CONTEMPORARY
ARCHITECTURE
BY-
HARSHIT KUMAR
SAUMYA BANSAL
PROJECTS BY –
 ARCOP ASSOCIATES
 CHRISTOPHER BENNINGER
 DEBASHISH GUHA
 JASBIR SAWHNEY
 ROMI KHOSLA
 SATISH GUJRAL
ARCOP ASSOCIATES
• ARCOP Associates Private Limited was
founded in 1985, as a private limited
company for the growing activities of the
ARCOP Group in Montreal, Canada.
Arcop is an acronym for, “Architects in
Co-partnership”. Founded in Montreal in
the early ’50′s under the name “Affleck,
Desbarats, Dimakopoulos, Lebensold,
Sise,” the office adopted the designation
Arcop in 1970. Arcop’s presence in India in
ARCOP ASSOCIATES
Team ARCOP
• Ramesh Khosla,
• Debashish Guha
• Ranjit Sabikhi,
• Ajoy Choudhury,
• Ray Affleck
Projects-
• MUGHAL SHERETON, AGRA,
UP, INDIA
• JAYPEE PALACE CONVENTION
HOTEL, AGRA, UP, INDIA
• KABUL SERENA HOTEL,
KABUL,AFGHANISTAN
• DUSHANBE SERENA HOTEL,
DUSHANBE, TAJIKISTAN
• BURJ UL BEHAR, TRIPOLI,
LIBYA
• CITY PARK, NEW DELHI, INDIA
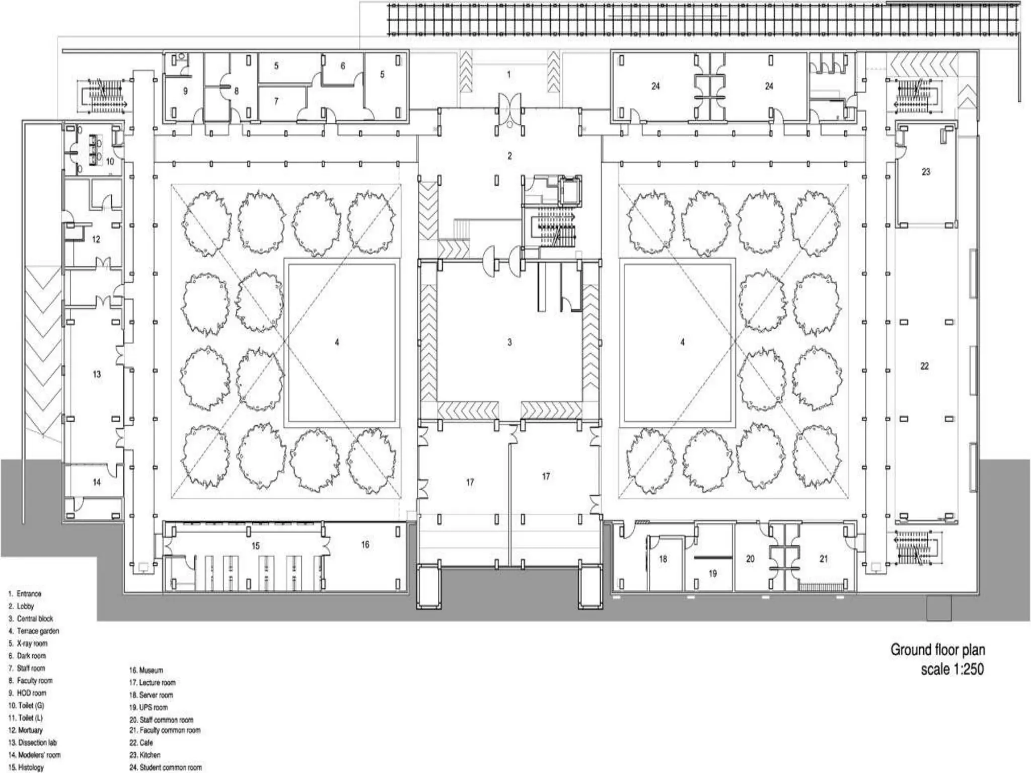
MUGHAL SHERATON HOTEL, AGRA
• Year of completion
-1976
• Area- 1900 sq. M
The idea was to build a
cooling heaven in
the dust of Agra.
The hotel is built on
Mughal architectural
concept of gardens
and fountains with
climate responsive
architecture and
modern building
shapes
MODEL OF HOTEL COMPLEX – entry bridge is located
in upper right corner
• The rooms are
organised around
3 courtyards in 2-
storey
quadrangles.
• They are linked to
each other and to
the central public
block by enclosed
pedestrian
bridges. The
courts are
gradually
excavated to a
level 12 feet below
grade by a series
of landscaped
terraces, pools,
and fountains that
act as buffer zones
between the
The 200 room 5 star hotel planned
around gardens and fountains is built
with loacally available material
Site plan of gardens
with roof plan of
building
FIRST FLOOR
NORTH- SOUTH SECTION
EAST–WESTSECTION
INTERIOR COURT-
The primary focus of
the complex is inward
to the garden courts.
From the room level
the courtyard gradually
steps down, through a
series of terraces ,
planters, pools, and
foundations, to a level
twelve feet below
grade. Here, pools are
used extensively the
largest designed as a
swimming pools,
forming small terraces
ENTRY BRIDGE AND PUBLIC BLOCK-no windows on
View of quadrangle from periphery of sit
One of the three internal courtyards around
which rooms are arranged. Public block is in
Pedestrian bridges link room
quadrangle to the public
North West corner of hotel complex.-
openings in the west wall are recessed for
Cypresses , fruit trees , lantern niches and waterfalls
Planters at the base of the walls are a screen
for the rooms and a transitions to the
Detail of double wall system
enclosing public block. Structural
Interiors of hotel complex
CHRISTOPHER BENNINGER
• Christopher Charles Benninger is an
American-Indian architect and planner
born in the United States in 1942. He
studied urban planning at
the Massachusetts Institute of
Technology and architecture at
Harvard's Graduate School of Design,
where he later taught (1969–72).
• In April 2010 he was awarded the
ARCHITECT FOR DECADE Award for
his contribution to the profession of
architecture. On three occasions, the
Indian Institute of Architects has honored
him with the award of BEST PUBLIC
BUILDING OF THE YEAR for his
designs of the Centre for Life Sciences,
Health and Medicine, the YMCA
International Camp, & Samundra
PROJECTS OF SIR CHRISTOPHER
BENNINGER• SUZLON ONE EARTH, PUNE
• SAMUNDRA INSTITUTE OF
MARITIME STUDIES, PUNE
• INDIA HOUSE, PUNE
• CENTRE FOR LIFE SCIENCES,
HEALTH & MEDICINE, PUNE
• INDIAN INSTITUTE OF
MANAGEMENT, CALCUTTA
• GOVERNANCE CENTRE,
HYDERABAD
• YMCA INTERNATIONAL CAMP,
NILSHI
• MAHINDRA UNITED WORLD
COLLEGE OF INDIA
• HEADQUARTERS OF KOCHI
REFINERIES, KERALA
SUZLON ONE EARTH, PUNE
• Between the eternal & the transformational
• An exemplary model of tradition and modernity designed
with adaptability and balance.
• Balance between mind & spirit- creating a central gathering
space, or Brahmasthan, with the sky as its ceiling! I conceived
it as a “secret internal garden” that gifts an exclusive and
unique feel to the campus.
• Suzlon is about sustainability ; it is about renewable energy.
• Plot area: 10.76 acres
• Built up area: 47,338 sq.mt
• Basement area: 29,050sq.mt
• Road area: 11,127 sq.mt
• Landscaped area: 16,413 sq.mt
• Date of completion: March 2010
SUZLON ONE EARTH, PUNE
• BALANCE WITH TRADITION
Suzlon One Earth derives its
inspiration from large Indian
historical campuses like Fatehpur
Sikri and the Meenakshi
Sundareshvara Temple complex in
Madurai. Both employ an
interpositioning of open and closed
spaces that balances one another.
Both have strong horizontal
elements that tie the complexes
together and accent features that
emphasize quadrants and sacred
places, like the gopuram at
Meenakshi.
CONCEPTUAL SKETCHES OF THE DEEP STAMBH & WATER BODY IN THE CAMPUS
CONCEPTUAL SKETCHES OF THE EVOLUTION OF
CAMPUS
SITE PLAN
1. SUN LOUNGE
2. SKY LOUNGE
3. TREE LOUNGE
4. AQUA LOUNGE
5. WATERBODY/CAFETERIA
6.SKY CYLINDER
7.SUZLON EXCELLENCE ACADEMY
8.WELCOME LOUNGE
9.ELECTRICAL SERVICE YARD
9
8 7
2
3
1
5
4
6
WAITING LOUNGE AT
THE ENTRY PORTAL
REFLECTIVE
POOLS NOT
ONLY CONNECT
THE CAMPUS
BUT ALSO
CREATE A
MICRO
ENVIRONMENT
IN THE
CAMPUS,
COOLING THE
AIR AROUND.
The glass cylinder connecting the earth and the sky at various entry portals.
WELCOME LOUNGE AT THE ENTRY OF THE CAMPUS
THE DEEP STAMBH
OR THE CENTRAL
OBLIX REACHING
OUT TO THE SKY AS
SYMBOL OF
EXCELLENCE AND
HOPE.
WORK AREA
CAFETERIA
SOLAR
PHOTOVOLTAIC
PANELS FROM
THE ROOF OF
THE ATRIUM OF
THE LEARNING
CENTRE,
GENERATING
GREEN POWER.
CAFETERIA
LOUVERS &
CLADDING
INTERPLAY
CREATING
A VISUAL
DRAMA OF
THE
FACADE
SAMUNDRA INSTITUTE OF MARITIME STUDIES
• Location: Pune, India
• Area: 21,500 sq.m
• Year: 2007
• Cost: US$ 15.3 million
• Client: Balaji Singh Teeka, Executive Ship Management Pvt. Ltd.
• The SIMS was established by Executive Ship Management (ESM)
Singapore, to fulfill its new vision of an industry driven by
environmental protection, safety and efficiency.
• Realizing that it must drive this mission through human
resources it embarked on the creation of a sophisticated state of
the art, world class green campus where the full range of pre-
sea and post-sea studies can be imparted.
SKETCH OF THE CAMPUS BY SIR CHRISTOPHER BENNINGER
ADMINISTRATIVE BLOCK
The Administration
Building cleverly
exploits northern
light through its
wavy glass atrium
wall, while
generating
electricity through
the grand
photovoltaic south-
facing façade that
produces 30 KW of
electricity.
ACADEMIC BLOCK
DIFFERENT VIEWS
OF THE
ACADEMIC BLOCK
WORKSHOP
BUILDING
VIEW OF
THE
WORKSHOP
BUILDING
The three hundred feet long
photovoltaic solar wall in the
Maritime Workshop produces
60 KW of electricity. Clear glass
on the north façade brings in
natural light, giving the testing
equipment and machinery all-
round, energy free illumination
and ventilation.
HOSTEL BLOCK
Aluminum louvers in
the long Hostel
Building allow natural
ventilation and day
light, while
blocking India’s fierce
sun, thereby acting as
a passive air
conditioning system.
Solar panels provide the entire
heated water requirement, using
hot water tanks held above the
hostel roofs from water tanks
above the circular stairs. These
seemingly frivolous shapes are
integrated within a functional
system of water management.
CATERING CENTRE
FRONT VIEW
Ar. Debashish Guha is the
principal director of ARCOP
DEBASHISH GUHA
Bharat Hotel Complex , New
Delhi
• This building
comprises of high
rise luxury hotel ,
office tower and
world trade center.
• Hotel is 18 floors
above the 5
storeyed podium
• The trade center is
the extension of
this podium
• The office building
• Year of completion-
1988
• Area-100,000 sq m
•All the three
buildings are clad
with red and
yellow sandstones
inspired by the
mughal
architecture
•The hotel lobby is
done with green
stones and white
marble
Monumental
chhatri on
banquet hall
facade
Porte -
cochere
from the
north
JASBIR
SAWHNEY
Jasbir Sawhney is
an architect with 45
years experience.
Prior to starting his
own practice in New
Delhi, he was with
Charles Correa,
Architect as a senior
designer. He also
worked in New York
for Edward D.Stone,
Architect.
Academic Qualifications
1964 Bachelor of Architecture,
University of Roorkee, UP
Merit Scholarship 1959-1964
1965 Master of Architecture,
Massachusetts Institute of Techn
Rotary Foundation Fellowship
PROJECTS
• INDIRA GANDHI MEMORIAL HOSPITAL,
MALDIVES
• PARK HYATT , GOA
• DISTRICT COURTS ROHINI
• ASHOK YATRI NIWAS, NEW DELHI
• KASHMIRI GATE METRO STATION , NEW DELHI
Ashok Yatri Niwas,New Delhi
• Year of completion -
1982
• Area – 23000 sq.m
(565 hotel rooms)
• Located amidst
several high priced
hotels.
• Ashok yatri niwas
is an economy
hotel developed
by the Indian
tourism authority
to provide
moderately priced
acomodation to
the large no. of
Typical floor pla
entrance
COST EFFECTIVE-
• Guests rooms are
cross ventilated
without mechanical
handing systems.
• Corridor lengths,
space use and
structure were
optimised by the
geometric analysis
of the room shapes.
• Another cost cutting
tactic was to reduce
no. Of elevators
causing long cues
of hotel guests.
• Public corridor
spaces are treated
as Buildings
exterior spaces.
Cost effective
materials used
reducing cost-
•Coarse building
stones for
exteriors and
pavings.
•Cheap tiles for
cladding.
•Precast reinforced
concrete panels
finished in earthen
colours.
ROMI KHOSLA
• He studied Economics at
Cambridge University and CA in
London before turning to
Architecture, which he studied at
the Architectural Association in
London.
• He set up Romi Khosla Design
Studios in 1973 in New Delhi.
• His famous works include Castro
Café, Dental College for Jamia
Millia Islamia University, School
for Spastic Children, New Delhi,
Chakravarty Residence.
CASTRO CAFE
• Architects: Romi Khosla Design Studios
• Location: New Delhi, India
• Chief architects: Martand Khosla, Romi Khosla
• Design team: Praveen Rajput, Maulik Bansal
• Project area: 890 sq.m
• DESIGN CONCEPT
This canteen was proposed as a ‘Semi open air Café’. This
allowed to have an ambient temperature for most of the year
along with good ventilation, and a variety of degrees of shade
from the climate.
The design is truly unique and contemporary and we feel, will
herald a new age of Architecture for the University.
SITE PLAN
1
PLAN
N
1
2
3
1. LAWN FOR OUTDOOR SITTING
2. KITCHEN
3. SITTING SPACE
4. ELEVATED PLATFORM
4
The idea was to try and blur the boundaries between inside and outside,
where these undefined boundaries act as a negotiator between the user and
the climate of Delhi.
The building block has a kitchen block to the
east, which is a fully enclosed space to cook and
serve in. As One walks along the length of the
building westwards, initially the eating enclosure
is defined by two walls and a roof, further still
the sense of interior is defined by one wall and
the roof, further still the space is articulated by
only one wall, and yet further still, there is only
the floor, and then that too stops continuing.
SEATING DETAIL
All the elements of
the building are
defined distinctly and
independent from
each other. The walls
don’t touch the floor
and the roof does not
touch the walls.
This was the
first steel building built at
the university campus.
DENTAL COLLEGE
JAMIA MILLIA ISLAMIA UNIVERSITY
• Architects: Romi Khosla Design Studios
• Location: New Delhi, India
• Client: Jamia Millia Islamia University, New Delhi
• Project area: 11,696 sq.m
• Project year: 2007 – 2009
• It serves to provide dental care to the people and is also one of
the primary teaching centre of Dentistry in India.
• The site given for the building was a neglected and overgrown
part of the campus.
• It had two levels and both the levels were used to access the
building for the public and students.
ENTRY LEVEL PLAN
1. PATIENT ENTRANCE
2. ENTRANCE LOBBY
3. PATIENT’S WAITING/LOBBY
4. COURTYARD OPEN TO SKY
5. TERRACE GARDEN
6. DENTAL CLINIC
NORTH ELEVATION
SOUTH ELEVATION
The fenestration has been
designed to have twin
functions. On the north faces
of the building, where the
clinics have been located, the
structural curtain wall glazing
provides enormous daylight
for dental treatment.
NORTH FACE
SOUTH FACE
On the south side, the glazing
has been confined to narrow
slits which run horizontally and
protect the south of the
building in the clinic areas from
heat gain. These staggered
fenestrations also break the
scale and the thin strips of
windows help in exaggerating
the horizontality of the
structure.
The materials used for the
structure of the building are
reinforced concrete frames,
structural steel staircases
and corridors, brick walls.
Stone is used for cladding
wall surfaces, structural glass
for the north light window
facades, aluminium sheeting
for cladding the brisk walls.
In order to further reduce energy
consumption, the treatment
clinics have been provided with
full 80% north side glazing that
allows ample daylight to flood
the clinics. This helps the
treatment during power cuts and
naturally light spaces ensure a
higher level of cleanliness.
Satish Gujral
Satish Gujral is an
Punjabi-Indian
painter, sculptor,
muralist, graphic
designer, writer and
architect who has
consistently
dominated the art
scene in India for the
entire post-
independent era. He
was awarded the
Projects
• Belgium Embassy , New Delhi
• Summer Palace, Saudi Arabia
• CMC, Hyderabad
• Goa University
BELGIUM EMBASSY, NEW
DELHI
• Multi domed, arched, brick complex on
Shanti Path, Chanakyapuri
• Completed in 1984
• The front facade consists
of two large cupolas with a
central fold above the
entrance.
• The entrance opens into a
courtyard with stone
masonry and greenery
within.
• The building is constructed
with red bricks.
The ubiquitous red
brick construction of
the building has been
compared to early
architectural forms
prevalent in Mohenjo-
daro and the buddhist
architecture in Sanchi a
nd Nalanda
Cont. architects ppt
Cont. architects ppt
Cont. architects ppt

Cont. architects ppt

  • 1.
  • 2.
    PROJECTS BY – ARCOP ASSOCIATES  CHRISTOPHER BENNINGER  DEBASHISH GUHA  JASBIR SAWHNEY  ROMI KHOSLA  SATISH GUJRAL
  • 3.
    ARCOP ASSOCIATES • ARCOPAssociates Private Limited was founded in 1985, as a private limited company for the growing activities of the ARCOP Group in Montreal, Canada. Arcop is an acronym for, “Architects in Co-partnership”. Founded in Montreal in the early ’50′s under the name “Affleck, Desbarats, Dimakopoulos, Lebensold, Sise,” the office adopted the designation Arcop in 1970. Arcop’s presence in India in
  • 4.
    ARCOP ASSOCIATES Team ARCOP •Ramesh Khosla, • Debashish Guha • Ranjit Sabikhi, • Ajoy Choudhury, • Ray Affleck Projects- • MUGHAL SHERETON, AGRA, UP, INDIA • JAYPEE PALACE CONVENTION HOTEL, AGRA, UP, INDIA • KABUL SERENA HOTEL, KABUL,AFGHANISTAN • DUSHANBE SERENA HOTEL, DUSHANBE, TAJIKISTAN • BURJ UL BEHAR, TRIPOLI, LIBYA • CITY PARK, NEW DELHI, INDIA
  • 5.
    MUGHAL SHERATON HOTEL,AGRA • Year of completion -1976 • Area- 1900 sq. M The idea was to build a cooling heaven in the dust of Agra. The hotel is built on Mughal architectural concept of gardens and fountains with climate responsive architecture and modern building shapes
  • 6.
    MODEL OF HOTELCOMPLEX – entry bridge is located in upper right corner
  • 7.
    • The roomsare organised around 3 courtyards in 2- storey quadrangles. • They are linked to each other and to the central public block by enclosed pedestrian bridges. The courts are gradually excavated to a level 12 feet below grade by a series of landscaped terraces, pools, and fountains that act as buffer zones between the The 200 room 5 star hotel planned around gardens and fountains is built with loacally available material
  • 8.
    Site plan ofgardens with roof plan of building
  • 9.
  • 10.
  • 11.
    INTERIOR COURT- The primaryfocus of the complex is inward to the garden courts. From the room level the courtyard gradually steps down, through a series of terraces , planters, pools, and foundations, to a level twelve feet below grade. Here, pools are used extensively the largest designed as a swimming pools, forming small terraces
  • 12.
    ENTRY BRIDGE ANDPUBLIC BLOCK-no windows on
  • 13.
    View of quadranglefrom periphery of sit
  • 14.
    One of thethree internal courtyards around which rooms are arranged. Public block is in
  • 15.
    Pedestrian bridges linkroom quadrangle to the public
  • 16.
    North West cornerof hotel complex.- openings in the west wall are recessed for
  • 17.
    Cypresses , fruittrees , lantern niches and waterfalls
  • 18.
    Planters at thebase of the walls are a screen for the rooms and a transitions to the
  • 19.
    Detail of doublewall system enclosing public block. Structural
  • 20.
  • 21.
    CHRISTOPHER BENNINGER • ChristopherCharles Benninger is an American-Indian architect and planner born in the United States in 1942. He studied urban planning at the Massachusetts Institute of Technology and architecture at Harvard's Graduate School of Design, where he later taught (1969–72). • In April 2010 he was awarded the ARCHITECT FOR DECADE Award for his contribution to the profession of architecture. On three occasions, the Indian Institute of Architects has honored him with the award of BEST PUBLIC BUILDING OF THE YEAR for his designs of the Centre for Life Sciences, Health and Medicine, the YMCA International Camp, & Samundra
  • 22.
    PROJECTS OF SIRCHRISTOPHER BENNINGER• SUZLON ONE EARTH, PUNE • SAMUNDRA INSTITUTE OF MARITIME STUDIES, PUNE • INDIA HOUSE, PUNE • CENTRE FOR LIFE SCIENCES, HEALTH & MEDICINE, PUNE • INDIAN INSTITUTE OF MANAGEMENT, CALCUTTA • GOVERNANCE CENTRE, HYDERABAD • YMCA INTERNATIONAL CAMP, NILSHI • MAHINDRA UNITED WORLD COLLEGE OF INDIA • HEADQUARTERS OF KOCHI REFINERIES, KERALA
  • 23.
    SUZLON ONE EARTH,PUNE • Between the eternal & the transformational • An exemplary model of tradition and modernity designed with adaptability and balance. • Balance between mind & spirit- creating a central gathering space, or Brahmasthan, with the sky as its ceiling! I conceived it as a “secret internal garden” that gifts an exclusive and unique feel to the campus. • Suzlon is about sustainability ; it is about renewable energy. • Plot area: 10.76 acres • Built up area: 47,338 sq.mt • Basement area: 29,050sq.mt • Road area: 11,127 sq.mt • Landscaped area: 16,413 sq.mt • Date of completion: March 2010
  • 24.
    SUZLON ONE EARTH,PUNE • BALANCE WITH TRADITION Suzlon One Earth derives its inspiration from large Indian historical campuses like Fatehpur Sikri and the Meenakshi Sundareshvara Temple complex in Madurai. Both employ an interpositioning of open and closed spaces that balances one another. Both have strong horizontal elements that tie the complexes together and accent features that emphasize quadrants and sacred places, like the gopuram at Meenakshi. CONCEPTUAL SKETCHES OF THE DEEP STAMBH & WATER BODY IN THE CAMPUS
  • 25.
    CONCEPTUAL SKETCHES OFTHE EVOLUTION OF CAMPUS
  • 26.
    SITE PLAN 1. SUNLOUNGE 2. SKY LOUNGE 3. TREE LOUNGE 4. AQUA LOUNGE 5. WATERBODY/CAFETERIA 6.SKY CYLINDER 7.SUZLON EXCELLENCE ACADEMY 8.WELCOME LOUNGE 9.ELECTRICAL SERVICE YARD 9 8 7 2 3 1 5 4 6
  • 29.
    WAITING LOUNGE AT THEENTRY PORTAL REFLECTIVE POOLS NOT ONLY CONNECT THE CAMPUS BUT ALSO CREATE A MICRO ENVIRONMENT IN THE CAMPUS, COOLING THE AIR AROUND.
  • 30.
    The glass cylinderconnecting the earth and the sky at various entry portals.
  • 31.
    WELCOME LOUNGE ATTHE ENTRY OF THE CAMPUS THE DEEP STAMBH OR THE CENTRAL OBLIX REACHING OUT TO THE SKY AS SYMBOL OF EXCELLENCE AND HOPE.
  • 32.
  • 33.
    CAFETERIA SOLAR PHOTOVOLTAIC PANELS FROM THE ROOFOF THE ATRIUM OF THE LEARNING CENTRE, GENERATING GREEN POWER. CAFETERIA
  • 34.
  • 35.
    SAMUNDRA INSTITUTE OFMARITIME STUDIES • Location: Pune, India • Area: 21,500 sq.m • Year: 2007 • Cost: US$ 15.3 million • Client: Balaji Singh Teeka, Executive Ship Management Pvt. Ltd. • The SIMS was established by Executive Ship Management (ESM) Singapore, to fulfill its new vision of an industry driven by environmental protection, safety and efficiency. • Realizing that it must drive this mission through human resources it embarked on the creation of a sophisticated state of the art, world class green campus where the full range of pre- sea and post-sea studies can be imparted.
  • 36.
    SKETCH OF THECAMPUS BY SIR CHRISTOPHER BENNINGER
  • 37.
  • 38.
    The Administration Building cleverly exploitsnorthern light through its wavy glass atrium wall, while generating electricity through the grand photovoltaic south- facing façade that produces 30 KW of electricity.
  • 39.
  • 40.
  • 41.
  • 42.
    VIEW OF THE WORKSHOP BUILDING The threehundred feet long photovoltaic solar wall in the Maritime Workshop produces 60 KW of electricity. Clear glass on the north façade brings in natural light, giving the testing equipment and machinery all- round, energy free illumination and ventilation.
  • 43.
  • 44.
    Aluminum louvers in thelong Hostel Building allow natural ventilation and day light, while blocking India’s fierce sun, thereby acting as a passive air conditioning system. Solar panels provide the entire heated water requirement, using hot water tanks held above the hostel roofs from water tanks above the circular stairs. These seemingly frivolous shapes are integrated within a functional system of water management.
  • 45.
  • 46.
  • 47.
    Ar. Debashish Guhais the principal director of ARCOP DEBASHISH GUHA
  • 48.
    Bharat Hotel Complex, New Delhi • This building comprises of high rise luxury hotel , office tower and world trade center. • Hotel is 18 floors above the 5 storeyed podium • The trade center is the extension of this podium • The office building • Year of completion- 1988 • Area-100,000 sq m
  • 50.
    •All the three buildingsare clad with red and yellow sandstones inspired by the mughal architecture •The hotel lobby is done with green stones and white marble
  • 51.
  • 52.
  • 53.
    JASBIR SAWHNEY Jasbir Sawhney is anarchitect with 45 years experience. Prior to starting his own practice in New Delhi, he was with Charles Correa, Architect as a senior designer. He also worked in New York for Edward D.Stone, Architect. Academic Qualifications 1964 Bachelor of Architecture, University of Roorkee, UP Merit Scholarship 1959-1964 1965 Master of Architecture, Massachusetts Institute of Techn Rotary Foundation Fellowship
  • 54.
    PROJECTS • INDIRA GANDHIMEMORIAL HOSPITAL, MALDIVES • PARK HYATT , GOA • DISTRICT COURTS ROHINI • ASHOK YATRI NIWAS, NEW DELHI • KASHMIRI GATE METRO STATION , NEW DELHI
  • 55.
    Ashok Yatri Niwas,NewDelhi • Year of completion - 1982 • Area – 23000 sq.m (565 hotel rooms) • Located amidst several high priced hotels. • Ashok yatri niwas is an economy hotel developed by the Indian tourism authority to provide moderately priced acomodation to the large no. of
  • 57.
  • 59.
    COST EFFECTIVE- • Guestsrooms are cross ventilated without mechanical handing systems. • Corridor lengths, space use and structure were optimised by the geometric analysis of the room shapes. • Another cost cutting tactic was to reduce no. Of elevators causing long cues of hotel guests. • Public corridor spaces are treated as Buildings exterior spaces.
  • 60.
    Cost effective materials used reducingcost- •Coarse building stones for exteriors and pavings. •Cheap tiles for cladding. •Precast reinforced concrete panels finished in earthen colours.
  • 61.
    ROMI KHOSLA • Hestudied Economics at Cambridge University and CA in London before turning to Architecture, which he studied at the Architectural Association in London. • He set up Romi Khosla Design Studios in 1973 in New Delhi. • His famous works include Castro Café, Dental College for Jamia Millia Islamia University, School for Spastic Children, New Delhi, Chakravarty Residence.
  • 62.
    CASTRO CAFE • Architects:Romi Khosla Design Studios • Location: New Delhi, India • Chief architects: Martand Khosla, Romi Khosla • Design team: Praveen Rajput, Maulik Bansal • Project area: 890 sq.m • DESIGN CONCEPT This canteen was proposed as a ‘Semi open air Café’. This allowed to have an ambient temperature for most of the year along with good ventilation, and a variety of degrees of shade from the climate. The design is truly unique and contemporary and we feel, will herald a new age of Architecture for the University.
  • 64.
  • 65.
    PLAN N 1 2 3 1. LAWN FOROUTDOOR SITTING 2. KITCHEN 3. SITTING SPACE 4. ELEVATED PLATFORM 4
  • 67.
    The idea wasto try and blur the boundaries between inside and outside, where these undefined boundaries act as a negotiator between the user and the climate of Delhi.
  • 68.
    The building blockhas a kitchen block to the east, which is a fully enclosed space to cook and serve in. As One walks along the length of the building westwards, initially the eating enclosure is defined by two walls and a roof, further still the sense of interior is defined by one wall and the roof, further still the space is articulated by only one wall, and yet further still, there is only the floor, and then that too stops continuing. SEATING DETAIL
  • 69.
    All the elementsof the building are defined distinctly and independent from each other. The walls don’t touch the floor and the roof does not touch the walls. This was the first steel building built at the university campus.
  • 70.
    DENTAL COLLEGE JAMIA MILLIAISLAMIA UNIVERSITY • Architects: Romi Khosla Design Studios • Location: New Delhi, India • Client: Jamia Millia Islamia University, New Delhi • Project area: 11,696 sq.m • Project year: 2007 – 2009 • It serves to provide dental care to the people and is also one of the primary teaching centre of Dentistry in India. • The site given for the building was a neglected and overgrown part of the campus. • It had two levels and both the levels were used to access the building for the public and students.
  • 71.
    ENTRY LEVEL PLAN 1.PATIENT ENTRANCE 2. ENTRANCE LOBBY 3. PATIENT’S WAITING/LOBBY 4. COURTYARD OPEN TO SKY 5. TERRACE GARDEN 6. DENTAL CLINIC
  • 73.
  • 74.
    The fenestration hasbeen designed to have twin functions. On the north faces of the building, where the clinics have been located, the structural curtain wall glazing provides enormous daylight for dental treatment. NORTH FACE SOUTH FACE On the south side, the glazing has been confined to narrow slits which run horizontally and protect the south of the building in the clinic areas from heat gain. These staggered fenestrations also break the scale and the thin strips of windows help in exaggerating the horizontality of the structure.
  • 75.
    The materials usedfor the structure of the building are reinforced concrete frames, structural steel staircases and corridors, brick walls. Stone is used for cladding wall surfaces, structural glass for the north light window facades, aluminium sheeting for cladding the brisk walls. In order to further reduce energy consumption, the treatment clinics have been provided with full 80% north side glazing that allows ample daylight to flood the clinics. This helps the treatment during power cuts and naturally light spaces ensure a higher level of cleanliness.
  • 76.
    Satish Gujral Satish Gujralis an Punjabi-Indian painter, sculptor, muralist, graphic designer, writer and architect who has consistently dominated the art scene in India for the entire post- independent era. He was awarded the
  • 77.
    Projects • Belgium Embassy, New Delhi • Summer Palace, Saudi Arabia • CMC, Hyderabad • Goa University
  • 78.
    BELGIUM EMBASSY, NEW DELHI •Multi domed, arched, brick complex on Shanti Path, Chanakyapuri • Completed in 1984
  • 80.
    • The frontfacade consists of two large cupolas with a central fold above the entrance. • The entrance opens into a courtyard with stone masonry and greenery within. • The building is constructed with red bricks. The ubiquitous red brick construction of the building has been compared to early architectural forms prevalent in Mohenjo- daro and the buddhist architecture in Sanchi a nd Nalanda