School of Architecture, Building and Design
Bachelor of Science (Honours) Architecture
Building Science
[BLD 61303]
Project 02
Integration Project
Community Library // Jalan Hang Kasturi
Name: Tan Yincy
ID: 0318355
Tutor: Mr. Azim Sulaiman
Contents
01 Introduction
Objectives
Project Description
Site Analysis
Floor Plans
Sections
02 Lighting Analysis
Artificial Lighting Analysis
Daylight Factor Analysis
PSALI Design Strategy
03 References
01 Introduction
Objectives
This project is to integrate student’s understanding on the principles of lighting design in
the context of the final design studio project. It encompasses on artificial lighting and
daylighting systems as well as PSALI design strategies.
Project Description
For design studio final project, we were to design a community library in the heart of Kuala
Lumpur.. Sandwiched in between abandoned shophouses in a street filled with historical,
art and cultural heritage, the library is an infill project within the busy urban context of
Jalan Hang Kasturi. The urban grid is orientated where the front and the back of the
building receive strong sunlight during the morning and afternoon. The design intention of
the library is to act as a common ground (balance) where the collaboration, sharing of
knowledge and art & cultural would take place to bring more interaction among the
community. It empowers the local community to learn, disregarding their races and
nationality through books (intellectual resources), art and culture through and among
each other.
As the library is an urban infill, sandwiched between shophouses, limited amount of
sunlight could penetrate the building. The use of sawtooth roof, atriums and materials that
promote transparency allows adequate sunlight to enter the building so that the reliance
towards artificial lighting could be reduced. Carbon footprint could be minimized while
enhancing architectural aesthetic value. Also, the highrise on the adjacent street would
cause minimal obstruction to the penetration of sunlight to the frontage. Spaces located at
the front of the library are setback from the facade to minimize direct sunlight.
Site Plan
Site Analysis
Diagrams show the shadow casting effect of the building in relation to the adjacent
buildings from 9am, 12pm, 3pm and 6pm.
9 AM
6 PM
3 PM
12 PM
E
W
N
S
E
W
N
S
E
W
N
S
E
W
N
S
Floor Plans
Ground Floor Plan
Scale 1:200
SPACE 01
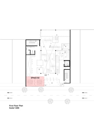
First Floor Plan
Scale 1:200
SPACE 02
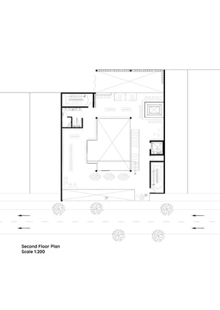
Second Floor Plan
Scale 1:200
Third Floor Plan
Scale 1:200
Sections
Long Section
NTS
Short Section
NTS
02 Lighting Analysis
Artificial Lighting Analysis
The lumen method is a simplified method to calculate the light level in a room. The method
is a series of calculations that uses horizontal illuminance criteria to establish a uniform
luminaire layout in a space and In order to perform this calculation, many factors,
coefficients, lamp lumen data and other quantities must be gathered.
where,
N = Number of lamps required
E = Illuminance level required (lux)
A = Area at working plane height (m2)
F = Average luminous flux from each lamp (lm)
UF = Utilization factor
MF = Maintenance factor
L = length
W = width
Hm = mounted height of fitting above the working plane
For filament lamps (bulbs) in direct luminaires:
Smax = 1.0 x h m
S max = maximum horizontal spacing between fittings.
H m = mounted height of fitting above the working plane.
Selected Space: Space 01 Art Gallery/ Exhibition Atelier
Art Gallery/ Exhibition Atelier
Scale 1:100
The chosen space is a art gallery/
exhibition area where only certain
users who are interested in enjoying
art or in painting would spend more
time in. Artificial lighting is needed in
this area as daylight is at its minimal
point. Indirect sunlight may be
reflected in from the vent blocks
facade.
Vent blocks facade
Daylight Situation Due to the location of the space chosen, not
much natural sunlight penetrates through.
Artificial lightings are installed to aid on the
activities present.
Room Dimension (m) 5.839 (W) x 8.420 (L)
Total Floor Area (A/m2) 49.164 m2
Head Room (m) 5.5
IES Standard Illumination Level (E/lx) 300
Type of Lighting Fixture Recessed Dimmable LED
Advantages of Light Fixture Type Adjustable light source with excellent CRI
that an art gallery needs
Color Temperature Warm White (2700k)
Color Rendering Index (CRI) 90
Luminous Flux (F/lm) 1600
Height of Luminaires (m) 5.5
Height of Working Plane (m) 0
Mounting Height of Fitting (m) 5.5
Reflectance Factor Ceilings: 0.7
Wall: Grey Bricks 0.5
Working Plane: Wood Finishing 0.2
Room Index (RI) LxW/ Hm x (L + W)
= 8.4 x 5.8 / 5.5 x ( 8.4 + 5.8 )
= 0.62
Lumen Method
Utilization Factor (UF) 0.43
Maintenance Factor (MF) 0.8
Number of Lighting Fixtures Required (N) E x A / F x UF x MF
= 300 x 49.164 / 1600 x 0.43 x 0.8
= 27
Maximum Horizontal Spacing Between
Fittings (m)
Smax = 1.0 x 5.5
= 5.5
Light Fixture Spacing Diagram
Art Gallery/ Exhibition Atelier
Reflected Ceiling Plan
Scale 1:100
Based on the calculations, with 1600 lumens at the area of 49.164 m2
, 27 fixtures
are needed. The distance between fixtures shall not be more than 5.5m. To
allocate 27 fixtures in the gallery, the distance between fixtures are 1450mm x
900mm.
Section Cut Showing Fixtures
Art Gallery/ Exhibition Atelier
NTS
Light Contour Diagram
Light contour after applying artificial light fixtures to ensure an even distribution.
Light contour before applying light fixtures. Inconsistent natural light penetrates the space
that is not suitable for an art gallery.
Daylight Factor Analysis
Daylight Factor is a ratio that represents the amount of illumination available indoors
relative to the illumination present outdoors at the same time under overcast skies. It is
used to assess the internal natural lighting levels as perceived on the working plane or
surface, in order to determine if there is sufficient natural lighting for the occupants of the
space to carry out their normal duties.
Daylight Factor,DF = (Ei/Eo) x 100%
Where,
Ei = Illuminance due to daylight at a point on the indoor’s working plane
Eo = Simultaneous outdoor illuminance on a horizontal plane from an unobstructed
hemisphere of overcast sky
Daylight Factors and distribution ( Department of Standards Malaysia, 2007 )
Average Daylight Factor may be used to assess the adequacy of daylight through the
following formula:
Average DF = W x Tθ G
A (1 −R)
Where,
W is the area of the windows (m2)
A is the total area of the internal surfaces (m2)
T is the glass transmittance corrected for dirt
θ is visible sky angle in degrees from the centre of the window
R is the average reflectance of area A.
Selected Space: Space 02 Discussion Area
The chosen space is a discussion area where users would gather and carry on with reading
or have small discussions among themselves. Adequate indirect sunlight are required for
this space where an comfortable ambience with abundant diffused natural light could be
achieved as it could boost productivity and lessen eye strain for long hours.
Discussion Area
Scale 1:100
Daylight Calculations
Daylight Situation The space is located at the front with louvered
plexiglass and vent blocks as double skin facade.
It acts as a glassbox, exposing activities to the
street that would act as a point of interest that
catches people’s attention. It is a very open
space with only partitions that separates the
space. Natural light intake is maximized.
Room Dimension (m) 8.531 (W) x 5.329 (L)
Total Floor Area (A/m2) 45.46 m2
Head Room (m) 4.3
MS 1525 Recommended Illumination
Level (E/lx)
300
Reflectance Factor Ceilings: 0.7
Wall: Grey Bricks 0.5
Working Plane: Wooden Table 0.3
Average Reflectance (R) 0.4
Glass Transmittance Corrected for
Dirt (T)
0.4 (Due to double facade)
Area of Windows (W/m2
) 24.49
Total Area of Internal Surfaces
(A/m2
)
123.18
Visible Sky Angle in Degrees from
the Centre of the Window (θ)
25°
Average Daylight Factor Calculation Average DF = W x Tθ G
A (1 −R)
= 24.49 x 0.4(25°)
123.18 1 - 0.4
= 3.32 %
External Illuminance (E0/ lx) 20000 (Clear Sky)
Daylight Factor Calculation DF = (Ei/ E0) x 100%
3.32 % = Ei x 100%
20000
= 664 (lx)
Calculation Outcome
Based on the calculations, the discussion room have an average daylight factor of 3.32%
and a natural illumination of 664 lux. The natural light penetrated into the space is more
than enough for the activities performed where users could carry out discussions or read
in a comfortable environment and would not cause any glare problem because the
illumination level is still rational. However, from the daylight contour, it is obvious that the
natural light could not reach the back of the space despite the presence of natural
daylight. Due to that, the presence of artificial lighting and PSALI are required to light up
the space.
Section
Section Cut Showing Daylight
Discussion Area
NTS
Light Contour Diagram (Daylight before solution)
Daylight Contour of Discussion Area
According to the daylight contour diagram, section A is the brightest with the
most natural light due to its location nearest to the facade while section B
receive a small amount of natural light due to the wall height windows of the
facade. Section C receives almost none as it is located at the back.
C
A
B
Light Contour Diagram (Daylight after solution)
Daylight Contour of Discussion Area
Light shelves are installed to fully utilize the natural lighting to illuminate
Section C where natural lighting could not reach. After installing the light selves,
indirect sunlight are able to reach deeper into the space. Lesser artificial
lighting would be needed when daylight is present.
Room Dimension (m) 8.531 (W) x 5.329 (L)
Total Floor Area (A/m2) 45.46 m2
Head Room (m) 4.3
IES Standard Illumination Level
(E/lx)
300
Type of Lighting Fixture Direct Pendant Light with Dimmable LED Bulb
Color Temperature Warm White to Extra Warm White (2200 - 2700 K)
Color Rendering Index (CRI) 80
Luminous Flux (F/lm) 1200
Height of Luminaires (m) 2.8
Height of Working Plane (m) 0.7
Mounting Height of Fitting (m) 4.3
Reflectance Factor Ceilings: 0.7
Wall: Grey Bricks 0.5
Working Plane: Wooden Table 0.3
Room Index (RI) LxW/ Hm x (L + W)
= 5.3 x 8.5 / 4.3 x ( 5.3 + 8.5 )
= 0.76
Lumen Method
Utilization Factor (UF) 0.44
Maintenance Factor (MF) 0.7
Number of Lighting Fixtures Required (N) E x A / F x UF x MF
= 300 x 45.46 / 1200 x 0.44 x 0.7
= 36
Maximum Horizontal Spacing Between
Fittings (m)
Smax = 1.0 x 4.3
= 4.3
Light Fixture Spacing Diagram
Discussion Area
Reflected Ceiling Plan
Scale 1:100
Based on the calculations, with 1200 lumens at the area of 45.46 m2
, 36 fixtures
are needed. The distance between fixtures shall not be more than 4.3m. To
allocate 36 fixtures in the discussion area, the distance between fixtures are
900mm x 1060mm.
PSALI Design Strategy
Based on the daylight analysis and all of the calculations, the light fixtures installed are
separated into four groups. The green wiring fixtures are required to be switched on
throughout the day. The yellow wiring fixtures are to be switched on only when there isn’t
enough natural light on gloomy days or around evening and when the space are being
used. When the discussion area is occupied, the pink wiring fixtures would be switched on.
The space near the full height windows would be showered by natural light, thus the purple
wiring fixtures would only be switched on when there isn’t sufficient natural light. All four
colored wiring fixtures would be switched on at night, when there is no natural light at all to
provide sufficient illumination.
Light Fixture Spacing Diagram
Discussion Area
Reflected Ceiling Plan
Scale 1:100
Artificial Light Contour of Discussion Area
Section Cut Showing Fixtures
Discussion Area
NTS
References
Room Illumination Level. (n.d.). Retrieved December 11, 2017, from
http://www.lumitronlighting.com/lighting_nowledge/LUX%20LEVEL_IESLuxLevel.pdf
(n.d.). Retrieved December 11, 2017, from http://personal.cityu.edu.hk/~bsapplec/lumen.htm
Department of Standards Malaysia (2007). Code of Practice on Energy Efficiency and Use
of Renewable Energy for Non-Residential Buildings (First Revision). N.p, Department of
Standards Malaysia. Retrieved December 11, 2017, from http://www.msonline.gov.my
Ander, G. (2003). Daylighting Performance and Design. Hoboken, N.J. John Wiley & Sons.
Izdihar, I.A. (2013). MS 1525 (2013/ 2014) 2nd Revision. Retrieved December 11, 2017, from
https://www.scribd.com/doc/297929846/MS-1525-2014

Building Science P02

  • 1.
    School of Architecture,Building and Design Bachelor of Science (Honours) Architecture Building Science [BLD 61303] Project 02 Integration Project Community Library // Jalan Hang Kasturi Name: Tan Yincy ID: 0318355 Tutor: Mr. Azim Sulaiman
  • 2.
    Contents 01 Introduction Objectives Project Description SiteAnalysis Floor Plans Sections 02 Lighting Analysis Artificial Lighting Analysis Daylight Factor Analysis PSALI Design Strategy 03 References
  • 3.
    01 Introduction Objectives This projectis to integrate student’s understanding on the principles of lighting design in the context of the final design studio project. It encompasses on artificial lighting and daylighting systems as well as PSALI design strategies. Project Description For design studio final project, we were to design a community library in the heart of Kuala Lumpur.. Sandwiched in between abandoned shophouses in a street filled with historical, art and cultural heritage, the library is an infill project within the busy urban context of Jalan Hang Kasturi. The urban grid is orientated where the front and the back of the building receive strong sunlight during the morning and afternoon. The design intention of the library is to act as a common ground (balance) where the collaboration, sharing of knowledge and art & cultural would take place to bring more interaction among the community. It empowers the local community to learn, disregarding their races and nationality through books (intellectual resources), art and culture through and among each other. As the library is an urban infill, sandwiched between shophouses, limited amount of sunlight could penetrate the building. The use of sawtooth roof, atriums and materials that promote transparency allows adequate sunlight to enter the building so that the reliance towards artificial lighting could be reduced. Carbon footprint could be minimized while enhancing architectural aesthetic value. Also, the highrise on the adjacent street would cause minimal obstruction to the penetration of sunlight to the frontage. Spaces located at the front of the library are setback from the facade to minimize direct sunlight.
  • 4.
  • 5.
    Site Analysis Diagrams showthe shadow casting effect of the building in relation to the adjacent buildings from 9am, 12pm, 3pm and 6pm. 9 AM 6 PM 3 PM 12 PM E W N S E W N S E W N S E W N S
  • 6.
    Floor Plans Ground FloorPlan Scale 1:200 SPACE 01
  • 7.
    First Floor Plan Scale1:200 SPACE 02
  • 8.
  • 9.
  • 10.
  • 11.
    02 Lighting Analysis ArtificialLighting Analysis The lumen method is a simplified method to calculate the light level in a room. The method is a series of calculations that uses horizontal illuminance criteria to establish a uniform luminaire layout in a space and In order to perform this calculation, many factors, coefficients, lamp lumen data and other quantities must be gathered. where, N = Number of lamps required E = Illuminance level required (lux) A = Area at working plane height (m2) F = Average luminous flux from each lamp (lm) UF = Utilization factor MF = Maintenance factor L = length W = width Hm = mounted height of fitting above the working plane
  • 12.
    For filament lamps(bulbs) in direct luminaires: Smax = 1.0 x h m S max = maximum horizontal spacing between fittings. H m = mounted height of fitting above the working plane. Selected Space: Space 01 Art Gallery/ Exhibition Atelier Art Gallery/ Exhibition Atelier Scale 1:100 The chosen space is a art gallery/ exhibition area where only certain users who are interested in enjoying art or in painting would spend more time in. Artificial lighting is needed in this area as daylight is at its minimal point. Indirect sunlight may be reflected in from the vent blocks facade. Vent blocks facade
  • 14.
    Daylight Situation Dueto the location of the space chosen, not much natural sunlight penetrates through. Artificial lightings are installed to aid on the activities present. Room Dimension (m) 5.839 (W) x 8.420 (L) Total Floor Area (A/m2) 49.164 m2 Head Room (m) 5.5 IES Standard Illumination Level (E/lx) 300 Type of Lighting Fixture Recessed Dimmable LED Advantages of Light Fixture Type Adjustable light source with excellent CRI that an art gallery needs Color Temperature Warm White (2700k) Color Rendering Index (CRI) 90 Luminous Flux (F/lm) 1600 Height of Luminaires (m) 5.5 Height of Working Plane (m) 0 Mounting Height of Fitting (m) 5.5 Reflectance Factor Ceilings: 0.7 Wall: Grey Bricks 0.5 Working Plane: Wood Finishing 0.2 Room Index (RI) LxW/ Hm x (L + W) = 8.4 x 5.8 / 5.5 x ( 8.4 + 5.8 ) = 0.62 Lumen Method
  • 15.
    Utilization Factor (UF)0.43 Maintenance Factor (MF) 0.8 Number of Lighting Fixtures Required (N) E x A / F x UF x MF = 300 x 49.164 / 1600 x 0.43 x 0.8 = 27 Maximum Horizontal Spacing Between Fittings (m) Smax = 1.0 x 5.5 = 5.5 Light Fixture Spacing Diagram Art Gallery/ Exhibition Atelier Reflected Ceiling Plan Scale 1:100 Based on the calculations, with 1600 lumens at the area of 49.164 m2 , 27 fixtures are needed. The distance between fixtures shall not be more than 5.5m. To allocate 27 fixtures in the gallery, the distance between fixtures are 1450mm x 900mm.
  • 16.
    Section Cut ShowingFixtures Art Gallery/ Exhibition Atelier NTS
  • 17.
    Light Contour Diagram Lightcontour after applying artificial light fixtures to ensure an even distribution. Light contour before applying light fixtures. Inconsistent natural light penetrates the space that is not suitable for an art gallery.
  • 18.
    Daylight Factor Analysis DaylightFactor is a ratio that represents the amount of illumination available indoors relative to the illumination present outdoors at the same time under overcast skies. It is used to assess the internal natural lighting levels as perceived on the working plane or surface, in order to determine if there is sufficient natural lighting for the occupants of the space to carry out their normal duties. Daylight Factor,DF = (Ei/Eo) x 100% Where, Ei = Illuminance due to daylight at a point on the indoor’s working plane Eo = Simultaneous outdoor illuminance on a horizontal plane from an unobstructed hemisphere of overcast sky Daylight Factors and distribution ( Department of Standards Malaysia, 2007 ) Average Daylight Factor may be used to assess the adequacy of daylight through the following formula: Average DF = W x Tθ G A (1 −R) Where, W is the area of the windows (m2) A is the total area of the internal surfaces (m2) T is the glass transmittance corrected for dirt θ is visible sky angle in degrees from the centre of the window R is the average reflectance of area A.
  • 19.
    Selected Space: Space02 Discussion Area The chosen space is a discussion area where users would gather and carry on with reading or have small discussions among themselves. Adequate indirect sunlight are required for this space where an comfortable ambience with abundant diffused natural light could be achieved as it could boost productivity and lessen eye strain for long hours. Discussion Area Scale 1:100
  • 20.
    Daylight Calculations Daylight SituationThe space is located at the front with louvered plexiglass and vent blocks as double skin facade. It acts as a glassbox, exposing activities to the street that would act as a point of interest that catches people’s attention. It is a very open space with only partitions that separates the space. Natural light intake is maximized. Room Dimension (m) 8.531 (W) x 5.329 (L) Total Floor Area (A/m2) 45.46 m2 Head Room (m) 4.3 MS 1525 Recommended Illumination Level (E/lx) 300 Reflectance Factor Ceilings: 0.7 Wall: Grey Bricks 0.5 Working Plane: Wooden Table 0.3 Average Reflectance (R) 0.4 Glass Transmittance Corrected for Dirt (T) 0.4 (Due to double facade) Area of Windows (W/m2 ) 24.49 Total Area of Internal Surfaces (A/m2 ) 123.18 Visible Sky Angle in Degrees from the Centre of the Window (θ) 25° Average Daylight Factor Calculation Average DF = W x Tθ G A (1 −R) = 24.49 x 0.4(25°) 123.18 1 - 0.4 = 3.32 % External Illuminance (E0/ lx) 20000 (Clear Sky) Daylight Factor Calculation DF = (Ei/ E0) x 100% 3.32 % = Ei x 100% 20000 = 664 (lx)
  • 21.
    Calculation Outcome Based onthe calculations, the discussion room have an average daylight factor of 3.32% and a natural illumination of 664 lux. The natural light penetrated into the space is more than enough for the activities performed where users could carry out discussions or read in a comfortable environment and would not cause any glare problem because the illumination level is still rational. However, from the daylight contour, it is obvious that the natural light could not reach the back of the space despite the presence of natural daylight. Due to that, the presence of artificial lighting and PSALI are required to light up the space. Section Section Cut Showing Daylight Discussion Area NTS
  • 22.
    Light Contour Diagram(Daylight before solution) Daylight Contour of Discussion Area According to the daylight contour diagram, section A is the brightest with the most natural light due to its location nearest to the facade while section B receive a small amount of natural light due to the wall height windows of the facade. Section C receives almost none as it is located at the back. C A B
  • 23.
    Light Contour Diagram(Daylight after solution) Daylight Contour of Discussion Area Light shelves are installed to fully utilize the natural lighting to illuminate Section C where natural lighting could not reach. After installing the light selves, indirect sunlight are able to reach deeper into the space. Lesser artificial lighting would be needed when daylight is present.
  • 24.
    Room Dimension (m)8.531 (W) x 5.329 (L) Total Floor Area (A/m2) 45.46 m2 Head Room (m) 4.3 IES Standard Illumination Level (E/lx) 300 Type of Lighting Fixture Direct Pendant Light with Dimmable LED Bulb Color Temperature Warm White to Extra Warm White (2200 - 2700 K) Color Rendering Index (CRI) 80 Luminous Flux (F/lm) 1200 Height of Luminaires (m) 2.8 Height of Working Plane (m) 0.7 Mounting Height of Fitting (m) 4.3 Reflectance Factor Ceilings: 0.7 Wall: Grey Bricks 0.5 Working Plane: Wooden Table 0.3 Room Index (RI) LxW/ Hm x (L + W) = 5.3 x 8.5 / 4.3 x ( 5.3 + 8.5 ) = 0.76 Lumen Method
  • 25.
    Utilization Factor (UF)0.44 Maintenance Factor (MF) 0.7 Number of Lighting Fixtures Required (N) E x A / F x UF x MF = 300 x 45.46 / 1200 x 0.44 x 0.7 = 36 Maximum Horizontal Spacing Between Fittings (m) Smax = 1.0 x 4.3 = 4.3 Light Fixture Spacing Diagram Discussion Area Reflected Ceiling Plan Scale 1:100 Based on the calculations, with 1200 lumens at the area of 45.46 m2 , 36 fixtures are needed. The distance between fixtures shall not be more than 4.3m. To allocate 36 fixtures in the discussion area, the distance between fixtures are 900mm x 1060mm.
  • 26.
    PSALI Design Strategy Basedon the daylight analysis and all of the calculations, the light fixtures installed are separated into four groups. The green wiring fixtures are required to be switched on throughout the day. The yellow wiring fixtures are to be switched on only when there isn’t enough natural light on gloomy days or around evening and when the space are being used. When the discussion area is occupied, the pink wiring fixtures would be switched on. The space near the full height windows would be showered by natural light, thus the purple wiring fixtures would only be switched on when there isn’t sufficient natural light. All four colored wiring fixtures would be switched on at night, when there is no natural light at all to provide sufficient illumination. Light Fixture Spacing Diagram Discussion Area Reflected Ceiling Plan Scale 1:100 Artificial Light Contour of Discussion Area
  • 27.
    Section Cut ShowingFixtures Discussion Area NTS
  • 28.
    References Room Illumination Level.(n.d.). Retrieved December 11, 2017, from http://www.lumitronlighting.com/lighting_nowledge/LUX%20LEVEL_IESLuxLevel.pdf (n.d.). Retrieved December 11, 2017, from http://personal.cityu.edu.hk/~bsapplec/lumen.htm Department of Standards Malaysia (2007). Code of Practice on Energy Efficiency and Use of Renewable Energy for Non-Residential Buildings (First Revision). N.p, Department of Standards Malaysia. Retrieved December 11, 2017, from http://www.msonline.gov.my Ander, G. (2003). Daylighting Performance and Design. Hoboken, N.J. John Wiley & Sons. Izdihar, I.A. (2013). MS 1525 (2013/ 2014) 2nd Revision. Retrieved December 11, 2017, from https://www.scribd.com/doc/297929846/MS-1525-2014