WIND REMARKSCORE FINISH FRAMEMATERIALSIZE TYPEDR
DESIGN
PRESSURE
(PSF)
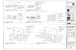
11. ALL EXTERIOR WINDOWS AND DOORS SHALL MEET OR
EXCEED POSITIVE AND NEGATIVE DESIGN WIND LOAD
PRESSURES NOTED IN SCHEDULE ABOVE.
12. PROVIDE ALL MULLIONS & STRUCTURAL SUPPORTS
REQUIRED FOR PROPER WINDOW OR DOOR INSTALLATION.
13. PROVIDE CONTINUOUS SEALANT AT INSIDE AND
OUTSIDE JOINTS, WOOD BUCK, AND MASONRY IN
ADDITION TO INSIDE AND OUTSIDE OF WINDOW AND
DOOR / WALL UNITS.
14. CONTRACTOR SHALL FULLY CAULK ALL EXTERIOR
WINDOWS THROUGHOUT. CAULK SHALL MATCH WINDOW
FRAME COLOR.
15. ALL WINDOW GLAZING SHALL BE PROVIDED WITH
WINDOW TINTING FILM WITH A LIGHT TRANSMISSION
VALUE (VLT) OF 15% OR LESS TO SATISFY THE MODEL
LIGHTING ORDINANCE FOR MARINE TURTLE PROTECTION.
5. ALL DOOR HARDWARE SHALL BE AS SELECTED BY
OWNER.
6. CONTRACTOR IS RESPONSIBLE FOR PERFORMING ANY
WORK NECESSARY TO COMPLETE THE PROPER
INSTALLATION OF DOORS, WINDOWS, FRAMES, AND
HARDWARE.
7. ALL EXTERIOR WINDOWS AND DOORS SHALL BE LARGE
MISSILE IMPACT RESISTANT, SUBMIT FLORIDA PRODUCT
APPROVALS.
8. ALL EXTERIOR DOOR FRAMES ANCHOR PER PRODUCT
APPROVALS.
9. ALL DOOR FRAMES ON CONCRETE TO BE GROUTED
SOLID.
10. EXTERIOR WINDOWS AND DOORS TO BE FASTENED TO
FILLED CELL OR CONCRETE AND THRU WD. BUCKS AS PER
PRODUCT APPROVAL.
WINDOWS / DOORS NOTES
1. WINDOWS AND DOORS SHALL BE OF TYPES,
THICKNESS, SIZE, AND CONSTRUCTION AS SHOWN.
2. ALL WALL OPENING DIMENSIONS SHALL BE VERIFIED BY
CONTRACTOR.
3. FRAMED WINDOWS SHALL BE PRODUCTS OF AN
APPROVED MANUFACTURER. ALL MEMBERS SHALL HAVE
FINISH IN COLOR SELECTED: MEETING OR EXCEEDING
REQUIREMENTS FOR WATER PENETRATION. INFILTRATION
AND WIND LOAD OF ALL APPLICABLE BUILDING CODES. AT
EACH MOVEABLE DOOR OR WINDOW PANEL PROVIDE A
FRAMED VINYL INSECT SCREENING UNIT.
4. BUILDER'S ROUGH HARDWARE SHALL BE FURNISHED
AND INSTALLED BY EACH PARTY TO WHOSE WORK SUCH
ITEMS ARE INCIDENTAL. ALL ITEMS SHALL BE GALVANIZED
AND/OR CORROSION-PROOF. FINISH DOOR HARDWARE
WILL BE SELECTED BY THE OWNER AND PURCHASED
DIRECTLY BY GENERAL CONTRACTOR FOR FURNISHING
TO JOB SITES
THIS EXCEEDS THE NATURAL
VENTILATION REQUIREMENTS
A1 FLOOR PLAN
SCALE : 1/4" = 1'-0"
A3 DOOR & WINDOW SCHEDULES
A2 UPPER LEVEL / LOW ROOF PLAN
SCALE : 1/4" = 1'-0"
A4 DOOR & WINDOW NOTES MANUEL SYNALOVSKI, AIA
AR 0011628
LICENSE NO. AA26001863
A5 VENTILATION CALCULATIONS
Principal in Charge:
Sheet Title:
Rev: Date: Description: By:
Date:
Drawn By:
Project No:
Sheet Number:
Project Manager:
Prepared for:
Project Name:
Consultants:
Seal:
Site Map:
Project Phase:
Scale:
FINISH FLOOR
0'-0" A.F.F.
LOUVER HEAD HGT.
8'-0" A.F.F.
TOP OF PYLON
20'-0" A.F.F.
ROOF LOW BEARING
11'-9 3/4" A.F.F.
ROOF MID BEARING
12'-11 1/4" A.F.F.
ROOF HIGH BEARING
15'-0 3/8" A.F.F.
FINISH FLOOR
0'-0" A.F.F.
ROOF LOW BEARING
11'-9 3/4" A.F.F.
LOUVER HEAD HGT.
8'-0" A.F.F.
TOP OF PYLON
20'-0" A.F.F.
FINISH FLOOR
0'-0" A.F.F.
TOP OF PYLON
20'-0" A.F.F.
LOUVER HEAD HGT.
8'-0" A.F.F.
ROOF LOW BEARING
11'-9 3/4" A.F.F.
ROOF HIGH BEARING
15'-0 3/8" A.F.F.
ROOF MID BEARING
12'-11 1/4" A.F.F.
FINISH FLOOR
0'-0" A.F.F.
ROOF LOW BEARING
11'-9 3/4" A.F.F.
TOP OF PYLON
20'-0" A.F.F.
LOUVER HEAD HGT.
8'-0" A.F.F.
ROOF HIGH BEARING
15'-0 3/8" A.F.F.
ROOF MID BEARING
12'-11 1/4" A.F.F.
FINISH FLOOR
0'-0" A.F.F.
LOUVER HEAD HGT.
8'-0" A.F.F.
ROOF HIGH BEARING
15'-0 3/8" A.F.F.
TOP OF PYLON
20'-0" A.F.F.
A1 FRONT ELEVATION (WEST FACE)
SCALE : 1/4" = 1'-0"A4 RIGHT SIDE ELEVATION (SOUTH FACE)
SCALE : 1/4" = 1'-0"
MANUEL SYNALOVSKI, AIA
AR 0011628
LICENSE NO. AA26001863
A5 BUILDING CROSS SECTION (LOOKING SOUTH)
SCALE : 1/4" = 1'-0" A2 REAR ELEVATION (EAST FACE)
SCALE : 1/4" = 1'-0"
A3 LEFT SIDE ELEVATION (NORTH FACE)
SCALE : 1/4" = 1'-0"
Principal in Charge:
Sheet Title:
Rev: Date: Description: By:
Date:
Drawn By:
Project No:
Sheet Number:
Project Manager:
Prepared for:
Project Name:
Consultants:
Seal:
Site Map:
Project Phase:
Scale:
INDICATES EXISTING INTERIOR
PARTITION TO REMAIN
INDICATES EXISTING INTERIOR
PARTITION TO BE REMOVED
LEGEND:
INDICATES EXISTING DOOR TO REMAIN
HATCH DENOTES EXISTING TO REMAIN
NO WORK IN THIS AREA
7. TOUCH-UP REMAINING STRUCTURES TO MATCH EXISTING CONDITIONS.
1. THE CONSTRUCTION SHALL INCLUDE THE FURNISHING OF ALL MATERIALS, EXTENSIONS, CONNECTIONS, CUTTING,
PATCHING, PAINTING, REPAIRING, ADAPTING AND OTHER WORK, INCIDENTAL TO, AND TOGETHER WITH SUCH
TEMPORARY CONNECTIONS AS MAY BE REQUIRED. THE CONSTRUCTION SHALL ALSO INCLUDE THE REMOVAL OF
MATERIALS AS DIRECTED.
2. ANY WORK NOT SHOWN ON THE DRAWING OR SPECIFICALLY MENTIONED IN THE SPECIFICATIONS, BUT
CONSIDERED NECESSARY FOR THE COMPLETION OF THE WORK IN PROPER MANNER SHALL BE PROVIDED BY THIS
CONTRACTOR WITHOUT ADDITIONAL CHARGE.
3. WHERE PRESENT WORK IS DAMAGED IN THE EXECUTION OF THIS CONTRACT, OR WHERE OPENINGS ARE LEFT
DUE TO THE REMOVAL OF PIPES, EQUIPMENT OR APPARATUS, THE SAME SHALL BE REPAIRED OR CLOSED UP TO
CORRESPOND IN MATERIAL, QUALITY, SHAPE, AND FINISH WITH THAT OF SIMILAR AND ADJOINING WORK,
UNLESS OTHERWISE CALLED FOR. WHERE DAMAGE IS NOT REPAIRABLE, NEW ITEMS OR EQUIPMENT SHALL BE
PROVIDED.
4. INTERRUPTION OF EXISTING FACILITIES OR SERVICES SHALL BE KEPT TO A MINIMUM AND THE CONTRACTOR
SHALL FURNISH ALL MATERIALS REQUIRED WHENEVER TEMPORARY CONNECTIONS ARE NECESSARY TO MAINTAIN
CONTINUITY OF SERVICE. INTERRUPTION OF EXISTING SERVICES, THE INSTALLATION OF TEMPORARY FACILITIES,
AND THE WORK OF MAKING FINAL CONNECTIONS TO THE NETWORK SHALL BE DONE ONLY AT SUCH TIMES AS
PERMITTED AND SCHEDULED BY THE OWNER WITHOUT ADDITIONAL COST. CARE MUST BE USED IN RESOLVING
SERVICES TO AREAS BEING DEMOLISHED SO THAT SERVICES TO OTHER AREAS WHICH MIGHT BE SERVED THROUGH
THESE AREAS WILL NOT BE INTERRUPTED.
5. ANY AND ALL WORK SHALL BE PERFORMED DURING NORMAL BUSINESS HOURS AS STIPULATED BY THE OWNER,
LANDLORD, AND THE MUNICIPALITY IN WHICH THE PROJECT IS LOCATED.
6. ALL DEBRIS SHALL BE DISPOSED OF AS PER ALL APPLICABLE CODES AND/OR LAWS.
8. ALL WORK SHALL BE PERFORMED TO MEET AND COMPLY WITH A.D.A. STANDARDS AND FLORIDA ACCESSIBILITY
CODE FOR BUILDING CONSTRUCTION, CHAPTER 11, PART A OF THE 2010 FLORIDA BUILDING CODE.
ALTERATION PROJECT PROCEDURES:
GENERAL DEMOLITION NOTES:
11.)
A.)
10.)
9.)
A.)
8.)
7.)
6.)
5.)
4.)
3.)
2.)
D.)
C.)
B.)
A.)
1.)
ALTERATION PROJECT PROCEDURES:
CUT, MOVE OR REMOVE ITEMS AS NECESSARY TO PROVIDE ACCESS OR TO ALLOW ALTERATIONS AND NEW
WORK TO PROCEED. INCLUDE SUCH ITEMS AS:
REPAIR OR REMOVAL OF HAZARDOUS OR UNSANITARY CONDITIONS.
REMOVAL OF ABANDONED ITEMS AND ITEMS SERVING NO USEFUL PURPOSE, SUCH AS ABANDONED
PIPING, CONDUIT AND WIRING.
REMOVAL OF UNSUITABLE OR EXTRANEOUS MATERIALS NOT MARKED FOR SALVAGE, SUCH AS
ABANDONED FURNISHINGS AND EQUIPMENT, AND DEBRIS SUCH AS ROTTED WOOD, RUSTED METAL AND
DETERIORATED CONCRETE.
CLEANING OF SURFACES, AND REMOVAL OF SURFACE FINISHES AS NEEDED TO INSTALL NEW WORK
AND FINISHES.
WHEN ALTERATIONS AND CONNECTIONS OF NEW CONSTRUCTION TO EXISTING CONSTRUCTION OCCUR AT DUST
SENSITIVE AREAS, EXECUTE ALL MEASURES TO COMPLETELY CONTROL AND SEPERATE DUST FROM EXISTING
AREAS, EQUIPMENT AND FURNISHINGS.
ASSIGN THE WORK OF MOVING, REMOVAL, CUTTING AND PATCHING, TO TRADES QUALIFIED TO PERFORM THE
WORK IN A MANNER TO CAUSE LEAST DAMAGE TO EACH TYPE OF WORK, AND PROVIDE MEANS OF RETURNING
TO APPEARANCE OF NEW WORK.
PERFORM CUTTING AND REMOVAL WORK TO REMOVE MINIMUM NECESSARY AND IN A MANNER TO AVOID
DAMAGE TO ADJACENT WORK.
CUT FINISH SURFACES SUCH AS MASONRY, GYPSUM WALLBOARD, STUCCO, WALL COVERING, TILE, PLASTER OR
METALS, BY METHODS TO TEMINATE SURFACES ON A STRAIGHT LINE AT A NATURAL POINT OF DIVISION.
PROTECT FROM DAMAGE EXISTING FINISHES, EQUIPMENT, AND ADJACENT WORK WHICH IS SCHEDULED TO
REMAIN.
REROUTE OR EXTEND EXISTING ELECTRICAL, PLUMBING OR AIR CONDITIONING LINES IN AREAS WHERE
DEMOLITION IS TO OCCUR. (REFER TO ELECTRICAL, PLUMBING AND MECHANICAL DRAWINGS).
PROVIDE SAME PRODUCTS OR TYPES OF CONSTRUCTION AS THAT IN EXISTING STRUCTURE, AS NEEDED TO
PATCH, EXTEND OR TO MATCH EXISTING WORK.
CONTRACT DOCUMENTS WILL NOT DEFINE PRODUCTS OR STANDARDS OF WORKMANSHIP PRESENT IN
EXISTING CONSTRUCTION; CONTRACTOR SHALL DETERMINE PRODUCTS BY INSPECTION AND ANY
NECESSARY TESTING, AND WORKMANSHIP BY USE OF THE EXISTING AS A SAMPLE OF COMPARISON.
PATCH AND EXTEND EXISTING WORK USING SKILLED MECHANICS WHO ARE CAPABLE OF MATCHING
EXISTING QUALITY OF WORKMANSHIP. QUALITY OF PATCHED OR EXTENDED WORK SHALL BE NOT LESS
THAN THAT SPECIFIED FOR NEW WORK.
WHERE PARTITIONS ARE REMOVED, PATCH FLOORS, WALLS AND CEILING, WITH FINISH MATERIALS TO
MATCH EXISTING.
WHERE REMOVAL OF PARTITIONS RESULT IN ADJACENT SPACE BECOMING ONE, REWORK FLOORS,
WALLS, AND CEILINGS TO PROVIDE SMOOTH PLANES WITHOUT BREAKS, STEPS, OR BULKHEADS.
WHERE NEW WORK ABUTS EXISTING FINISHES FINISH FLUSH WITH EXISTING WORK, MAKING A SMOOTH AND
FLAWLESS TRANSITION.
1
2
3
4
5
6
7
8
9
10
11
12
13
14
REMOVE EXISTING TOILETS
REMOVE EXISTING TOILETS PARTITIONS & ACCESSORIES
REMOVE EXISTING SINKS
REMOVE EXISTING JANITOR SINK
REMOVE EXISTING URINALS
REMOVE EXISTING DRINKING FOUNTAIN
REMOVE EXISTING LIGHTS FIXTURES
REMOVE EXISTING DOOR, FRAME AND ASSOCIATED COMPONENTS COMPLETELY
REMOVE EXISTING CMU BLOCK WALLS
REMOVE EXISTING FIRE EXTINGUISHER CABINET. PATCH, REPAIR, REFINISH REMAINING SURFACES AND
PREPARE TO RECEIVE NEW FINISHES. STORE AND PROTECT DURING CONSTRUCTION FOR REUSE.
EXISTING DOOR AND FRAME TO BE REMOVED IF NECESSARY TO CHANGE SWING DIRECTION. MODIFY OR
PROVIDE NEW HINGES AS NECESSARY.
REMOVE EXISTING FLOORING AND BASE TO THE EXTENT REQUIRED TO INSTALL NEW FLOORING AND
BASE PER FINISH SCHEDULE PATCH AND PREPARE REMAINING SLAB TO RECEIVE NEW FLOORING.
EXISTING CEILING TILE, GRID AND LIGHT FIXTURES TO BE REMOVED. INCLUSIVE OF ASSOCIATED
CONDUITS, WIRE, HANGERS, ETC. TO SOURCE, UNLESS SLATED FOR REUSE OR RELOCATION..
REMOVE EXISTING WALL AND ASSOCIATED COMPONENTS COMPLETELY. PATCH, REPAIR, REFINISH
REMAINING SURFACES AND PREPARE TO RECEIVE NEW FINISHES. REMOVE ASSOCIATED UTILITIES,
CONDUITS, ETC. TO SOURCE.
REMOVE EXISTING GRAB BAR
REMOVE EXISTING CONCRETE LOUVER UNITS
REMOVE EXISTING GLASS BLOCK
REMOVE PORTION OF EXISTING WALL AND ASSOCIATED COMPONENTS FROM UNDERSIDE OF EXISTING
BEAM TO FLOOR TO CREATE THE FINISHED OPENING AS ILLUSTRATED IN THE ELEVATIONS. THIS MAY
INCLUDE ADDITIONAL WALL MATERIAL FOR NEW STRUCTURAL COMPONENTS (SEE STRUCT. DWG'S.).
PREPARE REMAINING SURFACES FOR NEW CONCRETE EDGES, AND DOOR OR LOUVER COMPONENTS.
REMOVE ASSOCIATED UTILITIES, CONDUITS, ETC. TO SOURCE. SHORE AS REQUIRED.
REMOVE PORTION OF EXISTING WALL AND ASSOCIATED COMPONENTS TO CREATE THE FINISHED
OPENING AS ILLUSTRATED IN THE ELEVATIONS. THIS MAY INCLUDE ADDITIONAL WALL MATERIAL FOR NEW
STRUCTURAL COMPONENTS (SEE STRUCTURAL DWG'S.). PREPARE REMAINING SURFACES FOR NEW
CONCRETE EDGES, AND DOOR OR LOUVER COMPONENTS. REMOVE ASSOCIATED UTILITIES, CONDUITS,
ETC. TO SOURCE.
REMOVE EXISTING OVERHEAD ROLL-UP COILING DOOR AND ALL ASSOCIATED COVERS, TRACKS,
HARDWARE, ETC. PATCH, REPAIR, REFINISH REMAINING SURFACES AND PREPARE TO RECEIVE NEW
FINISHES OR REPLACEMENT UNIT.
EXISTING EXTERIOR SHOWER TO BE REPLACED.
15
16
17
18
19
20
21
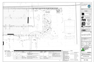
1 DEMOLITION FLOOR PLAN
SCALE : 1/4" = 1'-0" 2 DEMOLITION REFLECTED CEILING PLAN
SCALE : 1/4" = 1'-0"
3 GENERAL NOTES
5 LEGEND
4 KEY NOTES
Principal in Charge:
Sheet Title:
Rev: Date: Description: By:
Date:
Drawn By:
Project No:
Sheet Number:
Project Manager:
Prepared for:
Project Name:
Consultants:
Seal:
Site Map:
Project Phase:
Scale:
WIND REMARKSCORE FINISH FRAMEMATERIALSIZE TYPEDR
DESIGN
PRESSURE
(PSF)
5. ALL DOOR HARDWARE SHALL BE AS SELECTED BY
OWNER.
6. CONTRACTOR IS RESPONSIBLE FOR PERFORMING ANY
WORK NECESSARY TO COMPLETE THE PROPER
INSTALLATION OF DOORS, WINDOWS, FRAMES, AND
HARDWARE.
7. ALL EXTERIOR WINDOWS AND DOORS SHALL BE LARGE
MISSILE IMPACT RESISTANT, SUBMIT FLORIDA PRODUCT
APPROVALS.
8. ALL EXTERIOR DOOR FRAMES ANCHOR PER PRODUCT
APPROVALS.
9. ALL DOOR FRAMES ON CONCRETE TO BE GROUTED
SOLID.
10. EXTERIOR WINDOWS AND DOORS TO BE FASTENED TO
FILLED CELL OR CONCRETE AND THRU WD. BUCKS AS PER
PRODUCT APPROVAL.
WINDOWS / DOORS NOTES
1. WINDOWS AND DOORS SHALL BE OF TYPES,
THICKNESS, SIZE, AND CONSTRUCTION AS SHOWN.
2. ALL WALL OPENING DIMENSIONS SHALL BE VERIFIED BY
CONTRACTOR.
3. FRAMED WINDOWS SHALL BE PRODUCTS OF AN
APPROVED MANUFACTURER. ALL MEMBERS SHALL HAVE
FINISH IN COLOR SELECTED: MEETING OR EXCEEDING
REQUIREMENTS FOR WATER PENETRATION. INFILTRATION
AND WIND LOAD OF ALL APPLICABLE BUILDING CODES. AT
EACH MOVEABLE DOOR OR WINDOW PANEL PROVIDE A
FRAMED VINYL INSECT SCREENING UNIT.
4. BUILDER'S ROUGH HARDWARE SHALL BE FURNISHED
AND INSTALLED BY EACH PARTY TO WHOSE WORK SUCH
ITEMS ARE INCIDENTAL. ALL ITEMS SHALL BE GALVANIZED
AND/OR CORROSION-PROOF. FINISH DOOR HARDWARE
WILL BE SELECTED BY THE OWNER AND PURCHASED
DIRECTLY BY GENERAL CONTRACTOR FOR FURNISHING
TO JOB SITES
11. ALL EXTERIOR WINDOWS AND DOORS SHALL MEET OR
EXCEED POSITIVE AND NEGATIVE DESIGN WIND LOAD
PRESSURES NOTED IN SCHEDULE ABOVE.
12. PROVIDE ALL MULLIONS & STRUCTURAL SUPPORTS
REQUIRED FOR PROPER WINDOW OR DOOR INSTALLATION.
13. PROVIDE CONTINUOUS SEALANT AT INSIDE AND
OUTSIDE JOINTS, WOOD BUCK, AND MASONRY IN
ADDITION TO INSIDE AND OUTSIDE OF WINDOW AND
DOOR / WALL UNITS.
14. CONTRACTOR SHALL FULLY CAULK ALL EXTERIOR
WINDOWS THROUGHOUT. CAULK SHALL MATCH WINDOW
FRAME COLOR.
15. ALL WINDOW GLAZING SHALL BE PROVIDED WITH
WINDOW TINTING FILM WITH A LIGHT TRANSMISSION
VALUE (VLT) OF 15% OR LESS TO SATISFY THE MODEL
LIGHTING ORDINANCE FOR MARINE TURTLE PROTECTION.
THIS EXCEEDS THE NATURAL
VENTILATION REQUIREMENTS
THIS EXCEEDS THE NATURAL
VENTILATION REQUIREMENTS
THIS EXCEEDS THE NATURAL
VENTILATION REQUIREMENTS
A1 FLOOR PLAN
SCALE : 1/4" = 1'-0"
A3 DOOR & WINDOW SCHEDULES
A2 UPPER LEVEL / LOW ROOF PLAN
SCALE : 1/4" = 1'-0"
A4 DOOR & WINDOW NOTES MANUEL SYNALOVSKI, AIA
AR 0011628
LICENSE NO. AA26001863
A5 VENTILATION CALCULATIONS
Principal in Charge:
Sheet Title:
Rev: Date: Description: By:
Date:
Drawn By:
Project No:
Sheet Number:
Project Manager:
Prepared for:
Project Name:
Consultants:
Seal:
Site Map:
Project Phase:
Scale:
FINISH FLOOR
0'-0" A.F.F.
HIGH ROOF LOW BEARING
12'-0" A.F.F.
NEW LOW ROOF BEARING
11'-0" A.F.F.
HIGH ROOF HIGH BEARING
16'-4" A.F.F.
TOP OF PYLON
20'-0" A.F.F.
TOP OF PARAPET
14'-8" A.F.F.
TOP OF EXIST. TIEBEAM
LOUVER HEAD HGT.
8'-0" A.F.F.
TOP OF EXIST. TIEBEAM
12'-0" A.F.F.
FINISH FLOOR
0'-0" A.F.F.
NEW LOW ROOF BEARING
11'-0" A.F.F.
HIGH ROOF BEARING
16'-4" A.F.F.
TOP OF PYLON
20'-0" A.F.F.
WINDOW HEAD HGT.
15'-0" A.F.F.
LOUVER HEAD HGT.
8'-0" A.F.F.
TOP OF EXIST. TIEBEAM
12'-0" A.F.F.
FINISH FLOOR
0'-0" A.F.F.
HIGH ROOF LOW BEARING
12'-0" A.F.F.
NEW LOW ROOF BEARING
11'-0" A.F.F.
HIGH ROOF HIGH BEARING
16'-4" A.F.F.
TOP OF PYLON
20'-0" A.F.F.
LOUVER HEAD HGT.
8'-0" A.F.F.
TOP OF EXIST. TIEBEAM
TOP OF EXIST. TIEBEAM
12'-0" A.F.F.
FINISH FLOOR
0'-0" A.F.F.
HIGH ROOF HIGH BEARING
16'-4" A.F.F.
TOP OF PYLON
20'-0" A.F.F.
LOUVER HEAD HGT.
8'-0" A.F.F.
HIGH ROOF LOW BEARING
12'-0" A.F.F.
TOP OF NEW TIEBEAM
WINDOW HEAD HGT.
15'-0" A.F.F.
NEW LOW ROOF BEARING
11'-0" A.F.F.
FINISH FLOOR
0'-0" A.F.F.
HIGH ROOF LOW BEARING
12'-0" A.F.F.
TOP OF PYLON
20'-0" A.F.F.
LOUVER HEAD HGT.
8'-0" A.F.F.
TOP OF PARAPET
14'-8" A.F.F.
TOP OF EXIST. TIEBEAM
A1 FRONT ELEVATION (WEST FACE)
SCALE : 1/4" = 1'-0"A4 LEFT SIDE ELEVATION (NORTH FACE)
SCALE : 1/4" = 1'-0"
MANUEL SYNALOVSKI, AIA
AR 0011628
LICENSE NO. AA26001863
A5 BUILDING CROSS SECTION (LOOKING SOUTH)
SCALE : 1/4" = 1'-0" A2 REAR ELEVATION (EAST FACE)
SCALE : 1/4" = 1'-0"
A3 RIGHT SIDE ELEVATION (SOUTH FACE)
SCALE : 1/4" = 1'-0"
Principal in Charge:
Sheet Title:
Rev: Date: Description: By:
Date:
Drawn By:
Project No:
Sheet Number:
Project Manager:
Prepared for:
Project Name:
Consultants:
Seal:
Site Map:
Project Phase:
Scale:
RESTROOM ACCESSORIES LEGEND
MANUF'R. DESCRIPTION
1
2
3
4
5
6
7
8
10
9
11
12
13
15
16
17
14
18
19
20
21
22
23
24
DROP-IN LAVATORY
WALL-HUNG LAVATORY
HANDS-FREE FAUCET
SURF. MTD. MIRROR
SURF. MTD. AUTOMATIC FOAM SOAP DISPENSER
SURF. MTD. AUTOMATIC HAND DRYER
ELONGATED TOILET (STD. HGT.)
TOILET SEAT
SURF. MTD. 1 1
4" DIA. GRAB BAR (36" LONG)
SURF. MTD. SINGLE JUMBO ROLL TOILET PAPER DISPENSER
SURF. MTD. SANITARY NAPKIN DISPOSAL
SOLID CORE RESIN BASED TOILET PARTITION SYSTEM
SURF. MTD. HORIZ. FOLD-DOWN BABY CHANGING STATION
HI-LOW WATER FOUNTAIN
RECESSED WALL HYDRANT WATER SUPPLY HOSE BIBB
PRECAST MOP SINK
12" SWINGING FAUCET WITH WALL CONTROL
HANDS-FREE FAUCET
ELONGATED TOILET (ADA HGT.)
SURF. MTD. 1 1
4" DIA. GRAB BAR (42" LONG)
AUTO-FLUSH FLUSH VALVE
WALL-HUNG URINAL (STD. HGT.)
AUTO-FLUSH FLUSH VALVE
25
SHOWER HEAD WITH WALL CONTROL26
3 1
2" THICK CONC. COUNTER W/ EPOXY FINISH (SEE DET. X/A-XXX)
MARK MODEL
WALL-HUNG URINAL (ADA HGT.)
27
SURF. MTD. SEAT COVER DISPENSER
BOBRICK B-2013
BOBRICK B-290
BOBRICK B-715
BOBRICK B-2890
BOBRICK B-254
BOBRICK B-221
BOBRICK B-5806-36
BOBRICK B-5806-42
KOALA KARE KB110-SSWM
(18"w X 36"h or 24"w X 36"h)
SCRANTON
A1 REFLECTED CEILING PLAN
SCALE : 1/4" = 1'-0"
MANUEL SYNALOVSKI, AIA
AR 0011628
LICENSE NO. AA26001863
A2 FIXTURE & ACCESSORY PLAN
SCALE : 1/4" = 1'-0"A4 INTERIOR ELEVATIONS
SCALE : 1/4" = 1'-0"
A3 FIXTURE & ACCESSORY SCHEDULE
SCALE : 1/4" = 1'-0"
Principal in Charge:
Sheet Title:
Rev: Date: Description: By:
Date:
Drawn By:
Project No:
Sheet Number:
Project Manager:
Prepared for:
Project Name:
Consultants:
Seal:
Site Map:
Project Phase:
Scale:
INDICATES EXISTING INTERIOR
PARTITION TO REMAIN
INDICATES EXISTING INTERIOR
PARTITION TO BE REMOVED
LEGEND:
INDICATES EXISTING DOOR TO REMAIN
HATCH DENOTES EXISTING TO REMAIN
NO WORK IN THIS AREA
7. TOUCH-UP REMAINING STRUCTURES TO MATCH EXISTING CONDITIONS.
1. THE CONSTRUCTION SHALL INCLUDE THE FURNISHING OF ALL MATERIALS, EXTENSIONS, CONNECTIONS, CUTTING,
PATCHING, PAINTING, REPAIRING, ADAPTING AND OTHER WORK, INCIDENTAL TO, AND TOGETHER WITH SUCH
TEMPORARY CONNECTIONS AS MAY BE REQUIRED. THE CONSTRUCTION SHALL ALSO INCLUDE THE REMOVAL OF
MATERIALS AS DIRECTED.
2. ANY WORK NOT SHOWN ON THE DRAWING OR SPECIFICALLY MENTIONED IN THE SPECIFICATIONS, BUT
CONSIDERED NECESSARY FOR THE COMPLETION OF THE WORK IN PROPER MANNER SHALL BE PROVIDED BY THIS
CONTRACTOR WITHOUT ADDITIONAL CHARGE.
3. WHERE PRESENT WORK IS DAMAGED IN THE EXECUTION OF THIS CONTRACT, OR WHERE OPENINGS ARE LEFT
DUE TO THE REMOVAL OF PIPES, EQUIPMENT OR APPARATUS, THE SAME SHALL BE REPAIRED OR CLOSED UP TO
CORRESPOND IN MATERIAL, QUALITY, SHAPE, AND FINISH WITH THAT OF SIMILAR AND ADJOINING WORK,
UNLESS OTHERWISE CALLED FOR. WHERE DAMAGE IS NOT REPAIRABLE, NEW ITEMS OR EQUIPMENT SHALL BE
PROVIDED.
4. INTERRUPTION OF EXISTING FACILITIES OR SERVICES SHALL BE KEPT TO A MINIMUM AND THE CONTRACTOR
SHALL FURNISH ALL MATERIALS REQUIRED WHENEVER TEMPORARY CONNECTIONS ARE NECESSARY TO MAINTAIN
CONTINUITY OF SERVICE. INTERRUPTION OF EXISTING SERVICES, THE INSTALLATION OF TEMPORARY FACILITIES,
AND THE WORK OF MAKING FINAL CONNECTIONS TO THE NETWORK SHALL BE DONE ONLY AT SUCH TIMES AS
PERMITTED AND SCHEDULED BY THE OWNER WITHOUT ADDITIONAL COST. CARE MUST BE USED IN RESOLVING
SERVICES TO AREAS BEING DEMOLISHED SO THAT SERVICES TO OTHER AREAS WHICH MIGHT BE SERVED THROUGH
THESE AREAS WILL NOT BE INTERRUPTED.
5. ANY AND ALL WORK SHALL BE PERFORMED DURING NORMAL BUSINESS HOURS AS STIPULATED BY THE OWNER,
LANDLORD, AND THE MUNICIPALITY IN WHICH THE PROJECT IS LOCATED.
6. ALL DEBRIS SHALL BE DISPOSED OF AS PER ALL APPLICABLE CODES AND/OR LAWS.
8. ALL WORK SHALL BE PERFORMED TO MEET AND COMPLY WITH A.D.A. STANDARDS AND FLORIDA ACCESSIBILITY
CODE FOR BUILDING CONSTRUCTION, CHAPTER 11, PART A OF THE 2010 FLORIDA BUILDING CODE.
ALTERATION PROJECT PROCEDURES:
GENERAL DEMOLITION NOTES:
11.)
A.)
10.)
9.)
A.)
8.)
7.)
6.)
5.)
4.)
3.)
2.)
D.)
C.)
B.)
A.)
1.)
ALTERATION PROJECT PROCEDURES:
CUT, MOVE OR REMOVE ITEMS AS NECESSARY TO PROVIDE ACCESS OR TO ALLOW ALTERATIONS AND NEW
WORK TO PROCEED. INCLUDE SUCH ITEMS AS:
REPAIR OR REMOVAL OF HAZARDOUS OR UNSANITARY CONDITIONS.
REMOVAL OF ABANDONED ITEMS AND ITEMS SERVING NO USEFUL PURPOSE, SUCH AS ABANDONED
PIPING, CONDUIT AND WIRING.
REMOVAL OF UNSUITABLE OR EXTRANEOUS MATERIALS NOT MARKED FOR SALVAGE, SUCH AS
ABANDONED FURNISHINGS AND EQUIPMENT, AND DEBRIS SUCH AS ROTTED WOOD, RUSTED METAL AND
DETERIORATED CONCRETE.
CLEANING OF SURFACES, AND REMOVAL OF SURFACE FINISHES AS NEEDED TO INSTALL NEW WORK
AND FINISHES.
WHEN ALTERATIONS AND CONNECTIONS OF NEW CONSTRUCTION TO EXISTING CONSTRUCTION OCCUR AT DUST
SENSITIVE AREAS, EXECUTE ALL MEASURES TO COMPLETELY CONTROL AND SEPERATE DUST FROM EXISTING
AREAS, EQUIPMENT AND FURNISHINGS.
ASSIGN THE WORK OF MOVING, REMOVAL, CUTTING AND PATCHING, TO TRADES QUALIFIED TO PERFORM THE
WORK IN A MANNER TO CAUSE LEAST DAMAGE TO EACH TYPE OF WORK, AND PROVIDE MEANS OF RETURNING
TO APPEARANCE OF NEW WORK.
PERFORM CUTTING AND REMOVAL WORK TO REMOVE MINIMUM NECESSARY AND IN A MANNER TO AVOID
DAMAGE TO ADJACENT WORK.
CUT FINISH SURFACES SUCH AS MASONRY, GYPSUM WALLBOARD, STUCCO, WALL COVERING, TILE, PLASTER OR
METALS, BY METHODS TO TEMINATE SURFACES ON A STRAIGHT LINE AT A NATURAL POINT OF DIVISION.
PROTECT FROM DAMAGE EXISTING FINISHES, EQUIPMENT, AND ADJACENT WORK WHICH IS SCHEDULED TO
REMAIN.
REROUTE OR EXTEND EXISTING ELECTRICAL, PLUMBING OR AIR CONDITIONING LINES IN AREAS WHERE
DEMOLITION IS TO OCCUR. (REFER TO ELECTRICAL, PLUMBING AND MECHANICAL DRAWINGS).
PROVIDE SAME PRODUCTS OR TYPES OF CONSTRUCTION AS THAT IN EXISTING STRUCTURE, AS NEEDED TO
PATCH, EXTEND OR TO MATCH EXISTING WORK.
CONTRACT DOCUMENTS WILL NOT DEFINE PRODUCTS OR STANDARDS OF WORKMANSHIP PRESENT IN
EXISTING CONSTRUCTION; CONTRACTOR SHALL DETERMINE PRODUCTS BY INSPECTION AND ANY
NECESSARY TESTING, AND WORKMANSHIP BY USE OF THE EXISTING AS A SAMPLE OF COMPARISON.
PATCH AND EXTEND EXISTING WORK USING SKILLED MECHANICS WHO ARE CAPABLE OF MATCHING
EXISTING QUALITY OF WORKMANSHIP. QUALITY OF PATCHED OR EXTENDED WORK SHALL BE NOT LESS
THAN THAT SPECIFIED FOR NEW WORK.
WHERE PARTITIONS ARE REMOVED, PATCH FLOORS, WALLS AND CEILING, WITH FINISH MATERIALS TO
MATCH EXISTING.
WHERE REMOVAL OF PARTITIONS RESULT IN ADJACENT SPACE BECOMING ONE, REWORK FLOORS,
WALLS, AND CEILINGS TO PROVIDE SMOOTH PLANES WITHOUT BREAKS, STEPS, OR BULKHEADS.
WHERE NEW WORK ABUTS EXISTING FINISHES FINISH FLUSH WITH EXISTING WORK, MAKING A SMOOTH AND
FLAWLESS TRANSITION.
1
2
3
4
5
6
7
8
9
10
11
12
13
14
REMOVE EXISTING TOILETS
REMOVE EXISTING TOILETS PARTITIONS & ACCESSORIES
REMOVE EXISTING SINKS
REMOVE EXISTING JANITOR SINK
REMOVE EXISTING URINALS
REMOVE EXISTING DRINKING FOUNTAIN
REMOVE EXISTING LIGHTS FIXTURES
REMOVE EXISTING DOOR, FRAME AND ASSOCIATED COMPONENTS COMPLETELY
REMOVE EXISTING CMU BLOCK WALLS
REMOVE EXISTING FIRE EXTINGUISHER CABINET. PATCH, REPAIR, REFINISH REMAINING SURFACES AND
PREPARE TO RECEIVE NEW FINISHES. STORE AND PROTECT DURING CONSTRUCTION FOR REUSE.
EXISTING DOOR AND FRAME TO BE REMOVED IF NECESSARY TO CHANGE SWING DIRECTION. MODIFY OR
PROVIDE NEW HINGES AS NECESSARY.
REMOVE EXISTING FLOORING AND BASE TO THE EXTENT REQUIRED TO INSTALL NEW FLOORING AND
BASE PER FINISH SCHEDULE PATCH AND PREPARE REMAINING SLAB TO RECEIVE NEW FLOORING.
EXISTING CEILING TILE, GRID AND LIGHT FIXTURES TO BE REMOVED. INCLUSIVE OF ASSOCIATED
CONDUITS, WIRE, HANGERS, ETC. TO SOURCE, UNLESS SLATED FOR REUSE OR RELOCATION..
REMOVE EXISTING WALL AND ASSOCIATED COMPONENTS COMPLETELY. PATCH, REPAIR, REFINISH
REMAINING SURFACES AND PREPARE TO RECEIVE NEW FINISHES. REMOVE ASSOCIATED UTILITIES,
CONDUITS, ETC. TO SOURCE.
REMOVE EXISTING GRAB BAR
REMOVE EXISTING CONCRETE LOUVER UNITS
REMOVE EXISTING GLASS BLOCK
REMOVE PORTION OF EXISTING WALL AND ASSOCIATED COMPONENTS FROM UNDERSIDE OF EXISTING
BEAM TO FLOOR TO CREATE THE FINISHED OPENING AS ILLUSTRATED IN THE ELEVATIONS. THIS MAY
INCLUDE ADDITIONAL WALL MATERIAL FOR NEW STRUCTURAL COMPONENTS (SEE STRUCT. DWG'S.).
PREPARE REMAINING SURFACES FOR NEW CONCRETE EDGES, AND DOOR OR LOUVER COMPONENTS.
REMOVE ASSOCIATED UTILITIES, CONDUITS, ETC. TO SOURCE. SHORE AS REQUIRED.
REMOVE PORTION OF EXISTING WALL AND ASSOCIATED COMPONENTS TO CREATE THE FINISHED
OPENING AS ILLUSTRATED IN THE ELEVATIONS. THIS MAY INCLUDE ADDITIONAL WALL MATERIAL FOR NEW
STRUCTURAL COMPONENTS (SEE STRUCTURAL DWG'S.). PREPARE REMAINING SURFACES FOR NEW
CONCRETE EDGES, AND LOUVER COMPONENTS. REMOVE ASSOCIATED UTILITIES, CONDUITS, ETC. TO
SOURCE.
REMOVE EXISTING CONCRETE SIDEWALK. COORDINATE WITH EDSA LANDSCAPE SITE PLAN FOR EXTENT
OF WORK.
15
16
17
18
19
20
1 DEMOLITION FLOOR PLAN
SCALE : 1/4" = 1'-0"2 DEMOLITION REFLECTED CEILING PLAN
SCALE : 1/4" = 1'-0"
3 GENERAL NOTES
5 LEGEND
4 KEY NOTES
Principal in Charge:
Sheet Title:
Rev: Date: Description: By:
Date:
Drawn By:
Project No:
Sheet Number:
Project Manager:
Prepared for:
Project Name:
Consultants:
Seal:
Site Map:
Project Phase:
Scale:
WIND REMARKSCORE FINISH FRAMEMATERIALSIZE TYPEDR
DESIGN
PRESSURE
(PSF)
5. ALL DOOR HARDWARE SHALL BE AS SELECTED BY
OWNER.
6. CONTRACTOR IS RESPONSIBLE FOR PERFORMING ANY
WORK NECESSARY TO COMPLETE THE PROPER
INSTALLATION OF DOORS, WINDOWS, FRAMES, AND
HARDWARE.
7. ALL EXTERIOR WINDOWS AND DOORS SHALL BE LARGE
MISSILE IMPACT RESISTANT, SUBMIT FLORIDA PRODUCT
APPROVALS.
8. ALL EXTERIOR DOOR FRAMES ANCHOR PER PRODUCT
APPROVALS.
9. ALL DOOR FRAMES ON CONCRETE TO BE GROUTED
SOLID.
10. EXTERIOR WINDOWS AND DOORS TO BE FASTENED TO
FILLED CELL OR CONCRETE AND THRU WD. BUCKS AS PER
PRODUCT APPROVAL.
WINDOWS / DOORS NOTES
1. WINDOWS AND DOORS SHALL BE OF TYPES,
THICKNESS, SIZE, AND CONSTRUCTION AS SHOWN.
2. ALL WALL OPENING DIMENSIONS SHALL BE VERIFIED BY
CONTRACTOR.
3. FRAMED WINDOWS SHALL BE PRODUCTS OF AN
APPROVED MANUFACTURER. ALL MEMBERS SHALL HAVE
FINISH IN COLOR SELECTED: MEETING OR EXCEEDING
REQUIREMENTS FOR WATER PENETRATION. INFILTRATION
AND WIND LOAD OF ALL APPLICABLE BUILDING CODES. AT
EACH MOVEABLE DOOR OR WINDOW PANEL PROVIDE A
FRAMED VINYL INSECT SCREENING UNIT.
4. BUILDER'S ROUGH HARDWARE SHALL BE FURNISHED
AND INSTALLED BY EACH PARTY TO WHOSE WORK SUCH
ITEMS ARE INCIDENTAL. ALL ITEMS SHALL BE GALVANIZED
AND/OR CORROSION-PROOF. FINISH DOOR HARDWARE
WILL BE SELECTED BY THE OWNER AND PURCHASED
DIRECTLY BY GENERAL CONTRACTOR FOR FURNISHING
TO JOB SITES
11. ALL EXTERIOR WINDOWS AND DOORS SHALL MEET OR
EXCEED POSITIVE AND NEGATIVE DESIGN WIND LOAD
PRESSURES NOTED IN SCHEDULE ABOVE.
12. PROVIDE ALL MULLIONS & STRUCTURAL SUPPORTS
REQUIRED FOR PROPER WINDOW OR DOOR INSTALLATION.
13. PROVIDE CONTINUOUS SEALANT AT INSIDE AND
OUTSIDE JOINTS, WOOD BUCK, AND MASONRY IN
ADDITION TO INSIDE AND OUTSIDE OF WINDOW AND
DOOR / WALL UNITS.
14. CONTRACTOR SHALL FULLY CAULK ALL EXTERIOR
WINDOWS THROUGHOUT. CAULK SHALL MATCH WINDOW
FRAME COLOR.
15. ALL WINDOW GLAZING SHALL BE PROVIDED WITH
WINDOW TINTING FILM WITH A LIGHT TRANSMISSION
VALUE (VLT) OF 15% OR LESS TO SATISFY THE MODEL
LIGHTING ORDINANCE FOR MARINE TURTLE PROTECTION.
TOP OF ROOF
+8'-6" A.F.F.
FINISH FLOOR
0'-0" A.F.F.
TOP OF PYLON
+13'-6" A.F.F.
TOP OF ROOF
+8'-6" A.F.F.
FINISH FLOOR
0'-0" A.F.F.
TOP OF PYLON
+13'-6" A.F.F.
TOP OF ROOF
+8'-6" A.F.F.
FINISH FLOOR
0'-0" A.F.F.
TOP OF PYLON
+13'-6" A.F.F.
TOP OF ROOF
+8'-6" A.F.F.
FINISH FLOOR
0'-0" A.F.F.
TOP OF PYLON
+13'-6" A.F.F.
THIS EXCEEDS THE NATURAL
VENTILATION REQUIREMENTS
THIS EXCEEDS THE NATURAL
VENTILATION REQUIREMENTS
A1 FLOOR PLAN
SCALE : 1/4" = 1'-0"
A2 DOOR & WINDOW SCHEDULES
A3 EXISTING FRONT ELEVATION
SCALE : 1/4" = 1'-0"
A4 EXISTING REAR ELEVATION
SCALE : 1/4" = 1'-0"
A5 EXISTING NORTH ELEVATION
SCALE : 1/4" = 1'-0"
A6 EXISTING SOUTH ELEVATION
SCALE : 1/4" = 1'-0"
MANUEL SYNALOVSKI, AIA
AR 0011628
LICENSE NO. AA26001863
A7 VENTILATION CALCULATIONS
NO SCALE
Principal in Charge:
Sheet Title:
Rev: Date: Description: By:
Date:
Drawn By:
Project No:
Sheet Number:
Project Manager:
Prepared for:
Project Name:
Consultants:
Seal:
Site Map:
Project Phase:
Scale:
RESTROOM ACCESSORIES LEGEND
MANUF'R. DESCRIPTION
1
2
3
4
5
6
7
8
10
9
11
12
13
15
16
17
14
18
19
20
21
22
23
24
DROP-IN LAVATORY
WALL-HUNG LAVATORY
HANDS-FREE FAUCET
SURF. MTD. MIRROR
SURF. MTD. AUTOMATIC FOAM SOAP DISPENSER
SURF. MTD. AUTOMATIC HAND DRYER
ELONGATED TOILET (STD. HGT.)
TOILET SEAT
SURF. MTD. 1 1
4" DIA. GRAB BAR (36" LONG)
SURF. MTD. SINGLE JUMBO ROLL TOILET PAPER DISPENSER
SURF. MTD. SANITARY NAPKIN DISPOSAL
SOLID CORE RESIN BASED TOILET PARTITION SYSTEM
SURF. MTD. HORIZ. FOLD-DOWN BABY CHANGING STATION
HI-LOW WATER FOUNTAIN
RECESSED WALL HYDRANT WATER SUPPLY HOSE BIBB
PRECAST MOP SINK
12" SWINGING FAUCET WITH WALL CONTROL
HANDS-FREE FAUCET
ELONGATED TOILET (ADA HGT.)
SURF. MTD. 1 1
4" DIA. GRAB BAR (42" LONG)
AUTO-FLUSH FLUSH VALVE
WALL-HUNG URINAL (STD. HGT.)
AUTO-FLUSH FLUSH VALVE
25
SHOWER HEAD WITH WALL CONTROL26
3 1
2" THICK CONC. COUNTER W/ EPOXY FINISH (SEE DET. X/A-XXX)
MARK MODEL
WALL-HUNG URINAL (ADA HGT.)
27
SURF. MTD. SEAT COVER DISPENSER
BOBRICK B-2013
BOBRICK B-290
BOBRICK B-715
BOBRICK B-2890
BOBRICK B-254
BOBRICK B-221
BOBRICK B-5806-36
BOBRICK B-5806-42
KOALA KARE KB110-SSWM
(18"w X 36"h or 24"w X 36"h)
SCRANTON
TOP OF ROOF
+8'-6" A.F.F.
FINISH FLOOR
0'-0" A.F.F.
TOP OF PYLON
+13'-6" A.F.F.
A1 REFLECTED CEILING PLAN
SCALE : 1/4" = 1'-0"
A3 FIXTURES & ACCESSORIES LEGEND
A2 FIXTURES & ACCESSORIES PLAN
SCALE : 1/4" = 1'-0"
A4 INTERIOR ELEVATIONS
SCALE : 1/4" = 1'-0"
MANUEL SYNALOVSKI, AIA
AR 0011628
LICENSE NO. AA26001863
A5 BUILDING SECTION
SCALE : 1/4" = 1'-0"
Principal in Charge:
Sheet Title:
Rev: Date: Description: By:
Date:
Drawn By:
Project No:
Sheet Number:
Project Manager:
Prepared for:
Project Name:
Consultants:
Seal:
Site Map:
Project Phase:
Scale:
A4-1
C
STORAGE
DUMPSTER
DUMPSTER
A4-1
A
A4-1
B
A4-1
C
TOP OF SLAB
+ 0'-0" (GND. FLR.)
TOP OF BOND BM.
+ 6'-0"
+ 10'-0" (HIGH END)
ROOF DECK BRG.
TOP OF SLAB
+ 0'-0" (GND. FLR.)
TOP OF BOND BM.
+ 6'-0"
ROOF DECK BRG.
+ 9'-4" (LOW END)
A4-1
B
TOP OF SLAB
+ 0'-0" (GND. FLR.)
TOP OF BOND BM.
+ 6'-0"
ROOF DECK BRG.
+ 9'-4" (LOW END)
ROOF DECK BRG.
+ 10'-0" (HIGH END)
A4-1
A
Principal in Charge:
Sheet Title:
Rev: Date: Description: By:
Date:
Drawn By:
Project No:
Sheet Number:
Project Manager:
Prepared for:
Project Name:
Consultants:
Seal:
Site Map:
Project Phase:
Scale:
1 FLOOR PLAN
SCALE : 1/4" = 1'-0"
3 FRONT ELEVATION
SCALE : 1/4" = 1'-0"
4 REAR ELEVATION
SCALE : 1/4" = 1'-0" 5 RIGHT SIDE ELEVATION (LEFT SIM.)
SCALE : 1/4" = 1'-0"
2 FOUNDATION PLAN
SCALE : 1/4" = 1'-0"
A WALL SECTION
SCALE : 1/2" = 1'-0" B WALL SECTION
SCALE : 1/2" = 1'-0" C WALL SECTION
SCALE : 1/2" = 1'-0"
6 UTILITIES PLAN
SCALE : 1/4" = 1'-0"
D ROOF DESIGN PRESSURE
NO SCALE
ATLANTIC OCEAN
ATLANTIC OCEAN
8.8 DUNE ELEV 8.1 DUNE ELEV8.3 DUNE ELEV8.6 DUNE ELEV
8.2 DUNE ELEV
Principal in Charge:
Sheet Title:
Rev: Date: Description: By:
Date:
Drawn By:
Project No:
Sheet Number:
Project Manager:
Prepared for:
Project Name:
Drawingname:F:2012Jobs12-1028.01DaniaWaterfrontPHASE112-1028.00SITE.dwgC002Oct01,20155:32pmby:shane
Consultants:
Seal:
Site Map:
®
PLANNING LANDSCAPE ARCHITECTURE URBAN DESIGN
1512 E. BROWARD BOULEVARD, SUITE 110
FORT LAUDERDALE, FLORIDA 33301 USA
LCC000001
TEL: 954.524.3330
www.edsaplan.com
Project Phase:
Scale:
OCEAN PARK REVITALIZATION
PHASE 1
CONSTRUCTION DOCUMENTS
CITY OF DANIA BEACH, FLORIDA
100 WEST DANIA BEACH BLVD.
DANIA BEACH, FL 33004
CRAVEN THOMPSON & ASSOCIATES, INC.
1
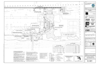
234
C-302
LEGEND:
PAVING, GRADING
AND DRAINAGE PLAN
NORTH
VERTICALDATUM
CONVERSION
1"=20'
SHG
SHG
JMF
12-1028.01
09-04-2015
10-02-2015 PLAN ADDENDUM #11 SHG
GRADING AND DRAINAGE NOTES:
1
ATLANTIC OCEAN
ATLANTIC OCEAN
8.5 DUNE ELEV
8.1 DUNE ELEV
8.3 DUNE ELEV
8.2 DUNE ELEV
8.2 DUNE ELEV
Principal in Charge:
Sheet Title:
Rev: Date: Description: By:
Date:
Drawn By:
Project No:
Sheet Number:
Project Manager:
Prepared for:
Project Name:
Drawingname:F:2012Jobs12-1028.01DaniaWaterfrontPHASE112-1028.00SITE.dwgC003Oct01,20155:31pmby:shane
Consultants:
Seal:
Site Map:
®
PLANNING LANDSCAPE ARCHITECTURE URBAN DESIGN
1512 E. BROWARD BOULEVARD, SUITE 110
FORT LAUDERDALE, FLORIDA 33301 USA
LCC000001
TEL: 954.524.3330
www.edsaplan.com
Project Phase:
Scale:
OCEAN PARK REVITALIZATION
PHASE 1
CONSTRUCTION DOCUMENTS
CITY OF DANIA BEACH, FLORIDA
100 WEST DANIA BEACH BLVD.
DANIA BEACH, FL 33004
CRAVEN THOMPSON & ASSOCIATES, INC.
1
234
C-303
LEGEND:
PAVING, GRADING
AND DRAINAGE PLAN
NORTH
VERTICALDATUM
CONVERSION
1"=20'
SHG
SHG
JMF
12-1028.01
09-04-2015
10-02-2015 PLAN ADDENDUM #11 SHG
GRADING AND DRAINAGE NOTES:
1
1
ATLANTIC OCEAN
ATLANTIC OCEAN
9.2 DUNE ELEV
9.3 DUNE ELEV
9.0 DUNE ELEV
Principal in Charge:
Sheet Title:
Rev: Date: Description: By:
Date:
Drawn By:
Project No:
Sheet Number:
Project Manager:
Prepared for:
Project Name:
Drawingname:F:2012Jobs12-1028.01DaniaWaterfrontPHASE112-1028.00SITE.dwgC004Oct01,20155:29pmby:shane
Consultants:
Seal:
Site Map:
®
PLANNING LANDSCAPE ARCHITECTURE URBAN DESIGN
1512 E. BROWARD BOULEVARD, SUITE 110
FORT LAUDERDALE, FLORIDA 33301 USA
LCC000001
TEL: 954.524.3330
www.edsaplan.com
Project Phase:
Scale:
OCEAN PARK REVITALIZATION
PHASE 1
CONSTRUCTION DOCUMENTS
CITY OF DANIA BEACH, FLORIDA
100 WEST DANIA BEACH BLVD.
DANIA BEACH, FL 33004
CRAVEN THOMPSON & ASSOCIATES, INC.
1
234
C-304
LEGEND:
PAVING, GRADING
AND DRAINAGE PLAN
NORTH
VERTICALDATUM
CONVERSION
1"=20'
09-04-2015
SHG
SHG
JMF
12-1028.01
10-02-2015 PLAN ADDENDUM #11 SHG
GRADING AND DRAINAGE NOTES:
1
EXFILTRATION TRENCH DETAIL
COMPACTION TEST SCHEDULE
ON SITE PAVEMENT DETAIL
TYPE "D" CURB DETAIL
SUMMARY OF DRAINAGE STRUCTURES
JUNCTION BOX/CATCH BASIN
POLLUTION RETARDANT BAFFLE
Principal in Charge:
Sheet Title:
Rev: Date: Description: By:
Date:
Drawn By:
Project No:
Sheet Number:
Project Manager:
Prepared for:
Project Name:
Consultants:
Seal:
Site Map:
Project Phase:
Scale:
C-400
PAVING, GRADING AND
DRAINAGE DETAILS
NORTH
Principal in Charge:
Sheet Title:
Rev: Date: Description: By:
Date:
Drawn By:
Project No:
Sheet Number:
Project Manager:
Prepared for:
Project Name:
Consultants:
Seal:
Site Map:
Project Phase:
KONA GRAY, ASLA
LA-6666950
Scale:
BIDSETDOCUMENTS-NOTFORCONSTRUCTION
NORTH
PHASE 1 REVITALIZATION OF OCEAN PARK
BID SET DOCUMENT PACKAGE
DANIA BEACH, FLORIDA
CIVIL ENGINEERS
CONSULTANT TEAM
LANDSCAPE ARCHITECTS (PRIME)
ARCHITECTURE
SURVEYOR
Sheet No. Sheet Title
ENVIRONMENTAL SERVICES
COST ESTIMATOR
INDEX OF DRAWINGS
Sheet No. Sheet Title
PREPARED FOR:
CITY OF DANIA BEACH
CITY OFFICIALS
September 14, 2015
BID LEGEND
Principal in Charge:
Sheet Title:
Rev: Date: Description: By:
Date:
Drawn By:
Project No:
Sheet Number:
Project Manager:
Prepared for:
Project Name:
Consultants:
Seal:
Site Map:
Project Phase:
KONA GRAY, ASLA
LA-6666950
Scale:
BIDSETDOCUMENTS-NOTFORCONSTRUCTION
NORTH
Principal in Charge:
Sheet Title:
Rev: Date: Description: By:
Date:
Drawn By:
Project No:
Sheet Number:
Project Manager:
Prepared for:
Project Name:
Consultants:
Seal:
Site Map:
Project Phase:
KONA GRAY, ASLA
LA-6666950
Scale:
BIDSETDOCUMENTS-NOTFORCONSTRUCTION
NORTH
Principal in Charge:
Sheet Title:
Rev: Date: Description: By:
Date:
Drawn By:
Project No:
Sheet Number:
Project Manager:
Prepared for:
Project Name:
Consultants:
Seal:
Site Map:
Project Phase:
KONA GRAY, ASLA
LA-6666950
Scale:
BIDSETDOCUMENTS-NOTFORCONSTRUCTION
NORTH
Principal in Charge:
Sheet Title:
Rev: Date: Description: By:
Date:
Drawn By:
Project No:
Sheet Number:
Project Manager:
Prepared for:
Project Name:
Consultants:
Seal:
Site Map:
Project Phase:
KONA GRAY, ASLA
LA-6666950
Scale:
BIDSETDOCUMENTS-NOTFORCONSTRUCTION
NORTH
Principal in Charge:
Sheet Title:
Rev: Date: Description: By:
Date:
Drawn By:
Project No:
Sheet Number:
Project Manager:
Prepared for:
Project Name:
Consultants:
Seal:
Site Map:
Project Phase:
KONA GRAY, ASLA
LA-6666950
Scale:
BIDSETDOCUMENTS-NOTFORCONSTRUCTION
NORTH
Principal in Charge:
Sheet Title:
Rev: Date: Description: By:
Date:
Drawn By:
Project No:
Sheet Number:
Project Manager:
Prepared for:
Project Name:
Consultants:
Seal:
Site Map:
Project Phase:
KONA GRAY, ASLA
LA-6666950
Scale:
BIDSETDOCUMENTS-NOTFORCONSTRUCTION
NORTH
TREE TO REMAIN 64
-
PALM TO REMAIN 91
-
CONCEPT PLANT SCHEDULE
PALM TREES CODE QTY BOTANICAL NAME COMMON NAME CONT SIZE
CNX 19 Cocos nucifera `Green Malayan` Coconut Palm FG 6`-14` C.T. as shown
PSE SAR 41 Pseudophoenix sargentii Buccaneer Palm FG 8`-10` OA
SPX 127 Sabal palmetto Cabbage Palmetto FG 12`-16` OA
TRX 8 Thrinax radiata Florida Thatch Palm FG 8`-12` OA
PLANT SCHEDULE
RELOCATED SABAL PALM 6
RELOCATED COCONUT PALM 11
Principal in Charge:
Sheet Title:
Rev: Date: Description: By:
Date:
Drawn By:
Project No:
Sheet Number:
Project Manager:
Prepared for:
Project Name:
Consultants:
Seal:
Site Map:
Project Phase:
KONA GRAY, ASLA
LA-6666950
Scale:
BIDSETDOCUMENTS-NOTFORCONSTRUCTION
NORTH
TREE TO REMAIN 64
-
PALM TO REMAIN 91
-
CONCEPT PLANT SCHEDULE
PALM TREES CODE QTY BOTANICAL NAME COMMON NAME CONT SIZE
CNX 19 Cocos nucifera `Green Malayan` Coconut Palm FG 6`-14` C.T. as shown
PSE SAR 41 Pseudophoenix sargentii Buccaneer Palm FG 8`-10` OA
SPX 127 Sabal palmetto Cabbage Palmetto FG 12`-16` OA
TRX 8 Thrinax radiata Florida Thatch Palm FG 8`-12` OA
PLANT SCHEDULE
RELOCATED SABAL PALM 6
RELOCATED COCONUT PALM 11
Principal in Charge:
Sheet Title:
Rev: Date: Description: By:
Date:
Drawn By:
Project No:
Sheet Number:
Project Manager:
Prepared for:
Project Name:
Consultants:
Seal:
Site Map:
Project Phase:
KONA GRAY, ASLA
LA-6666950
Scale:
BIDSETDOCUMENTS-NOTFORCONSTRUCTION
NORTH
TREE TO REMAIN 64
-
PALM TO REMAIN 91
-
CONCEPT PLANT SCHEDULE
PALM TREES CODE QTY BOTANICAL NAME COMMON NAME CONT SIZE
CNX 19 Cocos nucifera `Green Malayan` Coconut Palm FG 6`-14` C.T. as shown
PSE SAR 41 Pseudophoenix sargentii Buccaneer Palm FG 8`-10` OA
SPX 127 Sabal palmetto Cabbage Palmetto FG 12`-16` OA
TRX 8 Thrinax radiata Florida Thatch Palm FG 8`-12` OA
PLANT SCHEDULE
RELOCATED SABAL PALM 6
RELOCATED COCONUT PALM 11
Principal in Charge:
Sheet Title:
Rev: Date: Description: By:
Date:
Drawn By:
Project No:
Sheet Number:
Project Manager:
Prepared for:
Project Name:
Consultants:
Seal:
Site Map:
Project Phase:
KONA GRAY, ASLA
LA-6666950
Scale:
BIDSETDOCUMENTS-NOTFORCONSTRUCTION
NORTH
TREE TO REMAIN 64
-
PALM TO REMAIN 91
-
CONCEPT PLANT SCHEDULE
PALM TREES CODE QTY BOTANICAL NAME COMMON NAME CONT SIZE
CNX 19 Cocos nucifera `Green Malayan` Coconut Palm FG 6`-14` C.T. as shown
PSE SAR 41 Pseudophoenix sargentii Buccaneer Palm FG 8`-10` OA
SPX 127 Sabal palmetto Cabbage Palmetto FG 12`-16` OA
TRX 8 Thrinax radiata Florida Thatch Palm FG 8`-12` OA
PLANT SCHEDULE
RELOCATED SABAL PALM 6
RELOCATED COCONUT PALM 11
Principal in Charge:
Sheet Title:
Rev: Date: Description: By:
Date:
Drawn By:
Project No:
Sheet Number:
Project Manager:
Prepared for:
Project Name:
Consultants:
Seal:
Site Map:
Project Phase:
KONA GRAY, ASLA
LA-6666950
Scale:
BIDSETDOCUMENTS-NOTFORCONSTRUCTION
NORTH
26CHI
SOD2,533 sf
SOD2,951 sf
CHI11
MUC8
38BOA
41HED
EX. DUN1,792 sf
17MUC
27CAM
CAM15
MUC17
FIM29
CAM22
20FIM
17HYL 15MUC
18FIM
15HYL
27NEO
MUC15
HYL21
NEO24
SPP25
GAP57
HED41
GAP67
SPP19
HED30
UNP26
HED26
GAP115
SPP2628HYL
69HED
94SPP
79GAP
31HED
13SPP
110GAP
49GAP
57GAP
17HYL
33SPP
65HED
605UNP
UNP297
15NEO
13NEO
20HYL
19MUC
15HYL
8HYL
15MUC
26CAM
HED29GAP65SPP29
HED35 GAP44
HED13
HED33
SPP58
UNP23
143UNP
GAP105
HED32
37HED
81HED
39SPP
HYL20
63SPP
36HYL
49HED
157GAP
29SPP
IPP52
34SPP
20FIM
165SPV
301SPV
16CLU AUT
40HYL
14UNP
UNP120
120SPP
64CHI
EX. DUN4,776 sf
SHRUBS CODE QTY BOTANICAL NAME COMMON NAME CONT SIZE
CLU AUT 16 Clusia rosea Autograph Tree 15 gal 5`-6`Ht.
SHRUB AREAS CODE QTY BOTANICAL NAME COMMON NAME CONT. SIZE SPACING
CAM 99 Carissa macrocarpa `Emerald Blanket` Emerald Blanket Carissa 3 gal 12" ht. x 12" spr. 24" o.c.
CHI 165 Chrysobalanus icaco `Red Tip` Red Tip Cocoplum 3 gal 24" ht. x 24" spr. 30" o.c.
FIM 142 Ficus microcarpa `Green Island` Green Island Ficus 3 gal 12" ht. x 12" spr. 24" o.c.
MUC 130 Muhlenbergia capillaris `Gulf Coast` Gulf Coast Muhly 3 gal 12" O.A. 30" o.c.
NEO 112 Nerium oleander `Petite Pink` Petite Pink Oleander 3 gal 15" - 18" O.A 24" o.c.
PLANT SCHEDULE DUNE VEGETATION CODE QTY BOTANICAL NAME COMMON NAME CONT. SIZE SPACING
BOA 601 Borrichia arborescens Sea Oxeye Daisy 1 gal 18" o.c.
GAP 905 Gaillardia pulchella Blanket Flower flat 12" o.c.
HED 1,242 Helianthus debilis Dune Sunflower 1 gal 18" o.c.
HYL 237 Hymenocallis latifolia Spider Lily 1 gal 24" o.c.
IPP 179 Ipomoea pes-caprae Railroad Vine 4"pot 12" spr. 24" o.c.
SEP 760 Sesuvium portulacastrum Sea Purslane 1 gal 18" o.c.
SPP 1,002 Spartina patens Salt Meadow Cord Grass 1 gal 24" o.c.
DUNE VEGETATION CODE BOTANICAL NAME COMMON NAME CONT. SIZE SPACING
SPV 466 Sporobolus virginicus Seashore Dropseed 4"pot 6" o.c.
UNP 1,862 Uniola paniculata Sea Oats 4"pot 24" o.c.
EXISTING DUNES CODE QTY BOTANICAL NAME COMMON NAME CONT. SIZE SPACING
REMOVE 890 sf Dune Planting Removed N/A
EX. DUN 52,720 sf Dune Planting (not to be disturbed) Existing (protect in place) N/A
SOD/SEED CODE QTY BOTANICAL NAME COMMON NAME CONT SIZE SPACING
SOD 5,484 sf Paspalum vaginatum `platinum TE` Seashore Paspalum-Platinum TE sod
Principal in Charge:
Sheet Title:
Rev: Date: Description: By:
Date:
Drawn By:
Project No:
Sheet Number:
Project Manager:
Prepared for:
Project Name:
Consultants:
Seal:
Site Map:
Project Phase:
KONA GRAY, ASLA
LA-6666950
Scale:
BIDSETDOCUMENTS-NOTFORCONSTRUCTION
NORTH
EX. DUN1,872 sf
51HED
46HED
4,248 sfEX. DUN
HED44 HED17 HED30
97SEP
EX. DUN851 sf
175BOA
59BOA
70IPP
102UNP
UNP54
HED28
23IPP
UNP161
77HED
17UNP
44SPP
SPP60
HED76
CHI9
15CHI
41HED
218 sfREMOVE
EX. DUN1,060 sf
SHRUBS CODE QTY BOTANICAL NAME COMMON NAME CONT SIZE
CLU AUT 16 Clusia rosea Autograph Tree 15 gal 5`-6`Ht.
SHRUB AREAS CODE QTY BOTANICAL NAME COMMON NAME CONT. SIZE SPACING
CAM 99 Carissa macrocarpa `Emerald Blanket` Emerald Blanket Carissa 3 gal 12" ht. x 12" spr. 24" o.c.
CHI 165 Chrysobalanus icaco `Red Tip` Red Tip Cocoplum 3 gal 24" ht. x 24" spr. 30" o.c.
FIM 142 Ficus microcarpa `Green Island` Green Island Ficus 3 gal 12" ht. x 12" spr. 24" o.c.
MUC 130 Muhlenbergia capillaris `Gulf Coast` Gulf Coast Muhly 3 gal 12" O.A. 30" o.c.
NEO 112 Nerium oleander `Petite Pink` Petite Pink Oleander 3 gal 15" - 18" O.A 24" o.c.
PLANT SCHEDULE DUNE VEGETATION CODE QTY BOTANICAL NAME COMMON NAME CONT. SIZE SPACING
BOA 601 Borrichia arborescens Sea Oxeye Daisy 1 gal 18" o.c.
GAP 905 Gaillardia pulchella Blanket Flower flat 12" o.c.
HED 1,242 Helianthus debilis Dune Sunflower 1 gal 18" o.c.
HYL 237 Hymenocallis latifolia Spider Lily 1 gal 24" o.c.
IPP 179 Ipomoea pes-caprae Railroad Vine 4"pot 12" spr. 24" o.c.
SEP 760 Sesuvium portulacastrum Sea Purslane 1 gal 18" o.c.
SPP 1,002 Spartina patens Salt Meadow Cord Grass 1 gal 24" o.c.
DUNE VEGETATION CODE BOTANICAL NAME COMMON NAME CONT. SIZE SPACING
SPV 466 Sporobolus virginicus Seashore Dropseed 4"pot 6" o.c.
UNP 1,862 Uniola paniculata Sea Oats 4"pot 24" o.c.
EXISTING DUNES CODE QTY BOTANICAL NAME COMMON NAME CONT. SIZE SPACING
REMOVE 890 sf Dune Planting Removed N/A
EX. DUN 52,720 sf Dune Planting (not to be disturbed) Existing (protect in place) N/A
SOD/SEED CODE QTY BOTANICAL NAME COMMON NAME CONT SIZE SPACING
SOD 5,484 sf Paspalum vaginatum `platinum TE` Seashore Paspalum-Platinum TE sod
Principal in Charge:
Sheet Title:
Rev: Date: Description: By:
Date:
Drawn By:
Project No:
Sheet Number:
Project Manager:
Prepared for:
Project Name:
Consultants:
Seal:
Site Map:
Project Phase:
KONA GRAY, ASLA
LA-6666950
Scale:
BIDSETDOCUMENTS-NOTFORCONSTRUCTION
NORTH
SPP13
EX. DUN2,923 sf 52HED
BOA56 BOA68
SEP55
16HED
21FIM
13MUC
CHI10
NEO33
SEP164
HED70
23UNP
UNP7
204SPP
SPP98
UNP72
HED43
SEP444
38UNP
9MUC
17CHI
HED17
FIM32
CHI9
4CHI
EX. DUN3,422 sf REMOVE266 sf EX. DUN2,982 sf
REMOVE222 sf
879 sfEX. DUN
EX. DUN4,245 sf
SHRUBS CODE QTY BOTANICAL NAME COMMON NAME CONT SIZE
CLU AUT 16 Clusia rosea Autograph Tree 15 gal 5`-6`Ht.
SHRUB AREAS CODE QTY BOTANICAL NAME COMMON NAME CONT. SIZE SPACING
CAM 99 Carissa macrocarpa `Emerald Blanket` Emerald Blanket Carissa 3 gal 12" ht. x 12" spr. 24" o.c.
CHI 165 Chrysobalanus icaco `Red Tip` Red Tip Cocoplum 3 gal 24" ht. x 24" spr. 30" o.c.
FIM 142 Ficus microcarpa `Green Island` Green Island Ficus 3 gal 12" ht. x 12" spr. 24" o.c.
MUC 130 Muhlenbergia capillaris `Gulf Coast` Gulf Coast Muhly 3 gal 12" O.A. 30" o.c.
NEO 112 Nerium oleander `Petite Pink` Petite Pink Oleander 3 gal 15" - 18" O.A 24" o.c.
PLANT SCHEDULE DUNE VEGETATION CODE QTY BOTANICAL NAME COMMON NAME CONT. SIZE SPACING
BOA 601 Borrichia arborescens Sea Oxeye Daisy 1 gal 18" o.c.
GAP 905 Gaillardia pulchella Blanket Flower flat 12" o.c.
HED 1,242 Helianthus debilis Dune Sunflower 1 gal 18" o.c.
HYL 237 Hymenocallis latifolia Spider Lily 1 gal 24" o.c.
IPP 179 Ipomoea pes-caprae Railroad Vine 4"pot 12" spr. 24" o.c.
SEP 760 Sesuvium portulacastrum Sea Purslane 1 gal 18" o.c.
SPP 1,002 Spartina patens Salt Meadow Cord Grass 1 gal 24" o.c.
DUNE VEGETATION CODE BOTANICAL NAME COMMON NAME CONT. SIZE SPACING
SPV 466 Sporobolus virginicus Seashore Dropseed 4"pot 6" o.c.
UNP 1,862 Uniola paniculata Sea Oats 4"pot 24" o.c.
EXISTING DUNES CODE QTY BOTANICAL NAME COMMON NAME CONT. SIZE SPACING
REMOVE 890 sf Dune Planting Removed N/A
EX. DUN 52,720 sf Dune Planting (not to be disturbed) Existing (protect in place) N/A
SOD/SEED CODE QTY BOTANICAL NAME COMMON NAME CONT SIZE SPACING
SOD 5,484 sf Paspalum vaginatum `platinum TE` Seashore Paspalum-Platinum TE sod
Principal in Charge:
Sheet Title:
Rev: Date: Description: By:
Date:
Drawn By:
Project No:
Sheet Number:
Project Manager:
Prepared for:
Project Name:
Consultants:
Seal:
Site Map:
Project Phase:
KONA GRAY, ASLA
LA-6666950
Scale:
BIDSETDOCUMENTS-NOTFORCONSTRUCTION
NORTH
5,546 sfEX. DUN
53BOA
34IPP
20HED
BOA56
BOA84
122UNP 2,361 sfEX. DUN
REMOVE23 sf EX. DUN7,645 sf
8,118 sfEX. DUN38UNP
REMOVE160 sf
SHRUBS CODE QTY BOTANICAL NAME COMMON NAME CONT SIZE
CLU AUT 16 Clusia rosea Autograph Tree 15 gal 5`-6`Ht.
SHRUB AREAS CODE QTY BOTANICAL NAME COMMON NAME CONT. SIZE SPACING
CAM 99 Carissa macrocarpa `Emerald Blanket` Emerald Blanket Carissa 3 gal 12" ht. x 12" spr. 24" o.c.
CHI 165 Chrysobalanus icaco `Red Tip` Red Tip Cocoplum 3 gal 24" ht. x 24" spr. 30" o.c.
FIM 142 Ficus microcarpa `Green Island` Green Island Ficus 3 gal 12" ht. x 12" spr. 24" o.c.
MUC 130 Muhlenbergia capillaris `Gulf Coast` Gulf Coast Muhly 3 gal 12" O.A. 30" o.c.
NEO 112 Nerium oleander `Petite Pink` Petite Pink Oleander 3 gal 15" - 18" O.A 24" o.c.
PLANT SCHEDULE DUNE VEGETATION CODE QTY BOTANICAL NAME COMMON NAME CONT. SIZE SPACING
BOA 601 Borrichia arborescens Sea Oxeye Daisy 1 gal 18" o.c.
GAP 905 Gaillardia pulchella Blanket Flower flat 12" o.c.
HED 1,242 Helianthus debilis Dune Sunflower 1 gal 18" o.c.
HYL 237 Hymenocallis latifolia Spider Lily 1 gal 24" o.c.
IPP 179 Ipomoea pes-caprae Railroad Vine 4"pot 12" spr. 24" o.c.
SEP 760 Sesuvium portulacastrum Sea Purslane 1 gal 18" o.c.
SPP 1,002 Spartina patens Salt Meadow Cord Grass 1 gal 24" o.c.
DUNE VEGETATION CODE BOTANICAL NAME COMMON NAME CONT. SIZE SPACING
SPV 466 Sporobolus virginicus Seashore Dropseed 4"pot 6" o.c.
UNP 1,862 Uniola paniculata Sea Oats 4"pot 24" o.c.
EXISTING DUNES CODE QTY BOTANICAL NAME COMMON NAME CONT. SIZE SPACING
REMOVE 890 sf Dune Planting Removed N/A
EX. DUN 52,720 sf Dune Planting (not to be disturbed) Existing (protect in place) N/A
SOD/SEED CODE QTY BOTANICAL NAME COMMON NAME CONT SIZE SPACING
SOD 5,484 sf Paspalum vaginatum `platinum TE` Seashore Paspalum-Platinum TE sod
Principal in Charge:
Sheet Title:
Rev: Date: Description: By:
Date:
Drawn By:
Project No:
Sheet Number:
Project Manager:
Prepared for:
Project Name:
Consultants:
Seal:
Site Map:
Project Phase:
KONA GRAY, ASLA
LA-6666950
Scale:
BIDSETDOCUMENTS-NOTFORCONSTRUCTION
NORTH
L
L
Symbol QtyType Catalog Number Manufacturer
AMBER LED1 13
2 2
Notes
LIGHT FIXTURE TO BE SHEILDED TO COMPLY WITH
FFWCC REQUIREMENTS.
CONTRACTOR TO SUBMIT COORDINATED SHOP
DRAWINGS FOR LIGHTS AND POLES. PRE-DRILLED
BOLT PATTERNS AND THREAD TYPES TO BE
COORDINATED
MANUFACTURER TO PROVIDE SHIELDING SHOP
DRAWINGS FOR REVIEW/APPROVAL OF LAND ARCH.
AMBER LED
4
FIXTURE SCHEDULE
Detail #
L
11 12W -
AMBER LED
LIGHT FIXTURE MOUNTED INSIDE WALL FIXTURE
TO BACK-LIGHT SIGNAGE. SEE DETAIL (2&5/L-923)
L
Principal in Charge:
Sheet Title:
Rev: Date: Description: By:
Date:
Drawn By:
Project No:
Sheet Number:
Project Manager:
Prepared for:
Project Name:
Consultants:
Seal:
Site Map:
Project Phase:
KONA GRAY, ASLA
LA-6666950
Scale:
BIDSETDOCUMENTS-NOTFORCONSTRUCTION
NORTH
Symbol QtyType Catalog Number Manufacturer
AMBER LED1 13
2 2
Notes
LIGHT FIXTURE TO BE SHEILDED TO COMPLY WITH
FFWCC REQUIREMENTS.
CONTRACTOR TO SUBMIT COORDINATED SHOP
DRAWINGS FOR LIGHTS AND POLES. PRE-DRILLED
BOLT PATTERNS AND THREAD TYPES TO BE
COORDINATED
MANUFACTURER TO PROVIDE SHIELDING SHOP
DRAWINGS FOR REVIEW/APPROVAL OF LAND ARCH.
AMBER LED
4
FIXTURE SCHEDULE
Detail #
L
11 12W -
AMBER LED
LIGHT FIXTURE MOUNTED INSIDE WALL FIXTURE
TO BACK-LIGHT SIGNAGE. SEE DETAIL (2&5/L-923)
L
Principal in Charge:
Sheet Title:
Rev: Date: Description: By:
Date:
Drawn By:
Project No:
Sheet Number:
Project Manager:
Prepared for:
Project Name:
Consultants:
Seal:
Site Map:
Project Phase:
KONA GRAY, ASLA
LA-6666950
Scale:
BIDSETDOCUMENTS-NOTFORCONSTRUCTION
NORTH
Symbol QtyType Catalog Number Manufacturer
AMBER LED1 13
2 2
Notes
LIGHT FIXTURE TO BE SHEILDED TO COMPLY WITH
FFWCC REQUIREMENTS.
CONTRACTOR TO SUBMIT COORDINATED SHOP
DRAWINGS FOR LIGHTS AND POLES. PRE-DRILLED
BOLT PATTERNS AND THREAD TYPES TO BE
COORDINATED
MANUFACTURER TO PROVIDE SHIELDING SHOP
DRAWINGS FOR REVIEW/APPROVAL OF LAND ARCH.
AMBER LED
4
FIXTURE SCHEDULE
Detail #
L
11 12W -
AMBER LED
LIGHT FIXTURE MOUNTED INSIDE WALL FIXTURE
TO BACK-LIGHT SIGNAGE. SEE DETAIL (2&5/L-923)
L
Principal in Charge:
Sheet Title:
Rev: Date: Description: By:
Date:
Drawn By:
Project No:
Sheet Number:
Project Manager:
Prepared for:
Project Name:
Consultants:
Seal:
Site Map:
Project Phase:
KONA GRAY, ASLA
LA-6666950
Scale:
BIDSETDOCUMENTS-NOTFORCONSTRUCTION
NORTH
Symbol QtyType Catalog Number Manufacturer
AMBER LED1 13
2 2
Notes
LIGHT FIXTURE TO BE SHEILDED TO COMPLY WITH
FFWCC REQUIREMENTS.
CONTRACTOR TO SUBMIT COORDINATED SHOP
DRAWINGS FOR LIGHTS AND POLES. PRE-DRILLED
BOLT PATTERNS AND THREAD TYPES TO BE
COORDINATED
MANUFACTURER TO PROVIDE SHIELDING SHOP
DRAWINGS FOR REVIEW/APPROVAL OF LAND ARCH.
AMBER LED
4
FIXTURE SCHEDULE
Detail #
L
11 12W -
AMBER LED
LIGHT FIXTURE MOUNTED INSIDE WALL FIXTURE
TO BACK-LIGHT SIGNAGE. SEE DETAIL (2&5/L-923)
L
Principal in Charge:
Sheet Title:
Rev: Date: Description: By:
Date:
Drawn By:
Project No:
Sheet Number:
Project Manager:
Prepared for:
Project Name:
Consultants:
Seal:
Site Map:
Project Phase:
KONA GRAY, ASLA
LA-6666950
Scale:
BIDSETDOCUMENTS-NOTFORCONSTRUCTION
NORTH
0.000
0.000
0.000
0.000
0.000
0.000
0.000
0.000
0.000
0.000
0.000
0.000
0.000
0.000
0.000
0.000
0.000
0.000
0.000
0.000
0.000
0.000
0.000
0.000
0.000
0.000
0.000
0.000
0.000
0.000
0.000
0.000
0.000
0.000
0.000
0.000
0.000
0.000
0.000
0.000
0.000
0.000
0.000
0.000
0.000
0.000
0.000
0.000
0.000
0.000
0.000
0.000
0.000
0.000
0.000
0.000
0.000
0.000
0.000
0.000
0.000
0.000
0.000
0.000
0.000
0.000
0.000
0.000
0.000
0.000
0.000
0.000
0.000
0.000
0.000
0.000
0.000
0.000
0.000
0.000
0.000
0.000
0.000
0.000
0.000
0.000
0.000
0.000
0.000
0.000
0.000
0.000
0.000
0.000
0.000
0.000
0.000
0.000
0.000
0.000
0.000
0.000
0.000
0.000
0.000
0.000
0.000
0.000
0.000
0.000
0.000
0.000
0.000
0.000
0.000
0.000
0.000
0.000
0.000
0.000
0.000
0.000
0.000
0.000
0.000
0.000
0.000
0.000
0.000
0.000
0.000
0.000
0.000
0.000
0.000
0.000
0.000
0.000
0.000
0.000
0.000
0.000
0.000
0.000
0.000
0.000
0.000
0.000
0.000
0.000
0.000
0.000
0.000
0.000
0.000
0.000
0.000
0.000
0.000
0.000
0.000
0.000
0.000
0.000
0.000
0.000
0.000
0.000
0.000
0.000
0.000
0.000
0.000
0.000
0.000
0.000
0.000
0.000
0.000
0.000
0.000
0.000
0.000
0.000
0.000
0.000
0.000
0.000
0.000
0.000
0.000
0.000
0.000
0.000
0.000
0.000
0.000
0.000
0.000
0.000
0.000
0.000
0.000
0.000
0.000
0.000
0.000
0.000
0.000
0.000
0.000
0.000
0.000
0.000
0.000
0.000
0.000
0.000
0.000
0.000
0.000
0.000
0.000
0.000
0.000
0.000
0.000
0.000
0.000
0.000
0.000
0.000
0.000
0.000
0.000
0.000
0.000
0.000
0.000
0.000
0.000
0.000
0.000
0.000
0.000
0.000
0.000
0.000
0.000
0.000
0.000
0.000
0.000
0.000
0.000
0.000
0.000
0.000
0.000
0.000
0.000
0.000
0.000
0.000
0.000
0.000
0.000
0.000
0.000
0.000
0.000
0.000
0.000
0.000
0.000
0.000
0.000
0.000
0.000
0.000
0.000
0.000
0.000
0.000
0.000
0.000
0.000
0.000
0.000
0.000
0.000
0.000
0.000
0.000
0.000
0.000
0.000
0.000
0.000
0.000
0.000
0.000
0.000
0.000
0.000
0.000
0.000
0.000
0.000
0.000
0.000
0.000
0.000
0.000
0.000
0.000
0.000
0.000
0.000
0.000
0.000
0.000
0.000
0.000
E1
E1
E1
E1
E1
E1
E1
E1
E1 E1 E1E1 E1
0.1
0.1
0.4
1.0
1.4
2.2
0.1
0.3
0.8
0.9
2.1
1.9
1.0
1.1
1.8
1.3
1.8
1.3
0.8
0.5
0.4
0.7
1.1
1.2
1.1
1.8
1.50.81.02.4
0.6
1.7
2.5
1.7
2.1
2.4
1.4
1.3
0.5
0.8
1.8
2.4
1.8
1.9
2.5
1.9
1.8
2.2
1.4
0.00.00.00.0
2.30.00.00.0
1.90.00.00.0
0.00.00.00.0
0.00.00.00.0
0.10.00.00.0
0.40.46.40.0
1.10.3
0.3
3.0
Luminaire Schedule
Project: OCEAN PARK DANIA BEACH, FL REV 2 8-27-2015
Symbol Qty Label Description Lumens/Lamp LLF Lum. Watts Total Watts
9 4 LUMINIS SY30O-L1W11r0-R26 AMBER LED N.A. 0.243 12 132
4 1A PHILIPS LUMEC DOS-40W30LED4K-ES-LE4F N.A. 0.405 45 180
9 1 PHILIPS LUMEC DOS-40W30LED4K-ES-LE2F N.A. 0.405 45
Calculation Summary
Project: OCEAN PARK DANIA BEACH, FL REV 2 8-27-2015
Label Avg Max Min Avg/Min Max/Min
BEACH 0.000 0.000 0.000 N.A. N.A.
KAYAK 0.51 6.4 0.0 N.A. N.A.
PARK 1.34 2.5 0.1 13.40 25.00
RESTROOMS 0.58 10.3 0.0 N.A. N.A.
WALL MOUNT: 8' - 0" AFG
POLE MOUNT: 12' - 0" AFG
POLE MOUNT: 12' - 0" AFG 405
Principal in Charge:
Sheet Title:
Rev: Date: Description: By:
Date:
Drawn By:
Project No:
Sheet Number:
Project Manager:
Prepared for:
Project Name:
Consultants:
Seal:
Site Map:
Project Phase:
KONA GRAY, ASLA
LA-6666950
Scale:
BIDSETDOCUMENTS-NOTFORCONSTRUCTION
NORTH
1 PEDESTRIAN FIXTURE - POLE MOUNTED
SPEC SHEETS 2 LED LIGHT STRIP
SPEC SHEETS
Principal in Charge:
Sheet Title:
Rev: Date: Description: By:
Date:
Drawn By:
Project No:
Sheet Number:
Project Manager:
Prepared for:
Project Name:
Consultants:
Seal:
Site Map:
Project Phase:
KONA GRAY, ASLA
LA-6666950
Scale:
BIDSETDOCUMENTS-NOTFORCONSTRUCTION
1 PEDESTRIAN FIXTURE - WALL MOUNTED - 24W
SPEC SHEETS 2 PEDESTRIAN FIXTURE - WALL MOUNTED - 12W
SPEC SHEETS
Principal in Charge:
Sheet Title:
Rev: Date: Description: By:
Date:
Drawn By:
Project No:
Sheet Number:
Project Manager:
Prepared for:
Project Name:
Consultants:
Seal:
Site Map:
Project Phase:
KONA GRAY, ASLA
LA-6666950
Scale:
BIDSETDOCUMENTS-NOTFORCONSTRUCTION
Principal in Charge:
Sheet Title:
Rev: Date: Description: By:
Date:
Drawn By:
Project No:
Sheet Number:
Project Manager:
Prepared for:
Project Name:
Consultants:
Seal:
Site Map:
Project Phase:
Scale:
1 N/A
2 10-05-15 ADDENDUM #3
HOLLOWCORE ROOF PLAN
NEW
FOUNDATION PLAN (BLDG 1)
EXISTING
Principal in Charge:
Sheet Title:
Rev: Date: Description: By:
Date:
Drawn By:
Project No:
Sheet Number:
Project Manager:
Prepared for:
Project Name:
Consultants:
Seal:
Site Map:
Project Phase:
Scale:
1 10-02-15 ADDENDUM #11
2 10-05-15 ADDENDUM #3
Principal in Charge:
Sheet Title:
Rev: Date: Description: By:
Date:
Drawn By:
Project No:
Sheet Number:
Project Manager:
Prepared for:
Project Name:
Consultants:
Seal:
Site Map:
Project Phase:
Scale:
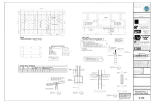
FOUNDATION PLAN (BLDG 2)
EXISTING
1 N/A
2 10-05-15 ADDENDUM #3
Principal in Charge:
Sheet Title:
Rev: Date: Description: By:
Date:
Drawn By:
Project No:
Sheet Number:
Project Manager:
Prepared for:
Project Name:
Consultants:
Seal:
Site Map:
Project Phase:
Scale:
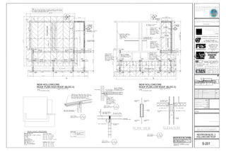
ROOF PLAN HIGH ROOF (BLDG 2)
NEW HOLLOWCORE
ROOF PLAN LOW ROOF (BLDG 2)
NEW HOLLOWCORE
1 N/A
2 10-05-15 ADDENDUM #3
Principal in Charge:
Sheet Title:
Rev: Date: Description: By:
Date:
Drawn By:
Project No:
Sheet Number:
Project Manager:
Prepared for:
Project Name:
Consultants:
Seal:
Site Map:
Project Phase:
Scale:
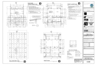
1 N/A
2 10-05-15 ADDENDUM #3
GRADE BEAM PLAN
PILES AND
FIRST FLOOR PLAN
ROOF PLANHOLLOWCORE PLAN
Principal in Charge:
Sheet Title:
Rev: Date: Description: By:
Date:
Drawn By:
Project No:
Sheet Number:
Project Manager:
Prepared for:
Project Name:
Consultants:
Seal:
Site Map:
Project Phase:
Scale:
1 N/A
2 10-05-15 ADDENDUM #3

Plan addendum sheets

  • 1.
    WIND REMARKSCORE FINISHFRAMEMATERIALSIZE TYPEDR DESIGN PRESSURE (PSF) 11. ALL EXTERIOR WINDOWS AND DOORS SHALL MEET OR EXCEED POSITIVE AND NEGATIVE DESIGN WIND LOAD PRESSURES NOTED IN SCHEDULE ABOVE. 12. PROVIDE ALL MULLIONS & STRUCTURAL SUPPORTS REQUIRED FOR PROPER WINDOW OR DOOR INSTALLATION. 13. PROVIDE CONTINUOUS SEALANT AT INSIDE AND OUTSIDE JOINTS, WOOD BUCK, AND MASONRY IN ADDITION TO INSIDE AND OUTSIDE OF WINDOW AND DOOR / WALL UNITS. 14. CONTRACTOR SHALL FULLY CAULK ALL EXTERIOR WINDOWS THROUGHOUT. CAULK SHALL MATCH WINDOW FRAME COLOR. 15. ALL WINDOW GLAZING SHALL BE PROVIDED WITH WINDOW TINTING FILM WITH A LIGHT TRANSMISSION VALUE (VLT) OF 15% OR LESS TO SATISFY THE MODEL LIGHTING ORDINANCE FOR MARINE TURTLE PROTECTION. 5. ALL DOOR HARDWARE SHALL BE AS SELECTED BY OWNER. 6. CONTRACTOR IS RESPONSIBLE FOR PERFORMING ANY WORK NECESSARY TO COMPLETE THE PROPER INSTALLATION OF DOORS, WINDOWS, FRAMES, AND HARDWARE. 7. ALL EXTERIOR WINDOWS AND DOORS SHALL BE LARGE MISSILE IMPACT RESISTANT, SUBMIT FLORIDA PRODUCT APPROVALS. 8. ALL EXTERIOR DOOR FRAMES ANCHOR PER PRODUCT APPROVALS. 9. ALL DOOR FRAMES ON CONCRETE TO BE GROUTED SOLID. 10. EXTERIOR WINDOWS AND DOORS TO BE FASTENED TO FILLED CELL OR CONCRETE AND THRU WD. BUCKS AS PER PRODUCT APPROVAL. WINDOWS / DOORS NOTES 1. WINDOWS AND DOORS SHALL BE OF TYPES, THICKNESS, SIZE, AND CONSTRUCTION AS SHOWN. 2. ALL WALL OPENING DIMENSIONS SHALL BE VERIFIED BY CONTRACTOR. 3. FRAMED WINDOWS SHALL BE PRODUCTS OF AN APPROVED MANUFACTURER. ALL MEMBERS SHALL HAVE FINISH IN COLOR SELECTED: MEETING OR EXCEEDING REQUIREMENTS FOR WATER PENETRATION. INFILTRATION AND WIND LOAD OF ALL APPLICABLE BUILDING CODES. AT EACH MOVEABLE DOOR OR WINDOW PANEL PROVIDE A FRAMED VINYL INSECT SCREENING UNIT. 4. BUILDER'S ROUGH HARDWARE SHALL BE FURNISHED AND INSTALLED BY EACH PARTY TO WHOSE WORK SUCH ITEMS ARE INCIDENTAL. ALL ITEMS SHALL BE GALVANIZED AND/OR CORROSION-PROOF. FINISH DOOR HARDWARE WILL BE SELECTED BY THE OWNER AND PURCHASED DIRECTLY BY GENERAL CONTRACTOR FOR FURNISHING TO JOB SITES THIS EXCEEDS THE NATURAL VENTILATION REQUIREMENTS A1 FLOOR PLAN SCALE : 1/4" = 1'-0" A3 DOOR & WINDOW SCHEDULES A2 UPPER LEVEL / LOW ROOF PLAN SCALE : 1/4" = 1'-0" A4 DOOR & WINDOW NOTES MANUEL SYNALOVSKI, AIA AR 0011628 LICENSE NO. AA26001863 A5 VENTILATION CALCULATIONS Principal in Charge: Sheet Title: Rev: Date: Description: By: Date: Drawn By: Project No: Sheet Number: Project Manager: Prepared for: Project Name: Consultants: Seal: Site Map: Project Phase: Scale:
  • 2.
    FINISH FLOOR 0'-0" A.F.F. LOUVERHEAD HGT. 8'-0" A.F.F. TOP OF PYLON 20'-0" A.F.F. ROOF LOW BEARING 11'-9 3/4" A.F.F. ROOF MID BEARING 12'-11 1/4" A.F.F. ROOF HIGH BEARING 15'-0 3/8" A.F.F. FINISH FLOOR 0'-0" A.F.F. ROOF LOW BEARING 11'-9 3/4" A.F.F. LOUVER HEAD HGT. 8'-0" A.F.F. TOP OF PYLON 20'-0" A.F.F. FINISH FLOOR 0'-0" A.F.F. TOP OF PYLON 20'-0" A.F.F. LOUVER HEAD HGT. 8'-0" A.F.F. ROOF LOW BEARING 11'-9 3/4" A.F.F. ROOF HIGH BEARING 15'-0 3/8" A.F.F. ROOF MID BEARING 12'-11 1/4" A.F.F. FINISH FLOOR 0'-0" A.F.F. ROOF LOW BEARING 11'-9 3/4" A.F.F. TOP OF PYLON 20'-0" A.F.F. LOUVER HEAD HGT. 8'-0" A.F.F. ROOF HIGH BEARING 15'-0 3/8" A.F.F. ROOF MID BEARING 12'-11 1/4" A.F.F. FINISH FLOOR 0'-0" A.F.F. LOUVER HEAD HGT. 8'-0" A.F.F. ROOF HIGH BEARING 15'-0 3/8" A.F.F. TOP OF PYLON 20'-0" A.F.F. A1 FRONT ELEVATION (WEST FACE) SCALE : 1/4" = 1'-0"A4 RIGHT SIDE ELEVATION (SOUTH FACE) SCALE : 1/4" = 1'-0" MANUEL SYNALOVSKI, AIA AR 0011628 LICENSE NO. AA26001863 A5 BUILDING CROSS SECTION (LOOKING SOUTH) SCALE : 1/4" = 1'-0" A2 REAR ELEVATION (EAST FACE) SCALE : 1/4" = 1'-0" A3 LEFT SIDE ELEVATION (NORTH FACE) SCALE : 1/4" = 1'-0" Principal in Charge: Sheet Title: Rev: Date: Description: By: Date: Drawn By: Project No: Sheet Number: Project Manager: Prepared for: Project Name: Consultants: Seal: Site Map: Project Phase: Scale:
  • 3.
    INDICATES EXISTING INTERIOR PARTITIONTO REMAIN INDICATES EXISTING INTERIOR PARTITION TO BE REMOVED LEGEND: INDICATES EXISTING DOOR TO REMAIN HATCH DENOTES EXISTING TO REMAIN NO WORK IN THIS AREA 7. TOUCH-UP REMAINING STRUCTURES TO MATCH EXISTING CONDITIONS. 1. THE CONSTRUCTION SHALL INCLUDE THE FURNISHING OF ALL MATERIALS, EXTENSIONS, CONNECTIONS, CUTTING, PATCHING, PAINTING, REPAIRING, ADAPTING AND OTHER WORK, INCIDENTAL TO, AND TOGETHER WITH SUCH TEMPORARY CONNECTIONS AS MAY BE REQUIRED. THE CONSTRUCTION SHALL ALSO INCLUDE THE REMOVAL OF MATERIALS AS DIRECTED. 2. ANY WORK NOT SHOWN ON THE DRAWING OR SPECIFICALLY MENTIONED IN THE SPECIFICATIONS, BUT CONSIDERED NECESSARY FOR THE COMPLETION OF THE WORK IN PROPER MANNER SHALL BE PROVIDED BY THIS CONTRACTOR WITHOUT ADDITIONAL CHARGE. 3. WHERE PRESENT WORK IS DAMAGED IN THE EXECUTION OF THIS CONTRACT, OR WHERE OPENINGS ARE LEFT DUE TO THE REMOVAL OF PIPES, EQUIPMENT OR APPARATUS, THE SAME SHALL BE REPAIRED OR CLOSED UP TO CORRESPOND IN MATERIAL, QUALITY, SHAPE, AND FINISH WITH THAT OF SIMILAR AND ADJOINING WORK, UNLESS OTHERWISE CALLED FOR. WHERE DAMAGE IS NOT REPAIRABLE, NEW ITEMS OR EQUIPMENT SHALL BE PROVIDED. 4. INTERRUPTION OF EXISTING FACILITIES OR SERVICES SHALL BE KEPT TO A MINIMUM AND THE CONTRACTOR SHALL FURNISH ALL MATERIALS REQUIRED WHENEVER TEMPORARY CONNECTIONS ARE NECESSARY TO MAINTAIN CONTINUITY OF SERVICE. INTERRUPTION OF EXISTING SERVICES, THE INSTALLATION OF TEMPORARY FACILITIES, AND THE WORK OF MAKING FINAL CONNECTIONS TO THE NETWORK SHALL BE DONE ONLY AT SUCH TIMES AS PERMITTED AND SCHEDULED BY THE OWNER WITHOUT ADDITIONAL COST. CARE MUST BE USED IN RESOLVING SERVICES TO AREAS BEING DEMOLISHED SO THAT SERVICES TO OTHER AREAS WHICH MIGHT BE SERVED THROUGH THESE AREAS WILL NOT BE INTERRUPTED. 5. ANY AND ALL WORK SHALL BE PERFORMED DURING NORMAL BUSINESS HOURS AS STIPULATED BY THE OWNER, LANDLORD, AND THE MUNICIPALITY IN WHICH THE PROJECT IS LOCATED. 6. ALL DEBRIS SHALL BE DISPOSED OF AS PER ALL APPLICABLE CODES AND/OR LAWS. 8. ALL WORK SHALL BE PERFORMED TO MEET AND COMPLY WITH A.D.A. STANDARDS AND FLORIDA ACCESSIBILITY CODE FOR BUILDING CONSTRUCTION, CHAPTER 11, PART A OF THE 2010 FLORIDA BUILDING CODE. ALTERATION PROJECT PROCEDURES: GENERAL DEMOLITION NOTES: 11.) A.) 10.) 9.) A.) 8.) 7.) 6.) 5.) 4.) 3.) 2.) D.) C.) B.) A.) 1.) ALTERATION PROJECT PROCEDURES: CUT, MOVE OR REMOVE ITEMS AS NECESSARY TO PROVIDE ACCESS OR TO ALLOW ALTERATIONS AND NEW WORK TO PROCEED. INCLUDE SUCH ITEMS AS: REPAIR OR REMOVAL OF HAZARDOUS OR UNSANITARY CONDITIONS. REMOVAL OF ABANDONED ITEMS AND ITEMS SERVING NO USEFUL PURPOSE, SUCH AS ABANDONED PIPING, CONDUIT AND WIRING. REMOVAL OF UNSUITABLE OR EXTRANEOUS MATERIALS NOT MARKED FOR SALVAGE, SUCH AS ABANDONED FURNISHINGS AND EQUIPMENT, AND DEBRIS SUCH AS ROTTED WOOD, RUSTED METAL AND DETERIORATED CONCRETE. CLEANING OF SURFACES, AND REMOVAL OF SURFACE FINISHES AS NEEDED TO INSTALL NEW WORK AND FINISHES. WHEN ALTERATIONS AND CONNECTIONS OF NEW CONSTRUCTION TO EXISTING CONSTRUCTION OCCUR AT DUST SENSITIVE AREAS, EXECUTE ALL MEASURES TO COMPLETELY CONTROL AND SEPERATE DUST FROM EXISTING AREAS, EQUIPMENT AND FURNISHINGS. ASSIGN THE WORK OF MOVING, REMOVAL, CUTTING AND PATCHING, TO TRADES QUALIFIED TO PERFORM THE WORK IN A MANNER TO CAUSE LEAST DAMAGE TO EACH TYPE OF WORK, AND PROVIDE MEANS OF RETURNING TO APPEARANCE OF NEW WORK. PERFORM CUTTING AND REMOVAL WORK TO REMOVE MINIMUM NECESSARY AND IN A MANNER TO AVOID DAMAGE TO ADJACENT WORK. CUT FINISH SURFACES SUCH AS MASONRY, GYPSUM WALLBOARD, STUCCO, WALL COVERING, TILE, PLASTER OR METALS, BY METHODS TO TEMINATE SURFACES ON A STRAIGHT LINE AT A NATURAL POINT OF DIVISION. PROTECT FROM DAMAGE EXISTING FINISHES, EQUIPMENT, AND ADJACENT WORK WHICH IS SCHEDULED TO REMAIN. REROUTE OR EXTEND EXISTING ELECTRICAL, PLUMBING OR AIR CONDITIONING LINES IN AREAS WHERE DEMOLITION IS TO OCCUR. (REFER TO ELECTRICAL, PLUMBING AND MECHANICAL DRAWINGS). PROVIDE SAME PRODUCTS OR TYPES OF CONSTRUCTION AS THAT IN EXISTING STRUCTURE, AS NEEDED TO PATCH, EXTEND OR TO MATCH EXISTING WORK. CONTRACT DOCUMENTS WILL NOT DEFINE PRODUCTS OR STANDARDS OF WORKMANSHIP PRESENT IN EXISTING CONSTRUCTION; CONTRACTOR SHALL DETERMINE PRODUCTS BY INSPECTION AND ANY NECESSARY TESTING, AND WORKMANSHIP BY USE OF THE EXISTING AS A SAMPLE OF COMPARISON. PATCH AND EXTEND EXISTING WORK USING SKILLED MECHANICS WHO ARE CAPABLE OF MATCHING EXISTING QUALITY OF WORKMANSHIP. QUALITY OF PATCHED OR EXTENDED WORK SHALL BE NOT LESS THAN THAT SPECIFIED FOR NEW WORK. WHERE PARTITIONS ARE REMOVED, PATCH FLOORS, WALLS AND CEILING, WITH FINISH MATERIALS TO MATCH EXISTING. WHERE REMOVAL OF PARTITIONS RESULT IN ADJACENT SPACE BECOMING ONE, REWORK FLOORS, WALLS, AND CEILINGS TO PROVIDE SMOOTH PLANES WITHOUT BREAKS, STEPS, OR BULKHEADS. WHERE NEW WORK ABUTS EXISTING FINISHES FINISH FLUSH WITH EXISTING WORK, MAKING A SMOOTH AND FLAWLESS TRANSITION. 1 2 3 4 5 6 7 8 9 10 11 12 13 14 REMOVE EXISTING TOILETS REMOVE EXISTING TOILETS PARTITIONS & ACCESSORIES REMOVE EXISTING SINKS REMOVE EXISTING JANITOR SINK REMOVE EXISTING URINALS REMOVE EXISTING DRINKING FOUNTAIN REMOVE EXISTING LIGHTS FIXTURES REMOVE EXISTING DOOR, FRAME AND ASSOCIATED COMPONENTS COMPLETELY REMOVE EXISTING CMU BLOCK WALLS REMOVE EXISTING FIRE EXTINGUISHER CABINET. PATCH, REPAIR, REFINISH REMAINING SURFACES AND PREPARE TO RECEIVE NEW FINISHES. STORE AND PROTECT DURING CONSTRUCTION FOR REUSE. EXISTING DOOR AND FRAME TO BE REMOVED IF NECESSARY TO CHANGE SWING DIRECTION. MODIFY OR PROVIDE NEW HINGES AS NECESSARY. REMOVE EXISTING FLOORING AND BASE TO THE EXTENT REQUIRED TO INSTALL NEW FLOORING AND BASE PER FINISH SCHEDULE PATCH AND PREPARE REMAINING SLAB TO RECEIVE NEW FLOORING. EXISTING CEILING TILE, GRID AND LIGHT FIXTURES TO BE REMOVED. INCLUSIVE OF ASSOCIATED CONDUITS, WIRE, HANGERS, ETC. TO SOURCE, UNLESS SLATED FOR REUSE OR RELOCATION.. REMOVE EXISTING WALL AND ASSOCIATED COMPONENTS COMPLETELY. PATCH, REPAIR, REFINISH REMAINING SURFACES AND PREPARE TO RECEIVE NEW FINISHES. REMOVE ASSOCIATED UTILITIES, CONDUITS, ETC. TO SOURCE. REMOVE EXISTING GRAB BAR REMOVE EXISTING CONCRETE LOUVER UNITS REMOVE EXISTING GLASS BLOCK REMOVE PORTION OF EXISTING WALL AND ASSOCIATED COMPONENTS FROM UNDERSIDE OF EXISTING BEAM TO FLOOR TO CREATE THE FINISHED OPENING AS ILLUSTRATED IN THE ELEVATIONS. THIS MAY INCLUDE ADDITIONAL WALL MATERIAL FOR NEW STRUCTURAL COMPONENTS (SEE STRUCT. DWG'S.). PREPARE REMAINING SURFACES FOR NEW CONCRETE EDGES, AND DOOR OR LOUVER COMPONENTS. REMOVE ASSOCIATED UTILITIES, CONDUITS, ETC. TO SOURCE. SHORE AS REQUIRED. REMOVE PORTION OF EXISTING WALL AND ASSOCIATED COMPONENTS TO CREATE THE FINISHED OPENING AS ILLUSTRATED IN THE ELEVATIONS. THIS MAY INCLUDE ADDITIONAL WALL MATERIAL FOR NEW STRUCTURAL COMPONENTS (SEE STRUCTURAL DWG'S.). PREPARE REMAINING SURFACES FOR NEW CONCRETE EDGES, AND DOOR OR LOUVER COMPONENTS. REMOVE ASSOCIATED UTILITIES, CONDUITS, ETC. TO SOURCE. REMOVE EXISTING OVERHEAD ROLL-UP COILING DOOR AND ALL ASSOCIATED COVERS, TRACKS, HARDWARE, ETC. PATCH, REPAIR, REFINISH REMAINING SURFACES AND PREPARE TO RECEIVE NEW FINISHES OR REPLACEMENT UNIT. EXISTING EXTERIOR SHOWER TO BE REPLACED. 15 16 17 18 19 20 21 1 DEMOLITION FLOOR PLAN SCALE : 1/4" = 1'-0" 2 DEMOLITION REFLECTED CEILING PLAN SCALE : 1/4" = 1'-0" 3 GENERAL NOTES 5 LEGEND 4 KEY NOTES Principal in Charge: Sheet Title: Rev: Date: Description: By: Date: Drawn By: Project No: Sheet Number: Project Manager: Prepared for: Project Name: Consultants: Seal: Site Map: Project Phase: Scale:
  • 4.
    WIND REMARKSCORE FINISHFRAMEMATERIALSIZE TYPEDR DESIGN PRESSURE (PSF) 5. ALL DOOR HARDWARE SHALL BE AS SELECTED BY OWNER. 6. CONTRACTOR IS RESPONSIBLE FOR PERFORMING ANY WORK NECESSARY TO COMPLETE THE PROPER INSTALLATION OF DOORS, WINDOWS, FRAMES, AND HARDWARE. 7. ALL EXTERIOR WINDOWS AND DOORS SHALL BE LARGE MISSILE IMPACT RESISTANT, SUBMIT FLORIDA PRODUCT APPROVALS. 8. ALL EXTERIOR DOOR FRAMES ANCHOR PER PRODUCT APPROVALS. 9. ALL DOOR FRAMES ON CONCRETE TO BE GROUTED SOLID. 10. EXTERIOR WINDOWS AND DOORS TO BE FASTENED TO FILLED CELL OR CONCRETE AND THRU WD. BUCKS AS PER PRODUCT APPROVAL. WINDOWS / DOORS NOTES 1. WINDOWS AND DOORS SHALL BE OF TYPES, THICKNESS, SIZE, AND CONSTRUCTION AS SHOWN. 2. ALL WALL OPENING DIMENSIONS SHALL BE VERIFIED BY CONTRACTOR. 3. FRAMED WINDOWS SHALL BE PRODUCTS OF AN APPROVED MANUFACTURER. ALL MEMBERS SHALL HAVE FINISH IN COLOR SELECTED: MEETING OR EXCEEDING REQUIREMENTS FOR WATER PENETRATION. INFILTRATION AND WIND LOAD OF ALL APPLICABLE BUILDING CODES. AT EACH MOVEABLE DOOR OR WINDOW PANEL PROVIDE A FRAMED VINYL INSECT SCREENING UNIT. 4. BUILDER'S ROUGH HARDWARE SHALL BE FURNISHED AND INSTALLED BY EACH PARTY TO WHOSE WORK SUCH ITEMS ARE INCIDENTAL. ALL ITEMS SHALL BE GALVANIZED AND/OR CORROSION-PROOF. FINISH DOOR HARDWARE WILL BE SELECTED BY THE OWNER AND PURCHASED DIRECTLY BY GENERAL CONTRACTOR FOR FURNISHING TO JOB SITES 11. ALL EXTERIOR WINDOWS AND DOORS SHALL MEET OR EXCEED POSITIVE AND NEGATIVE DESIGN WIND LOAD PRESSURES NOTED IN SCHEDULE ABOVE. 12. PROVIDE ALL MULLIONS & STRUCTURAL SUPPORTS REQUIRED FOR PROPER WINDOW OR DOOR INSTALLATION. 13. PROVIDE CONTINUOUS SEALANT AT INSIDE AND OUTSIDE JOINTS, WOOD BUCK, AND MASONRY IN ADDITION TO INSIDE AND OUTSIDE OF WINDOW AND DOOR / WALL UNITS. 14. CONTRACTOR SHALL FULLY CAULK ALL EXTERIOR WINDOWS THROUGHOUT. CAULK SHALL MATCH WINDOW FRAME COLOR. 15. ALL WINDOW GLAZING SHALL BE PROVIDED WITH WINDOW TINTING FILM WITH A LIGHT TRANSMISSION VALUE (VLT) OF 15% OR LESS TO SATISFY THE MODEL LIGHTING ORDINANCE FOR MARINE TURTLE PROTECTION. THIS EXCEEDS THE NATURAL VENTILATION REQUIREMENTS THIS EXCEEDS THE NATURAL VENTILATION REQUIREMENTS THIS EXCEEDS THE NATURAL VENTILATION REQUIREMENTS A1 FLOOR PLAN SCALE : 1/4" = 1'-0" A3 DOOR & WINDOW SCHEDULES A2 UPPER LEVEL / LOW ROOF PLAN SCALE : 1/4" = 1'-0" A4 DOOR & WINDOW NOTES MANUEL SYNALOVSKI, AIA AR 0011628 LICENSE NO. AA26001863 A5 VENTILATION CALCULATIONS Principal in Charge: Sheet Title: Rev: Date: Description: By: Date: Drawn By: Project No: Sheet Number: Project Manager: Prepared for: Project Name: Consultants: Seal: Site Map: Project Phase: Scale:
  • 5.
    FINISH FLOOR 0'-0" A.F.F. HIGHROOF LOW BEARING 12'-0" A.F.F. NEW LOW ROOF BEARING 11'-0" A.F.F. HIGH ROOF HIGH BEARING 16'-4" A.F.F. TOP OF PYLON 20'-0" A.F.F. TOP OF PARAPET 14'-8" A.F.F. TOP OF EXIST. TIEBEAM LOUVER HEAD HGT. 8'-0" A.F.F. TOP OF EXIST. TIEBEAM 12'-0" A.F.F. FINISH FLOOR 0'-0" A.F.F. NEW LOW ROOF BEARING 11'-0" A.F.F. HIGH ROOF BEARING 16'-4" A.F.F. TOP OF PYLON 20'-0" A.F.F. WINDOW HEAD HGT. 15'-0" A.F.F. LOUVER HEAD HGT. 8'-0" A.F.F. TOP OF EXIST. TIEBEAM 12'-0" A.F.F. FINISH FLOOR 0'-0" A.F.F. HIGH ROOF LOW BEARING 12'-0" A.F.F. NEW LOW ROOF BEARING 11'-0" A.F.F. HIGH ROOF HIGH BEARING 16'-4" A.F.F. TOP OF PYLON 20'-0" A.F.F. LOUVER HEAD HGT. 8'-0" A.F.F. TOP OF EXIST. TIEBEAM TOP OF EXIST. TIEBEAM 12'-0" A.F.F. FINISH FLOOR 0'-0" A.F.F. HIGH ROOF HIGH BEARING 16'-4" A.F.F. TOP OF PYLON 20'-0" A.F.F. LOUVER HEAD HGT. 8'-0" A.F.F. HIGH ROOF LOW BEARING 12'-0" A.F.F. TOP OF NEW TIEBEAM WINDOW HEAD HGT. 15'-0" A.F.F. NEW LOW ROOF BEARING 11'-0" A.F.F. FINISH FLOOR 0'-0" A.F.F. HIGH ROOF LOW BEARING 12'-0" A.F.F. TOP OF PYLON 20'-0" A.F.F. LOUVER HEAD HGT. 8'-0" A.F.F. TOP OF PARAPET 14'-8" A.F.F. TOP OF EXIST. TIEBEAM A1 FRONT ELEVATION (WEST FACE) SCALE : 1/4" = 1'-0"A4 LEFT SIDE ELEVATION (NORTH FACE) SCALE : 1/4" = 1'-0" MANUEL SYNALOVSKI, AIA AR 0011628 LICENSE NO. AA26001863 A5 BUILDING CROSS SECTION (LOOKING SOUTH) SCALE : 1/4" = 1'-0" A2 REAR ELEVATION (EAST FACE) SCALE : 1/4" = 1'-0" A3 RIGHT SIDE ELEVATION (SOUTH FACE) SCALE : 1/4" = 1'-0" Principal in Charge: Sheet Title: Rev: Date: Description: By: Date: Drawn By: Project No: Sheet Number: Project Manager: Prepared for: Project Name: Consultants: Seal: Site Map: Project Phase: Scale:
  • 6.
    RESTROOM ACCESSORIES LEGEND MANUF'R.DESCRIPTION 1 2 3 4 5 6 7 8 10 9 11 12 13 15 16 17 14 18 19 20 21 22 23 24 DROP-IN LAVATORY WALL-HUNG LAVATORY HANDS-FREE FAUCET SURF. MTD. MIRROR SURF. MTD. AUTOMATIC FOAM SOAP DISPENSER SURF. MTD. AUTOMATIC HAND DRYER ELONGATED TOILET (STD. HGT.) TOILET SEAT SURF. MTD. 1 1 4" DIA. GRAB BAR (36" LONG) SURF. MTD. SINGLE JUMBO ROLL TOILET PAPER DISPENSER SURF. MTD. SANITARY NAPKIN DISPOSAL SOLID CORE RESIN BASED TOILET PARTITION SYSTEM SURF. MTD. HORIZ. FOLD-DOWN BABY CHANGING STATION HI-LOW WATER FOUNTAIN RECESSED WALL HYDRANT WATER SUPPLY HOSE BIBB PRECAST MOP SINK 12" SWINGING FAUCET WITH WALL CONTROL HANDS-FREE FAUCET ELONGATED TOILET (ADA HGT.) SURF. MTD. 1 1 4" DIA. GRAB BAR (42" LONG) AUTO-FLUSH FLUSH VALVE WALL-HUNG URINAL (STD. HGT.) AUTO-FLUSH FLUSH VALVE 25 SHOWER HEAD WITH WALL CONTROL26 3 1 2" THICK CONC. COUNTER W/ EPOXY FINISH (SEE DET. X/A-XXX) MARK MODEL WALL-HUNG URINAL (ADA HGT.) 27 SURF. MTD. SEAT COVER DISPENSER BOBRICK B-2013 BOBRICK B-290 BOBRICK B-715 BOBRICK B-2890 BOBRICK B-254 BOBRICK B-221 BOBRICK B-5806-36 BOBRICK B-5806-42 KOALA KARE KB110-SSWM (18"w X 36"h or 24"w X 36"h) SCRANTON A1 REFLECTED CEILING PLAN SCALE : 1/4" = 1'-0" MANUEL SYNALOVSKI, AIA AR 0011628 LICENSE NO. AA26001863 A2 FIXTURE & ACCESSORY PLAN SCALE : 1/4" = 1'-0"A4 INTERIOR ELEVATIONS SCALE : 1/4" = 1'-0" A3 FIXTURE & ACCESSORY SCHEDULE SCALE : 1/4" = 1'-0" Principal in Charge: Sheet Title: Rev: Date: Description: By: Date: Drawn By: Project No: Sheet Number: Project Manager: Prepared for: Project Name: Consultants: Seal: Site Map: Project Phase: Scale:
  • 7.
    INDICATES EXISTING INTERIOR PARTITIONTO REMAIN INDICATES EXISTING INTERIOR PARTITION TO BE REMOVED LEGEND: INDICATES EXISTING DOOR TO REMAIN HATCH DENOTES EXISTING TO REMAIN NO WORK IN THIS AREA 7. TOUCH-UP REMAINING STRUCTURES TO MATCH EXISTING CONDITIONS. 1. THE CONSTRUCTION SHALL INCLUDE THE FURNISHING OF ALL MATERIALS, EXTENSIONS, CONNECTIONS, CUTTING, PATCHING, PAINTING, REPAIRING, ADAPTING AND OTHER WORK, INCIDENTAL TO, AND TOGETHER WITH SUCH TEMPORARY CONNECTIONS AS MAY BE REQUIRED. THE CONSTRUCTION SHALL ALSO INCLUDE THE REMOVAL OF MATERIALS AS DIRECTED. 2. ANY WORK NOT SHOWN ON THE DRAWING OR SPECIFICALLY MENTIONED IN THE SPECIFICATIONS, BUT CONSIDERED NECESSARY FOR THE COMPLETION OF THE WORK IN PROPER MANNER SHALL BE PROVIDED BY THIS CONTRACTOR WITHOUT ADDITIONAL CHARGE. 3. WHERE PRESENT WORK IS DAMAGED IN THE EXECUTION OF THIS CONTRACT, OR WHERE OPENINGS ARE LEFT DUE TO THE REMOVAL OF PIPES, EQUIPMENT OR APPARATUS, THE SAME SHALL BE REPAIRED OR CLOSED UP TO CORRESPOND IN MATERIAL, QUALITY, SHAPE, AND FINISH WITH THAT OF SIMILAR AND ADJOINING WORK, UNLESS OTHERWISE CALLED FOR. WHERE DAMAGE IS NOT REPAIRABLE, NEW ITEMS OR EQUIPMENT SHALL BE PROVIDED. 4. INTERRUPTION OF EXISTING FACILITIES OR SERVICES SHALL BE KEPT TO A MINIMUM AND THE CONTRACTOR SHALL FURNISH ALL MATERIALS REQUIRED WHENEVER TEMPORARY CONNECTIONS ARE NECESSARY TO MAINTAIN CONTINUITY OF SERVICE. INTERRUPTION OF EXISTING SERVICES, THE INSTALLATION OF TEMPORARY FACILITIES, AND THE WORK OF MAKING FINAL CONNECTIONS TO THE NETWORK SHALL BE DONE ONLY AT SUCH TIMES AS PERMITTED AND SCHEDULED BY THE OWNER WITHOUT ADDITIONAL COST. CARE MUST BE USED IN RESOLVING SERVICES TO AREAS BEING DEMOLISHED SO THAT SERVICES TO OTHER AREAS WHICH MIGHT BE SERVED THROUGH THESE AREAS WILL NOT BE INTERRUPTED. 5. ANY AND ALL WORK SHALL BE PERFORMED DURING NORMAL BUSINESS HOURS AS STIPULATED BY THE OWNER, LANDLORD, AND THE MUNICIPALITY IN WHICH THE PROJECT IS LOCATED. 6. ALL DEBRIS SHALL BE DISPOSED OF AS PER ALL APPLICABLE CODES AND/OR LAWS. 8. ALL WORK SHALL BE PERFORMED TO MEET AND COMPLY WITH A.D.A. STANDARDS AND FLORIDA ACCESSIBILITY CODE FOR BUILDING CONSTRUCTION, CHAPTER 11, PART A OF THE 2010 FLORIDA BUILDING CODE. ALTERATION PROJECT PROCEDURES: GENERAL DEMOLITION NOTES: 11.) A.) 10.) 9.) A.) 8.) 7.) 6.) 5.) 4.) 3.) 2.) D.) C.) B.) A.) 1.) ALTERATION PROJECT PROCEDURES: CUT, MOVE OR REMOVE ITEMS AS NECESSARY TO PROVIDE ACCESS OR TO ALLOW ALTERATIONS AND NEW WORK TO PROCEED. INCLUDE SUCH ITEMS AS: REPAIR OR REMOVAL OF HAZARDOUS OR UNSANITARY CONDITIONS. REMOVAL OF ABANDONED ITEMS AND ITEMS SERVING NO USEFUL PURPOSE, SUCH AS ABANDONED PIPING, CONDUIT AND WIRING. REMOVAL OF UNSUITABLE OR EXTRANEOUS MATERIALS NOT MARKED FOR SALVAGE, SUCH AS ABANDONED FURNISHINGS AND EQUIPMENT, AND DEBRIS SUCH AS ROTTED WOOD, RUSTED METAL AND DETERIORATED CONCRETE. CLEANING OF SURFACES, AND REMOVAL OF SURFACE FINISHES AS NEEDED TO INSTALL NEW WORK AND FINISHES. WHEN ALTERATIONS AND CONNECTIONS OF NEW CONSTRUCTION TO EXISTING CONSTRUCTION OCCUR AT DUST SENSITIVE AREAS, EXECUTE ALL MEASURES TO COMPLETELY CONTROL AND SEPERATE DUST FROM EXISTING AREAS, EQUIPMENT AND FURNISHINGS. ASSIGN THE WORK OF MOVING, REMOVAL, CUTTING AND PATCHING, TO TRADES QUALIFIED TO PERFORM THE WORK IN A MANNER TO CAUSE LEAST DAMAGE TO EACH TYPE OF WORK, AND PROVIDE MEANS OF RETURNING TO APPEARANCE OF NEW WORK. PERFORM CUTTING AND REMOVAL WORK TO REMOVE MINIMUM NECESSARY AND IN A MANNER TO AVOID DAMAGE TO ADJACENT WORK. CUT FINISH SURFACES SUCH AS MASONRY, GYPSUM WALLBOARD, STUCCO, WALL COVERING, TILE, PLASTER OR METALS, BY METHODS TO TEMINATE SURFACES ON A STRAIGHT LINE AT A NATURAL POINT OF DIVISION. PROTECT FROM DAMAGE EXISTING FINISHES, EQUIPMENT, AND ADJACENT WORK WHICH IS SCHEDULED TO REMAIN. REROUTE OR EXTEND EXISTING ELECTRICAL, PLUMBING OR AIR CONDITIONING LINES IN AREAS WHERE DEMOLITION IS TO OCCUR. (REFER TO ELECTRICAL, PLUMBING AND MECHANICAL DRAWINGS). PROVIDE SAME PRODUCTS OR TYPES OF CONSTRUCTION AS THAT IN EXISTING STRUCTURE, AS NEEDED TO PATCH, EXTEND OR TO MATCH EXISTING WORK. CONTRACT DOCUMENTS WILL NOT DEFINE PRODUCTS OR STANDARDS OF WORKMANSHIP PRESENT IN EXISTING CONSTRUCTION; CONTRACTOR SHALL DETERMINE PRODUCTS BY INSPECTION AND ANY NECESSARY TESTING, AND WORKMANSHIP BY USE OF THE EXISTING AS A SAMPLE OF COMPARISON. PATCH AND EXTEND EXISTING WORK USING SKILLED MECHANICS WHO ARE CAPABLE OF MATCHING EXISTING QUALITY OF WORKMANSHIP. QUALITY OF PATCHED OR EXTENDED WORK SHALL BE NOT LESS THAN THAT SPECIFIED FOR NEW WORK. WHERE PARTITIONS ARE REMOVED, PATCH FLOORS, WALLS AND CEILING, WITH FINISH MATERIALS TO MATCH EXISTING. WHERE REMOVAL OF PARTITIONS RESULT IN ADJACENT SPACE BECOMING ONE, REWORK FLOORS, WALLS, AND CEILINGS TO PROVIDE SMOOTH PLANES WITHOUT BREAKS, STEPS, OR BULKHEADS. WHERE NEW WORK ABUTS EXISTING FINISHES FINISH FLUSH WITH EXISTING WORK, MAKING A SMOOTH AND FLAWLESS TRANSITION. 1 2 3 4 5 6 7 8 9 10 11 12 13 14 REMOVE EXISTING TOILETS REMOVE EXISTING TOILETS PARTITIONS & ACCESSORIES REMOVE EXISTING SINKS REMOVE EXISTING JANITOR SINK REMOVE EXISTING URINALS REMOVE EXISTING DRINKING FOUNTAIN REMOVE EXISTING LIGHTS FIXTURES REMOVE EXISTING DOOR, FRAME AND ASSOCIATED COMPONENTS COMPLETELY REMOVE EXISTING CMU BLOCK WALLS REMOVE EXISTING FIRE EXTINGUISHER CABINET. PATCH, REPAIR, REFINISH REMAINING SURFACES AND PREPARE TO RECEIVE NEW FINISHES. STORE AND PROTECT DURING CONSTRUCTION FOR REUSE. EXISTING DOOR AND FRAME TO BE REMOVED IF NECESSARY TO CHANGE SWING DIRECTION. MODIFY OR PROVIDE NEW HINGES AS NECESSARY. REMOVE EXISTING FLOORING AND BASE TO THE EXTENT REQUIRED TO INSTALL NEW FLOORING AND BASE PER FINISH SCHEDULE PATCH AND PREPARE REMAINING SLAB TO RECEIVE NEW FLOORING. EXISTING CEILING TILE, GRID AND LIGHT FIXTURES TO BE REMOVED. INCLUSIVE OF ASSOCIATED CONDUITS, WIRE, HANGERS, ETC. TO SOURCE, UNLESS SLATED FOR REUSE OR RELOCATION.. REMOVE EXISTING WALL AND ASSOCIATED COMPONENTS COMPLETELY. PATCH, REPAIR, REFINISH REMAINING SURFACES AND PREPARE TO RECEIVE NEW FINISHES. REMOVE ASSOCIATED UTILITIES, CONDUITS, ETC. TO SOURCE. REMOVE EXISTING GRAB BAR REMOVE EXISTING CONCRETE LOUVER UNITS REMOVE EXISTING GLASS BLOCK REMOVE PORTION OF EXISTING WALL AND ASSOCIATED COMPONENTS FROM UNDERSIDE OF EXISTING BEAM TO FLOOR TO CREATE THE FINISHED OPENING AS ILLUSTRATED IN THE ELEVATIONS. THIS MAY INCLUDE ADDITIONAL WALL MATERIAL FOR NEW STRUCTURAL COMPONENTS (SEE STRUCT. DWG'S.). PREPARE REMAINING SURFACES FOR NEW CONCRETE EDGES, AND DOOR OR LOUVER COMPONENTS. REMOVE ASSOCIATED UTILITIES, CONDUITS, ETC. TO SOURCE. SHORE AS REQUIRED. REMOVE PORTION OF EXISTING WALL AND ASSOCIATED COMPONENTS TO CREATE THE FINISHED OPENING AS ILLUSTRATED IN THE ELEVATIONS. THIS MAY INCLUDE ADDITIONAL WALL MATERIAL FOR NEW STRUCTURAL COMPONENTS (SEE STRUCTURAL DWG'S.). PREPARE REMAINING SURFACES FOR NEW CONCRETE EDGES, AND LOUVER COMPONENTS. REMOVE ASSOCIATED UTILITIES, CONDUITS, ETC. TO SOURCE. REMOVE EXISTING CONCRETE SIDEWALK. COORDINATE WITH EDSA LANDSCAPE SITE PLAN FOR EXTENT OF WORK. 15 16 17 18 19 20 1 DEMOLITION FLOOR PLAN SCALE : 1/4" = 1'-0"2 DEMOLITION REFLECTED CEILING PLAN SCALE : 1/4" = 1'-0" 3 GENERAL NOTES 5 LEGEND 4 KEY NOTES Principal in Charge: Sheet Title: Rev: Date: Description: By: Date: Drawn By: Project No: Sheet Number: Project Manager: Prepared for: Project Name: Consultants: Seal: Site Map: Project Phase: Scale:
  • 8.
    WIND REMARKSCORE FINISHFRAMEMATERIALSIZE TYPEDR DESIGN PRESSURE (PSF) 5. ALL DOOR HARDWARE SHALL BE AS SELECTED BY OWNER. 6. CONTRACTOR IS RESPONSIBLE FOR PERFORMING ANY WORK NECESSARY TO COMPLETE THE PROPER INSTALLATION OF DOORS, WINDOWS, FRAMES, AND HARDWARE. 7. ALL EXTERIOR WINDOWS AND DOORS SHALL BE LARGE MISSILE IMPACT RESISTANT, SUBMIT FLORIDA PRODUCT APPROVALS. 8. ALL EXTERIOR DOOR FRAMES ANCHOR PER PRODUCT APPROVALS. 9. ALL DOOR FRAMES ON CONCRETE TO BE GROUTED SOLID. 10. EXTERIOR WINDOWS AND DOORS TO BE FASTENED TO FILLED CELL OR CONCRETE AND THRU WD. BUCKS AS PER PRODUCT APPROVAL. WINDOWS / DOORS NOTES 1. WINDOWS AND DOORS SHALL BE OF TYPES, THICKNESS, SIZE, AND CONSTRUCTION AS SHOWN. 2. ALL WALL OPENING DIMENSIONS SHALL BE VERIFIED BY CONTRACTOR. 3. FRAMED WINDOWS SHALL BE PRODUCTS OF AN APPROVED MANUFACTURER. ALL MEMBERS SHALL HAVE FINISH IN COLOR SELECTED: MEETING OR EXCEEDING REQUIREMENTS FOR WATER PENETRATION. INFILTRATION AND WIND LOAD OF ALL APPLICABLE BUILDING CODES. AT EACH MOVEABLE DOOR OR WINDOW PANEL PROVIDE A FRAMED VINYL INSECT SCREENING UNIT. 4. BUILDER'S ROUGH HARDWARE SHALL BE FURNISHED AND INSTALLED BY EACH PARTY TO WHOSE WORK SUCH ITEMS ARE INCIDENTAL. ALL ITEMS SHALL BE GALVANIZED AND/OR CORROSION-PROOF. FINISH DOOR HARDWARE WILL BE SELECTED BY THE OWNER AND PURCHASED DIRECTLY BY GENERAL CONTRACTOR FOR FURNISHING TO JOB SITES 11. ALL EXTERIOR WINDOWS AND DOORS SHALL MEET OR EXCEED POSITIVE AND NEGATIVE DESIGN WIND LOAD PRESSURES NOTED IN SCHEDULE ABOVE. 12. PROVIDE ALL MULLIONS & STRUCTURAL SUPPORTS REQUIRED FOR PROPER WINDOW OR DOOR INSTALLATION. 13. PROVIDE CONTINUOUS SEALANT AT INSIDE AND OUTSIDE JOINTS, WOOD BUCK, AND MASONRY IN ADDITION TO INSIDE AND OUTSIDE OF WINDOW AND DOOR / WALL UNITS. 14. CONTRACTOR SHALL FULLY CAULK ALL EXTERIOR WINDOWS THROUGHOUT. CAULK SHALL MATCH WINDOW FRAME COLOR. 15. ALL WINDOW GLAZING SHALL BE PROVIDED WITH WINDOW TINTING FILM WITH A LIGHT TRANSMISSION VALUE (VLT) OF 15% OR LESS TO SATISFY THE MODEL LIGHTING ORDINANCE FOR MARINE TURTLE PROTECTION. TOP OF ROOF +8'-6" A.F.F. FINISH FLOOR 0'-0" A.F.F. TOP OF PYLON +13'-6" A.F.F. TOP OF ROOF +8'-6" A.F.F. FINISH FLOOR 0'-0" A.F.F. TOP OF PYLON +13'-6" A.F.F. TOP OF ROOF +8'-6" A.F.F. FINISH FLOOR 0'-0" A.F.F. TOP OF PYLON +13'-6" A.F.F. TOP OF ROOF +8'-6" A.F.F. FINISH FLOOR 0'-0" A.F.F. TOP OF PYLON +13'-6" A.F.F. THIS EXCEEDS THE NATURAL VENTILATION REQUIREMENTS THIS EXCEEDS THE NATURAL VENTILATION REQUIREMENTS A1 FLOOR PLAN SCALE : 1/4" = 1'-0" A2 DOOR & WINDOW SCHEDULES A3 EXISTING FRONT ELEVATION SCALE : 1/4" = 1'-0" A4 EXISTING REAR ELEVATION SCALE : 1/4" = 1'-0" A5 EXISTING NORTH ELEVATION SCALE : 1/4" = 1'-0" A6 EXISTING SOUTH ELEVATION SCALE : 1/4" = 1'-0" MANUEL SYNALOVSKI, AIA AR 0011628 LICENSE NO. AA26001863 A7 VENTILATION CALCULATIONS NO SCALE Principal in Charge: Sheet Title: Rev: Date: Description: By: Date: Drawn By: Project No: Sheet Number: Project Manager: Prepared for: Project Name: Consultants: Seal: Site Map: Project Phase: Scale:
  • 9.
    RESTROOM ACCESSORIES LEGEND MANUF'R.DESCRIPTION 1 2 3 4 5 6 7 8 10 9 11 12 13 15 16 17 14 18 19 20 21 22 23 24 DROP-IN LAVATORY WALL-HUNG LAVATORY HANDS-FREE FAUCET SURF. MTD. MIRROR SURF. MTD. AUTOMATIC FOAM SOAP DISPENSER SURF. MTD. AUTOMATIC HAND DRYER ELONGATED TOILET (STD. HGT.) TOILET SEAT SURF. MTD. 1 1 4" DIA. GRAB BAR (36" LONG) SURF. MTD. SINGLE JUMBO ROLL TOILET PAPER DISPENSER SURF. MTD. SANITARY NAPKIN DISPOSAL SOLID CORE RESIN BASED TOILET PARTITION SYSTEM SURF. MTD. HORIZ. FOLD-DOWN BABY CHANGING STATION HI-LOW WATER FOUNTAIN RECESSED WALL HYDRANT WATER SUPPLY HOSE BIBB PRECAST MOP SINK 12" SWINGING FAUCET WITH WALL CONTROL HANDS-FREE FAUCET ELONGATED TOILET (ADA HGT.) SURF. MTD. 1 1 4" DIA. GRAB BAR (42" LONG) AUTO-FLUSH FLUSH VALVE WALL-HUNG URINAL (STD. HGT.) AUTO-FLUSH FLUSH VALVE 25 SHOWER HEAD WITH WALL CONTROL26 3 1 2" THICK CONC. COUNTER W/ EPOXY FINISH (SEE DET. X/A-XXX) MARK MODEL WALL-HUNG URINAL (ADA HGT.) 27 SURF. MTD. SEAT COVER DISPENSER BOBRICK B-2013 BOBRICK B-290 BOBRICK B-715 BOBRICK B-2890 BOBRICK B-254 BOBRICK B-221 BOBRICK B-5806-36 BOBRICK B-5806-42 KOALA KARE KB110-SSWM (18"w X 36"h or 24"w X 36"h) SCRANTON TOP OF ROOF +8'-6" A.F.F. FINISH FLOOR 0'-0" A.F.F. TOP OF PYLON +13'-6" A.F.F. A1 REFLECTED CEILING PLAN SCALE : 1/4" = 1'-0" A3 FIXTURES & ACCESSORIES LEGEND A2 FIXTURES & ACCESSORIES PLAN SCALE : 1/4" = 1'-0" A4 INTERIOR ELEVATIONS SCALE : 1/4" = 1'-0" MANUEL SYNALOVSKI, AIA AR 0011628 LICENSE NO. AA26001863 A5 BUILDING SECTION SCALE : 1/4" = 1'-0" Principal in Charge: Sheet Title: Rev: Date: Description: By: Date: Drawn By: Project No: Sheet Number: Project Manager: Prepared for: Project Name: Consultants: Seal: Site Map: Project Phase: Scale:
  • 10.
    A4-1 C STORAGE DUMPSTER DUMPSTER A4-1 A A4-1 B A4-1 C TOP OF SLAB +0'-0" (GND. FLR.) TOP OF BOND BM. + 6'-0" + 10'-0" (HIGH END) ROOF DECK BRG. TOP OF SLAB + 0'-0" (GND. FLR.) TOP OF BOND BM. + 6'-0" ROOF DECK BRG. + 9'-4" (LOW END) A4-1 B TOP OF SLAB + 0'-0" (GND. FLR.) TOP OF BOND BM. + 6'-0" ROOF DECK BRG. + 9'-4" (LOW END) ROOF DECK BRG. + 10'-0" (HIGH END) A4-1 A Principal in Charge: Sheet Title: Rev: Date: Description: By: Date: Drawn By: Project No: Sheet Number: Project Manager: Prepared for: Project Name: Consultants: Seal: Site Map: Project Phase: Scale: 1 FLOOR PLAN SCALE : 1/4" = 1'-0" 3 FRONT ELEVATION SCALE : 1/4" = 1'-0" 4 REAR ELEVATION SCALE : 1/4" = 1'-0" 5 RIGHT SIDE ELEVATION (LEFT SIM.) SCALE : 1/4" = 1'-0" 2 FOUNDATION PLAN SCALE : 1/4" = 1'-0" A WALL SECTION SCALE : 1/2" = 1'-0" B WALL SECTION SCALE : 1/2" = 1'-0" C WALL SECTION SCALE : 1/2" = 1'-0" 6 UTILITIES PLAN SCALE : 1/4" = 1'-0" D ROOF DESIGN PRESSURE NO SCALE
  • 12.
    ATLANTIC OCEAN ATLANTIC OCEAN 8.8DUNE ELEV 8.1 DUNE ELEV8.3 DUNE ELEV8.6 DUNE ELEV 8.2 DUNE ELEV Principal in Charge: Sheet Title: Rev: Date: Description: By: Date: Drawn By: Project No: Sheet Number: Project Manager: Prepared for: Project Name: Drawingname:F:2012Jobs12-1028.01DaniaWaterfrontPHASE112-1028.00SITE.dwgC002Oct01,20155:32pmby:shane Consultants: Seal: Site Map: ® PLANNING LANDSCAPE ARCHITECTURE URBAN DESIGN 1512 E. BROWARD BOULEVARD, SUITE 110 FORT LAUDERDALE, FLORIDA 33301 USA LCC000001 TEL: 954.524.3330 www.edsaplan.com Project Phase: Scale: OCEAN PARK REVITALIZATION PHASE 1 CONSTRUCTION DOCUMENTS CITY OF DANIA BEACH, FLORIDA 100 WEST DANIA BEACH BLVD. DANIA BEACH, FL 33004 CRAVEN THOMPSON & ASSOCIATES, INC. 1 234 C-302 LEGEND: PAVING, GRADING AND DRAINAGE PLAN NORTH VERTICALDATUM CONVERSION 1"=20' SHG SHG JMF 12-1028.01 09-04-2015 10-02-2015 PLAN ADDENDUM #11 SHG GRADING AND DRAINAGE NOTES: 1
  • 13.
    ATLANTIC OCEAN ATLANTIC OCEAN 8.5DUNE ELEV 8.1 DUNE ELEV 8.3 DUNE ELEV 8.2 DUNE ELEV 8.2 DUNE ELEV Principal in Charge: Sheet Title: Rev: Date: Description: By: Date: Drawn By: Project No: Sheet Number: Project Manager: Prepared for: Project Name: Drawingname:F:2012Jobs12-1028.01DaniaWaterfrontPHASE112-1028.00SITE.dwgC003Oct01,20155:31pmby:shane Consultants: Seal: Site Map: ® PLANNING LANDSCAPE ARCHITECTURE URBAN DESIGN 1512 E. BROWARD BOULEVARD, SUITE 110 FORT LAUDERDALE, FLORIDA 33301 USA LCC000001 TEL: 954.524.3330 www.edsaplan.com Project Phase: Scale: OCEAN PARK REVITALIZATION PHASE 1 CONSTRUCTION DOCUMENTS CITY OF DANIA BEACH, FLORIDA 100 WEST DANIA BEACH BLVD. DANIA BEACH, FL 33004 CRAVEN THOMPSON & ASSOCIATES, INC. 1 234 C-303 LEGEND: PAVING, GRADING AND DRAINAGE PLAN NORTH VERTICALDATUM CONVERSION 1"=20' SHG SHG JMF 12-1028.01 09-04-2015 10-02-2015 PLAN ADDENDUM #11 SHG GRADING AND DRAINAGE NOTES: 1 1
  • 14.
    ATLANTIC OCEAN ATLANTIC OCEAN 9.2DUNE ELEV 9.3 DUNE ELEV 9.0 DUNE ELEV Principal in Charge: Sheet Title: Rev: Date: Description: By: Date: Drawn By: Project No: Sheet Number: Project Manager: Prepared for: Project Name: Drawingname:F:2012Jobs12-1028.01DaniaWaterfrontPHASE112-1028.00SITE.dwgC004Oct01,20155:29pmby:shane Consultants: Seal: Site Map: ® PLANNING LANDSCAPE ARCHITECTURE URBAN DESIGN 1512 E. BROWARD BOULEVARD, SUITE 110 FORT LAUDERDALE, FLORIDA 33301 USA LCC000001 TEL: 954.524.3330 www.edsaplan.com Project Phase: Scale: OCEAN PARK REVITALIZATION PHASE 1 CONSTRUCTION DOCUMENTS CITY OF DANIA BEACH, FLORIDA 100 WEST DANIA BEACH BLVD. DANIA BEACH, FL 33004 CRAVEN THOMPSON & ASSOCIATES, INC. 1 234 C-304 LEGEND: PAVING, GRADING AND DRAINAGE PLAN NORTH VERTICALDATUM CONVERSION 1"=20' 09-04-2015 SHG SHG JMF 12-1028.01 10-02-2015 PLAN ADDENDUM #11 SHG GRADING AND DRAINAGE NOTES: 1
  • 15.
    EXFILTRATION TRENCH DETAIL COMPACTIONTEST SCHEDULE ON SITE PAVEMENT DETAIL TYPE "D" CURB DETAIL SUMMARY OF DRAINAGE STRUCTURES JUNCTION BOX/CATCH BASIN POLLUTION RETARDANT BAFFLE Principal in Charge: Sheet Title: Rev: Date: Description: By: Date: Drawn By: Project No: Sheet Number: Project Manager: Prepared for: Project Name: Consultants: Seal: Site Map: Project Phase: Scale: C-400 PAVING, GRADING AND DRAINAGE DETAILS NORTH
  • 20.
    Principal in Charge: SheetTitle: Rev: Date: Description: By: Date: Drawn By: Project No: Sheet Number: Project Manager: Prepared for: Project Name: Consultants: Seal: Site Map: Project Phase: KONA GRAY, ASLA LA-6666950 Scale: BIDSETDOCUMENTS-NOTFORCONSTRUCTION NORTH PHASE 1 REVITALIZATION OF OCEAN PARK BID SET DOCUMENT PACKAGE DANIA BEACH, FLORIDA CIVIL ENGINEERS CONSULTANT TEAM LANDSCAPE ARCHITECTS (PRIME) ARCHITECTURE SURVEYOR Sheet No. Sheet Title ENVIRONMENTAL SERVICES COST ESTIMATOR INDEX OF DRAWINGS Sheet No. Sheet Title PREPARED FOR: CITY OF DANIA BEACH CITY OFFICIALS September 14, 2015 BID LEGEND
  • 21.
    Principal in Charge: SheetTitle: Rev: Date: Description: By: Date: Drawn By: Project No: Sheet Number: Project Manager: Prepared for: Project Name: Consultants: Seal: Site Map: Project Phase: KONA GRAY, ASLA LA-6666950 Scale: BIDSETDOCUMENTS-NOTFORCONSTRUCTION NORTH
  • 22.
    Principal in Charge: SheetTitle: Rev: Date: Description: By: Date: Drawn By: Project No: Sheet Number: Project Manager: Prepared for: Project Name: Consultants: Seal: Site Map: Project Phase: KONA GRAY, ASLA LA-6666950 Scale: BIDSETDOCUMENTS-NOTFORCONSTRUCTION NORTH
  • 23.
    Principal in Charge: SheetTitle: Rev: Date: Description: By: Date: Drawn By: Project No: Sheet Number: Project Manager: Prepared for: Project Name: Consultants: Seal: Site Map: Project Phase: KONA GRAY, ASLA LA-6666950 Scale: BIDSETDOCUMENTS-NOTFORCONSTRUCTION NORTH
  • 24.
    Principal in Charge: SheetTitle: Rev: Date: Description: By: Date: Drawn By: Project No: Sheet Number: Project Manager: Prepared for: Project Name: Consultants: Seal: Site Map: Project Phase: KONA GRAY, ASLA LA-6666950 Scale: BIDSETDOCUMENTS-NOTFORCONSTRUCTION NORTH
  • 25.
    Principal in Charge: SheetTitle: Rev: Date: Description: By: Date: Drawn By: Project No: Sheet Number: Project Manager: Prepared for: Project Name: Consultants: Seal: Site Map: Project Phase: KONA GRAY, ASLA LA-6666950 Scale: BIDSETDOCUMENTS-NOTFORCONSTRUCTION NORTH
  • 26.
    Principal in Charge: SheetTitle: Rev: Date: Description: By: Date: Drawn By: Project No: Sheet Number: Project Manager: Prepared for: Project Name: Consultants: Seal: Site Map: Project Phase: KONA GRAY, ASLA LA-6666950 Scale: BIDSETDOCUMENTS-NOTFORCONSTRUCTION NORTH
  • 27.
    TREE TO REMAIN64 - PALM TO REMAIN 91 - CONCEPT PLANT SCHEDULE PALM TREES CODE QTY BOTANICAL NAME COMMON NAME CONT SIZE CNX 19 Cocos nucifera `Green Malayan` Coconut Palm FG 6`-14` C.T. as shown PSE SAR 41 Pseudophoenix sargentii Buccaneer Palm FG 8`-10` OA SPX 127 Sabal palmetto Cabbage Palmetto FG 12`-16` OA TRX 8 Thrinax radiata Florida Thatch Palm FG 8`-12` OA PLANT SCHEDULE RELOCATED SABAL PALM 6 RELOCATED COCONUT PALM 11 Principal in Charge: Sheet Title: Rev: Date: Description: By: Date: Drawn By: Project No: Sheet Number: Project Manager: Prepared for: Project Name: Consultants: Seal: Site Map: Project Phase: KONA GRAY, ASLA LA-6666950 Scale: BIDSETDOCUMENTS-NOTFORCONSTRUCTION NORTH
  • 28.
    TREE TO REMAIN64 - PALM TO REMAIN 91 - CONCEPT PLANT SCHEDULE PALM TREES CODE QTY BOTANICAL NAME COMMON NAME CONT SIZE CNX 19 Cocos nucifera `Green Malayan` Coconut Palm FG 6`-14` C.T. as shown PSE SAR 41 Pseudophoenix sargentii Buccaneer Palm FG 8`-10` OA SPX 127 Sabal palmetto Cabbage Palmetto FG 12`-16` OA TRX 8 Thrinax radiata Florida Thatch Palm FG 8`-12` OA PLANT SCHEDULE RELOCATED SABAL PALM 6 RELOCATED COCONUT PALM 11 Principal in Charge: Sheet Title: Rev: Date: Description: By: Date: Drawn By: Project No: Sheet Number: Project Manager: Prepared for: Project Name: Consultants: Seal: Site Map: Project Phase: KONA GRAY, ASLA LA-6666950 Scale: BIDSETDOCUMENTS-NOTFORCONSTRUCTION NORTH
  • 29.
    TREE TO REMAIN64 - PALM TO REMAIN 91 - CONCEPT PLANT SCHEDULE PALM TREES CODE QTY BOTANICAL NAME COMMON NAME CONT SIZE CNX 19 Cocos nucifera `Green Malayan` Coconut Palm FG 6`-14` C.T. as shown PSE SAR 41 Pseudophoenix sargentii Buccaneer Palm FG 8`-10` OA SPX 127 Sabal palmetto Cabbage Palmetto FG 12`-16` OA TRX 8 Thrinax radiata Florida Thatch Palm FG 8`-12` OA PLANT SCHEDULE RELOCATED SABAL PALM 6 RELOCATED COCONUT PALM 11 Principal in Charge: Sheet Title: Rev: Date: Description: By: Date: Drawn By: Project No: Sheet Number: Project Manager: Prepared for: Project Name: Consultants: Seal: Site Map: Project Phase: KONA GRAY, ASLA LA-6666950 Scale: BIDSETDOCUMENTS-NOTFORCONSTRUCTION NORTH
  • 30.
    TREE TO REMAIN64 - PALM TO REMAIN 91 - CONCEPT PLANT SCHEDULE PALM TREES CODE QTY BOTANICAL NAME COMMON NAME CONT SIZE CNX 19 Cocos nucifera `Green Malayan` Coconut Palm FG 6`-14` C.T. as shown PSE SAR 41 Pseudophoenix sargentii Buccaneer Palm FG 8`-10` OA SPX 127 Sabal palmetto Cabbage Palmetto FG 12`-16` OA TRX 8 Thrinax radiata Florida Thatch Palm FG 8`-12` OA PLANT SCHEDULE RELOCATED SABAL PALM 6 RELOCATED COCONUT PALM 11 Principal in Charge: Sheet Title: Rev: Date: Description: By: Date: Drawn By: Project No: Sheet Number: Project Manager: Prepared for: Project Name: Consultants: Seal: Site Map: Project Phase: KONA GRAY, ASLA LA-6666950 Scale: BIDSETDOCUMENTS-NOTFORCONSTRUCTION NORTH
  • 31.
    26CHI SOD2,533 sf SOD2,951 sf CHI11 MUC8 38BOA 41HED EX.DUN1,792 sf 17MUC 27CAM CAM15 MUC17 FIM29 CAM22 20FIM 17HYL 15MUC 18FIM 15HYL 27NEO MUC15 HYL21 NEO24 SPP25 GAP57 HED41 GAP67 SPP19 HED30 UNP26 HED26 GAP115 SPP2628HYL 69HED 94SPP 79GAP 31HED 13SPP 110GAP 49GAP 57GAP 17HYL 33SPP 65HED 605UNP UNP297 15NEO 13NEO 20HYL 19MUC 15HYL 8HYL 15MUC 26CAM HED29GAP65SPP29 HED35 GAP44 HED13 HED33 SPP58 UNP23 143UNP GAP105 HED32 37HED 81HED 39SPP HYL20 63SPP 36HYL 49HED 157GAP 29SPP IPP52 34SPP 20FIM 165SPV 301SPV 16CLU AUT 40HYL 14UNP UNP120 120SPP 64CHI EX. DUN4,776 sf SHRUBS CODE QTY BOTANICAL NAME COMMON NAME CONT SIZE CLU AUT 16 Clusia rosea Autograph Tree 15 gal 5`-6`Ht. SHRUB AREAS CODE QTY BOTANICAL NAME COMMON NAME CONT. SIZE SPACING CAM 99 Carissa macrocarpa `Emerald Blanket` Emerald Blanket Carissa 3 gal 12" ht. x 12" spr. 24" o.c. CHI 165 Chrysobalanus icaco `Red Tip` Red Tip Cocoplum 3 gal 24" ht. x 24" spr. 30" o.c. FIM 142 Ficus microcarpa `Green Island` Green Island Ficus 3 gal 12" ht. x 12" spr. 24" o.c. MUC 130 Muhlenbergia capillaris `Gulf Coast` Gulf Coast Muhly 3 gal 12" O.A. 30" o.c. NEO 112 Nerium oleander `Petite Pink` Petite Pink Oleander 3 gal 15" - 18" O.A 24" o.c. PLANT SCHEDULE DUNE VEGETATION CODE QTY BOTANICAL NAME COMMON NAME CONT. SIZE SPACING BOA 601 Borrichia arborescens Sea Oxeye Daisy 1 gal 18" o.c. GAP 905 Gaillardia pulchella Blanket Flower flat 12" o.c. HED 1,242 Helianthus debilis Dune Sunflower 1 gal 18" o.c. HYL 237 Hymenocallis latifolia Spider Lily 1 gal 24" o.c. IPP 179 Ipomoea pes-caprae Railroad Vine 4"pot 12" spr. 24" o.c. SEP 760 Sesuvium portulacastrum Sea Purslane 1 gal 18" o.c. SPP 1,002 Spartina patens Salt Meadow Cord Grass 1 gal 24" o.c. DUNE VEGETATION CODE BOTANICAL NAME COMMON NAME CONT. SIZE SPACING SPV 466 Sporobolus virginicus Seashore Dropseed 4"pot 6" o.c. UNP 1,862 Uniola paniculata Sea Oats 4"pot 24" o.c. EXISTING DUNES CODE QTY BOTANICAL NAME COMMON NAME CONT. SIZE SPACING REMOVE 890 sf Dune Planting Removed N/A EX. DUN 52,720 sf Dune Planting (not to be disturbed) Existing (protect in place) N/A SOD/SEED CODE QTY BOTANICAL NAME COMMON NAME CONT SIZE SPACING SOD 5,484 sf Paspalum vaginatum `platinum TE` Seashore Paspalum-Platinum TE sod Principal in Charge: Sheet Title: Rev: Date: Description: By: Date: Drawn By: Project No: Sheet Number: Project Manager: Prepared for: Project Name: Consultants: Seal: Site Map: Project Phase: KONA GRAY, ASLA LA-6666950 Scale: BIDSETDOCUMENTS-NOTFORCONSTRUCTION NORTH
  • 32.
    EX. DUN1,872 sf 51HED 46HED 4,248sfEX. DUN HED44 HED17 HED30 97SEP EX. DUN851 sf 175BOA 59BOA 70IPP 102UNP UNP54 HED28 23IPP UNP161 77HED 17UNP 44SPP SPP60 HED76 CHI9 15CHI 41HED 218 sfREMOVE EX. DUN1,060 sf SHRUBS CODE QTY BOTANICAL NAME COMMON NAME CONT SIZE CLU AUT 16 Clusia rosea Autograph Tree 15 gal 5`-6`Ht. SHRUB AREAS CODE QTY BOTANICAL NAME COMMON NAME CONT. SIZE SPACING CAM 99 Carissa macrocarpa `Emerald Blanket` Emerald Blanket Carissa 3 gal 12" ht. x 12" spr. 24" o.c. CHI 165 Chrysobalanus icaco `Red Tip` Red Tip Cocoplum 3 gal 24" ht. x 24" spr. 30" o.c. FIM 142 Ficus microcarpa `Green Island` Green Island Ficus 3 gal 12" ht. x 12" spr. 24" o.c. MUC 130 Muhlenbergia capillaris `Gulf Coast` Gulf Coast Muhly 3 gal 12" O.A. 30" o.c. NEO 112 Nerium oleander `Petite Pink` Petite Pink Oleander 3 gal 15" - 18" O.A 24" o.c. PLANT SCHEDULE DUNE VEGETATION CODE QTY BOTANICAL NAME COMMON NAME CONT. SIZE SPACING BOA 601 Borrichia arborescens Sea Oxeye Daisy 1 gal 18" o.c. GAP 905 Gaillardia pulchella Blanket Flower flat 12" o.c. HED 1,242 Helianthus debilis Dune Sunflower 1 gal 18" o.c. HYL 237 Hymenocallis latifolia Spider Lily 1 gal 24" o.c. IPP 179 Ipomoea pes-caprae Railroad Vine 4"pot 12" spr. 24" o.c. SEP 760 Sesuvium portulacastrum Sea Purslane 1 gal 18" o.c. SPP 1,002 Spartina patens Salt Meadow Cord Grass 1 gal 24" o.c. DUNE VEGETATION CODE BOTANICAL NAME COMMON NAME CONT. SIZE SPACING SPV 466 Sporobolus virginicus Seashore Dropseed 4"pot 6" o.c. UNP 1,862 Uniola paniculata Sea Oats 4"pot 24" o.c. EXISTING DUNES CODE QTY BOTANICAL NAME COMMON NAME CONT. SIZE SPACING REMOVE 890 sf Dune Planting Removed N/A EX. DUN 52,720 sf Dune Planting (not to be disturbed) Existing (protect in place) N/A SOD/SEED CODE QTY BOTANICAL NAME COMMON NAME CONT SIZE SPACING SOD 5,484 sf Paspalum vaginatum `platinum TE` Seashore Paspalum-Platinum TE sod Principal in Charge: Sheet Title: Rev: Date: Description: By: Date: Drawn By: Project No: Sheet Number: Project Manager: Prepared for: Project Name: Consultants: Seal: Site Map: Project Phase: KONA GRAY, ASLA LA-6666950 Scale: BIDSETDOCUMENTS-NOTFORCONSTRUCTION NORTH
  • 33.
    SPP13 EX. DUN2,923 sf52HED BOA56 BOA68 SEP55 16HED 21FIM 13MUC CHI10 NEO33 SEP164 HED70 23UNP UNP7 204SPP SPP98 UNP72 HED43 SEP444 38UNP 9MUC 17CHI HED17 FIM32 CHI9 4CHI EX. DUN3,422 sf REMOVE266 sf EX. DUN2,982 sf REMOVE222 sf 879 sfEX. DUN EX. DUN4,245 sf SHRUBS CODE QTY BOTANICAL NAME COMMON NAME CONT SIZE CLU AUT 16 Clusia rosea Autograph Tree 15 gal 5`-6`Ht. SHRUB AREAS CODE QTY BOTANICAL NAME COMMON NAME CONT. SIZE SPACING CAM 99 Carissa macrocarpa `Emerald Blanket` Emerald Blanket Carissa 3 gal 12" ht. x 12" spr. 24" o.c. CHI 165 Chrysobalanus icaco `Red Tip` Red Tip Cocoplum 3 gal 24" ht. x 24" spr. 30" o.c. FIM 142 Ficus microcarpa `Green Island` Green Island Ficus 3 gal 12" ht. x 12" spr. 24" o.c. MUC 130 Muhlenbergia capillaris `Gulf Coast` Gulf Coast Muhly 3 gal 12" O.A. 30" o.c. NEO 112 Nerium oleander `Petite Pink` Petite Pink Oleander 3 gal 15" - 18" O.A 24" o.c. PLANT SCHEDULE DUNE VEGETATION CODE QTY BOTANICAL NAME COMMON NAME CONT. SIZE SPACING BOA 601 Borrichia arborescens Sea Oxeye Daisy 1 gal 18" o.c. GAP 905 Gaillardia pulchella Blanket Flower flat 12" o.c. HED 1,242 Helianthus debilis Dune Sunflower 1 gal 18" o.c. HYL 237 Hymenocallis latifolia Spider Lily 1 gal 24" o.c. IPP 179 Ipomoea pes-caprae Railroad Vine 4"pot 12" spr. 24" o.c. SEP 760 Sesuvium portulacastrum Sea Purslane 1 gal 18" o.c. SPP 1,002 Spartina patens Salt Meadow Cord Grass 1 gal 24" o.c. DUNE VEGETATION CODE BOTANICAL NAME COMMON NAME CONT. SIZE SPACING SPV 466 Sporobolus virginicus Seashore Dropseed 4"pot 6" o.c. UNP 1,862 Uniola paniculata Sea Oats 4"pot 24" o.c. EXISTING DUNES CODE QTY BOTANICAL NAME COMMON NAME CONT. SIZE SPACING REMOVE 890 sf Dune Planting Removed N/A EX. DUN 52,720 sf Dune Planting (not to be disturbed) Existing (protect in place) N/A SOD/SEED CODE QTY BOTANICAL NAME COMMON NAME CONT SIZE SPACING SOD 5,484 sf Paspalum vaginatum `platinum TE` Seashore Paspalum-Platinum TE sod Principal in Charge: Sheet Title: Rev: Date: Description: By: Date: Drawn By: Project No: Sheet Number: Project Manager: Prepared for: Project Name: Consultants: Seal: Site Map: Project Phase: KONA GRAY, ASLA LA-6666950 Scale: BIDSETDOCUMENTS-NOTFORCONSTRUCTION NORTH
  • 34.
    5,546 sfEX. DUN 53BOA 34IPP 20HED BOA56 BOA84 122UNP2,361 sfEX. DUN REMOVE23 sf EX. DUN7,645 sf 8,118 sfEX. DUN38UNP REMOVE160 sf SHRUBS CODE QTY BOTANICAL NAME COMMON NAME CONT SIZE CLU AUT 16 Clusia rosea Autograph Tree 15 gal 5`-6`Ht. SHRUB AREAS CODE QTY BOTANICAL NAME COMMON NAME CONT. SIZE SPACING CAM 99 Carissa macrocarpa `Emerald Blanket` Emerald Blanket Carissa 3 gal 12" ht. x 12" spr. 24" o.c. CHI 165 Chrysobalanus icaco `Red Tip` Red Tip Cocoplum 3 gal 24" ht. x 24" spr. 30" o.c. FIM 142 Ficus microcarpa `Green Island` Green Island Ficus 3 gal 12" ht. x 12" spr. 24" o.c. MUC 130 Muhlenbergia capillaris `Gulf Coast` Gulf Coast Muhly 3 gal 12" O.A. 30" o.c. NEO 112 Nerium oleander `Petite Pink` Petite Pink Oleander 3 gal 15" - 18" O.A 24" o.c. PLANT SCHEDULE DUNE VEGETATION CODE QTY BOTANICAL NAME COMMON NAME CONT. SIZE SPACING BOA 601 Borrichia arborescens Sea Oxeye Daisy 1 gal 18" o.c. GAP 905 Gaillardia pulchella Blanket Flower flat 12" o.c. HED 1,242 Helianthus debilis Dune Sunflower 1 gal 18" o.c. HYL 237 Hymenocallis latifolia Spider Lily 1 gal 24" o.c. IPP 179 Ipomoea pes-caprae Railroad Vine 4"pot 12" spr. 24" o.c. SEP 760 Sesuvium portulacastrum Sea Purslane 1 gal 18" o.c. SPP 1,002 Spartina patens Salt Meadow Cord Grass 1 gal 24" o.c. DUNE VEGETATION CODE BOTANICAL NAME COMMON NAME CONT. SIZE SPACING SPV 466 Sporobolus virginicus Seashore Dropseed 4"pot 6" o.c. UNP 1,862 Uniola paniculata Sea Oats 4"pot 24" o.c. EXISTING DUNES CODE QTY BOTANICAL NAME COMMON NAME CONT. SIZE SPACING REMOVE 890 sf Dune Planting Removed N/A EX. DUN 52,720 sf Dune Planting (not to be disturbed) Existing (protect in place) N/A SOD/SEED CODE QTY BOTANICAL NAME COMMON NAME CONT SIZE SPACING SOD 5,484 sf Paspalum vaginatum `platinum TE` Seashore Paspalum-Platinum TE sod Principal in Charge: Sheet Title: Rev: Date: Description: By: Date: Drawn By: Project No: Sheet Number: Project Manager: Prepared for: Project Name: Consultants: Seal: Site Map: Project Phase: KONA GRAY, ASLA LA-6666950 Scale: BIDSETDOCUMENTS-NOTFORCONSTRUCTION NORTH
  • 35.
    L L Symbol QtyType CatalogNumber Manufacturer AMBER LED1 13 2 2 Notes LIGHT FIXTURE TO BE SHEILDED TO COMPLY WITH FFWCC REQUIREMENTS. CONTRACTOR TO SUBMIT COORDINATED SHOP DRAWINGS FOR LIGHTS AND POLES. PRE-DRILLED BOLT PATTERNS AND THREAD TYPES TO BE COORDINATED MANUFACTURER TO PROVIDE SHIELDING SHOP DRAWINGS FOR REVIEW/APPROVAL OF LAND ARCH. AMBER LED 4 FIXTURE SCHEDULE Detail # L 11 12W - AMBER LED LIGHT FIXTURE MOUNTED INSIDE WALL FIXTURE TO BACK-LIGHT SIGNAGE. SEE DETAIL (2&5/L-923) L Principal in Charge: Sheet Title: Rev: Date: Description: By: Date: Drawn By: Project No: Sheet Number: Project Manager: Prepared for: Project Name: Consultants: Seal: Site Map: Project Phase: KONA GRAY, ASLA LA-6666950 Scale: BIDSETDOCUMENTS-NOTFORCONSTRUCTION NORTH
  • 36.
    Symbol QtyType CatalogNumber Manufacturer AMBER LED1 13 2 2 Notes LIGHT FIXTURE TO BE SHEILDED TO COMPLY WITH FFWCC REQUIREMENTS. CONTRACTOR TO SUBMIT COORDINATED SHOP DRAWINGS FOR LIGHTS AND POLES. PRE-DRILLED BOLT PATTERNS AND THREAD TYPES TO BE COORDINATED MANUFACTURER TO PROVIDE SHIELDING SHOP DRAWINGS FOR REVIEW/APPROVAL OF LAND ARCH. AMBER LED 4 FIXTURE SCHEDULE Detail # L 11 12W - AMBER LED LIGHT FIXTURE MOUNTED INSIDE WALL FIXTURE TO BACK-LIGHT SIGNAGE. SEE DETAIL (2&5/L-923) L Principal in Charge: Sheet Title: Rev: Date: Description: By: Date: Drawn By: Project No: Sheet Number: Project Manager: Prepared for: Project Name: Consultants: Seal: Site Map: Project Phase: KONA GRAY, ASLA LA-6666950 Scale: BIDSETDOCUMENTS-NOTFORCONSTRUCTION NORTH
  • 37.
    Symbol QtyType CatalogNumber Manufacturer AMBER LED1 13 2 2 Notes LIGHT FIXTURE TO BE SHEILDED TO COMPLY WITH FFWCC REQUIREMENTS. CONTRACTOR TO SUBMIT COORDINATED SHOP DRAWINGS FOR LIGHTS AND POLES. PRE-DRILLED BOLT PATTERNS AND THREAD TYPES TO BE COORDINATED MANUFACTURER TO PROVIDE SHIELDING SHOP DRAWINGS FOR REVIEW/APPROVAL OF LAND ARCH. AMBER LED 4 FIXTURE SCHEDULE Detail # L 11 12W - AMBER LED LIGHT FIXTURE MOUNTED INSIDE WALL FIXTURE TO BACK-LIGHT SIGNAGE. SEE DETAIL (2&5/L-923) L Principal in Charge: Sheet Title: Rev: Date: Description: By: Date: Drawn By: Project No: Sheet Number: Project Manager: Prepared for: Project Name: Consultants: Seal: Site Map: Project Phase: KONA GRAY, ASLA LA-6666950 Scale: BIDSETDOCUMENTS-NOTFORCONSTRUCTION NORTH
  • 38.
    Symbol QtyType CatalogNumber Manufacturer AMBER LED1 13 2 2 Notes LIGHT FIXTURE TO BE SHEILDED TO COMPLY WITH FFWCC REQUIREMENTS. CONTRACTOR TO SUBMIT COORDINATED SHOP DRAWINGS FOR LIGHTS AND POLES. PRE-DRILLED BOLT PATTERNS AND THREAD TYPES TO BE COORDINATED MANUFACTURER TO PROVIDE SHIELDING SHOP DRAWINGS FOR REVIEW/APPROVAL OF LAND ARCH. AMBER LED 4 FIXTURE SCHEDULE Detail # L 11 12W - AMBER LED LIGHT FIXTURE MOUNTED INSIDE WALL FIXTURE TO BACK-LIGHT SIGNAGE. SEE DETAIL (2&5/L-923) L Principal in Charge: Sheet Title: Rev: Date: Description: By: Date: Drawn By: Project No: Sheet Number: Project Manager: Prepared for: Project Name: Consultants: Seal: Site Map: Project Phase: KONA GRAY, ASLA LA-6666950 Scale: BIDSETDOCUMENTS-NOTFORCONSTRUCTION NORTH
  • 39.
    0.000 0.000 0.000 0.000 0.000 0.000 0.000 0.000 0.000 0.000 0.000 0.000 0.000 0.000 0.000 0.000 0.000 0.000 0.000 0.000 0.000 0.000 0.000 0.000 0.000 0.000 0.000 0.000 0.000 0.000 0.000 0.000 0.000 0.000 0.000 0.000 0.000 0.000 0.000 0.000 0.000 0.000 0.000 0.000 0.000 0.000 0.000 0.000 0.000 0.000 0.000 0.000 0.000 0.000 0.000 0.000 0.000 0.000 0.000 0.000 0.000 0.000 0.000 0.000 0.000 0.000 0.000 0.000 0.000 0.000 0.000 0.000 0.000 0.000 0.000 0.000 0.000 0.000 0.000 0.000 0.000 0.000 0.000 0.000 0.000 0.000 0.000 0.000 0.000 0.000 0.000 0.000 0.000 0.000 0.000 0.000 0.000 0.000 0.000 0.000 0.000 0.000 0.000 0.000 0.000 0.000 0.000 0.000 0.000 0.000 0.000 0.000 0.000 0.000 0.000 0.000 0.000 0.000 0.000 0.000 0.000 0.000 0.000 0.000 0.000 0.000 0.000 0.000 0.000 0.000 0.000 0.000 0.000 0.000 0.000 0.000 0.000 0.000 0.000 0.000 0.000 0.000 0.000 0.000 0.000 0.000 0.000 0.000 0.000 0.000 0.000 0.000 0.000 0.000 0.000 0.000 0.000 0.000 0.000 0.000 0.000 0.000 0.000 0.000 0.000 0.000 0.000 0.000 0.000 0.000 0.000 0.000 0.000 0.000 0.000 0.000 0.000 0.000 0.000 0.000 0.000 0.000 0.000 0.000 0.000 0.000 0.000 0.000 0.000 0.000 0.000 0.000 0.000 0.000 0.000 0.000 0.000 0.000 0.000 0.000 0.000 0.000 0.000 0.000 0.000 0.000 0.000 0.000 0.000 0.000 0.000 0.000 0.000 0.000 0.000 0.000 0.000 0.000 0.000 0.000 0.000 0.000 0.000 0.000 0.000 0.000 0.000 0.000 0.000 0.000 0.000 0.000 0.000 0.000 0.000 0.000 0.000 0.000 0.000 0.000 0.000 0.000 0.000 0.000 0.000 0.000 0.000 0.000 0.000 0.000 0.000 0.000 0.000 0.000 0.000 0.000 0.000 0.000 0.000 0.000 0.000 0.000 0.000 0.000 0.000 0.000 0.000 0.000 0.000 0.000 0.000 0.000 0.000 0.000 0.000 0.000 0.000 0.000 0.000 0.000 0.000 0.000 0.000 0.000 0.000 0.000 0.000 0.000 0.000 0.000 0.000 0.000 0.000 0.000 0.000 0.000 0.000 0.000 0.000 0.000 0.000 0.000 0.000 0.000 0.000 0.000 0.000 0.000 0.000 0.000 0.000 0.000 0.000 0.000 0.000 0.000 0.000 0.000 0.000 0.000 0.000 0.000 0.000 0.000 E1 E1 E1 E1 E1 E1 E1 E1 E1 E1 E1E1E1 0.1 0.1 0.4 1.0 1.4 2.2 0.1 0.3 0.8 0.9 2.1 1.9 1.0 1.1 1.8 1.3 1.8 1.3 0.8 0.5 0.4 0.7 1.1 1.2 1.1 1.8 1.50.81.02.4 0.6 1.7 2.5 1.7 2.1 2.4 1.4 1.3 0.5 0.8 1.8 2.4 1.8 1.9 2.5 1.9 1.8 2.2 1.4 0.00.00.00.0 2.30.00.00.0 1.90.00.00.0 0.00.00.00.0 0.00.00.00.0 0.10.00.00.0 0.40.46.40.0 1.10.3 0.3 3.0 Luminaire Schedule Project: OCEAN PARK DANIA BEACH, FL REV 2 8-27-2015 Symbol Qty Label Description Lumens/Lamp LLF Lum. Watts Total Watts 9 4 LUMINIS SY30O-L1W11r0-R26 AMBER LED N.A. 0.243 12 132 4 1A PHILIPS LUMEC DOS-40W30LED4K-ES-LE4F N.A. 0.405 45 180 9 1 PHILIPS LUMEC DOS-40W30LED4K-ES-LE2F N.A. 0.405 45 Calculation Summary Project: OCEAN PARK DANIA BEACH, FL REV 2 8-27-2015 Label Avg Max Min Avg/Min Max/Min BEACH 0.000 0.000 0.000 N.A. N.A. KAYAK 0.51 6.4 0.0 N.A. N.A. PARK 1.34 2.5 0.1 13.40 25.00 RESTROOMS 0.58 10.3 0.0 N.A. N.A. WALL MOUNT: 8' - 0" AFG POLE MOUNT: 12' - 0" AFG POLE MOUNT: 12' - 0" AFG 405 Principal in Charge: Sheet Title: Rev: Date: Description: By: Date: Drawn By: Project No: Sheet Number: Project Manager: Prepared for: Project Name: Consultants: Seal: Site Map: Project Phase: KONA GRAY, ASLA LA-6666950 Scale: BIDSETDOCUMENTS-NOTFORCONSTRUCTION NORTH
  • 46.
    1 PEDESTRIAN FIXTURE- POLE MOUNTED SPEC SHEETS 2 LED LIGHT STRIP SPEC SHEETS Principal in Charge: Sheet Title: Rev: Date: Description: By: Date: Drawn By: Project No: Sheet Number: Project Manager: Prepared for: Project Name: Consultants: Seal: Site Map: Project Phase: KONA GRAY, ASLA LA-6666950 Scale: BIDSETDOCUMENTS-NOTFORCONSTRUCTION
  • 47.
    1 PEDESTRIAN FIXTURE- WALL MOUNTED - 24W SPEC SHEETS 2 PEDESTRIAN FIXTURE - WALL MOUNTED - 12W SPEC SHEETS Principal in Charge: Sheet Title: Rev: Date: Description: By: Date: Drawn By: Project No: Sheet Number: Project Manager: Prepared for: Project Name: Consultants: Seal: Site Map: Project Phase: KONA GRAY, ASLA LA-6666950 Scale: BIDSETDOCUMENTS-NOTFORCONSTRUCTION
  • 50.
    Principal in Charge: SheetTitle: Rev: Date: Description: By: Date: Drawn By: Project No: Sheet Number: Project Manager: Prepared for: Project Name: Consultants: Seal: Site Map: Project Phase: Scale: 1 N/A 2 10-05-15 ADDENDUM #3
  • 51.
    HOLLOWCORE ROOF PLAN NEW FOUNDATIONPLAN (BLDG 1) EXISTING Principal in Charge: Sheet Title: Rev: Date: Description: By: Date: Drawn By: Project No: Sheet Number: Project Manager: Prepared for: Project Name: Consultants: Seal: Site Map: Project Phase: Scale: 1 10-02-15 ADDENDUM #11 2 10-05-15 ADDENDUM #3
  • 52.
    Principal in Charge: SheetTitle: Rev: Date: Description: By: Date: Drawn By: Project No: Sheet Number: Project Manager: Prepared for: Project Name: Consultants: Seal: Site Map: Project Phase: Scale: FOUNDATION PLAN (BLDG 2) EXISTING 1 N/A 2 10-05-15 ADDENDUM #3
  • 53.
    Principal in Charge: SheetTitle: Rev: Date: Description: By: Date: Drawn By: Project No: Sheet Number: Project Manager: Prepared for: Project Name: Consultants: Seal: Site Map: Project Phase: Scale: ROOF PLAN HIGH ROOF (BLDG 2) NEW HOLLOWCORE ROOF PLAN LOW ROOF (BLDG 2) NEW HOLLOWCORE 1 N/A 2 10-05-15 ADDENDUM #3
  • 54.
    Principal in Charge: SheetTitle: Rev: Date: Description: By: Date: Drawn By: Project No: Sheet Number: Project Manager: Prepared for: Project Name: Consultants: Seal: Site Map: Project Phase: Scale: 1 N/A 2 10-05-15 ADDENDUM #3
  • 55.
    GRADE BEAM PLAN PILESAND FIRST FLOOR PLAN ROOF PLANHOLLOWCORE PLAN Principal in Charge: Sheet Title: Rev: Date: Description: By: Date: Drawn By: Project No: Sheet Number: Project Manager: Prepared for: Project Name: Consultants: Seal: Site Map: Project Phase: Scale: 1 N/A 2 10-05-15 ADDENDUM #3