SD
1 PARTITION TYPE
GRAPHIC SYMBOLS
WALL MOUNTED SMOKE DETECTOR
EXHAUST VENT
EXISTING CONSTRUCTION TO REMAIN
EXISTING CONSTRUCTION TO BE REMOVED
NEW CONSTRUCTION
EXG6"VENT.STACK
EXG4"SOILSTACK
3"2"
RELOCATE
W/C
2"
RELOCATE
LAV
11/2"
BATH 2 POWDER ROOM
4"
CO.
4"
CO.
3" 2"
RELOCATE
W/C
2"
RELOCATE
LAV
11/2"
3"
11/2"
RELOCATE
SHOWER
MASTER BATH
3"1-1/2"
RELOCATE
W/C
2"
RELOCATE
LAV
11/2"
4"
CO.
3"
11/2"
RELOCATE
SHOWER
1-1/2"
REMOVE
LAV
11/2"
REMOVE
HOT TUB
2"
LAUNDRY
2"
FLOOR DRAIN
GREENHOUSE
EXG6"VENT.STACK
EXG4"SOILSTACK
PH-F Upper Level
PH-F 36th Flr Main Level
CO.
1-1/2"
11/2"
RELOCATE
SINK
KITCHEN
EXIST. HOUSE TRAP
RELOCATE
DISHWASHER
CO.
1-1/2"
11/2"
NEW
SINK
GREENHOUSE
Roof
EAST 73RD STREET
37 STORY BUILDING
#300
BLOCK: 1448
LOT: 3
OCCUPANCY CLASS: RES
CONSTRUCTION CLASS: 1
AREA OF
WORK ON
36TH FLOOR
ADJACENT 14 STORY
BUILDING
ADJACENT 6 STORY
BUILDING
100
102.17
100100
102.17
153.2551.08
100
51.08
100 25
25
25
EAST 74TH STREET
2NDAVENUE
NEIGHBORING 2 STORY
BUILDING
M
GAS
METER
CELLAR
3/4"
RELOCATE
GAS RANGE
EXISTING
GAS RISER
APT. 5E
KITCHEN
EXISTING
GAS SHUT-OFF
VALVE
36TH FLOOR
Push Side
42 min
Y
54 min
X24 preferred60 min
18 min,
Pull Side
48 min
X Push Side
Pull Side
NOTE: All doors in alcoves shall comply with the clearances for front approaches.
12"
(FIG. 25)(FIG. 25)
Clearance of optional enclosure.
NOTE: Dashed line indicates dimensional
8 min Knee
6 max Toe
17 min Lavatory Depth
9 min
27min
29min
49max
19 max
17 min
clear floor space
30min
48 min
6 max
38min
32max
24 min
38min
32max
foot
area
control
24 min
6max
38min
48 min
back
6 max
seat
head
back wall side wall
38min
38min
12 min 12 min
32max
toilet paper
19min
12 18 min
36 max
32max
clear floor space
18
lav.
min
36 min
56min
48 min
min
clear floor space
lav.
1816-18
36 min
66min
48 min
16-18
Clearance
Clearance
space
floor
30min
clear
60 min
back
foot
head
18min
B. Hinge Side Approaches - Swinging
Doors
A. Front Approaches - Swinging Doors
NOTE: y = 48" minimum if
door has both a latch
and closer.
NOTE: x = 36" minimum if y
= 60"; x = 42" minimum
if y = 54".
NOTE: x = 12" if door
has both a closer
and latch.
MANEUVERING CLEARANCES AT DOORS
CLEAR FLOOR SPACE
AT BATHTUB
REINFORCED AREAS FOR GRABS AT BATHTUB
CLEAR FLOOR SPACE AT WATER CLOSET
REINFORCED AREAS FOR GRAB BARS AT WATER CLOSET CLEAR FLOOR SPACE AND CLEARANCES AT LAVATORIES
.
.
. .
Y
.
.
. .
.
.
.
.
..
.
.
Scale:
Consultant
Contact
Address
Phone
e-mail
ARCHITCTS PLLC
648 Broadway / Suite 402, New York, NY 10012
T.212.254.5210
F.212.254.4523
www.wilkinsonarchitects.com
New York: Registered Architect 027917-1
Pennsylvania: Registered Architect 402561
National Council of Architectural Registration Board #52853
DOB Barcode
ATOZ Consulting Engineers, PC
Ilya Malyuchenko, P.E.
363 7th Avenue
3rd Floor
New York, NY 10001
212.929.2491
Ilya@atozengineers.com
Consultant
Contact
Address
Phone
e-mail
NYC Building Restoration
Robert M. Hanna, P.E.
9011 Northern Boulevard
Suite 307
Jackson Heights, NY 11372
646-522-0589
rhanna@engineer.com
MECHANICAL
STRUCTURAL
As indicated
A-000
GENERAL NOTES / PLOT PLAN
ELAM RESIDENCE
300 EAST 74TH STREET PENTHOUSE-F/36TH FLOOR
NEW YORK, NY 10021
04/03/2015
BUILDING DEPT. GENERAL NOTES
1. SCOPE OF WORK: APPLICATION FILED FOR THE INTERIOR RENOVATION OF EXISTING PENTHOUSE F. NO
CHANGE IN USE, OCCUPANCY, OR EGRESS.
2. ALL WORK SHALL CONFORM TO THE REQUIREMENTS OF THE NEW YORK CITY BUILDING CODE, FIRE
DEPARTMENT REGULATIONS, UTILITY COMPANY REQUIREMENTS, AND THE BEST TRADE PRACTICES.
3. BEFORE COMMENCING WORK, THE CONTRACTOR SHALL FILE ALL REQUIRED CERTIFICATES OF
INSURANCE WITH THE DEPARTMENT OF BUILDINGS, OBTAIN ALL REQUIRED PERMITS, AND PAY ALL FEES
REQUIRED BY GOVERNING NEW YORK CITY AGENCIES.
4. THE CONTRACTOR SHALL VERIFY ALL EXISTING CONDITIONS IN THE FIELD PRIOR TO COMMENCING WORK,
AND SHALL REPORT ANY DISCREPANCIES BETWEEN DRAWINGS AND FIELD CONDITIONS TO THE
ARCHITECT.
5. MINOR DETAILS NOT USUALLY SHOWN OR SPECIFIED, BUT NECESSARY FOR PROPER CONSTRUCTION OF
ANY PART OF THE WORK SHALL BE INCLUDED AS IF THEY WERE INDICATED IN THE DRAWINGS.
6. THE CONTRACTOR SHALL COORDINATE ALL WORK PROCEDURES WITH REQUIREMENTS OF LOCAL
AUTHORITIES AND BUILDING MANAGEMENT.
7. THE CONTRACTOR SHALL BE RESPONSIBLE FOR THE PROTECTION OF ALL CONDITIONS AND MATERIALS
WITHIN THE PROPOSED CONSTRUCTION AREA. THE CONTRACTOR SHALL DESIGN AND INSTALL ADEQUATE
SHORING AND BRACING FOR ALL STRUCTURAL OR REMOVAL TASKS. THE CONTRACTOR SHALL HAVE SOLE
RESPONSIBILITY FOR ANY DAMAGE OR INJURIES CAUSED BY OR DURING THE EXECUTION OF THE WORK.
8. THE CONTRACTOR SHALL LAY OUT HIS OWN WORK, AND SHALL PROVIDE ALL DIMENSIONS REQUIRED FOR
OTHER TRADES (PLUMBING, ELECTRICAL, ETC.).
9. PLUMBING, HVAC, AND ELECTRICAL WORK SHALL BE PERFORMED BY PERSONS LICENSED IN THEIR
TRADES, WHO SHALL ARRANGE FOR AND OBTAIN INSPECTIONS AND REQUIRED SIGN-OFFS.
10. THE CONTRACTOR SHALL DO ALL CUTTING, PATCHING, REPAIRING AS REQUIRED TO PERFORM ALL OF
THE WORK INDICATED ON THE DRAWINGS, AND ALL OTHER WORK THAT MAY BE REQUIRED TO COMPLETE
THE JOB.
11. ALL PIPING AND WIRING SHALL BE REMOVED TO A POINT OF CONCEALMENT AND SHALL BE PROPERLY
CAPPED OR PLUGGED.
12. THE CONTRACTOR, UPON COMPLETION OF THE WORK, SHALL ARRANGE FOR DEPARTMENT OF
BUILDINGS INSPECTIONS AND SIGNOFFS AS REQUIRED
SMOKE/CARBON MONOXIDE DETECTION
DEVICES
1. SMOKE/CARBON MONOXIDE DETECTORS OR DEVICES SHALL BE INSTALLED IN ORDINANCE WITH THE
HOUSING MAINTENANCE CODE,MULTIPLE DWELLING LAW, THE NEW YORK CITY BUILDING CODE, AND THE
NEW YORK CITY ELECTRICAL CODE.
2. SMOKE DETECTORS AND CARBON MONOXIDE DETECTORS MAY BE COMBINED PROVIDING THE DEVICES
COMPLY WITH THE PROVISIONS OF TITLE OF THE ADMINISTRATIVE CODE OF THE CITY OF NEW YORK AND
ANY APPLICABLE RULES PROMULGATED THEREUNDER.
3. EACH SMOKE/CARBON MONOXIDE DETECTOR SHALL BE INSTALLED IN ACCORDANCE WITH SECTION BC
908.7.1 THROUGH 908.7.3.
4. EACH SMOKE/CARBON MONOXIDE DETECTOR SHALL BE INSTALLED OUTSIDE OF EACH SLEEPING ROOM IN
THE IMMEDIATE VICINITY OR WITHIN 15'-0" OF THE ENTRANCE TO A SLEEPING ROOM.
5. EACH SMOKE CARBON MONOXIDE DETECTOR SHALL BE OF A TYPE THAT ALLOWS FOR READILY TESTING
OF SUCH DEVICE.
6. DUPLEX UNITS SHALL HAVE A DEVICE LOCATED ON EACH LEVEL IF ONLY ONE MEANS OF EGRESS IS
PROVIDED FROM EACH LEVEL.
7. CEILING MOUNTED DEVICES SHALL BE A MINIMUM DISTANCE OF 4" FROM ANY WALL.
8. WALL MOUNTED DEVICES SHALL BE A MINIMUM OF 4" TO A MAXIMUM OF 12" FROM THE CEILING.
9. EACH DWELLING UNIT SHALL BE EQUIPPED WITH AN APPROVED TYPE SMOKE/CARBON MONOXIDE
DETECTOR DEVICE.
10. SUCH SMOKE/CARBON MONOXIDE DETECTOR MUST BE EITHER THE IONIZATION OR PHOTO-ELECTRIC
TYPE.
PLUMBING AND DRAINAGE NOTES
1. ALL PLUMBING AND GAS PIPING WORK SHALL BE INSTALLED IN STRICT ACCORDANCE WITH THE
REQUIREMENTS OF 2008 NEW YORK CITY PLUMBING CODE.
2. PLUMBING FIXTURES SHALL BE OF TYPE AND MANUFACTURE APPROVED FOR USE IN NEW YORK CITY,
AND SHALL BEAR BS&A APPROVAL.
3. ALL GAS-FIRED EQUIPMENT TO BE A.G.A. OR M.E.A. APPROVED.
4. PLUMBING CONTRACTOR TO EXAMINE PROPOSED LAYOUT WITH REGARD TO EXISTING FIELD
CONDITIONS, AND SHALL NOTIFY ARCHITECT OF ANY DISCREPANCIES BETWEEN ASSUMED FIELD
CONDITIONS AND THOSE ENCOUNTERED DURING CONSTRUCTION. PLUMBING CONTRACTOR SHALL
INFORM ARCHITECT OF ANY REVISIONS TO PLAN WHICH SHALL BE NECESSARY, BASED ON CONDITIONS
UNCOVERED IN THE FIELD, IN ORDER TO INSTALL ALL FIXTURES, EQUIPMENT AND PIPING IN STRICT
ACCORDANCE WITH THE REQUIREMENTS OF THE NYC BUILDING CODE.
5. PLUMBING CONTRACTOR SHALL ARRANGE AND OBTAIN INSPECTIONS AND REQUIRED SIGN-OFFS.
NOTE: THIS PLAN IS APPROVED ONLY FOR WORK APPROVED ON THE APPLICATION SPECIFICATION
SHEET. ALL OTHER MATTERS SHOWN ARE NOT TO BE RELIED UPON, OR TO BE CONSIDERED AS EITHER
APPROVED OR IN ACCORDANCE WITH APPLICABLE CODES.
ALL PLUMBING WORK FILED UNDER SEPARATE LAA BY LICENSED PLUMBING. PLUMBING WORK SHOWN
AS REFERENCE ONLY.
SITE SAFETY
THIS DRAWING DOES NOT INCLUDE NECESSARY COMPONENTS FOR CONSTRUCTION SAFETY. THE
CONTRACTOR HAS THE RESPONSIBILITY FOR THE SUPERINTENDENCE OF CONSTRUCTION PROCESSES.
SITE CONDITIONS, OPERATIONS, EQUIPMENT, PERSONNEL, THE MAINTENANCE OF A SAFE PLACE TO
WORK AND ANY SAFETY IN, ON, OR AROUND THE SITE OF WORK.
LEAD NOTES
THE OWNER, GENERAL CONTRACTOR, DEMOLITION SUBCONTRACTOR ARE ADVISED THAT THERE IS A
POSSIBILITY OF LEAD PAINT HAVING BEEN USED IN THE EXISTING CONSTRUCTION.
THE DEMOLITION PORTION OF THE JOB MUST BE PERFORMED ACCORDING TO SAFE WORK PRACTICES
(OSHA). INCLUDING WORKER PROTECTION, PREVENTION OF SPREAD OF LEAD DUST AND NOTIFICATION OF
THE PUBLIC AND GOV'T AGENCIES AND PROPER DISPOSAL OF CONTAMINATED REFUSE. AFTER THE DEMO IS
PROPERLY FINISHED AND PROPER CLEAN UP IS PERFORMED, IT IS NO LONGER A LEAD ABATEMENT JOB.
THE OWNER IS OBLIGED TO COMPLY WITH LOCAL LAW 1 OF 2004. COMPLY WITH ALL NYC LAWS.
SCOPE OF WORK NOTES
1. THE SCOPE OF WORK FOR THIS PROJECT REQUIRES THE FILING OF AN ALTERATION TYPE 2 APPLICATION AT THE
NEW YORK CITY BUILDING DEPARTMENT. THE CONTRACTOR IS RESPONSIBLE FOR OBTAINING A PERMIT FOR THIS
WORK PRIOR TO CONSTRUCTION.
2. CONTRACTOR SHALL MAINTAIN PERMIT UNTIL ALL SIGN-OFFS ARE COMPLETE.
3. ALL CONTRACTORS SHALL BE LICENSED BY THE CITY OF NEW YORK FOR HIS/HER TRADE RESPECTIVELY.
ZONING
CONSTRUCTION CLASSIFICATION
1: FIREPROOF STRUCTURES
CCCUPANCY CLASSIFICATION
RES
SCOPE OF WORK
APPLICATION FILED FOR THE INTERIOR RENOVATION OF EXISTING
APARTMENT #5E. NO CHANGE IN USE, OCCUPANCY, OR EGRESS.
ENERGY
TO THE BEST OF MY KNOWLEDGE, BELIEF AND PROFESSIONAL
JUDGEMENT, ALL WORK UNDER THIS APPLICATION IS IN
COMPLIANCE WITH NYCECC 2011.
ZONING INFO
BLOCK: 1448
LOT: 3
ZONE: C1-9 R8B
MAP: 8C
BOROUGH: MANHATTAN
ADDRESS: 300 EAST 74TH STREET PH-F
NEW YORK, NY 10021
NOTE: NO CHANGE IN BULK AND HEIGHT OF THE
BUILDING IS PROPOSED IN THIS APPLICATION
NOTE: NO CHANGE TO USE, EGRESS OR
OCCUPANCY IS PROPOSED IN THIS APPLICATION
TENENT PROTECTION NOTES
1. GENERAL:
ALL WORK TO BE COMPLETED IN ACCORDANCE WITH THE NEW YORK BUILDING CODE, ARTICLE 19, AND
REGULATIONS OF ALL OTHER AGENCIES HAVING JURISDICTION. THE BUILDING CONTAINS UNITS THAT WILL BE
OCCUPIED DURING CONSTRUCTION.
2. MEANS OF EGRESS:
ALL EXISTING MEANS OF EGRESS FOR TENANTS OF THE BUILDING TO BE MAINTAINED CLEAR AND FREE OF ALL
OBSTRUCTION, SUCH AS BUILDING MATERIALS, TOOLS, ETC.
3. FIRE SAFETY:
A) ALL BUILDING MATERIALS, WHICH ARE STORED AT THE SITE OR ANY AREA OF THE BUILDING, ARE TO BE
STORED IN A LOCKED AREA. ACCESS TO THE AREAS TO BE CONTROLLED BY THE OWNER, OR THE GENERAL
CONTRACTOR.
B) ALL MATERIALS TO BE STORED IN AN ORDERLY FASHION.
C) ALL FLAMMABLE MATERIALS TO BE KEPT AND TIGHTLY SEALED IN THEIR RESPECTIVE MANUFACTURER'S
CONTAINERS. SUCH MATERIALS ARE TO BE KEPT FROM SOURCES OF HEAT.
D) ALL FLAMMABLE MATERIALS TO BE USED AND STORED IN AN ADEQUATELY VENTILATED SPACE.
E) ALL ELECTRICAL POWER TO BE SHUT-OFF WHERE THERE ARE EXPOSED CONDUIT.
F) ALL ELECTRICAL POWER IN THE CONSTRUCTION AREA TO BE SHUT OFF AFTER WORKING HOURS.
G) CONTRACTOR. AT ALL TIMES, SHALL ENSURE THERE IS NO NATURAL GAS LEAKAGE IN THE BUILDINGS, OR ANY
FLAMMABLE GAS TO BE USED DURING CONSTRUCTION.
4. HEALTH REQUIREMENTS:
A). DUST CONTROL:
1) DEBRIS, DIRT, AND DUST TO BE KEPT TO A MINIMUM AND CONFINED TO THE IMMEDIATE CONSTRUCTION AREA,
AND SHALL NOT CREATE DUST, DIRT OR OTHER SUCH INCONVENIENCES TO OTHER APARTMENT UNITS WITHIN
THE BUILDING.
2) CONTRACTOR SHALL ISOLATE CONSTRUCTION AREA FROM OCCUPIED BUILDING AREA BY MEANS OF
TEMPORARY PARTITIONS OR HEAVY WEIGHT DROPCLOTH.
3) DEBRIS, DIRT, AND DUST SHALL BE CLEANED-UP AND CLEARED FROM THE BUILDING SITE PERIODICALLY TO
AVOID EXCESSIVE ACCUMULATION.
B). DISPOSAL OF CONSTRUCTION DEBRIS: ALL DEBRIS AND PRODUCTS OF DEMOLITION NOT DESIGNATED FOR
REFUSE SHALL BE REMOVED FROM THE PREMISES AND LEGALLY DISPOSED OF. THE SITE SHALL BE LEFT BROOM
CLEAN AT THE END OF EVERY WORKING DAY.
C). PEST CONTROL: SHALL CONFORM TO ARTICLE 13 OF THE NYC HOUSING MAINTENANCE CODE WITH REGARDS
TO:
1) RODENT AND INSECT ERADICATION; MANDATORY EXTERMINATION
` 2) ELIMINATION OF HARBORAGES
D). MAINTENANCE OF SANITARY FACILITIES: SHALL CONFORM TO ARTICLE 14 OF THE NYC HOUSING MAINTENANCE
CODE.
E). NOISE CONTROL: ALL WORK SHALL CONFORM TO LOCAL LAW 113/2005.
F). LEAD: ALL WORK SHALL CONFORM TO LOCAL LAW 1/2004 WITH REGARDS TO THE HANDLING OF LEAD.
G). ASBESTOS: ALL WORK SHALL CONFORM TO THE NYS DEP ASBESTOS CONTROL PROGRAM §1-01 WITH
REGARDS TO THE HANDLING OF ASBESTOS.
5. STRUCTURAL SAFETY:
NO STRUCTURAL WORK SHALL BE DONE THAT MAY ENDANGER THE OCCUPANTS.
6. NOISE RESTRICTIONS
1) CONSTRUCTION OPERATION WILL BE CONFINED TO NORMAL WORKING HOURS: 8:00 AM TO 5:00 PM, MONDAY THRU
FRIDAY, EXCEPT LEGAL HOLIDAYS. AFTER HOURS AND WEEKEND WORK BE SPECIAL PERMIT ONLY.
2) CONTRACTOR MUST OBTAIN WRITTEN PERMISSION FROM ALL AFFECTED PARTIES TO WORK OUTSIDE OF THE
REGULAR HOURS STATED ABOVE.
ELAM RESIDENCE
300 EAST 74TH STREET PH-F, NEW YORK, NY 10021
ADA COMPLIANCE - LOCAL LAW 58/87
ADA COMPLIANCE- LOCAL LAW 58/87 NOTES
1. ALL WORK TO COMPLY WITH LOCAL LAW 58/87. WORK IN BOTH THE KITCHEN AND THE BATHROOMS TO COMPLY
WITH NYC DEPARTMENT OF BUILDINGS POLICY AND PROCEDURES NOTICES: PPN #15/88, PNN #1/92, PPN #3/92
2. NEW DOORWAYS AND FRAMED OPENINGS MUST COMPLY WITH ADA / NYC LOCAL LAW 58 OF 1987 CLEARANCE
REQUIREMENTS. NEW DOOR HARDWARE AND THRESHOLDS TO BE ADA-COMPLIANT.
3. NEW ELECTRICAL OUTLETS, TELEPHONE OUTLETS, ETC, TO BE INSTALLED IN COMPLIANCE WITH AMERICAN
NATIONAL STANDARDS INSTITUTE (ANSI) A117.1 - 1986. NO OULET TO MOUNTED LESS THEN 15" AFF, SWITCHES TO
BE MOUNTED NO HIGHER THAN 48" TO TOP OF BOX.
4. REPLACEMENT OF PLUMBING FIXTURES ON EXISTING ROUGHING DOES NOT MANDATE COMPLIANCE WITH
HANDICAP ACCESSIBLITY REQUIREMENTS PER LOCAL LAW 58/87.
5. RELOCATION OR NEW FIXTURES INSTALLED TO COMPLY WITH LL58/87
PLUMBING RISER DIAGRAM - NOT TO SCALE
ASBESTOS NOTES
IN THE EVENT OF ASBESTOS OR OTHER TOXIC SUBSTANCE EXPOSURE OR THE SUBSTANTIAL RISK
THEREOF, CLIENT WILL HAVE THE DUTY TO INFORM ARCHITECT OF SUCH RISKS KNOWN OR REASONABLY
KNOWABLE TO CLIENT. IF ASBESTOS, OR ANY OTHER TOXIC SUBSTANCE, OR RISK TO EXPOSURE THERETO
IS DISCOVERED BY THE ARCHITECT DURING WORK ON THE PROJECT, ARCHITECT SHALL, IN HIS SOLE
DISCRETION, HAVE THE RIGHT TO SUSPEND WORK ON THE PROJECT. CLIENT SHALL HAVE THE DUTY
PROMPTLY TO RETAIN A QUALIFIED EXPERT SAFELY TO REMOVE OR SUPERVISE THE REMOVAL OF SUCH
ASBESTOS OR OTHER TOXIC SUBSTANCE. CLIENT SHALL INDEMNIFY AND HOLD ARCHITECT, HIS AFFILIATES
AND SUBCONTRACTORS, AND THEIR OFFICERS, AGENTS AND EMPLOYEES HARMLESS FROM ANY AND ALL
LIABILITY ON THE PART OF OR DAMAGE TO SUCH ENTITIES OR PERSONS, INCLUDING THE COST OF LEGAL
FEES AND EXPENSES, AS SUCH FEES AND EXPENSES ARE INCURED, WHICH MAY RESULT FROM ASBESTOS
OR OTHER TOXIC SUBSTANCE EXPOSURE ON THE PROJECT.
INTERIOR FINISH NOTES
1. THE CONTRACTOR SHALL INSPECT ALL SURFACES AND PROVIDE ALL PREPARATORY WORK NECESSARY TO ACHIEVE
NEW FINISHES.
2. ALL AREAS SHALL BE FINISHED AS PER FINISH PLANS & RELATED NOTES ON CONSTRUCTION PLANS.
3. ON WALL SURFACES SCHEDULED TO RECEIVE PAINT, ALL PAINT SHALL BE APPLIED IN ACCORDANCE WITH THE MFR'S
SPECIFICATIONS OR AS INDICATED.
4. ALL PAINTED CLGS. TO MATCH ADJACENT PAINT FINISH OR NEW PAINT FINISH SHALL BE FLAT LATEX U.O.N.
5. ONLY LOW VOC (VOLITILE ORGANIC COMPOUND) PAINT AND FLOOR FINISH MATERIALS WILL BE PERMITTED FOR USE.
PROGRESS INSPECTIONS:
THE FOLLOWING SHALL BE SUBJECT TO PROGRESS INSPECTIONS
1. ENERGY CODE COMPLIANCE INSPECTIONS (BC 109.3.5)
2. FINAL INSPECTION (1RCNY-101-10)
SPECIAL INSPECTIONS:
THE FOLLOWING SHALL BE SUBJECT TO SPECIAL INSPECTIONS
1. STRUCTURAL STEEL - WELDING (BC 1704.3.1)
2. STRUCTURAL STEEL - HIGH STRENGTH BOLTING (BC 1704.3.3)
3. STRUCTURAL STABILITY - EXISTING BUILDINGS (BC 1704.20.1)
4. FIRE RESISTANT PENETRATIONS AND JOINTS (BC 1704.27)
SHEET INDEX
Sheet # Sheet Name
A-000 GENERAL NOTES / PLOT PLAN
A-100 REMOVAL PLANS
A-101 CONSTRUCTION PLANS
A-102 ROOF PLANS
A-103 REFLECTED CEILING PLANS
A-104 FLOOR FINISHES PLANS
A-201 KITCHEN ENLARGED PLANS
A-202 KITCHEN ELEVATIONS
A-203 BATHROOM ENLARGED PLANS &
ELEVATIONS
A-204 BEDROOM ENLARGED PLANS &
ELEVATIONS
A-205 MAIN FLOOR ENLARGED PLANS &
ELEVATIONS
A-206 GREENHOUSE ENLARGED PLAN &
ELEVATIONS
A-301 GREENHOUSE FRAMING PLAN
A-302 GREENHOUSE SECTIONS
A-303 STAIRWELL PLANS & SECTIONS
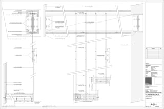
A-501 STAIR DETAILS I
A-502 STAIR DETAILS II
A-503 GREENHOUSE DETAILS
A-504 ROOF DETAILS
A-505 FLOOR DETAILS
A-506 CASEWORK DETAILS
A-507 CEILING DETAILS
A-600 FIXTURE, APPLIANCE, & DOOR
SCHEDULES
A-601 FINISH SCHEDULES
M-001 MECHANICAL SYMBOLS & NOTES
M-100 MECHANICAL PLANS & SCHEDULES
M-200 MECHANICAL DETAILS & SECTIONS
M-300 MECHANICAL SPECIFICATIONS
E-101 POWER PLANS
P-101 PLUMBING PLANS
GAS RISER DIAGRAM - NOT TO SCALE
PLOT PLAN - NOT TO SCALE
ADA COMPLIANCE DIAGRAMS
No. Description Date
N
I. THE CONTRACTOR SHALL PROVIDE THE OWNER WITH THE NAMES AND PHONE NUMBERS OF ALL
SUBCONTRACTORS USED DURING THE DEMOLITION (INCLUDING TRASH REMOVAL CONTRACTOR), THE
DATES OF THE CONSTRUCTION IN THE TENANT PREMISES, AND COPIES OF ALL REQUIRED INSURANCE
CERTIFICATES, PRIOR TO THE COMMENCEMENT OF ANY WORK.
II. THE CONTRACTOR SHALL PROVIDE THE OWNER WITH A COPY OF ALL PERMITS BEFORE
COMMENCEMENT OF RELEVANT WORK AS WELL AS DISPLAYING ALL PERMITS ON SITE.
III. THE CONTRACTOR SHALL CONSTRUCT DUST TIGHT PARTITIONS PRIOR TO THE COMMENCEMENT OF
DEMOLITION AND ARE TO REMAIN IN PLACE UNTIL ALL WORK HAS BEEN COMPLETED AND WRITTEN
APPROVAL HAS BEEN RECEIVED FROM THE OWNER. THE CONTRACTOR SHALL BE RESPONSIBLE FOR
ANY AND ALL REPAIRS TO THE SURFACES MARKED OR DAMAGED BY THE PARTITION INSTALLATION
AND SUBSEQUENT REMOVAL, ALL SURFACES ARE TO BE RESTORED TO THEIR ORIGINAL CONDITION.
IV. GENERAL CONTRACTOR TO COOR. W/ OWNER FOR THE HOURS THAT THE DEMO WORK, INCLUDING
DEMOLITION REMOVAL CAN BE DONE. EXCEPTIONS WILL BE MADE ONLY WITH PRIOR APPROVAL FORM
THE LANDLORD.
V. IN THE EVENT THE CONTRACTOR FAILS TO PERFORM THE ABOVE SPECIFIED WORK DEEMED
NECESSARY BY THE OWNER, THE OWNER SHALL COMPLETE SUCH WORK AT CONTRACTOR'S /
TENANT'S EXPENSE.
VI. DUST PROTECTION SHALL BE PROVIDED TO THE SPACES ADJACENT TO WORK BEING PERFORMED.
CONTRACTOR REMAINS LIABLE FOR DUST AND DIRT INTRUSION INTO ADJOINING SPACE. ALL DUST
PROTECTION WORK TO BE COORDINATE WITH THE OWNER.
VIII. NO FLAMMABLE LIQUIDS OR MATERIALS SHALL BE STORED AT SITE JOB.
IX. AUTHORIZATION MUST BE OBTAIN FROM THE OWNER PRIOR TO COMMENCEMENT OF ANY CUTTING
WELDING WORK. LANDLORD WILL GIVE AUTHORIZATION ONLY AFTER RECEIPTOF PROOF OF A
BURNER'S/ WELDER'S PERMIT.
X. THE CONTRACTOR SHALL CONSULT WITH THE OWNER PRIOR TO COMMENCEMENT OF ANY WORK
TO DETERMINE WHETHER THERE ARE ANY KNOWN HAZARDOUS SUBSTANCES IN OR NEAR THE
PREMISES. IF ANY HAZARDOUS SUBSTANCES IN OR NEAR ARE DISCOVERED DURING CONSTRUCTION
ALL WORK IS TO STOP IMMEDIATELY AND NOTIFICATION GIVEN TO THE OWNER.
XI. REMOVE DEMOLISHED MATERIALS, TOOLS AND EQUIPMENT FROM SITE UPON OF COMPLETION OF
WORK.
XII. DELIVERY OF ITEMS WILL BE ALLOWED BETWEEN THE HOURS OF 9:00 AM and 4:00 PM. ALL
DELIVERIES SHOULD CLEARLY IDENTIFY STORE NAME.
XIII. CONTRACTOR SHALL VERIFY FIELD CONDITIONS AND NOTIFY ARCHITECT OF ALL DISCREPANCIES
BEFORE PROCEEDING WITH WORK.
XIV.CEASE OPERATION AND NOTIFY THE OWNER IMMEDIATELY IF SAFETY OF STRUCTURE APPEARS TO
BE ENDANGERED. TAKE PRECAUTIONS TO PROPERLY SUPPORT STRUCTURE. DO NOT RESUME
OPERATIONS UNTIL SAFETY IS RESTORED.
XV. THE CONTRACTOR SHALL EMPLOY CLEAN UP PERSONNEL TO MAINTAIN THE WORK AREA IN A
NEAT AND ORDERLY MANNER, INCLUDING ANY AREA BEYOND THE DUST TIGHT PARTITIONS WHERE
WORK IS OCCURRING, WHERE TRAFFIC HAS OCCURRED WHILE IMPLEMENTING WORK, OR WHERE DUST,
DIRT, OR DEBRIS HAS MIGRATED THE PARTITION. THESE PERSONNEL SHOULD BE RESPONSIVE TO
DIRECTION GIVEN BY THE CONTRACTOR AND BY THE LANDLORD THE LANDLORD WILL BE COORDINATE
ALL CLEAN UP REQUEST THROUGH THE CONTRACTOR. HOWEVER, WHEN DEEMED NECESSARY, THE
OWNER WILL DIRECT CLEAN UP PERSONNEL DIRECTLY AND SUBSEQUENTLY NOTIFY THE
CONTRACTOR. IN CASES WHERE THE BUILDING'S STAFF MUST CLEAN UP CONTRACTOR'S WORK, THE
COST OF SUCH WORK WILL BE BORNE BY THE CONTRACTOR.
XVI.ARRANGE PAY FOR DISCONNECTION, REMOVING AND CAPPING UTILITY SERVICES WITHIN AREAS
OF DEMOLITION. DISCONNECT AND STUB OFF. NOTIFY THE AFFECTED UTILITY COMPANY AND BUILDING
MANAGER IN ADVANCED AND OBTAIN APPROVAL BEFORE STARTING THIS WORK.
XVII. PLACE MARKERS TO INDICATE LOCATION OF DISCONNECTED SERVICES. IDENTIFY SERVICE
LINES AND CAPPING LOCATIONS ON PROJECT RECORD DOCUMENTS.
XVIII. PERFORM DEMOLITION IN ACCORDANCE WITH APPLICABLE AUTHORITIES HAVING
JURISDICTION.
XIX.REPAIR ALL DEMOLITION PERFORMED IN EXCESS OF THAT REQUIRED, AT NO COST TO THE OWNER.
XX. G.C. TO NOTIFY ASBESTOS INVESTIGATOR OF ANY SUSPICIOUS MATERIAL UNCOVERED DURING
DEMOLITION NOT NORMALLY ACCESSIBLE.
XXI.ALL EXHAUST GRILLES SHALL BE CLOSED AND COVERED TO PREVENT THE SPREAD OF DUST INTO
THE SYSTEM UNTIL CONSTRUCTION IS COMPLETE.
XXIV. ANY DISRUPTION OF THE ELECTRICAL, PLUMBING AND MECHANICAL TO THE BUILDING SHALL
BE COORDINATED WITH THE BUILDING SUPER AND MANAGEMENT WITH THE LENGTH OF TIME
DISRUPTION INDICATED.
GENERAL REMOVAL NOTES
-
REMOVAL KEYNOTES
No. Description
-
Scale:
Consultant
Contact
Address
Phone
e-mail
ARCHITCTS PLLC
648 Broadway / Suite 402, New York, NY 10012
T.212.254.5210
F.212.254.4523
www.wilkinsonarchitects.com
New York: Registered Architect 027917-1
Pennsylvania: Registered Architect 402561
National Council of Architectural Registration Board #52853
DOB Barcode
ATOZ Consulting Engineers, PC
Ilya Malyuchenko, P.E.
363 7th Avenue
3rd Floor
New York, NY 10001
212.929.2491
Ilya@atozengineers.com
Consultant
Contact
Address
Phone
e-mail
NYC Building Restoration
Robert M. Hanna, P.E.
9011 Northern Boulevard
Suite 307
Jackson Heights, NY 11372
646-522-0589
rhanna@engineer.com
MECHANICAL
STRUCTURAL
1/4" = 1'-0"
A-100
REMOVAL PLANS
ELAM RESIDENCE
300 EAST 74TH STREET PENTHOUSE-F/36TH FLOOR
NEW YORK, NY 10021
04/03/2015
1/4" = 1'-0"
1
Penthouse F - 36th Floor - Main Level
Removal Plan
R1
R12
R1 REMOVE EXISTING NON-STRUCTURAL PARTITION. PATCH CEILINGS, WALLS, AND FLOORS AS REQUIRED WITH MATERIALS TO MATCH EXISTING.
R2 REMOVE EXISTING WALL TILE FINISH AND BACKERBOARD IN BATHROOMS AND KITCHEN.
R3 REMOVE EXISTING DOOR AND FRAME. PATCH CEILINGS, WALLS, AND FLOORS AS REQUIRED WITH MATERIALS TO MATCH EXISTING.
R4 REMOVE EXISTING CASEWORK. PATCH CEILINGS, WALLS, AND FLOORS AS REQUIRED WITH MATERIALS TO MATCH EXISTING.
R5 REMOVE EXISTING COUNTERTOP AND BACKSPLASH.
R6 REMOVE EXISTING FLOOR FINISH DOWN TO SUB-FLOOR.
R7 REMOVE EXISTING RAISED PLATFORM. REMOVE ANY PLUMBING BELOW BACK TO RISERS. CAP AT CONNECTION WITH RISER.
R8 REMOVE EXISTING FANCOIL UNIT AND ENCLOSURE.
R9 REMOVE EXISTING PLUMBING FIXTURE AND ALL ASSOCIATED SUPPLY AND WASTE LINES BACK TO RISER. WELD CAP AT CONNECTION WITH RISER.
R10 REMOVE EXISTING KITCHEN APPLIANCE.
R11 REMOVE FINISH AROUND COLUMN TO EXPOSE STRUCTURAL CONCRETE.
R12 REMOVE EXISTING MANTEL, SURROUND, FLUE ENCLOSURE, AND HEARTH. EXISTING SOLID FUEL FIREBOX AND FLUE TO REMAIN.
R1
R4
R8
R8
R1 R1
R3
R3
R3
R7
R13
R13 REMOVE EXISTING STAIRCASE.
R1
R3 R9
R4
R4
R6
R6
R6
R6
R6
R6
R5
R5
R9
R10
R14 REMOVE EXISTING ELECTRICAL PANELS. DO NOT INTERFERE OR ALTER ELECTRICAL RISER. SEE E-100 FOR RELOCATION.
R14
R6
1/4" = 1'-0"
2
Penthouse F - Upper Level Removal Plan
R6
R1
R1
R3
R2
R2
R3
R9
R18
R15
REMOVE EXISTING WALL FINISHES ABOVE AND BELOW GREENHOUSE GLAZING DOWN TO FRAMING. MAINTAIN EXISTING EXTERIOR FINISH ON SOUTH SIDE OF
WALL. SEE CONSTRUCTION KEYNOTE 2 ON SHEET A-101.
R16 REMOVE EXISTING GREENHOUSE GLAZING AND KNEEWALL. PATCH AND REPAIR EXTERIOR WALLS AND FLOORS AS REQUIRED WITH MATERIALS TO MATCH EXISTING.
R16
R16
WALK -IN
CLOSET
MASTER
BEDROOM
MASTER
BATHROOM
GREENHOUSE
ROOF TERRACE
EXISTING FLUE AND
COVERING TO REMAIN
R6
R6
R6
R1
R4
R4
R4
R6
R3
R1
R13
R15
R8
STAIRWELL
R6
R6R9
R3
UP
BALCONY
DINING
LIVING
KITCHEN
FOYERCL
CL
CL
CORRIDOR
BEDROOM
M. BATH
POWDER
R8
R4
R4
R6
R17 SALVAGE EXISTING INTERCOM FOR RELOCATION.
R17
R17
R4
R18 DRAIN HOT TUB TO ROOF TERRACE WITH SYPHON PUMP BEFORE REMOVAL. CUT AND REMOVE TUB IN MANAGABLE SECTIONS, THEN REMOVE FRAMING.
R11
LAV WC
WC
LAV
SHOWER
PH-F
GAS RANGE
REF
SINK
DW
FP
HOT TUB
SHOWER
WC
LAV
LAV
No. Description Date
1 DOB Submission 02/06/2015
N N
NO WORK
R2
TYP
NO WORK
I. ALL CONTRACTORS & THEIR SUB-CONTRACTORS SHALL VISIT, BECOME FAMILIARIZED, & VERIFY ALL EXISTING
CONDITIONS PRIOR TO SUBMITTING A PROPOSAL. SUBMISSION OF A PROPOSAL WILL BE CONSTRUED AS EVIDENCE THAT
SUCH AN EXAMINATION HAS OCCURED & LATER CLAIMS WILL NOT BE RECOGNIZED FOR EXTRA LABOR, EQUIPMENT OR
MATERIALS REQUIRED BECAUSE OF DIFFICULTIES ENCOUNTERED WHICH COULD HAVE BEEN FORESEEN, HAD SUCH AN
EXAMINATION BEEN MADE. THIS EXAMINATION IS TO INCLUDE BUT NOT LIMITED TO VERIFYING WEIGHT, STRUCTURAL
LIMITATIONS, CLEARANCES, & MANEUVERING SPACE ASSOCIATED W/REMOVAL OF LARGE EQUIPMENT FROM BUILDING
PREMISES, OR ANY SUCH FORSEEABLE SPECIAL REQUIREMENTS. CONTRACTOR SHALL INCLUDE A PRICE BREAKDOWN FOR
SPECIAL REQUIREMENTS DUE TO SITE RESTRICTIONS OR CONDITIONS.
II. ALL CONTRACTORS AND/OR SUB-CONTRACTORS SHALL OBTAIN DEMOLITION AND/OR CONSTRUCTION PERMITS AND / OR
AUTHORIZATIONS FROM THE BUILDING DEPARTMENT, ARCHITECT, CLIENT, TENANT, AND / OR ENGINEERS AS REQUIRED
PRIOR TO THE COMMENCEMENT OF WORK. A COPY OF SUCH DOCUMENTS SHALL BE FURNISHED TO THE OWNERS AND THE
ARCHITECT PRIOR TO THE COMMENCEMENT OF WORK.
III. WHILE PERFORMING DUTIES ASSOCIATED WITH THIS CONTRACT ALL CONTRACTORS, SUB-CONTRACTORS, AND THEIR
WORKERS SHALL COMPLY WITH ALL OSHA RULES AND REGULATIONS & WITH THE STANDARD RULES AND REGULATIONS SET
FORTH BY THE OWNERS.
IV. ALL CONTRACTORS AND THEIR SUB-CONTRACTORS SHALL COORDINATE THEIR WORK WITH OTHER TRADES AND WILL
CONFER WITH ARCHITECT.
V. PROTECT ALL WINDOWS AND VENTS FROM DEBRIS AND DUST DURING CONSTRUCTION. KEEP PREMISES CLEAN AND DO
NOT LET DEBRIS, RUBBISH, OR EXCESS CONSTRUCTION MATERIAL ACCUMULATE OR OBSTRUCT EXITS AND EXIT
PASSAGEWAYS.
VI. THE CONTRACTOR SHALL NOTIFY THE ARCHITECT OF ANY ERRORS, OMISSIONS, CONFLICTS OR AMBIGUITIES WITHIN
AND BETWEEN THE PLANS, DRAWINGS, AND SPECIFICATIONS COMPRISING THESE CONTRACT DOCUMENTS PRIOR TO
SUBMITTING HIS BID PROPOSAL. IF SUCH NOTICE IS NOT FURNISHED TO THE ARCHITECT, THE CONTRACTOR SHALL BE
DEEMED TO HAVE INSPECTED THE PLANS, DRAWINGS, SPECIFICATIONS AND JOB CONDITIONS AND HAVE FOUND THEM IN
PROPER FORM FOR EXECUTION.
VII. THE ARCHITECT ASSUMES NO RESPONSIBILITY FOR CONSTRUCTION MEANS, TECHNIQUES, SEQUENCES OR
PROCEDURES, OR FOR THE SAFETY PRECAUTIONS IN CONNECTION WITH THE WORK.
VIII. DRAWINGS ARE NOT TO BE SCALED. FOLLOW DIMENSIONS SHOWN.
IX. NO CHANNELING, CUTTING OR CHOPPING OF ANY STRUCTURAL SLAB, ELEMENTS, DEMISING WALLS AND EXTERIOR
WALLS OR PIPE CHASE / SHAFT ENCLOSURE WALLS SHALL OCCUR DURING THE COURSE OF ANY WORK.
X. NO REMOVAL OF MASONRY BACK-UP MATERIAL AT EXTERIOR OR SHAFT WALLS SHALL OCCUR FOR INSTALLATION OF
JUNCTION BOXES, ETC.
XI. ALL FIREPROOFING MUST BE MAINTAINED. ANY FIREPROOFING THAT IS DISTURBED DURING THE COURSE OF THE
RENOVATION IS TO BE RECONSTITUTED TO CODE COMPLIANT RATINGS.
XII. NO OFFSET OF RISERS (PLUMBING, GAS, ETC) SHALL OCCUR.
XIV.ALL PLUMBING SHALL BE DONE BY A NEW YORK CITY LICENSED PLUMBER AND ALL ELECTRICAL WORK BY A NYC
LICENSED ELECTRICIAN IN ACCORDANCE WITH N.Y.C. BUILDING CODES AND REGULATIONS.
XV. PROVIDE NEW BRANCH LINES AT ALL NEW FIXTURES FOR WASTE, VENT AND SUPPLY LINES BACK TO THE RISERS, WITH
NEW ACCESSIBLE SHUT-OFF VALVES AT RISER. WASTE LINES MUST BE RE-USED WHERE WHERE CURRENTLY LOCATED IN
THE CONCRETE SLAB OR NEW LINES RUN ABOVE THE STRUCTURAL SLAB. INSTALL NEW SUPPLY BALL TYPE STOP VALVES
FOR EACH LAV AND TOILET AND NEW BALL SHUT-OFF VALVES FOR THE BATHROOM AS A WHOLE. FIRE RATED ACCESS
PANELS ARE REQUIRED AT ALL SHUT-OFF VALVES.
XVI.THE USE OF ELECTRICAL OR AIR HAMMER OR OTHER PNEUMATIC TOOLS ARE NOT PERMITTED TO BE USED DURING
CONSTRUCTION DUE TO THE NOISE FACTOR UNLESS SPECIAL PERMISSION IS GRANTED.
XVII. ALL NECESSARY ELECTRIC, GAS & WATER WORK MUST BE PERFORMED LOCALLY WITHIN THE APARTMENT. ALL
NECESSARY SHUTDOWNS SHALL BE COORDINATED WITH THE BUILDING SUPER AND MANAGEMENT. SHUT DOWNS OF
SERVICE RISERS TO RELOCATE ELECTRIC PANEL BOXES, SERVICE RISERS OR TO PERFORM PLUMBING WORK WILL NOT BE
PERMITTED.
XVIII. PLUMBER TO PROVIDE BACKFLOW PREVENTORS AND BALL VALVES AT ALL PIPE OUT LOCATIONS.
XIX.REPLACE ALL SUPPLY, VENT AND SANITARY LINES BACK TO RISER AT KITCHEN. INSTALL NEW BALL TYPE SHUT-OFF
VALVES AT SINK, DISHWASHER AND REFRIGERATOR WATER LINE, AND MASTER SHUT-OFF VALVES FOR KITCHEN AS A
WHOLE.
XX. ALL WATER LINES ARE TO BE INSTALLED WITH THERMAL / ACOUSTIC INSULATION TO MINIMIZE SWEATING AND NOISE
TRANSMISSION, INCLUDING ELBOWS AND FITTINGS.
XXI.ISOLATE COPPER PIPING FROM DISSIMILAR MATERIAL TO PREVENT GALVANIC CORROSION.
XXII. NO PENETRATION THROUGH ANY EXTERIOR WALL IS PROPOSED NOR PERMITTED AS PART OF THIS ALTERATION.
XXIII. GC TO VERIFY THE LOCATION OF ALL EXISTING CONNECTIONS TO THE STACK. BUILDING MANAGEMENT TO INSPECT
AND NOTIFY OF OTHER PLUMBING TO BE REPLACED.
XXIV. ALL EXHAUST GRILLES AND DAMPERS MUST BE MAINTAINED, REMAIN ACCESSIBLE AND IN OPERATION. UPON
COMPLETION OF WORK, ALL GRILLES AND DAMPERS ARE TO BE CLEANED.
XXV. GC TO TAKE MEASURES TO INSURE THAT OTHER PORTIONS OF THE BUILDING ARE NOT DAMAGED. ALL EXISTING
CONSTRUCTION ADJACENT TO PUBLIC AREAS OR OTHER APARTMENTS AFFECTED BY THE PROPOSED WORK IS TO BE
PATCHED BACK TO IT'S ORIGINAL CONDITION USING MATCHING MATERIALS.
XXVI. NO STORAGE OR WORK IS PERMITTED IN COMMON AREAS AND FIRE STAIRS.
XXVII. PLUMBER MUST CHECK EXISTING WASTE AND VENT LINES TO BE FREE OF OBSTRUCTION.
XXVIII. CEMENT BOARD IS TO BE USED AT ALL SHOWER, TUB ENCLOSURES AND TILED AREAS. MOLD AND MOISTURE
RESISTANT WALL BOARD AT ALL OTHER DESIGNATED "WET AREAS".
XXIX. FIXTURE PIPING BETWEEN SHUT-OFF VALVE AND THE FAUCET OR APPLIANCE TO BE COPPER TUBING WITH FLARED
ENDS AND BRASS BUSHINGS, OR BRASS COMPRESSION FITTINGS. (NO PLASTIC; RUBBER OR BRAIDED STAINLESS STEEL.
HIGH PRESSURE "NO BURST" BRAIDED STAINLESS STEEL WILL BE ALLOWED TO HOOK-UP APPLIANCES THAT DO NOT HAVE
ACCESS AFTER INSTALLATION IF DEMONSTRATED THERE IS NO PRACTICAL ALTERNATIVE.)
XXX. THE CONTRACTOR SHALL MAINTAIN ADEQUATE, CLEARLY IDENTIFIED FIRE EXTINGUISHERS THROUGHOUT THE AREA
OF WORK.
XXXI. GC TO PROVIDE A COMPLETE PHOTOGRAPHIC SURVEY OF THE ADJACENT APARTMENTS AND PUBLIC SPACES PRIOR
TO THE COMMENCEMENT OF ANY WORK TO IDENTIFY PRE-EXISTING CONDITIONS. A COPY OF THE SURVEY SHALL BE
DELIVERED TO THE MANAGING AGENT.
XXXII. HOT AND COLD BRANCH LINES MUST BE REPLACED AT THE RISER'S CONNECTIONS.
XXXIII. FOUR-ELBOW SWING MUST BE INSTALLED ON THE HOT WATER BRANCH LINE.
XXXIV. WATTS PRESSURE REDUCING VALVES MODEL U5B-Z3 MUST BE INSTALLED ON THE HOT AND COLD WATER BRANCH
LINES.
XXXV. SPRING LOADED CHECK VALVES MUST BE INSTALLED ON THE HOT AND COLD WATER BRANCH LINES.
XXXVI. APOLLO BALL VALVES MUST BE INSTALLED ON THE HOT AND COLD WATER BRANCH LINES.
XXXVII. PLUMBERS ARE REQUIRED TO USE TYPE L COPPER TUBING TO SUPPLY WATER TO TOILETS AND SINKS.
XXXVIII.PLUMBERS ARE PROHIBITIED FROM USING PLASTIC TUBING AND/OR RUBBER HOSES TO SUPPLY WATER TO
REFRIGERATORS, DISHWASHERS, WASHING MACHINES, INSTANT HOT WATER MAKERS, TOILETS, SINKS AND WATER
FILTERS.
XXXIX. PLUMBERS ARE REQUIRED TO INSTALL McGUIRE VALVES UNDER THE SINKS AND TOILETS. PLASTIC STEM VALVES
ARE PROHIBITIED.
XXXX. GARBAGE DISPOSALS ARE PROHIBITIED.
XXXXI. REGARDING INSTALLATION OF SHOWER STALLS, THE CONTRACTOR AND PLUMBER ARE REQUIRED TO INSTALL A
TWO-INCH DRAIN WITH WEEP HOLES AND P-TRAP. TWO-INCH DRAIN MUST BE CONNECTED TO THE EXISTING STACK.
XXXXII. REGARDING INSTALLATION OF SHOWER STALLS, THE CONTRACTOR AND PLUMBER ARE REQUIRED TO USE A 6
GUAGE LEAD PAN THAT RETURNS UP THE WALL A MINIMUM OF 12-INCHES.
XXXXIII. REGARDING INSTALLATION OF SHOWER STALLS, THE CONTRACTOR AND PLUMBER ARE REQUIRED TO APPLY A COAT
OF "BLACK MAGIC" TO THE TOP PORTION OF THE LEAD PAN. "BLACK MAGIC" EXTENDS THE LIFE OF THE PAN AND PREVENTS
THE LEAD PAN FROM DIRECT CONTACT WITH CEMENT WHICH CORRODES AND DAMAGES THE LEAD PAN.
XXXXIV. WHEN A WOODEN PLATFORM IS CONSTRUCTED TO CREATE A SHOWER STALL, THE CONTRACTOR IS REQUIRED TO
USE A MINIMUM OF 3/4-INCH THICK PLYWOOD.
XXXXVI. CONTRACTORS ARE PROHIBITED FROM DRILLING NAILS AND SCREWS THROUGH ANY PORTION OF THE LEAD PAN.
XXXXVII. REGARDING INSTALLATION OF WASHER AND DRYER UNITS, HOT AND COLD WATER VALVES MUST BE INSTALLED TO
THE SIDE OF EACH MACHINE FOR EASY ACCESS IN THE EVENT THE MACHINE NEEDS TO BE SERVICED.
XXXXVIII. REGARDING INSTALLATION OF WASHER AND DRYER UNITS, ALL FLOORING BENEATH MACHINES MUST BE WATER
PROOFED AND SEALED.
XXXXIX. WASHER UNITS MUST BE SET ON VIBRATION ISOLATORS INSTALLED IN A WATERPROOF PAN.
XXXXX. REGARDING INSTALLATION OF WASHER AND DRYER UNITS, A FLOOD STOP KIT MUST BE INSTALLED ON THE HOT
AND COLD WATER HOSES.
XXXXXI. REGARDING INSTALLATION OF WASHER AND DRYER UNITS, EASILY ACCESSIBLE BACKFLOW PREVENTORS NEED TO
BE INSTALLED ON THE HOT AND COLD WATER BRANCH LINES.
XXXXXII. DRYER UNITS MUST BE VENTLESS TYPE UNITS. VENTED DRYER UNITS ARE PROHIBITED.
GENERAL CONSTRUCTION NOTES
UP
1
3
1
4
1
1
ALIGN
11
ALIGN
5'-0"8'-61/2"1'-103/4"9'-71/4"
3
2
MIN CLEAR
3' - 0"
6'-03/4"5'-1"9'-01/4"
1'-8"
VERIFYINFIELD
21'-10"
13' - 2 3/4"
VERIFY IN FIELD
9' - 2 1/4"
ALIGN
ALIGN
A-2053
2
VERIFYINFIELD
6'-113/4"
VIF
1'-10"
VERIFY IN FIELD
18' - 6"
VIF
2' - 10 1/4"
VERIFY IN FIELD
7' - 8 1/2"
1
1
SD
SD
EXG
16R15T 7
A-101
3
A-101
4
A-101
5
4' - 6"
13' - 9 3/4"
VERIFY IN FIELD
27' - 0 1/2"
VERIFYINFIELD
26'-63/4"
1
A-505
1
A-505
6
A-505
A-303
1
ALIGN
A-2056
5
8
1
3
1
1
UP
16R
4
6
5
17' - 0 1/4"
1 3/4"
1' - 11"
15'-3"
DN
6"11'-10"
SD
6'-8"
SD
15T
1R 0T
8
2'-21/4"
1
A-302
MATCHEXTENTSOFEXGGREENHOUSE
10'-53/4"±(VERIFYINFIELD)
MATCH EXTENTS OF EXISTING GREENHOUSE BEING REMOVED
17' - 3 3/4" ± (VERIFY IN FIELD)
4
A-505
A B
1
7
A-505
SD
1
A-506
FCU-3FCU-1
2
CONSTRUCTION KEYNOTES
No. Description
CLEAR
2'-8"
MINIMUM
1' - 6"
MINIMUM
1' - 6" 1' - 6"
3
MINIMUM
2' - 0"
MIN
1'-0"
MINIMUM
2'-0"
MINIMUM
2' - 0"
MAX
1' - 0"
MAX
1'-0"
MINIMUM
1'-6"
W
C
48"X
56"
LAV
30" X
48"
SHOWER
30" X
48"
18" VERTICAL
GRAB BAR
WOOD BLOCKING (TYP)
CLEAR
2'-8"
1
MINIMUM
1' - 6"
W
C
48"X
56"
LAV
30" X
48"
MINIMUM
2' - 0"
6"
MINIMUM
1'-6"
18" VERTICAL
GRAB BAR
WOOD BLOCKING (TYP)
METAL RUNNER (TYP)
TOP OF FLOOR
5/8" GWB EACH SIDE
TO U/S OF CEILING
3 5/8 " METAL STUDS
(MAY VARY) @ 16" O.C.
U/S OF CEILING
ROOM PARTITION F.H.
5/8" FIRE RATED GWB
INTERIOR SIDE ONLY (2
LAYERS FOR FIRE RATING)
U/S OF CEILING
ROXUL SAFE 'N'
SOUND MINERAL
WOOL INSULATION
SOLID WOODSTRIP
5/8" GWB EACH
SIDE TO U/S OF
CEILING
1-1/2" METAL
STUDS @ 16" O.C.
U/S OF CEILING
5/8" GWB. EACH
SIDE TO U/S OF
CEILING
U/S OF CEILING
J - BEAD METAL RUNNER (TYP)
TOP OF FLOOR
20 GA METAL STUDS
(SIZE VARIES) @ 16" O.C.
HILTI FIRE FOAM CP620
J - BEAD
METAL RUNNER
EACH SIDE (TYP)
TOP OF FLOOR
SOLID WOOD STRIP
J - BEAD
(TYP)
1
FURRED-OUT WALL F.H.
2
POCKET DOOR WALL F.H.
3
PLUMBING CAVITY F.H.
4
PARTITION WALL TYPE
#
EXISTING WALL
VIBRATION
ISOLATION PADDING
HILTI FIRE FOAM CP620
WALL CLIPS AS NEEDED
Non Fire Rated
STC: 51-56
Fire Rating
STC Rating
Maintain EXG Fire Rating As Req'd
STC: 40-48
Non Fire Rated
STC: 40-44
Non Fire Rated
STC: 40-48
(SIZE VARIES)
AIR SPACE
1/4"
1/4"(TYP)
(TYP)1/4"
POCKET DOOR CAVITY
1-1/2" METAL
STUDS @
16" O.C.
METAL RUNNER
EACH SIDE (TYP)
TOP OF FLOOR
SOLID WOOD
STRIP
J - BEAD
1/4"(TYP)
CLEAR FLOOR SPACE
ø 5' - 6"
5' - 0"
6'-7"
EXTENTS OF NEW/EXISTING WET AREA
(SEE FLOOR DETAILS ON SHEET A-501)
FLOOR FINISH LEGEND
STONE TILE FLOOR FINISH
(SEE FLOOR DETAILS ON SHEET A-501)
HARD WOOD FLOOR FINISH
(SEE FLOOR DETAILS ON SHEET A-501)
Graphic Description
Scale:
Consultant
Contact
Address
Phone
e-mail
ARCHITCTS PLLC
648 Broadway / Suite 402, New York, NY 10012
T.212.254.5210
F.212.254.4523
www.wilkinsonarchitects.com
New York: Registered Architect 027917-1
Pennsylvania: Registered Architect 402561
National Council of Architectural Registration Board #52853
DOB Barcode
ATOZ Consulting Engineers, PC
Ilya Malyuchenko, P.E.
363 7th Avenue
3rd Floor
New York, NY 10001
212.929.2491
Ilya@atozengineers.com
Consultant
Contact
Address
Phone
e-mail
NYC Building Restoration
Robert M. Hanna, P.E.
9011 Northern Boulevard
Suite 307
Jackson Heights, NY 11372
646-522-0589
rhanna@engineer.com
MECHANICAL
STRUCTURAL
As indicated
A-101
CONSTRUCTION PLANS
ELAM RESIDENCE
300 EAST 74TH STREET PENTHOUSE-F/36TH FLOOR
NEW YORK, NY 10021
04/03/2015
1/4" = 1'-0"
1
Penthouse F - 36th Floor - Main Level
Construction Plan
1/4" = 1'-0"
2
Penthouse F - Upper Level Construction Plan
1
NEW RAISED PLATFORM UNDER STAIR. PLATFORM HEIGHT TO MATCH STAIR RISER HEIGHT.
PLATFORM FLOOR FINISH TO MATCH STAIR TREAD FINISH. SEE SHEET A-303.
2 REINSULATE EXISTING FRAMING AND FINISH WITH GWB. DO NOT DISTURB OR ALTER EXISTING
EXTERIOR FINISH.
3 NEW DOOR, FRAME, AND HARDWARE. SEE DOOR REFERENCE CHART.
4 NEW KITCHEN CASEWORK. SEE ELEVATIONS ON SHEET A-202.
5
NEW REFRIGERATOR. EXTEND COPPER TUBE WATER SUPPLY TO ICE MAKER. SEE APPLIANCE
SCHEDULE ON SHEET A-600.
6 NEW DISHWASHER. SEE APPLIANCE SCHEDULE ON SHEET A-600.
7
8
9
NEW STAIRCASE WITH CONTINUOUS 1-3/8" WIDE HANDRAIL INSTALLED 36" HIGH.
10 NEW BUILT-IN STORAGE FURNITURE.
11 NEW WALL HUNG SHELVING UNIT. SEE DETAILS ON SHEET A-506.
12
NEW STONE MANTEL OVER EXISTING FIREPLACE. NO WORK TO FIREPLACE OR EXISTING FLUE.
13 NEW RECIRCULATING HOOD OVER GAS RANGE. SEE APPLIANCE SCHEDULE ON SHEET A-600.
14 NEW WALL MOUNTED TOILET. SEE PLUMBING FIXTURE SCHEDULE ON SHEET A-600.
15 NEW BATHROOM LAVATORY. SEE PLUMBING FIXTURE SCHEDULE ON SHEET A-600.
16
REPLACE PTAC UNIT AND ENCLOSURE. REPLACEMENT UNITS MUST BE CERTIFIED AND
INSTALLED BY A NYC LICENCED PLUMBER. REPLACEMENT ENCLOSURES MUST HAVE SERVICE
ACCESS PANELS AND INTERNAL DUCT (PAINTED MATTE BLACK) BETWEEN PTAC UNIT AND GRILL.
1
3
3
21
21
EXISTING EXPOSED
CONCRETE COLUMN
MASTER
BEDROOM
MASTER
BATHROOM
GREENHOUSE
ROOF TERRACE
STAIRWELL
LIVING
DINING
KITCHEN
FOYER
CORRIDOR
BEDROOM
POWDER
10
10
EXISTING FLUE
AND COVERING
TO REMAIN
17
NEW UNDERCOUNTER WINE STORAGE. SEE APPLIANCE SCHEDULE ON SHEET A-600.18
19 NEW INTEGRATED WINE STORAGE. SEE APPLIANCE SCHEDULE ON SHEET A-600.
20
NEW STACKABLE WASHER/SELF-CONDENSING DRYER. PROVIDE NEW FLOOR DRAIN AND
METAL PAN MIN 3" CURB W/ WATER SENSOR AND AUTOMATIC SHUT OFF VALVE.
21
NEW ACCESS PANEL TO WATER SUPPLY SHUT OFF FOR AREA INDICATED.22
23
24
25
NEW STAINLESS STEEL UNDERMOUNT KITCHEN SINK. SEE PLUMBING FIXTURE SCHEDULE ON
SHEET A-600.
REPLACE GREENHOUSE ENCLOSURE. SEE SHEETS A-301, A-302, AND A-503.
NOTE: GREEHOUSE STRUCTURE APPROVED UNDER PRIOR NYC DOB APPLICATION #BH594-85.
NEW SKYLINE TERRACE DOOR AND TILT & TURN CASEMENT WINDOWS WITH FASTENERS @
16" O.C. FINISH TO MATCH EXISTING FENESTRATION. SEE SHEETS A-301, A-302, AND A-503.
BALCONY
NEW SHOWER UNIT. SEE PLUMBING FIXTURE SCHEDULE ON SHEET A-600.
PARTITION TYPES
W/D
BATH
NO WORK
NO WORK
CL
2
7
19
26
10
3
REPLACE SKYLIGHT ABOVE
(SEE DETAIL SHEET A-504)
8
8
8
8
15
15
11
9
14
13
5
17
10
14
16
14
15
24
21
7
(TYP)
6
ENLARGED PLANS FOR
ADA ADAPTABLE USE
1/2" = 1'-0"
4
Main Level Bath Enlarged ADA Plan
1/2" = 1'-0"
3
Main Level Powder Enlarged ADA Plan
NO WORK
NEW STAINLESS STEEL UNDERMOUNT BAR SINK. SEE PLUMBING FIXTURE SCHEDULE ON SHEET
A-600.
22
20
3
1/2" = 1'-0"
5
Main Level Kitchen Enlarged ADA Plan
DOOR REFERENCE CHART
Mark Height Width Thickness Comments
1 8' - 0" 2' - 8" 1 1/2" 1ST FLR: POWDER RM
2 7' - 10" 4' - 10 1/2" 2" 1ST FLR: BEDROOM
3 8' - 0" 2' - 8" 1 1/2" 1ST FLR: BATHROOM
4 7' - 10" 4' - 5 3/4" 2" 2ND FLR: MASTER BEDROOM
5 8' - 0" 2' - 8" 1 1/2" 2ND FLR: MASTER BATHROOM
6 6' - 8" 2' - 6" 2" 2ND FLR: GREENHOUSE
7 7' - 9" 2' - 7" 3/8" 1ST FLR: BATH SHOWER
8 7' - 8" 2' - 11 1/4" 3/8" 2ND FLR: MASTER BATH SHOWER
9 7' - 11" 3' - 0" 1 3/4" 2ND FLR: GREENHOUSE
MAINTAIN CLEARANCE
TO ACCESS EXISTING
ROOF DRAIN. VERIFY
LOCATION IN FIELD.
EXISTING BATHROOM
VENT EXTENDED TO
NEW LOCATION.
22
22
(M. BATH)
(GARDEN SINK)
(W/D)
LOWERED
COUNTERTOP
NOTE: GREEHOUSE STRUCTURE
APPROVED UNDER PRIOR NYC DOB
APPLICATION #BH594-85
NOTE: ALL WALL DIMENSIONS SHOWN ARE FROM FINISH FACE TO FINISH FACE NOTE: ALL WALL DIMENSIONS SHOWN ARE FROM FINISH FACE TO FINISH FACE
REPLACE SKYLIGHT ABOVE
(SEE DETAIL SHEET A-504)
23
16
4
12
18
4
4
(TYP)
(TYP)
26
NEW 5/8" SOLARBAN 60 INSULATED GLASS WINDOW UNITS. ALL FINISHES TO MATCH EXISTING
FENESTRATION. SEE SHEET A-505.
25
No. Description Date
NEW CERAMIC TILE WALL FINISH WITH BACKERBOARD IN WASHROOMS.
10
LAV
WC
WC
SHOWER
LAV
3
LAV
SHOWER
HALL
WC
SINK
CL
CL
LAV
WC
SHOWER
LAV
WC
SINK
D/W
REF
F/P
REF
SINK
D/W
NEW GAS RANGE. PROVIDE ACCESSIBLE FIXTURE SHUT OFF VALVE IN KITCHEN. SEE
APPLIANCE SCHEDULE ON SHEET A-600.
REF
PENTHOUSE F
GASRANGE
GASRANGE
NOT TO SCALE
N N
3
24
CU-1
1
A-302
1
A-504
TYP
1
A-504
TYP
3
A-504
TYP
A B
1
I. ANY ALTERATION TO ROOFING DURING REMOVAL AND CONSTRUCTION MUST BE PERFORMED BY
THE BUILDING'S ROOFING CONTRACTOR (YORK RESTORATION CORP.) TO MAINTAIN WARRANTY.
GENERAL ROOF NOTES
REMOVAL KEYNOTES
No. Description
CONSTRUCTION KEYNOTES
No. Description
Scale:
Consultant
Contact
Address
Phone
e-mail
ARCHITCTS PLLC
648 Broadway / Suite 402, New York, NY 10012
T.212.254.5210
F.212.254.4523
www.wilkinsonarchitects.com
New York: Registered Architect 027917-1
Pennsylvania: Registered Architect 402561
National Council of Architectural Registration Board #52853
DOB Barcode
ATOZ Consulting Engineers, PC
Ilya Malyuchenko, P.E.
363 7th Avenue
3rd Floor
New York, NY 10001
212.929.2491
Ilya@atozengineers.com
Consultant
Contact
Address
Phone
e-mail
NYC Building Restoration
Robert M. Hanna, P.E.
9011 Northern Boulevard
Suite 307
Jackson Heights, NY 11372
646-522-0589
rhanna@engineer.com
MECHANICAL
STRUCTURAL
1/4" = 1'-0"
A-102
ROOF PLANS
ELAM RESIDENCE
300 EAST 74TH STREET PENTHOUSE-F/36TH FLOOR
NEW YORK, NY 10021
04/03/2015
1/4" = 1'-0"
2
Penthouse F - Upper Level Roof
Construction Plan
1/4" = 1'-0"
1
Penthouse F - Upper Level Roof Removal
Plan
EXISTING ROOF
DRAIN TO REMAIN
(DO NOT DISTURB)
EXISTING FLUE AND
CAP TO REMAIN
(DO NOT DISTURB)
EXISTING 4" Ø VENT
PIPE TO REMAIN
EXISTING JUNCTION
BOX TO REMAIN
EXISTING FIRE SAFETY
RAILING TO REMAIN
(DO NOT DISTURB)
SEE DRAWING 3 ON M-100
FOR MECHANICAL WORK
No. Description Date
UPPER LEVEL ROOF
D1 REMOVE EXISTING GREENHOUSE INSULATED GLASS ENCLOSURE.
D2 REMOVE PORTION OF EXISTING KNEE WALL DOWN TO HEIGHT OF GREENHOUSE FLOOR SUBSTRATE.
D3 REMOVE EXISTING SKYLIGHT. COORDINATE WITH REPLACEMENT INSTALLATION. SEE GENERAL ROOF NOTE I.
D4 REMOVE EXISTING AIR HANDLER. EXISTING MECHANICAL EQUIPMENT SLAB TO REMAIN. SEE GENERAL ROOF NOTE I.
D5 REMOVE EXISTING DUCTING AND SUPPORTS BETWEEN AIR HANDLER AND ROOF SLEEVE. SEE GENERAL ROOF NOTE I.
D6 REMOVE EXISTING ROOF SLEEVE. COORDINATE WITH ROOF REPAIR WORK TO FILL OPENING. SEE GENERAL GENERAL ROOF NOTE I.
D7 REMOVE EXISTING AIR HANDLER ELECTRICAL WIRING AND REFRIGERANT LINES BACK TO JUNCTION BOX.
UPPER LEVEL ROOF
ROOF TERRACE BELOW ROOF TERRACE BELOW
NO WORK NO WORK
GREENHOUSE INSULATED
GLASS ENCLOSURE BELOW
1 NEW AIR HANDLER MOUNTED ON EXISTING EQUIPMENT PAD. SEE MECHANICAL DRAWINGS. SEE GENERAL ROOF NOTE I.
2 NEW TAPERED STEEL ROOF BEAM OF NEW GREENHOUSE ENLOSURE. SEE SHEETS A-502 AND A-503.
3 NEW STRUCTURAL INSULATED PANEL BETWEEN TAPERED ROOF BEAMS TO EXTENTS SHOWN.
4 NEW "THERMALGAL" TRANSLUCENT INSULATED STRUTRURAL POLYCARBONATE (POLYGAL) SHEET BETWEEN TAPERED ROOF BEAMS TO EXTENTS SHOWN.
5 NEW SKYLIGHT AT EXISTING LOCATION. SIZE TO MATCH EXISTING ROOF OPENING. SEE GENERAL ROOF NOTE I.
6
REPAIR ROOF OPENING. FRAME, INSULATE, AND FINISH TO MATCH EXISTING INTERIOR AND EXTERIOR. SEE GENERAL ROOF NOTE I.7
NEW SAFETY RAIL SOURCE SAFETY ROOF SCREEN INSTALLED ON FRAME OF NEW SKYLIGHT OVER STAIRWELL. SEE GENERAL ROOF NOTE I.
D1
D2
D3
D3
D4
D5
D6
D7
1
2
TYP
3
4
TYP
5
56
7
PITCH
PITCH
NEW CONTINUNOUS COIL STOCK ROOF GUTTER WITH COPPER RAIN LEADER PITCHED TOWARD EXISTING ROOF DRAIN.8
8
EXISTING TERRACE
DEMISING WALL TO REMAIN
EXISTING PARAPET
WALL TO REMAIN
(DO NOT DISTURB)
EXISTING METAL SAFETY
RAILING TO REMAIN
(DO NOT DISTURB)
EXISTING PARAPET
WALL TO REMAIN
(DO NOT DISTURB)
8
33
3
3
4
3
2
A-507
2
A-507
1
A-507
TYP
TYP
TYP
1
A-507
TYP
1
A-507
TYP
1
A-507
SIM
OPEN TO ABOVE
L-R1 L-R1
L-R1 L-R1
L-R1L-R1
L-R1 L-R1 L-R1
L-R1 L-R1
L-R1 L-R1 L-R1
L-R1
L-R1L-R1
L-R1L-R1
L-R1
EXPOSED UNDERSIDE
OF EXISTING FLOOR
SLAB ABOVE
3
A-507
TYP
3
A-507
TYP
3
A-507
TYP
EXPOSED UNDERSIDE OF
EXISTING FLOOR SLAB ABOVE
EXPOSED UNDERSIDE OF
EXISTING FLOOR SLAB ABOVE
L-R3L-R3
L-R4 L-R4
L-R2
L-R2
L-R2
L-R2 L-R2 L-R2 L-R2
L-R2
L-R2
L-R2 L-R2 L-R2
L-P2 L-P2 L-P2
L-RL1
L-RL1
WALL MOUNTED
SMOKE DETECTORS
(MOUNT 6"-12" FROM
CEILING FINISH)
L-RL1
L-R1
L-R2
L-R2
L-R2
L-RL1
L-RL2
L-RL2 L-RL2
3
U/L 3-WAY
SWITCH
L-RL1
RAISED PLATORM BELOW
16'-8"
8' - 6"
9' - 3"
5'-0"
1'-8"
L-RL1
L-RL2
L-WM2
L-WM2
L-WM1
L-WM1
3
A-507
L-RL2
L-R2 L-R2
CF-3
CF-3
CF-3 CF-3
CF-3
MOTORIZED CEILING SHADE MOTORIZED CEILING SHADE
CF-2
CF-2
ALIGN
CF-1
CF-1
CF-1
CF-1
CF-1
CF-1
CF-5
CF-2
CF-1
L-P1
L-R3 L-R3
L-R6
L-R6
DR
CF-2
L-WM3
RAISED PLATORM BELOW
2
A-507
TYP
WALL MOUNTED SMOKE DETECTOR
(MOUNT 6"-12" FROM CEILING FINISH)
A B
1
L-R5 L-R5
L-R5 L-R5
L-R5 L-R5
L-R1 L-R1 L-R4
L-R4
L-R5
L-R5 L-R5
L-R5
L-R5
L-R5
L-P2L-P2
16' - 9"
L-S1
L-S1
L-S1
L-S1
3
OUT TO TERRACE
4
4
4
L-RL2
T
M/L 3 WAY SWITCHL-TL1
M/L 3 WAY SWITCH
MASTER BED CUSTOM
CASEWORK BELOW
L-RL2
TREAD
BELOW
L-RL1
EXPOSED UNDERSIDE OF
EXISTING SLAB ABOVE
CF-3
STEEL BEAM
TYP
4
A-507
CF-1
CF-1
CF-1
CF-1
L-R6
L-R6
L-R6
L-R6
L-R6
L-R6
L-R6
L-R6
CF-1
DR
DR
DR
DR
DR
L-R6
L-R6
CF-1
CF-1
L-P2
L-WM4 CF-1
CF-6
CASEWORK
BELOW
L-S2 L-S2 L-S2 L-S2 L-S2 L-S2 L-S2
L-WM5
4
A-507
TYP
TYP
CF-6CF-6CF-6 CF-6 CF-6 CF-6
L-TL1
WALL MOUNTED SMOKE DETECTOR
(MOUNT 6"-12" FROM CEILING FINISH)
4
4
4
L-WM6
L-WM6
SINGLE POLE WALL MOUNTED SWITCH
SYMBOL DESCRIPTION
ELECTRICAL LIGHTING LEGEND
3 WAY WALL MOUNTED SWITCH
4 WAY WALL MOUNTED SWITCH
JAMB MOUNTED DOOR SWITCHDR
1" RECESSED LED
4" RECESSED HALOGEN
4" RECESSED LED (SHOWER)
WALL MOUNTED SCONCE
CEILING MOUNTED TRACK LIGHTING
WALL MOUNTED SURFACE FIXTURE
ROPE LIGHT
CEILING MOUNTED SURFACE FIXTURE
PENDANT MOUNTED LIGHT FIXTURE
CEILING MOUNTED SURFACE FIXTURE
Scale:
Consultant
Contact
Address
Phone
e-mail
ARCHITCTS PLLC
648 Broadway / Suite 402, New York, NY 10012
T.212.254.5210
F.212.254.4523
www.wilkinsonarchitects.com
New York: Registered Architect 027917-1
Pennsylvania: Registered Architect 402561
National Council of Architectural Registration Board #52853
DOB Barcode
ATOZ Consulting Engineers, PC
Ilya Malyuchenko, P.E.
363 7th Avenue
3rd Floor
New York, NY 10001
212.929.2491
Ilya@atozengineers.com
Consultant
Contact
Address
Phone
e-mail
NYC Building Restoration
Robert M. Hanna, P.E.
9011 Northern Boulevard
Suite 307
Jackson Heights, NY 11372
646-522-0589
rhanna@engineer.com
MECHANICAL
STRUCTURAL
1/4" = 1'-0"
A-103
REFLECTED CEILING PLANS
ELAM RESIDENCE
300 EAST 74TH STREET PENTHOUSE-F/36TH FLOOR
NEW YORK, NY 10021
04/03/2015
1/4" = 1'-0"
1
Penthouse F - 36th Flr - Main Level
Reflected Ceiling Plan
1/4" = 1'-0"
2
Penthouse F - Upper Level Refelected
Ceiling Plan
No. Description Date
LIGHTING FIXTURE SCHEDULE
Desig. Cnt Description Housing / Trim Lamp Manufacturer Product ID Location(s)
L-P1 1 PENDANT MOUNTED (OWNER PROVIDED) NA INCANDESCENT 1ST FLR: DINING
L-P2 3 PENDANT MOUNTED (OWNER PROVIDED) NA T5 Delray Lighting 6311 2MD FLR: STAIRWELL
L-R1 23 LOW VOLTAGE HALOGEN TRIMLESS HALOGEN (12OV, 277V, OR 347V) USAI 9004-10-C-FL100-120 1ST FLR: FOYER/LIVING/DINING SOFFITS
L-R2 17 LOW VOLTAGE HALOGEN 4" LOW VOLTAGE REMODEL HOUSING MR16 (12V/50W) WAC LIGHTING HR-8401E 1ST FLR: LIVING/DINING & KITCHEN DROP CEILING
L-R3 4 1" LEDme MINI RECESSED ADJUSTABLE SPOT NA / LOW PROFILE TRIM WARM/NEUTRAL LED (3W) WAC LIGHTING HR-LED272R 1ST FLR: POWDER ROOM CEILING
L-R4 4 4" LEDme NEW CONSTRUCTION HOUSING / SHOWER TRIM 6 x WARM/NEUTRAL LED (3W) WAC LIGHTING HR-LED418-N 1ST FLR: BATHROOM SHOWER CEILING 2ND FLR: MASTER BATHROOM SHOWER CEILING
L-R5 12 3.5" TESLA LED NA / DOWNLIGHT TRIM LUXEON S MULTI-CHIP LED (18W) WAC LIGHTING HR-3LED-T718 2ND FLR: STAIRWELL CEILING, HALL CEILING, MASTER BEDROOM DROP CEILING
L-R6 12 1" LEDME MINI RECESSED ADJUSTABLE SPOT NA / LOW PROFILE TRIM WARM/NEUTRAL LED (3W) WAC LIGHTING HR-LED272R 1ST FLR: BEDROOM CLOSET CLG 2ND FLR: W/D CLG, ELEC CLOSET CLG, M. BEDROOM CLOSET CLG
L-S1 3 SURFACE MOUNTED (OWNER PROVIDED) 2ND FLR: MASTER BEDROOM DROP CEILING
L-S2 7 SURFACE MOUNTED (OWNER PROVIDED) 2ND FLR: GREENHOUSE BAY CEILINGS
L-TL1 1 14' LED TRACK LIGHTING (OWNER PROVIDED) 2ND FLR: MASTER BEDROOM CEILING (WEST)
L-WM1 2 WALL MOUNTED (OWNER PROVIDED) 1ST FLR: POWDER ROOM (BEHIND MIRROR)
L-WM2 2 WALL MOUNTED (OWNER PROVIDED) 1ST FLR: BATHROOM (ABOVE MIRROR)
L-WM3 1 WALL MOUNTED (OWNER PROVIDED) 1ST FLR STAIRWELL (WALL MOUNTED ABOVE STAIR PLATFORM)
L-WM4 1 WALL MOUNTED (OWNER PROVIDED) 2ND FLR: MASTER BATHROOM (WALL MOUNTED W/ MIRROR SURROUND)
L-WM5 1 WALL MOUNTED (OWNER PROVIDED) 2ND FLR: MASTER BEDROOM (WALL MOUNTED)
L-WM6 2 WALL MOUNTED (OWNER PROVIDED) 2ND FLR: MASTER BEDROOM (WALL MOUNTED)
FF-1
FF-1
FF-1
FF-3
FF-2
FF-2
FF-2
FF-2
FF-6
FF-6
2
A-505
2
A-505
1
A-505
1
A-505
6
A-505
2'-71/4"2'-43/4"
1' - 7" 3' - 4"
A B
1
FF-4
FF-4
FF-5
FF-6
FF-5
FF-5
FF-2
4
A-505
1
A-302
7
A-505
FLOOR FINISH SCHEDULE
DESIGNATION SIZE/MATERIAL FINISH MANUFACTURER LOCATION(S)
FF-1 3/8"x12"x24" PORCELAIN FLR TILE MATTE NASCO STONE & TILE
SERIES/COLOR
FUSSION, DARK ANTHRACITE
FF-3
3/8"x6"x24" PORCELAIN FLR TILE MATTE PROVENZAW-AGE, CORTEX NERO
FF-5 3/4" VENEERED PLYWOOD FLOOR SATIN CLEAR TBDEAST INDIAN ROSEWOOD
1ST FLR: FOYER, LIVING, DINING, KITCHEN, BEDROOM, BATHROOM
FF-6 3/4" SOLID WOOD RUBBED MONOCOAT MATTEWALNUT 1ST FLR: STAIR TREADS, KITCHEN CUSTOM CASEWORK
2ND FLR: MASTER BEDROOM, MASTER BATHROOM, GREENHOUSE
2ND FLR: MASTER BATHROOM & SHOWER
FF-2 3/8"x40"x40" PORCELAIN FLR TILE MATTE NASCO STONE & TILEFUSSION, DARK ANTHRACITE 1ST FLR: POWDER RM
FF-4
3/8"x6"x36" PORCELAIN WALL TILE MATTE DALTILEACACIA VALLY, ASH 1ST FLR: BATHROOM SHOWER
TBD
REMARKS
FIELD CUT AS NOTED IN PLAN
Scale:
Consultant
Contact
Address
Phone
e-mail
ARCHITCTS PLLC
648 Broadway / Suite 402, New York, NY 10012
T.212.254.5210
F.212.254.4523
www.wilkinsonarchitects.com
New York: Registered Architect 027917-1
Pennsylvania: Registered Architect 402561
National Council of Architectural Registration Board #52853
DOB Barcode
ATOZ Consulting Engineers, PC
Ilya Malyuchenko, P.E.
363 7th Avenue
3rd Floor
New York, NY 10001
212.929.2491
Ilya@atozengineers.com
Consultant
Contact
Address
Phone
e-mail
NYC Building Restoration
Robert M. Hanna, P.E.
9011 Northern Boulevard
Suite 307
Jackson Heights, NY 11372
646-522-0589
rhanna@engineer.com
MECHANICAL
STRUCTURAL
As indicated
A-104
FLOOR FINISHES PLANS
ELAM RESIDENCE
300 EAST 74TH STREET PENTHOUSE-F/36TH FLOOR
NEW YORK, NY 10021
04/03/2015
1/4" = 1'-0"
1
Penthouse F - 36th Floor - Main Level Floor
Finishes Plan
1/4" = 1'-0"
2
Penthouse F - Upper Level Floor Finishes
Plan
No. Description Date
FLOOR TILE EXTENDS
BENEATH TOE KICK
A-202 4
1
3
-
2
6
A-202
AP-1
-
---
1
A-506
2' - 2"
ALIGN
ALIGN
AP-2
WOOD PANEL
MARINE EDGE SS-1
SS-1
CT-1
CT-1
AP-3
5
A-202
8
A-202 4
1
3
2
- -
ROLL OUT
SHELF
PULL OUT
PULL OUT
DRAWER
AP-1
AP-5SINK BASIN
AP-4
AP-3
DRAWERSHELF
ALIGN
-
---
1
A-506
STEEL ANGLE SUPPORT
BENEATH FLOATING CABINETS
COUNTERTOP ABOVE
EXISTING CAST
IRON RADIATOR
RECESSED TOE KICK
5
A-202
8
A-202 4
1
3
-
2
6
A-202
FCU-1
ENCLOSURE
FCU-1
UNISTRUT
(TYP)
HOOD DUCT
DRAWER
DRAWER
-
---
1
A-506
9' - 3"
L-R1
L-R1
L-R1
L-R1
L-R1
L-R1
L-R1
L-R1
L-R1
GLASS SHELF
GL-1
GL-1
CW-1CW-1
5
A-202
Scale:
Consultant
Contact
Address
Phone
e-mail
ARCHITCTS PLLC
648 Broadway / Suite 402, New York, NY 10012
T.212.254.5210
F.212.254.4523
www.wilkinsonarchitects.com
New York: Registered Architect 027917-1
Pennsylvania: Registered Architect 402561
National Council of Architectural Registration Board #52853
DOB Barcode
ATOZ Consulting Engineers, PC
Ilya Malyuchenko, P.E.
363 7th Avenue
3rd Floor
New York, NY 10001
212.929.2491
Ilya@atozengineers.com
Consultant
Contact
Address
Phone
e-mail
NYC Building Restoration
Robert M. Hanna, P.E.
9011 Northern Boulevard
Suite 307
Jackson Heights, NY 11372
646-522-0589
rhanna@engineer.com
MECHANICAL
STRUCTURAL
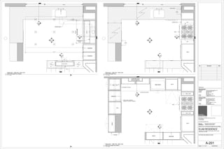
1" = 1'-0"
A-201
KITCHEN ENLARGED PLANS
ELAM RESIDENCE
300 EAST 74TH STREET PENTHOUSE-F/36TH FLOOR
NEW YORK, NY 10021
04/03/2015
1" = 1'-0"
2
Penthouse F - 36th Floor - Main Level
Kitchen Enlarged Plan
1" = 1'-0"
1
Penthouse F - 36th Floor - Main Level
Kitchen Enlarged Plan (Base)
1" = 1'-0"
3
Penthouse F - 36th Floor - Main Level
Kitchen Enlarged Plan (Upper)
No. Description Date
T ecton icCop yright 2007
T ecton icCop yright 2007
AP-4 AP-5
AP-2
AP-1
1/2" 2' - 0" 3/4" 2' - 3" 3/4" 2' - 3" 3/4" 2' - 6" 1' - 11 1/2" 5 1/2"
-
---
CW-1 CW-1 CW-1
CW-1CW-1
CW-1
CW-1
GFI
CW-1CT-1 CT-1
5
A-202
EXISTING CAST IRON
RADIATOR BEYOND
AUTOMATIC ROLLER SHADE
L-R1 L-R1 L-R1
73/4"111/2"1'-31/2"11/2"
5' - 10"
EXISTING
CONCRETE
COLUMN
EXPOSED
AP-4
CW-1
CW-1CW-1
CW-1
EXISTING CAST IRON
RADIATOR BEYOND
EQ EQ EQ EQ EQ
CT-1
3'-0"
2-1/2"x2-1/2"x3/16" STEEL ANGLE
UNISTRUT SUPPORTS (TYP)
L-R1L-R1L-R1
AP-4
1
A-506
A-202
6
CW-2 CW-2
CW-2
CW-2
CW-2
CW-2
CW-2
4
A-506
CW-1
GL-1 GL-1
SS-1
EXISTING CONCRETE
COLUMN EXPOSED
CT-1
6
A-202
AP-1
AP-2
1 1/2"
7 1/2" 2' - 6" 7 1/2"
1 1/2"
2' - 6"
1 1/2"
AP-3
RECIRCULATING HOOD DUCT
GFI GFI
FCU-1 UNIT
EXHAUST DUCT
FCU-1 UNIT
CW-1
CW-1
CW-1
SS-1
GFI
CW-1 CW-1
WF-1
SS-1 SS-1
A-202
5
CW-1
CW-1 CW-1
CW-1
L-R1 L-R1 L-R1
103/4"2'-11/2"6"
11/2"
FCU-1
HOOD
DUCT
DUCT DUCT
UNISTRUT
UNISTRUT
AP-2
DRAWER
VENT
5"MIN.
CT-1
TOE KICK VENT
EXISTING CAST
IRON RADIATOR
11/2"
1/8" EASED EDGE
(TYP)
RECESSED PULL
SHELF
IN FRONT OF RADIATOR
SHALLOW CABINET ONLY
SHELF
Scale:
Consultant
Contact
Address
Phone
e-mail
ARCHITCTS PLLC
648 Broadway / Suite 402, New York, NY 10012
T.212.254.5210
F.212.254.4523
www.wilkinsonarchitects.com
New York: Registered Architect 027917-1
Pennsylvania: Registered Architect 402561
National Council of Architectural Registration Board #52853
DOB Barcode
ATOZ Consulting Engineers, PC
Ilya Malyuchenko, P.E.
363 7th Avenue
3rd Floor
New York, NY 10001
212.929.2491
Ilya@atozengineers.com
Consultant
Contact
Address
Phone
e-mail
NYC Building Restoration
Robert M. Hanna, P.E.
9011 Northern Boulevard
Suite 307
Jackson Heights, NY 11372
646-522-0589
rhanna@engineer.com
MECHANICAL
STRUCTURAL
As indicated
A-202
KITCHEN ELEVATIONS
ELAM RESIDENCE
300 EAST 74TH STREET PENTHOUSE-F/36TH FLOOR
NEW YORK, NY 10021
04/03/2015
1" = 1'-0"
1
Kitchen Elevation - North
1" = 1'-0"
3
Kitchen Elevation - West
1" = 1'-0"
2
Kitchen Elevation - South
1" = 1'-0"
4
Kitchen Elevation - East
1" = 1'-0"
6
Range/Hood/FCU-1 Section
No. Description Date
1 1/2" = 1'-0"
5
Kitchen Recessed Casework Section
A-203
12
13
14
15
SHELF
SHELF
FF-4
FF-4
PL-7
PL-11
A-20310
7
8
9
FF-1
FF-3
A-203
4
3
2
5
FF-2
FF-2
FF-2
FF-6
CT-3
PL-5
PL-10
MR-1
P-1
MEDICINE
CABINET
WF-3
WF-3
WF-3
CT-3
MR-1
WF-1
A-505
6
P-1
WF-3
WF-3
GFI
CT-3
L-R4
L-WM2 L-WM2
PL-10
PL-6
SLIDE
WF-1
A-505
6
P-1
3
L-R4
WF-3
7
G2
WF-1
FF-1
PL-6
CF-1
WF-3
SLIDE
MIRROR
A-505
6
P-2
5
FF-4 FF-4
P-2
MR-1
8 G3
FF-4
TRANSOM WINDOW
7' - 8"
MR-1
WF-3
MR-1
A-505
6
WF-4
WF-4
SS-1
CT-2
CT-2
G3
P-2 P-2
FF-4
L-WM4
MR-1 MR-1
MR-1
SS-1
CW-3
CW-3
CW-3
WF-4
WF-3
WF-4
MR-1
L-WM4
WC-1
WF-2
WF-2
CT-3
L-WM1
MR-1
WC-1
WF-2 MR-1
CT-3
L-WM1 L-WM1
P-1
WF-4
PL-10
PL-5CW-3
WF-4
WF-4
WF-4
WF-4WF-4WF-4
CT-3
L-WM1
MR-1
SLIDE
WF-2
G1
WC-1
WF-4
1
Scale:
Consultant
Contact
Address
Phone
e-mail
ARCHITCTS PLLC
648 Broadway / Suite 402, New York, NY 10012
T.212.254.5210
F.212.254.4523
www.wilkinsonarchitects.com
New York: Registered Architect 027917-1
Pennsylvania: Registered Architect 402561
National Council of Architectural Registration Board #52853
DOB Barcode
ATOZ Consulting Engineers, PC
Ilya Malyuchenko, P.E.
363 7th Avenue
3rd Floor
New York, NY 10001
212.929.2491
Ilya@atozengineers.com
Consultant
Contact
Address
Phone
e-mail
NYC Building Restoration
Robert M. Hanna, P.E.
9011 Northern Boulevard
Suite 307
Jackson Heights, NY 11372
646-522-0589
rhanna@engineer.com
MECHANICAL
STRUCTURAL
1/2" = 1'-0"
A-203
BATHROOM ENLARGED PLANS &
ELEVATIONS
ELAM RESIDENCE
300 EAST 74TH STREET PENTHOUSE-F/36TH FLOOR
NEW YORK, NY 10021
04/03/2015
1/2" = 1'-0"
11
Penthouse F - Upper Level Master Bath
Enlarged Plan
1/2" = 1'-0"
6
Penthouse F - 36th Floor - Main Level Bath
Enlarged Plan
1/2" = 1'-0"
1
Penthouse F - 36th Floor - Main Level
Powder Room Enlarged Plan
1/2" = 1'-0"
7
Bathroom Elevation - North
1/2" = 1'-0"
8
Bathroom Elevation - East
1/2" = 1'-0"
10
Bathroom Elevation - West
1/2" = 1'-0"
9
Bathroom Elevation - South
1/2" = 1'-0"
12
Master Bath Elevation - North
1/2" = 1'-0"
13
Master Bath Elevation - East
1/2" = 1'-0"
14
Master Bath Elevation - South
1/2" = 1'-0"
15
Master Bath Elevation - West
1/2" = 1'-0"
2
Powder Elevation - North
1/2" = 1'-0"
3
Powder Elevation - East
1/2" = 1'-0"
4
Powder Elevation - South
1/2" = 1'-0"
5
Powder Elevation - West
No. Description Date
PL-6
PL-10
A-2045 3
4
2
3'-0"3'-0"1'-6"1'-43/4"
S/D
C1
P-2
P-2
SLIDE
3
S/D
P-2
P-2
P-2
7"6'-63/4"2'-4"
ATUO ROLLER SHADE POCKET BEYOND
PTAC UNIT
EXISTING SLIDING WINDOW
2' - 6" 3' - 5" 2' - 6"
CW-1 CW-1
CW-1
CW-1 CW-1
P-2
P-2
WB-1
8' - 8" 8' - 3" 4' - 4"
1'-7"1'-5"1'-63/4"1'-63/4"1'-81/2"
SLIDE
60" FLAT SCREEN TV
2
3' - 6 3/4"
P-2P-2
P-2
P-2
CW-5
CW-5
CT-5
PTAC
UNIT
CT-5
L-R2L-R2L-R2
CW-5
CW-5
A-204
7
8
9
10
14'-3"1'-0"
4'-23/4"1'-0"6'-6"1'-0"2'-6"
8' - 6" 3' - 0"
5'-23/4"6'-6"
A-5067
A-506 6
4
A-507
EXG SLIDING WINDOW
L-TL1
L-WM6 L-WM6
BED FRAME
BY OWNER
P-3
P-3
MASTER
CLOSET
P-3
A-506
5
A-507
4
OPP
L-R5 L-R5
L-S1
SLIDESLIDE
S/D L-WM5
4 5
P-3
P-3
L-TL1
P-3
ACCESS TO
W/D SHUTOFFS
MASTER
CLOSET
L-R5 L-R5
L-S1
A-507
4
TYP
A-507
4
TYP
A-507
4
OPP
S/D
C4C4C4
P-3
L-S1 L-S1 L-S1
P-3 P-3 P-3
EXISTING SLIDING WINDOW
L-TL1
EXISTING FLUE & COVER
L-TL1
P-3
P-3
P-3
WB-1
UPHOLSTERED CUSION
PTAC UNIT
CW-3
Scale:
Consultant
Contact
Address
Phone
e-mail
ARCHITCTS PLLC
648 Broadway / Suite 402, New York, NY 10012
T.212.254.5210
F.212.254.4523
www.wilkinsonarchitects.com
New York: Registered Architect 027917-1
Pennsylvania: Registered Architect 402561
National Council of Architectural Registration Board #52853
DOB Barcode
ATOZ Consulting Engineers, PC
Ilya Malyuchenko, P.E.
363 7th Avenue
3rd Floor
New York, NY 10001
212.929.2491
Ilya@atozengineers.com
Consultant
Contact
Address
Phone
e-mail
NYC Building Restoration
Robert M. Hanna, P.E.
9011 Northern Boulevard
Suite 307
Jackson Heights, NY 11372
646-522-0589
rhanna@engineer.com
MECHANICAL
STRUCTURAL
1/2" = 1'-0"
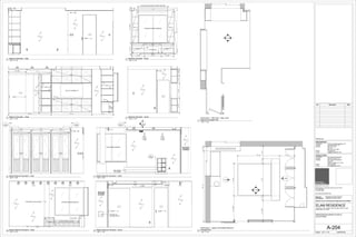
A-204
BEDROOM ENLARGED PLANS &
ELEVATIONS
ELAM RESIDENCE
300 EAST 74TH STREET PENTHOUSE-F/36TH FLOOR
NEW YORK, NY 10021
04/03/2015
1/2" = 1'-0"
1
Penthouse F - 36th Floor - Main Level
Bedroom Enlarged Plan
1/2" = 1'-0"
4
Bedroom Elevation - South
1/2" = 1'-0"
3
Bedroom Elevation - East
1/2" = 1'-0"
2
Bedroom Elevation - North
1/2" = 1'-0"
5
Bedroom Elevation - West
1/2" = 1'-0"
6
Penthouse F - Upper Level Master Bedroom
Enlarged Plan
1/2" = 1'-0"
7
Master Bedroom Elevation - North
1/2" = 1'-0"
9
Master Bedroom Elevation - South
1/2" = 1'-0"
8
Master Bedroom Elevation - East
1/2" = 1'-0"
10
Master Bedroom Elevation - West
No. Description Date
A-2053
2
AP-6
AP-6
P-1
CW-3 MR-1
CW-1
L-R2 L-R2 L-R2
A-507
3OPP
AP-6
EXISTING
ENTRY DOOR
OUTSIDE CORNER
OF POWER RM WALL
WC-2
WC-2WC-2
CW-4
WF-5
WF-5
WF-5
WF-5
WB-1
L-R2L-R2L-R2 L-R2L-R2
A-507
3 TYP
1
A-507
EXISTING WOOD
BURNING FIREPLACE
AND MANTEL
P-1
CW-4
PTAC UNIT PTAC UNIT
CW-4 CW-4
P-1
EXISTING SLIDING WINDOW EXISTING SLIDING WINDOW
A-507
2
TYP
A-507
2
OPP
WB-1 WB-1
L-R1 L-R1 L-R1 L-R1 L-R1L-R2
CT-4 CT-4
WF-6 WF-6
EXISTING SLIDING DOOR
SLIDE
FLUE
L-P1
RACEWAY FOR
L-P1 WIRING
P-1
L-R1L-R1
A-507
2
TYP
A-507
2OPP
PTAC ENCLOSURE BEYOND
4
A-303
2
SLIDE
4
A-506
ROLL OUT
ROLL OUT
CW-1
CW-2
CW-1
CW-1
P-1
P-1
P-1
P-1
L-P2
EXISTING
CONCRETE
COLUMN
EXPOSED
Scale:
Consultant
Contact
Address
Phone
e-mail
ARCHITCTS PLLC
648 Broadway / Suite 402, New York, NY 10012
T.212.254.5210
F.212.254.4523
www.wilkinsonarchitects.com
New York: Registered Architect 027917-1
Pennsylvania: Registered Architect 402561
National Council of Architectural Registration Board #52853
DOB Barcode
ATOZ Consulting Engineers, PC
Ilya Malyuchenko, P.E.
363 7th Avenue
3rd Floor
New York, NY 10001
212.929.2491
Ilya@atozengineers.com
Consultant
Contact
Address
Phone
e-mail
NYC Building Restoration
Robert M. Hanna, P.E.
9011 Northern Boulevard
Suite 307
Jackson Heights, NY 11372
646-522-0589
rhanna@engineer.com
MECHANICAL
STRUCTURAL
1/2" = 1'-0"
A-205
MAIN FLOOR ENLARGED PLANS &
ELEVATIONS
ELAM RESIDENCE
300 EAST 74TH STREET PENTHOUSE-F/36TH FLOOR
NEW YORK, NY 10021
04/03/2015
1/2" = 1'-0"
1
Penthouse F - 36th Floor - Main Level Foyer
Enlarged Plan
1/2" = 1'-0"
3
Foyer Elevation - West
1/2" = 1'-0"
2
Foyer Elevation - South
No. Description Date
1/2" = 1'-0"
6
Living/Dining Elevation - West
1/2" = 1'-0"
5
Living/Dining Elevation - North
1/2" = 1'-0"
8
Living/Dining Elevation - East
A-206
5
4
2
3
FCU-2
3' - 2 1/4"
2'-6"4'-5"2'-6"
2
A-302
63/4"9'-11"
A B
1
3' - 2" 3' - 2" 3' - 2" 3' - 2" 3' - 2" 11"
PL-9
PL-13
AP-9
CT-3
FF-5
FF-5
CT-3
81/4"
3/4"
81/4"
3/4"
81/4"
3/4"
1'-5"
AP-10
3' - 8"
TRANSOM WINDOW TO MASTER BATHROOM
7' - 8"1' - 10 1/4"
A B
6
W2MR-1
PL-9
WB-1
WB-1
P-4
P-4
P-4
ACCESS TO MASTER
BATHROOM CLEAN OUT
FCU-2
PL-13
MR-1
1'-31/2"
MATCH FINISH MATCH FINISHS/D
AP-9
AP-10
2' - 1 1/2"
1 1/2"
MR-1
P-4
P-4
CW-1
CW-1
PL-13
PL-9
P-4
CW-1
CT-3
FCU-2
WF-4
1
W2
W2
W2
WB-1
P-4
P-4
AB
W1 W1W1 W1
9
FCU-2
WF-4 WF-4 WF-4 WF-4 WF-4 WF-4 WF-4
STEEL ROOF BEAM
(TYP)
STEEL ROOF BEAM
(TYP)
CF-6
(TYP)
CF-6
(TYP)
CF-6
(TYP)
Scale:
Consultant
Contact
Address
Phone
e-mail
ARCHITCTS PLLC
648 Broadway / Suite 402, New York, NY 10012
T.212.254.5210
F.212.254.4523
www.wilkinsonarchitects.com
New York: Registered Architect 027917-1
Pennsylvania: Registered Architect 402561
National Council of Architectural Registration Board #52853
DOB Barcode
ATOZ Consulting Engineers, PC
Ilya Malyuchenko, P.E.
363 7th Avenue
3rd Floor
New York, NY 10001
212.929.2491
Ilya@atozengineers.com
Consultant
Contact
Address
Phone
e-mail
NYC Building Restoration
Robert M. Hanna, P.E.
9011 Northern Boulevard
Suite 307
Jackson Heights, NY 11372
646-522-0589
rhanna@engineer.com
MECHANICAL
STRUCTURAL
3/4" = 1'-0"
A-206
GREENHOUSE ENLARGED PLAN &
ELEVATIONS
ELAM RESIDENCE
300 EAST 74TH STREET PENTHOUSE-F/36TH FLOOR
NEW YORK, NY 10021
04/03/2015
3/4" = 1'-0"
1
Penthouse F - Upper Level Greenhouse
Enlarged Plan
3/4" = 1'-0"
2
Greenhouse Elevation - North
3/4" = 1'-0"
3
Greenhouse Elevation - East
3/4" = 1'-0"
4
Greenhouse Elevation - West
3/4" = 1'-0"
5
Greenhouse Elevation - South
No. Description Date
P-4
GFI
FCU-2
2
A-302
TYP
2' - 3" 2' - 3" 2' - 3" 2' - 3" 2' - 3" 2' - 3" 2' - 3"
H
SS
5x5x1/2
H
SS
5x5x1/2
6" 15' - 9" 6"
3/8"THICKTAPEREDSTEELBEAM(TYPOF8)
3/8"THICKTAPEREDSTEELBEAM(TYPOF8)
A B
1
2'-0"10'-21/2"
1
A-302
17' - 3 3/4"
3/8"THICKTAPEREDSTEELBEAM(TYPOF8)
3/8"THICKTAPEREDSTEELBEAM(TYPOF8)
3/8"THICKTAPERED
STEELBEAM(TYPOF8)
3/8"THICKTAPERED
STEELBEAM(TYPOF8)
3/8"THICKTAPERED
STEELBEAM(TYPOF8)
3/8"THICKTAPERED
STEELBEAM(TYPOF8)
3/8"THICKTAPERED
STEELBEAM(TYPOF8)
3/8"THICKTAPERED
STEELBEAM(TYPOF8)
Scale:
Consultant
Contact
Address
Phone
e-mail
ARCHITCTS PLLC
648 Broadway / Suite 402, New York, NY 10012
T.212.254.5210
F.212.254.4523
www.wilkinsonarchitects.com
New York: Registered Architect 027917-1
Pennsylvania: Registered Architect 402561
National Council of Architectural Registration Board #52853
DOB Barcode
ATOZ Consulting Engineers, PC
Ilya Malyuchenko, P.E.
363 7th Avenue
3rd Floor
New York, NY 10001
212.929.2491
Ilya@atozengineers.com
Consultant
Contact
Address
Phone
e-mail
NYC Building Restoration
Robert M. Hanna, P.E.
9011 Northern Boulevard
Suite 307
Jackson Heights, NY 11372
646-522-0589
rhanna@engineer.com
MECHANICAL
STRUCTURAL
1" = 1'-0"
A-301
GREENHOUSE FRAMING PLAN
ELAM RESIDENCE
300 EAST 74TH STREET PENTHOUSE-F/36TH FLOOR
NEW YORK, NY 10021
04/03/2015
No. Description Date
1" = 1'-0"
1
Penthouse F - Upper Level Greenhouse
Enlarged Framing Plan
EXISTING TERRACE DRAIN
(DO NOT DISTURB)
EXISTING ROOF ASSEMBLY
EXISTING SLEEPERS
EXISTING RIGID INSULATION
EXISTING PLYWOOD SUB-FLOOR
NEW BACKERBOARD
NEW STONE TILE FLOORING
EXISTING CMU KNEE WALL
MODIFIED IN HEIGHT
EXISTING ROOF MEMBRANE
NOT TO BE DISTURBED
EXISTING PAVER SYSTEM
(NO WORK)
NEW 3/8" STEEL BEAM
INTERIOR EXTERIORGREENHOUSE
EXISTING PARAPET FLASHING CAP TO REMAIN
NEW PLUMBING RUN ABOVE
SLAB TO EXISTING RISER
CONCEALED BENEATH STEP
SOPREMA WATERPROOFING MEMBRANE
(COLOR TO BE WHITE)
6-1/2" R-30 SIP PANEL
POLYGAL "THERMOGAL"
THERMALLY INSULATED
STRUCTURAL POLYCARBONATE
PANEL (0.31 U VALUE)
NEW SKYLINE TERRACE
DOOR (OUTSWING)
3/8" STEEL BEAM
LATICRETE 9235 WATERPROOFING
MEMBRANE APPLIED IN (2) LAYERS WITH
REINFORCEMENT FLEECE IN BETWEEN
A-503
3
A-503
4
A-503
5
A-503
2
A-503
1
A-505
4
TYP
OPEN
EXISTINGOPENING
EXTENT OF EXISTING GREENHOUSE TO BE REMOVED
SILL FLASHING END DAM
AT WALL BEYOND (TYP)
HSS 5X5X1/2 COLUMN IN
WALL BEYOND
ALUMINUM STOREFRONT SYSTEM
GRACE VYCOR SILL FLASHING
GRACE VYCOR-NER END DAM
SILL FLASHING BEYOND
BASF SONOLASTIC 150 EXTERIOR
CAULK (COLOR TO MATCH EXTERIOR
FINISHES PENDING BOARD APPROVAL)
EXTERIOR SHEATHING
SOLARBAN 60 LOW E INSULATED GLASS
R7.5 CONTINUOUS RIGID INSULATION
ALUMINUM SILL PAN
STUCCO EXTERIOR FINISH
R13 BATT INSULATION
CEMENT BACKERBOARD
LATICRETE 9235 WATERPROOFING
MEMBRANE APPLIED IN (2) LAYERS WITH
REINFORCEMENT FLEECE IN BETWEEN
3/8" STONE TILE
UNMODIFIED THIN
SET MORTER
5/8" PLYWOOD SUBFLOOR
EXISTING 2" RIGID
INSULATION
EXISTING ROOF
ASSEMBLY
EXISTING SLEEPER
JOISTS
WATERPROOF
SEALANT
1/8" THICK WOOD
FILLER
EXISTING CMU KNEE WALL
MODIFIED IN HEIGHT
EXISTING PAVER SYSTEM
(NO WORK)
P.T. WOOD BLOCKING
PAN FLASHING
WITH DRIP EDGE
3/8" BACKER ROD
AND CAULK
QT SCU PERIMETER ISOLATION STRIP
UV BLOCKING WINDOW FILM
5/8" GYPSUM
WALL BOARD
SOLID WOOD SILL
SOLID WOOD TRIM
5/8" PLYWOOD
HSS 3x1-1/2x3/8
3/8" STEEL BEAM
3/8" STEEL TAB
WELDED TO BEAM
6-1/2" R30 SIPS PANEL
ALUMINUM STOREFRONT SYSTEM
ALUMINUM STOREFRONT SYSTEM
BASF SONOLASTIC 150 EXTERIOR CAULK
(COLOR TO MATCH EXTERIOR FINISHES
PENDING BOARD APPROVAL)
ALUMINUM SILL PAN
1" THICK AZEK TRIM
BASF SONOLASTIC 150 EXTERIOR
CAULK (COLOR TO MATCH EXTERIOR
FINISHES PENDING BOARD APPROVAL)
5/8" PLYWOOD
GRACE VYCOR-NER END DAM
SILL FLASHING BEYOND
SOLARBAN 60 LOW E INSULATED GLASS
UV BLOCKING WINDOW FILM
BASF SONOLASTIC 150 EXTERIOR CAULK
(COLOR TO MATCH EXTERIOR FINISHES
PENDING BOARD APPROVAL)
1" THICK AZEK FACIA
3/4" MDF NOTCHED
AROUND STEEL TAB
WHITE SOPREMA
WATERPROOF MEMBRANE
COIL STOCK FLASHING WITH DRIP EDGE
(MIN 0.05 GAUGE)
EXTERIOR GREEN-
HOUSE
A
A
A
BEAM
BEAM
ALUMINUM STOREFRONT SYSTEM
Scale:
Consultant
Contact
Address
Phone
e-mail
ARCHITCTS PLLC
648 Broadway / Suite 402, New York, NY 10012
T.212.254.5210
F.212.254.4523
www.wilkinsonarchitects.com
New York: Registered Architect 027917-1
Pennsylvania: Registered Architect 402561
National Council of Architectural Registration Board #52853
DOB Barcode
ATOZ Consulting Engineers, PC
Ilya Malyuchenko, P.E.
363 7th Avenue
3rd Floor
New York, NY 10001
212.929.2491
Ilya@atozengineers.com
Consultant
Contact
Address
Phone
e-mail
NYC Building Restoration
Robert M. Hanna, P.E.
9011 Northern Boulevard
Suite 307
Jackson Heights, NY 11372
646-522-0589
rhanna@engineer.com
MECHANICAL
STRUCTURAL
As indicated
A-302
GREENHOUSE SECTIONS
ELAM RESIDENCE
300 EAST 74TH STREET PENTHOUSE-F/36TH FLOOR
NEW YORK, NY 10021
04/03/2015
No. Description Date
1 1/2" = 1'-0"
1
GREENHOUSE SECTION
3" = 1'-0"
2
GREENHOUSE WEST WALL F.H. SECTION
A-501
2
TYP
12
13
14
15
16
17
A-502
2
1
A-502
TYP
L-P1
L-P1
L-P1
SKYLIGHT OPENING
1
A-501
TYP
1
2
3
4
5
6
7
8
9
10
11
ROPE LIGHT
L-RL1
A-505
8
3/16"x1/4" STEEL
BAR STOCK (TYP)
1/2"x1-1/2" STEEL
BAR STOCK
HANDRAIL
4
A-303
2
A-501
1
A-501
TYP
1 2 3 4 5 6 7
8
10
9
11
12
13
151617 14
UP
1
A-502
TYP
2
A-502
3
A-303
FF-6
(TYP)
CW-1
EXISTING W8 x 13
NEW DOUBLE JOIST
NEW DOUBLE JOIST
EXISTING W8 x 13
EXISTING
W
8
x
13
EXISTINGW8x13
4
A-303
1
A-501
2
A-501
TYP
1
2
3
4
5
6
7
8
13/4"
3'-111/4"2'-0"1'-6"
13/4"
1'-2"1'-0"1'-0"1'-0"
21/4"
1'-8"
ROPE LIGHT
L-RL1
1
A-506
2' - 11 1/4"2' - 11"
A-505
8
SIM
GL-1
4
A-506
T.O. GLASS SHELF
T.O. GLASS SHELF
T.O. GLASS SHELF
T.O. GLASS SHELF
Scale:
Consultant
Contact
Address
Phone
e-mail
ARCHITCTS PLLC
648 Broadway / Suite 402, New York, NY 10012
T.212.254.5210
F.212.254.4523
www.wilkinsonarchitects.com
New York: Registered Architect 027917-1
Pennsylvania: Registered Architect 402561
National Council of Architectural Registration Board #52853
DOB Barcode
ATOZ Consulting Engineers, PC
Ilya Malyuchenko, P.E.
363 7th Avenue
3rd Floor
New York, NY 10001
212.929.2491
Ilya@atozengineers.com
Consultant
Contact
Address
Phone
e-mail
NYC Building Restoration
Robert M. Hanna, P.E.
9011 Northern Boulevard
Suite 307
Jackson Heights, NY 11372
646-522-0589
rhanna@engineer.com
MECHANICAL
STRUCTURAL
1" = 1'-0"
A-303
STAIRWELL PLANS & SECTIONS
ELAM RESIDENCE
300 EAST 74TH STREET PENTHOUSE-F/36TH FLOOR
NEW YORK, NY 10021
04/03/2015
1" = 1'-0"
4
STAIRWELL SECTION LOOKING SOUTH
No. Description Date
1" = 1'-0"
1
Penthouse F - 36th Floor - Main Level
Stairwell Enlarged Plan
1" = 1'-0"
2
ROOF FRAMING ABOVE STAIRWELL
1" = 1'-0"
3
STAIRWELL SECTION LOOKING NORTH
SELF TAPPING MACHINE SCREWS
BOTTOM OF EXISTING CONCRETE ROOF SLAB
1/2" x 3/16" STEEL SUPPORT TABS
8" x 2" 10 GAUGE UNPUNCHED COLD FORM JOIST (TYP)
5/8" EXPANSION BOLT (BASE PLATE AND
BOLT CONCEALED BEHIND FINISHED GWB)
EXISTING WALL ASSEMBLY
8"
BUILT-UP SOLID WOOD STAIR TREAD
3'-3" WIDE (VERIFY IN FIELD)
11/4"31/2"11/4"
SPLICE
6"
5/8" TYPE X FIRE RATED GYPSUM WALL BOARD
PLASTIC J-BEAD
1/2" x 3/16" STEEL BAR
STOCK WITH BRASS FINISH
WELD (TYP)
1" x 1" x 1/8" STEEL TUBE WELDED TO PLATE
1/2" GYPSUM WALL BOARD
WITH PLASTER SKIM COAT
3" x 11" x 1/8" THICK STEEL PLATE
FASTENED TO WALL
COUNTERSUNK SQUARE
DRIVE BOLTS (TYP)
1/2" x 3/16" STEEL BAR
STOCK WITH BRASS FINISH
1/2" x 3/16" STEEL BAR
STOCK WITH BRASS FINISH
3/4" 3 1/4" 3 1/4" 3/4"
WELDED CONNECTION
(FILED DOWN FOR
SMOOTH FINISH)
5/8" GYPSUM WALL BOARD ENCLOSURE
EXISTING WALL ASSEMBLY
OPEN TO SKYLIGHT ABOVE
EXISTING SKYLIGHT
WALL ASSEMBLY
BRIDGE JOISTS WITH
STEEL STRAP @ 16" O.C.
SOLID FIRE TREATED WOOD
BLOCKING BETWEEN HEAVY
GAUGE JOISTS
EXISTING CONCRETE ROOF SLAB
EXISTING W8 x 13
6"SPLICE
1/2" x 3/16" STEEL
SUPPORT TABS
(2) 8" x 2" 10 GAUGE UNPUNCHED
COLD FORM JOIST (TYP)
5/8" EXPANSION BOLT (BASE
PLATE AND BOLT CONCEALED
BEHIND FINISHED GWB)
1/2" x 3/16" STEEL
BAR STOCK (TYP)
11/4"31/2"11/4"
1" x 1" x 1/8" STEEL TUBE (2 PER TREAD)
STAIRTREAD
21/2"THICK
MAXIMUMOPENING
3"
751/128"
1/2" x 3/16" STEEL
BAR STOCK (TYP)
8 3/4"
COUNTERSUNK SQUARE
DRIVE BOLTS (TYP)
3" x 11" x 1/8" STEEL
PLATE BEYOND
3" x 11" x 1/8" STEEL
PLATE BEYOND
Scale:
Consultant
Contact
Address
Phone
e-mail
ARCHITCTS PLLC
648 Broadway / Suite 402, New York, NY 10012
T.212.254.5210
F.212.254.4523
www.wilkinsonarchitects.com
New York: Registered Architect 027917-1
Pennsylvania: Registered Architect 402561
National Council of Architectural Registration Board #52853
DOB Barcode
ATOZ Consulting Engineers, PC
Ilya Malyuchenko, P.E.
363 7th Avenue
3rd Floor
New York, NY 10001
212.929.2491
Ilya@atozengineers.com
Consultant
Contact
Address
Phone
e-mail
NYC Building Restoration
Robert M. Hanna, P.E.
9011 Northern Boulevard
Suite 307
Jackson Heights, NY 11372
646-522-0589
rhanna@engineer.com
MECHANICAL
STRUCTURAL
6" = 1'-0"
A-501
STAIR DETAILS I
ELAM RESIDENCE
300 EAST 74TH STREET PENTHOUSE-F/36TH FLOOR
NEW YORK, NY 10021
04/03/2015
No. Description Date
6" = 1'-0"
1
STAIR TREAD SUPPORT DETAIL 1
6" = 1'-0"
2
STAIR TREAD SUPPORT DETAIL 2
SELF TAPPING MACHINE SCREWS
BOTTOM OF EXISTING CONCRETE ROOF SLAB
1/2" x 3/16" STEEL SUPPORT TABS
8" x 2" 10 GAUGE UNPUNCHED COLD FORM JOIST (TYP)
5/8" EXPANSION BOLT (BASE PLATE AND
BOLT CONCEALED BEHIND FINISHED GWB)
EXISTING WALL ASSEMBLY
8"
BUILT-UP SOLID WOOD STAIR TREAD
3'-3" WIDE (VERIFY IN FIELD)
STAIRTREAD
21/2"THICK11/4"31/2"11/4"
SPLICE
6"
5/8" TYPE X FIRE RATED GYPSUM WALL BOARD
PLASTIC J-BEAD
1/2" x 3/16" STEEL BAR STOCK
WITH BRASS FINISH
WELD (TYP)
1" x 1" x 1/8" STEEL TUBE
1/2" GYPSUM WALL BOARD
WITH PLASTER SKIM COAT
COUNTERSUNK SQUARE
DRIVE BOLTS (TYP)
1/2" x 3/16" STEEL BAR
STOCK WITH BRASS FINISH
1/2" x 3/16" STEEL BAR
STOCK WITH BRASS FINISH
3/4" 3 1/4" 3 1/4" 3/4"
WELDED CONNECTION
(FILED DOWN FOR SMOOTH FINISH)
1/2" x 3/16" STEEL BAR STOCK
WITH BRASS FINISH
1/2" x 3/16" STEEL BAR STOCK WEB
1/2" x 3/16" STEEL BAR STOCK
FASTENED TO SIDE OF 2ND
FLOOR SLAB
1/2"1"1/2"6"WEBDISTANCEVARIES
1" x 1" x 1/8" STEEL TUBE
1/2" x 3/16" STEEL
BAR STOCK (TYP)
Scale:
Consultant
Contact
Address
Phone
e-mail
ARCHITCTS PLLC
648 Broadway / Suite 402, New York, NY 10012
T.212.254.5210
F.212.254.4523
www.wilkinsonarchitects.com
New York: Registered Architect 027917-1
Pennsylvania: Registered Architect 402561
National Council of Architectural Registration Board #52853
DOB Barcode
ATOZ Consulting Engineers, PC
Ilya Malyuchenko, P.E.
363 7th Avenue
3rd Floor
New York, NY 10001
212.929.2491
Ilya@atozengineers.com
Consultant
Contact
Address
Phone
e-mail
NYC Building Restoration
Robert M. Hanna, P.E.
9011 Northern Boulevard
Suite 307
Jackson Heights, NY 11372
646-522-0589
rhanna@engineer.com
MECHANICAL
STRUCTURAL
6" = 1'-0"
A-502
STAIR DETAILS II
ELAM RESIDENCE
300 EAST 74TH STREET PENTHOUSE-F/36TH FLOOR
NEW YORK, NY 10021
04/03/2015
No. Description Date
6" = 1'-0"
1
SUSPENDED STAIR TREAD SUPPORT
DETAIL
6" = 1'-0"
2
LANDING SUPPORT DETAIL AT UPPER
LEVEL FLOOR
SIP PANEL FASTENED TO
STEEL TAB WELDED TO
BEAM WITH THRU BOLT
CONTINUOUS STEEL TAB
BEYOND WELDED TO BEAM
TO SUPPORT SIP PANEL
(2) 2-1/2" 16 GA STEEL STUD HEADER
WHITE SOPREMA WATERPROOF MEMBRANE
SKYLINE 1700 TERRACE DOOR HEAD
6-1/2" R-30 SIP PANEL
3/4" MDF PANEL
(NOTCHED AROUND STEEL TAB)
PL4.5X4.5X3/8 STEEL PLATE
WELDED TO HSS8X3X3/8 GIRDER
AND BOLTED TO BEAM
FINISHED WOOD FASCIA
STEEL TAB WELDED TO BEAM
AND BOLTED TO CHANNEL
HOMOSOTE
BASF SONOLASTIC 150 CAULK (COLOR TO MATCH
EXISTING EXTERIOR FINISH PENDING BOARD APPROVAL)
CONTINUOUS 1/4" STEEL PLATE
WELDED TO EAVE BEAM
HSS 8X3X3/8 GIRDER
1" AZECK PANEL
1" X 1" STEEL TUBE
3/4" CDX PLYWOOD
BENT COIL STOCK GUTTER
PITCHED TO NORTHWEST END
COIL STOCK FLASHING WITH
DRIP EDGE (MIN 0.05 GAUGE)
COIL STOCK FLASHING WITH
DRIP EDGE (MIN 0.05 GAUGE)
HILTI KWIK-FLEX SELF-DRILLING SCREWS @16" O.C.
BACKER ROD
WOOD BLOCKING
PLASTIC HORSESHOE SHIM AS REQUIRED
TO LEVEL/SQUARE NANAWALL SYSTEM
WOOD BLOCKING
EAVE BEAM WELDED TO HSS 8X3X3/8
HSS 5X5X1/2 COLUMN IN WALL BEYOND
WOOD NAILER GLUED TO GIRDER
1/2" AZEK PANEL
EXISTING PAVER SYSTEM (NO WORK)
BASF SONOLASTIC 150 EXTERIOR CAULK
(COLOR TO MATCH EXISTING EXTERIOR
FINISH PENDING BOARD APPROVAL)
CEMENT BACKERBOARD
LATICRETE 9235 WATERPROOFING
MEMBRANE APPLIED IN (2) LAYERS WITH
REINFORCEMENT FLEECE IN BETWEEN
3/8" THICK FLOOR TILE
FLEXIBLE WATERPROOF
ACOUSTICAL SEALANT
QT SCU PERIMETER ISOLATION STRIP
UNMODIFIED THIN SET MORTER
BACKER ROD
WOOD BLOCKING
EXISTING CMU KNEE WALL
MODIFIED IN HEIGHT
NEW PAN FLASHING WITH DRIP EDGE
HILTI KWIK-FLEX SELF-DRILLING SCREWS @16" O.C.
PLASTIC HORSESHOE SHIM AS REQUIRED
TO LEVEL/SQUARE NANAWALL SYSTEM
5/8" PLYWOOD SUBFLOOR
EXISTING 2" RIGID
INSULATION
SKYLINE 1700 TERRACE DOOR SILL
EXISTING ROOF ASSEMBLY
EXISTING SLEEPER JOISTS
BASF SONOLASTIC 150 EXTERIOR CAULK
(COLOR TO MATCH EXISTING EXTERIOR
FINISH PENDING BOARD APPROVAL)
HSS 5X5X1/2 COLUMN IN WALL BEYOND
NEW FLASHING END DAM AT WALL
BEYOND (TYP. BOTH SIDES)
EXISTING WALL ASSEMBLY
C8X13.7 STEEL CHANNEL BOLTED
WITH EPOXY TO EXISTING MASONRY
3/8" STEEL BEAM
1-1/2" METAL FRAMING BOLTED WITH
EXPOXY BACK TO EXISTING MASONRY
5/8" GYPSUM WALL BOARD
5/8" GYPSUM WALL BOARD
STEEL PL4.5X4.5X3/8 WELDED TO
C8X13.7 CHANNEL AND BOLTED TO BEAM
ALUMINUM END CAP
POLYGAL 'THERMALGAL' PANEL
CAULK
1-1/2" METAL FRAMING
BOLTED WITH EXPOXY BACK
TO EXISTING MASONRY
5/8" GYPSUM WALL BOARD
PLASTIC J-BEAD
WOOD BLOCKING
EXISTING PARAPET CAP FLASHING
EXISTING WALL ASSEMBLY
3/4" MDF PANEL
ALUMINUM CAP PROFILE
GLAZING EPDM
POLYGAL FLASHING CAP
WHITE SOPREMA
WATERPROOF MEMBRANE
6-1/2" R-30 SIP PANEL
Scale:
Consultant
Contact
Address
Phone
e-mail
ARCHITCTS PLLC
648 Broadway / Suite 402, New York, NY 10012
T.212.254.5210
F.212.254.4523
www.wilkinsonarchitects.com
New York: Registered Architect 027917-1
Pennsylvania: Registered Architect 402561
National Council of Architectural Registration Board #52853
DOB Barcode
ATOZ Consulting Engineers, PC
Ilya Malyuchenko, P.E.
363 7th Avenue
3rd Floor
New York, NY 10001
212.929.2491
Ilya@atozengineers.com
Consultant
Contact
Address
Phone
e-mail
NYC Building Restoration
Robert M. Hanna, P.E.
9011 Northern Boulevard
Suite 307
Jackson Heights, NY 11372
646-522-0589
rhanna@engineer.com
MECHANICAL
STRUCTURAL
6" = 1'-0"
A-503
GREENHOUSE DETAILS
ELAM RESIDENCE
300 EAST 74TH STREET PENTHOUSE-F/36TH FLOOR
NEW YORK, NY 10021
04/03/2015
6" = 1'-0"
2
NANAWALL HEAD/GIRDER DETAIL
No. Description Date
6" = 1'-0"
1
GREENHOUSE FLOOR DETAIL @
NANAWALL RAISED SILL
6" = 1'-0"
3
BEAM SEAT DETAIL
6" = 1'-0"
4
UPPER POLYGAL PANEL SECTION
6" = 1'-0"
5
LOWER POLYGAL SECTION
EXISTING BUILT-UP
ROOF MEMBRANCE
NOT TO BE DISTURBED
EXISTING ROOF & SKYLIGHT
CURB ASSEMBLY
1/2" GYPSUM WALL BOARD
NEW VELUX FIXED CM DOME
CURB MOUNTED SKYLIGHT 0.030" ACRYLIC INTERLAYER
WHITE LAMINATED ACRYLIC OUTER DOME
VERIFY DIMENSIONS IN FIELD
EXISTING OUTBOUND CURB
A-504
2
NEW SAFETY RAIL SOURCE
SAFETY ROOF SCREEN
FASTENED TO SKYLIGHT FRAME
WITH STEEL CLIPS 12" O.C.
(STAIRWELL SKYLIGHT ONLY)
NEW 1/2" GYPSUM WALL BOARD
NEW CURB FLASHING
CONDENSATE CONTROL
GUTTER WITH WEEP HOLES
ALUMINUM SKYLIGHT FRAME
THERMAL BARRIER
EXISTING ROOF FLASHING
DO NOT DISTURB
NEW SAFETY RAIL SOURCE
SAFETY ROOF SCREEN
FASTENED TO SKYLIGHT FRAME
WITH STEEL CLIPS 12" O.C.
(STAIRWELL SKYLIGHT ONLY)
I. ANY ALTERATION TO ROOFING DURING REMOVAL AND CONSTRUCTION MUST BE PERFORMED BY
THE BUILDING'S ROOFING CONTRACTOR (YORK RESTORATION CORP.) TO MAINTAIN WARRANTY.
GENERAL ROOF NOTES
NEW TYPE X FIRE RATED 5/8" GYPSUM WALL
BOARD. TAPE AND FINISH TO MATCH CEILING.
NEW 3-5/8" 20ga METAL RUNNER
(VERIFYINFIELD)
EXISTINGROOFSTRUCTURE
EXISTING FIRE RATED 5/8"
GYPSUM WALL BOARD
(VERIFY IN FIELD)
EXISTING FIRE RATED 5/8"
GYPSUM WALL BOARD
(VERIFY IN FIELD)
NEW 3-5/8" 20ga METAL STUDS @12" O.C.
OVERLAP
2" MINIMUM
(TYP ALL AROUND)
EXTEND WATERPROOFING
3" PAST OPENING
(VERIFYINFIELD)
EXISTINGROOFSTRUCTURE
(THICKNESS = EXISTING # OF PLYS + 1 PLY OVERLAP)
NEW BUILT-UP ROOFING
FASTEN FRAMING TO EXISTING STRUCTURE
WITH SELF TAPING SCREWS (TYP ALL AROUND)
NEW R-38 BATT INSULATION
(VERIFY DIMENSIONS IN FIELD)
EXISTING ROOF OPENING
OVERLAP
2" MINIMUM
(TYP ALL AROUND)
EXTEND WATERPROOFING
3" PAST OPENING
NEW (2) LAYERS OF 3/4" FIRE TREATED CDX PLYWOOD
NEW WATERPROOFING MEMBRANE
Scale:
Consultant
Contact
Address
Phone
e-mail
ARCHITCTS PLLC
648 Broadway / Suite 402, New York, NY 10012
T.212.254.5210
F.212.254.4523
www.wilkinsonarchitects.com
New York: Registered Architect 027917-1
Pennsylvania: Registered Architect 402561
National Council of Architectural Registration Board #52853
DOB Barcode
ATOZ Consulting Engineers, PC
Ilya Malyuchenko, P.E.
363 7th Avenue
3rd Floor
New York, NY 10001
212.929.2491
Ilya@atozengineers.com
Consultant
Contact
Address
Phone
e-mail
NYC Building Restoration
Robert M. Hanna, P.E.
9011 Northern Boulevard
Suite 307
Jackson Heights, NY 11372
646-522-0589
rhanna@engineer.com
MECHANICAL
STRUCTURAL
As indicated
A-504
ROOF DETAILS
ELAM RESIDENCE
300 EAST 74TH STREET PENTHOUSE-F/36TH FLOOR
NEW YORK, NY 10021
04/03/2015
No. Description Date
3" = 1'-0"
1
SKYLIGHT SECTION
6" = 1'-0"
2
SKYLIGHT CURB DETAIL
6" = 1'-0"
3
ROOF PATCH DETAIL
3/4" HARDWOOD FINISH FLOORING
5/8" FLOATING FIRE TREATED PLYWOOD
SUB-FLOOR APPLIES PERPENDICULAR
TO ACOUSTICAL UNDERLAYMENT
QUIETDOWN MAX (4MM) ACOUSTIC
UNDERLAY WITH TAPED SEAMS
NOTE: FINISHED WOOD FASTNERES
MUST NOT PENETRATE ACOUSTICAL
UNDERLAYMENT IN ANY WAY
1/8"
MAINTAIN 1/8" GAP BETWEEN
FLOOR ASSEMBLY AND WALL
HOLD 1/2" BASE TRIM 1/8" CLEAR
ABOVE FINISHED FLOOR
ACOUSTICAL SEALANT AT
FLOOR PERIMETER
EXISTING SLAB
WALL ASSEMBLY
ACOUSTICAL SEALANT
3/8" PORCELAIN TILE
LEAD SHOWER PAN
LIQUID LATICRETE
WATERPROOFING
MEMBRANE # 9235
MUD SET
EXISTING FLOOR
ASSEMBLY
NICKLE / BRONZE
ADJUSTABLE
STRAINER
3/16" PORCELAIN TILE
5/8" BACKERBOARD
LOOSE GRAVEL OR CRUSHED TILE AT WEEP HOLES
FLASHING CLAMP WITH WEEP HOLES
THREADED, CAULKED OR NO-HUB CONNECTION
HEIGHTOFLEAD
PANABOVE
FINISHEDSHOWER
FLOOR
EXISTING WALL
ASSEMBLY
CONTINUOUS WATERPROOFING
MEMBRANE TO 6" ABOVE SHOWER HEAD
FINISHED FLOOR
ASSEMBLY
CURB
6"
EXISTING FLOOR SLAB
EXISTING WALL ASSEMBLY
CEMENT BACKERBOARD
LATICRETE 9235 WATERPROOFING
MEMBRANE APPLIED IN (2) LAYERS
WITH REINFORCEMENT FLEECE IN
BETWEEN
3/8" THICK FLOOR TILE
HONEYWELL RADIANT
FLOOR WARMING SYSTEM
MINIMUMABOVEFINISHFLOOR
EXTENDWATERPROOFINGMEMBRANE6"
FLEXIBLE WATERPROOF
ACOUSTICAL SEALANT
QT scu PERIMETER ISOLATION STRIP
3/16" THICK WALL TILE
UNMODIFIED THIN SET MORTER
LATICRETE 9235 WATERPROOFING
MEMBRANE APPLIED IN (2) LAYERS
WITH REINFORCEMENT FLEECE IN
BETWEEN
SCHLUTER DITRA MEMBRANE
CEMENT BACKERBOARD
QUIETDOWN MAX (4MM)
ACOUSTIC UNDERLAY
WITH TAPED SEAMS
UNMODIFIED THIN SET MORTAR
3/8" PORCELAIN TILE
6 GAUGE LEAD SHOWER PAN
LATICRETE 9235 WATERPROOFING
MEMBRANE APPLIED IN (2) LAYERS WITH
REINFORCEMENT FLEECE IN BETWEEN
MUD SET
EXISTING FLOOR SLAB
LINEAR DRAIN WITH REMOVABLE
STAINLESS STEEL PERFORATED GRATE
3/16" PORCELAIN WALL TILE
5/8" BACKERBOARD
HEIGHTOFLEADPANABOVE
FINISHEDSHOWERFLOOR
EXISTING WALL
ASSEMBLY
LATICRETE 9235 WATERPROOFING
MEMBRANE APPLIED IN (2) LAYERS WITH
REINFORCEMENT FLEECE IN BETWEEN.
TERMINATE 6" ABOVE SHOWER HEAD.
3/8" PORCELAIN TILE CURB
6"
FLASHING CLAMP WITH WEEP HOLES
THREADED, CAULKED, OR NO-HUB CONNECTION
± 3 1/2"
WALLOPENING
4"MINIMUM
EXISTING GWB
5/8" BACKERBOARD
3/4" PLYWOOD
2" x 6" WOOD
FLOOR JOISTS
@12" O.C. (TYP)
2" PVC SANITARY P-TRAP
UNMODIFIED THIN SET MORTAR
6 GAUGE LEAD SHOWER PAN
5/8" BACKERBOARD
WOOD BLOCKING
UNMODIFIED THIN SET MORTAR
3/16" PORCELAIN WALL TILE
A-505
3SIM
EXISTING FLOOR SLAB
CEMENT BACKERBOARD
LATICRETE 9235 WATERPROOFING
MEMBRANE APPLIED IN (2) LAYERS
WITH REINFORCEMENT FLEECE IN
BETWEEN
3/8" FLOOR TILE (FF-1/FF-2)WET LOCATIONDRY LOCATION
..
HONEYWELL RADIANT
FLOOR WARMING SYSTEM
SCHLUTER DITRA MEMBRANE
QUIETDOWN MAX (4MM)
ACOUSTIC UNDERLAY
WITH TAPED SEAMS
UNMODIFIED THIN SET MORTER
1/8"MIN.
EXISTING FLOOR SLAB
CEMENT BACKERBOARD
LATICRETE 9235 WATERPROOFING
MEMBRANE APPLIED IN (2) LAYERS
WITH REINFORCEMENT FLEECE IN
BETWEEN
3/8" FLOOR TILE (FF-1)
WET LOCATIONDRY LOCATION
..
SCHLUTER DITRA MEMBRANE
UNMODIFIED THIN SET MORTER
QUIETDOWN MAX (4MM)
ACOUSTIC UNDERLAY
WITH TAPED SEAMS
EXISTING FLOOR SLAB
CEMENT BACKERBOARD
LATICRETE 9235 WATERPROOFING
MEMBRANE APPLIED IN (2) LAYERS
WITH REINFORCEMENT FLEECE IN
BETWEEN
3/8" FLOOR TILE
CORIAN SADDLE (GLACIER WHITE)
3/4" HARDWOOD
FLOORING
ACOUSTICAL SEALANT
AT FLOOR PERIMETER
HONEYWELL RADIANT
FLOOR WARMING SYSTEM
SCHLUTER DITRA MEMBRANE
QUIETDOWN MAX (4MM)
ACOUSTIC UNDERLAY
WITH TAPED SEAMS
UNMODIFIED THIN SET MORTER
5/8" PLYWOOD
SUBFLOORING
QT scu ISOLATION STRIP
1/8"MIN.
WET LOCATIONDRY LOCATION ..
ROPE LIGHT L-RL1
3/4" PLYWOOD
3/4" SOLID
WOOD FINISH
3/4" SOLID
WOOD FINISH
2X6 WOOD
FRAMING @16"O.C.
EXISTING MAIN LEVEL
FLOOR ASSEMBLY
Scale:
Consultant
Contact
Address
Phone
e-mail
ARCHITCTS PLLC
648 Broadway / Suite 402, New York, NY 10012
T.212.254.5210
F.212.254.4523
www.wilkinsonarchitects.com
New York: Registered Architect 027917-1
Pennsylvania: Registered Architect 402561
National Council of Architectural Registration Board #52853
DOB Barcode
ATOZ Consulting Engineers, PC
Ilya Malyuchenko, P.E.
363 7th Avenue
3rd Floor
New York, NY 10001
212.929.2491
Ilya@atozengineers.com
Consultant
Contact
Address
Phone
e-mail
NYC Building Restoration
Robert M. Hanna, P.E.
9011 Northern Boulevard
Suite 307
Jackson Heights, NY 11372
646-522-0589
rhanna@engineer.com
MECHANICAL
STRUCTURAL
As indicated
A-505
FLOOR DETAILS
ELAM RESIDENCE
300 EAST 74TH STREET PENTHOUSE-F/36TH FLOOR
NEW YORK, NY 10021
04/03/2015
6" = 1'-0"
5
WOOD FLOOR SOUNDPROOFING DETAIL
3" = 1'-0"
6
SHOWER INSTALLATION DETAIL
6" = 1'-0"
3
FLOOR WATERPROOFING DETAIL @
WALL
No. Description Date
6" = 1'-0"
7
RAISED SHOWER INSTALLATION DETAIL
6" = 1'-0"
1
FLOOR WATERPROOFING DETAIL @
THRESHOLD (MAIN LEVEL)
6" = 1'-0"
2
FLOOR WATERPROOFING DETAIL
6" = 1'-0"
4
FLOOR WATERPROOFING DETAIL @
THRESHOLD (UPPER LEVEL)
6" = 1'-0"
8
STAIR PLATFORM EDGE DETAIL
ROPE LIGHT
L-RL1
2"
A-501
1
SIM
A-506
2
A-506
3
STAIRWELL KITCHEN
A-505
8
SIM
4
A-506
SIM
1/2" SOLID WOOD
(2) LAYERS 3/4" PLYWOOD
METAL LAMINATE
METAL LAMINATE
1/2" SOLID GLASS SHELF
1/4" SOLID GLASS BACK PANEL
1/4" SOLID GLASS
CABINET DOORS
ROPE LIGHT L-RL2
3 1/2" 1" 3 1/2"
STAIRWELL KITCHEN
ROUTE OUT RACEWAY
FOR BX WIRE
1/2" SOLID GLASS SHELF
(ADJUSTABLE HEIGHT)
1/4" SOLID GLASS
CABINET DOORS
1/4" SOLID GLASS
BACK PANEL
5/8" GYPSUM BOARD
Z CLIPS 16" O.C.
1/2" MEDIUM DENSITY
FIBERBOARD
3/4" PLYWOOD
3-5/8" METAL TRACK
3-5/8" METAL
STUDS @16" O.C.
STAIRWELL KITCHEN
1/2" SOLID WOOD
(2) LAYERS 3/4" PLYWOOD
1/8" METAL LAMINATE
METAL LAMINATE
ROPE LIGHT L-RL2
1 3/4" 4" 1 3/4"
3"
EXISTING WALL ASSEMBLY
1/4" SOLID GLASS BACK PANEL
1/2" SOLID GLASS SHELF
METAL LAMINATE
(2) LAYERS 3/4" PLYWOOD
1/2" SOLID WOOD
1/2" THICK GLASS SHELF
1/2" SOLID WOOD
UPHOLSTERED HEADBOARD
5
A-506
1" 11" 2' - 2" 2' - 2" 2' - 2" 11" 1"
1"
1/4"
10"
1/4"
10"
1/4"
10"
1/4"
1"
3"2'-9"
3" 8' - 0" 3"
5
A-506
CW-1
DRAWERDRAWER
DRAWER
DRAWER
MATRESS BY OWNER
BED FRAME BY OWNER
Scale:
Consultant
Contact
Address
Phone
e-mail
ARCHITCTS PLLC
648 Broadway / Suite 402, New York, NY 10012
T.212.254.5210
F.212.254.4523
www.wilkinsonarchitects.com
New York: Registered Architect 027917-1
Pennsylvania: Registered Architect 402561
National Council of Architectural Registration Board #52853
DOB Barcode
ATOZ Consulting Engineers, PC
Ilya Malyuchenko, P.E.
363 7th Avenue
3rd Floor
New York, NY 10001
212.929.2491
Ilya@atozengineers.com
Consultant
Contact
Address
Phone
e-mail
NYC Building Restoration
Robert M. Hanna, P.E.
9011 Northern Boulevard
Suite 307
Jackson Heights, NY 11372
646-522-0589
rhanna@engineer.com
MECHANICAL
STRUCTURAL
As indicated
A-506
CASEWORK DETAILS
ELAM RESIDENCE
300 EAST 74TH STREET PENTHOUSE-F/36TH FLOOR
NEW YORK, NY 10021
04/03/2015
No. Description Date
1" = 1'-0"
1
KITCHEN/STAIRWELL CUSTOM
CASEWORK SECTION
6" = 1'-0"
2
KITCHEN/STAIRWELL CUSTOM
CASEWORK SECTION - Callout 1
3" = 1'-0"
3
KITCHEN/STAIRWELL CUSTOM
CASEWORK SECTION - Callout 2
3" = 1'-0"
4
KITCHEN/STAIRWELL CUSTOM
CASEWORK SIDE SECTION DETAIL
1" = 1'-0"
6
Master Bed Front Elevation
1" = 1'-0"
7
Master Bed Back Elevation
3" = 1'-0"
5
Master Bedroom Custom Casework Section
J-BEAD
1/4" GYPSUM WALL BOARD
PLASTER SKIM COAT
QUICKSET FASTENERS
(ALTERNATING ANGLES
@10" O.C.)
EXISTING FLOOR SLAB ABOVE
3-5/8" 22 GA METAL TRACK
3-5/8" 22 GA METAL STUDS
3-5/8" 22 GA METAL TRACK
1-1/2" CORSE THREAD
COUNTERSUNK
SCREWS @10" O.C.
FIRE TREATED WOOD
BLOCKING BETWEEN STUDS
RECESSED LIGHTING FIXTURE
L-R1
SOLID WOOD MOLDING
1/2" MDF PAINTED WHITE
U/S OF EXISTING UPPER
LEVEL FLOOR SLAB
1/4" REVEAL PAINED BLACK
1/2" PLYWOOD
EXISTING EXTERIOR WALL
SHADE
ROLER SHADE COVER PANEL
AUTOMATIC ROLER SHADE
SOLID WOOD MOLDING
5/8" GYPSUM BOARD PAINTED
ROPE LIGHT L-R2
3-5/8" 22GA METAL RUNNERS
FIRE TREATED WOOD
BLOCKING BETWEEN STUDS
PAINTED GYPSUM BOARD
QUICKSET FASTENERS @10"
O.C. (ALTERNATING ANGLES)
3-5/8" 22GA METAL STUDS
U/S OF EXISTING EXPOSED
CONCRETE FLOOR SLAB
RECESSED LIGHTING
FIXTURE L-R2
3" 3" DISTANCE VARIES
SCHEDULED ROLLER SHADE POCKET OPENING
1/4" REVEAL PAINTED BLACK
CLEAR "U" CHANNEL
1/4" REVEAL PAINTED BLACK
DISTANCE VARIES
FIRE TREATED WOOD
BLOCKING BETWEEN STUDS
SOLID WOOD MOLDING
5/8" GYPSUM BOARD PAINTED
ROPE LIGHT L-RL2
1/2" MDF PAINTED WHITE
QUICKSET FASTENERS
(ALTERNATING ANGLES
@10" O.C.)
3-5/8" 22 GA METAL TRACK
3-5/8" 22 GA METAL STUDS
3-5/8" 22 GA METAL TRACK
FIRE TREATED WOOD
BLOCKING BETWEEN
METAL STUDS
RECESSED LIGHTING FIXTURE
L-R2
U/S OF EXISTING UPPER
LEVEL FLOOR SLAB
QUICKSET FASTENERS @10" O.C.
(ALTERNATING ANGLES)
3-5/8" 22 GA METAL TRACK
3-5/8" 22 GA METAL STUDS
3-5/8" 22 GA METAL TRACK
FIRE TREATED WOOD BLOCKING
BETWEEN METAL STUDS
FIRE TREATED WOOD
BLOCKING
RECESSED LIGHTING
FIXTURE L-R5
3/4" SOLID WOOD TRIM
3/4" SOLID WOOD TRIM
1/4" REVEAL PAINTED BLACK
Scale:
Consultant
Contact
Address
Phone
e-mail
ARCHITCTS PLLC
648 Broadway / Suite 402, New York, NY 10012
T.212.254.5210
F.212.254.4523
www.wilkinsonarchitects.com
New York: Registered Architect 027917-1
Pennsylvania: Registered Architect 402561
National Council of Architectural Registration Board #52853
DOB Barcode
ATOZ Consulting Engineers, PC
Ilya Malyuchenko, P.E.
363 7th Avenue
3rd Floor
New York, NY 10001
212.929.2491
Ilya@atozengineers.com
Consultant
Contact
Address
Phone
e-mail
NYC Building Restoration
Robert M. Hanna, P.E.
9011 Northern Boulevard
Suite 307
Jackson Heights, NY 11372
646-522-0589
rhanna@engineer.com
MECHANICAL
STRUCTURAL
6" = 1'-0"
A-507
CEILING DETAILS
ELAM RESIDENCE
300 EAST 74TH STREET PENTHOUSE-F/36TH FLOOR
NEW YORK, NY 10021
04/03/2015
No. Description Date
6" = 1'-0"
2
TYPICAL DROP CEILING DETAIL
6" = 1'-0"
1
SHADE POCKET DETAIL
6" = 1'-0"
3
TYPICAL SOFFIT DETAIL
6" = 1'-0"
4
MASTER BEDROOM DROP CEILING
TYPICAL DETAIL
PLUMBING FIXTURE SCHEDULE
DESIGNATION DESCRIPTION MANUFACTURER LOCATION(S)SERIES
PL-1
INTEGRATED STONE SINK WITH OVERFLOW
PL-2
PL-5 N/A
PL-4 S-AG 38
WALL HUNG TOILET WITH SEAT 1ST FLR: POWDER RM, BATHROOM 2ND FLR: MASTER BATHROOM
SHOWER HEAD
PL-6
N/APROVIDED BY OWNER 1ST FLR: KITCHEN COUNTERTOPPL-7
N/APL-8
N/A
LINEAR SHOWER DRAIN
PL-3
PROVIDED BY OWNER
PROVIDED BY OWNER
SITE BUILT
GEBERIT
TBD
INFINITY
DURAVIT
DUOFIX 111.728.00.1
STARCK #220109
TBD
CNT
WALL HUNG TOILET CARRIER WITH ACTIVATOR
UNDERMOUNT STAINLESS STEEL KITCHEN SINK
SINGLE HOLE DECK MOUNTED MASTER LAV
UNDERMOUNT STAINLESS STEEL BAR SINKPL-9
N/APROVIDED BY OWNERFAUCETPL-10
N/APROVIDED BY OWNERFAUCETPL-11
N/APROVIDED BY OWNERFAUCET
2ND FLR: MASTER BATHROOM
2ND FLR: GREENHOUSE
3
3
2
2
1
1
1
1
2
1
1
1ST FLR: POWDER RM, BATHROOM 2ND FLR: MASTER BATHROOM
1ST FLR: POWDER RM
1ST FLR: BATHROOM 2ND FLR: MASTER BATHROOM
1ST FLR: BATHROOM 2ND FLR: MASTER BATHROOM
1ST FLR: POWDER RM, BATHROOM
1ST FLR: KITCHEN
2ND FLR: MASTER BATHROOMPL-12
INTEGRATED CORIAN SINK N/ASITE BUILT1 1ST FLR: BATHROOM VANITY
N/APROVIDED BY OWNERFAUCET1 2ND FLR: GREENHOUSEPL-13
Scale:
Consultant
Contact
Address
Phone
e-mail
ARCHITCTS PLLC
648 Broadway / Suite 402, New York, NY 10012
T.212.254.5210
F.212.254.4523
www.wilkinsonarchitects.com
New York: Registered Architect 027917-1
Pennsylvania: Registered Architect 402561
National Council of Architectural Registration Board #52853
DOB Barcode
ATOZ Consulting Engineers, PC
Ilya Malyuchenko, P.E.
363 7th Avenue
3rd Floor
New York, NY 10001
212.929.2491
Ilya@atozengineers.com
Consultant
Contact
Address
Phone
e-mail
NYC Building Restoration
Robert M. Hanna, P.E.
9011 Northern Boulevard
Suite 307
Jackson Heights, NY 11372
646-522-0589
rhanna@engineer.com
MECHANICAL
STRUCTURAL
1" = 1'-0"
A-600
FIXTURE, APPLIANCE, & DOOR
SCHEDULES
ELAM RESIDENCE
300 EAST 74TH STREET PENTHOUSE-F/36TH FLOOR
NEW YORK, NY 10021
04/03/2015
No. Description Date
LIGHTING FIXTURE SCHEDULE
Desig. Cnt Description Housing / Trim Lamp Manufacturer Product ID Location(s)
L-P1 1 PENDANT MOUNTED (OWNER PROVIDED) NA INCANDESCENT 1ST FLR: DINING
L-P2 3 PENDANT MOUNTED (OWNER PROVIDED) NA T5 Delray Lighting 6311 2MD FLR: STAIRWELL
L-R1 23 LOW VOLTAGE HALOGEN TRIMLESS HALOGEN (12OV, 277V, OR 347V) USAI 9004-10-C-FL100-120 1ST FLR: FOYER/LIVING/DINING SOFFITS
L-R2 17 LOW VOLTAGE HALOGEN 4" LOW VOLTAGE REMODEL HOUSING MR16 (12V/50W) WAC LIGHTING HR-8401E 1ST FLR: LIVING/DINING & KITCHEN DROP CEILING
L-R3 4 1" LEDme MINI RECESSED ADJUSTABLE SPOT NA / LOW PROFILE TRIM WARM/NEUTRAL LED (3W) WAC LIGHTING HR-LED272R 1ST FLR: POWDER ROOM CEILING
L-R4 4 4" LEDme NEW CONSTRUCTION HOUSING / SHOWER TRIM 6 x WARM/NEUTRAL LED (3W) WAC LIGHTING HR-LED418-N 1ST FLR: BATHROOM SHOWER CEILING 2ND FLR: MASTER BATHROOM SHOWER CEILING
L-R5 12 3.5" TESLA LED NA / DOWNLIGHT TRIM LUXEON S MULTI-CHIP LED (18W) WAC LIGHTING HR-3LED-T718 2ND FLR: STAIRWELL CEILING, HALL CEILING, MASTER BEDROOM DROP CEILING
L-R6 12 1" LEDME MINI RECESSED ADJUSTABLE SPOT NA / LOW PROFILE TRIM WARM/NEUTRAL LED (3W) WAC LIGHTING HR-LED272R 1ST FLR: BEDROOM CLOSET CLG 2ND FLR: W/D CLG, ELEC CLOSET CLG, M. BEDROOM CLOSET CLG
L-S1 3 SURFACE MOUNTED (OWNER PROVIDED) 2ND FLR: MASTER BEDROOM DROP CEILING
L-S2 7 SURFACE MOUNTED (OWNER PROVIDED) 2ND FLR: GREENHOUSE BAY CEILINGS
L-TL1 1 14' LED TRACK LIGHTING (OWNER PROVIDED) 2ND FLR: MASTER BEDROOM CEILING (WEST)
L-WM1 2 WALL MOUNTED (OWNER PROVIDED) 1ST FLR: POWDER ROOM (BEHIND MIRROR)
L-WM2 2 WALL MOUNTED (OWNER PROVIDED) 1ST FLR: BATHROOM (ABOVE MIRROR)
L-WM3 1 WALL MOUNTED (OWNER PROVIDED) 1ST FLR STAIRWELL (WALL MOUNTED ABOVE STAIR PLATFORM)
L-WM4 1 WALL MOUNTED (OWNER PROVIDED) 2ND FLR: MASTER BATHROOM (WALL MOUNTED W/ MIRROR SURROUND)
L-WM5 1 WALL MOUNTED (OWNER PROVIDED) 2ND FLR: MASTER BEDROOM (WALL MOUNTED)
L-WM6 2 WALL MOUNTED (OWNER PROVIDED) 2ND FLR: MASTER BEDROOM (WALL MOUNTED)
APPLIANCE SCHEDULE
Desig. Description Manufacturer Model Location
AP-1 30" ALL GAS RANGE MIELE HR1124 1ST FLR: KITCHEN RANGE WALL
AP-2 30" BUILT-IN WALL CABINET HOOD MIELE DA3480 1ST FLR: KITCHEN RANGE WALL
AP-3 30" INTEGRATED O&U REFRIGERATOR/FREEZER SUB ZERO IT-30CI 1ST FLR: KITCHEN RANGE WALL
AP-4 24" UNDER COUNTER MICROWAVE W/DRAWER JENN AIR JMD2124WS 1ST FLR: KITCHEN FLOATING BASE CABINETS
AP-6 24" UNDER COUNTER WINE STORAGE MIELE KWT4154UG-1 1ST FLR: FOYER/LIVING CUSTOM CASEWORK
AP-7 24" COMPACT WASHING MACHINE LG WM1355HW 2ND FLR: W/D
AP-8 24" COMPACT ELECTRIC CONDENSING DRYER LG DLEC855W/R 2ND FLR: W/D
AP-9 27" INTEGRATED WINE STORAGE SUB ZERO 427RG 2ND FLR: GREENHOUSE CUSTOM CASEWORK
AP-10 24" UNDERCOUNTER DISHDRAWER DISHWASHER FISHER & PAYKEL DD24SVT7 2ND FLR: GREENHOUSE CUSTOM CASEWORK
APPLIANCE & FIXTURE NOTES
I. GC TO PROVIDE AND INSTALL ALL APPLIANCES LISTED IN SCHEDULE.
II. GC TO PROVIDE ALL SUPPLY AND WASTE PIPING NECESSARY FOR THE
INSTALLATION OF ALL PLUMBING FIXTURES AND APPLIANCES AS REQUIRED.
DOOR SCHEDULE
Mark Description Count Height Width Thickness Finish Frame Type Hardware Location(s)
1 POCKET 1 8' - 0" 2' - 8" 1 1/2" Solid Wood 1ST FLR: POWDER RM
2 TOP HUNG SLIDING 1 7' - 10" 4' - 10 1/2" 2" Solid Wood 1ST FLR: BEDROOM
3 POCKET 1 8' - 0" 2' - 8" 1 1/2" Solid Wood 1ST FLR: BATHROOM
4 TOP HUNG SLIDING 1 7' - 10" 4' - 5 3/4" 2" Solid Wood 2ND FLR: MASTER BEDROOM
5 POCKET 1 8' - 0" 2' - 8" 1 1/2" Solid Wood 2ND FLR: MASTER BATHROOM
6 SINGLE FLUSH SWING RHR 1 6' - 8" 2' - 6" 2" Solid Wood 2ND FLR: GREENHOUSE
7 TEMPERED GLASS OUTSWING 1 7' - 9" 2' - 7" 3/8" Extruded Aluminum Edge 1ST FLR: BATHROOM SHOWER
8 TEMPERED GLASS OUTSWING 1 7' - 8" 2' - 11 1/4" 3/8" Extruded Aluminum Edge 2ND FLR: MASTER BATHROOM SHOWER
9 SKYLINE 1700 TERRACE OUTSWING 1 7' - 11" 3' - 0" 1 3/4" Hollow Metal 2ND FLR: GREENHOUSE/TERRACE
C1 RECESSED SINGLE FLUSH (RH) 1 6' - 8" 2' - 6" 2" Recessed Wood 1ST FLR: BEDROOM CLOSET
C2 RECESSED SINGLE FLUSH (LH) 1 6' - 8" 2' - 4" 1 1/2" Recessed Wood 2ND FLR: WASHER/DRYER CLOSET
C3 RECESSED SINGLE FLUSH (RH) 1 6' - 8" 1' - 10" 1 1/2" Recessed Wood 2ND FLR: ELECTRICAL CLOSET
C4 CUSTOM DOUBLE WITH GLASS LITES 3 8' - 0" 3' - 10" 2" Solid Wood 2ND FLR: MASTER BEDROOM CLOSET
FLOOR FINISH SCHEDULE
DESIGNATION SIZE/MATERIAL FINISH MANUFACTURER LOCATION(S)
FF-1 3/8"x12"x24" PORCELAIN FLR TILE MATTE NASCO STONE & TILE
SERIES/COLOR
FUSSION, DARK ANTHRACITE
FF-3
3/8"x6"x24" PORCELAIN FLR TILE MATTE PROVENZAW-AGE, CORTEX NERO
FF-5 3/4" VENEERED PLYWOOD FLOOR SATIN CLEAR TBDEAST INDIAN ROSEWOOD
1ST FLR: FOYER, LIVING, DINING, KITCHEN, BEDROOM, BATHROOM
FF-6 3/4" SOLID WOOD RUBBED MONOCOAT MATTEWALNUT 1ST FLR: STAIR TREADS, KITCHEN CUSTOM CASEWORK
2ND FLR: MASTER BEDROOM, MASTER BATHROOM, GREENHOUSE
2ND FLR: MASTER BATHROOM & SHOWER
FF-2 3/8"x40"x40" PORCELAIN FLR TILE MATTE NASCO STONE & TILEFUSSION, DARK ANTHRACITE 1ST FLR: POWDER RM
FF-4
3/8"x6"x36" PORCELAIN WALL TILE MATTE DALTILEACACIA VALLY, ASH 1ST FLR: BATHROOM SHOWER
TBD
REMARKS
FIELD CUT AS NOTED IN PLAN
WALL FINISH SCHEDULE
DESIGNATION SIZE/MATERIAL FINISH MANUFACTURER LOCATION(S)SERIES/COLOR
WF-1
1/2"x36"x144" CORIAN SHEET FACTORY DUPONTSOLID SURFACE, GLACIER WHITE 1ST FLR: BATHROOM 2ND FLR: MASTER BATHROOM
WF-2
3/8"x6"x36" PORCELAIN WALL TILE MATTE DALTILEACACIA VALLY, ASH 1ST FLR: BATHROOM
WC-1 DYED SILK DEGOURNAYDECORATIVE WALL COVERING KOREAN PEONY
P-3 MATTE BENJAMIN MOOREWATER BASED PAINT TBD
P-4 MATTETBD
WF-4 SATIN CLEAR TBD1/2" VENEERED PLYWOOD EAST INDIAN ROSEWOOD 1ST FLR: POWDER RM 2ND FLR: MASTER BATHROOM
1st Flr: TBD 2nd Flr: TBD
MR-1 GLASS TBDWALL MTD MIRROR SURFACE N/A
BENJAMIN MOOREWATER BASED PAINT 1st Flr: TBD 2nd Flr: TBD
WC-2 MATTE DEGOURNAYPAPER WALL COVERING ROYAL RED 1ST FLR: FOYER
1ST FLR: POWDER RM, BATHROOM 2ND FLR: MASTER BATHROOM
3/8"x40"x40" PORCELAIN WALL TILE MATTE NASCO STONE & TILEFUSSION, DARK ANTHRACITE 1ST FLR: POWDER RM
WF-3
P-1 MATTE BENJAMIN MOOREWATER BASED PAINT TBD
P-2 MATTETBD
1st Flr: TBD 2nd Flr: TBD
BENJAMIN MOOREWATER BASED PAINT 1st Flr: TBD 2nd Flr: TBD
REMARKS
PROVIDED BY OWNER1ST FLR: POWDER RM
PROVIDED BY OWNER
PROVIDED (3) SAMPLES
PROVIDED (3) SAMPLES
PROVIDED (3) SAMPLES
PROVIDED (3) SAMPLES
WB-1 MATTETBD TBDWOOD WALL BASE 2nd Flr: GREENHOUSE
WF-5 SATIN CLEAR TBD1/2" VANEERED MDF QUARTER SAWN WALNUT 1ST FLR: FOYER
CASEWORK FINISH SCHEDULE
DESIGNATION SIZE/MATERIAL FINISH MANUFACTURER LOCATION(S)SERIES/COLOR
CT-1
3/4"x36"x144" CORIAN SHEET FACTORY DUPONTSOLID SURFACE, GLACIER WHITE 1ST FLR: BATHROOM VANITY C-TOP 2ND FLR: MASTER BATH VANITY C-TOPCT-2
CW-2 GLOSSY TBD
CW-1 LACQUERED TBD 1ST FLR: KITCHEN/STAIRWELL CUSTOM CASEWORK
3/4" SOLID WOOD WALNUT
1-1/8" SOLID GRANITE HONED SMC STONEABSOLUTE BLACK 1ST FLR: KITCHEN COUNTERTOP
3/4" VENEERED MDF DECORATOR WHITE
CW-3 SATIN CLEAR TBD1/4" VENEERED PLYWOOD EAST INDIAN ROSEWOOD 2ND FLR: MASTER BATHROOM VANITY
1ST FLR: KITCHEN BASE CABINETS
SS-1 BRUSHED TBD1/2" STEEL LAMINATED WOOD STAINLESS STEEL 1ST FLR: KITCHEN RANGE, ADJACENT UPPER/LOWER CASEWORK & C-TOP
GL-1 CLEAR TBD1/2" THICK GLASS N/A 1ST FLR: KITCHEN/STAIRWELL CUSTOM WALL HUNG CABINET/SHELVING
1-1/8" SOLID STONE HONED DUPONTJET MIST 1ST FLR: POWDER RM VANITY COUNTERTOPCT-3
REMARKS
EASED EDGE. RECIEVES (2) COATS OF SEALER
RECIEVES (2) COATS OF SEALER
CW-4 SATIN CLEAR TBD1/2" VENEERED MDF QUARTER SAWN WALNUT 1ST FLR: FOYER, BEDROOM SOLID WOOD EDGING
CW-5 SATIN CLEAR TBD1/2" SPRAY LAQUERED MDF TBD 1ST FLR: LIV/DINING & BDRM PTAC ENCLSR 2ND FLR: M.BDRM PTAC ENCLSR
CT-4 3/4"x36"x144" CORIAN SHEET FACTORY DUPONTSOLID SURFACE, TBD 1ST FLR: LIV/DINING & BDRM PTAC ENCLSR 2ND FLR: M.BDRM PTAC ENCLSR
CT-5 3/4" VENEERED MDF FACTORY TBDTBD 1ST FLR: BEDROOM ENTERTAINMENT CENTER COUNTERTOP & OFFICE DESKTOP
CEILING FINISH SCHEDULE
DESIGNATION SIZE/MATERIAL FINISH MANUFACTURER LOCATION(S)SERIES/COLOR
CF-1
VENETIAN PLASTER FACTORY DUPONTWHITE 1ST FLR: LIVING/DINING & KITCHEN DRP CLG 2ND FLR: MASTER BED DRP CLG
CF-2
5/8" GYPSUM BOARD MATTE TBDWHITE 1ST FLR: LIVING/DINING, FOYER, & BEDROOM SOFFITS
CF-5
CF-4 SATIN CLEAR TBD1/2" VENEERED PLYWOOD EAST INDIAN ROSEWOOD 1ST FLR: FOYER/LIVING/DINING/KITCHEN SOFFIT COVE
5/8" MOISTURE RESISTANT GWB MATTE TBDWHITE 1ST FLR: BATHROOM, POWDER RM 2ND FLR: MASTER BATHROOM
CF-3
3/8"x6"x36" PORCELAIN TILE MATTE DALTILEACACIA VALLY, ASH 1ST FLR: BATHROOM SHOWER
CF-6 3/4" MEDIUM DENSITY FIBERBOARD MATTE TBDWHITE 2ND FLR: GREENHOUSE BAY CIELINGS
REMARKS
NOTCH AROUND ROOF BEAM FLANGE
MOUNT ON MOISTURE RESISTANT BACKERBOARD
Scale:
Consultant
Contact
Address
Phone
e-mail
ARCHITCTS PLLC
648 Broadway / Suite 402, New York, NY 10012
T.212.254.5210
F.212.254.4523
www.wilkinsonarchitects.com
New York: Registered Architect 027917-1
Pennsylvania: Registered Architect 402561
National Council of Architectural Registration Board #52853
DOB Barcode
ATOZ Consulting Engineers, PC
Ilya Malyuchenko, P.E.
363 7th Avenue
3rd Floor
New York, NY 10001
212.929.2491
Ilya@atozengineers.com
Consultant
Contact
Address
Phone
e-mail
NYC Building Restoration
Robert M. Hanna, P.E.
9011 Northern Boulevard
Suite 307
Jackson Heights, NY 11372
646-522-0589
rhanna@engineer.com
MECHANICAL
STRUCTURAL
1" = 1'-0"
A-601
FINISH SCHEDULES
ELAM RESIDENCE
300 EAST 74TH STREET PENTHOUSE-F/36TH FLOOR
NEW YORK, NY 10021
04/03/2015
No. Description Date
FINISH NOTES
I. GC TO PROVIDE SUBMITTALS FOR ALL FINISHES TO BE APPROVED BY
OWNER/ARCHITECT
II. ALL STONE TO RECIEVE (2) COATS SEALER
GFI
GFI
GFI
GFIGFI
GFI
TV
TD
GFI
GFI
GFI
TV
TD
R
UP
REF.
RANGE
HOOD
U.C.
MICROWAVEGFI
U.C.
REF.
GFI GFI
MOTORIZED SHADE
(AT CEILING)
MOTORIZEDWINDOW
SHADE(CEILING)
U.C.
D/W
FCU-1
I
MOTORIZED WINDOW
SHADE (CEILING) MOTORIZED WINDOW
SHADE (CEILING)
DN
MOTORIZED SHADE
(AT CEILING)
W D
GFI
UP
1 Riser
A B
1
I
WP
WP
I
SINGLE WALL MOUNTED RECEPTACLE
SYMBOL DESCRIPTION
ELECTRICAL RECEPTACLE LEGEND
DUPLEX WALL MOUNTED RECEPTACLE
GFI DUPLEX WALL MOUNTED RECEPTACLE
240V WALL MOUNTED RECEPTACLE
CATV WALL MOUNTED RECEPTACLE
TELE/DATA WALL MOUNTED RECEPTACLE
INTERCOM SERVICE
WATERPROOF DUPLEX WALL MOUNTED RECEPTACLEWP
Scale:
Consultant
Contact
Address
Phone
e-mail
ARCHITCTS PLLC
648 Broadway / Suite 402, New York, NY 10012
T.212.254.5210
F.212.254.4523
www.wilkinsonarchitects.com
New York: Registered Architect 027917-1
Pennsylvania: Registered Architect 402561
National Council of Architectural Registration Board #52853
DOB Barcode
ATOZ Consulting Engineers, PC
Ilya Malyuchenko, P.E.
363 7th Avenue
3rd Floor
New York, NY 10001
212.929.2491
Ilya@atozengineers.com
Consultant
Contact
Address
Phone
e-mail
NYC Building Restoration
Robert M. Hanna, P.E.
9011 Northern Boulevard
Suite 307
Jackson Heights, NY 11372
646-522-0589
rhanna@engineer.com
MECHANICAL
STRUCTURAL
1/4" = 1'-0"
E-101
POWER PLANS
ELAM RESIDENCE
300 EAST 74TH STREET PENTHOUSE-F/36TH FLOOR
NEW YORK, NY 10021
04/03/2015
1/4" = 1'-0"
1
Penthouse F - 36th Floor - Main Level Power
Plan
1/4" = 1'-0"
2
Penthouse F - Upper Level Power Plan
ALL ELECTRICAL OUTLETS, FIXTURES, AND RELATED ITEMS BEING INSTALLED IN PUBLIC/PARTY/CHASE
WALLS AND/OR CEILINGS MUST BE INSTALLED WITH SOUNDPROOF HOUSINGS AND/OR GASKETING.
GENERAL ELECTRICAL NOTES
No. Description Date
DN
UP
GAS GAS GAS
GASGASGASGASGASGAS
UP
1 Riser
C.O.
A B
1
NEW WASTE LINE
PLUMBING LEGEND
NEW VENT LINE
NEW GAS LINE
NEW CLEAN OUT
WASTE RISER
GAS GAS
C.O.
VENT RISER
RISER SHUTOFF
BRANCH SHUTOFF
Scale:
Consultant
Contact
Address
Phone
e-mail
ARCHITCTS PLLC
648 Broadway / Suite 402, New York, NY 10012
T.212.254.5210
F.212.254.4523
www.wilkinsonarchitects.com
New York: Registered Architect 027917-1
Pennsylvania: Registered Architect 402561
National Council of Architectural Registration Board #52853
DOB Barcode
ATOZ Consulting Engineers, PC
Ilya Malyuchenko, P.E.
363 7th Avenue
3rd Floor
New York, NY 10001
212.929.2491
Ilya@atozengineers.com
Consultant
Contact
Address
Phone
e-mail
NYC Building Restoration
Robert M. Hanna, P.E.
9011 Northern Boulevard
Suite 307
Jackson Heights, NY 11372
646-522-0589
rhanna@engineer.com
MECHANICAL
STRUCTURAL
1/4" = 1'-0"
P-101
PLUMBING PLANS
ELAM RESIDENCE
300 EAST 74TH STREET PENTHOUSE-F/36TH FLOOR
NEW YORK, NY 10021
04/03/2015
1/4" = 1'-0"
1
Penthouse F - 36th Floor - Main Level
Plumbing Plan
1/4" = 1'-0"
2
Penthouse F - Upper Level Plumbing Plan
EXISTING VENT STACK
(VERIFY IN FIELD)
EXISTING WASTE STACK
(VERIFY IN FIELD)
EXISTING WASTE STACK
(VERIFY IN FIELD)
EXISTING 6" VENT STACK
(VERIFY IN FIELD)
EXISTING 4" WASTE STACK
(VERIFY IN FIELD)
EXISTING 4" VENT
TO ROOF
(VERIFY IN FIELD)
W/D
EXISTING RISER SHUTOFF
(VERIFY IN FIELD)
NEW FIXTURE SHUTOFF
(ACCESS INSIDE B.C.)
No. Description Date

Elam Pricing Full Set 4.3.15

  • 1.
    SD 1 PARTITION TYPE GRAPHICSYMBOLS WALL MOUNTED SMOKE DETECTOR EXHAUST VENT EXISTING CONSTRUCTION TO REMAIN EXISTING CONSTRUCTION TO BE REMOVED NEW CONSTRUCTION EXG6"VENT.STACK EXG4"SOILSTACK 3"2" RELOCATE W/C 2" RELOCATE LAV 11/2" BATH 2 POWDER ROOM 4" CO. 4" CO. 3" 2" RELOCATE W/C 2" RELOCATE LAV 11/2" 3" 11/2" RELOCATE SHOWER MASTER BATH 3"1-1/2" RELOCATE W/C 2" RELOCATE LAV 11/2" 4" CO. 3" 11/2" RELOCATE SHOWER 1-1/2" REMOVE LAV 11/2" REMOVE HOT TUB 2" LAUNDRY 2" FLOOR DRAIN GREENHOUSE EXG6"VENT.STACK EXG4"SOILSTACK PH-F Upper Level PH-F 36th Flr Main Level CO. 1-1/2" 11/2" RELOCATE SINK KITCHEN EXIST. HOUSE TRAP RELOCATE DISHWASHER CO. 1-1/2" 11/2" NEW SINK GREENHOUSE Roof EAST 73RD STREET 37 STORY BUILDING #300 BLOCK: 1448 LOT: 3 OCCUPANCY CLASS: RES CONSTRUCTION CLASS: 1 AREA OF WORK ON 36TH FLOOR ADJACENT 14 STORY BUILDING ADJACENT 6 STORY BUILDING 100 102.17 100100 102.17 153.2551.08 100 51.08 100 25 25 25 EAST 74TH STREET 2NDAVENUE NEIGHBORING 2 STORY BUILDING M GAS METER CELLAR 3/4" RELOCATE GAS RANGE EXISTING GAS RISER APT. 5E KITCHEN EXISTING GAS SHUT-OFF VALVE 36TH FLOOR Push Side 42 min Y 54 min X24 preferred60 min 18 min, Pull Side 48 min X Push Side Pull Side NOTE: All doors in alcoves shall comply with the clearances for front approaches. 12" (FIG. 25)(FIG. 25) Clearance of optional enclosure. NOTE: Dashed line indicates dimensional 8 min Knee 6 max Toe 17 min Lavatory Depth 9 min 27min 29min 49max 19 max 17 min clear floor space 30min 48 min 6 max 38min 32max 24 min 38min 32max foot area control 24 min 6max 38min 48 min back 6 max seat head back wall side wall 38min 38min 12 min 12 min 32max toilet paper 19min 12 18 min 36 max 32max clear floor space 18 lav. min 36 min 56min 48 min min clear floor space lav. 1816-18 36 min 66min 48 min 16-18 Clearance Clearance space floor 30min clear 60 min back foot head 18min B. Hinge Side Approaches - Swinging Doors A. Front Approaches - Swinging Doors NOTE: y = 48" minimum if door has both a latch and closer. NOTE: x = 36" minimum if y = 60"; x = 42" minimum if y = 54". NOTE: x = 12" if door has both a closer and latch. MANEUVERING CLEARANCES AT DOORS CLEAR FLOOR SPACE AT BATHTUB REINFORCED AREAS FOR GRABS AT BATHTUB CLEAR FLOOR SPACE AT WATER CLOSET REINFORCED AREAS FOR GRAB BARS AT WATER CLOSET CLEAR FLOOR SPACE AND CLEARANCES AT LAVATORIES . . . . Y . . . . . . . . .. . . Scale: Consultant Contact Address Phone e-mail ARCHITCTS PLLC 648 Broadway / Suite 402, New York, NY 10012 T.212.254.5210 F.212.254.4523 www.wilkinsonarchitects.com New York: Registered Architect 027917-1 Pennsylvania: Registered Architect 402561 National Council of Architectural Registration Board #52853 DOB Barcode ATOZ Consulting Engineers, PC Ilya Malyuchenko, P.E. 363 7th Avenue 3rd Floor New York, NY 10001 212.929.2491 Ilya@atozengineers.com Consultant Contact Address Phone e-mail NYC Building Restoration Robert M. Hanna, P.E. 9011 Northern Boulevard Suite 307 Jackson Heights, NY 11372 646-522-0589 rhanna@engineer.com MECHANICAL STRUCTURAL As indicated A-000 GENERAL NOTES / PLOT PLAN ELAM RESIDENCE 300 EAST 74TH STREET PENTHOUSE-F/36TH FLOOR NEW YORK, NY 10021 04/03/2015 BUILDING DEPT. GENERAL NOTES 1. SCOPE OF WORK: APPLICATION FILED FOR THE INTERIOR RENOVATION OF EXISTING PENTHOUSE F. NO CHANGE IN USE, OCCUPANCY, OR EGRESS. 2. ALL WORK SHALL CONFORM TO THE REQUIREMENTS OF THE NEW YORK CITY BUILDING CODE, FIRE DEPARTMENT REGULATIONS, UTILITY COMPANY REQUIREMENTS, AND THE BEST TRADE PRACTICES. 3. BEFORE COMMENCING WORK, THE CONTRACTOR SHALL FILE ALL REQUIRED CERTIFICATES OF INSURANCE WITH THE DEPARTMENT OF BUILDINGS, OBTAIN ALL REQUIRED PERMITS, AND PAY ALL FEES REQUIRED BY GOVERNING NEW YORK CITY AGENCIES. 4. THE CONTRACTOR SHALL VERIFY ALL EXISTING CONDITIONS IN THE FIELD PRIOR TO COMMENCING WORK, AND SHALL REPORT ANY DISCREPANCIES BETWEEN DRAWINGS AND FIELD CONDITIONS TO THE ARCHITECT. 5. MINOR DETAILS NOT USUALLY SHOWN OR SPECIFIED, BUT NECESSARY FOR PROPER CONSTRUCTION OF ANY PART OF THE WORK SHALL BE INCLUDED AS IF THEY WERE INDICATED IN THE DRAWINGS. 6. THE CONTRACTOR SHALL COORDINATE ALL WORK PROCEDURES WITH REQUIREMENTS OF LOCAL AUTHORITIES AND BUILDING MANAGEMENT. 7. THE CONTRACTOR SHALL BE RESPONSIBLE FOR THE PROTECTION OF ALL CONDITIONS AND MATERIALS WITHIN THE PROPOSED CONSTRUCTION AREA. THE CONTRACTOR SHALL DESIGN AND INSTALL ADEQUATE SHORING AND BRACING FOR ALL STRUCTURAL OR REMOVAL TASKS. THE CONTRACTOR SHALL HAVE SOLE RESPONSIBILITY FOR ANY DAMAGE OR INJURIES CAUSED BY OR DURING THE EXECUTION OF THE WORK. 8. THE CONTRACTOR SHALL LAY OUT HIS OWN WORK, AND SHALL PROVIDE ALL DIMENSIONS REQUIRED FOR OTHER TRADES (PLUMBING, ELECTRICAL, ETC.). 9. PLUMBING, HVAC, AND ELECTRICAL WORK SHALL BE PERFORMED BY PERSONS LICENSED IN THEIR TRADES, WHO SHALL ARRANGE FOR AND OBTAIN INSPECTIONS AND REQUIRED SIGN-OFFS. 10. THE CONTRACTOR SHALL DO ALL CUTTING, PATCHING, REPAIRING AS REQUIRED TO PERFORM ALL OF THE WORK INDICATED ON THE DRAWINGS, AND ALL OTHER WORK THAT MAY BE REQUIRED TO COMPLETE THE JOB. 11. ALL PIPING AND WIRING SHALL BE REMOVED TO A POINT OF CONCEALMENT AND SHALL BE PROPERLY CAPPED OR PLUGGED. 12. THE CONTRACTOR, UPON COMPLETION OF THE WORK, SHALL ARRANGE FOR DEPARTMENT OF BUILDINGS INSPECTIONS AND SIGNOFFS AS REQUIRED SMOKE/CARBON MONOXIDE DETECTION DEVICES 1. SMOKE/CARBON MONOXIDE DETECTORS OR DEVICES SHALL BE INSTALLED IN ORDINANCE WITH THE HOUSING MAINTENANCE CODE,MULTIPLE DWELLING LAW, THE NEW YORK CITY BUILDING CODE, AND THE NEW YORK CITY ELECTRICAL CODE. 2. SMOKE DETECTORS AND CARBON MONOXIDE DETECTORS MAY BE COMBINED PROVIDING THE DEVICES COMPLY WITH THE PROVISIONS OF TITLE OF THE ADMINISTRATIVE CODE OF THE CITY OF NEW YORK AND ANY APPLICABLE RULES PROMULGATED THEREUNDER. 3. EACH SMOKE/CARBON MONOXIDE DETECTOR SHALL BE INSTALLED IN ACCORDANCE WITH SECTION BC 908.7.1 THROUGH 908.7.3. 4. EACH SMOKE/CARBON MONOXIDE DETECTOR SHALL BE INSTALLED OUTSIDE OF EACH SLEEPING ROOM IN THE IMMEDIATE VICINITY OR WITHIN 15'-0" OF THE ENTRANCE TO A SLEEPING ROOM. 5. EACH SMOKE CARBON MONOXIDE DETECTOR SHALL BE OF A TYPE THAT ALLOWS FOR READILY TESTING OF SUCH DEVICE. 6. DUPLEX UNITS SHALL HAVE A DEVICE LOCATED ON EACH LEVEL IF ONLY ONE MEANS OF EGRESS IS PROVIDED FROM EACH LEVEL. 7. CEILING MOUNTED DEVICES SHALL BE A MINIMUM DISTANCE OF 4" FROM ANY WALL. 8. WALL MOUNTED DEVICES SHALL BE A MINIMUM OF 4" TO A MAXIMUM OF 12" FROM THE CEILING. 9. EACH DWELLING UNIT SHALL BE EQUIPPED WITH AN APPROVED TYPE SMOKE/CARBON MONOXIDE DETECTOR DEVICE. 10. SUCH SMOKE/CARBON MONOXIDE DETECTOR MUST BE EITHER THE IONIZATION OR PHOTO-ELECTRIC TYPE. PLUMBING AND DRAINAGE NOTES 1. ALL PLUMBING AND GAS PIPING WORK SHALL BE INSTALLED IN STRICT ACCORDANCE WITH THE REQUIREMENTS OF 2008 NEW YORK CITY PLUMBING CODE. 2. PLUMBING FIXTURES SHALL BE OF TYPE AND MANUFACTURE APPROVED FOR USE IN NEW YORK CITY, AND SHALL BEAR BS&A APPROVAL. 3. ALL GAS-FIRED EQUIPMENT TO BE A.G.A. OR M.E.A. APPROVED. 4. PLUMBING CONTRACTOR TO EXAMINE PROPOSED LAYOUT WITH REGARD TO EXISTING FIELD CONDITIONS, AND SHALL NOTIFY ARCHITECT OF ANY DISCREPANCIES BETWEEN ASSUMED FIELD CONDITIONS AND THOSE ENCOUNTERED DURING CONSTRUCTION. PLUMBING CONTRACTOR SHALL INFORM ARCHITECT OF ANY REVISIONS TO PLAN WHICH SHALL BE NECESSARY, BASED ON CONDITIONS UNCOVERED IN THE FIELD, IN ORDER TO INSTALL ALL FIXTURES, EQUIPMENT AND PIPING IN STRICT ACCORDANCE WITH THE REQUIREMENTS OF THE NYC BUILDING CODE. 5. PLUMBING CONTRACTOR SHALL ARRANGE AND OBTAIN INSPECTIONS AND REQUIRED SIGN-OFFS. NOTE: THIS PLAN IS APPROVED ONLY FOR WORK APPROVED ON THE APPLICATION SPECIFICATION SHEET. ALL OTHER MATTERS SHOWN ARE NOT TO BE RELIED UPON, OR TO BE CONSIDERED AS EITHER APPROVED OR IN ACCORDANCE WITH APPLICABLE CODES. ALL PLUMBING WORK FILED UNDER SEPARATE LAA BY LICENSED PLUMBING. PLUMBING WORK SHOWN AS REFERENCE ONLY. SITE SAFETY THIS DRAWING DOES NOT INCLUDE NECESSARY COMPONENTS FOR CONSTRUCTION SAFETY. THE CONTRACTOR HAS THE RESPONSIBILITY FOR THE SUPERINTENDENCE OF CONSTRUCTION PROCESSES. SITE CONDITIONS, OPERATIONS, EQUIPMENT, PERSONNEL, THE MAINTENANCE OF A SAFE PLACE TO WORK AND ANY SAFETY IN, ON, OR AROUND THE SITE OF WORK. LEAD NOTES THE OWNER, GENERAL CONTRACTOR, DEMOLITION SUBCONTRACTOR ARE ADVISED THAT THERE IS A POSSIBILITY OF LEAD PAINT HAVING BEEN USED IN THE EXISTING CONSTRUCTION. THE DEMOLITION PORTION OF THE JOB MUST BE PERFORMED ACCORDING TO SAFE WORK PRACTICES (OSHA). INCLUDING WORKER PROTECTION, PREVENTION OF SPREAD OF LEAD DUST AND NOTIFICATION OF THE PUBLIC AND GOV'T AGENCIES AND PROPER DISPOSAL OF CONTAMINATED REFUSE. AFTER THE DEMO IS PROPERLY FINISHED AND PROPER CLEAN UP IS PERFORMED, IT IS NO LONGER A LEAD ABATEMENT JOB. THE OWNER IS OBLIGED TO COMPLY WITH LOCAL LAW 1 OF 2004. COMPLY WITH ALL NYC LAWS. SCOPE OF WORK NOTES 1. THE SCOPE OF WORK FOR THIS PROJECT REQUIRES THE FILING OF AN ALTERATION TYPE 2 APPLICATION AT THE NEW YORK CITY BUILDING DEPARTMENT. THE CONTRACTOR IS RESPONSIBLE FOR OBTAINING A PERMIT FOR THIS WORK PRIOR TO CONSTRUCTION. 2. CONTRACTOR SHALL MAINTAIN PERMIT UNTIL ALL SIGN-OFFS ARE COMPLETE. 3. ALL CONTRACTORS SHALL BE LICENSED BY THE CITY OF NEW YORK FOR HIS/HER TRADE RESPECTIVELY. ZONING CONSTRUCTION CLASSIFICATION 1: FIREPROOF STRUCTURES CCCUPANCY CLASSIFICATION RES SCOPE OF WORK APPLICATION FILED FOR THE INTERIOR RENOVATION OF EXISTING APARTMENT #5E. NO CHANGE IN USE, OCCUPANCY, OR EGRESS. ENERGY TO THE BEST OF MY KNOWLEDGE, BELIEF AND PROFESSIONAL JUDGEMENT, ALL WORK UNDER THIS APPLICATION IS IN COMPLIANCE WITH NYCECC 2011. ZONING INFO BLOCK: 1448 LOT: 3 ZONE: C1-9 R8B MAP: 8C BOROUGH: MANHATTAN ADDRESS: 300 EAST 74TH STREET PH-F NEW YORK, NY 10021 NOTE: NO CHANGE IN BULK AND HEIGHT OF THE BUILDING IS PROPOSED IN THIS APPLICATION NOTE: NO CHANGE TO USE, EGRESS OR OCCUPANCY IS PROPOSED IN THIS APPLICATION TENENT PROTECTION NOTES 1. GENERAL: ALL WORK TO BE COMPLETED IN ACCORDANCE WITH THE NEW YORK BUILDING CODE, ARTICLE 19, AND REGULATIONS OF ALL OTHER AGENCIES HAVING JURISDICTION. THE BUILDING CONTAINS UNITS THAT WILL BE OCCUPIED DURING CONSTRUCTION. 2. MEANS OF EGRESS: ALL EXISTING MEANS OF EGRESS FOR TENANTS OF THE BUILDING TO BE MAINTAINED CLEAR AND FREE OF ALL OBSTRUCTION, SUCH AS BUILDING MATERIALS, TOOLS, ETC. 3. FIRE SAFETY: A) ALL BUILDING MATERIALS, WHICH ARE STORED AT THE SITE OR ANY AREA OF THE BUILDING, ARE TO BE STORED IN A LOCKED AREA. ACCESS TO THE AREAS TO BE CONTROLLED BY THE OWNER, OR THE GENERAL CONTRACTOR. B) ALL MATERIALS TO BE STORED IN AN ORDERLY FASHION. C) ALL FLAMMABLE MATERIALS TO BE KEPT AND TIGHTLY SEALED IN THEIR RESPECTIVE MANUFACTURER'S CONTAINERS. SUCH MATERIALS ARE TO BE KEPT FROM SOURCES OF HEAT. D) ALL FLAMMABLE MATERIALS TO BE USED AND STORED IN AN ADEQUATELY VENTILATED SPACE. E) ALL ELECTRICAL POWER TO BE SHUT-OFF WHERE THERE ARE EXPOSED CONDUIT. F) ALL ELECTRICAL POWER IN THE CONSTRUCTION AREA TO BE SHUT OFF AFTER WORKING HOURS. G) CONTRACTOR. AT ALL TIMES, SHALL ENSURE THERE IS NO NATURAL GAS LEAKAGE IN THE BUILDINGS, OR ANY FLAMMABLE GAS TO BE USED DURING CONSTRUCTION. 4. HEALTH REQUIREMENTS: A). DUST CONTROL: 1) DEBRIS, DIRT, AND DUST TO BE KEPT TO A MINIMUM AND CONFINED TO THE IMMEDIATE CONSTRUCTION AREA, AND SHALL NOT CREATE DUST, DIRT OR OTHER SUCH INCONVENIENCES TO OTHER APARTMENT UNITS WITHIN THE BUILDING. 2) CONTRACTOR SHALL ISOLATE CONSTRUCTION AREA FROM OCCUPIED BUILDING AREA BY MEANS OF TEMPORARY PARTITIONS OR HEAVY WEIGHT DROPCLOTH. 3) DEBRIS, DIRT, AND DUST SHALL BE CLEANED-UP AND CLEARED FROM THE BUILDING SITE PERIODICALLY TO AVOID EXCESSIVE ACCUMULATION. B). DISPOSAL OF CONSTRUCTION DEBRIS: ALL DEBRIS AND PRODUCTS OF DEMOLITION NOT DESIGNATED FOR REFUSE SHALL BE REMOVED FROM THE PREMISES AND LEGALLY DISPOSED OF. THE SITE SHALL BE LEFT BROOM CLEAN AT THE END OF EVERY WORKING DAY. C). PEST CONTROL: SHALL CONFORM TO ARTICLE 13 OF THE NYC HOUSING MAINTENANCE CODE WITH REGARDS TO: 1) RODENT AND INSECT ERADICATION; MANDATORY EXTERMINATION ` 2) ELIMINATION OF HARBORAGES D). MAINTENANCE OF SANITARY FACILITIES: SHALL CONFORM TO ARTICLE 14 OF THE NYC HOUSING MAINTENANCE CODE. E). NOISE CONTROL: ALL WORK SHALL CONFORM TO LOCAL LAW 113/2005. F). LEAD: ALL WORK SHALL CONFORM TO LOCAL LAW 1/2004 WITH REGARDS TO THE HANDLING OF LEAD. G). ASBESTOS: ALL WORK SHALL CONFORM TO THE NYS DEP ASBESTOS CONTROL PROGRAM §1-01 WITH REGARDS TO THE HANDLING OF ASBESTOS. 5. STRUCTURAL SAFETY: NO STRUCTURAL WORK SHALL BE DONE THAT MAY ENDANGER THE OCCUPANTS. 6. NOISE RESTRICTIONS 1) CONSTRUCTION OPERATION WILL BE CONFINED TO NORMAL WORKING HOURS: 8:00 AM TO 5:00 PM, MONDAY THRU FRIDAY, EXCEPT LEGAL HOLIDAYS. AFTER HOURS AND WEEKEND WORK BE SPECIAL PERMIT ONLY. 2) CONTRACTOR MUST OBTAIN WRITTEN PERMISSION FROM ALL AFFECTED PARTIES TO WORK OUTSIDE OF THE REGULAR HOURS STATED ABOVE. ELAM RESIDENCE 300 EAST 74TH STREET PH-F, NEW YORK, NY 10021 ADA COMPLIANCE - LOCAL LAW 58/87 ADA COMPLIANCE- LOCAL LAW 58/87 NOTES 1. ALL WORK TO COMPLY WITH LOCAL LAW 58/87. WORK IN BOTH THE KITCHEN AND THE BATHROOMS TO COMPLY WITH NYC DEPARTMENT OF BUILDINGS POLICY AND PROCEDURES NOTICES: PPN #15/88, PNN #1/92, PPN #3/92 2. NEW DOORWAYS AND FRAMED OPENINGS MUST COMPLY WITH ADA / NYC LOCAL LAW 58 OF 1987 CLEARANCE REQUIREMENTS. NEW DOOR HARDWARE AND THRESHOLDS TO BE ADA-COMPLIANT. 3. NEW ELECTRICAL OUTLETS, TELEPHONE OUTLETS, ETC, TO BE INSTALLED IN COMPLIANCE WITH AMERICAN NATIONAL STANDARDS INSTITUTE (ANSI) A117.1 - 1986. NO OULET TO MOUNTED LESS THEN 15" AFF, SWITCHES TO BE MOUNTED NO HIGHER THAN 48" TO TOP OF BOX. 4. REPLACEMENT OF PLUMBING FIXTURES ON EXISTING ROUGHING DOES NOT MANDATE COMPLIANCE WITH HANDICAP ACCESSIBLITY REQUIREMENTS PER LOCAL LAW 58/87. 5. RELOCATION OR NEW FIXTURES INSTALLED TO COMPLY WITH LL58/87 PLUMBING RISER DIAGRAM - NOT TO SCALE ASBESTOS NOTES IN THE EVENT OF ASBESTOS OR OTHER TOXIC SUBSTANCE EXPOSURE OR THE SUBSTANTIAL RISK THEREOF, CLIENT WILL HAVE THE DUTY TO INFORM ARCHITECT OF SUCH RISKS KNOWN OR REASONABLY KNOWABLE TO CLIENT. IF ASBESTOS, OR ANY OTHER TOXIC SUBSTANCE, OR RISK TO EXPOSURE THERETO IS DISCOVERED BY THE ARCHITECT DURING WORK ON THE PROJECT, ARCHITECT SHALL, IN HIS SOLE DISCRETION, HAVE THE RIGHT TO SUSPEND WORK ON THE PROJECT. CLIENT SHALL HAVE THE DUTY PROMPTLY TO RETAIN A QUALIFIED EXPERT SAFELY TO REMOVE OR SUPERVISE THE REMOVAL OF SUCH ASBESTOS OR OTHER TOXIC SUBSTANCE. CLIENT SHALL INDEMNIFY AND HOLD ARCHITECT, HIS AFFILIATES AND SUBCONTRACTORS, AND THEIR OFFICERS, AGENTS AND EMPLOYEES HARMLESS FROM ANY AND ALL LIABILITY ON THE PART OF OR DAMAGE TO SUCH ENTITIES OR PERSONS, INCLUDING THE COST OF LEGAL FEES AND EXPENSES, AS SUCH FEES AND EXPENSES ARE INCURED, WHICH MAY RESULT FROM ASBESTOS OR OTHER TOXIC SUBSTANCE EXPOSURE ON THE PROJECT. INTERIOR FINISH NOTES 1. THE CONTRACTOR SHALL INSPECT ALL SURFACES AND PROVIDE ALL PREPARATORY WORK NECESSARY TO ACHIEVE NEW FINISHES. 2. ALL AREAS SHALL BE FINISHED AS PER FINISH PLANS & RELATED NOTES ON CONSTRUCTION PLANS. 3. ON WALL SURFACES SCHEDULED TO RECEIVE PAINT, ALL PAINT SHALL BE APPLIED IN ACCORDANCE WITH THE MFR'S SPECIFICATIONS OR AS INDICATED. 4. ALL PAINTED CLGS. TO MATCH ADJACENT PAINT FINISH OR NEW PAINT FINISH SHALL BE FLAT LATEX U.O.N. 5. ONLY LOW VOC (VOLITILE ORGANIC COMPOUND) PAINT AND FLOOR FINISH MATERIALS WILL BE PERMITTED FOR USE. PROGRESS INSPECTIONS: THE FOLLOWING SHALL BE SUBJECT TO PROGRESS INSPECTIONS 1. ENERGY CODE COMPLIANCE INSPECTIONS (BC 109.3.5) 2. FINAL INSPECTION (1RCNY-101-10) SPECIAL INSPECTIONS: THE FOLLOWING SHALL BE SUBJECT TO SPECIAL INSPECTIONS 1. STRUCTURAL STEEL - WELDING (BC 1704.3.1) 2. STRUCTURAL STEEL - HIGH STRENGTH BOLTING (BC 1704.3.3) 3. STRUCTURAL STABILITY - EXISTING BUILDINGS (BC 1704.20.1) 4. FIRE RESISTANT PENETRATIONS AND JOINTS (BC 1704.27) SHEET INDEX Sheet # Sheet Name A-000 GENERAL NOTES / PLOT PLAN A-100 REMOVAL PLANS A-101 CONSTRUCTION PLANS A-102 ROOF PLANS A-103 REFLECTED CEILING PLANS A-104 FLOOR FINISHES PLANS A-201 KITCHEN ENLARGED PLANS A-202 KITCHEN ELEVATIONS A-203 BATHROOM ENLARGED PLANS & ELEVATIONS A-204 BEDROOM ENLARGED PLANS & ELEVATIONS A-205 MAIN FLOOR ENLARGED PLANS & ELEVATIONS A-206 GREENHOUSE ENLARGED PLAN & ELEVATIONS A-301 GREENHOUSE FRAMING PLAN A-302 GREENHOUSE SECTIONS A-303 STAIRWELL PLANS & SECTIONS A-501 STAIR DETAILS I A-502 STAIR DETAILS II A-503 GREENHOUSE DETAILS A-504 ROOF DETAILS A-505 FLOOR DETAILS A-506 CASEWORK DETAILS A-507 CEILING DETAILS A-600 FIXTURE, APPLIANCE, & DOOR SCHEDULES A-601 FINISH SCHEDULES M-001 MECHANICAL SYMBOLS & NOTES M-100 MECHANICAL PLANS & SCHEDULES M-200 MECHANICAL DETAILS & SECTIONS M-300 MECHANICAL SPECIFICATIONS E-101 POWER PLANS P-101 PLUMBING PLANS GAS RISER DIAGRAM - NOT TO SCALE PLOT PLAN - NOT TO SCALE ADA COMPLIANCE DIAGRAMS No. Description Date N
  • 2.
    I. THE CONTRACTORSHALL PROVIDE THE OWNER WITH THE NAMES AND PHONE NUMBERS OF ALL SUBCONTRACTORS USED DURING THE DEMOLITION (INCLUDING TRASH REMOVAL CONTRACTOR), THE DATES OF THE CONSTRUCTION IN THE TENANT PREMISES, AND COPIES OF ALL REQUIRED INSURANCE CERTIFICATES, PRIOR TO THE COMMENCEMENT OF ANY WORK. II. THE CONTRACTOR SHALL PROVIDE THE OWNER WITH A COPY OF ALL PERMITS BEFORE COMMENCEMENT OF RELEVANT WORK AS WELL AS DISPLAYING ALL PERMITS ON SITE. III. THE CONTRACTOR SHALL CONSTRUCT DUST TIGHT PARTITIONS PRIOR TO THE COMMENCEMENT OF DEMOLITION AND ARE TO REMAIN IN PLACE UNTIL ALL WORK HAS BEEN COMPLETED AND WRITTEN APPROVAL HAS BEEN RECEIVED FROM THE OWNER. THE CONTRACTOR SHALL BE RESPONSIBLE FOR ANY AND ALL REPAIRS TO THE SURFACES MARKED OR DAMAGED BY THE PARTITION INSTALLATION AND SUBSEQUENT REMOVAL, ALL SURFACES ARE TO BE RESTORED TO THEIR ORIGINAL CONDITION. IV. GENERAL CONTRACTOR TO COOR. W/ OWNER FOR THE HOURS THAT THE DEMO WORK, INCLUDING DEMOLITION REMOVAL CAN BE DONE. EXCEPTIONS WILL BE MADE ONLY WITH PRIOR APPROVAL FORM THE LANDLORD. V. IN THE EVENT THE CONTRACTOR FAILS TO PERFORM THE ABOVE SPECIFIED WORK DEEMED NECESSARY BY THE OWNER, THE OWNER SHALL COMPLETE SUCH WORK AT CONTRACTOR'S / TENANT'S EXPENSE. VI. DUST PROTECTION SHALL BE PROVIDED TO THE SPACES ADJACENT TO WORK BEING PERFORMED. CONTRACTOR REMAINS LIABLE FOR DUST AND DIRT INTRUSION INTO ADJOINING SPACE. ALL DUST PROTECTION WORK TO BE COORDINATE WITH THE OWNER. VIII. NO FLAMMABLE LIQUIDS OR MATERIALS SHALL BE STORED AT SITE JOB. IX. AUTHORIZATION MUST BE OBTAIN FROM THE OWNER PRIOR TO COMMENCEMENT OF ANY CUTTING WELDING WORK. LANDLORD WILL GIVE AUTHORIZATION ONLY AFTER RECEIPTOF PROOF OF A BURNER'S/ WELDER'S PERMIT. X. THE CONTRACTOR SHALL CONSULT WITH THE OWNER PRIOR TO COMMENCEMENT OF ANY WORK TO DETERMINE WHETHER THERE ARE ANY KNOWN HAZARDOUS SUBSTANCES IN OR NEAR THE PREMISES. IF ANY HAZARDOUS SUBSTANCES IN OR NEAR ARE DISCOVERED DURING CONSTRUCTION ALL WORK IS TO STOP IMMEDIATELY AND NOTIFICATION GIVEN TO THE OWNER. XI. REMOVE DEMOLISHED MATERIALS, TOOLS AND EQUIPMENT FROM SITE UPON OF COMPLETION OF WORK. XII. DELIVERY OF ITEMS WILL BE ALLOWED BETWEEN THE HOURS OF 9:00 AM and 4:00 PM. ALL DELIVERIES SHOULD CLEARLY IDENTIFY STORE NAME. XIII. CONTRACTOR SHALL VERIFY FIELD CONDITIONS AND NOTIFY ARCHITECT OF ALL DISCREPANCIES BEFORE PROCEEDING WITH WORK. XIV.CEASE OPERATION AND NOTIFY THE OWNER IMMEDIATELY IF SAFETY OF STRUCTURE APPEARS TO BE ENDANGERED. TAKE PRECAUTIONS TO PROPERLY SUPPORT STRUCTURE. DO NOT RESUME OPERATIONS UNTIL SAFETY IS RESTORED. XV. THE CONTRACTOR SHALL EMPLOY CLEAN UP PERSONNEL TO MAINTAIN THE WORK AREA IN A NEAT AND ORDERLY MANNER, INCLUDING ANY AREA BEYOND THE DUST TIGHT PARTITIONS WHERE WORK IS OCCURRING, WHERE TRAFFIC HAS OCCURRED WHILE IMPLEMENTING WORK, OR WHERE DUST, DIRT, OR DEBRIS HAS MIGRATED THE PARTITION. THESE PERSONNEL SHOULD BE RESPONSIVE TO DIRECTION GIVEN BY THE CONTRACTOR AND BY THE LANDLORD THE LANDLORD WILL BE COORDINATE ALL CLEAN UP REQUEST THROUGH THE CONTRACTOR. HOWEVER, WHEN DEEMED NECESSARY, THE OWNER WILL DIRECT CLEAN UP PERSONNEL DIRECTLY AND SUBSEQUENTLY NOTIFY THE CONTRACTOR. IN CASES WHERE THE BUILDING'S STAFF MUST CLEAN UP CONTRACTOR'S WORK, THE COST OF SUCH WORK WILL BE BORNE BY THE CONTRACTOR. XVI.ARRANGE PAY FOR DISCONNECTION, REMOVING AND CAPPING UTILITY SERVICES WITHIN AREAS OF DEMOLITION. DISCONNECT AND STUB OFF. NOTIFY THE AFFECTED UTILITY COMPANY AND BUILDING MANAGER IN ADVANCED AND OBTAIN APPROVAL BEFORE STARTING THIS WORK. XVII. PLACE MARKERS TO INDICATE LOCATION OF DISCONNECTED SERVICES. IDENTIFY SERVICE LINES AND CAPPING LOCATIONS ON PROJECT RECORD DOCUMENTS. XVIII. PERFORM DEMOLITION IN ACCORDANCE WITH APPLICABLE AUTHORITIES HAVING JURISDICTION. XIX.REPAIR ALL DEMOLITION PERFORMED IN EXCESS OF THAT REQUIRED, AT NO COST TO THE OWNER. XX. G.C. TO NOTIFY ASBESTOS INVESTIGATOR OF ANY SUSPICIOUS MATERIAL UNCOVERED DURING DEMOLITION NOT NORMALLY ACCESSIBLE. XXI.ALL EXHAUST GRILLES SHALL BE CLOSED AND COVERED TO PREVENT THE SPREAD OF DUST INTO THE SYSTEM UNTIL CONSTRUCTION IS COMPLETE. XXIV. ANY DISRUPTION OF THE ELECTRICAL, PLUMBING AND MECHANICAL TO THE BUILDING SHALL BE COORDINATED WITH THE BUILDING SUPER AND MANAGEMENT WITH THE LENGTH OF TIME DISRUPTION INDICATED. GENERAL REMOVAL NOTES - REMOVAL KEYNOTES No. Description - Scale: Consultant Contact Address Phone e-mail ARCHITCTS PLLC 648 Broadway / Suite 402, New York, NY 10012 T.212.254.5210 F.212.254.4523 www.wilkinsonarchitects.com New York: Registered Architect 027917-1 Pennsylvania: Registered Architect 402561 National Council of Architectural Registration Board #52853 DOB Barcode ATOZ Consulting Engineers, PC Ilya Malyuchenko, P.E. 363 7th Avenue 3rd Floor New York, NY 10001 212.929.2491 Ilya@atozengineers.com Consultant Contact Address Phone e-mail NYC Building Restoration Robert M. Hanna, P.E. 9011 Northern Boulevard Suite 307 Jackson Heights, NY 11372 646-522-0589 rhanna@engineer.com MECHANICAL STRUCTURAL 1/4" = 1'-0" A-100 REMOVAL PLANS ELAM RESIDENCE 300 EAST 74TH STREET PENTHOUSE-F/36TH FLOOR NEW YORK, NY 10021 04/03/2015 1/4" = 1'-0" 1 Penthouse F - 36th Floor - Main Level Removal Plan R1 R12 R1 REMOVE EXISTING NON-STRUCTURAL PARTITION. PATCH CEILINGS, WALLS, AND FLOORS AS REQUIRED WITH MATERIALS TO MATCH EXISTING. R2 REMOVE EXISTING WALL TILE FINISH AND BACKERBOARD IN BATHROOMS AND KITCHEN. R3 REMOVE EXISTING DOOR AND FRAME. PATCH CEILINGS, WALLS, AND FLOORS AS REQUIRED WITH MATERIALS TO MATCH EXISTING. R4 REMOVE EXISTING CASEWORK. PATCH CEILINGS, WALLS, AND FLOORS AS REQUIRED WITH MATERIALS TO MATCH EXISTING. R5 REMOVE EXISTING COUNTERTOP AND BACKSPLASH. R6 REMOVE EXISTING FLOOR FINISH DOWN TO SUB-FLOOR. R7 REMOVE EXISTING RAISED PLATFORM. REMOVE ANY PLUMBING BELOW BACK TO RISERS. CAP AT CONNECTION WITH RISER. R8 REMOVE EXISTING FANCOIL UNIT AND ENCLOSURE. R9 REMOVE EXISTING PLUMBING FIXTURE AND ALL ASSOCIATED SUPPLY AND WASTE LINES BACK TO RISER. WELD CAP AT CONNECTION WITH RISER. R10 REMOVE EXISTING KITCHEN APPLIANCE. R11 REMOVE FINISH AROUND COLUMN TO EXPOSE STRUCTURAL CONCRETE. R12 REMOVE EXISTING MANTEL, SURROUND, FLUE ENCLOSURE, AND HEARTH. EXISTING SOLID FUEL FIREBOX AND FLUE TO REMAIN. R1 R4 R8 R8 R1 R1 R3 R3 R3 R7 R13 R13 REMOVE EXISTING STAIRCASE. R1 R3 R9 R4 R4 R6 R6 R6 R6 R6 R6 R5 R5 R9 R10 R14 REMOVE EXISTING ELECTRICAL PANELS. DO NOT INTERFERE OR ALTER ELECTRICAL RISER. SEE E-100 FOR RELOCATION. R14 R6 1/4" = 1'-0" 2 Penthouse F - Upper Level Removal Plan R6 R1 R1 R3 R2 R2 R3 R9 R18 R15 REMOVE EXISTING WALL FINISHES ABOVE AND BELOW GREENHOUSE GLAZING DOWN TO FRAMING. MAINTAIN EXISTING EXTERIOR FINISH ON SOUTH SIDE OF WALL. SEE CONSTRUCTION KEYNOTE 2 ON SHEET A-101. R16 REMOVE EXISTING GREENHOUSE GLAZING AND KNEEWALL. PATCH AND REPAIR EXTERIOR WALLS AND FLOORS AS REQUIRED WITH MATERIALS TO MATCH EXISTING. R16 R16 WALK -IN CLOSET MASTER BEDROOM MASTER BATHROOM GREENHOUSE ROOF TERRACE EXISTING FLUE AND COVERING TO REMAIN R6 R6 R6 R1 R4 R4 R4 R6 R3 R1 R13 R15 R8 STAIRWELL R6 R6R9 R3 UP BALCONY DINING LIVING KITCHEN FOYERCL CL CL CORRIDOR BEDROOM M. BATH POWDER R8 R4 R4 R6 R17 SALVAGE EXISTING INTERCOM FOR RELOCATION. R17 R17 R4 R18 DRAIN HOT TUB TO ROOF TERRACE WITH SYPHON PUMP BEFORE REMOVAL. CUT AND REMOVE TUB IN MANAGABLE SECTIONS, THEN REMOVE FRAMING. R11 LAV WC WC LAV SHOWER PH-F GAS RANGE REF SINK DW FP HOT TUB SHOWER WC LAV LAV No. Description Date 1 DOB Submission 02/06/2015 N N NO WORK R2 TYP NO WORK
  • 3.
    I. ALL CONTRACTORS& THEIR SUB-CONTRACTORS SHALL VISIT, BECOME FAMILIARIZED, & VERIFY ALL EXISTING CONDITIONS PRIOR TO SUBMITTING A PROPOSAL. SUBMISSION OF A PROPOSAL WILL BE CONSTRUED AS EVIDENCE THAT SUCH AN EXAMINATION HAS OCCURED & LATER CLAIMS WILL NOT BE RECOGNIZED FOR EXTRA LABOR, EQUIPMENT OR MATERIALS REQUIRED BECAUSE OF DIFFICULTIES ENCOUNTERED WHICH COULD HAVE BEEN FORESEEN, HAD SUCH AN EXAMINATION BEEN MADE. THIS EXAMINATION IS TO INCLUDE BUT NOT LIMITED TO VERIFYING WEIGHT, STRUCTURAL LIMITATIONS, CLEARANCES, & MANEUVERING SPACE ASSOCIATED W/REMOVAL OF LARGE EQUIPMENT FROM BUILDING PREMISES, OR ANY SUCH FORSEEABLE SPECIAL REQUIREMENTS. CONTRACTOR SHALL INCLUDE A PRICE BREAKDOWN FOR SPECIAL REQUIREMENTS DUE TO SITE RESTRICTIONS OR CONDITIONS. II. ALL CONTRACTORS AND/OR SUB-CONTRACTORS SHALL OBTAIN DEMOLITION AND/OR CONSTRUCTION PERMITS AND / OR AUTHORIZATIONS FROM THE BUILDING DEPARTMENT, ARCHITECT, CLIENT, TENANT, AND / OR ENGINEERS AS REQUIRED PRIOR TO THE COMMENCEMENT OF WORK. A COPY OF SUCH DOCUMENTS SHALL BE FURNISHED TO THE OWNERS AND THE ARCHITECT PRIOR TO THE COMMENCEMENT OF WORK. III. WHILE PERFORMING DUTIES ASSOCIATED WITH THIS CONTRACT ALL CONTRACTORS, SUB-CONTRACTORS, AND THEIR WORKERS SHALL COMPLY WITH ALL OSHA RULES AND REGULATIONS & WITH THE STANDARD RULES AND REGULATIONS SET FORTH BY THE OWNERS. IV. ALL CONTRACTORS AND THEIR SUB-CONTRACTORS SHALL COORDINATE THEIR WORK WITH OTHER TRADES AND WILL CONFER WITH ARCHITECT. V. PROTECT ALL WINDOWS AND VENTS FROM DEBRIS AND DUST DURING CONSTRUCTION. KEEP PREMISES CLEAN AND DO NOT LET DEBRIS, RUBBISH, OR EXCESS CONSTRUCTION MATERIAL ACCUMULATE OR OBSTRUCT EXITS AND EXIT PASSAGEWAYS. VI. THE CONTRACTOR SHALL NOTIFY THE ARCHITECT OF ANY ERRORS, OMISSIONS, CONFLICTS OR AMBIGUITIES WITHIN AND BETWEEN THE PLANS, DRAWINGS, AND SPECIFICATIONS COMPRISING THESE CONTRACT DOCUMENTS PRIOR TO SUBMITTING HIS BID PROPOSAL. IF SUCH NOTICE IS NOT FURNISHED TO THE ARCHITECT, THE CONTRACTOR SHALL BE DEEMED TO HAVE INSPECTED THE PLANS, DRAWINGS, SPECIFICATIONS AND JOB CONDITIONS AND HAVE FOUND THEM IN PROPER FORM FOR EXECUTION. VII. THE ARCHITECT ASSUMES NO RESPONSIBILITY FOR CONSTRUCTION MEANS, TECHNIQUES, SEQUENCES OR PROCEDURES, OR FOR THE SAFETY PRECAUTIONS IN CONNECTION WITH THE WORK. VIII. DRAWINGS ARE NOT TO BE SCALED. FOLLOW DIMENSIONS SHOWN. IX. NO CHANNELING, CUTTING OR CHOPPING OF ANY STRUCTURAL SLAB, ELEMENTS, DEMISING WALLS AND EXTERIOR WALLS OR PIPE CHASE / SHAFT ENCLOSURE WALLS SHALL OCCUR DURING THE COURSE OF ANY WORK. X. NO REMOVAL OF MASONRY BACK-UP MATERIAL AT EXTERIOR OR SHAFT WALLS SHALL OCCUR FOR INSTALLATION OF JUNCTION BOXES, ETC. XI. ALL FIREPROOFING MUST BE MAINTAINED. ANY FIREPROOFING THAT IS DISTURBED DURING THE COURSE OF THE RENOVATION IS TO BE RECONSTITUTED TO CODE COMPLIANT RATINGS. XII. NO OFFSET OF RISERS (PLUMBING, GAS, ETC) SHALL OCCUR. XIV.ALL PLUMBING SHALL BE DONE BY A NEW YORK CITY LICENSED PLUMBER AND ALL ELECTRICAL WORK BY A NYC LICENSED ELECTRICIAN IN ACCORDANCE WITH N.Y.C. BUILDING CODES AND REGULATIONS. XV. PROVIDE NEW BRANCH LINES AT ALL NEW FIXTURES FOR WASTE, VENT AND SUPPLY LINES BACK TO THE RISERS, WITH NEW ACCESSIBLE SHUT-OFF VALVES AT RISER. WASTE LINES MUST BE RE-USED WHERE WHERE CURRENTLY LOCATED IN THE CONCRETE SLAB OR NEW LINES RUN ABOVE THE STRUCTURAL SLAB. INSTALL NEW SUPPLY BALL TYPE STOP VALVES FOR EACH LAV AND TOILET AND NEW BALL SHUT-OFF VALVES FOR THE BATHROOM AS A WHOLE. FIRE RATED ACCESS PANELS ARE REQUIRED AT ALL SHUT-OFF VALVES. XVI.THE USE OF ELECTRICAL OR AIR HAMMER OR OTHER PNEUMATIC TOOLS ARE NOT PERMITTED TO BE USED DURING CONSTRUCTION DUE TO THE NOISE FACTOR UNLESS SPECIAL PERMISSION IS GRANTED. XVII. ALL NECESSARY ELECTRIC, GAS & WATER WORK MUST BE PERFORMED LOCALLY WITHIN THE APARTMENT. ALL NECESSARY SHUTDOWNS SHALL BE COORDINATED WITH THE BUILDING SUPER AND MANAGEMENT. SHUT DOWNS OF SERVICE RISERS TO RELOCATE ELECTRIC PANEL BOXES, SERVICE RISERS OR TO PERFORM PLUMBING WORK WILL NOT BE PERMITTED. XVIII. PLUMBER TO PROVIDE BACKFLOW PREVENTORS AND BALL VALVES AT ALL PIPE OUT LOCATIONS. XIX.REPLACE ALL SUPPLY, VENT AND SANITARY LINES BACK TO RISER AT KITCHEN. INSTALL NEW BALL TYPE SHUT-OFF VALVES AT SINK, DISHWASHER AND REFRIGERATOR WATER LINE, AND MASTER SHUT-OFF VALVES FOR KITCHEN AS A WHOLE. XX. ALL WATER LINES ARE TO BE INSTALLED WITH THERMAL / ACOUSTIC INSULATION TO MINIMIZE SWEATING AND NOISE TRANSMISSION, INCLUDING ELBOWS AND FITTINGS. XXI.ISOLATE COPPER PIPING FROM DISSIMILAR MATERIAL TO PREVENT GALVANIC CORROSION. XXII. NO PENETRATION THROUGH ANY EXTERIOR WALL IS PROPOSED NOR PERMITTED AS PART OF THIS ALTERATION. XXIII. GC TO VERIFY THE LOCATION OF ALL EXISTING CONNECTIONS TO THE STACK. BUILDING MANAGEMENT TO INSPECT AND NOTIFY OF OTHER PLUMBING TO BE REPLACED. XXIV. ALL EXHAUST GRILLES AND DAMPERS MUST BE MAINTAINED, REMAIN ACCESSIBLE AND IN OPERATION. UPON COMPLETION OF WORK, ALL GRILLES AND DAMPERS ARE TO BE CLEANED. XXV. GC TO TAKE MEASURES TO INSURE THAT OTHER PORTIONS OF THE BUILDING ARE NOT DAMAGED. ALL EXISTING CONSTRUCTION ADJACENT TO PUBLIC AREAS OR OTHER APARTMENTS AFFECTED BY THE PROPOSED WORK IS TO BE PATCHED BACK TO IT'S ORIGINAL CONDITION USING MATCHING MATERIALS. XXVI. NO STORAGE OR WORK IS PERMITTED IN COMMON AREAS AND FIRE STAIRS. XXVII. PLUMBER MUST CHECK EXISTING WASTE AND VENT LINES TO BE FREE OF OBSTRUCTION. XXVIII. CEMENT BOARD IS TO BE USED AT ALL SHOWER, TUB ENCLOSURES AND TILED AREAS. MOLD AND MOISTURE RESISTANT WALL BOARD AT ALL OTHER DESIGNATED "WET AREAS". XXIX. FIXTURE PIPING BETWEEN SHUT-OFF VALVE AND THE FAUCET OR APPLIANCE TO BE COPPER TUBING WITH FLARED ENDS AND BRASS BUSHINGS, OR BRASS COMPRESSION FITTINGS. (NO PLASTIC; RUBBER OR BRAIDED STAINLESS STEEL. HIGH PRESSURE "NO BURST" BRAIDED STAINLESS STEEL WILL BE ALLOWED TO HOOK-UP APPLIANCES THAT DO NOT HAVE ACCESS AFTER INSTALLATION IF DEMONSTRATED THERE IS NO PRACTICAL ALTERNATIVE.) XXX. THE CONTRACTOR SHALL MAINTAIN ADEQUATE, CLEARLY IDENTIFIED FIRE EXTINGUISHERS THROUGHOUT THE AREA OF WORK. XXXI. GC TO PROVIDE A COMPLETE PHOTOGRAPHIC SURVEY OF THE ADJACENT APARTMENTS AND PUBLIC SPACES PRIOR TO THE COMMENCEMENT OF ANY WORK TO IDENTIFY PRE-EXISTING CONDITIONS. A COPY OF THE SURVEY SHALL BE DELIVERED TO THE MANAGING AGENT. XXXII. HOT AND COLD BRANCH LINES MUST BE REPLACED AT THE RISER'S CONNECTIONS. XXXIII. FOUR-ELBOW SWING MUST BE INSTALLED ON THE HOT WATER BRANCH LINE. XXXIV. WATTS PRESSURE REDUCING VALVES MODEL U5B-Z3 MUST BE INSTALLED ON THE HOT AND COLD WATER BRANCH LINES. XXXV. SPRING LOADED CHECK VALVES MUST BE INSTALLED ON THE HOT AND COLD WATER BRANCH LINES. XXXVI. APOLLO BALL VALVES MUST BE INSTALLED ON THE HOT AND COLD WATER BRANCH LINES. XXXVII. PLUMBERS ARE REQUIRED TO USE TYPE L COPPER TUBING TO SUPPLY WATER TO TOILETS AND SINKS. XXXVIII.PLUMBERS ARE PROHIBITIED FROM USING PLASTIC TUBING AND/OR RUBBER HOSES TO SUPPLY WATER TO REFRIGERATORS, DISHWASHERS, WASHING MACHINES, INSTANT HOT WATER MAKERS, TOILETS, SINKS AND WATER FILTERS. XXXIX. PLUMBERS ARE REQUIRED TO INSTALL McGUIRE VALVES UNDER THE SINKS AND TOILETS. PLASTIC STEM VALVES ARE PROHIBITIED. XXXX. GARBAGE DISPOSALS ARE PROHIBITIED. XXXXI. REGARDING INSTALLATION OF SHOWER STALLS, THE CONTRACTOR AND PLUMBER ARE REQUIRED TO INSTALL A TWO-INCH DRAIN WITH WEEP HOLES AND P-TRAP. TWO-INCH DRAIN MUST BE CONNECTED TO THE EXISTING STACK. XXXXII. REGARDING INSTALLATION OF SHOWER STALLS, THE CONTRACTOR AND PLUMBER ARE REQUIRED TO USE A 6 GUAGE LEAD PAN THAT RETURNS UP THE WALL A MINIMUM OF 12-INCHES. XXXXIII. REGARDING INSTALLATION OF SHOWER STALLS, THE CONTRACTOR AND PLUMBER ARE REQUIRED TO APPLY A COAT OF "BLACK MAGIC" TO THE TOP PORTION OF THE LEAD PAN. "BLACK MAGIC" EXTENDS THE LIFE OF THE PAN AND PREVENTS THE LEAD PAN FROM DIRECT CONTACT WITH CEMENT WHICH CORRODES AND DAMAGES THE LEAD PAN. XXXXIV. WHEN A WOODEN PLATFORM IS CONSTRUCTED TO CREATE A SHOWER STALL, THE CONTRACTOR IS REQUIRED TO USE A MINIMUM OF 3/4-INCH THICK PLYWOOD. XXXXVI. CONTRACTORS ARE PROHIBITED FROM DRILLING NAILS AND SCREWS THROUGH ANY PORTION OF THE LEAD PAN. XXXXVII. REGARDING INSTALLATION OF WASHER AND DRYER UNITS, HOT AND COLD WATER VALVES MUST BE INSTALLED TO THE SIDE OF EACH MACHINE FOR EASY ACCESS IN THE EVENT THE MACHINE NEEDS TO BE SERVICED. XXXXVIII. REGARDING INSTALLATION OF WASHER AND DRYER UNITS, ALL FLOORING BENEATH MACHINES MUST BE WATER PROOFED AND SEALED. XXXXIX. WASHER UNITS MUST BE SET ON VIBRATION ISOLATORS INSTALLED IN A WATERPROOF PAN. XXXXX. REGARDING INSTALLATION OF WASHER AND DRYER UNITS, A FLOOD STOP KIT MUST BE INSTALLED ON THE HOT AND COLD WATER HOSES. XXXXXI. REGARDING INSTALLATION OF WASHER AND DRYER UNITS, EASILY ACCESSIBLE BACKFLOW PREVENTORS NEED TO BE INSTALLED ON THE HOT AND COLD WATER BRANCH LINES. XXXXXII. DRYER UNITS MUST BE VENTLESS TYPE UNITS. VENTED DRYER UNITS ARE PROHIBITED. GENERAL CONSTRUCTION NOTES UP 1 3 1 4 1 1 ALIGN 11 ALIGN 5'-0"8'-61/2"1'-103/4"9'-71/4" 3 2 MIN CLEAR 3' - 0" 6'-03/4"5'-1"9'-01/4" 1'-8" VERIFYINFIELD 21'-10" 13' - 2 3/4" VERIFY IN FIELD 9' - 2 1/4" ALIGN ALIGN A-2053 2 VERIFYINFIELD 6'-113/4" VIF 1'-10" VERIFY IN FIELD 18' - 6" VIF 2' - 10 1/4" VERIFY IN FIELD 7' - 8 1/2" 1 1 SD SD EXG 16R15T 7 A-101 3 A-101 4 A-101 5 4' - 6" 13' - 9 3/4" VERIFY IN FIELD 27' - 0 1/2" VERIFYINFIELD 26'-63/4" 1 A-505 1 A-505 6 A-505 A-303 1 ALIGN A-2056 5 8 1 3 1 1 UP 16R 4 6 5 17' - 0 1/4" 1 3/4" 1' - 11" 15'-3" DN 6"11'-10" SD 6'-8" SD 15T 1R 0T 8 2'-21/4" 1 A-302 MATCHEXTENTSOFEXGGREENHOUSE 10'-53/4"±(VERIFYINFIELD) MATCH EXTENTS OF EXISTING GREENHOUSE BEING REMOVED 17' - 3 3/4" ± (VERIFY IN FIELD) 4 A-505 A B 1 7 A-505 SD 1 A-506 FCU-3FCU-1 2 CONSTRUCTION KEYNOTES No. Description CLEAR 2'-8" MINIMUM 1' - 6" MINIMUM 1' - 6" 1' - 6" 3 MINIMUM 2' - 0" MIN 1'-0" MINIMUM 2'-0" MINIMUM 2' - 0" MAX 1' - 0" MAX 1'-0" MINIMUM 1'-6" W C 48"X 56" LAV 30" X 48" SHOWER 30" X 48" 18" VERTICAL GRAB BAR WOOD BLOCKING (TYP) CLEAR 2'-8" 1 MINIMUM 1' - 6" W C 48"X 56" LAV 30" X 48" MINIMUM 2' - 0" 6" MINIMUM 1'-6" 18" VERTICAL GRAB BAR WOOD BLOCKING (TYP) METAL RUNNER (TYP) TOP OF FLOOR 5/8" GWB EACH SIDE TO U/S OF CEILING 3 5/8 " METAL STUDS (MAY VARY) @ 16" O.C. U/S OF CEILING ROOM PARTITION F.H. 5/8" FIRE RATED GWB INTERIOR SIDE ONLY (2 LAYERS FOR FIRE RATING) U/S OF CEILING ROXUL SAFE 'N' SOUND MINERAL WOOL INSULATION SOLID WOODSTRIP 5/8" GWB EACH SIDE TO U/S OF CEILING 1-1/2" METAL STUDS @ 16" O.C. U/S OF CEILING 5/8" GWB. EACH SIDE TO U/S OF CEILING U/S OF CEILING J - BEAD METAL RUNNER (TYP) TOP OF FLOOR 20 GA METAL STUDS (SIZE VARIES) @ 16" O.C. HILTI FIRE FOAM CP620 J - BEAD METAL RUNNER EACH SIDE (TYP) TOP OF FLOOR SOLID WOOD STRIP J - BEAD (TYP) 1 FURRED-OUT WALL F.H. 2 POCKET DOOR WALL F.H. 3 PLUMBING CAVITY F.H. 4 PARTITION WALL TYPE # EXISTING WALL VIBRATION ISOLATION PADDING HILTI FIRE FOAM CP620 WALL CLIPS AS NEEDED Non Fire Rated STC: 51-56 Fire Rating STC Rating Maintain EXG Fire Rating As Req'd STC: 40-48 Non Fire Rated STC: 40-44 Non Fire Rated STC: 40-48 (SIZE VARIES) AIR SPACE 1/4" 1/4"(TYP) (TYP)1/4" POCKET DOOR CAVITY 1-1/2" METAL STUDS @ 16" O.C. METAL RUNNER EACH SIDE (TYP) TOP OF FLOOR SOLID WOOD STRIP J - BEAD 1/4"(TYP) CLEAR FLOOR SPACE ø 5' - 6" 5' - 0" 6'-7" EXTENTS OF NEW/EXISTING WET AREA (SEE FLOOR DETAILS ON SHEET A-501) FLOOR FINISH LEGEND STONE TILE FLOOR FINISH (SEE FLOOR DETAILS ON SHEET A-501) HARD WOOD FLOOR FINISH (SEE FLOOR DETAILS ON SHEET A-501) Graphic Description Scale: Consultant Contact Address Phone e-mail ARCHITCTS PLLC 648 Broadway / Suite 402, New York, NY 10012 T.212.254.5210 F.212.254.4523 www.wilkinsonarchitects.com New York: Registered Architect 027917-1 Pennsylvania: Registered Architect 402561 National Council of Architectural Registration Board #52853 DOB Barcode ATOZ Consulting Engineers, PC Ilya Malyuchenko, P.E. 363 7th Avenue 3rd Floor New York, NY 10001 212.929.2491 Ilya@atozengineers.com Consultant Contact Address Phone e-mail NYC Building Restoration Robert M. Hanna, P.E. 9011 Northern Boulevard Suite 307 Jackson Heights, NY 11372 646-522-0589 rhanna@engineer.com MECHANICAL STRUCTURAL As indicated A-101 CONSTRUCTION PLANS ELAM RESIDENCE 300 EAST 74TH STREET PENTHOUSE-F/36TH FLOOR NEW YORK, NY 10021 04/03/2015 1/4" = 1'-0" 1 Penthouse F - 36th Floor - Main Level Construction Plan 1/4" = 1'-0" 2 Penthouse F - Upper Level Construction Plan 1 NEW RAISED PLATFORM UNDER STAIR. PLATFORM HEIGHT TO MATCH STAIR RISER HEIGHT. PLATFORM FLOOR FINISH TO MATCH STAIR TREAD FINISH. SEE SHEET A-303. 2 REINSULATE EXISTING FRAMING AND FINISH WITH GWB. DO NOT DISTURB OR ALTER EXISTING EXTERIOR FINISH. 3 NEW DOOR, FRAME, AND HARDWARE. SEE DOOR REFERENCE CHART. 4 NEW KITCHEN CASEWORK. SEE ELEVATIONS ON SHEET A-202. 5 NEW REFRIGERATOR. EXTEND COPPER TUBE WATER SUPPLY TO ICE MAKER. SEE APPLIANCE SCHEDULE ON SHEET A-600. 6 NEW DISHWASHER. SEE APPLIANCE SCHEDULE ON SHEET A-600. 7 8 9 NEW STAIRCASE WITH CONTINUOUS 1-3/8" WIDE HANDRAIL INSTALLED 36" HIGH. 10 NEW BUILT-IN STORAGE FURNITURE. 11 NEW WALL HUNG SHELVING UNIT. SEE DETAILS ON SHEET A-506. 12 NEW STONE MANTEL OVER EXISTING FIREPLACE. NO WORK TO FIREPLACE OR EXISTING FLUE. 13 NEW RECIRCULATING HOOD OVER GAS RANGE. SEE APPLIANCE SCHEDULE ON SHEET A-600. 14 NEW WALL MOUNTED TOILET. SEE PLUMBING FIXTURE SCHEDULE ON SHEET A-600. 15 NEW BATHROOM LAVATORY. SEE PLUMBING FIXTURE SCHEDULE ON SHEET A-600. 16 REPLACE PTAC UNIT AND ENCLOSURE. REPLACEMENT UNITS MUST BE CERTIFIED AND INSTALLED BY A NYC LICENCED PLUMBER. REPLACEMENT ENCLOSURES MUST HAVE SERVICE ACCESS PANELS AND INTERNAL DUCT (PAINTED MATTE BLACK) BETWEEN PTAC UNIT AND GRILL. 1 3 3 21 21 EXISTING EXPOSED CONCRETE COLUMN MASTER BEDROOM MASTER BATHROOM GREENHOUSE ROOF TERRACE STAIRWELL LIVING DINING KITCHEN FOYER CORRIDOR BEDROOM POWDER 10 10 EXISTING FLUE AND COVERING TO REMAIN 17 NEW UNDERCOUNTER WINE STORAGE. SEE APPLIANCE SCHEDULE ON SHEET A-600.18 19 NEW INTEGRATED WINE STORAGE. SEE APPLIANCE SCHEDULE ON SHEET A-600. 20 NEW STACKABLE WASHER/SELF-CONDENSING DRYER. PROVIDE NEW FLOOR DRAIN AND METAL PAN MIN 3" CURB W/ WATER SENSOR AND AUTOMATIC SHUT OFF VALVE. 21 NEW ACCESS PANEL TO WATER SUPPLY SHUT OFF FOR AREA INDICATED.22 23 24 25 NEW STAINLESS STEEL UNDERMOUNT KITCHEN SINK. SEE PLUMBING FIXTURE SCHEDULE ON SHEET A-600. REPLACE GREENHOUSE ENCLOSURE. SEE SHEETS A-301, A-302, AND A-503. NOTE: GREEHOUSE STRUCTURE APPROVED UNDER PRIOR NYC DOB APPLICATION #BH594-85. NEW SKYLINE TERRACE DOOR AND TILT & TURN CASEMENT WINDOWS WITH FASTENERS @ 16" O.C. FINISH TO MATCH EXISTING FENESTRATION. SEE SHEETS A-301, A-302, AND A-503. BALCONY NEW SHOWER UNIT. SEE PLUMBING FIXTURE SCHEDULE ON SHEET A-600. PARTITION TYPES W/D BATH NO WORK NO WORK CL 2 7 19 26 10 3 REPLACE SKYLIGHT ABOVE (SEE DETAIL SHEET A-504) 8 8 8 8 15 15 11 9 14 13 5 17 10 14 16 14 15 24 21 7 (TYP) 6 ENLARGED PLANS FOR ADA ADAPTABLE USE 1/2" = 1'-0" 4 Main Level Bath Enlarged ADA Plan 1/2" = 1'-0" 3 Main Level Powder Enlarged ADA Plan NO WORK NEW STAINLESS STEEL UNDERMOUNT BAR SINK. SEE PLUMBING FIXTURE SCHEDULE ON SHEET A-600. 22 20 3 1/2" = 1'-0" 5 Main Level Kitchen Enlarged ADA Plan DOOR REFERENCE CHART Mark Height Width Thickness Comments 1 8' - 0" 2' - 8" 1 1/2" 1ST FLR: POWDER RM 2 7' - 10" 4' - 10 1/2" 2" 1ST FLR: BEDROOM 3 8' - 0" 2' - 8" 1 1/2" 1ST FLR: BATHROOM 4 7' - 10" 4' - 5 3/4" 2" 2ND FLR: MASTER BEDROOM 5 8' - 0" 2' - 8" 1 1/2" 2ND FLR: MASTER BATHROOM 6 6' - 8" 2' - 6" 2" 2ND FLR: GREENHOUSE 7 7' - 9" 2' - 7" 3/8" 1ST FLR: BATH SHOWER 8 7' - 8" 2' - 11 1/4" 3/8" 2ND FLR: MASTER BATH SHOWER 9 7' - 11" 3' - 0" 1 3/4" 2ND FLR: GREENHOUSE MAINTAIN CLEARANCE TO ACCESS EXISTING ROOF DRAIN. VERIFY LOCATION IN FIELD. EXISTING BATHROOM VENT EXTENDED TO NEW LOCATION. 22 22 (M. BATH) (GARDEN SINK) (W/D) LOWERED COUNTERTOP NOTE: GREEHOUSE STRUCTURE APPROVED UNDER PRIOR NYC DOB APPLICATION #BH594-85 NOTE: ALL WALL DIMENSIONS SHOWN ARE FROM FINISH FACE TO FINISH FACE NOTE: ALL WALL DIMENSIONS SHOWN ARE FROM FINISH FACE TO FINISH FACE REPLACE SKYLIGHT ABOVE (SEE DETAIL SHEET A-504) 23 16 4 12 18 4 4 (TYP) (TYP) 26 NEW 5/8" SOLARBAN 60 INSULATED GLASS WINDOW UNITS. ALL FINISHES TO MATCH EXISTING FENESTRATION. SEE SHEET A-505. 25 No. Description Date NEW CERAMIC TILE WALL FINISH WITH BACKERBOARD IN WASHROOMS. 10 LAV WC WC SHOWER LAV 3 LAV SHOWER HALL WC SINK CL CL LAV WC SHOWER LAV WC SINK D/W REF F/P REF SINK D/W NEW GAS RANGE. PROVIDE ACCESSIBLE FIXTURE SHUT OFF VALVE IN KITCHEN. SEE APPLIANCE SCHEDULE ON SHEET A-600. REF PENTHOUSE F GASRANGE GASRANGE NOT TO SCALE N N 3 24
  • 4.
    CU-1 1 A-302 1 A-504 TYP 1 A-504 TYP 3 A-504 TYP A B 1 I. ANYALTERATION TO ROOFING DURING REMOVAL AND CONSTRUCTION MUST BE PERFORMED BY THE BUILDING'S ROOFING CONTRACTOR (YORK RESTORATION CORP.) TO MAINTAIN WARRANTY. GENERAL ROOF NOTES REMOVAL KEYNOTES No. Description CONSTRUCTION KEYNOTES No. Description Scale: Consultant Contact Address Phone e-mail ARCHITCTS PLLC 648 Broadway / Suite 402, New York, NY 10012 T.212.254.5210 F.212.254.4523 www.wilkinsonarchitects.com New York: Registered Architect 027917-1 Pennsylvania: Registered Architect 402561 National Council of Architectural Registration Board #52853 DOB Barcode ATOZ Consulting Engineers, PC Ilya Malyuchenko, P.E. 363 7th Avenue 3rd Floor New York, NY 10001 212.929.2491 Ilya@atozengineers.com Consultant Contact Address Phone e-mail NYC Building Restoration Robert M. Hanna, P.E. 9011 Northern Boulevard Suite 307 Jackson Heights, NY 11372 646-522-0589 rhanna@engineer.com MECHANICAL STRUCTURAL 1/4" = 1'-0" A-102 ROOF PLANS ELAM RESIDENCE 300 EAST 74TH STREET PENTHOUSE-F/36TH FLOOR NEW YORK, NY 10021 04/03/2015 1/4" = 1'-0" 2 Penthouse F - Upper Level Roof Construction Plan 1/4" = 1'-0" 1 Penthouse F - Upper Level Roof Removal Plan EXISTING ROOF DRAIN TO REMAIN (DO NOT DISTURB) EXISTING FLUE AND CAP TO REMAIN (DO NOT DISTURB) EXISTING 4" Ø VENT PIPE TO REMAIN EXISTING JUNCTION BOX TO REMAIN EXISTING FIRE SAFETY RAILING TO REMAIN (DO NOT DISTURB) SEE DRAWING 3 ON M-100 FOR MECHANICAL WORK No. Description Date UPPER LEVEL ROOF D1 REMOVE EXISTING GREENHOUSE INSULATED GLASS ENCLOSURE. D2 REMOVE PORTION OF EXISTING KNEE WALL DOWN TO HEIGHT OF GREENHOUSE FLOOR SUBSTRATE. D3 REMOVE EXISTING SKYLIGHT. COORDINATE WITH REPLACEMENT INSTALLATION. SEE GENERAL ROOF NOTE I. D4 REMOVE EXISTING AIR HANDLER. EXISTING MECHANICAL EQUIPMENT SLAB TO REMAIN. SEE GENERAL ROOF NOTE I. D5 REMOVE EXISTING DUCTING AND SUPPORTS BETWEEN AIR HANDLER AND ROOF SLEEVE. SEE GENERAL ROOF NOTE I. D6 REMOVE EXISTING ROOF SLEEVE. COORDINATE WITH ROOF REPAIR WORK TO FILL OPENING. SEE GENERAL GENERAL ROOF NOTE I. D7 REMOVE EXISTING AIR HANDLER ELECTRICAL WIRING AND REFRIGERANT LINES BACK TO JUNCTION BOX. UPPER LEVEL ROOF ROOF TERRACE BELOW ROOF TERRACE BELOW NO WORK NO WORK GREENHOUSE INSULATED GLASS ENCLOSURE BELOW 1 NEW AIR HANDLER MOUNTED ON EXISTING EQUIPMENT PAD. SEE MECHANICAL DRAWINGS. SEE GENERAL ROOF NOTE I. 2 NEW TAPERED STEEL ROOF BEAM OF NEW GREENHOUSE ENLOSURE. SEE SHEETS A-502 AND A-503. 3 NEW STRUCTURAL INSULATED PANEL BETWEEN TAPERED ROOF BEAMS TO EXTENTS SHOWN. 4 NEW "THERMALGAL" TRANSLUCENT INSULATED STRUTRURAL POLYCARBONATE (POLYGAL) SHEET BETWEEN TAPERED ROOF BEAMS TO EXTENTS SHOWN. 5 NEW SKYLIGHT AT EXISTING LOCATION. SIZE TO MATCH EXISTING ROOF OPENING. SEE GENERAL ROOF NOTE I. 6 REPAIR ROOF OPENING. FRAME, INSULATE, AND FINISH TO MATCH EXISTING INTERIOR AND EXTERIOR. SEE GENERAL ROOF NOTE I.7 NEW SAFETY RAIL SOURCE SAFETY ROOF SCREEN INSTALLED ON FRAME OF NEW SKYLIGHT OVER STAIRWELL. SEE GENERAL ROOF NOTE I. D1 D2 D3 D3 D4 D5 D6 D7 1 2 TYP 3 4 TYP 5 56 7 PITCH PITCH NEW CONTINUNOUS COIL STOCK ROOF GUTTER WITH COPPER RAIN LEADER PITCHED TOWARD EXISTING ROOF DRAIN.8 8 EXISTING TERRACE DEMISING WALL TO REMAIN EXISTING PARAPET WALL TO REMAIN (DO NOT DISTURB) EXISTING METAL SAFETY RAILING TO REMAIN (DO NOT DISTURB) EXISTING PARAPET WALL TO REMAIN (DO NOT DISTURB) 8
  • 5.
    33 3 3 4 3 2 A-507 2 A-507 1 A-507 TYP TYP TYP 1 A-507 TYP 1 A-507 TYP 1 A-507 SIM OPEN TO ABOVE L-R1L-R1 L-R1 L-R1 L-R1L-R1 L-R1 L-R1 L-R1 L-R1 L-R1 L-R1 L-R1 L-R1 L-R1 L-R1L-R1 L-R1L-R1 L-R1 EXPOSED UNDERSIDE OF EXISTING FLOOR SLAB ABOVE 3 A-507 TYP 3 A-507 TYP 3 A-507 TYP EXPOSED UNDERSIDE OF EXISTING FLOOR SLAB ABOVE EXPOSED UNDERSIDE OF EXISTING FLOOR SLAB ABOVE L-R3L-R3 L-R4 L-R4 L-R2 L-R2 L-R2 L-R2 L-R2 L-R2 L-R2 L-R2 L-R2 L-R2 L-R2 L-R2 L-P2 L-P2 L-P2 L-RL1 L-RL1 WALL MOUNTED SMOKE DETECTORS (MOUNT 6"-12" FROM CEILING FINISH) L-RL1 L-R1 L-R2 L-R2 L-R2 L-RL1 L-RL2 L-RL2 L-RL2 3 U/L 3-WAY SWITCH L-RL1 RAISED PLATORM BELOW 16'-8" 8' - 6" 9' - 3" 5'-0" 1'-8" L-RL1 L-RL2 L-WM2 L-WM2 L-WM1 L-WM1 3 A-507 L-RL2 L-R2 L-R2 CF-3 CF-3 CF-3 CF-3 CF-3 MOTORIZED CEILING SHADE MOTORIZED CEILING SHADE CF-2 CF-2 ALIGN CF-1 CF-1 CF-1 CF-1 CF-1 CF-1 CF-5 CF-2 CF-1 L-P1 L-R3 L-R3 L-R6 L-R6 DR CF-2 L-WM3 RAISED PLATORM BELOW 2 A-507 TYP WALL MOUNTED SMOKE DETECTOR (MOUNT 6"-12" FROM CEILING FINISH) A B 1 L-R5 L-R5 L-R5 L-R5 L-R5 L-R5 L-R1 L-R1 L-R4 L-R4 L-R5 L-R5 L-R5 L-R5 L-R5 L-R5 L-P2L-P2 16' - 9" L-S1 L-S1 L-S1 L-S1 3 OUT TO TERRACE 4 4 4 L-RL2 T M/L 3 WAY SWITCHL-TL1 M/L 3 WAY SWITCH MASTER BED CUSTOM CASEWORK BELOW L-RL2 TREAD BELOW L-RL1 EXPOSED UNDERSIDE OF EXISTING SLAB ABOVE CF-3 STEEL BEAM TYP 4 A-507 CF-1 CF-1 CF-1 CF-1 L-R6 L-R6 L-R6 L-R6 L-R6 L-R6 L-R6 L-R6 CF-1 DR DR DR DR DR L-R6 L-R6 CF-1 CF-1 L-P2 L-WM4 CF-1 CF-6 CASEWORK BELOW L-S2 L-S2 L-S2 L-S2 L-S2 L-S2 L-S2 L-WM5 4 A-507 TYP TYP CF-6CF-6CF-6 CF-6 CF-6 CF-6 L-TL1 WALL MOUNTED SMOKE DETECTOR (MOUNT 6"-12" FROM CEILING FINISH) 4 4 4 L-WM6 L-WM6 SINGLE POLE WALL MOUNTED SWITCH SYMBOL DESCRIPTION ELECTRICAL LIGHTING LEGEND 3 WAY WALL MOUNTED SWITCH 4 WAY WALL MOUNTED SWITCH JAMB MOUNTED DOOR SWITCHDR 1" RECESSED LED 4" RECESSED HALOGEN 4" RECESSED LED (SHOWER) WALL MOUNTED SCONCE CEILING MOUNTED TRACK LIGHTING WALL MOUNTED SURFACE FIXTURE ROPE LIGHT CEILING MOUNTED SURFACE FIXTURE PENDANT MOUNTED LIGHT FIXTURE CEILING MOUNTED SURFACE FIXTURE Scale: Consultant Contact Address Phone e-mail ARCHITCTS PLLC 648 Broadway / Suite 402, New York, NY 10012 T.212.254.5210 F.212.254.4523 www.wilkinsonarchitects.com New York: Registered Architect 027917-1 Pennsylvania: Registered Architect 402561 National Council of Architectural Registration Board #52853 DOB Barcode ATOZ Consulting Engineers, PC Ilya Malyuchenko, P.E. 363 7th Avenue 3rd Floor New York, NY 10001 212.929.2491 Ilya@atozengineers.com Consultant Contact Address Phone e-mail NYC Building Restoration Robert M. Hanna, P.E. 9011 Northern Boulevard Suite 307 Jackson Heights, NY 11372 646-522-0589 rhanna@engineer.com MECHANICAL STRUCTURAL 1/4" = 1'-0" A-103 REFLECTED CEILING PLANS ELAM RESIDENCE 300 EAST 74TH STREET PENTHOUSE-F/36TH FLOOR NEW YORK, NY 10021 04/03/2015 1/4" = 1'-0" 1 Penthouse F - 36th Flr - Main Level Reflected Ceiling Plan 1/4" = 1'-0" 2 Penthouse F - Upper Level Refelected Ceiling Plan No. Description Date LIGHTING FIXTURE SCHEDULE Desig. Cnt Description Housing / Trim Lamp Manufacturer Product ID Location(s) L-P1 1 PENDANT MOUNTED (OWNER PROVIDED) NA INCANDESCENT 1ST FLR: DINING L-P2 3 PENDANT MOUNTED (OWNER PROVIDED) NA T5 Delray Lighting 6311 2MD FLR: STAIRWELL L-R1 23 LOW VOLTAGE HALOGEN TRIMLESS HALOGEN (12OV, 277V, OR 347V) USAI 9004-10-C-FL100-120 1ST FLR: FOYER/LIVING/DINING SOFFITS L-R2 17 LOW VOLTAGE HALOGEN 4" LOW VOLTAGE REMODEL HOUSING MR16 (12V/50W) WAC LIGHTING HR-8401E 1ST FLR: LIVING/DINING & KITCHEN DROP CEILING L-R3 4 1" LEDme MINI RECESSED ADJUSTABLE SPOT NA / LOW PROFILE TRIM WARM/NEUTRAL LED (3W) WAC LIGHTING HR-LED272R 1ST FLR: POWDER ROOM CEILING L-R4 4 4" LEDme NEW CONSTRUCTION HOUSING / SHOWER TRIM 6 x WARM/NEUTRAL LED (3W) WAC LIGHTING HR-LED418-N 1ST FLR: BATHROOM SHOWER CEILING 2ND FLR: MASTER BATHROOM SHOWER CEILING L-R5 12 3.5" TESLA LED NA / DOWNLIGHT TRIM LUXEON S MULTI-CHIP LED (18W) WAC LIGHTING HR-3LED-T718 2ND FLR: STAIRWELL CEILING, HALL CEILING, MASTER BEDROOM DROP CEILING L-R6 12 1" LEDME MINI RECESSED ADJUSTABLE SPOT NA / LOW PROFILE TRIM WARM/NEUTRAL LED (3W) WAC LIGHTING HR-LED272R 1ST FLR: BEDROOM CLOSET CLG 2ND FLR: W/D CLG, ELEC CLOSET CLG, M. BEDROOM CLOSET CLG L-S1 3 SURFACE MOUNTED (OWNER PROVIDED) 2ND FLR: MASTER BEDROOM DROP CEILING L-S2 7 SURFACE MOUNTED (OWNER PROVIDED) 2ND FLR: GREENHOUSE BAY CEILINGS L-TL1 1 14' LED TRACK LIGHTING (OWNER PROVIDED) 2ND FLR: MASTER BEDROOM CEILING (WEST) L-WM1 2 WALL MOUNTED (OWNER PROVIDED) 1ST FLR: POWDER ROOM (BEHIND MIRROR) L-WM2 2 WALL MOUNTED (OWNER PROVIDED) 1ST FLR: BATHROOM (ABOVE MIRROR) L-WM3 1 WALL MOUNTED (OWNER PROVIDED) 1ST FLR STAIRWELL (WALL MOUNTED ABOVE STAIR PLATFORM) L-WM4 1 WALL MOUNTED (OWNER PROVIDED) 2ND FLR: MASTER BATHROOM (WALL MOUNTED W/ MIRROR SURROUND) L-WM5 1 WALL MOUNTED (OWNER PROVIDED) 2ND FLR: MASTER BEDROOM (WALL MOUNTED) L-WM6 2 WALL MOUNTED (OWNER PROVIDED) 2ND FLR: MASTER BEDROOM (WALL MOUNTED)
  • 6.
    FF-1 FF-1 FF-1 FF-3 FF-2 FF-2 FF-2 FF-2 FF-6 FF-6 2 A-505 2 A-505 1 A-505 1 A-505 6 A-505 2'-71/4"2'-43/4" 1' - 7"3' - 4" A B 1 FF-4 FF-4 FF-5 FF-6 FF-5 FF-5 FF-2 4 A-505 1 A-302 7 A-505 FLOOR FINISH SCHEDULE DESIGNATION SIZE/MATERIAL FINISH MANUFACTURER LOCATION(S) FF-1 3/8"x12"x24" PORCELAIN FLR TILE MATTE NASCO STONE & TILE SERIES/COLOR FUSSION, DARK ANTHRACITE FF-3 3/8"x6"x24" PORCELAIN FLR TILE MATTE PROVENZAW-AGE, CORTEX NERO FF-5 3/4" VENEERED PLYWOOD FLOOR SATIN CLEAR TBDEAST INDIAN ROSEWOOD 1ST FLR: FOYER, LIVING, DINING, KITCHEN, BEDROOM, BATHROOM FF-6 3/4" SOLID WOOD RUBBED MONOCOAT MATTEWALNUT 1ST FLR: STAIR TREADS, KITCHEN CUSTOM CASEWORK 2ND FLR: MASTER BEDROOM, MASTER BATHROOM, GREENHOUSE 2ND FLR: MASTER BATHROOM & SHOWER FF-2 3/8"x40"x40" PORCELAIN FLR TILE MATTE NASCO STONE & TILEFUSSION, DARK ANTHRACITE 1ST FLR: POWDER RM FF-4 3/8"x6"x36" PORCELAIN WALL TILE MATTE DALTILEACACIA VALLY, ASH 1ST FLR: BATHROOM SHOWER TBD REMARKS FIELD CUT AS NOTED IN PLAN Scale: Consultant Contact Address Phone e-mail ARCHITCTS PLLC 648 Broadway / Suite 402, New York, NY 10012 T.212.254.5210 F.212.254.4523 www.wilkinsonarchitects.com New York: Registered Architect 027917-1 Pennsylvania: Registered Architect 402561 National Council of Architectural Registration Board #52853 DOB Barcode ATOZ Consulting Engineers, PC Ilya Malyuchenko, P.E. 363 7th Avenue 3rd Floor New York, NY 10001 212.929.2491 Ilya@atozengineers.com Consultant Contact Address Phone e-mail NYC Building Restoration Robert M. Hanna, P.E. 9011 Northern Boulevard Suite 307 Jackson Heights, NY 11372 646-522-0589 rhanna@engineer.com MECHANICAL STRUCTURAL As indicated A-104 FLOOR FINISHES PLANS ELAM RESIDENCE 300 EAST 74TH STREET PENTHOUSE-F/36TH FLOOR NEW YORK, NY 10021 04/03/2015 1/4" = 1'-0" 1 Penthouse F - 36th Floor - Main Level Floor Finishes Plan 1/4" = 1'-0" 2 Penthouse F - Upper Level Floor Finishes Plan No. Description Date FLOOR TILE EXTENDS BENEATH TOE KICK
  • 7.
    A-202 4 1 3 - 2 6 A-202 AP-1 - --- 1 A-506 2' -2" ALIGN ALIGN AP-2 WOOD PANEL MARINE EDGE SS-1 SS-1 CT-1 CT-1 AP-3 5 A-202 8 A-202 4 1 3 2 - - ROLL OUT SHELF PULL OUT PULL OUT DRAWER AP-1 AP-5SINK BASIN AP-4 AP-3 DRAWERSHELF ALIGN - --- 1 A-506 STEEL ANGLE SUPPORT BENEATH FLOATING CABINETS COUNTERTOP ABOVE EXISTING CAST IRON RADIATOR RECESSED TOE KICK 5 A-202 8 A-202 4 1 3 - 2 6 A-202 FCU-1 ENCLOSURE FCU-1 UNISTRUT (TYP) HOOD DUCT DRAWER DRAWER - --- 1 A-506 9' - 3" L-R1 L-R1 L-R1 L-R1 L-R1 L-R1 L-R1 L-R1 L-R1 GLASS SHELF GL-1 GL-1 CW-1CW-1 5 A-202 Scale: Consultant Contact Address Phone e-mail ARCHITCTS PLLC 648 Broadway / Suite 402, New York, NY 10012 T.212.254.5210 F.212.254.4523 www.wilkinsonarchitects.com New York: Registered Architect 027917-1 Pennsylvania: Registered Architect 402561 National Council of Architectural Registration Board #52853 DOB Barcode ATOZ Consulting Engineers, PC Ilya Malyuchenko, P.E. 363 7th Avenue 3rd Floor New York, NY 10001 212.929.2491 Ilya@atozengineers.com Consultant Contact Address Phone e-mail NYC Building Restoration Robert M. Hanna, P.E. 9011 Northern Boulevard Suite 307 Jackson Heights, NY 11372 646-522-0589 rhanna@engineer.com MECHANICAL STRUCTURAL 1" = 1'-0" A-201 KITCHEN ENLARGED PLANS ELAM RESIDENCE 300 EAST 74TH STREET PENTHOUSE-F/36TH FLOOR NEW YORK, NY 10021 04/03/2015 1" = 1'-0" 2 Penthouse F - 36th Floor - Main Level Kitchen Enlarged Plan 1" = 1'-0" 1 Penthouse F - 36th Floor - Main Level Kitchen Enlarged Plan (Base) 1" = 1'-0" 3 Penthouse F - 36th Floor - Main Level Kitchen Enlarged Plan (Upper) No. Description Date
  • 8.
    T ecton icCopyright 2007 T ecton icCop yright 2007 AP-4 AP-5 AP-2 AP-1 1/2" 2' - 0" 3/4" 2' - 3" 3/4" 2' - 3" 3/4" 2' - 6" 1' - 11 1/2" 5 1/2" - --- CW-1 CW-1 CW-1 CW-1CW-1 CW-1 CW-1 GFI CW-1CT-1 CT-1 5 A-202 EXISTING CAST IRON RADIATOR BEYOND AUTOMATIC ROLLER SHADE L-R1 L-R1 L-R1 73/4"111/2"1'-31/2"11/2" 5' - 10" EXISTING CONCRETE COLUMN EXPOSED AP-4 CW-1 CW-1CW-1 CW-1 EXISTING CAST IRON RADIATOR BEYOND EQ EQ EQ EQ EQ CT-1 3'-0" 2-1/2"x2-1/2"x3/16" STEEL ANGLE UNISTRUT SUPPORTS (TYP) L-R1L-R1L-R1 AP-4 1 A-506 A-202 6 CW-2 CW-2 CW-2 CW-2 CW-2 CW-2 CW-2 4 A-506 CW-1 GL-1 GL-1 SS-1 EXISTING CONCRETE COLUMN EXPOSED CT-1 6 A-202 AP-1 AP-2 1 1/2" 7 1/2" 2' - 6" 7 1/2" 1 1/2" 2' - 6" 1 1/2" AP-3 RECIRCULATING HOOD DUCT GFI GFI FCU-1 UNIT EXHAUST DUCT FCU-1 UNIT CW-1 CW-1 CW-1 SS-1 GFI CW-1 CW-1 WF-1 SS-1 SS-1 A-202 5 CW-1 CW-1 CW-1 CW-1 L-R1 L-R1 L-R1 103/4"2'-11/2"6" 11/2" FCU-1 HOOD DUCT DUCT DUCT UNISTRUT UNISTRUT AP-2 DRAWER VENT 5"MIN. CT-1 TOE KICK VENT EXISTING CAST IRON RADIATOR 11/2" 1/8" EASED EDGE (TYP) RECESSED PULL SHELF IN FRONT OF RADIATOR SHALLOW CABINET ONLY SHELF Scale: Consultant Contact Address Phone e-mail ARCHITCTS PLLC 648 Broadway / Suite 402, New York, NY 10012 T.212.254.5210 F.212.254.4523 www.wilkinsonarchitects.com New York: Registered Architect 027917-1 Pennsylvania: Registered Architect 402561 National Council of Architectural Registration Board #52853 DOB Barcode ATOZ Consulting Engineers, PC Ilya Malyuchenko, P.E. 363 7th Avenue 3rd Floor New York, NY 10001 212.929.2491 Ilya@atozengineers.com Consultant Contact Address Phone e-mail NYC Building Restoration Robert M. Hanna, P.E. 9011 Northern Boulevard Suite 307 Jackson Heights, NY 11372 646-522-0589 rhanna@engineer.com MECHANICAL STRUCTURAL As indicated A-202 KITCHEN ELEVATIONS ELAM RESIDENCE 300 EAST 74TH STREET PENTHOUSE-F/36TH FLOOR NEW YORK, NY 10021 04/03/2015 1" = 1'-0" 1 Kitchen Elevation - North 1" = 1'-0" 3 Kitchen Elevation - West 1" = 1'-0" 2 Kitchen Elevation - South 1" = 1'-0" 4 Kitchen Elevation - East 1" = 1'-0" 6 Range/Hood/FCU-1 Section No. Description Date 1 1/2" = 1'-0" 5 Kitchen Recessed Casework Section
  • 9.
    A-203 12 13 14 15 SHELF SHELF FF-4 FF-4 PL-7 PL-11 A-20310 7 8 9 FF-1 FF-3 A-203 4 3 2 5 FF-2 FF-2 FF-2 FF-6 CT-3 PL-5 PL-10 MR-1 P-1 MEDICINE CABINET WF-3 WF-3 WF-3 CT-3 MR-1 WF-1 A-505 6 P-1 WF-3 WF-3 GFI CT-3 L-R4 L-WM2 L-WM2 PL-10 PL-6 SLIDE WF-1 A-505 6 P-1 3 L-R4 WF-3 7 G2 WF-1 FF-1 PL-6 CF-1 WF-3 SLIDE MIRROR A-505 6 P-2 5 FF-4 FF-4 P-2 MR-1 8G3 FF-4 TRANSOM WINDOW 7' - 8" MR-1 WF-3 MR-1 A-505 6 WF-4 WF-4 SS-1 CT-2 CT-2 G3 P-2 P-2 FF-4 L-WM4 MR-1 MR-1 MR-1 SS-1 CW-3 CW-3 CW-3 WF-4 WF-3 WF-4 MR-1 L-WM4 WC-1 WF-2 WF-2 CT-3 L-WM1 MR-1 WC-1 WF-2 MR-1 CT-3 L-WM1 L-WM1 P-1 WF-4 PL-10 PL-5CW-3 WF-4 WF-4 WF-4 WF-4WF-4WF-4 CT-3 L-WM1 MR-1 SLIDE WF-2 G1 WC-1 WF-4 1 Scale: Consultant Contact Address Phone e-mail ARCHITCTS PLLC 648 Broadway / Suite 402, New York, NY 10012 T.212.254.5210 F.212.254.4523 www.wilkinsonarchitects.com New York: Registered Architect 027917-1 Pennsylvania: Registered Architect 402561 National Council of Architectural Registration Board #52853 DOB Barcode ATOZ Consulting Engineers, PC Ilya Malyuchenko, P.E. 363 7th Avenue 3rd Floor New York, NY 10001 212.929.2491 Ilya@atozengineers.com Consultant Contact Address Phone e-mail NYC Building Restoration Robert M. Hanna, P.E. 9011 Northern Boulevard Suite 307 Jackson Heights, NY 11372 646-522-0589 rhanna@engineer.com MECHANICAL STRUCTURAL 1/2" = 1'-0" A-203 BATHROOM ENLARGED PLANS & ELEVATIONS ELAM RESIDENCE 300 EAST 74TH STREET PENTHOUSE-F/36TH FLOOR NEW YORK, NY 10021 04/03/2015 1/2" = 1'-0" 11 Penthouse F - Upper Level Master Bath Enlarged Plan 1/2" = 1'-0" 6 Penthouse F - 36th Floor - Main Level Bath Enlarged Plan 1/2" = 1'-0" 1 Penthouse F - 36th Floor - Main Level Powder Room Enlarged Plan 1/2" = 1'-0" 7 Bathroom Elevation - North 1/2" = 1'-0" 8 Bathroom Elevation - East 1/2" = 1'-0" 10 Bathroom Elevation - West 1/2" = 1'-0" 9 Bathroom Elevation - South 1/2" = 1'-0" 12 Master Bath Elevation - North 1/2" = 1'-0" 13 Master Bath Elevation - East 1/2" = 1'-0" 14 Master Bath Elevation - South 1/2" = 1'-0" 15 Master Bath Elevation - West 1/2" = 1'-0" 2 Powder Elevation - North 1/2" = 1'-0" 3 Powder Elevation - East 1/2" = 1'-0" 4 Powder Elevation - South 1/2" = 1'-0" 5 Powder Elevation - West No. Description Date PL-6 PL-10
  • 10.
    A-2045 3 4 2 3'-0"3'-0"1'-6"1'-43/4" S/D C1 P-2 P-2 SLIDE 3 S/D P-2 P-2 P-2 7"6'-63/4"2'-4" ATUO ROLLERSHADE POCKET BEYOND PTAC UNIT EXISTING SLIDING WINDOW 2' - 6" 3' - 5" 2' - 6" CW-1 CW-1 CW-1 CW-1 CW-1 P-2 P-2 WB-1 8' - 8" 8' - 3" 4' - 4" 1'-7"1'-5"1'-63/4"1'-63/4"1'-81/2" SLIDE 60" FLAT SCREEN TV 2 3' - 6 3/4" P-2P-2 P-2 P-2 CW-5 CW-5 CT-5 PTAC UNIT CT-5 L-R2L-R2L-R2 CW-5 CW-5 A-204 7 8 9 10 14'-3"1'-0" 4'-23/4"1'-0"6'-6"1'-0"2'-6" 8' - 6" 3' - 0" 5'-23/4"6'-6" A-5067 A-506 6 4 A-507 EXG SLIDING WINDOW L-TL1 L-WM6 L-WM6 BED FRAME BY OWNER P-3 P-3 MASTER CLOSET P-3 A-506 5 A-507 4 OPP L-R5 L-R5 L-S1 SLIDESLIDE S/D L-WM5 4 5 P-3 P-3 L-TL1 P-3 ACCESS TO W/D SHUTOFFS MASTER CLOSET L-R5 L-R5 L-S1 A-507 4 TYP A-507 4 TYP A-507 4 OPP S/D C4C4C4 P-3 L-S1 L-S1 L-S1 P-3 P-3 P-3 EXISTING SLIDING WINDOW L-TL1 EXISTING FLUE & COVER L-TL1 P-3 P-3 P-3 WB-1 UPHOLSTERED CUSION PTAC UNIT CW-3 Scale: Consultant Contact Address Phone e-mail ARCHITCTS PLLC 648 Broadway / Suite 402, New York, NY 10012 T.212.254.5210 F.212.254.4523 www.wilkinsonarchitects.com New York: Registered Architect 027917-1 Pennsylvania: Registered Architect 402561 National Council of Architectural Registration Board #52853 DOB Barcode ATOZ Consulting Engineers, PC Ilya Malyuchenko, P.E. 363 7th Avenue 3rd Floor New York, NY 10001 212.929.2491 Ilya@atozengineers.com Consultant Contact Address Phone e-mail NYC Building Restoration Robert M. Hanna, P.E. 9011 Northern Boulevard Suite 307 Jackson Heights, NY 11372 646-522-0589 rhanna@engineer.com MECHANICAL STRUCTURAL 1/2" = 1'-0" A-204 BEDROOM ENLARGED PLANS & ELEVATIONS ELAM RESIDENCE 300 EAST 74TH STREET PENTHOUSE-F/36TH FLOOR NEW YORK, NY 10021 04/03/2015 1/2" = 1'-0" 1 Penthouse F - 36th Floor - Main Level Bedroom Enlarged Plan 1/2" = 1'-0" 4 Bedroom Elevation - South 1/2" = 1'-0" 3 Bedroom Elevation - East 1/2" = 1'-0" 2 Bedroom Elevation - North 1/2" = 1'-0" 5 Bedroom Elevation - West 1/2" = 1'-0" 6 Penthouse F - Upper Level Master Bedroom Enlarged Plan 1/2" = 1'-0" 7 Master Bedroom Elevation - North 1/2" = 1'-0" 9 Master Bedroom Elevation - South 1/2" = 1'-0" 8 Master Bedroom Elevation - East 1/2" = 1'-0" 10 Master Bedroom Elevation - West No. Description Date
  • 11.
    A-2053 2 AP-6 AP-6 P-1 CW-3 MR-1 CW-1 L-R2 L-R2L-R2 A-507 3OPP AP-6 EXISTING ENTRY DOOR OUTSIDE CORNER OF POWER RM WALL WC-2 WC-2WC-2 CW-4 WF-5 WF-5 WF-5 WF-5 WB-1 L-R2L-R2L-R2 L-R2L-R2 A-507 3 TYP 1 A-507 EXISTING WOOD BURNING FIREPLACE AND MANTEL P-1 CW-4 PTAC UNIT PTAC UNIT CW-4 CW-4 P-1 EXISTING SLIDING WINDOW EXISTING SLIDING WINDOW A-507 2 TYP A-507 2 OPP WB-1 WB-1 L-R1 L-R1 L-R1 L-R1 L-R1L-R2 CT-4 CT-4 WF-6 WF-6 EXISTING SLIDING DOOR SLIDE FLUE L-P1 RACEWAY FOR L-P1 WIRING P-1 L-R1L-R1 A-507 2 TYP A-507 2OPP PTAC ENCLOSURE BEYOND 4 A-303 2 SLIDE 4 A-506 ROLL OUT ROLL OUT CW-1 CW-2 CW-1 CW-1 P-1 P-1 P-1 P-1 L-P2 EXISTING CONCRETE COLUMN EXPOSED Scale: Consultant Contact Address Phone e-mail ARCHITCTS PLLC 648 Broadway / Suite 402, New York, NY 10012 T.212.254.5210 F.212.254.4523 www.wilkinsonarchitects.com New York: Registered Architect 027917-1 Pennsylvania: Registered Architect 402561 National Council of Architectural Registration Board #52853 DOB Barcode ATOZ Consulting Engineers, PC Ilya Malyuchenko, P.E. 363 7th Avenue 3rd Floor New York, NY 10001 212.929.2491 Ilya@atozengineers.com Consultant Contact Address Phone e-mail NYC Building Restoration Robert M. Hanna, P.E. 9011 Northern Boulevard Suite 307 Jackson Heights, NY 11372 646-522-0589 rhanna@engineer.com MECHANICAL STRUCTURAL 1/2" = 1'-0" A-205 MAIN FLOOR ENLARGED PLANS & ELEVATIONS ELAM RESIDENCE 300 EAST 74TH STREET PENTHOUSE-F/36TH FLOOR NEW YORK, NY 10021 04/03/2015 1/2" = 1'-0" 1 Penthouse F - 36th Floor - Main Level Foyer Enlarged Plan 1/2" = 1'-0" 3 Foyer Elevation - West 1/2" = 1'-0" 2 Foyer Elevation - South No. Description Date 1/2" = 1'-0" 6 Living/Dining Elevation - West 1/2" = 1'-0" 5 Living/Dining Elevation - North 1/2" = 1'-0" 8 Living/Dining Elevation - East
  • 12.
    A-206 5 4 2 3 FCU-2 3' - 21/4" 2'-6"4'-5"2'-6" 2 A-302 63/4"9'-11" A B 1 3' - 2" 3' - 2" 3' - 2" 3' - 2" 3' - 2" 11" PL-9 PL-13 AP-9 CT-3 FF-5 FF-5 CT-3 81/4" 3/4" 81/4" 3/4" 81/4" 3/4" 1'-5" AP-10 3' - 8" TRANSOM WINDOW TO MASTER BATHROOM 7' - 8"1' - 10 1/4" A B 6 W2MR-1 PL-9 WB-1 WB-1 P-4 P-4 P-4 ACCESS TO MASTER BATHROOM CLEAN OUT FCU-2 PL-13 MR-1 1'-31/2" MATCH FINISH MATCH FINISHS/D AP-9 AP-10 2' - 1 1/2" 1 1/2" MR-1 P-4 P-4 CW-1 CW-1 PL-13 PL-9 P-4 CW-1 CT-3 FCU-2 WF-4 1 W2 W2 W2 WB-1 P-4 P-4 AB W1 W1W1 W1 9 FCU-2 WF-4 WF-4 WF-4 WF-4 WF-4 WF-4 WF-4 STEEL ROOF BEAM (TYP) STEEL ROOF BEAM (TYP) CF-6 (TYP) CF-6 (TYP) CF-6 (TYP) Scale: Consultant Contact Address Phone e-mail ARCHITCTS PLLC 648 Broadway / Suite 402, New York, NY 10012 T.212.254.5210 F.212.254.4523 www.wilkinsonarchitects.com New York: Registered Architect 027917-1 Pennsylvania: Registered Architect 402561 National Council of Architectural Registration Board #52853 DOB Barcode ATOZ Consulting Engineers, PC Ilya Malyuchenko, P.E. 363 7th Avenue 3rd Floor New York, NY 10001 212.929.2491 Ilya@atozengineers.com Consultant Contact Address Phone e-mail NYC Building Restoration Robert M. Hanna, P.E. 9011 Northern Boulevard Suite 307 Jackson Heights, NY 11372 646-522-0589 rhanna@engineer.com MECHANICAL STRUCTURAL 3/4" = 1'-0" A-206 GREENHOUSE ENLARGED PLAN & ELEVATIONS ELAM RESIDENCE 300 EAST 74TH STREET PENTHOUSE-F/36TH FLOOR NEW YORK, NY 10021 04/03/2015 3/4" = 1'-0" 1 Penthouse F - Upper Level Greenhouse Enlarged Plan 3/4" = 1'-0" 2 Greenhouse Elevation - North 3/4" = 1'-0" 3 Greenhouse Elevation - East 3/4" = 1'-0" 4 Greenhouse Elevation - West 3/4" = 1'-0" 5 Greenhouse Elevation - South No. Description Date P-4
  • 13.
    GFI FCU-2 2 A-302 TYP 2' - 3"2' - 3" 2' - 3" 2' - 3" 2' - 3" 2' - 3" 2' - 3" H SS 5x5x1/2 H SS 5x5x1/2 6" 15' - 9" 6" 3/8"THICKTAPEREDSTEELBEAM(TYPOF8) 3/8"THICKTAPEREDSTEELBEAM(TYPOF8) A B 1 2'-0"10'-21/2" 1 A-302 17' - 3 3/4" 3/8"THICKTAPEREDSTEELBEAM(TYPOF8) 3/8"THICKTAPEREDSTEELBEAM(TYPOF8) 3/8"THICKTAPERED STEELBEAM(TYPOF8) 3/8"THICKTAPERED STEELBEAM(TYPOF8) 3/8"THICKTAPERED STEELBEAM(TYPOF8) 3/8"THICKTAPERED STEELBEAM(TYPOF8) 3/8"THICKTAPERED STEELBEAM(TYPOF8) 3/8"THICKTAPERED STEELBEAM(TYPOF8) Scale: Consultant Contact Address Phone e-mail ARCHITCTS PLLC 648 Broadway / Suite 402, New York, NY 10012 T.212.254.5210 F.212.254.4523 www.wilkinsonarchitects.com New York: Registered Architect 027917-1 Pennsylvania: Registered Architect 402561 National Council of Architectural Registration Board #52853 DOB Barcode ATOZ Consulting Engineers, PC Ilya Malyuchenko, P.E. 363 7th Avenue 3rd Floor New York, NY 10001 212.929.2491 Ilya@atozengineers.com Consultant Contact Address Phone e-mail NYC Building Restoration Robert M. Hanna, P.E. 9011 Northern Boulevard Suite 307 Jackson Heights, NY 11372 646-522-0589 rhanna@engineer.com MECHANICAL STRUCTURAL 1" = 1'-0" A-301 GREENHOUSE FRAMING PLAN ELAM RESIDENCE 300 EAST 74TH STREET PENTHOUSE-F/36TH FLOOR NEW YORK, NY 10021 04/03/2015 No. Description Date 1" = 1'-0" 1 Penthouse F - Upper Level Greenhouse Enlarged Framing Plan EXISTING TERRACE DRAIN (DO NOT DISTURB)
  • 14.
    EXISTING ROOF ASSEMBLY EXISTINGSLEEPERS EXISTING RIGID INSULATION EXISTING PLYWOOD SUB-FLOOR NEW BACKERBOARD NEW STONE TILE FLOORING EXISTING CMU KNEE WALL MODIFIED IN HEIGHT EXISTING ROOF MEMBRANE NOT TO BE DISTURBED EXISTING PAVER SYSTEM (NO WORK) NEW 3/8" STEEL BEAM INTERIOR EXTERIORGREENHOUSE EXISTING PARAPET FLASHING CAP TO REMAIN NEW PLUMBING RUN ABOVE SLAB TO EXISTING RISER CONCEALED BENEATH STEP SOPREMA WATERPROOFING MEMBRANE (COLOR TO BE WHITE) 6-1/2" R-30 SIP PANEL POLYGAL "THERMOGAL" THERMALLY INSULATED STRUCTURAL POLYCARBONATE PANEL (0.31 U VALUE) NEW SKYLINE TERRACE DOOR (OUTSWING) 3/8" STEEL BEAM LATICRETE 9235 WATERPROOFING MEMBRANE APPLIED IN (2) LAYERS WITH REINFORCEMENT FLEECE IN BETWEEN A-503 3 A-503 4 A-503 5 A-503 2 A-503 1 A-505 4 TYP OPEN EXISTINGOPENING EXTENT OF EXISTING GREENHOUSE TO BE REMOVED SILL FLASHING END DAM AT WALL BEYOND (TYP) HSS 5X5X1/2 COLUMN IN WALL BEYOND ALUMINUM STOREFRONT SYSTEM GRACE VYCOR SILL FLASHING GRACE VYCOR-NER END DAM SILL FLASHING BEYOND BASF SONOLASTIC 150 EXTERIOR CAULK (COLOR TO MATCH EXTERIOR FINISHES PENDING BOARD APPROVAL) EXTERIOR SHEATHING SOLARBAN 60 LOW E INSULATED GLASS R7.5 CONTINUOUS RIGID INSULATION ALUMINUM SILL PAN STUCCO EXTERIOR FINISH R13 BATT INSULATION CEMENT BACKERBOARD LATICRETE 9235 WATERPROOFING MEMBRANE APPLIED IN (2) LAYERS WITH REINFORCEMENT FLEECE IN BETWEEN 3/8" STONE TILE UNMODIFIED THIN SET MORTER 5/8" PLYWOOD SUBFLOOR EXISTING 2" RIGID INSULATION EXISTING ROOF ASSEMBLY EXISTING SLEEPER JOISTS WATERPROOF SEALANT 1/8" THICK WOOD FILLER EXISTING CMU KNEE WALL MODIFIED IN HEIGHT EXISTING PAVER SYSTEM (NO WORK) P.T. WOOD BLOCKING PAN FLASHING WITH DRIP EDGE 3/8" BACKER ROD AND CAULK QT SCU PERIMETER ISOLATION STRIP UV BLOCKING WINDOW FILM 5/8" GYPSUM WALL BOARD SOLID WOOD SILL SOLID WOOD TRIM 5/8" PLYWOOD HSS 3x1-1/2x3/8 3/8" STEEL BEAM 3/8" STEEL TAB WELDED TO BEAM 6-1/2" R30 SIPS PANEL ALUMINUM STOREFRONT SYSTEM ALUMINUM STOREFRONT SYSTEM BASF SONOLASTIC 150 EXTERIOR CAULK (COLOR TO MATCH EXTERIOR FINISHES PENDING BOARD APPROVAL) ALUMINUM SILL PAN 1" THICK AZEK TRIM BASF SONOLASTIC 150 EXTERIOR CAULK (COLOR TO MATCH EXTERIOR FINISHES PENDING BOARD APPROVAL) 5/8" PLYWOOD GRACE VYCOR-NER END DAM SILL FLASHING BEYOND SOLARBAN 60 LOW E INSULATED GLASS UV BLOCKING WINDOW FILM BASF SONOLASTIC 150 EXTERIOR CAULK (COLOR TO MATCH EXTERIOR FINISHES PENDING BOARD APPROVAL) 1" THICK AZEK FACIA 3/4" MDF NOTCHED AROUND STEEL TAB WHITE SOPREMA WATERPROOF MEMBRANE COIL STOCK FLASHING WITH DRIP EDGE (MIN 0.05 GAUGE) EXTERIOR GREEN- HOUSE A A A BEAM BEAM ALUMINUM STOREFRONT SYSTEM Scale: Consultant Contact Address Phone e-mail ARCHITCTS PLLC 648 Broadway / Suite 402, New York, NY 10012 T.212.254.5210 F.212.254.4523 www.wilkinsonarchitects.com New York: Registered Architect 027917-1 Pennsylvania: Registered Architect 402561 National Council of Architectural Registration Board #52853 DOB Barcode ATOZ Consulting Engineers, PC Ilya Malyuchenko, P.E. 363 7th Avenue 3rd Floor New York, NY 10001 212.929.2491 Ilya@atozengineers.com Consultant Contact Address Phone e-mail NYC Building Restoration Robert M. Hanna, P.E. 9011 Northern Boulevard Suite 307 Jackson Heights, NY 11372 646-522-0589 rhanna@engineer.com MECHANICAL STRUCTURAL As indicated A-302 GREENHOUSE SECTIONS ELAM RESIDENCE 300 EAST 74TH STREET PENTHOUSE-F/36TH FLOOR NEW YORK, NY 10021 04/03/2015 No. Description Date 1 1/2" = 1'-0" 1 GREENHOUSE SECTION 3" = 1'-0" 2 GREENHOUSE WEST WALL F.H. SECTION
  • 15.
    A-501 2 TYP 12 13 14 15 16 17 A-502 2 1 A-502 TYP L-P1 L-P1 L-P1 SKYLIGHT OPENING 1 A-501 TYP 1 2 3 4 5 6 7 8 9 10 11 ROPE LIGHT L-RL1 A-505 8 3/16"x1/4"STEEL BAR STOCK (TYP) 1/2"x1-1/2" STEEL BAR STOCK HANDRAIL 4 A-303 2 A-501 1 A-501 TYP 1 2 3 4 5 6 7 8 10 9 11 12 13 151617 14 UP 1 A-502 TYP 2 A-502 3 A-303 FF-6 (TYP) CW-1 EXISTING W8 x 13 NEW DOUBLE JOIST NEW DOUBLE JOIST EXISTING W8 x 13 EXISTING W 8 x 13 EXISTINGW8x13 4 A-303 1 A-501 2 A-501 TYP 1 2 3 4 5 6 7 8 13/4" 3'-111/4"2'-0"1'-6" 13/4" 1'-2"1'-0"1'-0"1'-0" 21/4" 1'-8" ROPE LIGHT L-RL1 1 A-506 2' - 11 1/4"2' - 11" A-505 8 SIM GL-1 4 A-506 T.O. GLASS SHELF T.O. GLASS SHELF T.O. GLASS SHELF T.O. GLASS SHELF Scale: Consultant Contact Address Phone e-mail ARCHITCTS PLLC 648 Broadway / Suite 402, New York, NY 10012 T.212.254.5210 F.212.254.4523 www.wilkinsonarchitects.com New York: Registered Architect 027917-1 Pennsylvania: Registered Architect 402561 National Council of Architectural Registration Board #52853 DOB Barcode ATOZ Consulting Engineers, PC Ilya Malyuchenko, P.E. 363 7th Avenue 3rd Floor New York, NY 10001 212.929.2491 Ilya@atozengineers.com Consultant Contact Address Phone e-mail NYC Building Restoration Robert M. Hanna, P.E. 9011 Northern Boulevard Suite 307 Jackson Heights, NY 11372 646-522-0589 rhanna@engineer.com MECHANICAL STRUCTURAL 1" = 1'-0" A-303 STAIRWELL PLANS & SECTIONS ELAM RESIDENCE 300 EAST 74TH STREET PENTHOUSE-F/36TH FLOOR NEW YORK, NY 10021 04/03/2015 1" = 1'-0" 4 STAIRWELL SECTION LOOKING SOUTH No. Description Date 1" = 1'-0" 1 Penthouse F - 36th Floor - Main Level Stairwell Enlarged Plan 1" = 1'-0" 2 ROOF FRAMING ABOVE STAIRWELL 1" = 1'-0" 3 STAIRWELL SECTION LOOKING NORTH
  • 16.
    SELF TAPPING MACHINESCREWS BOTTOM OF EXISTING CONCRETE ROOF SLAB 1/2" x 3/16" STEEL SUPPORT TABS 8" x 2" 10 GAUGE UNPUNCHED COLD FORM JOIST (TYP) 5/8" EXPANSION BOLT (BASE PLATE AND BOLT CONCEALED BEHIND FINISHED GWB) EXISTING WALL ASSEMBLY 8" BUILT-UP SOLID WOOD STAIR TREAD 3'-3" WIDE (VERIFY IN FIELD) 11/4"31/2"11/4" SPLICE 6" 5/8" TYPE X FIRE RATED GYPSUM WALL BOARD PLASTIC J-BEAD 1/2" x 3/16" STEEL BAR STOCK WITH BRASS FINISH WELD (TYP) 1" x 1" x 1/8" STEEL TUBE WELDED TO PLATE 1/2" GYPSUM WALL BOARD WITH PLASTER SKIM COAT 3" x 11" x 1/8" THICK STEEL PLATE FASTENED TO WALL COUNTERSUNK SQUARE DRIVE BOLTS (TYP) 1/2" x 3/16" STEEL BAR STOCK WITH BRASS FINISH 1/2" x 3/16" STEEL BAR STOCK WITH BRASS FINISH 3/4" 3 1/4" 3 1/4" 3/4" WELDED CONNECTION (FILED DOWN FOR SMOOTH FINISH) 5/8" GYPSUM WALL BOARD ENCLOSURE EXISTING WALL ASSEMBLY OPEN TO SKYLIGHT ABOVE EXISTING SKYLIGHT WALL ASSEMBLY BRIDGE JOISTS WITH STEEL STRAP @ 16" O.C. SOLID FIRE TREATED WOOD BLOCKING BETWEEN HEAVY GAUGE JOISTS EXISTING CONCRETE ROOF SLAB EXISTING W8 x 13 6"SPLICE 1/2" x 3/16" STEEL SUPPORT TABS (2) 8" x 2" 10 GAUGE UNPUNCHED COLD FORM JOIST (TYP) 5/8" EXPANSION BOLT (BASE PLATE AND BOLT CONCEALED BEHIND FINISHED GWB) 1/2" x 3/16" STEEL BAR STOCK (TYP) 11/4"31/2"11/4" 1" x 1" x 1/8" STEEL TUBE (2 PER TREAD) STAIRTREAD 21/2"THICK MAXIMUMOPENING 3" 751/128" 1/2" x 3/16" STEEL BAR STOCK (TYP) 8 3/4" COUNTERSUNK SQUARE DRIVE BOLTS (TYP) 3" x 11" x 1/8" STEEL PLATE BEYOND 3" x 11" x 1/8" STEEL PLATE BEYOND Scale: Consultant Contact Address Phone e-mail ARCHITCTS PLLC 648 Broadway / Suite 402, New York, NY 10012 T.212.254.5210 F.212.254.4523 www.wilkinsonarchitects.com New York: Registered Architect 027917-1 Pennsylvania: Registered Architect 402561 National Council of Architectural Registration Board #52853 DOB Barcode ATOZ Consulting Engineers, PC Ilya Malyuchenko, P.E. 363 7th Avenue 3rd Floor New York, NY 10001 212.929.2491 Ilya@atozengineers.com Consultant Contact Address Phone e-mail NYC Building Restoration Robert M. Hanna, P.E. 9011 Northern Boulevard Suite 307 Jackson Heights, NY 11372 646-522-0589 rhanna@engineer.com MECHANICAL STRUCTURAL 6" = 1'-0" A-501 STAIR DETAILS I ELAM RESIDENCE 300 EAST 74TH STREET PENTHOUSE-F/36TH FLOOR NEW YORK, NY 10021 04/03/2015 No. Description Date 6" = 1'-0" 1 STAIR TREAD SUPPORT DETAIL 1 6" = 1'-0" 2 STAIR TREAD SUPPORT DETAIL 2
  • 17.
    SELF TAPPING MACHINESCREWS BOTTOM OF EXISTING CONCRETE ROOF SLAB 1/2" x 3/16" STEEL SUPPORT TABS 8" x 2" 10 GAUGE UNPUNCHED COLD FORM JOIST (TYP) 5/8" EXPANSION BOLT (BASE PLATE AND BOLT CONCEALED BEHIND FINISHED GWB) EXISTING WALL ASSEMBLY 8" BUILT-UP SOLID WOOD STAIR TREAD 3'-3" WIDE (VERIFY IN FIELD) STAIRTREAD 21/2"THICK11/4"31/2"11/4" SPLICE 6" 5/8" TYPE X FIRE RATED GYPSUM WALL BOARD PLASTIC J-BEAD 1/2" x 3/16" STEEL BAR STOCK WITH BRASS FINISH WELD (TYP) 1" x 1" x 1/8" STEEL TUBE 1/2" GYPSUM WALL BOARD WITH PLASTER SKIM COAT COUNTERSUNK SQUARE DRIVE BOLTS (TYP) 1/2" x 3/16" STEEL BAR STOCK WITH BRASS FINISH 1/2" x 3/16" STEEL BAR STOCK WITH BRASS FINISH 3/4" 3 1/4" 3 1/4" 3/4" WELDED CONNECTION (FILED DOWN FOR SMOOTH FINISH) 1/2" x 3/16" STEEL BAR STOCK WITH BRASS FINISH 1/2" x 3/16" STEEL BAR STOCK WEB 1/2" x 3/16" STEEL BAR STOCK FASTENED TO SIDE OF 2ND FLOOR SLAB 1/2"1"1/2"6"WEBDISTANCEVARIES 1" x 1" x 1/8" STEEL TUBE 1/2" x 3/16" STEEL BAR STOCK (TYP) Scale: Consultant Contact Address Phone e-mail ARCHITCTS PLLC 648 Broadway / Suite 402, New York, NY 10012 T.212.254.5210 F.212.254.4523 www.wilkinsonarchitects.com New York: Registered Architect 027917-1 Pennsylvania: Registered Architect 402561 National Council of Architectural Registration Board #52853 DOB Barcode ATOZ Consulting Engineers, PC Ilya Malyuchenko, P.E. 363 7th Avenue 3rd Floor New York, NY 10001 212.929.2491 Ilya@atozengineers.com Consultant Contact Address Phone e-mail NYC Building Restoration Robert M. Hanna, P.E. 9011 Northern Boulevard Suite 307 Jackson Heights, NY 11372 646-522-0589 rhanna@engineer.com MECHANICAL STRUCTURAL 6" = 1'-0" A-502 STAIR DETAILS II ELAM RESIDENCE 300 EAST 74TH STREET PENTHOUSE-F/36TH FLOOR NEW YORK, NY 10021 04/03/2015 No. Description Date 6" = 1'-0" 1 SUSPENDED STAIR TREAD SUPPORT DETAIL 6" = 1'-0" 2 LANDING SUPPORT DETAIL AT UPPER LEVEL FLOOR
  • 18.
    SIP PANEL FASTENEDTO STEEL TAB WELDED TO BEAM WITH THRU BOLT CONTINUOUS STEEL TAB BEYOND WELDED TO BEAM TO SUPPORT SIP PANEL (2) 2-1/2" 16 GA STEEL STUD HEADER WHITE SOPREMA WATERPROOF MEMBRANE SKYLINE 1700 TERRACE DOOR HEAD 6-1/2" R-30 SIP PANEL 3/4" MDF PANEL (NOTCHED AROUND STEEL TAB) PL4.5X4.5X3/8 STEEL PLATE WELDED TO HSS8X3X3/8 GIRDER AND BOLTED TO BEAM FINISHED WOOD FASCIA STEEL TAB WELDED TO BEAM AND BOLTED TO CHANNEL HOMOSOTE BASF SONOLASTIC 150 CAULK (COLOR TO MATCH EXISTING EXTERIOR FINISH PENDING BOARD APPROVAL) CONTINUOUS 1/4" STEEL PLATE WELDED TO EAVE BEAM HSS 8X3X3/8 GIRDER 1" AZECK PANEL 1" X 1" STEEL TUBE 3/4" CDX PLYWOOD BENT COIL STOCK GUTTER PITCHED TO NORTHWEST END COIL STOCK FLASHING WITH DRIP EDGE (MIN 0.05 GAUGE) COIL STOCK FLASHING WITH DRIP EDGE (MIN 0.05 GAUGE) HILTI KWIK-FLEX SELF-DRILLING SCREWS @16" O.C. BACKER ROD WOOD BLOCKING PLASTIC HORSESHOE SHIM AS REQUIRED TO LEVEL/SQUARE NANAWALL SYSTEM WOOD BLOCKING EAVE BEAM WELDED TO HSS 8X3X3/8 HSS 5X5X1/2 COLUMN IN WALL BEYOND WOOD NAILER GLUED TO GIRDER 1/2" AZEK PANEL EXISTING PAVER SYSTEM (NO WORK) BASF SONOLASTIC 150 EXTERIOR CAULK (COLOR TO MATCH EXISTING EXTERIOR FINISH PENDING BOARD APPROVAL) CEMENT BACKERBOARD LATICRETE 9235 WATERPROOFING MEMBRANE APPLIED IN (2) LAYERS WITH REINFORCEMENT FLEECE IN BETWEEN 3/8" THICK FLOOR TILE FLEXIBLE WATERPROOF ACOUSTICAL SEALANT QT SCU PERIMETER ISOLATION STRIP UNMODIFIED THIN SET MORTER BACKER ROD WOOD BLOCKING EXISTING CMU KNEE WALL MODIFIED IN HEIGHT NEW PAN FLASHING WITH DRIP EDGE HILTI KWIK-FLEX SELF-DRILLING SCREWS @16" O.C. PLASTIC HORSESHOE SHIM AS REQUIRED TO LEVEL/SQUARE NANAWALL SYSTEM 5/8" PLYWOOD SUBFLOOR EXISTING 2" RIGID INSULATION SKYLINE 1700 TERRACE DOOR SILL EXISTING ROOF ASSEMBLY EXISTING SLEEPER JOISTS BASF SONOLASTIC 150 EXTERIOR CAULK (COLOR TO MATCH EXISTING EXTERIOR FINISH PENDING BOARD APPROVAL) HSS 5X5X1/2 COLUMN IN WALL BEYOND NEW FLASHING END DAM AT WALL BEYOND (TYP. BOTH SIDES) EXISTING WALL ASSEMBLY C8X13.7 STEEL CHANNEL BOLTED WITH EPOXY TO EXISTING MASONRY 3/8" STEEL BEAM 1-1/2" METAL FRAMING BOLTED WITH EXPOXY BACK TO EXISTING MASONRY 5/8" GYPSUM WALL BOARD 5/8" GYPSUM WALL BOARD STEEL PL4.5X4.5X3/8 WELDED TO C8X13.7 CHANNEL AND BOLTED TO BEAM ALUMINUM END CAP POLYGAL 'THERMALGAL' PANEL CAULK 1-1/2" METAL FRAMING BOLTED WITH EXPOXY BACK TO EXISTING MASONRY 5/8" GYPSUM WALL BOARD PLASTIC J-BEAD WOOD BLOCKING EXISTING PARAPET CAP FLASHING EXISTING WALL ASSEMBLY 3/4" MDF PANEL ALUMINUM CAP PROFILE GLAZING EPDM POLYGAL FLASHING CAP WHITE SOPREMA WATERPROOF MEMBRANE 6-1/2" R-30 SIP PANEL Scale: Consultant Contact Address Phone e-mail ARCHITCTS PLLC 648 Broadway / Suite 402, New York, NY 10012 T.212.254.5210 F.212.254.4523 www.wilkinsonarchitects.com New York: Registered Architect 027917-1 Pennsylvania: Registered Architect 402561 National Council of Architectural Registration Board #52853 DOB Barcode ATOZ Consulting Engineers, PC Ilya Malyuchenko, P.E. 363 7th Avenue 3rd Floor New York, NY 10001 212.929.2491 Ilya@atozengineers.com Consultant Contact Address Phone e-mail NYC Building Restoration Robert M. Hanna, P.E. 9011 Northern Boulevard Suite 307 Jackson Heights, NY 11372 646-522-0589 rhanna@engineer.com MECHANICAL STRUCTURAL 6" = 1'-0" A-503 GREENHOUSE DETAILS ELAM RESIDENCE 300 EAST 74TH STREET PENTHOUSE-F/36TH FLOOR NEW YORK, NY 10021 04/03/2015 6" = 1'-0" 2 NANAWALL HEAD/GIRDER DETAIL No. Description Date 6" = 1'-0" 1 GREENHOUSE FLOOR DETAIL @ NANAWALL RAISED SILL 6" = 1'-0" 3 BEAM SEAT DETAIL 6" = 1'-0" 4 UPPER POLYGAL PANEL SECTION 6" = 1'-0" 5 LOWER POLYGAL SECTION
  • 19.
    EXISTING BUILT-UP ROOF MEMBRANCE NOTTO BE DISTURBED EXISTING ROOF & SKYLIGHT CURB ASSEMBLY 1/2" GYPSUM WALL BOARD NEW VELUX FIXED CM DOME CURB MOUNTED SKYLIGHT 0.030" ACRYLIC INTERLAYER WHITE LAMINATED ACRYLIC OUTER DOME VERIFY DIMENSIONS IN FIELD EXISTING OUTBOUND CURB A-504 2 NEW SAFETY RAIL SOURCE SAFETY ROOF SCREEN FASTENED TO SKYLIGHT FRAME WITH STEEL CLIPS 12" O.C. (STAIRWELL SKYLIGHT ONLY) NEW 1/2" GYPSUM WALL BOARD NEW CURB FLASHING CONDENSATE CONTROL GUTTER WITH WEEP HOLES ALUMINUM SKYLIGHT FRAME THERMAL BARRIER EXISTING ROOF FLASHING DO NOT DISTURB NEW SAFETY RAIL SOURCE SAFETY ROOF SCREEN FASTENED TO SKYLIGHT FRAME WITH STEEL CLIPS 12" O.C. (STAIRWELL SKYLIGHT ONLY) I. ANY ALTERATION TO ROOFING DURING REMOVAL AND CONSTRUCTION MUST BE PERFORMED BY THE BUILDING'S ROOFING CONTRACTOR (YORK RESTORATION CORP.) TO MAINTAIN WARRANTY. GENERAL ROOF NOTES NEW TYPE X FIRE RATED 5/8" GYPSUM WALL BOARD. TAPE AND FINISH TO MATCH CEILING. NEW 3-5/8" 20ga METAL RUNNER (VERIFYINFIELD) EXISTINGROOFSTRUCTURE EXISTING FIRE RATED 5/8" GYPSUM WALL BOARD (VERIFY IN FIELD) EXISTING FIRE RATED 5/8" GYPSUM WALL BOARD (VERIFY IN FIELD) NEW 3-5/8" 20ga METAL STUDS @12" O.C. OVERLAP 2" MINIMUM (TYP ALL AROUND) EXTEND WATERPROOFING 3" PAST OPENING (VERIFYINFIELD) EXISTINGROOFSTRUCTURE (THICKNESS = EXISTING # OF PLYS + 1 PLY OVERLAP) NEW BUILT-UP ROOFING FASTEN FRAMING TO EXISTING STRUCTURE WITH SELF TAPING SCREWS (TYP ALL AROUND) NEW R-38 BATT INSULATION (VERIFY DIMENSIONS IN FIELD) EXISTING ROOF OPENING OVERLAP 2" MINIMUM (TYP ALL AROUND) EXTEND WATERPROOFING 3" PAST OPENING NEW (2) LAYERS OF 3/4" FIRE TREATED CDX PLYWOOD NEW WATERPROOFING MEMBRANE Scale: Consultant Contact Address Phone e-mail ARCHITCTS PLLC 648 Broadway / Suite 402, New York, NY 10012 T.212.254.5210 F.212.254.4523 www.wilkinsonarchitects.com New York: Registered Architect 027917-1 Pennsylvania: Registered Architect 402561 National Council of Architectural Registration Board #52853 DOB Barcode ATOZ Consulting Engineers, PC Ilya Malyuchenko, P.E. 363 7th Avenue 3rd Floor New York, NY 10001 212.929.2491 Ilya@atozengineers.com Consultant Contact Address Phone e-mail NYC Building Restoration Robert M. Hanna, P.E. 9011 Northern Boulevard Suite 307 Jackson Heights, NY 11372 646-522-0589 rhanna@engineer.com MECHANICAL STRUCTURAL As indicated A-504 ROOF DETAILS ELAM RESIDENCE 300 EAST 74TH STREET PENTHOUSE-F/36TH FLOOR NEW YORK, NY 10021 04/03/2015 No. Description Date 3" = 1'-0" 1 SKYLIGHT SECTION 6" = 1'-0" 2 SKYLIGHT CURB DETAIL 6" = 1'-0" 3 ROOF PATCH DETAIL
  • 20.
    3/4" HARDWOOD FINISHFLOORING 5/8" FLOATING FIRE TREATED PLYWOOD SUB-FLOOR APPLIES PERPENDICULAR TO ACOUSTICAL UNDERLAYMENT QUIETDOWN MAX (4MM) ACOUSTIC UNDERLAY WITH TAPED SEAMS NOTE: FINISHED WOOD FASTNERES MUST NOT PENETRATE ACOUSTICAL UNDERLAYMENT IN ANY WAY 1/8" MAINTAIN 1/8" GAP BETWEEN FLOOR ASSEMBLY AND WALL HOLD 1/2" BASE TRIM 1/8" CLEAR ABOVE FINISHED FLOOR ACOUSTICAL SEALANT AT FLOOR PERIMETER EXISTING SLAB WALL ASSEMBLY ACOUSTICAL SEALANT 3/8" PORCELAIN TILE LEAD SHOWER PAN LIQUID LATICRETE WATERPROOFING MEMBRANE # 9235 MUD SET EXISTING FLOOR ASSEMBLY NICKLE / BRONZE ADJUSTABLE STRAINER 3/16" PORCELAIN TILE 5/8" BACKERBOARD LOOSE GRAVEL OR CRUSHED TILE AT WEEP HOLES FLASHING CLAMP WITH WEEP HOLES THREADED, CAULKED OR NO-HUB CONNECTION HEIGHTOFLEAD PANABOVE FINISHEDSHOWER FLOOR EXISTING WALL ASSEMBLY CONTINUOUS WATERPROOFING MEMBRANE TO 6" ABOVE SHOWER HEAD FINISHED FLOOR ASSEMBLY CURB 6" EXISTING FLOOR SLAB EXISTING WALL ASSEMBLY CEMENT BACKERBOARD LATICRETE 9235 WATERPROOFING MEMBRANE APPLIED IN (2) LAYERS WITH REINFORCEMENT FLEECE IN BETWEEN 3/8" THICK FLOOR TILE HONEYWELL RADIANT FLOOR WARMING SYSTEM MINIMUMABOVEFINISHFLOOR EXTENDWATERPROOFINGMEMBRANE6" FLEXIBLE WATERPROOF ACOUSTICAL SEALANT QT scu PERIMETER ISOLATION STRIP 3/16" THICK WALL TILE UNMODIFIED THIN SET MORTER LATICRETE 9235 WATERPROOFING MEMBRANE APPLIED IN (2) LAYERS WITH REINFORCEMENT FLEECE IN BETWEEN SCHLUTER DITRA MEMBRANE CEMENT BACKERBOARD QUIETDOWN MAX (4MM) ACOUSTIC UNDERLAY WITH TAPED SEAMS UNMODIFIED THIN SET MORTAR 3/8" PORCELAIN TILE 6 GAUGE LEAD SHOWER PAN LATICRETE 9235 WATERPROOFING MEMBRANE APPLIED IN (2) LAYERS WITH REINFORCEMENT FLEECE IN BETWEEN MUD SET EXISTING FLOOR SLAB LINEAR DRAIN WITH REMOVABLE STAINLESS STEEL PERFORATED GRATE 3/16" PORCELAIN WALL TILE 5/8" BACKERBOARD HEIGHTOFLEADPANABOVE FINISHEDSHOWERFLOOR EXISTING WALL ASSEMBLY LATICRETE 9235 WATERPROOFING MEMBRANE APPLIED IN (2) LAYERS WITH REINFORCEMENT FLEECE IN BETWEEN. TERMINATE 6" ABOVE SHOWER HEAD. 3/8" PORCELAIN TILE CURB 6" FLASHING CLAMP WITH WEEP HOLES THREADED, CAULKED, OR NO-HUB CONNECTION ± 3 1/2" WALLOPENING 4"MINIMUM EXISTING GWB 5/8" BACKERBOARD 3/4" PLYWOOD 2" x 6" WOOD FLOOR JOISTS @12" O.C. (TYP) 2" PVC SANITARY P-TRAP UNMODIFIED THIN SET MORTAR 6 GAUGE LEAD SHOWER PAN 5/8" BACKERBOARD WOOD BLOCKING UNMODIFIED THIN SET MORTAR 3/16" PORCELAIN WALL TILE A-505 3SIM EXISTING FLOOR SLAB CEMENT BACKERBOARD LATICRETE 9235 WATERPROOFING MEMBRANE APPLIED IN (2) LAYERS WITH REINFORCEMENT FLEECE IN BETWEEN 3/8" FLOOR TILE (FF-1/FF-2)WET LOCATIONDRY LOCATION .. HONEYWELL RADIANT FLOOR WARMING SYSTEM SCHLUTER DITRA MEMBRANE QUIETDOWN MAX (4MM) ACOUSTIC UNDERLAY WITH TAPED SEAMS UNMODIFIED THIN SET MORTER 1/8"MIN. EXISTING FLOOR SLAB CEMENT BACKERBOARD LATICRETE 9235 WATERPROOFING MEMBRANE APPLIED IN (2) LAYERS WITH REINFORCEMENT FLEECE IN BETWEEN 3/8" FLOOR TILE (FF-1) WET LOCATIONDRY LOCATION .. SCHLUTER DITRA MEMBRANE UNMODIFIED THIN SET MORTER QUIETDOWN MAX (4MM) ACOUSTIC UNDERLAY WITH TAPED SEAMS EXISTING FLOOR SLAB CEMENT BACKERBOARD LATICRETE 9235 WATERPROOFING MEMBRANE APPLIED IN (2) LAYERS WITH REINFORCEMENT FLEECE IN BETWEEN 3/8" FLOOR TILE CORIAN SADDLE (GLACIER WHITE) 3/4" HARDWOOD FLOORING ACOUSTICAL SEALANT AT FLOOR PERIMETER HONEYWELL RADIANT FLOOR WARMING SYSTEM SCHLUTER DITRA MEMBRANE QUIETDOWN MAX (4MM) ACOUSTIC UNDERLAY WITH TAPED SEAMS UNMODIFIED THIN SET MORTER 5/8" PLYWOOD SUBFLOORING QT scu ISOLATION STRIP 1/8"MIN. WET LOCATIONDRY LOCATION .. ROPE LIGHT L-RL1 3/4" PLYWOOD 3/4" SOLID WOOD FINISH 3/4" SOLID WOOD FINISH 2X6 WOOD FRAMING @16"O.C. EXISTING MAIN LEVEL FLOOR ASSEMBLY Scale: Consultant Contact Address Phone e-mail ARCHITCTS PLLC 648 Broadway / Suite 402, New York, NY 10012 T.212.254.5210 F.212.254.4523 www.wilkinsonarchitects.com New York: Registered Architect 027917-1 Pennsylvania: Registered Architect 402561 National Council of Architectural Registration Board #52853 DOB Barcode ATOZ Consulting Engineers, PC Ilya Malyuchenko, P.E. 363 7th Avenue 3rd Floor New York, NY 10001 212.929.2491 Ilya@atozengineers.com Consultant Contact Address Phone e-mail NYC Building Restoration Robert M. Hanna, P.E. 9011 Northern Boulevard Suite 307 Jackson Heights, NY 11372 646-522-0589 rhanna@engineer.com MECHANICAL STRUCTURAL As indicated A-505 FLOOR DETAILS ELAM RESIDENCE 300 EAST 74TH STREET PENTHOUSE-F/36TH FLOOR NEW YORK, NY 10021 04/03/2015 6" = 1'-0" 5 WOOD FLOOR SOUNDPROOFING DETAIL 3" = 1'-0" 6 SHOWER INSTALLATION DETAIL 6" = 1'-0" 3 FLOOR WATERPROOFING DETAIL @ WALL No. Description Date 6" = 1'-0" 7 RAISED SHOWER INSTALLATION DETAIL 6" = 1'-0" 1 FLOOR WATERPROOFING DETAIL @ THRESHOLD (MAIN LEVEL) 6" = 1'-0" 2 FLOOR WATERPROOFING DETAIL 6" = 1'-0" 4 FLOOR WATERPROOFING DETAIL @ THRESHOLD (UPPER LEVEL) 6" = 1'-0" 8 STAIR PLATFORM EDGE DETAIL
  • 21.
    ROPE LIGHT L-RL1 2" A-501 1 SIM A-506 2 A-506 3 STAIRWELL KITCHEN A-505 8 SIM 4 A-506 SIM 1/2"SOLID WOOD (2) LAYERS 3/4" PLYWOOD METAL LAMINATE METAL LAMINATE 1/2" SOLID GLASS SHELF 1/4" SOLID GLASS BACK PANEL 1/4" SOLID GLASS CABINET DOORS ROPE LIGHT L-RL2 3 1/2" 1" 3 1/2" STAIRWELL KITCHEN ROUTE OUT RACEWAY FOR BX WIRE 1/2" SOLID GLASS SHELF (ADJUSTABLE HEIGHT) 1/4" SOLID GLASS CABINET DOORS 1/4" SOLID GLASS BACK PANEL 5/8" GYPSUM BOARD Z CLIPS 16" O.C. 1/2" MEDIUM DENSITY FIBERBOARD 3/4" PLYWOOD 3-5/8" METAL TRACK 3-5/8" METAL STUDS @16" O.C. STAIRWELL KITCHEN 1/2" SOLID WOOD (2) LAYERS 3/4" PLYWOOD 1/8" METAL LAMINATE METAL LAMINATE ROPE LIGHT L-RL2 1 3/4" 4" 1 3/4" 3" EXISTING WALL ASSEMBLY 1/4" SOLID GLASS BACK PANEL 1/2" SOLID GLASS SHELF METAL LAMINATE (2) LAYERS 3/4" PLYWOOD 1/2" SOLID WOOD 1/2" THICK GLASS SHELF 1/2" SOLID WOOD UPHOLSTERED HEADBOARD 5 A-506 1" 11" 2' - 2" 2' - 2" 2' - 2" 11" 1" 1" 1/4" 10" 1/4" 10" 1/4" 10" 1/4" 1" 3"2'-9" 3" 8' - 0" 3" 5 A-506 CW-1 DRAWERDRAWER DRAWER DRAWER MATRESS BY OWNER BED FRAME BY OWNER Scale: Consultant Contact Address Phone e-mail ARCHITCTS PLLC 648 Broadway / Suite 402, New York, NY 10012 T.212.254.5210 F.212.254.4523 www.wilkinsonarchitects.com New York: Registered Architect 027917-1 Pennsylvania: Registered Architect 402561 National Council of Architectural Registration Board #52853 DOB Barcode ATOZ Consulting Engineers, PC Ilya Malyuchenko, P.E. 363 7th Avenue 3rd Floor New York, NY 10001 212.929.2491 Ilya@atozengineers.com Consultant Contact Address Phone e-mail NYC Building Restoration Robert M. Hanna, P.E. 9011 Northern Boulevard Suite 307 Jackson Heights, NY 11372 646-522-0589 rhanna@engineer.com MECHANICAL STRUCTURAL As indicated A-506 CASEWORK DETAILS ELAM RESIDENCE 300 EAST 74TH STREET PENTHOUSE-F/36TH FLOOR NEW YORK, NY 10021 04/03/2015 No. Description Date 1" = 1'-0" 1 KITCHEN/STAIRWELL CUSTOM CASEWORK SECTION 6" = 1'-0" 2 KITCHEN/STAIRWELL CUSTOM CASEWORK SECTION - Callout 1 3" = 1'-0" 3 KITCHEN/STAIRWELL CUSTOM CASEWORK SECTION - Callout 2 3" = 1'-0" 4 KITCHEN/STAIRWELL CUSTOM CASEWORK SIDE SECTION DETAIL 1" = 1'-0" 6 Master Bed Front Elevation 1" = 1'-0" 7 Master Bed Back Elevation 3" = 1'-0" 5 Master Bedroom Custom Casework Section
  • 22.
    J-BEAD 1/4" GYPSUM WALLBOARD PLASTER SKIM COAT QUICKSET FASTENERS (ALTERNATING ANGLES @10" O.C.) EXISTING FLOOR SLAB ABOVE 3-5/8" 22 GA METAL TRACK 3-5/8" 22 GA METAL STUDS 3-5/8" 22 GA METAL TRACK 1-1/2" CORSE THREAD COUNTERSUNK SCREWS @10" O.C. FIRE TREATED WOOD BLOCKING BETWEEN STUDS RECESSED LIGHTING FIXTURE L-R1 SOLID WOOD MOLDING 1/2" MDF PAINTED WHITE U/S OF EXISTING UPPER LEVEL FLOOR SLAB 1/4" REVEAL PAINED BLACK 1/2" PLYWOOD EXISTING EXTERIOR WALL SHADE ROLER SHADE COVER PANEL AUTOMATIC ROLER SHADE SOLID WOOD MOLDING 5/8" GYPSUM BOARD PAINTED ROPE LIGHT L-R2 3-5/8" 22GA METAL RUNNERS FIRE TREATED WOOD BLOCKING BETWEEN STUDS PAINTED GYPSUM BOARD QUICKSET FASTENERS @10" O.C. (ALTERNATING ANGLES) 3-5/8" 22GA METAL STUDS U/S OF EXISTING EXPOSED CONCRETE FLOOR SLAB RECESSED LIGHTING FIXTURE L-R2 3" 3" DISTANCE VARIES SCHEDULED ROLLER SHADE POCKET OPENING 1/4" REVEAL PAINTED BLACK CLEAR "U" CHANNEL 1/4" REVEAL PAINTED BLACK DISTANCE VARIES FIRE TREATED WOOD BLOCKING BETWEEN STUDS SOLID WOOD MOLDING 5/8" GYPSUM BOARD PAINTED ROPE LIGHT L-RL2 1/2" MDF PAINTED WHITE QUICKSET FASTENERS (ALTERNATING ANGLES @10" O.C.) 3-5/8" 22 GA METAL TRACK 3-5/8" 22 GA METAL STUDS 3-5/8" 22 GA METAL TRACK FIRE TREATED WOOD BLOCKING BETWEEN METAL STUDS RECESSED LIGHTING FIXTURE L-R2 U/S OF EXISTING UPPER LEVEL FLOOR SLAB QUICKSET FASTENERS @10" O.C. (ALTERNATING ANGLES) 3-5/8" 22 GA METAL TRACK 3-5/8" 22 GA METAL STUDS 3-5/8" 22 GA METAL TRACK FIRE TREATED WOOD BLOCKING BETWEEN METAL STUDS FIRE TREATED WOOD BLOCKING RECESSED LIGHTING FIXTURE L-R5 3/4" SOLID WOOD TRIM 3/4" SOLID WOOD TRIM 1/4" REVEAL PAINTED BLACK Scale: Consultant Contact Address Phone e-mail ARCHITCTS PLLC 648 Broadway / Suite 402, New York, NY 10012 T.212.254.5210 F.212.254.4523 www.wilkinsonarchitects.com New York: Registered Architect 027917-1 Pennsylvania: Registered Architect 402561 National Council of Architectural Registration Board #52853 DOB Barcode ATOZ Consulting Engineers, PC Ilya Malyuchenko, P.E. 363 7th Avenue 3rd Floor New York, NY 10001 212.929.2491 Ilya@atozengineers.com Consultant Contact Address Phone e-mail NYC Building Restoration Robert M. Hanna, P.E. 9011 Northern Boulevard Suite 307 Jackson Heights, NY 11372 646-522-0589 rhanna@engineer.com MECHANICAL STRUCTURAL 6" = 1'-0" A-507 CEILING DETAILS ELAM RESIDENCE 300 EAST 74TH STREET PENTHOUSE-F/36TH FLOOR NEW YORK, NY 10021 04/03/2015 No. Description Date 6" = 1'-0" 2 TYPICAL DROP CEILING DETAIL 6" = 1'-0" 1 SHADE POCKET DETAIL 6" = 1'-0" 3 TYPICAL SOFFIT DETAIL 6" = 1'-0" 4 MASTER BEDROOM DROP CEILING TYPICAL DETAIL
  • 23.
    PLUMBING FIXTURE SCHEDULE DESIGNATIONDESCRIPTION MANUFACTURER LOCATION(S)SERIES PL-1 INTEGRATED STONE SINK WITH OVERFLOW PL-2 PL-5 N/A PL-4 S-AG 38 WALL HUNG TOILET WITH SEAT 1ST FLR: POWDER RM, BATHROOM 2ND FLR: MASTER BATHROOM SHOWER HEAD PL-6 N/APROVIDED BY OWNER 1ST FLR: KITCHEN COUNTERTOPPL-7 N/APL-8 N/A LINEAR SHOWER DRAIN PL-3 PROVIDED BY OWNER PROVIDED BY OWNER SITE BUILT GEBERIT TBD INFINITY DURAVIT DUOFIX 111.728.00.1 STARCK #220109 TBD CNT WALL HUNG TOILET CARRIER WITH ACTIVATOR UNDERMOUNT STAINLESS STEEL KITCHEN SINK SINGLE HOLE DECK MOUNTED MASTER LAV UNDERMOUNT STAINLESS STEEL BAR SINKPL-9 N/APROVIDED BY OWNERFAUCETPL-10 N/APROVIDED BY OWNERFAUCETPL-11 N/APROVIDED BY OWNERFAUCET 2ND FLR: MASTER BATHROOM 2ND FLR: GREENHOUSE 3 3 2 2 1 1 1 1 2 1 1 1ST FLR: POWDER RM, BATHROOM 2ND FLR: MASTER BATHROOM 1ST FLR: POWDER RM 1ST FLR: BATHROOM 2ND FLR: MASTER BATHROOM 1ST FLR: BATHROOM 2ND FLR: MASTER BATHROOM 1ST FLR: POWDER RM, BATHROOM 1ST FLR: KITCHEN 2ND FLR: MASTER BATHROOMPL-12 INTEGRATED CORIAN SINK N/ASITE BUILT1 1ST FLR: BATHROOM VANITY N/APROVIDED BY OWNERFAUCET1 2ND FLR: GREENHOUSEPL-13 Scale: Consultant Contact Address Phone e-mail ARCHITCTS PLLC 648 Broadway / Suite 402, New York, NY 10012 T.212.254.5210 F.212.254.4523 www.wilkinsonarchitects.com New York: Registered Architect 027917-1 Pennsylvania: Registered Architect 402561 National Council of Architectural Registration Board #52853 DOB Barcode ATOZ Consulting Engineers, PC Ilya Malyuchenko, P.E. 363 7th Avenue 3rd Floor New York, NY 10001 212.929.2491 Ilya@atozengineers.com Consultant Contact Address Phone e-mail NYC Building Restoration Robert M. Hanna, P.E. 9011 Northern Boulevard Suite 307 Jackson Heights, NY 11372 646-522-0589 rhanna@engineer.com MECHANICAL STRUCTURAL 1" = 1'-0" A-600 FIXTURE, APPLIANCE, & DOOR SCHEDULES ELAM RESIDENCE 300 EAST 74TH STREET PENTHOUSE-F/36TH FLOOR NEW YORK, NY 10021 04/03/2015 No. Description Date LIGHTING FIXTURE SCHEDULE Desig. Cnt Description Housing / Trim Lamp Manufacturer Product ID Location(s) L-P1 1 PENDANT MOUNTED (OWNER PROVIDED) NA INCANDESCENT 1ST FLR: DINING L-P2 3 PENDANT MOUNTED (OWNER PROVIDED) NA T5 Delray Lighting 6311 2MD FLR: STAIRWELL L-R1 23 LOW VOLTAGE HALOGEN TRIMLESS HALOGEN (12OV, 277V, OR 347V) USAI 9004-10-C-FL100-120 1ST FLR: FOYER/LIVING/DINING SOFFITS L-R2 17 LOW VOLTAGE HALOGEN 4" LOW VOLTAGE REMODEL HOUSING MR16 (12V/50W) WAC LIGHTING HR-8401E 1ST FLR: LIVING/DINING & KITCHEN DROP CEILING L-R3 4 1" LEDme MINI RECESSED ADJUSTABLE SPOT NA / LOW PROFILE TRIM WARM/NEUTRAL LED (3W) WAC LIGHTING HR-LED272R 1ST FLR: POWDER ROOM CEILING L-R4 4 4" LEDme NEW CONSTRUCTION HOUSING / SHOWER TRIM 6 x WARM/NEUTRAL LED (3W) WAC LIGHTING HR-LED418-N 1ST FLR: BATHROOM SHOWER CEILING 2ND FLR: MASTER BATHROOM SHOWER CEILING L-R5 12 3.5" TESLA LED NA / DOWNLIGHT TRIM LUXEON S MULTI-CHIP LED (18W) WAC LIGHTING HR-3LED-T718 2ND FLR: STAIRWELL CEILING, HALL CEILING, MASTER BEDROOM DROP CEILING L-R6 12 1" LEDME MINI RECESSED ADJUSTABLE SPOT NA / LOW PROFILE TRIM WARM/NEUTRAL LED (3W) WAC LIGHTING HR-LED272R 1ST FLR: BEDROOM CLOSET CLG 2ND FLR: W/D CLG, ELEC CLOSET CLG, M. BEDROOM CLOSET CLG L-S1 3 SURFACE MOUNTED (OWNER PROVIDED) 2ND FLR: MASTER BEDROOM DROP CEILING L-S2 7 SURFACE MOUNTED (OWNER PROVIDED) 2ND FLR: GREENHOUSE BAY CEILINGS L-TL1 1 14' LED TRACK LIGHTING (OWNER PROVIDED) 2ND FLR: MASTER BEDROOM CEILING (WEST) L-WM1 2 WALL MOUNTED (OWNER PROVIDED) 1ST FLR: POWDER ROOM (BEHIND MIRROR) L-WM2 2 WALL MOUNTED (OWNER PROVIDED) 1ST FLR: BATHROOM (ABOVE MIRROR) L-WM3 1 WALL MOUNTED (OWNER PROVIDED) 1ST FLR STAIRWELL (WALL MOUNTED ABOVE STAIR PLATFORM) L-WM4 1 WALL MOUNTED (OWNER PROVIDED) 2ND FLR: MASTER BATHROOM (WALL MOUNTED W/ MIRROR SURROUND) L-WM5 1 WALL MOUNTED (OWNER PROVIDED) 2ND FLR: MASTER BEDROOM (WALL MOUNTED) L-WM6 2 WALL MOUNTED (OWNER PROVIDED) 2ND FLR: MASTER BEDROOM (WALL MOUNTED) APPLIANCE SCHEDULE Desig. Description Manufacturer Model Location AP-1 30" ALL GAS RANGE MIELE HR1124 1ST FLR: KITCHEN RANGE WALL AP-2 30" BUILT-IN WALL CABINET HOOD MIELE DA3480 1ST FLR: KITCHEN RANGE WALL AP-3 30" INTEGRATED O&U REFRIGERATOR/FREEZER SUB ZERO IT-30CI 1ST FLR: KITCHEN RANGE WALL AP-4 24" UNDER COUNTER MICROWAVE W/DRAWER JENN AIR JMD2124WS 1ST FLR: KITCHEN FLOATING BASE CABINETS AP-6 24" UNDER COUNTER WINE STORAGE MIELE KWT4154UG-1 1ST FLR: FOYER/LIVING CUSTOM CASEWORK AP-7 24" COMPACT WASHING MACHINE LG WM1355HW 2ND FLR: W/D AP-8 24" COMPACT ELECTRIC CONDENSING DRYER LG DLEC855W/R 2ND FLR: W/D AP-9 27" INTEGRATED WINE STORAGE SUB ZERO 427RG 2ND FLR: GREENHOUSE CUSTOM CASEWORK AP-10 24" UNDERCOUNTER DISHDRAWER DISHWASHER FISHER & PAYKEL DD24SVT7 2ND FLR: GREENHOUSE CUSTOM CASEWORK APPLIANCE & FIXTURE NOTES I. GC TO PROVIDE AND INSTALL ALL APPLIANCES LISTED IN SCHEDULE. II. GC TO PROVIDE ALL SUPPLY AND WASTE PIPING NECESSARY FOR THE INSTALLATION OF ALL PLUMBING FIXTURES AND APPLIANCES AS REQUIRED. DOOR SCHEDULE Mark Description Count Height Width Thickness Finish Frame Type Hardware Location(s) 1 POCKET 1 8' - 0" 2' - 8" 1 1/2" Solid Wood 1ST FLR: POWDER RM 2 TOP HUNG SLIDING 1 7' - 10" 4' - 10 1/2" 2" Solid Wood 1ST FLR: BEDROOM 3 POCKET 1 8' - 0" 2' - 8" 1 1/2" Solid Wood 1ST FLR: BATHROOM 4 TOP HUNG SLIDING 1 7' - 10" 4' - 5 3/4" 2" Solid Wood 2ND FLR: MASTER BEDROOM 5 POCKET 1 8' - 0" 2' - 8" 1 1/2" Solid Wood 2ND FLR: MASTER BATHROOM 6 SINGLE FLUSH SWING RHR 1 6' - 8" 2' - 6" 2" Solid Wood 2ND FLR: GREENHOUSE 7 TEMPERED GLASS OUTSWING 1 7' - 9" 2' - 7" 3/8" Extruded Aluminum Edge 1ST FLR: BATHROOM SHOWER 8 TEMPERED GLASS OUTSWING 1 7' - 8" 2' - 11 1/4" 3/8" Extruded Aluminum Edge 2ND FLR: MASTER BATHROOM SHOWER 9 SKYLINE 1700 TERRACE OUTSWING 1 7' - 11" 3' - 0" 1 3/4" Hollow Metal 2ND FLR: GREENHOUSE/TERRACE C1 RECESSED SINGLE FLUSH (RH) 1 6' - 8" 2' - 6" 2" Recessed Wood 1ST FLR: BEDROOM CLOSET C2 RECESSED SINGLE FLUSH (LH) 1 6' - 8" 2' - 4" 1 1/2" Recessed Wood 2ND FLR: WASHER/DRYER CLOSET C3 RECESSED SINGLE FLUSH (RH) 1 6' - 8" 1' - 10" 1 1/2" Recessed Wood 2ND FLR: ELECTRICAL CLOSET C4 CUSTOM DOUBLE WITH GLASS LITES 3 8' - 0" 3' - 10" 2" Solid Wood 2ND FLR: MASTER BEDROOM CLOSET
  • 24.
    FLOOR FINISH SCHEDULE DESIGNATIONSIZE/MATERIAL FINISH MANUFACTURER LOCATION(S) FF-1 3/8"x12"x24" PORCELAIN FLR TILE MATTE NASCO STONE & TILE SERIES/COLOR FUSSION, DARK ANTHRACITE FF-3 3/8"x6"x24" PORCELAIN FLR TILE MATTE PROVENZAW-AGE, CORTEX NERO FF-5 3/4" VENEERED PLYWOOD FLOOR SATIN CLEAR TBDEAST INDIAN ROSEWOOD 1ST FLR: FOYER, LIVING, DINING, KITCHEN, BEDROOM, BATHROOM FF-6 3/4" SOLID WOOD RUBBED MONOCOAT MATTEWALNUT 1ST FLR: STAIR TREADS, KITCHEN CUSTOM CASEWORK 2ND FLR: MASTER BEDROOM, MASTER BATHROOM, GREENHOUSE 2ND FLR: MASTER BATHROOM & SHOWER FF-2 3/8"x40"x40" PORCELAIN FLR TILE MATTE NASCO STONE & TILEFUSSION, DARK ANTHRACITE 1ST FLR: POWDER RM FF-4 3/8"x6"x36" PORCELAIN WALL TILE MATTE DALTILEACACIA VALLY, ASH 1ST FLR: BATHROOM SHOWER TBD REMARKS FIELD CUT AS NOTED IN PLAN WALL FINISH SCHEDULE DESIGNATION SIZE/MATERIAL FINISH MANUFACTURER LOCATION(S)SERIES/COLOR WF-1 1/2"x36"x144" CORIAN SHEET FACTORY DUPONTSOLID SURFACE, GLACIER WHITE 1ST FLR: BATHROOM 2ND FLR: MASTER BATHROOM WF-2 3/8"x6"x36" PORCELAIN WALL TILE MATTE DALTILEACACIA VALLY, ASH 1ST FLR: BATHROOM WC-1 DYED SILK DEGOURNAYDECORATIVE WALL COVERING KOREAN PEONY P-3 MATTE BENJAMIN MOOREWATER BASED PAINT TBD P-4 MATTETBD WF-4 SATIN CLEAR TBD1/2" VENEERED PLYWOOD EAST INDIAN ROSEWOOD 1ST FLR: POWDER RM 2ND FLR: MASTER BATHROOM 1st Flr: TBD 2nd Flr: TBD MR-1 GLASS TBDWALL MTD MIRROR SURFACE N/A BENJAMIN MOOREWATER BASED PAINT 1st Flr: TBD 2nd Flr: TBD WC-2 MATTE DEGOURNAYPAPER WALL COVERING ROYAL RED 1ST FLR: FOYER 1ST FLR: POWDER RM, BATHROOM 2ND FLR: MASTER BATHROOM 3/8"x40"x40" PORCELAIN WALL TILE MATTE NASCO STONE & TILEFUSSION, DARK ANTHRACITE 1ST FLR: POWDER RM WF-3 P-1 MATTE BENJAMIN MOOREWATER BASED PAINT TBD P-2 MATTETBD 1st Flr: TBD 2nd Flr: TBD BENJAMIN MOOREWATER BASED PAINT 1st Flr: TBD 2nd Flr: TBD REMARKS PROVIDED BY OWNER1ST FLR: POWDER RM PROVIDED BY OWNER PROVIDED (3) SAMPLES PROVIDED (3) SAMPLES PROVIDED (3) SAMPLES PROVIDED (3) SAMPLES WB-1 MATTETBD TBDWOOD WALL BASE 2nd Flr: GREENHOUSE WF-5 SATIN CLEAR TBD1/2" VANEERED MDF QUARTER SAWN WALNUT 1ST FLR: FOYER CASEWORK FINISH SCHEDULE DESIGNATION SIZE/MATERIAL FINISH MANUFACTURER LOCATION(S)SERIES/COLOR CT-1 3/4"x36"x144" CORIAN SHEET FACTORY DUPONTSOLID SURFACE, GLACIER WHITE 1ST FLR: BATHROOM VANITY C-TOP 2ND FLR: MASTER BATH VANITY C-TOPCT-2 CW-2 GLOSSY TBD CW-1 LACQUERED TBD 1ST FLR: KITCHEN/STAIRWELL CUSTOM CASEWORK 3/4" SOLID WOOD WALNUT 1-1/8" SOLID GRANITE HONED SMC STONEABSOLUTE BLACK 1ST FLR: KITCHEN COUNTERTOP 3/4" VENEERED MDF DECORATOR WHITE CW-3 SATIN CLEAR TBD1/4" VENEERED PLYWOOD EAST INDIAN ROSEWOOD 2ND FLR: MASTER BATHROOM VANITY 1ST FLR: KITCHEN BASE CABINETS SS-1 BRUSHED TBD1/2" STEEL LAMINATED WOOD STAINLESS STEEL 1ST FLR: KITCHEN RANGE, ADJACENT UPPER/LOWER CASEWORK & C-TOP GL-1 CLEAR TBD1/2" THICK GLASS N/A 1ST FLR: KITCHEN/STAIRWELL CUSTOM WALL HUNG CABINET/SHELVING 1-1/8" SOLID STONE HONED DUPONTJET MIST 1ST FLR: POWDER RM VANITY COUNTERTOPCT-3 REMARKS EASED EDGE. RECIEVES (2) COATS OF SEALER RECIEVES (2) COATS OF SEALER CW-4 SATIN CLEAR TBD1/2" VENEERED MDF QUARTER SAWN WALNUT 1ST FLR: FOYER, BEDROOM SOLID WOOD EDGING CW-5 SATIN CLEAR TBD1/2" SPRAY LAQUERED MDF TBD 1ST FLR: LIV/DINING & BDRM PTAC ENCLSR 2ND FLR: M.BDRM PTAC ENCLSR CT-4 3/4"x36"x144" CORIAN SHEET FACTORY DUPONTSOLID SURFACE, TBD 1ST FLR: LIV/DINING & BDRM PTAC ENCLSR 2ND FLR: M.BDRM PTAC ENCLSR CT-5 3/4" VENEERED MDF FACTORY TBDTBD 1ST FLR: BEDROOM ENTERTAINMENT CENTER COUNTERTOP & OFFICE DESKTOP CEILING FINISH SCHEDULE DESIGNATION SIZE/MATERIAL FINISH MANUFACTURER LOCATION(S)SERIES/COLOR CF-1 VENETIAN PLASTER FACTORY DUPONTWHITE 1ST FLR: LIVING/DINING & KITCHEN DRP CLG 2ND FLR: MASTER BED DRP CLG CF-2 5/8" GYPSUM BOARD MATTE TBDWHITE 1ST FLR: LIVING/DINING, FOYER, & BEDROOM SOFFITS CF-5 CF-4 SATIN CLEAR TBD1/2" VENEERED PLYWOOD EAST INDIAN ROSEWOOD 1ST FLR: FOYER/LIVING/DINING/KITCHEN SOFFIT COVE 5/8" MOISTURE RESISTANT GWB MATTE TBDWHITE 1ST FLR: BATHROOM, POWDER RM 2ND FLR: MASTER BATHROOM CF-3 3/8"x6"x36" PORCELAIN TILE MATTE DALTILEACACIA VALLY, ASH 1ST FLR: BATHROOM SHOWER CF-6 3/4" MEDIUM DENSITY FIBERBOARD MATTE TBDWHITE 2ND FLR: GREENHOUSE BAY CIELINGS REMARKS NOTCH AROUND ROOF BEAM FLANGE MOUNT ON MOISTURE RESISTANT BACKERBOARD Scale: Consultant Contact Address Phone e-mail ARCHITCTS PLLC 648 Broadway / Suite 402, New York, NY 10012 T.212.254.5210 F.212.254.4523 www.wilkinsonarchitects.com New York: Registered Architect 027917-1 Pennsylvania: Registered Architect 402561 National Council of Architectural Registration Board #52853 DOB Barcode ATOZ Consulting Engineers, PC Ilya Malyuchenko, P.E. 363 7th Avenue 3rd Floor New York, NY 10001 212.929.2491 Ilya@atozengineers.com Consultant Contact Address Phone e-mail NYC Building Restoration Robert M. Hanna, P.E. 9011 Northern Boulevard Suite 307 Jackson Heights, NY 11372 646-522-0589 rhanna@engineer.com MECHANICAL STRUCTURAL 1" = 1'-0" A-601 FINISH SCHEDULES ELAM RESIDENCE 300 EAST 74TH STREET PENTHOUSE-F/36TH FLOOR NEW YORK, NY 10021 04/03/2015 No. Description Date FINISH NOTES I. GC TO PROVIDE SUBMITTALS FOR ALL FINISHES TO BE APPROVED BY OWNER/ARCHITECT II. ALL STONE TO RECIEVE (2) COATS SEALER
  • 25.
    GFI GFI GFI GFIGFI GFI TV TD GFI GFI GFI TV TD R UP REF. RANGE HOOD U.C. MICROWAVEGFI U.C. REF. GFI GFI MOTORIZED SHADE (ATCEILING) MOTORIZEDWINDOW SHADE(CEILING) U.C. D/W FCU-1 I MOTORIZED WINDOW SHADE (CEILING) MOTORIZED WINDOW SHADE (CEILING) DN MOTORIZED SHADE (AT CEILING) W D GFI UP 1 Riser A B 1 I WP WP I SINGLE WALL MOUNTED RECEPTACLE SYMBOL DESCRIPTION ELECTRICAL RECEPTACLE LEGEND DUPLEX WALL MOUNTED RECEPTACLE GFI DUPLEX WALL MOUNTED RECEPTACLE 240V WALL MOUNTED RECEPTACLE CATV WALL MOUNTED RECEPTACLE TELE/DATA WALL MOUNTED RECEPTACLE INTERCOM SERVICE WATERPROOF DUPLEX WALL MOUNTED RECEPTACLEWP Scale: Consultant Contact Address Phone e-mail ARCHITCTS PLLC 648 Broadway / Suite 402, New York, NY 10012 T.212.254.5210 F.212.254.4523 www.wilkinsonarchitects.com New York: Registered Architect 027917-1 Pennsylvania: Registered Architect 402561 National Council of Architectural Registration Board #52853 DOB Barcode ATOZ Consulting Engineers, PC Ilya Malyuchenko, P.E. 363 7th Avenue 3rd Floor New York, NY 10001 212.929.2491 Ilya@atozengineers.com Consultant Contact Address Phone e-mail NYC Building Restoration Robert M. Hanna, P.E. 9011 Northern Boulevard Suite 307 Jackson Heights, NY 11372 646-522-0589 rhanna@engineer.com MECHANICAL STRUCTURAL 1/4" = 1'-0" E-101 POWER PLANS ELAM RESIDENCE 300 EAST 74TH STREET PENTHOUSE-F/36TH FLOOR NEW YORK, NY 10021 04/03/2015 1/4" = 1'-0" 1 Penthouse F - 36th Floor - Main Level Power Plan 1/4" = 1'-0" 2 Penthouse F - Upper Level Power Plan ALL ELECTRICAL OUTLETS, FIXTURES, AND RELATED ITEMS BEING INSTALLED IN PUBLIC/PARTY/CHASE WALLS AND/OR CEILINGS MUST BE INSTALLED WITH SOUNDPROOF HOUSINGS AND/OR GASKETING. GENERAL ELECTRICAL NOTES No. Description Date
  • 26.
    DN UP GAS GAS GAS GASGASGASGASGASGAS UP 1Riser C.O. A B 1 NEW WASTE LINE PLUMBING LEGEND NEW VENT LINE NEW GAS LINE NEW CLEAN OUT WASTE RISER GAS GAS C.O. VENT RISER RISER SHUTOFF BRANCH SHUTOFF Scale: Consultant Contact Address Phone e-mail ARCHITCTS PLLC 648 Broadway / Suite 402, New York, NY 10012 T.212.254.5210 F.212.254.4523 www.wilkinsonarchitects.com New York: Registered Architect 027917-1 Pennsylvania: Registered Architect 402561 National Council of Architectural Registration Board #52853 DOB Barcode ATOZ Consulting Engineers, PC Ilya Malyuchenko, P.E. 363 7th Avenue 3rd Floor New York, NY 10001 212.929.2491 Ilya@atozengineers.com Consultant Contact Address Phone e-mail NYC Building Restoration Robert M. Hanna, P.E. 9011 Northern Boulevard Suite 307 Jackson Heights, NY 11372 646-522-0589 rhanna@engineer.com MECHANICAL STRUCTURAL 1/4" = 1'-0" P-101 PLUMBING PLANS ELAM RESIDENCE 300 EAST 74TH STREET PENTHOUSE-F/36TH FLOOR NEW YORK, NY 10021 04/03/2015 1/4" = 1'-0" 1 Penthouse F - 36th Floor - Main Level Plumbing Plan 1/4" = 1'-0" 2 Penthouse F - Upper Level Plumbing Plan EXISTING VENT STACK (VERIFY IN FIELD) EXISTING WASTE STACK (VERIFY IN FIELD) EXISTING WASTE STACK (VERIFY IN FIELD) EXISTING 6" VENT STACK (VERIFY IN FIELD) EXISTING 4" WASTE STACK (VERIFY IN FIELD) EXISTING 4" VENT TO ROOF (VERIFY IN FIELD) W/D EXISTING RISER SHUTOFF (VERIFY IN FIELD) NEW FIXTURE SHUTOFF (ACCESS INSIDE B.C.) No. Description Date