(E) 1-STORY S.F.D.
1,346 SQ. FT.
NEW 2 CAR
GARAGE
(E) DRIVEWAY
PROPOSED
ADDITION
350 SQ. FT.
DEMOLISH
36 SQ. FT.
462 SQ. FT.
50'-0"
135'-6"
135'-6"
50'-0"
CONVERT
146 SQ. FT.
(E)GARAGE
TO BATH
46'-1"
7'-6"
5'-0"
10'-0"
5'-0"
11'-6"
4'-0"
8'-0" 2'-0"
18'-3"
2'-0"
23'-4"
15'-0"22'-0"
22'-0"
21'-0"
22'-0"
21'-0"
3'-0"
3'-0"
36'-5"
10'-0"3'-0"
24'-0"
(E) UTILITY POLE
5806 TODD AVE.
2%
SLOPE
2%
SLOPE
2%
SLOPE
2%
SLOPE
2%
SLOPE
2%
SLOPE2%
SLOPE
2%
SLOPE
2%
SLOPE
2%
SLOPE
2%
SLOPE
(N) DRIVEWAY
(N) DRIVEWAY
LEGEND
NEW CONSTRUCTION
EXISTING STRUCTURE
DEMOLISH
50 SQ. FT.
(N) PORCH
FONT YARD
BACK YARD
25'-0"
2%
SLOPE
2%
SLOPE
8'-0"
FIN. CEILING
FIN. FLOOR
12'-11"
TOP OF RIDGE
12
4
STUCCO FINISH
TO MATCH EXISTING
STUCCO FINISH
TO MATCH EXISTING
COMP. ROOF SHINGLE
CLASS 'B' OR BETTER
TO MATCH EXISTING
COMP. ROOF SHINGLE
CLASS 'B' OR BETTER
TO MATCH EXISTING
ROOF OVERHANG
LOCATED WITH IN 2' OF P.L
SHALL BE 1 HR FIRE RATED
STUCCO FINISH
TO MATCH EXISTING
COMP. ROOF SHINGLE
CLASS 'B' OR BETTER
TO MATCH EXISTING
12
4
24"x12"TYP. HALF
ROUND DORMER VENT
8'-6"
FIN. CEILING
FIN. FLOOR
STUCCO FINISH
TO MATCH EXISTING
12
4
18"x14"
VENT
12'-7"
TOP OF RIDGE
12
3
18"x14"
VENT
COMP. ROOF SHINGLE
CLASS 'B' OR BETTER
TO MATCH EXISTING
11'-3"
8'-0"
FIN. FLOOR
FIN. CEILING
TOP OF RIDGE
STUCCO FINISH
TO MATCH EXISTING
1 3/2015 S.L
PROJECT DESCRIPTION
LYNWOOD, CA. 90262
PROJECT DIRECTORY
PROPERTY
TABLE OF CONTENTS
CONTENTSSHEET
1
PLOT PLAN
STEVEN LOPEZ
OWNER:
ELEVATION
AREA SUMMARY
(E) S.F.D. 1,346 SQ. FT.
(E) GARAGE 182 SQ. FT.
TOTAL FLOOR AREA = 1,842 sq.ft.
1. 350 sq.ft. 1-STORY ADDITION OF MASTER BEDROOM W/ WALK
IN CLOSET.
2. 36 sq.ft. DEMOLITION OF EXIST 1-CAR GARAGE.
3. 146 sq.ft. OF EXISTING 1-CAR GARAGE CONVERTED
TO MASTER BATHROOM.
4. 50 sq.ft. OF NEW PORCH.
5. 462 sq.ft. 2-CAR GARAGE
6. DEMO OF EXISTING BEDROOM TO CONVERT INTO LIVING
ROOM
F.A.R. =
LOT COV. AREA =
LOT COVERAGE =
1. PLOT PLAN  ELEVATIONS
ADDITION 350 SQ. FT.
TOTAL FLOOR AREA = C + D + E = 1,346 + 350 + 146
C + D + E
A
=
6,775
= 0.27 ( 27% )
B + C + D + E + F
= 1,346 + 146 + 350 + 50 + 462 = 2,354 sq.ft.
A
2,354
6,775
= =
NEW PORCH 50 SQ. FT.
B + C + D + E + F
2. FLOOR PLANS  DEMO PLAN
AS NOTED
1,842
LOPEZ S.
APN:6356-015-032
01/07/15
-
5806TODDAVE.
COMMERCECA.90040
(323)350-9234
-
TRACT:12751
LOT:33
LEGALDESCRIPTION
BLOCK:-
SERGIO MAGO A
5806 TODD AVE.
COMMERCE CA. 90040
(323)350-9234
GARAGE CONVERSION 146 SQ. FT.
GARAGE DEMO 36 SQ. FT.
NEW 2-CAR GARAGE 462 SQ. FT.
0.34 ( 34% )
WEST ELEVATION
3/16" = 1'-0"
EAST ELEVATION
3/16" = 1'-0"
SOUTH ELEVATION
3/16" = 1'-0"
NORTH ELEVATION
3/16" = 1'-0"
WEST ELEVATION
3/16" = 1'-0"
SOUT ELEVATION
3/16" = 1'-0"
EAST ELEVATION
3/16" = 1'-0"
FOUNDATION PLANS
FRAMING PLANS
DETAILS
SECTIONS
CODES
1. ALL WORK SHALL COMPLY WITH THE FOLLOWING:
2013 CALIFORNIA BUILDING CODE
2013 CALIFORNIA RESIDENTIAL CODE
2013 CALIFORNIA MECHANICAL CODE
2013 CALIFORNIA PLUMBING CODE
2013 CALIFORNIA ELECTRICAL CODE
2013 CALIFORNIA ENERGY CODE
2013 CALIFORNIA GREEN BUILDING CODE
2008 CALIFORNIA ENERGY EFFICIENT STANDARDS
3.
4.
5.
6.
NORTH ELEVATION
3/16" = 1'-0"
BEST MANAGEMENT PRACTICES
ERODED SEDIMENTS AND OTHER POLLUTANTS MUST BE RETAINED ON
SITE AND MAY NOT BE TRANSPORTED FROM SITE VIA SHEETFLOW,
SWALES, AREA DRAIN, NATURAL DRAINAGE COURSES OR WIND.
STOCKPILES OF EARTH AND OTHER CONSTRUCTION RELATED MATERIALS
MUST BE PROTECTED FROM BEING TRANSPORTED FROM THE SITE BY THE
FORCES OF WIND OR WATER.
FUELS, SOILS, SOLVENTS AND OTHER TOXIC MATERIALS MUST BE STORED
IN ACCORDANCE WITH THEIR LISTING AND ARE ARE NOT TO CONTAMINATE
THE SOIL AND SURFACE WATERS. ALL APPROVED STORAGE CONTAINERS
ARE TO BE PROTECTED FROM THE WEATHER. SPILLS MUST BE CLEANED
UP IMMEDIATELY AND DISPOSED OF IN A PROPER MANNER. SPILLS MAY
NOT BE WASHED INTO THE DRAINAGE SYSTEM..
NON-STORMWATER RUNOFF FROM EQUIPMENT AND VEHICLE WASHING
AND ANY OTHER ACTIVITY SHALL BE CONTAINED AT THE PROJECT SITE.
EXCESS OR WASTE CONCRETE MAY NOT BE WASHED INTO THE PUBLIC
WAY OR ANY OTHER DRAINAGE SYSTEM. PROVISIONS SHALL BE MADE TO
RETAIN CONCRETE WASTES ON SITE UNTIL THEY CAN BE DISPOSED OF AS
SOLID WASTE.
TRASH AND CONSTRUCTION RELATED SOLID WASTE MUST BE DEPOSITED
INTO A COVERED RECEPTACLE TO PREVENT CONTAMINATION OF
RAINWATER AND DISPERSAL BY WIND.
SEDIMENTS AND OTHER MATERIALS MAY NOT BE TRACKED FROM THE SITE
BY VEHICLE TRAFFIC. THE CONSTRUCTION ENTRANCE ROADWAYS MUST
BE STABILIZED SO AS TO INHIBIT SEDIMENTS FROM BEING DEPOSITED INTO
THE PUBLIC WAY. ACCIDENTAL DEPOSITIONS MUST BE SWEPT UP
IMMEDIATELY AND MAY NOT BE WASHED DOWN BY RAIN OR OTHER MEANS.
ANY SLOPES WITH DISTURBED SOILS OR DENUDED OF VEGETATION MUST
BE STABILIZED SO AS TO NHIBIT EROSION BY WIND AND WATER.
AS THE PROJECT OWNER OR AUTHORIZED AGENT OF THE OWNER, I HAVE READ
AND UNDERSTAND THE REQUIREMENTS LISTED ABOVE, NECESSARY TO
CONTROL WATER POLLUTION FROM SEDIMENTS, EROSION, AND CONSTRUCTION
MATERIALS, AND I CERTIFY THAT I WILL COMPLY WITH THESE REQUIREMENTS.
PRINT NAME
SIGNATURE DATE
(OWNER OR AUTHORIZED AGENT OF THE OWNER)
(OWNER OR AUTHORIZED AGENT OF THE OWNER)
10963 CORNISH AVE.
(310)594-1980
1
1
TITLE-247.
ENGINEER:
DRAFTING:
PERFECT DESIGN & ENGINEERING
2416 W. VALLEY BLVD.
T-24:
ALHAMBRA, CA. 91803
(626)289-8808
(N)LIVING ROOM
(N)MASTER BEDROOM
(E)LAUND.
(E)BEDROOM 1
(E)BATH
(E)BEDROOM 2
(E)DEN
W.I.C.
36"MIN.
24"MIN
SD
SD
SD
SD
(N) PORCH
1
2
2
2
3
C
A
B
B
C
30" MIN
GFCI
(E)KITCHEN
(N)DINING ROOM
UP
7'-4" 7'-8"
15'-0"
5'-6"10'-0"7'-10"6'-11"11'-4"
23'-4"18'-3"
41'-7"
3'-0"
2'-6" 2'-2" 3'-4"
8'-0"
11'-6"10'-0"7'-6"
29'-0"
37'-0"
(N)MASTER
BATH
1
2
3
4 5
6
7
2
4
4
5
MS
TEMP.
GLASS
46'-1"
22'-0"
GFCI
W/P
F
ATTIC
(E)30"x30
ACCESS
CM
6'-0"
W/H
(E) WALL HEATER
ATTIC
(N)30"x30
ACCESS
12'-0"
1'-8"
4"DIA.DRYERDUCTW/2ELBOWS
ANDBACK-DRAFTDAMPER
HE
HE
MS
AFCI
AFCI
AFCI
AFCI
AFCI
NOTE 15
NOTE 15 NOTE 15
NOTE 15
AFCI
NOTE 15
STRAPPED TO WALL W/
2-SEISMIC STRAPS
CONC. PAD 3"
ABOVE GRADE
1"
6"
1-CAR GARAGE
KITCHEN
BEDROOM 1
LAUND.
BEDROOM 2
BATH
BEDROOM 3
DEN
BATH
LIVING / DINING ROOM UP
C
6
7
21'-0"
22'-0"
7'-8"6'-4"4'-0"
21'-0"
11'-0" 11'-0"
22'-0"
2-CAR GARAGE
MS MS
5/8" TYPE "X"
GYPSUM BOARD
1 HR FIRE RATED
HE
3'-0" MIN
3'-0"
GFCI
W/P
1 3/2015 S.L
2
FLOOR PLAN
DEMO PLAN
AS NOTED
LOPEZ S.
APN:6356-015-032
01/07/15
-
5806TODDAVE.
COMMERCECA.90040
(323)350-9234
-
TRACT:12751
LOT:33
LEGALDESCRIPTION
BLOCK:-
WINDOW SYMBOL
DOOR SYMBOL
(P)
PAGE NUMBER
SECTION NUMBER
PAGE NUMBER
DETAIL NUMBER
1
A
A
1
(E)
DUPLEX OUTLET
GROUND FAULT
DUPLEX OUTLET ON
PROPOSED
KEY NOTES
GFCI
SINGLE POLE LIGHT SWITCH
W/ BATTERY BACKUP
SMOKE DETECTOR, HARDWIRED
PROPOSED WALL 2x4 STUD
EXISTING WALL
EXISTING SD
EXHAUST FAN W/
50 CFM
HIGH EFFICIENCY
DOWN LIGHT
SINGLE POLE LIGHT SWITCH
HE
WITH DIMMER
EXISTING WALL REMOVED
RECESSED LIGHT
PHOTO CONTROLLED MOTIONPM
SENSOR, OR HIGH EFFICACY
LUMINAIR.
FAULT CIRCUIT INTERRUPTER
DUPLEX OUTLET ON ARC
AFCI
HARDWIRED
CARBON MONOXIDECM
LEGEND
(N) NEW
LIGHT
DOOR SCHEDULE
1
SYM SIZE NOTE
2
SYMBOL:
#
TYPE
ENTRY DOOR W/ SIDE LIGHTS
2'-8" x 6'-8" HOLLOW CORE
3
5'-0" x 6'-8"
4
5
6
SLIDING DOOR
A
SYM
6'-0" x 4'-0"
SIZE NOTE
B
SYMBOL:
TYPE
3'-0" x 1'-0" VINYL SLIDING
3'-0" x 4'-0" VINYL HUNGC
3'-0" x 3'-0" VINYL SLIDINGD
VINYL SLIDINGE 3'-0" x 1'-6"
TEMPERED GLASS
VINYL DOUBLE SLIDING
WINDOW SCHEDULE#
5'-0" x 6'-8"
#
KEY NOTES
1. ENCLOSE EXISTING ENTRY DOOR
2'-8" x 6'-8" HOLLOW CORE EXISTING
3'-0" x 6'-8" SOLID CORE EXISTING
MS MOTION SENSOR
W/PHOTOCONTROL
FLOOR PLAN
1/4" = 1'-0"
EXISTING / DEMO PLAN
1/4" = 1'-0"
GARAGE FLOOR PLAN
1/4" = 1'-0"
SOLID CORE
7 GARAGE DOOR
3'-0" x 6'-8"
16'-0" x 7'-0"
2. EXISTING WINDOW OPENING TO BE USED AS NEW ENTRY DOOR
3. EXPAND EXISTING WINDOW FROM 3'X4' TO 6'X4' WINDOW
4. ENCLOSE 3'X3' WINDOW
5. ENCLOSE 3'-0" EXIT DOOR.
6. ENCLOSE EXISTING DOOR OPENING
7. NEW DOOR OPENING.
GARAGE PLAN
1. SHOWER WALLS MUST BE FINISHED TO A HEIGHT OF 70" ABOVE DRAIN
WITH MOISTURE RESISTIVE TILE OR APPROVED EQUAL. APPROVED
SHATTER RESISTANT MATERIALS FOR SHOWER ENCLOSURE.
2. WATER HEATER MUST BE STRAPPED TO WALL
3. AN APPROVED SEISMIC SHUT OFF VALVE WILL BE INSTALLED ON THE
FUEL GAS LINE ON THE DOWN STREAM SIDE OF THE UTILITY METER
AND BE RIGIDLY CONNECTED TO THE EXTERIOR OF THE BUILDING OR
STRUCTURE CONTAINING THE FUEL GAS LINE.
4. PROVIDE ULTRA FLUSH WATER CLOSETS FOR ALL NEW
CONSTRUCTION. EXISTING SHOWER HEADS AND WATER CLOSETS
MUST BE ADAPTED FOR LOW WATER CONSUMPTION.
5. THE EFFECTIVE FLUSH VOLUME OF ALL WATER CLOSETS SHALL NOT
EXCEED 1.28 gpf. URINALS SHALL BE 0.5 gpf MAXIMUM.
6. SINGLE SHOWER HEADS SHALL HAVE A MAXIMUM FLOW RATE OR 2.0
gpm AT 80 psi. MULTIPLE SHOWER HEADS SERVING ONE SHOWER
SHALL HAVE A COMBINED FLOW RATE OF 2.0 gpm AT 80 psi, OR
SHOWER SHALL BE DESIGNED TO ALLOW ONLY ONE SHOWER OUTLET
TO BE IN OPERATION AT A TIME.
7. LAVATORY FAUCETS SHALL NOT EXCEED 1.5gpm AT 60psi THE
MINIMUM FLOW RATE SHALL NOT BE LESS THAN 0.8gpm AT 20psi
8. ALL SHOWERS AND TUB-SHOWERS SHALL HAVE A PRESSURE
BALANCE, THERMOSTATIC MIXING VALVE, OR A COMBINATION
PRESSURE BALANCE/THERMOSTATIC MIXING VALVE
9. KITCHEN FAUCETS SHALL NOT EXCEED 1.8 gpm AT 60 psi. THE FAUCET
MAY TEMPORARILY INCREASE TO ABOVE THE RATE, BUT NOT EXCEED
2.2 gpm AT 60 psi AND MUST DEFAULT TO THE MAXIMUM FLOW RATE
OF 1.8 gpm AT 60 psi.
10. ALL PLUMBING FIXTURES SHALL BE REPLACED PER SB407.
11. BEDROOM OUTLETS TO BE AFCI.
12. BATHROOM RECEPTACLES TO BE DEDICATED 20 AMP GFCI CIRCUITS
13. GROUND FAULT CIRCUIT INTERRUPTION (GFCI) FOR PERSONNEL
SHALL BE PROVIDED PER EC SECTION 210.8(A) AND INSTALLED IN A
READILY ACCESSIBLE LOCATION.
14. ARC FAULT CIRCUIT INTERRUPTION SHALL BE INSTALLED TO PROVIDE
PROTECTION OF THE BRANCH CIRCUIT
15. TAMPER RESISTANT RECEPTACLES SHALL BE INSTALLED IN ALL
AREAS SPECIFIED IN (210.52), ALL NONLOCKING TYPE 12 VOLT, 15
AND 20 AMPERE RECEPTACLES SHALL BE LISTED TAMPER RESISTANT
16. SMOKE DETECTORS TO BE HARDWIRED WITH BATTERY BACK UP.
17. THE CONSTRUCTION SHALL NOT RESTRICT A FIVE FOOT CLEAR AND
UNOBSTRUCTED ACCESS TO ANY WATER OR POWER DISTRIBUTION
FACILITIES (POWER POLES, PULL BOXES, TRANSFORMERS, VAULTS,
PUMPS, VALVES, METERS, APPURTENACES, ETC.) OR TO THE TEN
FEET OF ANY POWER LINES WHETHER OR NOT THE LINES ARE
LOCATED ON THE PROPERTY. FAILURE TO COMPLY MAY CAUSE
CONSTRCUTION DELAYS AND OR ADDITIONAL EXPENSES.
GENERAL NOTES
1. FOR KITCHEN LIGHTING, 50% OF ALL WATTAGE MUST BE EFFICACY
(E.G. FLOURECENT). THE HIGH EFFICACY FIXTURES AND NON-HIGH
EFFICACY FIXTURES HAVE TO BE SWITCHED SEPERATELY . ANY
AREAS ADJACENT TO THE KITCHEN ON THE SAME LIGHT SWITCH ARE
CONSIDERED PART OF THE KITCHEN. THIS MUST BE DOCUMENTED IN
THE REPORT THAT IS SUBMITTED TO THE BUILDING DEPARTMENT.
2. LIGHTING IN BATHROOMS, GARAGES, LAUNDRY ROOMS, AND/ OR
UTILITY ROOMS MUST BE HIGH EFFICACY OR MJST BE CONTROLLED
BY A MANUAL- ON OCCUPANCY SENSOR. A MANUAL- ON OCCUPANCY
SENSOR MUST BE MANUALLY TURNED ON AND AS LONG AS THE
SENSOR DETECTS MOVEMENT STAYS ON. WHEN MOVEMENT IS NOT
DETECTED, WHICH CANNOT BE LONGER THAN 30 MIN. THE FIXTURE
AUTOMATICALLY TURNS OFF. A BATHROOM IS DEFINED AS A ROOM
CONTAINING A SHOWER, TUB, TOILET, OR SINK THAT IS USED FOR
PERSONAL HYGENE. SO THIS WOULD INCLUDE A VANITY SINK IN A
DRESSING AREA OR PERHAPS EVEN IN THE BEDROOM, WHICH WOULD
REQUIRE A HIGH EFFICACY LIGHT SERVING THAT SPECIFIC AREA.
3. ALL PERMANENTLY INSTALLED LIGHTING IN OTHER ROOMS,
INCLUDING HALLWAYS, DINING ROOMS, BEDROOMS, FAMILY ROOMS,
MUST BE HIGH EFFICACY LIGHT SERVICES OR CONTROLLED BY A
MANUAL-ON OCCUPANCY SENSOR, OR A DIMMER. THE MANUAL-ON
OCCUPANCY SENSORS ARE BEING MANUFACTURER AND ARE
AVAILABLE. THE EXCEPTION IS A CLOSET UNDER 70 SQUARE FEET,
AND HALF HOT OUTLES FOR LAMPS.
4. RECESSED LIGHTS ARE TO BE INSTALLED IN AN INSULATED CEILING
OR CAVITY ARE REQUIRED TO HAVE A ZERO CLEARANCE INSULATION
COVER (IC): BE CERTIFIED THAT THEY ARE AIR TIGHT : AND SEALED
WITH A GASKET OR CAULK BETWEEN THE HOUSING AND THE CEILING.
5. OUTDOOR LIGHTING THAT IS ATTACHED TO A BUILDING MUST BE
HIGHT EFFICACY, OR CONTROLLED BY A MOTION SENSOR WITH AN
INTEGRAL PHOTOCONTROL. LIGHTING AROUND SWIMMING POOL S,
WATER FEATURES, OR OTHER LOCATIONS SUBJECT TO ARTICLE 680
OF THE CALIFORNIA ELECTRIC CODE ARE EXEMPT.
ENERGY NOTES
VINYL HUNGF 2'-6" x 4'-0" EXISTING
= .97 SQ.FT.150
1
196 X
146 SQ.FT. NEW ATTIC AREA
(SQ.FT.) 1.2
0.00
AREAQTY.FREE AIRITEM
24 X 12 HALF ROUND DORMER .9
14 X 18 SQUARE GABLE VENT .8 1 0.8
14 X 6 EAVE VEMT .4 1 0.4
AREA (SQ.FT.) (SQ.FT.)
TOTAL
ATTIC VENTILATION
= 2.40 SQ.FT.150
1
360 X
360 SQ.FT. NEW ATTIC AREA
(SQ.FT.) 2.6
1.82
AREAQTY.FREE AIRITEM
24 X 12 HALF ROUND DORMER .9
14 X 18 SQUARE GABLE VENT .8 1 0.8
14 X 6 EAVE VEMT .4 0 0.0
AREA (SQ.FT.) (SQ.FT.)
TOTAL
1
1
1
1
1
1
MASTER BEDROOM
ATTIC VENTILATION
MASTER BATH
1
4" CONC. SLAB
#4 @ 16" EA. WAY O.C.
2" SAND BED TOP & BOTTOM,
6 MIL VAPOR BARRIER
EXISTING
SLAB
FOUNDATION
EXISTING
RAISED
FOUNDATION
EXISTING
SLAB
FOUNDATION
16"x16"
CONC. PAD
16"x16"
CONC. PAD
4" CONC. SLAB
6x6-10/10 WWM
2" SAND BED,
6 MIL VAPOR BARRIER
B
5
B
5
B
5
C
5
H
5
G
5
G
5
D
5
L=4' L=4'
L=4'L=4'L=8'L=8'
L=8'
L=4'L=8'
L=4'
#4 TO & BOTTOM
6" EMBEDMENT W/
SIMPSON SET EPOXY
A
5
#4 TO & BOTTOM
6" EMBEDMENT W/
SIMPSON SET EPOXY
A
5
#4 TO & BOTTOM
6" EMBEDMENT W/
SIMPSON SET EPOXY
A
5
L=8'
E
5
F
5
F
5
X
6
X
6
Z
6
Z
6
W
6
W
6
K
5
#4 TO & BOTTOM
SIMPSON SET EPOXY
6" EMBEDMENT W/
#4 @ 16" O.C.
BENT 2' INTO SLAB
1' INTO FOOTING
L=6'L=4'
16"x16"
CONC. PAD
M
5
A
5
4" CONC. SLAB
#4 @ 16" EA. WAY O.C.
2" SAND BED TOP & BOTTOM,
6 MIL VAPOR BARRIER
I
5
I
5
I
5
J
5
L=8' L=8'
L=4'L=4'L=4'
L=4'L=8'
L=3'L=3'
Y
6
Y
6
2-2x4 POST
W/ HDU-2
2-2x4 POST
W/ HDU-2
2-2x4POST
W/HDU-2
2-2x4POST
W/HDU-2
2-2x4POST
W/HDU-2
2-2x4POST
W/HDU-22-2x4POST
W/HDU-2
2-2x4 POST
W/ HDU-2
2-2x4 POST
W/ HDU-2
L
5
L
5
L
5
L
5
L
5
L
5
L
5
L
5
L
5
1 3/2015 S.L
3
FOUNDATION
PLAN
AS NOTED
LOPEZ S.
APN:6356-015-032
01/07/15
-
5806TODDAVE.
COMMERCECA.90040
(323)350-9234
-
TRACT:12751
LOT:33
LEGALDESCRIPTION
BLOCK:-
FOUDATION PLAN
1/4" = 1'-0"
GARAGE FOUNDATION PLAN
1/4" = 1'-0"
1. TYPICAL SLAB ON GRADE, 4" THK. 2500 psi CONCRETE
W/ #4@16" EA. WAY O.C.
CONCRETE OVER 2" CLEAN SAND TOP & BOTTOM OVER 6 MILS VISQUINE.
2. SATURATE SOIL 18" DEEP W/ WATER BEFORE PLACING CONC.
3. SECURE ALL HOLDOWN HARDWARE IN PLACE BEFORE
FIRST FOUNDATION INSPECTION.
4. PROVIDE APPROVED WASHERS AT ALL HOLDOWNS AND
5. ALL ANCHOR BOLTS SHALL BE EMBEDED 9" INTO CONC
6. CONC. FOR GRADE BEAMS SHALL HAVE 3,000 psi.
7. LIMIT SOIL BEARING PRESSURE TO 1,000 psi
9. PROVIDE G.I. WEEP SCREED NOT MORE THAN 4"
ABOVE FINISHED GRADE AT FTNG.
10. ALL REBARS SHALL BE 3" CLEAR OF SOIL
11. LAYOUT FOUNDATION USING ARCHITECTURAL
DIMENSIONS OF FIRST FLOOR PLANS.
12. ALL SILL PLATES TO BE PRESSURE TREATED
OR FOUNDATION GRADE REDWOOD.
13. ALL ANCHOR BOLTS TO BE 1-3/4" FROM EDGE.
14. FOUNDATION CRIPPLE WALL FRAMED OF STUDS NOT
LESS THAN STUDDING ABOVE, W/ MIN. LENGTH OF 14"
EXCEPT AT SHEAR WALL
FOUNDATION NOTES
1
FINISH MATERIAL POLLUTANT CONTROL
1
1
4x6 HDR
4x4HDR
4x4 HDR
4x4HDR4x4HDR
4x4HDR
4x4HDR
4x4 HDR
4x4 HDR
4x6 HDR 4x6 HDR
2x6@16"OC
DF#2C.J.
2x8@16"OC
DF#2R.R.
2x10 RIDGE
2x6@16"OC
DF#2C.J.
2x6@16"OC
DF#2R.R.
2x6@16"OC
DF#2R.R.
L=4' L=4'
L=4'L=4'L=8'L=8'
L=8'
L=4'L=8'
L=4'
2
5
3
5
3
5
2
5
L=8'
2x8 RIDGE
CALIFORNIA
FRAME
4
5
8
5
4
5
1
5
1
5
2x8RIDGE
2x6 @ 16" OC
DF #2 R.R.
4x10 HDR
4x6HDR
4x6HDR
2x6 @ 16" OC
DF #2 C.J.
4
5
CALIFORNIA
FRAME
5
5
5
5
6
5
4"x4" POST
W/ SIMPSON
7
5
1
5
X
6
X
6
Z
6
Z
6
(E)CEILINGJOIST(E)CEILINGJOIST
(E) BEAM
(E)HIP
(E)HIP
(E)HIP
(E) HIP
(E) RIDGE
2x6@16"OC
DF#2C.J.
2x8@16"OC
DF#2R.R.
W
6
W
6
CALIFORNIA
FRAME
4x4 HDR
4x12 DF No.1
4x12DFNo.1
9
5
4"x4" POST
9
5
4"x4" POST
4"x4" POST
9
5
10
5
HU HAGNER
10
5
L=6'L=4'2x6 @ 16" OC
DF #2 R.R.
12
5
ECC & HW
4"x4" POST
W/ SIMPSON
ECC & HW
7
5
4x4HDR
4x12 DF No.1
2x8 @ 16" OC
DF #2 R.R.
2x8 @ 16" OC
DF #2 R.R.
4x4HDR
2x10RIDGE
L=8' L=8'
L=4'L=4'L=4'
L=4'L=8'
L=3'L=3'
3
5
2
5
6
5
2
5
1
5
2x8 @ 16" OC
DF #2 C.J.
Y
6
Y
6
2-2x4 POST
W/ HDU-2
2-2x4 POST
W/ HDU-2
2-2x4POST
W/HDU-2
2-2x4POST
W/HDU-2
2-2x4POST
W/HDU-2
2-2x4POST
W/HDU-22-2x4POST
W/HDU-2
2-2x4 POST
W/ HDU-2
2-2x4 POST
W/ HDU-2
L
5
L
5
L
5
L
5
L
5
L
5
L
5
L
5
L
5
1 3/2015 S.L
4
FRAMING PLAN
AS NOTED
LOPEZ S.
APN:6356-015-032
01/07/15
-
5806TODDAVE.
COMMERCECA.90040
(323)350-9234
-
TRACT:12751
LOT:33
LEGALDESCRIPTION
BLOCK:-
FRAMING PLAN
1/4" = 1'-0"
GARAGE FRAMING PLAN
1/4" = 1'-0"
SHEARWALL
1/2" STRUCT. 1 O.S.B. W/ 8d COMMON NAILS
@ 6"/6"/12" AND,
ROOF DIAPHRAGM
A-35 @ 16" OC @ TOP PLATE
NAILING SCHEDULE
SOLE PLATE TO JOIST OR
JOIST TO SILL OR GIRDER, TOE NAIL
BRIDGING TO JOIST, TOE NAIL EACH END
SOLE PLATE TO JOIST, OR
TOP PLATE TO STUD, END NAIL
DOUBLE TOP PLATES, TYPICAL FACE NAIL
DOUBLE TOP PLATES, LAP SPLICE
BLOCKING BETWEEN JOIST TO RAFTERS
RIM JOIST TO TOP PLATE, TOE NAIL
STUD TO SOLE PLATE
DOUBLE STUDS, FACE NAIL
3-16d PER 16"
16d @ 16" O.C.
16d @ 24" OC
16d @ 16" OC
4-8d, TOE NAIL
8d @ 6" OC
3-8d
8-16d
2-16d
3-8d
2-8d
SHEATHING NAIL 6" OC @ EDGE, 12" OC @ FIELD
BUILT UP CORNER STUDS
RAFTER TO PLATE, FACE NAIL
CEILING JOISTS TO PARALLEL RAFTERS, FACE NAIL
CEILING JOISTS, LAPS OVER PARTITION, FACE NAIL
TOP PLATES, LAPS AND INTERSECTIONS, FACE NAIL
CEILING JOISTS TO PLATE, TOE NAIL
CONTINUOUS HEADER TO STUD, TOENAIL
2-16d @ EA.
16d @ 24" OC
4-8d
3-16d
3-8d
3-16d
3-8d
2-16d
2" PLANKS
BEARING
TO TOP PLATE, TOE NAIL
BLOCKING TYPICAL FACE NAIL
BLOCKING AT BRACED WALL PANEL
E) AT OPENING BETWEEN ATTIC SPACES W/NONCOMBUSTIBLE
CEILING AND FLOOR LEVEL W/ NONCOMBUSTIBLE MATERIALS.
SIMILAR OPENINGS WHICH AFFORD A PASSAGE FOR FIRE AT
D) IN OPENINGS AROUND VENTS, PIPES, DUCTS, CHIMNEYS AND
UNFINISHED
AND BOTTOM OF RUN OF STAIRS IF WALLS UNDER STAIRS ARE
C) IN CONCEALED SPACES BETWEEN STAIR STRINGESR AT TOP
HORIZONTAL SPACES eg. SOFFITS, DROPS AND COVES.
B) AT ALL INTERCONNECTION BETWEEN VERTICAL AND
AND AT 10' INTERVALS VERTICAL AND HORIZONTAL.
INCLUDING FURRED SPACES @ CEIL'G AND FLOOR LEVELS
A) CONCEALED SPACES OF STUD WALLS AND PARTITIONS,
14. FIRE STOPS TO BE PROVIDED INT THE FOLLOWING LOCATIONS:
1. ALL BEAMS TO HAVE A MIN. 4 X 4 POST EA. END.
BORED HOLES SHALL NOT BE MORE THAN 40%.
8. PROVIDE SOLID BLOCKING AT HORIZONTAL JOINTS IN BRACED
7. BEARING WALL STUDS SHALL NOT BE NOTCHED MORE THAN 25%
6. INSTALL ALL MANUF. PRODUCTS PER INSTRUCTIONS AS APROVED
5. VERIFY ALL DIMENSIONS BASED ON ARCHITECTURAL PLAN.
4. EXTEND INTERIOR SHEAR WALLS TO BOTTOM OF ROOF SHEATHNG.
AND CONT. 2 X BLOCKING UNDER PERPENDICULAR PARTITIONS
3. PROVIDE DBL. JOIST UNDER PARALLEL PARTITIONS AND
AND CONT. 4 X BLOCING UNDER PERPENDICULAR WALLS
2. PROVIDE 4 X BEAM BELOW ALL SHEAR WALLS PARALLEL TO JST.
BY BUILDING DEPT.
WALL PANELS.
4FT X 8FT. EXCEPT AT BOUNDARIES AND CHANGES IN FRAMING
CONSTRUCTED USING EXTERIOR GLUE AND SHEETS NO LESS THAN
13. WOOD STRUCT. PANEL DIAPHRAGMS AND SHEAR WALLS TO BE
SIDE SHALL BE BONDED W/ EXTERIOR GLUE.
12. WOOD STRUCT. PANEL ROOF SHEATHING EXPOSED ON UNDER-
SUPPORT BY SOLID BLOCKING, 2X MIN AND NO LESS THAN DEPTH
11. FLOOR JOISTS SUPPORTED LATERALLY AT ENDS AND AT EA.
RIDGES, HIPS AND VALLEYS.
10. RAFTERS FRAMED DIRECTLY OPPOSITE EA. OTHER AT
9. RAFTER TIES TO BE SPACED AT 48" O.C. MAX.
OF UNDERSIZED SHEETS ARE SUPPORTED BY FRAMING OR BLCK.
WHERE MIN. SHEET DIMENSIONS TO BE 24" UNLESS ALL EDGES
MATERIALS.
FRAMING NOTES
1/2" O.S.B W/ RADIANT BARRIER
8d COMMON NAILS @ 6"/6"/12"
ROOF DIAPHRAGM NAILING TO BE
INSPECTED BEFORE COVERING.
FACE GRAIN OF PLYWOOD SHALL BE
PERPENDICULAR TO SUPPORTS.
1
15. WHERE FLASHING IS OF METAL, THE METAL SHALL BE CORROSION
RESISTANT WITH A THICKNESS OF NOT LESS THAN 0.019"
(NO. 26 GALVANIZED SHEET.)
1
1
1
#4 DOWELS TOP AND BOTTOM
W/ SIMPSON SET EPOXY ADHESIVE,
INSERT BAR UNTIL HITS BOTTOM OF HOLE
(SPECIAL INSPECTION REQ'D)
FOOTING CONNECTION
NEW CONC. FOOTING
3/4" = 1'-0"
6"
NEW #4 CONT. REBAR
TOP AND BOTTOM
EXISTING
CONC. FOOTING
6"
WEEP SCREED
FIN. GRADE
24"MIN.8"
2 X 4 P.T. SILL W/
5/8" X 10" A.B. @ 6' O.C.
W/ 3" X 3" X 1/4"
PLATE WASHERS
4" CONC. SLAB W/
#4 @ 16" EA. WAY O.C.
2 X 4 @ 16 OC
STUD WALL
4"
2" CLEAN SAND TOP & BOTTOM
6 MILS VISQUINE
NEW EXTERIOR FOOTING
2- #4 TOP AND BOTTOM
W/ 4" COVER
#3 DOWELS @ 24" OC
EXTENDED 36" INTO SLAB
12" INTO FOOTING
4"
12"
B.N.
12"
EXISTINGE FOOTING
C
CONC. PAD
SEE PLAN
6"
18"
1"
MIN. 1/8"X1-1/4"X20" U-STRAP,POST
(SEE PLAN)
4" CONC. SLAB OR
2" ASPHALT PAVING
16"MIN. @
EXT. COL.
20"MIN. @
INT. COL.
4"
3-#4 EA.WAY
EXISTING
STUD WALL
EXISTING
CONC. SLAB W/
6X6-W1.4/W1.4 WWM
2 X 4 P.T. SILL W/
5/8" X 10" A.B. @ 6' O.C.
W/ 3" X 3" X 1/4"
PLATE WASHERS
EXISTING FOUNDATION
4" CONC. SLAB W/
#4 @ 16" EA. WAY O.C.
2" CLEAN SAND,
TOP & BOTTOM
6 MILS VISQUINE
#3 DOWEL @ 48" OC
6" EMBEDMENT TO (E) FOOTING
A B
G
3/4" = 1'-0" 3/4" = 1'-0"
3/4" = 1'-0"
#3 DOWEL @ 48" OC
6" EMBEDMENT TO (E) FOOTING
D
EXISTING FOOTING
3/4" = 1'-0"
EXISTING FOOTING
4" CONC. SLAB W/
#4 @ 16" EA. WAY O.C.
EXISTING SLAB
2" CLEAN SAND
TOP & BOTTOM
6 MILS VISQUINE
5/8" THREADED ROD
W/ SIMPSON SET EPOXY
WHEN REQ'D @ SHEARWALL
4"MIN.
EXISTING CONC. SLAB
EXISTING FOOTING
VARIES
WEEP SCREED
(N)2X4@16"OC
STUD WALL
NEW LAYER OF CONC.
TO ELIMINATE SLOPE
HEIGHT NOT TO EXCEED
EXISTING CURB HEIGHT
(N)CURB TO MATCH
(E)CURB HEIGHT 2X4 P.T. SILL
10" EMBEDMENT W/
SIMPSON SET EPOXY
EXISTING GARAGE FOOTING
3/4" = 1'-0"
E
NEW LAYER OF CONC.
TO ELIMINATE SLOPE
HEIGHT NOT TO EXCEED
EXISTING CURB HEIGHT
EXISTING
2X4 @ 16"OC
STUD WALL
4" CONC. SLAB W/
#4 @ 16" EA. WAY O.C.
2" CLEAN SAND
TOP & BOTTOM
6 MILS VISQUINE
EXISTING F.J.
#3 DOWELS
@ 32"OC
5/8" THREADED ROD, INTO
W/ SIMPSON SET EPOXY
WHEN REQ'D @ SHEARWALL
EXISTING FOOTING
3/4" = 1'-0"
F
H
SECTION
2" CLEAN SAND
TOP & BOTTOM
6 MILS VISQUINE
12"
71
2"
4"
#3 DOWELS @ 24" OC
EXTENDED 36" INTO SLAB
12" INTO FOOTING
2 X 4 @ 16 OC
STUD WALL
4" CONC. SLAB W/
#4 @ 16" EA. WAY O.C.
2 X 4 P.T. SILL W/
5/8" X 10" A.B. @ 6' O.C.
W/ 3" X 3" X 1/4"
PLATE WASHERS
6"24"MIN.
2-#4 TOP AND BOTTOM
W/ 4" COVER
WEEP SCREED
3/4" = 1'-0"
GRAGE FOOTING
I
6"
4" CONC. SLAB W/
#4 @ 16" EA. WAY O.C.
2" CLEAN SAND,
O/ 6 MILS VISQUINE
24"
12"2-#4 TOP AND BOTTOM
3"
3/4" = 1'-0"
GARAGE FOOTING
J
2 X @ 16" OC
RAFTERS
2 X 6 COLLAR TIES
@ 48" O.C.
RIDGE
3/4" = 1'-0"
2 X RIDGE (3) 16d
MIN.
SIMPSON ST-24
STRAP OVER RIDGE
@ 48"OC
1
A35 @ 16"OC
DRYWALL
R-13 BATT. INSUL.
EAVE
R-30 BATT. INSUL.
5-16d MIN.
2X @ 16OC
CEILING JOIST
3/4" = 1'-0"
2
CONT. FASCIA
COMP ROOF SHINGLES
CLASS "B" OR BETTER
OVER 15# FELT
E.N. 8d @ 6"OC
1/2" OSB W/ RADIANT BARRIER
W/ 8d @ 6/6/12
2X @ 16"OC
ROOF RAFTERS
E.N. 8d @ 6"OC
2X @ 16"OC
ROOF RAFTERS
1/2" OSB W/ RADIANT BARRIER
W/ 8d @ 6/6/12
RAKE
3/4" = 1'-0"
2X @ 16"OC
CEILING JOIST
16d @ 6"OC
A35 @ 16"OC
2X4 @ 16"OC
CRIPPLE WALL
E.N.B.N.
2X STUD WALL.
3
(N) 2 X 10
(E) 2 X 4 @ 16"OC
STUD WALL
(N) 2 X 4 @ 16" O.C.
CRIPPLE WALL
(N) 2X @ 16"OC
CEILING JOIST
(N) 2 X 4 SILL PLATE
W/ 16d @6" OC
(E) 1/2" CDX PLY.
W/ 8 d @ 6:6:12
16d @ 16" OC
BOUNDARY NAILING
2X BLOCKING
(N) 2 X @ 16 OC
ROOF RAFTERS
(E) 2X CEILING JOIST
(E) 2X ROOF RAFTERS
CALIFORNIA FRAME
A-35 @ 16"OC
4
E.N.
E.N.
E.N.A-35 @ 16"OC
3/4" = 1'-0"
A35 @ 16"OC
4X HDR.
SEEPLAN
EAVE W/ BEAM
5-16d MIN.
2X @ 16OC
CEILING JOIST
3/4" = 1'-0"
5
CONT. FASCIA
COMP ROOF SHINGLES
CLASS "B" OR BETTER
OVER 15# FELT
E.N. 8d @ 6"OC
1/2" OSB
W/ 8d @ 6/6/12
2X @ 16"OC
ROOF RAFTERS
2X @ 16"OC
ROOF RAFTERS
1/2" OSB
W/ 8d @ 6/6/12
RAKE W/ BEAM
3/4" = 1'-0"
2X @ 16"OC
CEILING JOIST
16d @ 6"OC
A35 @ 16"OC
2X4 @ 16"OC
CRIPPLE WALL
E.N.
4X HDR.
SEE PLAN
B.N.
6
ECC
N.T.S.
7
4X_BEAM
4X_ BEAM
SIMPSON HW
SIMPSON ECC
4X4 POST
R13 BATT.INSUL.
R13 BATT.INSUL.
R-13 BATT. INSUL.
3/4" = 1'-0"
8
CRICKET FRAME
NEW 2X
ROOF RAFTERS
NEW 2X
CEILING JOIST
NEW 2X @ 16"OC
CEILING JOIST
2 X 4 @ 16"OC
STUD WALL
A-35@16"OC
NEW 2X @ 16"OC
ROOF RAFTERS.
NEW R.R. & C.J.
LAP ON TO
EXISTING STUD WALL.
3 PLY BUILT UP
OR TORCH DOWN
NEW CRICKET
FRAME.
1/2" CDX.
(3) 16d
2X SHAPED
BLOCKING.
12"12"
E.N.
#3 DOWELS @ 24" OC
EXTENDED 36" INTO SLAB
12" INTO FOOTING
18"MIN.
K
INTERIOR FOOTING
4"
12"
2-#4 TOP AND BOTTOM
W/ 4" COVER
2 X 4 @ 16 OC
STUD WALL2 X 4 P.T. SILL W/
5/8" X 10" A.B. @ 6' O.C.
W/ 3" X 3" X 1/4"
PLATE WASHERS
3/4" = 1'-0"
MULTI-STUDS W/
16d @ 12"OC
OR POST SEE PLAN
BEAM
SEE PLAN
SIMPSON A-35
2X DBL TOP PLATE
2X @16"OC
STUD
3/4" = 1'-0"
9
BEAM TO TOP PLATE
2X @16"O.C.
CEILING JOIST
LUS HANGERS
BEAM SEE PLAN 2X @16"O.C.
CEILING JOIST
ST 22
3/4" = 1'-0"
10
CEILING JOIST TO BEAM
HU HANGER
BEAM PER PLAN
3/4" = 1'-0"
11
BEAM TO BEAM
7/8" STUCCO FINISH
ALL AROUND EAVE
FOR 1HR FIRE RATED
WHEN WITHIN 2'
OF P.L.
7/8" STUCCO FINISH
ALL AROUND EAVE
FOR 1HR FIRE RATED
WHEN WITHIN 2'
OF P.L.
2X4@16"OC
STUD WALL
A-35 @ 16"OC
WALL TO ROOF
2X @16"OC
CEILING JOIST
4-16d
EA. SIDE
EN
12"MIN.12"MIN.
123/4" = 1'-0"
OPENING FOR ATTIC
ACCESS
FILL W/ COMPACT DIRT.
4" CONC. SLAB
W/ 6X6-10/10 WWM
#4 W/
3" COVER
10" MIN
7.5"8"7.75"
G.I. SHEET TO
PROTECT WOOD
EXISITNG
FOOTING
EXISTING
FLOOR JOIST
4X4 P.T. POST
W/ POST BASE
SEE PLAN
6"
18"
8"
18"MIN
(E) 2X FLOOR JOIST
2-16d EA. SIDE
E.N. 16d EA. SIDE
M
PIER
3/4" = 1'-0"
4"
3-#4 EA.WAY
20"MIN. @
INT. COL.
16"MIN. @
EXT. COL.
2x4 SILL PLATE
2X4 STUD
5
8"X 10" A.B.
SHEARWALL
POST PER PLAN
HOLDOWN
PER PLAN
NAILING PER
SCHEDULE
1/2" STRUCT. 1
PLYWOOD
SIMPSON SSTB
PER HOLDOWN SPECS
1 3/4" EDGE DISTANCE
12" END DISTANCE
@ 40" O.C.
NEW FOOTING
3" x 3" x .229"
PLATE WASHER
3/4" = 1'-0"
L
HOLDOWN
3/4" = 1'-0"
1 3/2015 S.L
5
DETAILS
AS NOTED
LOPEZ S.
APN:6356-015-032
01/07/15
-
5806TODDAVE.
COMMERCECA.90040
(323)350-9234
-
TRACT:12751
LOT:33
LEGALDESCRIPTION
BLOCK:-
FIN. GRADE
FIN. GRADE FIN. GRADE
2x4 DLB.
TOP PLATE
2x4@16"OC
WALL STUD
2x4 DLB.
TOP PLATE
2x4@16"OC
WALL STUD
R-13 BATT.
INSULATION
2x @ 16"O.C
CEILING JOIST
R-30 BATT.
INSULATION
2x @ 16"O.C
CEILING JOIST
2X @16" O.C.
ROOF RAFTER
2X @16" O.C.
ROOF RAFTER
2
5
1
5
I
5
B
5
3
5
4
5
FIN. GRADE
2x4 DLB.
TOP PLATE
2x4@16"OC
WALL STUD
R-13 BATT.
INSULATION
R-30 BATT.
INSULATION
2x @ 16"O.C
CEILING JOIST
2X @16" O.C.
ROOF RAFTER
2
5
B
5
1
5
8
5
FIN. GRADE
F
5
FIN. GRADE
2x4 DLB.
TOP PLATE
2x4@16"OC
WALL STUD
R-13 BATT.
INSULATION
R-30 BATT.
INSULATION
2X @16" O.C.
ROOF RAFTER
B
5
3
5
D
5
4
5
2x @ 16"O.C
CEILING JOIST
EXISTING 2x
CEILING JOIST
EXISTING 2x
ROOF RAFTER
EXISTING 2x
CEILING JOIST
EXISTING 2x
ROOF RAFTER
EXISTING
WALL STUD
EXISTING
WALL STUD
12
4
12
3
12
5
2x @ 16"O.C
CEILING JOIST
12
4
8'-6"
B
5
K
5
D
5
8'-0"
8'-6"
8'-6"
8'-0"
8'-6"
8'-6"
2'-0"
PL
2
5
1 HR FIRE RATED EAVE
REQ'D WHEN WITHIN
2' OF P.L.
5/8" TYPE "X"
GYPSUM BOARD
1 HR FIRE RATED
1 3/2015 S.L
6
SECTIONS
AS NOTED
LOPEZ S.
APN:6356-015-032
01/07/15
-
5806TODDAVE.
COMMERCECA.90040
(323)350-9234
-
TRACT:12751
LOT:33
LEGALDESCRIPTION
BLOCK:-
SECTION
3/8"=1'-0" Z
SECTION
3/8"=1'-0" X
SECTION
3/8"=1'-0" Y
SECTION
3/8"=1'-0" W

Todd Ave

  • 1.
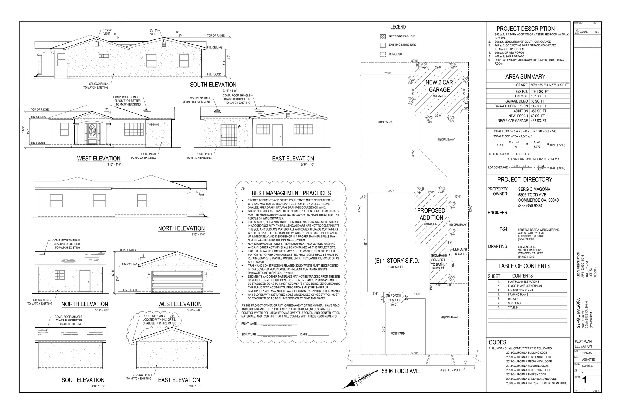
    (E) 1-STORY S.F.D. 1,346SQ. FT. NEW 2 CAR GARAGE (E) DRIVEWAY PROPOSED ADDITION 350 SQ. FT. DEMOLISH 36 SQ. FT. 462 SQ. FT. 50'-0" 135'-6" 135'-6" 50'-0" CONVERT 146 SQ. FT. (E)GARAGE TO BATH 46'-1" 7'-6" 5'-0" 10'-0" 5'-0" 11'-6" 4'-0" 8'-0" 2'-0" 18'-3" 2'-0" 23'-4" 15'-0"22'-0" 22'-0" 21'-0" 22'-0" 21'-0" 3'-0" 3'-0" 36'-5" 10'-0"3'-0" 24'-0" (E) UTILITY POLE 5806 TODD AVE. 2% SLOPE 2% SLOPE 2% SLOPE 2% SLOPE 2% SLOPE 2% SLOPE2% SLOPE 2% SLOPE 2% SLOPE 2% SLOPE 2% SLOPE (N) DRIVEWAY (N) DRIVEWAY LEGEND NEW CONSTRUCTION EXISTING STRUCTURE DEMOLISH 50 SQ. FT. (N) PORCH FONT YARD BACK YARD 25'-0" 2% SLOPE 2% SLOPE 8'-0" FIN. CEILING FIN. FLOOR 12'-11" TOP OF RIDGE 12 4 STUCCO FINISH TO MATCH EXISTING STUCCO FINISH TO MATCH EXISTING COMP. ROOF SHINGLE CLASS 'B' OR BETTER TO MATCH EXISTING COMP. ROOF SHINGLE CLASS 'B' OR BETTER TO MATCH EXISTING ROOF OVERHANG LOCATED WITH IN 2' OF P.L SHALL BE 1 HR FIRE RATED STUCCO FINISH TO MATCH EXISTING COMP. ROOF SHINGLE CLASS 'B' OR BETTER TO MATCH EXISTING 12 4 24"x12"TYP. HALF ROUND DORMER VENT 8'-6" FIN. CEILING FIN. FLOOR STUCCO FINISH TO MATCH EXISTING 12 4 18"x14" VENT 12'-7" TOP OF RIDGE 12 3 18"x14" VENT COMP. ROOF SHINGLE CLASS 'B' OR BETTER TO MATCH EXISTING 11'-3" 8'-0" FIN. FLOOR FIN. CEILING TOP OF RIDGE STUCCO FINISH TO MATCH EXISTING 1 3/2015 S.L PROJECT DESCRIPTION LYNWOOD, CA. 90262 PROJECT DIRECTORY PROPERTY TABLE OF CONTENTS CONTENTSSHEET 1 PLOT PLAN STEVEN LOPEZ OWNER: ELEVATION AREA SUMMARY (E) S.F.D. 1,346 SQ. FT. (E) GARAGE 182 SQ. FT. TOTAL FLOOR AREA = 1,842 sq.ft. 1. 350 sq.ft. 1-STORY ADDITION OF MASTER BEDROOM W/ WALK IN CLOSET. 2. 36 sq.ft. DEMOLITION OF EXIST 1-CAR GARAGE. 3. 146 sq.ft. OF EXISTING 1-CAR GARAGE CONVERTED TO MASTER BATHROOM. 4. 50 sq.ft. OF NEW PORCH. 5. 462 sq.ft. 2-CAR GARAGE 6. DEMO OF EXISTING BEDROOM TO CONVERT INTO LIVING ROOM F.A.R. = LOT COV. AREA = LOT COVERAGE = 1. PLOT PLAN ELEVATIONS ADDITION 350 SQ. FT. TOTAL FLOOR AREA = C + D + E = 1,346 + 350 + 146 C + D + E A = 6,775 = 0.27 ( 27% ) B + C + D + E + F = 1,346 + 146 + 350 + 50 + 462 = 2,354 sq.ft. A 2,354 6,775 = = NEW PORCH 50 SQ. FT. B + C + D + E + F 2. FLOOR PLANS DEMO PLAN AS NOTED 1,842 LOPEZ S. APN:6356-015-032 01/07/15 - 5806TODDAVE. COMMERCECA.90040 (323)350-9234 - TRACT:12751 LOT:33 LEGALDESCRIPTION BLOCK:- SERGIO MAGO A 5806 TODD AVE. COMMERCE CA. 90040 (323)350-9234 GARAGE CONVERSION 146 SQ. FT. GARAGE DEMO 36 SQ. FT. NEW 2-CAR GARAGE 462 SQ. FT. 0.34 ( 34% ) WEST ELEVATION 3/16" = 1'-0" EAST ELEVATION 3/16" = 1'-0" SOUTH ELEVATION 3/16" = 1'-0" NORTH ELEVATION 3/16" = 1'-0" WEST ELEVATION 3/16" = 1'-0" SOUT ELEVATION 3/16" = 1'-0" EAST ELEVATION 3/16" = 1'-0" FOUNDATION PLANS FRAMING PLANS DETAILS SECTIONS CODES 1. ALL WORK SHALL COMPLY WITH THE FOLLOWING: 2013 CALIFORNIA BUILDING CODE 2013 CALIFORNIA RESIDENTIAL CODE 2013 CALIFORNIA MECHANICAL CODE 2013 CALIFORNIA PLUMBING CODE 2013 CALIFORNIA ELECTRICAL CODE 2013 CALIFORNIA ENERGY CODE 2013 CALIFORNIA GREEN BUILDING CODE 2008 CALIFORNIA ENERGY EFFICIENT STANDARDS 3. 4. 5. 6. NORTH ELEVATION 3/16" = 1'-0" BEST MANAGEMENT PRACTICES ERODED SEDIMENTS AND OTHER POLLUTANTS MUST BE RETAINED ON SITE AND MAY NOT BE TRANSPORTED FROM SITE VIA SHEETFLOW, SWALES, AREA DRAIN, NATURAL DRAINAGE COURSES OR WIND. STOCKPILES OF EARTH AND OTHER CONSTRUCTION RELATED MATERIALS MUST BE PROTECTED FROM BEING TRANSPORTED FROM THE SITE BY THE FORCES OF WIND OR WATER. FUELS, SOILS, SOLVENTS AND OTHER TOXIC MATERIALS MUST BE STORED IN ACCORDANCE WITH THEIR LISTING AND ARE ARE NOT TO CONTAMINATE THE SOIL AND SURFACE WATERS. ALL APPROVED STORAGE CONTAINERS ARE TO BE PROTECTED FROM THE WEATHER. SPILLS MUST BE CLEANED UP IMMEDIATELY AND DISPOSED OF IN A PROPER MANNER. SPILLS MAY NOT BE WASHED INTO THE DRAINAGE SYSTEM.. NON-STORMWATER RUNOFF FROM EQUIPMENT AND VEHICLE WASHING AND ANY OTHER ACTIVITY SHALL BE CONTAINED AT THE PROJECT SITE. EXCESS OR WASTE CONCRETE MAY NOT BE WASHED INTO THE PUBLIC WAY OR ANY OTHER DRAINAGE SYSTEM. PROVISIONS SHALL BE MADE TO RETAIN CONCRETE WASTES ON SITE UNTIL THEY CAN BE DISPOSED OF AS SOLID WASTE. TRASH AND CONSTRUCTION RELATED SOLID WASTE MUST BE DEPOSITED INTO A COVERED RECEPTACLE TO PREVENT CONTAMINATION OF RAINWATER AND DISPERSAL BY WIND. SEDIMENTS AND OTHER MATERIALS MAY NOT BE TRACKED FROM THE SITE BY VEHICLE TRAFFIC. THE CONSTRUCTION ENTRANCE ROADWAYS MUST BE STABILIZED SO AS TO INHIBIT SEDIMENTS FROM BEING DEPOSITED INTO THE PUBLIC WAY. ACCIDENTAL DEPOSITIONS MUST BE SWEPT UP IMMEDIATELY AND MAY NOT BE WASHED DOWN BY RAIN OR OTHER MEANS. ANY SLOPES WITH DISTURBED SOILS OR DENUDED OF VEGETATION MUST BE STABILIZED SO AS TO NHIBIT EROSION BY WIND AND WATER. AS THE PROJECT OWNER OR AUTHORIZED AGENT OF THE OWNER, I HAVE READ AND UNDERSTAND THE REQUIREMENTS LISTED ABOVE, NECESSARY TO CONTROL WATER POLLUTION FROM SEDIMENTS, EROSION, AND CONSTRUCTION MATERIALS, AND I CERTIFY THAT I WILL COMPLY WITH THESE REQUIREMENTS. PRINT NAME SIGNATURE DATE (OWNER OR AUTHORIZED AGENT OF THE OWNER) (OWNER OR AUTHORIZED AGENT OF THE OWNER) 10963 CORNISH AVE. (310)594-1980 1 1 TITLE-247. ENGINEER: DRAFTING: PERFECT DESIGN & ENGINEERING 2416 W. VALLEY BLVD. T-24: ALHAMBRA, CA. 91803 (626)289-8808
  • 2.
    (N)LIVING ROOM (N)MASTER BEDROOM (E)LAUND. (E)BEDROOM1 (E)BATH (E)BEDROOM 2 (E)DEN W.I.C. 36"MIN. 24"MIN SD SD SD SD (N) PORCH 1 2 2 2 3 C A B B C 30" MIN GFCI (E)KITCHEN (N)DINING ROOM UP 7'-4" 7'-8" 15'-0" 5'-6"10'-0"7'-10"6'-11"11'-4" 23'-4"18'-3" 41'-7" 3'-0" 2'-6" 2'-2" 3'-4" 8'-0" 11'-6"10'-0"7'-6" 29'-0" 37'-0" (N)MASTER BATH 1 2 3 4 5 6 7 2 4 4 5 MS TEMP. GLASS 46'-1" 22'-0" GFCI W/P F ATTIC (E)30"x30 ACCESS CM 6'-0" W/H (E) WALL HEATER ATTIC (N)30"x30 ACCESS 12'-0" 1'-8" 4"DIA.DRYERDUCTW/2ELBOWS ANDBACK-DRAFTDAMPER HE HE MS AFCI AFCI AFCI AFCI AFCI NOTE 15 NOTE 15 NOTE 15 NOTE 15 AFCI NOTE 15 STRAPPED TO WALL W/ 2-SEISMIC STRAPS CONC. PAD 3" ABOVE GRADE 1" 6" 1-CAR GARAGE KITCHEN BEDROOM 1 LAUND. BEDROOM 2 BATH BEDROOM 3 DEN BATH LIVING / DINING ROOM UP C 6 7 21'-0" 22'-0" 7'-8"6'-4"4'-0" 21'-0" 11'-0" 11'-0" 22'-0" 2-CAR GARAGE MS MS 5/8" TYPE "X" GYPSUM BOARD 1 HR FIRE RATED HE 3'-0" MIN 3'-0" GFCI W/P 1 3/2015 S.L 2 FLOOR PLAN DEMO PLAN AS NOTED LOPEZ S. APN:6356-015-032 01/07/15 - 5806TODDAVE. COMMERCECA.90040 (323)350-9234 - TRACT:12751 LOT:33 LEGALDESCRIPTION BLOCK:- WINDOW SYMBOL DOOR SYMBOL (P) PAGE NUMBER SECTION NUMBER PAGE NUMBER DETAIL NUMBER 1 A A 1 (E) DUPLEX OUTLET GROUND FAULT DUPLEX OUTLET ON PROPOSED KEY NOTES GFCI SINGLE POLE LIGHT SWITCH W/ BATTERY BACKUP SMOKE DETECTOR, HARDWIRED PROPOSED WALL 2x4 STUD EXISTING WALL EXISTING SD EXHAUST FAN W/ 50 CFM HIGH EFFICIENCY DOWN LIGHT SINGLE POLE LIGHT SWITCH HE WITH DIMMER EXISTING WALL REMOVED RECESSED LIGHT PHOTO CONTROLLED MOTIONPM SENSOR, OR HIGH EFFICACY LUMINAIR. FAULT CIRCUIT INTERRUPTER DUPLEX OUTLET ON ARC AFCI HARDWIRED CARBON MONOXIDECM LEGEND (N) NEW LIGHT DOOR SCHEDULE 1 SYM SIZE NOTE 2 SYMBOL: # TYPE ENTRY DOOR W/ SIDE LIGHTS 2'-8" x 6'-8" HOLLOW CORE 3 5'-0" x 6'-8" 4 5 6 SLIDING DOOR A SYM 6'-0" x 4'-0" SIZE NOTE B SYMBOL: TYPE 3'-0" x 1'-0" VINYL SLIDING 3'-0" x 4'-0" VINYL HUNGC 3'-0" x 3'-0" VINYL SLIDINGD VINYL SLIDINGE 3'-0" x 1'-6" TEMPERED GLASS VINYL DOUBLE SLIDING WINDOW SCHEDULE# 5'-0" x 6'-8" # KEY NOTES 1. ENCLOSE EXISTING ENTRY DOOR 2'-8" x 6'-8" HOLLOW CORE EXISTING 3'-0" x 6'-8" SOLID CORE EXISTING MS MOTION SENSOR W/PHOTOCONTROL FLOOR PLAN 1/4" = 1'-0" EXISTING / DEMO PLAN 1/4" = 1'-0" GARAGE FLOOR PLAN 1/4" = 1'-0" SOLID CORE 7 GARAGE DOOR 3'-0" x 6'-8" 16'-0" x 7'-0" 2. EXISTING WINDOW OPENING TO BE USED AS NEW ENTRY DOOR 3. EXPAND EXISTING WINDOW FROM 3'X4' TO 6'X4' WINDOW 4. ENCLOSE 3'X3' WINDOW 5. ENCLOSE 3'-0" EXIT DOOR. 6. ENCLOSE EXISTING DOOR OPENING 7. NEW DOOR OPENING. GARAGE PLAN 1. SHOWER WALLS MUST BE FINISHED TO A HEIGHT OF 70" ABOVE DRAIN WITH MOISTURE RESISTIVE TILE OR APPROVED EQUAL. APPROVED SHATTER RESISTANT MATERIALS FOR SHOWER ENCLOSURE. 2. WATER HEATER MUST BE STRAPPED TO WALL 3. AN APPROVED SEISMIC SHUT OFF VALVE WILL BE INSTALLED ON THE FUEL GAS LINE ON THE DOWN STREAM SIDE OF THE UTILITY METER AND BE RIGIDLY CONNECTED TO THE EXTERIOR OF THE BUILDING OR STRUCTURE CONTAINING THE FUEL GAS LINE. 4. PROVIDE ULTRA FLUSH WATER CLOSETS FOR ALL NEW CONSTRUCTION. EXISTING SHOWER HEADS AND WATER CLOSETS MUST BE ADAPTED FOR LOW WATER CONSUMPTION. 5. THE EFFECTIVE FLUSH VOLUME OF ALL WATER CLOSETS SHALL NOT EXCEED 1.28 gpf. URINALS SHALL BE 0.5 gpf MAXIMUM. 6. SINGLE SHOWER HEADS SHALL HAVE A MAXIMUM FLOW RATE OR 2.0 gpm AT 80 psi. MULTIPLE SHOWER HEADS SERVING ONE SHOWER SHALL HAVE A COMBINED FLOW RATE OF 2.0 gpm AT 80 psi, OR SHOWER SHALL BE DESIGNED TO ALLOW ONLY ONE SHOWER OUTLET TO BE IN OPERATION AT A TIME. 7. LAVATORY FAUCETS SHALL NOT EXCEED 1.5gpm AT 60psi THE MINIMUM FLOW RATE SHALL NOT BE LESS THAN 0.8gpm AT 20psi 8. ALL SHOWERS AND TUB-SHOWERS SHALL HAVE A PRESSURE BALANCE, THERMOSTATIC MIXING VALVE, OR A COMBINATION PRESSURE BALANCE/THERMOSTATIC MIXING VALVE 9. KITCHEN FAUCETS SHALL NOT EXCEED 1.8 gpm AT 60 psi. THE FAUCET MAY TEMPORARILY INCREASE TO ABOVE THE RATE, BUT NOT EXCEED 2.2 gpm AT 60 psi AND MUST DEFAULT TO THE MAXIMUM FLOW RATE OF 1.8 gpm AT 60 psi. 10. ALL PLUMBING FIXTURES SHALL BE REPLACED PER SB407. 11. BEDROOM OUTLETS TO BE AFCI. 12. BATHROOM RECEPTACLES TO BE DEDICATED 20 AMP GFCI CIRCUITS 13. GROUND FAULT CIRCUIT INTERRUPTION (GFCI) FOR PERSONNEL SHALL BE PROVIDED PER EC SECTION 210.8(A) AND INSTALLED IN A READILY ACCESSIBLE LOCATION. 14. ARC FAULT CIRCUIT INTERRUPTION SHALL BE INSTALLED TO PROVIDE PROTECTION OF THE BRANCH CIRCUIT 15. TAMPER RESISTANT RECEPTACLES SHALL BE INSTALLED IN ALL AREAS SPECIFIED IN (210.52), ALL NONLOCKING TYPE 12 VOLT, 15 AND 20 AMPERE RECEPTACLES SHALL BE LISTED TAMPER RESISTANT 16. SMOKE DETECTORS TO BE HARDWIRED WITH BATTERY BACK UP. 17. THE CONSTRUCTION SHALL NOT RESTRICT A FIVE FOOT CLEAR AND UNOBSTRUCTED ACCESS TO ANY WATER OR POWER DISTRIBUTION FACILITIES (POWER POLES, PULL BOXES, TRANSFORMERS, VAULTS, PUMPS, VALVES, METERS, APPURTENACES, ETC.) OR TO THE TEN FEET OF ANY POWER LINES WHETHER OR NOT THE LINES ARE LOCATED ON THE PROPERTY. FAILURE TO COMPLY MAY CAUSE CONSTRCUTION DELAYS AND OR ADDITIONAL EXPENSES. GENERAL NOTES 1. FOR KITCHEN LIGHTING, 50% OF ALL WATTAGE MUST BE EFFICACY (E.G. FLOURECENT). THE HIGH EFFICACY FIXTURES AND NON-HIGH EFFICACY FIXTURES HAVE TO BE SWITCHED SEPERATELY . ANY AREAS ADJACENT TO THE KITCHEN ON THE SAME LIGHT SWITCH ARE CONSIDERED PART OF THE KITCHEN. THIS MUST BE DOCUMENTED IN THE REPORT THAT IS SUBMITTED TO THE BUILDING DEPARTMENT. 2. LIGHTING IN BATHROOMS, GARAGES, LAUNDRY ROOMS, AND/ OR UTILITY ROOMS MUST BE HIGH EFFICACY OR MJST BE CONTROLLED BY A MANUAL- ON OCCUPANCY SENSOR. A MANUAL- ON OCCUPANCY SENSOR MUST BE MANUALLY TURNED ON AND AS LONG AS THE SENSOR DETECTS MOVEMENT STAYS ON. WHEN MOVEMENT IS NOT DETECTED, WHICH CANNOT BE LONGER THAN 30 MIN. THE FIXTURE AUTOMATICALLY TURNS OFF. A BATHROOM IS DEFINED AS A ROOM CONTAINING A SHOWER, TUB, TOILET, OR SINK THAT IS USED FOR PERSONAL HYGENE. SO THIS WOULD INCLUDE A VANITY SINK IN A DRESSING AREA OR PERHAPS EVEN IN THE BEDROOM, WHICH WOULD REQUIRE A HIGH EFFICACY LIGHT SERVING THAT SPECIFIC AREA. 3. ALL PERMANENTLY INSTALLED LIGHTING IN OTHER ROOMS, INCLUDING HALLWAYS, DINING ROOMS, BEDROOMS, FAMILY ROOMS, MUST BE HIGH EFFICACY LIGHT SERVICES OR CONTROLLED BY A MANUAL-ON OCCUPANCY SENSOR, OR A DIMMER. THE MANUAL-ON OCCUPANCY SENSORS ARE BEING MANUFACTURER AND ARE AVAILABLE. THE EXCEPTION IS A CLOSET UNDER 70 SQUARE FEET, AND HALF HOT OUTLES FOR LAMPS. 4. RECESSED LIGHTS ARE TO BE INSTALLED IN AN INSULATED CEILING OR CAVITY ARE REQUIRED TO HAVE A ZERO CLEARANCE INSULATION COVER (IC): BE CERTIFIED THAT THEY ARE AIR TIGHT : AND SEALED WITH A GASKET OR CAULK BETWEEN THE HOUSING AND THE CEILING. 5. OUTDOOR LIGHTING THAT IS ATTACHED TO A BUILDING MUST BE HIGHT EFFICACY, OR CONTROLLED BY A MOTION SENSOR WITH AN INTEGRAL PHOTOCONTROL. LIGHTING AROUND SWIMMING POOL S, WATER FEATURES, OR OTHER LOCATIONS SUBJECT TO ARTICLE 680 OF THE CALIFORNIA ELECTRIC CODE ARE EXEMPT. ENERGY NOTES VINYL HUNGF 2'-6" x 4'-0" EXISTING = .97 SQ.FT.150 1 196 X 146 SQ.FT. NEW ATTIC AREA (SQ.FT.) 1.2 0.00 AREAQTY.FREE AIRITEM 24 X 12 HALF ROUND DORMER .9 14 X 18 SQUARE GABLE VENT .8 1 0.8 14 X 6 EAVE VEMT .4 1 0.4 AREA (SQ.FT.) (SQ.FT.) TOTAL ATTIC VENTILATION = 2.40 SQ.FT.150 1 360 X 360 SQ.FT. NEW ATTIC AREA (SQ.FT.) 2.6 1.82 AREAQTY.FREE AIRITEM 24 X 12 HALF ROUND DORMER .9 14 X 18 SQUARE GABLE VENT .8 1 0.8 14 X 6 EAVE VEMT .4 0 0.0 AREA (SQ.FT.) (SQ.FT.) TOTAL 1 1 1 1 1 1 MASTER BEDROOM ATTIC VENTILATION MASTER BATH 1
  • 3.
    4" CONC. SLAB #4@ 16" EA. WAY O.C. 2" SAND BED TOP & BOTTOM, 6 MIL VAPOR BARRIER EXISTING SLAB FOUNDATION EXISTING RAISED FOUNDATION EXISTING SLAB FOUNDATION 16"x16" CONC. PAD 16"x16" CONC. PAD 4" CONC. SLAB 6x6-10/10 WWM 2" SAND BED, 6 MIL VAPOR BARRIER B 5 B 5 B 5 C 5 H 5 G 5 G 5 D 5 L=4' L=4' L=4'L=4'L=8'L=8' L=8' L=4'L=8' L=4' #4 TO & BOTTOM 6" EMBEDMENT W/ SIMPSON SET EPOXY A 5 #4 TO & BOTTOM 6" EMBEDMENT W/ SIMPSON SET EPOXY A 5 #4 TO & BOTTOM 6" EMBEDMENT W/ SIMPSON SET EPOXY A 5 L=8' E 5 F 5 F 5 X 6 X 6 Z 6 Z 6 W 6 W 6 K 5 #4 TO & BOTTOM SIMPSON SET EPOXY 6" EMBEDMENT W/ #4 @ 16" O.C. BENT 2' INTO SLAB 1' INTO FOOTING L=6'L=4' 16"x16" CONC. PAD M 5 A 5 4" CONC. SLAB #4 @ 16" EA. WAY O.C. 2" SAND BED TOP & BOTTOM, 6 MIL VAPOR BARRIER I 5 I 5 I 5 J 5 L=8' L=8' L=4'L=4'L=4' L=4'L=8' L=3'L=3' Y 6 Y 6 2-2x4 POST W/ HDU-2 2-2x4 POST W/ HDU-2 2-2x4POST W/HDU-2 2-2x4POST W/HDU-2 2-2x4POST W/HDU-2 2-2x4POST W/HDU-22-2x4POST W/HDU-2 2-2x4 POST W/ HDU-2 2-2x4 POST W/ HDU-2 L 5 L 5 L 5 L 5 L 5 L 5 L 5 L 5 L 5 1 3/2015 S.L 3 FOUNDATION PLAN AS NOTED LOPEZ S. APN:6356-015-032 01/07/15 - 5806TODDAVE. COMMERCECA.90040 (323)350-9234 - TRACT:12751 LOT:33 LEGALDESCRIPTION BLOCK:- FOUDATION PLAN 1/4" = 1'-0" GARAGE FOUNDATION PLAN 1/4" = 1'-0" 1. TYPICAL SLAB ON GRADE, 4" THK. 2500 psi CONCRETE W/ #4@16" EA. WAY O.C. CONCRETE OVER 2" CLEAN SAND TOP & BOTTOM OVER 6 MILS VISQUINE. 2. SATURATE SOIL 18" DEEP W/ WATER BEFORE PLACING CONC. 3. SECURE ALL HOLDOWN HARDWARE IN PLACE BEFORE FIRST FOUNDATION INSPECTION. 4. PROVIDE APPROVED WASHERS AT ALL HOLDOWNS AND 5. ALL ANCHOR BOLTS SHALL BE EMBEDED 9" INTO CONC 6. CONC. FOR GRADE BEAMS SHALL HAVE 3,000 psi. 7. LIMIT SOIL BEARING PRESSURE TO 1,000 psi 9. PROVIDE G.I. WEEP SCREED NOT MORE THAN 4" ABOVE FINISHED GRADE AT FTNG. 10. ALL REBARS SHALL BE 3" CLEAR OF SOIL 11. LAYOUT FOUNDATION USING ARCHITECTURAL DIMENSIONS OF FIRST FLOOR PLANS. 12. ALL SILL PLATES TO BE PRESSURE TREATED OR FOUNDATION GRADE REDWOOD. 13. ALL ANCHOR BOLTS TO BE 1-3/4" FROM EDGE. 14. FOUNDATION CRIPPLE WALL FRAMED OF STUDS NOT LESS THAN STUDDING ABOVE, W/ MIN. LENGTH OF 14" EXCEPT AT SHEAR WALL FOUNDATION NOTES 1 FINISH MATERIAL POLLUTANT CONTROL 1 1
  • 4.
    4x6 HDR 4x4HDR 4x4 HDR 4x4HDR4x4HDR 4x4HDR 4x4HDR 4x4HDR 4x4 HDR 4x6 HDR 4x6 HDR 2x6@16"OC DF#2C.J. 2x8@16"OC DF#2R.R. 2x10 RIDGE 2x6@16"OC DF#2C.J. 2x6@16"OC DF#2R.R. 2x6@16"OC DF#2R.R. L=4' L=4' L=4'L=4'L=8'L=8' L=8' L=4'L=8' L=4' 2 5 3 5 3 5 2 5 L=8' 2x8 RIDGE CALIFORNIA FRAME 4 5 8 5 4 5 1 5 1 5 2x8RIDGE 2x6 @ 16" OC DF #2 R.R. 4x10 HDR 4x6HDR 4x6HDR 2x6 @ 16" OC DF #2 C.J. 4 5 CALIFORNIA FRAME 5 5 5 5 6 5 4"x4" POST W/ SIMPSON 7 5 1 5 X 6 X 6 Z 6 Z 6 (E)CEILINGJOIST(E)CEILINGJOIST (E) BEAM (E)HIP (E)HIP (E)HIP (E) HIP (E) RIDGE 2x6@16"OC DF#2C.J. 2x8@16"OC DF#2R.R. W 6 W 6 CALIFORNIA FRAME 4x4 HDR 4x12 DF No.1 4x12DFNo.1 9 5 4"x4" POST 9 5 4"x4" POST 4"x4" POST 9 5 10 5 HU HAGNER 10 5 L=6'L=4'2x6 @ 16" OC DF #2 R.R. 12 5 ECC & HW 4"x4" POST W/ SIMPSON ECC & HW 7 5 4x4HDR 4x12 DF No.1 2x8 @ 16" OC DF #2 R.R. 2x8 @ 16" OC DF #2 R.R. 4x4HDR 2x10RIDGE L=8' L=8' L=4'L=4'L=4' L=4'L=8' L=3'L=3' 3 5 2 5 6 5 2 5 1 5 2x8 @ 16" OC DF #2 C.J. Y 6 Y 6 2-2x4 POST W/ HDU-2 2-2x4 POST W/ HDU-2 2-2x4POST W/HDU-2 2-2x4POST W/HDU-2 2-2x4POST W/HDU-2 2-2x4POST W/HDU-22-2x4POST W/HDU-2 2-2x4 POST W/ HDU-2 2-2x4 POST W/ HDU-2 L 5 L 5 L 5 L 5 L 5 L 5 L 5 L 5 L 5 1 3/2015 S.L 4 FRAMING PLAN AS NOTED LOPEZ S. APN:6356-015-032 01/07/15 - 5806TODDAVE. COMMERCECA.90040 (323)350-9234 - TRACT:12751 LOT:33 LEGALDESCRIPTION BLOCK:- FRAMING PLAN 1/4" = 1'-0" GARAGE FRAMING PLAN 1/4" = 1'-0" SHEARWALL 1/2" STRUCT. 1 O.S.B. W/ 8d COMMON NAILS @ 6"/6"/12" AND, ROOF DIAPHRAGM A-35 @ 16" OC @ TOP PLATE NAILING SCHEDULE SOLE PLATE TO JOIST OR JOIST TO SILL OR GIRDER, TOE NAIL BRIDGING TO JOIST, TOE NAIL EACH END SOLE PLATE TO JOIST, OR TOP PLATE TO STUD, END NAIL DOUBLE TOP PLATES, TYPICAL FACE NAIL DOUBLE TOP PLATES, LAP SPLICE BLOCKING BETWEEN JOIST TO RAFTERS RIM JOIST TO TOP PLATE, TOE NAIL STUD TO SOLE PLATE DOUBLE STUDS, FACE NAIL 3-16d PER 16" 16d @ 16" O.C. 16d @ 24" OC 16d @ 16" OC 4-8d, TOE NAIL 8d @ 6" OC 3-8d 8-16d 2-16d 3-8d 2-8d SHEATHING NAIL 6" OC @ EDGE, 12" OC @ FIELD BUILT UP CORNER STUDS RAFTER TO PLATE, FACE NAIL CEILING JOISTS TO PARALLEL RAFTERS, FACE NAIL CEILING JOISTS, LAPS OVER PARTITION, FACE NAIL TOP PLATES, LAPS AND INTERSECTIONS, FACE NAIL CEILING JOISTS TO PLATE, TOE NAIL CONTINUOUS HEADER TO STUD, TOENAIL 2-16d @ EA. 16d @ 24" OC 4-8d 3-16d 3-8d 3-16d 3-8d 2-16d 2" PLANKS BEARING TO TOP PLATE, TOE NAIL BLOCKING TYPICAL FACE NAIL BLOCKING AT BRACED WALL PANEL E) AT OPENING BETWEEN ATTIC SPACES W/NONCOMBUSTIBLE CEILING AND FLOOR LEVEL W/ NONCOMBUSTIBLE MATERIALS. SIMILAR OPENINGS WHICH AFFORD A PASSAGE FOR FIRE AT D) IN OPENINGS AROUND VENTS, PIPES, DUCTS, CHIMNEYS AND UNFINISHED AND BOTTOM OF RUN OF STAIRS IF WALLS UNDER STAIRS ARE C) IN CONCEALED SPACES BETWEEN STAIR STRINGESR AT TOP HORIZONTAL SPACES eg. SOFFITS, DROPS AND COVES. B) AT ALL INTERCONNECTION BETWEEN VERTICAL AND AND AT 10' INTERVALS VERTICAL AND HORIZONTAL. INCLUDING FURRED SPACES @ CEIL'G AND FLOOR LEVELS A) CONCEALED SPACES OF STUD WALLS AND PARTITIONS, 14. FIRE STOPS TO BE PROVIDED INT THE FOLLOWING LOCATIONS: 1. ALL BEAMS TO HAVE A MIN. 4 X 4 POST EA. END. BORED HOLES SHALL NOT BE MORE THAN 40%. 8. PROVIDE SOLID BLOCKING AT HORIZONTAL JOINTS IN BRACED 7. BEARING WALL STUDS SHALL NOT BE NOTCHED MORE THAN 25% 6. INSTALL ALL MANUF. PRODUCTS PER INSTRUCTIONS AS APROVED 5. VERIFY ALL DIMENSIONS BASED ON ARCHITECTURAL PLAN. 4. EXTEND INTERIOR SHEAR WALLS TO BOTTOM OF ROOF SHEATHNG. AND CONT. 2 X BLOCKING UNDER PERPENDICULAR PARTITIONS 3. PROVIDE DBL. JOIST UNDER PARALLEL PARTITIONS AND AND CONT. 4 X BLOCING UNDER PERPENDICULAR WALLS 2. PROVIDE 4 X BEAM BELOW ALL SHEAR WALLS PARALLEL TO JST. BY BUILDING DEPT. WALL PANELS. 4FT X 8FT. EXCEPT AT BOUNDARIES AND CHANGES IN FRAMING CONSTRUCTED USING EXTERIOR GLUE AND SHEETS NO LESS THAN 13. WOOD STRUCT. PANEL DIAPHRAGMS AND SHEAR WALLS TO BE SIDE SHALL BE BONDED W/ EXTERIOR GLUE. 12. WOOD STRUCT. PANEL ROOF SHEATHING EXPOSED ON UNDER- SUPPORT BY SOLID BLOCKING, 2X MIN AND NO LESS THAN DEPTH 11. FLOOR JOISTS SUPPORTED LATERALLY AT ENDS AND AT EA. RIDGES, HIPS AND VALLEYS. 10. RAFTERS FRAMED DIRECTLY OPPOSITE EA. OTHER AT 9. RAFTER TIES TO BE SPACED AT 48" O.C. MAX. OF UNDERSIZED SHEETS ARE SUPPORTED BY FRAMING OR BLCK. WHERE MIN. SHEET DIMENSIONS TO BE 24" UNLESS ALL EDGES MATERIALS. FRAMING NOTES 1/2" O.S.B W/ RADIANT BARRIER 8d COMMON NAILS @ 6"/6"/12" ROOF DIAPHRAGM NAILING TO BE INSPECTED BEFORE COVERING. FACE GRAIN OF PLYWOOD SHALL BE PERPENDICULAR TO SUPPORTS. 1 15. WHERE FLASHING IS OF METAL, THE METAL SHALL BE CORROSION RESISTANT WITH A THICKNESS OF NOT LESS THAN 0.019" (NO. 26 GALVANIZED SHEET.) 1 1 1
  • 5.
    #4 DOWELS TOPAND BOTTOM W/ SIMPSON SET EPOXY ADHESIVE, INSERT BAR UNTIL HITS BOTTOM OF HOLE (SPECIAL INSPECTION REQ'D) FOOTING CONNECTION NEW CONC. FOOTING 3/4" = 1'-0" 6" NEW #4 CONT. REBAR TOP AND BOTTOM EXISTING CONC. FOOTING 6" WEEP SCREED FIN. GRADE 24"MIN.8" 2 X 4 P.T. SILL W/ 5/8" X 10" A.B. @ 6' O.C. W/ 3" X 3" X 1/4" PLATE WASHERS 4" CONC. SLAB W/ #4 @ 16" EA. WAY O.C. 2 X 4 @ 16 OC STUD WALL 4" 2" CLEAN SAND TOP & BOTTOM 6 MILS VISQUINE NEW EXTERIOR FOOTING 2- #4 TOP AND BOTTOM W/ 4" COVER #3 DOWELS @ 24" OC EXTENDED 36" INTO SLAB 12" INTO FOOTING 4" 12" B.N. 12" EXISTINGE FOOTING C CONC. PAD SEE PLAN 6" 18" 1" MIN. 1/8"X1-1/4"X20" U-STRAP,POST (SEE PLAN) 4" CONC. SLAB OR 2" ASPHALT PAVING 16"MIN. @ EXT. COL. 20"MIN. @ INT. COL. 4" 3-#4 EA.WAY EXISTING STUD WALL EXISTING CONC. SLAB W/ 6X6-W1.4/W1.4 WWM 2 X 4 P.T. SILL W/ 5/8" X 10" A.B. @ 6' O.C. W/ 3" X 3" X 1/4" PLATE WASHERS EXISTING FOUNDATION 4" CONC. SLAB W/ #4 @ 16" EA. WAY O.C. 2" CLEAN SAND, TOP & BOTTOM 6 MILS VISQUINE #3 DOWEL @ 48" OC 6" EMBEDMENT TO (E) FOOTING A B G 3/4" = 1'-0" 3/4" = 1'-0" 3/4" = 1'-0" #3 DOWEL @ 48" OC 6" EMBEDMENT TO (E) FOOTING D EXISTING FOOTING 3/4" = 1'-0" EXISTING FOOTING 4" CONC. SLAB W/ #4 @ 16" EA. WAY O.C. EXISTING SLAB 2" CLEAN SAND TOP & BOTTOM 6 MILS VISQUINE 5/8" THREADED ROD W/ SIMPSON SET EPOXY WHEN REQ'D @ SHEARWALL 4"MIN. EXISTING CONC. SLAB EXISTING FOOTING VARIES WEEP SCREED (N)2X4@16"OC STUD WALL NEW LAYER OF CONC. TO ELIMINATE SLOPE HEIGHT NOT TO EXCEED EXISTING CURB HEIGHT (N)CURB TO MATCH (E)CURB HEIGHT 2X4 P.T. SILL 10" EMBEDMENT W/ SIMPSON SET EPOXY EXISTING GARAGE FOOTING 3/4" = 1'-0" E NEW LAYER OF CONC. TO ELIMINATE SLOPE HEIGHT NOT TO EXCEED EXISTING CURB HEIGHT EXISTING 2X4 @ 16"OC STUD WALL 4" CONC. SLAB W/ #4 @ 16" EA. WAY O.C. 2" CLEAN SAND TOP & BOTTOM 6 MILS VISQUINE EXISTING F.J. #3 DOWELS @ 32"OC 5/8" THREADED ROD, INTO W/ SIMPSON SET EPOXY WHEN REQ'D @ SHEARWALL EXISTING FOOTING 3/4" = 1'-0" F H SECTION 2" CLEAN SAND TOP & BOTTOM 6 MILS VISQUINE 12" 71 2" 4" #3 DOWELS @ 24" OC EXTENDED 36" INTO SLAB 12" INTO FOOTING 2 X 4 @ 16 OC STUD WALL 4" CONC. SLAB W/ #4 @ 16" EA. WAY O.C. 2 X 4 P.T. SILL W/ 5/8" X 10" A.B. @ 6' O.C. W/ 3" X 3" X 1/4" PLATE WASHERS 6"24"MIN. 2-#4 TOP AND BOTTOM W/ 4" COVER WEEP SCREED 3/4" = 1'-0" GRAGE FOOTING I 6" 4" CONC. SLAB W/ #4 @ 16" EA. WAY O.C. 2" CLEAN SAND, O/ 6 MILS VISQUINE 24" 12"2-#4 TOP AND BOTTOM 3" 3/4" = 1'-0" GARAGE FOOTING J 2 X @ 16" OC RAFTERS 2 X 6 COLLAR TIES @ 48" O.C. RIDGE 3/4" = 1'-0" 2 X RIDGE (3) 16d MIN. SIMPSON ST-24 STRAP OVER RIDGE @ 48"OC 1 A35 @ 16"OC DRYWALL R-13 BATT. INSUL. EAVE R-30 BATT. INSUL. 5-16d MIN. 2X @ 16OC CEILING JOIST 3/4" = 1'-0" 2 CONT. FASCIA COMP ROOF SHINGLES CLASS "B" OR BETTER OVER 15# FELT E.N. 8d @ 6"OC 1/2" OSB W/ RADIANT BARRIER W/ 8d @ 6/6/12 2X @ 16"OC ROOF RAFTERS E.N. 8d @ 6"OC 2X @ 16"OC ROOF RAFTERS 1/2" OSB W/ RADIANT BARRIER W/ 8d @ 6/6/12 RAKE 3/4" = 1'-0" 2X @ 16"OC CEILING JOIST 16d @ 6"OC A35 @ 16"OC 2X4 @ 16"OC CRIPPLE WALL E.N.B.N. 2X STUD WALL. 3 (N) 2 X 10 (E) 2 X 4 @ 16"OC STUD WALL (N) 2 X 4 @ 16" O.C. CRIPPLE WALL (N) 2X @ 16"OC CEILING JOIST (N) 2 X 4 SILL PLATE W/ 16d @6" OC (E) 1/2" CDX PLY. W/ 8 d @ 6:6:12 16d @ 16" OC BOUNDARY NAILING 2X BLOCKING (N) 2 X @ 16 OC ROOF RAFTERS (E) 2X CEILING JOIST (E) 2X ROOF RAFTERS CALIFORNIA FRAME A-35 @ 16"OC 4 E.N. E.N. E.N.A-35 @ 16"OC 3/4" = 1'-0" A35 @ 16"OC 4X HDR. SEEPLAN EAVE W/ BEAM 5-16d MIN. 2X @ 16OC CEILING JOIST 3/4" = 1'-0" 5 CONT. FASCIA COMP ROOF SHINGLES CLASS "B" OR BETTER OVER 15# FELT E.N. 8d @ 6"OC 1/2" OSB W/ 8d @ 6/6/12 2X @ 16"OC ROOF RAFTERS 2X @ 16"OC ROOF RAFTERS 1/2" OSB W/ 8d @ 6/6/12 RAKE W/ BEAM 3/4" = 1'-0" 2X @ 16"OC CEILING JOIST 16d @ 6"OC A35 @ 16"OC 2X4 @ 16"OC CRIPPLE WALL E.N. 4X HDR. SEE PLAN B.N. 6 ECC N.T.S. 7 4X_BEAM 4X_ BEAM SIMPSON HW SIMPSON ECC 4X4 POST R13 BATT.INSUL. R13 BATT.INSUL. R-13 BATT. INSUL. 3/4" = 1'-0" 8 CRICKET FRAME NEW 2X ROOF RAFTERS NEW 2X CEILING JOIST NEW 2X @ 16"OC CEILING JOIST 2 X 4 @ 16"OC STUD WALL A-35@16"OC NEW 2X @ 16"OC ROOF RAFTERS. NEW R.R. & C.J. LAP ON TO EXISTING STUD WALL. 3 PLY BUILT UP OR TORCH DOWN NEW CRICKET FRAME. 1/2" CDX. (3) 16d 2X SHAPED BLOCKING. 12"12" E.N. #3 DOWELS @ 24" OC EXTENDED 36" INTO SLAB 12" INTO FOOTING 18"MIN. K INTERIOR FOOTING 4" 12" 2-#4 TOP AND BOTTOM W/ 4" COVER 2 X 4 @ 16 OC STUD WALL2 X 4 P.T. SILL W/ 5/8" X 10" A.B. @ 6' O.C. W/ 3" X 3" X 1/4" PLATE WASHERS 3/4" = 1'-0" MULTI-STUDS W/ 16d @ 12"OC OR POST SEE PLAN BEAM SEE PLAN SIMPSON A-35 2X DBL TOP PLATE 2X @16"OC STUD 3/4" = 1'-0" 9 BEAM TO TOP PLATE 2X @16"O.C. CEILING JOIST LUS HANGERS BEAM SEE PLAN 2X @16"O.C. CEILING JOIST ST 22 3/4" = 1'-0" 10 CEILING JOIST TO BEAM HU HANGER BEAM PER PLAN 3/4" = 1'-0" 11 BEAM TO BEAM 7/8" STUCCO FINISH ALL AROUND EAVE FOR 1HR FIRE RATED WHEN WITHIN 2' OF P.L. 7/8" STUCCO FINISH ALL AROUND EAVE FOR 1HR FIRE RATED WHEN WITHIN 2' OF P.L. 2X4@16"OC STUD WALL A-35 @ 16"OC WALL TO ROOF 2X @16"OC CEILING JOIST 4-16d EA. SIDE EN 12"MIN.12"MIN. 123/4" = 1'-0" OPENING FOR ATTIC ACCESS FILL W/ COMPACT DIRT. 4" CONC. SLAB W/ 6X6-10/10 WWM #4 W/ 3" COVER 10" MIN 7.5"8"7.75" G.I. SHEET TO PROTECT WOOD EXISITNG FOOTING EXISTING FLOOR JOIST 4X4 P.T. POST W/ POST BASE SEE PLAN 6" 18" 8" 18"MIN (E) 2X FLOOR JOIST 2-16d EA. SIDE E.N. 16d EA. SIDE M PIER 3/4" = 1'-0" 4" 3-#4 EA.WAY 20"MIN. @ INT. COL. 16"MIN. @ EXT. COL. 2x4 SILL PLATE 2X4 STUD 5 8"X 10" A.B. SHEARWALL POST PER PLAN HOLDOWN PER PLAN NAILING PER SCHEDULE 1/2" STRUCT. 1 PLYWOOD SIMPSON SSTB PER HOLDOWN SPECS 1 3/4" EDGE DISTANCE 12" END DISTANCE @ 40" O.C. NEW FOOTING 3" x 3" x .229" PLATE WASHER 3/4" = 1'-0" L HOLDOWN 3/4" = 1'-0" 1 3/2015 S.L 5 DETAILS AS NOTED LOPEZ S. APN:6356-015-032 01/07/15 - 5806TODDAVE. COMMERCECA.90040 (323)350-9234 - TRACT:12751 LOT:33 LEGALDESCRIPTION BLOCK:-
  • 6.
    FIN. GRADE FIN. GRADEFIN. GRADE 2x4 DLB. TOP PLATE 2x4@16"OC WALL STUD 2x4 DLB. TOP PLATE 2x4@16"OC WALL STUD R-13 BATT. INSULATION 2x @ 16"O.C CEILING JOIST R-30 BATT. INSULATION 2x @ 16"O.C CEILING JOIST 2X @16" O.C. ROOF RAFTER 2X @16" O.C. ROOF RAFTER 2 5 1 5 I 5 B 5 3 5 4 5 FIN. GRADE 2x4 DLB. TOP PLATE 2x4@16"OC WALL STUD R-13 BATT. INSULATION R-30 BATT. INSULATION 2x @ 16"O.C CEILING JOIST 2X @16" O.C. ROOF RAFTER 2 5 B 5 1 5 8 5 FIN. GRADE F 5 FIN. GRADE 2x4 DLB. TOP PLATE 2x4@16"OC WALL STUD R-13 BATT. INSULATION R-30 BATT. INSULATION 2X @16" O.C. ROOF RAFTER B 5 3 5 D 5 4 5 2x @ 16"O.C CEILING JOIST EXISTING 2x CEILING JOIST EXISTING 2x ROOF RAFTER EXISTING 2x CEILING JOIST EXISTING 2x ROOF RAFTER EXISTING WALL STUD EXISTING WALL STUD 12 4 12 3 12 5 2x @ 16"O.C CEILING JOIST 12 4 8'-6" B 5 K 5 D 5 8'-0" 8'-6" 8'-6" 8'-0" 8'-6" 8'-6" 2'-0" PL 2 5 1 HR FIRE RATED EAVE REQ'D WHEN WITHIN 2' OF P.L. 5/8" TYPE "X" GYPSUM BOARD 1 HR FIRE RATED 1 3/2015 S.L 6 SECTIONS AS NOTED LOPEZ S. APN:6356-015-032 01/07/15 - 5806TODDAVE. COMMERCECA.90040 (323)350-9234 - TRACT:12751 LOT:33 LEGALDESCRIPTION BLOCK:- SECTION 3/8"=1'-0" Z SECTION 3/8"=1'-0" X SECTION 3/8"=1'-0" Y SECTION 3/8"=1'-0" W