Kingston University
MSc in International Business Management

OPERATION MANAGEMENT REPORT:
A CASE-STUDY ON THE KEY STRATEGIC AND
OPERATIONAL ISSUES FACED BY ONE STARBUCKS COFFEE SHOP
ON 91 CLARENCE STREET IN KINGSTON TOWN

Submitted by: k1270095
Submission date: 16th December 2013

Lecturer: Alex Hill
Words count: 2288 words

0
EXCUTIVE SUMMARY
This report focuses on analyzing the key strategic and business operation issues of a Starbucks coffee shop on
91 Clarence high street in Kingston town (Kingston Upon Thames, London, UK). The report identifies the
business context and main operational aspects of this Starbucks shop which will be shown briefly in the
Introduction part.
Methods of analysis include the secondary-data, primary-data (qualitative and quantitative research), relevant
theories and relative information from books, online databases, as also student’s works and so on.
The report figures out the problems of this Starbucks shop, such as the atmosphere and layout inside the
store, as also some customer services. However, those issues depend on many different cases which cannot
meet a specific solution to improve themselves. In addition, the general feedback of customers indicates that
although the problems exist, these issues are not big impacts.
Recommendation for the business of this Starbucks shop is to keep managing their current operating system
and extend their competitive advantage, based on the ideal location (order-winner), to target the potential
segment customers as non-coffee drinkers.
This report might not avoid the shortcomings and limitations itself. For instance, a lack of experience in doing
the actual surveys which led to incomplete data and information; some results are based on past performance
or general context which can be subjective.

1
LIST OF CONTENTS
EXCUTIVE SUMMARY .......................................................................................................................................................... 1

LIST OF CONTENTS .............................................................................................................................................................. 2

LIST OF TABLES/ FIGURES.................................................................................................................................................... 3

INTRODUCTION ................................................................................................................................................................... 4
A business overview of the Starbucks shop on high street in Kingston town ............................................................ 4
Market order-winners and market qualifiers of this Starbucks shop......................................................................... 6
Alternative customer segments for this Starbucks shop ............................................................................................ 6

METHODOLOGY .................................................................................................................................................................. 7
Supplements ....................................................................................................................................................................... 8
For the Primary-data:................................................................................................................................................. 8
Test the recommendation: ......................................................................................................................................... 8

ANALYSIS ............................................................................................................................................................................. 9
Analysis this Starbucks shop in the coffee market ........................................................................................................... 10
The general context of the coffee market in the UK ................................................................................................ 10
The context of the coffee market in Kingston town ................................................................................................. 11
Consider the different target market of two Starbucks shops in Kingston town ..................................................... 13

FINDING AND CONCLUSION.............................................................................................................................................. 15

RECOMMENDATION ......................................................................................................................................................... 16

REFERENCE LIST ................................................................................................................................................................ 17
BIBLIOGRAPHY .................................................................................................................................................................. 18

APPENDICES ...................................................................................................................................................................... 20

2
LIST OF TABLES/ FIGURES

Title

Description

Page number

Table 1

An overview of Starbucks shop on high street in Kingston town – Own visualization

4-5

Table 2

Market segment by age of Starbucks shop in Kingston town – Own visualization

5

Table 3

Market order-winners or qualifiers of Starbucks shop on high street in Kingston

6

Table 4

Methodology of this report – Own visualization

7

Table 5

Time-line of the actual survey – Own visualization

8

Table 6

Operation functions – Own visualization

9

Table 7

Selected leading operators of branded coffee shops by turn over (£m), 2008-2012

11

Table 8

11

Table 9

Location and customer-service rating of the coffee shops of Starbucks and Costa in
Kingston town
Commuters and captive-consumers – Own visualization

Table 10

Life-style and behavior – Own visualization

13

Figure 1

UK Coffee shops market size and forecast, 2008-18

4

Figure 2

Outlet numbers of selected leading specialist coffee chains, 2011 and 2013

10

Figure 3

Factors influencing where hot drinks are purchased out of home, July 2013

12

Figure 4

Apply Maslow’s 3rganizat of needs on the target market of Starbucks shops in
Kingston town – Own visualization
Improvement process

14

Figure 5

13

16

3
INTRODUCTION
Starbucks is a famous brand with a worldwide chain of coffee shops. As can be seen in the figure 1 (Mintel,
2013c), the UK coffee shop market is achieving a modest growth in recent years, based on the improvements
in the confidence of consumers (estimated market size of £1.4 billion in 2013).

Figure 1. UK Coffee shops market size and forecast, 2008-18 (Mintel, 2013c)
A business overview of the Starbucks shop on high street in Kingston town
This section of the report first provides an overview and comment of the business context on one Starbucks
shop in Kingston town which can be seen briefly in Table 1 below. In addition, table 1 identifies the customers
and the services supplied to the customers. It also points out the market share and main competitors of this
Starbucks in general coffee market.
Starbucks coffee shop in Kingston town
Categories
Location

Detail

General comment

91 Clarence Street, Kingston Upon Ideal location
Thames, London, UK

Brand

Global famous brand name

Competitive advantage: loyalty customers

Brand positioning The concept of “Third Place”

Unique and very effective

Service system

Customer

Fast-food delivery service

journey:

Starbucks

staff

ask

4
More self-service for customers

customers’ name, good delivery reliability

Inside context:

-

Small, one floor

Maximize their small space efficiently

space/ layout/

-

Available seats: 55-60

Noisy, busy, uncomfortable, especially on

facilities

-

Facilities: average

Saturday

Products

Main products: coffee, coffee latte

High quality – Customers specially love coffee

Amount of consumption: 900 drinks/ day latte
Price average at £3 (both drinks and High price
foods)
Large range of options
Product life cycle

Satisfy the customer’s needs

Different and flexible

Can be considered at maturity stage

Main competitors Costa, Nero, Republic
Market share

Healthy competition

Estimated at 20% in general market (this High market share and sustainable growth
data is conjectured and will be explained because Starbucks also has another shop
in the Analysis part)

Target market

nearby in the Bentall centre

Commuters, different age segments, life- The majority of customers is whom travel and
style and behaviours of customers

move around high street

Table 1. An overview of Starbucks shop on high street in Kingston town – Own visualization
(Source: online resources and perspective from Primary-data and practical survey)
From the customer’s overall assessment, this Starbucks shop is not high in quality for space, layout, facilities
(e.g. complaint about the seats, toilet..); however, the main strategic operation of this shop is not to keep
customers staying longer but to increase sales and profits, as maximize all the possible advantages, based on
its ideal location.
Table 2 illustrates one way to identify the target market of this Starbucks shop, based on age segment, which
can also describe the coffee and drink products supplied to their customers.
Age
Adults (main target)
Young adults
Kids and Teens
Others

25 to 40
18 to 24
13 to 17

Proportion of
Starbucks’ sales
49%
40%
2%

Percent of the
growth rate
3%
4.6%
n.a.

Typical products

Coffee Latte
Coffee Latte, Sugary Coffee
Babyccinos, Smoothie, Caffeinated,
Whipped cream
n.a.
9%
n.a.
n.a.
Table 2. Market segment by ages of Starbucks shop in Kingston town – Own visualization
(Source: Primary-data and Small Business, 2013)
5
Market order-winners and market qualifiers of this Starbucks shop
Table 2 indicates the market order-winners and qualifiers of the operation of this Starbucks shop (as
considering with a Starbucks and Costa shop in the Bentall centre)
Operational Components

Order-Winner or Qualifier

Price

Q

Quality conformance

Q

Delivery reliability

Q

Delivery speed

Q

Service or product range

Q

Service or product design

Q

Demand fluctuations

Q

Speed or new service of product development

Q

Some additional operational components:
Location

OW

Brand/ Reputation

Q

Space/ layout/ facilities of shop

Q

Shop atmosphere

Q

Loyalty program

Q

Corporate social responsibility (CSR)

Q

Table 3. Market order-winners or qualifiers of Starbucks shop on high street in Kingston town
[Source: Primary-data and Operation Management book (Hill and Hill, 2012)]
Alternative customer segments for this Starbucks shop


Non-coffee drinkers

As assessed above, the market order-winner of Starbucks shop on 91 Clarence street is the location. It means,
this Starbucks shop has a chance to access the variety and diverse types of consumers which can be everyone
that travels and moves around Kingston town. In other words, it can be an alternative operational strategy for
this shop. Therefore, follow this point, it can be suggested that an alternative customer segment for this
Starbucks shop is to target the non-coffee drinkers. Non-coffee drinkers are who have no experience about
drinking coffee; however, they have the needs for delicious drinks.

Some products of Starbucks, as

Frappuccino with contain high percentage of milk, can be attractive for the taste and flavor of this new
segment market.

6
METHODOLOGY
The methods of this report can be described in detail as table 4 below:
METHODS

DESCRIPTION

HOW/ WHERE

Secondary-

Using market reports of online sources as Mintel, Keynote. The secondary

The Secondary-

data

data supports to have an overview of the coffee market in general context to

data is used for

analyse the Starbucks shop on high street in particular. Mintel and Keynote

the whole

reports are made by the experts on the market survey which are important

report

and necessary for both purposes of studying and practices
Primary-

Some actual survey with Starbucks’ customers (qualitative and quantitative

The Primary-

data

research) and an interview with Starbucks’ manager (qualitative research).

data can be

The primary-data supports on understanding the core operating system of

found in the

this Starbucks shop and helping to access the specific information that need

Appendices part

to involve in this report
Relevant

Any types of online resources (e.g. blogs of customers’ reviews, articles about This method is

and relative the issues surrounding this Starbucks shop and so on). This methodology can

applied through

information be similar to the secondary-data but it includes more non-academic

the report

information
Knowledge

Operation Management book and academic database (i.e. using the theory of This method is

application

Maslow’s hierarchy of needs for the target market of this Starbucks shop)

used for the
whole report

Group work After doing the practical survey and collecting data, the Kingston University This method is
students, who chose to write similar report on this Starbucks shop, discussed used for the
and analysed all information together. Because the purpose of this report is whole report;
to understand about the operation issues of an 7organization or business; some work can
therefore, the students have assumed themselves as different parts of a be found in the
business and support each other to understand how the operating system Appendices part
works, as also be able to see the problems under the managers’ perspective.
Students divided main basic parts of the report, which can be the same, to
work on individual (e.g. background of market context, the market share, the
target market..) and then share for other members to work on it again.
Each member can contribute and give their ideas based on their particular
skill to improve different aspects of the report (e.g. a figure of the floor plan)
Table 4. Methodology of this report – Own visualization
7
Supplements
-

For the Primary-data:

Respondents – There were four staff and one manager of this Starbucks shop for the surveys’ interviews. The
customers have been chosen randomly, 40 people, which also include four members of the student group. The
students directly used the products and services of the Starbucks shop on high street to get the assessments
from customers' views.
Limitations - Due to the inconvenient issues in communicating of a public place with limited time, the students
were not able to record the video or voice of the interviewees during the experimental market survey. Data
and information have done with their personal laptops, writing-notes and verbal exchanges.
Time-line - The survey was carried out in four days:
Date

Significant feature

Methods

Saturday (7th December 2013)

considered as the busiest day of qualitative market research with
this Starbuck shop
random customers and four staff
th
Sunday (8 December 2013)
quantitative market research with
random customers
th
Monday (9 December 2013)
the only day which manager will qualitative market research, an
come and work at here
interview with manager
th
Wednesday (11 December 2013)
review the layout and space of the
shop to redraw its floor plan
Table 5. Time-line of the actual survey - Own visualization
In addition, the students also used the Saturday above to do research of another Starbucks shop and their
main competitors, such as Costa and Nero, in the Bentall centre.
-

Test the recommendation:

The process of the survey on customers' general feedback shows that they do not particularly love this
Starbucks shop. Nevertheless, they are completely satisfied with the inconvenience (e.g. layout, atmosphere)
and feel more comfortable with the convenience (e.g. ideal location, customer service and so on). Based on
that, as considered the operation of this Starbucks shop till far, the problems which this shop is meeting are
not large enough to cause an adverse effect on it. This Starbucks shop can keep maintaining its current
operating status, and aims to further expand its business into the different customer segments. The survey
indicates that the frequency of people who visit the store is high; however, it needs more time to ensure that
the non-coffee drinkers can be a potential market.

8
ANALYSIS
According to Reid and Sanders (2010), operation functions of a business focuses on specific capabilities which
give it a competitive edge or competitive priorities such as cost, quality, time and flexibility. From the practical
survey and online resources, it can be argued that the Starbucks coffee shop on high street in Kingston town is
managing its operation in the most effective way [see Table 6].

Table 6: Operation functions - Own visualization
[Source: perspective from practical survey, Reid and Sanders (2010)]
The service delivery system of this Starbuck shop is to push up the rotation speed of the sales and the
customers' purchasing power with the most possible advantages of the infrastructure that it owns. Although

9
this Starbucks shop has a moderate space, it improves as much in the arrangement and construction of the
equipment, as also the place of its counters and employee which are suitable for a fastest customer journey.

Analysis this Starbucks shop in the coffee market (compare with another Starbucks shop and its main
competitors, Costa coffee which both located in Kingston town)
-

The general context of the coffee market in the UK

According to Mintel (2013a), Starbucks has encountered some issues with the payment of UK corporation tax
in 2012/13. This caused a bit of the negative impact on Starbucks’ brand image and reduced a small amount of
consumers to all Starbucks’s shop around the UK. Meanwhile, Costa Coffee was continuing to lead the coffee
shops market which is considered as the biggest rival of Starbucks. As can be seen in Figure 2 (Mintel, 2013a),
the number of Costa Coffee outlets as twice compared to Starbucks. This can partly reflects the market share
of the coffee shop brand.

Figure 2. Outlet numbers of selected leading specialist coffee chains, 2011 and 2013 (Mintel, 2013a)
By considering the leading operators of branded coffee shop's turnover from 2008 to 2012, it can be seen
from Table 7 (source: Keynote, 2013) that although Starbucks was always higher than Costa, its growth was
very slow for each next stage. In contrast, Costa had significant step forward and was closing the turnover gap
to Starbucks (from £157.2m in 2008 to £20.4m in 2011). Analysis of the data, such as market share based on
turnover and the turnover gap between Starbucks and Costa, is also shown in Table 7 below.

10
Table 7: Selected leading operators of branded coffee shops by turn over (£m), 2008-2012
(Source: Keynote, 2013)

- The context of the coffee market in Kingston town
Table 8 shows the locations of the coffee shops of Starbucks and Costa in Kingston town and the overall rating
for the quality of customer service on these places.
Location

Rating

Starbucks

91 Clarence Street, KT1 1QY
7/10
Ground floor, The Bentall Shopping Centre, Wood Street, KT1 1TR
7/10
Costa
Kingston Station, Wood Street, KT1 1UJ
6/10
The Bentall Shopping Centre, KT1 1TR (3 shops)
8/10
34 Market Place, KT1 1JQ
6/10
Table 8: Location and customer-service rating of the coffee shops of Starbucks and Costa in Kingston town
- Own visualization (Source: Primary-data and relevant online database)
As also from the experimental investigation, the general context of the coffee market in the UK seems to be
compatible with the context in Kingston town. The number of Costa outlets is also overwhelming than
Starbucks stores in Kingston town. That may create a large market share for Costa. However, Starbucks'
market share here still seems to be more dominant due to their ideal location. Both of two Starbucks shops
here are located in convenient places, especially the Starbucks shop on 91 Clarence Street, which completely
attract a large number of potential customers. If consider that the percent of market share will be similar from
the general context to the particular context in Kingston town, the market share for both of these Starbucks
shops is also estimated at 40% and 20% for each of them (if they balance in the business operation).

11
To strengthen the argument above about the sustainable market share of Starbucks outlets, from the factors
affecting the hot drinks purchase of customers (Mintel, 2013c), location is the most important factor, as
opposed to the coffee brand [see Figure 3]. As also from the reaction and feedback of coffee customers in
Kingston, it can be argued that:
-

Location is placed in high positions of customers' priorities: Starbucks shop on 91 Clarence Street hold
the high market share position

-

Brand is placed in low positions of customers' priorities: Starbucks shop on 91 Clarence Street do not
face the tax issue which affects their brand image negatively as mentioned above

Figure 3. Factors influencing where hot drinks are purchased out of home, July 2013 (Mintel, 2013c)
In addition, with the two Starbucks shops that near each other, it can be stated that they can conflict
themselves on business operations, market sales and so on. Nevertheless, both these Starbucks shops are
running the good system, being flexibility to support themselves on promoting the general business
operations of Starbucks.

12
- Consider the different target market of two Starbucks shops in Kingston town
From the interview with the manager of the Starbucks on 91 Clarence street, because of the flexibility in
operation function of Starbucks, their shops in different location can meet the different customers’ needs. As
also based on some online research, it seems to have three ways to identify the target market of Starbucks in
Kingston:


Commuters and captive-consumers: both Starbucks shops meet the needs of commuters

Commuters

someone traveling to or from work, out shopping, lunch breaks or delivering goods or services
and so on

Captive-

someone who is in a restricted entry environment (e.g. high school, college campuses, special

consumers

events) that does not allow convenient departure, free movement and return while searching
for refreshment, or where refreshment stands are an integral part of the environment
Table 9. Commuters and captive-consumers - Own visualization
(Source: perspective from practical survey and UMSL, 2013)



Age segments: this target market can be also applied for both Starbucks’ shops, it also points out the
typical products for each market segment of customers [See table 2 in the Introduction part]



Life-style and behavior: this target market can nearly be divided into two different segments for two
Starbucks shops in Kingston; depends on the different needs, wants and demands of customers

91 Clarence Street

Most of customers who want to get a quick relaxation and have an easy day – more selfservice and self-actualisation needs

The Bentall Centre

Most of customers who want to feel welcome, relaxed and important, impress a date
and socially interactive – more social needs
Table 10. Life-style and behavior - Own visualization
(Source: perspective from practical survey Novilla, 2011)

The Starbucks’ operation model, as McDonald's, is type of fast-food company and organisations nowadays;
therefore, customers seem to be self-initiative for a self-service in the delivery process of product. From the
perspective of the practical survey, one of the reasons (for the inconsistency of these two Starbucks stores)
comes from the layout based on their surface area. Starbucks on 91 Clarence Street does not have a large
space for social activities like Starbucks in the Bentall Centre. However, at Starbucks shop on 91 Clarence
Street, a busy atmosphere can create a faster trend for the transfer of product sales.
If using five stage models of Maslow's Hierarchy of Needs, the target market for two Starbucks in Kingston
town can be considered as in figure 4 below:

13
Figure 4. Apply Maslow's hierachy of needs on the target market of Starbucks shops in Kingston town
- Own visualization (Source: Simply Psychology, 2013)
In brief, the customers come to Starbucks shop on 91 Clarence Street for more self-service; they make fast
delivery, mostly buy take-away drinks and spend less time to stay in the shop. On the other hand, with
Starbucks in the Bentall Centre, customers often sit longer for a group meeting, friendly communication and
social needs.

14
FINDING AND CONCLUSION
From the above analysis of the business operating system of Starbucks shop in Kingston, as Joel (2008)
mentioned in his article, it can be suggested that the market orientation of their shop on high street focuses
more on the market driving approach than the market driven approach. This Starbucks shop is flexible in its
operation, proactively change and create new customers or markets easily. It focuses more on increasing the
speed of the delivery service and improves the possible opportunities that based on its ideal location. In
addition, it is extending the internal dynamics for the operation and intra-firm behavior with configurable
advantage on the market ownership.
From the practical investigation, it indicates that the atmosphere and layout, as some customer services of the
Starbuck shop on high street can be the obstacles for its business operation. However, from the general
reaction of customers, those issues perfectly do not influence as much to this Starbucks shop.
As can be seen in Figure 4, this Starbucks shop meets the highest philosophy needs of customers. Nonetheless,
other rivals of Starbucks, as Costa coffee outlets, also be able to meet these requirements. To create a
competitive advantage, Starbucks shops need to consider their operation strategy based on the order-winners
as their ideal location in the context of the Kingston coffee market. This argument leads to the
recommendation that the Starbucks shop on high street should target an alternative customer segment, noncoffee drinkers.

15
RECOMMENDATION
Taking everything into consideration, the recommendations for future actions of the Starbucks on high street
in Kingston town can be identified as:


Maintain the current operations of its business



Expand the market into new target customers as non-coffee drinkers

As stated in the Operation Management book (Hill and Hill, 2012), “Organisations must continually look for
ways to improve operations”. Therefore, it can be argued that the action as keep managing the current
operations of the Starbucks shop on high street is not the most effective solution for unpredictable issues in
future. On the other hand, if this Starbucks considers on the way of expanding the target market, it can apply
the Improvement process for improving the operations of an organisation [see figure 5]. Adding to this point,
with the new market segment, this Starbucks shop can focus on developing the mixed-ingredient for its
product chain. This recommendation requires the agility and flexibility of the business operations on product
strategy. For example, coffee beverage can contain the high percentage of milk or different flavours that are
suitable to the taste of the non-coffee drinkers. As an expected consequence, this Starbucks shop still can
keep its brand image as a famous worldwide chain of coffee shops but improve its business operation on a
new potential market.

Figure 5. Improvement process [Source: Operation Management (Hill and Hill, 2013)]

16
REFERENCE LIST
Hill, A. and Hill, T. (2012) Operations Management, 3rd Edition, Macmillan [Digitally] Available at: http://www.
coursesmart.co.uk/IR/5238660/9780230362901?__hdv=6.8
Joel, D. (2008) ‘Market driven vs. market driving’, 2nd December 2008 [Online]. Available at: http://delwin
joelmarketing.blog.com/2008/12/02/market-driven-vs-market-driving/ [Accessed: 13th December 2013]
Keynote (2013) ‘Coffee & Sandwich Shops 2013’ *Online+. Available at: http://www.keynote.co.uk.
ezproxy.kingston.ac.uk/ajax/site/browser/download?productId=109549 [Accessed at: 9th December 2013]
Mintel (2013a) ‘Coffee Shops – UK – October 2013: Executive Summary’ *Online+. Available at:
http://academic.mintel.com/sinatra/oxygen_academic/attachment/id=638274&seq=1 [Accessed at: 9th
December 2013]
Mintel (2013c) ‘Coffee Shops – UK – October 2013: Infographic Overview’ *Online+. Available at:
http://academic.mintel.com/download/pdf/report_infographic/638274/ [Accessed at: 9th December 2013]
Novilla, H. (2011) ‘The 10 Step Marketing Plan for Starbucks Coffee?’, Slideshare, October 2011[Online].
Available at: http://www.slideshare.net/Homieboi/starbucks-9784106 [Accessed: 15th December 2013]
Reid, R.D. and Sangers, N. R. (2010) Operations Management, 4th Edition, Wiley, ‘Chapter 2 – Operations
Strategy and Competitiveness’ *Online+ Available at: http://www.wright.edu/~george.polak/ch02.ppt
[Accessed: 13th December 2013]
Simply Psychology (2013) ‘Maslow’s Hierarchy of Needs’ [Online]. Available at: http://www.simply
psychology.org/maslow.html [Accessed: 14th December 2013]
Small Business (2013) ‘Who Is Starbucks' Target Audience?’ *Online+. Available at: http://smallbusiness.
chron.com/starbucks-target-audience-10553.html [Accessed: 14th December 2013]
Umsl (2013) ‘Starbucks coffee – Marketing Management’, University of Missouri-St. Louis [Online]. Available
at: http://www.umsl.edu/~chewl/4700/STARBUCKS_CASE_01/Starbucks.ppt [Accessed: 13th December 2013]

17
BIBLIOGRAPHY
Bains, L. (2010) ‘Starbucks Listens to Customer Feedback: A Case Study’, 8 th July 2010 [Online]. Available at:
http://survey.cvent.com/blog/market-research-and-survey-basics/starbucks-listens-to-customer-feedback-acase-study [Accessed: 11th December 2013]
Consumer affairs (2013) ‘Top 242 Complaints and Reviews about Starbucks’ *Online+. Available at:
http://www.consumeraffairs.com/food/starbucks.html [Accessed: 9th December 2013]
Costa (2013a) Official Website of Costa Coffee [Online]. Available at: http://www.costa.co.uk/ [Accessed: 13th
December 2013]
Costa (2013b) Official Website of Costa Coffee – Store locator [Online]. Available at: http://www.
costa.co.uk/locations/store-locator/ [Accessed: 13th December 2013]
Distilled (2013) ‘What is Starbucks missing from its marketing strategy’, Slideshare, 30th September 2013
[Available at: http://www.slideshare.net/DistilledSEO/starbucks-marketing-web-3 [Accessed: 13th December
2013]
Forbes (2012) ‘3 Reasons Why Starbucks Still Shines, Despite Market Shortcomings’, 6th August 2012 [Online].
Available at: http://www.forbes.com/sites/rachelhennessey/2012/08/06/3-reasons-why-starbucks-still-shines
-despite-market-shortcomings/ [Accessed: 14th December 2013]
Forbes (2013) ‘Starbucks: Loyalty Program Misfire’, 23rd July 2013 [Online]. Available
http://www.forbes.com/sites/rogerdooley/2013/07/23/starbucks-gold/ [Accessed: 9th December 2013]

at:

Hill, A. and Hill, T. (2012) Operations Management, 3rd Edition, Macmillan [Digitally] Available at: http://www.
coursesmart.co.uk/IR/5238660/9780230362901?__hdv=6.8
Huggins, C. (2013) ‘How will Starbucks maintain its competitive advantage?’, 6th May 2013 [Online]. Available
at: http://blogs.desmoinesregister.com/dmr/index.php/2013/05/06/how-will-starbucks-maintain-its-competi
tive-advantage/article?nclick_check=1 [Accessed: 14th December 2013]
Keynote (2013) ‘Coffee & Sandwich Shops 2013’ *Online+. Available at: http://www.keynote.co.uk.
ezproxy.kingston.ac.uk/ajax/site/browser/download?productId=109549 [Accessed at: 9th December 2013]
Joel, D. (2008) ‘Market driven vs. market driving’, 2nd December 2008 [Online]. Available at: http://delwin
joelmarketing.blog.com/2008/12/02/market-driven-vs-market-driving/ [Accessed: 13th December 2013]
Manifested Marketing (2012) ‘Starbucks – Relationship & Service Marketing’, 16th March 2012 [Online].
Available at: http://manifestedmarketing.com/2012/03/16/starbucks-relationship-services-marketing/#comm
ents [Accessed: 14th December 2013]
Mintel (2013a) ‘Coffee Shops – UK – October 2013: Executive Summary’ *Online+. Available at:
http://academic.mintel.com/sinatra/oxygen_academic/attachment/id=638274&seq=1 [Accessed at: 9th
December 2013]
Mintel (2013b) ‘Coffee Shops – UK – October 2013: Issues in the Market’ *Online+. Available at:
http://academic.mintel.com/sinatra/oxygen_academic/attachment/id=638274&seq=2 [Accessed at: 9th
December 2013]
Mintel (2013c) ‘Coffee Shops – UK – October 2013: Infographic Overview’ *Online+. Available at:
http://academic.mintel.com/download/pdf/report_infographic/638274/ [Accessed at: 9th December 2013]

18
Mintel (2013d) ‘Coffee Shops – UK – October 2013: Report Brochure [Online]. Available at:
http://academic.mintel.com/editorial/report_brochure_editor/pdf/638274?language_code=en [Accessed at:
9th December 2013]
Nero (2013) Official Website of Nero Coffee [Online]. Available at: http://www.caffenero.com/default.aspx
[Accessed: 13th December 2013]
Northrup, L. (2013) ‘Why Should Starbucks Give You A Loyalty Discount? You’re Already Addicted’, 26 th March
2013 [Online]. Available at: http://consumerist.com/2013/03/26/why-should-starbucks-give-you-a-loyaltydiscount-youre-already-addicted/ [Accessed: 10th December 2013]
Novilla, H. (2011) ‘The 10 Step Marketing Plan for Starbucks Coffee?’, Slideshare, October 2011[Online].
Available at: http://www.slideshare.net/Homieboi/starbucks-9784106 [Accessed: 15th December 2013]
Quirk, M. B. (2012) ‘Starbucks To Gold Card Customers: Sorry, We're Not Paying For Your Lactose Intolerance
Anymore’, 18th September 2012 [Online] Available at: http://consumerist.com/2012/09/18/starbucks-to-goldcard-customers-sorry-were-not-paying-for-your-lactose-intolerance-anymore/ [Accessed: 10th December
2013]
Ramaika, J. (2013) ‘Starbucks C.A.F.E. Practices vs. Fair Trade Certified Coffee’, 11 th January 2013 [Online].
Available at: http://pennstatebrandywinefairtrade.wordpress.com/2013/01/11/starbucks-c-a-f-e-practices-vsfair-trade-certified-coffee/ [Accessed: 12th December 2013]
Reid, R.D. and Sangers, N. R. (2010) Operations Management, 4th Edition, Wiley, ‘Chapter 2 – Operations
Strategy and Competitiveness’ *Online+ Available at: http://www.wright.edu/~george.polak/ch02.ppt
[Accessed: 13th December 2013]
Rice, D. (2012) ‘12 Most Caffeinated Customer Service Lessons from Starbucks’, 28 th February 2012 [Online].
Available at: http://12most.com/2012/02/28/12-caffeinated-customer-service-lessons-starbucks/ [Accessed:
11th December 2013]
Schepp, D. (2012) ‘Starbucks: Best Part – Time Jobs in Retail – Or overrated?’, 21st September 2012 [Online].
Available at: http://jobs.aol.com/articles/2012/09/21/starbucks-is-hiring-health-plan-good-coffee-but-watchout-for/ [Accessed: 13th December 2013]
Simply Psychology (2013) ‘Maslow’s Hierarchy of Needs’ [Online]. Available at: http://www.simply
psychology.org/maslow.html [Accessed: 14th December 2013]
Small Business (2013) ‘Who Is Starbucks' Target Audience?’ *Online+. Available at: http://smallbusiness.
chron.com/starbucks-target-audience-10553.html [Accessed: 14th December 2013]
Starbucks (2013a) Official website of Starbucks [Online]. Available at: http://www.starbucks.co.uk/ [Accessed:
13th December 2013]
Starbucks (2013b) ‘ Working at Starbucks’ *Online+. Available at: http://www.starbucks.com/careers/workingat-starbucks [Accessed: 13th December 2013]
Umsl (2013) ‘Starbucks coffee – Marketing Management’, University of Missouri-St. Louis [Online]. Available
at: http://www.umsl.edu/~chewl/4700/STARBUCKS_CASE_01/Starbucks.ppt [Accessed: 13th December 2013]

19
APPENDICES
PRIMARY-DATA


The questionnaire model for quantitative market research on random customers

20
21
22
23
24
25
26


The questionnaire model for qualitative market research on an interview with manager:

QUESTIONS
Which is the busiest day? And busiest time?

ANSWERS
Saturday from 11am-5pm

How many employees? How are they array

5-6 staff per day and switch position in standing place

during the day?
Which is the average age of customers?

Adults from 38-40

Do people who come in the morning have

Yes! The same to everywhere else. Depends on time,

different needs (order different things) in

careers... In the morning, most people come for coffee, they

comparison who comes in the
afternoon/evening?

just come and students move to school, workers move to
office.. etc.. They have stayed longer at noon, buy meals to
eat and relax for the rest of the day with having a talk with
friend or using computer and so on here

What make people come to Starbucks?

Loyalty and location.. Starbucks is a strong brand which be

(location, product, customer service, etc)

popular and famous

What do you think about the competition

All are doing well as different shops serve different needs

(Costa, Nero)?
Are all Starbucks the same everywhere?

Not at all. Starbucks shops keep the core value of the brand
image with same menu lists, same service system but
because of the location, the space of store ..etc.. different
shops will be flexible to serve the different needs of
customers

Do you sell always the similar products?
How many new products have been
introduced in the last 6 months?
Which product consumers buy most? Which is

Yes
No but Starbucks always think of creating a new innovation
for products, customer services and so on
Coffee-Latte

the best-selling product?
Has Starbucks changed the flavour and taste

Yes

of coffee before?
Starbucks is a coffee shop. How about the
meal? Do you sell more sweetie or salty food?
How much is Starbucks’ income per day?
How many coffee does Starbucks can sell per

Starbucks is a coffee shop, just sell enough and suitable
foods to serve the different wants of customers
Private issue. Cannot answer
About 900 beverages

27
day?
Would you change/ improve/ introduce a

Yes. Every year

practice/product or something else as
Christmas is coming??
Why do people like the atmosphere here? Do
you think is a good idea to make the

Most of customers are comfortable. They come here to talk,
meet friends, working with their laptop and so on

environment more comfortable?
Do you think Starbucks is meeting the needs

Not at all. It depends on do they love coffee or not.

of young people more than other ages?
Can you say to us any complaint that you have About 4 weeks of working time till now, there still are no
received since the time you started working

complaints

here?
There are some negative feedback from

Do not realize that these issues exist.

customers like:

Explain that some issues are not problems.

-

Coffee’s taste not the same

-

Not comfortable to stay in

-

Toilet is bad

-

Of course, find the ways to improve those cases.

Negative image of how staff clean
table and collect the trash

-

Busy and noisy

-

Feeling like Starbuck doesn’t want to
keep customers stay longer

What you wanna say about these things? how
would you deal with that? Any suggestion?

Will Starbuck improve it or it is how Starbucks
work?
Have you ever worked for other Starbucks?
Are they different?
Are you happy to work in Starbucks? Why?
Can you, from your own opinion, say one

About 4 stores already and each shops are flexible to
improve and develop their own ways of working and so on
Yes and let be a partner of Starbuck to know the reason
Being consistency

aspect that Starbucks want to improve?

28
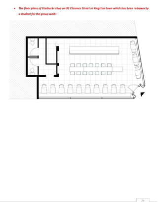


The floor plans of Starbucks shop on 91 Clarence Street in Kingston town which has been redrawn by
a student for the group work:

29

OPERATION MANAGEMENT REPORT: A CASE-STUDY ON THE KEY STRATEGIC AND OPERATIONAL ISSUES FACED BY ONE STARBUCKS COFFEE SHOP ON 91 CLARENCE STREET IN KINGSTON TOWN

  • 1.
    Kingston University MSc inInternational Business Management OPERATION MANAGEMENT REPORT: A CASE-STUDY ON THE KEY STRATEGIC AND OPERATIONAL ISSUES FACED BY ONE STARBUCKS COFFEE SHOP ON 91 CLARENCE STREET IN KINGSTON TOWN Submitted by: k1270095 Submission date: 16th December 2013 Lecturer: Alex Hill Words count: 2288 words 0
  • 2.
    EXCUTIVE SUMMARY This reportfocuses on analyzing the key strategic and business operation issues of a Starbucks coffee shop on 91 Clarence high street in Kingston town (Kingston Upon Thames, London, UK). The report identifies the business context and main operational aspects of this Starbucks shop which will be shown briefly in the Introduction part. Methods of analysis include the secondary-data, primary-data (qualitative and quantitative research), relevant theories and relative information from books, online databases, as also student’s works and so on. The report figures out the problems of this Starbucks shop, such as the atmosphere and layout inside the store, as also some customer services. However, those issues depend on many different cases which cannot meet a specific solution to improve themselves. In addition, the general feedback of customers indicates that although the problems exist, these issues are not big impacts. Recommendation for the business of this Starbucks shop is to keep managing their current operating system and extend their competitive advantage, based on the ideal location (order-winner), to target the potential segment customers as non-coffee drinkers. This report might not avoid the shortcomings and limitations itself. For instance, a lack of experience in doing the actual surveys which led to incomplete data and information; some results are based on past performance or general context which can be subjective. 1
  • 3.
    LIST OF CONTENTS EXCUTIVESUMMARY .......................................................................................................................................................... 1 LIST OF CONTENTS .............................................................................................................................................................. 2 LIST OF TABLES/ FIGURES.................................................................................................................................................... 3 INTRODUCTION ................................................................................................................................................................... 4 A business overview of the Starbucks shop on high street in Kingston town ............................................................ 4 Market order-winners and market qualifiers of this Starbucks shop......................................................................... 6 Alternative customer segments for this Starbucks shop ............................................................................................ 6 METHODOLOGY .................................................................................................................................................................. 7 Supplements ....................................................................................................................................................................... 8 For the Primary-data:................................................................................................................................................. 8 Test the recommendation: ......................................................................................................................................... 8 ANALYSIS ............................................................................................................................................................................. 9 Analysis this Starbucks shop in the coffee market ........................................................................................................... 10 The general context of the coffee market in the UK ................................................................................................ 10 The context of the coffee market in Kingston town ................................................................................................. 11 Consider the different target market of two Starbucks shops in Kingston town ..................................................... 13 FINDING AND CONCLUSION.............................................................................................................................................. 15 RECOMMENDATION ......................................................................................................................................................... 16 REFERENCE LIST ................................................................................................................................................................ 17 BIBLIOGRAPHY .................................................................................................................................................................. 18 APPENDICES ...................................................................................................................................................................... 20 2
  • 4.
    LIST OF TABLES/FIGURES Title Description Page number Table 1 An overview of Starbucks shop on high street in Kingston town – Own visualization 4-5 Table 2 Market segment by age of Starbucks shop in Kingston town – Own visualization 5 Table 3 Market order-winners or qualifiers of Starbucks shop on high street in Kingston 6 Table 4 Methodology of this report – Own visualization 7 Table 5 Time-line of the actual survey – Own visualization 8 Table 6 Operation functions – Own visualization 9 Table 7 Selected leading operators of branded coffee shops by turn over (£m), 2008-2012 11 Table 8 11 Table 9 Location and customer-service rating of the coffee shops of Starbucks and Costa in Kingston town Commuters and captive-consumers – Own visualization Table 10 Life-style and behavior – Own visualization 13 Figure 1 UK Coffee shops market size and forecast, 2008-18 4 Figure 2 Outlet numbers of selected leading specialist coffee chains, 2011 and 2013 10 Figure 3 Factors influencing where hot drinks are purchased out of home, July 2013 12 Figure 4 Apply Maslow’s 3rganizat of needs on the target market of Starbucks shops in Kingston town – Own visualization Improvement process 14 Figure 5 13 16 3
  • 5.
    INTRODUCTION Starbucks is afamous brand with a worldwide chain of coffee shops. As can be seen in the figure 1 (Mintel, 2013c), the UK coffee shop market is achieving a modest growth in recent years, based on the improvements in the confidence of consumers (estimated market size of £1.4 billion in 2013). Figure 1. UK Coffee shops market size and forecast, 2008-18 (Mintel, 2013c) A business overview of the Starbucks shop on high street in Kingston town This section of the report first provides an overview and comment of the business context on one Starbucks shop in Kingston town which can be seen briefly in Table 1 below. In addition, table 1 identifies the customers and the services supplied to the customers. It also points out the market share and main competitors of this Starbucks in general coffee market. Starbucks coffee shop in Kingston town Categories Location Detail General comment 91 Clarence Street, Kingston Upon Ideal location Thames, London, UK Brand Global famous brand name Competitive advantage: loyalty customers Brand positioning The concept of “Third Place” Unique and very effective Service system Customer Fast-food delivery service journey: Starbucks staff ask 4
  • 6.
    More self-service forcustomers customers’ name, good delivery reliability Inside context: - Small, one floor Maximize their small space efficiently space/ layout/ - Available seats: 55-60 Noisy, busy, uncomfortable, especially on facilities - Facilities: average Saturday Products Main products: coffee, coffee latte High quality – Customers specially love coffee Amount of consumption: 900 drinks/ day latte Price average at £3 (both drinks and High price foods) Large range of options Product life cycle Satisfy the customer’s needs Different and flexible Can be considered at maturity stage Main competitors Costa, Nero, Republic Market share Healthy competition Estimated at 20% in general market (this High market share and sustainable growth data is conjectured and will be explained because Starbucks also has another shop in the Analysis part) Target market nearby in the Bentall centre Commuters, different age segments, life- The majority of customers is whom travel and style and behaviours of customers move around high street Table 1. An overview of Starbucks shop on high street in Kingston town – Own visualization (Source: online resources and perspective from Primary-data and practical survey) From the customer’s overall assessment, this Starbucks shop is not high in quality for space, layout, facilities (e.g. complaint about the seats, toilet..); however, the main strategic operation of this shop is not to keep customers staying longer but to increase sales and profits, as maximize all the possible advantages, based on its ideal location. Table 2 illustrates one way to identify the target market of this Starbucks shop, based on age segment, which can also describe the coffee and drink products supplied to their customers. Age Adults (main target) Young adults Kids and Teens Others 25 to 40 18 to 24 13 to 17 Proportion of Starbucks’ sales 49% 40% 2% Percent of the growth rate 3% 4.6% n.a. Typical products Coffee Latte Coffee Latte, Sugary Coffee Babyccinos, Smoothie, Caffeinated, Whipped cream n.a. 9% n.a. n.a. Table 2. Market segment by ages of Starbucks shop in Kingston town – Own visualization (Source: Primary-data and Small Business, 2013) 5
  • 7.
    Market order-winners andmarket qualifiers of this Starbucks shop Table 2 indicates the market order-winners and qualifiers of the operation of this Starbucks shop (as considering with a Starbucks and Costa shop in the Bentall centre) Operational Components Order-Winner or Qualifier Price Q Quality conformance Q Delivery reliability Q Delivery speed Q Service or product range Q Service or product design Q Demand fluctuations Q Speed or new service of product development Q Some additional operational components: Location OW Brand/ Reputation Q Space/ layout/ facilities of shop Q Shop atmosphere Q Loyalty program Q Corporate social responsibility (CSR) Q Table 3. Market order-winners or qualifiers of Starbucks shop on high street in Kingston town [Source: Primary-data and Operation Management book (Hill and Hill, 2012)] Alternative customer segments for this Starbucks shop  Non-coffee drinkers As assessed above, the market order-winner of Starbucks shop on 91 Clarence street is the location. It means, this Starbucks shop has a chance to access the variety and diverse types of consumers which can be everyone that travels and moves around Kingston town. In other words, it can be an alternative operational strategy for this shop. Therefore, follow this point, it can be suggested that an alternative customer segment for this Starbucks shop is to target the non-coffee drinkers. Non-coffee drinkers are who have no experience about drinking coffee; however, they have the needs for delicious drinks. Some products of Starbucks, as Frappuccino with contain high percentage of milk, can be attractive for the taste and flavor of this new segment market. 6
  • 8.
    METHODOLOGY The methods ofthis report can be described in detail as table 4 below: METHODS DESCRIPTION HOW/ WHERE Secondary- Using market reports of online sources as Mintel, Keynote. The secondary The Secondary- data data supports to have an overview of the coffee market in general context to data is used for analyse the Starbucks shop on high street in particular. Mintel and Keynote the whole reports are made by the experts on the market survey which are important report and necessary for both purposes of studying and practices Primary- Some actual survey with Starbucks’ customers (qualitative and quantitative The Primary- data research) and an interview with Starbucks’ manager (qualitative research). data can be The primary-data supports on understanding the core operating system of found in the this Starbucks shop and helping to access the specific information that need Appendices part to involve in this report Relevant Any types of online resources (e.g. blogs of customers’ reviews, articles about This method is and relative the issues surrounding this Starbucks shop and so on). This methodology can applied through information be similar to the secondary-data but it includes more non-academic the report information Knowledge Operation Management book and academic database (i.e. using the theory of This method is application Maslow’s hierarchy of needs for the target market of this Starbucks shop) used for the whole report Group work After doing the practical survey and collecting data, the Kingston University This method is students, who chose to write similar report on this Starbucks shop, discussed used for the and analysed all information together. Because the purpose of this report is whole report; to understand about the operation issues of an 7organization or business; some work can therefore, the students have assumed themselves as different parts of a be found in the business and support each other to understand how the operating system Appendices part works, as also be able to see the problems under the managers’ perspective. Students divided main basic parts of the report, which can be the same, to work on individual (e.g. background of market context, the market share, the target market..) and then share for other members to work on it again. Each member can contribute and give their ideas based on their particular skill to improve different aspects of the report (e.g. a figure of the floor plan) Table 4. Methodology of this report – Own visualization 7
  • 9.
    Supplements - For the Primary-data: Respondents– There were four staff and one manager of this Starbucks shop for the surveys’ interviews. The customers have been chosen randomly, 40 people, which also include four members of the student group. The students directly used the products and services of the Starbucks shop on high street to get the assessments from customers' views. Limitations - Due to the inconvenient issues in communicating of a public place with limited time, the students were not able to record the video or voice of the interviewees during the experimental market survey. Data and information have done with their personal laptops, writing-notes and verbal exchanges. Time-line - The survey was carried out in four days: Date Significant feature Methods Saturday (7th December 2013) considered as the busiest day of qualitative market research with this Starbuck shop random customers and four staff th Sunday (8 December 2013) quantitative market research with random customers th Monday (9 December 2013) the only day which manager will qualitative market research, an come and work at here interview with manager th Wednesday (11 December 2013) review the layout and space of the shop to redraw its floor plan Table 5. Time-line of the actual survey - Own visualization In addition, the students also used the Saturday above to do research of another Starbucks shop and their main competitors, such as Costa and Nero, in the Bentall centre. - Test the recommendation: The process of the survey on customers' general feedback shows that they do not particularly love this Starbucks shop. Nevertheless, they are completely satisfied with the inconvenience (e.g. layout, atmosphere) and feel more comfortable with the convenience (e.g. ideal location, customer service and so on). Based on that, as considered the operation of this Starbucks shop till far, the problems which this shop is meeting are not large enough to cause an adverse effect on it. This Starbucks shop can keep maintaining its current operating status, and aims to further expand its business into the different customer segments. The survey indicates that the frequency of people who visit the store is high; however, it needs more time to ensure that the non-coffee drinkers can be a potential market. 8
  • 10.
    ANALYSIS According to Reidand Sanders (2010), operation functions of a business focuses on specific capabilities which give it a competitive edge or competitive priorities such as cost, quality, time and flexibility. From the practical survey and online resources, it can be argued that the Starbucks coffee shop on high street in Kingston town is managing its operation in the most effective way [see Table 6]. Table 6: Operation functions - Own visualization [Source: perspective from practical survey, Reid and Sanders (2010)] The service delivery system of this Starbuck shop is to push up the rotation speed of the sales and the customers' purchasing power with the most possible advantages of the infrastructure that it owns. Although 9
  • 11.
    this Starbucks shophas a moderate space, it improves as much in the arrangement and construction of the equipment, as also the place of its counters and employee which are suitable for a fastest customer journey. Analysis this Starbucks shop in the coffee market (compare with another Starbucks shop and its main competitors, Costa coffee which both located in Kingston town) - The general context of the coffee market in the UK According to Mintel (2013a), Starbucks has encountered some issues with the payment of UK corporation tax in 2012/13. This caused a bit of the negative impact on Starbucks’ brand image and reduced a small amount of consumers to all Starbucks’s shop around the UK. Meanwhile, Costa Coffee was continuing to lead the coffee shops market which is considered as the biggest rival of Starbucks. As can be seen in Figure 2 (Mintel, 2013a), the number of Costa Coffee outlets as twice compared to Starbucks. This can partly reflects the market share of the coffee shop brand. Figure 2. Outlet numbers of selected leading specialist coffee chains, 2011 and 2013 (Mintel, 2013a) By considering the leading operators of branded coffee shop's turnover from 2008 to 2012, it can be seen from Table 7 (source: Keynote, 2013) that although Starbucks was always higher than Costa, its growth was very slow for each next stage. In contrast, Costa had significant step forward and was closing the turnover gap to Starbucks (from £157.2m in 2008 to £20.4m in 2011). Analysis of the data, such as market share based on turnover and the turnover gap between Starbucks and Costa, is also shown in Table 7 below. 10
  • 12.
    Table 7: Selectedleading operators of branded coffee shops by turn over (£m), 2008-2012 (Source: Keynote, 2013) - The context of the coffee market in Kingston town Table 8 shows the locations of the coffee shops of Starbucks and Costa in Kingston town and the overall rating for the quality of customer service on these places. Location Rating Starbucks 91 Clarence Street, KT1 1QY 7/10 Ground floor, The Bentall Shopping Centre, Wood Street, KT1 1TR 7/10 Costa Kingston Station, Wood Street, KT1 1UJ 6/10 The Bentall Shopping Centre, KT1 1TR (3 shops) 8/10 34 Market Place, KT1 1JQ 6/10 Table 8: Location and customer-service rating of the coffee shops of Starbucks and Costa in Kingston town - Own visualization (Source: Primary-data and relevant online database) As also from the experimental investigation, the general context of the coffee market in the UK seems to be compatible with the context in Kingston town. The number of Costa outlets is also overwhelming than Starbucks stores in Kingston town. That may create a large market share for Costa. However, Starbucks' market share here still seems to be more dominant due to their ideal location. Both of two Starbucks shops here are located in convenient places, especially the Starbucks shop on 91 Clarence Street, which completely attract a large number of potential customers. If consider that the percent of market share will be similar from the general context to the particular context in Kingston town, the market share for both of these Starbucks shops is also estimated at 40% and 20% for each of them (if they balance in the business operation). 11
  • 13.
    To strengthen theargument above about the sustainable market share of Starbucks outlets, from the factors affecting the hot drinks purchase of customers (Mintel, 2013c), location is the most important factor, as opposed to the coffee brand [see Figure 3]. As also from the reaction and feedback of coffee customers in Kingston, it can be argued that: - Location is placed in high positions of customers' priorities: Starbucks shop on 91 Clarence Street hold the high market share position - Brand is placed in low positions of customers' priorities: Starbucks shop on 91 Clarence Street do not face the tax issue which affects their brand image negatively as mentioned above Figure 3. Factors influencing where hot drinks are purchased out of home, July 2013 (Mintel, 2013c) In addition, with the two Starbucks shops that near each other, it can be stated that they can conflict themselves on business operations, market sales and so on. Nevertheless, both these Starbucks shops are running the good system, being flexibility to support themselves on promoting the general business operations of Starbucks. 12
  • 14.
    - Consider thedifferent target market of two Starbucks shops in Kingston town From the interview with the manager of the Starbucks on 91 Clarence street, because of the flexibility in operation function of Starbucks, their shops in different location can meet the different customers’ needs. As also based on some online research, it seems to have three ways to identify the target market of Starbucks in Kingston:  Commuters and captive-consumers: both Starbucks shops meet the needs of commuters Commuters someone traveling to or from work, out shopping, lunch breaks or delivering goods or services and so on Captive- someone who is in a restricted entry environment (e.g. high school, college campuses, special consumers events) that does not allow convenient departure, free movement and return while searching for refreshment, or where refreshment stands are an integral part of the environment Table 9. Commuters and captive-consumers - Own visualization (Source: perspective from practical survey and UMSL, 2013)  Age segments: this target market can be also applied for both Starbucks’ shops, it also points out the typical products for each market segment of customers [See table 2 in the Introduction part]  Life-style and behavior: this target market can nearly be divided into two different segments for two Starbucks shops in Kingston; depends on the different needs, wants and demands of customers 91 Clarence Street Most of customers who want to get a quick relaxation and have an easy day – more selfservice and self-actualisation needs The Bentall Centre Most of customers who want to feel welcome, relaxed and important, impress a date and socially interactive – more social needs Table 10. Life-style and behavior - Own visualization (Source: perspective from practical survey Novilla, 2011) The Starbucks’ operation model, as McDonald's, is type of fast-food company and organisations nowadays; therefore, customers seem to be self-initiative for a self-service in the delivery process of product. From the perspective of the practical survey, one of the reasons (for the inconsistency of these two Starbucks stores) comes from the layout based on their surface area. Starbucks on 91 Clarence Street does not have a large space for social activities like Starbucks in the Bentall Centre. However, at Starbucks shop on 91 Clarence Street, a busy atmosphere can create a faster trend for the transfer of product sales. If using five stage models of Maslow's Hierarchy of Needs, the target market for two Starbucks in Kingston town can be considered as in figure 4 below: 13
  • 15.
    Figure 4. ApplyMaslow's hierachy of needs on the target market of Starbucks shops in Kingston town - Own visualization (Source: Simply Psychology, 2013) In brief, the customers come to Starbucks shop on 91 Clarence Street for more self-service; they make fast delivery, mostly buy take-away drinks and spend less time to stay in the shop. On the other hand, with Starbucks in the Bentall Centre, customers often sit longer for a group meeting, friendly communication and social needs. 14
  • 16.
    FINDING AND CONCLUSION Fromthe above analysis of the business operating system of Starbucks shop in Kingston, as Joel (2008) mentioned in his article, it can be suggested that the market orientation of their shop on high street focuses more on the market driving approach than the market driven approach. This Starbucks shop is flexible in its operation, proactively change and create new customers or markets easily. It focuses more on increasing the speed of the delivery service and improves the possible opportunities that based on its ideal location. In addition, it is extending the internal dynamics for the operation and intra-firm behavior with configurable advantage on the market ownership. From the practical investigation, it indicates that the atmosphere and layout, as some customer services of the Starbuck shop on high street can be the obstacles for its business operation. However, from the general reaction of customers, those issues perfectly do not influence as much to this Starbucks shop. As can be seen in Figure 4, this Starbucks shop meets the highest philosophy needs of customers. Nonetheless, other rivals of Starbucks, as Costa coffee outlets, also be able to meet these requirements. To create a competitive advantage, Starbucks shops need to consider their operation strategy based on the order-winners as their ideal location in the context of the Kingston coffee market. This argument leads to the recommendation that the Starbucks shop on high street should target an alternative customer segment, noncoffee drinkers. 15
  • 17.
    RECOMMENDATION Taking everything intoconsideration, the recommendations for future actions of the Starbucks on high street in Kingston town can be identified as:  Maintain the current operations of its business  Expand the market into new target customers as non-coffee drinkers As stated in the Operation Management book (Hill and Hill, 2012), “Organisations must continually look for ways to improve operations”. Therefore, it can be argued that the action as keep managing the current operations of the Starbucks shop on high street is not the most effective solution for unpredictable issues in future. On the other hand, if this Starbucks considers on the way of expanding the target market, it can apply the Improvement process for improving the operations of an organisation [see figure 5]. Adding to this point, with the new market segment, this Starbucks shop can focus on developing the mixed-ingredient for its product chain. This recommendation requires the agility and flexibility of the business operations on product strategy. For example, coffee beverage can contain the high percentage of milk or different flavours that are suitable to the taste of the non-coffee drinkers. As an expected consequence, this Starbucks shop still can keep its brand image as a famous worldwide chain of coffee shops but improve its business operation on a new potential market. Figure 5. Improvement process [Source: Operation Management (Hill and Hill, 2013)] 16
  • 18.
    REFERENCE LIST Hill, A.and Hill, T. (2012) Operations Management, 3rd Edition, Macmillan [Digitally] Available at: http://www. coursesmart.co.uk/IR/5238660/9780230362901?__hdv=6.8 Joel, D. (2008) ‘Market driven vs. market driving’, 2nd December 2008 [Online]. Available at: http://delwin joelmarketing.blog.com/2008/12/02/market-driven-vs-market-driving/ [Accessed: 13th December 2013] Keynote (2013) ‘Coffee & Sandwich Shops 2013’ *Online+. Available at: http://www.keynote.co.uk. ezproxy.kingston.ac.uk/ajax/site/browser/download?productId=109549 [Accessed at: 9th December 2013] Mintel (2013a) ‘Coffee Shops – UK – October 2013: Executive Summary’ *Online+. Available at: http://academic.mintel.com/sinatra/oxygen_academic/attachment/id=638274&seq=1 [Accessed at: 9th December 2013] Mintel (2013c) ‘Coffee Shops – UK – October 2013: Infographic Overview’ *Online+. Available at: http://academic.mintel.com/download/pdf/report_infographic/638274/ [Accessed at: 9th December 2013] Novilla, H. (2011) ‘The 10 Step Marketing Plan for Starbucks Coffee?’, Slideshare, October 2011[Online]. Available at: http://www.slideshare.net/Homieboi/starbucks-9784106 [Accessed: 15th December 2013] Reid, R.D. and Sangers, N. R. (2010) Operations Management, 4th Edition, Wiley, ‘Chapter 2 – Operations Strategy and Competitiveness’ *Online+ Available at: http://www.wright.edu/~george.polak/ch02.ppt [Accessed: 13th December 2013] Simply Psychology (2013) ‘Maslow’s Hierarchy of Needs’ [Online]. Available at: http://www.simply psychology.org/maslow.html [Accessed: 14th December 2013] Small Business (2013) ‘Who Is Starbucks' Target Audience?’ *Online+. Available at: http://smallbusiness. chron.com/starbucks-target-audience-10553.html [Accessed: 14th December 2013] Umsl (2013) ‘Starbucks coffee – Marketing Management’, University of Missouri-St. Louis [Online]. Available at: http://www.umsl.edu/~chewl/4700/STARBUCKS_CASE_01/Starbucks.ppt [Accessed: 13th December 2013] 17
  • 19.
    BIBLIOGRAPHY Bains, L. (2010)‘Starbucks Listens to Customer Feedback: A Case Study’, 8 th July 2010 [Online]. Available at: http://survey.cvent.com/blog/market-research-and-survey-basics/starbucks-listens-to-customer-feedback-acase-study [Accessed: 11th December 2013] Consumer affairs (2013) ‘Top 242 Complaints and Reviews about Starbucks’ *Online+. Available at: http://www.consumeraffairs.com/food/starbucks.html [Accessed: 9th December 2013] Costa (2013a) Official Website of Costa Coffee [Online]. Available at: http://www.costa.co.uk/ [Accessed: 13th December 2013] Costa (2013b) Official Website of Costa Coffee – Store locator [Online]. Available at: http://www. costa.co.uk/locations/store-locator/ [Accessed: 13th December 2013] Distilled (2013) ‘What is Starbucks missing from its marketing strategy’, Slideshare, 30th September 2013 [Available at: http://www.slideshare.net/DistilledSEO/starbucks-marketing-web-3 [Accessed: 13th December 2013] Forbes (2012) ‘3 Reasons Why Starbucks Still Shines, Despite Market Shortcomings’, 6th August 2012 [Online]. Available at: http://www.forbes.com/sites/rachelhennessey/2012/08/06/3-reasons-why-starbucks-still-shines -despite-market-shortcomings/ [Accessed: 14th December 2013] Forbes (2013) ‘Starbucks: Loyalty Program Misfire’, 23rd July 2013 [Online]. Available http://www.forbes.com/sites/rogerdooley/2013/07/23/starbucks-gold/ [Accessed: 9th December 2013] at: Hill, A. and Hill, T. (2012) Operations Management, 3rd Edition, Macmillan [Digitally] Available at: http://www. coursesmart.co.uk/IR/5238660/9780230362901?__hdv=6.8 Huggins, C. (2013) ‘How will Starbucks maintain its competitive advantage?’, 6th May 2013 [Online]. Available at: http://blogs.desmoinesregister.com/dmr/index.php/2013/05/06/how-will-starbucks-maintain-its-competi tive-advantage/article?nclick_check=1 [Accessed: 14th December 2013] Keynote (2013) ‘Coffee & Sandwich Shops 2013’ *Online+. Available at: http://www.keynote.co.uk. ezproxy.kingston.ac.uk/ajax/site/browser/download?productId=109549 [Accessed at: 9th December 2013] Joel, D. (2008) ‘Market driven vs. market driving’, 2nd December 2008 [Online]. Available at: http://delwin joelmarketing.blog.com/2008/12/02/market-driven-vs-market-driving/ [Accessed: 13th December 2013] Manifested Marketing (2012) ‘Starbucks – Relationship & Service Marketing’, 16th March 2012 [Online]. Available at: http://manifestedmarketing.com/2012/03/16/starbucks-relationship-services-marketing/#comm ents [Accessed: 14th December 2013] Mintel (2013a) ‘Coffee Shops – UK – October 2013: Executive Summary’ *Online+. Available at: http://academic.mintel.com/sinatra/oxygen_academic/attachment/id=638274&seq=1 [Accessed at: 9th December 2013] Mintel (2013b) ‘Coffee Shops – UK – October 2013: Issues in the Market’ *Online+. Available at: http://academic.mintel.com/sinatra/oxygen_academic/attachment/id=638274&seq=2 [Accessed at: 9th December 2013] Mintel (2013c) ‘Coffee Shops – UK – October 2013: Infographic Overview’ *Online+. Available at: http://academic.mintel.com/download/pdf/report_infographic/638274/ [Accessed at: 9th December 2013] 18
  • 20.
    Mintel (2013d) ‘CoffeeShops – UK – October 2013: Report Brochure [Online]. Available at: http://academic.mintel.com/editorial/report_brochure_editor/pdf/638274?language_code=en [Accessed at: 9th December 2013] Nero (2013) Official Website of Nero Coffee [Online]. Available at: http://www.caffenero.com/default.aspx [Accessed: 13th December 2013] Northrup, L. (2013) ‘Why Should Starbucks Give You A Loyalty Discount? You’re Already Addicted’, 26 th March 2013 [Online]. Available at: http://consumerist.com/2013/03/26/why-should-starbucks-give-you-a-loyaltydiscount-youre-already-addicted/ [Accessed: 10th December 2013] Novilla, H. (2011) ‘The 10 Step Marketing Plan for Starbucks Coffee?’, Slideshare, October 2011[Online]. Available at: http://www.slideshare.net/Homieboi/starbucks-9784106 [Accessed: 15th December 2013] Quirk, M. B. (2012) ‘Starbucks To Gold Card Customers: Sorry, We're Not Paying For Your Lactose Intolerance Anymore’, 18th September 2012 [Online] Available at: http://consumerist.com/2012/09/18/starbucks-to-goldcard-customers-sorry-were-not-paying-for-your-lactose-intolerance-anymore/ [Accessed: 10th December 2013] Ramaika, J. (2013) ‘Starbucks C.A.F.E. Practices vs. Fair Trade Certified Coffee’, 11 th January 2013 [Online]. Available at: http://pennstatebrandywinefairtrade.wordpress.com/2013/01/11/starbucks-c-a-f-e-practices-vsfair-trade-certified-coffee/ [Accessed: 12th December 2013] Reid, R.D. and Sangers, N. R. (2010) Operations Management, 4th Edition, Wiley, ‘Chapter 2 – Operations Strategy and Competitiveness’ *Online+ Available at: http://www.wright.edu/~george.polak/ch02.ppt [Accessed: 13th December 2013] Rice, D. (2012) ‘12 Most Caffeinated Customer Service Lessons from Starbucks’, 28 th February 2012 [Online]. Available at: http://12most.com/2012/02/28/12-caffeinated-customer-service-lessons-starbucks/ [Accessed: 11th December 2013] Schepp, D. (2012) ‘Starbucks: Best Part – Time Jobs in Retail – Or overrated?’, 21st September 2012 [Online]. Available at: http://jobs.aol.com/articles/2012/09/21/starbucks-is-hiring-health-plan-good-coffee-but-watchout-for/ [Accessed: 13th December 2013] Simply Psychology (2013) ‘Maslow’s Hierarchy of Needs’ [Online]. Available at: http://www.simply psychology.org/maslow.html [Accessed: 14th December 2013] Small Business (2013) ‘Who Is Starbucks' Target Audience?’ *Online+. Available at: http://smallbusiness. chron.com/starbucks-target-audience-10553.html [Accessed: 14th December 2013] Starbucks (2013a) Official website of Starbucks [Online]. Available at: http://www.starbucks.co.uk/ [Accessed: 13th December 2013] Starbucks (2013b) ‘ Working at Starbucks’ *Online+. Available at: http://www.starbucks.com/careers/workingat-starbucks [Accessed: 13th December 2013] Umsl (2013) ‘Starbucks coffee – Marketing Management’, University of Missouri-St. Louis [Online]. Available at: http://www.umsl.edu/~chewl/4700/STARBUCKS_CASE_01/Starbucks.ppt [Accessed: 13th December 2013] 19
  • 21.
    APPENDICES PRIMARY-DATA  The questionnaire modelfor quantitative market research on random customers 20
  • 22.
  • 23.
  • 24.
  • 25.
  • 26.
  • 27.
  • 28.
     The questionnaire modelfor qualitative market research on an interview with manager: QUESTIONS Which is the busiest day? And busiest time? ANSWERS Saturday from 11am-5pm How many employees? How are they array 5-6 staff per day and switch position in standing place during the day? Which is the average age of customers? Adults from 38-40 Do people who come in the morning have Yes! The same to everywhere else. Depends on time, different needs (order different things) in careers... In the morning, most people come for coffee, they comparison who comes in the afternoon/evening? just come and students move to school, workers move to office.. etc.. They have stayed longer at noon, buy meals to eat and relax for the rest of the day with having a talk with friend or using computer and so on here What make people come to Starbucks? Loyalty and location.. Starbucks is a strong brand which be (location, product, customer service, etc) popular and famous What do you think about the competition All are doing well as different shops serve different needs (Costa, Nero)? Are all Starbucks the same everywhere? Not at all. Starbucks shops keep the core value of the brand image with same menu lists, same service system but because of the location, the space of store ..etc.. different shops will be flexible to serve the different needs of customers Do you sell always the similar products? How many new products have been introduced in the last 6 months? Which product consumers buy most? Which is Yes No but Starbucks always think of creating a new innovation for products, customer services and so on Coffee-Latte the best-selling product? Has Starbucks changed the flavour and taste Yes of coffee before? Starbucks is a coffee shop. How about the meal? Do you sell more sweetie or salty food? How much is Starbucks’ income per day? How many coffee does Starbucks can sell per Starbucks is a coffee shop, just sell enough and suitable foods to serve the different wants of customers Private issue. Cannot answer About 900 beverages 27
  • 29.
    day? Would you change/improve/ introduce a Yes. Every year practice/product or something else as Christmas is coming?? Why do people like the atmosphere here? Do you think is a good idea to make the Most of customers are comfortable. They come here to talk, meet friends, working with their laptop and so on environment more comfortable? Do you think Starbucks is meeting the needs Not at all. It depends on do they love coffee or not. of young people more than other ages? Can you say to us any complaint that you have About 4 weeks of working time till now, there still are no received since the time you started working complaints here? There are some negative feedback from Do not realize that these issues exist. customers like: Explain that some issues are not problems. - Coffee’s taste not the same - Not comfortable to stay in - Toilet is bad - Of course, find the ways to improve those cases. Negative image of how staff clean table and collect the trash - Busy and noisy - Feeling like Starbuck doesn’t want to keep customers stay longer What you wanna say about these things? how would you deal with that? Any suggestion? Will Starbuck improve it or it is how Starbucks work? Have you ever worked for other Starbucks? Are they different? Are you happy to work in Starbucks? Why? Can you, from your own opinion, say one About 4 stores already and each shops are flexible to improve and develop their own ways of working and so on Yes and let be a partner of Starbuck to know the reason Being consistency aspect that Starbucks want to improve? 28
  • 30.
     The floor plansof Starbucks shop on 91 Clarence Street in Kingston town which has been redrawn by a student for the group work: 29