ELEVATORS
BUILDING CONSTRUCTION VI
S. S B. ARCH III
THE MAHARAJA SAYAJIRAO UNIVERSITY OF BARODA
SUBMITTED BY: -
VISHWA KELAWALA – 08
PANKTI GAJJAR – 15
MANSHI PARIKH – 16
NISHWA PATEL – 17
SHARANYA DAS – 29
TRUNIKA KANKARIA – 36
Lifts or elevators
An elevator or lift is a type of vertical transportation that moves people or goods
between floors (levels, decks) of a building, vessel, or other structure.
Components of lifts or elevators
• Overspeed governor
• Electric motor
• Car guide rail
• Elevator car
• Elevator shaft
• Landing doors
• Machine drive
• Buffers- Car buffer
• Counterweight buffer
• Safety device
fig 1: components of lift
fig 2: classification of elevators
Mechanism observed in elevators
a. Hydraulic
b. Traction/ pulley
c. Climbing
d. Pneumatic
e. Electromagnetic propulsion
1. Hydraulic lift:
• Hydraulic elevators are elevators which are powered by a piston that travels
inside a cylinder. An electric motor pumps hydraulic oil into the cylinder to move
the piston. The piston smoothly lifts the elevator cab. Electrical valves control the
release of the oil for a gentle descent.
• Types of hydraulic elevators
a. Conventional hydraulic elevators
b. Hole- less hydraulic elevators
c. Roped hydraulic elevators
fig 3: hydraulic elevator
2. Traction/ pulley elevators:
• Traction elevators are lifted by ropes, which pass over a wheel attached to an
electric motor above the elevator shaft. They are used for mid and high-rise
applications and have much higher travel speeds than hydraulic elevators. A
counter weight makes the elevators more efficient by offsetting the weight of the
car and occupants so that the motor doesn't have to move as much weight.
• Types of traction elevators:
a. Geared- traction elevators
b. Gearless-traction elevators
Fig 4: Traction/Pulley elevators
3. Climbing lifts:
• A climbing elevator is a self-ascending elevator with its own propulsion. The
propulsion can be done by an electric or a combustion engine.
• Climbing elevators are usually used in work and construction areas.
fig 5: climbing elevator
fig 6: climbing elevator
4. Pneumatic elevators:
• An elevator of this kind uses a vacuum on top of the cab and a valve on the top of
the "shaft" to move the cab upwards and closes the valve in order to keep the
cab at the same level. A diaphragm or a piston is used as a "brake", if there's a
sudden increase in pressure above the cab. To go down, it opens the valve so
that the air can pressurize the top of the "shaft", allowing the cab to go down by
its own weight. This also means that in case of a power failure, the cab will
automatically go down.
fig 7: pneumatic elevator
5. Electromagnetic propulsion:
• The elevator of the future may be just over the horizon thanks to German
company ThyssenKrupp. The firm has invented a cable-free elevator (called multi)
that can go up and down like traditional lifts, but the magnetic motors allow it to
go side-to-side, too.
• The designers speculate that buildings implementing this technology could
increase the carrying capacity of existing architecture by as much as 50%. Plus, it
looks neat.
fig 8: electromagnetic compulsion
Machine Room- Less Elevator
Machine-Room-Less Elevators are typically traction elevators that do not have a
dedicated machine room above the elevator shaft. The machine sits in the override
space and the controls sit above the ceiling adjacent to the elevator shaft. Machine-
room-less elevators are becoming more common; however, many maintenance
departments do not like them due to the hassle of working on a ladder as opposed to
within a room. They are becoming common because this saves productive space in the
buildings.
Fig 9: comparison of MR and MRL lifts
Advantages of MRL Elevator
• The advantage of MRL elevator is saving space. You can only make a maintenance
platform under the host.
• Since there is no need room, it is a greater benefit to the structure and cost of
the building allowing the architect to have greater flexibility and convenience in
design
• Some places where it is inconvenient to set up elevator room, such as hotels,
hotel affiliated buildings, and podiums, MRL elevator can be used.
Disadvantages of MRL Elevators
• impact of noise is very great
• comfort of the MRL elevator is significantly weaker than MR elevator due to
vibrations of car and guide rail.
• MRL elevator is not suitable for high speed
According to building type
fig 10: classification according to building type
1. Commercial passenger elevator
• The modern passenger lift is a simple means of transport within a building.
• Generally, passenger elevators are available in typical capacities from 4 to 26
passengers.
• Speed varies between 0.5 meter/sec to 2.5 meter/sec.
Load Car inside Lift well Entrances Type of door
Person Kg A B C D E
4 272 1100 700 1800 1100 800 Manual
6 408 1100 1000 1800 1400 800
8 544 1300 1100 2000 1550 800
4 272 1100 700 1900 1350 800 Automatic
6 408 1100 1000 1900 1700 800
8 544 1300 1100 1900 1900 800
10 680 1300 1350 1900 2100 800
13 884 2000 1100 2500 1900 900
16 1088 2000 1300 2500 2100 1000
20 1360 2000 1500 2500 2400 1000
24 1632 2150 1650 2650 2500 1100
fig 11: dimensions for commercial lifts
fig 12: dimensions for commercial lifts
2. Hospital elevators
• One of the features of this elevator is its ability to transport patients as smoothly
as possible with minimal amount of bumping and jostling.
• Most often there will be a rear and a front entry to the elevator cabin.
• Door width: 900-1100 mm
• In general, hospital elevators can reach endures a load of between 600 and 2,500
kilos.
• The usual capacity of these lifts is between 8 and 13 people
• The maximum height that elevators can raise reaches 45 meters.
• The speed limit at which they can get these elevators is set at 1.6 meters per
second
fig 13: dimensions for hospital lifts
fig 14: dimensions for hospital lifts
fig 15: plan for dimensions for hospital lifts
fig 16: section for dimensions for hospital lifts
Hospital elevators
Load Car inside Lift well Entrances Machine room Pit
depth
Over
head
Person Kg A B C D E K L M N
15 1020 1000 2400 1800 3000 900 3800 5500 1600 4400
20 1300 1300 2400 2200 3000 1200 4200 5500 1600 4400
26 1768 1600 2400 2400 3000 1200 4400 5500 1600 4400
fig 17: dimensions for hospital lifts
3. Inclined/diagonal elevator
• An inclined elevator consists of one or two inclined tracks on a slope with a single
car on each carrying payload
• Unlike a standard elevator, it can go up tilted grades, and can be used for both
residential and commercial purposes.
• The purpose of inclined elevators is to provide accessibility to steep hillsides and
inclines at minimal effort to the user.
• Inclined elevator is a form of cable railway.
fig 18: inclined or diagonal lifts
fig 19: inclined or diagonal lifts
fig 20: working mechanism of inclined or diagonal lifts
4. Fire escape lift
• Exclusive use of a passenger lift by the fire service to carry firefighters and their
equipment to the required floors in the event of a fire.
• Firefighting lifts are required in housing where the building has a floor more than
18m above or more than 10m below fire service vehicle access level.
• Features:
-Interface between the lift control, fire detection and alarm system
-Trap doors and ladders for rescue operations
-Electrical components in the shaft and on the car are protected against water
-Emergency intercom system and lift operation
-Separate power supply (supplied by builder) to enable the lift to remain in use
-Typically, 8 or 13-person passenger lifts.
fig 21: dimensions for fire escape lifts
5. Handicapped lift
• A wheelchair lift, also known as a platform lift, or vertical platform lift is a fully
powered device designed to raise a wheelchair and its occupant in order to
overcome a step or similar vertical barrier.
Fig 22: handicapped lifts
fig 23: handicapped lifts
fig 24: handicapped lifts in bus
6. Paternoster lift
• A paternoster or paternoster lift is a passenger elevator which consists of a chain
of open compartments (each usually designed for two persons) that move slowly
in a loop up and down inside a building without stopping. Passengers can step on
or off at any floor they like.
fig 25: paternoster lift
Fig 26: working technique of paternoster lift
Fig 27: working technique of paternoster lift
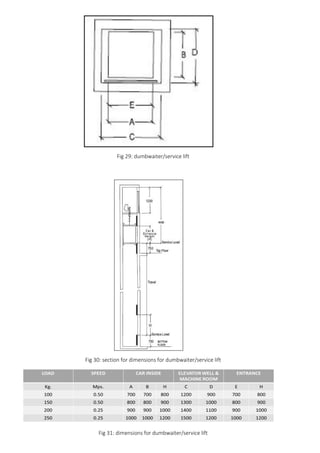
7. Dumbwaiters/service elevators
Fig 28: dumbwaiter/service lift
Fig 29: dumbwaiter/service lift
Fig 30: section for dimensions for dumbwaiter/service lift
Fig 31: dimensions for dumbwaiter/service lift
8. Freight elevators
• Freight elevator is essentially designed to fulfill material handling
• choice of freight elevator requires consideration factors such as volume and
weight of material to be transported and the method of handling like manual or
trolley driven, requirement of industry, building, hotel, car workshop etc.
Fig 32: freight lift
Fig 33: dimensions for freight lift
Load Car inside Lift well Entrances Machine room Pit depth Over head
Kg A B C D E K L
500 1100 1200 1900 1500 1100 3900 4500 1600 4500
1000 1400 1800 2300 2100 1400 4300 4600
1500 1700 2000 2600 2300 1700 4600 4800
2000 1700 2500 2600 2800 1700 4600 5300
2500 2000 2500 2900 2800 2000 4900 5300
3000 2000 3000 2900 3300 2000 4900 5800
4000 2500 3000 3400 3300 2500 5400 5800
5000 2500 3600 3400 3900 2500 5400 6400
Fig 34: working technique of freight lift
Fig 35: freight lift
Fig 36: freight lift
Fig 37: elements of freight lift
9. Outdoor elevator
Fig 38: outdoor lift
Fig 39: outdoor lift
10.Industrial inclined elevator
• The equipment and supplies are placed on a conveyer belt that continues
bringing the cargo up to its destination where it can be unloaded, as the belt
continues to turn around.
• This is much quicker method of loading and unloading cargo.
• Everything happens in one fluid motion.
• These are mostly temporary and mobile, and many are on wheels and can be
moved from one dock to another.
Fig 40: conveyer belt
11.Stair rail straight lift
• A stair lift is a mechanical device for lifting people up and down stairs. For
sufficiently wide stairs, a rail is mounted to the treads of the stairs. A chair or
lifting platform is attached to the rail. A person gets onto the chair or platform
and is lifted up or down the stairs by the chair which moves along the rail.
Fig 41: indoor stair rail straight lift
Fig 42: stair rail lift
12.Fork elevator
• A forklift (also called lift truck, jitney, fork truck, fork hoist, and forklift truck) is
a powered industrial truck used to lift and move materials over short distances.
• Forklifts are rated for loads at a specified maximum weight forklift hydraulics are
controlled either with levers directly manipulating the hydraulic valves or by
electrically controlled actuators, using smaller "finger" levers for control. The
latter allows forklift designers more freedom in ergonomic design.
• Forklift trucks are available in many variations and load capacities. In a typical
warehouse setting most forklifts have load capacities between one and five tons.
Larger machines, up to 50 tons lift capacity, are used for lifting heavier loads,
including loaded shipping containers.
• Skilled forklift operators annually compete in obstacle and timed challenges at
regional forklift rodeos
Fig 43: fork lift
13.Grain elevator
• A grain elevator is a tower containing a bucket elevator, which scoops up,
elevates, and then uses gravity to deposit gain in a silo or other storage facility.
• They can be classified as either ‘counter’ or “terminal” elevators, with terminal
elevators further categorized as inland or export types.
• Operations other than storage, such as cleaning, drying, and blending, often are
performed at elevators.
• The principal grains and oilseeds handled include wheat, corn, oats, rice
soybeans, and sorghum.
Fig 44: grain lift
14.Platform Lift
Fig 45: platform scissor lift
Fig 46: platform lift
15.Evacuation lifts
• Use of elevators in parking:
-A vehicle enters the system by being driven into a transfer cabin and parked on a
platform. Then a rgc picks up the platform and vehicle and drives it into the
system for storage.
-As more rgcs are placed in a system, the quantity (and associated cost) is
increased. However only to the point that the number of transfer cabins, lifts,
paths and shared resources exist.
a. Shuttle/ stack parking system.
-Shuttle systems utilize transfer cabins to park and retrieve vehicles from the
system, autonomous robots to move vehicles to and from elevators and parking
spaces, and lifts to gain access to multiple floors or height variances.
Fig 47: shuttle stack parking lift
b. Silo parking system
-A silo system is cylindrical in nature, like a grain silo. Vehicles are parked at the
outer edge of the core. The core is occupied by a lifting/rotating mechanism that
accomplishes the vehicle positioning, typically allowing only one vehicle to be
manipulated at a time.
-Silo mechanisms do however allow simultaneous up/down and axial positioning,
which can move the vehicles rather quickly.
Fig 48: silo parking lift
Fig 49: silo parking lift
c. Crane parking system
-A crane parking system consists of a central lifting and positioning
mechanism that is built into the center isle of a parking structure. The rails
that the crane glides on are installed at the ceiling and floor and run down the
center aisle.
-This crane mechanism is responsible for positioning a vehicle at a selected
parking slot. Parking slots are positioned on either side of the center aisle.
Lifts or Elevators

Lifts or Elevators

  • 1.
    ELEVATORS BUILDING CONSTRUCTION VI S.S B. ARCH III THE MAHARAJA SAYAJIRAO UNIVERSITY OF BARODA SUBMITTED BY: - VISHWA KELAWALA – 08 PANKTI GAJJAR – 15 MANSHI PARIKH – 16 NISHWA PATEL – 17 SHARANYA DAS – 29 TRUNIKA KANKARIA – 36
  • 2.
    Lifts or elevators Anelevator or lift is a type of vertical transportation that moves people or goods between floors (levels, decks) of a building, vessel, or other structure. Components of lifts or elevators • Overspeed governor • Electric motor • Car guide rail • Elevator car • Elevator shaft • Landing doors • Machine drive • Buffers- Car buffer • Counterweight buffer • Safety device fig 1: components of lift
  • 3.
    fig 2: classificationof elevators Mechanism observed in elevators a. Hydraulic b. Traction/ pulley c. Climbing d. Pneumatic e. Electromagnetic propulsion 1. Hydraulic lift: • Hydraulic elevators are elevators which are powered by a piston that travels inside a cylinder. An electric motor pumps hydraulic oil into the cylinder to move the piston. The piston smoothly lifts the elevator cab. Electrical valves control the release of the oil for a gentle descent. • Types of hydraulic elevators a. Conventional hydraulic elevators b. Hole- less hydraulic elevators c. Roped hydraulic elevators
  • 4.
    fig 3: hydraulicelevator 2. Traction/ pulley elevators: • Traction elevators are lifted by ropes, which pass over a wheel attached to an electric motor above the elevator shaft. They are used for mid and high-rise applications and have much higher travel speeds than hydraulic elevators. A counter weight makes the elevators more efficient by offsetting the weight of the car and occupants so that the motor doesn't have to move as much weight. • Types of traction elevators: a. Geared- traction elevators b. Gearless-traction elevators Fig 4: Traction/Pulley elevators
  • 5.
    3. Climbing lifts: •A climbing elevator is a self-ascending elevator with its own propulsion. The propulsion can be done by an electric or a combustion engine. • Climbing elevators are usually used in work and construction areas. fig 5: climbing elevator fig 6: climbing elevator
  • 6.
    4. Pneumatic elevators: •An elevator of this kind uses a vacuum on top of the cab and a valve on the top of the "shaft" to move the cab upwards and closes the valve in order to keep the cab at the same level. A diaphragm or a piston is used as a "brake", if there's a sudden increase in pressure above the cab. To go down, it opens the valve so that the air can pressurize the top of the "shaft", allowing the cab to go down by its own weight. This also means that in case of a power failure, the cab will automatically go down. fig 7: pneumatic elevator 5. Electromagnetic propulsion: • The elevator of the future may be just over the horizon thanks to German company ThyssenKrupp. The firm has invented a cable-free elevator (called multi) that can go up and down like traditional lifts, but the magnetic motors allow it to go side-to-side, too. • The designers speculate that buildings implementing this technology could increase the carrying capacity of existing architecture by as much as 50%. Plus, it looks neat. fig 8: electromagnetic compulsion
  • 7.
    Machine Room- LessElevator Machine-Room-Less Elevators are typically traction elevators that do not have a dedicated machine room above the elevator shaft. The machine sits in the override space and the controls sit above the ceiling adjacent to the elevator shaft. Machine- room-less elevators are becoming more common; however, many maintenance departments do not like them due to the hassle of working on a ladder as opposed to within a room. They are becoming common because this saves productive space in the buildings. Fig 9: comparison of MR and MRL lifts Advantages of MRL Elevator • The advantage of MRL elevator is saving space. You can only make a maintenance platform under the host. • Since there is no need room, it is a greater benefit to the structure and cost of the building allowing the architect to have greater flexibility and convenience in design • Some places where it is inconvenient to set up elevator room, such as hotels, hotel affiliated buildings, and podiums, MRL elevator can be used. Disadvantages of MRL Elevators • impact of noise is very great • comfort of the MRL elevator is significantly weaker than MR elevator due to vibrations of car and guide rail. • MRL elevator is not suitable for high speed
  • 8.
    According to buildingtype fig 10: classification according to building type 1. Commercial passenger elevator • The modern passenger lift is a simple means of transport within a building. • Generally, passenger elevators are available in typical capacities from 4 to 26 passengers. • Speed varies between 0.5 meter/sec to 2.5 meter/sec. Load Car inside Lift well Entrances Type of door Person Kg A B C D E 4 272 1100 700 1800 1100 800 Manual 6 408 1100 1000 1800 1400 800 8 544 1300 1100 2000 1550 800 4 272 1100 700 1900 1350 800 Automatic 6 408 1100 1000 1900 1700 800 8 544 1300 1100 1900 1900 800 10 680 1300 1350 1900 2100 800 13 884 2000 1100 2500 1900 900 16 1088 2000 1300 2500 2100 1000 20 1360 2000 1500 2500 2400 1000 24 1632 2150 1650 2650 2500 1100 fig 11: dimensions for commercial lifts
  • 9.
    fig 12: dimensionsfor commercial lifts 2. Hospital elevators • One of the features of this elevator is its ability to transport patients as smoothly as possible with minimal amount of bumping and jostling. • Most often there will be a rear and a front entry to the elevator cabin. • Door width: 900-1100 mm • In general, hospital elevators can reach endures a load of between 600 and 2,500 kilos. • The usual capacity of these lifts is between 8 and 13 people • The maximum height that elevators can raise reaches 45 meters. • The speed limit at which they can get these elevators is set at 1.6 meters per second
  • 10.
    fig 13: dimensionsfor hospital lifts fig 14: dimensions for hospital lifts
  • 11.
    fig 15: planfor dimensions for hospital lifts fig 16: section for dimensions for hospital lifts
  • 12.
    Hospital elevators Load Carinside Lift well Entrances Machine room Pit depth Over head Person Kg A B C D E K L M N 15 1020 1000 2400 1800 3000 900 3800 5500 1600 4400 20 1300 1300 2400 2200 3000 1200 4200 5500 1600 4400 26 1768 1600 2400 2400 3000 1200 4400 5500 1600 4400 fig 17: dimensions for hospital lifts 3. Inclined/diagonal elevator • An inclined elevator consists of one or two inclined tracks on a slope with a single car on each carrying payload • Unlike a standard elevator, it can go up tilted grades, and can be used for both residential and commercial purposes. • The purpose of inclined elevators is to provide accessibility to steep hillsides and inclines at minimal effort to the user. • Inclined elevator is a form of cable railway. fig 18: inclined or diagonal lifts
  • 13.
    fig 19: inclinedor diagonal lifts fig 20: working mechanism of inclined or diagonal lifts 4. Fire escape lift • Exclusive use of a passenger lift by the fire service to carry firefighters and their equipment to the required floors in the event of a fire. • Firefighting lifts are required in housing where the building has a floor more than 18m above or more than 10m below fire service vehicle access level.
  • 14.
    • Features: -Interface betweenthe lift control, fire detection and alarm system -Trap doors and ladders for rescue operations -Electrical components in the shaft and on the car are protected against water -Emergency intercom system and lift operation -Separate power supply (supplied by builder) to enable the lift to remain in use -Typically, 8 or 13-person passenger lifts. fig 21: dimensions for fire escape lifts 5. Handicapped lift • A wheelchair lift, also known as a platform lift, or vertical platform lift is a fully powered device designed to raise a wheelchair and its occupant in order to overcome a step or similar vertical barrier.
  • 15.
    Fig 22: handicappedlifts fig 23: handicapped lifts
  • 16.
    fig 24: handicappedlifts in bus 6. Paternoster lift • A paternoster or paternoster lift is a passenger elevator which consists of a chain of open compartments (each usually designed for two persons) that move slowly in a loop up and down inside a building without stopping. Passengers can step on or off at any floor they like. fig 25: paternoster lift
  • 17.
    Fig 26: workingtechnique of paternoster lift Fig 27: working technique of paternoster lift 7. Dumbwaiters/service elevators Fig 28: dumbwaiter/service lift
  • 18.
    Fig 29: dumbwaiter/servicelift Fig 30: section for dimensions for dumbwaiter/service lift Fig 31: dimensions for dumbwaiter/service lift
  • 19.
    8. Freight elevators •Freight elevator is essentially designed to fulfill material handling • choice of freight elevator requires consideration factors such as volume and weight of material to be transported and the method of handling like manual or trolley driven, requirement of industry, building, hotel, car workshop etc. Fig 32: freight lift Fig 33: dimensions for freight lift Load Car inside Lift well Entrances Machine room Pit depth Over head Kg A B C D E K L 500 1100 1200 1900 1500 1100 3900 4500 1600 4500 1000 1400 1800 2300 2100 1400 4300 4600 1500 1700 2000 2600 2300 1700 4600 4800 2000 1700 2500 2600 2800 1700 4600 5300 2500 2000 2500 2900 2800 2000 4900 5300 3000 2000 3000 2900 3300 2000 4900 5800 4000 2500 3000 3400 3300 2500 5400 5800 5000 2500 3600 3400 3900 2500 5400 6400
  • 20.
    Fig 34: workingtechnique of freight lift Fig 35: freight lift
  • 21.
    Fig 36: freightlift Fig 37: elements of freight lift
  • 22.
    9. Outdoor elevator Fig38: outdoor lift
  • 23.
    Fig 39: outdoorlift 10.Industrial inclined elevator • The equipment and supplies are placed on a conveyer belt that continues bringing the cargo up to its destination where it can be unloaded, as the belt continues to turn around. • This is much quicker method of loading and unloading cargo. • Everything happens in one fluid motion. • These are mostly temporary and mobile, and many are on wheels and can be moved from one dock to another. Fig 40: conveyer belt
  • 24.
    11.Stair rail straightlift • A stair lift is a mechanical device for lifting people up and down stairs. For sufficiently wide stairs, a rail is mounted to the treads of the stairs. A chair or lifting platform is attached to the rail. A person gets onto the chair or platform and is lifted up or down the stairs by the chair which moves along the rail. Fig 41: indoor stair rail straight lift Fig 42: stair rail lift
  • 25.
    12.Fork elevator • Aforklift (also called lift truck, jitney, fork truck, fork hoist, and forklift truck) is a powered industrial truck used to lift and move materials over short distances. • Forklifts are rated for loads at a specified maximum weight forklift hydraulics are controlled either with levers directly manipulating the hydraulic valves or by electrically controlled actuators, using smaller "finger" levers for control. The latter allows forklift designers more freedom in ergonomic design. • Forklift trucks are available in many variations and load capacities. In a typical warehouse setting most forklifts have load capacities between one and five tons. Larger machines, up to 50 tons lift capacity, are used for lifting heavier loads, including loaded shipping containers. • Skilled forklift operators annually compete in obstacle and timed challenges at regional forklift rodeos Fig 43: fork lift
  • 26.
    13.Grain elevator • Agrain elevator is a tower containing a bucket elevator, which scoops up, elevates, and then uses gravity to deposit gain in a silo or other storage facility. • They can be classified as either ‘counter’ or “terminal” elevators, with terminal elevators further categorized as inland or export types. • Operations other than storage, such as cleaning, drying, and blending, often are performed at elevators. • The principal grains and oilseeds handled include wheat, corn, oats, rice soybeans, and sorghum. Fig 44: grain lift 14.Platform Lift Fig 45: platform scissor lift
  • 27.
    Fig 46: platformlift 15.Evacuation lifts • Use of elevators in parking: -A vehicle enters the system by being driven into a transfer cabin and parked on a platform. Then a rgc picks up the platform and vehicle and drives it into the system for storage. -As more rgcs are placed in a system, the quantity (and associated cost) is increased. However only to the point that the number of transfer cabins, lifts, paths and shared resources exist. a. Shuttle/ stack parking system. -Shuttle systems utilize transfer cabins to park and retrieve vehicles from the system, autonomous robots to move vehicles to and from elevators and parking spaces, and lifts to gain access to multiple floors or height variances.
  • 28.
    Fig 47: shuttlestack parking lift b. Silo parking system -A silo system is cylindrical in nature, like a grain silo. Vehicles are parked at the outer edge of the core. The core is occupied by a lifting/rotating mechanism that accomplishes the vehicle positioning, typically allowing only one vehicle to be manipulated at a time. -Silo mechanisms do however allow simultaneous up/down and axial positioning, which can move the vehicles rather quickly. Fig 48: silo parking lift
  • 29.
    Fig 49: siloparking lift c. Crane parking system -A crane parking system consists of a central lifting and positioning mechanism that is built into the center isle of a parking structure. The rails that the crane glides on are installed at the ceiling and floor and run down the center aisle. -This crane mechanism is responsible for positioning a vehicle at a selected parking slot. Parking slots are positioned on either side of the center aisle.