K ARA DZIOBEK
RHODE ISLAND SCHOOL OF DESIGN BArch + BFA 2011
TABLE OF CONTENTS
  1   EARTH LA FLOR UNIVERSITY ADVANCED STUDIO Spring 2010
  7   ACUSHNET HEIGHTS AFFORDABLE HOUSING ADVANCED STUDIO Fall 2009
 11   LA SALLE CULTURAL EXCHANGE ADVANCED STUDIO Spring 2009
 15   URBAN HOUSING PROJECT URBAN DESIGN PRINCIPLES Fall 2008
 17   SCUBA DIVING FACILITY ARCHITECTURAL DESIGN Spring 2008
 19   BROWN STREET PARK INSTALLATION ARCHITECTURAL DESIGN Spring 2008
 21   TRAVELER’S CENTER DESIGN PRINCIPLES Fall 2007
 23   HOUSING PROJECT URBAN DESIGN PRINCIPLES Fall 2008
 25   MANUAL + DIGITAL REPRESENTATION 2007
 27   INTEGRATED BUILDING SYSTEMS Spring 2010
 29   WORK EXPERIENCE
 33   DEGREE PROJECT SEMINAR
 40   RÉSUMÉ
EARTH UNIVERSITY
                      LA FLOR, GUANACASTE REGION, COSTA RICA
                      PARTNER: CATHERINE RHA
                      CRITIC: LILI HERMANN

                      EARTH University La Flor will serve as a resource and infor-
                      mation center for those within the school and in the surround-
                      ing area. Converging with the roadside and located primar-
                      ily along the north-south road with a splay into the east-west
                      road, EARTH La Flor is the intersection of local community
                      from Liberia and global knowledge connected from the air-
                      port. The campus serves as a hub for community participa-
                      tion and learning, student outreach, and sustainable research
                      and influence.




                                                                                 Top to bottom :
                                                                Site plan, conceptual sketches,
                                                                             preliminary models




1   advanced studio
Our design played with the idea of weaving, with dis-
tinct threads that made up the campus, including ac-
ademics, student living, managed landscape, circula-
tion (vehicular and pedestrian), and natural elements
(water, wind, sun).



                                                        advanced studio   2
SCUBA DIVING FACILITY
                      PROVIDENCE, RI



                                                     Academic core




                                        The academic core weaves
                                        itself along the road run-
                                        ning through the campus
                                        and acts as a spine that stu-
                                        dents must filter through in
                                        order to access both sides
                                        of campus.

                                        The two housing threads
                                        allow for students to apply
                                        what they learn in the class-
                                        room about sustainability
                                        towards their everyday living
                                        experience.




3   advanced studio
H
 OU




                               HOUSING
         CL A
   SI




              S   SRO
     N




                      OM
    G




                        S




                            advanced studio   4
5   advanced studio
CAMPUS DURING DRY SEASON                           CAMPUS DURING WET SEASON



The drastic change in seasons played a large role when designing, especially with the
idea of the managed landscape and water conservation. We wanted to take advantage
of the river water located on site and filtered greywater for agricultural use during the dry
season.




                                                                              advanced studio   6
ACUSHNET HEIGHTS
                      AFFORDABLE HOUSING
                      NEW BEDFORD, MA
                      CRITIC: NADINE GERDTS
                      The housing design is site specific on both the site scale and
                      neighborhood scale. It serves as a demonstration house to
                      show others in the neighborhood how the existing architecture
                      can be manipulated to maximize environmental sustainability.
                      The design is flexible to fit any vacant lot within the neighbor-
                      hood of Acushnet Heights and can be duplicated in larger
                      sites. It includes environmentally sustainable systems includ-
                      ing a rainwater catchment system for all indoor and outdoor
                      water usage, accessible green roof, and a ventilation core.




                                                               The form of the house
                                                               was derived from manipu-
                                                               lating the standard house
                                                               size for the neighborhood,
                                                               a 24’ x 36’ three-story
                                                               building.




7   advanced studio
advanced studio   8
South                 East            North                            West
                                  South                     East                     North                        W




                                          Section A                      Section B
                                                          Section A                             Section B


                       A
                                   A




                              B
                                                      B




                                           Site Plan            First Floor Plan     Second Floor Plan
                                                           Site Plan                   First Floor Plan     Second F




9   advanced studio
Front Elevation facing South



                                               WATER FILTRATION SYSTEM

                                           1. Rainwater runoff from roof is captured
                                              in water wall
                                           2. Storage tank below ground
                                           3. Separated into exterior and interior
                                              use (ext. water is dispensed at timed
Green Roof = Communal Rooftop Gar den
                                              intervals; interior water enters filter
                                              system)
                                           4. Water enters into house for potable
                                              kitchen and WC use
 Ventilation Core                          5. Greywater from interior
 Green Roof                                   enters back into filter and is
                                              recycled back inside
 Rainwater Catchment System



                                                       advanced studio          10
LA SALLE CULTURAL EXCHANGE
                       CHICAGO, IL
                       PARTNER: JACQUELINE LAVIN
                       CRITIC: ANDRE SCHMIDT

                       Located within the “Loop” on the edge of downtown Chicago,
                       this design of a cultural center was also supposed to serve as a
                       connection between the train station and the park located south
                       of the lot. The design consisted of two main axes that drove the
                       locations of the surrounding program including theatres, exhibi-
                       tion space, research center, library, and offices.




11   advanced studio
advanced studio   12
G   1   2   3   4


13   advanced studio
The form of the design is a series of terraces, creating
an interesting roofscape, perfect for rooftop garden and
exhibition space. The models above show the iterations of
the overall form of the cultural center.

With circulation as the driving factor, the ramp from the
train station to the adjacent park is the most prominent
feature of the building, with the rest of the program twist-
ed around it.




                                    advanced studio       14
URBAN HOUSING
                                               PROVIDENCE, RI
                                               CRITIC: JONATHAN KNOWLES
                                               The goal of this apartment building is to promote a creative
                                               and collaborative work and living environment for the artist and
                                   A           business population in Providence. The two groups of people
                                           B   would learn, grow, and benefit from each other.




                               A
                                       B




                                   A
                                           B


15   urban design principles
The first two floors are
spaces for offices and gal-
leries, allowing for the op-
tion of having a personal
office or gallery in Down-
town Providence, while
having a living space and
workspace located above.
The living units are a mix of
2-3 bedroom apartments
and single apartments with
artist studio spaces.




                                                   SECTION A




                                                   SECTION B



                                urban design principles    16
SCUBA DIVING FACILITY
                                                       PROVIDENCE, RI
                                                       CRITIC: OLGA MESA

                                                       Located on Fox Point, the experience within the facility is
                                                       one of filtration. This concept is realized in the layout, the
                                                       handling of light, and the scuba diving experience. The
                                                       facility houses pools for different skill levels, along with
                                                       classroom space below where students are able to view
                                                       the divers in action.




     D




     C




     B


                                A   FIRST FLOOR PLAN                                                        SECTION D



17       architectural design
SECTION A




            WATER
            The facility dually functions as scuba
            practice pools and also a filtration sys-
SECTION B   tem for the water from the Providence
            River. The water would be treated before
            entering into the building, but then trans-
            ported from low depths to higher depths.
            Similarly, people would be able to swim
            from one pool to another.

            LIGHT
            The building is located underground,
            causing the land above to turn into a hilled
            landscape park area. Light is cast down
SECTION C   from the top of the mounds and pierces
            through the holes of the classrooms. At
            night, the mounds are lit from the inte-
            rior, creating a luminous landscape.




                          architectural design       18
BROWN STREET PARK INSTALLATION
                            PROVIDENCE, RI
                            GROUP PROJECT, CRITIC: OLGA MESA
                            Our project is motivated by a direct engagement with the given materials and by a dynamic
                            relationship with the sloped ground. Using the rope and wood in equal measure, the rope
                            is tensioned to induce a bow and increase the strength of the furring strips. This interde-
                            pendence is pushed to its limits and results in a delicate balance between the materials
                            and within the form of the construct itself. Drawing on the experiential site mappings and
                            our early sketch models, the construct aims to both react to the ground of its specific site
                            and also create an inverted ground that becomes the means of inhabitation. Taken in
                            section, the ground elevation drops as the lines of the construct sweep upward, creating
                            an open canopy over the slope. Sited on the boundary between two sections of Brown
                            Street Park, the construct visually lifts the ground and opens outward towards the clearest
                            horizon.




19   architectural design
The basic construction unit is a
bowed furring strip. These pieces
are combined to create either an ‘s’
shaped length that becomes the el-
evated, cantilevered canopy or com-
bined to create strong bases that
support those cantilevered canopies.
Both the canopy pieces and the base
pieces are woven together to create
an interdependent lattice. Within this
system, there is an inherent flexibility
that allows the construct to adapt to
different site conditions and different
programmatic concerns.



                architectural design       20
TRAVELER’S CENTER
                                                                                PROVIDENCE, RI
                                                                                CRITIC: ANASTASIA CONGDON
                                                                                The Traveler’s Center is designed as a journey inspired by the
                                                                                sounds of three distinct textures on site- concrete, leaves and
                                                                                grass, and rocks. Each sound has their own spatial qualities which
                                                                                were translated into an architectural environment. The three parts
                                                                                of the building allow for a different experience and also change
                                                                                the focus of the surrounding context. Part of the existing bridge
                                                                                was preserved as a pedestrian park area and also to celebrate the
                                                                                rich textures found underneath it.




     Initial explorations were done through folding paper, experimenting
     with different angles and spacing. By thickening the material, this al-
     lowed for each part to increase their dependence on each other and
     in turn became a series of hinges. The concept of a hinge was carried
     through to the overall form of the building and its interaction with the
     site and existing infrastructure.



21    design principles
design principles   22
HOUSING PROJECT
     CRITIC: JONATHAN KNOWLES

     This housing project is designed to maximize the amount of
     light that can enter into the units. The angled walls exist in
     order to reflect light and also capture it from above and pull
     it into the areas that might not want as much direct light. The
     stairwells serve as light shafts within the units as well.




                                                                        Study models
                                                                                 (top)
                                                                       Massing model
                                                                               (right)


23   urban design principles
SECOND FLOOR




               FIRST FLOOR




urban design principles      24
MANUAL & DIGITAL REPRESENTATION
25   manual + digital representation
LEFT TO RIGHT
Therme Vals study of light and
water distribution, interior per-
spective of the Fleet Library, an
imaginative plan, four bar link-
age rotational drawings, surface
study done in Rhino




                                    manual + digital representation   26
INTEGRATED BUILDING SYSTEMS
                                   22 BIANCO CT, PROVIDENCE, RI
                                   GROUP WORK

                                   What once was worker’s housing, has recently gone through a lot of
                                   renovation and rebuilding. Our interests lied in the overlap between the
                                   old and the new, and the process from what was existing versus was
                                   exists now. The model on this page attempts to point out what happens
                                   if the two stages were to exist simultaneously.




27   integrated building systems
integrated building systems   28
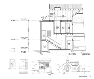
WELLFLEET PRESERVATION HALL
                  WELLFLEET, MA
                  HADLEY CROW STUDIO

                  The Wellfleet Preservation Hall includes the restoration of the sanctuary
                  space into a performance hall and a complete redesign of what once once
                  a parish and is now a mixed-use community center and meeting space.
                  Design by James Hadley.




29   work experience
work experience   30
PERMANENT HOUSING COMMUNITIES
     MIREBALAIS & PANDIASSOU, HAITI
     ENGINEERING MINISTRIES INTERNATIONAL

     After the earthquake on January 12, 2010, many people in HaI-
     ti were left without homes and an even greater need for hope.
     Although many of the efforts were focused on providing the people of Port-
     au-Prince with quick and temporary housing, there was also a great need for
     structurally stable permanent houses located outside the city, which in turn
     would help to decentralize the country. Our team of 13 volunteer architects
     and engineers proposed 3 housing variations to fit on the two site plans that
     included approx. 60 units per community complete with structural drawings,
     electrical drawings, and water/waste water design.




31   work experience
work experience   32
THE MAKING OF THINGS:
      DEGREE PROJECT SEMINAR
       CRITIC: SILVIA ACOSTA




       The idea of this chair design was flexibility and user initiation.
       When not in use, the chair can be propped up against the
       wall, and then when needed, it can be folded down to create
       a chair. The piece can be positioned in a variety of ways.
       As a chair, it can either use the wall as support or fold over
       to support itself. In addition, it can be used as a foot rest if
       placed next to a couch.




33   degree project seminar
Alex often sat at one of the benches at the Memorial Park on South
Main St. in Providence. During our first conversation, he told me that
he wanted to go to the homeless shelter in Cranston but they wouldn’t
let him on the bus because he smelt too bad. This raised awareness
to the fact that there is no public shower facility for homeless people
to use, other than at Crossroads RI, but the wait is very long. He is
now staying at the emergency shelter at Mathewson Street Church.

Everyone has a need for privacy, especially in moments of bathing. Is
there a way to design a transportable private space to bathe that could
capture, store, and warm up water? These models are explorations of
tectonics that could serve as a screen, a rainwater capturing device,
and flexible to fit a specific size or surface area.




                                            degree project seminar        34
PORTABLE CARDBOARD BED
     You will need:
     (5) Wine boxes (undo flaps)
     (5) Chipboard/cardboard slotted inserts (found inside wine boxes)
     (2) Beer boxes (flattened)

     The design of the portable cardboard bed is a
     response to the 282 people who were without a
     bed to sleep on in the shelters in Providence. The
     amount of people staying in the shelters is far more
     than ever before, and as a result, the resources that
     they have are inadequate. This bed would allow an
     individual to be elevated while providing comfort,
     and could essentially be made by anyone and used
     recyclable materials.




35   degree project seminar
1.                                                                     2.
                              1.                                                                     2.    3.



                         2.                                                            3.


                                                                                                      3.
                                                           2.                                         3.
                                                                                                           4. Assemble




                                      You will need:

                                 1.   (5) Wine boxes (undo flaps)                     4. ASSEMBLE
                                                                                       4. Assemble
                                                                                             4. Assemble
                                 2.   (5) Chipboard/cardboard slotted inserts (found inside wine boxes)

                                 3.   (2) Beer boxes (flattened)




                              PORTABLE CARDBOARD BED
u will need:
Wine boxes (undo flaps)

 hipboard/cardboard slotted inserts (found inside wine boxes)

 eer boxes (flattened)


                                                                                                                     degree project seminar   36
37   degree project seminar
After the physical making of objects and
investigation of ideas related to flexibility and
portability, the projects were the beginning of
my degree project which focuses on recon-
necting homeless people in Providence, RI.
The project works at both the human scale
and the urban scale, bridging the homeless
from the streets to a permanent supportive
housing facility.


                            degree project seminar   38
K ARA KARA DZIOBEK
      DZIOBEK
PO Box PO Box 21, S. Chatham, MA 02659 | | 508-246-2272 | kdziobek@risd.edu
       21, S. Chatham, MA 02659 508-246-2272 | kdziobek@risd.edu

       OBJECTIVE     To become a licensed architect and a LEED accredited professional. Seeking a full time internship
                     position in a firm with a highly collaborative design team that focuses on innovative and
                     sustainable design for a positive social impact

       EDUCATION     Rhode Island School of Design (RISD) – Providence, RI
                     Bachelor of Architecture ’11, Bachelor of Fine Arts ‘10
                     Additional: Resident Assistant, With One Voice (Christian A Cappella), Alternative Spring Break leader, After
                     School Arts Tutor (Fort building class), HOPE (Housing Opportunities for People Everywhere), Advocate for
                     the homeless community, RISD Christian Body

       EXPERIENCE    Rhode Island School of Design – Providence, RI
                     Resident Assistant 2010-2011
                     Engineering Ministries International – Costa Rica office, Project trip to Haiti
                     Architectural Intern – Summer ‘10
                     Designed the housing units for two permanent housing communities in Mirebalais & Pandiassou, Haiti;
                     finalized CD set of engineering and architectural drawings

                     Alternative Spring Break – Mexico, Guatemala, Ecuador
                     Spring Break – ’07, ’08, ’09, ‘10
                     Led in organizing, fundraising and hosting events for service trips – trips focused on construction work,
                     beautification, and community development

                     Hadley Crow Studio – Orleans, MA
                     Architectural Intern – Summer ‘07, ‘08, ‘09
                     Drafted construction drawing sets for several residential and commercial projects, 3-D rendering, and model-
                     making

                     Town of Orleans – Orleans, MA
                     Private Contractor – July-September ‘07
                     Created an electronic database for four cemeteries that included AutoCAD drawings, photo documentation
                     and analysis, surveying

       WORK STUDY Rhode Island Historical Preservation & Heritage Commission – ‘10
                     Office assistant: computer and database work and architecture-related work

                     Providence Preservation Society – ’09
                     Office assistant: computer and database work, special events, mailings, filing, reception

       SKILLS        Computer: Proficiency in AutoCAD, Adobe Photoshop, Illustrator, InDesign, Rhino, SketchUp,
                          PowerPoint, and Microsoft Office
                     3-D: Architectural model-making, structural understanding, excellent craftsmanship, 1:1
                          construction, ceramics
                     2-D: Manual drafting, painting, photography, photo manipulation, and graphic design
                     Organizational skills: Strong client communication experience and office skills – following office
                          standards, data entry, and meeting deadlines
                     Other: Conceptual understanding, intermediate level Spanish, enthusiastic and passionate about
                          humanitarian work, self-motivated, ability to be both a leader and team player, detail-
                          oriented, expert at multi-tasking, reliable, strong work ethic, adaptable, and positive attitude

       AWARDS        Steven Mendelson Community Service Award 2011
                     Prescott O. Clark Scholarship 2009-2011                                                                         résumé   40
                     Patricia M. Smith Scholarship 2009
                     RISD Merit Scholarship 2006-2011
Kara Dziobek RISD Architecture Portfolio

Kara Dziobek RISD Architecture Portfolio

  • 1.
    K ARA DZIOBEK RHODEISLAND SCHOOL OF DESIGN BArch + BFA 2011
  • 3.
    TABLE OF CONTENTS 1 EARTH LA FLOR UNIVERSITY ADVANCED STUDIO Spring 2010 7 ACUSHNET HEIGHTS AFFORDABLE HOUSING ADVANCED STUDIO Fall 2009 11 LA SALLE CULTURAL EXCHANGE ADVANCED STUDIO Spring 2009 15 URBAN HOUSING PROJECT URBAN DESIGN PRINCIPLES Fall 2008 17 SCUBA DIVING FACILITY ARCHITECTURAL DESIGN Spring 2008 19 BROWN STREET PARK INSTALLATION ARCHITECTURAL DESIGN Spring 2008 21 TRAVELER’S CENTER DESIGN PRINCIPLES Fall 2007 23 HOUSING PROJECT URBAN DESIGN PRINCIPLES Fall 2008 25 MANUAL + DIGITAL REPRESENTATION 2007 27 INTEGRATED BUILDING SYSTEMS Spring 2010 29 WORK EXPERIENCE 33 DEGREE PROJECT SEMINAR 40 RÉSUMÉ
  • 4.
    EARTH UNIVERSITY LA FLOR, GUANACASTE REGION, COSTA RICA PARTNER: CATHERINE RHA CRITIC: LILI HERMANN EARTH University La Flor will serve as a resource and infor- mation center for those within the school and in the surround- ing area. Converging with the roadside and located primar- ily along the north-south road with a splay into the east-west road, EARTH La Flor is the intersection of local community from Liberia and global knowledge connected from the air- port. The campus serves as a hub for community participa- tion and learning, student outreach, and sustainable research and influence. Top to bottom : Site plan, conceptual sketches, preliminary models 1 advanced studio
  • 5.
    Our design playedwith the idea of weaving, with dis- tinct threads that made up the campus, including ac- ademics, student living, managed landscape, circula- tion (vehicular and pedestrian), and natural elements (water, wind, sun). advanced studio 2
  • 6.
    SCUBA DIVING FACILITY PROVIDENCE, RI Academic core The academic core weaves itself along the road run- ning through the campus and acts as a spine that stu- dents must filter through in order to access both sides of campus. The two housing threads allow for students to apply what they learn in the class- room about sustainability towards their everyday living experience. 3 advanced studio
  • 7.
    H OU HOUSING CL A SI S SRO N OM G S advanced studio 4
  • 8.
    5 advanced studio
  • 9.
    CAMPUS DURING DRYSEASON CAMPUS DURING WET SEASON The drastic change in seasons played a large role when designing, especially with the idea of the managed landscape and water conservation. We wanted to take advantage of the river water located on site and filtered greywater for agricultural use during the dry season. advanced studio 6
  • 10.
    ACUSHNET HEIGHTS AFFORDABLE HOUSING NEW BEDFORD, MA CRITIC: NADINE GERDTS The housing design is site specific on both the site scale and neighborhood scale. It serves as a demonstration house to show others in the neighborhood how the existing architecture can be manipulated to maximize environmental sustainability. The design is flexible to fit any vacant lot within the neighbor- hood of Acushnet Heights and can be duplicated in larger sites. It includes environmentally sustainable systems includ- ing a rainwater catchment system for all indoor and outdoor water usage, accessible green roof, and a ventilation core. The form of the house was derived from manipu- lating the standard house size for the neighborhood, a 24’ x 36’ three-story building. 7 advanced studio
  • 11.
  • 12.
    South East North West South East North W Section A Section B Section A Section B A A B B Site Plan First Floor Plan Second Floor Plan Site Plan First Floor Plan Second F 9 advanced studio
  • 13.
    Front Elevation facingSouth WATER FILTRATION SYSTEM 1. Rainwater runoff from roof is captured in water wall 2. Storage tank below ground 3. Separated into exterior and interior use (ext. water is dispensed at timed Green Roof = Communal Rooftop Gar den intervals; interior water enters filter system) 4. Water enters into house for potable kitchen and WC use Ventilation Core 5. Greywater from interior Green Roof enters back into filter and is recycled back inside Rainwater Catchment System advanced studio 10
  • 14.
    LA SALLE CULTURALEXCHANGE CHICAGO, IL PARTNER: JACQUELINE LAVIN CRITIC: ANDRE SCHMIDT Located within the “Loop” on the edge of downtown Chicago, this design of a cultural center was also supposed to serve as a connection between the train station and the park located south of the lot. The design consisted of two main axes that drove the locations of the surrounding program including theatres, exhibi- tion space, research center, library, and offices. 11 advanced studio
  • 15.
  • 16.
    G 1 2 3 4 13 advanced studio
  • 17.
    The form ofthe design is a series of terraces, creating an interesting roofscape, perfect for rooftop garden and exhibition space. The models above show the iterations of the overall form of the cultural center. With circulation as the driving factor, the ramp from the train station to the adjacent park is the most prominent feature of the building, with the rest of the program twist- ed around it. advanced studio 14
  • 18.
    URBAN HOUSING PROVIDENCE, RI CRITIC: JONATHAN KNOWLES The goal of this apartment building is to promote a creative and collaborative work and living environment for the artist and A business population in Providence. The two groups of people B would learn, grow, and benefit from each other. A B A B 15 urban design principles
  • 19.
    The first twofloors are spaces for offices and gal- leries, allowing for the op- tion of having a personal office or gallery in Down- town Providence, while having a living space and workspace located above. The living units are a mix of 2-3 bedroom apartments and single apartments with artist studio spaces. SECTION A SECTION B urban design principles 16
  • 20.
    SCUBA DIVING FACILITY PROVIDENCE, RI CRITIC: OLGA MESA Located on Fox Point, the experience within the facility is one of filtration. This concept is realized in the layout, the handling of light, and the scuba diving experience. The facility houses pools for different skill levels, along with classroom space below where students are able to view the divers in action. D C B A FIRST FLOOR PLAN SECTION D 17 architectural design
  • 21.
    SECTION A WATER The facility dually functions as scuba practice pools and also a filtration sys- SECTION B tem for the water from the Providence River. The water would be treated before entering into the building, but then trans- ported from low depths to higher depths. Similarly, people would be able to swim from one pool to another. LIGHT The building is located underground, causing the land above to turn into a hilled landscape park area. Light is cast down SECTION C from the top of the mounds and pierces through the holes of the classrooms. At night, the mounds are lit from the inte- rior, creating a luminous landscape. architectural design 18
  • 22.
    BROWN STREET PARKINSTALLATION PROVIDENCE, RI GROUP PROJECT, CRITIC: OLGA MESA Our project is motivated by a direct engagement with the given materials and by a dynamic relationship with the sloped ground. Using the rope and wood in equal measure, the rope is tensioned to induce a bow and increase the strength of the furring strips. This interde- pendence is pushed to its limits and results in a delicate balance between the materials and within the form of the construct itself. Drawing on the experiential site mappings and our early sketch models, the construct aims to both react to the ground of its specific site and also create an inverted ground that becomes the means of inhabitation. Taken in section, the ground elevation drops as the lines of the construct sweep upward, creating an open canopy over the slope. Sited on the boundary between two sections of Brown Street Park, the construct visually lifts the ground and opens outward towards the clearest horizon. 19 architectural design
  • 23.
    The basic constructionunit is a bowed furring strip. These pieces are combined to create either an ‘s’ shaped length that becomes the el- evated, cantilevered canopy or com- bined to create strong bases that support those cantilevered canopies. Both the canopy pieces and the base pieces are woven together to create an interdependent lattice. Within this system, there is an inherent flexibility that allows the construct to adapt to different site conditions and different programmatic concerns. architectural design 20
  • 24.
    TRAVELER’S CENTER PROVIDENCE, RI CRITIC: ANASTASIA CONGDON The Traveler’s Center is designed as a journey inspired by the sounds of three distinct textures on site- concrete, leaves and grass, and rocks. Each sound has their own spatial qualities which were translated into an architectural environment. The three parts of the building allow for a different experience and also change the focus of the surrounding context. Part of the existing bridge was preserved as a pedestrian park area and also to celebrate the rich textures found underneath it. Initial explorations were done through folding paper, experimenting with different angles and spacing. By thickening the material, this al- lowed for each part to increase their dependence on each other and in turn became a series of hinges. The concept of a hinge was carried through to the overall form of the building and its interaction with the site and existing infrastructure. 21 design principles
  • 25.
  • 26.
    HOUSING PROJECT CRITIC: JONATHAN KNOWLES This housing project is designed to maximize the amount of light that can enter into the units. The angled walls exist in order to reflect light and also capture it from above and pull it into the areas that might not want as much direct light. The stairwells serve as light shafts within the units as well. Study models (top) Massing model (right) 23 urban design principles
  • 27.
    SECOND FLOOR FIRST FLOOR urban design principles 24
  • 28.
    MANUAL & DIGITALREPRESENTATION 25 manual + digital representation
  • 29.
    LEFT TO RIGHT ThermeVals study of light and water distribution, interior per- spective of the Fleet Library, an imaginative plan, four bar link- age rotational drawings, surface study done in Rhino manual + digital representation 26
  • 30.
    INTEGRATED BUILDING SYSTEMS 22 BIANCO CT, PROVIDENCE, RI GROUP WORK What once was worker’s housing, has recently gone through a lot of renovation and rebuilding. Our interests lied in the overlap between the old and the new, and the process from what was existing versus was exists now. The model on this page attempts to point out what happens if the two stages were to exist simultaneously. 27 integrated building systems
  • 31.
  • 32.
    WELLFLEET PRESERVATION HALL WELLFLEET, MA HADLEY CROW STUDIO The Wellfleet Preservation Hall includes the restoration of the sanctuary space into a performance hall and a complete redesign of what once once a parish and is now a mixed-use community center and meeting space. Design by James Hadley. 29 work experience
  • 33.
  • 34.
    PERMANENT HOUSING COMMUNITIES MIREBALAIS & PANDIASSOU, HAITI ENGINEERING MINISTRIES INTERNATIONAL After the earthquake on January 12, 2010, many people in HaI- ti were left without homes and an even greater need for hope. Although many of the efforts were focused on providing the people of Port- au-Prince with quick and temporary housing, there was also a great need for structurally stable permanent houses located outside the city, which in turn would help to decentralize the country. Our team of 13 volunteer architects and engineers proposed 3 housing variations to fit on the two site plans that included approx. 60 units per community complete with structural drawings, electrical drawings, and water/waste water design. 31 work experience
  • 35.
  • 36.
    THE MAKING OFTHINGS: DEGREE PROJECT SEMINAR CRITIC: SILVIA ACOSTA The idea of this chair design was flexibility and user initiation. When not in use, the chair can be propped up against the wall, and then when needed, it can be folded down to create a chair. The piece can be positioned in a variety of ways. As a chair, it can either use the wall as support or fold over to support itself. In addition, it can be used as a foot rest if placed next to a couch. 33 degree project seminar
  • 37.
    Alex often satat one of the benches at the Memorial Park on South Main St. in Providence. During our first conversation, he told me that he wanted to go to the homeless shelter in Cranston but they wouldn’t let him on the bus because he smelt too bad. This raised awareness to the fact that there is no public shower facility for homeless people to use, other than at Crossroads RI, but the wait is very long. He is now staying at the emergency shelter at Mathewson Street Church. Everyone has a need for privacy, especially in moments of bathing. Is there a way to design a transportable private space to bathe that could capture, store, and warm up water? These models are explorations of tectonics that could serve as a screen, a rainwater capturing device, and flexible to fit a specific size or surface area. degree project seminar 34
  • 38.
    PORTABLE CARDBOARD BED You will need: (5) Wine boxes (undo flaps) (5) Chipboard/cardboard slotted inserts (found inside wine boxes) (2) Beer boxes (flattened) The design of the portable cardboard bed is a response to the 282 people who were without a bed to sleep on in the shelters in Providence. The amount of people staying in the shelters is far more than ever before, and as a result, the resources that they have are inadequate. This bed would allow an individual to be elevated while providing comfort, and could essentially be made by anyone and used recyclable materials. 35 degree project seminar
  • 39.
    1. 2. 1. 2. 3. 2. 3. 3. 2. 3. 4. Assemble You will need: 1. (5) Wine boxes (undo flaps) 4. ASSEMBLE 4. Assemble 4. Assemble 2. (5) Chipboard/cardboard slotted inserts (found inside wine boxes) 3. (2) Beer boxes (flattened) PORTABLE CARDBOARD BED u will need: Wine boxes (undo flaps) hipboard/cardboard slotted inserts (found inside wine boxes) eer boxes (flattened) degree project seminar 36
  • 40.
    37 degree project seminar
  • 41.
    After the physicalmaking of objects and investigation of ideas related to flexibility and portability, the projects were the beginning of my degree project which focuses on recon- necting homeless people in Providence, RI. The project works at both the human scale and the urban scale, bridging the homeless from the streets to a permanent supportive housing facility. degree project seminar 38
  • 43.
    K ARA KARADZIOBEK DZIOBEK PO Box PO Box 21, S. Chatham, MA 02659 | | 508-246-2272 | kdziobek@risd.edu 21, S. Chatham, MA 02659 508-246-2272 | kdziobek@risd.edu OBJECTIVE To become a licensed architect and a LEED accredited professional. Seeking a full time internship position in a firm with a highly collaborative design team that focuses on innovative and sustainable design for a positive social impact EDUCATION Rhode Island School of Design (RISD) – Providence, RI Bachelor of Architecture ’11, Bachelor of Fine Arts ‘10 Additional: Resident Assistant, With One Voice (Christian A Cappella), Alternative Spring Break leader, After School Arts Tutor (Fort building class), HOPE (Housing Opportunities for People Everywhere), Advocate for the homeless community, RISD Christian Body EXPERIENCE Rhode Island School of Design – Providence, RI Resident Assistant 2010-2011 Engineering Ministries International – Costa Rica office, Project trip to Haiti Architectural Intern – Summer ‘10 Designed the housing units for two permanent housing communities in Mirebalais & Pandiassou, Haiti; finalized CD set of engineering and architectural drawings Alternative Spring Break – Mexico, Guatemala, Ecuador Spring Break – ’07, ’08, ’09, ‘10 Led in organizing, fundraising and hosting events for service trips – trips focused on construction work, beautification, and community development Hadley Crow Studio – Orleans, MA Architectural Intern – Summer ‘07, ‘08, ‘09 Drafted construction drawing sets for several residential and commercial projects, 3-D rendering, and model- making Town of Orleans – Orleans, MA Private Contractor – July-September ‘07 Created an electronic database for four cemeteries that included AutoCAD drawings, photo documentation and analysis, surveying WORK STUDY Rhode Island Historical Preservation & Heritage Commission – ‘10 Office assistant: computer and database work and architecture-related work Providence Preservation Society – ’09 Office assistant: computer and database work, special events, mailings, filing, reception SKILLS Computer: Proficiency in AutoCAD, Adobe Photoshop, Illustrator, InDesign, Rhino, SketchUp, PowerPoint, and Microsoft Office 3-D: Architectural model-making, structural understanding, excellent craftsmanship, 1:1 construction, ceramics 2-D: Manual drafting, painting, photography, photo manipulation, and graphic design Organizational skills: Strong client communication experience and office skills – following office standards, data entry, and meeting deadlines Other: Conceptual understanding, intermediate level Spanish, enthusiastic and passionate about humanitarian work, self-motivated, ability to be both a leader and team player, detail- oriented, expert at multi-tasking, reliable, strong work ethic, adaptable, and positive attitude AWARDS Steven Mendelson Community Service Award 2011 Prescott O. Clark Scholarship 2009-2011 résumé 40 Patricia M. Smith Scholarship 2009 RISD Merit Scholarship 2006-2011