MONTANA STATE UNIVERSIT Y
SCHOOL OF ART & ARCHITECTURE

BOZEMAN ART & EDUCATION CENTER

MIKE ENGEL
MA S T E R S O F A R C H I T E C T U R E
STUD IO 5 58 THES I S
SPRING 2009 SEMESTER
PROFESSOR - KEITH ANDERSON
THESIS



    THESIS                                  4- 7

    S I T E / C O D E A N A LY S I S      8- 15

    PROGRAMMING / USAGE                  16- 21

    PRECEDENT STUDIES                    22- 33

    BUILDING FORM                        34- 75

    BUILDING SYSTEMS                     76- 95

    MODEL                               96- 101

    PROCESS IMAGES                     102- 115

    MODEL PROCESS                      116- 127

    C I TAT I O N S                    128- 131




4                                                  A R C H I T E C T U R E - C O L L A B O R AT I O N
ARCHITECTURE IS OPPORTUNITY. THE PROFESSION IS GIVEN THE GIFT TO CREATE SPACE THAT BOTH CREATES AND ENCOURAGES THE COLLABORTION OF PERSONS

             ACROSS PROFESSIONS. OUR TYPICAL “BUSINESS PARK” CREATES ISOLATED SILOS IN WHICH SINGLE IDEAS EXIST. HOWEVER, THROUGH THE CONCISE DESIGN OF SPACE WE

             HAVE THE OPPORTUNITY TO EXPAND EXISTING IDEAS AND CREATE NEW CONSIDERATIONS BY ALLOWING COLLABORATION BETWEEN DISPARATE PROFESSIONS AND THE

             NURTURING OF SUCH IDEAS AS THEY BEGIN TO SPROUT. IT IS THE IDEA OF THE GROWTH OF A SINGLE PEA PLANT ON A WINDOW SILL VERSUS THE COMMUNITY OF PEA

             PLANTS IN THE NATURAL WORLD TENDED BY THE FARMER.




TH E S I S                                                                                                                                                         5
R E S E A R C H - T H E S I S S TAT E M E N T



    Co l l a bo ra ti o n o f th e a r ts, e d u ca ti o n a nd business c anno t hap p en in o ur c ur rent ‘o f f ice p ark ’ des ig n model. R ather
    Architec ture has the oppor tunit y to create a model in which the Ar ts, Education and Professional ser vices can cross
    pollinate under a single ro of.

    Co l l a bo ra ti o n ca n n o t be fo rce d, rat he r it hap p ens t hro ugh c hance. A b usi ness p ro fessi o na l is able to g ain mu ch k nowl-
    edge from the ar ts along with proving k nowledge to the education which creates the communit y of our to day and our
    ch i l d ren’s
    to m o r row.

    The Arch i tec tu re o f a n “Ar t & Ed u c a t io n Center o f B ozem an” co mb i ned wit h a no n- p ro f it bas ed profes s ional arm is a
    m o d e l w h i c h c a n b e d u p l i c a te d i n co m m u n i t i e s o f var y i n g s c a l e s a n d t y p e s t h ro u g h o u t t h e i n d u s t r i a l wor l d o f to d ay.
    This is a model of a space in which education, ar t and business are not separated into silos lik e grains. But rather are
    spread to gether through the building circulation. Create junc tions in which they combine and pollinate one another.
    The creation of a communit y in which cross pollination of ideas is nur tured is the ultimate evolution of the professional
    wo rl d i n w h i ch we a s a cu l tu re h ave c re a ted and m ust nur t ure to b ear t he f r ui t to feed tomo rrows children




6                                                                                                                                                              A R C H I T E C T U R E - C O L L A B O R AT I O N
TH E S I S   7
S I T E / CO D E A N A LY S I S



     THESIS                                  4- 7

     S I T E / C O D E A N A LY S I S      8- 15

     PROGRAMMING / USAGE                  16- 21

     PRECEDENT STUDIES                    22- 33

     BUILDING FORM                        34- 75

     BUILDING SYSTEMS                     76- 95

     MODEL                               96- 101

     PROCESS IMAGES                     102- 115

     MODEL PROCESS                      116- 127

     C I TAT I O N S                    128- 131




8                                                   A R C H I T E C T U R E - C O L L A B O R AT I O N
BOZEMAN CREEK




                                            DITCH
                                            (IRRIGATION)




                             MAIN STREET




                                            INTERSTATE-90




                            BUILDING SITE


                             LINDLEY PARK




S I T E / C O D E A N A LY S I S                      9
S I T E C O N D I T I O N S / A N A LY S I S

     Arterial Access
     Located Directly on Main Street & Entry Overlay to Core of City Center/Downtown. Creates a        Weather
     focus and show of cultural Influence at entry to town from Interstate. Create walking connec-      Located on North Side of Street with Natural Shading from Trees and Landscape to the south
     tion to main street galleries and Ellen theater. Also utilize trail artery for access to museum   (Back of site) Possibility for an advantage of a outdoor space in warm months and ability to
     and university campus.                                                                            shade entry point in evening. Southern Courtyard and Glazing during cool months to be ar-
                                                                                                       ranged to provide greatest opportunity to take advantage of solar gain, While also allowing
     Set Backs                                                                                         a summer place in the shade.
     25’ front set back when located along artery, 10’ rear set back, 5’ side setback (UDO
     18.18.060) If rezoned as B-3 no front set back.                                                   Parking
                                                                                                       Floor area Calculated as 85% of Gross floor area (UDO 18.46), (Parking spaces calculated as
     Water Table                                                                                       1/xxx sqft) Offices calculated at 1/250, Dancehall 1/300. Community Building 1/200, offices
     10 Below grade to water table.. Through minimal site work and underground diversion chan-         1/250. Theater calculated at 1 spot per 4 seats as noted by occupancy.
     nels or pumping 12-15’ is achievable
                                                                                                       Noise
     Live Water                                                                                        Main artery off interstate - provide buffer from times of heavy traffic along street façade.
     Currently seasonal Creek is located on site W/ flood plain staked out at approx 12 feet from       Placement of noise and vibration sensitive areas to park side of site.
     CL of creek. Classified as ditch, which allow diversion and covering.
                                                                                                       Height Restrictions
     Topography                                                                                        38’ to roof deck in B-2 zoning. Rezoned to B-3 allows 55’ zoning in core area of 70’ in non core
     Level on front half of site, approx 4 foot drop to creek along with gradual incline at junction   related B-3 zoning.
     with park edge - use as manner to create connection with park for both formal and informal
     connection with Lindley Park events                                                               City/County Zoning
                                                                                                       B-2 zoning, with edge condition of B-3 zoning existing at Wallace, Possibility to rezone as B-3.
     Traffic
     See noise restrictions, consideration how to service the building for entry and materials de-     Adjacent Properties
     livery.                                                                                           Public Library directly adjacent - link to educational resource and community events. Also
                                                                                                       adjacent to Lindley Park with trail connection to further parks. Create connection with Sweet
                                                                                                       Pea Festival in Fall and Shakespeare in the Parks, Also other park events and art related ex-
                                                                                                       hibitions.




10                                                                                                                                                          A R C H I T E C T U R E - C O L L A B O R AT I O N
S
                                                                                                                                       ER
                                                                                                                                     G
                                                                                                                                  ID    SS                                     -
                                                                                                                               BR    PA                                     R     Y
                                                  N O I S E F R O M T R A F F I C A LO N G M A I N                          TO A N                                     ID
                                                                                                                                                                          O    TR
                                                                     STREET                                               S
                                                                                                                              EM                                    RR      EN
                                                                                                                       EW OZ                                     CO N
                                                                                                                                                                         @
                                                                                                                    VI    B                                    Y     O
                                                                                                                        &                                   TR    IC
                                                                                                                                                         EN TE
                                                                                                                                                            EA
                                                                                                                                                         CR




                                                                                                                                    EXISTING STRUCTURES
           LIBRARY
                                                                                                                                    E X I S T I N G PA R K I N G

                                                                                                                                     D I TC H - V E R I F Y F LO O D P L A N
                                                                                                                                     * N AT U R A L D I V I D E R
                           P H YS I C A L CO N N E C -
                               T I O N TO L I B R A R Y
                                                                                                                                     UTILIT Y PIPES STUBBED 2’
                                                                                                                                     ABV GRADE

                        BOGART
                           PA R K                                                                                                    HEDGE ROW

                               LK
                           A
                       W
                      &    U           N
                    KE MS            O
               BI                 TI TEM
                     TO      EC YS                                                                            L I N K TO S W E E T P E A & S H A K E -
                           N       S                              VIEWS THROUGH
                         N      L
                       CO R A I                                      F O L I A G E TO
                                                                                                              S P E A R I N T H E PA R K
                         T
                      TO                                                  PA R K
                                                                                                                                               * T H R O U G H CO N N E C T I O N w /
                                                                                                                                               C O M M U N I T Y E V E N T S C R E AT E
                                                                                             LINDLEY                                           C ATA L I T I C R E A C T I O N F O R
                                                                                               PA R K                                          G R O W T H O F T H E C R E AT I V E
                                                                                                                                               CO M M U N I T Y
                                                          SOUTHER SUN
                                                                                   * UTILIZE SOLAR GAIN
                                                                                   * CO N T R O L S O U T H E R E X P O S U R E




S I T E / C O D E A N A LY S I S                                                                                                                                                          11
S I T E C O N D I T I O N S / A N A LY S I S


     Context
     Create an Extension of Main Street to Park, along with the ability to create a landmark at the
     vehicular entry to Bozeman. Concern is to be considered in the formative nature to respect,
     and interpret without replicating or re-creating the existing historical structure of the indus-
     trial and rail area.

     Influence on Future Developments
     Beginning to provide area of community that is centered on the creative activities. Provide
     space where different profession can collaborate. This also can help extend growth east of
     city in a more controlled manner than the current sprawl situation at west end of town. Pro-
     vide a beginning to a pedestrian and non-motorized vehicle based community (Bike).

     Landmark/Icon
     Expand / Define Entry corridor into Bozeman East of Downtown.



     Views
     Framing or important view for an intimate experience with the nature of the valley. Bring
     those in buildings out into nature. Control for sun penetrations.

     Culture Influence
     The site has opportunity to be a catalyst to a stronger, more vibrant creative community of
     the Gallatin Valley.




12                                                                                                      A R C H I T E C T U R E - C O L L A B O R AT I O N
EXISTING B3 ZONING
                   TO BE EXTENDED                                                BOZEMAN PUBLIC LIBRARY
                   TO INCLUDE SITE




                                                                            D-
                                                                         Y BLV
          INDUSTRIAL BUILDINGS                                                   BUILDING SITE




                                                                      DWA
                                                                                          - EXISTING STRUCTURES
          COMMUNITY GROCERY                                                               TO BE REMOVED




                                                                     BROA
                  TRAIL SYSTEM                                                   LINDLEY PARK
            RESIDENTIAL ZONING                     - MAIN STREET -               RESIDENTIAL ZONING




                                     - WALLACE -




S I T E / C O D E A N A LY S I S                                                                             13
B U I L D I N G CO D E R E V I E W



       Code Review:
                 IBC 2006                                                                                              Section 1004 - Egress
                 Section 303 - Occupancy                                                                                          1004.1.1 Occupant Load Calculations
                 Assembly group A-3 Community and Lecture Halls                                                                                 Assembly - Fixed Seating - Calculated per seat count - see section 1004.7   500
                             Some areas of building a lesser Restricting Occupancy Load                                                         Education - 50 net                                                          170
                 Section 404 - Atriums                                                                                                          Business - 100 gross                                                        110
                 Permited for any approved use when sprinkled                                                                                   Parking - 200 gross                                                         100
                             404.3 - Smoke Controlled to be installed per section 909                                  Total Building Occupant Load -                      880 persons
                             404.5 - Separation from Adjacent areas not required when such space are included in the                1005 Egress Width
                             smoke control system design                                                                                        Table 1005.1 - With Sprinkled Systems
                 Section 503 & 504 - Height & Area Restrictions                                                                                              Stair Ways - .2” per occupant                                  176” (15’)
                             Table 503 Type 1 construction - non combustable structural members                                                              Other Egress Components .15” per occupant                      132” (11’)
                                         Height Unlimited                                                                           1019 - Number of Exits Table 1019.1
                                         Building Area Unlimited                                                                                Minimum Number of Exits for Occupant Load
                 Section 803 - Wall & Ceiling Finishes                                                                                          1-500 persons/story = 2 Exits per story.
                             803.5 When Sprinkled - Exits, Passageways, & Corridors to be Class B                      Section 2900 - Fixture Counts Table 2902.1
                                                      - Room & enclosed Spaces to be Class C                                                    A-3          Male - 1/25 & Female 1/65                                      14
                                                                                                                                                E            Male - 1/50 & Female 1/50                                      4
                                                                                                                                                B            1 per 25 for first 50 & 1/50 for remainder                      3
                                                                                                                                                                                       Total Fixture Count                  21

                                                                                                                       See Site Analysis for Parking calculation per local Zoning.




14                                                                                                                                                                               A R C H I T E C T U R E - C O L L A B O R AT I O N
S I T E / C O D E A N A LY S I S   15
PROGRAMING / USAGE



     THESIS                                  4- 7

     S I T E / C O D E A N A LY S I S      8- 15

     PROGRAMMING / USAGE                  16- 21

     PRECEDENT STUDIES                    22- 33

     BUILDING FORM                        34- 75

     BUILDING SYSTEMS                     76- 95

     MODEL                               96- 101

     PROCESS IMAGES                     102- 115

     MODEL PROCESS                      116- 127

     C I TAT I O N S                    128- 131




16                                                  A R C H I T E C T U R E - C O L L A B O R AT I O N
PROGRAMING / USAGE   17
PROGR AMMING / USAGE MAPPING




     004 - Roof Garden / OFFICE                                       001 - Entr y / Auditorium
     C I R C U L AT I O N - H O R I Z   1,260 SF                      AUDI TO R I UM                         3,190 SF
     O FF I CE                          3 , 2 4 0 SF                  C I R C U L AT I O N - H O R I Z       8,500 SF
     A DM I N                           1 4 , 0 5 0 SF                C I R C U L AT I O N - V E R T         680 SF
     R O O F PAT I O                    2,270 SF                      LE A S E D S TUDI O                    1,840 SF
     S ER V I CE                        9 , 4 7 0 SF                  OFFICE / SUPPORT                       930 SF
                                                         30,310 S F   O UTDO O R                             16,850 SF
                                                                      P UBLI C GATH E R H A LL               4,530 SF
     003 - Admin / Education                                          R E TA I L                             770 SF
                                                                                                                         37, 310 S F
     E D U C AT I O N                   4,390 SF
     L EAS ED S T U D I O               4 , 6 0 0 SF                  000 - S er vice / Park ing
     AU DI TO R I U M                   5 , 0 0 0 SF                  C I R C U L AT I O N - H O R I Z       420 SF
     C I R C U L AT I O N - H O R I Z   9,540 SF                      C I R C U L AT I O N - S E R V I C E   11,940 SF
                                                         22,540 SF    PA R KI N G                            20,910 SF
                                                                      SERVICE                                130 SF
     002 - Admin / Education                                                                                             33, 400 S F
     AU DI TO R I U M                   4 , 9 7 0 SF
     C I R C U L AT I O N - H O R I Z   9,150 SF                                                                         142, 490 S F
     C I R C U L ATI O N - V E R T      160 SF
     CO O P E R AT I V E                2,560 SF
     E D U C AT I O N                   4,390 SF
     L EAS ED S T U D I O               4 , 6 0 0 SF
     O UT DO O R - T ER R ACE           1 , 1 0 0 SF
                                                         26,930 SF




18                                                                                                                                      A R C H I T E C T U R E - C O L L A B O R AT I O N
AUDITORIUM
         CIRCULATION   EDUCATION
VERTICLE CIRCULATION   CIRCULATION
  GATHER/ENTRY HALL    COLLABRATIVE STUDIO
                       LEASED STUDIOS




 PROGRAMING / USAGE                          19
PROGRAMMING / USER GROUPS



     The user groups defined are such to enhance and nurture the community. The building usage is to consist, as discussed, of groups which make up the functions of
     education, art and non-profit groups. Each is to enhance the others through impromptu collaboration and discussion.

     The education group will consist of primary performance, such as dance, music, speech, etc. Along with this the spaces are created in a manner to be used for re-
     cital/practice rooms and studio space for more traditional arts such as painting, ceramics and sculpture.

     Today in the Gallatin Valley there is a strong art community this space is to allow the arts to fertilize the Bozeman community in which they are a part of. This art
     movement is separated from our educational system and do thrive in the future they need to be integrated. This Art & Education Center creates a space in which
     both Art & Education can combine in a neutral environment creating growth in both groups.

     The third group is the Non-Profits. They provide back up traditionally to the educational and art systems, with the combination under a single roof they can con-
     tinue this tradition along with allowing the Non- Profits to gain from the Arts & Education in return. There is also the opportunity for less traditional non-profit roles
     in the space, financial or law groups, to be included with environmental and cultural non-profits of which are normally considered.




20                                                                                                                                                  A R C H I T E C T U R E - C O L L A B O R AT I O N
An outreach program of Montana State University, it is the only completely professional touring theatre program in the state that produces Shakespeare’s plays, the only Shake-
                     speare company in the country to reach as extensively into rural areas, and the only company in the state that offers its performances free to the public.




                     There is a sincere belief and commitment among the faculty and administration of the MSU College of Business that an entrepreneurship program can make a significant contribu-
                     tion to the economic development of the state and provide a framework for an outstanding educational experience for students.

                     At the Center for Entrepreneurship for the New West, students gain valuable experience by working for start-up or growth technology companies. Students apply the knowledge
                     gained from group projects, case studies, and classroom exercises in a real-life business. Client companies benefit from students’ skills and expertise.


                     ... a world where safe housing is available to all...

                     ...inspiring people to work collectively to make sustainable communities...

                     ...your involvement makes the difference...




                     Headwaters Economics is an independent, nonprofit research group. Our mission is to improve community development and land management decisions in the West.




                     ...established to advance the mission of large landscape conservation in the Yellowstone-to-Yukon (Y2Y) region, in western North America, and internationally, by acting as an
                     interorganizational, scientific and collaborative catalyst.




                     Puts the recources of Architecture in the services of the public interest. We identify and solve practical problems of human interaction in the built enviroment and act as a catalyst
                     for public discourse through education, advocacy and the design of public spaces and amenities.




PROGRAMING / USAGE                                                                                                                                                                                            21
PRECEDENT STUDIES



     THESIS                                  4- 7

     S I T E / C O D E A N A LY S I S      8- 15

     PROGRAMMING / USAGE                  16- 21

     PRECEDENT STUDIES                    22- 33

     BUILDING FORM                        34- 75

     BUILDING SYSTEMS                     76- 95

     MODEL                               96- 101

     PROCESS IMAGES                     102- 115

     MODEL PROCESS                      116- 127

     C I TAT I O N S                    128- 131




22                                                  A R C H I T E C T U R E - C O L L A B O R AT I O N
PRECEDENT STUDIES   23
K R E S G E AU D I T O R I U M


     ARCHITECT:           EERO SAARINEN

     LOCATION:            MIT - Campus
                          48 Massachusetts Ave
                          Cambridge, MA 02139
     YEAR CONSCTRUCTED:   1953 - Dedication in 1955

     OCCUPANCY:           1226 persons Auditorium

     MATERIALS:           CONCRETE
                          COPPER




24                                                    A R C H I T E C T U R E - C O L L A B O R AT I O N
i   ii




PRECEDENT STUDIES        25
W E Y E R H AU S E R - O F F I C E
     BUILDING

     ARCHITECT:           SOM - Skidmore Owings and Merril

     LOCATION:            TACOMA, WASHINGTON

     YEAR CONSCTRUCTED:   1971
     OCCUPANCY:           COMMERCIAL OFFICE FOR CORPORATE HEADQUARTERS


     MATERIALS:           CONCRETE, WOOD, GLASS, VEGITATION




26                                                                       A R C H I T E C T U R E - C O L L A B O R AT I O N
iii   iv




PRECEDENT STUDIES          27
B O S TO N - D I L L E R S CO F I D O &
     REFROS INSTITUTE FOR
     CO N T E M P O R A RY A R TS
     ARCHITECT:           DILLER SCOFIDO

     LOCATION:            BOSTON, MASSACHUSETTES

     YEAR CONSCTRUCTED:   2000
     OCCUPANCY:           CENTER FOR THE PERFOMING ARTS




28                                                        A R C H I T E C T U R E - C O L L A B O R AT I O N
vi




                    v


                        vii




PRECEDENT STUDIES         29
P E AV E Y P L A Z A - M I N N E A P O L I S M N
     N I CO L L E T MA L L

     ARCHITECT:           M. Paul Friedberg

     LOCATION:            MINNEAPOLIS MINNESOTA
                          NICOLLET & 11TH
     YEAR CONSCTRUCTED:   1975
     OCCUPANCY:           URBAN PARK, OUTDOOR CONCERTS/ PERFORMANCES & SKATING RINK




30                                                                                    A R C H I T E C T U R E - C O L L A B O R AT I O N
ix   x




PRECEDENT STUDIES        31
MINNEAPOLIS MN - GUTHRIE


     ARCHITECT:           JEAN NOUVEL

     LOCATION:            MINNEAPOLIS MINNESOTA

     YEAR CONSCTRUCTED:   2006
     OCCUPANCY:           THEATER & RESTAURANTE




32                                                A R C H I T E C T U R E - C O L L A B O R AT I O N
xi   xii




PRECEDENT STUDIES          33
BUILDING FORM



     THESIS                                  4- 7

     S I T E / C O D E A N A LY S I S      8- 15

     PROGRAMMING / USAGE                  16- 21

     PRECEDENT STUDIES                    22- 33

     BUILDING FORM                        34- 75

     BUILDING SYSTEMS                     76- 95

     MODEL                               96- 101

     PROCESS IMAGES                     102- 115

     MODEL PROCESS                      116- 127

     C I TAT I O N S                    128- 131




34                                                  A R C H I T E C T U R E - C O L L A B O R AT I O N
B U I L DI NG   FO RM   35
BUILDING FORM


     THE BUILDING FORM WAS DEVELOPED FROM THE ON SITE EXPERIENCE OF EXISTNG FORMS ALONG
     WITH A STUDY OF THE USGAS AND SPACE ADJACENCIES REQUIRED FOR THE USE AS A HIGH QUALITY
     PRESENATION AND EDUCATION SPACE. ALONG WITH THE INCLUSION OF OFFICE SPACE FOR NON-
     PROFIT ORGANIZATIONS WHICH ARE ADVANTAGES TO THE ARTS/EDUCATION OR ARE SUPPORTED
     THEMSELVES BY THE ARTS AND DEVELOPMENTS


     THE OVERALL FORM CONSISTS OF A SIMPLE CUBE FORM OPENED ON THE CORNERS AND FACADE TO
     CREATE TRANSPARENCY BETWEEN INTERIOR SPACES AND A CONNECTION BOTH VISUAL AND PHYSI-
     CALLY BETWEEN EXTERIOR AND INTERIOR FUNCTIONS


     INCLUDED IN THE SPACE IS BOTH A INTERIOR MULTIUSE AUDITORIUM AND EXTERIOR PLAZA FOR
     INFORMAL AND FORMAL OUTDOOR PERFORMANCE. AN ASSET TO THE PRESENT COMMUNITY THAT
     CAN BE EXTENDED IN NEW FACILITIES.




36                                                                                            A R C H I T E C T U R E - C O L L A B O R AT I O N
Y




SITE PLAN




B U I L DI NG   FO RM       37
38   A R C H I T E C T U R E - C O L L A B O R AT I O N
E L E VAT I O N - W E S T
L I B R A R Y FA C A D E




B U I L DI NG   FO RM       39
40   A R C H I T E C T U R E - C O L L A B O R AT I O N
E L E VAT I O N - E A S T
PA R K FA C A D E




B U I L DI NG   FO RM       41
42   A R C H I T E C T U R E - C O L L A B O R AT I O N
E L E VAT I O N - S O U T H
PA R K FA S C A D E




B U I L DI NG   FO RM         43
44   A R C H I T E C T U R E - C O L L A B O R AT I O N
E L E VAT I O N - N O R T H
M A I N S T R E E T FA C A D E




B U I L DI NG   FO RM            45
46   A R C H I T E C T U R E - C O L L A B O R AT I O N
SERVICE D
                 VERTICLE CIRCULA               EAST PLAZA
                                                LINDLEY PARK

                       SECONDARY E              CONFERENCE/MEETING ROOM
                                                CREEK WALK WAY
                                                CREEK




                                                OUTDOOR STAGE
                                                POND


         1ST LEVEL AUDITORIUM SEA
                    AUDITORIUM S
                             OPEN S




                MAIN STREET ENTRA               GLASS ELEVATOR
                                                SLIDING DOORS

                   GATHER/ENTRY                 SIGNATURE WALL

                            WEST P


                                            N
                                      20’


BUILDING PLAN - LEVEL 001
E N T R Y / S TA G E




B U I L DI NG   FO RM                                                     47
48   A R C H I T E C T U R E - C O L L A B O R AT I O N
EDUCATION / PRACTICE ROOM
                                                COOPERATIVE STUDIO

                      LOCKER ROOM               LEASED STUDIO

                            SERVICE
                                                COMMUNAL KITCHEN
                                                EGRESS/PARK ACCESS




                                                CIRCULATION

                AUDITORIUM SEATING              PLAZA




                         OPEN STAIR




                                            N
                                      20’


BUILDING PLAN - LEVEL 002
E D U C AT I O N / S T U D I O




B U I L DI NG   FO RM                                                49
50   A R C H I T E C T U R E - C O L L A B O R AT I O N
EDUCATION / PRACTICE ROOM
                                                           COOPERATIVE STUDIO
                                                           LEASED STUDIO

                            SERVICE
                                                           COMMUNAL KITCHEN
                                                           EGRESS/PARK ACCESS



                                                           CIRCULATION

                AUDITORIUM SEATING                         PLAZA




                         OPEN STAIR




                                                       N
                                                 20’


BUILDING PLAN - LEVEL 003
AU D I T O R I U M / E D U C AT I O N / S T U D I O




B U I L DI NG   FO RM                                                           51
52   A R C H I T E C T U R E - C O L L A B O R AT I O N
ADMINISTRATIVE & OFFICE

                                                         SOLAR ARRAY

                               SERVICE




             AUDITORIUM MECHANICAL


                         EXTERIOR PATIO




                                                     N
                                               20’


BUILDING PLAN - LEVEL 004
A D M I N I S T R AT I V E / R O O F PAT I O




B U I L DI NG    FO RM                                                 53
54   A R C H I T E C T U R E - C O L L A B O R AT I O N
SERVICE DRIVE


                            PARKING


                      EGRESS TOWER


                               SERVICE


                           ELEVATOR




                                               N
                                         20’


BUILDING PLAN - LEVEL 000
S E R V I C E & PA R K I N G




B U I L DI NG   FO RM                              55
56   A R C H I T E C T U R E - C O L L A B O R AT I O N
BUILDING SECTION - NORTH / SOUTH




B U I L DI NG   FO RM              57
58   A R C H I T E C T U R E - C O L L A B O R AT I O N
BUILDING SECTION - EAST / WEST




B U I L DI NG   FO RM            59
60   A R C H I T E C T U R E - C O L L A B O R AT I O N
R E N D E R I N G - “ P U B L I C G AT H E R H A L L”




B U I L DI NG   FO RM                                   61
62   A R C H I T E C T U R E - C O L L A B O R AT I O N
R E N D E R I N G - S O U T H P L A Z A / R O O F PAT I O




B U I L DI NG   FO RM                                       63
64   A R C H I T E C T U R E - C O L L A B O R AT I O N
RENDERING - POND / SOUTH PLAZA




B U I L DI NG   FO RM            65
66   A R C H I T E C T U R E - C O L L A B O R AT I O N
R E N D E R I N G - N O R T H E L E VAT I O N




B U I L DI NG   FO RM                           67
68   A R C H I T E C T U R E - C O L L A B O R AT I O N
RENDERING - ENTRY / WEST PLAZA




B U I L DI NG   FO RM            69
70   A R C H I T E C T U R E - C O L L A B O R AT I O N
R E N D E R I N G - AU D I T O R I U M




B U I L DI NG   FO RM                    71
72   A R C H I T E C T U R E - C O L L A B O R AT I O N
R E N D E R I N G - S T U D I O / C O L A B R AT I V E L A B




B U I L DI NG   FO RM                                          73
74   A R C H I T E C T U R E - C O L L A B O R AT I O N
RENDERING - SOUTH WEST AERIAL OVERVIEW




B U I L DI NG   FO RM                    75
BUILDING SYSTEMS



     THESIS                                  4- 7

     S I T E / C O D E A N A LY S I S      8- 15

     PROGRAMMING / USAGE                  16- 21

     PRECEDENT STUDIES                    22- 33

     BUILDING FORM                        34- 75

     BUILDING SYSTEMS                     76- 95

     MODEL                               96- 101

     PROCESS IMAGES                     102- 115

     MODEL PROCESS                      116- 127

     C I TAT I O N S                    128- 131




76                                                  A R C H I T E C T U R E - C O L L A B O R AT I O N
B U I L DI NG   SYST EM S   77
E G R E S S / C I R C U L AT I O N

     Verticle Circulation
               3 Protected Stair Towers
                          2 Adjacent to Auditorium
                          1 Direct access to Park at end of Cantilever
               2 Elevators
               1 Open Stair - Sprinkled

     Horizontal Circulation
              Major Paths pushed to exterior of Plan on all Levels
              Minor Paths as crosses between major paths


     Building Egress Point At Grade
               8 Direct opening from circulation to exterior.




78                                                                       A R C H I T E C T U R E - C O L L A B O R AT I O N
B U I L DI NG   SYST EM S   79
STRUC TUR AL SYSTEM

     AUDITORIUM:
              A992 STEEL MOMENT FRAME
                       W14x__ COLUMNS
                       W14x__GIRDERS
                       METAL PAN DECK w/ 6” CONCRETE TOPPING

              120 FOOT CLEAR SPAN AT AUDITORIUM - VERENDAL TRUSS

     STUDIO SPACE: 80’ CANTILEVER FRAME
              A992 STEEL FRAME
                       W14x__ COLUMNS
                       W14x__GIRDERS
                       W6x__ LATERAL BRACING
                       W8X__ HORIZONTAL BRACING
                       METAL PAN DECK w/ 6” CONCRETE TOPPING



     SERVICE LEVEL:
              32” DEPTH 3X3 WAFFLE SLAB
              36”X24” CONCRETE TRANSFER BEAM
              22X22 CONCRETE COLUMNS AT MAX SPACING OF 24’ OC

     FINISHES -
              ALL STRUCTURAL STEEL FRAME MATERIALS CLAD IN MINIMUM 2 LAYERS 5/8”
              GYPUSM BOARD, SEAMS STAGGERED AND FINISHED PER FINISH REQUIRE
              MENTS




80                                                                                 A R C H I T E C T U R E - C O L L A B O R AT I O N
B U I L DI NG   SYST EM S   81
MEP SYSTEMS

     PASSIVE SYSTEMS
             NATURAL DAYLIGHTING
             MANUALLY OPERABLE AWNING WINDOWS

     MECHANICAL SYSTEM
             IN-FLOOR RADIANT HEATING
             CEILING PLENUM w/ FORCED AIR COOLING & TRANSFER

     PLUMBING SYSTEM
             GRAY WATER RECYCLING
             RAIN WATER RETENTION/RECYCLING

     ELECTRICAL / LIGHTING SYSTEM
             PHOTOVOLTAIC PANELS
             T-5 FLUORESCENT LIGHTING
             AUTOMATIC DAYLIGHTING SENSOR & CONTROL

     TECHNOLOGY SYSTEM
             WIRELESS INTRANET & INTERNET ACCESS THROUGHOUT SITE
             T-1 LINE ACCESS
             ON SITE - SECURED SERVER SPACE
             ON SITE - LARGE FORMAT PRINT SERVICE ROOM




82                                                                 A R C H I T E C T U R E - C O L L A B O R AT I O N
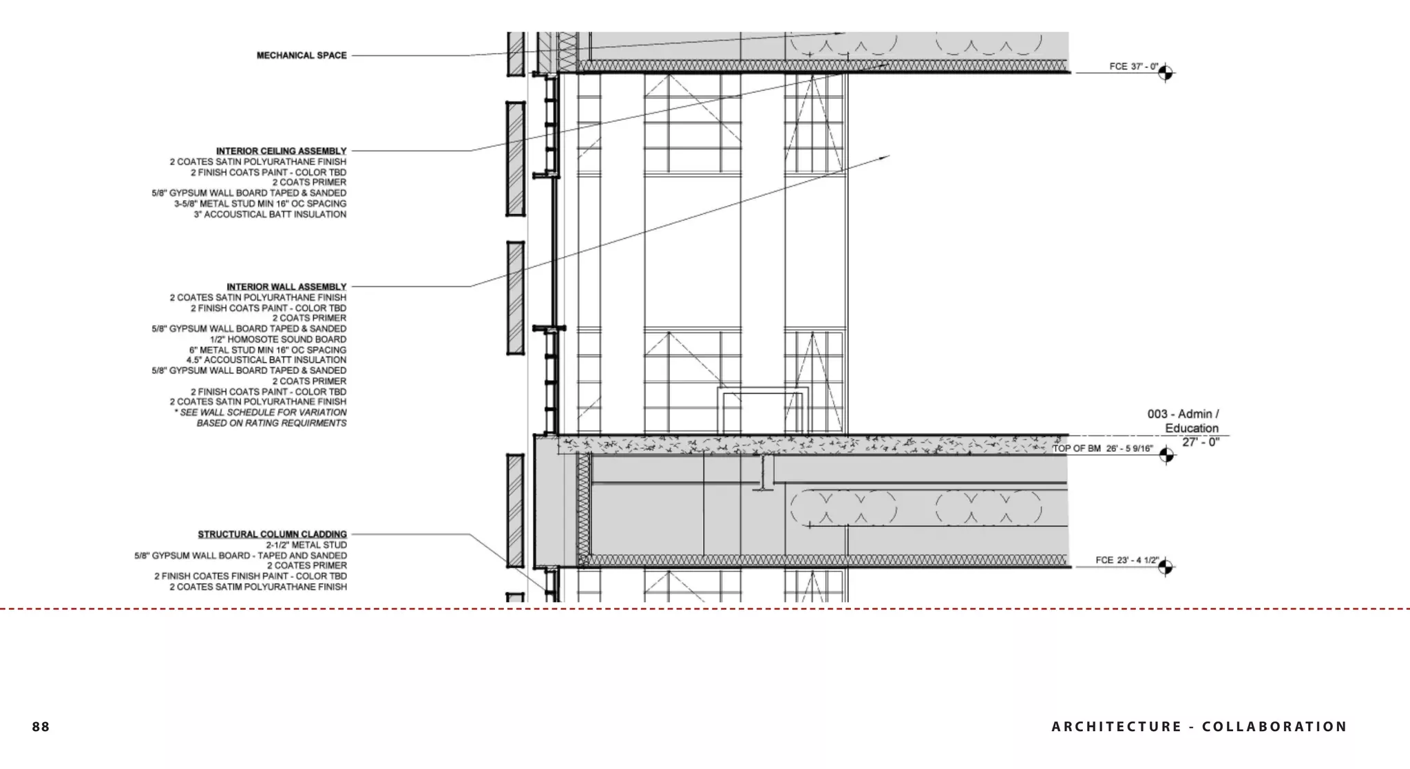
B U I L DI NG   SYST EM S   83
WA L L S E C T I O N S




84                            A R C H I T E C T U R E - C O L L A B O R AT I O N
PA G E - 8 9                  PA G E - 8 7




                                           PA G E - 8 8                  PA G E - 8 6




B U I L DI NG   SYST EM S                                                               85
86   A R C H I T E C T U R E - C O L L A B O R AT I O N
B U I L DI NG   SYST EM S   87
88   A R C H I T E C T U R E - C O L L A B O R AT I O N
B U I L DI NG   SYST EM S   89
M AT E R I A L S




90                      A R C H I T E C T U R E - C O L L A B O R AT I O N
xiii                        xiv                     xv
     LIMESTONE SCREEN WALL          STEEL CURTAIN WALL         CHANNEL GLAZING




B U I L DI NG   SYST EM S                                                         91
M AT E R I A L S




92                      A R C H I T E C T U R E - C O L L A B O R AT I O N
xvi                   xvii                         xviii
     DOUGLAS FIR DOORS            CABLE RAILING          PLASTER WALL FINISH




B U I L DI NG   SYST EM S                                                        93
M AT E R I A L S




94                      A R C H I T E C T U R E - C O L L A B O R AT I O N
xix                               xx                   xxi
     WOOD PANEL CEILING           POLISHED/STAINED CONCRETE        COPPER SCREEN




B U I L DI NG   SYST EM S                                                           95
MODEL



     THESIS                                  4- 7

     S I T E / C O D E A N A LY S I S      8- 15

     PROGRAMMING / USAGE                  16- 21

     PRECEDENT STUDIES                    22- 33

     BUILDING FORM                        34- 75

     BUILDING SYSTEMS                     76- 95

     MODEL                               96- 101

     PROCESS IMAGES                     102- 115

     MODEL PROCESS                      116- 127

     C I TAT I O N S                    128- 131




96                                                  A R C H I T E C T U R E - C O L L A B O R AT I O N
MO DEL   97
98   A R C H I T E C T U R E - C O L L A B O R AT I O N
MO DEL   99
100   A R C H I T E C T U R E - C O L L A B O R AT I O N
MO DE L   101
PROCESS IMAGES



      THESIS                                  4- 7

      S I T E / C O D E A N A LY S I S      8- 15

      PROGRAMMING / USAGE                  16- 21

      PRECEDENT STUDIES                    22- 33

      BUILDING FORM                        34- 75

      BUILDING SYSTEMS                     76- 95

      MODEL                               96- 101

      PROCESS IMAGES                     102- 115

      MODEL PROCESS                      116- 127

      C I TAT I O N S                    128- 131




102                                                  A R C H I T E C T U R E - C O L L A B O R AT I O N
PROCESS   IMAGES   103
104   A R C H I T E C T U R E - C O L L A B O R AT I O N
PROCESS   IMAGES   105
106   A R C H I T E C T U R E - C O L L A B O R AT I O N
PROCESS   IMAGES   107
108   A R C H I T E C T U R E - C O L L A B O R AT I O N
PROCESS   IMAGES   109
110   A R C H I T E C T U R E - C O L L A B O R AT I O N
PROCESS   IMAGES   111
112   A R C H I T E C T U R E - C O L L A B O R AT I O N
PROCESS   IMAGES   113
114   A R C H I T E C T U R E - C O L L A B O R AT I O N
PROCESS   IMAGES   115
MODEL PROCESS



      THESIS                                  4- 7

      S I T E / C O D E A N A LY S I S      8- 15

      PROGRAMMING / USAGE                  16- 21

      PRECEDENT STUDIES                    22- 33

      BUILDING FORM                        34- 75

      BUILDING SYSTEMS                     76- 95

      MODEL                               96- 101

      PROCESS IMAGES                     102- 115

      MODEL PROCESS                      116- 127

      C I TAT I O N S                    128- 131




116                                                  A R C H I T E C T U R E - C O L L A B O R AT I O N
117




                              EL
                         OD
                        M
                   3D
          E   TE
       PL
  M
CO
                             R
                          PE
                       OY
                L    OT
              IA PR
           ER    3D
        AT   L-
      -M E               EL
    C   OD            OD
CN T M               M
   IN              AT S
                  M TH
PR             OR PA
           LF L
        ST OO
      TE C T
   EA CN
CR TE
   EA
CR
                                   RM
                              FO
              NG
            DI
          IL TE
        BU A
       T ED
     AC IT
  TR T S
EX AC
  TR
EX
                                G
                             IN
                          EL
                     OD                          T
                    M
               3D                             EN
                                       M
      AL                             OP
    TI                             EL
  GI                             V
DI                            DE
                          N
                        IG
                    ES
               -D
          PT
   N   CE
CO
                                              GN
                                           SI
                                         DE
                                  P  T




                                                     PROCESS
                               CE
                          ON
                        -C
                CH
              ET
          SK
     ND
HA




                                                     MODEL
H A N D S K E TC H - CO N C E P T D E S I G N




118                                                   A R C H I T E C T U R E - C O L L A B O R AT I O N
MODEL   PROCESS   119
S I T E D ATA E X T R A C T I O N




120                                       A R C H I T E C T U R E - C O L L A B O R AT I O N
MODEL   PROCESS   121
B U I L D I N G D ATA E X T R A C T I O N




122                                               A R C H I T E C T U R E - C O L L A B O R AT I O N
MODEL   PROCESS   123
B U I L D I N G 3 D P R OTOT YP E




124                                       A R C H I T E C T U R E - C O L L A B O R AT I O N
MODEL   PROCESS   125
SITE - CNC MACHINING




126                          A R C H I T E C T U R E - C O L L A B O R AT I O N
MODEL   PROCESS   127
C I TAT I O N S



       THESIS                                  4- 7

       S I T E / C O D E A N A LY S I S      8- 15

       PROGRAMMING / USAGE                  16- 21

       PRECEDENT STUDIES                    22- 33

       BUILDING FORM                        34- 75

       BUILDING SYSTEMS                     76- 95

       MODEL                               96- 101

       PROCESS IMAGES                     102- 115

       MODEL PROCESS                      116- 127

       C I TAT I O N S                    128- 131




128                                                   A R C H I T E C T U R E - C O L L A B O R AT I O N
C I TATI ON S   129
End Notes                                                                                                                   xiii - http://tilgaengelighed.emu.dk/tilgaengelighed/fysisk/expl/s43-
      i - http://www.cpci.ca/images.asp?month=22008&image=7.jpg                                                                   rikestat-akustik.jpg
      ii -                                                                                                                        xiv - http://www.bnim.com/newsite/images/graphic/bpu.jpg
      iii - http://www.greatbuildings.com/cgi-bin/gbi.cgi/Weyerhaeuser_                                                           x v - h t t p ://w w w.f i re f ra m e s.b i z /g al l er y / i mag es / i n f i n i t y _ 4 . j pg
      Headquar ters.html/cid_20050902_k mm_img_6085.html                                                                          x vi - http://img.archiexpo.com/images_ae/photo-g/pivot-door-with-
      iv - http://www.greatbuildings.com/cgi-bin/gbi.cgi/Weyerhaeuser_                                                            ce ntral-axis-127429.jpg
      Headquar ters.html/cid_20050902_k mm_img_6071.html                                                                          x v i i - h t t p ://w w w.st a i n l e ss- ra i l i ng. co m/ c asi n o -rai l i n g s / c as i n o -f ul l -f i -
      v - h tt p:/ / w w w.a rcspace.com/arc hitec ts/D i l l er S cof i dio/I C A/P h oto-                                       nal2-1200.jpg
      4.jpg                                                                                                                       x viii - http://www.hillside.ca/1529/1529-6.gif
      vi - http://farm4.static.flick r.com/3021/2617992175_3009e65880.                                                            x i x - h t t p ://b u l l oc k p rop e r t i e s.u s/ i mag es/ bp l _ p_ s er v i ces _ cei l i n g s. j p g
      jpg?v=0                                                                                                                     x x - h t t p : / / w w w. co n c re te n e t wo r k . co m / p h o to - g a l l e r y / i m a g e s /
      vii - h ttp:/ / w w w.hughpearman.com/2006/i l l u st rat i ons/B oston _01a .j p g                                         250x 200E x a c t /p ol i sh e d- con c re te_ 30/ 46236 -i n -ar t i s t i c -s ur f aces -i n c -
      ix -                                                                                                                        p o l i s h e d - co n c re te - f l o o r - p o l i s h i n g - co n c re te _ 2 7 7 4 . j p g
      x -                                                                                                                         xxi - http://www.cpci.ca/images.asp?month=22008&image=7.jpg
      x i - h t t p : / / w w w. a rc s p a ce.co m / a rc h i te c t s / n o u ve l / g u t h r i e / 2 . g u t h r i e. j p g
      xii - http://www.washingtonspaces.com/blog/uploads/Image/Jean-
      N o u ve l / g u t h r i e. j p g




130                                                                                                                                                                                                               A R C H I T E C T U R E - C O L L A B O R AT I O N
G e ne ra l Refrences
                IBC 2006
                B oze m a n Zo n i n g Co d e
                w w w. b oze m a n . n e t

                Co m p u t e r S o f t ware / Te c h n o l o g i e s
                Revit
                AutoCa d
                Civil 3d
                Rhino & Rhino CAM
                Adobe Creative Suite
                Auto desk Impressions

                A l l H a n d D rawi n g s, R e n d e r i n g a n d Co m p u te r G ra p h i c s co m p l e te d B y
                M ik e E n gel.




C I TATI ON S                                                                                                          131
M.Arch Thesis - Process Compilation

M.Arch Thesis - Process Compilation

  • 1.
    MONTANA STATE UNIVERSITY SCHOOL OF ART & ARCHITECTURE BOZEMAN ART & EDUCATION CENTER MIKE ENGEL
  • 2.
    MA S TE R S O F A R C H I T E C T U R E STUD IO 5 58 THES I S SPRING 2009 SEMESTER PROFESSOR - KEITH ANDERSON
  • 3.
    THESIS THESIS 4- 7 S I T E / C O D E A N A LY S I S 8- 15 PROGRAMMING / USAGE 16- 21 PRECEDENT STUDIES 22- 33 BUILDING FORM 34- 75 BUILDING SYSTEMS 76- 95 MODEL 96- 101 PROCESS IMAGES 102- 115 MODEL PROCESS 116- 127 C I TAT I O N S 128- 131 4 A R C H I T E C T U R E - C O L L A B O R AT I O N
  • 4.
    ARCHITECTURE IS OPPORTUNITY.THE PROFESSION IS GIVEN THE GIFT TO CREATE SPACE THAT BOTH CREATES AND ENCOURAGES THE COLLABORTION OF PERSONS ACROSS PROFESSIONS. OUR TYPICAL “BUSINESS PARK” CREATES ISOLATED SILOS IN WHICH SINGLE IDEAS EXIST. HOWEVER, THROUGH THE CONCISE DESIGN OF SPACE WE HAVE THE OPPORTUNITY TO EXPAND EXISTING IDEAS AND CREATE NEW CONSIDERATIONS BY ALLOWING COLLABORATION BETWEEN DISPARATE PROFESSIONS AND THE NURTURING OF SUCH IDEAS AS THEY BEGIN TO SPROUT. IT IS THE IDEA OF THE GROWTH OF A SINGLE PEA PLANT ON A WINDOW SILL VERSUS THE COMMUNITY OF PEA PLANTS IN THE NATURAL WORLD TENDED BY THE FARMER. TH E S I S 5
  • 5.
    R E SE A R C H - T H E S I S S TAT E M E N T Co l l a bo ra ti o n o f th e a r ts, e d u ca ti o n a nd business c anno t hap p en in o ur c ur rent ‘o f f ice p ark ’ des ig n model. R ather Architec ture has the oppor tunit y to create a model in which the Ar ts, Education and Professional ser vices can cross pollinate under a single ro of. Co l l a bo ra ti o n ca n n o t be fo rce d, rat he r it hap p ens t hro ugh c hance. A b usi ness p ro fessi o na l is able to g ain mu ch k nowl- edge from the ar ts along with proving k nowledge to the education which creates the communit y of our to day and our ch i l d ren’s to m o r row. The Arch i tec tu re o f a n “Ar t & Ed u c a t io n Center o f B ozem an” co mb i ned wit h a no n- p ro f it bas ed profes s ional arm is a m o d e l w h i c h c a n b e d u p l i c a te d i n co m m u n i t i e s o f var y i n g s c a l e s a n d t y p e s t h ro u g h o u t t h e i n d u s t r i a l wor l d o f to d ay. This is a model of a space in which education, ar t and business are not separated into silos lik e grains. But rather are spread to gether through the building circulation. Create junc tions in which they combine and pollinate one another. The creation of a communit y in which cross pollination of ideas is nur tured is the ultimate evolution of the professional wo rl d i n w h i ch we a s a cu l tu re h ave c re a ted and m ust nur t ure to b ear t he f r ui t to feed tomo rrows children 6 A R C H I T E C T U R E - C O L L A B O R AT I O N
  • 6.
    TH E SI S 7
  • 7.
    S I TE / CO D E A N A LY S I S THESIS 4- 7 S I T E / C O D E A N A LY S I S 8- 15 PROGRAMMING / USAGE 16- 21 PRECEDENT STUDIES 22- 33 BUILDING FORM 34- 75 BUILDING SYSTEMS 76- 95 MODEL 96- 101 PROCESS IMAGES 102- 115 MODEL PROCESS 116- 127 C I TAT I O N S 128- 131 8 A R C H I T E C T U R E - C O L L A B O R AT I O N
  • 8.
    BOZEMAN CREEK DITCH (IRRIGATION) MAIN STREET INTERSTATE-90 BUILDING SITE LINDLEY PARK S I T E / C O D E A N A LY S I S 9
  • 9.
    S I TE C O N D I T I O N S / A N A LY S I S Arterial Access Located Directly on Main Street & Entry Overlay to Core of City Center/Downtown. Creates a Weather focus and show of cultural Influence at entry to town from Interstate. Create walking connec- Located on North Side of Street with Natural Shading from Trees and Landscape to the south tion to main street galleries and Ellen theater. Also utilize trail artery for access to museum (Back of site) Possibility for an advantage of a outdoor space in warm months and ability to and university campus. shade entry point in evening. Southern Courtyard and Glazing during cool months to be ar- ranged to provide greatest opportunity to take advantage of solar gain, While also allowing Set Backs a summer place in the shade. 25’ front set back when located along artery, 10’ rear set back, 5’ side setback (UDO 18.18.060) If rezoned as B-3 no front set back. Parking Floor area Calculated as 85% of Gross floor area (UDO 18.46), (Parking spaces calculated as Water Table 1/xxx sqft) Offices calculated at 1/250, Dancehall 1/300. Community Building 1/200, offices 10 Below grade to water table.. Through minimal site work and underground diversion chan- 1/250. Theater calculated at 1 spot per 4 seats as noted by occupancy. nels or pumping 12-15’ is achievable Noise Live Water Main artery off interstate - provide buffer from times of heavy traffic along street façade. Currently seasonal Creek is located on site W/ flood plain staked out at approx 12 feet from Placement of noise and vibration sensitive areas to park side of site. CL of creek. Classified as ditch, which allow diversion and covering. Height Restrictions Topography 38’ to roof deck in B-2 zoning. Rezoned to B-3 allows 55’ zoning in core area of 70’ in non core Level on front half of site, approx 4 foot drop to creek along with gradual incline at junction related B-3 zoning. with park edge - use as manner to create connection with park for both formal and informal connection with Lindley Park events City/County Zoning B-2 zoning, with edge condition of B-3 zoning existing at Wallace, Possibility to rezone as B-3. Traffic See noise restrictions, consideration how to service the building for entry and materials de- Adjacent Properties livery. Public Library directly adjacent - link to educational resource and community events. Also adjacent to Lindley Park with trail connection to further parks. Create connection with Sweet Pea Festival in Fall and Shakespeare in the Parks, Also other park events and art related ex- hibitions. 10 A R C H I T E C T U R E - C O L L A B O R AT I O N
  • 10.
    S ER G ID SS - BR PA R Y N O I S E F R O M T R A F F I C A LO N G M A I N TO A N ID O TR STREET S EM RR EN EW OZ CO N @ VI B Y O & TR IC EN TE EA CR EXISTING STRUCTURES LIBRARY E X I S T I N G PA R K I N G D I TC H - V E R I F Y F LO O D P L A N * N AT U R A L D I V I D E R P H YS I C A L CO N N E C - T I O N TO L I B R A R Y UTILIT Y PIPES STUBBED 2’ ABV GRADE BOGART PA R K HEDGE ROW LK A W & U N KE MS O BI TI TEM TO EC YS L I N K TO S W E E T P E A & S H A K E - N S VIEWS THROUGH N L CO R A I F O L I A G E TO S P E A R I N T H E PA R K T TO PA R K * T H R O U G H CO N N E C T I O N w / C O M M U N I T Y E V E N T S C R E AT E LINDLEY C ATA L I T I C R E A C T I O N F O R PA R K G R O W T H O F T H E C R E AT I V E CO M M U N I T Y SOUTHER SUN * UTILIZE SOLAR GAIN * CO N T R O L S O U T H E R E X P O S U R E S I T E / C O D E A N A LY S I S 11
  • 11.
    S I TE C O N D I T I O N S / A N A LY S I S Context Create an Extension of Main Street to Park, along with the ability to create a landmark at the vehicular entry to Bozeman. Concern is to be considered in the formative nature to respect, and interpret without replicating or re-creating the existing historical structure of the indus- trial and rail area. Influence on Future Developments Beginning to provide area of community that is centered on the creative activities. Provide space where different profession can collaborate. This also can help extend growth east of city in a more controlled manner than the current sprawl situation at west end of town. Pro- vide a beginning to a pedestrian and non-motorized vehicle based community (Bike). Landmark/Icon Expand / Define Entry corridor into Bozeman East of Downtown. Views Framing or important view for an intimate experience with the nature of the valley. Bring those in buildings out into nature. Control for sun penetrations. Culture Influence The site has opportunity to be a catalyst to a stronger, more vibrant creative community of the Gallatin Valley. 12 A R C H I T E C T U R E - C O L L A B O R AT I O N
  • 12.
    EXISTING B3 ZONING TO BE EXTENDED BOZEMAN PUBLIC LIBRARY TO INCLUDE SITE D- Y BLV INDUSTRIAL BUILDINGS BUILDING SITE DWA - EXISTING STRUCTURES COMMUNITY GROCERY TO BE REMOVED BROA TRAIL SYSTEM LINDLEY PARK RESIDENTIAL ZONING - MAIN STREET - RESIDENTIAL ZONING - WALLACE - S I T E / C O D E A N A LY S I S 13
  • 13.
    B U IL D I N G CO D E R E V I E W Code Review: IBC 2006 Section 1004 - Egress Section 303 - Occupancy 1004.1.1 Occupant Load Calculations Assembly group A-3 Community and Lecture Halls Assembly - Fixed Seating - Calculated per seat count - see section 1004.7 500 Some areas of building a lesser Restricting Occupancy Load Education - 50 net 170 Section 404 - Atriums Business - 100 gross 110 Permited for any approved use when sprinkled Parking - 200 gross 100 404.3 - Smoke Controlled to be installed per section 909 Total Building Occupant Load - 880 persons 404.5 - Separation from Adjacent areas not required when such space are included in the 1005 Egress Width smoke control system design Table 1005.1 - With Sprinkled Systems Section 503 & 504 - Height & Area Restrictions Stair Ways - .2” per occupant 176” (15’) Table 503 Type 1 construction - non combustable structural members Other Egress Components .15” per occupant 132” (11’) Height Unlimited 1019 - Number of Exits Table 1019.1 Building Area Unlimited Minimum Number of Exits for Occupant Load Section 803 - Wall & Ceiling Finishes 1-500 persons/story = 2 Exits per story. 803.5 When Sprinkled - Exits, Passageways, & Corridors to be Class B Section 2900 - Fixture Counts Table 2902.1 - Room & enclosed Spaces to be Class C A-3 Male - 1/25 & Female 1/65 14 E Male - 1/50 & Female 1/50 4 B 1 per 25 for first 50 & 1/50 for remainder 3 Total Fixture Count 21 See Site Analysis for Parking calculation per local Zoning. 14 A R C H I T E C T U R E - C O L L A B O R AT I O N
  • 14.
    S I TE / C O D E A N A LY S I S 15
  • 15.
    PROGRAMING / USAGE THESIS 4- 7 S I T E / C O D E A N A LY S I S 8- 15 PROGRAMMING / USAGE 16- 21 PRECEDENT STUDIES 22- 33 BUILDING FORM 34- 75 BUILDING SYSTEMS 76- 95 MODEL 96- 101 PROCESS IMAGES 102- 115 MODEL PROCESS 116- 127 C I TAT I O N S 128- 131 16 A R C H I T E C T U R E - C O L L A B O R AT I O N
  • 16.
  • 17.
    PROGR AMMING /USAGE MAPPING 004 - Roof Garden / OFFICE 001 - Entr y / Auditorium C I R C U L AT I O N - H O R I Z 1,260 SF AUDI TO R I UM 3,190 SF O FF I CE 3 , 2 4 0 SF C I R C U L AT I O N - H O R I Z 8,500 SF A DM I N 1 4 , 0 5 0 SF C I R C U L AT I O N - V E R T 680 SF R O O F PAT I O 2,270 SF LE A S E D S TUDI O 1,840 SF S ER V I CE 9 , 4 7 0 SF OFFICE / SUPPORT 930 SF 30,310 S F O UTDO O R 16,850 SF P UBLI C GATH E R H A LL 4,530 SF 003 - Admin / Education R E TA I L 770 SF 37, 310 S F E D U C AT I O N 4,390 SF L EAS ED S T U D I O 4 , 6 0 0 SF 000 - S er vice / Park ing AU DI TO R I U M 5 , 0 0 0 SF C I R C U L AT I O N - H O R I Z 420 SF C I R C U L AT I O N - H O R I Z 9,540 SF C I R C U L AT I O N - S E R V I C E 11,940 SF 22,540 SF PA R KI N G 20,910 SF SERVICE 130 SF 002 - Admin / Education 33, 400 S F AU DI TO R I U M 4 , 9 7 0 SF C I R C U L AT I O N - H O R I Z 9,150 SF 142, 490 S F C I R C U L ATI O N - V E R T 160 SF CO O P E R AT I V E 2,560 SF E D U C AT I O N 4,390 SF L EAS ED S T U D I O 4 , 6 0 0 SF O UT DO O R - T ER R ACE 1 , 1 0 0 SF 26,930 SF 18 A R C H I T E C T U R E - C O L L A B O R AT I O N
  • 18.
    AUDITORIUM CIRCULATION EDUCATION VERTICLE CIRCULATION CIRCULATION GATHER/ENTRY HALL COLLABRATIVE STUDIO LEASED STUDIOS PROGRAMING / USAGE 19
  • 19.
    PROGRAMMING / USERGROUPS The user groups defined are such to enhance and nurture the community. The building usage is to consist, as discussed, of groups which make up the functions of education, art and non-profit groups. Each is to enhance the others through impromptu collaboration and discussion. The education group will consist of primary performance, such as dance, music, speech, etc. Along with this the spaces are created in a manner to be used for re- cital/practice rooms and studio space for more traditional arts such as painting, ceramics and sculpture. Today in the Gallatin Valley there is a strong art community this space is to allow the arts to fertilize the Bozeman community in which they are a part of. This art movement is separated from our educational system and do thrive in the future they need to be integrated. This Art & Education Center creates a space in which both Art & Education can combine in a neutral environment creating growth in both groups. The third group is the Non-Profits. They provide back up traditionally to the educational and art systems, with the combination under a single roof they can con- tinue this tradition along with allowing the Non- Profits to gain from the Arts & Education in return. There is also the opportunity for less traditional non-profit roles in the space, financial or law groups, to be included with environmental and cultural non-profits of which are normally considered. 20 A R C H I T E C T U R E - C O L L A B O R AT I O N
  • 20.
    An outreach programof Montana State University, it is the only completely professional touring theatre program in the state that produces Shakespeare’s plays, the only Shake- speare company in the country to reach as extensively into rural areas, and the only company in the state that offers its performances free to the public. There is a sincere belief and commitment among the faculty and administration of the MSU College of Business that an entrepreneurship program can make a significant contribu- tion to the economic development of the state and provide a framework for an outstanding educational experience for students. At the Center for Entrepreneurship for the New West, students gain valuable experience by working for start-up or growth technology companies. Students apply the knowledge gained from group projects, case studies, and classroom exercises in a real-life business. Client companies benefit from students’ skills and expertise. ... a world where safe housing is available to all... ...inspiring people to work collectively to make sustainable communities... ...your involvement makes the difference... Headwaters Economics is an independent, nonprofit research group. Our mission is to improve community development and land management decisions in the West. ...established to advance the mission of large landscape conservation in the Yellowstone-to-Yukon (Y2Y) region, in western North America, and internationally, by acting as an interorganizational, scientific and collaborative catalyst. Puts the recources of Architecture in the services of the public interest. We identify and solve practical problems of human interaction in the built enviroment and act as a catalyst for public discourse through education, advocacy and the design of public spaces and amenities. PROGRAMING / USAGE 21
  • 21.
    PRECEDENT STUDIES THESIS 4- 7 S I T E / C O D E A N A LY S I S 8- 15 PROGRAMMING / USAGE 16- 21 PRECEDENT STUDIES 22- 33 BUILDING FORM 34- 75 BUILDING SYSTEMS 76- 95 MODEL 96- 101 PROCESS IMAGES 102- 115 MODEL PROCESS 116- 127 C I TAT I O N S 128- 131 22 A R C H I T E C T U R E - C O L L A B O R AT I O N
  • 22.
  • 23.
    K R ES G E AU D I T O R I U M ARCHITECT: EERO SAARINEN LOCATION: MIT - Campus 48 Massachusetts Ave Cambridge, MA 02139 YEAR CONSCTRUCTED: 1953 - Dedication in 1955 OCCUPANCY: 1226 persons Auditorium MATERIALS: CONCRETE COPPER 24 A R C H I T E C T U R E - C O L L A B O R AT I O N
  • 24.
    i ii PRECEDENT STUDIES 25
  • 25.
    W E YE R H AU S E R - O F F I C E BUILDING ARCHITECT: SOM - Skidmore Owings and Merril LOCATION: TACOMA, WASHINGTON YEAR CONSCTRUCTED: 1971 OCCUPANCY: COMMERCIAL OFFICE FOR CORPORATE HEADQUARTERS MATERIALS: CONCRETE, WOOD, GLASS, VEGITATION 26 A R C H I T E C T U R E - C O L L A B O R AT I O N
  • 26.
    iii iv PRECEDENT STUDIES 27
  • 27.
    B O STO N - D I L L E R S CO F I D O & REFROS INSTITUTE FOR CO N T E M P O R A RY A R TS ARCHITECT: DILLER SCOFIDO LOCATION: BOSTON, MASSACHUSETTES YEAR CONSCTRUCTED: 2000 OCCUPANCY: CENTER FOR THE PERFOMING ARTS 28 A R C H I T E C T U R E - C O L L A B O R AT I O N
  • 28.
    vi v vii PRECEDENT STUDIES 29
  • 29.
    P E AVE Y P L A Z A - M I N N E A P O L I S M N N I CO L L E T MA L L ARCHITECT: M. Paul Friedberg LOCATION: MINNEAPOLIS MINNESOTA NICOLLET & 11TH YEAR CONSCTRUCTED: 1975 OCCUPANCY: URBAN PARK, OUTDOOR CONCERTS/ PERFORMANCES & SKATING RINK 30 A R C H I T E C T U R E - C O L L A B O R AT I O N
  • 30.
    ix x PRECEDENT STUDIES 31
  • 31.
    MINNEAPOLIS MN -GUTHRIE ARCHITECT: JEAN NOUVEL LOCATION: MINNEAPOLIS MINNESOTA YEAR CONSCTRUCTED: 2006 OCCUPANCY: THEATER & RESTAURANTE 32 A R C H I T E C T U R E - C O L L A B O R AT I O N
  • 32.
    xi xii PRECEDENT STUDIES 33
  • 33.
    BUILDING FORM THESIS 4- 7 S I T E / C O D E A N A LY S I S 8- 15 PROGRAMMING / USAGE 16- 21 PRECEDENT STUDIES 22- 33 BUILDING FORM 34- 75 BUILDING SYSTEMS 76- 95 MODEL 96- 101 PROCESS IMAGES 102- 115 MODEL PROCESS 116- 127 C I TAT I O N S 128- 131 34 A R C H I T E C T U R E - C O L L A B O R AT I O N
  • 34.
    B U IL DI NG FO RM 35
  • 35.
    BUILDING FORM THE BUILDING FORM WAS DEVELOPED FROM THE ON SITE EXPERIENCE OF EXISTNG FORMS ALONG WITH A STUDY OF THE USGAS AND SPACE ADJACENCIES REQUIRED FOR THE USE AS A HIGH QUALITY PRESENATION AND EDUCATION SPACE. ALONG WITH THE INCLUSION OF OFFICE SPACE FOR NON- PROFIT ORGANIZATIONS WHICH ARE ADVANTAGES TO THE ARTS/EDUCATION OR ARE SUPPORTED THEMSELVES BY THE ARTS AND DEVELOPMENTS THE OVERALL FORM CONSISTS OF A SIMPLE CUBE FORM OPENED ON THE CORNERS AND FACADE TO CREATE TRANSPARENCY BETWEEN INTERIOR SPACES AND A CONNECTION BOTH VISUAL AND PHYSI- CALLY BETWEEN EXTERIOR AND INTERIOR FUNCTIONS INCLUDED IN THE SPACE IS BOTH A INTERIOR MULTIUSE AUDITORIUM AND EXTERIOR PLAZA FOR INFORMAL AND FORMAL OUTDOOR PERFORMANCE. AN ASSET TO THE PRESENT COMMUNITY THAT CAN BE EXTENDED IN NEW FACILITIES. 36 A R C H I T E C T U R E - C O L L A B O R AT I O N
  • 36.
    Y SITE PLAN B UI L DI NG FO RM 37
  • 37.
    38 A R C H I T E C T U R E - C O L L A B O R AT I O N
  • 38.
    E L EVAT I O N - W E S T L I B R A R Y FA C A D E B U I L DI NG FO RM 39
  • 39.
    40 A R C H I T E C T U R E - C O L L A B O R AT I O N
  • 40.
    E L EVAT I O N - E A S T PA R K FA C A D E B U I L DI NG FO RM 41
  • 41.
    42 A R C H I T E C T U R E - C O L L A B O R AT I O N
  • 42.
    E L EVAT I O N - S O U T H PA R K FA S C A D E B U I L DI NG FO RM 43
  • 43.
    44 A R C H I T E C T U R E - C O L L A B O R AT I O N
  • 44.
    E L EVAT I O N - N O R T H M A I N S T R E E T FA C A D E B U I L DI NG FO RM 45
  • 45.
    46 A R C H I T E C T U R E - C O L L A B O R AT I O N
  • 46.
    SERVICE D VERTICLE CIRCULA EAST PLAZA LINDLEY PARK SECONDARY E CONFERENCE/MEETING ROOM CREEK WALK WAY CREEK OUTDOOR STAGE POND 1ST LEVEL AUDITORIUM SEA AUDITORIUM S OPEN S MAIN STREET ENTRA GLASS ELEVATOR SLIDING DOORS GATHER/ENTRY SIGNATURE WALL WEST P N 20’ BUILDING PLAN - LEVEL 001 E N T R Y / S TA G E B U I L DI NG FO RM 47
  • 47.
    48 A R C H I T E C T U R E - C O L L A B O R AT I O N
  • 48.
    EDUCATION / PRACTICEROOM COOPERATIVE STUDIO LOCKER ROOM LEASED STUDIO SERVICE COMMUNAL KITCHEN EGRESS/PARK ACCESS CIRCULATION AUDITORIUM SEATING PLAZA OPEN STAIR N 20’ BUILDING PLAN - LEVEL 002 E D U C AT I O N / S T U D I O B U I L DI NG FO RM 49
  • 49.
    50 A R C H I T E C T U R E - C O L L A B O R AT I O N
  • 50.
    EDUCATION / PRACTICEROOM COOPERATIVE STUDIO LEASED STUDIO SERVICE COMMUNAL KITCHEN EGRESS/PARK ACCESS CIRCULATION AUDITORIUM SEATING PLAZA OPEN STAIR N 20’ BUILDING PLAN - LEVEL 003 AU D I T O R I U M / E D U C AT I O N / S T U D I O B U I L DI NG FO RM 51
  • 51.
    52 A R C H I T E C T U R E - C O L L A B O R AT I O N
  • 52.
    ADMINISTRATIVE & OFFICE SOLAR ARRAY SERVICE AUDITORIUM MECHANICAL EXTERIOR PATIO N 20’ BUILDING PLAN - LEVEL 004 A D M I N I S T R AT I V E / R O O F PAT I O B U I L DI NG FO RM 53
  • 53.
    54 A R C H I T E C T U R E - C O L L A B O R AT I O N
  • 54.
    SERVICE DRIVE PARKING EGRESS TOWER SERVICE ELEVATOR N 20’ BUILDING PLAN - LEVEL 000 S E R V I C E & PA R K I N G B U I L DI NG FO RM 55
  • 55.
    56 A R C H I T E C T U R E - C O L L A B O R AT I O N
  • 56.
    BUILDING SECTION -NORTH / SOUTH B U I L DI NG FO RM 57
  • 57.
    58 A R C H I T E C T U R E - C O L L A B O R AT I O N
  • 58.
    BUILDING SECTION -EAST / WEST B U I L DI NG FO RM 59
  • 59.
    60 A R C H I T E C T U R E - C O L L A B O R AT I O N
  • 60.
    R E ND E R I N G - “ P U B L I C G AT H E R H A L L” B U I L DI NG FO RM 61
  • 61.
    62 A R C H I T E C T U R E - C O L L A B O R AT I O N
  • 62.
    R E ND E R I N G - S O U T H P L A Z A / R O O F PAT I O B U I L DI NG FO RM 63
  • 63.
    64 A R C H I T E C T U R E - C O L L A B O R AT I O N
  • 64.
    RENDERING - POND/ SOUTH PLAZA B U I L DI NG FO RM 65
  • 65.
    66 A R C H I T E C T U R E - C O L L A B O R AT I O N
  • 66.
    R E ND E R I N G - N O R T H E L E VAT I O N B U I L DI NG FO RM 67
  • 67.
    68 A R C H I T E C T U R E - C O L L A B O R AT I O N
  • 68.
    RENDERING - ENTRY/ WEST PLAZA B U I L DI NG FO RM 69
  • 69.
    70 A R C H I T E C T U R E - C O L L A B O R AT I O N
  • 70.
    R E ND E R I N G - AU D I T O R I U M B U I L DI NG FO RM 71
  • 71.
    72 A R C H I T E C T U R E - C O L L A B O R AT I O N
  • 72.
    R E ND E R I N G - S T U D I O / C O L A B R AT I V E L A B B U I L DI NG FO RM 73
  • 73.
    74 A R C H I T E C T U R E - C O L L A B O R AT I O N
  • 74.
    RENDERING - SOUTHWEST AERIAL OVERVIEW B U I L DI NG FO RM 75
  • 75.
    BUILDING SYSTEMS THESIS 4- 7 S I T E / C O D E A N A LY S I S 8- 15 PROGRAMMING / USAGE 16- 21 PRECEDENT STUDIES 22- 33 BUILDING FORM 34- 75 BUILDING SYSTEMS 76- 95 MODEL 96- 101 PROCESS IMAGES 102- 115 MODEL PROCESS 116- 127 C I TAT I O N S 128- 131 76 A R C H I T E C T U R E - C O L L A B O R AT I O N
  • 76.
    B U IL DI NG SYST EM S 77
  • 77.
    E G RE S S / C I R C U L AT I O N Verticle Circulation 3 Protected Stair Towers 2 Adjacent to Auditorium 1 Direct access to Park at end of Cantilever 2 Elevators 1 Open Stair - Sprinkled Horizontal Circulation Major Paths pushed to exterior of Plan on all Levels Minor Paths as crosses between major paths Building Egress Point At Grade 8 Direct opening from circulation to exterior. 78 A R C H I T E C T U R E - C O L L A B O R AT I O N
  • 78.
    B U IL DI NG SYST EM S 79
  • 79.
    STRUC TUR ALSYSTEM AUDITORIUM: A992 STEEL MOMENT FRAME W14x__ COLUMNS W14x__GIRDERS METAL PAN DECK w/ 6” CONCRETE TOPPING 120 FOOT CLEAR SPAN AT AUDITORIUM - VERENDAL TRUSS STUDIO SPACE: 80’ CANTILEVER FRAME A992 STEEL FRAME W14x__ COLUMNS W14x__GIRDERS W6x__ LATERAL BRACING W8X__ HORIZONTAL BRACING METAL PAN DECK w/ 6” CONCRETE TOPPING SERVICE LEVEL: 32” DEPTH 3X3 WAFFLE SLAB 36”X24” CONCRETE TRANSFER BEAM 22X22 CONCRETE COLUMNS AT MAX SPACING OF 24’ OC FINISHES - ALL STRUCTURAL STEEL FRAME MATERIALS CLAD IN MINIMUM 2 LAYERS 5/8” GYPUSM BOARD, SEAMS STAGGERED AND FINISHED PER FINISH REQUIRE MENTS 80 A R C H I T E C T U R E - C O L L A B O R AT I O N
  • 80.
    B U IL DI NG SYST EM S 81
  • 81.
    MEP SYSTEMS PASSIVE SYSTEMS NATURAL DAYLIGHTING MANUALLY OPERABLE AWNING WINDOWS MECHANICAL SYSTEM IN-FLOOR RADIANT HEATING CEILING PLENUM w/ FORCED AIR COOLING & TRANSFER PLUMBING SYSTEM GRAY WATER RECYCLING RAIN WATER RETENTION/RECYCLING ELECTRICAL / LIGHTING SYSTEM PHOTOVOLTAIC PANELS T-5 FLUORESCENT LIGHTING AUTOMATIC DAYLIGHTING SENSOR & CONTROL TECHNOLOGY SYSTEM WIRELESS INTRANET & INTERNET ACCESS THROUGHOUT SITE T-1 LINE ACCESS ON SITE - SECURED SERVER SPACE ON SITE - LARGE FORMAT PRINT SERVICE ROOM 82 A R C H I T E C T U R E - C O L L A B O R AT I O N
  • 82.
    B U IL DI NG SYST EM S 83
  • 83.
    WA L LS E C T I O N S 84 A R C H I T E C T U R E - C O L L A B O R AT I O N
  • 84.
    PA G E- 8 9 PA G E - 8 7 PA G E - 8 8 PA G E - 8 6 B U I L DI NG SYST EM S 85
  • 85.
    86 A R C H I T E C T U R E - C O L L A B O R AT I O N
  • 86.
    B U IL DI NG SYST EM S 87
  • 87.
    88 A R C H I T E C T U R E - C O L L A B O R AT I O N
  • 88.
    B U IL DI NG SYST EM S 89
  • 89.
    M AT ER I A L S 90 A R C H I T E C T U R E - C O L L A B O R AT I O N
  • 90.
    xiii xiv xv LIMESTONE SCREEN WALL STEEL CURTAIN WALL CHANNEL GLAZING B U I L DI NG SYST EM S 91
  • 91.
    M AT ER I A L S 92 A R C H I T E C T U R E - C O L L A B O R AT I O N
  • 92.
    xvi xvii xviii DOUGLAS FIR DOORS CABLE RAILING PLASTER WALL FINISH B U I L DI NG SYST EM S 93
  • 93.
    M AT ER I A L S 94 A R C H I T E C T U R E - C O L L A B O R AT I O N
  • 94.
    xix xx xxi WOOD PANEL CEILING POLISHED/STAINED CONCRETE COPPER SCREEN B U I L DI NG SYST EM S 95
  • 95.
    MODEL THESIS 4- 7 S I T E / C O D E A N A LY S I S 8- 15 PROGRAMMING / USAGE 16- 21 PRECEDENT STUDIES 22- 33 BUILDING FORM 34- 75 BUILDING SYSTEMS 76- 95 MODEL 96- 101 PROCESS IMAGES 102- 115 MODEL PROCESS 116- 127 C I TAT I O N S 128- 131 96 A R C H I T E C T U R E - C O L L A B O R AT I O N
  • 96.
  • 97.
    98 A R C H I T E C T U R E - C O L L A B O R AT I O N
  • 98.
  • 99.
    100 A R C H I T E C T U R E - C O L L A B O R AT I O N
  • 100.
    MO DE L 101
  • 101.
    PROCESS IMAGES THESIS 4- 7 S I T E / C O D E A N A LY S I S 8- 15 PROGRAMMING / USAGE 16- 21 PRECEDENT STUDIES 22- 33 BUILDING FORM 34- 75 BUILDING SYSTEMS 76- 95 MODEL 96- 101 PROCESS IMAGES 102- 115 MODEL PROCESS 116- 127 C I TAT I O N S 128- 131 102 A R C H I T E C T U R E - C O L L A B O R AT I O N
  • 102.
    PROCESS IMAGES 103
  • 103.
    104 A R C H I T E C T U R E - C O L L A B O R AT I O N
  • 104.
    PROCESS IMAGES 105
  • 105.
    106 A R C H I T E C T U R E - C O L L A B O R AT I O N
  • 106.
    PROCESS IMAGES 107
  • 107.
    108 A R C H I T E C T U R E - C O L L A B O R AT I O N
  • 108.
    PROCESS IMAGES 109
  • 109.
    110 A R C H I T E C T U R E - C O L L A B O R AT I O N
  • 110.
    PROCESS IMAGES 111
  • 111.
    112 A R C H I T E C T U R E - C O L L A B O R AT I O N
  • 112.
    PROCESS IMAGES 113
  • 113.
    114 A R C H I T E C T U R E - C O L L A B O R AT I O N
  • 114.
    PROCESS IMAGES 115
  • 115.
    MODEL PROCESS THESIS 4- 7 S I T E / C O D E A N A LY S I S 8- 15 PROGRAMMING / USAGE 16- 21 PRECEDENT STUDIES 22- 33 BUILDING FORM 34- 75 BUILDING SYSTEMS 76- 95 MODEL 96- 101 PROCESS IMAGES 102- 115 MODEL PROCESS 116- 127 C I TAT I O N S 128- 131 116 A R C H I T E C T U R E - C O L L A B O R AT I O N
  • 116.
    117 EL OD M 3D E TE PL M CO R PE OY L OT IA PR ER 3D AT L- -M E EL C OD OD CN T M M IN AT S M TH PR OR PA LF L ST OO TE C T EA CN CR TE EA CR RM FO NG DI IL TE BU A T ED AC IT TR T S EX AC TR EX G IN EL OD T M 3D EN M AL OP TI EL GI V DI DE N IG ES -D PT N CE CO GN SI DE P T PROCESS CE ON -C CH ET SK ND HA MODEL
  • 117.
    H A ND S K E TC H - CO N C E P T D E S I G N 118 A R C H I T E C T U R E - C O L L A B O R AT I O N
  • 118.
    MODEL PROCESS 119
  • 119.
    S I TE D ATA E X T R A C T I O N 120 A R C H I T E C T U R E - C O L L A B O R AT I O N
  • 120.
    MODEL PROCESS 121
  • 121.
    B U IL D I N G D ATA E X T R A C T I O N 122 A R C H I T E C T U R E - C O L L A B O R AT I O N
  • 122.
    MODEL PROCESS 123
  • 123.
    B U IL D I N G 3 D P R OTOT YP E 124 A R C H I T E C T U R E - C O L L A B O R AT I O N
  • 124.
    MODEL PROCESS 125
  • 125.
    SITE - CNCMACHINING 126 A R C H I T E C T U R E - C O L L A B O R AT I O N
  • 126.
    MODEL PROCESS 127
  • 127.
    C I TATI O N S THESIS 4- 7 S I T E / C O D E A N A LY S I S 8- 15 PROGRAMMING / USAGE 16- 21 PRECEDENT STUDIES 22- 33 BUILDING FORM 34- 75 BUILDING SYSTEMS 76- 95 MODEL 96- 101 PROCESS IMAGES 102- 115 MODEL PROCESS 116- 127 C I TAT I O N S 128- 131 128 A R C H I T E C T U R E - C O L L A B O R AT I O N
  • 128.
    C I TATION S 129
  • 129.
    End Notes xiii - http://tilgaengelighed.emu.dk/tilgaengelighed/fysisk/expl/s43- i - http://www.cpci.ca/images.asp?month=22008&image=7.jpg rikestat-akustik.jpg ii - xiv - http://www.bnim.com/newsite/images/graphic/bpu.jpg iii - http://www.greatbuildings.com/cgi-bin/gbi.cgi/Weyerhaeuser_ x v - h t t p ://w w w.f i re f ra m e s.b i z /g al l er y / i mag es / i n f i n i t y _ 4 . j pg Headquar ters.html/cid_20050902_k mm_img_6085.html x vi - http://img.archiexpo.com/images_ae/photo-g/pivot-door-with- iv - http://www.greatbuildings.com/cgi-bin/gbi.cgi/Weyerhaeuser_ ce ntral-axis-127429.jpg Headquar ters.html/cid_20050902_k mm_img_6071.html x v i i - h t t p ://w w w.st a i n l e ss- ra i l i ng. co m/ c asi n o -rai l i n g s / c as i n o -f ul l -f i - v - h tt p:/ / w w w.a rcspace.com/arc hitec ts/D i l l er S cof i dio/I C A/P h oto- nal2-1200.jpg 4.jpg x viii - http://www.hillside.ca/1529/1529-6.gif vi - http://farm4.static.flick r.com/3021/2617992175_3009e65880. x i x - h t t p ://b u l l oc k p rop e r t i e s.u s/ i mag es/ bp l _ p_ s er v i ces _ cei l i n g s. j p g jpg?v=0 x x - h t t p : / / w w w. co n c re te n e t wo r k . co m / p h o to - g a l l e r y / i m a g e s / vii - h ttp:/ / w w w.hughpearman.com/2006/i l l u st rat i ons/B oston _01a .j p g 250x 200E x a c t /p ol i sh e d- con c re te_ 30/ 46236 -i n -ar t i s t i c -s ur f aces -i n c - ix - p o l i s h e d - co n c re te - f l o o r - p o l i s h i n g - co n c re te _ 2 7 7 4 . j p g x - xxi - http://www.cpci.ca/images.asp?month=22008&image=7.jpg x i - h t t p : / / w w w. a rc s p a ce.co m / a rc h i te c t s / n o u ve l / g u t h r i e / 2 . g u t h r i e. j p g xii - http://www.washingtonspaces.com/blog/uploads/Image/Jean- N o u ve l / g u t h r i e. j p g 130 A R C H I T E C T U R E - C O L L A B O R AT I O N
  • 130.
    G e nera l Refrences IBC 2006 B oze m a n Zo n i n g Co d e w w w. b oze m a n . n e t Co m p u t e r S o f t ware / Te c h n o l o g i e s Revit AutoCa d Civil 3d Rhino & Rhino CAM Adobe Creative Suite Auto desk Impressions A l l H a n d D rawi n g s, R e n d e r i n g a n d Co m p u te r G ra p h i c s co m p l e te d B y M ik e E n gel. C I TATI ON S 131