Scale (@ A3)
Checked byDrawn by
Date Project number
DRWAING NUMBER
CLIENTPROJECT TITLE
SHEET
STATUS PURPOSE OF ISSUECODE SUITABILITY DESCRIPTION
30/04/201504:05:10
1 : 1DDS4_PO4
GALWAY/MAYO INSTITUTE OF TECHNOLOGY
28/04/15
Mark Flynn
Denise Dillon
Emer MaughanGA-MF-00
Cover Sheet
Upgrade&Retro-Fit of Building and Civil
Department
GA
28/04/15
No. Description Date
Drawing Issue Sheet
Sheet Number Sheet Name
Sheet Issue
Date Checked By Drawn By scale
GA-MF-00 Cover Sheet 03/26/15 Denise Dillon
Emer Maughan
Mark Flynn
GA-MF-01 Site Plan 03/27/15 Denise Dillon
Emer Maughan
Mark Flynn 200
GA-MF-02 Ground Floor Plan 03/26/15 Denise Dillon
Emer Maughan
Mark Flynn 200
GA-MF-03 First Floor Plan 03/26/15 Denise Dillon
Emer Maughan
Mark Flynn 200
GA-MF-04 Ground Floor Demo 03/26/15 Denise Dillon
Emer Maughan
Mark Flynn 200
GA-MF-05 First Floor Demo 04/26/15 Denise Dillon
Emer Maughan
Mark Flynn
GA-MF-06 Large Elevations 03/26/15 Denise Dillon
Emer Maughan
Mark Flynn 200
GA-MF-07 North Entrance Elevations 03/26/15 Denise Dillon
Emer Maughan
Mark Flynn 200
GA-MF-08 Section AA & BB 03/26/15 Denise Dillon
Emer Maughan
Mark Flynn 50
GA-MF-09 Section CC & DD 03/26/15 Denise Dillon
Emer Maughan
Mark Flynn 50
GA-MF-10 Roof Sections 03/26/15 Denise Dillon
Emer Maughan
Mark Flynn 5
GA-MF-11 Curtain walling Sections 03/26/15 Denise Dillon
Emer Maughan
Mark Flynn 5
GA-MF-12 Elevator Details 03/26/15 Denise Dillon
Emer Maughan
Mark Flynn 5
GA-MF-13 Detail 1 03/26/15 Denise Dillon
Emer Maughan
Mark Flynn 5
GA-MF-14 Details 2 03/27/15 Denise Dillon
Emer Maughan
Mark Flynn 5
GA-MF-15 Link Bridge Sections 03/27/15 Denise Dillon
Emer Maughan
Mark Flynn 10
Design and Detail Studies 4 Project:
Construction Information/ Working Drawings/
NBS and Portfolio
You created this PDF from an application that is not licensed to print to novaPDF printer (http://www.novapdf.com)
Tourism&Art
Department
Existing
Pre-fabs
FistFloor
LinkBridge
Boiler
House
ToExistingFoulSewer
Pre-Fab
Cafe
Pedestrian Crossing
Tactile Surface
Disabled Car Parking
& Set Down Area
9625
1432
722
-100
200
-100
7725
9900
2731
879
4695
2400
1234567891011121314
1235678
18171615141312119 10
1 2 3 5 6 7 8 9 10 11 12 1 2 3 4 5 6 7 8 9
2
GA-MF-08
FH
3115
3830
4695
4695
2400
1432
RL 9.625+AOD
SVP
11258
9093
11339
20622
14624
3944
2000
12840
4925
3170
19370
146584712
15130
7441
RL 5.160+AOD
RL 5.530+AOD
RL 5.360+AOD
Building and Civil
Department
RF 2.731+AOD
RL 7.725+AOD
RL 9.900+AOD
GL -100+AOD
LP
9625
RL 9.625+AOD
1:80
1:80
1:80
1:80
1:80
1:80
1:80
1:80
1:80
1:80
1:80
1:80
1:80
1:80
1:80
1:50
1:50
1:50
1:50
1432
1432
2400
1432
1432
1432
-100
-100
-54
LP
LP
LP
LP
LP
LP
LP
LP
LP
LP
LP
LPLP
RMHRMHRMHRMH
RMH
RMH
RMH RMH
RMH RMH
RMH
RMH
FMH
FMH
FMH
FMH
FMH
FMH
FMH FMH FMH
FMH
41909
2400
4850
FH
FH
FH
N 122358
E 397423
1:5
1:3
1:3
1:3
LP
35216664
3536
146337672
30385
9020
12901
3856
18632000
19255785107625979214
1071
400
4220
400
10132110
1019 3870
15863
400
1102
1:9
1:9
1:4
1:4
1:4
1:9
1:20
1:7
1:7
[No Slope]
1:8
1:2
1:2
1:8
1:12
1:12
1:3
1:3
1:3
1:4
1:4
1:4
1:5
1:5
1:6
1:6
1:5
1:5
1:5
[No Slope]
[No Slope]
1:29
[No Slope]
3939 2575
38299 1287
76241619
6379
1432
78063088
1100 21718 1100 2000
11008025
4850
2400
5741
48504924
2380
RMH
RMH
RMH
RMH RMH
RMH
Accessible Entrance
Access Route
Permeable Paving
Drop Kerb With
Tactile Paving
In Compliance With
TGD Part M 2010
Diag 4b
Existing Building(All other
Construction is Proposed
Development)
General Notes:
All works to be Carried Out In Accordance With Current Building Regulations And
DOE Specification for Site Development Works.
This Drawing Is To Be Read In Conjuction With DAC And FSC Compliance Reports and All
Other Relavant Working Drawings And Documents.
Gravity Drainage System
Grass Areas
Proposed Building
Permeable Asphalt Paving
Disabled Parking Spaces IN
Compliance With TGD
Part M 2010, Section 1.1
CAR Park Spaces
-- No. Of
2000
1800
2000mm x 1800mm Passing
Space To Allow Two People
In a WheelChair To Pass By
Each Other, InCompliance
With TGD Part M 2010
Section 1.1.3.3
Fire HydrantFH
Lighting PostLP
Tarmac Roadway
New Disabled Parking
Corduroy Hazard Warning Surface
In Compliance With TGD Part M
2010,Diag 4b.
1800mm x 1800mm Level Landing
Provided in Front of Power-operated
Accessible DoorsIn Compliance
With TGD Part M 2010 ,Section 1.2
1500mm Pedestrian Crossing
Guard Rail Provided to Protect
From Outward Swinging Doors,
In Compliance With TGD Part M
2010 Section 1.1
Soil Vent Pipes
Rain Water Pipe
Foul Water Man-Hole
200mm x 200mm
F.M.H
Rain Water Man-Hole
200mm x 200mm
R.M.H
Fowl Water Drainage 150mm PVC
Pipe With Fall No Less Than 1.100
Rainwater Drainage 100mm PVC
Pipe With Fall No Less Than 1.100
Proposed Levels
98.40
Existing Levels
98.40
Site Area:
Legend
AR
New site: 8087 m2
Existing GMIT: 84297 m2
Min,5mm Raduis U3 Finish
217 40
Pavement As
Specified
Kerb with a Max height
of 80mm of 45 splay to
be adopted on design
speeds >45km
Grade C40
Concrete Kerb
Additional Concrete for Kerbs
and Kerb blocks where required
Stanard In situ Concrete Kerb
Sub-Base Material 500Min
Pavement As
Specified
Sub-Base Material 500Min
1.10 Slope
Tactile Paving
U3 Finish
217 40
Additional Concrete for Kerbs
and Kerb blocks where required
In situ Concrete Drop Kerb
35-40mm Thick Compacted Grit Sand
Minimum 100mm Thick
Compacted Sub-Base
50-65 Thick pavers
Edging Course laid on 100mm
Concrete bed and haunch
65
10040
100
N
Scale (@ A3)
Checked byDrawn by
Date Project number
DRWAING NUMBER
CLIENTPROJECT TITLE
SHEET
STATUS PURPOSE OF ISSUECODE SUITABILITY DESCRIPTION
30/04/201508:37:51
As indicatedDDS4_PO4
GALWAY/MAYO INSTITUTE OF TECHNOLOGY
28/04/15
Mark Flynn
Denise Dillon
Emer MaughanGA-MF-01
Site Plan
Upgrade&Retro-Fit of Building and Civil
Department
GA
28/04/15
No. Description Date
1 : 200
Site Layout Plan
17 No. Designated
Staff Parking Spaced
In Compliance With
Part M Section 1.1, Dia 8
Grassed Areas And Planted
Areas:Grassed Areas To Be
Graded to Required Levels.With
Suitable Subsoil. Suitable Free
Drainage Topsoil To Be Levelled
In 150mm Layers.
Tarmacadam:
2 Layers Of Base Course And Wearing
Course Thickness
Min 80mm. 50mm Base Course Dense
Bitumeous Macadam,20mm Chip,30mm
Wearing Course Dense Bitumeous
Macadam,14mm Chip,50mm Compacted
Blinding Limestone Dust
250mm Min Layer.
Set Down Area
Proposed Area For New Disabled
Car Parking To Serve The Building
Users
Sign at main entrance car
park clearly indicating location
of diabled parking space
Levelaccesprovided
Gradientslope1:50
Public Parking Area
30 Spaces provided
In Accordance With TGD
Level Paved
Acces Route
Saft Point
Of Assembly
Part B Compliant
Part M Compliant,Section 1.1.3.3
1800x1800mm Level Landing.
Landing to Be Provided at The
Top And Bottom Of A Slope.
The Top And Bottom Landings
Should Be At Least 1800mm Wide
and 1800mm Long.
Clear of Door Swing.
Circulation Routes:
Pedestrian Routes Gradient at
1:50 In Accordance With TGD
Part M 2010, Section 1.1 Tactile
Surface Shall Be Used To Provid
A Warning Of A Change In Level.
Rainwater Goods:
75mm Downpipes Including All Brackets
And Fixings.Gutters Formed In Asphalt.
Precoated, Polyester Coated And
Anodised. All Aluminium Alloys Used
Conform To Bs En485 2 And Bs En
1396.1997.
Entrance Roadway
Exsting Ambulant Disabled Stairs:
Minimum clear width between strings
of 1200mm provided.Rise 175mm,
Going 300mm.Continuous handrails
provided at eachends of the stairs.
In accordance with TGD Part M 2010
Level acces provided
Gradient slope 1:50
121 SIPHONIC RAINWATER DRAINAGE SYSTEM:
FULLFLOW SELF PRIMING SYPHONIC ROOF DRAINAGE SYSTEM CONSISTING OF
PRIMAFLOW® SELF PRIMING SYPHONIC ROOF OUTLETS AND ASSOCIATED PIPEWORK.
PRIMAFLOW OUTLET BOWLS ARE AVAILABLE WITH PLAIN SPIGOTS 56MM OR 75MM
EXTERNAL DIAMETER AND IN A RANGE OF MATERIALS INCLUDING, STAINLESS STEEL,
COPPER, GALVANISED MILD STEEL, PVC COATED ALUMINIUM AND WITH THE OPTION OF A
SMALL OR LARGE FLANGE. OUTLETS CAN BE FIXED MECHANICALLY OR WITH A
COMBINATION OF MECHANICAL AND ADHESIVE METHODS AND ARE SUPPLIED WITH A SELF-
ADHESIVE SEALING STRIP WHICH COMPLIES WITH BS 6213: 1982(1992) AND TEK SCREWS
TO BS 4174: 1972.
1 : 10
3
Kerbs
Notes:
in situ concrete kerbs shall comply with
therecommendations of b.s 5931
kerbs shall be protected from the effects of adverse
weather until curved
drop kerb height varies from 25mm for vihicular
accesses and 0-6mm for pedestrian crossing
1 : 5
4
Paving
External Wall Up-Grade:
Existing: 200mm internal Concrete Block.
80mm Semi Open Cavity, 45mm external
concrete aggregate panel
Up-Grade:Existing Reinforced Concrete
Panels to be Removed. 100mm
horizontal/vertical C-purlin support rails.
12mm plasterboard,125mm Kingspan
Kooltherm k15 rigid insulation panel 30mm
ventilated cavity, 10mm Granite Composite
Panel Externally.
Existing Roof Build-up:
Existing Roof:
Existing 200mm concrete waffle slab
Existing 50mm sand screed
Existing bituminous felt
Existing 25mm Insulation
Existing 30 Mastic asphalt as waterproof
150mm Concrete Slab, 25mm Degrading Polystyrene, 25mm
Locally Failing Asphalt.
Upgraded Roof:
Airtightness membrane bonded to primed substrate.
200mm Kingspan Kooltherm PIR insulation.
Two layers of polymer modified bitumen waterproof
membrane with chips on exposed surfaces.
Roof Build-up:
352mm x 172mm UB beam
150mm profiled steel decking
150mm reinforced concrete slab
1.2mm foil cored reinforcmed vapour
barrier.20mm asphalt. Tapered PIR
insulation varying from 110 to 270 mm
thick to form 1:80 fall.Two layers of
polymer modified bitumen waterproof
membrane with chips on exposed
surfaces.
Levelaccesprovided
Gradientslope1:50
Level Paved
Acces Route
Levelaccesprovided
Gradientslope1:50
Levelaccesprovided
Gradientslope1:50
Grassed Areas And Planted
Areas:Grassed Areas To Be
Graded to Required Levels.With
Suitable Subsoil. Suitable Free
Drainage Topsoil To Be Levelled
In 150mm Layers.
Grassed Areas And Planted
Areas:Grassed Areas To Be
Graded to Required Levels.With
Suitable Subsoil. Suitable Free
Drainage Topsoil To Be Levelled
In 150mm Layers.
Grassed Areas And Planted
Areas:Grassed Areas To Be
Graded to Required Levels.With
Suitable Subsoil. Suitable Free
Drainage Topsoil To Be Levelled
In 150mm Layers.
Grassed Areas And Planted
Areas:Grassed Areas To Be
Graded to Required Levels.With
Suitable Subsoil. Suitable Free
Drainage Topsoil To Be Levelled
In 150mm Layers.
Guarding provided
around outward opening
doors in compliance dia
1 and 2 of TGD
part M2010 1.1.3.1
Guarding provided
around outward opening
doors in compliance dia
1 and 2 of TGD
part M2010 1.1.3.1
Part M
Compliant
Pedesreian
Crossing
Roadway flush
with footpath
Paving
Paving Paving
Push Pad for accessible
power-operated doors. In
compliance with TGD Part
M 2010 Section 1.2.4.3
14 No. Designated
Staff Parking Spaced
In Compliance With
Part M Section 1.1, Dia 8
Level Paved
Acces Route
Yeild
Yeild
Bridge Structure
120mm Circlar hollow steel hexagonal frame
Connected by 340 x 315 mm UB at base plate
150mm profiled steel decking spaning
between UB ,150mm Concrete slab,100mm
concrete screed. 40mm Granite floor Finish
Bridge Facade:
40mm thick bead-blasted
stainless-stell panel with lazer-cut
vertical abutments botled to
supporting structure in rigid joints.
Canopy Gutter:
300 x 75 x 1.5mm pressed aluminium box
gutter inbeded in to polymer modified bitumen
waterproof memebrane on three sides.
76mm diameter aluminium rainwater pipes
inserted inside circular hollow columns.
300 x 150 mm cut-out near base of columns
for rainwater pipe outlet.
Existing Ramp
AR AR
AR
AR
Roof Light Build-up
375 x 75 mm reinforced concrete upstand.
25mm PIR insulation around up-stand.
75x 50mm softwood kerb screwed to concrete
up-stand.
Top layer of polymer modified bitumen waterproof
memebrane dressed up vertical face and under
rooflight frame. 2100mm wide extruded aluminium
frame screwed to kerb to ensure 1.100 fall.
Walk on 21.5 mm toughened laminated outer pane,
16mm air filled cavity, 6mm soft coat low-E inner
pane.
Roof Lights:
30no. Electro Automated Opening Windows
For Smoke Venting To Atrium Connected To
Firemans Switch At Main Entrance Lobby And
Fire Alarm System. Also Connected To Bms
For Enviromental Control Of Atrium.Windows
To Be Self Closing On De-Activation. Operation
Of The Vents In The Event Of A Power Failure
To Be Integrated Back-Up Battery Power
Which Fails In The Open Position
Concrete Footpaths:
100mm Conc. Paths Laid To Fall (1.36)
Away From Buildings On Min 150mm
Limestone Hardcore Fill Or As Nessary
To Make Up Levels.Concrete In 3m Bays
With A Starroller Finish And Bullnose Edging
The Foot Path That Surrounds The Building
Is Also Made From Eco-Cem Concrete. This
Will Hepl The Building Reduce Its Carbon
Foot Print
You created this PDF from an application that is not licensed to print to novaPDF printer (http://www.novapdf.com)
DN
DN
DNDN
UP
UP
UP
UP
A B C D E G H I
1
2
3
4
5
6
7
F
1:52
1:12
1:12
1:8
1:9
1:8
D-3
FD-3
D-12
FD-1
D-8
FD-1
D-15
FD-1
D-21
FD-1
D-23
FD-1
D-25
FD-1
D-28
FD-1
D-17
FD-1
D-18
FD-1
D-19
FD-1
D-22
FD-1
D-24
FD-1
D-26
FD-1
D-39
FD-1
D-41
FD-2
D-85
FD-1
D-86
FD-1
D-137
FD-1
D-87
FD-1
D-88
FD-1
D-90
FD-1
D-92
FD-2
D-151
FD-2
D-152
FD-2
1
GA-MF-08
1
GA-MF-12
CC
GA-MF-09
DD
GA-MF-09
2
GA-MF-08
19308
125942542
288724521912189120041448
11720
15123
5766
12374
7421
2198
2183
2260
12542
7501
12304
2170
23014907
2170
2308
2330
2530
900
8161
1010
18451980
4775
ø 450
741875007501750175017543
7443 7501 7501 7501 7501 7501 7501 7501
36 m²
Room
143A
34 m²
Room
145
87 m²
Hall
146
20 m²
Room
142
13 m²
Room
184
4 m²
Room
183
4 m²
Room
182
16 m²
Room
181
81 m²
Room
143
72 m²
Room
141
87 m²
Room
148
43 m²
Room
150
44 m²
Room
152
16 m²
Room
21
35 m²
Room
153
35 m²
Room
154
34 m²
Room
155
34 m²
Room
156
33 m²
Room
157
35 m²
Room
158
35 m²
Room
159
5 m²
Room
129A
5 m²
Room
129B
10 m²
Room
129C
11 m²
Room
131C
10 m²
Room
130B12 m²
Male WC
134C
8 m²
Room
134A
12 m²
Room
134D
39 m²
Room
130G
25 m²
Room
128
13 m²
Room
125A
11 m²
Room
128B
62 m²
Hall
147
35 m²
Room
131F
92 m²
Room
131
Selected Marmoleum
floor covering
62 m²
Hall
147
Selected Marmoleum
floor covering
11 m²
Room
132
Selected Non-Slip Tile
5 m²
Room
133
Selected Non-Slip Tile
146 m²
Entrance
131A
Granite Flooring
5 m²
Room
135A
Selected Non-Slip Tile
91 m²
Room
134E
Selected Marmoleum
floor covering
D-31
FD-1
D-33
FD-1
D-36
FD-1
D-34
FD-1
D-37
FD-1
D-44
FD-2
D-46
FD-2
D-8
FD-2
D-78
FD-1
D-48
FD-1
D-49
FD-1
D-51
FD-1
D-81
FD-1
D-82
FD-1
D-83
FD-1
D-84
FD-1
D-89
FD-1
D-91
FD-1
D-21
FD-1
D-145
FD-1
D-53
FD-1
D-55
FD-2
D-57
FD-2
D-59
FD-2
D-153
FD-1
D-155
FD-1
D-62
FD-2
D-177
FD-2
D-178
FD-2
D-26
FD-3
1800
1800
1800
1800
1800
1800
1800
1800
D
AA
A
A A
A
A
D
D
D
D
A
A
D
D
C
C
C
A
D
D
D
A
A
A
A
A
A A
A
A
A
A
A
A
A
A
A
A
A
A
20622
10852 1940 7829
1401194033461940538
9166
2177 3725 3600 1717
1930
1930
1930
910
1325
12406
11344
2079
2015 4134
1047 2100
9300
4519
1320 2814
4035
2813
7221666
8531
2452 2222 2678 2439 1895
283824521964189620002000
8690
FCFT-CircularFilledSections-Column
BasicWall
StairHarringtonPrecastConcrete
AmbulantAccessibleStairs
76 Doors_Dbl_Glass_4
ABasicWallConcreteBlock
D Basic Wall Kingspan KoolTherm
Premium performance rigid thermoset
modified resin insulant manufactured with a
blowing agent that has zero Ozone
Depletion Potential (ODP) and low Global
Warming Potential (GWP).
D-98
FD-2
2127
2127
774 3600 3126
8186 3600 588 702 1800 601 1200 907 1800 509
4781
26387
4600 2812 7039
B
B
772360058036003051810
2084
910 6350 2594 3600 2420 3600 1800 407 3600 1915 3600 1640 3600 1380 3600 820 1800 810 1800 830 3600 1540 3600 1119 18001398
309 3600 1468 1800 601 1200 5599 1800 1290 1010 631
4924
4991 7679 14633
1205
1205
4267
1051
1051
4850
24000
Floor to be raised
to existing internal
floor level
1900
1800
1432
1431
1900
1856
1900
1900
1900
1900
1432
F
FF
F
GG
G
G
H H
H
H
H
481041091197
11824129
W-1W-2W-3W-4
W-5W-6
W-7 W-8 W-9 W-10 W-11 W-12 W-13 W-14 W-15 W-16 W-17 W-18
FMH
FMH
RMH
FMH FMH
RMH RMH
RMH RMH RMH
RMH
RMH
RMHRMH
RMH
1:4
1:6
1:4
1:3
[No Slope]
[No Slope]
1:6
1:5
GFL 29.1
GFL 29.1
Existing Walls:
Starting out point for measurments.
External Wall Up-Grade:
Existing: 200mm internal Concrete Block.
80mm Semi Open Cavity, 45mm external concrete
aggregate panel. Up-Grade:Existing Reinforced
Concrete Panels to be Removed. 100mm
horizontal/vertical C-purlin support rails.12mm
plasterboard,125mm Kingspan Kooltherm k15 rigid
insulation panel 30mm ventilated cavity, 10mm
Granite Composite Panel Externally.
Internal Walls: Gypoc Metal Studding System
50mm Insulation Roll, 2Layer of Gypoc
Plasterboard Bothside with Skim Finish
Wall Types
Internal Wall: 215mm x 100mm Single Leaf
Block With Paint Finish
300mm Load Bearing Column
A
B
C
D
E
F
External Glazing
Exsting Concrete Columns (200 x 400)
Exsting Concrete Columns (400 x 400) G
H
1800mm Min Turning Circle
Provided In Lobbies And Spaces
Where Turning Is Needed For
WheelChair Users.
1800mm
Min Turning
Circle
Minimum 450mm Activity
Space Provided To All
Toilet Cubicles
Permeable Paving
Drop Kerb With
Tactile Paving
In Compliance With
TGD Part M 2010
Diag 4b
Existing Building(All other
Construction is Proposed
Development)
General Notes:
All works to be Carried Out In Accordance With Current Building Regulations And
DOE Specification for Site Development Works.
This Drawing Is To Be Read In Conjuction With DAC And FSC Compliance Reports and All
Other Relavant Working Drawings And Documents.
Prposed Construction
Grass Areas
Existing Block work
Permeable Asphalt Paving
2000
1800
2000mm x 1800mm Passing
Space To Allow Two People
In a WheelChair To Pass By
Each Other, InCompliance
With TGD Part M 2010
Section 1.1.3.3
Fire Hydrant
Lighting Post
Tarmac Roadway
Corduroy Hazard Warning Surface
In Compliance With TGD Part M
2010,Diag 4b.
1800mm x 1800mm Level Landing
Provided in Front of Power-operated
Accessible DoorsIn Compliance
With TGD Part M 2010 ,Section 1.2
1500mm Pedestrian Crossing
Guard Rail Provided to Protect
From Outward Swinging Doors,
In Compliance With TGD Part M
2010 Section 1.1
Soil Vent Pipes
Rain Water Pipe
Foul Water Man-Hole
200mm x 200mm
Rain Water Man-Hole
200mm x 200mm
Fowl Water Drainage 150mm PVC
Pipe With Fall No Less Than 1.100
Rainwater Drainage 100mm PVC
Pipe With Fall No Less Than 1.100
Proposed Levels
98.40
Existing Levels
98.40
Site Area:
Section 1.4 Sanitary
facilities for buildings other
than dwellings 68 Diagram
15a Wheelchair accessible
unisex WC (1800 mm x
1800 mm turning space)
Ambulant Disabled Cubicle
in compliance with TGD part
M 2010 Section 1.4 dia.19 FH
LP
F.M.H
R.M.H
New site: 8087 m2
Existing GMIT: 84297 m2
Internal Fire Doors
30 Minute Fire Resisting Single Doorset
Fire Resisting doorset to have no less than 30
minutes integrity rating in accordance with TGD
Part B/20-22 and to have a leakage rate not
exceeding 3m3/hour (Head&Jamb) when
tested at 26pa.
30 Minute Fire Resisting Double Doorset
Fire Resisting doorset to have no less than 30
minutes integrity rating in accordance with TGD
Part B/20-22 and to have a leakage rate not
exceeding 3m3/hour (Head&Jamb) when
tested at 26pa.
Doors to be fitted with an automatic self-closing
device which is capable of closing the door from
any angle.
Automatic doors to fitted with push button control.
FD1
FD2
60 Minute Fire Resisting Single Doorset
Fire Resisting doorset to have no less than 60
minutes integrity rating in accordance with TGD
Part B/20-22 and to have a leakage rate not
exceeding 3m3/hour (Head&Jamb) when
tested at 26pa.
FD3
N
Scale (@ A3)
Checked byDrawn by
Date Project number
DRWAING NUMBER
CLIENTPROJECT TITLE
SHEET
STATUS PURPOSE OF ISSUECODE SUITABILITY DESCRIPTION
30/04/201503:16:26
As indicatedDDS4_PO4
GALWAY/MAYO INSTITUTE OF TECHNOLOGY
28/04/15
Mark Flynn
Denise Dillon
Emer MaughanGA-MF-02
Ground Floor Plan
Upgrade&Retro-Fit of Building and Civil
Department
GA
28/04/15
No. Description Date
1 : 100
Block A Ground Floor
Push Pad for accessible
power-operated doors. In
compliance with TGD Part
M2010 Section 1.2.4.3
1800mm Min Turning Circle
Provided In Lobbies And
Spaces Where Turning Is
Needed For WheelChair
Users.
Push Pad for accessible
power-operated doors. In
compliance with TGD Part
M2010 Section 1.2.4.3
Levelaccesprovided
Gradientslope1:50
External Wall Up-Grade:
Existing: 200mm internal Concrete Block.
80mm Semi Open Cavity, 45mm external
concrete aggregate panel
Up-Grade:Existing Reinforced Concrete
Panels to be Removed. 100mm
horizontal/vertical C-purlin support rails.
12mm plasterboard,125mm Kingspan
Kooltherm k15 rigid insulation panel 30mm
ventilated cavity, 10mm Granite Composite
Panel Externally.
Level acces provided
Gradient slope 1:50
Level Paved
Acces Route
Grassed Areas And Planted
Areas:Grassed Areas To Be
Graded to Required Levels.With
Suitable Subsoil. Suitable Free
Drainage Topsoil To Be Levelled
In 150mm Layers.
Paving
Paving
14 No. Designated
Staff Parking Spaced
In Compliance With
Part M Section 1.1, Dia 8
Level Paved
Acces Route
Saft Point
Of Assembly
Part B Compliant
Part M Compliant,Section 1.1.3.3
1800x1800mm Level Landing.
Landing to Be Provided at The
Top And Bottom Of A Slope.
The Top And Bottom Landings
Should Be At Least 1800mm Wide
and 1800mm Long.
Clear of Door Swing.
Circulation Routes:
Pedestrian Routes Gradient at
1:50 In Accordance With TGD
Part M 2010, Section 1.1 Tactile
Surface Shall Be Used To Provid
A Warning Of A Change In Level.
Guarding provided
around outward opening
doors in compliance dia
1 and 2 of TGD
part M2010 1.1.3.1
Bridge Structure
120mm Circlar hollow steel hexagonal frame
Connected by 340 x 315 mm UB at base plate
150mm profiled steel decking spaning between
UB ,150mm Concrete slab,100mm concrete
screed. 40mm Granite floor Finish
Guarding provided
around outward opening
doors in compliance dia
1 and 2 of TGD
part M2010 1.1.3.1
Circulation Routes:
Pedestrian Routes Gradient at
1:50 In Accordance With TGD
Part M 2010, Section 1.1 Tactile
Surface Shall Be Used To Provid
A Warning Of A Change In Level.
Circulation Routes:
Pedestrian Routes Gradient at
1:50 In Accordance With TGD
Part M 2010, Section 1.1 Tactile
Surface Shall Be Used To Provid
A Warning Of A Change In Level.
Part M Compliant,Section 1.1.3.3
1800x1800mm Level Landing.
Landing to Be Provided at The
Top And Bottom Of A Slope.
The Top And Bottom Landings
Should Be At Least 1800mm Wide
and 1800mm Long.
Clear of Door Swing.
External Wall Up-Grade:
Existing: 200mm internal Concrete Block.
80mm Semi Open Cavity, 45mm external concrete aggregate
panel
Up-Grade:Existing Reinforced Concrete Panels to be
Removed. 100mm horizontal/vertical C-purlin support rails.
12mm plasterboard,125mm Kingspan Kooltherm k15 rigid
insulation panel 30mm ventilated cavity, 10mm Granite
Composite Panel Externally.
Level acces provided
Gradient slope 1:50
Level acces provided
Gradient slope 1:50
Level Paved
Acces Route
Concrete Footpaths:
100mm Conc. Paths Laid To Fall (1.36)
Away From Buildings On Min 150mm
Limestone Hardcore Fill Or As Nessary
To Make Up Levels.Concrete In 3m Bays
With A Starroller Finish And Bullnose Edging
The Foot Path That Surrounds The Building Is Also
Made From Eco-Cem Concrete. This Will Hepl The
Building Reduce Its Carbon Foot Print
External Wall Up-Grade:
Existing:
200mm internal Concrete Block.
80mm Semi Open Cavity
45mm external concrete aggregate panel
Up-Grade:
Existing Reinforced Concrete Panels to be Removed.
100mm horizontal/vertical C-purlin support rails.
12mm plasterboard
125mm Kingspan Kooltherm k15 rigid insulation panel
30mm ventilated cavity
10mm Granite Composite Panel Externally.
WINDOWS:
AMS WINDOWS WITH SAINT GOBAIN GLASS. SOUTH & WEST: TRIPLE
GLAZED, ARGON FILLED, WITH ADDITIONAL NON GLASS LAYER ON
THE INTERNAL FACE WITH INTERSTITIAL BLINDS. G-VALUE: 0.33 (TO
REDUCE SOLAR GAIN DUE TO OCCUPANCY LOADS). SHADING
COEFFICIENT 0.38. LIGHT TRANSMITTANCE 0.71. NORTH: TRIPLE
GLAZED, ARGON FILLED. G-VALUE: 0.61 (TO INCREASE SOLAR GAIN).
SHADING COEFFICIENT 0.7. LIGHT TRANSMITTANCE 0.62. OVERALL U-
VALUE OF 1.03 W/M2K
External Wall Up-Grade:
Existing: 200mm internal Concrete Block.
80mm Semi Open Cavity, 45mm external concrete aggregate
panel
Up-Grade:Existing Reinforced Concrete Panels to be
Removed. 100mm horizontal/vertical C-purlin support rails.
12mm plasterboard,125mm Kingspan Kooltherm k15 rigid
insulation panel 30mm ventilated cavity, 10mm Granite
Composite Panel Externally.
Curtain Walling
156x 60mm PPC Aluminium Mullions at 2900mm
centres. 90x 230x 12mm steel lateral support plates
at 3000mm centers, site welded to circular columns
to tranfer wind load back to steel columns.
Pilkington Energikare System. Double glazed
sealed units with 8mm toughened glass inner pane.
Black structural silicone horizontal joints.
This System Was Used Because It Can Help
Reduce The Buildings Energy Usage And Co2
Emmission . It Is Made Up Of Two Different
Glasses. Pilkingtonk-Glass A Low Emmissions
Glass Which Stop Heat Escaping And Pilkington
Optiwhite A Special Extra Clear Glass That Allows
More Solar Gain.
You created this PDF from an application that is not licensed to print to novaPDF printer (http://www.novapdf.com)
A B C D E G H I
2
3
4
5
6
7
65 m²
New open plan office
217
Selected Carpet
18 m²
Printing Room
224
Selected Marmoleum
floor covering
Not Enclosed
Waiting Area
47
72 m²
ARCH 3
228
Selected Carpet 54 m²
CM
229
Selected Carpet
70 m²
BIM/CAD2
227
Selected Carpet
4 m²
Services
220A
5 m²
Services
225B
40 m²
Stairway 2
226D
?
70 m²
QA
230
Selected Carpet
35 m²
N/A
231B
Selected Carpet
58 m²
N/A
216
Selected Carpet
77 m²
N/A
215
Selected Carpet
5 m²
LIFT
215B
5 m²
N/A
215A
35 m²
N/A
232
Selected Carpet
12 m²
N/A
232C
Selected Carpet
10 m²
N/A
232A
Selected Carpet
10 m²
N/A
232B
Selected Carpet
72 m²
BIM/CAD
226
Selected Carpet
73 m²
Arch 1
223
Selected Carpet
16 m²
Room
233A
Selected Carpet
7 m²
Store Room
225C
Selected Marmoleum
floor covering
172 m²
Hall
226E
Selected Marmoleum
floor covering
17 m²
StairWay 1
226F
Selected Marmoleum
floor covering
53 m²
Arch 4
226G
Selected Carpet
F
9 m²
Unisex Disabled WC
226M
Selected Non-Slip Tile
29 m²
Mary Office
226N
72 m²
Room
226O
Selected Carpet
D-4
FD-1
D-7
FD-1
D-10
FD-1
D-13
FD-1
D-14
FD-1
D-16
FD-1
D-20
FD-1
D-27
FD-1
D-30
FD-1
D-35
FD-1
D-38
FD-1
D-40
FD-1
D-42
FD-1
D-43
FD-1
D-52
FD-1
D-54
FD-1
5665
5665
5665
5665
5665
1900
5665
1432
D-1
FD-1
D-2
FD-1
D-45
FD-2
D-8
FD-2
D-47
FD-1
D-25
FD-1
D-50
FD-2
D-56
FD-2
D-58
FD-2
D-60
FD-2
D-61
FD-1
D-33
FD-1
D-63
FD-2
D-65
FD-2
1
GA-MF-08
4805
1432
CC
GA-MF-09
DD
GA-MF-09
2
GA-MF-08
74187500750175017501
7443 7501 7501 7501 7501 7501 7501 7501
56 m²
Study Area
134F
Selected Marmoleum
floor covering
79 m²
Hall
134G
Selected Marmoleum
floor covering
A
A
A
E
E
E
A
EE
E
E
E
E
E
E
E
D
D
D
D
D
C
C
C
A
E
A
A
E
A
A A
B
B
D
D
26387 9243 4991 7679 2812 7039 4781
1133 3579 14633
494 3600 768 1800 1032 3600 1789 3600 487 1800 363
19308
9900 9944 10093 2616 7315 7478 4795 205 7297
9695 9969 242 2308 225 7507 2262 220 9743 225 4838 225 4683 225 4868 225 2183
2854 6877 2521 2462 7790 2585 3439 11341 3952 1026 2500 12297
2184
12305
9771
4795
734375007433
2106
1190
238726262487
259924182483
3085
7527
900
2283
2302
5277
4025
1200
E
E
C
F
G
H
F
HH H H
G G G G
G GG
FMH
RMH
FMH FMH
RMH RMH
RMH RMH RMH
RMH
RMHRMH
RMH
1060 3600 487 1800 350600 3600 523950 3600 768 20877315840 5364 1683 1800 215 646 3600 1600 3600 495 444 1800 1161 3600 3089
1360 5364 1683 1800 861 3600 1600 3600 939 1800 1161 3600 1814
5766 4403 1148
9166
4403
41836003418
93536002761
4445
5417
2740 1705
772360097918002677
FMH
910 5364 4379 3600 1620 3600 4085 3600 1435
25336009791800640
5755 3941
1010 1010
439 3600 1620 3600 710 2308 600 3600 3307 2257 2426 1800 1640 3600 390 318 1800 810 1800 110 495 3600 588 747 3600 541 352 1943
1800 1640 3600 820 1800 810 1800 830 3600 1540 3600 1119 1800
22832250
48283706
2616
7351 3991
2891244819161887200014522542
2487 2222 2678 2436 1898
11720
2838245219641896200020001973
15123
7433
7500
2308
2473
1800
1800
1800
1800
1800
1800
1800
1800
W-43W-42W-41W-40W-39W-38W-37W-36W-35W-34W-33
W-32W-31W-30
W-29 W-28 W-27 W-26 W-25 W-24 W-23 W-22 W-21 W-20 W-19
12001200
1930
1010 1010
1010
10101010101010101010
1010
1010
10101010
2127
1810
1480
1514
7598
2112
4035
2047
1029
1:12
1:12
1:12
1:9
1:9
1:9
[No Slope]
[No Slope]
1:5
1:4
1:5
1:6
1:5
1:4
1900
RL 5.160+AOD
Study Pods Study Pods
2553 FFL 32.76
FFL 32.76
FFL 32.76
Existing Walls:
Starting out point for measurments.
External Wall Up-Grade:
Existing: 200mm internal Concrete Block.
80mm Semi Open Cavity, 45mm external concrete
aggregate panel. Up-Grade:Existing Reinforced
Concrete Panels to be Removed. 100mm
horizontal/vertical C-purlin support rails.12mm
plasterboard,125mm Kingspan Kooltherm k15 rigid
insulation panel 30mm ventilated cavity, 10mm
Granite Composite Panel Externally.
Internal Walls: Gypoc Metal Studding System
50mm Insulation Roll, 2Layer of Gypoc
Plasterboard Bothside with Skim Finish
Wall Types
Internal Wall: 215mm x 100mm Single Leaf
Block With Paint Finish
300mm Load Bearing Column
A
B
C
D
E
F
External Glazing
Exsting Concrete Columns (200 x 400)
Exsting Concrete Columns (400 x 400) G
H
Internal Fire Doors
30 Minute Fire Resisting Single Doorset
Fire Resisting doorset to have no less than 30
minutes integrity rating in accordance with TGD
Part B/20-22 and to have a leakage rate not
exceeding 3m3/hour (Head&Jamb) when
tested at 26pa.
30 Minute Fire Resisting Double Doorset
Fire Resisting doorset to have no less than 30
minutes integrity rating in accordance with TGD
Part B/20-22 and to have a leakage rate not
exceeding 3m3/hour (Head&Jamb) when
tested at 26pa.
Doors to be fitted with an automatic self-closing
device which is capable of closing the door from
any angle.
Automatic doors to fitted with push button control.
FD1
FD2
60 Minute Fire Resisting Single Doorset
Fire Resisting doorset to have no less than 60
minutes integrity rating in accordance with TGD
Part B/20-22 and to have a leakage rate not
exceeding 3m3/hour (Head&Jamb) when
tested at 26pa.
FD3
1800mm Min Turning Circle
Provided In Lobbies And Spaces
Where Turning Is Needed For
WheelChair Users.
1800mm
Min Turning
Circle
Minimum 450mm Activity
Space Provided To All
Toilet Cubicles
Permeable Paving
Drop Kerb With
Tactile Paving
In Compliance With
TGD Part M 2010
Diag 4b
Existing Building(All other
Construction is Proposed
Development)
General Notes:
All works to be Carried Out In Accordance With Current Building Regulations And
DOE Specification for Site Development Works.
This Drawing Is To Be Read In Conjuction With DAC And FSC Compliance Reports and All
Other Relavant Working Drawings And Documents.
Prposed Construction
Grass Areas
Existing Block work
Permeable Asphalt Paving
2000
1800
2000mm x 1800mm Passing
Space To Allow Two People
In a WheelChair To Pass By
Each Other, InCompliance
With TGD Part M 2010
Section 1.1.3.3
Fire Hydrant
Lighting Post
Tarmac Roadway
Corduroy Hazard Warning Surface
In Compliance With TGD Part M
2010,Diag 4b.
1800mm x 1800mm Level Landing
Provided in Front of Power-operated
Accessible DoorsIn Compliance
With TGD Part M 2010 ,Section 1.2
1500mm Pedestrian Crossing
Guard Rail Provided to Protect
From Outward Swinging Doors,
In Compliance With TGD Part M
2010 Section 1.1
Soil Vent Pipes
Rain Water Pipe
Foul Water Man-Hole
200mm x 200mm
Rain Water Man-Hole
200mm x 200mm
Fowl Water Drainage 150mm PVC
Pipe With Fall No Less Than 1.100
Rainwater Drainage 100mm PVC
Pipe With Fall No Less Than 1.100
Proposed Levels
98.40
Existing Levels
98.40
Site Area:
Section 1.4 Sanitary
facilities for buildings other
than dwellings 68 Diagram
15a Wheelchair accessible
unisex WC (1800 mm x
1800 mm turning space)
Ambulant Disabled Cubicle
in compliance with TGD part
M 2010 Section 1.4 dia.19 FH
LP
F.M.H
R.M.H
New site: 8087 m2
Existing GMIT: 84297 m2
N
Scale (@ A3)
Checked byDrawn by
Date Project number
DRWAING NUMBER
CLIENTPROJECT TITLE
SHEET
STATUS PURPOSE OF ISSUECODE SUITABILITY DESCRIPTION
30/04/201503:27:06
As indicatedDDS4_PO4
GALWAY/MAYO INSTITUTE OF TECHNOLOGY
28/04/15
Mark Flynn
Denise Dillon
Emer MaughanGA-MF-03
First Floor Plan
Upgrade&Retro-Fit of Building and Civil
Department
GA
28/04/15
No. Description Date
1 : 100
Block A First Floor Plan
Push Pad for accessible
power-operated doors. In
compliance with TGD Part
M2010 Section 1.2.4.3
Levelaccesprovided
Gradientslope1:50
External Wall Up-Grade:
Existing: 200mm internal Concrete Block.
80mm Semi Open Cavity, 45mm external
concrete aggregate panel
Up-Grade:Existing Reinforced Concrete
Panels to be Removed. 100mm
horizontal/vertical C-purlin support rails.
12mm plasterboard,125mm Kingspan
Kooltherm k15 rigid insulation panel 30mm
ventilated cavity, 10mm Granite Composite
Panel Externally.
Level Paved
Acces Route
Grassed Areas And Planted
Areas:Grassed Areas To Be
Graded to Required Levels.With
Suitable Subsoil. Suitable Free
Drainage Topsoil To Be Levelled
In 150mm Layers.
Paving
14 No. Designated
Staff Parking Spaced
In Compliance With
Part M Section 1.1, Dia 8
Level Paved
Acces Route
Saft Point
Of Assembly
Part B Compliant
Part M Compliant,Section 1.1.3.3
1800x1800mm Level Landing.
Landing to Be Provided at The
Top And Bottom Of A Slope.
The Top And Bottom Landings
Should Be At Least 1800mm Wide
and 1800mm Long.
Clear of Door Swing.
Circulation Routes:
Pedestrian Routes Gradient at
1:50 In Accordance With TGD
Part M 2010, Section 1.1 Tactile
Surface Shall Be Used To Provid
A Warning Of A Change In Level.
Guarding provided
around outward opening
doors in compliance dia
1 and 2 of TGD
part M2010 1.1.3.1
Bridge Structure
120mm Circlar hollow steel hexagonal frame
Connected by 340 x 315 mm UB at base plate
150mm profiled steel decking spaning between
UB ,150mm Concrete slab,100mm concrete
screed. 40mm Granite floor Finish
Guarding provided
around outward opening
doors in compliance dia
1 and 2 of TGD
part M2010 1.1.3.1
Circulation Routes:
Pedestrian Routes Gradient at
1:50 In Accordance With TGD
Part M 2010, Section 1.1 Tactile
Surface Shall Be Used To Provid
A Warning Of A Change In Level.
Level acces provided
Gradient slope 1:50
Level acces provided
Gradient slope 1:50
Level Paved
Acces Route
Concrete Footpaths:
100mm Conc. Paths Laid To Fall (1.36)
Away From Buildings On Min 150mm
Limestone Hardcore Fill Or As Nessary
To Make Up Levels.Concrete In 3m Bays
With A Starroller Finish And Bullnose Edging
The Foot Path That Surrounds The Building Is Also
Made From Eco-Cem Concrete. This Will Hepl The
Building Reduce Its Carbon Foot Print
External Wall Up-Grade:
Existing:
200mm internal Concrete Block.
80mm Semi Open Cavity
45mm external concrete aggregate panel
Up-Grade:
Existing Reinforced Concrete Panels to be
Removed.
100mm horizontal/vertical C-purlin support rails.
12mm plasterboard
125mm Kingspan Kooltherm k15 rigid insulation
panel 30mm ventilated cavity
10mm Granite Composite Panel Externally.
WINDOWS:
AMS WINDOWS WITH SAINT GOBAIN GLASS. SOUTH & WEST: TRIPLE
GLAZED, ARGON FILLED, WITH ADDITIONAL NON GLASS LAYER ON
THE INTERNAL FACE WITH INTERSTITIAL BLINDS. G-VALUE: 0.33 (TO
REDUCE SOLAR GAIN DUE TO OCCUPANCY LOADS). SHADING
COEFFICIENT 0.38. LIGHT TRANSMITTANCE 0.71. NORTH: TRIPLE
GLAZED, ARGON FILLED. G-VALUE: 0.61 (TO INCREASE SOLAR GAIN).
SHADING COEFFICIENT 0.7. LIGHT TRANSMITTANCE 0.62. OVERALL U-
VALUE OF 1.03 W/M2K
External Wall Up-Grade:
Existing: 200mm internal Concrete Block.
80mm Semi Open Cavity, 45mm external concrete
aggregate panel
Up-Grade:Existing Reinforced Concrete Panels to be
Removed. 100mm horizontal/vertical C-purlin support
rails.
12mm plasterboard,125mm Kingspan Kooltherm k15
rigid insulation panel 30mm ventilated cavity, 10mm
Granite Composite Panel Externally.
Curtain Walling
156x 60mm PPC Aluminium Mullions at 2900mm
centres. 90x 230x 12mm steel lateral support plates
at 3000mm centers, site welded to circular columns
to tranfer wind load back to steel columns.
Pilkington Energikare System. Double glazed
sealed units with 8mm toughened glass inner pane.
Black structural silicone horizontal joints.
This System Was Used Because It Can Help
Reduce The Buildings Energy Usage And Co2
Emmission . It Is Made Up Of Two Different
Glasses. Pilkingtonk-Glass A Low Emmissions
Glass Which Stop Heat Escaping And Pilkington
Optiwhite A Special Extra Clear Glass That Allows
More Solar Gain.
Part M Compliant,Section 1.1.3.3
1800x1800mm Level Landing.
Landing to Be Provided at The
Top And Bottom Of A Slope.
The Top And Bottom Landings
Should Be At Least 1800mm Wide
and 1800mm Long.
Clear of Door Swing.
Paving
Paving
Paving Paving
Bridge Balastrade
Structural Toughened and heat-soaked glass, held in
base clamp. Glass set in to a arbocal to a minimum depth
of 80mm, then pointed with silicone sealant. Continuous
metal clamping system fixed to the concrete slab using
M12 bolts at 500mm centres.
Columns:
300mm diameter circular hollow section
steel columns cranked to proved
bracing.Concrete pad-base foundations.
Columns filled with concrete to just below
knee level. Intumescent paint to provide1
hour fire protection.
Bridge UBeams.
340 x 315 Universal beams at 2.5m
centre cased in two layers 12.5mm fireline
board for fire protection.
Bridge Facade:
40mm thick bead-blasted stainless-stell panel
with lazer-cut vertical abutments botled to
supporting structure in rigid joints.
External Wall Up-Grade:
Existing: 200mm internal Concrete Block.
80mm Semi Open Cavity, 45mm external
concrete aggregate panel
Up-Grade:Existing Reinforced Concrete
Panels to be Removed. 100mm
horizontal/vertical C-purlin support rails.
12mm plasterboard,125mm Kingspan
Kooltherm k15 rigid insulation panel 30mm
ventilated cavity, 10mm Granite Composite
Panel Externally.
You created this PDF from an application that is not licensed to print to novaPDF printer (http://www.novapdf.com)
DNDNDNDNDNDNDNDNDN
Block A First Floor Plan
32795
Blcok A Roof Level
36325
Block A Ground Floor
28552
Block A Ridge Level
37172
Block A Ground Floor 2
29130
Block A First Floor Plan
32795
Blcok A Roof Level
36325
Block A Ground Floor
28552
Blcok B First Floor
30790
Block B Ground Floor
27130
Block B Roof Level
34750
Block A Ridge Level
37172 Block B Ridge Level
10009
Q41 Barriers/Guardrails L10/460 Rooflights
H72 Aluminium Strip/sheet Coverings/Flashings
Scale (@ A3)
Checked byDrawn by
Date Project number
DRWAING NUMBER
CLIENTPROJECT TITLE
SHEET
STATUS PURPOSE OF ISSUECODE SUITABILITY DESCRIPTION
30/04/201511:17:21
As indicatedDDS4_PO4
GALWAY/MAYO INSTITUTE OF TECHNOLOGY
28/04/15
Mark Flynn
Denise Dillon
Emer MaughanGA-MF-06
Large Elevations
Upgrade&Retro-Fit of Building and Civil
Department
GA
28/04/15
No. Description Date
1 : 100
South Elevation
1 : 100
West Elevation
UP-GRADE:
125MM KINGSPAN KOOLTHERM
INSULATION SEPARATED BY 35MM WELL
VENTILATED CAVITY BY A 10MM GRANITE
COMPOSITE PANEL EXTERNALLY, THE
EXISTING 65MM AGGREGATED PANEL,
80MM PHENOLIC FOAM INSULATION,
100MM EXISTING INNER LEAF BLOCK. U-
VALUE: 0.11 W/M2K
PROPOSED NEW EXTERNAL WALLS
UPGRADE:
EXISTING:
EXTERNAL CONCRETE AGGREGATE
PANEL, WELL VENTILATED 80MM SEMI
OPEN CAVITY, 100MM CONCRETE BLOCK
INNER LEAF. 1.77 W/M2K
Foundations:
1200 x 400mm Rinforcement concrete strip
footing below external glazing on 50mm sand
blinding.
900 x 300mm reinforced concrete strip footing
below steel columns on 50mm sand blinding.
Ground floor slab thickens at edges to 400 x
400mm at extention perimeter.
Ground Floor:
40mm Granite flooring with two coats clear sealant.
100mm screed.
25mm service void formed between edge of screed and
wall using plywood framework. 75mm rigid urrthane
insulation. DPM laid over slab and finished 100mm above
finished floor level in cast in groove in concrete upstand.
150mm thick reinforced concrete slab, thickening to 400 x
400mm at extention perimeter.150mm EPS rigid insulation
50mm Blinding, 200mm Compacted Hardcore, 25mm
extruded polystyrene insulation internally at floor
edge.
Roof Light Build-up
375 x 75 mm reinforced concrete upstand.
25mm PIR insulation around up-stand.
75x 50mm softwood kerb screwed to concrete
up-stand.
Top layer of polymer modified bitumen waterproof
memebrane dressed up vertical face and under
rooflight frame.
2100mm wide extruded aluminium frame screwed to
kerb to ensure 1.100 fall.
Walk on 21.5 mm toughened laminated outer pane,
16mm air filled cavity, 6mm soft coat low-E inner pane.
Canopy Gutter:
300 x 75 x 1.5mm pressed aluminium box
gutter inbeded in to polymer modified bitumen
waterproof memebrane on three sides.
76mm diameter aluminium rainwater pipes
inserted inside circular hollow columns.
300 x 150 mm cut-out near base of columns
for rainwater pipe outlet.
Roof Lights:
30no. Electro Automated Opening Windows For
Smoke Venting To Atrium
Connected To Firemans Switch At Main Entrance
Lobby And Fire Alarm System.
Also Connected To Bms For Enviromental Control
Of Atrium.
Windows To Be Self Closing On De-Activation.
Operation Of The Vents In The Event Of A Power
Failure To Be Integrated Back-Up Battery Power
Which Fails In The Open Position
Concrete Footpaths:
100mm Conc. Paths Laid To Fall (1.36)
Away From Buildings On Min 150mm
Limestone Hardcore Fill Or As Nessary
To Make Up Levels.Concrete In 3m Bays
With A Starroller Finish And Bullnose Edging
The Foot Path That Surrounds The Building Is
Also Made From Eco-Cem Concrete. This Will
Hepl The Building Reduce Its Carbon Foot Print
Curtain Walling
156x 60mm PPC Aluminium Mullions at 2130mm centres.
90x 230x 12mm steel lateral support plates at 3000mm
centers, site welded to circular columns to tranfer wind load
back to steel columns.
Pilkington Energikare System. Double glazed sealed units
with 8mm toughened glass inner pane. Black structural
silicone horizontal joints.
This System Was Used Because It Can Help Reduce The
Buildings Energy Usage And Co2 Emmission . It Is Made
Up Of Two Different Glasses. Pilkingtonk-Glass A Low
Emmissions Glass Which Stop Heat Escaping And
Pilkington Optiwhite A Special Extra Clear Glass That
Allows More Solar Gain.
Bridge Balastrade
Structural Toughened and heat-soaked glass, held
in base clamp. Glass set in to a arbocal to a
minimum depth of 80mm, then pointed with
silicone sealant. Continuous metal clamping
system fixed to the concrete slab using M12 bolts
at 500mm centres.
Columns:
300mm diameter circular hollow section
steel columns cranked to proved
bracing.Concrete pad-base foundations.
Columns filled with concrete to just below knee
level. Intumescent paint to provide1 hour fire
protection.
Bridge Structure
120mm Circlar hollow steel hexagonal frame
Connected by 340 x 315 mm UB at base plate
150mm profiled steel decking spaning between
UB ,150mm Concrete slab,100mm concrete screed.
40mm Granite floor Finish
6: Existing Roof Build-up:
Existing Roof:
Existing 200mm concrete waffle slab
Existing 50mm sand screed
Existing bituminous felt
Existing 25mm Insulation
Existing 30 Mastic asphalt as waterproof
150mm Concrete Slab, 25mm Degrading Polystyrene, 25mm
Locally Failing Asphalt.
Upgraded Roof:
Airtightness membrane bonded to primed substrate.
200mm Kingspan Kooltherm PIR insulation.
Two layers of polymer modified bitumen waterproof
membrane with chips on exposed surfaces.
1: Roof Build-up:
352mm x 172mm UB beam
150mm profiled steel decking
150mm reinforced concrete slab
1.2mm foil cored reinforcmed vapour barrier.
20mm asphalt.
Tapered PIR insulation varying from 110 to 270 mm thick
to form 1:80 fall.
Two layers of polymer modified bitumen waterproof
membrane with chips on exposed surfaces.
WINDOWS:
AMS WINDOWS WITH SAINT GOBAIN GLASS.
SOUTH & WEST: TRIPLE GLAZED, ARGON FILLED,
WITH ADDITIONAL NON GLASS LAYER ON THE
INTERNAL FACE WITH INTERSTITIAL BLINDS. G-
VALUE: 0.33 (TO REDUCE SOLAR GAIN DUE TO
OCCUPANCY LOADS). SHADING COEFFICIENT
0.38. LIGHT TRANSMITTANCE 0.71. NORTH: TRIPLE
GLAZED, ARGON FILLED. G-VALUE: 0.61 (TO
INCREASE SOLAR GAIN). SHADING COEFFICIENT
0.7. LIGHT TRANSMITTANCE 0.62. OVERALL U-
VALUE OF 1.03 W/M2K
Grassed Areas And Planted Areas:
Grassed Areas To Be Graded to Required
Levels
With Suitable Subsoil. Suitable Free Drainage
Topsoil To Be Levelled In 150mm Layers.
You created this PDF from an application that is not licensed to print to novaPDF printer (http://www.novapdf.com)
DNDNDNDNDNDNDNDNDN
Block A Ground Floor 2
29130
Block A First Floor Plan
32795
Blcok A Roof Level
36325
Block A Ridge Level
37172
CC
GA-MF-09
84735303665
Q41 Barriers/Guardrails
L10/460 Rooflights
H11 Curtain WallingG10/130
General Steel Sections And
Plates
Q24/110 Concrete block paving
H72
Aluminium Strip/sheet
Coverings/Flashings
115011501333968930940899773
L10/650 Metal louvres
H42
Precast Concrete Panel
Cladding/Features
Block A Ground Floor 2
29130
Block A First Floor Plan
32795
Blcok A Roof Level
36325
Block A Ground Floor
28552
Block A Ridge Level
37172
DD
GA-MF-09
2
GA-MF-08
57836653530847
1310
1175
1150115013331000930908890782
Scale (@ A3)
Checked by
Drawn by
Date Project number
DRWAING NUMBER
REV
CLIENTPROJECT
SHEET
STATUS PURPOSE OF ISSUECODE SUITABILITY DESCRIPTION
28/04/201511:54:30
As indicatedDDS4_PO4
GALWAY/MAYO INSTITUTE OF TECHNOLOGY
26/03/15
Mark Flynn
Denise Dillon
Emer Maughan
GA-MF-07North Entrance Elevations
Upgrade&Retro-Fit of Building and
Civil Department
GA
26/03/15
1 : 50
Entrance West Elevation
1 : 50
Entrance North Elevation
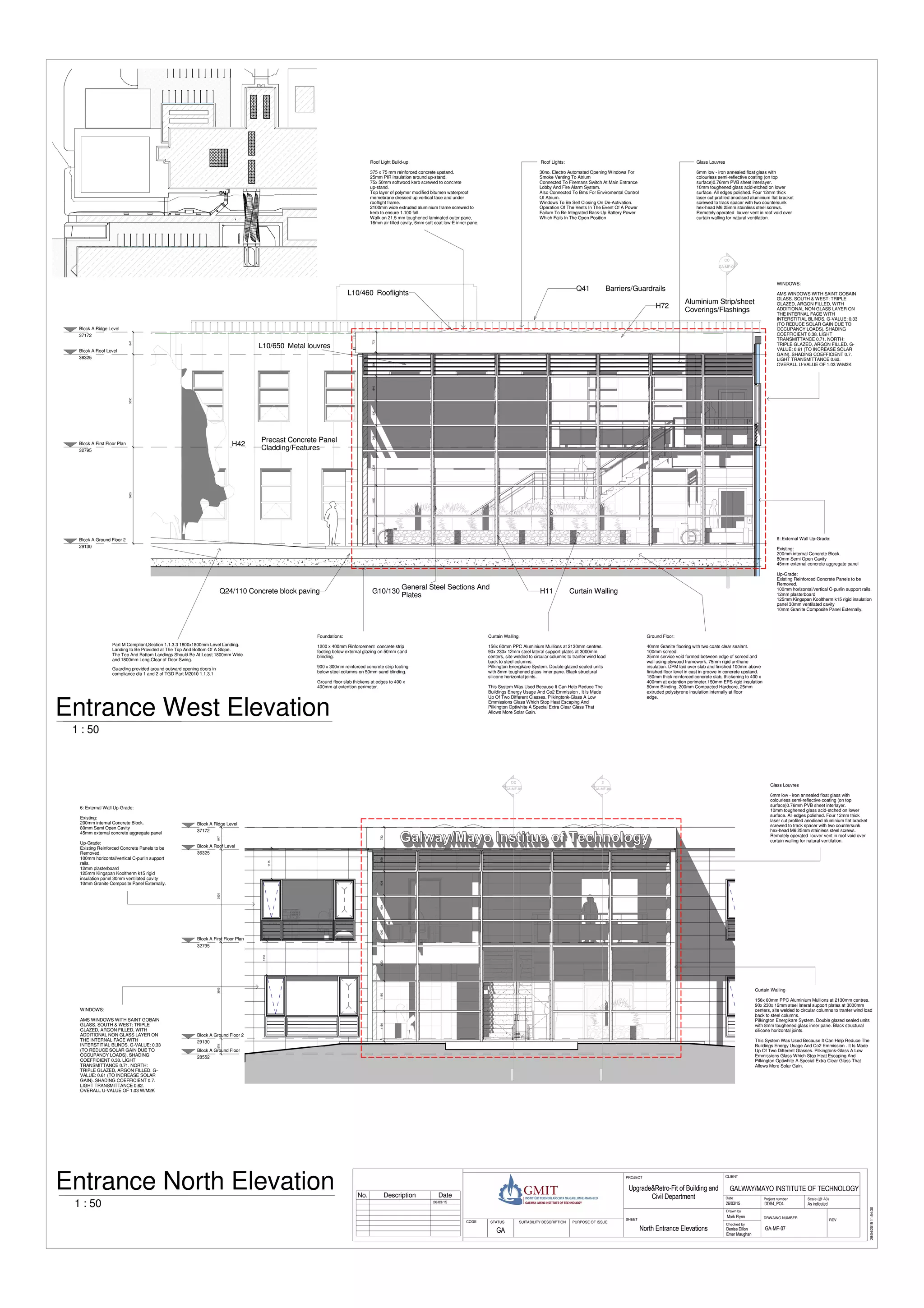
Part M Compliant,Section 1.1.3.3 1800x1800mm Level Landing.
Landing to Be Provided at The Top And Bottom Of A Slope.
The Top And Bottom Landings Should Be At Least 1800mm Wide
and 1800mm Long.Clear of Door Swing.
Guarding provided around outward opening doors in
compliance dia 1 and 2 of TGD Part M2010 1.1.3.1
Glass Louvres
6mm low - iron annealed float glass with
colourless semi-reflective coating (on top
surface)0.76mm PVB sheet interlayer.
10mm toughened glass acid-etched on lower
surface. All edges polished. Four 12mm thick
laser cut profiled anodised aluminium flat bracket
screwed to track spacer with two countersunk
hex-head M6 25mm stainless steel screws.
Remotely operated louver vent in roof void over
curtain walling for natural ventilation.
Foundations:
1200 x 400mm Rinforcement concrete strip
footing below external glazing on 50mm sand
blinding.
900 x 300mm reinforced concrete strip footing
below steel columns on 50mm sand blinding.
Ground floor slab thickens at edges to 400 x
400mm at extention perimeter.
Ground Floor:
40mm Granite flooring with two coats clear sealant.
100mm screed.
25mm service void formed between edge of screed and
wall using plywood framework. 75mm rigid urrthane
insulation. DPM laid over slab and finished 100mm above
finished floor level in cast in groove in concrete upstand.
150mm thick reinforced concrete slab, thickening to 400 x
400mm at extention perimeter.150mm EPS rigid insulation
50mm Blinding, 200mm Compacted Hardcore, 25mm
extruded polystyrene insulation internally at floor
edge.
Roof Light Build-up
375 x 75 mm reinforced concrete upstand.
25mm PIR insulation around up-stand.
75x 50mm softwood kerb screwed to concrete
up-stand.
Top layer of polymer modified bitumen waterproof
memebrane dressed up vertical face and under
rooflight frame.
2100mm wide extruded aluminium frame screwed to
kerb to ensure 1.100 fall.
Walk on 21.5 mm toughened laminated outer pane,
16mm air filled cavity, 6mm soft coat low-E inner pane.
Glass Louvres
6mm low - iron annealed float glass with
colourless semi-reflective coating (on top
surface)0.76mm PVB sheet interlayer.
10mm toughened glass acid-etched on lower
surface. All edges polished. Four 12mm thick
laser cut profiled anodised aluminium flat bracket
screwed to track spacer with two countersunk
hex-head M6 25mm stainless steel screws.
Remotely operated louver vent in roof void over
curtain walling for natural ventilation.
Roof Lights:
30no. Electro Automated Opening Windows For
Smoke Venting To Atrium
Connected To Firemans Switch At Main Entrance
Lobby And Fire Alarm System.
Also Connected To Bms For Enviromental Control
Of Atrium.
Windows To Be Self Closing On De-Activation.
Operation Of The Vents In The Event Of A Power
Failure To Be Integrated Back-Up Battery Power
Which Fails In The Open Position
Curtain Walling
156x 60mm PPC Aluminium Mullions at 2130mm centres.
90x 230x 12mm steel lateral support plates at 3000mm
centers, site welded to circular columns to tranfer wind load
back to steel columns.
Pilkington Energikare System. Double glazed sealed units
with 8mm toughened glass inner pane. Black structural
silicone horizontal joints.
This System Was Used Because It Can Help Reduce The
Buildings Energy Usage And Co2 Emmission . It Is Made
Up Of Two Different Glasses. Pilkingtonk-Glass A Low
Emmissions Glass Which Stop Heat Escaping And
Pilkington Optiwhite A Special Extra Clear Glass That
Allows More Solar Gain.
No. Description Date
6: External Wall Up-Grade:
Existing:
200mm internal Concrete Block.
80mm Semi Open Cavity
45mm external concrete aggregate panel
Up-Grade:
Existing Reinforced Concrete Panels to be
Removed.
100mm horizontal/vertical C-purlin support rails.
12mm plasterboard
125mm Kingspan Kooltherm k15 rigid insulation
panel 30mm ventilated cavity
10mm Granite Composite Panel Externally.
WINDOWS:
AMS WINDOWS WITH SAINT GOBAIN
GLASS. SOUTH & WEST: TRIPLE
GLAZED, ARGON FILLED, WITH
ADDITIONAL NON GLASS LAYER ON
THE INTERNAL FACE WITH
INTERSTITIAL BLINDS. G-VALUE: 0.33
(TO REDUCE SOLAR GAIN DUE TO
OCCUPANCY LOADS). SHADING
COEFFICIENT 0.38. LIGHT
TRANSMITTANCE 0.71. NORTH:
TRIPLE GLAZED, ARGON FILLED. G-
VALUE: 0.61 (TO INCREASE SOLAR
GAIN). SHADING COEFFICIENT 0.7.
LIGHT TRANSMITTANCE 0.62.
OVERALL U-VALUE OF 1.03 W/M2K
6: External Wall Up-Grade:
Existing:
200mm internal Concrete Block.
80mm Semi Open Cavity
45mm external concrete aggregate panel
Up-Grade:
Existing Reinforced Concrete Panels to be
Removed.
100mm horizontal/vertical C-purlin support
rails.
12mm plasterboard
125mm Kingspan Kooltherm k15 rigid
insulation panel 30mm ventilated cavity
10mm Granite Composite Panel Externally.
WINDOWS:
AMS WINDOWS WITH SAINT GOBAIN
GLASS. SOUTH & WEST: TRIPLE
GLAZED, ARGON FILLED, WITH
ADDITIONAL NON GLASS LAYER ON
THE INTERNAL FACE WITH
INTERSTITIAL BLINDS. G-VALUE: 0.33
(TO REDUCE SOLAR GAIN DUE TO
OCCUPANCY LOADS). SHADING
COEFFICIENT 0.38. LIGHT
TRANSMITTANCE 0.71. NORTH:
TRIPLE GLAZED, ARGON FILLED. G-
VALUE: 0.61 (TO INCREASE SOLAR
GAIN). SHADING COEFFICIENT 0.7.
LIGHT TRANSMITTANCE 0.62.
OVERALL U-VALUE OF 1.03 W/M2K
Curtain Walling
156x 60mm PPC Aluminium Mullions at 2130mm centres.
90x 230x 12mm steel lateral support plates at 3000mm
centers, site welded to circular columns to tranfer wind load
back to steel columns.
Pilkington Energikare System. Double glazed sealed units
with 8mm toughened glass inner pane. Black structural
silicone horizontal joints.
This System Was Used Because It Can Help Reduce The
Buildings Energy Usage And Co2 Emmission . It Is Made
Up Of Two Different Glasses. Pilkingtonk-Glass A Low
Emmissions Glass Which Stop Heat Escaping And
Pilkington Optiwhite A Special Extra Clear Glass That
Allows More Solar Gain.
DNDNDNDNDNDNDNDNDN
Block A Ground Floor 2
29130
Block A First Floor Plan
32795
Blcok A Roof Level
36325
Block A Ground Floor
28552
Block A Ridge Level
37172
DD
GA-MF-09
2
GA-MF-08
3765
2
GA-MF-12
3
GA-MF-12
-
---
84735304243
34384174307812749735
2854
21351293
2930
2300
276
572
1900
2145
3805592499
478
2430
21452960
2743
H72 Aluminium Strip/sheet Coverings/Flashings
L10/460 Rooflights
J21/420
Rigid polyisocyanurate foam (PIR)
roofboard warm roof insulation
E60/140 Composite floor
H92 Rainscreen Cladding F10/350 Common blockwork
M20/280Gypsum plaster skim on plasterboard
M20/280Gypsum plaster skim on plasterboard
E10/150 In situ concrete
1255
2749
Block A Ground Floor 2
29130
Block A First Floor Plan
32795
Blcok A Roof Level
36325
Block A Ground Floor
28552
Blcok B First Floor
30790
Block B Ground Floor
27130
Block B Roof Level
34750
Block A Ridge Level
37172
Block B Ridge Level
10009
1
GA-MF-08
CC
GA-MF-09
2930
1
GA-MF-090
2
GA-MF-090
1
GA-MF-10
2
GA-MF-10
4
GA-MF-13
3
GA-MF-12
4
GA-MF-14
4
GA-MF-13
2
GA-MF-12
3
GA-MF-12
L10/460 Rooflights
H11 Curtain Walling
G10/225Steelwork To Be Galvanized
L10/460 Rooflights
E60/140 Composite floor
Q41 Barriers/Guardrails
L10/460 Rooflights
J21/420
Rigid polyisocyanurate foam (PIR)
roofboard warm roof insulation
M20/280Gypsum plaster skim on plasterboard
M20/280Gypsum plaster skim on plasterboard
H72 Aluminium Strip/sheet Coverings/Flashings
E10/150In situ concrete
E10/150 In situ concrete
M20/280Gypsum plaster skim on plasterboard
H42 Precast Concrete Panel Cladding/Features
L10/650 Metal louvres
H11 Curtain Walling
E60/140Composite floor
Scale (@ A3)
Checked byDrawn by
Date Project number
DRWAING NUMBER
CLIENTPROJECT TITLE
SHEET
STATUS PURPOSE OF ISSUECODE SUITABILITY DESCRIPTION
27/04/201513:53:42
As indicatedDDS4_PO4
GALWAY/MAYO INSTITUTE OF TECHNOLOGY
26/03/15
Mark Flynn
Denise Dillon
Emer MaughanGA-MF-08
Section AA & BB
Upgrade&Retro-Fit of Building and Civil
Department
GA
26/03/15
No. Description Date
1 : 100
Section 2
1 : 100
Section 1
UP-GRADE:
125MM KINGSPAN KOOLTHERM
INSULATION SEPARATED BY 35MM WELL
VENTILATED CAVITY BY A 10MM GRANITE
COMPOSITE PANEL EXTERNALLY, THE
EXISTING 65MM AGGREGATED PANEL,
80MM PHENOLIC FOAM INSULATION,
100MM EXISTING INNER LEAF BLOCK. U-
VALUE: 0.11 W/M2K
PROPOSED NEW EXTERNAL WALLS
UPGRADE:
EXISTING:
EXTERNAL CONCRETE AGGREGATE
PANEL, WELL VENTILATED 80MM SEMI
OPEN CAVITY, 100MM CONCRETE BLOCK
INNER LEAF. 1.77 W/M2K
Foundations:
1200 x 400mm Rinforcement concrete strip
footing below external glazing on 50mm sand
blinding.
900 x 300mm reinforced concrete strip footing
below steel columns on 50mm sand blinding.
Ground floor slab thickens at edges to 400 x
400mm at extention perimeter.
Ground Floor:
40mm Granite flooring with two coats clear sealant.
100mm screed.
25mm service void formed between edge of screed and
wall using plywood framework. 75mm rigid urrthane
insulation. DPM laid over slab and finished 100mm above
finished floor level in cast in groove in concrete upstand.
150mm thick reinforced concrete slab, thickening to 400 x
400mm at extention perimeter.150mm EPS rigid insulation
50mm Blinding, 200mm Compacted Hardcore, 25mm
extruded polystyrene insulation internally at floor
edge.
Roof Light Build-up
375 x 75 mm reinforced concrete upstand.
25mm PIR insulation around up-stand.
75x 50mm softwood kerb screwed to concrete
up-stand.
Top layer of polymer modified bitumen waterproof
memebrane dressed up vertical face and under
rooflight frame.
2100mm wide extruded aluminium frame screwed to
kerb to ensure 1.100 fall.
Walk on 21.5 mm toughened laminated outer pane,
16mm air filled cavity, 6mm soft coat low-E inner pane.
Canopy Gutter:
300 x 75 x 1.5mm pressed aluminium box
gutter inbeded in to polymer modified bitumen
waterproof memebrane on three sides.
76mm diameter aluminium rainwater pipes
inserted inside circular hollow columns.
300 x 150 mm cut-out near base of columns
for rainwater pipe outlet.
Glass Louvres
6mm low - iron annealed float glass with
colourless semi-reflective coating (on top
surface)0.76mm PVB sheet interlayer.
10mm toughened glass acid-etched on lower
surface. All edges polished. Four 12mm thick
laser cut profiled anodised aluminium flat bracket
screwed to track spacer with two countersunk
hex-head M6 25mm stainless steel screws.
Remotely operated louver vent in roof void over
curtain walling for natural ventilation.
Roof Lights:
30no. Electro Automated Opening Windows For
Smoke Venting To Atrium
Connected To Firemans Switch At Main Entrance
Lobby And Fire Alarm System.
Also Connected To Bms For Enviromental Control
Of Atrium.
Windows To Be Self Closing On De-Activation.
Operation Of The Vents In The Event Of A Power
Failure To Be Integrated Back-Up Battery Power
Which Fails In The Open Position
Concrete Footpaths:
100mm Conc. Paths Laid To Fall (1.36)
Away From Buildings On Min 150mm
Limestone Hardcore Fill Or As Nessary
To Make Up Levels.Concrete In 3m Bays
With A Starroller Finish And Bullnose Edging
The Foot Path That Surrounds The Building Is
Also Made From Eco-Cem Concrete. This Will
Hepl The Building Reduce Its Carbon Foot Print
Curtain Walling
156x 60mm PPC Aluminium Mullions at 2130mm centres.
90x 230x 12mm steel lateral support plates at 3000mm
centers, site welded to circular columns to tranfer wind load
back to steel columns.
Pilkington Energikare System. Double glazed sealed units
with 8mm toughened glass inner pane. Black structural
silicone horizontal joints.
This System Was Used Because It Can Help Reduce The
Buildings Energy Usage And Co2 Emmission . It Is Made
Up Of Two Different Glasses. Pilkingtonk-Glass A Low
Emmissions Glass Which Stop Heat Escaping And
Pilkington Optiwhite A Special Extra Clear Glass That
Allows More Solar Gain.
Bridge Balastrade
Structural Toughened and heat-soaked glass, held
in base clamp. Glass set in to a arbocal to a
minimum depth of 80mm, then pointed with
silicone sealant. Continuous metal clamping
system fixed to the concrete slab using M12 bolts
at 500mm centres.
Columns:
300mm diameter circular hollow section
steel columns cranked to proved
bracing.Concrete pad-base foundations.
Columns filled with concrete to just below knee
level. Intumescent paint to provide1 hour fire
protection.
Bridge UBeams.
340 x 315 Universal beams at 2.5m
centre cased in two layers 12.5mm
fireline
board for fire protection.
Bridge Structure
120mm Circlar hollow steel hexagonal frame
Connected by 340 x 315 mm UB at base plate
150mm profiled steel decking spaning between
UB ,150mm Concrete slab,100mm concrete screed.
40mm Granite floor Finish
6: Existing Roof Build-up:
Existing Roof:
Existing 200mm concrete waffle slab
Existing 50mm sand screed
Existing bituminous felt
Existing 25mm Insulation
Existing 30 Mastic asphalt as waterproof
150mm Concrete Slab, 25mm Degrading Polystyrene, 25mm
Locally Failing Asphalt.
Upgraded Roof:
Airtightness membrane bonded to primed substrate.
200mm Kingspan Kooltherm PIR insulation.
Two layers of polymer modified bitumen waterproof
membrane with chips on exposed surfaces.
1: Roof Build-up:
352mm x 172mm UB beam
150mm profiled steel decking
150mm reinforced concrete slab
1.2mm foil cored reinforcmed vapour barrier.
20mm asphalt.
Tapered PIR insulation varying from 110 to 270 mm thick
to form 1:80 fall.
Two layers of polymer modified bitumen waterproof
membrane with chips on exposed surfaces.
DNDNDNDNDNDNDNDNDN
101020026140115115478430
9195253
150
80
88
164
21
2116
6
22105
163
660
140
1010200205140115115478428
ø 300
306
196
108
216
10
10203553030501003726313
200
400
100
215
658
667
106
211
40 55 30 80 12 115 211 3
175
175
247
62
419
215
100 10 100
Scale (@ A3)
Checked by
Drawn by
Date Project number
DRWAING NUMBER
REV
CLIENTPROJECT
SHEET
STATUS PURPOSE OF ISSUECODE SUITABILITY DESCRIPTION
27/04/201517:12:44
As indicatedDDS4_PO4
GALWAY/MAYO INSTITUTE OF TECHNOLOGY
26/03/15
Mark Flynn
Denise Dillon
Emer Maughan
GA-MF-10Roof Sections
Upgrade&Retro-Fit of Building and
Civil Department
GA
26/03/15
1 : 5
Roof Skylight
1 : 10
Roof Build-up
2: Roof Light Build-up
375 x 75 mm reinforced concrete upstand.
25mm PIR insulation around up-stand.
75x 50mm softwood kerb screwed to concrete
up-stand.
Top layer of polymer modified bitumen waterproof
memebrane dressed up vertical face and under
rooflight frame.
2100mm wide extruded aluminium frame screwed to
kerb to ensure 1.100 fall.
Walk on 21.5 mm toughened laminated outer pane,
16mm air filled cavity, 6mm soft coat low-E inner pane.
2: Suspened Ceiling:
Suspended Ceiling System
12.5mm plasterboard with skim coat and paint finish.
1: Roof Lights:
30no. Electro Automated Opening Windows For
Smoke Venting To Atrium
Connected To Firemans Switch At Main Entrance
Lobby And Fire Alarm System.
Also Connected To Bms For Enviromental Control
Of Atrium.
Windows To Be Self Closing On De-Activation.
Operation Of The Vents In The Event Of A Power
Failure To Be Integrated Back-Up Battery Power
Which Fails In The Open Position
3: Steel Structure:
400 x 200 x 20mm thick steel plate
welded to the top of the column and
bolted to 352 x 172mm galvanised
Universal Beam at front of extention.
352 x 172mm UB bolted to 200 x
300mm existing
reinforced beam.
No. Description Date
4: External Wall Up-Grade:
Existing:
200mm internal Concrete Block.
80mm Semi Open Cavity
45mm external concrete aggregate panel
Up-Grade:
Existing Reinforced Concrete Panels to be Removed.
100mm horizontal/vertical C-purlin support rails.
12mm plasterboard
125mm Kingspan Kooltherm k15 rigid insulation panel
30mm ventilated cavity
10mm Granite Composite Panel Externally.
3: Steel Structure:
400 x 200 x 20mm thick steel plate welded to the
top of the column and bolted to 352 x 172mm
galvanised Universal Beam at front of extention.
352 x 172mm UB bolted to 200 x 300mm existing
reinforced beam.
1
2
3
4
5
5: Parapet:
650mm wide x 100mm high concrete block on flat up-stand.
3mm aluminium capping clipped to counter flashing fixed to
steel z-supports. 175mm insulation up-stand retained to
inside of concrete block with galvanised mesh.
1
2
3
4
6: Existing Roof Build-up:
Existing Roof:
Existing 200mm concrete waffle slab
Existing 50mm sand screed
Existing bituminous felt
Existing 25mm Insulation
Existing 30 Mastic asphalt as waterproof
150mm Concrete Slab, 25mm Degrading Polystyrene, 25mm
Locally Failing Asphalt.
Upgraded Roof:
Airtightness membrane bonded to primed substrate.
200mm Kingspan Kooltherm PIR insulation.
Two layers of polymer modified bitumen waterproof
membrane with chips on exposed surfaces.
1: Roof Build-up:
352mm x 172mm UB beam
150mm profiled steel decking
150mm reinforced concrete slab
1.2mm foil cored reinforcmed vapour barrier.
20mm asphalt.
Tapered PIR insulation varying from 110 to 270 mm thick to
form 1:80 fall.
Two layers of polymer modified bitumen waterproof
membrane with chips on exposed surfaces.
5: Suspened Ceiling:
Suspended Ceiling System
12.5mm plasterboard with skim coat and paint finish.
4: Roof Build-up:
352mm x 172mm UB beam
150mm profiled steel decking
150mm reinforced concrete slab
1.2mm foil cored reinforcmed vapour barrier.
20mm asphalt.
Tapered PIR insulation varying from 110 to 270 mm thick
to form 1:80 fall.
Two layers of polymer modified bitumen waterproof
membrane with chips on exposed surfaces.
5
DNDNDNDNDNDNDNDNDN
300
112
108
75315915350751630
900
300
400
150
400
160
147
85
4050242
1173
100
100
75
24
1186
82
4mm Paralon Cap Sheet
3mm Paralon Base Sheet
Paratorch insulation
Harmer AV400 RWO 100 dia
Outlet flange recessed into insulation
2mm vapour control layer
Existing roof structure
2015622151115115478428
625
24 77 115 140 232
95
1030
480
651
592
14631853643250642
160
850
122
675
112
ø 300 ø 300
115
115
538
268
973
405505
138
140
18
26
15 251
86
Scale (@ A3)
Checked by
Drawn by
Date Project number
DRWAING NUMBER
REV
CLIENTPROJECT
SHEET
STATUS PURPOSE OF ISSUECODE SUITABILITY DESCRIPTION
27/04/201517:01:00
As indicatedDDS4_PO4
GALWAY/MAYO INSTITUTE OF TECHNOLOGY
26/03/15
Mark Flynn
Denise Dillon
Emer Maughan
GA-MF-11Curtain walling Sections
Upgrade&Retro-Fit of Building and
Civil Department
GA
26/03/15
3: Foundations:
1200 x 400mm Rinforcement concrete strip
footing below external glazing on 50mm sand
blinding.
900 x 300mm reinforced concrete strip footing
below steel columns on 50mm sand blinding.
Ground floor slab thickens at edges to 400 x
400mm at extention perimeter.
2: Ground Floor:
40mm Granite flooring with two coats clear sealant.
100mm screed.
25mm service void formed between edge of screed and
wall using plywood framework.
75mm rigid urrthane insulation.
DPM laid over slab and finished 100mm above finished
floor level in cast in groove in concrete upstand.
150mm thick reinforced concrete slab, thickening to 400 x
400mm at extention perimeter.
150mm EPS rigid insulation
50mm Blinding
200mm Compacted Hardcore
25mm extruded polystyrene insulation internally at floor
edge.
5: Steel Strcuture:
300x10mm galvanised steel circular hollow
section columns at 2.5m centres to enxtention
perimeter with painted finish 275 x 275 x 15mm
baseplate welded to circular hollow section
and bolted to concrete footing.
400 x 200 x 20mm thick steel plate welded to the
top of the column and bolted to 625 x 455mm
galvanised Universal Beam at front of extention.
352 x 172mm UB bolted to 200 x 300mm existing
reinforced beam.
6: Suspened Ceiling:
Suspended Ceiling System
12.5mm plasterboard with skim coat and paint finish.
2: Canopy Gutter:
300 x 75 x 1.5mm pressed aluminium box
gutter inbeded in to polymer modified bitumen
waterproof memebrane on three sides.
76mm diameter aluminium rainwater pipes
inserted inside circular hollow columns.
300 x 150 mm cut-out near base of columns
for rainwater pipe outlet.
1 : 10
Curtain walling/Foundation
1 : 10
Curtain walling/Roof
4:Concrete Footpaths:
100mm Conc. Paths Laid To Fall (1.36)
Away From Buildings On Min 150mm
Limestone Hardcore Fill Or As Nessary
To Make Up Levels.Concrete In 3m Bays
With A Starroller Finish And Bullnose Edging
The Foot Path That Surrounds The Building Is
Also Made From Eco-Cem Concrete. This Will
Hepl The Building Reduce Its Carbon Foot
Print
8: Parapet:
850mm wide x 160mm high reinforced concrete up-stand.
592mm wide pressed aluminium flashing fixed on clips to
concrete up-stand.
122mm insulation up-stand retained to inside of concrete
with galvanised mesh.
75mm insulation behind aluminium curtain wall panel.
7: Railing:
Guarding provided around outward opening
doors in compliance dia 1 and 2 of TGD
part M2010 1.1.3.1
4: Glass Louvre
6mm low - iron annealed float glass with
colourless semi-reflective coating (on top
surface)0.76mm PVB sheet interlayer.
10mm toughened glass acid-etched on lower
surface. All edges polished. Four 12mm thick
laser cut profiled anodised aluminium flat bracket
screwed to track spacer with two countersunk
hex-head M6 25mm stainless steel screws.
Remotely operated louver vent in roof void over
curtain walling for natural ventilation.
1: Curtain Walling
156x 60mm PPC Aluminium Mullions at 2130mm centres.
90x 230x 12mm steel lateral support plates at 3000mm
centers, site welded to circular columns to tranfer wind load
back to steel columns.
Pilkington Energikare System. Double glazed sealed units with
8mm toughened glass inner pane. Black structural silicone
horizontal joints.
This System Was Used Because It Can Help Reduce The
Buildings Energy Usage And Co2 Emmission . It Is Made Up
Of Two Different Glasses. Pilkingtonk-Glass A Low
Emmissions Glass Which Stop Heat Escaping And Pilkington
Optiwhite A Special Extra Clear Glass That Allows More Solar
Gain.
3: Curtain Walling
156x 60mm PPC Aluminium Mullions at 2130mm centres.
90x 230x 12mm steel lateral support plates at 3000mm
centers, site welded to circular columns to tranfer wind load
back to steel columns.
Pilkington Energikare System. Double glazed sealed units
with 8mm toughened glass inner pane. Black structural
silicone horizontal joints.
This System Was Used Because It Can Help Reduce The
Buildings Energy Usage And Co2 Emmission . It Is Made Up
Of Two Different Glasses. Pilkingtonk-Glass A Low
Emmissions Glass Which Stop Heat Escaping And Pilkington
Optiwhite A Special Extra Clear Glass That Allows More Solar
Gain.
5: Steel Strcuture:
300x10mm galvanised steel circular hollow section
columns at 2.5m centres to enxtention perimeter
with painted finish 275 x 275 x 15mm baseplate
welded to circular hollow section
and bolted to concrete footing.
400 x 200 x 20mm thick steel plate welded to the top
of the column and bolted to 352 x 172mm
galvanised Universal Beam at front of extention. 352
x 172mm UB bolted to 200 x 300mm existing
reinforced beam.
1
2
3
4
5
A1
12
3
4 5
6
7
8
6: Canopy Gutter:
300 x 75 x 1.5mm pressed aluminium box
gutter inbeded in to polymer modified bitumen
waterproof memebrane on three sides.
76mm diameter aluminium rainwater pipes
inserted inside circular hollow columns.
300 x 150 mm cut-out near base of columns
for rainwater pipe outlet.
6
No. Description Date
1: Roof Build-up:
352mm x 172mm UB beam
150mm profiled steel decking
150mm reinforced concrete slab
1.2mm foil cored reinforcmed vapour barrier.
20mm asphalt.
Tapered PIR insulation varying from 110 to 270 mm thick to
form 1:80 fall.
Two layers of polymer modified bitumen waterproof
membrane with chips on exposed surfaces.
DNDNDNDNDNDNDNDNDN
2050
1970
ø 1800
40 84 80
14
103 200
2649
200 100
14
80 83 40
20099
14
808340
211
1342
727
440
100
408380
14
101100105133
900
ø 300
1349
2868
1209540
205
200
1505075
16
30
43834010010040
17
4284682401412015620
2103
1591
1997
182 200
363
362
1867
200 201
2240
2476
2020
524
2103630
2400
2635
468
150
200 109
12
80 30
48 47
74103150
8672
1030
7963
8549
557
655
737
164500
2725
2730
301
Scale (@ A3)
Checked byDrawn by
Date Project number
DRWAING NUMBER
CLIENTPROJECT TITLE
SHEET
STATUS PURPOSE OF ISSUECODE SUITABILITY DESCRIPTION
28/04/201509:36:57
As indicatedDDS4_PO4
GALWAY/MAYO INSTITUTE OF TECHNOLOGY
26/03/15
Mark Flynn
Denise Dillon
Emer MaughanGA-MF-12
Elevator Details
Upgrade&Retro-Fit of Building and Civil
Department
GA
26/03/15
No. Description Date
1 : 20
Elevator Plan
1 : 20
Elevator Cross Section
8: Foundations:
1200 x 400mm Rinforcement concrete strip
footing below external glazing on 50mm sand
blinding.
900 x 300mm reinforced concrete strip footing
below steel columns on 50mm sand blinding.
Ground floor slab thickens at edges to 400 x
400mm at extention perimeter.
7: Ground Floor:
40mm Granite flooring with two coats clear sealant.
100mm screed.
25mm service void formed between edge of screed and
wall using plywood framework.
75mm rigid urrthane insulation.
DPM laid over slab and finished 100mm above finished
floor level in cast in groove in concrete upstand.
150mm thick reinforced concrete slab, thickening to 400 x
400mm at extention perimeter.
150mm EPS rigid insulation
50mm Blinding
200mm Compacted Hardcore
25mm extruded polystyrene insulation internally at floor
edge.
5: Suspened Ceiling:
Suspended Ceiling System
12.5mm plasterboard with skim coat and paint finish.
2: Canopy Gutter:
300 x 75 x 1.5mm pressed aluminium box
gutter inbeded in to polymer modified bitumen
waterproof memebrane on three sides.
76mm diameter aluminium rainwater pipes
inserted inside circular hollow columns.
300 x 150 mm cut-out near base of columns
for rainwater pipe outlet.
9:Concrete Footpaths:
100mm Conc. Paths Laid To Fall (1.36)
Away From Buildings On Min 150mm
Limestone Hardcore Fill Or As Nessary
To Make Up Levels.Concrete In 3m Bays
With A Starroller Finish And Bullnose Edging
The Foot Path That Surrounds The Building Is
Also Made From Eco-Cem Concrete. This
Will Hepl The Building Reduce Its Carbon
Foot Print
4: Parapet:
850mm wide x 160mm high reinforced concrete up-stand.
592mm wide pressed aluminium flashing fixed on clips to
concrete up-stand.
122mm insulation up-stand retained to inside of concrete
with galvanised mesh.
75mm insulation behind aluminium curtain wall panel.
3: Railing:
Guarding provided around outward opening
doors in compliance dia 1 and 2 of TGD
part M2010 1.1.3.1
12: Curtain Walling
156x 60mm PPC Aluminium Mullions at 2130mm centres.
90x 230x 12mm steel lateral support plates at 3000mm
centers, site welded to circular columns to tranfer wind load
back to steel columns.
Pilkington Energikare System. Double glazed sealed units
with 8mm toughened glass inner pane. Black structural
silicone horizontal joints.
This System Was Used Because It Can Help Reduce The
Buildings Energy Usage And Co2 Emmission . It Is Made Up
Of Two Different Glasses. Pilkingtonk-Glass A Low
Emmissions Glass Which Stop Heat Escaping And Pilkington
Optiwhite A Special Extra Clear Glass That Allows More Solar
Gain.
11: Steel Strcuture:
300x10mm galvanised steel circular hollow section
columns at 2.5m centres to enxtention perimeter
with painted finish 275 x 275 x 15mm baseplate
welded to circular hollow section
and bolted to concrete footing.
400 x 200 x 20mm thick steel plate welded to the
top of the column and bolted to 352 x 172mm
galvanised Universal Beam at front of extention.
352 x 172mm UB bolted to 200 x 300mm existing
reinforced beam.
1: Roof Build-up:
352mm x 172mm UB beam
150mm profiled steel decking
150mm reinforced concrete slab
1.2mm foil cored reinforcmed vapour barrier.
20mm asphalt.
Tapered PIR insulation varying from 110 to 270 mm thick to
form 1:80 fall.
Two layers of polymer modified bitumen waterproof
membrane with chips on exposed surfaces.
1
2
3
4
5
6
6: External Wall Up-Grade:
Existing:
200mm internal Concrete Block.
80mm Semi Open Cavity
45mm external concrete aggregate panel
Up-Grade:
Existing Reinforced Concrete Panels to be Removed.
100mm horizontal/vertical C-purlin support rails.
12mm plasterboard
125mm Kingspan Kooltherm k15 rigid insulation panel
30mm ventilated cavity
10mm Granite Composite Panel Externally.
10: Existing Floor :
20omm per-cast concrete waffel slab.
20mm concrete screed.
13mm marmoleum floor covering
7
9
8
10
11
12
DNDNDNDNDNDNDNDNDN
737
314
216
98
2020355302852200328
200
400
100
215
60055
47 48 30 80 12 117
166394
100
215
13
300138 32 16 54
38
100
215
423
352
252
394
550550
3012255010515015
5
177140
172
100 10 100
40
18
40 55 30 80 14 106 100 10 100 16
550
199
40
7
48 28 83 12 100 100 10 100 13
65
21542151620
282
123 21 32 16 54 282
158
39
32
Scale (@ A3)
Checked by
Drawn by
Date Project number
DRWAING NUMBER
REV
CLIENTPROJECT
SHEET
STATUS PURPOSE OF ISSUECODE SUITABILITY DESCRIPTION
27/04/201518:05:19
As indicatedDDS4_PO4
GALWAY/MAYO INSTITUTE OF TECHNOLOGY
26/03/15
Mark Flynn
Denise Dillon
Emer Maughan
GA-MF-13Detail 1
Upgrade&Retro-Fit of Building and
Civil Department
26/03/15
2: Foundations:
1200 x 400mm Rinforcement concrete strip
footing below external glazing on 50mm sand
blinding.
900 x 300mm reinforced concrete strip
footing below steel columns on 50mm sand
blinding.
Ground floor slab thickens at edges to 400 x
400mm at extention perimeter.
1 : 5
Parapet Detail
1 : 5
Foundation Detail
No. Description Date
2: Suspened Ceiling:
Suspended Ceiling System 12.5mm plasterboard with skim coat
and paint finish. Gap between plasterboard and suspended ceiling
to be sealed with a flexible sealant.
Two layers of polymer modified bitumen waterproof
membrane with chips on exposed surfaces.
Tapered PIR insulation varying from 110 to 270 mm
thick to form 1:80 fall.
1.2mm foil cored reinforcmed vapour barrier.
150mm concrete slab.
150mm deep profiled galvanised steel roof deck on
352 x 172mm UB.
3: External Wall Up-Grade:
Existing:
200mm internal Concrete Block.
80mm Semi Open Cavity
45mm external concrete aggregate panel
Up-Grade:
Existing Reinforced Concrete Panels to be Removed.
100mm horizontal/vertical C-purlin support rails.
12mm plasterboard
125mm Kingspan Kooltherm k15 rigid insulation panel
30mm ventilated cavity
10mm Granite Composite Panel Externally.
4: Parapet:
650mm wide x 100mm high concrete block on flat up-stand.
3mm aluminium capping clipped to counter flashing fixed to
steel z-supports. 175mm insulation up-stand retained to
inside of concrete block with galvanised mesh.
1: Roof Build-up:
Existing Roof:
Existing 200mm concrete waffle slab
Existing 50mm sand screed
Existing bituminous felt
Existing 25mm Insulation
Existing 30 Mastic asphalt as waterproof
150mm Concrete Slab, 25mm Degrading Polystyrene,
25mm Locally Failing Asphalt.
Upgraded Roof:
Airtightness membrane bonded to primed substrate.
200mm Kingspan Kooltherm PIR insulation
3mm Paratorch Pir Foam Composite Bitumen
Impregnated Hunton Fibreboard
1: External Wall Up-Grade:
Existing:
200mm internal Concrete Block.
80mm Semi Open Cavity
45mm external concrete aggregate panel
Up-Grade:
Existing Reinforced Concrete Panels to be Removed.
100mm horizontal/vertical C-purlin support rails.
12mm plasterboard
125mm Kingspan Kooltherm k15 rigid insulation panel
30mm ventilated cavity
10mm Granite Composite Panel Externally.
6: Structure
200mm x 600mm reinforced cast in-situ concrete beam.
200mm x 400mm reinforced cast in-situ concrete column.
5: Windows:
Aluminium frame window to achieve a miniumum u-value
of 0.80
w/mk. Stainless steel fixing strap bent across and fixed to
100mm concrete lintel with suitable fixings as per structural
engineers recommendations.
Gap bewteen plasterboard and window frame to be sealed
with a flexable sealant.
Air tightness membrane to be sealed to window frame to
maintain airtightness.
Ams Windows With Saint Gobain Glass. South & West:
Triple Glazed, Argon Filled, With Additional Non Glass
Layer On The Internal Face With Interstitial Blinds. G-
Value: 0.33 (To Reduce Solar Gain Due To Occupancy
Loads). Shading Coefficient 0.38. Light Transmittance
0.71. North: Triple Glazed, Argon Filled. G-Value: 0.61 (To
Increase Solar Gain). Shading Coefficient 0.7. Light
Transmittance 0.62. Overall U-Value Of 1.03 W/M2k
1
2
3
4
5
6
1
2
3
4
3:Concrete Footpaths:
100mm Conc. Paths Laid To Fall (1.36)
Away From Buildings On Min 150mm
Limestone Hardcore Fill Or As Nessary
To Make Up Levels.Concrete In 3m Bays
With A Starroller Finish And Bullnose
Edging
The Foot Path That Surrounds The Building
Is Also Made From Eco-Cem Concrete. This
Will Hepl The Building Reduce Its Carbon
Foot Print
2: External Wall Up-Grade:
Existing:
200mm internal Concrete Block.
80mm Semi Open Cavity
45mm external concrete aggregate panel
Up-Grade:
Existing Reinforced Concrete Panels to be Removed.
100mm horizontal/vertical C-purlin support rails.
12mm plasterboard
125mm Kingspan Kooltherm k15 rigid insulation panel
30mm ventilated cavity
10mm Granite Composite Panel Externally.
1: Windows:
Aluminium frame window to achieve a miniumum u-value
of 0.80
w/mk. Stainless steel fixing strap bent across and fixed to
100mm concrete lintel with suitable fixings as per structural
engineers recommendations.
Gap bewteen plasterboard and window frame to be sealed
with a flexable sealant.
Air tightness membrane to be sealed to window frame to
maintain airtightness.
Ams Windows With Saint Gobain Glass. South & West:
Triple Glazed, Argon Filled, With Additional Non Glass
Layer On The Internal Face With Interstitial Blinds. G-
Value: 0.33 (To Reduce Solar Gain Due To Occupancy
Loads). Shading Coefficient 0.38. Light Transmittance
0.71. North: Triple Glazed, Argon Filled. G-Value: 0.61 (To
Increase Solar Gain). Shading Coefficient 0.7. Light
Transmittance 0.62. Overall U-Value Of 1.03 W/M2k
1 : 5
Window detail
1
2
DNDNDNDNDNDNDNDNDN
30
16
3115010353
30167550153159
40 55 30 80 14 105 111 10 100 13
215
100
120
1720100115
200
600
210
507593507
507505
76538
100
40
7
78 80 14 106 100 10 100 13
17401001403976313
600
200
1740100100340
313 100 10 100 108 14 80 30 50 40
100
50
513 40
E05 In Situ Concrete Construction Generally
F10 Brick/Block Walling
K10/145 Wall lining system (Metal stud)
Z20 Fixings/Adhesives
E In Situ Concrete/Large Precast Concrete
Scale (@ A3)
Checked byDrawn by
Date Project number
DRWAING NUMBER
CLIENTPROJECT TITLE
SHEET
STATUS PURPOSE OF ISSUECODE SUITABILITY DESCRIPTION
28/04/201512:25:47
As indicatedDDS4_PO4
GALWAY/MAYO INSTITUTE OF TECHNOLOGY
28/04/15
Mark Flynn
Denise Dillon
Emer MaughanGA-MF-14
Details 2
Upgrade&Retro-Fit of Building and Civil
Department
GA
28/04/15
1 : 10
Floor Connections (B)
1 : 5
Floor Connection (C)
1 : 5
Floor New/existing (A)
2: Suspened Ceiling:
Suspended Ceiling System 12.5mm
plasterboard with skim coat and paint finish. Gap
between plasterboard and suspended ceiling
to be sealed with a flexible sealant.
3: Structure:
200mm x 600mm reinforced cast in-situ concrete beam.
200mm x 400mm reinforced cast in-situ concrete column.
4: Existing Floor :
20omm per-cast concrete waffel slab.
20mm concrete screed.
13mm marmoleum floor covering
1: External Wall Up-Grade:
Existing:
200mm internal Concrete Block.
80mm Semi Open Cavity
45mm external concrete aggregate panel
Up-Grade:
Existing Reinforced Concrete Panels to be
Removed. 100mm horizontal/vertical C-purlin
support rails.12mm plasterboard, 125mm
Kingspan Kooltherm k15 rigid insulation panel
30mm ventilated cavity ,10mm Granite Composite
Panel Externally.
No. Description Date
1
2
3
4 5
6
1: Foundations:
1200 x 400mm Rinforcement concrete strip
footing below external glazing on 50mm sand
blinding.
900 x 300mm reinforced concrete strip footing
below steel columns on 50mm sand blinding.
Ground floor slab thickens at edges to 400 x
400mm at extention perimeter.
3: Ground Floor:
40mm Granite flooring with two coats clear sealant.
100mm screed.
25mm service void formed between edge of screed and
wall using plywood framework. 75mm rigid urrthane
insulation. DPM laid over slab and finished 100mm above
finished floor level in cast in groove in concrete upstand.
150mm thick reinforced concrete slab, thickening to 400 x
400mm at extention perimeter.150mm EPS rigid
insulation
50mm Blinding, 200mm Compacted Hardcore, 25mm
extruded polystyrene insulation internally at floor
edge.
5:Bridge Structure:
120mm Circlar hollow steel hexagonal frame
Connected by 340 x 315 mm UB at base plate
150mm profiled steel decking spaning between
UB ,150mm Concrete slab,100mm concrete screed.
40mm Granite floor Finish
6: Movement Joint:
1
2
3
4
2: Movement Joint:
4: Existing Ground Floor
2: Suspened Ceiling:
Suspended Ceiling System 12.5mm
plasterboard with skim coat and paint finish. Gap
between plasterboard and suspended ceiling
to be sealed with a flexible sealant.
3: Structure:
200mm x 600mm reinforced cast in-situ concrete beam.
200mm x 400mm reinforced cast in-situ concrete column.
4: Existing Floor :
20omm per-cast concrete waffel slab.
20mm concrete screed.
13mm marmoleum floor covering
1: External Wall Up-Grade:
Existing:
200mm internal Concrete Block.
80mm Semi Open Cavity
45mm external concrete aggregate panel
Up-Grade:
Existing Reinforced Concrete Panels to be
Removed. 100mm horizontal/vertical C-purlin
support rails.12mm plasterboard, 125mm
Kingspan Kooltherm k15 rigid insulation panel
30mm ventilated cavity ,10mm Granite Composite
Panel Externally.
1
2
3
4
A
B
C
DNDNDNDNDNDNDNDNDN
4183
6802
11641236
2205
4800
24002400
+ 27.130
+ 32.795
+ 37.172
6466
1993
340
200
85
46
120
4800
Scale (@ A3)
Checked byDrawn by
Date Project number
DRWAING NUMBER
CLIENTPROJECT TITLE
SHEET
STATUS PURPOSE OF ISSUECODE SUITABILITY DESCRIPTION
27/04/201518:06:37
As indicatedDDS4_PO4
GALWAY/MAYO INSTITUTE OF TECHNOLOGY
26/03/15
Mark Flynn
Denise Dillon
Emer MaughanGA-MF-15
Link Bridge Sections
Upgrade&Retro-Fit of Building and Civil
Department
GA
26/03/15
No. Description Date
1 : 25
Section A1
4: Bridge Balastrade
Structural Toughened and heat-soaked glass, held in
base clamp. Glass set in to a arbocal to a minimum
depth of 80mm, then pointed with silicone sealant.
Continuous metal clamping system fixed to the
concrete slab using M12 bolts at 500mm centres.
1: Columns:
300mm diameter circular hollow section
steel columns cranked to proved
bracing.Concrete pad-base foundations.
Columns filled with concrete to just below
knee level. Intumescent paint to provide1
hour fire protection.
2: Bridge UBeams.
340 x 315 Universal beams at 2.5m
centre cased in two layers 12.5mm fireline
board for fire protection.
3: Bridge Structure
120mm Circlar hollow steel hexagonal frame
Connected by 340 x 315 mm UB at base plate
150mm profiled steel decking spaning between
UB ,150mm Concrete slab,100mm concrete screed.
40mm Granite floor Finish
Bridge Details:
A1
cs
1 : 25
Cross Section A1
1
2
3
4
5: Bridge Facade:
40mm thick bead-blasted stainless-stell panel with
lazer-cut vertical abutments botled to supporting
structure in rigid joints.
1
2
3
4

General Arrangement Drawings

  • 1.
    Scale (@ A3) CheckedbyDrawn by Date Project number DRWAING NUMBER CLIENTPROJECT TITLE SHEET STATUS PURPOSE OF ISSUECODE SUITABILITY DESCRIPTION 30/04/201504:05:10 1 : 1DDS4_PO4 GALWAY/MAYO INSTITUTE OF TECHNOLOGY 28/04/15 Mark Flynn Denise Dillon Emer MaughanGA-MF-00 Cover Sheet Upgrade&Retro-Fit of Building and Civil Department GA 28/04/15 No. Description Date Drawing Issue Sheet Sheet Number Sheet Name Sheet Issue Date Checked By Drawn By scale GA-MF-00 Cover Sheet 03/26/15 Denise Dillon Emer Maughan Mark Flynn GA-MF-01 Site Plan 03/27/15 Denise Dillon Emer Maughan Mark Flynn 200 GA-MF-02 Ground Floor Plan 03/26/15 Denise Dillon Emer Maughan Mark Flynn 200 GA-MF-03 First Floor Plan 03/26/15 Denise Dillon Emer Maughan Mark Flynn 200 GA-MF-04 Ground Floor Demo 03/26/15 Denise Dillon Emer Maughan Mark Flynn 200 GA-MF-05 First Floor Demo 04/26/15 Denise Dillon Emer Maughan Mark Flynn GA-MF-06 Large Elevations 03/26/15 Denise Dillon Emer Maughan Mark Flynn 200 GA-MF-07 North Entrance Elevations 03/26/15 Denise Dillon Emer Maughan Mark Flynn 200 GA-MF-08 Section AA & BB 03/26/15 Denise Dillon Emer Maughan Mark Flynn 50 GA-MF-09 Section CC & DD 03/26/15 Denise Dillon Emer Maughan Mark Flynn 50 GA-MF-10 Roof Sections 03/26/15 Denise Dillon Emer Maughan Mark Flynn 5 GA-MF-11 Curtain walling Sections 03/26/15 Denise Dillon Emer Maughan Mark Flynn 5 GA-MF-12 Elevator Details 03/26/15 Denise Dillon Emer Maughan Mark Flynn 5 GA-MF-13 Detail 1 03/26/15 Denise Dillon Emer Maughan Mark Flynn 5 GA-MF-14 Details 2 03/27/15 Denise Dillon Emer Maughan Mark Flynn 5 GA-MF-15 Link Bridge Sections 03/27/15 Denise Dillon Emer Maughan Mark Flynn 10 Design and Detail Studies 4 Project: Construction Information/ Working Drawings/ NBS and Portfolio You created this PDF from an application that is not licensed to print to novaPDF printer (http://www.novapdf.com)
  • 2.
    Tourism&Art Department Existing Pre-fabs FistFloor LinkBridge Boiler House ToExistingFoulSewer Pre-Fab Cafe Pedestrian Crossing Tactile Surface DisabledCar Parking & Set Down Area 9625 1432 722 -100 200 -100 7725 9900 2731 879 4695 2400 1234567891011121314 1235678 18171615141312119 10 1 2 3 5 6 7 8 9 10 11 12 1 2 3 4 5 6 7 8 9 2 GA-MF-08 FH 3115 3830 4695 4695 2400 1432 RL 9.625+AOD SVP 11258 9093 11339 20622 14624 3944 2000 12840 4925 3170 19370 146584712 15130 7441 RL 5.160+AOD RL 5.530+AOD RL 5.360+AOD Building and Civil Department RF 2.731+AOD RL 7.725+AOD RL 9.900+AOD GL -100+AOD LP 9625 RL 9.625+AOD 1:80 1:80 1:80 1:80 1:80 1:80 1:80 1:80 1:80 1:80 1:80 1:80 1:80 1:80 1:80 1:50 1:50 1:50 1:50 1432 1432 2400 1432 1432 1432 -100 -100 -54 LP LP LP LP LP LP LP LP LP LP LP LPLP RMHRMHRMHRMH RMH RMH RMH RMH RMH RMH RMH RMH FMH FMH FMH FMH FMH FMH FMH FMH FMH FMH 41909 2400 4850 FH FH FH N 122358 E 397423 1:5 1:3 1:3 1:3 LP 35216664 3536 146337672 30385 9020 12901 3856 18632000 19255785107625979214 1071 400 4220 400 10132110 1019 3870 15863 400 1102 1:9 1:9 1:4 1:4 1:4 1:9 1:20 1:7 1:7 [No Slope] 1:8 1:2 1:2 1:8 1:12 1:12 1:3 1:3 1:3 1:4 1:4 1:4 1:5 1:5 1:6 1:6 1:5 1:5 1:5 [No Slope] [No Slope] 1:29 [No Slope] 3939 2575 38299 1287 76241619 6379 1432 78063088 1100 21718 1100 2000 11008025 4850 2400 5741 48504924 2380 RMH RMH RMH RMH RMH RMH Accessible Entrance Access Route Permeable Paving Drop Kerb With Tactile Paving In Compliance With TGD Part M 2010 Diag 4b Existing Building(All other Construction is Proposed Development) General Notes: All works to be Carried Out In Accordance With Current Building Regulations And DOE Specification for Site Development Works. This Drawing Is To Be Read In Conjuction With DAC And FSC Compliance Reports and All Other Relavant Working Drawings And Documents. Gravity Drainage System Grass Areas Proposed Building Permeable Asphalt Paving Disabled Parking Spaces IN Compliance With TGD Part M 2010, Section 1.1 CAR Park Spaces -- No. Of 2000 1800 2000mm x 1800mm Passing Space To Allow Two People In a WheelChair To Pass By Each Other, InCompliance With TGD Part M 2010 Section 1.1.3.3 Fire HydrantFH Lighting PostLP Tarmac Roadway New Disabled Parking Corduroy Hazard Warning Surface In Compliance With TGD Part M 2010,Diag 4b. 1800mm x 1800mm Level Landing Provided in Front of Power-operated Accessible DoorsIn Compliance With TGD Part M 2010 ,Section 1.2 1500mm Pedestrian Crossing Guard Rail Provided to Protect From Outward Swinging Doors, In Compliance With TGD Part M 2010 Section 1.1 Soil Vent Pipes Rain Water Pipe Foul Water Man-Hole 200mm x 200mm F.M.H Rain Water Man-Hole 200mm x 200mm R.M.H Fowl Water Drainage 150mm PVC Pipe With Fall No Less Than 1.100 Rainwater Drainage 100mm PVC Pipe With Fall No Less Than 1.100 Proposed Levels 98.40 Existing Levels 98.40 Site Area: Legend AR New site: 8087 m2 Existing GMIT: 84297 m2 Min,5mm Raduis U3 Finish 217 40 Pavement As Specified Kerb with a Max height of 80mm of 45 splay to be adopted on design speeds >45km Grade C40 Concrete Kerb Additional Concrete for Kerbs and Kerb blocks where required Stanard In situ Concrete Kerb Sub-Base Material 500Min Pavement As Specified Sub-Base Material 500Min 1.10 Slope Tactile Paving U3 Finish 217 40 Additional Concrete for Kerbs and Kerb blocks where required In situ Concrete Drop Kerb 35-40mm Thick Compacted Grit Sand Minimum 100mm Thick Compacted Sub-Base 50-65 Thick pavers Edging Course laid on 100mm Concrete bed and haunch 65 10040 100 N Scale (@ A3) Checked byDrawn by Date Project number DRWAING NUMBER CLIENTPROJECT TITLE SHEET STATUS PURPOSE OF ISSUECODE SUITABILITY DESCRIPTION 30/04/201508:37:51 As indicatedDDS4_PO4 GALWAY/MAYO INSTITUTE OF TECHNOLOGY 28/04/15 Mark Flynn Denise Dillon Emer MaughanGA-MF-01 Site Plan Upgrade&Retro-Fit of Building and Civil Department GA 28/04/15 No. Description Date 1 : 200 Site Layout Plan 17 No. Designated Staff Parking Spaced In Compliance With Part M Section 1.1, Dia 8 Grassed Areas And Planted Areas:Grassed Areas To Be Graded to Required Levels.With Suitable Subsoil. Suitable Free Drainage Topsoil To Be Levelled In 150mm Layers. Tarmacadam: 2 Layers Of Base Course And Wearing Course Thickness Min 80mm. 50mm Base Course Dense Bitumeous Macadam,20mm Chip,30mm Wearing Course Dense Bitumeous Macadam,14mm Chip,50mm Compacted Blinding Limestone Dust 250mm Min Layer. Set Down Area Proposed Area For New Disabled Car Parking To Serve The Building Users Sign at main entrance car park clearly indicating location of diabled parking space Levelaccesprovided Gradientslope1:50 Public Parking Area 30 Spaces provided In Accordance With TGD Level Paved Acces Route Saft Point Of Assembly Part B Compliant Part M Compliant,Section 1.1.3.3 1800x1800mm Level Landing. Landing to Be Provided at The Top And Bottom Of A Slope. The Top And Bottom Landings Should Be At Least 1800mm Wide and 1800mm Long. Clear of Door Swing. Circulation Routes: Pedestrian Routes Gradient at 1:50 In Accordance With TGD Part M 2010, Section 1.1 Tactile Surface Shall Be Used To Provid A Warning Of A Change In Level. Rainwater Goods: 75mm Downpipes Including All Brackets And Fixings.Gutters Formed In Asphalt. Precoated, Polyester Coated And Anodised. All Aluminium Alloys Used Conform To Bs En485 2 And Bs En 1396.1997. Entrance Roadway Exsting Ambulant Disabled Stairs: Minimum clear width between strings of 1200mm provided.Rise 175mm, Going 300mm.Continuous handrails provided at eachends of the stairs. In accordance with TGD Part M 2010 Level acces provided Gradient slope 1:50 121 SIPHONIC RAINWATER DRAINAGE SYSTEM: FULLFLOW SELF PRIMING SYPHONIC ROOF DRAINAGE SYSTEM CONSISTING OF PRIMAFLOW® SELF PRIMING SYPHONIC ROOF OUTLETS AND ASSOCIATED PIPEWORK. PRIMAFLOW OUTLET BOWLS ARE AVAILABLE WITH PLAIN SPIGOTS 56MM OR 75MM EXTERNAL DIAMETER AND IN A RANGE OF MATERIALS INCLUDING, STAINLESS STEEL, COPPER, GALVANISED MILD STEEL, PVC COATED ALUMINIUM AND WITH THE OPTION OF A SMALL OR LARGE FLANGE. OUTLETS CAN BE FIXED MECHANICALLY OR WITH A COMBINATION OF MECHANICAL AND ADHESIVE METHODS AND ARE SUPPLIED WITH A SELF- ADHESIVE SEALING STRIP WHICH COMPLIES WITH BS 6213: 1982(1992) AND TEK SCREWS TO BS 4174: 1972. 1 : 10 3 Kerbs Notes: in situ concrete kerbs shall comply with therecommendations of b.s 5931 kerbs shall be protected from the effects of adverse weather until curved drop kerb height varies from 25mm for vihicular accesses and 0-6mm for pedestrian crossing 1 : 5 4 Paving External Wall Up-Grade: Existing: 200mm internal Concrete Block. 80mm Semi Open Cavity, 45mm external concrete aggregate panel Up-Grade:Existing Reinforced Concrete Panels to be Removed. 100mm horizontal/vertical C-purlin support rails. 12mm plasterboard,125mm Kingspan Kooltherm k15 rigid insulation panel 30mm ventilated cavity, 10mm Granite Composite Panel Externally. Existing Roof Build-up: Existing Roof: Existing 200mm concrete waffle slab Existing 50mm sand screed Existing bituminous felt Existing 25mm Insulation Existing 30 Mastic asphalt as waterproof 150mm Concrete Slab, 25mm Degrading Polystyrene, 25mm Locally Failing Asphalt. Upgraded Roof: Airtightness membrane bonded to primed substrate. 200mm Kingspan Kooltherm PIR insulation. Two layers of polymer modified bitumen waterproof membrane with chips on exposed surfaces. Roof Build-up: 352mm x 172mm UB beam 150mm profiled steel decking 150mm reinforced concrete slab 1.2mm foil cored reinforcmed vapour barrier.20mm asphalt. Tapered PIR insulation varying from 110 to 270 mm thick to form 1:80 fall.Two layers of polymer modified bitumen waterproof membrane with chips on exposed surfaces. Levelaccesprovided Gradientslope1:50 Level Paved Acces Route Levelaccesprovided Gradientslope1:50 Levelaccesprovided Gradientslope1:50 Grassed Areas And Planted Areas:Grassed Areas To Be Graded to Required Levels.With Suitable Subsoil. Suitable Free Drainage Topsoil To Be Levelled In 150mm Layers. Grassed Areas And Planted Areas:Grassed Areas To Be Graded to Required Levels.With Suitable Subsoil. Suitable Free Drainage Topsoil To Be Levelled In 150mm Layers. Grassed Areas And Planted Areas:Grassed Areas To Be Graded to Required Levels.With Suitable Subsoil. Suitable Free Drainage Topsoil To Be Levelled In 150mm Layers. Grassed Areas And Planted Areas:Grassed Areas To Be Graded to Required Levels.With Suitable Subsoil. Suitable Free Drainage Topsoil To Be Levelled In 150mm Layers. Guarding provided around outward opening doors in compliance dia 1 and 2 of TGD part M2010 1.1.3.1 Guarding provided around outward opening doors in compliance dia 1 and 2 of TGD part M2010 1.1.3.1 Part M Compliant Pedesreian Crossing Roadway flush with footpath Paving Paving Paving Push Pad for accessible power-operated doors. In compliance with TGD Part M 2010 Section 1.2.4.3 14 No. Designated Staff Parking Spaced In Compliance With Part M Section 1.1, Dia 8 Level Paved Acces Route Yeild Yeild Bridge Structure 120mm Circlar hollow steel hexagonal frame Connected by 340 x 315 mm UB at base plate 150mm profiled steel decking spaning between UB ,150mm Concrete slab,100mm concrete screed. 40mm Granite floor Finish Bridge Facade: 40mm thick bead-blasted stainless-stell panel with lazer-cut vertical abutments botled to supporting structure in rigid joints. Canopy Gutter: 300 x 75 x 1.5mm pressed aluminium box gutter inbeded in to polymer modified bitumen waterproof memebrane on three sides. 76mm diameter aluminium rainwater pipes inserted inside circular hollow columns. 300 x 150 mm cut-out near base of columns for rainwater pipe outlet. Existing Ramp AR AR AR AR Roof Light Build-up 375 x 75 mm reinforced concrete upstand. 25mm PIR insulation around up-stand. 75x 50mm softwood kerb screwed to concrete up-stand. Top layer of polymer modified bitumen waterproof memebrane dressed up vertical face and under rooflight frame. 2100mm wide extruded aluminium frame screwed to kerb to ensure 1.100 fall. Walk on 21.5 mm toughened laminated outer pane, 16mm air filled cavity, 6mm soft coat low-E inner pane. Roof Lights: 30no. Electro Automated Opening Windows For Smoke Venting To Atrium Connected To Firemans Switch At Main Entrance Lobby And Fire Alarm System. Also Connected To Bms For Enviromental Control Of Atrium.Windows To Be Self Closing On De-Activation. Operation Of The Vents In The Event Of A Power Failure To Be Integrated Back-Up Battery Power Which Fails In The Open Position Concrete Footpaths: 100mm Conc. Paths Laid To Fall (1.36) Away From Buildings On Min 150mm Limestone Hardcore Fill Or As Nessary To Make Up Levels.Concrete In 3m Bays With A Starroller Finish And Bullnose Edging The Foot Path That Surrounds The Building Is Also Made From Eco-Cem Concrete. This Will Hepl The Building Reduce Its Carbon Foot Print You created this PDF from an application that is not licensed to print to novaPDF printer (http://www.novapdf.com)
  • 3.
    DN DN DNDN UP UP UP UP A B CD E G H I 1 2 3 4 5 6 7 F 1:52 1:12 1:12 1:8 1:9 1:8 D-3 FD-3 D-12 FD-1 D-8 FD-1 D-15 FD-1 D-21 FD-1 D-23 FD-1 D-25 FD-1 D-28 FD-1 D-17 FD-1 D-18 FD-1 D-19 FD-1 D-22 FD-1 D-24 FD-1 D-26 FD-1 D-39 FD-1 D-41 FD-2 D-85 FD-1 D-86 FD-1 D-137 FD-1 D-87 FD-1 D-88 FD-1 D-90 FD-1 D-92 FD-2 D-151 FD-2 D-152 FD-2 1 GA-MF-08 1 GA-MF-12 CC GA-MF-09 DD GA-MF-09 2 GA-MF-08 19308 125942542 288724521912189120041448 11720 15123 5766 12374 7421 2198 2183 2260 12542 7501 12304 2170 23014907 2170 2308 2330 2530 900 8161 1010 18451980 4775 ø 450 741875007501750175017543 7443 7501 7501 7501 7501 7501 7501 7501 36 m² Room 143A 34 m² Room 145 87 m² Hall 146 20 m² Room 142 13 m² Room 184 4 m² Room 183 4 m² Room 182 16 m² Room 181 81 m² Room 143 72 m² Room 141 87 m² Room 148 43 m² Room 150 44 m² Room 152 16 m² Room 21 35 m² Room 153 35 m² Room 154 34 m² Room 155 34 m² Room 156 33 m² Room 157 35 m² Room 158 35 m² Room 159 5 m² Room 129A 5 m² Room 129B 10 m² Room 129C 11 m² Room 131C 10 m² Room 130B12 m² Male WC 134C 8 m² Room 134A 12 m² Room 134D 39 m² Room 130G 25 m² Room 128 13 m² Room 125A 11 m² Room 128B 62 m² Hall 147 35 m² Room 131F 92 m² Room 131 Selected Marmoleum floor covering 62 m² Hall 147 Selected Marmoleum floor covering 11 m² Room 132 Selected Non-Slip Tile 5 m² Room 133 Selected Non-Slip Tile 146 m² Entrance 131A Granite Flooring 5 m² Room 135A Selected Non-Slip Tile 91 m² Room 134E Selected Marmoleum floor covering D-31 FD-1 D-33 FD-1 D-36 FD-1 D-34 FD-1 D-37 FD-1 D-44 FD-2 D-46 FD-2 D-8 FD-2 D-78 FD-1 D-48 FD-1 D-49 FD-1 D-51 FD-1 D-81 FD-1 D-82 FD-1 D-83 FD-1 D-84 FD-1 D-89 FD-1 D-91 FD-1 D-21 FD-1 D-145 FD-1 D-53 FD-1 D-55 FD-2 D-57 FD-2 D-59 FD-2 D-153 FD-1 D-155 FD-1 D-62 FD-2 D-177 FD-2 D-178 FD-2 D-26 FD-3 1800 1800 1800 1800 1800 1800 1800 1800 D AA A A A A A D D D D A A D D C C C A D D D A A A A A A A A A A A A A A A A A A A 20622 10852 1940 7829 1401194033461940538 9166 2177 3725 3600 1717 1930 1930 1930 910 1325 12406 11344 2079 2015 4134 1047 2100 9300 4519 1320 2814 4035 2813 7221666 8531 2452 2222 2678 2439 1895 283824521964189620002000 8690 FCFT-CircularFilledSections-Column BasicWall StairHarringtonPrecastConcrete AmbulantAccessibleStairs 76 Doors_Dbl_Glass_4 ABasicWallConcreteBlock D Basic Wall Kingspan KoolTherm Premium performance rigid thermoset modified resin insulant manufactured with a blowing agent that has zero Ozone Depletion Potential (ODP) and low Global Warming Potential (GWP). D-98 FD-2 2127 2127 774 3600 3126 8186 3600 588 702 1800 601 1200 907 1800 509 4781 26387 4600 2812 7039 B B 772360058036003051810 2084 910 6350 2594 3600 2420 3600 1800 407 3600 1915 3600 1640 3600 1380 3600 820 1800 810 1800 830 3600 1540 3600 1119 18001398 309 3600 1468 1800 601 1200 5599 1800 1290 1010 631 4924 4991 7679 14633 1205 1205 4267 1051 1051 4850 24000 Floor to be raised to existing internal floor level 1900 1800 1432 1431 1900 1856 1900 1900 1900 1900 1432 F FF F GG G G H H H H H 481041091197 11824129 W-1W-2W-3W-4 W-5W-6 W-7 W-8 W-9 W-10 W-11 W-12 W-13 W-14 W-15 W-16 W-17 W-18 FMH FMH RMH FMH FMH RMH RMH RMH RMH RMH RMH RMH RMHRMH RMH 1:4 1:6 1:4 1:3 [No Slope] [No Slope] 1:6 1:5 GFL 29.1 GFL 29.1 Existing Walls: Starting out point for measurments. External Wall Up-Grade: Existing: 200mm internal Concrete Block. 80mm Semi Open Cavity, 45mm external concrete aggregate panel. Up-Grade:Existing Reinforced Concrete Panels to be Removed. 100mm horizontal/vertical C-purlin support rails.12mm plasterboard,125mm Kingspan Kooltherm k15 rigid insulation panel 30mm ventilated cavity, 10mm Granite Composite Panel Externally. Internal Walls: Gypoc Metal Studding System 50mm Insulation Roll, 2Layer of Gypoc Plasterboard Bothside with Skim Finish Wall Types Internal Wall: 215mm x 100mm Single Leaf Block With Paint Finish 300mm Load Bearing Column A B C D E F External Glazing Exsting Concrete Columns (200 x 400) Exsting Concrete Columns (400 x 400) G H 1800mm Min Turning Circle Provided In Lobbies And Spaces Where Turning Is Needed For WheelChair Users. 1800mm Min Turning Circle Minimum 450mm Activity Space Provided To All Toilet Cubicles Permeable Paving Drop Kerb With Tactile Paving In Compliance With TGD Part M 2010 Diag 4b Existing Building(All other Construction is Proposed Development) General Notes: All works to be Carried Out In Accordance With Current Building Regulations And DOE Specification for Site Development Works. This Drawing Is To Be Read In Conjuction With DAC And FSC Compliance Reports and All Other Relavant Working Drawings And Documents. Prposed Construction Grass Areas Existing Block work Permeable Asphalt Paving 2000 1800 2000mm x 1800mm Passing Space To Allow Two People In a WheelChair To Pass By Each Other, InCompliance With TGD Part M 2010 Section 1.1.3.3 Fire Hydrant Lighting Post Tarmac Roadway Corduroy Hazard Warning Surface In Compliance With TGD Part M 2010,Diag 4b. 1800mm x 1800mm Level Landing Provided in Front of Power-operated Accessible DoorsIn Compliance With TGD Part M 2010 ,Section 1.2 1500mm Pedestrian Crossing Guard Rail Provided to Protect From Outward Swinging Doors, In Compliance With TGD Part M 2010 Section 1.1 Soil Vent Pipes Rain Water Pipe Foul Water Man-Hole 200mm x 200mm Rain Water Man-Hole 200mm x 200mm Fowl Water Drainage 150mm PVC Pipe With Fall No Less Than 1.100 Rainwater Drainage 100mm PVC Pipe With Fall No Less Than 1.100 Proposed Levels 98.40 Existing Levels 98.40 Site Area: Section 1.4 Sanitary facilities for buildings other than dwellings 68 Diagram 15a Wheelchair accessible unisex WC (1800 mm x 1800 mm turning space) Ambulant Disabled Cubicle in compliance with TGD part M 2010 Section 1.4 dia.19 FH LP F.M.H R.M.H New site: 8087 m2 Existing GMIT: 84297 m2 Internal Fire Doors 30 Minute Fire Resisting Single Doorset Fire Resisting doorset to have no less than 30 minutes integrity rating in accordance with TGD Part B/20-22 and to have a leakage rate not exceeding 3m3/hour (Head&Jamb) when tested at 26pa. 30 Minute Fire Resisting Double Doorset Fire Resisting doorset to have no less than 30 minutes integrity rating in accordance with TGD Part B/20-22 and to have a leakage rate not exceeding 3m3/hour (Head&Jamb) when tested at 26pa. Doors to be fitted with an automatic self-closing device which is capable of closing the door from any angle. Automatic doors to fitted with push button control. FD1 FD2 60 Minute Fire Resisting Single Doorset Fire Resisting doorset to have no less than 60 minutes integrity rating in accordance with TGD Part B/20-22 and to have a leakage rate not exceeding 3m3/hour (Head&Jamb) when tested at 26pa. FD3 N Scale (@ A3) Checked byDrawn by Date Project number DRWAING NUMBER CLIENTPROJECT TITLE SHEET STATUS PURPOSE OF ISSUECODE SUITABILITY DESCRIPTION 30/04/201503:16:26 As indicatedDDS4_PO4 GALWAY/MAYO INSTITUTE OF TECHNOLOGY 28/04/15 Mark Flynn Denise Dillon Emer MaughanGA-MF-02 Ground Floor Plan Upgrade&Retro-Fit of Building and Civil Department GA 28/04/15 No. Description Date 1 : 100 Block A Ground Floor Push Pad for accessible power-operated doors. In compliance with TGD Part M2010 Section 1.2.4.3 1800mm Min Turning Circle Provided In Lobbies And Spaces Where Turning Is Needed For WheelChair Users. Push Pad for accessible power-operated doors. In compliance with TGD Part M2010 Section 1.2.4.3 Levelaccesprovided Gradientslope1:50 External Wall Up-Grade: Existing: 200mm internal Concrete Block. 80mm Semi Open Cavity, 45mm external concrete aggregate panel Up-Grade:Existing Reinforced Concrete Panels to be Removed. 100mm horizontal/vertical C-purlin support rails. 12mm plasterboard,125mm Kingspan Kooltherm k15 rigid insulation panel 30mm ventilated cavity, 10mm Granite Composite Panel Externally. Level acces provided Gradient slope 1:50 Level Paved Acces Route Grassed Areas And Planted Areas:Grassed Areas To Be Graded to Required Levels.With Suitable Subsoil. Suitable Free Drainage Topsoil To Be Levelled In 150mm Layers. Paving Paving 14 No. Designated Staff Parking Spaced In Compliance With Part M Section 1.1, Dia 8 Level Paved Acces Route Saft Point Of Assembly Part B Compliant Part M Compliant,Section 1.1.3.3 1800x1800mm Level Landing. Landing to Be Provided at The Top And Bottom Of A Slope. The Top And Bottom Landings Should Be At Least 1800mm Wide and 1800mm Long. Clear of Door Swing. Circulation Routes: Pedestrian Routes Gradient at 1:50 In Accordance With TGD Part M 2010, Section 1.1 Tactile Surface Shall Be Used To Provid A Warning Of A Change In Level. Guarding provided around outward opening doors in compliance dia 1 and 2 of TGD part M2010 1.1.3.1 Bridge Structure 120mm Circlar hollow steel hexagonal frame Connected by 340 x 315 mm UB at base plate 150mm profiled steel decking spaning between UB ,150mm Concrete slab,100mm concrete screed. 40mm Granite floor Finish Guarding provided around outward opening doors in compliance dia 1 and 2 of TGD part M2010 1.1.3.1 Circulation Routes: Pedestrian Routes Gradient at 1:50 In Accordance With TGD Part M 2010, Section 1.1 Tactile Surface Shall Be Used To Provid A Warning Of A Change In Level. Circulation Routes: Pedestrian Routes Gradient at 1:50 In Accordance With TGD Part M 2010, Section 1.1 Tactile Surface Shall Be Used To Provid A Warning Of A Change In Level. Part M Compliant,Section 1.1.3.3 1800x1800mm Level Landing. Landing to Be Provided at The Top And Bottom Of A Slope. The Top And Bottom Landings Should Be At Least 1800mm Wide and 1800mm Long. Clear of Door Swing. External Wall Up-Grade: Existing: 200mm internal Concrete Block. 80mm Semi Open Cavity, 45mm external concrete aggregate panel Up-Grade:Existing Reinforced Concrete Panels to be Removed. 100mm horizontal/vertical C-purlin support rails. 12mm plasterboard,125mm Kingspan Kooltherm k15 rigid insulation panel 30mm ventilated cavity, 10mm Granite Composite Panel Externally. Level acces provided Gradient slope 1:50 Level acces provided Gradient slope 1:50 Level Paved Acces Route Concrete Footpaths: 100mm Conc. Paths Laid To Fall (1.36) Away From Buildings On Min 150mm Limestone Hardcore Fill Or As Nessary To Make Up Levels.Concrete In 3m Bays With A Starroller Finish And Bullnose Edging The Foot Path That Surrounds The Building Is Also Made From Eco-Cem Concrete. This Will Hepl The Building Reduce Its Carbon Foot Print External Wall Up-Grade: Existing: 200mm internal Concrete Block. 80mm Semi Open Cavity 45mm external concrete aggregate panel Up-Grade: Existing Reinforced Concrete Panels to be Removed. 100mm horizontal/vertical C-purlin support rails. 12mm plasterboard 125mm Kingspan Kooltherm k15 rigid insulation panel 30mm ventilated cavity 10mm Granite Composite Panel Externally. WINDOWS: AMS WINDOWS WITH SAINT GOBAIN GLASS. SOUTH & WEST: TRIPLE GLAZED, ARGON FILLED, WITH ADDITIONAL NON GLASS LAYER ON THE INTERNAL FACE WITH INTERSTITIAL BLINDS. G-VALUE: 0.33 (TO REDUCE SOLAR GAIN DUE TO OCCUPANCY LOADS). SHADING COEFFICIENT 0.38. LIGHT TRANSMITTANCE 0.71. NORTH: TRIPLE GLAZED, ARGON FILLED. G-VALUE: 0.61 (TO INCREASE SOLAR GAIN). SHADING COEFFICIENT 0.7. LIGHT TRANSMITTANCE 0.62. OVERALL U- VALUE OF 1.03 W/M2K External Wall Up-Grade: Existing: 200mm internal Concrete Block. 80mm Semi Open Cavity, 45mm external concrete aggregate panel Up-Grade:Existing Reinforced Concrete Panels to be Removed. 100mm horizontal/vertical C-purlin support rails. 12mm plasterboard,125mm Kingspan Kooltherm k15 rigid insulation panel 30mm ventilated cavity, 10mm Granite Composite Panel Externally. Curtain Walling 156x 60mm PPC Aluminium Mullions at 2900mm centres. 90x 230x 12mm steel lateral support plates at 3000mm centers, site welded to circular columns to tranfer wind load back to steel columns. Pilkington Energikare System. Double glazed sealed units with 8mm toughened glass inner pane. Black structural silicone horizontal joints. This System Was Used Because It Can Help Reduce The Buildings Energy Usage And Co2 Emmission . It Is Made Up Of Two Different Glasses. Pilkingtonk-Glass A Low Emmissions Glass Which Stop Heat Escaping And Pilkington Optiwhite A Special Extra Clear Glass That Allows More Solar Gain. You created this PDF from an application that is not licensed to print to novaPDF printer (http://www.novapdf.com)
  • 4.
    A B CD E G H I 2 3 4 5 6 7 65 m² New open plan office 217 Selected Carpet 18 m² Printing Room 224 Selected Marmoleum floor covering Not Enclosed Waiting Area 47 72 m² ARCH 3 228 Selected Carpet 54 m² CM 229 Selected Carpet 70 m² BIM/CAD2 227 Selected Carpet 4 m² Services 220A 5 m² Services 225B 40 m² Stairway 2 226D ? 70 m² QA 230 Selected Carpet 35 m² N/A 231B Selected Carpet 58 m² N/A 216 Selected Carpet 77 m² N/A 215 Selected Carpet 5 m² LIFT 215B 5 m² N/A 215A 35 m² N/A 232 Selected Carpet 12 m² N/A 232C Selected Carpet 10 m² N/A 232A Selected Carpet 10 m² N/A 232B Selected Carpet 72 m² BIM/CAD 226 Selected Carpet 73 m² Arch 1 223 Selected Carpet 16 m² Room 233A Selected Carpet 7 m² Store Room 225C Selected Marmoleum floor covering 172 m² Hall 226E Selected Marmoleum floor covering 17 m² StairWay 1 226F Selected Marmoleum floor covering 53 m² Arch 4 226G Selected Carpet F 9 m² Unisex Disabled WC 226M Selected Non-Slip Tile 29 m² Mary Office 226N 72 m² Room 226O Selected Carpet D-4 FD-1 D-7 FD-1 D-10 FD-1 D-13 FD-1 D-14 FD-1 D-16 FD-1 D-20 FD-1 D-27 FD-1 D-30 FD-1 D-35 FD-1 D-38 FD-1 D-40 FD-1 D-42 FD-1 D-43 FD-1 D-52 FD-1 D-54 FD-1 5665 5665 5665 5665 5665 1900 5665 1432 D-1 FD-1 D-2 FD-1 D-45 FD-2 D-8 FD-2 D-47 FD-1 D-25 FD-1 D-50 FD-2 D-56 FD-2 D-58 FD-2 D-60 FD-2 D-61 FD-1 D-33 FD-1 D-63 FD-2 D-65 FD-2 1 GA-MF-08 4805 1432 CC GA-MF-09 DD GA-MF-09 2 GA-MF-08 74187500750175017501 7443 7501 7501 7501 7501 7501 7501 7501 56 m² Study Area 134F Selected Marmoleum floor covering 79 m² Hall 134G Selected Marmoleum floor covering A A A E E E A EE E E E E E E E D D D D D C C C A E A A E A A A B B D D 26387 9243 4991 7679 2812 7039 4781 1133 3579 14633 494 3600 768 1800 1032 3600 1789 3600 487 1800 363 19308 9900 9944 10093 2616 7315 7478 4795 205 7297 9695 9969 242 2308 225 7507 2262 220 9743 225 4838 225 4683 225 4868 225 2183 2854 6877 2521 2462 7790 2585 3439 11341 3952 1026 2500 12297 2184 12305 9771 4795 734375007433 2106 1190 238726262487 259924182483 3085 7527 900 2283 2302 5277 4025 1200 E E C F G H F HH H H G G G G G GG FMH RMH FMH FMH RMH RMH RMH RMH RMH RMH RMHRMH RMH 1060 3600 487 1800 350600 3600 523950 3600 768 20877315840 5364 1683 1800 215 646 3600 1600 3600 495 444 1800 1161 3600 3089 1360 5364 1683 1800 861 3600 1600 3600 939 1800 1161 3600 1814 5766 4403 1148 9166 4403 41836003418 93536002761 4445 5417 2740 1705 772360097918002677 FMH 910 5364 4379 3600 1620 3600 4085 3600 1435 25336009791800640 5755 3941 1010 1010 439 3600 1620 3600 710 2308 600 3600 3307 2257 2426 1800 1640 3600 390 318 1800 810 1800 110 495 3600 588 747 3600 541 352 1943 1800 1640 3600 820 1800 810 1800 830 3600 1540 3600 1119 1800 22832250 48283706 2616 7351 3991 2891244819161887200014522542 2487 2222 2678 2436 1898 11720 2838245219641896200020001973 15123 7433 7500 2308 2473 1800 1800 1800 1800 1800 1800 1800 1800 W-43W-42W-41W-40W-39W-38W-37W-36W-35W-34W-33 W-32W-31W-30 W-29 W-28 W-27 W-26 W-25 W-24 W-23 W-22 W-21 W-20 W-19 12001200 1930 1010 1010 1010 10101010101010101010 1010 1010 10101010 2127 1810 1480 1514 7598 2112 4035 2047 1029 1:12 1:12 1:12 1:9 1:9 1:9 [No Slope] [No Slope] 1:5 1:4 1:5 1:6 1:5 1:4 1900 RL 5.160+AOD Study Pods Study Pods 2553 FFL 32.76 FFL 32.76 FFL 32.76 Existing Walls: Starting out point for measurments. External Wall Up-Grade: Existing: 200mm internal Concrete Block. 80mm Semi Open Cavity, 45mm external concrete aggregate panel. Up-Grade:Existing Reinforced Concrete Panels to be Removed. 100mm horizontal/vertical C-purlin support rails.12mm plasterboard,125mm Kingspan Kooltherm k15 rigid insulation panel 30mm ventilated cavity, 10mm Granite Composite Panel Externally. Internal Walls: Gypoc Metal Studding System 50mm Insulation Roll, 2Layer of Gypoc Plasterboard Bothside with Skim Finish Wall Types Internal Wall: 215mm x 100mm Single Leaf Block With Paint Finish 300mm Load Bearing Column A B C D E F External Glazing Exsting Concrete Columns (200 x 400) Exsting Concrete Columns (400 x 400) G H Internal Fire Doors 30 Minute Fire Resisting Single Doorset Fire Resisting doorset to have no less than 30 minutes integrity rating in accordance with TGD Part B/20-22 and to have a leakage rate not exceeding 3m3/hour (Head&Jamb) when tested at 26pa. 30 Minute Fire Resisting Double Doorset Fire Resisting doorset to have no less than 30 minutes integrity rating in accordance with TGD Part B/20-22 and to have a leakage rate not exceeding 3m3/hour (Head&Jamb) when tested at 26pa. Doors to be fitted with an automatic self-closing device which is capable of closing the door from any angle. Automatic doors to fitted with push button control. FD1 FD2 60 Minute Fire Resisting Single Doorset Fire Resisting doorset to have no less than 60 minutes integrity rating in accordance with TGD Part B/20-22 and to have a leakage rate not exceeding 3m3/hour (Head&Jamb) when tested at 26pa. FD3 1800mm Min Turning Circle Provided In Lobbies And Spaces Where Turning Is Needed For WheelChair Users. 1800mm Min Turning Circle Minimum 450mm Activity Space Provided To All Toilet Cubicles Permeable Paving Drop Kerb With Tactile Paving In Compliance With TGD Part M 2010 Diag 4b Existing Building(All other Construction is Proposed Development) General Notes: All works to be Carried Out In Accordance With Current Building Regulations And DOE Specification for Site Development Works. This Drawing Is To Be Read In Conjuction With DAC And FSC Compliance Reports and All Other Relavant Working Drawings And Documents. Prposed Construction Grass Areas Existing Block work Permeable Asphalt Paving 2000 1800 2000mm x 1800mm Passing Space To Allow Two People In a WheelChair To Pass By Each Other, InCompliance With TGD Part M 2010 Section 1.1.3.3 Fire Hydrant Lighting Post Tarmac Roadway Corduroy Hazard Warning Surface In Compliance With TGD Part M 2010,Diag 4b. 1800mm x 1800mm Level Landing Provided in Front of Power-operated Accessible DoorsIn Compliance With TGD Part M 2010 ,Section 1.2 1500mm Pedestrian Crossing Guard Rail Provided to Protect From Outward Swinging Doors, In Compliance With TGD Part M 2010 Section 1.1 Soil Vent Pipes Rain Water Pipe Foul Water Man-Hole 200mm x 200mm Rain Water Man-Hole 200mm x 200mm Fowl Water Drainage 150mm PVC Pipe With Fall No Less Than 1.100 Rainwater Drainage 100mm PVC Pipe With Fall No Less Than 1.100 Proposed Levels 98.40 Existing Levels 98.40 Site Area: Section 1.4 Sanitary facilities for buildings other than dwellings 68 Diagram 15a Wheelchair accessible unisex WC (1800 mm x 1800 mm turning space) Ambulant Disabled Cubicle in compliance with TGD part M 2010 Section 1.4 dia.19 FH LP F.M.H R.M.H New site: 8087 m2 Existing GMIT: 84297 m2 N Scale (@ A3) Checked byDrawn by Date Project number DRWAING NUMBER CLIENTPROJECT TITLE SHEET STATUS PURPOSE OF ISSUECODE SUITABILITY DESCRIPTION 30/04/201503:27:06 As indicatedDDS4_PO4 GALWAY/MAYO INSTITUTE OF TECHNOLOGY 28/04/15 Mark Flynn Denise Dillon Emer MaughanGA-MF-03 First Floor Plan Upgrade&Retro-Fit of Building and Civil Department GA 28/04/15 No. Description Date 1 : 100 Block A First Floor Plan Push Pad for accessible power-operated doors. In compliance with TGD Part M2010 Section 1.2.4.3 Levelaccesprovided Gradientslope1:50 External Wall Up-Grade: Existing: 200mm internal Concrete Block. 80mm Semi Open Cavity, 45mm external concrete aggregate panel Up-Grade:Existing Reinforced Concrete Panels to be Removed. 100mm horizontal/vertical C-purlin support rails. 12mm plasterboard,125mm Kingspan Kooltherm k15 rigid insulation panel 30mm ventilated cavity, 10mm Granite Composite Panel Externally. Level Paved Acces Route Grassed Areas And Planted Areas:Grassed Areas To Be Graded to Required Levels.With Suitable Subsoil. Suitable Free Drainage Topsoil To Be Levelled In 150mm Layers. Paving 14 No. Designated Staff Parking Spaced In Compliance With Part M Section 1.1, Dia 8 Level Paved Acces Route Saft Point Of Assembly Part B Compliant Part M Compliant,Section 1.1.3.3 1800x1800mm Level Landing. Landing to Be Provided at The Top And Bottom Of A Slope. The Top And Bottom Landings Should Be At Least 1800mm Wide and 1800mm Long. Clear of Door Swing. Circulation Routes: Pedestrian Routes Gradient at 1:50 In Accordance With TGD Part M 2010, Section 1.1 Tactile Surface Shall Be Used To Provid A Warning Of A Change In Level. Guarding provided around outward opening doors in compliance dia 1 and 2 of TGD part M2010 1.1.3.1 Bridge Structure 120mm Circlar hollow steel hexagonal frame Connected by 340 x 315 mm UB at base plate 150mm profiled steel decking spaning between UB ,150mm Concrete slab,100mm concrete screed. 40mm Granite floor Finish Guarding provided around outward opening doors in compliance dia 1 and 2 of TGD part M2010 1.1.3.1 Circulation Routes: Pedestrian Routes Gradient at 1:50 In Accordance With TGD Part M 2010, Section 1.1 Tactile Surface Shall Be Used To Provid A Warning Of A Change In Level. Level acces provided Gradient slope 1:50 Level acces provided Gradient slope 1:50 Level Paved Acces Route Concrete Footpaths: 100mm Conc. Paths Laid To Fall (1.36) Away From Buildings On Min 150mm Limestone Hardcore Fill Or As Nessary To Make Up Levels.Concrete In 3m Bays With A Starroller Finish And Bullnose Edging The Foot Path That Surrounds The Building Is Also Made From Eco-Cem Concrete. This Will Hepl The Building Reduce Its Carbon Foot Print External Wall Up-Grade: Existing: 200mm internal Concrete Block. 80mm Semi Open Cavity 45mm external concrete aggregate panel Up-Grade: Existing Reinforced Concrete Panels to be Removed. 100mm horizontal/vertical C-purlin support rails. 12mm plasterboard 125mm Kingspan Kooltherm k15 rigid insulation panel 30mm ventilated cavity 10mm Granite Composite Panel Externally. WINDOWS: AMS WINDOWS WITH SAINT GOBAIN GLASS. SOUTH & WEST: TRIPLE GLAZED, ARGON FILLED, WITH ADDITIONAL NON GLASS LAYER ON THE INTERNAL FACE WITH INTERSTITIAL BLINDS. G-VALUE: 0.33 (TO REDUCE SOLAR GAIN DUE TO OCCUPANCY LOADS). SHADING COEFFICIENT 0.38. LIGHT TRANSMITTANCE 0.71. NORTH: TRIPLE GLAZED, ARGON FILLED. G-VALUE: 0.61 (TO INCREASE SOLAR GAIN). SHADING COEFFICIENT 0.7. LIGHT TRANSMITTANCE 0.62. OVERALL U- VALUE OF 1.03 W/M2K External Wall Up-Grade: Existing: 200mm internal Concrete Block. 80mm Semi Open Cavity, 45mm external concrete aggregate panel Up-Grade:Existing Reinforced Concrete Panels to be Removed. 100mm horizontal/vertical C-purlin support rails. 12mm plasterboard,125mm Kingspan Kooltherm k15 rigid insulation panel 30mm ventilated cavity, 10mm Granite Composite Panel Externally. Curtain Walling 156x 60mm PPC Aluminium Mullions at 2900mm centres. 90x 230x 12mm steel lateral support plates at 3000mm centers, site welded to circular columns to tranfer wind load back to steel columns. Pilkington Energikare System. Double glazed sealed units with 8mm toughened glass inner pane. Black structural silicone horizontal joints. This System Was Used Because It Can Help Reduce The Buildings Energy Usage And Co2 Emmission . It Is Made Up Of Two Different Glasses. Pilkingtonk-Glass A Low Emmissions Glass Which Stop Heat Escaping And Pilkington Optiwhite A Special Extra Clear Glass That Allows More Solar Gain. Part M Compliant,Section 1.1.3.3 1800x1800mm Level Landing. Landing to Be Provided at The Top And Bottom Of A Slope. The Top And Bottom Landings Should Be At Least 1800mm Wide and 1800mm Long. Clear of Door Swing. Paving Paving Paving Paving Bridge Balastrade Structural Toughened and heat-soaked glass, held in base clamp. Glass set in to a arbocal to a minimum depth of 80mm, then pointed with silicone sealant. Continuous metal clamping system fixed to the concrete slab using M12 bolts at 500mm centres. Columns: 300mm diameter circular hollow section steel columns cranked to proved bracing.Concrete pad-base foundations. Columns filled with concrete to just below knee level. Intumescent paint to provide1 hour fire protection. Bridge UBeams. 340 x 315 Universal beams at 2.5m centre cased in two layers 12.5mm fireline board for fire protection. Bridge Facade: 40mm thick bead-blasted stainless-stell panel with lazer-cut vertical abutments botled to supporting structure in rigid joints. External Wall Up-Grade: Existing: 200mm internal Concrete Block. 80mm Semi Open Cavity, 45mm external concrete aggregate panel Up-Grade:Existing Reinforced Concrete Panels to be Removed. 100mm horizontal/vertical C-purlin support rails. 12mm plasterboard,125mm Kingspan Kooltherm k15 rigid insulation panel 30mm ventilated cavity, 10mm Granite Composite Panel Externally. You created this PDF from an application that is not licensed to print to novaPDF printer (http://www.novapdf.com)
  • 5.
    DNDNDNDNDNDNDNDNDN Block A FirstFloor Plan 32795 Blcok A Roof Level 36325 Block A Ground Floor 28552 Block A Ridge Level 37172 Block A Ground Floor 2 29130 Block A First Floor Plan 32795 Blcok A Roof Level 36325 Block A Ground Floor 28552 Blcok B First Floor 30790 Block B Ground Floor 27130 Block B Roof Level 34750 Block A Ridge Level 37172 Block B Ridge Level 10009 Q41 Barriers/Guardrails L10/460 Rooflights H72 Aluminium Strip/sheet Coverings/Flashings Scale (@ A3) Checked byDrawn by Date Project number DRWAING NUMBER CLIENTPROJECT TITLE SHEET STATUS PURPOSE OF ISSUECODE SUITABILITY DESCRIPTION 30/04/201511:17:21 As indicatedDDS4_PO4 GALWAY/MAYO INSTITUTE OF TECHNOLOGY 28/04/15 Mark Flynn Denise Dillon Emer MaughanGA-MF-06 Large Elevations Upgrade&Retro-Fit of Building and Civil Department GA 28/04/15 No. Description Date 1 : 100 South Elevation 1 : 100 West Elevation UP-GRADE: 125MM KINGSPAN KOOLTHERM INSULATION SEPARATED BY 35MM WELL VENTILATED CAVITY BY A 10MM GRANITE COMPOSITE PANEL EXTERNALLY, THE EXISTING 65MM AGGREGATED PANEL, 80MM PHENOLIC FOAM INSULATION, 100MM EXISTING INNER LEAF BLOCK. U- VALUE: 0.11 W/M2K PROPOSED NEW EXTERNAL WALLS UPGRADE: EXISTING: EXTERNAL CONCRETE AGGREGATE PANEL, WELL VENTILATED 80MM SEMI OPEN CAVITY, 100MM CONCRETE BLOCK INNER LEAF. 1.77 W/M2K Foundations: 1200 x 400mm Rinforcement concrete strip footing below external glazing on 50mm sand blinding. 900 x 300mm reinforced concrete strip footing below steel columns on 50mm sand blinding. Ground floor slab thickens at edges to 400 x 400mm at extention perimeter. Ground Floor: 40mm Granite flooring with two coats clear sealant. 100mm screed. 25mm service void formed between edge of screed and wall using plywood framework. 75mm rigid urrthane insulation. DPM laid over slab and finished 100mm above finished floor level in cast in groove in concrete upstand. 150mm thick reinforced concrete slab, thickening to 400 x 400mm at extention perimeter.150mm EPS rigid insulation 50mm Blinding, 200mm Compacted Hardcore, 25mm extruded polystyrene insulation internally at floor edge. Roof Light Build-up 375 x 75 mm reinforced concrete upstand. 25mm PIR insulation around up-stand. 75x 50mm softwood kerb screwed to concrete up-stand. Top layer of polymer modified bitumen waterproof memebrane dressed up vertical face and under rooflight frame. 2100mm wide extruded aluminium frame screwed to kerb to ensure 1.100 fall. Walk on 21.5 mm toughened laminated outer pane, 16mm air filled cavity, 6mm soft coat low-E inner pane. Canopy Gutter: 300 x 75 x 1.5mm pressed aluminium box gutter inbeded in to polymer modified bitumen waterproof memebrane on three sides. 76mm diameter aluminium rainwater pipes inserted inside circular hollow columns. 300 x 150 mm cut-out near base of columns for rainwater pipe outlet. Roof Lights: 30no. Electro Automated Opening Windows For Smoke Venting To Atrium Connected To Firemans Switch At Main Entrance Lobby And Fire Alarm System. Also Connected To Bms For Enviromental Control Of Atrium. Windows To Be Self Closing On De-Activation. Operation Of The Vents In The Event Of A Power Failure To Be Integrated Back-Up Battery Power Which Fails In The Open Position Concrete Footpaths: 100mm Conc. Paths Laid To Fall (1.36) Away From Buildings On Min 150mm Limestone Hardcore Fill Or As Nessary To Make Up Levels.Concrete In 3m Bays With A Starroller Finish And Bullnose Edging The Foot Path That Surrounds The Building Is Also Made From Eco-Cem Concrete. This Will Hepl The Building Reduce Its Carbon Foot Print Curtain Walling 156x 60mm PPC Aluminium Mullions at 2130mm centres. 90x 230x 12mm steel lateral support plates at 3000mm centers, site welded to circular columns to tranfer wind load back to steel columns. Pilkington Energikare System. Double glazed sealed units with 8mm toughened glass inner pane. Black structural silicone horizontal joints. This System Was Used Because It Can Help Reduce The Buildings Energy Usage And Co2 Emmission . It Is Made Up Of Two Different Glasses. Pilkingtonk-Glass A Low Emmissions Glass Which Stop Heat Escaping And Pilkington Optiwhite A Special Extra Clear Glass That Allows More Solar Gain. Bridge Balastrade Structural Toughened and heat-soaked glass, held in base clamp. Glass set in to a arbocal to a minimum depth of 80mm, then pointed with silicone sealant. Continuous metal clamping system fixed to the concrete slab using M12 bolts at 500mm centres. Columns: 300mm diameter circular hollow section steel columns cranked to proved bracing.Concrete pad-base foundations. Columns filled with concrete to just below knee level. Intumescent paint to provide1 hour fire protection. Bridge Structure 120mm Circlar hollow steel hexagonal frame Connected by 340 x 315 mm UB at base plate 150mm profiled steel decking spaning between UB ,150mm Concrete slab,100mm concrete screed. 40mm Granite floor Finish 6: Existing Roof Build-up: Existing Roof: Existing 200mm concrete waffle slab Existing 50mm sand screed Existing bituminous felt Existing 25mm Insulation Existing 30 Mastic asphalt as waterproof 150mm Concrete Slab, 25mm Degrading Polystyrene, 25mm Locally Failing Asphalt. Upgraded Roof: Airtightness membrane bonded to primed substrate. 200mm Kingspan Kooltherm PIR insulation. Two layers of polymer modified bitumen waterproof membrane with chips on exposed surfaces. 1: Roof Build-up: 352mm x 172mm UB beam 150mm profiled steel decking 150mm reinforced concrete slab 1.2mm foil cored reinforcmed vapour barrier. 20mm asphalt. Tapered PIR insulation varying from 110 to 270 mm thick to form 1:80 fall. Two layers of polymer modified bitumen waterproof membrane with chips on exposed surfaces. WINDOWS: AMS WINDOWS WITH SAINT GOBAIN GLASS. SOUTH & WEST: TRIPLE GLAZED, ARGON FILLED, WITH ADDITIONAL NON GLASS LAYER ON THE INTERNAL FACE WITH INTERSTITIAL BLINDS. G- VALUE: 0.33 (TO REDUCE SOLAR GAIN DUE TO OCCUPANCY LOADS). SHADING COEFFICIENT 0.38. LIGHT TRANSMITTANCE 0.71. NORTH: TRIPLE GLAZED, ARGON FILLED. G-VALUE: 0.61 (TO INCREASE SOLAR GAIN). SHADING COEFFICIENT 0.7. LIGHT TRANSMITTANCE 0.62. OVERALL U- VALUE OF 1.03 W/M2K Grassed Areas And Planted Areas: Grassed Areas To Be Graded to Required Levels With Suitable Subsoil. Suitable Free Drainage Topsoil To Be Levelled In 150mm Layers. You created this PDF from an application that is not licensed to print to novaPDF printer (http://www.novapdf.com)
  • 6.
    DNDNDNDNDNDNDNDNDN Block A GroundFloor 2 29130 Block A First Floor Plan 32795 Blcok A Roof Level 36325 Block A Ridge Level 37172 CC GA-MF-09 84735303665 Q41 Barriers/Guardrails L10/460 Rooflights H11 Curtain WallingG10/130 General Steel Sections And Plates Q24/110 Concrete block paving H72 Aluminium Strip/sheet Coverings/Flashings 115011501333968930940899773 L10/650 Metal louvres H42 Precast Concrete Panel Cladding/Features Block A Ground Floor 2 29130 Block A First Floor Plan 32795 Blcok A Roof Level 36325 Block A Ground Floor 28552 Block A Ridge Level 37172 DD GA-MF-09 2 GA-MF-08 57836653530847 1310 1175 1150115013331000930908890782 Scale (@ A3) Checked by Drawn by Date Project number DRWAING NUMBER REV CLIENTPROJECT SHEET STATUS PURPOSE OF ISSUECODE SUITABILITY DESCRIPTION 28/04/201511:54:30 As indicatedDDS4_PO4 GALWAY/MAYO INSTITUTE OF TECHNOLOGY 26/03/15 Mark Flynn Denise Dillon Emer Maughan GA-MF-07North Entrance Elevations Upgrade&Retro-Fit of Building and Civil Department GA 26/03/15 1 : 50 Entrance West Elevation 1 : 50 Entrance North Elevation Part M Compliant,Section 1.1.3.3 1800x1800mm Level Landing. Landing to Be Provided at The Top And Bottom Of A Slope. The Top And Bottom Landings Should Be At Least 1800mm Wide and 1800mm Long.Clear of Door Swing. Guarding provided around outward opening doors in compliance dia 1 and 2 of TGD Part M2010 1.1.3.1 Glass Louvres 6mm low - iron annealed float glass with colourless semi-reflective coating (on top surface)0.76mm PVB sheet interlayer. 10mm toughened glass acid-etched on lower surface. All edges polished. Four 12mm thick laser cut profiled anodised aluminium flat bracket screwed to track spacer with two countersunk hex-head M6 25mm stainless steel screws. Remotely operated louver vent in roof void over curtain walling for natural ventilation. Foundations: 1200 x 400mm Rinforcement concrete strip footing below external glazing on 50mm sand blinding. 900 x 300mm reinforced concrete strip footing below steel columns on 50mm sand blinding. Ground floor slab thickens at edges to 400 x 400mm at extention perimeter. Ground Floor: 40mm Granite flooring with two coats clear sealant. 100mm screed. 25mm service void formed between edge of screed and wall using plywood framework. 75mm rigid urrthane insulation. DPM laid over slab and finished 100mm above finished floor level in cast in groove in concrete upstand. 150mm thick reinforced concrete slab, thickening to 400 x 400mm at extention perimeter.150mm EPS rigid insulation 50mm Blinding, 200mm Compacted Hardcore, 25mm extruded polystyrene insulation internally at floor edge. Roof Light Build-up 375 x 75 mm reinforced concrete upstand. 25mm PIR insulation around up-stand. 75x 50mm softwood kerb screwed to concrete up-stand. Top layer of polymer modified bitumen waterproof memebrane dressed up vertical face and under rooflight frame. 2100mm wide extruded aluminium frame screwed to kerb to ensure 1.100 fall. Walk on 21.5 mm toughened laminated outer pane, 16mm air filled cavity, 6mm soft coat low-E inner pane. Glass Louvres 6mm low - iron annealed float glass with colourless semi-reflective coating (on top surface)0.76mm PVB sheet interlayer. 10mm toughened glass acid-etched on lower surface. All edges polished. Four 12mm thick laser cut profiled anodised aluminium flat bracket screwed to track spacer with two countersunk hex-head M6 25mm stainless steel screws. Remotely operated louver vent in roof void over curtain walling for natural ventilation. Roof Lights: 30no. Electro Automated Opening Windows For Smoke Venting To Atrium Connected To Firemans Switch At Main Entrance Lobby And Fire Alarm System. Also Connected To Bms For Enviromental Control Of Atrium. Windows To Be Self Closing On De-Activation. Operation Of The Vents In The Event Of A Power Failure To Be Integrated Back-Up Battery Power Which Fails In The Open Position Curtain Walling 156x 60mm PPC Aluminium Mullions at 2130mm centres. 90x 230x 12mm steel lateral support plates at 3000mm centers, site welded to circular columns to tranfer wind load back to steel columns. Pilkington Energikare System. Double glazed sealed units with 8mm toughened glass inner pane. Black structural silicone horizontal joints. This System Was Used Because It Can Help Reduce The Buildings Energy Usage And Co2 Emmission . It Is Made Up Of Two Different Glasses. Pilkingtonk-Glass A Low Emmissions Glass Which Stop Heat Escaping And Pilkington Optiwhite A Special Extra Clear Glass That Allows More Solar Gain. No. Description Date 6: External Wall Up-Grade: Existing: 200mm internal Concrete Block. 80mm Semi Open Cavity 45mm external concrete aggregate panel Up-Grade: Existing Reinforced Concrete Panels to be Removed. 100mm horizontal/vertical C-purlin support rails. 12mm plasterboard 125mm Kingspan Kooltherm k15 rigid insulation panel 30mm ventilated cavity 10mm Granite Composite Panel Externally. WINDOWS: AMS WINDOWS WITH SAINT GOBAIN GLASS. SOUTH & WEST: TRIPLE GLAZED, ARGON FILLED, WITH ADDITIONAL NON GLASS LAYER ON THE INTERNAL FACE WITH INTERSTITIAL BLINDS. G-VALUE: 0.33 (TO REDUCE SOLAR GAIN DUE TO OCCUPANCY LOADS). SHADING COEFFICIENT 0.38. LIGHT TRANSMITTANCE 0.71. NORTH: TRIPLE GLAZED, ARGON FILLED. G- VALUE: 0.61 (TO INCREASE SOLAR GAIN). SHADING COEFFICIENT 0.7. LIGHT TRANSMITTANCE 0.62. OVERALL U-VALUE OF 1.03 W/M2K 6: External Wall Up-Grade: Existing: 200mm internal Concrete Block. 80mm Semi Open Cavity 45mm external concrete aggregate panel Up-Grade: Existing Reinforced Concrete Panels to be Removed. 100mm horizontal/vertical C-purlin support rails. 12mm plasterboard 125mm Kingspan Kooltherm k15 rigid insulation panel 30mm ventilated cavity 10mm Granite Composite Panel Externally. WINDOWS: AMS WINDOWS WITH SAINT GOBAIN GLASS. SOUTH & WEST: TRIPLE GLAZED, ARGON FILLED, WITH ADDITIONAL NON GLASS LAYER ON THE INTERNAL FACE WITH INTERSTITIAL BLINDS. G-VALUE: 0.33 (TO REDUCE SOLAR GAIN DUE TO OCCUPANCY LOADS). SHADING COEFFICIENT 0.38. LIGHT TRANSMITTANCE 0.71. NORTH: TRIPLE GLAZED, ARGON FILLED. G- VALUE: 0.61 (TO INCREASE SOLAR GAIN). SHADING COEFFICIENT 0.7. LIGHT TRANSMITTANCE 0.62. OVERALL U-VALUE OF 1.03 W/M2K Curtain Walling 156x 60mm PPC Aluminium Mullions at 2130mm centres. 90x 230x 12mm steel lateral support plates at 3000mm centers, site welded to circular columns to tranfer wind load back to steel columns. Pilkington Energikare System. Double glazed sealed units with 8mm toughened glass inner pane. Black structural silicone horizontal joints. This System Was Used Because It Can Help Reduce The Buildings Energy Usage And Co2 Emmission . It Is Made Up Of Two Different Glasses. Pilkingtonk-Glass A Low Emmissions Glass Which Stop Heat Escaping And Pilkington Optiwhite A Special Extra Clear Glass That Allows More Solar Gain.
  • 7.
    DNDNDNDNDNDNDNDNDN Block A GroundFloor 2 29130 Block A First Floor Plan 32795 Blcok A Roof Level 36325 Block A Ground Floor 28552 Block A Ridge Level 37172 DD GA-MF-09 2 GA-MF-08 3765 2 GA-MF-12 3 GA-MF-12 - --- 84735304243 34384174307812749735 2854 21351293 2930 2300 276 572 1900 2145 3805592499 478 2430 21452960 2743 H72 Aluminium Strip/sheet Coverings/Flashings L10/460 Rooflights J21/420 Rigid polyisocyanurate foam (PIR) roofboard warm roof insulation E60/140 Composite floor H92 Rainscreen Cladding F10/350 Common blockwork M20/280Gypsum plaster skim on plasterboard M20/280Gypsum plaster skim on plasterboard E10/150 In situ concrete 1255 2749 Block A Ground Floor 2 29130 Block A First Floor Plan 32795 Blcok A Roof Level 36325 Block A Ground Floor 28552 Blcok B First Floor 30790 Block B Ground Floor 27130 Block B Roof Level 34750 Block A Ridge Level 37172 Block B Ridge Level 10009 1 GA-MF-08 CC GA-MF-09 2930 1 GA-MF-090 2 GA-MF-090 1 GA-MF-10 2 GA-MF-10 4 GA-MF-13 3 GA-MF-12 4 GA-MF-14 4 GA-MF-13 2 GA-MF-12 3 GA-MF-12 L10/460 Rooflights H11 Curtain Walling G10/225Steelwork To Be Galvanized L10/460 Rooflights E60/140 Composite floor Q41 Barriers/Guardrails L10/460 Rooflights J21/420 Rigid polyisocyanurate foam (PIR) roofboard warm roof insulation M20/280Gypsum plaster skim on plasterboard M20/280Gypsum plaster skim on plasterboard H72 Aluminium Strip/sheet Coverings/Flashings E10/150In situ concrete E10/150 In situ concrete M20/280Gypsum plaster skim on plasterboard H42 Precast Concrete Panel Cladding/Features L10/650 Metal louvres H11 Curtain Walling E60/140Composite floor Scale (@ A3) Checked byDrawn by Date Project number DRWAING NUMBER CLIENTPROJECT TITLE SHEET STATUS PURPOSE OF ISSUECODE SUITABILITY DESCRIPTION 27/04/201513:53:42 As indicatedDDS4_PO4 GALWAY/MAYO INSTITUTE OF TECHNOLOGY 26/03/15 Mark Flynn Denise Dillon Emer MaughanGA-MF-08 Section AA & BB Upgrade&Retro-Fit of Building and Civil Department GA 26/03/15 No. Description Date 1 : 100 Section 2 1 : 100 Section 1 UP-GRADE: 125MM KINGSPAN KOOLTHERM INSULATION SEPARATED BY 35MM WELL VENTILATED CAVITY BY A 10MM GRANITE COMPOSITE PANEL EXTERNALLY, THE EXISTING 65MM AGGREGATED PANEL, 80MM PHENOLIC FOAM INSULATION, 100MM EXISTING INNER LEAF BLOCK. U- VALUE: 0.11 W/M2K PROPOSED NEW EXTERNAL WALLS UPGRADE: EXISTING: EXTERNAL CONCRETE AGGREGATE PANEL, WELL VENTILATED 80MM SEMI OPEN CAVITY, 100MM CONCRETE BLOCK INNER LEAF. 1.77 W/M2K Foundations: 1200 x 400mm Rinforcement concrete strip footing below external glazing on 50mm sand blinding. 900 x 300mm reinforced concrete strip footing below steel columns on 50mm sand blinding. Ground floor slab thickens at edges to 400 x 400mm at extention perimeter. Ground Floor: 40mm Granite flooring with two coats clear sealant. 100mm screed. 25mm service void formed between edge of screed and wall using plywood framework. 75mm rigid urrthane insulation. DPM laid over slab and finished 100mm above finished floor level in cast in groove in concrete upstand. 150mm thick reinforced concrete slab, thickening to 400 x 400mm at extention perimeter.150mm EPS rigid insulation 50mm Blinding, 200mm Compacted Hardcore, 25mm extruded polystyrene insulation internally at floor edge. Roof Light Build-up 375 x 75 mm reinforced concrete upstand. 25mm PIR insulation around up-stand. 75x 50mm softwood kerb screwed to concrete up-stand. Top layer of polymer modified bitumen waterproof memebrane dressed up vertical face and under rooflight frame. 2100mm wide extruded aluminium frame screwed to kerb to ensure 1.100 fall. Walk on 21.5 mm toughened laminated outer pane, 16mm air filled cavity, 6mm soft coat low-E inner pane. Canopy Gutter: 300 x 75 x 1.5mm pressed aluminium box gutter inbeded in to polymer modified bitumen waterproof memebrane on three sides. 76mm diameter aluminium rainwater pipes inserted inside circular hollow columns. 300 x 150 mm cut-out near base of columns for rainwater pipe outlet. Glass Louvres 6mm low - iron annealed float glass with colourless semi-reflective coating (on top surface)0.76mm PVB sheet interlayer. 10mm toughened glass acid-etched on lower surface. All edges polished. Four 12mm thick laser cut profiled anodised aluminium flat bracket screwed to track spacer with two countersunk hex-head M6 25mm stainless steel screws. Remotely operated louver vent in roof void over curtain walling for natural ventilation. Roof Lights: 30no. Electro Automated Opening Windows For Smoke Venting To Atrium Connected To Firemans Switch At Main Entrance Lobby And Fire Alarm System. Also Connected To Bms For Enviromental Control Of Atrium. Windows To Be Self Closing On De-Activation. Operation Of The Vents In The Event Of A Power Failure To Be Integrated Back-Up Battery Power Which Fails In The Open Position Concrete Footpaths: 100mm Conc. Paths Laid To Fall (1.36) Away From Buildings On Min 150mm Limestone Hardcore Fill Or As Nessary To Make Up Levels.Concrete In 3m Bays With A Starroller Finish And Bullnose Edging The Foot Path That Surrounds The Building Is Also Made From Eco-Cem Concrete. This Will Hepl The Building Reduce Its Carbon Foot Print Curtain Walling 156x 60mm PPC Aluminium Mullions at 2130mm centres. 90x 230x 12mm steel lateral support plates at 3000mm centers, site welded to circular columns to tranfer wind load back to steel columns. Pilkington Energikare System. Double glazed sealed units with 8mm toughened glass inner pane. Black structural silicone horizontal joints. This System Was Used Because It Can Help Reduce The Buildings Energy Usage And Co2 Emmission . It Is Made Up Of Two Different Glasses. Pilkingtonk-Glass A Low Emmissions Glass Which Stop Heat Escaping And Pilkington Optiwhite A Special Extra Clear Glass That Allows More Solar Gain. Bridge Balastrade Structural Toughened and heat-soaked glass, held in base clamp. Glass set in to a arbocal to a minimum depth of 80mm, then pointed with silicone sealant. Continuous metal clamping system fixed to the concrete slab using M12 bolts at 500mm centres. Columns: 300mm diameter circular hollow section steel columns cranked to proved bracing.Concrete pad-base foundations. Columns filled with concrete to just below knee level. Intumescent paint to provide1 hour fire protection. Bridge UBeams. 340 x 315 Universal beams at 2.5m centre cased in two layers 12.5mm fireline board for fire protection. Bridge Structure 120mm Circlar hollow steel hexagonal frame Connected by 340 x 315 mm UB at base plate 150mm profiled steel decking spaning between UB ,150mm Concrete slab,100mm concrete screed. 40mm Granite floor Finish 6: Existing Roof Build-up: Existing Roof: Existing 200mm concrete waffle slab Existing 50mm sand screed Existing bituminous felt Existing 25mm Insulation Existing 30 Mastic asphalt as waterproof 150mm Concrete Slab, 25mm Degrading Polystyrene, 25mm Locally Failing Asphalt. Upgraded Roof: Airtightness membrane bonded to primed substrate. 200mm Kingspan Kooltherm PIR insulation. Two layers of polymer modified bitumen waterproof membrane with chips on exposed surfaces. 1: Roof Build-up: 352mm x 172mm UB beam 150mm profiled steel decking 150mm reinforced concrete slab 1.2mm foil cored reinforcmed vapour barrier. 20mm asphalt. Tapered PIR insulation varying from 110 to 270 mm thick to form 1:80 fall. Two layers of polymer modified bitumen waterproof membrane with chips on exposed surfaces.
  • 8.
    DNDNDNDNDNDNDNDNDN 101020026140115115478430 9195253 150 80 88 164 21 2116 6 22105 163 660 140 1010200205140115115478428 ø 300 306 196 108 216 10 10203553030501003726313 200 400 100 215 658 667 106 211 40 5530 80 12 115 211 3 175 175 247 62 419 215 100 10 100 Scale (@ A3) Checked by Drawn by Date Project number DRWAING NUMBER REV CLIENTPROJECT SHEET STATUS PURPOSE OF ISSUECODE SUITABILITY DESCRIPTION 27/04/201517:12:44 As indicatedDDS4_PO4 GALWAY/MAYO INSTITUTE OF TECHNOLOGY 26/03/15 Mark Flynn Denise Dillon Emer Maughan GA-MF-10Roof Sections Upgrade&Retro-Fit of Building and Civil Department GA 26/03/15 1 : 5 Roof Skylight 1 : 10 Roof Build-up 2: Roof Light Build-up 375 x 75 mm reinforced concrete upstand. 25mm PIR insulation around up-stand. 75x 50mm softwood kerb screwed to concrete up-stand. Top layer of polymer modified bitumen waterproof memebrane dressed up vertical face and under rooflight frame. 2100mm wide extruded aluminium frame screwed to kerb to ensure 1.100 fall. Walk on 21.5 mm toughened laminated outer pane, 16mm air filled cavity, 6mm soft coat low-E inner pane. 2: Suspened Ceiling: Suspended Ceiling System 12.5mm plasterboard with skim coat and paint finish. 1: Roof Lights: 30no. Electro Automated Opening Windows For Smoke Venting To Atrium Connected To Firemans Switch At Main Entrance Lobby And Fire Alarm System. Also Connected To Bms For Enviromental Control Of Atrium. Windows To Be Self Closing On De-Activation. Operation Of The Vents In The Event Of A Power Failure To Be Integrated Back-Up Battery Power Which Fails In The Open Position 3: Steel Structure: 400 x 200 x 20mm thick steel plate welded to the top of the column and bolted to 352 x 172mm galvanised Universal Beam at front of extention. 352 x 172mm UB bolted to 200 x 300mm existing reinforced beam. No. Description Date 4: External Wall Up-Grade: Existing: 200mm internal Concrete Block. 80mm Semi Open Cavity 45mm external concrete aggregate panel Up-Grade: Existing Reinforced Concrete Panels to be Removed. 100mm horizontal/vertical C-purlin support rails. 12mm plasterboard 125mm Kingspan Kooltherm k15 rigid insulation panel 30mm ventilated cavity 10mm Granite Composite Panel Externally. 3: Steel Structure: 400 x 200 x 20mm thick steel plate welded to the top of the column and bolted to 352 x 172mm galvanised Universal Beam at front of extention. 352 x 172mm UB bolted to 200 x 300mm existing reinforced beam. 1 2 3 4 5 5: Parapet: 650mm wide x 100mm high concrete block on flat up-stand. 3mm aluminium capping clipped to counter flashing fixed to steel z-supports. 175mm insulation up-stand retained to inside of concrete block with galvanised mesh. 1 2 3 4 6: Existing Roof Build-up: Existing Roof: Existing 200mm concrete waffle slab Existing 50mm sand screed Existing bituminous felt Existing 25mm Insulation Existing 30 Mastic asphalt as waterproof 150mm Concrete Slab, 25mm Degrading Polystyrene, 25mm Locally Failing Asphalt. Upgraded Roof: Airtightness membrane bonded to primed substrate. 200mm Kingspan Kooltherm PIR insulation. Two layers of polymer modified bitumen waterproof membrane with chips on exposed surfaces. 1: Roof Build-up: 352mm x 172mm UB beam 150mm profiled steel decking 150mm reinforced concrete slab 1.2mm foil cored reinforcmed vapour barrier. 20mm asphalt. Tapered PIR insulation varying from 110 to 270 mm thick to form 1:80 fall. Two layers of polymer modified bitumen waterproof membrane with chips on exposed surfaces. 5: Suspened Ceiling: Suspended Ceiling System 12.5mm plasterboard with skim coat and paint finish. 4: Roof Build-up: 352mm x 172mm UB beam 150mm profiled steel decking 150mm reinforced concrete slab 1.2mm foil cored reinforcmed vapour barrier. 20mm asphalt. Tapered PIR insulation varying from 110 to 270 mm thick to form 1:80 fall. Two layers of polymer modified bitumen waterproof membrane with chips on exposed surfaces. 5
  • 9.
    DNDNDNDNDNDNDNDNDN 300 112 108 75315915350751630 900 300 400 150 400 160 147 85 4050242 1173 100 100 75 24 1186 82 4mm Paralon CapSheet 3mm Paralon Base Sheet Paratorch insulation Harmer AV400 RWO 100 dia Outlet flange recessed into insulation 2mm vapour control layer Existing roof structure 2015622151115115478428 625 24 77 115 140 232 95 1030 480 651 592 14631853643250642 160 850 122 675 112 ø 300 ø 300 115 115 538 268 973 405505 138 140 18 26 15 251 86 Scale (@ A3) Checked by Drawn by Date Project number DRWAING NUMBER REV CLIENTPROJECT SHEET STATUS PURPOSE OF ISSUECODE SUITABILITY DESCRIPTION 27/04/201517:01:00 As indicatedDDS4_PO4 GALWAY/MAYO INSTITUTE OF TECHNOLOGY 26/03/15 Mark Flynn Denise Dillon Emer Maughan GA-MF-11Curtain walling Sections Upgrade&Retro-Fit of Building and Civil Department GA 26/03/15 3: Foundations: 1200 x 400mm Rinforcement concrete strip footing below external glazing on 50mm sand blinding. 900 x 300mm reinforced concrete strip footing below steel columns on 50mm sand blinding. Ground floor slab thickens at edges to 400 x 400mm at extention perimeter. 2: Ground Floor: 40mm Granite flooring with two coats clear sealant. 100mm screed. 25mm service void formed between edge of screed and wall using plywood framework. 75mm rigid urrthane insulation. DPM laid over slab and finished 100mm above finished floor level in cast in groove in concrete upstand. 150mm thick reinforced concrete slab, thickening to 400 x 400mm at extention perimeter. 150mm EPS rigid insulation 50mm Blinding 200mm Compacted Hardcore 25mm extruded polystyrene insulation internally at floor edge. 5: Steel Strcuture: 300x10mm galvanised steel circular hollow section columns at 2.5m centres to enxtention perimeter with painted finish 275 x 275 x 15mm baseplate welded to circular hollow section and bolted to concrete footing. 400 x 200 x 20mm thick steel plate welded to the top of the column and bolted to 625 x 455mm galvanised Universal Beam at front of extention. 352 x 172mm UB bolted to 200 x 300mm existing reinforced beam. 6: Suspened Ceiling: Suspended Ceiling System 12.5mm plasterboard with skim coat and paint finish. 2: Canopy Gutter: 300 x 75 x 1.5mm pressed aluminium box gutter inbeded in to polymer modified bitumen waterproof memebrane on three sides. 76mm diameter aluminium rainwater pipes inserted inside circular hollow columns. 300 x 150 mm cut-out near base of columns for rainwater pipe outlet. 1 : 10 Curtain walling/Foundation 1 : 10 Curtain walling/Roof 4:Concrete Footpaths: 100mm Conc. Paths Laid To Fall (1.36) Away From Buildings On Min 150mm Limestone Hardcore Fill Or As Nessary To Make Up Levels.Concrete In 3m Bays With A Starroller Finish And Bullnose Edging The Foot Path That Surrounds The Building Is Also Made From Eco-Cem Concrete. This Will Hepl The Building Reduce Its Carbon Foot Print 8: Parapet: 850mm wide x 160mm high reinforced concrete up-stand. 592mm wide pressed aluminium flashing fixed on clips to concrete up-stand. 122mm insulation up-stand retained to inside of concrete with galvanised mesh. 75mm insulation behind aluminium curtain wall panel. 7: Railing: Guarding provided around outward opening doors in compliance dia 1 and 2 of TGD part M2010 1.1.3.1 4: Glass Louvre 6mm low - iron annealed float glass with colourless semi-reflective coating (on top surface)0.76mm PVB sheet interlayer. 10mm toughened glass acid-etched on lower surface. All edges polished. Four 12mm thick laser cut profiled anodised aluminium flat bracket screwed to track spacer with two countersunk hex-head M6 25mm stainless steel screws. Remotely operated louver vent in roof void over curtain walling for natural ventilation. 1: Curtain Walling 156x 60mm PPC Aluminium Mullions at 2130mm centres. 90x 230x 12mm steel lateral support plates at 3000mm centers, site welded to circular columns to tranfer wind load back to steel columns. Pilkington Energikare System. Double glazed sealed units with 8mm toughened glass inner pane. Black structural silicone horizontal joints. This System Was Used Because It Can Help Reduce The Buildings Energy Usage And Co2 Emmission . It Is Made Up Of Two Different Glasses. Pilkingtonk-Glass A Low Emmissions Glass Which Stop Heat Escaping And Pilkington Optiwhite A Special Extra Clear Glass That Allows More Solar Gain. 3: Curtain Walling 156x 60mm PPC Aluminium Mullions at 2130mm centres. 90x 230x 12mm steel lateral support plates at 3000mm centers, site welded to circular columns to tranfer wind load back to steel columns. Pilkington Energikare System. Double glazed sealed units with 8mm toughened glass inner pane. Black structural silicone horizontal joints. This System Was Used Because It Can Help Reduce The Buildings Energy Usage And Co2 Emmission . It Is Made Up Of Two Different Glasses. Pilkingtonk-Glass A Low Emmissions Glass Which Stop Heat Escaping And Pilkington Optiwhite A Special Extra Clear Glass That Allows More Solar Gain. 5: Steel Strcuture: 300x10mm galvanised steel circular hollow section columns at 2.5m centres to enxtention perimeter with painted finish 275 x 275 x 15mm baseplate welded to circular hollow section and bolted to concrete footing. 400 x 200 x 20mm thick steel plate welded to the top of the column and bolted to 352 x 172mm galvanised Universal Beam at front of extention. 352 x 172mm UB bolted to 200 x 300mm existing reinforced beam. 1 2 3 4 5 A1 12 3 4 5 6 7 8 6: Canopy Gutter: 300 x 75 x 1.5mm pressed aluminium box gutter inbeded in to polymer modified bitumen waterproof memebrane on three sides. 76mm diameter aluminium rainwater pipes inserted inside circular hollow columns. 300 x 150 mm cut-out near base of columns for rainwater pipe outlet. 6 No. Description Date 1: Roof Build-up: 352mm x 172mm UB beam 150mm profiled steel decking 150mm reinforced concrete slab 1.2mm foil cored reinforcmed vapour barrier. 20mm asphalt. Tapered PIR insulation varying from 110 to 270 mm thick to form 1:80 fall. Two layers of polymer modified bitumen waterproof membrane with chips on exposed surfaces.
  • 10.
    DNDNDNDNDNDNDNDNDN 2050 1970 ø 1800 40 8480 14 103 200 2649 200 100 14 80 83 40 20099 14 808340 211 1342 727 440 100 408380 14 101100105133 900 ø 300 1349 2868 1209540 205 200 1505075 16 30 43834010010040 17 4284682401412015620 2103 1591 1997 182 200 363 362 1867 200 201 2240 2476 2020 524 2103630 2400 2635 468 150 200 109 12 80 30 48 47 74103150 8672 1030 7963 8549 557 655 737 164500 2725 2730 301 Scale (@ A3) Checked byDrawn by Date Project number DRWAING NUMBER CLIENTPROJECT TITLE SHEET STATUS PURPOSE OF ISSUECODE SUITABILITY DESCRIPTION 28/04/201509:36:57 As indicatedDDS4_PO4 GALWAY/MAYO INSTITUTE OF TECHNOLOGY 26/03/15 Mark Flynn Denise Dillon Emer MaughanGA-MF-12 Elevator Details Upgrade&Retro-Fit of Building and Civil Department GA 26/03/15 No. Description Date 1 : 20 Elevator Plan 1 : 20 Elevator Cross Section 8: Foundations: 1200 x 400mm Rinforcement concrete strip footing below external glazing on 50mm sand blinding. 900 x 300mm reinforced concrete strip footing below steel columns on 50mm sand blinding. Ground floor slab thickens at edges to 400 x 400mm at extention perimeter. 7: Ground Floor: 40mm Granite flooring with two coats clear sealant. 100mm screed. 25mm service void formed between edge of screed and wall using plywood framework. 75mm rigid urrthane insulation. DPM laid over slab and finished 100mm above finished floor level in cast in groove in concrete upstand. 150mm thick reinforced concrete slab, thickening to 400 x 400mm at extention perimeter. 150mm EPS rigid insulation 50mm Blinding 200mm Compacted Hardcore 25mm extruded polystyrene insulation internally at floor edge. 5: Suspened Ceiling: Suspended Ceiling System 12.5mm plasterboard with skim coat and paint finish. 2: Canopy Gutter: 300 x 75 x 1.5mm pressed aluminium box gutter inbeded in to polymer modified bitumen waterproof memebrane on three sides. 76mm diameter aluminium rainwater pipes inserted inside circular hollow columns. 300 x 150 mm cut-out near base of columns for rainwater pipe outlet. 9:Concrete Footpaths: 100mm Conc. Paths Laid To Fall (1.36) Away From Buildings On Min 150mm Limestone Hardcore Fill Or As Nessary To Make Up Levels.Concrete In 3m Bays With A Starroller Finish And Bullnose Edging The Foot Path That Surrounds The Building Is Also Made From Eco-Cem Concrete. This Will Hepl The Building Reduce Its Carbon Foot Print 4: Parapet: 850mm wide x 160mm high reinforced concrete up-stand. 592mm wide pressed aluminium flashing fixed on clips to concrete up-stand. 122mm insulation up-stand retained to inside of concrete with galvanised mesh. 75mm insulation behind aluminium curtain wall panel. 3: Railing: Guarding provided around outward opening doors in compliance dia 1 and 2 of TGD part M2010 1.1.3.1 12: Curtain Walling 156x 60mm PPC Aluminium Mullions at 2130mm centres. 90x 230x 12mm steel lateral support plates at 3000mm centers, site welded to circular columns to tranfer wind load back to steel columns. Pilkington Energikare System. Double glazed sealed units with 8mm toughened glass inner pane. Black structural silicone horizontal joints. This System Was Used Because It Can Help Reduce The Buildings Energy Usage And Co2 Emmission . It Is Made Up Of Two Different Glasses. Pilkingtonk-Glass A Low Emmissions Glass Which Stop Heat Escaping And Pilkington Optiwhite A Special Extra Clear Glass That Allows More Solar Gain. 11: Steel Strcuture: 300x10mm galvanised steel circular hollow section columns at 2.5m centres to enxtention perimeter with painted finish 275 x 275 x 15mm baseplate welded to circular hollow section and bolted to concrete footing. 400 x 200 x 20mm thick steel plate welded to the top of the column and bolted to 352 x 172mm galvanised Universal Beam at front of extention. 352 x 172mm UB bolted to 200 x 300mm existing reinforced beam. 1: Roof Build-up: 352mm x 172mm UB beam 150mm profiled steel decking 150mm reinforced concrete slab 1.2mm foil cored reinforcmed vapour barrier. 20mm asphalt. Tapered PIR insulation varying from 110 to 270 mm thick to form 1:80 fall. Two layers of polymer modified bitumen waterproof membrane with chips on exposed surfaces. 1 2 3 4 5 6 6: External Wall Up-Grade: Existing: 200mm internal Concrete Block. 80mm Semi Open Cavity 45mm external concrete aggregate panel Up-Grade: Existing Reinforced Concrete Panels to be Removed. 100mm horizontal/vertical C-purlin support rails. 12mm plasterboard 125mm Kingspan Kooltherm k15 rigid insulation panel 30mm ventilated cavity 10mm Granite Composite Panel Externally. 10: Existing Floor : 20omm per-cast concrete waffel slab. 20mm concrete screed. 13mm marmoleum floor covering 7 9 8 10 11 12
  • 11.
    DNDNDNDNDNDNDNDNDN 737 314 216 98 2020355302852200328 200 400 100 215 60055 47 48 3080 12 117 166394 100 215 13 300138 32 16 54 38 100 215 423 352 252 394 550550 3012255010515015 5 177140 172 100 10 100 40 18 40 55 30 80 14 106 100 10 100 16 550 199 40 7 48 28 83 12 100 100 10 100 13 65 21542151620 282 123 21 32 16 54 282 158 39 32 Scale (@ A3) Checked by Drawn by Date Project number DRWAING NUMBER REV CLIENTPROJECT SHEET STATUS PURPOSE OF ISSUECODE SUITABILITY DESCRIPTION 27/04/201518:05:19 As indicatedDDS4_PO4 GALWAY/MAYO INSTITUTE OF TECHNOLOGY 26/03/15 Mark Flynn Denise Dillon Emer Maughan GA-MF-13Detail 1 Upgrade&Retro-Fit of Building and Civil Department 26/03/15 2: Foundations: 1200 x 400mm Rinforcement concrete strip footing below external glazing on 50mm sand blinding. 900 x 300mm reinforced concrete strip footing below steel columns on 50mm sand blinding. Ground floor slab thickens at edges to 400 x 400mm at extention perimeter. 1 : 5 Parapet Detail 1 : 5 Foundation Detail No. Description Date 2: Suspened Ceiling: Suspended Ceiling System 12.5mm plasterboard with skim coat and paint finish. Gap between plasterboard and suspended ceiling to be sealed with a flexible sealant. Two layers of polymer modified bitumen waterproof membrane with chips on exposed surfaces. Tapered PIR insulation varying from 110 to 270 mm thick to form 1:80 fall. 1.2mm foil cored reinforcmed vapour barrier. 150mm concrete slab. 150mm deep profiled galvanised steel roof deck on 352 x 172mm UB. 3: External Wall Up-Grade: Existing: 200mm internal Concrete Block. 80mm Semi Open Cavity 45mm external concrete aggregate panel Up-Grade: Existing Reinforced Concrete Panels to be Removed. 100mm horizontal/vertical C-purlin support rails. 12mm plasterboard 125mm Kingspan Kooltherm k15 rigid insulation panel 30mm ventilated cavity 10mm Granite Composite Panel Externally. 4: Parapet: 650mm wide x 100mm high concrete block on flat up-stand. 3mm aluminium capping clipped to counter flashing fixed to steel z-supports. 175mm insulation up-stand retained to inside of concrete block with galvanised mesh. 1: Roof Build-up: Existing Roof: Existing 200mm concrete waffle slab Existing 50mm sand screed Existing bituminous felt Existing 25mm Insulation Existing 30 Mastic asphalt as waterproof 150mm Concrete Slab, 25mm Degrading Polystyrene, 25mm Locally Failing Asphalt. Upgraded Roof: Airtightness membrane bonded to primed substrate. 200mm Kingspan Kooltherm PIR insulation 3mm Paratorch Pir Foam Composite Bitumen Impregnated Hunton Fibreboard 1: External Wall Up-Grade: Existing: 200mm internal Concrete Block. 80mm Semi Open Cavity 45mm external concrete aggregate panel Up-Grade: Existing Reinforced Concrete Panels to be Removed. 100mm horizontal/vertical C-purlin support rails. 12mm plasterboard 125mm Kingspan Kooltherm k15 rigid insulation panel 30mm ventilated cavity 10mm Granite Composite Panel Externally. 6: Structure 200mm x 600mm reinforced cast in-situ concrete beam. 200mm x 400mm reinforced cast in-situ concrete column. 5: Windows: Aluminium frame window to achieve a miniumum u-value of 0.80 w/mk. Stainless steel fixing strap bent across and fixed to 100mm concrete lintel with suitable fixings as per structural engineers recommendations. Gap bewteen plasterboard and window frame to be sealed with a flexable sealant. Air tightness membrane to be sealed to window frame to maintain airtightness. Ams Windows With Saint Gobain Glass. South & West: Triple Glazed, Argon Filled, With Additional Non Glass Layer On The Internal Face With Interstitial Blinds. G- Value: 0.33 (To Reduce Solar Gain Due To Occupancy Loads). Shading Coefficient 0.38. Light Transmittance 0.71. North: Triple Glazed, Argon Filled. G-Value: 0.61 (To Increase Solar Gain). Shading Coefficient 0.7. Light Transmittance 0.62. Overall U-Value Of 1.03 W/M2k 1 2 3 4 5 6 1 2 3 4 3:Concrete Footpaths: 100mm Conc. Paths Laid To Fall (1.36) Away From Buildings On Min 150mm Limestone Hardcore Fill Or As Nessary To Make Up Levels.Concrete In 3m Bays With A Starroller Finish And Bullnose Edging The Foot Path That Surrounds The Building Is Also Made From Eco-Cem Concrete. This Will Hepl The Building Reduce Its Carbon Foot Print 2: External Wall Up-Grade: Existing: 200mm internal Concrete Block. 80mm Semi Open Cavity 45mm external concrete aggregate panel Up-Grade: Existing Reinforced Concrete Panels to be Removed. 100mm horizontal/vertical C-purlin support rails. 12mm plasterboard 125mm Kingspan Kooltherm k15 rigid insulation panel 30mm ventilated cavity 10mm Granite Composite Panel Externally. 1: Windows: Aluminium frame window to achieve a miniumum u-value of 0.80 w/mk. Stainless steel fixing strap bent across and fixed to 100mm concrete lintel with suitable fixings as per structural engineers recommendations. Gap bewteen plasterboard and window frame to be sealed with a flexable sealant. Air tightness membrane to be sealed to window frame to maintain airtightness. Ams Windows With Saint Gobain Glass. South & West: Triple Glazed, Argon Filled, With Additional Non Glass Layer On The Internal Face With Interstitial Blinds. G- Value: 0.33 (To Reduce Solar Gain Due To Occupancy Loads). Shading Coefficient 0.38. Light Transmittance 0.71. North: Triple Glazed, Argon Filled. G-Value: 0.61 (To Increase Solar Gain). Shading Coefficient 0.7. Light Transmittance 0.62. Overall U-Value Of 1.03 W/M2k 1 : 5 Window detail 1 2
  • 12.
    DNDNDNDNDNDNDNDNDN 30 16 3115010353 30167550153159 40 55 3080 14 105 111 10 100 13 215 100 120 1720100115 200 600 210 507593507 507505 76538 100 40 7 78 80 14 106 100 10 100 13 17401001403976313 600 200 1740100100340 313 100 10 100 108 14 80 30 50 40 100 50 513 40 E05 In Situ Concrete Construction Generally F10 Brick/Block Walling K10/145 Wall lining system (Metal stud) Z20 Fixings/Adhesives E In Situ Concrete/Large Precast Concrete Scale (@ A3) Checked byDrawn by Date Project number DRWAING NUMBER CLIENTPROJECT TITLE SHEET STATUS PURPOSE OF ISSUECODE SUITABILITY DESCRIPTION 28/04/201512:25:47 As indicatedDDS4_PO4 GALWAY/MAYO INSTITUTE OF TECHNOLOGY 28/04/15 Mark Flynn Denise Dillon Emer MaughanGA-MF-14 Details 2 Upgrade&Retro-Fit of Building and Civil Department GA 28/04/15 1 : 10 Floor Connections (B) 1 : 5 Floor Connection (C) 1 : 5 Floor New/existing (A) 2: Suspened Ceiling: Suspended Ceiling System 12.5mm plasterboard with skim coat and paint finish. Gap between plasterboard and suspended ceiling to be sealed with a flexible sealant. 3: Structure: 200mm x 600mm reinforced cast in-situ concrete beam. 200mm x 400mm reinforced cast in-situ concrete column. 4: Existing Floor : 20omm per-cast concrete waffel slab. 20mm concrete screed. 13mm marmoleum floor covering 1: External Wall Up-Grade: Existing: 200mm internal Concrete Block. 80mm Semi Open Cavity 45mm external concrete aggregate panel Up-Grade: Existing Reinforced Concrete Panels to be Removed. 100mm horizontal/vertical C-purlin support rails.12mm plasterboard, 125mm Kingspan Kooltherm k15 rigid insulation panel 30mm ventilated cavity ,10mm Granite Composite Panel Externally. No. Description Date 1 2 3 4 5 6 1: Foundations: 1200 x 400mm Rinforcement concrete strip footing below external glazing on 50mm sand blinding. 900 x 300mm reinforced concrete strip footing below steel columns on 50mm sand blinding. Ground floor slab thickens at edges to 400 x 400mm at extention perimeter. 3: Ground Floor: 40mm Granite flooring with two coats clear sealant. 100mm screed. 25mm service void formed between edge of screed and wall using plywood framework. 75mm rigid urrthane insulation. DPM laid over slab and finished 100mm above finished floor level in cast in groove in concrete upstand. 150mm thick reinforced concrete slab, thickening to 400 x 400mm at extention perimeter.150mm EPS rigid insulation 50mm Blinding, 200mm Compacted Hardcore, 25mm extruded polystyrene insulation internally at floor edge. 5:Bridge Structure: 120mm Circlar hollow steel hexagonal frame Connected by 340 x 315 mm UB at base plate 150mm profiled steel decking spaning between UB ,150mm Concrete slab,100mm concrete screed. 40mm Granite floor Finish 6: Movement Joint: 1 2 3 4 2: Movement Joint: 4: Existing Ground Floor 2: Suspened Ceiling: Suspended Ceiling System 12.5mm plasterboard with skim coat and paint finish. Gap between plasterboard and suspended ceiling to be sealed with a flexible sealant. 3: Structure: 200mm x 600mm reinforced cast in-situ concrete beam. 200mm x 400mm reinforced cast in-situ concrete column. 4: Existing Floor : 20omm per-cast concrete waffel slab. 20mm concrete screed. 13mm marmoleum floor covering 1: External Wall Up-Grade: Existing: 200mm internal Concrete Block. 80mm Semi Open Cavity 45mm external concrete aggregate panel Up-Grade: Existing Reinforced Concrete Panels to be Removed. 100mm horizontal/vertical C-purlin support rails.12mm plasterboard, 125mm Kingspan Kooltherm k15 rigid insulation panel 30mm ventilated cavity ,10mm Granite Composite Panel Externally. 1 2 3 4 A B C
  • 13.
    DNDNDNDNDNDNDNDNDN 4183 6802 11641236 2205 4800 24002400 + 27.130 + 32.795 +37.172 6466 1993 340 200 85 46 120 4800 Scale (@ A3) Checked byDrawn by Date Project number DRWAING NUMBER CLIENTPROJECT TITLE SHEET STATUS PURPOSE OF ISSUECODE SUITABILITY DESCRIPTION 27/04/201518:06:37 As indicatedDDS4_PO4 GALWAY/MAYO INSTITUTE OF TECHNOLOGY 26/03/15 Mark Flynn Denise Dillon Emer MaughanGA-MF-15 Link Bridge Sections Upgrade&Retro-Fit of Building and Civil Department GA 26/03/15 No. Description Date 1 : 25 Section A1 4: Bridge Balastrade Structural Toughened and heat-soaked glass, held in base clamp. Glass set in to a arbocal to a minimum depth of 80mm, then pointed with silicone sealant. Continuous metal clamping system fixed to the concrete slab using M12 bolts at 500mm centres. 1: Columns: 300mm diameter circular hollow section steel columns cranked to proved bracing.Concrete pad-base foundations. Columns filled with concrete to just below knee level. Intumescent paint to provide1 hour fire protection. 2: Bridge UBeams. 340 x 315 Universal beams at 2.5m centre cased in two layers 12.5mm fireline board for fire protection. 3: Bridge Structure 120mm Circlar hollow steel hexagonal frame Connected by 340 x 315 mm UB at base plate 150mm profiled steel decking spaning between UB ,150mm Concrete slab,100mm concrete screed. 40mm Granite floor Finish Bridge Details: A1 cs 1 : 25 Cross Section A1 1 2 3 4 5: Bridge Facade: 40mm thick bead-blasted stainless-stell panel with lazer-cut vertical abutments botled to supporting structure in rigid joints. 1 2 3 4