Page | 0Belajar Cepat Desain Mesin 3D dengan
Solidworks
I
Page | 1Belajar Cepat Desain Mesin 3D dengan
Solidworks
Daftar isi
Halaman judul
Kata pengantar
Daftar Isi
Bab 1 Pendahuluan
Bab 2 Gambar 2D dengan Basic Sketch
Bab 3 Pembuatan gambar komponen 3D dengan Part Modeling
Bab 3 Pembuatan Gambar rakitan 3D dengan Asemblies
Bab 4 Pembuatan Gambar Kerja 2D dengan Drawing
Bab 5 Mencetak Gambar
Bab 6 Topik Khusus (sheetmetal, Mold Desain, Rendering)
Daftar Pustaka
Page | 2Belajar Cepat Desain Mesin 3D dengan
Solidworks
Pengenalan perangkat lunak CAD
Solidworks merupakan program rancang bangun yang banyak digunakan
untuk mengerjakan desain produk, desain mesin, desain mould, desain konstruksi,
ataupun keperluan teknik yang lain. Solidworks dilengkapi dengan tool yang
digunakan untuk menghitung dan analisis hasil desain seperti tegangan, regangan,
maupun pengaruh suhu, angin, dll. Solidworks adalah program pemodelan yang
berbasis fitur parametrik , maksudnya semua objek dan hubungan antar geometrik
dapat dimodifikasi kembali meskipun geometriknya sudah jadi tanpa perlu
mengulang lagi dari awal. Dengan metode ini sangat memudahkan dalam proses
desain suatu produk atau rancangan.
Untuk membuat sebuah model 3D yang solid kita harus membuat sketchnya
terlebih dahulu. Model 3D berupa component kemudian dirakit menjadi sebuah
gambar rakitan dengan menu assembly. Setelah gambar component atau dan
assembly jadi maka dibuat gambar kerjanya menggunakan fasilitas drawing. Untuk
alurnya dapat dilihat ilustrasi chart berikut ini :
Diagram 1. Proses gambar dengan solidworks
Beberapa keunggulan membuat gambar teknik menggunakan solidworks
sebagai berikut :
1. Software ini cukup mudah dioperasikan
2. Dapat membantu mengurangi kesalahan dalam mendesain
BAB I
Pendahuluan
Page | 3Belajar Cepat Desain Mesin 3D dengan
Solidworks
3. Dapat mensimulasikan gerakan hasil desain
4. Dapat menganalisis tegangan, beban, pengaruh suhu, cuaca, dan
sebagainya hasil desain dengan mudah tanpa menggunakan software lain
5. Dapat membuat program untuk proses manufaktur dengan CNC atau
robot industri dengan bantuan software lain seperti mastercam, robotcam,
delcam, dsb.
6. Biaya produksi yang harus dikeluarkan menjadi berkurang karena proses
yang terencana
Memulai aplikasi solidworks
1. Buka program Solidworks 2012 caranya, klik tombol start lalu pilih
All Program > Solidworks 2012 > Solidworks 2012.exe
Gambar 1.1. Membuka aplikasi
2. Buat dokumen baru dengan cara klik file > New
( hot key : Ctrl + N )
Gambar 1.2. Membuat dokumen baru
Page | 4Belajar Cepat Desain Mesin 3D dengan
Solidworks
Akan muncul pilihan menu sebagai berikut :
Gambar 1.3 Pilihan ruang gambar
Tipe file di solidworks disesuaikan dengan template yang disediakan yaitu :
Part (*.prt;*.sldprt) : digunakan untuk menggambar komponen 3D (proyeksi
pictorial) yang berupa sebuah part atau komponen tunggal
Assembly (*.asm;*.sldasm) digunakan untuk membuat gambar rakitan 3D (proyeksi
pictorial rakitan) yang berisikan rakitan dari beberapa part
dan atau komponen standar. Assembly juga dapat berisikan
beberapa sub assembly.
Drawing(*.drw;*.slddrw) digunakan untuk membuat gambar kerja 2D (proyeksi
orthogonal/gambar kerja) yang berdasarkan aturan gambar
teknik.
Layar solidworks sebagai berikut
Gambar 1.4 Layar utama
Keterangan :
Page | 5Belajar Cepat Desain Mesin 3D dengan
Solidworks
Menu bar : berisi barisan menu utama
Command manager : berisi baris perintah utama
Configuration manager : berisi bagian-bagian utama file gambar
Layar : area yang digunakan untuk membuat gambar/objek
Task pan : berisi menu tambahan
Motion manager : berisi menu objek dan menu motion
3. membuka file dengan cara klik File > Open (hotkey : Ctrl + O )
Gambar 1.5 Petunjuk membuka dokumen
pilihlah file yang akan di buka pada drive penyimpanan kemudian Open
1.6 Petunjuk pemilihan file
4. menyimpan file dengan cara klik file > save (hotkey : Ctrl + S)
1.7 Petunjuk menyimpan file
Page | 6Belajar Cepat Desain Mesin 3D dengan
Solidworks
ubah nama part 1 pada file name > pilih drive penyimpanan > save
1.8 Petunjuk merubah nama file
Perlu diperhatikan!
Tidak diajurkan merubah nama file komponen yang sudah dirakit (asembly)
atau di buat gambar kerjanya (drawing) karena menyebabkan data file tidak
terbaca.
Merubah satuan
Sistem satuan merupakan bagian sangat penting dari sebuah gambar. Di dalam
gambar teknik kita mengenal sistem satuan dimana terdapat sistem satuan British
(English) dan satuan IS (Metric). Langkah-langkah mengubah satuan sebelum
menggambar adalah sebagai berikut:
cara pertama : klik file > tool > option
1.9. Petunjuk merubah satuan
Kemudian pilih document properties
Page | 7Belajar Cepat Desain Mesin 3D dengan
Solidworks
Gambar 1.20. document properties
Kemudian pilih unit
Gambar 1.21 unit
Kemudian pilihlah unit properties MMS, CGS, MMGS, IPS, Custom
Cara kedua : klik segitiga kecil pojok kanan bawah pilihlah edit document units
kemudian pilih unit yang digunakan dengan di centang
Gambar 1.22 unit properties
BAB II
GAMBAR 2D DENGAN
BASIC SKETCH
Page | 8Belajar Cepat Desain Mesin 3D dengan
Solidworks
Sketch merupakan dasar dalam pembuatan sebuah objek dasar di
solidworks. Di menu sketch memuat berbagai perintah dasar seperti line, circle,
arc,polygon, dll.
Baris Comand sketch
Gambar 2.1 comand sketch
Baris comand pada menu sketch dikategorikan menjadi 3 bagian pokok yaitu
comand draw, comand modify, dan comand transformasi.
Comand draw
Comand draw digunakan untuk membuat objek gambar pada sketch. Ada
beberapa perintah pokok pada menu draw yang dijelaskan pada tabel 1 berikut ini.
TOOLBAR COMAND FUNGSI
Sketch Sketch untuk membuat 2D sketch
3D sketch untuk membuat 3D sketch
Dimension Smart
dimension
untuk memberikan ukuran
dasar suatu sketch
Line line Untuk membuat garis lurus
centerline Untuk membuat garis tengah
TOOLBAR COMAND FUNGSI
Polygon Polygon Untuk membuat segi banyak
beraturan
Page | 9Belajar Cepat Desain Mesin 3D dengan
Solidworks
Circle Circle Untuk membuat bentuk
lingkaran
Perimeter
circle
Untuk membuat lingkaran
berdasarkan 3 titik acuan
Arc Centerpoint
arc
Untuk membuat busur
berdasarkan pusat radius
Tangent arc Untuk membuat busur
berdasarkan titik tangen
3 point arc Untuk membuat busur dengan
berdasarkan 3 titik acuan
Rectangle Corner
rectangle
Untuk membuat segiempat
dengan dua titik diagonal
Center
rectangle
Untuk membuat segiempat
berdasarkan titik pusat acuan
3 Point corner
rectangle
Untuk membuat segiempat
berdasarkan diagonal dengan 3
titik acuan
3 point center
rectangle
Untuk membuat segi empat
dengan berdasarkan pusat
bangun dan 2 titik acuan
parallelogram Untuk membuat bangun
jajargenjang berdasar 3 titik
acuan
Slot Staright Slot Untuk membuat alur slot lurus
Centerpoint
straight slot
Untuk membuat alur slot
berdasarkan titik pusat acuan
3 point arc
slot
Untuk membuat slot bentuk
radius/arc
Centerpoint
arc slot
Untuk membuat slot radius
dengan acuan titik pusat radius
TOOLBAR COMAND FUNGSI
Spline Spline Untuk membuat garis tak
beraturan
Page | 10Belajar Cepat Desain Mesin 3D dengan
Solidworks
Elipsee Elipse Untuk membuat sebuah
bangun elipse
Planee Planee Untuk membuat bidang gambar
pada 3D sketch
Text Text Untuk menulis sebuah text
Tabel 1 comand draw
Comand Modify
Comand modify digunakan untuk membuat objek dengan cara memodifikasi
sketch yang sudah ada. Adapun beberapa perintah pokok yang dikategorikan dalam
comand modify dijelaskan seperti pada tabel 2 berikut ini:
TOOLBAR COMAND FUNGSI
Mirror Mirror entities Digunakan untuk membuat
bentuk geometri yang
dicerminkan dari bentuk yang
dipilih dengan menentukan
garis pencerminan
Offset Offset entities Untuk membuat bentuk
geometri yang sebangun
dengan bentuk objek yang
dipilih dengan menentukan
jarak tertentu dari objek
aslinya.
TOOLBAR COMAND FUNGSI
Convert Convert entities Untuk menduplikat segment
garis pada bentuk geometric
Page | 11Belajar Cepat Desain Mesin 3D dengan
Solidworks
Pattern Linier sketch
Pattern
Digunakan untuk membuat
pola linier/garis lurus dengan
duplikasi dalam sejumlah
baris dan kolom. Perlu
ditentukan juga jarak antar
baris dan kolom berikut arah
duplikasinya.
Circular sketch
pattern
Digunakan untuk membuat
pola melingkar dari suatu
objek dengan menentukan
sumbu pusat perputaran,
jumlah duplikasi dan sudut
yang melingkupi.
Fillet/Chamfer Fillet digunakan untuk membuat
pertemuan 2 garis atau busur
(arc) menjadi
cembung/cekung.
Chamfer Digunakan untuk membuat
pertemuan antara 2 garis
menjadi miring dengan
spesifiksai tertentu
Tabel 2. Comand modifikasi
Comand Transformasi
Page | 12Belajar Cepat Desain Mesin 3D dengan
Solidworks
Comand transformasi digunakan untuk memodifikasi garis/objek seperti
memotong, memperpanjang, memindah dan lain-lain. Comand transformasi
dijelaskan lebih detail seperti pada tabel 3 berikut ini:
TOOLBAR COMAND FUNGSI
Trims / extend Trim entities Digunakan untuk
memotong garis atau
kurva di dalam ruas yang
berpotongan dengan
garis atau kurva lain.
Extend entities Digunakan untuk
memperpanjang suatu
garis atau kurva sampai
titik perpotongan terdekat
dengan kurva yang lain
TOOLBAR COMAND FUNGSI
Move Move entities Untuk memindah objek
Copy Untuk menduplikat objek
Rotate Untuk merotasi sebuah
objek
Scale Untuk menskalakan
sebuah objek
Stretch Untuk memindah posisi
sebuah objek
Tabel 3. Comand transformasi
Relation dan Dimension
Fungsi relation sangat penting untuk digunakan pada saat membuat sketch.
Relation merupakan hubungan antara satu atau lebih sebuah garis/lingkaran/arc.
Beberapa relation sebagai berikut :
RELATION COMAND FUNGSI
Fix Membuat garis atau lingkaran menjadi
tetap tidak bisa digeser dan digerakan
Horizontal Membuat garis menjadi mendatar atau
sejajar sumbu X
Vertical Membuat garis menjadi tegak atau
sejajar sumbu Y
RELATION COMAND FUNGSI
Page | 13Belajar Cepat Desain Mesin 3D dengan
Solidworks
Collinier Membuat dua garis saling
berhimpit/segaris
Perpendicular Membuat 2 garis saling tegak lurus
Equal Menyamakan ukuran objek
Coradial Membuat dua buah lingkaran atau
busur lingkaran sepusat dan seukuran
Parallel Membuat 2 buah garis sejajar atau
sejajar dengan plane front, top, atau
right
Tangent Membuat garis dan garis busur (arc)
saling bersinggungan pada satu titik
Concentric Membuat 2 buah lingkaran atau arc
sepusat
Tabel 4. Relation
Untuk menampilkan relation antar garis/lingkaran/arc sebagai berikut ;
Cara pertama :
1. Pada lembar sketch klik display/delete relation
Gambar 2.2 relation
2. Kemudian klik add relation
Gambar 2.3 add relation
3. Akan muncul dialog relation berikut
Page | 14Belajar Cepat Desain Mesin 3D dengan
Solidworks
- Pada select entities pilih
garis yang akan di beri
relation
- Pada kolom add relation
pilih jenis relation yang
dipilih
- Kemudian klik centang
warna hijau
Gambar 2.4 dialog relation
Cara kedua ;
1. Klik dua garis / objek dengan
menekan tombol shift
2. Secara otomatis akan muncul
dialog properties
3. Kemudian pilih add relation
Gambar 2.5 dialog properties
Dimension
Untuk mendapatkan gambar dengan ukuran yang tepat diberikan nilai ukuran
pada garis, arc,dan sudut sebuah objek. Beberapa comand yang digunakan untuk
pemberian ukuran dijelaskan seperti pada tabel 5 berikut ini:
TOOLBAR COMAND FUNGSI
Smart dimension Smart
dimension
Digunakan untuk membuat
ukuran
Horizontal
dimension
Digunakan untuk membuat
ukuran mendatar
Vertical
dimension
Digunakan untuk membuat
ukuran tegak
Ordinate
dimension
Digunakan untuk membuat
ukuran secara
berkesinambungan
Horizontal
ordinate
dimension
Digunakan untuk membuat
ukuran berkesinambungan
secara mendatar
Vertical
ordinat
dimension
Digunakan untuk membuat
ukuran berkesinambungan
secara tegak
TOOLBAR COMAND FUNGSI
Page | 15Belajar Cepat Desain Mesin 3D dengan
Solidworks
Full define Full define Memberikan ukuran secara
otomatis pada gambar sketch
Tabel 5. dimension
Latihan 1. Membuat animasi dengan sketch dengan relation
Gambar 2.6 Sketch piston
Membuka lembar kerja baru
Langkah-langkah sebagai
berikut:
- Klik new
- Klik part (1)
- Klik oke (2)
Setting satuan dalam metric
(MMGS)
Langkah-langkah sebagai
berikut:
- Klik unit properties di pojok
kanan bawah (1)
- Klik MMGS
Page | 16Belajar Cepat Desain Mesin 3D dengan
Solidworks
Untuk memulai membuat sketch
pada front plane
Langkah-langkah sebagai berikut
:
- Klik kanan pada front plane
(1)
- Klik kiri sketch (2)
Tampilkan plane pada front plane
Langkah-langkah sebagai berikut
:
Cara 1 :
- klik kanan front plane
- Klik normal to
Cara 2 :
- Klik normal to pada menu
navigasi
Cara 1
Cara 2
Page | 17Belajar Cepat Desain Mesin 3D dengan
Solidworks
Buat garis sumbu
- Klik sketch
- Klik line
- Buatlah garis line 2 seperti
gambar
- Untuk menyelesaikan klik esc
pada keyboard
- Dengan smart dimension
berikan ukuran panjang garis
Merubah line 1 menjadi
horizontal
Langkah-langkah sebagai
berikut:
- Klik add relation (1)
- Klik line (2)
- Pilih relation horizontal (3)
- Klik oke
Menempatkan titik pada origin
Langkah-langkah sebagai
berikut:
- Klik add relation
- Klik point 1
- Klik point 2
- Pilih relation concident
- Klik oke
Cara memberikan ukuran ukuran
dengan smart dimension
Langkah-langkah sebagai
berikut:
- Klik smart dimension (1)
- Klik garis
- Pada dialog dimension
masukan 200mm (2)
- Kemudian centang
- Maka garis akan berubah
Page | 18Belajar Cepat Desain Mesin 3D dengan
Solidworks
panjang menjadi 200mm
Merubah garis menjadi centerline
Langkah-langkah sebagai
berikut:
- Klik garis
- Akan muncul dialog line
properties
- Beri tanda check pada option
for contrucsion
- Maka garis akan berubah
menjadi centerline
Buat lingkaran
Langkah-langkah sebagai
berikut:
- Klik circle (1)
- Klik pusat lingkaran (2)
- Klik sembarang (3)
- Beri tanda check for
contrucsion (4)
- Kemudian Oke
Berikan diameter lingkaran
dengan smart dimension sebesar
40 mm
Buat dua garis sejajar
Langkah-langkah sebagai
berikut:
- Dengan line buat dua buah
garis
- Klik add relation
- Klik line 1
- Klik line 2
- Kemudian pilih relation
parallel dan equal
- Kemudian OK
- Klik add relation
- Klik line 1,2 dan 3
- Kemudian pilih relation
symmetric
- Kemudian OK
Page | 19Belajar Cepat Desain Mesin 3D dengan
Solidworks
Buat sebuah persegi panjang di
dalam garis pararel
Langkah-langkah sebagai
berikut:
- Klik rectangle
- Klik corner 1
- Klik corner 2
- Klik oke
Buat garis yang menghubungkan
persegi dengan lingkaran dan
pusat lingkaran seperti gambar
disamping.
Langkah-langkah sebagai
berikut:
- Klik line
- Klik point 1, 2, dan 3
Dengan smart dimension berikan
ukuran lengan piston 100mm dan
ukuran piston 30mm xØ20mm
seperti gambar disamping
Page | 20Belajar Cepat Desain Mesin 3D dengan
Solidworks
- Setelah selesai klik finish
sketch dengan klik cek
pojok kanan atas
- Untuk menggerakan piston
putar point 1 secara melingkar
Lembar kerja
Buatlah gambar sketch front plane gambar berikut
Gambar 2.7 slotted guide Gambar 2.8 pivot guide
Page | 21Belajar Cepat Desain Mesin 3D dengan
Solidworks
Part merupakan ruang gambar pemdelan 3D component suatu objek
gambar. Dasar pembuatan part adalah gambar sketch. Secara otomatis setelah
selesai dalam pembuatan sketch maka akan beralih pada menu future. Pada
dasarnya gambar part pada solidowrks dibedakan menjadi 3 macam yaitu :
- Solid, yaitu objek gambar yang padat
Cocok digunakan untuk desain dengan komponen yang sangat detail mesin,
furniture, konstruksi, moulding, dll.
- Surface, yaitu objek gambar yang tidak padat berupa kulit
Cocok digunakan pada desain produk yang rumit/ kompleks seperti desain
mobil, desain body motor, desain sepeda, dll
- Sheetmetal, yaitu objek gambar yang berupa penekukan plat metal
Cocok digunakan untuk mendesain yang kaitanya dengan casing dengan
bahan plat metal seperti casing elektronika, casing mesin, dll
Beberapa tool yang digunakan untuk membuat part sebagai berikut :
TOOLBAR COMAND FUNGSI
Extrude Extruded boss/base Berfungsi untuk memberikan
tinggi, tebal atau kedalaman dari
sebuah profil tertutup dengan
ukuran tertentu
Revolve Revolve boss/base Untuk membuat bentuk silindris
dengan cara memutar suatu
bentuk profil terhadap sumbu
yang ditentukan.
Swept Swept Membuat objek yang terbentuk
dari sketch atau profil melalui
garis edar (path)
Loft Loft Membuat objek dengan
perpaduan beberapa bentuk atau
potongan yang berbeda
Extrude dasar
BAB III
PEMBUATAN GAMBAR KOMPONEN
3D DENGAN PART MODELING
Page | 22Belajar Cepat Desain Mesin 3D dengan
Solidworks
Membuat document baru
- Klik file
- Klik new
- Klik part
- Klik Oke
Memulai membuat sketch
pada Top plane.
Langkah-langkah sebagai
berikut:
- klik kanan pada top
plane
- klik sketch
Membuat sketch seperti
gambar disamping
Langkah-langkah sebagi
berikut :
- Klik rectangle
- Klik corner 1
- Klik corner 2
Menampilkan ukuran
Langkah-langkah sebagai
berikut:
- Klik display/delete
relation
- Klik fully define
Akan muncul dialeg fully
define sketch
- Klik all entities sketch
- Klik oke
Akan muncul ukuran pada
objek
Tinggal menyesuaikan
dengan ukuran gambar
dengan double klik pada
ukuran tersebut.
Page | 23Belajar Cepat Desain Mesin 3D dengan
Solidworks
Buat lingkaran dengan
perintah circle
Caranya :
- Klik circle
- Klik pusat lingkaran
- Klik sembarang titik
- Klik smart dimension
- Klik lingkaran dan
berikan ukuran seperti
gambar disamping
Buat alur slot
Caranya :
- Klik slot
- Klik point 1
- Klik point 2
- Gunakan smart
dimension untuk
memberi ukuran
Buatlah slot kedua
Kemudian berikan relation
equal slot
Page | 24Belajar Cepat Desain Mesin 3D dengan
Solidworks
Membuat sketch menjadi
objek 3D
Caranya :
- Klik future
- Klik extrude boss
Pada dialog extrude
Direction 1
 Rteverse direction pilih
blind
 Distance masukan
10mm
 Kemudian oke
Klik save dan beri nama
pemegang pengarah
Latihan 2 membuat meja ragum ragum silinder
1. membuka dokumen baru
Page | 25Belajar Cepat Desain Mesin 3D dengan
Solidworks
- klik new – part – oke
- setting satuan MMGS
2. mulailah membuat sketch
pada right plane
- buatlah gambar seperti
disamping dengan perintah
line
- berikan relation equal,
symmetric, colinier, vertical
dan horizontal
- klik finish
sketch terkonstrain jika semua garis berwarna
hitam
3. buat gambar sketch
dengan extrude
langkah-langkah sebagai
berikut:
- klik future – extrude
- akan muncul dialog extrude
pada direction 1 pilih :
 reverse direction (1)
ada beberapa pilihan
:
 untuk dept (2)
masukan nilai 150mm
atau
menggeser anak
panah (3) pada
sketch sejauh 150mm
- selanjutnya Oke
Keterangan reverse direction::
blind : extrude satu arah
up to vertex : sampai ruas di depannya
up to surface : sampai bidang di depanya
offset from surface : bergeser dari bidang
up to body : sampai component di depanya
Mid plane : extrude dua sisi
Page | 26Belajar Cepat Desain Mesin 3D dengan
Solidworks
4. Simpan gambar dengan
nama meja ragum
5. Langkah selanjutnya klik
kanan pada bidang A
kemudian pilih normal to
untuk menampilkan
pandangan atas objek
gambar
6. Buat sketch pada bidang A
Langkah-langkah sbb:
- klik kanan bidang A
- Pilih new sketch
7. Buat sketch pada bidang A
seperti gambar disamping
Langkah-langkah sbb:
- Klik point
- Klik circle buat diameter
25mm
- * Untuk pemberian ukuran
dengan fungsi di mulai
dengan tanda sama
dengan (=) kemudian
fungsi dimension vertical
114/2 dan ukuran
horizontal 150/2
Ket :
Dimension dengan fungsi maka ukuran akan
dimuali dengan symbol sigma (Σ)
Page | 27Belajar Cepat Desain Mesin 3D dengan
Solidworks
8. Dengan rectangle buatlah
segi dengan klik corner 1
kemudian klik corner 2
9. Potong garis tengan
dengan trim
Langkah-langkah sebagai
berikut:
- Klik trim
- Selec semua garis
- Klik garis yang akan
dipotong dengan cara drop
and drag sehingga garis
yang akan dipotong
terselect
- Klik finish
10. Potong profil sketch
dengan extrude cut
Langkah-langkah sebagai
berikut:
- Klik future
- Klik extrude cut
- Pada dialog cut extrude
direction 1 pilihan di
reverse direction pilih
trought all
- Kemudian Oke
11. Menduplikat profil dengan
mirror. Langkah-langkah
sebagai berikut:
- Klik mirror
Pada dialog mirror :
- Mirror face : klik front plane
- Feature for mirror : klik cut
extrude 1
Page | 28Belajar Cepat Desain Mesin 3D dengan
Solidworks
- Kemudian Oke
12. Membuat lobang
Langkah-langkah sebagai
berikut:
- Klik kanan bidang A
- Klik new sketch
- Buat point untuk titik
pengeboran dengan klik
point
- Buatlah point dengan jarak
seperti gambar disamping
- Kemudian oke
- Klik future
- Klik hole wizard
Pada dialog hole pilih type hole
 Pilih nomor 3 tanpa
chamfer
 Standar : ISO
 Type : drill size
 Pada hol spesificasion
pilih size Ø6mm
 End condition : trough
all
Kemudian klik pilih positions
- Klik 3D Sketch
- Klik point 2 seperti gambar
- Kemudian oke
Page | 29Belajar Cepat Desain Mesin 3D dengan
Solidworks
13. Membuat lubang berulir
Langkah-langkah sebagai
berikut:
Klik hole wizard
Pada dialog hole pilih type hole
 Pilih nomor 4 hole
dengan thread
 Standar : ISO
 Type : tapped hole
 Pada hol spesificasion
pilih size M6
 End condition : trough
all
Kemudian klik pilih positions
- Klik 3D Sketch
- Klik point 1 dan point 3
seperti gambar
- Kemudian oke
14. Mirror 3 hole dengan cara
sebagai berikut :
- Klik mirror
Pada dialog mirror pilih :
 Mirror face : front plane
 Feature to mirror :
o Diameter hole 1
o Tapped hole 1
- Kemudian oke
15. Mengganti jenis material
Langkah-langkah sebagai
berikut :
- Klik kanan pada folder meja
ragum (1)
- Pilih material (2)
 Pilih edit material (3)
 Pilih material: AISI
Page | 30Belajar Cepat Desain Mesin 3D dengan
Solidworks
1045 Steel
- klik apply
- klik close
16. mengecek spesifikasi
bahan
langkah-langkah sebagai
berikut :
- klik tool
- klik mass properties
- akan muncul hasil analisis
seperti berikut ini
Mass = 3822.97 grams
Volume = 487002.88 cubic
millimeters
Surface area = 60725.49
square millimeters
Center of mass: ( millimeters )
X = -75.00
Y = 13.86
Z = 0.00
17. Kemudian save
Page | 31Belajar Cepat Desain Mesin 3D dengan
Solidworks
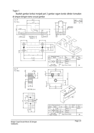
Tugas 1
Buatlah gambar berikut menjadi part 2 gambar ragum benda silinder kemudian
di simpan dengan nama sesuai gambar
Page | 32Belajar Cepat Desain Mesin 3D dengan
Solidworks
Revolve Dasar
Langkah mengerjakan gambar tersebut sebagai berikut:
Membuat dokumen baru
- Klik file
- Klik new
- Klik part
- Klik oke
Memulai menggambar sketch
- Klik kanan right plane
- Klik sketch
- Klik line
Buatlah sketch line seperti gambar
disamping
Setelah selesai klik finish sketch
Page | 33Belajar Cepat Desain Mesin 3D dengan
Solidworks
- Klik future
- Klik revolve
Pada dialog revolve :
 Axis for revolution klik axis objek
sketch

Angle revolution : isikan 3600
 Kemudian oke
Menyimpan gambar
- Langkah-langkah sebagai berikut
:
- Klik file
- Klik save
- Ganti nama menjadi pengarah
mata potong
- Kemudian klik save
- Mengganti material
Langkah-langkah sebagai
berikut:
- Klik kanan sub folder material
- Klik edit material
- Pilih AISI 1045 stell
- Kemudian apply dan close
Klik save kembali
Page | 34Belajar Cepat Desain Mesin 3D dengan
Solidworks
Latihan 3 Batang pengarah ragum benda silinder
Membuka dokumen baru
1. Klik file – new - part
2. Buatlah sketch seperti
gambar pada right plane
dengan relation equal
dan colinier
3. Membuat 3D component
- Klik future
- Klik revolve
Akan muncul dialog revolve
 Axis of revolution : klik
axis pada sketch
 Reverse direction pilih
blind
 Angle revolution : 3600
 Kemudian oke
4. Membuat chamfer 1x450
Langkah-langkah sebagai
berikut:
- Klik chamfer
- Klik segmen garis
Pada dialog chamfer :
Page | 35Belajar Cepat Desain Mesin 3D dengan
Solidworks
 Chamfer parameter : klik
segmen garis yang akan
di chamfer
 Distance : lebar chamfer
1mm

Angle : sudut chamfer
450
5. Membuat ulir kanan
M20x15
Langkah-langkah
sebagai berikut:
- Pada menubar klik insert
- Klik annotations
- Klik cosmetic thread
Pada dialog thread
 Thread setting : klik
segmen garis yang akan
di ulir
 Standard : ISO
 Type : mechine threads
 Size :M20x1.5
Untuk menampilkan thread
langkah-langkah sebagai
berikut :
- Klik tools -options
- Pilih document
properties- detailing
- Beri check shaded
cosmetic threads
- Kemudian oke
Page | 36Belajar Cepat Desain Mesin 3D dengan
Solidworks
6. Dengan cara yang sama
seperti diatas buat ulir kiri
M20x1.5
7. Menampilkan efek kartel
Langkah-langkah sebagai
berikut :
- Klik kanan bidang A
- Pilih aperance (1)
- Klik face 1 (2)
Pada dialog color
- Pilih Advance
- Pilih color/image
Klik browse :
- drive C >Solidworks>
data>graphic>materials>
metal > stell > stainless
knurling
- kemudian open
Page | 37Belajar Cepat Desain Mesin 3D dengan
Solidworks
8. Membuat lobang center
Langkah-langkah
sebagai berikut:
- Klik hole wizard
Pada dialog hole wizard
pilihan type :
 Hole type pilih nomor 2
 Standard ISO
 Type : CTSK flat ISO
 Hole Specification: M2
 End Condition : 10 mm
Pilih positions
 Klik 3D Position
 Klik point a
 Kemudian oke
9. Mirror countersink
dengan plane
Langkah-langkah
sebagai berikut :
- Klik reference geometry
- klik plane
muncul dialog plane isikan :
 first reference :klik
front plane
 distance : isi 120mm
 kemudian oke
Page | 38Belajar Cepat Desain Mesin 3D dengan
Solidworks
- klik mirror
pada dialog mirror :
 plane face: klik plane 1
 feauture for mirror : klik
CSK for M3
Countersink
 kemudian oke
untuk menyembunyikan
plane 1 langkah-langkah
sebagai berikut:
 klik kanan plane 1
 klik hide
10. Material dengan : AISI
1045 steel
11. Analisis dengan mass
properties sehingga
data component
sebagai berikut:
Mass = 421.33 grams
Volume = 53672.08 cubic
millimeters
Surface area = 15589.40
square millimeters
Center of mass: (millimeters)
X = 0.00
Y = 0.00
Z = 110.00
12. Kemudian save dengan
nama file batang
pengarah ragum
Page | 39Belajar Cepat Desain Mesin 3D dengan
Solidworks
BIODATA PENULIS
Sarwanto,S.Pd.T, seorang anak penarik becak lahir di
Kulonprogo, 13 September 1983. Menempuh
pendidikan formal di SMK Negeri 2 Pengasih jurusan
Teknik Pemesinan. Studi D3 di jurusan Teknik Mesin
Universitas Negeri Yogyakarta diselesaikan dengan
penghargaan lulusan terbaik untuk jurusan Teknik Mesin,
kemudian melanjutkan S1 jurusan Pendidikan Teknik
Mesin di Universitas Negeri Yogyakarta .
Mulai tahun 2009 hingga saat ini menjadi staf pengajar di SMK Negeri 1
Nanggulan, DIY dan instruktur eksternal di BLPT Yogyakarta. Sebagai pendidik
penulis selalu memiliki tekad untuk membangun bangsa melalui pendidikan. Pada
tahun 2013 penulis mendapatkan penghargaan tokoh/lembaga/duta berjasa
berprestasi dibidang ilmu pengetahuan dan teknologi kategori masyarakat umum
provinsi Daerah istimewa Yogyakarta yang diberikan langsung oleh Gubernur DIY
Sri Sultan Hamengkubuono X di Bangsal Kepatihan.
Dalam buku ini akan dapat banyak belajar tentang step by step mendesain
mesin dengan software solidworks. Disini anda akan dipandu secara detail dan
mudah dipahami bagaimana proses pemodelan 3Dimensi solid secara mudah dan
cepat.
Ringkasan buku ini meliputi :
 Pemahaman dasar desain dengan software CAD
 Mendesain 3D dengan perintah dasar feature dan part modeling
 Mendesain 3D dengan asemblies
 Pembuatan gambar kerja dan detail dengan Drawing
Page | 39Belajar Cepat Desain Mesin 3D dengan
Solidworks
BIODATA PENULIS
Sarwanto,S.Pd.T, seorang anak penarik becak lahir di
Kulonprogo, 13 September 1983. Menempuh
pendidikan formal di SMK Negeri 2 Pengasih jurusan
Teknik Pemesinan. Studi D3 di jurusan Teknik Mesin
Universitas Negeri Yogyakarta diselesaikan dengan
penghargaan lulusan terbaik untuk jurusan Teknik Mesin,
kemudian melanjutkan S1 jurusan Pendidikan Teknik
Mesin di Universitas Negeri Yogyakarta .
Mulai tahun 2009 hingga saat ini menjadi staf pengajar di SMK Negeri 1
Nanggulan, DIY dan instruktur eksternal di BLPT Yogyakarta. Sebagai pendidik
penulis selalu memiliki tekad untuk membangun bangsa melalui pendidikan. Pada
tahun 2013 penulis mendapatkan penghargaan tokoh/lembaga/duta berjasa
berprestasi dibidang ilmu pengetahuan dan teknologi kategori masyarakat umum
provinsi Daerah istimewa Yogyakarta yang diberikan langsung oleh Gubernur DIY
Sri Sultan Hamengkubuono X di Bangsal Kepatihan.
Dalam buku ini akan dapat banyak belajar tentang step by step mendesain
mesin dengan software solidworks. Disini anda akan dipandu secara detail dan
mudah dipahami bagaimana proses pemodelan 3Dimensi solid secara mudah dan
cepat.
Ringkasan buku ini meliputi :
 Pemahaman dasar desain dengan software CAD
 Mendesain 3D dengan perintah dasar feature dan part modeling
 Mendesain 3D dengan asemblies
 Pembuatan gambar kerja dan detail dengan Drawing

Buku soliworks

  • 1.
    Page | 0BelajarCepat Desain Mesin 3D dengan Solidworks I
  • 2.
    Page | 1BelajarCepat Desain Mesin 3D dengan Solidworks Daftar isi Halaman judul Kata pengantar Daftar Isi Bab 1 Pendahuluan Bab 2 Gambar 2D dengan Basic Sketch Bab 3 Pembuatan gambar komponen 3D dengan Part Modeling Bab 3 Pembuatan Gambar rakitan 3D dengan Asemblies Bab 4 Pembuatan Gambar Kerja 2D dengan Drawing Bab 5 Mencetak Gambar Bab 6 Topik Khusus (sheetmetal, Mold Desain, Rendering) Daftar Pustaka
  • 3.
    Page | 2BelajarCepat Desain Mesin 3D dengan Solidworks Pengenalan perangkat lunak CAD Solidworks merupakan program rancang bangun yang banyak digunakan untuk mengerjakan desain produk, desain mesin, desain mould, desain konstruksi, ataupun keperluan teknik yang lain. Solidworks dilengkapi dengan tool yang digunakan untuk menghitung dan analisis hasil desain seperti tegangan, regangan, maupun pengaruh suhu, angin, dll. Solidworks adalah program pemodelan yang berbasis fitur parametrik , maksudnya semua objek dan hubungan antar geometrik dapat dimodifikasi kembali meskipun geometriknya sudah jadi tanpa perlu mengulang lagi dari awal. Dengan metode ini sangat memudahkan dalam proses desain suatu produk atau rancangan. Untuk membuat sebuah model 3D yang solid kita harus membuat sketchnya terlebih dahulu. Model 3D berupa component kemudian dirakit menjadi sebuah gambar rakitan dengan menu assembly. Setelah gambar component atau dan assembly jadi maka dibuat gambar kerjanya menggunakan fasilitas drawing. Untuk alurnya dapat dilihat ilustrasi chart berikut ini : Diagram 1. Proses gambar dengan solidworks Beberapa keunggulan membuat gambar teknik menggunakan solidworks sebagai berikut : 1. Software ini cukup mudah dioperasikan 2. Dapat membantu mengurangi kesalahan dalam mendesain BAB I Pendahuluan
  • 4.
    Page | 3BelajarCepat Desain Mesin 3D dengan Solidworks 3. Dapat mensimulasikan gerakan hasil desain 4. Dapat menganalisis tegangan, beban, pengaruh suhu, cuaca, dan sebagainya hasil desain dengan mudah tanpa menggunakan software lain 5. Dapat membuat program untuk proses manufaktur dengan CNC atau robot industri dengan bantuan software lain seperti mastercam, robotcam, delcam, dsb. 6. Biaya produksi yang harus dikeluarkan menjadi berkurang karena proses yang terencana Memulai aplikasi solidworks 1. Buka program Solidworks 2012 caranya, klik tombol start lalu pilih All Program > Solidworks 2012 > Solidworks 2012.exe Gambar 1.1. Membuka aplikasi 2. Buat dokumen baru dengan cara klik file > New ( hot key : Ctrl + N ) Gambar 1.2. Membuat dokumen baru
  • 5.
    Page | 4BelajarCepat Desain Mesin 3D dengan Solidworks Akan muncul pilihan menu sebagai berikut : Gambar 1.3 Pilihan ruang gambar Tipe file di solidworks disesuaikan dengan template yang disediakan yaitu : Part (*.prt;*.sldprt) : digunakan untuk menggambar komponen 3D (proyeksi pictorial) yang berupa sebuah part atau komponen tunggal Assembly (*.asm;*.sldasm) digunakan untuk membuat gambar rakitan 3D (proyeksi pictorial rakitan) yang berisikan rakitan dari beberapa part dan atau komponen standar. Assembly juga dapat berisikan beberapa sub assembly. Drawing(*.drw;*.slddrw) digunakan untuk membuat gambar kerja 2D (proyeksi orthogonal/gambar kerja) yang berdasarkan aturan gambar teknik. Layar solidworks sebagai berikut Gambar 1.4 Layar utama Keterangan :
  • 6.
    Page | 5BelajarCepat Desain Mesin 3D dengan Solidworks Menu bar : berisi barisan menu utama Command manager : berisi baris perintah utama Configuration manager : berisi bagian-bagian utama file gambar Layar : area yang digunakan untuk membuat gambar/objek Task pan : berisi menu tambahan Motion manager : berisi menu objek dan menu motion 3. membuka file dengan cara klik File > Open (hotkey : Ctrl + O ) Gambar 1.5 Petunjuk membuka dokumen pilihlah file yang akan di buka pada drive penyimpanan kemudian Open 1.6 Petunjuk pemilihan file 4. menyimpan file dengan cara klik file > save (hotkey : Ctrl + S) 1.7 Petunjuk menyimpan file
  • 7.
    Page | 6BelajarCepat Desain Mesin 3D dengan Solidworks ubah nama part 1 pada file name > pilih drive penyimpanan > save 1.8 Petunjuk merubah nama file Perlu diperhatikan! Tidak diajurkan merubah nama file komponen yang sudah dirakit (asembly) atau di buat gambar kerjanya (drawing) karena menyebabkan data file tidak terbaca. Merubah satuan Sistem satuan merupakan bagian sangat penting dari sebuah gambar. Di dalam gambar teknik kita mengenal sistem satuan dimana terdapat sistem satuan British (English) dan satuan IS (Metric). Langkah-langkah mengubah satuan sebelum menggambar adalah sebagai berikut: cara pertama : klik file > tool > option 1.9. Petunjuk merubah satuan Kemudian pilih document properties
  • 8.
    Page | 7BelajarCepat Desain Mesin 3D dengan Solidworks Gambar 1.20. document properties Kemudian pilih unit Gambar 1.21 unit Kemudian pilihlah unit properties MMS, CGS, MMGS, IPS, Custom Cara kedua : klik segitiga kecil pojok kanan bawah pilihlah edit document units kemudian pilih unit yang digunakan dengan di centang Gambar 1.22 unit properties BAB II GAMBAR 2D DENGAN BASIC SKETCH
  • 9.
    Page | 8BelajarCepat Desain Mesin 3D dengan Solidworks Sketch merupakan dasar dalam pembuatan sebuah objek dasar di solidworks. Di menu sketch memuat berbagai perintah dasar seperti line, circle, arc,polygon, dll. Baris Comand sketch Gambar 2.1 comand sketch Baris comand pada menu sketch dikategorikan menjadi 3 bagian pokok yaitu comand draw, comand modify, dan comand transformasi. Comand draw Comand draw digunakan untuk membuat objek gambar pada sketch. Ada beberapa perintah pokok pada menu draw yang dijelaskan pada tabel 1 berikut ini. TOOLBAR COMAND FUNGSI Sketch Sketch untuk membuat 2D sketch 3D sketch untuk membuat 3D sketch Dimension Smart dimension untuk memberikan ukuran dasar suatu sketch Line line Untuk membuat garis lurus centerline Untuk membuat garis tengah TOOLBAR COMAND FUNGSI Polygon Polygon Untuk membuat segi banyak beraturan
  • 10.
    Page | 9BelajarCepat Desain Mesin 3D dengan Solidworks Circle Circle Untuk membuat bentuk lingkaran Perimeter circle Untuk membuat lingkaran berdasarkan 3 titik acuan Arc Centerpoint arc Untuk membuat busur berdasarkan pusat radius Tangent arc Untuk membuat busur berdasarkan titik tangen 3 point arc Untuk membuat busur dengan berdasarkan 3 titik acuan Rectangle Corner rectangle Untuk membuat segiempat dengan dua titik diagonal Center rectangle Untuk membuat segiempat berdasarkan titik pusat acuan 3 Point corner rectangle Untuk membuat segiempat berdasarkan diagonal dengan 3 titik acuan 3 point center rectangle Untuk membuat segi empat dengan berdasarkan pusat bangun dan 2 titik acuan parallelogram Untuk membuat bangun jajargenjang berdasar 3 titik acuan Slot Staright Slot Untuk membuat alur slot lurus Centerpoint straight slot Untuk membuat alur slot berdasarkan titik pusat acuan 3 point arc slot Untuk membuat slot bentuk radius/arc Centerpoint arc slot Untuk membuat slot radius dengan acuan titik pusat radius TOOLBAR COMAND FUNGSI Spline Spline Untuk membuat garis tak beraturan
  • 11.
    Page | 10BelajarCepat Desain Mesin 3D dengan Solidworks Elipsee Elipse Untuk membuat sebuah bangun elipse Planee Planee Untuk membuat bidang gambar pada 3D sketch Text Text Untuk menulis sebuah text Tabel 1 comand draw Comand Modify Comand modify digunakan untuk membuat objek dengan cara memodifikasi sketch yang sudah ada. Adapun beberapa perintah pokok yang dikategorikan dalam comand modify dijelaskan seperti pada tabel 2 berikut ini: TOOLBAR COMAND FUNGSI Mirror Mirror entities Digunakan untuk membuat bentuk geometri yang dicerminkan dari bentuk yang dipilih dengan menentukan garis pencerminan Offset Offset entities Untuk membuat bentuk geometri yang sebangun dengan bentuk objek yang dipilih dengan menentukan jarak tertentu dari objek aslinya. TOOLBAR COMAND FUNGSI Convert Convert entities Untuk menduplikat segment garis pada bentuk geometric
  • 12.
    Page | 11BelajarCepat Desain Mesin 3D dengan Solidworks Pattern Linier sketch Pattern Digunakan untuk membuat pola linier/garis lurus dengan duplikasi dalam sejumlah baris dan kolom. Perlu ditentukan juga jarak antar baris dan kolom berikut arah duplikasinya. Circular sketch pattern Digunakan untuk membuat pola melingkar dari suatu objek dengan menentukan sumbu pusat perputaran, jumlah duplikasi dan sudut yang melingkupi. Fillet/Chamfer Fillet digunakan untuk membuat pertemuan 2 garis atau busur (arc) menjadi cembung/cekung. Chamfer Digunakan untuk membuat pertemuan antara 2 garis menjadi miring dengan spesifiksai tertentu Tabel 2. Comand modifikasi Comand Transformasi
  • 13.
    Page | 12BelajarCepat Desain Mesin 3D dengan Solidworks Comand transformasi digunakan untuk memodifikasi garis/objek seperti memotong, memperpanjang, memindah dan lain-lain. Comand transformasi dijelaskan lebih detail seperti pada tabel 3 berikut ini: TOOLBAR COMAND FUNGSI Trims / extend Trim entities Digunakan untuk memotong garis atau kurva di dalam ruas yang berpotongan dengan garis atau kurva lain. Extend entities Digunakan untuk memperpanjang suatu garis atau kurva sampai titik perpotongan terdekat dengan kurva yang lain TOOLBAR COMAND FUNGSI Move Move entities Untuk memindah objek Copy Untuk menduplikat objek Rotate Untuk merotasi sebuah objek Scale Untuk menskalakan sebuah objek Stretch Untuk memindah posisi sebuah objek Tabel 3. Comand transformasi Relation dan Dimension Fungsi relation sangat penting untuk digunakan pada saat membuat sketch. Relation merupakan hubungan antara satu atau lebih sebuah garis/lingkaran/arc. Beberapa relation sebagai berikut : RELATION COMAND FUNGSI Fix Membuat garis atau lingkaran menjadi tetap tidak bisa digeser dan digerakan Horizontal Membuat garis menjadi mendatar atau sejajar sumbu X Vertical Membuat garis menjadi tegak atau sejajar sumbu Y RELATION COMAND FUNGSI
  • 14.
    Page | 13BelajarCepat Desain Mesin 3D dengan Solidworks Collinier Membuat dua garis saling berhimpit/segaris Perpendicular Membuat 2 garis saling tegak lurus Equal Menyamakan ukuran objek Coradial Membuat dua buah lingkaran atau busur lingkaran sepusat dan seukuran Parallel Membuat 2 buah garis sejajar atau sejajar dengan plane front, top, atau right Tangent Membuat garis dan garis busur (arc) saling bersinggungan pada satu titik Concentric Membuat 2 buah lingkaran atau arc sepusat Tabel 4. Relation Untuk menampilkan relation antar garis/lingkaran/arc sebagai berikut ; Cara pertama : 1. Pada lembar sketch klik display/delete relation Gambar 2.2 relation 2. Kemudian klik add relation Gambar 2.3 add relation 3. Akan muncul dialog relation berikut
  • 15.
    Page | 14BelajarCepat Desain Mesin 3D dengan Solidworks - Pada select entities pilih garis yang akan di beri relation - Pada kolom add relation pilih jenis relation yang dipilih - Kemudian klik centang warna hijau Gambar 2.4 dialog relation Cara kedua ; 1. Klik dua garis / objek dengan menekan tombol shift 2. Secara otomatis akan muncul dialog properties 3. Kemudian pilih add relation Gambar 2.5 dialog properties Dimension Untuk mendapatkan gambar dengan ukuran yang tepat diberikan nilai ukuran pada garis, arc,dan sudut sebuah objek. Beberapa comand yang digunakan untuk pemberian ukuran dijelaskan seperti pada tabel 5 berikut ini: TOOLBAR COMAND FUNGSI Smart dimension Smart dimension Digunakan untuk membuat ukuran Horizontal dimension Digunakan untuk membuat ukuran mendatar Vertical dimension Digunakan untuk membuat ukuran tegak Ordinate dimension Digunakan untuk membuat ukuran secara berkesinambungan Horizontal ordinate dimension Digunakan untuk membuat ukuran berkesinambungan secara mendatar Vertical ordinat dimension Digunakan untuk membuat ukuran berkesinambungan secara tegak TOOLBAR COMAND FUNGSI
  • 16.
    Page | 15BelajarCepat Desain Mesin 3D dengan Solidworks Full define Full define Memberikan ukuran secara otomatis pada gambar sketch Tabel 5. dimension Latihan 1. Membuat animasi dengan sketch dengan relation Gambar 2.6 Sketch piston Membuka lembar kerja baru Langkah-langkah sebagai berikut: - Klik new - Klik part (1) - Klik oke (2) Setting satuan dalam metric (MMGS) Langkah-langkah sebagai berikut: - Klik unit properties di pojok kanan bawah (1) - Klik MMGS
  • 17.
    Page | 16BelajarCepat Desain Mesin 3D dengan Solidworks Untuk memulai membuat sketch pada front plane Langkah-langkah sebagai berikut : - Klik kanan pada front plane (1) - Klik kiri sketch (2) Tampilkan plane pada front plane Langkah-langkah sebagai berikut : Cara 1 : - klik kanan front plane - Klik normal to Cara 2 : - Klik normal to pada menu navigasi Cara 1 Cara 2
  • 18.
    Page | 17BelajarCepat Desain Mesin 3D dengan Solidworks Buat garis sumbu - Klik sketch - Klik line - Buatlah garis line 2 seperti gambar - Untuk menyelesaikan klik esc pada keyboard - Dengan smart dimension berikan ukuran panjang garis Merubah line 1 menjadi horizontal Langkah-langkah sebagai berikut: - Klik add relation (1) - Klik line (2) - Pilih relation horizontal (3) - Klik oke Menempatkan titik pada origin Langkah-langkah sebagai berikut: - Klik add relation - Klik point 1 - Klik point 2 - Pilih relation concident - Klik oke Cara memberikan ukuran ukuran dengan smart dimension Langkah-langkah sebagai berikut: - Klik smart dimension (1) - Klik garis - Pada dialog dimension masukan 200mm (2) - Kemudian centang - Maka garis akan berubah
  • 19.
    Page | 18BelajarCepat Desain Mesin 3D dengan Solidworks panjang menjadi 200mm Merubah garis menjadi centerline Langkah-langkah sebagai berikut: - Klik garis - Akan muncul dialog line properties - Beri tanda check pada option for contrucsion - Maka garis akan berubah menjadi centerline Buat lingkaran Langkah-langkah sebagai berikut: - Klik circle (1) - Klik pusat lingkaran (2) - Klik sembarang (3) - Beri tanda check for contrucsion (4) - Kemudian Oke Berikan diameter lingkaran dengan smart dimension sebesar 40 mm Buat dua garis sejajar Langkah-langkah sebagai berikut: - Dengan line buat dua buah garis - Klik add relation - Klik line 1 - Klik line 2 - Kemudian pilih relation parallel dan equal - Kemudian OK - Klik add relation - Klik line 1,2 dan 3 - Kemudian pilih relation symmetric - Kemudian OK
  • 20.
    Page | 19BelajarCepat Desain Mesin 3D dengan Solidworks Buat sebuah persegi panjang di dalam garis pararel Langkah-langkah sebagai berikut: - Klik rectangle - Klik corner 1 - Klik corner 2 - Klik oke Buat garis yang menghubungkan persegi dengan lingkaran dan pusat lingkaran seperti gambar disamping. Langkah-langkah sebagai berikut: - Klik line - Klik point 1, 2, dan 3 Dengan smart dimension berikan ukuran lengan piston 100mm dan ukuran piston 30mm xØ20mm seperti gambar disamping
  • 21.
    Page | 20BelajarCepat Desain Mesin 3D dengan Solidworks - Setelah selesai klik finish sketch dengan klik cek pojok kanan atas - Untuk menggerakan piston putar point 1 secara melingkar Lembar kerja Buatlah gambar sketch front plane gambar berikut Gambar 2.7 slotted guide Gambar 2.8 pivot guide
  • 22.
    Page | 21BelajarCepat Desain Mesin 3D dengan Solidworks Part merupakan ruang gambar pemdelan 3D component suatu objek gambar. Dasar pembuatan part adalah gambar sketch. Secara otomatis setelah selesai dalam pembuatan sketch maka akan beralih pada menu future. Pada dasarnya gambar part pada solidowrks dibedakan menjadi 3 macam yaitu : - Solid, yaitu objek gambar yang padat Cocok digunakan untuk desain dengan komponen yang sangat detail mesin, furniture, konstruksi, moulding, dll. - Surface, yaitu objek gambar yang tidak padat berupa kulit Cocok digunakan pada desain produk yang rumit/ kompleks seperti desain mobil, desain body motor, desain sepeda, dll - Sheetmetal, yaitu objek gambar yang berupa penekukan plat metal Cocok digunakan untuk mendesain yang kaitanya dengan casing dengan bahan plat metal seperti casing elektronika, casing mesin, dll Beberapa tool yang digunakan untuk membuat part sebagai berikut : TOOLBAR COMAND FUNGSI Extrude Extruded boss/base Berfungsi untuk memberikan tinggi, tebal atau kedalaman dari sebuah profil tertutup dengan ukuran tertentu Revolve Revolve boss/base Untuk membuat bentuk silindris dengan cara memutar suatu bentuk profil terhadap sumbu yang ditentukan. Swept Swept Membuat objek yang terbentuk dari sketch atau profil melalui garis edar (path) Loft Loft Membuat objek dengan perpaduan beberapa bentuk atau potongan yang berbeda Extrude dasar BAB III PEMBUATAN GAMBAR KOMPONEN 3D DENGAN PART MODELING
  • 23.
    Page | 22BelajarCepat Desain Mesin 3D dengan Solidworks Membuat document baru - Klik file - Klik new - Klik part - Klik Oke Memulai membuat sketch pada Top plane. Langkah-langkah sebagai berikut: - klik kanan pada top plane - klik sketch Membuat sketch seperti gambar disamping Langkah-langkah sebagi berikut : - Klik rectangle - Klik corner 1 - Klik corner 2 Menampilkan ukuran Langkah-langkah sebagai berikut: - Klik display/delete relation - Klik fully define Akan muncul dialeg fully define sketch - Klik all entities sketch - Klik oke Akan muncul ukuran pada objek Tinggal menyesuaikan dengan ukuran gambar dengan double klik pada ukuran tersebut.
  • 24.
    Page | 23BelajarCepat Desain Mesin 3D dengan Solidworks Buat lingkaran dengan perintah circle Caranya : - Klik circle - Klik pusat lingkaran - Klik sembarang titik - Klik smart dimension - Klik lingkaran dan berikan ukuran seperti gambar disamping Buat alur slot Caranya : - Klik slot - Klik point 1 - Klik point 2 - Gunakan smart dimension untuk memberi ukuran Buatlah slot kedua Kemudian berikan relation equal slot
  • 25.
    Page | 24BelajarCepat Desain Mesin 3D dengan Solidworks Membuat sketch menjadi objek 3D Caranya : - Klik future - Klik extrude boss Pada dialog extrude Direction 1  Rteverse direction pilih blind  Distance masukan 10mm  Kemudian oke Klik save dan beri nama pemegang pengarah Latihan 2 membuat meja ragum ragum silinder 1. membuka dokumen baru
  • 26.
    Page | 25BelajarCepat Desain Mesin 3D dengan Solidworks - klik new – part – oke - setting satuan MMGS 2. mulailah membuat sketch pada right plane - buatlah gambar seperti disamping dengan perintah line - berikan relation equal, symmetric, colinier, vertical dan horizontal - klik finish sketch terkonstrain jika semua garis berwarna hitam 3. buat gambar sketch dengan extrude langkah-langkah sebagai berikut: - klik future – extrude - akan muncul dialog extrude pada direction 1 pilih :  reverse direction (1) ada beberapa pilihan :  untuk dept (2) masukan nilai 150mm atau menggeser anak panah (3) pada sketch sejauh 150mm - selanjutnya Oke Keterangan reverse direction:: blind : extrude satu arah up to vertex : sampai ruas di depannya up to surface : sampai bidang di depanya offset from surface : bergeser dari bidang up to body : sampai component di depanya Mid plane : extrude dua sisi
  • 27.
    Page | 26BelajarCepat Desain Mesin 3D dengan Solidworks 4. Simpan gambar dengan nama meja ragum 5. Langkah selanjutnya klik kanan pada bidang A kemudian pilih normal to untuk menampilkan pandangan atas objek gambar 6. Buat sketch pada bidang A Langkah-langkah sbb: - klik kanan bidang A - Pilih new sketch 7. Buat sketch pada bidang A seperti gambar disamping Langkah-langkah sbb: - Klik point - Klik circle buat diameter 25mm - * Untuk pemberian ukuran dengan fungsi di mulai dengan tanda sama dengan (=) kemudian fungsi dimension vertical 114/2 dan ukuran horizontal 150/2 Ket : Dimension dengan fungsi maka ukuran akan dimuali dengan symbol sigma (Σ)
  • 28.
    Page | 27BelajarCepat Desain Mesin 3D dengan Solidworks 8. Dengan rectangle buatlah segi dengan klik corner 1 kemudian klik corner 2 9. Potong garis tengan dengan trim Langkah-langkah sebagai berikut: - Klik trim - Selec semua garis - Klik garis yang akan dipotong dengan cara drop and drag sehingga garis yang akan dipotong terselect - Klik finish 10. Potong profil sketch dengan extrude cut Langkah-langkah sebagai berikut: - Klik future - Klik extrude cut - Pada dialog cut extrude direction 1 pilihan di reverse direction pilih trought all - Kemudian Oke 11. Menduplikat profil dengan mirror. Langkah-langkah sebagai berikut: - Klik mirror Pada dialog mirror : - Mirror face : klik front plane - Feature for mirror : klik cut extrude 1
  • 29.
    Page | 28BelajarCepat Desain Mesin 3D dengan Solidworks - Kemudian Oke 12. Membuat lobang Langkah-langkah sebagai berikut: - Klik kanan bidang A - Klik new sketch - Buat point untuk titik pengeboran dengan klik point - Buatlah point dengan jarak seperti gambar disamping - Kemudian oke - Klik future - Klik hole wizard Pada dialog hole pilih type hole  Pilih nomor 3 tanpa chamfer  Standar : ISO  Type : drill size  Pada hol spesificasion pilih size Ø6mm  End condition : trough all Kemudian klik pilih positions - Klik 3D Sketch - Klik point 2 seperti gambar - Kemudian oke
  • 30.
    Page | 29BelajarCepat Desain Mesin 3D dengan Solidworks 13. Membuat lubang berulir Langkah-langkah sebagai berikut: Klik hole wizard Pada dialog hole pilih type hole  Pilih nomor 4 hole dengan thread  Standar : ISO  Type : tapped hole  Pada hol spesificasion pilih size M6  End condition : trough all Kemudian klik pilih positions - Klik 3D Sketch - Klik point 1 dan point 3 seperti gambar - Kemudian oke 14. Mirror 3 hole dengan cara sebagai berikut : - Klik mirror Pada dialog mirror pilih :  Mirror face : front plane  Feature to mirror : o Diameter hole 1 o Tapped hole 1 - Kemudian oke 15. Mengganti jenis material Langkah-langkah sebagai berikut : - Klik kanan pada folder meja ragum (1) - Pilih material (2)  Pilih edit material (3)  Pilih material: AISI
  • 31.
    Page | 30BelajarCepat Desain Mesin 3D dengan Solidworks 1045 Steel - klik apply - klik close 16. mengecek spesifikasi bahan langkah-langkah sebagai berikut : - klik tool - klik mass properties - akan muncul hasil analisis seperti berikut ini Mass = 3822.97 grams Volume = 487002.88 cubic millimeters Surface area = 60725.49 square millimeters Center of mass: ( millimeters ) X = -75.00 Y = 13.86 Z = 0.00 17. Kemudian save
  • 32.
    Page | 31BelajarCepat Desain Mesin 3D dengan Solidworks Tugas 1 Buatlah gambar berikut menjadi part 2 gambar ragum benda silinder kemudian di simpan dengan nama sesuai gambar
  • 33.
    Page | 32BelajarCepat Desain Mesin 3D dengan Solidworks Revolve Dasar Langkah mengerjakan gambar tersebut sebagai berikut: Membuat dokumen baru - Klik file - Klik new - Klik part - Klik oke Memulai menggambar sketch - Klik kanan right plane - Klik sketch - Klik line Buatlah sketch line seperti gambar disamping Setelah selesai klik finish sketch
  • 34.
    Page | 33BelajarCepat Desain Mesin 3D dengan Solidworks - Klik future - Klik revolve Pada dialog revolve :  Axis for revolution klik axis objek sketch  Angle revolution : isikan 3600  Kemudian oke Menyimpan gambar - Langkah-langkah sebagai berikut : - Klik file - Klik save - Ganti nama menjadi pengarah mata potong - Kemudian klik save - Mengganti material Langkah-langkah sebagai berikut: - Klik kanan sub folder material - Klik edit material - Pilih AISI 1045 stell - Kemudian apply dan close Klik save kembali
  • 35.
    Page | 34BelajarCepat Desain Mesin 3D dengan Solidworks Latihan 3 Batang pengarah ragum benda silinder Membuka dokumen baru 1. Klik file – new - part 2. Buatlah sketch seperti gambar pada right plane dengan relation equal dan colinier 3. Membuat 3D component - Klik future - Klik revolve Akan muncul dialog revolve  Axis of revolution : klik axis pada sketch  Reverse direction pilih blind  Angle revolution : 3600  Kemudian oke 4. Membuat chamfer 1x450 Langkah-langkah sebagai berikut: - Klik chamfer - Klik segmen garis Pada dialog chamfer :
  • 36.
    Page | 35BelajarCepat Desain Mesin 3D dengan Solidworks  Chamfer parameter : klik segmen garis yang akan di chamfer  Distance : lebar chamfer 1mm  Angle : sudut chamfer 450 5. Membuat ulir kanan M20x15 Langkah-langkah sebagai berikut: - Pada menubar klik insert - Klik annotations - Klik cosmetic thread Pada dialog thread  Thread setting : klik segmen garis yang akan di ulir  Standard : ISO  Type : mechine threads  Size :M20x1.5 Untuk menampilkan thread langkah-langkah sebagai berikut : - Klik tools -options - Pilih document properties- detailing - Beri check shaded cosmetic threads - Kemudian oke
  • 37.
    Page | 36BelajarCepat Desain Mesin 3D dengan Solidworks 6. Dengan cara yang sama seperti diatas buat ulir kiri M20x1.5 7. Menampilkan efek kartel Langkah-langkah sebagai berikut : - Klik kanan bidang A - Pilih aperance (1) - Klik face 1 (2) Pada dialog color - Pilih Advance - Pilih color/image Klik browse : - drive C >Solidworks> data>graphic>materials> metal > stell > stainless knurling - kemudian open
  • 38.
    Page | 37BelajarCepat Desain Mesin 3D dengan Solidworks 8. Membuat lobang center Langkah-langkah sebagai berikut: - Klik hole wizard Pada dialog hole wizard pilihan type :  Hole type pilih nomor 2  Standard ISO  Type : CTSK flat ISO  Hole Specification: M2  End Condition : 10 mm Pilih positions  Klik 3D Position  Klik point a  Kemudian oke 9. Mirror countersink dengan plane Langkah-langkah sebagai berikut : - Klik reference geometry - klik plane muncul dialog plane isikan :  first reference :klik front plane  distance : isi 120mm  kemudian oke
  • 39.
    Page | 38BelajarCepat Desain Mesin 3D dengan Solidworks - klik mirror pada dialog mirror :  plane face: klik plane 1  feauture for mirror : klik CSK for M3 Countersink  kemudian oke untuk menyembunyikan plane 1 langkah-langkah sebagai berikut:  klik kanan plane 1  klik hide 10. Material dengan : AISI 1045 steel 11. Analisis dengan mass properties sehingga data component sebagai berikut: Mass = 421.33 grams Volume = 53672.08 cubic millimeters Surface area = 15589.40 square millimeters Center of mass: (millimeters) X = 0.00 Y = 0.00 Z = 110.00 12. Kemudian save dengan nama file batang pengarah ragum
  • 40.
    Page | 39BelajarCepat Desain Mesin 3D dengan Solidworks BIODATA PENULIS Sarwanto,S.Pd.T, seorang anak penarik becak lahir di Kulonprogo, 13 September 1983. Menempuh pendidikan formal di SMK Negeri 2 Pengasih jurusan Teknik Pemesinan. Studi D3 di jurusan Teknik Mesin Universitas Negeri Yogyakarta diselesaikan dengan penghargaan lulusan terbaik untuk jurusan Teknik Mesin, kemudian melanjutkan S1 jurusan Pendidikan Teknik Mesin di Universitas Negeri Yogyakarta . Mulai tahun 2009 hingga saat ini menjadi staf pengajar di SMK Negeri 1 Nanggulan, DIY dan instruktur eksternal di BLPT Yogyakarta. Sebagai pendidik penulis selalu memiliki tekad untuk membangun bangsa melalui pendidikan. Pada tahun 2013 penulis mendapatkan penghargaan tokoh/lembaga/duta berjasa berprestasi dibidang ilmu pengetahuan dan teknologi kategori masyarakat umum provinsi Daerah istimewa Yogyakarta yang diberikan langsung oleh Gubernur DIY Sri Sultan Hamengkubuono X di Bangsal Kepatihan. Dalam buku ini akan dapat banyak belajar tentang step by step mendesain mesin dengan software solidworks. Disini anda akan dipandu secara detail dan mudah dipahami bagaimana proses pemodelan 3Dimensi solid secara mudah dan cepat. Ringkasan buku ini meliputi :  Pemahaman dasar desain dengan software CAD  Mendesain 3D dengan perintah dasar feature dan part modeling  Mendesain 3D dengan asemblies  Pembuatan gambar kerja dan detail dengan Drawing Page | 39Belajar Cepat Desain Mesin 3D dengan Solidworks BIODATA PENULIS Sarwanto,S.Pd.T, seorang anak penarik becak lahir di Kulonprogo, 13 September 1983. Menempuh pendidikan formal di SMK Negeri 2 Pengasih jurusan Teknik Pemesinan. Studi D3 di jurusan Teknik Mesin Universitas Negeri Yogyakarta diselesaikan dengan penghargaan lulusan terbaik untuk jurusan Teknik Mesin, kemudian melanjutkan S1 jurusan Pendidikan Teknik Mesin di Universitas Negeri Yogyakarta . Mulai tahun 2009 hingga saat ini menjadi staf pengajar di SMK Negeri 1 Nanggulan, DIY dan instruktur eksternal di BLPT Yogyakarta. Sebagai pendidik penulis selalu memiliki tekad untuk membangun bangsa melalui pendidikan. Pada tahun 2013 penulis mendapatkan penghargaan tokoh/lembaga/duta berjasa berprestasi dibidang ilmu pengetahuan dan teknologi kategori masyarakat umum provinsi Daerah istimewa Yogyakarta yang diberikan langsung oleh Gubernur DIY Sri Sultan Hamengkubuono X di Bangsal Kepatihan. Dalam buku ini akan dapat banyak belajar tentang step by step mendesain mesin dengan software solidworks. Disini anda akan dipandu secara detail dan mudah dipahami bagaimana proses pemodelan 3Dimensi solid secara mudah dan cepat. Ringkasan buku ini meliputi :  Pemahaman dasar desain dengan software CAD  Mendesain 3D dengan perintah dasar feature dan part modeling  Mendesain 3D dengan asemblies  Pembuatan gambar kerja dan detail dengan Drawing