BARRIER FREE
DESIGN
ABDULILAAHM Y
MOHAMEDSHAFIQR
MOHAMMEDIQBALA
KALYANKUMARGANDHIK
WHAT???
 The goal of barrier free design is to provide an environment
that supports the independent functioning of individuals so that
they can get to, and participate without assistance, in every day
activities.
 A well-designed environment which is safe, convenient,
comfortable, and readily accessible benefits everyone.
 Today accessibility for all is recognized as a basic necessity.
 Barrier-free features are now becoming fundamental to all
design concepts.
UNIVERSALDESIGNOR DESIGNFORALL
 Not allowing a person equal opportunities and
participation is an infringement on his/her rights as
a citizen of this country.
 Throughout the world it is being realized that there
need not be an exclusive design effort to suit the needs
of people with differences. One proper design, which
keeps in mind all the requirements, can work for all.
PHYSICALDISABILITIES
 Disability is not a phenomenon but a phase.
 Everyone at one point or the other passes through such phases.
The elderly, ill, pregnant, obese, children, persons with fracture
or with luggage could all be described as passing through a
phase of disability
OVERCOMINGTHE SITUATION…
 It means free and safe environment
 This is regardless of gender, age or condition.
 It defines that set of services which can be accessed by all independently
 Therefore, to list out people affected by barriers –
- Wheelchair users
- People with limited walking/movement abilities
- People with visual impairment or low vision
- People with hearing impairment
- Elderly and infirm persons
- Pregnant ladies
- Children
- People with temporary disabilities
 This is not just giving a Ramp and an Elevator/lift
 These range from door and passage widths to flooring surfaces, from counter heights to door handles
and railings from signage and auditory signals to tactile guides.
TYPESOF DISABILITIES
1. Non-Ambulatory : Impairments that, regardless of cause or manifestation, for all
practical purposes, confine individuals to wheel & chairs.
2. Semi-Ambulatory : Impairments that cause individuals to walk with difficulty or
insecurity. Individual using braces or crutches, amputees, arthritics, spastics &those
with pulmonary & cardiac ills may be semi-ambulatory.
3. Sight : Total blindness or impairments affecting sight to the extent that the
individual functioning in public areas is insecure or exposed to danger.
4. Hearing : Deafness or hearing handicaps that might make an individual insecure in
public areas because he is unable to communicate or hear warning signals.
NON-AMBULATORY
 Persons restricted on wheel
chair should use the facilities
within the built environment
independently without a
helper’s assistance. However,
wheelchair design must
assume that the user should be
able to operate the wheelchair
without help.
SEMI-AMBULATORY
 Persons in this category who use walking aids such as crutches or canes,
who are amputees, who have chest ailments or heart disease. The persons in
this category include those who can not walk without a cane and those who
have some trouble in their upper or lower limbs although they can walk
unassisted.
DESIGN REQUIREMENTS
 Width of passage for crutch users (min. 900 mm)
 Finishes of floor surface with non slip floor material.
 Installation of handrail to support the body weight at the critical places e.g. staircase, toilet, ramp,
passage with a change of level (800-850 mm).
 Extension of handrail on the flat landing at the top and bottom of the stairs (300 mm).
 To prevent slipping off the cane or crutch from the side of the stairs or ramps (20 mm high lip on
the exposed edge)
 To prevent a cane or crutch tip from slipping off the side of the stairs or ramp, install a 20 mm
high lip on the exposed edge.
 Persons in this category are totally blind or with impaired vision. Visually impaired persons make use of
other senses such as hearing or touch to compensate for the lack of vision. It is necessary to give
instructions accessible through the sense of touch (hands, fingers or legs).
 While walking with a white cane to spot their feet near the tip of the cane the persons may bump his or
her head or shoulder against protruding objects.
 Persons with limited vision may be able to discriminate between dark and bright shades and difference in
primary colors.
DESIGN REQUIREMENTS
 Use of guiding blocks for persons with impaired vision to guide them within the buildings and facilities
and out side the building. (Refer details of guiding/warning blocks).
 Installation of information board in braille.
 Installation of audible signages (announcements)
 Removal of any protruding objects and sufficient walking space for safe walking.
 For persons with limited vision use of contrasting color arrangements
PERSONSWITHIMPAIREDVISION
PERSONS WITH
HEARINGDISABILITIES
 Persons in this category are
totally deaf or have
difficulty in hearing. They
generally use their sight to
gather information in public
places.
 Provision of information
board in an easily
understandable manner.
 Provision of illuminated
signages, layout diagrams to
help the persons easily reach
the desired place.
DESIGN REQUIREMENTS
ELDERLYPERSONS
 Elderly persons may suffer impaired mobility, sight
disabilities (partially or fully), hearing disabilities or any
other physical difficulties, for which the design guidelines
for them within and outside the buildings and facilities shall
be similar like other physically disabled persons.
ANTHROPOMETRICS
ANTHROPOMETRICS– DESIGN
CONSIDERATIONS
 Dimensional data
which can be
used for guidance
when designing
facilities and
equipment for use
by persons with a
disability.
WALKSAND PATHS
• Walks should be smooth, hard level surface suitable for walking
and wheeling.
• The minimum walk way width would be 1200 mm and for
moderate two way traffic it should be 1650 .mm - 1800 mm.
• Longitudinal walk gradient should be 3 to 5% (30 mm - 50 mm in
1 meter)
• Texture change in walk ways adjacent to seating will be desirable
for blind persons.
APPROACH
o Ramped Approach : Ramp shall be finished with non slip material to enter the building. Minimum
width or ramp shall be 1800 mm with maximum gradient 1:12 for pedestrian,1:15 minimum for
wheelchair users.
o Length of ramp shall not exceed 9.0 M having double handrail at a height of 800 and 900 mm on both
sides extending 300 mm beyond top and bottom of the ramp. Minimum gap from the adjacent wall to
the hand rail shall be 50 mm.
o Stepped Approach : For stepped approach size of tread shall not be less than 300 mm. and
maximum riser shall be 150 mm. Provision of 900 mm high hand rail on both sides of the stepped
approach similar to the ramped approach.
o Entrance Landing:
o A clear space of not less than ramp’s width shall be provided at the head and foot of every ramp; door
swing and alike shall not be allowed to swing onto the landing.
o Entrance landing shall be provided adjacent to ramp with the minimum dimension 1800 x 2000 mm.
o A level resting space outside the swing of any door at the top of a ramp should be provided to avoid the
possibility of ‘roll-back’for wheelchair user when trying to open the door.
WIDTH OFENTRANCE AND EXIT
STAIRS
Steps and staircases shall be intended as an
alternative to lift access in buildings and
shall be of adequate design to allow all persons,
with or without a disability, to travel safely and
independently.
Where steps or stairs are in an accessible
route, complementary ramps, lifts or
escalators should be provided.
DIMENSION AND ORIENTATION
The required staircases and the main circulation staircase in common
areas of a building shall be constructed with treads not less than 300 mm
in width (measured at the centre of the flight) from the face of one riser to
the face of the next riser and with risers not more than 150 mm in height;
The risers built with vertical or receding face not more than 15mm from
the vertical, without a projecting nosing;
It shall not have more than 11 steps in any flight without the introduction
of a landing;
It shall be provided on both sides with properly fitted handrails.
It shall be provided with non-slip nosing in contrasting color.
STAIRS AND HANDRAILS
HANDRAILS
 Handrails shall be of the correct sizes,
strengths and shapes and be conveniently
located to provide secure hand-grips, and be
capable of taking the entire weight of the
persons using them.
 Handrail to ramp and step shall be fixed not
less than 35 mm and not more than 50 mm
clear of wall and with a clear height of
70mm from the top of the bracket to the top
of the handrail.
 The top of handrail shall be at a height of
not less than 850 mm and not more than
950mm above any nosing, floor or landing.
CORRIDORS
• Corridors are passages providing for internal circulation within a building.
• The minimum width shall be 1500 mm.
• DOORS
• Minimum clear opening of the entrance door shall be 900mm. and it shall
not be provided with a step that obstructs the passage of a wheel chair
user.
• Threshold shall not be raised more than 12 mm.
HEADROOM
Where the headroom is 2000 mm or less from the finished floor level, a warning guardrail
or other barrier shall be provided for detection, having its leading edge at or below 680
mm above the finished floor level.
TOILET
 One special W.C should be provided with the essential provisions such as wash basin for the use
of the physically challenged
 The minimum size-1500 x 1750 mm
 Minimum clear sopening-900mm[swing out]
 The W.C. seat shall be 500 mm
 Toilet floors-Non slippery[no level difference]
 Guiding blocks near the entrance should be textural
WASH BASIN
 The toilet shall be provided with a wash basin mounted with the
rim not higher than 750 mm above the finished floor level. A
clearance of 550mm shall be maintained from the finished floor
level to the bottom of the apron.
 Tap for wash basin shall be automatic or of lever control type
without spring loading.
 Tap shall not require tight grasping, pinching or twisting of the
wrist.
 The operating force required shall not be greater than 22 N.
WASH BASIN
WINDOWS
 A window should have handles/controls at a height that permits use from wheelchairs.
 A window should have an unobstructed viewing zone for wheelchair users.
 Curtain or Venetian blind controls/ropes should be accessible for wheelchair users.
ESCALATORSANDPASSENGERCONVEYORS
 Escalators or passenger conveyors are not considered part of a barrier-free route of
travel.
 However, adequate warning or guarding shall be provided alongside and at each end of
the escalators and passenger conveyors for the safety of persons with visual
impairment.
 Tactile Warning Strips
 Tactile warning strips shall be provided at both bottom and top ends of an escalator.
 Tactile warning strips shall be provided at both ends of a passenger conveyor.
 Design Considerations
 Escalator can be a useful addition to stair and lift where significant height difference
has to be negotiated, but it should be designed with slower speed for the safety use by
persons with visual impairment and the elderly.
 The angle of inclination of escalator should not exceed 30°.
LIFTS
Wherever lift is required as per by-laws, provision of at least one lift shall be made for the wheel
chair user with the following cage dimensions of lift recommended for passenger lift of 13
persons capacity by Bureau of Indian Standards.
 Clear internal depth : 11OO mm.
 Clear internal width : 2000 mm.
 Entrance door width : 900 mm.
 A hand rail not less than 600 mm. long at 800-1000 mm. above floor level shall be fixed
adjacent to the control panel.
 The lift lobby shall be of an inside measurement of 1800 x 1800 mm. or more.
 The time of an automatically closing door should or minimum 5 seconds and the closing
speed should not exceed 0.25 M/ Sec.
 The interior of the cage shall be provided with a device that audibly indicates the floor the
cage has reached and indicates that the door of the cage for entrance/exit is either open or
closed.
SIGNAGES
 The main purpose of signs should be to provide a clear designation of
places, warnings and routing information.
 A person in a wheel chair is less than 1200 mm high.
 A person who is partially sighted needs contrasting texture along side
walkways and audible signs for dangerous areas,.
 Signs should be useful to everyone, easily seen from eye level,
readable by moving the fingers and well lighted for night time
identification.
 Signs shall indicate the direction and name of the accessible facility
and incorporate the symbol of access.
 The size, type and layout of lettering on signs shall be clear and
legible
SIGNAGES
 Signs should be in contrasting colours and preferably be
embossed in distinct relief to allow visually impaired persons
to obtain the information they contain by touching them
 Simple symbols and contrasting colours which are
universally recognized should be used, e.g. green for safety
or go, yellow or amber for risk or caution, and red for danger
SIGNAGES
PARKING
 Adequate numbers of accessible car parking spaces shall be
provided with proper access, proper designation and
directional signage in the car parks.
 The parking spaces reserved for persons with a disability
shall be located in proximity and with an accessible route to
the lobby with an accessible lift or entrance.
 The minimum width for a parking space for persons with a
disability shall be 3600 mm.
PARKING- REQUIREMENTS
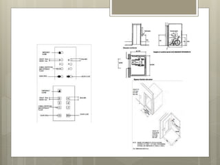
SWITCHES AND CONTROLS
 This section is applicable to operable part of
controls such as electrical switches, wall
socket outlets and controls of other electrical
and mechanical equipment.
 Switches, socket outlets and controls for
lighting and other equipment shall be located
so that they are easily reachable for all users.
DESIGN CONSIDERATIONS
 Ease of operation, visibility, reachable height and
free from obstruction are key factors that affect the
use of building services by persons with a
disability.
 All outlets, switches and controls should be
positioned consistently in relation to doorways
and corners within a building and in a logical
sequence of passage through the building.
 Light switches and socket outlets should have a
minimum luminous contrast of 30% with their
background to indicate their locations.
ILLUMINATION
 Artificial lighting should be designed to give uniform
illumination and good color rendering of all surfaces, without
creating glare, or pools of bright light and strong shadows.
 Uniformity of illumination level should be maintained
throughout the designated confined areas such as staircases,
corridors or the like.
 Higher illumination level at the entrance doors to flats and
the exit doors should be provided.

Barrier free design

  • 1.
  • 2.
    WHAT???  The goalof barrier free design is to provide an environment that supports the independent functioning of individuals so that they can get to, and participate without assistance, in every day activities.  A well-designed environment which is safe, convenient, comfortable, and readily accessible benefits everyone.  Today accessibility for all is recognized as a basic necessity.  Barrier-free features are now becoming fundamental to all design concepts.
  • 3.
    UNIVERSALDESIGNOR DESIGNFORALL  Notallowing a person equal opportunities and participation is an infringement on his/her rights as a citizen of this country.  Throughout the world it is being realized that there need not be an exclusive design effort to suit the needs of people with differences. One proper design, which keeps in mind all the requirements, can work for all.
  • 4.
    PHYSICALDISABILITIES  Disability isnot a phenomenon but a phase.  Everyone at one point or the other passes through such phases. The elderly, ill, pregnant, obese, children, persons with fracture or with luggage could all be described as passing through a phase of disability
  • 5.
    OVERCOMINGTHE SITUATION…  Itmeans free and safe environment  This is regardless of gender, age or condition.  It defines that set of services which can be accessed by all independently  Therefore, to list out people affected by barriers – - Wheelchair users - People with limited walking/movement abilities - People with visual impairment or low vision - People with hearing impairment - Elderly and infirm persons - Pregnant ladies - Children - People with temporary disabilities  This is not just giving a Ramp and an Elevator/lift  These range from door and passage widths to flooring surfaces, from counter heights to door handles and railings from signage and auditory signals to tactile guides.
  • 6.
    TYPESOF DISABILITIES 1. Non-Ambulatory: Impairments that, regardless of cause or manifestation, for all practical purposes, confine individuals to wheel & chairs. 2. Semi-Ambulatory : Impairments that cause individuals to walk with difficulty or insecurity. Individual using braces or crutches, amputees, arthritics, spastics &those with pulmonary & cardiac ills may be semi-ambulatory. 3. Sight : Total blindness or impairments affecting sight to the extent that the individual functioning in public areas is insecure or exposed to danger. 4. Hearing : Deafness or hearing handicaps that might make an individual insecure in public areas because he is unable to communicate or hear warning signals.
  • 7.
    NON-AMBULATORY  Persons restrictedon wheel chair should use the facilities within the built environment independently without a helper’s assistance. However, wheelchair design must assume that the user should be able to operate the wheelchair without help.
  • 9.
    SEMI-AMBULATORY  Persons inthis category who use walking aids such as crutches or canes, who are amputees, who have chest ailments or heart disease. The persons in this category include those who can not walk without a cane and those who have some trouble in their upper or lower limbs although they can walk unassisted.
  • 10.
    DESIGN REQUIREMENTS  Widthof passage for crutch users (min. 900 mm)  Finishes of floor surface with non slip floor material.  Installation of handrail to support the body weight at the critical places e.g. staircase, toilet, ramp, passage with a change of level (800-850 mm).  Extension of handrail on the flat landing at the top and bottom of the stairs (300 mm).  To prevent slipping off the cane or crutch from the side of the stairs or ramps (20 mm high lip on the exposed edge)  To prevent a cane or crutch tip from slipping off the side of the stairs or ramp, install a 20 mm high lip on the exposed edge.
  • 11.
     Persons inthis category are totally blind or with impaired vision. Visually impaired persons make use of other senses such as hearing or touch to compensate for the lack of vision. It is necessary to give instructions accessible through the sense of touch (hands, fingers or legs).  While walking with a white cane to spot their feet near the tip of the cane the persons may bump his or her head or shoulder against protruding objects.  Persons with limited vision may be able to discriminate between dark and bright shades and difference in primary colors. DESIGN REQUIREMENTS  Use of guiding blocks for persons with impaired vision to guide them within the buildings and facilities and out side the building. (Refer details of guiding/warning blocks).  Installation of information board in braille.  Installation of audible signages (announcements)  Removal of any protruding objects and sufficient walking space for safe walking.  For persons with limited vision use of contrasting color arrangements PERSONSWITHIMPAIREDVISION
  • 12.
    PERSONS WITH HEARINGDISABILITIES  Personsin this category are totally deaf or have difficulty in hearing. They generally use their sight to gather information in public places.  Provision of information board in an easily understandable manner.  Provision of illuminated signages, layout diagrams to help the persons easily reach the desired place. DESIGN REQUIREMENTS
  • 13.
    ELDERLYPERSONS  Elderly personsmay suffer impaired mobility, sight disabilities (partially or fully), hearing disabilities or any other physical difficulties, for which the design guidelines for them within and outside the buildings and facilities shall be similar like other physically disabled persons.
  • 14.
  • 15.
    ANTHROPOMETRICS– DESIGN CONSIDERATIONS  Dimensionaldata which can be used for guidance when designing facilities and equipment for use by persons with a disability.
  • 17.
    WALKSAND PATHS • Walksshould be smooth, hard level surface suitable for walking and wheeling. • The minimum walk way width would be 1200 mm and for moderate two way traffic it should be 1650 .mm - 1800 mm. • Longitudinal walk gradient should be 3 to 5% (30 mm - 50 mm in 1 meter) • Texture change in walk ways adjacent to seating will be desirable for blind persons.
  • 18.
    APPROACH o Ramped Approach: Ramp shall be finished with non slip material to enter the building. Minimum width or ramp shall be 1800 mm with maximum gradient 1:12 for pedestrian,1:15 minimum for wheelchair users. o Length of ramp shall not exceed 9.0 M having double handrail at a height of 800 and 900 mm on both sides extending 300 mm beyond top and bottom of the ramp. Minimum gap from the adjacent wall to the hand rail shall be 50 mm. o Stepped Approach : For stepped approach size of tread shall not be less than 300 mm. and maximum riser shall be 150 mm. Provision of 900 mm high hand rail on both sides of the stepped approach similar to the ramped approach. o Entrance Landing: o A clear space of not less than ramp’s width shall be provided at the head and foot of every ramp; door swing and alike shall not be allowed to swing onto the landing. o Entrance landing shall be provided adjacent to ramp with the minimum dimension 1800 x 2000 mm. o A level resting space outside the swing of any door at the top of a ramp should be provided to avoid the possibility of ‘roll-back’for wheelchair user when trying to open the door.
  • 19.
  • 20.
    STAIRS Steps and staircasesshall be intended as an alternative to lift access in buildings and shall be of adequate design to allow all persons, with or without a disability, to travel safely and independently. Where steps or stairs are in an accessible route, complementary ramps, lifts or escalators should be provided.
  • 21.
    DIMENSION AND ORIENTATION Therequired staircases and the main circulation staircase in common areas of a building shall be constructed with treads not less than 300 mm in width (measured at the centre of the flight) from the face of one riser to the face of the next riser and with risers not more than 150 mm in height; The risers built with vertical or receding face not more than 15mm from the vertical, without a projecting nosing; It shall not have more than 11 steps in any flight without the introduction of a landing; It shall be provided on both sides with properly fitted handrails. It shall be provided with non-slip nosing in contrasting color.
  • 22.
  • 23.
    HANDRAILS  Handrails shallbe of the correct sizes, strengths and shapes and be conveniently located to provide secure hand-grips, and be capable of taking the entire weight of the persons using them.  Handrail to ramp and step shall be fixed not less than 35 mm and not more than 50 mm clear of wall and with a clear height of 70mm from the top of the bracket to the top of the handrail.  The top of handrail shall be at a height of not less than 850 mm and not more than 950mm above any nosing, floor or landing.
  • 24.
    CORRIDORS • Corridors arepassages providing for internal circulation within a building. • The minimum width shall be 1500 mm. • DOORS • Minimum clear opening of the entrance door shall be 900mm. and it shall not be provided with a step that obstructs the passage of a wheel chair user. • Threshold shall not be raised more than 12 mm.
  • 25.
    HEADROOM Where the headroomis 2000 mm or less from the finished floor level, a warning guardrail or other barrier shall be provided for detection, having its leading edge at or below 680 mm above the finished floor level.
  • 26.
    TOILET  One specialW.C should be provided with the essential provisions such as wash basin for the use of the physically challenged  The minimum size-1500 x 1750 mm  Minimum clear sopening-900mm[swing out]  The W.C. seat shall be 500 mm  Toilet floors-Non slippery[no level difference]  Guiding blocks near the entrance should be textural
  • 28.
    WASH BASIN  Thetoilet shall be provided with a wash basin mounted with the rim not higher than 750 mm above the finished floor level. A clearance of 550mm shall be maintained from the finished floor level to the bottom of the apron.  Tap for wash basin shall be automatic or of lever control type without spring loading.  Tap shall not require tight grasping, pinching or twisting of the wrist.  The operating force required shall not be greater than 22 N.
  • 29.
  • 30.
    WINDOWS  A windowshould have handles/controls at a height that permits use from wheelchairs.  A window should have an unobstructed viewing zone for wheelchair users.  Curtain or Venetian blind controls/ropes should be accessible for wheelchair users.
  • 31.
    ESCALATORSANDPASSENGERCONVEYORS  Escalators orpassenger conveyors are not considered part of a barrier-free route of travel.  However, adequate warning or guarding shall be provided alongside and at each end of the escalators and passenger conveyors for the safety of persons with visual impairment.  Tactile Warning Strips  Tactile warning strips shall be provided at both bottom and top ends of an escalator.  Tactile warning strips shall be provided at both ends of a passenger conveyor.  Design Considerations  Escalator can be a useful addition to stair and lift where significant height difference has to be negotiated, but it should be designed with slower speed for the safety use by persons with visual impairment and the elderly.  The angle of inclination of escalator should not exceed 30°.
  • 32.
    LIFTS Wherever lift isrequired as per by-laws, provision of at least one lift shall be made for the wheel chair user with the following cage dimensions of lift recommended for passenger lift of 13 persons capacity by Bureau of Indian Standards.  Clear internal depth : 11OO mm.  Clear internal width : 2000 mm.  Entrance door width : 900 mm.  A hand rail not less than 600 mm. long at 800-1000 mm. above floor level shall be fixed adjacent to the control panel.  The lift lobby shall be of an inside measurement of 1800 x 1800 mm. or more.  The time of an automatically closing door should or minimum 5 seconds and the closing speed should not exceed 0.25 M/ Sec.  The interior of the cage shall be provided with a device that audibly indicates the floor the cage has reached and indicates that the door of the cage for entrance/exit is either open or closed.
  • 34.
    SIGNAGES  The mainpurpose of signs should be to provide a clear designation of places, warnings and routing information.  A person in a wheel chair is less than 1200 mm high.  A person who is partially sighted needs contrasting texture along side walkways and audible signs for dangerous areas,.  Signs should be useful to everyone, easily seen from eye level, readable by moving the fingers and well lighted for night time identification.  Signs shall indicate the direction and name of the accessible facility and incorporate the symbol of access.  The size, type and layout of lettering on signs shall be clear and legible
  • 35.
    SIGNAGES  Signs shouldbe in contrasting colours and preferably be embossed in distinct relief to allow visually impaired persons to obtain the information they contain by touching them  Simple symbols and contrasting colours which are universally recognized should be used, e.g. green for safety or go, yellow or amber for risk or caution, and red for danger
  • 36.
  • 39.
    PARKING  Adequate numbersof accessible car parking spaces shall be provided with proper access, proper designation and directional signage in the car parks.  The parking spaces reserved for persons with a disability shall be located in proximity and with an accessible route to the lobby with an accessible lift or entrance.  The minimum width for a parking space for persons with a disability shall be 3600 mm.
  • 40.
  • 42.
    SWITCHES AND CONTROLS This section is applicable to operable part of controls such as electrical switches, wall socket outlets and controls of other electrical and mechanical equipment.  Switches, socket outlets and controls for lighting and other equipment shall be located so that they are easily reachable for all users.
  • 43.
    DESIGN CONSIDERATIONS  Easeof operation, visibility, reachable height and free from obstruction are key factors that affect the use of building services by persons with a disability.  All outlets, switches and controls should be positioned consistently in relation to doorways and corners within a building and in a logical sequence of passage through the building.  Light switches and socket outlets should have a minimum luminous contrast of 30% with their background to indicate their locations.
  • 44.
    ILLUMINATION  Artificial lightingshould be designed to give uniform illumination and good color rendering of all surfaces, without creating glare, or pools of bright light and strong shadows.  Uniformity of illumination level should be maintained throughout the designated confined areas such as staircases, corridors or the like.  Higher illumination level at the entrance doors to flats and the exit doors should be provided.