ARCHITECTURAL
CONSERVATION
PROPOSAL FOR ADAPTIVE REUSE
PEJABAT AGAMA ISLAM
DAERAH KLANG
KLANG ISLAMIC RELIGIOUS OFFICE
PEJABAT AGAMA ISLAM DAERAH KLANG
KLANG ISLAMIC RELIGIOUS OFFICE
Contents
1. Acknowledgement
2. Introduction
3. Preliminary investigation
A. Historical background
B. Site context
C. Spatial configuration and function
4. Dilapidation survey: Internal and external condition
5. Precedent study: Kuala Lumpur Performing Arts Centre
6. Proposal for adaptive reuse: Multipurpose Performing Arts Centre
Acknowledgement
We wish to express our sincere gratitude to Perbadanan Adat Melayu dan
Warisan Negeri Selangor (PADAT) for providing us an opportunity to
conduct our project execution at the building of Pejabat Agama Islam
Daerah Klang (PAID) / (Klang Islamic Religious Office) by granting us an
access to the building for the duration of our project. Greatest appreciation
for providing us with the relevant information of the PAID building.
We would like to sincerely thank our Architectural Conservation project
lecturer, Mr. Azim Sulaiman for the commitment, encouragement and
dedicated guidance given to educate us throughout the project.
We would also like to express our appreciation to the module coordinator
of Architectural Conservation for providing us an opportunity to embark on
this project.
For the duration of this project, we have grasped the understanding of the
historical and social background of Klang to a greater extent.
The following report and drawings in regards to the Preliminary
Investigation, Dilapidation Survey and Proposal for Adaptive Re-use are
produced with the dedication and cooperation of each of our teammates.
Team members
Cha Yun Xian
Harwinder Singh
Liew Cherng Qing
Muhammad A’ameer
Phares Phung
Racquel Ooi
Saw E Sean
Introduction
Situated on a land which was once filled with tin minerals, Pejabat Agama Islam Klang has undertaken
several ownership, for over 100 years of heritage. The PAID building was initially constructed as a
palace, for the Sultan of Selangor, then a Japanese Soldiers’ Quarters, Klang Municipal Building; and
Klang Islamic Religious Office (PAID) - until abandoned recently.
Since the abandonment, the building was left to deteriorate in poor state; where there were stolen
window grills, eroded walls with the growth of moss.
Hence, conservation efforts completed in other buildings are were part of the precedent studies to
resolve the PAID historical building.
PRELIMINARY INVESTIGATION
Historical Background
_____________________________________________________________________________
PEJABAT AGAMA ISLAM DAERAH KLANG
KLANG ISLAMIC RELIGIOUS OFFICE
Selangor
Selangor is one of the 14 states in Malaysia. It is placed on the
west coast of Peninsular Malaysia. The history of Selangor
started in the 16th Century when tin was found in the area.
Due to it characteristic which rich in natural resources, the
region attracted miners, trader, and immigrants to reside in the
area. Among all, Bugis is the most prominent immigrants as
they were good traders and warriors. By the time, the Bugis
rose to become renowned in Selangor. Raja Lumu which is
one of the descendants established Kuala Selangor and
became the first Sultan of Selangor in 1766.
There are two capitals in Selangor, which is Shah Alam as the
state capital city and Klang as the royal capital city. This state
covers an area of 8104km2 and consists of 9 districts which
are Hulu Langat, Gombak, Hulu Selangor, Kuala Langat,
Kuala Selangor, Petaling, Sabak Bernam, Sepang and lastly,
Klang. Nowadays, Selangor is the state of Malaysia with the
highest population.
Indication of Selangor in Malaysia map
Distribution zoning and
district of Old Klang
PRELIMINARY INVESTIGATION: HISTORICAL BACKGROUND
Illustration of Gedung Raja Adbdullah in the
earlier time as a warehouse
The origin of the name Klang is said to come from the Mon-
Khmer word “Klong”. The definition of “Klong” is a warehouse,
canal, waterway or storage place for goods. Back to the day,
Klang is one of the important port in Peninsula Malaysia. Due
to that, there is warehouse surrounding the port for the trading
activities while the waterways were the stream which flowed
into the Klang River for the convenient of transportation of tin
ore which was made from the hinterlands.
Throughout the time of the Malay Sultanate of Malacca, Klang
was part of its territory. Tun Perak, who was one of the famous
Bendahara in Malacca, is the ruler of the territory. Klang was
developed to be famous during that period due to the
outstanding skills of Tun Perak. The Klang River was the
pulse of the improvement and extension of Klang and its
surrounding region at that time.
Klang
PRELIMINARY INVESTIGATION: HISTORICAL BACKGROUND
Illustration
showing the war
between two
Malay dignitaries
to rule the Klang
River Valley
Fort of Raja
Mahadi as a
defensive
barricade against
Raja Abdullah.
Nowadays it
serves as one of
the landmark of
the state
The Klang War was the most famous events happen during
the period 1867- 1873 in Selangor. This event was started
from the conflict between two Selangor Malay dignitaries Raja
Abdullah and Raja Mahadi to rule the tin resources in Klang
River Valley.
Raja Abdullah was an “Orang Besar of Klang” who assigned
by Sultan Muhammad (1826 – 1857) at that time. However,
due to the great influence and reputation of Raja Mahadi in
Klang, Raja Abdullah was forced to retreat to Malacca. After
Raja Abdullah passed away, the demise was replaced by the
presence of Yap Ah Loy. Yap Ah Loy was the head of Fei
Chew clan from the Haisan Society. He, later on, became the
famous Chinese capitan in Kuala Lumpur and contribute to the
development of Kuala Lumpur. For Yap Ah Loy side, he was
assisted by the son of Sultan which is Tengku Kudin, while
Raja Mahadi was assisted by Syed Manshor and the Kah
Yang Chew clan from the Ghee Hin society from Kanching.
Klang Civil War (Perang Saudara) (1867-1873)
PRELIMINARY INVESTIGATION: HISTORICAL BACKGROUND
Yap Ah Loy, the famous
Chinese capitan in Kuala
Lumpur
Through the process, the cooperation between Chinese society and
Malays dignities form a set of positive competition mechanism order
which helps in the economic development in Straits Settlement.
Selangor was then becoming one of the main tin producing states in
the world.
The Klang Civil War ends when British indirectly assisted on Tengku
Kudin side in the war. Raja Mahadi was defeated by Tengku Kudin
and end the war.
Klang Civil War (Perang Saudara) (1867-1873)
PRELIMINARY INVESTIGATION: HISTORICAL BACKGROUND
Sir Frank Swettenham (right) and Sultan
Suleiman of Selangor (left), 1936
1873 to 1941 was the period where British colonize Selangor. British
take the opportunity to strengthen their position in Selangor when
there was a conflict between the Malay dignitaries over the rule on the
rich natural resources of the region. Hence there is also piracy
occurred around the sea near the state of Selangor. All of this situation
cause Sir Frank Swettenham successfully convince Sultan Sir Abdul
Samad to place the state under British rule. In December 1874, Tames
Guthrie Davidson was appointed as the first British resident in
Selangor, while Sir Frank Swettenham was made assistant resident in
Kuala Lumpur.
During that period, the position of the Malay dignitaries still remains,
however, the interruption of British in politics and economic, have
limited the power possessed by Sultan. The Sultan had authority only
in term of Malay customs and Islam.
After 1874, British decided to choose Klang instead of Jugra as their
administration center. This situation remains until 1880 when they
moved it to Kuala Lumpur due to its rapid development.
British Colonial Era (1873-1941)
PRELIMINARY INVESTIGATION: HISTORICAL BACKGROUND
Tin mining area in Klang
Port Swettenham, 1910
From 1874 to 1957 the economy of the state of Selangor grew rapidly,
spurred by the tin mining sector and commercial crops such as rubber
and oil palm.
Klang at that time did not lose its prominence and remain reputation
with the construction of Port Klang which formerly known as Port
Swettenham despite the moving administration center to Kuala
Lumpur. Furthermore, its position was enhanced in 1886 by the
completion of Klang Valley Railway (to Bukit Kuda). The town growth
was further provoked by the State becoming a leading producer of
coffee and rubber.
Throughout this period, The British administration was brought a
positive impact on the development of the town in general process.
However, the power of Sultan was limited due to the presence of
British.
Economic Development of Selangor (Klang) (1874-1957)
PRELIMINARY INVESTIGATION: HISTORICAL BACKGROUND
Japanese soldiers
World war ll occur during this period. At that time, Malaya was
gradually occupied by the Japanese.
The general policy of Japan administration was to make Malaya its
territory. Japanese exploit the local economy to fulfill its needs and
assist in the war against the Allies during the world war. Klang was
one of the most needed regions by Japanese for economic
development due to its rich in natural resources. At that time, the
Japanese treat the local people cruelly and cause the people to living
in the hardship. The economy of Selangor declined to owe the
economic sanctions.
Japanese Occupation (1941-1945)
PRELIMINARY INVESTIGATION: HISTORICAL BACKGROUND
Ownership
The Old Pejabat Agama Islam was built in 1912 as a resting
palace for Sultan Allaedin Sulaiman Shah. Since then, the
building was used for different functions through the times.
The building itself have survived through the British
colonization period from 1874–1946 and the Japanese
occupation from 1941-1945, until today. Over the 103 years,
the building itself have witnessed the changes or the
development of Klang.
1912 Building was built as a resting palace for Sultan Allaeddin
Sulaiman Shah
1938 Sultan Sir Allaeddin Sulaiman passed away
1941 Japanese invaded Malaysia and took over this building to
be used as a headquarter
1945 Japanese defeated. The building was used as lodging
house
1949 Building was used as the Klang Institution Municipal office
1965 A meeting was convened to handover the building to JAIS
1977 JAIS moved to Sultan Sulaiman Building. PAID took over
the building
1992 PAID shared building with the Lower Syariah Court
2001 The building was refurbished
2004 PAID occupied the building fully
2012 PAID moved to a new building. PADAT took over the
building to conserve its historical values
2015 The building is underused and was under maintenance
Brief Timeline of Building Ownership
PRELIMINARY INVESTIGATION: HISTORICAL BACKGROUND
Timeline of Building
Palace for Sultan Sir Allaeddin Sulaiman
1912 - 1938
In 1912, this old building was initially built as a palace for the Sultan
of Selangor at the time, DYMM Sultan Sir Allaeddin Sulaiman
Shah. However, it was not the official palace but was known as
“Istana Singgah” for the sultan. In the same year, Sultan Sulaiman
was knighted the Order of St. Michael and St George (GCMG) by
the United Kingdom with the title Sir. The palace served as the
Sultan’s office and his resting place when he came over for
government affairs, due to the close distance of the palace to the
British Administration Office, which is now being used as the Royal
Gallery. Royal events such as installation ceremonies, royal
weddings, awarding of state titles by the Sultan, receptions of
guests or dignitaries and other functions was also being held in the
palace. The official palace at that time was the Istana Mahkota
which was also located in Klang .Sultan Sulaiman live in the palace
for 35 years until his death in 1938. In 1950, this palace was
demolished.
“Istana SInggah” of
Sultan Sir
Allaeddin Sulaiman
Shah, 1912
Istana Mahkota as
official palace,
completed 1913
Scaled model of
Istana Mahkota,
Museum Shah
Alam
PRELIMINARY INVESTIGATION: HISTORICAL BACKGROUND
Sultan Sir Allaeddin Sulaiman
1896-1938
Before Sultan Sir Allaeddin Sulaiman Shah was being crowned as the 5th
Sultan of Selangor, he was known as Raja Sulaiman from the Bugis
family, originated from Selawasi. Replacing his grandfather who passed
away after 41 years of ruling Selangor, His majesty had ruled Selangor
since 1898 until he passed away on 31st March of 1938. with the title Sir,
he was knighted the Order of St Michael and St George by the United
Kingdom in 1912. He was succeeded by Sultan Sir Hisamuddin Alam
Shah Alhaj. Sultan Sulaiman was a religious follower, and was close to
the ulama. Ulama is the body of Muslim scholars who are recognised for
specialising in knowledge of Islamic sacred law and theology. His Majesty
would ask for opinions from the ulama regarding matters of administration
and spreading of Islam in the country. He would also bring along ulama
whenever he had to run errands abroad. Sultan Sulaiman was concerned
about the development of Islam in Selangor. Hence, several mosques
were built in the state and one of them was named after him. This
mosque with its unique and attractive style of construction was built in
1932. The mosque was made the Klang Royal Mosque following the
completion of the new state mosque in Shah Alam.
Portrait of
Sultan
Sulaiman
Sultan Sulaiman Mosque, 1932
PRELIMINARY INVESTIGATION: HISTORICAL BACKGROUND
JUNTAI during Japanese Occupation 1941- 1945
During the 2nd World War, the Japanese invaded Malaya on 18th
December 1941 from Kota Bahru. Within 1 and a half months, the
Japanese had full control over Malaya. They occupied the building
and used it as the quarters for the soldiers to aid in facilitation of
the war. The building was called JUNTAI, which is the Japanese
Armed Force Headquarter in Klang. Besides this building, the
buildings surrounding the area was taken over by the Japanese as
well. The Standard Chartered Bank building next to JUNTAI was
used as an interrogation and execution centre for the prisoners of
war. After the Japanese surrendered, the building was used as a
lodging house until 1945. A lodging house is a house that are
rented out for temporary stay with fully furnished rooms.
Japanese invasion in Malaya.
PRELIMINARY INVESTIGATION: HISTORICAL BACKGROUND
1949 - 1964 Klang Municipal Institution Office
1965 - 1976 JAIS office
The building has transformed its use as the Klang Municipal
Institution Office (Pejabat Lembaga Bandaran Klang) in 1949. It
was used as an operation centre until 1964. After a meeting was
convened, the building was handovered to Jabatan Agama Islam
Negeri Selangor (JAIS) in 1965, which was formed by Sultan
Hisamuddin Alam Shah Alhaj after the World War 2. Sultan
Hisamuddin Alam Shah Alhaj is the eldest son of Sultan Sulaiman
and Puan Hamsah. As he had two elder brothers, he wasn’t
expected to inherit the throne. However, during the Japanese
occupation, His Majesty stepped down and his eldest stepbrother,
Sultan Musa Ghiatuddin Riayat Shah was chosen to rule
Selangor. When British took over again after the Japanese had
surrendered, he was once again appointed to be Sultan of
Selangor.
Portrait of Sultan
Hisamuddin Alam
Shah Alhaj
First JAIS office building, 1965
PRELIMINARY INVESTIGATION: HISTORICAL BACKGROUND
1949 - 1964 Klang Municipal Institution Office
1965 - 1976 JAIS office
As a result of the Japanese and communist influence after the
2nd World War, he commanded the ministry of Selangor to establish JAIS due to the weakening moral consciousness of
the public based on the increment of crimes. On 1st October 1945, JAIS was formed and the first office was located in this
building of Sultan Hisamuddin Alam Shah Alhaj which he used as an office near Istana Mahkota, Klang. This organization
was funded by the Sultan himself, which aims to inhibit the spreading of communism in Selangor and Malaya. As intended,
it calibrated the morality and beliefs of the Malays that were influenced by the Japanese during the occupation. Due to the
effort of Sultan Hisamuddin, Undang-undang Tubuh of Selangor was revised in 1947, which the law including the
establishment of Jabatan Hal-Ehwal Agama Islam dan Adat Istiadat Melayu .Eversince, JAIS was officially established and
the office was relocated to the Old Kelab Diraja Selangor in 1948. In 1965, Selangor government removed the Klang
Municipal Institution Office and relocate JAIS to this building.
PRELIMINARY INVESTIGATION: HISTORICAL BACKGROUND
Pejabat Agama Islam Klang
1977-2012
In 1977, the building was used by JAIS until the state government
relocate them again to Bangunan Sultan Salahuddin Abdul Aziz
Shah di Shah Alam. After the relocation, the building was used as
the Klang Islamic Religious Office also known as Pejabat Agama
Islam Daerah Klang (PAID). In 1992, the building was shared with
the lower syariah court where PAID occupied the ground floor while
the Lower Syariah Court occupied the first floor. In 2004 the court
moved out and PAID occupied the whole building. PAID functions
similarly to JAIS, acting as the main headquarter for the whole of
Selangor while PAID was the office that was situated in Klang to
provide convenience for the Muslim in Klang. In 2001, the building
was refurbished and remained as the Klang Islamic Religious Office
until it was evacuated and handed over to the PADAT on the 6th
July 2012. Since 1st February 2015, it is in the process to be
renovated and maintained as a historical and cultural building. The
building was officially renamed as Bangunan Lama Pejabat Agama
Islam Daerah Klang.
Pejabat Agama
Islam, 2000
Pejabat Agama
Islam, 2014
PRELIMINARY INVESTIGATION: HISTORICAL BACKGROUND
PRELIMINARY INVESTIGATION
Site Context
____________________________________________________________________________
PEJABAT AGAMA ISLAM DAERAH KLANG
KLANG ISLAMIC RELIGIOUS OFFICE
Located along Jalan Dato Hamzah (Sultan Street in
1930), the Pejabat Agama Islam was once the
resting palace of Sultan Sir Allaeddin Sulaiman
Shah. Jalan Besar which once used to call Istana
Street that is adjacent to Jalan Dato Hamzah, where
the current Royal Gallery of Klang is located was
used to be Municipal of Klang and Administrative
Office during British and Japanese Colonisation
period. Jalan Besar is one of the street that connect
to Jalan Raya Timur, which was the main street of
Klang during 1930 .This is due to the Klang Valley
KTM station which was situated along the street.
Site Context
Map of Klang, 2015
Map of Klang, 1930 with red
indication of Pejabat Agama
Islam Daerah
During that time, the trains were mainly utilised as transportation for goods. This
increases the efficiency for the businessmen to trade at Rembau Street and Jalan
Raya Timur. Hence, the area around these streets was prosperous in the early 20th
century. Located along Jalan Tengku Kelana is the Gedung Raja Abdullah. in 1989
and many of the tin related exhibits were transferred there.
PRELIMINARY INVESTIGATION: SITE CONTEXT
Built in 1857, it is the oldest surviving building in Klang. Originally used as a warehouse by
Raja Abdullah, a Malay tin-mining pioneer. Conflict broke out between Raja Abdullah and
his rival, Raja Mahadi in 1867 and the warehouse had to be fortified. It was later used by
the British as government office and later, the police headquarter in 1880’s. It became a Tin
Museum after the Police headquarter was relocated to a new building beside it in
1970’s.However the museum was closed after the Sultan Alam Shah Museum in Shah
Alam was opened
Site Context
PRELIMINARY INVESTIGATION: SITE CONTEXT
PRELIMINARY INVESTIGATION
Spatial Configuration and Function
_____________________________________________________________________________
PEJABAT AGAMA ISLAM DAERAH KLANG
KLANG ISLAMIC RELIGIOUS OFFICE
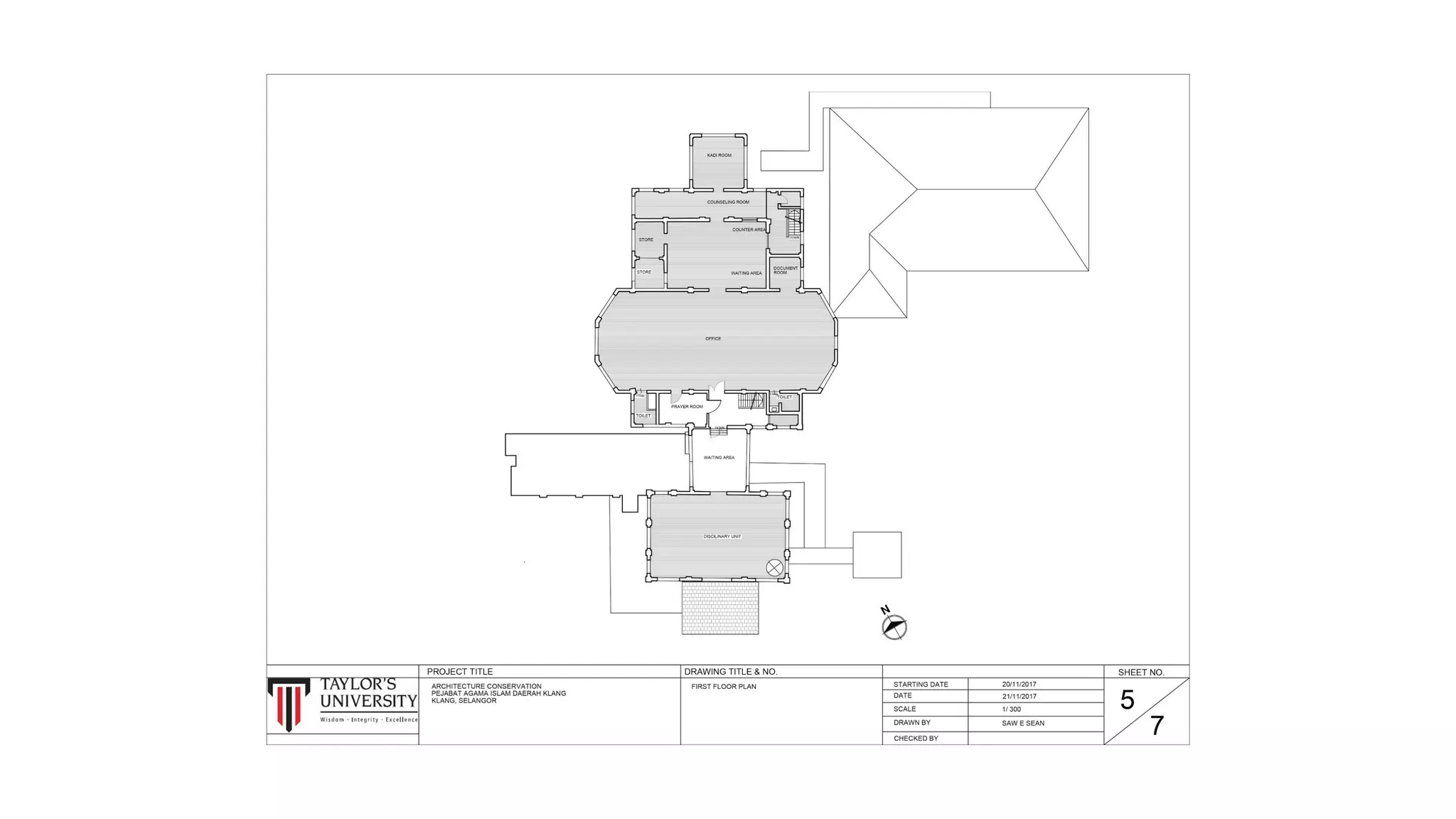
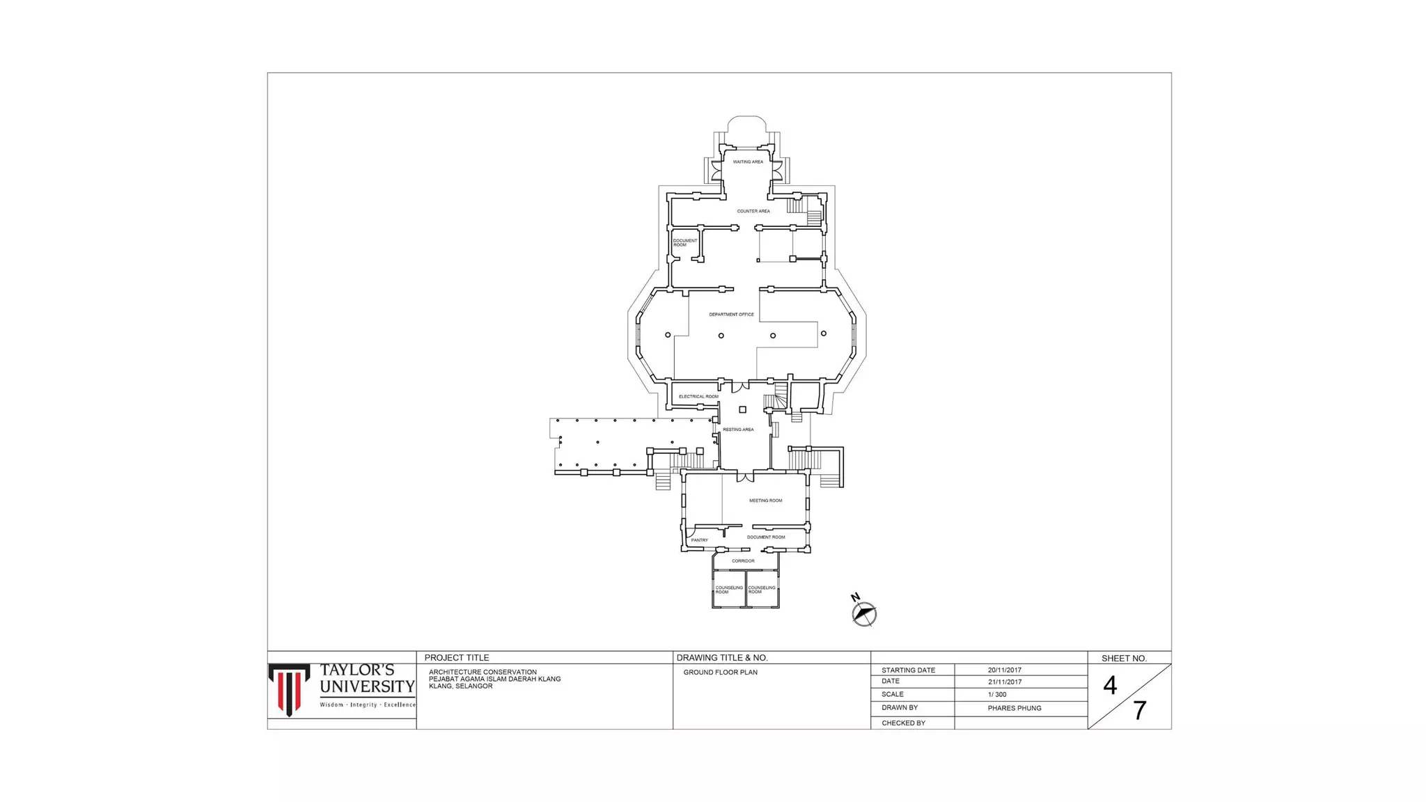
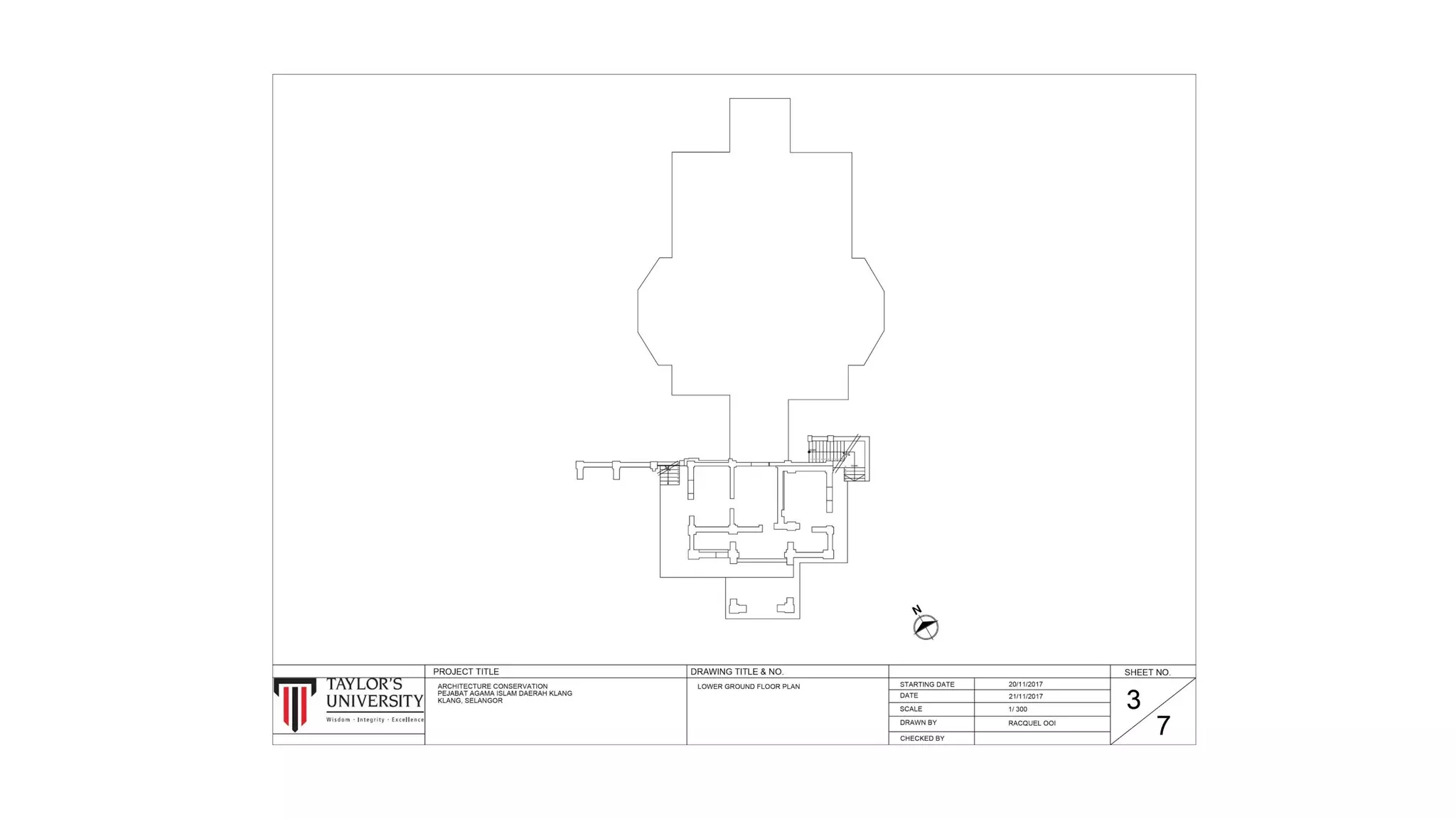
Spatial Configuration and Function
Spatial configuration plays an essential part in the
building’s design. Proper spatial planning ensures
that the spaces planned would be utilized
completely while, at the same time, determines
the circulation of the building itself.
As with other buildings, spaces are segregated
into three general spaces, each with separate
access restrictions. These spaces include public,
semi-public and private spaces.
Figures 1.1 and 1.2 depict the current spatial
configurations of the buildings.
Ground Floor Plan
Pejabat Agama Islam
Daerah
First Floor Plan
Pejabat Agama Islam
Daerah
PRELIMINARY INVESTIGATION: SPATIAL CONFIGURATION AND FUNCTION
Spatial Configuration and Function during its time as a palace.
Public spaces
1. Porch
An area used by the King, for his disciples to greet.
2. Waiting Room
An area used by those who wish to meet the King. Commoners and/or
palace officials would be served by the palace’s servants while awaiting
the King.
3. Throne room
An area used by the people to meet with the King. This area was also
used to conduct events or ceremonies by the King.
Ground Floor Plan
Pejabat Agama
Islam Daerah
PRELIMINARY INVESTIGATION: SPATIAL CONFIGURATION AND FUNCTION
Spatial configuration and function during its
time as a palace.
Semi-public space
1. Meeting Room
Located on the ground floor under the Living Room
above, it was speculated that this room was used by
the King to discuss official matters with the palace
officials.
2. Living Room
Above the Meeting Room lies the Living Room, an
area used by the King during times of leisure.
First Floor Plan
Pejabat Agama
Islam Daerah
PRELIMINARY INVESTIGATION: SPATIAL CONFIGURATION AND FUNCTION
Spatial configuration and function during its
time as a palace.
Private spaces
1. The King’s Office
This room was presumably used by the King as a
workspace.
2. The King’s Bedroom
This space was speculated to be the King’s bedroom
due to its placement next to the King’s office, as well
as the shear size of the room itself.
First Floor Plan
Pejabat Agama
Islam Daerah
PRELIMINARY INVESTIGATION: SPATIAL CONFIGURATION AND FUNCTION
Spatial configuration and function as the Pejabat
Agama Islam
Public spaces
1. Waiting Area
As a palace, the porch was left with open arches for the King’s disciples
to greet. As JAIS took over, however, the arches were sealed off in
order to make more room for interior spaces, namely the waiting area.
2. Mufti Room
The term ‘mufti’ refers to an individual with authority over Islamic
religious matters. The mufti room is allocated to those who wish to take
note of the current Islamic rules.
Ground Floor Plan
Pejabat Agama
Islam Daerah
PRELIMINARY INVESTIGATION: SPATIAL CONFIGURATION AND FUNCTION
Spatial configuration and function as the Pejabat
Agama Islam
Public spaces
3. Reception
- Used by individuals who wish to meet with officers regarding
matters unrelated to services.
4. Clerk Sitting
- A small office space for clerks to perform their tasks
5. Document Store Room
- Two rooms used to store documents strategically placed near
the clerk desks.
Ground Floor Plan
Pejabat Agama
Islam Daerah
PRELIMINARY INVESTIGATION: SPATIAL CONFIGURATION AND FUNCTION
Spatial configuration and function as the Pejabat
Agama Islam
Semi-public spaces
1. Boss room
The office assigned to the highest ranking officer.
2. Officer’s office
The inclusion of partitions at the time were used to
separate officers’ workspaces.
3. Stationery room
This room was used to store stationeries that can be
accessed by the officers at any given time.
Ground Floor Plan
Pejabat Agama
Islam Daerah
PRELIMINARY INVESTIGATION: SPATIAL CONFIGURATION AND FUNCTION
Spatial configuration and function as the Pejabat
Agama Islam
Semi-public spaces
4. Electric Room
- Used to house M&E units.
5. Anjung Canteen
- Prior to the construction of a separate
canteen, this area was used as a canteen
itself. It was later abandoned after the
construction of another canteen opposite.
Ground Floor Plan
Pejabat Agama
Islam Daerah
PRELIMINARY INVESTIGATION: SPATIAL CONFIGURATION AND FUNCTION
Spatial configuration and function as the Pejabat
Agama Islam
Semi-public spaces
6. Meeting Room
- Under JAIS, it was used as a courtroom but was
later transformed into a meeting room after PAID
took over.
7. Counseling Rooms
- JAIS extended the building, erecting two rooms to
educate those who require counseling on the
Islamic studies.
Ground Floor Plan
Pejabat Agama
Islam Daerah
PRELIMINARY INVESTIGATION: SPATIAL CONFIGURATION AND FUNCTION
Spatial configuration and function as the
Pejabat Agama Islam
Public spaces (First floor)
1. Kadi Room
- A room assigned to the Kadi, the highest
ranking officer. The ‘Kadi’ is a judge with the
authority to marry couples.
2. Waiting Area
- This area consisted of counters manned by
the officers. It also included an area for
individuals to wait for their sequence.
3. Storage
- More storage was allocated on the first floor
to keep important documents.
First Floor Plan
Pejabat Agama
Islam Daerah
PRELIMINARY INVESTIGATION: SPATIAL CONFIGURATION AND FUNCTION
Spatial configuration and function as the Pejabat
Agama Islam
Private spaces (First floor)
1. Judge’s Room
The room allocated to the Judge while awaiting court
duties.
2. Court
This area was used as a courtroom for those who
have neglected the Islamic regulations set by JAIS.
3. Prayer Room
A room for Islamic individuals to perform their daily
prayers.
First Floor Plan
Pejabat Agama
Islam Daerah
PRELIMINARY INVESTIGATION: SPATIAL CONFIGURATION AND FUNCTION
Spatial configuration and function as the Pejabat
Agama Islam
Private spaces (First floor)
4. Waiting Area
- This room is meant to house individuals who
would have been waiting to pay their fines or
bail.
5. Detention room
- Two rooms used to detain individuals that
have broken the Islamic rules and regulations.
6. Officer’s Office
- The working quarters of officers in charge of
this section of the building.
First Floor Plan
Pejabat Agama
Islam Daerah
PRELIMINARY INVESTIGATION: SPATIAL CONFIGURATION AND FUNCTION
DILAPIDATION SURVEY
Internal and External Building Defects
_____________________________________________________________________________
PEJABAT AGAMA ISLAM DAERAH KLANG
KLANG ISLAMIC RELIGIOUS OFFICE
DILAPIDATION SURVEY
As a dilapidation survey, a detailed evaluation for the Pejabat Agama Islam Daerah (PAID) building has been
executed to understand the current condition of the property; including internal and external condition of the
building.
For the duration of the survey, it is discerned that there are great quantities of building defects that have
weakened the entire building; resulting to the current impairment and building damage.
The Pejabat Agama Islam Daerah (PAID) building has been existent for 103 years; hence the building
materials that were utilised long ago may not be adaptive to the present climate and surrounding today; thus
the current building damage. For instance, acid rain may have caused corrosion on the building and the
present cracks may have resulted from the uneven settlement of the building.
The current PAID building is highly deficient in preservation and conservation; as abandoned; consequently
causing the building to be in a poor condition.
DILAPIDATION SURVEY: BUILDING DEFECTS
Dilapidation Survey
Internal condition
1. Stains
Stains have caused the PAID building to appear disorderly and cluttered; hence causing difficulty for removal.
There are two main categories; which are water stain and algae stain. Thus, the building is in need for
repainting and refurbishment; to rectify the current issue.
A. Water stain
The presence of water stain is due to the pipe leakage; hence causing the sipping of water to the walls and
ceilings. The blockage of pipe further causes the collection of water; resulting to an overflow of water thus the
sipping of water through walls and ceilings. Accordingly, the plaster wall and ceiling is dampened, hence
imprinting a stain.
DILAPIDATION SURVEY: BUILDING DEFECTS
A. Water Stain
Figure A1: Water stain on
ceiling on ground floor
Figure A2: Water stain on
wall on ground floor
DILAPIDATION SURVEY: BUILDING DEFECTS
A1: Water stain on ceiling
on first floor
A4: Water stain on ceiling
on first floor
A. Water Stain
DILAPIDATION SURVEY: BUILDING DEFECTS
B1: Algae stain on wall on
ground floor (internal)
Figure B1: Algae stain on wall on
ground floor (external)
B. Algae stain
DILAPIDATION SURVEY: BUILDING DEFECTS
B1: Algae stain on wall on
ground floor (external)
B1: Algae stain on wall on
ground floor (external)
B. Algae stain
DILAPIDATION SURVEY: BUILDING DEFECTS
2. Holes
A. Ground floor
Hole is present on the ground floor; the missing spiral staircase; as it was stolen during the abandonment of
the PAID building. Consequently, the removal of staircase resulted the area of space to be damaged; such as
the minute remnants and debris of the building materials that have been affected.
C1: Large circular hole on
ground floor ceiling
DILAPIDATION SURVEY: BUILDING DEFECTS
B. First floor
There is a presence of a large circular hole on the first floor; as when observed from top; the damage of the
ground floor is highly visible in sight.
C2: Large circular hole on first
floor
C2: Large circular hole on first
floor
DILAPIDATION SURVEY: BUILDING DEFECTS
C. Walls
The presence of holes on the brick walls of the building have been impacted by the operation of knocking
down partitions; to form offices; when the building was occupied by JAIS (Jabatan Agama Islam Selangor)
and PAID (Pejabat Agama Islam Daerah).
D1: Hole on wall on
ground floor
D1: Close-up view of
hole on wall
D2: Close view of hole on wallD2: Hole on wall on ground
floor
DILAPIDATION SURVEY: BUILDING DEFECTS
D3: Hole on wall on ground
floor
D4: Hole on wall on ground
floor
D5: Hole on wall on ground
floor
D5: Close-up view of hole on
wall
DILAPIDATION SURVEY: BUILDING DEFECTS
D. Ceiling
The holes in the ceiling are predominantly caused by the ceiling pieces that have collapsed. The occurrence of this
issue is thus caused by the removal of electrical appliances; such as lights and air-conditions. Consequently, the
current situation of the entire building does not comprise of electrical appliances; other than an electrical box,
situated in the electrical room.
Figure E1: Hole on ceiling at
ground floor
Figure E1: Hole on ceiling at
ground floor
Figure E1: Hole on ceiling at
ground floor
DILAPIDATION SURVEY: BUILDING DEFECTS
E3: Broken ceiling with large
holes at first floor hallway
D. Ceiling
DILAPIDATION SURVEY: BUILDING DEFECTS
E2: Hole on ceiling at ground
floor due to removal of electrical
appliance (lights)
E2: Close-up view of hole at
ceiling
E2: Hole on ceiling at ground
floor due to removal of electrical
appliance as wire is seen
hanging above
E2: Hole - Removal of electrical
appliances; weakened the
strength of the ceiling
D. Ceiling
DILAPIDATION SURVEY: BUILDING DEFECTS
3. Cracks
There are several types of cracks visibly seen in the PAID building; on the walls, in particular; as the paint
has been peeled off. There is also a distinct presence of hairline cracks; in which, for a long duration of time,
a critical damage may occur as the cracks would weaken the building; hence the possibility of a collapse.
F1: Cracks causing plaster
ceiling to tear off
F1: Close-up view of the
cracked and torn plaster
ceiling
F2: Cracked tiles on floor on ground
floor
F3: Cracked walls due to removal of
electrical appliances
DILAPIDATION SURVEY: BUILDING DEFECTS
NORTH EAST ELEVATION
Cracked and deteriorated
wall
Missing windows, rusted
roof and truss
Chipped paint on exterior
wall
Decaying of door frame
Dilapidation Survey
External condition
DILAPIDATION SURVEY: BUILDING DEFECTS
Broken concrete surface
on column
Cracked walls causing
concrete surface to break
over time
Deterioration of wall and
paint
Cracked floor tiles on stairs
Dilapidation Survey
External condition
NORTH EAST ELEVATION
DILAPIDATION SURVEY: BUILDING DEFECTS
1. Damaged and
fallen off soffit
panels
3. Missing
windows
2. Peeled off paint near
cornice
NORTH WEST ELEVATION
Exposed and broken
brick wall
Dilapidation Survey
External condition
DILAPIDATION SURVEY: BUILDING DEFECTS
7. Damaged damped wall 8. Peeled off paint at the
bottom of facade
6. Moss growth at the
bottom of facade
NORTH WEST ELEVATION
5. Wall dent
due to piping
installation
Dilapidation Survey
External condition
DILAPIDATION SURVEY: BUILDING DEFECTS
ADAPTIVE REUSE PROPOSAL
Multipurpose Performing Arts Centre
_____________________________________________________________________________
PEJABAT AGAMA ISLAM DAERAH KLANG
KLANG ISLAMIC RELIGIOUS OFFICE
Multipurpose Performing Arts Centre
Adaptive reuse of former Klang Islamic Religious Office
Introduction
In this proposal, Klang former islamic religious office is proposed to transform into a multipurpose
performing arts center. The current building is situated near a couple of educational institutions
such as: Sekolah Rendah Istimewa, Sekolah Kebangsaan Klang and SMK Convent. Therefore,
there is a high demographic percentage of children and students near the current building, making
it a suitable platform to educate and interact with the students as well as the public demographics
of Klang and allowing the culture of art to spread in Klang.
By turning the former Islamic religious office into a multipurpose performing arts center, it also fulfill
its responsibility to preserve and conserve the history and culture of Klang. The age old building will
remain and refurbished as well as purposed by the public and the youngsters.
PRECEDENT STUDY
KLPAC: The Kuala Lumpur Performing Arts Centre
_____________________________________________________________________________
Precedent Study
KLPAC (The Kuala Lumpur Performing Arts Centre)
Architects : Ar. Baldip Singh
Ar. SekSan
Location : Kuala Lumpur
Year : 2005
1800s - KLPAC was a wood crafting workshop and
sawmill.
1900s - Then, it was turned into a railway deport and
workshop.
WWII
1960 - It was used as a golf club house.
2005 - The building was turned into KLPAC whilst
incorporating the former structures and materials from
the past
Facade
Theatre 1 Theatre 2
Indicine Lobby
ADAPTIVE REUSE PROPOSAL: PRECEDENT STUDY
KLPAC is transforms an age old building by maintaining and
conserving its structures and materials. However, its interior was
repurposed into a performing art centre as
well as public rental space for various of events. The building
functions following the concept as centre of people, fusion of old
charm and modernism, and maintaining rustic features blending with
new aged designs.
The building consists of notable spaces such as lobby, cafeteria,
theatre 1, theatre 2,
Indicine (multipurpose hall), sound chamber, resting room, rehearsal
room.
Ar. Baldip and Ar. Seksan orientates the design of KLPAC
according to providing new structures onto yesterday’s building and
ecological rustic materials design respectively.
Exterior perspective
Theater view
ADAPTIVE REUSE PROPOSAL: PRECEDENT STUDY
ADAPTIVE REUSE PROPOSAL
Spatial Configurations and Functions
_____________________________________________________________________________
Proposed ‘Multipurpose Performing Arts Centre’ for the
former Pejabat Agama Islam Daerah Klang
Proposed ‘Multipurpose Performing Arts Centre’
Spatial configurations and functions
Porch
Lobby
Admin
Waiting room
Theatre
Control room
Resource centre
Backstage
Gallery
Washroom
Indicine
The new proposed Multipurpose Performing Art Centre serves to heighten
the creativity of future generations in Klang, as well as incite artistic culture in Klang demographics.
Legend
ADAPTIVE REUSE PROPOSAL: ‘MULTIPURPOSE PERFORMING ARTS CENTRE’
Porch
Lobby
Admin
Waiting room
Theatre
Control room
Resource centre
Backstage
Gallery
Washroom
Indicine
Porch
Lobby
Admin
Waiting room
Theatre
Control room
Resource centre
Backstage
Gallery
Washroom
Indicine
Proposed ‘Multipurpose Performing Arts Centre’
Spatial configurations and functions
ADAPTIVE REUSE PROPOSAL: ‘MULTIPURPOSE PERFORMING ARTS CENTRE’
Resource centre which is like a mini library stocks
knowledge for educational purposes as well as
relaxing purposes for the public to access.
Entering the centre, lobby welcomes the visitors with
warmth and the authentic essence of an age old building,
symbolising the strength of past fusing with the modernity
art.
The centre will consist of a theatre room for regular
performing art shows as well as for event rentals such as
promotions or talks.
ADAPTIVE REUSE PROPOSAL: ‘MULTIPURPOSE PERFORMING ARTS CENTRE’
Spatial Planning of the Multipurpose Performing Arts Centre
First Floor
Porch
Lobby
Admin
Waiting room
Theatre
Control room
Resource centre
Backstage
Gallery
Washroom
Indicine
ADAPTIVE REUSE PROPOSAL: ‘MULTIPURPOSE PERFORMING ARTS CENTRE’
Entering the first floor, visitors are welcomed by a
gallery showcasing arts and creative works.
Inspiring children and public in various ways.
Indicine allows rearrangement of furnitures
easily and acts as multipurpose hall of the
centre. Multipurpose:
- Press conference
- Buffet dinner
- Meeting room
- Small theatre
- Rehearsal room
The control room in the centre are used to facilitate
theatre events and shows.
ADAPTIVE REUSE PROPOSAL: ‘MULTIPURPOSE PERFORMING ARTS CENTRE’
Summary
In this proposal, Multipurpose Performing Arts Centre will be a suitable platform to educate and
interact with the students as well as the public demographics of Klang. It is also a collaborative joint
between residents, academia, art troupe and civil groups in Klang.
The centre orientates the design of daring use of colours which produces a vibrant atmosphere in
the building at the same time conserving the striking colours of existing external facade of Klang
Islamic religious office. Variation of colours also conveys the purpose of performing art centre as
well as the culture of art.
Besides a theatre, the centre also features an indicine (multipurpose hall), a backstage, a gallery
and a resource centre.
The final goal of the centre is to create a lively and friendly atmosphere which attracts the
neighbourhood of Klang as well as art lovers from different places. Students will be able to spend
their past time by visiting somewhere more meaningful while conserving and giving Klang Islamic
religious office building a new life and a new meaning/
ADAPTIVE REUSE PROPOSAL: ‘MULTIPURPOSE PERFORMING ARTS CENTRE’
ARCHITECTURAL DRAWING
_____________________________________________________________________________
PEJABAT AGAMA ISLAM DAERAH KLANG
KLANG ISLAMIC RELIGIOUS OFFICE
References
Wordpress n.d.,
Brief History of Kuala Selangor, viewed 15th November 2017,
<https://ilovekualaselangor.wordpress.com/green-info/>
Hj Ismail 2014,
Padang Jawa - Masih Ku Ingat, Dulu Lain Sekarang Lain, viewed 15th November 2017,
<http://padangjawaku.blogspot.my/2014/02/wajah-beberapa-tempat-di-bandar-klang.html>
Satisfied Unique Visitors 2011,
Gedung Raja Abdullah, viewed 18th November 2017,
<https://www.malaysia-traveller.com/gedung-raja-abdullah.html>
Radzi Sapiee n.d.,
Seni Lama Melayu (Malay Olden Art), viewed 20th November 2017,
<https://artmelayu.blogspot.my/2011/09/kota-fort-of-raja-mahadi.html?m=1>
The Early Malay Doctors n.d.,
Frank Swettenham, viewed 20th November 2017,
<http://theearlymalaydoctors.blogspot.my/2013/07/frank-swettenham.html>
Quora n.d.,
How was Kuala Lumpur established as the capital of Malaysia?, viewed 20th November 2017
<https://www.quora.com/How-was-Kuala-Lumpur-established-as-the-capital-of-Malaysia>
St. Rosemary Institution 2017,
Japanese Invasion of Malaya, viewed 21st November 2017
<https://schoolworkhelper.net/japanese-invasion-of-malaya-singapore-history-and-significance/>

Architecture Conservation Project 2 Report

  • 1.
    ARCHITECTURAL CONSERVATION PROPOSAL FOR ADAPTIVEREUSE PEJABAT AGAMA ISLAM DAERAH KLANG KLANG ISLAMIC RELIGIOUS OFFICE
  • 2.
    PEJABAT AGAMA ISLAMDAERAH KLANG KLANG ISLAMIC RELIGIOUS OFFICE
  • 3.
    Contents 1. Acknowledgement 2. Introduction 3.Preliminary investigation A. Historical background B. Site context C. Spatial configuration and function 4. Dilapidation survey: Internal and external condition 5. Precedent study: Kuala Lumpur Performing Arts Centre 6. Proposal for adaptive reuse: Multipurpose Performing Arts Centre
  • 4.
    Acknowledgement We wish toexpress our sincere gratitude to Perbadanan Adat Melayu dan Warisan Negeri Selangor (PADAT) for providing us an opportunity to conduct our project execution at the building of Pejabat Agama Islam Daerah Klang (PAID) / (Klang Islamic Religious Office) by granting us an access to the building for the duration of our project. Greatest appreciation for providing us with the relevant information of the PAID building. We would like to sincerely thank our Architectural Conservation project lecturer, Mr. Azim Sulaiman for the commitment, encouragement and dedicated guidance given to educate us throughout the project. We would also like to express our appreciation to the module coordinator of Architectural Conservation for providing us an opportunity to embark on this project. For the duration of this project, we have grasped the understanding of the historical and social background of Klang to a greater extent. The following report and drawings in regards to the Preliminary Investigation, Dilapidation Survey and Proposal for Adaptive Re-use are produced with the dedication and cooperation of each of our teammates. Team members Cha Yun Xian Harwinder Singh Liew Cherng Qing Muhammad A’ameer Phares Phung Racquel Ooi Saw E Sean
  • 5.
    Introduction Situated on aland which was once filled with tin minerals, Pejabat Agama Islam Klang has undertaken several ownership, for over 100 years of heritage. The PAID building was initially constructed as a palace, for the Sultan of Selangor, then a Japanese Soldiers’ Quarters, Klang Municipal Building; and Klang Islamic Religious Office (PAID) - until abandoned recently. Since the abandonment, the building was left to deteriorate in poor state; where there were stolen window grills, eroded walls with the growth of moss. Hence, conservation efforts completed in other buildings are were part of the precedent studies to resolve the PAID historical building.
  • 6.
  • 7.
    Selangor Selangor is oneof the 14 states in Malaysia. It is placed on the west coast of Peninsular Malaysia. The history of Selangor started in the 16th Century when tin was found in the area. Due to it characteristic which rich in natural resources, the region attracted miners, trader, and immigrants to reside in the area. Among all, Bugis is the most prominent immigrants as they were good traders and warriors. By the time, the Bugis rose to become renowned in Selangor. Raja Lumu which is one of the descendants established Kuala Selangor and became the first Sultan of Selangor in 1766. There are two capitals in Selangor, which is Shah Alam as the state capital city and Klang as the royal capital city. This state covers an area of 8104km2 and consists of 9 districts which are Hulu Langat, Gombak, Hulu Selangor, Kuala Langat, Kuala Selangor, Petaling, Sabak Bernam, Sepang and lastly, Klang. Nowadays, Selangor is the state of Malaysia with the highest population. Indication of Selangor in Malaysia map Distribution zoning and district of Old Klang PRELIMINARY INVESTIGATION: HISTORICAL BACKGROUND
  • 8.
    Illustration of GedungRaja Adbdullah in the earlier time as a warehouse The origin of the name Klang is said to come from the Mon- Khmer word “Klong”. The definition of “Klong” is a warehouse, canal, waterway or storage place for goods. Back to the day, Klang is one of the important port in Peninsula Malaysia. Due to that, there is warehouse surrounding the port for the trading activities while the waterways were the stream which flowed into the Klang River for the convenient of transportation of tin ore which was made from the hinterlands. Throughout the time of the Malay Sultanate of Malacca, Klang was part of its territory. Tun Perak, who was one of the famous Bendahara in Malacca, is the ruler of the territory. Klang was developed to be famous during that period due to the outstanding skills of Tun Perak. The Klang River was the pulse of the improvement and extension of Klang and its surrounding region at that time. Klang PRELIMINARY INVESTIGATION: HISTORICAL BACKGROUND
  • 9.
    Illustration showing the war betweentwo Malay dignitaries to rule the Klang River Valley Fort of Raja Mahadi as a defensive barricade against Raja Abdullah. Nowadays it serves as one of the landmark of the state The Klang War was the most famous events happen during the period 1867- 1873 in Selangor. This event was started from the conflict between two Selangor Malay dignitaries Raja Abdullah and Raja Mahadi to rule the tin resources in Klang River Valley. Raja Abdullah was an “Orang Besar of Klang” who assigned by Sultan Muhammad (1826 – 1857) at that time. However, due to the great influence and reputation of Raja Mahadi in Klang, Raja Abdullah was forced to retreat to Malacca. After Raja Abdullah passed away, the demise was replaced by the presence of Yap Ah Loy. Yap Ah Loy was the head of Fei Chew clan from the Haisan Society. He, later on, became the famous Chinese capitan in Kuala Lumpur and contribute to the development of Kuala Lumpur. For Yap Ah Loy side, he was assisted by the son of Sultan which is Tengku Kudin, while Raja Mahadi was assisted by Syed Manshor and the Kah Yang Chew clan from the Ghee Hin society from Kanching. Klang Civil War (Perang Saudara) (1867-1873) PRELIMINARY INVESTIGATION: HISTORICAL BACKGROUND
  • 10.
    Yap Ah Loy,the famous Chinese capitan in Kuala Lumpur Through the process, the cooperation between Chinese society and Malays dignities form a set of positive competition mechanism order which helps in the economic development in Straits Settlement. Selangor was then becoming one of the main tin producing states in the world. The Klang Civil War ends when British indirectly assisted on Tengku Kudin side in the war. Raja Mahadi was defeated by Tengku Kudin and end the war. Klang Civil War (Perang Saudara) (1867-1873) PRELIMINARY INVESTIGATION: HISTORICAL BACKGROUND
  • 11.
    Sir Frank Swettenham(right) and Sultan Suleiman of Selangor (left), 1936 1873 to 1941 was the period where British colonize Selangor. British take the opportunity to strengthen their position in Selangor when there was a conflict between the Malay dignitaries over the rule on the rich natural resources of the region. Hence there is also piracy occurred around the sea near the state of Selangor. All of this situation cause Sir Frank Swettenham successfully convince Sultan Sir Abdul Samad to place the state under British rule. In December 1874, Tames Guthrie Davidson was appointed as the first British resident in Selangor, while Sir Frank Swettenham was made assistant resident in Kuala Lumpur. During that period, the position of the Malay dignitaries still remains, however, the interruption of British in politics and economic, have limited the power possessed by Sultan. The Sultan had authority only in term of Malay customs and Islam. After 1874, British decided to choose Klang instead of Jugra as their administration center. This situation remains until 1880 when they moved it to Kuala Lumpur due to its rapid development. British Colonial Era (1873-1941) PRELIMINARY INVESTIGATION: HISTORICAL BACKGROUND
  • 12.
    Tin mining areain Klang Port Swettenham, 1910 From 1874 to 1957 the economy of the state of Selangor grew rapidly, spurred by the tin mining sector and commercial crops such as rubber and oil palm. Klang at that time did not lose its prominence and remain reputation with the construction of Port Klang which formerly known as Port Swettenham despite the moving administration center to Kuala Lumpur. Furthermore, its position was enhanced in 1886 by the completion of Klang Valley Railway (to Bukit Kuda). The town growth was further provoked by the State becoming a leading producer of coffee and rubber. Throughout this period, The British administration was brought a positive impact on the development of the town in general process. However, the power of Sultan was limited due to the presence of British. Economic Development of Selangor (Klang) (1874-1957) PRELIMINARY INVESTIGATION: HISTORICAL BACKGROUND
  • 13.
    Japanese soldiers World warll occur during this period. At that time, Malaya was gradually occupied by the Japanese. The general policy of Japan administration was to make Malaya its territory. Japanese exploit the local economy to fulfill its needs and assist in the war against the Allies during the world war. Klang was one of the most needed regions by Japanese for economic development due to its rich in natural resources. At that time, the Japanese treat the local people cruelly and cause the people to living in the hardship. The economy of Selangor declined to owe the economic sanctions. Japanese Occupation (1941-1945) PRELIMINARY INVESTIGATION: HISTORICAL BACKGROUND
  • 14.
    Ownership The Old PejabatAgama Islam was built in 1912 as a resting palace for Sultan Allaedin Sulaiman Shah. Since then, the building was used for different functions through the times. The building itself have survived through the British colonization period from 1874–1946 and the Japanese occupation from 1941-1945, until today. Over the 103 years, the building itself have witnessed the changes or the development of Klang. 1912 Building was built as a resting palace for Sultan Allaeddin Sulaiman Shah 1938 Sultan Sir Allaeddin Sulaiman passed away 1941 Japanese invaded Malaysia and took over this building to be used as a headquarter 1945 Japanese defeated. The building was used as lodging house 1949 Building was used as the Klang Institution Municipal office 1965 A meeting was convened to handover the building to JAIS 1977 JAIS moved to Sultan Sulaiman Building. PAID took over the building 1992 PAID shared building with the Lower Syariah Court 2001 The building was refurbished 2004 PAID occupied the building fully 2012 PAID moved to a new building. PADAT took over the building to conserve its historical values 2015 The building is underused and was under maintenance Brief Timeline of Building Ownership PRELIMINARY INVESTIGATION: HISTORICAL BACKGROUND
  • 15.
    Timeline of Building Palacefor Sultan Sir Allaeddin Sulaiman 1912 - 1938 In 1912, this old building was initially built as a palace for the Sultan of Selangor at the time, DYMM Sultan Sir Allaeddin Sulaiman Shah. However, it was not the official palace but was known as “Istana Singgah” for the sultan. In the same year, Sultan Sulaiman was knighted the Order of St. Michael and St George (GCMG) by the United Kingdom with the title Sir. The palace served as the Sultan’s office and his resting place when he came over for government affairs, due to the close distance of the palace to the British Administration Office, which is now being used as the Royal Gallery. Royal events such as installation ceremonies, royal weddings, awarding of state titles by the Sultan, receptions of guests or dignitaries and other functions was also being held in the palace. The official palace at that time was the Istana Mahkota which was also located in Klang .Sultan Sulaiman live in the palace for 35 years until his death in 1938. In 1950, this palace was demolished. “Istana SInggah” of Sultan Sir Allaeddin Sulaiman Shah, 1912 Istana Mahkota as official palace, completed 1913 Scaled model of Istana Mahkota, Museum Shah Alam PRELIMINARY INVESTIGATION: HISTORICAL BACKGROUND
  • 16.
    Sultan Sir AllaeddinSulaiman 1896-1938 Before Sultan Sir Allaeddin Sulaiman Shah was being crowned as the 5th Sultan of Selangor, he was known as Raja Sulaiman from the Bugis family, originated from Selawasi. Replacing his grandfather who passed away after 41 years of ruling Selangor, His majesty had ruled Selangor since 1898 until he passed away on 31st March of 1938. with the title Sir, he was knighted the Order of St Michael and St George by the United Kingdom in 1912. He was succeeded by Sultan Sir Hisamuddin Alam Shah Alhaj. Sultan Sulaiman was a religious follower, and was close to the ulama. Ulama is the body of Muslim scholars who are recognised for specialising in knowledge of Islamic sacred law and theology. His Majesty would ask for opinions from the ulama regarding matters of administration and spreading of Islam in the country. He would also bring along ulama whenever he had to run errands abroad. Sultan Sulaiman was concerned about the development of Islam in Selangor. Hence, several mosques were built in the state and one of them was named after him. This mosque with its unique and attractive style of construction was built in 1932. The mosque was made the Klang Royal Mosque following the completion of the new state mosque in Shah Alam. Portrait of Sultan Sulaiman Sultan Sulaiman Mosque, 1932 PRELIMINARY INVESTIGATION: HISTORICAL BACKGROUND
  • 17.
    JUNTAI during JapaneseOccupation 1941- 1945 During the 2nd World War, the Japanese invaded Malaya on 18th December 1941 from Kota Bahru. Within 1 and a half months, the Japanese had full control over Malaya. They occupied the building and used it as the quarters for the soldiers to aid in facilitation of the war. The building was called JUNTAI, which is the Japanese Armed Force Headquarter in Klang. Besides this building, the buildings surrounding the area was taken over by the Japanese as well. The Standard Chartered Bank building next to JUNTAI was used as an interrogation and execution centre for the prisoners of war. After the Japanese surrendered, the building was used as a lodging house until 1945. A lodging house is a house that are rented out for temporary stay with fully furnished rooms. Japanese invasion in Malaya. PRELIMINARY INVESTIGATION: HISTORICAL BACKGROUND
  • 18.
    1949 - 1964Klang Municipal Institution Office 1965 - 1976 JAIS office The building has transformed its use as the Klang Municipal Institution Office (Pejabat Lembaga Bandaran Klang) in 1949. It was used as an operation centre until 1964. After a meeting was convened, the building was handovered to Jabatan Agama Islam Negeri Selangor (JAIS) in 1965, which was formed by Sultan Hisamuddin Alam Shah Alhaj after the World War 2. Sultan Hisamuddin Alam Shah Alhaj is the eldest son of Sultan Sulaiman and Puan Hamsah. As he had two elder brothers, he wasn’t expected to inherit the throne. However, during the Japanese occupation, His Majesty stepped down and his eldest stepbrother, Sultan Musa Ghiatuddin Riayat Shah was chosen to rule Selangor. When British took over again after the Japanese had surrendered, he was once again appointed to be Sultan of Selangor. Portrait of Sultan Hisamuddin Alam Shah Alhaj First JAIS office building, 1965 PRELIMINARY INVESTIGATION: HISTORICAL BACKGROUND
  • 19.
    1949 - 1964Klang Municipal Institution Office 1965 - 1976 JAIS office As a result of the Japanese and communist influence after the 2nd World War, he commanded the ministry of Selangor to establish JAIS due to the weakening moral consciousness of the public based on the increment of crimes. On 1st October 1945, JAIS was formed and the first office was located in this building of Sultan Hisamuddin Alam Shah Alhaj which he used as an office near Istana Mahkota, Klang. This organization was funded by the Sultan himself, which aims to inhibit the spreading of communism in Selangor and Malaya. As intended, it calibrated the morality and beliefs of the Malays that were influenced by the Japanese during the occupation. Due to the effort of Sultan Hisamuddin, Undang-undang Tubuh of Selangor was revised in 1947, which the law including the establishment of Jabatan Hal-Ehwal Agama Islam dan Adat Istiadat Melayu .Eversince, JAIS was officially established and the office was relocated to the Old Kelab Diraja Selangor in 1948. In 1965, Selangor government removed the Klang Municipal Institution Office and relocate JAIS to this building. PRELIMINARY INVESTIGATION: HISTORICAL BACKGROUND
  • 20.
    Pejabat Agama IslamKlang 1977-2012 In 1977, the building was used by JAIS until the state government relocate them again to Bangunan Sultan Salahuddin Abdul Aziz Shah di Shah Alam. After the relocation, the building was used as the Klang Islamic Religious Office also known as Pejabat Agama Islam Daerah Klang (PAID). In 1992, the building was shared with the lower syariah court where PAID occupied the ground floor while the Lower Syariah Court occupied the first floor. In 2004 the court moved out and PAID occupied the whole building. PAID functions similarly to JAIS, acting as the main headquarter for the whole of Selangor while PAID was the office that was situated in Klang to provide convenience for the Muslim in Klang. In 2001, the building was refurbished and remained as the Klang Islamic Religious Office until it was evacuated and handed over to the PADAT on the 6th July 2012. Since 1st February 2015, it is in the process to be renovated and maintained as a historical and cultural building. The building was officially renamed as Bangunan Lama Pejabat Agama Islam Daerah Klang. Pejabat Agama Islam, 2000 Pejabat Agama Islam, 2014 PRELIMINARY INVESTIGATION: HISTORICAL BACKGROUND
  • 21.
  • 22.
    Located along JalanDato Hamzah (Sultan Street in 1930), the Pejabat Agama Islam was once the resting palace of Sultan Sir Allaeddin Sulaiman Shah. Jalan Besar which once used to call Istana Street that is adjacent to Jalan Dato Hamzah, where the current Royal Gallery of Klang is located was used to be Municipal of Klang and Administrative Office during British and Japanese Colonisation period. Jalan Besar is one of the street that connect to Jalan Raya Timur, which was the main street of Klang during 1930 .This is due to the Klang Valley KTM station which was situated along the street. Site Context Map of Klang, 2015 Map of Klang, 1930 with red indication of Pejabat Agama Islam Daerah During that time, the trains were mainly utilised as transportation for goods. This increases the efficiency for the businessmen to trade at Rembau Street and Jalan Raya Timur. Hence, the area around these streets was prosperous in the early 20th century. Located along Jalan Tengku Kelana is the Gedung Raja Abdullah. in 1989 and many of the tin related exhibits were transferred there. PRELIMINARY INVESTIGATION: SITE CONTEXT
  • 23.
    Built in 1857,it is the oldest surviving building in Klang. Originally used as a warehouse by Raja Abdullah, a Malay tin-mining pioneer. Conflict broke out between Raja Abdullah and his rival, Raja Mahadi in 1867 and the warehouse had to be fortified. It was later used by the British as government office and later, the police headquarter in 1880’s. It became a Tin Museum after the Police headquarter was relocated to a new building beside it in 1970’s.However the museum was closed after the Sultan Alam Shah Museum in Shah Alam was opened Site Context PRELIMINARY INVESTIGATION: SITE CONTEXT
  • 24.
    PRELIMINARY INVESTIGATION Spatial Configurationand Function _____________________________________________________________________________ PEJABAT AGAMA ISLAM DAERAH KLANG KLANG ISLAMIC RELIGIOUS OFFICE
  • 25.
    Spatial Configuration andFunction Spatial configuration plays an essential part in the building’s design. Proper spatial planning ensures that the spaces planned would be utilized completely while, at the same time, determines the circulation of the building itself. As with other buildings, spaces are segregated into three general spaces, each with separate access restrictions. These spaces include public, semi-public and private spaces. Figures 1.1 and 1.2 depict the current spatial configurations of the buildings. Ground Floor Plan Pejabat Agama Islam Daerah First Floor Plan Pejabat Agama Islam Daerah PRELIMINARY INVESTIGATION: SPATIAL CONFIGURATION AND FUNCTION
  • 26.
    Spatial Configuration andFunction during its time as a palace. Public spaces 1. Porch An area used by the King, for his disciples to greet. 2. Waiting Room An area used by those who wish to meet the King. Commoners and/or palace officials would be served by the palace’s servants while awaiting the King. 3. Throne room An area used by the people to meet with the King. This area was also used to conduct events or ceremonies by the King. Ground Floor Plan Pejabat Agama Islam Daerah PRELIMINARY INVESTIGATION: SPATIAL CONFIGURATION AND FUNCTION
  • 27.
    Spatial configuration andfunction during its time as a palace. Semi-public space 1. Meeting Room Located on the ground floor under the Living Room above, it was speculated that this room was used by the King to discuss official matters with the palace officials. 2. Living Room Above the Meeting Room lies the Living Room, an area used by the King during times of leisure. First Floor Plan Pejabat Agama Islam Daerah PRELIMINARY INVESTIGATION: SPATIAL CONFIGURATION AND FUNCTION
  • 28.
    Spatial configuration andfunction during its time as a palace. Private spaces 1. The King’s Office This room was presumably used by the King as a workspace. 2. The King’s Bedroom This space was speculated to be the King’s bedroom due to its placement next to the King’s office, as well as the shear size of the room itself. First Floor Plan Pejabat Agama Islam Daerah PRELIMINARY INVESTIGATION: SPATIAL CONFIGURATION AND FUNCTION
  • 29.
    Spatial configuration andfunction as the Pejabat Agama Islam Public spaces 1. Waiting Area As a palace, the porch was left with open arches for the King’s disciples to greet. As JAIS took over, however, the arches were sealed off in order to make more room for interior spaces, namely the waiting area. 2. Mufti Room The term ‘mufti’ refers to an individual with authority over Islamic religious matters. The mufti room is allocated to those who wish to take note of the current Islamic rules. Ground Floor Plan Pejabat Agama Islam Daerah PRELIMINARY INVESTIGATION: SPATIAL CONFIGURATION AND FUNCTION
  • 30.
    Spatial configuration andfunction as the Pejabat Agama Islam Public spaces 3. Reception - Used by individuals who wish to meet with officers regarding matters unrelated to services. 4. Clerk Sitting - A small office space for clerks to perform their tasks 5. Document Store Room - Two rooms used to store documents strategically placed near the clerk desks. Ground Floor Plan Pejabat Agama Islam Daerah PRELIMINARY INVESTIGATION: SPATIAL CONFIGURATION AND FUNCTION
  • 31.
    Spatial configuration andfunction as the Pejabat Agama Islam Semi-public spaces 1. Boss room The office assigned to the highest ranking officer. 2. Officer’s office The inclusion of partitions at the time were used to separate officers’ workspaces. 3. Stationery room This room was used to store stationeries that can be accessed by the officers at any given time. Ground Floor Plan Pejabat Agama Islam Daerah PRELIMINARY INVESTIGATION: SPATIAL CONFIGURATION AND FUNCTION
  • 32.
    Spatial configuration andfunction as the Pejabat Agama Islam Semi-public spaces 4. Electric Room - Used to house M&E units. 5. Anjung Canteen - Prior to the construction of a separate canteen, this area was used as a canteen itself. It was later abandoned after the construction of another canteen opposite. Ground Floor Plan Pejabat Agama Islam Daerah PRELIMINARY INVESTIGATION: SPATIAL CONFIGURATION AND FUNCTION
  • 33.
    Spatial configuration andfunction as the Pejabat Agama Islam Semi-public spaces 6. Meeting Room - Under JAIS, it was used as a courtroom but was later transformed into a meeting room after PAID took over. 7. Counseling Rooms - JAIS extended the building, erecting two rooms to educate those who require counseling on the Islamic studies. Ground Floor Plan Pejabat Agama Islam Daerah PRELIMINARY INVESTIGATION: SPATIAL CONFIGURATION AND FUNCTION
  • 34.
    Spatial configuration andfunction as the Pejabat Agama Islam Public spaces (First floor) 1. Kadi Room - A room assigned to the Kadi, the highest ranking officer. The ‘Kadi’ is a judge with the authority to marry couples. 2. Waiting Area - This area consisted of counters manned by the officers. It also included an area for individuals to wait for their sequence. 3. Storage - More storage was allocated on the first floor to keep important documents. First Floor Plan Pejabat Agama Islam Daerah PRELIMINARY INVESTIGATION: SPATIAL CONFIGURATION AND FUNCTION
  • 35.
    Spatial configuration andfunction as the Pejabat Agama Islam Private spaces (First floor) 1. Judge’s Room The room allocated to the Judge while awaiting court duties. 2. Court This area was used as a courtroom for those who have neglected the Islamic regulations set by JAIS. 3. Prayer Room A room for Islamic individuals to perform their daily prayers. First Floor Plan Pejabat Agama Islam Daerah PRELIMINARY INVESTIGATION: SPATIAL CONFIGURATION AND FUNCTION
  • 36.
    Spatial configuration andfunction as the Pejabat Agama Islam Private spaces (First floor) 4. Waiting Area - This room is meant to house individuals who would have been waiting to pay their fines or bail. 5. Detention room - Two rooms used to detain individuals that have broken the Islamic rules and regulations. 6. Officer’s Office - The working quarters of officers in charge of this section of the building. First Floor Plan Pejabat Agama Islam Daerah PRELIMINARY INVESTIGATION: SPATIAL CONFIGURATION AND FUNCTION
  • 37.
    DILAPIDATION SURVEY Internal andExternal Building Defects _____________________________________________________________________________ PEJABAT AGAMA ISLAM DAERAH KLANG KLANG ISLAMIC RELIGIOUS OFFICE
  • 38.
    DILAPIDATION SURVEY As adilapidation survey, a detailed evaluation for the Pejabat Agama Islam Daerah (PAID) building has been executed to understand the current condition of the property; including internal and external condition of the building. For the duration of the survey, it is discerned that there are great quantities of building defects that have weakened the entire building; resulting to the current impairment and building damage. The Pejabat Agama Islam Daerah (PAID) building has been existent for 103 years; hence the building materials that were utilised long ago may not be adaptive to the present climate and surrounding today; thus the current building damage. For instance, acid rain may have caused corrosion on the building and the present cracks may have resulted from the uneven settlement of the building. The current PAID building is highly deficient in preservation and conservation; as abandoned; consequently causing the building to be in a poor condition. DILAPIDATION SURVEY: BUILDING DEFECTS
  • 39.
    Dilapidation Survey Internal condition 1.Stains Stains have caused the PAID building to appear disorderly and cluttered; hence causing difficulty for removal. There are two main categories; which are water stain and algae stain. Thus, the building is in need for repainting and refurbishment; to rectify the current issue. A. Water stain The presence of water stain is due to the pipe leakage; hence causing the sipping of water to the walls and ceilings. The blockage of pipe further causes the collection of water; resulting to an overflow of water thus the sipping of water through walls and ceilings. Accordingly, the plaster wall and ceiling is dampened, hence imprinting a stain. DILAPIDATION SURVEY: BUILDING DEFECTS
  • 40.
    A. Water Stain FigureA1: Water stain on ceiling on ground floor Figure A2: Water stain on wall on ground floor DILAPIDATION SURVEY: BUILDING DEFECTS
  • 41.
    A1: Water stainon ceiling on first floor A4: Water stain on ceiling on first floor A. Water Stain DILAPIDATION SURVEY: BUILDING DEFECTS
  • 42.
    B1: Algae stainon wall on ground floor (internal) Figure B1: Algae stain on wall on ground floor (external) B. Algae stain DILAPIDATION SURVEY: BUILDING DEFECTS
  • 43.
    B1: Algae stainon wall on ground floor (external) B1: Algae stain on wall on ground floor (external) B. Algae stain DILAPIDATION SURVEY: BUILDING DEFECTS
  • 44.
    2. Holes A. Groundfloor Hole is present on the ground floor; the missing spiral staircase; as it was stolen during the abandonment of the PAID building. Consequently, the removal of staircase resulted the area of space to be damaged; such as the minute remnants and debris of the building materials that have been affected. C1: Large circular hole on ground floor ceiling DILAPIDATION SURVEY: BUILDING DEFECTS
  • 45.
    B. First floor Thereis a presence of a large circular hole on the first floor; as when observed from top; the damage of the ground floor is highly visible in sight. C2: Large circular hole on first floor C2: Large circular hole on first floor DILAPIDATION SURVEY: BUILDING DEFECTS
  • 46.
    C. Walls The presenceof holes on the brick walls of the building have been impacted by the operation of knocking down partitions; to form offices; when the building was occupied by JAIS (Jabatan Agama Islam Selangor) and PAID (Pejabat Agama Islam Daerah). D1: Hole on wall on ground floor D1: Close-up view of hole on wall D2: Close view of hole on wallD2: Hole on wall on ground floor DILAPIDATION SURVEY: BUILDING DEFECTS
  • 47.
    D3: Hole onwall on ground floor D4: Hole on wall on ground floor D5: Hole on wall on ground floor D5: Close-up view of hole on wall DILAPIDATION SURVEY: BUILDING DEFECTS
  • 48.
    D. Ceiling The holesin the ceiling are predominantly caused by the ceiling pieces that have collapsed. The occurrence of this issue is thus caused by the removal of electrical appliances; such as lights and air-conditions. Consequently, the current situation of the entire building does not comprise of electrical appliances; other than an electrical box, situated in the electrical room. Figure E1: Hole on ceiling at ground floor Figure E1: Hole on ceiling at ground floor Figure E1: Hole on ceiling at ground floor DILAPIDATION SURVEY: BUILDING DEFECTS
  • 49.
    E3: Broken ceilingwith large holes at first floor hallway D. Ceiling DILAPIDATION SURVEY: BUILDING DEFECTS
  • 50.
    E2: Hole onceiling at ground floor due to removal of electrical appliance (lights) E2: Close-up view of hole at ceiling E2: Hole on ceiling at ground floor due to removal of electrical appliance as wire is seen hanging above E2: Hole - Removal of electrical appliances; weakened the strength of the ceiling D. Ceiling DILAPIDATION SURVEY: BUILDING DEFECTS
  • 51.
    3. Cracks There areseveral types of cracks visibly seen in the PAID building; on the walls, in particular; as the paint has been peeled off. There is also a distinct presence of hairline cracks; in which, for a long duration of time, a critical damage may occur as the cracks would weaken the building; hence the possibility of a collapse. F1: Cracks causing plaster ceiling to tear off F1: Close-up view of the cracked and torn plaster ceiling F2: Cracked tiles on floor on ground floor F3: Cracked walls due to removal of electrical appliances DILAPIDATION SURVEY: BUILDING DEFECTS
  • 52.
    NORTH EAST ELEVATION Crackedand deteriorated wall Missing windows, rusted roof and truss Chipped paint on exterior wall Decaying of door frame Dilapidation Survey External condition DILAPIDATION SURVEY: BUILDING DEFECTS
  • 53.
    Broken concrete surface oncolumn Cracked walls causing concrete surface to break over time Deterioration of wall and paint Cracked floor tiles on stairs Dilapidation Survey External condition NORTH EAST ELEVATION DILAPIDATION SURVEY: BUILDING DEFECTS
  • 54.
    1. Damaged and fallenoff soffit panels 3. Missing windows 2. Peeled off paint near cornice NORTH WEST ELEVATION Exposed and broken brick wall Dilapidation Survey External condition DILAPIDATION SURVEY: BUILDING DEFECTS
  • 55.
    7. Damaged dampedwall 8. Peeled off paint at the bottom of facade 6. Moss growth at the bottom of facade NORTH WEST ELEVATION 5. Wall dent due to piping installation Dilapidation Survey External condition DILAPIDATION SURVEY: BUILDING DEFECTS
  • 56.
    ADAPTIVE REUSE PROPOSAL MultipurposePerforming Arts Centre _____________________________________________________________________________ PEJABAT AGAMA ISLAM DAERAH KLANG KLANG ISLAMIC RELIGIOUS OFFICE
  • 57.
    Multipurpose Performing ArtsCentre Adaptive reuse of former Klang Islamic Religious Office
  • 58.
    Introduction In this proposal,Klang former islamic religious office is proposed to transform into a multipurpose performing arts center. The current building is situated near a couple of educational institutions such as: Sekolah Rendah Istimewa, Sekolah Kebangsaan Klang and SMK Convent. Therefore, there is a high demographic percentage of children and students near the current building, making it a suitable platform to educate and interact with the students as well as the public demographics of Klang and allowing the culture of art to spread in Klang. By turning the former Islamic religious office into a multipurpose performing arts center, it also fulfill its responsibility to preserve and conserve the history and culture of Klang. The age old building will remain and refurbished as well as purposed by the public and the youngsters.
  • 59.
    PRECEDENT STUDY KLPAC: TheKuala Lumpur Performing Arts Centre _____________________________________________________________________________
  • 60.
    Precedent Study KLPAC (TheKuala Lumpur Performing Arts Centre) Architects : Ar. Baldip Singh Ar. SekSan Location : Kuala Lumpur Year : 2005 1800s - KLPAC was a wood crafting workshop and sawmill. 1900s - Then, it was turned into a railway deport and workshop. WWII 1960 - It was used as a golf club house. 2005 - The building was turned into KLPAC whilst incorporating the former structures and materials from the past Facade Theatre 1 Theatre 2 Indicine Lobby ADAPTIVE REUSE PROPOSAL: PRECEDENT STUDY
  • 61.
    KLPAC is transformsan age old building by maintaining and conserving its structures and materials. However, its interior was repurposed into a performing art centre as well as public rental space for various of events. The building functions following the concept as centre of people, fusion of old charm and modernism, and maintaining rustic features blending with new aged designs. The building consists of notable spaces such as lobby, cafeteria, theatre 1, theatre 2, Indicine (multipurpose hall), sound chamber, resting room, rehearsal room. Ar. Baldip and Ar. Seksan orientates the design of KLPAC according to providing new structures onto yesterday’s building and ecological rustic materials design respectively. Exterior perspective Theater view ADAPTIVE REUSE PROPOSAL: PRECEDENT STUDY
  • 62.
    ADAPTIVE REUSE PROPOSAL SpatialConfigurations and Functions _____________________________________________________________________________ Proposed ‘Multipurpose Performing Arts Centre’ for the former Pejabat Agama Islam Daerah Klang
  • 63.
    Proposed ‘Multipurpose PerformingArts Centre’ Spatial configurations and functions Porch Lobby Admin Waiting room Theatre Control room Resource centre Backstage Gallery Washroom Indicine The new proposed Multipurpose Performing Art Centre serves to heighten the creativity of future generations in Klang, as well as incite artistic culture in Klang demographics. Legend ADAPTIVE REUSE PROPOSAL: ‘MULTIPURPOSE PERFORMING ARTS CENTRE’
  • 64.
    Porch Lobby Admin Waiting room Theatre Control room Resourcecentre Backstage Gallery Washroom Indicine Porch Lobby Admin Waiting room Theatre Control room Resource centre Backstage Gallery Washroom Indicine Proposed ‘Multipurpose Performing Arts Centre’ Spatial configurations and functions ADAPTIVE REUSE PROPOSAL: ‘MULTIPURPOSE PERFORMING ARTS CENTRE’
  • 65.
    Resource centre whichis like a mini library stocks knowledge for educational purposes as well as relaxing purposes for the public to access. Entering the centre, lobby welcomes the visitors with warmth and the authentic essence of an age old building, symbolising the strength of past fusing with the modernity art. The centre will consist of a theatre room for regular performing art shows as well as for event rentals such as promotions or talks. ADAPTIVE REUSE PROPOSAL: ‘MULTIPURPOSE PERFORMING ARTS CENTRE’
  • 66.
    Spatial Planning ofthe Multipurpose Performing Arts Centre First Floor Porch Lobby Admin Waiting room Theatre Control room Resource centre Backstage Gallery Washroom Indicine ADAPTIVE REUSE PROPOSAL: ‘MULTIPURPOSE PERFORMING ARTS CENTRE’
  • 67.
    Entering the firstfloor, visitors are welcomed by a gallery showcasing arts and creative works. Inspiring children and public in various ways. Indicine allows rearrangement of furnitures easily and acts as multipurpose hall of the centre. Multipurpose: - Press conference - Buffet dinner - Meeting room - Small theatre - Rehearsal room The control room in the centre are used to facilitate theatre events and shows. ADAPTIVE REUSE PROPOSAL: ‘MULTIPURPOSE PERFORMING ARTS CENTRE’
  • 68.
    Summary In this proposal,Multipurpose Performing Arts Centre will be a suitable platform to educate and interact with the students as well as the public demographics of Klang. It is also a collaborative joint between residents, academia, art troupe and civil groups in Klang. The centre orientates the design of daring use of colours which produces a vibrant atmosphere in the building at the same time conserving the striking colours of existing external facade of Klang Islamic religious office. Variation of colours also conveys the purpose of performing art centre as well as the culture of art. Besides a theatre, the centre also features an indicine (multipurpose hall), a backstage, a gallery and a resource centre. The final goal of the centre is to create a lively and friendly atmosphere which attracts the neighbourhood of Klang as well as art lovers from different places. Students will be able to spend their past time by visiting somewhere more meaningful while conserving and giving Klang Islamic religious office building a new life and a new meaning/ ADAPTIVE REUSE PROPOSAL: ‘MULTIPURPOSE PERFORMING ARTS CENTRE’
  • 69.
  • 77.
    References Wordpress n.d., Brief Historyof Kuala Selangor, viewed 15th November 2017, <https://ilovekualaselangor.wordpress.com/green-info/> Hj Ismail 2014, Padang Jawa - Masih Ku Ingat, Dulu Lain Sekarang Lain, viewed 15th November 2017, <http://padangjawaku.blogspot.my/2014/02/wajah-beberapa-tempat-di-bandar-klang.html> Satisfied Unique Visitors 2011, Gedung Raja Abdullah, viewed 18th November 2017, <https://www.malaysia-traveller.com/gedung-raja-abdullah.html>
  • 78.
    Radzi Sapiee n.d., SeniLama Melayu (Malay Olden Art), viewed 20th November 2017, <https://artmelayu.blogspot.my/2011/09/kota-fort-of-raja-mahadi.html?m=1> The Early Malay Doctors n.d., Frank Swettenham, viewed 20th November 2017, <http://theearlymalaydoctors.blogspot.my/2013/07/frank-swettenham.html> Quora n.d., How was Kuala Lumpur established as the capital of Malaysia?, viewed 20th November 2017 <https://www.quora.com/How-was-Kuala-Lumpur-established-as-the-capital-of-Malaysia> St. Rosemary Institution 2017, Japanese Invasion of Malaya, viewed 21st November 2017 <https://schoolworkhelper.net/japanese-invasion-of-malaya-singapore-history-and-significance/>