AREAS
SITE:
GROUND FLOOR:
FIRST FLOOR:
GARAGE:
PORCH:
BALCONY:
ALFRESCO:
TOTAL:
358.0 m
96.22 m
87.35 m
38.69 m
3.90 m
5.27 m
24.0 m
220.43 m
2
2
2
2
2
2
2
2
For:
DRAWING NAME:
SCALE @ A3
SHEET No:MR. HARVIE
Lot 1446 Bardia Ave, Bardia BASIX
00-01
COMPLYING DEVELOPMENT
00-01
01-01
01-02
02-01
02-02
02-03
02-04
02-05
02-06
02-07
02-08
02-09
02-10
02-11
02-12
02-13
02-14
02-15
02-16
02-17
02-18
02-19
02-20
02-21
BASIX
CONTOUR PLAN
SITE PLAN
FLOOR PLANS
ROOF PLAN
NORTH & SOUTH ELEVATIONS
WEST & EAST ELEVATIONS
GARAGE. PLANS
GARAGE ELEVATIONS
SECTIONS
LANDSCAPE PLAN
ELECTRICAL PLAN. GROUND FLOOR
ELECTRICAL PLAN. FIRST FLOOR
INTERNALS. KITCHEN
INTERNALS
INTERNALS
INTERNALS
GF & GARAGE WALL ELEVATIONS
FF WALL ELEVATIONS
NOTES
3D VIEWS
3D VIEWS
3D VIEWS
3D VIEWS
CERTIFICATE NUMBER: 54456790
BRALLOSSTR.
BARDIA AVENUE
BRICK RESIDENCE
AWN
2 STOREY
BRICK
RESIDENCE
No:28
BOUNDARY
BOUNDARY
FRONT BOUNDARY
BOUNDARY
PIT
64.82
INV
63.42
W
R
W
EBOX
SIG
N
SIG
N
LP
CONC.
RET.WALL
KERB
SM
H
IP
COMMS
TKPIT64.03
INV62.60
TKPIT64.60
INV62.50
TKPIT64.62
INV63.17
SIG
N
CONCRETE
CONCRETEROLLEDKERB
TREETREE
B
O
UNDARY
LOT 1446
DP 1175994
358m²
8.015
69°49'20"
LAPPED&CAPPEDPALINGFENCE
115°
15'20
"
160°20'40"
250°20'40"
340°20'40"
5
.6
5
26.5
12.015
30.415
SM
H
TR
EE
C
C
C
SIG
N
SIG
N
LP
65
.12
65
.18
64
.80
64
.31
64
.42
64
.21
64.92
SM
H
IP
N
S
N
S
N
S
NS
N
S
N
S
VC
TK
TK
P
C
P
C
64
.76
64.75
64
.28
64
.47
64
.83
65.0465
.31
64
.85
64
.75
64.55
64
.44
64
.15
64
.06
N
S
N
S
64
.86
65
.18
65
.44
65
C
O
M
M
S
64
.77
L.& C. P. F.
HEAD 71.64
SILL 70.43
1ST FLOOR
HEAD 71.63
SILL 71.03
1ST FLOOR
HEAD 68.86
SILL 68.22
HEAD 68.87
SILL 67.07
H 68.01
S 66.89
H 68.01
S 66.89
H 68.02
S 67.16
ORN.FCE.
R
ID
G
E
R
ID
G
E
G
U
T
GUT
G
U
T
G
U
T
G
U
T
GUT
N
S
N
S
N
S
N
S
N
S
N
S
N
S
NS
N
S
N
S
N
S
TK
TK
70
.17
74
.36
71.82
71.79
71.79
68
.20
68
.20
68.22
64
.86
64
.85
64
.79
64
.68
64
.55
64
.32
65
.55
65
.82
65.88
65
.62
65
.52
65
.44
64
.46
64
.73
64.5
65.5
BM
D
R
ILLH
O
LE
&
W
ING
R.L. 64.03
(AH
D)
gate
AHD
BM
C
GUT
INV
NS
LP
RL
TK
VC
LEGEND
AUSTRALIAN HEIGHT DATUM
BENCH MARK
EDGE OF CONCRETE
IP INSPECTION POINT
TOP OF GUTTER
INVERT OF PIT
NATURAL SURFACE
LIGHT POLE
REDUCED LEVEL
W WATER
TOP OF KERB
VEHICLE CROSSING
SMH
RW
EBOX
PC
SEWER MANHOLE
RECYCLED WATER
COMMS TELECOMMUNICATIONS BOX
ELECTRICITY BOX
PRAM CROSSING
CONCRETE HARD AREA
APPROX GUTTER LINE
For:
DRAWING NAME:
SCALE @ A3
SHEET No: 1 : 200MR. HARVIE
Lot 1446 Bardia Ave, Bardia Contour Plan
01-01
NORTH
BRALLOSSTR.
BARDIA AVENUE
2-STOREYHOUSE
183.5sqm
setback
rear setback
2400 6220 1395
38.7 sqm
GARAGE
Driveway
BRICK RESIDENCE
AWN
2 STOREY
BRICK
RESIDENCE
No:28
front setback
BOUNDARY
BOUNDARY
FRONT BOUNDARY
BOUNDARY
PIT
64.82
INV
63.42
W
R
W
EBOX
SIG
N
SIG
N
LP
CONC.
RET.WALL
KERB
SM
H
IP
COMMS
TKPIT64.03
INV62.60
TKPIT64.60
INV62.50
TKPIT64.62
INV63.17
SIG
N
CONCRETE
CONCRETEROLLEDKERB
TREETREE
B
O
UNDARY
LOT1446
DP1175994
358m²
KITCHEN
LIVING DINING
HOME
THEATRE STUDY
8.015
69°49'20"
LAPPED&CAPPEDPALINGFENCE
115°
15'20
"
160°20'40"
250°20'40"
340°20'40"
5
.6
5
26.5
12.015
30.415
(E1) EASEMENT TO DRAIN
WATER 1.5M WIDE
SM
H
articulation
zone
7000
3000
P.O.S.
ALFRESCO
24 sqm
a/c
hwu
6000
4500
setback
TR
EE
1500
15000
900
9115
2000
Porch
Sitecoverageofalldevelopment
=165.2m=46,1%
baywindow
firstfloorsetback
1450
1000
5500
2000
3650 2820 2645
AHD
BM
C
GUT
INV
NS
LP
RL
TK
VC
C
C
C
SIG
N
SIG
N
LP
65
.12
65
.18
64
.80
64
.31
64
.42
64
.21
64.92
SM
H
IP
N
S
N
S
N
S
NS
N
S
N
S
VC
TK
TK
P
C
P
C
64
.76
64.75
64
.28
64
.47
64
.83
65.0465
.31
64
.85
64
.75
64.55
64
.44
64
.15
64
.06
N
S
N
S
64
.86
65
.18
65
.4465
C
O
M
M
S
64
.77
L.& C. P. F.
HEAD 71.64
SILL 70.43
1ST FLOOR
HEAD 71.63
SILL 71.03
1ST FLOOR
HEAD 68.86
SILL 68.22
HEAD 68.87
SILL 67.07
H 68.01
S 66.89
H 68.01
S 66.89
H 68.02
S 67.16
ORN.FCE.
R
ID
G
E
R
ID
G
E
G
U
T
GUT
G
U
T
G
U
T
G
U
T
GUT
N
S
N
S
N
S
N
S
N
S
N
S
N
S
NS
N
S
N
S
N
S
TK
TK
70
.17
74
.36
71.82
71.79
71.79
68
.20
68
.20
68.22
64
.86
64
.85
64
.79
64
.68
64
.55
64
.32
65
.55
65
.82
65.88
65
.62
65
.52
65
.44
64
.46
64
.73
64.5
65.5
PAD
65.00
65.30
DECK
65.15
GF
65.15
retainingwall
PAD
PAD
PAD
LEGEND
AUSTRALIAN HEIGHT DATUM
BENCH MARK
EDGE OF CONCRETE
IP INSPECTION POINT
PAD
BM
D
R
ILLH
O
LE
&
W
ING
R.L. 64.03
(AH
D)
TOP OF GUTTER
INVERT OF PIT
NATURAL SURFACE
LIGHT POLE
REDUCED LEVEL
W WATER
TOP OF KERB
VEHICLE CROSSING
1500622028709004000104251500
SMH
RW
EBOX
PC
SEWER MANHOLE
RECYCLED WATER
COMMS TELECOMMUNICATIONS BOX
ELECTRICITY BOX
PRAM CROSSING
CONCRETE HARD AREA
APPROX GUTTER LINE
PAD PROPOSED LAND PAD20209001080
5010 1000 2610 900 2495
PAD
65.00
2700
4750 1700
HOUSE
PORCH
GARAGE
PATHWAY
1.8mfence
RETAINING WALL
1.2mopenfence
1.2m open fence
gate
gate
gate
2830
1.8m
open
fence
hardwood
fence
hardwood
fence
RECYCLED WATER TAP
2
For:
DRAWING NAME:
SCALE @ A3
SHEET No: 1 : 200MR. HARVIE
Lot 1446 Bardia Ave, Bardia Site Plan
01-02
NORTH
CW 1808TCW 1808T SW 1518
BD 2451
SW1526
AW0607
820
720
820
820
920
720
L'DRY
ENSUITE
KITCHEN
LIVING
DINING
HOME
THEATRE OFFICE
home theatre
4100
90
1100
90
office
3930
90
ALFRESCO
PORCH
220
1700
pillar
1000
900
pillar
600
1280
220
1970
90
porch
2820
porch
1500
Section 2
02-07
Section 1
02-07
A/C
HWU
FFL0.000
North
02-03
East
02-04
West
02-04
South
02-03
820
FR
SW1826T
PANTRY
5 burner with
in-built oven
and exhaust
microwave
DW
WMDRY
800 600
600
shelves
shelves
shelves
kitchen/dining
4305
90
stairs
910
90
stairs
900
90
office
3600
220
9985
220
720
90
window
2650
90
36019001015
window
2650950
10425
ensuite
2500
90
6085
90
4100
90
entry
1400
90
office
2995
220
8675
220
950 850 600 850 1400 920 1260 1810 475
9115 510
9625
concrete pad
1200
90
deck
5910
90
flowerbed
1410
90
325
deck
4000
2200
concretepad
1800
250660
700
laundry
3705
90
2160
90
pantry
2630
90
3705
90
1430
90
kitchen bench
3360
220
kitchen/dining/living
8675
220
9115
690
3300
90
1705
90
1710
90
3000
220
9985
220
10425
1290
bi-fold door
5135 2690
950
window
850 600
window
850 1400
entry door
920 1260
window
1810 475
4245
window
730535
door
8204095
90016 risers @ 180mm
15 treads @ 260mm
ceilingheight:2550
90
420
90
90
3560
flowerbed
flowerbed
flowerbed
flowerbed
500
90
1310
2645 420
90
420
90
510
flowerbed
5925
90
860
flowerbed
flowerbed
3910
90
90
820
90
D1
D2
D3
D4
D5
D7
D6
D8
W1 W2 W3
W4W5
W6
laminate laminate
laminate
laminate
tiles
tiles
concrete
polished
concrete
concrete
laminate
laminate
fixedoutdoor
clothesdryingline
deck
SW 1218 SW 1218
SW1226
AW1808T
FW0608
SD2418
BD 2436
AW0608AW0612
820
820820 820
720
720
720
Section 2
02-07
Section 1
02-07
fall
fall
fall
BED 2
ENSUITE
WIR
MASTER BED
BED 3
BALCONY
BED 1
FFL 2.850
ROBE
LINEN
ROBE
BATH
flowerbed
ROBE
timberpergola
North
02-03
East
02-04
West
02-04
South
02-03
flowerbed
90
bedroom3
3445
90
900
90
stairs
910
90
stairs
900
90
3600
90
berroom2
4435
90
hallway
1900
90
masterbedroom
3600
90
1620
90
220
10115
90
700107010425
1070
brick
720
90
flowerbed
2650
90
brick
360
bathroom
1750
90
hallway
3085
90
stairs
3240
2430 900
16 risers @ 180mm
15 treads @ 260mm
50
80
balcony
1070
balcony
930
130
3100
90
balcony
5155
90
220
90
flowerbed
1520
90
roofing
900
100
220
flowerbed
1700
pillar
1000
2704301065
90
420
90
100
50
90
925
3445
90
900
90
1900
90
linen
500
90
3015
90
4435
90
3300
90
2205
220
9985
220
104251070700
90
ensuite
1750
90
W.I.R. / linen
1800
90
master bedroom
4525
90
90
8255
220
550 8565 505
950
window
26501540
windows
8501395
slidingdoor
18101100
3820
bi-fold door
3685 930
7065
window
8501040
window
1210
265
90
bedroom 1
2675
90
bedroom 2
2700
90
bedroom 3
2700
90
pergola
1800
650
pergola
6000 1785
90
230
50
230
50
230
50
230
50
230
50
230
50
230
50
230
50
230
50
230
50
230
50
230
50
230
50
230
50
230
50
230
50
230
50
230
50
230
50
230
50
220
90
bedroom 1
2875
90
bedroom 2
1900
90
bedroom 3
3300
500
500
500
500
1840
1540
1100
90
8255
220
550 8565
535
window
1810 770
window
1810 3510
500
500500
500
40
90
415
90
ceiling height: 2550
D9
W7/W8
D10D11
D12
D13
D14
D17
D18
D16
D15W9
W10W11
W12W13
laminate
polished concrete
tiles
tiles
laminate
laminate
laminate laminate laminate
For:
DRAWING NAME:
SCALE @ A3
SHEET No: 1 : 100MR. HARVIE
Lot 1446 Bardia Ave, Bardia Floor Plans
02-01
GROUND FLOOR PLAN FIRST FLOOR PLAN
NORTH
Section 2
02-07
Section 1
02-07
North
02-03
East
02-04
West
02-04
South
02-03
skylight
parapet capping
roof at 5 degrees pitch
roofing at 15 degrees pitch
(first floor)
pergola (first floor)
balcony roof capping
gutter
W14
SL 2108
For:
DRAWING NAME:
SCALE @ A3
SHEET No: 1 : 100MR. HARVIE
Lot 1446 Bardia Ave, Bardia Roof Plan
02-02
NORTH
Ground Floor 0.00065150
First Floor 2.85068000
Roof 5.70070850
NGL
Building Top 6.55071700
lintel height 5.250
ceiling height / lintel 2.550
flowerbed top -0.200
wall capping 3.770
white painted
timber stud wall
face brickwork
wooden cladding
flowerbed top 3.050
porch ceiling 2.700
sill height 1.010
balcony roof capping 5.720
black painted
timber stud wall
black painted
timber stud wall
black painted wall
D1
W1W2
W3
D16
black painted wall
capping
black painted
capping
sill height 0.750
28502850
850
white painted parapet capping
black painted parapet capping
balcony fence height 3.750
ceiling height 5.400
BOUNDARY
BOUNDARY
balcony ceiling
height 5.615
fixed outdoor
clothes drying line
Ground Floor 0.000 65150
First Floor 2.850 68000
Roof 5.700 70850
NGL
520
Building Top 6.550 71700
85028502850
sill height 3.750
lintel height 4.950
ceiling height 5.400
flowerbed top -0.100
flowerbed top -0.200
wall capping 3.520
wall capping 3.070 wall capping 2.870
ceiling height 2.550
lintel height 2.400
BOUNDARY
BOUNDARY
D8
W10W11
A/C
HWU
pergola top 3.200
white painted
timber stud wall
black painted
timber stud wall
black painted
timber stud wall
black painted wall
capping
timver pergola
white painted parapet capping
black painted wall
capping
fixed outdoor
clothes drying line
Ground Floor 0.00065150
First Floor 2.85068000
Roof 5.70070850
Building Top 6.55071700
NGL
ceiling height / lintel 2.550
flowerbed top -0.200
wall capping 3.770
white painted
timber stud wall
face brickwork
wooden cladding
flowerbed top 3.050
porch ceiling 2.700
sill height 1.010
balcony roof capping 5.720
black painted
timber stud wall
black painted
timber stud wall
black painted wall
D1
W1W2
W3
black painted wall
capping
black painted
capping
sill height 0.750
28502850
850
aluminium external blinds
black painted parapet capping
balcony fence height 3.750
BOUNDARY
BOUNDARY
balcony ceiling
height 5.615
fixed outdoor
clothes drying line
For:
DRAWING NAME:
SCALE @ A3
SHEET No: 1 : 100MR. HARVIE
Lot 1446 Bardia Ave, Bardia North & South Elevations
02-03
NORTH ELEVATION SOUTH ELEVATION
NORTH ELEVATION 2
Ground Floor 0.000 65150
First Floor 2.850 68000
Roof 5.700 70850
NGL
500
85028502850
Building Top 6.550 71700
BOUNDARY
lintel height 4.650
pergola top 3.200
lintel height 5.200
sill height 4.600
sill height 4.050
wall capping 3.770
flowerbed top 3.050
balcony roof cappnig 5.720
porch ceiling height 2.700
lintel height 2.060
sill height 1.460
wall capping 3.070
roofing top 3.000
ceiling height 2.550
lintel height 2.040
ceiling height 5.400
black painted wallwhite painted
parapet capping
black painted
parapet capping
black painted downpipe
black painted wall
white painted
wall capping
white painted
timber stud
D6
A/C
HWU
W6
W12
W13
fixed outdoor
clothes drying line
Ground Floor 0.00065150
First Floor 2.85068000
Roof 5.70070850
NGL
lintel height
lintel height 5.250
lintel height 4.950
wall capping 3.520
wall capping 3.770
ceiling height 2.550
flowerbed top 3.050
flowerbed top -0.200
flowerbed top -0.100
sill height 3.750
sill height 2.850
sill height 0.750
sill height 1.010
porch ceiling height 2.700
W4W5
D15
W9
W7
W8
black painted wall white painted
timber stud wall
face brickwork
face brickwork
wooden cladding
wooden cladding
black painted timber stud wall
brick foundation wall
brick flowerbed
wall
chromed
metal fence
black painted timber stud wall
white painted
parapet capping
black painted
wall capping
timber pergola
black painted
wall capping
Building Top 6.55071700
balcony roof capping 5.720
850
28502850
ceiling height 5.400
BOUNDARY
For:
DRAWING NAME:
SCALE @ A3
SHEET No: 1 : 100MR. HARVIE
Lot 1446 Bardia Ave, Bardia West & East Elevations
02-04
WEST ELEVATION
EAST ELEVATION
Section 3
02-07
SW 0718 SW 0718
GARAGE
concrete
920
5500
360
garagedoor
5500360
110
6000
110
840 1810
door
920 1810 840
110
6000
110
6220
6220
ceiling height: 2550
North.
Garage
02-06
East.
Garage
02-06
South.
Garage
02-06
West.
Garage
02-06
flowerbed
90
2430
90
2610
90
660
750
D20
D19 W16W15
Section 3
02-07
North.
Garage
02-06
fall
gutter
East.
Garage
02-06
South.
Garage
02-06
West.
Garage
02-06
parapet capping
For:
DRAWING NAME:
SCALE @ A3
SHEET No: 1 : 100MR. HARVIE
Lot 1446 Bardia Ave, Bardia Garage. Plans
02-05
FLOOR PLAN ROOF PLAN
NORTH
Garage 0.00065300
Garage top 3.37068670
flowerbed top 0.700
lintel height 2.100
sill height 1.330
NGL
3370
BOUNDARY
D19
W16 W15
BOUNDARY
ceiling height 2.550
face brickworkblack painted parapet capping
Garage 0.00065300
Garage top 3.37068670
ceiling height 2.550
BOUNDARY
BOUNDARY
face brickworkblack painted parapet capping
black painted
downpipe
NGL
Garage 0.000 65300
ceiling height 2.550
BOUNDARY
Garage top 3.370 68670
garage door height 2.200
flowerbed top 0.700
D20
3370
face brickworkblack painted parapet capping
black
painted
downpipe
Garage 0.00065300
Garage top 3.37068670
ceiling height 2.550
flowerbed top 0.700
face brickwork black painted parapet capping
black
painted
downpipe
BOUNDARY
NGL
3370
lintel height 2.100
For:
DRAWING NAME:
SCALE @ A3
SHEET No: 1 : 100MR. HARVIE
Lot 1446 Bardia Ave, Bardia Garage. Elevations
02-06
NORTH ELEVATION SOUTH ELEVATION
EAST ELEVATION WEST ELEVATION
Ground Floor 0.000 65150
First Floor 2.850 68000
Roof 5.700 70850
Garage 0.00065300
85028502850
25502550
545
roof at 5 degrees pitch
roof at 5 degrees pitchpergola
KITCHEN
BED 2
MASTERBED
PORCH
BALCONY
flowerbed
GARAGE
skylight
ALFRESCO
NGL
Building Top 6.550 71700
Garage top 3.37068670
3370
BOUNDARY
BOUNDARY
ceiling
height
5.400
ceiling height 5.400
ceiling height 2.550
aluminium
external
blinds
foundation to
eng. spec
foundation to
eng. spec
900
ceiling height 2.550
2550
foundation to
eng. spec
foundation to
eng. spec
Ground Floor 0.000 65150
First Floor 2.850 68000
Roof 5.700 70850
BATH
ENSUITE
28502850
flowerbed
retaining wall
roof at 5 degrees pitch skylight
NGL
Building Top 6.550 71700
BOUNDARY
BOUNDARY
ceiling
height
5.400
ceiling height 2.550
foundation to
eng. spec
foundation to
eng. spec
25502550
roofing at 15
degrees pitch
Garage 0.00065300
460
NGL
Garage top 3.37068670
BOUNDARY
BOUNDARY
3370
ceiling height 2.550
foundation to
eng. spec
foundation to
eng. spec
2550
For:
DRAWING NAME:
SCALE @ A3
SHEET No: 1 : 100MR. HARVIE
Lot 1446 Bardia Ave, Bardia Sections
02-07
SECTION 1-1
SECTION 2-2 SECTION 3-3
2-STOREY HOUSE
(E1) EASEMENT TO DRAIN
WATER 1.5M WIDE
P.O.S.
BRALLOSSTR.
BARDIA AVENUE
GARAGE
symbol
PLANTING LEGEND:
code name size (hxw) type pot sizeqty
BaM Backhousia Myrtifolia "Grey Myrtle" 7m h x 3m w 2 small native tree 25kg
LcW Lomandra Confertifolia "Wingarra" 0.4m h x 0.4m w 35 clumping plants 150mm
DcB Dianella Caerulea "Breeze" 0.7m h x 0.7m w 53 clumping plants 150mm
AmA Agave "Americana" 7 shrub 200mm1m h x 1m w
Alcantarea Imperialis Rubra
Porch
gate
gate
gate
ALFRESCO
BOUNDARY
BOUNDARY
FRONT BOUNDARY
BOUNDARY
B
O
UNDARY
AcC Acacia cognata "River Wattle" 0.7m h x 0.7m w 3 small shrub 150mm
AiR
BaM
BaM
AcC
DcB
AiR
DcB
AmA
LcW
DcB
AcC
DcB
LcW
AiR
DcB
DcB
shrub1m h x 1m w 200mm7
1000
1000500 3740 500
600
590
510
1590
500
750
500
500
285
6970
750
3510
4000
59251310
2060
3650
900
For:
DRAWING NAME:
SCALE @ A3
SHEET No: 1 : 200MR. HARVIE
Lot 1446 Bardia Ave, Bardia Landscape Plan
02-08
NORTH
L'DRY
ENSUITE
KITCHEN
LIVING
DINING
HOME
THEATRE
ALFRESCO
PORCH
GARAGE
A/C
HWU
42 WATT/ 3000K INTERNAL LED
DOWNLIGHT
15 WATT/ 3000K GARDEN STAND LIGHT
HANGING LAMP
STRIPLIGHT / INDIRECT LIGHT TYPE 1
LEGEND
S
P
SPRINKLER POINT
SMOKE DETECTOR
SPEAKER
STRIPLIGHT / INDIRECT LIGHT TYPE 2
S S
R R
TV
D
U/W LIGHT
EXHAUST FAN
SUPPLY AC LINIER SLOT DIFFUSER
RETURM AC GRIL
SGL P.POINT TO CEILING
TV OUTLET
DATA OUTLET
TELEPHONE SOCKET
SINGLE SWITCH
DOUBLE SWITCH
SINGLE POWER SOCKET OUTLET
15 WATT/ 3000K EXTERNAL LED
DOWNLIGHT
AFFL+1350
AFFL +2350
AFFL +4250
AFFL+1350
AFFL +1350
AFFL+1350
AFFL+1350
AFFL+1350
AFFL+1350
AFFL +1350
AFFL +1300
TV
AFFL +1050
AFFL +1050
AFFL +650
AFFL+200
AFFL +1350
AFFL+200AFFL+200
AFFL+200
AFFL +200
AFFL +200
3000
3000
AFFL
+1050
AFFL +200
WMDRY
FR
5 burner with
in-built oven
and exhaust
microwave
DW
20WATT/ 3000K UP/DOWN WALL PILLAR
LIGHT
AFFL+650
DOUBLE POWER SOCKET OUTLET
For:
DRAWING NAME:
SCALE @ A3
SHEET No: 1 : 100MR. HARVIE
Lot 1446 Bardia Ave, Bardia Electrical Plan. Ground Floor
02-09
NORTH
WIR
MASTER
BED
BALCONY
BED 1
BATH
BED 2 BED 3
AFFL+1050
AFFL+200
AFFL +1350
AFFL+1350
AFFL +1350 AFFL +200
AFFL +1350
(ground floor)
AFFL+1350
AFFL+200
AFFL+200
AFFL+200
AFFL +1350
AFFL +1350 AFFL +1350
TV
AFFL +1050
42 WATT/ 3000K INTERNAL LED
DOWNLIGHT
15 WATT/ 3000K GARDEN STAND LIGHT
HANGING LAMP
STRIPLIGHT / INDIRECT LIGHT TYPE 1
LEGEND
S
P
20WATT/ 3000K UP/DOWN WALL PILLAR
LIGHT
SPRINKLER POINT
SMOKE DETECTOR
SPEAKER
STRIPLIGHT / INDIRECT LIGHT TYPE 2
S S
R R
TV
D
U/W LIGHT
EXHAUST FAN
SUPPLY AC LINIER SLOT DIFFUSER
RETURM AC GRIL
SGL P.POINT TO CEILING
TV OUTLET
DATA OUTLET
TELEPHONE SOCKET
SINGLE SWITCH
DOUBLE SWITCH
15 WATT/ 3000K EXTERNAL LED
DOWNLIGHTROBE
ROBE
ROBE
SINGLE POWER SOCKET OUTLET
DOUBLE POWER SOCKET OUTLET
LINEN
AFFL +1050
For:
DRAWING NAME:
SCALE @ A3
SHEET No: 1 : 100MR. HARVIE
Lot 1446 Bardia Ave, Bardia Electrical Plan. First Floor
02-10
NORTH
2001001300800150
690
aisle
900
bench length
1905
White laminated
recessed kicker
Black laminated
cupboard doors
with white laminated
inside space
40mm stone top
100
1705
100
Mixer tap
WELS 4 star rating
40
15
15
715
15
370 375 375 375 375
200
1505
200
690 900
ceiling playe with 2 x 42 LED light
1905
Ceiling plate
White laminated plate
Black laminated plate
950
SamsungSRF680CDLS
680Lfridge
Black laminated wall
Ceiling plate
White laminated plate
Black laminated plate
40mm stone top
Black laminated
cupboard doors
with white
laminated
inside space
White laminated
recessed kicker
Mixer tap
WELS 4 star ratingFisher & Paykel
DD60DCX7
dishwasher
Black laminated
drawer with bin
100 1705 100 900
50
550
bench
1905
aisle
900
bench
600
ceiling plate with 2 x 42W LED light
1905 900
cupboards
600
200 1505 200 900
15
570
15
1508001300100200
15
320 600 315 320 320
15
900
15
570
15
40
15
15
715
15
150
950
350
15
350
Samsung SRF680CDLS
680L fridge
White
laminated
cupboard'
inside space
Cupboards
150
15
360
15
370
40
650
15
360
15
360
15
185
bulkhead
185cupboards
765650
bench
950
20
510
20
Ceiling plate
White laminated plate
Black laminated plate
40mm stone top
White laminated
recessed kicker
Mixer tap
WELS 4 star rating
Black laminated
bench side
2001001300
40
15
365
15
365150
3001300950
250
50
800 100
overhang
250
cupboards
950
bench
1200
200 800 200
1200
Black
laminated
cupboard
doors;
white
laminated
inside and
side
cupboard'
surfaces
Black
laminated
cupboard
doors
with white
laminated
inside
space
Black laminated drawers
Fisher & Paykel HC90PCHTX2
range hood
Fisher & Paykel CG905DWFCX1
cook top
Fisher & Paykel OB90S9MEPX2
built-in oven
Samsung SRF680CDLS 680L
fridge
bulkhead
185cupboards
580
fridge
1785
185375
15
375650
40
375
15
370150
bulkhead
185cupboards
765650
bench
950
90
fridge
940
microwave & drawers
760
oven & drawer
900
cupboards
760
bench
2420
cupboards
925
cupboards
760
range hood
900
cupboards
760
microwave
465145145
Westinghouse WMG281SB
microwave with trim
DW
bench
1905
bench
1200
250 465 465
20
8651020
20
BIN
For:
DRAWING NAME:
SCALE @ A3
SHEET No: 1 : 25MR. HARVIE
Lot 1446 Bardia Ave, Bardia Internals. Kitchen
02-11
ELEVATION A
ELEVATION B
ELEVATION C
ISLAND BENCH
ELEVATION D
PLAN
ISLAND BENCH
Beko DV 7220 X
dryer
Samsung
WW8000
washing
machine
950
150320
15
445
20
600 800
20
600
20
595 1070
150835
15
385
15
385
15
750
2550
20mm white
laminated bench
top
White laminated
cupboards
Recessed kicker
Mixer tap
1600900
4902000
60
CIBO 1500mm Element double basin vanityMarbletrend 900 x 900mm
Ultralite™ shower base
Marbletrend 900mm chrome
flinders shower screen
Adjustable
shower rail with
showerhead
WELS 3 star
rating
Wall mixer
tap
Tucosi 600 x
750mm alloy
frame mirror
Mixer taps
WELS 4 star
rating
750
mirror
620380
vanity
430370
1000800
365 770 415
900
50
1500
50
CIBO 1500mm Element double basin vanityMarbletrend 900 x 900mm
Ultralite™ Shower Base
Forme 1380 x
700 x 20mm
alloy mirror
frame tucosi
Mixer taps
WELS 4 star rating
Marbletrend 900mm
chrome flinders shower
screen Adjustable
shower rail
with
showerhead
WELS 3 star
rating
Wall mixer
tap
Caroma Marina
1700 white bath
750
mirror
700300200
bathtub
600
1950600
300430370
800
60
2000490
900 75 1500 80 745
W12
900
55
1200
50
602000490
200
window
600
mirror
500350
vanity
400500
Adjustable shower
rail
with showerhead
WELS 3 star rating
Wall mixer
tap
CIBO 1200mm seamless wall hung
vanity with double basin
CIBO 1200 x
500mm outline
mirror
Caroma Kari walled
faced toilet suite
WELS 4 star rating
Mixer taps
WELS 4 star
rating
W13
For:
DRAWING NAME:
SCALE @ A3
SHEET No: 1 : 25MR. HARVIE
Lot 1446 Bardia Ave, Bardia Internals
02-12
ELEVATION E
LAUNDRY
ELEVATION G
FF ENSUITE
ELEVATION F
GF ENSUITE
ELEVATION H
MASTERBED BATH
500100600100500
300450450450450450
Black laminated bulkhead
Black laminated cupboards
5 x Award 600 x 450mm
diamond edge mirror panel
20
410
20
400
20
400
20
400
20
400
20
400
20
2550
20
400
20
200
20
200
20
400
20
400
20
400
20
390
20
2550
500800500
20
2100
20
390
20
Chromed
metalhanger
Black
laminated
cupboards
500 940
20
1035
20
500
2550
20
400225235400
20
400
20
400
20
390
20
20
8851000215
20
400
20
400
20
400
20
400
20
400
20
410
20
Chromed
metalhanger
Black laminated shelves
Black
laminated
cupboard
Black
laminated
bulkhead
Black laminated
drawers
D17
20
400
20
400
20
400
20
400
20
400
20
410
20
2550
3002995635
Black laminated shelves
For:
DRAWING NAME:
SCALE @ A3
SHEET No: 1 : 25MR. HARVIE
Lot 1446 Bardia Ave, Bardia Internals
02-13
ELEVATION J
W.I.R.
ELEVATION K
W.I.R.
ELEVATION L
W.I.R.
ELEVATION N
OFFICE SHELVES
Black laminated sliding doors
430
20
400
20
400
20
400
20
400
20
400
20
2550
920 920 1035
50
30
1000
30
970
20
Chromed
metalhanger
2080
White laminated
wardrobe' inside
space
White laminated
side wall
D11
1340
20
1340
2700
20
400
20
400
20
400
20
400
20
400
20
430
2550
20
970
30
1000
30
50
2080
Black laminated sliding doors
Chromed
metalhanger
White laminated
wardrobe' inside
space
430
20
400
20
400
20
400
20
400
20
400
20
50
30
1000
30
970
20
2080
2550
495 495 500
Black laminated sliding doors
Chromed
metalhanger
White laminated
wardrobe' inside
space
Black laminated
side wall
Black laminated
sliding doors
430
20
400
20
400
20
400
20
400
20
400
20
2550
1800
White painted
shelves
White painted
back wall
550
20
400
20
280
20
341
20
80x80mm
supporting
wood pillar
White painted
shelves
White painted
side supporting
wall
20
96080620
950980700
1631
For:
DRAWING NAME:
SCALE @ A3
SHEET No: 1 : 25MR. HARVIE
Lot 1446 Bardia Ave, Bardia Internals
02-14
ELEVATION O
BEDROOM 1
ELEVATION Q
BEDROOM 2
ELEVATION P
BEDROOM 3
ELEVATION S
PANTRY
ELEVATION R
LINEN
4100 3000 4100 3000
CW 1808T
820
pocket door
CW 1808T
1800750
730 850 600 850 1070 1855 820
325
6001200
2100
white painted white painted white painted white painted
HOME THEATRE
720
tiles
tilestiles
tiles
2500 1710 2500 1710
2550
4502100
495 720 495
GF ENSUITE
820
pocket door
2750 820 135 485 820 400
3705 1705 3705 1705
tiles tiles tiles tiles tiles
2150400
2550
LAUNDRY
white painted white painted white painted
white painted
white painted
OFFICE
SW 1518
SW 1526
820
pocket door
white painted black painted black painted
whitepainted
blackpainted
blackpainted
whitepainted
whitepainted
whitepainted
820
2995 590 635 2650 635 360 3295 1510
300
2090
930 1810 255 225
1865
15401010
15401010
4502100
vanity place
370
430
1750
950 1500
50
4906001460
45 730 935
AW 0607
shelvesplace
shelves place shelves place
shelvesplace
ENTRY/HALLWAY & KITCHEN/DINING/LIVING
920
820
pocket door
720
KITCHEN DINING
ENTRY
PANTRY
OFFICE
DINING LIVING
820
pocket door
720
LIVING LIVING
LAUNDRY
ENSUITE
820
pocket door
HOME
THEATRE
1400 2000
300
1690 3385 900 3385
90
665 910 665 690
90
600 3360 4305
8675 3300 3795 1885 1205 1710 1600 3090
4502100
2100
1790760
2100
7501800
925 2650 730
95
720
95
1045 820
135 145
2340 900
2470 5135 1070
225
820
160
530 720 460 415 820 1855
white painted
whitepainted
whitepainted
white painted white painted white painted white painted
whitepainted
whitepainted
white painted white painted
whitepainted
blacklaminated
blacklaminated
whitepainted
whitepainted
white painted
white painted white painted white painted white painted white painted
white painted white painted
white painted white painted
BD 2451
SW 1826T
150
2400
SW 0718 SW 0718
920
glass door
5500
slim-line sectional garage door
white painted white painted
white paintedwhite painted
white painted
6000 6000 6000 6000
4507701330
2100
2550
black painted
730 1810 920 1810 730
250
5500
250
GARAGE
275
staircase staircase
3502200
720
3705 910 3705 910
2550
1631
2550
2100450
white painted white painted white painted
white painted
PANTRY
For:
DRAWING NAME:
SCALE @ A3
SHEET No: 1 : 100MR. HARVIE
Lot 1446 Bardia Ave, Bardia GF & Garage Wall Elevations
02-15
MASTER BEDROOM
SD 2418BD 2436
820
720
pocket door
4525 3600 4525 3600
3685 840 1010 1810 780 3595 820
110
2255 720 625
150
2400
4502100
2550
150
2400
white painted white painted
whitepainted
whitepainted
whitepainted
4502100
W.I.R.
720
pocket door
white painted
720
pocket door
white painted white painted white painted
630 720 1665 1765 720 530
1800 3015 1800 3015
4502100
4502100
FF ENSUITE
720
pocket door
tiles
1690 720
1750 3300 1750 3300
bathtub place bathtub
place
tiles tiles
bathtub
place
vanity place
AW 0608
745 945 720 890 975 1500
80
745
750600600600
3704301750
1950600
2550
tiles
1200
LINEN
4502100
820
MASTERBED
staircase
white painted fence wall
FW 0608
AW1808T
staircase
820
pocket door
BED2
820
pocket door
BED1
ENSUITE
720
pocket door
6415 1900 6415 1900
3175 3240 2200
300 1200 500 820 3595 525 850 525 2480 820 1070 820 300 820 995 720 290
white painted
white painted
white painted
white painted
FF HALLWAY
7052100
2805
3350
2805
2805
12506001800
300
FF FLOOR LEVEL
5°
5°
2550
black painted
4502100
820
pocket door
wardrobe place
white painted
inside wardrobe
blackpainted
blackpainted
white painted
white painted
SW 1218
white painted
wardrobeplace
2875 900
200
3535 2675 4435
1840
105
820
110
420 1810 445 3935 500
4501200900
2550
2550
BEDROOM 1
blackpainted
820
pocket door
white painted
SW 1218
1900 990 600 3445 2700 3445
200
990
4501200900
2550
BEDROOM 2
white
painted
inside
wardrobe
white
painted
inside
wardrobe
wardrobeplace
wardrobeplace
wardrobeplace
110
820 470 500 500 2945 630 1810
260
white painted white painted
whitepainted
2550
BEDROOM 3
820
pocket door
BED3
820
pocket door
SW 1226
3300 4435 2700 3535 600 900
wardrobe place
white painted
inside wardrobe
wardrobeplace
wardrobeplace
white painted
white painted
white painted
white painted
whitepainted
820 2480 925 2650 360 500 500 3035
4501200900
4502100
MASTERBED' BATH
720
pocket door
tiles tiles tiles
530 720 955
1750 2205 1750 2205
4502100
200
600
1750
955 1210
40
AW 0612
vanity place
500400850
960 1200
900
For:
DRAWING NAME:
SCALE @ A3
SHEET No: 1 : 100MR. HARVIE
Lot 1446 Bardia Ave, Bardia FF Wall Elevations
02-16
NEW DOOR SCHEDULE
№ Size (h x w) Description Opening Material Location Finish
1 2550 x 920 Stegbar, entry door with upper window swing hinged timber entry cedar
2 2040 x 820 Stegbar, internal door pocket timber office cedar
3 2040 x 820 Stegbar, internal door pocket timber home theatre cedar
4 2040 x 720 Stegbar, internal door swing hinged timber GF ensuite cedar
5 2040 x 820 Stegbar, internal door pocket timber laundry cedar
6 2040 x 820 Corinthian doors interblind exterior door swing hinged timber laundry white painted
7 2040 x 720 Stegbar, internal door swing hinged timber pantry cedar
8 2400 x 5135 Stegbar, bi-fold patio door bi-fold metal living/dining aluminium
9 2040 x 820 Stegbar, internal door pocket timber bedroom 3 cedar
10
11
12 2040 x 720 pocket timber FF bathroom cedar
13 2040 x 1200 double swing timber linen cedar
14 2040 x 820 swing hinged timber master bedroom cedar
15 sliding metal master bedroom aluminium
16 2400 x 3685 Stegbar, bi-fold patio door bi-fold metal master bedroom aluminium
17 2040 x 720 Stegbar, internal door pocket timber W.I.R. cedar
18 2040 x 720 pocket timber FF ensuite cedar
19 2100 x 920 Stegbar, entry door swing hinged metal garage aluminium
20 220 x 5500 Sectional panel overhead garage door panel lift fiberglass garage black painted
2040 x 820 Stegbar, internal door pocket timber bedroom 2 cedar
2040 x 820 Stegbar, internal door pocket timber bedroom 1 cedar
Stegbar, internal door
Stegbar, internal door
Stegbar, internal door
Stegbar, patio door2400 x 1810
Stegbar, internal door
NEW WINDOW SCHEDULE
№ Size (h x w) Description Opening Frame material Location Frame finish
1 1800 x 850 Stegbar, CW 1808T casement metal home theatre aluminium
2
3 1540 x 1810 Stegbar, SW 1518 sliding metal office
4 1540 x 2650 sliding office
5 1800 x 2650 sliding kitchen/dining
6 600 x 730 awning GF ensuite
7 1800 x 850 awning staircase
8 600 x 850 fixed staircase aluminium
9 1200 x 2650 sliding bedroom 3
10
11
12 FF bathroom
13 600 x 1210 FF ensuite
14 2120 x 800 awning FF hallway
15 sliding garage aluminium
16 aluminium
1200 x 1810 sliding bedroom 2
bedroom 1
770 x 1810
1800 x 850 Stegbar, CW 1808T casement metal home theatre aluminium
aluminium
aluminium
aluminium
aluminium
aluminium
aluminium
aluminium
aluminium
aluminium
aluminium
aluminium
Stegbar, SW 1526
Stegbar, SW 1826T
Stegbar, AW 0607
Stegbar, AW 1808T
Stegbar, FW 0608
Stegbar, SW 1226
Stegbar, SW 1218
Stegbar, AW 0612
Stegbar, SL 2108
Stegbar, SW 0718
metal
metal
metal
metal
metal
metal
metal
metal
metal
metal
metal
metal
metal
1200 x 1810 slidingStegbar, SW 1218
600 x 850 awningStegbar, AW 0608
awning
sliding garage770 x 1810 Stegbar, SW 0718
For:
DRAWING NAME:
SCALE @ A3
SHEET No:MR. HARVIE
Lot 1446 Bardia Ave, Bardia New door & window schedule
02-17
For:
DRAWING NAME:
SCALE @ A3
SHEET No:MR. HARVIE
Lot 1446 Bardia Ave, Bardia 3D Views
02-18
For:
DRAWING NAME:
SCALE @ A3
SHEET No:MR. HARVIE
Lot 1446 Bardia Ave, Bardia 3D Views
02-19
For:
DRAWING NAME:
SCALE @ A3
SHEET No:MR. HARVIE
Lot 1446 Bardia Ave, Bardia 3D Views
02-20
KITCHEN / DINING MASTER BEDROOM
For:
DRAWING NAME:
SCALE @ A3
SHEET No:MR. HARVIE
Lot 1446 Bardia Ave, Bardia 3D Views
02-21
BEDROOM 1 OFFICE
GF HALLWAYKITCHEN / DINING / LIVING & BACKYARD

Architectural and drafting sample, residential house design, NSW

  • 1.
    AREAS SITE: GROUND FLOOR: FIRST FLOOR: GARAGE: PORCH: BALCONY: ALFRESCO: TOTAL: 358.0m 96.22 m 87.35 m 38.69 m 3.90 m 5.27 m 24.0 m 220.43 m 2 2 2 2 2 2 2 2 For: DRAWING NAME: SCALE @ A3 SHEET No:MR. HARVIE Lot 1446 Bardia Ave, Bardia BASIX 00-01 COMPLYING DEVELOPMENT 00-01 01-01 01-02 02-01 02-02 02-03 02-04 02-05 02-06 02-07 02-08 02-09 02-10 02-11 02-12 02-13 02-14 02-15 02-16 02-17 02-18 02-19 02-20 02-21 BASIX CONTOUR PLAN SITE PLAN FLOOR PLANS ROOF PLAN NORTH & SOUTH ELEVATIONS WEST & EAST ELEVATIONS GARAGE. PLANS GARAGE ELEVATIONS SECTIONS LANDSCAPE PLAN ELECTRICAL PLAN. GROUND FLOOR ELECTRICAL PLAN. FIRST FLOOR INTERNALS. KITCHEN INTERNALS INTERNALS INTERNALS GF & GARAGE WALL ELEVATIONS FF WALL ELEVATIONS NOTES 3D VIEWS 3D VIEWS 3D VIEWS 3D VIEWS CERTIFICATE NUMBER: 54456790
  • 2.
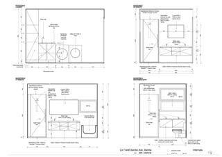
    BRALLOSSTR. BARDIA AVENUE BRICK RESIDENCE AWN 2STOREY BRICK RESIDENCE No:28 BOUNDARY BOUNDARY FRONT BOUNDARY BOUNDARY PIT 64.82 INV 63.42 W R W EBOX SIG N SIG N LP CONC. RET.WALL KERB SM H IP COMMS TKPIT64.03 INV62.60 TKPIT64.60 INV62.50 TKPIT64.62 INV63.17 SIG N CONCRETE CONCRETEROLLEDKERB TREETREE B O UNDARY LOT 1446 DP 1175994 358m² 8.015 69°49'20" LAPPED&CAPPEDPALINGFENCE 115° 15'20 " 160°20'40" 250°20'40" 340°20'40" 5 .6 5 26.5 12.015 30.415 SM H TR EE C C C SIG N SIG N LP 65 .12 65 .18 64 .80 64 .31 64 .42 64 .21 64.92 SM H IP N S N S N S NS N S N S VC TK TK P C P C 64 .76 64.75 64 .28 64 .47 64 .83 65.0465 .31 64 .85 64 .75 64.55 64 .44 64 .15 64 .06 N S N S 64 .86 65 .18 65 .44 65 C O M M S 64 .77 L.& C. P. F. HEAD 71.64 SILL 70.43 1ST FLOOR HEAD 71.63 SILL 71.03 1ST FLOOR HEAD 68.86 SILL 68.22 HEAD 68.87 SILL 67.07 H 68.01 S 66.89 H 68.01 S 66.89 H 68.02 S 67.16 ORN.FCE. R ID G E R ID G E G U T GUT G U T G U T G U T GUT N S N S N S N S N S N S N S NS N S N S N S TK TK 70 .17 74 .36 71.82 71.79 71.79 68 .20 68 .20 68.22 64 .86 64 .85 64 .79 64 .68 64 .55 64 .32 65 .55 65 .82 65.88 65 .62 65 .52 65 .44 64 .46 64 .73 64.5 65.5 BM D R ILLH O LE & W ING R.L. 64.03 (AH D) gate AHD BM C GUT INV NS LP RL TK VC LEGEND AUSTRALIAN HEIGHT DATUM BENCH MARK EDGE OF CONCRETE IP INSPECTION POINT TOP OF GUTTER INVERT OF PIT NATURAL SURFACE LIGHT POLE REDUCED LEVEL W WATER TOP OF KERB VEHICLE CROSSING SMH RW EBOX PC SEWER MANHOLE RECYCLED WATER COMMS TELECOMMUNICATIONS BOX ELECTRICITY BOX PRAM CROSSING CONCRETE HARD AREA APPROX GUTTER LINE For: DRAWING NAME: SCALE @ A3 SHEET No: 1 : 200MR. HARVIE Lot 1446 Bardia Ave, Bardia Contour Plan 01-01 NORTH
  • 3.
    BRALLOSSTR. BARDIA AVENUE 2-STOREYHOUSE 183.5sqm setback rear setback 24006220 1395 38.7 sqm GARAGE Driveway BRICK RESIDENCE AWN 2 STOREY BRICK RESIDENCE No:28 front setback BOUNDARY BOUNDARY FRONT BOUNDARY BOUNDARY PIT 64.82 INV 63.42 W R W EBOX SIG N SIG N LP CONC. RET.WALL KERB SM H IP COMMS TKPIT64.03 INV62.60 TKPIT64.60 INV62.50 TKPIT64.62 INV63.17 SIG N CONCRETE CONCRETEROLLEDKERB TREETREE B O UNDARY LOT1446 DP1175994 358m² KITCHEN LIVING DINING HOME THEATRE STUDY 8.015 69°49'20" LAPPED&CAPPEDPALINGFENCE 115° 15'20 " 160°20'40" 250°20'40" 340°20'40" 5 .6 5 26.5 12.015 30.415 (E1) EASEMENT TO DRAIN WATER 1.5M WIDE SM H articulation zone 7000 3000 P.O.S. ALFRESCO 24 sqm a/c hwu 6000 4500 setback TR EE 1500 15000 900 9115 2000 Porch Sitecoverageofalldevelopment =165.2m=46,1% baywindow firstfloorsetback 1450 1000 5500 2000 3650 2820 2645 AHD BM C GUT INV NS LP RL TK VC C C C SIG N SIG N LP 65 .12 65 .18 64 .80 64 .31 64 .42 64 .21 64.92 SM H IP N S N S N S NS N S N S VC TK TK P C P C 64 .76 64.75 64 .28 64 .47 64 .83 65.0465 .31 64 .85 64 .75 64.55 64 .44 64 .15 64 .06 N S N S 64 .86 65 .18 65 .4465 C O M M S 64 .77 L.& C. P. F. HEAD 71.64 SILL 70.43 1ST FLOOR HEAD 71.63 SILL 71.03 1ST FLOOR HEAD 68.86 SILL 68.22 HEAD 68.87 SILL 67.07 H 68.01 S 66.89 H 68.01 S 66.89 H 68.02 S 67.16 ORN.FCE. R ID G E R ID G E G U T GUT G U T G U T G U T GUT N S N S N S N S N S N S N S NS N S N S N S TK TK 70 .17 74 .36 71.82 71.79 71.79 68 .20 68 .20 68.22 64 .86 64 .85 64 .79 64 .68 64 .55 64 .32 65 .55 65 .82 65.88 65 .62 65 .52 65 .44 64 .46 64 .73 64.5 65.5 PAD 65.00 65.30 DECK 65.15 GF 65.15 retainingwall PAD PAD PAD LEGEND AUSTRALIAN HEIGHT DATUM BENCH MARK EDGE OF CONCRETE IP INSPECTION POINT PAD BM D R ILLH O LE & W ING R.L. 64.03 (AH D) TOP OF GUTTER INVERT OF PIT NATURAL SURFACE LIGHT POLE REDUCED LEVEL W WATER TOP OF KERB VEHICLE CROSSING 1500622028709004000104251500 SMH RW EBOX PC SEWER MANHOLE RECYCLED WATER COMMS TELECOMMUNICATIONS BOX ELECTRICITY BOX PRAM CROSSING CONCRETE HARD AREA APPROX GUTTER LINE PAD PROPOSED LAND PAD20209001080 5010 1000 2610 900 2495 PAD 65.00 2700 4750 1700 HOUSE PORCH GARAGE PATHWAY 1.8mfence RETAINING WALL 1.2mopenfence 1.2m open fence gate gate gate 2830 1.8m open fence hardwood fence hardwood fence RECYCLED WATER TAP 2 For: DRAWING NAME: SCALE @ A3 SHEET No: 1 : 200MR. HARVIE Lot 1446 Bardia Ave, Bardia Site Plan 01-02 NORTH
  • 4.
    CW 1808TCW 1808TSW 1518 BD 2451 SW1526 AW0607 820 720 820 820 920 720 L'DRY ENSUITE KITCHEN LIVING DINING HOME THEATRE OFFICE home theatre 4100 90 1100 90 office 3930 90 ALFRESCO PORCH 220 1700 pillar 1000 900 pillar 600 1280 220 1970 90 porch 2820 porch 1500 Section 2 02-07 Section 1 02-07 A/C HWU FFL0.000 North 02-03 East 02-04 West 02-04 South 02-03 820 FR SW1826T PANTRY 5 burner with in-built oven and exhaust microwave DW WMDRY 800 600 600 shelves shelves shelves kitchen/dining 4305 90 stairs 910 90 stairs 900 90 office 3600 220 9985 220 720 90 window 2650 90 36019001015 window 2650950 10425 ensuite 2500 90 6085 90 4100 90 entry 1400 90 office 2995 220 8675 220 950 850 600 850 1400 920 1260 1810 475 9115 510 9625 concrete pad 1200 90 deck 5910 90 flowerbed 1410 90 325 deck 4000 2200 concretepad 1800 250660 700 laundry 3705 90 2160 90 pantry 2630 90 3705 90 1430 90 kitchen bench 3360 220 kitchen/dining/living 8675 220 9115 690 3300 90 1705 90 1710 90 3000 220 9985 220 10425 1290 bi-fold door 5135 2690 950 window 850 600 window 850 1400 entry door 920 1260 window 1810 475 4245 window 730535 door 8204095 90016 risers @ 180mm 15 treads @ 260mm ceilingheight:2550 90 420 90 90 3560 flowerbed flowerbed flowerbed flowerbed 500 90 1310 2645 420 90 420 90 510 flowerbed 5925 90 860 flowerbed flowerbed 3910 90 90 820 90 D1 D2 D3 D4 D5 D7 D6 D8 W1 W2 W3 W4W5 W6 laminate laminate laminate laminate tiles tiles concrete polished concrete concrete laminate laminate fixedoutdoor clothesdryingline deck SW 1218 SW 1218 SW1226 AW1808T FW0608 SD2418 BD 2436 AW0608AW0612 820 820820 820 720 720 720 Section 2 02-07 Section 1 02-07 fall fall fall BED 2 ENSUITE WIR MASTER BED BED 3 BALCONY BED 1 FFL 2.850 ROBE LINEN ROBE BATH flowerbed ROBE timberpergola North 02-03 East 02-04 West 02-04 South 02-03 flowerbed 90 bedroom3 3445 90 900 90 stairs 910 90 stairs 900 90 3600 90 berroom2 4435 90 hallway 1900 90 masterbedroom 3600 90 1620 90 220 10115 90 700107010425 1070 brick 720 90 flowerbed 2650 90 brick 360 bathroom 1750 90 hallway 3085 90 stairs 3240 2430 900 16 risers @ 180mm 15 treads @ 260mm 50 80 balcony 1070 balcony 930 130 3100 90 balcony 5155 90 220 90 flowerbed 1520 90 roofing 900 100 220 flowerbed 1700 pillar 1000 2704301065 90 420 90 100 50 90 925 3445 90 900 90 1900 90 linen 500 90 3015 90 4435 90 3300 90 2205 220 9985 220 104251070700 90 ensuite 1750 90 W.I.R. / linen 1800 90 master bedroom 4525 90 90 8255 220 550 8565 505 950 window 26501540 windows 8501395 slidingdoor 18101100 3820 bi-fold door 3685 930 7065 window 8501040 window 1210 265 90 bedroom 1 2675 90 bedroom 2 2700 90 bedroom 3 2700 90 pergola 1800 650 pergola 6000 1785 90 230 50 230 50 230 50 230 50 230 50 230 50 230 50 230 50 230 50 230 50 230 50 230 50 230 50 230 50 230 50 230 50 230 50 230 50 230 50 230 50 220 90 bedroom 1 2875 90 bedroom 2 1900 90 bedroom 3 3300 500 500 500 500 1840 1540 1100 90 8255 220 550 8565 535 window 1810 770 window 1810 3510 500 500500 500 40 90 415 90 ceiling height: 2550 D9 W7/W8 D10D11 D12 D13 D14 D17 D18 D16 D15W9 W10W11 W12W13 laminate polished concrete tiles tiles laminate laminate laminate laminate laminate For: DRAWING NAME: SCALE @ A3 SHEET No: 1 : 100MR. HARVIE Lot 1446 Bardia Ave, Bardia Floor Plans 02-01 GROUND FLOOR PLAN FIRST FLOOR PLAN NORTH
  • 5.
    Section 2 02-07 Section 1 02-07 North 02-03 East 02-04 West 02-04 South 02-03 skylight parapetcapping roof at 5 degrees pitch roofing at 15 degrees pitch (first floor) pergola (first floor) balcony roof capping gutter W14 SL 2108 For: DRAWING NAME: SCALE @ A3 SHEET No: 1 : 100MR. HARVIE Lot 1446 Bardia Ave, Bardia Roof Plan 02-02 NORTH
  • 6.
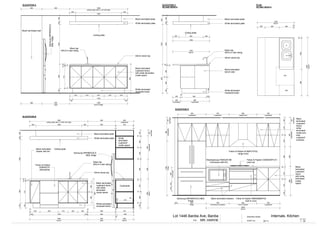
    Ground Floor 0.00065150 FirstFloor 2.85068000 Roof 5.70070850 NGL Building Top 6.55071700 lintel height 5.250 ceiling height / lintel 2.550 flowerbed top -0.200 wall capping 3.770 white painted timber stud wall face brickwork wooden cladding flowerbed top 3.050 porch ceiling 2.700 sill height 1.010 balcony roof capping 5.720 black painted timber stud wall black painted timber stud wall black painted wall D1 W1W2 W3 D16 black painted wall capping black painted capping sill height 0.750 28502850 850 white painted parapet capping black painted parapet capping balcony fence height 3.750 ceiling height 5.400 BOUNDARY BOUNDARY balcony ceiling height 5.615 fixed outdoor clothes drying line Ground Floor 0.000 65150 First Floor 2.850 68000 Roof 5.700 70850 NGL 520 Building Top 6.550 71700 85028502850 sill height 3.750 lintel height 4.950 ceiling height 5.400 flowerbed top -0.100 flowerbed top -0.200 wall capping 3.520 wall capping 3.070 wall capping 2.870 ceiling height 2.550 lintel height 2.400 BOUNDARY BOUNDARY D8 W10W11 A/C HWU pergola top 3.200 white painted timber stud wall black painted timber stud wall black painted timber stud wall black painted wall capping timver pergola white painted parapet capping black painted wall capping fixed outdoor clothes drying line Ground Floor 0.00065150 First Floor 2.85068000 Roof 5.70070850 Building Top 6.55071700 NGL ceiling height / lintel 2.550 flowerbed top -0.200 wall capping 3.770 white painted timber stud wall face brickwork wooden cladding flowerbed top 3.050 porch ceiling 2.700 sill height 1.010 balcony roof capping 5.720 black painted timber stud wall black painted timber stud wall black painted wall D1 W1W2 W3 black painted wall capping black painted capping sill height 0.750 28502850 850 aluminium external blinds black painted parapet capping balcony fence height 3.750 BOUNDARY BOUNDARY balcony ceiling height 5.615 fixed outdoor clothes drying line For: DRAWING NAME: SCALE @ A3 SHEET No: 1 : 100MR. HARVIE Lot 1446 Bardia Ave, Bardia North & South Elevations 02-03 NORTH ELEVATION SOUTH ELEVATION NORTH ELEVATION 2
  • 7.
    Ground Floor 0.00065150 First Floor 2.850 68000 Roof 5.700 70850 NGL 500 85028502850 Building Top 6.550 71700 BOUNDARY lintel height 4.650 pergola top 3.200 lintel height 5.200 sill height 4.600 sill height 4.050 wall capping 3.770 flowerbed top 3.050 balcony roof cappnig 5.720 porch ceiling height 2.700 lintel height 2.060 sill height 1.460 wall capping 3.070 roofing top 3.000 ceiling height 2.550 lintel height 2.040 ceiling height 5.400 black painted wallwhite painted parapet capping black painted parapet capping black painted downpipe black painted wall white painted wall capping white painted timber stud D6 A/C HWU W6 W12 W13 fixed outdoor clothes drying line Ground Floor 0.00065150 First Floor 2.85068000 Roof 5.70070850 NGL lintel height lintel height 5.250 lintel height 4.950 wall capping 3.520 wall capping 3.770 ceiling height 2.550 flowerbed top 3.050 flowerbed top -0.200 flowerbed top -0.100 sill height 3.750 sill height 2.850 sill height 0.750 sill height 1.010 porch ceiling height 2.700 W4W5 D15 W9 W7 W8 black painted wall white painted timber stud wall face brickwork face brickwork wooden cladding wooden cladding black painted timber stud wall brick foundation wall brick flowerbed wall chromed metal fence black painted timber stud wall white painted parapet capping black painted wall capping timber pergola black painted wall capping Building Top 6.55071700 balcony roof capping 5.720 850 28502850 ceiling height 5.400 BOUNDARY For: DRAWING NAME: SCALE @ A3 SHEET No: 1 : 100MR. HARVIE Lot 1446 Bardia Ave, Bardia West & East Elevations 02-04 WEST ELEVATION EAST ELEVATION
  • 8.
    Section 3 02-07 SW 0718SW 0718 GARAGE concrete 920 5500 360 garagedoor 5500360 110 6000 110 840 1810 door 920 1810 840 110 6000 110 6220 6220 ceiling height: 2550 North. Garage 02-06 East. Garage 02-06 South. Garage 02-06 West. Garage 02-06 flowerbed 90 2430 90 2610 90 660 750 D20 D19 W16W15 Section 3 02-07 North. Garage 02-06 fall gutter East. Garage 02-06 South. Garage 02-06 West. Garage 02-06 parapet capping For: DRAWING NAME: SCALE @ A3 SHEET No: 1 : 100MR. HARVIE Lot 1446 Bardia Ave, Bardia Garage. Plans 02-05 FLOOR PLAN ROOF PLAN NORTH
  • 9.
    Garage 0.00065300 Garage top3.37068670 flowerbed top 0.700 lintel height 2.100 sill height 1.330 NGL 3370 BOUNDARY D19 W16 W15 BOUNDARY ceiling height 2.550 face brickworkblack painted parapet capping Garage 0.00065300 Garage top 3.37068670 ceiling height 2.550 BOUNDARY BOUNDARY face brickworkblack painted parapet capping black painted downpipe NGL Garage 0.000 65300 ceiling height 2.550 BOUNDARY Garage top 3.370 68670 garage door height 2.200 flowerbed top 0.700 D20 3370 face brickworkblack painted parapet capping black painted downpipe Garage 0.00065300 Garage top 3.37068670 ceiling height 2.550 flowerbed top 0.700 face brickwork black painted parapet capping black painted downpipe BOUNDARY NGL 3370 lintel height 2.100 For: DRAWING NAME: SCALE @ A3 SHEET No: 1 : 100MR. HARVIE Lot 1446 Bardia Ave, Bardia Garage. Elevations 02-06 NORTH ELEVATION SOUTH ELEVATION EAST ELEVATION WEST ELEVATION
  • 10.
    Ground Floor 0.00065150 First Floor 2.850 68000 Roof 5.700 70850 Garage 0.00065300 85028502850 25502550 545 roof at 5 degrees pitch roof at 5 degrees pitchpergola KITCHEN BED 2 MASTERBED PORCH BALCONY flowerbed GARAGE skylight ALFRESCO NGL Building Top 6.550 71700 Garage top 3.37068670 3370 BOUNDARY BOUNDARY ceiling height 5.400 ceiling height 5.400 ceiling height 2.550 aluminium external blinds foundation to eng. spec foundation to eng. spec 900 ceiling height 2.550 2550 foundation to eng. spec foundation to eng. spec Ground Floor 0.000 65150 First Floor 2.850 68000 Roof 5.700 70850 BATH ENSUITE 28502850 flowerbed retaining wall roof at 5 degrees pitch skylight NGL Building Top 6.550 71700 BOUNDARY BOUNDARY ceiling height 5.400 ceiling height 2.550 foundation to eng. spec foundation to eng. spec 25502550 roofing at 15 degrees pitch Garage 0.00065300 460 NGL Garage top 3.37068670 BOUNDARY BOUNDARY 3370 ceiling height 2.550 foundation to eng. spec foundation to eng. spec 2550 For: DRAWING NAME: SCALE @ A3 SHEET No: 1 : 100MR. HARVIE Lot 1446 Bardia Ave, Bardia Sections 02-07 SECTION 1-1 SECTION 2-2 SECTION 3-3
  • 11.
    2-STOREY HOUSE (E1) EASEMENTTO DRAIN WATER 1.5M WIDE P.O.S. BRALLOSSTR. BARDIA AVENUE GARAGE symbol PLANTING LEGEND: code name size (hxw) type pot sizeqty BaM Backhousia Myrtifolia "Grey Myrtle" 7m h x 3m w 2 small native tree 25kg LcW Lomandra Confertifolia "Wingarra" 0.4m h x 0.4m w 35 clumping plants 150mm DcB Dianella Caerulea "Breeze" 0.7m h x 0.7m w 53 clumping plants 150mm AmA Agave "Americana" 7 shrub 200mm1m h x 1m w Alcantarea Imperialis Rubra Porch gate gate gate ALFRESCO BOUNDARY BOUNDARY FRONT BOUNDARY BOUNDARY B O UNDARY AcC Acacia cognata "River Wattle" 0.7m h x 0.7m w 3 small shrub 150mm AiR BaM BaM AcC DcB AiR DcB AmA LcW DcB AcC DcB LcW AiR DcB DcB shrub1m h x 1m w 200mm7 1000 1000500 3740 500 600 590 510 1590 500 750 500 500 285 6970 750 3510 4000 59251310 2060 3650 900 For: DRAWING NAME: SCALE @ A3 SHEET No: 1 : 200MR. HARVIE Lot 1446 Bardia Ave, Bardia Landscape Plan 02-08 NORTH
  • 12.
    L'DRY ENSUITE KITCHEN LIVING DINING HOME THEATRE ALFRESCO PORCH GARAGE A/C HWU 42 WATT/ 3000KINTERNAL LED DOWNLIGHT 15 WATT/ 3000K GARDEN STAND LIGHT HANGING LAMP STRIPLIGHT / INDIRECT LIGHT TYPE 1 LEGEND S P SPRINKLER POINT SMOKE DETECTOR SPEAKER STRIPLIGHT / INDIRECT LIGHT TYPE 2 S S R R TV D U/W LIGHT EXHAUST FAN SUPPLY AC LINIER SLOT DIFFUSER RETURM AC GRIL SGL P.POINT TO CEILING TV OUTLET DATA OUTLET TELEPHONE SOCKET SINGLE SWITCH DOUBLE SWITCH SINGLE POWER SOCKET OUTLET 15 WATT/ 3000K EXTERNAL LED DOWNLIGHT AFFL+1350 AFFL +2350 AFFL +4250 AFFL+1350 AFFL +1350 AFFL+1350 AFFL+1350 AFFL+1350 AFFL+1350 AFFL +1350 AFFL +1300 TV AFFL +1050 AFFL +1050 AFFL +650 AFFL+200 AFFL +1350 AFFL+200AFFL+200 AFFL+200 AFFL +200 AFFL +200 3000 3000 AFFL +1050 AFFL +200 WMDRY FR 5 burner with in-built oven and exhaust microwave DW 20WATT/ 3000K UP/DOWN WALL PILLAR LIGHT AFFL+650 DOUBLE POWER SOCKET OUTLET For: DRAWING NAME: SCALE @ A3 SHEET No: 1 : 100MR. HARVIE Lot 1446 Bardia Ave, Bardia Electrical Plan. Ground Floor 02-09 NORTH
  • 13.
    WIR MASTER BED BALCONY BED 1 BATH BED 2BED 3 AFFL+1050 AFFL+200 AFFL +1350 AFFL+1350 AFFL +1350 AFFL +200 AFFL +1350 (ground floor) AFFL+1350 AFFL+200 AFFL+200 AFFL+200 AFFL +1350 AFFL +1350 AFFL +1350 TV AFFL +1050 42 WATT/ 3000K INTERNAL LED DOWNLIGHT 15 WATT/ 3000K GARDEN STAND LIGHT HANGING LAMP STRIPLIGHT / INDIRECT LIGHT TYPE 1 LEGEND S P 20WATT/ 3000K UP/DOWN WALL PILLAR LIGHT SPRINKLER POINT SMOKE DETECTOR SPEAKER STRIPLIGHT / INDIRECT LIGHT TYPE 2 S S R R TV D U/W LIGHT EXHAUST FAN SUPPLY AC LINIER SLOT DIFFUSER RETURM AC GRIL SGL P.POINT TO CEILING TV OUTLET DATA OUTLET TELEPHONE SOCKET SINGLE SWITCH DOUBLE SWITCH 15 WATT/ 3000K EXTERNAL LED DOWNLIGHTROBE ROBE ROBE SINGLE POWER SOCKET OUTLET DOUBLE POWER SOCKET OUTLET LINEN AFFL +1050 For: DRAWING NAME: SCALE @ A3 SHEET No: 1 : 100MR. HARVIE Lot 1446 Bardia Ave, Bardia Electrical Plan. First Floor 02-10 NORTH
  • 14.
    2001001300800150 690 aisle 900 bench length 1905 White laminated recessedkicker Black laminated cupboard doors with white laminated inside space 40mm stone top 100 1705 100 Mixer tap WELS 4 star rating 40 15 15 715 15 370 375 375 375 375 200 1505 200 690 900 ceiling playe with 2 x 42 LED light 1905 Ceiling plate White laminated plate Black laminated plate 950 SamsungSRF680CDLS 680Lfridge Black laminated wall Ceiling plate White laminated plate Black laminated plate 40mm stone top Black laminated cupboard doors with white laminated inside space White laminated recessed kicker Mixer tap WELS 4 star ratingFisher & Paykel DD60DCX7 dishwasher Black laminated drawer with bin 100 1705 100 900 50 550 bench 1905 aisle 900 bench 600 ceiling plate with 2 x 42W LED light 1905 900 cupboards 600 200 1505 200 900 15 570 15 1508001300100200 15 320 600 315 320 320 15 900 15 570 15 40 15 15 715 15 150 950 350 15 350 Samsung SRF680CDLS 680L fridge White laminated cupboard' inside space Cupboards 150 15 360 15 370 40 650 15 360 15 360 15 185 bulkhead 185cupboards 765650 bench 950 20 510 20 Ceiling plate White laminated plate Black laminated plate 40mm stone top White laminated recessed kicker Mixer tap WELS 4 star rating Black laminated bench side 2001001300 40 15 365 15 365150 3001300950 250 50 800 100 overhang 250 cupboards 950 bench 1200 200 800 200 1200 Black laminated cupboard doors; white laminated inside and side cupboard' surfaces Black laminated cupboard doors with white laminated inside space Black laminated drawers Fisher & Paykel HC90PCHTX2 range hood Fisher & Paykel CG905DWFCX1 cook top Fisher & Paykel OB90S9MEPX2 built-in oven Samsung SRF680CDLS 680L fridge bulkhead 185cupboards 580 fridge 1785 185375 15 375650 40 375 15 370150 bulkhead 185cupboards 765650 bench 950 90 fridge 940 microwave & drawers 760 oven & drawer 900 cupboards 760 bench 2420 cupboards 925 cupboards 760 range hood 900 cupboards 760 microwave 465145145 Westinghouse WMG281SB microwave with trim DW bench 1905 bench 1200 250 465 465 20 8651020 20 BIN For: DRAWING NAME: SCALE @ A3 SHEET No: 1 : 25MR. HARVIE Lot 1446 Bardia Ave, Bardia Internals. Kitchen 02-11 ELEVATION A ELEVATION B ELEVATION C ISLAND BENCH ELEVATION D PLAN ISLAND BENCH
  • 15.
    Beko DV 7220X dryer Samsung WW8000 washing machine 950 150320 15 445 20 600 800 20 600 20 595 1070 150835 15 385 15 385 15 750 2550 20mm white laminated bench top White laminated cupboards Recessed kicker Mixer tap 1600900 4902000 60 CIBO 1500mm Element double basin vanityMarbletrend 900 x 900mm Ultralite™ shower base Marbletrend 900mm chrome flinders shower screen Adjustable shower rail with showerhead WELS 3 star rating Wall mixer tap Tucosi 600 x 750mm alloy frame mirror Mixer taps WELS 4 star rating 750 mirror 620380 vanity 430370 1000800 365 770 415 900 50 1500 50 CIBO 1500mm Element double basin vanityMarbletrend 900 x 900mm Ultralite™ Shower Base Forme 1380 x 700 x 20mm alloy mirror frame tucosi Mixer taps WELS 4 star rating Marbletrend 900mm chrome flinders shower screen Adjustable shower rail with showerhead WELS 3 star rating Wall mixer tap Caroma Marina 1700 white bath 750 mirror 700300200 bathtub 600 1950600 300430370 800 60 2000490 900 75 1500 80 745 W12 900 55 1200 50 602000490 200 window 600 mirror 500350 vanity 400500 Adjustable shower rail with showerhead WELS 3 star rating Wall mixer tap CIBO 1200mm seamless wall hung vanity with double basin CIBO 1200 x 500mm outline mirror Caroma Kari walled faced toilet suite WELS 4 star rating Mixer taps WELS 4 star rating W13 For: DRAWING NAME: SCALE @ A3 SHEET No: 1 : 25MR. HARVIE Lot 1446 Bardia Ave, Bardia Internals 02-12 ELEVATION E LAUNDRY ELEVATION G FF ENSUITE ELEVATION F GF ENSUITE ELEVATION H MASTERBED BATH
  • 16.
    500100600100500 300450450450450450 Black laminated bulkhead Blacklaminated cupboards 5 x Award 600 x 450mm diamond edge mirror panel 20 410 20 400 20 400 20 400 20 400 20 400 20 2550 20 400 20 200 20 200 20 400 20 400 20 400 20 390 20 2550 500800500 20 2100 20 390 20 Chromed metalhanger Black laminated cupboards 500 940 20 1035 20 500 2550 20 400225235400 20 400 20 400 20 390 20 20 8851000215 20 400 20 400 20 400 20 400 20 400 20 410 20 Chromed metalhanger Black laminated shelves Black laminated cupboard Black laminated bulkhead Black laminated drawers D17 20 400 20 400 20 400 20 400 20 400 20 410 20 2550 3002995635 Black laminated shelves For: DRAWING NAME: SCALE @ A3 SHEET No: 1 : 25MR. HARVIE Lot 1446 Bardia Ave, Bardia Internals 02-13 ELEVATION J W.I.R. ELEVATION K W.I.R. ELEVATION L W.I.R. ELEVATION N OFFICE SHELVES
  • 17.
    Black laminated slidingdoors 430 20 400 20 400 20 400 20 400 20 400 20 2550 920 920 1035 50 30 1000 30 970 20 Chromed metalhanger 2080 White laminated wardrobe' inside space White laminated side wall D11 1340 20 1340 2700 20 400 20 400 20 400 20 400 20 400 20 430 2550 20 970 30 1000 30 50 2080 Black laminated sliding doors Chromed metalhanger White laminated wardrobe' inside space 430 20 400 20 400 20 400 20 400 20 400 20 50 30 1000 30 970 20 2080 2550 495 495 500 Black laminated sliding doors Chromed metalhanger White laminated wardrobe' inside space Black laminated side wall Black laminated sliding doors 430 20 400 20 400 20 400 20 400 20 400 20 2550 1800 White painted shelves White painted back wall 550 20 400 20 280 20 341 20 80x80mm supporting wood pillar White painted shelves White painted side supporting wall 20 96080620 950980700 1631 For: DRAWING NAME: SCALE @ A3 SHEET No: 1 : 25MR. HARVIE Lot 1446 Bardia Ave, Bardia Internals 02-14 ELEVATION O BEDROOM 1 ELEVATION Q BEDROOM 2 ELEVATION P BEDROOM 3 ELEVATION S PANTRY ELEVATION R LINEN
  • 18.
    4100 3000 41003000 CW 1808T 820 pocket door CW 1808T 1800750 730 850 600 850 1070 1855 820 325 6001200 2100 white painted white painted white painted white painted HOME THEATRE 720 tiles tilestiles tiles 2500 1710 2500 1710 2550 4502100 495 720 495 GF ENSUITE 820 pocket door 2750 820 135 485 820 400 3705 1705 3705 1705 tiles tiles tiles tiles tiles 2150400 2550 LAUNDRY white painted white painted white painted white painted white painted OFFICE SW 1518 SW 1526 820 pocket door white painted black painted black painted whitepainted blackpainted blackpainted whitepainted whitepainted whitepainted 820 2995 590 635 2650 635 360 3295 1510 300 2090 930 1810 255 225 1865 15401010 15401010 4502100 vanity place 370 430 1750 950 1500 50 4906001460 45 730 935 AW 0607 shelvesplace shelves place shelves place shelvesplace ENTRY/HALLWAY & KITCHEN/DINING/LIVING 920 820 pocket door 720 KITCHEN DINING ENTRY PANTRY OFFICE DINING LIVING 820 pocket door 720 LIVING LIVING LAUNDRY ENSUITE 820 pocket door HOME THEATRE 1400 2000 300 1690 3385 900 3385 90 665 910 665 690 90 600 3360 4305 8675 3300 3795 1885 1205 1710 1600 3090 4502100 2100 1790760 2100 7501800 925 2650 730 95 720 95 1045 820 135 145 2340 900 2470 5135 1070 225 820 160 530 720 460 415 820 1855 white painted whitepainted whitepainted white painted white painted white painted white painted whitepainted whitepainted white painted white painted whitepainted blacklaminated blacklaminated whitepainted whitepainted white painted white painted white painted white painted white painted white painted white painted white painted white painted white painted BD 2451 SW 1826T 150 2400 SW 0718 SW 0718 920 glass door 5500 slim-line sectional garage door white painted white painted white paintedwhite painted white painted 6000 6000 6000 6000 4507701330 2100 2550 black painted 730 1810 920 1810 730 250 5500 250 GARAGE 275 staircase staircase 3502200 720 3705 910 3705 910 2550 1631 2550 2100450 white painted white painted white painted white painted PANTRY For: DRAWING NAME: SCALE @ A3 SHEET No: 1 : 100MR. HARVIE Lot 1446 Bardia Ave, Bardia GF & Garage Wall Elevations 02-15
  • 19.
    MASTER BEDROOM SD 2418BD2436 820 720 pocket door 4525 3600 4525 3600 3685 840 1010 1810 780 3595 820 110 2255 720 625 150 2400 4502100 2550 150 2400 white painted white painted whitepainted whitepainted whitepainted 4502100 W.I.R. 720 pocket door white painted 720 pocket door white painted white painted white painted 630 720 1665 1765 720 530 1800 3015 1800 3015 4502100 4502100 FF ENSUITE 720 pocket door tiles 1690 720 1750 3300 1750 3300 bathtub place bathtub place tiles tiles bathtub place vanity place AW 0608 745 945 720 890 975 1500 80 745 750600600600 3704301750 1950600 2550 tiles 1200 LINEN 4502100 820 MASTERBED staircase white painted fence wall FW 0608 AW1808T staircase 820 pocket door BED2 820 pocket door BED1 ENSUITE 720 pocket door 6415 1900 6415 1900 3175 3240 2200 300 1200 500 820 3595 525 850 525 2480 820 1070 820 300 820 995 720 290 white painted white painted white painted white painted FF HALLWAY 7052100 2805 3350 2805 2805 12506001800 300 FF FLOOR LEVEL 5° 5° 2550 black painted 4502100 820 pocket door wardrobe place white painted inside wardrobe blackpainted blackpainted white painted white painted SW 1218 white painted wardrobeplace 2875 900 200 3535 2675 4435 1840 105 820 110 420 1810 445 3935 500 4501200900 2550 2550 BEDROOM 1 blackpainted 820 pocket door white painted SW 1218 1900 990 600 3445 2700 3445 200 990 4501200900 2550 BEDROOM 2 white painted inside wardrobe white painted inside wardrobe wardrobeplace wardrobeplace wardrobeplace 110 820 470 500 500 2945 630 1810 260 white painted white painted whitepainted 2550 BEDROOM 3 820 pocket door BED3 820 pocket door SW 1226 3300 4435 2700 3535 600 900 wardrobe place white painted inside wardrobe wardrobeplace wardrobeplace white painted white painted white painted white painted whitepainted 820 2480 925 2650 360 500 500 3035 4501200900 4502100 MASTERBED' BATH 720 pocket door tiles tiles tiles 530 720 955 1750 2205 1750 2205 4502100 200 600 1750 955 1210 40 AW 0612 vanity place 500400850 960 1200 900 For: DRAWING NAME: SCALE @ A3 SHEET No: 1 : 100MR. HARVIE Lot 1446 Bardia Ave, Bardia FF Wall Elevations 02-16
  • 20.
    NEW DOOR SCHEDULE №Size (h x w) Description Opening Material Location Finish 1 2550 x 920 Stegbar, entry door with upper window swing hinged timber entry cedar 2 2040 x 820 Stegbar, internal door pocket timber office cedar 3 2040 x 820 Stegbar, internal door pocket timber home theatre cedar 4 2040 x 720 Stegbar, internal door swing hinged timber GF ensuite cedar 5 2040 x 820 Stegbar, internal door pocket timber laundry cedar 6 2040 x 820 Corinthian doors interblind exterior door swing hinged timber laundry white painted 7 2040 x 720 Stegbar, internal door swing hinged timber pantry cedar 8 2400 x 5135 Stegbar, bi-fold patio door bi-fold metal living/dining aluminium 9 2040 x 820 Stegbar, internal door pocket timber bedroom 3 cedar 10 11 12 2040 x 720 pocket timber FF bathroom cedar 13 2040 x 1200 double swing timber linen cedar 14 2040 x 820 swing hinged timber master bedroom cedar 15 sliding metal master bedroom aluminium 16 2400 x 3685 Stegbar, bi-fold patio door bi-fold metal master bedroom aluminium 17 2040 x 720 Stegbar, internal door pocket timber W.I.R. cedar 18 2040 x 720 pocket timber FF ensuite cedar 19 2100 x 920 Stegbar, entry door swing hinged metal garage aluminium 20 220 x 5500 Sectional panel overhead garage door panel lift fiberglass garage black painted 2040 x 820 Stegbar, internal door pocket timber bedroom 2 cedar 2040 x 820 Stegbar, internal door pocket timber bedroom 1 cedar Stegbar, internal door Stegbar, internal door Stegbar, internal door Stegbar, patio door2400 x 1810 Stegbar, internal door NEW WINDOW SCHEDULE № Size (h x w) Description Opening Frame material Location Frame finish 1 1800 x 850 Stegbar, CW 1808T casement metal home theatre aluminium 2 3 1540 x 1810 Stegbar, SW 1518 sliding metal office 4 1540 x 2650 sliding office 5 1800 x 2650 sliding kitchen/dining 6 600 x 730 awning GF ensuite 7 1800 x 850 awning staircase 8 600 x 850 fixed staircase aluminium 9 1200 x 2650 sliding bedroom 3 10 11 12 FF bathroom 13 600 x 1210 FF ensuite 14 2120 x 800 awning FF hallway 15 sliding garage aluminium 16 aluminium 1200 x 1810 sliding bedroom 2 bedroom 1 770 x 1810 1800 x 850 Stegbar, CW 1808T casement metal home theatre aluminium aluminium aluminium aluminium aluminium aluminium aluminium aluminium aluminium aluminium aluminium aluminium Stegbar, SW 1526 Stegbar, SW 1826T Stegbar, AW 0607 Stegbar, AW 1808T Stegbar, FW 0608 Stegbar, SW 1226 Stegbar, SW 1218 Stegbar, AW 0612 Stegbar, SL 2108 Stegbar, SW 0718 metal metal metal metal metal metal metal metal metal metal metal metal metal 1200 x 1810 slidingStegbar, SW 1218 600 x 850 awningStegbar, AW 0608 awning sliding garage770 x 1810 Stegbar, SW 0718 For: DRAWING NAME: SCALE @ A3 SHEET No:MR. HARVIE Lot 1446 Bardia Ave, Bardia New door & window schedule 02-17
  • 21.
    For: DRAWING NAME: SCALE @A3 SHEET No:MR. HARVIE Lot 1446 Bardia Ave, Bardia 3D Views 02-18
  • 22.
    For: DRAWING NAME: SCALE @A3 SHEET No:MR. HARVIE Lot 1446 Bardia Ave, Bardia 3D Views 02-19
  • 23.
    For: DRAWING NAME: SCALE @A3 SHEET No:MR. HARVIE Lot 1446 Bardia Ave, Bardia 3D Views 02-20 KITCHEN / DINING MASTER BEDROOM
  • 24.
    For: DRAWING NAME: SCALE @A3 SHEET No:MR. HARVIE Lot 1446 Bardia Ave, Bardia 3D Views 02-21 BEDROOM 1 OFFICE GF HALLWAYKITCHEN / DINING / LIVING & BACKYARD