1607
INFORMATION
4 STOREY HOUSE
CONTRACT
DOCUMENTATION
J & E STOREY
001
Title
Drawing Number Current Revision
All work to be in accordance with local
authority's building codes and standards,
The NCC/NZBC and all relevant and
current Aus/NZ Standards.
Verify all dimensions on site before
ordering materials or commencing
construction.
Contractor to notify architect immediately if
there are any discrepancies or errors in
the documentation.
Dimensions from stud for new
partitions/setout.
Dimensions from finished surface for all
existing partitions and for interior details,
joinery etc.
Drawings are design details only.
Contractor to provide shop drawings for
architects approval of all joinery elements
before commencing construction or
ordering materials. Provide finish samples
for architects approval before commencing
construction or ordering materials.
Do not scale off drawings. Use figured
dimensions only.
Status
Client
Project
Job Number
TRANSMITTAL,
REVISIONS & IMAGES
285 GOOCH STREET
THORNBURY VIC 3071 AUSTRALIA
Scale at A3
1:100, 1:1, 1:10
CheckedDrawn
JC JC
285 GOOCH STREET
THORNBURY VIC 3071 AUSTRALIA
REVISION DETAILS
ID DESCRIPTION DATE
A TENDER xx.xx.16
A
N
01
0001
4
HC
L4
L1
L2
L5
L6
01
1000
SL 2.800
FCL 2.800
RL 28.000
RL 28.000
RL 28.000
XEGL 28.000
NEGL 28.000
01
1001
01
1000
FFL 28.000
Level 01
door number
RL 28.000
Drawing number on
sheet.
Reference to sheet
that detail is drawn.
area or item revised
revision ID
window
number
P2BS1
S4B
P2B
L3
SD
EWIS
line of wall
line of wall
line of wall
G
CH
GRID REFERENCES
EXPRESSION OF LEVELS
Levels are shown in terms of Australian
Height Datum.
(AHD = 0)
All levels as per AS 110.301:1985
Reduced Level (plan view)
Existing Spot Level
New Spot Level
Finished Floor Level
For areas with carpet, vinyl, or
tiles, fixed directly to SL, and paint
finishes.
Structural Surface level.
For concrete work, SL includes all
concrete topping slabs and
levelling screeds.
Finished Ceiling Level
Reduced Level
(Section/Elevation view)
Existing External Ground
Level
New External Ground
Level
NORTH POINT
REFERENCE SYMBOLS
REVISION SYMBOLS
DRAWING ANNOTATION
DOORS AND WINDOWS
Refer to the floor plans and the Door and
Window Schedule for Door and Window
types, the rough opening sizes, finishes
and hardware.
1
DRAWING REFERENCE SYMBOLS
SECTION ELEVATION
DETAIL
(Reference to larger scale plan or detail)
Pendant LED
Downlight LED
Exhaust
Wall Lamp LED
LIGHTING
MECHANICAL
FIRE
Smoke Detector
Fire Sprinkler
EWIS Speaker
LEGENDS
Powerpoint & Light
Switch in wall
Hydronic Panel
HYDRAULIC
Core hole*
Gas connection
Hot & cold water supply
* GW - Greasy Waste
* TD - Tundish
* FW - Floor Waste
LED Strip light
NOTE:
1. D on symbol indicates dimmer
switch
2. X refers to nom height AFFL
3. All GPOs to be 10amp single phase
unless otherwise noted
All lamps to be warm white unless
otherwise noted
Electrical fitting colours:
W - White
B - Black
S - Stainless steel
All light circuits to be on separate
switches & dimmers and be connected
to 1 master switch on timer.
All GPOs to be on separate switch and
connected to master on timer.
Signage power supply to be on
separate switch and connected to
master on timer.
Powerpoint in wall
Light Switch in wall
ELECTRICAL
Note for Powerpoint Codes:
P = Powerpoint, 2 = Number of Gangs, B
= Colour (ie: B for Black, W for White & T
for Stainless Steel)
Note for Switch Codes:
S = Switch, 4 = Number of Switches, B =
Colour (ie: B for Black, W for White & T for
Stainless Steel)
Note for Powerpoint & SwitchCodes:
P = Powerpoint, 2 = Number of Gangs, B
= Colour (ie: B for Black, W for White & T
for Stainless Steel) S = Switch, 1 =
Number of Switches
Hose Cock
Spotlight LED
Floodlight LED
Sensor
ABBREVIATIONS BASED ON AS 1100:
AD Above Datum
Adj. Adjustable
Agg. Aggregate
Al. Aluminium
Alt. Alternate
AP Access Panel
APPR Approved
Approx. Approx
AS Australian Standard
B Bath
Bldg Building
BCA Building Code Australia
CAD Computer-Aided Drawing
CBI Coordinated Building Information
c/c Center to Center
CCTV Closed-Circuit Television
CHS Circular Hollow Section
CJ Construction Joint
Cnr. Corner
Code Building Code
COL. Column
CONC. Concrete
Corr. Corrugated
crs. Centers
DB Distribution Board
DH Double Hung
dia. Diameter
dim Dimension
DP Downpipe
DR Dry Riser
DW Dishwasher
dwg Drawing
EF Each Face
EW Each Way
EJ Expansion Joint
Ext External
Extg Existing
FA Fire Alarm
FAP Fire Alarm Panel
FCL Finished Ceiling Level
FE Fire Extinguisher
FF Fridge / Freezer
FFL Finished Floor Level
FG Fixed Glass
FH Fire Hydrant
FHR Fire Hose Reel
Fr. Freezer
FRR Fire Resistance Rating
FWG Floor Waste
GALV. Galvanised
GL Ground Level
GMS Galvanised Mild Steel
H Hosecock
HDG Hot Dipped Galvanised
horiz. Horizontal
horiz. Horizontal
ht height
HTR Heated Towel Rail
HWC Hot Water Cylinder
ID Internal Diameter
IJ Inspection Junction
Insul. Insulation
kg Kilogram
kW Kilowatt
max. Maximum
misc. Miscellaneous
m Metre
mm Millimetre
MS Mild Steel
MSB Main Switch Board
No. Number
Nom. Nominal
NTS Not To Scale
O/A Overall
O/H Overhead
OD Outside Diameter
OS Overall size
PFC Parallel Flange Channel
ply Plywood
PTN Partition
QTY Quantity
R Radius
rad. Radiator
Rad. Radiata
RC Reinforced Concrete
ref. Reference
reinf. Reinforcement
reqd. Required
RHS Rectangular Hollow Section
RL Reduced Level
RWH Rainwater Head
RWO Rainwater Outlet
RWS Rainwater Sump
S Sink
SC Sawcut Joint
SCHED Schedule
SL Structural Level
shwr. Shower
SHS Square Hollow Section
Sk Sketch
SP Soil Pipe
SPEC Specification
spr. Sprinkler
sqm Square Metre
SQ Square
SS Stainless Steel
SS. Soil Pipe / Sewer Pipe
SW. Stormwater Pipe
SWBD Switchboard
TA To Above
TB To Below
TBA To Be Advised
TBC To Be Confirmed
tub Laundry Tub
typ Typical
UB Universal Beam
UC Universal Column
U/G Underground
U/S Underside
Van U. Vanity Unit
vert. Vertical
W Watt
WC Water Closet (Toilet Pan)
WHB Wash Hand Basin
WM Washing Machine
NO.
001
1001
1002
1003
1004
1005
1006
1007
1008
1009
1010
1011
2001
2002
2003
3001
3002
3003
3004
3005
3006
3007
3008
3009
3010
5001
5002
6001
TYPE
INFORMATION
PLANS
PLANS
PLANS
PLANS
PLANS
PLANS
PLANS
PLANS
PLANS
PLANS
PLANS
SECTIONS & ELEVATIONS
SECTIONS & ELEVATIONS
SECTIONS & ELEVATIONS
INTERIOR DETAILS
INTERIOR DETAILS
INTERIOR DETAILS
INTERIOR DETAILS
INTERIOR DETAILS
INTERIOR DETAILS
INTERIOR DETAILS
INTERIOR DETAILS
INTERIOR DETAILS
INTERIOR DETAILS
DETAILS
DETAILS
DRAWN SCHEDULES
DRAWING
TRANSMITTAL, REVISIONS & IMAGES
DEMOLITION
PROPOSED SITE PLAN
GROUND FLOOR SETOUT
FIRST FLOOR SETOUT
GF GENERAL ARRANGEMENT
FF GENERAL ARRANGEMENT
SITE / ROOF
GF SERVICES & ELECTRICAL
FF SERVICES & ELECTRICAL
GF REFLECTED CEILING
FF REFLECTED CEILING
ELEVATIONS
ELEVATIONS
SECTIONS
KITCHEN / DINING
KITCHEN
KITCHEN
KITCHEN
KITCHEN
NOOK
LIVING
LIVING
LIVING
FF CIRCULATION
SECTIONS
SECTIONS
DOOR & WINDOW SCHEDULE
1011510
135155
10115
163
10115
WALL LINING
WALL LINING
SIP PANEL
BATTEN SPACING
WT1
EXTERNAL CLADDING - TYPE 1
INTERNAL LINING
WT3
SIP PANEL
BATTEN SPACING
WT2
EXTERNAL CLADDING - TYPE 2
INTERNAL LINING
BATTEN SPACING
VAPOR BARRIER
VAPOR BARRIER
SIP PANEL
DRAWING LIST
WALL TYPES
ABBREVIATIONS
N
1607
PLANS
4 STOREY HOUSE
CONTRACT
DOCUMENTATION
J & E STOREY
1001
Title
Drawing Number Current Revision
All work to be in accordance with local
authority's building codes and standards,
The NCC/NZBC and all relevant and
current Aus/NZ Standards.
Verify all dimensions on site before
ordering materials or commencing
construction.
Contractor to notify architect immediately if
there are any discrepancies or errors in
the documentation.
Dimensions from stud for new
partitions/setout.
Dimensions from finished surface for all
existing partitions and for interior details,
joinery etc.
Drawings are design details only.
Contractor to provide shop drawings for
architects approval of all joinery elements
before commencing construction or
ordering materials. Provide finish samples
for architects approval before commencing
construction or ordering materials.
Do not scale off drawings. Use figured
dimensions only.
Status
Client
Project
Job Number
DEMOLITION
285 GOOCH STREET
THORNBURY VIC 3071 AUSTRALIA
Scale at A3
1:200
CheckedDrawn
JC JC
285 GOOCH STREET
THORNBURY VIC 3071 AUSTRALIA
REVISION DETAILS
ID DESCRIPTION DATE
A TENDER xx.xx.16
A
CONCRETE DRIVEWAY
LIGHTPOLE
CONCRETE
PAVING
CAPPEDPICKET(1.2m)
PALING (1.68m)
PALING (1.63m)
No.287
470m„
13.4190°00'
35.05180°00'
13.41270°00'
35.050°00'
No.285
LOT5ONLP22727
SINGLESTOREY
WEATHERBOARD
DWELLING
GOOCHSTREET
CONCRETE
CROSSING
CONCRETE
CROSSING
CONCRETE
CROSSING
E-1
IN
V
52.90
IN
V
52.92
IN
V
52.91
IN
V
52.87
IN
V
52.75
IN
V
52.58BAC
K
53.04
BACKOFCONCRETEKERB
INVERTOFCONCRETEKERB
BACKOFCONCRETEKERB
INVERTOFCONCRETEKERB
G
UTTER
56.03
G
UTTER
56.60
G
UTTER
56.39
G
U
TTER
56.67
CH
IM
N
EY
TO
P
59.39
G
UTTER
56.71
G
UTTER
56.62
BAC
K
53.06
BAC
K
53.05
G
UTTER
56.51
G
U
TTER
55.92
G
UTTER
56.30
G
UTTER
56.51
G
UTTER
56.05
G
UTTER
55.80
G
UTTER
57.08
BA
CK
53.01
BAC
K
52.88
BAC
K
52.70
G
UTTER
56.08
W
ALL
TO
P
56.57
G
U
TTER
56.42
G
UTTER
55.72
G
UTTER
55.83
G
U
TTER
55.75
G
UTTER
56.62
G
UTTER
56.58
RID
G
E
58.84
RIDG
E
58.06
W
ALL
TO
P
56.55
W
A
LL
TO
P
55.58
R
IDG
E
59.24
W
ALL
TO
P
56.26
R
IDG
E
56.43
R
IDG
E
57.82
R
IDG
E
58.66
R
IDG
E
56.54
RID
G
E
58.67
RID
G
E
57.62
R
IDG
E
56.72
RID
G
E
56.55
R
IDG
E
56.64
PORCH
PORCH
PORCH
CUBBY
GALVANISED
IRONSHED
PERGOLA/PERGOLA
GALVANISED
IRONSHED
BRICKGARAGE
BRICKSTUDIO
SINGLESTOREY
WEATHERBOARD
DWELLING
No.283
SINGLESTOREY
WEATHERBOARD
DWELLING
No.328
SINGLESTOREY
WEATHERBOARD
DWELLING
PERGOLA
(ROSSMOYNEST)
FLR
LVL
54.04
FLR
LVL
53.98
53.0
53.0
53.5
53.5
53.5
53.44
53.43
53.40
53.37
53.42
53.36
53.35
53.43
53.51
53.59
53.56
53.68
53.64
53.65
53.69
53.12
53.28
53.48
53.47
53.51
53.49
53.54
53.54
53.35
53.52
53.56
53.62
53.68
53.66
53.56
53.67
53.49
53.51
53.48
53.50
53.47
53.44
53.60
53.69
GARDEN BED
SILL 54.88
TOP 55.88
TOP 55.99
SILL 54.83
TOP 55.41
SILL 54.47
TOP 55.54
SILL 53.30
SILL 55.39
TOP 56.36
TOP 56.28
SILL55.60
TOP56.21
TOP56.04
SILL55.00
SILL55.90
TOP56.38
TOP55.85
SILL55.04
SILL54.42
TOP55.86
SILL55.40
TOP55.97
WNHW
NHW
W
NHW
W
W
NHW
WW/DOOR
W/DOORW
6.10
1.09
3.07
6.12
1.21
6.14
1.40
PALING (1.63m)
PALING(1.65m)+
SCREEN(0.5m)
LAWN
SHADE
SAIL
PRIVATEOPENSPACE
PRIVATEOPENSPACE
PRIVATEOPENSPACE
LAWN
CONCRETE
PAVING
CONCRETE PATH
CONCRETEPAVEDPATIO
1
2
3
4
6
5
7
8
9
PALING (1.68m)
PICKET(1.36m)WOVENWIRE(0.63m)
NOT
FENCED
CONCRETEFOOTPATHCONCRETEFOOTPATH
TBMRIVET
RL=53.08AHD
CONCRETE DRIVEWAY
CONCRETE DRIVEWAY
1
1:200
PLAN DEMOLITION
N
1607
PLANS
4 STOREY HOUSE
CONTRACT
DOCUMENTATION
J & E STOREY
1002
Title
Drawing Number Current Revision
All work to be in accordance with local
authority's building codes and standards,
The NCC/NZBC and all relevant and
current Aus/NZ Standards.
Verify all dimensions on site before
ordering materials or commencing
construction.
Contractor to notify architect immediately if
there are any discrepancies or errors in
the documentation.
Dimensions from stud for new
partitions/setout.
Dimensions from finished surface for all
existing partitions and for interior details,
joinery etc.
Drawings are design details only.
Contractor to provide shop drawings for
architects approval of all joinery elements
before commencing construction or
ordering materials. Provide finish samples
for architects approval before commencing
construction or ordering materials.
Do not scale off drawings. Use figured
dimensions only.
Status
Client
Project
Job Number
PROPOSED SITE PLAN
285 GOOCH STREET
THORNBURY VIC 3071 AUSTRALIA
Scale at A3
1:200
CheckedDrawn
JC JC
285 GOOCH STREET
THORNBURY VIC 3071 AUSTRALIA
REVISION DETAILS
ID DESCRIPTION DATE
A TENDER xx.xx.16
A
UP
UP
UP
1030
15 010
12340
1810
4 255 3 635 5 030
105311810
1030
3 605
6 160
0.000 FL
53.700
COU R TYA RD
OU TDOOR D IN ING
SU NKE N COU R TY ARD
DE CK
BUILT-INSEAT
LAW N
FRON T L AWN
FOOTPATH
D EC K
SIDE PATH
DRI VEWA Y
285 GOOCH STREET
THORNBURY VIC 3071
PROPOSED 4 STOREY
BUILDING
ENTRY
GATE
FOOT PA TH
BUILT-INSEATBUILT-INSEAT
ADJACE NT D WE LLING
283 GO OC H STR EE T
ADJA CENT DWELLING
287 G OO CH S TRE ET
AD JA CE NT
DWE LLING
328
R O S S MO Y N
E STRE ET
CLOTHES LINE
PRODUCTIVE
GARDE N
RAIN WATER TANK S
10,000L CAPACITY
(Tankworks Modline)
GOOCHSTREET
ADJACE NT D WE LLING
283 GO OC H STR EE T
ADJA CENT DWELLING
287 G OO CH S TRE ET
AD JA CE NT
DWE LLING
328
R O S S MO Y N
E STRE ET
PA LING FENCE
PA LING FENCE
PALINGFENCE
1
1:200
PLAN SITE
N
1607
PLANS
4 STOREY HOUSE
CONTRACT
DOCUMENTATION
J & E STOREY
1003
Title
Drawing Number Current Revision
All work to be in accordance with local
authority's building codes and standards,
The NCC/NZBC and all relevant and
current Aus/NZ Standards.
Verify all dimensions on site before
ordering materials or commencing
construction.
Contractor to notify architect immediately if
there are any discrepancies or errors in
the documentation.
Dimensions from stud for new
partitions/setout.
Dimensions from finished surface for all
existing partitions and for interior details,
joinery etc.
Drawings are design details only.
Contractor to provide shop drawings for
architects approval of all joinery elements
before commencing construction or
ordering materials. Provide finish samples
for architects approval before commencing
construction or ordering materials.
Do not scale off drawings. Use figured
dimensions only.
Status
Client
Project
Job Number
GROUND FLOOR
SETOUT
285 GOOCH STREET
THORNBURY VIC 3071 AUSTRALIA
Scale at A3
1:100
CheckedDrawn
JC JC
285 GOOCH STREET
THORNBURY VIC 3071 AUSTRALIA
REVISION DETAILS
ID DESCRIPTION DATE
A TENDER xx.xx.16
A
UP
UP
UP
UP
UP
125 6 975 135 6 521 125
6 160 13 880 15 010
3 675 230 11 105
125550013547201351675125
104051251810
10301234040
125 3 880 135 1 025
135 50
135 8 320
125 4 005 125 3 635 135 4 780 125
960 4 255 3 635 5 030
83911351755125
12512091125
46951251550
1 340
135
3 560
53 700
53 400
53 400
53 400
53 400
53 680
53680
53 700
53 400
53 700
p a v i n g
1stflooro/h
P A L I N G F E N C E
P A L I N G F E N C E
D P
D P
1 2 3 4 5 6 7 8 9 10 11 12 13 14 15 16 17
1
1:100
PLAN GROUND FLOOR SETOUT
N
1607
TENDER
PLANS
4 STOREY HOUSE
1004
Drawing Number Current Revision
Status
Job Number
FIRST FLOOR SETOUT
Scale at A3
1:100
A
J & E STOREY
Title
Client
Project
285 GOOCH STREET
THORNBURY VIC 3071 AUSTRALIA
285 GOOCH STREET
THORNBURY VIC 3071 AUSTRALIA
UP
125 4 205 135 2 455 135 1 665 135 1 275 135 3 460
135 4 370 135 4 545 135 3 460 135
1 000 12 880 1 600
1 400
135
2 720
6 160 15 480 2 305 11 105
350013512901351000
1575
135
4350
12530301352895125
125409563101840
1030105301850
1256060125
525163101850
52818260
125 13 630 125
6 160 13 880 3 910 11 105
56 900
56900
56900
56 70056 700
57 350
56 410
56 900
RO O F
BE LO W
RO O F
BELO W
A
W
N
IN
G
B
E
LO
W
PERGOLABELOW
CO URT YARD
BEL O W
1 2 3 4 5 6 7 8 9 10 11 12 13 14 15 16 17
1
1:100
PLAN FIRST FLOOR SETOUT
N
1607
PLANS
4 STOREY HOUSE
CONTRACT
DOCUMENTATION
J & E STOREY
1005
Title
Drawing Number Current Revision
All work to be in accordance with local
authority's building codes and standards,
The NCC/NZBC and all relevant and
current Aus/NZ Standards.
Verify all dimensions on site before
ordering materials or commencing
construction.
Contractor to notify architect immediately if
there are any discrepancies or errors in
the documentation.
Dimensions from stud for new
partitions/setout.
Dimensions from finished surface for all
existing partitions and for interior details,
joinery etc.
Drawings are design details only.
Contractor to provide shop drawings for
architects approval of all joinery elements
before commencing construction or
ordering materials. Provide finish samples
for architects approval before commencing
construction or ordering materials.
Do not scale off drawings. Use figured
dimensions only.
Status
Client
Project
Job Number
GF GENERAL
ARRANGEMENT
285 GOOCH STREET
THORNBURY VIC 3071 AUSTRALIA
Scale at A3
1:100
CheckedDrawn
JC JC
285 GOOCH STREET
THORNBURY VIC 3071 AUSTRALIA
REVISION DETAILS
ID DESCRIPTION DATE
A TENDER xx.xx.16
A
D17
D14D15
D18
W01
D02
W01
D13
D07
D08
D04
D03
D16
D10
D09
D12D11
D05
D06
D01
UP
UP
UP
UP
UP
700 1 175 1 100
4600
960 4 255 2 005 450 1 180 5 030
5 200 900 2 860 450 3 320 450 700
350500021602896125
110
900500300
8703313138410021101360450
1 699 900 960
9004600
265
760
710500600
1039910
1755
1
2003
1
2003
2
2003
2
2003
1
2001
2
2002
1
2002
2
2001
MF001
CEQ16
EQ021
CEQ12
EQ001
EQ006
CEQ17
EQ005
EQ002 EQ002
MF001
MF009
MF001
MF001
MF001
MF001
MF009
MF010MF010
MF010
MF010
CEQ22
EQ013
EQ018
EQ019
EQ020
BUILT-INSEATBUILT-INSEATBUILT-INSEAT
F r
0 . 0 0 0 F L
G A R A G E
F I L M R O O M
E N T R Y
KITCHEN
DINING
F r
butler's
pantry
pantry
L I V I N G
S T Y D Y
b u l k h e a d o / h
s e a t w / s t o r a g e
C O U R T Y A R D
p a v i n g
S U N K E N
C O U R T Y A R D
O U T D O O R
D I N I N G
1stflooro/h
D E C K
D E C K
workbench
storage
-0.300RL
- 0 . 3 0 0 R L
P A L I N G F E N C E
P A L I N G F E N C E
PALINGFENCE
D P
D P
CT
D W
1 2 3 4 5 6 7 8 9 10 11 12 13 14 15 16 17
WT03
WT03
WT01
WT02
WT01
WT01
WT02
WT01
WT02
WT02
WT01
WT01
WT03
WT03
WT03
WT01
WT03
ADJACENT DWELLING
283 GOOCH STREET
ADJACENT DWELLING
287 GOOCH STREET
RO SS M OY N
Notes
EQUIPMENT BY CLIENT
BBQ - Built-inCEQ12
Refer to Finishes & Fixtures Schedule
Dining Table - InsideCEQ16
Refer to Finishes & Fixtures Schedule
Dining Table - outsideCEQ17
Refer to Finishes & Fixtures Schedule
SofaCEQ22
Refer to Finishes & Fixtures Schedule
EQUIPMENT1 BY CONTRACTOR
Freestanding FireplaceEQ001
Refer to Finishes & Fixtures Schedule
Rainwater TankEQ002
Refer to Finishes & Fixtures Schedule
Basin - Wall outlet -1EQ005
Refer to Finishes & Fixtures Schedule
Toilet PanEQ006
Refer to Finishes & Fixtures Schedule
BasinEQ013
Refer to Finishes & Fixtures Schedule
In-Built CabinetsEQ018
Refer to Finishes & Fixtures Schedule
In-Built CabinetsEQ019
Refer to Finishes & Fixtures Schedule
In-Built CabinetsEQ020
Refer to Finishes & Fixtures Schedule
Island BenchEQ021
Refer to Finishes & Fixtures Schedule
MF MATERIALS & FINISHES
Concrete SlabMF001
Refer to Finishes & Fixtures Schedule.
Timber DeckingMF009
Refer to Finishes & Fixtures Schedule.
PavingMF010
Refer to Finishes & Fixtures Schedule.
1
1:100
PLAN GF GENERAL ARRANGEMENT
N
1607
PLANS
4 STOREY HOUSE
CONTRACT
DOCUMENTATION
J & E STOREY
1006
Title
Drawing Number Current Revision
All work to be in accordance with local
authority's building codes and standards,
The NCC/NZBC and all relevant and
current Aus/NZ Standards.
Verify all dimensions on site before
ordering materials or commencing
construction.
Contractor to notify architect immediately if
there are any discrepancies or errors in
the documentation.
Dimensions from stud for new
partitions/setout.
Dimensions from finished surface for all
existing partitions and for interior details,
joinery etc.
Drawings are design details only.
Contractor to provide shop drawings for
architects approval of all joinery elements
before commencing construction or
ordering materials. Provide finish samples
for architects approval before commencing
construction or ordering materials.
Do not scale off drawings. Use figured
dimensions only.
Status
Client
Project
Job Number
FF GENERAL
ARRANGEMENT
285 GOOCH STREET
THORNBURY VIC 3071 AUSTRALIA
Scale at A3
1:100
CheckedDrawn
JC JC
285 GOOCH STREET
THORNBURY VIC 3071 AUSTRALIA
REVISION DETAILS
ID DESCRIPTION DATE
A TENDER xx.xx.16
A
D20D20
D27 D27
D22D22
D26
UP
1
2003
1
2003
2
2003
2
2003
1
2001
2
2002
1
2002
2
2001
32902420475125
125240012602400125
697 800 1 935 800 1 910 800 1 085 450 720 955 1 150 650 3 530
9 116 400 1 774 400 3 791
9001525
435 900 900 900 435
10269001359002100
675900
1050
MF008
MF008
MF008
MF008
MF008
MF009
MF009
MF011
MF011
MF007
MF012
CEQ19
CEQ20
CEQ20
CEQ20
EQ006
EQ008
EQ007
EQ006
EQ012
EQ009
EQ010
EQ011
CEQ23
RO O F
BEL O W
RO O F
BELO W
A
W
N
IN
G
B
E
LO
W
PERGOLABELOW
+ 3 . 2 0 0 F L
ROBE
ROBEROBE
RO B E
CO URT YARD
BELO W
M A S T E R B E D
E N S U I T E
B E D 4
ROBE
B A T H
C I R C U L A T I O N
B E D 3
B E D 2
BALCONY
BALCONY
R O O F G A R D E N
p a v e r s
p a v e r s
1 2 3 4 5 6 7 8 9 10 11 12 13 14 15 16 17
D23D24
D25
D21D25
D25
D19D19
D28
D27
WT03
WT02
WT03
WT03
WT03
WT03
WT03
WT03
WT03
WT02
WT02
ADJACENT DWELLING
283 GOOCH STREET
ADJACENT DWELLING
287 GOOCH STREET
Notes
EQUIPMENT BY CLIENT
Bed - 1CEQ19
Refer to Finishes &
Fixtures Schedule
Bed - 2CEQ20
Refer to Finishes &
Fixtures Schedule
CouchCEQ23
Refer to Finishes &
Fixtures Schedule
EQUIPMENT1 BY
CONTRACTOR
Toilet PanEQ006
Refer to Finishes &
Fixtures Schedule
BathtubEQ007
Refer to Finishes &
Fixtures Schedule
Shower - Rail TypeEQ008
Refer to Finishes &
Fixtures Schedule
Shower - CabinEQ010
Refer to Finishes &
Fixtures Schedule
Basin - Wall outlet -2EQ011
Refer to Finishes &
Fixtures Schedule
Basin - Wall outlet -3EQ012
Refer to Finishes &
Fixtures Schedule
MF MATERIALS & FINISHES
Green RoofMF007
Refer to Finishes &
Fixtures Schedule.
Recycled TimberMF008
Refer to Finishes &
Fixtures Schedule.
Timber DeckingMF009
Refer to Finishes &
Fixtures Schedule.
Tile - 1MF011
Refer to Finishes &
Fixtures Schedule.
Polycarbonate /
Translucent Roofing
MF012
Refer to Finishes &
Fixtures Schedule
1
1:100
PLAN FF GENERAL ARRANGEMENT
N
1607
PLANS
4 STOREY HOUSE
CONTRACT
DOCUMENTATION
J & E STOREY
1007
Title
Drawing Number Current Revision
All work to be in accordance with local
authority's building codes and standards,
The NCC/NZBC and all relevant and
current Aus/NZ Standards.
Verify all dimensions on site before
ordering materials or commencing
construction.
Contractor to notify architect immediately if
there are any discrepancies or errors in
the documentation.
Dimensions from stud for new
partitions/setout.
Dimensions from finished surface for all
existing partitions and for interior details,
joinery etc.
Drawings are design details only.
Contractor to provide shop drawings for
architects approval of all joinery elements
before commencing construction or
ordering materials. Provide finish samples
for architects approval before commencing
construction or ordering materials.
Do not scale off drawings. Use figured
dimensions only.
Status
Client
Project
Job Number
SITE / ROOF
285 GOOCH STREET
THORNBURY VIC 3071 AUSTRALIA
Scale at A3
1:100
CheckedDrawn
JC JC
285 GOOCH STREET
THORNBURY VIC 3071 AUSTRALIA
REVISION DETAILS
ID DESCRIPTION DATE
A TENDER xx.xx.16
A
1
2003
1
2003
2
2003
2
2003
1
2001
2
2002
1
2002
2
2001
6 125 15 495 13 435
7 095 4 315 3 575 5 100 1 485 50 2 280 50 11 105
5186322032201785
16030027602760300160
99014040566440177510
5091335820
35
813
50
813
35
820
35
83850153250148350148350153550180050
105305808510
6 120 130 13 720 70 3 855 50 11 105
Pergola with
opportunity to install
sail shades and
retractabale awning.
MF012
MF007
MF013 MF013
Pergola with
opportunity to install
sail shades and
retractabale awning.
Pergola with
opportunity to install
sail shades and
retractabale awning
Rainwater Head + Downpipe
Rainwater Head + Downpipe
MF014
MF014
C O U R T Y A R D B E L O W
V O I D
V O I D
V O I D
V O I D
V O I D
A
W
N
IN
G
B
E
L
O
W
B O X G U T T E R m i n 1 : 1 0 0 F A L L
B O X G U T T E R m i n 1 : 1 0 0 F A L L
C O U R T Y A R D B E L O WC O U R T Y A R D B E L O W
FRONTLAWNBELOWDRIVEWAYBELOW
L A W N B E L O W
FALL30o
FLAT
FALL30o
FLAT
FLATFLAT
Notes
MF MATERIALS & FINISHES
Green RoofMF007
Refer to Finishes &
Fixtures Schedule.
Polycarbonate /
Translucent Roofing
MF012
Refer to Finishes &
Fixtures Schedule
Roofing MembraneMF013
Refer to Finishes &
Fixtures Schedule
Roof Sheeting -
Colorbond
MF014
Refer to Finishes &
Fixtures Schedule
1
1:100
PLAN SITE / ROOF
N
1607
PLANS
4 STOREY HOUSE
CONTRACT
DOCUMENTATION
J & E STOREY
1002
Title
Drawing Number Current Revision
All work to be in accordance with local
authority's building codes and standards,
The NCC/NZBC and all relevant and
current Aus/NZ Standards.
Verify all dimensions on site before
ordering materials or commencing
construction.
Contractor to notify architect immediately if
there are any discrepancies or errors in
the documentation.
Dimensions from stud for new
partitions/setout.
Dimensions from finished surface for all
existing partitions and for interior details,
joinery etc.
Drawings are design details only.
Contractor to provide shop drawings for
architects approval of all joinery elements
before commencing construction or
ordering materials. Provide finish samples
for architects approval before commencing
construction or ordering materials.
Do not scale off drawings. Use figured
dimensions only.
Status
Client
Project
Job Number
PROPOSED SITE PLAN
285 GOOCH STREET
THORNBURY VIC 3071 AUSTRALIA
Scale at A3
1:200
CheckedDrawn
JC JC
285 GOOCH STREET
THORNBURY VIC 3071 AUSTRALIA
REVISION DETAILS
ID DESCRIPTION DATE
A TENDER xx.xx.16
A
UP
UP
UP
1030
15 010
12340
1810
4 255 3 635 5 030
105311810
1030
3 605
6 160
0.000 FL
53.700
COU R TYA RD
OU TDOOR D IN ING
SU NKE N COU R TY ARD
DE CK
BUILT-INSEAT
LAW N
FRON T L AWN
FOOTPATH
D EC K
SIDE PATH
DRI VEWA Y
285 GOOCH STREET
THORNBURY VIC 3071
PROPOSED 4 STOREY
BUILDING
ENTRY
GATE
FOOT PA TH
BUILT-INSEATBUILT-INSEAT
ADJACE NT D WE LLING
283 GO OC H STR EE T
ADJA CENT DWELLING
287 G OO CH S TRE ET
AD JA CE NT
DWE LLING
328
R O S S MO Y N
E STRE ET
CLOTHES LINE
PRODUCTIVE
GARDE N
RAIN WATER TANK S
10,000L CAPACITY
(Tankworks Modline)
GOOCHSTREET
ADJACE NT D WE LLING
283 GO OC H STR EE T
ADJA CENT DWELLING
287 G OO CH S TRE ET
AD JA CE NT
DWE LLING
328
R O S S MO Y N
E STRE ET
PA LING FENCE
PA LING FENCE
PALINGFENCE
1
1:200
PLAN SITE
N
1607
PLANS
4 STOREY HOUSE
CONTRACT
DOCUMENTATION
J & E STOREY
1009
Title
Drawing Number Current Revision
All work to be in accordance with local
authority's building codes and standards,
The NCC/NZBC and all relevant and
current Aus/NZ Standards.
Verify all dimensions on site before
ordering materials or commencing
construction.
Contractor to notify architect immediately if
there are any discrepancies or errors in
the documentation.
Dimensions from stud for new
partitions/setout.
Dimensions from finished surface for all
existing partitions and for interior details,
joinery etc.
Drawings are design details only.
Contractor to provide shop drawings for
architects approval of all joinery elements
before commencing construction or
ordering materials. Provide finish samples
for architects approval before commencing
construction or ordering materials.
Do not scale off drawings. Use figured
dimensions only.
Status
Client
Project
Job Number
FF SERVICES &
ELECTRICAL
285 GOOCH STREET
THORNBURY VIC 3071 AUSTRALIA
Scale at A3
1:100
CheckedDrawn
JC JC
285 GOOCH STREET
THORNBURY VIC 3071 AUSTRALIA
REVISION DETAILS
ID DESCRIPTION DATE
A TENDER xx.xx.16
A
D20D20
D27 D27
D22D22
D26
UP
HC
P2W/1.2
2
P2W/1.2
2
P2W/0.3
2
P2W/0.3
2
P2W/0.3
2
P2W/0.3
2
P2W/0.3
2
P2W/0.3
2
P2W/0.3
2
WP/0.3
WP/0.3
WP/0.3
WP/0.3
Hydronic Heating -
Slab and Panels
D P
D P
S D
1 2 3 4 5 6 7 8 9 10 11 12 13 14 15 16 17
D23D24
D25
D21D25
D25
Ph+Data/0.3
P
Ph+Data/0.3
P
Ph+Data/0.3
P
Ph+Data/0.3
P
D19D19
D28
D27
4
P2BS1
S4B
P2B
line of wall
line of wall
line of wall
Powerpoint & Light
Switch in wall
Powerpoint in wall
Light Switch in wall
ELECTRICAL
Note for Powerpoint Codes:
P = Powerpoint, 2 = Number of Gangs, B
= Colour (ie: B for Black, W for White & T
for Stainless Steel)
Note for Switch Codes:
S = Switch, 4 = Number of Switches, B =
Colour (ie: B for Black, W for White & T for
Stainless Steel)
Note for Powerpoint & SwitchCodes:
P = Powerpoint, 2 = Number of Gangs, B
= Colour (ie: B for Black, W for White & T
for Stainless Steel) S = Switch, 1 =
Number of Switches
HC
Exhaust
MECHANICAL
Hydronic Panel
Hose Cock
G
CH
HYDRAULIC
Core hole*
Gas connection
Hot & cold water supply
* GW - Greasy Waste
* TD - Tundish
* FW - Floor Waste
NOTE:
1. D on symbol indicates dimmer
switch
2. X refers to nom height AFFL
3. All GPOs to be 10amp single phase
unless otherwise noted
All lamps to be warm white unless
otherwise noted
Electrical fitting colours:
W - White
B - Black
S - Stainless steel
All light circuits to be on separate
switches & dimmers and be connected
to 1 master switch on timer.
1
1:100
PLAN FF SERVICES & ELECTRICAL
N
1607
PLANS
4 STOREY HOUSE
CONTRACT
DOCUMENTATION
J & E STOREY
1010
Title
Drawing Number Current Revision
All work to be in accordance with local
authority's building codes and standards,
The NCC/NZBC and all relevant and
current Aus/NZ Standards.
Verify all dimensions on site before
ordering materials or commencing
construction.
Contractor to notify architect immediately if
there are any discrepancies or errors in
the documentation.
Dimensions from stud for new
partitions/setout.
Dimensions from finished surface for all
existing partitions and for interior details,
joinery etc.
Drawings are design details only.
Contractor to provide shop drawings for
architects approval of all joinery elements
before commencing construction or
ordering materials. Provide finish samples
for architects approval before commencing
construction or ordering materials.
Do not scale off drawings. Use figured
dimensions only.
Status
Client
Project
Job Number
GF REFLECTED
CEILING
285 GOOCH STREET
THORNBURY VIC 3071 AUSTRALIA
Scale at A3
1:100
CheckedDrawn
JC JC
285 GOOCH STREET
THORNBURY VIC 3071 AUSTRALIA
REVISION DETAILS
ID DESCRIPTION DATE
A TENDER xx.xx.16
A
S1W/1.2
S3W/1.2
3
S1W/1.2
S2/1.2
2
S1W/0.75
S1W/1.2
S2/1.2 2
S1W/1.2
S2/1.2
2
S3W/1.2
3
S1W/1.2S1W/1.2
S2/1.2
2
S2/1.2
2
S1W/1.2
S3W/1.2
3
L2 L2
L2 L2
L2 L2
L2 L2
L2 L2
L2
L2
L2
L2
L2L2
L2L2
L4 L4
L2
L2
L4
L2
L2
L2
L2
L2
L2
L4
L4
L1
L1
L1
L4 L4
L4
L4
L4L4
L4
L6
L6
L6
L6
L4
1
2003
1
2003
2
2003
2
2003
1
2001
2
2002
1
2002
2
2001
MF012
EQ016
EQ017
EQ016
EQ017
EQ016
EQ016
EQ016
MF015
MF015
MF015
MF015
MF015
MF015
FAN
FAN
EQ017
L 7
L 3
L 3
b u l k h e a d l i n e
1 2 3 4 5 6 7 8 9 10 11 12 13 14 15 16 17
4
L4
L1
L2
L5
L6
P2BS1
S4B
P2B
L3
line of wall
line of wall
line of wall
Pendant LED
Downlight LED
Wall Lamp LED
LIGHTING
Powerpoint & Light
Switch in wall
LED Strip light
Powerpoint in wall
Light Switch in wall
ELECTRICAL
Note for Powerpoint Codes:
P = Powerpoint, 2 = Number of Gangs, B
= Colour (ie: B for Black, W for White & T
for Stainless Steel)
Note for Switch Codes:
S = Switch, 4 = Number of Switches, B =
Colour (ie: B for Black, W for White & T for
Stainless Steel)
Note for Powerpoint & SwitchCodes:
P = Powerpoint, 2 = Number of Gangs, B
= Colour (ie: B for Black, W for White & T
for Stainless Steel) S = Switch, 1 =
Number of Switches
Spotlight LED
Floodlight LED
Sensor
HC
Exhaust
MECHANICAL
FIRE
Hydronic Panel
Hose Cock
Notes
EQUIPMENT1 BY
CONTRACTOR
Roller BlindEQ016
Refer to Finishes &
Fixtures Schedule
Vertical BlindEQ017
Refer to Finishes &
Fixtures Schedule
LIGHTING
Ceiling FanFAN
Fan to centrally
suspended in specific
room. Refer to Finishes
& Fixtures Schedule
LED PendantL1
Suspended Pendant
Light. Ceiling Rose
mounted to wall - note
location on drawings.
All lamps to be warm
white 2700K unless
otherwise noted - allow
adequate flex for drop
adjustment - to be
discussed with
Architect/Designer.
Refer to Finishes &
Fixtures Schedule.
LED Down LightL2
Ceiling Surface
Mounted. All
transformers to be
concealed. All lamps to
be warm white 2700K
unless otherwise noted.
Refer to Finishes &
Fixtures Schedule
LED Strip LightL3
Joinery Recess
Mounted. All
transformers to be
concealed. All lamps to
be warm white 2700K
unless otherwise noted.
Refer to Finishes &
Fixtures Schedule
LED Wall LightL4
Wall Mounted 1800mm
FFL to underside of
fitting unless otherwise
noted. All transformers
to be concealed, All
lamps to be warm white
2700K unless
otherwise noted. Refer
to Finishes & Fixtures
Schedule
LED Flood LightL6
Wall Mounted 2400mm
FFL to underside of
fitting unless otherwise
noted. All transformers
to be concealed, All
lamps to be warm white
2700K unless
otherwise noted. Refer
to Finishes & Fixtures
Schedule
LED Custom LightL7
LED Strip light built into
RHS. Allow for install
only. Discuss with
Architect/Designer prior
to installation
MF MATERIALS & FINISHES
Polycarbonate /
Translucent Roofing
MF012
Refer to Finishes &
Fixtures Schedule
PlasterboardMF015
Refer to Finishes &
Fixtures Schedule
1
1:100
PLAN GF REFLECTED CEILING
N
1607
PLANS
4 STOREY HOUSE
CONTRACT
DOCUMENTATION
J & E STOREY
1011
Title
Drawing Number Current Revision
All work to be in accordance with local
authority's building codes and standards,
The NCC/NZBC and all relevant and
current Aus/NZ Standards.
Verify all dimensions on site before
ordering materials or commencing
construction.
Contractor to notify architect immediately if
there are any discrepancies or errors in
the documentation.
Dimensions from stud for new
partitions/setout.
Dimensions from finished surface for all
existing partitions and for interior details,
joinery etc.
Drawings are design details only.
Contractor to provide shop drawings for
architects approval of all joinery elements
before commencing construction or
ordering materials. Provide finish samples
for architects approval before commencing
construction or ordering materials.
Do not scale off drawings. Use figured
dimensions only.
Status
Client
Project
Job Number
FF REFLECTED
CEILING
285 GOOCH STREET
THORNBURY VIC 3071 AUSTRALIA
Scale at A3
1:100
CheckedDrawn
JC JC
285 GOOCH STREET
THORNBURY VIC 3071 AUSTRALIA
REVISION DETAILS
ID DESCRIPTION DATE
A TENDER xx.xx.16
A
S1W/1.2
S3W/1.2
3
S1W/1.2
S1W/1.2
S2/1.2
2
S2/1.2
2S2/1.22
S1W/1.2
S1W/1.2
S1W/1.2
S1W/1.2
S1W/1.2
S1W/1.2
S1W/1.2S1W/1.2
L1
L4
L1
L4
L4
L1
L4
L4
L4
L4
L4
L1L1
L4
L1
L4
L4
L1
L4
L4
L1
L1
L4
L4L4 L4 L4
L4
1
2003
1
2003
2
2003
2
2003
1
2001
2
2002
1
2002
2
2001
MF004
FAN
MF004
MF004
MF004
MF004
EQ017
EQ016
EQ017
EQ016
EQ016
EQ016
EQ017
EQ016
L 3
RAKINGUP
RAKINGUP
RAKINGUP
RAKINGUP
RAKINGUP
RAKINGUP
L3
1 2 3 4 5 6 7 8 9 10 11 12 13 14 15 16 17
4
L4
L1
L2
L5
L6
P2BS1
S4B
P2B
L3
line of wall
line of wall
line of wall
Pendant LED
Downlight LED
Wall Lamp LED
LIGHTING
Powerpoint & Light
Switch in wall
LED Strip light
Powerpoint in wall
Light Switch in wall
ELECTRICAL
Note for Powerpoint Codes:
P = Powerpoint, 2 = Number of Gangs, B
= Colour (ie: B for Black, W for White & T
for Stainless Steel)
Note for Switch Codes:
S = Switch, 4 = Number of Switches, B =
Colour (ie: B for Black, W for White & T for
Stainless Steel)
Note for Powerpoint & SwitchCodes:
P = Powerpoint, 2 = Number of Gangs, B
= Colour (ie: B for Black, W for White & T
for Stainless Steel) S = Switch, 1 =
Number of Switches
Spotlight LED
Floodlight LED
Sensor
HC
Exhaust
MECHANICAL
FIRE
Hydronic Panel
Hose Cock
Notes
EQUIPMENT1 BY
CONTRACTOR
Roller BlindEQ016
Refer to Finishes &
Fixtures Schedule
Vertical BlindEQ017
Refer to Finishes &
Fixtures Schedule
LIGHTING
Ceiling FanFAN
Fan to centrally
suspended in specific
room. Refer to Finishes
& Fixtures Schedule
LED PendantL1
Suspended Pendant
Light. Ceiling Rose
mounted to wall - note
location on drawings.
All lamps to be warm
white 2700K unless
otherwise noted - allow
adequate flex for drop
adjustment - to be
discussed with
Architect/Designer.
Refer to Finishes &
Fixtures Schedule.
LED Strip LightL3
Joinery Recess
Mounted. All
transformers to be
concealed. All lamps to
be warm white 2700K
unless otherwise noted.
Refer to Finishes &
Fixtures Schedule
LED Wall LightL4
Wall Mounted 1800mm
FFL to underside of
fitting unless otherwise
noted. All transformers
to be concealed, All
lamps to be warm white
2700K unless
otherwise noted. Refer
to Finishes & Fixtures
Schedule
MF MATERIALS & FINISHES
PlywoodMF004
Refer to Finishes &
Fixtures Schedule.
1
1:100
PLAN FF REFLECTED CEILING
1607
SECTIONS &
ELEVATIONS
4 STOREY HOUSE
CONTRACT
DOCUMENTATION
J & E STOREY
2001
Title
Drawing Number Current Revision
All work to be in accordance with local
authority's building codes and standards,
The NCC/NZBC and all relevant and
current Aus/NZ Standards.
Verify all dimensions on site before
ordering materials or commencing
construction.
Contractor to notify architect immediately if
there are any discrepancies or errors in
the documentation.
Dimensions from stud for new
partitions/setout.
Dimensions from finished surface for all
existing partitions and for interior details,
joinery etc.
Drawings are design details only.
Contractor to provide shop drawings for
architects approval of all joinery elements
before commencing construction or
ordering materials. Provide finish samples
for architects approval before commencing
construction or ordering materials.
Do not scale off drawings. Use figured
dimensions only.
Status
Client
Project
Job Number
ELEVATIONS
285 GOOCH STREET
THORNBURY VIC 3071 AUSTRALIA
Scale at A3
1:100
CheckedDrawn
JC JC
285 GOOCH STREET
THORNBURY VIC 3071 AUSTRALIA
REVISION DETAILS
ID DESCRIPTION DATE
A TENDER xx.xx.16
A
GROUND
RL 53,700
FIRST
RL 56,900
ROOF
RL 59,300
TOP
RL 61,430
GROUND
RL 53,700
FIRST
RL 56,900
ROOF
RL 59,300
TOP
RL 61,430
1000
Min.
MF003MF002 MF017
L4L4 L4
WP POWER
L4
Pergola at rear North side
MF005MF005MF017
CEQ12
L4
DOWNPIPE
MF019
D18
D28
D02W01 D01
RESCODE54.04-1
SITEBOUNDARY
RESCODE
54.04-1
SITEBOUNDARY
GROUND
RL 53,700
FIRST
RL 56,900
ROOF
RL 59,300
TOP
RL 61,430
GROUND
RL 53,700
FIRST
RL 56,900
ROOF
RL 59,300
TOP
RL 61,430
2705100
1000
MF003MF017 MF005
L4
WP POWER
DECORATIVE WALL LATTICE
MF018
L4
L6 L6 L6
L4
L4
CEQ12
PERGOLA STRUCTURE
MF005
CEQ17
MF003
MF002
MF017
MF002
D20
D20
D11D12D13
W03
W02
RESCODE54.04-1
SITEBOUNDARY
RESCODE
54.04-1
SITEBOUNDARY
Notes
EQUIPMENT BY CLIENT
BBQ - Built-inCEQ12
Refer to Finishes & Fixtures Schedule
Dining Table - outsideCEQ17
Refer to Finishes & Fixtures Schedule
LIGHTING
LED Wall LightL4
Wall Mounted 1700mm FFL to underside
of fitting unless otherwise noted. All
transformers to be concealed, All lamps to
be warm white 2700K unless otherwise
noted. Refer to Finishes & Fixtures
Schedule
LED Flood LightL6
Wall Mounted 2400mm FFL to underside
of fitting unless otherwise noted. All
transformers to be concealed, All lamps to
be warm white 2700K unless otherwise
noted. Refer to Finishes & Fixtures
Schedule
MF MATERIALS & FINISHES
Paint - WhiteMF002
Refer to Finishes & Fixtures Schedule
Timber CladdingMF003
Refer to Finishes & Fixtures Schedule
Mild SteelMF005
Refer to Finishes & Fixtures Schedule.
Polycarbonate / Translucent RoofingMF012
Refer to Finishes & Fixtures Schedule
Roof Sheeting - ColorbondMF014
Refer to Finishes & Fixtures Schedule
Tiled Wall CladdingMF017
Refer to Finishes & Fixtures Schedule
Metal Perforated MeshMF018
Refer to Finishes & Fixtures Schedule
Powdercoat - Dark GreyMF019
Refer to Finishes & Fixtures Schedule
1
1:100
ELEVATION SOUTH
2
1:100
ELEVATION NORTH
N
1607
PLANS
4 STOREY HOUSE
CONTRACT
DOCUMENTATION
J & E STOREY
1003
Title
Drawing Number Current Revision
All work to be in accordance with local
authority's building codes and standards,
The NCC/NZBC and all relevant and
current Aus/NZ Standards.
Verify all dimensions on site before
ordering materials or commencing
construction.
Contractor to notify architect immediately if
there are any discrepancies or errors in
the documentation.
Dimensions from stud for new
partitions/setout.
Dimensions from finished surface for all
existing partitions and for interior details,
joinery etc.
Drawings are design details only.
Contractor to provide shop drawings for
architects approval of all joinery elements
before commencing construction or
ordering materials. Provide finish samples
for architects approval before commencing
construction or ordering materials.
Do not scale off drawings. Use figured
dimensions only.
Status
Client
Project
Job Number
GROUND FLOOR
SETOUT
285 GOOCH STREET
THORNBURY VIC 3071 AUSTRALIA
Scale at A3
1:100
CheckedDrawn
JC JC
285 GOOCH STREET
THORNBURY VIC 3071 AUSTRALIA
REVISION DETAILS
ID DESCRIPTION DATE
A TENDER xx.xx.16
A
UP
UP
UP
UP
UP
125 6 975 135 6 521 125
6 160 13 880 15 010
3 675 230 11 105
125550013547201351675125
104051251810
10301234040
125 3 880 135 1 025
135 50
135 8 320
125 4 005 125 3 635 135 4 780 125
960 4 255 3 635 5 030
83911351755125
12512091125
46951251550
1 340
135
3 560
53 700
53 400
53 400
53 400
53 400
53 680
53680
53 700
53 400
53 700
p a v i n g
1stflooro/h
P A L I N G F E N C E
P A L I N G F E N C E
D P
D P
1 2 3 4 5 6 7 8 9 10 11 12 13 14 15 16 17
1
1:100
PLAN GROUND FLOOR SETOUT
1607
SECTIONS &
ELEVATIONS
4 STOREY HOUSE
CONTRACT
DOCUMENTATION
J & E STOREY
2003
Title
Drawing Number Current Revision
All work to be in accordance with local
authority's building codes and standards,
The NCC/NZBC and all relevant and
current Aus/NZ Standards.
Verify all dimensions on site before
ordering materials or commencing
construction.
Contractor to notify architect immediately if
there are any discrepancies or errors in
the documentation.
Dimensions from stud for new
partitions/setout.
Dimensions from finished surface for all
existing partitions and for interior details,
joinery etc.
Drawings are design details only.
Contractor to provide shop drawings for
architects approval of all joinery elements
before commencing construction or
ordering materials. Provide finish samples
for architects approval before commencing
construction or ordering materials.
Do not scale off drawings. Use figured
dimensions only.
Status
Client
Project
Job Number
SECTIONS
285 GOOCH STREET
THORNBURY VIC 3071 AUSTRALIA
Scale at A3
1:100
CheckedDrawn
JC JC
285 GOOCH STREET
THORNBURY VIC 3071 AUSTRALIA
REVISION DETAILS
ID DESCRIPTION DATE
A TENDER xx.xx.16
A
GROUND
RL 53,700
FIRST
RL 56,900
ROOF
RL 59,300
TOP
RL 61,430
ROOF
RL 59,300
TOP
RL 61,430
FIRST
RL 56,900
GROUND
RL 53,700
MF002MF014
D10
D23 D27D27 D25
D05
MASTER BEDCIRCULATION
LIVING
BED 2BALCONY
BALCONY
DECK
FILM ROOM
DECK
2
5001
1
5001
GROUND
RL 53,700
FIRST
RL 56,900
ROOF
RL 59,300
TOP
RL 61,430
TOP
RL 61,430
ROOF
RL 59,300
GROUND
RL 53,700
FIRST
RL 56,900
2
5002
3
5002
1
5002
MF002
MF002
W01
D27
D16
D06
SITEBOUNDARY
RESCODE
54.04-1
SITEBOUNDARY
CIRCULATION
FALL 30
o FALL 30 o
ENTRY GARAGE
MASTER BED BED 4
Notes
MF MATERIALS & FINISHES
Paint - WhiteMF002
Refer to Finishes & Fixtures Schedule
Roof Sheeting - ColorbondMF014
Refer to Finishes & Fixtures Schedule
1
SECTION A-A
2
SECTION B-B
1607
INTERIOR DETAILS
4 STOREY HOUSE
CONTRACT
DOCUMENTATION
J & E STOREY
3001
Title
Drawing Number Current Revision
All work to be in accordance with local
authority's building codes and standards,
The NCC/NZBC and all relevant and
current Aus/NZ Standards.
Verify all dimensions on site before
ordering materials or commencing
construction.
Contractor to notify architect immediately if
there are any discrepancies or errors in
the documentation.
Dimensions from stud for new
partitions/setout.
Dimensions from finished surface for all
existing partitions and for interior details,
joinery etc.
Drawings are design details only.
Contractor to provide shop drawings for
architects approval of all joinery elements
before commencing construction or
ordering materials. Provide finish samples
for architects approval before commencing
construction or ordering materials.
Do not scale off drawings. Use figured
dimensions only.
Status
Client
Project
Job Number
KITCHEN / DINING
285 GOOCH STREET
THORNBURY VIC 3071 AUSTRALIA
Scale at A3
1:40
CheckedDrawn
JC JC
285 GOOCH STREET
THORNBURY VIC 3071 AUSTRALIA
REVISION DETAILS
ID DESCRIPTION DATE
A TENDER xx.xx.16
A
4
3
1
2
EQ021
EQ003
EQ004
CEQ15
CEQ14
CEQ24
CEQ13
CEQ25
butler'spantrypantry
F r
CT
DW
Notes
EQUIPMENT BY CLIENT
RefrigeratorCEQ13
Refer to Finishes & Fixtures Schedule
CooktopCEQ14
Refer to Finishes & Fixtures Schedule
DishwasherCEQ15
Refer to Finishes & Fixtures Schedule
OvenCEQ24
Refer to Finishes & Fixtures Schedule
CabinetsCEQ25
Refer to Finishes & Fixtures Schedule
EQUIPMENT1 BY CONTRACTOR
Sink - Double BowlEQ003
Refer to Finishes & Fixtures Schedule
Sink MixerEQ004
Refer to Finishes & Fixtures Schedule
Island BenchEQ021
Refer to Finishes & Fixtures Schedule
1:40
PLAN KEY - KITCHEN
1607
INTERIOR DETAILS
4 STOREY HOUSE
CONTRACT
DOCUMENTATION
J & E STOREY
3002
Title
Drawing Number Current Revision
All work to be in accordance with local
authority's building codes and standards,
The NCC/NZBC and all relevant and
current Aus/NZ Standards.
Verify all dimensions on site before
ordering materials or commencing
construction.
Contractor to notify architect immediately if
there are any discrepancies or errors in
the documentation.
Dimensions from stud for new
partitions/setout.
Dimensions from finished surface for all
existing partitions and for interior details,
joinery etc.
Drawings are design details only.
Contractor to provide shop drawings for
architects approval of all joinery elements
before commencing construction or
ordering materials. Provide finish samples
for architects approval before commencing
construction or ordering materials.
Do not scale off drawings. Use figured
dimensions only.
Status
Client
Project
Job Number
KITCHEN
285 GOOCH STREET
THORNBURY VIC 3071 AUSTRALIA
Scale at A3
1:20
CheckedDrawn
JC JC
285 GOOCH STREET
THORNBURY VIC 3071 AUSTRALIA
REVISION DETAILS
ID DESCRIPTION DATE
A TENDER xx.xx.16
A
9007001400
2 570 1 000 310 790 1 075
3000
5 720
489 514 514 514 514
600
L1
DR
L7
CEQ14
EQ021
CEQ25
L4 L4
DR DR
DR
EQ022
DR
MF002
MF006
MF001
MF004
MF004
MF002
L2L2
EQ004D14
D15
SEATING / CABINETS TOP
FL 53,850
LOWERED FLOOR
FL 53,400
RANGE HOOD
FL 55,000
Notes
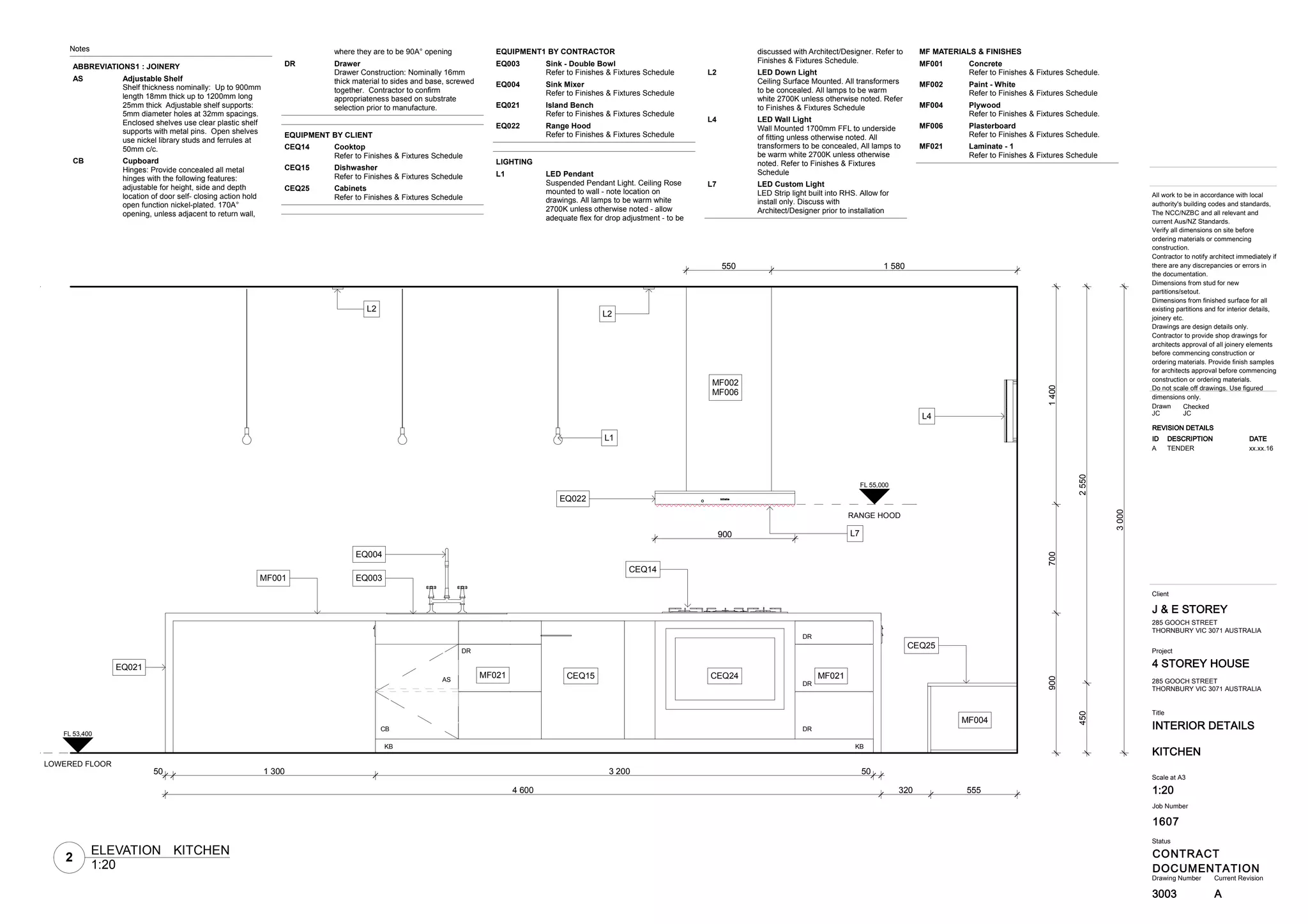
ABBREVIATIONS1 : JOINERY
DrawerDR
Drawer Construction: Nominally 16mm
thick material to sides and base, screwed
together. Contractor to confirm
appropriateness based on substrate
selection prior to manufacture.
EQUIPMENT BY CLIENT
CooktopCEQ14
Refer to Finishes & Fixtures Schedule
CabinetsCEQ25
Refer to Finishes & Fixtures Schedule
EQUIPMENT1 BY CONTRACTOR
Sink MixerEQ004
Refer to Finishes & Fixtures Schedule
Island BenchEQ021
Refer to Finishes & Fixtures Schedule
Range HoodEQ022
Refer to Finishes & Fixtures Schedule
LIGHTING
LED PendantL1
Suspended Pendant Light. Ceiling Rose
mounted to wall - note location on
drawings. All lamps to be warm white
2700K unless otherwise noted - allow
adequate flex for drop adjustment - to be
discussed with Architect/Designer. Refer to
Finishes & Fixtures Schedule.
LED Down LightL2
Ceiling Surface Mounted. All transformers
to be concealed. All lamps to be warm
white 2700K unless otherwise noted. Refer
to Finishes & Fixtures Schedule
LED Wall LightL4
Wall Mounted 1700mm FFL to underside
of fitting unless otherwise noted. All
transformers to be concealed, All lamps to
be warm white 2700K unless otherwise
noted. Refer to Finishes & Fixtures
Schedule
LED Custom LightL7
LED Strip light built into RHS. Allow for
install only. Discuss with
Architect/Designer prior to installation
MF MATERIALS & FINISHES
ConcreteMF001
Refer to Finishes & Fixtures Schedule.
Paint - WhiteMF002
Refer to Finishes & Fixtures Schedule
PlywoodMF004
Refer to Finishes & Fixtures Schedule.
1
1:20
ELEVATION KITCHEN
1607
INTERIOR DETAILS
4 STOREY HOUSE
CONTRACT
DOCUMENTATION
J & E STOREY
3003
Title
Drawing Number Current Revision
All work to be in accordance with local
authority's building codes and standards,
The NCC/NZBC and all relevant and
current Aus/NZ Standards.
Verify all dimensions on site before
ordering materials or commencing
construction.
Contractor to notify architect immediately if
there are any discrepancies or errors in
the documentation.
Dimensions from stud for new
partitions/setout.
Dimensions from finished surface for all
existing partitions and for interior details,
joinery etc.
Drawings are design details only.
Contractor to provide shop drawings for
architects approval of all joinery elements
before commencing construction or
ordering materials. Provide finish samples
for architects approval before commencing
construction or ordering materials.
Do not scale off drawings. Use figured
dimensions only.
Status
Client
Project
Job Number
KITCHEN
285 GOOCH STREET
THORNBURY VIC 3071 AUSTRALIA
Scale at A3
1:20
CheckedDrawn
JC JC
285 GOOCH STREET
THORNBURY VIC 3071 AUSTRALIA
REVISION DETAILS
ID DESCRIPTION DATE
A TENDER xx.xx.16
A
50 1 300 3 200 50
4 600 320 555
9007001400
4502550
3000
900
550 1 580
L1
L7
CEQ15
L4
DR
EQ022
MF002
MF006
L2
L2
CB
AS
KB
CEQ24
CEQ14
EQ003
EQ004
MF021
EQ021
CEQ25
MF021
DR
DR
DR
KB
MF004
MF001
LOWERED FLOOR
FL 53,400
RANGE HOOD
FL 55,000
Notes
ABBREVIATIONS1 : JOINERY
Adjustable ShelfAS
Shelf thickness nominally: Up to 900mm
length 18mm thick up to 1200mm long
25mm thick Adjustable shelf supports:
5mm diameter holes at 32mm spacings.
Enclosed shelves use clear plastic shelf
supports with metal pins. Open shelves
use nickel library studs and ferrules at
50mm c/c.
CupboardCB
Hinges: Provide concealed all metal
hinges with the following features:
adjustable for height, side and depth
location of door self- closing action hold
open function nickel-plated. 170A°
opening, unless adjacent to return wall,
where they are to be 90A° opening
DrawerDR
Drawer Construction: Nominally 16mm
thick material to sides and base, screwed
together. Contractor to confirm
appropriateness based on substrate
selection prior to manufacture.
EQUIPMENT BY CLIENT
CooktopCEQ14
Refer to Finishes & Fixtures Schedule
DishwasherCEQ15
Refer to Finishes & Fixtures Schedule
CabinetsCEQ25
Refer to Finishes & Fixtures Schedule
EQUIPMENT1 BY CONTRACTOR
Sink - Double BowlEQ003
Refer to Finishes & Fixtures Schedule
Sink MixerEQ004
Refer to Finishes & Fixtures Schedule
Island BenchEQ021
Refer to Finishes & Fixtures Schedule
Range HoodEQ022
Refer to Finishes & Fixtures Schedule
LIGHTING
LED PendantL1
Suspended Pendant Light. Ceiling Rose
mounted to wall - note location on
drawings. All lamps to be warm white
2700K unless otherwise noted - allow
adequate flex for drop adjustment - to be
discussed with Architect/Designer. Refer to
Finishes & Fixtures Schedule.
LED Down LightL2
Ceiling Surface Mounted. All transformers
to be concealed. All lamps to be warm
white 2700K unless otherwise noted. Refer
to Finishes & Fixtures Schedule
LED Wall LightL4
Wall Mounted 1700mm FFL to underside
of fitting unless otherwise noted. All
transformers to be concealed, All lamps to
be warm white 2700K unless otherwise
noted. Refer to Finishes & Fixtures
Schedule
LED Custom LightL7
LED Strip light built into RHS. Allow for
install only. Discuss with
Architect/Designer prior to installation
MF MATERIALS & FINISHES
ConcreteMF001
Refer to Finishes & Fixtures Schedule.
Paint - WhiteMF002
Refer to Finishes & Fixtures Schedule
PlywoodMF004
Refer to Finishes & Fixtures Schedule.
PlasterboardMF006
Refer to Finishes & Fixtures Schedule.
Laminate - 1MF021
Refer to Finishes & Fixtures Schedule
2
1:20
ELEVATION KITCHEN
N
1607
TENDER
PLANS
4 STOREY HOUSE
1004
Drawing Number Current Revision
Status
Job Number
FIRST FLOOR SETOUT
Scale at A3
1:100
A
J & E STOREY
Title
Client
Project
285 GOOCH STREET
THORNBURY VIC 3071 AUSTRALIA
285 GOOCH STREET
THORNBURY VIC 3071 AUSTRALIA
UP
125 4 205 135 2 455 135 1 665 135 1 275 135 3 460
135 4 370 135 4 545 135 3 460 135
1 000 12 880 1 600
1 400
135
2 720
6 160 15 480 2 305 11 105
350013512901351000
1575
135
4350
12530301352895125
125409563101840
1030105301850
1256060125
525163101850
52818260
125 13 630 125
6 160 13 880 3 910 11 105
56 900
56900
56900
56 70056 700
57 350
56 410
56 900
RO O F
BE LO W
RO O F
BELO W
A
W
N
IN
G
B
E
LO
W
PERGOLABELOW
CO URT YARD
BEL O W
1 2 3 4 5 6 7 8 9 10 11 12 13 14 15 16 17
1
1:100
PLAN FIRST FLOOR SETOUT
1607
INTERIOR DETAILS
4 STOREY HOUSE
CONTRACT
DOCUMENTATION
J & E STOREY
3005
Title
Drawing Number Current Revision
All work to be in accordance with local
authority's building codes and standards,
The NCC/NZBC and all relevant and
current Aus/NZ Standards.
Verify all dimensions on site before
ordering materials or commencing
construction.
Contractor to notify architect immediately if
there are any discrepancies or errors in
the documentation.
Dimensions from stud for new
partitions/setout.
Dimensions from finished surface for all
existing partitions and for interior details,
joinery etc.
Drawings are design details only.
Contractor to provide shop drawings for
architects approval of all joinery elements
before commencing construction or
ordering materials. Provide finish samples
for architects approval before commencing
construction or ordering materials.
Do not scale off drawings. Use figured
dimensions only.
Status
Client
Project
Job Number
KITCHEN
285 GOOCH STREET
THORNBURY VIC 3071 AUSTRALIA
Scale at A3
1:20
CheckedDrawn
JC JC
285 GOOCH STREET
THORNBURY VIC 3071 AUSTRALIA
REVISION DETAILS
ID DESCRIPTION DATE
A TENDER xx.xx.16
A
457 457 457 457 457 760 388 388 388 388
4 600
50 3 200 1 300 50
885 4 600
85050
9002100
3000
L7
CB
MF002
MF006
L1
L4
MF021
MF001 EQ004
CB CB CB CB
AS
AS
AS
AS AS
AS
AS
AS
AS
AS
AS
AS
AS AS
AS
AS
AS
AS
MF004
MF004 AS
CB
CEQ13
CEQ14
EQ022
D16
LOWERED FLOOR
Notes
ABBREVIATIONS1 : JOINERY
Adjustable ShelfAS
Shelf thickness nominally: Up to 900mm
length 18mm thick up to 1200mm long
25mm thick Adjustable shelf supports:
5mm diameter holes at 32mm spacings.
Enclosed shelves use clear plastic shelf
supports with metal pins. Open shelves
use nickel library studs and ferrules at
50mm c/c.
CupboardCB
Hinges: Provide concealed all metal
hinges with the following features:
adjustable for height, side and depth
location of door self- closing action hold
open function nickel-plated. 170A°
opening, unless adjacent to return wall,
where they are to be 90A° opening
EQUIPMENT BY CLIENT
RefrigeratorCEQ13
Refer to Finishes & Fixtures Schedule
CooktopCEQ14
Refer to Finishes & Fixtures Schedule
EQUIPMENT1 BY CONTRACTOR
Sink MixerEQ004
Refer to Finishes & Fixtures Schedule
Range HoodEQ022
Refer to Finishes & Fixtures Schedule
LIGHTING
LED PendantL1
Suspended Pendant Light. Ceiling Rose
mounted to wall - note location on
drawings. All lamps to be warm white
2700K unless otherwise noted - allow
adequate flex for drop adjustment - to be
discussed with Architect/Designer. Refer to
Finishes & Fixtures Schedule.
LED Wall LightL4
Wall Mounted 1700mm FFL to underside
of fitting unless otherwise noted. All
transformers to be concealed, All lamps to
be warm white 2700K unless otherwise
noted. Refer to Finishes & Fixtures
Schedule
LED Custom LightL7
LED Strip light built into RHS. Allow for
install only. Discuss with
Architect/Designer prior to installation
MF MATERIALS & FINISHES
ConcreteMF001
Refer to Finishes & Fixtures Schedule.
Paint - WhiteMF002
Refer to Finishes & Fixtures Schedule
PlywoodMF004
Refer to Finishes & Fixtures Schedule.
PlasterboardMF006
Refer to Finishes & Fixtures Schedule.
Laminate - 1MF021
Refer to Finishes & Fixtures Schedule
4
1:20
ELEVATION KITCHEN
1607
INTERIOR DETAILS
4 STOREY HOUSE
CONTRACT
DOCUMENTATION
J & E STOREY
3006
Title
Drawing Number Current Revision
All work to be in accordance with local
authority's building codes and standards,
The NCC/NZBC and all relevant and
current Aus/NZ Standards.
Verify all dimensions on site before
ordering materials or commencing
construction.
Contractor to notify architect immediately if
there are any discrepancies or errors in
the documentation.
Dimensions from stud for new
partitions/setout.
Dimensions from finished surface for all
existing partitions and for interior details,
joinery etc.
Drawings are design details only.
Contractor to provide shop drawings for
architects approval of all joinery elements
before commencing construction or
ordering materials. Provide finish samples
for architects approval before commencing
construction or ordering materials.
Do not scale off drawings. Use figured
dimensions only.
Status
Client
Project
Job Number
NOOK
285 GOOCH STREET
THORNBURY VIC 3071 AUSTRALIA
Scale at A3
1:40, 1:20
CheckedDrawn
JC JC
285 GOOCH STREET
THORNBURY VIC 3071 AUSTRALIA
REVISION DETAILS
ID DESCRIPTION DATE
A TENDER xx.xx.16
A
UP
5
6
1 2 3 4 5 6 7 8 9 10 11
43020330203302033020330203302033020250200
115 515 20 939 20 785
1 070 20 618 20 551
698 20 1 157 20 383
1 084 20
310 20 451 20
2 279
3000
L2
L3
MF004
MF002
MF002
MF004
MF004
OS
DR DR DR DR
OS
OS
OS
OS
OS
D07
Stairs
bottom
surface
Seating
LOWERED CEILING
FL 56,200
SEATING
FL 53,850
465 290 1 134
50 1 375
43020330203302033020330203302033020250
2800
2 025
Stairs bottom surface
L3
MF004
MF006
OS
OS
OS
OS
OS
OS
L2
D06
SEATING
FL 53,850
LOWERED CEILING
FL 56,200
Notes
ABBREVIATIONS1 : JOINERY
DrawerDR
Drawer Construction: Nominally 16mm
thick material to sides and base, screwed
together. Contractor to confirm
appropriateness based on substrate
selection prior to manufacture.
Open ShelfOS
Exposed edge DAR, unless otherwise
noted on drawings. Finish to be free from
imperfections such as dust marks, sanding
marks and 'orange peel' effect.
LIGHTING
LED Down LightL2
Ceiling Surface Mounted. All transformers
to be concealed. All lamps to be warm
white 2700K unless otherwise noted. Refer
to Finishes & Fixtures Schedule
LED Strip LightL3
Joinery Recess Mounted. All transformers
to be concealed. All lamps to be warm
white 2700K unless otherwise noted. Refer
to Finishes & Fixtures Schedule
MF MATERIALS & FINISHES
Paint - WhiteMF002
Refer to Finishes & Fixtures Schedule
PlywoodMF004
Refer to Finishes & Fixtures Schedule.
PlasterboardMF006
Refer to Finishes & Fixtures Schedule.
1:40
PLAN KEY - NOOK
5
1:20
ELEVATION NOOK
6
1:20
ELEVATION NOOK
1607
INTERIOR DETAILS
4 STOREY HOUSE
CONTRACT
DOCUMENTATION
J & E STOREY
3007
Title
Drawing Number Current Revision
All work to be in accordance with local
authority's building codes and standards,
The NCC/NZBC and all relevant and
current Aus/NZ Standards.
Verify all dimensions on site before
ordering materials or commencing
construction.
Contractor to notify architect immediately if
there are any discrepancies or errors in
the documentation.
Dimensions from stud for new
partitions/setout.
Dimensions from finished surface for all
existing partitions and for interior details,
joinery etc.
Drawings are design details only.
Contractor to provide shop drawings for
architects approval of all joinery elements
before commencing construction or
ordering materials. Provide finish samples
for architects approval before commencing
construction or ordering materials.
Do not scale off drawings. Use figured
dimensions only.
Status
Client
Project
Job Number
LIVING
285 GOOCH STREET
THORNBURY VIC 3071 AUSTRALIA
Scale at A3
1:40, 1:20
CheckedDrawn
JC JC
285 GOOCH STREET
THORNBURY VIC 3071 AUSTRALIA
REVISION DETAILS
ID DESCRIPTION DATE
A TENDER xx.xx.16
A
D09
7
9
8
EQ001
MF023
16 17
300 875 3 132 500
544 519 519 519 519 494 519
430201180203002033020
4301200690480
1 175 3 632
20 892 20 555 20 1 005 20 1 080 20
20 1 192 20 780 20 1 580 20
2800
L3
MF002
MF004
MF004
MF002
MF002
MF004
EQ001
TV
OS
OS OS
OS
OS
OS
DR DR DR DR DR DR
L4
LOWERED FLOOR
FL 53,400
SEATING / CABINETS TOP
FL 53,850
LOWERED CEILING
FL 56,200
FIREPLACE PODIUM
FL 53,500
TOP SHELVES
FL 55,030
Notes
ABBREVIATIONS1 : JOINERY
DrawerDR
Drawer Construction: Nominally 16mm
thick material to sides and base, screwed
together. Contractor to confirm
appropriateness based on substrate
selection prior to manufacture.
Open ShelfOS
Exposed edge DAR, unless otherwise
noted on drawings. Finish to be free from
imperfections such as dust marks, sanding
marks and 'orange peel' effect.
EQUIPMENT1 BY CONTRACTOR
Freestanding FireplaceEQ001
Refer to Finishes & Fixtures Schedule
LIGHTING
LED Strip LightL3
Joinery Recess Mounted. All transformers
to be concealed. All lamps to be warm
white 2700K unless otherwise noted. Refer
to Finishes & Fixtures Schedule
LED Wall LightL4
Wall Mounted 1700mm FFL to underside
of fitting unless otherwise noted. All
transformers to be concealed, All lamps to
be warm white 2700K unless otherwise
noted. Refer to Finishes & Fixtures
Schedule
MF MATERIALS & FINISHES
Paint - WhiteMF002
Refer to Finishes & Fixtures Schedule
PlywoodMF004
Refer to Finishes & Fixtures Schedule.
CarpetMF023
Refer to Finishes & Fixtures Schedule
1:40
ELEVATION KEY - LIVING
7
1:20
ELEVATION LIVING
1607
INTERIOR DETAILS
4 STOREY HOUSE
CONTRACT
DOCUMENTATION
J & E STOREY
3008
Title
Drawing Number Current Revision
All work to be in accordance with local
authority's building codes and standards,
The NCC/NZBC and all relevant and
current Aus/NZ Standards.
Verify all dimensions on site before
ordering materials or commencing
construction.
Contractor to notify architect immediately if
there are any discrepancies or errors in
the documentation.
Dimensions from stud for new
partitions/setout.
Dimensions from finished surface for all
existing partitions and for interior details,
joinery etc.
Drawings are design details only.
Contractor to provide shop drawings for
architects approval of all joinery elements
before commencing construction or
ordering materials. Provide finish samples
for architects approval before commencing
construction or ordering materials.
Do not scale off drawings. Use figured
dimensions only.
Status
Client
Project
Job Number
LIVING
285 GOOCH STREET
THORNBURY VIC 3071 AUSTRALIA
Scale at A3
1:20
CheckedDrawn
JC JC
285 GOOCH STREET
THORNBURY VIC 3071 AUSTRALIA
REVISION DETAILS
ID DESCRIPTION DATE
A TENDER xx.xx.16
A
430201180203002033020480
500 325
525 300
2800
MF004
L3
TV
EQ001
OS
DR
OS
MF002
MF004
D08
D09
LOWERED FLOOR
FL 53,400
SEATING / CABINETS TOP
FL 53,850
LOWERED CEILING
FL 56,200
TOP SHELVES
FL 55,075
Notes
ABBREVIATIONS1 : JOINERY
DrawerDR
Drawer Construction: Nominally 16mm
thick material to sides and base, screwed
together. Contractor to confirm
appropriateness based on substrate
selection prior to manufacture.
Open ShelfOS
Exposed edge DAR, unless otherwise
noted on drawings. Finish to be free from
imperfections such as dust marks, sanding
marks and 'orange peel' effect.
EQUIPMENT1 BY CONTRACTOR
Freestanding FireplaceEQ001
Refer to Finishes & Fixtures Schedule
LIGHTING
LED Strip LightL3
Joinery Recess Mounted. All transformers
to be concealed. All lamps to be warm
white 2700K unless otherwise noted. Refer
to Finishes & Fixtures Schedule
MF MATERIALS & FINISHES
Paint - WhiteMF002
Refer to Finishes & Fixtures Schedule
PlywoodMF004
Refer to Finishes & Fixtures Schedule.
8
1:20
ELEVATION LIVING
N
1607
PLANS
4 STOREY HOUSE
CONTRACT
DOCUMENTATION
J & E STOREY
1005
Title
Drawing Number Current Revision
All work to be in accordance with local
authority's building codes and standards,
The NCC/NZBC and all relevant and
current Aus/NZ Standards.
Verify all dimensions on site before
ordering materials or commencing
construction.
Contractor to notify architect immediately if
there are any discrepancies or errors in
the documentation.
Dimensions from stud for new
partitions/setout.
Dimensions from finished surface for all
existing partitions and for interior details,
joinery etc.
Drawings are design details only.
Contractor to provide shop drawings for
architects approval of all joinery elements
before commencing construction or
ordering materials. Provide finish samples
for architects approval before commencing
construction or ordering materials.
Do not scale off drawings. Use figured
dimensions only.
Status
Client
Project
Job Number
GF GENERAL
ARRANGEMENT
285 GOOCH STREET
THORNBURY VIC 3071 AUSTRALIA
Scale at A3
1:100
CheckedDrawn
JC JC
285 GOOCH STREET
THORNBURY VIC 3071 AUSTRALIA
REVISION DETAILS
ID DESCRIPTION DATE
A TENDER xx.xx.16
A
D17
D14D15
D18
W01
D02
W01
D13
D07
D08
D04
D03
D16
D10
D09
D12D11
D05
D06
D01
UP
UP
UP
UP
UP
700 1 175 1 100
4600
960 4 255 2 005 450 1 180 5 030
5 200 900 2 860 450 3 320 450 700
350500021602896125
110
900500300
8703313138410021101360450
1 699 900 960
9004600
265
760
710500600
1039910
1755
1
2003
1
2003
2
2003
2
2003
1
2001
2
2002
1
2002
2
2001
MF001
CEQ16
EQ021
CEQ12
EQ001
EQ006
CEQ17
EQ005
EQ002 EQ002
MF001
MF009
MF001
MF001
MF001
MF001
MF009
MF010MF010
MF010
MF010
CEQ22
EQ013
EQ018
EQ019
EQ020
BUILT-INSEATBUILT-INSEATBUILT-INSEAT
F r
0 . 0 0 0 F L
G A R A G E
F I L M R O O M
E N T R Y
KITCHEN
DINING
F r
butler's
pantry
pantry
L I V I N G
S T Y D Y
b u l k h e a d o / h
s e a t w / s t o r a g e
C O U R T Y A R D
p a v i n g
S U N K E N
C O U R T Y A R D
O U T D O O R
D I N I N G
1stflooro/h
D E C K
D E C K
workbench
storage
-0.300RL
- 0 . 3 0 0 R L
P A L I N G F E N C E
P A L I N G F E N C E
PALINGFENCE
D P
D P
CT
D W
1 2 3 4 5 6 7 8 9 10 11 12 13 14 15 16 17
WT03
WT03
WT01
WT02
WT01
WT01
WT02
WT01
WT02
WT02
WT01
WT01
WT03
WT03
WT03
WT01
WT03
ADJACENT DWELLING
283 GOOCH STREET
ADJACENT DWELLING
287 GOOCH STREET
RO SS M OY N
Notes
EQUIPMENT BY CLIENT
BBQ - Built-inCEQ12
Refer to Finishes & Fixtures Schedule
Dining Table - InsideCEQ16
Refer to Finishes & Fixtures Schedule
Dining Table - outsideCEQ17
Refer to Finishes & Fixtures Schedule
SofaCEQ22
Refer to Finishes & Fixtures Schedule
EQUIPMENT1 BY CONTRACTOR
Freestanding FireplaceEQ001
Refer to Finishes & Fixtures Schedule
Rainwater TankEQ002
Refer to Finishes & Fixtures Schedule
Basin - Wall outlet -1EQ005
Refer to Finishes & Fixtures Schedule
Toilet PanEQ006
Refer to Finishes & Fixtures Schedule
BasinEQ013
Refer to Finishes & Fixtures Schedule
In-Built CabinetsEQ018
Refer to Finishes & Fixtures Schedule
In-Built CabinetsEQ019
Refer to Finishes & Fixtures Schedule
In-Built CabinetsEQ020
Refer to Finishes & Fixtures Schedule
Island BenchEQ021
Refer to Finishes & Fixtures Schedule
MF MATERIALS & FINISHES
Concrete SlabMF001
Refer to Finishes & Fixtures Schedule.
Timber DeckingMF009
Refer to Finishes & Fixtures Schedule.
PavingMF010
Refer to Finishes & Fixtures Schedule.
1
1:100
PLAN GF GENERAL ARRANGEMENT
1607
INTERIOR DETAILS
4 STOREY HOUSE
CONTRACT
DOCUMENTATION
J & E STOREY
3010
Title
Drawing Number Current Revision
All work to be in accordance with local
authority's building codes and standards,
The NCC/NZBC and all relevant and
current Aus/NZ Standards.
Verify all dimensions on site before
ordering materials or commencing
construction.
Contractor to notify architect immediately if
there are any discrepancies or errors in
the documentation.
Dimensions from stud for new
partitions/setout.
Dimensions from finished surface for all
existing partitions and for interior details,
joinery etc.
Drawings are design details only.
Contractor to provide shop drawings for
architects approval of all joinery elements
before commencing construction or
ordering materials. Provide finish samples
for architects approval before commencing
construction or ordering materials.
Do not scale off drawings. Use figured
dimensions only.
Status
Client
Project
Job Number
FF CIRCULATION
285 GOOCH STREET
THORNBURY VIC 3071 AUSTRALIA
Scale at A3
1:40, 1:20
CheckedDrawn
JC JC
285 GOOCH STREET
THORNBURY VIC 3071 AUSTRALIA
REVISION DETAILS
ID DESCRIPTION DATE
A TENDER xx.xx.16
A
11253001000
2 335 540 685 985
10
J O I N E R Y / F E N C I N G - O P E N S H E L V E S
3 4 5 6 7 8 9 10 11 12 13 14 15 16 17
20 437 20 447 20 447 20 447 20 437 20 560 646 20
2 335 560 665 985
20307203072030720
1000
L4
MF002
DR
L4
L1
MF004
MF004 MF004
OS OS OS OS OS OS
OSOSOS OS OS OS
OSOSOS OS OS OS
D19
FIRST FLOOR
FL 56,900
JOINERY TOP
FL 57,900
Notes
ABBREVIATIONS1 : JOINERY
Open ShelfOS
Exposed edge DAR, unless otherwise
noted on drawings. Finish to be free from
imperfections such as dust marks, sanding
marks and 'orange peel' effect.
LIGHTING
LED PendantL1
Suspended Pendant Light. Ceiling Rose
mounted to wall - note location on
drawings. All lamps to be warm white
2700K unless otherwise noted - allow
adequate flex for drop adjustment - to be
discussed with Architect/Designer. Refer to
Finishes & Fixtures Schedule.
LED Wall LightL4
Wall Mounted 1700mm FFL to underside
of fitting unless otherwise noted. All
transformers to be concealed, All lamps to
be warm white 2700K unless otherwise
noted. Refer to Finishes & Fixtures
Schedule
MF MATERIALS & FINISHES
Paint - WhiteMF002
Refer to Finishes & Fixtures Schedule
PlywoodMF004
Refer to Finishes & Fixtures Schedule.
1:40
ELEVATION KEY - FF CIRCULATION
10
1:20
ELEVATION FF CIRCULATION
1607
DETAILS
4 STOREY HOUSE
CONTRACT
DOCUMENTATION
J & E STOREY
5001
Title
Drawing Number Current Revision
All work to be in accordance with local
authority's building codes and standards,
The NCC/NZBC and all relevant and
current Aus/NZ Standards.
Verify all dimensions on site before
ordering materials or commencing
construction.
Contractor to notify architect immediately if
there are any discrepancies or errors in
the documentation.
Dimensions from stud for new
partitions/setout.
Dimensions from finished surface for all
existing partitions and for interior details,
joinery etc.
Drawings are design details only.
Contractor to provide shop drawings for
architects approval of all joinery elements
before commencing construction or
ordering materials. Provide finish samples
for architects approval before commencing
construction or ordering materials.
Do not scale off drawings. Use figured
dimensions only.
Status
Client
Project
Job Number
SECTIONS
285 GOOCH STREET
THORNBURY VIC 3071 AUSTRALIA
Scale at A3
1:20
CheckedDrawn
JC JC
285 GOOCH STREET
THORNBURY VIC 3071 AUSTRALIA
REVISION DETAILS
ID DESCRIPTION DATE
A TENDER xx.xx.16
A
1905
505
1000
10mm PLASTERBOARD CEILING
RECYCLED TIMBER FLOORING
FIRST FLOOR
MF008
D01
CONCRETE SLAB
GROUND FLOOR
MF001
FOOTING TO
ENGINEER
DETAIL
115mm STRUCTURAL
INSULATED PANEL
10mm PLASTERBOARD
MF002
10mm PLASTERBOARD
MF002
VAPOUR BARRIER
BALCONY FENCING
1000mm min HEIGHT FROM FFL
MF005
TIMBER DECK
MF009
MOISTURE
INSULATION
115mm STRUCTURAL
INSULATED PANEL
10mm PLASTERBOARD
MF002
10mm PLASTERBOARD CEILING
CONCRETE SLAB
GROUND FLOOR
MF001
RECYCLED TIMBER FLOORING
FIRST FLOOR
MF008
10mm PLASTERBOARD
MF002
IN-BUILT CABINETS
EQ018
FOOTING TO ENGINEER
DETAIL
Notes
EQUIPMENT1 BY CONTRACTOR
In-Built CabinetsEQ018
Refer to Finishes & Fixtures Schedule
MF MATERIALS & FINISHES
Concrete SlabMF001
Refer to Finishes & Fixtures Schedule.
Paint - WhiteMF002
Refer to Finishes & Fixtures Schedule
Mild SteelMF005
Refer to Finishes & Fixtures Schedule.
Recycled TimberMF008
Refer to Finishes & Fixtures Schedule.
Timber DeckingMF009
Refer to Finishes & Fixtures Schedule.
1
1:20
DETAIL WALL SECTION 1
2
1:20
DETAIL WALL SECTION 2
1607
DETAILS
4 STOREY HOUSE
CONTRACT
DOCUMENTATION
J & E STOREY
5002
Title
Drawing Number Current Revision
All work to be in accordance with local
authority's building codes and standards,
The NCC/NZBC and all relevant and
current Aus/NZ Standards.
Verify all dimensions on site before
ordering materials or commencing
construction.
Contractor to notify architect immediately if
there are any discrepancies or errors in
the documentation.
Dimensions from stud for new
partitions/setout.
Dimensions from finished surface for all
existing partitions and for interior details,
joinery etc.
Drawings are design details only.
Contractor to provide shop drawings for
architects approval of all joinery elements
before commencing construction or
ordering materials. Provide finish samples
for architects approval before commencing
construction or ordering materials.
Do not scale off drawings. Use figured
dimensions only.
Status
Client
Project
Job Number
SECTIONS
285 GOOCH STREET
THORNBURY VIC 3071 AUSTRALIA
Scale at A3
1:20, 1:10
CheckedDrawn
JC JC
285 GOOCH STREET
THORNBURY VIC 3071 AUSTRALIA
REVISION DETAILS
ID DESCRIPTION DATE
A TENDER xx.xx.16
A
180
115mm STRUCTURAL
INSULATED PANEL
10mm PLASTERBOARD
MF002
VAPOUR BARRIER SARKING
TIMBER BATTEN TO FORM
A VENTILATED CAVITY
TILED WALL CLADDING
MF01710mm PLASTERBOARD CEILING
MF002
TIMBER SLAB
SOIL
MOISTURE INSULATION PARAPET METAL CAPPING
MF005
FOOTING TO ENGINEER
DETAIL
CONCRETE SLAB
MF001
INSULSPAN APPROVED
PANEL SEAL TAPE
BLOCKING TO BE
CARRIED OUT
BY PANEL
PREFABRICATOR
115mm STRUCTURAL
INSULATED PANEL
10mm PLASTERBOARD
MF002
10mm PLASTERBOARD
MF002
165mm STRUCTURAL
INSULATED PANEL
VAPOUR BARRIER SARKING
TIMBER BATTEN TO FORM
A VENTILATED CAVITY
TIMBER CLADDING
MF003
INSULSPAN APPROVED
PANEL SEAL TAPE
TIMBER BATTEN
BOX GUTTER min 1:100
FALL
VAPOUR BARRIER
SARKING
ROOF SHEETING
MF003
CAP FLASHING TO MATCH
THE COLOUR OF MF014
ROOF SHEETING
MF014
VAPOUR BARRIER
SARKING
165mm STRUCTURAL
INSULATED PANEL
INSULSPAN APPROVED
PANEL SEAL TAPE
INSULSPAN APPROVED
SEALANT
RIDGE BEAM
Notes
MF MATERIALS & FINISHES
Concrete SlabMF001
Refer to Finishes & Fixtures Schedule.
Paint - WhiteMF002
Refer to Finishes & Fixtures Schedule
Timber CladdingMF003
Refer to Finishes & Fixtures Schedule
Green RoofMF007
Refer to Finishes & Fixtures Schedule.
Roof Sheeting - ColorbondMF014
Refer to Finishes & Fixtures Schedule
Tiled Wall CladdingMF017
Refer to Finishes & Fixtures Schedule
1
1:20
DETAIL WALL SECTION 3
3
1:10
DETAIL ROOF & WALL JOINT
2
1:10
DETAIL ROOF RIDGE
1607
DRAWN SCHEDULES
4 STOREY HOUSE
CONTRACT
DOCUMENTATION
J & E STOREY
6001
Title
Drawing Number Current Revision
All work to be in accordance with local
authority's building codes and standards,
The NCC/NZBC and all relevant and
current Aus/NZ Standards.
Verify all dimensions on site before
ordering materials or commencing
construction.
Contractor to notify architect immediately if
there are any discrepancies or errors in
the documentation.
Dimensions from stud for new
partitions/setout.
Dimensions from finished surface for all
existing partitions and for interior details,
joinery etc.
Drawings are design details only.
Contractor to provide shop drawings for
architects approval of all joinery elements
before commencing construction or
ordering materials. Provide finish samples
for architects approval before commencing
construction or ordering materials.
Do not scale off drawings. Use figured
dimensions only.
Status
Client
Project
Job Number
DOOR & WINDOW
SCHEDULE
285 GOOCH STREET
THORNBURY VIC 3071 AUSTRALIA
Scale at A3
1:1
CheckedDrawn
JC JC
285 GOOCH STREET
THORNBURY VIC 3071 AUSTRALIA
REVISION DETAILS
ID DESCRIPTION DATE
A TENDER xx.xx.16
A
ELEVATION
2 883
2600
900
2600
900
2600
1 000
2600
2580
760 1 200
2600
450
1000
900
2400
585 585 585
1 755
2400
1 208 1 208 1 208 1 208
4 832
2800
1 360
2350
ID D01 D02 D03 D04 D05 D06 D07 D08 D09 D10 D11
Quantity 1 1 1 1 1 1 1 1 1 1 1
Height 2 600 2 600 2 600 2 600 2 560 2 600 1 000 2 400 2 400 2 800 2 350
Width 2 883 900 900 1 000 720 1 200 450 900 1 755 4 807 1 360
DOOR SCHEDULE
4 100
2800
3 313
2800
1500
450 450
1500
900
2400
900
2800
5 000
2224
1800
400
2 400
2400
1930
650
D12 D13 D14 D15 D16 D17 D18 D19 D20 D21
1 1 1 1 1 1 1 2 2 1
2 800 2 800 1 500 1 500 2 400 2 800 2 200 1 800 2 400 1 930
4 100 3 313 450 450 900 900 5 000 400 2 400 650
900
2400
1930
955
450
1780
800
1930
900
2100
900
2400
2 411
2400
D22 D23 D24 D25 D26 D27 D28
2 1 1 3 1 3 1
2 400 1 930 1 780 1 930 2 100 2 400 2 400
900 955 450 800 900 900 2 420
ID W01 W02 W03
Height 2 150 1 601 1 601
Width 500 2 600 2 600
Elevation
450
FFL
2600
FFL
2600
FFL
WINDOW SCHEDULE
ELEVATION
ID
Quantity
Height
Width
DOOR SCHEDULE
ELEVATION
ID
Quantity
Height
Width
DOOR SCHEDULE

Working drawings sample

  • 1.
    1607 INFORMATION 4 STOREY HOUSE CONTRACT DOCUMENTATION J& E STOREY 001 Title Drawing Number Current Revision All work to be in accordance with local authority's building codes and standards, The NCC/NZBC and all relevant and current Aus/NZ Standards. Verify all dimensions on site before ordering materials or commencing construction. Contractor to notify architect immediately if there are any discrepancies or errors in the documentation. Dimensions from stud for new partitions/setout. Dimensions from finished surface for all existing partitions and for interior details, joinery etc. Drawings are design details only. Contractor to provide shop drawings for architects approval of all joinery elements before commencing construction or ordering materials. Provide finish samples for architects approval before commencing construction or ordering materials. Do not scale off drawings. Use figured dimensions only. Status Client Project Job Number TRANSMITTAL, REVISIONS & IMAGES 285 GOOCH STREET THORNBURY VIC 3071 AUSTRALIA Scale at A3 1:100, 1:1, 1:10 CheckedDrawn JC JC 285 GOOCH STREET THORNBURY VIC 3071 AUSTRALIA REVISION DETAILS ID DESCRIPTION DATE A TENDER xx.xx.16 A N 01 0001 4 HC L4 L1 L2 L5 L6 01 1000 SL 2.800 FCL 2.800 RL 28.000 RL 28.000 RL 28.000 XEGL 28.000 NEGL 28.000 01 1001 01 1000 FFL 28.000 Level 01 door number RL 28.000 Drawing number on sheet. Reference to sheet that detail is drawn. area or item revised revision ID window number P2BS1 S4B P2B L3 SD EWIS line of wall line of wall line of wall G CH GRID REFERENCES EXPRESSION OF LEVELS Levels are shown in terms of Australian Height Datum. (AHD = 0) All levels as per AS 110.301:1985 Reduced Level (plan view) Existing Spot Level New Spot Level Finished Floor Level For areas with carpet, vinyl, or tiles, fixed directly to SL, and paint finishes. Structural Surface level. For concrete work, SL includes all concrete topping slabs and levelling screeds. Finished Ceiling Level Reduced Level (Section/Elevation view) Existing External Ground Level New External Ground Level NORTH POINT REFERENCE SYMBOLS REVISION SYMBOLS DRAWING ANNOTATION DOORS AND WINDOWS Refer to the floor plans and the Door and Window Schedule for Door and Window types, the rough opening sizes, finishes and hardware. 1 DRAWING REFERENCE SYMBOLS SECTION ELEVATION DETAIL (Reference to larger scale plan or detail) Pendant LED Downlight LED Exhaust Wall Lamp LED LIGHTING MECHANICAL FIRE Smoke Detector Fire Sprinkler EWIS Speaker LEGENDS Powerpoint & Light Switch in wall Hydronic Panel HYDRAULIC Core hole* Gas connection Hot & cold water supply * GW - Greasy Waste * TD - Tundish * FW - Floor Waste LED Strip light NOTE: 1. D on symbol indicates dimmer switch 2. X refers to nom height AFFL 3. All GPOs to be 10amp single phase unless otherwise noted All lamps to be warm white unless otherwise noted Electrical fitting colours: W - White B - Black S - Stainless steel All light circuits to be on separate switches & dimmers and be connected to 1 master switch on timer. All GPOs to be on separate switch and connected to master on timer. Signage power supply to be on separate switch and connected to master on timer. Powerpoint in wall Light Switch in wall ELECTRICAL Note for Powerpoint Codes: P = Powerpoint, 2 = Number of Gangs, B = Colour (ie: B for Black, W for White & T for Stainless Steel) Note for Switch Codes: S = Switch, 4 = Number of Switches, B = Colour (ie: B for Black, W for White & T for Stainless Steel) Note for Powerpoint & SwitchCodes: P = Powerpoint, 2 = Number of Gangs, B = Colour (ie: B for Black, W for White & T for Stainless Steel) S = Switch, 1 = Number of Switches Hose Cock Spotlight LED Floodlight LED Sensor ABBREVIATIONS BASED ON AS 1100: AD Above Datum Adj. Adjustable Agg. Aggregate Al. Aluminium Alt. Alternate AP Access Panel APPR Approved Approx. Approx AS Australian Standard B Bath Bldg Building BCA Building Code Australia CAD Computer-Aided Drawing CBI Coordinated Building Information c/c Center to Center CCTV Closed-Circuit Television CHS Circular Hollow Section CJ Construction Joint Cnr. Corner Code Building Code COL. Column CONC. Concrete Corr. Corrugated crs. Centers DB Distribution Board DH Double Hung dia. Diameter dim Dimension DP Downpipe DR Dry Riser DW Dishwasher dwg Drawing EF Each Face EW Each Way EJ Expansion Joint Ext External Extg Existing FA Fire Alarm FAP Fire Alarm Panel FCL Finished Ceiling Level FE Fire Extinguisher FF Fridge / Freezer FFL Finished Floor Level FG Fixed Glass FH Fire Hydrant FHR Fire Hose Reel Fr. Freezer FRR Fire Resistance Rating FWG Floor Waste GALV. Galvanised GL Ground Level GMS Galvanised Mild Steel H Hosecock HDG Hot Dipped Galvanised horiz. Horizontal horiz. Horizontal ht height HTR Heated Towel Rail HWC Hot Water Cylinder ID Internal Diameter IJ Inspection Junction Insul. Insulation kg Kilogram kW Kilowatt max. Maximum misc. Miscellaneous m Metre mm Millimetre MS Mild Steel MSB Main Switch Board No. Number Nom. Nominal NTS Not To Scale O/A Overall O/H Overhead OD Outside Diameter OS Overall size PFC Parallel Flange Channel ply Plywood PTN Partition QTY Quantity R Radius rad. Radiator Rad. Radiata RC Reinforced Concrete ref. Reference reinf. Reinforcement reqd. Required RHS Rectangular Hollow Section RL Reduced Level RWH Rainwater Head RWO Rainwater Outlet RWS Rainwater Sump S Sink SC Sawcut Joint SCHED Schedule SL Structural Level shwr. Shower SHS Square Hollow Section Sk Sketch SP Soil Pipe SPEC Specification spr. Sprinkler sqm Square Metre SQ Square SS Stainless Steel SS. Soil Pipe / Sewer Pipe SW. Stormwater Pipe SWBD Switchboard TA To Above TB To Below TBA To Be Advised TBC To Be Confirmed tub Laundry Tub typ Typical UB Universal Beam UC Universal Column U/G Underground U/S Underside Van U. Vanity Unit vert. Vertical W Watt WC Water Closet (Toilet Pan) WHB Wash Hand Basin WM Washing Machine NO. 001 1001 1002 1003 1004 1005 1006 1007 1008 1009 1010 1011 2001 2002 2003 3001 3002 3003 3004 3005 3006 3007 3008 3009 3010 5001 5002 6001 TYPE INFORMATION PLANS PLANS PLANS PLANS PLANS PLANS PLANS PLANS PLANS PLANS PLANS SECTIONS & ELEVATIONS SECTIONS & ELEVATIONS SECTIONS & ELEVATIONS INTERIOR DETAILS INTERIOR DETAILS INTERIOR DETAILS INTERIOR DETAILS INTERIOR DETAILS INTERIOR DETAILS INTERIOR DETAILS INTERIOR DETAILS INTERIOR DETAILS INTERIOR DETAILS DETAILS DETAILS DRAWN SCHEDULES DRAWING TRANSMITTAL, REVISIONS & IMAGES DEMOLITION PROPOSED SITE PLAN GROUND FLOOR SETOUT FIRST FLOOR SETOUT GF GENERAL ARRANGEMENT FF GENERAL ARRANGEMENT SITE / ROOF GF SERVICES & ELECTRICAL FF SERVICES & ELECTRICAL GF REFLECTED CEILING FF REFLECTED CEILING ELEVATIONS ELEVATIONS SECTIONS KITCHEN / DINING KITCHEN KITCHEN KITCHEN KITCHEN NOOK LIVING LIVING LIVING FF CIRCULATION SECTIONS SECTIONS DOOR & WINDOW SCHEDULE 1011510 135155 10115 163 10115 WALL LINING WALL LINING SIP PANEL BATTEN SPACING WT1 EXTERNAL CLADDING - TYPE 1 INTERNAL LINING WT3 SIP PANEL BATTEN SPACING WT2 EXTERNAL CLADDING - TYPE 2 INTERNAL LINING BATTEN SPACING VAPOR BARRIER VAPOR BARRIER SIP PANEL DRAWING LIST WALL TYPES ABBREVIATIONS
  • 2.
    N 1607 PLANS 4 STOREY HOUSE CONTRACT DOCUMENTATION J& E STOREY 1001 Title Drawing Number Current Revision All work to be in accordance with local authority's building codes and standards, The NCC/NZBC and all relevant and current Aus/NZ Standards. Verify all dimensions on site before ordering materials or commencing construction. Contractor to notify architect immediately if there are any discrepancies or errors in the documentation. Dimensions from stud for new partitions/setout. Dimensions from finished surface for all existing partitions and for interior details, joinery etc. Drawings are design details only. Contractor to provide shop drawings for architects approval of all joinery elements before commencing construction or ordering materials. Provide finish samples for architects approval before commencing construction or ordering materials. Do not scale off drawings. Use figured dimensions only. Status Client Project Job Number DEMOLITION 285 GOOCH STREET THORNBURY VIC 3071 AUSTRALIA Scale at A3 1:200 CheckedDrawn JC JC 285 GOOCH STREET THORNBURY VIC 3071 AUSTRALIA REVISION DETAILS ID DESCRIPTION DATE A TENDER xx.xx.16 A CONCRETE DRIVEWAY LIGHTPOLE CONCRETE PAVING CAPPEDPICKET(1.2m) PALING (1.68m) PALING (1.63m) No.287 470m„ 13.4190°00' 35.05180°00' 13.41270°00' 35.050°00' No.285 LOT5ONLP22727 SINGLESTOREY WEATHERBOARD DWELLING GOOCHSTREET CONCRETE CROSSING CONCRETE CROSSING CONCRETE CROSSING E-1 IN V 52.90 IN V 52.92 IN V 52.91 IN V 52.87 IN V 52.75 IN V 52.58BAC K 53.04 BACKOFCONCRETEKERB INVERTOFCONCRETEKERB BACKOFCONCRETEKERB INVERTOFCONCRETEKERB G UTTER 56.03 G UTTER 56.60 G UTTER 56.39 G U TTER 56.67 CH IM N EY TO P 59.39 G UTTER 56.71 G UTTER 56.62 BAC K 53.06 BAC K 53.05 G UTTER 56.51 G U TTER 55.92 G UTTER 56.30 G UTTER 56.51 G UTTER 56.05 G UTTER 55.80 G UTTER 57.08 BA CK 53.01 BAC K 52.88 BAC K 52.70 G UTTER 56.08 W ALL TO P 56.57 G U TTER 56.42 G UTTER 55.72 G UTTER 55.83 G U TTER 55.75 G UTTER 56.62 G UTTER 56.58 RID G E 58.84 RIDG E 58.06 W ALL TO P 56.55 W A LL TO P 55.58 R IDG E 59.24 W ALL TO P 56.26 R IDG E 56.43 R IDG E 57.82 R IDG E 58.66 R IDG E 56.54 RID G E 58.67 RID G E 57.62 R IDG E 56.72 RID G E 56.55 R IDG E 56.64 PORCH PORCH PORCH CUBBY GALVANISED IRONSHED PERGOLA/PERGOLA GALVANISED IRONSHED BRICKGARAGE BRICKSTUDIO SINGLESTOREY WEATHERBOARD DWELLING No.283 SINGLESTOREY WEATHERBOARD DWELLING No.328 SINGLESTOREY WEATHERBOARD DWELLING PERGOLA (ROSSMOYNEST) FLR LVL 54.04 FLR LVL 53.98 53.0 53.0 53.5 53.5 53.5 53.44 53.43 53.40 53.37 53.42 53.36 53.35 53.43 53.51 53.59 53.56 53.68 53.64 53.65 53.69 53.12 53.28 53.48 53.47 53.51 53.49 53.54 53.54 53.35 53.52 53.56 53.62 53.68 53.66 53.56 53.67 53.49 53.51 53.48 53.50 53.47 53.44 53.60 53.69 GARDEN BED SILL 54.88 TOP 55.88 TOP 55.99 SILL 54.83 TOP 55.41 SILL 54.47 TOP 55.54 SILL 53.30 SILL 55.39 TOP 56.36 TOP 56.28 SILL55.60 TOP56.21 TOP56.04 SILL55.00 SILL55.90 TOP56.38 TOP55.85 SILL55.04 SILL54.42 TOP55.86 SILL55.40 TOP55.97 WNHW NHW W NHW W W NHW WW/DOOR W/DOORW 6.10 1.09 3.07 6.12 1.21 6.14 1.40 PALING (1.63m) PALING(1.65m)+ SCREEN(0.5m) LAWN SHADE SAIL PRIVATEOPENSPACE PRIVATEOPENSPACE PRIVATEOPENSPACE LAWN CONCRETE PAVING CONCRETE PATH CONCRETEPAVEDPATIO 1 2 3 4 6 5 7 8 9 PALING (1.68m) PICKET(1.36m)WOVENWIRE(0.63m) NOT FENCED CONCRETEFOOTPATHCONCRETEFOOTPATH TBMRIVET RL=53.08AHD CONCRETE DRIVEWAY CONCRETE DRIVEWAY 1 1:200 PLAN DEMOLITION
  • 3.
    N 1607 PLANS 4 STOREY HOUSE CONTRACT DOCUMENTATION J& E STOREY 1002 Title Drawing Number Current Revision All work to be in accordance with local authority's building codes and standards, The NCC/NZBC and all relevant and current Aus/NZ Standards. Verify all dimensions on site before ordering materials or commencing construction. Contractor to notify architect immediately if there are any discrepancies or errors in the documentation. Dimensions from stud for new partitions/setout. Dimensions from finished surface for all existing partitions and for interior details, joinery etc. Drawings are design details only. Contractor to provide shop drawings for architects approval of all joinery elements before commencing construction or ordering materials. Provide finish samples for architects approval before commencing construction or ordering materials. Do not scale off drawings. Use figured dimensions only. Status Client Project Job Number PROPOSED SITE PLAN 285 GOOCH STREET THORNBURY VIC 3071 AUSTRALIA Scale at A3 1:200 CheckedDrawn JC JC 285 GOOCH STREET THORNBURY VIC 3071 AUSTRALIA REVISION DETAILS ID DESCRIPTION DATE A TENDER xx.xx.16 A UP UP UP 1030 15 010 12340 1810 4 255 3 635 5 030 105311810 1030 3 605 6 160 0.000 FL 53.700 COU R TYA RD OU TDOOR D IN ING SU NKE N COU R TY ARD DE CK BUILT-INSEAT LAW N FRON T L AWN FOOTPATH D EC K SIDE PATH DRI VEWA Y 285 GOOCH STREET THORNBURY VIC 3071 PROPOSED 4 STOREY BUILDING ENTRY GATE FOOT PA TH BUILT-INSEATBUILT-INSEAT ADJACE NT D WE LLING 283 GO OC H STR EE T ADJA CENT DWELLING 287 G OO CH S TRE ET AD JA CE NT DWE LLING 328 R O S S MO Y N E STRE ET CLOTHES LINE PRODUCTIVE GARDE N RAIN WATER TANK S 10,000L CAPACITY (Tankworks Modline) GOOCHSTREET ADJACE NT D WE LLING 283 GO OC H STR EE T ADJA CENT DWELLING 287 G OO CH S TRE ET AD JA CE NT DWE LLING 328 R O S S MO Y N E STRE ET PA LING FENCE PA LING FENCE PALINGFENCE 1 1:200 PLAN SITE
  • 4.
    N 1607 PLANS 4 STOREY HOUSE CONTRACT DOCUMENTATION J& E STOREY 1003 Title Drawing Number Current Revision All work to be in accordance with local authority's building codes and standards, The NCC/NZBC and all relevant and current Aus/NZ Standards. Verify all dimensions on site before ordering materials or commencing construction. Contractor to notify architect immediately if there are any discrepancies or errors in the documentation. Dimensions from stud for new partitions/setout. Dimensions from finished surface for all existing partitions and for interior details, joinery etc. Drawings are design details only. Contractor to provide shop drawings for architects approval of all joinery elements before commencing construction or ordering materials. Provide finish samples for architects approval before commencing construction or ordering materials. Do not scale off drawings. Use figured dimensions only. Status Client Project Job Number GROUND FLOOR SETOUT 285 GOOCH STREET THORNBURY VIC 3071 AUSTRALIA Scale at A3 1:100 CheckedDrawn JC JC 285 GOOCH STREET THORNBURY VIC 3071 AUSTRALIA REVISION DETAILS ID DESCRIPTION DATE A TENDER xx.xx.16 A UP UP UP UP UP 125 6 975 135 6 521 125 6 160 13 880 15 010 3 675 230 11 105 125550013547201351675125 104051251810 10301234040 125 3 880 135 1 025 135 50 135 8 320 125 4 005 125 3 635 135 4 780 125 960 4 255 3 635 5 030 83911351755125 12512091125 46951251550 1 340 135 3 560 53 700 53 400 53 400 53 400 53 400 53 680 53680 53 700 53 400 53 700 p a v i n g 1stflooro/h P A L I N G F E N C E P A L I N G F E N C E D P D P 1 2 3 4 5 6 7 8 9 10 11 12 13 14 15 16 17 1 1:100 PLAN GROUND FLOOR SETOUT
  • 5.
    N 1607 TENDER PLANS 4 STOREY HOUSE 1004 DrawingNumber Current Revision Status Job Number FIRST FLOOR SETOUT Scale at A3 1:100 A J & E STOREY Title Client Project 285 GOOCH STREET THORNBURY VIC 3071 AUSTRALIA 285 GOOCH STREET THORNBURY VIC 3071 AUSTRALIA UP 125 4 205 135 2 455 135 1 665 135 1 275 135 3 460 135 4 370 135 4 545 135 3 460 135 1 000 12 880 1 600 1 400 135 2 720 6 160 15 480 2 305 11 105 350013512901351000 1575 135 4350 12530301352895125 125409563101840 1030105301850 1256060125 525163101850 52818260 125 13 630 125 6 160 13 880 3 910 11 105 56 900 56900 56900 56 70056 700 57 350 56 410 56 900 RO O F BE LO W RO O F BELO W A W N IN G B E LO W PERGOLABELOW CO URT YARD BEL O W 1 2 3 4 5 6 7 8 9 10 11 12 13 14 15 16 17 1 1:100 PLAN FIRST FLOOR SETOUT
  • 6.
    N 1607 PLANS 4 STOREY HOUSE CONTRACT DOCUMENTATION J& E STOREY 1005 Title Drawing Number Current Revision All work to be in accordance with local authority's building codes and standards, The NCC/NZBC and all relevant and current Aus/NZ Standards. Verify all dimensions on site before ordering materials or commencing construction. Contractor to notify architect immediately if there are any discrepancies or errors in the documentation. Dimensions from stud for new partitions/setout. Dimensions from finished surface for all existing partitions and for interior details, joinery etc. Drawings are design details only. Contractor to provide shop drawings for architects approval of all joinery elements before commencing construction or ordering materials. Provide finish samples for architects approval before commencing construction or ordering materials. Do not scale off drawings. Use figured dimensions only. Status Client Project Job Number GF GENERAL ARRANGEMENT 285 GOOCH STREET THORNBURY VIC 3071 AUSTRALIA Scale at A3 1:100 CheckedDrawn JC JC 285 GOOCH STREET THORNBURY VIC 3071 AUSTRALIA REVISION DETAILS ID DESCRIPTION DATE A TENDER xx.xx.16 A D17 D14D15 D18 W01 D02 W01 D13 D07 D08 D04 D03 D16 D10 D09 D12D11 D05 D06 D01 UP UP UP UP UP 700 1 175 1 100 4600 960 4 255 2 005 450 1 180 5 030 5 200 900 2 860 450 3 320 450 700 350500021602896125 110 900500300 8703313138410021101360450 1 699 900 960 9004600 265 760 710500600 1039910 1755 1 2003 1 2003 2 2003 2 2003 1 2001 2 2002 1 2002 2 2001 MF001 CEQ16 EQ021 CEQ12 EQ001 EQ006 CEQ17 EQ005 EQ002 EQ002 MF001 MF009 MF001 MF001 MF001 MF001 MF009 MF010MF010 MF010 MF010 CEQ22 EQ013 EQ018 EQ019 EQ020 BUILT-INSEATBUILT-INSEATBUILT-INSEAT F r 0 . 0 0 0 F L G A R A G E F I L M R O O M E N T R Y KITCHEN DINING F r butler's pantry pantry L I V I N G S T Y D Y b u l k h e a d o / h s e a t w / s t o r a g e C O U R T Y A R D p a v i n g S U N K E N C O U R T Y A R D O U T D O O R D I N I N G 1stflooro/h D E C K D E C K workbench storage -0.300RL - 0 . 3 0 0 R L P A L I N G F E N C E P A L I N G F E N C E PALINGFENCE D P D P CT D W 1 2 3 4 5 6 7 8 9 10 11 12 13 14 15 16 17 WT03 WT03 WT01 WT02 WT01 WT01 WT02 WT01 WT02 WT02 WT01 WT01 WT03 WT03 WT03 WT01 WT03 ADJACENT DWELLING 283 GOOCH STREET ADJACENT DWELLING 287 GOOCH STREET RO SS M OY N Notes EQUIPMENT BY CLIENT BBQ - Built-inCEQ12 Refer to Finishes & Fixtures Schedule Dining Table - InsideCEQ16 Refer to Finishes & Fixtures Schedule Dining Table - outsideCEQ17 Refer to Finishes & Fixtures Schedule SofaCEQ22 Refer to Finishes & Fixtures Schedule EQUIPMENT1 BY CONTRACTOR Freestanding FireplaceEQ001 Refer to Finishes & Fixtures Schedule Rainwater TankEQ002 Refer to Finishes & Fixtures Schedule Basin - Wall outlet -1EQ005 Refer to Finishes & Fixtures Schedule Toilet PanEQ006 Refer to Finishes & Fixtures Schedule BasinEQ013 Refer to Finishes & Fixtures Schedule In-Built CabinetsEQ018 Refer to Finishes & Fixtures Schedule In-Built CabinetsEQ019 Refer to Finishes & Fixtures Schedule In-Built CabinetsEQ020 Refer to Finishes & Fixtures Schedule Island BenchEQ021 Refer to Finishes & Fixtures Schedule MF MATERIALS & FINISHES Concrete SlabMF001 Refer to Finishes & Fixtures Schedule. Timber DeckingMF009 Refer to Finishes & Fixtures Schedule. PavingMF010 Refer to Finishes & Fixtures Schedule. 1 1:100 PLAN GF GENERAL ARRANGEMENT
  • 7.
    N 1607 PLANS 4 STOREY HOUSE CONTRACT DOCUMENTATION J& E STOREY 1006 Title Drawing Number Current Revision All work to be in accordance with local authority's building codes and standards, The NCC/NZBC and all relevant and current Aus/NZ Standards. Verify all dimensions on site before ordering materials or commencing construction. Contractor to notify architect immediately if there are any discrepancies or errors in the documentation. Dimensions from stud for new partitions/setout. Dimensions from finished surface for all existing partitions and for interior details, joinery etc. Drawings are design details only. Contractor to provide shop drawings for architects approval of all joinery elements before commencing construction or ordering materials. Provide finish samples for architects approval before commencing construction or ordering materials. Do not scale off drawings. Use figured dimensions only. Status Client Project Job Number FF GENERAL ARRANGEMENT 285 GOOCH STREET THORNBURY VIC 3071 AUSTRALIA Scale at A3 1:100 CheckedDrawn JC JC 285 GOOCH STREET THORNBURY VIC 3071 AUSTRALIA REVISION DETAILS ID DESCRIPTION DATE A TENDER xx.xx.16 A D20D20 D27 D27 D22D22 D26 UP 1 2003 1 2003 2 2003 2 2003 1 2001 2 2002 1 2002 2 2001 32902420475125 125240012602400125 697 800 1 935 800 1 910 800 1 085 450 720 955 1 150 650 3 530 9 116 400 1 774 400 3 791 9001525 435 900 900 900 435 10269001359002100 675900 1050 MF008 MF008 MF008 MF008 MF008 MF009 MF009 MF011 MF011 MF007 MF012 CEQ19 CEQ20 CEQ20 CEQ20 EQ006 EQ008 EQ007 EQ006 EQ012 EQ009 EQ010 EQ011 CEQ23 RO O F BEL O W RO O F BELO W A W N IN G B E LO W PERGOLABELOW + 3 . 2 0 0 F L ROBE ROBEROBE RO B E CO URT YARD BELO W M A S T E R B E D E N S U I T E B E D 4 ROBE B A T H C I R C U L A T I O N B E D 3 B E D 2 BALCONY BALCONY R O O F G A R D E N p a v e r s p a v e r s 1 2 3 4 5 6 7 8 9 10 11 12 13 14 15 16 17 D23D24 D25 D21D25 D25 D19D19 D28 D27 WT03 WT02 WT03 WT03 WT03 WT03 WT03 WT03 WT03 WT02 WT02 ADJACENT DWELLING 283 GOOCH STREET ADJACENT DWELLING 287 GOOCH STREET Notes EQUIPMENT BY CLIENT Bed - 1CEQ19 Refer to Finishes & Fixtures Schedule Bed - 2CEQ20 Refer to Finishes & Fixtures Schedule CouchCEQ23 Refer to Finishes & Fixtures Schedule EQUIPMENT1 BY CONTRACTOR Toilet PanEQ006 Refer to Finishes & Fixtures Schedule BathtubEQ007 Refer to Finishes & Fixtures Schedule Shower - Rail TypeEQ008 Refer to Finishes & Fixtures Schedule Shower - CabinEQ010 Refer to Finishes & Fixtures Schedule Basin - Wall outlet -2EQ011 Refer to Finishes & Fixtures Schedule Basin - Wall outlet -3EQ012 Refer to Finishes & Fixtures Schedule MF MATERIALS & FINISHES Green RoofMF007 Refer to Finishes & Fixtures Schedule. Recycled TimberMF008 Refer to Finishes & Fixtures Schedule. Timber DeckingMF009 Refer to Finishes & Fixtures Schedule. Tile - 1MF011 Refer to Finishes & Fixtures Schedule. Polycarbonate / Translucent Roofing MF012 Refer to Finishes & Fixtures Schedule 1 1:100 PLAN FF GENERAL ARRANGEMENT
  • 8.
    N 1607 PLANS 4 STOREY HOUSE CONTRACT DOCUMENTATION J& E STOREY 1007 Title Drawing Number Current Revision All work to be in accordance with local authority's building codes and standards, The NCC/NZBC and all relevant and current Aus/NZ Standards. Verify all dimensions on site before ordering materials or commencing construction. Contractor to notify architect immediately if there are any discrepancies or errors in the documentation. Dimensions from stud for new partitions/setout. Dimensions from finished surface for all existing partitions and for interior details, joinery etc. Drawings are design details only. Contractor to provide shop drawings for architects approval of all joinery elements before commencing construction or ordering materials. Provide finish samples for architects approval before commencing construction or ordering materials. Do not scale off drawings. Use figured dimensions only. Status Client Project Job Number SITE / ROOF 285 GOOCH STREET THORNBURY VIC 3071 AUSTRALIA Scale at A3 1:100 CheckedDrawn JC JC 285 GOOCH STREET THORNBURY VIC 3071 AUSTRALIA REVISION DETAILS ID DESCRIPTION DATE A TENDER xx.xx.16 A 1 2003 1 2003 2 2003 2 2003 1 2001 2 2002 1 2002 2 2001 6 125 15 495 13 435 7 095 4 315 3 575 5 100 1 485 50 2 280 50 11 105 5186322032201785 16030027602760300160 99014040566440177510 5091335820 35 813 50 813 35 820 35 83850153250148350148350153550180050 105305808510 6 120 130 13 720 70 3 855 50 11 105 Pergola with opportunity to install sail shades and retractabale awning. MF012 MF007 MF013 MF013 Pergola with opportunity to install sail shades and retractabale awning. Pergola with opportunity to install sail shades and retractabale awning Rainwater Head + Downpipe Rainwater Head + Downpipe MF014 MF014 C O U R T Y A R D B E L O W V O I D V O I D V O I D V O I D V O I D A W N IN G B E L O W B O X G U T T E R m i n 1 : 1 0 0 F A L L B O X G U T T E R m i n 1 : 1 0 0 F A L L C O U R T Y A R D B E L O WC O U R T Y A R D B E L O W FRONTLAWNBELOWDRIVEWAYBELOW L A W N B E L O W FALL30o FLAT FALL30o FLAT FLATFLAT Notes MF MATERIALS & FINISHES Green RoofMF007 Refer to Finishes & Fixtures Schedule. Polycarbonate / Translucent Roofing MF012 Refer to Finishes & Fixtures Schedule Roofing MembraneMF013 Refer to Finishes & Fixtures Schedule Roof Sheeting - Colorbond MF014 Refer to Finishes & Fixtures Schedule 1 1:100 PLAN SITE / ROOF
  • 9.
    N 1607 PLANS 4 STOREY HOUSE CONTRACT DOCUMENTATION J& E STOREY 1002 Title Drawing Number Current Revision All work to be in accordance with local authority's building codes and standards, The NCC/NZBC and all relevant and current Aus/NZ Standards. Verify all dimensions on site before ordering materials or commencing construction. Contractor to notify architect immediately if there are any discrepancies or errors in the documentation. Dimensions from stud for new partitions/setout. Dimensions from finished surface for all existing partitions and for interior details, joinery etc. Drawings are design details only. Contractor to provide shop drawings for architects approval of all joinery elements before commencing construction or ordering materials. Provide finish samples for architects approval before commencing construction or ordering materials. Do not scale off drawings. Use figured dimensions only. Status Client Project Job Number PROPOSED SITE PLAN 285 GOOCH STREET THORNBURY VIC 3071 AUSTRALIA Scale at A3 1:200 CheckedDrawn JC JC 285 GOOCH STREET THORNBURY VIC 3071 AUSTRALIA REVISION DETAILS ID DESCRIPTION DATE A TENDER xx.xx.16 A UP UP UP 1030 15 010 12340 1810 4 255 3 635 5 030 105311810 1030 3 605 6 160 0.000 FL 53.700 COU R TYA RD OU TDOOR D IN ING SU NKE N COU R TY ARD DE CK BUILT-INSEAT LAW N FRON T L AWN FOOTPATH D EC K SIDE PATH DRI VEWA Y 285 GOOCH STREET THORNBURY VIC 3071 PROPOSED 4 STOREY BUILDING ENTRY GATE FOOT PA TH BUILT-INSEATBUILT-INSEAT ADJACE NT D WE LLING 283 GO OC H STR EE T ADJA CENT DWELLING 287 G OO CH S TRE ET AD JA CE NT DWE LLING 328 R O S S MO Y N E STRE ET CLOTHES LINE PRODUCTIVE GARDE N RAIN WATER TANK S 10,000L CAPACITY (Tankworks Modline) GOOCHSTREET ADJACE NT D WE LLING 283 GO OC H STR EE T ADJA CENT DWELLING 287 G OO CH S TRE ET AD JA CE NT DWE LLING 328 R O S S MO Y N E STRE ET PA LING FENCE PA LING FENCE PALINGFENCE 1 1:200 PLAN SITE
  • 10.
    N 1607 PLANS 4 STOREY HOUSE CONTRACT DOCUMENTATION J& E STOREY 1009 Title Drawing Number Current Revision All work to be in accordance with local authority's building codes and standards, The NCC/NZBC and all relevant and current Aus/NZ Standards. Verify all dimensions on site before ordering materials or commencing construction. Contractor to notify architect immediately if there are any discrepancies or errors in the documentation. Dimensions from stud for new partitions/setout. Dimensions from finished surface for all existing partitions and for interior details, joinery etc. Drawings are design details only. Contractor to provide shop drawings for architects approval of all joinery elements before commencing construction or ordering materials. Provide finish samples for architects approval before commencing construction or ordering materials. Do not scale off drawings. Use figured dimensions only. Status Client Project Job Number FF SERVICES & ELECTRICAL 285 GOOCH STREET THORNBURY VIC 3071 AUSTRALIA Scale at A3 1:100 CheckedDrawn JC JC 285 GOOCH STREET THORNBURY VIC 3071 AUSTRALIA REVISION DETAILS ID DESCRIPTION DATE A TENDER xx.xx.16 A D20D20 D27 D27 D22D22 D26 UP HC P2W/1.2 2 P2W/1.2 2 P2W/0.3 2 P2W/0.3 2 P2W/0.3 2 P2W/0.3 2 P2W/0.3 2 P2W/0.3 2 P2W/0.3 2 WP/0.3 WP/0.3 WP/0.3 WP/0.3 Hydronic Heating - Slab and Panels D P D P S D 1 2 3 4 5 6 7 8 9 10 11 12 13 14 15 16 17 D23D24 D25 D21D25 D25 Ph+Data/0.3 P Ph+Data/0.3 P Ph+Data/0.3 P Ph+Data/0.3 P D19D19 D28 D27 4 P2BS1 S4B P2B line of wall line of wall line of wall Powerpoint & Light Switch in wall Powerpoint in wall Light Switch in wall ELECTRICAL Note for Powerpoint Codes: P = Powerpoint, 2 = Number of Gangs, B = Colour (ie: B for Black, W for White & T for Stainless Steel) Note for Switch Codes: S = Switch, 4 = Number of Switches, B = Colour (ie: B for Black, W for White & T for Stainless Steel) Note for Powerpoint & SwitchCodes: P = Powerpoint, 2 = Number of Gangs, B = Colour (ie: B for Black, W for White & T for Stainless Steel) S = Switch, 1 = Number of Switches HC Exhaust MECHANICAL Hydronic Panel Hose Cock G CH HYDRAULIC Core hole* Gas connection Hot & cold water supply * GW - Greasy Waste * TD - Tundish * FW - Floor Waste NOTE: 1. D on symbol indicates dimmer switch 2. X refers to nom height AFFL 3. All GPOs to be 10amp single phase unless otherwise noted All lamps to be warm white unless otherwise noted Electrical fitting colours: W - White B - Black S - Stainless steel All light circuits to be on separate switches & dimmers and be connected to 1 master switch on timer. 1 1:100 PLAN FF SERVICES & ELECTRICAL
  • 11.
    N 1607 PLANS 4 STOREY HOUSE CONTRACT DOCUMENTATION J& E STOREY 1010 Title Drawing Number Current Revision All work to be in accordance with local authority's building codes and standards, The NCC/NZBC and all relevant and current Aus/NZ Standards. Verify all dimensions on site before ordering materials or commencing construction. Contractor to notify architect immediately if there are any discrepancies or errors in the documentation. Dimensions from stud for new partitions/setout. Dimensions from finished surface for all existing partitions and for interior details, joinery etc. Drawings are design details only. Contractor to provide shop drawings for architects approval of all joinery elements before commencing construction or ordering materials. Provide finish samples for architects approval before commencing construction or ordering materials. Do not scale off drawings. Use figured dimensions only. Status Client Project Job Number GF REFLECTED CEILING 285 GOOCH STREET THORNBURY VIC 3071 AUSTRALIA Scale at A3 1:100 CheckedDrawn JC JC 285 GOOCH STREET THORNBURY VIC 3071 AUSTRALIA REVISION DETAILS ID DESCRIPTION DATE A TENDER xx.xx.16 A S1W/1.2 S3W/1.2 3 S1W/1.2 S2/1.2 2 S1W/0.75 S1W/1.2 S2/1.2 2 S1W/1.2 S2/1.2 2 S3W/1.2 3 S1W/1.2S1W/1.2 S2/1.2 2 S2/1.2 2 S1W/1.2 S3W/1.2 3 L2 L2 L2 L2 L2 L2 L2 L2 L2 L2 L2 L2 L2 L2 L2L2 L2L2 L4 L4 L2 L2 L4 L2 L2 L2 L2 L2 L2 L4 L4 L1 L1 L1 L4 L4 L4 L4 L4L4 L4 L6 L6 L6 L6 L4 1 2003 1 2003 2 2003 2 2003 1 2001 2 2002 1 2002 2 2001 MF012 EQ016 EQ017 EQ016 EQ017 EQ016 EQ016 EQ016 MF015 MF015 MF015 MF015 MF015 MF015 FAN FAN EQ017 L 7 L 3 L 3 b u l k h e a d l i n e 1 2 3 4 5 6 7 8 9 10 11 12 13 14 15 16 17 4 L4 L1 L2 L5 L6 P2BS1 S4B P2B L3 line of wall line of wall line of wall Pendant LED Downlight LED Wall Lamp LED LIGHTING Powerpoint & Light Switch in wall LED Strip light Powerpoint in wall Light Switch in wall ELECTRICAL Note for Powerpoint Codes: P = Powerpoint, 2 = Number of Gangs, B = Colour (ie: B for Black, W for White & T for Stainless Steel) Note for Switch Codes: S = Switch, 4 = Number of Switches, B = Colour (ie: B for Black, W for White & T for Stainless Steel) Note for Powerpoint & SwitchCodes: P = Powerpoint, 2 = Number of Gangs, B = Colour (ie: B for Black, W for White & T for Stainless Steel) S = Switch, 1 = Number of Switches Spotlight LED Floodlight LED Sensor HC Exhaust MECHANICAL FIRE Hydronic Panel Hose Cock Notes EQUIPMENT1 BY CONTRACTOR Roller BlindEQ016 Refer to Finishes & Fixtures Schedule Vertical BlindEQ017 Refer to Finishes & Fixtures Schedule LIGHTING Ceiling FanFAN Fan to centrally suspended in specific room. Refer to Finishes & Fixtures Schedule LED PendantL1 Suspended Pendant Light. Ceiling Rose mounted to wall - note location on drawings. All lamps to be warm white 2700K unless otherwise noted - allow adequate flex for drop adjustment - to be discussed with Architect/Designer. Refer to Finishes & Fixtures Schedule. LED Down LightL2 Ceiling Surface Mounted. All transformers to be concealed. All lamps to be warm white 2700K unless otherwise noted. Refer to Finishes & Fixtures Schedule LED Strip LightL3 Joinery Recess Mounted. All transformers to be concealed. All lamps to be warm white 2700K unless otherwise noted. Refer to Finishes & Fixtures Schedule LED Wall LightL4 Wall Mounted 1800mm FFL to underside of fitting unless otherwise noted. All transformers to be concealed, All lamps to be warm white 2700K unless otherwise noted. Refer to Finishes & Fixtures Schedule LED Flood LightL6 Wall Mounted 2400mm FFL to underside of fitting unless otherwise noted. All transformers to be concealed, All lamps to be warm white 2700K unless otherwise noted. Refer to Finishes & Fixtures Schedule LED Custom LightL7 LED Strip light built into RHS. Allow for install only. Discuss with Architect/Designer prior to installation MF MATERIALS & FINISHES Polycarbonate / Translucent Roofing MF012 Refer to Finishes & Fixtures Schedule PlasterboardMF015 Refer to Finishes & Fixtures Schedule 1 1:100 PLAN GF REFLECTED CEILING
  • 12.
    N 1607 PLANS 4 STOREY HOUSE CONTRACT DOCUMENTATION J& E STOREY 1011 Title Drawing Number Current Revision All work to be in accordance with local authority's building codes and standards, The NCC/NZBC and all relevant and current Aus/NZ Standards. Verify all dimensions on site before ordering materials or commencing construction. Contractor to notify architect immediately if there are any discrepancies or errors in the documentation. Dimensions from stud for new partitions/setout. Dimensions from finished surface for all existing partitions and for interior details, joinery etc. Drawings are design details only. Contractor to provide shop drawings for architects approval of all joinery elements before commencing construction or ordering materials. Provide finish samples for architects approval before commencing construction or ordering materials. Do not scale off drawings. Use figured dimensions only. Status Client Project Job Number FF REFLECTED CEILING 285 GOOCH STREET THORNBURY VIC 3071 AUSTRALIA Scale at A3 1:100 CheckedDrawn JC JC 285 GOOCH STREET THORNBURY VIC 3071 AUSTRALIA REVISION DETAILS ID DESCRIPTION DATE A TENDER xx.xx.16 A S1W/1.2 S3W/1.2 3 S1W/1.2 S1W/1.2 S2/1.2 2 S2/1.2 2S2/1.22 S1W/1.2 S1W/1.2 S1W/1.2 S1W/1.2 S1W/1.2 S1W/1.2 S1W/1.2S1W/1.2 L1 L4 L1 L4 L4 L1 L4 L4 L4 L4 L4 L1L1 L4 L1 L4 L4 L1 L4 L4 L1 L1 L4 L4L4 L4 L4 L4 1 2003 1 2003 2 2003 2 2003 1 2001 2 2002 1 2002 2 2001 MF004 FAN MF004 MF004 MF004 MF004 EQ017 EQ016 EQ017 EQ016 EQ016 EQ016 EQ017 EQ016 L 3 RAKINGUP RAKINGUP RAKINGUP RAKINGUP RAKINGUP RAKINGUP L3 1 2 3 4 5 6 7 8 9 10 11 12 13 14 15 16 17 4 L4 L1 L2 L5 L6 P2BS1 S4B P2B L3 line of wall line of wall line of wall Pendant LED Downlight LED Wall Lamp LED LIGHTING Powerpoint & Light Switch in wall LED Strip light Powerpoint in wall Light Switch in wall ELECTRICAL Note for Powerpoint Codes: P = Powerpoint, 2 = Number of Gangs, B = Colour (ie: B for Black, W for White & T for Stainless Steel) Note for Switch Codes: S = Switch, 4 = Number of Switches, B = Colour (ie: B for Black, W for White & T for Stainless Steel) Note for Powerpoint & SwitchCodes: P = Powerpoint, 2 = Number of Gangs, B = Colour (ie: B for Black, W for White & T for Stainless Steel) S = Switch, 1 = Number of Switches Spotlight LED Floodlight LED Sensor HC Exhaust MECHANICAL FIRE Hydronic Panel Hose Cock Notes EQUIPMENT1 BY CONTRACTOR Roller BlindEQ016 Refer to Finishes & Fixtures Schedule Vertical BlindEQ017 Refer to Finishes & Fixtures Schedule LIGHTING Ceiling FanFAN Fan to centrally suspended in specific room. Refer to Finishes & Fixtures Schedule LED PendantL1 Suspended Pendant Light. Ceiling Rose mounted to wall - note location on drawings. All lamps to be warm white 2700K unless otherwise noted - allow adequate flex for drop adjustment - to be discussed with Architect/Designer. Refer to Finishes & Fixtures Schedule. LED Strip LightL3 Joinery Recess Mounted. All transformers to be concealed. All lamps to be warm white 2700K unless otherwise noted. Refer to Finishes & Fixtures Schedule LED Wall LightL4 Wall Mounted 1800mm FFL to underside of fitting unless otherwise noted. All transformers to be concealed, All lamps to be warm white 2700K unless otherwise noted. Refer to Finishes & Fixtures Schedule MF MATERIALS & FINISHES PlywoodMF004 Refer to Finishes & Fixtures Schedule. 1 1:100 PLAN FF REFLECTED CEILING
  • 13.
    1607 SECTIONS & ELEVATIONS 4 STOREYHOUSE CONTRACT DOCUMENTATION J & E STOREY 2001 Title Drawing Number Current Revision All work to be in accordance with local authority's building codes and standards, The NCC/NZBC and all relevant and current Aus/NZ Standards. Verify all dimensions on site before ordering materials or commencing construction. Contractor to notify architect immediately if there are any discrepancies or errors in the documentation. Dimensions from stud for new partitions/setout. Dimensions from finished surface for all existing partitions and for interior details, joinery etc. Drawings are design details only. Contractor to provide shop drawings for architects approval of all joinery elements before commencing construction or ordering materials. Provide finish samples for architects approval before commencing construction or ordering materials. Do not scale off drawings. Use figured dimensions only. Status Client Project Job Number ELEVATIONS 285 GOOCH STREET THORNBURY VIC 3071 AUSTRALIA Scale at A3 1:100 CheckedDrawn JC JC 285 GOOCH STREET THORNBURY VIC 3071 AUSTRALIA REVISION DETAILS ID DESCRIPTION DATE A TENDER xx.xx.16 A GROUND RL 53,700 FIRST RL 56,900 ROOF RL 59,300 TOP RL 61,430 GROUND RL 53,700 FIRST RL 56,900 ROOF RL 59,300 TOP RL 61,430 1000 Min. MF003MF002 MF017 L4L4 L4 WP POWER L4 Pergola at rear North side MF005MF005MF017 CEQ12 L4 DOWNPIPE MF019 D18 D28 D02W01 D01 RESCODE54.04-1 SITEBOUNDARY RESCODE 54.04-1 SITEBOUNDARY GROUND RL 53,700 FIRST RL 56,900 ROOF RL 59,300 TOP RL 61,430 GROUND RL 53,700 FIRST RL 56,900 ROOF RL 59,300 TOP RL 61,430 2705100 1000 MF003MF017 MF005 L4 WP POWER DECORATIVE WALL LATTICE MF018 L4 L6 L6 L6 L4 L4 CEQ12 PERGOLA STRUCTURE MF005 CEQ17 MF003 MF002 MF017 MF002 D20 D20 D11D12D13 W03 W02 RESCODE54.04-1 SITEBOUNDARY RESCODE 54.04-1 SITEBOUNDARY Notes EQUIPMENT BY CLIENT BBQ - Built-inCEQ12 Refer to Finishes & Fixtures Schedule Dining Table - outsideCEQ17 Refer to Finishes & Fixtures Schedule LIGHTING LED Wall LightL4 Wall Mounted 1700mm FFL to underside of fitting unless otherwise noted. All transformers to be concealed, All lamps to be warm white 2700K unless otherwise noted. Refer to Finishes & Fixtures Schedule LED Flood LightL6 Wall Mounted 2400mm FFL to underside of fitting unless otherwise noted. All transformers to be concealed, All lamps to be warm white 2700K unless otherwise noted. Refer to Finishes & Fixtures Schedule MF MATERIALS & FINISHES Paint - WhiteMF002 Refer to Finishes & Fixtures Schedule Timber CladdingMF003 Refer to Finishes & Fixtures Schedule Mild SteelMF005 Refer to Finishes & Fixtures Schedule. Polycarbonate / Translucent RoofingMF012 Refer to Finishes & Fixtures Schedule Roof Sheeting - ColorbondMF014 Refer to Finishes & Fixtures Schedule Tiled Wall CladdingMF017 Refer to Finishes & Fixtures Schedule Metal Perforated MeshMF018 Refer to Finishes & Fixtures Schedule Powdercoat - Dark GreyMF019 Refer to Finishes & Fixtures Schedule 1 1:100 ELEVATION SOUTH 2 1:100 ELEVATION NORTH
  • 14.
    N 1607 PLANS 4 STOREY HOUSE CONTRACT DOCUMENTATION J& E STOREY 1003 Title Drawing Number Current Revision All work to be in accordance with local authority's building codes and standards, The NCC/NZBC and all relevant and current Aus/NZ Standards. Verify all dimensions on site before ordering materials or commencing construction. Contractor to notify architect immediately if there are any discrepancies or errors in the documentation. Dimensions from stud for new partitions/setout. Dimensions from finished surface for all existing partitions and for interior details, joinery etc. Drawings are design details only. Contractor to provide shop drawings for architects approval of all joinery elements before commencing construction or ordering materials. Provide finish samples for architects approval before commencing construction or ordering materials. Do not scale off drawings. Use figured dimensions only. Status Client Project Job Number GROUND FLOOR SETOUT 285 GOOCH STREET THORNBURY VIC 3071 AUSTRALIA Scale at A3 1:100 CheckedDrawn JC JC 285 GOOCH STREET THORNBURY VIC 3071 AUSTRALIA REVISION DETAILS ID DESCRIPTION DATE A TENDER xx.xx.16 A UP UP UP UP UP 125 6 975 135 6 521 125 6 160 13 880 15 010 3 675 230 11 105 125550013547201351675125 104051251810 10301234040 125 3 880 135 1 025 135 50 135 8 320 125 4 005 125 3 635 135 4 780 125 960 4 255 3 635 5 030 83911351755125 12512091125 46951251550 1 340 135 3 560 53 700 53 400 53 400 53 400 53 400 53 680 53680 53 700 53 400 53 700 p a v i n g 1stflooro/h P A L I N G F E N C E P A L I N G F E N C E D P D P 1 2 3 4 5 6 7 8 9 10 11 12 13 14 15 16 17 1 1:100 PLAN GROUND FLOOR SETOUT
  • 15.
    1607 SECTIONS & ELEVATIONS 4 STOREYHOUSE CONTRACT DOCUMENTATION J & E STOREY 2003 Title Drawing Number Current Revision All work to be in accordance with local authority's building codes and standards, The NCC/NZBC and all relevant and current Aus/NZ Standards. Verify all dimensions on site before ordering materials or commencing construction. Contractor to notify architect immediately if there are any discrepancies or errors in the documentation. Dimensions from stud for new partitions/setout. Dimensions from finished surface for all existing partitions and for interior details, joinery etc. Drawings are design details only. Contractor to provide shop drawings for architects approval of all joinery elements before commencing construction or ordering materials. Provide finish samples for architects approval before commencing construction or ordering materials. Do not scale off drawings. Use figured dimensions only. Status Client Project Job Number SECTIONS 285 GOOCH STREET THORNBURY VIC 3071 AUSTRALIA Scale at A3 1:100 CheckedDrawn JC JC 285 GOOCH STREET THORNBURY VIC 3071 AUSTRALIA REVISION DETAILS ID DESCRIPTION DATE A TENDER xx.xx.16 A GROUND RL 53,700 FIRST RL 56,900 ROOF RL 59,300 TOP RL 61,430 ROOF RL 59,300 TOP RL 61,430 FIRST RL 56,900 GROUND RL 53,700 MF002MF014 D10 D23 D27D27 D25 D05 MASTER BEDCIRCULATION LIVING BED 2BALCONY BALCONY DECK FILM ROOM DECK 2 5001 1 5001 GROUND RL 53,700 FIRST RL 56,900 ROOF RL 59,300 TOP RL 61,430 TOP RL 61,430 ROOF RL 59,300 GROUND RL 53,700 FIRST RL 56,900 2 5002 3 5002 1 5002 MF002 MF002 W01 D27 D16 D06 SITEBOUNDARY RESCODE 54.04-1 SITEBOUNDARY CIRCULATION FALL 30 o FALL 30 o ENTRY GARAGE MASTER BED BED 4 Notes MF MATERIALS & FINISHES Paint - WhiteMF002 Refer to Finishes & Fixtures Schedule Roof Sheeting - ColorbondMF014 Refer to Finishes & Fixtures Schedule 1 SECTION A-A 2 SECTION B-B
  • 16.
    1607 INTERIOR DETAILS 4 STOREYHOUSE CONTRACT DOCUMENTATION J & E STOREY 3001 Title Drawing Number Current Revision All work to be in accordance with local authority's building codes and standards, The NCC/NZBC and all relevant and current Aus/NZ Standards. Verify all dimensions on site before ordering materials or commencing construction. Contractor to notify architect immediately if there are any discrepancies or errors in the documentation. Dimensions from stud for new partitions/setout. Dimensions from finished surface for all existing partitions and for interior details, joinery etc. Drawings are design details only. Contractor to provide shop drawings for architects approval of all joinery elements before commencing construction or ordering materials. Provide finish samples for architects approval before commencing construction or ordering materials. Do not scale off drawings. Use figured dimensions only. Status Client Project Job Number KITCHEN / DINING 285 GOOCH STREET THORNBURY VIC 3071 AUSTRALIA Scale at A3 1:40 CheckedDrawn JC JC 285 GOOCH STREET THORNBURY VIC 3071 AUSTRALIA REVISION DETAILS ID DESCRIPTION DATE A TENDER xx.xx.16 A 4 3 1 2 EQ021 EQ003 EQ004 CEQ15 CEQ14 CEQ24 CEQ13 CEQ25 butler'spantrypantry F r CT DW Notes EQUIPMENT BY CLIENT RefrigeratorCEQ13 Refer to Finishes & Fixtures Schedule CooktopCEQ14 Refer to Finishes & Fixtures Schedule DishwasherCEQ15 Refer to Finishes & Fixtures Schedule OvenCEQ24 Refer to Finishes & Fixtures Schedule CabinetsCEQ25 Refer to Finishes & Fixtures Schedule EQUIPMENT1 BY CONTRACTOR Sink - Double BowlEQ003 Refer to Finishes & Fixtures Schedule Sink MixerEQ004 Refer to Finishes & Fixtures Schedule Island BenchEQ021 Refer to Finishes & Fixtures Schedule 1:40 PLAN KEY - KITCHEN
  • 17.
    1607 INTERIOR DETAILS 4 STOREYHOUSE CONTRACT DOCUMENTATION J & E STOREY 3002 Title Drawing Number Current Revision All work to be in accordance with local authority's building codes and standards, The NCC/NZBC and all relevant and current Aus/NZ Standards. Verify all dimensions on site before ordering materials or commencing construction. Contractor to notify architect immediately if there are any discrepancies or errors in the documentation. Dimensions from stud for new partitions/setout. Dimensions from finished surface for all existing partitions and for interior details, joinery etc. Drawings are design details only. Contractor to provide shop drawings for architects approval of all joinery elements before commencing construction or ordering materials. Provide finish samples for architects approval before commencing construction or ordering materials. Do not scale off drawings. Use figured dimensions only. Status Client Project Job Number KITCHEN 285 GOOCH STREET THORNBURY VIC 3071 AUSTRALIA Scale at A3 1:20 CheckedDrawn JC JC 285 GOOCH STREET THORNBURY VIC 3071 AUSTRALIA REVISION DETAILS ID DESCRIPTION DATE A TENDER xx.xx.16 A 9007001400 2 570 1 000 310 790 1 075 3000 5 720 489 514 514 514 514 600 L1 DR L7 CEQ14 EQ021 CEQ25 L4 L4 DR DR DR EQ022 DR MF002 MF006 MF001 MF004 MF004 MF002 L2L2 EQ004D14 D15 SEATING / CABINETS TOP FL 53,850 LOWERED FLOOR FL 53,400 RANGE HOOD FL 55,000 Notes ABBREVIATIONS1 : JOINERY DrawerDR Drawer Construction: Nominally 16mm thick material to sides and base, screwed together. Contractor to confirm appropriateness based on substrate selection prior to manufacture. EQUIPMENT BY CLIENT CooktopCEQ14 Refer to Finishes & Fixtures Schedule CabinetsCEQ25 Refer to Finishes & Fixtures Schedule EQUIPMENT1 BY CONTRACTOR Sink MixerEQ004 Refer to Finishes & Fixtures Schedule Island BenchEQ021 Refer to Finishes & Fixtures Schedule Range HoodEQ022 Refer to Finishes & Fixtures Schedule LIGHTING LED PendantL1 Suspended Pendant Light. Ceiling Rose mounted to wall - note location on drawings. All lamps to be warm white 2700K unless otherwise noted - allow adequate flex for drop adjustment - to be discussed with Architect/Designer. Refer to Finishes & Fixtures Schedule. LED Down LightL2 Ceiling Surface Mounted. All transformers to be concealed. All lamps to be warm white 2700K unless otherwise noted. Refer to Finishes & Fixtures Schedule LED Wall LightL4 Wall Mounted 1700mm FFL to underside of fitting unless otherwise noted. All transformers to be concealed, All lamps to be warm white 2700K unless otherwise noted. Refer to Finishes & Fixtures Schedule LED Custom LightL7 LED Strip light built into RHS. Allow for install only. Discuss with Architect/Designer prior to installation MF MATERIALS & FINISHES ConcreteMF001 Refer to Finishes & Fixtures Schedule. Paint - WhiteMF002 Refer to Finishes & Fixtures Schedule PlywoodMF004 Refer to Finishes & Fixtures Schedule. 1 1:20 ELEVATION KITCHEN
  • 18.
    1607 INTERIOR DETAILS 4 STOREYHOUSE CONTRACT DOCUMENTATION J & E STOREY 3003 Title Drawing Number Current Revision All work to be in accordance with local authority's building codes and standards, The NCC/NZBC and all relevant and current Aus/NZ Standards. Verify all dimensions on site before ordering materials or commencing construction. Contractor to notify architect immediately if there are any discrepancies or errors in the documentation. Dimensions from stud for new partitions/setout. Dimensions from finished surface for all existing partitions and for interior details, joinery etc. Drawings are design details only. Contractor to provide shop drawings for architects approval of all joinery elements before commencing construction or ordering materials. Provide finish samples for architects approval before commencing construction or ordering materials. Do not scale off drawings. Use figured dimensions only. Status Client Project Job Number KITCHEN 285 GOOCH STREET THORNBURY VIC 3071 AUSTRALIA Scale at A3 1:20 CheckedDrawn JC JC 285 GOOCH STREET THORNBURY VIC 3071 AUSTRALIA REVISION DETAILS ID DESCRIPTION DATE A TENDER xx.xx.16 A 50 1 300 3 200 50 4 600 320 555 9007001400 4502550 3000 900 550 1 580 L1 L7 CEQ15 L4 DR EQ022 MF002 MF006 L2 L2 CB AS KB CEQ24 CEQ14 EQ003 EQ004 MF021 EQ021 CEQ25 MF021 DR DR DR KB MF004 MF001 LOWERED FLOOR FL 53,400 RANGE HOOD FL 55,000 Notes ABBREVIATIONS1 : JOINERY Adjustable ShelfAS Shelf thickness nominally: Up to 900mm length 18mm thick up to 1200mm long 25mm thick Adjustable shelf supports: 5mm diameter holes at 32mm spacings. Enclosed shelves use clear plastic shelf supports with metal pins. Open shelves use nickel library studs and ferrules at 50mm c/c. CupboardCB Hinges: Provide concealed all metal hinges with the following features: adjustable for height, side and depth location of door self- closing action hold open function nickel-plated. 170A° opening, unless adjacent to return wall, where they are to be 90A° opening DrawerDR Drawer Construction: Nominally 16mm thick material to sides and base, screwed together. Contractor to confirm appropriateness based on substrate selection prior to manufacture. EQUIPMENT BY CLIENT CooktopCEQ14 Refer to Finishes & Fixtures Schedule DishwasherCEQ15 Refer to Finishes & Fixtures Schedule CabinetsCEQ25 Refer to Finishes & Fixtures Schedule EQUIPMENT1 BY CONTRACTOR Sink - Double BowlEQ003 Refer to Finishes & Fixtures Schedule Sink MixerEQ004 Refer to Finishes & Fixtures Schedule Island BenchEQ021 Refer to Finishes & Fixtures Schedule Range HoodEQ022 Refer to Finishes & Fixtures Schedule LIGHTING LED PendantL1 Suspended Pendant Light. Ceiling Rose mounted to wall - note location on drawings. All lamps to be warm white 2700K unless otherwise noted - allow adequate flex for drop adjustment - to be discussed with Architect/Designer. Refer to Finishes & Fixtures Schedule. LED Down LightL2 Ceiling Surface Mounted. All transformers to be concealed. All lamps to be warm white 2700K unless otherwise noted. Refer to Finishes & Fixtures Schedule LED Wall LightL4 Wall Mounted 1700mm FFL to underside of fitting unless otherwise noted. All transformers to be concealed, All lamps to be warm white 2700K unless otherwise noted. Refer to Finishes & Fixtures Schedule LED Custom LightL7 LED Strip light built into RHS. Allow for install only. Discuss with Architect/Designer prior to installation MF MATERIALS & FINISHES ConcreteMF001 Refer to Finishes & Fixtures Schedule. Paint - WhiteMF002 Refer to Finishes & Fixtures Schedule PlywoodMF004 Refer to Finishes & Fixtures Schedule. PlasterboardMF006 Refer to Finishes & Fixtures Schedule. Laminate - 1MF021 Refer to Finishes & Fixtures Schedule 2 1:20 ELEVATION KITCHEN
  • 19.
    N 1607 TENDER PLANS 4 STOREY HOUSE 1004 DrawingNumber Current Revision Status Job Number FIRST FLOOR SETOUT Scale at A3 1:100 A J & E STOREY Title Client Project 285 GOOCH STREET THORNBURY VIC 3071 AUSTRALIA 285 GOOCH STREET THORNBURY VIC 3071 AUSTRALIA UP 125 4 205 135 2 455 135 1 665 135 1 275 135 3 460 135 4 370 135 4 545 135 3 460 135 1 000 12 880 1 600 1 400 135 2 720 6 160 15 480 2 305 11 105 350013512901351000 1575 135 4350 12530301352895125 125409563101840 1030105301850 1256060125 525163101850 52818260 125 13 630 125 6 160 13 880 3 910 11 105 56 900 56900 56900 56 70056 700 57 350 56 410 56 900 RO O F BE LO W RO O F BELO W A W N IN G B E LO W PERGOLABELOW CO URT YARD BEL O W 1 2 3 4 5 6 7 8 9 10 11 12 13 14 15 16 17 1 1:100 PLAN FIRST FLOOR SETOUT
  • 20.
    1607 INTERIOR DETAILS 4 STOREYHOUSE CONTRACT DOCUMENTATION J & E STOREY 3005 Title Drawing Number Current Revision All work to be in accordance with local authority's building codes and standards, The NCC/NZBC and all relevant and current Aus/NZ Standards. Verify all dimensions on site before ordering materials or commencing construction. Contractor to notify architect immediately if there are any discrepancies or errors in the documentation. Dimensions from stud for new partitions/setout. Dimensions from finished surface for all existing partitions and for interior details, joinery etc. Drawings are design details only. Contractor to provide shop drawings for architects approval of all joinery elements before commencing construction or ordering materials. Provide finish samples for architects approval before commencing construction or ordering materials. Do not scale off drawings. Use figured dimensions only. Status Client Project Job Number KITCHEN 285 GOOCH STREET THORNBURY VIC 3071 AUSTRALIA Scale at A3 1:20 CheckedDrawn JC JC 285 GOOCH STREET THORNBURY VIC 3071 AUSTRALIA REVISION DETAILS ID DESCRIPTION DATE A TENDER xx.xx.16 A 457 457 457 457 457 760 388 388 388 388 4 600 50 3 200 1 300 50 885 4 600 85050 9002100 3000 L7 CB MF002 MF006 L1 L4 MF021 MF001 EQ004 CB CB CB CB AS AS AS AS AS AS AS AS AS AS AS AS AS AS AS AS AS AS MF004 MF004 AS CB CEQ13 CEQ14 EQ022 D16 LOWERED FLOOR Notes ABBREVIATIONS1 : JOINERY Adjustable ShelfAS Shelf thickness nominally: Up to 900mm length 18mm thick up to 1200mm long 25mm thick Adjustable shelf supports: 5mm diameter holes at 32mm spacings. Enclosed shelves use clear plastic shelf supports with metal pins. Open shelves use nickel library studs and ferrules at 50mm c/c. CupboardCB Hinges: Provide concealed all metal hinges with the following features: adjustable for height, side and depth location of door self- closing action hold open function nickel-plated. 170A° opening, unless adjacent to return wall, where they are to be 90A° opening EQUIPMENT BY CLIENT RefrigeratorCEQ13 Refer to Finishes & Fixtures Schedule CooktopCEQ14 Refer to Finishes & Fixtures Schedule EQUIPMENT1 BY CONTRACTOR Sink MixerEQ004 Refer to Finishes & Fixtures Schedule Range HoodEQ022 Refer to Finishes & Fixtures Schedule LIGHTING LED PendantL1 Suspended Pendant Light. Ceiling Rose mounted to wall - note location on drawings. All lamps to be warm white 2700K unless otherwise noted - allow adequate flex for drop adjustment - to be discussed with Architect/Designer. Refer to Finishes & Fixtures Schedule. LED Wall LightL4 Wall Mounted 1700mm FFL to underside of fitting unless otherwise noted. All transformers to be concealed, All lamps to be warm white 2700K unless otherwise noted. Refer to Finishes & Fixtures Schedule LED Custom LightL7 LED Strip light built into RHS. Allow for install only. Discuss with Architect/Designer prior to installation MF MATERIALS & FINISHES ConcreteMF001 Refer to Finishes & Fixtures Schedule. Paint - WhiteMF002 Refer to Finishes & Fixtures Schedule PlywoodMF004 Refer to Finishes & Fixtures Schedule. PlasterboardMF006 Refer to Finishes & Fixtures Schedule. Laminate - 1MF021 Refer to Finishes & Fixtures Schedule 4 1:20 ELEVATION KITCHEN
  • 21.
    1607 INTERIOR DETAILS 4 STOREYHOUSE CONTRACT DOCUMENTATION J & E STOREY 3006 Title Drawing Number Current Revision All work to be in accordance with local authority's building codes and standards, The NCC/NZBC and all relevant and current Aus/NZ Standards. Verify all dimensions on site before ordering materials or commencing construction. Contractor to notify architect immediately if there are any discrepancies or errors in the documentation. Dimensions from stud for new partitions/setout. Dimensions from finished surface for all existing partitions and for interior details, joinery etc. Drawings are design details only. Contractor to provide shop drawings for architects approval of all joinery elements before commencing construction or ordering materials. Provide finish samples for architects approval before commencing construction or ordering materials. Do not scale off drawings. Use figured dimensions only. Status Client Project Job Number NOOK 285 GOOCH STREET THORNBURY VIC 3071 AUSTRALIA Scale at A3 1:40, 1:20 CheckedDrawn JC JC 285 GOOCH STREET THORNBURY VIC 3071 AUSTRALIA REVISION DETAILS ID DESCRIPTION DATE A TENDER xx.xx.16 A UP 5 6 1 2 3 4 5 6 7 8 9 10 11 43020330203302033020330203302033020250200 115 515 20 939 20 785 1 070 20 618 20 551 698 20 1 157 20 383 1 084 20 310 20 451 20 2 279 3000 L2 L3 MF004 MF002 MF002 MF004 MF004 OS DR DR DR DR OS OS OS OS OS D07 Stairs bottom surface Seating LOWERED CEILING FL 56,200 SEATING FL 53,850 465 290 1 134 50 1 375 43020330203302033020330203302033020250 2800 2 025 Stairs bottom surface L3 MF004 MF006 OS OS OS OS OS OS L2 D06 SEATING FL 53,850 LOWERED CEILING FL 56,200 Notes ABBREVIATIONS1 : JOINERY DrawerDR Drawer Construction: Nominally 16mm thick material to sides and base, screwed together. Contractor to confirm appropriateness based on substrate selection prior to manufacture. Open ShelfOS Exposed edge DAR, unless otherwise noted on drawings. Finish to be free from imperfections such as dust marks, sanding marks and 'orange peel' effect. LIGHTING LED Down LightL2 Ceiling Surface Mounted. All transformers to be concealed. All lamps to be warm white 2700K unless otherwise noted. Refer to Finishes & Fixtures Schedule LED Strip LightL3 Joinery Recess Mounted. All transformers to be concealed. All lamps to be warm white 2700K unless otherwise noted. Refer to Finishes & Fixtures Schedule MF MATERIALS & FINISHES Paint - WhiteMF002 Refer to Finishes & Fixtures Schedule PlywoodMF004 Refer to Finishes & Fixtures Schedule. PlasterboardMF006 Refer to Finishes & Fixtures Schedule. 1:40 PLAN KEY - NOOK 5 1:20 ELEVATION NOOK 6 1:20 ELEVATION NOOK
  • 22.
    1607 INTERIOR DETAILS 4 STOREYHOUSE CONTRACT DOCUMENTATION J & E STOREY 3007 Title Drawing Number Current Revision All work to be in accordance with local authority's building codes and standards, The NCC/NZBC and all relevant and current Aus/NZ Standards. Verify all dimensions on site before ordering materials or commencing construction. Contractor to notify architect immediately if there are any discrepancies or errors in the documentation. Dimensions from stud for new partitions/setout. Dimensions from finished surface for all existing partitions and for interior details, joinery etc. Drawings are design details only. Contractor to provide shop drawings for architects approval of all joinery elements before commencing construction or ordering materials. Provide finish samples for architects approval before commencing construction or ordering materials. Do not scale off drawings. Use figured dimensions only. Status Client Project Job Number LIVING 285 GOOCH STREET THORNBURY VIC 3071 AUSTRALIA Scale at A3 1:40, 1:20 CheckedDrawn JC JC 285 GOOCH STREET THORNBURY VIC 3071 AUSTRALIA REVISION DETAILS ID DESCRIPTION DATE A TENDER xx.xx.16 A D09 7 9 8 EQ001 MF023 16 17 300 875 3 132 500 544 519 519 519 519 494 519 430201180203002033020 4301200690480 1 175 3 632 20 892 20 555 20 1 005 20 1 080 20 20 1 192 20 780 20 1 580 20 2800 L3 MF002 MF004 MF004 MF002 MF002 MF004 EQ001 TV OS OS OS OS OS OS DR DR DR DR DR DR L4 LOWERED FLOOR FL 53,400 SEATING / CABINETS TOP FL 53,850 LOWERED CEILING FL 56,200 FIREPLACE PODIUM FL 53,500 TOP SHELVES FL 55,030 Notes ABBREVIATIONS1 : JOINERY DrawerDR Drawer Construction: Nominally 16mm thick material to sides and base, screwed together. Contractor to confirm appropriateness based on substrate selection prior to manufacture. Open ShelfOS Exposed edge DAR, unless otherwise noted on drawings. Finish to be free from imperfections such as dust marks, sanding marks and 'orange peel' effect. EQUIPMENT1 BY CONTRACTOR Freestanding FireplaceEQ001 Refer to Finishes & Fixtures Schedule LIGHTING LED Strip LightL3 Joinery Recess Mounted. All transformers to be concealed. All lamps to be warm white 2700K unless otherwise noted. Refer to Finishes & Fixtures Schedule LED Wall LightL4 Wall Mounted 1700mm FFL to underside of fitting unless otherwise noted. All transformers to be concealed, All lamps to be warm white 2700K unless otherwise noted. Refer to Finishes & Fixtures Schedule MF MATERIALS & FINISHES Paint - WhiteMF002 Refer to Finishes & Fixtures Schedule PlywoodMF004 Refer to Finishes & Fixtures Schedule. CarpetMF023 Refer to Finishes & Fixtures Schedule 1:40 ELEVATION KEY - LIVING 7 1:20 ELEVATION LIVING
  • 23.
    1607 INTERIOR DETAILS 4 STOREYHOUSE CONTRACT DOCUMENTATION J & E STOREY 3008 Title Drawing Number Current Revision All work to be in accordance with local authority's building codes and standards, The NCC/NZBC and all relevant and current Aus/NZ Standards. Verify all dimensions on site before ordering materials or commencing construction. Contractor to notify architect immediately if there are any discrepancies or errors in the documentation. Dimensions from stud for new partitions/setout. Dimensions from finished surface for all existing partitions and for interior details, joinery etc. Drawings are design details only. Contractor to provide shop drawings for architects approval of all joinery elements before commencing construction or ordering materials. Provide finish samples for architects approval before commencing construction or ordering materials. Do not scale off drawings. Use figured dimensions only. Status Client Project Job Number LIVING 285 GOOCH STREET THORNBURY VIC 3071 AUSTRALIA Scale at A3 1:20 CheckedDrawn JC JC 285 GOOCH STREET THORNBURY VIC 3071 AUSTRALIA REVISION DETAILS ID DESCRIPTION DATE A TENDER xx.xx.16 A 430201180203002033020480 500 325 525 300 2800 MF004 L3 TV EQ001 OS DR OS MF002 MF004 D08 D09 LOWERED FLOOR FL 53,400 SEATING / CABINETS TOP FL 53,850 LOWERED CEILING FL 56,200 TOP SHELVES FL 55,075 Notes ABBREVIATIONS1 : JOINERY DrawerDR Drawer Construction: Nominally 16mm thick material to sides and base, screwed together. Contractor to confirm appropriateness based on substrate selection prior to manufacture. Open ShelfOS Exposed edge DAR, unless otherwise noted on drawings. Finish to be free from imperfections such as dust marks, sanding marks and 'orange peel' effect. EQUIPMENT1 BY CONTRACTOR Freestanding FireplaceEQ001 Refer to Finishes & Fixtures Schedule LIGHTING LED Strip LightL3 Joinery Recess Mounted. All transformers to be concealed. All lamps to be warm white 2700K unless otherwise noted. Refer to Finishes & Fixtures Schedule MF MATERIALS & FINISHES Paint - WhiteMF002 Refer to Finishes & Fixtures Schedule PlywoodMF004 Refer to Finishes & Fixtures Schedule. 8 1:20 ELEVATION LIVING
  • 24.
    N 1607 PLANS 4 STOREY HOUSE CONTRACT DOCUMENTATION J& E STOREY 1005 Title Drawing Number Current Revision All work to be in accordance with local authority's building codes and standards, The NCC/NZBC and all relevant and current Aus/NZ Standards. Verify all dimensions on site before ordering materials or commencing construction. Contractor to notify architect immediately if there are any discrepancies or errors in the documentation. Dimensions from stud for new partitions/setout. Dimensions from finished surface for all existing partitions and for interior details, joinery etc. Drawings are design details only. Contractor to provide shop drawings for architects approval of all joinery elements before commencing construction or ordering materials. Provide finish samples for architects approval before commencing construction or ordering materials. Do not scale off drawings. Use figured dimensions only. Status Client Project Job Number GF GENERAL ARRANGEMENT 285 GOOCH STREET THORNBURY VIC 3071 AUSTRALIA Scale at A3 1:100 CheckedDrawn JC JC 285 GOOCH STREET THORNBURY VIC 3071 AUSTRALIA REVISION DETAILS ID DESCRIPTION DATE A TENDER xx.xx.16 A D17 D14D15 D18 W01 D02 W01 D13 D07 D08 D04 D03 D16 D10 D09 D12D11 D05 D06 D01 UP UP UP UP UP 700 1 175 1 100 4600 960 4 255 2 005 450 1 180 5 030 5 200 900 2 860 450 3 320 450 700 350500021602896125 110 900500300 8703313138410021101360450 1 699 900 960 9004600 265 760 710500600 1039910 1755 1 2003 1 2003 2 2003 2 2003 1 2001 2 2002 1 2002 2 2001 MF001 CEQ16 EQ021 CEQ12 EQ001 EQ006 CEQ17 EQ005 EQ002 EQ002 MF001 MF009 MF001 MF001 MF001 MF001 MF009 MF010MF010 MF010 MF010 CEQ22 EQ013 EQ018 EQ019 EQ020 BUILT-INSEATBUILT-INSEATBUILT-INSEAT F r 0 . 0 0 0 F L G A R A G E F I L M R O O M E N T R Y KITCHEN DINING F r butler's pantry pantry L I V I N G S T Y D Y b u l k h e a d o / h s e a t w / s t o r a g e C O U R T Y A R D p a v i n g S U N K E N C O U R T Y A R D O U T D O O R D I N I N G 1stflooro/h D E C K D E C K workbench storage -0.300RL - 0 . 3 0 0 R L P A L I N G F E N C E P A L I N G F E N C E PALINGFENCE D P D P CT D W 1 2 3 4 5 6 7 8 9 10 11 12 13 14 15 16 17 WT03 WT03 WT01 WT02 WT01 WT01 WT02 WT01 WT02 WT02 WT01 WT01 WT03 WT03 WT03 WT01 WT03 ADJACENT DWELLING 283 GOOCH STREET ADJACENT DWELLING 287 GOOCH STREET RO SS M OY N Notes EQUIPMENT BY CLIENT BBQ - Built-inCEQ12 Refer to Finishes & Fixtures Schedule Dining Table - InsideCEQ16 Refer to Finishes & Fixtures Schedule Dining Table - outsideCEQ17 Refer to Finishes & Fixtures Schedule SofaCEQ22 Refer to Finishes & Fixtures Schedule EQUIPMENT1 BY CONTRACTOR Freestanding FireplaceEQ001 Refer to Finishes & Fixtures Schedule Rainwater TankEQ002 Refer to Finishes & Fixtures Schedule Basin - Wall outlet -1EQ005 Refer to Finishes & Fixtures Schedule Toilet PanEQ006 Refer to Finishes & Fixtures Schedule BasinEQ013 Refer to Finishes & Fixtures Schedule In-Built CabinetsEQ018 Refer to Finishes & Fixtures Schedule In-Built CabinetsEQ019 Refer to Finishes & Fixtures Schedule In-Built CabinetsEQ020 Refer to Finishes & Fixtures Schedule Island BenchEQ021 Refer to Finishes & Fixtures Schedule MF MATERIALS & FINISHES Concrete SlabMF001 Refer to Finishes & Fixtures Schedule. Timber DeckingMF009 Refer to Finishes & Fixtures Schedule. PavingMF010 Refer to Finishes & Fixtures Schedule. 1 1:100 PLAN GF GENERAL ARRANGEMENT
  • 25.
    1607 INTERIOR DETAILS 4 STOREYHOUSE CONTRACT DOCUMENTATION J & E STOREY 3010 Title Drawing Number Current Revision All work to be in accordance with local authority's building codes and standards, The NCC/NZBC and all relevant and current Aus/NZ Standards. Verify all dimensions on site before ordering materials or commencing construction. Contractor to notify architect immediately if there are any discrepancies or errors in the documentation. Dimensions from stud for new partitions/setout. Dimensions from finished surface for all existing partitions and for interior details, joinery etc. Drawings are design details only. Contractor to provide shop drawings for architects approval of all joinery elements before commencing construction or ordering materials. Provide finish samples for architects approval before commencing construction or ordering materials. Do not scale off drawings. Use figured dimensions only. Status Client Project Job Number FF CIRCULATION 285 GOOCH STREET THORNBURY VIC 3071 AUSTRALIA Scale at A3 1:40, 1:20 CheckedDrawn JC JC 285 GOOCH STREET THORNBURY VIC 3071 AUSTRALIA REVISION DETAILS ID DESCRIPTION DATE A TENDER xx.xx.16 A 11253001000 2 335 540 685 985 10 J O I N E R Y / F E N C I N G - O P E N S H E L V E S 3 4 5 6 7 8 9 10 11 12 13 14 15 16 17 20 437 20 447 20 447 20 447 20 437 20 560 646 20 2 335 560 665 985 20307203072030720 1000 L4 MF002 DR L4 L1 MF004 MF004 MF004 OS OS OS OS OS OS OSOSOS OS OS OS OSOSOS OS OS OS D19 FIRST FLOOR FL 56,900 JOINERY TOP FL 57,900 Notes ABBREVIATIONS1 : JOINERY Open ShelfOS Exposed edge DAR, unless otherwise noted on drawings. Finish to be free from imperfections such as dust marks, sanding marks and 'orange peel' effect. LIGHTING LED PendantL1 Suspended Pendant Light. Ceiling Rose mounted to wall - note location on drawings. All lamps to be warm white 2700K unless otherwise noted - allow adequate flex for drop adjustment - to be discussed with Architect/Designer. Refer to Finishes & Fixtures Schedule. LED Wall LightL4 Wall Mounted 1700mm FFL to underside of fitting unless otherwise noted. All transformers to be concealed, All lamps to be warm white 2700K unless otherwise noted. Refer to Finishes & Fixtures Schedule MF MATERIALS & FINISHES Paint - WhiteMF002 Refer to Finishes & Fixtures Schedule PlywoodMF004 Refer to Finishes & Fixtures Schedule. 1:40 ELEVATION KEY - FF CIRCULATION 10 1:20 ELEVATION FF CIRCULATION
  • 26.
    1607 DETAILS 4 STOREY HOUSE CONTRACT DOCUMENTATION J& E STOREY 5001 Title Drawing Number Current Revision All work to be in accordance with local authority's building codes and standards, The NCC/NZBC and all relevant and current Aus/NZ Standards. Verify all dimensions on site before ordering materials or commencing construction. Contractor to notify architect immediately if there are any discrepancies or errors in the documentation. Dimensions from stud for new partitions/setout. Dimensions from finished surface for all existing partitions and for interior details, joinery etc. Drawings are design details only. Contractor to provide shop drawings for architects approval of all joinery elements before commencing construction or ordering materials. Provide finish samples for architects approval before commencing construction or ordering materials. Do not scale off drawings. Use figured dimensions only. Status Client Project Job Number SECTIONS 285 GOOCH STREET THORNBURY VIC 3071 AUSTRALIA Scale at A3 1:20 CheckedDrawn JC JC 285 GOOCH STREET THORNBURY VIC 3071 AUSTRALIA REVISION DETAILS ID DESCRIPTION DATE A TENDER xx.xx.16 A 1905 505 1000 10mm PLASTERBOARD CEILING RECYCLED TIMBER FLOORING FIRST FLOOR MF008 D01 CONCRETE SLAB GROUND FLOOR MF001 FOOTING TO ENGINEER DETAIL 115mm STRUCTURAL INSULATED PANEL 10mm PLASTERBOARD MF002 10mm PLASTERBOARD MF002 VAPOUR BARRIER BALCONY FENCING 1000mm min HEIGHT FROM FFL MF005 TIMBER DECK MF009 MOISTURE INSULATION 115mm STRUCTURAL INSULATED PANEL 10mm PLASTERBOARD MF002 10mm PLASTERBOARD CEILING CONCRETE SLAB GROUND FLOOR MF001 RECYCLED TIMBER FLOORING FIRST FLOOR MF008 10mm PLASTERBOARD MF002 IN-BUILT CABINETS EQ018 FOOTING TO ENGINEER DETAIL Notes EQUIPMENT1 BY CONTRACTOR In-Built CabinetsEQ018 Refer to Finishes & Fixtures Schedule MF MATERIALS & FINISHES Concrete SlabMF001 Refer to Finishes & Fixtures Schedule. Paint - WhiteMF002 Refer to Finishes & Fixtures Schedule Mild SteelMF005 Refer to Finishes & Fixtures Schedule. Recycled TimberMF008 Refer to Finishes & Fixtures Schedule. Timber DeckingMF009 Refer to Finishes & Fixtures Schedule. 1 1:20 DETAIL WALL SECTION 1 2 1:20 DETAIL WALL SECTION 2
  • 27.
    1607 DETAILS 4 STOREY HOUSE CONTRACT DOCUMENTATION J& E STOREY 5002 Title Drawing Number Current Revision All work to be in accordance with local authority's building codes and standards, The NCC/NZBC and all relevant and current Aus/NZ Standards. Verify all dimensions on site before ordering materials or commencing construction. Contractor to notify architect immediately if there are any discrepancies or errors in the documentation. Dimensions from stud for new partitions/setout. Dimensions from finished surface for all existing partitions and for interior details, joinery etc. Drawings are design details only. Contractor to provide shop drawings for architects approval of all joinery elements before commencing construction or ordering materials. Provide finish samples for architects approval before commencing construction or ordering materials. Do not scale off drawings. Use figured dimensions only. Status Client Project Job Number SECTIONS 285 GOOCH STREET THORNBURY VIC 3071 AUSTRALIA Scale at A3 1:20, 1:10 CheckedDrawn JC JC 285 GOOCH STREET THORNBURY VIC 3071 AUSTRALIA REVISION DETAILS ID DESCRIPTION DATE A TENDER xx.xx.16 A 180 115mm STRUCTURAL INSULATED PANEL 10mm PLASTERBOARD MF002 VAPOUR BARRIER SARKING TIMBER BATTEN TO FORM A VENTILATED CAVITY TILED WALL CLADDING MF01710mm PLASTERBOARD CEILING MF002 TIMBER SLAB SOIL MOISTURE INSULATION PARAPET METAL CAPPING MF005 FOOTING TO ENGINEER DETAIL CONCRETE SLAB MF001 INSULSPAN APPROVED PANEL SEAL TAPE BLOCKING TO BE CARRIED OUT BY PANEL PREFABRICATOR 115mm STRUCTURAL INSULATED PANEL 10mm PLASTERBOARD MF002 10mm PLASTERBOARD MF002 165mm STRUCTURAL INSULATED PANEL VAPOUR BARRIER SARKING TIMBER BATTEN TO FORM A VENTILATED CAVITY TIMBER CLADDING MF003 INSULSPAN APPROVED PANEL SEAL TAPE TIMBER BATTEN BOX GUTTER min 1:100 FALL VAPOUR BARRIER SARKING ROOF SHEETING MF003 CAP FLASHING TO MATCH THE COLOUR OF MF014 ROOF SHEETING MF014 VAPOUR BARRIER SARKING 165mm STRUCTURAL INSULATED PANEL INSULSPAN APPROVED PANEL SEAL TAPE INSULSPAN APPROVED SEALANT RIDGE BEAM Notes MF MATERIALS & FINISHES Concrete SlabMF001 Refer to Finishes & Fixtures Schedule. Paint - WhiteMF002 Refer to Finishes & Fixtures Schedule Timber CladdingMF003 Refer to Finishes & Fixtures Schedule Green RoofMF007 Refer to Finishes & Fixtures Schedule. Roof Sheeting - ColorbondMF014 Refer to Finishes & Fixtures Schedule Tiled Wall CladdingMF017 Refer to Finishes & Fixtures Schedule 1 1:20 DETAIL WALL SECTION 3 3 1:10 DETAIL ROOF & WALL JOINT 2 1:10 DETAIL ROOF RIDGE
  • 28.
    1607 DRAWN SCHEDULES 4 STOREYHOUSE CONTRACT DOCUMENTATION J & E STOREY 6001 Title Drawing Number Current Revision All work to be in accordance with local authority's building codes and standards, The NCC/NZBC and all relevant and current Aus/NZ Standards. Verify all dimensions on site before ordering materials or commencing construction. Contractor to notify architect immediately if there are any discrepancies or errors in the documentation. Dimensions from stud for new partitions/setout. Dimensions from finished surface for all existing partitions and for interior details, joinery etc. Drawings are design details only. Contractor to provide shop drawings for architects approval of all joinery elements before commencing construction or ordering materials. Provide finish samples for architects approval before commencing construction or ordering materials. Do not scale off drawings. Use figured dimensions only. Status Client Project Job Number DOOR & WINDOW SCHEDULE 285 GOOCH STREET THORNBURY VIC 3071 AUSTRALIA Scale at A3 1:1 CheckedDrawn JC JC 285 GOOCH STREET THORNBURY VIC 3071 AUSTRALIA REVISION DETAILS ID DESCRIPTION DATE A TENDER xx.xx.16 A ELEVATION 2 883 2600 900 2600 900 2600 1 000 2600 2580 760 1 200 2600 450 1000 900 2400 585 585 585 1 755 2400 1 208 1 208 1 208 1 208 4 832 2800 1 360 2350 ID D01 D02 D03 D04 D05 D06 D07 D08 D09 D10 D11 Quantity 1 1 1 1 1 1 1 1 1 1 1 Height 2 600 2 600 2 600 2 600 2 560 2 600 1 000 2 400 2 400 2 800 2 350 Width 2 883 900 900 1 000 720 1 200 450 900 1 755 4 807 1 360 DOOR SCHEDULE 4 100 2800 3 313 2800 1500 450 450 1500 900 2400 900 2800 5 000 2224 1800 400 2 400 2400 1930 650 D12 D13 D14 D15 D16 D17 D18 D19 D20 D21 1 1 1 1 1 1 1 2 2 1 2 800 2 800 1 500 1 500 2 400 2 800 2 200 1 800 2 400 1 930 4 100 3 313 450 450 900 900 5 000 400 2 400 650 900 2400 1930 955 450 1780 800 1930 900 2100 900 2400 2 411 2400 D22 D23 D24 D25 D26 D27 D28 2 1 1 3 1 3 1 2 400 1 930 1 780 1 930 2 100 2 400 2 400 900 955 450 800 900 900 2 420 ID W01 W02 W03 Height 2 150 1 601 1 601 Width 500 2 600 2 600 Elevation 450 FFL 2600 FFL 2600 FFL WINDOW SCHEDULE ELEVATION ID Quantity Height Width DOOR SCHEDULE ELEVATION ID Quantity Height Width DOOR SCHEDULE