DRAWINGS
FOR APPROVAL
(08-06-2014)
DRAWING INDEX
AN-0019th JUNE, 2014
DRAWING INDEX
Sheet List Table
Sheet Number Sheet Title
-- COVER
AN-001 DRAWING INDEX
S-100 FOUNDATION LAYOUT
S-101 FOUNDATION PILING LAYOUT
S-102 COLUMN LAYOUT
S-103 FOUNDATION DETAILS
S-104 RETAINING WALL DETAILS
S-105 RETAINING WALL DETAILS
C-106 R.C. BLOCK BASEWALL LAYOUT
S-107 R.C. SLAB LAYOUT
S-108 JOINTING SLAB LAYOUT
S-109 GROUND FLOOR BEAM LAYOUT
S-110 FIRST FLOOR BEAM LAYOUT
S-111 SECOND FLOOR BEAM LAYOUT
S-112 ROOF BEAM LAYOUT
S-113 PARAPET WALL BEAM LAYOUT
S-114 GROUND FLOOR DECKING PAN LAYOUT
S-115 FIRST FLOOR DECKING PAN LAYOUT
S-116 SECOND FLOOR DECKING PAN LAYOUT
S-117 ROOF DECKING PAN LAYOUT
S-118 ROOF DRAINAGE LAYOUT
S-119 STRUCTURAL SECTIONS
S-120 STRUCTURAL SECTIONS
S-121 STRUCTURAL SECTIONS
S-122 BRACING CONNECTION
S-123 BRACING CONNECTION DETAILS
S-124 BRACING CONNECTION DETAILS
S-125 BRACING CONNECTION DETAILS
S-126 BEAM CONNECTION DETAILS.
S-127 BEAM CONNECTION DETAILS
S-128 FIRE ESCAPE STAIR NO.1 DETAILS
S-129 FIRE ESCAPE STAIR NO.2 DETAILS
S-130 STAIRWELL NO. 3 DETAILS
S-131 BLOCKWORK CONNECTION DETAILS
AFL
1411865431
C
7 9 10
HJ
2 12
EGKD
13 15
BMG'K'
LEGEND:-
F1=17'1 x 8'-10" x 1'-8" DEEP R.C. PAD FOOTING
F2=13'-1" x 13'-1" x 1'-8" DEEP R.C. PAD FOOTING
F3=9'-10" x 9'-10" x 1'-8" DEEP R.C. PAD FOOTING
GROUND BEAM = 1'-4" WIDEx 1'-8" DEEP
P1=2'-4" x 2'-4" R.C. PEDESTAL
- 1'-4" THK. R.C. BLOCK RETAINING WALL
FOUNDATION LAYOUT
S-100
FOUNDATION LAYOUT
Scale 1/8"=1'-0"
9th JUNE, 2014
AFL
1411865431
C
7 9 10
HJ
2 12
EGKD
13 15
BMG'K'
VERTICAL SECTION THRU.'
Scale 1/2"=1'-0"
SECTION THRU.'
Scale 1"=1'-0"
FOUNDATION PILING LAYOUT
S-1019th JUNE, 2014
FOUNDATION PILING LAYOUT
Scale 1/8"=1'-0"
AFL
1411865431
C
7 9 10
HJ
2 12
EGKD
13 15
BMG'K'
COLUMN LAYOUT
S-1029th JUNE, 2014
STRUCTURAL COLUMN LAYOUT
Scale 1/8"=1'-0"
TYPE F1 FOUNDATION DETAILS
SECTION VIEW A-A
Scale 1/2"=1'-0"
PLAN VIEW
TYPE F1 FOUNDATION DETAILS
PLAN VIEW
Scale 3/8"=1'-0"
PLAN VIEW
TYPE F2 FOUNDATION DETAILS
PLAN VIEW
Scale 1/4"=1'-0"
TYPE F2 FOUNDATION DETAILS
SECTION VIEW B-B
Scale 1/2"=1'-0"
TYPE F3 FOUNDATION DETAILS
SECTION VIEW C-C
Scale 1/2"=1'-0"
PLAN VIEW
TYPE F3 FOUNDATION DETAILS
PLAN VIEW
Scale 3/8"=1'-0"
1'-4" WD.x1'-8" DEEP R.C.
GROUND BEAM DETAILS
Scale 1/2"=1'-0"
PEDESTAL TYPE 1
UC ENCASEMENT DETAILS
Scale 1/2"=1'-0"
PEDESTAL TYPE P1
BASEPLATE DETAILS
Scale 1/2"=1'-0"
TYPE P1
SECTION THRU.' 2'-4"x2'-4"
R.C. PEDESTAL
Scale 1/2"=1'-0"
FOUNDATION DETAILS
S-1039th JUNE, 2014
SECTION Q-Q THRU.' ELEVATOR SHAFT
Scale 1/2"=1'-0"
SECTION P-P THRU.' ELEVATOR SHAFT
Scale 1/2"=1'-0"
SECOND COURSE LAYOUT
R.C. BLOCK RETAINING WALL DETAILS
FIRST COURSE LAYOUT
R.C. BLOCK RETAINING WALL DETAILS
SECTION X-X
THRU.' 1'-4" THK R.C. BLOCK RETAINING WALLSECTION W-W
THRU.' 1'-4" THK R.C. BLOCK RETAINING WALL
RETAINING WALL DETAILS
S-1049th JUNE, 2014
SECTION Y-Y
THRU.' 1'-4" THK R.C. BLOCK RETAINING WALL
SECTION V-V
THRU.' 1'-4" THK R.C. BLOCK RETAINING WALL
SECTION U-U
THRU.' 1'-4" THK R.C. BLOCK RETAINING WALLSECTION T-T
THRU.' 1'-4" THK R.C. BLOCK RETAINING WALL
TYPICAL SECTION N-N THRU.' MAIN
ENTRANCE STAIRWELL TO BUILDING (MARIE STREET)
Scale 3/8"=1'-0"
TYPICAL SECTION L-L THRU.' MAIN
ENTRANCE STAIRWELL TO BUILDING (MARIE STREET)
Scale 3/8"=1'-0"
TYPICAL SECTION M-M THRU.' MAIN
ENTRANCE STAIRWELL TO BUILDING (MARIE STREET)
Scale 3/8"=1'-0"
RETAINING WALL DETAILS
S-1059th JUNE, 2014
STAIRWELL & RAMP LAYOUT TO MAIN ENTRANCE (MARIE STREET)
Scale 3/8"=1'-0"
TYPICAL DETAILS
Scale 1/2"=1'-0"
* R.C. SLAB CONSTRUCTION
AFL
1411865431
C
7 9 10
HJ
2 12
EGKD
13 15
BMG'K'
TYPICAL R.C. BLOCK BASEWALLBEAM & SLAB END CONNECTION DETAILS
Scale 1/2"=1'-0"
* R.C. SLAB CONSTRUCTION
R.C. BLOCK BASEWALL LAYOUT
C-1069th JUNE, 2014
R.C. BLOCK BASEWALL LAYOUT
Scale 1/8"=1'-0"
AFL
1411865431
C
7 9 10
HJ
2 12
EGKD
13 15
BMG'K'
* R.C. SLAB CONSTRUCTION
TYPICAL DRAIN DETAILS
Scale 1/2"=1'-0"
R.C. SLAB LAYOUT
S-1079th JUNE, 2014
R.C. BASEMENT SLAB LAYOUT
Scale 1/8"=1'-0"
AFL
1411865431
C
7 9 10
HJ
2 12
EGKD
13 15
BMG'K'
* R.C. SLAB CONSTRUCTION
* R.C. SLAB CONSTRUCTION
* R.C. SLAB CONSTRUCTION
* R.C. SLAB CONSTRUCTION
JOINTING SLAB LAYOUT
S-1089th JUNE, 2014
R.C. BASEMENT SLAB JOINTING LAYOUT
Scale 1/8"=1'-0"
AFL
1411865431
C
7 9 10
HJ
2 12
EGKD
13 15
BMG'K'AFL
1411865431
C
7 9 10
HJ
2 12
EGKD
13 15
BMG'K'
BEAM SIZES
GROUND FLOOR BEAM LAYOUT
S-1099th JUNE, 2014
GROUND FLOOR BEAM LAYOUT
Scale 1/8"=1'-0"
AFL
1411865431
C
7 9 10
HJ
2 12
EGKD
13 15
BMG'K'AFL
1411865431
C
7 9 10
HJ
2 12
EGKD
13 15
BMG'K'
BEAM SIZES
FIRST FLOOR BEAM LAYOUT
S-1109th JUNE, 2014
FIRST FLOOR BEAM LAYOUT
Scale 1/8"=1'-0"
AFL
1411865431
C
7 9 10
HJ
2 12
EGKD
13 15
BMG'K'AFL
1411865431
C
7 9 10
HJ
2 12
EGKD
13 15
BMG'K'
BEAM SIZES
SECOND FLOOR BEAM LAYOUT
S-1119th JUNE, 2014
SECOND FLOOR BEAM LAYOUT
Scale 1/8"=1'-0"
AFL
1411865431
C
7 9 10
HJ
2 12
EGKD
13 15
BMG'K'AFL
1411865431
C
7 9 10
HJ
2 12
EGKD
13 15
BMG'K'
BEAM SIZES
ROOF BEAM LAYOUT
S-1129th JUNE, 2014
ROOF BEAM LAYOUT
Scale 1/8"=1'-0"
AFL
1411865431
C
7 9 10
HJ
2 12
EGKD
13 15
BMG'K'
BEAM SIZES
PARAPET WALL BEAM LAYOUT
S-1139th JUNE, 2014
PARAPET WALL BEAM LAYOUT
Scale 1/8"=1'-0"
AFL
1411865431
C
7 9 10
HJ
2 12
EGKD
13 15
BMG'K'AFL
1411865431
C
7 9 10
HJ
2 12
EGKD
13 15
BMG'K'
TYPICAL END SLAB
CONNECTION DETAILS
Scale 3/4"=1'-0'
GROUND FLOOR DECKING PAN LAYOUT
S-1149th JUNE, 2014
GROUND FLOOR DECKING PAN LAYOUT
Scale 1/8"=1'-0"
AFL
1411865431
C
7 9 10
HJ
2 12
EGKD
13 15
BMG'K'AFL
1411865431
C
7 9 10
HJ
2 12
EGKD
13 15
BMG'K'
TYPICAL END SLAB
CONNECTION DETAILS
Scale 3/4"=1'-0'
FIRST FLOOR DECKING PAN LAYOUT
S-1159th JUNE, 2014
FIRST FLOOR DECKING PAN LAYOUT
Scale 1/8"=1'-0"
AFL
1411865431
C
7 9 10
HJ
2 12
EGKD
13 15
BMG'K'AFL
1411865431
C
7 9 10
HJ
2 12
EGKD
13 15
BMG'K'
TYPICAL END SLAB
CONNECTION DETAILS
Scale 3/4"=1'-0'
SECOND FLOOR DECKING PAN LAYOUT
S-1169th JUNE, 2014
SECOND FLOOR DECKING PAN LAYOUT
Scale 1/8"=1'-0"
AFL
1411865431
C
7 9 10
HJ
2 12
EGKD
13 15
BMG'K'
TYPICAL END SLAB
CONNECTION DETAILS
Scale 3/4"=1'-0'
ROOF DECKING PAN LAYOUT
S-1179th JUNE, 2014
ROOF DECKING PAN LAYOUT
Scale 1/8"=1'-0"
AFL
1411865431
C
7 9 10
HJ
2 12
EGKD
13 15
BMG'K'AFL
1411865431
C
7 9 10
HJ
2 12
EGKD
13 15
BMG'K'
R5 BEAM TO W14x283 UC.
CONNECTION DETAILS TO (PARAPET WALL)
Scale 1"=1'-0"
ROOF DRAINAGE LAYOUT
S-1189th JUNE, 2014
ROOF DRAINAGE LAYOUT
Scale 1/8"=1'-0"
STRUCTURAL SECTION AT GRID LINE "1"
Scale 1/8"=1'-0"
STRUCTURAL SECTION AT GRID LINE "2"
Scale 1/8"=1'-0"
STRUCTURAL SECTION AT GRID LINES "5" & "6"
Scale 1/8"=1'-0"
STRUCTURAL SECTION AT GRID LINE "9"
Scale 1/8"=1'-0"
STRUCTURAL SECTIONS
S-1199th JUNE, 2014
STRUCTURAL SECTION AT GRID LINE "12"
Scale 1/8"=1'-0"
STRUCTURAL SECTION AT GRID LINE "13"
Scale 1/8"=1'-0"
STRUCTURAL SECTION AT GRID LINE "15"
Scale 1/8"=1'-0"
STRUCTURAL SECTION AT GRID LINE "A"
Scale 1/8"=1'-0"
STRUCTURAL SECTIONS
S-1209th JUNE, 2014
STRUCTURAL SECTION AT GRID LINE "G"
Scale 1/8"=1'-0"
STRUCTURAL SECTION AT GRID LINE "M"
Scale 1/8"=1'-0"
STRUCTURAL SECTION AT DIAGONAL GRID LINE
Scale 1/8"=1'-0"
STRUCTURAL SECTIONS
S-1219th JUNE, 2014
STRUCTURAL SECTION AT GRID LINE "1" SHOWING HSSP BRACING CONNECTION
Scale 1/8"=1'-0"
STRUCTURAL SECTION AT GRID LINE "A" SHOWING HSSP BRACING CONNECTION
Scale 1/8"=1'-0"
STRUCTURAL SECTION AT GRID LINE "M" SHOWING HSSP BRACING CONNECTION
Scale 1/8"=1'-0"
STRUCTURAL SECTION AT GRID LINE "15"
SHOWING HSSP BRACING CONNECTION
Scale 1/8"=1'-0"
STRUCTURAL SECTION AT DIAGONAL GRID LINE SHOWING BRACING CONNECTION
Scale 1/8"=1'-0"
STRUCTURAL SECTION AT GRID LINE "2"
Scale 1/8"=1'-0"
BRACING CONNECTION
S-1229th JUNE, 2014
TYPICAL BRACING DETAILS TO STRUCTURAL GRID LINE "1" BETWEEN "A" & "G"
Scale 3/4"=1'-0"
TYPICAL BRACING DETAILS TO STRUCTURAL GRID LINE "1" BETWEEN "G" & "M"
Scale 3/4"=1'-0"
BRACING CONNECTION DETAILS
S-1239th JUNE, 2014
TYPICAL BRACING DETAILS TO STRUCTURAL GRID LINES "A" BETWEEN "5" TO "9"
Scale 3/4"=1'-0"
TYPICAL BRACING DETAILS TO STRUCTURAL GRID LINE "M" BETWEEN "1" &"4" - "5" & "6"
Scale 3/4"=1'-0"
TYPICAL BRACING DETAILS TO STRUCTURAL GRID LINE "15" BETWEEN "A" &"D"
Scale 3/4"=1'-0"
BRACING CONNECTION DETAILS
S-1249th JUNE, 2014
TYPICAL BRACING DETAILS TO DIAGONAL GRID LINE BETWEEN "G" &"H"
Scale 3/4"=1'-0"
TYPICAL BRACING DETAILS TO DIAGONAL GRID LINE BETWEEN "D" &"E"
Scale 3/4"=1'-0"
TYPICAL BRACING DETAILS TO STRUCTURAL GRID LINE "2" BETWEEN "G" &"G'
Scale 3/4"=1'-0"
TYPICAL BRACING DETAILS TO STRUCTURAL GRID LINE "2" BETWEEN G' &"K"
Scale 3/4"=1'-0"
BRACING CONNECTION DETAILS
S-1259th JUNE, 2014
R2 BEAM TO W14x283 UC. CONNECTION DETAILS
Scale 1"=1'-0"
PLAN VIEW
LATERAL VIEW
FRONT VIEW
R4 BEAM TO W14x283 UC. CONNECTION DETAILS
Scale 1"=1'-0"
PLAN VIEW
LATERAL VIEW
FRONT VIEW
LATERAL VIEW
R4 BEAM TO ELEVATOR WALL
CONNECTION DETAILS
Scale 1"=1'-0"
FRONT VIEW
BEAM TO ELEVATOR WALL
CONNECTION DETAILS
Scale 1"=1'-0"
R4 BEAM TO W14x283 UC. CONNECTION DETAILS
Scale 1"=1'-0"
PLAN VIEW
LATERAL VIEW
FRONT VIEW
LATERAL VIEW
R4 CANTILEVER BEAM
CONNECTION DETAILS
Scale 1"=1'-0"
R4 TO R3 BEAM CONNECTION DETAILS
Scale 1"=1'-0"
PLAN VIEW
LATERAL VIEW
FRONT VIEW
R4 TO R5 BEAM CONNECTION DETAILS
Scale 1"=1'-0"
PLAN VIEW
LATERAL VIEW
FRONT VIEW
BEAM CONNECTION DETAILS.
S-1269th JUNE, 2014
TYPICAL BEAM TO STACHION
CONNECTION DETAILS AT GRID LOCATION
Scale 1"=1'-0"
PLAN VIEW
LATERAL VIEW
FRONT VIEW
R4 TO R2 BEAM CONNECTION DETAILS
Scale 1"=1'-0"
PLAN VIEW LATERAL VIEW FRONT VIEW
R4 TO R4 BEAM CONNECTION DETAILS
Scale 1"=1'-0"
PLAN VIEW LATERAL VIEW
FRONT VIEW
TYPICAL BEAM TO STACHION
CONNECTION DETAILS AT GRID LOCATION
Scale 1"=1'-0"
LATERAL VIEWPLAN VIEW
TYPICAL BEAM TO STACHION
CONNECTION DETAILS WHERE APPLICABLE
Scale 1"=1'-0"
TYPICAL BEAM TO STACHION
CONNECTION DETAILS WHERE APPLICABLE
Scale 1"=1'-0"
TYPICAL BEAM TO STACHION
CONNECTION DETAILS WHERE APPLICABLE
Scale 1"=1'-0"
BEAM CONNECTION DETAILS
S-1279th JUNE, 2014
SECTION THRU.' FIRE ESPAPE STAIRWELL # 1
Scale 3/8"=1'-0"
3 4
STAIRWELL LAYOUT TO MAIN ENTRANCE (MANIC STREET)
Scale 3/8"=1'-0"
TYPICAL STAIRWELL TREADER DETAILS
Scale 1"=1'-0"
SECTION "L-L"
STAIRWELL LAYOUT TO MAIN ENTRANCE (MANIC STREET)
Scale 3/8"=1'-0"
TYPICAL STAIRWELL TREADER DETAILS
Scale 1"=1'-0"
FIRE ESCAPE # 1 STAIRWELL STRUCTURE PLAN
Scale 1/4"=1'-0"
FIRE ESCAPE # 1 STAIRWELL PLAN
Scale 1/4"=1'-0"
TYPICAL STAIRWELL TREAD DETAILS
Scale 1"=1'-0"
3 4
STAIRWELL STRUCTURE LAYOUT TO MAIN ENTRANCE (MANIC STREET)
Scale 3/8"=1'-0"
FIRE ESCAPE STAIR NO.1
DETAILS
S-1289th JUNE, 2014
SECTION THRU.' FIRE ESPAPE STAIRWELL # 2
Scale 3/8"=1'-0"
TYPICAL STAIRWELL TREADER DETAILS
Scale 1"=1'-0"
FIRE ESCAPE # 2 STAIRWELL STRUCTURE PLAN
Scale 1/4"=1'-0"
FIRE ESCAPE # 2 STAIRWELL PLAN
Scale 1/4"=1'-0"
TYPICAL STAIRWELL TREAD DETAILS
Scale 1"=1'-0"
FIRE ESCAPE STAIR NO.2
DETAILS
S-1299th JUNE, 2014
A
14
CED
13 15
B
STAIRWELL # 3 STRUCTURE PLAN
Scale 1/4"=1'-0"
TYPICAL STAIRWELL TREADER DETAILS
Scale 1"=1'-0"
TYPICAL STAIRWELL TREAD DETAILS
Scale 1"=1'-0"
SECTION "X-X" THRU.' STAIRWELL # 3
Scale 1/2"=1'-0"
SECTION "Y-Y" THRU.' STAIRWELL # 3
Scale 1/2"=1'-0"
STAIRWELL NO. 3 DETAILS
S-1309th JUNE, 2014
9th JUNE, 2014

TAN HOLDINGS FULL PACKAGE

  • 1.
  • 2.
    DRAWING INDEX AN-0019th JUNE,2014 DRAWING INDEX Sheet List Table Sheet Number Sheet Title -- COVER AN-001 DRAWING INDEX S-100 FOUNDATION LAYOUT S-101 FOUNDATION PILING LAYOUT S-102 COLUMN LAYOUT S-103 FOUNDATION DETAILS S-104 RETAINING WALL DETAILS S-105 RETAINING WALL DETAILS C-106 R.C. BLOCK BASEWALL LAYOUT S-107 R.C. SLAB LAYOUT S-108 JOINTING SLAB LAYOUT S-109 GROUND FLOOR BEAM LAYOUT S-110 FIRST FLOOR BEAM LAYOUT S-111 SECOND FLOOR BEAM LAYOUT S-112 ROOF BEAM LAYOUT S-113 PARAPET WALL BEAM LAYOUT S-114 GROUND FLOOR DECKING PAN LAYOUT S-115 FIRST FLOOR DECKING PAN LAYOUT S-116 SECOND FLOOR DECKING PAN LAYOUT S-117 ROOF DECKING PAN LAYOUT S-118 ROOF DRAINAGE LAYOUT S-119 STRUCTURAL SECTIONS S-120 STRUCTURAL SECTIONS S-121 STRUCTURAL SECTIONS S-122 BRACING CONNECTION S-123 BRACING CONNECTION DETAILS S-124 BRACING CONNECTION DETAILS S-125 BRACING CONNECTION DETAILS S-126 BEAM CONNECTION DETAILS. S-127 BEAM CONNECTION DETAILS S-128 FIRE ESCAPE STAIR NO.1 DETAILS S-129 FIRE ESCAPE STAIR NO.2 DETAILS S-130 STAIRWELL NO. 3 DETAILS S-131 BLOCKWORK CONNECTION DETAILS
  • 3.
    AFL 1411865431 C 7 9 10 HJ 212 EGKD 13 15 BMG'K' LEGEND:- F1=17'1 x 8'-10" x 1'-8" DEEP R.C. PAD FOOTING F2=13'-1" x 13'-1" x 1'-8" DEEP R.C. PAD FOOTING F3=9'-10" x 9'-10" x 1'-8" DEEP R.C. PAD FOOTING GROUND BEAM = 1'-4" WIDEx 1'-8" DEEP P1=2'-4" x 2'-4" R.C. PEDESTAL - 1'-4" THK. R.C. BLOCK RETAINING WALL FOUNDATION LAYOUT S-100 FOUNDATION LAYOUT Scale 1/8"=1'-0" 9th JUNE, 2014
  • 4.
    AFL 1411865431 C 7 9 10 HJ 212 EGKD 13 15 BMG'K' VERTICAL SECTION THRU.' Scale 1/2"=1'-0" SECTION THRU.' Scale 1"=1'-0" FOUNDATION PILING LAYOUT S-1019th JUNE, 2014 FOUNDATION PILING LAYOUT Scale 1/8"=1'-0"
  • 5.
    AFL 1411865431 C 7 9 10 HJ 212 EGKD 13 15 BMG'K' COLUMN LAYOUT S-1029th JUNE, 2014 STRUCTURAL COLUMN LAYOUT Scale 1/8"=1'-0"
  • 6.
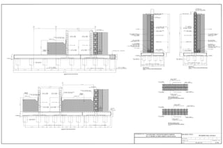
    TYPE F1 FOUNDATIONDETAILS SECTION VIEW A-A Scale 1/2"=1'-0" PLAN VIEW TYPE F1 FOUNDATION DETAILS PLAN VIEW Scale 3/8"=1'-0" PLAN VIEW TYPE F2 FOUNDATION DETAILS PLAN VIEW Scale 1/4"=1'-0" TYPE F2 FOUNDATION DETAILS SECTION VIEW B-B Scale 1/2"=1'-0" TYPE F3 FOUNDATION DETAILS SECTION VIEW C-C Scale 1/2"=1'-0" PLAN VIEW TYPE F3 FOUNDATION DETAILS PLAN VIEW Scale 3/8"=1'-0" 1'-4" WD.x1'-8" DEEP R.C. GROUND BEAM DETAILS Scale 1/2"=1'-0" PEDESTAL TYPE 1 UC ENCASEMENT DETAILS Scale 1/2"=1'-0" PEDESTAL TYPE P1 BASEPLATE DETAILS Scale 1/2"=1'-0" TYPE P1 SECTION THRU.' 2'-4"x2'-4" R.C. PEDESTAL Scale 1/2"=1'-0" FOUNDATION DETAILS S-1039th JUNE, 2014
  • 7.
    SECTION Q-Q THRU.'ELEVATOR SHAFT Scale 1/2"=1'-0" SECTION P-P THRU.' ELEVATOR SHAFT Scale 1/2"=1'-0" SECOND COURSE LAYOUT R.C. BLOCK RETAINING WALL DETAILS FIRST COURSE LAYOUT R.C. BLOCK RETAINING WALL DETAILS SECTION X-X THRU.' 1'-4" THK R.C. BLOCK RETAINING WALLSECTION W-W THRU.' 1'-4" THK R.C. BLOCK RETAINING WALL RETAINING WALL DETAILS S-1049th JUNE, 2014
  • 8.
    SECTION Y-Y THRU.' 1'-4"THK R.C. BLOCK RETAINING WALL SECTION V-V THRU.' 1'-4" THK R.C. BLOCK RETAINING WALL SECTION U-U THRU.' 1'-4" THK R.C. BLOCK RETAINING WALLSECTION T-T THRU.' 1'-4" THK R.C. BLOCK RETAINING WALL TYPICAL SECTION N-N THRU.' MAIN ENTRANCE STAIRWELL TO BUILDING (MARIE STREET) Scale 3/8"=1'-0" TYPICAL SECTION L-L THRU.' MAIN ENTRANCE STAIRWELL TO BUILDING (MARIE STREET) Scale 3/8"=1'-0" TYPICAL SECTION M-M THRU.' MAIN ENTRANCE STAIRWELL TO BUILDING (MARIE STREET) Scale 3/8"=1'-0" RETAINING WALL DETAILS S-1059th JUNE, 2014 STAIRWELL & RAMP LAYOUT TO MAIN ENTRANCE (MARIE STREET) Scale 3/8"=1'-0"
  • 9.
    TYPICAL DETAILS Scale 1/2"=1'-0" *R.C. SLAB CONSTRUCTION AFL 1411865431 C 7 9 10 HJ 2 12 EGKD 13 15 BMG'K' TYPICAL R.C. BLOCK BASEWALLBEAM & SLAB END CONNECTION DETAILS Scale 1/2"=1'-0" * R.C. SLAB CONSTRUCTION R.C. BLOCK BASEWALL LAYOUT C-1069th JUNE, 2014 R.C. BLOCK BASEWALL LAYOUT Scale 1/8"=1'-0"
  • 10.
    AFL 1411865431 C 7 9 10 HJ 212 EGKD 13 15 BMG'K' * R.C. SLAB CONSTRUCTION TYPICAL DRAIN DETAILS Scale 1/2"=1'-0" R.C. SLAB LAYOUT S-1079th JUNE, 2014 R.C. BASEMENT SLAB LAYOUT Scale 1/8"=1'-0"
  • 11.
    AFL 1411865431 C 7 9 10 HJ 212 EGKD 13 15 BMG'K' * R.C. SLAB CONSTRUCTION * R.C. SLAB CONSTRUCTION * R.C. SLAB CONSTRUCTION * R.C. SLAB CONSTRUCTION JOINTING SLAB LAYOUT S-1089th JUNE, 2014 R.C. BASEMENT SLAB JOINTING LAYOUT Scale 1/8"=1'-0"
  • 12.
    AFL 1411865431 C 7 9 10 HJ 212 EGKD 13 15 BMG'K'AFL 1411865431 C 7 9 10 HJ 2 12 EGKD 13 15 BMG'K' BEAM SIZES GROUND FLOOR BEAM LAYOUT S-1099th JUNE, 2014 GROUND FLOOR BEAM LAYOUT Scale 1/8"=1'-0"
  • 13.
    AFL 1411865431 C 7 9 10 HJ 212 EGKD 13 15 BMG'K'AFL 1411865431 C 7 9 10 HJ 2 12 EGKD 13 15 BMG'K' BEAM SIZES FIRST FLOOR BEAM LAYOUT S-1109th JUNE, 2014 FIRST FLOOR BEAM LAYOUT Scale 1/8"=1'-0"
  • 14.
    AFL 1411865431 C 7 9 10 HJ 212 EGKD 13 15 BMG'K'AFL 1411865431 C 7 9 10 HJ 2 12 EGKD 13 15 BMG'K' BEAM SIZES SECOND FLOOR BEAM LAYOUT S-1119th JUNE, 2014 SECOND FLOOR BEAM LAYOUT Scale 1/8"=1'-0"
  • 15.
    AFL 1411865431 C 7 9 10 HJ 212 EGKD 13 15 BMG'K'AFL 1411865431 C 7 9 10 HJ 2 12 EGKD 13 15 BMG'K' BEAM SIZES ROOF BEAM LAYOUT S-1129th JUNE, 2014 ROOF BEAM LAYOUT Scale 1/8"=1'-0"
  • 16.
    AFL 1411865431 C 7 9 10 HJ 212 EGKD 13 15 BMG'K' BEAM SIZES PARAPET WALL BEAM LAYOUT S-1139th JUNE, 2014 PARAPET WALL BEAM LAYOUT Scale 1/8"=1'-0"
  • 17.
    AFL 1411865431 C 7 9 10 HJ 212 EGKD 13 15 BMG'K'AFL 1411865431 C 7 9 10 HJ 2 12 EGKD 13 15 BMG'K' TYPICAL END SLAB CONNECTION DETAILS Scale 3/4"=1'-0' GROUND FLOOR DECKING PAN LAYOUT S-1149th JUNE, 2014 GROUND FLOOR DECKING PAN LAYOUT Scale 1/8"=1'-0"
  • 18.
    AFL 1411865431 C 7 9 10 HJ 212 EGKD 13 15 BMG'K'AFL 1411865431 C 7 9 10 HJ 2 12 EGKD 13 15 BMG'K' TYPICAL END SLAB CONNECTION DETAILS Scale 3/4"=1'-0' FIRST FLOOR DECKING PAN LAYOUT S-1159th JUNE, 2014 FIRST FLOOR DECKING PAN LAYOUT Scale 1/8"=1'-0"
  • 19.
    AFL 1411865431 C 7 9 10 HJ 212 EGKD 13 15 BMG'K'AFL 1411865431 C 7 9 10 HJ 2 12 EGKD 13 15 BMG'K' TYPICAL END SLAB CONNECTION DETAILS Scale 3/4"=1'-0' SECOND FLOOR DECKING PAN LAYOUT S-1169th JUNE, 2014 SECOND FLOOR DECKING PAN LAYOUT Scale 1/8"=1'-0"
  • 20.
    AFL 1411865431 C 7 9 10 HJ 212 EGKD 13 15 BMG'K' TYPICAL END SLAB CONNECTION DETAILS Scale 3/4"=1'-0' ROOF DECKING PAN LAYOUT S-1179th JUNE, 2014 ROOF DECKING PAN LAYOUT Scale 1/8"=1'-0"
  • 21.
    AFL 1411865431 C 7 9 10 HJ 212 EGKD 13 15 BMG'K'AFL 1411865431 C 7 9 10 HJ 2 12 EGKD 13 15 BMG'K' R5 BEAM TO W14x283 UC. CONNECTION DETAILS TO (PARAPET WALL) Scale 1"=1'-0" ROOF DRAINAGE LAYOUT S-1189th JUNE, 2014 ROOF DRAINAGE LAYOUT Scale 1/8"=1'-0"
  • 22.
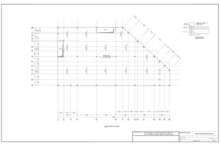
    STRUCTURAL SECTION ATGRID LINE "1" Scale 1/8"=1'-0" STRUCTURAL SECTION AT GRID LINE "2" Scale 1/8"=1'-0" STRUCTURAL SECTION AT GRID LINES "5" & "6" Scale 1/8"=1'-0" STRUCTURAL SECTION AT GRID LINE "9" Scale 1/8"=1'-0" STRUCTURAL SECTIONS S-1199th JUNE, 2014
  • 23.
    STRUCTURAL SECTION ATGRID LINE "12" Scale 1/8"=1'-0" STRUCTURAL SECTION AT GRID LINE "13" Scale 1/8"=1'-0" STRUCTURAL SECTION AT GRID LINE "15" Scale 1/8"=1'-0" STRUCTURAL SECTION AT GRID LINE "A" Scale 1/8"=1'-0" STRUCTURAL SECTIONS S-1209th JUNE, 2014
  • 24.
    STRUCTURAL SECTION ATGRID LINE "G" Scale 1/8"=1'-0" STRUCTURAL SECTION AT GRID LINE "M" Scale 1/8"=1'-0" STRUCTURAL SECTION AT DIAGONAL GRID LINE Scale 1/8"=1'-0" STRUCTURAL SECTIONS S-1219th JUNE, 2014
  • 25.
    STRUCTURAL SECTION ATGRID LINE "1" SHOWING HSSP BRACING CONNECTION Scale 1/8"=1'-0" STRUCTURAL SECTION AT GRID LINE "A" SHOWING HSSP BRACING CONNECTION Scale 1/8"=1'-0" STRUCTURAL SECTION AT GRID LINE "M" SHOWING HSSP BRACING CONNECTION Scale 1/8"=1'-0" STRUCTURAL SECTION AT GRID LINE "15" SHOWING HSSP BRACING CONNECTION Scale 1/8"=1'-0" STRUCTURAL SECTION AT DIAGONAL GRID LINE SHOWING BRACING CONNECTION Scale 1/8"=1'-0" STRUCTURAL SECTION AT GRID LINE "2" Scale 1/8"=1'-0" BRACING CONNECTION S-1229th JUNE, 2014
  • 26.
    TYPICAL BRACING DETAILSTO STRUCTURAL GRID LINE "1" BETWEEN "A" & "G" Scale 3/4"=1'-0" TYPICAL BRACING DETAILS TO STRUCTURAL GRID LINE "1" BETWEEN "G" & "M" Scale 3/4"=1'-0" BRACING CONNECTION DETAILS S-1239th JUNE, 2014
  • 27.
    TYPICAL BRACING DETAILSTO STRUCTURAL GRID LINES "A" BETWEEN "5" TO "9" Scale 3/4"=1'-0" TYPICAL BRACING DETAILS TO STRUCTURAL GRID LINE "M" BETWEEN "1" &"4" - "5" & "6" Scale 3/4"=1'-0" TYPICAL BRACING DETAILS TO STRUCTURAL GRID LINE "15" BETWEEN "A" &"D" Scale 3/4"=1'-0" BRACING CONNECTION DETAILS S-1249th JUNE, 2014
  • 28.
    TYPICAL BRACING DETAILSTO DIAGONAL GRID LINE BETWEEN "G" &"H" Scale 3/4"=1'-0" TYPICAL BRACING DETAILS TO DIAGONAL GRID LINE BETWEEN "D" &"E" Scale 3/4"=1'-0" TYPICAL BRACING DETAILS TO STRUCTURAL GRID LINE "2" BETWEEN "G" &"G' Scale 3/4"=1'-0" TYPICAL BRACING DETAILS TO STRUCTURAL GRID LINE "2" BETWEEN G' &"K" Scale 3/4"=1'-0" BRACING CONNECTION DETAILS S-1259th JUNE, 2014
  • 29.
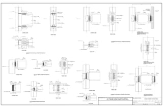
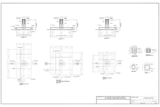
    R2 BEAM TOW14x283 UC. CONNECTION DETAILS Scale 1"=1'-0" PLAN VIEW LATERAL VIEW FRONT VIEW R4 BEAM TO W14x283 UC. CONNECTION DETAILS Scale 1"=1'-0" PLAN VIEW LATERAL VIEW FRONT VIEW LATERAL VIEW R4 BEAM TO ELEVATOR WALL CONNECTION DETAILS Scale 1"=1'-0" FRONT VIEW BEAM TO ELEVATOR WALL CONNECTION DETAILS Scale 1"=1'-0" R4 BEAM TO W14x283 UC. CONNECTION DETAILS Scale 1"=1'-0" PLAN VIEW LATERAL VIEW FRONT VIEW LATERAL VIEW R4 CANTILEVER BEAM CONNECTION DETAILS Scale 1"=1'-0" R4 TO R3 BEAM CONNECTION DETAILS Scale 1"=1'-0" PLAN VIEW LATERAL VIEW FRONT VIEW R4 TO R5 BEAM CONNECTION DETAILS Scale 1"=1'-0" PLAN VIEW LATERAL VIEW FRONT VIEW BEAM CONNECTION DETAILS. S-1269th JUNE, 2014
  • 30.
    TYPICAL BEAM TOSTACHION CONNECTION DETAILS AT GRID LOCATION Scale 1"=1'-0" PLAN VIEW LATERAL VIEW FRONT VIEW R4 TO R2 BEAM CONNECTION DETAILS Scale 1"=1'-0" PLAN VIEW LATERAL VIEW FRONT VIEW R4 TO R4 BEAM CONNECTION DETAILS Scale 1"=1'-0" PLAN VIEW LATERAL VIEW FRONT VIEW TYPICAL BEAM TO STACHION CONNECTION DETAILS AT GRID LOCATION Scale 1"=1'-0" LATERAL VIEWPLAN VIEW TYPICAL BEAM TO STACHION CONNECTION DETAILS WHERE APPLICABLE Scale 1"=1'-0" TYPICAL BEAM TO STACHION CONNECTION DETAILS WHERE APPLICABLE Scale 1"=1'-0" TYPICAL BEAM TO STACHION CONNECTION DETAILS WHERE APPLICABLE Scale 1"=1'-0" BEAM CONNECTION DETAILS S-1279th JUNE, 2014
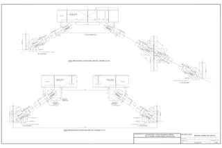
  • 31.
    SECTION THRU.' FIREESPAPE STAIRWELL # 1 Scale 3/8"=1'-0" 3 4 STAIRWELL LAYOUT TO MAIN ENTRANCE (MANIC STREET) Scale 3/8"=1'-0" TYPICAL STAIRWELL TREADER DETAILS Scale 1"=1'-0" SECTION "L-L" STAIRWELL LAYOUT TO MAIN ENTRANCE (MANIC STREET) Scale 3/8"=1'-0" TYPICAL STAIRWELL TREADER DETAILS Scale 1"=1'-0" FIRE ESCAPE # 1 STAIRWELL STRUCTURE PLAN Scale 1/4"=1'-0" FIRE ESCAPE # 1 STAIRWELL PLAN Scale 1/4"=1'-0" TYPICAL STAIRWELL TREAD DETAILS Scale 1"=1'-0" 3 4 STAIRWELL STRUCTURE LAYOUT TO MAIN ENTRANCE (MANIC STREET) Scale 3/8"=1'-0" FIRE ESCAPE STAIR NO.1 DETAILS S-1289th JUNE, 2014
  • 32.
    SECTION THRU.' FIREESPAPE STAIRWELL # 2 Scale 3/8"=1'-0" TYPICAL STAIRWELL TREADER DETAILS Scale 1"=1'-0" FIRE ESCAPE # 2 STAIRWELL STRUCTURE PLAN Scale 1/4"=1'-0" FIRE ESCAPE # 2 STAIRWELL PLAN Scale 1/4"=1'-0" TYPICAL STAIRWELL TREAD DETAILS Scale 1"=1'-0" FIRE ESCAPE STAIR NO.2 DETAILS S-1299th JUNE, 2014
  • 33.
    A 14 CED 13 15 B STAIRWELL #3 STRUCTURE PLAN Scale 1/4"=1'-0" TYPICAL STAIRWELL TREADER DETAILS Scale 1"=1'-0" TYPICAL STAIRWELL TREAD DETAILS Scale 1"=1'-0" SECTION "X-X" THRU.' STAIRWELL # 3 Scale 1/2"=1'-0" SECTION "Y-Y" THRU.' STAIRWELL # 3 Scale 1/2"=1'-0" STAIRWELL NO. 3 DETAILS S-1309th JUNE, 2014
  • 34.