Portfolio
Dunwoody College of Technology
Nicholas Ramsingh
The Brunsfield North Loop located on
915 N Washington Ave, Minneapolis, MN 55401,
has been designed by Julle Snow Architects Inc.
The structure is a beautiful apartment built in 2012.
It features multiple different rooms and unique
architecture through out the apartments.
The big eye catcher is the 3,600 sq. fish bowl
and the skin of the building.
The main focus in the re-design of the fish bowl,
is to make it more appealing for
business and also create a mezzanine
to add more space. We are using Revit on the
re-design.
2nd Semester
Dunwoody College of Technology
UP UP
DN DN
C305 1
A B C D D.5 E F G G.7 H
1
2
2.1
2.9
3
3.2
3.8
4
5
5.3
5.5
6
F7F7
WF1 F6
WF1
F7 F6 F5
F9F9F12F10F6
F10F11WF8 WF8WF4
WF4
F1
F9
F9F6
F1 F12 F11 F5 F11 F12 F11 F6 F8
F11 F12 F10
F5 F4 F4
F11 F10
F6
F8F10F9
F7F5
F6
F6
F9 F7
WF1
WF1WF1
WF1
WF1
WF1WF3
WF7
WF7
WF1
WF1
WF3
WF4
WF4
WF3
WF1
F6
WF1
WF1
WF3
WF3
WF1
WF1
18' - 0" 18' - 0" 27' - 10" 19' - 4" 12' - 0"0' - 10 5/8"0' - 7 3/8"
1'-6"15'-4"3'-4"20'-5"3'-7"6'-2"17'-6"8'-2"27'-10"12'-6"9'-8"18'-0"1'-6"
C3041
C305
C302
1
1
A B C D D.5 E F G G.7 H
1
2
2.1
2.9
3
3.2
3.8
4
5
5.3
5.5
6
0'-21/8"
2' - 2 1/2"
6' - 1"
18'-03/16"
24'-011/32"
C3041
A B C D D.5 E F G G.7 H
1
2
2.1
2.9
3
3.2
3.8
4
5
5.3
5.5
6
10'-43/8"
1'-103/8"7'-83/4"
10'-27/8"
7'-21/8"
9'-11/2"3'-103/8"10'-67/8"11' - 10 5/8"
7'-15/16"
6' - 0 23/32"
C305 1
A B C D D.5 E F G G.7 H
1
2
2.1
2.9
3
3.2
3.8
4
5
5.3
5.5
6
SW7
SW7
SW7
SW7
W10
W10
W10
W9
W11
SW7
SW4
SW4
SW6
W11
SW8
SW4
SW6
SW4
W11
W11 W9
SW4 W9
W9
W9
W9
W15
SW4
W10W10
SW4
1' - 6"10' - 4" 31' - 4" 19' - 4" 18' - 0" 18' - 0" 14' - 6 3/8" 13' - 3 5/8" 27' - 10" 19' - 4" 12' - 0"0' - 10 5/8"0' - 7 3/8"
1'-6"15'-4"3'-4"20'-5"3'-7"6'-2"17'-6"8'-2"27'-10"12'-6"9'-8"18'-0"1'-6"
Nicholas Ramsingh
ARCHITECT
CLIENT
REVISIONS
PROJECT INFO
SHEET INFO
SCALE:
PLAN NORTH
TRUE NORTH
1
1/16" = 1'-0"
Date 1
Revision 1
B102
Brunsfield Group LLC
Project #110
Level Set 1
Project Complete: 100%
02/02/16
1/16" = 1'-0"
1
Footing
1/16" = 1'-0"
2
Level 1
1/16" = 1'-0"
3
Level 2
1/16" = 1'-0"
5
Lower Level
E F G G.7 H
1
2
2.1
2.9
3
2
D404
1
D402
1
D404
2
D402
4
D402
5
D402
5' - 4 25/32"
3'-43/8"3'-0"
4' - 3"
3'-11/4"3'-11/4"
9'-27/32"
20' - 10"
16' - 8 1/4"
3'-1119/32"
21' - 8 1/4"
32' - 9 29/32" 2' - 2 25/32" 3' - 3 3/4"
1'-51/4"
1' - 4"
14' - 4 29/32"
3
D404
Nicholas Ramsingh
ARCHITECT
CLIENT
REVISIONS
PROJECT INFO
SHEET INFO
SCALE:
PLAN NORTH
TRUE NORTH
1/4" = 1'-0"
B105
Brunsfield Group LLC
Project #110
F.B Level 1
Project Complete: 100%
04/27/16
1/4" = 1'-0"
1
Fish Bowl Level 1
E F G G.7 H
1
2
2.1
2.9
3
3.2
2
D404
1
D404
35' - 3 1/16"
27' - 3 3/4"
3'-0"
4' - 0"
27' - 5 23/32"
8'-515/16"
4'-431/32"
3
D404
Nicholas Ramsingh
ARCHITECT
CLIENT
REVISIONS
PROJECT INFO
SHEET INFO
SCALE:
PLAN NORTH
TRUE NORTH
1/4" = 1'-0"
B106
Brunsfield Group LLC
Project #110
F.B Level 2
Project Complete: 100%
04/27/16
1/4" = 1'-0"
1
Fish Bowl Level 2
Level 1
100' - 0"
Level 2
111' - 8"
Level 4
133' - 0"
Level 3
122' - 4"
Level 5
143' - 8"
Roof Level
154' - 4"
T.O Parapet
158' - 11"
Upper Roof Level
166' - 0"
Upper Roof Parapet
169' - 7"
Lower Level
89' - 4"
ABCDD.5EFGG.7H
Footing
88' - 4"
Nicholas Ramsingh
ARCHITECT
CLIENT
REVISIONS
PROJECT INFO
SHEET INFO
SCALE:
PLAN NORTH
TRUE NORTH
1/8" = 1'-0"
C302
Brunsfield Group LLC
Project #110
North ELVE
Project Complete: 100%
03/04/16
1/8" = 1'-0"
1
North
Level 1
100' - 0"
22.1
2'-621/32"
3'-11/4"
3'-4"
2'-1"
Level 1
100' - 0"
2 2.1
2'-113/4"
1'-5"
1'-41/4"
2'-1011/16"
2'-31/4"
G.7 H
2
2.1
1
D402
2
D402 4
D402
5
D402
ø 5' - 0" ø 5' - 0"
3'-0"
3'-0"3'-0"
3'-0"
7' - 4 1/2" 8' - 11 3/4"
Level 1
100' - 0"
22.1
1'-5"
2'-113/4"
2'-31/4"
Level 1
100' - 0"
2 2.1
3'-11/4"
2'-71/32"
2'-1"
3'-4"
Nicholas Ramsingh
ARCHITECT
CLIENT
REVISIONS
PROJECT INFO
SHEET INFO
SCALE:
PLAN NORTH
TRUE NORTH
As indicated
D402
Brunsfield Group LLC
Project #110
Bathroom
Project Complete: 100%
04/27/16
3/8" = 1'-0"
1
Section 4
3/8" = 1'-0"
2
Section 10
1/2" = 1'-0"
3
Bathroom
3/8" = 1'-0"
4
Section 11
3/8" = 1'-0"
5
Section 12
Level 1
100' - 0"
Level 2
111' - 8"
Level 4
133' - 0"
Level 3
122' - 4"
Level 5
143' - 8"
Roof Level
154' - 4"
T.O Parapet
158' - 11"
Lower Level
89' - 4"
2.933.2
Footing
88' - 4"
D403
4
D403
5
D403
3
D403
2
D403
6
1
1
1
T.O Parapet
158' - 11"
3
CAPPING
10" INSULATION
1/4"CHROME PANEL
1/2" PLYWOOD
ROOF MEMBRANE
2X10 TREATED LUMBER
Roof Level
154' - 4"
3
102
102
2
10 10
2
102
2 PAIN INSULATED
GLASS
ALUMINUM MULLION
2X10 TREATED LUMBER
6" FIBERGLASS BATT
INSULATION
5/8" PLYWOOD
1/4" CHROME PANEL
10" FIBERGLASS BATT
INSULATION
ROOF MEMBRANE
6" FIBERGLASS BATT
INSULATION
"S" CLIP
1/2" GYP BOARD
1/2" GYP BOARD
METAL HEAD COVER
16"X24" WOOD TRUSS
Level 5
143' - 8"
3
102
2
10 10
2
102
102
2 10
102
16"X24" WOOD TRUSS
3/8 " CONCERT FLOORING
6" FIBERGLASS BATT
INSULATION
"S" CLIP
WOOD MOLDING
METAL SILL COVER
2 PANE INSULATED
GLASS
ALUMINUM MULLION
1/4"CHROME PANEL
5/8" PLYWOOD
2X10 TREATED LUMBER
10" FIBERGLASS BATT
INSULATION
6" FIBERGLASS BATT
INSULATION
1/2" GYP BOARD
Level 3
122' - 4"
3
62
2 6
62
6
2
6
2
6
2
6
2
102
2
10 10
2
102
102
2
10 10
2
102
2 PANE INSULATED
GLASS
ALUMINUM MULLION
ALUMINUM MULLION
METAL STILL COVER
3/8" WOOD FLOORING
WIND BRACE
6" FIBERGLASS BATT
INSULATION
10" FIBERGLASS BATT
INSULATION
1/4" CHROME PANEL
5/8" PLYWOOD STEEL REINFORCEMENT
2HR FIRE RATED GLASS
WOOD MOLDING
2X10 TREATED
LUMBER
Level 1
100' - 0"
3
2HR FIRE RATED GLASS
ALUMINUM MULLION
2" CONCRETE TOPING
BLOCK COLUMN
BOND BEAM
Nicholas Ramsingh
ARCHITECT
CLIENT
REVISIONS
PROJECT INFO
SHEET INFO
SCALE:
PLAN NORTH
TRUE NORTH
As indicated
D403
Brunsfield Group LLC
Project #110
Wall Section
Project Complete: 100%
05/09/16
1/4" = 1'-0"
1
Section 2
1 1/2" = 1'-0"
2
DETAIL 1
1 1/2" = 1'-0"
3
DETAIL 2
1 1/2" = 1'-0"
4
DETAIL 3
1 1/2" = 1'-0"
5
DETAIL 4
1 1/2" = 1'-0"
6
DETAIL 5
Wall Performance Key
MATERIAL R-VALUE
Inside Air Film
1/2" GYP
2"X10" Treated
Lumber
10" Fiberglass
Batt Insulation
3/4" Plywood
3/4" Air Space
1/4" Chrome
Panel
0.61
1.00
0.77
32.00 (85%)
12.50 (15%)
0.45
0.68
TOTAL R=43.40
1
Wall Performance Key1
MOISTURE PROTECTION
Polyethlene vaper barrier on
inside face of Wd Std. (Class 1
Vapor Retarder)
Wall Performance Key1
STRUCTUAL CONDITION
Load Bearing 2X Wood Framing
Plywood Shething
Nicholas Ramsingh
ARCHITECT
CLIENT
REVISIONS
PROJECT INFO
SHEET INFO
SCALE:
PLAN NORTH
TRUE NORTH
E502
Brunsfield Group LLC
Project #110
Plan Info
Project Complete: 100%
05/10/16
Door Schedule
Family
Head
Height Height Level Thickness
Overhead-S
ectional
6' - 6" 6' - 6" Lower Level 0' - 1 1/2"
Double-Pan
el 1
8' - 10" 8' - 10" Level 1 0' - 1 3/4"
Single-Flus
h
8' - 0" 8' - 0" Level 1 0' - 1 3/4"
Single-Flus
h
8' - 7 1/4" 8' - 7 1/4" Level 1 0' - 1 3/4"
Single-Flus
h
8' - 10" 8' - 10" Level 1 0' - 1 3/4"
Single-Flus
h
10' - 0" Level 1 0' - 1 3/4"
Single-Rais
ed Panel
with
Sidelights
8' - 10" 8' - 10" Level 1 0' - 1 3/4"
Double-Pan
el 1
8' - 0" 8' - 0" Level 2 0' - 1 3/4"
Single-Flus
h
8' - 0" 8' - 0" Level 2 0' - 1 3/4"
Single-Flus
h
8' - 10" 8' - 10" Level 2 0' - 1 3/4"
Sliding-2
panel
7' - 11 1/2" 7' - 11 1/2" Level 3 0' - 1 3/4"
Sliding-2
panel
7' - 11 1/2" 7' - 11 1/2" Level 4 0' - 1 3/4"
Sliding-2
panel
7' - 11 1/2" 7' - 11 1/2" Level 5 0' - 1 3/4"
Sliding-2
panel
7' - 8" 6' - 8" Roof Level 0' - 1 3/4"
Wall Schedule
Family and
Type Width
Assembly
Description
Basic Wall:
SW8 16"
(CONCRET
)
1' - 4"
Basic Wall:
w9
1' - 0"
Basic Wall:
W9 12"
(CONCRET
)
1' - 0"
Curtain
Wall:
Curtain
Wall 1
Curtain
Walls
Basic Wall:
100A
0' - 8" Exterior
Walls
Basic Wall:
airbox
6' - 6" Exterior
Walls
Basic Wall:
CP3
1' - 1" Exterior
Walls
Basic Wall:
CP3 BALC
1' - 1" Exterior
Walls
Basic Wall:
CVR
0' - 1" Exterior
Walls
Basic Wall:
Generic - 8"
0' - 8" Exterior
Walls
Basic Wall:
im5
0' - 4 7/8" Exterior
Walls
Basic Wall:
IM-1B
0' - 4 7/8" Exterior
Walls
Basic Wall:
IM-1C
0' - 4 7/8" Exterior
Walls
Basic Wall:
IM-1D
0' - 4 7/8" Exterior
Walls
Basic Wall:
IM-2
0' - 4 1/4" Exterior
Walls
Basic Wall:
IM-2B
0' - 4 7/8" Exterior
Walls
Basic Wall:
IM-3
0' - 1 1/2" Exterior
Walls
Basic Wall:
IM-5
0' - 4 7/8" Exterior
Walls
Basic Wall:
IM-5a
0' - 4 7/8" Exterior
Walls
Basic Wall:
IM-5B
0' - 4 7/8" Exterior
Walls
Basic Wall:
IM-6
2' - 0" Exterior
Walls
Basic Wall:
IM-7
0' - 5 3/8" Exterior
Walls
Basic Wall:
sing
1' - 10" Exterior
Walls
Basic Wall:
Stair Wall
0' - 6" Exterior
Walls
Basic Wall:
sw2
1' - 0" Exterior
Walls
Basic Wall:
SW3
1' - 0" Exterior
Walls
Basic Wall:
sw4 12"
1' - 0" Exterior
Walls
Basic Wall:
sw5
1' - 4" Exterior
Walls
Basic Wall:
sw6 16"
1' - 4" Exterior
Walls
Basic Wall:
sw7 16"
1' - 4" Exterior
Walls
Basic Wall:
W10 12"
(MASONER
Y)
1' - 0" Exterior
Walls
Basic Wall:
W11 12"
(MASONER
Y)
0' - 11 5/8" Exterior
Walls
Basic Wall:
W15
1' - 0" Exterior
Walls
Basic Wall:
Interior - 5
1/2"
Partition
(1-hr)
0' - 5 1/2" Partitions -
Drywall w/
Metal Stud
Room Schedule
Area Level Name
878 SF Level 1 GYM
749 SF Level 1 CONFERE
NCE
889 SF Level 1 OFFICE
922 SF Level 1 LEASING
OFFICE
240 SF Level 1 OFFICE
624 SF Level 1 BIKE
STORAGE
587 SF Level 1 GUEST
HOUSE
220 SF Level 1 STORAGE
3536 SF Level 1 FARMERS
MARKET
Window Schedule
Family and
Type
Head
Height Height Level Sill Height Type
Fixed: 7A 10' - 0" 10' - 0" Level 1 0' - 0" 7A
Fixed: 013 8' - 9 1/4" 5' - 10 3/4" Level 1 2' - 10 1/2" 013
Fixed: 013 9' - 0 1/4" 5' - 10 3/4" Level 1 3' - 1 1/2" 013
Fixed: 014 8' - 9 1/4" 5' - 10 3/4" Level 1 2' - 10 1/2" 014
Fixed: 017 8' - 9 1/4" 8' - 9 1/4" Level 1 0' - 0" 017
Fixed: 018 8' - 9 1/4" 8' - 9 1/4" Level 1 0' - 0" 018
Fixed: FOR
INT FIRST
8' - 10" 8' - 10" Level 1 0' - 0" FOR INT
FIRST
Fixed: FOR
INT FIRST
2
8' - 10" 8' - 10" Level 1 0' - 0" FOR INT
FIRST 2
Fixed: FOR
INT FIRST
3
8' - 10" 8' - 10" Level 1 0' - 0" FOR INT
FIRST 3
Fixed: A 8' - 8 1/4" 5' - 11 1/2" Level 2 2' - 8 3/4" A
Fixed: A2 2' - 8 3/4" 2' - 5 1/2" Level 2 0' - 3 1/4" A2
Fixed: B 8' - 8 1/4" 5' - 11 1/2" Level 2 2' - 8 3/4" B
Fixed: B2 2' - 8 3/4" 2' - 5 1/2" Level 2 0' - 3 1/4" B2
Fixed: E 7' - 2 1/4" 4' - 5 1/2" Level 2 2' - 8 3/4" E
Fixed: E2 2' - 8 3/4" 2' - 5 1/2" Level 2 0' - 3 1/4" E2
Fixed: A 8' - 8 1/4" 5' - 11 1/2" Level 3 2' - 8 3/4" A
Fixed: A2 2' - 8 3/4" 2' - 5 1/2" Level 3 0' - 3 1/4" A2
Fixed: B 8' - 8 1/4" 5' - 11 1/2" Level 3 2' - 8 3/4" B
Fixed: B2 2' - 8 3/4" 2' - 5 1/2" Level 3 0' - 3 1/4" B2
Fixed: A 8' - 8 1/4" 5' - 11 1/2" Level 4 2' - 8 3/4" A
Fixed: A2 2' - 8 3/4" 2' - 5 1/2" Level 4 0' - 3 1/4" A2
Fixed: B 8' - 8 1/4" 5' - 11 1/2" Level 4 2' - 8 3/4" B
Fixed: B2 2' - 8 3/4" 2' - 5 1/2" Level 4 0' - 3 1/4" B2
Fixed: A 8' - 8 1/4" 5' - 11 1/2" Level 5 2' - 8 3/4" A
Fixed: A2 2' - 8 3/4" 2' - 5 1/2" Level 5 0' - 3 1/4" A2
Fixed: B 8' - 8 1/4" 5' - 11 1/2" Level 5 2' - 8 3/4" B
Fixed: B2 2' - 8 3/4" 2' - 5 1/2" Level 5 0' - 3 1/4" B2
Fixed: A 9' - 7 1/4" 5' - 11 1/2" Roof Level 3' - 7 3/4" A
Fixed: A 9' - 8 1/4" 5' - 11 1/2" Roof Level 3' - 8 3/4" A
Fixed: A 9' - 10 1/4" 5' - 11 1/2" Roof Level 3' - 10 3/4" A
Fixed: A2 3' - 7 3/4" 2' - 5 1/2" Roof Level 1' - 2 1/4" A2
Fixed: A2 3' - 8 3/4" 2' - 5 1/2" Roof Level 1' - 3 1/4" A2
Fixed: A2 3' - 10 3/4" 2' - 5 1/2" Roof Level 1' - 5 1/4" A2
Fixed: C 9' - 8 1/4" 6' - 11 1/2" Roof Level 2' - 8 3/4" C
Fixed: C 11' - 1 1/4" 6' - 11 1/2" Roof Level 4' - 1 3/4" C
Fixed: C 11' - 2 1/4" 6' - 11 1/2" Roof Level 4' - 2 3/4" C
Fixed: C2 2' - 8 3/4" 2' - 5 1/2" Roof Level 0' - 3 1/4" C2
Fixed: C2 4' - 1 3/4" 2' - 5 1/2" Roof Level 1' - 8 1/4" C2
Fixed: C2 4' - 2 3/4" 2' - 5 1/2" Roof Level 1' - 9 1/4" C2
Fixed: D 9' - 8 1/4" 6' - 11 1/2" Roof Level 2' - 8 3/4" D
Fixed: D2 2' - 8 3/4" 2' - 5 1/2" Roof Level 0' - 3 1/4" D2
Fixed: K
DOOR
9' - 9" 2' - 0" Roof Level 7' - 9" K DOOR
Fixed: K
WINDOW 1
9' - 9" 6' - 0" Roof Level 3' - 9" K WINDOW
1
Fixed: K
WINDOW 2
3' - 9" 2' - 6" Roof Level 1' - 3" K WINDOW
2
Fixed: K
DOOR
5' - 2" 2' - 0" T.O
Parapet
3' - 2" K DOOR
Wall Performance Key
MATERIAL R-VALUE
Inside Air Film
1/2" GYP
2"X10" Treated
Lumber
10" Fiberglass
Batt Insulation
3/4" Plywood
3/4" Air Space
1/4" Chrome
Panel
0.61
1.00
0.77
32.00 (85%)
12.50 (15%)
0.45
0.68
TOTAL R=43.40
1
Wall Performance Key1
MOISTURE PROTECTION
Polyethlene vaper barrier on
inside face of Wd Std. (Class 1
Vapor Retarder)
Wall Performance Key1
STRUCTUAL CONDITION
Load Bearing 2X Wood Framing
Plywood Shething
1. The Zoning District B4N (Downtown Neighborhood) District and DP (Downtown Parking) Overlay District. (549.20).
2. The uses on the site is as follows. (Note see Appendix 1 for more Information) General retail sales and services, Offices, Automobile services, Food and Beverages, Commercial
Recreation, Entertainment and Lodging, Medical Facilities, Transportation, Parking Facilities, Planned Unit Development, Parking Facilities, Residential Uses, Dwellings, Congregate
Living, Institutional and Public Use, Educational Facilities, Social, Cultural, Charitable and Recreational Facilities, Religious Institutions, Production Processing and Services, Public
Services and Utilities. (549.30).
3. The following uses ate not permitted. (Note see Appendix 1 for more Information), Building material sales, Day labor agency, Exterminating shop, Firearms dealer, Greenhouse,
lawn and garden supply store, pawnshop, small engine repair, Automobile repair major, car wash, Nightclub, Regional sports arena, Blood/plasma collection facility, Ambulance service,
Limousine service, Truck, trailer, boat, recreational vehicle or mobile home sales, service and rental, Mission, Furniture moving and storage, Industrial machinery and equipment sales,
service and rental, Self-service storage, Garage for public vehicles, Mounted patrol stable, Pre-trial detention facility, adult, Pre-trial detention facility, juvenile, Street and equipment
maintenance facility. (549.30).
4. The following uses are permitted as conditional uses. (Note see Appendix 1 for more Information), Automobile convenience facility, Automobile rental, Automobile repair minor,
Automobile sales, Outdoor recreation area, Hospital, Package delivery service, Parking facility, Cluster development, Community residential facility serving seven (7) to sixteen (16)
persons, Community residential facility serving seventeen (17) to thirty-two (32) persons, Board and care home/Nursing home/Assisted living, Dormitory, Emergency shelter serving up to
thirty-two (32) persons, Inebriate housing, Overnight shelter, Residential hospice, Supportive housing, College or university, School, grades K—12, Dry cleaning establishment, Bus
turnaround, Electric or gas substation, Fire station, Heating or cooling facility, Railroad right-of-way, Storm water retention pond, Water pumping and filtration facility(549.30)
5. The Minimum required and maximum permitted parking requirements for: Food and Beverage occupancies are at a minimum of none to a maximum of 1 space per 200 sq. ft. of
GFA. For Residential occupancies, Minimum 1 space per dwelling unit, except an accessory dwelling unit shall not be required to provide off-street parking. Maximum None. For Office
occupancies minimum none. Maximum 1 space per 1,000 sq. ft. of GFA. (541.170).
6. The maximum occupancy of a dwelling unit located in the downtown districts shall not exceed one (1) family plus four (4) unrelated persons living together as a permanent
household, provided that the family plus the unrelated persons shall not exceed a total of five (5) persons. (649.50).
7. The minimum floor area ratio of all structures shall be two (2). (549.580).
8. There is no maximum floor area ratio in the B4N District. (549.580).
9. The maximum height of all principal structures located in the B4N District shall be ten (10) stories or one hundred forty (140) feet in height, whichever is less. (549.550).
10. For parking garages. The maximum height of all principal structures located in the B4N District shall be ten (10) stories or one hundred forty (140) feet in height, whichever is less.
(549.550).
11. Maximum floor area for all retail sales and services shall be limited to a maximum gross floor area of thirty thousand (30,000) square feet per use, except for planned unit
developments.
(549.580)
12. AF & PA - NDS --05 National Design Specification for Wood Construction and Supplement
13. ACI 318-05 Building Code Requirements for Reinforced Concrete
14. ACI 530-05 Building Code Requirements for Masonry Structures, Allowable Stress Design
15. ACI 530.1-05 Masonry Structures
16. AISC 360-05 Specification for Structural Steel Buildings
17. ANSI/AITC A190.1-92 Structural Glued Laminated Timber
18. APA-EWA PS2-92 Performance Standard for Wood-Based Structural-Use Panels
19. APA-EWA PRL - 501 Performance Standard for APA EWS Laminated Veneer Lumber
20. APA-EWA PRI - 400 Performance Standards for APA EWS I-Joists
21. APA PDS - 04 Panel Design Specification
22. ASCE 7-05 Minimum design loads for buildings and other structures including supplement NO. 1 and excluding Chapter 14 and
Appendix 11A.
ZONING / CODE
Column Schedule
Type Base Level Family
CP1 24X30 Lower Level Rectangular
Column
CP2 30X30 Lower Level Rectangular
Column
CP3 24x26 Lower Level Rectangular
Column
CP4 32X30 Lower Level Rectangular
Column
CP5 24X44 Lower Level Rectangular
Column
CP6 24x24 Lower Level Rectangular
Column
CP6 24x24 Level 1 Rectangular
Column
CP6 24x24 Level 2 Rectangular
Column
PC1 16X16 Lower Level Rectangular
Column
PC1 16X16 Level 1 Rectangular
Column
PC2 24X16
2
Lower Level Rectangular
Column
Portfolio
Dunwoody College of Technology
Nicholas Ramsingh
To Be Continued...

New Portfolio Simple

  • 1.
    Portfolio Dunwoody College ofTechnology Nicholas Ramsingh
  • 2.
    The Brunsfield NorthLoop located on 915 N Washington Ave, Minneapolis, MN 55401, has been designed by Julle Snow Architects Inc. The structure is a beautiful apartment built in 2012. It features multiple different rooms and unique architecture through out the apartments. The big eye catcher is the 3,600 sq. fish bowl and the skin of the building. The main focus in the re-design of the fish bowl, is to make it more appealing for business and also create a mezzanine to add more space. We are using Revit on the re-design. 2nd Semester Dunwoody College of Technology
  • 3.
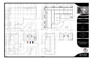
    UP UP DN DN C3051 A B C D D.5 E F G G.7 H 1 2 2.1 2.9 3 3.2 3.8 4 5 5.3 5.5 6 F7F7 WF1 F6 WF1 F7 F6 F5 F9F9F12F10F6 F10F11WF8 WF8WF4 WF4 F1 F9 F9F6 F1 F12 F11 F5 F11 F12 F11 F6 F8 F11 F12 F10 F5 F4 F4 F11 F10 F6 F8F10F9 F7F5 F6 F6 F9 F7 WF1 WF1WF1 WF1 WF1 WF1WF3 WF7 WF7 WF1 WF1 WF3 WF4 WF4 WF3 WF1 F6 WF1 WF1 WF3 WF3 WF1 WF1 18' - 0" 18' - 0" 27' - 10" 19' - 4" 12' - 0"0' - 10 5/8"0' - 7 3/8" 1'-6"15'-4"3'-4"20'-5"3'-7"6'-2"17'-6"8'-2"27'-10"12'-6"9'-8"18'-0"1'-6" C3041 C305 C302 1 1 A B C D D.5 E F G G.7 H 1 2 2.1 2.9 3 3.2 3.8 4 5 5.3 5.5 6 0'-21/8" 2' - 2 1/2" 6' - 1" 18'-03/16" 24'-011/32" C3041 A B C D D.5 E F G G.7 H 1 2 2.1 2.9 3 3.2 3.8 4 5 5.3 5.5 6 10'-43/8" 1'-103/8"7'-83/4" 10'-27/8" 7'-21/8" 9'-11/2"3'-103/8"10'-67/8"11' - 10 5/8" 7'-15/16" 6' - 0 23/32" C305 1 A B C D D.5 E F G G.7 H 1 2 2.1 2.9 3 3.2 3.8 4 5 5.3 5.5 6 SW7 SW7 SW7 SW7 W10 W10 W10 W9 W11 SW7 SW4 SW4 SW6 W11 SW8 SW4 SW6 SW4 W11 W11 W9 SW4 W9 W9 W9 W9 W15 SW4 W10W10 SW4 1' - 6"10' - 4" 31' - 4" 19' - 4" 18' - 0" 18' - 0" 14' - 6 3/8" 13' - 3 5/8" 27' - 10" 19' - 4" 12' - 0"0' - 10 5/8"0' - 7 3/8" 1'-6"15'-4"3'-4"20'-5"3'-7"6'-2"17'-6"8'-2"27'-10"12'-6"9'-8"18'-0"1'-6" Nicholas Ramsingh ARCHITECT CLIENT REVISIONS PROJECT INFO SHEET INFO SCALE: PLAN NORTH TRUE NORTH 1 1/16" = 1'-0" Date 1 Revision 1 B102 Brunsfield Group LLC Project #110 Level Set 1 Project Complete: 100% 02/02/16 1/16" = 1'-0" 1 Footing 1/16" = 1'-0" 2 Level 1 1/16" = 1'-0" 3 Level 2 1/16" = 1'-0" 5 Lower Level
  • 4.
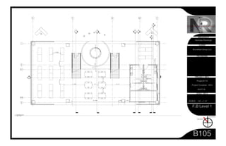
    E F GG.7 H 1 2 2.1 2.9 3 2 D404 1 D402 1 D404 2 D402 4 D402 5 D402 5' - 4 25/32" 3'-43/8"3'-0" 4' - 3" 3'-11/4"3'-11/4" 9'-27/32" 20' - 10" 16' - 8 1/4" 3'-1119/32" 21' - 8 1/4" 32' - 9 29/32" 2' - 2 25/32" 3' - 3 3/4" 1'-51/4" 1' - 4" 14' - 4 29/32" 3 D404 Nicholas Ramsingh ARCHITECT CLIENT REVISIONS PROJECT INFO SHEET INFO SCALE: PLAN NORTH TRUE NORTH 1/4" = 1'-0" B105 Brunsfield Group LLC Project #110 F.B Level 1 Project Complete: 100% 04/27/16 1/4" = 1'-0" 1 Fish Bowl Level 1
  • 5.
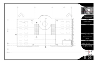
    E F GG.7 H 1 2 2.1 2.9 3 3.2 2 D404 1 D404 35' - 3 1/16" 27' - 3 3/4" 3'-0" 4' - 0" 27' - 5 23/32" 8'-515/16" 4'-431/32" 3 D404 Nicholas Ramsingh ARCHITECT CLIENT REVISIONS PROJECT INFO SHEET INFO SCALE: PLAN NORTH TRUE NORTH 1/4" = 1'-0" B106 Brunsfield Group LLC Project #110 F.B Level 2 Project Complete: 100% 04/27/16 1/4" = 1'-0" 1 Fish Bowl Level 2
  • 6.
    Level 1 100' -0" Level 2 111' - 8" Level 4 133' - 0" Level 3 122' - 4" Level 5 143' - 8" Roof Level 154' - 4" T.O Parapet 158' - 11" Upper Roof Level 166' - 0" Upper Roof Parapet 169' - 7" Lower Level 89' - 4" ABCDD.5EFGG.7H Footing 88' - 4" Nicholas Ramsingh ARCHITECT CLIENT REVISIONS PROJECT INFO SHEET INFO SCALE: PLAN NORTH TRUE NORTH 1/8" = 1'-0" C302 Brunsfield Group LLC Project #110 North ELVE Project Complete: 100% 03/04/16 1/8" = 1'-0" 1 North
  • 7.
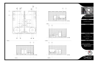
    Level 1 100' -0" 22.1 2'-621/32" 3'-11/4" 3'-4" 2'-1" Level 1 100' - 0" 2 2.1 2'-113/4" 1'-5" 1'-41/4" 2'-1011/16" 2'-31/4" G.7 H 2 2.1 1 D402 2 D402 4 D402 5 D402 ø 5' - 0" ø 5' - 0" 3'-0" 3'-0"3'-0" 3'-0" 7' - 4 1/2" 8' - 11 3/4" Level 1 100' - 0" 22.1 1'-5" 2'-113/4" 2'-31/4" Level 1 100' - 0" 2 2.1 3'-11/4" 2'-71/32" 2'-1" 3'-4" Nicholas Ramsingh ARCHITECT CLIENT REVISIONS PROJECT INFO SHEET INFO SCALE: PLAN NORTH TRUE NORTH As indicated D402 Brunsfield Group LLC Project #110 Bathroom Project Complete: 100% 04/27/16 3/8" = 1'-0" 1 Section 4 3/8" = 1'-0" 2 Section 10 1/2" = 1'-0" 3 Bathroom 3/8" = 1'-0" 4 Section 11 3/8" = 1'-0" 5 Section 12
  • 8.
    Level 1 100' -0" Level 2 111' - 8" Level 4 133' - 0" Level 3 122' - 4" Level 5 143' - 8" Roof Level 154' - 4" T.O Parapet 158' - 11" Lower Level 89' - 4" 2.933.2 Footing 88' - 4" D403 4 D403 5 D403 3 D403 2 D403 6 1 1 1 T.O Parapet 158' - 11" 3 CAPPING 10" INSULATION 1/4"CHROME PANEL 1/2" PLYWOOD ROOF MEMBRANE 2X10 TREATED LUMBER Roof Level 154' - 4" 3 102 102 2 10 10 2 102 2 PAIN INSULATED GLASS ALUMINUM MULLION 2X10 TREATED LUMBER 6" FIBERGLASS BATT INSULATION 5/8" PLYWOOD 1/4" CHROME PANEL 10" FIBERGLASS BATT INSULATION ROOF MEMBRANE 6" FIBERGLASS BATT INSULATION "S" CLIP 1/2" GYP BOARD 1/2" GYP BOARD METAL HEAD COVER 16"X24" WOOD TRUSS Level 5 143' - 8" 3 102 2 10 10 2 102 102 2 10 102 16"X24" WOOD TRUSS 3/8 " CONCERT FLOORING 6" FIBERGLASS BATT INSULATION "S" CLIP WOOD MOLDING METAL SILL COVER 2 PANE INSULATED GLASS ALUMINUM MULLION 1/4"CHROME PANEL 5/8" PLYWOOD 2X10 TREATED LUMBER 10" FIBERGLASS BATT INSULATION 6" FIBERGLASS BATT INSULATION 1/2" GYP BOARD Level 3 122' - 4" 3 62 2 6 62 6 2 6 2 6 2 6 2 102 2 10 10 2 102 102 2 10 10 2 102 2 PANE INSULATED GLASS ALUMINUM MULLION ALUMINUM MULLION METAL STILL COVER 3/8" WOOD FLOORING WIND BRACE 6" FIBERGLASS BATT INSULATION 10" FIBERGLASS BATT INSULATION 1/4" CHROME PANEL 5/8" PLYWOOD STEEL REINFORCEMENT 2HR FIRE RATED GLASS WOOD MOLDING 2X10 TREATED LUMBER Level 1 100' - 0" 3 2HR FIRE RATED GLASS ALUMINUM MULLION 2" CONCRETE TOPING BLOCK COLUMN BOND BEAM Nicholas Ramsingh ARCHITECT CLIENT REVISIONS PROJECT INFO SHEET INFO SCALE: PLAN NORTH TRUE NORTH As indicated D403 Brunsfield Group LLC Project #110 Wall Section Project Complete: 100% 05/09/16 1/4" = 1'-0" 1 Section 2 1 1/2" = 1'-0" 2 DETAIL 1 1 1/2" = 1'-0" 3 DETAIL 2 1 1/2" = 1'-0" 4 DETAIL 3 1 1/2" = 1'-0" 5 DETAIL 4 1 1/2" = 1'-0" 6 DETAIL 5 Wall Performance Key MATERIAL R-VALUE Inside Air Film 1/2" GYP 2"X10" Treated Lumber 10" Fiberglass Batt Insulation 3/4" Plywood 3/4" Air Space 1/4" Chrome Panel 0.61 1.00 0.77 32.00 (85%) 12.50 (15%) 0.45 0.68 TOTAL R=43.40 1 Wall Performance Key1 MOISTURE PROTECTION Polyethlene vaper barrier on inside face of Wd Std. (Class 1 Vapor Retarder) Wall Performance Key1 STRUCTUAL CONDITION Load Bearing 2X Wood Framing Plywood Shething
  • 9.
    Nicholas Ramsingh ARCHITECT CLIENT REVISIONS PROJECT INFO SHEETINFO SCALE: PLAN NORTH TRUE NORTH E502 Brunsfield Group LLC Project #110 Plan Info Project Complete: 100% 05/10/16 Door Schedule Family Head Height Height Level Thickness Overhead-S ectional 6' - 6" 6' - 6" Lower Level 0' - 1 1/2" Double-Pan el 1 8' - 10" 8' - 10" Level 1 0' - 1 3/4" Single-Flus h 8' - 0" 8' - 0" Level 1 0' - 1 3/4" Single-Flus h 8' - 7 1/4" 8' - 7 1/4" Level 1 0' - 1 3/4" Single-Flus h 8' - 10" 8' - 10" Level 1 0' - 1 3/4" Single-Flus h 10' - 0" Level 1 0' - 1 3/4" Single-Rais ed Panel with Sidelights 8' - 10" 8' - 10" Level 1 0' - 1 3/4" Double-Pan el 1 8' - 0" 8' - 0" Level 2 0' - 1 3/4" Single-Flus h 8' - 0" 8' - 0" Level 2 0' - 1 3/4" Single-Flus h 8' - 10" 8' - 10" Level 2 0' - 1 3/4" Sliding-2 panel 7' - 11 1/2" 7' - 11 1/2" Level 3 0' - 1 3/4" Sliding-2 panel 7' - 11 1/2" 7' - 11 1/2" Level 4 0' - 1 3/4" Sliding-2 panel 7' - 11 1/2" 7' - 11 1/2" Level 5 0' - 1 3/4" Sliding-2 panel 7' - 8" 6' - 8" Roof Level 0' - 1 3/4" Wall Schedule Family and Type Width Assembly Description Basic Wall: SW8 16" (CONCRET ) 1' - 4" Basic Wall: w9 1' - 0" Basic Wall: W9 12" (CONCRET ) 1' - 0" Curtain Wall: Curtain Wall 1 Curtain Walls Basic Wall: 100A 0' - 8" Exterior Walls Basic Wall: airbox 6' - 6" Exterior Walls Basic Wall: CP3 1' - 1" Exterior Walls Basic Wall: CP3 BALC 1' - 1" Exterior Walls Basic Wall: CVR 0' - 1" Exterior Walls Basic Wall: Generic - 8" 0' - 8" Exterior Walls Basic Wall: im5 0' - 4 7/8" Exterior Walls Basic Wall: IM-1B 0' - 4 7/8" Exterior Walls Basic Wall: IM-1C 0' - 4 7/8" Exterior Walls Basic Wall: IM-1D 0' - 4 7/8" Exterior Walls Basic Wall: IM-2 0' - 4 1/4" Exterior Walls Basic Wall: IM-2B 0' - 4 7/8" Exterior Walls Basic Wall: IM-3 0' - 1 1/2" Exterior Walls Basic Wall: IM-5 0' - 4 7/8" Exterior Walls Basic Wall: IM-5a 0' - 4 7/8" Exterior Walls Basic Wall: IM-5B 0' - 4 7/8" Exterior Walls Basic Wall: IM-6 2' - 0" Exterior Walls Basic Wall: IM-7 0' - 5 3/8" Exterior Walls Basic Wall: sing 1' - 10" Exterior Walls Basic Wall: Stair Wall 0' - 6" Exterior Walls Basic Wall: sw2 1' - 0" Exterior Walls Basic Wall: SW3 1' - 0" Exterior Walls Basic Wall: sw4 12" 1' - 0" Exterior Walls Basic Wall: sw5 1' - 4" Exterior Walls Basic Wall: sw6 16" 1' - 4" Exterior Walls Basic Wall: sw7 16" 1' - 4" Exterior Walls Basic Wall: W10 12" (MASONER Y) 1' - 0" Exterior Walls Basic Wall: W11 12" (MASONER Y) 0' - 11 5/8" Exterior Walls Basic Wall: W15 1' - 0" Exterior Walls Basic Wall: Interior - 5 1/2" Partition (1-hr) 0' - 5 1/2" Partitions - Drywall w/ Metal Stud Room Schedule Area Level Name 878 SF Level 1 GYM 749 SF Level 1 CONFERE NCE 889 SF Level 1 OFFICE 922 SF Level 1 LEASING OFFICE 240 SF Level 1 OFFICE 624 SF Level 1 BIKE STORAGE 587 SF Level 1 GUEST HOUSE 220 SF Level 1 STORAGE 3536 SF Level 1 FARMERS MARKET Window Schedule Family and Type Head Height Height Level Sill Height Type Fixed: 7A 10' - 0" 10' - 0" Level 1 0' - 0" 7A Fixed: 013 8' - 9 1/4" 5' - 10 3/4" Level 1 2' - 10 1/2" 013 Fixed: 013 9' - 0 1/4" 5' - 10 3/4" Level 1 3' - 1 1/2" 013 Fixed: 014 8' - 9 1/4" 5' - 10 3/4" Level 1 2' - 10 1/2" 014 Fixed: 017 8' - 9 1/4" 8' - 9 1/4" Level 1 0' - 0" 017 Fixed: 018 8' - 9 1/4" 8' - 9 1/4" Level 1 0' - 0" 018 Fixed: FOR INT FIRST 8' - 10" 8' - 10" Level 1 0' - 0" FOR INT FIRST Fixed: FOR INT FIRST 2 8' - 10" 8' - 10" Level 1 0' - 0" FOR INT FIRST 2 Fixed: FOR INT FIRST 3 8' - 10" 8' - 10" Level 1 0' - 0" FOR INT FIRST 3 Fixed: A 8' - 8 1/4" 5' - 11 1/2" Level 2 2' - 8 3/4" A Fixed: A2 2' - 8 3/4" 2' - 5 1/2" Level 2 0' - 3 1/4" A2 Fixed: B 8' - 8 1/4" 5' - 11 1/2" Level 2 2' - 8 3/4" B Fixed: B2 2' - 8 3/4" 2' - 5 1/2" Level 2 0' - 3 1/4" B2 Fixed: E 7' - 2 1/4" 4' - 5 1/2" Level 2 2' - 8 3/4" E Fixed: E2 2' - 8 3/4" 2' - 5 1/2" Level 2 0' - 3 1/4" E2 Fixed: A 8' - 8 1/4" 5' - 11 1/2" Level 3 2' - 8 3/4" A Fixed: A2 2' - 8 3/4" 2' - 5 1/2" Level 3 0' - 3 1/4" A2 Fixed: B 8' - 8 1/4" 5' - 11 1/2" Level 3 2' - 8 3/4" B Fixed: B2 2' - 8 3/4" 2' - 5 1/2" Level 3 0' - 3 1/4" B2 Fixed: A 8' - 8 1/4" 5' - 11 1/2" Level 4 2' - 8 3/4" A Fixed: A2 2' - 8 3/4" 2' - 5 1/2" Level 4 0' - 3 1/4" A2 Fixed: B 8' - 8 1/4" 5' - 11 1/2" Level 4 2' - 8 3/4" B Fixed: B2 2' - 8 3/4" 2' - 5 1/2" Level 4 0' - 3 1/4" B2 Fixed: A 8' - 8 1/4" 5' - 11 1/2" Level 5 2' - 8 3/4" A Fixed: A2 2' - 8 3/4" 2' - 5 1/2" Level 5 0' - 3 1/4" A2 Fixed: B 8' - 8 1/4" 5' - 11 1/2" Level 5 2' - 8 3/4" B Fixed: B2 2' - 8 3/4" 2' - 5 1/2" Level 5 0' - 3 1/4" B2 Fixed: A 9' - 7 1/4" 5' - 11 1/2" Roof Level 3' - 7 3/4" A Fixed: A 9' - 8 1/4" 5' - 11 1/2" Roof Level 3' - 8 3/4" A Fixed: A 9' - 10 1/4" 5' - 11 1/2" Roof Level 3' - 10 3/4" A Fixed: A2 3' - 7 3/4" 2' - 5 1/2" Roof Level 1' - 2 1/4" A2 Fixed: A2 3' - 8 3/4" 2' - 5 1/2" Roof Level 1' - 3 1/4" A2 Fixed: A2 3' - 10 3/4" 2' - 5 1/2" Roof Level 1' - 5 1/4" A2 Fixed: C 9' - 8 1/4" 6' - 11 1/2" Roof Level 2' - 8 3/4" C Fixed: C 11' - 1 1/4" 6' - 11 1/2" Roof Level 4' - 1 3/4" C Fixed: C 11' - 2 1/4" 6' - 11 1/2" Roof Level 4' - 2 3/4" C Fixed: C2 2' - 8 3/4" 2' - 5 1/2" Roof Level 0' - 3 1/4" C2 Fixed: C2 4' - 1 3/4" 2' - 5 1/2" Roof Level 1' - 8 1/4" C2 Fixed: C2 4' - 2 3/4" 2' - 5 1/2" Roof Level 1' - 9 1/4" C2 Fixed: D 9' - 8 1/4" 6' - 11 1/2" Roof Level 2' - 8 3/4" D Fixed: D2 2' - 8 3/4" 2' - 5 1/2" Roof Level 0' - 3 1/4" D2 Fixed: K DOOR 9' - 9" 2' - 0" Roof Level 7' - 9" K DOOR Fixed: K WINDOW 1 9' - 9" 6' - 0" Roof Level 3' - 9" K WINDOW 1 Fixed: K WINDOW 2 3' - 9" 2' - 6" Roof Level 1' - 3" K WINDOW 2 Fixed: K DOOR 5' - 2" 2' - 0" T.O Parapet 3' - 2" K DOOR Wall Performance Key MATERIAL R-VALUE Inside Air Film 1/2" GYP 2"X10" Treated Lumber 10" Fiberglass Batt Insulation 3/4" Plywood 3/4" Air Space 1/4" Chrome Panel 0.61 1.00 0.77 32.00 (85%) 12.50 (15%) 0.45 0.68 TOTAL R=43.40 1 Wall Performance Key1 MOISTURE PROTECTION Polyethlene vaper barrier on inside face of Wd Std. (Class 1 Vapor Retarder) Wall Performance Key1 STRUCTUAL CONDITION Load Bearing 2X Wood Framing Plywood Shething 1. The Zoning District B4N (Downtown Neighborhood) District and DP (Downtown Parking) Overlay District. (549.20). 2. The uses on the site is as follows. (Note see Appendix 1 for more Information) General retail sales and services, Offices, Automobile services, Food and Beverages, Commercial Recreation, Entertainment and Lodging, Medical Facilities, Transportation, Parking Facilities, Planned Unit Development, Parking Facilities, Residential Uses, Dwellings, Congregate Living, Institutional and Public Use, Educational Facilities, Social, Cultural, Charitable and Recreational Facilities, Religious Institutions, Production Processing and Services, Public Services and Utilities. (549.30). 3. The following uses ate not permitted. (Note see Appendix 1 for more Information), Building material sales, Day labor agency, Exterminating shop, Firearms dealer, Greenhouse, lawn and garden supply store, pawnshop, small engine repair, Automobile repair major, car wash, Nightclub, Regional sports arena, Blood/plasma collection facility, Ambulance service, Limousine service, Truck, trailer, boat, recreational vehicle or mobile home sales, service and rental, Mission, Furniture moving and storage, Industrial machinery and equipment sales, service and rental, Self-service storage, Garage for public vehicles, Mounted patrol stable, Pre-trial detention facility, adult, Pre-trial detention facility, juvenile, Street and equipment maintenance facility. (549.30). 4. The following uses are permitted as conditional uses. (Note see Appendix 1 for more Information), Automobile convenience facility, Automobile rental, Automobile repair minor, Automobile sales, Outdoor recreation area, Hospital, Package delivery service, Parking facility, Cluster development, Community residential facility serving seven (7) to sixteen (16) persons, Community residential facility serving seventeen (17) to thirty-two (32) persons, Board and care home/Nursing home/Assisted living, Dormitory, Emergency shelter serving up to thirty-two (32) persons, Inebriate housing, Overnight shelter, Residential hospice, Supportive housing, College or university, School, grades K—12, Dry cleaning establishment, Bus turnaround, Electric or gas substation, Fire station, Heating or cooling facility, Railroad right-of-way, Storm water retention pond, Water pumping and filtration facility(549.30) 5. The Minimum required and maximum permitted parking requirements for: Food and Beverage occupancies are at a minimum of none to a maximum of 1 space per 200 sq. ft. of GFA. For Residential occupancies, Minimum 1 space per dwelling unit, except an accessory dwelling unit shall not be required to provide off-street parking. Maximum None. For Office occupancies minimum none. Maximum 1 space per 1,000 sq. ft. of GFA. (541.170). 6. The maximum occupancy of a dwelling unit located in the downtown districts shall not exceed one (1) family plus four (4) unrelated persons living together as a permanent household, provided that the family plus the unrelated persons shall not exceed a total of five (5) persons. (649.50). 7. The minimum floor area ratio of all structures shall be two (2). (549.580). 8. There is no maximum floor area ratio in the B4N District. (549.580). 9. The maximum height of all principal structures located in the B4N District shall be ten (10) stories or one hundred forty (140) feet in height, whichever is less. (549.550). 10. For parking garages. The maximum height of all principal structures located in the B4N District shall be ten (10) stories or one hundred forty (140) feet in height, whichever is less. (549.550). 11. Maximum floor area for all retail sales and services shall be limited to a maximum gross floor area of thirty thousand (30,000) square feet per use, except for planned unit developments. (549.580) 12. AF & PA - NDS --05 National Design Specification for Wood Construction and Supplement 13. ACI 318-05 Building Code Requirements for Reinforced Concrete 14. ACI 530-05 Building Code Requirements for Masonry Structures, Allowable Stress Design 15. ACI 530.1-05 Masonry Structures 16. AISC 360-05 Specification for Structural Steel Buildings 17. ANSI/AITC A190.1-92 Structural Glued Laminated Timber 18. APA-EWA PS2-92 Performance Standard for Wood-Based Structural-Use Panels 19. APA-EWA PRL - 501 Performance Standard for APA EWS Laminated Veneer Lumber 20. APA-EWA PRI - 400 Performance Standards for APA EWS I-Joists 21. APA PDS - 04 Panel Design Specification 22. ASCE 7-05 Minimum design loads for buildings and other structures including supplement NO. 1 and excluding Chapter 14 and Appendix 11A. ZONING / CODE Column Schedule Type Base Level Family CP1 24X30 Lower Level Rectangular Column CP2 30X30 Lower Level Rectangular Column CP3 24x26 Lower Level Rectangular Column CP4 32X30 Lower Level Rectangular Column CP5 24X44 Lower Level Rectangular Column CP6 24x24 Lower Level Rectangular Column CP6 24x24 Level 1 Rectangular Column CP6 24x24 Level 2 Rectangular Column PC1 16X16 Lower Level Rectangular Column PC1 16X16 Level 1 Rectangular Column PC2 24X16 2 Lower Level Rectangular Column
  • 15.
    Portfolio Dunwoody College ofTechnology Nicholas Ramsingh To Be Continued...