STAIRCASE
Deepak Pradhan : 1210900048
Definition:
Construction designed to
bridge a large vertical
distance, by dividing it into
smaller vertical distances
called steps.
Different parts of staircase:
STEP, Tread, Riser,
BALUSTRADE, Baluster,
Handrail, Newel Post.
VARIOUS COMPONENTS OR PARTS OF STAIRCASE AND THEIR DETAILS
Step
The step is composed of the tread and riser.
Tread
The part of the stairway that is stepped on. It is
constructed to the same specifications (thickness) as any
other flooring. The tread "depth" is measured from the
outer edge of the step to the vertical "riser" between
steps. The "width" is measured from one side to the other.
Riser
The vertical portion between each tread on the stair. This
may be missing for an "open" stair effect.
Nosing
An edge part of the tread that protrudes over the
riser beneath. If it is present, this means that,
measured horizontally, the total "run" length of
the stairs is not simply the sum of the tread
lengths, as the treads actually overlap each other
slightly.
Starting step or Bullnose
Where stairs are open on one or both sides, the
first step above the lower floor may be wider than
the other steps and rounded. The balusters
typically form a semicircle around the
circumference of the rounded portion and the
handrail has a horizontal spiral called a "volute"
that supports the top of the balusters. Besides the
cosmetic appeal, starting steps allow the balusters
to form a wider.
Stringer, Stringer board or sometimes just
String
The structural member that supports the treads
and risers. There are typically two stringers,
one on either side of the stairs; though the
treads may be supported many other ways. The
stringers are sometimes notched so that the
risers and treads fit into them. Stringers on
open-sided stairs are often open themselves so
that the treads are visible from the side. Such
stringers are called "cut" stringers. Stringers on
a closed side of the stairs are closed, with the
support for the treads routed into the stringer.
Winders
Winders are steps that are narrower on one side than
the other. They are used to change the direction of the
stairs without landings. A series of winders form a
circular or spiral stairway. When three steps are used to
turn a 90° corner, the middle step is called a kite winder
as a kite-shaped quadrilateral.
Trim
A stair skirt or baseboard is the trim that runs
along the bottom of the wall beside the steps.
Often, it is made from the same baseboard used
throughout the home, but it can also have a
different appearance entirely. Baseboard trim
can be cut with mitered corners and follow the
angles of each tread and riser.
Banister, Railing or Handrail
The angled member for handholding, as
distinguished from the vertical balusters which
hold it up for stairs that are open on one side;
there is often a railing on both sides,
sometimes only on one side or not at all, on
wide staircases there is sometimes also one in
the middle, or even more. The term "banister"
is sometimes used to mean just the handrail, or
sometimes the handrail and the balusters or
sometimes just the balusters.
Volute
A handrail end element for the bullnose step
that curves inward like a spiral. A volute is said
to be right or left-handed depending on which
side of the stairs the handrail is as one faces up
the stairs.
Easings
Wall handrails are mounted directly onto
the wall with wall brackets. At the
bottom of the stairs such railings flare to
a horizontal railing and this horizontal
portion is called a "starting easing". At
the top of the stairs, the horizontal
portion of the railing is called a "over
easing".
Turnout
Instead of a complete spiral volute, a turnout is
a quarter-turn rounded end to the handrail.
Gooseneck
The vertical handrail that joins a
sloped handrail to a higher handrail on
the balcony or landing is a gooseneck.
Rosette
Where the handrail ends in the wall and a half-
newel is not used, it may be trimmed by a rosette.
Core rail
Wood handrails often have a metal core to
provide extra strength and stiffness, especially
when the rail has to curve against the grain of
the wood. The archaic term for the metal core
is "core rail".
Baluster
A term for the vertical posts that hold up the
handrail. Sometimes simply called guards or
spindles. Treads often require two balusters.
The second baluster is closer to the riser and is
taller than the first. The extra height in the
second baluster is typically in the middle
between decorative elements on the baluster.
That way the bottom decorative elements are
aligned with the tread and the top elements
are aligned with the railing angle.
Newel
A large baluster or post used to anchor the handrail. Since it
is a structural element, it extends below the floor and
subfloor to the bottom of the floor joists and is bolted right
to the floor joist. A half-newel may be used where a railing
ends in the wall. Visually, it looks like half the newel is
embedded in the wall. For open landings, a newel may
extend below the landing for a decorative newel drop.
Finial
A decorative cap to the top of a newel post, particularly at
the end of the balustrade.
Base Rail or Shoe Rail
For systems where the baluster does not start at the treads,
they go to a base rail. This allows for identical balusters,
avoiding the second baluster problem.
Fillet
A decorative filler piece on the floor between balusters on a
balcony railing.
Rcc staircase Wooden staircase
STANDARDS AND GUIDE LINE FOR FIXING THE DIMENSIONS :
Residential buildings:
Risers (R) : 150mm to 180mm (6” to 7”)
Tread (T) : 220 mm to 250mm (9” to 10”)
For public buildings:
Risers (R) : 120mm to 150mm (5” to 6”)
Tread (T) : 250 mm to 300mm (10” to 12”)
T + 2R : Range between 590mm to 650mm ( 23” - 26”)
The width of stair
• 0.8m to 1m for residential building and
• 1.8m to 2m for public building.
From the physiological point of view, the best use of 'climbing effort' is at a stair pitch of 30°
and a ratio of riser (r) to tread (t) of 17 : 29.
Staircase formula for run
calculation :
Two formula commonly are
used to determine the
proportions for interior
residential staircase.
1) 2 x risers + trade = 25 + 1
( this formula can
incorporated in some
building codes.)
2) Rise x trade =75 + 3 ( this
formula is used for
atypical applications like
attic or landscape stairs. )
Risers calculation:
Number of Riser = Height of Staircase / Height of one Rise
Example :
102.5”( total rise of stair) / 7”(approximate rise height ) = 14.6428 ( number of riser can not be in decimal )
Now as we got the idea that 14 no. of risers will be good for the staircase
Now : reverse calculating it
102.5” (total rise of stair) / 14 (number of risers) = 7.32” ( exact riser height )
Trade calculations :
(2 x Riser ) + (Trade) = 25 + 1
(2 x 7.32) + Trade = 25 + 1
Trade = 25 - 14.62 + 1
Trade = 10.38 + 1
(Trade can range from 9.38” to 11.38”)
Guide lines for fixing the dimensions
• The width of the landing is equal to the width of stairs.
• The number of steps in each flight should not be greater than 12
• The pitch of the stair should not be more than 38 degrees.
• The head room measured vertically above any step or below the mid landing shall not
be less than 2.1 m.
• The height of the balusters should be around 0.75 to 1 m.
• The space between two balusters should not be more than 30 - 40 cm.
• Steepness of stairs; Regular pitch: 25-36 °
Min. Tread width
no side walls =60cm
One side wall = 70cm
Two side walls = 80cm
Handrails height should be between 86.5- 96.5 cm.
Handrails may project a max. of 9cm into the
required width.
H=140+70/Cosα
Pitch : 20° H=215cm
Pitch : 30° H= 220cm
Pitch : 45° H=240cm
For stairs in buildings subject to disability-friendly building rules, steps may have no nosing!
In order to avoid ugly streaks of rubbed-off shoe polish on the risers of vertical stairs - 1 ,
profiles with an undercut riser are better, and this produces more tread surface. For a tread
width < 260mm – 1 (b) the step is to be undercut >30 mm. this also applies to open stairs
without risers.
Different types of Steps
01. Flier: Flier is an ordinary step of
uniform width and rectangular shape as
shown in figure.
02. Bullnose Step:
Bullnose step is generally provided at the
bottom of the flight. It usually projects in front
of the newel post and it ends near the newel
forming the quadrant of a circle as shown in
figure.
03. Round ended Step:
Round ended step is similar to the bullnose
step the only difference is it has semi-
circular end which project out of the
stringer as shown in figure.
04. Splayed Step:
Splayed step is also provided at the
beginning of the flight with its end near the
newel post as shown in figure.
05. Commode Step:
Commode step is also
provided at the beginning of
the flight, it has curved tread
and riser as shown in figure.
07. Dancing Step or Balancing
Step:
Dancing or Balancing steps are
those which do not radiate
from a common center as
shown in figure.
06. Winder:
Winders are tapering steps
which radiates from a point
usually situated at the
center of newel as shown in
figure.
CLASSIFICATION BASED ON SHAPE OF PLAN
Based on shape
STRAIGHT STAIRS
• All steps lead in one direction.
• Simplest form of stair arrangement.
• It may consist of one or more flights
• They are used when space
available for staircase is long
but narrow in width.
TURNING STAIRS
1. Quarter Turn Stairs
2. Half-Turn Stairs
3. Three Quarter Turn Stairs
In case of turning stairs ,flights take turn. The types of
turning stairs are:
Quarter turn stairs:
A stair turning through one right angle is known as
Quarter
turn stairs. (L-shaped stair)
• If a quarter turn stair is branched into two flights at a
landing is known as a Bifurcated stair.
• This types of stair is commonly used in the public
buildings near the entrance hall .
• The stair has a wider flight at bottom which bifurcates
into two narrower flights at the landing- one turn into
left and the other to the right.
• This staircase has either equal or unequal flights.
• When the direction of flight is changed at right
angles to the left or to the right , quarter turn stairs
are used.
2. Half Turn Stairs:
•A stair turning through right angle is known as Half Turn Stairs.
•A half turn star may be of dog-legged type or open newel type .
Dog-legged stair
Dog-legged stair :
• Two short flights with a half space landing between them.
• In case of dog-legged stair, the flights run in opposite directions
and there is no space between them in plan.
• Its name is derived from its appearance in the sectional elevation.
• This stairs are useful where total width of space available for the
staircase is equal to twice the width of steps.
Open newel stair
• Its name is derived from its appearance in the sectional elevation.
• This stairs are useful where total width of space available for the
staircase is equal to twice the width of steps.
Open newel stair
• Space between the upper and lower flights causes half space landing to be longer.
• In case of open newel stair, there is a well or hole or opening between flights in plan.
• This well may be rectangular or of any geometrical shape and it can be used for fixing lift.
• These staircase are useful where available space for staircase has a width greater than twice
the width of steps.
Circular or helical or spiral stairs
• the steps radiate from the center and they do not have
either any landing or any intermediate newel post…..
• Some of the important facts to be noted in connection
with the circular stairs are:
1. flights consist of winders only and may be continued
through any number of turns.
2. may be constructed of a cast iron or mild steel or
concrete. Usually its structural design and construction of
are complicated in nature.
STAIRCASE OF DIFFERENT MATERIAL
Brick Stairs
• Not frequently used.
• May be built of solid masonry construction or arches
may be
• When arches are provided, the total masonry work
is reduced and cupboards may be provided in this
hollow space.
• Treads are generally made equal to length 1.50
bricks and risers with the layers of 2 brick respectively.
• The treads and risers are finished with suitable
flooring material.
Metal Stairs
The external fire-escape stairs are generally made of metal.
The common metals used are cast iron, bronze and mild
steel.
• Used only as emergency stairs.....not common in
residential and public building.
Mostly used in factories, godowns, workshops etc. The
important features of metal stairs:
1. stringers are usually of channel section.
2. tread and riser of a step may be of one unit.
3. The tread and riser of a step may be of separate units.
Spiral Steel Stair
• The treads and risers aresupported on the
angles which are connected to the stringers.
• The risers may be totally omitted in some
cases.
• The spiral stairs of cast- iron consist of a cast-
iron newel fixed in the centre around which
the cast-iron steps are fixed.
• For metal stairs the metal balusters with
handrail of pipe are used.
R.C.C. STAIRS
• Commonly used in all type of constructions
for residential, public and industrial buildings,
in case of framed structuresz R.C.C. stairs is
perhaps only choice.
• Are very good fire resistance.
• Can be easily moulded to the desired shape.
• Steps can be provided with suitable finishing
material such as marble, tile, etc.
• Can be easily maintained clean and they are
strong, durable and pleasing in appearance.
Can also be easilv rendered non- slippery and
can designed for greater width and longer
shapes.
Precast R.C.C.
• The detail and placing of reinforcement will
naturally depend on the design of R.C.C.
Stair.
• The steps may be cast-in- situ or pre-cast.
• In the later case, it is also possible to pre-
cast a flight and then place it in position
with the help of suitable equipment. Stairs.
Wooden staircase
• Cheap, light in weight, easy to construct
& maintenance.....That's why mostly
used for residential buildings.
• Problem occurs during fire because
occupants of upper floors cannot
escape.......but if stair is constructed
from good quality timber like oak, teak,
mahogany, etc. using min. thickness of
5cm, to serve the requirements of a fire-
resisting stair to a great extent.
• Timber used should be free from fungal
decay, insect attack & other defects,
edges should be finished smooth, pieces
of timber having abnormal light weight
should not be used.
Stone stairs
• Stones should be hard & non- absorbent.
• Possess enough resistance to the action of fire.
• Mostly used for warehouses, workshops &
other public buildings.
• Widely used where ashlar stones are easily
available.
• Restricted in residential buildings to outside
stairs.
• Being heavy in weight, stone stairs require
stable support to avoid the danger of damage
due to settlement of supporting walls.
WHAT IS A FIRE ESCAPE?
• A Fire Escape is a special kind
of emergency exit, usually
mounted to the outside of a
building or occasionally inside
but separate from the main
areas of the building.
• It provides a method
of escape in the event of
a fire or other emergency that
makes the stairwells inside a
building inaccessible.
MULTIPLE USE OF STAIRCASE
MODERN DESIGN
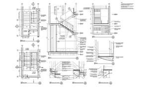
STAIRCASE DRAWINGS AND
WORKING
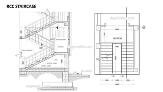
RCC STAIRCASE
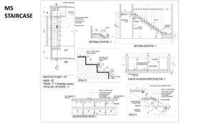
MS
STAIRCASE
WOODEN
STAIRCASE
Slab less staircase
staircase .pptx

staircase .pptx

  • 1.
  • 2.
    Definition: Construction designed to bridgea large vertical distance, by dividing it into smaller vertical distances called steps. Different parts of staircase: STEP, Tread, Riser, BALUSTRADE, Baluster, Handrail, Newel Post.
  • 3.
    VARIOUS COMPONENTS ORPARTS OF STAIRCASE AND THEIR DETAILS Step The step is composed of the tread and riser. Tread The part of the stairway that is stepped on. It is constructed to the same specifications (thickness) as any other flooring. The tread "depth" is measured from the outer edge of the step to the vertical "riser" between steps. The "width" is measured from one side to the other. Riser The vertical portion between each tread on the stair. This may be missing for an "open" stair effect.
  • 4.
    Nosing An edge partof the tread that protrudes over the riser beneath. If it is present, this means that, measured horizontally, the total "run" length of the stairs is not simply the sum of the tread lengths, as the treads actually overlap each other slightly. Starting step or Bullnose Where stairs are open on one or both sides, the first step above the lower floor may be wider than the other steps and rounded. The balusters typically form a semicircle around the circumference of the rounded portion and the handrail has a horizontal spiral called a "volute" that supports the top of the balusters. Besides the cosmetic appeal, starting steps allow the balusters to form a wider.
  • 5.
    Stringer, Stringer boardor sometimes just String The structural member that supports the treads and risers. There are typically two stringers, one on either side of the stairs; though the treads may be supported many other ways. The stringers are sometimes notched so that the risers and treads fit into them. Stringers on open-sided stairs are often open themselves so that the treads are visible from the side. Such stringers are called "cut" stringers. Stringers on a closed side of the stairs are closed, with the support for the treads routed into the stringer.
  • 6.
    Winders Winders are stepsthat are narrower on one side than the other. They are used to change the direction of the stairs without landings. A series of winders form a circular or spiral stairway. When three steps are used to turn a 90° corner, the middle step is called a kite winder as a kite-shaped quadrilateral.
  • 7.
    Trim A stair skirtor baseboard is the trim that runs along the bottom of the wall beside the steps. Often, it is made from the same baseboard used throughout the home, but it can also have a different appearance entirely. Baseboard trim can be cut with mitered corners and follow the angles of each tread and riser.
  • 8.
    Banister, Railing orHandrail The angled member for handholding, as distinguished from the vertical balusters which hold it up for stairs that are open on one side; there is often a railing on both sides, sometimes only on one side or not at all, on wide staircases there is sometimes also one in the middle, or even more. The term "banister" is sometimes used to mean just the handrail, or sometimes the handrail and the balusters or sometimes just the balusters. Volute A handrail end element for the bullnose step that curves inward like a spiral. A volute is said to be right or left-handed depending on which side of the stairs the handrail is as one faces up the stairs.
  • 9.
    Easings Wall handrails aremounted directly onto the wall with wall brackets. At the bottom of the stairs such railings flare to a horizontal railing and this horizontal portion is called a "starting easing". At the top of the stairs, the horizontal portion of the railing is called a "over easing". Turnout Instead of a complete spiral volute, a turnout is a quarter-turn rounded end to the handrail.
  • 10.
    Gooseneck The vertical handrailthat joins a sloped handrail to a higher handrail on the balcony or landing is a gooseneck. Rosette Where the handrail ends in the wall and a half- newel is not used, it may be trimmed by a rosette.
  • 11.
    Core rail Wood handrailsoften have a metal core to provide extra strength and stiffness, especially when the rail has to curve against the grain of the wood. The archaic term for the metal core is "core rail". Baluster A term for the vertical posts that hold up the handrail. Sometimes simply called guards or spindles. Treads often require two balusters. The second baluster is closer to the riser and is taller than the first. The extra height in the second baluster is typically in the middle between decorative elements on the baluster. That way the bottom decorative elements are aligned with the tread and the top elements are aligned with the railing angle.
  • 12.
    Newel A large balusteror post used to anchor the handrail. Since it is a structural element, it extends below the floor and subfloor to the bottom of the floor joists and is bolted right to the floor joist. A half-newel may be used where a railing ends in the wall. Visually, it looks like half the newel is embedded in the wall. For open landings, a newel may extend below the landing for a decorative newel drop. Finial A decorative cap to the top of a newel post, particularly at the end of the balustrade. Base Rail or Shoe Rail For systems where the baluster does not start at the treads, they go to a base rail. This allows for identical balusters, avoiding the second baluster problem. Fillet A decorative filler piece on the floor between balusters on a balcony railing.
  • 13.
  • 18.
    STANDARDS AND GUIDELINE FOR FIXING THE DIMENSIONS :
  • 19.
    Residential buildings: Risers (R): 150mm to 180mm (6” to 7”) Tread (T) : 220 mm to 250mm (9” to 10”) For public buildings: Risers (R) : 120mm to 150mm (5” to 6”) Tread (T) : 250 mm to 300mm (10” to 12”) T + 2R : Range between 590mm to 650mm ( 23” - 26”) The width of stair • 0.8m to 1m for residential building and • 1.8m to 2m for public building. From the physiological point of view, the best use of 'climbing effort' is at a stair pitch of 30° and a ratio of riser (r) to tread (t) of 17 : 29.
  • 20.
    Staircase formula forrun calculation : Two formula commonly are used to determine the proportions for interior residential staircase. 1) 2 x risers + trade = 25 + 1 ( this formula can incorporated in some building codes.) 2) Rise x trade =75 + 3 ( this formula is used for atypical applications like attic or landscape stairs. )
  • 21.
    Risers calculation: Number ofRiser = Height of Staircase / Height of one Rise Example : 102.5”( total rise of stair) / 7”(approximate rise height ) = 14.6428 ( number of riser can not be in decimal ) Now as we got the idea that 14 no. of risers will be good for the staircase Now : reverse calculating it 102.5” (total rise of stair) / 14 (number of risers) = 7.32” ( exact riser height ) Trade calculations : (2 x Riser ) + (Trade) = 25 + 1 (2 x 7.32) + Trade = 25 + 1 Trade = 25 - 14.62 + 1 Trade = 10.38 + 1 (Trade can range from 9.38” to 11.38”)
  • 22.
    Guide lines forfixing the dimensions • The width of the landing is equal to the width of stairs. • The number of steps in each flight should not be greater than 12 • The pitch of the stair should not be more than 38 degrees. • The head room measured vertically above any step or below the mid landing shall not be less than 2.1 m. • The height of the balusters should be around 0.75 to 1 m. • The space between two balusters should not be more than 30 - 40 cm. • Steepness of stairs; Regular pitch: 25-36 °
  • 23.
    Min. Tread width noside walls =60cm One side wall = 70cm Two side walls = 80cm Handrails height should be between 86.5- 96.5 cm. Handrails may project a max. of 9cm into the required width. H=140+70/Cosα Pitch : 20° H=215cm Pitch : 30° H= 220cm Pitch : 45° H=240cm
  • 25.
    For stairs inbuildings subject to disability-friendly building rules, steps may have no nosing! In order to avoid ugly streaks of rubbed-off shoe polish on the risers of vertical stairs - 1 , profiles with an undercut riser are better, and this produces more tread surface. For a tread width < 260mm – 1 (b) the step is to be undercut >30 mm. this also applies to open stairs without risers.
  • 27.
    Different types ofSteps 01. Flier: Flier is an ordinary step of uniform width and rectangular shape as shown in figure. 02. Bullnose Step: Bullnose step is generally provided at the bottom of the flight. It usually projects in front of the newel post and it ends near the newel forming the quadrant of a circle as shown in figure.
  • 28.
    03. Round endedStep: Round ended step is similar to the bullnose step the only difference is it has semi- circular end which project out of the stringer as shown in figure. 04. Splayed Step: Splayed step is also provided at the beginning of the flight with its end near the newel post as shown in figure.
  • 29.
    05. Commode Step: Commodestep is also provided at the beginning of the flight, it has curved tread and riser as shown in figure. 07. Dancing Step or Balancing Step: Dancing or Balancing steps are those which do not radiate from a common center as shown in figure. 06. Winder: Winders are tapering steps which radiates from a point usually situated at the center of newel as shown in figure.
  • 30.
  • 31.
  • 33.
    STRAIGHT STAIRS • Allsteps lead in one direction. • Simplest form of stair arrangement. • It may consist of one or more flights • They are used when space available for staircase is long but narrow in width.
  • 34.
    TURNING STAIRS 1. QuarterTurn Stairs 2. Half-Turn Stairs 3. Three Quarter Turn Stairs
  • 35.
    In case ofturning stairs ,flights take turn. The types of turning stairs are: Quarter turn stairs: A stair turning through one right angle is known as Quarter turn stairs. (L-shaped stair) • If a quarter turn stair is branched into two flights at a landing is known as a Bifurcated stair. • This types of stair is commonly used in the public buildings near the entrance hall . • The stair has a wider flight at bottom which bifurcates into two narrower flights at the landing- one turn into left and the other to the right. • This staircase has either equal or unequal flights. • When the direction of flight is changed at right angles to the left or to the right , quarter turn stairs are used.
  • 37.
    2. Half TurnStairs: •A stair turning through right angle is known as Half Turn Stairs. •A half turn star may be of dog-legged type or open newel type . Dog-legged stair Dog-legged stair : • Two short flights with a half space landing between them. • In case of dog-legged stair, the flights run in opposite directions and there is no space between them in plan. • Its name is derived from its appearance in the sectional elevation. • This stairs are useful where total width of space available for the staircase is equal to twice the width of steps. Open newel stair
  • 38.
    • Its nameis derived from its appearance in the sectional elevation. • This stairs are useful where total width of space available for the staircase is equal to twice the width of steps. Open newel stair • Space between the upper and lower flights causes half space landing to be longer. • In case of open newel stair, there is a well or hole or opening between flights in plan. • This well may be rectangular or of any geometrical shape and it can be used for fixing lift. • These staircase are useful where available space for staircase has a width greater than twice the width of steps.
  • 40.
    Circular or helicalor spiral stairs • the steps radiate from the center and they do not have either any landing or any intermediate newel post….. • Some of the important facts to be noted in connection with the circular stairs are: 1. flights consist of winders only and may be continued through any number of turns. 2. may be constructed of a cast iron or mild steel or concrete. Usually its structural design and construction of are complicated in nature.
  • 43.
  • 45.
    Brick Stairs • Notfrequently used. • May be built of solid masonry construction or arches may be • When arches are provided, the total masonry work is reduced and cupboards may be provided in this hollow space. • Treads are generally made equal to length 1.50 bricks and risers with the layers of 2 brick respectively. • The treads and risers are finished with suitable flooring material.
  • 46.
    Metal Stairs The externalfire-escape stairs are generally made of metal. The common metals used are cast iron, bronze and mild steel. • Used only as emergency stairs.....not common in residential and public building. Mostly used in factories, godowns, workshops etc. The important features of metal stairs: 1. stringers are usually of channel section. 2. tread and riser of a step may be of one unit. 3. The tread and riser of a step may be of separate units.
  • 47.
    Spiral Steel Stair •The treads and risers aresupported on the angles which are connected to the stringers. • The risers may be totally omitted in some cases. • The spiral stairs of cast- iron consist of a cast- iron newel fixed in the centre around which the cast-iron steps are fixed. • For metal stairs the metal balusters with handrail of pipe are used.
  • 48.
    R.C.C. STAIRS • Commonlyused in all type of constructions for residential, public and industrial buildings, in case of framed structuresz R.C.C. stairs is perhaps only choice. • Are very good fire resistance. • Can be easily moulded to the desired shape. • Steps can be provided with suitable finishing material such as marble, tile, etc. • Can be easily maintained clean and they are strong, durable and pleasing in appearance. Can also be easilv rendered non- slippery and can designed for greater width and longer shapes.
  • 49.
    Precast R.C.C. • Thedetail and placing of reinforcement will naturally depend on the design of R.C.C. Stair. • The steps may be cast-in- situ or pre-cast. • In the later case, it is also possible to pre- cast a flight and then place it in position with the help of suitable equipment. Stairs.
  • 50.
    Wooden staircase • Cheap,light in weight, easy to construct & maintenance.....That's why mostly used for residential buildings. • Problem occurs during fire because occupants of upper floors cannot escape.......but if stair is constructed from good quality timber like oak, teak, mahogany, etc. using min. thickness of 5cm, to serve the requirements of a fire- resisting stair to a great extent. • Timber used should be free from fungal decay, insect attack & other defects, edges should be finished smooth, pieces of timber having abnormal light weight should not be used.
  • 51.
    Stone stairs • Stonesshould be hard & non- absorbent. • Possess enough resistance to the action of fire. • Mostly used for warehouses, workshops & other public buildings. • Widely used where ashlar stones are easily available. • Restricted in residential buildings to outside stairs. • Being heavy in weight, stone stairs require stable support to avoid the danger of damage due to settlement of supporting walls.
  • 52.
    WHAT IS AFIRE ESCAPE? • A Fire Escape is a special kind of emergency exit, usually mounted to the outside of a building or occasionally inside but separate from the main areas of the building. • It provides a method of escape in the event of a fire or other emergency that makes the stairwells inside a building inaccessible.
  • 54.
    MULTIPLE USE OFSTAIRCASE
  • 59.
  • 67.
  • 68.
  • 72.
  • 73.
  • 83.