BINDINGEDGE
665 Buttonwood Lane
Miami, FL 33137
Exterior and Interior Renovations
Job Number: 2013_01
March 20, 2013
DRAWING
20
PARTITION & DOOR NOTES
TYP
##
TYP
TYP
##
FLOOR MATERIAL TYPE
FLOOR MATERIAL NUMBER
WALL MATERIAL NUMBER
WALL MATERIAL TYPE
MILLWORK SURFACE TYPE
& NUMBER
FINISH LEGEND
FLOOR TYPE
WALL TYPE
MILLWORK SURFACE TYPE
3
B
A41
100BB
ROOM NAME
4-3096
FRE FLOOR REFERENCE ELEVATION
SYMBOL INDICATE FIXTURE TYPE, SEE FIXTURE LIST
FLUOR & INCAND DOWN LTS
WALL WASHER
UPPER CASE LETTERS ADJACENT TO FIXTURE
2 x 22 x 4
SHEET NUMBER
PLAN OR DETAIL
DESIGNATION
SHEET NUMBER
DESIGNATION
SECTION
FLUORESCENT LTS
CEILING LIGHT FIXTURES
SECTION
(TSCD-)
(TKBD-)
(SNDU-)
PLASTIC LAMINATE
(PLAM-)
MIRROR
(MIRR-)
ALUMINUM
(ALUM-)
UNDER CABINET LIGHTING
(MKR BD-)
(INSUL-)
VNR (VNR-) VENEER
UC UNDER CABINET
UCL (UCL-)
STORAGE
THRES THRESHOLD
SSM (SSM-) SOLID SURFACE MATERIAL
DISPOSAL UNIT
SNDU SANITARY NAPKIN
SND (SND-) SANITARY NAPKIN DISPENSER
SGL SINGLE
RUBBER TILE FLOORRTF (RTF-)
RUBBERRUB
PSH (PSH-) PURSE SHELF
(PROJ SCRN-)
PERFORATEDPERF
OWNER FURNISHED,OF/OI
OWNER INSTALLED
CONTRACTOR INSTALLED
OF/CI OWNER FURNISHED,
KICK PLATEKPL (KPL-)
FIRE CABINETFC (FC-)
DISHWATERDW
BENCHBE (BE-)
AMERICANS W/ DISABILITIES ACTADA
TOWEL DISPENSER/ RECEPTACLE
TOILET SEAT COVER DISPENSER
UNDERWRITER'S LABORATORIES
SOUTH
SOUND ATTENUATION BATTS
SHOWER
SIGNAGE
SHEET
SANITARY
SOLID CORE
SECTION
SCHEDULE
SQUARE FOOT(FEET)
SOAP DISPENSER
STATION
SPEAKER
STANDPIPE
SPECIFICATION
SQUARE
SERVICE SINK
STAINLESS STEEL
SOUND TRANSMISSION CLASS
SHEET VINYL
SYMMETRICAL
STEEL
STRUCTURE, STRUCTURAL
SUSPENDED
STONE
STANDARD
SIMILAR
TELEPHONE
TEMPORARY
TOP OF
TREAD
TONGUE & GROOVE
TOP & BOTTOM
TREATED
THICK
TENANT IMPROVEMENT
TEMPERED
TOILET
TACKBOARD
TOILET PAPER DISPENSER
TOPOGRAPHY, TOPOGRAPHIC
TERRAZZO
UNEXCAVATED
UNFINISHED
TYPICAL
TELEVISION
HEAT TRANSFER COEFFICIENT
UNIT HEATER
UNDERGROUND
UNDERSLAB
UTILITY
UNLESS NOTED OTHERWISE
TUBE STEEL
VOLUME
VINYL TILE
VENTILATION
VESTIBULE
VERTICAL
VAPOR RETARDER
VINYL COMPOSITION TILE
VERIFY IN FIELD
WATER CLOSET
WALL GUARD
WOOD
WIDE FLANGE
WITHOUT
WEST
WITH
VINYL WALL COVERING
WEIGHT
WAINSCOT
WIRE MESH
WINDOW
WATER HEATER
WROUGHT IRON
WASTE RECEPTACLE
WELDED WIRE FABRIC
WATER PROOFING
YARD
ZINC.
VINYL BASE
SAB
S
SHR
SGNG
SHT
SAN
SC
SECT
SD (SD-)
SCHED
SF
GAUGE
GALVANIZEDGALV
GA
GLASS
GROUND
GENERAL
GRAB BAR
GLASS FIBER
GLASS FIBER
GD
GL (GL-)
GFRC
GEN
GB (GB-)
GFRG
REINFORCED CONCRETE
REINFORCED GYPSUM
SST
STA
STC
SPKR
SP
SPEC
SQ
SS
SV (SV-)
SYMM
STL
STOR
STRUCT
SUSP
STN (STN-)
STD
HIGH
HOSE BIBB
GRADE
GYPSUM
GREASE TRAP
H
HB
GT
GR
GLU LAM
GYP
HORIZONTAL
HOUR
HEIGHT
HIGH POINT
HANDICAPPED
HOLLOW METAL
HOLD OPEN
HARDWOOD
HARDWARE
HORIZ
HP
HR
HT
HDW
HCP
HM
HO
HDWD
HC HOLLOW CORE
GLUE LAMINATED WOOD
SIM
ANCHOR BOLT
AIR CONDITION(ING)(ED)
AGGREGATE
ADJUSTABLE
AREA DRAIN
ACOUSTIC(AL)
ACCESS PANEL
ADHESIVE
ABOVE FINISHED FLOOR
ACOUSTICAL CEILING TILE
ACOUSTICAL CEILING PANEL
AB
A/C
ADJ
AGGR
AFF
ACT (ACT-)
AD
ACP (ACP-)
ACS PNL
ACST
ADH
APPROXIMATE
ASPHALT
ARCHITECT(URAL), ARCHITECT
ALTERNATE
ANNUNCIATOR
ANODIZE(D)
AIR HANDLING UNIT
BOARD
BUILDING
BITUMINOUS
BASE BOARD
BACK TO BACK
BULLETIN BOARD
ACOUSTICAL WALL PANEL
AUTOMATIC
APPROX
ASPH
ARCH
ALT
ALUM
AHU
ANN
ANOD
BD
BLDG
BITUM
AWP (AWP-)
B/B
BB (BB-)
B BD
AUTO
AHR ANCHOR
TEL
TDR (TDR-)
TEMP
T/
T&G
T&B
t
TOPO
TPD (TBD-)
TRTD
THK
TI
TMPD
TLT
TKBD
TER (TER-)
HYDRANT
HEATER
HEATING
HOT WATER
HYD
ID
HVAC
HW
HTR
HTG
INVERT
JANITOR
INTERMEDIATE
INTERIOR
INCANDESCENT
INCH(ES)
INCLUDE(D), INCLUDING
INSULATION
INV
JAN
INT
IN
INCL
INSUL
INTERM
INCAND
HEATING, VENTILATION,
AIR CONDITIONING
INSIDE DIAMETER
UNEXC
UNFIN
U
TYP
TSCD
TV
TS
UL
UH
UGND
UNO
US
UTIL
KNOCK OUT
KITCHEN
JOINT
KNOCK(ED) DOWN
KO
KIT
JT
KD
LEFT HAND
LIVE LOAD
POUND(S)
LONG, LENGTH
LAUNDRY
LAMINATE(D)
LAVATORY
LH
LF
LL
LAU
L
LAM
LB(S)
LAV
LINEAR FOOT, (FEET)
BEARING
BASEMENT
BRONZE
BRICK
BENCHMARK
BOTTOM OF
BEAM
BOTTOM
CORNER GUARD
CAST IRON
COAT HOOK
CABINET
CATCH BASIN
CEMENT
BUILT-UP ROOFING
BRG
BSMT
BRZ
BR (BR-)
BOT
B MK
BM
BOT/
CG (CG-)
CI
CH (CH-)
CAB
CB
CEM
BUR
CLEAR
CENTIMETER
CENTER LINE
CEILING
CLOSET
CIRCULATION
CONTROL JOINT
CONCRETE MASONRY UNIT
CONTINUOUS
COORDINATE
CONTRACTOR
CONFERENCE
COLUMN
CONCRETE
CONSTRUCTION
CONNECTION
CLEANOUT
CLR
cm
CMU
CJ
CL
CLO
CLG
CIRC
CONT
COORD
CONTR
CONSTR
CONN
CONF
CONC
COL
CO
CIP CAST-IN-PLACE
VOL
VT (VT-)
VR
VCT (VCT-)
VENT
VERT
VIF
VEST
WC
WD (WD-)
WG (WG-)
VWC (VWC-)
W/O
W
W/
LIGHTING
LEVEL
LIGHT(S)
LOW POINT
LTG
LVL
LWC
LLH
LP
LT(S)
LNG
LLV
MAXIMUM
METER
MATERIAL
MAINTENANCE
MACHINE
MASONRY
MCB
MAX
MDO
MATL
MAINT
MACH
m
MAS
METAL CORNER BEAD
MEDIUM DENSITY OVERLAY
LONG LEG HORIZONTAL
LONGITUDE, LONGITUDINAL
LIGHT WEIGHT CONCRETE
LONG LEG VERTICAL
W RECPT
WWF
WT
WSCT
WIN
WM
WP
WH
WI
YD
ZN
MINIMUM
MANUFACTURER
MANHOLE
MEMBRANE
MEZZANINE
MECHANICAL
MIN
MH
MFR
MEMB
MEZZ
MEP
MECH
METAL
MEETING
MULLION
MARKER BOARD
MISCELLANEOUS
MILLIMETER
MOUNTED
MTL
MTG
MULL
MISC
MO
mm
MIRR
MKR BD
MTD
MASONRY OPENING
PLUMBING
MECHANICAL, ELECTRICAL,
MEDIUM DENSITY FIBERBOARDMDF
WF
COLD WATER
CUBIC
CERAMIC TILE
CENTER
COUNTERSUNK
CARPET
CLOSED CIRCUIT TELEVISION
DEGREE
DEPARTMENT
DETAIL
PENNY (NAIL)
DEEP, DEPTH
DOUBLE
DEMOLISH, DEMOLITION
DIAPER CHANGING TABLE
CW
CCTV
CSK
CPT (CPT-)
CT (CT-)
CU
CTR
DEG
DEMO
DEPT
DET
DCT (DCT-)
d
D
DBL
DIVISION
DEAD LOAD
DOWN
DIFFUSER
DISPENSER
DIMENSION
DIAGONAL
DIAMETER
DOWNSPOUT
DRAWING
DOOR
DRAINAGE, WASTE AND VENT
DAMPPROOFING
DIV
DL
DN
DIFF
DISP
DIM
DIA
DIAG
DS
DWV
DWG
DR
DP
DF (DF-) DRINKING FOUNTAIN
CORR CORRIDOR
LKR (LKR-) LOCKER
VB (VB-)
BLKG BLOCKING
AT
ANGLE
CENTER LINE
AND PLATE
CHANNEL
DEGREE
DIAMETER
DOUBLE ANGLE
INCHES
PLUS OR MINUS
ZEE
TUBE
@
&
"
±
[
°
NOMINAL
NOT TO SCALE
OUT TO OUT
NORTH
NUMBER
NOM
NTS
N
NO
NIC
OPPOSITE HAND
OPENING
OPPOSITE
OVERALL
ON CENTER
OFFICE
OVERHEAD
OPNG
OPP
OPH
OA
OC
OH
OFF
OFD
OD
O/O
NOT IN CONTRACT
OVERFLOW DRAIN
OUTSIDE DIAMETER
PLATE
PLASTER
PEG BOARD
PERPENDICULAR
PLAM
PL
PLAS
PGBD
PBD
PCC (PCC-)
PA
PERP
PROJECT
PARKING
PANEL
PAIR
PAINT
POLISHED
PLYWOOD
PREFAB
PROJ
PRKG
PNL
POL
PR
PNT (PNT-)
PLYWD
PLBG PLUMBING
PREFABRICATE(D)
PARTICLE BOARD
PUBLIC ADDRESS
PRE-CAST CONCRETE
ELASTOMERIC
ELEVATOR
ELECTRIC(AL)
EAST
EACH
FINISH SYSTEM
ELEVATION
EXPANSION JOINT
EXTERIOR INSULATION AND
EQUAL, EQUIVALENT
EQUIPMENT
ENGINEER
ENCLOSURE
ENTRANCE
ELECTRIC OUTLET
EDGE OF SLAB
ELECTRICAL PANEL
EMERGENCY SHOWER
EMERGENCY
ELAST
ELEV
ELEC
E
EA
EIFS
EL
EJ
EP
EQUIP
ES
EQ
ENGR
ENCL
EO
ENTR
EOS
EMER
EXISTING
EXPANSION
EXPOSED
EXHAUST
EXCAVATION, EXCAVATE
EACH WAY
ETCETERA
EXTERIOR, EXTERNAL
ELECTRIC WATER COOLER
FACE TO FACE
FIRE ALARM
FACE OF
FIRE ALARM ANNUNCIATOR PANEL
EXP
EXPO
EXT
EXIST
EXC
EWC
EW
EXH
ETC
F/F
FAAP
FA
F/
PARTITION
PAVING
POINT
PROPERTY
PTN
PVG
PVC
PSF
PSI
PROP
PT
PTD (PTD-)
RADIUS
RUBBER BASE
RISER
QUANTITY
QUARRY TILE
RB (RB-)
R
RAD
QTY
QT (QT-)
r
THERMAL RESISTANCE
POUNDS PER SQUARE INCH
POUNDS PER SQUARE FOOT
PAPER TOWEL DISPENSER
POLYVINYL CHLORIDE
REFRIGERATOR
REQUIRED
REFERENCE
ROOF DRAIN
RECESSED
RECEPTION
REQD
REINF
REFR
RCP
REF
RD
REC
RCPTN
RIGHT OF WAY
ROOM
RIGHT HAND
ROOFING
REVISION
RO
ROW
RH
RFG
RM
RF (RF-)
REV
RESIL RESILIENT
ROUGH OPENING
REFLECTED CEILING PLAN
RESILIENT FLOORING
REINFORCE, REINFORCING
FIRE HYDRANT
FOUNDATION
FLOOR DRAIN
FABRICATE(D)
FIRE EXTINGUISHER CABINET
FIRE ALARM CONTROL PANEL
FIRE EXTINGUISHER
FLEXIBLE
FLUORESCENT
FLOOR, FLOORING
FINISH(ED)
FIRE HOSE RACK
FLASHING
FIXTURE
FINISHED OPENING
FIRE HOSE VALVE CABINET
FIRE HOSE CABINET
FEC
FH
FDTN
FACP
FD
FABR
FE
FLEX
FLUOR
FO
FLR (FLR_)
FHVC
FHR
FIN
FLASH
FIXT
FHC
FURRING
FIRE PROTECTION
FIRE RETARDANT
FOOT (FEET)
FOOTING
TREATED WOOD
FINNED TUBE RADIATION
FURNISH, FURNITURE
FUTURE
FTR
FURG
FURN
FP
FRTW
FT
FTG
FUT
FAB (FAB-) FABRIC
PROJECTION SCREENPROJ SCRN
SYMBOLS
MVBL MOVABLE
A-521
DATUM POINT
KEY NOTE
BREAK LINE
DRAWING TITLE
MATCH LINE
SEE XX/X-XXX
ABBREVIATIONS WHEN USED IN COMPOSITION MAY INCLUDE PERIODS FOR CLARIFICATION
MATERIALS
INTERIOR ELEVATION TAG
SHEET NUMBER
SHEET NUMBER
SYMBOLS LEGENDABBREVIATIONS LEGEND
PARTITION TAG
DOOR NUMBER
WINDOW TYPE SYMBOL
DRAWING REVISION
TOILET ACCESSORY SYMBOL
WINDOW TYPE
CATEGORY NUMBER
DISCIPLINE LETTER
GRAPHIC SCALE
ROOM NAME AND NUMBER
NORTH ARROW
SPOT ELEVATION
VERTICAL ELEVATION
WHICH CONTIUNATION
SHEET NUMBER ON
IS FOUND
DESIGNATION
MATCH LINE
BUILDING SECTION TAG
SHEET NUMBER
PARTIAL PLAN AND DETAIL TAG
DETAIL/WALL SECTION TAG
ELEVATION
DESIGNATION
SHEET NUMBER
EXTERIOR ELEVATION TAG
GENERAL NOTES
OR
DOOR NO, USE ROOM NO
WITH DOOR MARK OR DOOR
MARK ONLY
NEW DOOR IN NEW OR
EXISTING FRAME
REFLECTED CEILING LEGEND
GYP. BOARD CEILING
CEILING MATERIAL AND HEIGHT
ABOVE FLOOR REFERENCE ELEV.AFRE
FINISHED FLOORFF
BLK BLOCK
(EQUIP_)
GLAZED WALL TILEGWT
GLAZED STRUCTURAL UNITGSU
HIGH DENSITY FIBERBOARDHDF
LATITUDE, LATITUDINALLAT
N/A NOT APPLICABLE
PC PRE-CAST
REVEALRVL
URINALUR
~<
~C
~P
FEET'
NUMBER, POUNDS#
PERCENT%
SQUARE FEET
BYx
~d
1. NOTES APPEAR ON VARIOUS DRAWINGS FOR DIFFERENT SYSTEMS AND MATERIALS. REVIEW ALL SHEETS AND
APPLY NOTES TO RELATED BUILDING COMPONENTS.
2. REFER TO COMPLETE SET OF ISSUED CONTRACT DOCUMENTS FOR OTHER APPLICABLE NOTES, ABBREVIATIONS,
AND SYMBOLS.
3. WHERE MATERIALS ARE APPLIED TO, OR ARE IN DIRECT CONTACT WITH WORK INSTALLED BY ANOTHER
SUBCONTRACTOR, COMMENCEMENT OF WORK IMPLIES ACCEPTANCE OF THE SUBSTRATE AS SUITABLE FOR THE
APPLICATION INTENDED.
4. ISOLATE DISSIMILAR METALS TO PREVENT GALVANIC CORROSION.
5. PARTITION TYPES AND FIRE RESISTIVE RATINGS INDICATED ON A WALL ARE TO BE CONTINUOUS FOR THE
LENGTH AND HEIGHT OF A PARTITION.
6. OPENINGS IN RATED WALL, FLOOR, CEILING AND ROOF ASSEMBLIES SHALL BE SEALED WITH PENETRATION
SEALANT SYSTEMS MEETING OR EXCEEDING THE REQUIRED FIRE RESISTIVE RATINGS.
7. MAINTAIN THE FIRE RATING OF CONSTRUCTION AROUND CABINETS, PANELS, AND BOXES RECESSED IN FIRE
RATED WALL, FLOOR, AND CEILING ASSEMBLIES.
8. PROVIDE CONTINUOUS PERIMETER FIRE SAFING BETWEEN FLOORS AND COORDINATE THE INSTALLATION WITH
THE EXTERIOR WALL. FIRE RATING OF SAFING SHALL MATCH FIRE RATING OF FLOOR CONSTRUCTION.
9. DO NOT SCALE THE DRAWINGS.
10. FIELD MEASURE AND CONFIRM DIMENSIONS FOR OWNER PROVIDED EQUIPMENT AND FURNISHINGS.
11. PROVIDE STIFFENERS, BRACING, BACKING PLATES AND BLOCKING REQUIRED FOR SECURE INSTALLATION OF
TOILET PARTITIONS, DOORS AND DOOR HARDWARE INCLUDING WALL-MOUNTED DOOR STOPS, HANDRAILS,
WALL-MOUNTED SHELVES, OPERABLE PARTITIONS, MISCELLANEOUS EQUIPMENT, AND SUSPENDED MECHANICAL
AND
ELECTRICAL EQUIPMENT.
12. COORDINATE ALL BASE AND HOUSEKEEPING PADS WITH MECHANICAL, PLUMBING AND ELECTRICAL EQUIPMENT.
13. LOCATE ACCESS PANELS AS INDICATED ON DRAWINGS. FOR ACCESS PANELS NOT SHOWN BUT REQUIRED BY
PROVISIONS OF THE CONTRACT DOCUMENTS, LOCATED IN ACCORDANCE WITH APPLICABLE CODES. SUBMIT
PROPOSED LOCATIONS TO THE ARCHITECT FOR REVIEW AND ACCEPTANCE PRIOR TO INSTALLATION.
ALL DRAWINGS ARE COMPLIMENTARY. CM IS TO DISTRIBUTE FULL SETS TO ALL BIDDERS WHICH MUST
INCLUDE ARCHITECTURE.
1. PARTITIONS LOCATED BY DIMENSION STRING ARE DIMENSIONED TO THE UNFINISHED FACE OF THE WALL
UNLESS NOTED OTHERWISE.
2. PARTITIONS NOT DIMENSIONED ARE GENERALLY LOCATED BY ONE OF THE FOLLOWING CRITERIA:
- CENTERLINE - CENTER OF PARTITION ALIGNS WITH THE CENTER OF GRIDLINE OR OBJECT CENTERLINE
(SUCH AS A COLUMN OR WINDOW MULLION). CENTER THE OVERALL PARTITION WIDTH, RATHER THAN STUD
WIDTH ON AS A COLUMN OR WINDOW MULLION). CENTER THE OVERALL PARTITION WIDTH, RATHER THAN STUD
WIDTH ON THE LINE.
- ALIGN - LOCATE PARTITION FLUSH WITH FACE OF GYPSUM BOARD, OR OTHER SURFACE INDICATED.
- MAINTAIN DIMENSIONS NOTED AS "MINIMUM" OR "CLEAR".
3. DOOR OPENINGS ARE DIMENSIONED TO CENTERLINE OF OPENING. IF NOT DIMENSIONED, THE HINGE SIDE
OF DOOR JAMBS SHALL BE SPACED 4" FROM THE ADJACENT WALL.
SHEET NUMBER
ELEVATION
DESIGNATION
COMPACTED SOIL
SAND
STEEL
CONCRETE
CONTINUOUS WOOD
ORNAMENTAL METAL
FRAMING
ALUMINUM
MASONRY UNIT
CONCRETE
CUT STONE
TERRAZZO
GLAZING
FINISH WOODWORK
RESILIENT FLOORING
GYPSUM WALLBOARD
PLASTIC LAMINATE
WOOD BLOCKING
CARPETING
BATT INSULATION
RIGID INSULATION
PARTICLE BOARD
PLYWOOD
BACKER ROD
SEALANT AND
UNDISTURBED SOIL
SHOWER HEAD
F.D.
FLOOR SINK
FLOOR DRAIN
F.S.
FRE 18'-6"
LEVEL 2
D1 D2
C2C1
A-100
1
A-100
1
A-100
1
A-100
1
A-100
1
SECOND FLOOR
EL. 18'-6"
TRUE NORTH
ID-601
1
2
3
4
GB3
MATERIAL
9'-0" AFF
1/4" = 1'-0"
SCALE: 1" = 4'-0"
0 2' 4' 8' Building 2010 Florida Building Code City of Miami
Plannning and Zoning
2700 North Miami Ave, Suite 804
Miami, FL 33127
N/A
(305) 586-8169
Jorge Alberto Pernas
cube² (architecture+design), inc.
Address:
Fax:
Phone:
Contact:
Architect:
GENERAL PROJECT INFORMATION
APPLICABLE CODES
Energy
665 Buttonwood Lane
Miami, FL 33137
(561)445-1138
Todd & Sheila Oretsky
Todd & Sheila Oretsky
Address:
Fax:
Phone:
Contact:
Owner:
2010 FBC - Residential
2010 Florida Fire Prevention Code
2006 NFPA Life Safety Code
Gas
Mechanical
Plumbing
Existing Building
Resdential
Fire Prevention
Accessibility
SCOPE AUTHORITY
Life Safety
REGULATING AUTHORITIES
Building Department
2010 FBC - Chapter 11
LEGAL DESCRIPTION :
Zoning 2011 Zoning Classification
Address:
Phone:
Department:
Jurisdiction:
Address:
Phone:
Department:
Jurisdiction:City of Miami City of Miami
City of Miami
City of Miami
City of Miami
City of Miami
City of Miami
City of Miami
City of Miami
City of Miami
City of Miami
City of Miami
2010 FBC - Existing Building
2010 FBC - Plumbing
2010 FBC - Mechanical
2010 FBC - Fuel and Gas
2010 FBC - Energy
BAY POINT PB 40-63 LOT 11 BLK 12 AND PROP INT
IN & TO COMMON ELEMENTS NOT DEDICATED TO
PUBLIC LOT SIZE 88.000 X 158 OR 27143-1750 0110
19
FOLIO NO: 01-3219-008-1910
(305) 416-1100 (305) 416-1100
Contact: Mariano Fernandez Contact: Francisco Gonzales
N/A
ZONING CLASSIFICATION :
CITY OF MIAMI ZONING - January 2011
T3 R
Ordinances 2011 Code of Ordinances City of Miami
CODE RESEARCH
PARTITION RATING DESIGNATIONS
FIRE PROTECTION LEGEND
(NO FIRE RATING)
1 HOUR FIRE
City of Miami2008 NEC - ElectricalElectrical
444 South West 2nd Avenue
4th Floor
Miami, FL 33130
444 South West 2nd Avenue
4th Floor
Miami, FL 33130
Existing 2-Story Residential Concrete Masonry Unit Structure
Approximately: 3,768 SF
FBC 2010- Exisitng Building, Chapter 8, Alterations - Level 1
CHAPTER 3 - OCCUPANCY CLASSIFICATION
SECTION 310.1
RESIDENTIAL OCCUPANCY - GROUP R
R-3: SINGLE FAMILY HOME - RESIDENTIAL OCCUPANCIES WHERE THE
OCCUPANTS ARE PRIMARILY PERMANENT IN NATURE
CHAPTER 5 - GENERAL BUILDING LIMITATIONS
TABLE 500:
R-3: SINGLE FAMILY HOME: TYPE II-B CONSTRUCTION
MAX. HEIGHT: 55'-0"
MAX. NO. OF STORIES: 4 (NO CHANGE TO EXISTING)
AREA (MULTISTORY): UNLIMITED AREA
CHAPTER 6 - CONSTRUCTION TYPES
SECTION 604:
TYPE II-B CONSTRUCTION
TABLE 600:
INTERIOR BEARING WALLS:
SUPPORTING COLUMNS, OTHER BEARING
WALLS OR MORE THAN ONE FLOOR: 0 HOUR RATING
SUPPORTING ONE FLOOR ONLY: 0 HOUR RATING
SUPPORTING ROOFS ONLY: 0 HOUR RATING
COLUMNS:
SUPPORTING OTHER COLUMNS OR MORE THAN ONE FLOOR: 0 HOUR RATING
SUPPORTING ONE FLOOR ONLY: 0 HOUR RATING
SUPPORTING ROOFS ONLY: 0 HOUR RATING
BEAMS, GIRDERS, TRUSSES & ARCHES:
SUPPORTING COLUMNS OR MORE THAN ONE FLOOR: 0 HOUR RATING *
SUPPORTING ONE FLOOR ONLY: 0 HOUR RATING *
SUPPORTING ROOFS ONLY: 0 HOUR RATING *
FLOORS & FLOOR/CEILING ASSEMBLIES: 0 HOUR RATING
ROOFS & ROOF/CEILING ASSEMBLIES: 0 HOUR RATING *
* FIRE RETARDANT TREATED WOOD MAY BE USED FOR BEAMS, GIRDERS,
TRUSSES, ARCHES, ROOFS & ROOF/CEILING ASSEMBLIES SINCE THIS
BUILDING IS NOT OVER TWO STORIES TALL.
CHAPTER 7 - FIRE RESISTANT MATERIALS AND CONSTRUCTION
TABLE 704, MINIMUM FIRE RESISTANCE OF WALLS, PARTITIONS AND OPENING
PROTECTIVES
CHAPTER 8 - INTERIOR FINISHES
TABLE 803.3, MINIMUM INTERIOR FINISH CLASSIFICATION:
OCCUPANCY R-3, NON-SPRINKLERED:
EXITS, STAIRWAYS, CORRIDORS & LOBBIES (PER NOTES 1 & 5): CLASS C
EXIT ACCESS: CLASS C
OTHER SPACES: CLASS C
CHAPTER 10 - MEANS OF EGRESS
TABLE 1003.1, MINIMUM OCCUPANT LOAD
REFER TO OCCUPANCY CALCULATIONS SPREADSHEET
TABLE 1004:
MAXIMUM TRAVEL DISTANCE TO EXIT (NON-SPRINKLERED): 100 FT
MAXIMUM DEAD END CORRIDOR LENGTH: 20 FT
EGRESS WIDTH PER PERSON SERVED (LEVEL): 0.2 IN.
EGRESS WIDTH PER PERSON SERVED (STAIRS): N/A
MINIMUM CORRIDOR/AISLE WIDTH: 36 IN.
MINIMUM CLEAR OPENING OF EXIT DOORS: 32 IN.
MINIMUM STAIR WIDTH: N/A
SECTION 1032: RESIDENTIAL
CHAPTER 11 - PART A FLORIDA ACCESSIBILITY CODE FOR BUILDING
CONSTRUCTION
ALL COMPONENTS OF THIS BUILDING MUST COMPLY WITH THIS SECTION.
cube² (architecture+design)
2700 north miami avenue
suite 804
miami, fl 33127
t: 305.586.8169
www.cube2architecture.com
aa-26001789
ib-26001134
BINDINGEDGE
Design Professional FL License
Number
Signature
Jorge Alberto Pernas
AR92904
ID5632
Revisions
Sheet Information
DateIssueNumber
Date
Job Number
Scale
Drawn
Checked
Approved
Title
Sheet
© Copyright 2012 cube² (architecture+design)
12345
12345
A
B
C
A
B
C
D
12" = 1'-0"
Oretsky Residence
Todd and Sheila
Oretsky
665 Buttonwood Lane
Miami, FL 33137
2013_01
SM
JAP
JAP
03/20/2013
G-001
General Notes
Compliance,
Sheet Index
Sheet List
Sheet Number Sheet Name Sheet Issue Date Current Revision
1.0 General
G-000 Cover Sheet 03/20/13
G-001 General Notes Compliance, Sheet Index 03/20/13
2.0 Demolition
DM-101 Demolition Plans 03/20/13
DM-102 Existing Building Elevations 03/20/13
3.0 Architectural
A-001 Architectural Specifications & Zoning Analysis 03/20/13
A-002 Architectural Site Plans 03/20/13
A-010 Zone Diagram 03/20/13
A-012 Wind Pressure 03/20/13
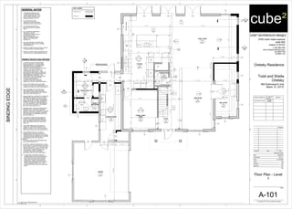
A-101 Floor Plan - Level 1 03/20/13
A-102 Floor Plan - Level 2 03/20/13
A-201 Finished Floor Plan 03/20/13
A-301 Exterior Building Elevations - Renovation 03/20/13
A-302 Perspectives 03/20/13
A-410 Wall Sections & Room Schedule 03/20/13
A-501 Kitchen and Laundry/Pantry Elevations 03/20/13
A-502 Enlarged Bathroom Plans and Elevations 03/20/13
A-503 Interior Elevations 03/20/13
A-504 Interior Elevations 03/20/13
A-505 Interior Elevations 03/20/13
A-601 Reflected Ceiling Plan 03/20/13
A-801 Door Schedules and Details 03/21/13
A-802 Window Elevations and Details 03/20/13
4.0 Structural
S-0 General Notes 03/20/13
S-1 Foundation Plan 03/20/13
S-2 Second Floor Framing Plan - Roof Framing Plan 03/20/13
S-3 Sections 03/20/13
S-4 Details 03/20/13
S-5 Footing Details 03/20/13
5.0 Mechanical
M-101 Mechanical Plan - Level 1 03/20/13
M-102 Mechanical Plan - Level 2 03/20/13
6.0 Electrical
E-101 Electrical Plan - Level 1 03/20/13
E-102 Electrical Plan - Level 2 03/20/13
7.0 Plumbing
P-101 Sanitary Plan - Level 1 03/20/13
P-102 Sanitary Plan - Level 2 03/20/13
P-103 Water Distribution Plan - Level 1 03/20/13
P-104 Water Distribution Plan - Level 2 03/20/13
DWOVEN
WH
UP
WD
REF.
DW
6"
6"
12"
12"
24"
265 SF
LIVING ROOM
102
583 SF
FAMILY ROOM
104
368 SF
KITCHEN
106
196 SF
FORMAL DINING
ROOM
105
168 SF
DEN / OFFICE
103
28 SF
POWDER ROOM
109
465 SF
GARAGE
112
GENERAL DEMOLTION NOTES:
1. WHERE EXISTING SERVICES SUCH
AS PLUMBING, ELECTRICAL, ETC.
ARE AFFECTED BY DEMOLITION
WORK, SUCH AS REMOVAL OF AN
EXISTING PARTITION, THE
SERVICES SHALL BE REMOVED TO
A POINT WHERE THEY CAN BE
CAPPED AND TERMINATED.
2. WHERE NEW FINISHES ARE
SCHEDULED FOR EXISTING OR
RENOVATED SPACES, THE
CONTRACTOR SHALL REMOVE
EXISTING FINISHES AND PREPARE
SUBSTRATES TO RECEIVE NEW
FINISHES. PREPARATION OF
SUBSTRATES SHALL INCLUDE BUT
NOT BE LIMITED TO THE
FOLLOWING IF DEEMED
REQUIRED BY THE ARCHITECT:
- PATCHING AND/OR LEVELING OF
FLOOR SLAB.
- SKIM COATING OF GYPSUM
WALLBOARD SURFACES
- SANDING OF METAL FRAMES, ETC.
3. REMOVE EXISTING FLOOR, BASE,
WALLS AND CEILING FINISHES AS
REQUIRED TO RECEIVE NEW
WORK OR FINISHES THROUGHOUT
ENTIRE PROJECT AREA.
4. ALL WALLS TO BE DEMOLISHED
ARE NON-LOAD BEARING WALLS.
DEMOLITION KEYNOTES:
1. REMOVE EXISTING CASEWORK.
PATCH FLOORS, BASE WALLS AND
CEILING TO MATCH EXISTING
ADJACENT SURFACES IF
SCHEDULED TO REMAIN OR
PREPARE TO
RECEIVE NEW FINISHES.
2. REMOVE KITCHEN SINK.
3. REMOVE EXISTING EQUIPMENT
AND TURN OVER TO OWNER OR
DISPOSE AT HIS REQUEST. ALL
EXISTING EQUIPMENT TO BE
REPLACED WITH NEW.
4 REMOVE EXISTING DRYWALL
CEILING TO ALLOW AREAS FOR
WORK OF OTHER TRADES AS
REQUIRED. PATCH AND REPAIR
AS REQUIRED.
5. REMOVE EXISTING BATHROOM
SINK.
6. REMOVE EXISTING TOILET
7. REMOVE EXISTING INTERIOR
PARTITION. PATCH FLOORS, BASE,
WALLS AND CEILING TO MATCH
EXISTING ADJACENT SURFACES IF
SCHEDULED TO REMAIN, OR
PREPARE TO RECEIVE NEW
FINISHES.
8. REMOVE EXISTING DOOR
9. REMOVE EXISTING WINDOW AND
REPLACE WITH NEW
10. REMOVE EXISTING EXTERIOR
WALL
11. STAIR RAILING TO BE REMOVED
AND REPLACED WITH NEW
12. STAIRS TO BE REFINISHED
13. EXISTING FLOOR TILE TO BE
REMOVED
14. EXISTING WOOD FLOOR TO BE
REMOVED
15. EXISTING FRONT DOOR TO BE
REMOVED AND REPLACED WITH
NEW
16. ALL EXISTING GARAGE WALLS TO
BE REPAINTED. CONC. FLOOR TO
BE REPAINTED
GENERAL DEMOLTION NOTES:
1. ALL EXISTING WINDOW SHUTTERS
TO BE REPAINTED.
2. ALL EXTRA WIRING ON THE
EXTERIOR OF THE HOUSE TO BE
REMOVED.
3. EXTERIOR TO BE RESURFACED AND
REFINISHED.
8 99
9
9
8
8
9
3
9
9
8
8
7
9
9
9
9
9
8
7
7
10
9
8
8
8
6
5
3
2
2
2
1
2
1
1
14
14
13
13
13
11
12
6
5
15
10
7
7
9
16
13
292 SF
BEDROOM 3
209
261 SF
BEDROOM 1
201
77 SF
BATHROOM 1
202
190 SF
BEDROOM 2
203
32 SF
HIS CLOSET
205
W.I.C
211
W.I.C
212
HER CLOSET
206
GENERAL DEMOLTION NOTES:
1. WHERE EXISTING SERVICES SUCH
AS PLUMBING, ELECTRICAL, ETC.
ARE AFFECTED BY DEMOLITION
WORK, SUCH AS REMOVAL OF AN
EXISTING PARTITION, THE
SERVICES SHALL BE REMOVED TO
A POINT WHERE THEY CAN BE
CAPPED AND TERMINATED.
2. WHERE NEW FINISHES ARE
SCHEDULED FOR EXISTING OR
RENOVATED SPACES, THE
CONTRACTOR SHALL REMOVE
EXISTING FINISHES AND PREPARE
SUBSTRATES TO RECEIVE NEW
FINISHES. PREPARATION OF
SUBSTRATES SHALL INCLUDE BUT
NOT BE LIMITED TO THE
FOLLOWING IF DEEMED
REQUIRED BY THE ARCHITECT:
- PATCHING AND/OR LEVELING OF
FLOOR SLAB.
- SKIM COATING OF GYPSUM
WALLBOARD SURFACES
- SANDING OF METAL FRAMES, ETC.
3. REMOVE EXISTING FLOOR, BASE,
WALLS AND CEILING FINISHES AS
REQUIRED TO RECEIVE NEW WORK
OR FINISHES THROUGHOUT ENTIRE
PROJECT AREA.
4. ALL WALLS TO BE DEMOLISHED
ARE NON-LOAD BEARING WALLS.
DEMOLITION KEYNOTES:
1. REMOVE EXISTING CASEWORK.
PATCH FLOORS, BASE WALLS AND
CEILING TO MATCH EXISTING
ADJACENT SURFACES IF
SCHEDULED TO REMAIN OR
PREPARE TO
RECEIVE NEW FINISHES.
2. REMOVE KITCHEN SINK.
3. REMOVE EXISTING EQUIPMENT
AND TURN OVER TO OWNER OR
DISPOSE AT HIS REQUEST. ALL
EXISTING EQUIPMENT TO BE
REPLACED WITH NEW.
4 REMOVE EXISTING DRYWALL
CEILING TO ALLOW AREAS FOR
WORK OF OTHER TRADES AS
REQUIRED. PATCH AND REPAIR
AS REQUIRED.
5. REMOVE EXISTING BATHROOM
SINK.
6. REMOVE EXISTING TOILET
7. REMOVE EXISTING INTERIOR
PARTITION. PATCH FLOORS, BASE,
WALLS AND CEILING TO MATCH
EXISTING ADJACENT SURFACES IF
SCHEDULED TO REMAIN, OR
PREPARE TO RECEIVE NEW
FINISHES.
8. REMOVE EXISTING DOOR
9. REMOVE EXISTING WINDOW AND
REPLACE WITH NEW
10. REMOVE EXISTING EXTERIOR
WALL
11. EXISTING WOOD FLOOR TO BE
REMOVED
12. EXISTING TUB TO BE REMOVED
GENERAL DEMOLTION NOTES:
1. ALL EXISTING WINDOW SHUTTERS
TO BE REPAINTED.
2. ALL EXTRA WIRING ON THE
EXTERIOR OF THE HOUSE TO BE
REMOVED.
3. EXTERIOR TO BE RESURFACED AND
REFINISHED.
9
9
9
9 9 9
9
9
9
6
5
5
7
7
77
88
88
8
8
8
12
5
6
1 1
8
8
88
8
8
5
11
11
11 11
11
cube² (architecture+design)
2700 north miami avenue
suite 804
miami, fl 33127
t: 305.586.8169
www.cube2architecture.com
aa-26001789
ib-26001134
BINDINGEDGE
Design Professional FL License
Number
Signature
Jorge Alberto Pernas
AR92904
ID5632
Revisions
Sheet Information
DateIssueNumber
Date
Job Number
Scale
Drawn
Checked
Approved
Title
Sheet
© Copyright 2012 cube² (architecture+design)
12345
12345
A
B
C
A
B
C
D
1/4" = 1'-0"
Oretsky Residence
Todd and Sheila
Oretsky
665 Buttonwood Lane
Miami, FL 33137
2013_01
SM
JAP
JAP
03/20/2013
DM-101
Demolition Plans
1/4" = 1'-0"
A3
Ground Floor - Demolition Plan
1/4" = 1'-0"
A5
Second Floor - Demoliton Plan
THE WORK WITH A MINIMUM OF JOINTS OR THE OPTIMUM
AND HANDLING. PROTECT BOTTOM OF STACK AGAINST
DO NOT STORE DRESSED OR TREATED LUMBER OR
KEEP MATERIALS DRY DURING DELIVERY, STORAGE
HURRICANE ANCHORING SHALL BE INSTALLED FROM
INSTALL UPLIFT CONNECTORS AND HURRICANE TIE DOWNS
AFTER ERECTION, FIELD PRIME ALL AREAS EXCEPT
DO NOT EXCEED HEAD JOINT THICKNESS PLUS OR
PROVIDE TERMITE SHIELD AND 15# FELT BELOW ALL WOOD
3. WALL ....................................1/2" CDX PLYWOOD
FIBERGLASS FLOOR ....
FLOOR ..................................
4.
5.
3/4" BC PLYWOOD
3/4" T&G PLYWOOD
VI. ROUGH
CARPENTRY
F.
D.
E.
C.
B.
A.
D.
JOINT ARRANGEMENT
FOUNDATION THROUGH ROOF
SHINGLE ROOF ...............
TILE ROOF..........................
FRAMING TO MASONRY
TOLERANCE OF 1/8" IN 10'
ALL FRAMING SHALL BE PLUMB AND LEVEL TO A
AS NOTED ON DRAWINGS (SIMPSON OR EQL.)
ROUGH HARDWARE AND CONNECTIONS:
SHEATHING:
1.
2.
3.
1.
2.
1/2" CDX PLYWOOD
5/8" CDX PLYWOOD
CONTACT WITH DAMP SURFACES
BOWED, TWISTED OR TOO SMALL TO FABRICATE
DISCARD MATERIAL WHICH IS UNSOUND, WARPED,
AND INSTALLATION OF PERMANENT ATTACHMENTS
TRUE ALIGNMENT UNTIL COMPLETION OF ERECTION
PROVIDE FOR TEMPORARY BRACING TO MAINTAIN
PLYWOOD OUTDOORS
2.
3.
TOLERANCES:
V. METALS
IV. MASONRY
PROPER UNITS SHALL BE USED TO PROVIDE FOR
ALL WINDOWS, DOORS, BOND BEAMS, LINTELS,
PILASTERS, ETC. WITH A MINIMUM OF CUTTING
C.
A.
B.
B.
1.
A.
DO NOT EXCEED BED JOINT THICKNESS PLUS OR
ADJACENT FINISH SURFACE
GRIND EXPOSED JOINTS FLUSH AND SMOOTH WITH
FOREIGN MATTER PRIOR TO FINISHING
CLEAN SURFACE OF RUST, SCALE, GREASE AND
TO BE IN CONTACT WITH CONCRETE
MINUS 1/8", WITH A MAXIMUM THICKNESS OF 1/2".
MORTAR JOINTS:
MINUS 1/8".
PLUMB: NOT TO EXCEED 1/4" IN 10', OR 3/8" IN
DO NOT EXCEED 1/8" BETWEEN ADJACENT FLOOR
40'. FOR TOP SURFACES OF BEARING WALLS
LEVEL: NOT TO EXCEED 1/4" IN 20', NOR 1/2" IN
20', NOR 1/2" IN 40'
ELEMENTS IN 10'
PAINT FINISH SHALL BE CUT SHARPLY TO LINE. PROTECT
EACH COAT SHALL BE UNIFORMLY APPLIED, WELL BRUSHED
OUT AND FREE OF BRUSH MARKS, RUNS, SAGS OR SKIPS
RESULTING OVER SPRAY, AND FOR ALL NECESSARY
SUBCONTRACTOR WILL BE RESPONSIBLE FOR DAMAGE
ALL EXPOSED EDGES OF TRIM TO BE SAME COLOR AS
TRIM AND OTHER FINISH WORK SHALL BE BACK PAINTED
CRACKS, HOLES AND KNOTS SHALL BE FILLED, SANDED
NO THINNING OF MATERIAL SHALL BE ACCEPTABLE
SMOOTH AND SEALED. SANDING DUST SHALL BE
ADJACENT SURFACES
D.
C.
FACE
CLEANUP
COMPLETELY REMOVED
PRIOR TO INSTALLATION
B.
5.
3.
4.
2.
WITH WOOD FRAMING BACKING
SCALE AND EFFLORESCENCE
PROVIDE ELASTOMERIC PAINT ON ALL STUCCO SURFACES
SURFACE SHALL BE CLEAN AND DRY, AND IN SUIT-
ABLE CONDITIONS FOR FINISH SPECIFIED. REMOVE
ALL GREASE, BOND BREAKING AGENTS, DUST, MIL
AND FINISH COATS (7/8" TOTAL THICKNESS)
METAL LATH OVER SHEATHED........................ THREE COAT
SYSTEM, INTERNALLY REINFORCED OF SCRATCH, BROWN
DEVICES AS REQUIRED. VERIFY LOCATION OF CONTROL
PROVIDE CORNER MESH, CORNER BEADS, CONTROL JOINT
TWO COAT SYSTEM OF BROWN AND FINISH COATS
MASONRY, CONCRETE OR OTHER RIGID SUBSTRATES.......
JOINTS WITH DESIGNER
PREPARATION OF SURFACEA.
X. PAINT
1.
C.
B.
IX. STUCCO
APPLICATIONS:
( 5/8" TOTAL THICKNESS)
2.
A.
1.
MAINTAIN SITE FREE OF WASTE MATERIALS, DEBRIS
BACK FILL SHALL BE PLACED IN 6" MAXIMUM LIFTS
PERFORM EXCAVATION ACCORDING TO GOOD
REQUIRED
DRAWINGS
MEET THE STATED SOIL PRESSURE
DENSITY
III. CONCRETE
NO PUDDLING TO OCCUR
FREE OF DEBRIS AND ORGANIC MATERIAL
CONCRETE FLAT WORK SHALL BE TRUE TO WITHIN
1/8" IN 8 FEET IN ALL DIRECTIONS OR SLOPED TO
DRAIN AS INDICATED ON THE DRAWINGS ALLOWING
BACK FILL SHALL CONSIST OF NON EXPANSIVE,
AND COMPACTED TO MINIMUM 95% (UNDER SLABS-
PROVIDE CONSISTENT COMPACTION OF THE TOP 6"
OF SUB GRADE, FILL AND BACKFILL MATERIAL
BENEATH STRUCTURES, WALKS AND PAVEMENTS TO
PROVIDE SOIL TREATMENT FOR TERMITES AS
GRADES AND ELEVATIONS INDICATED ON THE
COMMON CONSTRUCTION PRACTICES, TO THE LINES,
ON-GRADE) AND 90% (ELSEWHERE) OF MAXIMUM
CURING: PREVENT PREMATURE DRYING IN
CONCRETE MANUFACTURER
EXCESSIVE HOT AND COLD TEMPERATURES
PROVIDE CONTROL JOINTS AS REQUIRED BY
C.
B.
A.
E.
D.
C.
B.
SHALL BE SUBJECT TO ADDITIONAL FEES.
NOT BE HELD RESPONSIBLE.
W/ MFG'R SPECIFICATIONS.
ABLE PER CODES.
ALL GIRDERS, BEAMS AND HEADERS.
ACCESS TO ALL WORK
PROVIDE SOLID VERTICAL FRAMING BELOW
VERIFY ALL WINDOW & DOOR ROUGH OPENINGS
LOCATE ALL PLUMBING STACKS BEYOND THE
FRONT ELEVATION ROOF RIDGES IF ALLOW-
PLANS BY ANY OTHER PARTY OTHER THAN THE
DESIGNERS OFFICE, THE DESIGNER SHALL
AFTER THE FINAL PLANS HAVE BEEN COMPLETED
THE CORRECTION OF ERRORS THAT ARE MADE
THE CONTRACTOR SHALL PROVIDE THE DESIGNER
CONDITION
II. SITE WORK
AND RUBBISH. MAINTAIN SITE CLEAN AND ORDERLY
A.
I.
G.
H.
F.
E.
D. IF ANY MODIFICATIONS ARE MADE TO THESE
CONSTRUCTION.
CODES PRIOR TO COMMENCEMENT OF ANY
RESPONSIBILITY TO REVIEW, VERIFY AND
l. GENERAL REQUIREMENTS:
OFFICE SHALL NOT RELIEVE THE BUILDER OF
COORDINATE ALL CONTENTS, NOTES, DIMENSIONS,
AND ADHERENCE TO APPLICABLE BUILDING
ANY DISCREPANCIES SHALL BE BROUGHT TO THE
CONSTRUCTION.
ATTENTION OF THE DESIGNERS OFFICE FOR
CORRECTION BEFORE COMMENCEMENT OF ANY
ANY REVISIONS OR CHANGES NOT RELATED TOC.
B.
A. ISSUANCE OF PLANS FROM THE DESIGNER'S
1. CLEARANCE AT THE LOCK AND HANGING STILES AND AT THE
PROVIDE GUTTERS AND DOWN SPOUTS AS SELECTED BY
PROVIDE FLASHING REQUIRED TO PREVENT PENETRATION
OF WATER THROUGH THE EXTERIOR SHELL OF THE
SLATE TILE ROOFING
VIII. GYPSUM WALLBOARD
N/A
BUILDING
DESIGNER/OWNER.
D.
2.
1.
SPRAY FOAM INSULATION (R-30)
1" RIGID INSUL (R-5)
PROVIDE THERMAL BUILDING INSULATION AT ASSEMBLIES
INSTALL IN CONTINUOUS BLANKETS WITHOUT HOLES FOR
THE REQUIREMENTS OF GOVERNING CODES
ADJACENT TO EXTERIOR OR UNHEATED SPACES MEETING
VII. THERMAL AND MOISTURE PROTECTION
ELECTRICAL BOXES, LIGHTING FIXTURES OR HEATING
ROOFING SHALL BE ONE OF THE FOLLOWING TYPES:
TOP SHALL NOT EXCEED 1/8". CLEARANCE AT THE BOTTOM
WITH ALL HARDWARE PROPERLY ADJUSTED AND FUNCTIONING
STICKING OR BINDING WITHOUT HINGE BOUND CONDITIONS; AND
DOOR SHALL OPERATE FREELY, BUT NOT LOOSELY, WITHOUT
SHALL BE ADJUSTED FOR THE FLOOR FINISH
LOCK STILE EDGES SHALL BE BEVELED
2. MASONRY WALLS..........
DUCTWORK
B.
C.
CEILING..............................1.
A.
2.
3.
CORNERS SHALL BE NEATLY MITERED, OR COPED WITH NAILS
ALL JOINTS TO BE TIGHT AND TRUE AND SECURELY FASTEN
WOOD WORK SHALL BE ACCURATELY SCRIBED TO FIT
SET AND SURFACES FREE FROM TOOL MARKS
EDGES AND SPLINTERS REMOVED AND COMPLETELY
FULL LENGTH CONTINUO BOARDS SHALL BE USED WHEREVER
APPLICABLE OR SPECIFICALLY NOTED
ALL WORK SHALL BE MACHINED OR HAND SANDED, SHARP
ADJOINING SURFACES
PREPARED FOR FINISH
VI. FINISH CARPENTRY
DOORS:
D.
E.
C.
B.
A.
ARCHITECTURAL SPECIFICATIONS
cube² (architecture+design)
2700 north miami avenue
suite 804
miami, fl 33127
t: 305.586.8169
www.cube2architecture.com
aa-26001789
ib-26001134
BINDINGEDGE
Design Professional FL License
Number
Signature
Jorge Alberto Pernas
AR92904
ID5632
Revisions
Sheet Information
DateIssueNumber
Date
Job Number
Scale
Drawn
Checked
Approved
Title
Sheet
© Copyright 2012 cube² (architecture+design)
12345
12345
A
B
C
A
B
C
D
3/8" = 1'-0"
Oretsky Residence
Todd and Sheila
Oretsky
665 Buttonwood Lane
Miami, FL 33137
2013_01
SM
JAP
JAP
03/20/2013
A-001
Architectural
Specifications &
Zoning Analysis
ARTICLE 4 - TABLE 6
ARTICLE 4 - TABLE 4
ARTICLE 4 - TABLE 1
MIAMI ATLAS - ZONING TRANSECTS
ARTICLE 4 - TABLE 2
ARTICLE 4 - TABLE 3
ARTICLE 5 - T3-R,L,O - ILLUSTRATION 5.3
BAY POINT RULES AND
REGULATIONS PROPOSED
10,000 Square Feet.
109.90 Feet
13,904 Square Feet.
88.17 Feet
22.6 % 22.6 %
48% N/A
6.9 du/acre 6.9 du/acre
N/A N/A
N/A N/A
10 Feet
10
Bay Point Property Site Development
Guidelines - Setbacks
10 Feet
35 Feet
N/A
N/A N/A
N/A
N/A
N/A N/A
N/A N/A
None None
2 Story and 25 feet
N/A N/A
N/A N/A
N/A N/A
30% minimum 77%
22 Feet
N/A
Established Setbacks - Article 3
12 Feet
50 Feet
N/A
N/A
N/A
N/A
N/A
N/A
N/A
2 Story and 19 feet
EXISTING
13,904 Square Feet.
88.17 Feet
22.6 %
N/A
6.9 du/acre
N/A
N/A
22 Feet
N/A
Established Setbacks - Article 3
12 Feet
50 Feet
N/A
N/A
N/A
N/A
N/A
None
2 Story and 19 feet
N/A
N/A
N/A
80%
N/A
N/A
N/A
N/A N/AN/A
N/A 76% 76%
ZONING DATA AND CALCULATIONS
BAY POINT PROPERTY OWNERS ASSOCIATION, INC. - SITE DEVELOPMENT GUIDELINES
LOCATION OF
PROPERTY
ALLOWED PER BAY POINT PROPOSED
FOOTPRINT PERCENTAGE ALLOWED
35% NET/4,866 S.F. 21.9% NET/3,051 S.F.
PROPOSED:
GROUND FLOOR: 2,394 S.F.
(SECOND FLOOR: 1,987 S.F.)
EXISTING GARAGE TO REMAIN: 521 S.F.
EXISTING TERRACE TO REMAIN: 290 S.F.
TOTAL FOOTPRINT PROPOSED:
FAR PERCENTAGE ALLOWED
48% NET/6,674 S.F.
PROPOSED:
GROUND FLOOR: 2,394 S.F.
(SECOND FLOOR: 1,987 S.F.)
EXISTING GARAGE TO REMAIN: 521 S.F.
EXISTING TERRACE TO REMAIN: 290 S.F.
TOTAL FAR PROPOSED:
33.95% NET/4,720 S.F.
HEIGHT
BAY POINT ASSOCIATION FROM N.G.V.D. TO
TOP OF ROOF
MAX. BLDG. HGT. OF 41'-6" N.G.V.D. EXISTING BLDG. HGT. OF
38'-6" N.G.V.D.
GREEN PERCENTAGE AREA REQUIRED MIN. GREEN-SPACE 30% NET/4,171 S.F.
EXISTING GREEN-SPACE
66.82% NET/9,290 S.F.
SETBACKS:
FRONT YARD: 10 FEET
SIDE YARD: 10 FEET
REAR YARD: 35 FEET
EXISTING SETBACKS:
FRONT YARD: 22 FEET
SIDE YARD: 12 FEET
REAR YARD: 50 FEET
PARKING: 4 CARS PER GUIDELINES EXISTING PARKING:4 CARS
*CITY OF MIAMI ZONING ANALYSIS PERFORMED PER NEW MIAMI 21 REQUIREMENTS - SEE ABOVE AND TO THE LEFT SIDE OF SHEET
NET LOT AREA: 13,904 S.F.
EXISTING
PROPOSED PARKING: 4 CARS
PROPOSED SETBACKS:
FRONT YARD: 22 FEET
SIDE YARD: 12 FEET
REAR YARD: 50 FEET
PROPOSED BLDG. HGT. OF
38'-6" N.G.V.D.
PROPOSED GREEN-SPACE
63.42% NET/8,818 S.F.
23% NET/3,205 S.F.
37.34% NET/5,192 S.F.
MIAMI 21 SUB-URBAN TRANSECT ZONE T3R
NORTH WATERWAY
SEA WALL
DRIVEWAY
ASPHALT FIM
CONC. CURB
N
BRICK STEPS
88' - 0"
22'-0"
12' - 5"
154'-11"
160'-5"
12' - 0"
88' - 2"
WOOD DECK
STEPS
20' - 10"
4'-0"
6' - 6"
58'-10"
NORTH WATERWAY
NEW 4 FOOT WOOD FENCE 35 FEET
FROM REAR PROPERTY LINE TO
MATCH SETBACK
CONC. CURB
N
NEW PAVERS
FOR
DRIVEWAY
NOTE:
1. NEW ELECTRICAL PANEL FOR BOAT LIFT.
2. NEW ELECTRICAL FOR LANDSCAPE LIGHTING
3. NEW OUTDOOR GAS GRILL.
4. NEW TANKLESS WATER HEATER
NEW ELECTRICAL
PANEL
88' - 0"
22'-0"
12' - 0"
12' - 1"
50'-6"
154'-11"
160'-5"
12' - 0"
88' - 2"
EXISTING CONCRETE
FENCE WALL TO REMAIN
EXISTING CONCRETE
FENCE WALL TO REMAIN
EXISTING SEA
WALL TO REMAIN
NEW 6 FOOT WOOD FENCE STARTS
AFTER 35 FEET FROM REAR
PROPERTY LINE TO MATCH SETBACK
NEW 4 FOOT WOOD FENCE 35 FEET
FROM REAR PROPERTY LINE TO
MATCH SETBACK
NEW 6 FOOT WOOD FENCE STARTS
AFTER 35 FEET FROM REAR
PROPERTY LINE TO MATCH SETBACK
15'-0"
15'-0"
WOOD DECK
STEPS
20' - 10"
4'-0"
6' - 6"
PROVIDE CONTROL
JOINTS AS REQUIRED
BY MANUFACTURER
FOR DRIVEWAY
R
9' - 11
1/2"
R
38'-4"
R
5' - 0 1/2"
R
13' - 2"
R 34' - 8"
R
13'-10
1/2"
R
10' - 1 1/2"
12' - 1"
7'-2"
30' - 10 1/2"
34'-11"
cube² (architecture+design)
2700 north miami avenue
suite 804
miami, fl 33127
t: 305.586.8169
www.cube2architecture.com
aa-26001789
ib-26001134
BINDINGEDGE
Design Professional FL License
Number
Signature
Jorge Alberto Pernas
AR92904
ID5632
Revisions
Sheet Information
DateIssueNumber
Date
Job Number
Scale
Drawn
Checked
Approved
Title
Sheet
© Copyright 2012 cube² (architecture+design)
12345
12345
A
B
C
A
B
C
D
1/8" = 1'-0"
Oretsky Residence
Todd and Sheila
Oretsky
665 Buttonwood Lane
Miami, FL 33137
2013_01
SM
JAP
JAP
03/20/2013
A-002
Architectural Site
Plans
1/8" = 1'-0"
A2
Existing Site
1/8" = 1'-0"
A4
Renovated Site
OVEN
DW
REF.
WD
UP
DN
OVEN
DW
REF.
WD
UP
DN
WINE
Trash
Microwave
A/C
Hood &
Range
6"
Bench/Storage
Trash
6"
24"
6"
12"
12"
LIVING ROOM
DEN / OFFICE
FAMILY ROOM
KITCHEN
FORMAL DINING
ROOM
GARAGE
LAUNDRY/PANTRY
MAID'S
BATHROOM
MAID'S ROOM
ZONE4ZONE5
ZONE 5
ZONE5
ZONE 5ZONE 4ZONE 5
ZONE5ZONE4ZONE5
ZONE 5ZONE 4ZONE 5
ZONE5ZONE4ZONE5
ZONE 5
ZONE 5
ZONE5ZONE4ZONE5
ZONE 5 ZONE 4 ZONE 5
ZONE5ZONE4ZONE5
ZONE 5 ZONE 4 ZONE 5
ZONE5
FOYER
W.I.C
212
W.I.C
211
BEDROOM 1
BEDROOM 2
BEDROOM 3
MASTER
BEDROOM
HER CLOSET
HIS CLOSET
BATHROOM 2
MASTER
BATHROOM
TOILET ROOM
BATHROOM 1
ZONE4
ZONE 5
ZONE5
ZONE 5ZONE 5
ZONE5ZONE4ZONE5
ZONE 5 ZONE 4 ZONE 5
ZONE5
ZONE 4
ZONE5
ZONE5ZONE4
W.I.C
W.I.C
BEDROOM 1
BEDROOM 2
BEDROOM 3
MASTER
BEDROOM
HER CLOSET
HIS CLOSET
BATHROOM 2
MASTER
BATHROOM
TOILET ROOM
BATHROOM 1
4' - 8" 3' - 0" 3' - 0" 5' - 11" 2' - 11" 6' - 2 1/2" 3' - 0" 3' - 0" 4' - 5 1/2"
6'-1"3'-0"3'-0"6'-8"
1' - 11 1/2"
4' - 0" 3' - 0 1/2"
13'-11/2"2'-0"11'-3"
6' - 7 1/2" 6' - 0" 11' - 0" 6' - 0" 8' - 5" 4' - 0" 3' - 1 1/2"
4'-11"3'-0"3'-0"6'-111/2"4'-6"10'-101/2"3'-0"3'-0"5'-101/2"
A/C
6"
6"
24"
6"
12"
12"
LIVING ROOM
DEN / OFFICE
FAMILY ROOM
KITCHEN
FORMAL DINING
ROOM
GARAGE
LAUNDRY/PANTRY
MAID'S
BATHROOM
MAID'S ROOM
5' - 10 1/2" 6' - 0" 3' - 2" 6' - 0" 3' - 5" 6' - 0" 7' - 7" 4' - 0" 3' - 1 1/2"
3'-71/2"4'-6"8'-6"4'-6"11"
3' - 11" 3' - 0" 6' - 6" 2' - 10"
2' - 6 1/2"
1' - 6"
1' - 4"
7' - 4"
1'-4"3'-0"10'-111/2"3'-0"3'-111/2"3'-0"8'-2"3'-0"3'-9"
2' - 3" 3' - 0" 3' - 9 1/2"6' - 11 1/2" 4' - 10" 5' - 6" 10' - 9" 4' - 7"
7'-31/2"16'-0"3'-8"
8' - 2" 6' - 0" 8' - 2"
8'-8"6'-0"8'-8"
4' - 8 1/2" 2' - 10"
2' - 7 1/2"
3'-41/2"3'-0"4'-2"
FOYER
1'-5"3'-0"
61/2"
cube² (architecture+design)
2700 north miami avenue
suite 804
miami, fl 33127
t: 305.586.8169
www.cube2architecture.com
aa-26001789
ib-26001134
BINDINGEDGE
Design Professional FL License
Number
Signature
Jorge Alberto Pernas
AR92904
ID5632
Revisions
Sheet Information
DateIssueNumber
Date
Job Number
Scale
Drawn
Checked
Approved
Title
Sheet
© Copyright 2012 cube² (architecture+design)
12345
12345
A
B
C
A
B
C
D
3/16" = 1'-0"
Oretsky Residence
Todd and Sheila
Oretsky
665 Buttonwood Lane
Miami, FL 33137
2013_01
SM
JAP
JAP
03/20/2013
A-010
Zone Diagram
GENERAL WIND PRESSURE NOTES
1. ALL PRESSURES ARE BASED ON THE FLORIDA BUILDING CODE
2010, TABLE R.301.2(2) AND R301.2(3).
2. THE STRUCTURE IS LOCATED IN THE WIND BOURNE DEBRIS
REGION OF 180 MPH (MIAMI-DADE COUNTY). ALL PRESSURES
ARE BASED ON THIS LOCATION.
3. COMPONENT AND CLADDING PRESSURE ZONES ARE
DETERMINED BY FLORIDA BUILDING CODE 2010, FIGURE
R301.2(7).
4. BASED ON FBC - RESIDENTIAL 2010, SEC. R4403.9.3THE
EXPOSURE CATEGORY "C" SHALL APPLY FOR WIND PRESSURE
CALCULATIONS OR DETERMINATIONS PER TABLE R.301.2(2).
5. ALL LOADS ARE ASSOCIATED WITH THE LOWER EFFECTIVE
AREA TO BE MORE CONSERVATIVE THAN INTERPOLATED
CALCULATIONS.
3/16" = 1'-0"
B2
Ground Floor - Zone Diagram
3/16" = 1'-0"
A2
Second Floor - Zone Diagram
3/16" = 1'-0"
A4
Second Floor - Window and Door Location
3/16" = 1'-0"
B4
Ground Floor -Window and Door Location
OVEN
DW
REF.
WD
UP
DN
FOYER
A/C
6"
6"
24"
6"
12"
12"
LIVING ROOM
DEN / OFFICE
FAMILY ROOM
KITCHEN
FORMAL DINING
ROOM
GARAGE
LAUNDRY/PANTRY
MAID'S
BATHROOM
MAID'S ROOM
78.71/-85.32
12-0221.14 OR EQUAL
Aluminum Single Hung
Window - L.M.I
w: 36"
h: 48"
78.71/-85.32
12-0221.14 OR EQUAL
Aluminum Single Hung
Window - L.M.I
w: 36"
h: 48"
78.71/-85.32
12-0221.14 OR EQUAL
Aluminum Single Hung
Window - L.M.I
w: 36"
h: 48"
78.71/-105.3
12-0221.14 OR EQUAL
Aluminum Single Hung
Window - L.M.I
w: 36"
h: 48"
75.20/-81.81
w: 72"
h: 78"75.20/-81.81
w: 72"
h: 78"
75.20/-81.81
w: 72"
h: 78"
78.71/-85.32
12-0221.14 OR EQUAL
Aluminum Single Hung
Window - L.M.I
w: 52"
h: 48"
78.71/-105.3
12-0221.14 OR EQUAL
Aluminum Single Hung
Window - L.M.I
w: 54"
h: 38"
75.20/-98.28
w: 34"
h: 84"
78.71/-85.32
12-0221.14 OR EQUAL
Aluminum Single Hung
Window - L.M.I
w: 36"
h: 48"
78.71/-105.3
12-0221.14 OR EQUAL
Aluminum Single Hung
Window - L.M.I
w: 36"
h: 42"
75.20/-81.81
12-0221.14 OR EQUAL
Aluminum Single Hung
Window - L.M.I
w: 72"
h: 48"
75.20/-98.28
w: 34"
h: 84"
75.20/-81.81
12-0221.14 OR EQUAL
Aluminum Single Hung
Window - L.M.I
w: 72"
h: 48"
12-0221.14 OR EQUAL
Aluminum Single Hung
Window - L.M.I
w: 72"
h: 48"
75.20/-81.81
12-0706.04 OR EQUAL
Aluminum Glazed Doors -
Impact
w: 36"
h: 84"
75.20/-81.81
12-0221.14 OR EQUAL
Aluminum Single Hung
Window - L.M.I
w: 72"
h: 48"
78.71/-105.3
12-0221.14 OR EQUAL
Aluminum Single Hung
Window - L.M.I
w: 36"
h: 48"
78.71/-105.3
12-0221.14 OR EQUAL
Aluminum Single Hung
Window - L.M.I
w: 52"
h: 48"
78.71/-105.3
12-0221.14 OR EQUAL
Aluminum Single Hung
Window - L.M.I
w: 16"
h: 24"
75.20/-98.28
78.71/-105.3
12-0221.14 OR EQUAL
Aluminum Single Hung
Window - L.M.I
w: 36"
h: 48"
12-0706.04 OR EQUAL
Aluminum Glazed Doors -
Impact
12-0706.04 OR EQUAL
Aluminum Glazed Doors -
Impact
12-0706.04 OR EQUAL
Aluminum Glazed Doors -
Impact
12-0706.04 OR EQUAL
Aluminum Glazed Doors -
Impact
12-0706.04 OR EQUAL
Aluminum Glazed Doors -
Impact
W.I.C
212
W.I.C
211
BEDROOM 1
BEDROOM 2
BEDROOM 3
MASTER
BEDROOM
HER CLOSET
HIS CLOSET
BATHROOM 2
MASTER
BATHROOM
TOILET ROOM
BATHROOM 1
12.0221.14 OR EQUAL
Aluminum Single Hung
Window - L.M.I
78.71/-85.32
12.0221.14 OR EQUAL
Aluminum Single Hung
Window - L.M.I
w: 54"
h: 18"
12.0221.14 OR EQUAL
Aluminum Single Hung
Window - L.M.I
12.0221.14 OR EQUAL
Aluminum Single Hung
Window - L.M.I
78.71/-85.32
12.0221.14 OR EQUAL
Aluminum Single Hung
Window - L.M.I
w: 36"
h: 36"
12.0221.14 OR EQUAL
Aluminum Single Hung
Window - L.M.I
12.0221.14 OR EQUAL
Aluminum Single Hung
Window - L.M.I
78.71/-85.32
75.20/-81.81
w: 72"
h: 48"75.20/-81.81
w: 72"
h: 48"
75.20/-81.81
w: 72"
h: 48"
75.20/-81.81
w: 72"
h: 48"
75.20/-81.81
w: 72"
h: 48"
78.71/-105.3
12.0221.14 OR EQUAL
Aluminum Single Hung
Window - L.M.I
w: 52"
h: 48"
12.0221.14 OR EQUAL
Aluminum Single Hung
Window - L.M.I
w: 52"
h: 48"78.71/-105.3
12.0221.14 OR EQUAL
Aluminum Single Hung
Window - L.M.I
w: 16"
h: 24"
75.20/-81.81
w: 72"
h: 78"
75.20/-81.81
w: 72"
h: 78"
12-0706.04 OR EQUAL
Aluminum Glazed Doors -
Impact
12-0706.04 OR EQUAL
Aluminum Glazed Doors -
Impact
cube² (architecture+design)
2700 north miami avenue
suite 804
miami, fl 33127
t: 305.586.8169
www.cube2architecture.com
aa-26001789
ib-26001134
BINDINGEDGE
Design Professional FL License
Number
Signature
Jorge Alberto Pernas
AR92904
ID5632
Revisions
Sheet Information
DateIssueNumber
Date
Job Number
Scale
Drawn
Checked
Approved
Title
Sheet
© Copyright 2012 cube² (architecture+design)
12345
12345
A
B
C
A
B
C
D
1/4" = 1'-0"
Oretsky Residence
Todd and Sheila
Oretsky
665 Buttonwood Lane
Miami, FL 33137
2013_01
SM
JAP
JAP
03/20/2013
A-012
Wind Pressure
1/4" = 1'-0"
A3
Ground Floor - Wind Pressure
WIND LOAD CALCULATIONS
BASED ON TABLE R301.2(2) COMPONENT AND CLADDING
LOADS FOR A BUILDING WITH A MEAN ROOF HEIGHT OF
30 FEET LOCATED IN EXPOSURE "B" PER THE
FBC 2010, RESIDENTIAL.
TABLE R301.2(3) HEIGHT AND EXPOSURE ADJUSTMENT
COEFFICIENTS FOR TABLE R301.2(2).
EXPOSURE "C" W/ A MEAN ROOF HEIGHT OF 20 FEET: 1.35
72" X 78" TYP.A WINDOW IN ZONE 5 = 24S.F.
PER TABLE R301.2(2) THE REQUIRED CLADDING FORCE
IN A 180 MPH WIND ZONE IS: 55.7/-72.8
USING EXPOSURE ADJUSTMENT COEFFICIENT FROM
TABLE R301.2(3) OF 1.35, THE ADJUSTED AMOUNTS ARE:
1.35 X 55.7 = 75.20 POSITIVE PRESSURE
1.35 X -72.8= -98.28 NEGATIVE PRESSURE
72" X 78" TYP.A WINDOW IN ZONE 4 = 24 S.F.
PER TABLE R301.2(2) THE REQUIRED CLADDING FORCE
IN A 180 MPH WIND ZONE IS: 55.7/-60.6
USING EXPOSURE ADJUSTMENT COEFFICIENT FROM
TABLE R301.2(3) OF 1.35, THE ADJUSTED AMOUNTS ARE:
1.35 X 55.7 = 75.20 POSITIVE PRESSURE
1.35 X -60.6 = -81.81 NEGATIVE PRESSURE
36" X 48" TYP.B WINDOW IN ZONE 5 = 12 S.F.
PER TABLE R301.2(2) THE REQUIRED CLADDING FORCE IN
A 180 MPH WIND ZONE IS: 58.3/-78.0
USING EXPOSURE ADJUSTMENT COEFFICIENT FROM
TABLE R301.2(3) OF 1.35, THE ADJUSTED AMOUNTS ARE:
1.35 X 58.3 = 78.71 POSITIVE PRESSURE
1.35 X -78.0 = -105.3 NEGATIVE PRESSURE
*ALL WINDOWS MUST BE LARGE MISSILE IMPACT (LMI)
1/4" = 1'-0"
A5
Second Floor - Wind Pressure
36" X 48" TYP.B WINDOW IN ZONE 4 = 12 S.F.
PER TABLE R301.2(2) THE REQUIRED CLADDING FORCE IN
A 180 MPH WIND ZONE IS: 58.3/-63.2
USING EXPOSURE ADJUSTMENT COEFFICIENT FROM
TABLE R301.2(3) OF 1.35, THE ADJUSTED AMOUNTS ARE:
1.35 X 58.3 = 78.71 POSITIVE PRESSURE
1.35 X -63.2 = -85.32 NEGATIVE PRESSURE
54" X 38" TYP.C WINDOW IN ZONE 5 = 15 S.F.
PER TABLE R301.2(2) THE REQUIRED CLADDING FORCE IN
A 180 MPH WIND ZONE IS: 58.3/-78.0
USING EXPOSURE ADJUSTMENT COEFFICIENT FROM
TABLE R301.2(3) OF 1.35, THE ADJUSTED AMOUNTS ARE:
1.35 X 52.2 = 78.71 POSITIVE PRESSURE
1.35 X -78.0 = -105.3 NEGATIVE PRESSURE
36" X 42" TYP.E WINDOW IN ZONE 5 = 10.5 S.F.
PER TABLE R301.2(2) THE REQUIRED CLADDING FORCE IN
A 180 MPH WIND ZONE IS: 58.3/-78.0
USING EXPOSURE ADJUSTMENT COEFFICIENT FROM
TABLE R301.2(3) OF 1.35, THE ADJUSTED AMOUNTS ARE:
1.35 X 52.2 = 78.71 POSITIVE PRESSURE
1.35 X -78.0 = -105.3 NEGATIVE PRESSURE
54" X 18" TYP.F WINDOW IN ZONE 4 = 6.8 S.F.
PER TABLE R301.2(2) THE REQUIRED CLADDING FORCE IN
A 180 MPH WIND ZONE IS: 58.3/-63.2
USING EXPOSURE ADJUSTMENT COEFFICIENT FROM
TABLE R301.2(3) OF 1.35, THE ADJUSTED AMOUNTS ARE:
1.35 X 58.3 = 78.71 POSITIVE PRESSURE
1.35 X -63.2 = -85.32 NEGATIVE PRESSURE
48" X 48" TYP.G WINDOW IN ZONE 4 = 16 S.F.
PER TABLE R301.2(2) THE REQUIRED CLADDING FORCE IN
A 180 MPH WIND ZONE IS: 58.3/-63.2
USING EXPOSURE ADJUSTMENT COEFFICIENT FROM
TABLE R301.2(3) OF 1.35, THE ADJUSTED AMOUNTS ARE:
1.35 X 58.3 = 78.71 POSITIVE PRESSURE
1.35 X -63.2 = -85.32 NEGATIVE PRESSURE
36" X 36" TYP.I WINDOW IN ZONE 4 = 9 S.F.
PER TABLE R301.2(2) THE REQUIRED CLADDING FORCE IN
A 180 MPH WIND ZONE IS: 58.3/-63.2
USING EXPOSURE ADJUSTMENT COEFFICIENT FROM
TABLE R301.2(3) OF 1.35, THE ADJUSTED AMOUNTS ARE:
1.35 X 58.3 = 78.71 POSITIVE PRESSURE
1.35 X -63.2 = -85.32 NEGATIVE PRESSURE
16" X 34" TYP.D WINDOW IN ZONE 5 = 4.5 S.F.
PER TABLE R301.2(2) THE REQUIRED CLADDING FORCE IN
A 180 MPH WIND ZONE IS: 58.3/-78.0
USING EXPOSURE ADJUSTMENT COEFFICIENT FROM
TABLE R301.2(3) OF 1.35, THE ADJUSTED AMOUNTS ARE:
1.35 X 52.2 = 78.71 POSITIVE PRESSURE
1.35 X -78.0 = -105.3 NEGATIVE PRESSURE
54" X 48" TYP.H WINDOW IN ZONE 4 = 18 S.F.
PER TABLE R301.2(2) THE REQUIRED CLADDING FORCE IN
A 180 MPH WIND ZONE IS:58.3/-63.2
USING EXPOSURE ADJUSTMENT COEFFICIENT FROM
TABLE R301.2(3) OF 1.35, THE ADJUSTED AMOUNTS ARE:
1.35 X 58.3 = 78.71 POSITIVE PRESSURE
1.35 X -63.2 = -85.32 NEGATIVE PRESSURE
34" X 84" DOOR IN ZONE 5 = 25 S.F.
PER TABLE R301.2(2) THE REQUIRED CLADDING FORCE IN
A 180 MPH WIND ZONE IS: 58.3/-63.2
USING EXPOSURE ADJUSTMENT COEFFICIENT FROM
TABLE R301.2(3) OF 1.35, THE ADJUSTED AMOUNTS ARE:
1.35 X 58.3 = 75.20POSITIVE PRESSURE
1.35 X -63.2 = -98.28NEGATIVE PRESSURE
74" X 78" FRENCH DOOR IN ZONE 4 = 42 S.F.
PER TABLE R301.2(2) THE REQUIRED CLADDING FORCE IN
A 180 MPH WIND ZONE IS: 55.7/-60.6
USING EXPOSURE ADJUSTMENT COEFFICIENT FROM
TABLE R301.2(3) OF 1.35, THE ADJUSTED AMOUNTS ARE:
1.35 X 55.7 = 75.20 POSITIVE PRESSURE
1.35 X -60.6= -81.81 NEGATIVE PRESSURE
36" X 84" FRENCH DOOR IN ZONE 4 = 21 S.F.
PER TABLE R301.2(2) THE REQUIRED CLADDING FORCE IN
A 180 MPH WIND ZONE IS: 55.7/-60.6
USING EXPOSURE ADJUSTMENT COEFFICIENT FROM
TABLE R301.2(3) OF 1.35, THE ADJUSTED AMOUNTS ARE:
1.35 X 55.7 = 75.20 POSITIVE PRESSURE
1.35 X -60.6= -81.81 NEGATIVE PRESSURE
UP
DN
OVEN
DW
REF.
WD
WINE
168 SF
DEN / OFFICE
103
Trash
Microwave
A/C
Hood &
Range
6"
Bench/Storage
17' - 9" 25' - 10"
18'-5"20'-2"
4' - 0" 2' - 10" 3 1/2" 3' - 0 1/2" 2' - 4" 3' - 0" 3' - 4 1/2" 4 1/2" 3' - 8" 2' - 8" 2' - 1 1/2" 3' - 3" 5' - 8" 3' - 10 1/2" 1' - 0" 11' - 11 1/2" 9' - 0 1/2"
11'-8"5'-8"6'-2"2'-01/2"
5'-0"1'-1"4'-0"1'-5"3'-0"4"
22'-81/2"4"2'-10"101/2"18'-31/2"
3'-81/2"
13'-51/2"2'-10"9"2'-10"2'-8"3'-0"2'-0"4'-01/2"4'-7"7'-5"
61/2"4'-0"10'-71/2"6'-11/2"2'-8"3'-0"3'-0"4'-0"7'-9"1'-101/2"
7' - 6" 2" 2' - 0" 3' - 2" 2' - 5" 5"
Trash
6"
24"
6"
12"
12"
EXISTING WALLS
NEW WALLS
WALL LEGEND
265 SF
LIVING ROOM
102
196 SF
FORMAL DINING
ROOM
105
368 SF
KITCHEN
106
583 SF
FAMILY ROOM
104
28 SF
POWDER ROOM
109
167 SF
LAUNDRY/PANTRY
108
76 SF
MAID'S ROOM
110
48 SF
MAID'S
BATHROOM
111
465 SF
GARAGE
112
102
101
103
104
105
106
107
108
109
110
111
112113
114
115 116 117
AA
A
A
H
B
B
B
B
B
C
B
D
E
2'-7"
2'-6"4'-9"
A-501D4 D5
C5
C4
A-501
B4
A-501B5
A-502
C5
A-502
D2
A-502
D3
13' - 0" 4' - 1" 4' - 6"
7' - 0 1/2" 2' - 0"
D4D5
A-502 B5B4
A-501 A4B2
A2
A1
130 SF
FOYER
101
G
B
A-503 A2
A3
A4
A-503 D5
A2
A-410
A1
A-410
A3
A-410
A4
A-410
EMERGENCY ESCAPE AND
RESCUE OPENING WINDOW
A-503
D4
A-503
C4
A-503 B2A-503C5
A-503 B4B5
A5
A-504 D3
D4
D5
A-504D2
C5
2' - 10" 3' - 0 1/2" 5' - 0"
A-501
C2
1. THE MAID'S ROOM WILL BE
A NEW ENCLOSED AND AIR
CONDITIONED SPACE. IT WILL
HAVE A NEW GYPSUM WALL
BOARD CEILING 8'-8" A.F.F.
2. ALL NEW DOORS AND
WINDOWS TO BE REVIEWED
AND SELECTED BY ARCHITECT.
3. ALL NEW INTERIOR WALLS
MUST HAVE AN STC- RATING
OF 52.
4. ALL EXTERIOR DOORS AND
WINDOWS, UNLESS
OTHERWISE NOTED, ARE TO
BE REPLACED WITH
IMPACT RESISTANT MIAMI-
DADE N.O.A APPROVED
PRODUCTS.
5. ALL NEW INTERIOR GYPSUM WALL
BOARD MUST MEET LEVEL 5 FINISH
REQUIREMENTS.
6. REFER TO SHEET DM-101 FOR ALL WALLS
TO BE REMOVED OR DEMOLISHED.
7. REFER TO STRUCTURAL DRAWINGS FOR
LOCATION OF ALL NEW BEARING WALLS.
1. A CERTIFICATION OF COMPLIANCE
MUST BE ISSUED TO THE BUILDING
DEPARTMENT BY A LICENSED PEST
CONTROL COMPANY BEFORE A
CERTIFICATE OF OCCUPANCY WILL BE
ISSUED. THE CERTIFICATE OF
COMPLIANCE SHALL STATE "THE
BUILDING HAS RECEIVED A COMPLETE
TREATMENT FOR THE PREVENTION OF
SUBTERRANEAN TERMITES. THE
TREATMENT IS IN ACCORDANCE WITH
THE RULES AND LAWS OF THE
FLORIDA DEPARTMENT OF
AGRICULTURE AND CONSUMER
SERVICES" (FBC 2010, SECTION R320.1.)
2. INITIAL TREATMENT SHALL BE DONE
AFTER ALL EXCAVATION AND BACKFILL IS
COMPLETED (FBC 2010, SECTION R320.1.1).
3. SOIL DISTURBED AFTER THE INITIAL
TREATMENT SHALL BE RETREATED
INCLUDING SPACES BOXED OR FORMED
(FBC 2010, SECTION R320.1.2).
4. BOXED AREAS IN CONCRETE FLOORS FOR
SUBSEQUENT INSTALLATION OF TRAPS,
ETC. SHALL BE MADE WITH PERMANENT
METAL OR PLASTIC FORMS. PERMANENT
FORMS MUST BE OF A SIZE AND DEPTH
THAT WILL ELIMINATE THE DISTURBANCE
OF SOIL AFTER THE INITIAL TREATMENT
(FBC 2010, SECTION R320.1.3).
5. MINIMUM 6 MIL. VAPOR RETARDER MUST
BE INSTALLED TO PROTECT AGAINST
RAINFALL DILUTION. IF RAINFALL OCCURS
BEFORE VAPOR RETARDER PLACEMENT,
RE-TREATMENT IS REQUIRED (FBC 2010,
SECTION R320.1.4).
6. CONCRETE OVERPOUR AND MORTAR
ALONG THE FOUNTATION PERIMETER
MUST BE REMOVED BEFORE EXTERIOR
SOIL TREATMENT (FBC 2010, SECTION
R320.1.5).
7. SOIL TREATMENT MUST BE APPLIED
UNDER ALL EXTERIOR CONCRETE OR
GRADE WITHIN 1'0" OF THE STRUCTURE
SIDE WALLS (FBC 2010, SECTION R320.1.6).
8. AN EXTERIOR VERTICAL ELEMENT
BARRIER MUST BE INSTALLED AFTER
CONSTRUCTION IS COMPLETE INCLUDING
LANDSCAPING AND IRRIGATION. ANY SOIL
DISTURBED AFTER THE VERTICAL
BARRIER
IS APPLIED, SHALL BE RETREATED (FBC
2010, SECTION R320.1.6).
9. AFTER ALL WORK IS COMPLETED, LOOSE
WOOD AND FILL MUST BE REMOVED FROM
BELOW AND WITHIN 1'0" OF THE BUILDING.
THIS INCLUDES ALL GRADE STATES, TUB
TRAP BOXES, FORMS, SHORING, OR
OTHER CELLULOSE CONTAINING
MATERIAL (FBC 2010, SECTION R320.3).
10. TO PROVIDE FOR INSPECTION FOR
TERMITE INFESTATION BETWEEN WALL
COVERING AND FINAL EARTH GRADE
SHALL NOT BE LESS THAN 6 INCHES.
EXCEPTION: PAINT OR DECORATIVE
CEMENTIOUS FINISHES LESS THAN 5/8"
THICK ADHERED DIRECTLY TO THE
FOUNDATION WALL (FBC 2010, SECTION
R704).
TERMITE PROTECTION CRITERIA
GENERAL NOTES
cube² (architecture+design)
2700 north miami avenue
suite 804
miami, fl 33127
t: 305.586.8169
www.cube2architecture.com
aa-26001789
ib-26001134
BINDINGEDGE
Design Professional FL License
Number
Signature
Jorge Alberto Pernas
AR92904
ID5632
Revisions
Sheet Information
DateIssueNumber
Date
Job Number
Scale
Drawn
Checked
Approved
Title
Sheet
© Copyright 2012 cube² (architecture+design)
12345
12345
A
B
C
A
B
C
D
As indicated
Oretsky Residence
Todd and Sheila
Oretsky
665 Buttonwood Lane
Miami, FL 33137
2013_01
SM
JAP
JAP
03/20/2013
A-101
Floor Plan - Level
1
3/8" = 1'-0"
A5
Ground Floor -Renovation Plan
W.I.C
212
29 SF
W.I.C
211
261 SF
BEDROOM 1
201
190 SF
BEDROOM 2
203
292 SF
BEDROOM 3
209
282 SF
MASTER
BEDROOM
204
3' - 0" 2' - 6" 3' - 3"
2' - 6" 2' - 10" 4' - 10 1/2" 2' - 10"
4" 1' - 11"
4' - 0 1/2" 15' - 2" 3' - 9" 2' - 1 1/2" 3' - 2 1/2"
4"3'-0"4'-101/2"6'-21/2"4'-0"
4"
5'-5"4"3'-0"15'-51/2"
2' - 6" 2' - 10" 4' - 11" 2' - 10" 7" 3' - 11 1/2" 1' - 8 1/2" 6' - 10 1/2"
8 1/2"
2' - 10" 4' - 10"
6'-111/2"1'-3"4'-0"3'-5"3'-0"4"5'-51/2"
2' - 9" 4' - 0" 8' - 4 1/2"
2' - 6" 2' - 10" 4' - 11" 2' - 10" 2"
1' - 10 1/2" 6' - 3 1/2"
13' - 1 1/2"
58 SF
HER CLOSET
206
32 SF
HIS CLOSET
205
40 SF
BATHROOM 2
210
141 SF
MASTER
BATHROOM
207
26 SF
TOILET ROOM
208
77 SF
BATHROOM 1
202
EXISTING WALLS
NEW WALLS
WALL LEGEND
11'-0"3'-0"61/2"10'-0"
4"
3'-0"8'-8"6'-111/2"
201
202203
204
205
206
207
208
209210
212
213
215
214
216
217
218
AIA
A
F
A
G
D
G
A
24'-9"
A-502
C2
A-502
B3
C3
C4
A-502
A2
A-502 A5A3
74 SF
HALLWAY
214
A-505 C2
D4
D2
D3
A2
A-410
A1
A-410
EMERGENCY ESCAPE AND
RESCUE OPENING WINDOW
EMERGENCY ESCAPE AND
RESCUE OPENING WINDOW
EMERGENCY ESCAPE AND
RESCUE OPENING WINDOW
211
A-504C2
C4
B2
B4
A-504 A2
A4
B5
A5
A-505C4
C5
B5
B4
A-505 A5
A4
B2
A2
3'-5"7'-3"5'-4"5'-1"3'-8"
1. THE MASTER BATHROOM WILL BE
A NEW ENCLOSED AND AIR
CONDITIONED SPACE. IT WILL
HAVE A NEW GYPSUM WALL
BOARD CEILING 8'-4" A.F.F.
2. ALL NEW DOORS AND
WINDOWS TO BE REVIEWED
AND SELECTED BY ARCHITECT.
3. ALL NEW INTERIOR WALLS
MUST HAVE AN STC- RATING
OF 52.
4. ALL EXTERIOR DOORS AND
WINDOWS, UNLESS
OTHERWISE NOTED, ARE TO
BE REPLACED WITH
IMPACT RESISTANT MIAMI-
DADE N.O.A APPROVED
PRODUCTS.
5. ALL NEW INTERIOR GYPSUM WALL
BOARD MUST MEET LEVEL 5 FINISH
REQUIREMENTS.
6. REFER TO SHEET DM-101 FOR ALL WALLS
TO BE REMOVED OR DEMOLISHED.
7. REFER TO STRUCTURAL DRAWINGS FOR
LOCATION OF ALL NEW BEARING WALLS.
1. A CERTIFICATION OF COMPLIANCE
MUST BE ISSUED TO THE BUILDING
DEPARTMENT BY A LICENSED PEST
CONTROL COMPANY BEFORE A
CERTIFICATE OF OCCUPANCY WILL BE
ISSUED. THE CERTIFICATE OF
COMPLIANCE SHALL STATE "THE
BUILDING HAS RECEIVED A COMPLETE
TREATMENT FOR THE PREVENTION OF
SUBTERRANEAN TERMITES. THE
TREATMENT IS IN ACCORDANCE WITH
THE RULES AND LAWS OF THE
FLORIDA DEPARTMENT OF
AGRICULTURE AND CONSUMER
SERVICES" (FBC 2010, SECTION R320.1.)
2. INITIAL TREATMENT SHALL BE DONE
AFTER ALL EXCAVATION AND BACKFILL IS
COMPLETED (FBC 2010, SECTION R320.1.1).
3. SOIL DISTURBED AFTER THE INITIAL
TREATMENT SHALL BE RETREATED
INCLUDING SPACES BOXED OR FORMED
(FBC 2010, SECTION R320.1.2).
4. BOXED AREAS IN CONCRETE FLOORS FOR
SUBSEQUENT INSTALLATION OF TRAPS,
ETC. SHALL BE MADE WITH PERMANENT
METAL OR PLASTIC FORMS. PERMANENT
FORMS MUST BE OF A SIZE AND DEPTH
THAT WILL ELIMINATE THE DISTURBANCE
OF SOIL AFTER THE INITIAL TREATMENT
(FBC 2010, SECTION R320.1.3).
5. MINIMUM 6 MIL. VAPOR RETARDER MUST
BE INSTALLED TO PROTECT AGAINST
RAINFALL DILUTION. IF RAINFALL OCCURS
BEFORE VAPOR RETARDER PLACEMENT,
RE-TREATMENT IS REQUIRED (FBC 2010,
SECTION R320.1.4).
6. CONCRETE OVERPOUR AND MORTAR
ALONG THE FOUNTATION PERIMETER
MUST BE REMOVED BEFORE EXTERIOR
SOIL TREATMENT (FBC 2010, SECTION
R320.1.5).
7. SOIL TREATMENT MUST BE APPLIED
UNDER ALL EXTERIOR CONCRETE OR
GRADE WITHIN 1'0" OF THE STRUCTURE
SIDE WALLS (FBC 2010, SECTION R320.1.6).
8. AN EXTERIOR VERTICAL ELEMENT
BARRIER MUST BE INSTALLED AFTER
CONSTRUCTION IS COMPLETE INCLUDING
LANDSCAPING AND IRRIGATION. ANY SOIL
DISTURBED AFTER THE VERTICAL
BARRIER
IS APPLIED, SHALL BE RETREATED (FBC
2010, SECTION R320.1.6).
9. AFTER ALL WORK IS COMPLETED, LOOSE
WOOD AND FILL MUST BE REMOVED FROM
BELOW AND WITHIN 1'0" OF THE BUILDING.
THIS INCLUDES ALL GRADE STATES, TUB
TRAP BOXES, FORMS, SHORING, OR
OTHER CELLULOSE CONTAINING
MATERIAL (FBC 2010, SECTION R320.3).
10. TO PROVIDE FOR INSPECTION FOR
TERMITE INFESTATION BETWEEN WALL
COVERING AND FINAL EARTH GRADE
SHALL NOT BE LESS THAN 6 INCHES.
EXCEPTION: PAINT OR DECORATIVE
CEMENTIOUS FINISHES LESS THAN 5/8"
THICK ADHERED DIRECTLY TO THE
FOUNDATION WALL (FBC 2010, SECTION
R704).
TERMITE PROTECTION CRITERIA
GENERAL NOTES
cube² (architecture+design)
2700 north miami avenue
suite 804
miami, fl 33127
t: 305.586.8169
www.cube2architecture.com
aa-26001789
ib-26001134
BINDINGEDGE
Design Professional FL License
Number
Signature
Jorge Alberto Pernas
AR92904
ID5632
Revisions
Sheet Information
DateIssueNumber
Date
Job Number
Scale
Drawn
Checked
Approved
Title
Sheet
© Copyright 2012 cube² (architecture+design)
12345
12345
A
B
C
A
B
C
D
As indicated
Oretsky Residence
Todd and Sheila
Oretsky
665 Buttonwood Lane
Miami, FL 33137
2013_01
SM
JAP
JAP
03/20/2013
A-102
Floor Plan - Level
2
3/8" = 1'-0"
A5
Second Floor - Renovation Plan
OVEN
DW
REF.
WD
UP
DN
FOYER
KITCHEN
Microwave
A/C
6"
6"
24"
6"
12"
12"
LIVING ROOM
DEN / OFFICE
FAMILY ROOM
KITCHEN
FORMAL DINING
ROOM
GARAGE
LAUNDRY/PANTRY
MAID'S
BATHROOM
MAID'S ROOM
EXISTING CONC. FLOOR TO BE
REPAINTED
DRIVEWAY TO BE 6" X 12"
TUMBLED TRAVERTINE
HERRINGBONE PATTERN
W.I.C
212
W.I.C
211
BEDROOM 1
BEDROOM 2
BEDROOM 3
MASTER
BEDROOM
HER CLOSET
HIS CLOSET
BATHROOM 2
MASTER
BATHROOM
TOILET ROOM
BATHROOM 1
NEW EXT. TILE
MATERIAL LEGEND
Teak Wood
Flooring
Carrera Marble
24" x 24 "
Tile Flooring
12" x 24 "
Bathroom
Shower Tile
4" x 4 "
Porcelain Tile
12" x 12"
Tumbled Travertine
Tile - Ivory 16 x 24
Tumbled Travertine
Tile - Ivory 6 x 12
Herringbone Pattern
cube² (architecture+design)
2700 north miami avenue
suite 804
miami, fl 33127
t: 305.586.8169
www.cube2architecture.com
aa-26001789
ib-26001134
BINDINGEDGE
Design Professional FL License
Number
Signature
Jorge Alberto Pernas
AR92904
ID5632
Revisions
Sheet Information
DateIssueNumber
Date
Job Number
Scale
Drawn
Checked
Approved
Title
Sheet
© Copyright 2012 cube² (architecture+design)
12345
12345
A
B
C
A
B
C
D
As indicated
Oretsky Residence
Todd and Sheila
Oretsky
665 Buttonwood Lane
Miami, FL 33137
2013_01
SM
JAP
JAP
03/20/2013
A-201
Finished Floor
Plan
1/4" = 1'-0"
A3
Ground Floor - Finished Floor Plan
1/4" = 1'-0"
A5
Second Floor - Finished Floor Plan
Level 1
0' - 0"
Level 2
10' - 8"
Foyer
1' - 6"
T.O.Beam
19' - 0"
Garage Roof
8' - 6"
Garage Floor
-1' - 0"
Level 1
0' - 0"
Level 2
10' - 8"
Foyer
1' - 6"
T.O.Beam
19' - 0"
Garage Roof
8' - 6"
Garage Floor
-1' - 0"
Level 1
0' - 0"
Level 2
10' - 8"
Foyer
1' - 6"
T.O.Beam
19' - 0"
Garage Roof
8' - 6"
Garage Floor
-1' - 0"
Level 1
0' - 0"
Level 2
10' - 8"
Foyer
1' - 6"
T.O.Beam
19' - 0"
Garage Roof
8' - 6"
Garage Floor
-1' - 0"
cube² (architecture+design)
2700 north miami avenue
suite 804
miami, fl 33127
t: 305.586.8169
www.cube2architecture.com
aa-26001789
ib-26001134
BINDINGEDGE
Design Professional FL License
Number
Signature
Jorge Alberto Pernas
AR92904
ID5632
Revisions
Sheet Information
DateIssueNumber
Date
Job Number
Scale
Drawn
Checked
Approved
Title
Sheet
© Copyright 2012 cube² (architecture+design)
12345
12345
A
B
C
A
B
C
D
1/4" = 1'-0"
Oretsky Residence
Todd and Sheila
Oretsky
665 Buttonwood Lane
Miami, FL 33137
2013_01
SM
JAP
JAP
03/20/2013
A-301
Exterior Building
Elevations -
Renovation
1/4" = 1'-0"
D5
Renovated Exterior Elevation - South
1/4" = 1'-0"
C5
Renovated Exterior Elevation - East
1/4" = 1'-0"
B5
Renovated Exterior Elevation - West
1/4" = 1'-0"
A5
Renovated Exterior Elevation - North
cube² (architecture+design)
2700 north miami avenue
suite 804
miami, fl 33127
t: 305.586.8169
www.cube2architecture.com
aa-26001789
ib-26001134
BINDINGEDGE
Design Professional FL License
Number
Signature
Jorge Alberto Pernas
AR92904
ID5632
Revisions
Sheet Information
DateIssueNumber
Date
Job Number
Scale
Drawn
Checked
Approved
Title
Sheet
© Copyright 2012 cube² (architecture+design)
12345
12345
A
B
C
A
B
C
D
Oretsky Residence
Todd and Sheila
Oretsky
665 Buttonwood Lane
Miami, FL 33137
2013_01
JAP
JAP
JAP
03/20/2013
A-302
Perspectives
Level 1
0' - 0"
Level 2
10' - 8"
Foyer
1' - 6"
T.O.Beam
19' - 0"
Garage Roof
8' - 6"
Garage Floor
-1' - 0"
C.I.P. CONCRETE SLAB WITH
VAPOR BARRIER ON PRE
CAST CONCRETE GRADE
BEAMS, SEE STRUCTURAL
CLEAN FILL COMPACTED
TO 95% MODIFIED PROCTOR
PER ASTM D1557. FILL TO BE
POISON TREATED.
C.I.P CONCRETE FOOTING
SEE STRUCTURAL
C.I.P. CONCRETE BEAM,
SEE STRUCTURAL
8" CMU WALL
5/8" GYPSUM WALL
BOARD ON 7/8" METAL
FURRING HAT
CHANNELS
5/8" CEMENT PLASTER
C.I.P. CONCRETE BEAM,
SEE STRUCTURAL
7/8" CEMENT PLASTER
ON METAL LATH ON
3/4" PLYWOOD
SHEATHING
Level 1
0' - 0"
Level 2
10' - 8"
Foyer
1' - 6"
T.O.Beam
19' - 0"
Garage Roof
8' - 6"
Garage Floor
-1' - 0"
C.I.P. CONCRETE SLAB WITH
VAPOR BARRIER ON PRE CAST
CONCRETE GRADE BEAMS, SEE
STRUCTURAL
CLEAN FILL COMPACTED
TO 95% MODIFIED PROCTOR
PER ASTM D1557. FILL TO BE
POISON TREATED.
C.I.P. CONCRETE BEAM,
SEE STRUCTURAL
8" CMU WALL
PRECAST CONC. LINTEL
SEE STRUCTURAL
5/8" GYPSUM WALL BOARD ON
7/8" METAL FURRING HAT
CHANNELS
NEW MIAMI-DADE N.O.A. APPROVED
IMPACT RESISTANT WINDOWS
5/8" CEMENT PLASTER
7/8" CEMENT PLASTER ON
METAL LATH ON 3/4"
PLYWOOD SHEATHING
C.I.P CONCRETE FOOTING
SEE STRUCTURAL
Level 1
0' - 0"
Level 2
10' - 8"
Foyer
1' - 6"
Garage Roof
8' - 6"
Garage Floor
-1' - 0"
PRECAST CONC. LINTEL
SEE STRUCTURAL
C.I.P. CONCRETE SLAB WITH
VAPOR BARRIER ON PRE
CAST CONCRETE GRADE
BEAMS, SEE STRUCTURAL
CLEAN FILL COMPACTED
TO 95% MODIFIED PROCTOR
PER ASTM D1557. FILL TO BE
POISON TREATED.
C.I.P CONCRETE FOOTING
SEE STRUCTURAL
8" CMU WALL
5/8" GYPSUM WALL
BOARD ON 7/8" METAL
FURRING HAT
CHANNELS
5/8" CEMENT PLASTER
Level 1
0' - 0"
Level 2
10' - 8"
Foyer
1' - 6"
Garage Roof
8' - 6"
Garage Floor
-1' - 0"
C.I.P. CONCRETE BEAM,
SEE STRUCTURAL
C.I.P. CONCRETE SLAB WITH
VAPOR BARRIER ON PRE
CAST CONCRETE GRADE
BEAMS, SEE STRUCTURAL
CLEAN FILL COMPACTED
TO 95% MODIFIED PROCTOR
PER ASTM D1557. FILL TO BE
POISON TREATED.
C.I.P CONCRETE FOOTING
SEE STRUCTURAL
8" CMU WALL
5/8" GYPSUM WALL
BOARD ON 7/8" METAL
FURRING HAT
CHANNELS
5/8" CEMENT PLASTER
cube² (architecture+design)
2700 north miami avenue
suite 804
miami, fl 33127
t: 305.586.8169
www.cube2architecture.com
aa-26001789
ib-26001134
BINDINGEDGE
Design Professional FL License
Number
Signature
Jorge Alberto Pernas
AR92904
ID5632
Revisions
Sheet Information
DateIssueNumber
Date
Job Number
Scale
Drawn
Checked
Approved
Title
Sheet
© Copyright 2012 cube² (architecture+design)
12345
12345
A
B
C
A
B
C
D
3/4" = 1'-0"
Oretsky Residence
Todd and Sheila
Oretsky
665 Buttonwood Lane
Miami, FL 33137
2013_01
SM
JAP
JAP
03/20/2013
A-410
Wall Sections &
Room Schedule
3/4" = 1'-0"
A2
Wall Section
3/4" = 1'-0"
A1
Wall Section
3/4" = 1'-0"
A3
Wall Section
3/4" = 1'-0"
A4
Wall Section
Room Schedule
Room Number Room Name
Floor Walls
Ceiling Finish CommentsFloor Finish Base Finish North Wall Finish East Wall Finish South Wall Finish West Wall Finish
101 FOYER Marble Tile G.W.B - Paint G.W.B - Paint G.W.B - Paint G.W.B - Paint G.W.B - Paint G.W.B - Paint
102 LIVING ROOM Porcelain Tile G.W.B - Paint G.W.B - Paint G.W.B - Paint G.W.B - Paint G.W.B - Paint G.W.B - Paint
103 DEN / OFFICE Porcelain Tile G.W.B - Paint G.W.B - Paint G.W.B - Paint G.W.B - Paint G.W.B - Paint G.W.B - Paint
104 FAMILY ROOM Porcelain Tile G.W.B - Paint G.W.B - Paint G.W.B - Paint G.W.B - Paint G.W.B - Paint G.W.B - Paint
105 FORMAL DINING ROOM Porcelain Tile G.W.B - Paint G.W.B - Paint G.W.B - Paint G.W.B - Paint G.W.B - Paint G.W.B - Paint
106 KITCHEN Porcelain Tile G.W.B - Paint G.W.B - Paint G.W.B - Paint G.W.B - Paint G.W.B - Paint G.W.B - Paint
107 A/C Porcelain Tile G.W.B - Paint G.W.B - Paint G.W.B - Paint G.W.B - Paint G.W.B - Paint G.W.B - Paint
108 LAUNDRY/PANTRY Porcelain Tile G.W.B - Paint G.W.B - Paint G.W.B - Paint G.W.B - Paint G.W.B - Paint G.W.B - Paint
109 POWDER ROOM Porcelain Tile G.W.B - Paint G.W.B - Paint G.W.B - Paint G.W.B - Paint G.W.B - Paint G.W.B - Paint
110 MAID'S ROOM Porcelain Tile G.W.B - Paint G.W.B - Paint G.W.B - Paint G.W.B - Paint G.W.B - Paint G.W.B - Paint
111 MAID'S BATHROOM Porcelain Tile G.W.B - Paint G.W.B - Paint G.W.B - Paint G.W.B - Paint G.W.B - Paint G.W.B - Paint
112 GARAGE Concrete - Stained G.W.B - Paint G.W.B - Paint G.W.B - Paint G.W.B - Paint G.W.B - Paint G.W.B - Paint
201 BEDROOM 1 Porcelain Tile G.W.B - Paint G.W.B - Paint G.W.B - Paint G.W.B - Paint G.W.B - Paint G.W.B - Paint
202 BATHROOM 1 Porcelain Tile Porcelain Tile Porcelain Tile Porcelain Tile G.W.B - Paint Porcelain Tile G.W.B - Paint
203 BEDROOM 2 Porcelain Tile G.W.B - Paint G.W.B - Paint G.W.B - Paint G.W.B - Paint G.W.B - Paint G.W.B - Paint
204 MASTER BEDROOM Porcelain Tile G.W.B - Paint G.W.B - Paint G.W.B - Paint G.W.B - Paint G.W.B - Paint G.W.B - Paint
205 HIS CLOSET Porcelain Tile G.W.B - Paint G.W.B - Paint G.W.B - Paint G.W.B - Paint G.W.B - Paint G.W.B - Paint
206 HER CLOSET Porcelain Tile G.W.B - Paint G.W.B - Paint G.W.B - Paint G.W.B - Paint G.W.B - Paint G.W.B - Paint
207 MASTER BATHROOM Marble Tile Marble Tile Marble Tile Marble Tile Marble Tile Marble Tile G.W.B - Paint
208 TOILET ROOM Marble Tile G.W.B - Paint G.W.B - Paint G.W.B - Paint G.W.B - Paint G.W.B - Paint G.W.B - Paint
209 BEDROOM 3 Porcelain Tile G.W.B - Paint G.W.B - Paint G.W.B - Paint G.W.B - Paint G.W.B - Paint G.W.B - Paint
210 BATHROOM 2 Porcelain Tile Porcelain Tile Porcelain Tile Porcelain Tile Porcelain Tile Porcelain Tile G.W.B - Paint
211 W.I.C Porcelain Tile G.W.B - Paint G.W.B - Paint G.W.B - Paint G.W.B - Paint G.W.B - Paint G.W.B - Paint
212 W.I.C Porcelain Tile G.W.B - Paint G.W.B - Paint G.W.B - Paint G.W.B - Paint G.W.B - Paint G.W.B - Paint
213 L.C Porcelain Tile G.W.B - Paint G.W.B - Paint G.W.B - Paint G.W.B - Paint G.W.B - Paint G.W.B - Paint
214 HALLWAY Porcelain Tile G.W.B - Paint G.W.B - Paint G.W.B - Paint G.W.B - Paint G.W.B - Paint G.W.B - Paint
OVEN
DW
WOOD COMPOSITE SILL CASING
WOOD COMPOSITE
JAMB EXTENSIONWOOD COMPOSITE
HEADER/JAMB CASING
FLAT SCREEN TV -
WALL MOUNT
WINE RACK OPEN BOOK
SHELVE
7' - 3" 10' - 8"
2'-61/2"1'-6"2'-8"4"
4' - 1 1/2" 4' - 6" 2' - 4" 7' - 3"
2'-61/2"1'-6"2'-8"4"
A-501D4 D5
C5
C4
A-501
B4
A-502 B5B4
WINE
Trash
Microwave
6"
Bench/Storage
Trash
6"
2' - 1" 2' - 11 1/2"
2'-2"8"2'-10"6'-31/2"4'-01/2"4'-7"5'-4"2'-0"
7' - 6" 5' - 4" 2' - 5" 5"
4" 3' - 0" 6' - 3" 2' - 1"
cube² (architecture+design)
2700 north miami avenue
suite 804
miami, fl 33127
t: 305.586.8169
www.cube2architecture.com
aa-26001789
ib-26001134
BINDINGEDGE
Design Professional FL License
Number
Signature
Jorge Alberto Pernas
AR92904
ID5632
Revisions
Sheet Information
DateIssueNumber
Date
Job Number
Scale
Drawn
Checked
Approved
Title
Sheet
© Copyright 2012 cube² (architecture+design)
12345
12345
A
B
C
A
B
C
D
As indicated
Oretsky Residence
Todd and Sheila
Oretsky
665 Buttonwood Lane
Miami, FL 33137
2013_01
SM
JAP
JAP
03/20/2013
A-501
Kitchen and
Laundry/Pantry
Elevations
1/2" = 1'-0"
D4
Kitchen - West Wall Elevation
1/2" = 1'-0"
D5
Kitchen - East Wall Elevation
1/2" = 1'-0"
C5
Kitchen - South Wall Elevation
1/2" = 1'-0"
C4
Kitchen Island - North Elevation
1/2" = 1'-0"
B4
Kitchen Island - South Elevation
1/2" = 1'-0"
B5
Kitchen Island - West Elevation
1/2" = 1'-0"
A4
Laundry / Pantry - East Elevation
1/2" = 1'-0"
B2
Laundry / Pantry - West Elevation
1/2" = 1'-0"
A1
Laundry / Pantry - North Elevation
1/2" = 1'-0"
A2
Laundry/ Pantry - South Elevation
3/8" = 1'-0"
C2
Enlarged Kitchen Plan
A-502
D3
D4D5
4' - 0" 2' - 10" 2' - 8 1/2"
9' - 6 1/2"
5'-0"
10" 1' - 4" 7' - 4"
2'-3"2'-10"2"
5' - 3"
5'-3"
A-502 B5B4
5' - 5 1/2" 2' - 6"
5'-0"
4" 2' - 10" 4' - 9 1/2"
A-502
B3
C3
C4
2' - 0" 6" 2' - 10" 3 1/2" 2' - 6"
2' - 0" 6" 2' - 10" 9 1/2" 2' - 0"
1'-8"2'-6"5"5'-0"
9'-7"
8' - 1 1/2"
A-502 A5A3
cube² (architecture+design)
2700 north miami avenue
suite 804
miami, fl 33127
t: 305.586.8169
www.cube2architecture.com
aa-26001789
ib-26001134
BINDINGEDGE
Design Professional FL License
Number
Signature
Jorge Alberto Pernas
AR92904
ID5632
Revisions
Sheet Information
DateIssueNumber
Date
Job Number
Scale
Drawn
Checked
Approved
Title
Sheet
© Copyright 2012 cube² (architecture+design)
12345
12345
A
B
C
A
B
C
D
3/4" = 1'-0"
Oretsky Residence
Todd and Sheila
Oretsky
665 Buttonwood Lane
Miami, FL 33137
2013_01
SM
JAP
JAP
03/20/2013
A-502
Enlarged
Bathroom Plans
and Elevations
3/4" = 1'-0"
D2
Maid Bathroom - Level 1
3/4" = 1'-0"
C5
Powder Room - Level 1
3/4" = 1'-0"
D3
Maid's Bathroom - South Elevation
3/4" = 1'-0"
D4
Maid's Bathroom - East Elevation
3/4" = 1'-0"
D5
Maid's Bathroom - West Elevation
3/4" = 1'-0"
B4
Powder Room - West Elevation
3/4" = 1'-0"
B5
Powder Room - East Elevation
3/4" = 1'-0"
C2
Enlarged Bathroom#3 Plan - Level 2
3/4" = 1'-0"
C3
Bathroom#2 - North Elevation
3/4" = 1'-0"
B3
Bathroom#2 - South Elevation
3/4" = 1'-0"
C4
Bathroom#2 - East Elevation
3/4" = 1'-0"
A2
Enlarged Bathroom#2 Plan - Level 2
3/4" = 1'-0"
A5
Bathroom#1 - East Elevation
3/4" = 1'-0"
A3
Bathroom#1 - West Elevation
WOOD COMPOSITE
HEADER/JAMB CASING
WOOD COMPOSITE
SILL CASING
WOOD COMPOSITE
HEADER/JAMB CASING
WOOD COMPOSITE
HEADER/JAMB CASING
WOOD COMPOSITE
HEADER/JAMB CASING
WOOD COMPOSITE BASE BOARDS
PAINTED G.W.B.
CTRL.SPKL.SPK R.SPK
TV TO BE FLUSH WITH
UNIT
LG 60LS5700
OPEN
WOOD COMPOSITE SILL CASING
WOOD COMPOSITE
HEADER/JAMB CASING
WOOD COMPOSITE SILL CASING
WOOD COMPOSITE
HEADER/JAMB CASING
PAINTED G.W.B.
WOOD COMPOSITE BASE BOARDS
WOOD COMPOSITE SILL CASING
WOOD COMPOSITE
HEADER/JAMB CASING
WOOD COMPOSITE
JAMB EXTENSION
PAINTED G.W.B.
WOOD COMPOSITE BASE BOARDS
WOOD COMPOSITE SILL CASING
WOOD COMPOSITE
HEADER/JAMB CASING
PAINTED G.W.B.
WOOD COMPOSITE BASE BOARDS
WOOD PANELING
6"2'-3"
PAINTED G.W.B.
WOOD COMPOSITE BASE BOARDS
2'-3"6"
WOOD PANELING
PAINTED G.W.B.
WOOD COMPOSITE BASE BOARDS
WOOD COMPOSITE SILL CASING
2'-3"6"
WOOD COMPOSITE
HEADER/JAMB CASING
WOOD COMPOSITE
SILL CASING
WOOD COMPOSITE
HEADER/JAMB CASING
WOOD COMPOSITE
SILL CASING
WOOD COMPOSITE
HEADER/JAMB CASING
WOOD COMPOSITE
SILL CASING
cube² (architecture+design)
2700 north miami avenue
suite 804
miami, fl 33127
t: 305.586.8169
www.cube2architecture.com
aa-26001789
ib-26001134
BINDINGEDGE
Design Professional FL License
Number
Signature
Jorge Alberto Pernas
AR92904
ID5632
Revisions
Sheet Information
DateIssueNumber
Date
Job Number
Scale
Drawn
Checked
Approved
Title
Sheet
© Copyright 2012 cube² (architecture+design)
12345
12345
A
B
C
A
B
C
D
As indicated
Oretsky Residence
Todd and Sheila
Oretsky
665 Buttonwood Lane
Miami, FL 33137
2013_01
SM
JAP
JAP
03/20/2013
A-503
Interior Elevations
1/2" = 1'-0"
D4
French Door Elevations
1/2" = 1'-0"
D5
Family Room - Entertainment Unit
1/2" = 1'-0"
C4
Foyer - South Wall Elevation
1/2" = 1'-0"
B2
Living Room - East Wall Elevation
3/8" = 1'-0"
C5
Foyer - West Wall Elevation
1/2" = 1'-0"
B4
Dining Room - East Elevation
1/2" = 1'-0"
B5
Dining Room - West Elevation
1/2" = 1'-0"
A5
Dining Room - North Elevation
1/2" = 1'-0"
A4
Den/Office - North Elevation
1/2" = 1'-0"
A3
Den/Office - South Elevation
1/2" = 1'-0"
A2
Den/Office - East Elevation
Level 1
0' - 0"
Level 2
10' - 8"
Foyer
1' - 6"
T.O.Beam
19' - 0"
Garage Roof
8' - 6"
EXISTING BALCONY RIALING TO
BE REMOVED AND REPLACED
WITH NEW
5 6
2
6
2 7 7 7
77
6
4
4
4
Level 1
0' - 0"
Level 2
10' - 8"
Foyer
1' - 6"
T.O.Beam
19' - 0"
Garage Roof
8' - 6"
4
4
4
7
66 6 6
666
8
Level 1
0' - 0"
Level 2
10' - 8"
Foyer
1' - 6"
T.O.Beam
19' - 0"
Garage Roof
8' - 6"
4
4 4
6 6 6
66
1
6
6
1
EXISTING BALCONY RIALING TO
BE REMOVED AND REPLACED
WITH NEW
5
8
EXISTING AWNING TO BE
REMOVED
Level 1
0' - 0"
Level 2
10' - 8"
Foyer
1' - 6"
T.O.Beam
19' - 0"
Garage Roof
8' - 6"
4
4 4
2
6
1
6
1
6
1
6
1
66
EXISTING BALCONY RIALING TO
BE REMOVED AND REPLACED
WITH NEW
5
EXISTING AWNING TO BE
REMOVED
cube² (architecture+design)
2700 north miami avenue
suite 804
miami, fl 33127
t: 305.586.8169
www.cube2architecture.com
aa-26001789
ib-26001134
BINDINGEDGE
Design Professional FL License
Number
Signature
Jorge Alberto Pernas
AR92904
ID5632
Revisions
Sheet Information
DateIssueNumber
Date
Job Number
Scale
Drawn
Checked
Approved
Title
Sheet
© Copyright 2012 cube² (architecture+design)
12345
12345
A
B
C
A
B
C
D
1/4" = 1'-0"
Oretsky Residence
Todd and Sheila
Oretsky
665 Buttonwood Lane
Miami, FL 33137
2013_01
SM
JAP
JAP
03/20/2013
DM-102
Existing Building
Elevations
1/4" = 1'-0"
A5
Existing Exterior Elevation - North
1/4" = 1'-0"
D5
Existing Exterior Elevation - South
1/4" = 1'-0"
C5
Existing Exterior Elevation - West
1/4" = 1'-0"
B5
Existing Exterior Elevation - East
DEMOLITION KEY NOTES:
1. PATCH WALLS TO MATCH EXISTING ADJACENT SURFACE IF SCHEDULED TO
REMAIN OR PREPARE TO RECIEVE NEW FINISHES.
2. CUT OPENING IN EXISTING EXTERIOR WALL FOR NEW DOOR AND/OR
WINDOW. PREPARE ADJACENT SURFACES TO RMAIN TO RECEIVE NEW
WORK AS SHOWN.
3. REMOVE EXISTING DOOR AND/OR WINDOW, FRAME AND HARDWARE. TURN
OVER TO OWNER OR DISPOSE AT HIS REQUEST.
4. EXISTING ROOF TO BE REPLACED WITH NEW.
5. REMOVE EXISTING SCREEN IN PATIO.
6. ALL WINDOWS TO BE REPLACED WITH NEW MIAMI-DADE N.O.A APPROVED
IMPACT RESISTANT CASEMENT WINDOWS.
7. ALL EXTERIOR DOORS TO BE REMOVED AND REPLACED WITH NEW MIAMI-
DADE N.O.A APPROVED IMPACT RESITANT DOORS.
8. EXISTING BRICK STEPS TO BE REMOVED
PAINTED G.W.B.
WOOD COMPOSITE BASE BOARDS
PAINTED
G.W.B.
WOOD COMPOSITE BASE BOARDS
WOOD COMPOSITE SILL CASING
WOOD COMPOSITE
HEADER/JAMB CASING
PAINTED G.W.B.
WOOD COMPOSITE BASE BOARDS
FLAT SCREEN TV -
WALL MOUNT
FLAT SCREEN TV -
WALL MOUNT
PAINTED G.W.B.
WOOD COMPOSITE BASE BOARDS
CLOSET
PAINTED G.W.B.
WOOD COMPOSITE BASE BOARDS
PAINTED G.W.B.
WOOD COMPOSITE BASE BOARDS
CLOSET
PAINTED G.W.B.
WOOD COMPOSITE
BASE BOARDS
WOOD COMPOSITE BASE BOARDS
PAINTED G.W.B.
WOOD COMPOSITE SILL CASING
WOOD COMPOSITE
HEADER/JAMB CASING
WOOD COMPOSITE
JAMB EXTENSION
PAINTED G.W.B.
WOOD COMPOSITE BASE BOARDS
WOOD COMPOSITE SILL CASING
WOOD COMPOSITE
JAMB EXTENSION
WOOD COMPOSITE
HEADER/JAMB CASING
WOOD COMPOSITE
HEADER/JAMB CASING
WOOD COMPOSITE SILL CASING
PAINTED G.W.B.
WOOD COMPOSITE BASE BOARDS
PAINTED G.W.B.
WOOD COMPOSITE
BASE BOARDS
PAINTED G.W.B.
WOOD COMPOSITE BASE BOARDS
WOOD COMPOSITE SILL CASING
WOOD COMPOSITE
HEADER/JAMB CASING
WOOD COMPOSITE
JAMB EXTENSION
PAINTED G.W.B.PAINTED G.W.B.
WOOD COMPOSITE BASE BOARDS
WOOD COMPOSITE SILL CASING
WOOD COMPOSITE
HEADER/JAMB CASING
WOOD COMPOSITE
JAMB EXTENSION
cube² (architecture+design)
2700 north miami avenue
suite 804
miami, fl 33127
t: 305.586.8169
www.cube2architecture.com
aa-26001789
ib-26001134
BINDINGEDGE
Design Professional FL License
Number
Signature
Jorge Alberto Pernas
AR92904
ID5632
Revisions
Sheet Information
DateIssueNumber
Date
Job Number
Scale
Drawn
Checked
Approved
Title
Sheet
© Copyright 2012 cube² (architecture+design)
12345
12345
A
B
C
A
B
C
D
1/2" = 1'-0"
Oretsky Residence
Todd and Sheila
Oretsky
665 Buttonwood Lane
Miami, FL 33137
2013_01
SM
JAP
JAP
03/20/2013
A-504
Interior Elevations
1/2" = 1'-0"
D3
Maid's Room - East Elevation
1/2" = 1'-0"
D4
Maid's Room - North Elevation
1/2" = 1'-0"
D5
Maid's Room - West Elevation
1/2" = 1'-0"
D2
Den/Office - West Elevation
1/2" = 1'-0"
C5
Maid's Room - South Elevation
1/2" = 1'-0"
C2
Bedroom 3 - West Elevation
1/2" = 1'-0"
C4
Bedroom 3 - North Elevation
1/2" = 1'-0"
B2
Bedroom 3 - East Elevation
1/2" = 1'-0"
B4
Bedroom 3 - South Elevation
1/2" = 1'-0"
A2
Bedroom 1 - East Elevation
1/2" = 1'-0"
A4
Bedroom 1 - North Elevation
1/2" = 1'-0"
B5
Bedroom 1 - South Elevation
1/2" = 1'-0"
A5
Bedroom 1 - West Elevation
BENCH
STEAM
SHOWER
TUB
PAINTED G.W.B.
WOOD COMPOSITE SILL CASING
WOOD COMPOSITE
HEADER/JAMB CASING
WOOD COMPOSITE
JAMB EXTENSION
FROSTED
SLIDING
DOOR
TUB
PAINTED G.W.B.
WOOD COMPOSITE BASE BOARDS
PAINTED G.W.B.
WOOD COMPOSITE BASE BOARDS
MIRRORED
CLOSET DOOR
PAINTED G.W.B.
WOOD COMPOSITE
BASE BOARDS
WOOD COMPOSITE
HEADER/JAMB CASING
PAINTED G.W.B.
WOOD COMPOSITE BASE BOARDS
PAINTED G.W.B.
WOOD COMPOSITE BASE BOARDS
MIRRORED
CLOSET DOOR
PAINTED G.W.B.
WOOD COMPOSITE BASE BOARDS
PAINTED G.W.B.
WOOD COMPOSITE BASE BOARDS
WOOD COMPOSITE
HEADER/JAMB CASING
PAINTED G.W.B.
WOOD COMPOSITE BASE BOARDS
WOOD COMPOSITE SILL CASING
WOOD COMPOSITE
HEADER/JAMB CASING
WOOD COMPOSITE
JAMB EXTENSION
cube² (architecture+design)
2700 north miami avenue
suite 804
miami, fl 33127
t: 305.586.8169
www.cube2architecture.com
aa-26001789
ib-26001134
BINDINGEDGE
Design Professional FL License
Number
Signature
Jorge Alberto Pernas
AR92904
ID5632
Revisions
Sheet Information
DateIssueNumber
Date
Job Number
Scale
Drawn
Checked
Approved
Title
Sheet
© Copyright 2012 cube² (architecture+design)
12345
12345
A
B
C
A
B
C
D
1/2" = 1'-0"
Oretsky Residence
Todd and Sheila
Oretsky
665 Buttonwood Lane
Miami, FL 33137
2013_01
SM
JAP
JAP
03/20/2013
A-505
Interior Elevations
1/2" = 1'-0"
C2
Master Bathroom - East Elevation
1/2" = 1'-0"
D4
Master Bathroom - North Elevation
1/2" = 1'-0"
D3
Master Bathroom - South Elevation
1/2" = 1'-0"
D2
Master Bathroom - West Elevation
1/2" = 1'-0"
C4
Master Bedroom - West Elevation
1/2" = 1'-0"
C5
Master Bedroom - North Elevation
1/2" = 1'-0"
B5
Master Bedroom - East Elevation
1/2" = 1'-0"
B4
Master Bedroom - South Elevation
1/2" = 1'-0"
A5
Bedroom 2 - East Elevation
1/2" = 1'-0"
A4
Bedroom 2 - South Elevation
1/2" = 1'-0"
B2
Bedroom 2 - North Elevation
1/2" = 1'-0"
A2
Bedroom 2 - West Elevation
NOTES:
• ALL INTERIOR PAINT TO BE SELECTED BY OWNER AND
INTERIOR DESIGNER.
• ALL CASING AND TRIM WORK FOR WINDOWS AND FRENCH
DOORS TO BE SELECTED BY OWNER AND INTERIOR
DESIGNER.
9'-0" A.F.F.
9'-6" A.F.F.
9'-1" A.F.F.
9'-0" A.F.F.
9'-0" A.F.F.
8'-6" A.F.F.
8'-6" A.F.F.
8'-3" A.F.F.
8"4" 6' - 10" 4"8"4" 6' - 10" 4"8"4" 6' - 10" 4"8"6' - 10" 6' - 10"
8"
8"
2'-91/2"5'-61/2"5'-61/2"5'-61/2"2'-91/2"4"4"
4"4" 2' - 11" 5' - 9 1/2" 2' - 11" 4"4"
8"1'-101/2"4'-11/2"4'-71/2"4'-71/2"4'-71/2"2'-4"8"
8" 3' - 2 1/2"
6'-11"4"4"
5' - 10" 4"4"
1'-101/2"
4' - 0"
3'-21/2"4'-0"4'-0"4'-0"4'-0"2'-9"
4' - 0"
2' - 11" 2' - 11" 1' - 11"
2'-8"
1' - 11" 3' - 9 1/2"
2'-1"5'-1"2'-31/2"
1'-2"2'-11"1'-2"
2' - 6"
3' - 11"3' - 11"6' - 0"
3'-5"3'-0"
3' - 11"3' - 11"6' - 0"
4'-0"
3'-7"3'-6"3'-5"3'-6"
3' - 7"
9'-11"
3' - 2"3' - 2"8' - 3"
9'-6"
2'-91/2"
2' - 1"
3' - 11 1/2"
5'-0"5'-0"5'-0"
2' - 5"3' - 8"
3' - 1" 4' - 4"
OUTDOOR SCONCE
OUTDOOR SCONCE
OUTDOOR SCONCE
OUTDOOR SCONCE
OUTDOOR SCONCE
OUTDOOR SCONCE
23' - 0" 4' - 4"
4'-8"
OUTDOOR FAN
8'-3" A.F.F.
TONG AND GROOVE
LIGHTING LEGEND
3" RECESSED LIGHT FIXTURE
PENDENT LIGHT FIXTURE
CEILING LIGHT - FLUSH
CHANDELIER
8'-3" A.F.F.
WALL SCONCE
CEILING FAN
CEILING HEIGHT ABOVE FINISHED
FLOOR
REFLECTED CEILING PLAN NOTES
1. INSTALL NEW 5/8" THICK GYPSUM WALLBOARD
CEILING ON WOOD RAFTERS.
2. NEW CEILING TO BE INSTALLED AS REQUIRED AND
FINISHED SMOOTH BY CONTRACTOR.
3. REFER TO LIGHTING SCHEDULE FOR LIGHT FIXTURE
SPECIFICATIONS.
4. ALL SWITCHES ARE DIMMERS, EXCEPT THE CLOSETS,
UTILITY ROOM AND EXTERIOR LIGHTING.
5'-0"5'-0"3'-4"4"8"
7' - 6 1/2"2' - 9 1/2"4"8"
3'-0"3'-0"2'-21/2"
2' - 9 1/2"
4' - 1"2' - 0"
2'-5"
EQ EQ EQ
2'-81/2"
4" 2' - 11" 6' - 6" 2' - 11" 4"
7'-01/2"3'-21/2"4"
6' - 6"
7'-01/2"
EQEQEQ
4' - 10" 1' - 3" 3' - 4 1/2"
2'-31/2"2'-31/2"
3' - 4 1/2"
6' - 7"2' - 11 1/2"4"
9'-51/2"4'-5"4"
6' - 7 1/2"
9'-6"
4"2' - 11 1/2"6' - 7"
9'-51/2"4'-5"4"
6' - 7"
9'-6"
3'-2"4"
11 1/2" 2' - 6"
3'-11/2"5'-5"5'-5"3'-2"
1' - 8"
8'-4" A.F.F.
8'-4" A.F.F.
8'-4" A.F.F.
8'-4" A.F.F.
8'-4" A.F.F. 8'-4" A.F.F.
8'-4" A.F.F.
8'-4" A.F.F.
8'-4" A.F.F.
8'-4" A.F.F.
OUTDOOR
WALL
SCONCE
OUTDOOR
WALL
SCONCE
cube² (architecture+design)
2700 north miami avenue
suite 804
miami, fl 33127
t: 305.586.8169
www.cube2architecture.com
aa-26001789
ib-26001134
BINDINGEDGE
Design Professional FL License
Number
Signature
Jorge Alberto Pernas
AR92904
ID5632
Revisions
Sheet Information
DateIssueNumber
Date
Job Number
Scale
Drawn
Checked
Approved
Title
Sheet
© Copyright 2012 cube² (architecture+design)
12345
12345
A
B
C
A
B
C
D
As indicated
Oretsky Residence
Todd and Sheila
Oretsky
665 Buttonwood Lane
Miami, FL 33137
2013_01
SM
JAP
JAP
03/20/2013
A-601
Reflected Ceiling
Plan
1/4" = 1'-0"
A3
Reflected Ceiling Plan - Ground Floor
1/4" = 1'-0"
A5
Reflected Ceiling Plan - Second Floor
1/4"
RUN FLOOR FINISH
UNDER THRES.
FLOOR FINISH
(SEE SCHEDULE)
RECESSED SLAB FOR TILE
FLOOR WHERE IT OCCURS
DOOR
(SEE SCHEDULE)
NOTE:
THRES. MUST MEET
MAXIMUM HEIGHT AND
SLOPE PER ADA
REQUIREMENTS.
ALUM. THRES.
SET IN CONT. BED
OF SEALANT - ANCHOR
RECESSED - F.H. SCREWS IN
EXPN. SHIELDS AT 8" O.C.
FLOOR FINISH
(SEE SCHEDULE)
REDUCER STRIP
CONCRETE SLAB
SOLID WOOD
FRAME
SEALANT
STD. ANCHORS
2X4 WD STUDS
5/8" GYPSUM
WALLBOARD
5 7/8"
3 15/16"
1 15/16"
1/2"
5/8"2"
5/8" GYPSUM WALL BOARD
2X4 WD STUDS
SOLID WOOD FRAME
SEALANT CONT TYP.
STD ANCHORS
2"5/8"
1 15/16"
5 7/8"
1 15/16" 2" STD.
ANCHORS
SOLID WOOD
FRAME
CMU
5/8" GWB ON
FURRING
CHANNELS
SEALANT
1/4"
2"5/8"
5 7/8"
CMU
GYPSUM
PLASTER
ALUMINUM
FRAME1 15/16"
2"
1 15/16"
SEALANT
5/8" GWB
ON
FURRING
CHANNELS
25 GA
GALV.
ANGLE
5/8" GYPSUM WALL BOARD
6" 20 GA METAL STUDS
SOLID WOOD POCKET
DOOR FRAME
SEALANT
CONT. TYP.
EQ.EQ.
5/8" GYPSUM WALL BOARD
6" 20 GA METAL STUDS
SOLID WOOD FRAME
SEALANT CONT TYP.
1/4"
2"5/8"
5 7/8"
CONC.
LINTEL
GYPSUM
PLASTER
ALUMINUM
FRAME
1 15/16"
2"
1 15/16"
SEALANT
5/8" GWB
ON
FURRING
CHANNELS
25 GA
GALV.
ANGLE
1 15/16"
5 7/8"
2"1 15/16"
5/8"2"
25 GA GALV.
ANGLE
SEALANT
SOLID
WOOD
FRAME
5/8" GWB ON
FURRING
CHANNELS
CONC.
LINTEL
5 7/8"
1/2"
2"
SEALANT
SOLID WOOD FRAME
2X4 WD STUDS
5/8" GYPSUM
WALL BOARD
STD ANCHORS
5 7/8"
1/2"
3 15/16"
5/8"2"
1 15/16"
SEALANT
SOLID WOOD
FRAME
2X4 WD STUDS
5/8" GYPSUM
WALL BOARD
STD ANCHORS
1 2
IMPACT RESISTANT
GLAZING FOR
EXTERIOR DOORS
ONLY
SOLID CORE
DOOR
A B
C D
SOLID CORE
DOOR
E
cube² (architecture+design)
2700 north miami avenue
suite 804
miami, fl 33127
t: 305.586.8169
www.cube2architecture.com
aa-26001789
ib-26001134
BINDINGEDGE
Design Professional FL License
Number
Signature
Jorge Alberto Pernas
AR92904
ID5632
Revisions
Sheet Information
DateIssueNumber
Date
Job Number
Scale
Drawn
Checked
Approved
Title
Sheet
© Copyright 2012 cube² (architecture+design)
12345
12345
A
B
C
A
B
C
D
As indicated
Oretsky Residence
Todd and Sheila
Oretsky
665 Buttonwood Lane
Miami, FL 33137
2013_01
SM
JAP
JAP
03/20/2013
A-801
Door Schedules
and Details
Door Schedule
Door Number Door Type
Door
Fire Rating Hardware
Frame
CommentsWidth Height Thickness Material Finish Frame Type Frame Material Jamb Head Sill
101 A 3' - 0" 6' - 8" 0' - 2" Wood - Door Paint N/A N/A 1 Wood JD4 HD4 T1
102 D 5' - 8" 6' - 8" 0' - 2" Wood - Door Paint N/A N/A 1 Wood JD3 HD3 T2
103 A 2' - 10" 6' - 8" 0' - 2" Wood - Door Paint N/A N/A 1 Wood JD1 HD1 T2
104 A 2' - 10" 6' - 8" 0' - 2" Wood - Door Paint N/A N/A 1 Wood JD1 HD1 T2
105 A 3' - 0" 6' - 8" 0' - 2" Wood - Door Paint N/A N/A 1 Wood JD1 HD1 T2
106 A 2' - 10" 6' - 8" 0' - 2" Wood - Door Paint N/A N/A 1 Wood JD1 HD1 T2
107 A 3' - 0" 6' - 8" 0' - 2" Wood - Door Paint N/A N/A 1 Wood JD1 HD1 T2
108 A 3' - 0" 6' - 8" 0' - 2" Wood - Door Paint N/A N/A 1 Wood JD3 HD3 T2
109 C 4' - 0" 6' - 8" 0' - 2" Wood - Door Paint N/A N/A 1 Wood JD1 HD1 T2
110 A 2' - 10" 6' - 8" 0' - 2" Wood - Door Paint N/A N/A 1 Wood JD1 HD1 T2
111 A 2' - 10" 6' - 8" 0' - 2" Wood - Door Paint N/A N/A 1 Wood JD1 HD1 T2
112 A 2' - 10" 6' - 8" 0' - 2" Wood - Door Paint N/A N/A 1 Wood JD1 HD1 T2
113 A 2' - 10" 6' - 8" 0' - 2" Wood - Door Paint N/A N/A 1 Wood JD4 HD4 T1
114 A 2' - 10" 6' - 8" 0' - 2" Wood - Door Paint N/A N/A 1 Wood JD4 HD4 T1
115 B 6' - 0" 6' - 8" 0' - 2" Glass Glass, Clear Glazing N/A N/A 2 Aluminum JD4 HD4 T1
116 B 6' - 0" 6' - 8" 0' - 2" Glass Glass, Clear Glazing N/A N/A 2 Aluminum JD4 HD4 T1
117 B 6' - 0" 6' - 8" 0' - 2" Glass Glass, Clear Glazing N/A N/A 2 Aluminum JD4 HD4 T1
201 A 3' - 0" 6' - 8" 0' - 2" Wood - Door Paint N/A N/A 1 Wood JD1 HD1 T2
202 A 2' - 10" 6' - 8" 0' - 2" Wood - Door Paint N/A N/A 1 Wood JD1 HD1 T2
203 A 2' - 10" 6' - 8" 0' - 2" Wood - Door Paint N/A N/A 1 Wood JD1 HD1 T2
204 A 2' - 10" 6' - 8" 0' - 2" Wood - Door Paint N/A N/A 1 Wood JD1 HD1 T2
205 A 2' - 10" 6' - 8" 0' - 2" Wood - Door Paint N/A N/A 1 Wood JD1 HD1 T2
206 A 3' - 0" 6' - 8" 0' - 2" Wood - Door Paint N/A N/A 1 Wood JD1 HD1 T2
207 A 3' - 0" 6' - 8" 0' - 2" Wood - Door Paint N/A N/A 1 Wood JD1 HD1 T2
208 A 4' - 0" 6' - 8" 0' - 2" Wood - Door Paint N/A N/A 1 Wood JD1 HD1 T2
209 B 6' - 0" 6' - 8" 0' - 2" Glass Glass, Clear Glazing N/A N/A 2 Aluminum JD4 HD4 T1
210 B 6' - 0" 6' - 8" 0' - 2" Glass Glass, Clear Glazing N/A N/A 2 Aluminum JD4 HD4 T1
211 A 3' - 0" 6' - 8" 0' - 2" Wood - Door Paint N/A N/A 1 Wood JD1 HD1 T2
212 A 2' - 0" 6' - 8" 0' - 1 1/2" Wood - Door Paint N/A N/A 1 Wood JD1 HD1 T2
213 E 2' - 6" 6' - 8" 0' - 1 1/2" Wood - Door Paint N/A N/A 1 Wood JD5 HD5 T2
214 A 4' - 0" 6' - 8" 0' - 2" Wood - Door Paint N/A N/A 1 Wood JD1 HD1 T2
215 A 2' - 10" 6' - 8" 0' - 2" Wood - Door Paint N/A N/A 1 Wood JD1 HD1 T2
216 A 3' - 0" 6' - 8" 0' - 2" Wood - Door Paint N/A N/A 1 Wood JD1 HD1 T2
217 A 1' - 8" 6' - 8" 0' - 2" Wood - Door Paint N/A N/A 1 Wood JD1 HD1 T2
218 C 4' - 0" 6' - 8" 0' - 2" Wood - Door Paint N/A N/A 2 Wood JD2 HD2 T2 Existing Door To Remain
6" = 1'-0"
B2
Threshold - T1
6" = 1'-0"
A1
Threshold - T2
6" = 1'-0"
D5
Jamb - JD1
6" = 1'-0"
C5
Jamb - JD2
6" = 1'-0"
A5
Jamb - JD3
6" = 1'-0"
A4
Jamb - JD4
6" = 1'-0"
A2
Jamb - JD5
6" = 1'-0"
A3
Header - HD5
6" = 1'-0"
B5
Header - HD4
6" = 1'-0"
B
Header - HD3
6" = 1'-0"
C4
Header - HD2 ( Jamb Similar)
6" = 1'-0"
D4
Header - HD1
1/4" = 1'-0"
C3
Frame Types
1/4" = 1'-0"
B3
Door Types
5 1/2" 2' - 10 1/2" 3" 2' - 10 1/2" 5 1/2"
51/2"4'-0"4"
HEAD, JAMB, SILL
SINGLE HUNG WINDOW DETAIL
SCALE: N.T.S.
WINDOW ATTACHMENT DETAIL
NOTE:
SCALE: N.T.S.
WINDOW CONNECTION SPEC.
NOTE: ANCHORING OF
ALUMINUM WINDOW FRAME
TO EXISTING FRAMED
OPENING SHALL ASTM
929-79, TYPE S, GRADE,
NS, USE NT, FEDERAL
SPEC.TT-S001657. TYPE 1
PERFORMANCE
CHARACTERISTICS TO
OPENING W/ MIN.
RECOMMENDED FASTENERS
BY WINDOW MFG.
WINDOW INSTALLATION
AS PER MANUFACTURER
STUCCO
CONTINUOUS SEALANT
WITH BACKER ROD FOR
ENTIRE PERIMETERE OF
UNIT
FIBERGLASS BATT INSUL.
ALL NEW WINDOWS SHALL BE
CONSTRUCTED TO MEET 140 MPH WIND
LOAD & LARGE MISSLE IMPACT
CRITERIA
GYPSUM WALL BOARD
C.M.U. WALL
P.T. WD. BLOCKING,
AS REQUIRED.
5 1/2" 3' - 0" 5 1/2"
51/2"4'-0"4"
5 1/2" 2' - 1" 3" 2' - 1 1/2" 5 1/2"
5"3'-1"4"
2' - 0"
2'-0"
5 1/2" 3' - 0" 5 1/2"
51/2"3'-6"4"
4' - 6"
1'-6"
5 1/2" 1' - 10 1/2" 3" 1' - 10 1/2" 5 1/2"
51/2"4'-0"4"
5 1/2" 4' - 6 1/2" 5 1/2"
51/2"4'-0"4"
5 1/2" 3' - 0" 5 1/2"
51/2"3'-0"4"
cube² (architecture+design)
2700 north miami avenue
suite 804
miami, fl 33127
t: 305.586.8169
www.cube2architecture.com
aa-26001789
ib-26001134
BINDINGEDGE
Design Professional FL License
Number
Signature
Jorge Alberto Pernas
AR92904
ID5632
Revisions
Sheet Information
DateIssueNumber
Date
Job Number
Scale
Drawn
Checked
Approved
Title
Sheet
© Copyright 2012 cube² (architecture+design)
12345
12345
A
B
C
A
B
C
D
As indicated
Oretsky Residence
Todd and Sheila
Oretsky
665 Buttonwood Lane
Miami, FL 33137
2013_01
JAP
JAP
JAP
03/20/2013
A-802
Window
Elevations and
Details
1" = 1'-0"
A2
Typ.A
SECTION R310 EMERGENCY ESCAPE AND RESCUE OPENINGS
R310.1 Emergency escape and rescue required.
Basements, habitable attics and every sleeping room shall have
at least one operable emergency escape and rescue opening.
Where basements contain one or more sleeping rooms,
emergency egress and rescue openings shall be required in
each sleeping room. Where emergency escape and rescue
openings are provided they shall have a sill height of not more
than 44 inches (1118 mm) above the floor. Where a door
opening having a threshold below the adjacent ground elevation
serves as an emergency escape and rescue opening and is
provided with a bulkhead enclosure, the bulkhead enclosure
shall comply with Section R310.3. The net clear opening
dimensions required by this section shall be obtained by the
normal operation of the emergency escape and rescue opening
from the inside. Emergency escape and rescue openings with a
finished sill height below the adjacent ground elevation shall be
provided with a window well in accordance with Section
R310.2. Emergency escape and rescue openings shall open
directly into a public way, or to a yard or court that opens to a
public way.
R310.1.1 Minimum opening area.
All emergency escape and rescue openings shall have a
minimum net clear opening of 5.7 square feet (0.530 m2).
Exception: Grade floor openings shall have a minimum net clear
opening of 5 square feet (0.465 m2).
R310.1.2 Minimum opening height.
The minimum net clear opening height shall be 24 inches (610
mm).
R310.1.3 Minimum opening width.
The minimum net clear opening width shall be 20 inches (508
mm).
R310.1.4 Operational constraints.
Emergency escape and rescue openings shall be operational
from the inside of the room without the use of keys, tools or
special knowledge.
**EMERGENCY ESCAPE WINDOW**
1" = 1'-0"
B2
Typ.B
1" = 1'-0"
C2
Typ.C
1" = 1'-0"
D1
Typ.D
1" = 1'-0"
D2
Typ.E
1" = 1'-0"
C3
Typ.F
1" = 1'-0"
B3
Typ.G
1" = 1'-0"
A3
Typ.H
1" = 1'-0"
C5
Typ.I
8'-3" A.F.F.
9'-6" A.F.F.9'-1" A.F.F.
8'-3" A.F.F.
8'-6" A.F.F.
8'-6" A.F.F.
8'-6" A.F.F.
8'-3" A.F.F.
OUTDOOR SCONCE
OUTDOOR SCONCE
OUTDOOR SCONCE
OUTDOOR SCONCE
OUTDOOR SCONCE
OUTDOOR SCONCE
OUTDOOR FAN
UP
DN
OVEN
DW
REF.
WD
VEG. GARDEN
WINE
168 SF
DEN / OFFICE
103
Trash
Microwave
A/C
Hood &
Range
6"
Bench/Storage
Trash
6"
24"
6"
12"
12"
265 SF
LIVING ROOM
102
196 SF
FORMAL DINING
ROOM
105
368 SF
KITCHEN
106
583 SF
FAMILY ROOM
104
28 SF
POWDER ROOM
109
167 SF
LAUNDRY/PANTRY
108
76 SF
MAID'S ROOM
110
48 SF
MAID'S
BATHROOM
111
465 SF
GARAGE
112
FOYER
101
2700 north miami avenue
suite 804
miami, fl 33127
t: 305.586.8169
www.cube2architecture.com
aa-26001789
ib-26001134
BINDINGEDGE
Design Professional FL License
Number
Signature
Jorge Alberto Pernas
AR92904
ID5632
Revisions
Sheet Information
DateIssueNumber
Date
Job Number
Scale
Drawn
Checked
Approved
Title
Sheet
12345
12345
A
B
C
A
B
C
D
As indicated
Oretsky Residence
Todd and Sheila
Oretsky
665 Buttonwood Lane
Miami, FL 33137
2013_01
RCI
RCI
RCI
3/19/2013
M-101
Mechanical Plan -
Level 1
W.I.C
212
29 SF
W.I.C
211
265 SF
BEDROOM 1
201
190 SF
BEDROOM 2
203
288 SF
BEDROOM 3
209
282 SF
MASTER
BEDROOM
204
58 SF
HER CLOSET
206
32 SF
HIS CLOSET
205
40 SF
BATHROOM 2
210
149 SF
MASTER
BATHROOM
207
26 SF
TOILET ROOM
208
77 SF
BATHROOM 1
202
74 SF
HALLWAY
214
8'-4" A.F.F.
8'-4" A.F.F.
8'-4" A.F.F.
8'-4" A.F.F.
8'-4" A.F.F. 8'-4" A.F.F.
8'-4" A.F.F.
8'-4" A.F.F.
8'-4" A.F.F.
8'-4" A.F.F.
OUTDOOR
WALL
SCONCE
OUTDOOR
WALL
SCONCE
2700 north miami avenue
suite 804
miami, fl 33127
t: 305.586.8169
www.cube2architecture.com
aa-26001789
ib-26001134
BINDINGEDGE
Design Professional FL License
Number
Signature
Jorge Alberto Pernas
AR92904
ID5632
Revisions
Sheet Information
DateIssueNumber
Date
Job Number
Scale
Drawn
Checked
Approved
Title
Sheet
12345
12345
A
B
C
A
B
C
D
As indicated
Oretsky Residence
Todd and Sheila
Oretsky
665 Buttonwood Lane
Miami, FL 33137
2013_01
RCI
RCI
RCI
3/19/2013
M-102
Mechanical Plan -
Level 2
UP
DN
OVEN
DW
REF.
WD
VEG. GARDEN
WINE
168 SF
DEN / OFFICE
103
Trash
Microwave
A/C
Hood &
Range
6"
Bench/Storage
Trash
6"
24"
6"
12"
12"
265 SF
LIVING ROOM
102
196 SF
FORMAL DINING
ROOM
105
368 SF
KITCHEN
106
583 SF
FAMILY ROOM
104
28 SF
POWDER ROOM
109
167 SF
LAUNDRY/PANTRY
108
76 SF
MAID'S ROOM
110
48 SF
MAID'S
BATHROOM
111
465 SF
GARAGE
112
FOYER
101
8'-3" A.F.F.
9'-6" A.F.F.9'-1" A.F.F.
8'-3" A.F.F.
8'-6" A.F.F.
8'-6" A.F.F.
8'-6" A.F.F.
8'-3" A.F.F.
OUTDOOR SCONCE
OUTDOOR SCONCE
OUTDOOR SCONCE
OUTDOOR SCONCE
OUTDOOR SCONCE
OUTDOOR SCONCE
OUTDOOR FAN
2700 north miami avenue
suite 804
miami, fl 33127
t: 305.586.8169
www.cube2architecture.com
aa-26001789
ib-26001134
BINDINGEDGE
Design Professional FL License
Number
Signature
Jorge Alberto Pernas
AR92904
ID5632
Revisions
Sheet Information
DateIssueNumber
Date
Job Number
Scale
Drawn
Checked
Approved
Title
Sheet
12345
12345
A
B
C
A
B
C
D
As indicated
Oretsky Residence
Todd and Sheila
Oretsky
665 Buttonwood Lane
Miami, FL 33137
2013_01
RCI
RCI
RCI
3/19/2013
E-101
Electrical Plan -
Level 1
W.I.C
212
29 SF
W.I.C
211
265 SF
BEDROOM 1
201
190 SF
BEDROOM 2
203
288 SF
BEDROOM 3
209
282 SF
MASTER
BEDROOM
204
58 SF
HER CLOSET
206
32 SF
HIS CLOSET
205
40 SF
BATHROOM 2
210
149 SF
MASTER
BATHROOM
207
26 SF
TOILET ROOM
208
77 SF
BATHROOM 1
202
74 SF
HALLWAY
214
8'-4" A.F.F.
8'-4" A.F.F.
8'-4" A.F.F.
8'-4" A.F.F.
8'-4" A.F.F. 8'-4" A.F.F.
8'-4" A.F.F.
8'-4" A.F.F.
8'-4" A.F.F.
8'-4" A.F.F.
OUTDOOR
WALL
SCONCE
OUTDOOR
WALL
SCONCE
2700 north miami avenue
suite 804
miami, fl 33127
t: 305.586.8169
www.cube2architecture.com
aa-26001789
ib-26001134
BINDINGEDGE
Design Professional FL License
Number
Signature
Jorge Alberto Pernas
AR92904
ID5632
Revisions
Sheet Information
DateIssueNumber
Date
Job Number
Scale
Drawn
Checked
Approved
Title
Sheet
12345
12345
A
B
C
A
B
C
D
As indicated
Oretsky Residence
Todd and Sheila
Oretsky
665 Buttonwood Lane
Miami, FL 33137
2013_01
RCI
RCI
RCI
3/19/2013
E-102
Electrical Plan -
Level 2
UP
DN
OVEN
DW
REF.
WD
VEG. GARDEN
WINE
168 SF
DEN / OFFICE
103
Trash
Microwave
A/C
Hood &
Range
6"
Bench/Storage
Trash
6"
24"
6"
12"
12"
265 SF
LIVING ROOM
102
196 SF
FORMAL DINING
ROOM
105
368 SF
KITCHEN
106
583 SF
FAMILY ROOM
104
28 SF
POWDER ROOM
109
167 SF
LAUNDRY/PANTRY
108
76 SF
MAID'S ROOM
110
48 SF
MAID'S
BATHROOM
111
465 SF
GARAGE
112
FOYER
101
2700 north miami avenue
suite 804
miami, fl 33127
t: 305.586.8169
www.cube2architecture.com
aa-26001789
ib-26001134
BINDINGEDGE
Design Professional FL License
Number
Signature
Jorge Alberto Pernas
AR92904
ID5632
Revisions
Sheet Information
DateIssueNumber
Date
Job Number
Scale
Drawn
Checked
Approved
Title
Sheet
12345
12345
A
B
C
A
B
C
D
As indicated
Oretsky Residence
Todd and Sheila
Oretsky
665 Buttonwood Lane
Miami, FL 33137
2013_01
RCI
RCI
RCI
3/19/2013
P-101
Sanitary Plan -
Level 1
W.I.C
212
29 SF
W.I.C
211
265 SF
BEDROOM 1
201
190 SF
BEDROOM 2
203
288 SF
BEDROOM 3
209
282 SF
MASTER
BEDROOM
204
58 SF
HER CLOSET
206
32 SF
HIS CLOSET
205
40 SF
BATHROOM 2
210
149 SF
MASTER
BATHROOM
207
26 SF
TOILET ROOM
208
77 SF
BATHROOM 1
202
74 SF
HALLWAY
214
2700 north miami avenue
suite 804
miami, fl 33127
t: 305.586.8169
www.cube2architecture.com
aa-26001789
ib-26001134
BINDINGEDGE
Design Professional FL License
Number
Signature
Jorge Alberto Pernas
AR92904
ID5632
Revisions
Sheet Information
DateIssueNumber
Date
Job Number
Scale
Drawn
Checked
Approved
Title
Sheet
12345
12345
A
B
C
A
B
C
D
As indicated
Oretsky Residence
Todd and Sheila
Oretsky
665 Buttonwood Lane
Miami, FL 33137
2013_01
RCI
RCI
RCI
3/19/2013
P-102
Sanitary Plan -
Level 2
UP
DN
OVEN
DW
REF.
WD
VEG. GARDEN
WINE
168 SF
DEN / OFFICE
103
Trash
Microwave
A/C
Hood &
Range
6"
Bench/Storage
Trash
6"
24"
6"
12"
12"
265 SF
LIVING ROOM
102
196 SF
FORMAL DINING
ROOM
105
368 SF
KITCHEN
106
583 SF
FAMILY ROOM
104
28 SF
POWDER ROOM
109
167 SF
LAUNDRY/PANTRY
108
76 SF
MAID'S ROOM
110
48 SF
MAID'S
BATHROOM
111
465 SF
GARAGE
112
FOYER
101
2700 north miami avenue
suite 804
miami, fl 33127
t: 305.586.8169
www.cube2architecture.com
aa-26001789
ib-26001134
BINDINGEDGE
Design Professional FL License
Number
Signature
Jorge Alberto Pernas
AR92904
ID5632
Revisions
Sheet Information
DateIssueNumber
Date
Job Number
Scale
Drawn
Checked
Approved
Title
Sheet
12345
12345
A
B
C
A
B
C
D
As indicated
Oretsky Residence
Todd and Sheila
Oretsky
665 Buttonwood Lane
Miami, FL 33137
2013_01
RCI
RCI
RCI
3/19/2013
P-103
Water Distribution Plan
- Level 1
W.I.C
212
29 SF
W.I.C
211
265 SF
BEDROOM 1
201
190 SF
BEDROOM 2
203
288 SF
BEDROOM 3
209
282 SF
MASTER
BEDROOM
204
58 SF
HER CLOSET
206
32 SF
HIS CLOSET
205
40 SF
BATHROOM 2
210
149 SF
MASTER
BATHROOM
207
26 SF
TOILET ROOM
208
77 SF
BATHROOM 1
202
74 SF
HALLWAY
214
2700 north miami avenue
suite 804
miami, fl 33127
t: 305.586.8169
www.cube2architecture.com
aa-26001789
ib-26001134
BINDINGEDGE
Design Professional FL License
Number
Signature
Jorge Alberto Pernas
AR92904
ID5632
Revisions
Sheet Information
DateIssueNumber
Date
Job Number
Scale
Drawn
Checked
Approved
Title
Sheet
12345
12345
A
B
C
A
B
C
D
As indicated
Oretsky Residence
Todd and Sheila
Oretsky
665 Buttonwood Lane
Miami, FL 33137
2013_01
RCI
RCI
RCI
3/19/2013
P-104
Water Distribution Plan
- Level 2

Oretsky Residence - Full Permit Set

  • 1.
    BINDINGEDGE 665 Buttonwood Lane Miami,FL 33137 Exterior and Interior Renovations Job Number: 2013_01 March 20, 2013
  • 2.
    DRAWING 20 PARTITION & DOORNOTES TYP ## TYP TYP ## FLOOR MATERIAL TYPE FLOOR MATERIAL NUMBER WALL MATERIAL NUMBER WALL MATERIAL TYPE MILLWORK SURFACE TYPE & NUMBER FINISH LEGEND FLOOR TYPE WALL TYPE MILLWORK SURFACE TYPE 3 B A41 100BB ROOM NAME 4-3096 FRE FLOOR REFERENCE ELEVATION SYMBOL INDICATE FIXTURE TYPE, SEE FIXTURE LIST FLUOR & INCAND DOWN LTS WALL WASHER UPPER CASE LETTERS ADJACENT TO FIXTURE 2 x 22 x 4 SHEET NUMBER PLAN OR DETAIL DESIGNATION SHEET NUMBER DESIGNATION SECTION FLUORESCENT LTS CEILING LIGHT FIXTURES SECTION (TSCD-) (TKBD-) (SNDU-) PLASTIC LAMINATE (PLAM-) MIRROR (MIRR-) ALUMINUM (ALUM-) UNDER CABINET LIGHTING (MKR BD-) (INSUL-) VNR (VNR-) VENEER UC UNDER CABINET UCL (UCL-) STORAGE THRES THRESHOLD SSM (SSM-) SOLID SURFACE MATERIAL DISPOSAL UNIT SNDU SANITARY NAPKIN SND (SND-) SANITARY NAPKIN DISPENSER SGL SINGLE RUBBER TILE FLOORRTF (RTF-) RUBBERRUB PSH (PSH-) PURSE SHELF (PROJ SCRN-) PERFORATEDPERF OWNER FURNISHED,OF/OI OWNER INSTALLED CONTRACTOR INSTALLED OF/CI OWNER FURNISHED, KICK PLATEKPL (KPL-) FIRE CABINETFC (FC-) DISHWATERDW BENCHBE (BE-) AMERICANS W/ DISABILITIES ACTADA TOWEL DISPENSER/ RECEPTACLE TOILET SEAT COVER DISPENSER UNDERWRITER'S LABORATORIES SOUTH SOUND ATTENUATION BATTS SHOWER SIGNAGE SHEET SANITARY SOLID CORE SECTION SCHEDULE SQUARE FOOT(FEET) SOAP DISPENSER STATION SPEAKER STANDPIPE SPECIFICATION SQUARE SERVICE SINK STAINLESS STEEL SOUND TRANSMISSION CLASS SHEET VINYL SYMMETRICAL STEEL STRUCTURE, STRUCTURAL SUSPENDED STONE STANDARD SIMILAR TELEPHONE TEMPORARY TOP OF TREAD TONGUE & GROOVE TOP & BOTTOM TREATED THICK TENANT IMPROVEMENT TEMPERED TOILET TACKBOARD TOILET PAPER DISPENSER TOPOGRAPHY, TOPOGRAPHIC TERRAZZO UNEXCAVATED UNFINISHED TYPICAL TELEVISION HEAT TRANSFER COEFFICIENT UNIT HEATER UNDERGROUND UNDERSLAB UTILITY UNLESS NOTED OTHERWISE TUBE STEEL VOLUME VINYL TILE VENTILATION VESTIBULE VERTICAL VAPOR RETARDER VINYL COMPOSITION TILE VERIFY IN FIELD WATER CLOSET WALL GUARD WOOD WIDE FLANGE WITHOUT WEST WITH VINYL WALL COVERING WEIGHT WAINSCOT WIRE MESH WINDOW WATER HEATER WROUGHT IRON WASTE RECEPTACLE WELDED WIRE FABRIC WATER PROOFING YARD ZINC. VINYL BASE SAB S SHR SGNG SHT SAN SC SECT SD (SD-) SCHED SF GAUGE GALVANIZEDGALV GA GLASS GROUND GENERAL GRAB BAR GLASS FIBER GLASS FIBER GD GL (GL-) GFRC GEN GB (GB-) GFRG REINFORCED CONCRETE REINFORCED GYPSUM SST STA STC SPKR SP SPEC SQ SS SV (SV-) SYMM STL STOR STRUCT SUSP STN (STN-) STD HIGH HOSE BIBB GRADE GYPSUM GREASE TRAP H HB GT GR GLU LAM GYP HORIZONTAL HOUR HEIGHT HIGH POINT HANDICAPPED HOLLOW METAL HOLD OPEN HARDWOOD HARDWARE HORIZ HP HR HT HDW HCP HM HO HDWD HC HOLLOW CORE GLUE LAMINATED WOOD SIM ANCHOR BOLT AIR CONDITION(ING)(ED) AGGREGATE ADJUSTABLE AREA DRAIN ACOUSTIC(AL) ACCESS PANEL ADHESIVE ABOVE FINISHED FLOOR ACOUSTICAL CEILING TILE ACOUSTICAL CEILING PANEL AB A/C ADJ AGGR AFF ACT (ACT-) AD ACP (ACP-) ACS PNL ACST ADH APPROXIMATE ASPHALT ARCHITECT(URAL), ARCHITECT ALTERNATE ANNUNCIATOR ANODIZE(D) AIR HANDLING UNIT BOARD BUILDING BITUMINOUS BASE BOARD BACK TO BACK BULLETIN BOARD ACOUSTICAL WALL PANEL AUTOMATIC APPROX ASPH ARCH ALT ALUM AHU ANN ANOD BD BLDG BITUM AWP (AWP-) B/B BB (BB-) B BD AUTO AHR ANCHOR TEL TDR (TDR-) TEMP T/ T&G T&B t TOPO TPD (TBD-) TRTD THK TI TMPD TLT TKBD TER (TER-) HYDRANT HEATER HEATING HOT WATER HYD ID HVAC HW HTR HTG INVERT JANITOR INTERMEDIATE INTERIOR INCANDESCENT INCH(ES) INCLUDE(D), INCLUDING INSULATION INV JAN INT IN INCL INSUL INTERM INCAND HEATING, VENTILATION, AIR CONDITIONING INSIDE DIAMETER UNEXC UNFIN U TYP TSCD TV TS UL UH UGND UNO US UTIL KNOCK OUT KITCHEN JOINT KNOCK(ED) DOWN KO KIT JT KD LEFT HAND LIVE LOAD POUND(S) LONG, LENGTH LAUNDRY LAMINATE(D) LAVATORY LH LF LL LAU L LAM LB(S) LAV LINEAR FOOT, (FEET) BEARING BASEMENT BRONZE BRICK BENCHMARK BOTTOM OF BEAM BOTTOM CORNER GUARD CAST IRON COAT HOOK CABINET CATCH BASIN CEMENT BUILT-UP ROOFING BRG BSMT BRZ BR (BR-) BOT B MK BM BOT/ CG (CG-) CI CH (CH-) CAB CB CEM BUR CLEAR CENTIMETER CENTER LINE CEILING CLOSET CIRCULATION CONTROL JOINT CONCRETE MASONRY UNIT CONTINUOUS COORDINATE CONTRACTOR CONFERENCE COLUMN CONCRETE CONSTRUCTION CONNECTION CLEANOUT CLR cm CMU CJ CL CLO CLG CIRC CONT COORD CONTR CONSTR CONN CONF CONC COL CO CIP CAST-IN-PLACE VOL VT (VT-) VR VCT (VCT-) VENT VERT VIF VEST WC WD (WD-) WG (WG-) VWC (VWC-) W/O W W/ LIGHTING LEVEL LIGHT(S) LOW POINT LTG LVL LWC LLH LP LT(S) LNG LLV MAXIMUM METER MATERIAL MAINTENANCE MACHINE MASONRY MCB MAX MDO MATL MAINT MACH m MAS METAL CORNER BEAD MEDIUM DENSITY OVERLAY LONG LEG HORIZONTAL LONGITUDE, LONGITUDINAL LIGHT WEIGHT CONCRETE LONG LEG VERTICAL W RECPT WWF WT WSCT WIN WM WP WH WI YD ZN MINIMUM MANUFACTURER MANHOLE MEMBRANE MEZZANINE MECHANICAL MIN MH MFR MEMB MEZZ MEP MECH METAL MEETING MULLION MARKER BOARD MISCELLANEOUS MILLIMETER MOUNTED MTL MTG MULL MISC MO mm MIRR MKR BD MTD MASONRY OPENING PLUMBING MECHANICAL, ELECTRICAL, MEDIUM DENSITY FIBERBOARDMDF WF COLD WATER CUBIC CERAMIC TILE CENTER COUNTERSUNK CARPET CLOSED CIRCUIT TELEVISION DEGREE DEPARTMENT DETAIL PENNY (NAIL) DEEP, DEPTH DOUBLE DEMOLISH, DEMOLITION DIAPER CHANGING TABLE CW CCTV CSK CPT (CPT-) CT (CT-) CU CTR DEG DEMO DEPT DET DCT (DCT-) d D DBL DIVISION DEAD LOAD DOWN DIFFUSER DISPENSER DIMENSION DIAGONAL DIAMETER DOWNSPOUT DRAWING DOOR DRAINAGE, WASTE AND VENT DAMPPROOFING DIV DL DN DIFF DISP DIM DIA DIAG DS DWV DWG DR DP DF (DF-) DRINKING FOUNTAIN CORR CORRIDOR LKR (LKR-) LOCKER VB (VB-) BLKG BLOCKING AT ANGLE CENTER LINE AND PLATE CHANNEL DEGREE DIAMETER DOUBLE ANGLE INCHES PLUS OR MINUS ZEE TUBE @ & " ± [ ° NOMINAL NOT TO SCALE OUT TO OUT NORTH NUMBER NOM NTS N NO NIC OPPOSITE HAND OPENING OPPOSITE OVERALL ON CENTER OFFICE OVERHEAD OPNG OPP OPH OA OC OH OFF OFD OD O/O NOT IN CONTRACT OVERFLOW DRAIN OUTSIDE DIAMETER PLATE PLASTER PEG BOARD PERPENDICULAR PLAM PL PLAS PGBD PBD PCC (PCC-) PA PERP PROJECT PARKING PANEL PAIR PAINT POLISHED PLYWOOD PREFAB PROJ PRKG PNL POL PR PNT (PNT-) PLYWD PLBG PLUMBING PREFABRICATE(D) PARTICLE BOARD PUBLIC ADDRESS PRE-CAST CONCRETE ELASTOMERIC ELEVATOR ELECTRIC(AL) EAST EACH FINISH SYSTEM ELEVATION EXPANSION JOINT EXTERIOR INSULATION AND EQUAL, EQUIVALENT EQUIPMENT ENGINEER ENCLOSURE ENTRANCE ELECTRIC OUTLET EDGE OF SLAB ELECTRICAL PANEL EMERGENCY SHOWER EMERGENCY ELAST ELEV ELEC E EA EIFS EL EJ EP EQUIP ES EQ ENGR ENCL EO ENTR EOS EMER EXISTING EXPANSION EXPOSED EXHAUST EXCAVATION, EXCAVATE EACH WAY ETCETERA EXTERIOR, EXTERNAL ELECTRIC WATER COOLER FACE TO FACE FIRE ALARM FACE OF FIRE ALARM ANNUNCIATOR PANEL EXP EXPO EXT EXIST EXC EWC EW EXH ETC F/F FAAP FA F/ PARTITION PAVING POINT PROPERTY PTN PVG PVC PSF PSI PROP PT PTD (PTD-) RADIUS RUBBER BASE RISER QUANTITY QUARRY TILE RB (RB-) R RAD QTY QT (QT-) r THERMAL RESISTANCE POUNDS PER SQUARE INCH POUNDS PER SQUARE FOOT PAPER TOWEL DISPENSER POLYVINYL CHLORIDE REFRIGERATOR REQUIRED REFERENCE ROOF DRAIN RECESSED RECEPTION REQD REINF REFR RCP REF RD REC RCPTN RIGHT OF WAY ROOM RIGHT HAND ROOFING REVISION RO ROW RH RFG RM RF (RF-) REV RESIL RESILIENT ROUGH OPENING REFLECTED CEILING PLAN RESILIENT FLOORING REINFORCE, REINFORCING FIRE HYDRANT FOUNDATION FLOOR DRAIN FABRICATE(D) FIRE EXTINGUISHER CABINET FIRE ALARM CONTROL PANEL FIRE EXTINGUISHER FLEXIBLE FLUORESCENT FLOOR, FLOORING FINISH(ED) FIRE HOSE RACK FLASHING FIXTURE FINISHED OPENING FIRE HOSE VALVE CABINET FIRE HOSE CABINET FEC FH FDTN FACP FD FABR FE FLEX FLUOR FO FLR (FLR_) FHVC FHR FIN FLASH FIXT FHC FURRING FIRE PROTECTION FIRE RETARDANT FOOT (FEET) FOOTING TREATED WOOD FINNED TUBE RADIATION FURNISH, FURNITURE FUTURE FTR FURG FURN FP FRTW FT FTG FUT FAB (FAB-) FABRIC PROJECTION SCREENPROJ SCRN SYMBOLS MVBL MOVABLE A-521 DATUM POINT KEY NOTE BREAK LINE DRAWING TITLE MATCH LINE SEE XX/X-XXX ABBREVIATIONS WHEN USED IN COMPOSITION MAY INCLUDE PERIODS FOR CLARIFICATION MATERIALS INTERIOR ELEVATION TAG SHEET NUMBER SHEET NUMBER SYMBOLS LEGENDABBREVIATIONS LEGEND PARTITION TAG DOOR NUMBER WINDOW TYPE SYMBOL DRAWING REVISION TOILET ACCESSORY SYMBOL WINDOW TYPE CATEGORY NUMBER DISCIPLINE LETTER GRAPHIC SCALE ROOM NAME AND NUMBER NORTH ARROW SPOT ELEVATION VERTICAL ELEVATION WHICH CONTIUNATION SHEET NUMBER ON IS FOUND DESIGNATION MATCH LINE BUILDING SECTION TAG SHEET NUMBER PARTIAL PLAN AND DETAIL TAG DETAIL/WALL SECTION TAG ELEVATION DESIGNATION SHEET NUMBER EXTERIOR ELEVATION TAG GENERAL NOTES OR DOOR NO, USE ROOM NO WITH DOOR MARK OR DOOR MARK ONLY NEW DOOR IN NEW OR EXISTING FRAME REFLECTED CEILING LEGEND GYP. BOARD CEILING CEILING MATERIAL AND HEIGHT ABOVE FLOOR REFERENCE ELEV.AFRE FINISHED FLOORFF BLK BLOCK (EQUIP_) GLAZED WALL TILEGWT GLAZED STRUCTURAL UNITGSU HIGH DENSITY FIBERBOARDHDF LATITUDE, LATITUDINALLAT N/A NOT APPLICABLE PC PRE-CAST REVEALRVL URINALUR ~< ~C ~P FEET' NUMBER, POUNDS# PERCENT% SQUARE FEET BYx ~d 1. NOTES APPEAR ON VARIOUS DRAWINGS FOR DIFFERENT SYSTEMS AND MATERIALS. REVIEW ALL SHEETS AND APPLY NOTES TO RELATED BUILDING COMPONENTS. 2. REFER TO COMPLETE SET OF ISSUED CONTRACT DOCUMENTS FOR OTHER APPLICABLE NOTES, ABBREVIATIONS, AND SYMBOLS. 3. WHERE MATERIALS ARE APPLIED TO, OR ARE IN DIRECT CONTACT WITH WORK INSTALLED BY ANOTHER SUBCONTRACTOR, COMMENCEMENT OF WORK IMPLIES ACCEPTANCE OF THE SUBSTRATE AS SUITABLE FOR THE APPLICATION INTENDED. 4. ISOLATE DISSIMILAR METALS TO PREVENT GALVANIC CORROSION. 5. PARTITION TYPES AND FIRE RESISTIVE RATINGS INDICATED ON A WALL ARE TO BE CONTINUOUS FOR THE LENGTH AND HEIGHT OF A PARTITION. 6. OPENINGS IN RATED WALL, FLOOR, CEILING AND ROOF ASSEMBLIES SHALL BE SEALED WITH PENETRATION SEALANT SYSTEMS MEETING OR EXCEEDING THE REQUIRED FIRE RESISTIVE RATINGS. 7. MAINTAIN THE FIRE RATING OF CONSTRUCTION AROUND CABINETS, PANELS, AND BOXES RECESSED IN FIRE RATED WALL, FLOOR, AND CEILING ASSEMBLIES. 8. PROVIDE CONTINUOUS PERIMETER FIRE SAFING BETWEEN FLOORS AND COORDINATE THE INSTALLATION WITH THE EXTERIOR WALL. FIRE RATING OF SAFING SHALL MATCH FIRE RATING OF FLOOR CONSTRUCTION. 9. DO NOT SCALE THE DRAWINGS. 10. FIELD MEASURE AND CONFIRM DIMENSIONS FOR OWNER PROVIDED EQUIPMENT AND FURNISHINGS. 11. PROVIDE STIFFENERS, BRACING, BACKING PLATES AND BLOCKING REQUIRED FOR SECURE INSTALLATION OF TOILET PARTITIONS, DOORS AND DOOR HARDWARE INCLUDING WALL-MOUNTED DOOR STOPS, HANDRAILS, WALL-MOUNTED SHELVES, OPERABLE PARTITIONS, MISCELLANEOUS EQUIPMENT, AND SUSPENDED MECHANICAL AND ELECTRICAL EQUIPMENT. 12. COORDINATE ALL BASE AND HOUSEKEEPING PADS WITH MECHANICAL, PLUMBING AND ELECTRICAL EQUIPMENT. 13. LOCATE ACCESS PANELS AS INDICATED ON DRAWINGS. FOR ACCESS PANELS NOT SHOWN BUT REQUIRED BY PROVISIONS OF THE CONTRACT DOCUMENTS, LOCATED IN ACCORDANCE WITH APPLICABLE CODES. SUBMIT PROPOSED LOCATIONS TO THE ARCHITECT FOR REVIEW AND ACCEPTANCE PRIOR TO INSTALLATION. ALL DRAWINGS ARE COMPLIMENTARY. CM IS TO DISTRIBUTE FULL SETS TO ALL BIDDERS WHICH MUST INCLUDE ARCHITECTURE. 1. PARTITIONS LOCATED BY DIMENSION STRING ARE DIMENSIONED TO THE UNFINISHED FACE OF THE WALL UNLESS NOTED OTHERWISE. 2. PARTITIONS NOT DIMENSIONED ARE GENERALLY LOCATED BY ONE OF THE FOLLOWING CRITERIA: - CENTERLINE - CENTER OF PARTITION ALIGNS WITH THE CENTER OF GRIDLINE OR OBJECT CENTERLINE (SUCH AS A COLUMN OR WINDOW MULLION). CENTER THE OVERALL PARTITION WIDTH, RATHER THAN STUD WIDTH ON AS A COLUMN OR WINDOW MULLION). CENTER THE OVERALL PARTITION WIDTH, RATHER THAN STUD WIDTH ON THE LINE. - ALIGN - LOCATE PARTITION FLUSH WITH FACE OF GYPSUM BOARD, OR OTHER SURFACE INDICATED. - MAINTAIN DIMENSIONS NOTED AS "MINIMUM" OR "CLEAR". 3. DOOR OPENINGS ARE DIMENSIONED TO CENTERLINE OF OPENING. IF NOT DIMENSIONED, THE HINGE SIDE OF DOOR JAMBS SHALL BE SPACED 4" FROM THE ADJACENT WALL. SHEET NUMBER ELEVATION DESIGNATION COMPACTED SOIL SAND STEEL CONCRETE CONTINUOUS WOOD ORNAMENTAL METAL FRAMING ALUMINUM MASONRY UNIT CONCRETE CUT STONE TERRAZZO GLAZING FINISH WOODWORK RESILIENT FLOORING GYPSUM WALLBOARD PLASTIC LAMINATE WOOD BLOCKING CARPETING BATT INSULATION RIGID INSULATION PARTICLE BOARD PLYWOOD BACKER ROD SEALANT AND UNDISTURBED SOIL SHOWER HEAD F.D. FLOOR SINK FLOOR DRAIN F.S. FRE 18'-6" LEVEL 2 D1 D2 C2C1 A-100 1 A-100 1 A-100 1 A-100 1 A-100 1 SECOND FLOOR EL. 18'-6" TRUE NORTH ID-601 1 2 3 4 GB3 MATERIAL 9'-0" AFF 1/4" = 1'-0" SCALE: 1" = 4'-0" 0 2' 4' 8' Building 2010 Florida Building Code City of Miami Plannning and Zoning 2700 North Miami Ave, Suite 804 Miami, FL 33127 N/A (305) 586-8169 Jorge Alberto Pernas cube² (architecture+design), inc. Address: Fax: Phone: Contact: Architect: GENERAL PROJECT INFORMATION APPLICABLE CODES Energy 665 Buttonwood Lane Miami, FL 33137 (561)445-1138 Todd & Sheila Oretsky Todd & Sheila Oretsky Address: Fax: Phone: Contact: Owner: 2010 FBC - Residential 2010 Florida Fire Prevention Code 2006 NFPA Life Safety Code Gas Mechanical Plumbing Existing Building Resdential Fire Prevention Accessibility SCOPE AUTHORITY Life Safety REGULATING AUTHORITIES Building Department 2010 FBC - Chapter 11 LEGAL DESCRIPTION : Zoning 2011 Zoning Classification Address: Phone: Department: Jurisdiction: Address: Phone: Department: Jurisdiction:City of Miami City of Miami City of Miami City of Miami City of Miami City of Miami City of Miami City of Miami City of Miami City of Miami City of Miami City of Miami 2010 FBC - Existing Building 2010 FBC - Plumbing 2010 FBC - Mechanical 2010 FBC - Fuel and Gas 2010 FBC - Energy BAY POINT PB 40-63 LOT 11 BLK 12 AND PROP INT IN & TO COMMON ELEMENTS NOT DEDICATED TO PUBLIC LOT SIZE 88.000 X 158 OR 27143-1750 0110 19 FOLIO NO: 01-3219-008-1910 (305) 416-1100 (305) 416-1100 Contact: Mariano Fernandez Contact: Francisco Gonzales N/A ZONING CLASSIFICATION : CITY OF MIAMI ZONING - January 2011 T3 R Ordinances 2011 Code of Ordinances City of Miami CODE RESEARCH PARTITION RATING DESIGNATIONS FIRE PROTECTION LEGEND (NO FIRE RATING) 1 HOUR FIRE City of Miami2008 NEC - ElectricalElectrical 444 South West 2nd Avenue 4th Floor Miami, FL 33130 444 South West 2nd Avenue 4th Floor Miami, FL 33130 Existing 2-Story Residential Concrete Masonry Unit Structure Approximately: 3,768 SF FBC 2010- Exisitng Building, Chapter 8, Alterations - Level 1 CHAPTER 3 - OCCUPANCY CLASSIFICATION SECTION 310.1 RESIDENTIAL OCCUPANCY - GROUP R R-3: SINGLE FAMILY HOME - RESIDENTIAL OCCUPANCIES WHERE THE OCCUPANTS ARE PRIMARILY PERMANENT IN NATURE CHAPTER 5 - GENERAL BUILDING LIMITATIONS TABLE 500: R-3: SINGLE FAMILY HOME: TYPE II-B CONSTRUCTION MAX. HEIGHT: 55'-0" MAX. NO. OF STORIES: 4 (NO CHANGE TO EXISTING) AREA (MULTISTORY): UNLIMITED AREA CHAPTER 6 - CONSTRUCTION TYPES SECTION 604: TYPE II-B CONSTRUCTION TABLE 600: INTERIOR BEARING WALLS: SUPPORTING COLUMNS, OTHER BEARING WALLS OR MORE THAN ONE FLOOR: 0 HOUR RATING SUPPORTING ONE FLOOR ONLY: 0 HOUR RATING SUPPORTING ROOFS ONLY: 0 HOUR RATING COLUMNS: SUPPORTING OTHER COLUMNS OR MORE THAN ONE FLOOR: 0 HOUR RATING SUPPORTING ONE FLOOR ONLY: 0 HOUR RATING SUPPORTING ROOFS ONLY: 0 HOUR RATING BEAMS, GIRDERS, TRUSSES & ARCHES: SUPPORTING COLUMNS OR MORE THAN ONE FLOOR: 0 HOUR RATING * SUPPORTING ONE FLOOR ONLY: 0 HOUR RATING * SUPPORTING ROOFS ONLY: 0 HOUR RATING * FLOORS & FLOOR/CEILING ASSEMBLIES: 0 HOUR RATING ROOFS & ROOF/CEILING ASSEMBLIES: 0 HOUR RATING * * FIRE RETARDANT TREATED WOOD MAY BE USED FOR BEAMS, GIRDERS, TRUSSES, ARCHES, ROOFS & ROOF/CEILING ASSEMBLIES SINCE THIS BUILDING IS NOT OVER TWO STORIES TALL. CHAPTER 7 - FIRE RESISTANT MATERIALS AND CONSTRUCTION TABLE 704, MINIMUM FIRE RESISTANCE OF WALLS, PARTITIONS AND OPENING PROTECTIVES CHAPTER 8 - INTERIOR FINISHES TABLE 803.3, MINIMUM INTERIOR FINISH CLASSIFICATION: OCCUPANCY R-3, NON-SPRINKLERED: EXITS, STAIRWAYS, CORRIDORS & LOBBIES (PER NOTES 1 & 5): CLASS C EXIT ACCESS: CLASS C OTHER SPACES: CLASS C CHAPTER 10 - MEANS OF EGRESS TABLE 1003.1, MINIMUM OCCUPANT LOAD REFER TO OCCUPANCY CALCULATIONS SPREADSHEET TABLE 1004: MAXIMUM TRAVEL DISTANCE TO EXIT (NON-SPRINKLERED): 100 FT MAXIMUM DEAD END CORRIDOR LENGTH: 20 FT EGRESS WIDTH PER PERSON SERVED (LEVEL): 0.2 IN. EGRESS WIDTH PER PERSON SERVED (STAIRS): N/A MINIMUM CORRIDOR/AISLE WIDTH: 36 IN. MINIMUM CLEAR OPENING OF EXIT DOORS: 32 IN. MINIMUM STAIR WIDTH: N/A SECTION 1032: RESIDENTIAL CHAPTER 11 - PART A FLORIDA ACCESSIBILITY CODE FOR BUILDING CONSTRUCTION ALL COMPONENTS OF THIS BUILDING MUST COMPLY WITH THIS SECTION. cube² (architecture+design) 2700 north miami avenue suite 804 miami, fl 33127 t: 305.586.8169 www.cube2architecture.com aa-26001789 ib-26001134 BINDINGEDGE Design Professional FL License Number Signature Jorge Alberto Pernas AR92904 ID5632 Revisions Sheet Information DateIssueNumber Date Job Number Scale Drawn Checked Approved Title Sheet © Copyright 2012 cube² (architecture+design) 12345 12345 A B C A B C D 12" = 1'-0" Oretsky Residence Todd and Sheila Oretsky 665 Buttonwood Lane Miami, FL 33137 2013_01 SM JAP JAP 03/20/2013 G-001 General Notes Compliance, Sheet Index Sheet List Sheet Number Sheet Name Sheet Issue Date Current Revision 1.0 General G-000 Cover Sheet 03/20/13 G-001 General Notes Compliance, Sheet Index 03/20/13 2.0 Demolition DM-101 Demolition Plans 03/20/13 DM-102 Existing Building Elevations 03/20/13 3.0 Architectural A-001 Architectural Specifications & Zoning Analysis 03/20/13 A-002 Architectural Site Plans 03/20/13 A-010 Zone Diagram 03/20/13 A-012 Wind Pressure 03/20/13 A-101 Floor Plan - Level 1 03/20/13 A-102 Floor Plan - Level 2 03/20/13 A-201 Finished Floor Plan 03/20/13 A-301 Exterior Building Elevations - Renovation 03/20/13 A-302 Perspectives 03/20/13 A-410 Wall Sections & Room Schedule 03/20/13 A-501 Kitchen and Laundry/Pantry Elevations 03/20/13 A-502 Enlarged Bathroom Plans and Elevations 03/20/13 A-503 Interior Elevations 03/20/13 A-504 Interior Elevations 03/20/13 A-505 Interior Elevations 03/20/13 A-601 Reflected Ceiling Plan 03/20/13 A-801 Door Schedules and Details 03/21/13 A-802 Window Elevations and Details 03/20/13 4.0 Structural S-0 General Notes 03/20/13 S-1 Foundation Plan 03/20/13 S-2 Second Floor Framing Plan - Roof Framing Plan 03/20/13 S-3 Sections 03/20/13 S-4 Details 03/20/13 S-5 Footing Details 03/20/13 5.0 Mechanical M-101 Mechanical Plan - Level 1 03/20/13 M-102 Mechanical Plan - Level 2 03/20/13 6.0 Electrical E-101 Electrical Plan - Level 1 03/20/13 E-102 Electrical Plan - Level 2 03/20/13 7.0 Plumbing P-101 Sanitary Plan - Level 1 03/20/13 P-102 Sanitary Plan - Level 2 03/20/13 P-103 Water Distribution Plan - Level 1 03/20/13 P-104 Water Distribution Plan - Level 2 03/20/13
  • 3.
    DWOVEN WH UP WD REF. DW 6" 6" 12" 12" 24" 265 SF LIVING ROOM 102 583SF FAMILY ROOM 104 368 SF KITCHEN 106 196 SF FORMAL DINING ROOM 105 168 SF DEN / OFFICE 103 28 SF POWDER ROOM 109 465 SF GARAGE 112 GENERAL DEMOLTION NOTES: 1. WHERE EXISTING SERVICES SUCH AS PLUMBING, ELECTRICAL, ETC. ARE AFFECTED BY DEMOLITION WORK, SUCH AS REMOVAL OF AN EXISTING PARTITION, THE SERVICES SHALL BE REMOVED TO A POINT WHERE THEY CAN BE CAPPED AND TERMINATED. 2. WHERE NEW FINISHES ARE SCHEDULED FOR EXISTING OR RENOVATED SPACES, THE CONTRACTOR SHALL REMOVE EXISTING FINISHES AND PREPARE SUBSTRATES TO RECEIVE NEW FINISHES. PREPARATION OF SUBSTRATES SHALL INCLUDE BUT NOT BE LIMITED TO THE FOLLOWING IF DEEMED REQUIRED BY THE ARCHITECT: - PATCHING AND/OR LEVELING OF FLOOR SLAB. - SKIM COATING OF GYPSUM WALLBOARD SURFACES - SANDING OF METAL FRAMES, ETC. 3. REMOVE EXISTING FLOOR, BASE, WALLS AND CEILING FINISHES AS REQUIRED TO RECEIVE NEW WORK OR FINISHES THROUGHOUT ENTIRE PROJECT AREA. 4. ALL WALLS TO BE DEMOLISHED ARE NON-LOAD BEARING WALLS. DEMOLITION KEYNOTES: 1. REMOVE EXISTING CASEWORK. PATCH FLOORS, BASE WALLS AND CEILING TO MATCH EXISTING ADJACENT SURFACES IF SCHEDULED TO REMAIN OR PREPARE TO RECEIVE NEW FINISHES. 2. REMOVE KITCHEN SINK. 3. REMOVE EXISTING EQUIPMENT AND TURN OVER TO OWNER OR DISPOSE AT HIS REQUEST. ALL EXISTING EQUIPMENT TO BE REPLACED WITH NEW. 4 REMOVE EXISTING DRYWALL CEILING TO ALLOW AREAS FOR WORK OF OTHER TRADES AS REQUIRED. PATCH AND REPAIR AS REQUIRED. 5. REMOVE EXISTING BATHROOM SINK. 6. REMOVE EXISTING TOILET 7. REMOVE EXISTING INTERIOR PARTITION. PATCH FLOORS, BASE, WALLS AND CEILING TO MATCH EXISTING ADJACENT SURFACES IF SCHEDULED TO REMAIN, OR PREPARE TO RECEIVE NEW FINISHES. 8. REMOVE EXISTING DOOR 9. REMOVE EXISTING WINDOW AND REPLACE WITH NEW 10. REMOVE EXISTING EXTERIOR WALL 11. STAIR RAILING TO BE REMOVED AND REPLACED WITH NEW 12. STAIRS TO BE REFINISHED 13. EXISTING FLOOR TILE TO BE REMOVED 14. EXISTING WOOD FLOOR TO BE REMOVED 15. EXISTING FRONT DOOR TO BE REMOVED AND REPLACED WITH NEW 16. ALL EXISTING GARAGE WALLS TO BE REPAINTED. CONC. FLOOR TO BE REPAINTED GENERAL DEMOLTION NOTES: 1. ALL EXISTING WINDOW SHUTTERS TO BE REPAINTED. 2. ALL EXTRA WIRING ON THE EXTERIOR OF THE HOUSE TO BE REMOVED. 3. EXTERIOR TO BE RESURFACED AND REFINISHED. 8 99 9 9 8 8 9 3 9 9 8 8 7 9 9 9 9 9 8 7 7 10 9 8 8 8 6 5 3 2 2 2 1 2 1 1 14 14 13 13 13 11 12 6 5 15 10 7 7 9 16 13 292 SF BEDROOM 3 209 261 SF BEDROOM 1 201 77 SF BATHROOM 1 202 190 SF BEDROOM 2 203 32 SF HIS CLOSET 205 W.I.C 211 W.I.C 212 HER CLOSET 206 GENERAL DEMOLTION NOTES: 1. WHERE EXISTING SERVICES SUCH AS PLUMBING, ELECTRICAL, ETC. ARE AFFECTED BY DEMOLITION WORK, SUCH AS REMOVAL OF AN EXISTING PARTITION, THE SERVICES SHALL BE REMOVED TO A POINT WHERE THEY CAN BE CAPPED AND TERMINATED. 2. WHERE NEW FINISHES ARE SCHEDULED FOR EXISTING OR RENOVATED SPACES, THE CONTRACTOR SHALL REMOVE EXISTING FINISHES AND PREPARE SUBSTRATES TO RECEIVE NEW FINISHES. PREPARATION OF SUBSTRATES SHALL INCLUDE BUT NOT BE LIMITED TO THE FOLLOWING IF DEEMED REQUIRED BY THE ARCHITECT: - PATCHING AND/OR LEVELING OF FLOOR SLAB. - SKIM COATING OF GYPSUM WALLBOARD SURFACES - SANDING OF METAL FRAMES, ETC. 3. REMOVE EXISTING FLOOR, BASE, WALLS AND CEILING FINISHES AS REQUIRED TO RECEIVE NEW WORK OR FINISHES THROUGHOUT ENTIRE PROJECT AREA. 4. ALL WALLS TO BE DEMOLISHED ARE NON-LOAD BEARING WALLS. DEMOLITION KEYNOTES: 1. REMOVE EXISTING CASEWORK. PATCH FLOORS, BASE WALLS AND CEILING TO MATCH EXISTING ADJACENT SURFACES IF SCHEDULED TO REMAIN OR PREPARE TO RECEIVE NEW FINISHES. 2. REMOVE KITCHEN SINK. 3. REMOVE EXISTING EQUIPMENT AND TURN OVER TO OWNER OR DISPOSE AT HIS REQUEST. ALL EXISTING EQUIPMENT TO BE REPLACED WITH NEW. 4 REMOVE EXISTING DRYWALL CEILING TO ALLOW AREAS FOR WORK OF OTHER TRADES AS REQUIRED. PATCH AND REPAIR AS REQUIRED. 5. REMOVE EXISTING BATHROOM SINK. 6. REMOVE EXISTING TOILET 7. REMOVE EXISTING INTERIOR PARTITION. PATCH FLOORS, BASE, WALLS AND CEILING TO MATCH EXISTING ADJACENT SURFACES IF SCHEDULED TO REMAIN, OR PREPARE TO RECEIVE NEW FINISHES. 8. REMOVE EXISTING DOOR 9. REMOVE EXISTING WINDOW AND REPLACE WITH NEW 10. REMOVE EXISTING EXTERIOR WALL 11. EXISTING WOOD FLOOR TO BE REMOVED 12. EXISTING TUB TO BE REMOVED GENERAL DEMOLTION NOTES: 1. ALL EXISTING WINDOW SHUTTERS TO BE REPAINTED. 2. ALL EXTRA WIRING ON THE EXTERIOR OF THE HOUSE TO BE REMOVED. 3. EXTERIOR TO BE RESURFACED AND REFINISHED. 9 9 9 9 9 9 9 9 9 6 5 5 7 7 77 88 88 8 8 8 12 5 6 1 1 8 8 88 8 8 5 11 11 11 11 11 cube² (architecture+design) 2700 north miami avenue suite 804 miami, fl 33127 t: 305.586.8169 www.cube2architecture.com aa-26001789 ib-26001134 BINDINGEDGE Design Professional FL License Number Signature Jorge Alberto Pernas AR92904 ID5632 Revisions Sheet Information DateIssueNumber Date Job Number Scale Drawn Checked Approved Title Sheet © Copyright 2012 cube² (architecture+design) 12345 12345 A B C A B C D 1/4" = 1'-0" Oretsky Residence Todd and Sheila Oretsky 665 Buttonwood Lane Miami, FL 33137 2013_01 SM JAP JAP 03/20/2013 DM-101 Demolition Plans 1/4" = 1'-0" A3 Ground Floor - Demolition Plan 1/4" = 1'-0" A5 Second Floor - Demoliton Plan
  • 4.
    THE WORK WITHA MINIMUM OF JOINTS OR THE OPTIMUM AND HANDLING. PROTECT BOTTOM OF STACK AGAINST DO NOT STORE DRESSED OR TREATED LUMBER OR KEEP MATERIALS DRY DURING DELIVERY, STORAGE HURRICANE ANCHORING SHALL BE INSTALLED FROM INSTALL UPLIFT CONNECTORS AND HURRICANE TIE DOWNS AFTER ERECTION, FIELD PRIME ALL AREAS EXCEPT DO NOT EXCEED HEAD JOINT THICKNESS PLUS OR PROVIDE TERMITE SHIELD AND 15# FELT BELOW ALL WOOD 3. WALL ....................................1/2" CDX PLYWOOD FIBERGLASS FLOOR .... FLOOR .................................. 4. 5. 3/4" BC PLYWOOD 3/4" T&G PLYWOOD VI. ROUGH CARPENTRY F. D. E. C. B. A. D. JOINT ARRANGEMENT FOUNDATION THROUGH ROOF SHINGLE ROOF ............... TILE ROOF.......................... FRAMING TO MASONRY TOLERANCE OF 1/8" IN 10' ALL FRAMING SHALL BE PLUMB AND LEVEL TO A AS NOTED ON DRAWINGS (SIMPSON OR EQL.) ROUGH HARDWARE AND CONNECTIONS: SHEATHING: 1. 2. 3. 1. 2. 1/2" CDX PLYWOOD 5/8" CDX PLYWOOD CONTACT WITH DAMP SURFACES BOWED, TWISTED OR TOO SMALL TO FABRICATE DISCARD MATERIAL WHICH IS UNSOUND, WARPED, AND INSTALLATION OF PERMANENT ATTACHMENTS TRUE ALIGNMENT UNTIL COMPLETION OF ERECTION PROVIDE FOR TEMPORARY BRACING TO MAINTAIN PLYWOOD OUTDOORS 2. 3. TOLERANCES: V. METALS IV. MASONRY PROPER UNITS SHALL BE USED TO PROVIDE FOR ALL WINDOWS, DOORS, BOND BEAMS, LINTELS, PILASTERS, ETC. WITH A MINIMUM OF CUTTING C. A. B. B. 1. A. DO NOT EXCEED BED JOINT THICKNESS PLUS OR ADJACENT FINISH SURFACE GRIND EXPOSED JOINTS FLUSH AND SMOOTH WITH FOREIGN MATTER PRIOR TO FINISHING CLEAN SURFACE OF RUST, SCALE, GREASE AND TO BE IN CONTACT WITH CONCRETE MINUS 1/8", WITH A MAXIMUM THICKNESS OF 1/2". MORTAR JOINTS: MINUS 1/8". PLUMB: NOT TO EXCEED 1/4" IN 10', OR 3/8" IN DO NOT EXCEED 1/8" BETWEEN ADJACENT FLOOR 40'. FOR TOP SURFACES OF BEARING WALLS LEVEL: NOT TO EXCEED 1/4" IN 20', NOR 1/2" IN 20', NOR 1/2" IN 40' ELEMENTS IN 10' PAINT FINISH SHALL BE CUT SHARPLY TO LINE. PROTECT EACH COAT SHALL BE UNIFORMLY APPLIED, WELL BRUSHED OUT AND FREE OF BRUSH MARKS, RUNS, SAGS OR SKIPS RESULTING OVER SPRAY, AND FOR ALL NECESSARY SUBCONTRACTOR WILL BE RESPONSIBLE FOR DAMAGE ALL EXPOSED EDGES OF TRIM TO BE SAME COLOR AS TRIM AND OTHER FINISH WORK SHALL BE BACK PAINTED CRACKS, HOLES AND KNOTS SHALL BE FILLED, SANDED NO THINNING OF MATERIAL SHALL BE ACCEPTABLE SMOOTH AND SEALED. SANDING DUST SHALL BE ADJACENT SURFACES D. C. FACE CLEANUP COMPLETELY REMOVED PRIOR TO INSTALLATION B. 5. 3. 4. 2. WITH WOOD FRAMING BACKING SCALE AND EFFLORESCENCE PROVIDE ELASTOMERIC PAINT ON ALL STUCCO SURFACES SURFACE SHALL BE CLEAN AND DRY, AND IN SUIT- ABLE CONDITIONS FOR FINISH SPECIFIED. REMOVE ALL GREASE, BOND BREAKING AGENTS, DUST, MIL AND FINISH COATS (7/8" TOTAL THICKNESS) METAL LATH OVER SHEATHED........................ THREE COAT SYSTEM, INTERNALLY REINFORCED OF SCRATCH, BROWN DEVICES AS REQUIRED. VERIFY LOCATION OF CONTROL PROVIDE CORNER MESH, CORNER BEADS, CONTROL JOINT TWO COAT SYSTEM OF BROWN AND FINISH COATS MASONRY, CONCRETE OR OTHER RIGID SUBSTRATES....... JOINTS WITH DESIGNER PREPARATION OF SURFACEA. X. PAINT 1. C. B. IX. STUCCO APPLICATIONS: ( 5/8" TOTAL THICKNESS) 2. A. 1. MAINTAIN SITE FREE OF WASTE MATERIALS, DEBRIS BACK FILL SHALL BE PLACED IN 6" MAXIMUM LIFTS PERFORM EXCAVATION ACCORDING TO GOOD REQUIRED DRAWINGS MEET THE STATED SOIL PRESSURE DENSITY III. CONCRETE NO PUDDLING TO OCCUR FREE OF DEBRIS AND ORGANIC MATERIAL CONCRETE FLAT WORK SHALL BE TRUE TO WITHIN 1/8" IN 8 FEET IN ALL DIRECTIONS OR SLOPED TO DRAIN AS INDICATED ON THE DRAWINGS ALLOWING BACK FILL SHALL CONSIST OF NON EXPANSIVE, AND COMPACTED TO MINIMUM 95% (UNDER SLABS- PROVIDE CONSISTENT COMPACTION OF THE TOP 6" OF SUB GRADE, FILL AND BACKFILL MATERIAL BENEATH STRUCTURES, WALKS AND PAVEMENTS TO PROVIDE SOIL TREATMENT FOR TERMITES AS GRADES AND ELEVATIONS INDICATED ON THE COMMON CONSTRUCTION PRACTICES, TO THE LINES, ON-GRADE) AND 90% (ELSEWHERE) OF MAXIMUM CURING: PREVENT PREMATURE DRYING IN CONCRETE MANUFACTURER EXCESSIVE HOT AND COLD TEMPERATURES PROVIDE CONTROL JOINTS AS REQUIRED BY C. B. A. E. D. C. B. SHALL BE SUBJECT TO ADDITIONAL FEES. NOT BE HELD RESPONSIBLE. W/ MFG'R SPECIFICATIONS. ABLE PER CODES. ALL GIRDERS, BEAMS AND HEADERS. ACCESS TO ALL WORK PROVIDE SOLID VERTICAL FRAMING BELOW VERIFY ALL WINDOW & DOOR ROUGH OPENINGS LOCATE ALL PLUMBING STACKS BEYOND THE FRONT ELEVATION ROOF RIDGES IF ALLOW- PLANS BY ANY OTHER PARTY OTHER THAN THE DESIGNERS OFFICE, THE DESIGNER SHALL AFTER THE FINAL PLANS HAVE BEEN COMPLETED THE CORRECTION OF ERRORS THAT ARE MADE THE CONTRACTOR SHALL PROVIDE THE DESIGNER CONDITION II. SITE WORK AND RUBBISH. MAINTAIN SITE CLEAN AND ORDERLY A. I. G. H. F. E. D. IF ANY MODIFICATIONS ARE MADE TO THESE CONSTRUCTION. CODES PRIOR TO COMMENCEMENT OF ANY RESPONSIBILITY TO REVIEW, VERIFY AND l. GENERAL REQUIREMENTS: OFFICE SHALL NOT RELIEVE THE BUILDER OF COORDINATE ALL CONTENTS, NOTES, DIMENSIONS, AND ADHERENCE TO APPLICABLE BUILDING ANY DISCREPANCIES SHALL BE BROUGHT TO THE CONSTRUCTION. ATTENTION OF THE DESIGNERS OFFICE FOR CORRECTION BEFORE COMMENCEMENT OF ANY ANY REVISIONS OR CHANGES NOT RELATED TOC. B. A. ISSUANCE OF PLANS FROM THE DESIGNER'S 1. CLEARANCE AT THE LOCK AND HANGING STILES AND AT THE PROVIDE GUTTERS AND DOWN SPOUTS AS SELECTED BY PROVIDE FLASHING REQUIRED TO PREVENT PENETRATION OF WATER THROUGH THE EXTERIOR SHELL OF THE SLATE TILE ROOFING VIII. GYPSUM WALLBOARD N/A BUILDING DESIGNER/OWNER. D. 2. 1. SPRAY FOAM INSULATION (R-30) 1" RIGID INSUL (R-5) PROVIDE THERMAL BUILDING INSULATION AT ASSEMBLIES INSTALL IN CONTINUOUS BLANKETS WITHOUT HOLES FOR THE REQUIREMENTS OF GOVERNING CODES ADJACENT TO EXTERIOR OR UNHEATED SPACES MEETING VII. THERMAL AND MOISTURE PROTECTION ELECTRICAL BOXES, LIGHTING FIXTURES OR HEATING ROOFING SHALL BE ONE OF THE FOLLOWING TYPES: TOP SHALL NOT EXCEED 1/8". CLEARANCE AT THE BOTTOM WITH ALL HARDWARE PROPERLY ADJUSTED AND FUNCTIONING STICKING OR BINDING WITHOUT HINGE BOUND CONDITIONS; AND DOOR SHALL OPERATE FREELY, BUT NOT LOOSELY, WITHOUT SHALL BE ADJUSTED FOR THE FLOOR FINISH LOCK STILE EDGES SHALL BE BEVELED 2. MASONRY WALLS.......... DUCTWORK B. C. CEILING..............................1. A. 2. 3. CORNERS SHALL BE NEATLY MITERED, OR COPED WITH NAILS ALL JOINTS TO BE TIGHT AND TRUE AND SECURELY FASTEN WOOD WORK SHALL BE ACCURATELY SCRIBED TO FIT SET AND SURFACES FREE FROM TOOL MARKS EDGES AND SPLINTERS REMOVED AND COMPLETELY FULL LENGTH CONTINUO BOARDS SHALL BE USED WHEREVER APPLICABLE OR SPECIFICALLY NOTED ALL WORK SHALL BE MACHINED OR HAND SANDED, SHARP ADJOINING SURFACES PREPARED FOR FINISH VI. FINISH CARPENTRY DOORS: D. E. C. B. A. ARCHITECTURAL SPECIFICATIONS cube² (architecture+design) 2700 north miami avenue suite 804 miami, fl 33127 t: 305.586.8169 www.cube2architecture.com aa-26001789 ib-26001134 BINDINGEDGE Design Professional FL License Number Signature Jorge Alberto Pernas AR92904 ID5632 Revisions Sheet Information DateIssueNumber Date Job Number Scale Drawn Checked Approved Title Sheet © Copyright 2012 cube² (architecture+design) 12345 12345 A B C A B C D 3/8" = 1'-0" Oretsky Residence Todd and Sheila Oretsky 665 Buttonwood Lane Miami, FL 33137 2013_01 SM JAP JAP 03/20/2013 A-001 Architectural Specifications & Zoning Analysis ARTICLE 4 - TABLE 6 ARTICLE 4 - TABLE 4 ARTICLE 4 - TABLE 1 MIAMI ATLAS - ZONING TRANSECTS ARTICLE 4 - TABLE 2 ARTICLE 4 - TABLE 3 ARTICLE 5 - T3-R,L,O - ILLUSTRATION 5.3 BAY POINT RULES AND REGULATIONS PROPOSED 10,000 Square Feet. 109.90 Feet 13,904 Square Feet. 88.17 Feet 22.6 % 22.6 % 48% N/A 6.9 du/acre 6.9 du/acre N/A N/A N/A N/A 10 Feet 10 Bay Point Property Site Development Guidelines - Setbacks 10 Feet 35 Feet N/A N/A N/A N/A N/A N/A N/A N/A N/A None None 2 Story and 25 feet N/A N/A N/A N/A N/A N/A 30% minimum 77% 22 Feet N/A Established Setbacks - Article 3 12 Feet 50 Feet N/A N/A N/A N/A N/A N/A N/A 2 Story and 19 feet EXISTING 13,904 Square Feet. 88.17 Feet 22.6 % N/A 6.9 du/acre N/A N/A 22 Feet N/A Established Setbacks - Article 3 12 Feet 50 Feet N/A N/A N/A N/A N/A None 2 Story and 19 feet N/A N/A N/A 80% N/A N/A N/A N/A N/AN/A N/A 76% 76% ZONING DATA AND CALCULATIONS BAY POINT PROPERTY OWNERS ASSOCIATION, INC. - SITE DEVELOPMENT GUIDELINES LOCATION OF PROPERTY ALLOWED PER BAY POINT PROPOSED FOOTPRINT PERCENTAGE ALLOWED 35% NET/4,866 S.F. 21.9% NET/3,051 S.F. PROPOSED: GROUND FLOOR: 2,394 S.F. (SECOND FLOOR: 1,987 S.F.) EXISTING GARAGE TO REMAIN: 521 S.F. EXISTING TERRACE TO REMAIN: 290 S.F. TOTAL FOOTPRINT PROPOSED: FAR PERCENTAGE ALLOWED 48% NET/6,674 S.F. PROPOSED: GROUND FLOOR: 2,394 S.F. (SECOND FLOOR: 1,987 S.F.) EXISTING GARAGE TO REMAIN: 521 S.F. EXISTING TERRACE TO REMAIN: 290 S.F. TOTAL FAR PROPOSED: 33.95% NET/4,720 S.F. HEIGHT BAY POINT ASSOCIATION FROM N.G.V.D. TO TOP OF ROOF MAX. BLDG. HGT. OF 41'-6" N.G.V.D. EXISTING BLDG. HGT. OF 38'-6" N.G.V.D. GREEN PERCENTAGE AREA REQUIRED MIN. GREEN-SPACE 30% NET/4,171 S.F. EXISTING GREEN-SPACE 66.82% NET/9,290 S.F. SETBACKS: FRONT YARD: 10 FEET SIDE YARD: 10 FEET REAR YARD: 35 FEET EXISTING SETBACKS: FRONT YARD: 22 FEET SIDE YARD: 12 FEET REAR YARD: 50 FEET PARKING: 4 CARS PER GUIDELINES EXISTING PARKING:4 CARS *CITY OF MIAMI ZONING ANALYSIS PERFORMED PER NEW MIAMI 21 REQUIREMENTS - SEE ABOVE AND TO THE LEFT SIDE OF SHEET NET LOT AREA: 13,904 S.F. EXISTING PROPOSED PARKING: 4 CARS PROPOSED SETBACKS: FRONT YARD: 22 FEET SIDE YARD: 12 FEET REAR YARD: 50 FEET PROPOSED BLDG. HGT. OF 38'-6" N.G.V.D. PROPOSED GREEN-SPACE 63.42% NET/8,818 S.F. 23% NET/3,205 S.F. 37.34% NET/5,192 S.F. MIAMI 21 SUB-URBAN TRANSECT ZONE T3R
  • 5.
    NORTH WATERWAY SEA WALL DRIVEWAY ASPHALTFIM CONC. CURB N BRICK STEPS 88' - 0" 22'-0" 12' - 5" 154'-11" 160'-5" 12' - 0" 88' - 2" WOOD DECK STEPS 20' - 10" 4'-0" 6' - 6" 58'-10" NORTH WATERWAY NEW 4 FOOT WOOD FENCE 35 FEET FROM REAR PROPERTY LINE TO MATCH SETBACK CONC. CURB N NEW PAVERS FOR DRIVEWAY NOTE: 1. NEW ELECTRICAL PANEL FOR BOAT LIFT. 2. NEW ELECTRICAL FOR LANDSCAPE LIGHTING 3. NEW OUTDOOR GAS GRILL. 4. NEW TANKLESS WATER HEATER NEW ELECTRICAL PANEL 88' - 0" 22'-0" 12' - 0" 12' - 1" 50'-6" 154'-11" 160'-5" 12' - 0" 88' - 2" EXISTING CONCRETE FENCE WALL TO REMAIN EXISTING CONCRETE FENCE WALL TO REMAIN EXISTING SEA WALL TO REMAIN NEW 6 FOOT WOOD FENCE STARTS AFTER 35 FEET FROM REAR PROPERTY LINE TO MATCH SETBACK NEW 4 FOOT WOOD FENCE 35 FEET FROM REAR PROPERTY LINE TO MATCH SETBACK NEW 6 FOOT WOOD FENCE STARTS AFTER 35 FEET FROM REAR PROPERTY LINE TO MATCH SETBACK 15'-0" 15'-0" WOOD DECK STEPS 20' - 10" 4'-0" 6' - 6" PROVIDE CONTROL JOINTS AS REQUIRED BY MANUFACTURER FOR DRIVEWAY R 9' - 11 1/2" R 38'-4" R 5' - 0 1/2" R 13' - 2" R 34' - 8" R 13'-10 1/2" R 10' - 1 1/2" 12' - 1" 7'-2" 30' - 10 1/2" 34'-11" cube² (architecture+design) 2700 north miami avenue suite 804 miami, fl 33127 t: 305.586.8169 www.cube2architecture.com aa-26001789 ib-26001134 BINDINGEDGE Design Professional FL License Number Signature Jorge Alberto Pernas AR92904 ID5632 Revisions Sheet Information DateIssueNumber Date Job Number Scale Drawn Checked Approved Title Sheet © Copyright 2012 cube² (architecture+design) 12345 12345 A B C A B C D 1/8" = 1'-0" Oretsky Residence Todd and Sheila Oretsky 665 Buttonwood Lane Miami, FL 33137 2013_01 SM JAP JAP 03/20/2013 A-002 Architectural Site Plans 1/8" = 1'-0" A2 Existing Site 1/8" = 1'-0" A4 Renovated Site
  • 6.
    OVEN DW REF. WD UP DN OVEN DW REF. WD UP DN WINE Trash Microwave A/C Hood & Range 6" Bench/Storage Trash 6" 24" 6" 12" 12" LIVING ROOM DEN/ OFFICE FAMILY ROOM KITCHEN FORMAL DINING ROOM GARAGE LAUNDRY/PANTRY MAID'S BATHROOM MAID'S ROOM ZONE4ZONE5 ZONE 5 ZONE5 ZONE 5ZONE 4ZONE 5 ZONE5ZONE4ZONE5 ZONE 5ZONE 4ZONE 5 ZONE5ZONE4ZONE5 ZONE 5 ZONE 5 ZONE5ZONE4ZONE5 ZONE 5 ZONE 4 ZONE 5 ZONE5ZONE4ZONE5 ZONE 5 ZONE 4 ZONE 5 ZONE5 FOYER W.I.C 212 W.I.C 211 BEDROOM 1 BEDROOM 2 BEDROOM 3 MASTER BEDROOM HER CLOSET HIS CLOSET BATHROOM 2 MASTER BATHROOM TOILET ROOM BATHROOM 1 ZONE4 ZONE 5 ZONE5 ZONE 5ZONE 5 ZONE5ZONE4ZONE5 ZONE 5 ZONE 4 ZONE 5 ZONE5 ZONE 4 ZONE5 ZONE5ZONE4 W.I.C W.I.C BEDROOM 1 BEDROOM 2 BEDROOM 3 MASTER BEDROOM HER CLOSET HIS CLOSET BATHROOM 2 MASTER BATHROOM TOILET ROOM BATHROOM 1 4' - 8" 3' - 0" 3' - 0" 5' - 11" 2' - 11" 6' - 2 1/2" 3' - 0" 3' - 0" 4' - 5 1/2" 6'-1"3'-0"3'-0"6'-8" 1' - 11 1/2" 4' - 0" 3' - 0 1/2" 13'-11/2"2'-0"11'-3" 6' - 7 1/2" 6' - 0" 11' - 0" 6' - 0" 8' - 5" 4' - 0" 3' - 1 1/2" 4'-11"3'-0"3'-0"6'-111/2"4'-6"10'-101/2"3'-0"3'-0"5'-101/2" A/C 6" 6" 24" 6" 12" 12" LIVING ROOM DEN / OFFICE FAMILY ROOM KITCHEN FORMAL DINING ROOM GARAGE LAUNDRY/PANTRY MAID'S BATHROOM MAID'S ROOM 5' - 10 1/2" 6' - 0" 3' - 2" 6' - 0" 3' - 5" 6' - 0" 7' - 7" 4' - 0" 3' - 1 1/2" 3'-71/2"4'-6"8'-6"4'-6"11" 3' - 11" 3' - 0" 6' - 6" 2' - 10" 2' - 6 1/2" 1' - 6" 1' - 4" 7' - 4" 1'-4"3'-0"10'-111/2"3'-0"3'-111/2"3'-0"8'-2"3'-0"3'-9" 2' - 3" 3' - 0" 3' - 9 1/2"6' - 11 1/2" 4' - 10" 5' - 6" 10' - 9" 4' - 7" 7'-31/2"16'-0"3'-8" 8' - 2" 6' - 0" 8' - 2" 8'-8"6'-0"8'-8" 4' - 8 1/2" 2' - 10" 2' - 7 1/2" 3'-41/2"3'-0"4'-2" FOYER 1'-5"3'-0" 61/2" cube² (architecture+design) 2700 north miami avenue suite 804 miami, fl 33127 t: 305.586.8169 www.cube2architecture.com aa-26001789 ib-26001134 BINDINGEDGE Design Professional FL License Number Signature Jorge Alberto Pernas AR92904 ID5632 Revisions Sheet Information DateIssueNumber Date Job Number Scale Drawn Checked Approved Title Sheet © Copyright 2012 cube² (architecture+design) 12345 12345 A B C A B C D 3/16" = 1'-0" Oretsky Residence Todd and Sheila Oretsky 665 Buttonwood Lane Miami, FL 33137 2013_01 SM JAP JAP 03/20/2013 A-010 Zone Diagram GENERAL WIND PRESSURE NOTES 1. ALL PRESSURES ARE BASED ON THE FLORIDA BUILDING CODE 2010, TABLE R.301.2(2) AND R301.2(3). 2. THE STRUCTURE IS LOCATED IN THE WIND BOURNE DEBRIS REGION OF 180 MPH (MIAMI-DADE COUNTY). ALL PRESSURES ARE BASED ON THIS LOCATION. 3. COMPONENT AND CLADDING PRESSURE ZONES ARE DETERMINED BY FLORIDA BUILDING CODE 2010, FIGURE R301.2(7). 4. BASED ON FBC - RESIDENTIAL 2010, SEC. R4403.9.3THE EXPOSURE CATEGORY "C" SHALL APPLY FOR WIND PRESSURE CALCULATIONS OR DETERMINATIONS PER TABLE R.301.2(2). 5. ALL LOADS ARE ASSOCIATED WITH THE LOWER EFFECTIVE AREA TO BE MORE CONSERVATIVE THAN INTERPOLATED CALCULATIONS. 3/16" = 1'-0" B2 Ground Floor - Zone Diagram 3/16" = 1'-0" A2 Second Floor - Zone Diagram 3/16" = 1'-0" A4 Second Floor - Window and Door Location 3/16" = 1'-0" B4 Ground Floor -Window and Door Location
  • 7.
    OVEN DW REF. WD UP DN FOYER A/C 6" 6" 24" 6" 12" 12" LIVING ROOM DEN /OFFICE FAMILY ROOM KITCHEN FORMAL DINING ROOM GARAGE LAUNDRY/PANTRY MAID'S BATHROOM MAID'S ROOM 78.71/-85.32 12-0221.14 OR EQUAL Aluminum Single Hung Window - L.M.I w: 36" h: 48" 78.71/-85.32 12-0221.14 OR EQUAL Aluminum Single Hung Window - L.M.I w: 36" h: 48" 78.71/-85.32 12-0221.14 OR EQUAL Aluminum Single Hung Window - L.M.I w: 36" h: 48" 78.71/-105.3 12-0221.14 OR EQUAL Aluminum Single Hung Window - L.M.I w: 36" h: 48" 75.20/-81.81 w: 72" h: 78"75.20/-81.81 w: 72" h: 78" 75.20/-81.81 w: 72" h: 78" 78.71/-85.32 12-0221.14 OR EQUAL Aluminum Single Hung Window - L.M.I w: 52" h: 48" 78.71/-105.3 12-0221.14 OR EQUAL Aluminum Single Hung Window - L.M.I w: 54" h: 38" 75.20/-98.28 w: 34" h: 84" 78.71/-85.32 12-0221.14 OR EQUAL Aluminum Single Hung Window - L.M.I w: 36" h: 48" 78.71/-105.3 12-0221.14 OR EQUAL Aluminum Single Hung Window - L.M.I w: 36" h: 42" 75.20/-81.81 12-0221.14 OR EQUAL Aluminum Single Hung Window - L.M.I w: 72" h: 48" 75.20/-98.28 w: 34" h: 84" 75.20/-81.81 12-0221.14 OR EQUAL Aluminum Single Hung Window - L.M.I w: 72" h: 48" 12-0221.14 OR EQUAL Aluminum Single Hung Window - L.M.I w: 72" h: 48" 75.20/-81.81 12-0706.04 OR EQUAL Aluminum Glazed Doors - Impact w: 36" h: 84" 75.20/-81.81 12-0221.14 OR EQUAL Aluminum Single Hung Window - L.M.I w: 72" h: 48" 78.71/-105.3 12-0221.14 OR EQUAL Aluminum Single Hung Window - L.M.I w: 36" h: 48" 78.71/-105.3 12-0221.14 OR EQUAL Aluminum Single Hung Window - L.M.I w: 52" h: 48" 78.71/-105.3 12-0221.14 OR EQUAL Aluminum Single Hung Window - L.M.I w: 16" h: 24" 75.20/-98.28 78.71/-105.3 12-0221.14 OR EQUAL Aluminum Single Hung Window - L.M.I w: 36" h: 48" 12-0706.04 OR EQUAL Aluminum Glazed Doors - Impact 12-0706.04 OR EQUAL Aluminum Glazed Doors - Impact 12-0706.04 OR EQUAL Aluminum Glazed Doors - Impact 12-0706.04 OR EQUAL Aluminum Glazed Doors - Impact 12-0706.04 OR EQUAL Aluminum Glazed Doors - Impact W.I.C 212 W.I.C 211 BEDROOM 1 BEDROOM 2 BEDROOM 3 MASTER BEDROOM HER CLOSET HIS CLOSET BATHROOM 2 MASTER BATHROOM TOILET ROOM BATHROOM 1 12.0221.14 OR EQUAL Aluminum Single Hung Window - L.M.I 78.71/-85.32 12.0221.14 OR EQUAL Aluminum Single Hung Window - L.M.I w: 54" h: 18" 12.0221.14 OR EQUAL Aluminum Single Hung Window - L.M.I 12.0221.14 OR EQUAL Aluminum Single Hung Window - L.M.I 78.71/-85.32 12.0221.14 OR EQUAL Aluminum Single Hung Window - L.M.I w: 36" h: 36" 12.0221.14 OR EQUAL Aluminum Single Hung Window - L.M.I 12.0221.14 OR EQUAL Aluminum Single Hung Window - L.M.I 78.71/-85.32 75.20/-81.81 w: 72" h: 48"75.20/-81.81 w: 72" h: 48" 75.20/-81.81 w: 72" h: 48" 75.20/-81.81 w: 72" h: 48" 75.20/-81.81 w: 72" h: 48" 78.71/-105.3 12.0221.14 OR EQUAL Aluminum Single Hung Window - L.M.I w: 52" h: 48" 12.0221.14 OR EQUAL Aluminum Single Hung Window - L.M.I w: 52" h: 48"78.71/-105.3 12.0221.14 OR EQUAL Aluminum Single Hung Window - L.M.I w: 16" h: 24" 75.20/-81.81 w: 72" h: 78" 75.20/-81.81 w: 72" h: 78" 12-0706.04 OR EQUAL Aluminum Glazed Doors - Impact 12-0706.04 OR EQUAL Aluminum Glazed Doors - Impact cube² (architecture+design) 2700 north miami avenue suite 804 miami, fl 33127 t: 305.586.8169 www.cube2architecture.com aa-26001789 ib-26001134 BINDINGEDGE Design Professional FL License Number Signature Jorge Alberto Pernas AR92904 ID5632 Revisions Sheet Information DateIssueNumber Date Job Number Scale Drawn Checked Approved Title Sheet © Copyright 2012 cube² (architecture+design) 12345 12345 A B C A B C D 1/4" = 1'-0" Oretsky Residence Todd and Sheila Oretsky 665 Buttonwood Lane Miami, FL 33137 2013_01 SM JAP JAP 03/20/2013 A-012 Wind Pressure 1/4" = 1'-0" A3 Ground Floor - Wind Pressure WIND LOAD CALCULATIONS BASED ON TABLE R301.2(2) COMPONENT AND CLADDING LOADS FOR A BUILDING WITH A MEAN ROOF HEIGHT OF 30 FEET LOCATED IN EXPOSURE "B" PER THE FBC 2010, RESIDENTIAL. TABLE R301.2(3) HEIGHT AND EXPOSURE ADJUSTMENT COEFFICIENTS FOR TABLE R301.2(2). EXPOSURE "C" W/ A MEAN ROOF HEIGHT OF 20 FEET: 1.35 72" X 78" TYP.A WINDOW IN ZONE 5 = 24S.F. PER TABLE R301.2(2) THE REQUIRED CLADDING FORCE IN A 180 MPH WIND ZONE IS: 55.7/-72.8 USING EXPOSURE ADJUSTMENT COEFFICIENT FROM TABLE R301.2(3) OF 1.35, THE ADJUSTED AMOUNTS ARE: 1.35 X 55.7 = 75.20 POSITIVE PRESSURE 1.35 X -72.8= -98.28 NEGATIVE PRESSURE 72" X 78" TYP.A WINDOW IN ZONE 4 = 24 S.F. PER TABLE R301.2(2) THE REQUIRED CLADDING FORCE IN A 180 MPH WIND ZONE IS: 55.7/-60.6 USING EXPOSURE ADJUSTMENT COEFFICIENT FROM TABLE R301.2(3) OF 1.35, THE ADJUSTED AMOUNTS ARE: 1.35 X 55.7 = 75.20 POSITIVE PRESSURE 1.35 X -60.6 = -81.81 NEGATIVE PRESSURE 36" X 48" TYP.B WINDOW IN ZONE 5 = 12 S.F. PER TABLE R301.2(2) THE REQUIRED CLADDING FORCE IN A 180 MPH WIND ZONE IS: 58.3/-78.0 USING EXPOSURE ADJUSTMENT COEFFICIENT FROM TABLE R301.2(3) OF 1.35, THE ADJUSTED AMOUNTS ARE: 1.35 X 58.3 = 78.71 POSITIVE PRESSURE 1.35 X -78.0 = -105.3 NEGATIVE PRESSURE *ALL WINDOWS MUST BE LARGE MISSILE IMPACT (LMI) 1/4" = 1'-0" A5 Second Floor - Wind Pressure 36" X 48" TYP.B WINDOW IN ZONE 4 = 12 S.F. PER TABLE R301.2(2) THE REQUIRED CLADDING FORCE IN A 180 MPH WIND ZONE IS: 58.3/-63.2 USING EXPOSURE ADJUSTMENT COEFFICIENT FROM TABLE R301.2(3) OF 1.35, THE ADJUSTED AMOUNTS ARE: 1.35 X 58.3 = 78.71 POSITIVE PRESSURE 1.35 X -63.2 = -85.32 NEGATIVE PRESSURE 54" X 38" TYP.C WINDOW IN ZONE 5 = 15 S.F. PER TABLE R301.2(2) THE REQUIRED CLADDING FORCE IN A 180 MPH WIND ZONE IS: 58.3/-78.0 USING EXPOSURE ADJUSTMENT COEFFICIENT FROM TABLE R301.2(3) OF 1.35, THE ADJUSTED AMOUNTS ARE: 1.35 X 52.2 = 78.71 POSITIVE PRESSURE 1.35 X -78.0 = -105.3 NEGATIVE PRESSURE 36" X 42" TYP.E WINDOW IN ZONE 5 = 10.5 S.F. PER TABLE R301.2(2) THE REQUIRED CLADDING FORCE IN A 180 MPH WIND ZONE IS: 58.3/-78.0 USING EXPOSURE ADJUSTMENT COEFFICIENT FROM TABLE R301.2(3) OF 1.35, THE ADJUSTED AMOUNTS ARE: 1.35 X 52.2 = 78.71 POSITIVE PRESSURE 1.35 X -78.0 = -105.3 NEGATIVE PRESSURE 54" X 18" TYP.F WINDOW IN ZONE 4 = 6.8 S.F. PER TABLE R301.2(2) THE REQUIRED CLADDING FORCE IN A 180 MPH WIND ZONE IS: 58.3/-63.2 USING EXPOSURE ADJUSTMENT COEFFICIENT FROM TABLE R301.2(3) OF 1.35, THE ADJUSTED AMOUNTS ARE: 1.35 X 58.3 = 78.71 POSITIVE PRESSURE 1.35 X -63.2 = -85.32 NEGATIVE PRESSURE 48" X 48" TYP.G WINDOW IN ZONE 4 = 16 S.F. PER TABLE R301.2(2) THE REQUIRED CLADDING FORCE IN A 180 MPH WIND ZONE IS: 58.3/-63.2 USING EXPOSURE ADJUSTMENT COEFFICIENT FROM TABLE R301.2(3) OF 1.35, THE ADJUSTED AMOUNTS ARE: 1.35 X 58.3 = 78.71 POSITIVE PRESSURE 1.35 X -63.2 = -85.32 NEGATIVE PRESSURE 36" X 36" TYP.I WINDOW IN ZONE 4 = 9 S.F. PER TABLE R301.2(2) THE REQUIRED CLADDING FORCE IN A 180 MPH WIND ZONE IS: 58.3/-63.2 USING EXPOSURE ADJUSTMENT COEFFICIENT FROM TABLE R301.2(3) OF 1.35, THE ADJUSTED AMOUNTS ARE: 1.35 X 58.3 = 78.71 POSITIVE PRESSURE 1.35 X -63.2 = -85.32 NEGATIVE PRESSURE 16" X 34" TYP.D WINDOW IN ZONE 5 = 4.5 S.F. PER TABLE R301.2(2) THE REQUIRED CLADDING FORCE IN A 180 MPH WIND ZONE IS: 58.3/-78.0 USING EXPOSURE ADJUSTMENT COEFFICIENT FROM TABLE R301.2(3) OF 1.35, THE ADJUSTED AMOUNTS ARE: 1.35 X 52.2 = 78.71 POSITIVE PRESSURE 1.35 X -78.0 = -105.3 NEGATIVE PRESSURE 54" X 48" TYP.H WINDOW IN ZONE 4 = 18 S.F. PER TABLE R301.2(2) THE REQUIRED CLADDING FORCE IN A 180 MPH WIND ZONE IS:58.3/-63.2 USING EXPOSURE ADJUSTMENT COEFFICIENT FROM TABLE R301.2(3) OF 1.35, THE ADJUSTED AMOUNTS ARE: 1.35 X 58.3 = 78.71 POSITIVE PRESSURE 1.35 X -63.2 = -85.32 NEGATIVE PRESSURE 34" X 84" DOOR IN ZONE 5 = 25 S.F. PER TABLE R301.2(2) THE REQUIRED CLADDING FORCE IN A 180 MPH WIND ZONE IS: 58.3/-63.2 USING EXPOSURE ADJUSTMENT COEFFICIENT FROM TABLE R301.2(3) OF 1.35, THE ADJUSTED AMOUNTS ARE: 1.35 X 58.3 = 75.20POSITIVE PRESSURE 1.35 X -63.2 = -98.28NEGATIVE PRESSURE 74" X 78" FRENCH DOOR IN ZONE 4 = 42 S.F. PER TABLE R301.2(2) THE REQUIRED CLADDING FORCE IN A 180 MPH WIND ZONE IS: 55.7/-60.6 USING EXPOSURE ADJUSTMENT COEFFICIENT FROM TABLE R301.2(3) OF 1.35, THE ADJUSTED AMOUNTS ARE: 1.35 X 55.7 = 75.20 POSITIVE PRESSURE 1.35 X -60.6= -81.81 NEGATIVE PRESSURE 36" X 84" FRENCH DOOR IN ZONE 4 = 21 S.F. PER TABLE R301.2(2) THE REQUIRED CLADDING FORCE IN A 180 MPH WIND ZONE IS: 55.7/-60.6 USING EXPOSURE ADJUSTMENT COEFFICIENT FROM TABLE R301.2(3) OF 1.35, THE ADJUSTED AMOUNTS ARE: 1.35 X 55.7 = 75.20 POSITIVE PRESSURE 1.35 X -60.6= -81.81 NEGATIVE PRESSURE
  • 8.
    UP DN OVEN DW REF. WD WINE 168 SF DEN /OFFICE 103 Trash Microwave A/C Hood & Range 6" Bench/Storage 17' - 9" 25' - 10" 18'-5"20'-2" 4' - 0" 2' - 10" 3 1/2" 3' - 0 1/2" 2' - 4" 3' - 0" 3' - 4 1/2" 4 1/2" 3' - 8" 2' - 8" 2' - 1 1/2" 3' - 3" 5' - 8" 3' - 10 1/2" 1' - 0" 11' - 11 1/2" 9' - 0 1/2" 11'-8"5'-8"6'-2"2'-01/2" 5'-0"1'-1"4'-0"1'-5"3'-0"4" 22'-81/2"4"2'-10"101/2"18'-31/2" 3'-81/2" 13'-51/2"2'-10"9"2'-10"2'-8"3'-0"2'-0"4'-01/2"4'-7"7'-5" 61/2"4'-0"10'-71/2"6'-11/2"2'-8"3'-0"3'-0"4'-0"7'-9"1'-101/2" 7' - 6" 2" 2' - 0" 3' - 2" 2' - 5" 5" Trash 6" 24" 6" 12" 12" EXISTING WALLS NEW WALLS WALL LEGEND 265 SF LIVING ROOM 102 196 SF FORMAL DINING ROOM 105 368 SF KITCHEN 106 583 SF FAMILY ROOM 104 28 SF POWDER ROOM 109 167 SF LAUNDRY/PANTRY 108 76 SF MAID'S ROOM 110 48 SF MAID'S BATHROOM 111 465 SF GARAGE 112 102 101 103 104 105 106 107 108 109 110 111 112113 114 115 116 117 AA A A H B B B B B C B D E 2'-7" 2'-6"4'-9" A-501D4 D5 C5 C4 A-501 B4 A-501B5 A-502 C5 A-502 D2 A-502 D3 13' - 0" 4' - 1" 4' - 6" 7' - 0 1/2" 2' - 0" D4D5 A-502 B5B4 A-501 A4B2 A2 A1 130 SF FOYER 101 G B A-503 A2 A3 A4 A-503 D5 A2 A-410 A1 A-410 A3 A-410 A4 A-410 EMERGENCY ESCAPE AND RESCUE OPENING WINDOW A-503 D4 A-503 C4 A-503 B2A-503C5 A-503 B4B5 A5 A-504 D3 D4 D5 A-504D2 C5 2' - 10" 3' - 0 1/2" 5' - 0" A-501 C2 1. THE MAID'S ROOM WILL BE A NEW ENCLOSED AND AIR CONDITIONED SPACE. IT WILL HAVE A NEW GYPSUM WALL BOARD CEILING 8'-8" A.F.F. 2. ALL NEW DOORS AND WINDOWS TO BE REVIEWED AND SELECTED BY ARCHITECT. 3. ALL NEW INTERIOR WALLS MUST HAVE AN STC- RATING OF 52. 4. ALL EXTERIOR DOORS AND WINDOWS, UNLESS OTHERWISE NOTED, ARE TO BE REPLACED WITH IMPACT RESISTANT MIAMI- DADE N.O.A APPROVED PRODUCTS. 5. ALL NEW INTERIOR GYPSUM WALL BOARD MUST MEET LEVEL 5 FINISH REQUIREMENTS. 6. REFER TO SHEET DM-101 FOR ALL WALLS TO BE REMOVED OR DEMOLISHED. 7. REFER TO STRUCTURAL DRAWINGS FOR LOCATION OF ALL NEW BEARING WALLS. 1. A CERTIFICATION OF COMPLIANCE MUST BE ISSUED TO THE BUILDING DEPARTMENT BY A LICENSED PEST CONTROL COMPANY BEFORE A CERTIFICATE OF OCCUPANCY WILL BE ISSUED. THE CERTIFICATE OF COMPLIANCE SHALL STATE "THE BUILDING HAS RECEIVED A COMPLETE TREATMENT FOR THE PREVENTION OF SUBTERRANEAN TERMITES. THE TREATMENT IS IN ACCORDANCE WITH THE RULES AND LAWS OF THE FLORIDA DEPARTMENT OF AGRICULTURE AND CONSUMER SERVICES" (FBC 2010, SECTION R320.1.) 2. INITIAL TREATMENT SHALL BE DONE AFTER ALL EXCAVATION AND BACKFILL IS COMPLETED (FBC 2010, SECTION R320.1.1). 3. SOIL DISTURBED AFTER THE INITIAL TREATMENT SHALL BE RETREATED INCLUDING SPACES BOXED OR FORMED (FBC 2010, SECTION R320.1.2). 4. BOXED AREAS IN CONCRETE FLOORS FOR SUBSEQUENT INSTALLATION OF TRAPS, ETC. SHALL BE MADE WITH PERMANENT METAL OR PLASTIC FORMS. PERMANENT FORMS MUST BE OF A SIZE AND DEPTH THAT WILL ELIMINATE THE DISTURBANCE OF SOIL AFTER THE INITIAL TREATMENT (FBC 2010, SECTION R320.1.3). 5. MINIMUM 6 MIL. VAPOR RETARDER MUST BE INSTALLED TO PROTECT AGAINST RAINFALL DILUTION. IF RAINFALL OCCURS BEFORE VAPOR RETARDER PLACEMENT, RE-TREATMENT IS REQUIRED (FBC 2010, SECTION R320.1.4). 6. CONCRETE OVERPOUR AND MORTAR ALONG THE FOUNTATION PERIMETER MUST BE REMOVED BEFORE EXTERIOR SOIL TREATMENT (FBC 2010, SECTION R320.1.5). 7. SOIL TREATMENT MUST BE APPLIED UNDER ALL EXTERIOR CONCRETE OR GRADE WITHIN 1'0" OF THE STRUCTURE SIDE WALLS (FBC 2010, SECTION R320.1.6). 8. AN EXTERIOR VERTICAL ELEMENT BARRIER MUST BE INSTALLED AFTER CONSTRUCTION IS COMPLETE INCLUDING LANDSCAPING AND IRRIGATION. ANY SOIL DISTURBED AFTER THE VERTICAL BARRIER IS APPLIED, SHALL BE RETREATED (FBC 2010, SECTION R320.1.6). 9. AFTER ALL WORK IS COMPLETED, LOOSE WOOD AND FILL MUST BE REMOVED FROM BELOW AND WITHIN 1'0" OF THE BUILDING. THIS INCLUDES ALL GRADE STATES, TUB TRAP BOXES, FORMS, SHORING, OR OTHER CELLULOSE CONTAINING MATERIAL (FBC 2010, SECTION R320.3). 10. TO PROVIDE FOR INSPECTION FOR TERMITE INFESTATION BETWEEN WALL COVERING AND FINAL EARTH GRADE SHALL NOT BE LESS THAN 6 INCHES. EXCEPTION: PAINT OR DECORATIVE CEMENTIOUS FINISHES LESS THAN 5/8" THICK ADHERED DIRECTLY TO THE FOUNDATION WALL (FBC 2010, SECTION R704). TERMITE PROTECTION CRITERIA GENERAL NOTES cube² (architecture+design) 2700 north miami avenue suite 804 miami, fl 33127 t: 305.586.8169 www.cube2architecture.com aa-26001789 ib-26001134 BINDINGEDGE Design Professional FL License Number Signature Jorge Alberto Pernas AR92904 ID5632 Revisions Sheet Information DateIssueNumber Date Job Number Scale Drawn Checked Approved Title Sheet © Copyright 2012 cube² (architecture+design) 12345 12345 A B C A B C D As indicated Oretsky Residence Todd and Sheila Oretsky 665 Buttonwood Lane Miami, FL 33137 2013_01 SM JAP JAP 03/20/2013 A-101 Floor Plan - Level 1 3/8" = 1'-0" A5 Ground Floor -Renovation Plan
  • 9.
    W.I.C 212 29 SF W.I.C 211 261 SF BEDROOM1 201 190 SF BEDROOM 2 203 292 SF BEDROOM 3 209 282 SF MASTER BEDROOM 204 3' - 0" 2' - 6" 3' - 3" 2' - 6" 2' - 10" 4' - 10 1/2" 2' - 10" 4" 1' - 11" 4' - 0 1/2" 15' - 2" 3' - 9" 2' - 1 1/2" 3' - 2 1/2" 4"3'-0"4'-101/2"6'-21/2"4'-0" 4" 5'-5"4"3'-0"15'-51/2" 2' - 6" 2' - 10" 4' - 11" 2' - 10" 7" 3' - 11 1/2" 1' - 8 1/2" 6' - 10 1/2" 8 1/2" 2' - 10" 4' - 10" 6'-111/2"1'-3"4'-0"3'-5"3'-0"4"5'-51/2" 2' - 9" 4' - 0" 8' - 4 1/2" 2' - 6" 2' - 10" 4' - 11" 2' - 10" 2" 1' - 10 1/2" 6' - 3 1/2" 13' - 1 1/2" 58 SF HER CLOSET 206 32 SF HIS CLOSET 205 40 SF BATHROOM 2 210 141 SF MASTER BATHROOM 207 26 SF TOILET ROOM 208 77 SF BATHROOM 1 202 EXISTING WALLS NEW WALLS WALL LEGEND 11'-0"3'-0"61/2"10'-0" 4" 3'-0"8'-8"6'-111/2" 201 202203 204 205 206 207 208 209210 212 213 215 214 216 217 218 AIA A F A G D G A 24'-9" A-502 C2 A-502 B3 C3 C4 A-502 A2 A-502 A5A3 74 SF HALLWAY 214 A-505 C2 D4 D2 D3 A2 A-410 A1 A-410 EMERGENCY ESCAPE AND RESCUE OPENING WINDOW EMERGENCY ESCAPE AND RESCUE OPENING WINDOW EMERGENCY ESCAPE AND RESCUE OPENING WINDOW 211 A-504C2 C4 B2 B4 A-504 A2 A4 B5 A5 A-505C4 C5 B5 B4 A-505 A5 A4 B2 A2 3'-5"7'-3"5'-4"5'-1"3'-8" 1. THE MASTER BATHROOM WILL BE A NEW ENCLOSED AND AIR CONDITIONED SPACE. IT WILL HAVE A NEW GYPSUM WALL BOARD CEILING 8'-4" A.F.F. 2. ALL NEW DOORS AND WINDOWS TO BE REVIEWED AND SELECTED BY ARCHITECT. 3. ALL NEW INTERIOR WALLS MUST HAVE AN STC- RATING OF 52. 4. ALL EXTERIOR DOORS AND WINDOWS, UNLESS OTHERWISE NOTED, ARE TO BE REPLACED WITH IMPACT RESISTANT MIAMI- DADE N.O.A APPROVED PRODUCTS. 5. ALL NEW INTERIOR GYPSUM WALL BOARD MUST MEET LEVEL 5 FINISH REQUIREMENTS. 6. REFER TO SHEET DM-101 FOR ALL WALLS TO BE REMOVED OR DEMOLISHED. 7. REFER TO STRUCTURAL DRAWINGS FOR LOCATION OF ALL NEW BEARING WALLS. 1. A CERTIFICATION OF COMPLIANCE MUST BE ISSUED TO THE BUILDING DEPARTMENT BY A LICENSED PEST CONTROL COMPANY BEFORE A CERTIFICATE OF OCCUPANCY WILL BE ISSUED. THE CERTIFICATE OF COMPLIANCE SHALL STATE "THE BUILDING HAS RECEIVED A COMPLETE TREATMENT FOR THE PREVENTION OF SUBTERRANEAN TERMITES. THE TREATMENT IS IN ACCORDANCE WITH THE RULES AND LAWS OF THE FLORIDA DEPARTMENT OF AGRICULTURE AND CONSUMER SERVICES" (FBC 2010, SECTION R320.1.) 2. INITIAL TREATMENT SHALL BE DONE AFTER ALL EXCAVATION AND BACKFILL IS COMPLETED (FBC 2010, SECTION R320.1.1). 3. SOIL DISTURBED AFTER THE INITIAL TREATMENT SHALL BE RETREATED INCLUDING SPACES BOXED OR FORMED (FBC 2010, SECTION R320.1.2). 4. BOXED AREAS IN CONCRETE FLOORS FOR SUBSEQUENT INSTALLATION OF TRAPS, ETC. SHALL BE MADE WITH PERMANENT METAL OR PLASTIC FORMS. PERMANENT FORMS MUST BE OF A SIZE AND DEPTH THAT WILL ELIMINATE THE DISTURBANCE OF SOIL AFTER THE INITIAL TREATMENT (FBC 2010, SECTION R320.1.3). 5. MINIMUM 6 MIL. VAPOR RETARDER MUST BE INSTALLED TO PROTECT AGAINST RAINFALL DILUTION. IF RAINFALL OCCURS BEFORE VAPOR RETARDER PLACEMENT, RE-TREATMENT IS REQUIRED (FBC 2010, SECTION R320.1.4). 6. CONCRETE OVERPOUR AND MORTAR ALONG THE FOUNTATION PERIMETER MUST BE REMOVED BEFORE EXTERIOR SOIL TREATMENT (FBC 2010, SECTION R320.1.5). 7. SOIL TREATMENT MUST BE APPLIED UNDER ALL EXTERIOR CONCRETE OR GRADE WITHIN 1'0" OF THE STRUCTURE SIDE WALLS (FBC 2010, SECTION R320.1.6). 8. AN EXTERIOR VERTICAL ELEMENT BARRIER MUST BE INSTALLED AFTER CONSTRUCTION IS COMPLETE INCLUDING LANDSCAPING AND IRRIGATION. ANY SOIL DISTURBED AFTER THE VERTICAL BARRIER IS APPLIED, SHALL BE RETREATED (FBC 2010, SECTION R320.1.6). 9. AFTER ALL WORK IS COMPLETED, LOOSE WOOD AND FILL MUST BE REMOVED FROM BELOW AND WITHIN 1'0" OF THE BUILDING. THIS INCLUDES ALL GRADE STATES, TUB TRAP BOXES, FORMS, SHORING, OR OTHER CELLULOSE CONTAINING MATERIAL (FBC 2010, SECTION R320.3). 10. TO PROVIDE FOR INSPECTION FOR TERMITE INFESTATION BETWEEN WALL COVERING AND FINAL EARTH GRADE SHALL NOT BE LESS THAN 6 INCHES. EXCEPTION: PAINT OR DECORATIVE CEMENTIOUS FINISHES LESS THAN 5/8" THICK ADHERED DIRECTLY TO THE FOUNDATION WALL (FBC 2010, SECTION R704). TERMITE PROTECTION CRITERIA GENERAL NOTES cube² (architecture+design) 2700 north miami avenue suite 804 miami, fl 33127 t: 305.586.8169 www.cube2architecture.com aa-26001789 ib-26001134 BINDINGEDGE Design Professional FL License Number Signature Jorge Alberto Pernas AR92904 ID5632 Revisions Sheet Information DateIssueNumber Date Job Number Scale Drawn Checked Approved Title Sheet © Copyright 2012 cube² (architecture+design) 12345 12345 A B C A B C D As indicated Oretsky Residence Todd and Sheila Oretsky 665 Buttonwood Lane Miami, FL 33137 2013_01 SM JAP JAP 03/20/2013 A-102 Floor Plan - Level 2 3/8" = 1'-0" A5 Second Floor - Renovation Plan
  • 10.
    OVEN DW REF. WD UP DN FOYER KITCHEN Microwave A/C 6" 6" 24" 6" 12" 12" LIVING ROOM DEN /OFFICE FAMILY ROOM KITCHEN FORMAL DINING ROOM GARAGE LAUNDRY/PANTRY MAID'S BATHROOM MAID'S ROOM EXISTING CONC. FLOOR TO BE REPAINTED DRIVEWAY TO BE 6" X 12" TUMBLED TRAVERTINE HERRINGBONE PATTERN W.I.C 212 W.I.C 211 BEDROOM 1 BEDROOM 2 BEDROOM 3 MASTER BEDROOM HER CLOSET HIS CLOSET BATHROOM 2 MASTER BATHROOM TOILET ROOM BATHROOM 1 NEW EXT. TILE MATERIAL LEGEND Teak Wood Flooring Carrera Marble 24" x 24 " Tile Flooring 12" x 24 " Bathroom Shower Tile 4" x 4 " Porcelain Tile 12" x 12" Tumbled Travertine Tile - Ivory 16 x 24 Tumbled Travertine Tile - Ivory 6 x 12 Herringbone Pattern cube² (architecture+design) 2700 north miami avenue suite 804 miami, fl 33127 t: 305.586.8169 www.cube2architecture.com aa-26001789 ib-26001134 BINDINGEDGE Design Professional FL License Number Signature Jorge Alberto Pernas AR92904 ID5632 Revisions Sheet Information DateIssueNumber Date Job Number Scale Drawn Checked Approved Title Sheet © Copyright 2012 cube² (architecture+design) 12345 12345 A B C A B C D As indicated Oretsky Residence Todd and Sheila Oretsky 665 Buttonwood Lane Miami, FL 33137 2013_01 SM JAP JAP 03/20/2013 A-201 Finished Floor Plan 1/4" = 1'-0" A3 Ground Floor - Finished Floor Plan 1/4" = 1'-0" A5 Second Floor - Finished Floor Plan
  • 11.
    Level 1 0' -0" Level 2 10' - 8" Foyer 1' - 6" T.O.Beam 19' - 0" Garage Roof 8' - 6" Garage Floor -1' - 0" Level 1 0' - 0" Level 2 10' - 8" Foyer 1' - 6" T.O.Beam 19' - 0" Garage Roof 8' - 6" Garage Floor -1' - 0" Level 1 0' - 0" Level 2 10' - 8" Foyer 1' - 6" T.O.Beam 19' - 0" Garage Roof 8' - 6" Garage Floor -1' - 0" Level 1 0' - 0" Level 2 10' - 8" Foyer 1' - 6" T.O.Beam 19' - 0" Garage Roof 8' - 6" Garage Floor -1' - 0" cube² (architecture+design) 2700 north miami avenue suite 804 miami, fl 33127 t: 305.586.8169 www.cube2architecture.com aa-26001789 ib-26001134 BINDINGEDGE Design Professional FL License Number Signature Jorge Alberto Pernas AR92904 ID5632 Revisions Sheet Information DateIssueNumber Date Job Number Scale Drawn Checked Approved Title Sheet © Copyright 2012 cube² (architecture+design) 12345 12345 A B C A B C D 1/4" = 1'-0" Oretsky Residence Todd and Sheila Oretsky 665 Buttonwood Lane Miami, FL 33137 2013_01 SM JAP JAP 03/20/2013 A-301 Exterior Building Elevations - Renovation 1/4" = 1'-0" D5 Renovated Exterior Elevation - South 1/4" = 1'-0" C5 Renovated Exterior Elevation - East 1/4" = 1'-0" B5 Renovated Exterior Elevation - West 1/4" = 1'-0" A5 Renovated Exterior Elevation - North
  • 12.
    cube² (architecture+design) 2700 northmiami avenue suite 804 miami, fl 33127 t: 305.586.8169 www.cube2architecture.com aa-26001789 ib-26001134 BINDINGEDGE Design Professional FL License Number Signature Jorge Alberto Pernas AR92904 ID5632 Revisions Sheet Information DateIssueNumber Date Job Number Scale Drawn Checked Approved Title Sheet © Copyright 2012 cube² (architecture+design) 12345 12345 A B C A B C D Oretsky Residence Todd and Sheila Oretsky 665 Buttonwood Lane Miami, FL 33137 2013_01 JAP JAP JAP 03/20/2013 A-302 Perspectives
  • 13.
    Level 1 0' -0" Level 2 10' - 8" Foyer 1' - 6" T.O.Beam 19' - 0" Garage Roof 8' - 6" Garage Floor -1' - 0" C.I.P. CONCRETE SLAB WITH VAPOR BARRIER ON PRE CAST CONCRETE GRADE BEAMS, SEE STRUCTURAL CLEAN FILL COMPACTED TO 95% MODIFIED PROCTOR PER ASTM D1557. FILL TO BE POISON TREATED. C.I.P CONCRETE FOOTING SEE STRUCTURAL C.I.P. CONCRETE BEAM, SEE STRUCTURAL 8" CMU WALL 5/8" GYPSUM WALL BOARD ON 7/8" METAL FURRING HAT CHANNELS 5/8" CEMENT PLASTER C.I.P. CONCRETE BEAM, SEE STRUCTURAL 7/8" CEMENT PLASTER ON METAL LATH ON 3/4" PLYWOOD SHEATHING Level 1 0' - 0" Level 2 10' - 8" Foyer 1' - 6" T.O.Beam 19' - 0" Garage Roof 8' - 6" Garage Floor -1' - 0" C.I.P. CONCRETE SLAB WITH VAPOR BARRIER ON PRE CAST CONCRETE GRADE BEAMS, SEE STRUCTURAL CLEAN FILL COMPACTED TO 95% MODIFIED PROCTOR PER ASTM D1557. FILL TO BE POISON TREATED. C.I.P. CONCRETE BEAM, SEE STRUCTURAL 8" CMU WALL PRECAST CONC. LINTEL SEE STRUCTURAL 5/8" GYPSUM WALL BOARD ON 7/8" METAL FURRING HAT CHANNELS NEW MIAMI-DADE N.O.A. APPROVED IMPACT RESISTANT WINDOWS 5/8" CEMENT PLASTER 7/8" CEMENT PLASTER ON METAL LATH ON 3/4" PLYWOOD SHEATHING C.I.P CONCRETE FOOTING SEE STRUCTURAL Level 1 0' - 0" Level 2 10' - 8" Foyer 1' - 6" Garage Roof 8' - 6" Garage Floor -1' - 0" PRECAST CONC. LINTEL SEE STRUCTURAL C.I.P. CONCRETE SLAB WITH VAPOR BARRIER ON PRE CAST CONCRETE GRADE BEAMS, SEE STRUCTURAL CLEAN FILL COMPACTED TO 95% MODIFIED PROCTOR PER ASTM D1557. FILL TO BE POISON TREATED. C.I.P CONCRETE FOOTING SEE STRUCTURAL 8" CMU WALL 5/8" GYPSUM WALL BOARD ON 7/8" METAL FURRING HAT CHANNELS 5/8" CEMENT PLASTER Level 1 0' - 0" Level 2 10' - 8" Foyer 1' - 6" Garage Roof 8' - 6" Garage Floor -1' - 0" C.I.P. CONCRETE BEAM, SEE STRUCTURAL C.I.P. CONCRETE SLAB WITH VAPOR BARRIER ON PRE CAST CONCRETE GRADE BEAMS, SEE STRUCTURAL CLEAN FILL COMPACTED TO 95% MODIFIED PROCTOR PER ASTM D1557. FILL TO BE POISON TREATED. C.I.P CONCRETE FOOTING SEE STRUCTURAL 8" CMU WALL 5/8" GYPSUM WALL BOARD ON 7/8" METAL FURRING HAT CHANNELS 5/8" CEMENT PLASTER cube² (architecture+design) 2700 north miami avenue suite 804 miami, fl 33127 t: 305.586.8169 www.cube2architecture.com aa-26001789 ib-26001134 BINDINGEDGE Design Professional FL License Number Signature Jorge Alberto Pernas AR92904 ID5632 Revisions Sheet Information DateIssueNumber Date Job Number Scale Drawn Checked Approved Title Sheet © Copyright 2012 cube² (architecture+design) 12345 12345 A B C A B C D 3/4" = 1'-0" Oretsky Residence Todd and Sheila Oretsky 665 Buttonwood Lane Miami, FL 33137 2013_01 SM JAP JAP 03/20/2013 A-410 Wall Sections & Room Schedule 3/4" = 1'-0" A2 Wall Section 3/4" = 1'-0" A1 Wall Section 3/4" = 1'-0" A3 Wall Section 3/4" = 1'-0" A4 Wall Section Room Schedule Room Number Room Name Floor Walls Ceiling Finish CommentsFloor Finish Base Finish North Wall Finish East Wall Finish South Wall Finish West Wall Finish 101 FOYER Marble Tile G.W.B - Paint G.W.B - Paint G.W.B - Paint G.W.B - Paint G.W.B - Paint G.W.B - Paint 102 LIVING ROOM Porcelain Tile G.W.B - Paint G.W.B - Paint G.W.B - Paint G.W.B - Paint G.W.B - Paint G.W.B - Paint 103 DEN / OFFICE Porcelain Tile G.W.B - Paint G.W.B - Paint G.W.B - Paint G.W.B - Paint G.W.B - Paint G.W.B - Paint 104 FAMILY ROOM Porcelain Tile G.W.B - Paint G.W.B - Paint G.W.B - Paint G.W.B - Paint G.W.B - Paint G.W.B - Paint 105 FORMAL DINING ROOM Porcelain Tile G.W.B - Paint G.W.B - Paint G.W.B - Paint G.W.B - Paint G.W.B - Paint G.W.B - Paint 106 KITCHEN Porcelain Tile G.W.B - Paint G.W.B - Paint G.W.B - Paint G.W.B - Paint G.W.B - Paint G.W.B - Paint 107 A/C Porcelain Tile G.W.B - Paint G.W.B - Paint G.W.B - Paint G.W.B - Paint G.W.B - Paint G.W.B - Paint 108 LAUNDRY/PANTRY Porcelain Tile G.W.B - Paint G.W.B - Paint G.W.B - Paint G.W.B - Paint G.W.B - Paint G.W.B - Paint 109 POWDER ROOM Porcelain Tile G.W.B - Paint G.W.B - Paint G.W.B - Paint G.W.B - Paint G.W.B - Paint G.W.B - Paint 110 MAID'S ROOM Porcelain Tile G.W.B - Paint G.W.B - Paint G.W.B - Paint G.W.B - Paint G.W.B - Paint G.W.B - Paint 111 MAID'S BATHROOM Porcelain Tile G.W.B - Paint G.W.B - Paint G.W.B - Paint G.W.B - Paint G.W.B - Paint G.W.B - Paint 112 GARAGE Concrete - Stained G.W.B - Paint G.W.B - Paint G.W.B - Paint G.W.B - Paint G.W.B - Paint G.W.B - Paint 201 BEDROOM 1 Porcelain Tile G.W.B - Paint G.W.B - Paint G.W.B - Paint G.W.B - Paint G.W.B - Paint G.W.B - Paint 202 BATHROOM 1 Porcelain Tile Porcelain Tile Porcelain Tile Porcelain Tile G.W.B - Paint Porcelain Tile G.W.B - Paint 203 BEDROOM 2 Porcelain Tile G.W.B - Paint G.W.B - Paint G.W.B - Paint G.W.B - Paint G.W.B - Paint G.W.B - Paint 204 MASTER BEDROOM Porcelain Tile G.W.B - Paint G.W.B - Paint G.W.B - Paint G.W.B - Paint G.W.B - Paint G.W.B - Paint 205 HIS CLOSET Porcelain Tile G.W.B - Paint G.W.B - Paint G.W.B - Paint G.W.B - Paint G.W.B - Paint G.W.B - Paint 206 HER CLOSET Porcelain Tile G.W.B - Paint G.W.B - Paint G.W.B - Paint G.W.B - Paint G.W.B - Paint G.W.B - Paint 207 MASTER BATHROOM Marble Tile Marble Tile Marble Tile Marble Tile Marble Tile Marble Tile G.W.B - Paint 208 TOILET ROOM Marble Tile G.W.B - Paint G.W.B - Paint G.W.B - Paint G.W.B - Paint G.W.B - Paint G.W.B - Paint 209 BEDROOM 3 Porcelain Tile G.W.B - Paint G.W.B - Paint G.W.B - Paint G.W.B - Paint G.W.B - Paint G.W.B - Paint 210 BATHROOM 2 Porcelain Tile Porcelain Tile Porcelain Tile Porcelain Tile Porcelain Tile Porcelain Tile G.W.B - Paint 211 W.I.C Porcelain Tile G.W.B - Paint G.W.B - Paint G.W.B - Paint G.W.B - Paint G.W.B - Paint G.W.B - Paint 212 W.I.C Porcelain Tile G.W.B - Paint G.W.B - Paint G.W.B - Paint G.W.B - Paint G.W.B - Paint G.W.B - Paint 213 L.C Porcelain Tile G.W.B - Paint G.W.B - Paint G.W.B - Paint G.W.B - Paint G.W.B - Paint G.W.B - Paint 214 HALLWAY Porcelain Tile G.W.B - Paint G.W.B - Paint G.W.B - Paint G.W.B - Paint G.W.B - Paint G.W.B - Paint
  • 14.
    OVEN DW WOOD COMPOSITE SILLCASING WOOD COMPOSITE JAMB EXTENSIONWOOD COMPOSITE HEADER/JAMB CASING FLAT SCREEN TV - WALL MOUNT WINE RACK OPEN BOOK SHELVE 7' - 3" 10' - 8" 2'-61/2"1'-6"2'-8"4" 4' - 1 1/2" 4' - 6" 2' - 4" 7' - 3" 2'-61/2"1'-6"2'-8"4" A-501D4 D5 C5 C4 A-501 B4 A-502 B5B4 WINE Trash Microwave 6" Bench/Storage Trash 6" 2' - 1" 2' - 11 1/2" 2'-2"8"2'-10"6'-31/2"4'-01/2"4'-7"5'-4"2'-0" 7' - 6" 5' - 4" 2' - 5" 5" 4" 3' - 0" 6' - 3" 2' - 1" cube² (architecture+design) 2700 north miami avenue suite 804 miami, fl 33127 t: 305.586.8169 www.cube2architecture.com aa-26001789 ib-26001134 BINDINGEDGE Design Professional FL License Number Signature Jorge Alberto Pernas AR92904 ID5632 Revisions Sheet Information DateIssueNumber Date Job Number Scale Drawn Checked Approved Title Sheet © Copyright 2012 cube² (architecture+design) 12345 12345 A B C A B C D As indicated Oretsky Residence Todd and Sheila Oretsky 665 Buttonwood Lane Miami, FL 33137 2013_01 SM JAP JAP 03/20/2013 A-501 Kitchen and Laundry/Pantry Elevations 1/2" = 1'-0" D4 Kitchen - West Wall Elevation 1/2" = 1'-0" D5 Kitchen - East Wall Elevation 1/2" = 1'-0" C5 Kitchen - South Wall Elevation 1/2" = 1'-0" C4 Kitchen Island - North Elevation 1/2" = 1'-0" B4 Kitchen Island - South Elevation 1/2" = 1'-0" B5 Kitchen Island - West Elevation 1/2" = 1'-0" A4 Laundry / Pantry - East Elevation 1/2" = 1'-0" B2 Laundry / Pantry - West Elevation 1/2" = 1'-0" A1 Laundry / Pantry - North Elevation 1/2" = 1'-0" A2 Laundry/ Pantry - South Elevation 3/8" = 1'-0" C2 Enlarged Kitchen Plan
  • 15.
    A-502 D3 D4D5 4' - 0"2' - 10" 2' - 8 1/2" 9' - 6 1/2" 5'-0" 10" 1' - 4" 7' - 4" 2'-3"2'-10"2" 5' - 3" 5'-3" A-502 B5B4 5' - 5 1/2" 2' - 6" 5'-0" 4" 2' - 10" 4' - 9 1/2" A-502 B3 C3 C4 2' - 0" 6" 2' - 10" 3 1/2" 2' - 6" 2' - 0" 6" 2' - 10" 9 1/2" 2' - 0" 1'-8"2'-6"5"5'-0" 9'-7" 8' - 1 1/2" A-502 A5A3 cube² (architecture+design) 2700 north miami avenue suite 804 miami, fl 33127 t: 305.586.8169 www.cube2architecture.com aa-26001789 ib-26001134 BINDINGEDGE Design Professional FL License Number Signature Jorge Alberto Pernas AR92904 ID5632 Revisions Sheet Information DateIssueNumber Date Job Number Scale Drawn Checked Approved Title Sheet © Copyright 2012 cube² (architecture+design) 12345 12345 A B C A B C D 3/4" = 1'-0" Oretsky Residence Todd and Sheila Oretsky 665 Buttonwood Lane Miami, FL 33137 2013_01 SM JAP JAP 03/20/2013 A-502 Enlarged Bathroom Plans and Elevations 3/4" = 1'-0" D2 Maid Bathroom - Level 1 3/4" = 1'-0" C5 Powder Room - Level 1 3/4" = 1'-0" D3 Maid's Bathroom - South Elevation 3/4" = 1'-0" D4 Maid's Bathroom - East Elevation 3/4" = 1'-0" D5 Maid's Bathroom - West Elevation 3/4" = 1'-0" B4 Powder Room - West Elevation 3/4" = 1'-0" B5 Powder Room - East Elevation 3/4" = 1'-0" C2 Enlarged Bathroom#3 Plan - Level 2 3/4" = 1'-0" C3 Bathroom#2 - North Elevation 3/4" = 1'-0" B3 Bathroom#2 - South Elevation 3/4" = 1'-0" C4 Bathroom#2 - East Elevation 3/4" = 1'-0" A2 Enlarged Bathroom#2 Plan - Level 2 3/4" = 1'-0" A5 Bathroom#1 - East Elevation 3/4" = 1'-0" A3 Bathroom#1 - West Elevation
  • 16.
    WOOD COMPOSITE HEADER/JAMB CASING WOODCOMPOSITE SILL CASING WOOD COMPOSITE HEADER/JAMB CASING WOOD COMPOSITE HEADER/JAMB CASING WOOD COMPOSITE HEADER/JAMB CASING WOOD COMPOSITE BASE BOARDS PAINTED G.W.B. CTRL.SPKL.SPK R.SPK TV TO BE FLUSH WITH UNIT LG 60LS5700 OPEN WOOD COMPOSITE SILL CASING WOOD COMPOSITE HEADER/JAMB CASING WOOD COMPOSITE SILL CASING WOOD COMPOSITE HEADER/JAMB CASING PAINTED G.W.B. WOOD COMPOSITE BASE BOARDS WOOD COMPOSITE SILL CASING WOOD COMPOSITE HEADER/JAMB CASING WOOD COMPOSITE JAMB EXTENSION PAINTED G.W.B. WOOD COMPOSITE BASE BOARDS WOOD COMPOSITE SILL CASING WOOD COMPOSITE HEADER/JAMB CASING PAINTED G.W.B. WOOD COMPOSITE BASE BOARDS WOOD PANELING 6"2'-3" PAINTED G.W.B. WOOD COMPOSITE BASE BOARDS 2'-3"6" WOOD PANELING PAINTED G.W.B. WOOD COMPOSITE BASE BOARDS WOOD COMPOSITE SILL CASING 2'-3"6" WOOD COMPOSITE HEADER/JAMB CASING WOOD COMPOSITE SILL CASING WOOD COMPOSITE HEADER/JAMB CASING WOOD COMPOSITE SILL CASING WOOD COMPOSITE HEADER/JAMB CASING WOOD COMPOSITE SILL CASING cube² (architecture+design) 2700 north miami avenue suite 804 miami, fl 33127 t: 305.586.8169 www.cube2architecture.com aa-26001789 ib-26001134 BINDINGEDGE Design Professional FL License Number Signature Jorge Alberto Pernas AR92904 ID5632 Revisions Sheet Information DateIssueNumber Date Job Number Scale Drawn Checked Approved Title Sheet © Copyright 2012 cube² (architecture+design) 12345 12345 A B C A B C D As indicated Oretsky Residence Todd and Sheila Oretsky 665 Buttonwood Lane Miami, FL 33137 2013_01 SM JAP JAP 03/20/2013 A-503 Interior Elevations 1/2" = 1'-0" D4 French Door Elevations 1/2" = 1'-0" D5 Family Room - Entertainment Unit 1/2" = 1'-0" C4 Foyer - South Wall Elevation 1/2" = 1'-0" B2 Living Room - East Wall Elevation 3/8" = 1'-0" C5 Foyer - West Wall Elevation 1/2" = 1'-0" B4 Dining Room - East Elevation 1/2" = 1'-0" B5 Dining Room - West Elevation 1/2" = 1'-0" A5 Dining Room - North Elevation 1/2" = 1'-0" A4 Den/Office - North Elevation 1/2" = 1'-0" A3 Den/Office - South Elevation 1/2" = 1'-0" A2 Den/Office - East Elevation
  • 17.
    Level 1 0' -0" Level 2 10' - 8" Foyer 1' - 6" T.O.Beam 19' - 0" Garage Roof 8' - 6" EXISTING BALCONY RIALING TO BE REMOVED AND REPLACED WITH NEW 5 6 2 6 2 7 7 7 77 6 4 4 4 Level 1 0' - 0" Level 2 10' - 8" Foyer 1' - 6" T.O.Beam 19' - 0" Garage Roof 8' - 6" 4 4 4 7 66 6 6 666 8 Level 1 0' - 0" Level 2 10' - 8" Foyer 1' - 6" T.O.Beam 19' - 0" Garage Roof 8' - 6" 4 4 4 6 6 6 66 1 6 6 1 EXISTING BALCONY RIALING TO BE REMOVED AND REPLACED WITH NEW 5 8 EXISTING AWNING TO BE REMOVED Level 1 0' - 0" Level 2 10' - 8" Foyer 1' - 6" T.O.Beam 19' - 0" Garage Roof 8' - 6" 4 4 4 2 6 1 6 1 6 1 6 1 66 EXISTING BALCONY RIALING TO BE REMOVED AND REPLACED WITH NEW 5 EXISTING AWNING TO BE REMOVED cube² (architecture+design) 2700 north miami avenue suite 804 miami, fl 33127 t: 305.586.8169 www.cube2architecture.com aa-26001789 ib-26001134 BINDINGEDGE Design Professional FL License Number Signature Jorge Alberto Pernas AR92904 ID5632 Revisions Sheet Information DateIssueNumber Date Job Number Scale Drawn Checked Approved Title Sheet © Copyright 2012 cube² (architecture+design) 12345 12345 A B C A B C D 1/4" = 1'-0" Oretsky Residence Todd and Sheila Oretsky 665 Buttonwood Lane Miami, FL 33137 2013_01 SM JAP JAP 03/20/2013 DM-102 Existing Building Elevations 1/4" = 1'-0" A5 Existing Exterior Elevation - North 1/4" = 1'-0" D5 Existing Exterior Elevation - South 1/4" = 1'-0" C5 Existing Exterior Elevation - West 1/4" = 1'-0" B5 Existing Exterior Elevation - East DEMOLITION KEY NOTES: 1. PATCH WALLS TO MATCH EXISTING ADJACENT SURFACE IF SCHEDULED TO REMAIN OR PREPARE TO RECIEVE NEW FINISHES. 2. CUT OPENING IN EXISTING EXTERIOR WALL FOR NEW DOOR AND/OR WINDOW. PREPARE ADJACENT SURFACES TO RMAIN TO RECEIVE NEW WORK AS SHOWN. 3. REMOVE EXISTING DOOR AND/OR WINDOW, FRAME AND HARDWARE. TURN OVER TO OWNER OR DISPOSE AT HIS REQUEST. 4. EXISTING ROOF TO BE REPLACED WITH NEW. 5. REMOVE EXISTING SCREEN IN PATIO. 6. ALL WINDOWS TO BE REPLACED WITH NEW MIAMI-DADE N.O.A APPROVED IMPACT RESISTANT CASEMENT WINDOWS. 7. ALL EXTERIOR DOORS TO BE REMOVED AND REPLACED WITH NEW MIAMI- DADE N.O.A APPROVED IMPACT RESITANT DOORS. 8. EXISTING BRICK STEPS TO BE REMOVED
  • 18.
    PAINTED G.W.B. WOOD COMPOSITEBASE BOARDS PAINTED G.W.B. WOOD COMPOSITE BASE BOARDS WOOD COMPOSITE SILL CASING WOOD COMPOSITE HEADER/JAMB CASING PAINTED G.W.B. WOOD COMPOSITE BASE BOARDS FLAT SCREEN TV - WALL MOUNT FLAT SCREEN TV - WALL MOUNT PAINTED G.W.B. WOOD COMPOSITE BASE BOARDS CLOSET PAINTED G.W.B. WOOD COMPOSITE BASE BOARDS PAINTED G.W.B. WOOD COMPOSITE BASE BOARDS CLOSET PAINTED G.W.B. WOOD COMPOSITE BASE BOARDS WOOD COMPOSITE BASE BOARDS PAINTED G.W.B. WOOD COMPOSITE SILL CASING WOOD COMPOSITE HEADER/JAMB CASING WOOD COMPOSITE JAMB EXTENSION PAINTED G.W.B. WOOD COMPOSITE BASE BOARDS WOOD COMPOSITE SILL CASING WOOD COMPOSITE JAMB EXTENSION WOOD COMPOSITE HEADER/JAMB CASING WOOD COMPOSITE HEADER/JAMB CASING WOOD COMPOSITE SILL CASING PAINTED G.W.B. WOOD COMPOSITE BASE BOARDS PAINTED G.W.B. WOOD COMPOSITE BASE BOARDS PAINTED G.W.B. WOOD COMPOSITE BASE BOARDS WOOD COMPOSITE SILL CASING WOOD COMPOSITE HEADER/JAMB CASING WOOD COMPOSITE JAMB EXTENSION PAINTED G.W.B.PAINTED G.W.B. WOOD COMPOSITE BASE BOARDS WOOD COMPOSITE SILL CASING WOOD COMPOSITE HEADER/JAMB CASING WOOD COMPOSITE JAMB EXTENSION cube² (architecture+design) 2700 north miami avenue suite 804 miami, fl 33127 t: 305.586.8169 www.cube2architecture.com aa-26001789 ib-26001134 BINDINGEDGE Design Professional FL License Number Signature Jorge Alberto Pernas AR92904 ID5632 Revisions Sheet Information DateIssueNumber Date Job Number Scale Drawn Checked Approved Title Sheet © Copyright 2012 cube² (architecture+design) 12345 12345 A B C A B C D 1/2" = 1'-0" Oretsky Residence Todd and Sheila Oretsky 665 Buttonwood Lane Miami, FL 33137 2013_01 SM JAP JAP 03/20/2013 A-504 Interior Elevations 1/2" = 1'-0" D3 Maid's Room - East Elevation 1/2" = 1'-0" D4 Maid's Room - North Elevation 1/2" = 1'-0" D5 Maid's Room - West Elevation 1/2" = 1'-0" D2 Den/Office - West Elevation 1/2" = 1'-0" C5 Maid's Room - South Elevation 1/2" = 1'-0" C2 Bedroom 3 - West Elevation 1/2" = 1'-0" C4 Bedroom 3 - North Elevation 1/2" = 1'-0" B2 Bedroom 3 - East Elevation 1/2" = 1'-0" B4 Bedroom 3 - South Elevation 1/2" = 1'-0" A2 Bedroom 1 - East Elevation 1/2" = 1'-0" A4 Bedroom 1 - North Elevation 1/2" = 1'-0" B5 Bedroom 1 - South Elevation 1/2" = 1'-0" A5 Bedroom 1 - West Elevation
  • 19.
    BENCH STEAM SHOWER TUB PAINTED G.W.B. WOOD COMPOSITESILL CASING WOOD COMPOSITE HEADER/JAMB CASING WOOD COMPOSITE JAMB EXTENSION FROSTED SLIDING DOOR TUB PAINTED G.W.B. WOOD COMPOSITE BASE BOARDS PAINTED G.W.B. WOOD COMPOSITE BASE BOARDS MIRRORED CLOSET DOOR PAINTED G.W.B. WOOD COMPOSITE BASE BOARDS WOOD COMPOSITE HEADER/JAMB CASING PAINTED G.W.B. WOOD COMPOSITE BASE BOARDS PAINTED G.W.B. WOOD COMPOSITE BASE BOARDS MIRRORED CLOSET DOOR PAINTED G.W.B. WOOD COMPOSITE BASE BOARDS PAINTED G.W.B. WOOD COMPOSITE BASE BOARDS WOOD COMPOSITE HEADER/JAMB CASING PAINTED G.W.B. WOOD COMPOSITE BASE BOARDS WOOD COMPOSITE SILL CASING WOOD COMPOSITE HEADER/JAMB CASING WOOD COMPOSITE JAMB EXTENSION cube² (architecture+design) 2700 north miami avenue suite 804 miami, fl 33127 t: 305.586.8169 www.cube2architecture.com aa-26001789 ib-26001134 BINDINGEDGE Design Professional FL License Number Signature Jorge Alberto Pernas AR92904 ID5632 Revisions Sheet Information DateIssueNumber Date Job Number Scale Drawn Checked Approved Title Sheet © Copyright 2012 cube² (architecture+design) 12345 12345 A B C A B C D 1/2" = 1'-0" Oretsky Residence Todd and Sheila Oretsky 665 Buttonwood Lane Miami, FL 33137 2013_01 SM JAP JAP 03/20/2013 A-505 Interior Elevations 1/2" = 1'-0" C2 Master Bathroom - East Elevation 1/2" = 1'-0" D4 Master Bathroom - North Elevation 1/2" = 1'-0" D3 Master Bathroom - South Elevation 1/2" = 1'-0" D2 Master Bathroom - West Elevation 1/2" = 1'-0" C4 Master Bedroom - West Elevation 1/2" = 1'-0" C5 Master Bedroom - North Elevation 1/2" = 1'-0" B5 Master Bedroom - East Elevation 1/2" = 1'-0" B4 Master Bedroom - South Elevation 1/2" = 1'-0" A5 Bedroom 2 - East Elevation 1/2" = 1'-0" A4 Bedroom 2 - South Elevation 1/2" = 1'-0" B2 Bedroom 2 - North Elevation 1/2" = 1'-0" A2 Bedroom 2 - West Elevation NOTES: • ALL INTERIOR PAINT TO BE SELECTED BY OWNER AND INTERIOR DESIGNER. • ALL CASING AND TRIM WORK FOR WINDOWS AND FRENCH DOORS TO BE SELECTED BY OWNER AND INTERIOR DESIGNER.
  • 20.
    9'-0" A.F.F. 9'-6" A.F.F. 9'-1"A.F.F. 9'-0" A.F.F. 9'-0" A.F.F. 8'-6" A.F.F. 8'-6" A.F.F. 8'-3" A.F.F. 8"4" 6' - 10" 4"8"4" 6' - 10" 4"8"4" 6' - 10" 4"8"6' - 10" 6' - 10" 8" 8" 2'-91/2"5'-61/2"5'-61/2"5'-61/2"2'-91/2"4"4" 4"4" 2' - 11" 5' - 9 1/2" 2' - 11" 4"4" 8"1'-101/2"4'-11/2"4'-71/2"4'-71/2"4'-71/2"2'-4"8" 8" 3' - 2 1/2" 6'-11"4"4" 5' - 10" 4"4" 1'-101/2" 4' - 0" 3'-21/2"4'-0"4'-0"4'-0"4'-0"2'-9" 4' - 0" 2' - 11" 2' - 11" 1' - 11" 2'-8" 1' - 11" 3' - 9 1/2" 2'-1"5'-1"2'-31/2" 1'-2"2'-11"1'-2" 2' - 6" 3' - 11"3' - 11"6' - 0" 3'-5"3'-0" 3' - 11"3' - 11"6' - 0" 4'-0" 3'-7"3'-6"3'-5"3'-6" 3' - 7" 9'-11" 3' - 2"3' - 2"8' - 3" 9'-6" 2'-91/2" 2' - 1" 3' - 11 1/2" 5'-0"5'-0"5'-0" 2' - 5"3' - 8" 3' - 1" 4' - 4" OUTDOOR SCONCE OUTDOOR SCONCE OUTDOOR SCONCE OUTDOOR SCONCE OUTDOOR SCONCE OUTDOOR SCONCE 23' - 0" 4' - 4" 4'-8" OUTDOOR FAN 8'-3" A.F.F. TONG AND GROOVE LIGHTING LEGEND 3" RECESSED LIGHT FIXTURE PENDENT LIGHT FIXTURE CEILING LIGHT - FLUSH CHANDELIER 8'-3" A.F.F. WALL SCONCE CEILING FAN CEILING HEIGHT ABOVE FINISHED FLOOR REFLECTED CEILING PLAN NOTES 1. INSTALL NEW 5/8" THICK GYPSUM WALLBOARD CEILING ON WOOD RAFTERS. 2. NEW CEILING TO BE INSTALLED AS REQUIRED AND FINISHED SMOOTH BY CONTRACTOR. 3. REFER TO LIGHTING SCHEDULE FOR LIGHT FIXTURE SPECIFICATIONS. 4. ALL SWITCHES ARE DIMMERS, EXCEPT THE CLOSETS, UTILITY ROOM AND EXTERIOR LIGHTING. 5'-0"5'-0"3'-4"4"8" 7' - 6 1/2"2' - 9 1/2"4"8" 3'-0"3'-0"2'-21/2" 2' - 9 1/2" 4' - 1"2' - 0" 2'-5" EQ EQ EQ 2'-81/2" 4" 2' - 11" 6' - 6" 2' - 11" 4" 7'-01/2"3'-21/2"4" 6' - 6" 7'-01/2" EQEQEQ 4' - 10" 1' - 3" 3' - 4 1/2" 2'-31/2"2'-31/2" 3' - 4 1/2" 6' - 7"2' - 11 1/2"4" 9'-51/2"4'-5"4" 6' - 7 1/2" 9'-6" 4"2' - 11 1/2"6' - 7" 9'-51/2"4'-5"4" 6' - 7" 9'-6" 3'-2"4" 11 1/2" 2' - 6" 3'-11/2"5'-5"5'-5"3'-2" 1' - 8" 8'-4" A.F.F. 8'-4" A.F.F. 8'-4" A.F.F. 8'-4" A.F.F. 8'-4" A.F.F. 8'-4" A.F.F. 8'-4" A.F.F. 8'-4" A.F.F. 8'-4" A.F.F. 8'-4" A.F.F. OUTDOOR WALL SCONCE OUTDOOR WALL SCONCE cube² (architecture+design) 2700 north miami avenue suite 804 miami, fl 33127 t: 305.586.8169 www.cube2architecture.com aa-26001789 ib-26001134 BINDINGEDGE Design Professional FL License Number Signature Jorge Alberto Pernas AR92904 ID5632 Revisions Sheet Information DateIssueNumber Date Job Number Scale Drawn Checked Approved Title Sheet © Copyright 2012 cube² (architecture+design) 12345 12345 A B C A B C D As indicated Oretsky Residence Todd and Sheila Oretsky 665 Buttonwood Lane Miami, FL 33137 2013_01 SM JAP JAP 03/20/2013 A-601 Reflected Ceiling Plan 1/4" = 1'-0" A3 Reflected Ceiling Plan - Ground Floor 1/4" = 1'-0" A5 Reflected Ceiling Plan - Second Floor
  • 21.
    1/4" RUN FLOOR FINISH UNDERTHRES. FLOOR FINISH (SEE SCHEDULE) RECESSED SLAB FOR TILE FLOOR WHERE IT OCCURS DOOR (SEE SCHEDULE) NOTE: THRES. MUST MEET MAXIMUM HEIGHT AND SLOPE PER ADA REQUIREMENTS. ALUM. THRES. SET IN CONT. BED OF SEALANT - ANCHOR RECESSED - F.H. SCREWS IN EXPN. SHIELDS AT 8" O.C. FLOOR FINISH (SEE SCHEDULE) REDUCER STRIP CONCRETE SLAB SOLID WOOD FRAME SEALANT STD. ANCHORS 2X4 WD STUDS 5/8" GYPSUM WALLBOARD 5 7/8" 3 15/16" 1 15/16" 1/2" 5/8"2" 5/8" GYPSUM WALL BOARD 2X4 WD STUDS SOLID WOOD FRAME SEALANT CONT TYP. STD ANCHORS 2"5/8" 1 15/16" 5 7/8" 1 15/16" 2" STD. ANCHORS SOLID WOOD FRAME CMU 5/8" GWB ON FURRING CHANNELS SEALANT 1/4" 2"5/8" 5 7/8" CMU GYPSUM PLASTER ALUMINUM FRAME1 15/16" 2" 1 15/16" SEALANT 5/8" GWB ON FURRING CHANNELS 25 GA GALV. ANGLE 5/8" GYPSUM WALL BOARD 6" 20 GA METAL STUDS SOLID WOOD POCKET DOOR FRAME SEALANT CONT. TYP. EQ.EQ. 5/8" GYPSUM WALL BOARD 6" 20 GA METAL STUDS SOLID WOOD FRAME SEALANT CONT TYP. 1/4" 2"5/8" 5 7/8" CONC. LINTEL GYPSUM PLASTER ALUMINUM FRAME 1 15/16" 2" 1 15/16" SEALANT 5/8" GWB ON FURRING CHANNELS 25 GA GALV. ANGLE 1 15/16" 5 7/8" 2"1 15/16" 5/8"2" 25 GA GALV. ANGLE SEALANT SOLID WOOD FRAME 5/8" GWB ON FURRING CHANNELS CONC. LINTEL 5 7/8" 1/2" 2" SEALANT SOLID WOOD FRAME 2X4 WD STUDS 5/8" GYPSUM WALL BOARD STD ANCHORS 5 7/8" 1/2" 3 15/16" 5/8"2" 1 15/16" SEALANT SOLID WOOD FRAME 2X4 WD STUDS 5/8" GYPSUM WALL BOARD STD ANCHORS 1 2 IMPACT RESISTANT GLAZING FOR EXTERIOR DOORS ONLY SOLID CORE DOOR A B C D SOLID CORE DOOR E cube² (architecture+design) 2700 north miami avenue suite 804 miami, fl 33127 t: 305.586.8169 www.cube2architecture.com aa-26001789 ib-26001134 BINDINGEDGE Design Professional FL License Number Signature Jorge Alberto Pernas AR92904 ID5632 Revisions Sheet Information DateIssueNumber Date Job Number Scale Drawn Checked Approved Title Sheet © Copyright 2012 cube² (architecture+design) 12345 12345 A B C A B C D As indicated Oretsky Residence Todd and Sheila Oretsky 665 Buttonwood Lane Miami, FL 33137 2013_01 SM JAP JAP 03/20/2013 A-801 Door Schedules and Details Door Schedule Door Number Door Type Door Fire Rating Hardware Frame CommentsWidth Height Thickness Material Finish Frame Type Frame Material Jamb Head Sill 101 A 3' - 0" 6' - 8" 0' - 2" Wood - Door Paint N/A N/A 1 Wood JD4 HD4 T1 102 D 5' - 8" 6' - 8" 0' - 2" Wood - Door Paint N/A N/A 1 Wood JD3 HD3 T2 103 A 2' - 10" 6' - 8" 0' - 2" Wood - Door Paint N/A N/A 1 Wood JD1 HD1 T2 104 A 2' - 10" 6' - 8" 0' - 2" Wood - Door Paint N/A N/A 1 Wood JD1 HD1 T2 105 A 3' - 0" 6' - 8" 0' - 2" Wood - Door Paint N/A N/A 1 Wood JD1 HD1 T2 106 A 2' - 10" 6' - 8" 0' - 2" Wood - Door Paint N/A N/A 1 Wood JD1 HD1 T2 107 A 3' - 0" 6' - 8" 0' - 2" Wood - Door Paint N/A N/A 1 Wood JD1 HD1 T2 108 A 3' - 0" 6' - 8" 0' - 2" Wood - Door Paint N/A N/A 1 Wood JD3 HD3 T2 109 C 4' - 0" 6' - 8" 0' - 2" Wood - Door Paint N/A N/A 1 Wood JD1 HD1 T2 110 A 2' - 10" 6' - 8" 0' - 2" Wood - Door Paint N/A N/A 1 Wood JD1 HD1 T2 111 A 2' - 10" 6' - 8" 0' - 2" Wood - Door Paint N/A N/A 1 Wood JD1 HD1 T2 112 A 2' - 10" 6' - 8" 0' - 2" Wood - Door Paint N/A N/A 1 Wood JD1 HD1 T2 113 A 2' - 10" 6' - 8" 0' - 2" Wood - Door Paint N/A N/A 1 Wood JD4 HD4 T1 114 A 2' - 10" 6' - 8" 0' - 2" Wood - Door Paint N/A N/A 1 Wood JD4 HD4 T1 115 B 6' - 0" 6' - 8" 0' - 2" Glass Glass, Clear Glazing N/A N/A 2 Aluminum JD4 HD4 T1 116 B 6' - 0" 6' - 8" 0' - 2" Glass Glass, Clear Glazing N/A N/A 2 Aluminum JD4 HD4 T1 117 B 6' - 0" 6' - 8" 0' - 2" Glass Glass, Clear Glazing N/A N/A 2 Aluminum JD4 HD4 T1 201 A 3' - 0" 6' - 8" 0' - 2" Wood - Door Paint N/A N/A 1 Wood JD1 HD1 T2 202 A 2' - 10" 6' - 8" 0' - 2" Wood - Door Paint N/A N/A 1 Wood JD1 HD1 T2 203 A 2' - 10" 6' - 8" 0' - 2" Wood - Door Paint N/A N/A 1 Wood JD1 HD1 T2 204 A 2' - 10" 6' - 8" 0' - 2" Wood - Door Paint N/A N/A 1 Wood JD1 HD1 T2 205 A 2' - 10" 6' - 8" 0' - 2" Wood - Door Paint N/A N/A 1 Wood JD1 HD1 T2 206 A 3' - 0" 6' - 8" 0' - 2" Wood - Door Paint N/A N/A 1 Wood JD1 HD1 T2 207 A 3' - 0" 6' - 8" 0' - 2" Wood - Door Paint N/A N/A 1 Wood JD1 HD1 T2 208 A 4' - 0" 6' - 8" 0' - 2" Wood - Door Paint N/A N/A 1 Wood JD1 HD1 T2 209 B 6' - 0" 6' - 8" 0' - 2" Glass Glass, Clear Glazing N/A N/A 2 Aluminum JD4 HD4 T1 210 B 6' - 0" 6' - 8" 0' - 2" Glass Glass, Clear Glazing N/A N/A 2 Aluminum JD4 HD4 T1 211 A 3' - 0" 6' - 8" 0' - 2" Wood - Door Paint N/A N/A 1 Wood JD1 HD1 T2 212 A 2' - 0" 6' - 8" 0' - 1 1/2" Wood - Door Paint N/A N/A 1 Wood JD1 HD1 T2 213 E 2' - 6" 6' - 8" 0' - 1 1/2" Wood - Door Paint N/A N/A 1 Wood JD5 HD5 T2 214 A 4' - 0" 6' - 8" 0' - 2" Wood - Door Paint N/A N/A 1 Wood JD1 HD1 T2 215 A 2' - 10" 6' - 8" 0' - 2" Wood - Door Paint N/A N/A 1 Wood JD1 HD1 T2 216 A 3' - 0" 6' - 8" 0' - 2" Wood - Door Paint N/A N/A 1 Wood JD1 HD1 T2 217 A 1' - 8" 6' - 8" 0' - 2" Wood - Door Paint N/A N/A 1 Wood JD1 HD1 T2 218 C 4' - 0" 6' - 8" 0' - 2" Wood - Door Paint N/A N/A 2 Wood JD2 HD2 T2 Existing Door To Remain 6" = 1'-0" B2 Threshold - T1 6" = 1'-0" A1 Threshold - T2 6" = 1'-0" D5 Jamb - JD1 6" = 1'-0" C5 Jamb - JD2 6" = 1'-0" A5 Jamb - JD3 6" = 1'-0" A4 Jamb - JD4 6" = 1'-0" A2 Jamb - JD5 6" = 1'-0" A3 Header - HD5 6" = 1'-0" B5 Header - HD4 6" = 1'-0" B Header - HD3 6" = 1'-0" C4 Header - HD2 ( Jamb Similar) 6" = 1'-0" D4 Header - HD1 1/4" = 1'-0" C3 Frame Types 1/4" = 1'-0" B3 Door Types
  • 22.
    5 1/2" 2'- 10 1/2" 3" 2' - 10 1/2" 5 1/2" 51/2"4'-0"4" HEAD, JAMB, SILL SINGLE HUNG WINDOW DETAIL SCALE: N.T.S. WINDOW ATTACHMENT DETAIL NOTE: SCALE: N.T.S. WINDOW CONNECTION SPEC. NOTE: ANCHORING OF ALUMINUM WINDOW FRAME TO EXISTING FRAMED OPENING SHALL ASTM 929-79, TYPE S, GRADE, NS, USE NT, FEDERAL SPEC.TT-S001657. TYPE 1 PERFORMANCE CHARACTERISTICS TO OPENING W/ MIN. RECOMMENDED FASTENERS BY WINDOW MFG. WINDOW INSTALLATION AS PER MANUFACTURER STUCCO CONTINUOUS SEALANT WITH BACKER ROD FOR ENTIRE PERIMETERE OF UNIT FIBERGLASS BATT INSUL. ALL NEW WINDOWS SHALL BE CONSTRUCTED TO MEET 140 MPH WIND LOAD & LARGE MISSLE IMPACT CRITERIA GYPSUM WALL BOARD C.M.U. WALL P.T. WD. BLOCKING, AS REQUIRED. 5 1/2" 3' - 0" 5 1/2" 51/2"4'-0"4" 5 1/2" 2' - 1" 3" 2' - 1 1/2" 5 1/2" 5"3'-1"4" 2' - 0" 2'-0" 5 1/2" 3' - 0" 5 1/2" 51/2"3'-6"4" 4' - 6" 1'-6" 5 1/2" 1' - 10 1/2" 3" 1' - 10 1/2" 5 1/2" 51/2"4'-0"4" 5 1/2" 4' - 6 1/2" 5 1/2" 51/2"4'-0"4" 5 1/2" 3' - 0" 5 1/2" 51/2"3'-0"4" cube² (architecture+design) 2700 north miami avenue suite 804 miami, fl 33127 t: 305.586.8169 www.cube2architecture.com aa-26001789 ib-26001134 BINDINGEDGE Design Professional FL License Number Signature Jorge Alberto Pernas AR92904 ID5632 Revisions Sheet Information DateIssueNumber Date Job Number Scale Drawn Checked Approved Title Sheet © Copyright 2012 cube² (architecture+design) 12345 12345 A B C A B C D As indicated Oretsky Residence Todd and Sheila Oretsky 665 Buttonwood Lane Miami, FL 33137 2013_01 JAP JAP JAP 03/20/2013 A-802 Window Elevations and Details 1" = 1'-0" A2 Typ.A SECTION R310 EMERGENCY ESCAPE AND RESCUE OPENINGS R310.1 Emergency escape and rescue required. Basements, habitable attics and every sleeping room shall have at least one operable emergency escape and rescue opening. Where basements contain one or more sleeping rooms, emergency egress and rescue openings shall be required in each sleeping room. Where emergency escape and rescue openings are provided they shall have a sill height of not more than 44 inches (1118 mm) above the floor. Where a door opening having a threshold below the adjacent ground elevation serves as an emergency escape and rescue opening and is provided with a bulkhead enclosure, the bulkhead enclosure shall comply with Section R310.3. The net clear opening dimensions required by this section shall be obtained by the normal operation of the emergency escape and rescue opening from the inside. Emergency escape and rescue openings with a finished sill height below the adjacent ground elevation shall be provided with a window well in accordance with Section R310.2. Emergency escape and rescue openings shall open directly into a public way, or to a yard or court that opens to a public way. R310.1.1 Minimum opening area. All emergency escape and rescue openings shall have a minimum net clear opening of 5.7 square feet (0.530 m2). Exception: Grade floor openings shall have a minimum net clear opening of 5 square feet (0.465 m2). R310.1.2 Minimum opening height. The minimum net clear opening height shall be 24 inches (610 mm). R310.1.3 Minimum opening width. The minimum net clear opening width shall be 20 inches (508 mm). R310.1.4 Operational constraints. Emergency escape and rescue openings shall be operational from the inside of the room without the use of keys, tools or special knowledge. **EMERGENCY ESCAPE WINDOW** 1" = 1'-0" B2 Typ.B 1" = 1'-0" C2 Typ.C 1" = 1'-0" D1 Typ.D 1" = 1'-0" D2 Typ.E 1" = 1'-0" C3 Typ.F 1" = 1'-0" B3 Typ.G 1" = 1'-0" A3 Typ.H 1" = 1'-0" C5 Typ.I
  • 29.
    8'-3" A.F.F. 9'-6" A.F.F.9'-1"A.F.F. 8'-3" A.F.F. 8'-6" A.F.F. 8'-6" A.F.F. 8'-6" A.F.F. 8'-3" A.F.F. OUTDOOR SCONCE OUTDOOR SCONCE OUTDOOR SCONCE OUTDOOR SCONCE OUTDOOR SCONCE OUTDOOR SCONCE OUTDOOR FAN UP DN OVEN DW REF. WD VEG. GARDEN WINE 168 SF DEN / OFFICE 103 Trash Microwave A/C Hood & Range 6" Bench/Storage Trash 6" 24" 6" 12" 12" 265 SF LIVING ROOM 102 196 SF FORMAL DINING ROOM 105 368 SF KITCHEN 106 583 SF FAMILY ROOM 104 28 SF POWDER ROOM 109 167 SF LAUNDRY/PANTRY 108 76 SF MAID'S ROOM 110 48 SF MAID'S BATHROOM 111 465 SF GARAGE 112 FOYER 101 2700 north miami avenue suite 804 miami, fl 33127 t: 305.586.8169 www.cube2architecture.com aa-26001789 ib-26001134 BINDINGEDGE Design Professional FL License Number Signature Jorge Alberto Pernas AR92904 ID5632 Revisions Sheet Information DateIssueNumber Date Job Number Scale Drawn Checked Approved Title Sheet 12345 12345 A B C A B C D As indicated Oretsky Residence Todd and Sheila Oretsky 665 Buttonwood Lane Miami, FL 33137 2013_01 RCI RCI RCI 3/19/2013 M-101 Mechanical Plan - Level 1
  • 30.
    W.I.C 212 29 SF W.I.C 211 265 SF BEDROOM1 201 190 SF BEDROOM 2 203 288 SF BEDROOM 3 209 282 SF MASTER BEDROOM 204 58 SF HER CLOSET 206 32 SF HIS CLOSET 205 40 SF BATHROOM 2 210 149 SF MASTER BATHROOM 207 26 SF TOILET ROOM 208 77 SF BATHROOM 1 202 74 SF HALLWAY 214 8'-4" A.F.F. 8'-4" A.F.F. 8'-4" A.F.F. 8'-4" A.F.F. 8'-4" A.F.F. 8'-4" A.F.F. 8'-4" A.F.F. 8'-4" A.F.F. 8'-4" A.F.F. 8'-4" A.F.F. OUTDOOR WALL SCONCE OUTDOOR WALL SCONCE 2700 north miami avenue suite 804 miami, fl 33127 t: 305.586.8169 www.cube2architecture.com aa-26001789 ib-26001134 BINDINGEDGE Design Professional FL License Number Signature Jorge Alberto Pernas AR92904 ID5632 Revisions Sheet Information DateIssueNumber Date Job Number Scale Drawn Checked Approved Title Sheet 12345 12345 A B C A B C D As indicated Oretsky Residence Todd and Sheila Oretsky 665 Buttonwood Lane Miami, FL 33137 2013_01 RCI RCI RCI 3/19/2013 M-102 Mechanical Plan - Level 2
  • 31.
    UP DN OVEN DW REF. WD VEG. GARDEN WINE 168 SF DEN/ OFFICE 103 Trash Microwave A/C Hood & Range 6" Bench/Storage Trash 6" 24" 6" 12" 12" 265 SF LIVING ROOM 102 196 SF FORMAL DINING ROOM 105 368 SF KITCHEN 106 583 SF FAMILY ROOM 104 28 SF POWDER ROOM 109 167 SF LAUNDRY/PANTRY 108 76 SF MAID'S ROOM 110 48 SF MAID'S BATHROOM 111 465 SF GARAGE 112 FOYER 101 8'-3" A.F.F. 9'-6" A.F.F.9'-1" A.F.F. 8'-3" A.F.F. 8'-6" A.F.F. 8'-6" A.F.F. 8'-6" A.F.F. 8'-3" A.F.F. OUTDOOR SCONCE OUTDOOR SCONCE OUTDOOR SCONCE OUTDOOR SCONCE OUTDOOR SCONCE OUTDOOR SCONCE OUTDOOR FAN 2700 north miami avenue suite 804 miami, fl 33127 t: 305.586.8169 www.cube2architecture.com aa-26001789 ib-26001134 BINDINGEDGE Design Professional FL License Number Signature Jorge Alberto Pernas AR92904 ID5632 Revisions Sheet Information DateIssueNumber Date Job Number Scale Drawn Checked Approved Title Sheet 12345 12345 A B C A B C D As indicated Oretsky Residence Todd and Sheila Oretsky 665 Buttonwood Lane Miami, FL 33137 2013_01 RCI RCI RCI 3/19/2013 E-101 Electrical Plan - Level 1
  • 32.
    W.I.C 212 29 SF W.I.C 211 265 SF BEDROOM1 201 190 SF BEDROOM 2 203 288 SF BEDROOM 3 209 282 SF MASTER BEDROOM 204 58 SF HER CLOSET 206 32 SF HIS CLOSET 205 40 SF BATHROOM 2 210 149 SF MASTER BATHROOM 207 26 SF TOILET ROOM 208 77 SF BATHROOM 1 202 74 SF HALLWAY 214 8'-4" A.F.F. 8'-4" A.F.F. 8'-4" A.F.F. 8'-4" A.F.F. 8'-4" A.F.F. 8'-4" A.F.F. 8'-4" A.F.F. 8'-4" A.F.F. 8'-4" A.F.F. 8'-4" A.F.F. OUTDOOR WALL SCONCE OUTDOOR WALL SCONCE 2700 north miami avenue suite 804 miami, fl 33127 t: 305.586.8169 www.cube2architecture.com aa-26001789 ib-26001134 BINDINGEDGE Design Professional FL License Number Signature Jorge Alberto Pernas AR92904 ID5632 Revisions Sheet Information DateIssueNumber Date Job Number Scale Drawn Checked Approved Title Sheet 12345 12345 A B C A B C D As indicated Oretsky Residence Todd and Sheila Oretsky 665 Buttonwood Lane Miami, FL 33137 2013_01 RCI RCI RCI 3/19/2013 E-102 Electrical Plan - Level 2
  • 33.
    UP DN OVEN DW REF. WD VEG. GARDEN WINE 168 SF DEN/ OFFICE 103 Trash Microwave A/C Hood & Range 6" Bench/Storage Trash 6" 24" 6" 12" 12" 265 SF LIVING ROOM 102 196 SF FORMAL DINING ROOM 105 368 SF KITCHEN 106 583 SF FAMILY ROOM 104 28 SF POWDER ROOM 109 167 SF LAUNDRY/PANTRY 108 76 SF MAID'S ROOM 110 48 SF MAID'S BATHROOM 111 465 SF GARAGE 112 FOYER 101 2700 north miami avenue suite 804 miami, fl 33127 t: 305.586.8169 www.cube2architecture.com aa-26001789 ib-26001134 BINDINGEDGE Design Professional FL License Number Signature Jorge Alberto Pernas AR92904 ID5632 Revisions Sheet Information DateIssueNumber Date Job Number Scale Drawn Checked Approved Title Sheet 12345 12345 A B C A B C D As indicated Oretsky Residence Todd and Sheila Oretsky 665 Buttonwood Lane Miami, FL 33137 2013_01 RCI RCI RCI 3/19/2013 P-101 Sanitary Plan - Level 1
  • 34.
    W.I.C 212 29 SF W.I.C 211 265 SF BEDROOM1 201 190 SF BEDROOM 2 203 288 SF BEDROOM 3 209 282 SF MASTER BEDROOM 204 58 SF HER CLOSET 206 32 SF HIS CLOSET 205 40 SF BATHROOM 2 210 149 SF MASTER BATHROOM 207 26 SF TOILET ROOM 208 77 SF BATHROOM 1 202 74 SF HALLWAY 214 2700 north miami avenue suite 804 miami, fl 33127 t: 305.586.8169 www.cube2architecture.com aa-26001789 ib-26001134 BINDINGEDGE Design Professional FL License Number Signature Jorge Alberto Pernas AR92904 ID5632 Revisions Sheet Information DateIssueNumber Date Job Number Scale Drawn Checked Approved Title Sheet 12345 12345 A B C A B C D As indicated Oretsky Residence Todd and Sheila Oretsky 665 Buttonwood Lane Miami, FL 33137 2013_01 RCI RCI RCI 3/19/2013 P-102 Sanitary Plan - Level 2
  • 35.
    UP DN OVEN DW REF. WD VEG. GARDEN WINE 168 SF DEN/ OFFICE 103 Trash Microwave A/C Hood & Range 6" Bench/Storage Trash 6" 24" 6" 12" 12" 265 SF LIVING ROOM 102 196 SF FORMAL DINING ROOM 105 368 SF KITCHEN 106 583 SF FAMILY ROOM 104 28 SF POWDER ROOM 109 167 SF LAUNDRY/PANTRY 108 76 SF MAID'S ROOM 110 48 SF MAID'S BATHROOM 111 465 SF GARAGE 112 FOYER 101 2700 north miami avenue suite 804 miami, fl 33127 t: 305.586.8169 www.cube2architecture.com aa-26001789 ib-26001134 BINDINGEDGE Design Professional FL License Number Signature Jorge Alberto Pernas AR92904 ID5632 Revisions Sheet Information DateIssueNumber Date Job Number Scale Drawn Checked Approved Title Sheet 12345 12345 A B C A B C D As indicated Oretsky Residence Todd and Sheila Oretsky 665 Buttonwood Lane Miami, FL 33137 2013_01 RCI RCI RCI 3/19/2013 P-103 Water Distribution Plan - Level 1
  • 36.
    W.I.C 212 29 SF W.I.C 211 265 SF BEDROOM1 201 190 SF BEDROOM 2 203 288 SF BEDROOM 3 209 282 SF MASTER BEDROOM 204 58 SF HER CLOSET 206 32 SF HIS CLOSET 205 40 SF BATHROOM 2 210 149 SF MASTER BATHROOM 207 26 SF TOILET ROOM 208 77 SF BATHROOM 1 202 74 SF HALLWAY 214 2700 north miami avenue suite 804 miami, fl 33127 t: 305.586.8169 www.cube2architecture.com aa-26001789 ib-26001134 BINDINGEDGE Design Professional FL License Number Signature Jorge Alberto Pernas AR92904 ID5632 Revisions Sheet Information DateIssueNumber Date Job Number Scale Drawn Checked Approved Title Sheet 12345 12345 A B C A B C D As indicated Oretsky Residence Todd and Sheila Oretsky 665 Buttonwood Lane Miami, FL 33137 2013_01 RCI RCI RCI 3/19/2013 P-104 Water Distribution Plan - Level 2