CEE320
Winter2006
Signalized Intersections
CEE 320
Steve Muench
CEE320
Winter2006
Outline
1. Key Definitions
2. Baseline Assumptions
3. Control Delay
4. Signal Analysis
a. D/D/1
b. Random Arrivals
c. LOS Calculation
d. Optimization
CEE320
Winter2006
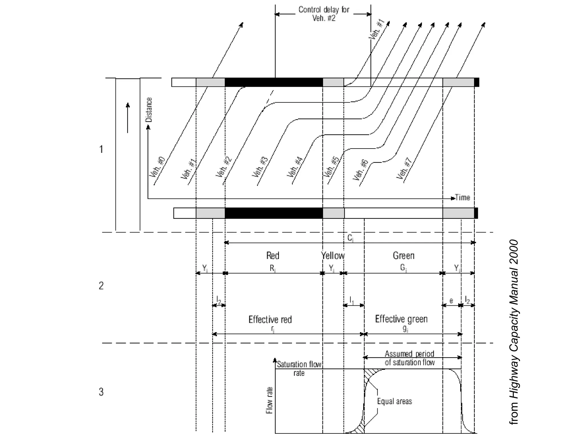
Key Definitions (1)
• Cycle Length (C)
– The total time for a signal to complete a cycle
• Phase
– The part of the signal cycle allocated to any combination
of traffic movements receiving the ROW simultaneously
during one or more intervals
• Green Time (G)
– The duration of the green indication of a given
movement at a signalized intersection
• Red Time (R)
– The period in the signal cycle during which, for a given
phase or lane group, the signal is red
CEE320
Winter2006
Key Definitions (2)
• Change Interval (Y)
– Yellow time
– The period in the signal cycle during which, for a given
phase or lane group, the signal is yellow
• Clearance Interval (AR)
– All red time
– The period in the signal cycle during which all
approaches have a red indication
CEE320
Winter2006
Key Definitions (3)
• Start-up Lost Time (l1)
– Time used by the first few vehicles in a queue while reacting
to the initiation of the green phase and accelerating.
2 seconds is typical.
• Clearance Lost Time (l2)
– Time between signal phases during which an intersection is
not used by traffic. 2 seconds is typical.
• Lost Time (tL)
– Time when an intersection is not effectively used by any
approach. 4 seconds is typical.
– tL = l1 + l2
• Total Lost Time (L)
– Total lost time per cycle during which the intersection is not
used by any movement.
CEE320
Winter2006
Key Definitions (4)
• Effective Green Time (g)
– Time actually available for movement
– g = G + Y + AR – tL
• Extension of Effective Green Time (e)
– The amount of the change and clearance interval at the
end of a phase that is usable for movement of vehicles
• Effective Red Time (r)
– Time during which a movement is effectively not
permitted to move.
– r = R + tL
– r = C – g
CEE320
Winter2006
Key Definitions (5)
• Saturation Flow Rate (s)
– Maximum flow that could pass through an intersection if
100% green time was allocated to that movement.
– s = 3600/h
• Approach Capacity (c)
– Saturation flow times the proportion of effective green
– c = s × g/C
• Peak Hour Factor (PHF)
– The hourly volume during the maximum-volume hour of
the day divided by the peak 15-minute flow rate within
the peak hour; a measure of traffic demand fluctuation
within the peak hour.
CEE320
Winter2006
Key Definitions (6)
• Flow Ratio
– The ratio of actual flow rate (v) to saturation flow rate (s)
for a lane group at an intersection
• Lane Group
– A set of lanes established at an intersection approach
for separate analysis
• Critical Lane Group
– The lane group that has the highest flow ratio (v/s) for a
given signal phase
• Critical Volume-to-Capacity Ratio (Xc)
– The proportion of available intersection capacity used
by vehicles in critical lane groups
– In terms of v/c and NOT v/s
fromHighwayCapacityManual2000
CEE320
Winter2006
Baseline Assumptions
• D/D/1 queuing
• Approach arrivals < departure capacity
– (no queue exists at the beginning/end of a
cycle)
CEE320
Winter2006
Quantifying Control Delay
• Two approaches
– Deterministic (uniform) arrivals (Use D/D/1)
– Probabilistic (random) arrivals (Use empirical equations)
• Total delay can be expressed as
– Total delay in an hour (vehicle-hours, person-hours)
– Average delay per vehicle (seconds per vehicle)
CEE320
Winter2006
D/D/1 Signal Analysis (Graphical)
Arrival
Rate
Departure
Rate
Time
Vehicles
Maximum delay
Maximum queue
Total vehicle delay per cycle
Red Red RedGreen Green Green
Queue dissipation
CEE320
Winter2006
D/D/1 Signal Analysis – Numerical
• Time to queue dissipation after the start of effective green
• Proportion of the cycle with a queue
• Proportion of vehicles stopped


  0.1
 



1
0
r
t
c
tr
Pq
0

 
  qs P
c
tr
gr
tr
P 




 00

  
  c
t
c
t
gr
tr
Ps



 000




CEE320
Winter2006
D/D/1 Signal Analysis – Numerical
• Maximum number of vehicles in a queue
• Total delay per cycle
• Average vehicle delay per cycle
• Maximum delay of any vehicle (assume FIFO)


  0.1
rQm 
 



12
2
r
Dt
   





12
1
12
22
c
r
c
r
Dt
rdm 
CEE320
Winter2006
Signal Analysis – Random Arrivals
• Webster’s Formula (1958) - empirical
d’ = avg. veh. delay assuming random arrivals
d = avg. veh. delay assuming uniform arrivals (D/D/1)
x = ratio of arrivals to departures (c/g)
g = effective green time (sec)
c = cycle length (sec)
 
)/(52
3/1
2
2
65.0
12
' cg
x
c
x
x
dd 










CEE320
Winter2006
Signal Analysis – Random Arrivals
• Allsop’s Formula (1972) - empirical
d’ = avg. veh delay assuming random arrivals
d = avg. veh delay assuming uniform arrivals
(D/D/1)
x = ratio of arrivals to departures (c/g)
 







x
x
dd
1210
9
'
2

CEE320
Winter2006
Definition – Level of Service (LOS)
• Chief measure of “quality of service”
– Describes operational conditions within a traffic
stream
– Does not include safety
– Different measures for different facilities
• Six levels of service (A through F)
CEE320
Winter2006
Signalized Intersection LOS
• Based on control delay per vehicle
– How long you wait, on average, at the stop light
from Highway Capacity Manual 2000
CEE320
Winter2006
Typical Approach
• Split control delay into three parts
– Part 1: Delay calculated assuming uniform arrivals (d1).
This is essentially a D/D/1 analysis.
– Part 2: Delay due to random arrivals (d2)
– Part 3: Delay due to initial queue at start of analysis time
period (d3). Often assumed zero.
  321 ddPFdd 
d = Average signal delay per vehicle in s/veh
PF = progression adjustment factor
d1, d2, d3 = as defined above
CEE320
Winter2006
Uniform Delay (d1)
  












C
g
X
C
g
C
d
,1min1
15.0
1
d1 = delay due to uniform arrivals (s/veh)
C = cycle length (seconds)
g = effective green time for lane group (seconds)
X = v/c ratio for lane group
CEE320
Winter2006
Incremental Delay (d2)
    






cT
kIX
XXTd
8
11900
2
2
d2 = delay due to random arrivals (s/veh)
T = duration of analysis period (hours). If the analysis is based on the
peak 15-min. flow then T = 0.25 hrs.
k = delay adjustment factor that is dependent on signal controller mode.
For pretimed intersections k = 0.5. For more efficient intersections k
< 0.5.
I = upstream filtering/metering adjustment factor. Adjusts for the effect of
an upstream signal on the randomness of the arrival pattern. I = 1.0
for completely random. I < 1.0 for reduced variance.
c = lane group capacity (veh/hr)
X = v/c ratio for lane group
CEE320
Winter2006
Initial Queue Delay (d3)
• Applied in cases where X > 1.0 for the
analysis period
– Vehicles arriving during the analysis period
will experience an additional delay because
there is already an existing queue
• When no initial queue…
– d3 = 0
CEE320
Winter2006
Control Optimization
• Conflicting Operational Objectives
– minimize vehicle delay
– minimize vehicle stops
– minimize lost time
– major vs. minor service (progression)
– pedestrian service
– reduce accidents/severity
– reduce fuel consumption
– Air pollution
CEE320
Winter2006
The “Art” of Signal Optimization
• Long Cycle Length
– High capacity (reduced lost time)
– High delay on movements that are not served
– Pedestrian movements? Number of Phases?
• Short Cycle Length
– Reduced capacity (increased lost time)
– Reduced delay for any given movement
CEE320
Winter2006
Minimum Cycle Length









 n
i ci
c
c
s
v
X
XL
C
1
min
Cmin = estimated minimum cycle length (seconds)
L = total lost time per cycle (seconds), 4 seconds per
phase is typical
(v/s)ci = flow ratio for critical lane group, i (seconds)
Xc = critical v/c ratio for the intersection
CEE320
Winter2006
Optimum Cycle Length Estimation
 









 n
i ci
opt
s
v
L
C
1
1
55.1
Copt = estimated optimum cycle length (seconds) to
minimize vehicle delay
L = total lost time per cycle (seconds), 4 seconds per
phase is typical
(v/s)ci = flow ratio for critical lane group, i (seconds)
CEE320
Winter2006
Green Time Estimation













ii
i
X
C
s
v
g
g = effective green time for phase, i (seconds)
(v/s)i = flow ratio for lane group, i (seconds)
C = cycle length (seconds)
Xi = v/c ratio for lane group i
CEE320
Winter2006
Pedestrian Crossing Time
ft.10for7.22.3 





 E
E
ped
p
p W
W
N
S
L
G
  ft.10for27.02.3  Eped
p
p WN
S
L
G
Gp = minimum green time required for pedestrians (seconds)
L = crosswalk length (ft)
Sp = average pedestrian speed (ft/s) – often assumed 4 ft/s
WE = effective crosswalk width (ft)
3.2 = pedestrian startup time (seconds)
Nped = number of pedestrians crossing during an interval
CEE320
Winter2006
Effective Width (WE)
from Highway Capacity Manual 2000
CEE320
Winter2006
Example
An intersection operates using a
simple 3-phase design as
pictured.
NB
SB
EB
WB
Phase Lane
group
Saturation Flows
1 SB 3400 veh/hr
2 NB 3400 veh/hr
3 EB 1400 veh/hr
WB 1400 veh/hr
CEE320
Winter2006
Example
SB
NB
EB
WB
30
150
50
30
400
100
1000
200
300
20
What is the sum of the flow ratios for the critical lane groups?
What is the total lost time for a signal cycle assuming 2 seconds of
clearance lost time and 2 seconds of startup lost time per phase?
CEE320
Winter2006
Example
Calculate an optimal signal timing (rounded up to the nearest 5
seconds) using Webster’s formula.
 
 


 n
i
ci
opt
sv
L
C
1
1
55.1
CEE320
Winter2006
Example
Determine the green times allocation using v/c equalization.
Assume the extension of effective green time = 2 seconds and
startup lost time = 2 seconds.













ii
i
X
C
s
v
g
LC
C
s
v
X
n
i i
c








1
CEE320
Winter2006
Example
What is the intersection Level of Service (LOS)? Assume in all
cases that PF = 1.0, k = 0.5 (pretimed intersection), I = 1.0 (no
upstream signal effects).



i
i
i
ii
A
v
vd
d



k
k
k
kk
I
v
vd
d
CEE320
Winter2006
Example
Is this signal adequate for pedestrians? A pedestrian count showed
5 pedestrians crossing the EB and WB lanes on each side of the
intersection and 10 pedestrians crossing the NB and SB
crosswalks on each side of the intersection. Lanes are 12 ft. wide.
The effective crosswalk widths are all 10 ft.
  ft10for27.02.3  Eped
p
p WN
S
L
G
CEE320
Winter2006
Signal Installation: “Warrants”
• Manual of Uniform Traffic Control
Devices (MUTCD)
• Apply these rules to determine if a
signal is “warranted” at an
intersection
• If warrants are met, doesn’t mean
signals or control is mandatory
• 8 major warrants
• Multiple warrants usually required
for recommending control
http://mutcd.fhwa.dot.gov/
FYI – NOT TESTABLE
CEE320
Winter2006
Intersection Control Type
from Highway Capacity Manual 2000
FYI – NOT TESTABLE
CEE320
Winter2006
Primary References
• Mannering, F.L.; Kilareski, W.P. and Washburn, S.S. (2003).
Principles of Highway Engineering and Traffic Analysis, Third Edition
(Draft). Chapter 7
• Transportation Research Board. (2000). Highway Capacity Manual.
National Research Council, Washington, D.C.

Lec 13A Signalized Intersections (Transportation Engineering Dr.Lina Shbeeb)

  • 1.
  • 2.
    CEE320 Winter2006 Outline 1. Key Definitions 2.Baseline Assumptions 3. Control Delay 4. Signal Analysis a. D/D/1 b. Random Arrivals c. LOS Calculation d. Optimization
  • 3.
    CEE320 Winter2006 Key Definitions (1) •Cycle Length (C) – The total time for a signal to complete a cycle • Phase – The part of the signal cycle allocated to any combination of traffic movements receiving the ROW simultaneously during one or more intervals • Green Time (G) – The duration of the green indication of a given movement at a signalized intersection • Red Time (R) – The period in the signal cycle during which, for a given phase or lane group, the signal is red
  • 4.
    CEE320 Winter2006 Key Definitions (2) •Change Interval (Y) – Yellow time – The period in the signal cycle during which, for a given phase or lane group, the signal is yellow • Clearance Interval (AR) – All red time – The period in the signal cycle during which all approaches have a red indication
  • 5.
    CEE320 Winter2006 Key Definitions (3) •Start-up Lost Time (l1) – Time used by the first few vehicles in a queue while reacting to the initiation of the green phase and accelerating. 2 seconds is typical. • Clearance Lost Time (l2) – Time between signal phases during which an intersection is not used by traffic. 2 seconds is typical. • Lost Time (tL) – Time when an intersection is not effectively used by any approach. 4 seconds is typical. – tL = l1 + l2 • Total Lost Time (L) – Total lost time per cycle during which the intersection is not used by any movement.
  • 6.
    CEE320 Winter2006 Key Definitions (4) •Effective Green Time (g) – Time actually available for movement – g = G + Y + AR – tL • Extension of Effective Green Time (e) – The amount of the change and clearance interval at the end of a phase that is usable for movement of vehicles • Effective Red Time (r) – Time during which a movement is effectively not permitted to move. – r = R + tL – r = C – g
  • 7.
    CEE320 Winter2006 Key Definitions (5) •Saturation Flow Rate (s) – Maximum flow that could pass through an intersection if 100% green time was allocated to that movement. – s = 3600/h • Approach Capacity (c) – Saturation flow times the proportion of effective green – c = s × g/C • Peak Hour Factor (PHF) – The hourly volume during the maximum-volume hour of the day divided by the peak 15-minute flow rate within the peak hour; a measure of traffic demand fluctuation within the peak hour.
  • 8.
    CEE320 Winter2006 Key Definitions (6) •Flow Ratio – The ratio of actual flow rate (v) to saturation flow rate (s) for a lane group at an intersection • Lane Group – A set of lanes established at an intersection approach for separate analysis • Critical Lane Group – The lane group that has the highest flow ratio (v/s) for a given signal phase • Critical Volume-to-Capacity Ratio (Xc) – The proportion of available intersection capacity used by vehicles in critical lane groups – In terms of v/c and NOT v/s
  • 9.
  • 10.
    CEE320 Winter2006 Baseline Assumptions • D/D/1queuing • Approach arrivals < departure capacity – (no queue exists at the beginning/end of a cycle)
  • 11.
    CEE320 Winter2006 Quantifying Control Delay •Two approaches – Deterministic (uniform) arrivals (Use D/D/1) – Probabilistic (random) arrivals (Use empirical equations) • Total delay can be expressed as – Total delay in an hour (vehicle-hours, person-hours) – Average delay per vehicle (seconds per vehicle)
  • 12.
    CEE320 Winter2006 D/D/1 Signal Analysis(Graphical) Arrival Rate Departure Rate Time Vehicles Maximum delay Maximum queue Total vehicle delay per cycle Red Red RedGreen Green Green Queue dissipation
  • 13.
    CEE320 Winter2006 D/D/1 Signal Analysis– Numerical • Time to queue dissipation after the start of effective green • Proportion of the cycle with a queue • Proportion of vehicles stopped     0.1      1 0 r t c tr Pq 0      qs P c tr gr tr P       00       c t c t gr tr Ps     000    
  • 14.
    CEE320 Winter2006 D/D/1 Signal Analysis– Numerical • Maximum number of vehicles in a queue • Total delay per cycle • Average vehicle delay per cycle • Maximum delay of any vehicle (assume FIFO)     0.1 rQm       12 2 r Dt          12 1 12 22 c r c r Dt rdm 
  • 15.
    CEE320 Winter2006 Signal Analysis –Random Arrivals • Webster’s Formula (1958) - empirical d’ = avg. veh. delay assuming random arrivals d = avg. veh. delay assuming uniform arrivals (D/D/1) x = ratio of arrivals to departures (c/g) g = effective green time (sec) c = cycle length (sec)   )/(52 3/1 2 2 65.0 12 ' cg x c x x dd           
  • 16.
    CEE320 Winter2006 Signal Analysis –Random Arrivals • Allsop’s Formula (1972) - empirical d’ = avg. veh delay assuming random arrivals d = avg. veh delay assuming uniform arrivals (D/D/1) x = ratio of arrivals to departures (c/g)          x x dd 1210 9 ' 2 
  • 17.
    CEE320 Winter2006 Definition – Levelof Service (LOS) • Chief measure of “quality of service” – Describes operational conditions within a traffic stream – Does not include safety – Different measures for different facilities • Six levels of service (A through F)
  • 18.
    CEE320 Winter2006 Signalized Intersection LOS •Based on control delay per vehicle – How long you wait, on average, at the stop light from Highway Capacity Manual 2000
  • 19.
    CEE320 Winter2006 Typical Approach • Splitcontrol delay into three parts – Part 1: Delay calculated assuming uniform arrivals (d1). This is essentially a D/D/1 analysis. – Part 2: Delay due to random arrivals (d2) – Part 3: Delay due to initial queue at start of analysis time period (d3). Often assumed zero.   321 ddPFdd  d = Average signal delay per vehicle in s/veh PF = progression adjustment factor d1, d2, d3 = as defined above
  • 20.
    CEE320 Winter2006 Uniform Delay (d1)               C g X C g C d ,1min1 15.0 1 d1 = delay due to uniform arrivals (s/veh) C = cycle length (seconds) g = effective green time for lane group (seconds) X = v/c ratio for lane group
  • 21.
    CEE320 Winter2006 Incremental Delay (d2)           cT kIX XXTd 8 11900 2 2 d2 = delay due to random arrivals (s/veh) T = duration of analysis period (hours). If the analysis is based on the peak 15-min. flow then T = 0.25 hrs. k = delay adjustment factor that is dependent on signal controller mode. For pretimed intersections k = 0.5. For more efficient intersections k < 0.5. I = upstream filtering/metering adjustment factor. Adjusts for the effect of an upstream signal on the randomness of the arrival pattern. I = 1.0 for completely random. I < 1.0 for reduced variance. c = lane group capacity (veh/hr) X = v/c ratio for lane group
  • 22.
    CEE320 Winter2006 Initial Queue Delay(d3) • Applied in cases where X > 1.0 for the analysis period – Vehicles arriving during the analysis period will experience an additional delay because there is already an existing queue • When no initial queue… – d3 = 0
  • 23.
    CEE320 Winter2006 Control Optimization • ConflictingOperational Objectives – minimize vehicle delay – minimize vehicle stops – minimize lost time – major vs. minor service (progression) – pedestrian service – reduce accidents/severity – reduce fuel consumption – Air pollution
  • 24.
    CEE320 Winter2006 The “Art” ofSignal Optimization • Long Cycle Length – High capacity (reduced lost time) – High delay on movements that are not served – Pedestrian movements? Number of Phases? • Short Cycle Length – Reduced capacity (increased lost time) – Reduced delay for any given movement
  • 25.
    CEE320 Winter2006 Minimum Cycle Length          n i ci c c s v X XL C 1 min Cmin = estimated minimum cycle length (seconds) L = total lost time per cycle (seconds), 4 seconds per phase is typical (v/s)ci = flow ratio for critical lane group, i (seconds) Xc = critical v/c ratio for the intersection
  • 26.
    CEE320 Winter2006 Optimum Cycle LengthEstimation             n i ci opt s v L C 1 1 55.1 Copt = estimated optimum cycle length (seconds) to minimize vehicle delay L = total lost time per cycle (seconds), 4 seconds per phase is typical (v/s)ci = flow ratio for critical lane group, i (seconds)
  • 27.
    CEE320 Winter2006 Green Time Estimation              ii i X C s v g g= effective green time for phase, i (seconds) (v/s)i = flow ratio for lane group, i (seconds) C = cycle length (seconds) Xi = v/c ratio for lane group i
  • 28.
    CEE320 Winter2006 Pedestrian Crossing Time ft.10for7.22.3       E E ped p p W W N S L G   ft.10for27.02.3  Eped p p WN S L G Gp = minimum green time required for pedestrians (seconds) L = crosswalk length (ft) Sp = average pedestrian speed (ft/s) – often assumed 4 ft/s WE = effective crosswalk width (ft) 3.2 = pedestrian startup time (seconds) Nped = number of pedestrians crossing during an interval
  • 29.
    CEE320 Winter2006 Effective Width (WE) fromHighway Capacity Manual 2000
  • 30.
    CEE320 Winter2006 Example An intersection operatesusing a simple 3-phase design as pictured. NB SB EB WB Phase Lane group Saturation Flows 1 SB 3400 veh/hr 2 NB 3400 veh/hr 3 EB 1400 veh/hr WB 1400 veh/hr
  • 31.
    CEE320 Winter2006 Example SB NB EB WB 30 150 50 30 400 100 1000 200 300 20 What is thesum of the flow ratios for the critical lane groups? What is the total lost time for a signal cycle assuming 2 seconds of clearance lost time and 2 seconds of startup lost time per phase?
  • 32.
    CEE320 Winter2006 Example Calculate an optimalsignal timing (rounded up to the nearest 5 seconds) using Webster’s formula.        n i ci opt sv L C 1 1 55.1
  • 33.
    CEE320 Winter2006 Example Determine the greentimes allocation using v/c equalization. Assume the extension of effective green time = 2 seconds and startup lost time = 2 seconds.              ii i X C s v g LC C s v X n i i c         1
  • 34.
    CEE320 Winter2006 Example What is theintersection Level of Service (LOS)? Assume in all cases that PF = 1.0, k = 0.5 (pretimed intersection), I = 1.0 (no upstream signal effects).    i i i ii A v vd d    k k k kk I v vd d
  • 35.
    CEE320 Winter2006 Example Is this signaladequate for pedestrians? A pedestrian count showed 5 pedestrians crossing the EB and WB lanes on each side of the intersection and 10 pedestrians crossing the NB and SB crosswalks on each side of the intersection. Lanes are 12 ft. wide. The effective crosswalk widths are all 10 ft.   ft10for27.02.3  Eped p p WN S L G
  • 36.
    CEE320 Winter2006 Signal Installation: “Warrants” •Manual of Uniform Traffic Control Devices (MUTCD) • Apply these rules to determine if a signal is “warranted” at an intersection • If warrants are met, doesn’t mean signals or control is mandatory • 8 major warrants • Multiple warrants usually required for recommending control http://mutcd.fhwa.dot.gov/ FYI – NOT TESTABLE
  • 37.
    CEE320 Winter2006 Intersection Control Type fromHighway Capacity Manual 2000 FYI – NOT TESTABLE
  • 38.
    CEE320 Winter2006 Primary References • Mannering,F.L.; Kilareski, W.P. and Washburn, S.S. (2003). Principles of Highway Engineering and Traffic Analysis, Third Edition (Draft). Chapter 7 • Transportation Research Board. (2000). Highway Capacity Manual. National Research Council, Washington, D.C.