FORM FOLLOWS FUNCTION?
This is a question that we in our
professional practise always come across.
In our opinion most of the time it does. As
illustrated in some of the examples in the
slides, particularly for functional buildings
like banks. However sometimes it is the
other way. In the example of SKVM, where
the concept revolved around the iconic
form of India House, or a very striking
dynamic form for MEGA Bhavan.
The key is I think in balancing both as
sometimes we want a particular form, but
it may have to be suitably modified to suit
a particular function.

HIREN A. GANDHI (0470)

AJIT PANDEY (1170)
After leaving the required
margins as per by-laws
the space left was very
less and it had large
neem tree which was
decided to save by us, as
a result of which the
glazing at the entries
were curved.
•

LAW
GARDEN

•
A’

A

N
•The building is G + 9 floors out of which upper two
floors are for top executives residences and a guest
house. The rest floors are for Bank’s Offices.
•VRV system was provided for Air- Conditioning which
also resulted in lot of energy saving. BMS was provided
integrating all services such as A.C. Lifts, fire, etc.
N
GSC Bank, Ahmedabad
The apex co-operative bank is located on an
extremely linear plot with primarily three blocks.
“Block-A” , “Block-B” and “Block-C”. The aluminum
screens were deployed to cut the glare of the sun
and provide shed.
The brief from the bank was to have the bank
building housing core functioning of bank, farmers‟
hostel & amenities such as canteen, sports hall
and an auditorium.

It was conscious decision to go for a mid rise block
rather than a multistoried building and to spread
the building horizontally.
The common amenities such as
canteen, auditorium are located in between the
two building. i.e., banking and farmers‟ hostel so
that both can use them.
Schematic Diagram
COMMON
AMENITIES

BANK
HOUSE

GREEN PATCH

Banking Area &
Executive Area

Canteen, Spor
ts
Room, Auditori
um

FARMERS‟
HOSTEL

Farmers‟ Hostel
Rooms &
VIP Rooms

GREEN PATCH

N

Inter Connectivity of AREAS
The Site has access from both the sides as per shown in the plan.
A thick buffer is provided with green patch on both the sides. After that the the building is divided
into 3 parts.
And the interconnectivity is such that common aminities can be used by both the blocks( Block – „A‟
& Block – „C‟ ).
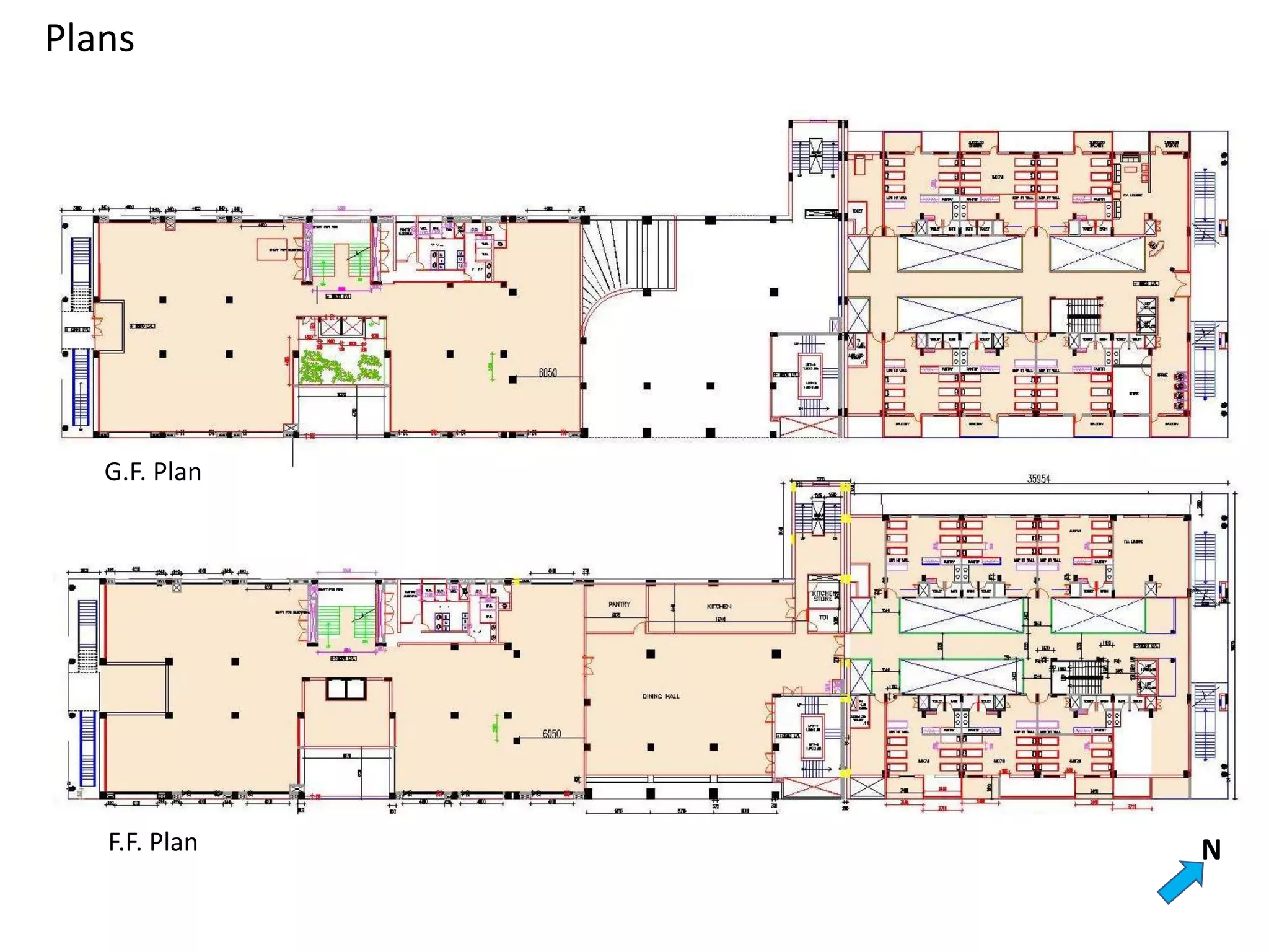
Plans

G.F. Plan

F.F. Plan

N
Longitudinal Section

G.F. Plan

N
View Of Bank Entry - 2

View Of Bank Entry - 1

View Of Bank Entry - 3
View of Double Height Entrance

Atrium view

Entry of the Bank
Waiting Area

View of Passage over Entrance

View of Entrance Double Height
View of Hostel Block Double Heights

Auditorium

View of Hostel Passage

View of Hostel Passage
Conference Room

Dinning Area

Work Station

Farmers’ Hostel
NABARD, Ahmedabad
It is an old site
with lot of
restrictions of
margin and
common plot.
Programme
required various
offices for
National bank for
Agricultureand
Rural
Development with
DGM office.
The plot
overlooks
Usmanpura
Garden & the
building responds
to the same with
a small garden at
DGM floor.
Site Plan
Usmanpura
Garden

18.28 m wide t.p. road

Site Plan
with Parking
Plans
A

G.F. Plan

F.F. Plan

A’
S.F. Plan

T.F. Plan

Terrace Garden
N
Section - AA’
Building
Overlooking
Usmanpura Garden

the
View from Usmanpura Garden - 1

View from Usmanpura Garden - 2

Side View
• The brief was to represent the progressive image of the town of Gandhidham.

•Since it falls within a significant seismic zone in Kutch, the design had to follow stringent bye
laws and codes . In fact, the skeleton of the building was complete when the devastating
earthquake of 2001 struck. It was the one of the few buildings on the street that survived, with
practically no damage. However, as an additional precaution, such as adding ties to the
columns were incorporated into the existing structure.
•The inspiration behind the design is the
beautiful traditional forms of Kutchi
structures, though it also confidently embodies
the progressive and cosmopolitan image required
in the brief.
•The curvilinear north façade subtly evokes the
traditional “Bhunga” huts of Kutch, while its
north facing glass wall is shaded by a pergola
above, which also protects the entrance from the
harsh sun and lends a soft indirect filtered
light, creating patterns on the floor.

• A fountain in the front helps create a cool feel
at the entrance. Inclined aluminum fins on the
west façade help reduce the harsh sunlight and
catch the southwest breezes.
A

A’

N
•This unconventional bank building is
built on a rectangular plot of 800
sq.mt. with the main road running
along one side of the plot.
•The building has suitably imposing
feel, reinforced by a banking hall sited at a
raised level, with a mezzanine floor.
•The executive wing and conference hall are
located at ground level, while utilities and
parking are provided at the basement.
KEY ELEMENTS -

•Exposed trusses have been honestly incorporated into the interior design.
•The interiors have touches of bright earthy color, while typical kutchi folk
elements like the triangular motif have been incorporated in glass etchings
and in the floor as inlays.
• The air-conditioning ducts have been kept exposed and are painted brightly
to contrast with the exposed concrete ceiling, a very contemporary note.
• The curvilinear form of the north wall is echoed in the furniture. The motif
of the triangle, is used as a linking pattern throughout the interior.
Syndicate Bank , Vadodara

Bank building was proposed on the prime
locality in Alkapuri in Baroda.
It had to house officers‟ flats above &
bank on the Ground floor.
Stilt area was provided & G.F. + 3
structure was planned.
The G.F. level housed bank‟s branch
while the upper floor had flats with each
floor having a small terrace.
Vertical fins were provided to shed the
windows on front side road for privacy.

View From Road
Plans

G.F. Plan

Key Plan
Plans

F.F. Plan

Key Plan
Plans

S.F. Plan

Key Plan
Plans

T.F. Plan

Key Plan
Section

Section Reference
Voids to get natural light into the central areas
of the bank

View Showing Terraces and Louvers as
Shading Elements

Exterior View
SITE PLAN

The plot on the Palanpur district highway is extremely narrow due
to building control line . A very and long building is only possible
to construct. The area to be built upon is wider at the other end.
A

A’

GROUND FLOOR

•Services were incorporated at the narrow and living
wider side for functions like conference rooms, etc.
D.G.U. are used all throughout to cut the sound &
reduce the heat.

N
FIRST FLOOR
SECTION A-A’
A

A’
•
•

•
GROUND FLOOR

SECOND FLOOR

FIRST FLOOR

THIRD FLOOR

N
A

SECTION A-A’

A’
GSPC is amongst the brightest and most successful Govt. corporations in Gujarat. Their brief for a multistory
building would reflect and project progressive corporate ethos in modern idiom.
The site is rectangular – 60 m* 30 m, has 20 mt. road on north and 25 mt. road on east side. It is typical urban
plot devoid of any natural or topographical feature.

Conceptually the overall building form, its orientation, size, type and extent of fenestrations, locations of
constituent elements take into account the hot and dry climate.
This results in very few openings on West, North dacade is fully Structural glazed to draw maximum natural,
glare free north light; stepped south façade is specially articulated with pronounced ledges to receive solar
photo voltaic panels as south, south east is most appropriate for harnessing solar power. Each façade is
different than the other responding to a set of relevant applicable factors.
GROUND FLOOR

SECOND FLOOR

FIRST FLOOR

THIRD FLOOR

This results in very few openings on West, North facade is fully Structural glazed to draw maximum
natural, glare free north light; stepped south façade is specially articulated with pronounced ledges to
receive solar photo voltaic panels as south, south east is most appropriate for harnessing solar power.
Each façade is different than the other responding to a set of relevant applicable factors.
From podium one reaches the atrium which provides a unique visual delight where on one side floors are
cantilevered into the atrium space forming interesting honey combing type massing of boxes; A capsule lift
is tucked in one corner, as its base reception desk is located with plants in background.

N
A

A’

FOURTH FLOOR
View of Stepped Glazing

View of Volumes
Created Inside

SECTION AA’
View From Inside

View of staggered cubical forms
Kranti Tirth, Mandvi
The present India House, houses Library and Audio
Visual room on Ground floor & picture gallery on the
upper floor. A lift has been incorporated in the plan to
make convenient for visitors.

The India House built in the Shyamji Varma
memorial complex, Mandvi is modeled on the
pattern of original India House 65, Cromwell
avenue was a detached Victorian house built
in 1865 as part of the Winchester Hall Estate
development.

Also a ramp has been provided for convenience of
physically challenged.
The external elevation features the overall proportion of
the India House.

Picture Gallery

View of India House

Library
The site is 500 mt. away from the sea shore & is
a rectangular piece of Land.
Ample visitors‟ parking space is provided near
the entrance.
From here one enters the mashal court which is
void within a circular mound.

Night View towards Sea from India House

View from Entrance towards INDIA HOUSE

It has cascading water fountain on its circular
walls. Fromm here on the journey continues
through semi-shaded pergola walkway with India
house at the end of the axis.
India House at Smarak

G.F. Plan

There is a provision of ramp for convenience of
physically challenged.
The external elevation features the overall proportion
of the India House have been by and large replicated.
All the front balconies are having the direct view of
the sea through the axis.
The statue of Shyamji Krushna Varma is placed in the
courtyard in front of the INDIA House.

Site Plan
Details of the Exhibition

Amphitheatre, cafeteria and Shops Plan

Exhibition Area

View Of Amphitheatre
The complex also houses an exhibition on life & times of
Shyamji Krishna Varma.
Common amenities such as cafeteria, souvenir
shops, Amphitheater, children play area, senior citizens’
corner are added for convenience of the visitors.
Pargolas are added as a climatic element over long
passages and at the Mashal Court, which enhances the
beauty by creating interesting shadows.

Exhibition Area

View from Covered Passage

MASHAL Court

Cultural programmes and exhibitions are
held on the occasion of Republic Day and
Independence day, to create awareness.
Asthi Kumbh

Swami Vivekanand Pavilion

View Inside India House

View Inside India House
View from Parking

View Of MASHAL Court at night

View Of India House From Courtyard at night

Exhibition Area
MEGA BHAVAN

To Ahmedabad

To Gandhinagar

Indroda
Depot
Hiren Gandhi's Presentation in #MultiCulti2014 Event
Hiren Gandhi's Presentation in #MultiCulti2014 Event
Hiren Gandhi's Presentation in #MultiCulti2014 Event
Hiren Gandhi's Presentation in #MultiCulti2014 Event
Hiren Gandhi's Presentation in #MultiCulti2014 Event
Hiren Gandhi's Presentation in #MultiCulti2014 Event

Hiren Gandhi's Presentation in #MultiCulti2014 Event

  • 1.
    FORM FOLLOWS FUNCTION? Thisis a question that we in our professional practise always come across. In our opinion most of the time it does. As illustrated in some of the examples in the slides, particularly for functional buildings like banks. However sometimes it is the other way. In the example of SKVM, where the concept revolved around the iconic form of India House, or a very striking dynamic form for MEGA Bhavan. The key is I think in balancing both as sometimes we want a particular form, but it may have to be suitably modified to suit a particular function. HIREN A. GANDHI (0470) AJIT PANDEY (1170)
  • 2.
    After leaving therequired margins as per by-laws the space left was very less and it had large neem tree which was decided to save by us, as a result of which the glazing at the entries were curved.
  • 4.
  • 5.
    A’ A N •The building isG + 9 floors out of which upper two floors are for top executives residences and a guest house. The rest floors are for Bank’s Offices. •VRV system was provided for Air- Conditioning which also resulted in lot of energy saving. BMS was provided integrating all services such as A.C. Lifts, fire, etc.
  • 6.
  • 8.
    GSC Bank, Ahmedabad Theapex co-operative bank is located on an extremely linear plot with primarily three blocks. “Block-A” , “Block-B” and “Block-C”. The aluminum screens were deployed to cut the glare of the sun and provide shed. The brief from the bank was to have the bank building housing core functioning of bank, farmers‟ hostel & amenities such as canteen, sports hall and an auditorium. It was conscious decision to go for a mid rise block rather than a multistoried building and to spread the building horizontally. The common amenities such as canteen, auditorium are located in between the two building. i.e., banking and farmers‟ hostel so that both can use them.
  • 9.
    Schematic Diagram COMMON AMENITIES BANK HOUSE GREEN PATCH BankingArea & Executive Area Canteen, Spor ts Room, Auditori um FARMERS‟ HOSTEL Farmers‟ Hostel Rooms & VIP Rooms GREEN PATCH N Inter Connectivity of AREAS The Site has access from both the sides as per shown in the plan. A thick buffer is provided with green patch on both the sides. After that the the building is divided into 3 parts. And the interconnectivity is such that common aminities can be used by both the blocks( Block – „A‟ & Block – „C‟ ).
  • 10.
  • 11.
  • 12.
    View Of BankEntry - 2 View Of Bank Entry - 1 View Of Bank Entry - 3
  • 13.
    View of DoubleHeight Entrance Atrium view Entry of the Bank
  • 14.
    Waiting Area View ofPassage over Entrance View of Entrance Double Height
  • 15.
    View of HostelBlock Double Heights Auditorium View of Hostel Passage View of Hostel Passage
  • 16.
    Conference Room Dinning Area WorkStation Farmers’ Hostel
  • 17.
    NABARD, Ahmedabad It isan old site with lot of restrictions of margin and common plot. Programme required various offices for National bank for Agricultureand Rural Development with DGM office. The plot overlooks Usmanpura Garden & the building responds to the same with a small garden at DGM floor.
  • 18.
    Site Plan Usmanpura Garden 18.28 mwide t.p. road Site Plan with Parking
  • 19.
    Plans A G.F. Plan F.F. Plan A’ S.F.Plan T.F. Plan Terrace Garden N
  • 20.
  • 21.
    View from UsmanpuraGarden - 1 View from Usmanpura Garden - 2 Side View
  • 22.
    • The briefwas to represent the progressive image of the town of Gandhidham. •Since it falls within a significant seismic zone in Kutch, the design had to follow stringent bye laws and codes . In fact, the skeleton of the building was complete when the devastating earthquake of 2001 struck. It was the one of the few buildings on the street that survived, with practically no damage. However, as an additional precaution, such as adding ties to the columns were incorporated into the existing structure.
  • 23.
    •The inspiration behindthe design is the beautiful traditional forms of Kutchi structures, though it also confidently embodies the progressive and cosmopolitan image required in the brief. •The curvilinear north façade subtly evokes the traditional “Bhunga” huts of Kutch, while its north facing glass wall is shaded by a pergola above, which also protects the entrance from the harsh sun and lends a soft indirect filtered light, creating patterns on the floor. • A fountain in the front helps create a cool feel at the entrance. Inclined aluminum fins on the west façade help reduce the harsh sunlight and catch the southwest breezes.
  • 24.
    A A’ N •This unconventional bankbuilding is built on a rectangular plot of 800 sq.mt. with the main road running along one side of the plot. •The building has suitably imposing feel, reinforced by a banking hall sited at a raised level, with a mezzanine floor. •The executive wing and conference hall are located at ground level, while utilities and parking are provided at the basement.
  • 25.
    KEY ELEMENTS - •Exposedtrusses have been honestly incorporated into the interior design. •The interiors have touches of bright earthy color, while typical kutchi folk elements like the triangular motif have been incorporated in glass etchings and in the floor as inlays. • The air-conditioning ducts have been kept exposed and are painted brightly to contrast with the exposed concrete ceiling, a very contemporary note. • The curvilinear form of the north wall is echoed in the furniture. The motif of the triangle, is used as a linking pattern throughout the interior.
  • 27.
    Syndicate Bank ,Vadodara Bank building was proposed on the prime locality in Alkapuri in Baroda. It had to house officers‟ flats above & bank on the Ground floor. Stilt area was provided & G.F. + 3 structure was planned. The G.F. level housed bank‟s branch while the upper floor had flats with each floor having a small terrace. Vertical fins were provided to shed the windows on front side road for privacy. View From Road
  • 28.
  • 29.
  • 30.
  • 31.
  • 32.
  • 33.
    Voids to getnatural light into the central areas of the bank View Showing Terraces and Louvers as Shading Elements Exterior View
  • 35.
    SITE PLAN The ploton the Palanpur district highway is extremely narrow due to building control line . A very and long building is only possible to construct. The area to be built upon is wider at the other end.
  • 36.
    A A’ GROUND FLOOR •Services wereincorporated at the narrow and living wider side for functions like conference rooms, etc. D.G.U. are used all throughout to cut the sound & reduce the heat. N FIRST FLOOR
  • 37.
  • 38.
  • 39.
  • 40.
  • 41.
    GSPC is amongstthe brightest and most successful Govt. corporations in Gujarat. Their brief for a multistory building would reflect and project progressive corporate ethos in modern idiom. The site is rectangular – 60 m* 30 m, has 20 mt. road on north and 25 mt. road on east side. It is typical urban plot devoid of any natural or topographical feature. Conceptually the overall building form, its orientation, size, type and extent of fenestrations, locations of constituent elements take into account the hot and dry climate. This results in very few openings on West, North dacade is fully Structural glazed to draw maximum natural, glare free north light; stepped south façade is specially articulated with pronounced ledges to receive solar photo voltaic panels as south, south east is most appropriate for harnessing solar power. Each façade is different than the other responding to a set of relevant applicable factors.
  • 42.
    GROUND FLOOR SECOND FLOOR FIRSTFLOOR THIRD FLOOR This results in very few openings on West, North facade is fully Structural glazed to draw maximum natural, glare free north light; stepped south façade is specially articulated with pronounced ledges to receive solar photo voltaic panels as south, south east is most appropriate for harnessing solar power. Each façade is different than the other responding to a set of relevant applicable factors. From podium one reaches the atrium which provides a unique visual delight where on one side floors are cantilevered into the atrium space forming interesting honey combing type massing of boxes; A capsule lift is tucked in one corner, as its base reception desk is located with plants in background. N
  • 43.
    A A’ FOURTH FLOOR View ofStepped Glazing View of Volumes Created Inside SECTION AA’
  • 44.
    View From Inside Viewof staggered cubical forms
  • 45.
    Kranti Tirth, Mandvi Thepresent India House, houses Library and Audio Visual room on Ground floor & picture gallery on the upper floor. A lift has been incorporated in the plan to make convenient for visitors. The India House built in the Shyamji Varma memorial complex, Mandvi is modeled on the pattern of original India House 65, Cromwell avenue was a detached Victorian house built in 1865 as part of the Winchester Hall Estate development. Also a ramp has been provided for convenience of physically challenged. The external elevation features the overall proportion of the India House. Picture Gallery View of India House Library
  • 46.
    The site is500 mt. away from the sea shore & is a rectangular piece of Land. Ample visitors‟ parking space is provided near the entrance. From here one enters the mashal court which is void within a circular mound. Night View towards Sea from India House View from Entrance towards INDIA HOUSE It has cascading water fountain on its circular walls. Fromm here on the journey continues through semi-shaded pergola walkway with India house at the end of the axis.
  • 47.
    India House atSmarak G.F. Plan There is a provision of ramp for convenience of physically challenged. The external elevation features the overall proportion of the India House have been by and large replicated. All the front balconies are having the direct view of the sea through the axis. The statue of Shyamji Krushna Varma is placed in the courtyard in front of the INDIA House. Site Plan
  • 48.
    Details of theExhibition Amphitheatre, cafeteria and Shops Plan Exhibition Area View Of Amphitheatre
  • 49.
    The complex alsohouses an exhibition on life & times of Shyamji Krishna Varma. Common amenities such as cafeteria, souvenir shops, Amphitheater, children play area, senior citizens’ corner are added for convenience of the visitors. Pargolas are added as a climatic element over long passages and at the Mashal Court, which enhances the beauty by creating interesting shadows. Exhibition Area View from Covered Passage MASHAL Court Cultural programmes and exhibitions are held on the occasion of Republic Day and Independence day, to create awareness.
  • 50.
    Asthi Kumbh Swami VivekanandPavilion View Inside India House View Inside India House
  • 51.
    View from Parking ViewOf MASHAL Court at night View Of India House From Courtyard at night Exhibition Area
  • 53.
    MEGA BHAVAN To Ahmedabad ToGandhinagar Indroda Depot