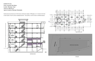
82 BURLINGTON STREET
Construction Certificate Drawing for Renovation of Residence
Client: Chris and Theresa Kelly
Location: Crows Nest, NSW 2065
Date: 21 June 2016
Approval Authority: North Sydney Council
The subject application seeks for alterations and additions to an existing single storey terrace dwelling
including a first floor addition and a single carport at the rear of the property fronting Burlington
Lane.
Ground Floor:
- Demolish the rear portion of existing western wall and some internal walls
- Extend the rear of the dwelling to the western side boundary to provide for a new kitchen, family
area, bathroom and staircase
- Construct new single carport with panel lift door and paved area for bin storage
- Demolish existing brick front fence and replace with traditional picket fence
Long section
Proposed Ground Floor Plan
Demolition plan
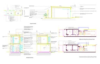
Detailed Sections
Carport Details
Block A
Reflected Ceiling Plan of Ground Floor
Electrical and Service plan of Ground Floor
Rear Elevation
Ground Floor Plan
First Floor Plan
Roof Plan
53 Ourimbah Road
Existing Drawing for Development Application Drawing
Client: Mr. Rene Leveaux
Location: Mosman
The subject application seeks for alterations of ground floor plan and retained
first floor .
Ground Floor:
- Demolish the rear portion of ground floor plan and some internal walls
- alteration of back of the boundary to provide new kitchen, dining and family
area.
JP COMMERCIAL BUILDING
Location: Thamel, Kathmandu
Total site area: 4847.83 SQ.M
Built up area: 1950.19 SQ.M
Rentable area: 990.69 SQ.M
Approval Authority: Bagmati Municipality
Typical floor plan
Long section
Volumetric view of site
JP commercial complex is one of the upcoming biggest commercial, business and entertainment build-
ing located in Thamel. Inside the premises, there is JP school at the back of the complex. It include base-
ment parking, retail shops and hotel rooms. It is five storey building with basement parking. The main
road is on three sides with entrance and exit points. Ground and first floor are use for retail shops. Se-
cond floor is use for multipurpose and food court. Rest of the two floors are use for hotel purposes.
ANANDA WORLD TRADE CENTER
Client: Kanhaiya Lal Shrestha
Location: Chitwan, Nepal
Total site area: 48394.40 SQ FT
Total coverage: 65%
Approval Authority: Bharatpur Municipality
BLOCK A
BLOCK E
BLOCK D
BLOCK C
BLOCK B
BLOCK H
BLOCK G
BLOCK F
Ananda World Trade Centre is one of the upcoming biggest commercial building located in Chitwan, Ne-
pal. It include basement parking on both of the exit road. It includes retail shop, departmental stores, banks
and lot of hotels and coffee shop. It has recreation park as the centre of attraction. The internal passage is
wide enough for the E-rickshaw from basement to reach each store by elevator.
Master plan
Block A section
Block A
3D perspective
URBAN REDEVELOPMENT AT JADIBUTI
Location: Jadibuti area, along Manohara River
Total site area: 137890.1740 SQ M
Built up area: 32283.3 SQ M
Jadibuti chowk is one of the major interconnections of macro roads like Koteshwor, Pepsicola and Bhakta-
pur. Jadibuti is potential in the business to create landmarks for better imageability. The aim are
 To enrich the potential urban features and facilities for city dwellers as well as enhance pedestrian
movement whilst discouraging private vehicles
 To enhance a legible urban form establishing the assemblage of urban square and create a landmark
Longitudinal road section
Section of river set back
Master plan
BHETGHAT RESTAURANT
Client: Mahesh Tiwari
Location: Bharatpur, Nepal
Task: interior design and animation of two sto-
rey café
Restaurant with two storey building with perfect
family environment and modern ambience. Archi-
tect was ask to design unique decoration with mod-
ern art. False ceiling, pillar and wall decoration were
more like sea (blue) concept.
View of interior designs
LOKMAN PLAZA
Client: Gyanendra Man Shakya
Location: Bharatpur, Nepal
Total area: 2054.20 sq. ft.
Approval Authority: Bharatpur Municipality
Lokman plaza has become one of the busiest commercial complex of Bharatpur as it is located at the heart
of main market. It has five floors including basement. The top floor is used by client as residential purpose.
Sectional view
Site plan
Typical floor plan
RESIDENTIAL VILLA
Client: Buddhi Dhakal
Location: Bharatpur, Nepal
Total area: 5600 sq. ft.
Built up area: 2678.30 sq. ft.
Approval Authority: Bharatpur Municipality
Residential villa is designed with sophisticated planning with circular staircase. It is two and half storey
building composed of flat and slope roof. Design is more or less like a gothic architecture.
Front elevation Typical section
Typical floor plan
NIKO CHILDREN HOSPITAL AND RESEARCH CENTER
Client: Suraj Shakya
Location: Bharatpur, Nepal
Task: Façade Treatment
Architect was given for façade treatment of the building. As this hospital was design for children, primary
colour was used with box concept. Attractive colours and eye catching features of the building enhances the
area along highway.
3D views of the building
RESIDENTIAL CUM COMMERCIAL BUILDING
Clinet: Kanhaiya Lal Shrestha
Location: Bharatpur, Nepal
Built up coverage: 30%
Approval Authority: Bharatpur Municipality
The commercial cum residential building is designed based on client requirements for business in the
lower two floors and residence in upper two floors. As the location is situated in the hot tropic zone,
Architect create the truss roofing on the top floors to protect from excessive heat. At the of the building,
ware house was designed for the storage of construction materials. The site is nearly located to the
north side of Narayani river which gives the cooling effect during summer.
Typical plan
3D isometric view
DIFFERENTLY ABLED HOSPITAL AND REHABILITATION CENTER
Bachelor of Architecture Thesis Final Project
Location: Bharatpur, Nepal
People with disabilities are widely denied equal civil rights, rights to family life and recognition of legal capacity. Yet none of the governments reports re-
view reveals any acknowledgment of how the rights of people with disabilities are being realized. In many ways, people with disabilities are rendered invisi-
ble. The aim to introduce obligations on governments to implement existing human rights for differently able people on an equal basis compared with nor-
mal people. It assesses various problems and issues of the physically disabled through interviews, observation and some photographs, and finally an appro-
One point perspective view (3D)
3D views
Wheelchair mobility area
(3D landscape)

Emma Shrestha Portfolio

  • 1.
    82 BURLINGTON STREET ConstructionCertificate Drawing for Renovation of Residence Client: Chris and Theresa Kelly Location: Crows Nest, NSW 2065 Date: 21 June 2016 Approval Authority: North Sydney Council The subject application seeks for alterations and additions to an existing single storey terrace dwelling including a first floor addition and a single carport at the rear of the property fronting Burlington Lane. Ground Floor: - Demolish the rear portion of existing western wall and some internal walls - Extend the rear of the dwelling to the western side boundary to provide for a new kitchen, family area, bathroom and staircase - Construct new single carport with panel lift door and paved area for bin storage - Demolish existing brick front fence and replace with traditional picket fence Long section Proposed Ground Floor Plan Demolition plan
  • 2.
    Detailed Sections Carport Details BlockA Reflected Ceiling Plan of Ground Floor Electrical and Service plan of Ground Floor
  • 3.
    Rear Elevation Ground FloorPlan First Floor Plan Roof Plan 53 Ourimbah Road Existing Drawing for Development Application Drawing Client: Mr. Rene Leveaux Location: Mosman The subject application seeks for alterations of ground floor plan and retained first floor . Ground Floor: - Demolish the rear portion of ground floor plan and some internal walls - alteration of back of the boundary to provide new kitchen, dining and family area.
  • 4.
    JP COMMERCIAL BUILDING Location:Thamel, Kathmandu Total site area: 4847.83 SQ.M Built up area: 1950.19 SQ.M Rentable area: 990.69 SQ.M Approval Authority: Bagmati Municipality Typical floor plan Long section Volumetric view of site JP commercial complex is one of the upcoming biggest commercial, business and entertainment build- ing located in Thamel. Inside the premises, there is JP school at the back of the complex. It include base- ment parking, retail shops and hotel rooms. It is five storey building with basement parking. The main road is on three sides with entrance and exit points. Ground and first floor are use for retail shops. Se- cond floor is use for multipurpose and food court. Rest of the two floors are use for hotel purposes.
  • 5.
    ANANDA WORLD TRADECENTER Client: Kanhaiya Lal Shrestha Location: Chitwan, Nepal Total site area: 48394.40 SQ FT Total coverage: 65% Approval Authority: Bharatpur Municipality BLOCK A BLOCK E BLOCK D BLOCK C BLOCK B BLOCK H BLOCK G BLOCK F Ananda World Trade Centre is one of the upcoming biggest commercial building located in Chitwan, Ne- pal. It include basement parking on both of the exit road. It includes retail shop, departmental stores, banks and lot of hotels and coffee shop. It has recreation park as the centre of attraction. The internal passage is wide enough for the E-rickshaw from basement to reach each store by elevator. Master plan Block A section Block A
  • 6.
    3D perspective URBAN REDEVELOPMENTAT JADIBUTI Location: Jadibuti area, along Manohara River Total site area: 137890.1740 SQ M Built up area: 32283.3 SQ M Jadibuti chowk is one of the major interconnections of macro roads like Koteshwor, Pepsicola and Bhakta- pur. Jadibuti is potential in the business to create landmarks for better imageability. The aim are  To enrich the potential urban features and facilities for city dwellers as well as enhance pedestrian movement whilst discouraging private vehicles  To enhance a legible urban form establishing the assemblage of urban square and create a landmark Longitudinal road section Section of river set back Master plan
  • 7.
    BHETGHAT RESTAURANT Client: MaheshTiwari Location: Bharatpur, Nepal Task: interior design and animation of two sto- rey café Restaurant with two storey building with perfect family environment and modern ambience. Archi- tect was ask to design unique decoration with mod- ern art. False ceiling, pillar and wall decoration were more like sea (blue) concept. View of interior designs
  • 8.
    LOKMAN PLAZA Client: GyanendraMan Shakya Location: Bharatpur, Nepal Total area: 2054.20 sq. ft. Approval Authority: Bharatpur Municipality Lokman plaza has become one of the busiest commercial complex of Bharatpur as it is located at the heart of main market. It has five floors including basement. The top floor is used by client as residential purpose. Sectional view Site plan Typical floor plan
  • 9.
    RESIDENTIAL VILLA Client: BuddhiDhakal Location: Bharatpur, Nepal Total area: 5600 sq. ft. Built up area: 2678.30 sq. ft. Approval Authority: Bharatpur Municipality Residential villa is designed with sophisticated planning with circular staircase. It is two and half storey building composed of flat and slope roof. Design is more or less like a gothic architecture. Front elevation Typical section Typical floor plan
  • 10.
    NIKO CHILDREN HOSPITALAND RESEARCH CENTER Client: Suraj Shakya Location: Bharatpur, Nepal Task: Façade Treatment Architect was given for façade treatment of the building. As this hospital was design for children, primary colour was used with box concept. Attractive colours and eye catching features of the building enhances the area along highway. 3D views of the building
  • 11.
    RESIDENTIAL CUM COMMERCIALBUILDING Clinet: Kanhaiya Lal Shrestha Location: Bharatpur, Nepal Built up coverage: 30% Approval Authority: Bharatpur Municipality The commercial cum residential building is designed based on client requirements for business in the lower two floors and residence in upper two floors. As the location is situated in the hot tropic zone, Architect create the truss roofing on the top floors to protect from excessive heat. At the of the building, ware house was designed for the storage of construction materials. The site is nearly located to the north side of Narayani river which gives the cooling effect during summer. Typical plan 3D isometric view
  • 12.
    DIFFERENTLY ABLED HOSPITALAND REHABILITATION CENTER Bachelor of Architecture Thesis Final Project Location: Bharatpur, Nepal People with disabilities are widely denied equal civil rights, rights to family life and recognition of legal capacity. Yet none of the governments reports re- view reveals any acknowledgment of how the rights of people with disabilities are being realized. In many ways, people with disabilities are rendered invisi- ble. The aim to introduce obligations on governments to implement existing human rights for differently able people on an equal basis compared with nor- mal people. It assesses various problems and issues of the physically disabled through interviews, observation and some photographs, and finally an appro- One point perspective view (3D) 3D views Wheelchair mobility area (3D landscape)