FREE HAND SKETCHING
FOR T.V.
FOR
S.V.
FOR F.V.
FIRST ANGLE
PROJECTION
IN THIS METHOD,
THE OBJECT IS ASSUMED TO BE
SITUATED IN FIRST QUADRANT
MEANS
ABOVE HP & INFRONT OF VP.
OBJECT IS INBETWEEN
OBSERVER & PLANE.
ACTUAL PATTERN OF
PLANES & VIEWS
IN
FIRST ANGLE METHOD
OF PROJECTIONS
X Y
VP
HP
PP
FV LSV
TV
1st ANGLE PROJECTION
OBSERVER
X
x y
FRONT VIEW
TOP VIEW
L.H.SIDE VIEW
FOR F.V.
FOR S.V.
FOR T.V.
PICTORIAL PRESENTATION IS GIVEN
DRAW THREE VIEWS OF THIS OBJECT
BY FIRST ANGLE PROJECTION METHOD
ORTHOGRAPHIC
PROJECTIONS
FOR F.V.
FOR
S.V.
FOR T.V.
X Y
FRONT VIEW
TOP VIEW
L.H.SIDE VIEW
ORTHOGRAPHIC
PROJECTIONS
PICTORIAL PRESENTATION IS GIVEN
DRAW THREE VIEWS OF THIS OBJECT
BY FIRST ANGLE PROJECTION METHOD
FOR T.V.
FOR
S.V.
FOR F.V.
PICTORIAL PRESENTATION IS GIVEN
DRAW THREE VIEWS OF THIS OBJECT
BY FIRST ANGLE PROJECTION METHOD
ORTHOGRAPHIC
PROJECTIONS
FRONT VIEW
TOP VIEW
L.H.SIDE VIEW
X Y
FOR F.V.
FOR S.V.
FOR T.V.
ORTHOGRAPHIC
PROJECTIONS
X Y
FRONT VIEW
TOP VIEW
L.H.SIDE VIEW
PICTORIAL PRESENTATION IS GIVEN
DRAW THREE VIEWS OF THIS OBJECT
BY FIRST ANGLE PROJECTION METHOD
FOR T.V.
FOR
S.V.
FOR F.V.
PICTORIAL PRESENTATION IS GIVEN
DRAW THREE VIEWS OF THIS OBJECT
BY FIRST ANGLE PROJECTION METHOD
ORTHOGRAPHIC
PROJECTIONS
FRONT VIEW
TOP VIEW
L.H.SIDE VIEW
X Y
FOR T.V.
FOR
S.V.
FOR F.V.
PICTORIAL PRESENTATION IS GIVEN
DRAW THREE VIEWS OF THIS OBJECT
BY FIRST ANGLE PROJECTION METHOD
ORTHOGRAPHIC
PROJECTIONS
FRONT VIEW
TOP VIEW
L.H.SIDE VIEW
X Y
FOR T.V.
FOR F.V.
FOR
S.V.
PICTORIAL PRESENTATION IS GIVEN
DRAW THREE VIEWS OF THIS OBJECT
BY FIRST ANGLE PROJECTION METHOD
ORTHOGRAPHIC
PROJECTIONS
FRONT VIEW
TOP VIEW
L.H.SIDE VIEW
X Y
FOR T.V.
FOR F.V.
FOR
S.V.
ORTHOGRAPHIC
PROJECTIONS
FRONT VIEW
TOP VIEW
L.H.SIDE VIEW
X Y
PICTORIAL PRESENTATION IS GIVEN
DRAW THREE VIEWS OF THIS OBJECT
BY FIRST ANGLE PROJECTION METHOD
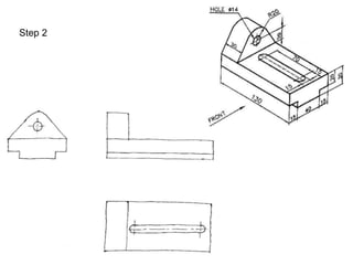
General procedure for sketching orthographic views
from pictorial view (isometric view):
Step 1 : Sketch with free hand, the outline of all the required views with
thin line (2H pencil).
Step 2 : Sketch with free hand, all the visible lines and visible circles in
all the required views with thin line (2H pencil).
Step 3 : Sketch with free hand, all the hidden lines and hidden circles in
all the required views with thin line (2H pencil).
Step 4 : After checking for technical mistakes if any, darken (with free
hand) all the visible lines, hidden lines, visible circles/arcs and hidden
circles/arcs forming the required views with HB pencil.
Step 5 : Lettering (both alphabets and numbers) should be done with
free hand.
An example :
Make free-hand sketches of front, top and right side views of the
pictorial view shown below.
Step 1 :
Step 2
Step 3 :
Step 4 :
Step 5 :
Engineering Graphics Free hand sketching
Engineering Graphics Free hand sketching
Engineering Graphics Free hand sketching
Engineering Graphics Free hand sketching
Engineering Graphics Free hand sketching
Engineering Graphics Free hand sketching

Engineering Graphics Free hand sketching

  • 1.
  • 2.
    FOR T.V. FOR S.V. FOR F.V. FIRSTANGLE PROJECTION IN THIS METHOD, THE OBJECT IS ASSUMED TO BE SITUATED IN FIRST QUADRANT MEANS ABOVE HP & INFRONT OF VP. OBJECT IS INBETWEEN OBSERVER & PLANE. ACTUAL PATTERN OF PLANES & VIEWS IN FIRST ANGLE METHOD OF PROJECTIONS X Y VP HP PP FV LSV TV
  • 3.
  • 4.
    x y FRONT VIEW TOPVIEW L.H.SIDE VIEW FOR F.V. FOR S.V. FOR T.V. PICTORIAL PRESENTATION IS GIVEN DRAW THREE VIEWS OF THIS OBJECT BY FIRST ANGLE PROJECTION METHOD ORTHOGRAPHIC PROJECTIONS
  • 5.
    FOR F.V. FOR S.V. FOR T.V. XY FRONT VIEW TOP VIEW L.H.SIDE VIEW ORTHOGRAPHIC PROJECTIONS PICTORIAL PRESENTATION IS GIVEN DRAW THREE VIEWS OF THIS OBJECT BY FIRST ANGLE PROJECTION METHOD
  • 6.
    FOR T.V. FOR S.V. FOR F.V. PICTORIALPRESENTATION IS GIVEN DRAW THREE VIEWS OF THIS OBJECT BY FIRST ANGLE PROJECTION METHOD ORTHOGRAPHIC PROJECTIONS FRONT VIEW TOP VIEW L.H.SIDE VIEW X Y
  • 7.
    FOR F.V. FOR S.V. FORT.V. ORTHOGRAPHIC PROJECTIONS X Y FRONT VIEW TOP VIEW L.H.SIDE VIEW PICTORIAL PRESENTATION IS GIVEN DRAW THREE VIEWS OF THIS OBJECT BY FIRST ANGLE PROJECTION METHOD
  • 8.
    FOR T.V. FOR S.V. FOR F.V. PICTORIALPRESENTATION IS GIVEN DRAW THREE VIEWS OF THIS OBJECT BY FIRST ANGLE PROJECTION METHOD ORTHOGRAPHIC PROJECTIONS FRONT VIEW TOP VIEW L.H.SIDE VIEW X Y
  • 9.
    FOR T.V. FOR S.V. FOR F.V. PICTORIALPRESENTATION IS GIVEN DRAW THREE VIEWS OF THIS OBJECT BY FIRST ANGLE PROJECTION METHOD ORTHOGRAPHIC PROJECTIONS FRONT VIEW TOP VIEW L.H.SIDE VIEW X Y
  • 10.
    FOR T.V. FOR F.V. FOR S.V. PICTORIALPRESENTATION IS GIVEN DRAW THREE VIEWS OF THIS OBJECT BY FIRST ANGLE PROJECTION METHOD ORTHOGRAPHIC PROJECTIONS FRONT VIEW TOP VIEW L.H.SIDE VIEW X Y
  • 11.
    FOR T.V. FOR F.V. FOR S.V. ORTHOGRAPHIC PROJECTIONS FRONTVIEW TOP VIEW L.H.SIDE VIEW X Y PICTORIAL PRESENTATION IS GIVEN DRAW THREE VIEWS OF THIS OBJECT BY FIRST ANGLE PROJECTION METHOD
  • 12.
    General procedure forsketching orthographic views from pictorial view (isometric view): Step 1 : Sketch with free hand, the outline of all the required views with thin line (2H pencil). Step 2 : Sketch with free hand, all the visible lines and visible circles in all the required views with thin line (2H pencil). Step 3 : Sketch with free hand, all the hidden lines and hidden circles in all the required views with thin line (2H pencil). Step 4 : After checking for technical mistakes if any, darken (with free hand) all the visible lines, hidden lines, visible circles/arcs and hidden circles/arcs forming the required views with HB pencil. Step 5 : Lettering (both alphabets and numbers) should be done with free hand.
  • 13.
    An example : Makefree-hand sketches of front, top and right side views of the pictorial view shown below.
  • 14.
  • 15.
  • 16.
  • 17.
  • 18.