Chong Jia Yi 0320869
BUILDING TECHNOLOGY
Project 02: Construction Solution: Integration project
Tutor: Mr Rizal
Content
1. Introduction
2. Roof system: Saw tooth steel roof: Leveling Trade
3. Structural system: Forum of Saint-Louis
4. Facade system
4.1.1. Bifold vertical shutter: Social Housing + Shops in Mouans Sartoux
4.1.2. Perforated steel facade: Jussieu 16M Atrium Campus, Paris France
5. Facade scheme designs
5.1. Bifold vertical shutter
5.2. Perforated steel facade
6. Sectional perspective
6.1. Space 01: Ground Floor
6.2. Space 02: Top Floor
1. Introduction
This project help us in understanding the technical studies and development of our design. It deals
with the analysis and establishment of the structural and the envelope systems of the design,
therefore our design has logical and workable construction systems. We needed to think about
construction as integral part of the design and not just an afterthought. This assignment was
designed with the intention to tackle this issue and to increase the technical competency of us.
Community library, Medan pasar. Kuala lumpur
The community library is located at Jalan Hang Kasturi, with
Central Market along the street. It is an infill building between an
abandoned shophouses that considered as an heritage building and
a restaurant. The design of the library is focused to retrace the
historical context that diminishing of the site, as well as brings back
the sense of belonging of the community through educating the
local. By analyzing their social behaviour and the characteristic of
the public realm of sitem the library is designed with the language
of ‘street’, by juxtapositioning building blocks and twisting the urban
grid, to brings back the most indigenous accent of the lively street
culture.
The 5 storey community library consists of exhibition space,
archiving centre, paperback collection, creche, rentable offices and
rooftop garden.
SIte elevation
Site location
2. Roof system: Saw tooth steel roof: Leveling Trade by Atelier ARS
Saw tooth roof system:
A saw-tooth roof is a series of ridges
comprised of a vertical glass window that
meets a pitched roof.
It first emerged in the 19th century, before
the days of artificial light, when the
dual-pitched ridges with angle-glazed
apertures allowed sun to shine evenly into
industrial-scale spaces.
The roof is usually angled so the glass
panels face to the north, which filters the
light and avoids glares.
Levering Trade by
ATELIER ARS:
The Levering Trade building
expresses the beauty of industrial
architecture through its tectonic
expression, with a steel frame,
sawtooth structure. Its function as
a warehouse, incorporate with
working space for the craft
workers.
Materiality :
Steel lattice work in order to reduce solar
radiation and The saw tooth roof using a
conventional translucent plastic sheet as a
lid on the Vierendeel beams. The interior
spaces is divided by OSB panel walls.
Overall the structure are visually light due
to the choice of materials.
Advantages:
- Uniform diffusion of light throughout the space
- Prevent the influx of direct sunlight while providing
northern light.
- Less glare and unwanted heat also offer better working
conditions
- Provide stack ventilation
Disadvantages:
- Possible leakage of the roof that will lead to high
maintenance cost
Reasoning of application to
studio project:
- To provide sufficient daylight evenly
to the library space to save energy
cost on the artificial lighting
- It able to ventilate interior space by
stack ventilation
- Exposed truss to show the structural
honesty of the building
DIagram 2. 1 Section of the Levering Trade
DIagram 2.2. Section of the Levering Trade
Construction details of roof:
The connection between steel frame
and roof sheathing are focused in
this study to apply to the
community library.
Detail A:
The steel roof frame connected to the roof sheathing
Detail B:
The connection between the glazing to
the roof structure.
The gutter detail of the saw tooth roof
A
B
3. Structural system: Composite steel frame structure: Forum of Saint-Louis
Steel framing structure
Column and beam steel frame
structures have a skeleton of steel
connected by bolts or welds that
act as the support for the rest of
the building. A column and beam
frame can be braced or continuous.
Forum of Saint-Louis by
Manuelle Gautrand
Architecture
Forum of saint louis is a good
example of large span structure to
provides a venue for sports,
exhibitions and cultural events. It
located in the town, which sits right
on the French-German-Swiss
border.
Perforated metal cladding wraps
the walls and roof of each block to
create a sense of homogeneity. It
is this that gives the building its
orange colouring, intended to look
like unoxidised copper.
Materiality:
The steel frame and concrete structure utilize the
benefits of the lightness of steel frame and the
versatility of the reinforced concrete. Therefore the
dynamic leveling of the library can be shown using the
rigidity of the concrete floor that manoeuvre between
the light steel frame structure.
Advantages:
- longevity and durability of
the steel
- Lighter material, which
could simplify the design of
the foundation of the
building, which is an urban
infill that is difficult to
reinforcing its foundation
- Environmental friendly as
steel is recyclable and
reduce the carbon dioxide
emission during production
Disadvantages:
- Insulation might needed to
add to the structure to
counteract the thermal
conductivity of the steel
Reason of proposed roof
system
- Reducing on-site
construction time to
minimize the interruption to
the site which is very
compact and hustle bustle.
- To provoke openness and
lightness of the library
building
- To eliminate the needs of
load bearing wall, therefore
daylight will penetrate more
evenly to the building
- Visual permeability to the
backlane of the site to
reconnect the back and
front
DIagram 3.1 Section of the Forum of Saint Louis
Construction details
of Composite steel framing and concrete flooring system
C
B
A
A: Steel Bracing
B: Foundation and Flooring C: Connection of column and beam
A2
B2
4.1 Facade system: Bifold vertical shutter:
Social Housing + Shops in Mouans Sartoux by COMTE et VOLLENWEIDER Architectes
Bifold vertical shutter system:
A bifold vertical shutter facade is a series
of louvres that can be open manually or
automatically that covered fully or
partially of the facade of the building.
The main function of this facade system is
to protect buildings from direct sunlight
and allowed user to look through outside
by opening the louvre manually.
Social Housing + Shops in Mouans Sartoux
The construction of a small building of social housing is commissioned by social landlord
"logis Familial". The facade made out of wooden slats which contrast with the concrete
structure gives the exterior a sense of tactile. Shutters can be open or closed to allow views
out while protecting the interiors from direct sun and unwanted overlooking.
The creation of a planted promenade along the railway line Cannes Grasse reinforces
pedestrian walkways and brings the project closer to the historical centre of the city.
Materiality :
- The timber louvre slats is
connected to the
aluminium frame, which is
installed along the sliding
track that allowed the
sliding movement of the
frame.
- When the light cast on the
facade, rhythmic shadow
reflect on the floor,
extended to the interior
which highlight the
interior of the library.
Advantages:
- Beautiful tactile aesthetic value of timber
- Adopt to the climatic changes as it provide
shading and protect building from rain splashing
- Adjustable and flexible facade
- Everchanging facade give a sense of dynamism
to the building
- Perforated facade allow natural ventilation in the
building
- Energy efficiency, as it reduce the cost of air
conditioning and artificial light.
Disadvantages:
- Flexible facade requires maintenance as the
connection are weaker
- Complexity of design might result to higher
construction cost
Reasoning of application to
studio project:
- To covered front facade that
exposed to sunlight during evening
time as the building facing west
- To add warmth the the library that
built mainly from steel and concrete
Construction details of bifold vertical facade :
The mechanism of bi fold vertical facade is similar to bifold
door. The track located on the top and bottom to allow roller to
slide through. The roller is located at the corner of top and
bottom of fin.
DIagram 3.1 Elevation profile of
the aluminium frame
DIagram 3.2 Section of the
aluminium frame
DIagram 3.3 Connection and hinge of the
aluminium frame
4.2 Facade system: Perforated steel facade:
Jussieu 16M Atrium Campus, Paris France, by Peripheriques Architects
Perforated steel facade:
A perforated steel facade is a type of
double layered facade that covered the
exterior of the building with a layer of
perforated steel panels.
Jussieu 16M Atrium Campus,
Paris France
The project presents itself as a form that
is both independent and in continuity
with pre-existing logic. The facades are
glazed on the same pattern as the one
on the existing building. However the
glass metal skin, composed of 10 types
of panels perforated with circular holes
of varied dimension, gives the facades
complex and variable depth. The holes
also filter daylight and reflexions
through the glass surface creating
shimmering effects that give the building
an impression of constant change.
Materiality :
- Steel portrays lightness
- Versatile material as it can easily to
bent and configure to our design
- The perforated steel filter the light
before its casting into the interior, at
the same time it might reflects some
of the sunlight, giving it glittering
outlook and different tone of the
exterior.
Advantages:
- Eco-friendly
- Potential to add greenery in the facade
- Filter the daylight before it enter the
building to reduce discomfort glare
Disadvantages:
- Difficulty for the cleaning as the dust
will accumulate between perforation
steel.
- Blocking the view to outside
Reasoning of application to studio
project:
- The perforated facade could create an
illusion as if the building is ‘breathing’,
therefore evoke the dynamism of the
building. Its give a shimmery and glowing
looks of the library at night.
- Its reveal the opening and the interior space
of the library however at the same time it
shield building from sun and rain.
- Double skin facade traps heat in between
the facade and the glazing, therefore the
building remains cool inside.
Figure 4.2.1 Ambient of light setting the
tone of facade
Construction details of bifold vertical facade :
The perforated metal facade is constructed as a
double skin facade of the building, therefore
building is protected from sun and rain splashing.
DIagram 4.2.2 The interstitial space between the
facade and the structure
DIagram 4.2.3 Construction detail of the facade
DIagram 4.2.4 The section to show the connection of facade
DIagram 4.2.5 The elevation profile of the facade
5.1 Facade scheme: Bifold vertical shutter:
Front Elevation scale 1: 100
The facade covered the opening of most of the
space, leaving the entrance and the main
circulation in void to lure people to the interior
of the building. The building is facing west so it
is covered to shield from sun. The bifold louvre
can be open up in windy day to have the view
to the street.
5.1 Facade scheme: Bifold vertical shutter
Rear Elevation scale 1: 100
The wooden louver act as a shading
devices of the balcony open toward the
back lane so that the privacy of the user
is protected at the same time user can
open up the louver for view. The louvre
and the balcony works as a double skin
facade that prevent heat from entering
inside the building
5.1 Facade scheme: Bifold vertical shutter:
Detail drawings
Balcony Interior
Diagram 5.1.1 Section of the building to show the facade connection
Diagram 5.1.2 Plan view of the louvre to show the fittings and the
mechanism of the facade
Diagram 5.1.3 Detail A: Sectional detail of the roller and the L bracket
connection of the wooden louver to the aluminium frame
5.2 Facade scheme: Perforated steel facade
Front Elevation scale 1: 100
The perforated metal screen covered the fire
staircase located at the front to show the
silhouette of the staircase, giving dynamism to
the building facade. It also covered the
archiving block alternatively to create visual
interest to the street.
5.2 Facade scheme: Perforated steel facade
Rear Elevation scale 1: 100
The double skin facade protected
building from direct sunlight and rain
splashes. The opening of the interior can
be open up to allow natural ventilation
as the facade allow optimum wind flow
and air exchange.
5.2 Facade scheme: Perforated steel facade
Detail drawings
Diagram 5.2.1 Section of the building to show the facade connection
Steel
decking
for
servicing
purpose
Interior
Diagram 5.2.2 Exploded axonometric of the facade to show the connection
of the facade to the wall of the building
6.1 Sectional perspective: Ground floor: Back lane cafe
Foundation
Exterior concrete floor slab with 150mm thickness
200x200 reinforced concrete
column
Steel decking composite floor with suspended
ceiling
Concrete wall with
white paint finish
Steel I beam
Detail A Detail B
Detail A:
Wall to beam
connection
Detail B:
Beam to
column
connection
Diagram 6.1.1 Sectional perspective to show foundation detail
Diagram 6.1.2 Ground floor key plan to show the location of
sectional perspective
6.2 Sectional perspective: 3rd floor connected with glazing roof canopy
Slope glazing with
aluminium sloped glazing
Steel truss
Flat concrete roof slab
Diagram 6.2.2 Third floor key plan to show the
location of sectional perspective
Detail A
Detail B
Detail C
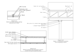
Figure 6.2.4 Glass glazing with roller blind that support by trusses and reinforced concrete column.Figure 6.2.3 Wooden floor finishes on
composite floor system
Diagram 6.2.1
Detail A: Connection between glazings
using aluminium mullion
Diagram 6.2.2
Detail B: Composite steel decking floor consist of
wooden flooring and suspended ceiling
Diagram 6.2.3
Detail C: To showing the connection
from roof glazing to column.
Reference
1. Ching, Francis D. K. (2011). Building Construction Illustrated. Hoboken, NJ: Wiley.
2. Exterior Glazing - ClearShade for Skylights from Panelite. (n.d.). Retrieved November 21, 2017, from
https://www.archdaily.com/catalog/us/products/8348/exterior-glazing-clearshade-for-skylights-panelite?ad_source=nimrod&ad_medium=widget&ad_content=
single_longtail
3. (n.d.). Retrieved November 21, 2017, from http://chestofbooks.com/crafts/machinery/Shop/Chapter-VIII-Saw-Tooth-Construction-Of-Roofs.html#.VjgR6ivvCO0
4. Manuelle Gautrand splits exhibition centre into 13 orange blocks. (2016, April 25). Retrieved November 21, 2017, from
https://www.dezeen.com/2016/04/13/forum-of-saint-louis-by-manuelle-gautrand-architecture-basel-exhibition-centre-orange-basel/
5. UPMC - ATRIUM UNIVERSITÉ PIERRE ET MARIE CURIE, Paris. (n.d.). Retrieved November 21, 2017, from
http://www.peripheriques-architectes.com/atrium-universit%C3%A9-pierre-et-marie-curie-upmc-campus-de-jussieu
6. Social Housing Shops in Mouans Sartoux / COMTE et VOLLENWEIDER Architectes. (2015, December 24). Retrieved November 21, 2017, from
https://www.archdaily.com/779037/social-housing-plus-shops-in-mouans-sartoux-comte-et-vollenweider-architectes
7. Gallery of Levering Trade / ATELIER ARS° - 32. (n.d.). Retrieved November 21, 2017, from
https://www.archdaily.com/771468/levering-trade-atelier-ars-degrees/55c0e343e58ece593800001e-levering-trade-atelier-ars-degrees-section
8. Shutters, Blinds & Awnings for Roof Windows will control heat and sun. (n.d.). Retrieved November 21, 2017, from
http://www.sustainableconstructionservices.com.au/products/roof-windows/roof-window-blinds-shutters
9. Top 5 Advantages of Perforated Metal for Architects. (n.d.). Retrieved November 21, 2017, from
https://www.johnroccosales.com/news-blog/2015/9/10/architects-top-5-advantages-of-perforated-metal
10. What are the benefits of a perforated metal façade? (2017, July 24). Retrieved November 21, 2017, from
https://proteusfacades.com/benefits-perforated-metal-facade/
11. Lecture 10.1: Composite Construction. (n.d.). Retrieved November 21, 2017, from http://fgg-web.fgg.uni-lj.si/~/pmoze/esdep/master/wg10/l0100.htm

Building Technology project 02

  • 1.
    Chong Jia Yi0320869 BUILDING TECHNOLOGY Project 02: Construction Solution: Integration project Tutor: Mr Rizal
  • 2.
    Content 1. Introduction 2. Roofsystem: Saw tooth steel roof: Leveling Trade 3. Structural system: Forum of Saint-Louis 4. Facade system 4.1.1. Bifold vertical shutter: Social Housing + Shops in Mouans Sartoux 4.1.2. Perforated steel facade: Jussieu 16M Atrium Campus, Paris France 5. Facade scheme designs 5.1. Bifold vertical shutter 5.2. Perforated steel facade 6. Sectional perspective 6.1. Space 01: Ground Floor 6.2. Space 02: Top Floor
  • 3.
    1. Introduction This projecthelp us in understanding the technical studies and development of our design. It deals with the analysis and establishment of the structural and the envelope systems of the design, therefore our design has logical and workable construction systems. We needed to think about construction as integral part of the design and not just an afterthought. This assignment was designed with the intention to tackle this issue and to increase the technical competency of us. Community library, Medan pasar. Kuala lumpur The community library is located at Jalan Hang Kasturi, with Central Market along the street. It is an infill building between an abandoned shophouses that considered as an heritage building and a restaurant. The design of the library is focused to retrace the historical context that diminishing of the site, as well as brings back the sense of belonging of the community through educating the local. By analyzing their social behaviour and the characteristic of the public realm of sitem the library is designed with the language of ‘street’, by juxtapositioning building blocks and twisting the urban grid, to brings back the most indigenous accent of the lively street culture. The 5 storey community library consists of exhibition space, archiving centre, paperback collection, creche, rentable offices and rooftop garden. SIte elevation Site location
  • 4.
    2. Roof system:Saw tooth steel roof: Leveling Trade by Atelier ARS Saw tooth roof system: A saw-tooth roof is a series of ridges comprised of a vertical glass window that meets a pitched roof. It first emerged in the 19th century, before the days of artificial light, when the dual-pitched ridges with angle-glazed apertures allowed sun to shine evenly into industrial-scale spaces. The roof is usually angled so the glass panels face to the north, which filters the light and avoids glares. Levering Trade by ATELIER ARS: The Levering Trade building expresses the beauty of industrial architecture through its tectonic expression, with a steel frame, sawtooth structure. Its function as a warehouse, incorporate with working space for the craft workers. Materiality : Steel lattice work in order to reduce solar radiation and The saw tooth roof using a conventional translucent plastic sheet as a lid on the Vierendeel beams. The interior spaces is divided by OSB panel walls. Overall the structure are visually light due to the choice of materials. Advantages: - Uniform diffusion of light throughout the space - Prevent the influx of direct sunlight while providing northern light. - Less glare and unwanted heat also offer better working conditions - Provide stack ventilation Disadvantages: - Possible leakage of the roof that will lead to high maintenance cost Reasoning of application to studio project: - To provide sufficient daylight evenly to the library space to save energy cost on the artificial lighting - It able to ventilate interior space by stack ventilation - Exposed truss to show the structural honesty of the building DIagram 2. 1 Section of the Levering Trade DIagram 2.2. Section of the Levering Trade
  • 5.
    Construction details ofroof: The connection between steel frame and roof sheathing are focused in this study to apply to the community library. Detail A: The steel roof frame connected to the roof sheathing Detail B: The connection between the glazing to the roof structure. The gutter detail of the saw tooth roof A B
  • 6.
    3. Structural system:Composite steel frame structure: Forum of Saint-Louis Steel framing structure Column and beam steel frame structures have a skeleton of steel connected by bolts or welds that act as the support for the rest of the building. A column and beam frame can be braced or continuous. Forum of Saint-Louis by Manuelle Gautrand Architecture Forum of saint louis is a good example of large span structure to provides a venue for sports, exhibitions and cultural events. It located in the town, which sits right on the French-German-Swiss border. Perforated metal cladding wraps the walls and roof of each block to create a sense of homogeneity. It is this that gives the building its orange colouring, intended to look like unoxidised copper. Materiality: The steel frame and concrete structure utilize the benefits of the lightness of steel frame and the versatility of the reinforced concrete. Therefore the dynamic leveling of the library can be shown using the rigidity of the concrete floor that manoeuvre between the light steel frame structure. Advantages: - longevity and durability of the steel - Lighter material, which could simplify the design of the foundation of the building, which is an urban infill that is difficult to reinforcing its foundation - Environmental friendly as steel is recyclable and reduce the carbon dioxide emission during production Disadvantages: - Insulation might needed to add to the structure to counteract the thermal conductivity of the steel Reason of proposed roof system - Reducing on-site construction time to minimize the interruption to the site which is very compact and hustle bustle. - To provoke openness and lightness of the library building - To eliminate the needs of load bearing wall, therefore daylight will penetrate more evenly to the building - Visual permeability to the backlane of the site to reconnect the back and front DIagram 3.1 Section of the Forum of Saint Louis
  • 7.
    Construction details of Compositesteel framing and concrete flooring system C B A A: Steel Bracing B: Foundation and Flooring C: Connection of column and beam A2 B2
  • 8.
    4.1 Facade system:Bifold vertical shutter: Social Housing + Shops in Mouans Sartoux by COMTE et VOLLENWEIDER Architectes Bifold vertical shutter system: A bifold vertical shutter facade is a series of louvres that can be open manually or automatically that covered fully or partially of the facade of the building. The main function of this facade system is to protect buildings from direct sunlight and allowed user to look through outside by opening the louvre manually. Social Housing + Shops in Mouans Sartoux The construction of a small building of social housing is commissioned by social landlord "logis Familial". The facade made out of wooden slats which contrast with the concrete structure gives the exterior a sense of tactile. Shutters can be open or closed to allow views out while protecting the interiors from direct sun and unwanted overlooking. The creation of a planted promenade along the railway line Cannes Grasse reinforces pedestrian walkways and brings the project closer to the historical centre of the city. Materiality : - The timber louvre slats is connected to the aluminium frame, which is installed along the sliding track that allowed the sliding movement of the frame. - When the light cast on the facade, rhythmic shadow reflect on the floor, extended to the interior which highlight the interior of the library. Advantages: - Beautiful tactile aesthetic value of timber - Adopt to the climatic changes as it provide shading and protect building from rain splashing - Adjustable and flexible facade - Everchanging facade give a sense of dynamism to the building - Perforated facade allow natural ventilation in the building - Energy efficiency, as it reduce the cost of air conditioning and artificial light. Disadvantages: - Flexible facade requires maintenance as the connection are weaker - Complexity of design might result to higher construction cost Reasoning of application to studio project: - To covered front facade that exposed to sunlight during evening time as the building facing west - To add warmth the the library that built mainly from steel and concrete
  • 9.
    Construction details ofbifold vertical facade : The mechanism of bi fold vertical facade is similar to bifold door. The track located on the top and bottom to allow roller to slide through. The roller is located at the corner of top and bottom of fin. DIagram 3.1 Elevation profile of the aluminium frame DIagram 3.2 Section of the aluminium frame DIagram 3.3 Connection and hinge of the aluminium frame
  • 10.
    4.2 Facade system:Perforated steel facade: Jussieu 16M Atrium Campus, Paris France, by Peripheriques Architects Perforated steel facade: A perforated steel facade is a type of double layered facade that covered the exterior of the building with a layer of perforated steel panels. Jussieu 16M Atrium Campus, Paris France The project presents itself as a form that is both independent and in continuity with pre-existing logic. The facades are glazed on the same pattern as the one on the existing building. However the glass metal skin, composed of 10 types of panels perforated with circular holes of varied dimension, gives the facades complex and variable depth. The holes also filter daylight and reflexions through the glass surface creating shimmering effects that give the building an impression of constant change. Materiality : - Steel portrays lightness - Versatile material as it can easily to bent and configure to our design - The perforated steel filter the light before its casting into the interior, at the same time it might reflects some of the sunlight, giving it glittering outlook and different tone of the exterior. Advantages: - Eco-friendly - Potential to add greenery in the facade - Filter the daylight before it enter the building to reduce discomfort glare Disadvantages: - Difficulty for the cleaning as the dust will accumulate between perforation steel. - Blocking the view to outside Reasoning of application to studio project: - The perforated facade could create an illusion as if the building is ‘breathing’, therefore evoke the dynamism of the building. Its give a shimmery and glowing looks of the library at night. - Its reveal the opening and the interior space of the library however at the same time it shield building from sun and rain. - Double skin facade traps heat in between the facade and the glazing, therefore the building remains cool inside. Figure 4.2.1 Ambient of light setting the tone of facade
  • 11.
    Construction details ofbifold vertical facade : The perforated metal facade is constructed as a double skin facade of the building, therefore building is protected from sun and rain splashing. DIagram 4.2.2 The interstitial space between the facade and the structure DIagram 4.2.3 Construction detail of the facade DIagram 4.2.4 The section to show the connection of facade DIagram 4.2.5 The elevation profile of the facade
  • 12.
    5.1 Facade scheme:Bifold vertical shutter: Front Elevation scale 1: 100 The facade covered the opening of most of the space, leaving the entrance and the main circulation in void to lure people to the interior of the building. The building is facing west so it is covered to shield from sun. The bifold louvre can be open up in windy day to have the view to the street.
  • 13.
    5.1 Facade scheme:Bifold vertical shutter Rear Elevation scale 1: 100 The wooden louver act as a shading devices of the balcony open toward the back lane so that the privacy of the user is protected at the same time user can open up the louver for view. The louvre and the balcony works as a double skin facade that prevent heat from entering inside the building
  • 14.
    5.1 Facade scheme:Bifold vertical shutter: Detail drawings Balcony Interior Diagram 5.1.1 Section of the building to show the facade connection Diagram 5.1.2 Plan view of the louvre to show the fittings and the mechanism of the facade Diagram 5.1.3 Detail A: Sectional detail of the roller and the L bracket connection of the wooden louver to the aluminium frame
  • 15.
    5.2 Facade scheme:Perforated steel facade Front Elevation scale 1: 100 The perforated metal screen covered the fire staircase located at the front to show the silhouette of the staircase, giving dynamism to the building facade. It also covered the archiving block alternatively to create visual interest to the street.
  • 16.
    5.2 Facade scheme:Perforated steel facade Rear Elevation scale 1: 100 The double skin facade protected building from direct sunlight and rain splashes. The opening of the interior can be open up to allow natural ventilation as the facade allow optimum wind flow and air exchange.
  • 17.
    5.2 Facade scheme:Perforated steel facade Detail drawings Diagram 5.2.1 Section of the building to show the facade connection Steel decking for servicing purpose Interior Diagram 5.2.2 Exploded axonometric of the facade to show the connection of the facade to the wall of the building
  • 18.
    6.1 Sectional perspective:Ground floor: Back lane cafe Foundation Exterior concrete floor slab with 150mm thickness 200x200 reinforced concrete column Steel decking composite floor with suspended ceiling Concrete wall with white paint finish Steel I beam
  • 19.
    Detail A DetailB Detail A: Wall to beam connection Detail B: Beam to column connection Diagram 6.1.1 Sectional perspective to show foundation detail Diagram 6.1.2 Ground floor key plan to show the location of sectional perspective
  • 20.
    6.2 Sectional perspective:3rd floor connected with glazing roof canopy Slope glazing with aluminium sloped glazing Steel truss Flat concrete roof slab
  • 21.
    Diagram 6.2.2 Thirdfloor key plan to show the location of sectional perspective Detail A Detail B Detail C Figure 6.2.4 Glass glazing with roller blind that support by trusses and reinforced concrete column.Figure 6.2.3 Wooden floor finishes on composite floor system
  • 22.
    Diagram 6.2.1 Detail A:Connection between glazings using aluminium mullion Diagram 6.2.2 Detail B: Composite steel decking floor consist of wooden flooring and suspended ceiling Diagram 6.2.3 Detail C: To showing the connection from roof glazing to column.
  • 23.
    Reference 1. Ching, FrancisD. K. (2011). Building Construction Illustrated. Hoboken, NJ: Wiley. 2. Exterior Glazing - ClearShade for Skylights from Panelite. (n.d.). Retrieved November 21, 2017, from https://www.archdaily.com/catalog/us/products/8348/exterior-glazing-clearshade-for-skylights-panelite?ad_source=nimrod&ad_medium=widget&ad_content= single_longtail 3. (n.d.). Retrieved November 21, 2017, from http://chestofbooks.com/crafts/machinery/Shop/Chapter-VIII-Saw-Tooth-Construction-Of-Roofs.html#.VjgR6ivvCO0 4. Manuelle Gautrand splits exhibition centre into 13 orange blocks. (2016, April 25). Retrieved November 21, 2017, from https://www.dezeen.com/2016/04/13/forum-of-saint-louis-by-manuelle-gautrand-architecture-basel-exhibition-centre-orange-basel/ 5. UPMC - ATRIUM UNIVERSITÉ PIERRE ET MARIE CURIE, Paris. (n.d.). Retrieved November 21, 2017, from http://www.peripheriques-architectes.com/atrium-universit%C3%A9-pierre-et-marie-curie-upmc-campus-de-jussieu 6. Social Housing Shops in Mouans Sartoux / COMTE et VOLLENWEIDER Architectes. (2015, December 24). Retrieved November 21, 2017, from https://www.archdaily.com/779037/social-housing-plus-shops-in-mouans-sartoux-comte-et-vollenweider-architectes 7. Gallery of Levering Trade / ATELIER ARS° - 32. (n.d.). Retrieved November 21, 2017, from https://www.archdaily.com/771468/levering-trade-atelier-ars-degrees/55c0e343e58ece593800001e-levering-trade-atelier-ars-degrees-section 8. Shutters, Blinds & Awnings for Roof Windows will control heat and sun. (n.d.). Retrieved November 21, 2017, from http://www.sustainableconstructionservices.com.au/products/roof-windows/roof-window-blinds-shutters 9. Top 5 Advantages of Perforated Metal for Architects. (n.d.). Retrieved November 21, 2017, from https://www.johnroccosales.com/news-blog/2015/9/10/architects-top-5-advantages-of-perforated-metal 10. What are the benefits of a perforated metal façade? (2017, July 24). Retrieved November 21, 2017, from https://proteusfacades.com/benefits-perforated-metal-facade/ 11. Lecture 10.1: Composite Construction. (n.d.). Retrieved November 21, 2017, from http://fgg-web.fgg.uni-lj.si/~/pmoze/esdep/master/wg10/l0100.htm