International Burch university               Course : Building Construction Technology I
Architecture department                                              Date : xx / xx / xxxx
Sarajevo




                               LECTURE NO.7
                             CONSTRUCTION SITE

                         Building Construction Technology I


  Professor : Prof.dr.Nerman Rustempasic
  Assistant : M.Sc. Ahmed El Sayed
THE STUDY OF CONSTRUCTION ORGANIZATIONS
           -PREPARATION PHASE-
   Basic information to be collected are the following:
       technical-economic documentation of agreed work
       geographic and topographic conditions,
       meteorological and climatic conditions,
       geological and geotechnical conditions,
       hydrological conditions,
       ability to supply water, energy, etc.
       ability to supply material
       traffic, and conditions for delivery of materials, machinery, etc.
       opportunity for employment of labor force,
       property-legal relations,
       capacity of eventual subcontractors, suppliers, transportation
       companies,
       cost of resources to be used in the region in which to build, etc.
TECHNICAL-ECONOMIC DOCUMENTATION OF
            AGREED WORK
   Main project of architectural- constructive phase of the
    building,
   Priced bill of quantities, cost estimate
   contract for construction,
   General technical and special conditions of the contract,
   the document on Providing financial resources,
   Conceptual project of site organization if there is , etc.


   Without complete documentation it is not possible to
    consider all the needs, which inevitably leads to losses.
SITE GEOGRAPHY

   The exact geographical location of site,

   The nearest villages, centers of possible supply
    (construction materials, handicraft workshops and repair
    shops, banks, post offices, the building materials industry,
    quarries, gravel pits, desire. stations, ports, airports, pumps
    for              liquid                fuels,               etc.)

   Economic description of cities, towns and other centers
    that gravitate future construction, as documentation and
    background should submit: geographical maps and
    distances specified in relation to the site.
SITE TOPOGRAPHY

   Configuration of site has a big influence on the organization
    of the site, or the disposition of various plants, design and
    development of access roads, the internal communication
    at the site, the interior horizontal and vertical transport to
    the site and the whole works.



   Since the topography of ground depends on what will be
    applied to the disposition of the site, which transport
    vehicles to use and how much transportation will cost.
GEOLOGICAL AND GEOTECHNICAL CONDITIONS
    When performing work on the building below the ground
     surface occurs some problems related to groundwater
     (groundwater elevation, vibration levels at various time
     periods, the strength of underground springs, etc.).


    Geological complex of ground, geomechanical and
     geotechnical properties of soil layers on the basis of
     appropriate tests, and geological sections, geological map
     of the area generally should exist within the architectural-
     constructive phase of the project of the building, but
     contractor has all these elements to check before building
GEOLOGICAL AND GEOTECHNICAL CONDITIONS
    Determining the existence of groundwater, and their regime
     is of great importance to the process of organizing works at
     zero cycle facilities, as well as for predicting the equipment
     and installations for water pumping, fencing construction
     pit, concreting under water, etc., which has great
     importance for, among other things, calculating and
     determining the cost of these works.
METEOROLOGICAL AND CLIMATIC CONDITIONS
 Climatic conditions at the site are reflected in two ways:

    the creation of special conditions for life and work, or the
     hygienic and technical conditions, and the impact on the
     organization     and     the     construction    technique.

    The human activity, climate has a direct effect especially
     when the works are carried out in the open. It has an
     impact on the performance of workers and the effect of
     work generally. Unfavorable climatic conditions create
     special, difficult living and working conditions of workers on
     site and reflect on the state of health, and should be
     anticipated and calculate all necessary safeguards for the
     health and maintaining good working condition of workers.
METEOROLOGICAL AND CLIMATIC CONDITIONS
    Climatic conditions are decisive for the annual fund of
     working time, it is essential that information about climate
     and weather conditions to be collected for a longer period
     of observation.
    Such information may be obtained from Hydro-
     Meteorological Institute. data on rainfall and its distribution
     throughout the year, with rainfall greater than 1 mm and 10
     mm, as well as data on relative humidity. on temperature,
     average annual, highest and lowest, and the number of
     days with temperatures below 0 C or lower than -5 C.
     information about the dominant winds, their direction,
     intensity and duration. Strong winds can cause major
     problems at work and in certain areas and to stop work
     completely. Strong winds have an influence on the stability
     of the scaffolding, formwork and roof, high pumps, etc.
METEOROLOGICAL AND CLIMATIC CONDITIONS
    Climatic conditions are decisive for the annual fund of
     working time, it is essential that information about climate
     and weather conditions to be collected for a longer period
     of observation.
    Such information may be obtained from Hydro-
     Meteorological Institute. data on rainfall and its distribution
     throughout the year, with rainfall greater than 1 mm and 10
     mm, as well as data on relative humidity. on temperature,
     average annual, highest and lowest, and the number of
     days with temperatures below 0 C or lower than -5 C.
     information about the dominant winds, their direction,
     intensity and duration. Strong winds can cause major
     problems at work and in certain areas and to stop work
     completely. Strong winds have an influence on the stability
     of the scaffolding, formwork and roof, high pumps, etc.
SITE HYDROLOGY
    When it comes to the performance of buildings in the
     vicinity of surface water, rivers, lakes, canals, must be
     familiar with the water regime because it has a direct
     impact on the groundwater regime.




    Based on the collected data should find the optimal
     technological solution and make a study of evacuation from
     the building of underground water tanks - wide excavation
SITE ORGANIZATION – PHASE 1
    In the first phase of works is formed and performed:

        Traffic and site access

        Fence site and input (s)

        Earthworks on the site, digging pits

        Building site road (part of)

        Interim and secondary buildings on the site (part of)

        Energy and installation needed on site (part of)
EXCAVATION FOUNDATION PITS IN A WIDE
EXCAVATION
EXCAVATION OF EARTH BY EXCAVATOR WITH
DEPTH BUCKET
EXCAVATION OF EARTH WITH EXCAVATOR WITH
FRONTAL BUCKET
EXCAVATION FOUNDATION PITS IN A WIDE EXCAVATION
EXCAVATION FOUNDATION PITS IN A WIDE EXCAVATION
EXCAVATION FOUNDATION PITS IN A WIDE EXCAVATION
EXCAVATION FOUNDATION PITS IN A WIDE EXCAVATION
EXCAVATION FOUNDATION PITS IN A WIDE EXCAVATION
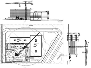
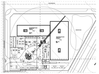
THE PROJECT (STUDY) OF THE ORGANIZATION OF CONSTRUCTION



    Main attachments and content of site organization study :
     The urban situation
     Site plan
     site Fence and enters
     Traffic and site access
     Earthworks on the site, digging foundation pits
     Temporary and secondary buildings on the site
     roads in Construction site
     Energy and installation needed on site
     Production units and workshops on the site
     Deposition of materials and components, formwork, etc.
     Internal horizontal and vertical transport (key machines on the
     site, the principles of sizing and positioning
     Other facilities on the site
     Technical report on the project of site organization
THE PROJECT (STUDY) OF THE ORGANIZATION OF CONSTRUCTION



    Main attachments and content of site organization study :
     The urban situation
     Site plan
     site Fence and enters
     Traffic and site access
     Earthworks on the site, digging foundation pits
     Temporary and secondary buildings on the site
     roads in Construction site
     Energy and installation needed on site
     Production units and workshops on the site
     Deposition of materials and components, formwork, etc.
     Internal horizontal and vertical transport (key machines on the
     site, the principles of sizing and positioning
     Other facilities on the site
     Technical report on the project of site organization
SITE FENCE
SITE FENCE
EXTERNAL TRANSPORT


   The rationality of building, directly depends
    on the good of the solutions to the
    construction site and traffic on the site. It
    should be well studied, the question of
    suitable external roads and access to the site
    to direct the delivery of materials.
EXTERNAL TRANSPORT
   The rationality of building, directly depends on the good of
    the solutions to the construction site and traffic on the
    site. It should be well studied, the question of suitable
    external roads and access to the site to direct the delivery
    of materials.

   To make calculations of external transport of materials,
    equipment, etc. should draw on the map scheme of the
    source of materials and equipment to existing roads and
    traffic facilities through which supplies will be carried out
    site, enter the route, transport distances and create a
    specially prescribed distance table, expressed in miles.

   These data on the source of materials and the distance is
    important for the transport and purchase service.
EXTERNAL TRANSPORT
   The rationality of building, directly depends on the good of
    the solutions to the construction site and traffic on the
    site. It should be well studied, the question of suitable
    external roads and access to the site to direct the delivery
    of materials.

   To make calculations of external transport of materials,
    equipment, etc. should draw on the map scheme of the
    source of materials and equipment to existing roads and
    traffic facilities through which supplies will be carried out
    site, enter the route, transport distances and create a
    specially prescribed distance table, expressed in miles.

   These data on the source of materials and the distance is
    important for the transport and purchase service.
SITE CENTER
   The term "center of gravity" means the mass
    of material to be installed.

   There is a notion of "center of gravity of the
    horizontal transport" and the term "center of
    gravity of vertical transportation"
SITE CENTER
INTERNAL TRAFFIC COMMUNICATIONS
    Internal roads and traffic areas can be realized as a
     temporary or permanent traffic areas. The realization of
     permanent traffic areas within the site is a very rational
     approach, and it is possible when the place and route traffic
     areas around the planned design for the of the building
     matches with the area of traffic routes for the construction
     site need to function.

    There are three basic solutions of the route:
     1. A bypass circuit with a separate or unique entrance-exit,
     the traffic is on one way.
     2. Transitory roads - when there are public roads with two
     opposite side of the site, two-way traffic. There are two
     entrance-exit to the site
     3. Blind with bucket - a connection to the main road, two-
     way traffic.
INTERNAL TRAFFIC COMMIUNICATION
Širina vozila     Širina trake
do 2,4 m          3,00 m
do 2,65 m         3,50 m
preko 2,65 m      4,00 m
INTERNAL TRAFFIC COMMUNICATIONS
    In the building production, works on the site is more or less a problem of
     transportation.

    Every unnecessary step, every unnecessary transfer or transportation
     costs are extra, so it can get a space by eliminating harmful to significant
     savings in time and of work costs.

    Unnecessary transportation to the site comes from the wrong set of
     major landfill materials, storage and access to them.

    Easier or harder to perform the necessary transportation of materials
     depends on properly selected modes of transport, the transport routes,
     and it all comes down to problems of organization of transport to the
     site.

    Under the "internal transport site" means any transportation or
     transmission of building materials, equipment, etc. from its storage place
     to place for installation. This includes the transport of excavated earth
     from the excavation of construction sites to landfills.

    Under the "transfer" means the transfer of a human who performs work
INTERNAL TRAFFIC COMMUNICATIONS

    internal transport on the site is divided into:
           horizontal transport
           vertical transport

    The basic principles of solving (site plan of organization) with respect to
     the principle of rationalization of traffic would be:

         The principle of gravity and minimum transportation costs of materials

         The principle of removing the spaces and remove harmful in terms of
          transport distance and lifting height

         The principle of using the force of gravity and transport movement from
          higher to lower points

         The principle of uniformity of production and capacity adjustment to the
          chain of machinery and transport equipment, the term "lead machine"
SPACE DIMENSIONS

    In practice, for dimensioning are used the following standards:

    Accommodation - from 4.5 to 6 m2/radniku
    Dining Room - 3-4 m2/radniku
    Changing rooms and sanitation facilities - 0.4 -0.5 m2/radniku


    Standards for design offices:

    3.0 to 3.5 m2/osobi
    4.5 to 5.0 m2/osobi – drawers
    5.0 m2/osobi - management staff
STAFF ROOM
CHANGING ROOM
SANITARY OBJECTS ON SITE
SANITARY OBJECTS ON SITE
MAGACIN
THANK YOU

Building Construction 7. construction site

  • 1.
    International Burch university Course : Building Construction Technology I Architecture department Date : xx / xx / xxxx Sarajevo LECTURE NO.7 CONSTRUCTION SITE Building Construction Technology I Professor : Prof.dr.Nerman Rustempasic Assistant : M.Sc. Ahmed El Sayed
  • 2.
    THE STUDY OFCONSTRUCTION ORGANIZATIONS -PREPARATION PHASE-  Basic information to be collected are the following:  technical-economic documentation of agreed work  geographic and topographic conditions,  meteorological and climatic conditions,  geological and geotechnical conditions,  hydrological conditions,  ability to supply water, energy, etc.  ability to supply material  traffic, and conditions for delivery of materials, machinery, etc.  opportunity for employment of labor force,  property-legal relations,  capacity of eventual subcontractors, suppliers, transportation  companies,  cost of resources to be used in the region in which to build, etc.
  • 3.
    TECHNICAL-ECONOMIC DOCUMENTATION OF AGREED WORK  Main project of architectural- constructive phase of the building,  Priced bill of quantities, cost estimate  contract for construction,  General technical and special conditions of the contract,  the document on Providing financial resources,  Conceptual project of site organization if there is , etc.  Without complete documentation it is not possible to consider all the needs, which inevitably leads to losses.
  • 4.
    SITE GEOGRAPHY  The exact geographical location of site,  The nearest villages, centers of possible supply (construction materials, handicraft workshops and repair shops, banks, post offices, the building materials industry, quarries, gravel pits, desire. stations, ports, airports, pumps for liquid fuels, etc.)  Economic description of cities, towns and other centers that gravitate future construction, as documentation and background should submit: geographical maps and distances specified in relation to the site.
  • 5.
    SITE TOPOGRAPHY  Configuration of site has a big influence on the organization of the site, or the disposition of various plants, design and development of access roads, the internal communication at the site, the interior horizontal and vertical transport to the site and the whole works.  Since the topography of ground depends on what will be applied to the disposition of the site, which transport vehicles to use and how much transportation will cost.
  • 6.
    GEOLOGICAL AND GEOTECHNICALCONDITIONS  When performing work on the building below the ground surface occurs some problems related to groundwater (groundwater elevation, vibration levels at various time periods, the strength of underground springs, etc.).  Geological complex of ground, geomechanical and geotechnical properties of soil layers on the basis of appropriate tests, and geological sections, geological map of the area generally should exist within the architectural- constructive phase of the project of the building, but contractor has all these elements to check before building
  • 7.
    GEOLOGICAL AND GEOTECHNICALCONDITIONS  Determining the existence of groundwater, and their regime is of great importance to the process of organizing works at zero cycle facilities, as well as for predicting the equipment and installations for water pumping, fencing construction pit, concreting under water, etc., which has great importance for, among other things, calculating and determining the cost of these works.
  • 8.
    METEOROLOGICAL AND CLIMATICCONDITIONS Climatic conditions at the site are reflected in two ways:  the creation of special conditions for life and work, or the hygienic and technical conditions, and the impact on the organization and the construction technique.  The human activity, climate has a direct effect especially when the works are carried out in the open. It has an impact on the performance of workers and the effect of work generally. Unfavorable climatic conditions create special, difficult living and working conditions of workers on site and reflect on the state of health, and should be anticipated and calculate all necessary safeguards for the health and maintaining good working condition of workers.
  • 9.
    METEOROLOGICAL AND CLIMATICCONDITIONS  Climatic conditions are decisive for the annual fund of working time, it is essential that information about climate and weather conditions to be collected for a longer period of observation.  Such information may be obtained from Hydro- Meteorological Institute. data on rainfall and its distribution throughout the year, with rainfall greater than 1 mm and 10 mm, as well as data on relative humidity. on temperature, average annual, highest and lowest, and the number of days with temperatures below 0 C or lower than -5 C. information about the dominant winds, their direction, intensity and duration. Strong winds can cause major problems at work and in certain areas and to stop work completely. Strong winds have an influence on the stability of the scaffolding, formwork and roof, high pumps, etc.
  • 10.
    METEOROLOGICAL AND CLIMATICCONDITIONS  Climatic conditions are decisive for the annual fund of working time, it is essential that information about climate and weather conditions to be collected for a longer period of observation.  Such information may be obtained from Hydro- Meteorological Institute. data on rainfall and its distribution throughout the year, with rainfall greater than 1 mm and 10 mm, as well as data on relative humidity. on temperature, average annual, highest and lowest, and the number of days with temperatures below 0 C or lower than -5 C. information about the dominant winds, their direction, intensity and duration. Strong winds can cause major problems at work and in certain areas and to stop work completely. Strong winds have an influence on the stability of the scaffolding, formwork and roof, high pumps, etc.
  • 11.
    SITE HYDROLOGY  When it comes to the performance of buildings in the vicinity of surface water, rivers, lakes, canals, must be familiar with the water regime because it has a direct impact on the groundwater regime.  Based on the collected data should find the optimal technological solution and make a study of evacuation from the building of underground water tanks - wide excavation
  • 12.
    SITE ORGANIZATION –PHASE 1  In the first phase of works is formed and performed:  Traffic and site access  Fence site and input (s)  Earthworks on the site, digging pits  Building site road (part of)  Interim and secondary buildings on the site (part of)  Energy and installation needed on site (part of)
  • 13.
    EXCAVATION FOUNDATION PITSIN A WIDE EXCAVATION
  • 14.
    EXCAVATION OF EARTHBY EXCAVATOR WITH DEPTH BUCKET
  • 15.
    EXCAVATION OF EARTHWITH EXCAVATOR WITH FRONTAL BUCKET
  • 16.
    EXCAVATION FOUNDATION PITSIN A WIDE EXCAVATION
  • 17.
    EXCAVATION FOUNDATION PITSIN A WIDE EXCAVATION
  • 18.
    EXCAVATION FOUNDATION PITSIN A WIDE EXCAVATION
  • 19.
    EXCAVATION FOUNDATION PITSIN A WIDE EXCAVATION
  • 20.
    EXCAVATION FOUNDATION PITSIN A WIDE EXCAVATION
  • 21.
    THE PROJECT (STUDY)OF THE ORGANIZATION OF CONSTRUCTION  Main attachments and content of site organization study : The urban situation Site plan site Fence and enters Traffic and site access Earthworks on the site, digging foundation pits Temporary and secondary buildings on the site roads in Construction site Energy and installation needed on site Production units and workshops on the site Deposition of materials and components, formwork, etc. Internal horizontal and vertical transport (key machines on the site, the principles of sizing and positioning Other facilities on the site Technical report on the project of site organization
  • 22.
    THE PROJECT (STUDY)OF THE ORGANIZATION OF CONSTRUCTION  Main attachments and content of site organization study : The urban situation Site plan site Fence and enters Traffic and site access Earthworks on the site, digging foundation pits Temporary and secondary buildings on the site roads in Construction site Energy and installation needed on site Production units and workshops on the site Deposition of materials and components, formwork, etc. Internal horizontal and vertical transport (key machines on the site, the principles of sizing and positioning Other facilities on the site Technical report on the project of site organization
  • 23.
  • 24.
  • 25.
    EXTERNAL TRANSPORT  The rationality of building, directly depends on the good of the solutions to the construction site and traffic on the site. It should be well studied, the question of suitable external roads and access to the site to direct the delivery of materials.
  • 26.
    EXTERNAL TRANSPORT  The rationality of building, directly depends on the good of the solutions to the construction site and traffic on the site. It should be well studied, the question of suitable external roads and access to the site to direct the delivery of materials.  To make calculations of external transport of materials, equipment, etc. should draw on the map scheme of the source of materials and equipment to existing roads and traffic facilities through which supplies will be carried out site, enter the route, transport distances and create a specially prescribed distance table, expressed in miles.  These data on the source of materials and the distance is important for the transport and purchase service.
  • 27.
    EXTERNAL TRANSPORT  The rationality of building, directly depends on the good of the solutions to the construction site and traffic on the site. It should be well studied, the question of suitable external roads and access to the site to direct the delivery of materials.  To make calculations of external transport of materials, equipment, etc. should draw on the map scheme of the source of materials and equipment to existing roads and traffic facilities through which supplies will be carried out site, enter the route, transport distances and create a specially prescribed distance table, expressed in miles.  These data on the source of materials and the distance is important for the transport and purchase service.
  • 31.
    SITE CENTER  The term "center of gravity" means the mass of material to be installed.  There is a notion of "center of gravity of the horizontal transport" and the term "center of gravity of vertical transportation"
  • 32.
  • 33.
    INTERNAL TRAFFIC COMMUNICATIONS  Internal roads and traffic areas can be realized as a temporary or permanent traffic areas. The realization of permanent traffic areas within the site is a very rational approach, and it is possible when the place and route traffic areas around the planned design for the of the building matches with the area of traffic routes for the construction site need to function.  There are three basic solutions of the route: 1. A bypass circuit with a separate or unique entrance-exit, the traffic is on one way. 2. Transitory roads - when there are public roads with two opposite side of the site, two-way traffic. There are two entrance-exit to the site 3. Blind with bucket - a connection to the main road, two- way traffic.
  • 34.
    INTERNAL TRAFFIC COMMIUNICATION Širinavozila Širina trake do 2,4 m 3,00 m do 2,65 m 3,50 m preko 2,65 m 4,00 m
  • 38.
    INTERNAL TRAFFIC COMMUNICATIONS  In the building production, works on the site is more or less a problem of transportation.  Every unnecessary step, every unnecessary transfer or transportation costs are extra, so it can get a space by eliminating harmful to significant savings in time and of work costs.  Unnecessary transportation to the site comes from the wrong set of major landfill materials, storage and access to them.  Easier or harder to perform the necessary transportation of materials depends on properly selected modes of transport, the transport routes, and it all comes down to problems of organization of transport to the site.  Under the "internal transport site" means any transportation or transmission of building materials, equipment, etc. from its storage place to place for installation. This includes the transport of excavated earth from the excavation of construction sites to landfills.  Under the "transfer" means the transfer of a human who performs work
  • 39.
    INTERNAL TRAFFIC COMMUNICATIONS  internal transport on the site is divided into: horizontal transport vertical transport  The basic principles of solving (site plan of organization) with respect to the principle of rationalization of traffic would be:  The principle of gravity and minimum transportation costs of materials  The principle of removing the spaces and remove harmful in terms of transport distance and lifting height  The principle of using the force of gravity and transport movement from higher to lower points  The principle of uniformity of production and capacity adjustment to the chain of machinery and transport equipment, the term "lead machine"
  • 40.
    SPACE DIMENSIONS  In practice, for dimensioning are used the following standards:  Accommodation - from 4.5 to 6 m2/radniku  Dining Room - 3-4 m2/radniku  Changing rooms and sanitation facilities - 0.4 -0.5 m2/radniku  Standards for design offices:  3.0 to 3.5 m2/osobi  4.5 to 5.0 m2/osobi – drawers  5.0 m2/osobi - management staff
  • 43.
  • 56.
  • 57.
  • 58.
  • 61.
  • 78.