ANGELA SU
2727 ELLENDALE PL #233, LOS ANGELES, CA
ANGELASU@USC.EDU
• MOUNTAIN CABIN 1
• PARK PAVILION 2
• SANTA MONICA OFFICE BUILDING 3
• GOLF CART BRIDGE 4
• BEACH FRONT HOUSE 5
• 3D DYNAMIC ANALYSIS WITH SAP2000 14
TABLE OF CONTENTS
The simple design of a 20’ by 40’ cabin uses 20’ span beams
between the walls to create the mezzanine and roof. The
design of the roof reflects the inside of the cabin, since a roof
is build upon beams that reside on load bearing walls below it.
MOUNTAIN CABIN
ARCH 205A
fall 2006
1
The pavilion design is simple, but the structure
provides a basic shelter while allowing visitors to
enjoy the park. The triangular motif of the structure
is unique and acts as a bridge across the lake to an
island at the center.
The three columns support the cantiliver beams to
provide those under it shade while maintaining a full
view of the park.
PARK PAVILION
ARCH 205A
fall 2006
2
The following is a group project with two
students in a group. This is a steel frame
building with columns 18ft apart in the
east-west direction and 33 ft apart in the
north-south direction, 27ft from a solid wall to
the north.
The first floor is designed with a 15 ft
overhang on the exterior of the building. This
floor is split into two areas, a retail area on
the west side, and a gallery on the east side.
A large skylight opens up between the two
areas, with a fountain and benches for people
to enjoy.
The second floor is designed for office space.
There is a walkway that circulates around the
building, with a skylight above to allow light in
the halls. This walkway is broken as one exits
the building and walks onto a balcony
overlooking the skylight on the first floor and
the street below on the other side. Offices line
the exterior of the west and south wall facing
the street. All utilities are along the north wall
away from the streets.
ARCH 205B
SPRING 2007
SANTA MONICA
OFFICE BUILDING
3
The design of a 64’golf cart
bridge uses a double arch
suspended deck bridge to solve
the forces. The leaning arches
allow resistance to the horizontal
wind and seismic forces. Through
the use of cables, the concrete
slab can overcome the moment
from the long span.
BRENT WOOD, CALIFORNIA
ARCH 305A
fall 2007
GOLF CART BRIDGE
AND CLUB HOUSE
To keep the same motif
throughout the golf course, the
clubhouse is designed with
three steel arches breced to
resist lateral forces. Rods are
used to hang the roof from the
arches, creating a flexible open
space below with no colums
and glass walls.
Lobby & Observation Area
Women's
Locker
Men's
Locker
Women's
Toilet
Men's
Toilet
MaintenanceMaintenance
FLOOR PLAN
SCALE 3/16"=1'
CONNECTION DETAIL
SCALE 3/4"=1'
CONNECTION DETAIL
SCALE 3/4"=1'
WALL SECTION DETAIL
SCALE 3/4"=1'
WALL SECTION DETAIL
SCALE 3/4"=1'
SOUTH ELEVATION
SCALE 3/16"=1'
EAST ELEVATION(SIMILAR TO WEST)
SCALE3/16"=1'
SECTION 1
SCALE3/16"=1'
SECTION 2
SCALE3/16"=1'
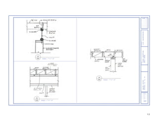
4
For this project we were assigned to design a pentagon shaped house,
with the south side facing the beach. We had a group of three, with I as
the group leader.
The house has a mezzanine on the north side, so that the open studio
would have a grand view of the ocean. The mezzanine includes two
beds and two baths, with a lounge area that is open to the ocean view
and studio below.
On the first floor there is half bath, kitchen, a laundry/mechanical, and
a storage. There are two entrances to the house, an utility entrance
leading to the storage and kitchen, and a grand entrance on the east
side to the two story studio with a view of the ocean.
SANTA MONICA, CALIFORNIA
ARCH 305B
SPRING 2008
BEACH FRONT HOUSE
5
6
7
8
9
10
11
12
13
14
3-D DYNAMIC ANALYSIS OF A
THREE STORY BUILDING
USING SAP2000
by
Angela Su
As a part of laboratory project for CE 458 class
Department of Civil and Environmental Engineering
Viterbi School of Engineering
University of Southern California
Spring 2008
15
Abstract
Dynamic response of a three story building was studied using SAP2000 software. Analysis was performed as a Time History
Analysis, using the ground motion excitation with PGA of 170.76 and as a Response Spectra Analysis for PGA =1g. Base shears
were calculated for both cases and results were compared and discussed.
As an illustration, design requirements were checked for one member and its adequacy to withstand the earthquake induced loads was
discussed.
16
Table of Contents
1. Introduction
2. Description of the structure
3. Description of the model
4. Analysis and Results
4.1. Time History Analysis
4.2. Response Spectra Analysis
5. Conclusions
6. References
17
1. Introduction
For the purpose of learning some of the major application possibilities of SAP2000 software, a fictitious structure is created.
Structure is a three story steel building, with frame configuration that can be used in a typical office building design. Main structural
system consists of steel frames, positioned in both horizontal directions, combined with reinforced concrete (RC) shear walls.
Main tasks were:
• Creating the finite element model, based on the assigned characteristics of structural elements, assumptions of the rigid floor
diaphragms and lumped mass calculation.
• Performing 3D dynamic analysis using Response Spectra approach, for longitudinal and for transversal direction, for peak
ground acceleration (PGA) 1g. Maximal physical displacements are obtained using RSS method. Base shear was calculated for
both horizontal directions and stresses plotted for the shear walls. Stress check was performed for the first floor column.
• Performing 3D dynamic analysis using Time History approach for the given acceleration excitation record, with PGA =170.76.
Selected time histories of the joint displacements and base shear are plotted.
Obtained results were discussed and it is found that the results of the two dynamic analysis show very different results in base shear,
the response spectra gives a se shear of X=2402.04K and Y=3738.63K, while maximum base shear for the El Centro earthquake is
X=7.742x105
K, and Y=2.89 x105
K. The El Centro earthquake’s acceleration exceeds the 5 modes we analyzed in response spectrum
analysis, since it yielded a larger base shear. The building is found to be not adequate to endure the earthquake in both analyses. We
checked the structure through sheer stress of a bottom member where it is larges, which failed, for the response spectrum analysis. For
time history the deflection at the roof, which would be the largest, exceeded the acceptable limit.
18
2. Description of the Structure
Analyzed structure is a three story still building, with typical office building design characteristics. Story height is 12ft, for all stories.
Base of the structure is of irregular shape, with maximal dimensions of 84 ft by 40 ft.
Main structural system consists of orthogonal positioned still frames – moment resistant and brace frames and of shear walls.
Structural system of the floor slabs is not specifically defined, but slabs are assumed to be rigid in their own planes, what corresponds
to type of RC slab systems. The weight of the slabs, including the weight of the flooring, perimeter walls, services load, etc. is defined
to be 120 lb/sq ft and roof weight to be 110 lb/sq ft.
Gravity load is carried by the system of longitudinal and transversal still frames (Fig. 1 and Fig. 2).
Main lateral load for transversal direction is carried by two shear walls and by moment resistant frame. Each shear wall is 20 ft long
and 1ft thick RC system. Walls are located at the outside transversal frames and symmetrical with respect to central transversal axis.
Moment resistant frame, with one 20 ft span is located along the central transversal axis (Fig. 1 and Fig.2)
Main lateral load for the longitudinal direction is carried by two moment resistant frames and two brace frames. Frames are positioned
along the outside longitudinal frames, and symmetrical to the central transversal axis (Fig. 1 and Fig.2).
Characteristics and types of structural elements are assigned and presented on the Fig.1 and Fig. 2.
Foundation type was not specified, but for purposes of Response Spectra Analysis, soil type 1 was used.
Results obtained by the Response Spectra Analysis were compared to results obtained by the Time History Analysis.
19
Fig. 1 PERSPECTIVE VIEW
20
20ft 24ft 24ft 20ft
Moment Frame Moment Frame
20ft Shear Moment Frame Shear 20ft
Wall Wall
20ft
Brace Frame Brace Frame
10ft 10ft 10ft 10ft
Fig. 2 PLAN VIEW
Sections:
Columns : W10X49 Frame Girders : W24X55
Frame Columns : W14X90 Brace : TS 6X6X1/2
Beams : W24X68 Shear Walls : 1 ft thick Concrete
21
3. Description of the Model
SAP 2000 model of the structure is presented in the Fig.3.
Fig. 3 X-Z PERSPECTIVE VIEW
Model is created using the elements W10x49 (colums), W24x68 (beams), W14x90 (frame columns), W24x55 (frame girders),
TS6x6x1/2 (brace) for the still frame structures and one foot thick concrete elements for modeling the shear walls.
Mass of the model is defined as a combination of the structural mass of participating elements and as lumped mass that was calculated
based on tributary areas and represents the mass of the slabs with corresponding loads.
22
Calculation of tributary areas is shown on the Fig. 4.
Fig.4 TRIBUTARY AREAS
AxRoof 110psf AxFloor 120psf
Node1 A1=100 F=11k M=.3416 F=12k M=.3727
Node2 A2=220 F=24.2k M=.7516 F=26.4k M=.8199
Node3 A3=240 F=26.4k M=.8199 F=28.8k M=.8944
Node4 A4=200 F=22k M=.6832 F=24k M=.7453
Node5 A5=320 F=35.2k M=1.093 F=38.4k M=1.193
Node6 A6=240 F=26.4k M=.8199 F=28.8k M=.8944
Node7 A7=100 F=11k M=.3416 F=12k M=.3727
Node8 A8=100 F=11k M=.3416 F=12k M=.3727
Each story of the shear wall has a window with dimensions 10ft by 6ft located at the center of the bay.
23
4. Analysis and Results
Study of dynamic response of the structure is performed using:
• Response Spectra Analysis, for X and Y direction separately, based on normalized response spectra graph, for PGA of 1g. It is
assumed that excitation at all supports is the same.
• Time History Analysis, for the given acceleration excitation at supports, assuming that earthquake strikes at an angle of 45
degrees from the global X axis of the structure.
24
4.1. Response Spectra Analysis
Based on normalized response spectra graph, and for PGA =1g, for soil type 1, response spectra calculation was performed for two
orthogonal directions independently.
Model of the structure is created such that floor slabs remain rigid during the translations and torsional rotations.
There are advantages in using the response spectrum method of seismic analysis for prediction of displacements and member forces in
structural systems. The method involves the calculation of only maximum values of the displacements and member forces in each
mode. The use of computers has sped up the process and allows one to run many time history analyses in a short period of time.
The “Mode Superposition Method” is used to “uncouple” the dynamic force equilibrium equation. The number of degrees-of-freedom
is equal to the number of lumped mass in the system. The mode superposition method is a powerful method used to solve for the many
unknowns in a dynamic response analysis. Using a computer all types of loading can be accurately approximated by linear functions
with a small time increment.
.. . ..
[M]{D} + [C]{D} + [K]{D} =-[M][R]{Dg}
{D}=[!]{q}
.. . ..
{q} + [GM]-1
[GC]{q} + [GM]-1
[GK]{q}=[GM]-1
[GL] {Dg}
.. . ..
{q} + [2"#]{q} + [#2
]{q}=[$] {Dg}
1. The natural frequencies and vibration modes using SAP2000.
mode Period (T) (s) f = 1/T (1/s) ! = f*2" (rad/s)
1 0.3045 3.284072 20.62397
2 0.1576 6.345178 39.84772
3 0.1182 8.460237 53.13029
4 0.1092 9.157509 57.50916
5 0.0627 15.94896 100.1595
25
2. The first 5 vibration modes
Fig. 5 Mode 1
Fig. 6 Mode 2
26
Fig.7 Mode 3
Fig. 8 Mode 4
27
Fig.9 Mode 5
28
3. Stress check on the first floor column located in the top rightmost corner of Figure 2. Assume the allowable stress to be 0.66
times the yield stress of steel (36ksi).
0.66 x 36ksi x (0.1x144) = 342.14ksi = 49268.7k-ft2
< 5214.38 member fails
29
4. Base shear in each case in both directions.
SpecX SpecY
X Y X Y
28.32 330.51 0.10 593.82
44.49 0.94 0.7 3.11
57.55 5.3x10^-3 0.06 6.98
44.49 0.94 0.03 3.13
28.32 331.15 0.08 599.09
24.55 330.55 0.07 594.09
7.19 0.24 8.27X10^-3 0.81
24.79 5.3x10^-3 0.03 6.98
7.53 0.25 9.33X10^-3 0.82
24.55 331.19 0.06 599.37
526.97 0.45 0.4 0.81
526.97 0.25 0.4 0.81
526.64 0.25 0.4 0.82
526.95 0.45 0.4 0.82
TOTAL
2399.31 1327.17 2.73 2411.46
BASE SHEAR IN X=2399.31+2.73=2402.04K
BASE SHEAR IN Y= 1327.17+2411.46=3738.63K
30
5. Stress contour plot (S11, S22 & S12) of the shear wall due the ground motion in Y-direction.
Fig.10 Contour S11
31
Fig.11 Contour S22
32
Fig.12 Contour S12
The shear panels for S11 and S22 accumulate stress from top to bottom so that the bottom corners receive the most stress. For S12
the stress gathers at the center of the shear panel rather than the edges.
33
6. Results
In class we learned to find the period for a 1D structure, a complex 3D structure, such as our model would be extremely
complicated to calculate. From the period, shape functions were applied to find the mode shapes of the structure. To solve for
displacement, uncouple equations were used. Using the RSS method, one can convert modal displacement back to physical
displacement. Next we checked the stress of different members of the structure and its shear walls. It appears our structure is not
adequate to withstand the base shear of X=2402.04K and Y=3738.63K.
34
4.2 Time History Analysis
For the given acceleration excitation, defined by 936 points, equally spaced on 0.02 seconds (50 points per second), with peak
amplitude of 215.212 cm/sec2, at about 6.68 seconds, Time History Analysis is performed. It is assumed that earthquake strikes the
structure at an angle of 45 degrees measured from the global X axis of the structure.
Time history dynamic analysis of structures uses actual past earthquake data to apply acceleration to the building from the base. It is
assumed that all support excitations are the same and the response of the building is computed at each point of given acceleration. Iti s
also assumed that all floor diaphragms are rigid so that they move as one. Using the same differential equations as above we solve for
the structural response.
.. . ..
[M]{D} + [C]{D} + [K]{D} =-[M][R]{Dg}
{D}=[!]{q}
.. . ..
{q} + [GM]-1
[GC]{q} + [GM]-1
[GK]{q}=[GM]-1
[GL] {Dg}
.. . ..
{q} + [2"#]{q} + [#2
]{q}=[$] {Dg}
35
1. Time history displacements of the joint located on the roof at the bottom left corner of Figure 2.
Fig. 12 TIME HISTORY OF JOINT
36
2. Plot the time history of the base shear in each direction. Determine the max shear.
Fig. 13 BASE SHEAR IN Y
37
Fig. 14 BASE SHEAR IN X &Y
3. Results
The maximum base shear is 7.742x105
K for the X direction, and 2.89 x105
K in the Y direction. When the two graphs are
plotted against each other it is obvious that shear in X is much larger than Y.
Looking at the roof joint displacement, the maximum is 7.07ft of displacement. This is a very large displacement for a 3 story
building, 12ft each.
38
5. Conclusions
A complex 3D structure, such as the one we modeled, would be hard analyze and would take a long time to calculate. Using software
such as SAP2000 analysis can be done in minutes, even seconds. However one must use their engineering judgment to interpret these
results. One should check to see that the results are reasonable. Software can be used to help in the analysis process, but if one does
not have any engineering background, one would not even recognize a major error the program had made. Errors happen a lot,
whether by wrong inputs, such as wrong units, or errors in modeling, where joints are not connected properly, and sometimes the
structure is just beyond the limits of the program.
The results of the two dynamic analysis show very different results in base shear, the response spectra gives a se shear of X=2402.04K
and Y=3738.63K, while maximum base shear is X=7.742x105
K, and Y=2.89 x105
K. Modes are used to determine the base shear in response
spectra, while time history uses actually earthquake data to apply acceleration to the building. We can then conclude that El Centro earthquake
exceeded the five modes we analyzed in response spectra analysis. Both analysis shows that the building is not adequate. Through response spectra
we determined that building would fail. Response spectra results showed an unacceptable displacement in the roof. The shear walls would not be
able to take that large of a deflection.
To perform analysis, one must simplify the model, and make assumptions, such as rigid floor slabs, and equal support excitation. This makes the
model move as a inverted pendulum. Without these assumptions the process and time to make analysis would take much longer, and yield results
we may not necessarily need. What we want is the maximum. Through the use of safety factors and assuming the largest excitation, we make sure
the structure is stronger than it would need to be.
39
6. References
1. Class notes for CE 458 Lab and class, Univ. of Southern California, Civil Eng. Dept., Spring 2006.
2. “Personal Communication” with Professor Sanja Ivanovic.

Arch.CE Portfolio

  • 1.
    ANGELA SU 2727 ELLENDALEPL #233, LOS ANGELES, CA ANGELASU@USC.EDU
  • 2.
    • MOUNTAIN CABIN1 • PARK PAVILION 2 • SANTA MONICA OFFICE BUILDING 3 • GOLF CART BRIDGE 4 • BEACH FRONT HOUSE 5 • 3D DYNAMIC ANALYSIS WITH SAP2000 14 TABLE OF CONTENTS
  • 3.
    The simple designof a 20’ by 40’ cabin uses 20’ span beams between the walls to create the mezzanine and roof. The design of the roof reflects the inside of the cabin, since a roof is build upon beams that reside on load bearing walls below it. MOUNTAIN CABIN ARCH 205A fall 2006 1
  • 4.
    The pavilion designis simple, but the structure provides a basic shelter while allowing visitors to enjoy the park. The triangular motif of the structure is unique and acts as a bridge across the lake to an island at the center. The three columns support the cantiliver beams to provide those under it shade while maintaining a full view of the park. PARK PAVILION ARCH 205A fall 2006 2
  • 5.
    The following isa group project with two students in a group. This is a steel frame building with columns 18ft apart in the east-west direction and 33 ft apart in the north-south direction, 27ft from a solid wall to the north. The first floor is designed with a 15 ft overhang on the exterior of the building. This floor is split into two areas, a retail area on the west side, and a gallery on the east side. A large skylight opens up between the two areas, with a fountain and benches for people to enjoy. The second floor is designed for office space. There is a walkway that circulates around the building, with a skylight above to allow light in the halls. This walkway is broken as one exits the building and walks onto a balcony overlooking the skylight on the first floor and the street below on the other side. Offices line the exterior of the west and south wall facing the street. All utilities are along the north wall away from the streets. ARCH 205B SPRING 2007 SANTA MONICA OFFICE BUILDING 3
  • 6.
    The design ofa 64’golf cart bridge uses a double arch suspended deck bridge to solve the forces. The leaning arches allow resistance to the horizontal wind and seismic forces. Through the use of cables, the concrete slab can overcome the moment from the long span. BRENT WOOD, CALIFORNIA ARCH 305A fall 2007 GOLF CART BRIDGE AND CLUB HOUSE To keep the same motif throughout the golf course, the clubhouse is designed with three steel arches breced to resist lateral forces. Rods are used to hang the roof from the arches, creating a flexible open space below with no colums and glass walls. Lobby & Observation Area Women's Locker Men's Locker Women's Toilet Men's Toilet MaintenanceMaintenance FLOOR PLAN SCALE 3/16"=1' CONNECTION DETAIL SCALE 3/4"=1' CONNECTION DETAIL SCALE 3/4"=1' WALL SECTION DETAIL SCALE 3/4"=1' WALL SECTION DETAIL SCALE 3/4"=1' SOUTH ELEVATION SCALE 3/16"=1' EAST ELEVATION(SIMILAR TO WEST) SCALE3/16"=1' SECTION 1 SCALE3/16"=1' SECTION 2 SCALE3/16"=1' 4
  • 7.
    For this projectwe were assigned to design a pentagon shaped house, with the south side facing the beach. We had a group of three, with I as the group leader. The house has a mezzanine on the north side, so that the open studio would have a grand view of the ocean. The mezzanine includes two beds and two baths, with a lounge area that is open to the ocean view and studio below. On the first floor there is half bath, kitchen, a laundry/mechanical, and a storage. There are two entrances to the house, an utility entrance leading to the storage and kitchen, and a grand entrance on the east side to the two story studio with a view of the ocean. SANTA MONICA, CALIFORNIA ARCH 305B SPRING 2008 BEACH FRONT HOUSE 5
  • 8.
  • 9.
  • 10.
  • 11.
  • 12.
  • 13.
  • 14.
  • 15.
  • 16.
    14 3-D DYNAMIC ANALYSISOF A THREE STORY BUILDING USING SAP2000 by Angela Su As a part of laboratory project for CE 458 class Department of Civil and Environmental Engineering Viterbi School of Engineering University of Southern California Spring 2008
  • 17.
    15 Abstract Dynamic response ofa three story building was studied using SAP2000 software. Analysis was performed as a Time History Analysis, using the ground motion excitation with PGA of 170.76 and as a Response Spectra Analysis for PGA =1g. Base shears were calculated for both cases and results were compared and discussed. As an illustration, design requirements were checked for one member and its adequacy to withstand the earthquake induced loads was discussed.
  • 18.
    16 Table of Contents 1.Introduction 2. Description of the structure 3. Description of the model 4. Analysis and Results 4.1. Time History Analysis 4.2. Response Spectra Analysis 5. Conclusions 6. References
  • 19.
    17 1. Introduction For thepurpose of learning some of the major application possibilities of SAP2000 software, a fictitious structure is created. Structure is a three story steel building, with frame configuration that can be used in a typical office building design. Main structural system consists of steel frames, positioned in both horizontal directions, combined with reinforced concrete (RC) shear walls. Main tasks were: • Creating the finite element model, based on the assigned characteristics of structural elements, assumptions of the rigid floor diaphragms and lumped mass calculation. • Performing 3D dynamic analysis using Response Spectra approach, for longitudinal and for transversal direction, for peak ground acceleration (PGA) 1g. Maximal physical displacements are obtained using RSS method. Base shear was calculated for both horizontal directions and stresses plotted for the shear walls. Stress check was performed for the first floor column. • Performing 3D dynamic analysis using Time History approach for the given acceleration excitation record, with PGA =170.76. Selected time histories of the joint displacements and base shear are plotted. Obtained results were discussed and it is found that the results of the two dynamic analysis show very different results in base shear, the response spectra gives a se shear of X=2402.04K and Y=3738.63K, while maximum base shear for the El Centro earthquake is X=7.742x105 K, and Y=2.89 x105 K. The El Centro earthquake’s acceleration exceeds the 5 modes we analyzed in response spectrum analysis, since it yielded a larger base shear. The building is found to be not adequate to endure the earthquake in both analyses. We checked the structure through sheer stress of a bottom member where it is larges, which failed, for the response spectrum analysis. For time history the deflection at the roof, which would be the largest, exceeded the acceptable limit.
  • 20.
    18 2. Description ofthe Structure Analyzed structure is a three story still building, with typical office building design characteristics. Story height is 12ft, for all stories. Base of the structure is of irregular shape, with maximal dimensions of 84 ft by 40 ft. Main structural system consists of orthogonal positioned still frames – moment resistant and brace frames and of shear walls. Structural system of the floor slabs is not specifically defined, but slabs are assumed to be rigid in their own planes, what corresponds to type of RC slab systems. The weight of the slabs, including the weight of the flooring, perimeter walls, services load, etc. is defined to be 120 lb/sq ft and roof weight to be 110 lb/sq ft. Gravity load is carried by the system of longitudinal and transversal still frames (Fig. 1 and Fig. 2). Main lateral load for transversal direction is carried by two shear walls and by moment resistant frame. Each shear wall is 20 ft long and 1ft thick RC system. Walls are located at the outside transversal frames and symmetrical with respect to central transversal axis. Moment resistant frame, with one 20 ft span is located along the central transversal axis (Fig. 1 and Fig.2) Main lateral load for the longitudinal direction is carried by two moment resistant frames and two brace frames. Frames are positioned along the outside longitudinal frames, and symmetrical to the central transversal axis (Fig. 1 and Fig.2). Characteristics and types of structural elements are assigned and presented on the Fig.1 and Fig. 2. Foundation type was not specified, but for purposes of Response Spectra Analysis, soil type 1 was used. Results obtained by the Response Spectra Analysis were compared to results obtained by the Time History Analysis.
  • 21.
  • 22.
    20 20ft 24ft 24ft20ft Moment Frame Moment Frame 20ft Shear Moment Frame Shear 20ft Wall Wall 20ft Brace Frame Brace Frame 10ft 10ft 10ft 10ft Fig. 2 PLAN VIEW Sections: Columns : W10X49 Frame Girders : W24X55 Frame Columns : W14X90 Brace : TS 6X6X1/2 Beams : W24X68 Shear Walls : 1 ft thick Concrete
  • 23.
    21 3. Description ofthe Model SAP 2000 model of the structure is presented in the Fig.3. Fig. 3 X-Z PERSPECTIVE VIEW Model is created using the elements W10x49 (colums), W24x68 (beams), W14x90 (frame columns), W24x55 (frame girders), TS6x6x1/2 (brace) for the still frame structures and one foot thick concrete elements for modeling the shear walls. Mass of the model is defined as a combination of the structural mass of participating elements and as lumped mass that was calculated based on tributary areas and represents the mass of the slabs with corresponding loads.
  • 24.
    22 Calculation of tributaryareas is shown on the Fig. 4. Fig.4 TRIBUTARY AREAS AxRoof 110psf AxFloor 120psf Node1 A1=100 F=11k M=.3416 F=12k M=.3727 Node2 A2=220 F=24.2k M=.7516 F=26.4k M=.8199 Node3 A3=240 F=26.4k M=.8199 F=28.8k M=.8944 Node4 A4=200 F=22k M=.6832 F=24k M=.7453 Node5 A5=320 F=35.2k M=1.093 F=38.4k M=1.193 Node6 A6=240 F=26.4k M=.8199 F=28.8k M=.8944 Node7 A7=100 F=11k M=.3416 F=12k M=.3727 Node8 A8=100 F=11k M=.3416 F=12k M=.3727 Each story of the shear wall has a window with dimensions 10ft by 6ft located at the center of the bay.
  • 25.
    23 4. Analysis andResults Study of dynamic response of the structure is performed using: • Response Spectra Analysis, for X and Y direction separately, based on normalized response spectra graph, for PGA of 1g. It is assumed that excitation at all supports is the same. • Time History Analysis, for the given acceleration excitation at supports, assuming that earthquake strikes at an angle of 45 degrees from the global X axis of the structure.
  • 26.
    24 4.1. Response SpectraAnalysis Based on normalized response spectra graph, and for PGA =1g, for soil type 1, response spectra calculation was performed for two orthogonal directions independently. Model of the structure is created such that floor slabs remain rigid during the translations and torsional rotations. There are advantages in using the response spectrum method of seismic analysis for prediction of displacements and member forces in structural systems. The method involves the calculation of only maximum values of the displacements and member forces in each mode. The use of computers has sped up the process and allows one to run many time history analyses in a short period of time. The “Mode Superposition Method” is used to “uncouple” the dynamic force equilibrium equation. The number of degrees-of-freedom is equal to the number of lumped mass in the system. The mode superposition method is a powerful method used to solve for the many unknowns in a dynamic response analysis. Using a computer all types of loading can be accurately approximated by linear functions with a small time increment. .. . .. [M]{D} + [C]{D} + [K]{D} =-[M][R]{Dg} {D}=[!]{q} .. . .. {q} + [GM]-1 [GC]{q} + [GM]-1 [GK]{q}=[GM]-1 [GL] {Dg} .. . .. {q} + [2"#]{q} + [#2 ]{q}=[$] {Dg} 1. The natural frequencies and vibration modes using SAP2000. mode Period (T) (s) f = 1/T (1/s) ! = f*2" (rad/s) 1 0.3045 3.284072 20.62397 2 0.1576 6.345178 39.84772 3 0.1182 8.460237 53.13029 4 0.1092 9.157509 57.50916 5 0.0627 15.94896 100.1595
  • 27.
    25 2. The first5 vibration modes Fig. 5 Mode 1 Fig. 6 Mode 2
  • 28.
  • 29.
  • 30.
    28 3. Stress checkon the first floor column located in the top rightmost corner of Figure 2. Assume the allowable stress to be 0.66 times the yield stress of steel (36ksi). 0.66 x 36ksi x (0.1x144) = 342.14ksi = 49268.7k-ft2 < 5214.38 member fails
  • 31.
    29 4. Base shearin each case in both directions. SpecX SpecY X Y X Y 28.32 330.51 0.10 593.82 44.49 0.94 0.7 3.11 57.55 5.3x10^-3 0.06 6.98 44.49 0.94 0.03 3.13 28.32 331.15 0.08 599.09 24.55 330.55 0.07 594.09 7.19 0.24 8.27X10^-3 0.81 24.79 5.3x10^-3 0.03 6.98 7.53 0.25 9.33X10^-3 0.82 24.55 331.19 0.06 599.37 526.97 0.45 0.4 0.81 526.97 0.25 0.4 0.81 526.64 0.25 0.4 0.82 526.95 0.45 0.4 0.82 TOTAL 2399.31 1327.17 2.73 2411.46 BASE SHEAR IN X=2399.31+2.73=2402.04K BASE SHEAR IN Y= 1327.17+2411.46=3738.63K
  • 32.
    30 5. Stress contourplot (S11, S22 & S12) of the shear wall due the ground motion in Y-direction. Fig.10 Contour S11
  • 33.
  • 34.
    32 Fig.12 Contour S12 Theshear panels for S11 and S22 accumulate stress from top to bottom so that the bottom corners receive the most stress. For S12 the stress gathers at the center of the shear panel rather than the edges.
  • 35.
    33 6. Results In classwe learned to find the period for a 1D structure, a complex 3D structure, such as our model would be extremely complicated to calculate. From the period, shape functions were applied to find the mode shapes of the structure. To solve for displacement, uncouple equations were used. Using the RSS method, one can convert modal displacement back to physical displacement. Next we checked the stress of different members of the structure and its shear walls. It appears our structure is not adequate to withstand the base shear of X=2402.04K and Y=3738.63K.
  • 36.
    34 4.2 Time HistoryAnalysis For the given acceleration excitation, defined by 936 points, equally spaced on 0.02 seconds (50 points per second), with peak amplitude of 215.212 cm/sec2, at about 6.68 seconds, Time History Analysis is performed. It is assumed that earthquake strikes the structure at an angle of 45 degrees measured from the global X axis of the structure. Time history dynamic analysis of structures uses actual past earthquake data to apply acceleration to the building from the base. It is assumed that all support excitations are the same and the response of the building is computed at each point of given acceleration. Iti s also assumed that all floor diaphragms are rigid so that they move as one. Using the same differential equations as above we solve for the structural response. .. . .. [M]{D} + [C]{D} + [K]{D} =-[M][R]{Dg} {D}=[!]{q} .. . .. {q} + [GM]-1 [GC]{q} + [GM]-1 [GK]{q}=[GM]-1 [GL] {Dg} .. . .. {q} + [2"#]{q} + [#2 ]{q}=[$] {Dg}
  • 37.
    35 1. Time historydisplacements of the joint located on the roof at the bottom left corner of Figure 2. Fig. 12 TIME HISTORY OF JOINT
  • 38.
    36 2. Plot thetime history of the base shear in each direction. Determine the max shear. Fig. 13 BASE SHEAR IN Y
  • 39.
    37 Fig. 14 BASESHEAR IN X &Y 3. Results The maximum base shear is 7.742x105 K for the X direction, and 2.89 x105 K in the Y direction. When the two graphs are plotted against each other it is obvious that shear in X is much larger than Y. Looking at the roof joint displacement, the maximum is 7.07ft of displacement. This is a very large displacement for a 3 story building, 12ft each.
  • 40.
    38 5. Conclusions A complex3D structure, such as the one we modeled, would be hard analyze and would take a long time to calculate. Using software such as SAP2000 analysis can be done in minutes, even seconds. However one must use their engineering judgment to interpret these results. One should check to see that the results are reasonable. Software can be used to help in the analysis process, but if one does not have any engineering background, one would not even recognize a major error the program had made. Errors happen a lot, whether by wrong inputs, such as wrong units, or errors in modeling, where joints are not connected properly, and sometimes the structure is just beyond the limits of the program. The results of the two dynamic analysis show very different results in base shear, the response spectra gives a se shear of X=2402.04K and Y=3738.63K, while maximum base shear is X=7.742x105 K, and Y=2.89 x105 K. Modes are used to determine the base shear in response spectra, while time history uses actually earthquake data to apply acceleration to the building. We can then conclude that El Centro earthquake exceeded the five modes we analyzed in response spectra analysis. Both analysis shows that the building is not adequate. Through response spectra we determined that building would fail. Response spectra results showed an unacceptable displacement in the roof. The shear walls would not be able to take that large of a deflection. To perform analysis, one must simplify the model, and make assumptions, such as rigid floor slabs, and equal support excitation. This makes the model move as a inverted pendulum. Without these assumptions the process and time to make analysis would take much longer, and yield results we may not necessarily need. What we want is the maximum. Through the use of safety factors and assuming the largest excitation, we make sure the structure is stronger than it would need to be.
  • 41.
    39 6. References 1. Classnotes for CE 458 Lab and class, Univ. of Southern California, Civil Eng. Dept., Spring 2006. 2. “Personal Communication” with Professor Sanja Ivanovic.