B50A Series 
B5OAS ERIESP WMS ERVOA MPLIFIERS 
MODELS: 850A8, 850A20 
Sold & Serviced By: 
ELECTROMATE 
Toll Free Phone (877) SERVO98 
Toll Free Fax (877) SERV099 
FEATURES: 
* Surface-moutnetc hnology 
' Smalls ize,l owc ost, 
ease of use 
. Optionailn puts ignal 
isolation{o r off{ he-rectiife d 
120 VAC line operation 
. DIPs witchs electable: 
currentv, elocity, 
open loop conlrol 
* Fourq uadranrte generativoep eration 
DESCR|pTIONB: 50AS eriesP WMs ervoa mplifieras re designedto driveb rushlessD C motorsa t a highs witching 
frequencyO. peratinegl ficienciys 97"k.A IIm odelsa ref ullyp rotecteadg ainsot ver-voltagoev, er-currenotv, er-heatinagn d 
short-circuitAs.l l modelsin terfacwe ithd igitacl ontrollerosr can be useda s a sland-alonsey stem.T heyr equireo nlya n 
unregutatesdi ngtep owers upply. Loop gain, currentl imit, inputg ain and offsetc an be adiustedu sing 15{urn 
potentiometerTsh. eo flseta diustinpgo tentiometcear na lsob eu seda sa no n-boaridn puts ignaflo rt estingp urposesw,h en 
SWl0 (DlPs witchi)s "On". 
cuRREriT REFERENCE <,, I 
l'lAxll'lul'Ct URREfl=T 7.5U * ' 
aox orl  sllro 
ror( r*---lh + 
HI6H uoLTAcE I 
- cuRREflT LInIT 
FUdCTIOIIAL BLOCK NIA6PAI'I 
LINE REPRESENTS OPTIONAL 75()U ISOLATIO{ (ISO) 
norE- aLL * cnouros AREI XTERIIr{-LYco rlNEcrE!. 
IF IsoLAnoil oprlor! rs sELEcreD + AflD= 5 6R0uNDsn REi loT co{'lEcrED, IdTERHaLP 0,|ERS UPPLY 
ALL P1 COIIIIECTOR PII1S AR€ ISOLATE! FROI1 ALL OTHER PIIJS. FOR HA-L 
! ctt-A 
3 Gfi! 
'{ tic 
5 ftc 
6 Gl1I) 
7 UCC 
8 CH-8 
LED GREEI'{ - NORNAL OPERATION, LED RED - FAULT 
RECOHTENDEDSE TTIXG FOR CURRETiTI 'IODE- FOTI FULLY CC!I, POT3 FULLY C! 
SI1 - FUT{CTIOTOt F POT 1 - TEST IIJFUT, IIIIEH ON. OFFSET AD..!.JSTI'IEiITI,I HEII OFF 
S!I2 - LOII UELOCI]Y RANGE. t.IHEIi ON (USED III UELOCITY I'IODE OtiLY) 
Sl,l3 - lU-€A, l4€l 011, lU-{A, llHEtl oFF 
st10 - 1a) IIEGREE PHFS$i6, llHEn ofl, 60 DEGREE PHASttlG. LlHEd oFF 
su9 
CUPPENT NOiE NN xa ON 
ox 
UOI TAGF NODE 
rR c0rlPENSAll0ti N ' NN OFF 
IA.HniFTFP inTF I NFF NC OFF 
www.electromate.com 
sales@electromate.com
B50A Series 
MODELS 
ELECTROMATE 
Toll Free Phone (877) SERVO98 
Toll Free Fax (877) SERV099 
www.electromate.com 
sales@electromate.com 
POWER STAGE SPECIFICATIONS B5OA8 850A20 
SUPPLY VOLTAGE 20-80v 30-200v 
MAXIMUMPE AKC URRENT 150A +50A 
MAXIMUMC ONTINUOUCSU RRENT +25A +254 
MINIMUM LOAD INDUCTANCE 1 50uH 250uH 
SWITCHINGF REQUENCY 33 KHZ 
THERMAL REOUIREMENTS: 
Case Temperature 
-25"Ct o +65oCc, urrenlr educedif over+ 65oC 
OUTPUT SPECIFICATIONS 
POWER SUPPLIES. +10V P1- 1 
5mA, short circuit protected 
-10v P1- 3 
+5V P2- 1 30mA,s hortc ircuitD rotected 
CURRENTR EFERENCE: P2-9 Maximumcu rren=t 7.5V 
CURRENTM ONITOR: P2-8 1V=8Aw hen SW3=ON,1 V=4Aw hen SW3=OFF 
VELOCITYM ONITOR: P1-10 10 kOhm 
INPUT SPECIFICATIONS 
HALLS ENSORS: P2-3 .4.5 TTL,i nternapl ull-upre sistors 
iNFtstt: p1-6 TTL,i nternapl ull-upre sistorp,u llt o grounctoj inhibit 
amplifier 
TACHOMETER: P2- 6 Maximum16 0Va nalog6, 0Ki nputr esistance 
INPUT: P1- 4,5 Differentianl alogin put,m aximum+ 10V,5 0Ki nput 
resistance 
MECHANICAL SPECIFICATIONS 
POWERC ONNECTOR Screwt erminal 
SIGNALC ONNECTOR Phoenixo r molexc onnector 
SIZE (inches) 5.06x10.00x1.70 
WEIGHT 2.5 lb 
Sold & Serviced By:
B50A Series 
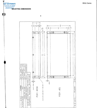
MOUNTINGD IMENSIONS 
_,:l 
t P l 
t @ l l " l - 
ll- ---r l r  - 
F il 
q- 
r 
tr 
z-z 
o 
r 
n 
z 
O 
nq 
n{z 
w 
3 
C 
O 
tl 
T 
a r 
n 
EA - a  
!  
: ( ! 
b Q 
1  
: N 
- 6 (  
t  
;^, 
t N 
t v =  ' - N . 
o C   
3N 
9t c  
:o 
P  
-u N 
'Hia 
F I  
i; v) 
(rl 
o 
ft 
@(, 
q 
n 
n 
ma 
o(: 
z 
2n 
a 
?nzq 
c] 
z 
q 
T 
o 
o 
O 
ru 
O 
s 
ru 
-l 
E-Tt 
rn 
> o 
2 N 
P . E : > m 
u l x 
n3 
6 
m 
TN 
1 0 
6 
! 
t- 
Sold & Serviced By: 
ELECTROMATE 
Toll Free Phone (877) SERVO98 
Toll Free Fax (877) SERV099 
www.electromate.com 
sales@electromate.com

Advanced motion controls b50a8

  • 1.
    B50A Series B5OASERIESP WMS ERVOA MPLIFIERS MODELS: 850A8, 850A20 Sold & Serviced By: ELECTROMATE Toll Free Phone (877) SERVO98 Toll Free Fax (877) SERV099 FEATURES: * Surface-moutnetc hnology ' Smalls ize,l owc ost, ease of use . Optionailn puts ignal isolation{o r off{ he-rectiife d 120 VAC line operation . DIPs witchs electable: currentv, elocity, open loop conlrol * Fourq uadranrte generativoep eration DESCR|pTIONB: 50AS eriesP WMs ervoa mplifieras re designedto driveb rushlessD C motorsa t a highs witching frequencyO. peratinegl ficienciys 97"k.A IIm odelsa ref ullyp rotecteadg ainsot ver-voltagoev, er-currenotv, er-heatinagn d short-circuitAs.l l modelsin terfacwe ithd igitacl ontrollerosr can be useda s a sland-alonsey stem.T heyr equireo nlya n unregutatesdi ngtep owers upply. Loop gain, currentl imit, inputg ain and offsetc an be adiustedu sing 15{urn potentiometerTsh. eo flseta diustinpgo tentiometcear na lsob eu seda sa no n-boaridn puts ignaflo rt estingp urposesw,h en SWl0 (DlPs witchi)s "On". cuRREriT REFERENCE <,, I l'lAxll'lul'Ct URREfl=T 7.5U * ' aox orl sllro ror( r*---lh + HI6H uoLTAcE I - cuRREflT LInIT FUdCTIOIIAL BLOCK NIA6PAI'I LINE REPRESENTS OPTIONAL 75()U ISOLATIO{ (ISO) norE- aLL * cnouros AREI XTERIIr{-LYco rlNEcrE!. IF IsoLAnoil oprlor! rs sELEcreD + AflD= 5 6R0uNDsn REi loT co{'lEcrED, IdTERHaLP 0,|ERS UPPLY ALL P1 COIIIIECTOR PII1S AR€ ISOLATE! FROI1 ALL OTHER PIIJS. FOR HA-L ! ctt-A 3 Gfi! '{ tic 5 ftc 6 Gl1I) 7 UCC 8 CH-8 LED GREEI'{ - NORNAL OPERATION, LED RED - FAULT RECOHTENDEDSE TTIXG FOR CURRETiTI 'IODE- FOTI FULLY CC!I, POT3 FULLY C! SI1 - FUT{CTIOTOt F POT 1 - TEST IIJFUT, IIIIEH ON. OFFSET AD..!.JSTI'IEiITI,I HEII OFF S!I2 - LOII UELOCI]Y RANGE. t.IHEIi ON (USED III UELOCITY I'IODE OtiLY) Sl,l3 - lU-€A, l4€l 011, lU-{A, llHEtl oFF st10 - 1a) IIEGREE PHFS$i6, llHEn ofl, 60 DEGREE PHASttlG. LlHEd oFF su9 CUPPENT NOiE NN xa ON ox UOI TAGF NODE rR c0rlPENSAll0ti N ' NN OFF IA.HniFTFP inTF I NFF NC OFF www.electromate.com sales@electromate.com
  • 2.
    B50A Series MODELS ELECTROMATE Toll Free Phone (877) SERVO98 Toll Free Fax (877) SERV099 www.electromate.com sales@electromate.com POWER STAGE SPECIFICATIONS B5OA8 850A20 SUPPLY VOLTAGE 20-80v 30-200v MAXIMUMPE AKC URRENT 150A +50A MAXIMUMC ONTINUOUCSU RRENT +25A +254 MINIMUM LOAD INDUCTANCE 1 50uH 250uH SWITCHINGF REQUENCY 33 KHZ THERMAL REOUIREMENTS: Case Temperature -25"Ct o +65oCc, urrenlr educedif over+ 65oC OUTPUT SPECIFICATIONS POWER SUPPLIES. +10V P1- 1 5mA, short circuit protected -10v P1- 3 +5V P2- 1 30mA,s hortc ircuitD rotected CURRENTR EFERENCE: P2-9 Maximumcu rren=t 7.5V CURRENTM ONITOR: P2-8 1V=8Aw hen SW3=ON,1 V=4Aw hen SW3=OFF VELOCITYM ONITOR: P1-10 10 kOhm INPUT SPECIFICATIONS HALLS ENSORS: P2-3 .4.5 TTL,i nternapl ull-upre sistors iNFtstt: p1-6 TTL,i nternapl ull-upre sistorp,u llt o grounctoj inhibit amplifier TACHOMETER: P2- 6 Maximum16 0Va nalog6, 0Ki nputr esistance INPUT: P1- 4,5 Differentianl alogin put,m aximum+ 10V,5 0Ki nput resistance MECHANICAL SPECIFICATIONS POWERC ONNECTOR Screwt erminal SIGNALC ONNECTOR Phoenixo r molexc onnector SIZE (inches) 5.06x10.00x1.70 WEIGHT 2.5 lb Sold & Serviced By:
  • 3.
    B50A Series MOUNTINGDIMENSIONS _,:l t P l t @ l l " l - ll- ---r l r - F il q- r tr z-z o r n z O nq n{z w 3 C O tl T a r n EA - a ! : ( ! b Q 1 : N - 6 ( t ;^, t N t v = ' - N . o C 3N 9t c :o P -u N 'Hia F I i; v) (rl o ft @(, q n n ma o(: z 2n a ?nzq c] z q T o o O ru O s ru -l E-Tt rn > o 2 N P . E : > m u l x n3 6 m TN 1 0 6 ! t- Sold & Serviced By: ELECTROMATE Toll Free Phone (877) SERVO98 Toll Free Fax (877) SERV099 www.electromate.com sales@electromate.com