Domus Academy
Interior and Living Design 2014-2015
Project leader_
Alessia Cipolla
Group members_
Liao Wan-Chun
Kulkarni Sumit Vinod
Smidi Lilwa Khalil
[ Research ]
61
5
4 3
2
7
Butchery shops address
P.ta Genova F.s.
Romolo
Navigli
01.Via Emilio Gola ,5
02.Viale Gorizia_ Il Casaro
03.Viale Gorizia, 1
04.Via Corsico, 2
05.Via Santa Crose, 1
06.Via Giuseppe Moda,16
07.Corso S. Gottardo, 47
08.Via Monte, 8
09.Via vodice, 9
10.Viale monza, 78
FLOOR PLAN
4.Via Corsico,2
Display:traditional way
Sell items: meat and groceries,
vegetables, delicatessen,cheese
Materials: tiles wall, terrazzo floor,
wooden shelves, stainless counter
refrigerator
refrigerator
refrigerator
refrigerator
Entrance
grocery shelf
worker area
Window
FLOOR PLAN
5.Via Santa Croce, 1
Display:traditional way
Sell items: meat and groceries,cheese
Materials: tiles wall, terrazzo floor,
wooden shelves, stainless counter
kitchen
refrigerator
refrigerator
Entrance
grocery shelf
kitchen
worker area
Window
counter
FLOOR PLAN
7.Corso S. Gottardo, 47
Display: traditional way
Sell items: meat and groceries,cheese
Materials: tiles wall, tiles floor,
wooden shelves, stainless counter
worker area
Entrance
grocery shelf
machinesWindow refrigerator
kitchen
refrigerator
8.Via Monte, 8
Display:traditional way
Sell items: meat and wine and groceries
Materials: tiles wall,
tiles floor, stainless counter,
wooden shelves
FLOOR PLAN
grocery shelf
kitchen
Entrance
worker areaWindow
refrigerator
counter
FLOOR PLAN
9.Via vodice, 9
Display:traditional way
Sell items: meat and wine, groceries
Materials: tiles wall,tiles floor,
stainless counter
worker area
grocery shelf
kitchen
Window
refrigerator
refrigerator
Entrance
FLOOR PLAN
10.Viale monza, 78
Display:traditional way
Sell items: meat and wine, groceries
Materials: tiles wall,tiles floor,
stainless counter
worker area
grocery shelf
kitchen
refrigerator
refrigerator
Entrance
Entrance
Interview of Butchery shop
Shop address : Via Giuseppe Moda,16
Date : 11.March.2015
Time : p.m. 13:00
Access members :
Liao Wan-Chun
Kulkarni Sumit Vinod
Translate part : Mirco
Butchery shop
Navigli
P.ta Genova F.s.
Romolo
Domus
Q&A
1.Daily work: How many hours you work?
Ten hours
2.How many years this shop have opening?
This shop has more than one century, 103-104 years.
3.The customer base? (target group, age,...etc.)
Not one in particular, all types.
4.When did you last renovated this shop?
In 1980
5.Which type of meat is most selling/ most selling product in your butchery?
Beef.
Background Part
Q&A
1.Which part you want improve in this shop?
Space: about freeze meat , storage goods,...etc.
People: short-hand
I haven't personally designed this shop, I found it, but it's perfectly conceived, and it's
suitable for working from one to five persons.
The persons who designed it didn't fail anything.
2.Strengths and weakness in this shop?
Working environment: lighting, location, work movement, material in interior,...etc.
Product: quality or price
Strenghts: the cold storage is perfectly conceived, could contain less, more or much more
meat. No weakness.
3. How do you see future of this shop?
Same as future of all butcher's shops: going to end after our generation.
Politics are in favour of supermarkets. The last decree made by Mario Monti liberalized
opening times, so supermarked are open 7 days by 7 until 11 pm, a small shop will never be
able to do those openings and suffers.
The buyers do the shopping on sunday and not during the week because they know that
supermarkets are opened on sunday.
Functional Part
Q&A
4.If you have opportunity, did you want add the taste experience to your customers?
No I don't see that. Recently some shops did that, they cut a chop and cook it.
They do it and it could work, but I don't see that: butcher's shop should remain butcher's
shop and should not mix with cooking.
5.How it's work, the progress about prepare meat and survive way?
(from merchandise purchases to survive your customers)
From the point of view of the architecture of the store it takes a particular organization?
When comes the meat bone, you bone, work, make various cuts.
From the back come out 9 cuts, from a calf 35 cuts, from a half-carcass of beef even 40.
To move forward you have to know the meat, you can not improvise.
It does not take a particular organization of the store, only the table boning.
Functional Part
[ Project ]
BRIEF
Design of a “new” butchery with a tasting area
AREA
1. Selling area/client area:
Fresh meats
Package meats and wines
Cashier counter
Apron and some kitchen's elements
2. Tasting area
Tasting foods boxes-combine refrigerator
Tasting foods boxes-combine information table
Low seats area and sharing table with high seats
3. Kitchen
Cooking tasting foods
4. Storage
2. Floor
5.Packed products display
3. Table
wood
4.counter
stainless 6.counter_image
8.lighting image
10.display image
9.counter and floor_image
1. Copper 7.lighting image
Mood board References
5.Packed products display
via http://homesthetics.net/get-crafty-with-60-diy-recycled-wooden-pallets-projects/
6.Counter_image
via http://trendland.com/butchers-are-all-the-hype/
9.counter and floor_image
via http://trendland.com/butchers-are-all-the-hype/
10.display image
via http://ambjewellery.com/2014/02/
Routes
Selling Area/Serving Bar
Cashier
Main Entrance
Back door
Experience Area
Tasting Area
KitchenStorage
Packed
Meats
and wines
Customer Routes
Worker Routes
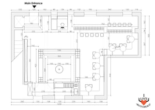
PLAN
Fresh meats selling
Package meats
and wines
Cashier counter
Main Entrance
Back door
KitchenStorage
Experience area
Tasting area
Routes
Customer Routes
Worker Routes
Main Entrance
Fresh meats selling
Package meats
and wines
Cashier counter
Back door
Kitchen
Storage
Experience area
Tasting area
Main Entrance
B B’
A A’
+50
A-A' SECTION
+50
B-B' SECTION
C
C’
D
D’
• • • •
+50
C-C' SECTION
+50
D-D' SECTION
B B’
A A’
+50
A-A' SECTION
+50
B-B' SECTION
C
C’
D
• • • •
+50
C-C' SECTION
+50
D-D' SECTION
The Butchery Shop
The Butchery Shop
The Butchery Shop
The Butchery Shop
The Butchery Shop
The Butchery Shop

The Butchery Shop

  • 1.
    Domus Academy Interior andLiving Design 2014-2015 Project leader_ Alessia Cipolla Group members_ Liao Wan-Chun Kulkarni Sumit Vinod Smidi Lilwa Khalil
  • 2.
  • 3.
    61 5 4 3 2 7 Butchery shopsaddress P.ta Genova F.s. Romolo Navigli 01.Via Emilio Gola ,5 02.Viale Gorizia_ Il Casaro 03.Viale Gorizia, 1 04.Via Corsico, 2 05.Via Santa Crose, 1 06.Via Giuseppe Moda,16 07.Corso S. Gottardo, 47 08.Via Monte, 8 09.Via vodice, 9 10.Viale monza, 78
  • 7.
    FLOOR PLAN 4.Via Corsico,2 Display:traditionalway Sell items: meat and groceries, vegetables, delicatessen,cheese Materials: tiles wall, terrazzo floor, wooden shelves, stainless counter refrigerator refrigerator refrigerator refrigerator Entrance grocery shelf worker area Window
  • 8.
    FLOOR PLAN 5.Via SantaCroce, 1 Display:traditional way Sell items: meat and groceries,cheese Materials: tiles wall, terrazzo floor, wooden shelves, stainless counter kitchen refrigerator refrigerator Entrance grocery shelf kitchen worker area Window counter
  • 10.
    FLOOR PLAN 7.Corso S.Gottardo, 47 Display: traditional way Sell items: meat and groceries,cheese Materials: tiles wall, tiles floor, wooden shelves, stainless counter worker area Entrance grocery shelf machinesWindow refrigerator kitchen refrigerator
  • 11.
    8.Via Monte, 8 Display:traditionalway Sell items: meat and wine and groceries Materials: tiles wall, tiles floor, stainless counter, wooden shelves FLOOR PLAN grocery shelf kitchen Entrance worker areaWindow refrigerator counter
  • 12.
    FLOOR PLAN 9.Via vodice,9 Display:traditional way Sell items: meat and wine, groceries Materials: tiles wall,tiles floor, stainless counter worker area grocery shelf kitchen Window refrigerator refrigerator Entrance
  • 13.
    FLOOR PLAN 10.Viale monza,78 Display:traditional way Sell items: meat and wine, groceries Materials: tiles wall,tiles floor, stainless counter worker area grocery shelf kitchen refrigerator refrigerator Entrance Entrance
  • 14.
    Interview of Butcheryshop Shop address : Via Giuseppe Moda,16 Date : 11.March.2015 Time : p.m. 13:00 Access members : Liao Wan-Chun Kulkarni Sumit Vinod Translate part : Mirco Butchery shop Navigli P.ta Genova F.s. Romolo Domus
  • 16.
    Q&A 1.Daily work: Howmany hours you work? Ten hours 2.How many years this shop have opening? This shop has more than one century, 103-104 years. 3.The customer base? (target group, age,...etc.) Not one in particular, all types. 4.When did you last renovated this shop? In 1980 5.Which type of meat is most selling/ most selling product in your butchery? Beef. Background Part
  • 17.
    Q&A 1.Which part youwant improve in this shop? Space: about freeze meat , storage goods,...etc. People: short-hand I haven't personally designed this shop, I found it, but it's perfectly conceived, and it's suitable for working from one to five persons. The persons who designed it didn't fail anything. 2.Strengths and weakness in this shop? Working environment: lighting, location, work movement, material in interior,...etc. Product: quality or price Strenghts: the cold storage is perfectly conceived, could contain less, more or much more meat. No weakness. 3. How do you see future of this shop? Same as future of all butcher's shops: going to end after our generation. Politics are in favour of supermarkets. The last decree made by Mario Monti liberalized opening times, so supermarked are open 7 days by 7 until 11 pm, a small shop will never be able to do those openings and suffers. The buyers do the shopping on sunday and not during the week because they know that supermarkets are opened on sunday. Functional Part
  • 18.
    Q&A 4.If you haveopportunity, did you want add the taste experience to your customers? No I don't see that. Recently some shops did that, they cut a chop and cook it. They do it and it could work, but I don't see that: butcher's shop should remain butcher's shop and should not mix with cooking. 5.How it's work, the progress about prepare meat and survive way? (from merchandise purchases to survive your customers) From the point of view of the architecture of the store it takes a particular organization? When comes the meat bone, you bone, work, make various cuts. From the back come out 9 cuts, from a calf 35 cuts, from a half-carcass of beef even 40. To move forward you have to know the meat, you can not improvise. It does not take a particular organization of the store, only the table boning. Functional Part
  • 19.
  • 20.
    BRIEF Design of a“new” butchery with a tasting area AREA 1. Selling area/client area: Fresh meats Package meats and wines Cashier counter Apron and some kitchen's elements 2. Tasting area Tasting foods boxes-combine refrigerator Tasting foods boxes-combine information table Low seats area and sharing table with high seats 3. Kitchen Cooking tasting foods 4. Storage
  • 21.
    2. Floor 5.Packed productsdisplay 3. Table wood 4.counter stainless 6.counter_image 8.lighting image 10.display image 9.counter and floor_image 1. Copper 7.lighting image
  • 22.
    Mood board References 5.Packedproducts display via http://homesthetics.net/get-crafty-with-60-diy-recycled-wooden-pallets-projects/ 6.Counter_image via http://trendland.com/butchers-are-all-the-hype/ 9.counter and floor_image via http://trendland.com/butchers-are-all-the-hype/ 10.display image via http://ambjewellery.com/2014/02/
  • 23.
    Routes Selling Area/Serving Bar Cashier MainEntrance Back door Experience Area Tasting Area KitchenStorage Packed Meats and wines Customer Routes Worker Routes
  • 24.
    PLAN Fresh meats selling Packagemeats and wines Cashier counter Main Entrance Back door KitchenStorage Experience area Tasting area
  • 25.
    Routes Customer Routes Worker Routes MainEntrance Fresh meats selling Package meats and wines Cashier counter Back door Kitchen Storage Experience area Tasting area
  • 26.
  • 27.
    B B’ A A’ +50 A-A'SECTION +50 B-B' SECTION
  • 28.
    C C’ D D’ • • •• +50 C-C' SECTION +50 D-D' SECTION
  • 29.
    B B’ A A’ +50 A-A'SECTION +50 B-B' SECTION
  • 30.
    C C’ D • • •• +50 C-C' SECTION +50 D-D' SECTION