GOVERNMENT POLYTECHNIC RAJKOT
NEAR AJI DAM, BHAVNAGAR ROAD, RAJKOT-360003
A
PROJECT REPORT ON
“DESIGN OF PROTOTYPE OF AIRCRAFT - ROBOCRAFT”
Gujarat Technological University, Ahmadabad
APRIL, 2015
NAME TANK CHIRAG G.
ER.NO. 126200319084
DIVISION B
SUBJECT PROJECT-II
SUBJECT CODE 3361910
DISCIPLINE DIPL.MECH. ENGG.
GUIDED BY R.M. VAGHASIYA
THIS IS TO CERTIFY THAT
MR. TANK CHIRAG G.
ENROLMENT NO :- 126200319084
OF PROGRAMME MECHANICAL HAS
SATISFACTORILY COMPLETED HIS
TERMWORK IN THE SUBJECT
PROJECT – II (3361910) HAVING PROJECT TITLE
“DESIGN OF PROTOTYPE OF AIRCRAFT - ROBOCRAFT”
WITHIN THE PRESCRIBED TIME LIMIT AND PRESCRIBED
BOUNDARY.
DATE:
INSTITUTE GUIDE HEAD OF MECH. DEPARTMENT
MR. R. M. VAGHASIYA MR. R.N. MANDELIYA
Govt. Poly. Rajkot (DME) – 2015 i
ACKNOWLEDGMENT
Successful completion of a project required active involvement of many people
from time of inception of an idea to its Implementation, many brains work together and
that only provides faithful results. Here, I would like to thanks those people who have
provided their assistant, encouragement and enthusiasm, without them this project
would not have been possible.
First of all I would like to thank Gujarat Technological University and My College
Government Polytechnic-Rajkot, who give me an opportunity to prepare a Dissertation.
Before we get into thick of the things, I would to add a few heartfelt words for the
people who are part of this dissertation report in numerous ways… people who give
unending support right from the stage dissertation report idea was conceived. In
particular, I would like to thank head of Mechanical department Mandaliya Sir, and Prof.
VAGHASIYA sir who provides us such nice and encouraging environment. When we
face troubles during the project Mr. Anand savaliya and Mr. Vivek vaghasiya guided us
so I would also like to thank them.
We wish to thank our team member for taking responsibilities to finish a
dissertation in limited time duration for phase, documentations & creations of the
dissertation.
Thanking you…
GUIDED BY HEAD OF MECH DEPARTMENT.
Mr. R.M. VAGHASIYA Mr.R.N.MANDELIYA
Govt. Poly. Rajkot (DME) – 2015 ii
PREFACE
In the scope of mechanical engineering, the aerodynamics have lot of
importance. Aerodynamics used to transportation of goods, travelling, and surveillance
of nation. So we decided to make the prototype of the aircraft as the project of the
mechanical final year.
The “DESIGN OF PROTOTYPE OF AIRCRAFT – ROBOCRAFT” is very
important and interesting project of the mechanical field. In this project We learnt about
the working , terminology, factors affecting to flight, construction, application and
advantage of the aircraft. We also studied about the designing of aircraft. We checkout
aeronautics formula rules and equation .Now we will make the prototype of aircraft by
foam material in the next semester. We will also study about the errors out coming from
the preparation of the model.
To generate the aircraft , it is the necessary to know how the aircraft works, what
are the condition for fly the drone, which aerodynamic shapes use for lift of flight , what
are the dimension for consume lower power for fly the flight.
In the construction of the prototype of aircraft many parts are used like frame,
servo motor, brushless motor, propeller, battery, radio control and any others.
This project also contains the servo mechanism and arrangement of servo
motors. We studied aerodynamic theory and we modify the aircraft by some creative
and innovative features. The system uses less-than lethal force or remote CS/CN tear
gas deployment, and is also invaluable for counter-sniper detection and neutralization.
Military Forces, Law Enforcement Agencies, Border Patro, First Responders of
Natural or Civil Disasters, Monitors of Petroleum Pipe Lines, Firefighters Battling Forest
Blazes this aircraft is used.
Govt. Poly. Rajkot (DME) – 2015 iii
LIST OF FIGURES
FIGURE 1 :- "VOODOO" A MODIFIED P 51 MUSTANG [4] FIGURE 2 :- QANTAS AIRBUS A380 [4].............................. 1
FIGURE 3 :- BALTIC AIRLINES MIL MI-8 [4] FIGURE 4 :- AUTO GYROPLANE XENON 2 [4]...................... 1
FIGURE 5 :- GLIDER AIRCRAFT [5] FIGURE 6 :- TRI COPTER – 3 MOTORS [5] .........................2
FIGURE 7 :- BELL EAGLE EYE (MODEL 918) [5] FIGURE 8 :- QUAD COPTER WITH VIDEO SURVEILLANCE..2
FIGURE 9 :- HEXACOPTER - 6 MOTORS [5] FIGURE 10 :- OCTOCOPTER – 8 MOTORS [5] ......................2
FIGURE 11 :- GLIDER AIRCRAFT [2] ..........................................................................................................................3
FIGURE 12 :- AFFECTING FORCES ON AIRCRAFT [6] ..................................................................................................4
FIGURE 13 :- LIFT [6]...............................................................................................................................................5
FIGURE 14 :- AIR DENSITY EFFECT AT WING [8]........................................................................................................7
FIGURE 15 :- WING GEOMETRY [8]...........................................................................................................................8
FIGURE 16 :- WING THICKNESS & CAMBER [7] .........................................................................................................8
FIGURE 17 :- ASPECT RATIO[4].................................................................................................................................9
FIGURE 18 :- STALL AND AOA [3] ..........................................................................................................................10
FIGURE 19 :- CONTROL SURFACE AND BALANCE WEIGHT [6] .................................................................................. 12
FIGURE 20 :- STABILITY CONCEPT [2]..................................................................................................................... 13
FIGURE 21 :- CONSTRUCTION OF AIRCRAFT [4] ...................................................................................................... 14
FIGURE 22 :- RADIO CONTROL [12] ........................................................................................................................ 16
FIGURE 23 :- DETAIL VIEW & SPECIFICATION OF REMOTE CONTROL [12] ................................................................ 17
FIGURE 24 :- SERVO MOTOR [12]............................................................................................................................18
FIGURE 25 :- CONTROL HORNS [12]........................................................................................................................18
FIGURE 26 :- BLDC MOTOR [12] ............................................................................................................................ 19
FIGURE 27 :- PROP [12] ......................................................................................................................................... 20
FIGURE 28 :- SPEED CONTROLLER [12].................................................................................................................. 20
FIGURE 29 :- BATTERY [12] .................................................................................................................................... 21
FIGURE 30 :- AUTOCAD & ACTUAL DRAWING OF WING ........................................................................................32
FIGURE 31 :- AUTOCAD & ACTUAL DRAWING OF FUSELAGE..................................................................................35
FIGURE 32 :- AUTOCAD & ACTUAL DRAWING OF STABILIZER ...............................................................................38
FIGURE 33 :- AUTOCAD & ACTUAL DRAWING OF FIN............................................................................................ 41
FIGURE 34 :- AUTOCAD & ACTUAL DRAWING OF LANDING GEAR..........................................................................43
FIGURE 35 :- RADIO INSTALLATION[4]...................................................................................................................44
FIGURE 36 :- AUTOCAD & ACTUAL DRAWING OF ASSEMBLY OF AIRCRAFT ............................................................47
LIST OF GRAPH
GRAPH1 :- LIFT COEFFICIENT V/S ANGLE OF ATTACK [2] .........................................................................................10
GRAPH2 :- LIFT COEFFICIENT V/S ANGLE OF ATTACK & LIFT COEFFICIENT V/S DRAG COEFFICIENT [5]....................26
GRAPH 3 :- L/D RATIO V/S ANGLE OF ATTACK [5] ..................................................................................................27
Govt. Poly. Rajkot (DME) – 2015 iv
TABLE OF CONTENT
ACKNOWLEDGMENT ...................................................................................................................................................I
PREFACE......................................................................................................................................................................II
LIST OF FIGURES .......................................................................................................................................................III
TABLE OF CONTENT................................................................................................................................................. IV
CHAPTER:- 1
INTRODUCTION AND LITERATURE STUDY OF AERODYNAMICS..........................................................................1
1.1 AIR VEHICLES............................................................................................................................................... 1
1.2 UNMANNED AIR (AERIAL) VEHICLES ...........................................................................................................2
1.3 CONCEPT OF RC AIRCRAFT...........................................................................................................................3
1.4 SCOPE & NEED OF AIRCRAFT & UAV ............................................................................................................3
CHAPTER:- 2
WORKING PRINCIPLES...............................................................................................................................................4
2.1 WORKING PRINCIPLE AND AFFECTING FORCES FOR AIRCRAFT.......................................................................4
2.1.1 Gravity ................................................................................................................................................4
2.1.2 lift ........................................................................................................................................................5
2.1.3 Thrust..................................................................................................................................................6
2.1.4 Drag ....................................................................................................................................................6
2.2 AIR DENSITY ................................................................................................................................................7
2.3 WING GEOMETRY.........................................................................................................................................8
2.4 STALL AND SPIN...........................................................................................................................................9
2.5 STABILITY CONCEPT ................................................................................................................................... 12
CHAPTER - 3
CONSTRUCTION AND BOUGHT OUT PARTS SPECIFICATION.............................................................................14
3.1 AIRCRAFT BODY.......................................................................................................................................... 16
3.2 RADIO CONTROL ........................................................................................................................................ 16
3.3 SERVO MOTOR............................................................................................................................................18
3.4 ELECTRIC MOTOR....................................................................................................................................... 19
3.5 PROP ......................................................................................................................................................... 20
3.6 SPEED CONTROLLER.................................................................................................................................. 20
3.7 BATTERIES ................................................................................................................................................. 21
CHAPTER - 4
DESIGN AND MANUFACTURING OF AIRCRAFT.....................................................................................................23
4.1 SELECTION OF MATERIAL............................................................................................................................23
4.2.1 DESIGN OF WING.....................................................................................................................................28
4.2.2 MANUFACTURING OF WING..................................................................................................................... 31
Govt. Poly. Rajkot (DME) – 2015 v
4.3.1 DESIGN OF FUSELAGE .............................................................................................................................33
4.3.2 MANUFACTURING OF FUSELAGE .............................................................................................................34
4.4.1 DESIGN OF STABILIZER............................................................................................................................36
4.4.2 MANUFACTURING OF STABILIZER ...........................................................................................................37
4.5.1 DESIGN OF FIN........................................................................................................................................39
4.5.2 MANUFACTURING OF FIN........................................................................................................................ 41
4.6.1 DESIGN OF LANDING GEAR......................................................................................................................42
4.6.2 MANUFACTURING OF LANDING GEAR......................................................................................................42
4.7. ASSEMBLY OF AIRCRAFT ............................................................................................................................44
CHAPTER - 5
FLOW PROCESS CHART & WORK ALLOCATION SHEET .....................................................................................48
5.1. FLOW PROCESS CHART.............................................................................................................................. 48
5.2. WORK ALLOCATION SHEET........................................................................................................................49
CHAPTER - 6
INNOVATION AND FUTURE PLAN OF PROJECT....................................................................................................50
6.1 INNOVATION IN AIRCRAFT ..........................................................................................................................50
6.1.1 Definition of Servo motor ................................................................................................................50
6.1.2 Function of Servo motor..................................................................................................................50
6.1.3 Change in Servo motor....................................................................................................................50
6.1.4 Advantages of innovation ............................................................................................................... 51
6.2 FUTURE PLAN OF AIRCRAFT........................................................................................................................ 51
6.2.1 Return to home aircraft................................................................................................................... 51
6.2.2 AUTOMATIC REMOTE LESS AIRCRAFT...................................................................................................52
CHAPTER - 7
COSTING OF RC AIRCRAFT PROJECT ...................................................................................................................53
CHAPTER - 8
RESULT AND DISCUSSION.......................................................................................................................................54
8.1 ADVANTAGE ...............................................................................................................................................54
8.2 APPLICATION .............................................................................................................................................54
CHAPTER - 9
CONCLUSION.............................................................................................................................................................55
CHAPTER - 10
REFRENCES...............................................................................................................................................................56
Chapter: - 1 DESIGN OF PROTOTYPE OF AIRCRAFT – ROBOCRAFT P a g e | 1
Govt. Poly. Rajkot (DME) - 2015
Chapter:- 1
INTRODUCTION AND LITERATURE STUDY OF
AERODYNAMICS
Aerodynamics is the study of forces and motion of objects through the air. A
model aircraft that is hanging still in air during strong winds may be subject to the same
aerodynamic forces as a model aircraft that is flying fast during calm weather.
The aerodynamic forces depend much on the air density. For example, if a glider
glides 25 meters from a given altitude during low air density it may glide 40 meters
during high density.
1.1 Air Vehicles
Figure 1 :- "Voodoo" a modified P 51 Mustang [4] Figure 2 :- Qantas Airbus A380 [4]
Figure 3 :- Baltic Airlines Mil Mi-8 [4] Figure 4 :- Auto Gyroplane Xenon 2 [4]
Chapter: - 1 DESIGN OF PROTOTYPE OF AIRCRAFT – ROBOCRAFT P a g e | 2
Govt. Poly. Rajkot (DME) - 2015
1.2 Unmanned Air (Aerial) Vehicles
Figure 6 :- Tri copter – 3 motors [5]
Figure 7 :- Bell Eagle Eye (Model 918) [5] Figure 8 :- Quad copter with Video Surveillance [5]
Figure 9 :- Hexacopter - 6 motors [5] Figure 10 :- Octocopter – 8 motors [5]
Figure 5 :- Glider Aircraft [5]
Chapter: - 1 DESIGN OF PROTOTYPE OF AIRCRAFT – ROBOCRAFT P a g e | 3
Govt. Poly. Rajkot (DME) - 2015
1.3 Concept of RC Aircraft
A radio-controlled (model) aircraft (often called RC aircraft or RC plane) is a
small flying machine that is controlled remotely by an operator on the ground using a
hand-held radio transmitter. The transmitter communicates with a receiver within the
craft that sends signals to servomechanisms (servos) which move the control surfaces
based on the position of joysticks on the transmitter. The control surfaces, in turn, affect
the orientation of the plane. A glider normally flies slower. This type is usually a high
wing aircraft model with nearly flat bottom airfoil that produces high lift, permitting slow
landing speeds without stalling. It also has some dihedral angle to give a good lateral
stability. However, a flat bottom high wing with dihedral is more sensitive to
crosswind gusts, so the first flights should be done during calm weather.
Figure 11 :- Glider aircraft [2]
1. A well-rounded leading edge is therefore preferable, as it better conveys the
airflow onto the upper wing surface allowing higher angle of attack at low speed.
2. A trainer model should not be too small, as it would be difficult to assemble and
maintain and would be more sensitive to strong winds. It should not be too large
either, as it would be difficult to transport require a larger flying field and would
more expensive.
1.4 Scope & need of Aircraft & UAV
Scientific, government and military organizations are also utilizing RC aircraft for
experiments, gathering weather readings, aerodynamic modeling and testing, and even
using them as drones or spy planes.
Chapter: - 2 DESIGN OF PROTOTYPE OF AIRCRAFT – ROBOCRAFT P a g e | 4
Govt. Poly. Rajkot (DME) - 2015
Chapter:- 2
WORKING PRINCIPLES
To generate the aircraft , it is the necessary to know how the aircraft works, what
are the condition for fly the drone, which aerodynamic shapes use for lift of flight , what
are the dimension for consume lower power for fly the flight. So to generate the aircraft
the working principle and affecting laws are given below.
2.1 Working Principle and affecting forces for aircraft
Gravity, Lift, Thrust and Drag are the factors affecting to the aircrafts.
Figure 1 :- Affecting forces on aircraft [6]
2.1.1 Gravity
Gravity is a force that is always directed toward the Centre of the earth.The
magnitude of the force depends on the mass of all the aircraft parts.The gravity is also
called weight and is distributed throughout the aircraft.But we can think of it as collected
and acting through a single point called the centre of gravity.
In flight, the aircraft rotates about its centre of gravity, but the direction of the
weight force always remains toward the centre of the earth.
Chapter: - 2 DESIGN OF PROTOTYPE OF AIRCRAFT – ROBOCRAFT P a g e | 5
Govt. Poly. Rajkot (DME) - 2015
2.1.2 lift
Lift is the force generated in order to overcome the weight, which makes the
aircraft fly. This force is obtained by the motion of the aircraft through the air.
Factors that affect lift:
Figure 2 :- Lift [6]
Lift force is therefore dependent on the density of the air , the airspeed V, the
type of airfoil and on the wing’s area according to the formula below:
Lift Force = 0.5 *  * V2 * Wing's Lift Coefficient * Wing Area
Where, Lift Force is in Newton,
Wing Area in m2,
Air speed in m/s.
Standard density of the air is 1.225kg/m3.
The wing's lift coefficient is a dimensionless number that depends on the airfoil
type, the wings aspect ratio (AR), Reynolds Number and is proportional to the angle of
attack (AoA) before reaching the stall angle.
Chapter: - 2 DESIGN OF PROTOTYPE OF AIRCRAFT – ROBOCRAFT P a g e | 6
Govt. Poly. Rajkot (DME) - 2015
2.1.3 Thrust
Thrust is the force generated by some kind of propulsion system. The magnitude
of the thrust depends on many factors associated with the propulsion system used.
1.Type of engine
2.number of engines
3.throttle setting
4.speed
The direction of the force depends on how the engines are attached to the
aircraft.
The glider, however, has no engine to generate thrust. It uses the potential
energy difference from a higher altitude to a lower altitude to produce kinetic energy,
which means velocity. Gliders are always descending relative to the air in which they
are flying.
2.1.4 Drag
Drag is the aerodynamic force that opposes an aircraft's motion through the air.
Drag is generated by every part of the aircraft (even the engines).
There are several sources of drag:
One of them is the skin friction between the molecules of the air and the
surface of the aircraft.
The skin friction causes the air near the wing's surface to slow down.
This slowed down layer of air is called the boundary layer.
The boundary layer builds up thicker when moving from the front of the airfoil
toward the wing trailing edge.
Another factor is called the Reynolds effect, which means that the slower we fly,
the thicker the boundary layer becomes. Form drag, induced drag, interference drag,
parasitic drag, total drag are the various types of drag.
Chapter: - 2 DESIGN OF PROTOTYPE OF AIRCRAFT – ROBOCRAFT P a g e | 7
Govt. Poly. Rajkot (DME) - 2015
2.2 Air density
The air density depends on the atmospheric pressure and on the air temperature.
The air density increases with decreasing of the air temperature and/or with increasing
of the atmospheric pressure. The air density decreases with increasing of the air
temperature and/or with decreasing of the atmospheric pressure.
Figure 3 :- Air density effect at wing [8]
The pressure increases exponentially with increasing of the airspeed. The
aircraft's resistance to the airflow (drag) depends on the shape of the fuselage and
flying surfaces. An aircraft that is intended to fly fast has a thinner and different wing
profile than one that is intended to fly slower. That's why many aircraft change their
wings' profiles on landing approach by lowering the flaps located at the wings' trailing
edge and the slats at the leading edge in order to keep enough lifting force during the
much lower landing speed.
The wings' profile of an aircraft is usually asymmetric, which makes the pressure
on the wings' upper side lower than the underside, causing the air on the wing supper
side to accelerate downwards, thereby a lift force is created.
Pockets of rising air are called updrafts. Updrafts are found when the wind
blowing at a hill or mountain rises to climb over it. (However, there may be
a downdraft on the other side!) Updrafts can also be found over dark land masses that
absorb more heat from the sun than light land masses. The heat from the ground heats
the surrounding air, which causes the air to rise. The rising pockets of hot air are
called thermals.
Chapter: - 2 DESIGN OF PROTOTYPE OF AIRCRAFT – ROBOCRAFT P a g e | 8
Govt. Poly. Rajkot (DME) - 2015
2.3 Wing geometry
A vertical cut through the wing parallel to flight's direction (plan view) will show
the cross-section of the wing.
This side view (profile) is called Airfoil, and it has some geometry definitions
of its own as shown on the picture below.
Figure 4 :- Wing geometry [8]
The longest straight line that can be drawn from the Airfoil's leading edge to
trailing edge is called the Chord Line.
The Chord Line cuts the airfoil into an upper surface and a lower surface. If we
plot the points that lie halfway between the upper and lower surfaces, we obtain a curve
called the Mean Camber Line.
For a symmetric airfoil (upper surface the same shape as the lower surface) the
Mean Camber Line will fall on top of the Chord Line. But for an asymmetric airfoil, these
are two separate lines. The maximum distance between these two lines is called the
Camber, which is a measure of the curvature of the airfoil (high camber means high
curvature).Asymmetric airfoils are also known as cambered airfoils.
The maximum distance between the upper and lower surfaces is called the
Thickness. Both Thickness and Camber are expressed as a percentage of Chord.
Figure 5 :- Wing thickness & camber [7]
Airfoils can come with all kinds of combinations of camber and thickness
distributions. They are designed for the conditions under which the plane is likely to be
flown most of the time. NACA (the precursor of NASA) established a method of
designating classes of airfoils and then wind tunnel tested the airfoils in order to provide
lift coefficients and drag coefficients for designers.
Chapter: - 2 DESIGN OF PROTOTYPE OF AIRCRAFT – ROBOCRAFT P a g e | 9
Govt. Poly. Rajkot (DME) - 2015
Aspect Ratio is a measure of how long and slender a wing is from tip to tip. The
Aspect Ratio of a wing is defined to be the square of the span divided by the wing area
and is given the symbol AR.
The formula is simplified for a rectangular wing, as being the ratio of the span to
the chord length as shown on the figure below.
Figure 6 :- Aspect ratio[4]
Wing Dihedral refers to the angle of wing panels as seen in the aircraft's front
view. Dihedral is added to the wings for roll stability; a wing with some Dihedral will
naturally return to its original position if it is subject to a briefly slight roll displacement.
Most large airliner wings are designed with Dihedral. On the contrary the highly
maneuverable fighter planes have no Dihedral. In fact, some fighter aircraft have the
wing tips lower than the roots, giving the aircraft a high roll rate. A negative Dihedral
angle is called Anhedral.
2.4 Stall and Spin
"What's the stall speed?"
The reason for the enquiry is that usually, but not always, the approach speed
chosen for landing is 1.3 times the stall speed.
“Stall is an undesirable phenomenon in which the aircraft wings produce an
increased air resistance and decreased lift, which may cause an aircraft to crash.”
The stall occurs when the airflow separates from the upper wing surface. It
happens when a plane is under too great an Angle of Attack (AoA).
Chapter: - 2 DESIGN OF PROTOTYPE OF AIRCRAFT – ROBOCRAFT P a g e | 10
Govt. Poly. Rajkot (DME) - 2015
For light aircraft, without high-lift devices, the critical angle is usually around 16°.
The picture below shows a stalled airfoil:
Figure 7 :- Stall and AOA [3]
graph1 :- Lift coefficient v/s angle of attack [2]
For airfoils of one family the symmetric airfoil stalls at a higher Geometric AoA
compared with the cambered airfoil, however the cambered airfoil has higher lift
coefficient and stalls at a higher Absolute AoA.
Chapter: - 2 DESIGN OF PROTOTYPE OF AIRCRAFT – ROBOCRAFT P a g e | 11
Govt. Poly. Rajkot (DME) - 2015
As mentioned in the chapter Forces in Flight, the lift force is proportional to the
density of the air , the square of the airspeed V, the type of airfoil and to the wing’s
area according to the formula:
Lift force = 0.5 *  * V2 * wing's lift coefficient * wing area
Since lift coefficient is proportional to the angle of attack, the lower the airspeed
the higher the angle of attack has to be in order to produce the same lift.
Thus, stall may occur during take-off or landing, just when the airspeed is low:
To keep altitude at low airspeed, the wing's lift coefficient has to increase, and if a non-
experienced pilot tries to lift the aircraft's nose at a too low airspeed, it may exceed the
critical angle of attack and stall occurs. If you're flying near the stall speed and make a
steep turn, the aircraft will stall. That's because, if the aircraft stalls for instance at 20
knots in straight level flight, it will stall at 28.2 knots in a 60 degree banked turn. The
rapid reduction in speed after passing the critical angle of attack means the wing is now
unable to provide sufficient lift to totally balance weight and, in a normal stall, the aircraft
starts to sink, but if one wing stalls before the other, that wing will drop, the plane falls
out of the air. The ground waits below. Stalls may also occur at high airspeeds. If at max
airspeed and full throttle the pilot suddenly applies excessive up elevator, the aircraft
will rotate upwards, however, due to aircraft's inertia, it may continue flying in the same
direction but with the wings at an angle of attack that may exceed the stall angle.
The aileron drag is a further factor that may cause an aircraft to stall. When the
pilot applies aileron to roll upright during low speed, the downward movement of the
aileron on the lower wing might take an angle on that part of the wing past the critical
stall angle. Thus that section of wing, rather than increasing lift and making the wing
rise, will stall, lose lift and the aircraft instead of straightening up, will roll into a steeper
bank and descend quickly.
Also the wing with the down aileron often produces a larger drag, which may
create a yaw motion in the opposite direction of the roll. This yaw motion partially
counteracts the desired roll motion and is called the adverse yaw.
Another factor that affects the aircraft's stall characteristics is the location of its
centre of gravity CG.A tail-heavy aircraft is likely to be more unstable and susceptible to
stall at low speed, e. g. during the landing approach.
Chapter: - 2 DESIGN OF PROTOTYPE OF AIRCRAFT – ROBOCRAFT P a g e | 12
Govt. Poly. Rajkot (DME) - 2015
Spin
A worse version of a stall is called spin, in which the plane spirals down. A stall
can develop into a spin through the exertion of a sidewise moment. Depending on the
plane, (and where its CG is located) it may be more difficult or impossible to recover
from a spin. Recovery requires good efficiency from the tail surfaces of the plane;
typically recovery involves the use of the rudder to stop the spinning motion, in addition
to the elevator to break the stall. However the wings might block the airflow to the tail.
If the centre of gravity of the plane is too far back, it tends to make recovery much more
difficult.
Another circumstance that may cause loss of control is when a hinged control
surface starts to flutter. Such flutter is harmless if it just vibrates slightly at certain
airspeed (possibly giving a kind of buzzing sound), but ceases as soon as the airspeed
drops. In some cases however, the flutter increases rapidly so that the model is
no longer controllable. The pilot may not be aware of the cause and suspect radio
interference instead. To reduce the flutter, the control linkages should not be loosely
fitted and the push rods should be stiff. Long unbraced push rods can create flutter as
vibration whips them around. In some difficult cases the control surface has to be
balanced, so that its centre of mass (gravity) is ahead of the hinge line. It should be
located at about 60-65%of the length of the control surface from its inner end:
Figure 8 :- Control surface and balance weight [6]
2.5 Stability concept
The aircraft's response to momentary disturbance is associated with its inherent
degree of stability built in by the designer, in each of the three axes, and occurring
without any reaction from the pilot.
An aircraft's stability is expressed in relation to each axis:
lateral stability (stability in roll), directional stability (stability in yaw)longitudinal
stability (stability in pitch).
Lateral and directional stabilities are inter-dependent.
Chapter: - 2 DESIGN OF PROTOTYPE OF AIRCRAFT – ROBOCRAFT P a g e | 13
Govt. Poly. Rajkot (DME) - 2015
Figure 9 :- stability concept [2]
Stability may be defined as follows:
- Positive stability: tends to return to original condition after a disturbance.
- Negative stability: tends to increase the disturbance.
- Neutral stability: remains at the new condition.
-Static stability: refers to the aircraft's initial response to a disturbance. A statically
unstable aircraft will uniformly depart from a condition of equilibrium.
-Dynamic stability: refers to the aircraft's ability to damp out oscillations which depends
on how fast or how slow it responds to a disturbance.
-Lateral stability is achieved through dihedral, sweepback, keel effect and proper
distribution of weight. The dihedral angle is the angle that each wing makes with the
horizontal (see Wing Geometry).If a disturbance causes one wing to drop, the lower
wing will receive more lift and the aircraft will roll back into the horizontal level.
-The tail fin determines the directional stability. If a gust of wind strikes the aircraft
from the right it will be in a slip and the fin will get an angle of attack causing the aircraft
to yaw until the slip is eliminated.
-Longitudinal stability depends on the location of the centre of gravity, the stabilizer
area and how far the stabilizer is placed from the main wing. Most aircraft would be
completely unstable without the horizontal stabilizer.
-It is of crucial importance that the aircraft's Centre of Gravity (CG) is located at the
right point, so that a stable and controllable flight can be achieved. In order to achieve a
good longitudinal stability, the CG should be ahead of the Neutral Point (NP), which is
the Aerodynamic Centre of the whole aircraft.
Chapter: - 3 DESIGN OF PROTOTYPE OF AIRCRAFT – ROBOCRAFT P a g e | 14
Govt. Poly. Rajkot (DME) - 2015
Chapter - 3
CONSTRUCTION AND BOUGHT OUT PARTS
SPECIFICATION
A reasonable size is about 150cm wingspan (60 in) with a high aspect ratio,
which means the wingspan being about 5.5 times the wing chord. A square wing is
advisable, as it distributes the weight of the aircraft evenly over the entire surface of the
wing. In order to allow a reasonable low landing speed without stalling, the wing loading
should not be greater than about 60g/sq.dm (19-oz/sq. ft). Wing loading is the aircraft's
weight divided by the wing area. Some degree of wing washout also improves the stall
characteristics.
The basic parts of a trainer model:
Figure 1 :- Construction of aircraft [4]
Chapter: - 3 DESIGN OF PROTOTYPE OF AIRCRAFT – ROBOCRAFT P a g e | 15
Govt. Poly. Rajkot (DME) - 2015
Engine - provides the power to rotate the propeller.
Propeller - (also Prop) is attached to the engine's shaft to convert rotational motion into
thrust and speed, which depends on the Prop's diameter, pitch and the Engine's power.
Spinner – stream lined part that covers the end of the Prop shaft.
Fin - (also Vertical Stabilizer) provides directional stability (stability in yaw).
Rudder - moveable part fitted to the Fin's trailing edge, is used to change the aircraft's
direction.
Stabilizer - (also Horizontal Stabilizer or Stab) provides longitudinal stability (stability in
pitch).
Elevator - moveable part fitted to the Horizontal Stabilizer's trailing edge, is used to
make the aircraft climb or dive.
Ailerons - movable parts on both sides of the wing, are used to make the aircraft roll
about its fore - aft axis. When one aileron moves up the other moves down.
Wing - provides the aircraft's main lifting force.
List of part used in aircraft
1. Body
2. Radio control
3. Servo motor
4. Brushless DC motor
5. Prop / propeller
6. Electronic Speed controller
7. Battery
Chapter: - 3 DESIGN OF PROTOTYPE OF AIRCRAFT – ROBOCRAFT P a g e | 16
Govt. Poly. Rajkot (DME) - 2015
3.1 Aircraft body
Aircraft body is the main part of the R/C aircraft. Electronic parts like radio
control, servo motor, brushless motor, speed controller, propeller etc. arranged in the
body.
Body have many parts like Spinner, fin , Rudder, stabilizer, elevator, ailerons,
wing, fuselage etc.
Construction of body parts are describe above. The design and dimension of
body is described in next chapter.
3.2 Radio control
The R/C pilot controls the model by a radio link, which means by using
electromagnetic radiation.
Basically the R/C equipment consists of a
Transmitter operated by the pilot and the airborne
units consisting in a Receiver together with one or
more Servos depending on the number of channels
used and a Battery pack. The picture shows a four
channel RC Transmitter, Receiver, 4 Servos,
Battery pack and Switch.
Figure 2 :- Radio control [12]
A typical RC Transmitter has about 4 to 6 channels with at least 4 of them
being proportional, which means the controlled surfaces or devices will
move proportionally to the movements of the control sticks. Additional channels may
function only in "on-off" manner like a switch, and are usually used to actuate
retractable landing gears, airbrakes, lamps, etc. The example bellow shows a five
channel RC Transmitter with two joysticks (left/right and up/down movement) enabling
four proportional channels, channels, while the fifth channel is of switch type
(on/off).The example shows the mode two configuration (most common) having
the elevator control on the right joystick and the motor throttle on the left one.
Chapter: - 3 DESIGN OF PROTOTYPE OF AIRCRAFT – ROBOCRAFT P a g e | 17
Govt. Poly. Rajkot (DME) - 2015
Figure 3 :- Detail view & specification of remote control [12]
Chapter: - 3 DESIGN OF PROTOTYPE OF AIRCRAFT – ROBOCRAFT P a g e | 18
Govt. Poly. Rajkot (DME) - 2015
3.3 Servo motor
Servos are the end units in a radio control chain.
They are used to move the aircraft's control surfaces, the motor throttle and
to actuate other devices such as retractable landing gears.
The picture on right shows
some servo hardware, such as
mounting screws, rubber pads, and
different sorts of servo arms.
Figure 5 :- Control horns [12]
Specification:
1. Wire length 18cm
2. Weight 9 gm
At 4.8V
3. Speed (sec/60) 0.12
4. Torque (Kg-cm) 1.3
At 6V
5. Speed (sec/60) 0.10
6. Torque (Kg-cm) 1.5
A servo consists basically in a motor,
gearbox, feedback potentiometer and an
electronic board inside a plastic case. Outside
are the servo arm and the servo cable and
plug. The servo arm is often a plastic piece
with holes on it for attaching push rods or other
mechanical linkages. Figure 4 :- Servo motor [12]
Chapter: - 3 DESIGN OF PROTOTYPE OF AIRCRAFT – ROBOCRAFT P a g e | 19
Govt. Poly. Rajkot (DME) - 2015
3.4 Electric motor
Electric powered model aircraft has gained popularity, mainly because the
electric motors are more quiet, clean and often easier to start and operate than the
combustion motors.
They need batteries to operate and
despite some developments in this area;
the batteries still are some what heavier
as energy source compared with the gas
fuel. Thus, the electric flier has to strive to
build the model as light as possible in order
to obtain a reasonable wing loading and/or
a reasonable flight time.
Figure 6 :- BLDC motor [12]
Specification:
1. RPM / V 1250 rpm
2. Weight 132 gm
Combination of usage
3. PROP 11x5.5E
4. Thrust 3000gms
5. Lipo batteries 4cell 14.8V
6. Operating Voltage 12V
7. Amp draw at load 63 amp
8. ESC 60 amp
9. Power 764W
Chapter: - 3 DESIGN OF PROTOTYPE OF AIRCRAFT – ROBOCRAFT P a g e | 20
Govt. Poly. Rajkot (DME) - 2015
3.5 prop
The prop is the component used to
generate the electric power to the thrust for the
aircraft. There are various airfoil shape and
size react the various effect at the fly.
Specification:
1. Electric flight prop 11 x 5.5 E
2. Weight 60 gm
3. Size 280 X 27 mm
Figure 7 :- prop [12]
3.6 Speed controller
A common way to control the electric motor's speed is by using an Electronic
Speed Controller (ESC).
Figure 8 :- Speed controller [12]
The Electronic Speed Controller is based on Pulse Width Modulation
(PWM),which means that the motor's rpm is regulated by varying the pulses' duty-cycle
according to the transmitter's throttle position. Most ESCs have a facility known as
Battery Eliminator Circuit (BEC).These controllers include a 5V regulator to supply the
receiver and servos from the same battery that is used to power the motor, thereby
eliminating the weight of a second battery only to power the radio and servos. The
motor power is cut-off when the battery voltage falls, for example below 5V.This
prevents the battery from getting totally flat allowing the pilot to control the model when
the motor stops.
Chapter: - 3 DESIGN OF PROTOTYPE OF AIRCRAFT – ROBOCRAFT P a g e | 21
Govt. Poly. Rajkot (DME) - 2015
Specification:
1. Output Continuous 40A,Burst 50A up to 10 Sec
2. Input Voltage 2-6 cells lithium battery or 5-18 cells NiCd/NiMh battery
3. BEC output 3A/5V
4. Max. Speed
210,000rpm for 2 poles brushless motor
70,000rpm for 6 poles brushless motor
35,000rpm for 12 poles brushless motor
5. Dimension 40mm(L)*24mm(W)*12mm(H)
6. Weight 38g
3.7 Batteries
Batteries are available in different sizes, weights, voltages and capacities C,
which refer to their stored energy expressed either in amps-hour Ah or milliamps-
hour mAh. For example, a battery with a capacity of 500mAh should deliver 500mA
during one hour before it gets totally discharged (flat).
Radio control systems are
usually powered by rechargeable
batteries. Rechargeable battery
types available on the market today
are:
Nickel-Cadmium (NiCads)
Nickel-Metal hydride (NiMH) and
Lithium-Polymer (Lipo) batteries.
Even Lead-Acid batteries are also
used as ground power source.
Figure 9 :- Battery [12]
Chapter: - 3 DESIGN OF PROTOTYPE OF AIRCRAFT – ROBOCRAFT P a g e | 22
Govt. Poly. Rajkot (DME) - 2015
The lead acid batteries have normally 3 or 6 cells connected in series. Each cell
has a nominal voltage of 2V resulting in anominal pack voltage of 6V and 12V
respectively. They are usually charged with a constant voltage of 2.4 - 2.5V per cell
having the charging current limited to 1/10C. It is not recommended charging these
batteries with a charging current exceeding 1/3C.A lead acid battery pack is considered
fully charged when the charging current falls below 10mA and/or the cell voltage
reaches 2.4 - 2.5V.
Should a lead acid battery be continuously left on charge (when used as
power backup); the charging voltage should not exceed 2.25 - 2.30V per cell. It is also
advisable to charge these batteries in a well-ventilated area/room, since it produces
hydrogen-oxygen gases that can be explosive and also the electrolyte contains sulfuric
acid that can cause severe burns. Lead acid batteries' lifespan is about 4 to 8 years
depending on the treatment.
Specification :
1. Capacity 4200mAh
2. Voltage 11.1v
3. Continuous Discharge Rate 35C
4. Charger Time Recommend (by input 1mah)
5. Weight 740 gm
6.
Size
L: 13.8 cm
B: 4.2 cm
H: 2.5 cm
Chapter: - 4 DESIGN OF PROTOTYPE OF AIRCRAFT – ROBOCRAFT P a g e | 23
Govt. Poly. Rajkot (DME) - 2015
Chapter - 4
DESIGN AND MANUFACTURING OF AIRCRAFT
4.1 Selection of material
Several materials are commonly used for construction of the airframe of model
radio controlled aircraft.
The earliest model radio controlled aircraft were constructed of wood covered
with paper. Later, plastic film such as Monokote came to be widely used as a covering
material. Wood has relatively low cost, high specific Young's modulus (stiffness per unit
weight), good workability and strength, and can be assembled with adhesives of various
types. Light-weight strong varieties such as balsa wood are preferred; basswood, pine
and spruce are also used.
Carbon fiber, in rod or strip form, supplements wood in more recent models to
reinforce the structure, and replaces it entirely in some cases (such as high
performance turbine engine powered models and helicopters). The disadvantage of
using carbon fiber is its high cost.
Twinwall extruded polypropylene sheet has been used from the mid nineties.
Commonly known as Correx in the United Kingdom, it is mentioned in the sections
above. Currently the Mugi group based in West Yorkshire still promote and use this
material in 2mm thickness sheet form. Very tough and lightweight it has only two
disadvantages. Firstly it needs particular two-part contact glues. Secondly the material
is difficult to paint due to low surface adhesion. Self-adhesive coloured tapes were the
answer. Components are often laminated, taking advantage of differing flute directions
for strength and forming. Models tend to exceed 900mm wingspan with carbon fibre
tubing used for local reinforcement. The thickness used among modellers is from 2mm
to 4 mm thickness. Models made out of this material are commonly known among
modellers as "Spad" types (simple plastic aero plane design).
Expanded polystyrene and extruded polystyrene foam (Styrofoam) came to be
used more recently for the construction of the entire airframe. Depron (the type of foam
used for meat trays) blends rigidity with flexibility, allowing aircraft to absorb the stress
of flying. Expanded polypropylene (EPP) is an extremely resilient variety of foam, often
used in basic trainers, which take considerable abuse from beginners. So we chose
Styrofoam for our project.
Chapter: - 4 DESIGN OF PROTOTYPE OF AIRCRAFT – ROBOCRAFT P a g e | 24
Govt. Poly. Rajkot (DME) - 2015
By reducing the dimensions of a full-sized aircraft proportionally, a scaled model
will be obtained. However, it seldom becomes an easy flying one. The main
aerodynamic differences between a model and a full-sized aircraft are originated from
the boundary layer, the thin layer of air close to the wing surface that is slowed down by
skin friction.
According to Osborne Reynolds, there are two main types of flow:
(i) The laminar and (ii)the turbulent.
Which flow type occurs within the boundary layer at a given point of the wing's
surface depends on the wing's form, the surface's roughness, the chord length, the
airspeed and the ratio of density to viscosity of the air. Reynolds combined all those
factors (except the surface condition) into a non-dimensional number known as
Reynolds Number Re.
Re = (air density/air viscosity) * air speed * wing chord
Air viscosity is measured in kilograms per meter per second.
The standard value is: 0.0000179 kg/m/sec.
For instance, a wing with a chord of 1 meter at a airspeed of 1 m/sec
and with the standard air density and viscosity will have the following
Re:(1.225/0.0000179) * 1 * 1 = 68459
Thereby, a simplified formula may be obtained as follows:
Re = 68459 * V * L
Where V is the airspeed in m/sec and L the wing chord in meters. The Reynolds
number is therefore dependent on the weather conditions, the wing chord and the
airspeed. Re increases as the airspeed, the air density and the wing chord increases.
Chapter: - 4 DESIGN OF PROTOTYPE OF AIRCRAFT – ROBOCRAFT P a g e | 25
Govt. Poly. Rajkot (DME) - 2015
Since the wing chords of model aircraft are often much less than 1 meter, one
may get a Re value close enough for modeling purposes by using the following
simplified formula:
Re = speed in kilometers per hour * chord in centimeters * 189 (Metric units)
Re = 80 X 23 X 189
Re = 347,760
At low airspeed and small wing chord (as with a model aircraft) the air viscosity is
a dominant factor, whereas with the full-sized aircraft the viscosity effects of the air are
insignificant while the aircraft's mass inertia becomes more dominant. That's why one
should not expect a scaled model aircraft to have the same flight characteristics as its
larger counterpart.
As stated in Forces in Flight, the lift force is dependent on the density of the air
, the airspeed V, the wing's Lift Coefficient and the wing’s area. So theory and various
graphs of lift coefficient v /s angle of attack & lift coefficient v /s drag coefficient, l/d ratio
v /s angle of attack are described below.
The Wing's Drag Coefficient is a dimensionless number that depends on the
airfoiltype, the wing's aspect ratio (AR), the shape of the wing tips, Reynolds Number
(Re)and the angle of attack (alpha).
The relation between lift and drag is called the Lift to Drag ratio (L/D) and is
obtained by dividing the Lift Coefficient by the Drag Coefficient.
Chapter: - 4 DESIGN OF PROTOTYPE OF AIRCRAFT – ROBOCRAFT P a g e | 26
Govt. Poly. Rajkot (DME) - 2015
The characteristics of any particular airfoil may be represented by graphs
showing the amount of lift and drag obtained at various angles of attack as well as the
Lift/Drag ratio. The same airfoil has different Lift and Drag Coefficients at different
Reynolds Numbers as shown in the graphs below.
graph1 :- Lift coefficient v/s angle of attack & Lift coefficient v/s drag coefficient [5]
The above graphs refer to the airfoil only, as the Coefficients of a whole wing
also depend on the wing's Aspect Ratio, Taper Ratio and on the shape of the wing tips.
Note that this airfoil still produces lift at negative geometric angles of attack.
The graphs also show a portion of the negative Coefficients (when flying inverted).
Chapter: - 4 DESIGN OF PROTOTYPE OF AIRCRAFT – ROBOCRAFT P a g e | 27
Govt. Poly. Rajkot (DME) - 2015
graph 2 :- L/D ratio V/S angle of attack [5]
The graph on left shows Lift and Drag
Coefficients along with Lift/Drag ratio
of a whole wing with aspect ratio of 9
and airfoil RAF 32 at Re 56,100.
The Max Lift Coefficient is obtained at
about 9.2oAoA, while the best L/D is
obtained at 3oAoA.
A large wing that is flying fast has a higher Re and thinner boundary layer than a
small wing that is flying slow. The boundary layer is thinnest when its flow is laminar and
thickens when it is turbulent.
The turbulent flow may separate from the wing's surface, producing more drag
and decreasing the lift, which may lead to stall. Thus, a low Re wing is more likely to
suffer from laminar separation and to stall sooner than a wing with high Re.
Chapter: - 4 DESIGN OF PROTOTYPE OF AIRCRAFT – ROBOCRAFT P a g e | 28
Govt. Poly. Rajkot (DME) - 2015
4.2.1 Design of wing
As stated in Forces in Flight, the lift force is dependent on the density of the air
,the airspeed V, the wing's Lift Coefficient and the wing’s area according to the
formula:
Lift Force = 0.5 *  * V2
* Wing's Lift Coefficient * Wing's Area
For our aircraft design assume that the weight of all parts of aircraft will be less
than 2.9 kg. So the lift weight should be capable near to 3 kg. Also consider air
density = 0.98 , coefficient of lift = 1 , velocity = 22.22 m/s , area = 0.23 m2
The Wing's Lift Coefficient is a dimensionless number that depends on the airfoil
type, the wing's aspect ratio (AR), Reynolds Number (Re) and is proportional to the
angle of attack (alpha) before reaching the stall angle.
𝑳 = 𝟎. 𝟓 × 𝑪𝒍 × 𝝆 × 𝑽 𝟐
× 𝑨
= 0.5 × 1 × 0.98 × 22.222
× 0.23
= 𝟓𝟓. 𝟔𝟒 𝑵𝑬𝑾𝑻𝑶𝑵
= 𝟓. 𝟔 𝑲𝒈
However, the wing's generation of lift also produces Induced Drag, which along
with Parasitic Drag are forces that oppose the aircraft's motion through the air. One may
also say that Induced Drag is the price we pay for getting lift. Induced Drag is also
dependent on the density of the air , the airspeed V, the wing's Drag Coefficient and
the wing’s area according to the formula:
Chapter: - 4 DESIGN OF PROTOTYPE OF AIRCRAFT – ROBOCRAFT P a g e | 29
Govt. Poly. Rajkot (DME) - 2015
Drag Force = 0.5 *  * V2
* Wing's Drag Coefficient * Wing's Area
𝑫 = 𝟎. 𝟓 × 𝑪𝒅 × 𝝆 × 𝑽 𝟐
× 𝑨
= 0.5 × 0.5 × 0.98 × 22.222
× 0.23
= 𝟐𝟕. 𝟖𝟐 𝑵𝑬𝑾𝑻𝑶𝑵
= 𝟐. 𝟕 𝑲𝒈
𝑴𝑨𝑿. 𝑳𝑰𝑭𝑻 𝑪𝑨𝑷𝑨𝑪𝑰𝑻𝒀 = 𝑳𝑰𝑭𝑻 𝑭𝑶𝑹𝑪𝑬 − 𝑫𝑹𝑨𝑮 𝑭𝑶𝑹𝑪𝑬
= 5.6 − 2.7
= 𝟐. 𝟗 𝑲𝒈
𝐖𝐢𝐧𝐠′𝐬 𝐀𝐫𝐞𝐚 =
𝐋𝐢𝐟𝐭 𝐅𝐨𝐫𝐜𝐞
𝟎.𝟓 ∗ 𝛒 ∗ 𝐕 𝟐 ∗ 𝐖𝐢𝐧𝐠′𝐬 𝐋𝐢𝐟𝐭 𝐂𝐨𝐞𝐟𝐟𝐢𝐜𝐢𝐞𝐧𝐭
=
55.64
0.5 × 1 × 0.98 × 22.222
= 0.23 𝑚2
𝑨 = 𝟐𝟑𝟎𝟎 𝒄𝒎 𝟐
Chapter: - 4 DESIGN OF PROTOTYPE OF AIRCRAFT – ROBOCRAFT P a g e | 30
Govt. Poly. Rajkot (DME) - 2015
Assume that, 𝐴𝑠𝑝𝑒𝑐𝑡 𝑟𝑎𝑡𝑖𝑜 (𝐴𝑅) =
𝑠𝑝𝑎𝑛 𝑙𝑒𝑛𝑔𝑡ℎ
𝑐ℎ𝑜𝑟𝑑 𝑙𝑒𝑛𝑔𝑡ℎ
= 4.347
𝑾𝒊𝒏𝒈 𝒂𝒓𝒆𝒂 = 𝑺𝒑𝒂𝒏 𝒍𝒆𝒏𝒈𝒕𝒉 × 𝒄𝒉𝒐𝒓𝒅 𝒍𝒆𝒏𝒈𝒕𝒉
2300 = 𝑆 × 𝐶
2300 = 4.347 𝐶 × 𝐶
√
2300
4.347
= 𝐶
𝑪 = 𝟐𝟑 𝒄𝒎
𝑨𝒔𝒑𝒆𝒄𝒕 𝒓𝒂𝒕𝒊𝒐 ( 𝑨𝑹) =
𝒔𝒑𝒂𝒏 𝒍𝒆𝒏𝒈𝒕𝒉
𝒄𝒉𝒐𝒓𝒅 𝒍𝒆𝒏𝒈𝒕𝒉
4.347 =
𝑆
23
𝑺 = 𝟏𝟎𝟎 𝒄𝒎
𝑨𝒊𝒍𝒆𝒓𝒐𝒏 𝒍𝒆𝒏𝒈𝒕𝒉 =
𝟏
𝟖
× 𝒄𝒉𝒐𝒓𝒅
=
1
8
× 23
= 2.875 𝑐𝑚
𝑨𝒍 ≅ 𝟑. 𝟎𝟎 𝒄𝒎
Chapter: - 4 DESIGN OF PROTOTYPE OF AIRCRAFT – ROBOCRAFT P a g e | 31
Govt. Poly. Rajkot (DME) - 2015
𝑾𝒊𝒏𝒈 𝒕𝒉𝒊𝒄𝒌𝒏𝒆𝒔𝒔 = 𝟏𝟎. 𝟓𝟎 % 𝒐𝒇 𝒄𝒉𝒐𝒓𝒅
=
10.50 ×23
100
𝒕 = 𝟐. 𝟒 𝒄𝒎
𝑫𝒊𝒔𝒕𝒂𝒏𝒄𝒆 𝒐𝒇 𝒍𝒆𝒂𝒅𝒊𝒏𝒈 𝒆𝒅𝒈𝒆 𝒕𝒐 𝒎𝒂𝒙. 𝒕𝒉𝒊𝒄𝒌𝒏𝒆𝒔𝒔 = 𝟑𝟓 % 𝒐𝒇 𝒄𝒉𝒐𝒓𝒅
=
35 ×23
100
𝒍 = 𝟖. 𝟎𝟓 𝒄𝒎
4.2.2 Manufacturing of wing
First of all to manufacturing the wing of aircraft we need extruded polystyrene
foam (Styrofoam) sheet as a raw material, a sharp and clean edge cutter for cut the
foam sheet, larger than 3 feet scale and T-square used as measuring and guiding
equipment for cutter’s edge. The seller tap of various 3-4 colors are used for stick the
different parts and attractive design look. The hot melt glue gun is used for joint the
various parts of wing. The glue stick is consume in the glue gun as the adhesive
material like as the fevicol.
Now we have enough raw material and equipments. The wing is generate as per
the wing’s AutoCAD drawing which is given below.
First cut the 50 X 100 cm rectangle shape from the foam sheet with the help of
cutter and scale. Then cut the 23 X 100 cm rectangle from the 50 X 100 cm rectangle.
So we have two rectangle which have 23 X 100 and 27 X 100 cm dimension. Now joint
the both rectangle foam sheet with the help of seller tap. Then remove the material from
the joint as the 45 from lower surface of foam sheet.
Chapter: - 4 DESIGN OF PROTOTYPE OF AIRCRAFT – ROBOCRAFT P a g e | 32
Govt. Poly. Rajkot (DME) - 2015
Figure 1 :- AutoCAD & actual drawing of wing
Chapter: - 4 DESIGN OF PROTOTYPE OF AIRCRAFT – ROBOCRAFT P a g e | 33
Govt. Poly. Rajkot (DME) - 2015
Then cut the two foam sheet plate which have 7 X 100 and 3.5 X 100 cm
dimension with the help of cutter and scale. Stick the small foam sheet plate up the long
foam sheet plate kept distance from leading as 1/3 longer sheet plate, it is shown in the
figure. After that operation these jointed foam sheet plate was sticked on the 23 X 100
cm rectangle from the distance of 8 cm as the maximum thickness distance with the
help of glue gun and glue stick.
Then bend the foam sheet from the 45’ cutted rectangle joint and touch as the
lower surface of big rectangle to the small foam sheet plate and sticked it with the help
of glue gun.
So the 23 X 100 X 2.4 cm wing is generated but keep calm because the aileron
is generate now. Cut the 3 X 45.5 cm plate both side from center line of wing and tailing
edge. Remove the material 45’ from tailing edge wing and leading edge of aileron and
also cut the 0.5 cm material and make the ailerons 3 X 45 cm.
Then join the leading edge of aileron and tailing edge of wing with the help of
seller tap but remember that distance of both ailerons must be 9 cm. Then make the
aileron surface smooth and tailing edge 0.6 cm thick with the help of 220 and 320 no.
glass paper. Now this wing is ready to fly.
4.3.1 Design of Fuselage
The design of fuselage is obtained from the various dimension of aircraft wing.
Generally for trainer model some standard thumb rules are used which is given as
formula for various dimension of aircraft fuselage.
𝑭𝒖𝒔𝒆𝒍𝒂𝒈𝒆 𝒍𝒆𝒏𝒈𝒕𝒉 ( 𝒍) = 𝟗𝟔. 𝟕 % 𝒐𝒇 𝒘𝒊𝒏𝒈′
𝒔 𝒔𝒑𝒂𝒏 𝒍𝒆𝒏𝒈𝒕𝒉
=
96.7 ×100
100
𝒍 = 𝟗𝟔. 𝟕 𝒄𝒎
Chapter: - 4 DESIGN OF PROTOTYPE OF AIRCRAFT – ROBOCRAFT P a g e | 34
Govt. Poly. Rajkot (DME) - 2015
𝑭𝒖𝒔𝒆𝒍𝒂𝒈𝒆 𝒉𝒆𝒊𝒈𝒉𝒕 ( 𝒉) = 𝟏𝟐. 𝟒𝟎 % 𝒐𝒇 𝒇𝒖𝒔𝒆𝒍𝒂𝒈𝒆′𝒔 𝒍𝒆𝒏𝒈𝒕𝒉
=
12.40 ×100
96.7
𝒉 = 𝟏𝟐 𝒄𝒎
𝑭𝒖𝒔𝒆𝒍𝒂𝒈𝒆 𝒘𝒊𝒅𝒕𝒉 ( 𝒘) = 𝒘𝒊𝒅𝒕𝒉 𝒐𝒇 𝒎𝒐𝒖𝒏𝒕𝒊𝒏𝒈
𝒘 = 𝟔 𝒄𝒎
4.3.2 Manufacturing of Fuselage
The fuselage is the hollow part of the aircraft in which the various parts like
stabilizer, rudder, BLDC motor, servo motor, battery, ESC and control horns are
attached.The fuselage is generate by the equipments used in the wing manufacturing
like cutter , glue gun etc.
The fuselage is generated as per given AutoCAD drawing. First we was made
the side of fuselage and then top of the fuselage. The right end of fuselage width is
equal to the height of the mounting which is the 6.5 cm. So draw the vertical line of 6.5
cm. The thumb rule and with the help of experience other dimension are shown in the
AutoCAD drawing. Draw the side drawing of fuselage on the foam sheet. The slot of 6
mm width is provided for the attachment of stabilizer part. Cut the drawn side of
fuselage with the help of sharp edge cutter. Do the above procedure one another time
and made second time the side of fuselage.
Then we made the top side of the fuselage. The right end of fuselage width is
equal to the width of the mounting which is 6.0 cm. So draw the vertical line of 6.0 cm.
The thumb rule and with the help of experience other dimension are shown in the
AutoCAD drawing. Draw the top drawing of fuselage on the foam sheet. The slot of 6
mm width is provided for the attachment of fin part. Cut the drawn side of fuselage with
the help of sharp edge cutter. Do the above procedure one another time and made
second time the top of fuselage.
Chapter: - 4 DESIGN OF PROTOTYPE OF AIRCRAFT – ROBOCRAFT P a g e | 35
Govt. Poly. Rajkot (DME) - 2015
So we made the 2 side and top part of fuselage. Now stick the part as hollow
qube which have 967 X 65 X 60 mm dimension with the help of glue gun. Then cut 234
mm length from the top of the fuselage which is shown in the figure. The wing will attach
in this 234 mm slot.
Figure 2 :- AutoCAD & actual drawing of fuselage
Chapter: - 4 DESIGN OF PROTOTYPE OF AIRCRAFT – ROBOCRAFT P a g e | 36
Govt. Poly. Rajkot (DME) - 2015
4.4.1 Design of stabilizer
The design of stabilizer is obtained from the various dimension of aircraft wing.
Generally for trainer model some standard thumb rules are used which is given as
formula for various dimension of aircraft stabilizer.
𝑺𝒕𝒂𝒃𝒊𝒍𝒊𝒛𝒆𝒓 𝒂𝒓𝒆𝒂 = 𝟐𝟐. 𝟓 % 𝒐𝒇 𝒘𝒊𝒏𝒈′
𝒔 𝒂𝒓𝒆𝒂
=
22.5 × 2300
100
𝒂 = 𝟓𝟏𝟓. 𝟐 𝒄𝒎 𝟐
Assume that, 𝐴𝑠𝑝𝑒𝑐𝑡 𝑟𝑎𝑡𝑖𝑜 (𝐴𝑅) =
𝑠𝑝𝑎𝑛 𝑙𝑒𝑛𝑔𝑡ℎ
𝑐ℎ𝑜𝑟𝑑 𝑙𝑒𝑛𝑔𝑡ℎ
= 2.0125
𝑺𝒕𝒂𝒃 𝒂𝒓𝒆𝒂 = 𝑺𝒑𝒂𝒏 𝒍𝒆𝒏𝒈𝒕𝒉 × 𝒄𝒉𝒐𝒓𝒅 𝒍𝒆𝒏𝒈𝒕𝒉
515.2 = 𝑆 × 𝐶
515.2 = 2.0125 𝐶 × 𝐶
√
515.2
2.0125
= 𝐶
𝑪 = 𝟏𝟔 𝒄𝒎
𝑨𝒔𝒑𝒆𝒄𝒕 𝒓𝒂𝒕𝒊𝒐 ( 𝑨𝑹) =
𝒔𝒑𝒂𝒏 𝒍𝒆𝒏𝒈𝒕𝒉
𝒄𝒉𝒐𝒓𝒅 𝒍𝒆𝒏𝒈𝒕𝒉
2.0125 =
𝑆
16
𝑺 = 𝟑𝟐. 𝟐 𝒄𝒎
Chapter: - 4 DESIGN OF PROTOTYPE OF AIRCRAFT – ROBOCRAFT P a g e | 37
Govt. Poly. Rajkot (DME) - 2015
𝑬𝒍𝒆𝒗𝒂𝒕𝒐𝒓 𝒂𝒓𝒆𝒂 = 𝟏𝟖. 𝟕𝟓 % 𝒐𝒇 𝒔𝒕𝒂𝒃′
𝒔 𝒂𝒓𝒆𝒂
=
18.75 ×515.2
100
𝒂 = 𝟗𝟔. 𝟔 𝒄𝒎 𝟐
𝑬𝒍𝒆𝒗𝒂𝒕𝒐𝒓 𝒍𝒆𝒏𝒈𝒕𝒉 =
𝑬𝒍𝒆𝒗𝒂𝒕𝒐𝒓 𝒂𝒓𝒆𝒂
𝑺𝒑𝒂𝒏 𝒍𝒆𝒏𝒈𝒕𝒉
=
96.6
32.2
𝑬𝒍 = 𝟑 𝒄𝒎
4.4.2 Manufacturing of Stabilizer
The stabilizer is part of the aircraft which is used for lift or land the aircraft. The
stabilizer is generate by the equipments used in the wing manufacturing like cutter, glue
gun etc.
First cut the rectangle which have 16 X 32.2 cm from the foam sheet with the use
of cutter tool. Then make two part 13 X 32.2 and 3 X 32.2 cm dimensional rectangle.
Cut the material 45’ from the one end of stabilizer and elevator. The tailing edge of
elevator was sharpen and smoothed by the glass paper 220 and 320. Then joint the
leading edge of elevator and tailing edge of the stabilizer with the help of seller tap. Now
this stabilizer is ready to assemble.
Chapter: - 4 DESIGN OF PROTOTYPE OF AIRCRAFT – ROBOCRAFT P a g e | 38
Govt. Poly. Rajkot (DME) - 2015
Figure 3 :- AutoCAD & actual drawing of stabilizer
Chapter: - 4 DESIGN OF PROTOTYPE OF AIRCRAFT – ROBOCRAFT P a g e | 39
Govt. Poly. Rajkot (DME) - 2015
4.5.1 Design of Fin
The design of Fin is obtained from the various dimension of aircraft stabilizer.
Generally for trainer model some standard thumb rules are used which is given as
formula for various dimension of aircraft fin.
𝑭𝒊𝒏 𝒂𝒓𝒆𝒂 = 𝟒𝟔. 𝟓 % 𝒐𝒇 𝑺𝒕𝒂𝒃′𝒔 𝒂𝒓𝒆𝒂
=
46.5 × 515.2
100
𝒂 = 𝟐𝟒𝟎 𝒄𝒎 𝟐
Assume that, 𝐴𝑠𝑝𝑒𝑐𝑡 𝑟𝑎𝑡𝑖𝑜 (𝐴𝑅) =
𝑠𝑝𝑎𝑛 𝑙𝑒𝑛𝑔𝑡ℎ
𝑐ℎ𝑜𝑟𝑑 𝑙𝑒𝑛𝑔𝑡ℎ
= 0.937
𝑭𝒊𝒏 𝒂𝒓𝒆𝒂 = 𝑺𝒑𝒂𝒏 𝒍𝒆𝒏𝒈𝒕𝒉 × 𝒄𝒉𝒐𝒓𝒅 𝒍𝒆𝒏𝒈𝒕𝒉
240 = 𝑆 × 𝐶
240 = 0.937 𝐶 × 𝐶
√
240
0.937
= 𝐶
𝑪𝒍 = 𝟏𝟔 𝒄𝒎
𝑨𝒔𝒑𝒆𝒄𝒕 𝒓𝒂𝒕𝒊𝒐 ( 𝑨𝑹) =
𝒔𝒑𝒂𝒏 𝒍𝒆𝒏𝒈𝒕𝒉
𝒄𝒉𝒐𝒓𝒅 𝒍𝒆𝒏𝒈𝒕𝒉
0.937 =
𝑆
16
𝑺 = 𝟏𝟓 𝒄𝒎
Chapter: - 4 DESIGN OF PROTOTYPE OF AIRCRAFT – ROBOCRAFT P a g e | 40
Govt. Poly. Rajkot (DME) - 2015
Fin is the 65’ trapezoidal shape so the lower chord length and upper chord length
are not same. Therefore now we will find the upper chord length by following formula.
𝑼𝒑𝒑𝒆𝒓 𝒇𝒊𝒏 𝒄𝒉𝒐𝒓𝒅 𝒍𝒆𝒏𝒈𝒕𝒉 = 𝒍𝒐𝒘𝒆𝒓 𝒄𝒉𝒐𝒓𝒅 −
𝑺𝒑𝒂𝒏 𝒍𝒆𝒏𝒈𝒕𝒉
𝐭𝐚𝐧 𝟔𝟓
= 16 −
15
tan 65
𝑪 𝒖 = 𝟗 𝒄𝒎
𝑹𝒖𝒅𝒅𝒆𝒓 𝒂𝒓𝒆𝒂 = 𝟐𝟓 % 𝒐𝒇 𝑭𝒊𝒏′
𝒔 𝒂𝒓𝒆𝒂
=
25 ×240
100
𝒂 = 𝟔𝟎 𝒄𝒎 𝟐
𝑹𝒖𝒅𝒅𝒆𝒓 𝒍𝒆𝒏𝒈𝒕𝒉 =
𝑹𝒖𝒅𝒅𝒆𝒓 𝒂𝒓𝒆𝒂
𝑭𝒊𝒏 𝑺𝒑𝒂𝒏 𝒍𝒆𝒏𝒈𝒕𝒉
=
60
15
𝑹𝒍 = 𝟒 𝒄𝒎
Rudder is the 20’ trapezoidal shape so the Fin span length and rudder span
length are not same. Therefore now we will find the rudder span length by following
formula.
𝑹𝒖𝒅𝒅𝒆𝒓 𝒔𝒑𝒂𝒏 𝒍𝒆𝒏𝒈𝒕𝒉 = 𝑭𝒊𝒏 𝒔𝒑𝒂𝒏 − (𝐭𝐚𝐧 𝟐𝟎 × 𝑹𝒖𝒅𝒅𝒆𝒓 𝒍𝒆𝒏𝒈𝒕𝒉)
= 15 − (tan 20 × 4)
𝑺 𝒓 = 𝟏𝟑. 𝟓 𝒄𝒎
Chapter: - 4 DESIGN OF PROTOTYPE OF AIRCRAFT – ROBOCRAFT P a g e | 41
Govt. Poly. Rajkot (DME) - 2015
4.5.2 Manufacturing of Fin
The fin is part of the aircraft which is used to change the direction of aircraft right
or left. The fin is generate by the equipments used in the wing manufacturing like cutter,
glue gun etc.
First cut the rectangle which have 16 X 15 cm from the foam sheet with the use
of cutter tool. Then make two part 12 X 15 and 4 X 15 cm dimensional rectangle. Cut
the material at 65’ from the fin and note than upper chord length 55 cm. Cut the material
45’ from the end of fin and leading edge of rudder. The tailing edge of rudder was
sharpen and smoothed by the glass paper 220 and 320. Then joint the leading edge of
rudder and tailing edge of the fin with the help of seller tap. Now this fin is ready to
assemble.
Figure 4 :- AutoCAD & actual drawing of fin
Chapter: - 4 DESIGN OF PROTOTYPE OF AIRCRAFT – ROBOCRAFT P a g e | 42
Govt. Poly. Rajkot (DME) - 2015
4.6.1 Design of Landing gear
The landing gear is the wheels of the aircraft which used for the convert thrust
energy into the rotary energy of wheel means kinetic energy.
The landing gear wheels are taken from the bike toy’s wheels. According to
thumb rule and from experience landing gear and landing gear links dimension are
obtained. The landing gear generate as per the AutoCAD drawing.
𝐿𝑎𝑛𝑑𝑖𝑛𝑔 𝑔𝑒𝑎𝑟 𝑤ℎ𝑒𝑒𝑙 𝑑𝑖𝑎𝑚𝑒𝑡𝑒𝑟, 𝒅 = 𝟒 𝒄𝒎
𝑇ℎ𝑖𝑐𝑘𝑛𝑒𝑠𝑠 𝑜𝑓 𝑤ℎ𝑒𝑒𝑙, 𝒕 = 𝟐 𝒄𝒎
𝐻𝑒𝑖𝑔ℎ𝑡 𝑜𝑓 𝑙𝑖𝑛𝑘, 𝒉 = 𝟏𝟒. 𝟓 𝒄𝒎
𝐷𝑖𝑠𝑡𝑎𝑛𝑐𝑒 𝑏𝑒𝑡 𝑛
𝑡𝑤𝑜 𝑤ℎ𝑒𝑒𝑙, 𝒍 = 𝟏𝟐 𝒄𝒎
4.6.2 Manufacturing of Landing gear
The landing gear system is the assembly of wheels and links. The wheels are
taken from the bike toys which have 40 mm diameter and 20 mm thickness. The link is
the bicycle’s (aara). So bend the link 2.5 cm 90’ from the bottom end with the help of
snap wrench. Then once again bend the link from the distance 14.5 cm 90’. Again bend
2 cm 90’. Do this procedure for second wheel and join the end of the link with the help
of glue gun.
So now landing gear is ready. The rear landing gear have also same diameter
and thickness but it have small link height 4 cm.
Chapter: - 4 DESIGN OF PROTOTYPE OF AIRCRAFT – ROBOCRAFT P a g e | 43
Govt. Poly. Rajkot (DME) - 2015
Figure 5 :- AutoCAD & actual drawing of landing gear
Chapter: - 4 DESIGN OF PROTOTYPE OF AIRCRAFT – ROBOCRAFT P a g e | 44
Govt. Poly. Rajkot (DME) - 2015
4.7. Assembly of aircraft
The aircraft consist Wing, fuselage, stabilizer, fin, mounting, Brushless DC motor,
prop, Electronic speed controller, battery, radio control, servo motor, control horn,
pushrod and landing gear.
First of all we installed the servo motor. As shown in assembly drawing cut one
slot from wing and two slot from fuselage as per the servo base dimension and 5 mm
depth. Then install the servo and lim (stick) with the help of glue gun.
Then assemble the stabilizer and fin in the slot of fuselage. After that sticked
them with the help of glue gun.
The picture below shows a typical assembly of parts installation. Both the battery
and the receiver are wrapped up in soft foam to damp the motor vibrations.
Figure 6 :- Radio installation[4]
Chapter: - 4 DESIGN OF PROTOTYPE OF AIRCRAFT – ROBOCRAFT P a g e | 45
Govt. Poly. Rajkot (DME) - 2015
Then attached control horns in the control surfaces and shaft of the servo motor
then connect them by pushrod.
Then installed the mounting plate in the fuselage and attached the BLDC motor
with the mounting with the help of fasteners. After that completion attached the prop
with the BLDC motor shaft with the help of bushes and screw driver.
For support the wing stick the wooden support stick with the help of glue gun as
shown in the figure. After that the landing gear was sticked with the fuselage base with
the help of glue gun.
With the help of conductor wires installed the electronic speed controller with the
BLDC motor. Then also connect the ESC with the battery. After that completion installed
the receiver and connect the terminals of aileron servo with channel – 1, elevator servo
with channel – 2, BLDC motor with channel – 3, rudder servo with channel – 3.
Here aileron servo connection is temporary connection because it is connected
when the wing is attached with fuselage with the help of rubber bands and wooden
stick.
So we connected battery terminal with ESC terminal and attached the wing and
connected the aileron servo with receiver after that start the remote control transmitter
then fly the aircraft.
Chapter: - 4 DESIGN OF PROTOTYPE OF AIRCRAFT – ROBOCRAFT P a g e | 46
Govt. Poly. Rajkot (DME) - 2015
Chapter: - 4 DESIGN OF PROTOTYPE OF AIRCRAFT – ROBOCRAFT P a g e | 47
Govt. Poly. Rajkot (DME) - 2015
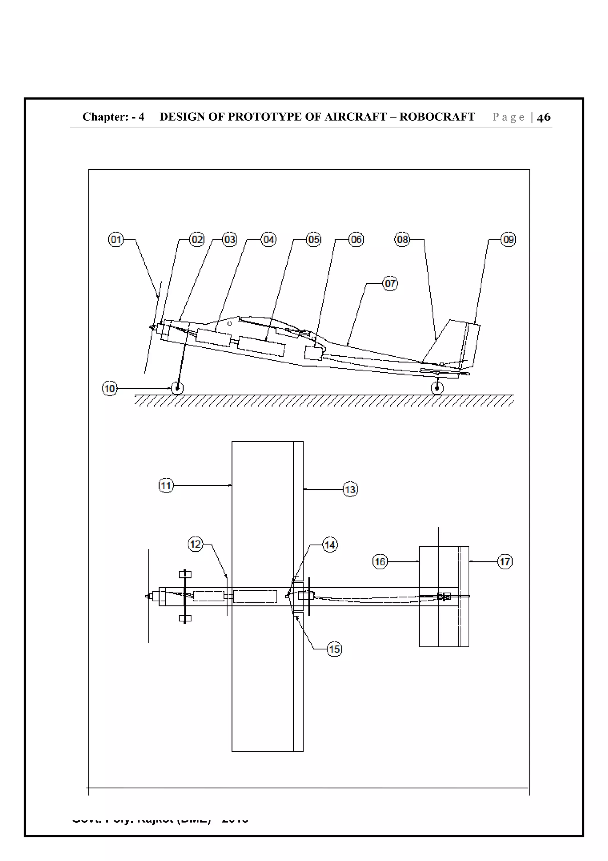
Figure 1 :- AutoCAD & actual drawing of assembly of aircraft
Chapter: - 5 DESIGN OF PROTOTYPE OF AIRCRAFT – ROBOCRAFT P a g e | 48
Govt. Poly. Rajkot (DME) - 2015
Chapter - 5
FLOW PROCESS CHART & WORK ALLOCATION SHEET
5.1 Flow process chart
Design
Detail & assembly
drawing
manufacturing of wing,
fusalage, fin, stabilizer
Assembly of aircraft
Installation of
electronic parts
Analysis and testing
Working aircraft model
Chapter: - 5 DESIGN OF PROTOTYPE OF AIRCRAFT – ROBOCRAFT P a g e | 49
Govt. Poly. Rajkot (DME) - 2015
5.2 Work allocation sheet
Task Dec Jan Feb March April
Preparing and
maintaining
logbook
Design and
Assembly &
detail drawing
Purchasing the
readymade
parts
Manufacturing
of wing,
fuselage, fin,
stabilizer
Assemble the
wing, fuselage,
fin, stabilizer
Installation of
electronic
components
Analysis and
testing
Rework /
rectification
activity
Costing
Chapter: - 6 DESIGN OF PROTOTYPE OF AIRCRAFT – ROBOCRAFT P a g e | 50
Govt. Poly. Rajkot (DME) - 2015
Chapter - 6
INNOVATION AND FUTURE PLAN OF PROJECT
6.1 Innovation in aircraft
Our project RC aircraft is worked based on trainer model. Trainer model consist
of 4 servo motor. So what is servo motor , function of the servo motor and changes
about the servo motor is described below.
6.1.1 Definition of Servo motor
A servo is a device that can rotate to an arbitrary position, as set by the user.
Servos usually consist of a small DC (direct current) electric motor, several gears, and a
head where an arm or wheel can be attached. Servos exert a torque on external forces,
that prevents them from changing the position of any control surface.
6.1.2 Function of Servo motor
A servos job is to convert the angular movement of a servo arm to the linear
movement of a control surface. This is done by attaching linkages, called control rods to
the servo arm and the associated control surface. When the servo head rotates, it
pushes the control rod back and forth. The rod is linked to a control surface, and can
move it up or down as the servo rotates.
6.1.3 Change in Servo motor
We change in the quantity of the servo motor. Trainer model consist of 4 servo
motor at rudder, elevator, right aileron and left aileron. In our project instead of 4 servo
motor we used just 3 servo motor at rudder, elevator and one aileron at center of wing.
We eliminate 1 servo motor from the wing and other one attached at the vertical center
of the wing.
Chapter: - 6 DESIGN OF PROTOTYPE OF AIRCRAFT – ROBOCRAFT P a g e | 51
Govt. Poly. Rajkot (DME) - 2015
6.1.4 Advantages of innovation
1. Assembly is easy and consists less time due to reduction in quantity of servo
motor.
2. Weight of aircraft will be decrease due to reduction in quantity of servo.
3. Aircraft lift capacity will be increase due to reduction in aircraft weight.
4. Easy to handle remote control because extra joystick control is eliminated,
5. The cost of the aircraft will reduce due to consumption in servo motor.
6.2 Future plan of aircraft
To make this project successful we read and study more and more literature and
online materials related to RC aircraft. Due to this study new creative and innovative
idea take place in our mind. Those are described below.
6.2.1 Return to home aircraft
A device which pretty much just needs to have return to home (launch) function
for the airplane, so that an airplane flys home at the pre-set altitude and then circles
above "home" spot if the link with transmitter is lost or when "ordered" to return home by
flipping one of the switches on the transmitter. A system that can safely return an
airplane to launch spot if it "gets out of hand". From memory, it returns at the same
height you are currently flying at. Set install direction of FY_DOS,GPS fence for
automatic return home, proper direction for servos, gains, Reset GPS, Fly the plane,
trims manually, land If notice any oscillation adjust down the gains 5 or 10 units on
respective axis, Reset attitude (basically normalizing the trims) from 1st flight Test fly
plane Test RTH function (comes back straight every-time with many different types of
planes that I have tried). This feature is worthwhile when the aircraft will out of the
range.
Chapter: - 6 DESIGN OF PROTOTYPE OF AIRCRAFT – ROBOCRAFT P a g e | 52
Govt. Poly. Rajkot (DME) - 2015
6.2.2 Automatic remote less aircraft
“An Unmanned Aerial Vehicle (UAV, colloquially known as a “drone”) is basically
an aerial robot. As we define it, it is capable of both remotely controlled flight (like a
regular RC aircraft) and fully-autonomous flight, controlled by sensors, GPS, and
onboard computers performing the functions of an autopilot. ”
In this type of aircraft the facilities and functions are like automated including fly-
to- way point operation and takeoff and landing system. Guidance is via a GPS receiver
and communications with ground control is accomplished through either satellite relay
(sitcom) system. In this system it fly about on a pre-programmed mission flight path or
direct control.
The drone pairs with your iOS or Android smart phone or tablet through an app.
You can map out your flights beforehand, meaning the aircraft will fly itself to a fixed
point you set in advance, hover at the fixed point and then will fly to the next assigned
point.
It even has a return-to-home setting, allowing the drone to fly itself back to its
starting point in the event that it loses connection with the controller or the batteries die.
You will want to avoid using this setting if you take off from a boat, because the GPS is
frequently off-point by a couple feet, thus increasing the probability of automatically
landing in the water.
Users can set up to 127 waypoints or, in the case of the mobile app, just draw a
route on the screen to have the UAV follow a flight path using GPS coordinates. At any
point during a flight, the Iris can be commanded to automatically take off, land, or return
to its starting position. The software will keep track of its position in real-time and even
keep a log of its movements. Alternatively, the program has a mode where the drone
will follow its controller autonomously at a specific distance.
The program also allows for automatic failsafe commands, which will tell the
quad what to do if it loses a signal or detects a low battery. Pilots will also have the
option of setting up a virtual fence that will keep the Iris from wandering outside a pre-
set boundary, regardless of what it's commanded to do.
Chapter: - 7 DESIGN OF PROTOTYPE OF AIRCRAFT – ROBOCRAFT P a g e | 53
Govt. Poly. Rajkot (DME) - 2015
Chapter - 7
COSTING OF RC AIRCRAFT PROJECT
The calculated cost of the various aircraft parts are given below.
No. Item / component Quantity Prize in Rs.
BODY
1.
extruded polystyrene foam
(Styrofoam) sheet
3 X 120 360
2. Hot melt glue gun 1 X 180 180
3. Foam sheet Cutter 1 X 30 30
4. Glue stick 10 X 10 100
5. Bond tite 2 X 40 80
6. Transparent seller tap 1 X 20 20
7. Red & Yellow tap 2 X 25 50
8. Marker 1 X 10 10
9. Glass paper 320 1 X 10 10
10. Glass paper 220 1 X 10 10
11. T square 1 X 150 150
12. Landing Gear 2 X 50 100
13. Landing gear links 2 X 5 10
14. Pushrod 1 X 50 50
15. Clamp sticks 1 X 5 5
16. Support rubber bands 1 X 5 5
17. Feviquick 2 X 5 10
REMOTE CONTROLL & CHARGER SYSTEM
18. Radio control 1 X 3100 3100
19. ESC 1 X 1500 1500
20. Battery 1 X 3820 3820
21. Rechargeable cell 1800 - mA 2 X 70 140
22. Rechargeable cell 2100 - mA 2 X 140 280
23. Panasonic cell 4 X 10 40
24. Cell holder with pins 2 X 35 70
25. Variable voltage dc charger 1 X 120 120
POWER & THRUST PRODUCER ELEMENTS
26. Brushless DC motor 1 X 1800 1800
27. Propeller 2 X 120 240
28. Servo motor 4 X 210 840
Overhead cost
29. Shipping & Tax - 1900
30. Overhead cost - 800
31. Report print cost 14 X 130 1820
Total 17650
Chapter: - 8 DESIGN OF PROTOTYPE OF AIRCRAFT – ROBOCRAFT P a g e | 54
Govt. Poly. Rajkot (DME) - 2015
Chapter - 8
Result and discussion
8.1 Advantage
1. It has most important advantage that it is one type of silent aircraft so it avoids
the noise pollution.
2. It is small in the size so it is easy to handle.
3. No necessary for large storage space when not in use.
4. It is the also best toy for the children , by flying the aircraft children learn more
controlling of aircraft.
5. It is consists the BLDC motor instead of gasoline or jet engine so it reflect slowly
compare to 3d aerobics aircraft thus it is easy to handle.
8.2 Application
The UAV with its silent operation can protect VIP’s from assassination by
performing aerial observation, buried object detection, facial recognition, and laser
targeting of hostile personnel. The system uses less-than lethal force or remote CS/CN
tear gas deployment, and is also invaluable for counter-sniper detection and
neutralization. Generally for Aerial photography the Octocopter is generally more stable.
Radio-controlled aircraft are also used for military purposes, with their primary task
being intelligence-gathering reconnaissance. An Unmanned Aerial Vehicle (UAV), also
known as a drone, is usually not designed to contain a human pilot. Remotely controlled
target drone aircraft were used to train gun crews.
New UAV drones are capable of making deliveries, washing windows of tall
buildings from the outside, putting out fires, spraying, searching and rescuing people
and animals not only in nature, but also in buildings, where drones are becoming an
important tool for police and other security agencies. In addition, drones are becoming
so large and strong with so much lifting power, they are also now being used to lift
people and save them from burning buildings or sinking boats.
Chapter: - 9 DESIGN OF PROTOTYPE OF AIRCRAFT – ROBOCRAFT P a g e | 55
Govt. Poly. Rajkot (DME) - 2015
Chapter - 9
Conclusion
The design of prototype of aircraft is very important and interesting project of the
mechanical field. In this project We learnt about the working, terminology, factors
affecting to flight, construction, application and advantage of the aircraft. We also
studied about the designing of aircraft. We checkout aeronautics formula rules and
equation .We made the prototype of aircraft by foam material in this semester. We were
also studied about the errors out coming from the preparation of the model. Then we
want to learn about the how to fly the aircraft with remote control.
The prototype of RC aircraft is the costly project compare to other mechanical
project but we learnt more in this project. If we study further than make appropriate
changes in the design to make sufficient aircraft. If we will change in the model shape
than we can increase the speed of aircraft, change in the thrust system means arrange
the gasoline engine instead of motor we can increase the lift power and make it 3d
aerobic plane.
Chapter: - 10 DESIGN OF PROTOTYPE OF AIRCRAFT – ROBOCRAFT P a g e | 56
Govt. Poly. Rajkot (DME) - 2015
Chapter - 10
REFRENCES
[1] Andy Lennon, “Basic of R/C model aircraft design”
[2] Ira H. Abbott, “Theory of wing section”
[3] Randy Randolph, “Radio control airplane building technique”
[4] http://en.wikipedia.org/wiki/Aircraft
[5]http://adamone.rchomepage.com/index2.htm
[6]http://rcvehicles.about.com/od/aircraftplans/tp/Foamie_RC_Airplane_Plans.htm
[7] http://www.easyrc.com/airplanes/
[8] http://www.security.gr/unmanned-aerial-vehicles/
[9] http://www.uavtechnics.com/blog/
[10] http://www.rctoys.com/pr/2009/06/25/choosing-the-right-servos-for-your-rc-planes-
and-helicopters/
[11] http://www.militaryfactory.com/aircraft/detail.asp?aircraft_id=823
[12] http://www.rcbazaar.com/default.aspx

Robocraft design of prototype of aircraft

  • 1.
    GOVERNMENT POLYTECHNIC RAJKOT NEARAJI DAM, BHAVNAGAR ROAD, RAJKOT-360003 A PROJECT REPORT ON “DESIGN OF PROTOTYPE OF AIRCRAFT - ROBOCRAFT” Gujarat Technological University, Ahmadabad APRIL, 2015 NAME TANK CHIRAG G. ER.NO. 126200319084 DIVISION B SUBJECT PROJECT-II SUBJECT CODE 3361910 DISCIPLINE DIPL.MECH. ENGG. GUIDED BY R.M. VAGHASIYA
  • 2.
    THIS IS TOCERTIFY THAT MR. TANK CHIRAG G. ENROLMENT NO :- 126200319084 OF PROGRAMME MECHANICAL HAS SATISFACTORILY COMPLETED HIS TERMWORK IN THE SUBJECT PROJECT – II (3361910) HAVING PROJECT TITLE “DESIGN OF PROTOTYPE OF AIRCRAFT - ROBOCRAFT” WITHIN THE PRESCRIBED TIME LIMIT AND PRESCRIBED BOUNDARY. DATE: INSTITUTE GUIDE HEAD OF MECH. DEPARTMENT MR. R. M. VAGHASIYA MR. R.N. MANDELIYA
  • 3.
    Govt. Poly. Rajkot(DME) – 2015 i ACKNOWLEDGMENT Successful completion of a project required active involvement of many people from time of inception of an idea to its Implementation, many brains work together and that only provides faithful results. Here, I would like to thanks those people who have provided their assistant, encouragement and enthusiasm, without them this project would not have been possible. First of all I would like to thank Gujarat Technological University and My College Government Polytechnic-Rajkot, who give me an opportunity to prepare a Dissertation. Before we get into thick of the things, I would to add a few heartfelt words for the people who are part of this dissertation report in numerous ways… people who give unending support right from the stage dissertation report idea was conceived. In particular, I would like to thank head of Mechanical department Mandaliya Sir, and Prof. VAGHASIYA sir who provides us such nice and encouraging environment. When we face troubles during the project Mr. Anand savaliya and Mr. Vivek vaghasiya guided us so I would also like to thank them. We wish to thank our team member for taking responsibilities to finish a dissertation in limited time duration for phase, documentations & creations of the dissertation. Thanking you… GUIDED BY HEAD OF MECH DEPARTMENT. Mr. R.M. VAGHASIYA Mr.R.N.MANDELIYA
  • 4.
    Govt. Poly. Rajkot(DME) – 2015 ii PREFACE In the scope of mechanical engineering, the aerodynamics have lot of importance. Aerodynamics used to transportation of goods, travelling, and surveillance of nation. So we decided to make the prototype of the aircraft as the project of the mechanical final year. The “DESIGN OF PROTOTYPE OF AIRCRAFT – ROBOCRAFT” is very important and interesting project of the mechanical field. In this project We learnt about the working , terminology, factors affecting to flight, construction, application and advantage of the aircraft. We also studied about the designing of aircraft. We checkout aeronautics formula rules and equation .Now we will make the prototype of aircraft by foam material in the next semester. We will also study about the errors out coming from the preparation of the model. To generate the aircraft , it is the necessary to know how the aircraft works, what are the condition for fly the drone, which aerodynamic shapes use for lift of flight , what are the dimension for consume lower power for fly the flight. In the construction of the prototype of aircraft many parts are used like frame, servo motor, brushless motor, propeller, battery, radio control and any others. This project also contains the servo mechanism and arrangement of servo motors. We studied aerodynamic theory and we modify the aircraft by some creative and innovative features. The system uses less-than lethal force or remote CS/CN tear gas deployment, and is also invaluable for counter-sniper detection and neutralization. Military Forces, Law Enforcement Agencies, Border Patro, First Responders of Natural or Civil Disasters, Monitors of Petroleum Pipe Lines, Firefighters Battling Forest Blazes this aircraft is used.
  • 5.
    Govt. Poly. Rajkot(DME) – 2015 iii LIST OF FIGURES FIGURE 1 :- "VOODOO" A MODIFIED P 51 MUSTANG [4] FIGURE 2 :- QANTAS AIRBUS A380 [4].............................. 1 FIGURE 3 :- BALTIC AIRLINES MIL MI-8 [4] FIGURE 4 :- AUTO GYROPLANE XENON 2 [4]...................... 1 FIGURE 5 :- GLIDER AIRCRAFT [5] FIGURE 6 :- TRI COPTER – 3 MOTORS [5] .........................2 FIGURE 7 :- BELL EAGLE EYE (MODEL 918) [5] FIGURE 8 :- QUAD COPTER WITH VIDEO SURVEILLANCE..2 FIGURE 9 :- HEXACOPTER - 6 MOTORS [5] FIGURE 10 :- OCTOCOPTER – 8 MOTORS [5] ......................2 FIGURE 11 :- GLIDER AIRCRAFT [2] ..........................................................................................................................3 FIGURE 12 :- AFFECTING FORCES ON AIRCRAFT [6] ..................................................................................................4 FIGURE 13 :- LIFT [6]...............................................................................................................................................5 FIGURE 14 :- AIR DENSITY EFFECT AT WING [8]........................................................................................................7 FIGURE 15 :- WING GEOMETRY [8]...........................................................................................................................8 FIGURE 16 :- WING THICKNESS & CAMBER [7] .........................................................................................................8 FIGURE 17 :- ASPECT RATIO[4].................................................................................................................................9 FIGURE 18 :- STALL AND AOA [3] ..........................................................................................................................10 FIGURE 19 :- CONTROL SURFACE AND BALANCE WEIGHT [6] .................................................................................. 12 FIGURE 20 :- STABILITY CONCEPT [2]..................................................................................................................... 13 FIGURE 21 :- CONSTRUCTION OF AIRCRAFT [4] ...................................................................................................... 14 FIGURE 22 :- RADIO CONTROL [12] ........................................................................................................................ 16 FIGURE 23 :- DETAIL VIEW & SPECIFICATION OF REMOTE CONTROL [12] ................................................................ 17 FIGURE 24 :- SERVO MOTOR [12]............................................................................................................................18 FIGURE 25 :- CONTROL HORNS [12]........................................................................................................................18 FIGURE 26 :- BLDC MOTOR [12] ............................................................................................................................ 19 FIGURE 27 :- PROP [12] ......................................................................................................................................... 20 FIGURE 28 :- SPEED CONTROLLER [12].................................................................................................................. 20 FIGURE 29 :- BATTERY [12] .................................................................................................................................... 21 FIGURE 30 :- AUTOCAD & ACTUAL DRAWING OF WING ........................................................................................32 FIGURE 31 :- AUTOCAD & ACTUAL DRAWING OF FUSELAGE..................................................................................35 FIGURE 32 :- AUTOCAD & ACTUAL DRAWING OF STABILIZER ...............................................................................38 FIGURE 33 :- AUTOCAD & ACTUAL DRAWING OF FIN............................................................................................ 41 FIGURE 34 :- AUTOCAD & ACTUAL DRAWING OF LANDING GEAR..........................................................................43 FIGURE 35 :- RADIO INSTALLATION[4]...................................................................................................................44 FIGURE 36 :- AUTOCAD & ACTUAL DRAWING OF ASSEMBLY OF AIRCRAFT ............................................................47 LIST OF GRAPH GRAPH1 :- LIFT COEFFICIENT V/S ANGLE OF ATTACK [2] .........................................................................................10 GRAPH2 :- LIFT COEFFICIENT V/S ANGLE OF ATTACK & LIFT COEFFICIENT V/S DRAG COEFFICIENT [5]....................26 GRAPH 3 :- L/D RATIO V/S ANGLE OF ATTACK [5] ..................................................................................................27
  • 6.
    Govt. Poly. Rajkot(DME) – 2015 iv TABLE OF CONTENT ACKNOWLEDGMENT ...................................................................................................................................................I PREFACE......................................................................................................................................................................II LIST OF FIGURES .......................................................................................................................................................III TABLE OF CONTENT................................................................................................................................................. IV CHAPTER:- 1 INTRODUCTION AND LITERATURE STUDY OF AERODYNAMICS..........................................................................1 1.1 AIR VEHICLES............................................................................................................................................... 1 1.2 UNMANNED AIR (AERIAL) VEHICLES ...........................................................................................................2 1.3 CONCEPT OF RC AIRCRAFT...........................................................................................................................3 1.4 SCOPE & NEED OF AIRCRAFT & UAV ............................................................................................................3 CHAPTER:- 2 WORKING PRINCIPLES...............................................................................................................................................4 2.1 WORKING PRINCIPLE AND AFFECTING FORCES FOR AIRCRAFT.......................................................................4 2.1.1 Gravity ................................................................................................................................................4 2.1.2 lift ........................................................................................................................................................5 2.1.3 Thrust..................................................................................................................................................6 2.1.4 Drag ....................................................................................................................................................6 2.2 AIR DENSITY ................................................................................................................................................7 2.3 WING GEOMETRY.........................................................................................................................................8 2.4 STALL AND SPIN...........................................................................................................................................9 2.5 STABILITY CONCEPT ................................................................................................................................... 12 CHAPTER - 3 CONSTRUCTION AND BOUGHT OUT PARTS SPECIFICATION.............................................................................14 3.1 AIRCRAFT BODY.......................................................................................................................................... 16 3.2 RADIO CONTROL ........................................................................................................................................ 16 3.3 SERVO MOTOR............................................................................................................................................18 3.4 ELECTRIC MOTOR....................................................................................................................................... 19 3.5 PROP ......................................................................................................................................................... 20 3.6 SPEED CONTROLLER.................................................................................................................................. 20 3.7 BATTERIES ................................................................................................................................................. 21 CHAPTER - 4 DESIGN AND MANUFACTURING OF AIRCRAFT.....................................................................................................23 4.1 SELECTION OF MATERIAL............................................................................................................................23 4.2.1 DESIGN OF WING.....................................................................................................................................28 4.2.2 MANUFACTURING OF WING..................................................................................................................... 31
  • 7.
    Govt. Poly. Rajkot(DME) – 2015 v 4.3.1 DESIGN OF FUSELAGE .............................................................................................................................33 4.3.2 MANUFACTURING OF FUSELAGE .............................................................................................................34 4.4.1 DESIGN OF STABILIZER............................................................................................................................36 4.4.2 MANUFACTURING OF STABILIZER ...........................................................................................................37 4.5.1 DESIGN OF FIN........................................................................................................................................39 4.5.2 MANUFACTURING OF FIN........................................................................................................................ 41 4.6.1 DESIGN OF LANDING GEAR......................................................................................................................42 4.6.2 MANUFACTURING OF LANDING GEAR......................................................................................................42 4.7. ASSEMBLY OF AIRCRAFT ............................................................................................................................44 CHAPTER - 5 FLOW PROCESS CHART & WORK ALLOCATION SHEET .....................................................................................48 5.1. FLOW PROCESS CHART.............................................................................................................................. 48 5.2. WORK ALLOCATION SHEET........................................................................................................................49 CHAPTER - 6 INNOVATION AND FUTURE PLAN OF PROJECT....................................................................................................50 6.1 INNOVATION IN AIRCRAFT ..........................................................................................................................50 6.1.1 Definition of Servo motor ................................................................................................................50 6.1.2 Function of Servo motor..................................................................................................................50 6.1.3 Change in Servo motor....................................................................................................................50 6.1.4 Advantages of innovation ............................................................................................................... 51 6.2 FUTURE PLAN OF AIRCRAFT........................................................................................................................ 51 6.2.1 Return to home aircraft................................................................................................................... 51 6.2.2 AUTOMATIC REMOTE LESS AIRCRAFT...................................................................................................52 CHAPTER - 7 COSTING OF RC AIRCRAFT PROJECT ...................................................................................................................53 CHAPTER - 8 RESULT AND DISCUSSION.......................................................................................................................................54 8.1 ADVANTAGE ...............................................................................................................................................54 8.2 APPLICATION .............................................................................................................................................54 CHAPTER - 9 CONCLUSION.............................................................................................................................................................55 CHAPTER - 10 REFRENCES...............................................................................................................................................................56
  • 8.
    Chapter: - 1DESIGN OF PROTOTYPE OF AIRCRAFT – ROBOCRAFT P a g e | 1 Govt. Poly. Rajkot (DME) - 2015 Chapter:- 1 INTRODUCTION AND LITERATURE STUDY OF AERODYNAMICS Aerodynamics is the study of forces and motion of objects through the air. A model aircraft that is hanging still in air during strong winds may be subject to the same aerodynamic forces as a model aircraft that is flying fast during calm weather. The aerodynamic forces depend much on the air density. For example, if a glider glides 25 meters from a given altitude during low air density it may glide 40 meters during high density. 1.1 Air Vehicles Figure 1 :- "Voodoo" a modified P 51 Mustang [4] Figure 2 :- Qantas Airbus A380 [4] Figure 3 :- Baltic Airlines Mil Mi-8 [4] Figure 4 :- Auto Gyroplane Xenon 2 [4]
  • 9.
    Chapter: - 1DESIGN OF PROTOTYPE OF AIRCRAFT – ROBOCRAFT P a g e | 2 Govt. Poly. Rajkot (DME) - 2015 1.2 Unmanned Air (Aerial) Vehicles Figure 6 :- Tri copter – 3 motors [5] Figure 7 :- Bell Eagle Eye (Model 918) [5] Figure 8 :- Quad copter with Video Surveillance [5] Figure 9 :- Hexacopter - 6 motors [5] Figure 10 :- Octocopter – 8 motors [5] Figure 5 :- Glider Aircraft [5]
  • 10.
    Chapter: - 1DESIGN OF PROTOTYPE OF AIRCRAFT – ROBOCRAFT P a g e | 3 Govt. Poly. Rajkot (DME) - 2015 1.3 Concept of RC Aircraft A radio-controlled (model) aircraft (often called RC aircraft or RC plane) is a small flying machine that is controlled remotely by an operator on the ground using a hand-held radio transmitter. The transmitter communicates with a receiver within the craft that sends signals to servomechanisms (servos) which move the control surfaces based on the position of joysticks on the transmitter. The control surfaces, in turn, affect the orientation of the plane. A glider normally flies slower. This type is usually a high wing aircraft model with nearly flat bottom airfoil that produces high lift, permitting slow landing speeds without stalling. It also has some dihedral angle to give a good lateral stability. However, a flat bottom high wing with dihedral is more sensitive to crosswind gusts, so the first flights should be done during calm weather. Figure 11 :- Glider aircraft [2] 1. A well-rounded leading edge is therefore preferable, as it better conveys the airflow onto the upper wing surface allowing higher angle of attack at low speed. 2. A trainer model should not be too small, as it would be difficult to assemble and maintain and would be more sensitive to strong winds. It should not be too large either, as it would be difficult to transport require a larger flying field and would more expensive. 1.4 Scope & need of Aircraft & UAV Scientific, government and military organizations are also utilizing RC aircraft for experiments, gathering weather readings, aerodynamic modeling and testing, and even using them as drones or spy planes.
  • 11.
    Chapter: - 2DESIGN OF PROTOTYPE OF AIRCRAFT – ROBOCRAFT P a g e | 4 Govt. Poly. Rajkot (DME) - 2015 Chapter:- 2 WORKING PRINCIPLES To generate the aircraft , it is the necessary to know how the aircraft works, what are the condition for fly the drone, which aerodynamic shapes use for lift of flight , what are the dimension for consume lower power for fly the flight. So to generate the aircraft the working principle and affecting laws are given below. 2.1 Working Principle and affecting forces for aircraft Gravity, Lift, Thrust and Drag are the factors affecting to the aircrafts. Figure 1 :- Affecting forces on aircraft [6] 2.1.1 Gravity Gravity is a force that is always directed toward the Centre of the earth.The magnitude of the force depends on the mass of all the aircraft parts.The gravity is also called weight and is distributed throughout the aircraft.But we can think of it as collected and acting through a single point called the centre of gravity. In flight, the aircraft rotates about its centre of gravity, but the direction of the weight force always remains toward the centre of the earth.
  • 12.
    Chapter: - 2DESIGN OF PROTOTYPE OF AIRCRAFT – ROBOCRAFT P a g e | 5 Govt. Poly. Rajkot (DME) - 2015 2.1.2 lift Lift is the force generated in order to overcome the weight, which makes the aircraft fly. This force is obtained by the motion of the aircraft through the air. Factors that affect lift: Figure 2 :- Lift [6] Lift force is therefore dependent on the density of the air , the airspeed V, the type of airfoil and on the wing’s area according to the formula below: Lift Force = 0.5 *  * V2 * Wing's Lift Coefficient * Wing Area Where, Lift Force is in Newton, Wing Area in m2, Air speed in m/s. Standard density of the air is 1.225kg/m3. The wing's lift coefficient is a dimensionless number that depends on the airfoil type, the wings aspect ratio (AR), Reynolds Number and is proportional to the angle of attack (AoA) before reaching the stall angle.
  • 13.
    Chapter: - 2DESIGN OF PROTOTYPE OF AIRCRAFT – ROBOCRAFT P a g e | 6 Govt. Poly. Rajkot (DME) - 2015 2.1.3 Thrust Thrust is the force generated by some kind of propulsion system. The magnitude of the thrust depends on many factors associated with the propulsion system used. 1.Type of engine 2.number of engines 3.throttle setting 4.speed The direction of the force depends on how the engines are attached to the aircraft. The glider, however, has no engine to generate thrust. It uses the potential energy difference from a higher altitude to a lower altitude to produce kinetic energy, which means velocity. Gliders are always descending relative to the air in which they are flying. 2.1.4 Drag Drag is the aerodynamic force that opposes an aircraft's motion through the air. Drag is generated by every part of the aircraft (even the engines). There are several sources of drag: One of them is the skin friction between the molecules of the air and the surface of the aircraft. The skin friction causes the air near the wing's surface to slow down. This slowed down layer of air is called the boundary layer. The boundary layer builds up thicker when moving from the front of the airfoil toward the wing trailing edge. Another factor is called the Reynolds effect, which means that the slower we fly, the thicker the boundary layer becomes. Form drag, induced drag, interference drag, parasitic drag, total drag are the various types of drag.
  • 14.
    Chapter: - 2DESIGN OF PROTOTYPE OF AIRCRAFT – ROBOCRAFT P a g e | 7 Govt. Poly. Rajkot (DME) - 2015 2.2 Air density The air density depends on the atmospheric pressure and on the air temperature. The air density increases with decreasing of the air temperature and/or with increasing of the atmospheric pressure. The air density decreases with increasing of the air temperature and/or with decreasing of the atmospheric pressure. Figure 3 :- Air density effect at wing [8] The pressure increases exponentially with increasing of the airspeed. The aircraft's resistance to the airflow (drag) depends on the shape of the fuselage and flying surfaces. An aircraft that is intended to fly fast has a thinner and different wing profile than one that is intended to fly slower. That's why many aircraft change their wings' profiles on landing approach by lowering the flaps located at the wings' trailing edge and the slats at the leading edge in order to keep enough lifting force during the much lower landing speed. The wings' profile of an aircraft is usually asymmetric, which makes the pressure on the wings' upper side lower than the underside, causing the air on the wing supper side to accelerate downwards, thereby a lift force is created. Pockets of rising air are called updrafts. Updrafts are found when the wind blowing at a hill or mountain rises to climb over it. (However, there may be a downdraft on the other side!) Updrafts can also be found over dark land masses that absorb more heat from the sun than light land masses. The heat from the ground heats the surrounding air, which causes the air to rise. The rising pockets of hot air are called thermals.
  • 15.
    Chapter: - 2DESIGN OF PROTOTYPE OF AIRCRAFT – ROBOCRAFT P a g e | 8 Govt. Poly. Rajkot (DME) - 2015 2.3 Wing geometry A vertical cut through the wing parallel to flight's direction (plan view) will show the cross-section of the wing. This side view (profile) is called Airfoil, and it has some geometry definitions of its own as shown on the picture below. Figure 4 :- Wing geometry [8] The longest straight line that can be drawn from the Airfoil's leading edge to trailing edge is called the Chord Line. The Chord Line cuts the airfoil into an upper surface and a lower surface. If we plot the points that lie halfway between the upper and lower surfaces, we obtain a curve called the Mean Camber Line. For a symmetric airfoil (upper surface the same shape as the lower surface) the Mean Camber Line will fall on top of the Chord Line. But for an asymmetric airfoil, these are two separate lines. The maximum distance between these two lines is called the Camber, which is a measure of the curvature of the airfoil (high camber means high curvature).Asymmetric airfoils are also known as cambered airfoils. The maximum distance between the upper and lower surfaces is called the Thickness. Both Thickness and Camber are expressed as a percentage of Chord. Figure 5 :- Wing thickness & camber [7] Airfoils can come with all kinds of combinations of camber and thickness distributions. They are designed for the conditions under which the plane is likely to be flown most of the time. NACA (the precursor of NASA) established a method of designating classes of airfoils and then wind tunnel tested the airfoils in order to provide lift coefficients and drag coefficients for designers.
  • 16.
    Chapter: - 2DESIGN OF PROTOTYPE OF AIRCRAFT – ROBOCRAFT P a g e | 9 Govt. Poly. Rajkot (DME) - 2015 Aspect Ratio is a measure of how long and slender a wing is from tip to tip. The Aspect Ratio of a wing is defined to be the square of the span divided by the wing area and is given the symbol AR. The formula is simplified for a rectangular wing, as being the ratio of the span to the chord length as shown on the figure below. Figure 6 :- Aspect ratio[4] Wing Dihedral refers to the angle of wing panels as seen in the aircraft's front view. Dihedral is added to the wings for roll stability; a wing with some Dihedral will naturally return to its original position if it is subject to a briefly slight roll displacement. Most large airliner wings are designed with Dihedral. On the contrary the highly maneuverable fighter planes have no Dihedral. In fact, some fighter aircraft have the wing tips lower than the roots, giving the aircraft a high roll rate. A negative Dihedral angle is called Anhedral. 2.4 Stall and Spin "What's the stall speed?" The reason for the enquiry is that usually, but not always, the approach speed chosen for landing is 1.3 times the stall speed. “Stall is an undesirable phenomenon in which the aircraft wings produce an increased air resistance and decreased lift, which may cause an aircraft to crash.” The stall occurs when the airflow separates from the upper wing surface. It happens when a plane is under too great an Angle of Attack (AoA).
  • 17.
    Chapter: - 2DESIGN OF PROTOTYPE OF AIRCRAFT – ROBOCRAFT P a g e | 10 Govt. Poly. Rajkot (DME) - 2015 For light aircraft, without high-lift devices, the critical angle is usually around 16°. The picture below shows a stalled airfoil: Figure 7 :- Stall and AOA [3] graph1 :- Lift coefficient v/s angle of attack [2] For airfoils of one family the symmetric airfoil stalls at a higher Geometric AoA compared with the cambered airfoil, however the cambered airfoil has higher lift coefficient and stalls at a higher Absolute AoA.
  • 18.
    Chapter: - 2DESIGN OF PROTOTYPE OF AIRCRAFT – ROBOCRAFT P a g e | 11 Govt. Poly. Rajkot (DME) - 2015 As mentioned in the chapter Forces in Flight, the lift force is proportional to the density of the air , the square of the airspeed V, the type of airfoil and to the wing’s area according to the formula: Lift force = 0.5 *  * V2 * wing's lift coefficient * wing area Since lift coefficient is proportional to the angle of attack, the lower the airspeed the higher the angle of attack has to be in order to produce the same lift. Thus, stall may occur during take-off or landing, just when the airspeed is low: To keep altitude at low airspeed, the wing's lift coefficient has to increase, and if a non- experienced pilot tries to lift the aircraft's nose at a too low airspeed, it may exceed the critical angle of attack and stall occurs. If you're flying near the stall speed and make a steep turn, the aircraft will stall. That's because, if the aircraft stalls for instance at 20 knots in straight level flight, it will stall at 28.2 knots in a 60 degree banked turn. The rapid reduction in speed after passing the critical angle of attack means the wing is now unable to provide sufficient lift to totally balance weight and, in a normal stall, the aircraft starts to sink, but if one wing stalls before the other, that wing will drop, the plane falls out of the air. The ground waits below. Stalls may also occur at high airspeeds. If at max airspeed and full throttle the pilot suddenly applies excessive up elevator, the aircraft will rotate upwards, however, due to aircraft's inertia, it may continue flying in the same direction but with the wings at an angle of attack that may exceed the stall angle. The aileron drag is a further factor that may cause an aircraft to stall. When the pilot applies aileron to roll upright during low speed, the downward movement of the aileron on the lower wing might take an angle on that part of the wing past the critical stall angle. Thus that section of wing, rather than increasing lift and making the wing rise, will stall, lose lift and the aircraft instead of straightening up, will roll into a steeper bank and descend quickly. Also the wing with the down aileron often produces a larger drag, which may create a yaw motion in the opposite direction of the roll. This yaw motion partially counteracts the desired roll motion and is called the adverse yaw. Another factor that affects the aircraft's stall characteristics is the location of its centre of gravity CG.A tail-heavy aircraft is likely to be more unstable and susceptible to stall at low speed, e. g. during the landing approach.
  • 19.
    Chapter: - 2DESIGN OF PROTOTYPE OF AIRCRAFT – ROBOCRAFT P a g e | 12 Govt. Poly. Rajkot (DME) - 2015 Spin A worse version of a stall is called spin, in which the plane spirals down. A stall can develop into a spin through the exertion of a sidewise moment. Depending on the plane, (and where its CG is located) it may be more difficult or impossible to recover from a spin. Recovery requires good efficiency from the tail surfaces of the plane; typically recovery involves the use of the rudder to stop the spinning motion, in addition to the elevator to break the stall. However the wings might block the airflow to the tail. If the centre of gravity of the plane is too far back, it tends to make recovery much more difficult. Another circumstance that may cause loss of control is when a hinged control surface starts to flutter. Such flutter is harmless if it just vibrates slightly at certain airspeed (possibly giving a kind of buzzing sound), but ceases as soon as the airspeed drops. In some cases however, the flutter increases rapidly so that the model is no longer controllable. The pilot may not be aware of the cause and suspect radio interference instead. To reduce the flutter, the control linkages should not be loosely fitted and the push rods should be stiff. Long unbraced push rods can create flutter as vibration whips them around. In some difficult cases the control surface has to be balanced, so that its centre of mass (gravity) is ahead of the hinge line. It should be located at about 60-65%of the length of the control surface from its inner end: Figure 8 :- Control surface and balance weight [6] 2.5 Stability concept The aircraft's response to momentary disturbance is associated with its inherent degree of stability built in by the designer, in each of the three axes, and occurring without any reaction from the pilot. An aircraft's stability is expressed in relation to each axis: lateral stability (stability in roll), directional stability (stability in yaw)longitudinal stability (stability in pitch). Lateral and directional stabilities are inter-dependent.
  • 20.
    Chapter: - 2DESIGN OF PROTOTYPE OF AIRCRAFT – ROBOCRAFT P a g e | 13 Govt. Poly. Rajkot (DME) - 2015 Figure 9 :- stability concept [2] Stability may be defined as follows: - Positive stability: tends to return to original condition after a disturbance. - Negative stability: tends to increase the disturbance. - Neutral stability: remains at the new condition. -Static stability: refers to the aircraft's initial response to a disturbance. A statically unstable aircraft will uniformly depart from a condition of equilibrium. -Dynamic stability: refers to the aircraft's ability to damp out oscillations which depends on how fast or how slow it responds to a disturbance. -Lateral stability is achieved through dihedral, sweepback, keel effect and proper distribution of weight. The dihedral angle is the angle that each wing makes with the horizontal (see Wing Geometry).If a disturbance causes one wing to drop, the lower wing will receive more lift and the aircraft will roll back into the horizontal level. -The tail fin determines the directional stability. If a gust of wind strikes the aircraft from the right it will be in a slip and the fin will get an angle of attack causing the aircraft to yaw until the slip is eliminated. -Longitudinal stability depends on the location of the centre of gravity, the stabilizer area and how far the stabilizer is placed from the main wing. Most aircraft would be completely unstable without the horizontal stabilizer. -It is of crucial importance that the aircraft's Centre of Gravity (CG) is located at the right point, so that a stable and controllable flight can be achieved. In order to achieve a good longitudinal stability, the CG should be ahead of the Neutral Point (NP), which is the Aerodynamic Centre of the whole aircraft.
  • 21.
    Chapter: - 3DESIGN OF PROTOTYPE OF AIRCRAFT – ROBOCRAFT P a g e | 14 Govt. Poly. Rajkot (DME) - 2015 Chapter - 3 CONSTRUCTION AND BOUGHT OUT PARTS SPECIFICATION A reasonable size is about 150cm wingspan (60 in) with a high aspect ratio, which means the wingspan being about 5.5 times the wing chord. A square wing is advisable, as it distributes the weight of the aircraft evenly over the entire surface of the wing. In order to allow a reasonable low landing speed without stalling, the wing loading should not be greater than about 60g/sq.dm (19-oz/sq. ft). Wing loading is the aircraft's weight divided by the wing area. Some degree of wing washout also improves the stall characteristics. The basic parts of a trainer model: Figure 1 :- Construction of aircraft [4]
  • 22.
    Chapter: - 3DESIGN OF PROTOTYPE OF AIRCRAFT – ROBOCRAFT P a g e | 15 Govt. Poly. Rajkot (DME) - 2015 Engine - provides the power to rotate the propeller. Propeller - (also Prop) is attached to the engine's shaft to convert rotational motion into thrust and speed, which depends on the Prop's diameter, pitch and the Engine's power. Spinner – stream lined part that covers the end of the Prop shaft. Fin - (also Vertical Stabilizer) provides directional stability (stability in yaw). Rudder - moveable part fitted to the Fin's trailing edge, is used to change the aircraft's direction. Stabilizer - (also Horizontal Stabilizer or Stab) provides longitudinal stability (stability in pitch). Elevator - moveable part fitted to the Horizontal Stabilizer's trailing edge, is used to make the aircraft climb or dive. Ailerons - movable parts on both sides of the wing, are used to make the aircraft roll about its fore - aft axis. When one aileron moves up the other moves down. Wing - provides the aircraft's main lifting force. List of part used in aircraft 1. Body 2. Radio control 3. Servo motor 4. Brushless DC motor 5. Prop / propeller 6. Electronic Speed controller 7. Battery
  • 23.
    Chapter: - 3DESIGN OF PROTOTYPE OF AIRCRAFT – ROBOCRAFT P a g e | 16 Govt. Poly. Rajkot (DME) - 2015 3.1 Aircraft body Aircraft body is the main part of the R/C aircraft. Electronic parts like radio control, servo motor, brushless motor, speed controller, propeller etc. arranged in the body. Body have many parts like Spinner, fin , Rudder, stabilizer, elevator, ailerons, wing, fuselage etc. Construction of body parts are describe above. The design and dimension of body is described in next chapter. 3.2 Radio control The R/C pilot controls the model by a radio link, which means by using electromagnetic radiation. Basically the R/C equipment consists of a Transmitter operated by the pilot and the airborne units consisting in a Receiver together with one or more Servos depending on the number of channels used and a Battery pack. The picture shows a four channel RC Transmitter, Receiver, 4 Servos, Battery pack and Switch. Figure 2 :- Radio control [12] A typical RC Transmitter has about 4 to 6 channels with at least 4 of them being proportional, which means the controlled surfaces or devices will move proportionally to the movements of the control sticks. Additional channels may function only in "on-off" manner like a switch, and are usually used to actuate retractable landing gears, airbrakes, lamps, etc. The example bellow shows a five channel RC Transmitter with two joysticks (left/right and up/down movement) enabling four proportional channels, channels, while the fifth channel is of switch type (on/off).The example shows the mode two configuration (most common) having the elevator control on the right joystick and the motor throttle on the left one.
  • 24.
    Chapter: - 3DESIGN OF PROTOTYPE OF AIRCRAFT – ROBOCRAFT P a g e | 17 Govt. Poly. Rajkot (DME) - 2015 Figure 3 :- Detail view & specification of remote control [12]
  • 25.
    Chapter: - 3DESIGN OF PROTOTYPE OF AIRCRAFT – ROBOCRAFT P a g e | 18 Govt. Poly. Rajkot (DME) - 2015 3.3 Servo motor Servos are the end units in a radio control chain. They are used to move the aircraft's control surfaces, the motor throttle and to actuate other devices such as retractable landing gears. The picture on right shows some servo hardware, such as mounting screws, rubber pads, and different sorts of servo arms. Figure 5 :- Control horns [12] Specification: 1. Wire length 18cm 2. Weight 9 gm At 4.8V 3. Speed (sec/60) 0.12 4. Torque (Kg-cm) 1.3 At 6V 5. Speed (sec/60) 0.10 6. Torque (Kg-cm) 1.5 A servo consists basically in a motor, gearbox, feedback potentiometer and an electronic board inside a plastic case. Outside are the servo arm and the servo cable and plug. The servo arm is often a plastic piece with holes on it for attaching push rods or other mechanical linkages. Figure 4 :- Servo motor [12]
  • 26.
    Chapter: - 3DESIGN OF PROTOTYPE OF AIRCRAFT – ROBOCRAFT P a g e | 19 Govt. Poly. Rajkot (DME) - 2015 3.4 Electric motor Electric powered model aircraft has gained popularity, mainly because the electric motors are more quiet, clean and often easier to start and operate than the combustion motors. They need batteries to operate and despite some developments in this area; the batteries still are some what heavier as energy source compared with the gas fuel. Thus, the electric flier has to strive to build the model as light as possible in order to obtain a reasonable wing loading and/or a reasonable flight time. Figure 6 :- BLDC motor [12] Specification: 1. RPM / V 1250 rpm 2. Weight 132 gm Combination of usage 3. PROP 11x5.5E 4. Thrust 3000gms 5. Lipo batteries 4cell 14.8V 6. Operating Voltage 12V 7. Amp draw at load 63 amp 8. ESC 60 amp 9. Power 764W
  • 27.
    Chapter: - 3DESIGN OF PROTOTYPE OF AIRCRAFT – ROBOCRAFT P a g e | 20 Govt. Poly. Rajkot (DME) - 2015 3.5 prop The prop is the component used to generate the electric power to the thrust for the aircraft. There are various airfoil shape and size react the various effect at the fly. Specification: 1. Electric flight prop 11 x 5.5 E 2. Weight 60 gm 3. Size 280 X 27 mm Figure 7 :- prop [12] 3.6 Speed controller A common way to control the electric motor's speed is by using an Electronic Speed Controller (ESC). Figure 8 :- Speed controller [12] The Electronic Speed Controller is based on Pulse Width Modulation (PWM),which means that the motor's rpm is regulated by varying the pulses' duty-cycle according to the transmitter's throttle position. Most ESCs have a facility known as Battery Eliminator Circuit (BEC).These controllers include a 5V regulator to supply the receiver and servos from the same battery that is used to power the motor, thereby eliminating the weight of a second battery only to power the radio and servos. The motor power is cut-off when the battery voltage falls, for example below 5V.This prevents the battery from getting totally flat allowing the pilot to control the model when the motor stops.
  • 28.
    Chapter: - 3DESIGN OF PROTOTYPE OF AIRCRAFT – ROBOCRAFT P a g e | 21 Govt. Poly. Rajkot (DME) - 2015 Specification: 1. Output Continuous 40A,Burst 50A up to 10 Sec 2. Input Voltage 2-6 cells lithium battery or 5-18 cells NiCd/NiMh battery 3. BEC output 3A/5V 4. Max. Speed 210,000rpm for 2 poles brushless motor 70,000rpm for 6 poles brushless motor 35,000rpm for 12 poles brushless motor 5. Dimension 40mm(L)*24mm(W)*12mm(H) 6. Weight 38g 3.7 Batteries Batteries are available in different sizes, weights, voltages and capacities C, which refer to their stored energy expressed either in amps-hour Ah or milliamps- hour mAh. For example, a battery with a capacity of 500mAh should deliver 500mA during one hour before it gets totally discharged (flat). Radio control systems are usually powered by rechargeable batteries. Rechargeable battery types available on the market today are: Nickel-Cadmium (NiCads) Nickel-Metal hydride (NiMH) and Lithium-Polymer (Lipo) batteries. Even Lead-Acid batteries are also used as ground power source. Figure 9 :- Battery [12]
  • 29.
    Chapter: - 3DESIGN OF PROTOTYPE OF AIRCRAFT – ROBOCRAFT P a g e | 22 Govt. Poly. Rajkot (DME) - 2015 The lead acid batteries have normally 3 or 6 cells connected in series. Each cell has a nominal voltage of 2V resulting in anominal pack voltage of 6V and 12V respectively. They are usually charged with a constant voltage of 2.4 - 2.5V per cell having the charging current limited to 1/10C. It is not recommended charging these batteries with a charging current exceeding 1/3C.A lead acid battery pack is considered fully charged when the charging current falls below 10mA and/or the cell voltage reaches 2.4 - 2.5V. Should a lead acid battery be continuously left on charge (when used as power backup); the charging voltage should not exceed 2.25 - 2.30V per cell. It is also advisable to charge these batteries in a well-ventilated area/room, since it produces hydrogen-oxygen gases that can be explosive and also the electrolyte contains sulfuric acid that can cause severe burns. Lead acid batteries' lifespan is about 4 to 8 years depending on the treatment. Specification : 1. Capacity 4200mAh 2. Voltage 11.1v 3. Continuous Discharge Rate 35C 4. Charger Time Recommend (by input 1mah) 5. Weight 740 gm 6. Size L: 13.8 cm B: 4.2 cm H: 2.5 cm
  • 30.
    Chapter: - 4DESIGN OF PROTOTYPE OF AIRCRAFT – ROBOCRAFT P a g e | 23 Govt. Poly. Rajkot (DME) - 2015 Chapter - 4 DESIGN AND MANUFACTURING OF AIRCRAFT 4.1 Selection of material Several materials are commonly used for construction of the airframe of model radio controlled aircraft. The earliest model radio controlled aircraft were constructed of wood covered with paper. Later, plastic film such as Monokote came to be widely used as a covering material. Wood has relatively low cost, high specific Young's modulus (stiffness per unit weight), good workability and strength, and can be assembled with adhesives of various types. Light-weight strong varieties such as balsa wood are preferred; basswood, pine and spruce are also used. Carbon fiber, in rod or strip form, supplements wood in more recent models to reinforce the structure, and replaces it entirely in some cases (such as high performance turbine engine powered models and helicopters). The disadvantage of using carbon fiber is its high cost. Twinwall extruded polypropylene sheet has been used from the mid nineties. Commonly known as Correx in the United Kingdom, it is mentioned in the sections above. Currently the Mugi group based in West Yorkshire still promote and use this material in 2mm thickness sheet form. Very tough and lightweight it has only two disadvantages. Firstly it needs particular two-part contact glues. Secondly the material is difficult to paint due to low surface adhesion. Self-adhesive coloured tapes were the answer. Components are often laminated, taking advantage of differing flute directions for strength and forming. Models tend to exceed 900mm wingspan with carbon fibre tubing used for local reinforcement. The thickness used among modellers is from 2mm to 4 mm thickness. Models made out of this material are commonly known among modellers as "Spad" types (simple plastic aero plane design). Expanded polystyrene and extruded polystyrene foam (Styrofoam) came to be used more recently for the construction of the entire airframe. Depron (the type of foam used for meat trays) blends rigidity with flexibility, allowing aircraft to absorb the stress of flying. Expanded polypropylene (EPP) is an extremely resilient variety of foam, often used in basic trainers, which take considerable abuse from beginners. So we chose Styrofoam for our project.
  • 31.
    Chapter: - 4DESIGN OF PROTOTYPE OF AIRCRAFT – ROBOCRAFT P a g e | 24 Govt. Poly. Rajkot (DME) - 2015 By reducing the dimensions of a full-sized aircraft proportionally, a scaled model will be obtained. However, it seldom becomes an easy flying one. The main aerodynamic differences between a model and a full-sized aircraft are originated from the boundary layer, the thin layer of air close to the wing surface that is slowed down by skin friction. According to Osborne Reynolds, there are two main types of flow: (i) The laminar and (ii)the turbulent. Which flow type occurs within the boundary layer at a given point of the wing's surface depends on the wing's form, the surface's roughness, the chord length, the airspeed and the ratio of density to viscosity of the air. Reynolds combined all those factors (except the surface condition) into a non-dimensional number known as Reynolds Number Re. Re = (air density/air viscosity) * air speed * wing chord Air viscosity is measured in kilograms per meter per second. The standard value is: 0.0000179 kg/m/sec. For instance, a wing with a chord of 1 meter at a airspeed of 1 m/sec and with the standard air density and viscosity will have the following Re:(1.225/0.0000179) * 1 * 1 = 68459 Thereby, a simplified formula may be obtained as follows: Re = 68459 * V * L Where V is the airspeed in m/sec and L the wing chord in meters. The Reynolds number is therefore dependent on the weather conditions, the wing chord and the airspeed. Re increases as the airspeed, the air density and the wing chord increases.
  • 32.
    Chapter: - 4DESIGN OF PROTOTYPE OF AIRCRAFT – ROBOCRAFT P a g e | 25 Govt. Poly. Rajkot (DME) - 2015 Since the wing chords of model aircraft are often much less than 1 meter, one may get a Re value close enough for modeling purposes by using the following simplified formula: Re = speed in kilometers per hour * chord in centimeters * 189 (Metric units) Re = 80 X 23 X 189 Re = 347,760 At low airspeed and small wing chord (as with a model aircraft) the air viscosity is a dominant factor, whereas with the full-sized aircraft the viscosity effects of the air are insignificant while the aircraft's mass inertia becomes more dominant. That's why one should not expect a scaled model aircraft to have the same flight characteristics as its larger counterpart. As stated in Forces in Flight, the lift force is dependent on the density of the air , the airspeed V, the wing's Lift Coefficient and the wing’s area. So theory and various graphs of lift coefficient v /s angle of attack & lift coefficient v /s drag coefficient, l/d ratio v /s angle of attack are described below. The Wing's Drag Coefficient is a dimensionless number that depends on the airfoiltype, the wing's aspect ratio (AR), the shape of the wing tips, Reynolds Number (Re)and the angle of attack (alpha). The relation between lift and drag is called the Lift to Drag ratio (L/D) and is obtained by dividing the Lift Coefficient by the Drag Coefficient.
  • 33.
    Chapter: - 4DESIGN OF PROTOTYPE OF AIRCRAFT – ROBOCRAFT P a g e | 26 Govt. Poly. Rajkot (DME) - 2015 The characteristics of any particular airfoil may be represented by graphs showing the amount of lift and drag obtained at various angles of attack as well as the Lift/Drag ratio. The same airfoil has different Lift and Drag Coefficients at different Reynolds Numbers as shown in the graphs below. graph1 :- Lift coefficient v/s angle of attack & Lift coefficient v/s drag coefficient [5] The above graphs refer to the airfoil only, as the Coefficients of a whole wing also depend on the wing's Aspect Ratio, Taper Ratio and on the shape of the wing tips. Note that this airfoil still produces lift at negative geometric angles of attack. The graphs also show a portion of the negative Coefficients (when flying inverted).
  • 34.
    Chapter: - 4DESIGN OF PROTOTYPE OF AIRCRAFT – ROBOCRAFT P a g e | 27 Govt. Poly. Rajkot (DME) - 2015 graph 2 :- L/D ratio V/S angle of attack [5] The graph on left shows Lift and Drag Coefficients along with Lift/Drag ratio of a whole wing with aspect ratio of 9 and airfoil RAF 32 at Re 56,100. The Max Lift Coefficient is obtained at about 9.2oAoA, while the best L/D is obtained at 3oAoA. A large wing that is flying fast has a higher Re and thinner boundary layer than a small wing that is flying slow. The boundary layer is thinnest when its flow is laminar and thickens when it is turbulent. The turbulent flow may separate from the wing's surface, producing more drag and decreasing the lift, which may lead to stall. Thus, a low Re wing is more likely to suffer from laminar separation and to stall sooner than a wing with high Re.
  • 35.
    Chapter: - 4DESIGN OF PROTOTYPE OF AIRCRAFT – ROBOCRAFT P a g e | 28 Govt. Poly. Rajkot (DME) - 2015 4.2.1 Design of wing As stated in Forces in Flight, the lift force is dependent on the density of the air ,the airspeed V, the wing's Lift Coefficient and the wing’s area according to the formula: Lift Force = 0.5 *  * V2 * Wing's Lift Coefficient * Wing's Area For our aircraft design assume that the weight of all parts of aircraft will be less than 2.9 kg. So the lift weight should be capable near to 3 kg. Also consider air density = 0.98 , coefficient of lift = 1 , velocity = 22.22 m/s , area = 0.23 m2 The Wing's Lift Coefficient is a dimensionless number that depends on the airfoil type, the wing's aspect ratio (AR), Reynolds Number (Re) and is proportional to the angle of attack (alpha) before reaching the stall angle. 𝑳 = 𝟎. 𝟓 × 𝑪𝒍 × 𝝆 × 𝑽 𝟐 × 𝑨 = 0.5 × 1 × 0.98 × 22.222 × 0.23 = 𝟓𝟓. 𝟔𝟒 𝑵𝑬𝑾𝑻𝑶𝑵 = 𝟓. 𝟔 𝑲𝒈 However, the wing's generation of lift also produces Induced Drag, which along with Parasitic Drag are forces that oppose the aircraft's motion through the air. One may also say that Induced Drag is the price we pay for getting lift. Induced Drag is also dependent on the density of the air , the airspeed V, the wing's Drag Coefficient and the wing’s area according to the formula:
  • 36.
    Chapter: - 4DESIGN OF PROTOTYPE OF AIRCRAFT – ROBOCRAFT P a g e | 29 Govt. Poly. Rajkot (DME) - 2015 Drag Force = 0.5 *  * V2 * Wing's Drag Coefficient * Wing's Area 𝑫 = 𝟎. 𝟓 × 𝑪𝒅 × 𝝆 × 𝑽 𝟐 × 𝑨 = 0.5 × 0.5 × 0.98 × 22.222 × 0.23 = 𝟐𝟕. 𝟖𝟐 𝑵𝑬𝑾𝑻𝑶𝑵 = 𝟐. 𝟕 𝑲𝒈 𝑴𝑨𝑿. 𝑳𝑰𝑭𝑻 𝑪𝑨𝑷𝑨𝑪𝑰𝑻𝒀 = 𝑳𝑰𝑭𝑻 𝑭𝑶𝑹𝑪𝑬 − 𝑫𝑹𝑨𝑮 𝑭𝑶𝑹𝑪𝑬 = 5.6 − 2.7 = 𝟐. 𝟗 𝑲𝒈 𝐖𝐢𝐧𝐠′𝐬 𝐀𝐫𝐞𝐚 = 𝐋𝐢𝐟𝐭 𝐅𝐨𝐫𝐜𝐞 𝟎.𝟓 ∗ 𝛒 ∗ 𝐕 𝟐 ∗ 𝐖𝐢𝐧𝐠′𝐬 𝐋𝐢𝐟𝐭 𝐂𝐨𝐞𝐟𝐟𝐢𝐜𝐢𝐞𝐧𝐭 = 55.64 0.5 × 1 × 0.98 × 22.222 = 0.23 𝑚2 𝑨 = 𝟐𝟑𝟎𝟎 𝒄𝒎 𝟐
  • 37.
    Chapter: - 4DESIGN OF PROTOTYPE OF AIRCRAFT – ROBOCRAFT P a g e | 30 Govt. Poly. Rajkot (DME) - 2015 Assume that, 𝐴𝑠𝑝𝑒𝑐𝑡 𝑟𝑎𝑡𝑖𝑜 (𝐴𝑅) = 𝑠𝑝𝑎𝑛 𝑙𝑒𝑛𝑔𝑡ℎ 𝑐ℎ𝑜𝑟𝑑 𝑙𝑒𝑛𝑔𝑡ℎ = 4.347 𝑾𝒊𝒏𝒈 𝒂𝒓𝒆𝒂 = 𝑺𝒑𝒂𝒏 𝒍𝒆𝒏𝒈𝒕𝒉 × 𝒄𝒉𝒐𝒓𝒅 𝒍𝒆𝒏𝒈𝒕𝒉 2300 = 𝑆 × 𝐶 2300 = 4.347 𝐶 × 𝐶 √ 2300 4.347 = 𝐶 𝑪 = 𝟐𝟑 𝒄𝒎 𝑨𝒔𝒑𝒆𝒄𝒕 𝒓𝒂𝒕𝒊𝒐 ( 𝑨𝑹) = 𝒔𝒑𝒂𝒏 𝒍𝒆𝒏𝒈𝒕𝒉 𝒄𝒉𝒐𝒓𝒅 𝒍𝒆𝒏𝒈𝒕𝒉 4.347 = 𝑆 23 𝑺 = 𝟏𝟎𝟎 𝒄𝒎 𝑨𝒊𝒍𝒆𝒓𝒐𝒏 𝒍𝒆𝒏𝒈𝒕𝒉 = 𝟏 𝟖 × 𝒄𝒉𝒐𝒓𝒅 = 1 8 × 23 = 2.875 𝑐𝑚 𝑨𝒍 ≅ 𝟑. 𝟎𝟎 𝒄𝒎
  • 38.
    Chapter: - 4DESIGN OF PROTOTYPE OF AIRCRAFT – ROBOCRAFT P a g e | 31 Govt. Poly. Rajkot (DME) - 2015 𝑾𝒊𝒏𝒈 𝒕𝒉𝒊𝒄𝒌𝒏𝒆𝒔𝒔 = 𝟏𝟎. 𝟓𝟎 % 𝒐𝒇 𝒄𝒉𝒐𝒓𝒅 = 10.50 ×23 100 𝒕 = 𝟐. 𝟒 𝒄𝒎 𝑫𝒊𝒔𝒕𝒂𝒏𝒄𝒆 𝒐𝒇 𝒍𝒆𝒂𝒅𝒊𝒏𝒈 𝒆𝒅𝒈𝒆 𝒕𝒐 𝒎𝒂𝒙. 𝒕𝒉𝒊𝒄𝒌𝒏𝒆𝒔𝒔 = 𝟑𝟓 % 𝒐𝒇 𝒄𝒉𝒐𝒓𝒅 = 35 ×23 100 𝒍 = 𝟖. 𝟎𝟓 𝒄𝒎 4.2.2 Manufacturing of wing First of all to manufacturing the wing of aircraft we need extruded polystyrene foam (Styrofoam) sheet as a raw material, a sharp and clean edge cutter for cut the foam sheet, larger than 3 feet scale and T-square used as measuring and guiding equipment for cutter’s edge. The seller tap of various 3-4 colors are used for stick the different parts and attractive design look. The hot melt glue gun is used for joint the various parts of wing. The glue stick is consume in the glue gun as the adhesive material like as the fevicol. Now we have enough raw material and equipments. The wing is generate as per the wing’s AutoCAD drawing which is given below. First cut the 50 X 100 cm rectangle shape from the foam sheet with the help of cutter and scale. Then cut the 23 X 100 cm rectangle from the 50 X 100 cm rectangle. So we have two rectangle which have 23 X 100 and 27 X 100 cm dimension. Now joint the both rectangle foam sheet with the help of seller tap. Then remove the material from the joint as the 45 from lower surface of foam sheet.
  • 39.
    Chapter: - 4DESIGN OF PROTOTYPE OF AIRCRAFT – ROBOCRAFT P a g e | 32 Govt. Poly. Rajkot (DME) - 2015 Figure 1 :- AutoCAD & actual drawing of wing
  • 40.
    Chapter: - 4DESIGN OF PROTOTYPE OF AIRCRAFT – ROBOCRAFT P a g e | 33 Govt. Poly. Rajkot (DME) - 2015 Then cut the two foam sheet plate which have 7 X 100 and 3.5 X 100 cm dimension with the help of cutter and scale. Stick the small foam sheet plate up the long foam sheet plate kept distance from leading as 1/3 longer sheet plate, it is shown in the figure. After that operation these jointed foam sheet plate was sticked on the 23 X 100 cm rectangle from the distance of 8 cm as the maximum thickness distance with the help of glue gun and glue stick. Then bend the foam sheet from the 45’ cutted rectangle joint and touch as the lower surface of big rectangle to the small foam sheet plate and sticked it with the help of glue gun. So the 23 X 100 X 2.4 cm wing is generated but keep calm because the aileron is generate now. Cut the 3 X 45.5 cm plate both side from center line of wing and tailing edge. Remove the material 45’ from tailing edge wing and leading edge of aileron and also cut the 0.5 cm material and make the ailerons 3 X 45 cm. Then join the leading edge of aileron and tailing edge of wing with the help of seller tap but remember that distance of both ailerons must be 9 cm. Then make the aileron surface smooth and tailing edge 0.6 cm thick with the help of 220 and 320 no. glass paper. Now this wing is ready to fly. 4.3.1 Design of Fuselage The design of fuselage is obtained from the various dimension of aircraft wing. Generally for trainer model some standard thumb rules are used which is given as formula for various dimension of aircraft fuselage. 𝑭𝒖𝒔𝒆𝒍𝒂𝒈𝒆 𝒍𝒆𝒏𝒈𝒕𝒉 ( 𝒍) = 𝟗𝟔. 𝟕 % 𝒐𝒇 𝒘𝒊𝒏𝒈′ 𝒔 𝒔𝒑𝒂𝒏 𝒍𝒆𝒏𝒈𝒕𝒉 = 96.7 ×100 100 𝒍 = 𝟗𝟔. 𝟕 𝒄𝒎
  • 41.
    Chapter: - 4DESIGN OF PROTOTYPE OF AIRCRAFT – ROBOCRAFT P a g e | 34 Govt. Poly. Rajkot (DME) - 2015 𝑭𝒖𝒔𝒆𝒍𝒂𝒈𝒆 𝒉𝒆𝒊𝒈𝒉𝒕 ( 𝒉) = 𝟏𝟐. 𝟒𝟎 % 𝒐𝒇 𝒇𝒖𝒔𝒆𝒍𝒂𝒈𝒆′𝒔 𝒍𝒆𝒏𝒈𝒕𝒉 = 12.40 ×100 96.7 𝒉 = 𝟏𝟐 𝒄𝒎 𝑭𝒖𝒔𝒆𝒍𝒂𝒈𝒆 𝒘𝒊𝒅𝒕𝒉 ( 𝒘) = 𝒘𝒊𝒅𝒕𝒉 𝒐𝒇 𝒎𝒐𝒖𝒏𝒕𝒊𝒏𝒈 𝒘 = 𝟔 𝒄𝒎 4.3.2 Manufacturing of Fuselage The fuselage is the hollow part of the aircraft in which the various parts like stabilizer, rudder, BLDC motor, servo motor, battery, ESC and control horns are attached.The fuselage is generate by the equipments used in the wing manufacturing like cutter , glue gun etc. The fuselage is generated as per given AutoCAD drawing. First we was made the side of fuselage and then top of the fuselage. The right end of fuselage width is equal to the height of the mounting which is the 6.5 cm. So draw the vertical line of 6.5 cm. The thumb rule and with the help of experience other dimension are shown in the AutoCAD drawing. Draw the side drawing of fuselage on the foam sheet. The slot of 6 mm width is provided for the attachment of stabilizer part. Cut the drawn side of fuselage with the help of sharp edge cutter. Do the above procedure one another time and made second time the side of fuselage. Then we made the top side of the fuselage. The right end of fuselage width is equal to the width of the mounting which is 6.0 cm. So draw the vertical line of 6.0 cm. The thumb rule and with the help of experience other dimension are shown in the AutoCAD drawing. Draw the top drawing of fuselage on the foam sheet. The slot of 6 mm width is provided for the attachment of fin part. Cut the drawn side of fuselage with the help of sharp edge cutter. Do the above procedure one another time and made second time the top of fuselage.
  • 42.
    Chapter: - 4DESIGN OF PROTOTYPE OF AIRCRAFT – ROBOCRAFT P a g e | 35 Govt. Poly. Rajkot (DME) - 2015 So we made the 2 side and top part of fuselage. Now stick the part as hollow qube which have 967 X 65 X 60 mm dimension with the help of glue gun. Then cut 234 mm length from the top of the fuselage which is shown in the figure. The wing will attach in this 234 mm slot. Figure 2 :- AutoCAD & actual drawing of fuselage
  • 43.
    Chapter: - 4DESIGN OF PROTOTYPE OF AIRCRAFT – ROBOCRAFT P a g e | 36 Govt. Poly. Rajkot (DME) - 2015 4.4.1 Design of stabilizer The design of stabilizer is obtained from the various dimension of aircraft wing. Generally for trainer model some standard thumb rules are used which is given as formula for various dimension of aircraft stabilizer. 𝑺𝒕𝒂𝒃𝒊𝒍𝒊𝒛𝒆𝒓 𝒂𝒓𝒆𝒂 = 𝟐𝟐. 𝟓 % 𝒐𝒇 𝒘𝒊𝒏𝒈′ 𝒔 𝒂𝒓𝒆𝒂 = 22.5 × 2300 100 𝒂 = 𝟓𝟏𝟓. 𝟐 𝒄𝒎 𝟐 Assume that, 𝐴𝑠𝑝𝑒𝑐𝑡 𝑟𝑎𝑡𝑖𝑜 (𝐴𝑅) = 𝑠𝑝𝑎𝑛 𝑙𝑒𝑛𝑔𝑡ℎ 𝑐ℎ𝑜𝑟𝑑 𝑙𝑒𝑛𝑔𝑡ℎ = 2.0125 𝑺𝒕𝒂𝒃 𝒂𝒓𝒆𝒂 = 𝑺𝒑𝒂𝒏 𝒍𝒆𝒏𝒈𝒕𝒉 × 𝒄𝒉𝒐𝒓𝒅 𝒍𝒆𝒏𝒈𝒕𝒉 515.2 = 𝑆 × 𝐶 515.2 = 2.0125 𝐶 × 𝐶 √ 515.2 2.0125 = 𝐶 𝑪 = 𝟏𝟔 𝒄𝒎 𝑨𝒔𝒑𝒆𝒄𝒕 𝒓𝒂𝒕𝒊𝒐 ( 𝑨𝑹) = 𝒔𝒑𝒂𝒏 𝒍𝒆𝒏𝒈𝒕𝒉 𝒄𝒉𝒐𝒓𝒅 𝒍𝒆𝒏𝒈𝒕𝒉 2.0125 = 𝑆 16 𝑺 = 𝟑𝟐. 𝟐 𝒄𝒎
  • 44.
    Chapter: - 4DESIGN OF PROTOTYPE OF AIRCRAFT – ROBOCRAFT P a g e | 37 Govt. Poly. Rajkot (DME) - 2015 𝑬𝒍𝒆𝒗𝒂𝒕𝒐𝒓 𝒂𝒓𝒆𝒂 = 𝟏𝟖. 𝟕𝟓 % 𝒐𝒇 𝒔𝒕𝒂𝒃′ 𝒔 𝒂𝒓𝒆𝒂 = 18.75 ×515.2 100 𝒂 = 𝟗𝟔. 𝟔 𝒄𝒎 𝟐 𝑬𝒍𝒆𝒗𝒂𝒕𝒐𝒓 𝒍𝒆𝒏𝒈𝒕𝒉 = 𝑬𝒍𝒆𝒗𝒂𝒕𝒐𝒓 𝒂𝒓𝒆𝒂 𝑺𝒑𝒂𝒏 𝒍𝒆𝒏𝒈𝒕𝒉 = 96.6 32.2 𝑬𝒍 = 𝟑 𝒄𝒎 4.4.2 Manufacturing of Stabilizer The stabilizer is part of the aircraft which is used for lift or land the aircraft. The stabilizer is generate by the equipments used in the wing manufacturing like cutter, glue gun etc. First cut the rectangle which have 16 X 32.2 cm from the foam sheet with the use of cutter tool. Then make two part 13 X 32.2 and 3 X 32.2 cm dimensional rectangle. Cut the material 45’ from the one end of stabilizer and elevator. The tailing edge of elevator was sharpen and smoothed by the glass paper 220 and 320. Then joint the leading edge of elevator and tailing edge of the stabilizer with the help of seller tap. Now this stabilizer is ready to assemble.
  • 45.
    Chapter: - 4DESIGN OF PROTOTYPE OF AIRCRAFT – ROBOCRAFT P a g e | 38 Govt. Poly. Rajkot (DME) - 2015 Figure 3 :- AutoCAD & actual drawing of stabilizer
  • 46.
    Chapter: - 4DESIGN OF PROTOTYPE OF AIRCRAFT – ROBOCRAFT P a g e | 39 Govt. Poly. Rajkot (DME) - 2015 4.5.1 Design of Fin The design of Fin is obtained from the various dimension of aircraft stabilizer. Generally for trainer model some standard thumb rules are used which is given as formula for various dimension of aircraft fin. 𝑭𝒊𝒏 𝒂𝒓𝒆𝒂 = 𝟒𝟔. 𝟓 % 𝒐𝒇 𝑺𝒕𝒂𝒃′𝒔 𝒂𝒓𝒆𝒂 = 46.5 × 515.2 100 𝒂 = 𝟐𝟒𝟎 𝒄𝒎 𝟐 Assume that, 𝐴𝑠𝑝𝑒𝑐𝑡 𝑟𝑎𝑡𝑖𝑜 (𝐴𝑅) = 𝑠𝑝𝑎𝑛 𝑙𝑒𝑛𝑔𝑡ℎ 𝑐ℎ𝑜𝑟𝑑 𝑙𝑒𝑛𝑔𝑡ℎ = 0.937 𝑭𝒊𝒏 𝒂𝒓𝒆𝒂 = 𝑺𝒑𝒂𝒏 𝒍𝒆𝒏𝒈𝒕𝒉 × 𝒄𝒉𝒐𝒓𝒅 𝒍𝒆𝒏𝒈𝒕𝒉 240 = 𝑆 × 𝐶 240 = 0.937 𝐶 × 𝐶 √ 240 0.937 = 𝐶 𝑪𝒍 = 𝟏𝟔 𝒄𝒎 𝑨𝒔𝒑𝒆𝒄𝒕 𝒓𝒂𝒕𝒊𝒐 ( 𝑨𝑹) = 𝒔𝒑𝒂𝒏 𝒍𝒆𝒏𝒈𝒕𝒉 𝒄𝒉𝒐𝒓𝒅 𝒍𝒆𝒏𝒈𝒕𝒉 0.937 = 𝑆 16 𝑺 = 𝟏𝟓 𝒄𝒎
  • 47.
    Chapter: - 4DESIGN OF PROTOTYPE OF AIRCRAFT – ROBOCRAFT P a g e | 40 Govt. Poly. Rajkot (DME) - 2015 Fin is the 65’ trapezoidal shape so the lower chord length and upper chord length are not same. Therefore now we will find the upper chord length by following formula. 𝑼𝒑𝒑𝒆𝒓 𝒇𝒊𝒏 𝒄𝒉𝒐𝒓𝒅 𝒍𝒆𝒏𝒈𝒕𝒉 = 𝒍𝒐𝒘𝒆𝒓 𝒄𝒉𝒐𝒓𝒅 − 𝑺𝒑𝒂𝒏 𝒍𝒆𝒏𝒈𝒕𝒉 𝐭𝐚𝐧 𝟔𝟓 = 16 − 15 tan 65 𝑪 𝒖 = 𝟗 𝒄𝒎 𝑹𝒖𝒅𝒅𝒆𝒓 𝒂𝒓𝒆𝒂 = 𝟐𝟓 % 𝒐𝒇 𝑭𝒊𝒏′ 𝒔 𝒂𝒓𝒆𝒂 = 25 ×240 100 𝒂 = 𝟔𝟎 𝒄𝒎 𝟐 𝑹𝒖𝒅𝒅𝒆𝒓 𝒍𝒆𝒏𝒈𝒕𝒉 = 𝑹𝒖𝒅𝒅𝒆𝒓 𝒂𝒓𝒆𝒂 𝑭𝒊𝒏 𝑺𝒑𝒂𝒏 𝒍𝒆𝒏𝒈𝒕𝒉 = 60 15 𝑹𝒍 = 𝟒 𝒄𝒎 Rudder is the 20’ trapezoidal shape so the Fin span length and rudder span length are not same. Therefore now we will find the rudder span length by following formula. 𝑹𝒖𝒅𝒅𝒆𝒓 𝒔𝒑𝒂𝒏 𝒍𝒆𝒏𝒈𝒕𝒉 = 𝑭𝒊𝒏 𝒔𝒑𝒂𝒏 − (𝐭𝐚𝐧 𝟐𝟎 × 𝑹𝒖𝒅𝒅𝒆𝒓 𝒍𝒆𝒏𝒈𝒕𝒉) = 15 − (tan 20 × 4) 𝑺 𝒓 = 𝟏𝟑. 𝟓 𝒄𝒎
  • 48.
    Chapter: - 4DESIGN OF PROTOTYPE OF AIRCRAFT – ROBOCRAFT P a g e | 41 Govt. Poly. Rajkot (DME) - 2015 4.5.2 Manufacturing of Fin The fin is part of the aircraft which is used to change the direction of aircraft right or left. The fin is generate by the equipments used in the wing manufacturing like cutter, glue gun etc. First cut the rectangle which have 16 X 15 cm from the foam sheet with the use of cutter tool. Then make two part 12 X 15 and 4 X 15 cm dimensional rectangle. Cut the material at 65’ from the fin and note than upper chord length 55 cm. Cut the material 45’ from the end of fin and leading edge of rudder. The tailing edge of rudder was sharpen and smoothed by the glass paper 220 and 320. Then joint the leading edge of rudder and tailing edge of the fin with the help of seller tap. Now this fin is ready to assemble. Figure 4 :- AutoCAD & actual drawing of fin
  • 49.
    Chapter: - 4DESIGN OF PROTOTYPE OF AIRCRAFT – ROBOCRAFT P a g e | 42 Govt. Poly. Rajkot (DME) - 2015 4.6.1 Design of Landing gear The landing gear is the wheels of the aircraft which used for the convert thrust energy into the rotary energy of wheel means kinetic energy. The landing gear wheels are taken from the bike toy’s wheels. According to thumb rule and from experience landing gear and landing gear links dimension are obtained. The landing gear generate as per the AutoCAD drawing. 𝐿𝑎𝑛𝑑𝑖𝑛𝑔 𝑔𝑒𝑎𝑟 𝑤ℎ𝑒𝑒𝑙 𝑑𝑖𝑎𝑚𝑒𝑡𝑒𝑟, 𝒅 = 𝟒 𝒄𝒎 𝑇ℎ𝑖𝑐𝑘𝑛𝑒𝑠𝑠 𝑜𝑓 𝑤ℎ𝑒𝑒𝑙, 𝒕 = 𝟐 𝒄𝒎 𝐻𝑒𝑖𝑔ℎ𝑡 𝑜𝑓 𝑙𝑖𝑛𝑘, 𝒉 = 𝟏𝟒. 𝟓 𝒄𝒎 𝐷𝑖𝑠𝑡𝑎𝑛𝑐𝑒 𝑏𝑒𝑡 𝑛 𝑡𝑤𝑜 𝑤ℎ𝑒𝑒𝑙, 𝒍 = 𝟏𝟐 𝒄𝒎 4.6.2 Manufacturing of Landing gear The landing gear system is the assembly of wheels and links. The wheels are taken from the bike toys which have 40 mm diameter and 20 mm thickness. The link is the bicycle’s (aara). So bend the link 2.5 cm 90’ from the bottom end with the help of snap wrench. Then once again bend the link from the distance 14.5 cm 90’. Again bend 2 cm 90’. Do this procedure for second wheel and join the end of the link with the help of glue gun. So now landing gear is ready. The rear landing gear have also same diameter and thickness but it have small link height 4 cm.
  • 50.
    Chapter: - 4DESIGN OF PROTOTYPE OF AIRCRAFT – ROBOCRAFT P a g e | 43 Govt. Poly. Rajkot (DME) - 2015 Figure 5 :- AutoCAD & actual drawing of landing gear
  • 51.
    Chapter: - 4DESIGN OF PROTOTYPE OF AIRCRAFT – ROBOCRAFT P a g e | 44 Govt. Poly. Rajkot (DME) - 2015 4.7. Assembly of aircraft The aircraft consist Wing, fuselage, stabilizer, fin, mounting, Brushless DC motor, prop, Electronic speed controller, battery, radio control, servo motor, control horn, pushrod and landing gear. First of all we installed the servo motor. As shown in assembly drawing cut one slot from wing and two slot from fuselage as per the servo base dimension and 5 mm depth. Then install the servo and lim (stick) with the help of glue gun. Then assemble the stabilizer and fin in the slot of fuselage. After that sticked them with the help of glue gun. The picture below shows a typical assembly of parts installation. Both the battery and the receiver are wrapped up in soft foam to damp the motor vibrations. Figure 6 :- Radio installation[4]
  • 52.
    Chapter: - 4DESIGN OF PROTOTYPE OF AIRCRAFT – ROBOCRAFT P a g e | 45 Govt. Poly. Rajkot (DME) - 2015 Then attached control horns in the control surfaces and shaft of the servo motor then connect them by pushrod. Then installed the mounting plate in the fuselage and attached the BLDC motor with the mounting with the help of fasteners. After that completion attached the prop with the BLDC motor shaft with the help of bushes and screw driver. For support the wing stick the wooden support stick with the help of glue gun as shown in the figure. After that the landing gear was sticked with the fuselage base with the help of glue gun. With the help of conductor wires installed the electronic speed controller with the BLDC motor. Then also connect the ESC with the battery. After that completion installed the receiver and connect the terminals of aileron servo with channel – 1, elevator servo with channel – 2, BLDC motor with channel – 3, rudder servo with channel – 3. Here aileron servo connection is temporary connection because it is connected when the wing is attached with fuselage with the help of rubber bands and wooden stick. So we connected battery terminal with ESC terminal and attached the wing and connected the aileron servo with receiver after that start the remote control transmitter then fly the aircraft.
  • 53.
    Chapter: - 4DESIGN OF PROTOTYPE OF AIRCRAFT – ROBOCRAFT P a g e | 46 Govt. Poly. Rajkot (DME) - 2015
  • 54.
    Chapter: - 4DESIGN OF PROTOTYPE OF AIRCRAFT – ROBOCRAFT P a g e | 47 Govt. Poly. Rajkot (DME) - 2015 Figure 1 :- AutoCAD & actual drawing of assembly of aircraft
  • 55.
    Chapter: - 5DESIGN OF PROTOTYPE OF AIRCRAFT – ROBOCRAFT P a g e | 48 Govt. Poly. Rajkot (DME) - 2015 Chapter - 5 FLOW PROCESS CHART & WORK ALLOCATION SHEET 5.1 Flow process chart Design Detail & assembly drawing manufacturing of wing, fusalage, fin, stabilizer Assembly of aircraft Installation of electronic parts Analysis and testing Working aircraft model
  • 56.
    Chapter: - 5DESIGN OF PROTOTYPE OF AIRCRAFT – ROBOCRAFT P a g e | 49 Govt. Poly. Rajkot (DME) - 2015 5.2 Work allocation sheet Task Dec Jan Feb March April Preparing and maintaining logbook Design and Assembly & detail drawing Purchasing the readymade parts Manufacturing of wing, fuselage, fin, stabilizer Assemble the wing, fuselage, fin, stabilizer Installation of electronic components Analysis and testing Rework / rectification activity Costing
  • 57.
    Chapter: - 6DESIGN OF PROTOTYPE OF AIRCRAFT – ROBOCRAFT P a g e | 50 Govt. Poly. Rajkot (DME) - 2015 Chapter - 6 INNOVATION AND FUTURE PLAN OF PROJECT 6.1 Innovation in aircraft Our project RC aircraft is worked based on trainer model. Trainer model consist of 4 servo motor. So what is servo motor , function of the servo motor and changes about the servo motor is described below. 6.1.1 Definition of Servo motor A servo is a device that can rotate to an arbitrary position, as set by the user. Servos usually consist of a small DC (direct current) electric motor, several gears, and a head where an arm or wheel can be attached. Servos exert a torque on external forces, that prevents them from changing the position of any control surface. 6.1.2 Function of Servo motor A servos job is to convert the angular movement of a servo arm to the linear movement of a control surface. This is done by attaching linkages, called control rods to the servo arm and the associated control surface. When the servo head rotates, it pushes the control rod back and forth. The rod is linked to a control surface, and can move it up or down as the servo rotates. 6.1.3 Change in Servo motor We change in the quantity of the servo motor. Trainer model consist of 4 servo motor at rudder, elevator, right aileron and left aileron. In our project instead of 4 servo motor we used just 3 servo motor at rudder, elevator and one aileron at center of wing. We eliminate 1 servo motor from the wing and other one attached at the vertical center of the wing.
  • 58.
    Chapter: - 6DESIGN OF PROTOTYPE OF AIRCRAFT – ROBOCRAFT P a g e | 51 Govt. Poly. Rajkot (DME) - 2015 6.1.4 Advantages of innovation 1. Assembly is easy and consists less time due to reduction in quantity of servo motor. 2. Weight of aircraft will be decrease due to reduction in quantity of servo. 3. Aircraft lift capacity will be increase due to reduction in aircraft weight. 4. Easy to handle remote control because extra joystick control is eliminated, 5. The cost of the aircraft will reduce due to consumption in servo motor. 6.2 Future plan of aircraft To make this project successful we read and study more and more literature and online materials related to RC aircraft. Due to this study new creative and innovative idea take place in our mind. Those are described below. 6.2.1 Return to home aircraft A device which pretty much just needs to have return to home (launch) function for the airplane, so that an airplane flys home at the pre-set altitude and then circles above "home" spot if the link with transmitter is lost or when "ordered" to return home by flipping one of the switches on the transmitter. A system that can safely return an airplane to launch spot if it "gets out of hand". From memory, it returns at the same height you are currently flying at. Set install direction of FY_DOS,GPS fence for automatic return home, proper direction for servos, gains, Reset GPS, Fly the plane, trims manually, land If notice any oscillation adjust down the gains 5 or 10 units on respective axis, Reset attitude (basically normalizing the trims) from 1st flight Test fly plane Test RTH function (comes back straight every-time with many different types of planes that I have tried). This feature is worthwhile when the aircraft will out of the range.
  • 59.
    Chapter: - 6DESIGN OF PROTOTYPE OF AIRCRAFT – ROBOCRAFT P a g e | 52 Govt. Poly. Rajkot (DME) - 2015 6.2.2 Automatic remote less aircraft “An Unmanned Aerial Vehicle (UAV, colloquially known as a “drone”) is basically an aerial robot. As we define it, it is capable of both remotely controlled flight (like a regular RC aircraft) and fully-autonomous flight, controlled by sensors, GPS, and onboard computers performing the functions of an autopilot. ” In this type of aircraft the facilities and functions are like automated including fly- to- way point operation and takeoff and landing system. Guidance is via a GPS receiver and communications with ground control is accomplished through either satellite relay (sitcom) system. In this system it fly about on a pre-programmed mission flight path or direct control. The drone pairs with your iOS or Android smart phone or tablet through an app. You can map out your flights beforehand, meaning the aircraft will fly itself to a fixed point you set in advance, hover at the fixed point and then will fly to the next assigned point. It even has a return-to-home setting, allowing the drone to fly itself back to its starting point in the event that it loses connection with the controller or the batteries die. You will want to avoid using this setting if you take off from a boat, because the GPS is frequently off-point by a couple feet, thus increasing the probability of automatically landing in the water. Users can set up to 127 waypoints or, in the case of the mobile app, just draw a route on the screen to have the UAV follow a flight path using GPS coordinates. At any point during a flight, the Iris can be commanded to automatically take off, land, or return to its starting position. The software will keep track of its position in real-time and even keep a log of its movements. Alternatively, the program has a mode where the drone will follow its controller autonomously at a specific distance. The program also allows for automatic failsafe commands, which will tell the quad what to do if it loses a signal or detects a low battery. Pilots will also have the option of setting up a virtual fence that will keep the Iris from wandering outside a pre- set boundary, regardless of what it's commanded to do.
  • 60.
    Chapter: - 7DESIGN OF PROTOTYPE OF AIRCRAFT – ROBOCRAFT P a g e | 53 Govt. Poly. Rajkot (DME) - 2015 Chapter - 7 COSTING OF RC AIRCRAFT PROJECT The calculated cost of the various aircraft parts are given below. No. Item / component Quantity Prize in Rs. BODY 1. extruded polystyrene foam (Styrofoam) sheet 3 X 120 360 2. Hot melt glue gun 1 X 180 180 3. Foam sheet Cutter 1 X 30 30 4. Glue stick 10 X 10 100 5. Bond tite 2 X 40 80 6. Transparent seller tap 1 X 20 20 7. Red & Yellow tap 2 X 25 50 8. Marker 1 X 10 10 9. Glass paper 320 1 X 10 10 10. Glass paper 220 1 X 10 10 11. T square 1 X 150 150 12. Landing Gear 2 X 50 100 13. Landing gear links 2 X 5 10 14. Pushrod 1 X 50 50 15. Clamp sticks 1 X 5 5 16. Support rubber bands 1 X 5 5 17. Feviquick 2 X 5 10 REMOTE CONTROLL & CHARGER SYSTEM 18. Radio control 1 X 3100 3100 19. ESC 1 X 1500 1500 20. Battery 1 X 3820 3820 21. Rechargeable cell 1800 - mA 2 X 70 140 22. Rechargeable cell 2100 - mA 2 X 140 280 23. Panasonic cell 4 X 10 40 24. Cell holder with pins 2 X 35 70 25. Variable voltage dc charger 1 X 120 120 POWER & THRUST PRODUCER ELEMENTS 26. Brushless DC motor 1 X 1800 1800 27. Propeller 2 X 120 240 28. Servo motor 4 X 210 840 Overhead cost 29. Shipping & Tax - 1900 30. Overhead cost - 800 31. Report print cost 14 X 130 1820 Total 17650
  • 61.
    Chapter: - 8DESIGN OF PROTOTYPE OF AIRCRAFT – ROBOCRAFT P a g e | 54 Govt. Poly. Rajkot (DME) - 2015 Chapter - 8 Result and discussion 8.1 Advantage 1. It has most important advantage that it is one type of silent aircraft so it avoids the noise pollution. 2. It is small in the size so it is easy to handle. 3. No necessary for large storage space when not in use. 4. It is the also best toy for the children , by flying the aircraft children learn more controlling of aircraft. 5. It is consists the BLDC motor instead of gasoline or jet engine so it reflect slowly compare to 3d aerobics aircraft thus it is easy to handle. 8.2 Application The UAV with its silent operation can protect VIP’s from assassination by performing aerial observation, buried object detection, facial recognition, and laser targeting of hostile personnel. The system uses less-than lethal force or remote CS/CN tear gas deployment, and is also invaluable for counter-sniper detection and neutralization. Generally for Aerial photography the Octocopter is generally more stable. Radio-controlled aircraft are also used for military purposes, with their primary task being intelligence-gathering reconnaissance. An Unmanned Aerial Vehicle (UAV), also known as a drone, is usually not designed to contain a human pilot. Remotely controlled target drone aircraft were used to train gun crews. New UAV drones are capable of making deliveries, washing windows of tall buildings from the outside, putting out fires, spraying, searching and rescuing people and animals not only in nature, but also in buildings, where drones are becoming an important tool for police and other security agencies. In addition, drones are becoming so large and strong with so much lifting power, they are also now being used to lift people and save them from burning buildings or sinking boats.
  • 62.
    Chapter: - 9DESIGN OF PROTOTYPE OF AIRCRAFT – ROBOCRAFT P a g e | 55 Govt. Poly. Rajkot (DME) - 2015 Chapter - 9 Conclusion The design of prototype of aircraft is very important and interesting project of the mechanical field. In this project We learnt about the working, terminology, factors affecting to flight, construction, application and advantage of the aircraft. We also studied about the designing of aircraft. We checkout aeronautics formula rules and equation .We made the prototype of aircraft by foam material in this semester. We were also studied about the errors out coming from the preparation of the model. Then we want to learn about the how to fly the aircraft with remote control. The prototype of RC aircraft is the costly project compare to other mechanical project but we learnt more in this project. If we study further than make appropriate changes in the design to make sufficient aircraft. If we will change in the model shape than we can increase the speed of aircraft, change in the thrust system means arrange the gasoline engine instead of motor we can increase the lift power and make it 3d aerobic plane.
  • 63.
    Chapter: - 10DESIGN OF PROTOTYPE OF AIRCRAFT – ROBOCRAFT P a g e | 56 Govt. Poly. Rajkot (DME) - 2015 Chapter - 10 REFRENCES [1] Andy Lennon, “Basic of R/C model aircraft design” [2] Ira H. Abbott, “Theory of wing section” [3] Randy Randolph, “Radio control airplane building technique” [4] http://en.wikipedia.org/wiki/Aircraft [5]http://adamone.rchomepage.com/index2.htm [6]http://rcvehicles.about.com/od/aircraftplans/tp/Foamie_RC_Airplane_Plans.htm [7] http://www.easyrc.com/airplanes/ [8] http://www.security.gr/unmanned-aerial-vehicles/ [9] http://www.uavtechnics.com/blog/ [10] http://www.rctoys.com/pr/2009/06/25/choosing-the-right-servos-for-your-rc-planes- and-helicopters/ [11] http://www.militaryfactory.com/aircraft/detail.asp?aircraft_id=823 [12] http://www.rcbazaar.com/default.aspx