Acknowledgement
I take this opportunity to express my profound gratitude and deep regards to
Dezyne Ecole College for helping me throughout my journey and made me
capable of successfully completing my internship at Hiren Patel Architects,
Ahmedabad.
I also take this opportunity to express a deep sense of gratitude to Hiren Patel
Architects for their exemplary guidance, monitoring and constant encouragement
throughout the course of internship and also to the mentors at the office especially
for the ones whom I have worked for Ma’am Krima Shah, Ma'am Naiya Patel,
Ma'am Jignesha Shah, Sir Mukesh, and Sir Amar as this couldn’t have been possible
without their cardinal support, valuable information and guidance, which has also
helped me in learning and gaining practical knowledge of the field.
Thank you.
Due regards
Milli Jain
RESIDENTIAL:
1. Utkarsh Shah Residence
2. Jimit Shah Residence
3. Neha Hemang Patel
4. Dipti Parekh
5. Mitul Patel
6. Aashish Nagar Seth
7. Nimish Shah
8. Arvind Patel
9. Pavan Parekh
10. Sarvanand
11. Harsh Agarwal
OFFICE:
1. Intas Biopharmaceuticals
2. Daffodil Pharma (Setu Office)
RESTAURANT:
1. Vinod Patel
CONTENT
RESIDENTIAL PROJECTS
Utkarsh Shah Residence
This was the first project that I have worked on as an intern at HPA. In this project, I have learnt about the detailing as
well as designing of the basin consoles and bathrooms of the residential space. I have also developed working
drawings of bed and basin console and ceiling layouts. Also I have attended certain meetings with client and visited
site many time to see the execution of the designs.
SITE
PHOTOGRAPHS
Jimit Shah Residence
Under this project I have to work on the space planning along with the furniture layout of the double storeyed
residential building. While working on this project I have gained knowledge on how to optimally utilize the space
keeping in mind the client’s requirements.
Neha Hemang Patel
In this project, I did the space planning of the residential building, prepared furniture layout, came up with the
multiple options of the rooms’ furniture placement and developed folded elevations of the toilets. I have also learnt
about the detailing as well as designing of the bathrooms and dress area of a residential building. Also I have
attended certain meetings with client and understood their requirements and worked accordingly.
Dipti Parekh
In this project, I’ve worked on the space planning of the home-theatre and activity area and living room,
developed folded elevations of the toilets and prepared quantity sheet for the flooring. From this I’ve learned about
finding the required quantity of the tiles for flooring.
Mitul Patel
In this project I have learned a lot. From site visits to dealing with vendors and carpenters, till designing. I have
designed parking shed and many furniture with the help of reference images, also I have developed various options
of wall panelling, study table and bunk bed. Folded elevations of all room were developed by me along with their
detailed drawings.
Parking shed views
Drawing Room Detail
Wall Panelling Opt. 1
Wall Panelling Opt. 3
Wall Panelling Opt. 2
Wall Panelling Opt. 4
Nivaan’s Room Detail
Study Option 1
Study Option 2 Study Option 3
Study Option 4
Master Room Detail
Ayaan’s Room Detail
Option For T.V. Unit
SITE
PHOTOGRAPHS
Aashish Nagar Seth
In this project I have worked on the flooring layout and developed some options for applying flooring and also
designed and developed folded elevations of toilets.
Flooring opt. 1
Flooring opt. 2
Flooring opt. 3
Flooring opt. 4
Nimish Shah
In this project I did the space planning and developed floor plans along with flooring layout of both floors. I have
also worked on the False Ceiling Layout and developed HVAC and Lighting Layouts and developed Folded
elevations of toilets. I have interacted with client during meetings and visited site several times.
SITE
PHOTOGRAPHS
Arvind bhai
In this project I did the space planning and developed floor plans along with flooring layout of the floors. I have also
worked on the False Ceiling Layout and developed HVAC and Lighting Layouts and developed Folded elevations of
all the rooms and toilets.
Pavan Parekh
In this project I have worked on the detailing of a
toilet with outdoor shower. In this I have learnt
about hoe the faucets fittings are being done in
outdoor showers.
Sarvanand
In this project I have designed
Foyer area of the house and
developed certain options
with there 3D views.
Option 1
Isometric view
Option 1
Isometric view
Harsh Agarwal
In this project I have done the space planning
and developed detailed elevation of two options
for the children’s room.
Option 2
Option 1
SOHAM MEHTA’S
SITE
PALLAV
CHOKHANI’S SITE
OFFICE PROJECTS
Intas Biopharmaceuticals
This is one of the major projects on which I have worked. For this project I have done the basic
space planning, coping up with the requirements list of the client and had developed all the layouts
(furniture layout, flooring layout, lighting layout, false ceiling layout). I have also developed folded
elevations of washrooms and pantry. Dealt with the vendor (featherlite) and discussed with them
about the furniture requirements of the client. Selected the finishes for pin boards and furniture and
also did the lighting selection.
Working Drawings Of Second
Floor
Working Drawings Of Third Floor
Working Drawings Of Fourth Floor
Daffodil Pharma (Setu Office)
Setu office is another major project that I have worked on. In this project I have done the space
planning, developed ceiling layout, electrical layout which included speaker points, fire extinguisher
points and smoke detector points, sectional elevations of the office, folded elevation of director’s
cabin and of pantry, detail of basin consoles and mirrors of washrooms. I have done several site
visits also.
AB
Elevation A
Elevation A
A B
Elevation A
Elevation A
SITE
PHOTOGRAPHS
RESTAURANT PROJECTS
Vinod Patel
For the restaurant of Mr. Vinod Patel I have designed his outside sitting area and did the space
planning of the café which is on first floor. Developed folded elevations of grooms toilet and gave
detail to the basin console.
Thank You
For Your Time

Milli Jain (Internship Portfolio)

  • 3.
    Acknowledgement I take thisopportunity to express my profound gratitude and deep regards to Dezyne Ecole College for helping me throughout my journey and made me capable of successfully completing my internship at Hiren Patel Architects, Ahmedabad. I also take this opportunity to express a deep sense of gratitude to Hiren Patel Architects for their exemplary guidance, monitoring and constant encouragement throughout the course of internship and also to the mentors at the office especially for the ones whom I have worked for Ma’am Krima Shah, Ma'am Naiya Patel, Ma'am Jignesha Shah, Sir Mukesh, and Sir Amar as this couldn’t have been possible without their cardinal support, valuable information and guidance, which has also helped me in learning and gaining practical knowledge of the field. Thank you. Due regards Milli Jain
  • 7.
    RESIDENTIAL: 1. Utkarsh ShahResidence 2. Jimit Shah Residence 3. Neha Hemang Patel 4. Dipti Parekh 5. Mitul Patel 6. Aashish Nagar Seth 7. Nimish Shah 8. Arvind Patel 9. Pavan Parekh 10. Sarvanand 11. Harsh Agarwal OFFICE: 1. Intas Biopharmaceuticals 2. Daffodil Pharma (Setu Office) RESTAURANT: 1. Vinod Patel CONTENT
  • 8.
  • 9.
    Utkarsh Shah Residence Thiswas the first project that I have worked on as an intern at HPA. In this project, I have learnt about the detailing as well as designing of the basin consoles and bathrooms of the residential space. I have also developed working drawings of bed and basin console and ceiling layouts. Also I have attended certain meetings with client and visited site many time to see the execution of the designs.
  • 13.
  • 14.
    Jimit Shah Residence Underthis project I have to work on the space planning along with the furniture layout of the double storeyed residential building. While working on this project I have gained knowledge on how to optimally utilize the space keeping in mind the client’s requirements.
  • 18.
    Neha Hemang Patel Inthis project, I did the space planning of the residential building, prepared furniture layout, came up with the multiple options of the rooms’ furniture placement and developed folded elevations of the toilets. I have also learnt about the detailing as well as designing of the bathrooms and dress area of a residential building. Also I have attended certain meetings with client and understood their requirements and worked accordingly.
  • 20.
    Dipti Parekh In thisproject, I’ve worked on the space planning of the home-theatre and activity area and living room, developed folded elevations of the toilets and prepared quantity sheet for the flooring. From this I’ve learned about finding the required quantity of the tiles for flooring.
  • 24.
    Mitul Patel In thisproject I have learned a lot. From site visits to dealing with vendors and carpenters, till designing. I have designed parking shed and many furniture with the help of reference images, also I have developed various options of wall panelling, study table and bunk bed. Folded elevations of all room were developed by me along with their detailed drawings. Parking shed views
  • 25.
  • 26.
    Wall Panelling Opt.1 Wall Panelling Opt. 3 Wall Panelling Opt. 2 Wall Panelling Opt. 4
  • 27.
  • 28.
    Study Option 2Study Option 3 Study Option 4
  • 29.
  • 30.
  • 33.
  • 34.
  • 35.
    Aashish Nagar Seth Inthis project I have worked on the flooring layout and developed some options for applying flooring and also designed and developed folded elevations of toilets. Flooring opt. 1 Flooring opt. 2
  • 36.
  • 39.
    Nimish Shah In thisproject I did the space planning and developed floor plans along with flooring layout of both floors. I have also worked on the False Ceiling Layout and developed HVAC and Lighting Layouts and developed Folded elevations of toilets. I have interacted with client during meetings and visited site several times.
  • 53.
  • 54.
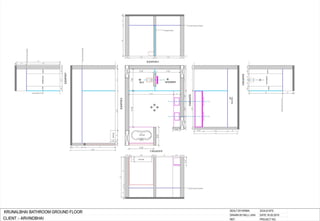
    Arvind bhai In thisproject I did the space planning and developed floor plans along with flooring layout of the floors. I have also worked on the False Ceiling Layout and developed HVAC and Lighting Layouts and developed Folded elevations of all the rooms and toilets.
  • 58.
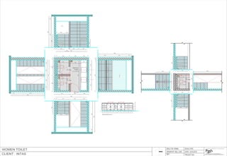
    Pavan Parekh In thisproject I have worked on the detailing of a toilet with outdoor shower. In this I have learnt about hoe the faucets fittings are being done in outdoor showers.
  • 59.
    Sarvanand In this projectI have designed Foyer area of the house and developed certain options with there 3D views. Option 1 Isometric view
  • 60.
  • 61.
    Harsh Agarwal In thisproject I have done the space planning and developed detailed elevation of two options for the children’s room. Option 2 Option 1
  • 62.
  • 63.
  • 64.
  • 65.
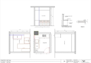
    Intas Biopharmaceuticals This isone of the major projects on which I have worked. For this project I have done the basic space planning, coping up with the requirements list of the client and had developed all the layouts (furniture layout, flooring layout, lighting layout, false ceiling layout). I have also developed folded elevations of washrooms and pantry. Dealt with the vendor (featherlite) and discussed with them about the furniture requirements of the client. Selected the finishes for pin boards and furniture and also did the lighting selection.
  • 70.
    Working Drawings OfSecond Floor
  • 71.
  • 72.
    Working Drawings OfFourth Floor
  • 76.
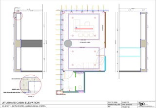
    Daffodil Pharma (SetuOffice) Setu office is another major project that I have worked on. In this project I have done the space planning, developed ceiling layout, electrical layout which included speaker points, fire extinguisher points and smoke detector points, sectional elevations of the office, folded elevation of director’s cabin and of pantry, detail of basin consoles and mirrors of washrooms. I have done several site visits also.
  • 80.
  • 82.
  • 83.
  • 84.
  • 85.
    Vinod Patel For therestaurant of Mr. Vinod Patel I have designed his outside sitting area and did the space planning of the café which is on first floor. Developed folded elevations of grooms toilet and gave detail to the basin console.
  • 87.