Eiif TAYLoR'S UNIVERSITY
lI,
INTRODUCTION TO THE CONSTRUCTION INDUSTRY
(QSB 3o1os)
FOUNDATION IN NATURAL AND BUILT ENVIRONMENT
JANJARY INTAKE 2015
FINAT PROJECT
GROUP MEMBERS:.
LOO S|AH MONG (032199s)
MELANTE SOON YU XrN (0322327l,
LEE FONG YEN (0321976)
TUTOR: MS ANN SEE PENG
SITE CONTEXTUAL STUDY
North: Residential Area
South: CommercialArea
East: lndustrial Area
West: Residential Area
SITE ANATYSIS
The proposed site is located in the middle of the area for the convenience of
people in Bandar Bukit Tinggi 2. The site is surrounded by road systems that
makes it easier for people to visit the recreational area. The strategic location of
the proposed site is only a few kilometer away from other residential and
commercial areas and a walking distant from the neighborhood.
RESIDENTIATAREA
Residential area consists of both double story and single story houses mainly
owned by families with the average of 3-4 family members per unit. Residential
areas across the road can visit the recreation area either by cycling or walking.
ROADS SYSTEMS
The area which is surrounded by roads is convenient for car users to enter the
Recreation area. Visitors can either enter the area from the residential area or
straight from the main road heading towards town
INDUSTRIAIAREA
Factories and industries which are located at the east ofthe area does not affect
the recreation area as they are blocked with trees to prevent a bad view from
the neighborhood.
COMMERCIALAREAS
Commercial areas consists of shop lots that operates as a service area in
automobile and grocery stores for residents.
Photo of the site:
The site has been a large vacant for many years without and construction or renovation.
Hence, most of the area around this field is residential area, so I am proposing a
neighborhood commercial area for the nearby residents because its near and
Convenient for all the residents nearby.
This is a commercial area in front of the empty land. The shops that available in the
commercial area are police station, car service Centre , restaurants ,and some office
branches. Although is a commercial area, but I found that there are too much of care
shops around there that causes traffic jam and there are not much of restaurant nearby
where the residents nearby have to go others place to eat.
qb
The view beside the empty land is full with vegetation.
The industry area beside the empty land . There are few factories which is timber
factories , and paint factories and some office branches in this area. Not only that,
there is one masjid is located somewhere inside the industry area.
i0
Iiii' TAYLOR'S UNIVERSITY
lIl w"d"
FOUNDATION IN NATURALAND BUILT ENVIRONMENT
JANUARY 2015 INTAKE
INTRODUCTION TO THE CONSTRUCTION INDUSTRY
(qsB 30los)
PROPOSAL REPORT TO BUILD A RECREATION
AREA IN BANDAR BUKIT TINGGI 2
NEIGHBORHOOD AREA
NAME: LEE FONG YEN
STUDENT lDz O321976
TUTOR: MS ANN SEE PENG
SUBMISSION DATE: 9th June 20ts
ln this project, students are grouped into groups of 3 and are required to look
for a vacant land which is either 70m by 50m or 50m by 50m big. This is to initiate
a small construction project which serves as a suitable purpose.
The choice of purposes given to propose are:-
1-. Recreation area
2. Commercial area
3. lndustrial area
4. Agricultural area
5. Tourism area
6. Residential area
The objectives of this project is to enable students to understand the process
related to a specific profession in a project in construction and the requirements
when proposing a project to clients.
INTRODUCTION TO THE SITE
The site that we have chosen is located in Bandar Bukit Tinggi 2 around the
residential, commercial and industrial areas.
Site Area
To the north of my proposed site, there are double story terrace houses also
known as residential area, while on the south, there are shop lots and road
systems leading to the town a rea. Not only that, on the east of the proposed site,
there are factories and industries and on the west, there are houses and parks.
SUGGESTION AND PROPOSAL
To put the vacant land into the good use, there are some suggestions to make it
useful. The vacant land can be converted into a neighborhood commercial area,
a playground recreation area or a combination of both. Hence, I would like to
propose to build a recreation area which is a playground area for the residents
there, mainly for the children.
After surveying and observing, I decided to propose a neighborhood playground
area which serves as a recreation area in the neighborhood. The site proposed
will be 70m x 50m in the center ofthe vacant land chosen.
OBJECTIVE OF CONSTRUCTING A PTAYGROUND
A. To put a vacant land into good use
B. To create a better and more beautiful scenery in the area
C. To unlte the community in that area that consists of different races and
religions
D. To provide a better environment and public space for people to enjoy
E. To enhance a better communication between residents of the same area
F, To encourage neighborliness among communities
BENEFITS
1. Enables community to play and exercise in a public space
2. Enables children to be active in doing physical activities
3. Enables both children and adults to relieve stress
4. Provides opportunities for children in developing:-
. Social Skills - when they play with other children they learn to
communicate, share, collaborate and empathize with others.
. lmagination and creativity - outside play is often open-ended and
children need to be creative about what and how games are played.
. Thinking and problem solving skills - as children assess risks and tackle
new challenges they learn about having a go, persistence and
perseverance and the success those attributes can bring.
Sense of self - as they master new skills and play with other children they
improve their competence and confidence in their own physical and
socia I a bilities.
. Sense of connection - to place, to peers and to their local community
and environment.
. Self-care skills - managing physical and social challenges helps children
to learn about keeping themselves safe.
IMPACTS
Main impact of constructing a recreation playground area is to
encourage maximum interaction between residents in the community.
Not only that, when a public area is built, this becomes the space of
encounter for neighbors. Regular involvement in the community can be
cultivated by building a public space in the neighborhood
RATIONALE
The area in Bandar Bukit Tinggi 2 are mainly residential areas and
commercial areas. No recreation area ie built around the neighborhood.
Therefore the main idea of proposing a recreational area in the
neighborhood is to provide a public space for the residents around to
enjoy, relax and also to encourage them to involve in outdoor activities
SKETCH PROPOSAL
l!(,)
z
CA
zt!
(!
0,
o
!,
lE
q0'= b
E EEr^(Er/t
oIJ
IU
iL
t/ro
!pP
,=dJE
lDc
eo
o
E
Eo.Uc
l^=
dro
HE
o
E
Og
to
o'-CLE
r ()
tketph Proposal of Playground Unit
PLAYGROUND CONCEPT
The playground will be built based on a sustainable concept which focus mainly
on children as the main user of the recreation playground area. Therefore
equipments and facilities provided are safe for children. Besides that, trees and
plants are planted around the playground area to provide a clean and
comfortable environment for users to enjoy. Sustainable and long lasting
materials are used to prevent costly maintenance.
PROPOSED IDEAS OF PLAYGROUND
The proposed playground consists of 2 slides and a merry go round for children
to play. A superdome climber is built for children to climb, which is suitable for
children of age 3 years and above. A bigger space is required for swing to be
built so that there is enough space for the fall zone, according to the
playground manual from the government. A parking space is provided for car
users to park when visiting the playground. The space is big enough to occupy
5-6 cars. Besides that, an exercise area is proposed to be built for adults to use.
Sand area is built mainly for toddler and small children as other equipments
are too dangerous for them. Sitting area with shelter that can fit more than 20
people is provided for residents to interact and rest especially during hot or
rainy weather: For bicycle users, bicycle racks are provided for them to park
10
their bicycles. Multi play unit which consists of slides, climber and others are
built in the center of the playground area as the main attraction and also
surrounded by walkways for people to walk without passing through the
playing areas. Signboard regarding the rules and regulations will be provided to
inform all users of the playground regarding safety measures when using
equlpments provided.
5lides and merry
go mund 1
11
PLAYGROUND EQUIPMENTS
E stiAes and merry go round
fl superdome Climber
72
fl swings
@ ParkingSpace
fl Exercise Area
13
@ Sand Area
fl sitting Area
$ Bicycle Rack
-----l
74
fl wutti play Unit
E. signboard
OPEN DAWN TO DUSK
I rt u, .' shr)url0 EQUIPI{IIiI
rs al Y0irn oIflt 8ls(.
2, PLiY ARTA RTSEflV€O fO8 BESIOEIIIS
Afl0Ixl!B cutst 0ItY
3.I0 n0u0H praylsc 08 yttLtxcpt8titmo
d.0nLy 0NE prR50[ pE8 stlI]lc lI aItmE.
s. H0 JUMPutc orF T8E SUot 0B puycaoof,o
6. fto 0[r 0vr8 t2 yEAEsol.o ts p€f,Ilrlfo
r0 usa r|t tout? tlll
,. tio PErs Atur :o n PtlYctr{ltrxo raEls
a m AlDoIoL 0i IoltDDo tBt uttttt
?t YoiutMoni,fl.
E qr nq * c ria ?rrlcio{F ni.tt m
l^rra lrrl.all-
^r
narrafia u ll r l. aa?cr lrr axrmarEv srua'lots
rrllaLEararilErqrlntrlE llnr &aart, c^xir!
15
E] . w"lt*"y surrounding multi play unit
THE SURROUNDING
TREES AND PLANTS
The playground area will be surrounded by trees and plants to provide a cooler
and fresher air to playground users.
16
LAMP POSTS
Lamp post will be built around the playground area to be used during the night.
This can brighten the whole area, which can help prevent the occurring of
crimes and unwanted activities.
77
y' Ground surfacing
/ Fallheight
/ Fallzone
/ Entrapment
Ground Surfacine
Choices:-
Wet Pour
Wet Pour is a continuous rubber surface that gives a high quality, hard wearing,
slip-resistant surface requiring little or no maintenance.
Standard Wet Poui anilallation
lvd rxrur we.nnq lay., (ttroM)
ComAr.red &OI ]r?e I ion€
Nok' .orxr.k iholld b( u!{
r, tlbbrtc Dris
'rl
lq rrct poor
rhi.tneee of ls! rhln 40mm.
Con(retc kerb edoinq
Erirting 9,ound l.vel
tn5!uk, n.!k'd nnrlE, .d9nq
9^Bu.rrrard ndb., trnh
li.rsl P.ourinjtalled. gDto.erir-tiogLbrre
Wet pour wcnnnq layo (EPDI.ll
Coflrp!.ld MOI Tr?e I (oN.
Noie. (oix,et. ,!ould be ured
.tebb.k hirn'rl fo.wer pou'
rln(k Al ol k'r( rhr^40nh
Wer pou, weanng liye, lt l{)Ill
trtstig (on(rcrc/ ir nx
18
Tiles
The rubber tiles we use provide a finished surface with similar properties as
wet pour. The tiles are laid onto a prepared concrete base. The tiles are
prefabricated, 1m x 1m, and are supplied in various thicknesses. The thickness
of the tile used is dependent on the Critical Fall Height (CFH) of the equipment.
The standard color is black but the tiles are also available in red, green, and
blue.
B.bt$rg groi ,!d hv.l
Ptaasqrl tnatad
{mb.r .dglri,
ft{r6rrr. t.ated
trlltblr srrll
lrnp.d .brEdbhg
r,ulb.r tllc
?)hrdt.6|t
subb.s{r
tr EO nrllr r'on{J.tt
19
FAIL HEIGHT
Fall height is a measurement defined as the "vertical distance between a
designated play surface and the protective surfacing beneath it. Falt height
measurements vary according to the type of play equipment. On climbing
equipment, the fall height is measured from the highest part of the climber
intended for foot support. The fall height for upper body equipment is
measured from the highest part of the equipment, not including support posts
with no designated play surface. The fall height for swings is measured from
the pivot point.
FALL ZONES
Fall zones for climbing equipment should extend at least 6 ft. on all sides for
children and at least 3 ft. on all sides for infants and toddlers. Spacing between
pieces of equipment must allow children to circulate around or fall from play
structures without striking another structure, and permit adults to have easy
access to the children who are using the equipment. A play surface over 30"
high, should be spaced at least 9 ft. apart. lfthe play surfaces of both
structures are 30" high or less, the equipment may be located a minimum of 6
ft. apart. Moving pieces of equipment (e.g., swings, merry-go-rounds) should
be located in an area awayfrom other play structures so children have
adequate room to pass from one play area to another without being struck by
20
moving equipment, and their fall zones should not overlap the fall zone of
other equipment.
ENTRAPMENT
Head Entrapment-Head entrapment is a serious concern on playgrounds, since
it could lead to strangulation and death A child's head may become entrapped
if the child enters an opening either feet first or head first. Head entrapment
by head-first entry generally occurs when children place their heads through
an opening in one orientation, turn their heads to a different orientation, then
are unable to get themselves out. Head entrapment by feet first entry involves
children who generally sit or lie down and slide their feet into an opening that
is large enough to permit their bodies to go through but is not large enough to
permit their heads to go through.
27
Designing stage
1. Good play space
-Ensure who repairs, uses and maintains the area
- Use natural landscape as an element
2. Determine the space needed to accommodate
- taking 0.25m2 per child
- find our population
3. Finding a great space
4. Design for different types of play
- lmaginative play
- active play
.sport/ games
- free play
5. Good and Planning and Layout
i) isolate fast moving playing equipments from other equipments
ii) separate toddler and older children area
iii) enable movement without crossing safety fall zone
iv) Provide basics
- shade
- seating
- trash cans
- playground do's and don'ts
23
-Bicycle racks
6. Meet with community again
-present sketches and seek agreement before progressing
7. After agreement, create playground schedule
final, detailed plan
-prepare step by step plans and elements to be used
- save photos from site to show how will it be build
8. Playground materials and tools
- use appropriate materials and tools to ensure good quality and safe
playground
Building
1, Set up
- Have a plan to ensure of keeping up regular communication with
community
2. Building it
- Clear site
- Rope off area to prevent trespassing
- Double check measurements
3. Before opens
- Check equipments thoroughly
- Inspeqtion of wielding bolts and screws.
24
.-c A
-.9 - B
EE"gb
EB iE
.,E a.t
E2 tr
.!i€$| "'l
25
EXAMPLES OF APPLICATION FORM TO BE FITLED FOR
PERMISSION TO DEVETOP AN AREA
26
#J$ateF0tlt8$ p.t(Ogcl
fl{r3Mlldr.rr[$iig
Arae 8*relr , 2-r 2 {G}
J&l Rey8 8{at
4llmfUItlG
OSCIPBT0I-10 Ftldem:l
Tflth lt etuese:l Jmfli 2012
Td : tr1.3375 7813
Fd(s : ffi*$71 0&15
rBl. ThdCr rmdtfi..i yero [r&.dlt i {{
t. F.lmaEn pdti tsyei lorll lllerie PerM{flI l{ang
(htD://portslfi pthrq.Wrnyl fi l* n€0.bp6tsr Dtr{.E ssnEi srElBn
dd(unon dar sanerd sme[ lsp.riEi s+liT HreEn td(litd IrU !6rtih .
t. lkhmat &lrl| B*.glili A p{h fti &n dfflr&tal d.ltogr l6.rgfep.
3. lBJrrglai lB: $rBd Semet Oolmcn &|t Smai Sandr Terpwini
Pefinftnfll hb Bqmrt tffj Jeletafi Td(lfld oakfiflt
4. B$rda! C:sB,s.a s.irsl Oofimgl (Er Sffiei Siird( Tsp.riEa
Prmolrcnat Pch BeEinflt b6d JebaBt Tdfl{d lE.el.
5- lidilmel &E n BCirohr O: Ja*C lftll,gm PsEn P{E F0rnb $nfll
Iehpshflerut t .
Bagi p{ndtst ssE El , pigft hn$n I bEldl dtsim ECfxrya t{rnue
FmdEn{l psEr pimhryrHr t Eh flsml*d(el. 8fli p*rmdHBn
b8resh$n, pdel MnS!,rIr iatlF bd€h fl€rina ssl#s sdnue
l.Uusatfp.rEs &.1 (Dsl(m.
6. sle tsEtrylan dfi fiBngsrfld€Iill brq D..auls€mee nerEflm*el(zl
pBrmolEllfll P.ElB.,Emfll ls OSC:
i. SorgE lranrflel Pqd(
i. EorIE m{dmai Ps.alusel P5ngginsl 8{Ilgen Tsnp6al
-. Bolru lfrsl mll* Bayr pro*s fid 8{EuEl dafiGeg lllEeFsl
Fcn&ftdff li*a Balff tlita
ir. St.Hsa RiEfrrfi flaa( lrll k hdyil, {te{ipq.f, p.nmsltgl &n p.oid( tsh
y6r,E lsrlsig0
7. Frg.l Er$mole.E dl8.n lBh p{rh mrrnaili ilrpcfist daEn L*E*n
Tdutld Fdil @rHt fi+ p.,t dilil fibrB.
8. I(.ps,lff od fitungl a&bh m6n il( Jdrd P{rtarxlEfll PGrhghat
F€ngDdtil AgensiTd(dd. PGrlDhr p{rh.rErtah{lrrndolun€n den p8tsn
)etE iril fl(€rflttd(fi m{tElqrt hsFuh H}rBl td lrd sIE 6lstd gfll
lEfiEs url* mmdar*el sdrlr dolunm tB qgl$ td(r*d.
3. Sih tsnfit {rl O ruam "Ad Tirda" ta doa(lrn{fi G€rtd(fll eil (r} Ba
&lunsr lidat m.lel{el. 86rilm ir$ti*erils8m dd(lmgl lihl bslsihr d
mrEs"Cagb".
ffillAfifl 8ilAK FERmHffiAXI FTELANI IBA{lOUttS
Fardrm n E dr F.illdlrg
ttba; sddflrye p€rmoam lqiE fl({fi*dfl ftel lsrgl(+ &n l&fi m€rmhll TcmBle Sara{ n
Ssrxd Ssnal Do.(mifi d EelHd S{rnal TelFhd, pfC{ OSC bcfid( l,llrB ,rBn#Hm{(Iltdul(al
pEnnoalssl.
#Je:htr ihrs.l$rl.nFtl03cl Td0l0,retuas.:l Jflr i20l2
{$ FxtsdrEr lttcto
Aras S rrdr,2-l2(G)
J&r ftara 8{al
4flm filA]tc
Td : frl*I}7s 7873
F{(3 :033iyl 0695
ilo- Fd OSC
t{o. FC J&ten
trhmprEE€. (Ba eda)
T+tf Cd gBn
Psn+ t (s.!.rli
Eir* di EarE Al
lild(lmal Pem*{
Fun 0 EPA l{anra
ABnal
tlo. Tsbf(n
tlo. hl$
Psosuea trlr(
Da{hrBa
I'lo. HP
l*rJllat F8nfldm
t'lo. Talefcfl
PcQa$a fli{
Dhhrqi i
ib. HP
Kal€{od Pnid('
Ja* P€.naiB,l'
&ris P€rmotEigr.
BAflAGIA AT ml&l,lIAT FnGl5l(
Ei l(o4*od b.rtitfi nr€rqd( Padren Bflzrg EdEqi A
29
THqikr-.t,
OSCIPSo1.l0 Phdsfll
JSri{t Plll iSr|rnglt{OBCI Trl ltua*uesI J3}si20l2
|i}Mr &nn fkrg
Alrs 8sn{l , 2l 2 (G)
J.En Ray. 8:rat T.l :03*tYS 7873
4llool(LAt'lc FeIe:03+371 oBs
Pardual E{a o BalE i.r A
X, i(abgod h*t
3. JrriE Prfidldr.n
1- J. r PfiEitlir
fi.d !{aL{ri Pni.l Ihtl*
A PiEi6hEaEe
ftli6k Ed.ifl ddFada trlieh
dib.rdr kd E C O E
s
PEi6kgin.
l(firrdan $d
FEiqhIalg b.rforEqlran
&ra tG.ruden,lrel lBtO I
PEisk lkri.ai
ftli€h dilatranahan da!
dadrar agErEi pdat5fle
kEdeer
D
PEi.h ldpd(
Iinggi
Fllish lrrg dilutrd(an
't{aford lm65tll6nl
Corn nitE
E
PlEish P€lahnar
Adrs
ftEiEhyrrg dheah*an
E6b{d p6hburtl chg
ohh .g.rEi Ftt.l abu
ltuil l{.Lfli Plli.f llstdt
A Psltlir*lar PrEid( E€lrttdra EatEia
B
P€ntan$nal
BaGtnpx
B€taEaipsnqu dd*t
sati LBean
c Ka ril PmiC( iofirril arlaia
o
hdrlti,
fuddroal
Prcid( indrdriJ
n€rtilarEall teheb
F
hdiri
Lah-t.an
lr{t(Ei }rnr Eaprrli
ssbbh . ,rrqid" ds,rEfr
oreng r'lri. gEEi. drr
lll'!+iI
J€dr pgtraiuar s6lin
lem dnlad(rr tf, ebs
!(od Jrnia PrrlEiIran Odr*i
s0t
ssrgrbk: Hj +loJ+ FB
+PJ
PrihC Tan$ F€cdt s€nE dEn d'| ub.h Slzr.q + thbErBran lJ.larcang + Pclir
BrlgnEn + ftla.t l(qurutran
A(u
S6rfitsk : PP+ lO, +PB
+PJ
Psihel T.ll$ f.nlilahin Bdik da PErt.irditrfl S€mrbl + lftbert,e.l
llEralcang + klan 8an$nan + P€lan lgiuids.aff
A(B sgrglbh: Rl +P8+PJ Psihal Tenn F.cah Sfipdan dar tl bat! Syara$ + ftlafl 8rl$nen + Pqlan
(dunrtran
A0r
toz
S€rs|tsk:PF+loJ+PB
Ssrslbk: lcl +P8+PJ
Pfihal Tani f€rlqrahaa Edih dal PE.rtiirdliLn S€nubJ + K*snaan
lrsr4cang +Pqlan EEng'ran
XetEn:ar Ue.:m,rd + tuler B'ldrlrn + tulrn |(dututran
At0
,qt1
9-6-!E!8.-: EJ :f P!
Ssr tsh: FB + PJ
K*anaran ,|lrdltErg + flan EagurEn
PC4r S.Igultar + Pdan FsiuuE.a
801 F€lar Benguna! Pdat EdBUnrt {Pg)
B(p P€rnil P€nbhaan Ksl Prmil Untlk FsrriinEn Ksdl atsu Peniahfi dan Tanltdr.n lGril !.lare UUX 18 ,
uKss fi)8{
8rB
PernftSsrnsrtaB
B:rElnrr Fsrnit S.nctlrE unbk &nEl,larlstulcr S€mrriaa sdaraE U Uf I B, UI(8S lgN,l
a0a P6la Sanihi Pdan dih€nuhElan uriuh rEldd EahEF
siE Psl- KonkilTddanE Pdin dhrn ltrhan urnukr.h.d lehie
30
Mt,t-,/
ll[lrEll
S.lrs d.nggl FddllrB ltdJJs S€taidra l+nalHan PFrunEh{] dal l+.q8 lgeryigL I 'lsh-n ?01 I irupr.'l .l(lo loGtBE
( ldJ - Iend*e Seragar S€ifrr Ssnd( od(ursl d l S€i{a Se.nd( Teapano &enar lekr*sl oahnEr d AlEk Eerk(Ea Isrp#r
(PBT) leltdith 6 tu!tusr 20111 ddn ftiidrlrg Kdlls Sdrar6$la KglEr,l rdl FBruftJEn d.n l+rq.an lsrpEEl Bl. { Tahrl20fl
{qttsl Jl(IO.lU}tE,?i13) - I ptsESel8gdr S..ds S6rd(odo,rBnddl Sr(€la S€.rS( leF6arfr &E6r l*nrc L!r6n(Eds
Xp2l b.,r rttl 2a F&tusr 20ll). pEndl8Bn Brd# n dl(lrrtu6.l€n FE rggunaal(r€ dr ltl4ll fuhandr& (hr! mua I JdrLsr
,On $eldrE [art$]AErl d*l p.rtEla:i lal(tbdfrlturqpsdlrrqrl.l bdEh dl(ernl-lidrdr [@a.
K€ a terE *r
J*aHr Ke,aF'l l€rn@n
l€ng1Eifi Ferut6lsl dil rsFal Isnp*gl
lrs *8. ttr. 5l Perstelgr Fstgla
PrEfi t1, 62100 h.riqdra.
iup EElEgEn peflrddkEnd{l F€rlnd*rg{ I.mkd)
TEl.dm r1]€gql 3m
TBAHAG{AI Dr JADUAT KEtlrtlBAll FELAII-FELA|| PE BlllclrllAll TAllAll
J$drn Slt.tErtnF|rloBc)
Itdtu F.rbiD&rar l{kr9
Aar 8.rr$, 2-11(Gl
Jale Rrya Eral
4t i 00 l{LAltlc
OSCIPSOi.'t0 Fh@n:l
Tzl(h lfu at{uas.:l Jar-sa 20 12
T.l :03.:liy5 7673
FeIs :03.$71 0695
PPfi &rF Tanah
Peb,l JsE'l d.fl Paril
JaDaun gdnDe dan
PsU€Bnst l,latsfsa
SlllrlflFye fr{rnmisc
d&l lldtrEdEa
tlalafeir
31
M%../
JSdr.6 F0ritsri. Fr{O8Cl
It#r M.ar&trn XLlro
&as Ba*aI , 2J 2 lcl
Jdar Rats Barat
41r m K-AltG
OSCiPB,0I.l0 Pndefl:t
Tat$,(rei(uesa:l Jsll,ai 2012
Id :03"iliF5 7873
Far(s :03.TFl 0ffi5
,qhHl geya, trrE bart€Lyai(ar uflul( meflgErl l{eke permoh0flfli
@n b6rErrff mnqEsdll:5 b6lu,rE par(ua da alas tldl dB{rtal(}l
rrld( pcnnonarial p*o banqunar.
TefibEngar:
tlhrna: .........................
l.lo. l(8dtefl Lemb{a: ..........-.-...-.-...........
T€l:
CcF ltrhl LrlltrF
Hlp: ..-...-........-.......................
U TUI XEG U}BAII PEJIBAT
Osyor Teri, a dEh hafitsr
BErBuner
TandalE Ean :
l{arra :
Jrf,abn :
tlsahhan lErEir+ dan bohh disnnla
(old| psgarE laudtc OSCI
kral{Jan PansirraJr
FlEh pstgar$,Fegaxi bdrrEnJ
TadaErgEn :
tlrra :
Ja$rrn :
Taiti :
Ianddarpan
tLnr.
JarEbfl
Tadhrr
BACI FER ONOTAH TI&AI( TEIIG I$P
Jabalan ldd( daoet anelErvna p0rmolE r li.fll,h{ral t€rara dolcrmfi ys,lq d*eflrd(al{afi td,3t l€flgl(ap
d*{}rl*an:
NarE PerE irE
nlo. Ksd P€flqe.ul l
T&tll
Tsfldal5rqar
DXnfibdt D dotrnrfi Fl{mdtorrl I Frtln brnourrn lnptdr:
32
REFERENCES
I Application form - http://www.slideshare.net/hafizeswan/mpk-
senarai-sema k-permohonan-pela n-banguna n-kuatkuasa-010112
I Playground facts- http://www.houselosic.com/home-advice/home-
thoushts/how-to-set-plaveround-built-i n-neiehborhood/
I Flowchart-
https://www.soogle.com/search?q=a pplication+form+to+build+plav
ground&biw=1366&bih=633&source=lnms&tbm=isch&sa=X&ei=7J F
1VYmzL8v78QXo74GQCw&ved=0CAYQ AUoAQ#tbm=isch&q=flow+
chart+in+proposing+plaVground&imqrc=IxEWIVUGOH id-
M%253A%3BW AJbrtM BP qF aM%3Bhfip%253A%252F%252Fwww.r
eferenceforbusiness.com%252Fbusiness-
plans%252Fimases%252Fbph 03 imso180.ips%3Bhttp%253A%252
F%252Fwww. referenceforbusi ness.com%252Fbusiness-
pla ns%252FBusiness-Plans-Volume-03%252Flndoor-
Plavsrou nd. html%3B391%38331
I Playground safety-
http://plavgrou ndsafetv.o rglsta nda rds/resu latio ns
33
TAYLOR'S
UNIVERSITY
Wisdom . lntegrity - Excellence
FOUNDATION IN NATURAL AND BUILT ENVIRONMENT
JANUARY z0ls INTAKE
INTRODUCTION TO THE CONSTRUCTION INDUSTRY
(asB 30105)
PROPOSAT REPORT TO BUITD A NEIGHBORHOOD
COMMERICAT AREA IN BANDAR BUKIT TINGGI 2
NEIGHBORHOOD AREA
NAME: tOO SIAH MONG
STUDENT lD:0321995
TUTOR: MS ANN SEE PENG
SUBMISSION DATE:9th June 2015
lll
lntroduction
ln a group of 3 students, we need to find a specific empty land to initiate a small
construction project. The land is located at Bandar Bukit Tinggi2, Klang , a big
empty land that is sunounded with residential area, industry area , commercial
area, and also religion area. The size that I choose is between 50m x 70m
(3500m2) from the empty land to propose a neighborhood commercial area.
1 . To propose and make use of the empty land.
2. Provide a comfortable area for the residents
3. Make the empty land useful and interesting to attract residents to stop by.
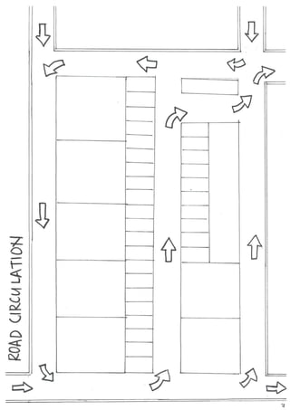
4. Provide a good circulation of road system.
5. Create more interactive spaces and awareness about self-sustainable living.
The Neighborhood Gommercial is intended for small sites in or near dense
residential neighbofioods. The zone encourages the provision of small-scale
retail and service uses for nea6y residential areas.
Suggested uses are neighborhood scale commercial, professional, and office
uses such as individual medical ,offices branch, banks, small service
establishments, day care @nters, convenience stores with limited hours of
operation, small restaurants, small cafes and smaller public facilities. Examples
of uses which are considered unacceptable include fast-food restaurants, 24-
hour convenience stores, car service Centre and gas stations.
Near and convenient for residence nearby to c,ome over.
Not too crowded as compare to hypermarket
Encourages municipalties and/or developers to plan for new and infill housing
in the area within walking distance of its designated downtown, village center,
new town center, or within its designated growth center and incentivizes
needed housing.
Supporting the commercial establishments in the designated centers.
The timing and intensity of neighborhood commercial development are
controlled by the maintenance of an acceptable level of service for roads and
other public services, the availability and capacity of public utilities, and
growth of nearby population to provide adequate market support for limited
business activity.
The space of the site is fully utilized.
1.
2.
3.
4.
5.
6.
)
lmpacts of neiqhborhood commercial
L The timing and intensity of neighborhood commercial development are
controlled by the maintenance of an acceptable level of service for roads and
other public services, the availability and capacity of public utilities, and
growth of nearby population to provide adequate market support for limited
business activity.
lntroducing neighborhood commercial uses closer to residential
neighborhoods help to achieve that goal by reducing the number and lengith
of automobile trips.
Some nearby residents might even value the opportunity of having some
neighborhood ommercial uses iust a short drive away or within walking
distane.
The project site is located Bandar Bukit Tinggi 2 surounded with housing area.
The vicinity of the project site, is a minor site housing area develop with housing
commercial area serving with neighborhood-serving commercial, retail, and
restaurant, caf6 uses to the nearby residence .The south area of the empty land
that l'm proposing is a commercial area with major car shops and police station.
3
About Mv Site
1. lt's a neighborhood commercial area.
2. lt's a 50m x 70m (3500m2) site.
3. A total 7 shops in it includes bank, day care Centre, small
restaurant, clinic, cafes and office branch.
4. There are three entrances and two exit.
5. The parking lot is placed in front of the shop and its vertical
parking lot.
6. lt is near from few blocks of housing area.
7. Residents around can also walkover cause it is near.
8. There is a police station in front of the neighborhood
commercial area.
9. lt is not over crowded place.
4
Location Plan
Mv SiteSite Plan
&
l.'r
I
.t' -'f s
.-_-t---.i---
m),j1
*--T"
W rNint
5
5
6
z
J-
B
U
Z
f)
E4S}
J5
-4{
'Vs$
d
*sJtr
>+4- l{t
-6 J
=$l )
SZ
E$os$
7lOI
t-l
JI
:SI-) I
o/- I
, I
AI<lolsrl
I
Justification
The reason why I choose this empty land is because it is a large
piece of land which enable us to to or build whatever we want. We
should utilize the place by building a usefulfacilities on it. Before we
utilize the site for something, we must also solute the main problem of
the site. For instance , green plant can be planted at the site to make
it more sustainable.
Observation before buildinq a neishborhood
commercialarea
Before constructing a project , there are few things to be
consider
1. Before proposing a project, we must considered of the building
surrounding the site.
2. Propose a suitable places such as recreation area, commercial
area, industrial area, agricultural area, tourism area , residential
area and etc if it is suitable to build at the site.
3. Make a list of the residents priority.
4. Consider of the functionality of the facilities.
5. Think about the concept of the buildings.
6. Plan for a better road system , sewage system and drainage
system of the site.
I
The residential area around the empty land. There are quite lots of
row surrounded the empty land.
The project team explore a variety of possible idea and concept that
could be apply on this area after conducting the site analysis. As a
result, in the end of the project, this site that we chose will function
as a neighborhood commercial.
|l
proiect.
A double story neighborhood commercialarea
A building with double story where goods or services are sold at a
store. A double story building is built because it saves a lots of
spaces and as forthe second floor is more quiet and peaceful.
Urban agricultrre is the prac*ice of cultivating, prooessing, and distributing food in
or around a village, town, or city. Urban agriculture can also involve animal
lt
A one wav road svstem
husbandry, aquaculfurc, agrofolestry, Urban beekeeping, and horticulture. These
activities occur in peri-u6an areas as well.
A system that goes  rith vehicles can only go one ways to reduce traffic jam.
A combination of one way system , a double story shops and
an urban agrlculture will be built to utilize the empty space.
Traffic light and rubbish bin will be provide to keep the
surrounding clean and save to walk at night as there is police
station nearby.
Vegetation around will be maintain clean as there will be
cleaner to clean it once a week.
Residents nearby can come by in a short period of time.
Clinic will be built and open lor 2417 to provide service for the
residents.
a
a
t5 E+
5
s
zJ
Bur
5
SI
J:S
*,sr^
G$
trl
*$rts
>-1
*s
$t
!L-
)
.+
rq )
*soss
' ltt
WWWWCIWAKNTE
I(,
TAYLOR'S UNIVERSITY
Wisdom.lntegrity Excellence
NTRODUCTION TO
CONSTRUCTION INDUSTRY
THE F]NAL PROJECT
PROJECT BRIEE
TUTOR:
MS . ANN SEE PENG
PREPARED BY:
LOO SrAH MONG (0321995)
MELANTE SOON (0322321 )
'iii'
LEE FONG YEN (032791 6)
1. ]NTRODUCTION
1 . 1 PROJECT DESCR]PTION
The name of my project proposal is "Athena",
it is set on a 50x70 metre piece of land
Iocated in Bandar Bukit Tinggi, a 6 unit
residentiaf area along with a smaff
recreational area amongst another residential
area,
The concept of these houses are to be a-
framed houses that is mainly built from
concrete and wood with majority of greeneries
surrounding the units. There will also be a
small area of tress and plants to promote the
idea of a Eco-friendly community as well as
walking tracks, a small pond, a lawn and also
lounge areas with sail roofs to promote
exercisj-ng and outdoor social activities.
Main reason for this obj ect. is to create a
place for people to get together in a community
that is sustainable, safe, cfose-knit and a
cIean.
T.2 SITE ANALYSIS
This site is an empty pi-ece of land surrounded
by residential, industrial, education and as
weII as religion areas. A site analysis has
been conducted and is proven to be suitabl-e for
the construction plan, the reason to this are
as mentioned below:
. high walkabil-ity within areas
. open space lawn
. good accessibility from the main road
. open lawn avaifable to develop into a recreational
area
. unused space to plant more greenerj-es
. accessibility from other residentiaf areas
1.3 OBJECT]VE
A. TO PROV]DE A UNIQUE AND RARE CONCEPT EOR
RESIDENTS
B. TO IMPROVE AND MAKE USE OE THE EMPTY AND
FREE SPACE
C. TO CREATE A SPACE THAT CELEBRATES THE
BEAUTY OE THE NATURAL ENV]RONMENT
SURROUNDING THE UNITS
D. TO PROMOTE A DIFEERENT KIND OF CONCEPT TO
THE NEIGHBOURHOOD
7 .4 BENEFITS
A. GREENER]ES THAT PROVIDES A COOLING AND
RELAX]NG ATMOSPHERE AROUND RES]DENTIAL AREA
B. UN]TS ARE MAINLY MADE OUT OE SUSTAINABLE
WOOD AND CONCRETE WH]CH ELIM]NATES THE HEAT
C. RESIDENTS GET TO REACH THE PARK WITHIN A
SHORT WALKING D]STANCE
D. ENHANCES AESTHETIC VALUE
E. GOOD SECURITY SERVICE PROVIDED WITH A
GUARANTEED FENCE-EREE COMMUN]TY
F. CATERS RES]DENTS THAT ARE EOND OF A GREEN
COMMUN]TY
2. SITE INTRODUCTION
A 70 x 50 METRE SITE HIGHLIGHTED IN ORANGE; AS
SHOWN BELOW, IT IS SURROUNDED BY RESIDENT]AL
AREAS AND ALSO AN EDUCATIONAL AREA WH]CH ARE
BOTH W]THIN WALKABLE DISTANCE
3n Perusahaan 22 IoJ
'usahaan 20
(_
9t
o)
l
tn
O)
c
z_
3
N)
(o
l
I
u)
D_
-
cll
o,
c
2
o,
3
(,
cr)
E
-q
z:,
(!
o
c
s(E
_-
t(-
9t-
0)
f
ao,
3o)
)
-.J
Asia Educational e Jalan BatL
Academy
sekolah Kebangsaan
Kampung ldaman
tl
ro
o
f
q,
c
z
q)
3
Prozen Ma*
And Service!
?_t L
2.1 PROJECT CONCE PT
A. A-FRAMED HOUSE
The main concept of my project are a-framed
houses, they are very unique and they stand out
in the crowd, something absolutely rare in
Malaysia that you don't see everyday.
B. SAIL ROOES
Saj-I roofs are gradually increasing in today, w
world, it is perfect for blocking out the sun
ray; residents can relax under the shade of the
roof and enjoy a small picnic or a gathering on
the grass.
C. SMALL POND
The irregular small pond will be made out of
granite rocks and ginormous stones along with
shrubs and trees, implementing a natural
environment-Iike atmosphere and surroundings.
2.2 PROJECT SUMMARY
1. Current grass will be replaced by carpet
grass (bentgrass)
2. Smaf I lamps wil-I be instal-led along the
walkway, lounge area and also the pond
3. SaiI roofs wiII also be placed to function
as shades for the park
4. A walkway wiIJ- be paved to promote walking
around the park
5. Majority of trees wi-Il be placed around the
whole park to provide a more cooling
surroundi-ngs for the residents while taking
a walk
6. A 6 sitter bench is instal-Ied for the
comfort of the residents during a picnic
1. Pond wil-I be made and improved with fishes
and water lilies to make it aesthetically
pleasing
B. Each A-framed houses will have both front
and back decks for any activities or
relaxation
9. Pine wood wiII be j-nstall-ed as decking
10. Free space around the units for plants,
trees and lawn
11. Road circulation surrounding the house
unitsi easier access for fire fighters and
rra l i na
i/vtf??
72. Front yards big enough to cater 2 cars
3. VISUALS
3.lPROJECT PLAN
E E E E
[y t-----
lffimo
ct
H
6M.
HOUSE UN]T
MEASUREMENTS
LEGEND
Ft
I'o-'
PQ sou,4tr, ou,r**
l[]ll o^*
l'.'l urtn^ ,^'r,
D un* ro,
ffi eo",
U Loxr
3 .2 BUBBLE DIAGRAM
3 .3 SKETCHES
VtfrrU
crhtL W0?
/
WATTWAY
+
DovttbL
4. DOCUMENTS
This torm take 0-25 minutes to
APPLICATION FOR APPROYAL OF BUILDING PLANS
lS€ction 5 ofthe Building Control Act (Cap.29 )l
Commissioner of Building Control
Building & Construction Authority
52 Jurong Gateway Road
# 1 1-01
Singapore 608550
Wabsitei http: /./wwr. bc a.gou sg/
INSTRI ICTIONS
(l) One copy ofthis folm is to be submittod. If an item is not
applicable it is to be indicated as 'N/A'.
(2) * Delete accordingly.
(3) Please tick (y') in the appropriate boxes.
(4) This form is to be filled in BLACK INK only.
SECTION I (To be completed by Developer)
(1) I hereby apply for approval ofbuilding pians for:"
Project Reference Number: 1b5E- o17l
Description of building works:
o'*.ol glvV, y oa,it V/ OY FS
*LotPlot:
Address:
t{/* *TS/MK: rl /l'
Ll A,^3 at"*<o Y , lAl" o;trv' a
Name of development: fLta a
(2) ln accordance with section 8(lxa) ofthe Act. I have appointed MrtapiC 9voh.
as the qualified percon in respect ofthe building works herein described.
The builder will appoint the qualified person for the purpose of section I I (l Xd)(i).
UEN (ifcompany) a.nd Name and Address ofDeveloper
SM ArrrM+o/+g
1A 1 1 at ,tn '[t 1',rtn ,
rbu^+ XctvkrT,
4o lro s hlh ktan..
Name & Signature ofDeveloper (in the case ofa company include
the designation ofthe autho sed signatory)
MTlALrb fuba.
TelNo.:01rt-J601942 NRICNo./PassportNo.: $O [>*- LO -, >1 I
Date: 1 lta"n VO l(
sIcrtoN Ir
(To be completed by Builder for Design & Build project where he is appointing the qualified person under section llOXdXD)
(l) I am appointed as the Builder under section I I of the Building Control Ac1 and in accordance with section I I ( I )(d X i) ol Lhe
Act- I have appoinied Lao liah M or,-l as the qualified person in respect of the building
works herein described.
Name and Address of Builder
Lo o fults*vu*+iw, },tr,r. P7Q .
L, 1n4n LluV*u"6-tY ,
lLa+ h l'J/Yva^ig t
4Ol,ro f Lln*1', t{l^-pr.
Name & Signature of Builder (in the case of a company include the
designation of the authorised signatory)
l,ov U1t'1.t laailA
rerNo.: ol6 -11q1+11. NRIC No./Passport N o.t qe06y1 - lO - 1.1{$ Date: 1 *t^"ozow
SECTION lll (To be completed by Qualified Person)
(1) I confirm that I have been appointed under seation 8(lxa) ofthe Act as the qualified person in respect ofthe building works
herein described. I certify that the building works shown in the plans submitted with this application are in accordance with the
Act and the building regulations, subject to such waiver/modification granted under section 6A ofthe Act.
BPD_BPO3
lver 2.l_Jan 20151 page I of7
This form may take you l0-25 minutes to complere.
(2 I hereby declare that the particula$ required for this application and as stated in these forms arc colrect.
(3) Waiver application forms *are attached/not applicable.
BPD_BPO3
lver 2.I_Jan 20I5l pago l of7
(4) D I certify that the requirements of the relevant Technical Authorities/Depafiments have been complied with and
respective clearances as listed below are attached.
Technical Department/Authorities Technical DepartmenYAuthorities
(a) LW$aaa P<yA+& Man1ttn (0
(b) 4n^^+^ r...la,lUnr*l lurh.,J. (e)
(c) t,Ad,llil Y-orbaJa,-a" b,,.1* (h)
(d) l-<'''r6}.,tr' (D
(e) (i)
ii) r will obtain the outstanding clearance(s) 1ro^ )ab a*aa b a"lnn'r+
(state rechnical departments) before the application for Temporary Occupatioi Pemit
Statutory Completion (CSC) in the event that there is no need for TOP
I confirm that -
D
ii)
planning permission for the building works is not applicable:
the building works have been submitted to the ChiefPlanner, Urban Redevelopment Authority under the
lodgement scheme; or
planning permission for the building works is applicable and has been granted by the Competent Authoriry. The
wriLlen perm ission "rogerher u ilh fte approved site plan t fif, inDC Olotl2b
is attachcd/is granted under eleclronic submission.
I hereby declare that (ifitem (ii) or (iii) is ticked):
ttl
/
(a)
Submission
(b)
the building plans do not deviate from the plan submitted to URA as lodgement under
No: t- q1t+7t - 5rt ,
the building plans do not deviate from *approved plan ( )inDC
/Electronic submission approval no:
(c) )inDC
/Electronic submission approval no:
These minor deviations are covered in the list of items exempted from Planning Permission as
issued by the Competent Authority.
the building plans contain minor deviations from *approved plan (
BPD-BPO3
[Ver 2.1_Jan_2015] page 2 of 7
I confirm that the provision ofhousehold/storoy shelter work is:
n / applicable and I will obtain Notice ofApproval of shelter plans from Special Functions Division of
RCA
not applicable, the rcason being:
(a) There is no residential dwelling house or flat in tho building works.
(b) It is addition and alteration wo*s.
(c) QP has sought advice with SCDF and obtained a confimation in wdting from SCDF that
provision of HS is not required for rcconstruction works.
The building works have *not commenced/cor*"n..6 on 8 1 ra t.{, ?Ol( (date) *{ifinithot apemir to carry out
building works. t''/-
BPD-BP03
[Ver 2.1_Jan 2015] page 2 of 7
(8) [ confim that the project:
) ,/ does not involve any complex building stucture.
ii) involves one or more ofthe following complex building structures:
' Multiple level tmnsfer structures (2 or more transfer Iloors each carrying 3 or more tlansfer floors) or cantilevered
transfer structures (carrying 5 or more floors).
' Non-vertical/inclined structuml elements (with offset of floor plate is more than 3m from the edge of the floor
above or below).
' Structures with unconventional geometry (e.g. dome or arch-shaped).
' Large span stnrctures (with span more than 40m) or large cantilever span structures (where cantilever span is
more than 8m).
Obtained a letter from our Building Engineering Group after completing pre-consultation session on the structuml
concept of the complex buildings.
The Pre-consultation Completion Letter Reference No. is
(Note: Ifsuch pre-consultation has not been made, please arrange for it before any building plans can be processed).
tTTV plans and calcularions are -
(9) i) not aPPlicable;
ji) / applicable and a set ofthose calculations are attached.
Altemative solutions are :
il ,./ adopLed (schedule ofalternari,e solution a(ached)l
( l0)
ii) not adopted.
Under the Buiiding Control (Buildable Design) Regulations. submission ofbuildability score is -
i) Applicable a set ofthese calculations (Form BPD BS01) is attached.
The buildability score is for GFA of m2.
The planning permission was lstapplied on (state the date).
Buildability score submitted in the previous BP submission and is unchanged
iit ,/ Nor applicable: Planning Permission requiremenrs:
GFA < 2000m2 (planning permission applied after I Jan 2004).
GFA < 5000m2 (planning permission applied before I Jan 2004).
Planning permission applied before I Jan 2001.
/ waiyer obtalned.
Exempted.
(u)
BPD_BPO3
[Ver 2.l-Jan_20I5] pa5e 2 of 7
(12) Category ofbuilding (for mixed developments, more than I box may be ticked)
Residential (landed) ,r/ Residential (non-landed) Commercial
Institutional and others
(13) Other documents necessary for the consideration ofapproval ofthe building plans are attached herewith.
Address of Qualifi ed Person
4L, Jaan Wbah,
V$ l+1,0 , tywAl )al*ory r
+olVon64sl"Ata.mr
k,lay'
Name & Signatur€ ofQualified Person
Lt| A,H(A Yh-l
avk|-11t11 1lr{tw
rerNo.: (916 -t01V bS Fa* No., O-1O1rc1X4 ResNo. (*Arch/PE): l4al6l Date: o1 ,!.*- ?otp
BPD.BP03
[Ver 2. 1_Jan_20 I 5]
EXPLANATORYNOTES TO FORM BPD BPO3 & FORM BPD BPO3 APPENDD( 1
(A) APPLTCATION FORM
(1) Ei,er] application shall be accompanied by -
BPD_BPO3
lver 2.1_Jan_20 iil
(a)
(b)
(c)
l set of building plans with the project reference number printed at the top right-hand
corner on every sheet of the plans and one copy of the site plan drawn in accordance with
the provisions of the Regulations (scale between 1:200 to l:1000);
Where applicable, an application(s) for the Modification/Waiver of Building Regulations -
Fonn BPD_BP05; and
Where applicable, the Written Permission Q.Jotice of Grant of Approval) including only the
site plan approved by the Competent Authority under Planning Act (Development Control
Division, URA).
(d) Clearances from the relevant technical authorities/departments.
(e) Where applicable, ETTV submission form (Form BPD_8P04), plans and calculations.
Tne plar:s for building works shall be prepared in accordance with the relevant provisions in Part
II ofthe Building Control Regulations.
The Qualified Person appointed under Section 8(l)(a) ofthe Act shall be according to the type of
projects or building works as determined under the Second Schedule to the Building Control
Reguiations.
The Qualified Person who prepares the building plans shall certif, in accordance with Second
SchedLrle of the Guidelines on Submission Applications to Commissioner Of Building Control on
eveiy sheet of tlie drawings.
hr the case of any building plans for repairs, alterations or additions to an existing building issued
rvith a Certificate of Statutory Completion or a Temporary Occupation Permit -
Where rhe Qualified Person who prepares the building plans reasonably suspects that the building
works may affect the structural stability or integrity of the building, every sheet of the drawings
shall bear a cefiificate from a Professional Engineer (Civil) or (Structural) as follows:-
u, hereby certiry that I have inspected the existing building and investigated
its overall stmcture and that, in my opinion, the building is capable of resisting the forces and
mor:ents lvirich may be increased or altered by reason of the repairs, alterations or additions
shorvr in the building plans".
4 'lvtL l,olq
(2)
(3)
(4)
(s)
Stamp & Signature of Pro
page 2 of 7
Buiiding developments with Provisional Permissions ("PPs") issued before 15 September 2000,
are required to comply with the Singapore Broadcasting Authority ("SBA")'s directions and
recommendations concerning the installation and provision of cable-ready Master Antenna
Television (MATV) system.
Buildrng developments with Provisional Permissions issued on and after 15 September 2000, are
required to comply with the Info-communications Development Authority of Singapore ("IDA")'s
directions and recommendations in accordance with the Code of Practice for Info-
Communications Facilities in Buildings ('COPIF). For buildings, which are six storeys and
above, developers are also required to comply with the "tap off-pipes" directions issued by SBA.
A ietter from the Qualified Person indicating receipt and retention of Singapore Cable Vision's
Certificate of Cable Readiness must be submitted before the issuance of the Certificate of
Statutorv Completion.
The Qualified Person shall indicate whether the project falls under the complex building criteria
by slrbmitting the folm BE-EP-ANNEX C completed by the Qualified Person for Structural
fublks, together with the first building plan submission. For project involving complex buildings,
piease a;'range lbr a pre-consultation session with our Building Engineering Group before making
application lor the approval ofbuilding plans ofthe pro.ject.
(B) TEE CO]?II]IJTATION FORMAT (APPENDIX 1)
Orre copy o1'this form is to be submitted.
Pev:r;ni of fees shall preferably be made by cheque in favour of the "BUILDING &
CON STKiJ CTION AUTHORITY, SINGAPORE".
The statistical gross floor area (SGFA) means the aggregate of the "gross floor areas" and "other
areas".
A certiiled true copy of forms submitted to URA Development Control Division on the Statistical
Cross Floor Area (PR l6GyEDA is to be attached for the purpose of confirming building plan
iees. Please ensure that PR 16G also reflects other areas such as carpark, swimming pool and
otiers.
Ilalterations to an existing building or amendments to an approved plan under SN (3) involve an
increase in the floor area, the fee for the new area shall be computed according to S,N (1).
BPD_BPO3
lver2.1 Jan 201i]
(6)
(7)
(1)
(2)
(3)
(4)
(s)
pa$e 2 of 7
5. ]MAGES
POND
LOUNGE AREA
SAIL ROOF
HERRINGBONE WALKWAY
PICNIC BENCH BENTGRASS

Ici final project

  • 1.
    Eiif TAYLoR'S UNIVERSITY lI, INTRODUCTIONTO THE CONSTRUCTION INDUSTRY (QSB 3o1os) FOUNDATION IN NATURAL AND BUILT ENVIRONMENT JANJARY INTAKE 2015 FINAT PROJECT GROUP MEMBERS:. LOO S|AH MONG (032199s) MELANTE SOON YU XrN (0322327l, LEE FONG YEN (0321976) TUTOR: MS ANN SEE PENG
  • 2.
    SITE CONTEXTUAL STUDY North:Residential Area South: CommercialArea East: lndustrial Area West: Residential Area SITE ANATYSIS The proposed site is located in the middle of the area for the convenience of people in Bandar Bukit Tinggi 2. The site is surrounded by road systems that makes it easier for people to visit the recreational area. The strategic location of the proposed site is only a few kilometer away from other residential and commercial areas and a walking distant from the neighborhood.
  • 3.
    RESIDENTIATAREA Residential area consistsof both double story and single story houses mainly owned by families with the average of 3-4 family members per unit. Residential areas across the road can visit the recreation area either by cycling or walking. ROADS SYSTEMS The area which is surrounded by roads is convenient for car users to enter the Recreation area. Visitors can either enter the area from the residential area or straight from the main road heading towards town INDUSTRIAIAREA Factories and industries which are located at the east ofthe area does not affect the recreation area as they are blocked with trees to prevent a bad view from the neighborhood. COMMERCIALAREAS Commercial areas consists of shop lots that operates as a service area in automobile and grocery stores for residents.
  • 4.
    Photo of thesite: The site has been a large vacant for many years without and construction or renovation. Hence, most of the area around this field is residential area, so I am proposing a neighborhood commercial area for the nearby residents because its near and Convenient for all the residents nearby. This is a commercial area in front of the empty land. The shops that available in the commercial area are police station, car service Centre , restaurants ,and some office branches. Although is a commercial area, but I found that there are too much of care shops around there that causes traffic jam and there are not much of restaurant nearby where the residents nearby have to go others place to eat. qb
  • 5.
    The view besidethe empty land is full with vegetation. The industry area beside the empty land . There are few factories which is timber factories , and paint factories and some office branches in this area. Not only that, there is one masjid is located somewhere inside the industry area. i0
  • 6.
    Iiii' TAYLOR'S UNIVERSITY lIlw"d" FOUNDATION IN NATURALAND BUILT ENVIRONMENT JANUARY 2015 INTAKE INTRODUCTION TO THE CONSTRUCTION INDUSTRY (qsB 30los) PROPOSAL REPORT TO BUILD A RECREATION AREA IN BANDAR BUKIT TINGGI 2 NEIGHBORHOOD AREA NAME: LEE FONG YEN STUDENT lDz O321976 TUTOR: MS ANN SEE PENG SUBMISSION DATE: 9th June 20ts
  • 7.
    ln this project,students are grouped into groups of 3 and are required to look for a vacant land which is either 70m by 50m or 50m by 50m big. This is to initiate a small construction project which serves as a suitable purpose. The choice of purposes given to propose are:- 1-. Recreation area 2. Commercial area 3. lndustrial area 4. Agricultural area 5. Tourism area 6. Residential area The objectives of this project is to enable students to understand the process related to a specific profession in a project in construction and the requirements when proposing a project to clients.
  • 8.
    INTRODUCTION TO THESITE The site that we have chosen is located in Bandar Bukit Tinggi 2 around the residential, commercial and industrial areas. Site Area
  • 9.
    To the northof my proposed site, there are double story terrace houses also known as residential area, while on the south, there are shop lots and road systems leading to the town a rea. Not only that, on the east of the proposed site, there are factories and industries and on the west, there are houses and parks. SUGGESTION AND PROPOSAL To put the vacant land into the good use, there are some suggestions to make it useful. The vacant land can be converted into a neighborhood commercial area, a playground recreation area or a combination of both. Hence, I would like to propose to build a recreation area which is a playground area for the residents there, mainly for the children. After surveying and observing, I decided to propose a neighborhood playground area which serves as a recreation area in the neighborhood. The site proposed will be 70m x 50m in the center ofthe vacant land chosen.
  • 10.
    OBJECTIVE OF CONSTRUCTINGA PTAYGROUND A. To put a vacant land into good use B. To create a better and more beautiful scenery in the area C. To unlte the community in that area that consists of different races and religions D. To provide a better environment and public space for people to enjoy E. To enhance a better communication between residents of the same area F, To encourage neighborliness among communities BENEFITS 1. Enables community to play and exercise in a public space 2. Enables children to be active in doing physical activities 3. Enables both children and adults to relieve stress 4. Provides opportunities for children in developing:- . Social Skills - when they play with other children they learn to communicate, share, collaborate and empathize with others. . lmagination and creativity - outside play is often open-ended and children need to be creative about what and how games are played. . Thinking and problem solving skills - as children assess risks and tackle new challenges they learn about having a go, persistence and perseverance and the success those attributes can bring.
  • 11.
    Sense of self- as they master new skills and play with other children they improve their competence and confidence in their own physical and socia I a bilities. . Sense of connection - to place, to peers and to their local community and environment. . Self-care skills - managing physical and social challenges helps children to learn about keeping themselves safe. IMPACTS Main impact of constructing a recreation playground area is to encourage maximum interaction between residents in the community. Not only that, when a public area is built, this becomes the space of encounter for neighbors. Regular involvement in the community can be cultivated by building a public space in the neighborhood RATIONALE The area in Bandar Bukit Tinggi 2 are mainly residential areas and commercial areas. No recreation area ie built around the neighborhood. Therefore the main idea of proposing a recreational area in the neighborhood is to provide a public space for the residents around to enjoy, relax and also to encourage them to involve in outdoor activities
  • 12.
    SKETCH PROPOSAL l!(,) z CA zt! (! 0, o !, lE q0'= b EEEr^(Er/t oIJ IU iL t/ro !pP ,=dJE lDc eo o E Eo.Uc l^= dro HE o E Og to o'-CLE r () tketph Proposal of Playground Unit
  • 13.
    PLAYGROUND CONCEPT The playgroundwill be built based on a sustainable concept which focus mainly on children as the main user of the recreation playground area. Therefore equipments and facilities provided are safe for children. Besides that, trees and plants are planted around the playground area to provide a clean and comfortable environment for users to enjoy. Sustainable and long lasting materials are used to prevent costly maintenance. PROPOSED IDEAS OF PLAYGROUND The proposed playground consists of 2 slides and a merry go round for children to play. A superdome climber is built for children to climb, which is suitable for children of age 3 years and above. A bigger space is required for swing to be built so that there is enough space for the fall zone, according to the playground manual from the government. A parking space is provided for car users to park when visiting the playground. The space is big enough to occupy 5-6 cars. Besides that, an exercise area is proposed to be built for adults to use. Sand area is built mainly for toddler and small children as other equipments are too dangerous for them. Sitting area with shelter that can fit more than 20 people is provided for residents to interact and rest especially during hot or rainy weather: For bicycle users, bicycle racks are provided for them to park 10
  • 14.
    their bicycles. Multiplay unit which consists of slides, climber and others are built in the center of the playground area as the main attraction and also surrounded by walkways for people to walk without passing through the playing areas. Signboard regarding the rules and regulations will be provided to inform all users of the playground regarding safety measures when using equlpments provided. 5lides and merry go mund 1 11
  • 15.
    PLAYGROUND EQUIPMENTS E stiAesand merry go round fl superdome Climber 72
  • 16.
  • 17.
    @ Sand Area flsitting Area $ Bicycle Rack -----l 74
  • 18.
    fl wutti playUnit E. signboard OPEN DAWN TO DUSK I rt u, .' shr)url0 EQUIPI{IIiI rs al Y0irn oIflt 8ls(. 2, PLiY ARTA RTSEflV€O fO8 BESIOEIIIS Afl0Ixl!B cutst 0ItY 3.I0 n0u0H praylsc 08 yttLtxcpt8titmo d.0nLy 0NE prR50[ pE8 stlI]lc lI aItmE. s. H0 JUMPutc orF T8E SUot 0B puycaoof,o 6. fto 0[r 0vr8 t2 yEAEsol.o ts p€f,Ilrlfo r0 usa r|t tout? tlll ,. tio PErs Atur :o n PtlYctr{ltrxo raEls a m AlDoIoL 0i IoltDDo tBt uttttt ?t YoiutMoni,fl. E qr nq * c ria ?rrlcio{F ni.tt m l^rra lrrl.all- ^r narrafia u ll r l. aa?cr lrr axrmarEv srua'lots rrllaLEararilErqrlntrlE llnr &aart, c^xir! 15
  • 19.
    E] . w"lt*"ysurrounding multi play unit THE SURROUNDING TREES AND PLANTS The playground area will be surrounded by trees and plants to provide a cooler and fresher air to playground users. 16
  • 20.
    LAMP POSTS Lamp postwill be built around the playground area to be used during the night. This can brighten the whole area, which can help prevent the occurring of crimes and unwanted activities. 77
  • 21.
    y' Ground surfacing /Fallheight / Fallzone / Entrapment Ground Surfacine Choices:- Wet Pour Wet Pour is a continuous rubber surface that gives a high quality, hard wearing, slip-resistant surface requiring little or no maintenance. Standard Wet Poui anilallation lvd rxrur we.nnq lay., (ttroM) ComAr.red &OI ]r?e I ion€ Nok' .orxr.k iholld b( u!{ r, tlbbrtc Dris 'rl lq rrct poor rhi.tneee of ls! rhln 40mm. Con(retc kerb edoinq Erirting 9,ound l.vel tn5!uk, n.!k'd nnrlE, .d9nq 9^Bu.rrrard ndb., trnh li.rsl P.ourinjtalled. gDto.erir-tiogLbrre Wet pour wcnnnq layo (EPDI.ll Coflrp!.ld MOI Tr?e I (oN. Noie. (oix,et. ,!ould be ured .tebb.k hirn'rl fo.wer pou' rln(k Al ol k'r( rhr^40nh Wer pou, weanng liye, lt l{)Ill trtstig (on(rcrc/ ir nx 18
  • 22.
    Tiles The rubber tileswe use provide a finished surface with similar properties as wet pour. The tiles are laid onto a prepared concrete base. The tiles are prefabricated, 1m x 1m, and are supplied in various thicknesses. The thickness of the tile used is dependent on the Critical Fall Height (CFH) of the equipment. The standard color is black but the tiles are also available in red, green, and blue. B.bt$rg groi ,!d hv.l Ptaasqrl tnatad {mb.r .dglri, ft{r6rrr. t.ated trlltblr srrll lrnp.d .brEdbhg r,ulb.r tllc ?)hrdt.6|t subb.s{r tr EO nrllr r'on{J.tt 19
  • 23.
    FAIL HEIGHT Fall heightis a measurement defined as the "vertical distance between a designated play surface and the protective surfacing beneath it. Falt height measurements vary according to the type of play equipment. On climbing equipment, the fall height is measured from the highest part of the climber intended for foot support. The fall height for upper body equipment is measured from the highest part of the equipment, not including support posts with no designated play surface. The fall height for swings is measured from the pivot point. FALL ZONES Fall zones for climbing equipment should extend at least 6 ft. on all sides for children and at least 3 ft. on all sides for infants and toddlers. Spacing between pieces of equipment must allow children to circulate around or fall from play structures without striking another structure, and permit adults to have easy access to the children who are using the equipment. A play surface over 30" high, should be spaced at least 9 ft. apart. lfthe play surfaces of both structures are 30" high or less, the equipment may be located a minimum of 6 ft. apart. Moving pieces of equipment (e.g., swings, merry-go-rounds) should be located in an area awayfrom other play structures so children have adequate room to pass from one play area to another without being struck by 20
  • 24.
    moving equipment, andtheir fall zones should not overlap the fall zone of other equipment. ENTRAPMENT Head Entrapment-Head entrapment is a serious concern on playgrounds, since it could lead to strangulation and death A child's head may become entrapped if the child enters an opening either feet first or head first. Head entrapment by head-first entry generally occurs when children place their heads through an opening in one orientation, turn their heads to a different orientation, then are unable to get themselves out. Head entrapment by feet first entry involves children who generally sit or lie down and slide their feet into an opening that is large enough to permit their bodies to go through but is not large enough to permit their heads to go through. 27
  • 25.
    Designing stage 1. Goodplay space -Ensure who repairs, uses and maintains the area - Use natural landscape as an element 2. Determine the space needed to accommodate - taking 0.25m2 per child - find our population 3. Finding a great space 4. Design for different types of play - lmaginative play - active play .sport/ games - free play 5. Good and Planning and Layout i) isolate fast moving playing equipments from other equipments ii) separate toddler and older children area iii) enable movement without crossing safety fall zone iv) Provide basics - shade - seating - trash cans - playground do's and don'ts 23
  • 26.
    -Bicycle racks 6. Meetwith community again -present sketches and seek agreement before progressing 7. After agreement, create playground schedule final, detailed plan -prepare step by step plans and elements to be used - save photos from site to show how will it be build 8. Playground materials and tools - use appropriate materials and tools to ensure good quality and safe playground Building 1, Set up - Have a plan to ensure of keeping up regular communication with community 2. Building it - Clear site - Rope off area to prevent trespassing - Double check measurements 3. Before opens - Check equipments thoroughly - Inspeqtion of wielding bolts and screws. 24
  • 27.
    .-c A -.9 -B EE"gb EB iE .,E a.t E2 tr .!i€$| "'l 25
  • 28.
    EXAMPLES OF APPLICATIONFORM TO BE FITLED FOR PERMISSION TO DEVETOP AN AREA 26
  • 29.
    #J$ateF0tlt8$ p.t(Ogcl fl{r3Mlldr.rr[$iig Arae 8*relr, 2-r 2 {G} J&l Rey8 8{at 4llmfUItlG OSCIPBT0I-10 Ftldem:l Tflth lt etuese:l Jmfli 2012 Td : tr1.3375 7813 Fd(s : ffi*$71 0&15 rBl. ThdCr rmdtfi..i yero [r&.dlt i {{ t. F.lmaEn pdti tsyei lorll lllerie PerM{flI l{ang (htD://portslfi pthrq.Wrnyl fi l* n€0.bp6tsr Dtr{.E ssnEi srElBn dd(unon dar sanerd sme[ lsp.riEi s+liT HreEn td(litd IrU !6rtih . t. lkhmat &lrl| B*.glili A p{h fti &n dfflr&tal d.ltogr l6.rgfep. 3. lBJrrglai lB: $rBd Semet Oolmcn &|t Smai Sandr Terpwini Pefinftnfll hb Bqmrt tffj Jeletafi Td(lfld oakfiflt 4. B$rda! C:sB,s.a s.irsl Oofimgl (Er Sffiei Siird( Tsp.riEa Prmolrcnat Pch BeEinflt b6d JebaBt Tdfl{d lE.el. 5- lidilmel &E n BCirohr O: Ja*C lftll,gm PsEn P{E F0rnb $nfll Iehpshflerut t . Bagi p{ndtst ssE El , pigft hn$n I bEldl dtsim ECfxrya t{rnue FmdEn{l psEr pimhryrHr t Eh flsml*d(el. 8fli p*rmdHBn b8resh$n, pdel MnS!,rIr iatlF bd€h fl€rina ssl#s sdnue l.Uusatfp.rEs &.1 (Dsl(m. 6. sle tsEtrylan dfi fiBngsrfld€Iill brq D..auls€mee nerEflm*el(zl pBrmolEllfll P.ElB.,Emfll ls OSC: i. SorgE lranrflel Pqd( i. EorIE m{dmai Ps.alusel P5ngginsl 8{Ilgen Tsnp6al -. Bolru lfrsl mll* Bayr pro*s fid 8{EuEl dafiGeg lllEeFsl Fcn&ftdff li*a Balff tlita ir. St.Hsa RiEfrrfi flaa( lrll k hdyil, {te{ipq.f, p.nmsltgl &n p.oid( tsh y6r,E lsrlsig0 7. Frg.l Er$mole.E dl8.n lBh p{rh mrrnaili ilrpcfist daEn L*E*n Tdutld Fdil @rHt fi+ p.,t dilil fibrB. 8. I(.ps,lff od fitungl a&bh m6n il( Jdrd P{rtarxlEfll PGrhghat F€ngDdtil AgensiTd(dd. PGrlDhr p{rh.rErtah{lrrndolun€n den p8tsn )etE iril fl(€rflttd(fi m{tElqrt hsFuh H}rBl td lrd sIE 6lstd gfll lEfiEs url* mmdar*el sdrlr dolunm tB qgl$ td(r*d. 3. Sih tsnfit {rl O ruam "Ad Tirda" ta doa(lrn{fi G€rtd(fll eil (r} Ba &lunsr lidat m.lel{el. 86rilm ir$ti*erils8m dd(lmgl lihl bslsihr d mrEs"Cagb". ffillAfifl 8ilAK FERmHffiAXI FTELANI IBA{lOUttS Fardrm n E dr F.illdlrg ttba; sddflrye p€rmoam lqiE fl({fi*dfl ftel lsrgl(+ &n l&fi m€rmhll TcmBle Sara{ n Ssrxd Ssnal Do.(mifi d EelHd S{rnal TelFhd, pfC{ OSC bcfid( l,llrB ,rBn#Hm{(Iltdul(al pEnnoalssl.
  • 30.
    #Je:htr ihrs.l$rl.nFtl03cl Td0l0,retuas.:lJflr i20l2 {$ FxtsdrEr lttcto Aras S rrdr,2-l2(G) J&r ftara 8{al 4flm filA]tc Td : frl*I}7s 7873 F{(3 :033iyl 0695 ilo- Fd OSC t{o. FC J&ten trhmprEE€. (Ba eda) T+tf Cd gBn Psn+ t (s.!.rli Eir* di EarE Al lild(lmal Pem*{ Fun 0 EPA l{anra ABnal tlo. Tsbf(n tlo. hl$ Psosuea trlr( Da{hrBa I'lo. HP l*rJllat F8nfldm t'lo. Talefcfl PcQa$a fli{ Dhhrqi i ib. HP Kal€{od Pnid(' Ja* P€.naiB,l' &ris P€rmotEigr. BAflAGIA AT ml&l,lIAT FnGl5l( Ei l(o4*od b.rtitfi nr€rqd( Padren Bflzrg EdEqi A 29
  • 31.
    THqikr-.t, OSCIPSo1.l0 Phdsfll JSri{t PllliSr|rnglt{OBCI Trl ltua*uesI J3}si20l2 |i}Mr &nn fkrg Alrs 8sn{l , 2l 2 (G) J.En Ray. 8:rat T.l :03*tYS 7873 4llool(LAt'lc FeIe:03+371 oBs Pardual E{a o BalE i.r A X, i(abgod h*t 3. JrriE Prfidldr.n 1- J. r PfiEitlir fi.d !{aL{ri Pni.l Ihtl* A PiEi6hEaEe ftli6k Ed.ifl ddFada trlieh dib.rdr kd E C O E s PEi6kgin. l(firrdan $d FEiqhIalg b.rforEqlran &ra tG.ruden,lrel lBtO I PEisk lkri.ai ftli€h dilatranahan da! dadrar agErEi pdat5fle kEdeer D PEi.h ldpd( Iinggi Fllish lrrg dilutrd(an 't{aford lm65tll6nl Corn nitE E PlEish P€lahnar Adrs ftEiEhyrrg dheah*an E6b{d p6hburtl chg ohh .g.rEi Ftt.l abu ltuil l{.Lfli Plli.f llstdt A Psltlir*lar PrEid( E€lrttdra EatEia B P€ntan$nal BaGtnpx B€taEaipsnqu dd*t sati LBean c Ka ril PmiC( iofirril arlaia o hdrlti, fuddroal Prcid( indrdriJ n€rtilarEall teheb F hdiri Lah-t.an lr{t(Ei }rnr Eaprrli ssbbh . ,rrqid" ds,rEfr oreng r'lri. gEEi. drr lll'!+iI J€dr pgtraiuar s6lin lem dnlad(rr tf, ebs !(od Jrnia PrrlEiIran Odr*i s0t ssrgrbk: Hj +loJ+ FB +PJ PrihC Tan$ F€cdt s€nE dEn d'| ub.h Slzr.q + thbErBran lJ.larcang + Pclir BrlgnEn + ftla.t l(qurutran A(u S6rfitsk : PP+ lO, +PB +PJ Psihel T.ll$ f.nlilahin Bdik da PErt.irditrfl S€mrbl + lftbert,e.l llEralcang + klan 8an$nan + P€lan lgiuids.aff A(B sgrglbh: Rl +P8+PJ Psihal Tenn F.cah Sfipdan dar tl bat! Syara$ + ftlafl 8rl$nen + Pqlan (dunrtran A0r toz S€rs|tsk:PF+loJ+PB Ssrslbk: lcl +P8+PJ Pfihal Tani f€rlqrahaa Edih dal PE.rtiirdliLn S€nubJ + K*snaan lrsr4cang +Pqlan EEng'ran XetEn:ar Ue.:m,rd + tuler B'ldrlrn + tulrn |(dututran At0 ,qt1 9-6-!E!8.-: EJ :f P! Ssr tsh: FB + PJ K*anaran ,|lrdltErg + flan EagurEn PC4r S.Igultar + Pdan FsiuuE.a 801 F€lar Benguna! Pdat EdBUnrt {Pg) B(p P€rnil P€nbhaan Ksl Prmil Untlk FsrriinEn Ksdl atsu Peniahfi dan Tanltdr.n lGril !.lare UUX 18 , uKss fi)8{ 8rB PernftSsrnsrtaB B:rElnrr Fsrnit S.nctlrE unbk &nEl,larlstulcr S€mrriaa sdaraE U Uf I B, UI(8S lgN,l a0a P6la Sanihi Pdan dih€nuhElan uriuh rEldd EahEF siE Psl- KonkilTddanE Pdin dhrn ltrhan urnukr.h.d lehie 30
  • 32.
    Mt,t-,/ ll[lrEll S.lrs d.nggl FddllrBltdJJs S€taidra l+nalHan PFrunEh{] dal l+.q8 lgeryigL I 'lsh-n ?01 I irupr.'l .l(lo loGtBE ( ldJ - Iend*e Seragar S€ifrr Ssnd( od(ursl d l S€i{a Se.nd( Teapano &enar lekr*sl oahnEr d AlEk Eerk(Ea Isrp#r (PBT) leltdith 6 tu!tusr 20111 ddn ftiidrlrg Kdlls Sdrar6$la KglEr,l rdl FBruftJEn d.n l+rq.an lsrpEEl Bl. { Tahrl20fl {qttsl Jl(IO.lU}tE,?i13) - I ptsESel8gdr S..ds S6rd(odo,rBnddl Sr(€la S€.rS( leF6arfr &E6r l*nrc L!r6n(Eds Xp2l b.,r rttl 2a F&tusr 20ll). pEndl8Bn Brd# n dl(lrrtu6.l€n FE rggunaal(r€ dr ltl4ll fuhandr& (hr! mua I JdrLsr ,On $eldrE [art$]AErl d*l p.rtEla:i lal(tbdfrlturqpsdlrrqrl.l bdEh dl(ernl-lidrdr [@a. K€ a terE *r J*aHr Ke,aF'l l€rn@n l€ng1Eifi Ferut6lsl dil rsFal Isnp*gl lrs *8. ttr. 5l Perstelgr Fstgla PrEfi t1, 62100 h.riqdra. iup EElEgEn peflrddkEnd{l F€rlnd*rg{ I.mkd) TEl.dm r1]€gql 3m TBAHAG{AI Dr JADUAT KEtlrtlBAll FELAII-FELA|| PE BlllclrllAll TAllAll J$drn Slt.tErtnF|rloBc) Itdtu F.rbiD&rar l{kr9 Aar 8.rr$, 2-11(Gl Jale Rrya Eral 4t i 00 l{LAltlc OSCIPSOi.'t0 Fh@n:l Tzl(h lfu at{uas.:l Jar-sa 20 12 T.l :03.:liy5 7673 FeIs :03.$71 0695 PPfi &rF Tanah Peb,l JsE'l d.fl Paril JaDaun gdnDe dan PsU€Bnst l,latsfsa SlllrlflFye fr{rnmisc d&l lldtrEdEa tlalafeir 31
  • 33.
    M%../ JSdr.6 F0ritsri. Fr{O8Cl It#rM.ar&trn XLlro &as Ba*aI , 2J 2 lcl Jdar Rats Barat 41r m K-AltG OSCiPB,0I.l0 Pndefl:t Tat$,(rei(uesa:l Jsll,ai 2012 Id :03"iliF5 7873 Far(s :03.TFl 0ffi5 ,qhHl geya, trrE bart€Lyai(ar uflul( meflgErl l{eke permoh0flfli @n b6rErrff mnqEsdll:5 b6lu,rE par(ua da alas tldl dB{rtal(}l rrld( pcnnonarial p*o banqunar. TefibEngar: tlhrna: ......................... l.lo. l(8dtefl Lemb{a: ..........-.-...-.-........... T€l: CcF ltrhl LrlltrF Hlp: ..-...-........-....................... U TUI XEG U}BAII PEJIBAT Osyor Teri, a dEh hafitsr BErBuner TandalE Ean : l{arra : Jrf,abn : tlsahhan lErEir+ dan bohh disnnla (old| psgarE laudtc OSCI kral{Jan PansirraJr FlEh pstgar$,Fegaxi bdrrEnJ TadaErgEn : tlrra : Ja$rrn : Taiti : Ianddarpan tLnr. JarEbfl Tadhrr BACI FER ONOTAH TI&AI( TEIIG I$P Jabalan ldd( daoet anelErvna p0rmolE r li.fll,h{ral t€rara dolcrmfi ys,lq d*eflrd(al{afi td,3t l€flgl(ap d*{}rl*an: NarE PerE irE nlo. Ksd P€flqe.ul l T&tll Tsfldal5rqar DXnfibdt D dotrnrfi Fl{mdtorrl I Frtln brnourrn lnptdr: 32
  • 34.
    REFERENCES I Application form- http://www.slideshare.net/hafizeswan/mpk- senarai-sema k-permohonan-pela n-banguna n-kuatkuasa-010112 I Playground facts- http://www.houselosic.com/home-advice/home- thoushts/how-to-set-plaveround-built-i n-neiehborhood/ I Flowchart- https://www.soogle.com/search?q=a pplication+form+to+build+plav ground&biw=1366&bih=633&source=lnms&tbm=isch&sa=X&ei=7J F 1VYmzL8v78QXo74GQCw&ved=0CAYQ AUoAQ#tbm=isch&q=flow+ chart+in+proposing+plaVground&imqrc=IxEWIVUGOH id- M%253A%3BW AJbrtM BP qF aM%3Bhfip%253A%252F%252Fwww.r eferenceforbusiness.com%252Fbusiness- plans%252Fimases%252Fbph 03 imso180.ips%3Bhttp%253A%252 F%252Fwww. referenceforbusi ness.com%252Fbusiness- pla ns%252FBusiness-Plans-Volume-03%252Flndoor- Plavsrou nd. html%3B391%38331 I Playground safety- http://plavgrou ndsafetv.o rglsta nda rds/resu latio ns 33
  • 35.
    TAYLOR'S UNIVERSITY Wisdom . lntegrity- Excellence FOUNDATION IN NATURAL AND BUILT ENVIRONMENT JANUARY z0ls INTAKE INTRODUCTION TO THE CONSTRUCTION INDUSTRY (asB 30105) PROPOSAT REPORT TO BUITD A NEIGHBORHOOD COMMERICAT AREA IN BANDAR BUKIT TINGGI 2 NEIGHBORHOOD AREA NAME: tOO SIAH MONG STUDENT lD:0321995 TUTOR: MS ANN SEE PENG SUBMISSION DATE:9th June 2015 lll
  • 36.
    lntroduction ln a groupof 3 students, we need to find a specific empty land to initiate a small construction project. The land is located at Bandar Bukit Tinggi2, Klang , a big empty land that is sunounded with residential area, industry area , commercial area, and also religion area. The size that I choose is between 50m x 70m (3500m2) from the empty land to propose a neighborhood commercial area. 1 . To propose and make use of the empty land. 2. Provide a comfortable area for the residents 3. Make the empty land useful and interesting to attract residents to stop by. 4. Provide a good circulation of road system. 5. Create more interactive spaces and awareness about self-sustainable living. The Neighborhood Gommercial is intended for small sites in or near dense residential neighbofioods. The zone encourages the provision of small-scale retail and service uses for nea6y residential areas.
  • 37.
    Suggested uses areneighborhood scale commercial, professional, and office uses such as individual medical ,offices branch, banks, small service establishments, day care @nters, convenience stores with limited hours of operation, small restaurants, small cafes and smaller public facilities. Examples of uses which are considered unacceptable include fast-food restaurants, 24- hour convenience stores, car service Centre and gas stations. Near and convenient for residence nearby to c,ome over. Not too crowded as compare to hypermarket Encourages municipalties and/or developers to plan for new and infill housing in the area within walking distance of its designated downtown, village center, new town center, or within its designated growth center and incentivizes needed housing. Supporting the commercial establishments in the designated centers. The timing and intensity of neighborhood commercial development are controlled by the maintenance of an acceptable level of service for roads and other public services, the availability and capacity of public utilities, and growth of nearby population to provide adequate market support for limited business activity. The space of the site is fully utilized. 1. 2. 3. 4. 5. 6. )
  • 38.
    lmpacts of neiqhborhoodcommercial L The timing and intensity of neighborhood commercial development are controlled by the maintenance of an acceptable level of service for roads and other public services, the availability and capacity of public utilities, and growth of nearby population to provide adequate market support for limited business activity. lntroducing neighborhood commercial uses closer to residential neighborhoods help to achieve that goal by reducing the number and lengith of automobile trips. Some nearby residents might even value the opportunity of having some neighborhood ommercial uses iust a short drive away or within walking distane. The project site is located Bandar Bukit Tinggi 2 surounded with housing area. The vicinity of the project site, is a minor site housing area develop with housing commercial area serving with neighborhood-serving commercial, retail, and restaurant, caf6 uses to the nearby residence .The south area of the empty land that l'm proposing is a commercial area with major car shops and police station. 3
  • 39.
    About Mv Site 1.lt's a neighborhood commercial area. 2. lt's a 50m x 70m (3500m2) site. 3. A total 7 shops in it includes bank, day care Centre, small restaurant, clinic, cafes and office branch. 4. There are three entrances and two exit. 5. The parking lot is placed in front of the shop and its vertical parking lot. 6. lt is near from few blocks of housing area. 7. Residents around can also walkover cause it is near. 8. There is a police station in front of the neighborhood commercial area. 9. lt is not over crowded place. 4
  • 40.
    Location Plan Mv SiteSitePlan & l.'r I .t' -'f s .-_-t---.i--- m),j1 *--T" W rNint 5
  • 41.
  • 42.
  • 43.
    Justification The reason whyI choose this empty land is because it is a large piece of land which enable us to to or build whatever we want. We should utilize the place by building a usefulfacilities on it. Before we utilize the site for something, we must also solute the main problem of the site. For instance , green plant can be planted at the site to make it more sustainable. Observation before buildinq a neishborhood commercialarea Before constructing a project , there are few things to be consider 1. Before proposing a project, we must considered of the building surrounding the site. 2. Propose a suitable places such as recreation area, commercial area, industrial area, agricultural area, tourism area , residential area and etc if it is suitable to build at the site. 3. Make a list of the residents priority. 4. Consider of the functionality of the facilities. 5. Think about the concept of the buildings. 6. Plan for a better road system , sewage system and drainage system of the site. I
  • 44.
    The residential areaaround the empty land. There are quite lots of row surrounded the empty land. The project team explore a variety of possible idea and concept that could be apply on this area after conducting the site analysis. As a result, in the end of the project, this site that we chose will function as a neighborhood commercial. |l
  • 45.
    proiect. A double storyneighborhood commercialarea A building with double story where goods or services are sold at a store. A double story building is built because it saves a lots of spaces and as forthe second floor is more quiet and peaceful. Urban agricultrre is the prac*ice of cultivating, prooessing, and distributing food in or around a village, town, or city. Urban agriculture can also involve animal lt
  • 46.
    A one wavroad svstem husbandry, aquaculfurc, agrofolestry, Urban beekeeping, and horticulture. These activities occur in peri-u6an areas as well. A system that goes rith vehicles can only go one ways to reduce traffic jam. A combination of one way system , a double story shops and an urban agrlculture will be built to utilize the empty space. Traffic light and rubbish bin will be provide to keep the surrounding clean and save to walk at night as there is police station nearby. Vegetation around will be maintain clean as there will be cleaner to clean it once a week. Residents nearby can come by in a short period of time. Clinic will be built and open lor 2417 to provide service for the residents. a a t5 E+
  • 47.
  • 48.
  • 49.
    TAYLOR'S UNIVERSITY Wisdom.lntegrity Excellence NTRODUCTIONTO CONSTRUCTION INDUSTRY THE F]NAL PROJECT PROJECT BRIEE TUTOR: MS . ANN SEE PENG PREPARED BY: LOO SrAH MONG (0321995) MELANTE SOON (0322321 ) 'iii' LEE FONG YEN (032791 6)
  • 50.
    1. ]NTRODUCTION 1 .1 PROJECT DESCR]PTION The name of my project proposal is "Athena", it is set on a 50x70 metre piece of land Iocated in Bandar Bukit Tinggi, a 6 unit residentiaf area along with a smaff recreational area amongst another residential area, The concept of these houses are to be a- framed houses that is mainly built from concrete and wood with majority of greeneries surrounding the units. There will also be a small area of tress and plants to promote the idea of a Eco-friendly community as well as walking tracks, a small pond, a lawn and also lounge areas with sail roofs to promote exercisj-ng and outdoor social activities. Main reason for this obj ect. is to create a place for people to get together in a community that is sustainable, safe, cfose-knit and a cIean.
  • 51.
    T.2 SITE ANALYSIS Thissite is an empty pi-ece of land surrounded by residential, industrial, education and as weII as religion areas. A site analysis has been conducted and is proven to be suitabl-e for the construction plan, the reason to this are as mentioned below: . high walkabil-ity within areas . open space lawn . good accessibility from the main road . open lawn avaifable to develop into a recreational area . unused space to plant more greenerj-es . accessibility from other residentiaf areas 1.3 OBJECT]VE A. TO PROV]DE A UNIQUE AND RARE CONCEPT EOR RESIDENTS B. TO IMPROVE AND MAKE USE OE THE EMPTY AND FREE SPACE C. TO CREATE A SPACE THAT CELEBRATES THE BEAUTY OE THE NATURAL ENV]RONMENT SURROUNDING THE UNITS D. TO PROMOTE A DIFEERENT KIND OF CONCEPT TO THE NEIGHBOURHOOD
  • 52.
    7 .4 BENEFITS A.GREENER]ES THAT PROVIDES A COOLING AND RELAX]NG ATMOSPHERE AROUND RES]DENTIAL AREA B. UN]TS ARE MAINLY MADE OUT OE SUSTAINABLE WOOD AND CONCRETE WH]CH ELIM]NATES THE HEAT C. RESIDENTS GET TO REACH THE PARK WITHIN A SHORT WALKING D]STANCE D. ENHANCES AESTHETIC VALUE E. GOOD SECURITY SERVICE PROVIDED WITH A GUARANTEED FENCE-EREE COMMUN]TY F. CATERS RES]DENTS THAT ARE EOND OF A GREEN COMMUN]TY
  • 53.
    2. SITE INTRODUCTION A70 x 50 METRE SITE HIGHLIGHTED IN ORANGE; AS SHOWN BELOW, IT IS SURROUNDED BY RESIDENT]AL AREAS AND ALSO AN EDUCATIONAL AREA WH]CH ARE BOTH W]THIN WALKABLE DISTANCE 3n Perusahaan 22 IoJ 'usahaan 20 (_ 9t o) l tn O) c z_ 3 N) (o l I u) D_ - cll o, c 2 o, 3 (, cr) E -q z:, (! o c s(E _- t(- 9t- 0) f ao, 3o) ) -.J Asia Educational e Jalan BatL Academy sekolah Kebangsaan Kampung ldaman tl ro o f q, c z q) 3 Prozen Ma* And Service! ?_t L
  • 54.
    2.1 PROJECT CONCEPT A. A-FRAMED HOUSE The main concept of my project are a-framed houses, they are very unique and they stand out in the crowd, something absolutely rare in Malaysia that you don't see everyday. B. SAIL ROOES Saj-I roofs are gradually increasing in today, w world, it is perfect for blocking out the sun ray; residents can relax under the shade of the roof and enjoy a small picnic or a gathering on the grass.
  • 55.
    C. SMALL POND Theirregular small pond will be made out of granite rocks and ginormous stones along with shrubs and trees, implementing a natural environment-Iike atmosphere and surroundings.
  • 56.
    2.2 PROJECT SUMMARY 1.Current grass will be replaced by carpet grass (bentgrass) 2. Smaf I lamps wil-I be instal-led along the walkway, lounge area and also the pond 3. SaiI roofs wiII also be placed to function as shades for the park 4. A walkway wiIJ- be paved to promote walking around the park 5. Majority of trees wi-Il be placed around the whole park to provide a more cooling surroundi-ngs for the residents while taking a walk 6. A 6 sitter bench is instal-Ied for the comfort of the residents during a picnic 1. Pond wil-I be made and improved with fishes and water lilies to make it aesthetically pleasing B. Each A-framed houses will have both front and back decks for any activities or relaxation 9. Pine wood wiII be j-nstall-ed as decking 10. Free space around the units for plants, trees and lawn 11. Road circulation surrounding the house unitsi easier access for fire fighters and rra l i na i/vtf?? 72. Front yards big enough to cater 2 cars
  • 57.
    3. VISUALS 3.lPROJECT PLAN EE E E [y t----- lffimo ct H 6M. HOUSE UN]T MEASUREMENTS LEGEND Ft I'o-' PQ sou,4tr, ou,r** l[]ll o^* l'.'l urtn^ ,^'r, D un* ro, ffi eo", U Loxr
  • 58.
    3 .2 BUBBLEDIAGRAM
  • 59.
  • 60.
  • 61.
  • 62.
    This torm take0-25 minutes to APPLICATION FOR APPROYAL OF BUILDING PLANS lS€ction 5 ofthe Building Control Act (Cap.29 )l Commissioner of Building Control Building & Construction Authority 52 Jurong Gateway Road # 1 1-01 Singapore 608550 Wabsitei http: /./wwr. bc a.gou sg/ INSTRI ICTIONS (l) One copy ofthis folm is to be submittod. If an item is not applicable it is to be indicated as 'N/A'. (2) * Delete accordingly. (3) Please tick (y') in the appropriate boxes. (4) This form is to be filled in BLACK INK only. SECTION I (To be completed by Developer) (1) I hereby apply for approval ofbuilding pians for:" Project Reference Number: 1b5E- o17l Description of building works: o'*.ol glvV, y oa,it V/ OY FS *LotPlot: Address: t{/* *TS/MK: rl /l' Ll A,^3 at"*<o Y , lAl" o;trv' a Name of development: fLta a (2) ln accordance with section 8(lxa) ofthe Act. I have appointed MrtapiC 9voh. as the qualified percon in respect ofthe building works herein described. The builder will appoint the qualified person for the purpose of section I I (l Xd)(i). UEN (ifcompany) a.nd Name and Address ofDeveloper SM ArrrM+o/+g 1A 1 1 at ,tn '[t 1',rtn , rbu^+ XctvkrT, 4o lro s hlh ktan.. Name & Signature ofDeveloper (in the case ofa company include the designation ofthe autho sed signatory) MTlALrb fuba. TelNo.:01rt-J601942 NRICNo./PassportNo.: $O [>*- LO -, >1 I Date: 1 lta"n VO l( sIcrtoN Ir (To be completed by Builder for Design & Build project where he is appointing the qualified person under section llOXdXD) (l) I am appointed as the Builder under section I I of the Building Control Ac1 and in accordance with section I I ( I )(d X i) ol Lhe Act- I have appoinied Lao liah M or,-l as the qualified person in respect of the building works herein described. Name and Address of Builder Lo o fults*vu*+iw, },tr,r. P7Q . L, 1n4n LluV*u"6-tY , lLa+ h l'J/Yva^ig t 4Ol,ro f Lln*1', t{l^-pr. Name & Signature of Builder (in the case of a company include the designation of the authorised signatory) l,ov U1t'1.t laailA rerNo.: ol6 -11q1+11. NRIC No./Passport N o.t qe06y1 - lO - 1.1{$ Date: 1 *t^"ozow SECTION lll (To be completed by Qualified Person) (1) I confirm that I have been appointed under seation 8(lxa) ofthe Act as the qualified person in respect ofthe building works herein described. I certify that the building works shown in the plans submitted with this application are in accordance with the Act and the building regulations, subject to such waiver/modification granted under section 6A ofthe Act. BPD_BPO3 lver 2.l_Jan 20151 page I of7
  • 63.
    This form maytake you l0-25 minutes to complere. (2 I hereby declare that the particula$ required for this application and as stated in these forms arc colrect. (3) Waiver application forms *are attached/not applicable. BPD_BPO3 lver 2.I_Jan 20I5l pago l of7
  • 64.
    (4) D Icertify that the requirements of the relevant Technical Authorities/Depafiments have been complied with and respective clearances as listed below are attached. Technical Department/Authorities Technical DepartmenYAuthorities (a) LW$aaa P<yA+& Man1ttn (0 (b) 4n^^+^ r...la,lUnr*l lurh.,J. (e) (c) t,Ad,llil Y-orbaJa,-a" b,,.1* (h) (d) l-<'''r6}.,tr' (D (e) (i) ii) r will obtain the outstanding clearance(s) 1ro^ )ab a*aa b a"lnn'r+ (state rechnical departments) before the application for Temporary Occupatioi Pemit Statutory Completion (CSC) in the event that there is no need for TOP I confirm that - D ii) planning permission for the building works is not applicable: the building works have been submitted to the ChiefPlanner, Urban Redevelopment Authority under the lodgement scheme; or planning permission for the building works is applicable and has been granted by the Competent Authoriry. The wriLlen perm ission "rogerher u ilh fte approved site plan t fif, inDC Olotl2b is attachcd/is granted under eleclronic submission. I hereby declare that (ifitem (ii) or (iii) is ticked): ttl / (a) Submission (b) the building plans do not deviate from the plan submitted to URA as lodgement under No: t- q1t+7t - 5rt , the building plans do not deviate from *approved plan ( )inDC /Electronic submission approval no: (c) )inDC /Electronic submission approval no: These minor deviations are covered in the list of items exempted from Planning Permission as issued by the Competent Authority. the building plans contain minor deviations from *approved plan ( BPD-BPO3 [Ver 2.1_Jan_2015] page 2 of 7
  • 65.
    I confirm thatthe provision ofhousehold/storoy shelter work is: n / applicable and I will obtain Notice ofApproval of shelter plans from Special Functions Division of RCA not applicable, the rcason being: (a) There is no residential dwelling house or flat in tho building works. (b) It is addition and alteration wo*s. (c) QP has sought advice with SCDF and obtained a confimation in wdting from SCDF that provision of HS is not required for rcconstruction works. The building works have *not commenced/cor*"n..6 on 8 1 ra t.{, ?Ol( (date) *{ifinithot apemir to carry out building works. t''/- BPD-BP03 [Ver 2.1_Jan 2015] page 2 of 7
  • 66.
    (8) [ confimthat the project: ) ,/ does not involve any complex building stucture. ii) involves one or more ofthe following complex building structures: ' Multiple level tmnsfer structures (2 or more transfer Iloors each carrying 3 or more tlansfer floors) or cantilevered transfer structures (carrying 5 or more floors). ' Non-vertical/inclined structuml elements (with offset of floor plate is more than 3m from the edge of the floor above or below). ' Structures with unconventional geometry (e.g. dome or arch-shaped). ' Large span stnrctures (with span more than 40m) or large cantilever span structures (where cantilever span is more than 8m). Obtained a letter from our Building Engineering Group after completing pre-consultation session on the structuml concept of the complex buildings. The Pre-consultation Completion Letter Reference No. is (Note: Ifsuch pre-consultation has not been made, please arrange for it before any building plans can be processed). tTTV plans and calcularions are - (9) i) not aPPlicable; ji) / applicable and a set ofthose calculations are attached. Altemative solutions are : il ,./ adopLed (schedule ofalternari,e solution a(ached)l ( l0) ii) not adopted. Under the Buiiding Control (Buildable Design) Regulations. submission ofbuildability score is - i) Applicable a set ofthese calculations (Form BPD BS01) is attached. The buildability score is for GFA of m2. The planning permission was lstapplied on (state the date). Buildability score submitted in the previous BP submission and is unchanged iit ,/ Nor applicable: Planning Permission requiremenrs: GFA < 2000m2 (planning permission applied after I Jan 2004). GFA < 5000m2 (planning permission applied before I Jan 2004). Planning permission applied before I Jan 2001. / waiyer obtalned. Exempted. (u) BPD_BPO3 [Ver 2.l-Jan_20I5] pa5e 2 of 7
  • 67.
    (12) Category ofbuilding(for mixed developments, more than I box may be ticked) Residential (landed) ,r/ Residential (non-landed) Commercial Institutional and others (13) Other documents necessary for the consideration ofapproval ofthe building plans are attached herewith. Address of Qualifi ed Person 4L, Jaan Wbah, V$ l+1,0 , tywAl )al*ory r +olVon64sl"Ata.mr k,lay' Name & Signatur€ ofQualified Person Lt| A,H(A Yh-l avk|-11t11 1lr{tw rerNo.: (916 -t01V bS Fa* No., O-1O1rc1X4 ResNo. (*Arch/PE): l4al6l Date: o1 ,!.*- ?otp BPD.BP03 [Ver 2. 1_Jan_20 I 5]
  • 68.
    EXPLANATORYNOTES TO FORMBPD BPO3 & FORM BPD BPO3 APPENDD( 1 (A) APPLTCATION FORM (1) Ei,er] application shall be accompanied by - BPD_BPO3 lver 2.1_Jan_20 iil (a) (b) (c) l set of building plans with the project reference number printed at the top right-hand corner on every sheet of the plans and one copy of the site plan drawn in accordance with the provisions of the Regulations (scale between 1:200 to l:1000); Where applicable, an application(s) for the Modification/Waiver of Building Regulations - Fonn BPD_BP05; and Where applicable, the Written Permission Q.Jotice of Grant of Approval) including only the site plan approved by the Competent Authority under Planning Act (Development Control Division, URA). (d) Clearances from the relevant technical authorities/departments. (e) Where applicable, ETTV submission form (Form BPD_8P04), plans and calculations. Tne plar:s for building works shall be prepared in accordance with the relevant provisions in Part II ofthe Building Control Regulations. The Qualified Person appointed under Section 8(l)(a) ofthe Act shall be according to the type of projects or building works as determined under the Second Schedule to the Building Control Reguiations. The Qualified Person who prepares the building plans shall certif, in accordance with Second SchedLrle of the Guidelines on Submission Applications to Commissioner Of Building Control on eveiy sheet of tlie drawings. hr the case of any building plans for repairs, alterations or additions to an existing building issued rvith a Certificate of Statutory Completion or a Temporary Occupation Permit - Where rhe Qualified Person who prepares the building plans reasonably suspects that the building works may affect the structural stability or integrity of the building, every sheet of the drawings shall bear a cefiificate from a Professional Engineer (Civil) or (Structural) as follows:- u, hereby certiry that I have inspected the existing building and investigated its overall stmcture and that, in my opinion, the building is capable of resisting the forces and mor:ents lvirich may be increased or altered by reason of the repairs, alterations or additions shorvr in the building plans". 4 'lvtL l,olq (2) (3) (4) (s) Stamp & Signature of Pro page 2 of 7
  • 69.
    Buiiding developments withProvisional Permissions ("PPs") issued before 15 September 2000, are required to comply with the Singapore Broadcasting Authority ("SBA")'s directions and recommendations concerning the installation and provision of cable-ready Master Antenna Television (MATV) system. Buildrng developments with Provisional Permissions issued on and after 15 September 2000, are required to comply with the Info-communications Development Authority of Singapore ("IDA")'s directions and recommendations in accordance with the Code of Practice for Info- Communications Facilities in Buildings ('COPIF). For buildings, which are six storeys and above, developers are also required to comply with the "tap off-pipes" directions issued by SBA. A ietter from the Qualified Person indicating receipt and retention of Singapore Cable Vision's Certificate of Cable Readiness must be submitted before the issuance of the Certificate of Statutorv Completion. The Qualified Person shall indicate whether the project falls under the complex building criteria by slrbmitting the folm BE-EP-ANNEX C completed by the Qualified Person for Structural fublks, together with the first building plan submission. For project involving complex buildings, piease a;'range lbr a pre-consultation session with our Building Engineering Group before making application lor the approval ofbuilding plans ofthe pro.ject. (B) TEE CO]?II]IJTATION FORMAT (APPENDIX 1) Orre copy o1'this form is to be submitted. Pev:r;ni of fees shall preferably be made by cheque in favour of the "BUILDING & CON STKiJ CTION AUTHORITY, SINGAPORE". The statistical gross floor area (SGFA) means the aggregate of the "gross floor areas" and "other areas". A certiiled true copy of forms submitted to URA Development Control Division on the Statistical Cross Floor Area (PR l6GyEDA is to be attached for the purpose of confirming building plan iees. Please ensure that PR 16G also reflects other areas such as carpark, swimming pool and otiers. Ilalterations to an existing building or amendments to an approved plan under SN (3) involve an increase in the floor area, the fee for the new area shall be computed according to S,N (1). BPD_BPO3 lver2.1 Jan 201i] (6) (7) (1) (2) (3) (4) (s) pa$e 2 of 7
  • 70.
    5. ]MAGES POND LOUNGE AREA SAILROOF HERRINGBONE WALKWAY PICNIC BENCH BENTGRASS