Embed presentation
Downloaded 43 times































































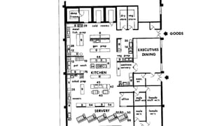
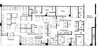
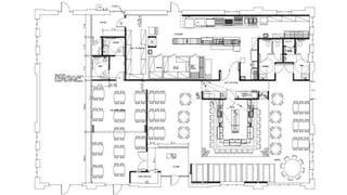
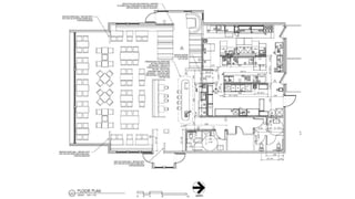
The document outlines key design principles for hotels, showing the link between different zones like parking, entrance, lobby, waiting area, administrative offices, toilets, restaurant, and guest rooms. It includes a bubble diagram mapping the flow between these areas and provides examples of massing and skin design considerations to tie the overall form and facade together cohesively.





























































