SOP: MAG-PEL1-SSOP- Handrail Fabrication SJP
DATE: 4/22/2016
REV:0001
RESPONSIBILITY: Magnetation Management
1.0 SAFETY
1.1. PERSONAL PROTECTIVE EQUIPMENT
 High Visibility Clothing
 Ear plugs
 Safety glasses
 Steel toe shoes
 Hard hat
 Welding gloves
 Face shield
1.2. HAZARDS
 Motion — : Pinch / Slip / Trip / Burn
 Welding
2.0 TOOLS/RESOURCES REQUIRED
 Mechanics Tool set (various Wrenches) 3/8”-15/16”
 Welder
 Grinder with cut off/grinding/buffing wheels
 Speed square
 Portable band saw
 Pipe wrap
 Framing square
 Soap stone/Permanent marker
 Tape measure
2.1 Materials:
 1-1/2” Black Pipe
 4”x1/4” Flat stock (toe plate)
 ½”-5/8” Bolts/washers/nuts (depending on mounting)
 Angle Iron (varies depending on application design)
MAG-PEL1-SSOP- REV: 0001
CONFIDENTIAL AND PROPRIETARY – MAGNETATION
Safety:
Welding curtains
Faceshield
Welding gloves
LOCATION:
Various
TASK DESCRIPTION:
0.5 Fabrication and erection of fabricated handrail.
1.0 PURPOSE:
Design/installation of safe handrail in accordance with industrial standards and codes.
2.0 SCOPE:
Specifications and design requirements.
4.0 PROCEDURE:
Specifications
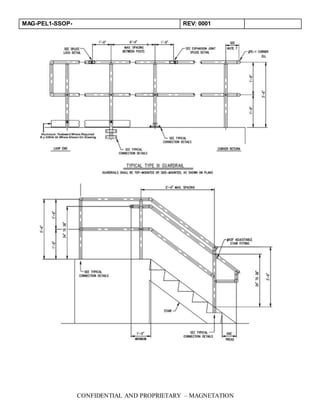
1. Railings shall be shop assembled in lengths not to exceed 24 feet for field erection. Railings shall be
Field assembled to any length as needed in accordance with specifications as listed and designed
2. The handrail shall be made of pipes joined together with component fittings
3. Railings shall be 1 1/2" Schedule 40 Black pipe Post shall be 1 1/2" Schedule 80 Black pipe. Post
spacing shall be a maximum of 6'-0". Distance between handrail ends (2 separate pieces) cannot exceed
3”. No opening of guarded areas can exceed 3”
4. Guardrails and Handrails shall be designed to withstand a 200lb concentrated load applied in any
direction and at any point on the top rail. Guardrails and Handrails shall also be designed to withstand a
uniform load of 50 lb/ft applied horizontally to the top rail. Uniform loads are not to be applied
simultaneously with the concentrated loads.
5. Intermediate railings shall be provided such that a 21-inch diameter sphere cannot pass through any
opening.
6. Intermediate railings shall be designed to withstand a horizontally applied normal load of 50lb on an
area not to exceed one square foot including openings and spaces between rails.
7. Posts shall not interrupt the continuation of the top rail at any point along the railing, including
corners and end terminations (OSHA 1910.23). The top surface of the top railing shall be smooth and
shall not be interrupted by projected fittings.
8. The mid-rail at a corner return shall be able to withstand a 200lb load without loosening.
9. Concrete anchors shall be stainless steel type 303 or 304 wedge anchors.
MAG-PEL1-SSOP- REV: 0001
CONFIDENTIAL AND PROPRIETARY – MAGNETATION
10. Toeboard shall be a minimum of 4" high. Toeboards shall be set 1/4" above the walking surface.
Toeboards shall be provided on handrails as required by OSHA and/or as shown on drawings.
13. Finish shall be Yellow safety paint to be applied before installation. Finish can be applied after
installation if it can be safely done with proper safety equipment.
Welding Specification:
1. All welds to be 100% coverage of all connections.
2. All welds to be ground and smooth with no burs. Grinding shall not remove welds to the point of
connections being the same diameter as the material used (IE. 1 ½” Pipe). Exceptions are only given to
splice joints which have a core for welds to adhere to.
3. Handrail Welding calls for D1.1 typical welds. Any personnel welding handrail needs to be a certified
welder (per Magnetation 5g weld certification testing)
MAG-PEL1-SSOP- REV: 0001
CONFIDENTIAL AND PROPRIETARY – MAGNETATION
MAG-PEL1-SSOP- REV: 0001
CONFIDENTIAL AND PROPRIETARY – MAGNETATION
MAG-PEL1-SSOP- REV: 0001
CONFIDENTIAL AND PROPRIETARY – MAGNETATION
MAG-PEL1-SSOP- REV: 0001
CONFIDENTIAL AND PROPRIETARY – MAGNETATION
MAG-PEL1-SSOP- REV: 0001
CONFIDENTIAL AND PROPRIETARY – MAGNETATION
MAG-PEL1-SSOP- REV: 0001
CONFIDENTIAL AND PROPRIETARY – MAGNETATION
MAG-PEL1-SSOP- REV: 0001
CONFIDENTIAL AND PROPRIETARY – MAGNETATION
MAG-PEL1-SSOP- REV: 0001
CONFIDENTIAL AND PROPRIETARY – MAGNETATION
MAG-PEL1-SSOP- REV: 0001
CONFIDENTIAL AND PROPRIETARY – MAGNETATION
5.0 Cleanup
7.1 Remove Trash and debris from in and around work area, especially welding rods.
7.2 Be sure to not leave any tools or excess material in the work area.
7.3 Remove any excess material from the building/platform and dispose of properly or return to keep fill
stock as necessary.
Mechanics to Add any notes concerning work below.
Post Completion Notes:
Description Developer Date Version
Created Document Harley Martin 6/13/2016 0001
Document Revised
MAG-PEL1-SSOP- REV: 0001
CONFIDENTIAL AND PROPRIETARY – MAGNETATION

Handrail Fabrication SJP

  • 1.
    SOP: MAG-PEL1-SSOP- HandrailFabrication SJP DATE: 4/22/2016 REV:0001 RESPONSIBILITY: Magnetation Management 1.0 SAFETY 1.1. PERSONAL PROTECTIVE EQUIPMENT  High Visibility Clothing  Ear plugs  Safety glasses  Steel toe shoes  Hard hat  Welding gloves  Face shield 1.2. HAZARDS  Motion — : Pinch / Slip / Trip / Burn  Welding 2.0 TOOLS/RESOURCES REQUIRED  Mechanics Tool set (various Wrenches) 3/8”-15/16”  Welder  Grinder with cut off/grinding/buffing wheels  Speed square  Portable band saw  Pipe wrap  Framing square  Soap stone/Permanent marker  Tape measure 2.1 Materials:  1-1/2” Black Pipe  4”x1/4” Flat stock (toe plate)  ½”-5/8” Bolts/washers/nuts (depending on mounting)  Angle Iron (varies depending on application design)
  • 2.
    MAG-PEL1-SSOP- REV: 0001 CONFIDENTIALAND PROPRIETARY – MAGNETATION Safety: Welding curtains Faceshield Welding gloves LOCATION: Various TASK DESCRIPTION: 0.5 Fabrication and erection of fabricated handrail. 1.0 PURPOSE: Design/installation of safe handrail in accordance with industrial standards and codes. 2.0 SCOPE: Specifications and design requirements. 4.0 PROCEDURE: Specifications 1. Railings shall be shop assembled in lengths not to exceed 24 feet for field erection. Railings shall be Field assembled to any length as needed in accordance with specifications as listed and designed 2. The handrail shall be made of pipes joined together with component fittings 3. Railings shall be 1 1/2" Schedule 40 Black pipe Post shall be 1 1/2" Schedule 80 Black pipe. Post spacing shall be a maximum of 6'-0". Distance between handrail ends (2 separate pieces) cannot exceed 3”. No opening of guarded areas can exceed 3” 4. Guardrails and Handrails shall be designed to withstand a 200lb concentrated load applied in any direction and at any point on the top rail. Guardrails and Handrails shall also be designed to withstand a uniform load of 50 lb/ft applied horizontally to the top rail. Uniform loads are not to be applied simultaneously with the concentrated loads. 5. Intermediate railings shall be provided such that a 21-inch diameter sphere cannot pass through any opening. 6. Intermediate railings shall be designed to withstand a horizontally applied normal load of 50lb on an area not to exceed one square foot including openings and spaces between rails. 7. Posts shall not interrupt the continuation of the top rail at any point along the railing, including corners and end terminations (OSHA 1910.23). The top surface of the top railing shall be smooth and shall not be interrupted by projected fittings. 8. The mid-rail at a corner return shall be able to withstand a 200lb load without loosening. 9. Concrete anchors shall be stainless steel type 303 or 304 wedge anchors.
  • 3.
    MAG-PEL1-SSOP- REV: 0001 CONFIDENTIALAND PROPRIETARY – MAGNETATION 10. Toeboard shall be a minimum of 4" high. Toeboards shall be set 1/4" above the walking surface. Toeboards shall be provided on handrails as required by OSHA and/or as shown on drawings. 13. Finish shall be Yellow safety paint to be applied before installation. Finish can be applied after installation if it can be safely done with proper safety equipment. Welding Specification: 1. All welds to be 100% coverage of all connections. 2. All welds to be ground and smooth with no burs. Grinding shall not remove welds to the point of connections being the same diameter as the material used (IE. 1 ½” Pipe). Exceptions are only given to splice joints which have a core for welds to adhere to. 3. Handrail Welding calls for D1.1 typical welds. Any personnel welding handrail needs to be a certified welder (per Magnetation 5g weld certification testing)
  • 4.
    MAG-PEL1-SSOP- REV: 0001 CONFIDENTIALAND PROPRIETARY – MAGNETATION
  • 5.
    MAG-PEL1-SSOP- REV: 0001 CONFIDENTIALAND PROPRIETARY – MAGNETATION
  • 6.
    MAG-PEL1-SSOP- REV: 0001 CONFIDENTIALAND PROPRIETARY – MAGNETATION
  • 7.
    MAG-PEL1-SSOP- REV: 0001 CONFIDENTIALAND PROPRIETARY – MAGNETATION
  • 8.
    MAG-PEL1-SSOP- REV: 0001 CONFIDENTIALAND PROPRIETARY – MAGNETATION
  • 9.
    MAG-PEL1-SSOP- REV: 0001 CONFIDENTIALAND PROPRIETARY – MAGNETATION
  • 10.
    MAG-PEL1-SSOP- REV: 0001 CONFIDENTIALAND PROPRIETARY – MAGNETATION
  • 11.
    MAG-PEL1-SSOP- REV: 0001 CONFIDENTIALAND PROPRIETARY – MAGNETATION
  • 12.
    MAG-PEL1-SSOP- REV: 0001 CONFIDENTIALAND PROPRIETARY – MAGNETATION 5.0 Cleanup 7.1 Remove Trash and debris from in and around work area, especially welding rods. 7.2 Be sure to not leave any tools or excess material in the work area. 7.3 Remove any excess material from the building/platform and dispose of properly or return to keep fill stock as necessary. Mechanics to Add any notes concerning work below. Post Completion Notes: Description Developer Date Version Created Document Harley Martin 6/13/2016 0001 Document Revised
  • 13.
    MAG-PEL1-SSOP- REV: 0001 CONFIDENTIALAND PROPRIETARY – MAGNETATION