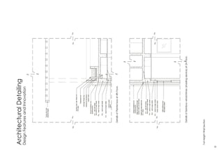
Architectural Design Project
[ARC60108]
Project 1c: Detailed Design and Final Executive Report
Traditional Music Centre
Design Report
Name: Teo Hong Wei
ID: 0322990
Tutor: Mr. Eric
1
Content Page
1.0 Introduction 2
1.1 Abstract
1.2 Introduction
1.3 Project Aims and Objectives
2.0 Site Investigation and Contextual Studies 3-4
2.1 Site Introduction
2.2 Districts
2.3 Sense of Place
2.4 Site Issue
2.5 Macro Site Analysis
3.0 Project Background and Design Intention Strategies 5-10
3.1 Micro Site Analysis
3.2 Design Intention
3.3 Programme – Traditional Music Centre
3.4 Site Strategies
3.5 Design Strategies and Response
3.6 Spatial Programming
3.7 Precedent Studies
4.0 Environmental and Technological Strategies 11-13
4.1 Orientation: Wind and Solar Analysis
4.2 Environmental Strategies
4.3 Sustainability Concept
4.4 Energy Conservation Features
4.5 Material and Resources
4.6 Acoustical Consideration
4.7 Innovations
4.8 Structural Concept
5.0 Final Design 14-25
2
1.0 Introduction
Traditional Music Centre Titiwangsa, Kuala Lumpur.
1.1 Abstract
A Traditional Music Centre built next to the Titiwangsa Lake
Gardens to create a ‘bridge’ between the park and the institutional
buildings to engage people to explore the institutional district which
is too internalized, into the cultural belt, and further into the
Traditional Cultures in Malaysia. The Traditional Music Centre
features making and playing of Malaysian Traditional Music and its
public performances to the park, creating background music for
Titiwangsa, to enhance the sense of place and its identity, which is
a ‘Cultural Haven’. Having the sense of place and the identity of the
place acknowledged by the visitors at the recreational district, the
traditional culture of Malaysia are more likely to be explored, which
prevents the fading of traditional culture in Malaysia.
1.2 Introduction
The aim of the project is to build an Art and Performance
Training Centre in Titiwangsa, Kuala Lumpur. The site is
located in Titiwangsa, right next to the Titiwangsa Lake
Gardens, with Istana Budaya, National Visual Arts Gallery, and
the National Library close by the proposed site. The idea of the
building design is to create an informal Traditional Music
Centre which acts as a connection that connects the
Recreational and the Institutional and Cultural district. It plays
traditional music to the public, to enhance the sense of place
and strengthen its identity, which is an Institutional and
Cultural district with the existing buildings around the place.
1.3 Project Aims and Objectives
 To engage people to explore the cultural district.
 To enhance the sense of place and its identity.
 To introduce traditional Malaysian music to local and
foreign visitors.
 To preserve the making and playing of Traditional Music
Instruments in Malaysia.
 To promote the inheritance of traditional music culture in
Malaysia.
 To educate the newer generations about the essence of
traditional music.
 To provide spaces for the public to learn and train on the
traditional music instruments.
3
2.0 Site Investigation and Contextual Studies
Jalan Tembeling, Titiwangsa, Kuala Lumpur.
2.1 Site Introduction
The proposed site is located on Jalan Tembeling,
Titiwangsa, which is facing the Titiwangsa Lake Gardens
and in the same district where institutional buildings like
Istana Budaya, National Art Gallery and National Library
are located in. Having the site located in the famous
tourist spot, high density of foreign and local visitiors can
be found around the area. A high density of students can
also be found at the site with the existing schools around
the site.
2.2 Districts
The Titiwangsa Lake Gardens feature a huge central lake
that was a byproduct of mining activities under British
rule. The area was cleaned up and developed into a park
after that, and the area slowly became a Recreational
District.
Neighbouring to the Recreational District, in the area
where Istana Budaya, National Visual Arts Gallery,
National Library, and a few schools are located in, a
cultural belt was formed by the institutional and cultural
building in the area, which makes the area an Institutional
District.
2.3 Sense of Place
– ‘Cultural Haven’
The institutional buildings next to the Titiwangsa Lake
Gardens formed a cultural belt within the Institutional
District, which makes Titiwangsa a ‘Cultural Haven’,
where high intensity of institutional and cultural activities
can be found in Titiwangsa.
Key Plan
4
2.4 Site Issue
2.5 Macro Site Analysis
Internalization of Cultural Buildings which leads to Disconnection of Recreational and Institutional
District.
Institutional and cultural buildings in Titiwangsa are too internalized that there is no engagement between the
institutional buildings and its surrounding context, which creates a disconnection between the institutional
buildings and the Titiwangsa park, and lead to the fading of traditional culture in Malaysia.
Node
The location the site is close to the nodes around the area, where many visitors, tourists,
parkgoers, and students will be close to the proposed site.
Edge
The Titiwangsa Lake formed a natural edge between the Recreational and Institutional
District, and the Highways act as an edge between the area and the outer areas.
5
3.0 Project Background and Design Intention Strategies
3.1 Micro Site Analysis
The proposed site is located at the opposite of the Lake Gardens, between an open car park and the office building of Istana Budaya. The huge amount of existing trees at the site makes the site visually hidden,
and with its location, strong individuality is created, where there are challenges to attract and engage people to visit the building.
Visually hidden, covered
by trees, low exposure,
good shading.
Located right next to the
TItiwangsa Lake Garden,
lake view and greeneries.
Two lane one-way road
as the only vehicular
access to the site, may
cause congestion.
Sun Orientation,
Annual wind flow
from South-West.
Site plan
6
3.2 Design Intention
3.3 Programme – Traditional Music Centre
The proposed Traditional Music Centre features informal making and playing of traditional instruments in Malaysia which encourages the public to experience hearing, playing, and making of traditional
instruments in Malaysia. Another main activity in the centre is the Public performaces to the park, to create background music for the district, to enhance the sense of place.
Create a ‘Bridge’ between the institutional buildings and the Titiwangsa
Lake Gardens to engage people to explore the institutional district, and
into the Traditional Cultures in Malaysia.
To enhance the Sense of Place and strengthen the identity
of Titiwangsa - Cultural Haven, by injecting cultural
essence into the park, schools, and residential area.
To preserve the making and playing of traditional instruments in
Malaysia which is fading, and promote the inheritance of
traditional music culture in Malaysia.
Public Traditional Music Performances create background
music for Titiwangsa, to enhance the sense of place and
its identity, as a Cultural Haven.
To attract locals and visitors by audibly exposing the building
which is visually hidden.
Preserve the making and playing of traditional Instruments in
Malaysia, while creating new combination of instruments from
different races to create ‘Malaysian Music‘.
7
3.4 Site Strategies
3.5 Design Strategies and Response
Create an extension of
the park by preserving
greeneries, to engage
people from the park to
explore.
Basement car park is
proposed and the drop-
off point is located in the
basement to reduce cars
on ground, prioritizing
pedestrians.
Vehicular lanes are kept at
the side and back of the site
to reduce area of vehicular
lane in front of site,
prioritizing pedestrians by
creating a safer entrance
with existing greeneries.
Reduce area of east-west
facing facade to reduce
heat gain.
Dividing the building into four
clusters according to the type
of instruments, which is wind,
string, percussion and drum
instruments, with music
studios designed specifically
for each type of instrument to
achieve its best acoustic
performance.
East-West linear arrangement
and 45 degree tilted massing
to reduce area of east-west
facing façade, to reduce heat
gain.
In-between spaces and
smoothened edges allow
better wind ventilation
through the clusters, creating
strong cross ventilation within
and between each cluster.
Linear while concaved
arrangement allow every
clusters to have both lake
view and view towards
Istana Budaya.
Clusters are connected by
bridges, creating a journey
going through every spaces,
which also act as a buffer
zone between each music
studio.
Main human flow comes
from North-West, furthest
block is mainly for services,
including Washrooms,
loading bay, and M&E
room.
8
Create a public realm on the ground floor of the centre by
elevating the clusters, to allow visual permeability and
creating an informal space to engage people to explore,
while the elevated upper floors will have better views and
exposure.
Preserve existing greeneries on site, prioritizing pedestrians in
front of site, creating an extension of the park in front of the
centre to engage people coming from the park.
Semi-open music studios create music that triggers curiosity which
attracts users to explore the building, while the public performance
stage creates background music that enhances the sense of place
and shows the identity of the building and the place, while triggering
curiosity at the same time.
Main building vertical
circulation is located in the
middle of the building, allows
easier access to every
spaces.
Replace Green by having
rooftop gardens and green
pockets around the building,
to reduce environmental
impact of the building to the
environment.
Half floor height difference
between levels to create
better audio and visual
connectivity and encourages
people to explore, connected
by a double sided lift to allow
OKU accessibility. Bamboo wind chimes wraps around
Traditional Music Centre, creating melodies
from natural wind, to attract and act as a
facade feature, with the function of sun
shading device.
The height of performance spaces are raised
up to show the hierarchy of space, and are
designed in such shape to amplify the sound
made to the audiences, while avoiding
occurrence of fluttered echoes.
9
3.6 Spatial Programming
Exploded Axonometric
Ground floor – A Public Realm
An informal public realm is created at the ground floor of the
building to engage the people having informal activities from
the recreational district to explore the building informally.
Public performance stage and Amphitheatre are located in the
public realm to house informal public performance.
1st Floor – Introduction
1A - Starting point of journey, introducing the building and the
Traditional Music of Malaysia to the visitor, where enquiries
counter and making of traditional instruments is placed at.
1B – A gallery to introduce collections of Traditional Music
Instruments in Malaysia to the visitors, and an experiential
space where collections of instruments are placed that are
allowed for public usage.
2nd Floor – Music Studios
Where semi-open wind, string, percussion and drum
instruments Studio area placed, that are specifically designed
for the best acoustic outcome for each type of instruments.
3rd Floor – Formal
The formal and semi-private floor of the building, where the
performance hall and public performance stage are located at.
4th Floor – Gardens
The highest floor of the building, having rooftop gardens for
leisure activity that features the full view of Titiwangsa Lake
Gardens.
Storage spaces are highly needed in a music centre, small
pockets of open/enclosed storage spaces are located all
around the building, serving as both storage and gallery space.
10
3.7 Precedent Studies
Music Pavillion Bad Ischl
Architect: Two in a Box Architekten
Sonorous Museum Copenhagen
Architect: CREO ARKITEKTER + ADEPT
’The Sonorous Museum’ is comprised of four sound regulated studios, acoustically adapted to a
specific instrumental group: strings, brass, percussion and mixed instruments. The four spaces
are designed as interactive classrooms in order to provide visiting school classes with a hands-on
experience of the classical music instruments and their sound spectre.
The basic elliptical shape of the pavilion results from the urban planning situation of the Spa
Gardens and blends in harmoniously with the surroundings. The artist's entrance consists of
a second ellipse connected tangentially to the main ellipse. In order to achieve the most
favorable sound propagation conditions, a roof shape that inclines to the rear was selected
for the main roof which further underscores the dynamic shape of the construction.
11
4.0 Environmental and Technological Strategies
4.1 Orientation: Wind and Solar Analysis
4.2 Environmental Strategies
East-West linear arrangement
and 45 degree tilted massing to
reduce area of east-west facing
façade, to reduce heat gain.
Building is separated into four
clusters, and the in-between
spaces and smoothened edges
allow better wind ventilation
through the clusters, creating
strong cross ventilation within
and between each cluster, to
activate the wind chimes and
reduce usage of mechanical
ventilation.
Front of building directly facing North and the lake, the heat gain on the East-West facing façade is higher.
Annual wind flow direction is from South-West, and due to the slower heat change of the lake than the land,
lake breeze is created, making the site a well-ventilated site.
Replace Green by having
rooftop gardens and green
pockets around the building, to
reduce environmental impact of
the building to the environment.
Create an extension of the park
by preserving greeneries in the
site, which can provide shaded
walkways to engage people
from the park to explore, and
reduce environmental impact.
Bamboo wind chimes wraps
around Traditional Music Centre,
creating melodies from natural
wind, to attract and act as a
facade feature, with the function
of sun shading device, that
effectively reduce heat gain from
the scorching sun.
12
4.3 Sustainability Concept
To build a sustainable building which causes less impact to the environment, greeneries and passive cooling are important elements for a successful Green Building. To achieve the requirements for a
sustainable building, efforts are made from:
 Dividing the building mass into four clusters which creates wind tunnels to allow cross ventilation all around the building and spaces whithin, to reduce usage of mechanical ventilation.
 Most of the spaces in the building are open or semi-open which allows cross ventilation, reduces usage of mechanical ventilation.
 Preserving existing greeneries on site, which reduces environmental impact and heat gain to the building, that reduces usage of mechanical ventilation.
 Replacing greeneries on the rooftop gardens and green pockets, to reduce environmental impact and heat gain to the building, that reduces usage of mechanical ventilation.
 East-West linear arrangement and 45 degree tilted massing to reduce area of east-west facing façade, to reduce heat gain, and reduces usage of mechanical ventilation.
 Usage of bamboo wind chimes as sun shading device which reduces heat gain on building, and reduces usage of mechanical ventilation.
4.4 Energy Conservation Features
 Split levels minimize distance between floor levels, users are less likely to use the lifts.
 Dividing the building mass into four clusters which creates wind tunnels to allow cross ventilation all around the building and spaces whithin, to reduce usage of mechanical ventilation.
 Most of the spaces in the building are open or semi-open which allows cross ventilation, reduces usage of mechanical ventilation.
 Preserving existing greeneries on site, which reduces environmental impact and heat gain to the building, that reduces usage of mechanical ventilation.
 Replacing greeneries on the rooftop gardens and green pockets, to reduce environmental impact and heat gain to the building, that reduces usage of mechanical ventilation.
 East-West linear arrangement and 45 degree tilted massing to reduce area of east-west facing façade, to reduce heat gain, and reduces usage of mechanical ventilation.
 Usage of bamboo wind chimes as sun shading device which reduces heat gain on building, and reduces usage of mechanical ventilation.
4.5 Material and Resources
Building Material
The main building material chosen is reinforced concrete structure with brick infill and concrete wall finishes, timber floor finishes, timber roof, and bamboo façade. Concrete creates a feeling of informality for the
building, which engages people to explore the building informally, while timber and bamboo brings the warm cultural essence into the traditional Music Centre.
Resources
Resources for Traditional Music Instruments making is imported and unloaded at the loading bay loacted at the last block where most services are located at.
13
4.6 Acoustical Consideration
4.7 Innovations
Rainwater Harvesting System Bamboo Wind Chimes
4.8 Structural Concept
The building consist of four clusters connected by bridges and covered by a slightly pitched roof. Having the clusters built up vertically with a few form changes, it can be easily constructed although with curved
building edges. The roof is supported by the main columns coming up from the four clusters, which makes it more stable although it is a huge roof.
 Rainwater Harvesting System is applied on the top of the cluster where the water
tank room and washrooms are located at.
 Rainwater are collected from the roof and transferred into the water tank room next
to the rooftop garden, the rainwater will be stored in the water tank room for the
washroom usage which is directly below the water tank room.
 Each music studios are separated from each other by voids or a buffer space, to avoid vibration of surfaces caused by sound
wave from a music studio to affect the acoustic performance of the neighboring music studios.
 Performing hall is placed on top floor of the building to avoid noise from the lower public realm and the other informal spaces.
 Public performance stages are designed in half-octagon shape to amplify sound towards certain direction, which is important
for public traditional music performances which require sound to travel further without the help of electronic amplifiers which
will reduce the essence of traditional music performances.
 The material selection of the building, which is concrete and timber, helps on the reverberation and reflectance of the sound
wave.
 Bamboo wind chimes wraps around Traditional Music Centre, creating melodies from natural
wind, to attract and act as a façade and building feature.
 Function as sun shading device, which can effectively reduce heat gain from the scorching sun.
14
5.0 Final Design
Site Plan
LG FLOOR PLAN
G FLOOR PLAN
15
1B FLOOR PLAN
2B FLOOR PLAN
3B FLOOR PLAN
4TH FLOOR PLAN
16
SECTION A - A
17
SECTION B - B
18
FRONT ELEVATION
19
REAR ELEVATION
20
21
22
23
ROOFTOP GARDENSPLIT LEVELS
ENTRANCE DISCUSSION & DINING AREA
24
25

Final Studio Project Report

  • 1.
    Architectural Design Project [ARC60108] Project1c: Detailed Design and Final Executive Report Traditional Music Centre Design Report Name: Teo Hong Wei ID: 0322990 Tutor: Mr. Eric
  • 2.
    1 Content Page 1.0 Introduction2 1.1 Abstract 1.2 Introduction 1.3 Project Aims and Objectives 2.0 Site Investigation and Contextual Studies 3-4 2.1 Site Introduction 2.2 Districts 2.3 Sense of Place 2.4 Site Issue 2.5 Macro Site Analysis 3.0 Project Background and Design Intention Strategies 5-10 3.1 Micro Site Analysis 3.2 Design Intention 3.3 Programme – Traditional Music Centre 3.4 Site Strategies 3.5 Design Strategies and Response 3.6 Spatial Programming 3.7 Precedent Studies 4.0 Environmental and Technological Strategies 11-13 4.1 Orientation: Wind and Solar Analysis 4.2 Environmental Strategies 4.3 Sustainability Concept 4.4 Energy Conservation Features 4.5 Material and Resources 4.6 Acoustical Consideration 4.7 Innovations 4.8 Structural Concept 5.0 Final Design 14-25
  • 3.
    2 1.0 Introduction Traditional MusicCentre Titiwangsa, Kuala Lumpur. 1.1 Abstract A Traditional Music Centre built next to the Titiwangsa Lake Gardens to create a ‘bridge’ between the park and the institutional buildings to engage people to explore the institutional district which is too internalized, into the cultural belt, and further into the Traditional Cultures in Malaysia. The Traditional Music Centre features making and playing of Malaysian Traditional Music and its public performances to the park, creating background music for Titiwangsa, to enhance the sense of place and its identity, which is a ‘Cultural Haven’. Having the sense of place and the identity of the place acknowledged by the visitors at the recreational district, the traditional culture of Malaysia are more likely to be explored, which prevents the fading of traditional culture in Malaysia. 1.2 Introduction The aim of the project is to build an Art and Performance Training Centre in Titiwangsa, Kuala Lumpur. The site is located in Titiwangsa, right next to the Titiwangsa Lake Gardens, with Istana Budaya, National Visual Arts Gallery, and the National Library close by the proposed site. The idea of the building design is to create an informal Traditional Music Centre which acts as a connection that connects the Recreational and the Institutional and Cultural district. It plays traditional music to the public, to enhance the sense of place and strengthen its identity, which is an Institutional and Cultural district with the existing buildings around the place. 1.3 Project Aims and Objectives  To engage people to explore the cultural district.  To enhance the sense of place and its identity.  To introduce traditional Malaysian music to local and foreign visitors.  To preserve the making and playing of Traditional Music Instruments in Malaysia.  To promote the inheritance of traditional music culture in Malaysia.  To educate the newer generations about the essence of traditional music.  To provide spaces for the public to learn and train on the traditional music instruments.
  • 4.
    3 2.0 Site Investigationand Contextual Studies Jalan Tembeling, Titiwangsa, Kuala Lumpur. 2.1 Site Introduction The proposed site is located on Jalan Tembeling, Titiwangsa, which is facing the Titiwangsa Lake Gardens and in the same district where institutional buildings like Istana Budaya, National Art Gallery and National Library are located in. Having the site located in the famous tourist spot, high density of foreign and local visitiors can be found around the area. A high density of students can also be found at the site with the existing schools around the site. 2.2 Districts The Titiwangsa Lake Gardens feature a huge central lake that was a byproduct of mining activities under British rule. The area was cleaned up and developed into a park after that, and the area slowly became a Recreational District. Neighbouring to the Recreational District, in the area where Istana Budaya, National Visual Arts Gallery, National Library, and a few schools are located in, a cultural belt was formed by the institutional and cultural building in the area, which makes the area an Institutional District. 2.3 Sense of Place – ‘Cultural Haven’ The institutional buildings next to the Titiwangsa Lake Gardens formed a cultural belt within the Institutional District, which makes Titiwangsa a ‘Cultural Haven’, where high intensity of institutional and cultural activities can be found in Titiwangsa. Key Plan
  • 5.
    4 2.4 Site Issue 2.5Macro Site Analysis Internalization of Cultural Buildings which leads to Disconnection of Recreational and Institutional District. Institutional and cultural buildings in Titiwangsa are too internalized that there is no engagement between the institutional buildings and its surrounding context, which creates a disconnection between the institutional buildings and the Titiwangsa park, and lead to the fading of traditional culture in Malaysia. Node The location the site is close to the nodes around the area, where many visitors, tourists, parkgoers, and students will be close to the proposed site. Edge The Titiwangsa Lake formed a natural edge between the Recreational and Institutional District, and the Highways act as an edge between the area and the outer areas.
  • 6.
    5 3.0 Project Backgroundand Design Intention Strategies 3.1 Micro Site Analysis The proposed site is located at the opposite of the Lake Gardens, between an open car park and the office building of Istana Budaya. The huge amount of existing trees at the site makes the site visually hidden, and with its location, strong individuality is created, where there are challenges to attract and engage people to visit the building. Visually hidden, covered by trees, low exposure, good shading. Located right next to the TItiwangsa Lake Garden, lake view and greeneries. Two lane one-way road as the only vehicular access to the site, may cause congestion. Sun Orientation, Annual wind flow from South-West. Site plan
  • 7.
    6 3.2 Design Intention 3.3Programme – Traditional Music Centre The proposed Traditional Music Centre features informal making and playing of traditional instruments in Malaysia which encourages the public to experience hearing, playing, and making of traditional instruments in Malaysia. Another main activity in the centre is the Public performaces to the park, to create background music for the district, to enhance the sense of place. Create a ‘Bridge’ between the institutional buildings and the Titiwangsa Lake Gardens to engage people to explore the institutional district, and into the Traditional Cultures in Malaysia. To enhance the Sense of Place and strengthen the identity of Titiwangsa - Cultural Haven, by injecting cultural essence into the park, schools, and residential area. To preserve the making and playing of traditional instruments in Malaysia which is fading, and promote the inheritance of traditional music culture in Malaysia. Public Traditional Music Performances create background music for Titiwangsa, to enhance the sense of place and its identity, as a Cultural Haven. To attract locals and visitors by audibly exposing the building which is visually hidden. Preserve the making and playing of traditional Instruments in Malaysia, while creating new combination of instruments from different races to create ‘Malaysian Music‘.
  • 8.
    7 3.4 Site Strategies 3.5Design Strategies and Response Create an extension of the park by preserving greeneries, to engage people from the park to explore. Basement car park is proposed and the drop- off point is located in the basement to reduce cars on ground, prioritizing pedestrians. Vehicular lanes are kept at the side and back of the site to reduce area of vehicular lane in front of site, prioritizing pedestrians by creating a safer entrance with existing greeneries. Reduce area of east-west facing facade to reduce heat gain. Dividing the building into four clusters according to the type of instruments, which is wind, string, percussion and drum instruments, with music studios designed specifically for each type of instrument to achieve its best acoustic performance. East-West linear arrangement and 45 degree tilted massing to reduce area of east-west facing façade, to reduce heat gain. In-between spaces and smoothened edges allow better wind ventilation through the clusters, creating strong cross ventilation within and between each cluster. Linear while concaved arrangement allow every clusters to have both lake view and view towards Istana Budaya. Clusters are connected by bridges, creating a journey going through every spaces, which also act as a buffer zone between each music studio. Main human flow comes from North-West, furthest block is mainly for services, including Washrooms, loading bay, and M&E room.
  • 9.
    8 Create a publicrealm on the ground floor of the centre by elevating the clusters, to allow visual permeability and creating an informal space to engage people to explore, while the elevated upper floors will have better views and exposure. Preserve existing greeneries on site, prioritizing pedestrians in front of site, creating an extension of the park in front of the centre to engage people coming from the park. Semi-open music studios create music that triggers curiosity which attracts users to explore the building, while the public performance stage creates background music that enhances the sense of place and shows the identity of the building and the place, while triggering curiosity at the same time. Main building vertical circulation is located in the middle of the building, allows easier access to every spaces. Replace Green by having rooftop gardens and green pockets around the building, to reduce environmental impact of the building to the environment. Half floor height difference between levels to create better audio and visual connectivity and encourages people to explore, connected by a double sided lift to allow OKU accessibility. Bamboo wind chimes wraps around Traditional Music Centre, creating melodies from natural wind, to attract and act as a facade feature, with the function of sun shading device. The height of performance spaces are raised up to show the hierarchy of space, and are designed in such shape to amplify the sound made to the audiences, while avoiding occurrence of fluttered echoes.
  • 10.
    9 3.6 Spatial Programming ExplodedAxonometric Ground floor – A Public Realm An informal public realm is created at the ground floor of the building to engage the people having informal activities from the recreational district to explore the building informally. Public performance stage and Amphitheatre are located in the public realm to house informal public performance. 1st Floor – Introduction 1A - Starting point of journey, introducing the building and the Traditional Music of Malaysia to the visitor, where enquiries counter and making of traditional instruments is placed at. 1B – A gallery to introduce collections of Traditional Music Instruments in Malaysia to the visitors, and an experiential space where collections of instruments are placed that are allowed for public usage. 2nd Floor – Music Studios Where semi-open wind, string, percussion and drum instruments Studio area placed, that are specifically designed for the best acoustic outcome for each type of instruments. 3rd Floor – Formal The formal and semi-private floor of the building, where the performance hall and public performance stage are located at. 4th Floor – Gardens The highest floor of the building, having rooftop gardens for leisure activity that features the full view of Titiwangsa Lake Gardens. Storage spaces are highly needed in a music centre, small pockets of open/enclosed storage spaces are located all around the building, serving as both storage and gallery space.
  • 11.
    10 3.7 Precedent Studies MusicPavillion Bad Ischl Architect: Two in a Box Architekten Sonorous Museum Copenhagen Architect: CREO ARKITEKTER + ADEPT ’The Sonorous Museum’ is comprised of four sound regulated studios, acoustically adapted to a specific instrumental group: strings, brass, percussion and mixed instruments. The four spaces are designed as interactive classrooms in order to provide visiting school classes with a hands-on experience of the classical music instruments and their sound spectre. The basic elliptical shape of the pavilion results from the urban planning situation of the Spa Gardens and blends in harmoniously with the surroundings. The artist's entrance consists of a second ellipse connected tangentially to the main ellipse. In order to achieve the most favorable sound propagation conditions, a roof shape that inclines to the rear was selected for the main roof which further underscores the dynamic shape of the construction.
  • 12.
    11 4.0 Environmental andTechnological Strategies 4.1 Orientation: Wind and Solar Analysis 4.2 Environmental Strategies East-West linear arrangement and 45 degree tilted massing to reduce area of east-west facing façade, to reduce heat gain. Building is separated into four clusters, and the in-between spaces and smoothened edges allow better wind ventilation through the clusters, creating strong cross ventilation within and between each cluster, to activate the wind chimes and reduce usage of mechanical ventilation. Front of building directly facing North and the lake, the heat gain on the East-West facing façade is higher. Annual wind flow direction is from South-West, and due to the slower heat change of the lake than the land, lake breeze is created, making the site a well-ventilated site. Replace Green by having rooftop gardens and green pockets around the building, to reduce environmental impact of the building to the environment. Create an extension of the park by preserving greeneries in the site, which can provide shaded walkways to engage people from the park to explore, and reduce environmental impact. Bamboo wind chimes wraps around Traditional Music Centre, creating melodies from natural wind, to attract and act as a facade feature, with the function of sun shading device, that effectively reduce heat gain from the scorching sun.
  • 13.
    12 4.3 Sustainability Concept Tobuild a sustainable building which causes less impact to the environment, greeneries and passive cooling are important elements for a successful Green Building. To achieve the requirements for a sustainable building, efforts are made from:  Dividing the building mass into four clusters which creates wind tunnels to allow cross ventilation all around the building and spaces whithin, to reduce usage of mechanical ventilation.  Most of the spaces in the building are open or semi-open which allows cross ventilation, reduces usage of mechanical ventilation.  Preserving existing greeneries on site, which reduces environmental impact and heat gain to the building, that reduces usage of mechanical ventilation.  Replacing greeneries on the rooftop gardens and green pockets, to reduce environmental impact and heat gain to the building, that reduces usage of mechanical ventilation.  East-West linear arrangement and 45 degree tilted massing to reduce area of east-west facing façade, to reduce heat gain, and reduces usage of mechanical ventilation.  Usage of bamboo wind chimes as sun shading device which reduces heat gain on building, and reduces usage of mechanical ventilation. 4.4 Energy Conservation Features  Split levels minimize distance between floor levels, users are less likely to use the lifts.  Dividing the building mass into four clusters which creates wind tunnels to allow cross ventilation all around the building and spaces whithin, to reduce usage of mechanical ventilation.  Most of the spaces in the building are open or semi-open which allows cross ventilation, reduces usage of mechanical ventilation.  Preserving existing greeneries on site, which reduces environmental impact and heat gain to the building, that reduces usage of mechanical ventilation.  Replacing greeneries on the rooftop gardens and green pockets, to reduce environmental impact and heat gain to the building, that reduces usage of mechanical ventilation.  East-West linear arrangement and 45 degree tilted massing to reduce area of east-west facing façade, to reduce heat gain, and reduces usage of mechanical ventilation.  Usage of bamboo wind chimes as sun shading device which reduces heat gain on building, and reduces usage of mechanical ventilation. 4.5 Material and Resources Building Material The main building material chosen is reinforced concrete structure with brick infill and concrete wall finishes, timber floor finishes, timber roof, and bamboo façade. Concrete creates a feeling of informality for the building, which engages people to explore the building informally, while timber and bamboo brings the warm cultural essence into the traditional Music Centre. Resources Resources for Traditional Music Instruments making is imported and unloaded at the loading bay loacted at the last block where most services are located at.
  • 14.
    13 4.6 Acoustical Consideration 4.7Innovations Rainwater Harvesting System Bamboo Wind Chimes 4.8 Structural Concept The building consist of four clusters connected by bridges and covered by a slightly pitched roof. Having the clusters built up vertically with a few form changes, it can be easily constructed although with curved building edges. The roof is supported by the main columns coming up from the four clusters, which makes it more stable although it is a huge roof.  Rainwater Harvesting System is applied on the top of the cluster where the water tank room and washrooms are located at.  Rainwater are collected from the roof and transferred into the water tank room next to the rooftop garden, the rainwater will be stored in the water tank room for the washroom usage which is directly below the water tank room.  Each music studios are separated from each other by voids or a buffer space, to avoid vibration of surfaces caused by sound wave from a music studio to affect the acoustic performance of the neighboring music studios.  Performing hall is placed on top floor of the building to avoid noise from the lower public realm and the other informal spaces.  Public performance stages are designed in half-octagon shape to amplify sound towards certain direction, which is important for public traditional music performances which require sound to travel further without the help of electronic amplifiers which will reduce the essence of traditional music performances.  The material selection of the building, which is concrete and timber, helps on the reverberation and reflectance of the sound wave.  Bamboo wind chimes wraps around Traditional Music Centre, creating melodies from natural wind, to attract and act as a façade and building feature.  Function as sun shading device, which can effectively reduce heat gain from the scorching sun.
  • 15.
    14 5.0 Final Design SitePlan LG FLOOR PLAN G FLOOR PLAN
  • 16.
    15 1B FLOOR PLAN 2BFLOOR PLAN 3B FLOOR PLAN 4TH FLOOR PLAN
  • 17.
  • 18.
  • 19.
  • 20.
  • 21.
  • 22.
  • 23.
  • 24.
  • 25.
  • 26.