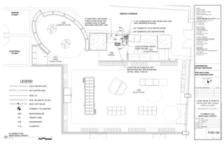
JANITOR
CLOSET
ELECTRICAL
CLOSET
SERVICE CORRIDOR
B.O. VAULT
13'-0"
B.O.F.C.
14'-3"
T.O. WOOD CLG
14'-0"
B.O.F.C.
14'-3"
B.O.F.C.
14'-3"
B.O.F.C.
14'-3"
B.O. WOOD CLG
13'-0"
B.O.F.C.
14'-3"
VAULTEDCEILING
B.O. VAULT
13'-0"
B.O.F.C.
9'-0"
B.O.F.C.
9'-0"
B.O. VAULT
13'-0"
L2
L2
L2
L2
L2
L2
L2a
L2a
L2a
L2a
L2a
L2aL2a
L2a
L2a
L2a
L2a
L1
L1
L1
L1
L1
L1 L1
L1 L1
L3
L3
L3
(2)L6
(2)L6
(2)L6
(2)L6
(2)L6
(2)L6
(2)L6
(2)L6
(2)L6
(2)L6
(2)L6
(2)L6
(2)L6
(2)L6
L4
L4
L3
L4
J
J
J
J
SD7
LOW VOLTAGE WIRING TO REMOTE LED DRIVER
SEE WIRING DETAIL A ON DWG. E-006
LPWS-7
SD1
LPWS-6
LPWS-5
CONNECT VIA REMOTE
LED DRIVER
SD9
LP-WS
LPWS-1
SD5
SD8
SD3
LED TYPE WITH METAL HOUSING AND BATTERY PACK
BRANCH CIRCUIT CONDUIT HOMERUN
EXIT LIGHT-CEILING MOUNTED 120- VOLT
LIGHITNG FIXTURES, LETTER DEMOTES TYPE
LIGHTING CIRCUIT TO DIMMING MODULE
BRANCH CIRCUIT LOW VOLTAGE WIRING
DUPLEX OUTLET 20A-3W. 125 VOLT GROUNDING TYPE.
FLUSH FLOOR MOUNTED TEL/DATA OUTLET W/ BRASS COVER
DUPLEX OUTLET, 20A-120 VOLT, GROUNDING TYPE WALL MTD.
DUPLEX OUTLET, 20A-120 VOLT WITH GROUND
FAULT INTERRUPTER WALL MOUNTED
DOUBLE DUPLEX OUTLET
NON-FUSED DISCONNECT SWITCH
SYMBOL LIST
LIGHITNG FIXTURES ON NORMAL/EMERGENCY CIRCUITL3/EM
SD7
J JUNCTION BOX
GFI
LOW VOLTAGE LIGHTING
TRANSFORMER AND LED
LIGHT BOX LOCATION
FLUSH FLOOR MTD. WITH BRASS COVER & HINGED PLATES
J
JUNCTION BOX WITH 15A-1P-120 VOLT DISCONNECT SWITCH
S
CONNECT TO VIA AUTO TRANSFER RELAY
SEE WIRING DETAIL B ON DWG. E-005
CONN. TO CONSTANT
UNSWITCHED CIRCUIT
CONNECT TO CONSTANT
UNSWITCHED CIRCUIT
TWIST LOCK RECEPTACLESTL
LUTRON LIGHTING CONTROL UNITS
J
J
VIA TRANSFORMER
AND AL DRIVER
LPWS-1
VIA TRANSFORMER
AND AL DRIVER
SD16
PRIMARY STORE
SIGNAGE
(4)LM9
DRAWN BY:
FILENAME:
CHECKED BY:
PROJ. NUM:
ISSUED:
SET:
LEVEL LL2 LL2370
UPPER LEVEL WALL STREET
180 VARICK STREET, SUITE 1316
NEW YORK, NY 10014
P: 212.627.0240
F: 212.627.0242
ANDRE KIKOSKI ARCHITECT, PLLC
ARCHITECT:
UPPER LEVEL WALL STREET
LEVEL LL2 LL2370
WORLD TRADE CENTER, NYC
HENRY MEER
CLIENT:
DOCUMENT:Y:3108ELEC11-07-14-BIDSET3108_E-001.DWGDATE:December4,2014TIME:10:13AM
SEAL & SIGNATURE:
SHEET OF
NO. REVISION/SUBMISSION DATE
LORE WINE & SPIRITS
SC
AK
171 MADISON AVENUE
SUITE 308
NEW YORK, NY 10016
(212) 532-5335
OPIE ATHWAL
MEP ENGINEER
N
PROJECT NORTH
ANDRE KIKOSKI ARCHITECT, PLLC. COPYRIGHT ©2014
137 EAST 25TH STREET
11TH FLOOR
NEW YORK, NY 10010
(212) 674-4488
COOLEY MONATO STUDIO
LIGHTING DESIGNER
7 WORLD TRADE CTR, 250 GREENWICH ST
37TH FLOOR
NEW YORK, NY 10007
(212) 822-1110
WESTFIELD, LLC
DEVELOPER
FOR QAD FILING
FOR CONSTRUCTION
CONFIDENTIAL
DO NOT DUPLICATE
1402
100% CD SET
12.05.2014
E-001.00
3108_E-001
LIGHTING PLAN:
MEER WINE & SPIRITS
1' 2'0 4'
01 1/2"=1'-0"
LIGHTING PLAN:
MEER WINE & SPIRITS
1 10
TL
JANITOR
CLOSET
ELECTRICAL
CLOSET
SERVICE CORRIDOR
102
DOMESTIC ROOM
104
OFFICE/STORAGE
100
RETAIL FLOOR
103
SERVICE
101
LARGE
FORMAT ROOM
LM1
LM1
LM1
LM1
LM1
LM1LM1
(2)LM2
(2)LM2LM1
(2)LM2
LM1
LM3LM3
LM6
LM6
LM6LM6
LM7
(ALL 4
SIDES)
LM7
(ALL 4 SIDES)
LM7
(ALL 4 SIDES)
(2)LM2LM7
(ALL 4 SIDES)
(2)LM2
LM7
(ALL 4 SIDES)
LM7
LPWS-10
J
J
J
J
J
CABINET. TYPICAL
CONNECT TO LM3 FIXTURES
120/24 VOLT 100W. POWER
SUPPLY UNIT IN DISPLAY
LPWS-11
CONNECT VIA XITANIUM
CONTANT VOLATAGE 80W-120/24 VOLT
TRANSFORMER
LPWS-8
TO SD12
LPWS-8
SEE NOTE 8
LOW VOLTAGE WIRING
LOCATE IN
NEW FLOOR SLAB
TO SD10
LIGHT ZONE
COORDINATE LIGHTING FIXTURES LOCATION WITH
ARCHITECTURAL DRAWINGS REFLECTED CEILING PLANS
FURNITURE PLANS AND FIELD CONDITIONS PRIOR TO
INSTALLATION.
ALL LOW-VOLTAGE LIGHTING FIXTURE WIRING SHALL BE
AS PER MANUFACTURERS FIELD INSTALLATION DETAILS.
REMOTE TRANSFORMERS TO BE OF THE TYPE SIZE AND
VOLTAGE RATING AS REQUIRED BY LIGHTING FIXTURES
VENDOR.
REMOTE LIGHTING CONTROL TRANSFORMERS TO BE
LOCATED ON SHELF ABOVE CEILING AND OR AS DIRECTED
IN FIELD BY ARCHITECT.
ALL DIMMER SWITCHES TO BE OF THE TYPE SPECIFIED BY
LIGHTING CONSULTANT AND OR ARCHITECT. LOCATION
OF DIMMER SWITCHES TO BE PROVIDED BY ARCHITECT.
ALL LOW-VOLTAGE WIRE TYPE INSULATION TO COMPLY
WITH ELECTRICAL DESIGN CRITERIA FOR LOW SMOKE
ZERO HALOGEN AND FLAME RETARDANT TYPE.
CONNECT VIA REMOTE DIMMABLE POWER SUPPLY UNIT.
CONNECT TO 120/12 VOLT DIMMABLE POWER SUPPLY
UNITS. COORDINATE LOCATION IN FIELD WITH
ARCHITECT.
ALL LIGHTING VOLTAGE STEP-DOWN TRANSFORMER TO
BE PROVED WITH PRIMARY AND SECONDARY FUSING.
1.
2.
4.
5.
6.
7.
8.
NOTES:
3.
9. J
FLUSH FLOOR
MOUNTED FOR
LMD LIGHT FIXTURES
TYPICAL
S
JS
JJ
J
J
J J
J SJ
S
J
S
J
S
J
S
J
S
J
S
J
S
LIGHT ZONE
LPWS-8
LPWS-8
TO SD12
LIGHT ZONE
TO SD12
LIGHT ZONE
TO 24 VOLT REMOTE
DRIVERS. SEE DETAIL 'A'
ON DWG. E-005.00.
LOCATE 120/24 VOLT DRIVERS
IN CABINETRY. TYPICAL
JUNCTION BOX WITH
120V. 15A ON-OFF
SWITCH. TYPICAL
J
J
J
J
LPWS-11
TO SD14
LIGHT ZONE
LOCATE IN
FLOOR SLAB
POWER SUPPLY UNIT
CONN. TO LM7
FIXTURE. TYPICAL
POWER SUPPLY UNIT
CONN. TO LM2
FIXTURE. TYPICAL
J
TO SD12
LIGHT ZONE
TL TL
TL
(2)LM8
(2)LM8
(2)LM8
(2)LM8
(2)LM8
J
S
J
S
J
S
J
S TO LM8
TO LM8
TO LM8
TO LM8
J
S
TO LM8
LPWS-8
(5)LM8
(5)LM8
(5)LM8
(5)LM2
(5)LM2
(5)LM2
VIA
SD19
LOW VOLTAGE
WIRING IN METAL
CONDUIT CONCEALED
TO 12-VOLT SUPPLY
SEE DETAIL B
LM-5 AT EACH SHELF
ON DWG. E-005.00.
IN NEW CONCRETE
SLAB
TL
J
S
J
S
TO LM2
TO LM8
LOCATE IN
NEW FLOOR SLAB
T
J
CONNECT TO
ILLUMINATED SIGN
120/12 VOLT TRANSFOMER
LPWS-14
VIA LIGHT SWITCH
PRIMARY STORE
SIGNAGE
(4)LM9
DRAWN BY:
FILENAME:
CHECKED BY:
PROJ. NUM:
ISSUED:
SET:
1402
BID SET
12.05.2014
LEVEL LL2 LL2370
UPPER LEVEL WALL STREET
180 VARICK STREET, SUITE 1316
NEW YORK, NY 10014
P: 212.627.0240
F: 212.627.0242
ANDRE KIKOSKI ARCHITECT, PLLC
ARCHITECT:
UPPER LEVEL WALL STREET
LEVEL LL2 LL2370
WORLD TRADE CENTER, NYC
HENRY MEER
CLIENT:
DOCUMENT:Y:3108ELEC11-07-14-BIDSET3108_E-002.DWGDATE:December4,2014TIME:10:18AM
SEAL & SIGNATURE:
SHEET OF
NO. REVISION/SUBMISSION DATE
LORE WINE & SPIRITS
SC
AK
171 MADISON AVENUE
SUITE 308
NEW YORK, NY 10016
(212) 532-5335
OPIE ATHWAL
MEP ENGINEER
N
PROJECT NORTH
ANDRE KIKOSKI ARCHITECT, PLLC. COPYRIGHT ©2014
CONFIDENTIAL
DO NOT DUPLICATE
137 EAST 25TH STREET
11TH FLOOR
NEW YORK, NY 10010
(212) 674-4488
COOLEY MONATO STUDIO
LIGHTING DESIGNER
7 WORLD TRADE CTR, 250 GREENWICH ST
37TH FLOOR
NEW YORK, NY 10007
(212) 822-1110
WESTFIELD, LLC
DEVELOPER
FOR QAD FILING
FOR CONSTRUCTION
CONFIDENTIAL
DO NOT DUPLICATE
FOR PRICING ONLY. NOT
FOR CONSTRUCTION
1402
100% CD SET
12.05.2014
E-002.00
3108_E-002
MILLWORK LIGHTING
LAYOUT
01 1/2"=1'-0"
MILLWORK LIGHTING LAYOUT
2 10
J
RECESSED FLOOR MOUNTED IN
NEW 3" CONCRETE SLAB.
(TYPICAL). SEE DETAIL D
TO 12-VOLT POWER
SUPPLY UNIT.
SEE DETAIL C
SD17
LPWS-12
THIS DWG.
JANITOR
CLOSET
ELECTRICAL
CLOSET
SERVICE CORRIDOR
LM4
LM4
LM4
LM4LM4
LM4
LM4
LM4
LM4
LM4
LM4
LM4
LM4
LM4
LM4
LM4
LM4 (12) LM4
(12)
101
LARGE
FORMAT ROOM
102
DOMESTIC ROOM
100
RETAIL FLOOR
ON DWG. E-005.00.
PRIMARY STORE
SIGNAGE
(4)LM9
DRAWN BY:
FILENAME:
CHECKED BY:
PROJ. NUM:
ISSUED:
SET:
1402
BID SET
12.05.2014
LEVEL LL2 LL2370
UPPER LEVEL WALL STREET
180 VARICK STREET, SUITE 1316
NEW YORK, NY 10014
P: 212.627.0240
F: 212.627.0242
ANDRE KIKOSKI ARCHITECT, PLLC
ARCHITECT:
UPPER LEVEL WALL STREET
LEVEL LL2 LL2370
WORLD TRADE CENTER, NYC
HENRY MEER
CLIENT:
DOCUMENT:Y:3108ELEC11-07-14-BIDSET3108_E-002.DWGDATE:December4,2014TIME:10:17AM
SEAL & SIGNATURE:
SHEET OF
NO. REVISION/SUBMISSION DATE
LORE WINE & SPIRITS
SC
AK
171 MADISON AVENUE
SUITE 308
NEW YORK, NY 10016
(212) 532-5335
OPIE ATHWAL
MEP ENGINEER
N
PROJECT NORTH
ANDRE KIKOSKI ARCHITECT, PLLC. COPYRIGHT ©2014
CONFIDENTIAL
DO NOT DUPLICATE
137 EAST 25TH STREET
11TH FLOOR
NEW YORK, NY 10010
(212) 674-4488
COOLEY MONATO STUDIO
LIGHTING DESIGNER
7 WORLD TRADE CTR, 250 GREENWICH ST
37TH FLOOR
NEW YORK, NY 10007
(212) 822-1110
WESTFIELD, LLC
DEVELOPER
FOR QAD FILING
FOR CONSTRUCTION
CONFIDENTIAL
DO NOT DUPLICATE
FOR PRICING ONLY. NOT
FOR CONSTRUCTION
1402
100% CD SET
12.05.2014
E-003.00
3108_E-002
FLOOR LIGHTING
LAYOUT
1' 2'0 4'
01 1/2"=1'-0"
FLOOR LIGHTING LAYOUT
3 10
SERVICE CORRIDOR
102
DOMESTIC ROOM
104
OFFICE/STORAGE
100
RETAIL FLOOR
103
SERVICE
101
LARGE
FORMAT ROOM
T
J
S
LPWS-25,27
3/4" C TO HUNG CEILING
LPWS-31
LPWS-29
LPWS-24
LPWS-17-22
LPWS-23
LPWS-20LPWS-33
LPWS-19,21
CONN. TO ELEC. HOT WATER HEATER
19
AC UNIT. LOCATED
ABOVE HUNG CEILING
HVAC-1
NOTES:
1.5
SEE NOTE 1 (TYPICAL)
22
FOR PRINTER/COPIER
ESSPRESO MACHINE
3#10, 3/4"C.
30A-2P-250 VOLT
CONNECT TO
CEILING MTD.
REFRIG
COMPRESSOR
LPWS-28
3#12, 3/4"C.
LPWS-26
3#12, 3/4"C.
WINE COOLER
1.
2.
COORDINATE OUTLET
LOCATION WITH
ARCHITECT DRAWINGS
FURNITURE PLAN
AUDIO/VISUAL SYSTEM
VENDOR AND FIELD
CONDITIONS PRIOR TO
INSTALLATION.
COORDINATE OUTLET
TYPE WITH EQUIPMENT
MALE PLUG PRIOR TO
INSTALLTION.
TRANSFORMER LOCATED
ABOVE HUNG CLG. SEE
RISER AND MOUNTNG
DETAIL ON DWG. 05.00
TRANSFORMER FUSED
DISCONNECT SEE RISER
DIAGRAM ON DWG. E-005.00.
AC UNIT FUSED DISCONNECT
SEE RISER DIAGRAM ON DWG.
E-005.00.
LPWS-34,36
6#12, 3/4"C.
LOCATE IN NEW
3" CONCRETE SLAB
LPWS-13,15
13
15
6#12, 3/4"C.
LOCATE IN NEW
3" CONCRETE SLAB
LOCATE IN NEW
3" CONCRETE SLAB
PRIMARY STORE
SIGNAGE
(4)LM9
DRAWN BY:
FILENAME:
CHECKED BY:
PROJ. NUM:
ISSUED:
SET:
1402
BID SET
12.05.2014
LEVEL LL2 LL2370
UPPER LEVEL WALL STREET
180 VARICK STREET, SUITE 1316
NEW YORK, NY 10014
P: 212.627.0240
F: 212.627.0242
ANDRE KIKOSKI ARCHITECT, PLLC
ARCHITECT:
UPPER LEVEL WALL STREET
LEVEL LL2 LL2370
WORLD TRADE CENTER, NYC
HENRY MEER
CLIENT:
DOCUMENT:Y:3108ELEC11-07-14-BIDSET3108_E-002.DWGDATE:December4,2014TIME:10:17AM
SEAL & SIGNATURE:
SHEET OF
NO. REVISION/SUBMISSION DATE
LORE WINE & SPIRITS
SC
AK
171 MADISON AVENUE
SUITE 308
NEW YORK, NY 10016
(212) 532-5335
OPIE ATHWAL
MEP ENGINEER
N
PROJECT NORTH
ANDRE KIKOSKI ARCHITECT, PLLC. COPYRIGHT ©2014
CONFIDENTIAL
DO NOT DUPLICATE
137 EAST 25TH STREET
11TH FLOOR
NEW YORK, NY 10010
(212) 674-4488
COOLEY MONATO STUDIO
LIGHTING DESIGNER
7 WORLD TRADE CTR, 250 GREENWICH ST
37TH FLOOR
NEW YORK, NY 10007
(212) 822-1110
WESTFIELD, LLC
DEVELOPER
FOR QAD FILING
FOR CONSTRUCTION
CONFIDENTIAL
DO NOT DUPLICATE
FOR PRICING ONLY. NOT
FOR CONSTRUCTION
1402
100% CD SET
12.05.2014
E-004.00
3108_E-002
POWER PLAN
MEER WINE & SPIRITS
1' 2'0 4'
01 1/2"=1'-0"
POWER PLAN
MEER WINE & SPIRITS
4 10
WIRING DETAIL-A
NOT TO SCALE
J
LPWS-4
120/24 VOLT REMOTE
TO LOW VOLTAGE
WIRING TO
TO SD-11
LIGHT ZONE
DRIVERS
FIXTURE TYPE LM1
NEW CONCRETE SLAB
FIXTURE TYPE "LM4"
FXITURE HOUSING
EXISTING FLOOR SLAB
3/4" EMT
WIRING DETAIL-B
NOT TO SCALE
J
LPWS-9
120/12 VOLT
LOW VOLTAGE
WIRING TO
TO SD-16
LIGHT ZONE
POWER SUPPLY
FIXTURE TYPE LM5
WIRING DETAIL-C
NOT TO SCALE
J
LPWS-12
TO LOW VOLTAGE
WIRING TO FLOOR
TO SD-15
LIGHT ZONE
LED DRIVERS
FIXTURE TYPE LM4
UNITS
DETAIL-D
NOT TO SCALE
DRAWN BY:
FILENAME:
CHECKED BY:
PROJ. NUM:
ISSUED:
SET:
1402
BID SET
12.05.2014
LEVEL LL2 LL2370
UPPER LEVEL WALL STREET
180 VARICK STREET, SUITE 1316
NEW YORK, NY 10014
P: 212.627.0240
F: 212.627.0242
ANDRE KIKOSKI ARCHITECT, PLLC
ARCHITECT:
UPPER LEVEL WALL STREET
LEVEL LL2 LL2370
WORLD TRADE CENTER, NYC
HENRY MEER
CLIENT:
DOCUMENT:Y:3108ELEC11-07-14-BIDSET3108_E-002.DWGDATE:December4,2014TIME:10:17AM
SEAL & SIGNATURE:
SHEET OF
NO. REVISION/SUBMISSION DATE
LORE WINE & SPIRITS
SC
AK
171 MADISON AVENUE
SUITE 308
NEW YORK, NY 10016
(212) 532-5335
OPIE ATHWAL
MEP ENGINEER
N
PROJECT NORTH
ANDRE KIKOSKI ARCHITECT, PLLC. COPYRIGHT ©2014
CONFIDENTIAL
DO NOT DUPLICATE
137 EAST 25TH STREET
11TH FLOOR
NEW YORK, NY 10010
(212) 674-4488
COOLEY MONATO STUDIO
LIGHTING DESIGNER
7 WORLD TRADE CTR, 250 GREENWICH ST
37TH FLOOR
NEW YORK, NY 10007
(212) 822-1110
WESTFIELD, LLC
DEVELOPER
FOR QAD FILING
FOR CONSTRUCTION
CONFIDENTIAL
DO NOT DUPLICATE
FOR PRICING ONLY. NOT
FOR CONSTRUCTION
1402
100% CD SET
12.05.2014
E-005.00
3108_E-002
DETAILS SHET
01 NONE
DETAILS SHEET
5 10
4#4,1#8, 2"C.
60A-3P-600V. FUSED DISCONNECT WITH 60A FUSES
30 KVA, 480 VOLT /208-120 VOLT Y
DRY TYPE TRANSFOMER TYPE K RATED
TRAPEZE MOUNTED ON VIBRATION ISOLATORS
FLEX CONNECTION
4#2, 1#8 GRD., 1 1
2"C.
4#4,1#8, 2" FLEXIBLE 'SEALTITE' CONDUIT CONNECTION
NO. 8 AWG GROUND CONDUCTOR
TO EXISTING LANDLORD GROUND LP-WS
TENANT SPACE
LIGHT AND POWER RISER DETAIL 'A'
NOT TO SCALE
LPWS-
CKT #7
120 VOLT
120 VOLT COIL
FROM OWNERS 277 VOLT
EMERGENCY LIGHTING CIRCUIT
20A-2P-250 VOLT
LIGHTING CONTACTOR
1 (NO)
1 (NC)
IN NEMA I ENCLOSURE
TO NORMAL/EMERGENCY
LIGHTING FIXTURES TYPE L3
WIRING DETAIL-B EMERGENCY LIGHTING
TRANSFER RELAY
NOT TO SCALE
C
J
LOAD DESCRIPTION
CIR.BKR CIR.BKR
2
4
6
8
1
3
7
5
14
12
13
11
17
15
109
CBANo. TRIPTRIP No.CBA
LOAD DESCRIPTION
23
21
27
25
24
22
28
26
31
29
35
37
33
32
30
36
38
34
41
39
42
40
TOTAL CONNECTED
19
LOAD-VA
120V/208V 3PH 4W
LOAD-VA
FLUSH MTD.
20A
20A
20A
20A
20A
20A
20A
20A
30A
20A
20A
30A
20A
20A
20A
20A
20A
20A
20A
20A
20A
20A
20A
20A
20A
20A
20A
20A
20A
20A
20A
20 20A
18 20A
16 20A
100AT
PANEL LP-WS
LIGHTING FIXT. (L4)
LIGHTING FIXT. (L1)
NORMAL/EM FIXT. (L3)
LIGHTING FIXT. (L5)
LIGHTING FIXT. (LM3)
ILLUMINATED SIGN
SPARE
SPARE
REFRIGERATOR RECEPTACLES
DISHWASHER RECEPTACLES
ELEC. HOT WATER HTR PRINTER/COPIER
REFRIGERATOR
REFRIGERATOR
RECEPTACLES
RECEPTACLES
RECEPTACLES
SPARE
SPARE
SPARESPARE
SPARE
LIGHTING FIXT. (L6)
140
168
70
700
60
450
1200
1200
1650
1200
1200
1200
170
210
100
140
84
400
1000
1000
2140 2450 23644640 3628 4570 TOTAL 20.2 KW (56 AMPS)
1000
MCB
225A BUS
20A
20A
20A LIGHTING FIXT. (L2)
LIGHTING FIXT. (L2)
LIGHTING FIXT. (LM2/7)
LIGHTING FIXT. (LM1/6)
LIGHTING FIXT. (LM4)
LIGHTING FIXT. (LM1)
COMPRESSOR
RECEPTACLES
RECEPTACLES
*CONNECT VIA AUTO TRANSFER LIGHTING CONTACTOR
180
SEE WIRING DETAIL 'B' THIS DWG.
RECEPTACLES
RECEPTACLES
RECEPTACLES
400
1000
400
*
WIRING DETAIL-A
NOT TO SCALE
J
LPWS-3
REMOTE LOW
TO LOW
VOLTAGE
TO SD-6
25K AIC
BAR. COORDINATE LOCATION IN FIELD.
VIA BATTERY PACK
TO EXIT LIGHTS
2#12, 3/4"C.
20A-1P-120V
DISCONNECT BREAKER
30A-1P-277V DISCONNECT
750 VA TRANSFORMER
277/120 VOLT
TO SD-6
LIGHT ZONE
VOLTAGE UNIT
LIGHTING FIXTURE
TYPE L-6
CONSTANT
CIRCUIT
12"
TRANSFORMER
TYPICAL TRANSFORMER MOUNTING DETAIL
NOT TO SCALE
CONCRETE DRY TYPE
EXPANSION SHIELD
GALVANIZED STEEL
CHANNEL4-3/8" GALVANIZED
STEEL RODS
VIBRATION
GALVANIZED
ISOLATORS
STEEL BOLTS
UNISTRUT OR EQUAL
EXISTING
SLAB
SPARE
SPARE
SPARE
4#12,3/4"C.
CONNECT TO 480 VOLT, 3Ø, 3W. JUNCTION BOX AT
LOCATION PROVIDED BY LANDLORD.
CABLE TAP BOX
30A-3P-600V. FUSED DISCONNECT
WITH 15A FUSES
4#12,3/4"C. CONNECT TO AC UNIT
100A-3P-250 VOLT
MAIN CIRCUIT
BREAKER
COMPRESSOR
20A
20A
20A
700
700
700
700
400
400
70
DRAWN BY:
FILENAME:
CHECKED BY:
PROJ. NUM:
ISSUED:
SET:
LEVEL LL2 LL2370
UPPER LEVEL WALL STREET
180 VARICK STREET, SUITE 1316
NEW YORK, NY 10014
P: 212.627.0240
F: 212.627.0242
ANDRE KIKOSKI ARCHITECT, PLLC
ARCHITECT:
UPPER LEVEL WALL STREET
LEVEL LL2 LL2370
WORLD TRADE CENTER, NYC
HENRY MEER
CLIENT:
DOCUMENT:Y:3108ELEC11-07-14-BIDSET3108_E-001.DWGDATE:December4,2014TIME:10:13AM
SEAL & SIGNATURE:
SHEET OF
NO. REVISION/SUBMISSION DATE
LORE WINE & SPIRITS
SC
AK
171 MADISON AVENUE
SUITE 308
NEW YORK, NY 10016
(212) 532-5335
OPIE ATHWAL
MEP ENGINEER
N
PROJECT NORTH
ANDRE KIKOSKI ARCHITECT, PLLC. COPYRIGHT ©2014
137 EAST 25TH STREET
11TH FLOOR
NEW YORK, NY 10010
(212) 674-4488
COOLEY MONATO STUDIO
LIGHTING DESIGNER
7 WORLD TRADE CTR, 250 GREENWICH ST
37TH FLOOR
NEW YORK, NY 10007
(212) 822-1110
WESTFIELD, LLC
DEVELOPER
FOR QAD FILING
FOR CONSTRUCTION
CONFIDENTIAL
DO NOT DUPLICATE
1402
100% CD SET
12.05.2014
E-006.00
3108_E-001
PANEL SCHEDULES AND
RISER DETAILS
01 NONE
PANEL SCHEDULES AND
RISER DETAILS
6 10
DRAWN BY:
FILENAME:
CHECKED BY:
PROJ. NUM:
ISSUED:
SET:
LEVEL LL2 LL2370
UPPER LEVEL WALL STREET
180 VARICK STREET, SUITE 1316
NEW YORK, NY 10014
P: 212.627.0240
F: 212.627.0242
ANDRE KIKOSKI ARCHITECT, PLLC
ARCHITECT:
UPPER LEVEL WALL STREET
LEVEL LL2 LL2370
WORLD TRADE CENTER, NYC
HENRY MEER
CLIENT:
DOCUMENT:Y:3108ELEC11-07-14-BIDSET3108_E-001.DWGDATE:December4,2014TIME:10:13AM
SEAL & SIGNATURE:
SHEET OF
NO. REVISION/SUBMISSION DATE
LORE WINE & SPIRITS
SC
AK
171 MADISON AVENUE
SUITE 308
NEW YORK, NY 10016
(212) 532-5335
OPIE ATHWAL
MEP ENGINEER
N
PROJECT NORTH
ANDRE KIKOSKI ARCHITECT, PLLC. COPYRIGHT ©2014
137 EAST 25TH STREET
11TH FLOOR
NEW YORK, NY 10010
(212) 674-4488
COOLEY MONATO STUDIO
LIGHTING DESIGNER
7 WORLD TRADE CTR, 250 GREENWICH ST
37TH FLOOR
NEW YORK, NY 10007
(212) 822-1110
WESTFIELD, LLC
DEVELOPER
FOR QAD FILING
FOR CONSTRUCTION
CONFIDENTIAL
DO NOT DUPLICATE
1402
100% CD SET
12.05.2014
E-007.00
3108_E-001
ELECTRICAL SPECIFICATION
SHEET 1
01 NONE
ELECTRICAL SPECIFICATION
SHEET 1
7 10
DRAWN BY:
FILENAME:
CHECKED BY:
PROJ. NUM:
ISSUED:
SET:
LEVEL LL2 LL2370
UPPER LEVEL WALL STREET
180 VARICK STREET, SUITE 1316
NEW YORK, NY 10014
P: 212.627.0240
F: 212.627.0242
ANDRE KIKOSKI ARCHITECT, PLLC
ARCHITECT:
UPPER LEVEL WALL STREET
LEVEL LL2 LL2370
WORLD TRADE CENTER, NYC
HENRY MEER
CLIENT:
DOCUMENT:Y:3108ELEC11-07-14-BIDSET3108_E-001.DWGDATE:December4,2014TIME:10:13AM
SEAL & SIGNATURE:
SHEET OF
NO. REVISION/SUBMISSION DATE
LORE WINE & SPIRITS
SC
AK
171 MADISON AVENUE
SUITE 308
NEW YORK, NY 10016
(212) 532-5335
OPIE ATHWAL
MEP ENGINEER
N
PROJECT NORTH
ANDRE KIKOSKI ARCHITECT, PLLC. COPYRIGHT ©2014
137 EAST 25TH STREET
11TH FLOOR
NEW YORK, NY 10010
(212) 674-4488
COOLEY MONATO STUDIO
LIGHTING DESIGNER
7 WORLD TRADE CTR, 250 GREENWICH ST
37TH FLOOR
NEW YORK, NY 10007
(212) 822-1110
WESTFIELD, LLC
DEVELOPER
FOR QAD FILING
FOR CONSTRUCTION
CONFIDENTIAL
DO NOT DUPLICATE
1402
100% CD SET
12.05.2014
E-008.00
3108_E-001
ELECTRICAL SPECIFICATION
SHEET 2
01 NONE
ELECTRICAL SPECIFICATION
SHEET 2
8 10
DRAWN BY:
FILENAME:
CHECKED BY:
PROJ. NUM:
ISSUED:
SET:
LEVEL LL2 LL2370
UPPER LEVEL WALL STREET
180 VARICK STREET, SUITE 1316
NEW YORK, NY 10014
P: 212.627.0240
F: 212.627.0242
ANDRE KIKOSKI ARCHITECT, PLLC
ARCHITECT:
UPPER LEVEL WALL STREET
LEVEL LL2 LL2370
WORLD TRADE CENTER, NYC
HENRY MEER
CLIENT:
DOCUMENT:Y:3108ELEC11-07-14-BIDSET3108_E-001.DWGDATE:December4,2014TIME:10:13AM
SEAL & SIGNATURE:
SHEET OF
NO. REVISION/SUBMISSION DATE
LORE WINE & SPIRITS
SC
AK
171 MADISON AVENUE
SUITE 308
NEW YORK, NY 10016
(212) 532-5335
OPIE ATHWAL
MEP ENGINEER
N
PROJECT NORTH
ANDRE KIKOSKI ARCHITECT, PLLC. COPYRIGHT ©2014
137 EAST 25TH STREET
11TH FLOOR
NEW YORK, NY 10010
(212) 674-4488
COOLEY MONATO STUDIO
LIGHTING DESIGNER
7 WORLD TRADE CTR, 250 GREENWICH ST
37TH FLOOR
NEW YORK, NY 10007
(212) 822-1110
WESTFIELD, LLC
DEVELOPER
FOR QAD FILING
FOR CONSTRUCTION
CONFIDENTIAL
DO NOT DUPLICATE
1402
100% CD SET
12.05.2014
E-009.00
3108_E-001
ELECTRICAL SPECIFICATION
SHEET 3
01 NONE
ELECTRICAL SPECIFICATION
SHEET 3
9 10
BUILDING OWNER APPROVAL MUST BE OBTAINED PRIOR
TO ANY UTILITY SHUTDOWN, WORK TO EXISTING
BUILDING SYSTEMS AND/OR WORK TO BE PERFORMED
OUTSIDE OF TENANT SPACE.
DEPARTMENT OF BUILDINGS APPROVAL SHALL BE
OBTAINED AND PERMITS ISSUED PRIOR TO THE
COMMENCEMENT OF ANY WORK.
ALL WORK MUST BE PERFORMED DURING THE HOURS
DESIGNATED BY BUILDING MANAGEMENT.
6.
7.
8.
ALL TENANTS WILL BE REQUIRED TO EXTEND THE WTC
SITE-WIDE FIRST RESPONDER RADIO COMMUNICATIONS
SYSTEM INTO THEIR INDIVIDUAL SPACES AND INTEGRATE
THE DISTRIBUTED ANTENNAS INTO THEIR CEILING DESIGN.
CURRENT SCOPE IS FOR THE RETAIL TENANT TO CONNECT
TO AN EXISTING ANTENNA TAP PROVIDED WITHIN THE
DEMISED SPACE FROM THE MAIN RADIO SYSTEM AND
INSTALL THE REQUIRED DISTRIBUTED ANTENNAS FOR THE
SPACE.
REFER TO RETAIL TENANT TECHNICAL CRITERIA MANUAL
SECTION ENTITLED “RETAIL SPACE ANTENNA GUIDELINES
PSLS RADIO SYSTEM COVERAGE” FOR INFORMATION
REGARDING ANTENNA REQUIREMENTS.
THE FOLLOWING RETAIL TENANT SYSTEM LOADS SHALL BE
SERVED BY THE EMERGENCY POWER SYSTEM:
A. FIRE ALARM SYSTEMS.
B. SMOKE CONTROL SYSTEMS.
C. SECURITY SYSTEMS.
D. EMERGENCY EXIT LIGHTING AND SIGNAGE, WHICH
SHALL ALSO BE PROVIDED WITH SELF-CONTAINED BATTERY
BACKUP POWER.
E. ELECTRONIC TOILET FIXTURES.
THE SITE STANDBY POWER AND LIGHT DISTRIBUTION SYSTEM SHALL
SERVE THE FOLLOWING LIFE SAFETY AND BUILDING FUNCTIONS:
A. STAIR, EXIT, AND EGRESS PASSAGEWAY LIGHTING WITH THE EXIT
STAIRWAY LIGHTING ALSO CONTAINING INTEGRATED
BATTERY/INVERTERS.
B. CODE-REQUIRED EGRESS LIGHTING WITHIN THE RETAIL SPACES.
C. FLOOR PROXIMITY EGRESS SIGNS SHALL BE INSTALLED NEAR FLOOR
LEVEL IN ADDITION TO HIGH LEVEL SIGNS. ELECTROLUMINESCENT EXIT
PATHWAY LIGHTING SHALL BE INCORPORATED WITHIN THE EXIT
STAIRWAYS.
LIFE SAFETY SYSTEMS, INCLUDING FIRE ALARM SYSTEM, DOOR HOLD
OPEN/CLOSER DEVICE AND VOICE COMMUNICATIONS.
9.
10.
11.
12.
13.
ALL WORK AND MATERIALS SHALL BE IN ACCORDANCE
WITH THE LATEST EDITION OF THE 2 GRAND CENTRAL
TOWER RULES AND REGULATIONS ALTERATION
GUIDELINES REQUIREMENTS.
ALL WORK, WHERE REQUIRED IN THE BUILDING
STANDARDS, SHALL BE SUBMITTED TO APPROPRIATE
AND PUBLIC JURISDICTIONS FOR INSPECTION AND
APPROVAL.
PROOF OF INSPECTION AND APPROVAL, SHOP
DRAWINGS, OPERATING AND MAINTENANCE MANUALS,
VALVES SCHEDULES AND ALL OTHER PERTINENT
INFORMATION SHALL BE FILED WITH THE BUILDING
MANAGER BEFORE WORK IS ACCEPTED.
PROVIDE A SET OF AS-BUILT DRAWINGS FOR ALL
TRADES. SUBMIT TO BUILDING MANAGEMENT AT
COMPLETION OF PROJECT, TWO (2) SETS OF FULL SIZES
PRINTS AND CD/DVD WITH ELECTRONIC FILES IN
AUTOCAD REL. 2008 FORMAT AND PDF FORMAT.
PROVIDE A SET OF AS-BUILT DRAWINGS FOR ALL
TRADES. SUBMIT TO BUILDING MANAGEMENT AT
COMPLETION OF PROJECT, TWO (2) SETS OF FULL SIZES
PRINTS AND CD/DVD WITH ELECTRONIC FILES IN
AUTOCAD REL. 2008 FORMAT AND PDF FORMAT.
1.
2.
3.
4.
5.
GENERAL NOTES:
DRAWN BY:
FILENAME:
CHECKED BY:
PROJ. NUM:
ISSUED:
SET:
LEVEL LL2 LL2370
UPPER LEVEL WALL STREET
180 VARICK STREET, SUITE 1316
NEW YORK, NY 10014
P: 212.627.0240
F: 212.627.0242
ANDRE KIKOSKI ARCHITECT, PLLC
ARCHITECT:
UPPER LEVEL WALL STREET
LEVEL LL2 LL2370
WORLD TRADE CENTER, NYC
HENRY MEER
CLIENT:
DOCUMENT:Y:3108ELEC11-07-14-BIDSET3108_E-001.DWGDATE:December4,2014TIME:10:13AM
SEAL & SIGNATURE:
SHEET OF
NO. REVISION/SUBMISSION DATE
LORE WINE & SPIRITS
SC
AK
171 MADISON AVENUE
SUITE 308
NEW YORK, NY 10016
(212) 532-5335
OPIE ATHWAL
MEP ENGINEER
N
PROJECT NORTH
ANDRE KIKOSKI ARCHITECT, PLLC. COPYRIGHT ©2014
137 EAST 25TH STREET
11TH FLOOR
NEW YORK, NY 10010
(212) 674-4488
COOLEY MONATO STUDIO
LIGHTING DESIGNER
7 WORLD TRADE CTR, 250 GREENWICH ST
37TH FLOOR
NEW YORK, NY 10007
(212) 822-1110
WESTFIELD, LLC
DEVELOPER
FOR QAD FILING
FOR CONSTRUCTION
CONFIDENTIAL
DO NOT DUPLICATE
1402
100% CD SET
12.05.2014
E-010.00
3108_E-001
ELECTRICAL SPECIFICATION
SHEET 4 AND
GENERAL NOTES
01 NONE
ELECTRICAL SPECIFICATION
SHEET 4 AND
GENERAL NOTES
10 10
DRAWN BY:
FILENAME:
CHECKED BY:
PROJ. NUM:
ISSUED:
SET:
LEVEL LL2 LL2370
UPPER LEVEL WALL STREET
180 VARICK STREET, SUITE 1316
NEW YORK, NY 10014
P: 212.627.0240
F: 212.627.0242
ANDRE KIKOSKI ARCHITECT, PLLC
ARCHITECT:
UPPER LEVEL WALL STREET
LEVEL LL2 LL2370
WORLD TRADE CENTER, NYC
HENRY MEER
CLIENT:
DOCUMENT:Y:3108HVAC11-07-14-BIDSET3108_HVAC.DWGDATE:December4,2014TIME:10:24AM
SEAL & SIGNATURE:
SHEET OF
NO. REVISION/SUBMISSION DATE
LORE WINE & SPIRITS
SC
AK
171 MADISON AVENUE
SUITE 308
NEW YORK, NY 10016
(212) 532-5335
OPIE ATHWAL
MEP ENGINEER
N
PROJECT NORTH
ANDRE KIKOSKI ARCHITECT, PLLC. COPYRIGHT ©2014
137 EAST 25TH STREET
11TH FLOOR
NEW YORK, NY 10010
(212) 674-4488
COOLEY MONATO STUDIO
LIGHTING DESIGNER
7 WORLD TRADE CTR, 250 GREENWICH ST
37TH FLOOR
NEW YORK, NY 10007
(212) 822-1110
WESTFIELD, LLC
DEVELOPER
FOR QAD FILING
FOR CONSTRUCTION
CONFIDENTIAL
DO NOT DUPLICATE
1402
100% CD SET
12.05.2014
M-001.00
3108_HVAC
GENERAL ABBREVIATIONS
AND SYMBOLS
01 NONE
GENERAL ABBREVIATIONS
AND SYMBOLS
1 13
ALL HVAC SYSTEM COMPONENTS SHOWN ON DRAWINGS CONVEY THE
SCHEMATIC INTENT OF THE DESIGN. CONTRACTOR SHALL COORDINATE
THE COMPONENT LOCATIONS INCLUDING ELEVATION WITH BUILDING
COMPONENTS AND WITH OTHER TRADES.
1.
DUCTS, PIPES AND CONDUITS SHALL BE RUN AS HIGH AS POSSIBLE.2.
DUCT TRANSITIONS SHALL BE FABRICATED WITH FLAT BOTTOMS UNLESS
OTHERWISE NOTED.
3.
PROVIDE SLEEVES FOR ALL PIPES PENETRATING WALLS, FLOORS AND
ROOFS AS PER SPECIFICATIONS. ALL OPENINGS AROUND PENETRATIONS
SHALL BE FIRE STOPPED & FIRE PROOFED WITH NYC BUILDING
DEPARTMENT APPROVED MATERIALS. COORDINATE PIPE RISER
ENCLOSURES WITH GENERAL CONTRACTOR.
4.
LOCATIONS OF THERMOSTATS AND LOCAL INDICATING PANELS ARE
APPROXIMATE AND SHALL BE COORDINATED TO SUIT FIELD CONDITIONS.
5.
ALL REMOTE THERMOSTATS UNLESS OTHERWISE INDICATED SHALL BE IN A
TAMPER PROOF ENCLOSURE W/ SUFFICIENT OPENING TO ACCORD SENSING
OF ACTUAL SPACE CONDITIONS.
6.
ALL MECHANICAL EQUIPMENT SUPPORTS ARE BASED ON PRELIMINARY
INFORMATION FROM ONE MANUFACTURER. THE CONTRACTOR SHALL BE
RESPONSIBLE FOR CHECKING SIZES FROM CERTIFIED DRAWINGS OF
EQUIPMENT BEING SUBMITTED AND SHALL MAKE ANY STRUCTURAL AND
OTHER BUILDING COMPONENT MODIFICATIONS REQUIRED WITHOUT ANY
ADDITIONAL COST TO THE OWNER.
7.
ELECTRICAL POWER PROVISIONS FOR MECHANICAL EQUIPMENT ARE BASED
ON PRELIMINARY INFORMATION FROM ONE MANUFACTURER. THE
CONTRACTOR SHALL BE RESPONSIBLE FOR CHECKING ELECTRICAL
RATINGS FROM CERTIFIED DRAWINGS AND SHALL MAKE ANY CIRCUIT
DISTRIBUTION MODIFICATION REQUIRED WITHOUT ANY ADDITIONAL COST
TO THE OWNER. THE CONTRACTOR SHALL SUBMIT A SCHEDULE OF SUCH
CHANGES FOR ACCEPTANCE BY THE ENGINEER. ALL ACCEPTED CHANGES
SHALL BE RECORDED ON "AS-BUILTS" DRAWINGS.
8.
SEAL ALL OPENINGS WHERE DUCTS PENETRATE WALLS TO PREVENT AIR
TRANSFER BETWEEN SPACES.
9.
ALL WORK SHALL COMPLY WITH THE REQUIREMENTS OF THE 2008 NYC
BUILDING CODE AND WITH THE RETAIL TENANT TECHNICAL CRITERIA
MANUAL.
1.
THE CONTRACTOR SHALL OBTAIN ALL PERMITS, APPROVALS AND PAY ALL
FEES.
2.
PROVIDE THE FOLLOWING:3.
VOLUME DAMPER AT ALL BRANCH DUCT CONNECTIONS.A.
WIRE MESH SCREEN AT ALL RETURN/EXHAUST/TRANSFER AIR
DUCT OPENING.
B.
SUPPLY AND RETURN DUCTWORK SHALL BE LINED WITH 1"
ACOUSTIC LINING FOR 25'-0" OF DUCT TO AND FROM THE AIR
HANDLING EQUIPMENT.
NOTE: THE REST OF THE DUCT SHALL BE PROVIDED WITH
EXTERIOR INSULATION.
C.
CONTRACTOR SHALL BALANCE THE ENTIRE AIR SYSTEM AS PER CFM
INDICATED ON THE DWGS AT THE COMPLETION OF THE PROJECT.
4.
COORDINATE WITH GENERAL CONTRACTOR PROVISION OF ACCESS DOORS
IN HUNG CEILINGS, DRYWALLS AS PER SPECIFICATION REQUIREMENTS FOR
ALL SERVICEABLE COMPONENTS INCLUDING BUT NOT LIMITED TO AIR
HANDLING UNITS, FANS, DAMPERS, VALVES & DRAINS WHETHER INDICATED
OR NOT ON DRAWINGS.
5.
CONTRACTOR SHALL PROVIDE ALL NECESSARY DIFFUSER, REGISTER AND
GRILLE FRAME TYPES AND LEVELING CLIPS TO MATCH CEILING
CONSTRUCTION IN WHICH UNITS ARE TO BE INSTALLED.
6.
ALL DUCTWORK, PIPING, CONDUITS AND TUBING SHALL BE RUN CONCEALED
IN FINISHED AREAS INCLUDING BUT NOT LIMITED TO DRYWALL, HUNG
CEILING ETC. COORDINATE LOCATION MODIFICATIONS TO DUCTWORK,
PIPING, CONCEALING MEMBERS WITH GENERAL CONSTRUCTION.
7.
ALL DUCTWORK PENETRATIONS THROUGH FIRE RATED CONSTRUCTION
SHALL BE PROVIDED WITH NEW YORK CITY APPROVED FIRE SMOKE
DAMPERS. ALL FIRE SMOKE DAMPERS SHALL POSSESS NYC BSA NO. AND
SHALL BE PROVIDED WITH ACCESS DOORS. COORDINATE CEILING ACCESS
WITH GENERAL CONSTRUCTION.
8.
PROVIDE VALVED AND CAPPED CONNECTIONS FOR DRAINING AT ALL PIPING
SYSTEM LOW POINTS WHETHER INDICATED OR NOT INDICATED ON
DRAWINGS.
9.
PROVIDE DRAINS & DRAIN PIPING TO FUNNEL DRAIN.10.
POINT OF CONNECTION FOR RESPECTIVE COMPONENTS WITH OTHER
TRADES, IS ONLY DIAGRAMMATIC. ACTUAL CONNECTIONS WILL BE BASED
ON FIELD COORDINATION WITH OTHER TRADES.
11.
PITCH ALL DRAIN LINES AT 1/4" PER LINEAR FOOT OF PIPE LENGTH IN THE
DIRECTION OF FUNNEL DRAIN.
12.
10. CONTRACTOR SHALL SUBMIT AS-BUILT PLANS IN AUTOCADD FORMAT.
THAT THE FULL SCOPE OF WORK IS COMPLETE FOR PRICING.
11. CONTRACTOR SHALL SUBMIT RFI'S WHEN REQUIRED TO INSURE
ALL MECHANICAL SYSTEMS SHALL BE SEISMICALLY RESTRAINED IN
ACCORDANCE WITH BCCNY. SEISMIC RESTRAINTS SHALL CONFORM TO
ZONE 2 REQUIREMENTS.
13.
CO2 SENSOR IN SPACE TO MODULATE OUTSIDE AIR DAMPER BASED ON
OCCUPANCY.
14.
ALL WORK SHALL COMPLY WITH THE APPLICABLE SECTIONS OF
THE NEW YOUR CITY BUILDING CODE, EFFECTIVE JULY 1, 2008,
AND ALL AMENDMENTS AND RULES AND REGULATIONS OF THE
SPECIAL INSPECTIONS ARE REQUIRED FOR MECHANICAL SYSTEMS
IN ACCORDANCE WITH THE FOLLOWING CODE SECTIONS:
ENERGY CODE COMPLIANCE - BC 109.3.5
MECHANICAL SYSTEMS - BC 1704.15
IN ADDITION TO SPECIAL INSPECTION, THE FOLLOWING PROGRESS
INSPECTIONS ARE REQUIRED FOR MECHANICAL SYSTEMS IN
ACCORDANCE WITH THE FOLLOWING CODE SECTIONS:
THROUGH PENETRATION FIRESTOP SYSTEMS - BC 1704.25
MECHANICAL SYSTEMS SHALL BE TESTED IN ACCORDANCE WITH
CODE SECTION MC 107 AND THE FOLLOWING CODE SECTIONS:
VENTILATION SYSTEM BALANCING - MC 403.3.4
THE FOLLOWING WORK ITEMS, COMPONENTS, MATERIALS, CAPACITIES,
ETC., SHALL COMPLY WITH THE FOLLOWING CODE SECTIONS:
SPACE HEATING SYSTEMS - MC 309.1
VENTILATION - MC 401
AIR INTAKE, EXHAUSTS AND RELIEF OPENINGS - MC 401.5
DUCT CONSTRUCTION AND INSTALLATION - MC 603
AIR FILTERS - MC 605
DUCT AND TRANSFERS OPENINGS - MC 607
NOISE CONTROL - MC 926
THE HEATING AND AIR CONDITIONING SYSTEM SHALL MEET THE
TEMPERATURE AND HUMIDITY REQUIREMENTS OF CODE
1.
2.
A.
B.
3.
A.
4.
A.
5.
A.
B.
C.
D.
E.
F.
G.
6.
DEPARTMENT OF BUILDINGS TO DATE.
SECTION BC 1204.
NOTES:
OUTSIDE AIR INTAKE AND SUPPLY DUCTWORK HAS
BEEN SIZED FOR A MAX.
AIR VELOCITY OF 1,500 FPM SMOKE EXHAUST
DUCTWORK HAS BEEN SIZED FOR A MAX. AIR
VELOCITY OF 2,000 FPM
SMOKE EXHAUST SHALL BE VIA TRANSFER/RETURN AIR
OPENINGS. LANDLORD PROVIDES THE FSD'S AT
DEMISING WALLS.
VENTILATION LEVELS COMPLIES WITH ASHRAE
STANDARD 62.1 REQUIREMENTS.
PROVIDE BTU METER FOR CHILLED WATER SYSTEM.
ONICON F-4000 SERIES CLAMP ON ULTRASONIC FLOW
METER. LOCATE PANEL IN OFFICE
CO2 SENSOR FOR DEMAND CONTROLLED VENTILATION
(DCV) SHALL BE PROVIDED TO INTERFACE WITH THE
MOTORIZED DAMPER IN THE OUTSIDE AIR DUCT. (CO2
SENSOR: HONEYWELL C7632)
1.
2.
3.
4.
5.
6.
DRAWN BY:
FILENAME:
CHECKED BY:
PROJ. NUM:
ISSUED:
SET:
LEVEL LL2 LL2370
UPPER LEVEL WALL STREET
180 VARICK STREET, SUITE 1316
NEW YORK, NY 10014
P: 212.627.0240
F: 212.627.0242
ANDRE KIKOSKI ARCHITECT, PLLC
ARCHITECT:
UPPER LEVEL WALL STREET
LEVEL LL2 LL2370
WORLD TRADE CENTER, NYC
HENRY MEER
CLIENT:
DOCUMENT:Y:3108HVAC11-07-14-BIDSET3108_HVAC.DWGDATE:December4,2014TIME:10:24AM
SEAL & SIGNATURE:
SHEET OF
NO. REVISION/SUBMISSION DATE
LORE WINE & SPIRITS
SC
AK
171 MADISON AVENUE
SUITE 308
NEW YORK, NY 10016
(212) 532-5335
OPIE ATHWAL
MEP ENGINEER
N
PROJECT NORTH
ANDRE KIKOSKI ARCHITECT, PLLC. COPYRIGHT ©2014
137 EAST 25TH STREET
11TH FLOOR
NEW YORK, NY 10010
(212) 674-4488
COOLEY MONATO STUDIO
LIGHTING DESIGNER
7 WORLD TRADE CTR, 250 GREENWICH ST
37TH FLOOR
NEW YORK, NY 10007
(212) 822-1110
WESTFIELD, LLC
DEVELOPER
FOR QAD FILING
FOR CONSTRUCTION
CONFIDENTIAL
DO NOT DUPLICATE
1402
100% CD SET
12.05.2014
M-002.00
3108_HVAC
HVAC CONSTRUCTION,
GENERAL & BUILDING
DEPT. NOTES
01 NONE
HVAC CONSTRUCTION,
GENERAL & BUILDING
DEPT. NOTES
2 13
JANITOR
CLOSET
ELECTRICAL
CLOSET
SERVICE CORRIDOR
30x12
14x8
10x6
HVAC-1
DIMENSION: 82"Lx43"Wx22"H
OPR.WT.: 800 LBS
BASE BUILDING 1" HWS/HWR
BASE BUILDING
1 1/4" CHWS/CHWR
16x8
REMOVE CAP
12x10 BASE
16x12 BASE
RUN PIPING CLOSE
N.C.
N.C.
DAMPER TO OPEN
DAMPER TO OPEN
ON DUCT
BUILDING (OA)
BUILDING
WHEN SPACE IS
WHEN HVAC-1 IS
(GX/SX)
IN SMOKE EXHAUST MODE
IN OPERATION
VOLUME DAMPER (TYP.)
SEE NOTE 5
34x10
16x10 12x8
26x14
12x814x8
SEE DIFFUSER NOTE 5
SEE DIFFUSER NOTE 1
SEE DIFFUSER NOTE 1
30x12
8x6
SEE DIFFUSER NOTE 1
SEE DIFFUSER NOTE 5
SEE DIFFUSER NOTE 5
SEE DIFFUSER NOTE 1
SEE DIFFUSER NOTE 2
SEE DIFFUSER NOTE 5
SEE DIFFUSER NOTE 7
SEE DIFFUSER NOTE 3
SEE DIFFUSER NOTE 3
12x8
SEE DIFFUSER
NOTE 4
SEE DIFFUSER
NOTE 6
SEE DIFFUSER NOTE 1
100
RETAIL FLOOR
104
OFFICE/STORAGE
103
SERVICE
102
DOMESTIC ROOM
101
LARGE
FORMAT ROOM
DIFFUSER NOTES:
LINEAR SUPPLY DIFFUSER:
ANEMOSTAT: SLAD-75/TAZR-S-75
(2) 3/4" SLOT, 45 CFM/FT, 6'-0" LONG,
HORIZONTAL PATTERN.
LINEAR SUPPLY DIFFUSER:
ANEMOSTAT: SLAD-75/TAZR-S-75
(2) 3/4" SLOT, 35 CFM/FT, 6'-0" LONG,
HORIZONTAL PATTERN.
LINEAR SUPPLY DIFFUSER:
ANEMOSTAT: SLAD-100/TAZR-S-100
(2) 1" SLOT, 70 CFM/FT, 6'-0" LONG,
VERTICAL PATTERN.
LINEAR SUPPLY DIFFUSER:
ANEMOSTAT: SLAD-50/TAZR-S-50
(2) 1/2" SLOT, 35 CFM/FT, 4'-0" LONG,
HORIZONTAL PATTERN.
RETURN AIR DIFFUSER:
ANEMOSTAT: SLAR-75/TAZR-S-75
(2) 3/4" SLOT.
RETURN AIR DIFFUSER:
ANEMOSTAT: SLAR-50/TAZR-S-50
(2) 1/2" SLOT.
RETURN AIR DIFFUSER:
ANEMOSTAT: SLAR-100/TAZR-S-10
(2) 1" SLOT.
ALL VOLUME DAMPERS IN DUCTS
SERVING THE PLENUMS
SHALL BE CABLE OPERATED.
1.
2.
3.
4.
5.
6.
7.
8.
1 1/4" CONDENSATE LINE TO FUNNEL DRAIN
(SEE PLUMBINGS: P-001.00 AND P-002.00)
F.C.
NOTES:
1. THE HVAC UNIT WILL BE SUPPORTED AT
(6) LOCATIONS AS SHOWN BY 3/8" THREADEDTO COLUMN
RODS THAT CONNECT TO CONCRETE INSERTS
PHILIPS J38C OR EQUAL.
SEE NOTE 1
DRAWN BY:
FILENAME:
CHECKED BY:
PROJ. NUM:
ISSUED:
SET:
LEVEL LL2 LL2370
UPPER LEVEL WALL STREET
180 VARICK STREET, SUITE 1316
NEW YORK, NY 10014
P: 212.627.0240
F: 212.627.0242
ANDRE KIKOSKI ARCHITECT, PLLC
ARCHITECT:
UPPER LEVEL WALL STREET
LEVEL LL2 LL2370
WORLD TRADE CENTER, NYC
HENRY MEER
CLIENT:
DOCUMENT:Y:3108HVAC11-07-14-BIDSET3108_HVAC.DWGDATE:December4,2014TIME:10:24AM
SEAL & SIGNATURE:
SHEET OF
NO. REVISION/SUBMISSION DATE
LORE WINE & SPIRITS
SC
AK
171 MADISON AVENUE
SUITE 308
NEW YORK, NY 10016
(212) 532-5335
OPIE ATHWAL
MEP ENGINEER
N
PROJECT NORTH
ANDRE KIKOSKI ARCHITECT, PLLC. COPYRIGHT ©2014
137 EAST 25TH STREET
11TH FLOOR
NEW YORK, NY 10010
(212) 674-4488
COOLEY MONATO STUDIO
LIGHTING DESIGNER
7 WORLD TRADE CTR, 250 GREENWICH ST
37TH FLOOR
NEW YORK, NY 10007
(212) 822-1110
WESTFIELD, LLC
DEVELOPER
FOR QAD FILING
FOR CONSTRUCTION
CONFIDENTIAL
DO NOT DUPLICATE
1402
100% CD SET
12.05.2014
M-003.00
3108_HVAC
HVAC PLAN
MEER WINE & SPIRITS
1' 2'0 4'
01 1/2"=1'-0"
HVAC PLAN
MEER WINE & SPIRITS
3 13
CONCRETE INSERT
FOR POURED
CONCRETE BLDG.
VIBRATION
ISOLATION
HANGER ROD
ANGLE IRON
SUPPORT
CONCRETE SLAB
BEAM
CLAMP FOR
STEEL
BLDG.
NOTES:
METHOD OF HANGING, TYPE OR INSERT, BEAM
CLAMP, ROD, ETC., MUST BE APPROVED BY
STRUCTURAL ENGINEER.
TYPICAL FAN EQUIPMENT
HANGING DETAIL VOLUME CONTROL DAMPER
YOUNG NO:
1200 RIGHT ANGLE
WORM GEAR
YOUNG NO:
857-C
AIR FLOW
FOR PLASTER CEILINGS ONLY
DAMPER
BLADE
METAL LATH
PLASTER
7/8" DIA CAP
DUCT
HVAC-1
AAON AS STANDARD
DB/WB °F L.A.T NUMBERGPM LWT
E.A.T.
E.A.T.
HEATING VENTILATING AIR CONDITIONING UNIT
COILS
TOTAL
MBH.
HZV. PHASE
CFMDESIGNATION ESP.
ELECTRICAL DATA COOLING DATA
HP
HEATING DATA
MBH. COILSDB/WB °F
L.A.T.
EWTP.D. P.D. GPM LWTEWT(" W.C.)
MODEL
FINAL FILTERS
PRE-FILTER/
H3-DRB
NOTE:
TOTAL
MERV9/MERV16
AIR
OUTSIDE
CFM
550
1. UNIT TO INCLUDE STAINLESS STEEL DRAIN PANS.
44 60 200 180.3
2. SUPPLY FAN SHALL BE EQUIPPED WITH A VARIABLE FREQUENCY DRIVE.
3. COILS SHALL BE COPPER TUBE WITH ALUMINUM FINS.
4. UNIT SHALL BE CONSTRUCTED WITH STAINLESS STEEL FRAMES.
5. UNIT SHALL BE FACTORY TESTED.
2260 1.5 .5 480 3 60 1 8.96' 78.17 74/61 48/47.99 9.75 133.2 72 60 1 3.2' 14
DRAWN BY:
FILENAME:
CHECKED BY:
PROJ. NUM:
ISSUED:
SET:
LEVEL LL2 LL2370
UPPER LEVEL WALL STREET
180 VARICK STREET, SUITE 1316
NEW YORK, NY 10014
P: 212.627.0240
F: 212.627.0242
ANDRE KIKOSKI ARCHITECT, PLLC
ARCHITECT:
UPPER LEVEL WALL STREET
LEVEL LL2 LL2370
WORLD TRADE CENTER, NYC
HENRY MEER
CLIENT:
DOCUMENT:Y:3108HVAC11-07-14-BIDSET3108_HVAC.DWGDATE:December4,2014TIME:10:24AM
SEAL & SIGNATURE:
SHEET OF
NO. REVISION/SUBMISSION DATE
LORE WINE & SPIRITS
SC
AK
171 MADISON AVENUE
SUITE 308
NEW YORK, NY 10016
(212) 532-5335
OPIE ATHWAL
MEP ENGINEER
N
PROJECT NORTH
ANDRE KIKOSKI ARCHITECT, PLLC. COPYRIGHT ©2014
137 EAST 25TH STREET
11TH FLOOR
NEW YORK, NY 10010
(212) 674-4488
COOLEY MONATO STUDIO
LIGHTING DESIGNER
7 WORLD TRADE CTR, 250 GREENWICH ST
37TH FLOOR
NEW YORK, NY 10007
(212) 822-1110
WESTFIELD, LLC
DEVELOPER
FOR QAD FILING
FOR CONSTRUCTION
CONFIDENTIAL
DO NOT DUPLICATE
1402
100% CD SET
12.05.2014
M-004.00
3108_HVAC
HVAC DETAIL SHEET 1
AND EQUIPMENT SCHEDULE
01 NONE
HVAC DETAIL SHEET 1
AND EQUIPMENT SCHEDULE
4 13
SUSPENDED FROM SLAB
HVAC UNIT
UNIT DRAIN
1 1/4" INSULATED
CONDENSATE LINE
AUXILIARY
DRAIN PIPE
UNIT SHUTDOWN
TERMINAL
24-VAC
WATER DETECTOR
24-VAC
~~~~
WALL MOUNTED ANNUNCIATOR/CONTROLLER
ALARM PANEL. LOCATED IN OFFICE.
1. PAN SHALL BE LARGER THAN AC UNIT ON ALL FOUR (4) SIDES &
SHALL ACCOMMODATE CONDENSATE PUMP. ALLOW SERVICE ACCESS
TO FILTER & FAN BELT.
2. 1" HEM SHALL BE TURNED DOWN OUTSIDE OF PAN.
CORNERS WATER TIGHT.
3. FABRICATE PAN OF 16 GAUGE GALVANIZED STEEL WITH SOLDERED
PAN CONSTRUCTION:
AUXILIARY DRAIN PAN
1 2
4 7
5
6
2
3
1. PHILLIPS JS14C (BSA APPROVAL NO.
39058 SM) OR EQUAL, OR FORCED
ENTRY FASTENERS.
2. BAND IRON HANGER PER CODE OR SMACNA.
3. TURN UNDER WHEN DUCT IS OVER 47" WIDE.
4. PHILLIPS J38C OR EQUAL
5. THREADED ROD COUPLING.
6. THREADED ROD (SIZE AS REQUIRED 3/8" MIN).
7. SCISSOR CLAMP ON REINFORCED ROD.
METHOD OF HANGING DUCTWORK
~
TO FUNNEL DRAIN
DRAWN BY:
FILENAME:
CHECKED BY:
PROJ. NUM:
ISSUED:
SET:
LEVEL LL2 LL2370
UPPER LEVEL WALL STREET
180 VARICK STREET, SUITE 1316
NEW YORK, NY 10014
P: 212.627.0240
F: 212.627.0242
ANDRE KIKOSKI ARCHITECT, PLLC
ARCHITECT:
UPPER LEVEL WALL STREET
LEVEL LL2 LL2370
WORLD TRADE CENTER, NYC
HENRY MEER
CLIENT:
DOCUMENT:Y:3108HVAC11-07-14-BIDSET3108_HVAC.DWGDATE:December4,2014TIME:10:24AM
SEAL & SIGNATURE:
SHEET OF
NO. REVISION/SUBMISSION DATE
LORE WINE & SPIRITS
SC
AK
171 MADISON AVENUE
SUITE 308
NEW YORK, NY 10016
(212) 532-5335
OPIE ATHWAL
MEP ENGINEER
N
PROJECT NORTH
ANDRE KIKOSKI ARCHITECT, PLLC. COPYRIGHT ©2014
137 EAST 25TH STREET
11TH FLOOR
NEW YORK, NY 10010
(212) 674-4488
COOLEY MONATO STUDIO
LIGHTING DESIGNER
7 WORLD TRADE CTR, 250 GREENWICH ST
37TH FLOOR
NEW YORK, NY 10007
(212) 822-1110
WESTFIELD, LLC
DEVELOPER
FOR QAD FILING
FOR CONSTRUCTION
CONFIDENTIAL
DO NOT DUPLICATE
1402
100% CD SET
12.05.2014
M-005.00
3108_HVAC
HVAC DETAIL SHEET 2
01 NONE
HVAC DETAIL SHEET 2
5 13
MOTORIZED DAMPER FOR
DEMAND-CONTROLLED
VENTILATION
SEE COIL PIPING
DETAIL ON
DWG. M-006.00
~
CHWS/R
~ ~ ~
HWS/R
HVAC
~
HVAC
DRAWN BY:
FILENAME:
CHECKED BY:
PROJ. NUM:
ISSUED:
SET:
LEVEL LL2 LL2370
UPPER LEVEL WALL STREET
180 VARICK STREET, SUITE 1316
NEW YORK, NY 10014
P: 212.627.0240
F: 212.627.0242
ANDRE KIKOSKI ARCHITECT, PLLC
ARCHITECT:
UPPER LEVEL WALL STREET
LEVEL LL2 LL2370
WORLD TRADE CENTER, NYC
HENRY MEER
CLIENT:
DOCUMENT:Y:3108HVAC11-07-14-BIDSET3108_HVAC.DWGDATE:December4,2014TIME:10:24AM
SEAL & SIGNATURE:
SHEET OF
NO. REVISION/SUBMISSION DATE
LORE WINE & SPIRITS
SC
AK
171 MADISON AVENUE
SUITE 308
NEW YORK, NY 10016
(212) 532-5335
OPIE ATHWAL
MEP ENGINEER
N
PROJECT NORTH
ANDRE KIKOSKI ARCHITECT, PLLC. COPYRIGHT ©2014
137 EAST 25TH STREET
11TH FLOOR
NEW YORK, NY 10010
(212) 674-4488
COOLEY MONATO STUDIO
LIGHTING DESIGNER
7 WORLD TRADE CTR, 250 GREENWICH ST
37TH FLOOR
NEW YORK, NY 10007
(212) 822-1110
WESTFIELD, LLC
DEVELOPER
FOR QAD FILING
FOR CONSTRUCTION
CONFIDENTIAL
DO NOT DUPLICATE
1402
100% CD SET
12.05.2014
M-006.00
3108_HVAC
HVAC DETAIL SHEET 3
01 NONE
HVAC DETAIL SHEET 3
6 13
AIRFLOW
AIRFLOW
b
ACCESSIBLE THROUGH THE FACE OF DIFFUSER
REGULATION OF VOLUME DAMPER SHALL BE
CONICAL FITTINGS
PLENUM OVER LINEAR SUPPLY OR RETURN
SMOOTH FITTINGS.
SHALL BE MADE WITH
OFFSET IN HORIZONTAL PLANE
SMOOTH FITTINGS.
SHALL BE MADE WITH
OFFSET IN VERTICAL PLANE
ELEVATION
RETURNSUPPLY
OVER 1000 FPM USE V.D. ONLY
ADJUSTABLE TAP UP TO 1000FPM
VOLUME DAMPER
BRANCH.
VOLUME DAMPER IN SHORTER
4" (10cm), USE TAP DETAIL.
MIN. IF A or B IS LESS THAN
TO AIR QUANTITY, 4" (10cm)
A,B SHALL BE PROPORTIONALa
TO SPACE CONDITIONS).
AT CONTR. OPTION-SUBJECT
VANES (EITHER TYPE ELBOW
DOUBLE THICKNESS TURNING
DIFFUSER PLENUM
CONN. TO LINEAR
DIFFUSER
OVER
PLENUM
OFFSET
HORIZONTAL
RISE OR DROP
TAP TAKE-OFF
TAKE-OFF
SPLIT OR
ELBOW
ACTUAL CONSTRUCTIONSINGLE LINE
WHERE DUCTWORK IS SHOWN SINGLE LINE, FOLLOWING SHALL APPLY FOR ACTUAL DUCT CONSTR.
DIFFUSER OR GRILLE
DRAWN BY:
FILENAME:
CHECKED BY:
PROJ. NUM:
ISSUED:
SET:
LEVEL LL2 LL2370
UPPER LEVEL WALL STREET
180 VARICK STREET, SUITE 1316
NEW YORK, NY 10014
P: 212.627.0240
F: 212.627.0242
ANDRE KIKOSKI ARCHITECT, PLLC
ARCHITECT:
UPPER LEVEL WALL STREET
LEVEL LL2 LL2370
WORLD TRADE CENTER, NYC
HENRY MEER
CLIENT:
DOCUMENT:Y:3108HVAC11-07-14-BIDSET3108_HVAC.DWGDATE:December4,2014TIME:10:24AM
SEAL & SIGNATURE:
SHEET OF
NO. REVISION/SUBMISSION DATE
LORE WINE & SPIRITS
SC
AK
171 MADISON AVENUE
SUITE 308
NEW YORK, NY 10016
(212) 532-5335
OPIE ATHWAL
MEP ENGINEER
N
PROJECT NORTH
ANDRE KIKOSKI ARCHITECT, PLLC. COPYRIGHT ©2014
137 EAST 25TH STREET
11TH FLOOR
NEW YORK, NY 10010
(212) 674-4488
COOLEY MONATO STUDIO
LIGHTING DESIGNER
7 WORLD TRADE CTR, 250 GREENWICH ST
37TH FLOOR
NEW YORK, NY 10007
(212) 822-1110
WESTFIELD, LLC
DEVELOPER
FOR QAD FILING
FOR CONSTRUCTION
CONFIDENTIAL
DO NOT DUPLICATE
1402
100% CD SET
12.05.2014
M-007.00
3108_HVAC
HVAC DETAIL SHEET 4
01 NONE
HVAC DETAIL SHEET 4
7 13
WallOf Damper
On All Sides
Typical Overlap
1" Minimum
1. Operator/Actuator
2. Fusible Rod
3. Auxiliary Operating Jack Shaft
4. Damper Frame
5. Fusible Link with Lock
6. Sleeve
7. Negator Spring
8. Mounting Angles
9. S-Joint, Sleeve to Duct
10. Caulking Material
ITEM DESCRIPTION
firestat and electric actuator.
stalled within the fire wall duct opening.
operate with blades running horizontally and must be in-
Combination fire and leakage rated dampers are designed to
or opening.
Do not compress or stretch the damper frame into the duct
must be installed so that it is square and free from racking.
To insure optimum operation and performance, the damper
than any damper and sleeve assembly.
foot plus 1", nor shall the opening be less than 1/4" larger
sembly. the maximum opening size shall not exceed 1/8" per
larger than the overall size of the damper and sleeve as-
The fire wall opening shall be a minimum of 1/8" per foot
damper widths exceeding 36" or heights exceeding 24".
for dampers up to 36" wide by 24" high and 14 gage for
connections are used, the sleeve shall be a minimum of 16 gage
a maximum of 2" from damper corners. If other duct sleeve
to the sleeve with 1/2" welds spaced 8" center to center and
inside slip joint, and double s-slip. The damper is fastened
hemmed s-slip, standing s-slip, reinforced standing s-slip,
more of the following duct connections are used: plain s-slip,
equal to or heavier than the gage of the duct when one or
SMACNA duct construction standard, the sleeve gage shall be
As described in NFPA 90A and as defined by the appropriate
on center for 1-1/2 hour rated dampers.
steel rivets or 1/2" long tack welds. Space fasteners 8
and fastened with No. 10 bolts or screws, 3/16" diameter
Mounting angles shall be 1-1/2" x 1-1/2" x 14 gage minimum
ant in place to dispel any air.
plied on the mullion joint. Press the surface of the seal-
Dow-corning silastic 732, or GE RTV 106 sealantshall be ap-
a continuous 1/8" bead of Dow-corning 100% silicon rubber,
from each corner. When joining multiple damper assemblies,
and a maximum 2" from the ends of the joining sections or
termittently on both sides. Space fasteners 6" on center
20 bolts, No. 10 screws, or 1/2" long welds staggered in-
damper to the sleeve, dampers shall be fastened with 1/4"-
When joining multiple damper assemblies or fastening the
tions only and are not required to be leakage rated.
quired when dampers are supplied for fire damper applica-
the damper requires caulking. Note that sealant is not re-
the damper and sleeve in the same manner. Only one side of
Another bead of the same sealant shall be applied between
uator side.
wall or partition and not more than 9" on the operator/act-
Damper sleeve shall not extend more than 6" beyond the fire
Safety Standards 555 and 555S.
These instructions comply with Underwriters Laboratories
GENERAL INSTALLATION
APPLICATION
Duct
1/4" Minimum
9
1
10
7
8
6
5
4
2
3
6" Maximum
FSD60 Damper to include
DRAWN BY:
FILENAME:
CHECKED BY:
PROJ. NUM:
ISSUED:
SET:
LEVEL LL2 LL2370
UPPER LEVEL WALL STREET
180 VARICK STREET, SUITE 1316
NEW YORK, NY 10014
P: 212.627.0240
F: 212.627.0242
ANDRE KIKOSKI ARCHITECT, PLLC
ARCHITECT:
UPPER LEVEL WALL STREET
LEVEL LL2 LL2370
WORLD TRADE CENTER, NYC
HENRY MEER
CLIENT:
DOCUMENT:Y:3108HVAC11-07-14-BIDSET3108_HVAC.DWGDATE:December4,2014TIME:10:24AM
SEAL & SIGNATURE:
SHEET OF
NO. REVISION/SUBMISSION DATE
LORE WINE & SPIRITS
SC
AK
171 MADISON AVENUE
SUITE 308
NEW YORK, NY 10016
(212) 532-5335
OPIE ATHWAL
MEP ENGINEER
N
PROJECT NORTH
ANDRE KIKOSKI ARCHITECT, PLLC. COPYRIGHT ©2014
137 EAST 25TH STREET
11TH FLOOR
NEW YORK, NY 10010
(212) 674-4488
COOLEY MONATO STUDIO
LIGHTING DESIGNER
7 WORLD TRADE CTR, 250 GREENWICH ST
37TH FLOOR
NEW YORK, NY 10007
(212) 822-1110
WESTFIELD, LLC
DEVELOPER
FOR QAD FILING
FOR CONSTRUCTION
CONFIDENTIAL
DO NOT DUPLICATE
1402
100% CD SET
12.05.2014
M-008.00
3108_HVAC
HVAC DETAIL SHEET 5
01 NONE
HVAC DETAIL SHEET 5
8 13
THROAT AND VOLUME DAMPER
RECTANGULAR DUCT BRANCH WITH
4. MINIMUM T = 4".
3. MUST BE USED WHEN W 36".
NOTES:
2. FURNISH THIS TYPE CONNECTION WITHOUT HAND DAMPER FOR
ALL HIGH PRESSURE DUCTWORK BRANCHES.
MORE THAN 1000 CFM.
LINE DUCTWORK IS INDICATED AS THIS FOR BRANCHES WITH
1. FURNISH THIS TYPE CONNECTION WHERE NOTED AND WHEN SINGLE
NOT TO SCALE
W
T
CLEVIS HANGER
'U'-BOLT
CONCRETE ANCHOR
TRAPEZE HANGER
TYPICAL PIPE SUPPORT DETAIL
SHIELD
PIPE
INSULATION
DRAWN BY:
FILENAME:
CHECKED BY:
PROJ. NUM:
ISSUED:
SET:
LEVEL LL2 LL2370
UPPER LEVEL WALL STREET
180 VARICK STREET, SUITE 1316
NEW YORK, NY 10014
P: 212.627.0240
F: 212.627.0242
ANDRE KIKOSKI ARCHITECT, PLLC
ARCHITECT:
UPPER LEVEL WALL STREET
LEVEL LL2 LL2370
WORLD TRADE CENTER, NYC
HENRY MEER
CLIENT:
DOCUMENT:Y:3108HVAC11-07-14-BIDSET3108_HVAC.DWGDATE:December4,2014TIME:10:24AM
SEAL & SIGNATURE:
SHEET OF
NO. REVISION/SUBMISSION DATE
LORE WINE & SPIRITS
SC
AK
171 MADISON AVENUE
SUITE 308
NEW YORK, NY 10016
(212) 532-5335
OPIE ATHWAL
MEP ENGINEER
N
PROJECT NORTH
ANDRE KIKOSKI ARCHITECT, PLLC. COPYRIGHT ©2014
137 EAST 25TH STREET
11TH FLOOR
NEW YORK, NY 10010
(212) 674-4488
COOLEY MONATO STUDIO
LIGHTING DESIGNER
7 WORLD TRADE CTR, 250 GREENWICH ST
37TH FLOOR
NEW YORK, NY 10007
(212) 822-1110
WESTFIELD, LLC
DEVELOPER
FOR QAD FILING
FOR CONSTRUCTION
CONFIDENTIAL
DO NOT DUPLICATE
1402
100% CD SET
12.05.2014
M-009.00
3108_HVAC
HVAC DETAIL SHEET 6
01 NONE
HVAC DETAIL SHEET 6
9 13
DRAWN BY:
FILENAME:
CHECKED BY:
PROJ. NUM:
ISSUED:
SET:
LEVEL LL2 LL2370
UPPER LEVEL WALL STREET
180 VARICK STREET, SUITE 1316
NEW YORK, NY 10014
P: 212.627.0240
F: 212.627.0242
ANDRE KIKOSKI ARCHITECT, PLLC
ARCHITECT:
UPPER LEVEL WALL STREET
LEVEL LL2 LL2370
WORLD TRADE CENTER, NYC
HENRY MEER
CLIENT:
DOCUMENT:Y:3108HVAC11-07-14-BIDSET3108_HVAC.DWGDATE:December4,2014TIME:10:24AM
SEAL & SIGNATURE:
SHEET OF
NO. REVISION/SUBMISSION DATE
LORE WINE & SPIRITS
SC
AK
171 MADISON AVENUE
SUITE 308
NEW YORK, NY 10016
(212) 532-5335
OPIE ATHWAL
MEP ENGINEER
N
PROJECT NORTH
ANDRE KIKOSKI ARCHITECT, PLLC. COPYRIGHT ©2014
137 EAST 25TH STREET
11TH FLOOR
NEW YORK, NY 10010
(212) 674-4488
COOLEY MONATO STUDIO
LIGHTING DESIGNER
7 WORLD TRADE CTR, 250 GREENWICH ST
37TH FLOOR
NEW YORK, NY 10007
(212) 822-1110
WESTFIELD, LLC
DEVELOPER
FOR QAD FILING
FOR CONSTRUCTION
CONFIDENTIAL
DO NOT DUPLICATE
1402
100% CD SET
12.05.2014
M-010.00
3108_HVAC
HVAC SPECIFICATIONS
SHEET 1
01 NONE
SHEET 1
HVAC SPECIFICATIONS
10 13
DRAWN BY:
FILENAME:
CHECKED BY:
PROJ. NUM:
ISSUED:
SET:
LEVEL LL2 LL2370
UPPER LEVEL WALL STREET
180 VARICK STREET, SUITE 1316
NEW YORK, NY 10014
P: 212.627.0240
F: 212.627.0242
ANDRE KIKOSKI ARCHITECT, PLLC
ARCHITECT:
UPPER LEVEL WALL STREET
LEVEL LL2 LL2370
WORLD TRADE CENTER, NYC
HENRY MEER
CLIENT:
DOCUMENT:Y:3108HVAC11-07-14-BIDSET3108_HVAC.DWGDATE:December4,2014TIME:10:24AM
SEAL & SIGNATURE:
SHEET OF
NO. REVISION/SUBMISSION DATE
LORE WINE & SPIRITS
SC
AK
171 MADISON AVENUE
SUITE 308
NEW YORK, NY 10016
(212) 532-5335
OPIE ATHWAL
MEP ENGINEER
N
PROJECT NORTH
ANDRE KIKOSKI ARCHITECT, PLLC. COPYRIGHT ©2014
137 EAST 25TH STREET
11TH FLOOR
NEW YORK, NY 10010
(212) 674-4488
COOLEY MONATO STUDIO
LIGHTING DESIGNER
7 WORLD TRADE CTR, 250 GREENWICH ST
37TH FLOOR
NEW YORK, NY 10007
(212) 822-1110
WESTFIELD, LLC
DEVELOPER
FOR QAD FILING
FOR CONSTRUCTION
CONFIDENTIAL
DO NOT DUPLICATE
1402
100% CD SET
12.05.2014
M-011.00
3108_HVAC
HVAC SPECIFICATIONS
SHEET 2
01 NONE
SHEET 2
HVAC SPECIFICATIONS
11 13
DRAWN BY:
FILENAME:
CHECKED BY:
PROJ. NUM:
ISSUED:
SET:
LEVEL LL2 LL2370
UPPER LEVEL WALL STREET
180 VARICK STREET, SUITE 1316
NEW YORK, NY 10014
P: 212.627.0240
F: 212.627.0242
ANDRE KIKOSKI ARCHITECT, PLLC
ARCHITECT:
UPPER LEVEL WALL STREET
LEVEL LL2 LL2370
WORLD TRADE CENTER, NYC
HENRY MEER
CLIENT:
DOCUMENT:Y:3108HVAC11-07-14-BIDSET3108_HVAC.DWGDATE:December4,2014TIME:10:24AM
SEAL & SIGNATURE:
SHEET OF
NO. REVISION/SUBMISSION DATE
LORE WINE & SPIRITS
SC
AK
171 MADISON AVENUE
SUITE 308
NEW YORK, NY 10016
(212) 532-5335
OPIE ATHWAL
MEP ENGINEER
N
PROJECT NORTH
ANDRE KIKOSKI ARCHITECT, PLLC. COPYRIGHT ©2014
137 EAST 25TH STREET
11TH FLOOR
NEW YORK, NY 10010
(212) 674-4488
COOLEY MONATO STUDIO
LIGHTING DESIGNER
7 WORLD TRADE CTR, 250 GREENWICH ST
37TH FLOOR
NEW YORK, NY 10007
(212) 822-1110
WESTFIELD, LLC
DEVELOPER
FOR QAD FILING
FOR CONSTRUCTION
CONFIDENTIAL
DO NOT DUPLICATE
1402
100% CD SET
12.05.2014
M-012.00
3108_HVAC
HVAC SPECIFICATIONS
SHEET 3
01 NONE
SHEET 2
HVAC SPECIFICATIONS
12 13
DRAWN BY:
FILENAME:
CHECKED BY:
PROJ. NUM:
ISSUED:
SET:
LEVEL LL2 LL2370
UPPER LEVEL WALL STREET
180 VARICK STREET, SUITE 1316
NEW YORK, NY 10014
P: 212.627.0240
F: 212.627.0242
ANDRE KIKOSKI ARCHITECT, PLLC
ARCHITECT:
UPPER LEVEL WALL STREET
LEVEL LL2 LL2370
WORLD TRADE CENTER, NYC
HENRY MEER
CLIENT:
DOCUMENT:Y:3108HVAC11-07-14-BIDSET3108_HVAC.DWGDATE:December4,2014TIME:10:24AM
SEAL & SIGNATURE:
SHEET OF
NO. REVISION/SUBMISSION DATE
LORE WINE & SPIRITS
SC
AK
171 MADISON AVENUE
SUITE 308
NEW YORK, NY 10016
(212) 532-5335
OPIE ATHWAL
MEP ENGINEER
N
PROJECT NORTH
ANDRE KIKOSKI ARCHITECT, PLLC. COPYRIGHT ©2014
137 EAST 25TH STREET
11TH FLOOR
NEW YORK, NY 10010
(212) 674-4488
COOLEY MONATO STUDIO
LIGHTING DESIGNER
7 WORLD TRADE CTR, 250 GREENWICH ST
37TH FLOOR
NEW YORK, NY 10007
(212) 822-1110
WESTFIELD, LLC
DEVELOPER
FOR QAD FILING
FOR CONSTRUCTION
CONFIDENTIAL
DO NOT DUPLICATE
1402
100% CD SET
12.05.2014
M-013.00
3108_HVAC
HVAC SPECIFICATIONS
SHEET 4
01 NONE
SHEET 4
HVAC SPECIFICATIONS
13 13
JANITOR
CLOSET
ELECTRICAL
CLOSET
SERVICE CORRIDOR
102
DOMESTIC ROOM
104
OFFICE/STORAGE
100
RETAIL FLOOR
103
SERVICE
101
LARGE
FORMAT ROOM
BUILDING SANITARY LINE
2" SANITARY LINE DOWN
THRU FLOOR SLAB FOR
CONNECTION TO BASE
SOIL OR WASTE (S) (W)
CONNECT TO EXISITNG
VENT (V)
SHUT-OFF VALVE
LEGEND
COLD WATER (CW)
HOT WATER (HW)
LOCATION OF DOMESTIC HOT
WATER HEATER. SEE MOUNTING
DETAIL: DWG. P-002.00
REFRIGERATOR
PANTRY SINK
DISHWASHER
REF
PS
DW
CLEANOUTC.O.
3/4" DOMESTIC COLD WATER DOWN
3/4" DOMESTIC HOT WATER DOWN
3/4"
3/4"
3/4"
LOCATE PIPING ABOVE
HUNG CEILING
1/4"
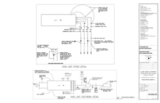
1 1/4" CONDENSATE LINE FROM HVAC UNIT
(SEE DRAWING M-003.00)
DRAWN BY:
FILENAME:
CHECKED BY:
PROJ. NUM:
ISSUED:
SET:
LEVEL LL2 LL2370
UPPER LEVEL WALL STREET
180 VARICK STREET, SUITE 1316
NEW YORK, NY 10014
P: 212.627.0240
F: 212.627.0242
ANDRE KIKOSKI ARCHITECT, PLLC
ARCHITECT:
UPPER LEVEL WALL STREET
LEVEL LL2 LL2370
WORLD TRADE CENTER, NYC
HENRY MEER
CLIENT:
DOCUMENT:Y:3108PLBG11-07-14-BIDSET3108_PLBG.DWGDATE:December4,2014TIME:10:26AM
SEAL & SIGNATURE:
SHEET OF
NO. REVISION/SUBMISSION DATE
LORE WINE & SPIRITS
SC
AK
171 MADISON AVENUE
SUITE 308
NEW YORK, NY 10016
(212) 532-5335
OPIE ATHWAL
MEP ENGINEER
N
PROJECT NORTH
ANDRE KIKOSKI ARCHITECT, PLLC. COPYRIGHT ©2014
137 EAST 25TH STREET
11TH FLOOR
NEW YORK, NY 10010
(212) 674-4488
COOLEY MONATO STUDIO
LIGHTING DESIGNER
7 WORLD TRADE CTR, 250 GREENWICH ST
37TH FLOOR
NEW YORK, NY 10007
(212) 822-1110
WESTFIELD, LLC
DEVELOPER
FOR QAD FILING
FOR CONSTRUCTION
CONFIDENTIAL
DO NOT DUPLICATE
1402
100% CD SET
12.05.2014
P-001.00
3108_PLBG
PLUMBING PLAN
MEER WINE & SPIRITS
1' 2'0 4'
01 1/2"=1'-0"
PLUMBING PLAN
MEER WINE & SPIRITS
1 4
NO SCALE
CLEVIS HANGER
DIP TUBE WITH HOLE ON TOP
CONNECIONS & COLD WATER
IF HEATER IS PROVIDED
MAY BE ELIMINATED
VACUUM RELIEF VALVE
W/BRASS COCK
SUPPORTED FROM OVERHEAD STRUCTURAL SLAB
EXTEND 1" DRAIN FROM DRAIN PAN TO FUNNEL DRAIN.
IF DIELECTRIC NIPPLES ARE NOT SUPPLIED BY HEATER MFGR.
PROVIDE DIELECTRIC UNIONS ON PIPING CONNECTIONS TO HEATERS
FLOOR
NOT TO SCALE
WATER HEATER DETAIL
1. STRAP THE UNIT TO THE SHELF.
TO FUNNEL DRAIN.
BLOW-OFF SPILL
PRESSURE RELIEF VALVE
TEMPERATURE &
UNION
GATE VALVE
TO FUNNEL DRAIN
BLOW-OFF SPILL
THERMOMETER
AIR VENT
CHECK VALVE
PETE'S PLUG FOR
PRESSURE GAUGE
PSREF
DW
~~
~ ~~ ~~~
LEVEL LL2
TO BASE BUILDING SANITARY LINE
DOMESTIC HOT WATER HEATER
(SUSPENDED ABOVE CEILING)
FUNNEL DRAIN WITH TRAP PRIMER
3/4"
3/4" COLD WATER
BASE BUILDING DOMESTIC
PLUMBING RISER DIAGRAM
1/4"
1 1/2" TO BASE
NOT TO SCALE
GALVANIZED PROTECTION
SHIELD-18 GA.,12" LONG
WHEN PIPING IS INSULATED
ELASTIC LOCKNUTS
ELASTIC LOCKNUTS
THREADED ROD
WATER SUPPLY
BUILDING VENT LINE
A.O. SMITH
PROMAX: EJC-10
10 GALLON CAPACITY, 1650 WATTS
DIM.: 18 1/4"H x 16" DIA.
OPR. WT.: 55 LBS
CONCRETE ANCHOR
2"
ALL PLUMBING SYSTEMS (SANITARY, WASTE, VENT , WATER
DISTRIBUTION AND GAS PIPING SYSTEMS) AND ASSOCIATED
EQUIPMENT SHALL BE INSTALLED, OPERATED AND MAINTAINED IN
ACCORDANCE WITH THE REQUIREMENTS OF 2008 THE NEW YORK
CITY PLUMBING CODE (NYCPC).
INSTALLATION OF UNDERGROUND PIPING SHALL BE IN ACCORDANCE
WITH THE REQUIREMENTS OF SECTION PC 702.2.
PROTECTION OF PIPING PASSING UNDER OR THROUGH FOUNDATION
WALLS AS PER SECTION PC 305.
TRENCHING, EXCAVATION AND BACKFILL AS PER SECTION PC 306.
RAT PROOFING AS PER PC 304.
MATERIALS USED IN PLUMBING SYSTEMS SHALL BE IN ACCORDANCE
WITH THE REQUIREMENTS OF SECTION PC 303, PC 605, PC 702,
PC 902, PC 1102.
EQUIPMENT CONNECTIONS AND JOINING OF PIPING SHALL BE IN
ACCORDANCE WITH THE REQUIREMENTS OF CHAPTERS 4,5,6,7, AND
9.
DEEP SEAL TRAPS FOR FLOOR DRAINS SHALL BE PROVIDED AS
PER PC 1002 AND CLEAN-OUTS SHALL BE INSTALLED IN
ACCORDANCE WITH THE REQUIREMENTS OF SECTION PC 708.
BUILDING HOUSE TRAPS SHALL BE PROVIDED AS PER SECTION PC
1002.
DRAINAGE PIPE CLEANOUTS AS PER SECTION PC 708.
VERTICAL AND HORIZONTAL PIPING SHALL BE SUPPORTED IN
ACCORDANCE WITH THE REQUIREMENTS OF SECTION PC 308.
WATER SUPPLY SYSTEMS SHALL BE INSTALLED AND MAINTAINED IN
ACCORDANCE WITH THE REQUIREMENTS OF CHAPTERS 6 SECTION
PC 601-603, 604, 606, 607, 608, 610.
THE SANITARY DRAINAGE SYSTEM SHALL BE SIZED AND INSTALLED
IN ACCORDANCE WITH THE REQUIREMENTS OF CHAPTER 7 SECTION
PC 701, 704, 705, 706, 707, 708, 711.
VENT PIPING FOR THE SANITARY DRAINAGE SYSTEM SHALL BE
INSTALLED N ACCORDANCE WITH THE REQUIREMENTS OF CHAPTER
9 SECTIONS PS 901 THROUGH PC 912 THROUGH PC 917.
THE STORM DRAINAGE PIPING SHALL BE SIZED AND INSTALLED IN
ACCORDANCE WITH THE REQUIREMENTS OF CHAPTER 11 SECTION
PC 1101 THROUGH 113.
INSPECTION AND TESTING OF PLUMBING AND GAS PIPING SYSTEMS
SHALL BE IN ACCORDANCE WITH SECTION PC 107, 312.
1.
2.
3.
4.
5.
6.
7.
8.
9.
10.
11.
12.
13.
14.
15.
BUILDING DEPARTMENT PLUMBING NOTES
2"
3/4"
C.O.
BLOW-OFF SPILL
DRAIN FROM DRAIN PAN
BLOW-OFF SPILL
NOTE:
2.
1.
DRAIN PAN
AUTOMATIC TRAP PRIMER:
J.R. SMITH FIG. 2699
PLUMBING PART-PLAN
NOT TO SCALE
CONDENSATE LINE FROM HVAC UNIT
NOTES:
104
OFFICE/STORAGE
103
SERVICE
Y LINE
OWN
FOR
ASE
LOCATION OF DOMESTIC HOT
WATER HEATER. SEE MOUNTING
DETAIL: DWG. P-002.00
3/4" DOMESTIC COLD WATER DOWN
3/4" DOMESTIC HOT WATER DOWN
3/4"
3/4"
3/4"
LOCATE PIPING ABOVE
HUNG CEILING
1/4"
1 1/4" CONDENSATE LINE FROM HVAC UN
(SEE DRAWING M-003.00)
DRAWN BY:
FILENAME:
CHECKED BY:
PROJ. NUM:
ISSUED:
SET:
LEVEL LL2 LL2370
UPPER LEVEL WALL STREET
180 VARICK STREET, SUITE 1316
NEW YORK, NY 10014
P: 212.627.0240
F: 212.627.0242
ANDRE KIKOSKI ARCHITECT, PLLC
ARCHITECT:
UPPER LEVEL WALL STREET
LEVEL LL2 LL2370
WORLD TRADE CENTER, NYC
HENRY MEER
CLIENT:
DOCUMENT:Y:3108PLBG11-07-14-BIDSET3108_PLBG.DWGDATE:December4,2014TIME:10:26AM
SEAL & SIGNATURE:
SHEET OF
NO. REVISION/SUBMISSION DATE
LORE WINE & SPIRITS
SC
AK
171 MADISON AVENUE
SUITE 308
NEW YORK, NY 10016
(212) 532-5335
OPIE ATHWAL
MEP ENGINEER
N
PROJECT NORTH
ANDRE KIKOSKI ARCHITECT, PLLC. COPYRIGHT ©2014
137 EAST 25TH STREET
11TH FLOOR
NEW YORK, NY 10010
(212) 674-4488
COOLEY MONATO STUDIO
LIGHTING DESIGNER
7 WORLD TRADE CTR, 250 GREENWICH ST
37TH FLOOR
NEW YORK, NY 10007
(212) 822-1110
WESTFIELD, LLC
DEVELOPER
FOR QAD FILING
FOR CONSTRUCTION
CONFIDENTIAL
DO NOT DUPLICATE
1402
100% CD SET
12.05.2014
P-002.00
3108_PLBG
PLUMBING RISER
DIAGRAM AND DETAILS
01 NONE
PLUMBING RISER
DIAGRAM AND DETAILS
2 4
DRAWN BY:
FILENAME:
CHECKED BY:
PROJ. NUM:
ISSUED:
SET:
LEVEL LL2 LL2370
UPPER LEVEL WALL STREET
180 VARICK STREET, SUITE 1316
NEW YORK, NY 10014
P: 212.627.0240
F: 212.627.0242
ANDRE KIKOSKI ARCHITECT, PLLC
ARCHITECT:
UPPER LEVEL WALL STREET
LEVEL LL2 LL2370
WORLD TRADE CENTER, NYC
HENRY MEER
CLIENT:
DOCUMENT:Y:3108PLBG11-07-14-BIDSET3108_PLBG.DWGDATE:December4,2014TIME:10:26AM
SEAL & SIGNATURE:
SHEET OF
NO. REVISION/SUBMISSION DATE
LORE WINE & SPIRITS
SC
AK
171 MADISON AVENUE
SUITE 308
NEW YORK, NY 10016
(212) 532-5335
OPIE ATHWAL
MEP ENGINEER
N
PROJECT NORTH
ANDRE KIKOSKI ARCHITECT, PLLC. COPYRIGHT ©2014
137 EAST 25TH STREET
11TH FLOOR
NEW YORK, NY 10010
(212) 674-4488
COOLEY MONATO STUDIO
LIGHTING DESIGNER
7 WORLD TRADE CTR, 250 GREENWICH ST
37TH FLOOR
NEW YORK, NY 10007
(212) 822-1110
WESTFIELD, LLC
DEVELOPER
FOR QAD FILING
FOR CONSTRUCTION
CONFIDENTIAL
DO NOT DUPLICATE
1402
100% CD SET
12.05.2014
P-003.00
3108_PLBG
PLUMBING SPECIFICATIONS
SHEET 1
01 NONE
PLUMBING SPECIFICATIONS
SHEET 1
3 4
DRAWN BY:
FILENAME:
CHECKED BY:
PROJ. NUM:
ISSUED:
SET:
LEVEL LL2 LL2370
UPPER LEVEL WALL STREET
180 VARICK STREET, SUITE 1316
NEW YORK, NY 10014
P: 212.627.0240
F: 212.627.0242
ANDRE KIKOSKI ARCHITECT, PLLC
ARCHITECT:
UPPER LEVEL WALL STREET
LEVEL LL2 LL2370
WORLD TRADE CENTER, NYC
HENRY MEER
CLIENT:
DOCUMENT:Y:3108PLBG11-07-14-BIDSET3108_PLBG.DWGDATE:December4,2014TIME:10:26AM
SEAL & SIGNATURE:
SHEET OF
NO. REVISION/SUBMISSION DATE
LORE WINE & SPIRITS
SC
AK
171 MADISON AVENUE
SUITE 308
NEW YORK, NY 10016
(212) 532-5335
OPIE ATHWAL
MEP ENGINEER
N
PROJECT NORTH
ANDRE KIKOSKI ARCHITECT, PLLC. COPYRIGHT ©2014
137 EAST 25TH STREET
11TH FLOOR
NEW YORK, NY 10010
(212) 674-4488
COOLEY MONATO STUDIO
LIGHTING DESIGNER
7 WORLD TRADE CTR, 250 GREENWICH ST
37TH FLOOR
NEW YORK, NY 10007
(212) 822-1110
WESTFIELD, LLC
DEVELOPER
FOR QAD FILING
FOR CONSTRUCTION
CONFIDENTIAL
DO NOT DUPLICATE
1402
100% CD SET
12.05.2014
P-004.00
3108_PLBG
PLUMBING SPECIFICATIONS
SHEET 2
01 NONE
PLUMBING SPECIFICATIONS
SHEET 2
4 4
JANITOR
CLOSET
ELECTRICAL
CLOSET
SERVICE CORRIDOR
B.O. V
13'-0"
B.O.F.C.
14'-3"
T.O. WOOD CLG
14'-0"
B.O.F.C.
14'-3"
T.O. VAU
14'-0"
B.O.F.C.
14'-3"
B.O.F.C.
14'-3"
B.O. WOOD CLG
13'-0"
B.O.F.C.
14'-3"
VAULTEDCEILING
B.O. VAULT
13'-0"
B.O.F.C.
9'-0"
B.O.F.C.
9'-0"
B.O. VAULT
13'-0"
L4
EXISTING SPRINKLER PIPING
NEW SPRINKLER PIPING
EXISTING UPRIGHT SPRINKLER HEAD
CONCEALED TYPE SPRINKLER HEAD
LEGEND
EXISTING SPRINKLER PIPING
POINT-OF-NEW CONNECTION
TO BE REMOVED
E E
E
E
E
E
E
E
E
E
E
E
E
E
EEE
E
E
EXISTING UPRIGHT SPRINKLER HEADE
TO BE REMOVED
PIPING CAPPED
TOTAL NO. OF EXISTING
HEADS REMOVED: 18
L1
L1
TOTAL NO. OF EXISTING
HEADS TO REMAIN: 0
TOTAL NO. OF NEW
HEADS ADDED: 18
DRAWN BY:
FILENAME:
CHECKED BY:
PROJ. NUM:
ISSUED:
SET:
LEVEL LL2 LL2370
UPPER LEVEL WALL STREET
180 VARICK STREET, SUITE 1316
NEW YORK, NY 10014
P: 212.627.0240
F: 212.627.0242
ANDRE KIKOSKI ARCHITECT, PLLC
ARCHITECT:
UPPER LEVEL WALL STREET
LEVEL LL2 LL2370
WORLD TRADE CENTER, NYC
HENRY MEER
CLIENT:
DOCUMENT:Y:3108SPRK11-07-14-BIDSET3108_SPRK.DWGDATE:December4,2014TIME:10:28AM
SEAL & SIGNATURE:
SHEET OF
NO. REVISION/SUBMISSION DATE
LORE WINE & SPIRITS
SC
AK
171 MADISON AVENUE
SUITE 308
NEW YORK, NY 10016
(212) 532-5335
OPIE ATHWAL
MEP ENGINEER
N
PROJECT NORTH
ANDRE KIKOSKI ARCHITECT, PLLC. COPYRIGHT ©2014
137 EAST 25TH STREET
11TH FLOOR
NEW YORK, NY 10010
(212) 674-4488
COOLEY MONATO STUDIO
LIGHTING DESIGNER
7 WORLD TRADE CTR, 250 GREENWICH ST
37TH FLOOR
NEW YORK, NY 10007
(212) 822-1110
WESTFIELD, LLC
DEVELOPER
FOR QAD FILING
FOR CONSTRUCTION
CONFIDENTIAL
DO NOT DUPLICATE
1402
100% CD SET
12.05.2014
SP-001.00
3108_SPRK
SPRINKLER PLAN
MEER WINE & SPIRITS
1' 2'0 4'
01 1/2"=1'-0"
SPRINKLER PLAN
MEER WINE & SPIRITS
1 3
DRAWN BY:
FILENAME:
CHECKED BY:
PROJ. NUM:
ISSUED:
SET:
LEVEL LL2 LL2370
UPPER LEVEL WALL STREET
180 VARICK STREET, SUITE 1316
NEW YORK, NY 10014
P: 212.627.0240
F: 212.627.0242
ANDRE KIKOSKI ARCHITECT, PLLC
ARCHITECT:
UPPER LEVEL WALL STREET
LEVEL LL2 LL2370
WORLD TRADE CENTER, NYC
HENRY MEER
CLIENT:
DOCUMENT:Y:3108SPRK11-07-14-BIDSET3108_SPRK.DWGDATE:December4,2014TIME:10:28AM
SEAL & SIGNATURE:
SHEET OF
NO. REVISION/SUBMISSION DATE
LORE WINE & SPIRITS
SC
AK
171 MADISON AVENUE
SUITE 308
NEW YORK, NY 10016
(212) 532-5335
OPIE ATHWAL
MEP ENGINEER
N
PROJECT NORTH
ANDRE KIKOSKI ARCHITECT, PLLC. COPYRIGHT ©2014
137 EAST 25TH STREET
11TH FLOOR
NEW YORK, NY 10010
(212) 674-4488
COOLEY MONATO STUDIO
LIGHTING DESIGNER
7 WORLD TRADE CTR, 250 GREENWICH ST
37TH FLOOR
NEW YORK, NY 10007
(212) 822-1110
WESTFIELD, LLC
DEVELOPER
FOR QAD FILING
FOR CONSTRUCTION
CONFIDENTIAL
DO NOT DUPLICATE
1402
100% CD SET
12.05.2014
SP-002.00
3108_SPRK
SPRINKLER SPECIFICATIONS
01 NONE
SPRINKLER SPECIFICATIONS
2 3
1" DROP NIPPLE
SUSPENDED CEILING
1" x 1/2" COUPLING
(IF REQUIRED)
SPRINKLER HEAD
(SEE SPECIFICATION
& DWG. FOR TYPE)
RELIABLE MODEL G1 - NYC BS&A # 587-75-SA
NOT TO SCALE
BRANCH PIPE
CONCEALED SPRINKLER HEAD
CONNECTION DETAIL
DRAWN BY:
FILENAME:
CHECKED BY:
PROJ. NUM:
ISSUED:
SET:
LEVEL LL2 LL2370
UPPER LEVEL WALL STREET
180 VARICK STREET, SUITE 1316
NEW YORK, NY 10014
P: 212.627.0240
F: 212.627.0242
ANDRE KIKOSKI ARCHITECT, PLLC
ARCHITECT:
UPPER LEVEL WALL STREET
LEVEL LL2 LL2370
WORLD TRADE CENTER, NYC
HENRY MEER
CLIENT:
DOCUMENT:Y:3108SPRK11-07-14-BIDSET3108_SPRK.DWGDATE:December4,2014TIME:10:28AM
SEAL & SIGNATURE:
SHEET OF
NO. REVISION/SUBMISSION DATE
LORE WINE & SPIRITS
SC
AK
171 MADISON AVENUE
SUITE 308
NEW YORK, NY 10016
(212) 532-5335
OPIE ATHWAL
MEP ENGINEER
N
PROJECT NORTH
ANDRE KIKOSKI ARCHITECT, PLLC. COPYRIGHT ©2014
137 EAST 25TH STREET
11TH FLOOR
NEW YORK, NY 10010
(212) 674-4488
COOLEY MONATO STUDIO
LIGHTING DESIGNER
7 WORLD TRADE CTR, 250 GREENWICH ST
37TH FLOOR
NEW YORK, NY 10007
(212) 822-1110
WESTFIELD, LLC
DEVELOPER
FOR QAD FILING
FOR CONSTRUCTION
CONFIDENTIAL
DO NOT DUPLICATE
1402
100% CD SET
12.05.2014
SP-003.00
3108_SPRK
BUILDING DEPARTMENT
SPRINKLER NOTES
AND DETAIL
01 NONE
BUILDING DEPARTMENT
SPRINKLER NOTES
AND DETAIL
3 3
DRAWN BY:
FILENAME:
CHECKED BY:
PROJ. NUM:
ISSUED:
SET:
LEVEL LL2 LL2370
UPPER LEVEL WALL STREET
180 VARICK STREET, SUITE 1316
NEW YORK, NY 10014
P: 212.627.0240
F: 212.627.0242
ANDRE KIKOSKI ARCHITECT, PLLC
ARCHITECT:
UPPER LEVEL WALL STREET
LEVEL LL2 LL2370
WORLD TRADE CENTER, NYC
HENRY MEER
CLIENT:
DOCUMENT:Y:3108EN11-07-14-BIDSET3108_EN.DWGDATE:December4,2014TIME:10:29AM
SEAL & SIGNATURE:
SHEET OF
NO. REVISION/SUBMISSION DATE
LORE WINE & SPIRITS
SC
AK
171 MADISON AVENUE
SUITE 308
NEW YORK, NY 10016
(212) 532-5335
OPIE ATHWAL
MEP ENGINEER
N
PROJECT NORTH
ANDRE KIKOSKI ARCHITECT, PLLC. COPYRIGHT ©2014
137 EAST 25TH STREET
11TH FLOOR
NEW YORK, NY 10010
(212) 674-4488
COOLEY MONATO STUDIO
LIGHTING DESIGNER
7 WORLD TRADE CTR, 250 GREENWICH ST
37TH FLOOR
NEW YORK, NY 10007
(212) 822-1110
WESTFIELD, LLC
DEVELOPER
FOR QAD FILING
FOR CONSTRUCTION
CONFIDENTIAL
DO NOT DUPLICATE
1402
100% CD SET
12.05.2014
EN-001.00
3108_SPRK
ENERGY COMPLAINCE
SHEET - MECHANICAL
01 NONE
ENERGY COMPLAINCE
SHEET - MECHANICAL
1 1

lore_wine_&_spirits_wtc_retail

  • 1.
    JANITOR CLOSET ELECTRICAL CLOSET SERVICE CORRIDOR B.O. VAULT 13'-0" B.O.F.C. 14'-3" T.O.WOOD CLG 14'-0" B.O.F.C. 14'-3" B.O.F.C. 14'-3" B.O.F.C. 14'-3" B.O. WOOD CLG 13'-0" B.O.F.C. 14'-3" VAULTEDCEILING B.O. VAULT 13'-0" B.O.F.C. 9'-0" B.O.F.C. 9'-0" B.O. VAULT 13'-0" L2 L2 L2 L2 L2 L2 L2a L2a L2a L2a L2a L2aL2a L2a L2a L2a L2a L1 L1 L1 L1 L1 L1 L1 L1 L1 L3 L3 L3 (2)L6 (2)L6 (2)L6 (2)L6 (2)L6 (2)L6 (2)L6 (2)L6 (2)L6 (2)L6 (2)L6 (2)L6 (2)L6 (2)L6 L4 L4 L3 L4 J J J J SD7 LOW VOLTAGE WIRING TO REMOTE LED DRIVER SEE WIRING DETAIL A ON DWG. E-006 LPWS-7 SD1 LPWS-6 LPWS-5 CONNECT VIA REMOTE LED DRIVER SD9 LP-WS LPWS-1 SD5 SD8 SD3 LED TYPE WITH METAL HOUSING AND BATTERY PACK BRANCH CIRCUIT CONDUIT HOMERUN EXIT LIGHT-CEILING MOUNTED 120- VOLT LIGHITNG FIXTURES, LETTER DEMOTES TYPE LIGHTING CIRCUIT TO DIMMING MODULE BRANCH CIRCUIT LOW VOLTAGE WIRING DUPLEX OUTLET 20A-3W. 125 VOLT GROUNDING TYPE. FLUSH FLOOR MOUNTED TEL/DATA OUTLET W/ BRASS COVER DUPLEX OUTLET, 20A-120 VOLT, GROUNDING TYPE WALL MTD. DUPLEX OUTLET, 20A-120 VOLT WITH GROUND FAULT INTERRUPTER WALL MOUNTED DOUBLE DUPLEX OUTLET NON-FUSED DISCONNECT SWITCH SYMBOL LIST LIGHITNG FIXTURES ON NORMAL/EMERGENCY CIRCUITL3/EM SD7 J JUNCTION BOX GFI LOW VOLTAGE LIGHTING TRANSFORMER AND LED LIGHT BOX LOCATION FLUSH FLOOR MTD. WITH BRASS COVER & HINGED PLATES J JUNCTION BOX WITH 15A-1P-120 VOLT DISCONNECT SWITCH S CONNECT TO VIA AUTO TRANSFER RELAY SEE WIRING DETAIL B ON DWG. E-005 CONN. TO CONSTANT UNSWITCHED CIRCUIT CONNECT TO CONSTANT UNSWITCHED CIRCUIT TWIST LOCK RECEPTACLESTL LUTRON LIGHTING CONTROL UNITS J J VIA TRANSFORMER AND AL DRIVER LPWS-1 VIA TRANSFORMER AND AL DRIVER SD16 PRIMARY STORE SIGNAGE (4)LM9 DRAWN BY: FILENAME: CHECKED BY: PROJ. NUM: ISSUED: SET: LEVEL LL2 LL2370 UPPER LEVEL WALL STREET 180 VARICK STREET, SUITE 1316 NEW YORK, NY 10014 P: 212.627.0240 F: 212.627.0242 ANDRE KIKOSKI ARCHITECT, PLLC ARCHITECT: UPPER LEVEL WALL STREET LEVEL LL2 LL2370 WORLD TRADE CENTER, NYC HENRY MEER CLIENT: DOCUMENT:Y:3108ELEC11-07-14-BIDSET3108_E-001.DWGDATE:December4,2014TIME:10:13AM SEAL & SIGNATURE: SHEET OF NO. REVISION/SUBMISSION DATE LORE WINE & SPIRITS SC AK 171 MADISON AVENUE SUITE 308 NEW YORK, NY 10016 (212) 532-5335 OPIE ATHWAL MEP ENGINEER N PROJECT NORTH ANDRE KIKOSKI ARCHITECT, PLLC. COPYRIGHT ©2014 137 EAST 25TH STREET 11TH FLOOR NEW YORK, NY 10010 (212) 674-4488 COOLEY MONATO STUDIO LIGHTING DESIGNER 7 WORLD TRADE CTR, 250 GREENWICH ST 37TH FLOOR NEW YORK, NY 10007 (212) 822-1110 WESTFIELD, LLC DEVELOPER FOR QAD FILING FOR CONSTRUCTION CONFIDENTIAL DO NOT DUPLICATE 1402 100% CD SET 12.05.2014 E-001.00 3108_E-001 LIGHTING PLAN: MEER WINE & SPIRITS 1' 2'0 4' 01 1/2"=1'-0" LIGHTING PLAN: MEER WINE & SPIRITS 1 10
  • 2.
    TL JANITOR CLOSET ELECTRICAL CLOSET SERVICE CORRIDOR 102 DOMESTIC ROOM 104 OFFICE/STORAGE 100 RETAILFLOOR 103 SERVICE 101 LARGE FORMAT ROOM LM1 LM1 LM1 LM1 LM1 LM1LM1 (2)LM2 (2)LM2LM1 (2)LM2 LM1 LM3LM3 LM6 LM6 LM6LM6 LM7 (ALL 4 SIDES) LM7 (ALL 4 SIDES) LM7 (ALL 4 SIDES) (2)LM2LM7 (ALL 4 SIDES) (2)LM2 LM7 (ALL 4 SIDES) LM7 LPWS-10 J J J J J CABINET. TYPICAL CONNECT TO LM3 FIXTURES 120/24 VOLT 100W. POWER SUPPLY UNIT IN DISPLAY LPWS-11 CONNECT VIA XITANIUM CONTANT VOLATAGE 80W-120/24 VOLT TRANSFORMER LPWS-8 TO SD12 LPWS-8 SEE NOTE 8 LOW VOLTAGE WIRING LOCATE IN NEW FLOOR SLAB TO SD10 LIGHT ZONE COORDINATE LIGHTING FIXTURES LOCATION WITH ARCHITECTURAL DRAWINGS REFLECTED CEILING PLANS FURNITURE PLANS AND FIELD CONDITIONS PRIOR TO INSTALLATION. ALL LOW-VOLTAGE LIGHTING FIXTURE WIRING SHALL BE AS PER MANUFACTURERS FIELD INSTALLATION DETAILS. REMOTE TRANSFORMERS TO BE OF THE TYPE SIZE AND VOLTAGE RATING AS REQUIRED BY LIGHTING FIXTURES VENDOR. REMOTE LIGHTING CONTROL TRANSFORMERS TO BE LOCATED ON SHELF ABOVE CEILING AND OR AS DIRECTED IN FIELD BY ARCHITECT. ALL DIMMER SWITCHES TO BE OF THE TYPE SPECIFIED BY LIGHTING CONSULTANT AND OR ARCHITECT. LOCATION OF DIMMER SWITCHES TO BE PROVIDED BY ARCHITECT. ALL LOW-VOLTAGE WIRE TYPE INSULATION TO COMPLY WITH ELECTRICAL DESIGN CRITERIA FOR LOW SMOKE ZERO HALOGEN AND FLAME RETARDANT TYPE. CONNECT VIA REMOTE DIMMABLE POWER SUPPLY UNIT. CONNECT TO 120/12 VOLT DIMMABLE POWER SUPPLY UNITS. COORDINATE LOCATION IN FIELD WITH ARCHITECT. ALL LIGHTING VOLTAGE STEP-DOWN TRANSFORMER TO BE PROVED WITH PRIMARY AND SECONDARY FUSING. 1. 2. 4. 5. 6. 7. 8. NOTES: 3. 9. J FLUSH FLOOR MOUNTED FOR LMD LIGHT FIXTURES TYPICAL S JS JJ J J J J J SJ S J S J S J S J S J S J S LIGHT ZONE LPWS-8 LPWS-8 TO SD12 LIGHT ZONE TO SD12 LIGHT ZONE TO 24 VOLT REMOTE DRIVERS. SEE DETAIL 'A' ON DWG. E-005.00. LOCATE 120/24 VOLT DRIVERS IN CABINETRY. TYPICAL JUNCTION BOX WITH 120V. 15A ON-OFF SWITCH. TYPICAL J J J J LPWS-11 TO SD14 LIGHT ZONE LOCATE IN FLOOR SLAB POWER SUPPLY UNIT CONN. TO LM7 FIXTURE. TYPICAL POWER SUPPLY UNIT CONN. TO LM2 FIXTURE. TYPICAL J TO SD12 LIGHT ZONE TL TL TL (2)LM8 (2)LM8 (2)LM8 (2)LM8 (2)LM8 J S J S J S J S TO LM8 TO LM8 TO LM8 TO LM8 J S TO LM8 LPWS-8 (5)LM8 (5)LM8 (5)LM8 (5)LM2 (5)LM2 (5)LM2 VIA SD19 LOW VOLTAGE WIRING IN METAL CONDUIT CONCEALED TO 12-VOLT SUPPLY SEE DETAIL B LM-5 AT EACH SHELF ON DWG. E-005.00. IN NEW CONCRETE SLAB TL J S J S TO LM2 TO LM8 LOCATE IN NEW FLOOR SLAB T J CONNECT TO ILLUMINATED SIGN 120/12 VOLT TRANSFOMER LPWS-14 VIA LIGHT SWITCH PRIMARY STORE SIGNAGE (4)LM9 DRAWN BY: FILENAME: CHECKED BY: PROJ. NUM: ISSUED: SET: 1402 BID SET 12.05.2014 LEVEL LL2 LL2370 UPPER LEVEL WALL STREET 180 VARICK STREET, SUITE 1316 NEW YORK, NY 10014 P: 212.627.0240 F: 212.627.0242 ANDRE KIKOSKI ARCHITECT, PLLC ARCHITECT: UPPER LEVEL WALL STREET LEVEL LL2 LL2370 WORLD TRADE CENTER, NYC HENRY MEER CLIENT: DOCUMENT:Y:3108ELEC11-07-14-BIDSET3108_E-002.DWGDATE:December4,2014TIME:10:18AM SEAL & SIGNATURE: SHEET OF NO. REVISION/SUBMISSION DATE LORE WINE & SPIRITS SC AK 171 MADISON AVENUE SUITE 308 NEW YORK, NY 10016 (212) 532-5335 OPIE ATHWAL MEP ENGINEER N PROJECT NORTH ANDRE KIKOSKI ARCHITECT, PLLC. COPYRIGHT ©2014 CONFIDENTIAL DO NOT DUPLICATE 137 EAST 25TH STREET 11TH FLOOR NEW YORK, NY 10010 (212) 674-4488 COOLEY MONATO STUDIO LIGHTING DESIGNER 7 WORLD TRADE CTR, 250 GREENWICH ST 37TH FLOOR NEW YORK, NY 10007 (212) 822-1110 WESTFIELD, LLC DEVELOPER FOR QAD FILING FOR CONSTRUCTION CONFIDENTIAL DO NOT DUPLICATE FOR PRICING ONLY. NOT FOR CONSTRUCTION 1402 100% CD SET 12.05.2014 E-002.00 3108_E-002 MILLWORK LIGHTING LAYOUT 01 1/2"=1'-0" MILLWORK LIGHTING LAYOUT 2 10
  • 3.
    J RECESSED FLOOR MOUNTEDIN NEW 3" CONCRETE SLAB. (TYPICAL). SEE DETAIL D TO 12-VOLT POWER SUPPLY UNIT. SEE DETAIL C SD17 LPWS-12 THIS DWG. JANITOR CLOSET ELECTRICAL CLOSET SERVICE CORRIDOR LM4 LM4 LM4 LM4LM4 LM4 LM4 LM4 LM4 LM4 LM4 LM4 LM4 LM4 LM4 LM4 LM4 (12) LM4 (12) 101 LARGE FORMAT ROOM 102 DOMESTIC ROOM 100 RETAIL FLOOR ON DWG. E-005.00. PRIMARY STORE SIGNAGE (4)LM9 DRAWN BY: FILENAME: CHECKED BY: PROJ. NUM: ISSUED: SET: 1402 BID SET 12.05.2014 LEVEL LL2 LL2370 UPPER LEVEL WALL STREET 180 VARICK STREET, SUITE 1316 NEW YORK, NY 10014 P: 212.627.0240 F: 212.627.0242 ANDRE KIKOSKI ARCHITECT, PLLC ARCHITECT: UPPER LEVEL WALL STREET LEVEL LL2 LL2370 WORLD TRADE CENTER, NYC HENRY MEER CLIENT: DOCUMENT:Y:3108ELEC11-07-14-BIDSET3108_E-002.DWGDATE:December4,2014TIME:10:17AM SEAL & SIGNATURE: SHEET OF NO. REVISION/SUBMISSION DATE LORE WINE & SPIRITS SC AK 171 MADISON AVENUE SUITE 308 NEW YORK, NY 10016 (212) 532-5335 OPIE ATHWAL MEP ENGINEER N PROJECT NORTH ANDRE KIKOSKI ARCHITECT, PLLC. COPYRIGHT ©2014 CONFIDENTIAL DO NOT DUPLICATE 137 EAST 25TH STREET 11TH FLOOR NEW YORK, NY 10010 (212) 674-4488 COOLEY MONATO STUDIO LIGHTING DESIGNER 7 WORLD TRADE CTR, 250 GREENWICH ST 37TH FLOOR NEW YORK, NY 10007 (212) 822-1110 WESTFIELD, LLC DEVELOPER FOR QAD FILING FOR CONSTRUCTION CONFIDENTIAL DO NOT DUPLICATE FOR PRICING ONLY. NOT FOR CONSTRUCTION 1402 100% CD SET 12.05.2014 E-003.00 3108_E-002 FLOOR LIGHTING LAYOUT 1' 2'0 4' 01 1/2"=1'-0" FLOOR LIGHTING LAYOUT 3 10
  • 4.
    SERVICE CORRIDOR 102 DOMESTIC ROOM 104 OFFICE/STORAGE 100 RETAILFLOOR 103 SERVICE 101 LARGE FORMAT ROOM T J S LPWS-25,27 3/4" C TO HUNG CEILING LPWS-31 LPWS-29 LPWS-24 LPWS-17-22 LPWS-23 LPWS-20LPWS-33 LPWS-19,21 CONN. TO ELEC. HOT WATER HEATER 19 AC UNIT. LOCATED ABOVE HUNG CEILING HVAC-1 NOTES: 1.5 SEE NOTE 1 (TYPICAL) 22 FOR PRINTER/COPIER ESSPRESO MACHINE 3#10, 3/4"C. 30A-2P-250 VOLT CONNECT TO CEILING MTD. REFRIG COMPRESSOR LPWS-28 3#12, 3/4"C. LPWS-26 3#12, 3/4"C. WINE COOLER 1. 2. COORDINATE OUTLET LOCATION WITH ARCHITECT DRAWINGS FURNITURE PLAN AUDIO/VISUAL SYSTEM VENDOR AND FIELD CONDITIONS PRIOR TO INSTALLATION. COORDINATE OUTLET TYPE WITH EQUIPMENT MALE PLUG PRIOR TO INSTALLTION. TRANSFORMER LOCATED ABOVE HUNG CLG. SEE RISER AND MOUNTNG DETAIL ON DWG. 05.00 TRANSFORMER FUSED DISCONNECT SEE RISER DIAGRAM ON DWG. E-005.00. AC UNIT FUSED DISCONNECT SEE RISER DIAGRAM ON DWG. E-005.00. LPWS-34,36 6#12, 3/4"C. LOCATE IN NEW 3" CONCRETE SLAB LPWS-13,15 13 15 6#12, 3/4"C. LOCATE IN NEW 3" CONCRETE SLAB LOCATE IN NEW 3" CONCRETE SLAB PRIMARY STORE SIGNAGE (4)LM9 DRAWN BY: FILENAME: CHECKED BY: PROJ. NUM: ISSUED: SET: 1402 BID SET 12.05.2014 LEVEL LL2 LL2370 UPPER LEVEL WALL STREET 180 VARICK STREET, SUITE 1316 NEW YORK, NY 10014 P: 212.627.0240 F: 212.627.0242 ANDRE KIKOSKI ARCHITECT, PLLC ARCHITECT: UPPER LEVEL WALL STREET LEVEL LL2 LL2370 WORLD TRADE CENTER, NYC HENRY MEER CLIENT: DOCUMENT:Y:3108ELEC11-07-14-BIDSET3108_E-002.DWGDATE:December4,2014TIME:10:17AM SEAL & SIGNATURE: SHEET OF NO. REVISION/SUBMISSION DATE LORE WINE & SPIRITS SC AK 171 MADISON AVENUE SUITE 308 NEW YORK, NY 10016 (212) 532-5335 OPIE ATHWAL MEP ENGINEER N PROJECT NORTH ANDRE KIKOSKI ARCHITECT, PLLC. COPYRIGHT ©2014 CONFIDENTIAL DO NOT DUPLICATE 137 EAST 25TH STREET 11TH FLOOR NEW YORK, NY 10010 (212) 674-4488 COOLEY MONATO STUDIO LIGHTING DESIGNER 7 WORLD TRADE CTR, 250 GREENWICH ST 37TH FLOOR NEW YORK, NY 10007 (212) 822-1110 WESTFIELD, LLC DEVELOPER FOR QAD FILING FOR CONSTRUCTION CONFIDENTIAL DO NOT DUPLICATE FOR PRICING ONLY. NOT FOR CONSTRUCTION 1402 100% CD SET 12.05.2014 E-004.00 3108_E-002 POWER PLAN MEER WINE & SPIRITS 1' 2'0 4' 01 1/2"=1'-0" POWER PLAN MEER WINE & SPIRITS 4 10
  • 5.
    WIRING DETAIL-A NOT TOSCALE J LPWS-4 120/24 VOLT REMOTE TO LOW VOLTAGE WIRING TO TO SD-11 LIGHT ZONE DRIVERS FIXTURE TYPE LM1 NEW CONCRETE SLAB FIXTURE TYPE "LM4" FXITURE HOUSING EXISTING FLOOR SLAB 3/4" EMT WIRING DETAIL-B NOT TO SCALE J LPWS-9 120/12 VOLT LOW VOLTAGE WIRING TO TO SD-16 LIGHT ZONE POWER SUPPLY FIXTURE TYPE LM5 WIRING DETAIL-C NOT TO SCALE J LPWS-12 TO LOW VOLTAGE WIRING TO FLOOR TO SD-15 LIGHT ZONE LED DRIVERS FIXTURE TYPE LM4 UNITS DETAIL-D NOT TO SCALE DRAWN BY: FILENAME: CHECKED BY: PROJ. NUM: ISSUED: SET: 1402 BID SET 12.05.2014 LEVEL LL2 LL2370 UPPER LEVEL WALL STREET 180 VARICK STREET, SUITE 1316 NEW YORK, NY 10014 P: 212.627.0240 F: 212.627.0242 ANDRE KIKOSKI ARCHITECT, PLLC ARCHITECT: UPPER LEVEL WALL STREET LEVEL LL2 LL2370 WORLD TRADE CENTER, NYC HENRY MEER CLIENT: DOCUMENT:Y:3108ELEC11-07-14-BIDSET3108_E-002.DWGDATE:December4,2014TIME:10:17AM SEAL & SIGNATURE: SHEET OF NO. REVISION/SUBMISSION DATE LORE WINE & SPIRITS SC AK 171 MADISON AVENUE SUITE 308 NEW YORK, NY 10016 (212) 532-5335 OPIE ATHWAL MEP ENGINEER N PROJECT NORTH ANDRE KIKOSKI ARCHITECT, PLLC. COPYRIGHT ©2014 CONFIDENTIAL DO NOT DUPLICATE 137 EAST 25TH STREET 11TH FLOOR NEW YORK, NY 10010 (212) 674-4488 COOLEY MONATO STUDIO LIGHTING DESIGNER 7 WORLD TRADE CTR, 250 GREENWICH ST 37TH FLOOR NEW YORK, NY 10007 (212) 822-1110 WESTFIELD, LLC DEVELOPER FOR QAD FILING FOR CONSTRUCTION CONFIDENTIAL DO NOT DUPLICATE FOR PRICING ONLY. NOT FOR CONSTRUCTION 1402 100% CD SET 12.05.2014 E-005.00 3108_E-002 DETAILS SHET 01 NONE DETAILS SHEET 5 10
  • 6.
    4#4,1#8, 2"C. 60A-3P-600V. FUSEDDISCONNECT WITH 60A FUSES 30 KVA, 480 VOLT /208-120 VOLT Y DRY TYPE TRANSFOMER TYPE K RATED TRAPEZE MOUNTED ON VIBRATION ISOLATORS FLEX CONNECTION 4#2, 1#8 GRD., 1 1 2"C. 4#4,1#8, 2" FLEXIBLE 'SEALTITE' CONDUIT CONNECTION NO. 8 AWG GROUND CONDUCTOR TO EXISTING LANDLORD GROUND LP-WS TENANT SPACE LIGHT AND POWER RISER DETAIL 'A' NOT TO SCALE LPWS- CKT #7 120 VOLT 120 VOLT COIL FROM OWNERS 277 VOLT EMERGENCY LIGHTING CIRCUIT 20A-2P-250 VOLT LIGHTING CONTACTOR 1 (NO) 1 (NC) IN NEMA I ENCLOSURE TO NORMAL/EMERGENCY LIGHTING FIXTURES TYPE L3 WIRING DETAIL-B EMERGENCY LIGHTING TRANSFER RELAY NOT TO SCALE C J LOAD DESCRIPTION CIR.BKR CIR.BKR 2 4 6 8 1 3 7 5 14 12 13 11 17 15 109 CBANo. TRIPTRIP No.CBA LOAD DESCRIPTION 23 21 27 25 24 22 28 26 31 29 35 37 33 32 30 36 38 34 41 39 42 40 TOTAL CONNECTED 19 LOAD-VA 120V/208V 3PH 4W LOAD-VA FLUSH MTD. 20A 20A 20A 20A 20A 20A 20A 20A 30A 20A 20A 30A 20A 20A 20A 20A 20A 20A 20A 20A 20A 20A 20A 20A 20A 20A 20A 20A 20A 20A 20A 20 20A 18 20A 16 20A 100AT PANEL LP-WS LIGHTING FIXT. (L4) LIGHTING FIXT. (L1) NORMAL/EM FIXT. (L3) LIGHTING FIXT. (L5) LIGHTING FIXT. (LM3) ILLUMINATED SIGN SPARE SPARE REFRIGERATOR RECEPTACLES DISHWASHER RECEPTACLES ELEC. HOT WATER HTR PRINTER/COPIER REFRIGERATOR REFRIGERATOR RECEPTACLES RECEPTACLES RECEPTACLES SPARE SPARE SPARESPARE SPARE LIGHTING FIXT. (L6) 140 168 70 700 60 450 1200 1200 1650 1200 1200 1200 170 210 100 140 84 400 1000 1000 2140 2450 23644640 3628 4570 TOTAL 20.2 KW (56 AMPS) 1000 MCB 225A BUS 20A 20A 20A LIGHTING FIXT. (L2) LIGHTING FIXT. (L2) LIGHTING FIXT. (LM2/7) LIGHTING FIXT. (LM1/6) LIGHTING FIXT. (LM4) LIGHTING FIXT. (LM1) COMPRESSOR RECEPTACLES RECEPTACLES *CONNECT VIA AUTO TRANSFER LIGHTING CONTACTOR 180 SEE WIRING DETAIL 'B' THIS DWG. RECEPTACLES RECEPTACLES RECEPTACLES 400 1000 400 * WIRING DETAIL-A NOT TO SCALE J LPWS-3 REMOTE LOW TO LOW VOLTAGE TO SD-6 25K AIC BAR. COORDINATE LOCATION IN FIELD. VIA BATTERY PACK TO EXIT LIGHTS 2#12, 3/4"C. 20A-1P-120V DISCONNECT BREAKER 30A-1P-277V DISCONNECT 750 VA TRANSFORMER 277/120 VOLT TO SD-6 LIGHT ZONE VOLTAGE UNIT LIGHTING FIXTURE TYPE L-6 CONSTANT CIRCUIT 12" TRANSFORMER TYPICAL TRANSFORMER MOUNTING DETAIL NOT TO SCALE CONCRETE DRY TYPE EXPANSION SHIELD GALVANIZED STEEL CHANNEL4-3/8" GALVANIZED STEEL RODS VIBRATION GALVANIZED ISOLATORS STEEL BOLTS UNISTRUT OR EQUAL EXISTING SLAB SPARE SPARE SPARE 4#12,3/4"C. CONNECT TO 480 VOLT, 3Ø, 3W. JUNCTION BOX AT LOCATION PROVIDED BY LANDLORD. CABLE TAP BOX 30A-3P-600V. FUSED DISCONNECT WITH 15A FUSES 4#12,3/4"C. CONNECT TO AC UNIT 100A-3P-250 VOLT MAIN CIRCUIT BREAKER COMPRESSOR 20A 20A 20A 700 700 700 700 400 400 70 DRAWN BY: FILENAME: CHECKED BY: PROJ. NUM: ISSUED: SET: LEVEL LL2 LL2370 UPPER LEVEL WALL STREET 180 VARICK STREET, SUITE 1316 NEW YORK, NY 10014 P: 212.627.0240 F: 212.627.0242 ANDRE KIKOSKI ARCHITECT, PLLC ARCHITECT: UPPER LEVEL WALL STREET LEVEL LL2 LL2370 WORLD TRADE CENTER, NYC HENRY MEER CLIENT: DOCUMENT:Y:3108ELEC11-07-14-BIDSET3108_E-001.DWGDATE:December4,2014TIME:10:13AM SEAL & SIGNATURE: SHEET OF NO. REVISION/SUBMISSION DATE LORE WINE & SPIRITS SC AK 171 MADISON AVENUE SUITE 308 NEW YORK, NY 10016 (212) 532-5335 OPIE ATHWAL MEP ENGINEER N PROJECT NORTH ANDRE KIKOSKI ARCHITECT, PLLC. COPYRIGHT ©2014 137 EAST 25TH STREET 11TH FLOOR NEW YORK, NY 10010 (212) 674-4488 COOLEY MONATO STUDIO LIGHTING DESIGNER 7 WORLD TRADE CTR, 250 GREENWICH ST 37TH FLOOR NEW YORK, NY 10007 (212) 822-1110 WESTFIELD, LLC DEVELOPER FOR QAD FILING FOR CONSTRUCTION CONFIDENTIAL DO NOT DUPLICATE 1402 100% CD SET 12.05.2014 E-006.00 3108_E-001 PANEL SCHEDULES AND RISER DETAILS 01 NONE PANEL SCHEDULES AND RISER DETAILS 6 10
  • 7.
    DRAWN BY: FILENAME: CHECKED BY: PROJ.NUM: ISSUED: SET: LEVEL LL2 LL2370 UPPER LEVEL WALL STREET 180 VARICK STREET, SUITE 1316 NEW YORK, NY 10014 P: 212.627.0240 F: 212.627.0242 ANDRE KIKOSKI ARCHITECT, PLLC ARCHITECT: UPPER LEVEL WALL STREET LEVEL LL2 LL2370 WORLD TRADE CENTER, NYC HENRY MEER CLIENT: DOCUMENT:Y:3108ELEC11-07-14-BIDSET3108_E-001.DWGDATE:December4,2014TIME:10:13AM SEAL & SIGNATURE: SHEET OF NO. REVISION/SUBMISSION DATE LORE WINE & SPIRITS SC AK 171 MADISON AVENUE SUITE 308 NEW YORK, NY 10016 (212) 532-5335 OPIE ATHWAL MEP ENGINEER N PROJECT NORTH ANDRE KIKOSKI ARCHITECT, PLLC. COPYRIGHT ©2014 137 EAST 25TH STREET 11TH FLOOR NEW YORK, NY 10010 (212) 674-4488 COOLEY MONATO STUDIO LIGHTING DESIGNER 7 WORLD TRADE CTR, 250 GREENWICH ST 37TH FLOOR NEW YORK, NY 10007 (212) 822-1110 WESTFIELD, LLC DEVELOPER FOR QAD FILING FOR CONSTRUCTION CONFIDENTIAL DO NOT DUPLICATE 1402 100% CD SET 12.05.2014 E-007.00 3108_E-001 ELECTRICAL SPECIFICATION SHEET 1 01 NONE ELECTRICAL SPECIFICATION SHEET 1 7 10
  • 8.
    DRAWN BY: FILENAME: CHECKED BY: PROJ.NUM: ISSUED: SET: LEVEL LL2 LL2370 UPPER LEVEL WALL STREET 180 VARICK STREET, SUITE 1316 NEW YORK, NY 10014 P: 212.627.0240 F: 212.627.0242 ANDRE KIKOSKI ARCHITECT, PLLC ARCHITECT: UPPER LEVEL WALL STREET LEVEL LL2 LL2370 WORLD TRADE CENTER, NYC HENRY MEER CLIENT: DOCUMENT:Y:3108ELEC11-07-14-BIDSET3108_E-001.DWGDATE:December4,2014TIME:10:13AM SEAL & SIGNATURE: SHEET OF NO. REVISION/SUBMISSION DATE LORE WINE & SPIRITS SC AK 171 MADISON AVENUE SUITE 308 NEW YORK, NY 10016 (212) 532-5335 OPIE ATHWAL MEP ENGINEER N PROJECT NORTH ANDRE KIKOSKI ARCHITECT, PLLC. COPYRIGHT ©2014 137 EAST 25TH STREET 11TH FLOOR NEW YORK, NY 10010 (212) 674-4488 COOLEY MONATO STUDIO LIGHTING DESIGNER 7 WORLD TRADE CTR, 250 GREENWICH ST 37TH FLOOR NEW YORK, NY 10007 (212) 822-1110 WESTFIELD, LLC DEVELOPER FOR QAD FILING FOR CONSTRUCTION CONFIDENTIAL DO NOT DUPLICATE 1402 100% CD SET 12.05.2014 E-008.00 3108_E-001 ELECTRICAL SPECIFICATION SHEET 2 01 NONE ELECTRICAL SPECIFICATION SHEET 2 8 10
  • 9.
    DRAWN BY: FILENAME: CHECKED BY: PROJ.NUM: ISSUED: SET: LEVEL LL2 LL2370 UPPER LEVEL WALL STREET 180 VARICK STREET, SUITE 1316 NEW YORK, NY 10014 P: 212.627.0240 F: 212.627.0242 ANDRE KIKOSKI ARCHITECT, PLLC ARCHITECT: UPPER LEVEL WALL STREET LEVEL LL2 LL2370 WORLD TRADE CENTER, NYC HENRY MEER CLIENT: DOCUMENT:Y:3108ELEC11-07-14-BIDSET3108_E-001.DWGDATE:December4,2014TIME:10:13AM SEAL & SIGNATURE: SHEET OF NO. REVISION/SUBMISSION DATE LORE WINE & SPIRITS SC AK 171 MADISON AVENUE SUITE 308 NEW YORK, NY 10016 (212) 532-5335 OPIE ATHWAL MEP ENGINEER N PROJECT NORTH ANDRE KIKOSKI ARCHITECT, PLLC. COPYRIGHT ©2014 137 EAST 25TH STREET 11TH FLOOR NEW YORK, NY 10010 (212) 674-4488 COOLEY MONATO STUDIO LIGHTING DESIGNER 7 WORLD TRADE CTR, 250 GREENWICH ST 37TH FLOOR NEW YORK, NY 10007 (212) 822-1110 WESTFIELD, LLC DEVELOPER FOR QAD FILING FOR CONSTRUCTION CONFIDENTIAL DO NOT DUPLICATE 1402 100% CD SET 12.05.2014 E-009.00 3108_E-001 ELECTRICAL SPECIFICATION SHEET 3 01 NONE ELECTRICAL SPECIFICATION SHEET 3 9 10
  • 10.
    BUILDING OWNER APPROVALMUST BE OBTAINED PRIOR TO ANY UTILITY SHUTDOWN, WORK TO EXISTING BUILDING SYSTEMS AND/OR WORK TO BE PERFORMED OUTSIDE OF TENANT SPACE. DEPARTMENT OF BUILDINGS APPROVAL SHALL BE OBTAINED AND PERMITS ISSUED PRIOR TO THE COMMENCEMENT OF ANY WORK. ALL WORK MUST BE PERFORMED DURING THE HOURS DESIGNATED BY BUILDING MANAGEMENT. 6. 7. 8. ALL TENANTS WILL BE REQUIRED TO EXTEND THE WTC SITE-WIDE FIRST RESPONDER RADIO COMMUNICATIONS SYSTEM INTO THEIR INDIVIDUAL SPACES AND INTEGRATE THE DISTRIBUTED ANTENNAS INTO THEIR CEILING DESIGN. CURRENT SCOPE IS FOR THE RETAIL TENANT TO CONNECT TO AN EXISTING ANTENNA TAP PROVIDED WITHIN THE DEMISED SPACE FROM THE MAIN RADIO SYSTEM AND INSTALL THE REQUIRED DISTRIBUTED ANTENNAS FOR THE SPACE. REFER TO RETAIL TENANT TECHNICAL CRITERIA MANUAL SECTION ENTITLED “RETAIL SPACE ANTENNA GUIDELINES PSLS RADIO SYSTEM COVERAGE” FOR INFORMATION REGARDING ANTENNA REQUIREMENTS. THE FOLLOWING RETAIL TENANT SYSTEM LOADS SHALL BE SERVED BY THE EMERGENCY POWER SYSTEM: A. FIRE ALARM SYSTEMS. B. SMOKE CONTROL SYSTEMS. C. SECURITY SYSTEMS. D. EMERGENCY EXIT LIGHTING AND SIGNAGE, WHICH SHALL ALSO BE PROVIDED WITH SELF-CONTAINED BATTERY BACKUP POWER. E. ELECTRONIC TOILET FIXTURES. THE SITE STANDBY POWER AND LIGHT DISTRIBUTION SYSTEM SHALL SERVE THE FOLLOWING LIFE SAFETY AND BUILDING FUNCTIONS: A. STAIR, EXIT, AND EGRESS PASSAGEWAY LIGHTING WITH THE EXIT STAIRWAY LIGHTING ALSO CONTAINING INTEGRATED BATTERY/INVERTERS. B. CODE-REQUIRED EGRESS LIGHTING WITHIN THE RETAIL SPACES. C. FLOOR PROXIMITY EGRESS SIGNS SHALL BE INSTALLED NEAR FLOOR LEVEL IN ADDITION TO HIGH LEVEL SIGNS. ELECTROLUMINESCENT EXIT PATHWAY LIGHTING SHALL BE INCORPORATED WITHIN THE EXIT STAIRWAYS. LIFE SAFETY SYSTEMS, INCLUDING FIRE ALARM SYSTEM, DOOR HOLD OPEN/CLOSER DEVICE AND VOICE COMMUNICATIONS. 9. 10. 11. 12. 13. ALL WORK AND MATERIALS SHALL BE IN ACCORDANCE WITH THE LATEST EDITION OF THE 2 GRAND CENTRAL TOWER RULES AND REGULATIONS ALTERATION GUIDELINES REQUIREMENTS. ALL WORK, WHERE REQUIRED IN THE BUILDING STANDARDS, SHALL BE SUBMITTED TO APPROPRIATE AND PUBLIC JURISDICTIONS FOR INSPECTION AND APPROVAL. PROOF OF INSPECTION AND APPROVAL, SHOP DRAWINGS, OPERATING AND MAINTENANCE MANUALS, VALVES SCHEDULES AND ALL OTHER PERTINENT INFORMATION SHALL BE FILED WITH THE BUILDING MANAGER BEFORE WORK IS ACCEPTED. PROVIDE A SET OF AS-BUILT DRAWINGS FOR ALL TRADES. SUBMIT TO BUILDING MANAGEMENT AT COMPLETION OF PROJECT, TWO (2) SETS OF FULL SIZES PRINTS AND CD/DVD WITH ELECTRONIC FILES IN AUTOCAD REL. 2008 FORMAT AND PDF FORMAT. PROVIDE A SET OF AS-BUILT DRAWINGS FOR ALL TRADES. SUBMIT TO BUILDING MANAGEMENT AT COMPLETION OF PROJECT, TWO (2) SETS OF FULL SIZES PRINTS AND CD/DVD WITH ELECTRONIC FILES IN AUTOCAD REL. 2008 FORMAT AND PDF FORMAT. 1. 2. 3. 4. 5. GENERAL NOTES: DRAWN BY: FILENAME: CHECKED BY: PROJ. NUM: ISSUED: SET: LEVEL LL2 LL2370 UPPER LEVEL WALL STREET 180 VARICK STREET, SUITE 1316 NEW YORK, NY 10014 P: 212.627.0240 F: 212.627.0242 ANDRE KIKOSKI ARCHITECT, PLLC ARCHITECT: UPPER LEVEL WALL STREET LEVEL LL2 LL2370 WORLD TRADE CENTER, NYC HENRY MEER CLIENT: DOCUMENT:Y:3108ELEC11-07-14-BIDSET3108_E-001.DWGDATE:December4,2014TIME:10:13AM SEAL & SIGNATURE: SHEET OF NO. REVISION/SUBMISSION DATE LORE WINE & SPIRITS SC AK 171 MADISON AVENUE SUITE 308 NEW YORK, NY 10016 (212) 532-5335 OPIE ATHWAL MEP ENGINEER N PROJECT NORTH ANDRE KIKOSKI ARCHITECT, PLLC. COPYRIGHT ©2014 137 EAST 25TH STREET 11TH FLOOR NEW YORK, NY 10010 (212) 674-4488 COOLEY MONATO STUDIO LIGHTING DESIGNER 7 WORLD TRADE CTR, 250 GREENWICH ST 37TH FLOOR NEW YORK, NY 10007 (212) 822-1110 WESTFIELD, LLC DEVELOPER FOR QAD FILING FOR CONSTRUCTION CONFIDENTIAL DO NOT DUPLICATE 1402 100% CD SET 12.05.2014 E-010.00 3108_E-001 ELECTRICAL SPECIFICATION SHEET 4 AND GENERAL NOTES 01 NONE ELECTRICAL SPECIFICATION SHEET 4 AND GENERAL NOTES 10 10
  • 11.
    DRAWN BY: FILENAME: CHECKED BY: PROJ.NUM: ISSUED: SET: LEVEL LL2 LL2370 UPPER LEVEL WALL STREET 180 VARICK STREET, SUITE 1316 NEW YORK, NY 10014 P: 212.627.0240 F: 212.627.0242 ANDRE KIKOSKI ARCHITECT, PLLC ARCHITECT: UPPER LEVEL WALL STREET LEVEL LL2 LL2370 WORLD TRADE CENTER, NYC HENRY MEER CLIENT: DOCUMENT:Y:3108HVAC11-07-14-BIDSET3108_HVAC.DWGDATE:December4,2014TIME:10:24AM SEAL & SIGNATURE: SHEET OF NO. REVISION/SUBMISSION DATE LORE WINE & SPIRITS SC AK 171 MADISON AVENUE SUITE 308 NEW YORK, NY 10016 (212) 532-5335 OPIE ATHWAL MEP ENGINEER N PROJECT NORTH ANDRE KIKOSKI ARCHITECT, PLLC. COPYRIGHT ©2014 137 EAST 25TH STREET 11TH FLOOR NEW YORK, NY 10010 (212) 674-4488 COOLEY MONATO STUDIO LIGHTING DESIGNER 7 WORLD TRADE CTR, 250 GREENWICH ST 37TH FLOOR NEW YORK, NY 10007 (212) 822-1110 WESTFIELD, LLC DEVELOPER FOR QAD FILING FOR CONSTRUCTION CONFIDENTIAL DO NOT DUPLICATE 1402 100% CD SET 12.05.2014 M-001.00 3108_HVAC GENERAL ABBREVIATIONS AND SYMBOLS 01 NONE GENERAL ABBREVIATIONS AND SYMBOLS 1 13
  • 12.
    ALL HVAC SYSTEMCOMPONENTS SHOWN ON DRAWINGS CONVEY THE SCHEMATIC INTENT OF THE DESIGN. CONTRACTOR SHALL COORDINATE THE COMPONENT LOCATIONS INCLUDING ELEVATION WITH BUILDING COMPONENTS AND WITH OTHER TRADES. 1. DUCTS, PIPES AND CONDUITS SHALL BE RUN AS HIGH AS POSSIBLE.2. DUCT TRANSITIONS SHALL BE FABRICATED WITH FLAT BOTTOMS UNLESS OTHERWISE NOTED. 3. PROVIDE SLEEVES FOR ALL PIPES PENETRATING WALLS, FLOORS AND ROOFS AS PER SPECIFICATIONS. ALL OPENINGS AROUND PENETRATIONS SHALL BE FIRE STOPPED & FIRE PROOFED WITH NYC BUILDING DEPARTMENT APPROVED MATERIALS. COORDINATE PIPE RISER ENCLOSURES WITH GENERAL CONTRACTOR. 4. LOCATIONS OF THERMOSTATS AND LOCAL INDICATING PANELS ARE APPROXIMATE AND SHALL BE COORDINATED TO SUIT FIELD CONDITIONS. 5. ALL REMOTE THERMOSTATS UNLESS OTHERWISE INDICATED SHALL BE IN A TAMPER PROOF ENCLOSURE W/ SUFFICIENT OPENING TO ACCORD SENSING OF ACTUAL SPACE CONDITIONS. 6. ALL MECHANICAL EQUIPMENT SUPPORTS ARE BASED ON PRELIMINARY INFORMATION FROM ONE MANUFACTURER. THE CONTRACTOR SHALL BE RESPONSIBLE FOR CHECKING SIZES FROM CERTIFIED DRAWINGS OF EQUIPMENT BEING SUBMITTED AND SHALL MAKE ANY STRUCTURAL AND OTHER BUILDING COMPONENT MODIFICATIONS REQUIRED WITHOUT ANY ADDITIONAL COST TO THE OWNER. 7. ELECTRICAL POWER PROVISIONS FOR MECHANICAL EQUIPMENT ARE BASED ON PRELIMINARY INFORMATION FROM ONE MANUFACTURER. THE CONTRACTOR SHALL BE RESPONSIBLE FOR CHECKING ELECTRICAL RATINGS FROM CERTIFIED DRAWINGS AND SHALL MAKE ANY CIRCUIT DISTRIBUTION MODIFICATION REQUIRED WITHOUT ANY ADDITIONAL COST TO THE OWNER. THE CONTRACTOR SHALL SUBMIT A SCHEDULE OF SUCH CHANGES FOR ACCEPTANCE BY THE ENGINEER. ALL ACCEPTED CHANGES SHALL BE RECORDED ON "AS-BUILTS" DRAWINGS. 8. SEAL ALL OPENINGS WHERE DUCTS PENETRATE WALLS TO PREVENT AIR TRANSFER BETWEEN SPACES. 9. ALL WORK SHALL COMPLY WITH THE REQUIREMENTS OF THE 2008 NYC BUILDING CODE AND WITH THE RETAIL TENANT TECHNICAL CRITERIA MANUAL. 1. THE CONTRACTOR SHALL OBTAIN ALL PERMITS, APPROVALS AND PAY ALL FEES. 2. PROVIDE THE FOLLOWING:3. VOLUME DAMPER AT ALL BRANCH DUCT CONNECTIONS.A. WIRE MESH SCREEN AT ALL RETURN/EXHAUST/TRANSFER AIR DUCT OPENING. B. SUPPLY AND RETURN DUCTWORK SHALL BE LINED WITH 1" ACOUSTIC LINING FOR 25'-0" OF DUCT TO AND FROM THE AIR HANDLING EQUIPMENT. NOTE: THE REST OF THE DUCT SHALL BE PROVIDED WITH EXTERIOR INSULATION. C. CONTRACTOR SHALL BALANCE THE ENTIRE AIR SYSTEM AS PER CFM INDICATED ON THE DWGS AT THE COMPLETION OF THE PROJECT. 4. COORDINATE WITH GENERAL CONTRACTOR PROVISION OF ACCESS DOORS IN HUNG CEILINGS, DRYWALLS AS PER SPECIFICATION REQUIREMENTS FOR ALL SERVICEABLE COMPONENTS INCLUDING BUT NOT LIMITED TO AIR HANDLING UNITS, FANS, DAMPERS, VALVES & DRAINS WHETHER INDICATED OR NOT ON DRAWINGS. 5. CONTRACTOR SHALL PROVIDE ALL NECESSARY DIFFUSER, REGISTER AND GRILLE FRAME TYPES AND LEVELING CLIPS TO MATCH CEILING CONSTRUCTION IN WHICH UNITS ARE TO BE INSTALLED. 6. ALL DUCTWORK, PIPING, CONDUITS AND TUBING SHALL BE RUN CONCEALED IN FINISHED AREAS INCLUDING BUT NOT LIMITED TO DRYWALL, HUNG CEILING ETC. COORDINATE LOCATION MODIFICATIONS TO DUCTWORK, PIPING, CONCEALING MEMBERS WITH GENERAL CONSTRUCTION. 7. ALL DUCTWORK PENETRATIONS THROUGH FIRE RATED CONSTRUCTION SHALL BE PROVIDED WITH NEW YORK CITY APPROVED FIRE SMOKE DAMPERS. ALL FIRE SMOKE DAMPERS SHALL POSSESS NYC BSA NO. AND SHALL BE PROVIDED WITH ACCESS DOORS. COORDINATE CEILING ACCESS WITH GENERAL CONSTRUCTION. 8. PROVIDE VALVED AND CAPPED CONNECTIONS FOR DRAINING AT ALL PIPING SYSTEM LOW POINTS WHETHER INDICATED OR NOT INDICATED ON DRAWINGS. 9. PROVIDE DRAINS & DRAIN PIPING TO FUNNEL DRAIN.10. POINT OF CONNECTION FOR RESPECTIVE COMPONENTS WITH OTHER TRADES, IS ONLY DIAGRAMMATIC. ACTUAL CONNECTIONS WILL BE BASED ON FIELD COORDINATION WITH OTHER TRADES. 11. PITCH ALL DRAIN LINES AT 1/4" PER LINEAR FOOT OF PIPE LENGTH IN THE DIRECTION OF FUNNEL DRAIN. 12. 10. CONTRACTOR SHALL SUBMIT AS-BUILT PLANS IN AUTOCADD FORMAT. THAT THE FULL SCOPE OF WORK IS COMPLETE FOR PRICING. 11. CONTRACTOR SHALL SUBMIT RFI'S WHEN REQUIRED TO INSURE ALL MECHANICAL SYSTEMS SHALL BE SEISMICALLY RESTRAINED IN ACCORDANCE WITH BCCNY. SEISMIC RESTRAINTS SHALL CONFORM TO ZONE 2 REQUIREMENTS. 13. CO2 SENSOR IN SPACE TO MODULATE OUTSIDE AIR DAMPER BASED ON OCCUPANCY. 14. ALL WORK SHALL COMPLY WITH THE APPLICABLE SECTIONS OF THE NEW YOUR CITY BUILDING CODE, EFFECTIVE JULY 1, 2008, AND ALL AMENDMENTS AND RULES AND REGULATIONS OF THE SPECIAL INSPECTIONS ARE REQUIRED FOR MECHANICAL SYSTEMS IN ACCORDANCE WITH THE FOLLOWING CODE SECTIONS: ENERGY CODE COMPLIANCE - BC 109.3.5 MECHANICAL SYSTEMS - BC 1704.15 IN ADDITION TO SPECIAL INSPECTION, THE FOLLOWING PROGRESS INSPECTIONS ARE REQUIRED FOR MECHANICAL SYSTEMS IN ACCORDANCE WITH THE FOLLOWING CODE SECTIONS: THROUGH PENETRATION FIRESTOP SYSTEMS - BC 1704.25 MECHANICAL SYSTEMS SHALL BE TESTED IN ACCORDANCE WITH CODE SECTION MC 107 AND THE FOLLOWING CODE SECTIONS: VENTILATION SYSTEM BALANCING - MC 403.3.4 THE FOLLOWING WORK ITEMS, COMPONENTS, MATERIALS, CAPACITIES, ETC., SHALL COMPLY WITH THE FOLLOWING CODE SECTIONS: SPACE HEATING SYSTEMS - MC 309.1 VENTILATION - MC 401 AIR INTAKE, EXHAUSTS AND RELIEF OPENINGS - MC 401.5 DUCT CONSTRUCTION AND INSTALLATION - MC 603 AIR FILTERS - MC 605 DUCT AND TRANSFERS OPENINGS - MC 607 NOISE CONTROL - MC 926 THE HEATING AND AIR CONDITIONING SYSTEM SHALL MEET THE TEMPERATURE AND HUMIDITY REQUIREMENTS OF CODE 1. 2. A. B. 3. A. 4. A. 5. A. B. C. D. E. F. G. 6. DEPARTMENT OF BUILDINGS TO DATE. SECTION BC 1204. NOTES: OUTSIDE AIR INTAKE AND SUPPLY DUCTWORK HAS BEEN SIZED FOR A MAX. AIR VELOCITY OF 1,500 FPM SMOKE EXHAUST DUCTWORK HAS BEEN SIZED FOR A MAX. AIR VELOCITY OF 2,000 FPM SMOKE EXHAUST SHALL BE VIA TRANSFER/RETURN AIR OPENINGS. LANDLORD PROVIDES THE FSD'S AT DEMISING WALLS. VENTILATION LEVELS COMPLIES WITH ASHRAE STANDARD 62.1 REQUIREMENTS. PROVIDE BTU METER FOR CHILLED WATER SYSTEM. ONICON F-4000 SERIES CLAMP ON ULTRASONIC FLOW METER. LOCATE PANEL IN OFFICE CO2 SENSOR FOR DEMAND CONTROLLED VENTILATION (DCV) SHALL BE PROVIDED TO INTERFACE WITH THE MOTORIZED DAMPER IN THE OUTSIDE AIR DUCT. (CO2 SENSOR: HONEYWELL C7632) 1. 2. 3. 4. 5. 6. DRAWN BY: FILENAME: CHECKED BY: PROJ. NUM: ISSUED: SET: LEVEL LL2 LL2370 UPPER LEVEL WALL STREET 180 VARICK STREET, SUITE 1316 NEW YORK, NY 10014 P: 212.627.0240 F: 212.627.0242 ANDRE KIKOSKI ARCHITECT, PLLC ARCHITECT: UPPER LEVEL WALL STREET LEVEL LL2 LL2370 WORLD TRADE CENTER, NYC HENRY MEER CLIENT: DOCUMENT:Y:3108HVAC11-07-14-BIDSET3108_HVAC.DWGDATE:December4,2014TIME:10:24AM SEAL & SIGNATURE: SHEET OF NO. REVISION/SUBMISSION DATE LORE WINE & SPIRITS SC AK 171 MADISON AVENUE SUITE 308 NEW YORK, NY 10016 (212) 532-5335 OPIE ATHWAL MEP ENGINEER N PROJECT NORTH ANDRE KIKOSKI ARCHITECT, PLLC. COPYRIGHT ©2014 137 EAST 25TH STREET 11TH FLOOR NEW YORK, NY 10010 (212) 674-4488 COOLEY MONATO STUDIO LIGHTING DESIGNER 7 WORLD TRADE CTR, 250 GREENWICH ST 37TH FLOOR NEW YORK, NY 10007 (212) 822-1110 WESTFIELD, LLC DEVELOPER FOR QAD FILING FOR CONSTRUCTION CONFIDENTIAL DO NOT DUPLICATE 1402 100% CD SET 12.05.2014 M-002.00 3108_HVAC HVAC CONSTRUCTION, GENERAL & BUILDING DEPT. NOTES 01 NONE HVAC CONSTRUCTION, GENERAL & BUILDING DEPT. NOTES 2 13
  • 13.
    JANITOR CLOSET ELECTRICAL CLOSET SERVICE CORRIDOR 30x12 14x8 10x6 HVAC-1 DIMENSION: 82"Lx43"Wx22"H OPR.WT.:800 LBS BASE BUILDING 1" HWS/HWR BASE BUILDING 1 1/4" CHWS/CHWR 16x8 REMOVE CAP 12x10 BASE 16x12 BASE RUN PIPING CLOSE N.C. N.C. DAMPER TO OPEN DAMPER TO OPEN ON DUCT BUILDING (OA) BUILDING WHEN SPACE IS WHEN HVAC-1 IS (GX/SX) IN SMOKE EXHAUST MODE IN OPERATION VOLUME DAMPER (TYP.) SEE NOTE 5 34x10 16x10 12x8 26x14 12x814x8 SEE DIFFUSER NOTE 5 SEE DIFFUSER NOTE 1 SEE DIFFUSER NOTE 1 30x12 8x6 SEE DIFFUSER NOTE 1 SEE DIFFUSER NOTE 5 SEE DIFFUSER NOTE 5 SEE DIFFUSER NOTE 1 SEE DIFFUSER NOTE 2 SEE DIFFUSER NOTE 5 SEE DIFFUSER NOTE 7 SEE DIFFUSER NOTE 3 SEE DIFFUSER NOTE 3 12x8 SEE DIFFUSER NOTE 4 SEE DIFFUSER NOTE 6 SEE DIFFUSER NOTE 1 100 RETAIL FLOOR 104 OFFICE/STORAGE 103 SERVICE 102 DOMESTIC ROOM 101 LARGE FORMAT ROOM DIFFUSER NOTES: LINEAR SUPPLY DIFFUSER: ANEMOSTAT: SLAD-75/TAZR-S-75 (2) 3/4" SLOT, 45 CFM/FT, 6'-0" LONG, HORIZONTAL PATTERN. LINEAR SUPPLY DIFFUSER: ANEMOSTAT: SLAD-75/TAZR-S-75 (2) 3/4" SLOT, 35 CFM/FT, 6'-0" LONG, HORIZONTAL PATTERN. LINEAR SUPPLY DIFFUSER: ANEMOSTAT: SLAD-100/TAZR-S-100 (2) 1" SLOT, 70 CFM/FT, 6'-0" LONG, VERTICAL PATTERN. LINEAR SUPPLY DIFFUSER: ANEMOSTAT: SLAD-50/TAZR-S-50 (2) 1/2" SLOT, 35 CFM/FT, 4'-0" LONG, HORIZONTAL PATTERN. RETURN AIR DIFFUSER: ANEMOSTAT: SLAR-75/TAZR-S-75 (2) 3/4" SLOT. RETURN AIR DIFFUSER: ANEMOSTAT: SLAR-50/TAZR-S-50 (2) 1/2" SLOT. RETURN AIR DIFFUSER: ANEMOSTAT: SLAR-100/TAZR-S-10 (2) 1" SLOT. ALL VOLUME DAMPERS IN DUCTS SERVING THE PLENUMS SHALL BE CABLE OPERATED. 1. 2. 3. 4. 5. 6. 7. 8. 1 1/4" CONDENSATE LINE TO FUNNEL DRAIN (SEE PLUMBINGS: P-001.00 AND P-002.00) F.C. NOTES: 1. THE HVAC UNIT WILL BE SUPPORTED AT (6) LOCATIONS AS SHOWN BY 3/8" THREADEDTO COLUMN RODS THAT CONNECT TO CONCRETE INSERTS PHILIPS J38C OR EQUAL. SEE NOTE 1 DRAWN BY: FILENAME: CHECKED BY: PROJ. NUM: ISSUED: SET: LEVEL LL2 LL2370 UPPER LEVEL WALL STREET 180 VARICK STREET, SUITE 1316 NEW YORK, NY 10014 P: 212.627.0240 F: 212.627.0242 ANDRE KIKOSKI ARCHITECT, PLLC ARCHITECT: UPPER LEVEL WALL STREET LEVEL LL2 LL2370 WORLD TRADE CENTER, NYC HENRY MEER CLIENT: DOCUMENT:Y:3108HVAC11-07-14-BIDSET3108_HVAC.DWGDATE:December4,2014TIME:10:24AM SEAL & SIGNATURE: SHEET OF NO. REVISION/SUBMISSION DATE LORE WINE & SPIRITS SC AK 171 MADISON AVENUE SUITE 308 NEW YORK, NY 10016 (212) 532-5335 OPIE ATHWAL MEP ENGINEER N PROJECT NORTH ANDRE KIKOSKI ARCHITECT, PLLC. COPYRIGHT ©2014 137 EAST 25TH STREET 11TH FLOOR NEW YORK, NY 10010 (212) 674-4488 COOLEY MONATO STUDIO LIGHTING DESIGNER 7 WORLD TRADE CTR, 250 GREENWICH ST 37TH FLOOR NEW YORK, NY 10007 (212) 822-1110 WESTFIELD, LLC DEVELOPER FOR QAD FILING FOR CONSTRUCTION CONFIDENTIAL DO NOT DUPLICATE 1402 100% CD SET 12.05.2014 M-003.00 3108_HVAC HVAC PLAN MEER WINE & SPIRITS 1' 2'0 4' 01 1/2"=1'-0" HVAC PLAN MEER WINE & SPIRITS 3 13
  • 14.
    CONCRETE INSERT FOR POURED CONCRETEBLDG. VIBRATION ISOLATION HANGER ROD ANGLE IRON SUPPORT CONCRETE SLAB BEAM CLAMP FOR STEEL BLDG. NOTES: METHOD OF HANGING, TYPE OR INSERT, BEAM CLAMP, ROD, ETC., MUST BE APPROVED BY STRUCTURAL ENGINEER. TYPICAL FAN EQUIPMENT HANGING DETAIL VOLUME CONTROL DAMPER YOUNG NO: 1200 RIGHT ANGLE WORM GEAR YOUNG NO: 857-C AIR FLOW FOR PLASTER CEILINGS ONLY DAMPER BLADE METAL LATH PLASTER 7/8" DIA CAP DUCT HVAC-1 AAON AS STANDARD DB/WB °F L.A.T NUMBERGPM LWT E.A.T. E.A.T. HEATING VENTILATING AIR CONDITIONING UNIT COILS TOTAL MBH. HZV. PHASE CFMDESIGNATION ESP. ELECTRICAL DATA COOLING DATA HP HEATING DATA MBH. COILSDB/WB °F L.A.T. EWTP.D. P.D. GPM LWTEWT(" W.C.) MODEL FINAL FILTERS PRE-FILTER/ H3-DRB NOTE: TOTAL MERV9/MERV16 AIR OUTSIDE CFM 550 1. UNIT TO INCLUDE STAINLESS STEEL DRAIN PANS. 44 60 200 180.3 2. SUPPLY FAN SHALL BE EQUIPPED WITH A VARIABLE FREQUENCY DRIVE. 3. COILS SHALL BE COPPER TUBE WITH ALUMINUM FINS. 4. UNIT SHALL BE CONSTRUCTED WITH STAINLESS STEEL FRAMES. 5. UNIT SHALL BE FACTORY TESTED. 2260 1.5 .5 480 3 60 1 8.96' 78.17 74/61 48/47.99 9.75 133.2 72 60 1 3.2' 14 DRAWN BY: FILENAME: CHECKED BY: PROJ. NUM: ISSUED: SET: LEVEL LL2 LL2370 UPPER LEVEL WALL STREET 180 VARICK STREET, SUITE 1316 NEW YORK, NY 10014 P: 212.627.0240 F: 212.627.0242 ANDRE KIKOSKI ARCHITECT, PLLC ARCHITECT: UPPER LEVEL WALL STREET LEVEL LL2 LL2370 WORLD TRADE CENTER, NYC HENRY MEER CLIENT: DOCUMENT:Y:3108HVAC11-07-14-BIDSET3108_HVAC.DWGDATE:December4,2014TIME:10:24AM SEAL & SIGNATURE: SHEET OF NO. REVISION/SUBMISSION DATE LORE WINE & SPIRITS SC AK 171 MADISON AVENUE SUITE 308 NEW YORK, NY 10016 (212) 532-5335 OPIE ATHWAL MEP ENGINEER N PROJECT NORTH ANDRE KIKOSKI ARCHITECT, PLLC. COPYRIGHT ©2014 137 EAST 25TH STREET 11TH FLOOR NEW YORK, NY 10010 (212) 674-4488 COOLEY MONATO STUDIO LIGHTING DESIGNER 7 WORLD TRADE CTR, 250 GREENWICH ST 37TH FLOOR NEW YORK, NY 10007 (212) 822-1110 WESTFIELD, LLC DEVELOPER FOR QAD FILING FOR CONSTRUCTION CONFIDENTIAL DO NOT DUPLICATE 1402 100% CD SET 12.05.2014 M-004.00 3108_HVAC HVAC DETAIL SHEET 1 AND EQUIPMENT SCHEDULE 01 NONE HVAC DETAIL SHEET 1 AND EQUIPMENT SCHEDULE 4 13
  • 15.
    SUSPENDED FROM SLAB HVACUNIT UNIT DRAIN 1 1/4" INSULATED CONDENSATE LINE AUXILIARY DRAIN PIPE UNIT SHUTDOWN TERMINAL 24-VAC WATER DETECTOR 24-VAC ~~~~ WALL MOUNTED ANNUNCIATOR/CONTROLLER ALARM PANEL. LOCATED IN OFFICE. 1. PAN SHALL BE LARGER THAN AC UNIT ON ALL FOUR (4) SIDES & SHALL ACCOMMODATE CONDENSATE PUMP. ALLOW SERVICE ACCESS TO FILTER & FAN BELT. 2. 1" HEM SHALL BE TURNED DOWN OUTSIDE OF PAN. CORNERS WATER TIGHT. 3. FABRICATE PAN OF 16 GAUGE GALVANIZED STEEL WITH SOLDERED PAN CONSTRUCTION: AUXILIARY DRAIN PAN 1 2 4 7 5 6 2 3 1. PHILLIPS JS14C (BSA APPROVAL NO. 39058 SM) OR EQUAL, OR FORCED ENTRY FASTENERS. 2. BAND IRON HANGER PER CODE OR SMACNA. 3. TURN UNDER WHEN DUCT IS OVER 47" WIDE. 4. PHILLIPS J38C OR EQUAL 5. THREADED ROD COUPLING. 6. THREADED ROD (SIZE AS REQUIRED 3/8" MIN). 7. SCISSOR CLAMP ON REINFORCED ROD. METHOD OF HANGING DUCTWORK ~ TO FUNNEL DRAIN DRAWN BY: FILENAME: CHECKED BY: PROJ. NUM: ISSUED: SET: LEVEL LL2 LL2370 UPPER LEVEL WALL STREET 180 VARICK STREET, SUITE 1316 NEW YORK, NY 10014 P: 212.627.0240 F: 212.627.0242 ANDRE KIKOSKI ARCHITECT, PLLC ARCHITECT: UPPER LEVEL WALL STREET LEVEL LL2 LL2370 WORLD TRADE CENTER, NYC HENRY MEER CLIENT: DOCUMENT:Y:3108HVAC11-07-14-BIDSET3108_HVAC.DWGDATE:December4,2014TIME:10:24AM SEAL & SIGNATURE: SHEET OF NO. REVISION/SUBMISSION DATE LORE WINE & SPIRITS SC AK 171 MADISON AVENUE SUITE 308 NEW YORK, NY 10016 (212) 532-5335 OPIE ATHWAL MEP ENGINEER N PROJECT NORTH ANDRE KIKOSKI ARCHITECT, PLLC. COPYRIGHT ©2014 137 EAST 25TH STREET 11TH FLOOR NEW YORK, NY 10010 (212) 674-4488 COOLEY MONATO STUDIO LIGHTING DESIGNER 7 WORLD TRADE CTR, 250 GREENWICH ST 37TH FLOOR NEW YORK, NY 10007 (212) 822-1110 WESTFIELD, LLC DEVELOPER FOR QAD FILING FOR CONSTRUCTION CONFIDENTIAL DO NOT DUPLICATE 1402 100% CD SET 12.05.2014 M-005.00 3108_HVAC HVAC DETAIL SHEET 2 01 NONE HVAC DETAIL SHEET 2 5 13
  • 16.
    MOTORIZED DAMPER FOR DEMAND-CONTROLLED VENTILATION SEECOIL PIPING DETAIL ON DWG. M-006.00 ~ CHWS/R ~ ~ ~ HWS/R HVAC ~ HVAC DRAWN BY: FILENAME: CHECKED BY: PROJ. NUM: ISSUED: SET: LEVEL LL2 LL2370 UPPER LEVEL WALL STREET 180 VARICK STREET, SUITE 1316 NEW YORK, NY 10014 P: 212.627.0240 F: 212.627.0242 ANDRE KIKOSKI ARCHITECT, PLLC ARCHITECT: UPPER LEVEL WALL STREET LEVEL LL2 LL2370 WORLD TRADE CENTER, NYC HENRY MEER CLIENT: DOCUMENT:Y:3108HVAC11-07-14-BIDSET3108_HVAC.DWGDATE:December4,2014TIME:10:24AM SEAL & SIGNATURE: SHEET OF NO. REVISION/SUBMISSION DATE LORE WINE & SPIRITS SC AK 171 MADISON AVENUE SUITE 308 NEW YORK, NY 10016 (212) 532-5335 OPIE ATHWAL MEP ENGINEER N PROJECT NORTH ANDRE KIKOSKI ARCHITECT, PLLC. COPYRIGHT ©2014 137 EAST 25TH STREET 11TH FLOOR NEW YORK, NY 10010 (212) 674-4488 COOLEY MONATO STUDIO LIGHTING DESIGNER 7 WORLD TRADE CTR, 250 GREENWICH ST 37TH FLOOR NEW YORK, NY 10007 (212) 822-1110 WESTFIELD, LLC DEVELOPER FOR QAD FILING FOR CONSTRUCTION CONFIDENTIAL DO NOT DUPLICATE 1402 100% CD SET 12.05.2014 M-006.00 3108_HVAC HVAC DETAIL SHEET 3 01 NONE HVAC DETAIL SHEET 3 6 13
  • 17.
    AIRFLOW AIRFLOW b ACCESSIBLE THROUGH THEFACE OF DIFFUSER REGULATION OF VOLUME DAMPER SHALL BE CONICAL FITTINGS PLENUM OVER LINEAR SUPPLY OR RETURN SMOOTH FITTINGS. SHALL BE MADE WITH OFFSET IN HORIZONTAL PLANE SMOOTH FITTINGS. SHALL BE MADE WITH OFFSET IN VERTICAL PLANE ELEVATION RETURNSUPPLY OVER 1000 FPM USE V.D. ONLY ADJUSTABLE TAP UP TO 1000FPM VOLUME DAMPER BRANCH. VOLUME DAMPER IN SHORTER 4" (10cm), USE TAP DETAIL. MIN. IF A or B IS LESS THAN TO AIR QUANTITY, 4" (10cm) A,B SHALL BE PROPORTIONALa TO SPACE CONDITIONS). AT CONTR. OPTION-SUBJECT VANES (EITHER TYPE ELBOW DOUBLE THICKNESS TURNING DIFFUSER PLENUM CONN. TO LINEAR DIFFUSER OVER PLENUM OFFSET HORIZONTAL RISE OR DROP TAP TAKE-OFF TAKE-OFF SPLIT OR ELBOW ACTUAL CONSTRUCTIONSINGLE LINE WHERE DUCTWORK IS SHOWN SINGLE LINE, FOLLOWING SHALL APPLY FOR ACTUAL DUCT CONSTR. DIFFUSER OR GRILLE DRAWN BY: FILENAME: CHECKED BY: PROJ. NUM: ISSUED: SET: LEVEL LL2 LL2370 UPPER LEVEL WALL STREET 180 VARICK STREET, SUITE 1316 NEW YORK, NY 10014 P: 212.627.0240 F: 212.627.0242 ANDRE KIKOSKI ARCHITECT, PLLC ARCHITECT: UPPER LEVEL WALL STREET LEVEL LL2 LL2370 WORLD TRADE CENTER, NYC HENRY MEER CLIENT: DOCUMENT:Y:3108HVAC11-07-14-BIDSET3108_HVAC.DWGDATE:December4,2014TIME:10:24AM SEAL & SIGNATURE: SHEET OF NO. REVISION/SUBMISSION DATE LORE WINE & SPIRITS SC AK 171 MADISON AVENUE SUITE 308 NEW YORK, NY 10016 (212) 532-5335 OPIE ATHWAL MEP ENGINEER N PROJECT NORTH ANDRE KIKOSKI ARCHITECT, PLLC. COPYRIGHT ©2014 137 EAST 25TH STREET 11TH FLOOR NEW YORK, NY 10010 (212) 674-4488 COOLEY MONATO STUDIO LIGHTING DESIGNER 7 WORLD TRADE CTR, 250 GREENWICH ST 37TH FLOOR NEW YORK, NY 10007 (212) 822-1110 WESTFIELD, LLC DEVELOPER FOR QAD FILING FOR CONSTRUCTION CONFIDENTIAL DO NOT DUPLICATE 1402 100% CD SET 12.05.2014 M-007.00 3108_HVAC HVAC DETAIL SHEET 4 01 NONE HVAC DETAIL SHEET 4 7 13
  • 18.
    WallOf Damper On AllSides Typical Overlap 1" Minimum 1. Operator/Actuator 2. Fusible Rod 3. Auxiliary Operating Jack Shaft 4. Damper Frame 5. Fusible Link with Lock 6. Sleeve 7. Negator Spring 8. Mounting Angles 9. S-Joint, Sleeve to Duct 10. Caulking Material ITEM DESCRIPTION firestat and electric actuator. stalled within the fire wall duct opening. operate with blades running horizontally and must be in- Combination fire and leakage rated dampers are designed to or opening. Do not compress or stretch the damper frame into the duct must be installed so that it is square and free from racking. To insure optimum operation and performance, the damper than any damper and sleeve assembly. foot plus 1", nor shall the opening be less than 1/4" larger sembly. the maximum opening size shall not exceed 1/8" per larger than the overall size of the damper and sleeve as- The fire wall opening shall be a minimum of 1/8" per foot damper widths exceeding 36" or heights exceeding 24". for dampers up to 36" wide by 24" high and 14 gage for connections are used, the sleeve shall be a minimum of 16 gage a maximum of 2" from damper corners. If other duct sleeve to the sleeve with 1/2" welds spaced 8" center to center and inside slip joint, and double s-slip. The damper is fastened hemmed s-slip, standing s-slip, reinforced standing s-slip, more of the following duct connections are used: plain s-slip, equal to or heavier than the gage of the duct when one or SMACNA duct construction standard, the sleeve gage shall be As described in NFPA 90A and as defined by the appropriate on center for 1-1/2 hour rated dampers. steel rivets or 1/2" long tack welds. Space fasteners 8 and fastened with No. 10 bolts or screws, 3/16" diameter Mounting angles shall be 1-1/2" x 1-1/2" x 14 gage minimum ant in place to dispel any air. plied on the mullion joint. Press the surface of the seal- Dow-corning silastic 732, or GE RTV 106 sealantshall be ap- a continuous 1/8" bead of Dow-corning 100% silicon rubber, from each corner. When joining multiple damper assemblies, and a maximum 2" from the ends of the joining sections or termittently on both sides. Space fasteners 6" on center 20 bolts, No. 10 screws, or 1/2" long welds staggered in- damper to the sleeve, dampers shall be fastened with 1/4"- When joining multiple damper assemblies or fastening the tions only and are not required to be leakage rated. quired when dampers are supplied for fire damper applica- the damper requires caulking. Note that sealant is not re- the damper and sleeve in the same manner. Only one side of Another bead of the same sealant shall be applied between uator side. wall or partition and not more than 9" on the operator/act- Damper sleeve shall not extend more than 6" beyond the fire Safety Standards 555 and 555S. These instructions comply with Underwriters Laboratories GENERAL INSTALLATION APPLICATION Duct 1/4" Minimum 9 1 10 7 8 6 5 4 2 3 6" Maximum FSD60 Damper to include DRAWN BY: FILENAME: CHECKED BY: PROJ. NUM: ISSUED: SET: LEVEL LL2 LL2370 UPPER LEVEL WALL STREET 180 VARICK STREET, SUITE 1316 NEW YORK, NY 10014 P: 212.627.0240 F: 212.627.0242 ANDRE KIKOSKI ARCHITECT, PLLC ARCHITECT: UPPER LEVEL WALL STREET LEVEL LL2 LL2370 WORLD TRADE CENTER, NYC HENRY MEER CLIENT: DOCUMENT:Y:3108HVAC11-07-14-BIDSET3108_HVAC.DWGDATE:December4,2014TIME:10:24AM SEAL & SIGNATURE: SHEET OF NO. REVISION/SUBMISSION DATE LORE WINE & SPIRITS SC AK 171 MADISON AVENUE SUITE 308 NEW YORK, NY 10016 (212) 532-5335 OPIE ATHWAL MEP ENGINEER N PROJECT NORTH ANDRE KIKOSKI ARCHITECT, PLLC. COPYRIGHT ©2014 137 EAST 25TH STREET 11TH FLOOR NEW YORK, NY 10010 (212) 674-4488 COOLEY MONATO STUDIO LIGHTING DESIGNER 7 WORLD TRADE CTR, 250 GREENWICH ST 37TH FLOOR NEW YORK, NY 10007 (212) 822-1110 WESTFIELD, LLC DEVELOPER FOR QAD FILING FOR CONSTRUCTION CONFIDENTIAL DO NOT DUPLICATE 1402 100% CD SET 12.05.2014 M-008.00 3108_HVAC HVAC DETAIL SHEET 5 01 NONE HVAC DETAIL SHEET 5 8 13
  • 19.
    THROAT AND VOLUMEDAMPER RECTANGULAR DUCT BRANCH WITH 4. MINIMUM T = 4". 3. MUST BE USED WHEN W 36". NOTES: 2. FURNISH THIS TYPE CONNECTION WITHOUT HAND DAMPER FOR ALL HIGH PRESSURE DUCTWORK BRANCHES. MORE THAN 1000 CFM. LINE DUCTWORK IS INDICATED AS THIS FOR BRANCHES WITH 1. FURNISH THIS TYPE CONNECTION WHERE NOTED AND WHEN SINGLE NOT TO SCALE W T CLEVIS HANGER 'U'-BOLT CONCRETE ANCHOR TRAPEZE HANGER TYPICAL PIPE SUPPORT DETAIL SHIELD PIPE INSULATION DRAWN BY: FILENAME: CHECKED BY: PROJ. NUM: ISSUED: SET: LEVEL LL2 LL2370 UPPER LEVEL WALL STREET 180 VARICK STREET, SUITE 1316 NEW YORK, NY 10014 P: 212.627.0240 F: 212.627.0242 ANDRE KIKOSKI ARCHITECT, PLLC ARCHITECT: UPPER LEVEL WALL STREET LEVEL LL2 LL2370 WORLD TRADE CENTER, NYC HENRY MEER CLIENT: DOCUMENT:Y:3108HVAC11-07-14-BIDSET3108_HVAC.DWGDATE:December4,2014TIME:10:24AM SEAL & SIGNATURE: SHEET OF NO. REVISION/SUBMISSION DATE LORE WINE & SPIRITS SC AK 171 MADISON AVENUE SUITE 308 NEW YORK, NY 10016 (212) 532-5335 OPIE ATHWAL MEP ENGINEER N PROJECT NORTH ANDRE KIKOSKI ARCHITECT, PLLC. COPYRIGHT ©2014 137 EAST 25TH STREET 11TH FLOOR NEW YORK, NY 10010 (212) 674-4488 COOLEY MONATO STUDIO LIGHTING DESIGNER 7 WORLD TRADE CTR, 250 GREENWICH ST 37TH FLOOR NEW YORK, NY 10007 (212) 822-1110 WESTFIELD, LLC DEVELOPER FOR QAD FILING FOR CONSTRUCTION CONFIDENTIAL DO NOT DUPLICATE 1402 100% CD SET 12.05.2014 M-009.00 3108_HVAC HVAC DETAIL SHEET 6 01 NONE HVAC DETAIL SHEET 6 9 13
  • 20.
    DRAWN BY: FILENAME: CHECKED BY: PROJ.NUM: ISSUED: SET: LEVEL LL2 LL2370 UPPER LEVEL WALL STREET 180 VARICK STREET, SUITE 1316 NEW YORK, NY 10014 P: 212.627.0240 F: 212.627.0242 ANDRE KIKOSKI ARCHITECT, PLLC ARCHITECT: UPPER LEVEL WALL STREET LEVEL LL2 LL2370 WORLD TRADE CENTER, NYC HENRY MEER CLIENT: DOCUMENT:Y:3108HVAC11-07-14-BIDSET3108_HVAC.DWGDATE:December4,2014TIME:10:24AM SEAL & SIGNATURE: SHEET OF NO. REVISION/SUBMISSION DATE LORE WINE & SPIRITS SC AK 171 MADISON AVENUE SUITE 308 NEW YORK, NY 10016 (212) 532-5335 OPIE ATHWAL MEP ENGINEER N PROJECT NORTH ANDRE KIKOSKI ARCHITECT, PLLC. COPYRIGHT ©2014 137 EAST 25TH STREET 11TH FLOOR NEW YORK, NY 10010 (212) 674-4488 COOLEY MONATO STUDIO LIGHTING DESIGNER 7 WORLD TRADE CTR, 250 GREENWICH ST 37TH FLOOR NEW YORK, NY 10007 (212) 822-1110 WESTFIELD, LLC DEVELOPER FOR QAD FILING FOR CONSTRUCTION CONFIDENTIAL DO NOT DUPLICATE 1402 100% CD SET 12.05.2014 M-010.00 3108_HVAC HVAC SPECIFICATIONS SHEET 1 01 NONE SHEET 1 HVAC SPECIFICATIONS 10 13
  • 21.
    DRAWN BY: FILENAME: CHECKED BY: PROJ.NUM: ISSUED: SET: LEVEL LL2 LL2370 UPPER LEVEL WALL STREET 180 VARICK STREET, SUITE 1316 NEW YORK, NY 10014 P: 212.627.0240 F: 212.627.0242 ANDRE KIKOSKI ARCHITECT, PLLC ARCHITECT: UPPER LEVEL WALL STREET LEVEL LL2 LL2370 WORLD TRADE CENTER, NYC HENRY MEER CLIENT: DOCUMENT:Y:3108HVAC11-07-14-BIDSET3108_HVAC.DWGDATE:December4,2014TIME:10:24AM SEAL & SIGNATURE: SHEET OF NO. REVISION/SUBMISSION DATE LORE WINE & SPIRITS SC AK 171 MADISON AVENUE SUITE 308 NEW YORK, NY 10016 (212) 532-5335 OPIE ATHWAL MEP ENGINEER N PROJECT NORTH ANDRE KIKOSKI ARCHITECT, PLLC. COPYRIGHT ©2014 137 EAST 25TH STREET 11TH FLOOR NEW YORK, NY 10010 (212) 674-4488 COOLEY MONATO STUDIO LIGHTING DESIGNER 7 WORLD TRADE CTR, 250 GREENWICH ST 37TH FLOOR NEW YORK, NY 10007 (212) 822-1110 WESTFIELD, LLC DEVELOPER FOR QAD FILING FOR CONSTRUCTION CONFIDENTIAL DO NOT DUPLICATE 1402 100% CD SET 12.05.2014 M-011.00 3108_HVAC HVAC SPECIFICATIONS SHEET 2 01 NONE SHEET 2 HVAC SPECIFICATIONS 11 13
  • 22.
    DRAWN BY: FILENAME: CHECKED BY: PROJ.NUM: ISSUED: SET: LEVEL LL2 LL2370 UPPER LEVEL WALL STREET 180 VARICK STREET, SUITE 1316 NEW YORK, NY 10014 P: 212.627.0240 F: 212.627.0242 ANDRE KIKOSKI ARCHITECT, PLLC ARCHITECT: UPPER LEVEL WALL STREET LEVEL LL2 LL2370 WORLD TRADE CENTER, NYC HENRY MEER CLIENT: DOCUMENT:Y:3108HVAC11-07-14-BIDSET3108_HVAC.DWGDATE:December4,2014TIME:10:24AM SEAL & SIGNATURE: SHEET OF NO. REVISION/SUBMISSION DATE LORE WINE & SPIRITS SC AK 171 MADISON AVENUE SUITE 308 NEW YORK, NY 10016 (212) 532-5335 OPIE ATHWAL MEP ENGINEER N PROJECT NORTH ANDRE KIKOSKI ARCHITECT, PLLC. COPYRIGHT ©2014 137 EAST 25TH STREET 11TH FLOOR NEW YORK, NY 10010 (212) 674-4488 COOLEY MONATO STUDIO LIGHTING DESIGNER 7 WORLD TRADE CTR, 250 GREENWICH ST 37TH FLOOR NEW YORK, NY 10007 (212) 822-1110 WESTFIELD, LLC DEVELOPER FOR QAD FILING FOR CONSTRUCTION CONFIDENTIAL DO NOT DUPLICATE 1402 100% CD SET 12.05.2014 M-012.00 3108_HVAC HVAC SPECIFICATIONS SHEET 3 01 NONE SHEET 2 HVAC SPECIFICATIONS 12 13
  • 23.
    DRAWN BY: FILENAME: CHECKED BY: PROJ.NUM: ISSUED: SET: LEVEL LL2 LL2370 UPPER LEVEL WALL STREET 180 VARICK STREET, SUITE 1316 NEW YORK, NY 10014 P: 212.627.0240 F: 212.627.0242 ANDRE KIKOSKI ARCHITECT, PLLC ARCHITECT: UPPER LEVEL WALL STREET LEVEL LL2 LL2370 WORLD TRADE CENTER, NYC HENRY MEER CLIENT: DOCUMENT:Y:3108HVAC11-07-14-BIDSET3108_HVAC.DWGDATE:December4,2014TIME:10:24AM SEAL & SIGNATURE: SHEET OF NO. REVISION/SUBMISSION DATE LORE WINE & SPIRITS SC AK 171 MADISON AVENUE SUITE 308 NEW YORK, NY 10016 (212) 532-5335 OPIE ATHWAL MEP ENGINEER N PROJECT NORTH ANDRE KIKOSKI ARCHITECT, PLLC. COPYRIGHT ©2014 137 EAST 25TH STREET 11TH FLOOR NEW YORK, NY 10010 (212) 674-4488 COOLEY MONATO STUDIO LIGHTING DESIGNER 7 WORLD TRADE CTR, 250 GREENWICH ST 37TH FLOOR NEW YORK, NY 10007 (212) 822-1110 WESTFIELD, LLC DEVELOPER FOR QAD FILING FOR CONSTRUCTION CONFIDENTIAL DO NOT DUPLICATE 1402 100% CD SET 12.05.2014 M-013.00 3108_HVAC HVAC SPECIFICATIONS SHEET 4 01 NONE SHEET 4 HVAC SPECIFICATIONS 13 13
  • 24.
    JANITOR CLOSET ELECTRICAL CLOSET SERVICE CORRIDOR 102 DOMESTIC ROOM 104 OFFICE/STORAGE 100 RETAILFLOOR 103 SERVICE 101 LARGE FORMAT ROOM BUILDING SANITARY LINE 2" SANITARY LINE DOWN THRU FLOOR SLAB FOR CONNECTION TO BASE SOIL OR WASTE (S) (W) CONNECT TO EXISITNG VENT (V) SHUT-OFF VALVE LEGEND COLD WATER (CW) HOT WATER (HW) LOCATION OF DOMESTIC HOT WATER HEATER. SEE MOUNTING DETAIL: DWG. P-002.00 REFRIGERATOR PANTRY SINK DISHWASHER REF PS DW CLEANOUTC.O. 3/4" DOMESTIC COLD WATER DOWN 3/4" DOMESTIC HOT WATER DOWN 3/4" 3/4" 3/4" LOCATE PIPING ABOVE HUNG CEILING 1/4" 1 1/4" CONDENSATE LINE FROM HVAC UNIT (SEE DRAWING M-003.00) DRAWN BY: FILENAME: CHECKED BY: PROJ. NUM: ISSUED: SET: LEVEL LL2 LL2370 UPPER LEVEL WALL STREET 180 VARICK STREET, SUITE 1316 NEW YORK, NY 10014 P: 212.627.0240 F: 212.627.0242 ANDRE KIKOSKI ARCHITECT, PLLC ARCHITECT: UPPER LEVEL WALL STREET LEVEL LL2 LL2370 WORLD TRADE CENTER, NYC HENRY MEER CLIENT: DOCUMENT:Y:3108PLBG11-07-14-BIDSET3108_PLBG.DWGDATE:December4,2014TIME:10:26AM SEAL & SIGNATURE: SHEET OF NO. REVISION/SUBMISSION DATE LORE WINE & SPIRITS SC AK 171 MADISON AVENUE SUITE 308 NEW YORK, NY 10016 (212) 532-5335 OPIE ATHWAL MEP ENGINEER N PROJECT NORTH ANDRE KIKOSKI ARCHITECT, PLLC. COPYRIGHT ©2014 137 EAST 25TH STREET 11TH FLOOR NEW YORK, NY 10010 (212) 674-4488 COOLEY MONATO STUDIO LIGHTING DESIGNER 7 WORLD TRADE CTR, 250 GREENWICH ST 37TH FLOOR NEW YORK, NY 10007 (212) 822-1110 WESTFIELD, LLC DEVELOPER FOR QAD FILING FOR CONSTRUCTION CONFIDENTIAL DO NOT DUPLICATE 1402 100% CD SET 12.05.2014 P-001.00 3108_PLBG PLUMBING PLAN MEER WINE & SPIRITS 1' 2'0 4' 01 1/2"=1'-0" PLUMBING PLAN MEER WINE & SPIRITS 1 4
  • 25.
    NO SCALE CLEVIS HANGER DIPTUBE WITH HOLE ON TOP CONNECIONS & COLD WATER IF HEATER IS PROVIDED MAY BE ELIMINATED VACUUM RELIEF VALVE W/BRASS COCK SUPPORTED FROM OVERHEAD STRUCTURAL SLAB EXTEND 1" DRAIN FROM DRAIN PAN TO FUNNEL DRAIN. IF DIELECTRIC NIPPLES ARE NOT SUPPLIED BY HEATER MFGR. PROVIDE DIELECTRIC UNIONS ON PIPING CONNECTIONS TO HEATERS FLOOR NOT TO SCALE WATER HEATER DETAIL 1. STRAP THE UNIT TO THE SHELF. TO FUNNEL DRAIN. BLOW-OFF SPILL PRESSURE RELIEF VALVE TEMPERATURE & UNION GATE VALVE TO FUNNEL DRAIN BLOW-OFF SPILL THERMOMETER AIR VENT CHECK VALVE PETE'S PLUG FOR PRESSURE GAUGE PSREF DW ~~ ~ ~~ ~~~ LEVEL LL2 TO BASE BUILDING SANITARY LINE DOMESTIC HOT WATER HEATER (SUSPENDED ABOVE CEILING) FUNNEL DRAIN WITH TRAP PRIMER 3/4" 3/4" COLD WATER BASE BUILDING DOMESTIC PLUMBING RISER DIAGRAM 1/4" 1 1/2" TO BASE NOT TO SCALE GALVANIZED PROTECTION SHIELD-18 GA.,12" LONG WHEN PIPING IS INSULATED ELASTIC LOCKNUTS ELASTIC LOCKNUTS THREADED ROD WATER SUPPLY BUILDING VENT LINE A.O. SMITH PROMAX: EJC-10 10 GALLON CAPACITY, 1650 WATTS DIM.: 18 1/4"H x 16" DIA. OPR. WT.: 55 LBS CONCRETE ANCHOR 2" ALL PLUMBING SYSTEMS (SANITARY, WASTE, VENT , WATER DISTRIBUTION AND GAS PIPING SYSTEMS) AND ASSOCIATED EQUIPMENT SHALL BE INSTALLED, OPERATED AND MAINTAINED IN ACCORDANCE WITH THE REQUIREMENTS OF 2008 THE NEW YORK CITY PLUMBING CODE (NYCPC). INSTALLATION OF UNDERGROUND PIPING SHALL BE IN ACCORDANCE WITH THE REQUIREMENTS OF SECTION PC 702.2. PROTECTION OF PIPING PASSING UNDER OR THROUGH FOUNDATION WALLS AS PER SECTION PC 305. TRENCHING, EXCAVATION AND BACKFILL AS PER SECTION PC 306. RAT PROOFING AS PER PC 304. MATERIALS USED IN PLUMBING SYSTEMS SHALL BE IN ACCORDANCE WITH THE REQUIREMENTS OF SECTION PC 303, PC 605, PC 702, PC 902, PC 1102. EQUIPMENT CONNECTIONS AND JOINING OF PIPING SHALL BE IN ACCORDANCE WITH THE REQUIREMENTS OF CHAPTERS 4,5,6,7, AND 9. DEEP SEAL TRAPS FOR FLOOR DRAINS SHALL BE PROVIDED AS PER PC 1002 AND CLEAN-OUTS SHALL BE INSTALLED IN ACCORDANCE WITH THE REQUIREMENTS OF SECTION PC 708. BUILDING HOUSE TRAPS SHALL BE PROVIDED AS PER SECTION PC 1002. DRAINAGE PIPE CLEANOUTS AS PER SECTION PC 708. VERTICAL AND HORIZONTAL PIPING SHALL BE SUPPORTED IN ACCORDANCE WITH THE REQUIREMENTS OF SECTION PC 308. WATER SUPPLY SYSTEMS SHALL BE INSTALLED AND MAINTAINED IN ACCORDANCE WITH THE REQUIREMENTS OF CHAPTERS 6 SECTION PC 601-603, 604, 606, 607, 608, 610. THE SANITARY DRAINAGE SYSTEM SHALL BE SIZED AND INSTALLED IN ACCORDANCE WITH THE REQUIREMENTS OF CHAPTER 7 SECTION PC 701, 704, 705, 706, 707, 708, 711. VENT PIPING FOR THE SANITARY DRAINAGE SYSTEM SHALL BE INSTALLED N ACCORDANCE WITH THE REQUIREMENTS OF CHAPTER 9 SECTIONS PS 901 THROUGH PC 912 THROUGH PC 917. THE STORM DRAINAGE PIPING SHALL BE SIZED AND INSTALLED IN ACCORDANCE WITH THE REQUIREMENTS OF CHAPTER 11 SECTION PC 1101 THROUGH 113. INSPECTION AND TESTING OF PLUMBING AND GAS PIPING SYSTEMS SHALL BE IN ACCORDANCE WITH SECTION PC 107, 312. 1. 2. 3. 4. 5. 6. 7. 8. 9. 10. 11. 12. 13. 14. 15. BUILDING DEPARTMENT PLUMBING NOTES 2" 3/4" C.O. BLOW-OFF SPILL DRAIN FROM DRAIN PAN BLOW-OFF SPILL NOTE: 2. 1. DRAIN PAN AUTOMATIC TRAP PRIMER: J.R. SMITH FIG. 2699 PLUMBING PART-PLAN NOT TO SCALE CONDENSATE LINE FROM HVAC UNIT NOTES: 104 OFFICE/STORAGE 103 SERVICE Y LINE OWN FOR ASE LOCATION OF DOMESTIC HOT WATER HEATER. SEE MOUNTING DETAIL: DWG. P-002.00 3/4" DOMESTIC COLD WATER DOWN 3/4" DOMESTIC HOT WATER DOWN 3/4" 3/4" 3/4" LOCATE PIPING ABOVE HUNG CEILING 1/4" 1 1/4" CONDENSATE LINE FROM HVAC UN (SEE DRAWING M-003.00) DRAWN BY: FILENAME: CHECKED BY: PROJ. NUM: ISSUED: SET: LEVEL LL2 LL2370 UPPER LEVEL WALL STREET 180 VARICK STREET, SUITE 1316 NEW YORK, NY 10014 P: 212.627.0240 F: 212.627.0242 ANDRE KIKOSKI ARCHITECT, PLLC ARCHITECT: UPPER LEVEL WALL STREET LEVEL LL2 LL2370 WORLD TRADE CENTER, NYC HENRY MEER CLIENT: DOCUMENT:Y:3108PLBG11-07-14-BIDSET3108_PLBG.DWGDATE:December4,2014TIME:10:26AM SEAL & SIGNATURE: SHEET OF NO. REVISION/SUBMISSION DATE LORE WINE & SPIRITS SC AK 171 MADISON AVENUE SUITE 308 NEW YORK, NY 10016 (212) 532-5335 OPIE ATHWAL MEP ENGINEER N PROJECT NORTH ANDRE KIKOSKI ARCHITECT, PLLC. COPYRIGHT ©2014 137 EAST 25TH STREET 11TH FLOOR NEW YORK, NY 10010 (212) 674-4488 COOLEY MONATO STUDIO LIGHTING DESIGNER 7 WORLD TRADE CTR, 250 GREENWICH ST 37TH FLOOR NEW YORK, NY 10007 (212) 822-1110 WESTFIELD, LLC DEVELOPER FOR QAD FILING FOR CONSTRUCTION CONFIDENTIAL DO NOT DUPLICATE 1402 100% CD SET 12.05.2014 P-002.00 3108_PLBG PLUMBING RISER DIAGRAM AND DETAILS 01 NONE PLUMBING RISER DIAGRAM AND DETAILS 2 4
  • 26.
    DRAWN BY: FILENAME: CHECKED BY: PROJ.NUM: ISSUED: SET: LEVEL LL2 LL2370 UPPER LEVEL WALL STREET 180 VARICK STREET, SUITE 1316 NEW YORK, NY 10014 P: 212.627.0240 F: 212.627.0242 ANDRE KIKOSKI ARCHITECT, PLLC ARCHITECT: UPPER LEVEL WALL STREET LEVEL LL2 LL2370 WORLD TRADE CENTER, NYC HENRY MEER CLIENT: DOCUMENT:Y:3108PLBG11-07-14-BIDSET3108_PLBG.DWGDATE:December4,2014TIME:10:26AM SEAL & SIGNATURE: SHEET OF NO. REVISION/SUBMISSION DATE LORE WINE & SPIRITS SC AK 171 MADISON AVENUE SUITE 308 NEW YORK, NY 10016 (212) 532-5335 OPIE ATHWAL MEP ENGINEER N PROJECT NORTH ANDRE KIKOSKI ARCHITECT, PLLC. COPYRIGHT ©2014 137 EAST 25TH STREET 11TH FLOOR NEW YORK, NY 10010 (212) 674-4488 COOLEY MONATO STUDIO LIGHTING DESIGNER 7 WORLD TRADE CTR, 250 GREENWICH ST 37TH FLOOR NEW YORK, NY 10007 (212) 822-1110 WESTFIELD, LLC DEVELOPER FOR QAD FILING FOR CONSTRUCTION CONFIDENTIAL DO NOT DUPLICATE 1402 100% CD SET 12.05.2014 P-003.00 3108_PLBG PLUMBING SPECIFICATIONS SHEET 1 01 NONE PLUMBING SPECIFICATIONS SHEET 1 3 4
  • 27.
    DRAWN BY: FILENAME: CHECKED BY: PROJ.NUM: ISSUED: SET: LEVEL LL2 LL2370 UPPER LEVEL WALL STREET 180 VARICK STREET, SUITE 1316 NEW YORK, NY 10014 P: 212.627.0240 F: 212.627.0242 ANDRE KIKOSKI ARCHITECT, PLLC ARCHITECT: UPPER LEVEL WALL STREET LEVEL LL2 LL2370 WORLD TRADE CENTER, NYC HENRY MEER CLIENT: DOCUMENT:Y:3108PLBG11-07-14-BIDSET3108_PLBG.DWGDATE:December4,2014TIME:10:26AM SEAL & SIGNATURE: SHEET OF NO. REVISION/SUBMISSION DATE LORE WINE & SPIRITS SC AK 171 MADISON AVENUE SUITE 308 NEW YORK, NY 10016 (212) 532-5335 OPIE ATHWAL MEP ENGINEER N PROJECT NORTH ANDRE KIKOSKI ARCHITECT, PLLC. COPYRIGHT ©2014 137 EAST 25TH STREET 11TH FLOOR NEW YORK, NY 10010 (212) 674-4488 COOLEY MONATO STUDIO LIGHTING DESIGNER 7 WORLD TRADE CTR, 250 GREENWICH ST 37TH FLOOR NEW YORK, NY 10007 (212) 822-1110 WESTFIELD, LLC DEVELOPER FOR QAD FILING FOR CONSTRUCTION CONFIDENTIAL DO NOT DUPLICATE 1402 100% CD SET 12.05.2014 P-004.00 3108_PLBG PLUMBING SPECIFICATIONS SHEET 2 01 NONE PLUMBING SPECIFICATIONS SHEET 2 4 4
  • 28.
    JANITOR CLOSET ELECTRICAL CLOSET SERVICE CORRIDOR B.O. V 13'-0" B.O.F.C. 14'-3" T.O.WOOD CLG 14'-0" B.O.F.C. 14'-3" T.O. VAU 14'-0" B.O.F.C. 14'-3" B.O.F.C. 14'-3" B.O. WOOD CLG 13'-0" B.O.F.C. 14'-3" VAULTEDCEILING B.O. VAULT 13'-0" B.O.F.C. 9'-0" B.O.F.C. 9'-0" B.O. VAULT 13'-0" L4 EXISTING SPRINKLER PIPING NEW SPRINKLER PIPING EXISTING UPRIGHT SPRINKLER HEAD CONCEALED TYPE SPRINKLER HEAD LEGEND EXISTING SPRINKLER PIPING POINT-OF-NEW CONNECTION TO BE REMOVED E E E E E E E E E E E E E E EEE E E EXISTING UPRIGHT SPRINKLER HEADE TO BE REMOVED PIPING CAPPED TOTAL NO. OF EXISTING HEADS REMOVED: 18 L1 L1 TOTAL NO. OF EXISTING HEADS TO REMAIN: 0 TOTAL NO. OF NEW HEADS ADDED: 18 DRAWN BY: FILENAME: CHECKED BY: PROJ. NUM: ISSUED: SET: LEVEL LL2 LL2370 UPPER LEVEL WALL STREET 180 VARICK STREET, SUITE 1316 NEW YORK, NY 10014 P: 212.627.0240 F: 212.627.0242 ANDRE KIKOSKI ARCHITECT, PLLC ARCHITECT: UPPER LEVEL WALL STREET LEVEL LL2 LL2370 WORLD TRADE CENTER, NYC HENRY MEER CLIENT: DOCUMENT:Y:3108SPRK11-07-14-BIDSET3108_SPRK.DWGDATE:December4,2014TIME:10:28AM SEAL & SIGNATURE: SHEET OF NO. REVISION/SUBMISSION DATE LORE WINE & SPIRITS SC AK 171 MADISON AVENUE SUITE 308 NEW YORK, NY 10016 (212) 532-5335 OPIE ATHWAL MEP ENGINEER N PROJECT NORTH ANDRE KIKOSKI ARCHITECT, PLLC. COPYRIGHT ©2014 137 EAST 25TH STREET 11TH FLOOR NEW YORK, NY 10010 (212) 674-4488 COOLEY MONATO STUDIO LIGHTING DESIGNER 7 WORLD TRADE CTR, 250 GREENWICH ST 37TH FLOOR NEW YORK, NY 10007 (212) 822-1110 WESTFIELD, LLC DEVELOPER FOR QAD FILING FOR CONSTRUCTION CONFIDENTIAL DO NOT DUPLICATE 1402 100% CD SET 12.05.2014 SP-001.00 3108_SPRK SPRINKLER PLAN MEER WINE & SPIRITS 1' 2'0 4' 01 1/2"=1'-0" SPRINKLER PLAN MEER WINE & SPIRITS 1 3
  • 29.
    DRAWN BY: FILENAME: CHECKED BY: PROJ.NUM: ISSUED: SET: LEVEL LL2 LL2370 UPPER LEVEL WALL STREET 180 VARICK STREET, SUITE 1316 NEW YORK, NY 10014 P: 212.627.0240 F: 212.627.0242 ANDRE KIKOSKI ARCHITECT, PLLC ARCHITECT: UPPER LEVEL WALL STREET LEVEL LL2 LL2370 WORLD TRADE CENTER, NYC HENRY MEER CLIENT: DOCUMENT:Y:3108SPRK11-07-14-BIDSET3108_SPRK.DWGDATE:December4,2014TIME:10:28AM SEAL & SIGNATURE: SHEET OF NO. REVISION/SUBMISSION DATE LORE WINE & SPIRITS SC AK 171 MADISON AVENUE SUITE 308 NEW YORK, NY 10016 (212) 532-5335 OPIE ATHWAL MEP ENGINEER N PROJECT NORTH ANDRE KIKOSKI ARCHITECT, PLLC. COPYRIGHT ©2014 137 EAST 25TH STREET 11TH FLOOR NEW YORK, NY 10010 (212) 674-4488 COOLEY MONATO STUDIO LIGHTING DESIGNER 7 WORLD TRADE CTR, 250 GREENWICH ST 37TH FLOOR NEW YORK, NY 10007 (212) 822-1110 WESTFIELD, LLC DEVELOPER FOR QAD FILING FOR CONSTRUCTION CONFIDENTIAL DO NOT DUPLICATE 1402 100% CD SET 12.05.2014 SP-002.00 3108_SPRK SPRINKLER SPECIFICATIONS 01 NONE SPRINKLER SPECIFICATIONS 2 3
  • 30.
    1" DROP NIPPLE SUSPENDEDCEILING 1" x 1/2" COUPLING (IF REQUIRED) SPRINKLER HEAD (SEE SPECIFICATION & DWG. FOR TYPE) RELIABLE MODEL G1 - NYC BS&A # 587-75-SA NOT TO SCALE BRANCH PIPE CONCEALED SPRINKLER HEAD CONNECTION DETAIL DRAWN BY: FILENAME: CHECKED BY: PROJ. NUM: ISSUED: SET: LEVEL LL2 LL2370 UPPER LEVEL WALL STREET 180 VARICK STREET, SUITE 1316 NEW YORK, NY 10014 P: 212.627.0240 F: 212.627.0242 ANDRE KIKOSKI ARCHITECT, PLLC ARCHITECT: UPPER LEVEL WALL STREET LEVEL LL2 LL2370 WORLD TRADE CENTER, NYC HENRY MEER CLIENT: DOCUMENT:Y:3108SPRK11-07-14-BIDSET3108_SPRK.DWGDATE:December4,2014TIME:10:28AM SEAL & SIGNATURE: SHEET OF NO. REVISION/SUBMISSION DATE LORE WINE & SPIRITS SC AK 171 MADISON AVENUE SUITE 308 NEW YORK, NY 10016 (212) 532-5335 OPIE ATHWAL MEP ENGINEER N PROJECT NORTH ANDRE KIKOSKI ARCHITECT, PLLC. COPYRIGHT ©2014 137 EAST 25TH STREET 11TH FLOOR NEW YORK, NY 10010 (212) 674-4488 COOLEY MONATO STUDIO LIGHTING DESIGNER 7 WORLD TRADE CTR, 250 GREENWICH ST 37TH FLOOR NEW YORK, NY 10007 (212) 822-1110 WESTFIELD, LLC DEVELOPER FOR QAD FILING FOR CONSTRUCTION CONFIDENTIAL DO NOT DUPLICATE 1402 100% CD SET 12.05.2014 SP-003.00 3108_SPRK BUILDING DEPARTMENT SPRINKLER NOTES AND DETAIL 01 NONE BUILDING DEPARTMENT SPRINKLER NOTES AND DETAIL 3 3
  • 31.
    DRAWN BY: FILENAME: CHECKED BY: PROJ.NUM: ISSUED: SET: LEVEL LL2 LL2370 UPPER LEVEL WALL STREET 180 VARICK STREET, SUITE 1316 NEW YORK, NY 10014 P: 212.627.0240 F: 212.627.0242 ANDRE KIKOSKI ARCHITECT, PLLC ARCHITECT: UPPER LEVEL WALL STREET LEVEL LL2 LL2370 WORLD TRADE CENTER, NYC HENRY MEER CLIENT: DOCUMENT:Y:3108EN11-07-14-BIDSET3108_EN.DWGDATE:December4,2014TIME:10:29AM SEAL & SIGNATURE: SHEET OF NO. REVISION/SUBMISSION DATE LORE WINE & SPIRITS SC AK 171 MADISON AVENUE SUITE 308 NEW YORK, NY 10016 (212) 532-5335 OPIE ATHWAL MEP ENGINEER N PROJECT NORTH ANDRE KIKOSKI ARCHITECT, PLLC. COPYRIGHT ©2014 137 EAST 25TH STREET 11TH FLOOR NEW YORK, NY 10010 (212) 674-4488 COOLEY MONATO STUDIO LIGHTING DESIGNER 7 WORLD TRADE CTR, 250 GREENWICH ST 37TH FLOOR NEW YORK, NY 10007 (212) 822-1110 WESTFIELD, LLC DEVELOPER FOR QAD FILING FOR CONSTRUCTION CONFIDENTIAL DO NOT DUPLICATE 1402 100% CD SET 12.05.2014 EN-001.00 3108_SPRK ENERGY COMPLAINCE SHEET - MECHANICAL 01 NONE ENERGY COMPLAINCE SHEET - MECHANICAL 1 1