Concept Board - Inspiration, Material
Floor - Engineered Wood Floor
Cabinet Door - Maple- 650S / Espresso , Linen
Cabinet Pull,Knob A- 12”, 1”, Nickel Sink - Double Undermounted Sink Pendent - LED/ Glossy white / Nickel
Wall, Ceiling Wall
Countertop - Pantaquartz / Super WhiteBacksplash - Ceramic Tile / MN10/36
Faucet- 8”Spout, Nickel (P) Recessed Can A -LED
Knob B- 3”
Kitchen Fixture
Recessed Can A -LED
Perspective - Cooktop Wall
194" 271
2"
2211
2"
25" 43" 165"
233"
115"
583
4"
1733
4"
111
2"
opening to mud room
opening to dining room
NORTH
SHEET NO.:
SHEETTITLE:
AS-BUILTFLOORPLAN
1/2"=1'-0"
1
KITCHEN CH: 108"
36"
583
4"
233"
287
8"
161"
271
2" 1651
8"
36"
2211
2"
111
2"
opening to mud room
115"
1733
4"
opening to dining room
new 2x4 walls finished to blend with existing
NORTH
new 2x4 wall finished to blend with existing
existing wall to be removed
SHEET NO.:
SHEETTITLE:
CONSTRUCTIONPLAN
1/2"=1'-0"
2
KITCHEN CH: 108"
3
DB30
271
2" 1651
8" 287
8"
2211
2"
36" 36" 161"
233"
10
11
12
DB30
36" Gas
Cooktop
W1836
x12"
UT3624X90
FA4ROT BUTT
191
2"
717
8"
657
8"
161
2"
1733
4"1733
4"
A
E1
B
115"
KITCHEN
108" CH
583
4"
UT3624X90
FA4ROT BUTT
SHELF
PANTRY
DB361TD
MESSAGECENTER
-3DWR
-3DWR
-3DWR
2
261
4"
931
2"
42"
76"
30"
673
4"
64" 60" 59"24" 25"
1363
8" 965
8"
24" D/W
ISLAND
6
7
8
SINK
DB30
-3DWR
W1836
x12"
4
42"Hoodinsert
inside
Customhoodcover
DB36
DB36
DB24
40"
E3
E2
opening to dining room
opening to mud room
DB30
20"
BWRC6
BWRC6
BWRC6
E4
BS1234
121/2"deep
NORTH
D BFP3
UT2412 X 90 BUTT
BFP3
9 12"
DB24
DB24
36"REF.
1
W3618
x24"
30"OVEN
5
W3627
x24"
1 1
2" Panel
1 1
2" Panel
1 1
2" Panel
1 1
2" Panel
filler
filler
filler
C
SHEET NO.:
SHEETTITLE:
KITCHENFLOORPLAN
1/2"=1'-0"
3
1 36" Refrigerator - Frigidaire - FGHS2655PF (supplied by client)
Side-by-Side Refrigerator with Water Dispenser,70"(h) / 15amp
Cabinet - Brand:Waypoint Living Space
Door Style: 650S / Full Overlay
Finish: Maple / Painted
Color: Linen (upper cabinet)
Color: Espresso (lower cabinet)
See Elevation for Details page 5-A
2
Cabinet Knobs A - Rejuvenation / Sommerville Item #C0075 / Polished Nickel
Custom Hood (custom designed by designer, hand made by client)
See Elevation for Details Page 5-D
Wall Mounted Liner Insert with M600 - VentAHood M40SLD (supplied by client)
equipped with halogen lighting.
Ventilation - 350 CFM required, vented to exterior
Hood cover (supplied by client)
Material - Metal
Finish / Color : Match to Wall Color
5 30" Wall Oven - Jenn-Air JMW2430WS / Euro-Style Stainless (supplied by client)
6 24" Dishwasher- JENN-AIR JDB8700AW / Euro-Style Stainless (supplied by client)
Panel to match cabinets - Finish: Maple / Espresso
7 Double SINK - American Standard 20DB.331900, 8445.131500, 8443.101500
Prevoir Stainless Steel Undermount 32-7/8" X18-3/4" 2-Bowl Kitchen Sink
Island8
Pantry - Utility cabinet, 4 Butt Doors with Deep Roll-out Trays
Finish / Color / Style - Panel to match base cabinet (Espresso)
Message Center
See Elevation for Details, Page 5-B
10
12
Material
Countertops - Pentalquartz / Super White Polished (BQ200P)
Thinkness: 1 1
2"
Edge detail:Eased Edge
Corners: Radius
Backsplash - Oregon Tile & Marble
- Ceramic Tile 3"x6" Gloosy White MN10/36
Trim - Ogee Pliaster molding (OGP8)
Match to Cabinet Finish / Color - Maple / Espresso
Shelf - Glass shelf installation with polished metal bracket
Tile - Calacatta ThinSlab Porcelain - PS/OTM/99P
Background installation
See Elevation for Detail, Page 5-B
11
See Elevation for Details, Page 5-B
Finish / Color / Style - Panel to match base cabinet (Espresso)
Futniture Toe Kick All 4 sides
Countertop - Mix with wood table top
36" Induction Cook top - JENN-AIR , JIC4536XS (supplied by client) / 15amp
4
Crown Molding - Waypoint / CCM8WD - finish to match wall cabinet exterior
Light Rail Molding ( LR8WD) - underneath cabinet, finish to match wall cabinet
exterior
3
Cabinet Pulls - Rejuvenation / Sommerville Item #C0072 / Polished Nickel
Toe Kick - BTK8
Dish drawer - Waypoint - DB361TD PDO
Peg Dish Organizer
Spice Drawer Insert Kit - SDIK21- Waypoint
Faucet - KOHLER K-7508 / Polished Nickel
8" swing spout reach, with sidespray
Disposal- by contractor
Air switch- supplied by client
Soap Dispenser- supplied by client
Base Waste Basket Kit Installation - Waypoint / BWBT15FH
See Elevation for Details, Page 5-E
Paint
Wall - Color House / CHALK.01/ Flat
Ceiling - Color House / CHALK.01/ Flat
Mix with Cabinet Pulls ( East side)
Cabinet Knobs B (West side)- Top Knobs / TK501BSN
- Tab Pull 3 in / Brushed Satin Nickel
Base Wine Rack - 6" Base wine rack (BWRC6) X 3
12" Display cabinet -90" High,4 Butt Clear Glass Doors / UT2412 X 90 BUTT
Finish / Color / Style - Panel to match base cabinet (Espresso)
9
See Elevation for Details, Page 5-C
Upper cabinet
Lower cabinet
Floor Plan Specification
SHEET NO.:
SHEETTITLE:
KITCHENFLOORPLAN
SPECIFICATION
3-1
271
2" 1651
8" 287
8"
2211
2"
36" 36" 161"
233"
191
2"
717
8"
657
8"
161
2"
1733
4"1733
4"
KITCHEN
108" CH
115"
583
4"
36"Cooktop
USB
micro
A
A
USB
A
A
A
A
A
A
B
B
S3
S3
S3D
S3D
S3D
S3D
disp
36"
30"
24"
121
2"
503
4"
NORTH
SHELF
MESSAGECENTER
30" OVEN
42"Hoodinsert
inside
Customhoodcover
24" D/W
USB
781
4"
797
8"
43"
USB
A
A
A
AA
33"
84"
30"
463
4"
13" 945
8"
43"
823
4"
48"
24"
44"
725
8"
45"
63"
673
4"
43"
36"REF.
SHEET NO.:
SHEETTITLE:
ELECTRICALPLAN
1/2"=1'-0"
4
SWITCH INSTALLED @ 42" AFF
3-WAY SWITCH INSTALLED @ 42"
AFF WITH DIMMER
S3DS
S
DUPLEX OUTLET INSTALLED @
18" AFF - IN KITCHEN AND
BATHROOMS - THESE MUST BE
GFCI
DUPLEX OUTLET @ 45" AFF
S33-WAY SWITCH INSTALLED @ 42"
AFF
DEDICATED CIRCUITS - SEE ATTACHED
MANUFACTURER'S SPECIFICATIONS FOR
ELECTRICAL REQUIREMENTS
RECESSED CANS - WAC Lighting / HR-LED411TL-WT/WT
4" Open Reflector - Round LED 411
UNDERCABINET LIGHTING -
FLUORESCENT SWITCHED AT
SOURCE
A
RECESSED LOW VOLTAGE CANS - Venere / D55F45RM01 D55F45RM11
Line Voltage Round Recessed Lighting / Halogen
B
S
REJUVENATION / #A0046
LAURELHURST 16in. PENDANT WITH METAL DOME
FINISH / COLOR: GLOSSY WHITE / POLISHED NICKEL
UNDERCABINET PLUG MOULDING
3
3D
S
A
D
USB
ELECTRICAL LEGEND
LED STRIP LIGHT - ADJUSTABLE ANGLE
MOUNTED CLIP W.A.C -LS-LD08-W-WT
SHEET NO.:
SHEETTITLE:
ELECTRICALLEGEND
1/2"=1'-0"
4-1
181
8"
11
2"
703
8"
108"
11
2"
36"
11
2"
18" 481
2"
83
4" 11
2"
293
4"
11
2"
90"
11
2"
36"
11
2"
11
2"
191
2"
121
8"
4"
108"
30" 36" 30"
11
2"
293
4"
1733
4"
717
8" 66" 163
8"
3" 3"
83
4"
18"
3"
91
4"
41
4"
11
2"
121
8"
17
8"
433
8"
11
2"
271
8"
11
2"
3"
91
4"
41
4"
5
1
2
3
Scale: 1/2":1'-0"
COOKTOP WALL
A
Utensil
NORTH
4
833
4"
1733
4"
Glass
Ware
Pot Pan
Dish Mixing Bowls
Oils
FalseCutlery
Baking Tools
S
p
i
c
e
S
p
i
c
e
Scale: 1/2":1'-0"
SOUTH SIDE VIEW
D-3
rope light
(night lighting)
undercabinet
LED task light
trim to conceal
indirect ambient light
12"
42"
41
4"
253
4"
36"
151
2"
171
8" 103
8"
108"
SHEET NO.:
SHEETTITLE:
ELEVATION-EASTSIDE
1/2"=1'-0"
5-A
90"
36" 24"
1733
4"
3"
41
4"
porcelain tile
installation
message board
magnetic paint base
above wall paint
Scale: 1/2":1'-0"
CABINET WALL
B
108"
1"
673
4"
41
4"
108"
36"
36" 36"
1733
4"
Glass shelf(GSK36-9)
1
4" thicness
11
32"
24" 18"
31
2"
36"
31
2"
583
4"
3"
103
4"
NORTH
Pantry
15"
15"
18"
161
4"
103
4"
24"
4"
Fire extinguisher
placement
12 1/2" deep
10
Deep Roll-out Trays
12
SHEET NO.:
SHEETTITLE:
ELEVATION-WESTSIDE
1/2"=1'-0"
5-B
9
Scale: 1/2":1'-0"
DISPLAY CABINET WALL
C
NORTH
Dish Display Dish
911
2"
3"
91
4"
41
4"
25" 53" 24" 24" 24"
63
4" 41
4"
36"
41
4" 63
4"
25"
25" 53" 72" 11" 36" 11" 25"
233"
233"
108"
90"
3"
103
4"
41
4"
108"
opening to mud room
SHEET NO.:
SHEETTITLE:
ELEVATION-SOUTHSIDE
1/2"=1'-0"
5-C
Scale: 1/2":1'-0"
TOP VIEW-DIMENSION DETAIL
D-1
Scale: 1/2":1'-0"
EAST SIDE VIEW
D-2
Scale: 1/2":1'-0"
SOUTH SIDE VIEW - DETAIL
D-4
321
2"
8"
321
2"
8"
26"
8" 8"
Scale: 1/2":1'-0"
SOUTH SIDE VIEW
D-3
171
4"
2 1
2" Molding
rope light
(night lighting)
undercabinet
LED task light
trim to conceal
indirect ambient light
12"
42"
41
4"
253
4"
36"
Way point / Crown Molding
TCCM8 WD
Way point / Batten Molding
BM8WD
Way point / Ogee Pilaster Molding
OGP8
41
4"
91
4"
26"
33
8"
41
4"
Way point / Ogee Pilaster Molding
OGP8
151
2"
Material - Stainessstill
Finish / Color
Hood Cover - Benjamin Moore / White 01(as base coat)
Match to Wall color
Molding- Match to Cabinet exterior (Espresso)
2
1
1
2
171
8" 103
8"
108"
40" 8"8"
33
4" 33
4"
31
4"
56"
201
2"
56"
91
4"
41
4"
33
8"
41
4"
471
8"
4"
121
2"
13
8"
361
8"
11
2"
3"
42"
161
2"
247
8"
27"
72"
91
4"
41
4"
131
2"
Way point / Crown Molding
CCM8WD
Way point / LIght Rail Molding
LR8WD
Backsplash hight
241
4" 241
4"
481
2"
NORTH
SHEET NO.:
SHEETTITLE:
CUSTOMHOODDETAIL
1/2"=1'-0"
5-D
Scale: 1/2":1'-0"
TOP VIEW-DIMENSION DETAIL
E
Scale: 1/2":1'-0"
EAST SIDE VIEW
E-1 Scale: 1/2":1'-0"
WEST SIDE VIEW
E-2
Scale: 1/2":1'-0"
SOUTH SIDE VIEW
E-3
24" D/W
1193
4"
23"
37"
931
2"
261
4"
403
4"
191
4"
60"
Dining Counter
solid wood panel
: match with base cabinet
Quartz Counter top
2"11
2"
341
2"36"
3
4" 24" 36"36"
DB30
-3DWR
DB36DB36
Scale: 1/2":1'-0"
NORTH SIDE VIEW
E-4
2" 11
2"
301
2"
4"
36"
3
4" 36" 36" 12"
Cabinet knob B
911
2"
2"
141
2"
15
8"
127
8"
15
8"
4"
361
2"
341
2" 361
2"
NORTH
Cutlery
BS1234
DB30
433
4" 493
4"
30" 3
4"
123
4"
911
2"
30" 483
4"
1Factoy installed
wastebasket
(BWBT15FH)
11
2"
12"
12"
4"
1
2" 6"
36"
Cutlery divider kit (CDK21),
Knif section Kit (KSK15)
Trash Recycle
291
4"
Reduce width
to 12"
3
4"6"
SHEET NO.:
SHEETTITLE:
ISLANDDETAIL
1/2"=1'-0"
5-E

CM-Kitchen Design Project

  • 1.
    Concept Board -Inspiration, Material Floor - Engineered Wood Floor Cabinet Door - Maple- 650S / Espresso , Linen Cabinet Pull,Knob A- 12”, 1”, Nickel Sink - Double Undermounted Sink Pendent - LED/ Glossy white / Nickel Wall, Ceiling Wall Countertop - Pantaquartz / Super WhiteBacksplash - Ceramic Tile / MN10/36 Faucet- 8”Spout, Nickel (P) Recessed Can A -LED Knob B- 3” Kitchen Fixture Recessed Can A -LED
  • 2.
  • 3.
    194" 271 2" 2211 2" 25" 43"165" 233" 115" 583 4" 1733 4" 111 2" opening to mud room opening to dining room NORTH SHEET NO.: SHEETTITLE: AS-BUILTFLOORPLAN 1/2"=1'-0" 1 KITCHEN CH: 108"
  • 4.
    36" 583 4" 233" 287 8" 161" 271 2" 1651 8" 36" 2211 2" 111 2" opening tomud room 115" 1733 4" opening to dining room new 2x4 walls finished to blend with existing NORTH new 2x4 wall finished to blend with existing existing wall to be removed SHEET NO.: SHEETTITLE: CONSTRUCTIONPLAN 1/2"=1'-0" 2 KITCHEN CH: 108"
  • 5.
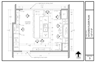
    3 DB30 271 2" 1651 8" 287 8" 2211 2" 36"36" 161" 233" 10 11 12 DB30 36" Gas Cooktop W1836 x12" UT3624X90 FA4ROT BUTT 191 2" 717 8" 657 8" 161 2" 1733 4"1733 4" A E1 B 115" KITCHEN 108" CH 583 4" UT3624X90 FA4ROT BUTT SHELF PANTRY DB361TD MESSAGECENTER -3DWR -3DWR -3DWR 2 261 4" 931 2" 42" 76" 30" 673 4" 64" 60" 59"24" 25" 1363 8" 965 8" 24" D/W ISLAND 6 7 8 SINK DB30 -3DWR W1836 x12" 4 42"Hoodinsert inside Customhoodcover DB36 DB36 DB24 40" E3 E2 opening to dining room opening to mud room DB30 20" BWRC6 BWRC6 BWRC6 E4 BS1234 121/2"deep NORTH D BFP3 UT2412 X 90 BUTT BFP3 9 12" DB24 DB24 36"REF. 1 W3618 x24" 30"OVEN 5 W3627 x24" 1 1 2" Panel 1 1 2" Panel 1 1 2" Panel 1 1 2" Panel filler filler filler C SHEET NO.: SHEETTITLE: KITCHENFLOORPLAN 1/2"=1'-0" 3
  • 6.
    1 36" Refrigerator- Frigidaire - FGHS2655PF (supplied by client) Side-by-Side Refrigerator with Water Dispenser,70"(h) / 15amp Cabinet - Brand:Waypoint Living Space Door Style: 650S / Full Overlay Finish: Maple / Painted Color: Linen (upper cabinet) Color: Espresso (lower cabinet) See Elevation for Details page 5-A 2 Cabinet Knobs A - Rejuvenation / Sommerville Item #C0075 / Polished Nickel Custom Hood (custom designed by designer, hand made by client) See Elevation for Details Page 5-D Wall Mounted Liner Insert with M600 - VentAHood M40SLD (supplied by client) equipped with halogen lighting. Ventilation - 350 CFM required, vented to exterior Hood cover (supplied by client) Material - Metal Finish / Color : Match to Wall Color 5 30" Wall Oven - Jenn-Air JMW2430WS / Euro-Style Stainless (supplied by client) 6 24" Dishwasher- JENN-AIR JDB8700AW / Euro-Style Stainless (supplied by client) Panel to match cabinets - Finish: Maple / Espresso 7 Double SINK - American Standard 20DB.331900, 8445.131500, 8443.101500 Prevoir Stainless Steel Undermount 32-7/8" X18-3/4" 2-Bowl Kitchen Sink Island8 Pantry - Utility cabinet, 4 Butt Doors with Deep Roll-out Trays Finish / Color / Style - Panel to match base cabinet (Espresso) Message Center See Elevation for Details, Page 5-B 10 12 Material Countertops - Pentalquartz / Super White Polished (BQ200P) Thinkness: 1 1 2" Edge detail:Eased Edge Corners: Radius Backsplash - Oregon Tile & Marble - Ceramic Tile 3"x6" Gloosy White MN10/36 Trim - Ogee Pliaster molding (OGP8) Match to Cabinet Finish / Color - Maple / Espresso Shelf - Glass shelf installation with polished metal bracket Tile - Calacatta ThinSlab Porcelain - PS/OTM/99P Background installation See Elevation for Detail, Page 5-B 11 See Elevation for Details, Page 5-B Finish / Color / Style - Panel to match base cabinet (Espresso) Futniture Toe Kick All 4 sides Countertop - Mix with wood table top 36" Induction Cook top - JENN-AIR , JIC4536XS (supplied by client) / 15amp 4 Crown Molding - Waypoint / CCM8WD - finish to match wall cabinet exterior Light Rail Molding ( LR8WD) - underneath cabinet, finish to match wall cabinet exterior 3 Cabinet Pulls - Rejuvenation / Sommerville Item #C0072 / Polished Nickel Toe Kick - BTK8 Dish drawer - Waypoint - DB361TD PDO Peg Dish Organizer Spice Drawer Insert Kit - SDIK21- Waypoint Faucet - KOHLER K-7508 / Polished Nickel 8" swing spout reach, with sidespray Disposal- by contractor Air switch- supplied by client Soap Dispenser- supplied by client Base Waste Basket Kit Installation - Waypoint / BWBT15FH See Elevation for Details, Page 5-E Paint Wall - Color House / CHALK.01/ Flat Ceiling - Color House / CHALK.01/ Flat Mix with Cabinet Pulls ( East side) Cabinet Knobs B (West side)- Top Knobs / TK501BSN - Tab Pull 3 in / Brushed Satin Nickel Base Wine Rack - 6" Base wine rack (BWRC6) X 3 12" Display cabinet -90" High,4 Butt Clear Glass Doors / UT2412 X 90 BUTT Finish / Color / Style - Panel to match base cabinet (Espresso) 9 See Elevation for Details, Page 5-C Upper cabinet Lower cabinet Floor Plan Specification SHEET NO.: SHEETTITLE: KITCHENFLOORPLAN SPECIFICATION 3-1
  • 7.
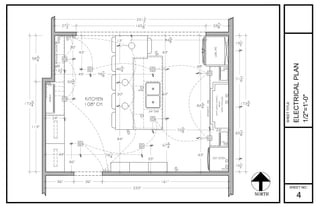
    271 2" 1651 8" 287 8" 2211 2" 36"36" 161" 233" 191 2" 717 8" 657 8" 161 2" 1733 4"1733 4" KITCHEN 108" CH 115" 583 4" 36"Cooktop USB micro A A USB A A A A A A B B S3 S3 S3D S3D S3D S3D disp 36" 30" 24" 121 2" 503 4" NORTH SHELF MESSAGECENTER 30" OVEN 42"Hoodinsert inside Customhoodcover 24" D/W USB 781 4" 797 8" 43" USB A A A AA 33" 84" 30" 463 4" 13" 945 8" 43" 823 4" 48" 24" 44" 725 8" 45" 63" 673 4" 43" 36"REF. SHEET NO.: SHEETTITLE: ELECTRICALPLAN 1/2"=1'-0" 4
  • 8.
    SWITCH INSTALLED @42" AFF 3-WAY SWITCH INSTALLED @ 42" AFF WITH DIMMER S3DS S DUPLEX OUTLET INSTALLED @ 18" AFF - IN KITCHEN AND BATHROOMS - THESE MUST BE GFCI DUPLEX OUTLET @ 45" AFF S33-WAY SWITCH INSTALLED @ 42" AFF DEDICATED CIRCUITS - SEE ATTACHED MANUFACTURER'S SPECIFICATIONS FOR ELECTRICAL REQUIREMENTS RECESSED CANS - WAC Lighting / HR-LED411TL-WT/WT 4" Open Reflector - Round LED 411 UNDERCABINET LIGHTING - FLUORESCENT SWITCHED AT SOURCE A RECESSED LOW VOLTAGE CANS - Venere / D55F45RM01 D55F45RM11 Line Voltage Round Recessed Lighting / Halogen B S REJUVENATION / #A0046 LAURELHURST 16in. PENDANT WITH METAL DOME FINISH / COLOR: GLOSSY WHITE / POLISHED NICKEL UNDERCABINET PLUG MOULDING 3 3D S A D USB ELECTRICAL LEGEND LED STRIP LIGHT - ADJUSTABLE ANGLE MOUNTED CLIP W.A.C -LS-LD08-W-WT SHEET NO.: SHEETTITLE: ELECTRICALLEGEND 1/2"=1'-0" 4-1
  • 9.
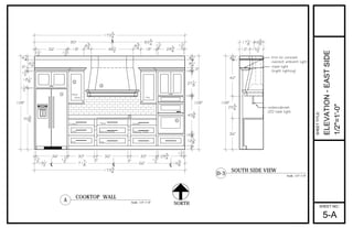
    181 8" 11 2" 703 8" 108" 11 2" 36" 11 2" 18" 481 2" 83 4" 11 2" 293 4" 11 2" 90" 11 2" 36" 11 2" 11 2" 191 2" 121 8" 4" 108" 30"36" 30" 11 2" 293 4" 1733 4" 717 8" 66" 163 8" 3" 3" 83 4" 18" 3" 91 4" 41 4" 11 2" 121 8" 17 8" 433 8" 11 2" 271 8" 11 2" 3" 91 4" 41 4" 5 1 2 3 Scale: 1/2":1'-0" COOKTOP WALL A Utensil NORTH 4 833 4" 1733 4" Glass Ware Pot Pan Dish Mixing Bowls Oils FalseCutlery Baking Tools S p i c e S p i c e Scale: 1/2":1'-0" SOUTH SIDE VIEW D-3 rope light (night lighting) undercabinet LED task light trim to conceal indirect ambient light 12" 42" 41 4" 253 4" 36" 151 2" 171 8" 103 8" 108" SHEET NO.: SHEETTITLE: ELEVATION-EASTSIDE 1/2"=1'-0" 5-A
  • 10.
    90" 36" 24" 1733 4" 3" 41 4" porcelain tile installation messageboard magnetic paint base above wall paint Scale: 1/2":1'-0" CABINET WALL B 108" 1" 673 4" 41 4" 108" 36" 36" 36" 1733 4" Glass shelf(GSK36-9) 1 4" thicness 11 32" 24" 18" 31 2" 36" 31 2" 583 4" 3" 103 4" NORTH Pantry 15" 15" 18" 161 4" 103 4" 24" 4" Fire extinguisher placement 12 1/2" deep 10 Deep Roll-out Trays 12 SHEET NO.: SHEETTITLE: ELEVATION-WESTSIDE 1/2"=1'-0" 5-B
  • 11.
    9 Scale: 1/2":1'-0" DISPLAY CABINETWALL C NORTH Dish Display Dish 911 2" 3" 91 4" 41 4" 25" 53" 24" 24" 24" 63 4" 41 4" 36" 41 4" 63 4" 25" 25" 53" 72" 11" 36" 11" 25" 233" 233" 108" 90" 3" 103 4" 41 4" 108" opening to mud room SHEET NO.: SHEETTITLE: ELEVATION-SOUTHSIDE 1/2"=1'-0" 5-C
  • 12.
    Scale: 1/2":1'-0" TOP VIEW-DIMENSIONDETAIL D-1 Scale: 1/2":1'-0" EAST SIDE VIEW D-2 Scale: 1/2":1'-0" SOUTH SIDE VIEW - DETAIL D-4 321 2" 8" 321 2" 8" 26" 8" 8" Scale: 1/2":1'-0" SOUTH SIDE VIEW D-3 171 4" 2 1 2" Molding rope light (night lighting) undercabinet LED task light trim to conceal indirect ambient light 12" 42" 41 4" 253 4" 36" Way point / Crown Molding TCCM8 WD Way point / Batten Molding BM8WD Way point / Ogee Pilaster Molding OGP8 41 4" 91 4" 26" 33 8" 41 4" Way point / Ogee Pilaster Molding OGP8 151 2" Material - Stainessstill Finish / Color Hood Cover - Benjamin Moore / White 01(as base coat) Match to Wall color Molding- Match to Cabinet exterior (Espresso) 2 1 1 2 171 8" 103 8" 108" 40" 8"8" 33 4" 33 4" 31 4" 56" 201 2" 56" 91 4" 41 4" 33 8" 41 4" 471 8" 4" 121 2" 13 8" 361 8" 11 2" 3" 42" 161 2" 247 8" 27" 72" 91 4" 41 4" 131 2" Way point / Crown Molding CCM8WD Way point / LIght Rail Molding LR8WD Backsplash hight 241 4" 241 4" 481 2" NORTH SHEET NO.: SHEETTITLE: CUSTOMHOODDETAIL 1/2"=1'-0" 5-D
  • 13.
    Scale: 1/2":1'-0" TOP VIEW-DIMENSIONDETAIL E Scale: 1/2":1'-0" EAST SIDE VIEW E-1 Scale: 1/2":1'-0" WEST SIDE VIEW E-2 Scale: 1/2":1'-0" SOUTH SIDE VIEW E-3 24" D/W 1193 4" 23" 37" 931 2" 261 4" 403 4" 191 4" 60" Dining Counter solid wood panel : match with base cabinet Quartz Counter top 2"11 2" 341 2"36" 3 4" 24" 36"36" DB30 -3DWR DB36DB36 Scale: 1/2":1'-0" NORTH SIDE VIEW E-4 2" 11 2" 301 2" 4" 36" 3 4" 36" 36" 12" Cabinet knob B 911 2" 2" 141 2" 15 8" 127 8" 15 8" 4" 361 2" 341 2" 361 2" NORTH Cutlery BS1234 DB30 433 4" 493 4" 30" 3 4" 123 4" 911 2" 30" 483 4" 1Factoy installed wastebasket (BWBT15FH) 11 2" 12" 12" 4" 1 2" 6" 36" Cutlery divider kit (CDK21), Knif section Kit (KSK15) Trash Recycle 291 4" Reduce width to 12" 3 4"6" SHEET NO.: SHEETTITLE: ISLANDDETAIL 1/2"=1'-0" 5-E