SULISTIANINGSIH, A.S., M.Pd.
UTILITAS BANGUNAN
S1 Arsitektur
STT STIKMA Internasional
Kontrak Kuliah
Nilai:
1. Kehadiran => 10%
2. Tugas => 20%
3. UTS => 30%
4. UAS => 40%
Tugas:
1. Tugas dikerjakan kelompok
2. Menganalisis/mengkaji ulang suatu pekerjaan utilitas pada proyek bangunan
tinggi dari suatu sumber (majalah, gambar proyek, internet) atau objek nyata
(minimal bangunan berlantai 5)
3. Setiap kelompok memilih salah satu tema materi utilitas berdasar undian atau
kesepakatan
4. Diakhir tugas, masing-masing kelompok mempresentasikan tugasnya, dan ini
menjadi nilai UTS
5. Nilai UAS diambil dari Laporan/Produk
Sistematika Penulisan Laporan Tugas Utilitas
1. Bab 1. Pendahuluan, Berisi latar belakang dan
pentingnya materi yang akan dibahas
2. Bab 2. Kajian Teori, Berisi teori-teori, kajian-kajian yang
terkait dengan materi yang akan dibahas
3. Bab 3. Deskripsi Kasus, Berisi uraian dan spesifikasi
obyek bangunan dan utilitas yang akan dianalisis/dokaji
4. Bab 4. Berisi deskripsi hasil kajian dan analisis/kaji
ulang
5. Bab 5. Berisi kesimpulan dan saran
6. Daftar Pustaka
UTILITAS BANGUNAN
Utilitas Bangunan adalah kelengkapan fasilitas Bangunan
yang digunakan untuk menunjang tercapainya unsur unsur
kenyamanan, kesehatan, keselamatan, kemudahan
komunikasi, dan mobilitas dalam Bangunan.
Utilitas sering disebut sebagai Layanan Bangunan
Mekanikal, Elektrikal dan Plambing
Perancangan Utilitas harus di koordinasikan dengan
Perancangan Arsitektur, Struktur, Interior dan Perancangan
lainnya
Perancangan Utilitas meliputi :
1. Perancangan Plambing dan Sanitasi
2. Perancangan Pencegahan Kebakaran
3. Perancangan Pengudaraan / Penghawaan
4. Perancangan Penerangan /Pencahayaan
5. Perancangan Telepon
6. Perancangan CCTV dan Security System
7. Perancangan Penangkal Petir
8. Perancangan Tata Suara
9. Perancangan Transportasi dalam Bangunan
10. Perancangan Landasan Helikopter
11. Perancangan Pembuangan Sampah
12. Perancangan Alat Pembersih Bangunan
Lingkup Materi
1. WATER SYSTEM (sistem penyediaan air bersih)
2. SEWAGE/SEWERAGE SYSTEM (sistem pengolahan
dan pembuangan limbah)
3. FIRE PROTECTION & EMERGENCY EXIT SYSTEM
(sistem perlindungan terhadap kebakaran dan Jalan
Keluar Darurat)
4. AIR CONDITIONING SYSTEM (sistem pengkondisian
udara)
5. ELEVATOR SYSTEM (sistem elevator/lift)
6. CCTV dan Security System
7. ELECTRICAL SYSTEM (sistem kelistrikan)
8. Telepon dan Tata Suara
PERANCANGAN UTILITAS Terbagi dalam 3 (tiga) bagian:
1. Utilitas Dasar untuk Bangunan berlanti 1 s/d 4 lantai
2. Utilitas Bangunan untuk Bangunan berlantai 5 s/d 16
lantai
3. Utilitas Bangunan Lanjutan untuk Bangunan lebih dari
20 lantai
Masalah Pokok dalam Bangunan :
• AIR
• UDARA / ANGIN
• CAHAYA
PERANCANGAN SANITASI (Air)
Air dalam bangunan dapat dibagi dalam 3 bagian:
1. Air Bersih
2. Air Kotor bekas pakai
3. Air Limbah
Air Bersih adalah air yang diperlukan dalam kebutuhan
manusia penghuni yang dapat di hitung kebutuhannya
sebanyak jumlah penghuni x jenis kebutuhan x volume per
hari Air ini dapat diambil dari PAM dan Sumur Dalam /
Semi; Deep Well
Kebutuhan Air Per hari cukup banyak disimpan dalam
Tangki Bawah Tanah. GROUND RESERVOIR (GR). Dibuat
dari beton kedap Air dan bak di bagi dalam 2-3 bagian
/Persiapan untuk Pembersihan Diatas Ruang GR dibuat
Ruang Pompa untuk memompa Air dari GR ke Water Tank
Air dari Tangki bawah di pompa ke Ruang Tangki Atas,
dipompa 2-3 x dalam waktu satu hari.
Air ini di salurkan ke tempat-tempat yang memerlukan
dengan sistem Sanitasi Air Bersih yang disalurkan
langsung ke bawah kecuali untuk Ruang yang paling atas
harus menggunakan pompa tekan dengan saluran
tersendiri. Sanitasi disini menggunakan pipa besi / PVC
dengan ukuran 1/2 - 2 inch
Dari sistem penyaluran air bersih ini dapat dibagi 2 bagian
yaitu air bersih biasa dan air bersih yang panas. Air Panas
ini di peruntukkan bagi bangunan2 tertentu seperti
Bangunan Hotel, Apartemen dan ada sebagian untuk
Bangunan Kantor.
Air Kotor Bekas Pakai.
Di setiap Kamar Mandi dimana banyak digunakan air
bersih untuk mencuci, hasil air cucian ini disebut air bekas
pakai. Pembuanagn air bekas pakai menggunakan
pemipaan dari pipa PVC ukura 3-4 inch Air di buang ke
Saluran Kota dengan melalui sumur2 resapan (untuk
membuat kondisi tanah dengan kandungan air cukup)
Air Hujan adalah Air Kotor juga karena banyak tercamppur
udara yang mengandung banyak asam. Air hujan dapat
disatukan dengan Air Bekas Pakai.
Air Limbah adalah air siraman ke closet-closet
pembuangan limbah kotoran manusia. Air Limbah ini
dibuang melalui pipa tersendiri baik pipa vertikal dari atas
maupun pipa2 yang horisontal. Air Limbah ini di buang ke
penampungan air kotor limbah yang dapat memuat volume
yang banyak. Ruang Penampungan ini disebut STP /
Sewage Treatment Plant Kotoran di proses sehingga
terjadi air kotor Limbah yang dapat di buang ke riol kota
setelah di campur obat pembersih.
Letak Penampungan Air Bersih maupun Air Limbah paling
tepat dan efisien di tempatkan di Ruang Lantai paling
bawah . (Bangunan lebih dari 4 lantai sebaiknya di buat
Lantai Basemen 1 atau 2 lantai Basement
Bangunan Bertingkat lebih dr 4 lantai harus mempunyai
Basemen, minimal 1 Basemen sehingga penataan
perpipaan dapat lebih mudah dan efisien.
PERANCANGAN PENCEGAHAN KEBAKARAN
Penanggulangan Kebakaran dalam suatu Bangunan Gedung sangat
Penting dan harus dapat perhatian khusus. Ada beberapa cara
menghindari Kebakaran :
1. Bangunan Tinggi harus sesuai standar Klas A dimana Struktur
Utama Bangunan harus mempunyai Ketahanan terhadap api
dalam 3 jam minimal 2 jam
2. Jarak bebas bangunan dengan bangunan sebelahnya minimal ber
jarak 2 x 6 mm
3. Menempatkan Tangga Kebakaran dan Penggunaan bahan tangga
harus sesuai syarat Pencegahan Kebakaran
4. Mempunyai Pencegahan terhadap sistem Elektrikal, Penangkal
Petir dan Pengkondisian Udara
5. Mempunyai sistem Pendeteksian awal dengan sistem alarm,
smoke (asam) detector dan heat ventilating
6. Mempunyai alat kontrol terhadap elevator
7. Mempunyai alat Pemadam Kebakaran secara manual yaitu Hidran
dan Automatic Pemadam Kebakaran seperti Sprinkler sistem.
PERANCANGAN PENGUDARAAN /PENGHAWAAN
Dalam Ruangan yang tertutp perlu diadakan Pengudaraan
Buatan khususnya Bangunan Bertingkat lebih dari 8 lantai.
Pengudaraan Buatan ini mengunakan alat Pendingin yang
disebut AC / Air Conditioner AC ini dibagi dalam beberapa
alat yang digunakan untuk mendinginkan Ruang seperti:
1. AC Window untuk Ruangan kecil
2. AC Split mesinnya terpisah Indoor dan outdoor (dimana
suara berisik ada di mesin luar) AC Multi Split Outdoor
nya 1 di luar, Indoornya ada 2 - 3 mesin Indoor nya di
dalam ruangan
3. AC Sentral untuk mendinginkan Ruangan yang besar
AC Sentral terdiri dari 3 bagian mesin yaitu :
1. Mesin Pendingin (Menara Pendingin) - Cooling Tower,
mesin ini mendinginkan udara sehingga memerlukan
angin dan kipas , mesin ini di letakkan diatas bangunan
jauh di luar bangunan, ditempat terbuka mendapatkan
angin panas dan hujan
2. Chiller dan Pompa, mesin ini mendapatkan udara dingin
dan merubah Freon untuk mendinginkan udara yang
akan disalurkan ke mesin AC
3. Mesin AC Pendingin / Air Handling Unit / AHU
AHU ini di pasang di setiap lantai Ruangan yang akan
didinginkan dan disambung dengan ducting untuk dapat
menyalurkan udara dingin ke tempat2 yang memerlukan
udara dingin. Udara diruangan yang menjadi panas akan di
hubungkan ke Ruang AHU dengan return ducting
PERANCANGAN PENERANGAN / PENCAHAYAAN
Penerangan Bangunan Gedung selalu menggunakan
Pencahayaan Buatan Pencahayaan Buatan ini
menggunakan daya listrik yang di dapat dari:
PLTA : Pembangkit Listrik Tenaga Air
PLTD Pembangkit Listrik Tenaga Disel
PLTU Pembangkit Listrik Tenaga Uap
PLTS Pembangkit Listrik Tenaga Surya
PLTA Pembangkit Listrik Tenaga Angin
PLTN Pembangkit Listrik Tenaga Nuklir
Listrik yang dihasilkan adalah Listrik TT / Tegangan Tinggi
Dari TT akan di pindahkan ke TM / Tegangan Menengah.
Untuk Bangunan yang besar seperti Gedung Kantor, Hotel,
Apartemen akan selalu menggunakan TM / Tegangan
Menengah karena sewa penggunaan daya lebih murah.
Sehingga akan menggunakan GARDU LISTRIK yang di
letakkan dalam bangunan bagian bawah.
Isi dari Bangunan Gardu : Transformator merubah TM
menjadi TR / Tegangan Rendah yang di gunakan untuk
penerangan dalam Bangunan.
Untuk menjaga kesiapan daya listrik dalam bangunan,
pemilik /pengelola akan menggunakan Generator set 1
atau 2 buah tergantung kebutuhan penerangan apakah
50% atau 100% daya. Daya yang diperoleh dari Genset di
satukan dengan daya dari PLN dengan memberikan
kestabilan daya, masuk ke Panel Utama daya dibagi 2
bagian yaitu tegangan 220 V untuk penerangan daya
dengan Tegangan 380 V untuk menghidupkan mesin-
mesin seperti AC, Pompa, Lift
Panel Utama ini di bagi ke Panel Penerangan untuk Lantai
Basemen, Lantai 1 s/d Lantai paling atas
Panel untuk Mesin2 Pompa, Elevator, mesinAC
Penerangan dapat di bagi dalam 2 bagian:
1. Penerangan langsung (dipasang di langit2 dengan
kekuatan daya sekian lux sesuai dengan Ruang yang
di beri penerangan.
2. Penerangan yang tidak langsung menggunakan sistem
/ saluran di lantai (khususnya Kantor) dengan
memasang Floorduct di dalam lantai
PERANCANGAN TELEPON, CCTV dan SECURITY
Telepon menggunakan sistem Tegangan Arus Lemah . Di
dalam perencanaanya menggunakan sistem floorduct
sama dengan sistem Penerangan Tidak Langsung
PERANCANGAN PENANGKAL PETIR
Pengamanan bangunan bertingkat dari bahaya sambaran
petir perlu dilakukan dengan memasang alat penangkal
petir pada puncak bangunan tersebut. Ada 3 macam
sistem Penangkal Petir :
1. Sistem Konvensional / Franklin
2. Sistem Sangkar Faraday
3. Sistem Radio Aktif atau Sistem Semi Radio Aktif /
Sistem Thomas
PERANCANGAN TRANSPORTASI dalam
BANGUNAN
Bangunan Tinggi dan Besar memerlukan alat angkut
/transportasi untuk manusia dalam rangka melancarkan
lalu lintas. Alat Angkut / sistem transportasi ini berupa:
1. Transportasi Vertikal berupa Elevator / Lift
2. Transportasi Horisontal berupa Conveyor
3. Transportasi Miring berupa Escalator
Elevator
Alat Angkut berupa lift untuk manusia dan barang pada
bangunan yang tinggi lebih dari 4 lantai dibagi menjadi:
1. Lift Penumpang / Passenger Elevator digunakan untuk
mengangkut manusia
2. Lift Barang / Fright Elevator digunakan untuk
mengangkut barang
3. Lift Uang / makanan / Dumb Waiters untuk mengangkut
uang (di Bank) / makanan
4. Lift Pemadam Kebakaran, biasanya juga untuk
mengangkut barang
Meletakkan Lift dan menyusun Lift harus sesuai dengan
jumlah kebutuhan, memenuhi syarat2 tertentu sesuai
dengan Perancangan Arsitekturnya
Memasang Pintu lift diusahakan tidak langsung
berhadapan dengan pintu masuk utama dalam bangunan.
Elevator dibagi dalam 3 bagian: Ruang Mesin , Ruang
Luncur, Ruang Dasar /Lift pit
Cara menyusun Lift terhadap Lobby Bangunan Juga
menyusun jumlah lift serta jarak untuk mendapatkan Lift
Lobby yang seimbang
Penggambaran Elevator untuk 2, 3 atau 4 elevator yang
gandeng dan juga Ruang Mesin Elevator yang berada di Lantai
paling Atas (Core bangunan). Untuk Bangunan yang tingginya 4
- 16 atau 20 lantai menggunakan satu Ruang Mesin di lantai
atas. Untuk Bangunan yang tingginya melebihi 20 lantai
digunakan dua zone, sehingga membutuhkan 2 ruang mesin.
Untuk menghitung jumlah Elevator dalam bangunan tergantung
dari jumlah ketinggian lantai dalam bangunan, fungsi dari
bangunan dan juga luas per lantai nya. Elevator untuk
Penumpang juga dibagi dari isi penumpang dan kecepatan yang
akan di gunakan Dari beberapa persyaratan ini jumlah Elevator
dalam bangunan dapat dihitung.
Escalator :
Alat Penghubung ke lantai
atas dan miring dengan
sudut tertentu
PERANCANGAN LANDASAN HELIKOPTER
Bangunan yang Tinggi lebih dari 10 lantai atau dengan ketinggian 40
m dianjurkan untuk membuat suatu Landasan Helikopter. Landasan ini
berfungsi sebagai tempat Helikopter mendarat agar dapat dengan
mudah dan cepat memberikan pertolongan apabila terjadi kebakaran
Oleh karena itu landasan Helikopter diatas bangunan harus
mempunyai persyaratan sebagai berikut:
1. Memperhitungkan kekuatan struktur yang dapat menahan
berat helikopter sebesar 2.284 kg.
2. Mempunyai landasan dengan ukuran radius tertentu dari jenis
helikopter khususnya dari Dinas Kebakaran / Dinas
Keamanan / Kepolisian atas ijin Dinas Perhubungan Udara.
3. Landasan terletak dibagian paling atas tidak boleh terganggu oleh
penangkal petir, antena, dsb
4. Landasan dihubungkan dengan tangga penghubung menuju Lantai
Atap Bangunan.
PERANCANGAN PEMBUANGAN SAMPAH
Limbah Sampah adalah buangan sampah dari penghuni
dalam bangunan tersebut. Bangunan Hotel atau
Apartemen merupakan bangunan yang penghuninya
banyak menghasilkan sampah, juga ruangan Lantai Atas
sering digunakan untuk Restoran (foodcourt). Untuk itu
Bangunan harus dibuatkan Saluran Pembuangan
Sampah dengan dilengkapi:
1. Box untuk pembuangan sampah di ruang servis
2. Box Penampungan sampah di bagian bawah /
Basement untuk menampung dari semua sampah
PERANCANGAN PEMBERSIH LUAR BANGUNAN
Untuk membersihkan Bangunan Bertingkat Tinggi (lebih
dari 4 lantai) , sebaiknya menggunakan Alat Pembersih
Luar Bangunan. Bagian luar bangunan yang selalu kotor
oleh udara luar. Alat ini di sebut Gondola, alat ini terdiri dari
Kereta yang dapat memuat 1, 2 atau 3 orang pekerja.
Mesin Penggerak secara manual atau otomatis yang
digerakkan oleh pekerjanya.
UTILITAS  BANGUNAN_
UTILITAS  BANGUNAN_
UTILITAS  BANGUNAN_

UTILITAS BANGUNAN_

  • 1.
    SULISTIANINGSIH, A.S., M.Pd. UTILITASBANGUNAN S1 Arsitektur STT STIKMA Internasional
  • 2.
    Kontrak Kuliah Nilai: 1. Kehadiran=> 10% 2. Tugas => 20% 3. UTS => 30% 4. UAS => 40% Tugas: 1. Tugas dikerjakan kelompok 2. Menganalisis/mengkaji ulang suatu pekerjaan utilitas pada proyek bangunan tinggi dari suatu sumber (majalah, gambar proyek, internet) atau objek nyata (minimal bangunan berlantai 5) 3. Setiap kelompok memilih salah satu tema materi utilitas berdasar undian atau kesepakatan 4. Diakhir tugas, masing-masing kelompok mempresentasikan tugasnya, dan ini menjadi nilai UTS 5. Nilai UAS diambil dari Laporan/Produk
  • 3.
    Sistematika Penulisan LaporanTugas Utilitas 1. Bab 1. Pendahuluan, Berisi latar belakang dan pentingnya materi yang akan dibahas 2. Bab 2. Kajian Teori, Berisi teori-teori, kajian-kajian yang terkait dengan materi yang akan dibahas 3. Bab 3. Deskripsi Kasus, Berisi uraian dan spesifikasi obyek bangunan dan utilitas yang akan dianalisis/dokaji 4. Bab 4. Berisi deskripsi hasil kajian dan analisis/kaji ulang 5. Bab 5. Berisi kesimpulan dan saran 6. Daftar Pustaka
  • 4.
    UTILITAS BANGUNAN Utilitas Bangunanadalah kelengkapan fasilitas Bangunan yang digunakan untuk menunjang tercapainya unsur unsur kenyamanan, kesehatan, keselamatan, kemudahan komunikasi, dan mobilitas dalam Bangunan. Utilitas sering disebut sebagai Layanan Bangunan Mekanikal, Elektrikal dan Plambing Perancangan Utilitas harus di koordinasikan dengan Perancangan Arsitektur, Struktur, Interior dan Perancangan lainnya
  • 5.
    Perancangan Utilitas meliputi: 1. Perancangan Plambing dan Sanitasi 2. Perancangan Pencegahan Kebakaran 3. Perancangan Pengudaraan / Penghawaan 4. Perancangan Penerangan /Pencahayaan 5. Perancangan Telepon 6. Perancangan CCTV dan Security System 7. Perancangan Penangkal Petir 8. Perancangan Tata Suara 9. Perancangan Transportasi dalam Bangunan 10. Perancangan Landasan Helikopter 11. Perancangan Pembuangan Sampah 12. Perancangan Alat Pembersih Bangunan
  • 6.
    Lingkup Materi 1. WATERSYSTEM (sistem penyediaan air bersih) 2. SEWAGE/SEWERAGE SYSTEM (sistem pengolahan dan pembuangan limbah) 3. FIRE PROTECTION & EMERGENCY EXIT SYSTEM (sistem perlindungan terhadap kebakaran dan Jalan Keluar Darurat) 4. AIR CONDITIONING SYSTEM (sistem pengkondisian udara) 5. ELEVATOR SYSTEM (sistem elevator/lift) 6. CCTV dan Security System 7. ELECTRICAL SYSTEM (sistem kelistrikan) 8. Telepon dan Tata Suara
  • 7.
    PERANCANGAN UTILITAS Terbagidalam 3 (tiga) bagian: 1. Utilitas Dasar untuk Bangunan berlanti 1 s/d 4 lantai 2. Utilitas Bangunan untuk Bangunan berlantai 5 s/d 16 lantai 3. Utilitas Bangunan Lanjutan untuk Bangunan lebih dari 20 lantai
  • 8.
    Masalah Pokok dalamBangunan : • AIR • UDARA / ANGIN • CAHAYA
  • 9.
    PERANCANGAN SANITASI (Air) Airdalam bangunan dapat dibagi dalam 3 bagian: 1. Air Bersih 2. Air Kotor bekas pakai 3. Air Limbah
  • 10.
    Air Bersih adalahair yang diperlukan dalam kebutuhan manusia penghuni yang dapat di hitung kebutuhannya sebanyak jumlah penghuni x jenis kebutuhan x volume per hari Air ini dapat diambil dari PAM dan Sumur Dalam / Semi; Deep Well Kebutuhan Air Per hari cukup banyak disimpan dalam Tangki Bawah Tanah. GROUND RESERVOIR (GR). Dibuat dari beton kedap Air dan bak di bagi dalam 2-3 bagian /Persiapan untuk Pembersihan Diatas Ruang GR dibuat Ruang Pompa untuk memompa Air dari GR ke Water Tank
  • 12.
    Air dari Tangkibawah di pompa ke Ruang Tangki Atas, dipompa 2-3 x dalam waktu satu hari. Air ini di salurkan ke tempat-tempat yang memerlukan dengan sistem Sanitasi Air Bersih yang disalurkan langsung ke bawah kecuali untuk Ruang yang paling atas harus menggunakan pompa tekan dengan saluran tersendiri. Sanitasi disini menggunakan pipa besi / PVC dengan ukuran 1/2 - 2 inch Dari sistem penyaluran air bersih ini dapat dibagi 2 bagian yaitu air bersih biasa dan air bersih yang panas. Air Panas ini di peruntukkan bagi bangunan2 tertentu seperti Bangunan Hotel, Apartemen dan ada sebagian untuk Bangunan Kantor.
  • 13.
    Air Kotor BekasPakai. Di setiap Kamar Mandi dimana banyak digunakan air bersih untuk mencuci, hasil air cucian ini disebut air bekas pakai. Pembuanagn air bekas pakai menggunakan pemipaan dari pipa PVC ukura 3-4 inch Air di buang ke Saluran Kota dengan melalui sumur2 resapan (untuk membuat kondisi tanah dengan kandungan air cukup) Air Hujan adalah Air Kotor juga karena banyak tercamppur udara yang mengandung banyak asam. Air hujan dapat disatukan dengan Air Bekas Pakai.
  • 14.
    Air Limbah adalahair siraman ke closet-closet pembuangan limbah kotoran manusia. Air Limbah ini dibuang melalui pipa tersendiri baik pipa vertikal dari atas maupun pipa2 yang horisontal. Air Limbah ini di buang ke penampungan air kotor limbah yang dapat memuat volume yang banyak. Ruang Penampungan ini disebut STP / Sewage Treatment Plant Kotoran di proses sehingga terjadi air kotor Limbah yang dapat di buang ke riol kota setelah di campur obat pembersih. Letak Penampungan Air Bersih maupun Air Limbah paling tepat dan efisien di tempatkan di Ruang Lantai paling bawah . (Bangunan lebih dari 4 lantai sebaiknya di buat Lantai Basemen 1 atau 2 lantai Basement
  • 17.
    Bangunan Bertingkat lebihdr 4 lantai harus mempunyai Basemen, minimal 1 Basemen sehingga penataan perpipaan dapat lebih mudah dan efisien.
  • 18.
    PERANCANGAN PENCEGAHAN KEBAKARAN PenanggulanganKebakaran dalam suatu Bangunan Gedung sangat Penting dan harus dapat perhatian khusus. Ada beberapa cara menghindari Kebakaran : 1. Bangunan Tinggi harus sesuai standar Klas A dimana Struktur Utama Bangunan harus mempunyai Ketahanan terhadap api dalam 3 jam minimal 2 jam 2. Jarak bebas bangunan dengan bangunan sebelahnya minimal ber jarak 2 x 6 mm 3. Menempatkan Tangga Kebakaran dan Penggunaan bahan tangga harus sesuai syarat Pencegahan Kebakaran 4. Mempunyai Pencegahan terhadap sistem Elektrikal, Penangkal Petir dan Pengkondisian Udara 5. Mempunyai sistem Pendeteksian awal dengan sistem alarm, smoke (asam) detector dan heat ventilating 6. Mempunyai alat kontrol terhadap elevator 7. Mempunyai alat Pemadam Kebakaran secara manual yaitu Hidran dan Automatic Pemadam Kebakaran seperti Sprinkler sistem.
  • 19.
    PERANCANGAN PENGUDARAAN /PENGHAWAAN DalamRuangan yang tertutp perlu diadakan Pengudaraan Buatan khususnya Bangunan Bertingkat lebih dari 8 lantai. Pengudaraan Buatan ini mengunakan alat Pendingin yang disebut AC / Air Conditioner AC ini dibagi dalam beberapa alat yang digunakan untuk mendinginkan Ruang seperti: 1. AC Window untuk Ruangan kecil 2. AC Split mesinnya terpisah Indoor dan outdoor (dimana suara berisik ada di mesin luar) AC Multi Split Outdoor nya 1 di luar, Indoornya ada 2 - 3 mesin Indoor nya di dalam ruangan 3. AC Sentral untuk mendinginkan Ruangan yang besar
  • 20.
    AC Sentral terdiridari 3 bagian mesin yaitu : 1. Mesin Pendingin (Menara Pendingin) - Cooling Tower, mesin ini mendinginkan udara sehingga memerlukan angin dan kipas , mesin ini di letakkan diatas bangunan jauh di luar bangunan, ditempat terbuka mendapatkan angin panas dan hujan 2. Chiller dan Pompa, mesin ini mendapatkan udara dingin dan merubah Freon untuk mendinginkan udara yang akan disalurkan ke mesin AC 3. Mesin AC Pendingin / Air Handling Unit / AHU
  • 21.
    AHU ini dipasang di setiap lantai Ruangan yang akan didinginkan dan disambung dengan ducting untuk dapat menyalurkan udara dingin ke tempat2 yang memerlukan udara dingin. Udara diruangan yang menjadi panas akan di hubungkan ke Ruang AHU dengan return ducting
  • 23.
    PERANCANGAN PENERANGAN /PENCAHAYAAN Penerangan Bangunan Gedung selalu menggunakan Pencahayaan Buatan Pencahayaan Buatan ini menggunakan daya listrik yang di dapat dari: PLTA : Pembangkit Listrik Tenaga Air PLTD Pembangkit Listrik Tenaga Disel PLTU Pembangkit Listrik Tenaga Uap PLTS Pembangkit Listrik Tenaga Surya PLTA Pembangkit Listrik Tenaga Angin PLTN Pembangkit Listrik Tenaga Nuklir
  • 24.
    Listrik yang dihasilkanadalah Listrik TT / Tegangan Tinggi Dari TT akan di pindahkan ke TM / Tegangan Menengah. Untuk Bangunan yang besar seperti Gedung Kantor, Hotel, Apartemen akan selalu menggunakan TM / Tegangan Menengah karena sewa penggunaan daya lebih murah. Sehingga akan menggunakan GARDU LISTRIK yang di letakkan dalam bangunan bagian bawah. Isi dari Bangunan Gardu : Transformator merubah TM menjadi TR / Tegangan Rendah yang di gunakan untuk penerangan dalam Bangunan.
  • 25.
    Untuk menjaga kesiapandaya listrik dalam bangunan, pemilik /pengelola akan menggunakan Generator set 1 atau 2 buah tergantung kebutuhan penerangan apakah 50% atau 100% daya. Daya yang diperoleh dari Genset di satukan dengan daya dari PLN dengan memberikan kestabilan daya, masuk ke Panel Utama daya dibagi 2 bagian yaitu tegangan 220 V untuk penerangan daya dengan Tegangan 380 V untuk menghidupkan mesin- mesin seperti AC, Pompa, Lift Panel Utama ini di bagi ke Panel Penerangan untuk Lantai Basemen, Lantai 1 s/d Lantai paling atas
  • 26.
    Panel untuk Mesin2Pompa, Elevator, mesinAC
  • 28.
    Penerangan dapat dibagi dalam 2 bagian: 1. Penerangan langsung (dipasang di langit2 dengan kekuatan daya sekian lux sesuai dengan Ruang yang di beri penerangan. 2. Penerangan yang tidak langsung menggunakan sistem / saluran di lantai (khususnya Kantor) dengan memasang Floorduct di dalam lantai
  • 29.
    PERANCANGAN TELEPON, CCTVdan SECURITY Telepon menggunakan sistem Tegangan Arus Lemah . Di dalam perencanaanya menggunakan sistem floorduct sama dengan sistem Penerangan Tidak Langsung
  • 30.
    PERANCANGAN PENANGKAL PETIR Pengamananbangunan bertingkat dari bahaya sambaran petir perlu dilakukan dengan memasang alat penangkal petir pada puncak bangunan tersebut. Ada 3 macam sistem Penangkal Petir : 1. Sistem Konvensional / Franklin 2. Sistem Sangkar Faraday 3. Sistem Radio Aktif atau Sistem Semi Radio Aktif / Sistem Thomas
  • 32.
    PERANCANGAN TRANSPORTASI dalam BANGUNAN BangunanTinggi dan Besar memerlukan alat angkut /transportasi untuk manusia dalam rangka melancarkan lalu lintas. Alat Angkut / sistem transportasi ini berupa: 1. Transportasi Vertikal berupa Elevator / Lift 2. Transportasi Horisontal berupa Conveyor 3. Transportasi Miring berupa Escalator
  • 33.
    Elevator Alat Angkut berupalift untuk manusia dan barang pada bangunan yang tinggi lebih dari 4 lantai dibagi menjadi: 1. Lift Penumpang / Passenger Elevator digunakan untuk mengangkut manusia 2. Lift Barang / Fright Elevator digunakan untuk mengangkut barang 3. Lift Uang / makanan / Dumb Waiters untuk mengangkut uang (di Bank) / makanan 4. Lift Pemadam Kebakaran, biasanya juga untuk mengangkut barang
  • 34.
    Meletakkan Lift danmenyusun Lift harus sesuai dengan jumlah kebutuhan, memenuhi syarat2 tertentu sesuai dengan Perancangan Arsitekturnya Memasang Pintu lift diusahakan tidak langsung berhadapan dengan pintu masuk utama dalam bangunan. Elevator dibagi dalam 3 bagian: Ruang Mesin , Ruang Luncur, Ruang Dasar /Lift pit Cara menyusun Lift terhadap Lobby Bangunan Juga menyusun jumlah lift serta jarak untuk mendapatkan Lift Lobby yang seimbang
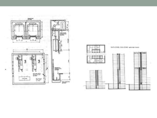
  • 37.
    Penggambaran Elevator untuk2, 3 atau 4 elevator yang gandeng dan juga Ruang Mesin Elevator yang berada di Lantai paling Atas (Core bangunan). Untuk Bangunan yang tingginya 4 - 16 atau 20 lantai menggunakan satu Ruang Mesin di lantai atas. Untuk Bangunan yang tingginya melebihi 20 lantai digunakan dua zone, sehingga membutuhkan 2 ruang mesin. Untuk menghitung jumlah Elevator dalam bangunan tergantung dari jumlah ketinggian lantai dalam bangunan, fungsi dari bangunan dan juga luas per lantai nya. Elevator untuk Penumpang juga dibagi dari isi penumpang dan kecepatan yang akan di gunakan Dari beberapa persyaratan ini jumlah Elevator dalam bangunan dapat dihitung.
  • 38.
    Escalator : Alat Penghubungke lantai atas dan miring dengan sudut tertentu
  • 39.
    PERANCANGAN LANDASAN HELIKOPTER Bangunanyang Tinggi lebih dari 10 lantai atau dengan ketinggian 40 m dianjurkan untuk membuat suatu Landasan Helikopter. Landasan ini berfungsi sebagai tempat Helikopter mendarat agar dapat dengan mudah dan cepat memberikan pertolongan apabila terjadi kebakaran Oleh karena itu landasan Helikopter diatas bangunan harus mempunyai persyaratan sebagai berikut: 1. Memperhitungkan kekuatan struktur yang dapat menahan berat helikopter sebesar 2.284 kg. 2. Mempunyai landasan dengan ukuran radius tertentu dari jenis helikopter khususnya dari Dinas Kebakaran / Dinas Keamanan / Kepolisian atas ijin Dinas Perhubungan Udara. 3. Landasan terletak dibagian paling atas tidak boleh terganggu oleh penangkal petir, antena, dsb 4. Landasan dihubungkan dengan tangga penghubung menuju Lantai Atap Bangunan.
  • 41.
    PERANCANGAN PEMBUANGAN SAMPAH LimbahSampah adalah buangan sampah dari penghuni dalam bangunan tersebut. Bangunan Hotel atau Apartemen merupakan bangunan yang penghuninya banyak menghasilkan sampah, juga ruangan Lantai Atas sering digunakan untuk Restoran (foodcourt). Untuk itu Bangunan harus dibuatkan Saluran Pembuangan Sampah dengan dilengkapi: 1. Box untuk pembuangan sampah di ruang servis 2. Box Penampungan sampah di bagian bawah / Basement untuk menampung dari semua sampah
  • 43.
    PERANCANGAN PEMBERSIH LUARBANGUNAN Untuk membersihkan Bangunan Bertingkat Tinggi (lebih dari 4 lantai) , sebaiknya menggunakan Alat Pembersih Luar Bangunan. Bagian luar bangunan yang selalu kotor oleh udara luar. Alat ini di sebut Gondola, alat ini terdiri dari Kereta yang dapat memuat 1, 2 atau 3 orang pekerja. Mesin Penggerak secara manual atau otomatis yang digerakkan oleh pekerjanya.