‫المعماري‬
‫الوكيل‬ ‫الواحد‬ ‫عبد‬
Dr : Mai Eid Khallil
By : Mohamed Atef Mohamed
Id : 20108522
‫المحتويات‬

‫النشأة‬

‫العملية‬ ‫حياة‬

‫المعماري‬ ‫فكره‬

‫التصميم‬ ‫في‬ ‫فلسفة‬

‫اعمالة‬ ‫اهم‬
2
‫النشأة‬

‫في‬ ‫ولد‬ ،‫مصري‬ ‫معماري‬ ،‫الوكيل‬ ‫محمد‬ ‫الواحد‬ ‫عبد‬ ‫الدكتور‬ ‫هو‬
7
‫أغسطس‬
1943
‫فيك‬ ‫كلية‬ ‫في‬ ‫درس‬ ،‫مصر‬ ،‫القاهرة‬ ‫بوسط‬ ‫سيتي‬ ‫جاردن‬ ‫بحي‬ ‫م‬
‫توريا‬
‫شهادة‬ ‫على‬ ‫وحصل‬ ‫بريطانية‬ ‫إنجليزية‬ ‫ومدارس‬
GCE
‫عام‬ ‫في‬
1960
،
‫و‬ ،‫الفيزياء‬ ،‫الفنون‬ ،‫التطبيقية‬ ‫الرياضيات‬ ‫في‬ ‫بامتياز‬ ‫وتخرج‬
‫الكيمياء‬
.
‫ثم‬
‫عين‬ ‫من‬ ‫العمارة‬ ‫بكالوريوس‬ ‫على‬ ‫وحصل‬ ‫شمس‬ ‫عين‬ ‫جامعة‬ ‫إلى‬ ‫انضم‬
‫عام‬ ‫األولى‬ ‫الشرف‬ ‫ومرتبة‬ ‫بامتياز‬ ‫تخرج‬ ‫القاهرة‬ ‫شمس‬
1965
‫حيث‬ ‫م‬
‫الفترة‬ ‫في‬ ‫معيدا‬ ‫عمل‬
1965
-
1970
‫م‬
.
‫قس‬ ‫في‬ ‫الجامعة‬ ‫في‬ ‫بالتدريس‬ ‫وقام‬
‫م‬
‫الهندسة‬ ‫كلية‬ ،‫المعمارية‬ ‫الهندسة‬
.
‫مع‬ ‫الحقا‬ ‫عمل‬ ‫ثم‬ ‫سنوات‬ ‫خمس‬ ‫لمدة‬
‫عام‬ ‫به‬ ‫االلتقاء‬ ‫بعد‬ ‫فتحي‬ ‫حسن‬ ‫المعماري‬
1968
.
3
‫المهنية‬ ‫حياته‬
PRESENTATION TITLE 2/11/20XX 4
•
‫إلى‬ ‫أفريقيا‬ ‫وجنوب‬ ‫وأميركا‬ ‫اليونان‬ ‫إلى‬ ،‫باريس‬ ،‫وبيروت‬ ‫السعودية‬ ‫إلى‬ ‫مصر‬ ‫من‬ ‫وتمتد‬ ‫طويلة‬ ‫رحلته‬
‫في‬ ‫استقر‬ ‫ان‬
‫عام‬ ‫بريطانيا‬ ،‫لندن‬
1980
.
‫المصري‬ ‫المعماري‬ ‫أعمال‬ ‫عن‬ ‫الماجستير‬ ‫رسالة‬ ‫تسجيل‬ ‫المعماري‬ ‫حاول‬ ‫تخرجه‬ ‫بعد‬
‫كتاب‬ ‫صاحب‬ ‫فتحي‬ ‫حسن‬ ‫الشهير‬
«
‫الفقراء‬ ‫عمارة‬
»
‫اإل‬ ‫على‬ ‫يوافق‬ ‫لم‬ ‫التدريس‬ ‫هيئة‬ ‫أعضاء‬ ‫من‬ ‫أيا‬ ‫أن‬ ‫إال‬
‫شراف‬
‫اإلنشاء‬ ‫أساليب‬ ‫ليدرس‬ ‫الرسالة‬ ‫موضوع‬ ‫تغيير‬ ‫إلى‬ ‫اضطره‬ ‫مما‬ ‫عليها‬
.
‫تف‬ ‫في‬ ‫الدراسة‬ ‫هذه‬ ‫ساعدته‬ ‫ولقد‬
‫أساليب‬ ‫هم‬
‫أعماله‬ ‫في‬ ‫واضحا‬ ‫ظهر‬ ‫الذي‬ ‫األمر‬ ‫اإلنشاء‬
.
‫خ‬ ‫لمدة‬ ‫الجامعة‬ ‫في‬ ‫بالتدريس‬ ‫واستمر‬ ،‫األكاديمي‬ ‫الطريق‬ ‫سلك‬
‫مس‬
‫عام‬ ‫حتي‬ ‫سنوات‬
1970
‫الحقيقي‬ ‫تعليمه‬ ‫في‬ ‫بالفضل‬ ‫يدين‬ ‫أنه‬ ‫إال‬ ‫فتحي‬ ‫حسن‬ ‫المعماري‬ ‫مع‬ ‫الحقا‬ ‫عمل‬ ‫ثم‬ ،
‫إلى‬
‫فتحي‬ ‫حسن‬ ‫المعماري‬ ‫مع‬ ‫قضاها‬ ‫التي‬ ‫الخمس‬ ‫السنوات‬
(
1968
–
1973
)
‫العمارة‬ ‫أصول‬ ‫في‬ ‫الشخصي‬ ‫بحثه‬ ‫والي‬
‫الفني‬ ‫المستوى‬ ‫على‬ ‫سواء‬ ‫كبير‬ ‫بتأييد‬ ‫المحلية‬ ‫اإلسالمية‬ ‫العمارة‬ ‫فيه‬ َ‫ظ‬‫تح‬ ‫لم‬ ‫وقت‬ ‫في‬ ‫اإلسالمية‬
‫الشعبي‬ ‫أو‬
.
‫حيث‬
‫ع‬ ‫األثر‬ ‫أكبر‬ ‫لها‬ ‫كان‬ ‫التي‬ ‫السنوات‬ ‫الخمس‬ ‫معه‬ ‫قضى‬ ‫حيث‬ ‫فتحي‬ ‫مع‬ ‫للعمل‬ ‫والتفرغ‬ ‫دراسته‬ ‫قطع‬ ‫قرر‬
‫حياته‬ ‫لى‬
‫العمل‬ ‫في‬ ‫وأسلوبه‬
.
‫الخامات‬ ‫الستخدام‬ ‫واتجاهه‬ ‫الغربية‬ ‫العمارة‬ ‫لتقليد‬ ‫انتقاده‬ ‫فتحي‬ ‫حسن‬ ‫عن‬ ‫المعروف‬
‫في‬ ‫المحلية‬
‫الحديثة‬ ‫التصاميم‬ ‫في‬ ‫واستخدامها‬ ‫التراثية‬ ‫الهندسية‬ ‫والتشكيالت‬ ‫األنماط‬ ‫واستيعاب‬ ‫البناء‬
.
‫ب‬ ‫وقام‬
‫الجامعة‬ ‫في‬ ‫التدريس‬
‫فتحي‬ ‫حسن‬ ‫المعماري‬ ‫مع‬ ‫الحقا‬ ‫عمل‬ ‫ثم‬ ‫سنوات‬ ‫خمس‬ ‫لمدة‬
.
‫المعماري‬ ‫فكرة‬
‫تطويرية‬ ‫عملية‬ ‫ما‬ ‫حد‬ ‫وإلى‬ ‫عضوي‬ ،‫حي‬ ‫كائن‬ ‫العمارة‬ ‫ان‬ ‫يرى‬
.
‫من‬ ‫شيئا‬ ‫يرث‬ ‫ان‬ ‫غير‬ ‫من‬ ‫شيء‬ ‫يوجد‬ ‫فال‬
‫أصل‬
‫والديه‬
.
‫األصلية‬ ‫االشكال‬ ‫هي‬ ‫ومعماريا‬
.
‫ومعان‬ ‫إعراب‬ ،‫كلمات‬ ‫لها‬ ‫لغة‬ ‫العمارة‬ ‫اخر‬ ‫وبمعنى‬
.
‫فر‬ ‫أي‬ ‫فهم‬ ‫فاذا‬
‫د‬
‫لغ‬ ‫تتحدث‬ ‫بعمارة‬ ،‫االرضية‬ ‫الكرة‬ ‫من‬ ‫نقظة‬ ‫أي‬ ‫في‬ ‫التصميم‬ ‫على‬ ‫قادرا‬ ‫سيصبح‬ ‫الحدود‬ ‫هذه‬ ‫من‬ ‫العمارة‬
‫ذلك‬ ‫ة‬
‫اإلقليم‬
.
‫و‬ ‫السعودية‬ ‫العربية‬ ‫والمملكة‬ ‫مصر‬ ،‫اليونان‬ ‫في‬ ‫مبان‬ ‫يصمم‬ ‫ان‬ ‫الوكيل‬ ‫استطاع‬ ‫السبب‬ ‫ولهذا‬
‫تتحدث‬ ‫هي‬
‫فيه‬ ‫بنيت‬ ‫إقليم‬ ‫لكل‬ ‫المعمارية‬ ‫اللغة‬
.
‫اإلسالمي‬ ‫العالم‬ ‫في‬ ‫العظيمة‬ ‫مبانيه‬ ‫من‬ ‫مبنى‬ ‫كل‬ ‫في‬ ‫فالوكيل‬
‫لغة‬ ‫تتحدث‬
‫الشارع‬ ‫في‬ ‫المتجولين‬ ‫المسلمين‬ ‫معظم‬ ‫فهمها‬ ‫معمارية‬
.
‫م‬ ‫كلمة‬ ‫أو‬ ‫رسالة‬ ‫أي‬ ‫يوصل‬ ‫المبنى‬ ‫ان‬ ‫فهم‬ ‫قد‬ ‫فهو‬
‫للغة‬ ‫حددة‬
‫التقليدية‬ ‫المعمارية‬
.
‫التقليدي‬ ‫التركيب‬ ‫أو‬ ‫اإلعراب‬ ‫في‬ ‫تستعمل‬ ‫ان‬ ‫فيجب‬
.
‫الكالس‬ ‫إلى‬ ‫هذا‬ ‫يعود‬ ‫قد‬
‫عصر‬ ‫أو‬ ‫يكية‬
‫النهضة‬
.
‫كذل‬ ‫صالحيتها‬ ‫وإنما‬ ‫اإلسالمية‬ ‫العمارة‬ ‫لغة‬ ‫نسميه‬ ‫ان‬ ‫يمكن‬ ‫ما‬ ‫وجود‬ ‫على‬ ‫فقط‬ ‫ليس‬ ‫يبرهن‬ ‫وهو‬
‫للعمارة‬ ‫ك‬
‫المعاصرة‬
.
‫الثامن‬ ‫القرن‬ ‫معماري‬ ‫انماط‬ ‫يشابه‬ ‫ال‬ ‫نمط‬ ‫في‬ ‫للعمارة‬ ‫التقليدية‬ ‫المفردات‬ ‫الوكيل‬ ‫استعمل‬
‫التاسع‬ ‫أو‬ ‫عشر‬
‫القديمة‬ ‫المعمارية‬ ‫االنماط‬ ‫الحياء‬ ‫عمدوا‬ ‫والذين‬ ،‫عشر‬
" .
‫ف‬ ،‫يكون‬ ‫وكيف‬ ‫الشيء‬ ‫ماهية‬ ‫عن‬ ‫دائما‬ ‫يسأل‬ ‫فهو‬
‫القوس‬
‫الطوب‬ ‫من‬ ‫حائط‬ ‫في‬ ‫شخص‬ ‫فتح‬ ‫إذا‬ ‫يتولد‬
.
‫خ‬ ‫لرؤية‬ ‫وامتالكه‬ ‫فلسفته‬ ‫من‬ ‫يأتى‬ ‫المعمارى‬ ‫تميز‬ ‫وألن‬
‫في‬ ‫اصة‬
‫ي‬ ‫الغربية‬ ‫العمارة‬ ‫ألساليب‬ ‫االنقياد‬ ‫أن‬ ‫يؤمن‬ ‫كان‬ ‫فقد‬ ،‫لتميزه‬ ‫سرا‬ ‫بالهوية‬ ‫تمسكه‬ ‫كان‬ ،‫تصميماته‬
‫عن‬ ‫ابتعادا‬ ‫عد‬
‫اإلسالمية‬ ‫العمارة‬ ‫قيم‬ ‫باحياء‬ ‫نادى‬ ‫لذلك‬ ‫اإلسالمية‬ ‫العربية‬ ‫الهوية‬
‫التصميم‬ ‫في‬ ‫فلسفة‬

‫الشكل‬ ‫فلسفة‬ 
‫فلسفته‬
•
‫ر‬
‫ور‬ ‫االنسياق‬ ‫مصر‬ ‫في‬ ‫المهنة‬ ‫ممارسته‬ ‫بداية‬ ‫مع‬ ‫الوكيل‬ ‫فض‬
‫اء‬
‫ا‬ ‫وقوانين‬ ‫الفترة‬ ‫تلك‬ ‫في‬ ‫ينتشر‬ ‫بدء‬ ‫الذي‬ ‫الغربي‬ ‫الطراز‬
‫التي‬ ‫لمباني‬
‫وإبداعه‬ ‫المعماري‬ ‫خيال‬ ‫تحدد‬ ‫قيودا‬ ‫تفرض‬
.
‫إح‬ ‫بضرورة‬ ‫ويؤمن‬
‫ياء‬
‫استخ‬ ‫بأهمية‬ ‫يؤمن‬ ‫كما‬ ،‫اإلسالمية‬ ‫العمارة‬ ‫في‬ ‫اإلسالمية‬ ‫القيم‬
‫دام‬
‫تطورها‬ ‫مع‬ ‫التقليدية‬ ‫البناء‬ ‫وتقنيات‬ ‫البيئية‬ ‫البناء‬ ‫مواد‬
‫مع‬ ‫لتتناسب‬
‫الحديثة‬ ‫المتطلبات‬
.
‫اإلنسان‬ ‫بأن‬ ‫إيمانه‬ ‫من‬ ‫األفكار‬ ‫هذه‬ ‫وتنبع‬
‫كان‬
‫ا‬ ‫البيئية‬ ‫للظروف‬ ‫تبعا‬ ‫العمارة‬ ‫بتشكيل‬ ‫األصل‬ ‫في‬ ‫يقوم‬
‫فتأتي‬ ‫لمحلية‬
‫االستمرارية‬ ‫من‬ ‫نوعا‬ ‫وتعطي‬ ‫المحلية‬ ‫الشخصية‬ ‫عن‬ ‫معبرة‬
‫مست‬ ‫مستقبل‬ ‫بناء‬ ‫على‬ ‫أقدر‬ ‫اإلنسان‬ ‫تجعل‬ ‫التي‬ ‫الحضارية‬
‫وتعكس‬ ‫قر‬
‫االحتي‬ ‫إلى‬ ‫باإلضافة‬ ‫المبادئ‬ ‫األفكار‬ ‫هذه‬ ‫الوكيل‬ ‫أعمال‬ ‫جميع‬
‫اجات‬
‫لشاغليها‬ ‫والوظيفية‬ ‫المناخية‬
.
PRESENTATION TITLE 2/11/20XX 6
‫ي‬
‫فال‬ ‫الشكل‬ ‫وليس‬ ‫الروح‬ ‫هو‬ ‫اإلسالمية‬ ‫العمارة‬ ‫يميز‬ ‫ما‬ ‫أن‬ ‫الوكيل‬ ‫رى‬
‫شيء‬
‫وال‬ ‫الشاهقة‬ ‫اليمنية‬ ‫والمباني‬ ‫الصغيرة‬ ‫النوبية‬ ‫المساكن‬ ‫يجمع‬ ‫الذي‬
‫مساجد‬
‫واحد‬ ‫مسمى‬ ‫تحت‬ ‫العظيمة‬ ‫التركية‬
«
‫اإلسالمية‬ ‫العمارة‬
»
‫اإلسال‬ ‫روح‬ ‫هو‬
‫م‬
‫مف‬ ‫إال‬ ‫هي‬ ‫ما‬ ‫المختلفة‬ ‫المعمارية‬ ‫فاألشكال‬ ،‫المعماري‬ ‫التشكيل‬ ‫وليس‬
‫ردات‬
‫ا‬ ‫هي‬ ‫فهذه‬ ‫شعرية‬ ‫قطعا‬ ‫لتكون‬ ‫معا‬ ‫المفردات‬ ‫هذه‬ ‫وضع‬ ‫كيفية‬ ‫أما‬ ‫اللغة‬
‫لعمارة‬
‫اإلسالمية‬
‫الوكيل‬ ‫رؤية‬
‫نفس‬ ‫له‬ ‫كانت‬ ‫فقد‬ ‫التصميم‬ ‫حد‬ ‫عند‬ ‫الوكيل‬ ‫لدى‬ ‫تتوقف‬ ‫لم‬ ‫العمل‬ ‫في‬ ‫الرؤية‬
‫في‬ ‫رؤية‬
‫ب‬ ‫البيئة‬ ‫مع‬ ‫تتفاعل‬ ‫التي‬ ‫البناء‬ ‫مواد‬ ‫استخدام‬ ‫يفضل‬ ‫إنه‬ ‫حيث‬ ‫البناء‬ ‫مواد‬
‫إلى‬ ‫اإلضافة‬
‫ال‬ ‫المتطلبات‬ ‫مع‬ ‫لتتناسب‬ ‫تطويرها‬ ‫مع‬ ‫التقليدية‬ ‫البناء‬ ‫تقنيات‬ ‫استخدام‬
‫وكان‬ ،‫حديثة‬
‫دهشة‬ ‫أثار‬ ‫أمرا‬ ‫اليدوي‬ ‫للعمل‬ ‫وتفضيله‬ ‫الجاهزة‬ ‫القوالب‬ ‫استخدام‬ ‫عن‬ ‫عزوفه‬
‫وت‬
‫عجب‬
‫والق‬ ‫بالصبات‬ ‫العمل‬ ‫بأن‬ ‫ذلك‬ ‫في‬ ‫عليهم‬ ‫يجيب‬ ‫كان‬ ‫انه‬ ‫إال‬ ‫المعماريون‬ ‫زمالئه‬
‫والب‬
‫بها‬ ‫يقوم‬ ‫التي‬ ‫للمهمة‬ ‫مناقضا‬
.
‫تص‬ ‫ليس‬ ‫ذاته‬ ‫حد‬ ‫في‬ ‫المفرد‬ ‫اقتباس‬ ‫أن‬ ‫يري‬
‫وان‬ ‫ميما‬
‫للعمارة‬ ‫الحقيقي‬ ‫الكشف‬ ‫هو‬ ‫المفرد‬ ‫هذا‬ ‫وفلسفة‬ ‫وفكر‬ ‫أصل‬ ‫اكتشاف‬
‫ر‬ ‫هنا‬ ‫من‬
‫الوكيل‬ ‫أى‬
‫كلمات‬ ‫هم‬ ‫المعمارى‬ ‫للنجاح‬ ‫األربع‬ ‫المفاتيح‬ ‫أن‬
(
‫بيئة‬
–
‫فلسفة‬
–
‫فكر‬
–
‫مع‬
‫تقد‬
.)

‫أهم‬
‫أعماله‬
8
‫قصر‬
‫السليمان‬
‫مسجد‬
‫الجزيرة‬
• ‫فيال‬
‫حالوة‬
• ‫الملك‬ ‫مسجد‬
‫سعود‬
• ‫مسجد‬
‫الكورنيش‬
PRESENTATION TITLE 2/11/20XX 9
‫السليمان‬ ‫قصر‬
‫في‬ ‫الواقع‬ ‫جدة‬ ‫في‬ ‫الحمراء‬ ‫حي‬ ‫في‬ ‫السليمان‬ ‫قصر‬ ‫بناء‬ ‫ميزها‬ ‫السعودية‬ ‫في‬ ‫الوكيل‬ ‫عمل‬ ‫بدايات‬
‫حي‬
‫الحمراء‬
‫عام‬ ‫جدة‬ ‫كورنيش‬ ‫علي‬
1979
‫عام‬ ‫السعودية‬ ‫العربية‬ ‫المملكة‬ ‫في‬ ‫مبني‬ ‫كأجمل‬ ‫السليمان‬ ‫قصر‬ ‫مختير‬
1973
‫المعمار‬ ‫في‬ ‫متخصصة‬ ‫أمريكية‬ ‫مجلة‬ ‫قبل‬ ‫من‬
.
‫السليم‬ ‫قصر‬ ‫مشروع‬ ‫في‬ ‫الرئيسية‬ ‫الفكرة‬ ‫قامت‬
‫على‬ ‫ان‬
‫تدعيم‬
‫باالندث‬ ‫مهددة‬ ‫أصبحت‬ ‫التي‬ ‫التقليدية‬ ‫الحرف‬ ‫تشجع‬ ‫تصميمات‬ ‫تطوير‬ ‫خالل‬ ‫من‬ ‫المحلية‬ ‫العمارة‬
‫ويعكس‬ ‫ار‬
‫والتحد‬ ‫األفقي‬ ‫المسقط‬ ‫تماثل‬ ‫عدم‬ ‫مثل‬ ‫العربية‬ ‫المعمارية‬ ‫المالمح‬ ‫بعض‬ ‫السليمان‬ ‫قصر‬ ‫تصميم‬
‫الواضع‬ ‫يد‬
‫ويطور‬ ‫اإلسالمية‬ ‫المعمارية‬ ‫العناصر‬ ‫يستخدم‬ ‫أن‬ ‫استطاع‬ ‫كما‬ ‫الداخلي‬ ‫الفناء‬ ‫استعمال‬ ‫للفراغات‬
‫بصورة‬ ‫ها‬
‫ال‬ ‫باألشكال‬ ‫المزخرفة‬ ‫الخشبية‬ ‫واألبواب‬ ‫والشخشيخة‬ ‫المرتفعة‬ ‫والقبة‬ ‫المشربية‬ ‫مثل‬ ‫مكثفة‬
‫هندسية‬
‫والخزف‬
‫م‬ ‫استخدام‬ ‫دون‬ ‫القصور‬ ‫هذه‬ ‫مثل‬ ‫في‬ ‫المطلوبة‬ ‫الفخامة‬ ‫يحقق‬ ‫أن‬ ‫الوكيل‬ ‫استطاع‬ ‫ولقد‬ ‫الرخام‬ ‫وأعمال‬
‫واد‬
‫بناء‬
‫اإلنش‬ ‫وطرق‬ ‫البيئية‬ ‫البناء‬ ‫مواد‬ ‫علي‬ ‫تصميمه‬ ‫في‬ ‫اعتمد‬ ‫وانما‬ ‫مكلفة‬ ‫حديثة‬ ‫إنشاء‬ ‫طرق‬ ‫أو‬ ‫غالية‬
‫اء‬
‫التقليدية‬
10
‫صور‬
‫القصر‬
‫قطاعت‬
‫مساقط‬
2/11/20XX 11
12
‫الجزيرة‬ ‫مسجد‬
‫صغ‬ ‫جزيرة‬ ‫على‬ ‫الشمالي‬ ‫الكورنيش‬ ‫من‬ ‫بالقرب‬ ،‫السعودية‬ ‫غرب‬ ‫جدة‬ ‫مدينة‬ ‫في‬ ‫يقع‬
‫يرة‬
‫مساحتها‬
2500
‫مربع‬ ‫متر‬
.
‫بواسطة‬ ‫بالجزيرة‬ ‫وصلها‬ ‫تم‬ ‫التي‬ ‫المرافق‬ ‫إلى‬ ‫باإلضافة‬
‫جسر‬
‫صغير‬
.
•
‫التصميم‬
‫التقليدية‬ ‫المساجد‬ ‫في‬ ‫القائمة‬ ‫االساسية‬ ‫العناصر‬ ‫على‬ ‫التصميم‬ ‫ارتكز‬
.
‫مس‬ ‫وهناك‬
‫رئيسية‬ ‫احة‬
‫رئيسية‬ ‫قبة‬ ‫تعلوها‬ ‫مستطيلة‬
(
‫بقطر‬
6
‫أمتار‬
)
‫القب‬ ‫جدار‬ ‫جانب‬ ‫إلى‬ ‫مباشرة‬ ‫المحراب‬ ‫فوق‬ ‫تقع‬
‫لة‬
‫أمتار‬ ‫ثالثة‬ ‫بعرض‬ ‫قناطر‬ ‫المتجاورة‬ ‫الثالثة‬ ‫اجزائها‬ ‫من‬ ‫جزء‬ ‫بكل‬ ‫وتحيط‬
.
‫والقناطر‬
‫ترتكز‬
‫المركزية‬ ‫واألقواس‬ ‫الجدران‬ ‫على‬
.
‫االضالع‬ ‫ثمانية‬ ‫اسطوانة‬ ‫على‬ ‫القبة‬ ‫ترتكز‬ ‫بينما‬
‫ترتكز‬
‫مربع‬ ‫إلى‬ ‫الدائرة‬ ‫تحويل‬ ‫إلى‬ ‫يؤدي‬ ‫مما‬ ‫قطرية‬ ‫عقود‬ ‫اربعه‬ ‫على‬ ‫بدورها‬
.
‫ج‬ ‫مقابل‬ ‫ويقع‬
‫دار‬
‫المقنطر‬ ‫بالممر‬ ‫المحاطة‬ ‫الباحة‬ ‫على‬ ‫يطل‬ ‫ضخم‬ ‫قوس‬ ‫القبلة‬
.
•
‫اإلنشاء‬
‫الضغ‬ ‫تحمل‬ ‫على‬ ‫القادرة‬ ‫الحمراء‬ ‫التراكوتا‬ ‫طوب‬ ‫حجارة‬ ‫من‬ ‫المسجد‬ ‫إنشاء‬ ‫عمد‬ ‫جرى‬ ‫لقد‬
‫ط‬
‫ا‬ ‫بشكل‬ ‫تستخدم‬ ‫التي‬ ‫المتفوقة‬ ‫والفنية‬ ‫العلمية‬ ‫الطوب‬ ‫تكنولوجيا‬ ‫ادخال‬ ‫لإلعادة‬
‫قتصادي‬
.
‫وأكثر‬
‫ب‬ ‫الطوب‬ ‫من‬ ‫صنعت‬ ‫التي‬ ‫المئذنة‬ ‫ساللم‬ ‫هي‬ ‫لالهتمام‬ ‫المثيرة‬ ‫االنشائية‬ ‫التفاصيل‬
‫حيث‬ ،‫أجمعها‬
‫اآلخر‬ ‫منها‬ ‫كل‬ ‫يحمل‬ ‫متراكبة‬ ‫أقواس‬ ‫على‬ ‫منها‬ ‫مجموعة‬ ‫كل‬ ‫تستند‬
.
‫عام‬ ‫في‬ ‫البناء‬ ‫انجر‬
1406
-
1985
‫م‬
.
PRESENTATION TITLE 2/11/20XX 14
‫صور‬
‫المسجد‬
‫قطاعت‬
‫مساقط‬
‫الواجهات‬
PRESENTATION TITLE 2/11/20XX 17
PRESENTATION TITLE 2/11/20XX 18
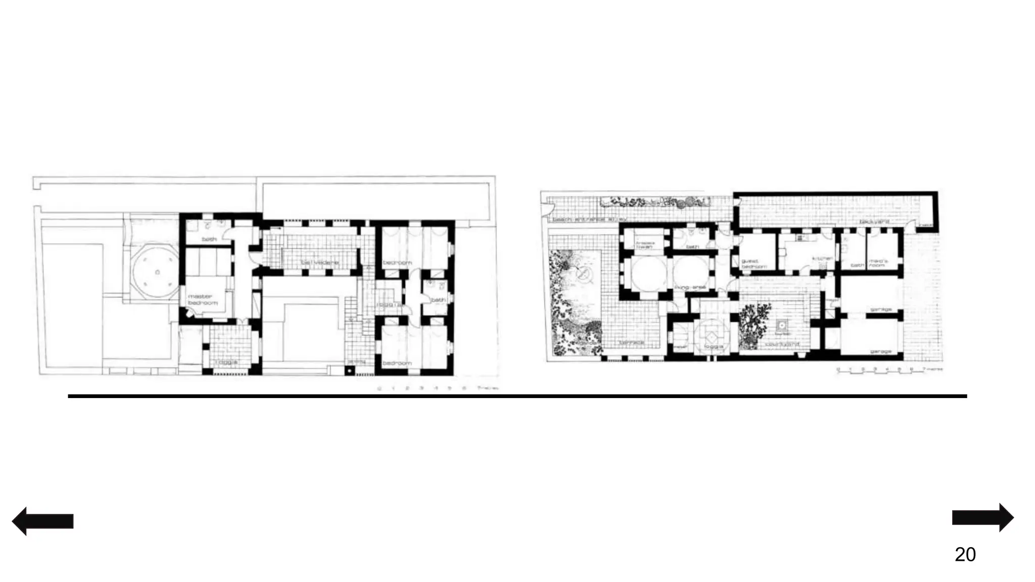
‫حالوة‬ ‫فيال‬
‫مصر‬ ‫بدولة‬ ‫االسكندرية‬ ‫لمحافظة‬ ‫التابعة‬ ‫العجمي‬ ‫منطقة‬ ‫في‬ ‫يقع‬ ‫حالوة‬ ‫منزل‬
‫التصميم‬
:
‫والمناطق‬ ‫والخدمات‬ ‫الضيوف‬ ‫اقامة‬ ‫لفراغ‬ ‫باإلضافة‬ ‫االرضي‬ ‫بالدور‬ ‫االستقبال‬ ‫فراغات‬ ‫من‬ ‫يتكون‬ ‫المنزل‬
‫المظللة‬
‫باإلضاف‬ ‫للنوم‬ ‫فراغات‬ ‫ثالث‬ ‫يضم‬ ‫االرض‬ ‫والدور‬ ‫الداخلي‬ ‫والفناء‬ ‫والجانبية‬ ‫والخلفية‬ ‫االمامية‬ ‫والحديقة‬
‫لفراغ‬ ‫ة‬
‫المعيشية‬
.
‫المنزل‬ ‫مميزات‬
:
‫التقليدية‬ ‫والمصرية‬ ‫العربية‬ ‫األبنية‬ ‫نماذج‬ ‫على‬ ‫المنزل‬ ‫هذا‬ ‫تصميم‬ ‫في‬ ‫المعماري‬ ‫اعتمد‬
.
‫م‬ ‫استفادة‬ ‫وتم‬
‫االساليب‬ ‫ن‬
‫متوفر‬ ‫محلية‬ ‫مواد‬ ‫واستخدام‬ ‫الهواء‬ ‫وتبريد‬ ‫الخصوصية‬ ‫لتوفير‬ ‫الداخلية‬ ‫االفنية‬ ‫مثل‬ ‫المحلية‬ ‫المعمارية‬
‫ة‬
.
‫االستعانة‬ ‫تم‬
‫عن‬ ‫نسبتهم‬ ‫تزيد‬ ‫فلم‬ ‫والمشربيات‬ ‫والعقود‬ ‫والقبوات‬ ‫القباب‬ ‫لبناء‬ ‫الحرفيين‬ ‫بأمهر‬
20
%
‫البناء‬ ‫اعمال‬ ‫في‬ ‫بينما‬ ‫فقط‬
‫الى‬ ‫نسبتهم‬ ‫وصلت‬ ‫والتي‬ ‫المدربين‬ ‫غير‬ ‫المنطقة‬ ‫سكان‬ ‫باألعراب‬ ‫االستعانة‬ ‫تم‬ ‫االخرى‬
80
%
‫العمال‬ ‫عدد‬ ‫اجمالي‬ ‫من‬
.
‫التقليدية‬ ‫األشكال‬ ‫باستخدام‬ ‫الهوية‬ ‫عن‬ ‫البحث‬ ‫في‬ ‫جادة‬ ‫محاولة‬ ‫اجماال‬ ‫المشروع‬
.
‫استعمال‬ ،‫الفناء‬ ‫تخطيط‬
‫واألقبية‬ ‫القباب‬
‫م‬ ‫يستوفي‬ ‫منزل‬ ‫بناء‬ ‫أجل‬ ‫من‬ ‫للضوء‬ ‫األمثل‬ ‫واالستخدام‬ ‫المساحات‬ ‫توفير‬ ،‫محلية‬ ‫مواد‬ ‫واستخدام‬ ،‫والعقود‬
‫تطلبات‬
‫العصر‬
.
‫البناء‬ ‫مواد‬
:
•
‫االسمنتية‬ ‫والمونة‬ ‫الجيري‬ ‫الحجر‬ ‫من‬ ‫كانت‬ ‫الحوائط‬
.
•
‫الطينية‬ ‫والمونة‬ ‫االحمر‬ ‫الطوب‬ ‫من‬ ‫كانت‬ ‫والقبوات‬ ‫القباب‬
.
•
‫الخشب‬ ‫من‬ ‫كان‬ ‫الفراغات‬ ‫بعض‬ ‫في‬ ‫السقف‬
.
•
‫الخرسانة‬ ‫من‬ ‫كانت‬ ‫االساسات‬
.
PRESENTATION TITLE 2/11/20XX 19
‫صور‬
‫المنزل‬
‫قطاعت‬
‫مساقط‬
20
21
22
‫سعود‬ ‫الملك‬ ‫مسجد‬
‫البلد‬ ‫منطقة‬ ‫في‬ ‫جدة‬ ‫مدينة‬ ‫وسط‬ ‫في‬ ‫يقع‬
(
‫الشرفية‬
)
‫مساحة‬ ‫على‬
9700
‫مربع‬ ‫متر‬
.
‫ويعد‬
‫مصل‬ ‫آالف‬ ‫لخمسة‬ ‫يتسع‬ ‫حيث‬ ‫المدينة‬ ‫في‬ ‫مسجد‬ ‫أكبر‬
.
‫المل‬ ‫مسجد‬ ‫مشروع‬ ‫يعد‬
‫سعود‬ ‫ك‬
‫المعماري‬ ‫الوصف‬
:
‫اإلنشاء‬ ‫ضخمة‬ ‫وقناطر‬ ‫جدران‬ ‫من‬ ‫المسجد‬ ‫يتألف‬
.
‫قب‬ ‫وزن‬ ‫تحمل‬ ‫التي‬ ‫فالركائز‬
‫مسجد‬ ‫ة‬
‫إلى‬ ‫ترتفع‬ ‫التي‬ ،‫جدة‬ ‫في‬ ‫سعود‬ ‫الملك‬
140
‫يبلغ‬ ‫الصلب‬ ‫الطوب‬ ‫من‬ ‫مصنوعة‬ ،‫متر‬
‫أمتار‬ ‫ستة‬ ‫عرضه‬
.
‫نح‬ ‫أسرع‬ ‫بخطى‬ ‫تسير‬ ‫الوكيل‬ ‫اقامها‬ ‫التي‬ ‫العديدة‬ ‫المباني‬
‫اإلنجاز‬ ‫و‬
‫الحديثة‬ ‫المباني‬ ‫من‬
.
‫للجامع‬ ‫يتيمة‬ ‫مئذنة‬ ‫تصميم‬ ‫إلى‬ ‫الوكيل‬ ‫عمد‬
‫بإرتفاع‬
‫الـ‬ ‫ناهز‬
60
‫على‬ ‫وحرص‬ ،ً‫ا‬‫متر‬
‫بال‬ ‫المار‬ ‫ويشاهدها‬ ،‫بها‬ ‫المحيط‬ ‫الفراغ‬ ً‫ال‬‫تم‬ ‫بحيث‬ ‫بصرية‬ ‫زاوية‬ ‫في‬ ‫وضعها‬
‫بكل‬ ‫جامع‬
‫سهولة‬
.
‫البلد‬ ‫منطقة‬ ‫في‬ ‫جدة‬ ‫مدينة‬ ‫وسط‬ ‫في‬ ‫يقع‬
(
‫الشرفية‬
)
‫مساحة‬ ‫على‬
9700
‫مربع‬ ‫متر‬
.
‫ويعد‬
‫مصل‬ ‫آالف‬ ‫لخمسة‬ ‫يتسع‬ ‫حيث‬ ‫المدينة‬ ‫في‬ ‫مسجد‬ ‫أكبر‬
.
‫المل‬ ‫مسجد‬ ‫مشروع‬ ‫يعد‬
‫سعود‬ ‫ك‬
PRESENTATION TITLE 2/11/20XX 23
‫صور‬
‫المسجد‬
‫قطاعت‬
‫مساقط‬
‫الواجهات‬
PRESENTATION TITLE 2/11/20XX 24
PRESENTATION TITLE 2/11/20XX 25
PRESENTATION TITLE 2/11/20XX 26
PRESENTATION TITLE 2/11/20XX 27
‫الكورنيش‬ ‫مسجد‬
‫التصميم‬
:
‫لت‬ ‫كوسيلة‬ ‫المنحوت‬ ‫الشكل‬ ‫أهمية‬ ‫على‬ ‫للتأكيد‬ ‫الكورنيش‬ ‫شاطئ‬ ‫على‬ ‫المسجد‬ ‫هذا‬ ‫بناء‬
‫وتحسين‬ ‫جميل‬
‫المعاصر‬ ‫المدينة‬ ‫منظر‬ ‫ضمن‬ ‫للمسجد‬ ‫المعمارية‬ ‫العدسة‬ ‫مظهر‬
.
‫إال‬ ‫صغير‬ ‫حجم‬ ‫ذو‬ ‫والتصميم‬
‫انه‬
‫معقد‬
.
‫ن‬ ‫القاء‬ ‫ويمكن‬ ،‫الداخل‬ ‫باتجاه‬ ‫هائلة‬ ‫بقنطرة‬ ‫القبلة‬ ‫جانب‬ ‫من‬ ‫المدخل‬ ‫تجميل‬ ‫تم‬ ‫وقد‬
‫على‬ ‫ظرة‬
‫المشبك‬ ‫الخشب‬ ‫من‬ ‫المصنوعة‬ ‫القوس‬ ‫ذات‬ ‫النافذة‬ ‫عبر‬ ‫البحر‬
(
‫المشربية‬
)
‫الجد‬ ‫آخر‬ ‫في‬
‫ار‬
.
‫وتوجد‬
‫العل‬ ‫بالنسيم‬ ‫االستمتاع‬ ‫من‬ ‫عليها‬ ‫يجلس‬ ‫من‬ ‫تمكن‬ ‫للجلوس‬ ‫مصطبة‬ ‫األيمن‬ ‫الجانب‬ ‫في‬
‫من‬ ‫الناتج‬ ‫يل‬
‫القنطرة‬ ‫من‬ ‫الهواء‬ ‫المتصاص‬ ‫المتوازي‬ ‫الفعل‬
.
‫ذات‬ ‫وقت‬ ‫في‬ ‫الداخل‬ ‫في‬ ‫والقبب‬ ‫والقناطر‬ ‫لألقواس‬ ‫االنسيابية‬ ‫باألحجام‬ ‫المرء‬ ‫يشعر‬ ‫ما‬
‫ظاللها‬ ‫مع‬ ‫ه‬
‫د‬ ‫عبر‬ ‫المئذنة‬ ‫إلى‬ ‫الوصول‬ ‫ويمكن‬ ‫والخارج‬ ‫الداخل‬ ‫بين‬ ‫مشرقا‬ ‫اختالطا‬ ‫يخلق‬ ‫مما‬ ‫الخارجية‬
‫رجات‬
‫الرئيسي‬ ‫بالبناء‬ ‫المئذنة‬ ‫تدمج‬ ‫التي‬ ‫الجنوبية‬ ‫الواجهة‬ ‫على‬ ً‫ال‬‫مائ‬ ‫سطحا‬ ‫تشكل‬
.
‫ا‬ ‫وقد‬
‫المئذنة‬ ‫علو‬ ‫بقي‬
‫ل‬ ‫انسيابي‬ ‫ظل‬ ‫وضمان‬ ‫ككل‬ ‫البناء‬ ‫ضمن‬ ‫ابقائه‬ ‫في‬ ‫المتمثل‬ ‫ذاته‬ ‫للغرض‬ ‫حد‬ ‫أقصى‬ ‫إلى‬
‫لمسجد‬
.
‫اإلنشاء‬
:
‫خالل‬ ‫من‬ ‫الضغط‬ ‫تحمل‬ ‫على‬ ‫القادر‬ ‫األحمر‬ ‫التراكوتا‬ ‫طوب‬ ‫في‬ ‫الكامنة‬ ‫االمكانيات‬ ‫هنا‬ ‫تظهر‬
‫المواد‬ ‫تفرضها‬ ‫التي‬ ‫التحديدات‬ ‫ضمن‬ ‫تتبع‬ ‫ان‬ ‫يمكن‬ ‫والتي‬ ‫للتصميم‬ ‫الهائلة‬ ‫المرونة‬
‫للشد‬ ‫القابلة‬ ‫غير‬
‫والمط‬
.
‫األسس‬ ‫بناء‬ ‫في‬ ‫إال‬ ‫الخرسانة‬ ‫الستخدام‬ ‫الحاجة‬ ‫تدع‬ ‫لم‬ ‫وهنا‬
.
PRESENTATION TITLE 2/11/20XX 28
‫صور‬
‫المسجد‬
‫قطاعت‬
‫مساقط‬
‫الواجهات‬
2/11/20XX 29
30
‫المراجع‬
1. ‫الوكيل‬ ‫الواحد‬ ‫عبد‬
..
‫خان‬ ‫األغا‬ ‫من‬
1980
‫إلى‬
‫ديرهاوس‬
2009
.
‫بناة‬
‫محفوظة‬ ‫نسخة‬
21
‫أكتوبر‬
2013
‫موقع‬ ‫على‬
‫مشين‬ ‫باك‬ ‫واي‬
.
2. ^
‫ل‬ ‫األعلى‬ ‫إلى‬ ‫تعدى‬
:
‫أ‬
‫ب‬
‫ت‬
‫ث‬
‫ج‬
‫ح‬
‫البناء‬ ‫مجلة‬
-
‫الثامنة‬ ‫السنة‬
-
‫العدد‬
34
(
‫رجب‬
-
‫شعبان‬
1407
‫هـ‬
-
‫أبريل‬
/
‫مايو‬
1987
‫م‬
)
3. ^Abdel-Wahed El-Wakil or the Triumph of the Islamic Architectural Styl ‫محفوظة‬ ‫نسخة‬
17
‫سبتمبر‬
2013
‫موقع‬ ‫على‬
‫مشين‬ ‫باك‬ ‫واي‬
.
[
‫مكسورة‬ ‫وصلة‬
]
4. ^
‫ل‬ ‫األعلى‬ ‫إلى‬ ‫تعدى‬
:
‫أ‬
‫ب‬
‫ت‬
‫الوكيل‬ ‫الواحد‬ ‫عبد‬ ‫المعماري‬ ‫أعمال‬ ‫في‬ ‫والطين‬ ‫الحجر‬ ‫من‬ ‫سيمفونية‬
-
‫األوسط‬ ‫الشرق‬
‫محفوظة‬ ‫نسخة‬
21
‫أكتوبر‬
2013
‫موقع‬ ‫على‬
‫مشين‬ ‫باك‬ ‫واي‬
.
5. ^
‫ل‬ ‫األعلى‬ ‫إلى‬ ‫تعدى‬
:
‫أ‬
‫ب‬
‫ت‬
‫الثاني‬ ‫العدد‬ ‫ابداعات‬ ‫مجلة‬
2008
6. ^
‫اإلسالمية‬ ‫العمارة‬ ‫روائع‬ ‫من‬
/
‫السليمان‬ ‫ومسجد‬ ‫قصر‬
-
‫الرآي‬
‫محفوظة‬ ‫نسخة‬
27
‫أبريل‬
2020
‫موقع‬ ‫على‬
‫مشين‬ ‫باك‬ ‫واي‬
.
7. ^
‫ل‬ ‫األعلى‬ ‫إلى‬ ‫تعدى‬
:
‫أ‬
‫ب‬
‫ت‬
‫عام‬ ‫دورة‬ ‫للعمارة‬ ‫خان‬ ‫اآلغا‬ ‫بجائزة‬ ‫الفائزة‬ ‫المشاريع‬
1980
‫محفوظة‬ ‫نسخة‬
24
‫أبريل‬
2016
‫موقع‬ ‫على‬
‫مشين‬ ‫باك‬ ‫واي‬
.
8. ^
‫ل‬ ‫األعلى‬ ‫إلى‬ ‫تعدى‬
:
‫أ‬
‫ب‬
‫ت‬
‫جدة‬ ‫مدينة‬ ‫امانة‬
‫محفوظة‬ ‫نسخة‬
3
‫أكتوبر‬
2016
‫موقع‬ ‫على‬
‫مشين‬ ‫باك‬ ‫واي‬
.
9. ^
‫ل‬ ‫األعلى‬ ‫إلى‬ ‫تعدى‬
:
‫أ‬
‫ب‬
‫عام‬ ‫دورة‬ ‫للعمارة‬ ‫خان‬ ‫اآلغا‬ ‫بجائزة‬ ‫الفائزة‬ ‫المشاريع‬
1989
‫محفوظة‬ ‫نسخة‬
24
‫أبريل‬
2016
‫موقع‬ ‫على‬
‫مشين‬ ‫باك‬ ‫واي‬
33
‫جزاكم‬
‫هللا‬
‫خير‬
....
PRESENTATION TITLE 2/11/20XX 34

الوكيل.pptx

  • 1.
    ‫المعماري‬ ‫الوكيل‬ ‫الواحد‬ ‫عبد‬ Dr: Mai Eid Khallil By : Mohamed Atef Mohamed Id : 20108522
  • 2.
  • 3.
    ‫النشأة‬  ‫في‬ ‫ولد‬ ،‫مصري‬‫معماري‬ ،‫الوكيل‬ ‫محمد‬ ‫الواحد‬ ‫عبد‬ ‫الدكتور‬ ‫هو‬ 7 ‫أغسطس‬ 1943 ‫فيك‬ ‫كلية‬ ‫في‬ ‫درس‬ ،‫مصر‬ ،‫القاهرة‬ ‫بوسط‬ ‫سيتي‬ ‫جاردن‬ ‫بحي‬ ‫م‬ ‫توريا‬ ‫شهادة‬ ‫على‬ ‫وحصل‬ ‫بريطانية‬ ‫إنجليزية‬ ‫ومدارس‬ GCE ‫عام‬ ‫في‬ 1960 ، ‫و‬ ،‫الفيزياء‬ ،‫الفنون‬ ،‫التطبيقية‬ ‫الرياضيات‬ ‫في‬ ‫بامتياز‬ ‫وتخرج‬ ‫الكيمياء‬ . ‫ثم‬ ‫عين‬ ‫من‬ ‫العمارة‬ ‫بكالوريوس‬ ‫على‬ ‫وحصل‬ ‫شمس‬ ‫عين‬ ‫جامعة‬ ‫إلى‬ ‫انضم‬ ‫عام‬ ‫األولى‬ ‫الشرف‬ ‫ومرتبة‬ ‫بامتياز‬ ‫تخرج‬ ‫القاهرة‬ ‫شمس‬ 1965 ‫حيث‬ ‫م‬ ‫الفترة‬ ‫في‬ ‫معيدا‬ ‫عمل‬ 1965 - 1970 ‫م‬ . ‫قس‬ ‫في‬ ‫الجامعة‬ ‫في‬ ‫بالتدريس‬ ‫وقام‬ ‫م‬ ‫الهندسة‬ ‫كلية‬ ،‫المعمارية‬ ‫الهندسة‬ . ‫مع‬ ‫الحقا‬ ‫عمل‬ ‫ثم‬ ‫سنوات‬ ‫خمس‬ ‫لمدة‬ ‫عام‬ ‫به‬ ‫االلتقاء‬ ‫بعد‬ ‫فتحي‬ ‫حسن‬ ‫المعماري‬ 1968 . 3
  • 4.
    ‫المهنية‬ ‫حياته‬ PRESENTATION TITLE2/11/20XX 4 • ‫إلى‬ ‫أفريقيا‬ ‫وجنوب‬ ‫وأميركا‬ ‫اليونان‬ ‫إلى‬ ،‫باريس‬ ،‫وبيروت‬ ‫السعودية‬ ‫إلى‬ ‫مصر‬ ‫من‬ ‫وتمتد‬ ‫طويلة‬ ‫رحلته‬ ‫في‬ ‫استقر‬ ‫ان‬ ‫عام‬ ‫بريطانيا‬ ،‫لندن‬ 1980 . ‫المصري‬ ‫المعماري‬ ‫أعمال‬ ‫عن‬ ‫الماجستير‬ ‫رسالة‬ ‫تسجيل‬ ‫المعماري‬ ‫حاول‬ ‫تخرجه‬ ‫بعد‬ ‫كتاب‬ ‫صاحب‬ ‫فتحي‬ ‫حسن‬ ‫الشهير‬ « ‫الفقراء‬ ‫عمارة‬ » ‫اإل‬ ‫على‬ ‫يوافق‬ ‫لم‬ ‫التدريس‬ ‫هيئة‬ ‫أعضاء‬ ‫من‬ ‫أيا‬ ‫أن‬ ‫إال‬ ‫شراف‬ ‫اإلنشاء‬ ‫أساليب‬ ‫ليدرس‬ ‫الرسالة‬ ‫موضوع‬ ‫تغيير‬ ‫إلى‬ ‫اضطره‬ ‫مما‬ ‫عليها‬ . ‫تف‬ ‫في‬ ‫الدراسة‬ ‫هذه‬ ‫ساعدته‬ ‫ولقد‬ ‫أساليب‬ ‫هم‬ ‫أعماله‬ ‫في‬ ‫واضحا‬ ‫ظهر‬ ‫الذي‬ ‫األمر‬ ‫اإلنشاء‬ . ‫خ‬ ‫لمدة‬ ‫الجامعة‬ ‫في‬ ‫بالتدريس‬ ‫واستمر‬ ،‫األكاديمي‬ ‫الطريق‬ ‫سلك‬ ‫مس‬ ‫عام‬ ‫حتي‬ ‫سنوات‬ 1970 ‫الحقيقي‬ ‫تعليمه‬ ‫في‬ ‫بالفضل‬ ‫يدين‬ ‫أنه‬ ‫إال‬ ‫فتحي‬ ‫حسن‬ ‫المعماري‬ ‫مع‬ ‫الحقا‬ ‫عمل‬ ‫ثم‬ ، ‫إلى‬ ‫فتحي‬ ‫حسن‬ ‫المعماري‬ ‫مع‬ ‫قضاها‬ ‫التي‬ ‫الخمس‬ ‫السنوات‬ ( 1968 – 1973 ) ‫العمارة‬ ‫أصول‬ ‫في‬ ‫الشخصي‬ ‫بحثه‬ ‫والي‬ ‫الفني‬ ‫المستوى‬ ‫على‬ ‫سواء‬ ‫كبير‬ ‫بتأييد‬ ‫المحلية‬ ‫اإلسالمية‬ ‫العمارة‬ ‫فيه‬ َ‫ظ‬‫تح‬ ‫لم‬ ‫وقت‬ ‫في‬ ‫اإلسالمية‬ ‫الشعبي‬ ‫أو‬ . ‫حيث‬ ‫ع‬ ‫األثر‬ ‫أكبر‬ ‫لها‬ ‫كان‬ ‫التي‬ ‫السنوات‬ ‫الخمس‬ ‫معه‬ ‫قضى‬ ‫حيث‬ ‫فتحي‬ ‫مع‬ ‫للعمل‬ ‫والتفرغ‬ ‫دراسته‬ ‫قطع‬ ‫قرر‬ ‫حياته‬ ‫لى‬ ‫العمل‬ ‫في‬ ‫وأسلوبه‬ . ‫الخامات‬ ‫الستخدام‬ ‫واتجاهه‬ ‫الغربية‬ ‫العمارة‬ ‫لتقليد‬ ‫انتقاده‬ ‫فتحي‬ ‫حسن‬ ‫عن‬ ‫المعروف‬ ‫في‬ ‫المحلية‬ ‫الحديثة‬ ‫التصاميم‬ ‫في‬ ‫واستخدامها‬ ‫التراثية‬ ‫الهندسية‬ ‫والتشكيالت‬ ‫األنماط‬ ‫واستيعاب‬ ‫البناء‬ . ‫ب‬ ‫وقام‬ ‫الجامعة‬ ‫في‬ ‫التدريس‬ ‫فتحي‬ ‫حسن‬ ‫المعماري‬ ‫مع‬ ‫الحقا‬ ‫عمل‬ ‫ثم‬ ‫سنوات‬ ‫خمس‬ ‫لمدة‬ .
  • 5.
    ‫المعماري‬ ‫فكرة‬ ‫تطويرية‬ ‫عملية‬‫ما‬ ‫حد‬ ‫وإلى‬ ‫عضوي‬ ،‫حي‬ ‫كائن‬ ‫العمارة‬ ‫ان‬ ‫يرى‬ . ‫من‬ ‫شيئا‬ ‫يرث‬ ‫ان‬ ‫غير‬ ‫من‬ ‫شيء‬ ‫يوجد‬ ‫فال‬ ‫أصل‬ ‫والديه‬ . ‫األصلية‬ ‫االشكال‬ ‫هي‬ ‫ومعماريا‬ . ‫ومعان‬ ‫إعراب‬ ،‫كلمات‬ ‫لها‬ ‫لغة‬ ‫العمارة‬ ‫اخر‬ ‫وبمعنى‬ . ‫فر‬ ‫أي‬ ‫فهم‬ ‫فاذا‬ ‫د‬ ‫لغ‬ ‫تتحدث‬ ‫بعمارة‬ ،‫االرضية‬ ‫الكرة‬ ‫من‬ ‫نقظة‬ ‫أي‬ ‫في‬ ‫التصميم‬ ‫على‬ ‫قادرا‬ ‫سيصبح‬ ‫الحدود‬ ‫هذه‬ ‫من‬ ‫العمارة‬ ‫ذلك‬ ‫ة‬ ‫اإلقليم‬ . ‫و‬ ‫السعودية‬ ‫العربية‬ ‫والمملكة‬ ‫مصر‬ ،‫اليونان‬ ‫في‬ ‫مبان‬ ‫يصمم‬ ‫ان‬ ‫الوكيل‬ ‫استطاع‬ ‫السبب‬ ‫ولهذا‬ ‫تتحدث‬ ‫هي‬ ‫فيه‬ ‫بنيت‬ ‫إقليم‬ ‫لكل‬ ‫المعمارية‬ ‫اللغة‬ . ‫اإلسالمي‬ ‫العالم‬ ‫في‬ ‫العظيمة‬ ‫مبانيه‬ ‫من‬ ‫مبنى‬ ‫كل‬ ‫في‬ ‫فالوكيل‬ ‫لغة‬ ‫تتحدث‬ ‫الشارع‬ ‫في‬ ‫المتجولين‬ ‫المسلمين‬ ‫معظم‬ ‫فهمها‬ ‫معمارية‬ . ‫م‬ ‫كلمة‬ ‫أو‬ ‫رسالة‬ ‫أي‬ ‫يوصل‬ ‫المبنى‬ ‫ان‬ ‫فهم‬ ‫قد‬ ‫فهو‬ ‫للغة‬ ‫حددة‬ ‫التقليدية‬ ‫المعمارية‬ . ‫التقليدي‬ ‫التركيب‬ ‫أو‬ ‫اإلعراب‬ ‫في‬ ‫تستعمل‬ ‫ان‬ ‫فيجب‬ . ‫الكالس‬ ‫إلى‬ ‫هذا‬ ‫يعود‬ ‫قد‬ ‫عصر‬ ‫أو‬ ‫يكية‬ ‫النهضة‬ . ‫كذل‬ ‫صالحيتها‬ ‫وإنما‬ ‫اإلسالمية‬ ‫العمارة‬ ‫لغة‬ ‫نسميه‬ ‫ان‬ ‫يمكن‬ ‫ما‬ ‫وجود‬ ‫على‬ ‫فقط‬ ‫ليس‬ ‫يبرهن‬ ‫وهو‬ ‫للعمارة‬ ‫ك‬ ‫المعاصرة‬ . ‫الثامن‬ ‫القرن‬ ‫معماري‬ ‫انماط‬ ‫يشابه‬ ‫ال‬ ‫نمط‬ ‫في‬ ‫للعمارة‬ ‫التقليدية‬ ‫المفردات‬ ‫الوكيل‬ ‫استعمل‬ ‫التاسع‬ ‫أو‬ ‫عشر‬ ‫القديمة‬ ‫المعمارية‬ ‫االنماط‬ ‫الحياء‬ ‫عمدوا‬ ‫والذين‬ ،‫عشر‬ " . ‫ف‬ ،‫يكون‬ ‫وكيف‬ ‫الشيء‬ ‫ماهية‬ ‫عن‬ ‫دائما‬ ‫يسأل‬ ‫فهو‬ ‫القوس‬ ‫الطوب‬ ‫من‬ ‫حائط‬ ‫في‬ ‫شخص‬ ‫فتح‬ ‫إذا‬ ‫يتولد‬ . ‫خ‬ ‫لرؤية‬ ‫وامتالكه‬ ‫فلسفته‬ ‫من‬ ‫يأتى‬ ‫المعمارى‬ ‫تميز‬ ‫وألن‬ ‫في‬ ‫اصة‬ ‫ي‬ ‫الغربية‬ ‫العمارة‬ ‫ألساليب‬ ‫االنقياد‬ ‫أن‬ ‫يؤمن‬ ‫كان‬ ‫فقد‬ ،‫لتميزه‬ ‫سرا‬ ‫بالهوية‬ ‫تمسكه‬ ‫كان‬ ،‫تصميماته‬ ‫عن‬ ‫ابتعادا‬ ‫عد‬ ‫اإلسالمية‬ ‫العمارة‬ ‫قيم‬ ‫باحياء‬ ‫نادى‬ ‫لذلك‬ ‫اإلسالمية‬ ‫العربية‬ ‫الهوية‬
  • 6.
    ‫التصميم‬ ‫في‬ ‫فلسفة‬  ‫الشكل‬‫فلسفة‬  ‫فلسفته‬ • ‫ر‬ ‫ور‬ ‫االنسياق‬ ‫مصر‬ ‫في‬ ‫المهنة‬ ‫ممارسته‬ ‫بداية‬ ‫مع‬ ‫الوكيل‬ ‫فض‬ ‫اء‬ ‫ا‬ ‫وقوانين‬ ‫الفترة‬ ‫تلك‬ ‫في‬ ‫ينتشر‬ ‫بدء‬ ‫الذي‬ ‫الغربي‬ ‫الطراز‬ ‫التي‬ ‫لمباني‬ ‫وإبداعه‬ ‫المعماري‬ ‫خيال‬ ‫تحدد‬ ‫قيودا‬ ‫تفرض‬ . ‫إح‬ ‫بضرورة‬ ‫ويؤمن‬ ‫ياء‬ ‫استخ‬ ‫بأهمية‬ ‫يؤمن‬ ‫كما‬ ،‫اإلسالمية‬ ‫العمارة‬ ‫في‬ ‫اإلسالمية‬ ‫القيم‬ ‫دام‬ ‫تطورها‬ ‫مع‬ ‫التقليدية‬ ‫البناء‬ ‫وتقنيات‬ ‫البيئية‬ ‫البناء‬ ‫مواد‬ ‫مع‬ ‫لتتناسب‬ ‫الحديثة‬ ‫المتطلبات‬ . ‫اإلنسان‬ ‫بأن‬ ‫إيمانه‬ ‫من‬ ‫األفكار‬ ‫هذه‬ ‫وتنبع‬ ‫كان‬ ‫ا‬ ‫البيئية‬ ‫للظروف‬ ‫تبعا‬ ‫العمارة‬ ‫بتشكيل‬ ‫األصل‬ ‫في‬ ‫يقوم‬ ‫فتأتي‬ ‫لمحلية‬ ‫االستمرارية‬ ‫من‬ ‫نوعا‬ ‫وتعطي‬ ‫المحلية‬ ‫الشخصية‬ ‫عن‬ ‫معبرة‬ ‫مست‬ ‫مستقبل‬ ‫بناء‬ ‫على‬ ‫أقدر‬ ‫اإلنسان‬ ‫تجعل‬ ‫التي‬ ‫الحضارية‬ ‫وتعكس‬ ‫قر‬ ‫االحتي‬ ‫إلى‬ ‫باإلضافة‬ ‫المبادئ‬ ‫األفكار‬ ‫هذه‬ ‫الوكيل‬ ‫أعمال‬ ‫جميع‬ ‫اجات‬ ‫لشاغليها‬ ‫والوظيفية‬ ‫المناخية‬ . PRESENTATION TITLE 2/11/20XX 6 ‫ي‬ ‫فال‬ ‫الشكل‬ ‫وليس‬ ‫الروح‬ ‫هو‬ ‫اإلسالمية‬ ‫العمارة‬ ‫يميز‬ ‫ما‬ ‫أن‬ ‫الوكيل‬ ‫رى‬ ‫شيء‬ ‫وال‬ ‫الشاهقة‬ ‫اليمنية‬ ‫والمباني‬ ‫الصغيرة‬ ‫النوبية‬ ‫المساكن‬ ‫يجمع‬ ‫الذي‬ ‫مساجد‬ ‫واحد‬ ‫مسمى‬ ‫تحت‬ ‫العظيمة‬ ‫التركية‬ « ‫اإلسالمية‬ ‫العمارة‬ » ‫اإلسال‬ ‫روح‬ ‫هو‬ ‫م‬ ‫مف‬ ‫إال‬ ‫هي‬ ‫ما‬ ‫المختلفة‬ ‫المعمارية‬ ‫فاألشكال‬ ،‫المعماري‬ ‫التشكيل‬ ‫وليس‬ ‫ردات‬ ‫ا‬ ‫هي‬ ‫فهذه‬ ‫شعرية‬ ‫قطعا‬ ‫لتكون‬ ‫معا‬ ‫المفردات‬ ‫هذه‬ ‫وضع‬ ‫كيفية‬ ‫أما‬ ‫اللغة‬ ‫لعمارة‬ ‫اإلسالمية‬
  • 7.
    ‫الوكيل‬ ‫رؤية‬ ‫نفس‬ ‫له‬‫كانت‬ ‫فقد‬ ‫التصميم‬ ‫حد‬ ‫عند‬ ‫الوكيل‬ ‫لدى‬ ‫تتوقف‬ ‫لم‬ ‫العمل‬ ‫في‬ ‫الرؤية‬ ‫في‬ ‫رؤية‬ ‫ب‬ ‫البيئة‬ ‫مع‬ ‫تتفاعل‬ ‫التي‬ ‫البناء‬ ‫مواد‬ ‫استخدام‬ ‫يفضل‬ ‫إنه‬ ‫حيث‬ ‫البناء‬ ‫مواد‬ ‫إلى‬ ‫اإلضافة‬ ‫ال‬ ‫المتطلبات‬ ‫مع‬ ‫لتتناسب‬ ‫تطويرها‬ ‫مع‬ ‫التقليدية‬ ‫البناء‬ ‫تقنيات‬ ‫استخدام‬ ‫وكان‬ ،‫حديثة‬ ‫دهشة‬ ‫أثار‬ ‫أمرا‬ ‫اليدوي‬ ‫للعمل‬ ‫وتفضيله‬ ‫الجاهزة‬ ‫القوالب‬ ‫استخدام‬ ‫عن‬ ‫عزوفه‬ ‫وت‬ ‫عجب‬ ‫والق‬ ‫بالصبات‬ ‫العمل‬ ‫بأن‬ ‫ذلك‬ ‫في‬ ‫عليهم‬ ‫يجيب‬ ‫كان‬ ‫انه‬ ‫إال‬ ‫المعماريون‬ ‫زمالئه‬ ‫والب‬ ‫بها‬ ‫يقوم‬ ‫التي‬ ‫للمهمة‬ ‫مناقضا‬ . ‫تص‬ ‫ليس‬ ‫ذاته‬ ‫حد‬ ‫في‬ ‫المفرد‬ ‫اقتباس‬ ‫أن‬ ‫يري‬ ‫وان‬ ‫ميما‬ ‫للعمارة‬ ‫الحقيقي‬ ‫الكشف‬ ‫هو‬ ‫المفرد‬ ‫هذا‬ ‫وفلسفة‬ ‫وفكر‬ ‫أصل‬ ‫اكتشاف‬ ‫ر‬ ‫هنا‬ ‫من‬ ‫الوكيل‬ ‫أى‬ ‫كلمات‬ ‫هم‬ ‫المعمارى‬ ‫للنجاح‬ ‫األربع‬ ‫المفاتيح‬ ‫أن‬ ( ‫بيئة‬ – ‫فلسفة‬ – ‫فكر‬ – ‫مع‬ ‫تقد‬ .)
  • 8.
  • 9.
    ‫قصر‬ ‫السليمان‬ ‫مسجد‬ ‫الجزيرة‬ • ‫فيال‬ ‫حالوة‬ • ‫الملك‬‫مسجد‬ ‫سعود‬ • ‫مسجد‬ ‫الكورنيش‬ PRESENTATION TITLE 2/11/20XX 9
  • 10.
    ‫السليمان‬ ‫قصر‬ ‫في‬ ‫الواقع‬‫جدة‬ ‫في‬ ‫الحمراء‬ ‫حي‬ ‫في‬ ‫السليمان‬ ‫قصر‬ ‫بناء‬ ‫ميزها‬ ‫السعودية‬ ‫في‬ ‫الوكيل‬ ‫عمل‬ ‫بدايات‬ ‫حي‬ ‫الحمراء‬ ‫عام‬ ‫جدة‬ ‫كورنيش‬ ‫علي‬ 1979 ‫عام‬ ‫السعودية‬ ‫العربية‬ ‫المملكة‬ ‫في‬ ‫مبني‬ ‫كأجمل‬ ‫السليمان‬ ‫قصر‬ ‫مختير‬ 1973 ‫المعمار‬ ‫في‬ ‫متخصصة‬ ‫أمريكية‬ ‫مجلة‬ ‫قبل‬ ‫من‬ . ‫السليم‬ ‫قصر‬ ‫مشروع‬ ‫في‬ ‫الرئيسية‬ ‫الفكرة‬ ‫قامت‬ ‫على‬ ‫ان‬ ‫تدعيم‬ ‫باالندث‬ ‫مهددة‬ ‫أصبحت‬ ‫التي‬ ‫التقليدية‬ ‫الحرف‬ ‫تشجع‬ ‫تصميمات‬ ‫تطوير‬ ‫خالل‬ ‫من‬ ‫المحلية‬ ‫العمارة‬ ‫ويعكس‬ ‫ار‬ ‫والتحد‬ ‫األفقي‬ ‫المسقط‬ ‫تماثل‬ ‫عدم‬ ‫مثل‬ ‫العربية‬ ‫المعمارية‬ ‫المالمح‬ ‫بعض‬ ‫السليمان‬ ‫قصر‬ ‫تصميم‬ ‫الواضع‬ ‫يد‬ ‫ويطور‬ ‫اإلسالمية‬ ‫المعمارية‬ ‫العناصر‬ ‫يستخدم‬ ‫أن‬ ‫استطاع‬ ‫كما‬ ‫الداخلي‬ ‫الفناء‬ ‫استعمال‬ ‫للفراغات‬ ‫بصورة‬ ‫ها‬ ‫ال‬ ‫باألشكال‬ ‫المزخرفة‬ ‫الخشبية‬ ‫واألبواب‬ ‫والشخشيخة‬ ‫المرتفعة‬ ‫والقبة‬ ‫المشربية‬ ‫مثل‬ ‫مكثفة‬ ‫هندسية‬ ‫والخزف‬ ‫م‬ ‫استخدام‬ ‫دون‬ ‫القصور‬ ‫هذه‬ ‫مثل‬ ‫في‬ ‫المطلوبة‬ ‫الفخامة‬ ‫يحقق‬ ‫أن‬ ‫الوكيل‬ ‫استطاع‬ ‫ولقد‬ ‫الرخام‬ ‫وأعمال‬ ‫واد‬ ‫بناء‬ ‫اإلنش‬ ‫وطرق‬ ‫البيئية‬ ‫البناء‬ ‫مواد‬ ‫علي‬ ‫تصميمه‬ ‫في‬ ‫اعتمد‬ ‫وانما‬ ‫مكلفة‬ ‫حديثة‬ ‫إنشاء‬ ‫طرق‬ ‫أو‬ ‫غالية‬ ‫اء‬ ‫التقليدية‬ 10 ‫صور‬ ‫القصر‬ ‫قطاعت‬ ‫مساقط‬
  • 11.
  • 12.
  • 14.
    ‫الجزيرة‬ ‫مسجد‬ ‫صغ‬ ‫جزيرة‬‫على‬ ‫الشمالي‬ ‫الكورنيش‬ ‫من‬ ‫بالقرب‬ ،‫السعودية‬ ‫غرب‬ ‫جدة‬ ‫مدينة‬ ‫في‬ ‫يقع‬ ‫يرة‬ ‫مساحتها‬ 2500 ‫مربع‬ ‫متر‬ . ‫بواسطة‬ ‫بالجزيرة‬ ‫وصلها‬ ‫تم‬ ‫التي‬ ‫المرافق‬ ‫إلى‬ ‫باإلضافة‬ ‫جسر‬ ‫صغير‬ . • ‫التصميم‬ ‫التقليدية‬ ‫المساجد‬ ‫في‬ ‫القائمة‬ ‫االساسية‬ ‫العناصر‬ ‫على‬ ‫التصميم‬ ‫ارتكز‬ . ‫مس‬ ‫وهناك‬ ‫رئيسية‬ ‫احة‬ ‫رئيسية‬ ‫قبة‬ ‫تعلوها‬ ‫مستطيلة‬ ( ‫بقطر‬ 6 ‫أمتار‬ ) ‫القب‬ ‫جدار‬ ‫جانب‬ ‫إلى‬ ‫مباشرة‬ ‫المحراب‬ ‫فوق‬ ‫تقع‬ ‫لة‬ ‫أمتار‬ ‫ثالثة‬ ‫بعرض‬ ‫قناطر‬ ‫المتجاورة‬ ‫الثالثة‬ ‫اجزائها‬ ‫من‬ ‫جزء‬ ‫بكل‬ ‫وتحيط‬ . ‫والقناطر‬ ‫ترتكز‬ ‫المركزية‬ ‫واألقواس‬ ‫الجدران‬ ‫على‬ . ‫االضالع‬ ‫ثمانية‬ ‫اسطوانة‬ ‫على‬ ‫القبة‬ ‫ترتكز‬ ‫بينما‬ ‫ترتكز‬ ‫مربع‬ ‫إلى‬ ‫الدائرة‬ ‫تحويل‬ ‫إلى‬ ‫يؤدي‬ ‫مما‬ ‫قطرية‬ ‫عقود‬ ‫اربعه‬ ‫على‬ ‫بدورها‬ . ‫ج‬ ‫مقابل‬ ‫ويقع‬ ‫دار‬ ‫المقنطر‬ ‫بالممر‬ ‫المحاطة‬ ‫الباحة‬ ‫على‬ ‫يطل‬ ‫ضخم‬ ‫قوس‬ ‫القبلة‬ . • ‫اإلنشاء‬ ‫الضغ‬ ‫تحمل‬ ‫على‬ ‫القادرة‬ ‫الحمراء‬ ‫التراكوتا‬ ‫طوب‬ ‫حجارة‬ ‫من‬ ‫المسجد‬ ‫إنشاء‬ ‫عمد‬ ‫جرى‬ ‫لقد‬ ‫ط‬ ‫ا‬ ‫بشكل‬ ‫تستخدم‬ ‫التي‬ ‫المتفوقة‬ ‫والفنية‬ ‫العلمية‬ ‫الطوب‬ ‫تكنولوجيا‬ ‫ادخال‬ ‫لإلعادة‬ ‫قتصادي‬ . ‫وأكثر‬ ‫ب‬ ‫الطوب‬ ‫من‬ ‫صنعت‬ ‫التي‬ ‫المئذنة‬ ‫ساللم‬ ‫هي‬ ‫لالهتمام‬ ‫المثيرة‬ ‫االنشائية‬ ‫التفاصيل‬ ‫حيث‬ ،‫أجمعها‬ ‫اآلخر‬ ‫منها‬ ‫كل‬ ‫يحمل‬ ‫متراكبة‬ ‫أقواس‬ ‫على‬ ‫منها‬ ‫مجموعة‬ ‫كل‬ ‫تستند‬ . ‫عام‬ ‫في‬ ‫البناء‬ ‫انجر‬ 1406 - 1985 ‫م‬ . PRESENTATION TITLE 2/11/20XX 14 ‫صور‬ ‫المسجد‬ ‫قطاعت‬ ‫مساقط‬ ‫الواجهات‬
  • 17.
  • 18.
  • 19.
    ‫حالوة‬ ‫فيال‬ ‫مصر‬ ‫بدولة‬‫االسكندرية‬ ‫لمحافظة‬ ‫التابعة‬ ‫العجمي‬ ‫منطقة‬ ‫في‬ ‫يقع‬ ‫حالوة‬ ‫منزل‬ ‫التصميم‬ : ‫والمناطق‬ ‫والخدمات‬ ‫الضيوف‬ ‫اقامة‬ ‫لفراغ‬ ‫باإلضافة‬ ‫االرضي‬ ‫بالدور‬ ‫االستقبال‬ ‫فراغات‬ ‫من‬ ‫يتكون‬ ‫المنزل‬ ‫المظللة‬ ‫باإلضاف‬ ‫للنوم‬ ‫فراغات‬ ‫ثالث‬ ‫يضم‬ ‫االرض‬ ‫والدور‬ ‫الداخلي‬ ‫والفناء‬ ‫والجانبية‬ ‫والخلفية‬ ‫االمامية‬ ‫والحديقة‬ ‫لفراغ‬ ‫ة‬ ‫المعيشية‬ . ‫المنزل‬ ‫مميزات‬ : ‫التقليدية‬ ‫والمصرية‬ ‫العربية‬ ‫األبنية‬ ‫نماذج‬ ‫على‬ ‫المنزل‬ ‫هذا‬ ‫تصميم‬ ‫في‬ ‫المعماري‬ ‫اعتمد‬ . ‫م‬ ‫استفادة‬ ‫وتم‬ ‫االساليب‬ ‫ن‬ ‫متوفر‬ ‫محلية‬ ‫مواد‬ ‫واستخدام‬ ‫الهواء‬ ‫وتبريد‬ ‫الخصوصية‬ ‫لتوفير‬ ‫الداخلية‬ ‫االفنية‬ ‫مثل‬ ‫المحلية‬ ‫المعمارية‬ ‫ة‬ . ‫االستعانة‬ ‫تم‬ ‫عن‬ ‫نسبتهم‬ ‫تزيد‬ ‫فلم‬ ‫والمشربيات‬ ‫والعقود‬ ‫والقبوات‬ ‫القباب‬ ‫لبناء‬ ‫الحرفيين‬ ‫بأمهر‬ 20 % ‫البناء‬ ‫اعمال‬ ‫في‬ ‫بينما‬ ‫فقط‬ ‫الى‬ ‫نسبتهم‬ ‫وصلت‬ ‫والتي‬ ‫المدربين‬ ‫غير‬ ‫المنطقة‬ ‫سكان‬ ‫باألعراب‬ ‫االستعانة‬ ‫تم‬ ‫االخرى‬ 80 % ‫العمال‬ ‫عدد‬ ‫اجمالي‬ ‫من‬ . ‫التقليدية‬ ‫األشكال‬ ‫باستخدام‬ ‫الهوية‬ ‫عن‬ ‫البحث‬ ‫في‬ ‫جادة‬ ‫محاولة‬ ‫اجماال‬ ‫المشروع‬ . ‫استعمال‬ ،‫الفناء‬ ‫تخطيط‬ ‫واألقبية‬ ‫القباب‬ ‫م‬ ‫يستوفي‬ ‫منزل‬ ‫بناء‬ ‫أجل‬ ‫من‬ ‫للضوء‬ ‫األمثل‬ ‫واالستخدام‬ ‫المساحات‬ ‫توفير‬ ،‫محلية‬ ‫مواد‬ ‫واستخدام‬ ،‫والعقود‬ ‫تطلبات‬ ‫العصر‬ . ‫البناء‬ ‫مواد‬ : • ‫االسمنتية‬ ‫والمونة‬ ‫الجيري‬ ‫الحجر‬ ‫من‬ ‫كانت‬ ‫الحوائط‬ . • ‫الطينية‬ ‫والمونة‬ ‫االحمر‬ ‫الطوب‬ ‫من‬ ‫كانت‬ ‫والقبوات‬ ‫القباب‬ . • ‫الخشب‬ ‫من‬ ‫كان‬ ‫الفراغات‬ ‫بعض‬ ‫في‬ ‫السقف‬ . • ‫الخرسانة‬ ‫من‬ ‫كانت‬ ‫االساسات‬ . PRESENTATION TITLE 2/11/20XX 19 ‫صور‬ ‫المنزل‬ ‫قطاعت‬ ‫مساقط‬
  • 20.
  • 21.
  • 22.
  • 23.
    ‫سعود‬ ‫الملك‬ ‫مسجد‬ ‫البلد‬‫منطقة‬ ‫في‬ ‫جدة‬ ‫مدينة‬ ‫وسط‬ ‫في‬ ‫يقع‬ ( ‫الشرفية‬ ) ‫مساحة‬ ‫على‬ 9700 ‫مربع‬ ‫متر‬ . ‫ويعد‬ ‫مصل‬ ‫آالف‬ ‫لخمسة‬ ‫يتسع‬ ‫حيث‬ ‫المدينة‬ ‫في‬ ‫مسجد‬ ‫أكبر‬ . ‫المل‬ ‫مسجد‬ ‫مشروع‬ ‫يعد‬ ‫سعود‬ ‫ك‬ ‫المعماري‬ ‫الوصف‬ : ‫اإلنشاء‬ ‫ضخمة‬ ‫وقناطر‬ ‫جدران‬ ‫من‬ ‫المسجد‬ ‫يتألف‬ . ‫قب‬ ‫وزن‬ ‫تحمل‬ ‫التي‬ ‫فالركائز‬ ‫مسجد‬ ‫ة‬ ‫إلى‬ ‫ترتفع‬ ‫التي‬ ،‫جدة‬ ‫في‬ ‫سعود‬ ‫الملك‬ 140 ‫يبلغ‬ ‫الصلب‬ ‫الطوب‬ ‫من‬ ‫مصنوعة‬ ،‫متر‬ ‫أمتار‬ ‫ستة‬ ‫عرضه‬ . ‫نح‬ ‫أسرع‬ ‫بخطى‬ ‫تسير‬ ‫الوكيل‬ ‫اقامها‬ ‫التي‬ ‫العديدة‬ ‫المباني‬ ‫اإلنجاز‬ ‫و‬ ‫الحديثة‬ ‫المباني‬ ‫من‬ . ‫للجامع‬ ‫يتيمة‬ ‫مئذنة‬ ‫تصميم‬ ‫إلى‬ ‫الوكيل‬ ‫عمد‬ ‫بإرتفاع‬ ‫الـ‬ ‫ناهز‬ 60 ‫على‬ ‫وحرص‬ ،ً‫ا‬‫متر‬ ‫بال‬ ‫المار‬ ‫ويشاهدها‬ ،‫بها‬ ‫المحيط‬ ‫الفراغ‬ ً‫ال‬‫تم‬ ‫بحيث‬ ‫بصرية‬ ‫زاوية‬ ‫في‬ ‫وضعها‬ ‫بكل‬ ‫جامع‬ ‫سهولة‬ . ‫البلد‬ ‫منطقة‬ ‫في‬ ‫جدة‬ ‫مدينة‬ ‫وسط‬ ‫في‬ ‫يقع‬ ( ‫الشرفية‬ ) ‫مساحة‬ ‫على‬ 9700 ‫مربع‬ ‫متر‬ . ‫ويعد‬ ‫مصل‬ ‫آالف‬ ‫لخمسة‬ ‫يتسع‬ ‫حيث‬ ‫المدينة‬ ‫في‬ ‫مسجد‬ ‫أكبر‬ . ‫المل‬ ‫مسجد‬ ‫مشروع‬ ‫يعد‬ ‫سعود‬ ‫ك‬ PRESENTATION TITLE 2/11/20XX 23 ‫صور‬ ‫المسجد‬ ‫قطاعت‬ ‫مساقط‬ ‫الواجهات‬
  • 24.
  • 25.
  • 26.
  • 27.
  • 28.
    ‫الكورنيش‬ ‫مسجد‬ ‫التصميم‬ : ‫لت‬ ‫كوسيلة‬‫المنحوت‬ ‫الشكل‬ ‫أهمية‬ ‫على‬ ‫للتأكيد‬ ‫الكورنيش‬ ‫شاطئ‬ ‫على‬ ‫المسجد‬ ‫هذا‬ ‫بناء‬ ‫وتحسين‬ ‫جميل‬ ‫المعاصر‬ ‫المدينة‬ ‫منظر‬ ‫ضمن‬ ‫للمسجد‬ ‫المعمارية‬ ‫العدسة‬ ‫مظهر‬ . ‫إال‬ ‫صغير‬ ‫حجم‬ ‫ذو‬ ‫والتصميم‬ ‫انه‬ ‫معقد‬ . ‫ن‬ ‫القاء‬ ‫ويمكن‬ ،‫الداخل‬ ‫باتجاه‬ ‫هائلة‬ ‫بقنطرة‬ ‫القبلة‬ ‫جانب‬ ‫من‬ ‫المدخل‬ ‫تجميل‬ ‫تم‬ ‫وقد‬ ‫على‬ ‫ظرة‬ ‫المشبك‬ ‫الخشب‬ ‫من‬ ‫المصنوعة‬ ‫القوس‬ ‫ذات‬ ‫النافذة‬ ‫عبر‬ ‫البحر‬ ( ‫المشربية‬ ) ‫الجد‬ ‫آخر‬ ‫في‬ ‫ار‬ . ‫وتوجد‬ ‫العل‬ ‫بالنسيم‬ ‫االستمتاع‬ ‫من‬ ‫عليها‬ ‫يجلس‬ ‫من‬ ‫تمكن‬ ‫للجلوس‬ ‫مصطبة‬ ‫األيمن‬ ‫الجانب‬ ‫في‬ ‫من‬ ‫الناتج‬ ‫يل‬ ‫القنطرة‬ ‫من‬ ‫الهواء‬ ‫المتصاص‬ ‫المتوازي‬ ‫الفعل‬ . ‫ذات‬ ‫وقت‬ ‫في‬ ‫الداخل‬ ‫في‬ ‫والقبب‬ ‫والقناطر‬ ‫لألقواس‬ ‫االنسيابية‬ ‫باألحجام‬ ‫المرء‬ ‫يشعر‬ ‫ما‬ ‫ظاللها‬ ‫مع‬ ‫ه‬ ‫د‬ ‫عبر‬ ‫المئذنة‬ ‫إلى‬ ‫الوصول‬ ‫ويمكن‬ ‫والخارج‬ ‫الداخل‬ ‫بين‬ ‫مشرقا‬ ‫اختالطا‬ ‫يخلق‬ ‫مما‬ ‫الخارجية‬ ‫رجات‬ ‫الرئيسي‬ ‫بالبناء‬ ‫المئذنة‬ ‫تدمج‬ ‫التي‬ ‫الجنوبية‬ ‫الواجهة‬ ‫على‬ ً‫ال‬‫مائ‬ ‫سطحا‬ ‫تشكل‬ . ‫ا‬ ‫وقد‬ ‫المئذنة‬ ‫علو‬ ‫بقي‬ ‫ل‬ ‫انسيابي‬ ‫ظل‬ ‫وضمان‬ ‫ككل‬ ‫البناء‬ ‫ضمن‬ ‫ابقائه‬ ‫في‬ ‫المتمثل‬ ‫ذاته‬ ‫للغرض‬ ‫حد‬ ‫أقصى‬ ‫إلى‬ ‫لمسجد‬ . ‫اإلنشاء‬ : ‫خالل‬ ‫من‬ ‫الضغط‬ ‫تحمل‬ ‫على‬ ‫القادر‬ ‫األحمر‬ ‫التراكوتا‬ ‫طوب‬ ‫في‬ ‫الكامنة‬ ‫االمكانيات‬ ‫هنا‬ ‫تظهر‬ ‫المواد‬ ‫تفرضها‬ ‫التي‬ ‫التحديدات‬ ‫ضمن‬ ‫تتبع‬ ‫ان‬ ‫يمكن‬ ‫والتي‬ ‫للتصميم‬ ‫الهائلة‬ ‫المرونة‬ ‫للشد‬ ‫القابلة‬ ‫غير‬ ‫والمط‬ . ‫األسس‬ ‫بناء‬ ‫في‬ ‫إال‬ ‫الخرسانة‬ ‫الستخدام‬ ‫الحاجة‬ ‫تدع‬ ‫لم‬ ‫وهنا‬ . PRESENTATION TITLE 2/11/20XX 28 ‫صور‬ ‫المسجد‬ ‫قطاعت‬ ‫مساقط‬ ‫الواجهات‬
  • 29.
  • 30.
  • 33.
    ‫المراجع‬ 1. ‫الوكيل‬ ‫الواحد‬‫عبد‬ .. ‫خان‬ ‫األغا‬ ‫من‬ 1980 ‫إلى‬ ‫ديرهاوس‬ 2009 . ‫بناة‬ ‫محفوظة‬ ‫نسخة‬ 21 ‫أكتوبر‬ 2013 ‫موقع‬ ‫على‬ ‫مشين‬ ‫باك‬ ‫واي‬ . 2. ^ ‫ل‬ ‫األعلى‬ ‫إلى‬ ‫تعدى‬ : ‫أ‬ ‫ب‬ ‫ت‬ ‫ث‬ ‫ج‬ ‫ح‬ ‫البناء‬ ‫مجلة‬ - ‫الثامنة‬ ‫السنة‬ - ‫العدد‬ 34 ( ‫رجب‬ - ‫شعبان‬ 1407 ‫هـ‬ - ‫أبريل‬ / ‫مايو‬ 1987 ‫م‬ ) 3. ^Abdel-Wahed El-Wakil or the Triumph of the Islamic Architectural Styl ‫محفوظة‬ ‫نسخة‬ 17 ‫سبتمبر‬ 2013 ‫موقع‬ ‫على‬ ‫مشين‬ ‫باك‬ ‫واي‬ . [ ‫مكسورة‬ ‫وصلة‬ ] 4. ^ ‫ل‬ ‫األعلى‬ ‫إلى‬ ‫تعدى‬ : ‫أ‬ ‫ب‬ ‫ت‬ ‫الوكيل‬ ‫الواحد‬ ‫عبد‬ ‫المعماري‬ ‫أعمال‬ ‫في‬ ‫والطين‬ ‫الحجر‬ ‫من‬ ‫سيمفونية‬ - ‫األوسط‬ ‫الشرق‬ ‫محفوظة‬ ‫نسخة‬ 21 ‫أكتوبر‬ 2013 ‫موقع‬ ‫على‬ ‫مشين‬ ‫باك‬ ‫واي‬ . 5. ^ ‫ل‬ ‫األعلى‬ ‫إلى‬ ‫تعدى‬ : ‫أ‬ ‫ب‬ ‫ت‬ ‫الثاني‬ ‫العدد‬ ‫ابداعات‬ ‫مجلة‬ 2008 6. ^ ‫اإلسالمية‬ ‫العمارة‬ ‫روائع‬ ‫من‬ / ‫السليمان‬ ‫ومسجد‬ ‫قصر‬ - ‫الرآي‬ ‫محفوظة‬ ‫نسخة‬ 27 ‫أبريل‬ 2020 ‫موقع‬ ‫على‬ ‫مشين‬ ‫باك‬ ‫واي‬ . 7. ^ ‫ل‬ ‫األعلى‬ ‫إلى‬ ‫تعدى‬ : ‫أ‬ ‫ب‬ ‫ت‬ ‫عام‬ ‫دورة‬ ‫للعمارة‬ ‫خان‬ ‫اآلغا‬ ‫بجائزة‬ ‫الفائزة‬ ‫المشاريع‬ 1980 ‫محفوظة‬ ‫نسخة‬ 24 ‫أبريل‬ 2016 ‫موقع‬ ‫على‬ ‫مشين‬ ‫باك‬ ‫واي‬ . 8. ^ ‫ل‬ ‫األعلى‬ ‫إلى‬ ‫تعدى‬ : ‫أ‬ ‫ب‬ ‫ت‬ ‫جدة‬ ‫مدينة‬ ‫امانة‬ ‫محفوظة‬ ‫نسخة‬ 3 ‫أكتوبر‬ 2016 ‫موقع‬ ‫على‬ ‫مشين‬ ‫باك‬ ‫واي‬ . 9. ^ ‫ل‬ ‫األعلى‬ ‫إلى‬ ‫تعدى‬ : ‫أ‬ ‫ب‬ ‫عام‬ ‫دورة‬ ‫للعمارة‬ ‫خان‬ ‫اآلغا‬ ‫بجائزة‬ ‫الفائزة‬ ‫المشاريع‬ 1989 ‫محفوظة‬ ‫نسخة‬ 24 ‫أبريل‬ 2016 ‫موقع‬ ‫على‬ ‫مشين‬ ‫باك‬ ‫واي‬ 33
  • 34.