MASTER OF ARCHITECTURE
SCHOOL OF ARCHITECTURE, BUILDING & DESIGN
ENVIRONMENT AND TECHNOLOGY II (ARC71003)
PROJECT 2: SERVICE CORE OPTIMAL PROPOSAL
STUDENT NAME: ONG SENG PENG (JEFF)
STUDENT ID: 0319016
TUTOR: AR. AXXU HOI
JUNE 2021
1
TABLE OF CONTENT
1.0 INTRODUCTION ................................................................................................ 3
2.0 SITE INTRODUCTION ...................................................................................... 4
2.1 Site Analysis................................................................................................ 5
2.1.1 Sun Path and Shadow Analysis ......................................................... 5
2.1.2 Temperature and Humidity................................................................. 6
2.1.3 Precipitation and Rainfall .................................................................. 7
2.1.4 Wind Flow Analysis .......................................................................... 8
3.0 BUILDING INTRODUCTION .......................................................................... 9
3.1 Building Information........................................................................................ 9
3.2 Purpose Group............................................................................................. 9 – 10
- Appendix Drawings............................................................................ 11 – 17
3.3 Occupancy Load......................................................................................... 18 – 19
4.0 PASSIVE FIRE PROTECTION ....................................................................... 20
4.1 Fire Appliance Access
4.1.1 Perimeter Appliance .................................................................... 20 - 22
4.1.2 Hydrant Location .............................................................................. 22
- Appendix Drawing....................................................................... 23
4.2 Means of Escape
4.2.1 Measurement of Travel Distance to Exits.................................... 24 – 25
- Appendix Drawings................................................................ 26 – 29
4.2.2 Escape Provision Computation.................................................... 30 – 31
5.0 ACTIVE FIRE PROTECTION .......................................................................... 32
5.1 Active Fire Protection System........................................................................... 32
5.2 Extinguishing System
5.2.1 Hose Reel System…........................................................................... 32
- Appendix Drawing........................................................................ 33
5.2.2 Automatic Sprinkler System…........................................................... 34
5.3 Fire Alarm System
5.3.1 Automatic Fire Detection System…................................................... 34
5.3.2 Manual Electrical Fire Alarm System…............................................. 34
5.4 Fire Alarm System…………….......................................................................... 35
- Appendix Drawings................................................................ 36 – 41
6.0 CORE DESIGN
6.1 Core Layout Design Optimization..................................................................... 42
6.2 Fire Lift Core Optimization............................................................................... 43
7.0 REFERENCES....................................................................................................... 44
2
List of Figures
Figure 1. Site plan, NTS
Figure 2. Sun path study
Figure 3. Summer Solstice shadow study
Figure 4. Winter Solstice shadow study
Figure 5. Average high and low temperature in Kuala Lumpur
Figure 6. Average humidity comfort level in Kuala Lumpur
Figure 7. Average precipitation rate in Kuala Lumpur
Figure 8. Average rainfall in Kuala Lumpur
Figure 9. Average wind occurrence in Kampong Bharu
Figure 10. Average predominant wind direction in Kampong Bharu
Figure 11. Relationship between building and access for Fire Appliance
Figure 12. Staircase labelling in Block B, NTS
Figure 13. Finalised form, based on design concept & functions.
Figure 14. Lift core design in week 12 with 224.1 m2, NTS
Figure 15. Optimized lift core design in week 13 with 126.8 m2, NTS
List of Tables
Table 1. Designated of purpose groups according to Fifth Schedule (UBBL, 2015)
Table 2. Block A purpose group
Table 3. Block B purpose group
Table 4. Block C purpose group
Table 5. Factors for calculation of Occupant Load and Capacity of Exits (UBBL, 2015)
Table 6. Building volume and required proportions of perimeter access (UBBL, 2015)
Table 7. Calculation of project’s building volume
Table 8. Maximum Travel Distance (UBBL, 2015)
Table 9. Exit Width Calculation Table
Table 10. Table of requirements for fire extinguishment, alarm systems and emergency lighting
Table 11. Comparative study & reasoning between core design options
3
1.0 INTRODUCTION
The aim of this project is to propose an integrated service core together with the final project of the
module, “Urban Design Studio”, in order to fully understand the following:
1) Standards and regulations of building core designs
2) Technology for building core construction
3) Environmental implications for the service core proposals
The learning outcomes are as followed:
1) Recognize the various types and functions of building components, materials and physical
properties aligned with the application green strategies in architectural design.
2) Evaluate energy consumption and implement strategies to reduce energy usage without
compromising the quality of life.
3) Develop appropriate construction methods to integrate passive and active building systems.
4) Appraise spatial requirements for different types of building services and its design
implications in different climate conditions.
5) Analyse the thermal, lighting and acoustic requirements of designed spaces.
4
2.0 SITE INTRODUCTION
The proposed site is located next to Jalan Raja Abdullah at Kampong Bharu with the land size
of 1.96 acres, with the statutory road offset requirement, it is left with 1.3acre buildable area. Some of
the prominent structures can be found at the nearby site such as the Sultan Suleiman Club and
Kampong Bharu Gateway. The Sultan Sulaiman Club has become history because this is where
UMNO was established, and various Malay’s congress was held. Till today, the club still remained as
a spot for sports facilities, meetings & evens for its members. On the other hand, the Kampong Bharu
Gateway is a modernised Islamic archway that serves as a welcoming entrance to the popular food
streets of Jalan Raja Muda Musa in Kampong Bharu.
Fig. 1. Site plan, NTS
Jalan Raja Abdullah
Jalan Datuk Abdul Razak
Jalan Dewan Sultan Suleiman
Sultan
Suleiman
Club
Site B
1.96 acres
Buildable area: 1.3 acres
Kampong Bharu Gateway
Jalan Raja
Muda Musa
5
2.1 Site Analysis
The site analysis was carried out to identify the issues associated with visual, thermal and site
environmental matter. Those factors analysed using appropriate methodology to stimulate a set of data
for future design consideration.
2.1.1 Sun Path and Shadow Analysis
Fig. 2. Sun path study
Figure 2 shows the sun position at the respective seasons: Equinox (21st
March/September),
Summer Solstice (21st
June) & Winter Solstice (21st
December). Different shadow casting direction
can be observed and studied based on Figure 3 &4.
Fig. 3. Summer Solstice shadow study
Fig. 4. Winter Solstice shadow study
6
2.1.2 Temperature and Humidity
Temperature:
Fig. 5. Average high and low temperature in Kuala Lumpur
As referring to Figure 5, the red highlighted area shows the hottest season in Kuala Lumpur,
from February 12 to May 23, with an average daily high temperature above 33°C. The hottest day of
the year is March 14, with an average high of 33°C and low of 24°C. The cool season lasts for 2.0
months, from November 3 to January 5, with an average daily high temperature below 32°C.
Humidity:
Fig. 6. Average humidity comfort level in Kuala Lumpur
The perceived humidity level in Kuala Lumpur, as measured by the percentage of time in
which the humidity comfort level does not vary significantly over the course of the year, staying
within 0% of 100% throughout.
7
2.1.3 Precipitation and Rainfall
Precipitation:
Fig. 7. Average precipitation rate in Kuala Lumpur
As shown in Figure 7, the chance of wet days in Kuala Lumpur varies significantly
throughout the year. The wetter season last for 6.8 months, from September 30th
to April 25th
, with a
greater than 47% chance of a given day being a wet day. The chance of a wet day peaks at 63% in
November. The drier season lasts 5.2 months, from April 25 to September 30.
Rainfall:
Fig. 8. Average rainfall in Kuala Lumpur
Figure 8 shows the rainfall accumulated over a sliding 31-day period centred around each day
of the year. Kuala Lumpur experiences extreme seasonal variation in monthly rainfall. The most rain
falls during the 31 days centred around November 14th
, with an average total accumulation of 271
millimetres. The least rain falls around June 25, with an average total accumulation of 112
millimetres.
8
2.1.4 Wind Flow Analysis
Fig. 9. Average wind occurrence in Kampong Bharu
Fig. 10. Average predominant wind direction in Kampong Bharu
Referring to Figure 9, the predominant wind direction comes from East-Northeast & South
direction, based on the frequency of wind occurrence. The average hourly wind speed in Kampong
Bharu experiences mild seasonal variation over the course of the year. The windier part of the year
lasts for 2.9 months, from December 2 to February 26, with average wind speeds of more than 1.8
meters per second.
9
3.0 BUILDING INTRODUCTION
3.1 Project Background
The selected building for the “Urban Design Studio” module assignment is a Social Science
College which will be located at the site shown in Figure 1. The project aims to respond to the issues
of “new urbanism in the post-covid world”. Hence, the element of flexibility & resiliency to be
adaptable for multiple functions & crises, is explored in the design process.
3.2 Purpose Group
The project consist of 3 main blocks, block A, B, C. Block A is mainly for place of assembly,
the multipurpose hall. Block B mainly consist of lecture theatres and classrooms whereby Block C
contains mixed usage such as administration area, canteen, and students’ recreation room.
Referring to UBBL 5th
Schedule - Designation of Purpose Group, this project comprises of
the following group:
No of Purpose
Group
Description Title Purposes for which compartment is intended to be used
II Institutional Hospitals, schools, colleges, libraries, nursing homes or
other similar establishment used for education or as
living accommodation for, or for treatment, care or
maintenance of, persons suffering from disabilities due to
illness or old age or other physical or mental disability or
under the age of 5 years, where such persons sleep in the
premises.
IV Office Office, or premises used for office purposes, meaning
thereby the purpose of administration, clerical work
(including writing, book-keeping, sorting papers, filing,
typing, duplicating, machine-calculating, drawingand the
editorial preparation of matter for publication), handling
money and telephone and telegraph operating.
VII Place of
assembly
Place, whether public or private, used for the attendance of
persons for or in connection with their social, recreational,
educational, business or other activities, and not comprised
within group I or VI
Table 1; Designated of purpose groups according to Fifth Schedule (UBBL, 2015)
10
The main usage of each level and each block are categorised as followed:
Block A:
Spaces Purpose Group
Ground Floor Multipurpose Hall Place of Assembly (VII)
First Floor Multipurpose Hall Auxiliary Rooms
Table 2; Block A purpose group
Block B
Spaces Purpose Group
Ground Floor Lecture Theatre + Canteen, Institutional (II)
- College
First Floor Classrooms + Lecture Theatres + Library
Second Floor Classrooms + Lecture Theatres + Library
Third Floor Classrooms + Lecture Theatres + Library
Fourth Floor Classrooms + Lecture Theatres + Library
Fifth Floor Staffs Office Office (IV)
Table 3; Block B purpose group
Block C:
Table 4; Block C purpose group
The spatial arrangement can be referred from the following plans:
Spaces Purpose Group
Ground Floor Administration Office + Canteen Office (IV)
First Floor Students’ Recreational Area Place of Assembly (VII)
11
BLOCK
B
BLOCK
A
BLOCK
C
SITE PLAN
SCALE 1:1000
12
GROUND FLOOR PLAN
SCALE 1:500
13
FIRST FLOOR PLAN
SCALE 1:500
14
THIRD & FOURTH FLOOR PLAN
SCALE 1:500
15
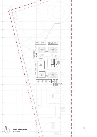
FIFTH FLOOR PLAN
SCALE 1:500
16
BASEMENT 1 FLOOR PLAN
SCALE 1:500
17
BASEMENT 2 FLOOR PLAN
SCALE 1:500
18
The purpose group is based on the following By-laws:
By-law Clause 134: Designation of purpose groups.
For the purpose of this Part every building or compartment shall be regarded according to its
use or intended use as falling within one of the purpose groups set out in the Fifth Schedule to these
By-laws and, where a building is divided into compartments, used or
intended to be used for different purposes, the purpose group of each compartment shall
be determined separately:
Provided that where the whole or part of a building or compartment is used or intended to be
used for more than one purpose, only the main purpose of use of
that building or compartment shall be taken into account in determining into which
purpose group it falls.
By-law Clause 138: Other walls and floors to be constructed as compartment walls
or compartment floors.
The following walls and floors in buildings shall be constructed as compartment walls or
compartment floors:
a) Any floor in a building of Purpose Group II (Institutional);
b) Any wall or floor separating a flat or maisonette from any other part of the same
building;
c) Any wall or floor separating part of a building from any other part of the same
building which is used or intended to be used mainly for a purpose falling within
a different purpose group as set out in the Fifth Schedule to these By-laws; and
d) Any floor immediately over a basement storey if such basement storey has an area
exceeding 100 square metres.
3.3 Occupancy Load
Based on the Uniform Building By-laws 1984 Seventh Schedule, the calculation of
occupancy load and capacity of exits for the identified purpose groups are as followed:
Purpose Group Occupant
load
square
metre per
CAPACITY EXIT
No. of persons per unit – Exit Width
Doors
outside
Horizo-
ntal
Exit
Ramp
Main
Exit
Ramp
Sec.
Exit
Escalator Stair
s
II. Institutional
Class-room Area 2 net
100 100 60 60 - 60
IV. Office 10 gross
(4)
100 100 100 60 60 60
VII. Place of Assembly 1.5 100 100 100 60 75 75
Table 5; Factors for calculation of Occupant Load and Capacity of Exits (UBBL, 2015)
Note:
(4) Excluding any areas occupied by staircases, lifts, sanitary accommodation and any other space
occupied by machinery for any lift, air-conditioning system or similar service provided for the
building.
19
The occupancy load and capacity exits are based on the following By-laws:
By-law Clause 167: Storey exits.
2) The width of storey exist shall be in accordance with the provision in the Seventh Schedule to these
By-laws.
By-law Clause 168: Staircases.
2) Staircases shall be of such width that in the event of any one staircase not being available for
escapee purposes the remaining staircases shall accommodate the highest occupancy load of any floor
discharging into it calculated in accordance with provisions in the Seventh schedule to these By-laws.
By-law Clause 170: Egress through unenclosed openings.
Where unenclosed openings are permitted between floors and for a mezzanine floor, egress may be by
way of an open staircase to an adjacent floor and terrace to a story exit:
c) Only 50% of the occupants of a floor are assumed to use the open staircase and storey exits are
provided at every level to accommodate the other 50% of the occupants of that level in accordance
with the provisions of the Seventh Schedule to these by-laws.
By-law Clause 171: Horizontal exits.
1) Where appropriate, horizontal exits may be provided in lines of other exits.
2) Where horizontal exits are provided protected staircases are final exits need only be of a width to
accommodate the occupancy load of the larger compartment or building discharging into it so long as
the total number of exit widths provided is not reduced to less than half that would otherwise be
required for the whole building.
3) For institutional occupancies the total exit capacity other than horizontal exits shall not be reduced
by more than one-third that would otherwise be required fix the entire area of the building.
By-law Clause 175: Calculation of occupant load
Calculation of occupancy loads and capacity of exits shall be in accordance with the provisions of the
Seventh Schedule to these By-laws
20
4.0 PASSIVE FIRE PROTECTION
4.1 Fire Application Access
Vehicular access to the exterior of a building is needed to enable high reach appliances, such
as turntable ladders and hydraulic platforms, to be used and to enable pumping appliances to
supply water and equipment for fire fighting and rescue activity (Bakar, 2006).
4.1.1 Perimeter Appliance
By-law Clause 140: Fire appliance access.
All buildings in excess of 7000 cubic metres shall abut upon a street or road or open space
of not less than 12 metres width and accessible to fire brigade appliances. The proportion
of the building abutting the street, road or open space shall be in accordance with the
following scale:
Volume of building in cubic meter Minimum proportions of perimeter of
building
7000 to 28000 One-sixth (1/6)
28000 to 56000 One-fourth (1/4)
56000 to 84000 One-half (1/2)
84000 to 112000 Three-fourths (3/4)
112000 and above Island site
Table 6; Building volume and required proportions of perimeter access (UBBL, 2015)
Referring to Figure 11, the minimum accessway for fire appliances should be at least 10m;
C (Total Access Width) =A (Offset Area) + B (Carriageway),
Other Access Consideration:
• Road/access width 6m (Maximum width of fire appliances is 2.5m)
• Maximum gradient of access is 1:12
• Minimum overhead clearance of access is 4m height
21
Fig. 11. Relationship between building and access for Fire Appliance (Medium to Highrise Building),
Guide to Fire Protection in Malaysia (2006), p.20
Total Volume of Block A
Base Area x Height
= 489.8m2
x 6m
= 2938.8 m3
Total Volume of Block B
= 1402.9m2
x 24m
= 33669.6 m3
Total Volume of Block C
= 634.7m2
x 8m
=5077.6 m3
Total Volume
2938.8 m3
+ 33,669.6 m3
+ 5077.6 m3
= 41686 m3
Total Perimeter of Block A
= 20.6m + 30.5m + 20.6m + 30.7
= 102.4m
Total Perimeter of Block B
= 5.6m + 67.5m + 7m + 2.9m + 18.3m + 46m +
8.2m + 22.4m
= 177.9m
Total Perimeter of Block C
= 3.7m + 9.1m+ 25.2m + 15.2m + 11.6m + 12.6m
+ 6.5m + 38.6m
= 122.5m
Total Perimeter
102.4 m + 177.9 m + 122.5m3
= 402.8 m
Table 7; Calculation of project’s building volume
22
The total volume of the proposed social science college is approximately 41686 m3
,
which fall under the range of 28000 to 56000 m3 , the minimum proportions of perimeter of
building will be one-forth. The total perimeter of the building, combing Block A, B & C is
402.8m, hence 100.7m of perimeter access will be required for the fire appliance.
4.1.2 Fire Hydrant Location
According to Guide to fire protection in Malaysia (2016), hydrants should be located :
i. Away from obstruction such as street furniture (benches), phone booths, etc.
ii. Not less than 2m from adjacent buildings and overhangs.
iii. Between 0.61m to 2.4m from Fire Appliance Access.
iv. Away from risks of vehicular damage.
v. Not more than 90m apart from each other (in new building adjacent to existing
developments, a new hydrants will have to be provided if there is no hydrant within 45m
radius of the new building ).
Besides, By-law Clause 225: Detecting and extinguishing fire mentioned that:
2) Every building shall be served by at least one fire hydrant located not more than 91.5
metres from the nearest point of fire brigade access.
3) Depending on the size and location of the building and the provision of access for fire
appliances, additional fire hydrant shall be provided as may be required by the Fire
Authority.
2 fire hydrants is proposed to sufficiently covering the whole building compound. The
bomba accessway is around 125m in length, which fulfilled the required 105m requirement.
The total road width has also reached 11.1m, more than the minimum requirement of 10m to
allow use of both turntable and hydraulic platform for fire fighting purpose. Besides, the
high ceiling of 4.5m at the ground floor also means the fire appliance is able to reach inside
the building compound. The drawing in the following page indicates the location of fire
hydrants is and the bomba access road following the perimeter access guideline mentioned in
the previous section 4.1.1, as followed:
23
BOMBA ACCESS PLAN
SCALE 1:750
125M
24
4.2 Means of Escape
4.2.1 Measurement of Travel Distance to Exits
The measurement of travel distance follows the guideline from Uniform Building By-laws
1984 Seventh Schedule, the criteria to be complied based on the building layout design are as
followed:
Purpose Group Limit when alternative exits are available
(1)
* Dead-End Limit
(meter)
(2)
Un-
sprinklered
(3)
Sprinklered
II. Institutional
School/College
Open Plan
6
NR
45
30
60
45
IV. Office 15 45 60
VII. Place of Assembly NR 45 61
Table 8; Maximum Travel Distance (UBBL, 2015)
Note:
* The dead-end limit shall be the distance to a storey exit or to a point where alternative means
of escape is available provided that the total travel distance shall not exceed the limits under (2) Un-
sprinklered.
The measurement and calculation of the travel distances are based on the following By-laws:
By-law Clause 165: Measurement of travel distance to exists.
1) The travel distance to an exit shall be measured on the floor or other walking surface along the
centre line of the natural path of travel, starting 0.300 metre from the most remote point of occupancy,
curving around any corners or obstructions with 0.300 metre clearance therefrom and ending at the
storey exit. Where measurement includes stairs, it shall be taken in the plane of the trend noising.
2) In the case of open areas the distance to exits shall be measured from the most remote point of
occupancy provided that the direct distance shall not exceed two-thirds the permitted travel distance.
3) In the case of individual rooms which are subject to occupancy of not more than six persons, the
travel distance shall be measured from the doors of such rooms: Provided that the travel distance from
any point in the room to the room door does not exceed 15 metres.
4) The maximum travel distances to exits and dead end limits shall be as specified in the Seventh
Schedule of these By-laws.
By-law Clause 166: Exits to be accessible at all times.
1) Except as permitted by by-law 167 not less than two separate exits shall be provided from each
storey together with such additional exits as may be necessary
2) The exits shall be sited and the exit access shall be so arranged that the exits are within the limits of
travel distance as specified in the Seventh Schedule to these By-laws and are readily accessible at all
times.
25
By-law Clause 167: Storey exits.
1) Except as provided for in by-law 194 every compartment shall be provided with at least two storey
exits located as far as practical from each other and in no case closer than 4.5 metres and in such
position that the travel distances specified in the Seventh Schedule to these By-laws are not exceeded.
2) The width of storey exits shall be in accordance with the provisions the Seventh Schedule to these
By-laws.
By-law Clause 170: Egress through unenclosed openings.
Where unenclosed openings are permitted between floors and for a mezzanine floor, egress may be by
way of an open staircase to an adjacent floor and thence to a story exit:
b) The travel distances specified in the Seventh Schedule to these By-laws are no exceeded.
The ground floor plan of the proposed social science college contains mostly open spaces for multiple
usage, besides a few enclosed one such as lecture theatre, assembly hall, and administration area. No
travel distance is measured in space like campus square and canteens as the users can readily exit to
the building exterior. Further details of the fire escape plans for are as followed:
26
FIRE ESCAPE PLAN 1
SCALE 1:500
27
FIRE ESCAPE PLAN 2
SCALE 1:500
28
FIRE ESCAPE PLAN 3
SCALE 1:500
29
FIRE ESCAPE PLAN 4
SCALE 1:500
30
4.2.2 Escape Provision Computation
The escape provision in relation to occupancy load is based on the following By-laws:
By-law Clause 175: Calculation of occupant load.
Calculation of occupancy loads and capacity of exits shall be in accordance with the provisions of the
Seventh Schedule to these By-laws.
By-law Clause 176. Computing storey exit widths.
To compute the required exit width from individual floors of a building
a) Calculate the floor area net or gross whichever is applicable;
b) Determine the allowable occupancy load factor from Table;
c) Calculate the number of units of exit width for each type of exit used based upon the capacity.
d) Determine from the table the capacity of the type of exit to be used for the purpose group being
designed; and
e) Calculate the number of units of exit width for each type of exit used based upon the capacity.
By-law Clause 177: Computing number of staircases and staircase widths.
The following factors shall be used in computing the exit widths:
d) Except as provided in these By-laws, the minimum number of exits is two;
e) At least one of the staircases should be a minimum of two units width except that 900 millimetres
may be allowed where total occupancy of all floors served by staircases is less than 50.
f) There should be no decrease in width along the path of travel of a staircase.
Since Block A and C only contain 2 levels and not exceeding 12m as per By-law Clause 194:
Building with single staircase.
A single staircase may be permitted in any building the topmost floor of which does not exceed 12
metres in height.
Therefore Block A & C does not follow the exit width calculation. For Block B, it’s a 5-storey
building with floor level exceeding 18.5 meter high. Referring the By-laws as the guideline, the
numbers and width of staircase for Block B is calculated as shown below:
31
Block B Staircase exit width calculation:
Level First Second Third Fourth Fifth
Purpose Group Institutional (II) Office (IV)
Floor Area (m2) 714.3 (net) 1026 (Gross-(4))
Occupancy Load (7th
Schedule)
2 (net) 10 Gross
(4)
Total No. of persons 714.3 Ă· 2= 357 1026 Ă· 10 = 102.6
No. of persons per unit –
Exit Width (7th
Schedule)
75 60
Unit Width Required 357 Ă· 75 = 4.76 102.6 Ă· 60 = 1.71
Exit Width Required 4.76 x 550 =
2618 mm
1.71 x 550 =
941mm
Exit Width Provided Staircase 1: 2000mm
Staircase 2: 2800mm
Staircase 3: 1000mm
Staircase 4: 1500mm
Staircase 5: 1500mm
Total: 8800mm
Staircase 2: 2800mm
Staircase 3: 1000mm
Staircase 4: 1500mm
Staircase 5: 1500mm
Total: 6800mm
Assuming One Staircase
Inaccessible
8800-2800
=6000mm
6800-2800
=4000mm
Remarks Adequate Adequate
Table 9; Exit Width Calculation Table
*Note: Non-ceiling areas are considered 50% of GFA
Note 2: (4) Excluding any areas occupied by staircases, lifts, sanitary accommodation and any other
space occupied by machinery for any lift, air-conditioning system or similar service provided for the
building.
Fig. 12. Staircase labelling in Block B, NTS
STC
1
STC
2
STC 3
STC
4
STC
5
32
5.0 ACTIVE FIRE PROTECTION
5.1 Active Fire Protection System
Referring to UBBL 10th
Schedule- Table of requirements for fire extinguishment, alarm
systems and emergency lighting
Occupancy Hazard Extinguishing
System
Fire Alarm System Emergency
Lighting
II. Institutional
1.Educational Occupancies
i) Use for instructional
purposes only
(b) 3 to 5 storeys
iv) Library
(c) More than 1000
sq.m or three storeys
or more
Hose Reel
Hose Reel
-
Automatic Fire
Detection System &
Manual Electrical
Fire Alarm System
-
Signal
Point Units
IV Offices
2. 5 storeys and over or
exceeding 1000sq.m
Hose Reel Manual Electrical
Fire Alarm System
Signal
Point Units
VII Place of Assembly
3. Hazardous areas Automatic
Sprinkler
- Signal
Point Units
Table 10; UBBL 10th
Schedule- Table of requirements for fire extinguishment, alarm systems and emergency lighting
5.2 Extinguishing System
5.2.1 Hose Reel System
Hose reel system is intended for the occupant to use during early stages of a fire and
comprises hose reel pumps, fire water storage tank, hose reels, pipe work and valves. (Bakar,2006)
Design Standards
The requirement for hose reel systems is detailed under 10th
Schedule of the Uniform Building By-
laws 1984. The applicable standards for hose reel systems are as follows:
- M.S.1489 Part 1: Hydrant Systems, Hose Reels and Foam Inlets;
- M.S. 1447 – Hose reels with semi-rigid hose;
- M.S. 1488: Semi-rigid hoses for first aid fixed installations.
The following drawing indicates the 30-metre hose coverage of each proposed hose reel at different
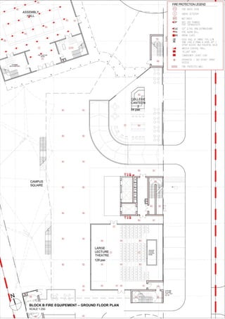
locations to fulfil the requirement of the Malaysian Standard 1447 – Hose reels with semi-rigid hose.
One hose reel should be provided for every 800sqm of usable floor space.
33
34
5.2.2 Automatic Sprinkler System
An automatic sprinkler system is intended to detect, control and extinguish a fire, and warn
the occupants of the occurrence of fire. The installation comprises firm pumps, water storage tanks,
control valve sets, sprinkler heads, flow switches, pressure switches, pipework and valves. The system
operates automatically without human intervention. The sprinkler head has a liquid filled glass bulb
that breaks due to the heat of the fire and releases water that sprays over the fire. (Bakar,2006)
Design Standards
Under the Uniform Building By-laws 1984, By-laws 226 and 228 refer to the requirement for
sprinkler systems. The accepted standards for automatic sprinkler installations are:
- BS EN 12845 : 2003 – Automatic Sprinkler systems – Design, installation and maintenance.
- NFPA 13.
5.3 Fire Alarm System
5.3.1 Automatic Fire Detection System
Fire detection and alarm systems are designed to provide warning of the outbreak of fire and
allow appropriate firefighting action to be taken before the situation gets out of control. As all systems
are designed primarily to protect life, property, this places a great responsibility on the designer
because each building will present a different set of problems in relation to the risk of fire and fire
spread. (Bakar,2006)
Design Standards
Automatic Fire detection and alarm system requirements shall be based on:
- B.S.5839 : Part 1,3,5
- M.S.1176 : Part 5, 7, 8, 9
- M.S.1471 : Part 3
- M.S.1745 : Part 1, 2, 3, 4, 11
- B.S.7273: Part 1
- B.S.6266
- By-law 133, 225(1), 237, 238, 239, 240, 241, 244 (g), 245, 246 – UBBL 1984
- Tenth Schedule – UBBL 1984
- B.S.5588 : Part 1, 8, 10
5.3.2 Manual Electrical Fire Alarm System
Every fire detection system must include call points, so that in the event of a fire, help can be
called immediately. All call points in the same installation shall have the same method of operation.
All call points should be clearly identifiable and should not require instructions as their mode of
actuation. (Bakar,2006)
Design Standards
Manual Call Point shall be based on:
a) B.S.5839 : Part 1 : 1988
- Fire Detection and Alarm System for Buildings
Code of Practice for System Design, Installation and Servicing
b) B.S.5839 : Part 2: 1983
- Specification for Manual Call Points
35
5.4 Emergency Lighting
UBBL Section 253 - Emergency power system:
(1) Emergency power system shall be provided to supply illumination and power
automatically in the event of failure of the normal supply or in the event of accident to
elements of the system supplying power and illumination essential for safety to life and
property.
(2) Emergency power system shall provide power for smoke control systems,
illumination, fire alarm systems, fire pumps, public address systems, fire lifts and other
emergency systems.
(3) Emergency systems shall have adequate capacity and rating for the emergency
operation of all equipment connected to the system including the simultaneous operation of
all fire lifts and one other lift.
(4) All wiring for emergency systems shall be in metal conduit or of fire resisting mineral
insulated cables, laid along areas of the least risk.
(5) Current supply shall be such that in the event of failure of the normal supply to or
within the building or group of building concerned, the emergency lighting or emergency
power, or both emergency lighting and power will be available within 10 seconds of the
interruption of the normal supply. The supply system for emergency purposes shall comprise
one or more of the following approved types:
(a) Storage Battery
Storage battery of suitable rating capacity to supply and maintain at not less than 87½
percent of the system voltage the total load of the circuits supplying emergency
lighting and emergency power for a period of at least 1½ hours;
(b) Generator set
A generator set driven by some form of prime mover and of sufficient capacity and
proper rating to supply circuit carrying emergency lighting or lighting and power
with suitable means for automatically starting the prime mover on failure of the
normal service.
Complying to the 10th
schedule guideline mentioned in section 5.1, the detailed version of the
proposed fire equipment layouts is as followed:
36
BLOCK A FIRE EQUIPEMENT – GROUND FLOOR PLAN
SCALE 1:250
37
BLOCK B FIRE EQUIPEMENT – GROUND FLOOR PLAN
SCALE 1:250
38
BLOCK C FIRE EQUIPEMENT – GROUND FLOOR PLAN
SCALE 1:250
39
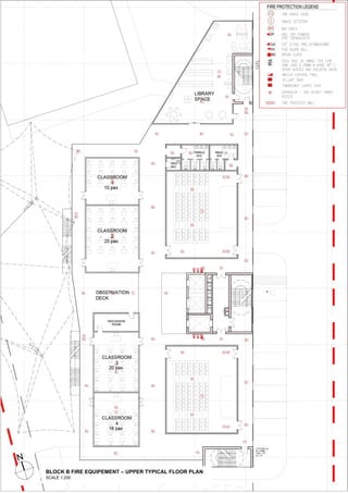
BLOCK B FIRE EQUIPEMENT – UPPER TYPICAL FLOOR PLAN
SCALE 1:250
40
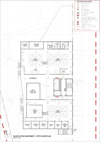
BLOCK B FIRE EQUIPEMENT – FIFTH FLOOR PLAN
SCALE 1:250
41
6.0 Core Design
6.1 Core Layout Design Optimization
From the personal learning process, it is concluded that the design of the core layout needs to
be determined by its spatial functions and architectural forms, in the early stage, attempts optimization
of core design were made, yet it impeded the spatial quality and design intention. In this design
exercise, the finalization of cores design & layout became more apparent when the architectural forms
and programs were set.
Fig. 13. Finalised form, based on design concept & functions.
Option 1 Option 2 Option 3
Core layout
Spatial
Remarks
In the initial design
stage, attempts were
made to minimize the
number of cores,
however it failed to
meet the By-laws
requirements of
maximum travel
distance.
Later on in order to
meet the By-laws
requirements, a few
more cores were added,
however this option
affect the overall
spatial quality and
design intention
especially towards the
campus square.
In the end, it is decided that,
most of the core massing will
be positioned in the eastern
side of the building massing.
Doing this has 2 benefits, one
is ensuring minimal core
massing near the campus
square for multiple usage
purposes and the other is that it
allows reduction of glares and
heat from the eastern sun.
Running
Distance
Not Complied Complied Complied
Environmental
Aspect
No effect Minimal effect Blocking partial sunlight and
heat from the eastern sun.
Table 11; Comparative study & reasoning between core design options
Campus
Square
X
42
6.2 Fire Lift Core Optimization
Fire lift refers to the lifts that are capable of being commandeered for exclusive use by
firemen during an emergency. According to Uniform Building By-laws 1984 (2015), and Guide to
Fire Protection in Malaysia (2006), the requirements for the fire lift are listed as below:
(i) The fire lift shall discharge directly into the fire fighting access lobby, fire fighting
staircase or shall be connected by a protected corridor (By-law 229[6]).
(ii) In a building where the top occupied floor is over 18.5 metres above the fire appliance
access level fire lifts shall be provided (By-law 243[1]).
(iii) The fire lift shall be located within a separate protected shaft if it opens into a separate
lobby (By-law 243[3]).
(iv) Fire lifts shall be provided as the rate of one lift in every group of lifts when discharged
into the same protected enclosure or smoke lobby containing the rising main, provided that
the fire lifts are located not more than 61 metres travel distance from the furthermost point of
the floor (By-law 243[4]).
(v) Fire lifts shall be located in protected lift shafts of at least 2 hours fire resistance
protection. No piping, conduit or equipment other than that forming part of the lift or
necessary for its maintenance shall be installed in any lift shaft or lift shaft enclosure (Bomba
16.2.5).
(vi) A fire lift shall be provided to give access to each fire fighting access lobby or in the
absence of a lobby to the fire fighting staircase at each floor level (By-law 229[5]).
(vii) The fire lift shall discharge directly into the fire fighting access lobby fire fighting
staircase or shall be connected to it by a protected corridor (By-law 229[6]).
Figure 14 & 15 demonstrate the optimization of lift core design during the design initially in
week 12 and later on in week 13 of the semester. It can be noticed that the lift core area went from
224.1m2
to 126.8m2
, more than 40% reduction of the initial size while also improving the spatial
quality through open staircase with the side facing exterior.
Fig. 14. Lift core design in week 12 with 224.1 m2
,
NTS
Fig. 15. Optimized lift core design in week 13
with 126.8 m2
, NTS
43
7.0 REFERENCE LIST
1. Bakar, H. A. (2006). Guide to fire protection in Malaysia. The Institute of Fire Engineers
(UK) Malaysia Branch.
2. Laws of Malaysia. (1984). Uniform building by-laws 1984. Kuala Lumpur: International
Law Book Services.
3. Department of Standards Malaysia. (2010). Fixed firefighting systems: hose systems.

Ong seng peng (jeff) ent 2 project 2 core optimization handbook c

  • 1.
    MASTER OF ARCHITECTURE SCHOOLOF ARCHITECTURE, BUILDING & DESIGN ENVIRONMENT AND TECHNOLOGY II (ARC71003) PROJECT 2: SERVICE CORE OPTIMAL PROPOSAL STUDENT NAME: ONG SENG PENG (JEFF) STUDENT ID: 0319016 TUTOR: AR. AXXU HOI JUNE 2021
  • 2.
    1 TABLE OF CONTENT 1.0INTRODUCTION ................................................................................................ 3 2.0 SITE INTRODUCTION ...................................................................................... 4 2.1 Site Analysis................................................................................................ 5 2.1.1 Sun Path and Shadow Analysis ......................................................... 5 2.1.2 Temperature and Humidity................................................................. 6 2.1.3 Precipitation and Rainfall .................................................................. 7 2.1.4 Wind Flow Analysis .......................................................................... 8 3.0 BUILDING INTRODUCTION .......................................................................... 9 3.1 Building Information........................................................................................ 9 3.2 Purpose Group............................................................................................. 9 – 10 - Appendix Drawings............................................................................ 11 – 17 3.3 Occupancy Load......................................................................................... 18 – 19 4.0 PASSIVE FIRE PROTECTION ....................................................................... 20 4.1 Fire Appliance Access 4.1.1 Perimeter Appliance .................................................................... 20 - 22 4.1.2 Hydrant Location .............................................................................. 22 - Appendix Drawing....................................................................... 23 4.2 Means of Escape 4.2.1 Measurement of Travel Distance to Exits.................................... 24 – 25 - Appendix Drawings................................................................ 26 – 29 4.2.2 Escape Provision Computation.................................................... 30 – 31 5.0 ACTIVE FIRE PROTECTION .......................................................................... 32 5.1 Active Fire Protection System........................................................................... 32 5.2 Extinguishing System 5.2.1 Hose Reel System…........................................................................... 32 - Appendix Drawing........................................................................ 33 5.2.2 Automatic Sprinkler System…........................................................... 34 5.3 Fire Alarm System 5.3.1 Automatic Fire Detection System…................................................... 34 5.3.2 Manual Electrical Fire Alarm System…............................................. 34 5.4 Fire Alarm System…………….......................................................................... 35 - Appendix Drawings................................................................ 36 – 41 6.0 CORE DESIGN 6.1 Core Layout Design Optimization..................................................................... 42 6.2 Fire Lift Core Optimization............................................................................... 43 7.0 REFERENCES....................................................................................................... 44
  • 3.
    2 List of Figures Figure1. Site plan, NTS Figure 2. Sun path study Figure 3. Summer Solstice shadow study Figure 4. Winter Solstice shadow study Figure 5. Average high and low temperature in Kuala Lumpur Figure 6. Average humidity comfort level in Kuala Lumpur Figure 7. Average precipitation rate in Kuala Lumpur Figure 8. Average rainfall in Kuala Lumpur Figure 9. Average wind occurrence in Kampong Bharu Figure 10. Average predominant wind direction in Kampong Bharu Figure 11. Relationship between building and access for Fire Appliance Figure 12. Staircase labelling in Block B, NTS Figure 13. Finalised form, based on design concept & functions. Figure 14. Lift core design in week 12 with 224.1 m2, NTS Figure 15. Optimized lift core design in week 13 with 126.8 m2, NTS List of Tables Table 1. Designated of purpose groups according to Fifth Schedule (UBBL, 2015) Table 2. Block A purpose group Table 3. Block B purpose group Table 4. Block C purpose group Table 5. Factors for calculation of Occupant Load and Capacity of Exits (UBBL, 2015) Table 6. Building volume and required proportions of perimeter access (UBBL, 2015) Table 7. Calculation of project’s building volume Table 8. Maximum Travel Distance (UBBL, 2015) Table 9. Exit Width Calculation Table Table 10. Table of requirements for fire extinguishment, alarm systems and emergency lighting Table 11. Comparative study & reasoning between core design options
  • 4.
    3 1.0 INTRODUCTION The aimof this project is to propose an integrated service core together with the final project of the module, “Urban Design Studio”, in order to fully understand the following: 1) Standards and regulations of building core designs 2) Technology for building core construction 3) Environmental implications for the service core proposals The learning outcomes are as followed: 1) Recognize the various types and functions of building components, materials and physical properties aligned with the application green strategies in architectural design. 2) Evaluate energy consumption and implement strategies to reduce energy usage without compromising the quality of life. 3) Develop appropriate construction methods to integrate passive and active building systems. 4) Appraise spatial requirements for different types of building services and its design implications in different climate conditions. 5) Analyse the thermal, lighting and acoustic requirements of designed spaces.
  • 5.
    4 2.0 SITE INTRODUCTION Theproposed site is located next to Jalan Raja Abdullah at Kampong Bharu with the land size of 1.96 acres, with the statutory road offset requirement, it is left with 1.3acre buildable area. Some of the prominent structures can be found at the nearby site such as the Sultan Suleiman Club and Kampong Bharu Gateway. The Sultan Sulaiman Club has become history because this is where UMNO was established, and various Malay’s congress was held. Till today, the club still remained as a spot for sports facilities, meetings & evens for its members. On the other hand, the Kampong Bharu Gateway is a modernised Islamic archway that serves as a welcoming entrance to the popular food streets of Jalan Raja Muda Musa in Kampong Bharu. Fig. 1. Site plan, NTS Jalan Raja Abdullah Jalan Datuk Abdul Razak Jalan Dewan Sultan Suleiman Sultan Suleiman Club Site B 1.96 acres Buildable area: 1.3 acres Kampong Bharu Gateway Jalan Raja Muda Musa
  • 6.
    5 2.1 Site Analysis Thesite analysis was carried out to identify the issues associated with visual, thermal and site environmental matter. Those factors analysed using appropriate methodology to stimulate a set of data for future design consideration. 2.1.1 Sun Path and Shadow Analysis Fig. 2. Sun path study Figure 2 shows the sun position at the respective seasons: Equinox (21st March/September), Summer Solstice (21st June) & Winter Solstice (21st December). Different shadow casting direction can be observed and studied based on Figure 3 &4. Fig. 3. Summer Solstice shadow study Fig. 4. Winter Solstice shadow study
  • 7.
    6 2.1.2 Temperature andHumidity Temperature: Fig. 5. Average high and low temperature in Kuala Lumpur As referring to Figure 5, the red highlighted area shows the hottest season in Kuala Lumpur, from February 12 to May 23, with an average daily high temperature above 33°C. The hottest day of the year is March 14, with an average high of 33°C and low of 24°C. The cool season lasts for 2.0 months, from November 3 to January 5, with an average daily high temperature below 32°C. Humidity: Fig. 6. Average humidity comfort level in Kuala Lumpur The perceived humidity level in Kuala Lumpur, as measured by the percentage of time in which the humidity comfort level does not vary significantly over the course of the year, staying within 0% of 100% throughout.
  • 8.
    7 2.1.3 Precipitation andRainfall Precipitation: Fig. 7. Average precipitation rate in Kuala Lumpur As shown in Figure 7, the chance of wet days in Kuala Lumpur varies significantly throughout the year. The wetter season last for 6.8 months, from September 30th to April 25th , with a greater than 47% chance of a given day being a wet day. The chance of a wet day peaks at 63% in November. The drier season lasts 5.2 months, from April 25 to September 30. Rainfall: Fig. 8. Average rainfall in Kuala Lumpur Figure 8 shows the rainfall accumulated over a sliding 31-day period centred around each day of the year. Kuala Lumpur experiences extreme seasonal variation in monthly rainfall. The most rain falls during the 31 days centred around November 14th , with an average total accumulation of 271 millimetres. The least rain falls around June 25, with an average total accumulation of 112 millimetres.
  • 9.
    8 2.1.4 Wind FlowAnalysis Fig. 9. Average wind occurrence in Kampong Bharu Fig. 10. Average predominant wind direction in Kampong Bharu Referring to Figure 9, the predominant wind direction comes from East-Northeast & South direction, based on the frequency of wind occurrence. The average hourly wind speed in Kampong Bharu experiences mild seasonal variation over the course of the year. The windier part of the year lasts for 2.9 months, from December 2 to February 26, with average wind speeds of more than 1.8 meters per second.
  • 10.
    9 3.0 BUILDING INTRODUCTION 3.1Project Background The selected building for the “Urban Design Studio” module assignment is a Social Science College which will be located at the site shown in Figure 1. The project aims to respond to the issues of “new urbanism in the post-covid world”. Hence, the element of flexibility & resiliency to be adaptable for multiple functions & crises, is explored in the design process. 3.2 Purpose Group The project consist of 3 main blocks, block A, B, C. Block A is mainly for place of assembly, the multipurpose hall. Block B mainly consist of lecture theatres and classrooms whereby Block C contains mixed usage such as administration area, canteen, and students’ recreation room. Referring to UBBL 5th Schedule - Designation of Purpose Group, this project comprises of the following group: No of Purpose Group Description Title Purposes for which compartment is intended to be used II Institutional Hospitals, schools, colleges, libraries, nursing homes or other similar establishment used for education or as living accommodation for, or for treatment, care or maintenance of, persons suffering from disabilities due to illness or old age or other physical or mental disability or under the age of 5 years, where such persons sleep in the premises. IV Office Office, or premises used for office purposes, meaning thereby the purpose of administration, clerical work (including writing, book-keeping, sorting papers, filing, typing, duplicating, machine-calculating, drawingand the editorial preparation of matter for publication), handling money and telephone and telegraph operating. VII Place of assembly Place, whether public or private, used for the attendance of persons for or in connection with their social, recreational, educational, business or other activities, and not comprised within group I or VI Table 1; Designated of purpose groups according to Fifth Schedule (UBBL, 2015)
  • 11.
    10 The main usageof each level and each block are categorised as followed: Block A: Spaces Purpose Group Ground Floor Multipurpose Hall Place of Assembly (VII) First Floor Multipurpose Hall Auxiliary Rooms Table 2; Block A purpose group Block B Spaces Purpose Group Ground Floor Lecture Theatre + Canteen, Institutional (II) - College First Floor Classrooms + Lecture Theatres + Library Second Floor Classrooms + Lecture Theatres + Library Third Floor Classrooms + Lecture Theatres + Library Fourth Floor Classrooms + Lecture Theatres + Library Fifth Floor Staffs Office Office (IV) Table 3; Block B purpose group Block C: Table 4; Block C purpose group The spatial arrangement can be referred from the following plans: Spaces Purpose Group Ground Floor Administration Office + Canteen Office (IV) First Floor Students’ Recreational Area Place of Assembly (VII)
  • 12.
  • 13.
  • 14.
  • 15.
    14 THIRD & FOURTHFLOOR PLAN SCALE 1:500
  • 16.
  • 17.
    16 BASEMENT 1 FLOORPLAN SCALE 1:500
  • 18.
    17 BASEMENT 2 FLOORPLAN SCALE 1:500
  • 19.
    18 The purpose groupis based on the following By-laws: By-law Clause 134: Designation of purpose groups. For the purpose of this Part every building or compartment shall be regarded according to its use or intended use as falling within one of the purpose groups set out in the Fifth Schedule to these By-laws and, where a building is divided into compartments, used or intended to be used for different purposes, the purpose group of each compartment shall be determined separately: Provided that where the whole or part of a building or compartment is used or intended to be used for more than one purpose, only the main purpose of use of that building or compartment shall be taken into account in determining into which purpose group it falls. By-law Clause 138: Other walls and floors to be constructed as compartment walls or compartment floors. The following walls and floors in buildings shall be constructed as compartment walls or compartment floors: a) Any floor in a building of Purpose Group II (Institutional); b) Any wall or floor separating a flat or maisonette from any other part of the same building; c) Any wall or floor separating part of a building from any other part of the same building which is used or intended to be used mainly for a purpose falling within a different purpose group as set out in the Fifth Schedule to these By-laws; and d) Any floor immediately over a basement storey if such basement storey has an area exceeding 100 square metres. 3.3 Occupancy Load Based on the Uniform Building By-laws 1984 Seventh Schedule, the calculation of occupancy load and capacity of exits for the identified purpose groups are as followed: Purpose Group Occupant load square metre per CAPACITY EXIT No. of persons per unit – Exit Width Doors outside Horizo- ntal Exit Ramp Main Exit Ramp Sec. Exit Escalator Stair s II. Institutional Class-room Area 2 net 100 100 60 60 - 60 IV. Office 10 gross (4) 100 100 100 60 60 60 VII. Place of Assembly 1.5 100 100 100 60 75 75 Table 5; Factors for calculation of Occupant Load and Capacity of Exits (UBBL, 2015) Note: (4) Excluding any areas occupied by staircases, lifts, sanitary accommodation and any other space occupied by machinery for any lift, air-conditioning system or similar service provided for the building.
  • 20.
    19 The occupancy loadand capacity exits are based on the following By-laws: By-law Clause 167: Storey exits. 2) The width of storey exist shall be in accordance with the provision in the Seventh Schedule to these By-laws. By-law Clause 168: Staircases. 2) Staircases shall be of such width that in the event of any one staircase not being available for escapee purposes the remaining staircases shall accommodate the highest occupancy load of any floor discharging into it calculated in accordance with provisions in the Seventh schedule to these By-laws. By-law Clause 170: Egress through unenclosed openings. Where unenclosed openings are permitted between floors and for a mezzanine floor, egress may be by way of an open staircase to an adjacent floor and terrace to a story exit: c) Only 50% of the occupants of a floor are assumed to use the open staircase and storey exits are provided at every level to accommodate the other 50% of the occupants of that level in accordance with the provisions of the Seventh Schedule to these by-laws. By-law Clause 171: Horizontal exits. 1) Where appropriate, horizontal exits may be provided in lines of other exits. 2) Where horizontal exits are provided protected staircases are final exits need only be of a width to accommodate the occupancy load of the larger compartment or building discharging into it so long as the total number of exit widths provided is not reduced to less than half that would otherwise be required for the whole building. 3) For institutional occupancies the total exit capacity other than horizontal exits shall not be reduced by more than one-third that would otherwise be required fix the entire area of the building. By-law Clause 175: Calculation of occupant load Calculation of occupancy loads and capacity of exits shall be in accordance with the provisions of the Seventh Schedule to these By-laws
  • 21.
    20 4.0 PASSIVE FIREPROTECTION 4.1 Fire Application Access Vehicular access to the exterior of a building is needed to enable high reach appliances, such as turntable ladders and hydraulic platforms, to be used and to enable pumping appliances to supply water and equipment for fire fighting and rescue activity (Bakar, 2006). 4.1.1 Perimeter Appliance By-law Clause 140: Fire appliance access. All buildings in excess of 7000 cubic metres shall abut upon a street or road or open space of not less than 12 metres width and accessible to fire brigade appliances. The proportion of the building abutting the street, road or open space shall be in accordance with the following scale: Volume of building in cubic meter Minimum proportions of perimeter of building 7000 to 28000 One-sixth (1/6) 28000 to 56000 One-fourth (1/4) 56000 to 84000 One-half (1/2) 84000 to 112000 Three-fourths (3/4) 112000 and above Island site Table 6; Building volume and required proportions of perimeter access (UBBL, 2015) Referring to Figure 11, the minimum accessway for fire appliances should be at least 10m; C (Total Access Width) =A (Offset Area) + B (Carriageway), Other Access Consideration: • Road/access width 6m (Maximum width of fire appliances is 2.5m) • Maximum gradient of access is 1:12 • Minimum overhead clearance of access is 4m height
  • 22.
    21 Fig. 11. Relationshipbetween building and access for Fire Appliance (Medium to Highrise Building), Guide to Fire Protection in Malaysia (2006), p.20 Total Volume of Block A Base Area x Height = 489.8m2 x 6m = 2938.8 m3 Total Volume of Block B = 1402.9m2 x 24m = 33669.6 m3 Total Volume of Block C = 634.7m2 x 8m =5077.6 m3 Total Volume 2938.8 m3 + 33,669.6 m3 + 5077.6 m3 = 41686 m3 Total Perimeter of Block A = 20.6m + 30.5m + 20.6m + 30.7 = 102.4m Total Perimeter of Block B = 5.6m + 67.5m + 7m + 2.9m + 18.3m + 46m + 8.2m + 22.4m = 177.9m Total Perimeter of Block C = 3.7m + 9.1m+ 25.2m + 15.2m + 11.6m + 12.6m + 6.5m + 38.6m = 122.5m Total Perimeter 102.4 m + 177.9 m + 122.5m3 = 402.8 m Table 7; Calculation of project’s building volume
  • 23.
    22 The total volumeof the proposed social science college is approximately 41686 m3 , which fall under the range of 28000 to 56000 m3 , the minimum proportions of perimeter of building will be one-forth. The total perimeter of the building, combing Block A, B & C is 402.8m, hence 100.7m of perimeter access will be required for the fire appliance. 4.1.2 Fire Hydrant Location According to Guide to fire protection in Malaysia (2016), hydrants should be located : i. Away from obstruction such as street furniture (benches), phone booths, etc. ii. Not less than 2m from adjacent buildings and overhangs. iii. Between 0.61m to 2.4m from Fire Appliance Access. iv. Away from risks of vehicular damage. v. Not more than 90m apart from each other (in new building adjacent to existing developments, a new hydrants will have to be provided if there is no hydrant within 45m radius of the new building ). Besides, By-law Clause 225: Detecting and extinguishing fire mentioned that: 2) Every building shall be served by at least one fire hydrant located not more than 91.5 metres from the nearest point of fire brigade access. 3) Depending on the size and location of the building and the provision of access for fire appliances, additional fire hydrant shall be provided as may be required by the Fire Authority. 2 fire hydrants is proposed to sufficiently covering the whole building compound. The bomba accessway is around 125m in length, which fulfilled the required 105m requirement. The total road width has also reached 11.1m, more than the minimum requirement of 10m to allow use of both turntable and hydraulic platform for fire fighting purpose. Besides, the high ceiling of 4.5m at the ground floor also means the fire appliance is able to reach inside the building compound. The drawing in the following page indicates the location of fire hydrants is and the bomba access road following the perimeter access guideline mentioned in the previous section 4.1.1, as followed:
  • 24.
  • 25.
    24 4.2 Means ofEscape 4.2.1 Measurement of Travel Distance to Exits The measurement of travel distance follows the guideline from Uniform Building By-laws 1984 Seventh Schedule, the criteria to be complied based on the building layout design are as followed: Purpose Group Limit when alternative exits are available (1) * Dead-End Limit (meter) (2) Un- sprinklered (3) Sprinklered II. Institutional School/College Open Plan 6 NR 45 30 60 45 IV. Office 15 45 60 VII. Place of Assembly NR 45 61 Table 8; Maximum Travel Distance (UBBL, 2015) Note: * The dead-end limit shall be the distance to a storey exit or to a point where alternative means of escape is available provided that the total travel distance shall not exceed the limits under (2) Un- sprinklered. The measurement and calculation of the travel distances are based on the following By-laws: By-law Clause 165: Measurement of travel distance to exists. 1) The travel distance to an exit shall be measured on the floor or other walking surface along the centre line of the natural path of travel, starting 0.300 metre from the most remote point of occupancy, curving around any corners or obstructions with 0.300 metre clearance therefrom and ending at the storey exit. Where measurement includes stairs, it shall be taken in the plane of the trend noising. 2) In the case of open areas the distance to exits shall be measured from the most remote point of occupancy provided that the direct distance shall not exceed two-thirds the permitted travel distance. 3) In the case of individual rooms which are subject to occupancy of not more than six persons, the travel distance shall be measured from the doors of such rooms: Provided that the travel distance from any point in the room to the room door does not exceed 15 metres. 4) The maximum travel distances to exits and dead end limits shall be as specified in the Seventh Schedule of these By-laws. By-law Clause 166: Exits to be accessible at all times. 1) Except as permitted by by-law 167 not less than two separate exits shall be provided from each storey together with such additional exits as may be necessary 2) The exits shall be sited and the exit access shall be so arranged that the exits are within the limits of travel distance as specified in the Seventh Schedule to these By-laws and are readily accessible at all times.
  • 26.
    25 By-law Clause 167:Storey exits. 1) Except as provided for in by-law 194 every compartment shall be provided with at least two storey exits located as far as practical from each other and in no case closer than 4.5 metres and in such position that the travel distances specified in the Seventh Schedule to these By-laws are not exceeded. 2) The width of storey exits shall be in accordance with the provisions the Seventh Schedule to these By-laws. By-law Clause 170: Egress through unenclosed openings. Where unenclosed openings are permitted between floors and for a mezzanine floor, egress may be by way of an open staircase to an adjacent floor and thence to a story exit: b) The travel distances specified in the Seventh Schedule to these By-laws are no exceeded. The ground floor plan of the proposed social science college contains mostly open spaces for multiple usage, besides a few enclosed one such as lecture theatre, assembly hall, and administration area. No travel distance is measured in space like campus square and canteens as the users can readily exit to the building exterior. Further details of the fire escape plans for are as followed:
  • 27.
    26 FIRE ESCAPE PLAN1 SCALE 1:500
  • 28.
    27 FIRE ESCAPE PLAN2 SCALE 1:500
  • 29.
    28 FIRE ESCAPE PLAN3 SCALE 1:500
  • 30.
    29 FIRE ESCAPE PLAN4 SCALE 1:500
  • 31.
    30 4.2.2 Escape ProvisionComputation The escape provision in relation to occupancy load is based on the following By-laws: By-law Clause 175: Calculation of occupant load. Calculation of occupancy loads and capacity of exits shall be in accordance with the provisions of the Seventh Schedule to these By-laws. By-law Clause 176. Computing storey exit widths. To compute the required exit width from individual floors of a building a) Calculate the floor area net or gross whichever is applicable; b) Determine the allowable occupancy load factor from Table; c) Calculate the number of units of exit width for each type of exit used based upon the capacity. d) Determine from the table the capacity of the type of exit to be used for the purpose group being designed; and e) Calculate the number of units of exit width for each type of exit used based upon the capacity. By-law Clause 177: Computing number of staircases and staircase widths. The following factors shall be used in computing the exit widths: d) Except as provided in these By-laws, the minimum number of exits is two; e) At least one of the staircases should be a minimum of two units width except that 900 millimetres may be allowed where total occupancy of all floors served by staircases is less than 50. f) There should be no decrease in width along the path of travel of a staircase. Since Block A and C only contain 2 levels and not exceeding 12m as per By-law Clause 194: Building with single staircase. A single staircase may be permitted in any building the topmost floor of which does not exceed 12 metres in height. Therefore Block A & C does not follow the exit width calculation. For Block B, it’s a 5-storey building with floor level exceeding 18.5 meter high. Referring the By-laws as the guideline, the numbers and width of staircase for Block B is calculated as shown below:
  • 32.
    31 Block B Staircaseexit width calculation: Level First Second Third Fourth Fifth Purpose Group Institutional (II) Office (IV) Floor Area (m2) 714.3 (net) 1026 (Gross-(4)) Occupancy Load (7th Schedule) 2 (net) 10 Gross (4) Total No. of persons 714.3 ÷ 2= 357 1026 ÷ 10 = 102.6 No. of persons per unit – Exit Width (7th Schedule) 75 60 Unit Width Required 357 ÷ 75 = 4.76 102.6 ÷ 60 = 1.71 Exit Width Required 4.76 x 550 = 2618 mm 1.71 x 550 = 941mm Exit Width Provided Staircase 1: 2000mm Staircase 2: 2800mm Staircase 3: 1000mm Staircase 4: 1500mm Staircase 5: 1500mm Total: 8800mm Staircase 2: 2800mm Staircase 3: 1000mm Staircase 4: 1500mm Staircase 5: 1500mm Total: 6800mm Assuming One Staircase Inaccessible 8800-2800 =6000mm 6800-2800 =4000mm Remarks Adequate Adequate Table 9; Exit Width Calculation Table *Note: Non-ceiling areas are considered 50% of GFA Note 2: (4) Excluding any areas occupied by staircases, lifts, sanitary accommodation and any other space occupied by machinery for any lift, air-conditioning system or similar service provided for the building. Fig. 12. Staircase labelling in Block B, NTS STC 1 STC 2 STC 3 STC 4 STC 5
  • 33.
    32 5.0 ACTIVE FIREPROTECTION 5.1 Active Fire Protection System Referring to UBBL 10th Schedule- Table of requirements for fire extinguishment, alarm systems and emergency lighting Occupancy Hazard Extinguishing System Fire Alarm System Emergency Lighting II. Institutional 1.Educational Occupancies i) Use for instructional purposes only (b) 3 to 5 storeys iv) Library (c) More than 1000 sq.m or three storeys or more Hose Reel Hose Reel - Automatic Fire Detection System & Manual Electrical Fire Alarm System - Signal Point Units IV Offices 2. 5 storeys and over or exceeding 1000sq.m Hose Reel Manual Electrical Fire Alarm System Signal Point Units VII Place of Assembly 3. Hazardous areas Automatic Sprinkler - Signal Point Units Table 10; UBBL 10th Schedule- Table of requirements for fire extinguishment, alarm systems and emergency lighting 5.2 Extinguishing System 5.2.1 Hose Reel System Hose reel system is intended for the occupant to use during early stages of a fire and comprises hose reel pumps, fire water storage tank, hose reels, pipe work and valves. (Bakar,2006) Design Standards The requirement for hose reel systems is detailed under 10th Schedule of the Uniform Building By- laws 1984. The applicable standards for hose reel systems are as follows: - M.S.1489 Part 1: Hydrant Systems, Hose Reels and Foam Inlets; - M.S. 1447 – Hose reels with semi-rigid hose; - M.S. 1488: Semi-rigid hoses for first aid fixed installations. The following drawing indicates the 30-metre hose coverage of each proposed hose reel at different locations to fulfil the requirement of the Malaysian Standard 1447 – Hose reels with semi-rigid hose. One hose reel should be provided for every 800sqm of usable floor space.
  • 34.
  • 35.
    34 5.2.2 Automatic SprinklerSystem An automatic sprinkler system is intended to detect, control and extinguish a fire, and warn the occupants of the occurrence of fire. The installation comprises firm pumps, water storage tanks, control valve sets, sprinkler heads, flow switches, pressure switches, pipework and valves. The system operates automatically without human intervention. The sprinkler head has a liquid filled glass bulb that breaks due to the heat of the fire and releases water that sprays over the fire. (Bakar,2006) Design Standards Under the Uniform Building By-laws 1984, By-laws 226 and 228 refer to the requirement for sprinkler systems. The accepted standards for automatic sprinkler installations are: - BS EN 12845 : 2003 – Automatic Sprinkler systems – Design, installation and maintenance. - NFPA 13. 5.3 Fire Alarm System 5.3.1 Automatic Fire Detection System Fire detection and alarm systems are designed to provide warning of the outbreak of fire and allow appropriate firefighting action to be taken before the situation gets out of control. As all systems are designed primarily to protect life, property, this places a great responsibility on the designer because each building will present a different set of problems in relation to the risk of fire and fire spread. (Bakar,2006) Design Standards Automatic Fire detection and alarm system requirements shall be based on: - B.S.5839 : Part 1,3,5 - M.S.1176 : Part 5, 7, 8, 9 - M.S.1471 : Part 3 - M.S.1745 : Part 1, 2, 3, 4, 11 - B.S.7273: Part 1 - B.S.6266 - By-law 133, 225(1), 237, 238, 239, 240, 241, 244 (g), 245, 246 – UBBL 1984 - Tenth Schedule – UBBL 1984 - B.S.5588 : Part 1, 8, 10 5.3.2 Manual Electrical Fire Alarm System Every fire detection system must include call points, so that in the event of a fire, help can be called immediately. All call points in the same installation shall have the same method of operation. All call points should be clearly identifiable and should not require instructions as their mode of actuation. (Bakar,2006) Design Standards Manual Call Point shall be based on: a) B.S.5839 : Part 1 : 1988 - Fire Detection and Alarm System for Buildings Code of Practice for System Design, Installation and Servicing b) B.S.5839 : Part 2: 1983 - Specification for Manual Call Points
  • 36.
    35 5.4 Emergency Lighting UBBLSection 253 - Emergency power system: (1) Emergency power system shall be provided to supply illumination and power automatically in the event of failure of the normal supply or in the event of accident to elements of the system supplying power and illumination essential for safety to life and property. (2) Emergency power system shall provide power for smoke control systems, illumination, fire alarm systems, fire pumps, public address systems, fire lifts and other emergency systems. (3) Emergency systems shall have adequate capacity and rating for the emergency operation of all equipment connected to the system including the simultaneous operation of all fire lifts and one other lift. (4) All wiring for emergency systems shall be in metal conduit or of fire resisting mineral insulated cables, laid along areas of the least risk. (5) Current supply shall be such that in the event of failure of the normal supply to or within the building or group of building concerned, the emergency lighting or emergency power, or both emergency lighting and power will be available within 10 seconds of the interruption of the normal supply. The supply system for emergency purposes shall comprise one or more of the following approved types: (a) Storage Battery Storage battery of suitable rating capacity to supply and maintain at not less than 87½ percent of the system voltage the total load of the circuits supplying emergency lighting and emergency power for a period of at least 1½ hours; (b) Generator set A generator set driven by some form of prime mover and of sufficient capacity and proper rating to supply circuit carrying emergency lighting or lighting and power with suitable means for automatically starting the prime mover on failure of the normal service. Complying to the 10th schedule guideline mentioned in section 5.1, the detailed version of the proposed fire equipment layouts is as followed:
  • 37.
    36 BLOCK A FIREEQUIPEMENT – GROUND FLOOR PLAN SCALE 1:250
  • 38.
    37 BLOCK B FIREEQUIPEMENT – GROUND FLOOR PLAN SCALE 1:250
  • 39.
    38 BLOCK C FIREEQUIPEMENT – GROUND FLOOR PLAN SCALE 1:250
  • 40.
    39 BLOCK B FIREEQUIPEMENT – UPPER TYPICAL FLOOR PLAN SCALE 1:250
  • 41.
    40 BLOCK B FIREEQUIPEMENT – FIFTH FLOOR PLAN SCALE 1:250
  • 42.
    41 6.0 Core Design 6.1Core Layout Design Optimization From the personal learning process, it is concluded that the design of the core layout needs to be determined by its spatial functions and architectural forms, in the early stage, attempts optimization of core design were made, yet it impeded the spatial quality and design intention. In this design exercise, the finalization of cores design & layout became more apparent when the architectural forms and programs were set. Fig. 13. Finalised form, based on design concept & functions. Option 1 Option 2 Option 3 Core layout Spatial Remarks In the initial design stage, attempts were made to minimize the number of cores, however it failed to meet the By-laws requirements of maximum travel distance. Later on in order to meet the By-laws requirements, a few more cores were added, however this option affect the overall spatial quality and design intention especially towards the campus square. In the end, it is decided that, most of the core massing will be positioned in the eastern side of the building massing. Doing this has 2 benefits, one is ensuring minimal core massing near the campus square for multiple usage purposes and the other is that it allows reduction of glares and heat from the eastern sun. Running Distance Not Complied Complied Complied Environmental Aspect No effect Minimal effect Blocking partial sunlight and heat from the eastern sun. Table 11; Comparative study & reasoning between core design options Campus Square X
  • 43.
    42 6.2 Fire LiftCore Optimization Fire lift refers to the lifts that are capable of being commandeered for exclusive use by firemen during an emergency. According to Uniform Building By-laws 1984 (2015), and Guide to Fire Protection in Malaysia (2006), the requirements for the fire lift are listed as below: (i) The fire lift shall discharge directly into the fire fighting access lobby, fire fighting staircase or shall be connected by a protected corridor (By-law 229[6]). (ii) In a building where the top occupied floor is over 18.5 metres above the fire appliance access level fire lifts shall be provided (By-law 243[1]). (iii) The fire lift shall be located within a separate protected shaft if it opens into a separate lobby (By-law 243[3]). (iv) Fire lifts shall be provided as the rate of one lift in every group of lifts when discharged into the same protected enclosure or smoke lobby containing the rising main, provided that the fire lifts are located not more than 61 metres travel distance from the furthermost point of the floor (By-law 243[4]). (v) Fire lifts shall be located in protected lift shafts of at least 2 hours fire resistance protection. No piping, conduit or equipment other than that forming part of the lift or necessary for its maintenance shall be installed in any lift shaft or lift shaft enclosure (Bomba 16.2.5). (vi) A fire lift shall be provided to give access to each fire fighting access lobby or in the absence of a lobby to the fire fighting staircase at each floor level (By-law 229[5]). (vii) The fire lift shall discharge directly into the fire fighting access lobby fire fighting staircase or shall be connected to it by a protected corridor (By-law 229[6]). Figure 14 & 15 demonstrate the optimization of lift core design during the design initially in week 12 and later on in week 13 of the semester. It can be noticed that the lift core area went from 224.1m2 to 126.8m2 , more than 40% reduction of the initial size while also improving the spatial quality through open staircase with the side facing exterior. Fig. 14. Lift core design in week 12 with 224.1 m2 , NTS Fig. 15. Optimized lift core design in week 13 with 126.8 m2 , NTS
  • 44.
    43 7.0 REFERENCE LIST 1.Bakar, H. A. (2006). Guide to fire protection in Malaysia. The Institute of Fire Engineers (UK) Malaysia Branch. 2. Laws of Malaysia. (1984). Uniform building by-laws 1984. Kuala Lumpur: International Law Book Services. 3. Department of Standards Malaysia. (2010). Fixed firefighting systems: hose systems.