1
A403.00
1
A404.00
PROPERTY LINE
PROPERTYLINE
COMPACTED FILL
BENEATH SLAB
1
A403.00
1
A404.00
20' - 0" 0' - 2"
0'-2"25'-0"3'-0"
1
1
1
3
A402.004
1
2
3
PROPERTY LINE
PROPERTYLINE
2
2
3
4
CEILING SOFFIT ABOVE
ALIGN FINISHES
FLOOR OUTLET
(TYP OF 7)
SLIDE
ACTIVE
PASSIVE
1
A403.00
1
A404.00
INSIDE FACE OF
CMU BLOCK WALL
REVERSE ROOF PITCH
AWAY FROM CORNER
REVERSE
ROOF PITCH
PAST EDGE
TO MAIN EXTERIOR
LIGHTING SWITCH
WALL/PARTITION TYPE
Fire Rating
STC Rating
1 EXTERIOR KALWALL F.H.
Non Fire Rated
STC: 40-48
3
#
4" KALWALL SYSTEM
3x3x1/4" HSS COLUMN
BEYOND
FLOOR SLAB
EXTERIOR CMU BLOCK WALL
Fire Rating: 4HR (UL Design No. U910)
STC: 40-48
2x6 IPE SLAT WALL
2 Fire Rating: 2HR (UL Design No. U905)
STC: 51-56
1" THICK STONE SILL
2x6 IPE SLAT WALL
T.O.W.
ALIGN W/ PARAPET
12" INSULATED CMU
BLOCK WALL W/ WIRE
JOINT REINFORCING
5/8" FIRE RATED GWB
UP TO U/S OF CEILING
1-5/8" METAL FURRING
HAT CHANNEL @16" O.C.
FLOOR SLAB
EXTERIOR CMU BLOCK WALL
STUCCO FINISH OVER
EXPANDED METAL LATH
ROPE LIGHT, CLEAR U-
CHANNEL, & VALENCE
ALONG WALL BASE
INTERIOR EXTERIOR
INTERIOR EXTERIOR
U/S OF CEILING
REINFORCING AS
SCHEDULE
4 Fire Rating: 2HR (UL Design No. U905)
STC: 51-56
12" CMU WALL W/ WIRE
JOINT REINFORCING
STUCCO FINISH OVER
EXPANDED METAL LATH
12" CONCRETE FOOTING
EXTERIOR CMU BLOCK WALL F.H.
STUCCO FINISH OVER
EXPANDED METAL LATH
BUILT UP TO ALIGN
WITH INTERIOR FINISH
STONE PARAPET CAP
REINFORCING AS
SCHEDULE
ROOF ASSEMBLY
STEEL BEAM HANGER
T.O. PARAPET WALL
F.F.
10" CMU BLOCK W/ WIRE
JOINT REINFORCING
5/8" FIRE RATED GWB
UP TO U/S OF CEILING
3-5/8" 20GA METAL
STUDS @16" O.C.
FLOOR SLAB
R15 BATT INSULATION
STUCCO FINISH OVER
EXPANDED METAL LATH
3-5/8" METAL TRACK
INTERIOR EXTERIOR
U/S OF CEILING
STEEL REINFORCING
AS SCHEDULE
F.F.
3-5/8" METAL TRACK
F.F.
ROPE LIGHT, CLEAR U-
CHANNEL, & VALENCE
ALONG WALL BASE
ROPE LIGHT, CLEAR U-
CHANNEL, & VALENCE
ALONG WALL BASE
U/S OF CEILING
FLASHING
COUNTER FLASHING
3-1/2"x12" WOOD ROOF BEAMS @24" O.C.
Scale:
Consultant
Address
Address
Phone
Fax
e-mail
Consultant
Address
Address
Phone
Fax
e-mail
ARCHITECTS PLLC
648 Broadway / Suite 402, New York, NY 10012
T.212.254.5210
F.212.254.4523
www.wilkinsonarchitects.com
New York: Registered Architect 027917-1
Pennsylvania: Registered Architect 402561
National Council of Architectural Registration Board #52853
DOB Barcode
As indicated
A400.00
GYM FOUNDATION, CONSTRUCTION,
REFLECTED CEILING, AND FINISH PLANS
KASSIN RESIDENCE
Enter address here
1/4" = 1'-0"
1
DETACHED GARAGE FOUNDATION PLAN
1/4" = 1'-0"
2
DETACHED GARAGE FLOOR PLAN
1/4" = 1'-0"
3
DETACHED GARAGE ROOF PLAN
CONSTRUCTION PLAN KEYNOTES
3
4
EXTERIOR MASONRY WALL. SEE WALL & PARTITION TYPES.
2
3,000 PSI POURED CONCRETE SLAB WITH 6X6 WELDED WIRE FABRIC REINFORCING OVER
COMPACTED FILL. SEE WALL SECTIONS, SHEET A-301, AND FOUNDATION PLAN, SHEET S-101.00
1
18"x12" POURED CONCRETE HAUNCHED FOOTING. SEE SECTIONS ON SHEETS A-300 & A-301, AND
FOUNDATION PLAN ON SHEET S-101.00
No. Description Date
4" VERTI-KALWALL. SEE MANUFACTURERS DETAILS.
5 2x6 IPE SLAT WALL. VERTICAL SLATS @6" O.C. FASTENED TO VERTI-KALWALL WITH WALL TIES.
6
3'W x 8'H FLUSH DOUBLE WOOD DOOR WITH TOP & BOTTOM BOLT LOCK.7
4 PANEL SLIDING GLASS DOORS. SEE ELEVATIONS FOR DIMENSIONS.8
NEW ELECTRIC HOT WATER TANK. PROVIDE 1/2" COPPER SUPPLY LINES WITH ACCESSIBLE SHUT-
OFF VALVES. INSTALL 20ga STAINLESS STEEL DRIP PAN WITH MINIMUM 6" HIGH PERIMETER WALLS.
SIZE FOOTPRINT OF PAN TO CATCH ALL CONDENSATION FROM PRESSURE RELIEF VALVES.
1
1
2
3
3
4
4
3x3x1/4 HSS COLUMNS.
9
6
5
5
5
11 ROOF 3 FINISH. SEE EXTERIOR FINISH SCHEDULE
12 STONE PARAPET CAP.
11
11
12
12
5
6
WALL & PARTITION TYPES
8
7
10 5/8" T&G PLYWOOD SUBFLOOR WITH SCHEDULED FLOOR FINISH
N N N
13 AC CONDENSOR MOUNTED ON STEEL BRACKETS WITH VIBRATION ISOLATION PADS.
10
14 12" CMU PILASTER WITH #3 REBAR REINFORCEMENT.
HAUNCH FOOTING
POINT LOAD OF
COLUMN ABOVE
POINT LOAD OF
COLUMN ABOVE
12
15 3" COPPER RAIN LEADER.
16 UNDEGROUND DRAINAGE PIPING TO DRYWELL.
16
15
15
LOWERED FOOTING EXTENSION
FLAT ROOF
ROOF PITCH
ROOF PITCH
17 AC CONDENSOR IN CEILNG SOFFIT.
17
18 TANKLESS HOT WATER HEATER IN CEILNG SOFFIT WITH ACCESS PANEL.
1/4" = 1'-0"
4
DETACHED GARAGE REFLECTED
CEILING PLAN
N
18
15
19 3/4" MDF PAINTED. NOTCH SLOTS FOR METAL STRAPING.
20 3/4" AZEK SOFFITS.
19
TYP
24
20
21 1" THICK AZEK FACIA BOARD.
21
21
21
STONE SILL
10
10
19
TYP
22 METAL STRAP BRIDGING
22
22
TYP
22
22
TYP
23 12" x 18" EQUIPMENT ACCESS PANEL IN CEILING SOFFIT.
EQUIPMENT SOFFIT 2323
24 STEEL ANGLE SUPPORT WELDED TO C10x15.3 CHANNEL HEADER AT CENTER.
25 SURFACE MOUNTED LIGHTING FIXTURE.
26 OUTDOOR RECESSED LIGHTING FIXTURE.
25
TYP
25
TYP
25
TYP
26 26
5
HAUNCH
FOOTING
HAUNCH
FOOTING
11
11
PRICING 05.04.15
27 WATERPROOF DUPLEX OUTLET.
27
T.O. FLOOR
0' - 3"
T.O. ROOF
11' - 4"
B.O. BEAM
10' - 0"
T.O. FOOTING
-0' - 3"
1
A403.00
T.O. PARAPET
13' - 0"
BASE PLANE
0' - 4"
STUCCO FINISH
PROPERTYLINE
T.O. FLOOR
0' - 3"
T.O. ROOF
11' - 4"
B.O. BEAM
10' - 0"
T.O. FOOTING
-0' - 3"
1
A404.00
T.O. PARAPET
13' - 0"
BASE PLANE
0' - 4"
STUCCO FINISH
PROPERTYLINE
T.O. FLOOR
0' - 3"
T.O. ROOF
11' - 4"
B.O. BEAM
10' - 0"
T.O. FOOTING
-0' - 3"
1
A403.00
T.O. PARAPET
13' - 0"
BASE PLANE
0' - 4"
FIXED FIXED
TOP & BOTTOM
BOLT LOCK
PROPERTYLINE
STUCCO
FINISH
T.O. FLOOR
0' - 3"
T.O. ROOF
11' - 4"
B.O. BEAM
10' - 0"
T.O. FOOTING
-0' - 3"
1
A404.00
T.O. PARAPET
13' - 0"
BASE PLANE
0' - 4"
SLIDE SLIDE
PROPERTYLINE
Scale:
Consultant
Address
Address
Phone
Fax
e-mail
Consultant
Address
Address
Phone
Fax
e-mail
ARCHITECTS PLLC
648 Broadway / Suite 402, New York, NY 10012
T.212.254.5210
F.212.254.4523
www.wilkinsonarchitects.com
New York: Registered Architect 027917-1
Pennsylvania: Registered Architect 402561
National Council of Architectural Registration Board #52853
DOB Barcode
1/2" = 1'-0"
A401.00
GYM EXTERIOR ELEVATIONS
KASSIN RESIDENCE
Enter address here
1/2" = 1'-0"
2
DETACHED GARAGE EXTERIOR
ELEVATION - NORTH
1/2" = 1'-0"
3
DETACHED GARAGE EXTERIOR
ELEVATION - WEST
1/2" = 1'-0"
1
DETACHED GARAGE EXTERIOR
ELEVATION - SOUTH
1/2" = 1'-0"
4
DETACHED GARAGE EXTERIOR
ELEVATION - EAST
No. Description Date
PRICING 05.04.15
1
A404.00
MIRROR
GWB SOFFIT
AIR REGISTERS
EQ 2 EQ 2 2' - 0"
9'-9"
GWB
CEILING MOUNTED TV
ALIGN
1
A404.00
SLIDE SLIDE
GWB GWB
8'-0"1'-95/8"0'-63/8"
10'-4"
1
A403.00
9'-95/8"
CEILING MOUNTED TV
2' - 0" EQ 1 EQ 1 EQ 1 EQ 1
1
A403.00
FIXEDFIXED
GWBTOP & BOTTOM
BOLT LOCK
1'-87/8"8'-03/4"
1'-95/8"8'-0"
9'-95/8"
Scale:
Consultant
Address
Address
Phone
Fax
e-mail
Consultant
Address
Address
Phone
Fax
e-mail
ARCHITECTS PLLC
648 Broadway / Suite 402, New York, NY 10012
T.212.254.5210
F.212.254.4523
www.wilkinsonarchitects.com
New York: Registered Architect 027917-1
Pennsylvania: Registered Architect 402561
National Council of Architectural Registration Board #52853
DOB Barcode
1/2" = 1'-0"
A402.00
GYM INTERIOR ELEVATIONS
KASSIN RESIDENCE
Enter address here
No. Description Date
2 PRICING REVISION 1 6/10/15
1/2" = 1'-0"
1
DETACHED GARAGE INTERIOR
ELEVATION - WEST
1/2" = 1'-0"
3
DETACHED GARAGE INTERIOR
ELEVATION - EAST
1/2" = 1'-0"
2
DETACHED GARAGE INTERIOR
ELEVATION - NORTH
1/2" = 1'-0"
4
DETACHED GARAGE INTERIOR
ELEVATION - SOUTH
MIRROR
GWB
PRICING 05.04.15
1
A404.00
2x6 IPE SLAT WALL
4" VERTI-KALWALL
3x3x1/4 HSS COLUMN
1" THICK STONE SILL
12"x12" CONCRETE HAUNCHED FOOTING
WITH SCHEDULED REINFORCEMENT
3,000 PSI POURED CONCRETE SLAB WITH
6x6 WELDED WIRE FABRIC REINFORCING
3" RIGID INSULATION
COMPACTED FILL
6x6x3/8 STEEL ANGLE
3-1/2x15 WOOD ROOF BEAM
3-1/2x15 WOOD ROOF BEAM 24"O.C.
STEEL BEAM HANGER
RIM JOIST WITH MORTISED WALL CLIP
1" THICK AZEK FACIA
COIL STOCK DRIP EDGE
(2) LAYERS OF 3/4" PLYWOOD
ROOF FINISH AS SCHEDULED
2x6 IPE SLAT WALL
CMU BLOCK WALL WITH STEEL REINFORCING
3-5/8" 20GA METAL STUDS @ 16"O.C.
STUCCO FINISH OVER EXPANDED METAL
LATH FASTENED TO BLOCK WALL
R-15 BATT INSULATION
3-5/8" 20GA CONTINUOUS METAL TRACK
5/8" GYPSUM WALL BOARD
OPEN CELL SPRAY FOAM INSULATION
1/2" MDF BETWEEN ROOF BEAMS
STUCCO FINISH OVER EXPANDED METAL
LATH FASTENED TO BLOCK WALL
STEEL BEAM HANGER
3-5/8" 20GA STEEL RUNNER
MORTAR
STONE PARAPET CAP PITCHED INWARD
(2) LAYERS OF 3/4" PLYWOOD
WOOD BLOCKING
(2) LAYERS OF 3/4" PLYWOOD
2x4 WOOD BLOCKING BEYOND
FLASHING & COUNTERFLASHING
3x3x1/4 STEEL ANGLE
C10x15.3 STEEL CHANNEL
12"x12" CONCRETE HAUNCHED FOOTING
WITH SCHEDULED REINFORCEMENT
3" RIGID INSULATION
Scale:
Consultant
Address
Address
Phone
Fax
e-mail
Consultant
Address
Address
Phone
Fax
e-mail
ARCHITECTS PLLC
648 Broadway / Suite 402, New York, NY 10012
T.212.254.5210
F.212.254.4523
www.wilkinsonarchitects.com
New York: Registered Architect 027917-1
Pennsylvania: Registered Architect 402561
National Council of Architectural Registration Board #52853
DOB Barcode
3/4" = 1'-0"
A403.00
GYM SECTION NORTH/SOUTH
KASSIN RESIDENCE
Enter address here
No. Description Date
3/4" = 1'-0"
1
DETACHED GARAGE SECTION -
EAST/WEST
PRICING 05.04.15
1
A403.00
TOP & BOTTOM
BOLT LOCK
FIXEDFIXED MECH SOFFIT
GWB
MECHANICAL
ACCESS PANEL
CMU BLOCK WALL WITH STEEL REINFORCING
3-5/8" 20GA METAL STUDS @ 16"O.C.
3x3x1/4 HSS COLUMN
3-5/8" 20GA CONTINUOUS METAL TRACK
12"x12" CONCRETE HAUNCHED FOOTING
WITH SCHEDULED REINFORCEMENT
3,000 PSI POURED CONCRETE SLAB WITH
6x6 WELDED WIRE FABRIC REINFORCING
3" RIGID INSULATION
STUCCO FINISH OVER EXPANDED METAL
LATH FASTENED TO BLOCK WALL
MORTAR
2"STONE PARAPET CAP PITCHED INWARD
(2) LAYERS OF 3/4" PLYWOOD
WOOD BLOCKING
FLASHING & COUNTER FLASHING
4" VERTI-KALWALL
COMPACTED FILL
5/8" GYPSUM WALL BOARD
R-15 BATT INSULATION
3-1/2x15 WOOD ROOF BEAM
3-5/8" 20GA METAL STUDS @ 16"O.C.
3-5/8" 20GA METAL TRACK
3-1/2x15 WOOD ROOF BEAM
RIM JOIST
1" THICK AZEK FACIA
1/2" MDF
(2) LAYERS OF 3/4" PLYWOOD
ROOF FINISH AS SCHEDULED
2x6 WOOD SLAT WALL
WOOD BLOCKING
OPEN CELL SPRAY FOAM INSULATION
STUCCO FINISH OVER EXPANDED METAL
LATH FASTENED TO BLOCK WALL
3-1/2x15 WOOD ROOF BEAM
FIXED GLASS TRANSOM WINDOW
SLIDING GLASS DOOR
1/2" MDF BETWEEN ROOF BEAMS
AIR REGISTER
5/8" GYPSUM WALL BOARD
5/8" GYPSUM WALL BOARD
3x3x1/4 STEEL ANGLE
C10x15.3 STEEL CHANNEL HEADER
5/8" GYPSUM WALL BOARD
ROOF FINISH AS SCHEDULED
12"x12" CONCRETE HAUNCHED FOOTING
WITH SCHEDULED REINFORCEMENT
3" RIGID INSULATION
ROPE LIGHT RL-2 WITH VALENCE
WATERPROOF DUPLEX ON MAIN EXT SWITCH
Scale:
Consultant
Address
Address
Phone
Fax
e-mail
Consultant
Address
Address
Phone
Fax
e-mail
ARCHITECTS PLLC
648 Broadway / Suite 402, New York, NY 10012
T.212.254.5210
F.212.254.4523
www.wilkinsonarchitects.com
New York: Registered Architect 027917-1
Pennsylvania: Registered Architect 402561
National Council of Architectural Registration Board #52853
DOB Barcode
3/4" = 1'-0"
A404.00
GYM SECTION EAST/WEST
KASSIN RESIDENCE
Enter address here
No. Description Date
3/4" = 1'-0"
1
DETACHED GARAGE SECTION -
NORTH/SOUTH
PRICING 05.04.15

KASSIN GYM

  • 1.
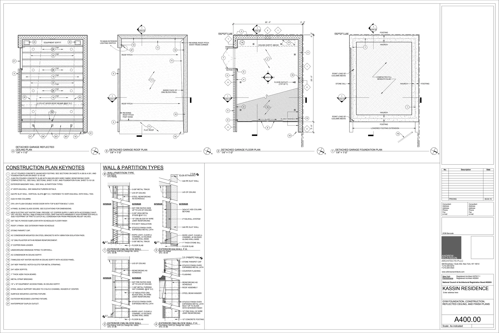
    1 A403.00 1 A404.00 PROPERTY LINE PROPERTYLINE COMPACTED FILL BENEATHSLAB 1 A403.00 1 A404.00 20' - 0" 0' - 2" 0'-2"25'-0"3'-0" 1 1 1 3 A402.004 1 2 3 PROPERTY LINE PROPERTYLINE 2 2 3 4 CEILING SOFFIT ABOVE ALIGN FINISHES FLOOR OUTLET (TYP OF 7) SLIDE ACTIVE PASSIVE 1 A403.00 1 A404.00 INSIDE FACE OF CMU BLOCK WALL REVERSE ROOF PITCH AWAY FROM CORNER REVERSE ROOF PITCH PAST EDGE TO MAIN EXTERIOR LIGHTING SWITCH WALL/PARTITION TYPE Fire Rating STC Rating 1 EXTERIOR KALWALL F.H. Non Fire Rated STC: 40-48 3 # 4" KALWALL SYSTEM 3x3x1/4" HSS COLUMN BEYOND FLOOR SLAB EXTERIOR CMU BLOCK WALL Fire Rating: 4HR (UL Design No. U910) STC: 40-48 2x6 IPE SLAT WALL 2 Fire Rating: 2HR (UL Design No. U905) STC: 51-56 1" THICK STONE SILL 2x6 IPE SLAT WALL T.O.W. ALIGN W/ PARAPET 12" INSULATED CMU BLOCK WALL W/ WIRE JOINT REINFORCING 5/8" FIRE RATED GWB UP TO U/S OF CEILING 1-5/8" METAL FURRING HAT CHANNEL @16" O.C. FLOOR SLAB EXTERIOR CMU BLOCK WALL STUCCO FINISH OVER EXPANDED METAL LATH ROPE LIGHT, CLEAR U- CHANNEL, & VALENCE ALONG WALL BASE INTERIOR EXTERIOR INTERIOR EXTERIOR U/S OF CEILING REINFORCING AS SCHEDULE 4 Fire Rating: 2HR (UL Design No. U905) STC: 51-56 12" CMU WALL W/ WIRE JOINT REINFORCING STUCCO FINISH OVER EXPANDED METAL LATH 12" CONCRETE FOOTING EXTERIOR CMU BLOCK WALL F.H. STUCCO FINISH OVER EXPANDED METAL LATH BUILT UP TO ALIGN WITH INTERIOR FINISH STONE PARAPET CAP REINFORCING AS SCHEDULE ROOF ASSEMBLY STEEL BEAM HANGER T.O. PARAPET WALL F.F. 10" CMU BLOCK W/ WIRE JOINT REINFORCING 5/8" FIRE RATED GWB UP TO U/S OF CEILING 3-5/8" 20GA METAL STUDS @16" O.C. FLOOR SLAB R15 BATT INSULATION STUCCO FINISH OVER EXPANDED METAL LATH 3-5/8" METAL TRACK INTERIOR EXTERIOR U/S OF CEILING STEEL REINFORCING AS SCHEDULE F.F. 3-5/8" METAL TRACK F.F. ROPE LIGHT, CLEAR U- CHANNEL, & VALENCE ALONG WALL BASE ROPE LIGHT, CLEAR U- CHANNEL, & VALENCE ALONG WALL BASE U/S OF CEILING FLASHING COUNTER FLASHING 3-1/2"x12" WOOD ROOF BEAMS @24" O.C. Scale: Consultant Address Address Phone Fax e-mail Consultant Address Address Phone Fax e-mail ARCHITECTS PLLC 648 Broadway / Suite 402, New York, NY 10012 T.212.254.5210 F.212.254.4523 www.wilkinsonarchitects.com New York: Registered Architect 027917-1 Pennsylvania: Registered Architect 402561 National Council of Architectural Registration Board #52853 DOB Barcode As indicated A400.00 GYM FOUNDATION, CONSTRUCTION, REFLECTED CEILING, AND FINISH PLANS KASSIN RESIDENCE Enter address here 1/4" = 1'-0" 1 DETACHED GARAGE FOUNDATION PLAN 1/4" = 1'-0" 2 DETACHED GARAGE FLOOR PLAN 1/4" = 1'-0" 3 DETACHED GARAGE ROOF PLAN CONSTRUCTION PLAN KEYNOTES 3 4 EXTERIOR MASONRY WALL. SEE WALL & PARTITION TYPES. 2 3,000 PSI POURED CONCRETE SLAB WITH 6X6 WELDED WIRE FABRIC REINFORCING OVER COMPACTED FILL. SEE WALL SECTIONS, SHEET A-301, AND FOUNDATION PLAN, SHEET S-101.00 1 18"x12" POURED CONCRETE HAUNCHED FOOTING. SEE SECTIONS ON SHEETS A-300 & A-301, AND FOUNDATION PLAN ON SHEET S-101.00 No. Description Date 4" VERTI-KALWALL. SEE MANUFACTURERS DETAILS. 5 2x6 IPE SLAT WALL. VERTICAL SLATS @6" O.C. FASTENED TO VERTI-KALWALL WITH WALL TIES. 6 3'W x 8'H FLUSH DOUBLE WOOD DOOR WITH TOP & BOTTOM BOLT LOCK.7 4 PANEL SLIDING GLASS DOORS. SEE ELEVATIONS FOR DIMENSIONS.8 NEW ELECTRIC HOT WATER TANK. PROVIDE 1/2" COPPER SUPPLY LINES WITH ACCESSIBLE SHUT- OFF VALVES. INSTALL 20ga STAINLESS STEEL DRIP PAN WITH MINIMUM 6" HIGH PERIMETER WALLS. SIZE FOOTPRINT OF PAN TO CATCH ALL CONDENSATION FROM PRESSURE RELIEF VALVES. 1 1 2 3 3 4 4 3x3x1/4 HSS COLUMNS. 9 6 5 5 5 11 ROOF 3 FINISH. SEE EXTERIOR FINISH SCHEDULE 12 STONE PARAPET CAP. 11 11 12 12 5 6 WALL & PARTITION TYPES 8 7 10 5/8" T&G PLYWOOD SUBFLOOR WITH SCHEDULED FLOOR FINISH N N N 13 AC CONDENSOR MOUNTED ON STEEL BRACKETS WITH VIBRATION ISOLATION PADS. 10 14 12" CMU PILASTER WITH #3 REBAR REINFORCEMENT. HAUNCH FOOTING POINT LOAD OF COLUMN ABOVE POINT LOAD OF COLUMN ABOVE 12 15 3" COPPER RAIN LEADER. 16 UNDEGROUND DRAINAGE PIPING TO DRYWELL. 16 15 15 LOWERED FOOTING EXTENSION FLAT ROOF ROOF PITCH ROOF PITCH 17 AC CONDENSOR IN CEILNG SOFFIT. 17 18 TANKLESS HOT WATER HEATER IN CEILNG SOFFIT WITH ACCESS PANEL. 1/4" = 1'-0" 4 DETACHED GARAGE REFLECTED CEILING PLAN N 18 15 19 3/4" MDF PAINTED. NOTCH SLOTS FOR METAL STRAPING. 20 3/4" AZEK SOFFITS. 19 TYP 24 20 21 1" THICK AZEK FACIA BOARD. 21 21 21 STONE SILL 10 10 19 TYP 22 METAL STRAP BRIDGING 22 22 TYP 22 22 TYP 23 12" x 18" EQUIPMENT ACCESS PANEL IN CEILING SOFFIT. EQUIPMENT SOFFIT 2323 24 STEEL ANGLE SUPPORT WELDED TO C10x15.3 CHANNEL HEADER AT CENTER. 25 SURFACE MOUNTED LIGHTING FIXTURE. 26 OUTDOOR RECESSED LIGHTING FIXTURE. 25 TYP 25 TYP 25 TYP 26 26 5 HAUNCH FOOTING HAUNCH FOOTING 11 11 PRICING 05.04.15 27 WATERPROOF DUPLEX OUTLET. 27
  • 2.
    T.O. FLOOR 0' -3" T.O. ROOF 11' - 4" B.O. BEAM 10' - 0" T.O. FOOTING -0' - 3" 1 A403.00 T.O. PARAPET 13' - 0" BASE PLANE 0' - 4" STUCCO FINISH PROPERTYLINE T.O. FLOOR 0' - 3" T.O. ROOF 11' - 4" B.O. BEAM 10' - 0" T.O. FOOTING -0' - 3" 1 A404.00 T.O. PARAPET 13' - 0" BASE PLANE 0' - 4" STUCCO FINISH PROPERTYLINE T.O. FLOOR 0' - 3" T.O. ROOF 11' - 4" B.O. BEAM 10' - 0" T.O. FOOTING -0' - 3" 1 A403.00 T.O. PARAPET 13' - 0" BASE PLANE 0' - 4" FIXED FIXED TOP & BOTTOM BOLT LOCK PROPERTYLINE STUCCO FINISH T.O. FLOOR 0' - 3" T.O. ROOF 11' - 4" B.O. BEAM 10' - 0" T.O. FOOTING -0' - 3" 1 A404.00 T.O. PARAPET 13' - 0" BASE PLANE 0' - 4" SLIDE SLIDE PROPERTYLINE Scale: Consultant Address Address Phone Fax e-mail Consultant Address Address Phone Fax e-mail ARCHITECTS PLLC 648 Broadway / Suite 402, New York, NY 10012 T.212.254.5210 F.212.254.4523 www.wilkinsonarchitects.com New York: Registered Architect 027917-1 Pennsylvania: Registered Architect 402561 National Council of Architectural Registration Board #52853 DOB Barcode 1/2" = 1'-0" A401.00 GYM EXTERIOR ELEVATIONS KASSIN RESIDENCE Enter address here 1/2" = 1'-0" 2 DETACHED GARAGE EXTERIOR ELEVATION - NORTH 1/2" = 1'-0" 3 DETACHED GARAGE EXTERIOR ELEVATION - WEST 1/2" = 1'-0" 1 DETACHED GARAGE EXTERIOR ELEVATION - SOUTH 1/2" = 1'-0" 4 DETACHED GARAGE EXTERIOR ELEVATION - EAST No. Description Date PRICING 05.04.15
  • 3.
    1 A404.00 MIRROR GWB SOFFIT AIR REGISTERS EQ2 EQ 2 2' - 0" 9'-9" GWB CEILING MOUNTED TV ALIGN 1 A404.00 SLIDE SLIDE GWB GWB 8'-0"1'-95/8"0'-63/8" 10'-4" 1 A403.00 9'-95/8" CEILING MOUNTED TV 2' - 0" EQ 1 EQ 1 EQ 1 EQ 1 1 A403.00 FIXEDFIXED GWBTOP & BOTTOM BOLT LOCK 1'-87/8"8'-03/4" 1'-95/8"8'-0" 9'-95/8" Scale: Consultant Address Address Phone Fax e-mail Consultant Address Address Phone Fax e-mail ARCHITECTS PLLC 648 Broadway / Suite 402, New York, NY 10012 T.212.254.5210 F.212.254.4523 www.wilkinsonarchitects.com New York: Registered Architect 027917-1 Pennsylvania: Registered Architect 402561 National Council of Architectural Registration Board #52853 DOB Barcode 1/2" = 1'-0" A402.00 GYM INTERIOR ELEVATIONS KASSIN RESIDENCE Enter address here No. Description Date 2 PRICING REVISION 1 6/10/15 1/2" = 1'-0" 1 DETACHED GARAGE INTERIOR ELEVATION - WEST 1/2" = 1'-0" 3 DETACHED GARAGE INTERIOR ELEVATION - EAST 1/2" = 1'-0" 2 DETACHED GARAGE INTERIOR ELEVATION - NORTH 1/2" = 1'-0" 4 DETACHED GARAGE INTERIOR ELEVATION - SOUTH MIRROR GWB PRICING 05.04.15
  • 4.
    1 A404.00 2x6 IPE SLATWALL 4" VERTI-KALWALL 3x3x1/4 HSS COLUMN 1" THICK STONE SILL 12"x12" CONCRETE HAUNCHED FOOTING WITH SCHEDULED REINFORCEMENT 3,000 PSI POURED CONCRETE SLAB WITH 6x6 WELDED WIRE FABRIC REINFORCING 3" RIGID INSULATION COMPACTED FILL 6x6x3/8 STEEL ANGLE 3-1/2x15 WOOD ROOF BEAM 3-1/2x15 WOOD ROOF BEAM 24"O.C. STEEL BEAM HANGER RIM JOIST WITH MORTISED WALL CLIP 1" THICK AZEK FACIA COIL STOCK DRIP EDGE (2) LAYERS OF 3/4" PLYWOOD ROOF FINISH AS SCHEDULED 2x6 IPE SLAT WALL CMU BLOCK WALL WITH STEEL REINFORCING 3-5/8" 20GA METAL STUDS @ 16"O.C. STUCCO FINISH OVER EXPANDED METAL LATH FASTENED TO BLOCK WALL R-15 BATT INSULATION 3-5/8" 20GA CONTINUOUS METAL TRACK 5/8" GYPSUM WALL BOARD OPEN CELL SPRAY FOAM INSULATION 1/2" MDF BETWEEN ROOF BEAMS STUCCO FINISH OVER EXPANDED METAL LATH FASTENED TO BLOCK WALL STEEL BEAM HANGER 3-5/8" 20GA STEEL RUNNER MORTAR STONE PARAPET CAP PITCHED INWARD (2) LAYERS OF 3/4" PLYWOOD WOOD BLOCKING (2) LAYERS OF 3/4" PLYWOOD 2x4 WOOD BLOCKING BEYOND FLASHING & COUNTERFLASHING 3x3x1/4 STEEL ANGLE C10x15.3 STEEL CHANNEL 12"x12" CONCRETE HAUNCHED FOOTING WITH SCHEDULED REINFORCEMENT 3" RIGID INSULATION Scale: Consultant Address Address Phone Fax e-mail Consultant Address Address Phone Fax e-mail ARCHITECTS PLLC 648 Broadway / Suite 402, New York, NY 10012 T.212.254.5210 F.212.254.4523 www.wilkinsonarchitects.com New York: Registered Architect 027917-1 Pennsylvania: Registered Architect 402561 National Council of Architectural Registration Board #52853 DOB Barcode 3/4" = 1'-0" A403.00 GYM SECTION NORTH/SOUTH KASSIN RESIDENCE Enter address here No. Description Date 3/4" = 1'-0" 1 DETACHED GARAGE SECTION - EAST/WEST PRICING 05.04.15
  • 5.
    1 A403.00 TOP & BOTTOM BOLTLOCK FIXEDFIXED MECH SOFFIT GWB MECHANICAL ACCESS PANEL CMU BLOCK WALL WITH STEEL REINFORCING 3-5/8" 20GA METAL STUDS @ 16"O.C. 3x3x1/4 HSS COLUMN 3-5/8" 20GA CONTINUOUS METAL TRACK 12"x12" CONCRETE HAUNCHED FOOTING WITH SCHEDULED REINFORCEMENT 3,000 PSI POURED CONCRETE SLAB WITH 6x6 WELDED WIRE FABRIC REINFORCING 3" RIGID INSULATION STUCCO FINISH OVER EXPANDED METAL LATH FASTENED TO BLOCK WALL MORTAR 2"STONE PARAPET CAP PITCHED INWARD (2) LAYERS OF 3/4" PLYWOOD WOOD BLOCKING FLASHING & COUNTER FLASHING 4" VERTI-KALWALL COMPACTED FILL 5/8" GYPSUM WALL BOARD R-15 BATT INSULATION 3-1/2x15 WOOD ROOF BEAM 3-5/8" 20GA METAL STUDS @ 16"O.C. 3-5/8" 20GA METAL TRACK 3-1/2x15 WOOD ROOF BEAM RIM JOIST 1" THICK AZEK FACIA 1/2" MDF (2) LAYERS OF 3/4" PLYWOOD ROOF FINISH AS SCHEDULED 2x6 WOOD SLAT WALL WOOD BLOCKING OPEN CELL SPRAY FOAM INSULATION STUCCO FINISH OVER EXPANDED METAL LATH FASTENED TO BLOCK WALL 3-1/2x15 WOOD ROOF BEAM FIXED GLASS TRANSOM WINDOW SLIDING GLASS DOOR 1/2" MDF BETWEEN ROOF BEAMS AIR REGISTER 5/8" GYPSUM WALL BOARD 5/8" GYPSUM WALL BOARD 3x3x1/4 STEEL ANGLE C10x15.3 STEEL CHANNEL HEADER 5/8" GYPSUM WALL BOARD ROOF FINISH AS SCHEDULED 12"x12" CONCRETE HAUNCHED FOOTING WITH SCHEDULED REINFORCEMENT 3" RIGID INSULATION ROPE LIGHT RL-2 WITH VALENCE WATERPROOF DUPLEX ON MAIN EXT SWITCH Scale: Consultant Address Address Phone Fax e-mail Consultant Address Address Phone Fax e-mail ARCHITECTS PLLC 648 Broadway / Suite 402, New York, NY 10012 T.212.254.5210 F.212.254.4523 www.wilkinsonarchitects.com New York: Registered Architect 027917-1 Pennsylvania: Registered Architect 402561 National Council of Architectural Registration Board #52853 DOB Barcode 3/4" = 1'-0" A404.00 GYM SECTION EAST/WEST KASSIN RESIDENCE Enter address here No. Description Date 3/4" = 1'-0" 1 DETACHED GARAGE SECTION - NORTH/SOUTH PRICING 05.04.15