Hessen Fatty
By
Micheal Abebe
ID*0259/2006
Architecture & Aruban Planning
History of Architecture Assignment፫
Instructor -
tec.Wondwesen
Content
1. Introduction
Biography
2. Personal Philosophy & Source of Inspiration
3. Elements and principles of designs in his work
4. Majesty works
5. His Drawings
6. His elements
7. Awards
8. Reference
Introduction
Biography
Hassan Fat'hy was born in 23 March 1900, in Alexandria,
He went to Cairo, when he was 8 years old, and lived in Helwan with his
family.
Hassan Fat'hy liked Painting, drawings, but he didn't have any specific
ambitions.
He wished to be an agriculture engineer, but he couldn't.
Hassan Fat'hy joined the faculty of Engineering to study Architecture
as part of Civil engineering. He graduated from the Faculty of
Engineering in 1926.
In the beginning of his life, he worked in the department of school
buildings in the local authority.
The first project he designed was a school in Talkha city.
He found the houses in this city were very ugly and it was not suitable
for living in.
He tried to build his own house but he didn't like the style of it.
Then he found the beauty of the Nubian architecture.
Because it has its own character.
The first building he designed in his life was a house for old people in
Menia.
He left his job in the local authority in 1930 then he went back to
Cairo.
He worked as a professor of Fine Arts, at the University of Cairo
(1946).
He couldn't teach his architecture in the college, because the
classic architecture was the main subject in all colleges.
He established a private practice in Cairo, he put all his practice in
el-Gourna village which was the most important project in his life, it
was in 1946.
At the end of his life, he worked in Ministry of Education, in
educational building department in (1949 - 1952).
Then he returned to work as a Head of the Architectural
department in Fine Arts College in (1953 - 1957).
He worked in Dexsas Company in Grease, (1959 - 1961).
He worked with Ministry of Scientific Research, United Nations,
Aghakhan organization, and in his own office in his house, (1963).
From this moment he was the point of attraction of the whole
architects in the world.
Hassan Fat'hy utilized ancient design methods and materials.
He integrated knowledge of the rural Egyptian economic situation
with a wide knowledge of ancient architectural and town design
techniques. He trained local inhabitants to make their own materials
and build their own buildings.
Personal Philosophy & Source Of Inspiration
Traditional material with modern architectural principles
Especially by working to re-establish the use of mud brick (or
adobe) and traditional as opposed to western building designs
and lay-outs.
Fatty’s approach of using traditional building materials and
techniques. Both institutions employ the owner-builder system in
West Africa and the Middle East. These are the Development
Workshop of Laureate, which has helped to introduce the Nubian
technique of mud-brick dome and vault construction
Nubian technique
Elements and principles of designs in his work
The elements and principles of designs in Hassan Fatty's work
are Line, Texture, Shape and Unity. His work has line from the
use of mud bricks. Texture because the buildings have a
rough surface. Shape is made by the domed roofs. Finally,
unity because his buildings look complete and connected.
Hassan uses spherical (dome) shapes on all his mosques. He
also uses rectangles, squares and arches in his
architecture. These shapes give his work a 3D and 2D look
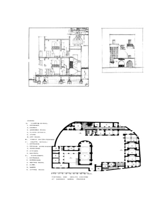
His Drawings
His elements
Aga khan award for architecture
Special Award the chairman award
The 1st
architect from developing country's to
receive the golden media of the UIA
(international union of Architect)receive the
…
• He’s designs and builds mosques, schools and
homes for Islamic Egyptian people
• Hassan likes to encourage people to
participate in the construction in their new
homes or mosques. Hassan uses thick walls,
shade and natural animal skin to make it
comfortable living in a desert. Hassan Fat'hy
died of old age on November 30th
, 1989. Just
before Hassan died, he was given the Aga Khan
Award and became Egypt's most well-known
architect…
Reference
• https://www.saudiaramcoworld.com/issue/199904/elegant.solutions.ht
m
• https://architecture.knoji.com/the-response-of-western-
architects-to-hassan-fathys-earth-architecture/
• http://egyptarch.net/egyptarchitect1/hasanfathi/hfmain.htm
• http://archive.unu.edu/unupress/unupbooks/80a01e/80A01E00.htm#C
ontents
• http://archnet.org/
• http://www.akdn.org/architecture/chairmans_ award.asp?tri=1980
• http://www.akdn.org/akaa_ chairman.asp
• http://en.wikipedia.org/wiki/Hassan_ Fathy
• http://www.remains.se/picturem.php?ObjectID=135&Browse=AREA
• http://www.rightlivelihood.org/fathy.html
• https://www.youtube.com/watch?v=r5QKLppxgbk
Hessen fatty

Hessen fatty

  • 1.
    Hessen Fatty By Micheal Abebe ID*0259/2006 Architecture& Aruban Planning History of Architecture Assignment፫ Instructor - tec.Wondwesen
  • 2.
    Content 1. Introduction Biography 2. PersonalPhilosophy & Source of Inspiration 3. Elements and principles of designs in his work 4. Majesty works 5. His Drawings 6. His elements 7. Awards 8. Reference
  • 3.
    Introduction Biography Hassan Fat'hy wasborn in 23 March 1900, in Alexandria, He went to Cairo, when he was 8 years old, and lived in Helwan with his family. Hassan Fat'hy liked Painting, drawings, but he didn't have any specific ambitions. He wished to be an agriculture engineer, but he couldn't. Hassan Fat'hy joined the faculty of Engineering to study Architecture as part of Civil engineering. He graduated from the Faculty of Engineering in 1926. In the beginning of his life, he worked in the department of school buildings in the local authority. The first project he designed was a school in Talkha city. He found the houses in this city were very ugly and it was not suitable for living in. He tried to build his own house but he didn't like the style of it. Then he found the beauty of the Nubian architecture. Because it has its own character. The first building he designed in his life was a house for old people in Menia. He left his job in the local authority in 1930 then he went back to Cairo. He worked as a professor of Fine Arts, at the University of Cairo (1946). He couldn't teach his architecture in the college, because the classic architecture was the main subject in all colleges. He established a private practice in Cairo, he put all his practice in el-Gourna village which was the most important project in his life, it was in 1946. At the end of his life, he worked in Ministry of Education, in educational building department in (1949 - 1952). Then he returned to work as a Head of the Architectural department in Fine Arts College in (1953 - 1957).
  • 4.
    He worked inDexsas Company in Grease, (1959 - 1961). He worked with Ministry of Scientific Research, United Nations, Aghakhan organization, and in his own office in his house, (1963). From this moment he was the point of attraction of the whole architects in the world. Hassan Fat'hy utilized ancient design methods and materials. He integrated knowledge of the rural Egyptian economic situation with a wide knowledge of ancient architectural and town design techniques. He trained local inhabitants to make their own materials and build their own buildings. Personal Philosophy & Source Of Inspiration Traditional material with modern architectural principles Especially by working to re-establish the use of mud brick (or adobe) and traditional as opposed to western building designs and lay-outs. Fatty’s approach of using traditional building materials and techniques. Both institutions employ the owner-builder system in West Africa and the Middle East. These are the Development Workshop of Laureate, which has helped to introduce the Nubian technique of mud-brick dome and vault construction
  • 5.
  • 6.
    Elements and principlesof designs in his work The elements and principles of designs in Hassan Fatty's work are Line, Texture, Shape and Unity. His work has line from the use of mud bricks. Texture because the buildings have a rough surface. Shape is made by the domed roofs. Finally, unity because his buildings look complete and connected. Hassan uses spherical (dome) shapes on all his mosques. He also uses rectangles, squares and arches in his architecture. These shapes give his work a 3D and 2D look
  • 9.
  • 12.
  • 13.
    Aga khan awardfor architecture Special Award the chairman award The 1st architect from developing country's to receive the golden media of the UIA (international union of Architect)receive the … • He’s designs and builds mosques, schools and homes for Islamic Egyptian people • Hassan likes to encourage people to participate in the construction in their new homes or mosques. Hassan uses thick walls, shade and natural animal skin to make it comfortable living in a desert. Hassan Fat'hy died of old age on November 30th , 1989. Just before Hassan died, he was given the Aga Khan Award and became Egypt's most well-known architect…
  • 14.
    Reference • https://www.saudiaramcoworld.com/issue/199904/elegant.solutions.ht m • https://architecture.knoji.com/the-response-of-western- architects-to-hassan-fathys-earth-architecture/ •http://egyptarch.net/egyptarchitect1/hasanfathi/hfmain.htm • http://archive.unu.edu/unupress/unupbooks/80a01e/80A01E00.htm#C ontents • http://archnet.org/ • http://www.akdn.org/architecture/chairmans_ award.asp?tri=1980 • http://www.akdn.org/akaa_ chairman.asp • http://en.wikipedia.org/wiki/Hassan_ Fathy • http://www.remains.se/picturem.php?ObjectID=135&Browse=AREA • http://www.rightlivelihood.org/fathy.html • https://www.youtube.com/watch?v=r5QKLppxgbk