• Project Based Learning
• Community Involvement
• Workforce Readiness
• Student Behavior
• Team Teaching
• Flexibility
• Access to Learning
> Does It work?
• Collaboration
• Interaction
• Engagement
• Transparency
• Multiuse
• Technology
• High Achievement
Who We Are
• Benjamin and Sanjay to introduce themselves
• Introduce D/P/S services + locations
• Benjamin has focused on educational design for the
past 15 years at Dekker/Perich/Sabatini. As a
Principal-in-Charge of K-12 Education, he leads
project teams through all phases of planning, design,
and construction administration. His project
experience informs Benjamin’s understanding of the
issues facing primary and secondary schools from
funding, to teaching models and classroom
technology, to constructability and innovation. He
believes that properly planned and well-designed
facilities play a vital role in successfully delivering
education.
Who We Are
• Benjamin and Sanjay to introduce themselves
• Introduce D/P/S services + locations
• For 15 years, Sanjay, a firm principal, has
focused on the advancement of educational
facilities and has designed a number of award-
winning schools. Sanjay’s primary concern is
ensuring flexibility and functionality to support
learning today and for generations to come. He
is an expert in designing schools that
accommodate today’s educational programs,
planning for the capacity to add new
technologies, easily transform classrooms for
new educational models, and adapt spaces for
various activities.
• A4LE is a Registered Provider with The American Institute of Architects Continuing
Education System (AIA/ CES). Credit(s) earned on completion of this course will be
reported to AIA/CES for AIA members.
• The programs presented at this conference are registered with AIA/CES for continuing
professional education. As such, it does not include content that may be deemed or
construed to be an approval or endorsement by the AIA of any material of construction
or any method or manner of handling, using, distributing, or dealing in any material or
product.
• Questions related to specific materials, methods, and services will be addressed at
the conclusion of this presentation.
> AIA / CES
> LEARNING OBJECTIVES
• Participants will be able to describe design principles which relate to project based
learning environments
• Participants will be able to assess the appropriateness of various design strategies
that promote collaboration and teamwork in a learning environment
• Participants will be able to define their own vision of forward-thinking educational
campus design and apply the lessons from this evaluation to inform school design
efforts
• Participants will be able to communicate how the applied strategies can improve
student communication, engagement, and learning
CONTEXT
About nexGen
• Map + Setting
– NM, ABQ
New Mexico
APS Demographics
• MAP BACKGROUND
• Size of APS District compared to Nation
– X students / X rank in nation
APS Demographics
• MAP BACKGROUND
• Number of only high school students
• Number of high schools
APS Demographics
• MAP BACKGROUND
• Number of only high school students
• Number of high schools
APS Demographics
• Map
– NM, ABQ, nexGen
• nexGen number of students, minority students, how many students come from
alternative learning environments compared to traditional
> nex+GEN
APS Demographics
• Map
– NM, ABQ, nexGen
• nexGen number of students, minority students, how many students come from
alternative learning environments compared to traditional
APS Demographics
• Map
– NM, ABQ, nexGen
• nexGen number of students, minority students, how many students come from
alternative learning environments compared to traditional
APS Demographics
• Map
– NM, ABQ, nexGen
• nexGen number of students, minority students, how many students come from
alternative learning environments compared to traditional
nexGen Grades
• “A” grade
• What makes an A school?
• How it compares to other APS HS – 6/27 with A grade
Campus Master Planning
Existing Campus New Campus
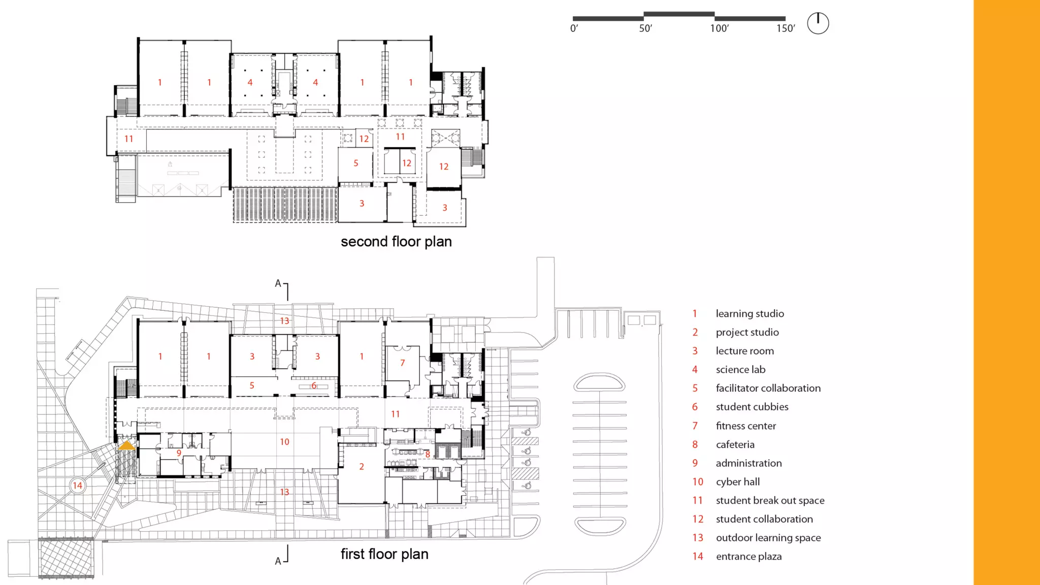
• PROJECT BASED LEARNING
• STUDENT ENGAGEMENT
• PROFESSIONAL DEVELOPMENT
& HANDS ON COACHING
• TEACHERS AS FACILITATORS
• OVER 150 SCHOOLS IN 26
STATES & AUSTRALIA
> WHAT IS THE NEW TECH NETWORK?
DESIGN PROCESS
Montgomery Blvd
SanMateoBlvd
Campus Master Planning• FIRST GROUND UP SCHOOL IN THE COUNTRY BASED ON
NEW TECH FOUNDATION’S 21ST CENTURY LEARNING MODEL
• STUDENT CAPACITY: 400 STUDENTS
• AREA: 47,000 SF
• nex+GEN DESIGN AWARDS
– LEED Silver, USGBC
– 2013 Sustainable Building
Award, Albuquerque Business
First and NM Green Chamber
of Commerce
– 2011 Grand Prize Award,
Learning By Design
– 2011 Award of Merit, ENR
Southwest
– 2011 Best K-12 Education
Project, NAIOP NM
– 2010 Citation Award, AIA
Albuquerque
– 2012 Demonstration School for
New Tech Network
> nex+GEN - 2010
DOES IT WORK?
> nex+GEN DESIGN DRIVERS
• PROJECT BASED LEARNING
– Contextual
– Creative
– Collaborative
• COMMUNITY INVOLVEMENT
• WORKFORCE READY
– Image and openness
• STUDENT BEHAVIOR
– Independence
– Trust
nex+GEN DESIGN DRIVERS
• PROJECT BASED LEARNING
– Contextual
– Creative
– Collaborative
• COMMUNITY ENVIRONMENT
• WORKFORCE READY
– Image and openness
• STUDENT BEHAVIOR
– Independence
– Trust
nex+GEN DESIGN DRIVERS
• PROJECT BASED LEARNING
– Contextual
– Creative
– Collaborative
• COMMUNITY INVOLVEMENT
• WORKFORCE READY
– Image and openness
• STUDENT BEHAVIOR
– Independence
– Trust
nex+GEN DESIGN DRIVERS
• PROJECT BASED LEARNING
– Contextual
– Creative
– Collaborative
• COMMUNITY INVOLVEMENT
• WORKFORCE READY
– Image and openness
• STUDENT BEHAVIOR
– Independence
– Trust
nex+GEN DESIGN DRIVERS
• PROJECT BASED LEARNING
– Contextual
– Creative
– Collaborative
• COMMUNITY INVOLVEMENT
• WORKFORCE READY
– Image and openness
• STUDENT BEHAVIOR
– Independence
– Trust
> nex+GEN STUDIOS
• TEAM TEACHING
• FLEXIBLE
• ACCESS
– Sparks interest
– Frees movement
– Promotes interaction
nex+GEN STUDIOS
• TEAM TEACHING
• FLEXIBLE
• ACCESS
– Sparks interest
– Frees movement
– Promotes interaction
nex+GEN STUDIOS
• TEAM TEACHING
• FLEXIBLE
• ACCESS
– Sparks interest
– Frees movement
– Promotes interaction
nex+GEN STUDIOS
• TEAM TEACHING
• FLEXIBLE
• ACCESS
– Sparks interest
– Frees movement
– Promotes interaction
nex+GEN STUDIOS
• TEAM TEACHING
• FLEXIBLE
• ACCESS
– Sparks interest
– Frees movement
– Promotes interaction
nex+GEN STUDIOS
• TEAM TEACHING
• FLEXIBLE
• ACCESS
– Sparks interest
– Free movement
– Promotes interaction
> nex+GEN MULTI-USE SPACES
• CYBER HALL
– STUDENT PRESENTATIONS
– COMMUNITY VENUE
– PROFESSIONAL
DEVELOPMENT
• COLLABORATION SPACES
– TEAMWORK
– SMALL GROUP MEETINGS
– TRUST
– INTERACTION
• nex+GEN MULTI-USE SPACES
• CYBER HALL
– STUDENT PRESENTATIONS
– COMMUNITY VENUE
– PROFESSIONAL
DEVELOPMENT
• COLLABORATION SPACES
– TEAMWORK
– SMALL GROUP MEETINGS
– TRUST
– INTERACTION
• nex+GEN MULTI-USE SPACES
• CYBER HALL
– STUDENT PRESENTATIONS
– COMMUNITY VENUE
– PROFESSIONAL
DEVELOPMENT
• COLLABORATION SPACES
– TEAMWORK
– SMALL GROUP MEETINGS
– TRUST
– INTERACTION
• nex+GEN MULTI-USE SPACES
• CYBER HALL
– STUDENT PRESENTATIONS
– COMMUNITY VENUE
– PROFESSIONAL
DEVELOPMENT
• COLLABORATION SPACES
– TEAMWORK
– SMALL GROUP MEETINGS
– TRUST
– INTERACTION
• nex+GEN MULTI-USE SPACES
• CYBER HALL
– STUDENT PRESENTATIONS
– COMMUNITY VENUE
– PROFESSIONAL
DEVELOPMENT
• COLLABORATION SPACES
– TEAMWORK
– SMALL GROUP MEETINGS
– TRUST
– INTERACTION
• nex+GEN MULTI-USE SPACES
• CYBER HALL
– STUDENT PRESENTATIONS
– COMMUNITY VENUE
– PROFESSIONAL
DEVELOPMENT
• COLLABORATION SPACES
– TEAMWORK
– SMALL GROUP MEETINGS
– TRUST
– INTERACTION
• nex+GEN MULTI-USE SPACES
• CYBER HALL
– STUDENT PRESENTATIONS
– COMMUNITY VENUE
– PROFESSIONAL
DEVELOPMENT
• COLLABORATION SPACES
– TEAMWORK
– SMALL GROUP MEETINGS
– TRUST
– INTERACTION
• nex+GEN MULTI-USE SPACES
• CYBER HALL
– STUDENT PRESENTATIONS
– COMMUNITY VENUE
– PROFESSIONAL
DEVELOPMENT
• COLLABORATION SPACES
– TEAMWORK
– SMALL GROUP MEETINGS
– TRUST
– INTERACTION
> nex+GEN OTHER SPACES/ ELEMENTS
• TEACHER WORK ROOMS
– OFFICE AND PREP SPACE
– PROMOTES INTERACTION
– SUPERVISION
• SCIENCE LABS
– MULTI-USE SPACE
• P.E. ROOM
– BIOLOGY, HEALTH & P.E.
INTEGRATION
• TRANSPARENCY
• TECHNOLOGY
• nex+GEN OTHER SPACES/
ELEMENTS
• TEACHER WORK ROOMS
– OFFICE AND PREP SPACE
– PROMOTES INTERACTION
– SUPERVISION
• SCIENCE LABS
– MULTI-USE SPACE
• P.E. ROOM
– BIOLOGY, HEALTH & P.E.
INTEGRATION
• TRANSPARENCY
• TECHNOLOGY
• nex+GEN OTHER SPACES/
ELEMENTS
• TEACHER WORK ROOMS
– OFFICE AND PREP SPACE
– PROMOTES INTERACTION
– SUPERVISION
• SCIENCE LABS
– MULTI-USE SPACE
• P.E. ROOM
– BIOLOGY, HEALTH & P.E.
INTEGRATION
• TRANSPARENCY
• TECHNOLOGY
• nex+GEN OTHER SPACES/
ELEMENTS
• TEACHER WORK ROOMS
– OFFICE AND PREP SPACE
– PROMOTES INTERACTION
– SUPERVISION
• SCIENCE LABS
– MULTI-USE SPACE
• P.E. ROOM
– BIOLOGY, HEALTH & P.E.
INTEGRATION
• TRANSPARENCY
• TECHNOLOGY
• nex+GEN OTHER SPACES/
ELEMENTS
• TEACHER WORK ROOMS
– OFFICE AND PREP SPACE
– PROMOTES INTERACTION
– SUPERVISION
• SCIENCE LABS
– MULTI-USE SPACE
• P.E. ROOM
– BIOLOGY, HEALTH & P.E.
INTEGRATION
• TRANSPARENCY
• TECHNOLOGY
• nex+GEN OTHER SPACES/
ELEMENTS
• TEACHER WORK ROOMS
– OFFICE AND PREP SPACE
– PROMOTES INTERACTION
– SUPERVISION
• SCIENCE LABS
– MULTI-USE SPACE
• P.E. ROOM
– BIOLOGY, HEALTH & P.E.
INTEGRATION
• TRANSPARENCY
• TECHNOLOGY
• nex+GEN OTHER SPACES/
ELEMENTS
• TEACHER WORK ROOMS
– OFFICE AND PREP SPACE
– PROMOTES INTERACTION
– SUPERVISION
• SCIENCE LABS
– MULTI-USE SPACE
• P.E. ROOM
– BIOLOGY, HEALTH & P.E.
INTEGRATION
• TRANSPARENCY
• TECHNOLOGY
• nex+GEN OTHER SPACES/
ELEMENTS
• TEACHER WORK ROOMS
– OFFICE AND PREP SPACE
– PROMOTES INTERACTION
– SUPERVISION
• SCIENCE LABS
– MULTI-USE SPACE
• P.E. ROOM
– BIOLOGY, HEALTH & P.E.
INTEGRATION
• TRANSPARENCY
• TECHNOLOGY
• nex+GEN OTHER SPACES/
ELEMENTS
• TEACHER WORK ROOMS
– OFFICE AND PREP SPACE
– PROMOTES INTERACTION
– SUPERVISION
• SCIENCE LABS
– MULTI-USE SPACE
• P.E. ROOM
– BIOLOGY, HEALTH & P.E.
INTEGRATION
• TRANSPARENCY
• TECHNOLOGY
• nex+GEN OTHER SPACES/
ELEMENTS
• TEACHER WORK ROOMS
– OFFICE AND PREP SPACE
– PROMOTES INTERACTION
– SUPERVISION
• SCIENCE LABS
– MULTI-USE SPACE
• P.E. ROOM
– BIOLOGY, HEALTH & P.E.
INTEGRATION
• TRANSPARENCY
• TECHNOLOGY
• nex+GEN OTHER SPACES/
ELEMENTS
• TEACHER WORK ROOMS
– OFFICE AND PREP SPACE
– PROMOTES INTERACTION
– SUPERVISION
• SCIENCE LABS
– MULTI-USE SPACE
• P.E. ROOM
– BIOLOGY, HEALTH & P.E.
INTEGRATION
• TRANSPARENCY
• TECHNOLOGY
• Acoustics – Collaboration & Interaction
• Science Labs - Flexibility
• Transparency – Private areas for staff
> Lessons learned
• Project Based Learning
• Community Involvement
• Workforce Readiness
• Student Behavior
• Team Teaching
• Flexibility
• Access to Learning
> It Works!!
• Collaboration
• Interaction
• Engagement
• Transparency
• Multiuse
• Technology
• High Achievement
> Questions
Does it Work? A post-occupancy evaluation focused on how facility design promotes project based learning

Does it Work? A post-occupancy evaluation focused on how facility design promotes project based learning

  • 2.
    • Project BasedLearning • Community Involvement • Workforce Readiness • Student Behavior • Team Teaching • Flexibility • Access to Learning > Does It work? • Collaboration • Interaction • Engagement • Transparency • Multiuse • Technology • High Achievement
  • 3.
    Who We Are •Benjamin and Sanjay to introduce themselves • Introduce D/P/S services + locations • Benjamin has focused on educational design for the past 15 years at Dekker/Perich/Sabatini. As a Principal-in-Charge of K-12 Education, he leads project teams through all phases of planning, design, and construction administration. His project experience informs Benjamin’s understanding of the issues facing primary and secondary schools from funding, to teaching models and classroom technology, to constructability and innovation. He believes that properly planned and well-designed facilities play a vital role in successfully delivering education.
  • 4.
    Who We Are •Benjamin and Sanjay to introduce themselves • Introduce D/P/S services + locations • For 15 years, Sanjay, a firm principal, has focused on the advancement of educational facilities and has designed a number of award- winning schools. Sanjay’s primary concern is ensuring flexibility and functionality to support learning today and for generations to come. He is an expert in designing schools that accommodate today’s educational programs, planning for the capacity to add new technologies, easily transform classrooms for new educational models, and adapt spaces for various activities.
  • 5.
    • A4LE isa Registered Provider with The American Institute of Architects Continuing Education System (AIA/ CES). Credit(s) earned on completion of this course will be reported to AIA/CES for AIA members. • The programs presented at this conference are registered with AIA/CES for continuing professional education. As such, it does not include content that may be deemed or construed to be an approval or endorsement by the AIA of any material of construction or any method or manner of handling, using, distributing, or dealing in any material or product. • Questions related to specific materials, methods, and services will be addressed at the conclusion of this presentation. > AIA / CES
  • 6.
    > LEARNING OBJECTIVES •Participants will be able to describe design principles which relate to project based learning environments • Participants will be able to assess the appropriateness of various design strategies that promote collaboration and teamwork in a learning environment • Participants will be able to define their own vision of forward-thinking educational campus design and apply the lessons from this evaluation to inform school design efforts • Participants will be able to communicate how the applied strategies can improve student communication, engagement, and learning
  • 7.
  • 8.
    About nexGen • Map+ Setting – NM, ABQ New Mexico
  • 9.
    APS Demographics • MAPBACKGROUND • Size of APS District compared to Nation – X students / X rank in nation
  • 10.
    APS Demographics • MAPBACKGROUND • Number of only high school students • Number of high schools
  • 11.
    APS Demographics • MAPBACKGROUND • Number of only high school students • Number of high schools
  • 12.
    APS Demographics • Map –NM, ABQ, nexGen • nexGen number of students, minority students, how many students come from alternative learning environments compared to traditional > nex+GEN
  • 13.
    APS Demographics • Map –NM, ABQ, nexGen • nexGen number of students, minority students, how many students come from alternative learning environments compared to traditional
  • 14.
    APS Demographics • Map –NM, ABQ, nexGen • nexGen number of students, minority students, how many students come from alternative learning environments compared to traditional
  • 15.
    APS Demographics • Map –NM, ABQ, nexGen • nexGen number of students, minority students, how many students come from alternative learning environments compared to traditional
  • 16.
    nexGen Grades • “A”grade • What makes an A school? • How it compares to other APS HS – 6/27 with A grade
  • 17.
  • 19.
    • PROJECT BASEDLEARNING • STUDENT ENGAGEMENT • PROFESSIONAL DEVELOPMENT & HANDS ON COACHING • TEACHERS AS FACILITATORS • OVER 150 SCHOOLS IN 26 STATES & AUSTRALIA > WHAT IS THE NEW TECH NETWORK?
  • 20.
  • 21.
  • 22.
    Campus Master Planning•FIRST GROUND UP SCHOOL IN THE COUNTRY BASED ON NEW TECH FOUNDATION’S 21ST CENTURY LEARNING MODEL • STUDENT CAPACITY: 400 STUDENTS • AREA: 47,000 SF
  • 26.
    • nex+GEN DESIGNAWARDS – LEED Silver, USGBC – 2013 Sustainable Building Award, Albuquerque Business First and NM Green Chamber of Commerce – 2011 Grand Prize Award, Learning By Design – 2011 Award of Merit, ENR Southwest – 2011 Best K-12 Education Project, NAIOP NM – 2010 Citation Award, AIA Albuquerque – 2012 Demonstration School for New Tech Network > nex+GEN - 2010
  • 27.
  • 28.
    > nex+GEN DESIGNDRIVERS • PROJECT BASED LEARNING – Contextual – Creative – Collaborative • COMMUNITY INVOLVEMENT • WORKFORCE READY – Image and openness • STUDENT BEHAVIOR – Independence – Trust
  • 29.
    nex+GEN DESIGN DRIVERS •PROJECT BASED LEARNING – Contextual – Creative – Collaborative • COMMUNITY ENVIRONMENT • WORKFORCE READY – Image and openness • STUDENT BEHAVIOR – Independence – Trust
  • 30.
    nex+GEN DESIGN DRIVERS •PROJECT BASED LEARNING – Contextual – Creative – Collaborative • COMMUNITY INVOLVEMENT • WORKFORCE READY – Image and openness • STUDENT BEHAVIOR – Independence – Trust
  • 31.
    nex+GEN DESIGN DRIVERS •PROJECT BASED LEARNING – Contextual – Creative – Collaborative • COMMUNITY INVOLVEMENT • WORKFORCE READY – Image and openness • STUDENT BEHAVIOR – Independence – Trust
  • 32.
    nex+GEN DESIGN DRIVERS •PROJECT BASED LEARNING – Contextual – Creative – Collaborative • COMMUNITY INVOLVEMENT • WORKFORCE READY – Image and openness • STUDENT BEHAVIOR – Independence – Trust
  • 33.
    > nex+GEN STUDIOS •TEAM TEACHING • FLEXIBLE • ACCESS – Sparks interest – Frees movement – Promotes interaction
  • 34.
    nex+GEN STUDIOS • TEAMTEACHING • FLEXIBLE • ACCESS – Sparks interest – Frees movement – Promotes interaction
  • 35.
    nex+GEN STUDIOS • TEAMTEACHING • FLEXIBLE • ACCESS – Sparks interest – Frees movement – Promotes interaction
  • 36.
    nex+GEN STUDIOS • TEAMTEACHING • FLEXIBLE • ACCESS – Sparks interest – Frees movement – Promotes interaction
  • 37.
    nex+GEN STUDIOS • TEAMTEACHING • FLEXIBLE • ACCESS – Sparks interest – Frees movement – Promotes interaction
  • 38.
    nex+GEN STUDIOS • TEAMTEACHING • FLEXIBLE • ACCESS – Sparks interest – Free movement – Promotes interaction
  • 39.
    > nex+GEN MULTI-USESPACES • CYBER HALL – STUDENT PRESENTATIONS – COMMUNITY VENUE – PROFESSIONAL DEVELOPMENT • COLLABORATION SPACES – TEAMWORK – SMALL GROUP MEETINGS – TRUST – INTERACTION
  • 40.
    • nex+GEN MULTI-USESPACES • CYBER HALL – STUDENT PRESENTATIONS – COMMUNITY VENUE – PROFESSIONAL DEVELOPMENT • COLLABORATION SPACES – TEAMWORK – SMALL GROUP MEETINGS – TRUST – INTERACTION
  • 41.
    • nex+GEN MULTI-USESPACES • CYBER HALL – STUDENT PRESENTATIONS – COMMUNITY VENUE – PROFESSIONAL DEVELOPMENT • COLLABORATION SPACES – TEAMWORK – SMALL GROUP MEETINGS – TRUST – INTERACTION
  • 42.
    • nex+GEN MULTI-USESPACES • CYBER HALL – STUDENT PRESENTATIONS – COMMUNITY VENUE – PROFESSIONAL DEVELOPMENT • COLLABORATION SPACES – TEAMWORK – SMALL GROUP MEETINGS – TRUST – INTERACTION
  • 43.
    • nex+GEN MULTI-USESPACES • CYBER HALL – STUDENT PRESENTATIONS – COMMUNITY VENUE – PROFESSIONAL DEVELOPMENT • COLLABORATION SPACES – TEAMWORK – SMALL GROUP MEETINGS – TRUST – INTERACTION
  • 44.
    • nex+GEN MULTI-USESPACES • CYBER HALL – STUDENT PRESENTATIONS – COMMUNITY VENUE – PROFESSIONAL DEVELOPMENT • COLLABORATION SPACES – TEAMWORK – SMALL GROUP MEETINGS – TRUST – INTERACTION
  • 45.
    • nex+GEN MULTI-USESPACES • CYBER HALL – STUDENT PRESENTATIONS – COMMUNITY VENUE – PROFESSIONAL DEVELOPMENT • COLLABORATION SPACES – TEAMWORK – SMALL GROUP MEETINGS – TRUST – INTERACTION
  • 46.
    • nex+GEN MULTI-USESPACES • CYBER HALL – STUDENT PRESENTATIONS – COMMUNITY VENUE – PROFESSIONAL DEVELOPMENT • COLLABORATION SPACES – TEAMWORK – SMALL GROUP MEETINGS – TRUST – INTERACTION
  • 47.
    > nex+GEN OTHERSPACES/ ELEMENTS • TEACHER WORK ROOMS – OFFICE AND PREP SPACE – PROMOTES INTERACTION – SUPERVISION • SCIENCE LABS – MULTI-USE SPACE • P.E. ROOM – BIOLOGY, HEALTH & P.E. INTEGRATION • TRANSPARENCY • TECHNOLOGY
  • 48.
    • nex+GEN OTHERSPACES/ ELEMENTS • TEACHER WORK ROOMS – OFFICE AND PREP SPACE – PROMOTES INTERACTION – SUPERVISION • SCIENCE LABS – MULTI-USE SPACE • P.E. ROOM – BIOLOGY, HEALTH & P.E. INTEGRATION • TRANSPARENCY • TECHNOLOGY
  • 49.
    • nex+GEN OTHERSPACES/ ELEMENTS • TEACHER WORK ROOMS – OFFICE AND PREP SPACE – PROMOTES INTERACTION – SUPERVISION • SCIENCE LABS – MULTI-USE SPACE • P.E. ROOM – BIOLOGY, HEALTH & P.E. INTEGRATION • TRANSPARENCY • TECHNOLOGY
  • 50.
    • nex+GEN OTHERSPACES/ ELEMENTS • TEACHER WORK ROOMS – OFFICE AND PREP SPACE – PROMOTES INTERACTION – SUPERVISION • SCIENCE LABS – MULTI-USE SPACE • P.E. ROOM – BIOLOGY, HEALTH & P.E. INTEGRATION • TRANSPARENCY • TECHNOLOGY
  • 51.
    • nex+GEN OTHERSPACES/ ELEMENTS • TEACHER WORK ROOMS – OFFICE AND PREP SPACE – PROMOTES INTERACTION – SUPERVISION • SCIENCE LABS – MULTI-USE SPACE • P.E. ROOM – BIOLOGY, HEALTH & P.E. INTEGRATION • TRANSPARENCY • TECHNOLOGY
  • 52.
    • nex+GEN OTHERSPACES/ ELEMENTS • TEACHER WORK ROOMS – OFFICE AND PREP SPACE – PROMOTES INTERACTION – SUPERVISION • SCIENCE LABS – MULTI-USE SPACE • P.E. ROOM – BIOLOGY, HEALTH & P.E. INTEGRATION • TRANSPARENCY • TECHNOLOGY
  • 53.
    • nex+GEN OTHERSPACES/ ELEMENTS • TEACHER WORK ROOMS – OFFICE AND PREP SPACE – PROMOTES INTERACTION – SUPERVISION • SCIENCE LABS – MULTI-USE SPACE • P.E. ROOM – BIOLOGY, HEALTH & P.E. INTEGRATION • TRANSPARENCY • TECHNOLOGY
  • 54.
    • nex+GEN OTHERSPACES/ ELEMENTS • TEACHER WORK ROOMS – OFFICE AND PREP SPACE – PROMOTES INTERACTION – SUPERVISION • SCIENCE LABS – MULTI-USE SPACE • P.E. ROOM – BIOLOGY, HEALTH & P.E. INTEGRATION • TRANSPARENCY • TECHNOLOGY
  • 55.
    • nex+GEN OTHERSPACES/ ELEMENTS • TEACHER WORK ROOMS – OFFICE AND PREP SPACE – PROMOTES INTERACTION – SUPERVISION • SCIENCE LABS – MULTI-USE SPACE • P.E. ROOM – BIOLOGY, HEALTH & P.E. INTEGRATION • TRANSPARENCY • TECHNOLOGY
  • 56.
    • nex+GEN OTHERSPACES/ ELEMENTS • TEACHER WORK ROOMS – OFFICE AND PREP SPACE – PROMOTES INTERACTION – SUPERVISION • SCIENCE LABS – MULTI-USE SPACE • P.E. ROOM – BIOLOGY, HEALTH & P.E. INTEGRATION • TRANSPARENCY • TECHNOLOGY
  • 57.
    • nex+GEN OTHERSPACES/ ELEMENTS • TEACHER WORK ROOMS – OFFICE AND PREP SPACE – PROMOTES INTERACTION – SUPERVISION • SCIENCE LABS – MULTI-USE SPACE • P.E. ROOM – BIOLOGY, HEALTH & P.E. INTEGRATION • TRANSPARENCY • TECHNOLOGY
  • 58.
    • Acoustics –Collaboration & Interaction • Science Labs - Flexibility • Transparency – Private areas for staff > Lessons learned
  • 59.
    • Project BasedLearning • Community Involvement • Workforce Readiness • Student Behavior • Team Teaching • Flexibility • Access to Learning > It Works!! • Collaboration • Interaction • Engagement • Transparency • Multiuse • Technology • High Achievement
  • 60.