1
Reducing Acute Mental Health Admissions in Northern Ireland
John Cole
Richard Murphy
2
PROBLEMS FACING THE HEALTH SERVICE
• Ever-increasing demand for health and social services generally
• Significant increase In people suffering from mental health illness
potentially linked to economic and social factors
• Threat of real reductions in funding or non-affordability of status quo
• Limited effective integration between primary / community and
acute sectors
3
THE GROWING PROBLEM
THE FUNDING GAP
• In 2010/11 Northern Ireland health and social services budget
was approximately £4.2 bn
• To meet growing demand of 6% per annum by 2015/16 on
previous model of health care we would need £5.4 bn
• We are projected to have a budget allocation in 2015/2016 of
£4.6 bn – a funding gap of £0.8bn
4
THERE HAS TO BE A BETTER WAY
TO CONTINUE TO DO WHAT WE ARE
DOING WILL ULTIMATELY LEAD TO
FAILURE
WE HAVE TO DO MORE WITH LESS
5
6
CONFIRMED SERVICE VISION
• Less reliance on reactive more expensive care in hospitals with
a move to creating integrated care partnerships between hospital
staff, GPs and community staff
• Providing more efficient, effective and economic proactive health
and social care services closer to where people live.
• Putting the patient at the centre of a high quality multi-disciplinary
integrated team
• Focus on preventing illness and improving health and well-
being through improved life-styles, diet, exercise, amenities,
education, access to information and support in the community.
• Facilitating people to live longer and more independent lives in their
own homes with the support of technology where appropriate
ORGANISATIONAL CHANGE TO
FACILITATE IMPROVED INTEGRATION
• Each of the 5 new CEOs now responsible for delivering the full
range of Hospital, Community and Mental Health Services within
a specific geographic area. ( Other than Regional Services)
• Removed incentive for Hospital CEOs to treat more patients in
hospitals for greater income generation
• Increased incentive for patients to be treated in the most
appropriate environment to meet the patients’ needs
• Establishment of networked integrated teams of clinicians,
nurses and health professionals working across all levels of
model
7
8
THE SHIFT RIGHT AND LEFT:
• Fewer but larger hospitals providing the critical mass of staff and facilities to
provide acute and complex services as Centres of Clinical Excellence
• The creation of a range of Health and Care Centres as hubs in the
community large enough to provide the critical mass to deliver good local
access to comprehensive range of health services, treatment and advice,
some of which would only previously have been available in hospitals
• Better chronic disease management reducing the need for more
expensive hospitalisation and maintaining people in their own homes
• Accessing appropriate care in less expensive settings:
e.g. urgent care, out-patients ,diagnostics, minor procedures, mental
health services
• Optimisation of technology, earlier diagnoses and interventions
leading to better patient outcomes
9
KEY CHANGES IN THE LOCATION OF SERVICES
0 - THE HOME
1 - LOCAL HEALTH CENTRES
2 - COMMUNITY HEALTH CENTRES
3 - LOCAL HOSPITALS
4 - ACUTE HOSPITALS
5 - REGIONAL CENTRES
Movement of out-
patients diagnostics
and treatments from
acute towards
community
Key issue is the
movement of
chronic disease
management to the
community
preventing
unnecessary
hospitalisation
Movement of
complex
specialties or
specialties
benefiting from
higher critical
mass to Centres
of Excellence
10
3 - LOCAL HOSPITALS
Movement of out-
patients diagnostics
and treatments from
acute towards
community
Key issue is the
movement of
chronic disease
management to the
community
preventing
unnecessary
hospitalisation
Movement of
complex
specialties or
specialties
benefiting from
higher critical
mass to Centres
of Excellence
PULL
PULL
LOCATION OF SERVICES
11
=3 - LOCAL HOSPITALS
Movement of out-
patients diagnostics
and treatments from
acute towards
community
Key issue is the
movement of
chronic disease
management to the
community
preventing
unnecessary
hospitalisation
Movement of
complex
specialties or
specialties
benefiting from
higher critical
mass to Centres
of Excellence
PULL
PULL
= LESS BEDS
AND
LESS HOSPITALS
LOCATION OF SERVICES
12
Location of Level 4 FacilitiesCURRENT PROPOSAL BEING DEVELOPED TO REDUCE
FROM 10 ACUTE HOSPITALS TO BETWEEN 5-7 NETWORKS
Approx £1000m being spent reinforcing Centres of Excellence
13
Location of Level 4 Facilities
6 OF EXISTING 10 ACUTE HOSPITALS TO HAVE ACUTE
MENTAL HEALTH UNITS CO-LOCATED – OTHERS CLOSED
SERVICE VISION
• Acute mental health units to be co-located with Acute Hospitals
for clinical linkages and as centres of excellence
• Acute mental health services no longer to be provided from
other existing stand-alone units
• Acute Centres to focus on achieving earliest appropriate transfer
to day-patient/out-patient services in smaller community facilities
or support in the home
• Major investment in community mental health teams with earlier
interventions /crisis response services seeking to prevent
unnecessary hospitalisation
• Mental health services to be provided within new Health and
Care Centres
• Development of smaller integrated crisis beds /out-patient /day-
patient units in community
14
BELFAST MODEL
• Closure of 3 Acute Psychiatric Units at Knockbracken (old
asylum-type site), at Mater Hospital and at Windsor House
Belfast City Hospital
• Creation of a single central Acute Psychiatric Unit at Belfast City
Hospital site with significant net reduction in acute beds from
130 to 80
• Development of a community facility with day and out patient
facilities and as a base for significantly increased community-
based outreach mental health teams (Old See House)
• Mental Health services to be available in new Health and Care
Centres across the city
15
16
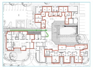
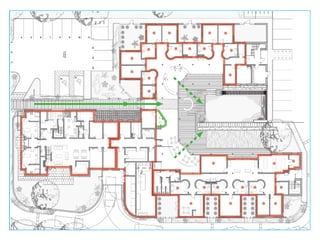
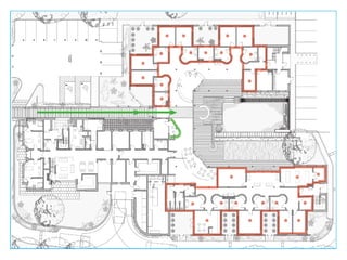
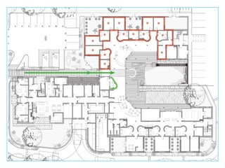
Old See House
DESIGN VISION
• The right type of facilities, of the right design, in the right place.
• Quality objectives that recognise the major contribution that design can
play in creating a healing environment.
• Therapeutic environment perhaps most critical for this vulnerable
patient group who are generally physically well
• Non-institutional, intuitive way-finding, quality of daylight and artificial
lighting, human scale, variety of spaces, conversation places, avoiding
the tyranny of the double-loaded corridor, respecting privacy and
dignity, patient safety
• Creating facilities that are welcomed by local communities and enhance
and enrich those communities in which they are located
17
John Cole Director of the Health Estates Investment Group NI and  Richard Murphy OBE Director, Richard Murphy Architects Reducing Acute Admissions to Mental Health Facilities: the Role of the Built Environment
John Cole Director of the Health Estates Investment Group NI and  Richard Murphy OBE Director, Richard Murphy Architects Reducing Acute Admissions to Mental Health Facilities: the Role of the Built Environment
John Cole Director of the Health Estates Investment Group NI and  Richard Murphy OBE Director, Richard Murphy Architects Reducing Acute Admissions to Mental Health Facilities: the Role of the Built Environment
John Cole Director of the Health Estates Investment Group NI and  Richard Murphy OBE Director, Richard Murphy Architects Reducing Acute Admissions to Mental Health Facilities: the Role of the Built Environment
John Cole Director of the Health Estates Investment Group NI and  Richard Murphy OBE Director, Richard Murphy Architects Reducing Acute Admissions to Mental Health Facilities: the Role of the Built Environment
John Cole Director of the Health Estates Investment Group NI and  Richard Murphy OBE Director, Richard Murphy Architects Reducing Acute Admissions to Mental Health Facilities: the Role of the Built Environment
John Cole Director of the Health Estates Investment Group NI and  Richard Murphy OBE Director, Richard Murphy Architects Reducing Acute Admissions to Mental Health Facilities: the Role of the Built Environment
John Cole Director of the Health Estates Investment Group NI and  Richard Murphy OBE Director, Richard Murphy Architects Reducing Acute Admissions to Mental Health Facilities: the Role of the Built Environment
John Cole Director of the Health Estates Investment Group NI and  Richard Murphy OBE Director, Richard Murphy Architects Reducing Acute Admissions to Mental Health Facilities: the Role of the Built Environment
John Cole Director of the Health Estates Investment Group NI and  Richard Murphy OBE Director, Richard Murphy Architects Reducing Acute Admissions to Mental Health Facilities: the Role of the Built Environment
John Cole Director of the Health Estates Investment Group NI and  Richard Murphy OBE Director, Richard Murphy Architects Reducing Acute Admissions to Mental Health Facilities: the Role of the Built Environment
John Cole Director of the Health Estates Investment Group NI and  Richard Murphy OBE Director, Richard Murphy Architects Reducing Acute Admissions to Mental Health Facilities: the Role of the Built Environment
John Cole Director of the Health Estates Investment Group NI and  Richard Murphy OBE Director, Richard Murphy Architects Reducing Acute Admissions to Mental Health Facilities: the Role of the Built Environment
John Cole Director of the Health Estates Investment Group NI and  Richard Murphy OBE Director, Richard Murphy Architects Reducing Acute Admissions to Mental Health Facilities: the Role of the Built Environment
John Cole Director of the Health Estates Investment Group NI and  Richard Murphy OBE Director, Richard Murphy Architects Reducing Acute Admissions to Mental Health Facilities: the Role of the Built Environment
John Cole Director of the Health Estates Investment Group NI and  Richard Murphy OBE Director, Richard Murphy Architects Reducing Acute Admissions to Mental Health Facilities: the Role of the Built Environment
John Cole Director of the Health Estates Investment Group NI and  Richard Murphy OBE Director, Richard Murphy Architects Reducing Acute Admissions to Mental Health Facilities: the Role of the Built Environment
John Cole Director of the Health Estates Investment Group NI and  Richard Murphy OBE Director, Richard Murphy Architects Reducing Acute Admissions to Mental Health Facilities: the Role of the Built Environment
John Cole Director of the Health Estates Investment Group NI and  Richard Murphy OBE Director, Richard Murphy Architects Reducing Acute Admissions to Mental Health Facilities: the Role of the Built Environment
John Cole Director of the Health Estates Investment Group NI and  Richard Murphy OBE Director, Richard Murphy Architects Reducing Acute Admissions to Mental Health Facilities: the Role of the Built Environment
John Cole Director of the Health Estates Investment Group NI and  Richard Murphy OBE Director, Richard Murphy Architects Reducing Acute Admissions to Mental Health Facilities: the Role of the Built Environment
John Cole Director of the Health Estates Investment Group NI and  Richard Murphy OBE Director, Richard Murphy Architects Reducing Acute Admissions to Mental Health Facilities: the Role of the Built Environment
John Cole Director of the Health Estates Investment Group NI and  Richard Murphy OBE Director, Richard Murphy Architects Reducing Acute Admissions to Mental Health Facilities: the Role of the Built Environment
John Cole Director of the Health Estates Investment Group NI and  Richard Murphy OBE Director, Richard Murphy Architects Reducing Acute Admissions to Mental Health Facilities: the Role of the Built Environment
John Cole Director of the Health Estates Investment Group NI and  Richard Murphy OBE Director, Richard Murphy Architects Reducing Acute Admissions to Mental Health Facilities: the Role of the Built Environment
John Cole Director of the Health Estates Investment Group NI and  Richard Murphy OBE Director, Richard Murphy Architects Reducing Acute Admissions to Mental Health Facilities: the Role of the Built Environment
John Cole Director of the Health Estates Investment Group NI and  Richard Murphy OBE Director, Richard Murphy Architects Reducing Acute Admissions to Mental Health Facilities: the Role of the Built Environment
John Cole Director of the Health Estates Investment Group NI and  Richard Murphy OBE Director, Richard Murphy Architects Reducing Acute Admissions to Mental Health Facilities: the Role of the Built Environment
John Cole Director of the Health Estates Investment Group NI and  Richard Murphy OBE Director, Richard Murphy Architects Reducing Acute Admissions to Mental Health Facilities: the Role of the Built Environment
John Cole Director of the Health Estates Investment Group NI and  Richard Murphy OBE Director, Richard Murphy Architects Reducing Acute Admissions to Mental Health Facilities: the Role of the Built Environment
John Cole Director of the Health Estates Investment Group NI and  Richard Murphy OBE Director, Richard Murphy Architects Reducing Acute Admissions to Mental Health Facilities: the Role of the Built Environment
John Cole Director of the Health Estates Investment Group NI and  Richard Murphy OBE Director, Richard Murphy Architects Reducing Acute Admissions to Mental Health Facilities: the Role of the Built Environment
John Cole Director of the Health Estates Investment Group NI and  Richard Murphy OBE Director, Richard Murphy Architects Reducing Acute Admissions to Mental Health Facilities: the Role of the Built Environment
John Cole Director of the Health Estates Investment Group NI and  Richard Murphy OBE Director, Richard Murphy Architects Reducing Acute Admissions to Mental Health Facilities: the Role of the Built Environment
John Cole Director of the Health Estates Investment Group NI and  Richard Murphy OBE Director, Richard Murphy Architects Reducing Acute Admissions to Mental Health Facilities: the Role of the Built Environment
John Cole Director of the Health Estates Investment Group NI and  Richard Murphy OBE Director, Richard Murphy Architects Reducing Acute Admissions to Mental Health Facilities: the Role of the Built Environment
John Cole Director of the Health Estates Investment Group NI and  Richard Murphy OBE Director, Richard Murphy Architects Reducing Acute Admissions to Mental Health Facilities: the Role of the Built Environment
John Cole Director of the Health Estates Investment Group NI and  Richard Murphy OBE Director, Richard Murphy Architects Reducing Acute Admissions to Mental Health Facilities: the Role of the Built Environment
John Cole Director of the Health Estates Investment Group NI and  Richard Murphy OBE Director, Richard Murphy Architects Reducing Acute Admissions to Mental Health Facilities: the Role of the Built Environment
John Cole Director of the Health Estates Investment Group NI and  Richard Murphy OBE Director, Richard Murphy Architects Reducing Acute Admissions to Mental Health Facilities: the Role of the Built Environment
John Cole Director of the Health Estates Investment Group NI and  Richard Murphy OBE Director, Richard Murphy Architects Reducing Acute Admissions to Mental Health Facilities: the Role of the Built Environment
John Cole Director of the Health Estates Investment Group NI and  Richard Murphy OBE Director, Richard Murphy Architects Reducing Acute Admissions to Mental Health Facilities: the Role of the Built Environment
John Cole Director of the Health Estates Investment Group NI and  Richard Murphy OBE Director, Richard Murphy Architects Reducing Acute Admissions to Mental Health Facilities: the Role of the Built Environment
John Cole Director of the Health Estates Investment Group NI and  Richard Murphy OBE Director, Richard Murphy Architects Reducing Acute Admissions to Mental Health Facilities: the Role of the Built Environment
John Cole Director of the Health Estates Investment Group NI and  Richard Murphy OBE Director, Richard Murphy Architects Reducing Acute Admissions to Mental Health Facilities: the Role of the Built Environment
John Cole Director of the Health Estates Investment Group NI and  Richard Murphy OBE Director, Richard Murphy Architects Reducing Acute Admissions to Mental Health Facilities: the Role of the Built Environment
John Cole Director of the Health Estates Investment Group NI and  Richard Murphy OBE Director, Richard Murphy Architects Reducing Acute Admissions to Mental Health Facilities: the Role of the Built Environment
John Cole Director of the Health Estates Investment Group NI and  Richard Murphy OBE Director, Richard Murphy Architects Reducing Acute Admissions to Mental Health Facilities: the Role of the Built Environment
John Cole Director of the Health Estates Investment Group NI and  Richard Murphy OBE Director, Richard Murphy Architects Reducing Acute Admissions to Mental Health Facilities: the Role of the Built Environment
John Cole Director of the Health Estates Investment Group NI and  Richard Murphy OBE Director, Richard Murphy Architects Reducing Acute Admissions to Mental Health Facilities: the Role of the Built Environment
John Cole Director of the Health Estates Investment Group NI and  Richard Murphy OBE Director, Richard Murphy Architects Reducing Acute Admissions to Mental Health Facilities: the Role of the Built Environment
John Cole Director of the Health Estates Investment Group NI and  Richard Murphy OBE Director, Richard Murphy Architects Reducing Acute Admissions to Mental Health Facilities: the Role of the Built Environment
John Cole Director of the Health Estates Investment Group NI and  Richard Murphy OBE Director, Richard Murphy Architects Reducing Acute Admissions to Mental Health Facilities: the Role of the Built Environment
John Cole Director of the Health Estates Investment Group NI and  Richard Murphy OBE Director, Richard Murphy Architects Reducing Acute Admissions to Mental Health Facilities: the Role of the Built Environment
John Cole Director of the Health Estates Investment Group NI and  Richard Murphy OBE Director, Richard Murphy Architects Reducing Acute Admissions to Mental Health Facilities: the Role of the Built Environment
John Cole Director of the Health Estates Investment Group NI and  Richard Murphy OBE Director, Richard Murphy Architects Reducing Acute Admissions to Mental Health Facilities: the Role of the Built Environment
John Cole Director of the Health Estates Investment Group NI and  Richard Murphy OBE Director, Richard Murphy Architects Reducing Acute Admissions to Mental Health Facilities: the Role of the Built Environment
John Cole Director of the Health Estates Investment Group NI and  Richard Murphy OBE Director, Richard Murphy Architects Reducing Acute Admissions to Mental Health Facilities: the Role of the Built Environment
John Cole Director of the Health Estates Investment Group NI and  Richard Murphy OBE Director, Richard Murphy Architects Reducing Acute Admissions to Mental Health Facilities: the Role of the Built Environment
John Cole Director of the Health Estates Investment Group NI and  Richard Murphy OBE Director, Richard Murphy Architects Reducing Acute Admissions to Mental Health Facilities: the Role of the Built Environment
John Cole Director of the Health Estates Investment Group NI and  Richard Murphy OBE Director, Richard Murphy Architects Reducing Acute Admissions to Mental Health Facilities: the Role of the Built Environment
John Cole Director of the Health Estates Investment Group NI and  Richard Murphy OBE Director, Richard Murphy Architects Reducing Acute Admissions to Mental Health Facilities: the Role of the Built Environment
John Cole Director of the Health Estates Investment Group NI and  Richard Murphy OBE Director, Richard Murphy Architects Reducing Acute Admissions to Mental Health Facilities: the Role of the Built Environment
John Cole Director of the Health Estates Investment Group NI and  Richard Murphy OBE Director, Richard Murphy Architects Reducing Acute Admissions to Mental Health Facilities: the Role of the Built Environment
John Cole Director of the Health Estates Investment Group NI and  Richard Murphy OBE Director, Richard Murphy Architects Reducing Acute Admissions to Mental Health Facilities: the Role of the Built Environment
John Cole Director of the Health Estates Investment Group NI and  Richard Murphy OBE Director, Richard Murphy Architects Reducing Acute Admissions to Mental Health Facilities: the Role of the Built Environment
John Cole Director of the Health Estates Investment Group NI and  Richard Murphy OBE Director, Richard Murphy Architects Reducing Acute Admissions to Mental Health Facilities: the Role of the Built Environment
John Cole Director of the Health Estates Investment Group NI and  Richard Murphy OBE Director, Richard Murphy Architects Reducing Acute Admissions to Mental Health Facilities: the Role of the Built Environment
John Cole Director of the Health Estates Investment Group NI and  Richard Murphy OBE Director, Richard Murphy Architects Reducing Acute Admissions to Mental Health Facilities: the Role of the Built Environment
John Cole Director of the Health Estates Investment Group NI and  Richard Murphy OBE Director, Richard Murphy Architects Reducing Acute Admissions to Mental Health Facilities: the Role of the Built Environment
John Cole Director of the Health Estates Investment Group NI and  Richard Murphy OBE Director, Richard Murphy Architects Reducing Acute Admissions to Mental Health Facilities: the Role of the Built Environment
John Cole Director of the Health Estates Investment Group NI and  Richard Murphy OBE Director, Richard Murphy Architects Reducing Acute Admissions to Mental Health Facilities: the Role of the Built Environment
John Cole Director of the Health Estates Investment Group NI and  Richard Murphy OBE Director, Richard Murphy Architects Reducing Acute Admissions to Mental Health Facilities: the Role of the Built Environment
John Cole Director of the Health Estates Investment Group NI and  Richard Murphy OBE Director, Richard Murphy Architects Reducing Acute Admissions to Mental Health Facilities: the Role of the Built Environment
John Cole Director of the Health Estates Investment Group NI and  Richard Murphy OBE Director, Richard Murphy Architects Reducing Acute Admissions to Mental Health Facilities: the Role of the Built Environment
John Cole Director of the Health Estates Investment Group NI and  Richard Murphy OBE Director, Richard Murphy Architects Reducing Acute Admissions to Mental Health Facilities: the Role of the Built Environment
John Cole Director of the Health Estates Investment Group NI and  Richard Murphy OBE Director, Richard Murphy Architects Reducing Acute Admissions to Mental Health Facilities: the Role of the Built Environment
John Cole Director of the Health Estates Investment Group NI and  Richard Murphy OBE Director, Richard Murphy Architects Reducing Acute Admissions to Mental Health Facilities: the Role of the Built Environment
John Cole Director of the Health Estates Investment Group NI and  Richard Murphy OBE Director, Richard Murphy Architects Reducing Acute Admissions to Mental Health Facilities: the Role of the Built Environment
John Cole Director of the Health Estates Investment Group NI and  Richard Murphy OBE Director, Richard Murphy Architects Reducing Acute Admissions to Mental Health Facilities: the Role of the Built Environment
John Cole Director of the Health Estates Investment Group NI and  Richard Murphy OBE Director, Richard Murphy Architects Reducing Acute Admissions to Mental Health Facilities: the Role of the Built Environment
John Cole Director of the Health Estates Investment Group NI and  Richard Murphy OBE Director, Richard Murphy Architects Reducing Acute Admissions to Mental Health Facilities: the Role of the Built Environment
John Cole Director of the Health Estates Investment Group NI and  Richard Murphy OBE Director, Richard Murphy Architects Reducing Acute Admissions to Mental Health Facilities: the Role of the Built Environment
John Cole Director of the Health Estates Investment Group NI and  Richard Murphy OBE Director, Richard Murphy Architects Reducing Acute Admissions to Mental Health Facilities: the Role of the Built Environment
John Cole Director of the Health Estates Investment Group NI and  Richard Murphy OBE Director, Richard Murphy Architects Reducing Acute Admissions to Mental Health Facilities: the Role of the Built Environment
John Cole Director of the Health Estates Investment Group NI and  Richard Murphy OBE Director, Richard Murphy Architects Reducing Acute Admissions to Mental Health Facilities: the Role of the Built Environment
John Cole Director of the Health Estates Investment Group NI and  Richard Murphy OBE Director, Richard Murphy Architects Reducing Acute Admissions to Mental Health Facilities: the Role of the Built Environment
John Cole Director of the Health Estates Investment Group NI and  Richard Murphy OBE Director, Richard Murphy Architects Reducing Acute Admissions to Mental Health Facilities: the Role of the Built Environment
John Cole Director of the Health Estates Investment Group NI and  Richard Murphy OBE Director, Richard Murphy Architects Reducing Acute Admissions to Mental Health Facilities: the Role of the Built Environment
John Cole Director of the Health Estates Investment Group NI and  Richard Murphy OBE Director, Richard Murphy Architects Reducing Acute Admissions to Mental Health Facilities: the Role of the Built Environment
John Cole Director of the Health Estates Investment Group NI and  Richard Murphy OBE Director, Richard Murphy Architects Reducing Acute Admissions to Mental Health Facilities: the Role of the Built Environment
John Cole Director of the Health Estates Investment Group NI and  Richard Murphy OBE Director, Richard Murphy Architects Reducing Acute Admissions to Mental Health Facilities: the Role of the Built Environment
John Cole Director of the Health Estates Investment Group NI and  Richard Murphy OBE Director, Richard Murphy Architects Reducing Acute Admissions to Mental Health Facilities: the Role of the Built Environment
John Cole Director of the Health Estates Investment Group NI and  Richard Murphy OBE Director, Richard Murphy Architects Reducing Acute Admissions to Mental Health Facilities: the Role of the Built Environment
John Cole Director of the Health Estates Investment Group NI and  Richard Murphy OBE Director, Richard Murphy Architects Reducing Acute Admissions to Mental Health Facilities: the Role of the Built Environment
John Cole Director of the Health Estates Investment Group NI and  Richard Murphy OBE Director, Richard Murphy Architects Reducing Acute Admissions to Mental Health Facilities: the Role of the Built Environment
John Cole Director of the Health Estates Investment Group NI and  Richard Murphy OBE Director, Richard Murphy Architects Reducing Acute Admissions to Mental Health Facilities: the Role of the Built Environment
John Cole Director of the Health Estates Investment Group NI and  Richard Murphy OBE Director, Richard Murphy Architects Reducing Acute Admissions to Mental Health Facilities: the Role of the Built Environment

John Cole Director of the Health Estates Investment Group NI and Richard Murphy OBE Director, Richard Murphy Architects Reducing Acute Admissions to Mental Health Facilities: the Role of the Built Environment

  • 1.
    1 Reducing Acute MentalHealth Admissions in Northern Ireland John Cole Richard Murphy
  • 2.
    2 PROBLEMS FACING THEHEALTH SERVICE • Ever-increasing demand for health and social services generally • Significant increase In people suffering from mental health illness potentially linked to economic and social factors • Threat of real reductions in funding or non-affordability of status quo • Limited effective integration between primary / community and acute sectors
  • 3.
  • 4.
    THE FUNDING GAP •In 2010/11 Northern Ireland health and social services budget was approximately £4.2 bn • To meet growing demand of 6% per annum by 2015/16 on previous model of health care we would need £5.4 bn • We are projected to have a budget allocation in 2015/2016 of £4.6 bn – a funding gap of £0.8bn 4
  • 5.
    THERE HAS TOBE A BETTER WAY TO CONTINUE TO DO WHAT WE ARE DOING WILL ULTIMATELY LEAD TO FAILURE WE HAVE TO DO MORE WITH LESS 5
  • 6.
    6 CONFIRMED SERVICE VISION •Less reliance on reactive more expensive care in hospitals with a move to creating integrated care partnerships between hospital staff, GPs and community staff • Providing more efficient, effective and economic proactive health and social care services closer to where people live. • Putting the patient at the centre of a high quality multi-disciplinary integrated team • Focus on preventing illness and improving health and well- being through improved life-styles, diet, exercise, amenities, education, access to information and support in the community. • Facilitating people to live longer and more independent lives in their own homes with the support of technology where appropriate
  • 7.
    ORGANISATIONAL CHANGE TO FACILITATEIMPROVED INTEGRATION • Each of the 5 new CEOs now responsible for delivering the full range of Hospital, Community and Mental Health Services within a specific geographic area. ( Other than Regional Services) • Removed incentive for Hospital CEOs to treat more patients in hospitals for greater income generation • Increased incentive for patients to be treated in the most appropriate environment to meet the patients’ needs • Establishment of networked integrated teams of clinicians, nurses and health professionals working across all levels of model 7
  • 8.
    8 THE SHIFT RIGHTAND LEFT: • Fewer but larger hospitals providing the critical mass of staff and facilities to provide acute and complex services as Centres of Clinical Excellence • The creation of a range of Health and Care Centres as hubs in the community large enough to provide the critical mass to deliver good local access to comprehensive range of health services, treatment and advice, some of which would only previously have been available in hospitals • Better chronic disease management reducing the need for more expensive hospitalisation and maintaining people in their own homes • Accessing appropriate care in less expensive settings: e.g. urgent care, out-patients ,diagnostics, minor procedures, mental health services • Optimisation of technology, earlier diagnoses and interventions leading to better patient outcomes
  • 9.
    9 KEY CHANGES INTHE LOCATION OF SERVICES 0 - THE HOME 1 - LOCAL HEALTH CENTRES 2 - COMMUNITY HEALTH CENTRES 3 - LOCAL HOSPITALS 4 - ACUTE HOSPITALS 5 - REGIONAL CENTRES Movement of out- patients diagnostics and treatments from acute towards community Key issue is the movement of chronic disease management to the community preventing unnecessary hospitalisation Movement of complex specialties or specialties benefiting from higher critical mass to Centres of Excellence
  • 10.
    10 3 - LOCALHOSPITALS Movement of out- patients diagnostics and treatments from acute towards community Key issue is the movement of chronic disease management to the community preventing unnecessary hospitalisation Movement of complex specialties or specialties benefiting from higher critical mass to Centres of Excellence PULL PULL LOCATION OF SERVICES
  • 11.
    11 =3 - LOCALHOSPITALS Movement of out- patients diagnostics and treatments from acute towards community Key issue is the movement of chronic disease management to the community preventing unnecessary hospitalisation Movement of complex specialties or specialties benefiting from higher critical mass to Centres of Excellence PULL PULL = LESS BEDS AND LESS HOSPITALS LOCATION OF SERVICES
  • 12.
    12 Location of Level4 FacilitiesCURRENT PROPOSAL BEING DEVELOPED TO REDUCE FROM 10 ACUTE HOSPITALS TO BETWEEN 5-7 NETWORKS Approx £1000m being spent reinforcing Centres of Excellence
  • 13.
    13 Location of Level4 Facilities 6 OF EXISTING 10 ACUTE HOSPITALS TO HAVE ACUTE MENTAL HEALTH UNITS CO-LOCATED – OTHERS CLOSED
  • 14.
    SERVICE VISION • Acutemental health units to be co-located with Acute Hospitals for clinical linkages and as centres of excellence • Acute mental health services no longer to be provided from other existing stand-alone units • Acute Centres to focus on achieving earliest appropriate transfer to day-patient/out-patient services in smaller community facilities or support in the home • Major investment in community mental health teams with earlier interventions /crisis response services seeking to prevent unnecessary hospitalisation • Mental health services to be provided within new Health and Care Centres • Development of smaller integrated crisis beds /out-patient /day- patient units in community 14
  • 15.
    BELFAST MODEL • Closureof 3 Acute Psychiatric Units at Knockbracken (old asylum-type site), at Mater Hospital and at Windsor House Belfast City Hospital • Creation of a single central Acute Psychiatric Unit at Belfast City Hospital site with significant net reduction in acute beds from 130 to 80 • Development of a community facility with day and out patient facilities and as a base for significantly increased community- based outreach mental health teams (Old See House) • Mental Health services to be available in new Health and Care Centres across the city 15
  • 16.
  • 17.
    DESIGN VISION • Theright type of facilities, of the right design, in the right place. • Quality objectives that recognise the major contribution that design can play in creating a healing environment. • Therapeutic environment perhaps most critical for this vulnerable patient group who are generally physically well • Non-institutional, intuitive way-finding, quality of daylight and artificial lighting, human scale, variety of spaces, conversation places, avoiding the tyranny of the double-loaded corridor, respecting privacy and dignity, patient safety • Creating facilities that are welcomed by local communities and enhance and enrich those communities in which they are located 17