BUILDING SCIENCE 2 [ARC 3413]
PROJECT 2: INTERGRATION WITH
DESIGN STUDIO 5
NAME: PENG YEP SIANG
STRUDENT ID: 0315259
TUTOR. Mr. Siva
Table of Content
Content
1.0 Introduction
2.0 Lighting
2.1 Daylight [Gallery]
2.2 Daylight [Studio]
2.3 Artificial Lighting [Academic Collection]
2.4 Artificial Lighting [Children’s Collection]
2.5 PSALI [Study Lounge]
3.0 Acoustic
3.1 Sound Pressure Level [Gallery]
3.2 Reverberation Time [Study Lounge]
3.3 Sound Reduction Index [Children’s Collection]
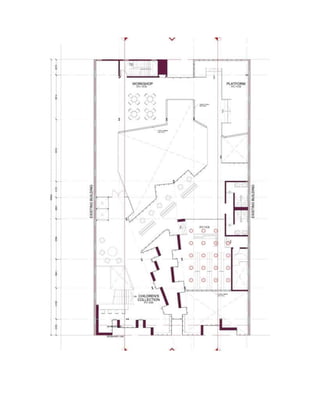
1.0 INTRODUCTION
The selected site is an urban infill project, a new library located in Sentul, Kuala Lumpur. This
report record the building acoustic and lighting performance analysis and formulate an
appropriate setting which enhance the spatial experience.
2.0 LIGHTING
2.1 Daylight [Gallery]
Daylight Factor, DF
DF,% Distribution
>6 Very bright
3~6 Bright
1~3 Average
0~1 Dark
The selected space is Gallery which shaded glazed curtain wall on all sides. One of its façade
faces the street directly and is exposed to the south-eastern sunlight. The other façade is more
shaded with overhand with pocket space of light.
Daylight Factor Calculation
Floor area, m2
82
Area of façade exposed to sunlight, m2
46.5
Exposed façade area to floor area ratio/
Dalight factor,DF
46.5/82
=0.57
=5.7%
Natural Illumination Calculation
Illuminance, lux Example
120,000 Brightest sunlight
110,000 Bright sunglight
20,000 Shade illuminated by entire clear blue sky
1,000-2,000 Typical overcast day, midday
<2,000 Extreme of darkest storm clouds, midday
400 Sunrise or sunset on clear day (ambient
illumination)
40 Fully overcast, sunset/sunrise
<1 Extreme of darkest storm clouds,
sunset/sunrise
E external = 20,000 lux
DF = E internal/E external x 100
5.7 = E internal/20,000 x 100
E internal
= (5.7 x 20,000) / 100
= 1140 lux
Conclusion
According to MS1525, average daylight factor of 3-5% is considered good daylighting condition.
The Gallery with a daylight factor of 5.7% and illuminance of 1140 lux may cause slight
discomfort with glare. The application of double glazed low-e glass can solve the glare problem.
2.1 Daylight [Studio]
Daylight Factor, DF
DF,% Distribution
>6 Very bright
3~6 Bright
1~3 Average
0~1 Dark
The selected space is Studio which has a 2 side of glazed façade that is exposed to the western
sun. The façade is partially shade with large overhangs.
Daylight Factor Calculation
Floor area, m2
45.8
Area of façade exposed to sunlight, m2
68
Exposed façade area to floor area ratio/
Daylight factor, DF
68/45.8
=1.48
=14.8%
Natural Illumination Calculation
Illuminance, lux Example
120,000 Brightest sunlight
110,000 Bright sunlight
20,000 Shade illuminated by entire clear blue sky
1,000-2,000 Typical overcast day, midday
<2,000 Extreme of darkest storm clouds, midday
400 Sunrise or sunset on clear day (ambient
illumination)
40 Fully overcast, sunset/sunrise
<1 Extreme of darkest storm clouds,
sunset/sunrise
E external = 20,000 lux
DF = E internal/E external x 100
14.8 = E internal/20,000 x 100
E internal
= (14.8 x 20,000) / 100
= 2960 lux
Conclusion
The Studio with a high value of daylight factor at 14.8% and illuminance at 2960 lux can cause
thermal and glare problem. Beside the application of double glazed low-e glass, a reduction of
glazed façade should be implemented.
2.3 Artificial Lighting [Academic Collection]
Type of Light Bulb
Type of Fixture LED Downlight
Material of Fixture Aluminium
Product Brand & Code Hf-GD-COB-2023
Nominal Life, hr 30000
Wattage 10W
CRI 65-80
Colour Temperature. K 2500 – 6500
Lumens, lm 750-800
Beam Angle 120o
Lumen MethodCalculation
Dimension Length = 8.8
Width = 6.9
Heightof ceiling = 3m
Total floorarea,m2
60.7
Type of lightingfixture LED light
Lumen 800lm
Heightof work level 0.8
Mountingheightof luminaire 2.9m
Reflectionfactor Ceiling=0.7
Wall = 0.5
Floor= 0.2
Roomindex,K K = 60.7/(8.8+6.9) x 2.9
= 1.33
Utilizationfactor 0.56
Maintenance factor 0.8
StandardilluminancebyMS1525 200
Numberof lightrequired N = (200 x 60.7)/(800 x 0.56 x 0.8)
= 34
Spacingto heightratio(SHR) SHR = 1 /2.9 x (60.7/34)-2
= 0.46
2.9 x 0.46 = 1.334
Approximate fittinglayout 8.8/1.334 = 6.597
= 7 rows
Luminaire required
5 x 7 = 35
6.9/5 = 1.38m
2.4 Artificial Lighting Children’s Collection]
Type of Light Bulb
Type of Fixture LED Track Light
Material of Fixture Aluminium
Product Brand & Code Hf-GD-COB-2023
Nominal Life, hr 25000
Wattage 20W
CRI 80
Colour Temperature. K 3000-6500
Lumens, lm 1600
Lumen MethodCalculation
Dimension Length = 9.7
Width = 6.6
Heightof ceiling = 3m
Total floorarea,m2
64
Type of lightingfixture LED light
Lumen 1600lm
Heightof work level 0.8
Mountingheightof luminaire 2.9m
Reflectionfactor Ceiling=0.7
Wall = 0.5
Floor= 0.2
Roomindex,K K = 64/(9.7+6.6) x 2.9
= 0.21
Utilizationfactor 0.56
Maintenance factor 0.8
StandardilluminancebyMS1525 200
Numberof lightrequired N = (200 x 64)/(1600 x 0.56 x 0.8)
= 16.7
= 17
Spacingto heightratio(SHR) SHR = 1 /2.9 x (64/17)-2
= 0.67
2.9 x 0.67 = 1.943
Approximate fittinglayout 9.7/1.943 = 4.99
= 5 rows
Luminaire required
5 x 4 = 20
6.6/4 = 1.65m
2.5 PSALI – Permenant Supplementary Artificial Lighting of Interior [Study Lounge]
Type of Light Bulb
Type of Fixture LED Downlight
Material of Fixture Aluminium
Product Brand & Code Hf-GD-COB-2023
Nominal Life, hr 30000
Wattage 10W
CRI 65-80
Colour Temperature. K 2500 – 6500
Lumens, lm 750-800
Beam Angle 120o
Lumen MethodCalculation
Dimension Length = 7.6
Width = 6.6
Heightof ceiling = 3m
Total floorarea 50
Type of lightingfixture LED light
Lumen 800lm
Heightof work level 0.8
Mountingheightof luminaire 2.9m
Reflectionfactor Ceiling=0.7
Wall = 0.5
Floor= 0.2
Roomindex,K K = 50/(7.6+6.6) x 2.9
= 1.21
Utilizationfactor 0.56
Maintenance factor 0.8
StandardilluminancebyMS1525 200
Numberof lightrequired N = (200 x 50)/(800 x 0.56 x 0.8)
= 27.9
= 30
Spacingto heightratio(SHR) SHR = 1 /2.9 x (50/30)-2
= 0.55
2.9 x 0.55 = 1.595
Approximate fittinglayout 7.6/1.595 = 4.76
= 5 rows
Luminaire required
5 x 6 = 30
6.6/6 = 1..1m
Two separate lighting system is created to adapt to the natural daylighting of different time and
create the optimum environment for the activity in the Study Lounge.
3.0 ACOUSTIC
3.1 Sound Pressure Level [Gallery]
Peak hour
Highest reading = 80db
L = 10 log10 (I/Io)
80 = 10 log10 (I/1x10-12
)
I = 108
x (I/1x10-12
)
= 1 x 10-4
Lowest reading = 63db
L = 10 log10 (I/Io)
60 = 10 log10 (I/1x10-12
)
I = 106
x (I/1x10-12
)
= 1 x 10-6
Total Intensity, I = (1 x 10-4
) + (1 x 10-6
)
= 1.01 x 10-4
Combined Spl = 10 log10 [(1.01 x 10-4
)/ (1x10-12
)]
= 80.04db
Non-peak Hour
Highest reading = 57db
L = 10 log10 (I/Io)
57 = 10 log10 (I/1x10-12
)
I = 105.7
x (I/1x10-12
)
= 5 x 10-7
Lowest reading = 50db
L = 10 log10 (I/Io)
50 = 10 log10 (I/1x10-12
)
I = 105
x (I/1x10-12
)
= 1 x 10-7
Total Intensity, I = (5 x 10-7
) + (1 x 10-7
)
= 6 x 10-7
Combined Spl = 10 log10 [(6 x 10-7
)/ (1x10-12
)]
= 57.78db
The selected space is Gallery, located on ground floor. The average sound pressure level in
Gallery during peak hour and non-peak hour is 80.04db and 57.78db respectively. Galley is the
space most exposed to the street environment.
3.2 Reverberation Time [StudyLounge]
Volume of space = 150m2
Material absorption coefficient at 500Hz during peak hour with 20 people in the space:
Building
Component
Material Area ,m2
Absorption
coefficient, a
Sound
Absorption, Sa
Wall Glass 66 0.10 6.6
Wall Concrete 38 0.02 0.76
Floor Concrete 50 0.06 3
Ceiling Plaster Finish 50 0.015 0.75
People - 20 0.46 9.2
Total 20.31
Reverberation Time, RT = (0.16 x V) /A
= (0.16 x 150)/20.31
= 1.18s
The standard comfort level of reverberation time is 1.5-2.5s. This prove the acoustic
performance of Study Lounge is adequate even during peak hour.
Material absorption coefficient at 2000Hz during peak hour with 40 people in the space:
Building
Component
Material Area ,m2
Absorption
coefficient, a
Sound
Absorption, Sa
Wall Glass 66 0.06 3.96
Wall Concrete 38 0.02 0.76
Floor Concrete 50 0.06 3
Ceiling Plaster Finish 50 0.04 2
People - 40 0.51 20.4
Total 30.12
Reverberation Time, RT = (0.16 x V) /A
= (0.16 x 150)/30.12
= 0.8s
The acoustic performance exceed the standard comfort level with a reverberation time of 0.8s,
indicating the capability of the space of accommodate volume of people exceeding its peak
hour.
2.3 Sound Reduction Index, SRI [Children’s Collection]
Building element Material Surface area,m2
SRI, db Transmission
coefficient, T
Wall Glass 11.2 26 2.51 x 10-3
Wall Concrete 52 52 6.31 x 10-6
Wall – glass
SRI = 10 log (1/ T glass)
26 = 10 log (1/ T glass)
102.6
= 1/ T glass
T glass = 2.51 x 10-3
Wall – concrete
SRI = 10 log (1/ T concrete)
52 = 10 log (1/ T concrete)
105.2
= 1/ T concrete
T concrete = 6.31 x 10-6
Average Transmission Coefficient of Material
T = (11.2 x 2.51 x 10-3
) + (52 x 6.31 x 10-6
) / (11.2 + 52)
= (2.81 x 10-2
+ 0.03 x 10-2
) / 63.2
= 4.49 x 10-4
SRI overall = 10 log (1/T)
= 10 log (1/ 4.49 x 10-4
)
= 33.47db
60db – 33.47db = 26.53db
The overall transmission loss from the Children’s Collection to the public area is 33.47db.
Assume the sound pressure level generated in the Children’s Collection is approximately 60db,
the sound that is transmitted to the public area is 26.53db which fall in the category of soft
whisper noise. It is considered an ideal value for the public activity.

CALCULATION

  • 1.
    BUILDING SCIENCE 2[ARC 3413] PROJECT 2: INTERGRATION WITH DESIGN STUDIO 5 NAME: PENG YEP SIANG STRUDENT ID: 0315259 TUTOR. Mr. Siva
  • 2.
    Table of Content Content 1.0Introduction 2.0 Lighting 2.1 Daylight [Gallery] 2.2 Daylight [Studio] 2.3 Artificial Lighting [Academic Collection] 2.4 Artificial Lighting [Children’s Collection] 2.5 PSALI [Study Lounge] 3.0 Acoustic 3.1 Sound Pressure Level [Gallery] 3.2 Reverberation Time [Study Lounge] 3.3 Sound Reduction Index [Children’s Collection]
  • 3.
    1.0 INTRODUCTION The selectedsite is an urban infill project, a new library located in Sentul, Kuala Lumpur. This report record the building acoustic and lighting performance analysis and formulate an appropriate setting which enhance the spatial experience. 2.0 LIGHTING 2.1 Daylight [Gallery] Daylight Factor, DF DF,% Distribution >6 Very bright 3~6 Bright 1~3 Average 0~1 Dark The selected space is Gallery which shaded glazed curtain wall on all sides. One of its façade faces the street directly and is exposed to the south-eastern sunlight. The other façade is more shaded with overhand with pocket space of light.
  • 4.
    Daylight Factor Calculation Floorarea, m2 82 Area of façade exposed to sunlight, m2 46.5 Exposed façade area to floor area ratio/ Dalight factor,DF 46.5/82 =0.57 =5.7%
  • 5.
    Natural Illumination Calculation Illuminance,lux Example 120,000 Brightest sunlight 110,000 Bright sunglight 20,000 Shade illuminated by entire clear blue sky 1,000-2,000 Typical overcast day, midday <2,000 Extreme of darkest storm clouds, midday 400 Sunrise or sunset on clear day (ambient illumination) 40 Fully overcast, sunset/sunrise <1 Extreme of darkest storm clouds, sunset/sunrise E external = 20,000 lux DF = E internal/E external x 100 5.7 = E internal/20,000 x 100 E internal = (5.7 x 20,000) / 100 = 1140 lux Conclusion According to MS1525, average daylight factor of 3-5% is considered good daylighting condition. The Gallery with a daylight factor of 5.7% and illuminance of 1140 lux may cause slight discomfort with glare. The application of double glazed low-e glass can solve the glare problem.
  • 6.
    2.1 Daylight [Studio] DaylightFactor, DF DF,% Distribution >6 Very bright 3~6 Bright 1~3 Average 0~1 Dark The selected space is Studio which has a 2 side of glazed façade that is exposed to the western sun. The façade is partially shade with large overhangs.
  • 7.
    Daylight Factor Calculation Floorarea, m2 45.8 Area of façade exposed to sunlight, m2 68 Exposed façade area to floor area ratio/ Daylight factor, DF 68/45.8 =1.48 =14.8% Natural Illumination Calculation Illuminance, lux Example 120,000 Brightest sunlight 110,000 Bright sunlight 20,000 Shade illuminated by entire clear blue sky 1,000-2,000 Typical overcast day, midday <2,000 Extreme of darkest storm clouds, midday 400 Sunrise or sunset on clear day (ambient illumination) 40 Fully overcast, sunset/sunrise <1 Extreme of darkest storm clouds, sunset/sunrise E external = 20,000 lux DF = E internal/E external x 100 14.8 = E internal/20,000 x 100 E internal = (14.8 x 20,000) / 100 = 2960 lux
  • 8.
    Conclusion The Studio witha high value of daylight factor at 14.8% and illuminance at 2960 lux can cause thermal and glare problem. Beside the application of double glazed low-e glass, a reduction of glazed façade should be implemented. 2.3 Artificial Lighting [Academic Collection]
  • 9.
    Type of LightBulb Type of Fixture LED Downlight Material of Fixture Aluminium Product Brand & Code Hf-GD-COB-2023 Nominal Life, hr 30000 Wattage 10W CRI 65-80 Colour Temperature. K 2500 – 6500 Lumens, lm 750-800 Beam Angle 120o Lumen MethodCalculation Dimension Length = 8.8 Width = 6.9 Heightof ceiling = 3m Total floorarea,m2 60.7 Type of lightingfixture LED light Lumen 800lm Heightof work level 0.8 Mountingheightof luminaire 2.9m
  • 10.
    Reflectionfactor Ceiling=0.7 Wall =0.5 Floor= 0.2 Roomindex,K K = 60.7/(8.8+6.9) x 2.9 = 1.33 Utilizationfactor 0.56 Maintenance factor 0.8 StandardilluminancebyMS1525 200 Numberof lightrequired N = (200 x 60.7)/(800 x 0.56 x 0.8) = 34 Spacingto heightratio(SHR) SHR = 1 /2.9 x (60.7/34)-2 = 0.46 2.9 x 0.46 = 1.334 Approximate fittinglayout 8.8/1.334 = 6.597 = 7 rows Luminaire required 5 x 7 = 35 6.9/5 = 1.38m
  • 12.
    2.4 Artificial LightingChildren’s Collection]
  • 13.
    Type of LightBulb Type of Fixture LED Track Light Material of Fixture Aluminium Product Brand & Code Hf-GD-COB-2023 Nominal Life, hr 25000 Wattage 20W CRI 80 Colour Temperature. K 3000-6500 Lumens, lm 1600 Lumen MethodCalculation Dimension Length = 9.7 Width = 6.6 Heightof ceiling = 3m Total floorarea,m2 64 Type of lightingfixture LED light Lumen 1600lm Heightof work level 0.8 Mountingheightof luminaire 2.9m Reflectionfactor Ceiling=0.7 Wall = 0.5
  • 14.
    Floor= 0.2 Roomindex,K K= 64/(9.7+6.6) x 2.9 = 0.21 Utilizationfactor 0.56 Maintenance factor 0.8 StandardilluminancebyMS1525 200 Numberof lightrequired N = (200 x 64)/(1600 x 0.56 x 0.8) = 16.7 = 17 Spacingto heightratio(SHR) SHR = 1 /2.9 x (64/17)-2 = 0.67 2.9 x 0.67 = 1.943 Approximate fittinglayout 9.7/1.943 = 4.99 = 5 rows Luminaire required 5 x 4 = 20 6.6/4 = 1.65m
  • 16.
    2.5 PSALI –Permenant Supplementary Artificial Lighting of Interior [Study Lounge]
  • 17.
    Type of LightBulb Type of Fixture LED Downlight Material of Fixture Aluminium Product Brand & Code Hf-GD-COB-2023 Nominal Life, hr 30000 Wattage 10W CRI 65-80 Colour Temperature. K 2500 – 6500 Lumens, lm 750-800 Beam Angle 120o Lumen MethodCalculation Dimension Length = 7.6 Width = 6.6 Heightof ceiling = 3m Total floorarea 50 Type of lightingfixture LED light Lumen 800lm Heightof work level 0.8 Mountingheightof luminaire 2.9m
  • 18.
    Reflectionfactor Ceiling=0.7 Wall =0.5 Floor= 0.2 Roomindex,K K = 50/(7.6+6.6) x 2.9 = 1.21 Utilizationfactor 0.56 Maintenance factor 0.8 StandardilluminancebyMS1525 200 Numberof lightrequired N = (200 x 50)/(800 x 0.56 x 0.8) = 27.9 = 30 Spacingto heightratio(SHR) SHR = 1 /2.9 x (50/30)-2 = 0.55 2.9 x 0.55 = 1.595 Approximate fittinglayout 7.6/1.595 = 4.76 = 5 rows Luminaire required 5 x 6 = 30 6.6/6 = 1..1m Two separate lighting system is created to adapt to the natural daylighting of different time and create the optimum environment for the activity in the Study Lounge.
  • 20.
    3.0 ACOUSTIC 3.1 SoundPressure Level [Gallery] Peak hour Highest reading = 80db L = 10 log10 (I/Io) 80 = 10 log10 (I/1x10-12 ) I = 108 x (I/1x10-12 ) = 1 x 10-4 Lowest reading = 63db L = 10 log10 (I/Io) 60 = 10 log10 (I/1x10-12 ) I = 106 x (I/1x10-12 ) = 1 x 10-6 Total Intensity, I = (1 x 10-4 ) + (1 x 10-6 ) = 1.01 x 10-4 Combined Spl = 10 log10 [(1.01 x 10-4 )/ (1x10-12 )] = 80.04db
  • 21.
    Non-peak Hour Highest reading= 57db L = 10 log10 (I/Io) 57 = 10 log10 (I/1x10-12 ) I = 105.7 x (I/1x10-12 ) = 5 x 10-7 Lowest reading = 50db L = 10 log10 (I/Io) 50 = 10 log10 (I/1x10-12 ) I = 105 x (I/1x10-12 ) = 1 x 10-7 Total Intensity, I = (5 x 10-7 ) + (1 x 10-7 ) = 6 x 10-7 Combined Spl = 10 log10 [(6 x 10-7 )/ (1x10-12 )] = 57.78db The selected space is Gallery, located on ground floor. The average sound pressure level in Gallery during peak hour and non-peak hour is 80.04db and 57.78db respectively. Galley is the space most exposed to the street environment.
  • 22.
    3.2 Reverberation Time[StudyLounge] Volume of space = 150m2 Material absorption coefficient at 500Hz during peak hour with 20 people in the space: Building Component Material Area ,m2 Absorption coefficient, a Sound Absorption, Sa Wall Glass 66 0.10 6.6 Wall Concrete 38 0.02 0.76 Floor Concrete 50 0.06 3 Ceiling Plaster Finish 50 0.015 0.75 People - 20 0.46 9.2 Total 20.31
  • 23.
    Reverberation Time, RT= (0.16 x V) /A = (0.16 x 150)/20.31 = 1.18s The standard comfort level of reverberation time is 1.5-2.5s. This prove the acoustic performance of Study Lounge is adequate even during peak hour. Material absorption coefficient at 2000Hz during peak hour with 40 people in the space: Building Component Material Area ,m2 Absorption coefficient, a Sound Absorption, Sa Wall Glass 66 0.06 3.96 Wall Concrete 38 0.02 0.76 Floor Concrete 50 0.06 3 Ceiling Plaster Finish 50 0.04 2 People - 40 0.51 20.4 Total 30.12 Reverberation Time, RT = (0.16 x V) /A = (0.16 x 150)/30.12 = 0.8s The acoustic performance exceed the standard comfort level with a reverberation time of 0.8s, indicating the capability of the space of accommodate volume of people exceeding its peak hour.
  • 24.
    2.3 Sound ReductionIndex, SRI [Children’s Collection] Building element Material Surface area,m2 SRI, db Transmission coefficient, T Wall Glass 11.2 26 2.51 x 10-3 Wall Concrete 52 52 6.31 x 10-6
  • 25.
    Wall – glass SRI= 10 log (1/ T glass) 26 = 10 log (1/ T glass) 102.6 = 1/ T glass T glass = 2.51 x 10-3 Wall – concrete SRI = 10 log (1/ T concrete) 52 = 10 log (1/ T concrete) 105.2 = 1/ T concrete T concrete = 6.31 x 10-6 Average Transmission Coefficient of Material T = (11.2 x 2.51 x 10-3 ) + (52 x 6.31 x 10-6 ) / (11.2 + 52) = (2.81 x 10-2 + 0.03 x 10-2 ) / 63.2 = 4.49 x 10-4 SRI overall = 10 log (1/T) = 10 log (1/ 4.49 x 10-4 ) = 33.47db 60db – 33.47db = 26.53db
  • 26.
    The overall transmissionloss from the Children’s Collection to the public area is 33.47db. Assume the sound pressure level generated in the Children’s Collection is approximately 60db, the sound that is transmitted to the public area is 26.53db which fall in the category of soft whisper noise. It is considered an ideal value for the public activity.