INSTITUTIONAL BUILDINGS
•CHINA
•Architects: SUP Atelier
•Area: 701 m²
•Year: 2015
•Photographs: Zhi Xia
THE-Studio is both a practical demonstration case which deeply integrates sustainable design strategies with ecological technologies,
and an experimental platform for sustainable architecture based on the Moderate Zone in southwest China, aiming to examine whether
the detailed design methods and building technologies can truly suit to the local conditions of climate, culture and even economy.
Oriented to the specific project
positioning, the design team has
developed the multi-system
integrated design strategy from
the very early design phase to
minimize the negative impacts to
local ecological system while
maximizing the indoor comfort and
energy efficiency.
Multi-system integration
The multi-system integration includes three levels: the paralleled
construction systems, the integration of vernacular culture with sustainable
technology and the BIM platform.
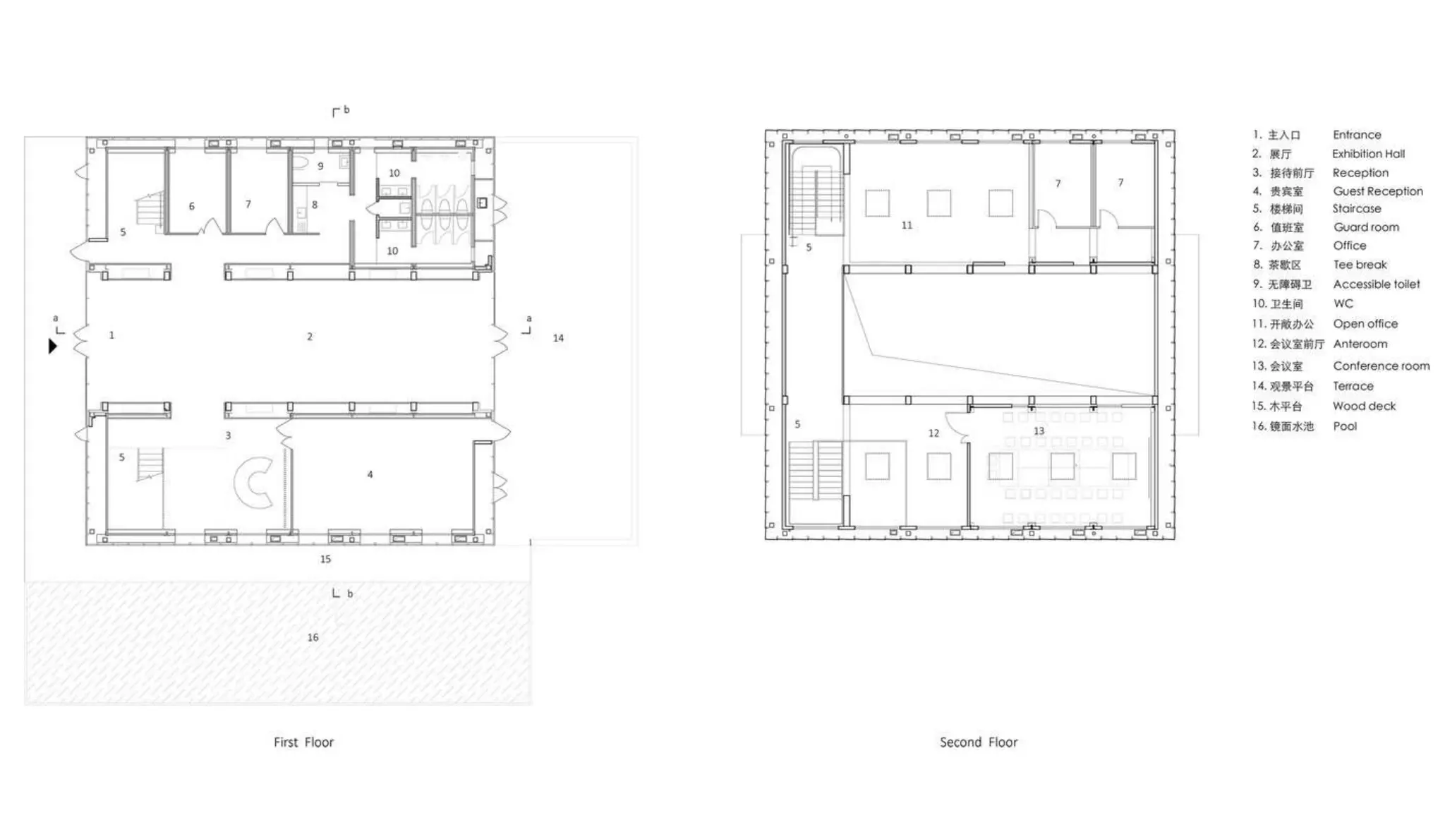
Four building systems are implemented in parallel to accelerate whole construction process thus reducing negative interference to the
site. Timber frameworks are employed in the large-space exhibition hall, while the prefab light-steel modules are used to shape functional
space at both sides. All these structural components and joints are produced off-site and swiftly assembled on site, leading to a
significant saving of time and energy.
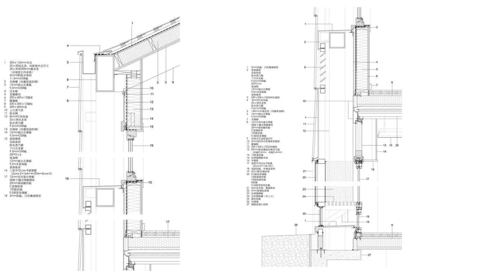
Sustainable service systems (air through tunnel, biomass heating, PVT system, rainwater collecting, control and monitoring, etc.)
are mostly plugged into the cavity of façades, which can save installation time, increase indoor flexibility and provide potential space
for additional equipment in future experiments.
The modular double-skin façade system is a unique integration of vernacular
rattan-weaving craftsmanship with industrial prefabrication technology, highly
expressing site-specific characteristics while promoting local traditional industry
and economy.
Four module patterns for the rattan-
weaving double skin are also developed
and arranged according to local solar
radiation and wind pressure on each
façade through software simulation,
aiming to comprehensively integrate
environmental performance, structural
stability and material durability together.
Passive design methods
The passive design methods responding to local climatic factors of
natural wind, solar radiation and daylight are further contrived by the
design team.
Firstly, the large-space central exhibition hall with extra-raised ventilating skylights
can truly act as a venting chimney to promote both wind and thermal pressure
ventilations while providing adequate and colorful light for the interior.
Secondly, the double-skin façades consisting of double-glazed
façade at the first floor and the rattan-weaving double skin at
the second floor are typical climate responsive design.
The double-glazed façade can adapt to the seasonal and daily changes
of the outdoor environment, through different operative modes of vents
and windows to reach the expected thermal and ventilation performance.
Thirdly, the building also adopts the underground air through tunnel as the
passive air-conditioning system, which can largely reduce the energy
consumption particularly in summer and winter. Its vertical venting ducts are
further integrated in the air cavity of double-skin façade and distributed into
the major working places, providing fresh air while creating indoor comfort.
Fourthly, the building highly encourages usage of renewable materials
such as timber, steel and wheat-straw board and promote the
employment of vernacular materials and craftsmanship such as
traditional rattan-weaving, blue-stone floor pavage and rubble wall
masonry, which can both decrease the carbon footprint during whole
life span and create a unique architectural self-expression.
After the building was completed, a series of field measuring and monitoring for thermal, humid, ventilation
and luminous environments are carried out and further analyzed. The outcomes verify that detailed design
methods and building technologies of THE-Studio at the early design phases were both effective and
appropriate during the construction and operation processes, which can be the references to the similar
sustainable buildings in the Moderate Zone of southwest China.
www.archdaily.com/799060/nearly-zero-energy-building-of-the-guian-innovation-park-sup-atelier

Building of the gui'an innovation park

  • 1.
    INSTITUTIONAL BUILDINGS •CHINA •Architects: SUPAtelier •Area: 701 m² •Year: 2015 •Photographs: Zhi Xia THE-Studio is both a practical demonstration case which deeply integrates sustainable design strategies with ecological technologies, and an experimental platform for sustainable architecture based on the Moderate Zone in southwest China, aiming to examine whether the detailed design methods and building technologies can truly suit to the local conditions of climate, culture and even economy.
  • 2.
    Oriented to thespecific project positioning, the design team has developed the multi-system integrated design strategy from the very early design phase to minimize the negative impacts to local ecological system while maximizing the indoor comfort and energy efficiency.
  • 3.
    Multi-system integration The multi-systemintegration includes three levels: the paralleled construction systems, the integration of vernacular culture with sustainable technology and the BIM platform.
  • 5.
    Four building systemsare implemented in parallel to accelerate whole construction process thus reducing negative interference to the site. Timber frameworks are employed in the large-space exhibition hall, while the prefab light-steel modules are used to shape functional space at both sides. All these structural components and joints are produced off-site and swiftly assembled on site, leading to a significant saving of time and energy.
  • 6.
    Sustainable service systems(air through tunnel, biomass heating, PVT system, rainwater collecting, control and monitoring, etc.) are mostly plugged into the cavity of façades, which can save installation time, increase indoor flexibility and provide potential space for additional equipment in future experiments.
  • 7.
    The modular double-skinfaçade system is a unique integration of vernacular rattan-weaving craftsmanship with industrial prefabrication technology, highly expressing site-specific characteristics while promoting local traditional industry and economy. Four module patterns for the rattan- weaving double skin are also developed and arranged according to local solar radiation and wind pressure on each façade through software simulation, aiming to comprehensively integrate environmental performance, structural stability and material durability together.
  • 8.
    Passive design methods Thepassive design methods responding to local climatic factors of natural wind, solar radiation and daylight are further contrived by the design team.
  • 9.
    Firstly, the large-spacecentral exhibition hall with extra-raised ventilating skylights can truly act as a venting chimney to promote both wind and thermal pressure ventilations while providing adequate and colorful light for the interior.
  • 10.
    Secondly, the double-skinfaçades consisting of double-glazed façade at the first floor and the rattan-weaving double skin at the second floor are typical climate responsive design. The double-glazed façade can adapt to the seasonal and daily changes of the outdoor environment, through different operative modes of vents and windows to reach the expected thermal and ventilation performance.
  • 12.
    Thirdly, the buildingalso adopts the underground air through tunnel as the passive air-conditioning system, which can largely reduce the energy consumption particularly in summer and winter. Its vertical venting ducts are further integrated in the air cavity of double-skin façade and distributed into the major working places, providing fresh air while creating indoor comfort.
  • 15.
    Fourthly, the buildinghighly encourages usage of renewable materials such as timber, steel and wheat-straw board and promote the employment of vernacular materials and craftsmanship such as traditional rattan-weaving, blue-stone floor pavage and rubble wall masonry, which can both decrease the carbon footprint during whole life span and create a unique architectural self-expression.
  • 16.
    After the buildingwas completed, a series of field measuring and monitoring for thermal, humid, ventilation and luminous environments are carried out and further analyzed. The outcomes verify that detailed design methods and building technologies of THE-Studio at the early design phases were both effective and appropriate during the construction and operation processes, which can be the references to the similar sustainable buildings in the Moderate Zone of southwest China. www.archdaily.com/799060/nearly-zero-energy-building-of-the-guian-innovation-park-sup-atelier