1
SCHOOL OF ARCHITECTURE, BUILDING & DESIGN
Research Unit for Modern Architecture Studies in Southeast Asia
Bachelor of Science (Honours) (Architecture)
BUILDING SERVICES (BLD 60903 / ARC 2423)
Project 2
Building Services In Public Buildings
Tutor: Mr. Mohamad Rizal Mohamad
Group Members:
Chong Yu Xuan 0317950
Lee Kai Yung 0318314
Loh Wei Shuen 0317896
Ng Hong Bin 0319735
Tan Sheau Hui 0319235
Wong Kai Chiang 0323341
2
1.1.1 The System Scales
3
Table of Content
1.0 Introduction 6
1.1 Chosen Building- An Elderly Centre 7
2.0 Literature Review
2.1 Mechanical Ventilation System 9-12
2.2 Air-Conditioning System 13
2.2.1 Distribution Media 15-17
2.2.2 Types of HVAC Systems 18-19
2.3 Fire Protection System
2.3.1 Active Fire Protection System 24-26
2.3.2 Passive Fire Protection System 27-31
2.4 Mechanical Transportation System 32
2.4.1 Elevator 33-39
2.4.2 Escalator 40-43
2.4.3 Travellator 44
3.0 Application of Building Services Components
3.1 Mechanical Ventilation System 46
3.1.1 Extract System 46
3.1.2 Components 46-50
3.1.3 Proposed Drawings 51-52
3.2 Air-Conditioning System 54
3.2.1 VRF Air-Conditioning System 54-56
3.2.2 Split Unit Air-Conditionig System 57-61
4
3.2.3 Proposed Drawings 62-64
3.3 Fire Protection System
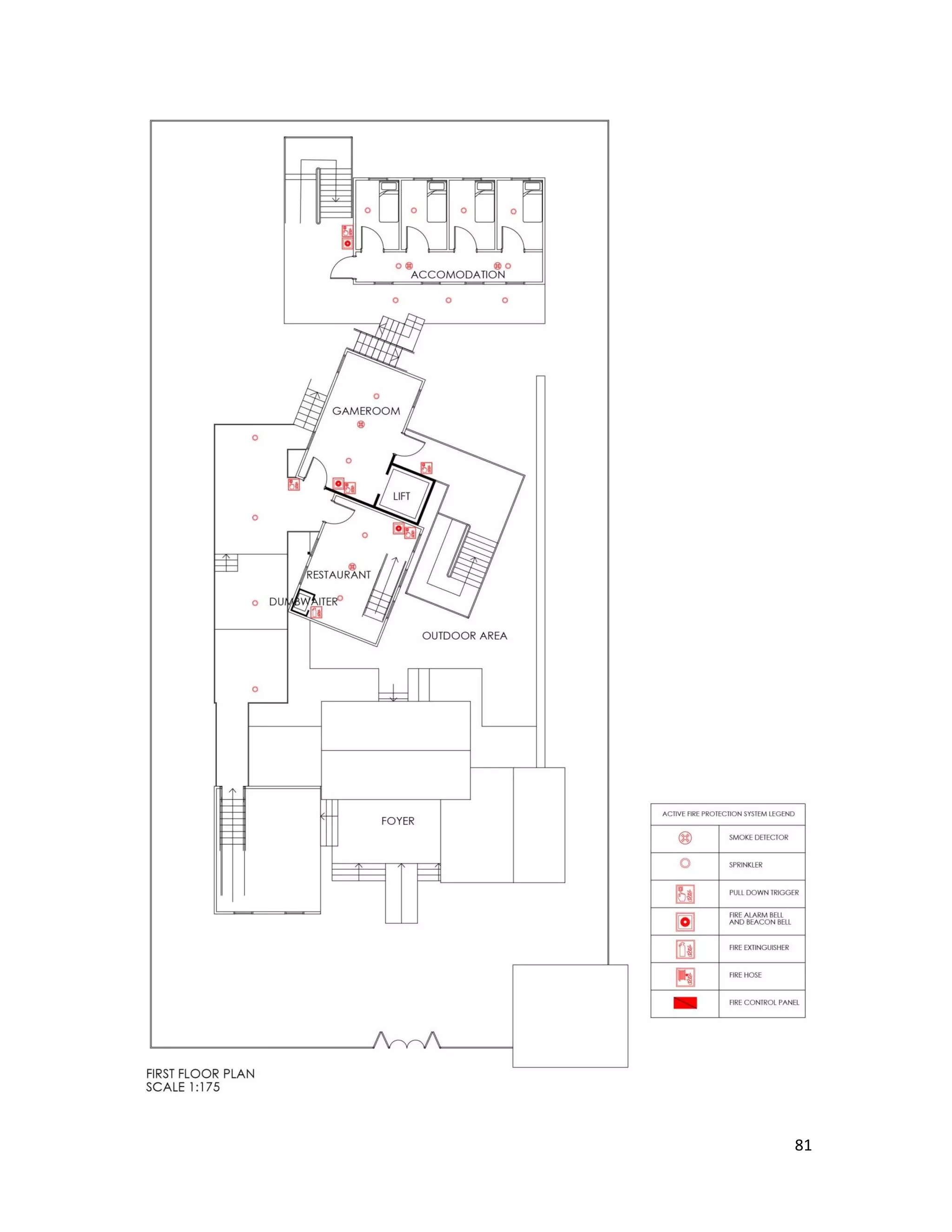
3.3.1 Active Fire Protection System 66
3.3.1.1 Two-Stage System 66
3.3.1.2 Recycling Sprinkler System 67
3.3.1.3 Components 68-79
3.3.1.4 Proposed Drawings 80-82
3.3.2 Passive Fire Protection System 83
3.3.2.1 Fire Escape 84-89
3.3.2.2 Fire Barriers 89-91
3.3.2.3 Fire Control 92
3.3.2.4 Proposed Drawings 93-95
3.4 Mechanical Transportation System 97
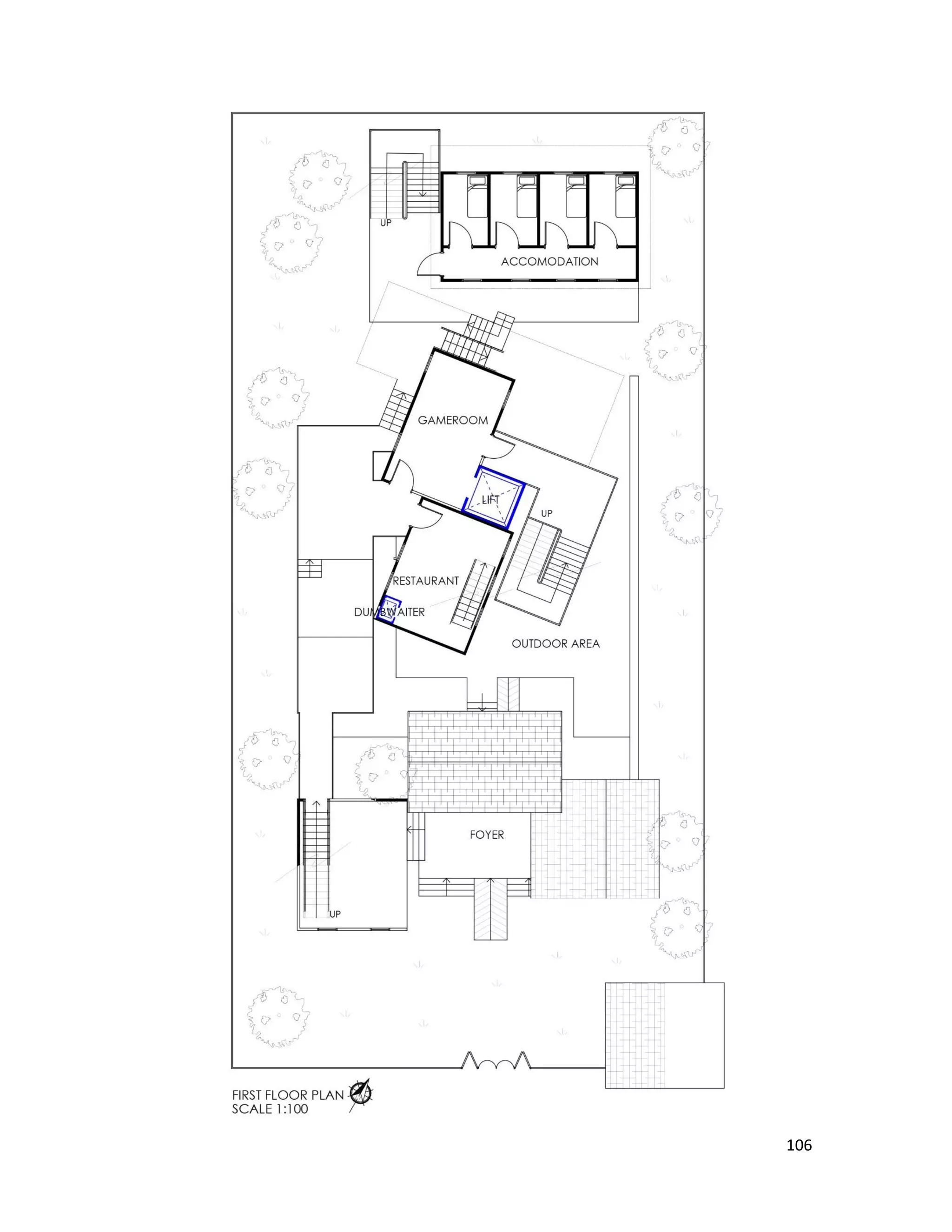
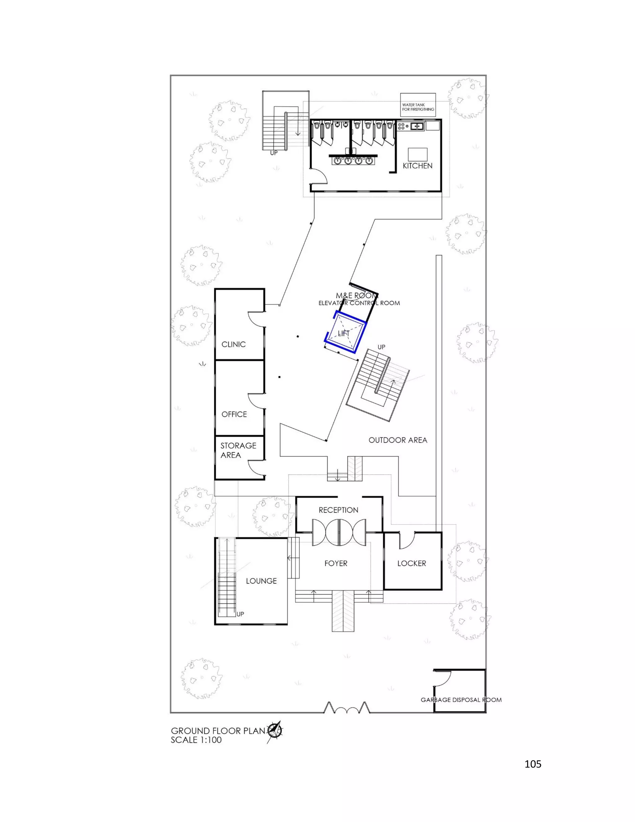
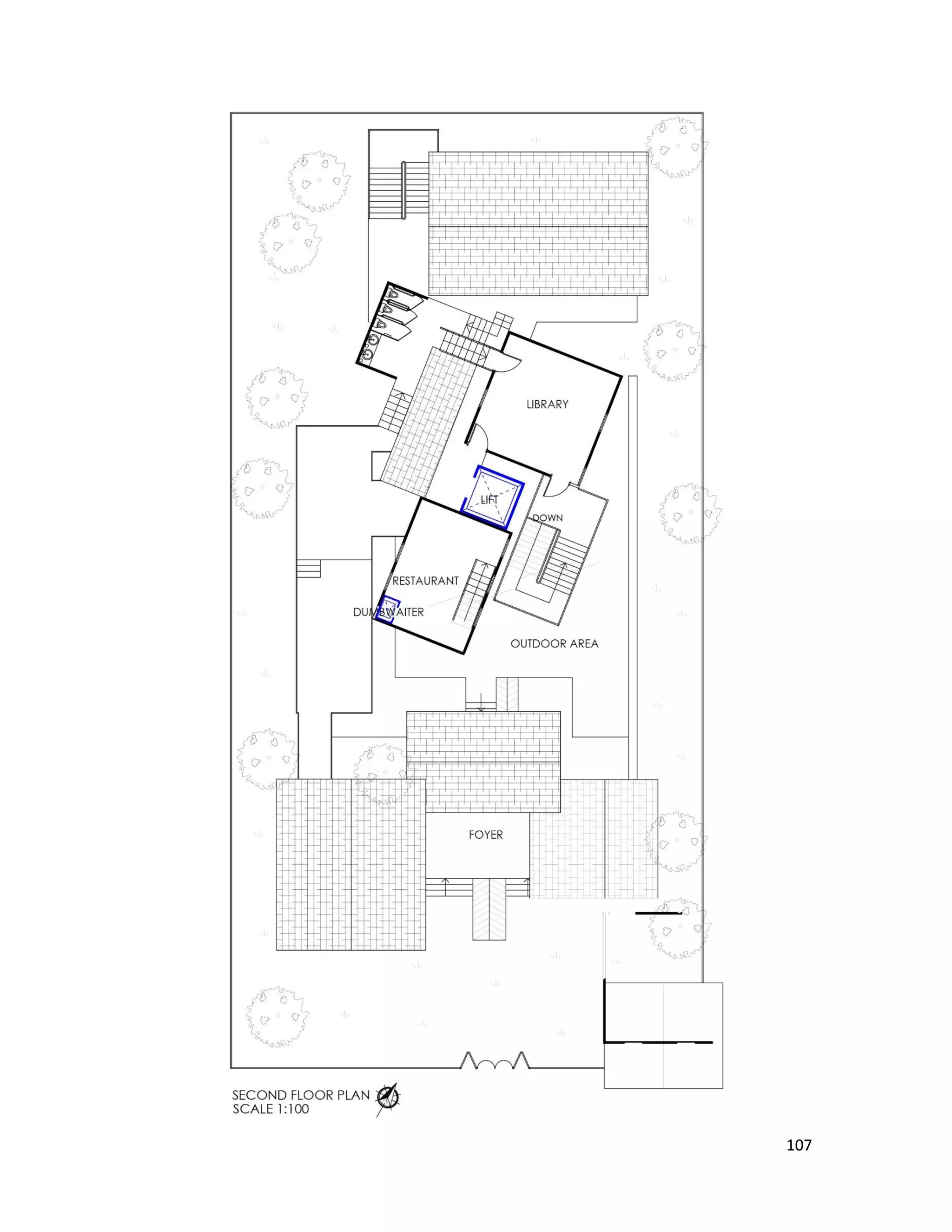
3.4.1 Elevator System 97-102
3.4.2 Dumbwaiter 103-104
3.4.3 Proposed Drawings 105-107
4.0 Proposal of Systems (Folded in A1 paper)
5.0 Conclusion 109-110
6.0 References 112-115
5
7.0 ConclusionReferencesReferences
6
1.0 Introduction
This report is a study analysis on building services systems found in multi-storey buildings. The
building services systems include:
a) Mechanical Ventilation System
b) Air-Conditioning System
c) Fire Protection System
d) Mechanical Transportation System
This analysis introduces us to the basic principles, process and equipment of various building
services systems found in buildings. It also allows us to demonstrate understanding of building
services according to statutory requirements including Uniform Building By Law (UBBL) and
MS 1184.
Upon completion of the analysis, our task were to present a proposal of the 4 main services
systems in a design chosen from design studio project, which is a multi-storey elderly centre.
7
1.1 Chosen Building: An Elderly Centre
Located in Taman Kanangapuram, the elderly centre is a three-storey building which occupies a
total of 756sqm built up area. The local community lacks interactions between the elderly centers
and themselves. Thus this center aims to bring back the qualities of kampong spirit into the local
communities .The bonds present in kampong villages are absent in the modern communities.
The center is built to accommodate 20-30 elderly users, equipped with entertainment and
exercise spaces for the users. The center has a 2-storey restaurant open at the middle and there
are accommodation provided for 4 workers of the center.
Taman Kanangapuram, Old Klang Road is located beside the main highway connecting to Kuala
Lumpur. The site consists of multiple types of housings and buildings. The types of dwellings
separate and identify the status of the residence there. Majority of the outsiders who enter the
area are students who go to the schools.
8
9
2.0 Literature Review
2.1 Mechanical Ventilation System
Mechanical ventilation is used when natural ventilations are not enough to circulate the air inside
the building; it consists of powered fans or blowers to provide fresh air into the room. To
maintain indoor air quality, mechanical ventilation acts as a medium to expel stale air containing
water vapor, carbon dioxide, airborne chemicals and other pollutants that can be controlled via
dilution or replacement with outside air; and circulate fresh air with lesser pollutants and water
vapor to circulate inside the buildings. However, in humid climate such as Malaysia, the
mechanical ventilation specialized in removing excess moisture from the air. It is essential to
keep a good maintenance of the mechanical ventilation as:
a) It reduces excess condensation.
b) It prevents heat concentration inside a building coming from machinery lighting and
people.
c) It preserves oxygen content whilst removing carbon dioxide.
d) It provides consistent fresh air into the spaces.
e) It is a good alternative in case of unreliable natural ventilation system.
f) It removes contaminants such as smoke, dust, gases, and body odors by the method of
dilution.
g) It prevents and controls the growth of bacteria.
Mechanical ventilation consists of 2 types; Spot ventilation and energy recovery ventilation
system, Spot ventilation system consists of 3 systems; namely supply system, extract system and
a combination system.
10
2.1.1 Supply System
Figure 2.1.1: Supply Ventilation Diagram
Image source: http://energy.gov/energysaver/whole-house-
ventilation
Figure 2.1.2: Supply Ventilation Diagram
Image source: https://basc.pnnl.gov/resource-
guides/whole-building-delivered-ventilation#quicktabs-
guides=1
The supply system (mechanical inlet and natural extract) is usually used in Boiler plant or
factories. The indoor positive air pressure is maintained by keeping the indoor provided with
outside air supply.
A supply ventilation system is the reverse of an exhaust ventilation system: Fresh outside air is
pulled into the house with a fan, forcing inside air out through random openings in the building
envelope. A supply ventilation system pressurizes a house. In homes equipped with forced-air
ductwork, supply ventilation systems are the least expensive way to provide whole house
mechanical ventilation.
11
Homes with supply ventilation systems still need spot exhaust fans in bathrooms and range
hoods. However, a supply ventilation system can supply fresh air whether or not the home’s
exhaust fans are operating (Dr. Sam C. M. Hui, 2011).
2.1.2 Extract System
Figure 2.1.3: Exhaust Ventilation Diagram
Image source: http://www.house-
energy.com/House/SupplyVsExhaust.html
The extract system (natural inlet and mechanical extract) is mainly used in humid rooms such as
kitchen, internal toilet and bathrooms, basement, attic and also crawl space. The air inside the
room is constantly being replaced with fresh air from outside. The fan creates a negative air
pressure inside the room causing the air to move from inside the spaces towards the fan and out
from the room (Andrew K. Persily, 1994)
Mechanical Extraction Ventilation also known as MEV, is a system that continuously extracts air
from ‘wet’ rooms. The moist air is drawn up ducts through to an outlet air or above the roof ridge.
The air is replaced by fresh air that is drawn in through background ventilators located in ‘dry
rooms’ (usually trickle ventilators in e.g. window frames) and through the building fabric in less
airtight buildings. Air is drawn by a centrally located (e.g. in a cupboard or loft), extract system
exist using multiple fans.
12
2.1.3 Balance System
Figure 2.1.4: Balanced Ventilation Diagram
Image source: http://energy.gov/energysaver/whole-house-
ventilation
A balanced ventilation system (as opposed to supply-only or exhaust-only system) has two fans:
one bringing outside air into the building, and the other exhausting stale interior air, resulting in
roughly balanced airflows. These systems do not significantly affect the pressure of the interior
space with respect to outdoors.
In most balanced ventilation systems, heat and sometimes moisture are exchanged between the
two airstreams, reducing the heating and cooling loads caused by outside ventilation air. These
systems are known as HRVs (heat recovery ventilation) and ERVs (energy or enthalpy recovery
ventilators). HRVs only exchange heat between the airstreams, while ERVs exchange both heat
and moisture (Jacob Verhaart, 2010).
13
2.2 Air Conditioning System
Air conditioning is used to describe systems that control the moisture content of air, which is the
humidity. This includes humidification and dehumidification. Humidity control can be important
for; the comfort of building occupants, to reduce the incidence of condensation (both surface and
interstitial), for specialist environments such as swimming pools and where the protection of
sensitive items which requires particular conditions. But overall, the aim is to provide fresh air
and improve thermal comfort and air quality in an occupied space. In Malaysia’s context, an
achieved thermal comfort space is where having a filtered supplied air with temperature ranged
from 22°C to 27°C, and with a relative humidity of 55-70% and controlled air velocity or
movement.
The system works by collecting air inside the building, then transported out of the building and
release the heat out of the building while fresh air is conditioned and distributed into the building.
Refrigeration cycle took place in air conditioning where heat is extracted out from one place to
another in an evaporator and release it to the outdoor with condenser. A clean and fresh
conditioned air needs to be supplied into the building after removing the hot air. When the heat
inside the room is removed by condenser and evaporator, the air become cooler and being
channel back into the building. The medium used to cool the air can be either air movement or
water cooling.
14
Image ssource: https://www.archtoolbox.com/materials-systems/hvac/how-air-conditioners-
work.html
Inside an air conditioner, refrigerant cycle happens with the use of refrigerant liquid. The process
of continuous circulating, evaporating and condensation of refrigerant happens in an air
conditioning system through pressure applied in indoor unit. Evaporation occurs at low
temperature and low pressure, which will be carried out by the outdoor unit, while condensation
occurs at high temperature and high pressure, which will be carried out by the indoor unit. The
reason behind the difference in pressure and temperature contributes in heat loss to the
surrounding and heat gain from the warm air inside the building.
The compressor will pump the refrigerant vapor from the evaporator and increase the pressure on
the air and send it to the condenser. Heat in the condenser is removed from high pressure gas
which result gas to condense and become high pressure and also a high temperature liquid. When
high pressure liquid refrigerant reach evaporator, the liquid refrigerant lowered its pressure
which will be equivalent to about 10°to 15°below the designed temperature of the evaporator
by the suction of compressor. A drop of pressure in refrigerant enable it to be evaporate, loses
heat and change into gas state cooling the air. The cooled air is blown out from evaporator and
distribute into the building with ductwork or piping system.
15
Image source: http://www.air-conditioning-and-refrigeration-guide.com/refrigeration-cycle.html
2.2.1 The System Scales
After some basic understanding on how the general air conditioning system works, the scales of
the air conditioning system are introduced. Overall, the system is classified into 3 scales, which
is local, central and district, which the coverage area varies between each scales.
2.2.1.1 Local System
It’s a system which serves only one zone, in which the zone includes only one room or at most
few rooms. The system is self-contained, where the source, distribution, delivery and control
components are close-coupled and generally comes in one package. The system is usually
located within the space being served and is typically of small capacity and small size. A
ductless mini split unit is an example of local HVAC system. (Grondzik, Kwok, 2014)
16
Image source: http://francisplumbing.com/air-conditioning/ductless-ac/
2.2.1.2 Central System
A system which serves on multiple zones from one location, or one zone from a remote location.
A distribution system is required to transport heating/cooling effect from its place it locate at,
such as the mechanical room, to the system zones of the building. The system scope can be very
different, from a single-family residence to a big area office or laboratory. A building may be
served by one central system or by multiple central systems. A variable air volume (VAV)
system is an example of central system. (Grondzik, Kwok, 2014)
Image source: http://www.browntechnical.org/pages/learning-center-for-hvac/how-an-hvac-
system-works.html
Image source: http://bergenhvac.com/central-air-conditioning-system/
17
Image source: https://haripoovachal.wordpress.com/2014/02/10/variable-air-volume-vav/
2.2.1.3 District System
The difference of this system from the others is that it serves multiple buildings. Normally
district systems provide heating/cooling effect for campuses or special utility zones. The building
usually has their own central HVAC systems. The system can include bulk purchase of fuels or
electricity, customized operating control sequences, outstanding maintenance quality and highly
trained operators. (Grondzik, Kwok, 2014)
Image source: http://thermenex.com/about/
18
2.2.2 Distribution Media
After deciding on the type of scale of the system, one also needs to decide on the distribution
media on the air conditioning system, whether it should be an all-air system, an air-water system
or an all-water system. The air and water in the system is actually the coolant used in the system.
2.2.2.1 All-air system
In this system, the heating/cooling effect is distributed from the source to the spaces via heated
or cooled air transported in ductwork, in which water is not used to transfer the heat. The
primary benefit of this system is that the air is used to modify the condition of air. The main
issue is the spatial volume that must be allocated to the ductwork, which happens in some
building projects. The conditioned air is delivered to various spaces through diffusers/registers.
An all-air HVAC system should be able to readily meet the owner’s project requirements for
thermal comfort, IAQ (Indoor Air Quality), and energy efficiency. (Grondzik, Kwok, 2014)
Image source: https://domesticfutureshvac.wordpress.com/2010/01/12/all-air-system/
19
2.2.2.2 Air-water system
In this system, the heating/cooling effect is brought by hot/cold water distributed from the
sources to each particular spaces. Air is also supplied to the spaces from a centralized unit-
typically only enough air to ensure desired indoor air quality, which is approximately 10% of the
airflow seen in this system. The air can also transport some heat/cool. The benefit is reduced
demand for distribution volume, where the piping is smaller than ductwork for equal heat
transport. The concern in some projects is the placement of the water-to-air heat exchangers (the
delivery device) within the occupied spaces. (Grondzik, Kwok, 2014)
2.2.2.3 All-water system
The heating/cooling effect is distributed from the source to each spaces via heated or cooled
water transported via piping and introduced to the spaces via heat exchange delivery devices. Air
is not used in this system. The benefit of this system is that the spatial volume required for
distribution will be at minimum possible because no ducts in used in this system. The issue
which may be faced later is the system’s ability to meet the clients project requirements for IAQ.
(Grondzik, Kwok, 2014)
Image source: http://betterbricks.com/articles/water-distribution
20
2.2.3 Types of HVAC Systems
The following table shows the types of air conditioning system available in the market.
Types of
HVAC
systems
Description Example
Window air
conditioning
The window units are by far the most
popular among the other air conditioning
units. The models can be installed in most
single or double hung windows and
typically come with panels to ensure a
secure fit. Sliding windows can be installed
with the unit as well. (Vandervort, 2016)
Installing the unit can be very easy, one just
has to make sure to measure the inside
window dimensions before purchasing the
unit. Direction and hardware should be
included as well. (Vandervort, 2016)
Image source:
http://canadianhomeowner.ca/air-
conditioning-how-to-install-a-
window-air-conditioner/
Image source:
http://www.hometips.com/buying
-guides/air-conditioners-
room.html
21
Split air
conditioning
Split Unit Without Outside Air (Ductless)
Ductless split system provides no supply of
renew fresh air to the interior, the existing
indoor air is then recycled and recirculated.
(Panasonic, 2016)
Split Unit Without Outside Air (Ducted)
Ducted split system has an outdoor unit and
a concealed indoor unit, deliver air through
ducting pipes (usually concealed in ceiling)
into each room via vents on the floor, wall
or ceiling. It has larger capacity as compares
to ductless system. (Panasonic, 2016)
Image source:
https://blogs.panasonic.com.au/co
nsumer/2016/08/13/panasonic-air-
conditioning-buyers-guide-part-1-
of-2/
Image source:
https://blogs.panasonic.com.au/co
nsumer/2016/08/13/panasonic-air-
conditioning-buyers-guide-part-1-
of-2/
22
Variable Refrigerant Flow (VRF)
Also known as multiple split unit system.
The outdoor unit is connected to several
indoor units at once. The piping can also be
done cross several floors. There are several
types of VRF system, which is the master
and slave system, zoned control unit system
and the original VRF system.
For the master and slave system, one
outdoor unit is connected to several indoor
units, but all the slave units are controlled
by the master unit.
For zoned control unit system, one outdoor
unit is connected to several indoor units.
However, each of the indoor unit can
function separately to adjust the
temperature.
For the variable refrigerant volume system,
it is a system similar to the master and slave
system, one outdoor unit is connected to
several indoor units. However, this system
allows cooling and heating simultaneously
in the space.
Image source:
http://www.achrnews.com/articles
/131198-clemson-stadium-vrv-
system-gets-uniformed-with-
armaflex
23
Centralized
air
conditioning
The system circulates cool air through a
system of supply and return ducts. Supply
ducts and registers carry cooled air from the
air conditioner to indoors. The cooled air
becomes warmer as it circulates through
interior and flows back to the central air
conditioner through return ducts and
registers. (energy.gov, 2016)
Image source:
http://ableairheat.com/Central-
Air-Conditioning.html
Packaged air
conditioning
The package air conditioner is a bigger
version of the window air conditioner.
However, it has a higher cooling or heating
capacity and is usually able to cool an entire
house or a commercial building. (air-
conditioning-systems.com, 2016)
The conditioned air is transferred to the
space to be conditioned through ducting
which is usually hidden in the ceiling and
wall of the building. The unit is placed
outside the house. The unit is factory
assembled and skilled technicians are
needed to install this type of unit. (air-
conditioning-systems.com, 2016)
Image source:
http://www.brighthubengineering.
com/hvac/61457-packaged-air-
conditioners-types-of-packaged-
ac/
Image source:
http://callthiele.com/indiana-
hvac-service-area/
24
2.3 Fire Protection System
Life safety is the ultimate consideration in Building Design. Life safety of occupancy of
buildings must always be priority and this can be achieved by minimum fire protection in respect
of the various basic aspects of: Means of escape for occupants/evacuation, spread of fire within
the building, from one building to another/passive containment and means of detection and
extinguishment of fire; active intervention & access for firefighting and rescue.
Fire protection system is categorized into two types, active fire protection system and passive
fire protection system.
2.3.1 Active Fire Protection System
The basic types of fire alarm systems currently used in buildings are single and two-stage
systems. A single-stage system is designed so that when activated the alarm signal is
immediately transmitted throughout the building to warn the occupants that a fire emergency
exists. In a two-stage alarm system, a distinct alert signal first advises the staff of the fire
emergency. Usually this signal is coded so that its meaning is apparent only to designated
building staff. The staff are expected to immediately investigate the source of the alarm and, if a
fire exists, to activate the alarm signal. The alarm signal is automatically set off after a
predetermined period of time (usually five minutes if the staff have not already activated it or
reset the alarm system. If, on the other hand, after investigation it is determined that the alert is a
false alarm, staff can silence the coded alert signal and reset the system.
Two-stage alarm systems are normally used if programmed evacuation is required or if a general
alarm would cause undue distress to the occupants, for example in health care facilities. In these
25
facilities the evacuation of the occupants is difficult and could be physically or psychologically
harmful. Therefore two-stage alarm systems are used to reduce the possibility of false alarms.
(R.H.L. McEwen, 1984)
Fire alarm systems are often associated only with pull boxes and alarm bells. However, they are
usually much more complex. They may include numerous components such as fire detectors,
annunciator panels, loudspeakers, telephones, control panels and pull boxes. In addition to the
alarm function, fire alarm and detection systems can also actuate other fire safety measures in a
building.
Active fire protection system that are being observed is fire extinguisher, sprinkler system,
smoke detection, pressurized escape routes, hose reel, external hydrant and alarm system.
Fire extinguisher is an extinguishing agent. Dry chemicals usually use a mix of monoammonium
phosphate and ammonium sulfate. It insulates class A fire by melting at approximately 350‐
400°C.
Hose reel is considered as the main weapon in fighting fire, for the use of the building occupants.
Hose reel delivers more water than several portable extinguishers added together. The hose reels
in Eureka are in good condition. Every exit door has one hose reel beside it. (Ooi Peih SHIA, Md.
Azree Othuman, 2012)
Water is always used by firefighting personnel to extinguish fires. Archivists and Librarians have
often held the strong conviction that water was as destructive to archives and books as fire. This
view is still held by many records custodians in Europe. However, archivists and librarians in
North America accept and, in most cases, enthusiastically endorse the use of automatic sprinkler
systems as an integral part of their fire protection system. North American archivists tend to
26
accept the thesis that wet records can be recovered, but burned records cannot. While virtually
any wet paper records can be recovered, provided prompt and proper action is taken, effective
salvage requires special techniques, facilities, and expert advice. Preplanning for records
recovery is essential. It is important for archivists and librarians to understand that unless there is
a specialized fire extinguishing system to control the development and growth of a fire,
responding fire fighting forces would have no choice but to attack the fire with fire hose. (Irina G.
Shepilova, 1992)
27
2.3.2 Passive Fire Protection System
Passive Fire Protection (PFP) is an integral component in fire protection and fire safety in a
building. It includes the components that allow a fire to act upon the system itself, to
compartmentalize and contain the fire to save lives and to protect the structure of the building.
(Aker, 2016) It begins at the designing stages of the building construction to ensure the
protection of occupants even in the event of the failure of active fire protection system.
Passive Fire Protection System in local must comply the rules and regulations in contents of
section VII by law 133 to 224 in Uniform Building By Laws 1984. This includes purpose group
and compartment, fire appliance access, walls and floor and the means of escape.
28
2.3.2.1 Components of Passive Fire Protection
Fire Staircase
Image source:
https://thumbs.dreamstime.com/x/fire-
stair-8792045.jpg
A fire staircase is an emergency exit, usually
mounted to the outside of a building or
occasionally inside but is separated from the
main areas of the building. It provides a
method of escape in the event of a fire or other
emergency that makes the stairwells inside a
building inaccessible.
Fire Rated Door
Image source:
http://imenfidar.com/wp-
content/uploads/2016/02/Fire-Door-
11.jpg
A fire door is a door with fire-resistance rating.
It reduces the spread of fire and smoke
between separate compartments of a structure.
All fire doors must be installed with the
appropriate fire resistant fittings, such as the
frame and door hardware, for it to fully comply
with the fire regulations. Fire doors are usually
built along the escape routes and fire escape
stair corridors to ensure safety when occupants
are escaping.
29
Fire Rated Wall
Image source:
http://cdn3.volusion.com/lcvky.pxvow/
v/vspfiles/photos/2-HOUR-FIRE-
WALL-50-2.jpg?1462972316
A firewall is a fire resistant barrier that limits
horizontal fire spread for a rated period of
time. It can be used to subdivide a building
into separate fire areas and are constructed in
accordance with the locally applicable building
codes. Fire barrier walls are made of fire-
resistant materials, commonly drywall or
gypsum board partitions with wood or metal
framed studs. Fire walls are extended from a
floor below to a floor or the roof; or from one
fire wall to another fire wall, having a fire
resistance rating equal to or greater than the
required rating for the application.
Compartmentation
Image source:
http://www.fmlfire.com/wp-
content/uploads/2013/03/Compartment
ation.jpg
Compartmentation limits the size of a fire. It
confines a fire and minimizes the risk of
occupant loss by segregating a space to control
fire spread.
According to UBBL, floors below 9m need not
be constructed as compartment floors if the
cubic capacity does not exceed compartment
limits.
30
Emergency Light
Image source:
http://alarmtradersdirect.co.uk/media/ca
talog/category/50_LED.jpg
An emergency light is a battery-backed
lighting device that switches on automatically
when a building experiences a power outage.
Emergency lights are standard in new
commercial and high occupancy residential
buildings.
Emergency Sign
Image source:
http://www.kumpulanprotection.com/ca
talog/images/Keluar_Sign.jpg
Fire escape sign usually reads “KELUAR”
meaning exit in Malaysia. It directs the path to
a safety area, usually open area or fire
staircases. It is often installed with emergency
light within with bright neon green to provide
clear visual guide for occupants during fire.
31
Emergency Floor Plan
Image source:
https://multimediawritingclass.files.wor
dpress.com/2015/10/escape-plan-
large2.jpg
Emergency floor plan shows the possible
evacuation routes in a building. It is colour
coded and uses arrows to indicate the
designated exits. A room containing hazardous
materials is indicated by the flame symbol. It is
usually found on the wall near exits to
emergency staircases or near the fire lifts. It
serves as a visual guide for occupants to
choose the right path to safety in the event of a
fire.
32
2.4 Mechanical Transportation System
Ever since the invention of simple rope and pulley block system around 1500 B.C, our ancestors
had understood the efficiency of using them to assist transport goods. This working model has
become the fundamental to develop into the mechanical transportation system that assists the
movement of people. In the twentieth century, the enormous growth of high rise buildings with
corresponding to the demands for the transportation of goods and people.
Mechanical transportation system is undeniable important as it will affect the satisfactory service
of one towards the building. In order to meet the standard of the users, the consideration of the
system have to be included during the building design stage. Before the installation of the system,
few requirements must be anticipated with full regard to the dependence on other services such
as electricity, fire protection, means of escape, co-ordination of installations and longer term
maintenance of the facility. Thus, a well-functioned mechanical transportation is very important
to ensure the safety and comfortable of all users.
Mechanical transportation system, normally refers to elevator, escalator and travellator can be
easily found in the public buildings.
- Elevator (Figure 2.4.0)
An elevator or lift is a platform or compartment housed in a shaft for raising and lowering
people or things to different floors or levels.
- Escalator (Figure 2.4.1)
An escalator is a series of moving stairs used to convey people between floor levels.
- Travellator (Figure 2.4.2)
33
Travellator also known as autowalks, passenger conveyors or moving pavements. It
provides horizontal movement of pedestrians, wheelchairs, luggage trolleys and small
vehicles up to the practical limitation of about 300m distance.
Figure 2.4.0:Elevators.
Source: G.S. Elevator.
Figure 2.4.1: Escalator.
Source: Nationwide lifts.
Figure 2.4.2: Travellator.
Source: SDA, 2015.
2.4.1 Elevator
Elevator is one of example of the mechanical transportation system. Also known as lift, it is a
platform or compartment housed in a shaft for raising and lowering people or things to different
floors or levels. According to by-laws 124 from UBBL, for all non-residential buildings that
exceeding 4 storeys above or below the main excess level at least one lift shall be provided.
However, it is also necessary for buildings that are less than 4 storeys for the conveniently usable
by the disabled people and elderlies.
By-laws 124 UBBL
A lift shall be provided for non-residential building which exceeds 4 storeys above/below main
entrance.
34
Elevator can be categorized into two different types which are traction (electric) elevator and
hydraulic elevator. Some types of elevator have no machine room which is normally located
above the lift well. It contains winding gear, traction sheave, control panel, overspeed governor
and numerous other components.
2.4.1.1Traction Elevator
Traction elevator is lifted by ropes, which pass over a wheel attached to an electric motor above
the elevator shaft. It is widely used for mid and high-rise applications and have much higher
travel speeds than hydraulic elevators. A counter weight makes the elevators more efficient by
offsetting the weight of the car and occupants so that the motor doesn't have to move as much
weight.
Elevator
Traction (Electric)
Elevator
Machine Room-Less (MRL)
Traction Elevator
Machine Room Traction
Elevator
Geared Traction
Elevator
Gearless Traction
Elevator
Hydraulic Elevator
Machine Room-Less (MRL)
Hydraulic Elevator
Holed Hydraulic
Elevator
Holeless Hydraulic
Elevator
Roped Hydraulic
Elevator
35
Traction (Electric) elevator can be divided into two different categories which are the machine
room-less (MRL) traction elevator and machine room traction elevator. Traction elevator is an
electric lift with traction drive consists of a lift car suspended by steel ropes which travel over a
grooved driving sheave. The steel ropes are connected to the top of the car at one end and to a
frame of a counterweight at the other.
Machine room-less traction elevator is elevator that does not have a machine room located
above the lift well. A machine room contains winding gear, traction sheave, control panel,
overspeed governor and numerous other components. Replaced the machine room, a control box
will be placed in a control room that is adjacent to the elevator shaft on the highest landing or
within around. (refers Figure 2.4.3)
Traction (Electric) Elevator
Machine Room-Less (MRL)
Traction Elevator
Machine Room Traction
Elevator
Geared Traction Elevator
Gearless Traction Elevator
36
Figure 2.4.3: Difference between a machine room elevator and
machine room-less (MRL) elevator.
Source: Electrical knowhow.
Geared traction elevator (refers Figure 2.4.4) is driven by AC or DC electric motors. It is
designed to operate in the range of 100ft/min to 500ft/min, which restricts their use to mid-rise
buildings.
Gearless traction elevator (refers Figure 2.4.5) consists of a DC or AC motor, the shaft of
which is directly connected to a brake wheel and driving sheave. The elevator hoist ropes are
placed around this sheave. The absence of gears means that the motor must run at the same
relatively slow speed as the driving sheave. A gearless traction elevator can reach up to
4000ft/min.
37
Figure 2.4.4: Component of a geared
traction elevator
Source: Electrical knowhow.
Figure 2.4.5: Component of a gearless
traction elevator
Source: Electrical knowhow.
38
2.4.1.2 Hydraulic Elevator
Hydraulic elevator can be categorized into three types which are holed hydraulic elevator,
holeless hydraulic elevator and roped hydraulic elevator. In early days, hydraulic elevator was
operated by water power and later experiments proved oil to be a more efficient medium, but
with an overall theoretical maximum travel of 21m, thus they are no threat to electric lifts for
higher-rise buildings. Hydraulic elevator is widely used in low-rise building as its speed is
limited to about 0.75m/s to maintain adequate standards of control and comfort.
Holed hydraulic elevator (refers Figure 2.4.6) is supported by a piston at the bottom of the
elevator that pushes the elevator up as an electric motor forces oil or another hydraulic fluid into
the piston. The elevator descends as a valve releases the fluid from the piston.
Holeless hydraulic elevator (refers Figure 2.4.7) will be used in when drilling a plunger hole is
difficult, a telescoping plunger or a roping arrangement can be used. The telescoping jack design,
in a single jack arrangement. This cause a lateral stress in the building due to the cantilevered car,
a dual-jack arrangement is used more frequently.
Roped hydraulic elevator (refers Figure 2.4.8) is much simpler than the telescoping plunger
unit because it uses only a single moving jack section. The combination of rope and piston
Hydraulic Elevator
Machine Room-Less (MRL) Hydraulic
Elevator
Holed Hydraulic Elevator
Holeless Hydraulic
Elevator
Roped Hydraulic Elevator
39
allows the car to travels twice as far. One end of the rope is attached to a fixed point in the pit
below the car, and the other end is attached to the base of the car.
Figure 2.4.6: Component of
a holed hydraulic elevator
Source: Electrical knowhow.
Figure 2.4.7: Component a
holeless hydraulic elevator.
Source: Electrical knowhow.
Figure 2.4.8: Component of
a roped hydraulic elevator.
Source: Electrical knowhow.
40
2.4.2 Escalator
Escalator is a series of moving stairs used to convey people between floor levels. They are
usually arranged in pairs for opposing directional travel to transport up to 12000 persons per
hour between them. They are widely used in department stores, airports, shopping malls,
convention centers, hotels and public buildings.
The escalator installation includes few components which are the escalator, the track, the trusses
or girders, the balustrades, the step treads and landings and all chains, wires and machinery
directly connected with the operation of the escalator.
Figure 2.4.9: Components of an escalator.
Source: Johnson, S.E.
There are various types of escalators operation arrangement. The factors that determine the
selection of an operation arrangement are the type of building, the place of installation and
41
direction of travel, traffic intensity, type of use (commercial/public transport buildings) and
special use. Listed is the types of escalators arrangements: -
(1) Single
The escalator connects two levels. It is
used in objects in which persons travel in
one direction mainly. A flexible
directional operation is possible.
(2) Double (two-way traffic)
This arrangement is used in the objects in which
persons travel in two opposite directions.
(3) Crisscross (two-way traffic)
This arrangement is popular in a small
two-level trade galleries.
(4) Single continuous (one way traffic)
This arrangement is mainly used in small
department stores and commercial
centers. The escalator that connects
subsequent levels in one-way traffic.
42
(5) Single non-continuous (one-way
traffic)
The escalator arrangement is used mainly
in small department stores and in
commercial centers. The escalator that
connects subsequent levels in a non-
continuous one-way traffic is not too
comfortable for persons who want travel
quickly through subsequent floors.
However, this operation arrangement is
attractive for owners of department stores
and lessees because it encourages to visit
around.
(6) Double non-continuous (two-way
traffic)
This arrangement is used in department
stores, office. The escalator that connects
subsequent levels in a non-continuous
two-way traffic buildings and public
transport objects. With multiplication of
this operation arrangement there can be
used sequence operation: travel in a
defined direction depending on day time.
43
(7) Crisscross continuous (two-way
traffic)
This arrangement is used mainly in big
department stores, office buildings and
public transport objects where efficient
travel of persons between floors is of
high importance.
44
2.4.3 Travellator
Travellator also known as autowalks, passenger conveyors and moving pavements, is a
moving walkway that transports people horizontally from one area to the other on the
same level. It can be inclined up to between 12°and 15°to the horizontal. The moving
surface is either a reinforced rubber belt or a series of linked steel plates running on
rollers. It is widely used at air terminals, railway stations and shopping centers.
Travellator can be divided into two types which are the pallet type and moving belt type.
Pallet type of moving walkway is a continuous series of flat metal plates join to form a
walkway and are effectively identical to escalators in their construction. Most have a
metal surface, though some models have a rubber surface for extra traction.
Moving belt type travellator is generally built with mesh metal belts or rubber walking
surfaces over metal rollers. The walking surface may have a solid feel or a "bouncy" feel.
Figure 2.4.10: Pallet type travellator.
Source: Sidekickboobs.
Figure 2.4.11: Moving belt type
travellator.
Source: TrekEarth.
45
46
3.0 Application of Building Services Components
3.1 Mechanical Ventilation System
3.1.1 Extract System
For our elderly centre, it is three story high and has a total of 756 square meter built up
areas which is assumed as a small site. Hence, for the mechanical ventilation system, we
only propose extract system as it is commonly used at kitchen, internal toilets and
bathrooms of low rise buildings. For the supply and combination system, they are usually
used at factories and public buildings such as shopping centre and theatre. Hence, we
decided to propose extract system instead of supply and balance systems.
3.1.2 Components
3.1.2.1 Fan
Fan serves the purpose of removing hot, humid and polluted air. It’s often used to bring
in outdoor air to encourage ventilation and cool then internal spaces of a building. It’s
one of the important components in mechanical ventilation in order to complete the air
circulation cycle of a system. Furthermore, it helps to keep the fresh air circulating within
a space.
1. Propeller Fan
Image Source: http://www.luft.co.za/fac-propeller-fan.html
47
It is usually used without ducting and required low cost installation. It is found at the
garbage disposal room which tends to remove odor of the garbage out of the room. In
kitchen, it functions as an exhaust fan for the room where it helps to remove the odor,
water vapor and reduce the humidity in the room to prevent condensation of bacteria and
also the growth of mold in the room.
2. Exhaust Fan
Image Source: https://www.alibaba.com/product-
detail/philippines-reverse-air-elevator-extractor-
jet_60422694347.html
It is found in the elevator control and M&E room. It is connected to a temperature
thermostat, it will be switched on automatically once the detector detected a high
temperature in the room. It plays the role of removing the hot air from the control room to
prevent overheating of the wire and mechanical components in the room.
3. Bath Fan
Image Source: https://www.nachi.org/bathroom-ventilation-
ducts-fans.htm
48
It is found in the bathroom and washroom. It removes the moisture which cause mold
to accumulate out of the bathroom. These fans help to control and eliminate bathroom
odors while providing clean atmosphere. It also adds to the safety of the home and
residents by reducing fumes from cleaning agents that could potentially cause health
related issues.
3.1.2.2 Ductwork
It serves the function of channeling air into a room or out from a room, ductwork comes
in different shapes and sizes which will also affect the efficiency and sustainability. They
are usually made from aluminium, copper and galvanized materials. It’s often connected
to the central supply or central exhaust fan of the mechanical ventilation system.
1. Rectangular Galvanized Ducting
Image Source:
http://leminarindustries.com/rectangular-
duct-system
Rectangular ducting made from galvanized material can be seen insulated at the
bathroom and washroom. It serves the purpose of channeling air out of the internal
space of each unit.
49
3.1.2.3 Filter
It is used to sift the external air before releasing into the room and to trap dust, smoke,
bacteria, etc. from entering the room. Usually, different filter is used for different
application and is installed at the inlet grille.
1. Extractor hood
Image Source: http://www.currys.co.uk/gbuk/household-
appliances/cooking/hoods/335_4216_31913_xx_xx/xx-
criteria.html
It removes airborne grease, combustion products, fumes, smoke, odors, heat, and steam
from the air by evacuation of the air and filtration. In most exhaust hoods, the grease trap
removes grease and other particles. Although many vent hoods exhaust air to the outside,
some recirculate the air to the kitchen.
2. Grease Filter
Image Source: http://www.euro-
filterinstallations.co.uk/grease-filters/
In a recirculating system, filters may be used to remove
odors in addition to the grease to ensure clean
environment for kitchen.
50
According to UBBL 1984
PART (III) SPACE, LIGHT AND VENTILATION
41. Mechanicals ventilation and air conditioning
1) Where permanent mechanical ventilation or air-conditioning is intended, the relevant
building by-laws relating to natural ventilation, natural lighting and heights of rooms may
be waived at the direction of the local authority.
2) Any application for the waiver of the relevant by-laws shall only be considered if in
addition to the permanent air-conditioning system there is provided alternative approved
means of ventilating the air-conditioned enclosure, such that within half an hour of the
air-conditioning system failing, not less than stipulated volume of fresh air specified
hereinafter shall be introduced into the enclosure during the period when the air-
conditioning system is not functioning.
3) The provisions of the Third Schedule to these By-laws shall apply to buildings which
are mechanically ventilated or air-conditioned.
4) Where permanent mechanical ventilation in respect of lavatories, water-closets,
bathrooms or corridors is provided for and maintained in accordance with the
requirements of the Third Schedule to these By-laws, the provisions of these By-laws
relating to natural ventilation and natural lighting shall not apply to such lavatories,
water-closets, bathrooms or corridors.
51
Proposed Operation of Mechanical System (Ground Floor Plan)
52
Proposed Operation of Mechanical System (Second Floor Plan)
53
54
3.2 Air-Conditioning System
The main purpose of air conditioning system to be proposed is to achieve and maintain
thermal comfort and indoor air quality of space in the building. Thermal comfort and
indoor air quality is achieved by altering the properties of air by controlling the
temperature and humidity of the air then distribute into spaces to create a healthy and
comfortable space for the users. Malaysia is experiencing tropical climate, where air
conditioning system is needed to overcome the hot and humid air and keep the occupant
comfortable under hot weather. And to create comfort in occupants, constant heating and
cooling is carried out to avoid the space from getting too cold or hot.
There are 4 types of air conditioning system, which includes window air conditioning,
split air conditioning, centralized air conditioning system and package air conditioning
system. In this research paper, only the split air conditioning system is focused on. Other
than that, Malaysia is also following the rules and standards in performing the air
conditioning system to ensure occupant have appropriate and proper thermal comfort and
indoor quality under Malaysian Standard (MS1525) and Uniform Building By-Laws
(UBBL).
3.2.1 Variable Refrigerant Flow (VRF) Air-Conditioning System
VRF systems are similar to the multi-split systems which connect one outdoor section to
several evaporators. However, multi-split systems turn off or on completely in response
to one master controller, whereas VRF systems continually adjust the flow of refrigerant
to each indoor evaporator. The control is achieved by continually varying the flow of
55
refrigerant through a pulse modulating valve (PMV) whose opening is determined by the
microprocessor receiving information from the thermistor sensors in each indoor unit.
Image source: https://korean.alibaba.com/product-detail/vrf-system-630420372.html
Compared to multi-split systems, VRF systems minimize the refrigerant path and use less
copper tubing as well. The minimizing of the refrigerant path allows for maximizing the
efficiency of refrigerant work. The introduce of Mode Control Unit (MCU) also reduce
the piping used in the whole system, this component can be found in some brand of VRF
system in the market. The advantages of this component is that it can change heat and
cool flow of air within this small component here before it is sent to each individual
indoor units. Also, each unit can have different air flow, which is cooling and heating
flow. It also allows constant change in heating and cooling effect for the thermal comfort
of occupants inside the building.
56
Image source: http://www.slideshare.net/adolfomesquita/variable-refrigerant-flow-vrf
Image source: https://www.youtube.com/watch?v=N27sLpQpVr4)
https://dvmdownload.com/DVM-S-Series-(VRF)/Mode-Change-Unit-(MCU)-and-EEV-
Kits/DVM-S-Mode-Change-Unit-(MCU)
Image source: https://samsunghvac.com/products.php?application=Commercial)
http://www.samsung.com/uk/business/business-products/commercial-cac/commercial-
cac/AC060FBNDEH/EU)
57
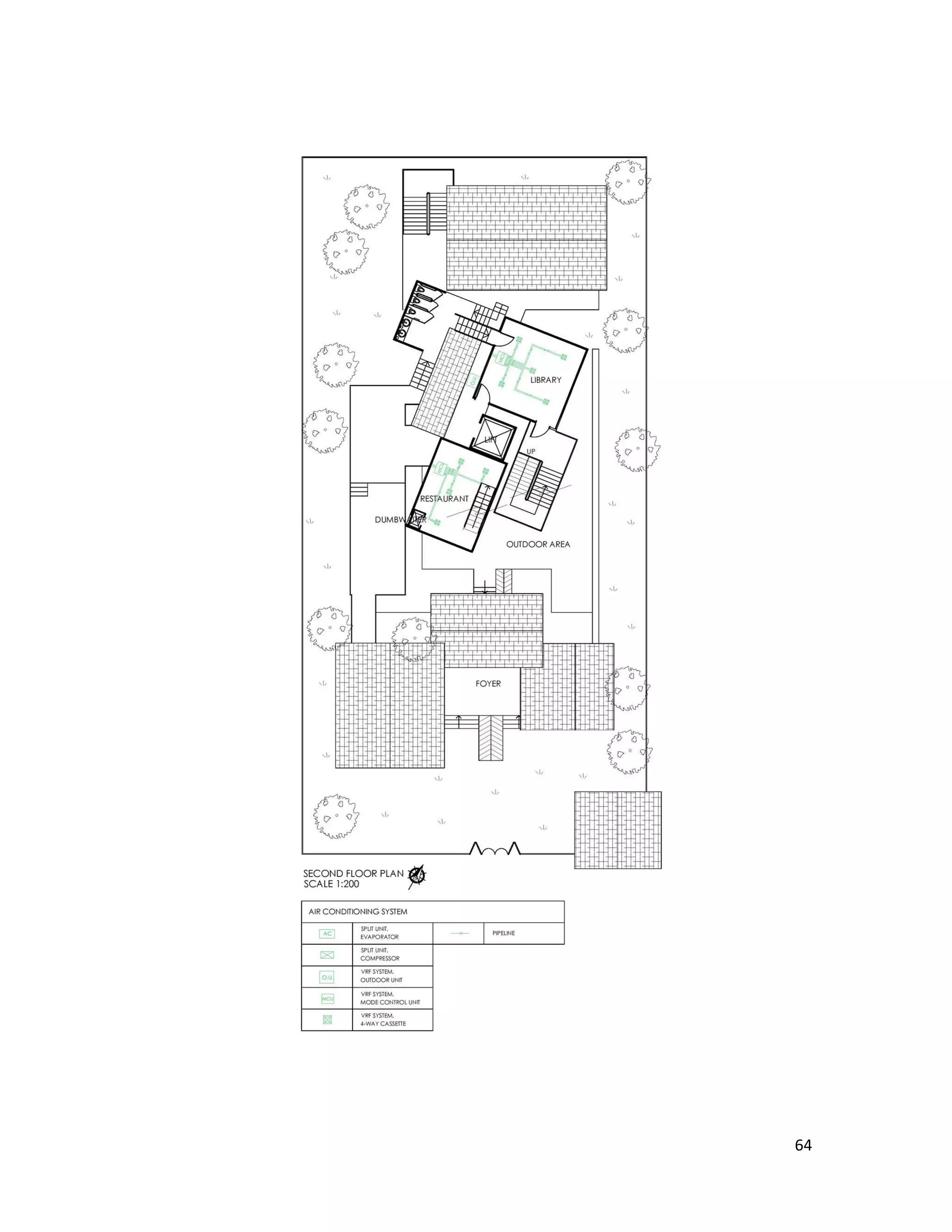
The VRF system is proposed in spaces such as restaurant, library and game room, which
their room sizes are bigger than the standard rooms. Considering the size and volume of
the spaces proposed here, the number of indoor units proposed in enough. One outdoor
unit is placed outside the library, and several indoor units are installed in these spaces
from the second floor to the first floor.
Indication of spaces which is using the VRF system.
3.2.2 Split Unit Air-Conditioning System (Ductless Split)
The ductless split air conditioning system only conditions certain space of a building
rather than the whole building. It is called ductless split air conditioning system because
it makes no use of the duct that is otherwise required by all other air conditioners for their
58
functioning. It consisted of two units, which is a condenser (outdoor unit) and evaporator
(indoor unit) connected by refrigerant pipe. Outdoor unit contain parts such as the
compressor, condenser and expansion valve that is function to remove the heat from the
refrigerant. For indoor unit, it produces conditioned air and give a cooling effect inside
the room. Split unit air conditioning system has flexibility advantage as in selecting
rooms for cooling with desired temperature control.
Image source: https://www.quora.com/Which-air-conditioner-gives-better-cooling-
window-or-split)
59
The split unit air conditioning system can be controlled by remote control at will to
achieve thermal comfort. The compressor is located within a distance outdoor near to
where split unit air conditioner is installed. The reason why a compressor is located at
outdoor is to release heat result from refrigeration process. The advantages of using this
system is that it has the flexibility in controlling and to distribute conditioned air at zoned
that needed air conditioning.
The split unit ductless air conditioning system, which consists of the evaporator (indoor
unit), compressor (outdoor unit), and a remote control where the user can control the
temperature at will to reach thermal comfort.
Image source: http://www.indiahometips.com/buying-split-ac.html
These ductless split units are located at the areas which is been indicated red on the
following figure. As the rooms or space are quite small in these indicating areas, this
small ductless split unit system is proposed to serve the occupants of the building.
Considering the volume of each spaces as well, it is proposed that one unit is provided for
each room to function, which is already enough.
60
Indication of spaces where split unit system is used.
According to
UBBL 1984
PART lll: SPACE, LIGHT AND VENTILATION
Mechanical Ventilation and Air-conditioning Law 41
(1) Where permanent mechanical ventilation or air-conditioning is intended, the relevant
building by-laws relating to natural ventilation, natural lighting and heights of rooms may
be waived at the discretion of the local authority.
61
(2) Any application for the waiver of the relevant by-laws shall only be considered of on
addition to the permanent air-conditioning system there is provided alternative approved
means of ventilating the air-conditioned enclosure, such that within half an hour of the
air-conditioning system failing, not less than the stipulated volume of fresh air specified
hereinafter shall be introduced into the enclosure during the period when the air-
conditioning system is not functioning.
(3) The provisions of the Third Schedule to these By-laws shall apply to buildings which
are mechanically ventilated or air-conditioned.
(4) Where permanent mechanical ventilation in respect of lavatories, water-closets,
bathrooms or corridors is provided for and maintained in accordance with the
requirements of the Third Schedule to these By-laws, the provisions of these By-laws
relating to natural ventilation and natural lighting shall not apply to such lavatories,
water-closets, bathrooms or corridors.
62
63
64
65
66
3.3 Fire Protection System
3.3.1 Active Fire Protection System
3.3.1.1 Two-Stage System
There are two types of system, single-stage system and two-stage system. A single-stage
system is designed so that when alarm is activated, it will immediately trigger the fire
alarm systems without passing through any control panel. For two-stage system, a distinct
alert signal first will go off and advices the staff of the fire emergency, then the staff are
to investigate the source of the alarm, if fire exist then triggered the alarm signal, if it is a
false alarm, staff can silence the alert signal and reset the system.
Two-stage system is being is being used in this particular building because of how it
function which signal will first transmit to alarm control panel, an indirect system which
can reduce the undue distress to the occupant especially senior citizen, it is most suitable
for elderly centre.
Progress of active fire protections:
67
3.3.1.2 Recycling Sprinkler System (for library area only)
Library content a highly combustible materials, paper, cardboard, wood, textiles or in the
form of data carriers. Different set of system are being used in library to protect these
irreplaceable items. Water was a destructive to archives and books as fire. However,
thesis proved that wet records can be recoverred, but burned records cannot, so water
sprinklers are being accepted by most of the libraries. Recycling Sprinkler System will be
adopting in only library area to further enhance the protection of theose irreplaceable
books and archives.
Wet fire protection system is being used for library as well, the sprinklers system used
here is automatic sprinkler system which is different from other. Sprinklers are consitute
a method of fire control involving a minimum rather than a maximum of water, each
sprinkler operated individually, only those sprinklers in the heat of the fire operate and
discharge water. This is also a recycling system which adapting a pre-action system. Pre-
action system is in which the sprinklers are normally dry, and the control valve opens
only when the heat detector detect the development of fire. For recycling system, is that
when heat drops below a preset temperature, such as 60 degrees Celsius, the detectors
cause a timing cycle to start and closing the valve in about 5minutes while the system
remains in readiness, and, should the fire redevelop, it would cycle and start again.
68
3.3.1.3 Components
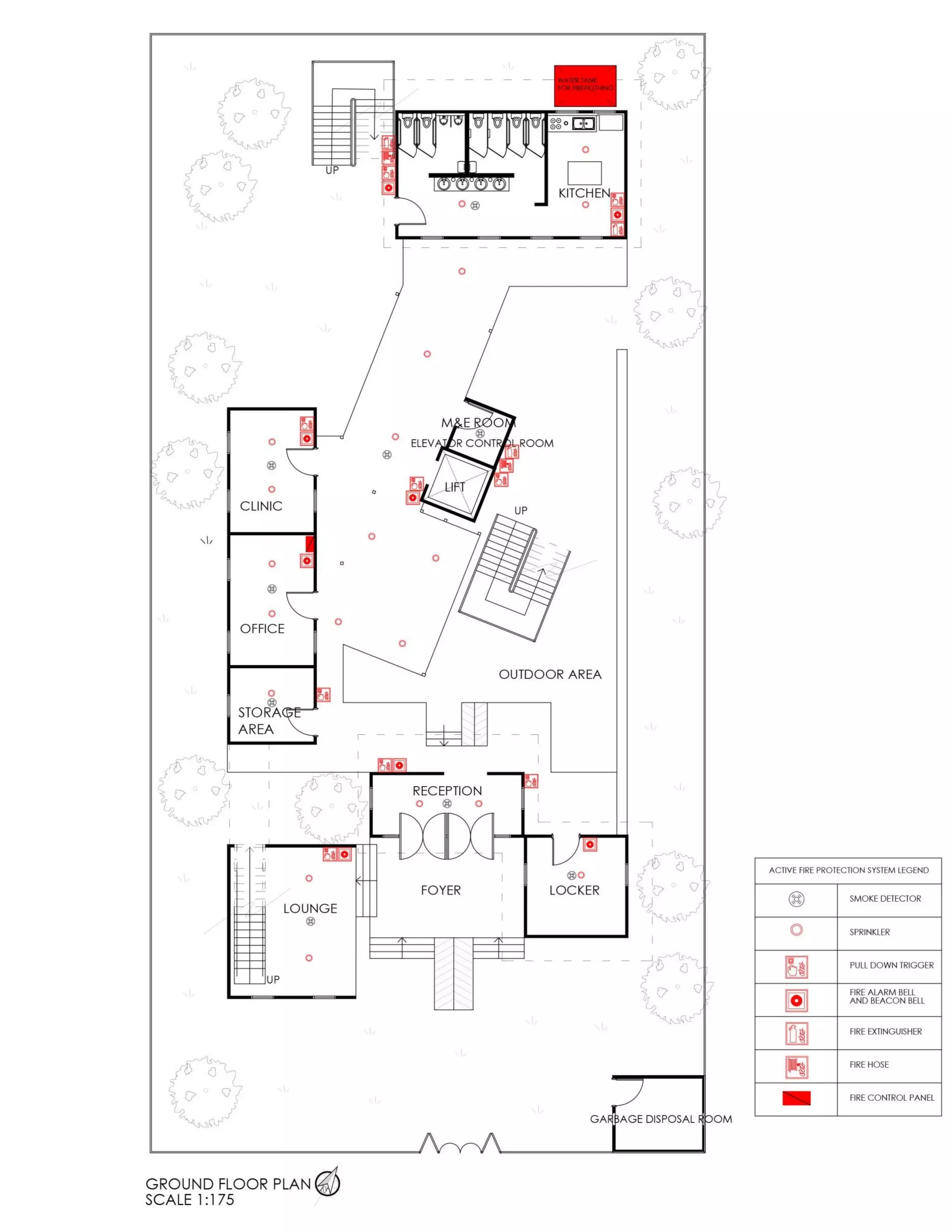
Smoke detector
Image Source: https://www.safety.com/p/smoke-alarm-
detectors/
Every enclosed room unit should have at least one smoke detector and so do lift lobby.
This elderly centre is smoke free area, occupants are not allowed to smoke indoor, or it
might be trigger the fire alarm.
Ionization smoke detector to use in this case. Ionization smoke detector is generally more
responsive to flaming fires. Ionization smoke detector has two electrically charged plates,
which ionizes the air and causes current to flow between the plates. When smoke enters
the chamber, it disrupts the flow of ions, thus reducing the flow of current and activating
the alarm.
According to
UBBL 1984 Section 153: Smoke detectors for lift lobbies.
a) All lift lobbies shall be provided with smoke detectors.
b) Lift not opening into a smoke lobby shall not use door reopening devices
controlled by light beam or photo-detector unless incorporated with a force close
feature which after thirty seconds of any interruption of the beam causes the door
to close within a pre-set time.
69
Smoke detector devices which mounted on a flat ceiling has an individual coverage of 7.5
radius. However it is advised to ensure the radii overlap to ensure there are no blind spots.
Therefore individual coverage can be represented by a square measuring 10.6m x 10.6m
giving an actual coverage area of 112m2
per device.
Coverage dimensions used for detectors:
Smoke detector: 5m to wall / 10m between detectors
Coverage 100m2
Triggers
Image Source: http://www.approvedprotection.com/fire-safety/fire-
alarms/
Pull down trigger will be use for the ease for the occupants as majority will be elderly,
and its more convenience than a glass alarm trigger which require user to break the glass.
Occupants just have to pull the trigger, then it will activate the trigger which will send a
warning signal to the central control panel to cut off electricity power supply, and ringing
the alarms to warn the occupants. Trigger will be located at emergency evacuation route,
nearby corridor, at landing of emergency staircase and exit door, easy to be spotted and
trigger.
70
Alarm Bell and Visual Signal (Beacon alarm)
Image Source:
https://www.systemsensor.com/en-us/Pages/Sprinkler-AlarmBells.aspx
http://halmapr.com/news/klaxon/page/2/
Fire alarm bell with visual signal aid for giving more attention to occupants, beacon
alarm for those occupants with hearing loss, giving more attention to the occupants. Once
the alarm receive signal from the main fire panel, electric is applied, the current will flow
through the coils and activating the bell to create a repetitive loud ringing sound and
flashing red light to alert occupants of emergency. Each enclosed room units is equipped
with an alarm bell and beacon alarm near the entrance and each at life lobby on every
floor, since these lift lobbies are in open outdoor space, so it also cover the whole outdoor
area.
According to
UBBL 1984 Section 237: Fire alarms.
a) Fire alarms shall be provided in accordance with the Tenth Schedule to these By-
laws.
71
b) All premises and buildings with gross floor area excluding car park and storage
areas exceeding 9290 square meters or exceeding 30.5 meters in height shall be
provided with a two stage alarm system with evacuation (Continuous signal) to be
given immediately in the affected section of the premises while an alert
(intermittent signal) be given in adjoining section.
c) Provision shall be made for the general evacuation of the premises by action of a
master control.
Alarm bell and visual signal should be mounted at a minimum height of 2.1m from floor
level.
Fire Alarm Panel
Image Source:
http://www.firesafetysearch.com/products/control-
panels/addressable-fire-panels/axis-ax-fire-panels/
The central command centre is the system panel of a fire alarm system. As the fire system
used is two stage system, with this panel, it’s able to control and receive information and
data from all the sensors designed to identify changes related to fire, monitor their
functioning integrity and provides for automatic control of equipment and transmission of
data needed to prepare the facility for fire based on a programmed order. This centre also
supply electricity to activate any connected sensor, transmitter, control or relay. It should
72
be located at staff area, which is the office so that it’s being observed and taking care by
the staff which had undergo training of how to operate it.
Fire Hydrant
Image Source:
http://www.kumpulanprotection.com/catalog/fire-hydrant-p-
42.html
Fire hydrant will be provided for every building according to UBBL, in this residential
area, the fire hydrant is provided in a coverage pattern. The location of the fire hydrant
located 4 blocks away from the site, approximately around 40meters away from the site.
It will become the main water source or supply for firefighting purpose. It is usually
installed 6m from the house boundary at an open space and in front for easy access.
According to UBBL 1984 Section 225: Detecting and extinguishing fire.
a) Every building shall be provided with means of detecting and extinguishing fire
and with fire alarms together with illuminated exit signs in accordance with the
requirements as specified in the Tenth Schedule to these By-laws.
b) Every building shall be served by at least one fire hydrant located not more than
91.5 metres from the nearest point of the brigade access
c) Depending on the size and location of the building and the provision of access for
fire appliances, additional fire hydrant shall be provided as may be required by the
Fire Authority.
73
External fire hydrant coverage:
 Not more than 30m from the breeching inlet for the building
 Not less than 6m from the building
 Spaced out more than 90m apart along access road
 Minimum width of access road is 6m
Water tank for firefighting
Image Source: http://www.binasteel.com.my/
Water tank storage for firefighting which provided by the government SYABAS. The
hydrant tanks to be separate from other water storage tank and only supply water for fire
sprinklers and wet riser system with a capacity of 180,000 litres, which able to supply a
light hazard system for minimum 30-minutes flow duration.
Hydrant Pump
Image Source:
https://www.allpumps.com.au/applications/fire-
hydrant-systems
74
The pump controlling system uses diesel to run and operate instead of electricity because
electricity might not working during a fire. The pumps will pump the water stored in the
tank to all sprinklers. This hydrant pump consist of two type, duty pump and standby
pump.
- Jockey Pump
- Jockey Pump are connected and work together with a fire pump. This jockey
pump is there to maintain and control a certain amount of pressure by elevating it
to a specific level when not in used hence to prevent the fire pump from running
all the time. It will also disable water drainage during a fire emergency.
- Duty Pump
- Helps pressurizes the water in the system in order to maintain with constant water
supply to all the appliances during a fire emergency. In case of a fault where duty
pump fails to work, the standby pump will be activated automatically.
75
- Standby Pump
- Function same as duty pump, this pump will be act as backup for when the duty is
under maintenance or malfunctioning. Standby pump will and can be controlled
by control panel where it can be switched off manually.
- Control valve set
- Located at the primary water pipe, it controls the flow of water from the pump.
Sprinkler
The system for sprinkler used in this case is pre-action installation. Pipe works always
filled with air under pressure. A valves release air and pipe works filled with water when
fire is detected by smoke or heat detectors. Water is discharged through the sprinkler
head only when the sprinkler head breaks.
Hazard classification:
Light hazard – non-industrial occupancies and low quality of combustibility contents
76
Type of sprinkler: Recessed Pendant Sprinkler
It is a downward spray type of sprinkler, it spray water out in a circle motion. This
sprinklers are commonly used and suitable for almost any type of rooms that are
accessible. The connecting pipes will be hidden in the veiling to avoid unattractive
appearances. The cover of light hazard will be 4.6m in diameter.
According to
UBBL 1984 Section 226: Automatic system for hazardous occupancy.
- Where hazardous processes, storage or occupancy are of such character as to
require automatic sprinklers or other automatic extinguishing system, it shall be of
a type and standard appropriate to extinguish fires in the hazardous materials
stored or handled or for the safety of the occupants.
Image Source: http://www.tlcfireandsecurity.com/fire-sprinkler-service.html
Hose Reel System
Image Source:
http://www.highrisefire.co.uk/wr.html
Connected to water tank for firefighting, pressurized by pump.
Hose reel will be located near the fire staircase. Occupants can use it for early stage of
firefighting, it is connected to the wet riser which is fully pressurized at all times for
emergency usage.
77
According to
UBBL 1984 248: Marking on wet riser, etc.
a) Wet riser, dry riser, sprinkler and other fire installation pipes and fittings shall be
painted red.
b) All cabinets and areas recessed in walls for location of fire installations and
extinguisher shall be clearly identified to the satisfaction of the Fire Authority or
otherwise clearly identified.
According to
UBBL 1984 Section 231: Installation and testing of wet rising system.
- Wet rising systems shall be provided in every building in which the topmost floor
is more than 30.5 meters above fire appliance access level.
- A hose connection shall be provided in each firefighting access lobby.
- Wet risers shall be of minimum 152.4 millimetres diameter and shall be
hydrostatically tested at a pressure 50% above the working pressure required and
not less than 14 bars for at least twenty-four hours.
- Each wet riser outlet shall comprise standard 63.5 millimetres instantaneous
coupling Fitted with a hose of not less than 38.1 millimetres diameter equipped
with an approved typed cradle and a variable for nozzle.
- A wet riser shall be provided in every staircase which extends from the ground
floor level to the roof and shall be equipped with a three-way 63.5 millimetres
outlets above the roof line.
78
- Each stage of the wet riser shall not exceed 61 meters, unless expressly permitted
by D.G.F.S but in no case exceeding 70.15 meters.
Fire Hose Cabinet
Image Source:
http://starssafety.starssafety.com/fire-
hose-cabinet/
Mainly used to store hose reel system, its main function is to protect the equipment from
weathering or damage. Fire hose cabinet are fire-resistance so it is useable even during a
fire.
Fire Extinguisher
Image Source:
http://www.floolish.com/2016/03/florida-man-steals-fire-
extinguisher-sprays-bar-patrons/
Type of fire extinguisher, Class A, water and foam extinguisher. Class A are for solids
such as paper, wood or plastic which is suitable for this building, hence there are only
light activities like relaxing, gaming being carried on in here.
Fire extinguisher is an active fire device that is used to control small fire. This water and
foam fire extinguisher extinguish the fire by taking away the heat element of the fire
79
triangle. Foam agent also separate the oxygen element from the other elements. Water
extinguisher are only for Class A fire only, they should not be used on Class B or C fire,
because the discharge steam could spear the flammable liquid in Class B fire or could
create a shock hazard on Class C fire.
According to
UBBL Section 227: Portable extinguishers
 Portable extinguisher shall be provided in accordance with the relevant codes of
practice and shall be sited in prominent positions on exit routes to be visible from all
directions and similar extinguishers in a building shall be of the same method of
operation.
80
81
82
83
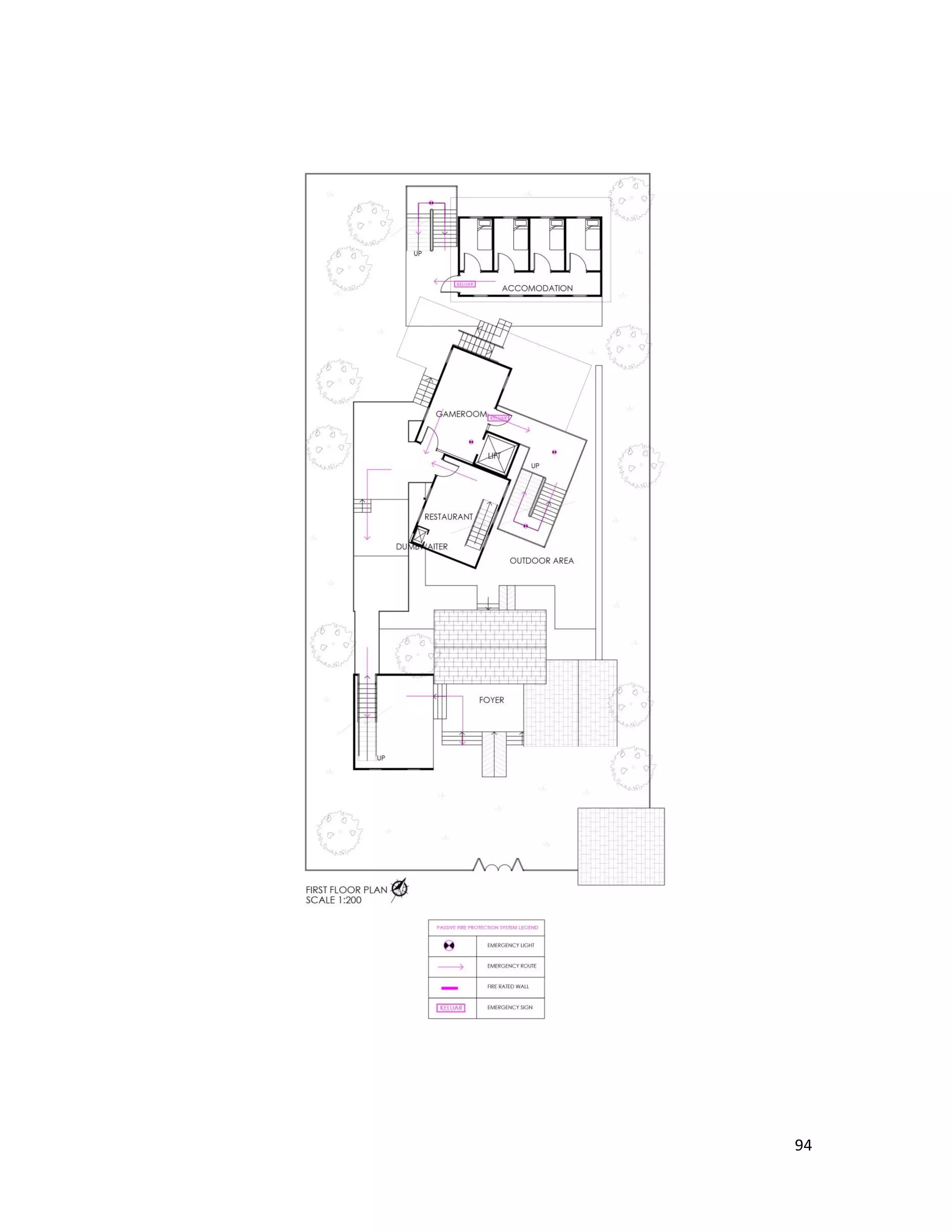
3.3.2 Passive Fire Protection System
Passive Fire Protection includes the components that allow a fire to act upon the system
itself, to compartmentalize and contain the fire to save lives and to protect the structure of
the building.
Components of passive fire protection system are applied in the elderly centre during the
designing stages according to the rules and regulations stated in the contents of section
VII by law 133 to 224 in Uniform Building by Laws 1984.
The elements are divided into 3 main parts, each with different main function. Fire escape
is meant to ensure the occupants are provided with safe and fast escape during fire
emergency. Fire barriers are to stop the spread of fire in a given time of period to
minimize fire damage. Fire control avoids fire victims from suffocated from smoke
during fire. The elements are summarized in the table below.
Passive Fire Protection System
Fire Escape Fire Barriers Fire Control
 Emergency Exit Signage
 Emergency Light
 Emergency Floor Plan
 Fire Evacuation Route
 Fire Staircase
 Fire Rescue Access
 Fire Barrier Gate
 Fire Rated Door
 Fire Rated Wall
 Separation of Fire
Risk Area
 Smoke and Heat
Ventilation
84
3.3.2.1 Fire Escape
Emergency Exit Signage
Image source:
http://www.kumpulanprotection.com/catalog/images/Keluar_S
ign.jpg
The emergency “KELUAR” exit signage is located above every fire rated door, which is
placed at exit leading to fire stair. The sign directs occupants to the designated fire escape
area where firemen can access for search and rescue.
According to
UBBL 1984 Section 172: Emergency exit signs.
(1) Storey exits and access to such exits shall be marked by readily visible signs and
shall not be obscured by any decorations, furnishings or other equipment.
(2) A sign reading “KELUAR” with an arrow indicating the direction shall be placed
in every location where the direction of travel to reach the nearest exit is not
immediately apparent.
(3) Every exit sign shall have the word “KELUAR” in plainly legible letters not less
than 150 millimetres high with the principal strokes of the letters not less than 18
millimetres wide. The lettering shall be in red against a black background.
(4) All exits signs shall be illuminated continuously during periods of occupancy.
85
(5) Illuminated signs shall be provided with two electric lamps of not less than fifteen
watts each.
Emergency Light
Image source:
http://alarmtradersdirect.co.uk/media/catalog/catego
ry/50_LED.jpg
Emergency lights in the elderly center function automatically during power failure due to
a fire event. They are fitted with charged battery to illuminate along exit access pathways
leading to exits, exit stairs, lobby and at the exit discharge pathways that lead to a public
way.
Fire Staircase
Image source: https://thumbs.dreamstime.com/x/fire-stair-
8792045.jpg
86
Outdoor fire staircases are applied
Fire staircases are vertical escape component of evacuation route, easily accessible from
the inside and outside of a building. It is designed for emergency escapes and for fire
fighters to enter the building in the event of a fire. It is wide enough for safe and quick
escape. In the elderly centre, 2 fire staircases are designed, one at the front and one on the
back to allow users to choose the shortest and safest escape route during emergency.
The fire stairs are designed with natural ventilation as they are placed outdoor,
illuminated by natural lighting during the day. Emergency lights are placed to ensure
safety during emergency especially during the night. The width of the staircase is 1.5m
wide, same as the exit width, which meet the requirement according to UBBL 1984.
According to
UBBL 1984 - Section 196
(1) The width of the smoke lobby shall at no point be less than the required exit width.
(2) Where practical smoke lobbies and fire fighting access lobbies shall have
permanent openings or openable windows of not less than 1 square metre giving
direct access to the open air from an external wall or internal light well.
(3) Where natural ventilation is impractical smoke lobbies and fire fighting access
lobbies may be ventilated by means of a vertical shaft or mechanically pressurised.
87
Fire Evacuation Route
Floor plan showing fire evacuation route
During an emergency, fire evacuation route plays an important role in ensuring the
occupants to take the safest and fastest way when escaping. In the elderly centre, spaces
located at the rear are placed with one fire stair for occupants to escape to the back alley.
Spaces at the front are placed with another fire stair, with half of the occupants escaping
through the fire stair, and another half of the occupants to escape from the main
circulation route. This is to reduce the time of escape during a fire emergency.
88
Emergency Floor Plan
Emergency floor plans are placed beside escape fire doors on every floor. It indicates the
mechanical transportation such as lifts which cannot be used during fire due to risk of
power failure. Yellow area indicates escape area and the red area indicates exit staircase.
The floor plan also indicates the location of fire extinguisher and break glass alarm
system. Occasionally, locations of the occupants are indicated with labelled “YOU ARE
HERE” to be easily understood.
Fire Rescue Access
The elderly centre has a front road of 8 meter wide to allow two way flow of vehicles.
During a fire emergency, it is wide enough for the access of fire trucks.
The nearest fire station is located only 550 meter away from the elderly centre, which is
an advantage for the building in the event of a fire.
89
Map generated from Google Maps
Location of elderly centre (Jalan 18/16) and the nearest fire station (Taman Sri Sentosa)
3.3.2.2 Fire Barriers
Fire Rated Door
Image source:
http://imenfidar.com/wp-content/uploads/2016/02/Fire-Door-11.jpg
90
http://image.slidesharecdn.com/keselamatanbangunan2-130724223400-
phpapp01/95/keselamatan-bangunan-2-2-638.jpg?cb=1374705296
Fire rated doors are used to separate compartments in a building to stop the spreading of
fire. It suppresses the fire by restricting the flow of oxygen and spread flames. In the
elderly centre, fire doors are placed at all the entrance of fire staircases, protecting the
evacuating occupants during emergency. The fire doors are opened towards the direction
of escape. High fire risk spaces are placed with fire doors along with fire rated walls as
well.
According to
UBBL 1984 - Section 196
(1) Access to a staircase smoke lobby shall be by means of fire doors opening in the
direction of escape.
Separation of Fire Risk Area
Location of the 3 high fire risk areas
91
Compartmentation is implemented in the elderly centre, separating the high fire risk area
using fire wall and fire doors. There are 3 high fire risk rooms in the elderly centre,
including the kitchen, control room and management office.
Compartment floors are not necessary in the design due to the building height less than
9m and its cubic capacity does not exceed compartment limits. Cubic capacity is defined
based on the regulations in UBBL.
According to
UBBL 1984- Section 135 – Cubic capacity
In this part-
(c) the cubic capacity of a building or compartment shall be ascertained by measuring the
volume of space contained within-
(i) the finished inner surfaces of the enclosing wall, a plane extending vertically above
the outermost edge of the floor on that side;
(ii) the upper surface of its lowest floor
92
3.3.2.3 Fire Control
Smoke and Heat Ventilation
Image source:
http://www.3dcadbrowser.com/ts/1/96/96213.jpg
https://thumbs.dreamstime.com/x/emergency-exit-stairs-15617372.jpg
Open fire staircases are placed outdoor, providing natural ventilation
Fire victims often die from smoke according to statistics. Fire churning up building
produces black smoke which suffocates and chokes humans. It reduces vision range and
case panic. Thus smoke and heat ventilation need to be considered when designing. The
elderly centre is incorporated with outdoor fire stair, providing enough ventilation for the
smoke to escape. Therefore mechanical ventilation is not needed for the fire staircases.
93
94
95
96
97
3.4 Mechanical Transportation System
After the general understanding of mechanical transportation system, the report will be
discussing about the system design proposal specifically for the old folks center by
identify the needs. The design scheme will be supported with the UBBL requirements
and diagrams.
3.4.1 Elevator
Situated in Taman Kanagapuram, the oldest residential area along Old Klang Road, the
old folks center covers an area of 800m2
which spread across three levels. To ease the
movement of the old folks, an elevator is needed to propose in this building scheme.
According to by-laws 124 from UBBL, for all non-residential buildings that exceeding 4
storeys above or below the main excess level at least one lift shall be provided. However,
it is also necessary for buildings that are less than 4 storeys for the conveniently usable by
the disabled people and elderlies.
By-laws 124 UBBL
A lift shall be provided for non-residential building which exceeds 4 storeys above/below
main entrance.
Otis HydroFit Machine Room-Less Elevator
Hydraulic elevator is suitable for the residential application. Supporting machine
enclosure does not necessary to have in the hydraulic elevator. Pipes can be used to
accommodate the hydraulic fluid if there is shortage of room. Pipes can be created in the
98
same way as plumbing systems which means that the installation of the machine
components almost anywhere by extending the pipes. It is affordable as it doesn’t usually
demand much time and effort to install and maintain, they’re ideal for low-rise (home)
elevation systems.
99
Figure: OTIS HydroFit Machine
Room-Less Elevator.
(Source: OTIS.)
Specifications:
Product :
Holeless Hydraulic elevator with
Machine-Room Less application
Equipment Control :
Elevonic®ControlSystem.
Quantity of Elevators : 1
Stops : 3
Openings : Central opening
Travel : 26’-6”.
Rated Capacity : 2100 lb.
Persons : Up to 14
Rated Speed : 100fqm
Platform Size : 1800 W x 1800 D mm
Cab Height : 2300 mm
Entrance Type and Width : Center-Open
Doors (1067 mm)
Entrance Height : 2134 mm
Main Power Supply : 230
Machine and Controller Location:
No machine-room required, tank and controller
in hoistway pit.
Signal Fixtures :
Manufacturer’s standard with stainless steel
metal button targets (exc. CA).
Controller location :
Inside hoistway, accessible by a door in a side
hoistway wall on the 1st or 2nd landing. (1st
landing only if rear entrance)
Operation :
[Simplex] Simplex Collective Operation: Using
a microprocessor-based controller, operation
shall be automatic by means of the car and hall
buttons. If all calls in the system have been
answered, the car shall park at the last landing
served.
Special Operating Features : Firefighting lift
100
3.4.1.1 Components of elevator
Hydraulic elevator is composed of several components as below: -
Lift doors
Figure: Central-open Lift door.
(Source: childrenscornerbk)
Two sets of lift doors are required at the lift entrances:
- Car doors fitted to the lift car
- Landing doors fitted to the lift shaft enclosure
Landing doors must be made of solid incombustible material and this reduces the fire risk,
ensures the safety of the passengers and keep the dust out of the lift shaft. It must have no
intangible means by which an unauthorized person can open them from a landing and
each door is locked from within the lift shaft.
Central opens door has been proposed in the old folks center which provides a clear
opening to the wheelchair users.
101
Lift car
Lift car is composed from several elements as below: -
- Lift controls
Figure: Call button.
(Source: aliexpress)
Figure: Floor buttons, alarm
buttons, emergency telephone
button.
(Source: flickr)
Lift controls consist of call buttons, floor buttons, alarm buttons, emergency telephone
button. They should not be located higher than 1400 mm above finished floor level. It is
preferably of a design which lights up and produce sound when pressed to reassure those
trapped inside. Additional sign with Braille or embossed letterings can be used for the
blind.
- Smoke detector
102
Figure: Fire fighting lift control
diagram.
(Source: Pearson, 2006)
Figure: Smoke detector.
(Source: amscostore)
Smoke detector will be illuminated and produce sound when there is fire. It will activate
the fire alarm panel and cut off the electric supply of elevator and then it will be brought
to ground floor immediately.
UBBL 1984 – Clause 153 [ ACT 133 ]
(1) Smoke detector must be present at all lift lobbies
(2) A lift that does not open into a smoke lobby shall not use opening devices
controlled by light or photo – detectors unless a force close feature is installed
which after 30 seconds of any interruption of the beam, causes the door to close
within a preset time.
- Lift indicator
Figure: Lift indicator.
103
(Source: indiamart)
Lift indicator must be both provided in the lift car and lift lobby to
show to position and direction of the lift car.
Hoistway
Figure: Hoistway
Source: Electrical knowhow
Hoistway is the space enclosed by fireproof walls and elevator doors for the travel of one
or more elevators, dumbwaiters or material lifts. It includes the pit and terminates at the
underside of the overhead machinery space floor or grating or at the underside of the roof
where the hoistway does not penetrate the roof. In the hoistway, there are few
components such as plungers, counterweight, buffer and landing doors.
3.4.2 Dumbwaiter
Dumbwaiter is a small freight elevator intended to carry objects rather than people. It is
designed in residential spaces where laundry, groceries, food, supplies or laundry have to
104
be moved between different floors within a building. The components are similar to the
elevator.
DW100 Ascent Dumbwaiter
Dumbwaiter has fast and easy installation. On-site installation is as simple as connecting
sections of track, securing the drive cable to the header, and wiring the controls and
interlocks. It helps to increase the efficiency to move various items within floors.
Figure: Car and
drive system are pre-
installed on a section
of track.
(Source: harmar)
Figure: Car and drive system are
pre-installed on a section of track.
(Source: harmar)
Specifications:
Product :
Ascent Dumbwaiter
Quantity of Elevators : 1
Stops : 2
Openings : Single opening
Travel : 32’
Rated Capacity : 100 lbs. (up to 45kg)
Rated Speed : 24fqm
Car Size: 704 W x 550 D mm
Cab Height : 762 mm
Main Power Supply : 230
Operation :
Push button call-send control, 24-volt
105
106
107
108
109
5.0 Conclusion
In conclusion, we can identify and understand relevant information related to mechanical
ventilation, air-conditioning system, mechanical transportation system as well as fire
protection systems and we understand the functions and purposes of building services
systems in public buildings.
From what we find, the mechanical extract system (natural inlet and mechanical extract)
is the most suitable as it is mainly used in humid rooms such as kitchen, internal toilet
and bathrooms, basement, attic, and crawl space. The air inside the room is constantly
being replaced with fresh air from outside. The fan creates a negative air pressure inside
the room causing the air to move from inside the spaces towards the fan and out from the
room.
The fire protection system used is two-stage system because of how it functions which
signal will first transmit to alarm control panel, an indirect system which can reduce the
undue distress to the occupant especially senior citizen, it is most suitable for elderly
centre.
The air conditioning system we proposed is Variable Refrigerant Flow Air Conditioning
System and Split Unit Air Conditioning System. The VRF system is proposed in spaces
such as restaurant, library, and game room, which their room sizes are bigger than the
standard rooms. Therefore, this system is proposed to have only an outdoor unit that can
be connected to several indoor units in the building. For the split unit air conditioning
system, it is proposed in spaces such as caretaker’s accommodation, clinic, and several
110
small closed spaces in the building. Considering the size of these rooms, this system is
enough to service the occupants in these spaces.
The mechanical transportation used in the centre is the Otis HydroFit Machine Room-
Less Elevator. It is a hydraulic elevator, suitable for the residential application.
Supporting machine enclosure does not necessary to have in the hydraulic elevator. Pipes
can be used to accommodate the hydraulic fluid if there is shortage of room. Pipes can be
created in the same way as plumbing systems which means that the installation of the
machine components almost anywhere by extending the pipes. It is affordable as it
doesn’t usually demand much time and effort to install and maintain, they’re ideal for
low-rise (home) elevation systems.
Overall this project has introduced us to the different varieties of service systems and
allow us to understand and determine which system is the most applicable and cost
efficient to be used in our selected building.
111
112
6.0 References
6.1 Mechanical Ventilation System
KANNO, H. (1992). Introduction of Exhaust Ventilation System. Shigen-To-Sozai,
108(9), 666-668. http://dx.-doi.org/10.2473/shigentosozai. 108.666
Mechanical ventilation of buildings – Designing Buildings Wiki. (20160.
Designingbuildings.co.uk. Retrieved 23 June 2016, from http://www.designing
buildings.co.uk/wiki/Mechanical_ventilation_of_buildings
Mechanical Ventilation in Buildings – What You Need to Know – TheGreenAge. (2015).
TheGreenAge. Retrieved 21 June 2016, from http://www.thegreenage.co.uk/mechanical-
ventilation-in-buildings-what-you-need-to-know/
Uniform Building By-laws 1984: All amendments up to August 1996: Act 133. (1996).
Kuala Lumpur: Published & printed by MDC Printers.
Whole-House Ventilation | Department of Energy. (2016). Energy.gov. Retrieved 16 June
2016. From http://energy.gov/energysaver/whole-house-ventilation
6.2 Air-Conditioning System
A.Bhatia. (n.d.). HVAC Variable Refrigerant Flow System. Stony Point, NY: Continuing
Education and Development, Inc.
Walter, G., Alison, K. (2014). Mechanical and Electrical Equipment for Buildings (12th
ed.). Hoboken, N.J.: John Wiley & Sons.
AirConditioning-Systems.com. (2016). Package Air Conditioner. Retrieved November 22,
2016, from
http://www.airconditioning-systems.com/package-air-conditioner.html
Bdacs.com. (2014). How Do We Design Your Air Conditioning System? Retrieved
November 22, 2016, from
http://www.bdacs.com/air-conditioning-design/
Energy.gov. (2016). Central Air Conditioning. Retrieved November 22, 2016, from
http://energy.gov/energysaver/central-air-conditioning
Panasonic Australia. (2016). Panasonic Air Conditioning Buyer’s Guide – Part 1 of 2.
Retrieved November 22, 2016, from
113
https://blogs.panasonic.com.au/consumer/2016/08/13/panasonic-air-conditioning-buyers-
guide-part-1-of-2/
Samsung Business. (n.d.). Samsung System Air Conditioner DVM and Indoor Units.
Retrieved November 22, 2016, from
samtech.co.il/_Uploads/dbsAttachedFiles/2015_DVM_CAT(1).pdf
Uniform Building By-laws 1984: All amendments up to August 1996: Act 133. (1996).
Kuala Lumpur: Published & printed by MDC Printers.
Vandervort, D. (2016). How to Buy the Right Window or Room Air Conditioner.
Retrieved November 22, 2016, from
http://www.hometips.com/buying-guides/air-conditioners-room.html
6.3 Fire Protection System
6.3.1 Active Fire Protection System
Distribution system requirements for fire protection. (2008). Denver, CO: American
Water Works Association.
Irina G. S. (1992, December). Main principles of fire protection in libraries and archives.
Retrieved November 20, 2016, from
http://unesdoc.unesco.org/images/0009/000955/095597eo.pdf
M. (2008, September). Fire detection and fire alarm systems. Retrieved November 20,
2016, from http://www.nrc-cnrc.gc.ca/irc/pubs/cbd/cbd233-print_e.html
Oh, J. W., Jiang, Z. W., & Panganiban, H. (n.d.). Development of a Smart Residential
Fire Protection System. Fire Prevention. Retrieved November, 2016, from
http://eds.a.ebscohost.com.ezproxy.taylors.edu.my/eds/pdfviewer/pdfviewer?sid=a8b9cc
9f-dd30-42ea-ba76-cc5f275591cf@sessionmgr4006&vid=1&hid=4105
Types of Fire Extinguishers. (n.d.). Retrieved November, 2016, from
http://www.femalifesafety.org/types-of-extinguishers.html
Uniform Building By-laws 1984: All amendments up to August 1996: Act 133. (1996).
Kuala Lumpur: Published & printed by MDC Printers.
114
6.3.2 Passive Fire Protection System
Aker, J. M. (2008, January 4). The Basics of Passive Fire Protection. Retrieved
November 24, 2016, from http://www.buildings.com/article-
details/articleid/5851/title/the-basics-of-passive-fire-protection-
Fire Precautions - Compartmentation. (2016). Retrieved November 24, 2016, from
http://www.lwf.co.uk/bulletin/fire-precautions-compartmentation/
Map data. (2016). Retrieved November 24, 2016, from
https://www.google.com/maps/search/taman
kanagapuram/@3.0802471,101.6565012,19z/data=!3m1!1e3
Stein, Benjamin & Reynolds, John S. 2000. Mechanical and Electrical Equipment for
Buildings. New York, John Wiley.
T. (2016, October 24). Fire Protection . Retrieved November 24, 2016, from
https://www.wbdg.org/design-objectives/secure-safe/fire-protection
Uniform Building By-laws 1984: All amendments up to August 1996: Act 133. (1996).
Kuala Lumpur: Published & printed by MDC Printers.
6.4 Mechanical Transportation
Architectural Design Catalogue. Retrieved 23rd November 2016 from
http://www.otis.com/site/us/OT_DL_Documents/OT_DL_DownloadCenter/AestheticOpt
ions/architectural_catalogue.pdf
Ascent Dumbwaiter. Retrieved 23rd November 2016 from
http://harmar.com/system/pdf_brochures/56/original/2012_Dumbwaiter_MKT-BR-
DW.pdf?1376926200
Basic Elevator Components. Retrieved 23rd November 2016 from
http://www.electrical-knowhow.com/2012/04/basic-elevator-components-part-one.html
Chudley, Roy. 1988. Building Finishes, Fittings and Domestic Services. 2nd Edition.
Longman.DW100 Ascent Dumbwaiter. Retrieved 23rd November 2016 from
http://harmar.com/products/DW100
Elevators Types and Classification. Retrieved 23rd November 2016 from
http://www.electrical-knowhow.com/2012/04/elevators-types-and-classification-part.html
Firefighting lift. Retrieved 23rd November 2016 from
https://www.designingbuildings.co.uk/wiki/Firefighting_lift
115
Hall, Frederick E. 1997. Building Services and Equipment. Volume 2. 2nd Edition.
Hall, Frederick E. 1999. Building Services, Technology and Design. 3rd Edition.
Longman.
HydroFit Machine-Roomless. Retrieved 23rd November 2016 from
http://www.otis.com/site/us/Pages/HydroFitProductPage.aspx
Greeno, R. 2000. Building Services Equipment. 5th Edition. Longman.
OTIS. Retrieved 23rd November 2016 from http://www.otisworldwide.com/a1-home-
tabs.html
Stein, Benjamin & Reynolds, John S. 2000. Mechanical and Electrical Equipment for
Buildings. New York, John Wiley.
Uniform Building By-laws 1984: All amendments up to August 1996: Act 133. (1996).
Kuala Lumpur: Published & printed by MDC Printers.
What are the Most Popular Types of Elevators? Retrieved 23rd November 2016 from
http://www.ascensionelevators.com/blog/what-are-the-most-popular-types-of-elevators

Bservice final report newest

  • 1.
    1 SCHOOL OF ARCHITECTURE,BUILDING & DESIGN Research Unit for Modern Architecture Studies in Southeast Asia Bachelor of Science (Honours) (Architecture) BUILDING SERVICES (BLD 60903 / ARC 2423) Project 2 Building Services In Public Buildings Tutor: Mr. Mohamad Rizal Mohamad Group Members: Chong Yu Xuan 0317950 Lee Kai Yung 0318314 Loh Wei Shuen 0317896 Ng Hong Bin 0319735 Tan Sheau Hui 0319235 Wong Kai Chiang 0323341
  • 2.
  • 3.
    3 Table of Content 1.0Introduction 6 1.1 Chosen Building- An Elderly Centre 7 2.0 Literature Review 2.1 Mechanical Ventilation System 9-12 2.2 Air-Conditioning System 13 2.2.1 Distribution Media 15-17 2.2.2 Types of HVAC Systems 18-19 2.3 Fire Protection System 2.3.1 Active Fire Protection System 24-26 2.3.2 Passive Fire Protection System 27-31 2.4 Mechanical Transportation System 32 2.4.1 Elevator 33-39 2.4.2 Escalator 40-43 2.4.3 Travellator 44 3.0 Application of Building Services Components 3.1 Mechanical Ventilation System 46 3.1.1 Extract System 46 3.1.2 Components 46-50 3.1.3 Proposed Drawings 51-52 3.2 Air-Conditioning System 54 3.2.1 VRF Air-Conditioning System 54-56 3.2.2 Split Unit Air-Conditionig System 57-61
  • 4.
    4 3.2.3 Proposed Drawings62-64 3.3 Fire Protection System 3.3.1 Active Fire Protection System 66 3.3.1.1 Two-Stage System 66 3.3.1.2 Recycling Sprinkler System 67 3.3.1.3 Components 68-79 3.3.1.4 Proposed Drawings 80-82 3.3.2 Passive Fire Protection System 83 3.3.2.1 Fire Escape 84-89 3.3.2.2 Fire Barriers 89-91 3.3.2.3 Fire Control 92 3.3.2.4 Proposed Drawings 93-95 3.4 Mechanical Transportation System 97 3.4.1 Elevator System 97-102 3.4.2 Dumbwaiter 103-104 3.4.3 Proposed Drawings 105-107 4.0 Proposal of Systems (Folded in A1 paper) 5.0 Conclusion 109-110 6.0 References 112-115
  • 5.
  • 6.
    6 1.0 Introduction This reportis a study analysis on building services systems found in multi-storey buildings. The building services systems include: a) Mechanical Ventilation System b) Air-Conditioning System c) Fire Protection System d) Mechanical Transportation System This analysis introduces us to the basic principles, process and equipment of various building services systems found in buildings. It also allows us to demonstrate understanding of building services according to statutory requirements including Uniform Building By Law (UBBL) and MS 1184. Upon completion of the analysis, our task were to present a proposal of the 4 main services systems in a design chosen from design studio project, which is a multi-storey elderly centre.
  • 7.
    7 1.1 Chosen Building:An Elderly Centre Located in Taman Kanangapuram, the elderly centre is a three-storey building which occupies a total of 756sqm built up area. The local community lacks interactions between the elderly centers and themselves. Thus this center aims to bring back the qualities of kampong spirit into the local communities .The bonds present in kampong villages are absent in the modern communities. The center is built to accommodate 20-30 elderly users, equipped with entertainment and exercise spaces for the users. The center has a 2-storey restaurant open at the middle and there are accommodation provided for 4 workers of the center. Taman Kanangapuram, Old Klang Road is located beside the main highway connecting to Kuala Lumpur. The site consists of multiple types of housings and buildings. The types of dwellings separate and identify the status of the residence there. Majority of the outsiders who enter the area are students who go to the schools.
  • 8.
  • 9.
    9 2.0 Literature Review 2.1Mechanical Ventilation System Mechanical ventilation is used when natural ventilations are not enough to circulate the air inside the building; it consists of powered fans or blowers to provide fresh air into the room. To maintain indoor air quality, mechanical ventilation acts as a medium to expel stale air containing water vapor, carbon dioxide, airborne chemicals and other pollutants that can be controlled via dilution or replacement with outside air; and circulate fresh air with lesser pollutants and water vapor to circulate inside the buildings. However, in humid climate such as Malaysia, the mechanical ventilation specialized in removing excess moisture from the air. It is essential to keep a good maintenance of the mechanical ventilation as: a) It reduces excess condensation. b) It prevents heat concentration inside a building coming from machinery lighting and people. c) It preserves oxygen content whilst removing carbon dioxide. d) It provides consistent fresh air into the spaces. e) It is a good alternative in case of unreliable natural ventilation system. f) It removes contaminants such as smoke, dust, gases, and body odors by the method of dilution. g) It prevents and controls the growth of bacteria. Mechanical ventilation consists of 2 types; Spot ventilation and energy recovery ventilation system, Spot ventilation system consists of 3 systems; namely supply system, extract system and a combination system.
  • 10.
    10 2.1.1 Supply System Figure2.1.1: Supply Ventilation Diagram Image source: http://energy.gov/energysaver/whole-house- ventilation Figure 2.1.2: Supply Ventilation Diagram Image source: https://basc.pnnl.gov/resource- guides/whole-building-delivered-ventilation#quicktabs- guides=1 The supply system (mechanical inlet and natural extract) is usually used in Boiler plant or factories. The indoor positive air pressure is maintained by keeping the indoor provided with outside air supply. A supply ventilation system is the reverse of an exhaust ventilation system: Fresh outside air is pulled into the house with a fan, forcing inside air out through random openings in the building envelope. A supply ventilation system pressurizes a house. In homes equipped with forced-air ductwork, supply ventilation systems are the least expensive way to provide whole house mechanical ventilation.
  • 11.
    11 Homes with supplyventilation systems still need spot exhaust fans in bathrooms and range hoods. However, a supply ventilation system can supply fresh air whether or not the home’s exhaust fans are operating (Dr. Sam C. M. Hui, 2011). 2.1.2 Extract System Figure 2.1.3: Exhaust Ventilation Diagram Image source: http://www.house- energy.com/House/SupplyVsExhaust.html The extract system (natural inlet and mechanical extract) is mainly used in humid rooms such as kitchen, internal toilet and bathrooms, basement, attic and also crawl space. The air inside the room is constantly being replaced with fresh air from outside. The fan creates a negative air pressure inside the room causing the air to move from inside the spaces towards the fan and out from the room (Andrew K. Persily, 1994) Mechanical Extraction Ventilation also known as MEV, is a system that continuously extracts air from ‘wet’ rooms. The moist air is drawn up ducts through to an outlet air or above the roof ridge. The air is replaced by fresh air that is drawn in through background ventilators located in ‘dry rooms’ (usually trickle ventilators in e.g. window frames) and through the building fabric in less airtight buildings. Air is drawn by a centrally located (e.g. in a cupboard or loft), extract system exist using multiple fans.
  • 12.
    12 2.1.3 Balance System Figure2.1.4: Balanced Ventilation Diagram Image source: http://energy.gov/energysaver/whole-house- ventilation A balanced ventilation system (as opposed to supply-only or exhaust-only system) has two fans: one bringing outside air into the building, and the other exhausting stale interior air, resulting in roughly balanced airflows. These systems do not significantly affect the pressure of the interior space with respect to outdoors. In most balanced ventilation systems, heat and sometimes moisture are exchanged between the two airstreams, reducing the heating and cooling loads caused by outside ventilation air. These systems are known as HRVs (heat recovery ventilation) and ERVs (energy or enthalpy recovery ventilators). HRVs only exchange heat between the airstreams, while ERVs exchange both heat and moisture (Jacob Verhaart, 2010).
  • 13.
    13 2.2 Air ConditioningSystem Air conditioning is used to describe systems that control the moisture content of air, which is the humidity. This includes humidification and dehumidification. Humidity control can be important for; the comfort of building occupants, to reduce the incidence of condensation (both surface and interstitial), for specialist environments such as swimming pools and where the protection of sensitive items which requires particular conditions. But overall, the aim is to provide fresh air and improve thermal comfort and air quality in an occupied space. In Malaysia’s context, an achieved thermal comfort space is where having a filtered supplied air with temperature ranged from 22°C to 27°C, and with a relative humidity of 55-70% and controlled air velocity or movement. The system works by collecting air inside the building, then transported out of the building and release the heat out of the building while fresh air is conditioned and distributed into the building. Refrigeration cycle took place in air conditioning where heat is extracted out from one place to another in an evaporator and release it to the outdoor with condenser. A clean and fresh conditioned air needs to be supplied into the building after removing the hot air. When the heat inside the room is removed by condenser and evaporator, the air become cooler and being channel back into the building. The medium used to cool the air can be either air movement or water cooling.
  • 14.
    14 Image ssource: https://www.archtoolbox.com/materials-systems/hvac/how-air-conditioners- work.html Insidean air conditioner, refrigerant cycle happens with the use of refrigerant liquid. The process of continuous circulating, evaporating and condensation of refrigerant happens in an air conditioning system through pressure applied in indoor unit. Evaporation occurs at low temperature and low pressure, which will be carried out by the outdoor unit, while condensation occurs at high temperature and high pressure, which will be carried out by the indoor unit. The reason behind the difference in pressure and temperature contributes in heat loss to the surrounding and heat gain from the warm air inside the building. The compressor will pump the refrigerant vapor from the evaporator and increase the pressure on the air and send it to the condenser. Heat in the condenser is removed from high pressure gas which result gas to condense and become high pressure and also a high temperature liquid. When high pressure liquid refrigerant reach evaporator, the liquid refrigerant lowered its pressure which will be equivalent to about 10°to 15°below the designed temperature of the evaporator by the suction of compressor. A drop of pressure in refrigerant enable it to be evaporate, loses heat and change into gas state cooling the air. The cooled air is blown out from evaporator and distribute into the building with ductwork or piping system.
  • 15.
    15 Image source: http://www.air-conditioning-and-refrigeration-guide.com/refrigeration-cycle.html 2.2.1The System Scales After some basic understanding on how the general air conditioning system works, the scales of the air conditioning system are introduced. Overall, the system is classified into 3 scales, which is local, central and district, which the coverage area varies between each scales. 2.2.1.1 Local System It’s a system which serves only one zone, in which the zone includes only one room or at most few rooms. The system is self-contained, where the source, distribution, delivery and control components are close-coupled and generally comes in one package. The system is usually located within the space being served and is typically of small capacity and small size. A ductless mini split unit is an example of local HVAC system. (Grondzik, Kwok, 2014)
  • 16.
    16 Image source: http://francisplumbing.com/air-conditioning/ductless-ac/ 2.2.1.2Central System A system which serves on multiple zones from one location, or one zone from a remote location. A distribution system is required to transport heating/cooling effect from its place it locate at, such as the mechanical room, to the system zones of the building. The system scope can be very different, from a single-family residence to a big area office or laboratory. A building may be served by one central system or by multiple central systems. A variable air volume (VAV) system is an example of central system. (Grondzik, Kwok, 2014) Image source: http://www.browntechnical.org/pages/learning-center-for-hvac/how-an-hvac- system-works.html Image source: http://bergenhvac.com/central-air-conditioning-system/
  • 17.
    17 Image source: https://haripoovachal.wordpress.com/2014/02/10/variable-air-volume-vav/ 2.2.1.3District System The difference of this system from the others is that it serves multiple buildings. Normally district systems provide heating/cooling effect for campuses or special utility zones. The building usually has their own central HVAC systems. The system can include bulk purchase of fuels or electricity, customized operating control sequences, outstanding maintenance quality and highly trained operators. (Grondzik, Kwok, 2014) Image source: http://thermenex.com/about/
  • 18.
    18 2.2.2 Distribution Media Afterdeciding on the type of scale of the system, one also needs to decide on the distribution media on the air conditioning system, whether it should be an all-air system, an air-water system or an all-water system. The air and water in the system is actually the coolant used in the system. 2.2.2.1 All-air system In this system, the heating/cooling effect is distributed from the source to the spaces via heated or cooled air transported in ductwork, in which water is not used to transfer the heat. The primary benefit of this system is that the air is used to modify the condition of air. The main issue is the spatial volume that must be allocated to the ductwork, which happens in some building projects. The conditioned air is delivered to various spaces through diffusers/registers. An all-air HVAC system should be able to readily meet the owner’s project requirements for thermal comfort, IAQ (Indoor Air Quality), and energy efficiency. (Grondzik, Kwok, 2014) Image source: https://domesticfutureshvac.wordpress.com/2010/01/12/all-air-system/
  • 19.
    19 2.2.2.2 Air-water system Inthis system, the heating/cooling effect is brought by hot/cold water distributed from the sources to each particular spaces. Air is also supplied to the spaces from a centralized unit- typically only enough air to ensure desired indoor air quality, which is approximately 10% of the airflow seen in this system. The air can also transport some heat/cool. The benefit is reduced demand for distribution volume, where the piping is smaller than ductwork for equal heat transport. The concern in some projects is the placement of the water-to-air heat exchangers (the delivery device) within the occupied spaces. (Grondzik, Kwok, 2014) 2.2.2.3 All-water system The heating/cooling effect is distributed from the source to each spaces via heated or cooled water transported via piping and introduced to the spaces via heat exchange delivery devices. Air is not used in this system. The benefit of this system is that the spatial volume required for distribution will be at minimum possible because no ducts in used in this system. The issue which may be faced later is the system’s ability to meet the clients project requirements for IAQ. (Grondzik, Kwok, 2014) Image source: http://betterbricks.com/articles/water-distribution
  • 20.
    20 2.2.3 Types ofHVAC Systems The following table shows the types of air conditioning system available in the market. Types of HVAC systems Description Example Window air conditioning The window units are by far the most popular among the other air conditioning units. The models can be installed in most single or double hung windows and typically come with panels to ensure a secure fit. Sliding windows can be installed with the unit as well. (Vandervort, 2016) Installing the unit can be very easy, one just has to make sure to measure the inside window dimensions before purchasing the unit. Direction and hardware should be included as well. (Vandervort, 2016) Image source: http://canadianhomeowner.ca/air- conditioning-how-to-install-a- window-air-conditioner/ Image source: http://www.hometips.com/buying -guides/air-conditioners- room.html
  • 21.
    21 Split air conditioning Split UnitWithout Outside Air (Ductless) Ductless split system provides no supply of renew fresh air to the interior, the existing indoor air is then recycled and recirculated. (Panasonic, 2016) Split Unit Without Outside Air (Ducted) Ducted split system has an outdoor unit and a concealed indoor unit, deliver air through ducting pipes (usually concealed in ceiling) into each room via vents on the floor, wall or ceiling. It has larger capacity as compares to ductless system. (Panasonic, 2016) Image source: https://blogs.panasonic.com.au/co nsumer/2016/08/13/panasonic-air- conditioning-buyers-guide-part-1- of-2/ Image source: https://blogs.panasonic.com.au/co nsumer/2016/08/13/panasonic-air- conditioning-buyers-guide-part-1- of-2/
  • 22.
    22 Variable Refrigerant Flow(VRF) Also known as multiple split unit system. The outdoor unit is connected to several indoor units at once. The piping can also be done cross several floors. There are several types of VRF system, which is the master and slave system, zoned control unit system and the original VRF system. For the master and slave system, one outdoor unit is connected to several indoor units, but all the slave units are controlled by the master unit. For zoned control unit system, one outdoor unit is connected to several indoor units. However, each of the indoor unit can function separately to adjust the temperature. For the variable refrigerant volume system, it is a system similar to the master and slave system, one outdoor unit is connected to several indoor units. However, this system allows cooling and heating simultaneously in the space. Image source: http://www.achrnews.com/articles /131198-clemson-stadium-vrv- system-gets-uniformed-with- armaflex
  • 23.
    23 Centralized air conditioning The system circulatescool air through a system of supply and return ducts. Supply ducts and registers carry cooled air from the air conditioner to indoors. The cooled air becomes warmer as it circulates through interior and flows back to the central air conditioner through return ducts and registers. (energy.gov, 2016) Image source: http://ableairheat.com/Central- Air-Conditioning.html Packaged air conditioning The package air conditioner is a bigger version of the window air conditioner. However, it has a higher cooling or heating capacity and is usually able to cool an entire house or a commercial building. (air- conditioning-systems.com, 2016) The conditioned air is transferred to the space to be conditioned through ducting which is usually hidden in the ceiling and wall of the building. The unit is placed outside the house. The unit is factory assembled and skilled technicians are needed to install this type of unit. (air- conditioning-systems.com, 2016) Image source: http://www.brighthubengineering. com/hvac/61457-packaged-air- conditioners-types-of-packaged- ac/ Image source: http://callthiele.com/indiana- hvac-service-area/
  • 24.
    24 2.3 Fire ProtectionSystem Life safety is the ultimate consideration in Building Design. Life safety of occupancy of buildings must always be priority and this can be achieved by minimum fire protection in respect of the various basic aspects of: Means of escape for occupants/evacuation, spread of fire within the building, from one building to another/passive containment and means of detection and extinguishment of fire; active intervention & access for firefighting and rescue. Fire protection system is categorized into two types, active fire protection system and passive fire protection system. 2.3.1 Active Fire Protection System The basic types of fire alarm systems currently used in buildings are single and two-stage systems. A single-stage system is designed so that when activated the alarm signal is immediately transmitted throughout the building to warn the occupants that a fire emergency exists. In a two-stage alarm system, a distinct alert signal first advises the staff of the fire emergency. Usually this signal is coded so that its meaning is apparent only to designated building staff. The staff are expected to immediately investigate the source of the alarm and, if a fire exists, to activate the alarm signal. The alarm signal is automatically set off after a predetermined period of time (usually five minutes if the staff have not already activated it or reset the alarm system. If, on the other hand, after investigation it is determined that the alert is a false alarm, staff can silence the coded alert signal and reset the system. Two-stage alarm systems are normally used if programmed evacuation is required or if a general alarm would cause undue distress to the occupants, for example in health care facilities. In these
  • 25.
    25 facilities the evacuationof the occupants is difficult and could be physically or psychologically harmful. Therefore two-stage alarm systems are used to reduce the possibility of false alarms. (R.H.L. McEwen, 1984) Fire alarm systems are often associated only with pull boxes and alarm bells. However, they are usually much more complex. They may include numerous components such as fire detectors, annunciator panels, loudspeakers, telephones, control panels and pull boxes. In addition to the alarm function, fire alarm and detection systems can also actuate other fire safety measures in a building. Active fire protection system that are being observed is fire extinguisher, sprinkler system, smoke detection, pressurized escape routes, hose reel, external hydrant and alarm system. Fire extinguisher is an extinguishing agent. Dry chemicals usually use a mix of monoammonium phosphate and ammonium sulfate. It insulates class A fire by melting at approximately 350‐ 400°C. Hose reel is considered as the main weapon in fighting fire, for the use of the building occupants. Hose reel delivers more water than several portable extinguishers added together. The hose reels in Eureka are in good condition. Every exit door has one hose reel beside it. (Ooi Peih SHIA, Md. Azree Othuman, 2012) Water is always used by firefighting personnel to extinguish fires. Archivists and Librarians have often held the strong conviction that water was as destructive to archives and books as fire. This view is still held by many records custodians in Europe. However, archivists and librarians in North America accept and, in most cases, enthusiastically endorse the use of automatic sprinkler systems as an integral part of their fire protection system. North American archivists tend to
  • 26.
    26 accept the thesisthat wet records can be recovered, but burned records cannot. While virtually any wet paper records can be recovered, provided prompt and proper action is taken, effective salvage requires special techniques, facilities, and expert advice. Preplanning for records recovery is essential. It is important for archivists and librarians to understand that unless there is a specialized fire extinguishing system to control the development and growth of a fire, responding fire fighting forces would have no choice but to attack the fire with fire hose. (Irina G. Shepilova, 1992)
  • 27.
    27 2.3.2 Passive FireProtection System Passive Fire Protection (PFP) is an integral component in fire protection and fire safety in a building. It includes the components that allow a fire to act upon the system itself, to compartmentalize and contain the fire to save lives and to protect the structure of the building. (Aker, 2016) It begins at the designing stages of the building construction to ensure the protection of occupants even in the event of the failure of active fire protection system. Passive Fire Protection System in local must comply the rules and regulations in contents of section VII by law 133 to 224 in Uniform Building By Laws 1984. This includes purpose group and compartment, fire appliance access, walls and floor and the means of escape.
  • 28.
    28 2.3.2.1 Components ofPassive Fire Protection Fire Staircase Image source: https://thumbs.dreamstime.com/x/fire- stair-8792045.jpg A fire staircase is an emergency exit, usually mounted to the outside of a building or occasionally inside but is separated from the main areas of the building. It provides a method of escape in the event of a fire or other emergency that makes the stairwells inside a building inaccessible. Fire Rated Door Image source: http://imenfidar.com/wp- content/uploads/2016/02/Fire-Door- 11.jpg A fire door is a door with fire-resistance rating. It reduces the spread of fire and smoke between separate compartments of a structure. All fire doors must be installed with the appropriate fire resistant fittings, such as the frame and door hardware, for it to fully comply with the fire regulations. Fire doors are usually built along the escape routes and fire escape stair corridors to ensure safety when occupants are escaping.
  • 29.
    29 Fire Rated Wall Imagesource: http://cdn3.volusion.com/lcvky.pxvow/ v/vspfiles/photos/2-HOUR-FIRE- WALL-50-2.jpg?1462972316 A firewall is a fire resistant barrier that limits horizontal fire spread for a rated period of time. It can be used to subdivide a building into separate fire areas and are constructed in accordance with the locally applicable building codes. Fire barrier walls are made of fire- resistant materials, commonly drywall or gypsum board partitions with wood or metal framed studs. Fire walls are extended from a floor below to a floor or the roof; or from one fire wall to another fire wall, having a fire resistance rating equal to or greater than the required rating for the application. Compartmentation Image source: http://www.fmlfire.com/wp- content/uploads/2013/03/Compartment ation.jpg Compartmentation limits the size of a fire. It confines a fire and minimizes the risk of occupant loss by segregating a space to control fire spread. According to UBBL, floors below 9m need not be constructed as compartment floors if the cubic capacity does not exceed compartment limits.
  • 30.
    30 Emergency Light Image source: http://alarmtradersdirect.co.uk/media/ca talog/category/50_LED.jpg Anemergency light is a battery-backed lighting device that switches on automatically when a building experiences a power outage. Emergency lights are standard in new commercial and high occupancy residential buildings. Emergency Sign Image source: http://www.kumpulanprotection.com/ca talog/images/Keluar_Sign.jpg Fire escape sign usually reads “KELUAR” meaning exit in Malaysia. It directs the path to a safety area, usually open area or fire staircases. It is often installed with emergency light within with bright neon green to provide clear visual guide for occupants during fire.
  • 31.
    31 Emergency Floor Plan Imagesource: https://multimediawritingclass.files.wor dpress.com/2015/10/escape-plan- large2.jpg Emergency floor plan shows the possible evacuation routes in a building. It is colour coded and uses arrows to indicate the designated exits. A room containing hazardous materials is indicated by the flame symbol. It is usually found on the wall near exits to emergency staircases or near the fire lifts. It serves as a visual guide for occupants to choose the right path to safety in the event of a fire.
  • 32.
    32 2.4 Mechanical TransportationSystem Ever since the invention of simple rope and pulley block system around 1500 B.C, our ancestors had understood the efficiency of using them to assist transport goods. This working model has become the fundamental to develop into the mechanical transportation system that assists the movement of people. In the twentieth century, the enormous growth of high rise buildings with corresponding to the demands for the transportation of goods and people. Mechanical transportation system is undeniable important as it will affect the satisfactory service of one towards the building. In order to meet the standard of the users, the consideration of the system have to be included during the building design stage. Before the installation of the system, few requirements must be anticipated with full regard to the dependence on other services such as electricity, fire protection, means of escape, co-ordination of installations and longer term maintenance of the facility. Thus, a well-functioned mechanical transportation is very important to ensure the safety and comfortable of all users. Mechanical transportation system, normally refers to elevator, escalator and travellator can be easily found in the public buildings. - Elevator (Figure 2.4.0) An elevator or lift is a platform or compartment housed in a shaft for raising and lowering people or things to different floors or levels. - Escalator (Figure 2.4.1) An escalator is a series of moving stairs used to convey people between floor levels. - Travellator (Figure 2.4.2)
  • 33.
    33 Travellator also knownas autowalks, passenger conveyors or moving pavements. It provides horizontal movement of pedestrians, wheelchairs, luggage trolleys and small vehicles up to the practical limitation of about 300m distance. Figure 2.4.0:Elevators. Source: G.S. Elevator. Figure 2.4.1: Escalator. Source: Nationwide lifts. Figure 2.4.2: Travellator. Source: SDA, 2015. 2.4.1 Elevator Elevator is one of example of the mechanical transportation system. Also known as lift, it is a platform or compartment housed in a shaft for raising and lowering people or things to different floors or levels. According to by-laws 124 from UBBL, for all non-residential buildings that exceeding 4 storeys above or below the main excess level at least one lift shall be provided. However, it is also necessary for buildings that are less than 4 storeys for the conveniently usable by the disabled people and elderlies. By-laws 124 UBBL A lift shall be provided for non-residential building which exceeds 4 storeys above/below main entrance.
  • 34.
    34 Elevator can becategorized into two different types which are traction (electric) elevator and hydraulic elevator. Some types of elevator have no machine room which is normally located above the lift well. It contains winding gear, traction sheave, control panel, overspeed governor and numerous other components. 2.4.1.1Traction Elevator Traction elevator is lifted by ropes, which pass over a wheel attached to an electric motor above the elevator shaft. It is widely used for mid and high-rise applications and have much higher travel speeds than hydraulic elevators. A counter weight makes the elevators more efficient by offsetting the weight of the car and occupants so that the motor doesn't have to move as much weight. Elevator Traction (Electric) Elevator Machine Room-Less (MRL) Traction Elevator Machine Room Traction Elevator Geared Traction Elevator Gearless Traction Elevator Hydraulic Elevator Machine Room-Less (MRL) Hydraulic Elevator Holed Hydraulic Elevator Holeless Hydraulic Elevator Roped Hydraulic Elevator
  • 35.
    35 Traction (Electric) elevatorcan be divided into two different categories which are the machine room-less (MRL) traction elevator and machine room traction elevator. Traction elevator is an electric lift with traction drive consists of a lift car suspended by steel ropes which travel over a grooved driving sheave. The steel ropes are connected to the top of the car at one end and to a frame of a counterweight at the other. Machine room-less traction elevator is elevator that does not have a machine room located above the lift well. A machine room contains winding gear, traction sheave, control panel, overspeed governor and numerous other components. Replaced the machine room, a control box will be placed in a control room that is adjacent to the elevator shaft on the highest landing or within around. (refers Figure 2.4.3) Traction (Electric) Elevator Machine Room-Less (MRL) Traction Elevator Machine Room Traction Elevator Geared Traction Elevator Gearless Traction Elevator
  • 36.
    36 Figure 2.4.3: Differencebetween a machine room elevator and machine room-less (MRL) elevator. Source: Electrical knowhow. Geared traction elevator (refers Figure 2.4.4) is driven by AC or DC electric motors. It is designed to operate in the range of 100ft/min to 500ft/min, which restricts their use to mid-rise buildings. Gearless traction elevator (refers Figure 2.4.5) consists of a DC or AC motor, the shaft of which is directly connected to a brake wheel and driving sheave. The elevator hoist ropes are placed around this sheave. The absence of gears means that the motor must run at the same relatively slow speed as the driving sheave. A gearless traction elevator can reach up to 4000ft/min.
  • 37.
    37 Figure 2.4.4: Componentof a geared traction elevator Source: Electrical knowhow. Figure 2.4.5: Component of a gearless traction elevator Source: Electrical knowhow.
  • 38.
    38 2.4.1.2 Hydraulic Elevator Hydraulicelevator can be categorized into three types which are holed hydraulic elevator, holeless hydraulic elevator and roped hydraulic elevator. In early days, hydraulic elevator was operated by water power and later experiments proved oil to be a more efficient medium, but with an overall theoretical maximum travel of 21m, thus they are no threat to electric lifts for higher-rise buildings. Hydraulic elevator is widely used in low-rise building as its speed is limited to about 0.75m/s to maintain adequate standards of control and comfort. Holed hydraulic elevator (refers Figure 2.4.6) is supported by a piston at the bottom of the elevator that pushes the elevator up as an electric motor forces oil or another hydraulic fluid into the piston. The elevator descends as a valve releases the fluid from the piston. Holeless hydraulic elevator (refers Figure 2.4.7) will be used in when drilling a plunger hole is difficult, a telescoping plunger or a roping arrangement can be used. The telescoping jack design, in a single jack arrangement. This cause a lateral stress in the building due to the cantilevered car, a dual-jack arrangement is used more frequently. Roped hydraulic elevator (refers Figure 2.4.8) is much simpler than the telescoping plunger unit because it uses only a single moving jack section. The combination of rope and piston Hydraulic Elevator Machine Room-Less (MRL) Hydraulic Elevator Holed Hydraulic Elevator Holeless Hydraulic Elevator Roped Hydraulic Elevator
  • 39.
    39 allows the carto travels twice as far. One end of the rope is attached to a fixed point in the pit below the car, and the other end is attached to the base of the car. Figure 2.4.6: Component of a holed hydraulic elevator Source: Electrical knowhow. Figure 2.4.7: Component a holeless hydraulic elevator. Source: Electrical knowhow. Figure 2.4.8: Component of a roped hydraulic elevator. Source: Electrical knowhow.
  • 40.
    40 2.4.2 Escalator Escalator isa series of moving stairs used to convey people between floor levels. They are usually arranged in pairs for opposing directional travel to transport up to 12000 persons per hour between them. They are widely used in department stores, airports, shopping malls, convention centers, hotels and public buildings. The escalator installation includes few components which are the escalator, the track, the trusses or girders, the balustrades, the step treads and landings and all chains, wires and machinery directly connected with the operation of the escalator. Figure 2.4.9: Components of an escalator. Source: Johnson, S.E. There are various types of escalators operation arrangement. The factors that determine the selection of an operation arrangement are the type of building, the place of installation and
  • 41.
    41 direction of travel,traffic intensity, type of use (commercial/public transport buildings) and special use. Listed is the types of escalators arrangements: - (1) Single The escalator connects two levels. It is used in objects in which persons travel in one direction mainly. A flexible directional operation is possible. (2) Double (two-way traffic) This arrangement is used in the objects in which persons travel in two opposite directions. (3) Crisscross (two-way traffic) This arrangement is popular in a small two-level trade galleries. (4) Single continuous (one way traffic) This arrangement is mainly used in small department stores and commercial centers. The escalator that connects subsequent levels in one-way traffic.
  • 42.
    42 (5) Single non-continuous(one-way traffic) The escalator arrangement is used mainly in small department stores and in commercial centers. The escalator that connects subsequent levels in a non- continuous one-way traffic is not too comfortable for persons who want travel quickly through subsequent floors. However, this operation arrangement is attractive for owners of department stores and lessees because it encourages to visit around. (6) Double non-continuous (two-way traffic) This arrangement is used in department stores, office. The escalator that connects subsequent levels in a non-continuous two-way traffic buildings and public transport objects. With multiplication of this operation arrangement there can be used sequence operation: travel in a defined direction depending on day time.
  • 43.
    43 (7) Crisscross continuous(two-way traffic) This arrangement is used mainly in big department stores, office buildings and public transport objects where efficient travel of persons between floors is of high importance.
  • 44.
    44 2.4.3 Travellator Travellator alsoknown as autowalks, passenger conveyors and moving pavements, is a moving walkway that transports people horizontally from one area to the other on the same level. It can be inclined up to between 12°and 15°to the horizontal. The moving surface is either a reinforced rubber belt or a series of linked steel plates running on rollers. It is widely used at air terminals, railway stations and shopping centers. Travellator can be divided into two types which are the pallet type and moving belt type. Pallet type of moving walkway is a continuous series of flat metal plates join to form a walkway and are effectively identical to escalators in their construction. Most have a metal surface, though some models have a rubber surface for extra traction. Moving belt type travellator is generally built with mesh metal belts or rubber walking surfaces over metal rollers. The walking surface may have a solid feel or a "bouncy" feel. Figure 2.4.10: Pallet type travellator. Source: Sidekickboobs. Figure 2.4.11: Moving belt type travellator. Source: TrekEarth.
  • 45.
  • 46.
    46 3.0 Application ofBuilding Services Components 3.1 Mechanical Ventilation System 3.1.1 Extract System For our elderly centre, it is three story high and has a total of 756 square meter built up areas which is assumed as a small site. Hence, for the mechanical ventilation system, we only propose extract system as it is commonly used at kitchen, internal toilets and bathrooms of low rise buildings. For the supply and combination system, they are usually used at factories and public buildings such as shopping centre and theatre. Hence, we decided to propose extract system instead of supply and balance systems. 3.1.2 Components 3.1.2.1 Fan Fan serves the purpose of removing hot, humid and polluted air. It’s often used to bring in outdoor air to encourage ventilation and cool then internal spaces of a building. It’s one of the important components in mechanical ventilation in order to complete the air circulation cycle of a system. Furthermore, it helps to keep the fresh air circulating within a space. 1. Propeller Fan Image Source: http://www.luft.co.za/fac-propeller-fan.html
  • 47.
    47 It is usuallyused without ducting and required low cost installation. It is found at the garbage disposal room which tends to remove odor of the garbage out of the room. In kitchen, it functions as an exhaust fan for the room where it helps to remove the odor, water vapor and reduce the humidity in the room to prevent condensation of bacteria and also the growth of mold in the room. 2. Exhaust Fan Image Source: https://www.alibaba.com/product- detail/philippines-reverse-air-elevator-extractor- jet_60422694347.html It is found in the elevator control and M&E room. It is connected to a temperature thermostat, it will be switched on automatically once the detector detected a high temperature in the room. It plays the role of removing the hot air from the control room to prevent overheating of the wire and mechanical components in the room. 3. Bath Fan Image Source: https://www.nachi.org/bathroom-ventilation- ducts-fans.htm
  • 48.
    48 It is foundin the bathroom and washroom. It removes the moisture which cause mold to accumulate out of the bathroom. These fans help to control and eliminate bathroom odors while providing clean atmosphere. It also adds to the safety of the home and residents by reducing fumes from cleaning agents that could potentially cause health related issues. 3.1.2.2 Ductwork It serves the function of channeling air into a room or out from a room, ductwork comes in different shapes and sizes which will also affect the efficiency and sustainability. They are usually made from aluminium, copper and galvanized materials. It’s often connected to the central supply or central exhaust fan of the mechanical ventilation system. 1. Rectangular Galvanized Ducting Image Source: http://leminarindustries.com/rectangular- duct-system Rectangular ducting made from galvanized material can be seen insulated at the bathroom and washroom. It serves the purpose of channeling air out of the internal space of each unit.
  • 49.
    49 3.1.2.3 Filter It isused to sift the external air before releasing into the room and to trap dust, smoke, bacteria, etc. from entering the room. Usually, different filter is used for different application and is installed at the inlet grille. 1. Extractor hood Image Source: http://www.currys.co.uk/gbuk/household- appliances/cooking/hoods/335_4216_31913_xx_xx/xx- criteria.html It removes airborne grease, combustion products, fumes, smoke, odors, heat, and steam from the air by evacuation of the air and filtration. In most exhaust hoods, the grease trap removes grease and other particles. Although many vent hoods exhaust air to the outside, some recirculate the air to the kitchen. 2. Grease Filter Image Source: http://www.euro- filterinstallations.co.uk/grease-filters/ In a recirculating system, filters may be used to remove odors in addition to the grease to ensure clean environment for kitchen.
  • 50.
    50 According to UBBL1984 PART (III) SPACE, LIGHT AND VENTILATION 41. Mechanicals ventilation and air conditioning 1) Where permanent mechanical ventilation or air-conditioning is intended, the relevant building by-laws relating to natural ventilation, natural lighting and heights of rooms may be waived at the direction of the local authority. 2) Any application for the waiver of the relevant by-laws shall only be considered if in addition to the permanent air-conditioning system there is provided alternative approved means of ventilating the air-conditioned enclosure, such that within half an hour of the air-conditioning system failing, not less than stipulated volume of fresh air specified hereinafter shall be introduced into the enclosure during the period when the air- conditioning system is not functioning. 3) The provisions of the Third Schedule to these By-laws shall apply to buildings which are mechanically ventilated or air-conditioned. 4) Where permanent mechanical ventilation in respect of lavatories, water-closets, bathrooms or corridors is provided for and maintained in accordance with the requirements of the Third Schedule to these By-laws, the provisions of these By-laws relating to natural ventilation and natural lighting shall not apply to such lavatories, water-closets, bathrooms or corridors.
  • 51.
    51 Proposed Operation ofMechanical System (Ground Floor Plan)
  • 52.
    52 Proposed Operation ofMechanical System (Second Floor Plan)
  • 53.
  • 54.
    54 3.2 Air-Conditioning System Themain purpose of air conditioning system to be proposed is to achieve and maintain thermal comfort and indoor air quality of space in the building. Thermal comfort and indoor air quality is achieved by altering the properties of air by controlling the temperature and humidity of the air then distribute into spaces to create a healthy and comfortable space for the users. Malaysia is experiencing tropical climate, where air conditioning system is needed to overcome the hot and humid air and keep the occupant comfortable under hot weather. And to create comfort in occupants, constant heating and cooling is carried out to avoid the space from getting too cold or hot. There are 4 types of air conditioning system, which includes window air conditioning, split air conditioning, centralized air conditioning system and package air conditioning system. In this research paper, only the split air conditioning system is focused on. Other than that, Malaysia is also following the rules and standards in performing the air conditioning system to ensure occupant have appropriate and proper thermal comfort and indoor quality under Malaysian Standard (MS1525) and Uniform Building By-Laws (UBBL). 3.2.1 Variable Refrigerant Flow (VRF) Air-Conditioning System VRF systems are similar to the multi-split systems which connect one outdoor section to several evaporators. However, multi-split systems turn off or on completely in response to one master controller, whereas VRF systems continually adjust the flow of refrigerant to each indoor evaporator. The control is achieved by continually varying the flow of
  • 55.
    55 refrigerant through apulse modulating valve (PMV) whose opening is determined by the microprocessor receiving information from the thermistor sensors in each indoor unit. Image source: https://korean.alibaba.com/product-detail/vrf-system-630420372.html Compared to multi-split systems, VRF systems minimize the refrigerant path and use less copper tubing as well. The minimizing of the refrigerant path allows for maximizing the efficiency of refrigerant work. The introduce of Mode Control Unit (MCU) also reduce the piping used in the whole system, this component can be found in some brand of VRF system in the market. The advantages of this component is that it can change heat and cool flow of air within this small component here before it is sent to each individual indoor units. Also, each unit can have different air flow, which is cooling and heating flow. It also allows constant change in heating and cooling effect for the thermal comfort of occupants inside the building.
  • 56.
    56 Image source: http://www.slideshare.net/adolfomesquita/variable-refrigerant-flow-vrf Imagesource: https://www.youtube.com/watch?v=N27sLpQpVr4) https://dvmdownload.com/DVM-S-Series-(VRF)/Mode-Change-Unit-(MCU)-and-EEV- Kits/DVM-S-Mode-Change-Unit-(MCU) Image source: https://samsunghvac.com/products.php?application=Commercial) http://www.samsung.com/uk/business/business-products/commercial-cac/commercial- cac/AC060FBNDEH/EU)
  • 57.
    57 The VRF systemis proposed in spaces such as restaurant, library and game room, which their room sizes are bigger than the standard rooms. Considering the size and volume of the spaces proposed here, the number of indoor units proposed in enough. One outdoor unit is placed outside the library, and several indoor units are installed in these spaces from the second floor to the first floor. Indication of spaces which is using the VRF system. 3.2.2 Split Unit Air-Conditioning System (Ductless Split) The ductless split air conditioning system only conditions certain space of a building rather than the whole building. It is called ductless split air conditioning system because it makes no use of the duct that is otherwise required by all other air conditioners for their
  • 58.
    58 functioning. It consistedof two units, which is a condenser (outdoor unit) and evaporator (indoor unit) connected by refrigerant pipe. Outdoor unit contain parts such as the compressor, condenser and expansion valve that is function to remove the heat from the refrigerant. For indoor unit, it produces conditioned air and give a cooling effect inside the room. Split unit air conditioning system has flexibility advantage as in selecting rooms for cooling with desired temperature control. Image source: https://www.quora.com/Which-air-conditioner-gives-better-cooling- window-or-split)
  • 59.
    59 The split unitair conditioning system can be controlled by remote control at will to achieve thermal comfort. The compressor is located within a distance outdoor near to where split unit air conditioner is installed. The reason why a compressor is located at outdoor is to release heat result from refrigeration process. The advantages of using this system is that it has the flexibility in controlling and to distribute conditioned air at zoned that needed air conditioning. The split unit ductless air conditioning system, which consists of the evaporator (indoor unit), compressor (outdoor unit), and a remote control where the user can control the temperature at will to reach thermal comfort. Image source: http://www.indiahometips.com/buying-split-ac.html These ductless split units are located at the areas which is been indicated red on the following figure. As the rooms or space are quite small in these indicating areas, this small ductless split unit system is proposed to serve the occupants of the building. Considering the volume of each spaces as well, it is proposed that one unit is provided for each room to function, which is already enough.
  • 60.
    60 Indication of spaceswhere split unit system is used. According to UBBL 1984 PART lll: SPACE, LIGHT AND VENTILATION Mechanical Ventilation and Air-conditioning Law 41 (1) Where permanent mechanical ventilation or air-conditioning is intended, the relevant building by-laws relating to natural ventilation, natural lighting and heights of rooms may be waived at the discretion of the local authority.
  • 61.
    61 (2) Any applicationfor the waiver of the relevant by-laws shall only be considered of on addition to the permanent air-conditioning system there is provided alternative approved means of ventilating the air-conditioned enclosure, such that within half an hour of the air-conditioning system failing, not less than the stipulated volume of fresh air specified hereinafter shall be introduced into the enclosure during the period when the air- conditioning system is not functioning. (3) The provisions of the Third Schedule to these By-laws shall apply to buildings which are mechanically ventilated or air-conditioned. (4) Where permanent mechanical ventilation in respect of lavatories, water-closets, bathrooms or corridors is provided for and maintained in accordance with the requirements of the Third Schedule to these By-laws, the provisions of these By-laws relating to natural ventilation and natural lighting shall not apply to such lavatories, water-closets, bathrooms or corridors.
  • 62.
  • 63.
  • 64.
  • 65.
  • 66.
    66 3.3 Fire ProtectionSystem 3.3.1 Active Fire Protection System 3.3.1.1 Two-Stage System There are two types of system, single-stage system and two-stage system. A single-stage system is designed so that when alarm is activated, it will immediately trigger the fire alarm systems without passing through any control panel. For two-stage system, a distinct alert signal first will go off and advices the staff of the fire emergency, then the staff are to investigate the source of the alarm, if fire exist then triggered the alarm signal, if it is a false alarm, staff can silence the alert signal and reset the system. Two-stage system is being is being used in this particular building because of how it function which signal will first transmit to alarm control panel, an indirect system which can reduce the undue distress to the occupant especially senior citizen, it is most suitable for elderly centre. Progress of active fire protections:
  • 67.
    67 3.3.1.2 Recycling SprinklerSystem (for library area only) Library content a highly combustible materials, paper, cardboard, wood, textiles or in the form of data carriers. Different set of system are being used in library to protect these irreplaceable items. Water was a destructive to archives and books as fire. However, thesis proved that wet records can be recoverred, but burned records cannot, so water sprinklers are being accepted by most of the libraries. Recycling Sprinkler System will be adopting in only library area to further enhance the protection of theose irreplaceable books and archives. Wet fire protection system is being used for library as well, the sprinklers system used here is automatic sprinkler system which is different from other. Sprinklers are consitute a method of fire control involving a minimum rather than a maximum of water, each sprinkler operated individually, only those sprinklers in the heat of the fire operate and discharge water. This is also a recycling system which adapting a pre-action system. Pre- action system is in which the sprinklers are normally dry, and the control valve opens only when the heat detector detect the development of fire. For recycling system, is that when heat drops below a preset temperature, such as 60 degrees Celsius, the detectors cause a timing cycle to start and closing the valve in about 5minutes while the system remains in readiness, and, should the fire redevelop, it would cycle and start again.
  • 68.
    68 3.3.1.3 Components Smoke detector ImageSource: https://www.safety.com/p/smoke-alarm- detectors/ Every enclosed room unit should have at least one smoke detector and so do lift lobby. This elderly centre is smoke free area, occupants are not allowed to smoke indoor, or it might be trigger the fire alarm. Ionization smoke detector to use in this case. Ionization smoke detector is generally more responsive to flaming fires. Ionization smoke detector has two electrically charged plates, which ionizes the air and causes current to flow between the plates. When smoke enters the chamber, it disrupts the flow of ions, thus reducing the flow of current and activating the alarm. According to UBBL 1984 Section 153: Smoke detectors for lift lobbies. a) All lift lobbies shall be provided with smoke detectors. b) Lift not opening into a smoke lobby shall not use door reopening devices controlled by light beam or photo-detector unless incorporated with a force close feature which after thirty seconds of any interruption of the beam causes the door to close within a pre-set time.
  • 69.
    69 Smoke detector deviceswhich mounted on a flat ceiling has an individual coverage of 7.5 radius. However it is advised to ensure the radii overlap to ensure there are no blind spots. Therefore individual coverage can be represented by a square measuring 10.6m x 10.6m giving an actual coverage area of 112m2 per device. Coverage dimensions used for detectors: Smoke detector: 5m to wall / 10m between detectors Coverage 100m2 Triggers Image Source: http://www.approvedprotection.com/fire-safety/fire- alarms/ Pull down trigger will be use for the ease for the occupants as majority will be elderly, and its more convenience than a glass alarm trigger which require user to break the glass. Occupants just have to pull the trigger, then it will activate the trigger which will send a warning signal to the central control panel to cut off electricity power supply, and ringing the alarms to warn the occupants. Trigger will be located at emergency evacuation route, nearby corridor, at landing of emergency staircase and exit door, easy to be spotted and trigger.
  • 70.
    70 Alarm Bell andVisual Signal (Beacon alarm) Image Source: https://www.systemsensor.com/en-us/Pages/Sprinkler-AlarmBells.aspx http://halmapr.com/news/klaxon/page/2/ Fire alarm bell with visual signal aid for giving more attention to occupants, beacon alarm for those occupants with hearing loss, giving more attention to the occupants. Once the alarm receive signal from the main fire panel, electric is applied, the current will flow through the coils and activating the bell to create a repetitive loud ringing sound and flashing red light to alert occupants of emergency. Each enclosed room units is equipped with an alarm bell and beacon alarm near the entrance and each at life lobby on every floor, since these lift lobbies are in open outdoor space, so it also cover the whole outdoor area. According to UBBL 1984 Section 237: Fire alarms. a) Fire alarms shall be provided in accordance with the Tenth Schedule to these By- laws.
  • 71.
    71 b) All premisesand buildings with gross floor area excluding car park and storage areas exceeding 9290 square meters or exceeding 30.5 meters in height shall be provided with a two stage alarm system with evacuation (Continuous signal) to be given immediately in the affected section of the premises while an alert (intermittent signal) be given in adjoining section. c) Provision shall be made for the general evacuation of the premises by action of a master control. Alarm bell and visual signal should be mounted at a minimum height of 2.1m from floor level. Fire Alarm Panel Image Source: http://www.firesafetysearch.com/products/control- panels/addressable-fire-panels/axis-ax-fire-panels/ The central command centre is the system panel of a fire alarm system. As the fire system used is two stage system, with this panel, it’s able to control and receive information and data from all the sensors designed to identify changes related to fire, monitor their functioning integrity and provides for automatic control of equipment and transmission of data needed to prepare the facility for fire based on a programmed order. This centre also supply electricity to activate any connected sensor, transmitter, control or relay. It should
  • 72.
    72 be located atstaff area, which is the office so that it’s being observed and taking care by the staff which had undergo training of how to operate it. Fire Hydrant Image Source: http://www.kumpulanprotection.com/catalog/fire-hydrant-p- 42.html Fire hydrant will be provided for every building according to UBBL, in this residential area, the fire hydrant is provided in a coverage pattern. The location of the fire hydrant located 4 blocks away from the site, approximately around 40meters away from the site. It will become the main water source or supply for firefighting purpose. It is usually installed 6m from the house boundary at an open space and in front for easy access. According to UBBL 1984 Section 225: Detecting and extinguishing fire. a) Every building shall be provided with means of detecting and extinguishing fire and with fire alarms together with illuminated exit signs in accordance with the requirements as specified in the Tenth Schedule to these By-laws. b) Every building shall be served by at least one fire hydrant located not more than 91.5 metres from the nearest point of the brigade access c) Depending on the size and location of the building and the provision of access for fire appliances, additional fire hydrant shall be provided as may be required by the Fire Authority.
  • 73.
    73 External fire hydrantcoverage:  Not more than 30m from the breeching inlet for the building  Not less than 6m from the building  Spaced out more than 90m apart along access road  Minimum width of access road is 6m Water tank for firefighting Image Source: http://www.binasteel.com.my/ Water tank storage for firefighting which provided by the government SYABAS. The hydrant tanks to be separate from other water storage tank and only supply water for fire sprinklers and wet riser system with a capacity of 180,000 litres, which able to supply a light hazard system for minimum 30-minutes flow duration. Hydrant Pump Image Source: https://www.allpumps.com.au/applications/fire- hydrant-systems
  • 74.
    74 The pump controllingsystem uses diesel to run and operate instead of electricity because electricity might not working during a fire. The pumps will pump the water stored in the tank to all sprinklers. This hydrant pump consist of two type, duty pump and standby pump. - Jockey Pump - Jockey Pump are connected and work together with a fire pump. This jockey pump is there to maintain and control a certain amount of pressure by elevating it to a specific level when not in used hence to prevent the fire pump from running all the time. It will also disable water drainage during a fire emergency. - Duty Pump - Helps pressurizes the water in the system in order to maintain with constant water supply to all the appliances during a fire emergency. In case of a fault where duty pump fails to work, the standby pump will be activated automatically.
  • 75.
    75 - Standby Pump -Function same as duty pump, this pump will be act as backup for when the duty is under maintenance or malfunctioning. Standby pump will and can be controlled by control panel where it can be switched off manually. - Control valve set - Located at the primary water pipe, it controls the flow of water from the pump. Sprinkler The system for sprinkler used in this case is pre-action installation. Pipe works always filled with air under pressure. A valves release air and pipe works filled with water when fire is detected by smoke or heat detectors. Water is discharged through the sprinkler head only when the sprinkler head breaks. Hazard classification: Light hazard – non-industrial occupancies and low quality of combustibility contents
  • 76.
    76 Type of sprinkler:Recessed Pendant Sprinkler It is a downward spray type of sprinkler, it spray water out in a circle motion. This sprinklers are commonly used and suitable for almost any type of rooms that are accessible. The connecting pipes will be hidden in the veiling to avoid unattractive appearances. The cover of light hazard will be 4.6m in diameter. According to UBBL 1984 Section 226: Automatic system for hazardous occupancy. - Where hazardous processes, storage or occupancy are of such character as to require automatic sprinklers or other automatic extinguishing system, it shall be of a type and standard appropriate to extinguish fires in the hazardous materials stored or handled or for the safety of the occupants. Image Source: http://www.tlcfireandsecurity.com/fire-sprinkler-service.html Hose Reel System Image Source: http://www.highrisefire.co.uk/wr.html Connected to water tank for firefighting, pressurized by pump. Hose reel will be located near the fire staircase. Occupants can use it for early stage of firefighting, it is connected to the wet riser which is fully pressurized at all times for emergency usage.
  • 77.
    77 According to UBBL 1984248: Marking on wet riser, etc. a) Wet riser, dry riser, sprinkler and other fire installation pipes and fittings shall be painted red. b) All cabinets and areas recessed in walls for location of fire installations and extinguisher shall be clearly identified to the satisfaction of the Fire Authority or otherwise clearly identified. According to UBBL 1984 Section 231: Installation and testing of wet rising system. - Wet rising systems shall be provided in every building in which the topmost floor is more than 30.5 meters above fire appliance access level. - A hose connection shall be provided in each firefighting access lobby. - Wet risers shall be of minimum 152.4 millimetres diameter and shall be hydrostatically tested at a pressure 50% above the working pressure required and not less than 14 bars for at least twenty-four hours. - Each wet riser outlet shall comprise standard 63.5 millimetres instantaneous coupling Fitted with a hose of not less than 38.1 millimetres diameter equipped with an approved typed cradle and a variable for nozzle. - A wet riser shall be provided in every staircase which extends from the ground floor level to the roof and shall be equipped with a three-way 63.5 millimetres outlets above the roof line.
  • 78.
    78 - Each stageof the wet riser shall not exceed 61 meters, unless expressly permitted by D.G.F.S but in no case exceeding 70.15 meters. Fire Hose Cabinet Image Source: http://starssafety.starssafety.com/fire- hose-cabinet/ Mainly used to store hose reel system, its main function is to protect the equipment from weathering or damage. Fire hose cabinet are fire-resistance so it is useable even during a fire. Fire Extinguisher Image Source: http://www.floolish.com/2016/03/florida-man-steals-fire- extinguisher-sprays-bar-patrons/ Type of fire extinguisher, Class A, water and foam extinguisher. Class A are for solids such as paper, wood or plastic which is suitable for this building, hence there are only light activities like relaxing, gaming being carried on in here. Fire extinguisher is an active fire device that is used to control small fire. This water and foam fire extinguisher extinguish the fire by taking away the heat element of the fire
  • 79.
    79 triangle. Foam agentalso separate the oxygen element from the other elements. Water extinguisher are only for Class A fire only, they should not be used on Class B or C fire, because the discharge steam could spear the flammable liquid in Class B fire or could create a shock hazard on Class C fire. According to UBBL Section 227: Portable extinguishers  Portable extinguisher shall be provided in accordance with the relevant codes of practice and shall be sited in prominent positions on exit routes to be visible from all directions and similar extinguishers in a building shall be of the same method of operation.
  • 80.
  • 81.
  • 82.
  • 83.
    83 3.3.2 Passive FireProtection System Passive Fire Protection includes the components that allow a fire to act upon the system itself, to compartmentalize and contain the fire to save lives and to protect the structure of the building. Components of passive fire protection system are applied in the elderly centre during the designing stages according to the rules and regulations stated in the contents of section VII by law 133 to 224 in Uniform Building by Laws 1984. The elements are divided into 3 main parts, each with different main function. Fire escape is meant to ensure the occupants are provided with safe and fast escape during fire emergency. Fire barriers are to stop the spread of fire in a given time of period to minimize fire damage. Fire control avoids fire victims from suffocated from smoke during fire. The elements are summarized in the table below. Passive Fire Protection System Fire Escape Fire Barriers Fire Control  Emergency Exit Signage  Emergency Light  Emergency Floor Plan  Fire Evacuation Route  Fire Staircase  Fire Rescue Access  Fire Barrier Gate  Fire Rated Door  Fire Rated Wall  Separation of Fire Risk Area  Smoke and Heat Ventilation
  • 84.
    84 3.3.2.1 Fire Escape EmergencyExit Signage Image source: http://www.kumpulanprotection.com/catalog/images/Keluar_S ign.jpg The emergency “KELUAR” exit signage is located above every fire rated door, which is placed at exit leading to fire stair. The sign directs occupants to the designated fire escape area where firemen can access for search and rescue. According to UBBL 1984 Section 172: Emergency exit signs. (1) Storey exits and access to such exits shall be marked by readily visible signs and shall not be obscured by any decorations, furnishings or other equipment. (2) A sign reading “KELUAR” with an arrow indicating the direction shall be placed in every location where the direction of travel to reach the nearest exit is not immediately apparent. (3) Every exit sign shall have the word “KELUAR” in plainly legible letters not less than 150 millimetres high with the principal strokes of the letters not less than 18 millimetres wide. The lettering shall be in red against a black background. (4) All exits signs shall be illuminated continuously during periods of occupancy.
  • 85.
    85 (5) Illuminated signsshall be provided with two electric lamps of not less than fifteen watts each. Emergency Light Image source: http://alarmtradersdirect.co.uk/media/catalog/catego ry/50_LED.jpg Emergency lights in the elderly center function automatically during power failure due to a fire event. They are fitted with charged battery to illuminate along exit access pathways leading to exits, exit stairs, lobby and at the exit discharge pathways that lead to a public way. Fire Staircase Image source: https://thumbs.dreamstime.com/x/fire-stair- 8792045.jpg
  • 86.
    86 Outdoor fire staircasesare applied Fire staircases are vertical escape component of evacuation route, easily accessible from the inside and outside of a building. It is designed for emergency escapes and for fire fighters to enter the building in the event of a fire. It is wide enough for safe and quick escape. In the elderly centre, 2 fire staircases are designed, one at the front and one on the back to allow users to choose the shortest and safest escape route during emergency. The fire stairs are designed with natural ventilation as they are placed outdoor, illuminated by natural lighting during the day. Emergency lights are placed to ensure safety during emergency especially during the night. The width of the staircase is 1.5m wide, same as the exit width, which meet the requirement according to UBBL 1984. According to UBBL 1984 - Section 196 (1) The width of the smoke lobby shall at no point be less than the required exit width. (2) Where practical smoke lobbies and fire fighting access lobbies shall have permanent openings or openable windows of not less than 1 square metre giving direct access to the open air from an external wall or internal light well. (3) Where natural ventilation is impractical smoke lobbies and fire fighting access lobbies may be ventilated by means of a vertical shaft or mechanically pressurised.
  • 87.
    87 Fire Evacuation Route Floorplan showing fire evacuation route During an emergency, fire evacuation route plays an important role in ensuring the occupants to take the safest and fastest way when escaping. In the elderly centre, spaces located at the rear are placed with one fire stair for occupants to escape to the back alley. Spaces at the front are placed with another fire stair, with half of the occupants escaping through the fire stair, and another half of the occupants to escape from the main circulation route. This is to reduce the time of escape during a fire emergency.
  • 88.
    88 Emergency Floor Plan Emergencyfloor plans are placed beside escape fire doors on every floor. It indicates the mechanical transportation such as lifts which cannot be used during fire due to risk of power failure. Yellow area indicates escape area and the red area indicates exit staircase. The floor plan also indicates the location of fire extinguisher and break glass alarm system. Occasionally, locations of the occupants are indicated with labelled “YOU ARE HERE” to be easily understood. Fire Rescue Access The elderly centre has a front road of 8 meter wide to allow two way flow of vehicles. During a fire emergency, it is wide enough for the access of fire trucks. The nearest fire station is located only 550 meter away from the elderly centre, which is an advantage for the building in the event of a fire.
  • 89.
    89 Map generated fromGoogle Maps Location of elderly centre (Jalan 18/16) and the nearest fire station (Taman Sri Sentosa) 3.3.2.2 Fire Barriers Fire Rated Door Image source: http://imenfidar.com/wp-content/uploads/2016/02/Fire-Door-11.jpg
  • 90.
    90 http://image.slidesharecdn.com/keselamatanbangunan2-130724223400- phpapp01/95/keselamatan-bangunan-2-2-638.jpg?cb=1374705296 Fire rated doorsare used to separate compartments in a building to stop the spreading of fire. It suppresses the fire by restricting the flow of oxygen and spread flames. In the elderly centre, fire doors are placed at all the entrance of fire staircases, protecting the evacuating occupants during emergency. The fire doors are opened towards the direction of escape. High fire risk spaces are placed with fire doors along with fire rated walls as well. According to UBBL 1984 - Section 196 (1) Access to a staircase smoke lobby shall be by means of fire doors opening in the direction of escape. Separation of Fire Risk Area Location of the 3 high fire risk areas
  • 91.
    91 Compartmentation is implementedin the elderly centre, separating the high fire risk area using fire wall and fire doors. There are 3 high fire risk rooms in the elderly centre, including the kitchen, control room and management office. Compartment floors are not necessary in the design due to the building height less than 9m and its cubic capacity does not exceed compartment limits. Cubic capacity is defined based on the regulations in UBBL. According to UBBL 1984- Section 135 – Cubic capacity In this part- (c) the cubic capacity of a building or compartment shall be ascertained by measuring the volume of space contained within- (i) the finished inner surfaces of the enclosing wall, a plane extending vertically above the outermost edge of the floor on that side; (ii) the upper surface of its lowest floor
  • 92.
    92 3.3.2.3 Fire Control Smokeand Heat Ventilation Image source: http://www.3dcadbrowser.com/ts/1/96/96213.jpg https://thumbs.dreamstime.com/x/emergency-exit-stairs-15617372.jpg Open fire staircases are placed outdoor, providing natural ventilation Fire victims often die from smoke according to statistics. Fire churning up building produces black smoke which suffocates and chokes humans. It reduces vision range and case panic. Thus smoke and heat ventilation need to be considered when designing. The elderly centre is incorporated with outdoor fire stair, providing enough ventilation for the smoke to escape. Therefore mechanical ventilation is not needed for the fire staircases.
  • 93.
  • 94.
  • 95.
  • 96.
  • 97.
    97 3.4 Mechanical TransportationSystem After the general understanding of mechanical transportation system, the report will be discussing about the system design proposal specifically for the old folks center by identify the needs. The design scheme will be supported with the UBBL requirements and diagrams. 3.4.1 Elevator Situated in Taman Kanagapuram, the oldest residential area along Old Klang Road, the old folks center covers an area of 800m2 which spread across three levels. To ease the movement of the old folks, an elevator is needed to propose in this building scheme. According to by-laws 124 from UBBL, for all non-residential buildings that exceeding 4 storeys above or below the main excess level at least one lift shall be provided. However, it is also necessary for buildings that are less than 4 storeys for the conveniently usable by the disabled people and elderlies. By-laws 124 UBBL A lift shall be provided for non-residential building which exceeds 4 storeys above/below main entrance. Otis HydroFit Machine Room-Less Elevator Hydraulic elevator is suitable for the residential application. Supporting machine enclosure does not necessary to have in the hydraulic elevator. Pipes can be used to accommodate the hydraulic fluid if there is shortage of room. Pipes can be created in the
  • 98.
    98 same way asplumbing systems which means that the installation of the machine components almost anywhere by extending the pipes. It is affordable as it doesn’t usually demand much time and effort to install and maintain, they’re ideal for low-rise (home) elevation systems.
  • 99.
    99 Figure: OTIS HydroFitMachine Room-Less Elevator. (Source: OTIS.) Specifications: Product : Holeless Hydraulic elevator with Machine-Room Less application Equipment Control : Elevonic®ControlSystem. Quantity of Elevators : 1 Stops : 3 Openings : Central opening Travel : 26’-6”. Rated Capacity : 2100 lb. Persons : Up to 14 Rated Speed : 100fqm Platform Size : 1800 W x 1800 D mm Cab Height : 2300 mm Entrance Type and Width : Center-Open Doors (1067 mm) Entrance Height : 2134 mm Main Power Supply : 230 Machine and Controller Location: No machine-room required, tank and controller in hoistway pit. Signal Fixtures : Manufacturer’s standard with stainless steel metal button targets (exc. CA). Controller location : Inside hoistway, accessible by a door in a side hoistway wall on the 1st or 2nd landing. (1st landing only if rear entrance) Operation : [Simplex] Simplex Collective Operation: Using a microprocessor-based controller, operation shall be automatic by means of the car and hall buttons. If all calls in the system have been answered, the car shall park at the last landing served. Special Operating Features : Firefighting lift
  • 100.
    100 3.4.1.1 Components ofelevator Hydraulic elevator is composed of several components as below: - Lift doors Figure: Central-open Lift door. (Source: childrenscornerbk) Two sets of lift doors are required at the lift entrances: - Car doors fitted to the lift car - Landing doors fitted to the lift shaft enclosure Landing doors must be made of solid incombustible material and this reduces the fire risk, ensures the safety of the passengers and keep the dust out of the lift shaft. It must have no intangible means by which an unauthorized person can open them from a landing and each door is locked from within the lift shaft. Central opens door has been proposed in the old folks center which provides a clear opening to the wheelchair users.
  • 101.
    101 Lift car Lift caris composed from several elements as below: - - Lift controls Figure: Call button. (Source: aliexpress) Figure: Floor buttons, alarm buttons, emergency telephone button. (Source: flickr) Lift controls consist of call buttons, floor buttons, alarm buttons, emergency telephone button. They should not be located higher than 1400 mm above finished floor level. It is preferably of a design which lights up and produce sound when pressed to reassure those trapped inside. Additional sign with Braille or embossed letterings can be used for the blind. - Smoke detector
  • 102.
    102 Figure: Fire fightinglift control diagram. (Source: Pearson, 2006) Figure: Smoke detector. (Source: amscostore) Smoke detector will be illuminated and produce sound when there is fire. It will activate the fire alarm panel and cut off the electric supply of elevator and then it will be brought to ground floor immediately. UBBL 1984 – Clause 153 [ ACT 133 ] (1) Smoke detector must be present at all lift lobbies (2) A lift that does not open into a smoke lobby shall not use opening devices controlled by light or photo – detectors unless a force close feature is installed which after 30 seconds of any interruption of the beam, causes the door to close within a preset time. - Lift indicator Figure: Lift indicator.
  • 103.
    103 (Source: indiamart) Lift indicatormust be both provided in the lift car and lift lobby to show to position and direction of the lift car. Hoistway Figure: Hoistway Source: Electrical knowhow Hoistway is the space enclosed by fireproof walls and elevator doors for the travel of one or more elevators, dumbwaiters or material lifts. It includes the pit and terminates at the underside of the overhead machinery space floor or grating or at the underside of the roof where the hoistway does not penetrate the roof. In the hoistway, there are few components such as plungers, counterweight, buffer and landing doors. 3.4.2 Dumbwaiter Dumbwaiter is a small freight elevator intended to carry objects rather than people. It is designed in residential spaces where laundry, groceries, food, supplies or laundry have to
  • 104.
    104 be moved betweendifferent floors within a building. The components are similar to the elevator. DW100 Ascent Dumbwaiter Dumbwaiter has fast and easy installation. On-site installation is as simple as connecting sections of track, securing the drive cable to the header, and wiring the controls and interlocks. It helps to increase the efficiency to move various items within floors. Figure: Car and drive system are pre- installed on a section of track. (Source: harmar) Figure: Car and drive system are pre-installed on a section of track. (Source: harmar) Specifications: Product : Ascent Dumbwaiter Quantity of Elevators : 1 Stops : 2 Openings : Single opening Travel : 32’ Rated Capacity : 100 lbs. (up to 45kg) Rated Speed : 24fqm Car Size: 704 W x 550 D mm Cab Height : 762 mm Main Power Supply : 230 Operation : Push button call-send control, 24-volt
  • 105.
  • 106.
  • 107.
  • 108.
  • 109.
    109 5.0 Conclusion In conclusion,we can identify and understand relevant information related to mechanical ventilation, air-conditioning system, mechanical transportation system as well as fire protection systems and we understand the functions and purposes of building services systems in public buildings. From what we find, the mechanical extract system (natural inlet and mechanical extract) is the most suitable as it is mainly used in humid rooms such as kitchen, internal toilet and bathrooms, basement, attic, and crawl space. The air inside the room is constantly being replaced with fresh air from outside. The fan creates a negative air pressure inside the room causing the air to move from inside the spaces towards the fan and out from the room. The fire protection system used is two-stage system because of how it functions which signal will first transmit to alarm control panel, an indirect system which can reduce the undue distress to the occupant especially senior citizen, it is most suitable for elderly centre. The air conditioning system we proposed is Variable Refrigerant Flow Air Conditioning System and Split Unit Air Conditioning System. The VRF system is proposed in spaces such as restaurant, library, and game room, which their room sizes are bigger than the standard rooms. Therefore, this system is proposed to have only an outdoor unit that can be connected to several indoor units in the building. For the split unit air conditioning system, it is proposed in spaces such as caretaker’s accommodation, clinic, and several
  • 110.
    110 small closed spacesin the building. Considering the size of these rooms, this system is enough to service the occupants in these spaces. The mechanical transportation used in the centre is the Otis HydroFit Machine Room- Less Elevator. It is a hydraulic elevator, suitable for the residential application. Supporting machine enclosure does not necessary to have in the hydraulic elevator. Pipes can be used to accommodate the hydraulic fluid if there is shortage of room. Pipes can be created in the same way as plumbing systems which means that the installation of the machine components almost anywhere by extending the pipes. It is affordable as it doesn’t usually demand much time and effort to install and maintain, they’re ideal for low-rise (home) elevation systems. Overall this project has introduced us to the different varieties of service systems and allow us to understand and determine which system is the most applicable and cost efficient to be used in our selected building.
  • 111.
  • 112.
    112 6.0 References 6.1 MechanicalVentilation System KANNO, H. (1992). Introduction of Exhaust Ventilation System. Shigen-To-Sozai, 108(9), 666-668. http://dx.-doi.org/10.2473/shigentosozai. 108.666 Mechanical ventilation of buildings – Designing Buildings Wiki. (20160. Designingbuildings.co.uk. Retrieved 23 June 2016, from http://www.designing buildings.co.uk/wiki/Mechanical_ventilation_of_buildings Mechanical Ventilation in Buildings – What You Need to Know – TheGreenAge. (2015). TheGreenAge. Retrieved 21 June 2016, from http://www.thegreenage.co.uk/mechanical- ventilation-in-buildings-what-you-need-to-know/ Uniform Building By-laws 1984: All amendments up to August 1996: Act 133. (1996). Kuala Lumpur: Published & printed by MDC Printers. Whole-House Ventilation | Department of Energy. (2016). Energy.gov. Retrieved 16 June 2016. From http://energy.gov/energysaver/whole-house-ventilation 6.2 Air-Conditioning System A.Bhatia. (n.d.). HVAC Variable Refrigerant Flow System. Stony Point, NY: Continuing Education and Development, Inc. Walter, G., Alison, K. (2014). Mechanical and Electrical Equipment for Buildings (12th ed.). Hoboken, N.J.: John Wiley & Sons. AirConditioning-Systems.com. (2016). Package Air Conditioner. Retrieved November 22, 2016, from http://www.airconditioning-systems.com/package-air-conditioner.html Bdacs.com. (2014). How Do We Design Your Air Conditioning System? Retrieved November 22, 2016, from http://www.bdacs.com/air-conditioning-design/ Energy.gov. (2016). Central Air Conditioning. Retrieved November 22, 2016, from http://energy.gov/energysaver/central-air-conditioning Panasonic Australia. (2016). Panasonic Air Conditioning Buyer’s Guide – Part 1 of 2. Retrieved November 22, 2016, from
  • 113.
    113 https://blogs.panasonic.com.au/consumer/2016/08/13/panasonic-air-conditioning-buyers- guide-part-1-of-2/ Samsung Business. (n.d.).Samsung System Air Conditioner DVM and Indoor Units. Retrieved November 22, 2016, from samtech.co.il/_Uploads/dbsAttachedFiles/2015_DVM_CAT(1).pdf Uniform Building By-laws 1984: All amendments up to August 1996: Act 133. (1996). Kuala Lumpur: Published & printed by MDC Printers. Vandervort, D. (2016). How to Buy the Right Window or Room Air Conditioner. Retrieved November 22, 2016, from http://www.hometips.com/buying-guides/air-conditioners-room.html 6.3 Fire Protection System 6.3.1 Active Fire Protection System Distribution system requirements for fire protection. (2008). Denver, CO: American Water Works Association. Irina G. S. (1992, December). Main principles of fire protection in libraries and archives. Retrieved November 20, 2016, from http://unesdoc.unesco.org/images/0009/000955/095597eo.pdf M. (2008, September). Fire detection and fire alarm systems. Retrieved November 20, 2016, from http://www.nrc-cnrc.gc.ca/irc/pubs/cbd/cbd233-print_e.html Oh, J. W., Jiang, Z. W., & Panganiban, H. (n.d.). Development of a Smart Residential Fire Protection System. Fire Prevention. Retrieved November, 2016, from http://eds.a.ebscohost.com.ezproxy.taylors.edu.my/eds/pdfviewer/pdfviewer?sid=a8b9cc 9f-dd30-42ea-ba76-cc5f275591cf@sessionmgr4006&vid=1&hid=4105 Types of Fire Extinguishers. (n.d.). Retrieved November, 2016, from http://www.femalifesafety.org/types-of-extinguishers.html Uniform Building By-laws 1984: All amendments up to August 1996: Act 133. (1996). Kuala Lumpur: Published & printed by MDC Printers.
  • 114.
    114 6.3.2 Passive FireProtection System Aker, J. M. (2008, January 4). The Basics of Passive Fire Protection. Retrieved November 24, 2016, from http://www.buildings.com/article- details/articleid/5851/title/the-basics-of-passive-fire-protection- Fire Precautions - Compartmentation. (2016). Retrieved November 24, 2016, from http://www.lwf.co.uk/bulletin/fire-precautions-compartmentation/ Map data. (2016). Retrieved November 24, 2016, from https://www.google.com/maps/search/taman kanagapuram/@3.0802471,101.6565012,19z/data=!3m1!1e3 Stein, Benjamin & Reynolds, John S. 2000. Mechanical and Electrical Equipment for Buildings. New York, John Wiley. T. (2016, October 24). Fire Protection . Retrieved November 24, 2016, from https://www.wbdg.org/design-objectives/secure-safe/fire-protection Uniform Building By-laws 1984: All amendments up to August 1996: Act 133. (1996). Kuala Lumpur: Published & printed by MDC Printers. 6.4 Mechanical Transportation Architectural Design Catalogue. Retrieved 23rd November 2016 from http://www.otis.com/site/us/OT_DL_Documents/OT_DL_DownloadCenter/AestheticOpt ions/architectural_catalogue.pdf Ascent Dumbwaiter. Retrieved 23rd November 2016 from http://harmar.com/system/pdf_brochures/56/original/2012_Dumbwaiter_MKT-BR- DW.pdf?1376926200 Basic Elevator Components. Retrieved 23rd November 2016 from http://www.electrical-knowhow.com/2012/04/basic-elevator-components-part-one.html Chudley, Roy. 1988. Building Finishes, Fittings and Domestic Services. 2nd Edition. Longman.DW100 Ascent Dumbwaiter. Retrieved 23rd November 2016 from http://harmar.com/products/DW100 Elevators Types and Classification. Retrieved 23rd November 2016 from http://www.electrical-knowhow.com/2012/04/elevators-types-and-classification-part.html Firefighting lift. Retrieved 23rd November 2016 from https://www.designingbuildings.co.uk/wiki/Firefighting_lift
  • 115.
    115 Hall, Frederick E.1997. Building Services and Equipment. Volume 2. 2nd Edition. Hall, Frederick E. 1999. Building Services, Technology and Design. 3rd Edition. Longman. HydroFit Machine-Roomless. Retrieved 23rd November 2016 from http://www.otis.com/site/us/Pages/HydroFitProductPage.aspx Greeno, R. 2000. Building Services Equipment. 5th Edition. Longman. OTIS. Retrieved 23rd November 2016 from http://www.otisworldwide.com/a1-home- tabs.html Stein, Benjamin & Reynolds, John S. 2000. Mechanical and Electrical Equipment for Buildings. New York, John Wiley. Uniform Building By-laws 1984: All amendments up to August 1996: Act 133. (1996). Kuala Lumpur: Published & printed by MDC Printers. What are the Most Popular Types of Elevators? Retrieved 23rd November 2016 from http://www.ascensionelevators.com/blog/what-are-the-most-popular-types-of-elevators