PROJECT 2 -
BUILDING SERVICES IN
PUBLIC BUILDINGS
For Purposed Elderly Center
prepared by
Andrew Law Zi Hang		 0322670
benjamin Cheng Jia Yeow	 0323336
Bridget Tan Su Ting			 0318370
Chok Jia Jun				0323117
Lai Yik Xin					0323388
Leong Yu Shi				0322586
building services BLD60903/ARC2423
1.0 Abstract
2.0 Acknowlegement
3.0 Introduction
4.0 Literature Review
	 4.1 Mechanical Ventilation System
	 4.2 Air Conditioning System
	 4.3 Fire Protection System
	 4.4 Mechanical Transportation System
5.0 Mechanical Ventilation System
	
6.0 Air Conditioning System
	
7.0 Fire Protection System
	
8.0 Mechanical Transportation System
9.0 General Conclusion
	 9.1 Mechanical Ventilation System
	 9.2 Air Conditioning System
	 9.3 Fire Protection System
	 9.4 Mechanical Transportation System
10.0 References
TabbleofContent.
a.
This research report looks into the specifics of the services
present in the Elderly Centre such as mechanical ventilation,
air-conditioningsystem,fireprotectionsystemandthemechanical
transportation system. A thorough analysis and synthesis on the
components of building services systems on the multi-storey
building’s operation is performed. Through the first-hand
experience and understanding of these systems in the building,
we gained an insight into the functions and operation of the
service components to be integrated to future design projects.
The analysis is documented and translated into an A4-bound
report with detailed analysis on how the service components
function in the building. This is summarised in diagrammatic forms
and supported by images.
Each of the systems are compared with UBBL Law requirements in
order to achieve a better understanding of the space implications
and regulations related to the distinct service components. The
positioning and relation of the components are discussed and
supported by diagrammatic images of the functioning of the
systems.
1.0Abstract.
1.0
This project was a success due to the help of a lot of peo-
ple. First and foremost, we would like to express our deepest
appreciation to our tutor, Mr Azim Sulaiman, for providing us
with his time and guidance to monitor the progression of our
report throughout our tutorial sessions in the development of
the research report. Through our sessions, we were able to gain
a better understanding of the systems which were being used.
In addition to this, we would also like to thank each and every
group member for having contributed and cooperating with one
another in making this project a successful one.
In summary, this project helped us to obtain a clearer and deeper
understanding on the different services provided in the Elderly
Centre. We were able to learn the importance of these services
and how they contribute to the building’s safety and comfort and
it was certainly achieved with the help of our tutor and members.
2.0Acknowlegement.
2.0
The proposed Elderly Centre is situated in Old Klang
Road, and was designed by Leong Yu Shi. The build-
ing approach is commercial development, where busi-
ness, accommodation, food and leisure are combined.
Sitting on a 960 square-metre site, it comprises 800 square-metres
of built-up space that houses a variety of spaces. Its well-integrat-
ed living-and-business development promotes the arts to further
enhance the wellbeing and vitality of all those who live, work and
visit the centre. The building is an Elderly Centre with a variety of
spaces such as offices, accommodation, gathering spaces, class-
rooms, a library, dance room, event hall, clinic, pharmacy, stores
and merchandise shops as well as restaurants. The layout of the
two-storey Elderly Centre is simple and follows a zigzag shape with
the allowance of the penetration of plenty of natural light.
The building is equipped with complete services of active and
passive fire protection system, mechanical transportation, me-
chanical ventilation system as well as air-conditioning systems.
Mechanical transportation which are the lift and escalator ser-
vices are installed for ease of access while fire protection is provid-
ed for the safety of the occupants in the case of an emergency.
The rest of the services provide a comfortable and safe environ-
ment for the occupants of the building.
3.0Introduction.
3.0
4.0LiteratureReview.
4.0
4.1 Mechanical Ventilation System
4.2 Air Conditioning System
4.3 Fire Protection System
4.4 Mechanical Transportation System
4.1
4.1MechanicalVentilation.
There are various mechanical ventilation system used in a build-
ing and it is chosen according to the function of the space. Three
types of system in mechanical ventilation are Supply ventilation
System, Extract ventilation System and Combined ventilation sys-
tem.
1. Supply Ventilation System
- Mechanical inlet and natural outlet. (Air overpressure)
Supply ventilation system is a system where fresh outdoor air is
brought in mechanically, and indoor air is extracted naturally
through the existing openings of a building. The system consists of
a series of ductwork or fans. This system works through the pressur-
ization of the condition where air flow into the space causes high
pressure which ultimately expels the indoor air to the outside.
The mechanical inlet is usually located in a high place to encour-
age air to be drawn in. It should also not be located near the out-
let to prevent the escape of incoming air. An air filter is connected
to the inlet inside the ductworks to filter and clean the air before
directing them to the interior spaces.
This system is commonly used in areas which has high heat
concentration such as service area and places with machineries.
Figure 1: Supply Ventilation System diagram
(Source: http://energy.gov/energysaver/whole-house-ventilation)
4.1.2
4.1MechanicalVentilation.
2. Exhaust Ventilation System
- Natural inlet and mechanical outlet. (Air under pressure)
Exhaust ventilation system is a system where hot or stale indoor
air is expelled mechanically, which draws in outdoor air inside the
space through natural inlets such as openings and windows. The
system also consists of a series of ductwork and fans. This system
works through the pressurization of the condition where air is ex-
tracted to the outside, creating low pressure in the space which
ultimately sucks in air into the space.
The mechanical extract which is the exhaust fan is usually located
at the ceiling or rooftop to help expel air out from the building.
Passive vents such as windows are installed for the air to flow in
but it requires a higher pressure difference compared to those
induced by Supply ventilation system. Exhaust ventilation system
often contributes to higher operational energy because the air
supply is brought in natural with contaminants and moisture.
This system is commonly used in areas which needs to expel heat
or smell such as kitchen, toilets and basement.
Figure 2: Exhaust Ventilation System diagram
(Source: http://energy.gov/energysaver/whole-house-ventilation)
4.1.3
4.1MechanicalVentilation.
3. Combined Ventilation System
- Mechanical inlet and outlet. (Air constant pressure)
Combined ventilation system (also known as balanced ventila-
tion) is a system at which the inlet and outlet are both operating
mechanically. This means the air supplied into a space and ex-
tracted from a space are done using mechanical devices. This
results in a constant pressure state.
The system works through two different sets of ductwork and fan
system and is known as the most efficient ventilation system as it
is independent of outdoor weather. However, it has high installa-
tion cost. This system can be done at multiple points at which the
building pressure will still be balanced.
This system is normally used in spaces where natural ventilation is
not easily promoted and applied. It can also be used in areas to
further promote ventilation.
Figure 3: Balanced Ventilation System diagram
(Source: http://energy.gov/energysaver/whole-house-ventilation)
4.2.1
Thermal comfort and indoor air quality of a building has be-
came increasingly vital which is also greatly emphasized in the
recent decades. Therefore, the thermal environment and indoor
quality is strongly related to the condition of occupants where
thermal comfort must be achieved and contaminants gaseous
have to kept below certain level. In this elderly center, various ser-
vices that tend to enhance thermal comfort which is used within
this tropical climate in Malaysia are applied and review was con-
ducted. Due to the hot and humid climate in Malaysia, it is con-
cluded that thermal comfort range higher than the international
standards based on the data and findings. (Daghigh, 2015). It is
necessary and essential for an elderly center building to apply
with air conditioning system based on the requirements as most of
the user are elderlies. Therefore both thermal comfort and indoor
air quality in the elderly center could be improved. As compared
to mechanical ventilation, air conditioning system is an active sys-
tem that extract heat from the interior spaces and transferred to
the outside with the aid of either electrical supply or water supply
depending on the scale of the building.
Airconditioningsystemisadevicetoaltertheconditionofaspace.
Itprovidesheating,coolingandventilationrequirementsofabuild-
ing over a range of ambient conditions depending on the build-
ing location. Air conditioning system is designed to cope with the
maximum value based on these requirements (Energuide, 2004)
>	 To maintain the human thermal comfort level by
	 controlling temperature and humidity in air.
>	 To remove internal heat gain produced by building
	 services and occupants
>	 To provide cool environment control for equipment and
	processes
>	 To prevent smoke, dust and haze from outdoors to protect
	 human health.
Through air conditioning system, air temperature, air movement,
air purity and humidity level within a building can be easily ma-
nipulated. Therefore, desired human comfort could be achieved.
There are four types of air-conditioning that is commonly used by
different scale of building based on the requirements needed to
accommodate the need of the users.
>	 Window Air Conditioning System
>	 Split Air Conditioning System
>	 Centralized Air Conditioning System
>	 Packaged Air Conditioning System
4.2AirConditioningSystem.
4.2.2
Thermal comfort and indoor air quality of a building has became
increasingly vital which is also greatly emphasized in the recent
decades. Therefore, thermal environment and indoor quality
is strongly related to the condition of occupants where thermal
comfort must be achieved and contaminants gaseous have to
kept below certain level. In this elderly center, various services
that tend to enhance thermal comfort which is used within this
tropical climate in Malaysia are applied and review was con-
ducted. Due to the hot and humid climate in Malaysia, it is con-
cluded that thermal comfort range higher than the international
standards based on the data and findings. (Daghigh, 2015). It is
necessary and essential for an elderly center building to apply
with air conditioning system based on the requirements as most of
the user are elderlies. Therefore both thermal comfort and indoor
air quality in the elderly center could be improved. As compared
to mechanical ventilation, air conditioning system is an active sys-
tem that extract heat from the interior spaces and transferred to
the outside with the aid of either electrical supply or water supply
depending on the scale of the building.
Air conditioning system is a device to alter the condition of a
space. It provides heating, cooling and ventilation requirements
of a building over a range of ambient conditions depending on
the building location. Air conditioning system is designed to cope
with the maximum value based on these requirements (Ener-
guide, 2004)
>	 To maintain the human thermal comfort level by
	 controlling temperature and humidity in air.
>	 To remove internal heat gain produced by building
	 services and occupants.
>	 To provide cool environment control for equipment &
	processes.
>	 To prevent smoke, dust and haze from outdoors to protect
	 human health.
Through air conditioning system, air temperature, air movement,
air purity and humidity level within a building can be easily ma-
nipulated. Therefore, desired human comfort could be achieved.
There are four types of air-conditioning that is commonly used by
different scale of building based on the requirements needed to
accommodate the need of the users.
	 Window Air Conditioning System
	 Split Air Conditioning System
	 Centralized Air Conditioning System
	 Packaged Air Conditioning System
4.2AirConditioningSystem.
6.2.2 Major Cycles in Air Conditioning System
6.2.2.1 Refrigerant cycle
Refrigerant cycle is a process that remove heat through the evaporator to the condenser out-
side. (ASHRAE 2008) . Air conditioner uses phrase conversion of liquid into gas which absorbs
heat (A simple principle of physics)
The principles of refrigeration are as follows:
	 Liquid absorbs heat when changing from liquid to gas
	 Gases gives off heat when changed from gas to liquid
The refrigerant is applied to air cooling cycle, compressed gas would liquefy at a certain
point and release a large amount of latent heat. When pressure is lowered, liquid will vapor-
ized back to gas as it is less compressed, large amount of latent heat will then absorbed and
eventually turn gas back into liquid. (Wang, 2000)
In order to be economical in the use of air conditioning system, refrigerant is used repeatedly.
Therefore, same cycle of compression, condensation, expansion and evaporation is used in
all air conditioners in a closed circuit. Refrigerant is consistently being reused to remove the
heat from the interior and expel the heat to the outdoor area.
Process of refrigerant cycle
>	 The refrigerant comes into the compressor as a low-pressure gas, it is compressed and
	 then moves out of the compressor as a high-pressure gas.
>	 The gas then flows to the condenser. Here the gas condenses to a liquid, and gives off
	 its heat to the outside air.
>	 The liquid then moves to the expansion valve under high pressure. This valve restricts
	 the flow of the fluid, and lowers its pressure as it leaves the expansion valve.
>	 The low-pressure liquid then moves to the evaporator, where heat from the inside air is
	 absorbed and changes it from a liquid to a gas.
>	 As a hot low-pressure gas, the refrigerant moves to the compressor where the entire
	 cycle is repeated.
4.2.3
Figure 4.2.1 Basic Refrigeration cycle schematic diagram
Source: (“Basic Refrigeration Cycle”, 2006)
Air conditioning system is comprised of these components.
Compressor
Expansion valve
Condenser
Evaporator
Compressing the refrigerant vapor from
evaporator and pumps the refrigerant
throughout the whole system.
Source: (“Compressor repair and replacement”, 2016)
A valve which regulates liquid refrigerant
into the evaporator.
Source: (“Guides to choose an expansion valve”, 2010)
Rejects heat absrobed by the evapo-
rators. Refrigetant changes from vapor
form to liquid state in the condenser and
a large amount heat will be rejected.
Source: (www.stylecrestinc.com)
Provide heat absorbing surface.
Source: (“Tips On Maintaining Your Evaporator Coil”, 2013)
4.2.4
4.2.2.2 Air Cycle
Air cycle is a process to distribute treated air into the specific room that need to be condi-
tioned. The air supplied to the room is filtered through air cleaners to remove pollen and dust
particles. This process is done by absorbing the latent heat within a room and transferred to
the chilled water at the Air Handling Unit. (AHU) The air is then mixed with fresh air from outside
and is blown through the cooling coil in order to provide air supply with lower temperature to
the indoor. Distribution of air is done by going through ductwork or chilled water pipes.
Main four components required to run the system, such as air handling unit, air filter, blower
fan and ductwork.
4.2.3 Windows Air conditioning system
Window air conditioner is the most commonly used air conditioner for small single rooms. In this air
conditioner all the components, namely the compressor, condenser, expansion valve or coil, evaporator
and cooling coil are enclosed in a single box. This unit is fitted in a slot made in the wall of the room, or
more commonly a window sill. In between them there’s an insulated partition used to enclose the gap
between two units.It is divided into three components:
	 - Refrigeration components
	 - Air Circulation and Ventilation Components
	 - Control system components
Figure 4.2.2 Schematic Diagram of an Air cycle
Figure 4.2.3: Window air conditioner
Source: (callmetrotech.com)
4.2.5
4.2.4 Split Unit Air Conditioning System
A split-system unit consists of indoor and outdoor sections. The indoor heat exchanger, or
cooling coil, cooling fan mounts above the furnace, inside the ducting. The outdoor section
consists of the remaining components like the compressor, condenser and expansion
valve, and the two sections are joined by refrigerant lines connecting the indoor coil to the
refrigeration components in the outdoor section. A split air conditioner can be used to cool
one or two rooms. (Energuide, 2004)
4.2.4.1 Components in split unit system
4.2.4.1.1 Outdoor unit
Figure 4.2.4: Outdoor unit. Source: (air-con-ch.blogspot.my)
Outdoor unit contains important components of the air conditioner like the compressor,
condenser coil and also the expansion coil or capillary tubing. This unit is installed outside the
room or office space which is to be cooled. The compressor is the maximum noise making part
of the air conditioner, and since in the split air conditioner, it is located outside the room, the
major source of noise is eliminated. In the outdoor unit there is a fan that blows air over the
condenser thus cooling the compressed Freon gas in it. This gas passes through the expansion
coil and gets converted into low pressure, low temperature partial gas and partial liquid Freon
fluid.
4.2.4.1.2 Indoor unit
Figure 4.2.5: indoor unit, source: (AC4Life, 2008)
It is the indoor unit that produces the cooling effect inside the room or the office. This is a
beautiful looking tall unit usually white in color, though these days a number of stylish models of
the indoor unit are being launched. The indoor unit houses the evaporator coil or the cooling
coil, a long blower and the filter. After passing from the expansion coil, the chilled Freon fluid
enters the cooling coil. The blower sucks the hot, humid and filtered air from the room and
it blows it over the cooling coil. As the air passes over cooling coil its temperature reduces
drastically and also loses the excess moisture. The cool and dry air enters the room and
maintains comfortable conditions of around 25-27 degree Celsius as per the requirements.
4.2.6
4.2.4.1.3 Copper Tubing
Figure 4.2.6: Copper Tubing. Source: (hvaccoppertubing.com)
Copper tubing is used to connect the indoor and outdoor unit while covering in insulated
protection layer. Normally, there are two copper tubing pipes which one pipe is used to supply
the refrigerant to the cooling coil and the other pipe returns the refrigerant to the compressor.
4.2.4.2 Type of Split Unit Air Conditioning System
- Ducted Split unit (With outside air)
Figure 4.2.7: Ducted Split unit system schematic diagram
Source: (Electrical Knowhow, 2014)
Ducted split unit system has and outdoor unit and a concealed indoor unit. Air is delivered
through ducting pipes (which is usually concealed in ceiling level) into each room by flowing
through vents on the wall, floor or ceiling. Therefore, the capacity of this system is higher as
compared to ductless split unit system.
- Ductless Split unit (Without outside air)
Figure 4.2.8: Ductless Split unit Schematic Diagram
Source: (francisplumbing.com)
Ductless split unit system provides no supply of fresh air from the outdoor. Instead, the existing
indoor air is recycled and recirculated.
4.2.7
Variable refrigerant flow (VRF)
Figure 4.2.9: Schematic Diagram of Variable refrigerant flow
Source: (construction.com)
Variable refrigerant flow is also known as multi-split unit system where one outdoor unit is
connected to several indoor units. It uses refrigerant as cooling medium.
Types of VRF system:
	 Master and slave system
	 Zoned control units
	 Variable Refrigerant volume system
Master and slave system
In master and slave system. one outdoor unit is connected to several indoor units with master
unit controlling all the slave units. Slave units are only able to control themselves.
Zoned control units
In zoned control units, one outdoor unit is connected to several indoor units with each unit
can function and adjust the temperature individually.
Variable refrigerant volume systems
In variable refrigerant volume systems, one outdoor unit is connected to several indoor units
with the ability to provide total versatility to each indoor unit to cool each other.
4.2.5 Centralized Air Conditioner System
The bulk of the equipment are located in the plant room and air air handling unit room (AHU
Room). There are basically two types of systems that are being implemented in most buildings.
They are the Direct or the Indirect type.
The Direct type is also known as the DX system where the air in the space is directly cooled by
the evaporator coil. The air from the space to be cooled is circulated over the cooling coil of
a refrigeration plant.
The Indirect type uses chilled water or brine from the refrigeration plant that is circulated
through the cooling coil which is located in the air-handling unit (AHU) to cool and dehumidify
the room air. This system is also known as the central chilled water system.
Figure 4.2.10: Centralized air conditioning system schematic diagram
Source: (brighthubengineering.com)
4.2.8
It consists of an air system,
a water system, a central,
heating/cooling plant and a
control system.
4.2.5.1 Air system
Air system which is sometimes called as air handler, or air handling unit (AHU). The function of
it is used to regulate and circulate air as part of a heating, ventilating, and air-conditioning
(HVAC) system. An air handler is usually a large metal box containing a blower, heating or
cooling elements, filter racks or chambers, sound attenuators, and dampers. Air handlers
usually connect to a ductwork ventilation system that distributes the conditioned air through
the building and returns it to the AHU. Sometimes AHUs supply and return air directly to and
from the space served without ductwork.
- Air Handling Unit
Figure 4.2.11: Air Handling Unit
Source: (HVAC Equipment, 2012)
The air is filtered, heated or cooled, and the humidity is regulated to the required level.
Air Handling Unit(AHU) also consists components such as supply fan, filter, mixing box, and
cooling coil.
4.2.6 Packaged Air Conditioning System
Figure 4.2.12: Packaged Air Conditioning System
Source: (refrigeratordiagrams.com)
The packaged air conditioners are used for the cooling capacities in between these two
extremes. The packaged air conditioners are available in the fixed rated capacities of 3,
5, 7, 10 and 15 tons. These units are used commonly in places like restaurants, telephone
exchanges, homes, small halls, etc.
As the name implies, in the packaged air conditioners all the important components of the
air conditioners are enclosed in a single casing like window AC. Thus the compressor, cooling
coil, air handling unit and the air filter are all housed in a single casing and assembled at the
factory location.. It consists of a large casing that keeps all the important components inside,
such as the compressor, condenser and fan.
4.2.9
4.3.1
Fire protection systems are one of the most crucial systems to
be included in every building’s design and construction. In the
event of a fire outbreak, the fire protection system ensures that
the building is equipped and capable of controlling and extin-
guishing the fire. The purpose of fire protection is to safe guard
human lives, preserve material assets as well as save the environ-
ment from devastation.
The fire protection system is divided into two major components
known as the Active Fire Protection System (AFPS) and the Passive
Fire Protection System (PFPS). These components are further divid-
ed into their individual sub-components, each with different char-
acteristics and functions. Active fire protection consists of manual
or automatic detection of fire, use of fore and smoke alarms, fire-
fighting as well as first aid. It is simply the method or the procedure
of preventing a building from fire burning by using either manual
or automatically operated fire mechanical systems such as fire
alarms, detectors, hose reels, fire telecoms, sprinklers and so on.
Passive fire protection system, however, delays the speed of com-
bustion and prevents the spreading of smoke whilst protecting the
escape routes in order to prolong the time taken to escape. De-
sign and infrastructure, materials used, provision of isolating fire,
fire walls and doors of the building that takes fire protection into
consideration can be classified as Passive Fire Protection.
The following tables present basic components of fire protection
system and their theory in use.
Active Fire Protection
Active fire protection is the process of protecting a building or
structure from fire with methods that use the action of mov-
ing parts. These systems can be automatic or operated manually,
but they require some sort of action in order to work. A couple of
examples of active fire protection would be building sprinkler sys-
tems and fire alarm systems. These systems are extremely import-
ant in protecting property and the lives of people within.
The overall aim of active system is to extinguish fire by detecting
the fire early and evacuating the building, alerting emergency
services at an early stage of the fire, controlling the movement of
smoke and fire as well as suppress and starve the fire of oxygen
and fuel.
There are several systems in the active fire protection.
4.3FireProtectionSystem.
4.3.2 Active Fire Protection System Overview
4.3.2
Components Description
sprinkler System
Figure 4.3.1 Sprinkler Head
Source: www.ssscorp.com
Sprinkler system consists of a water supply sys-
tem that provides to a series of water pipes. At
a selected interval along the pipe, there are
independent valves known as sprinkler heads.
The sprinklers are usually activated by heat
from fire, resulting in a discharge of water into
the fire area.
Hose Reel System
Figure 4.3.2 Fire Hose
Source: www.firefightingprotectionsystem.com.my
The hose reel system is intended for the early
stages of a fire for the occupants of the build-
ing. It is to provide the occupants with first aid
means of fighting a fire whilst awaiting the arriv-
al of the local fire service. When the hose reel is
used, the pressure of the pipe will drop below
the field adjusted pressure setting of the pres-
sure switch. This will trigger the pump to come
into operation automatically to feed a steady
supply of water to discharge through the hose.
Fire Alarm System
Figure 4.3.4 Break Glass Call Point
Source: www.lh5.ggpht.com
A key aspect of fire protection is to identify a
developing fire emergency in a timely manner,
and to alert the building’s occupants and fire
emergency organisations. A fire alarm system is
an is an integration of fire detection, alarm and
bells to detect and warn occupants through
glaring visuals of red light and loud ringing.
These alarms may be activated via smoke de-
tectors, heat detectors and manual activation
such as manual call points or pull stations.
Fire Suppression System
Figure 4.3.5 Co2 Suppression
Source: www.fire-protection.com.au
Fire suppression systems are used to protect
special hazard or sensitive areas. The use of
conventional fire sprinkler systems may be
inappropriate for special hazard areas as it
might cause the fire to be bigger or cause
more damage to the situation. Fire suppres-
sion systems are environmentally friendly clean
agents.
Fire Extinguisher System
Figure 4.3.6 Fire Extinguisher
Source: www.northerntool.com
Portable fire extinguishers are important for fire
prevention as most fires start small and can be
easily extinguished. It is designed to be operat-
ed easily by anyone who follows simple instruc-
tions labelled on the extinguishers. The type of
fire extinguishers used depends on the type of
fire that is present in the area.
Components Description
Emergency Exit Signs The emergency exit signs of ‘KELUAR’ means
‘EXIT’ in Malaysia to indicate the escape way
when fire events happened in the building. Ex-
its signs are usually located above a fire rated
door and are installed with neon green words
to provide clear visual guide for occupants
during fire.
Emergency Light The emergency light is a battery-backed light-
ing device that will switch on automatically
when a building experience a power outage.
Emergency light provide lighting for visibility as
well as a guidance to lead the occupants to
the nearest emergency exit.
Emergency Floor Plan Emergency floor plan shows the evacuation
routes that lead to the nearest exits in the build-
ing. Location of fire extinguisher and break
glass alarm system are indicated in the plan.
Fire Staircase Fire staircase is an emergency exit which usu-
ally located at the back of the building and is
separated by fire resistance walls. It is a path-
way that leads the occupants to a safer area
or assembly point when danger and emergen-
cy occurs. There should not have any inhibi-
tion object along the fire staircase and the fire
door should remained closed but not locked
according to the law.
Fire Rated Door Fire rated door is a door with fire-resistance rat-
ing. It acts as a barrier to stop the spreading of
fire smoke between separate compartments
of a structure. It is usually installed along the es-
cape routes and fire staircase entrance to en-
sure the safety of occupants while escaping.
Fire Rated Wall Fire rated doors are used in a building to sep-
arate it to compartments to stop the spread
of fire. The materials used in the walls are typ-
ically drywall or gypsum board partitions with
wood or metal framed studs. They are typically
continuous from a floor below to a floor or roof
above or from one fire barrier wall to another
fire barrier wall.
4.3.3
Pasive Fire Protection
Compartmentation Compartmentation also known as separation
of fire risk area is implemented in buildings with
high fire risk facilities. According to UBBL, all fire
risk area should be allocated evenly and sepa-
rately for the building to reduce fire spreading
from one point to another point.
4.3.4
Introduction
The mechanical transportation of people and goods is the first
concern of a designer in the earliest stage of designing a building
because it is related to the human circulation and the electrical
energy flow of the building. Standard of service rise with expec-
tations of quality by the final user and with the provision of access
for disabled people. The movement between levels of building is
controlled by the principle of transportation systems. A few com-
mon types of transportation systems are integrated in this public
building, which are elevators, escalators and travellators.
Literature review based on
- ELEVATOR
An elevator or lift is a type of vertical transportation that raising
or lowering people or goods between floors (levels, decks) of a
building, vessel or other structure.
- ESCALATOR
An escalator is a type of vertical transportation in the form of a
moving staircase – a conveyor transport device for carrying peo-
ple between floors of a building.
- TRAVELLATOR
A travellator is a slow moving conveyor mechanism that trans-
ports people across a horizontal or inclined plan over a short to
medium distance.
4.4.1
4.4MechanicalTransportationSystem
Figure – Elevator 	 Figure – Escalator 		 Figure – Travellator
Source King, W., 2012 Source : Doug Zanger, 2014 		 Source : GECC, 2013
Source: Xinda, 2015
Source: Rudolph J. Bodmer, ed. The Book
of Wonders (Washington, DC: Bureau of
Industrial Education, Inc., 1917)
Elevator
Elevator is a vertical transportation system that used for raising and lowering people and goods
to different floors in a building. Elevator is needed in any building which exceeds 4 storeys or
public building which caters disabilities to overcome the concentrated human flow and aid
the disabilities to enter different levels. According to the By-Law 124 of UBBL 1984, an elevator
is needed to provide in non-residential building which exceeds 4 storeys above or below the
main entrance. It is also essential in the building which less than 4 storeys if the access of the
elderly and disabled is required.
By-Law 124 of UBBL 1984 – Lift
For all non-residential buildings exceeding 4 storeys above or below the main access level at
least one lift shall be provided.
Elevators can be classified into 4 main types of hoist mechanisms which are :
>	 Traction Elevator
>	 Hydraulic Elevator
>	 Climbing Elevator
>	 Pneumatic Elevator
Various types of elevators can be classified from the main hoist mechanism of
Traction Elevator :
Various types of elevators can be classified from the main hoist mechanism of Hydraulic Elevator
4.4.2
Traction Elevator
Traction elevators are lifted by ropes, which pass over a wheel that is attached to an electric
motor above the elevator shaft. Traction elevator is used for mid or high rise applications
because it has much higher travel speed than hydraulic elevators. A counter weight makes the
elevators more efficient by offsetting the weight of lift car and occupants so the electric motor
does not have to move as much weight.
Gearless traction machines are low-speed	(low-RPM), high-torque electric mo-
tors powered Either by AC or DC. The traction sheave is Connected directly
to the shaft of the traction Motor, and the motor rotation (speed) is transmit-
ted directly to the traction sheave without any intermediate gearing. Gearless
traction elevations can reach speeds of up to 20m/s (4000 ft/min).
Source : BPE, 2013
Source : Archtoolbox, 2015 Source : kone, 2015
Source : Fuji, 2014
4.4.3
Geared traction machines are driven by AC or DC electric motors. Geared machines use worm gears to control mechan-
ical movement of elevator cars by “rolling” steel hoist ropes over a drive sheave which is attached to a gear box driven
by a high- speed motor. These machines are generally the best option for basement or overhead traction use for speeds
up to 3m/s (500ft/min).
Machine room-less (MRL) traction elevator becoming the most popular choice for mid-rise building.
- Use lesser energy (70-80% lesser than standard hydraulic elevators)
- Creates more usable space
- No oil is used (assuming it is a traction elevator)
- All components are above ground similar to roped hydraulic type elevators
- Lower cost than the other elevators; significantly so for the hydraulic MRL elevator
- Operate at faster speeds than hydraulics but not normal traction units
Hydraulic Elevator
Hydraulic elevators are supported by a piston at the bottom of the elevator that pushes the
elevator up as an electric motor forces oil or another hydraulic fluid into piston. The elevator
descends as a valve releases the fluid from the piston. They are used for low rise applications
of 2-8 stories and travel at a maximum speed of 200 feet per minute. The machine room for
hydraulic elevators is located at the lowest level adjacent to the elevator shaft.
With holed hydraulic systems, the elevator car is mounted on a piston that travels inside a
cylinder. The cylinder extends into the ground to a depth equal to the height the elevator will
rise. As hydraulic fluid is pumped into cylinder through a valve, the car rises. As the fluid returns
to the reservoir, the car descends. This systems is often called inground hydraulic.
4.4.4
Source : Schumacher, 2014
Disvantages :
- Areas with frequent seismic activity will have the greatest risk of oil contamination
- The jack must go down into the ground roughly the same distance as the desired
travel。
- Drilling a jack hole is expensive and may be nearly impossible in certain structural
or geologic conditions.
Advantages :
- Lowest material cost application
- Accommodates front and rear openings in any configuration
- No extensive pit or overhead is required
- Available for both high and low capacity cars
- All the application types, this equipment package is the easiest to install
Holeless hydraulic consists of pistons mounted inside the hoist way to raise and lower the lift
car. This is especially a solution for buildings built in bedrock, a high water table or unstable
soil conditions locations that can make digging the hole required for a conventional hydraulic
elevator impractical. Holeless hydraulic systems use a direct acting piston to raise the car.
4.4.5
Source : Schumacher, 2014
Disvantages :
- Usually requires more overhead than an In-Ground project. The greater the travel,
the greater the overhead must be
- Requires a wider hoist way for the jacks
- The material cost is typically higher than that of an in-ground package
Advantages :
- No jack hole is required. This eliminates the cost of drilling and the risk of oil con
tamination
- Accommodates front and rear openings in any configuration
- Available for both low and high capacity lift cars
Climbing Elevator
Pneumatic Elevator
4.4.6
Source : JiuHong, 2015
Source : JiuHong, 2015
A climbing elevator is a self-ascending elevator
with its own propulsion. Can be done by an elec-
tric or a combustion engine. Climbing elevators
are used in guyed masts or towers, in order to
make easy access to parts of these construc-
tions, such as flight safety lamps for maintenance.
Climbing elevators are often used in work and
construction areas.
Pneumatic elevators are raised and lowered by
controlling air pressure in a chamber in which the
elevator sits. By simple principles of physics; the
difference in air pressure above and beneath the
vacuum elevator cab literally transports cab by
air. It is the vacuum pumps or turbines that pull
cab up to the next floor and the slow release of
air pressure that floats cab down. They are espe-
cially ideal for existing homes due to their com-
pact design because excavating a pit and hoist
way are not required.
Escalator
An escalator is a type of vertical transportation in the form of a moving staircase which is
a conveyor transport device for carrying people between floors of a building. The device
consists of a motor-driven chain of individually linked steps that move up or down on tracks,
allowing the step treads to remain horizontal. Besides that, escalator provide an immediate
means of transportation which means it is able to continuously conveys to move large number
of people. Unlike elevator, no waiting time required during peak times. An escalator can
function as a normal staircase when its power down. The speed of the escalator is varies
between 0.45m/s to 0.7m/s and the width of the tread is varies between 600mm to 1200mm.
4.4.7
4.4.8
Travellator
Travellator is a slow moving conveyor mechanism that transports people across a horizontal or
inclined plan over a short to medium distance. Moving walkways can be used by standing or
walking on them. They are often installed in pairs which one for each direction. The moving surface
normally are covered with reinforced rubber belt or series of linked steel plate running on the roller.
4.4.9
Source : Sidekickboobs, 2010
Source : Vrosprung, 2011
5.0MechanicalVentilation.
5.0
5.0MechanicalVentilation.
5.1
5.1 Introduction
Ventilation
Ventilation is a process of changing air in an enclosed space. It is
mainly used to control indoor air quality by diffusing and displac-
ing indoor pollutants such as carbon dioxide, unpleasant odours,
excessive moisture, smoke, airborne bacteria etc. It also helps to
reduce heat concentration (produced by lightings, machines
and human activities) and air humidity in a space, ultimately
achieving thermal comfort.
There are two types of ventilation, Natural ventilation and Me-
chanical ventilation.
Natural ventilation
Natural ventilation is a process of air supply and removal through
an indoor space by natural means. It occurs when there is air dif-
ference, where outdoor cool air is forced in to ventilate the space.
Although natural ventilation saves energy, it varies in different lo-
cation as it is climatic based. Hence, mechanical ventilation is
used to reach the standard of proper ventilation in a building.
Mechanical ventilation
Mechanical ventilation is applied when natural ventilation is not
appropriate in a space. It is when mechanical devices such as
fans and ductworks are used to ventilate the internal space. Me-
chanical devices help in ventilation through pressurization of air.
Air is drawn in or expelled depending on the ventilation systems
used. Without mechanical ventilation in a poorly ventilated space,
contaminants, heat, moisture and odours trapped will cause
health problems or in some case, fire due to trapped chemicals.
Functions of Mechanical ventilation are to remove stale air and
pollutants from a space, to constantly provide fresh air supply, to
help moderate internal temperatures through air movement or air
circulation.
5.1.2
Benefits of mechanical ventilation:
-Better indoor air quality
Sometimes, indoor air can be more polluted than outdoor air due to trapped pollutants, mois-
ture and humidity which aids in bacteria growth. Mechanical ventilation system helps main-
tain constant air exchange whenever the system is used, which result in the removal of those
harmful pollutants and disperse of the bacteria concentration.
-Controllable
Natural ventilation does not allow user to exercise control over the source coming into the
space, thus making it difficult to ensure constant air circulation. However, mechanical ventila-
tion system can provide proper and constant fresh air flow depending on the user’s need and
the location appropriateness.
-Improved comfort
Mechanical ventilation system allows a constant air flow into the system, reducing heat and
humidity within a space. This maintains an optimum level of comfort due to the filtration and
dehumidification through the system regardless of the outdoor weather.
5.1.3
Advantages and disadvantages between three systems
-Supply Ventilation
-Exhaust Ventilation
-Balanced Ventilation
Ventilation System Pros Cons
Supply Ventilation Relatively inexpensive and
simple to install.
Work well in hot and humid
climate/spaces.
Allows better control than
exhaust system due to type
of pressurization system.
Allowing outdoor air
dehumidification.
Minimize pollutant intake
from outdoor through filter.
Can cause moisture
problem in cold climate.
Can increase heating and
cooling costs depending on
system.
Noise through air movement
inwards.
Exhaust Ventilation Relatively inexpensive and
simple to install.
Work well in cold climates/
spaces that needs to be rid
of smell.
Can draw pollutants into liv-
ing space because air is not
filtered.
Rely in part on random air
leakage
Can increase heating and
cooling cost depending on
system
Balanced Ventilation Appropriate for all climate Can cost more to install and
operate than Supply or Ex-
haust ventilation system
Will not temper or remove
moisture from incoming air
Uniform Building By-Law 1984
Clause 41: Mechanical ventilation and air-conditioning
(1) Where permanent mechanical ventilation or air-conditioning is intended, the relevant building by laws relating to natural ventilation,
natural lighting, and heights of rooms may be waived at the discretion of the local authority.
(2) Any application for the waiver of the relevant by-laws shall only be considered if in addition to the permanent air-conditioning system
there is provided alternative approved means of ventilating the air-conditioned enclosure, such that within half an hour of the air-con-
ditioning system failing, not less than the stipulated volume of fresh air specified hereinafter shall be introduced into the enclosure during
the period when the air-conditioning system is not functioning.
(3) The provisions of the Third Schedule to these By-laws shall apply to buildings which are mechanically ventilated or air-conditioned.
(4) Where permanent mechanical ventilation in respect of lavatories, water-closets, bathrooms or corridors is provided for and main-
tained in accordance with the requirements of the Third Schedule to these By-laws, the provisions of these By-laws relating to natural
ventilation and natural lighting shall not apply to such lavatories, water-closets, bathrooms or corridors.
5.1.4
Components of System
Axial Fan
Propeller Fan
Axial fan is a type of compressor that
forces air to flow through its shaft, thus
increasing high flow rate. The blades
of the axial fan rotates, decreasing
low pressure within the shaft which
sucks in surrounding air through the
shaft in a parallel direction. The speed
of the fan determines the cooling in-
tensity of the fan. It is normally used
to expel heat trapped in places such
as basements or tunnels. Axial fan
works in conjunction with the exhaust
ventilation system to expel smoke or
hot air from the basement, channel-
ling it to the ground floor to release it
through a series of ductwork above.
It is more effective in extracting air
under low pressure as compared to a
propeller fan.
Propeller fan is a device used to dis-
charge air from a space through
walls and windows. It is commonly
used in residential and commercial
buildings without ducting. The fan
is used commonly in places which
have higher temperature such as
service rooms, machinery room etc.
The propeller fan helps to extract the
hot air from the service rooms, main-
taining room temperature at comfort
levels and efficiency of machineries.
When placed in an opposite direc-
tion, the fan will help draw in outdoor
air into the building, however without
proper ductwork. This would result in
intake of air which includes moisture
and pollutants. Hence, propeller fans
are more commonly used in Exhaust
ventilation system than Supply venti-
lation system.
Figure 4: Axial Fan
(Source:https://sc01.alicdn.com/kf/HTB1fKkcGVXXXXaKXFXXq6x
XFXXXj/200058153/HTB1fKkcGVXXXXaKXFXXq6xXFXXXj.jpg)
Figure 5: Propeller Fan
(Source: http://www.northerntool.com/images/product/700x-
700/250/250726_700x700.jpg)
MS 1525
Code 8.4.1 Temperature Control
Each system should be provided with at least one thermostat
for the regulation of temperature.Each thermostat should be
capable of being set by adjustment or selection of sensors
over a minimum range of between 22c to 27c. Multi-stage
thermostat should be provided for equipment exceeding
35/65kWr in conjunction with 8.2.4
5.1.5
Ductwork
Diffuser
Ductwork system is commonly used
throughout a building. It is used for the
delivery of fresh air and the removal
of stale air across buildings to ensure
better indoor air quality. The material
used for the ductwork is commonly
galvanized steel or any other ap-
proved materials, in the possibility of a
spreading fire and the material’s abil-
ity to withstand it. Fibreglass is used
in ductworks for insulation purposes.
Poorly designed ductwork may result
in an opposite reaction, thus defeat-
ing its purpose and making air quality
worse. This will increase energy con-
sumption by the machine, affecting
building pressure and having higher
utility cost.
Ventilation ducts should not pass
through smoke-stop or firefighting
lobby less it be enclosed with fire-re-
sistant elements in which masonry is
used or it be fitted with fire dampers.
This is to prevent fire from spreading
into another room.
Normally, the ductwork system of
carparks, kitchen, and toilets are sep-
arated. This is to prevent any unnec-
essary foul smells from entering each
other’s spaces.
Air diffusers are designed for air sup-
ply and exhaustion in mechanical
ventilation system. The construction
gives the possibility of air distribution
in various amount and in one or more
directions with the help of ductworks.
The grilles are mounted on a dropped
ceiling or directly on the air duct sys-
tem where the supplied air is released
into the room. They are used to de-
liver ventilating and conditioning air
(conditioned air only when integrat-
ed into the HVAC system), to distrib-
ute air evenly in preferred directions
and to create low-velocity air move-
ment in occupied rooms in any de-
sired directions.
Figure 6: Ductwork
(Source: http://findapro.interioexterio.com/images/2016/03/31/26/dtc-aircondi-
tions_2.jpg)
Figure 6: Ductwork
(Source: http://findapro.interioexterio.com/images/2016/03/31/26/dtc-aircondi-
tions_2.jpg)
Uniform Building By-Law 1984
Clause 99
Cooking facilities in residential building.
2) Where a common vertical kitchen exhaust is provided, the riser shall be
continued up to a mechanical floor or roof for discharge to the open, and
shall be constructed with fire resisting material of at least 2 hours rating with
BS476: Part 3.
MS1525
8.3.1 Separate Air Distribution System
Zones which are expected to operate non-simultaneously for more than 750
hours per year should be served by separate air distribution system. As an
alternative off-house controls should be provided in accordance.
5.1.6
Filter
Fire Damper
Filter is commonly used inside
ductworks to filter outdoor incoming
air into the building or to filter indoor
outgoing air into the atmosphere. It is
used to trap and prevent dust, smoke,
and other pollutants from entering the
room. Fibreglass material is the cho-
sen material because of its sound in-
sulation properties and is considered
environmental friendly compared to
other materials such as polyester or
synthetics. Some other filters are used
in specific area due to its function. For
example, a kitchen exhaust ductwork
will normally be fitted with a grease fil-
ter so that grease will not be trapped
along the insides of the ductwork.
Fire damper is a device installed to
prevent the spreading of fire through
walls or ducts from one space to an-
other. Upon detection of heat, the fire
damper closes automatically, thus re-
sisting the passage of flames into oth-
er spaces. It is also used to interrupt
migratory airflow and maintaining
the integrity of the fire rated separa-
tion. Fire dampers are usually installed
at compartment walls, where it is at
the point of duct penetration from
one space to another. Even if the
ductwork collapses, the damper will
still be attached to the wall, maintain-
ing the integrity of the wall.
Figure 8: Fibreglass filter
(Source: http://www.smartclima.com/wp-content/uploads/2013/03/
Panel-prefilter-with-metal-frame-1.jpg)
Figure 9: Fire Damper
(Source: http://firedamper.com/wp-content/uploads/2013/04/75-B.jpg)
Uniform Building By-Law 1984
Clause 156: Protected shafts as ventilating duct,
(1) If a protected shaft serves as, or contains, a ventilating duct –
	 (a) The duct shall be fitted with automatic fire dampers
	 together with or without sub-ducts as Australian Standard
	 12668: Pt. 1:1974, so constructed at such intervals and in
	 such positions as may be necessary to reduce, so far as
	 practical, the risk of fire spreading from a compartment to
	 any other compartment, or such other provision shall be
	 made as will reduce such risk so far as practicable; and
	 (b) The duct shall not be constructed of, or lined with, any
	 material which substantially increases such risk.
5.1.7
Analysis
Based on our chosen Elderly centre, the spaces are analysed in order for the allocation of
mechanical ventilation system to be made. The proposed mechanical ventilation system
in spaces are made based on the information learned in Literature review. Spaces are
highlighted to indicate which mechanical ventilation system is used (Figure 10). Justifica-
tion is made below to show suitability of the chosen system at the given space.
Supply ventilation system. This system is used in areas which have higher temperatures.
Thus, the service area on both floors of the elderly centre needs to be equipped with this
system to aid ventilation into the space, cooling down the space.
Exhaust ventilation system. This system is used in areas which tends to have foul smells, or
heat concentration. Thus, the system is applied in areas such as the kitchen, washrooms
and bathrooms. Exhaust fans and ductwork are placed in the kitchen to remove the smell
of food and to remove grease particles in the air. On the other hand, washrooms and
bathrooms are fitted with exhaust fans to expel water vapour gathered in the space to
prevent the growth of mould. For this elderly centre, we propose to have two separate
exhaust ventilation system, one for the kitchen and the other for the washroom and bath-
rooms as both the spaces expel different pollutants in the air based on its different functions
of space.
Combined ventilation system. This system is used preferably in larger areas where major hu-
man concentration is focused in the area and in need of constant exchange of air in order
to accommodate the oxygen intake by the users in the space. Thus, the system is applied
in areas such as the chapel, restaurant, event hall and library. These are spaces which are
built to accommodate large amounts of people at a time in an enclosed area. Hence, it is
wise to apply combined ventilation system as we would like the pressure in the room to be
maintained at neutral to prevent wind drafts in the space.
Figure 10: Highlights of spaces based on types of mechanical ventilation system applied
5.1.8
The rest of the spaces in the elderly centre are not fitted with any mechanical ventilation sys-
tem due to a couple of reasons:
>	 Spaces are open (not enclosed) and thus have constant air flow in the area.
	
>	 Spaces are small, yet have windows to aid ventilation. Moreover, A/C units are in
	 stalled in most spaces. Thus, there will be conditioned air being introduced into the
	spaces.
Figure 11 shows the location of fans on the walls of the elderly centre based on the type of
Mechanical Ventilation System chosen. Ductworks are not shown in plan as it is up to the
building service engineer to determine its location, however the fans are placed to suggest
openings of the building to either draw in air flow or expel out air flow. Note that the combined
ventilation system has two types of fans (in & out) to determine the inlet and outlet of the vent
before being processed through the ductwork.
Figure 11: Placement of fans based on types of mechanical ventilation system applied
6.0AirConditioningSystem
6.0
6.1 Introduction
6.2 Split Unit System
6.3 Outdoor unit
6.0AirConditioningSystem
6.1
6.1 Introduction
An air-conditioning system can provide comfort for occupants by
lowering the air temperature and humidity level. This Elderly Cen-
tre is a public building with variety size of spaces which is separat-
ed into three compartments.This building consist of two storey and
is air conditioned by Multi Split-unit System (VRF) and Mono Split-
unit system depending on the sizes and requirement of the space.
Split-Unit system (VRF, Single Split) is applied to the Elderly Centre
as it is able to take up less space consumed at the outdoor area
with the less application of outdoor units. Independent control of
the room temperature setting is preferred in this Elderly Centre.
Furthermore, it has the advantages of energy and cost saving as
independent control of each unit can achieve greater efficien-
cy. Greater installation versatility and room saving choices in the
center. However, no renew fresh air are supplied into the interior
where the indoor air is recycled and recirculated. Every split unit
air conditioning system consist of an outdoor unit which connects
to the rest of the indoor unit. An outdoor unit function as a con-
denser while the indoor unit serves as the evaporator. The outdoor
compressor unit pumps and cools the system’s refrigerant by flow-
ing through the copper lines to the indoor unit. Cool air are turned
and distributed throughout the air by the fan inside the unit. As
cool are is heavier (as they are condensed) than warm air, thus
the cooled air drops and warmer air rises. Warm air is retrieved
through the indoor unit and removed along with condensation
which may have collected back inside the unit and out to the
compressor through the copper lines. This eliminate the installation
of complex duct system within the building or upon the ceiling.
6.2 Split Unit System
Split air conditioning systems are so described because the evaporator is housed in a room
unit and the condenser is housed in a separate outdoor unit. Refrigerant flow and return pipes
connect the two units together. The indoor unit can be wall or floor mounted or accommo-
dated within a suspended ceiling. The finish of the indoor unit is of high quality to integrate
with the appearance of the room decor or suspended ceiling panels. It works well in situations
where rooms only need to be cooled at certain times.
Multi-Split Unit System (VRF)
6.2
Figure 6.2.1 cooling operation in VRF system
Figure 6.2.2 Basic layout of the relationship between indoor and outdoor unit
Source: (Daffan Mechanical, 2014)
Variable refrigerant flow refers to the ability of the system to control the amount of refrigerant
flowing to each of the evaporators, enabling the use of many evaporators of differing ca-
pacities and configurations, individualized comfort control, simultaneous cooling in different
zones. This refrigerant flow control lies at the heart of VRF systems and is the major technical
challenge as well as the source of many of the system’s advantages. it consists of an outdoor
unit which can connects up to 8 indoor units.
6.2.1
Mono-Split Unit System
Figure 6.2.3 cooling operation in VRF system
Source: (Daffan Mechanical, 2014)
Similar to multi-split unit system, it consist of an outdoor unit and an indoor unit with piping con-
necting both. The outdoor unit houses the compressor, the condenser coil and the expansion
valve, and is designed to transfer heat outside through a centrifugal fan.The indoor unit hous-
es the evaporator coil and thanks to a tangential fan it blows cool air into the room. Piping
is straightforward, it is suitable to use at spaces that is small. Individual control of the space
temperature is provided as well.
Figure 6.2.4 Schematic diagram of Mono-Split Air conditioning
Source: (Bright Hub Engineering, 2009)
6.2.2
Ductless split system
Fig 6.2.5 Schematic diagram of indoor and outdoor unit through pipeline
Source: (Mission Air Conditioning, 2014)
Fig 6.2.6 Schematic diagram of multi split unit system through pipeline
Source: (Daffan Mechanical, 2015)
Both system applied does not need ducts at all where refrigerant lines, suction lines and
power cables are running between indoor and outdoor components. Therefore, small holes
must be drilled into walls in order to make these connections. Indoor units are mounted
high up on the walls or ceilings. No fresh air is brought into the indoor area but instead air
is recycled. They also avoid the energy losses associated with ductwork of central forced
air systems. Duct losses can account for more than 30% of energy consumption for space
conditioning, especially if the ducts are in an unconditioned space such as an attic.
It can also be controlled and remote individually in a specific space. One or more outdoor
units are mounted on the wall outside the center where one or more indoor blower units are
installed within the center. However, there will be less quantity for the outdoor units with more
quantity of the indoor unit where one outdoor unit is connected to numbers of indoor units.
Split unit system within the center are controlled as an individual unit which individual control
of temperature comfort is optimized in the specific space and running costs are saved as well.
RB unit is necessary as the air conditioning is solely for cooling purposes.
MS 1525 Code 8.4.1.3 Multi zone systems
These systems, other than those employing variable air volumes for
temperature control should be provided with controls that will auto-
matically reset the off-coil air supply to the highest temperature that
will satisfy the zone requiring the coolest air
6.3 Outdoor unit
Outdoor unit is where the heat from the interior space will be dispersed out to the surrounding.
It consists of various components such as compressor, condenser coil and a fan. The main
function of the compressor in this air conditioning system is to move the refrigerant through-
out the system by increasing the pressure and temperature of the refrigerant. It is vital in the
whole system as the refrigerant in the system can be reused to cool the space. Refrigerant is
compressed with high pressure and move through the outdoor coil which is known as the con-
denser. A fan delivers ambient air across the condenser coil causing it to cool as the refriger-
ant passes through the condenser. At the end of the process, heat from the interior spaces will
be dispersed to the outdoor where the refrigerant will be pumped back again to the indoors
and the whole process will be repeated as mentioned above.
Analysis
The outdoor units are located at the side or less visible area in order to maintain visual appear-
ance of Elderly Centre.
Cages or louvers are applied to the outdoor unit for security purpose.
6.3.1
Figure 6.2.7 Split system outdoor condenser
Source: (indiamart.com)
Figure 6.2.8 VRF outdoor condenser
Source: (www.narkissoscy.com)
Fig. 6.2.9 Caged VRF outdoor unit.
Source: (www.heronhill.co.uk)
Fig.6.2.10 Caged mono-split outdoor unit.
Source: (sethiwelders.co.nz)
MS1525 Code 8.4.4.2
Outdoor air supply and exhaust systems should be provided with motorized or gravity dampers
or other means of automatic volume shut-off or reduction during period of non-use or
alternate use of the spaces served by the systems.
The adoption of multi split unit has greatly lessened the amount of outdoor units used and
heat discharged to the outdoor area is greatly minimized as well as heat that is discharged
to the outdoor units which will create an uncomfortable outdoor environment for the elderly
with the rise of the surrounding temperature.
At the ground floor level, two VRF outdoor unit is used with one single split wall mounted out-
door unit. For the second floor, multi split indoor units are connected to VRF outdoor unit on
the ground level while 4 split indoor units are connected to their respective outdoor unit.
6.3.2
Fig. 6.2.11 Application of VRF and Mono split outdoor unit at Ground Floor Plan
& First Floor Plan
MS 1525 Code 8.2.1
Air conditioning systems and equipment shall be sized to provide no more than the space
and system loads calculated in accordance with 8.1 above, consistent with available
equipment capacity. Redundancy in capacity of equipment, if incorporated into the siz-
ing of the duty equipment, should include efficiency devices such as variable speed drive,
high efficiency motor, efficient unloading devices, multi compressors etc. so as not to
diminish the equipment/system efficiency when operating at varying loads.
Analysis
Two kind of indoor unit are applied in this Elderly Centre which is wall mounted unit and ceiling
cassette unit. The application of the type of indoor unit depends on the size and requirements
of each spaces.
Therefore, spaces that are spacious such as gathering courtyard, Lounge, restaurant, chapel
and library which has more engagement of activities adopted ceiling cassette unit as it can
cool these large spaces in four direction with its wide airflow distribution ensuring even tem-
perature distribution more efficiently.
However, spaces such as office room, pharmacy which is small, narrow and long are applied
with wall mounted unit as it has sufficient cooling load to cool the whole space in one direction.
Zone by zone installation benefits time and cost saving. The distance of refrigerant pipe (Cop-
per tube) between outdoor unit and indoor units can be minimized as much as possible to
prevent the loss of cooling effect.
6.3.3
Figure 6.2.12: Wall mounted Air Conditioner
Source: (www.fujitsu-general.com)
Figure 6.2.13: Ceiling Cassette unit
Source: (http://www.koppel.ph)
6.3.2 Indoor unit
The cooling effect in the interior spaces is created by the indoor unit. Variety of choices of in-
door unit can be chosen nowadays. The indoor unit houses a long blower, an evaporator coil,
cooling coil and a filter. After passing through the expansion coil, the chilled Freon fluid will
enter the cooling coil. The blower will suck the hot, humid and filtered air from interior space
and blows it over the cooling coil. As the air passes through the cooling coil, the temperature
reduces drastically and loses excess moisture collected. Comfortable condition is created at
around 25-27 degree Celsius as per the requirements.
Ceiling cassette unit is used as it can cool these large spaces in four direction with its wide
airflow distribution ensuring even temperature distribution more efficiently. adjustable thermo-
stats and variable speed fans, ceiling cassette A/C units are exceptionally energy efficient.
Photocatalytic purification filters can also be used with them to filter the air of pollutants and
other harmful particulate, meaning the A/C unit can pull double duty as an air purifier.
Wall mounted unit is used as it is sufficient to cool small, narrow room in one direction. Simple
and easy to install and maintain. Environmentally friendly to reduce carbon footprint.
MS 1525 Code 8.4.4.5
Zones may be grouped into a single isolation area provided the total conditioned floor
area does not exceed 250 m2 per group nor include more than one floor unless variable air
volume or equivalent devices are incorporated. Use of outside economy air cycle design
where feasible should be considered.
6.3.4
Figure 6.2.14: Multi Split (VRF) & mono split unit at Ground Floor Plan
Figure 6.2.15: Multi Split (VRF) & mono split system on First Floor Plan
Fig 6.2.16: Zoning of types of indoor unit used at Ground Floor Plan & First Floor Plan.
7.0FireProtectionSystem.
7.0
7.0.1 Introduction
7.1 Elderly Centre Fire Prtection System Overview
7.2 Active Fire Protection
7.3 Passive Fire Protection
7.0FireProtectionSystem.
7.0.1
7.0.1 Introduction
Fire is the rapid oxidation of a combustible material in the
exothermic chemical process of combustion or burning, in
which substances combine chemically with oxygen from the air
accompanied by release of energy in the form of heat. For
ignition to take place, the presence of both a fuel and a heat
energy source is required. When the two are brought together at
proportionate measurements, either by a lack of separation or by
some type of active interaction, a fire occurs.
Figure 7.1 Diagram of Fire Combustion
Source: (Fire Triangle, 2016)
The probability of occurrence of ignition within a room or a com-
partment depends on a number of parameters, including:
>Heatorignitionsourcespresentandtheavailableignitionenergy;
>Flash point of flammable liquids in the compartment;
>Flammability limit of combustible vapours released from the fuel;
>Ignitability characteristics of fuels that are near ignition sources;
>Critical temperatures of materials in the compartment;
>Separation or arrangement of fuels and heat sources;
>Building management characteristics (housekeeping, mainte-
nance, inspection, training and security of the building).
In its cycle, a fire goes through four distinct stages, usually charac-
terised in terms of the average temperature of compartment gas-
es: fire incipient or ignition which is defined as the onset of com-
bustion; the pre-flashover or growth period during which the fire is
localised to a few burning objects; the post-flashover or fully-de-
veloped stage during which the fire engulfs the whole compart-
ment; and the decay stage. The transition from the growth stage
to the fully-developed stage is known as flashover. These typical
fire stages are shown in Figure. Fire protection consist of methods
to prevent fire from turning destructive and also to minimize the
impact of the uncontrolled fire to reduce harm or damage.
Figure 7.2 Four Stages of a Fire Chart
Source: (http://journeytofirefighter.com/)
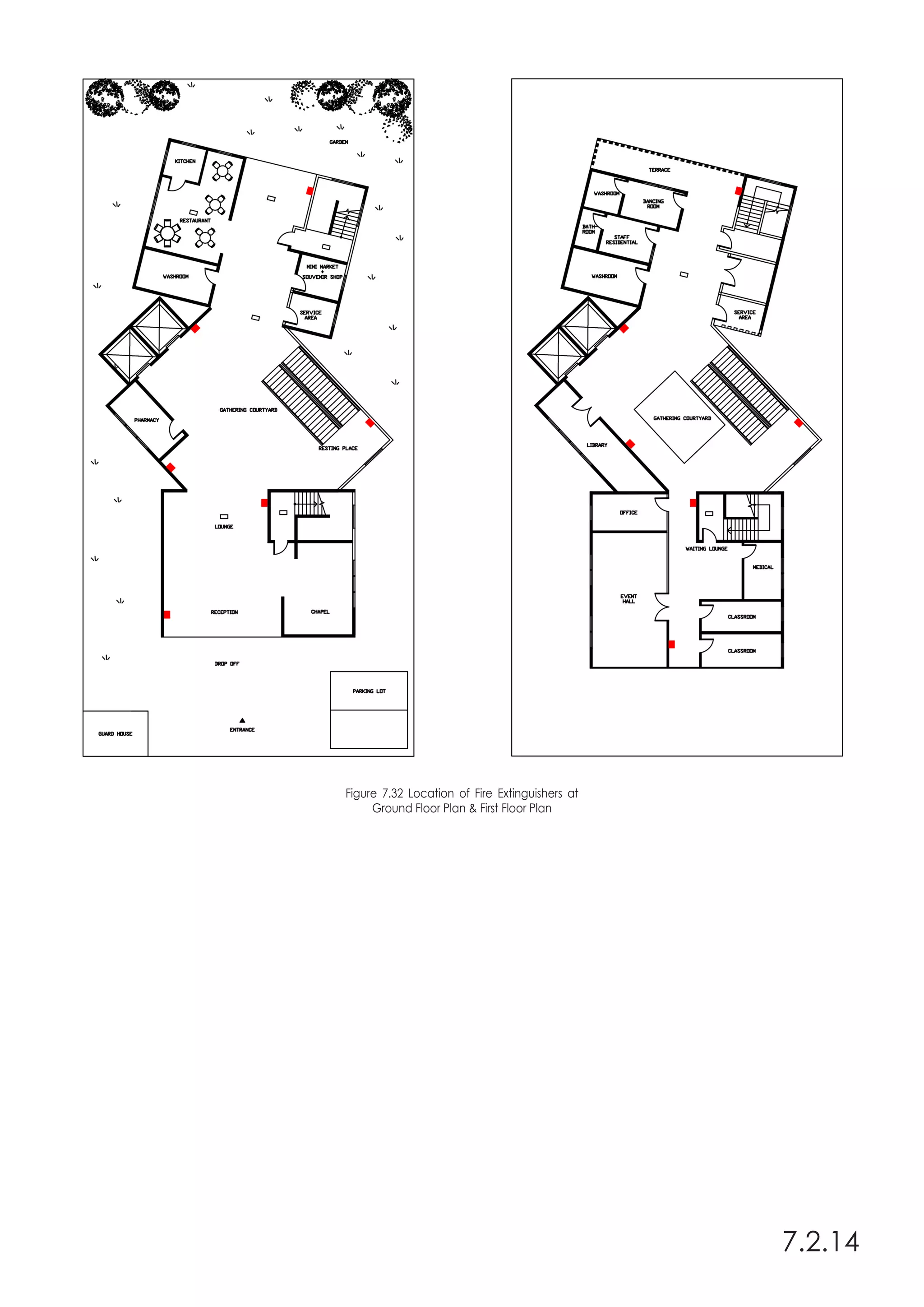
7.1 Elderly Centre Fire Protection System Overview
The Elderly Centre is a commercial building with a variety of spaces. It houses offices, a
restaurant, kitchen and merchants at the ground floor. The restaurant in the elderly centre
poses the highest risk for a fire breakout, therefore serious consideration must be taken in order
to ensure its safety. The nearest fire department station is located 300m away, indicating a
relatively fast reaction time for rescue. Being a complex commercial building, the elderly
centre has quite a complete array of active and passive fire protection systems.
7.2 Active Fire Protection
Active fire protection is the process of protecting a building from fire with methods that use
the action of moving parts. These systems can be automatic, or operated manually, but they
require some sort of action in order to work. There are some examples of active fire protection
would be building sprinkler systems and fire alarm systems. These systems are an extremely
important part of protecting property and the lives of the people within.
The following list shows the types of systems that are found in the elderly centre and will be
discussed further in this chapter with the various components that are used.
> Fire Alarm System
> Sprinkler System
> Hose Reel System
> Carbon Dioxide Fire Suppression System
> Fire Extinguisher
The following diagram shows the progress of how active fire protections are worked &
proceeded in the elderly centre:
7.1
Smoke Detector
Figure 7.3 Smoke Detector
Source: (www.blog.cdn.aws.vivint.com)
A smoke detector is required in every building. It is a device that senses smoke, typically as an
indicator of fire. Smoke detectors are located at alternate positions to detect smoke and tem-
perature rise in an event of a fire. The fire alarm control panel will be automatically triggered
when detectors has sensed smoke in that particular room and area.
Figure 7.4 Optical Smoke Detector Mechanism
Source: (www.acornfiresecurity.com)
There are two types of smoke detectors – Photoelectric/Optical Smoke Detectors and Ioniza-
tion Smoke Detectors. The elderly centre utilises the Optical Smoke Detector. Fire generates
hot gases and because these are less dense (thinner—or weigh less per unit of volume) than
ordinary air they rise upward, swirling tiny smoke particles up too. The detector is designed
with a large opening in the bottom (1), shown upper right in the top photo that leads to the
detection chamber up above. An invisible, infrared light beam shoots across the chamber
from a light-emitting diode or LED (2) to a photocell (3). The photocell is an electronic light de-
tector that generates electricity for as long as light falls on it. Normally, when there is no smoke
about, the light beam shoots constantly between the LED and the detector. An electronic
circuit (4) detects that all is well and nothing happens. The alarm (5) remains silent.
However, if a fire breaks out, smoke enters the chamber (6) and interrupts the beam (7). As no
light is falling on the photocell, it does not generate an electric current anymore. The circuit
spots this straight away (8), realizes something’s amiss, and triggers the shrill and alarm (9).
7.2
According to UBBL 1984 Section 225 (1): Detecting and extinguishing fire
Every building shall be provided with means of detecting and extinguishing fire and alarms together with illuminated exit signs in
accordance with the requirements as specified in the tenth schedule to these by laws.
Covered Smoke
Figure 7.5 Covered Smoke
(Source: www.ourshorelinecommunity.org)
There are some rooms in the elderly centre where a lot of dust is present. In these rooms, the
smoke detectors are covered to prevent the detectors from being stuck with dust as well as
to prevent the detectors from detecting excessive dust as smoke and triggering a false alarm.
Analysis
Each room in the Elderly Centre consists of at least one smoke detector. The smoke
detectors are also installed at the entrance. The Elderly Centre is a smoke free area, hence
occupantsarenotallowedtosmokeindoorsorelseitmighttriggerthesmokedetector.Thesmoke
detectors are mostly installed indoors with the sprinkler units to put out fire at first instance.
7.2.1
Figure 7.6 Location of Smoke Detectors at
Ground and First Floor Plans
Triggers
Figure 7.7 Break Glass Call Point
Source: (www.lh5.ggpht.com)
There are two types of triggers, namely, the break glass call point and the manual call point.
The break glass alarm is a manually actuated device which has to be activated by the oc-
cupants of the building. In every building, the call point should be placed strategically and
visible to all users for ease of activation in the event of a fire. An alarm system is initiated and
operated by means of a simple press of the button. It is easy for the occupants to trigger the
emergency alarm as the glass is a very fragile element. It is connected to a central control
panel in the building and is usually linked to a local fire bridge dispatcher. Occupants are re-
quired to break the glass to trigger the alarm system to activate via the call point, which will
send a warning signal to the central alarm system to cut off the electricity power supply, and
ring the alarm to warn nearby people.
Analysis
Break glass call points are usually located nearby staircases for convenience of occupants in
reaching for the trigger in the case of a fire emergency. They are placed at the emergency
staircase, nearby the corridor in the Elderly Centre.
7.2.2
Figure 7.8 Location of Break Glass Call Points
at Ground Floor Plan
Fireman Intercom System
Figure 7.9 Fireman Intercom
Source: (www.dynoklang.com.my/)
The Fireman Intercom System provides a reliable two-way emergency voice communication
system between the Master Console handset at the fire control room and the remote handset
stations which is located at the escape routes of the building. The master control panel com-
prises the master handset, a system control module and zone control modules. In the event
of a fire outbreak, a call lamp will flash with audible signals at the master control panel to
indicate where the call is coming from. As the handset is lifted to answer the call, the audible
signal will be silenced. The master control panel is also equipped with a fault indicator unit
which provides easier identification should there be a false alarm. The master control console
is located at the fire control room. When the master console handset is lifted and there is no
incoming call, there will be an outgoing call to the BOMBA. Should the BOMBA need to con-
tact anyone in the elderly entre, the call will be transferred immediately to the phone at the
fire control room.
Analysis
The fire intercom systems is placed at the reception, for the convenience of firemen and
occupants in alerting the security through the telecom. Immediate alert can be sent to the
master console. It is an efficient way to declare an emergency in the event of a fire outbreak.
7.2.3Figure 7.10 Location of Fireman Intercom at
Ground Floor Plan
Alarm Bell
Figure 7.11 Fire Alarm Bell
Source: (http://www.suns-usa.com)
Fire alarm bells are important components in the Fire Detection System as the sounds gen-
erated are usually the initial warnings that make occupants aware of the fire threats in the
building. Fire alarm bells are activated by fire detectors. The alarm bell is a device that creates
a loud alert sound. It functions by means of an electromagnet, consisting of coils of insulated
wire wound round iron rods. When electric is present, the current will flow through the coils.
The rods will then become magnetic and attract a piece of iron attached to a clapper. Once
the clapper hits the bell, it will create a repetitive loud ringing sound to alert occupants of
emergency.
7.2.4
Figure 7.12 Location of Alarm Bells at Ground
Floor Plan
According to UBBL 1984 Section 237: Fire alarms
(1) Fire alarms shall be provided in accordance with the Tenth Schedule to these By-laws.
(2) All premises and buildings with gross floor area excluding car park and storage areas exceeding 9290 square metres or exceeding
30.5 metres in height shall be provided with a two stage alarm system with evacuation (continuous signal) to be given immediately
in the affected section of the premises while an alert (intermittent signal) be given in adjoining section.
(3) Provision shall be made for the general evacuation of the premises by action of a master control.
Main Fire Control Panel
Figure 7.13 Main Fire Control Panel
Source: (www.cjelectronics.com)
The Central Command Centre, also named as Fire Alarm Control Panel or Fire Alarm Control
Unit, is the system panel of a fire alarm system. The control panel indicates the source of the
fire alarm so that ni case of an emergency, the source of the fire outbreak or the cause of the
alarm triggered can be set. It controls and receives information and data from all the sensors
designed to identify changes related to fire, monitors their functioning integrity and provides
for automatic control of equipment, and transmission of data needed to prepare the facility
for fire based on a programmed order. The centre can also supply electricity to activate any
connected sensor, transmitter, control or relay.
7.2.5
Fire Hydrant
Figure 7.14 Fire Hydrant
Source: (www.123rf.com)
The Fire Hydrant is a source of water which is provided in the most urban, suburban and rural
areas with public water services to enable the firefighters to tap into the water supply easily in
attemps of extinguishing a fire. It allows firefighters to gain water supply easily and efficiently
for firefighting purposes. The fire hydrant is usually installed in an open space area, for the
convenience of firefighters in the case of an emergency. The fire hydrant system consists of
a system of pipe works connected directly to the water supply. Firefighters attach a hose
to the hydrant, the valve is then opened to release high pressured water. The water from
the fire hydrant can be further pressurised for longer distance water shooting, firefighters will
connect the hose to a fire truck which contains a booster pump to enable an increment in
water pressure.
According to UBBL 1984 Section 225: Detecting and extinguishing fire
(1) Every building shall be provided with means of detecting and extinguishing fire and with fire alarms together with illuminated exit
signs in accordance with the requirements as specified in the Tenth Schedule to these By-laws.
(2) Every building shall be served by at least one fire hydrant located not more than 91.5 metres from the nearest point of fire brigade
access.
(3) Depending on the size and location of the building and the provision of access for fire appliances,additional fire hydrant shall be
provided as may be required by the Fire Authority.
Jockey Pump
Figure 7.16: Jockey Pump
Source: (www.indiamart.com)
The Jockey Pump is an apparatus that works
alongside a fire pump as a part of the fire
protection system. It functions to maintain
the pressure in the sprinkler piping system.
It also assists in the prevention of drainage
when a fire breaks out and water starts rush-
ing into the pipes. Jockey pumps are only
used for the sprinkler system. If a fire sprinkler is
activated, a pressure drop will be sensed by
the fire pump’s automatic controller, which
stimulates the fire pump to start working.
Duty Pump
Figure 7.17: Duty Pump
Source: (www.peerlessmidwest.com)
The Duty Pump functions when the pres-
sure in the pipe goes down to 35 PSI, and
supplies enough pressure of water in order to
maintain the system and make sure it is
running well. However, if the duty pump
encounters any form of problems which
prevents its proper operation or drops to 25
PSI, the standby pump will automatically be
activated from the master control panel if
needed.
Standby Pump The Standby Pump shares the exact
function as the duty pump. As mentioned
above,itreplacesthedutypumpwhenitisnot
functioning or needs to be switched off
Pump Controlling System
Figure 7.15 Fire Pump Room
Source: (www.indiamart.com)
The fire pump room plays a crucial part in order for a fire fighting system to actually work
during a fire breakout. It houses all the pump systems and water storage tanks. The main sys-
tems that function through the fire pump are the sprinkler and hose reel system. The fire pumps
can be powered by diesel, electronic or steam.
Types of pumps found in fire pump room:
7.2.6
7.2.7
Figure 7.17: Duty Pump
Source: (www.peerlessmidwest.com)
PSI, the standby pump will automatically be
activated from the master control panel if
needed.
Standby Pump
Figure 7.18: Duty Pump
Source: (www.power-technology.com)
The Standby Pump shares the exact
function as the duty pump. As mentioned
above,itreplacesthedutypumpwhenitisnot
functioning or needs to be switched off
manually.
Control Valve
Figure 7.19: Duty Pump
Source: (www.jflowcontrols.com)
The Control Valve is located at the primary
water pipe. It controls the flow of water from
the pumps.
Figure 7.21 Location of Water Tank at Roof Plan
7.2.8
Water Tank & Suction Tank
Figure 7.21 Water Tank for Fire Fighting
Source: (www.binasteel.com.my)
The Water Tank stores the water from the main pipe provided by SYABAS for all the existing
sprinklers and in the building. The water is channelled into the tank at the fire pump room
through the pipes. The water level indicates the level of water in the water tank to ensure
there is sufficient water in case for emergency usage. During a fire emergency, when the
sprinklers are triggered, water will be transferred from the suction tank to the pumps and the
pumps will pressurize the water to all the sprinklers.
According to UBBL 1984 Section 247: Water storage
(1) Water storage capacity and water flow rate for firefighting systems and installations shall be provided in accordance with the scale
as set out in the Tenth Schedule to these By-laws.
(2) Main water storage tanks within the building, other than for hose reel systems, shall be located at ground, first or second basement
levels, with fire brigade pumping inlet connections accessible to fire appliances.
(3) Storage tanks for automatic sprinkler installations where full capacity is provided without need for replenishment shall be exempted
from the restrictions in their location.
Wet Riser and Hose Reel System
Figure 7.22 Hose Reel
Source: (www.rnwservices.com.au)
The elderly centre is protected by a hose reel system running throughout the building and
serves by the hose reel pump set at fire pump room next to the pump set. Occupants of the
building can use it for firefighting at the early stages of fire. It is connected to the wet riser
which is fully pressurized at all times for emergency usage.
Analysis
The Fire Hose Reel is a crucial component which is intended for the users of the building. Fire
hose reels can deliver much more water than portable extinguishers, and given that it con-
tains a large amount of water source makes it a key device that could save many lives and
the building in a fire system. The hose length should be at least 45 meters made of reinforced
rubber. The hose reels are placed at the emergency staircases.
7.2.9Figure 7.23 Location of Hose Reels at Ground
Floor Plan & First Floor Plan
Sprinkler
Figure 7.24 Recessed Pendant Sprinkler
Source: (www.firesprinklerinstallation.website)
Figure 7.25 Recessed Pendant Sprinkler Detail
Source: (www.firesprinklerinstallation.website)
The Recessed Pendent Sprinkler contains a head that hangs down from the ceiling connect-
ed to the pipe which is hidden beneath the ceiling. Its water deflector is placed at the bottom
and it spreads water in a circular motion. Recessed pendent sprinklers have a higher water
flow speed than the upright sprinkler. Each sprinkler has an open compartment that holds a
friable heat-sensing quartz build, containing a coloured liquid that is usually red, that seals the
water inlet.
7.2.10
Figure 7.26 Location of Sprinklers at Ground
Floor Plan & First Floor Plan
According to UBBL 1984 Section 226: Automatic system for hazardous occupancy Where hazardous processes, storage or occupancy
are of such character as to require automatic sprinklers or other automatic extinguishing system, it shall be of a type and standard
appropriate to extinguish fires in the hazardous materials stored or handled or for the safety of the occupants.
Fire Sprinkler Control Valve (Alarm Gong System)
Figure 7.27 Sprinkler Alarm
Source: (www.industries.ul.com)
When a fire sprinkler is exposed for a sufficient time to a temperature at or above the tem-
perature rating of the heat sensitive element (glass bulb or fusible link) it releases, allowing
water to flow from only the affected sprinkler. Additional fire sprinklers may also operate if
they too are exposed to sufficient heat. When this occurs water from the water supply will pass
through the alarm valve to the affected fire sprinkler and also past the alarm bell. The resultant
pressure drop will also activate the alarm pressure switch, which in turn will activate an alarm
calling the fire brigade. The water supply may be isolated (stopping the flow of water to the
affected fire sprinklers) by closing the stop valve.
Carbon Dioxide Suppression System
Carbon Dioxide Fire Extinguishers contain chemical gas agents (Carbon Dioxide) that extin-
guishes fire through oxygen depletion by lowering the normal oxygen concentration in the
air from 21% to about 12%-10% below the limit required for combustion whilst providing a safe
and breathable atmosphere which can be tolerated by humans for a short period of time.
They are usually installed in facilities room such as the mechanical and electrical room that
consists of electrical apparatus that will cause danger to the occupants in the building. Car-
bon dioxide is an effective fire suppression ahent applicable to a wide range of fire hazards. It
works quickly, with no residual clean-up associated with a system discharge which translates
into minimal business interruption. Heat or smoke detectors will detect the heat and sound the
alarm while the CO2 gas floods the room from its high pressure storage cylinders. The gases
are sent via pipes to the ceiling and under flood distributors. Once detected by the heat trig-
gers, the CO2 released, curtain walls go down and when doors are shut, two indicators will
show when the gas operation is over. 7.2.11
Figure 7.26 Location of Sprinklers at Ground
Floor Plan
According to UBBL 1984 Section 228: Sprinkler valves
(1) Sprinkler valves shall be located in a safe and enclosed position on the exterior wall and shall be readily accessible to the Fire Au-
thority.
(2) All sprinkler systems shall be electricity connected to the nearest fire station to provide immediate and automatic relay of the alarm
when activated.
7.2.12
Figure 7.29 Location of Carbon Dioxide Suppression System at Ground & First Floor Plan
Fire Extinguisher
Figures 7.30 Types of Fire Extinguishers
Source: (Y.Q.Liang, 2012)
The fire extinguisher is installed to enable occupants to react as early as possible when there
is an initial stage of fire where the equipment is portable and easy to operate. An active fire
protection device that is used to control small fire, the Fire Extinguisher is made to be portable,
so that when the building is on fire, and the main fire devices such as hose reel are far from
reach, fire extinguisher will be the best option. Different types of fire further divides the fire ex-
tinguishers into 5 categories which are stated in the figure above.
Analysis
CO2 fire extinguishers are recommended for use in the Elderly Centre as it is safer and better
for use on electrical appliances and it is also non-residual, making them ideal for use in office
environment compared to the other types of fire extinguishers.
7.2.13
Figure 7.31 Fire Extinguisher
Source: (www.northerntool.com)
According to UBBL Section 227: Portable extinguishers
Portable extinguisher shall be provided in accordance with the relevant codes of practice and shall be sited in prominent positions on
exit routes to be visible from all directions and similar extinguishers in a building shall be of the same method of operation.
7.2.14
Figure 7.32 Location of Fire Extinguishers at
Ground Floor Plan & First Floor Plan
7.0FireProtectionSystem.
7.3.1
Passive Fire Protection System
Introduction
Passive fire protection is defined as the use of fire barrier systems
that are integrated into the structure of a building to contain
or slow the spread of fires through the use of fire rated walls, floors,
doors and so on. This system must be considered at the planning
design stage which includes, providing fire evacuation routes and
fire appliance access.
Emergency Exit Signs
The emergency signs act as the exit indication for the occupants. The emergency exit sign
can be found above all the exits, fire rated doors, fire staircases and doorways to direct the
occupants to reach the nearest exit. These emergency exits signs must be provided with elec-
tric lamps and illuminated 24/7 to ensure their visibility in the darkness during the event of fire
emergency.
7.3.2
Figure: Emergency exit sign
source: http;//www.econite.cm.my/
Location of Emergency Exit signs at Ground
Floor Plan & First Floor Plan
According to
UBBL 1984- Section 172
Storey exits and access to such exits shall be marked by readily visi-
ble signs and shall not be obscured by any decorations, furnishings
or other equipment.
A sign reading “KELUAR” with an arrow indicating the direction shall
be placed in every location where the direction of travel to reach
the nearest exit is not immediately apparent.
Every exit sign shall have the word “KELUAR” in plainly legible letters
not less than 150 millimetres high with the principal strokes of the
letters not less than 18 millimetres wide. The lettering shall be in red
against a black background.
All exits signs shall be provided with two electric lamps of not less
than fifteen watts each.
Emergency Light
Emergency light provides illumination during heavy smoke or power failure due to fire to en-
sure that the occupants able to evacuate safely in the hours of darkness. There are emergen-
cy light in each rooms to illuminate the escape pathways leading to fire escape staircase,
corridor and exits. It is crucial to do maintenance for the lighting to ensure that they are able
to illuminate during the event of fire emergency
7.3.3
Figure: Emergency light
Source:
http://www.qvsdirect.com/8-watt-fluorescent-ip65-non-main-
tained-emergency-bulkhead
Location of Emergency light signs at Ground
Floor Plan & First Floor Plan
The distance between each emergency light is less than 12m to
light up the spaces& corridors during blackout. They are for visibility
and as guidance to lead the occupants to the nearest emergency
exit.
Emergency Floor Plan
Emergency floor plan are found beside escape fire doors on every floor. The occupants can
be noticed the nearest escape route and exits from the floor plan. The components such
as manual break glass, fire alarm bells and also the fire extinguishers that might help during
the fire emergency will be indicated in the floor plan. Some advice such as do not use the
mechanical transportation during fire due to the risk of power failure is also stated in the floor
plan.
7.3.4
Location of Emergency Floor Plan at Ground
Floor Plan & First Floor Plan
Figure: Example of Emergency Floor plan
Source: http://sydney.edu.au/whs/emergency/emergency3.shtml
Fire Evacuation Route
These elderly centre are designed with double exits, one located at the front and the other
located at the back to allow occupants to escape from one if either one is blocked from fire.
There are also two fire staircase, one located at the front and the other located at the back.
The occupants on the first floor can use the nearest staircase escape to the ground floor and
to the exit. However, due to the centre is located between terrace houses, there is only on
way which is the front, to exit to the main street.
7.3.5
Location of fire evacuation route at the
Ground Floor Plan & First Floor Plan
According to
UBBL 1984-Section 178: Exits for institutional and other places of assembly
In buildings classified as institutional or places of assembly, exits to a street or large open space, together with staircases, corridors and
passages leading to such exits shall be located, separated or protected as to avoid any undue danger to the occupants of the place
of assembly from fire originating in the other occupancy or smoke therefrom.
According to
UBBL 1984-Section 169: Exit route
No exit route may reduce in width along its path of travel from storey exit to the final exit.
Fire Staircase
There are two fire staircases in this elderly centre, one at the front and the other at the back
which allow the occupants to choose the safest and nearest escape route during the event
of fire. The staircases are accessible for the occupants from the first floors and lead them to
the exits. The width of the staircases is 1.5m while the landing is 1.6m to allow for safe and quick
escape.
7.3.6
Location of fire staircase at the Ground Floor
Plan & First Floor Plan
Figure: The example of fire staircase
Source: http://vohc.com.au/wp-content/uploads/2014/07/
FF3-1080x800.jpg
According to
UBBL 1984-Section 165: Exits to be accessible at all times
Except as permitted by-law 167 not less than TWO separate exits
shall be provided from each storey together with such additional
exits as may be necessary
According to
UBBL 1984-Section 168: Staircase
Except as provided for in by-laws 194 every upper floor shall have
means of egress via at least two separated staircase.
Staircases shall be of such width that in the event of any one stair-
case not being available for escape purpose the remaining stair-
cases shall accommodate the highest occupancy load of any one
floor discharging into it calculated in accordance with provisions in
the Seventh Schedule to these Bylaws.
The required width of staircase shall be the clear width between
walls but handrails may be permitted to encroach on this width to a
maximum of 75 millimetres.
The required width of a staircase shall be maintained throughout its
length including at landings.
Doors giving access to staircase shall be so positioned that their
swing shall at no point encroach on the required width of the stair-
case or landing.
Fire Rescue Access
There is only one main entrance at the centre, the road in front is the only route for fire truck
to pass through. The nearest fire station is 500m away.
7.3.7
Figure: The road in front of the
elderly centre.
Figure: 650m (left) and 500m
(right) fire truck route.
Figure: The nearest Fire Station
(Balai Bomba Dan Penyelamat
Taman Sri Sentosa) from the
site.
7.3.8
Figure: The location of fire door at the
Ground Floor Plan & First Floor Plan
Figure: The example of fire rated
door.
Source: http://www.elliottspour-
house.com/consider-installing-fire-
rated-doors-for-your-familys-sake/
Fire Rated Door
Fire resistant door which are thicker than normal door are placed at the entrance of the fire
staircase and service room. The fire resistant doors act as a barrier to stop the spreading of
fire from the outside of the fire staircase. 1 hour fire rated door with single leaf door of 900mm
x 2100mm is used in the centre. The material used in the fire rated doors include gypsum and
vermiculite board. It can withstand up to 1 hour of fire and suppress the fire by restricting the
flow of oxygen and spread of fire. To fulfil the requirements of By-law Section 164(1), automatic
closer hinge is installed to ensure that the doors are closed by default so that the occupants
are safe to use the fire staircase in the case of fire.
According to
UBBL 1984 Section 162: Fire doors in compartment walls and separating walls
Fire doors of an appropriate FRP shall be provided.
Openings in compartment walls and separating walls shall be protected by a fire door hav-
ing a FRP in accordance with the requirements for that wall specified in the Ninth Schedule
to these Bylaws.
Openings in protecting structures shall be protected by fire doors having FRP of not less
than half the requirement for the surrounding wall specified in the Ninth Schedule to these
By-laws but in no case less than half hour.
Openings in partitions enclosing a protected corridor or lobby shall protected by fire doors
having FRP of half-hour.
Fire doors including frames shall be constructed to a specification which can be shown to
meet the requirements for the relevant FRP when tested in accordance with section 3 of
BS 476: 1951.
UBBL Section 164 (1)
All fire doors shall be fitted with automatic door closed of the hydraulically spring operated
type in the case of swing doors and wire rope and weigh type in the case of sliding door.
Fire Wall
Fire wall is installed to prevent and slow down the spread of fire in a period of time, to give
more time for the occupants to escape from the building. The wall is constructed using fire-re-
sistant materials and able to provide up to 240 minutes’ fire resistance. It is not only acting as
a wall to separate the spaces but also separate those high risk areas such as service rooms
and also fire staircases.
7.3.9
The location of fire walls at the at the Ground
Floor Plan & First Floor Plan
Figure: Example of fire wall.
Source: http://www.miframsecurity.com/solu-
tions/products/durasystem/
According to
UBBL Section 138 (C)
Any wall or floor separating part of a building form any other part of
the same building, which is used or intended to be used mainly for
a purpose failing within a different purpose group as, set out in the
Fifth Schedule to these by laws.
UBBL Section 148 (6)
Any compartment walls or compartment floor which is required by
these By-Law to have FRP of one hour or more shall be constructed
wholly of non-combustible materials and apart from any ceiling, the
required FRP of wall or floor shall be obtained without assistance
form any non-combustible materials.
Smoke Curtain
Smoke curtain are used to inhibit the spread of fire and prevent it from spreading to other ar-
eas of the building. It is installed at the entrance of the service rooms and elevators at ground
and first floor. The smoke curtain will automatically be released and rolled down when the
smoke detector inside the service rooms have detected the smoke due to fire. The two layer
of protection which are smoke curtain and fire rated door are able to control the spread of
fire into service rooms.
7.3.10
Figure: The location of smoke curtain at the
Ground Floor Plan & First Floor Plan
Figure: Smoke curtain located in front of elevator.
Source:http://willcosales.com/portfolio/eleva-
tor-smoke-curtain/
According to
UBBL Section 161 (1)
Any fire stop required by the provision of this Part
shall be so formed and positioned as to prevent or
retard the passage of flame.
Separation of Fire Risk Area (Compartmentation)
Compartmentation is used to confine fire and minimize the risk of loss of occupants by segre-
gating a space to control the spread of fire. The services rooms with high fire risk are separated
with fire wall, doors and smoke curtain. High pressure cylinders of CO2 fire suppression system
is also installed in the rooms to stop the spread of fire. These rooms are the most fire protected.
7.3.11
Figure Location of compartmentation (service rooms) at
Ground Floor Plan & First Floor Plan
Figure: The separation of fire risk area by using fire walls.
Source: http://www.fmlfire.com/wp-content/uploads/2013/03/
Compartmentation.jpg
According to
UBBL Section 139
The following area uses shall be sepa-
rated from the other areas of the oc-
cupancy in which they are located by
fire resisting construction of elements of
structure of a FRP to be determined by
local authority based on the degree of
fire hazard:
a) Boiler rooms and associated fuels stor-
age area;
b) Laundries;
c) Repairs shops involving hazardous pro-
cesses and materials;
d) Storage areas of materials in quantities
deemed hazardous;
e) Liquefied petroleum gas storage areas;
f) Linen rooms;
g) Transformer rooms and substations;
h) Flammable liquids stores.
Smoke and Heat ventilation
The installation of smoke and heat ventilation system is very crucial as smoke inhalation is the
primary cause of death for victims of fires. In the elderly centre, louvres are installed beside
and at the landing part of the fire staircase to allow air to ventilate and also natural lighting.
It is very important to channel the smoke especially at the fire escape to prevent the smoke
from cumulating and suffocating the occupants who are trying to escape.
7.3.12
Figure: the ventilation of the fire staircases at the
ground floor and first floor.
According to
UBBL-SECTION 198 Ventilation of staircase enclosures
All staircase enclosures shall be ventilated at each floor or land-
ing level by either permanent openings or openable windows
to the open air having a free area of not less than 1 square
metre per floor.
Openable windows shall meet the operational requirements of
the D.G.F.S.
In buildings not exceeding three storeys above ground level,
staircase enclosures may be unventilated provided that access
to them at all levels except the top floor is through ventilated
lobbies.
UBBL-SECTION 199 Ventilation of staircase enclosures is buildings
not exceeding 18 metres
In buildings not exceeding 18 metres above ground level, stair-
case enclosures may be unventilated provided that access to
them at all levels except the top floor is through ventilated lob-
bies and the staircase enclosures are permanently ventilated
at the top with at least 5% of the area of the enclosures.
Figure: Smoke control louvre.
Source: http://www.secontrols.com/product-groups/smoke-ven-
tilation/commercial/mechanical-smoke-shaft-fire-fight-
ing-core-commercial-building/
8.0MechanicalTranspoortation
System.
8.0
8.1 Introduction
By completing the literature review and studying the UBBL
laws, we have gained the basic understanding of the
mechanical transportation system. This report is regarding
further studies and research on the mechanical transpor-
tation by using our own Design Studio Proposal which is
an elderly centre. Different types of components and the
operation systems which is proposed to be used in this
building are supported by various information such as UBBL
requirements and schematic diagram of the system for
further elaboration. Self-analysis is included based on the
study on the mechanical transportation system.
8.0MechanicalTranspoortation
System.
8.0.1
Elevator
This elderly centre is a residential building which a single block and 2 storeys height. Due to the
disability of the old folks, elevator is introduced in this building to carry people or goods within
the 2 floors. There are total 2 hydraulic elevators will be installed in this elderly centre, all the
elevators are the passenger lift. The proposed operating hours of the building is 0700 until 1800.
2 elevators are grouped together which is placed in the lounge area.
Analysis
There are only passenger lifts proposed in this building to function as both passengers and
service lift to carry goods. The reason is because the building is an elderly centre which is a
residential building. Therefore, no heavy goods and items need to be transferred frequently
between 2 floors. So, passenger lift is the only type that is proposed to be used in this elderly
centre.
Lift Entrance
Analysis
The 2 passenger lifts are placed side by side in the lounge
area. 2 lifts are proposed instead of 1 lift due to the conges-
tion of lifts being used during peak hours. Both lifts transfer
people or goods to ground and first floors to enter the rooms
placed at ground or first floor.
8.1.1
According to UBBL 1984-By Law 124
It stated that for all non-residential buildings which exceeded 4 stores above or below the main access level should provide at
least one lift.
Figure - Ground Floor Plan & First Floor Plan with the
Position of the Elevators Position of the Elevators
Figure – View in to the Entrance of Elevator
Emergency
Emergency Staircase
Analysis
2 staircases were proposed, one in front of the building and one at the back of the building to
allow the more available users to access to 2 floors. It is also used as the only access to 2 floors
when the power is down or after the operating hours. Besides that, it is also the emergency
staircase when the building has caught fire.
8.1.2
Figure - Ground Floor Plan & First Floor Plan with the
Indication ooof Staircase
Figure – Emergency Exit Sign in Malaysia Context
Analysis
CCTV is installed in every lift shaft and operating 11 hours per day. The CCTVs are integrated
with the command and control center for security purpose.
Analysis
Emergency alarm is provided in each lift shaft which allows the passenger to alert the alarm
and transfer the emergency signal to the command and control center. Besides that, the in-
tercom button is also provided inside the lift shaft which connected to the interphone located
at the ground floor lounge area. The intercom system allows rescuer to communicate with the
passenger who is trapped inside the lift.
CCTV
Emergency Alarm and Intercom System
8.1.3
Figure - Ground Floor Plan with Indication of
Control Room
Figure – CCTV in the Lift
Figure – Monitors which linked to CCTV Installed
Figure
– Interphone Figure
– Alarm and Intercom Button
Analysis
Ventilated holes allow air flow through into the lift car from the
lift shaft. It prevents passengers inside to suffocate when they are
inside the enclosed lift car or when the lift’s power down.
Analysis
If there is fire happened, fire indicator will illuminate, a buzz sound
will ring. The elevator will move to the ground floor where the main
entrance of the building is, to allow passengers to leave the build-
ing immediately.
Analysis
The emergency power control panel will be switched on when
there is a power cut off in electricity or the main control system
panel is not functioning. The genset will be generated immediately
as a backup power supply. The lift car will be landed at the ground
floor and door iS opened to allow passengers to leave the lift car.
Analysis
Air vent is installed to provide ventilation to the lift lobbies. It is also
provided ventilation in case of the building has caught fire that the
lift has stopped working.
Ventilated Holes
Smoke Detector
Emergency Power Control Panel
Air Vent
8.1.4
According to UBBL 1984-By Law 151
Ventilation to Lift Shaft
Lift shaft shall be provided with vents of not less than 0.09 square meter per lift located at the top
of the shaft. Where the vent does not discharge directly to the open air, the lift shafts shall be
vented to the exterior through a duct of the required FRP as for the lift shafts.
According to UBBL 1984-By Law 154
Emergency mode of operation in the event of main power failure
On failure of main power of lifts shall return in sequence directly to the designated floor, com-
mencing with the fire lifts, without answering any car or landing calls and park with doors open.
According to UBBL 1984-By Law 153
Smoke detector for lift lobbies
All life lobbies shall be provided with smoke detectors.
Figure – Ventilated Holes inside the Lift
Figure – Smoke Detector Located at
the Lift Ceiling
Figure – Emergency Control Panel is
installed beside Main Panel
Figure – Air vent near Lift Lobby
Fire door is located in front of
the staircase of the building
and behind staircase of the
building. It ease the victim to
escape from the fire easily
when the elevator’s power
down.
All the passenger lift in this
building has the same capac-
ity which able to carry 1000kg
which is the load of average
13 persons.
Floor level indicator are located
beside lift opening at every floors
and inside the lift panel in the lift
car.
Floor level indicator are located
beside lift opening at every floors
and inside the lift panel in the lift
car.
Fire Door
Passenger Lift Capacity
Floor Indicator
Schematic Diagram of Elevator
8.1.5
Figure – Fire Door which Access to
Fire Staircase
Figure – Capacity Load are Marked
inside the Lift Panel
Figure – Capacity Load are Marked
inside the Lift Panel
Figure – Axonometric View of a Lift
with Components and Dimensions
Figure - Axonometric View of a Lift
with Indication of Hydraulic Elevator
Components`
Escalator
There is only one escalator proposed in the building which is located near the gathering
courtyard that connects both ground and first floor. The escalator are allocated in pairs. The
capacity of each escalator are able to withstand of 4800 person per hour at the speed of
0.5minute per second with a travel height range until 6 meters.
Analysis
The arrangement of the escalator is more economical and reduce
space wastage due to no inner lateral claddings are required.
8.1.6
Figure - Ground Floor Plan & First Floor Plan with the
Indication ooof Staircase
Figure – Parallel Layout with Interrupted in Two Way
Direction
Figure – Layout of the Escalator with Components
Escalator Arrangement
Escalator Components
Analysis
Controls start and stop operation of the escalator. It also supplies electric power to the Drive Unit.
Analysis :
Assembly of structural steel that supports the weight and
load of an escalator.
Analysis :
The escalator will start moving when the sensor has
sensed there is human movement or motion. 8.1.7
Figure – Escalator Direction Indicator
Figure – Elevator Safety Signs Figure – Control Panel
Figure – Step Thread and Riser
Analysis :
A section or steel plate with teeth that mesh with the
step cleats at the boarding and landing areas. This is
to prevent fingers, feet or foreign objects from getting
caught between the moving steps and floor plate.
Analysis :
A handhold is placed on top of the balustrade which
synchronized with the moving steps.
Analysis :
Panel below balustrade which is located immediately
below the inner deck and adjacent to the steps at a
slight gap from the steps.
8.1.8
Figure – Comb
Figure – Moving Handrail
Figure – Skirt Guard
Figure – Landing Plate
9.0Conclusion
9.0
Through this assignment, all of us real-
ized the importance of building services in
ordertomakeabuildingsafe,habitableand
functional. We also each gained knowl-
edge by being able to identify the each sys-
tem and its components involved in building
services. They are fire protection system,
mechanical ventilation system, air-condi-
tioning system and mechanical transpor-
tation system. The locations of where these
system components should be placed (zon-
ing) were also taken into consideration. The
use of pictures, diagrams and literature
review further aids in our understanding of
such systems. On the other hand, we also
learntomeetthebasicstandardsofbuilding
services in accordance to Uniform Building
By-Law (UBBL) and MS 1525 codes.
We have also come to an agreement of the
importanceofapplyingthemostappropriate
system in order to ensure maximum
energy efficiency and cost efficiency. In
addition, appropriate building services
system should be applied to accommodate
theuser’sneedsandthefunctionofthespace.
Being people-oriented and mindful of such
details will enable us to design a building
that is functional, safe and comfortable for
our clients.
1.0 Mechanical Ventilation System
In summary, mechanical ventilation system plays a very important
role in ensuring good indoor air quality as it will ultimately affect
the health of the user in the space. Mechanical ventilation sys-
tem is a necessity to ensure constant air exchange within indoor
spaces in order to remove pollutants, odour, and water vapour
trapped in interior spaces. Mechanical ventilation system can be
categorized into 3 types, Supply ventilation system, Exhaust ven-
tilation system and Combined ventilation system. The system ap-
plied in spaces varies according to the function, size, and capac-
ity of a room. Appropriate mechanical ventilation system should
be assigned correctly to prevent the wastage of energy, cost of
installation and maintenance. Constant maintenance should also
be conducted regularly to prevent energy loss which in result in-
crease utility cost.
9.0Conclusion
9.1
2.0 Air Conditioning System
In conclusion, the application of air conditioning system in this El-
derly Centre have followed requirements given by MS1525 and
UBBL Section 41. Split unit system is introduced to this Elderly Cen-
tre which consist of both Mono and Multi-Split Unit system (VRF).
This is a public building with variety of spaces with different siz-
es. Therefore, the use of VRF is effective as temperature of each
room can be alternated as well as the saving in electrical energy.
Lesser outdoor unit also provide a better outdoor environment for
the elderlies.
9.0Conclusion
9.2
3.0 Fire Protection System
In conclusion, the overall fire protection system including active
and passive fire protection system are well and appropriately in-
stalled for different function of the spaces to extinguish the fire
effectively and to ensure the safety of the occupants.
The unfavourable condition for the fire safety of this elderly centre
is there is only one main entrance connected to the main road.
The main road in front of the building is always congested during
the peak hours and parked with cars which will block the way for
fire trucks to pass through. These might hinder the full efficiency of
the fire rescue team when they arrive.
To summarize, there are two main escape routes provided in this
elderly centre. The two fire staircases which are located at the
front and back of the building are protected by fire walls and
doors with good ventilation and lighting. Each room has their indi-
vidual unit of alarm, detectors and sprinklers. CO2 fire extinguish-
ers are also provided to enable occupants to react as early as
possible when there is an initial stage of fire.
Spaces constituting high risk of fire such as service rooms are pro-
tected by fixed installations, protective devices and systems and
special extinguisher. Fire doors, fire walls and smoke curtain are
installed to slow the spread of fire in a period of time. Besides that,
the service rooms are also equipped with CO2 suppression units to
put out fire at fast instances.
In a nutshell, active and passive fire protection system should be
installed strictly according to the Uniform Building By-Law of Ma-
laysia and also the BOMBA requirements. All the systems should
be fully in active operation and be maintained in good condition.
9.0Conclusion
9.3
9.0GeneralConclusion.
9.4
4.0 Mechanical Transportation System
In conclusion, mechanical transportation is one of the important
design features to be considered in the earliest stage of design.
Both engineers and architects have to cooperate to provide
transportation systems in the building to ease the users to move
from one floor to another safely. This can be proven by looking at
how the architects and engineers by following the rules stated in
By-Law of UBBL 1984.
Mechanical transportation has to be located strategically to al-
low users to move around comfortably and conveniently. As this
building is longitudinal, the escalator is located in the middle of
the building hence everyone can access to it easily. Besides that,
the elevators are located near to the escalator as well to aid the
disabled to move within floors. In conclusion, no heavy weights
is going to be transported within floors frequently. Hence, holeless
hydraulic lift is proposed to be used as it is easier to be installed
and installation cost will be lowered due to no hole is needed to
drilled.
10.0References.
10.0
Mechanical Ventilation System
Whole-House Ventilation | Department of Energy. (2016). Energy.
gov. Retrieved 13 November 2016, from http://energy.gov/ener-
gysaver/whole-house-ventilation
Air Conditioning System
Bell, A. A. (2003). HVAC design portfolio: 865 airside systems flow
diagrams and details. New York: McGraw-Hill.
Ductless Mini-Split Air Conditioners. (n.d.). Retrieved June 22, 2016,
from http://energy.gov/energysaver/ductless-mini-split-air-condi-
tioners
Installation of the Split Air Conditioners: Deciding the Location
of Indoor and Outdoor Units. (n.d.). Retrieved June 19, 2016,
from http://www.brighthubengineering.com/hvac/45249-in-
door-and-outdoorinstallation-of-split-air-conditioners-decid-
ing-the-location/
PartsofSplitAirConditioners:OutdoorUnit.(n.d.).RetrievedJune18,
2016, from http://www.brighthubengineering.com/hvac/45044-
parts-of-the-split-air-condioners-outdoorunit/#imgn_3
Wall Mounted Indoor Unit: Ductless Split Air Conditioner Parts.
(n.d.). Retrieved June 22, 2016, from http://www.brighthubengi-
neering.com/hvac/45046-parts-of-the-split-air-conditioner-wall-
mountedindoor-unit/
Whitman, W., Johnson, W., & Tomczyk, J. (2000). Refrigeration & air
coniditioning technology. Albany, NY: Delmar Publishers
H. (n.d.). 7 Advantages of Ductless Air Conditioners - Cooling Sys-
tems. Retrieved November 23, 2016, from http://www.sila.com/
blog/7-advantages-ductless-air-conditioners/
Ltd, I. (n.d.). VRV/VRF CONDENSING UNIT GUARDS. Retrieved No-
vember 23, 2016, from http://www.heronhill.co.uk/products/314/
vrvvrf-condensing-unit-guards
Fuller, C. A., & Snow, D. (1938). Air conditioning; a practical, mod-
ern and fundamental treatise on the subject of air conditioning,
air distribution, refrigeration, comfort cooling, humidification, and
air purification. New York: Norman W. Henley Pub.
10.0.1
Fire Protection System:
Active Fire Protection System
Densing, J., & Harkins, J. (n.d.). Retrieved November 10, 2016, from
http://www.wisegeek.com/what-is-active-fire-protection.htm
Fire Extinguisher. (n.d.). Retrieved November 10, 2016, from http://
www.supremexfireextinguisher.com/fireextinguisher.html
Peacock, R.D.P., & Bukowski, W.B. (1990). A prototype methodol-
ogy for fire hazard analysis. United States: US National Institute of
Standards and Technology.
Smoke control and environmental ventilation systems for multi-sto-
rey residential buildings. (n.d.). Retrieved November 10, 2016, from
http://www.coltinfo.co.uk/smoke-control-residential-buildings.
html
The Different Types of Fire Extinguishers. (n.d.) Retrieved Novem-
ber 10, 2016, from http://www.firesure.ie/fire_safety_guidance/
comparison_of_the_different_types_of_fire_extinguishers.html
Passive Fire Protection System
Compartmentation. (n.d.). Retrieved November 24, 2016, from
http://www.fml.eu.com/compartmentation/
DuraSystem - Mifram Security. (n.d.). Retrieved November 24,
2016, from http://www.miframsecurity.com/solutions/products/
durasystem/
Consider Installing Fire Rated Doors for Your Family’s Sake. (n.d.).
Retrieved November 24, 2016, from http://www.elliottspourhouse.
com/consider-installing-fire-rated-doors-for-your-familys-sake/
H. (n.d.). Elevator Smoke Partition - Smoke Management. Re-
trieved November 24, 2016, from http://www.smokeguard.com/
products/m400/
Mechanical Transportation System.
Harris, T. (n.d.). retrieved November 12, 2016, from http://science.
howstuffworks.com/transport/engines-equipment/elevator.htm
Schindler Home. (n.d.). Retrieved November 11, 2016, from http://
www.schindler.com/com/internet/en/home.html
Stein, B., & Reynolds, J. (1992). Mechanical and electrical equip-
ment for buildings (8th ed.). New York: J. Wiley & Sons
Strakosch, G. (2010). The vertical transportation handbook (4th
ed. ). Hoboken, N.J.: John Wiley & Sons

Report v2

  • 1.
    PROJECT 2 - BUILDINGSERVICES IN PUBLIC BUILDINGS For Purposed Elderly Center prepared by Andrew Law Zi Hang 0322670 benjamin Cheng Jia Yeow 0323336 Bridget Tan Su Ting 0318370 Chok Jia Jun 0323117 Lai Yik Xin 0323388 Leong Yu Shi 0322586 building services BLD60903/ARC2423
  • 2.
    1.0 Abstract 2.0 Acknowlegement 3.0Introduction 4.0 Literature Review 4.1 Mechanical Ventilation System 4.2 Air Conditioning System 4.3 Fire Protection System 4.4 Mechanical Transportation System 5.0 Mechanical Ventilation System 6.0 Air Conditioning System 7.0 Fire Protection System 8.0 Mechanical Transportation System 9.0 General Conclusion 9.1 Mechanical Ventilation System 9.2 Air Conditioning System 9.3 Fire Protection System 9.4 Mechanical Transportation System 10.0 References TabbleofContent. a.
  • 3.
    This research reportlooks into the specifics of the services present in the Elderly Centre such as mechanical ventilation, air-conditioningsystem,fireprotectionsystemandthemechanical transportation system. A thorough analysis and synthesis on the components of building services systems on the multi-storey building’s operation is performed. Through the first-hand experience and understanding of these systems in the building, we gained an insight into the functions and operation of the service components to be integrated to future design projects. The analysis is documented and translated into an A4-bound report with detailed analysis on how the service components function in the building. This is summarised in diagrammatic forms and supported by images. Each of the systems are compared with UBBL Law requirements in order to achieve a better understanding of the space implications and regulations related to the distinct service components. The positioning and relation of the components are discussed and supported by diagrammatic images of the functioning of the systems. 1.0Abstract. 1.0
  • 4.
    This project wasa success due to the help of a lot of peo- ple. First and foremost, we would like to express our deepest appreciation to our tutor, Mr Azim Sulaiman, for providing us with his time and guidance to monitor the progression of our report throughout our tutorial sessions in the development of the research report. Through our sessions, we were able to gain a better understanding of the systems which were being used. In addition to this, we would also like to thank each and every group member for having contributed and cooperating with one another in making this project a successful one. In summary, this project helped us to obtain a clearer and deeper understanding on the different services provided in the Elderly Centre. We were able to learn the importance of these services and how they contribute to the building’s safety and comfort and it was certainly achieved with the help of our tutor and members. 2.0Acknowlegement. 2.0
  • 5.
    The proposed ElderlyCentre is situated in Old Klang Road, and was designed by Leong Yu Shi. The build- ing approach is commercial development, where busi- ness, accommodation, food and leisure are combined. Sitting on a 960 square-metre site, it comprises 800 square-metres of built-up space that houses a variety of spaces. Its well-integrat- ed living-and-business development promotes the arts to further enhance the wellbeing and vitality of all those who live, work and visit the centre. The building is an Elderly Centre with a variety of spaces such as offices, accommodation, gathering spaces, class- rooms, a library, dance room, event hall, clinic, pharmacy, stores and merchandise shops as well as restaurants. The layout of the two-storey Elderly Centre is simple and follows a zigzag shape with the allowance of the penetration of plenty of natural light. The building is equipped with complete services of active and passive fire protection system, mechanical transportation, me- chanical ventilation system as well as air-conditioning systems. Mechanical transportation which are the lift and escalator ser- vices are installed for ease of access while fire protection is provid- ed for the safety of the occupants in the case of an emergency. The rest of the services provide a comfortable and safe environ- ment for the occupants of the building. 3.0Introduction. 3.0
  • 6.
    4.0LiteratureReview. 4.0 4.1 Mechanical VentilationSystem 4.2 Air Conditioning System 4.3 Fire Protection System 4.4 Mechanical Transportation System
  • 7.
    4.1 4.1MechanicalVentilation. There are variousmechanical ventilation system used in a build- ing and it is chosen according to the function of the space. Three types of system in mechanical ventilation are Supply ventilation System, Extract ventilation System and Combined ventilation sys- tem. 1. Supply Ventilation System - Mechanical inlet and natural outlet. (Air overpressure) Supply ventilation system is a system where fresh outdoor air is brought in mechanically, and indoor air is extracted naturally through the existing openings of a building. The system consists of a series of ductwork or fans. This system works through the pressur- ization of the condition where air flow into the space causes high pressure which ultimately expels the indoor air to the outside. The mechanical inlet is usually located in a high place to encour- age air to be drawn in. It should also not be located near the out- let to prevent the escape of incoming air. An air filter is connected to the inlet inside the ductworks to filter and clean the air before directing them to the interior spaces. This system is commonly used in areas which has high heat concentration such as service area and places with machineries. Figure 1: Supply Ventilation System diagram (Source: http://energy.gov/energysaver/whole-house-ventilation)
  • 8.
    4.1.2 4.1MechanicalVentilation. 2. Exhaust VentilationSystem - Natural inlet and mechanical outlet. (Air under pressure) Exhaust ventilation system is a system where hot or stale indoor air is expelled mechanically, which draws in outdoor air inside the space through natural inlets such as openings and windows. The system also consists of a series of ductwork and fans. This system works through the pressurization of the condition where air is ex- tracted to the outside, creating low pressure in the space which ultimately sucks in air into the space. The mechanical extract which is the exhaust fan is usually located at the ceiling or rooftop to help expel air out from the building. Passive vents such as windows are installed for the air to flow in but it requires a higher pressure difference compared to those induced by Supply ventilation system. Exhaust ventilation system often contributes to higher operational energy because the air supply is brought in natural with contaminants and moisture. This system is commonly used in areas which needs to expel heat or smell such as kitchen, toilets and basement. Figure 2: Exhaust Ventilation System diagram (Source: http://energy.gov/energysaver/whole-house-ventilation)
  • 9.
    4.1.3 4.1MechanicalVentilation. 3. Combined VentilationSystem - Mechanical inlet and outlet. (Air constant pressure) Combined ventilation system (also known as balanced ventila- tion) is a system at which the inlet and outlet are both operating mechanically. This means the air supplied into a space and ex- tracted from a space are done using mechanical devices. This results in a constant pressure state. The system works through two different sets of ductwork and fan system and is known as the most efficient ventilation system as it is independent of outdoor weather. However, it has high installa- tion cost. This system can be done at multiple points at which the building pressure will still be balanced. This system is normally used in spaces where natural ventilation is not easily promoted and applied. It can also be used in areas to further promote ventilation. Figure 3: Balanced Ventilation System diagram (Source: http://energy.gov/energysaver/whole-house-ventilation)
  • 10.
    4.2.1 Thermal comfort andindoor air quality of a building has be- came increasingly vital which is also greatly emphasized in the recent decades. Therefore, the thermal environment and indoor quality is strongly related to the condition of occupants where thermal comfort must be achieved and contaminants gaseous have to kept below certain level. In this elderly center, various ser- vices that tend to enhance thermal comfort which is used within this tropical climate in Malaysia are applied and review was con- ducted. Due to the hot and humid climate in Malaysia, it is con- cluded that thermal comfort range higher than the international standards based on the data and findings. (Daghigh, 2015). It is necessary and essential for an elderly center building to apply with air conditioning system based on the requirements as most of the user are elderlies. Therefore both thermal comfort and indoor air quality in the elderly center could be improved. As compared to mechanical ventilation, air conditioning system is an active sys- tem that extract heat from the interior spaces and transferred to the outside with the aid of either electrical supply or water supply depending on the scale of the building. Airconditioningsystemisadevicetoaltertheconditionofaspace. Itprovidesheating,coolingandventilationrequirementsofabuild- ing over a range of ambient conditions depending on the build- ing location. Air conditioning system is designed to cope with the maximum value based on these requirements (Energuide, 2004) > To maintain the human thermal comfort level by controlling temperature and humidity in air. > To remove internal heat gain produced by building services and occupants > To provide cool environment control for equipment and processes > To prevent smoke, dust and haze from outdoors to protect human health. Through air conditioning system, air temperature, air movement, air purity and humidity level within a building can be easily ma- nipulated. Therefore, desired human comfort could be achieved. There are four types of air-conditioning that is commonly used by different scale of building based on the requirements needed to accommodate the need of the users. > Window Air Conditioning System > Split Air Conditioning System > Centralized Air Conditioning System > Packaged Air Conditioning System 4.2AirConditioningSystem.
  • 11.
    4.2.2 Thermal comfort andindoor air quality of a building has became increasingly vital which is also greatly emphasized in the recent decades. Therefore, thermal environment and indoor quality is strongly related to the condition of occupants where thermal comfort must be achieved and contaminants gaseous have to kept below certain level. In this elderly center, various services that tend to enhance thermal comfort which is used within this tropical climate in Malaysia are applied and review was con- ducted. Due to the hot and humid climate in Malaysia, it is con- cluded that thermal comfort range higher than the international standards based on the data and findings. (Daghigh, 2015). It is necessary and essential for an elderly center building to apply with air conditioning system based on the requirements as most of the user are elderlies. Therefore both thermal comfort and indoor air quality in the elderly center could be improved. As compared to mechanical ventilation, air conditioning system is an active sys- tem that extract heat from the interior spaces and transferred to the outside with the aid of either electrical supply or water supply depending on the scale of the building. Air conditioning system is a device to alter the condition of a space. It provides heating, cooling and ventilation requirements of a building over a range of ambient conditions depending on the building location. Air conditioning system is designed to cope with the maximum value based on these requirements (Ener- guide, 2004) > To maintain the human thermal comfort level by controlling temperature and humidity in air. > To remove internal heat gain produced by building services and occupants. > To provide cool environment control for equipment & processes. > To prevent smoke, dust and haze from outdoors to protect human health. Through air conditioning system, air temperature, air movement, air purity and humidity level within a building can be easily ma- nipulated. Therefore, desired human comfort could be achieved. There are four types of air-conditioning that is commonly used by different scale of building based on the requirements needed to accommodate the need of the users. Window Air Conditioning System Split Air Conditioning System Centralized Air Conditioning System Packaged Air Conditioning System 4.2AirConditioningSystem.
  • 12.
    6.2.2 Major Cyclesin Air Conditioning System 6.2.2.1 Refrigerant cycle Refrigerant cycle is a process that remove heat through the evaporator to the condenser out- side. (ASHRAE 2008) . Air conditioner uses phrase conversion of liquid into gas which absorbs heat (A simple principle of physics) The principles of refrigeration are as follows: Liquid absorbs heat when changing from liquid to gas Gases gives off heat when changed from gas to liquid The refrigerant is applied to air cooling cycle, compressed gas would liquefy at a certain point and release a large amount of latent heat. When pressure is lowered, liquid will vapor- ized back to gas as it is less compressed, large amount of latent heat will then absorbed and eventually turn gas back into liquid. (Wang, 2000) In order to be economical in the use of air conditioning system, refrigerant is used repeatedly. Therefore, same cycle of compression, condensation, expansion and evaporation is used in all air conditioners in a closed circuit. Refrigerant is consistently being reused to remove the heat from the interior and expel the heat to the outdoor area. Process of refrigerant cycle > The refrigerant comes into the compressor as a low-pressure gas, it is compressed and then moves out of the compressor as a high-pressure gas. > The gas then flows to the condenser. Here the gas condenses to a liquid, and gives off its heat to the outside air. > The liquid then moves to the expansion valve under high pressure. This valve restricts the flow of the fluid, and lowers its pressure as it leaves the expansion valve. > The low-pressure liquid then moves to the evaporator, where heat from the inside air is absorbed and changes it from a liquid to a gas. > As a hot low-pressure gas, the refrigerant moves to the compressor where the entire cycle is repeated. 4.2.3 Figure 4.2.1 Basic Refrigeration cycle schematic diagram Source: (“Basic Refrigeration Cycle”, 2006)
  • 13.
    Air conditioning systemis comprised of these components. Compressor Expansion valve Condenser Evaporator Compressing the refrigerant vapor from evaporator and pumps the refrigerant throughout the whole system. Source: (“Compressor repair and replacement”, 2016) A valve which regulates liquid refrigerant into the evaporator. Source: (“Guides to choose an expansion valve”, 2010) Rejects heat absrobed by the evapo- rators. Refrigetant changes from vapor form to liquid state in the condenser and a large amount heat will be rejected. Source: (www.stylecrestinc.com) Provide heat absorbing surface. Source: (“Tips On Maintaining Your Evaporator Coil”, 2013) 4.2.4
  • 14.
    4.2.2.2 Air Cycle Aircycle is a process to distribute treated air into the specific room that need to be condi- tioned. The air supplied to the room is filtered through air cleaners to remove pollen and dust particles. This process is done by absorbing the latent heat within a room and transferred to the chilled water at the Air Handling Unit. (AHU) The air is then mixed with fresh air from outside and is blown through the cooling coil in order to provide air supply with lower temperature to the indoor. Distribution of air is done by going through ductwork or chilled water pipes. Main four components required to run the system, such as air handling unit, air filter, blower fan and ductwork. 4.2.3 Windows Air conditioning system Window air conditioner is the most commonly used air conditioner for small single rooms. In this air conditioner all the components, namely the compressor, condenser, expansion valve or coil, evaporator and cooling coil are enclosed in a single box. This unit is fitted in a slot made in the wall of the room, or more commonly a window sill. In between them there’s an insulated partition used to enclose the gap between two units.It is divided into three components: - Refrigeration components - Air Circulation and Ventilation Components - Control system components Figure 4.2.2 Schematic Diagram of an Air cycle Figure 4.2.3: Window air conditioner Source: (callmetrotech.com) 4.2.5
  • 15.
    4.2.4 Split UnitAir Conditioning System A split-system unit consists of indoor and outdoor sections. The indoor heat exchanger, or cooling coil, cooling fan mounts above the furnace, inside the ducting. The outdoor section consists of the remaining components like the compressor, condenser and expansion valve, and the two sections are joined by refrigerant lines connecting the indoor coil to the refrigeration components in the outdoor section. A split air conditioner can be used to cool one or two rooms. (Energuide, 2004) 4.2.4.1 Components in split unit system 4.2.4.1.1 Outdoor unit Figure 4.2.4: Outdoor unit. Source: (air-con-ch.blogspot.my) Outdoor unit contains important components of the air conditioner like the compressor, condenser coil and also the expansion coil or capillary tubing. This unit is installed outside the room or office space which is to be cooled. The compressor is the maximum noise making part of the air conditioner, and since in the split air conditioner, it is located outside the room, the major source of noise is eliminated. In the outdoor unit there is a fan that blows air over the condenser thus cooling the compressed Freon gas in it. This gas passes through the expansion coil and gets converted into low pressure, low temperature partial gas and partial liquid Freon fluid. 4.2.4.1.2 Indoor unit Figure 4.2.5: indoor unit, source: (AC4Life, 2008) It is the indoor unit that produces the cooling effect inside the room or the office. This is a beautiful looking tall unit usually white in color, though these days a number of stylish models of the indoor unit are being launched. The indoor unit houses the evaporator coil or the cooling coil, a long blower and the filter. After passing from the expansion coil, the chilled Freon fluid enters the cooling coil. The blower sucks the hot, humid and filtered air from the room and it blows it over the cooling coil. As the air passes over cooling coil its temperature reduces drastically and also loses the excess moisture. The cool and dry air enters the room and maintains comfortable conditions of around 25-27 degree Celsius as per the requirements. 4.2.6
  • 16.
    4.2.4.1.3 Copper Tubing Figure4.2.6: Copper Tubing. Source: (hvaccoppertubing.com) Copper tubing is used to connect the indoor and outdoor unit while covering in insulated protection layer. Normally, there are two copper tubing pipes which one pipe is used to supply the refrigerant to the cooling coil and the other pipe returns the refrigerant to the compressor. 4.2.4.2 Type of Split Unit Air Conditioning System - Ducted Split unit (With outside air) Figure 4.2.7: Ducted Split unit system schematic diagram Source: (Electrical Knowhow, 2014) Ducted split unit system has and outdoor unit and a concealed indoor unit. Air is delivered through ducting pipes (which is usually concealed in ceiling level) into each room by flowing through vents on the wall, floor or ceiling. Therefore, the capacity of this system is higher as compared to ductless split unit system. - Ductless Split unit (Without outside air) Figure 4.2.8: Ductless Split unit Schematic Diagram Source: (francisplumbing.com) Ductless split unit system provides no supply of fresh air from the outdoor. Instead, the existing indoor air is recycled and recirculated. 4.2.7
  • 17.
    Variable refrigerant flow(VRF) Figure 4.2.9: Schematic Diagram of Variable refrigerant flow Source: (construction.com) Variable refrigerant flow is also known as multi-split unit system where one outdoor unit is connected to several indoor units. It uses refrigerant as cooling medium. Types of VRF system: Master and slave system Zoned control units Variable Refrigerant volume system Master and slave system In master and slave system. one outdoor unit is connected to several indoor units with master unit controlling all the slave units. Slave units are only able to control themselves. Zoned control units In zoned control units, one outdoor unit is connected to several indoor units with each unit can function and adjust the temperature individually. Variable refrigerant volume systems In variable refrigerant volume systems, one outdoor unit is connected to several indoor units with the ability to provide total versatility to each indoor unit to cool each other. 4.2.5 Centralized Air Conditioner System The bulk of the equipment are located in the plant room and air air handling unit room (AHU Room). There are basically two types of systems that are being implemented in most buildings. They are the Direct or the Indirect type. The Direct type is also known as the DX system where the air in the space is directly cooled by the evaporator coil. The air from the space to be cooled is circulated over the cooling coil of a refrigeration plant. The Indirect type uses chilled water or brine from the refrigeration plant that is circulated through the cooling coil which is located in the air-handling unit (AHU) to cool and dehumidify the room air. This system is also known as the central chilled water system. Figure 4.2.10: Centralized air conditioning system schematic diagram Source: (brighthubengineering.com) 4.2.8 It consists of an air system, a water system, a central, heating/cooling plant and a control system.
  • 18.
    4.2.5.1 Air system Airsystem which is sometimes called as air handler, or air handling unit (AHU). The function of it is used to regulate and circulate air as part of a heating, ventilating, and air-conditioning (HVAC) system. An air handler is usually a large metal box containing a blower, heating or cooling elements, filter racks or chambers, sound attenuators, and dampers. Air handlers usually connect to a ductwork ventilation system that distributes the conditioned air through the building and returns it to the AHU. Sometimes AHUs supply and return air directly to and from the space served without ductwork. - Air Handling Unit Figure 4.2.11: Air Handling Unit Source: (HVAC Equipment, 2012) The air is filtered, heated or cooled, and the humidity is regulated to the required level. Air Handling Unit(AHU) also consists components such as supply fan, filter, mixing box, and cooling coil. 4.2.6 Packaged Air Conditioning System Figure 4.2.12: Packaged Air Conditioning System Source: (refrigeratordiagrams.com) The packaged air conditioners are used for the cooling capacities in between these two extremes. The packaged air conditioners are available in the fixed rated capacities of 3, 5, 7, 10 and 15 tons. These units are used commonly in places like restaurants, telephone exchanges, homes, small halls, etc. As the name implies, in the packaged air conditioners all the important components of the air conditioners are enclosed in a single casing like window AC. Thus the compressor, cooling coil, air handling unit and the air filter are all housed in a single casing and assembled at the factory location.. It consists of a large casing that keeps all the important components inside, such as the compressor, condenser and fan. 4.2.9
  • 19.
    4.3.1 Fire protection systemsare one of the most crucial systems to be included in every building’s design and construction. In the event of a fire outbreak, the fire protection system ensures that the building is equipped and capable of controlling and extin- guishing the fire. The purpose of fire protection is to safe guard human lives, preserve material assets as well as save the environ- ment from devastation. The fire protection system is divided into two major components known as the Active Fire Protection System (AFPS) and the Passive Fire Protection System (PFPS). These components are further divid- ed into their individual sub-components, each with different char- acteristics and functions. Active fire protection consists of manual or automatic detection of fire, use of fore and smoke alarms, fire- fighting as well as first aid. It is simply the method or the procedure of preventing a building from fire burning by using either manual or automatically operated fire mechanical systems such as fire alarms, detectors, hose reels, fire telecoms, sprinklers and so on. Passive fire protection system, however, delays the speed of com- bustion and prevents the spreading of smoke whilst protecting the escape routes in order to prolong the time taken to escape. De- sign and infrastructure, materials used, provision of isolating fire, fire walls and doors of the building that takes fire protection into consideration can be classified as Passive Fire Protection. The following tables present basic components of fire protection system and their theory in use. Active Fire Protection Active fire protection is the process of protecting a building or structure from fire with methods that use the action of mov- ing parts. These systems can be automatic or operated manually, but they require some sort of action in order to work. A couple of examples of active fire protection would be building sprinkler sys- tems and fire alarm systems. These systems are extremely import- ant in protecting property and the lives of people within. The overall aim of active system is to extinguish fire by detecting the fire early and evacuating the building, alerting emergency services at an early stage of the fire, controlling the movement of smoke and fire as well as suppress and starve the fire of oxygen and fuel. There are several systems in the active fire protection. 4.3FireProtectionSystem.
  • 20.
    4.3.2 Active FireProtection System Overview 4.3.2 Components Description sprinkler System Figure 4.3.1 Sprinkler Head Source: www.ssscorp.com Sprinkler system consists of a water supply sys- tem that provides to a series of water pipes. At a selected interval along the pipe, there are independent valves known as sprinkler heads. The sprinklers are usually activated by heat from fire, resulting in a discharge of water into the fire area. Hose Reel System Figure 4.3.2 Fire Hose Source: www.firefightingprotectionsystem.com.my The hose reel system is intended for the early stages of a fire for the occupants of the build- ing. It is to provide the occupants with first aid means of fighting a fire whilst awaiting the arriv- al of the local fire service. When the hose reel is used, the pressure of the pipe will drop below the field adjusted pressure setting of the pres- sure switch. This will trigger the pump to come into operation automatically to feed a steady supply of water to discharge through the hose. Fire Alarm System Figure 4.3.4 Break Glass Call Point Source: www.lh5.ggpht.com A key aspect of fire protection is to identify a developing fire emergency in a timely manner, and to alert the building’s occupants and fire emergency organisations. A fire alarm system is an is an integration of fire detection, alarm and bells to detect and warn occupants through glaring visuals of red light and loud ringing. These alarms may be activated via smoke de- tectors, heat detectors and manual activation such as manual call points or pull stations. Fire Suppression System Figure 4.3.5 Co2 Suppression Source: www.fire-protection.com.au Fire suppression systems are used to protect special hazard or sensitive areas. The use of conventional fire sprinkler systems may be inappropriate for special hazard areas as it might cause the fire to be bigger or cause more damage to the situation. Fire suppres- sion systems are environmentally friendly clean agents. Fire Extinguisher System Figure 4.3.6 Fire Extinguisher Source: www.northerntool.com Portable fire extinguishers are important for fire prevention as most fires start small and can be easily extinguished. It is designed to be operat- ed easily by anyone who follows simple instruc- tions labelled on the extinguishers. The type of fire extinguishers used depends on the type of fire that is present in the area.
  • 21.
    Components Description Emergency ExitSigns The emergency exit signs of ‘KELUAR’ means ‘EXIT’ in Malaysia to indicate the escape way when fire events happened in the building. Ex- its signs are usually located above a fire rated door and are installed with neon green words to provide clear visual guide for occupants during fire. Emergency Light The emergency light is a battery-backed light- ing device that will switch on automatically when a building experience a power outage. Emergency light provide lighting for visibility as well as a guidance to lead the occupants to the nearest emergency exit. Emergency Floor Plan Emergency floor plan shows the evacuation routes that lead to the nearest exits in the build- ing. Location of fire extinguisher and break glass alarm system are indicated in the plan. Fire Staircase Fire staircase is an emergency exit which usu- ally located at the back of the building and is separated by fire resistance walls. It is a path- way that leads the occupants to a safer area or assembly point when danger and emergen- cy occurs. There should not have any inhibi- tion object along the fire staircase and the fire door should remained closed but not locked according to the law. Fire Rated Door Fire rated door is a door with fire-resistance rat- ing. It acts as a barrier to stop the spreading of fire smoke between separate compartments of a structure. It is usually installed along the es- cape routes and fire staircase entrance to en- sure the safety of occupants while escaping. Fire Rated Wall Fire rated doors are used in a building to sep- arate it to compartments to stop the spread of fire. The materials used in the walls are typ- ically drywall or gypsum board partitions with wood or metal framed studs. They are typically continuous from a floor below to a floor or roof above or from one fire barrier wall to another fire barrier wall. 4.3.3 Pasive Fire Protection
  • 22.
    Compartmentation Compartmentation alsoknown as separation of fire risk area is implemented in buildings with high fire risk facilities. According to UBBL, all fire risk area should be allocated evenly and sepa- rately for the building to reduce fire spreading from one point to another point. 4.3.4
  • 23.
    Introduction The mechanical transportationof people and goods is the first concern of a designer in the earliest stage of designing a building because it is related to the human circulation and the electrical energy flow of the building. Standard of service rise with expec- tations of quality by the final user and with the provision of access for disabled people. The movement between levels of building is controlled by the principle of transportation systems. A few com- mon types of transportation systems are integrated in this public building, which are elevators, escalators and travellators. Literature review based on - ELEVATOR An elevator or lift is a type of vertical transportation that raising or lowering people or goods between floors (levels, decks) of a building, vessel or other structure. - ESCALATOR An escalator is a type of vertical transportation in the form of a moving staircase – a conveyor transport device for carrying peo- ple between floors of a building. - TRAVELLATOR A travellator is a slow moving conveyor mechanism that trans- ports people across a horizontal or inclined plan over a short to medium distance. 4.4.1 4.4MechanicalTransportationSystem Figure – Elevator Figure – Escalator Figure – Travellator Source King, W., 2012 Source : Doug Zanger, 2014 Source : GECC, 2013
  • 24.
    Source: Xinda, 2015 Source:Rudolph J. Bodmer, ed. The Book of Wonders (Washington, DC: Bureau of Industrial Education, Inc., 1917) Elevator Elevator is a vertical transportation system that used for raising and lowering people and goods to different floors in a building. Elevator is needed in any building which exceeds 4 storeys or public building which caters disabilities to overcome the concentrated human flow and aid the disabilities to enter different levels. According to the By-Law 124 of UBBL 1984, an elevator is needed to provide in non-residential building which exceeds 4 storeys above or below the main entrance. It is also essential in the building which less than 4 storeys if the access of the elderly and disabled is required. By-Law 124 of UBBL 1984 – Lift For all non-residential buildings exceeding 4 storeys above or below the main access level at least one lift shall be provided. Elevators can be classified into 4 main types of hoist mechanisms which are : > Traction Elevator > Hydraulic Elevator > Climbing Elevator > Pneumatic Elevator Various types of elevators can be classified from the main hoist mechanism of Traction Elevator : Various types of elevators can be classified from the main hoist mechanism of Hydraulic Elevator 4.4.2 Traction Elevator Traction elevators are lifted by ropes, which pass over a wheel that is attached to an electric motor above the elevator shaft. Traction elevator is used for mid or high rise applications because it has much higher travel speed than hydraulic elevators. A counter weight makes the elevators more efficient by offsetting the weight of lift car and occupants so the electric motor does not have to move as much weight. Gearless traction machines are low-speed (low-RPM), high-torque electric mo- tors powered Either by AC or DC. The traction sheave is Connected directly to the shaft of the traction Motor, and the motor rotation (speed) is transmit- ted directly to the traction sheave without any intermediate gearing. Gearless traction elevations can reach speeds of up to 20m/s (4000 ft/min).
  • 25.
    Source : BPE,2013 Source : Archtoolbox, 2015 Source : kone, 2015 Source : Fuji, 2014 4.4.3 Geared traction machines are driven by AC or DC electric motors. Geared machines use worm gears to control mechan- ical movement of elevator cars by “rolling” steel hoist ropes over a drive sheave which is attached to a gear box driven by a high- speed motor. These machines are generally the best option for basement or overhead traction use for speeds up to 3m/s (500ft/min). Machine room-less (MRL) traction elevator becoming the most popular choice for mid-rise building. - Use lesser energy (70-80% lesser than standard hydraulic elevators) - Creates more usable space - No oil is used (assuming it is a traction elevator) - All components are above ground similar to roped hydraulic type elevators - Lower cost than the other elevators; significantly so for the hydraulic MRL elevator - Operate at faster speeds than hydraulics but not normal traction units
  • 26.
    Hydraulic Elevator Hydraulic elevatorsare supported by a piston at the bottom of the elevator that pushes the elevator up as an electric motor forces oil or another hydraulic fluid into piston. The elevator descends as a valve releases the fluid from the piston. They are used for low rise applications of 2-8 stories and travel at a maximum speed of 200 feet per minute. The machine room for hydraulic elevators is located at the lowest level adjacent to the elevator shaft. With holed hydraulic systems, the elevator car is mounted on a piston that travels inside a cylinder. The cylinder extends into the ground to a depth equal to the height the elevator will rise. As hydraulic fluid is pumped into cylinder through a valve, the car rises. As the fluid returns to the reservoir, the car descends. This systems is often called inground hydraulic. 4.4.4 Source : Schumacher, 2014 Disvantages : - Areas with frequent seismic activity will have the greatest risk of oil contamination - The jack must go down into the ground roughly the same distance as the desired travel。 - Drilling a jack hole is expensive and may be nearly impossible in certain structural or geologic conditions. Advantages : - Lowest material cost application - Accommodates front and rear openings in any configuration - No extensive pit or overhead is required - Available for both high and low capacity cars - All the application types, this equipment package is the easiest to install
  • 27.
    Holeless hydraulic consistsof pistons mounted inside the hoist way to raise and lower the lift car. This is especially a solution for buildings built in bedrock, a high water table or unstable soil conditions locations that can make digging the hole required for a conventional hydraulic elevator impractical. Holeless hydraulic systems use a direct acting piston to raise the car. 4.4.5 Source : Schumacher, 2014 Disvantages : - Usually requires more overhead than an In-Ground project. The greater the travel, the greater the overhead must be - Requires a wider hoist way for the jacks - The material cost is typically higher than that of an in-ground package Advantages : - No jack hole is required. This eliminates the cost of drilling and the risk of oil con tamination - Accommodates front and rear openings in any configuration - Available for both low and high capacity lift cars
  • 28.
    Climbing Elevator Pneumatic Elevator 4.4.6 Source: JiuHong, 2015 Source : JiuHong, 2015 A climbing elevator is a self-ascending elevator with its own propulsion. Can be done by an elec- tric or a combustion engine. Climbing elevators are used in guyed masts or towers, in order to make easy access to parts of these construc- tions, such as flight safety lamps for maintenance. Climbing elevators are often used in work and construction areas. Pneumatic elevators are raised and lowered by controlling air pressure in a chamber in which the elevator sits. By simple principles of physics; the difference in air pressure above and beneath the vacuum elevator cab literally transports cab by air. It is the vacuum pumps or turbines that pull cab up to the next floor and the slow release of air pressure that floats cab down. They are espe- cially ideal for existing homes due to their com- pact design because excavating a pit and hoist way are not required.
  • 29.
    Escalator An escalator isa type of vertical transportation in the form of a moving staircase which is a conveyor transport device for carrying people between floors of a building. The device consists of a motor-driven chain of individually linked steps that move up or down on tracks, allowing the step treads to remain horizontal. Besides that, escalator provide an immediate means of transportation which means it is able to continuously conveys to move large number of people. Unlike elevator, no waiting time required during peak times. An escalator can function as a normal staircase when its power down. The speed of the escalator is varies between 0.45m/s to 0.7m/s and the width of the tread is varies between 600mm to 1200mm. 4.4.7
  • 30.
  • 31.
    Travellator Travellator is aslow moving conveyor mechanism that transports people across a horizontal or inclined plan over a short to medium distance. Moving walkways can be used by standing or walking on them. They are often installed in pairs which one for each direction. The moving surface normally are covered with reinforced rubber belt or series of linked steel plate running on the roller. 4.4.9 Source : Sidekickboobs, 2010 Source : Vrosprung, 2011
  • 32.
  • 33.
    5.0MechanicalVentilation. 5.1 5.1 Introduction Ventilation Ventilation isa process of changing air in an enclosed space. It is mainly used to control indoor air quality by diffusing and displac- ing indoor pollutants such as carbon dioxide, unpleasant odours, excessive moisture, smoke, airborne bacteria etc. It also helps to reduce heat concentration (produced by lightings, machines and human activities) and air humidity in a space, ultimately achieving thermal comfort. There are two types of ventilation, Natural ventilation and Me- chanical ventilation. Natural ventilation Natural ventilation is a process of air supply and removal through an indoor space by natural means. It occurs when there is air dif- ference, where outdoor cool air is forced in to ventilate the space. Although natural ventilation saves energy, it varies in different lo- cation as it is climatic based. Hence, mechanical ventilation is used to reach the standard of proper ventilation in a building. Mechanical ventilation Mechanical ventilation is applied when natural ventilation is not appropriate in a space. It is when mechanical devices such as fans and ductworks are used to ventilate the internal space. Me- chanical devices help in ventilation through pressurization of air. Air is drawn in or expelled depending on the ventilation systems used. Without mechanical ventilation in a poorly ventilated space, contaminants, heat, moisture and odours trapped will cause health problems or in some case, fire due to trapped chemicals. Functions of Mechanical ventilation are to remove stale air and pollutants from a space, to constantly provide fresh air supply, to help moderate internal temperatures through air movement or air circulation.
  • 34.
    5.1.2 Benefits of mechanicalventilation: -Better indoor air quality Sometimes, indoor air can be more polluted than outdoor air due to trapped pollutants, mois- ture and humidity which aids in bacteria growth. Mechanical ventilation system helps main- tain constant air exchange whenever the system is used, which result in the removal of those harmful pollutants and disperse of the bacteria concentration. -Controllable Natural ventilation does not allow user to exercise control over the source coming into the space, thus making it difficult to ensure constant air circulation. However, mechanical ventila- tion system can provide proper and constant fresh air flow depending on the user’s need and the location appropriateness. -Improved comfort Mechanical ventilation system allows a constant air flow into the system, reducing heat and humidity within a space. This maintains an optimum level of comfort due to the filtration and dehumidification through the system regardless of the outdoor weather.
  • 35.
    5.1.3 Advantages and disadvantagesbetween three systems -Supply Ventilation -Exhaust Ventilation -Balanced Ventilation Ventilation System Pros Cons Supply Ventilation Relatively inexpensive and simple to install. Work well in hot and humid climate/spaces. Allows better control than exhaust system due to type of pressurization system. Allowing outdoor air dehumidification. Minimize pollutant intake from outdoor through filter. Can cause moisture problem in cold climate. Can increase heating and cooling costs depending on system. Noise through air movement inwards. Exhaust Ventilation Relatively inexpensive and simple to install. Work well in cold climates/ spaces that needs to be rid of smell. Can draw pollutants into liv- ing space because air is not filtered. Rely in part on random air leakage Can increase heating and cooling cost depending on system Balanced Ventilation Appropriate for all climate Can cost more to install and operate than Supply or Ex- haust ventilation system Will not temper or remove moisture from incoming air Uniform Building By-Law 1984 Clause 41: Mechanical ventilation and air-conditioning (1) Where permanent mechanical ventilation or air-conditioning is intended, the relevant building by laws relating to natural ventilation, natural lighting, and heights of rooms may be waived at the discretion of the local authority. (2) Any application for the waiver of the relevant by-laws shall only be considered if in addition to the permanent air-conditioning system there is provided alternative approved means of ventilating the air-conditioned enclosure, such that within half an hour of the air-con- ditioning system failing, not less than the stipulated volume of fresh air specified hereinafter shall be introduced into the enclosure during the period when the air-conditioning system is not functioning. (3) The provisions of the Third Schedule to these By-laws shall apply to buildings which are mechanically ventilated or air-conditioned. (4) Where permanent mechanical ventilation in respect of lavatories, water-closets, bathrooms or corridors is provided for and main- tained in accordance with the requirements of the Third Schedule to these By-laws, the provisions of these By-laws relating to natural ventilation and natural lighting shall not apply to such lavatories, water-closets, bathrooms or corridors.
  • 36.
    5.1.4 Components of System AxialFan Propeller Fan Axial fan is a type of compressor that forces air to flow through its shaft, thus increasing high flow rate. The blades of the axial fan rotates, decreasing low pressure within the shaft which sucks in surrounding air through the shaft in a parallel direction. The speed of the fan determines the cooling in- tensity of the fan. It is normally used to expel heat trapped in places such as basements or tunnels. Axial fan works in conjunction with the exhaust ventilation system to expel smoke or hot air from the basement, channel- ling it to the ground floor to release it through a series of ductwork above. It is more effective in extracting air under low pressure as compared to a propeller fan. Propeller fan is a device used to dis- charge air from a space through walls and windows. It is commonly used in residential and commercial buildings without ducting. The fan is used commonly in places which have higher temperature such as service rooms, machinery room etc. The propeller fan helps to extract the hot air from the service rooms, main- taining room temperature at comfort levels and efficiency of machineries. When placed in an opposite direc- tion, the fan will help draw in outdoor air into the building, however without proper ductwork. This would result in intake of air which includes moisture and pollutants. Hence, propeller fans are more commonly used in Exhaust ventilation system than Supply venti- lation system. Figure 4: Axial Fan (Source:https://sc01.alicdn.com/kf/HTB1fKkcGVXXXXaKXFXXq6x XFXXXj/200058153/HTB1fKkcGVXXXXaKXFXXq6xXFXXXj.jpg) Figure 5: Propeller Fan (Source: http://www.northerntool.com/images/product/700x- 700/250/250726_700x700.jpg) MS 1525 Code 8.4.1 Temperature Control Each system should be provided with at least one thermostat for the regulation of temperature.Each thermostat should be capable of being set by adjustment or selection of sensors over a minimum range of between 22c to 27c. Multi-stage thermostat should be provided for equipment exceeding 35/65kWr in conjunction with 8.2.4
  • 37.
    5.1.5 Ductwork Diffuser Ductwork system iscommonly used throughout a building. It is used for the delivery of fresh air and the removal of stale air across buildings to ensure better indoor air quality. The material used for the ductwork is commonly galvanized steel or any other ap- proved materials, in the possibility of a spreading fire and the material’s abil- ity to withstand it. Fibreglass is used in ductworks for insulation purposes. Poorly designed ductwork may result in an opposite reaction, thus defeat- ing its purpose and making air quality worse. This will increase energy con- sumption by the machine, affecting building pressure and having higher utility cost. Ventilation ducts should not pass through smoke-stop or firefighting lobby less it be enclosed with fire-re- sistant elements in which masonry is used or it be fitted with fire dampers. This is to prevent fire from spreading into another room. Normally, the ductwork system of carparks, kitchen, and toilets are sep- arated. This is to prevent any unnec- essary foul smells from entering each other’s spaces. Air diffusers are designed for air sup- ply and exhaustion in mechanical ventilation system. The construction gives the possibility of air distribution in various amount and in one or more directions with the help of ductworks. The grilles are mounted on a dropped ceiling or directly on the air duct sys- tem where the supplied air is released into the room. They are used to de- liver ventilating and conditioning air (conditioned air only when integrat- ed into the HVAC system), to distrib- ute air evenly in preferred directions and to create low-velocity air move- ment in occupied rooms in any de- sired directions. Figure 6: Ductwork (Source: http://findapro.interioexterio.com/images/2016/03/31/26/dtc-aircondi- tions_2.jpg) Figure 6: Ductwork (Source: http://findapro.interioexterio.com/images/2016/03/31/26/dtc-aircondi- tions_2.jpg) Uniform Building By-Law 1984 Clause 99 Cooking facilities in residential building. 2) Where a common vertical kitchen exhaust is provided, the riser shall be continued up to a mechanical floor or roof for discharge to the open, and shall be constructed with fire resisting material of at least 2 hours rating with BS476: Part 3. MS1525 8.3.1 Separate Air Distribution System Zones which are expected to operate non-simultaneously for more than 750 hours per year should be served by separate air distribution system. As an alternative off-house controls should be provided in accordance.
  • 38.
    5.1.6 Filter Fire Damper Filter iscommonly used inside ductworks to filter outdoor incoming air into the building or to filter indoor outgoing air into the atmosphere. It is used to trap and prevent dust, smoke, and other pollutants from entering the room. Fibreglass material is the cho- sen material because of its sound in- sulation properties and is considered environmental friendly compared to other materials such as polyester or synthetics. Some other filters are used in specific area due to its function. For example, a kitchen exhaust ductwork will normally be fitted with a grease fil- ter so that grease will not be trapped along the insides of the ductwork. Fire damper is a device installed to prevent the spreading of fire through walls or ducts from one space to an- other. Upon detection of heat, the fire damper closes automatically, thus re- sisting the passage of flames into oth- er spaces. It is also used to interrupt migratory airflow and maintaining the integrity of the fire rated separa- tion. Fire dampers are usually installed at compartment walls, where it is at the point of duct penetration from one space to another. Even if the ductwork collapses, the damper will still be attached to the wall, maintain- ing the integrity of the wall. Figure 8: Fibreglass filter (Source: http://www.smartclima.com/wp-content/uploads/2013/03/ Panel-prefilter-with-metal-frame-1.jpg) Figure 9: Fire Damper (Source: http://firedamper.com/wp-content/uploads/2013/04/75-B.jpg) Uniform Building By-Law 1984 Clause 156: Protected shafts as ventilating duct, (1) If a protected shaft serves as, or contains, a ventilating duct – (a) The duct shall be fitted with automatic fire dampers together with or without sub-ducts as Australian Standard 12668: Pt. 1:1974, so constructed at such intervals and in such positions as may be necessary to reduce, so far as practical, the risk of fire spreading from a compartment to any other compartment, or such other provision shall be made as will reduce such risk so far as practicable; and (b) The duct shall not be constructed of, or lined with, any material which substantially increases such risk.
  • 39.
    5.1.7 Analysis Based on ourchosen Elderly centre, the spaces are analysed in order for the allocation of mechanical ventilation system to be made. The proposed mechanical ventilation system in spaces are made based on the information learned in Literature review. Spaces are highlighted to indicate which mechanical ventilation system is used (Figure 10). Justifica- tion is made below to show suitability of the chosen system at the given space. Supply ventilation system. This system is used in areas which have higher temperatures. Thus, the service area on both floors of the elderly centre needs to be equipped with this system to aid ventilation into the space, cooling down the space. Exhaust ventilation system. This system is used in areas which tends to have foul smells, or heat concentration. Thus, the system is applied in areas such as the kitchen, washrooms and bathrooms. Exhaust fans and ductwork are placed in the kitchen to remove the smell of food and to remove grease particles in the air. On the other hand, washrooms and bathrooms are fitted with exhaust fans to expel water vapour gathered in the space to prevent the growth of mould. For this elderly centre, we propose to have two separate exhaust ventilation system, one for the kitchen and the other for the washroom and bath- rooms as both the spaces expel different pollutants in the air based on its different functions of space. Combined ventilation system. This system is used preferably in larger areas where major hu- man concentration is focused in the area and in need of constant exchange of air in order to accommodate the oxygen intake by the users in the space. Thus, the system is applied in areas such as the chapel, restaurant, event hall and library. These are spaces which are built to accommodate large amounts of people at a time in an enclosed area. Hence, it is wise to apply combined ventilation system as we would like the pressure in the room to be maintained at neutral to prevent wind drafts in the space. Figure 10: Highlights of spaces based on types of mechanical ventilation system applied
  • 40.
    5.1.8 The rest ofthe spaces in the elderly centre are not fitted with any mechanical ventilation sys- tem due to a couple of reasons: > Spaces are open (not enclosed) and thus have constant air flow in the area. > Spaces are small, yet have windows to aid ventilation. Moreover, A/C units are in stalled in most spaces. Thus, there will be conditioned air being introduced into the spaces. Figure 11 shows the location of fans on the walls of the elderly centre based on the type of Mechanical Ventilation System chosen. Ductworks are not shown in plan as it is up to the building service engineer to determine its location, however the fans are placed to suggest openings of the building to either draw in air flow or expel out air flow. Note that the combined ventilation system has two types of fans (in & out) to determine the inlet and outlet of the vent before being processed through the ductwork. Figure 11: Placement of fans based on types of mechanical ventilation system applied
  • 41.
  • 42.
    6.0AirConditioningSystem 6.1 6.1 Introduction An air-conditioningsystem can provide comfort for occupants by lowering the air temperature and humidity level. This Elderly Cen- tre is a public building with variety size of spaces which is separat- ed into three compartments.This building consist of two storey and is air conditioned by Multi Split-unit System (VRF) and Mono Split- unit system depending on the sizes and requirement of the space. Split-Unit system (VRF, Single Split) is applied to the Elderly Centre as it is able to take up less space consumed at the outdoor area with the less application of outdoor units. Independent control of the room temperature setting is preferred in this Elderly Centre. Furthermore, it has the advantages of energy and cost saving as independent control of each unit can achieve greater efficien- cy. Greater installation versatility and room saving choices in the center. However, no renew fresh air are supplied into the interior where the indoor air is recycled and recirculated. Every split unit air conditioning system consist of an outdoor unit which connects to the rest of the indoor unit. An outdoor unit function as a con- denser while the indoor unit serves as the evaporator. The outdoor compressor unit pumps and cools the system’s refrigerant by flow- ing through the copper lines to the indoor unit. Cool air are turned and distributed throughout the air by the fan inside the unit. As cool are is heavier (as they are condensed) than warm air, thus the cooled air drops and warmer air rises. Warm air is retrieved through the indoor unit and removed along with condensation which may have collected back inside the unit and out to the compressor through the copper lines. This eliminate the installation of complex duct system within the building or upon the ceiling.
  • 43.
    6.2 Split UnitSystem Split air conditioning systems are so described because the evaporator is housed in a room unit and the condenser is housed in a separate outdoor unit. Refrigerant flow and return pipes connect the two units together. The indoor unit can be wall or floor mounted or accommo- dated within a suspended ceiling. The finish of the indoor unit is of high quality to integrate with the appearance of the room decor or suspended ceiling panels. It works well in situations where rooms only need to be cooled at certain times. Multi-Split Unit System (VRF) 6.2 Figure 6.2.1 cooling operation in VRF system Figure 6.2.2 Basic layout of the relationship between indoor and outdoor unit Source: (Daffan Mechanical, 2014) Variable refrigerant flow refers to the ability of the system to control the amount of refrigerant flowing to each of the evaporators, enabling the use of many evaporators of differing ca- pacities and configurations, individualized comfort control, simultaneous cooling in different zones. This refrigerant flow control lies at the heart of VRF systems and is the major technical challenge as well as the source of many of the system’s advantages. it consists of an outdoor unit which can connects up to 8 indoor units.
  • 44.
    6.2.1 Mono-Split Unit System Figure6.2.3 cooling operation in VRF system Source: (Daffan Mechanical, 2014) Similar to multi-split unit system, it consist of an outdoor unit and an indoor unit with piping con- necting both. The outdoor unit houses the compressor, the condenser coil and the expansion valve, and is designed to transfer heat outside through a centrifugal fan.The indoor unit hous- es the evaporator coil and thanks to a tangential fan it blows cool air into the room. Piping is straightforward, it is suitable to use at spaces that is small. Individual control of the space temperature is provided as well. Figure 6.2.4 Schematic diagram of Mono-Split Air conditioning Source: (Bright Hub Engineering, 2009)
  • 45.
    6.2.2 Ductless split system Fig6.2.5 Schematic diagram of indoor and outdoor unit through pipeline Source: (Mission Air Conditioning, 2014) Fig 6.2.6 Schematic diagram of multi split unit system through pipeline Source: (Daffan Mechanical, 2015) Both system applied does not need ducts at all where refrigerant lines, suction lines and power cables are running between indoor and outdoor components. Therefore, small holes must be drilled into walls in order to make these connections. Indoor units are mounted high up on the walls or ceilings. No fresh air is brought into the indoor area but instead air is recycled. They also avoid the energy losses associated with ductwork of central forced air systems. Duct losses can account for more than 30% of energy consumption for space conditioning, especially if the ducts are in an unconditioned space such as an attic. It can also be controlled and remote individually in a specific space. One or more outdoor units are mounted on the wall outside the center where one or more indoor blower units are installed within the center. However, there will be less quantity for the outdoor units with more quantity of the indoor unit where one outdoor unit is connected to numbers of indoor units. Split unit system within the center are controlled as an individual unit which individual control of temperature comfort is optimized in the specific space and running costs are saved as well. RB unit is necessary as the air conditioning is solely for cooling purposes. MS 1525 Code 8.4.1.3 Multi zone systems These systems, other than those employing variable air volumes for temperature control should be provided with controls that will auto- matically reset the off-coil air supply to the highest temperature that will satisfy the zone requiring the coolest air
  • 46.
    6.3 Outdoor unit Outdoorunit is where the heat from the interior space will be dispersed out to the surrounding. It consists of various components such as compressor, condenser coil and a fan. The main function of the compressor in this air conditioning system is to move the refrigerant through- out the system by increasing the pressure and temperature of the refrigerant. It is vital in the whole system as the refrigerant in the system can be reused to cool the space. Refrigerant is compressed with high pressure and move through the outdoor coil which is known as the con- denser. A fan delivers ambient air across the condenser coil causing it to cool as the refriger- ant passes through the condenser. At the end of the process, heat from the interior spaces will be dispersed to the outdoor where the refrigerant will be pumped back again to the indoors and the whole process will be repeated as mentioned above. Analysis The outdoor units are located at the side or less visible area in order to maintain visual appear- ance of Elderly Centre. Cages or louvers are applied to the outdoor unit for security purpose. 6.3.1 Figure 6.2.7 Split system outdoor condenser Source: (indiamart.com) Figure 6.2.8 VRF outdoor condenser Source: (www.narkissoscy.com) Fig. 6.2.9 Caged VRF outdoor unit. Source: (www.heronhill.co.uk) Fig.6.2.10 Caged mono-split outdoor unit. Source: (sethiwelders.co.nz) MS1525 Code 8.4.4.2 Outdoor air supply and exhaust systems should be provided with motorized or gravity dampers or other means of automatic volume shut-off or reduction during period of non-use or alternate use of the spaces served by the systems.
  • 47.
    The adoption ofmulti split unit has greatly lessened the amount of outdoor units used and heat discharged to the outdoor area is greatly minimized as well as heat that is discharged to the outdoor units which will create an uncomfortable outdoor environment for the elderly with the rise of the surrounding temperature. At the ground floor level, two VRF outdoor unit is used with one single split wall mounted out- door unit. For the second floor, multi split indoor units are connected to VRF outdoor unit on the ground level while 4 split indoor units are connected to their respective outdoor unit. 6.3.2 Fig. 6.2.11 Application of VRF and Mono split outdoor unit at Ground Floor Plan & First Floor Plan
  • 48.
    MS 1525 Code8.2.1 Air conditioning systems and equipment shall be sized to provide no more than the space and system loads calculated in accordance with 8.1 above, consistent with available equipment capacity. Redundancy in capacity of equipment, if incorporated into the siz- ing of the duty equipment, should include efficiency devices such as variable speed drive, high efficiency motor, efficient unloading devices, multi compressors etc. so as not to diminish the equipment/system efficiency when operating at varying loads. Analysis Two kind of indoor unit are applied in this Elderly Centre which is wall mounted unit and ceiling cassette unit. The application of the type of indoor unit depends on the size and requirements of each spaces. Therefore, spaces that are spacious such as gathering courtyard, Lounge, restaurant, chapel and library which has more engagement of activities adopted ceiling cassette unit as it can cool these large spaces in four direction with its wide airflow distribution ensuring even tem- perature distribution more efficiently. However, spaces such as office room, pharmacy which is small, narrow and long are applied with wall mounted unit as it has sufficient cooling load to cool the whole space in one direction. Zone by zone installation benefits time and cost saving. The distance of refrigerant pipe (Cop- per tube) between outdoor unit and indoor units can be minimized as much as possible to prevent the loss of cooling effect. 6.3.3 Figure 6.2.12: Wall mounted Air Conditioner Source: (www.fujitsu-general.com) Figure 6.2.13: Ceiling Cassette unit Source: (http://www.koppel.ph) 6.3.2 Indoor unit The cooling effect in the interior spaces is created by the indoor unit. Variety of choices of in- door unit can be chosen nowadays. The indoor unit houses a long blower, an evaporator coil, cooling coil and a filter. After passing through the expansion coil, the chilled Freon fluid will enter the cooling coil. The blower will suck the hot, humid and filtered air from interior space and blows it over the cooling coil. As the air passes through the cooling coil, the temperature reduces drastically and loses excess moisture collected. Comfortable condition is created at around 25-27 degree Celsius as per the requirements. Ceiling cassette unit is used as it can cool these large spaces in four direction with its wide airflow distribution ensuring even temperature distribution more efficiently. adjustable thermo- stats and variable speed fans, ceiling cassette A/C units are exceptionally energy efficient. Photocatalytic purification filters can also be used with them to filter the air of pollutants and other harmful particulate, meaning the A/C unit can pull double duty as an air purifier. Wall mounted unit is used as it is sufficient to cool small, narrow room in one direction. Simple and easy to install and maintain. Environmentally friendly to reduce carbon footprint.
  • 49.
    MS 1525 Code8.4.4.5 Zones may be grouped into a single isolation area provided the total conditioned floor area does not exceed 250 m2 per group nor include more than one floor unless variable air volume or equivalent devices are incorporated. Use of outside economy air cycle design where feasible should be considered. 6.3.4 Figure 6.2.14: Multi Split (VRF) & mono split unit at Ground Floor Plan Figure 6.2.15: Multi Split (VRF) & mono split system on First Floor Plan Fig 6.2.16: Zoning of types of indoor unit used at Ground Floor Plan & First Floor Plan.
  • 50.
    7.0FireProtectionSystem. 7.0 7.0.1 Introduction 7.1 ElderlyCentre Fire Prtection System Overview 7.2 Active Fire Protection 7.3 Passive Fire Protection
  • 51.
    7.0FireProtectionSystem. 7.0.1 7.0.1 Introduction Fire isthe rapid oxidation of a combustible material in the exothermic chemical process of combustion or burning, in which substances combine chemically with oxygen from the air accompanied by release of energy in the form of heat. For ignition to take place, the presence of both a fuel and a heat energy source is required. When the two are brought together at proportionate measurements, either by a lack of separation or by some type of active interaction, a fire occurs. Figure 7.1 Diagram of Fire Combustion Source: (Fire Triangle, 2016) The probability of occurrence of ignition within a room or a com- partment depends on a number of parameters, including: >Heatorignitionsourcespresentandtheavailableignitionenergy; >Flash point of flammable liquids in the compartment; >Flammability limit of combustible vapours released from the fuel; >Ignitability characteristics of fuels that are near ignition sources; >Critical temperatures of materials in the compartment; >Separation or arrangement of fuels and heat sources; >Building management characteristics (housekeeping, mainte- nance, inspection, training and security of the building). In its cycle, a fire goes through four distinct stages, usually charac- terised in terms of the average temperature of compartment gas- es: fire incipient or ignition which is defined as the onset of com- bustion; the pre-flashover or growth period during which the fire is localised to a few burning objects; the post-flashover or fully-de- veloped stage during which the fire engulfs the whole compart- ment; and the decay stage. The transition from the growth stage to the fully-developed stage is known as flashover. These typical fire stages are shown in Figure. Fire protection consist of methods to prevent fire from turning destructive and also to minimize the impact of the uncontrolled fire to reduce harm or damage. Figure 7.2 Four Stages of a Fire Chart Source: (http://journeytofirefighter.com/)
  • 52.
    7.1 Elderly CentreFire Protection System Overview The Elderly Centre is a commercial building with a variety of spaces. It houses offices, a restaurant, kitchen and merchants at the ground floor. The restaurant in the elderly centre poses the highest risk for a fire breakout, therefore serious consideration must be taken in order to ensure its safety. The nearest fire department station is located 300m away, indicating a relatively fast reaction time for rescue. Being a complex commercial building, the elderly centre has quite a complete array of active and passive fire protection systems. 7.2 Active Fire Protection Active fire protection is the process of protecting a building from fire with methods that use the action of moving parts. These systems can be automatic, or operated manually, but they require some sort of action in order to work. There are some examples of active fire protection would be building sprinkler systems and fire alarm systems. These systems are an extremely important part of protecting property and the lives of the people within. The following list shows the types of systems that are found in the elderly centre and will be discussed further in this chapter with the various components that are used. > Fire Alarm System > Sprinkler System > Hose Reel System > Carbon Dioxide Fire Suppression System > Fire Extinguisher The following diagram shows the progress of how active fire protections are worked & proceeded in the elderly centre: 7.1
  • 53.
    Smoke Detector Figure 7.3Smoke Detector Source: (www.blog.cdn.aws.vivint.com) A smoke detector is required in every building. It is a device that senses smoke, typically as an indicator of fire. Smoke detectors are located at alternate positions to detect smoke and tem- perature rise in an event of a fire. The fire alarm control panel will be automatically triggered when detectors has sensed smoke in that particular room and area. Figure 7.4 Optical Smoke Detector Mechanism Source: (www.acornfiresecurity.com) There are two types of smoke detectors – Photoelectric/Optical Smoke Detectors and Ioniza- tion Smoke Detectors. The elderly centre utilises the Optical Smoke Detector. Fire generates hot gases and because these are less dense (thinner—or weigh less per unit of volume) than ordinary air they rise upward, swirling tiny smoke particles up too. The detector is designed with a large opening in the bottom (1), shown upper right in the top photo that leads to the detection chamber up above. An invisible, infrared light beam shoots across the chamber from a light-emitting diode or LED (2) to a photocell (3). The photocell is an electronic light de- tector that generates electricity for as long as light falls on it. Normally, when there is no smoke about, the light beam shoots constantly between the LED and the detector. An electronic circuit (4) detects that all is well and nothing happens. The alarm (5) remains silent. However, if a fire breaks out, smoke enters the chamber (6) and interrupts the beam (7). As no light is falling on the photocell, it does not generate an electric current anymore. The circuit spots this straight away (8), realizes something’s amiss, and triggers the shrill and alarm (9). 7.2 According to UBBL 1984 Section 225 (1): Detecting and extinguishing fire Every building shall be provided with means of detecting and extinguishing fire and alarms together with illuminated exit signs in accordance with the requirements as specified in the tenth schedule to these by laws.
  • 54.
    Covered Smoke Figure 7.5Covered Smoke (Source: www.ourshorelinecommunity.org) There are some rooms in the elderly centre where a lot of dust is present. In these rooms, the smoke detectors are covered to prevent the detectors from being stuck with dust as well as to prevent the detectors from detecting excessive dust as smoke and triggering a false alarm. Analysis Each room in the Elderly Centre consists of at least one smoke detector. The smoke detectors are also installed at the entrance. The Elderly Centre is a smoke free area, hence occupantsarenotallowedtosmokeindoorsorelseitmighttriggerthesmokedetector.Thesmoke detectors are mostly installed indoors with the sprinkler units to put out fire at first instance. 7.2.1 Figure 7.6 Location of Smoke Detectors at Ground and First Floor Plans
  • 55.
    Triggers Figure 7.7 BreakGlass Call Point Source: (www.lh5.ggpht.com) There are two types of triggers, namely, the break glass call point and the manual call point. The break glass alarm is a manually actuated device which has to be activated by the oc- cupants of the building. In every building, the call point should be placed strategically and visible to all users for ease of activation in the event of a fire. An alarm system is initiated and operated by means of a simple press of the button. It is easy for the occupants to trigger the emergency alarm as the glass is a very fragile element. It is connected to a central control panel in the building and is usually linked to a local fire bridge dispatcher. Occupants are re- quired to break the glass to trigger the alarm system to activate via the call point, which will send a warning signal to the central alarm system to cut off the electricity power supply, and ring the alarm to warn nearby people. Analysis Break glass call points are usually located nearby staircases for convenience of occupants in reaching for the trigger in the case of a fire emergency. They are placed at the emergency staircase, nearby the corridor in the Elderly Centre. 7.2.2 Figure 7.8 Location of Break Glass Call Points at Ground Floor Plan
  • 56.
    Fireman Intercom System Figure7.9 Fireman Intercom Source: (www.dynoklang.com.my/) The Fireman Intercom System provides a reliable two-way emergency voice communication system between the Master Console handset at the fire control room and the remote handset stations which is located at the escape routes of the building. The master control panel com- prises the master handset, a system control module and zone control modules. In the event of a fire outbreak, a call lamp will flash with audible signals at the master control panel to indicate where the call is coming from. As the handset is lifted to answer the call, the audible signal will be silenced. The master control panel is also equipped with a fault indicator unit which provides easier identification should there be a false alarm. The master control console is located at the fire control room. When the master console handset is lifted and there is no incoming call, there will be an outgoing call to the BOMBA. Should the BOMBA need to con- tact anyone in the elderly entre, the call will be transferred immediately to the phone at the fire control room. Analysis The fire intercom systems is placed at the reception, for the convenience of firemen and occupants in alerting the security through the telecom. Immediate alert can be sent to the master console. It is an efficient way to declare an emergency in the event of a fire outbreak. 7.2.3Figure 7.10 Location of Fireman Intercom at Ground Floor Plan
  • 57.
    Alarm Bell Figure 7.11Fire Alarm Bell Source: (http://www.suns-usa.com) Fire alarm bells are important components in the Fire Detection System as the sounds gen- erated are usually the initial warnings that make occupants aware of the fire threats in the building. Fire alarm bells are activated by fire detectors. The alarm bell is a device that creates a loud alert sound. It functions by means of an electromagnet, consisting of coils of insulated wire wound round iron rods. When electric is present, the current will flow through the coils. The rods will then become magnetic and attract a piece of iron attached to a clapper. Once the clapper hits the bell, it will create a repetitive loud ringing sound to alert occupants of emergency. 7.2.4 Figure 7.12 Location of Alarm Bells at Ground Floor Plan According to UBBL 1984 Section 237: Fire alarms (1) Fire alarms shall be provided in accordance with the Tenth Schedule to these By-laws. (2) All premises and buildings with gross floor area excluding car park and storage areas exceeding 9290 square metres or exceeding 30.5 metres in height shall be provided with a two stage alarm system with evacuation (continuous signal) to be given immediately in the affected section of the premises while an alert (intermittent signal) be given in adjoining section. (3) Provision shall be made for the general evacuation of the premises by action of a master control.
  • 58.
    Main Fire ControlPanel Figure 7.13 Main Fire Control Panel Source: (www.cjelectronics.com) The Central Command Centre, also named as Fire Alarm Control Panel or Fire Alarm Control Unit, is the system panel of a fire alarm system. The control panel indicates the source of the fire alarm so that ni case of an emergency, the source of the fire outbreak or the cause of the alarm triggered can be set. It controls and receives information and data from all the sensors designed to identify changes related to fire, monitors their functioning integrity and provides for automatic control of equipment, and transmission of data needed to prepare the facility for fire based on a programmed order. The centre can also supply electricity to activate any connected sensor, transmitter, control or relay. 7.2.5 Fire Hydrant Figure 7.14 Fire Hydrant Source: (www.123rf.com) The Fire Hydrant is a source of water which is provided in the most urban, suburban and rural areas with public water services to enable the firefighters to tap into the water supply easily in attemps of extinguishing a fire. It allows firefighters to gain water supply easily and efficiently for firefighting purposes. The fire hydrant is usually installed in an open space area, for the convenience of firefighters in the case of an emergency. The fire hydrant system consists of a system of pipe works connected directly to the water supply. Firefighters attach a hose to the hydrant, the valve is then opened to release high pressured water. The water from the fire hydrant can be further pressurised for longer distance water shooting, firefighters will connect the hose to a fire truck which contains a booster pump to enable an increment in water pressure. According to UBBL 1984 Section 225: Detecting and extinguishing fire (1) Every building shall be provided with means of detecting and extinguishing fire and with fire alarms together with illuminated exit signs in accordance with the requirements as specified in the Tenth Schedule to these By-laws. (2) Every building shall be served by at least one fire hydrant located not more than 91.5 metres from the nearest point of fire brigade access. (3) Depending on the size and location of the building and the provision of access for fire appliances,additional fire hydrant shall be provided as may be required by the Fire Authority.
  • 59.
    Jockey Pump Figure 7.16:Jockey Pump Source: (www.indiamart.com) The Jockey Pump is an apparatus that works alongside a fire pump as a part of the fire protection system. It functions to maintain the pressure in the sprinkler piping system. It also assists in the prevention of drainage when a fire breaks out and water starts rush- ing into the pipes. Jockey pumps are only used for the sprinkler system. If a fire sprinkler is activated, a pressure drop will be sensed by the fire pump’s automatic controller, which stimulates the fire pump to start working. Duty Pump Figure 7.17: Duty Pump Source: (www.peerlessmidwest.com) The Duty Pump functions when the pres- sure in the pipe goes down to 35 PSI, and supplies enough pressure of water in order to maintain the system and make sure it is running well. However, if the duty pump encounters any form of problems which prevents its proper operation or drops to 25 PSI, the standby pump will automatically be activated from the master control panel if needed. Standby Pump The Standby Pump shares the exact function as the duty pump. As mentioned above,itreplacesthedutypumpwhenitisnot functioning or needs to be switched off Pump Controlling System Figure 7.15 Fire Pump Room Source: (www.indiamart.com) The fire pump room plays a crucial part in order for a fire fighting system to actually work during a fire breakout. It houses all the pump systems and water storage tanks. The main sys- tems that function through the fire pump are the sprinkler and hose reel system. The fire pumps can be powered by diesel, electronic or steam. Types of pumps found in fire pump room: 7.2.6
  • 60.
    7.2.7 Figure 7.17: DutyPump Source: (www.peerlessmidwest.com) PSI, the standby pump will automatically be activated from the master control panel if needed. Standby Pump Figure 7.18: Duty Pump Source: (www.power-technology.com) The Standby Pump shares the exact function as the duty pump. As mentioned above,itreplacesthedutypumpwhenitisnot functioning or needs to be switched off manually. Control Valve Figure 7.19: Duty Pump Source: (www.jflowcontrols.com) The Control Valve is located at the primary water pipe. It controls the flow of water from the pumps.
  • 61.
    Figure 7.21 Locationof Water Tank at Roof Plan 7.2.8 Water Tank & Suction Tank Figure 7.21 Water Tank for Fire Fighting Source: (www.binasteel.com.my) The Water Tank stores the water from the main pipe provided by SYABAS for all the existing sprinklers and in the building. The water is channelled into the tank at the fire pump room through the pipes. The water level indicates the level of water in the water tank to ensure there is sufficient water in case for emergency usage. During a fire emergency, when the sprinklers are triggered, water will be transferred from the suction tank to the pumps and the pumps will pressurize the water to all the sprinklers. According to UBBL 1984 Section 247: Water storage (1) Water storage capacity and water flow rate for firefighting systems and installations shall be provided in accordance with the scale as set out in the Tenth Schedule to these By-laws. (2) Main water storage tanks within the building, other than for hose reel systems, shall be located at ground, first or second basement levels, with fire brigade pumping inlet connections accessible to fire appliances. (3) Storage tanks for automatic sprinkler installations where full capacity is provided without need for replenishment shall be exempted from the restrictions in their location.
  • 62.
    Wet Riser andHose Reel System Figure 7.22 Hose Reel Source: (www.rnwservices.com.au) The elderly centre is protected by a hose reel system running throughout the building and serves by the hose reel pump set at fire pump room next to the pump set. Occupants of the building can use it for firefighting at the early stages of fire. It is connected to the wet riser which is fully pressurized at all times for emergency usage. Analysis The Fire Hose Reel is a crucial component which is intended for the users of the building. Fire hose reels can deliver much more water than portable extinguishers, and given that it con- tains a large amount of water source makes it a key device that could save many lives and the building in a fire system. The hose length should be at least 45 meters made of reinforced rubber. The hose reels are placed at the emergency staircases. 7.2.9Figure 7.23 Location of Hose Reels at Ground Floor Plan & First Floor Plan
  • 63.
    Sprinkler Figure 7.24 RecessedPendant Sprinkler Source: (www.firesprinklerinstallation.website) Figure 7.25 Recessed Pendant Sprinkler Detail Source: (www.firesprinklerinstallation.website) The Recessed Pendent Sprinkler contains a head that hangs down from the ceiling connect- ed to the pipe which is hidden beneath the ceiling. Its water deflector is placed at the bottom and it spreads water in a circular motion. Recessed pendent sprinklers have a higher water flow speed than the upright sprinkler. Each sprinkler has an open compartment that holds a friable heat-sensing quartz build, containing a coloured liquid that is usually red, that seals the water inlet. 7.2.10 Figure 7.26 Location of Sprinklers at Ground Floor Plan & First Floor Plan According to UBBL 1984 Section 226: Automatic system for hazardous occupancy Where hazardous processes, storage or occupancy are of such character as to require automatic sprinklers or other automatic extinguishing system, it shall be of a type and standard appropriate to extinguish fires in the hazardous materials stored or handled or for the safety of the occupants.
  • 64.
    Fire Sprinkler ControlValve (Alarm Gong System) Figure 7.27 Sprinkler Alarm Source: (www.industries.ul.com) When a fire sprinkler is exposed for a sufficient time to a temperature at or above the tem- perature rating of the heat sensitive element (glass bulb or fusible link) it releases, allowing water to flow from only the affected sprinkler. Additional fire sprinklers may also operate if they too are exposed to sufficient heat. When this occurs water from the water supply will pass through the alarm valve to the affected fire sprinkler and also past the alarm bell. The resultant pressure drop will also activate the alarm pressure switch, which in turn will activate an alarm calling the fire brigade. The water supply may be isolated (stopping the flow of water to the affected fire sprinklers) by closing the stop valve. Carbon Dioxide Suppression System Carbon Dioxide Fire Extinguishers contain chemical gas agents (Carbon Dioxide) that extin- guishes fire through oxygen depletion by lowering the normal oxygen concentration in the air from 21% to about 12%-10% below the limit required for combustion whilst providing a safe and breathable atmosphere which can be tolerated by humans for a short period of time. They are usually installed in facilities room such as the mechanical and electrical room that consists of electrical apparatus that will cause danger to the occupants in the building. Car- bon dioxide is an effective fire suppression ahent applicable to a wide range of fire hazards. It works quickly, with no residual clean-up associated with a system discharge which translates into minimal business interruption. Heat or smoke detectors will detect the heat and sound the alarm while the CO2 gas floods the room from its high pressure storage cylinders. The gases are sent via pipes to the ceiling and under flood distributors. Once detected by the heat trig- gers, the CO2 released, curtain walls go down and when doors are shut, two indicators will show when the gas operation is over. 7.2.11 Figure 7.26 Location of Sprinklers at Ground Floor Plan According to UBBL 1984 Section 228: Sprinkler valves (1) Sprinkler valves shall be located in a safe and enclosed position on the exterior wall and shall be readily accessible to the Fire Au- thority. (2) All sprinkler systems shall be electricity connected to the nearest fire station to provide immediate and automatic relay of the alarm when activated.
  • 65.
    7.2.12 Figure 7.29 Locationof Carbon Dioxide Suppression System at Ground & First Floor Plan
  • 66.
    Fire Extinguisher Figures 7.30Types of Fire Extinguishers Source: (Y.Q.Liang, 2012) The fire extinguisher is installed to enable occupants to react as early as possible when there is an initial stage of fire where the equipment is portable and easy to operate. An active fire protection device that is used to control small fire, the Fire Extinguisher is made to be portable, so that when the building is on fire, and the main fire devices such as hose reel are far from reach, fire extinguisher will be the best option. Different types of fire further divides the fire ex- tinguishers into 5 categories which are stated in the figure above. Analysis CO2 fire extinguishers are recommended for use in the Elderly Centre as it is safer and better for use on electrical appliances and it is also non-residual, making them ideal for use in office environment compared to the other types of fire extinguishers. 7.2.13 Figure 7.31 Fire Extinguisher Source: (www.northerntool.com) According to UBBL Section 227: Portable extinguishers Portable extinguisher shall be provided in accordance with the relevant codes of practice and shall be sited in prominent positions on exit routes to be visible from all directions and similar extinguishers in a building shall be of the same method of operation.
  • 67.
    7.2.14 Figure 7.32 Locationof Fire Extinguishers at Ground Floor Plan & First Floor Plan
  • 68.
    7.0FireProtectionSystem. 7.3.1 Passive Fire ProtectionSystem Introduction Passive fire protection is defined as the use of fire barrier systems that are integrated into the structure of a building to contain or slow the spread of fires through the use of fire rated walls, floors, doors and so on. This system must be considered at the planning design stage which includes, providing fire evacuation routes and fire appliance access.
  • 69.
    Emergency Exit Signs Theemergency signs act as the exit indication for the occupants. The emergency exit sign can be found above all the exits, fire rated doors, fire staircases and doorways to direct the occupants to reach the nearest exit. These emergency exits signs must be provided with elec- tric lamps and illuminated 24/7 to ensure their visibility in the darkness during the event of fire emergency. 7.3.2 Figure: Emergency exit sign source: http;//www.econite.cm.my/ Location of Emergency Exit signs at Ground Floor Plan & First Floor Plan According to UBBL 1984- Section 172 Storey exits and access to such exits shall be marked by readily visi- ble signs and shall not be obscured by any decorations, furnishings or other equipment. A sign reading “KELUAR” with an arrow indicating the direction shall be placed in every location where the direction of travel to reach the nearest exit is not immediately apparent. Every exit sign shall have the word “KELUAR” in plainly legible letters not less than 150 millimetres high with the principal strokes of the letters not less than 18 millimetres wide. The lettering shall be in red against a black background. All exits signs shall be provided with two electric lamps of not less than fifteen watts each.
  • 70.
    Emergency Light Emergency lightprovides illumination during heavy smoke or power failure due to fire to en- sure that the occupants able to evacuate safely in the hours of darkness. There are emergen- cy light in each rooms to illuminate the escape pathways leading to fire escape staircase, corridor and exits. It is crucial to do maintenance for the lighting to ensure that they are able to illuminate during the event of fire emergency 7.3.3 Figure: Emergency light Source: http://www.qvsdirect.com/8-watt-fluorescent-ip65-non-main- tained-emergency-bulkhead Location of Emergency light signs at Ground Floor Plan & First Floor Plan The distance between each emergency light is less than 12m to light up the spaces& corridors during blackout. They are for visibility and as guidance to lead the occupants to the nearest emergency exit.
  • 71.
    Emergency Floor Plan Emergencyfloor plan are found beside escape fire doors on every floor. The occupants can be noticed the nearest escape route and exits from the floor plan. The components such as manual break glass, fire alarm bells and also the fire extinguishers that might help during the fire emergency will be indicated in the floor plan. Some advice such as do not use the mechanical transportation during fire due to the risk of power failure is also stated in the floor plan. 7.3.4 Location of Emergency Floor Plan at Ground Floor Plan & First Floor Plan Figure: Example of Emergency Floor plan Source: http://sydney.edu.au/whs/emergency/emergency3.shtml
  • 72.
    Fire Evacuation Route Theseelderly centre are designed with double exits, one located at the front and the other located at the back to allow occupants to escape from one if either one is blocked from fire. There are also two fire staircase, one located at the front and the other located at the back. The occupants on the first floor can use the nearest staircase escape to the ground floor and to the exit. However, due to the centre is located between terrace houses, there is only on way which is the front, to exit to the main street. 7.3.5 Location of fire evacuation route at the Ground Floor Plan & First Floor Plan According to UBBL 1984-Section 178: Exits for institutional and other places of assembly In buildings classified as institutional or places of assembly, exits to a street or large open space, together with staircases, corridors and passages leading to such exits shall be located, separated or protected as to avoid any undue danger to the occupants of the place of assembly from fire originating in the other occupancy or smoke therefrom. According to UBBL 1984-Section 169: Exit route No exit route may reduce in width along its path of travel from storey exit to the final exit.
  • 73.
    Fire Staircase There aretwo fire staircases in this elderly centre, one at the front and the other at the back which allow the occupants to choose the safest and nearest escape route during the event of fire. The staircases are accessible for the occupants from the first floors and lead them to the exits. The width of the staircases is 1.5m while the landing is 1.6m to allow for safe and quick escape. 7.3.6 Location of fire staircase at the Ground Floor Plan & First Floor Plan Figure: The example of fire staircase Source: http://vohc.com.au/wp-content/uploads/2014/07/ FF3-1080x800.jpg According to UBBL 1984-Section 165: Exits to be accessible at all times Except as permitted by-law 167 not less than TWO separate exits shall be provided from each storey together with such additional exits as may be necessary According to UBBL 1984-Section 168: Staircase Except as provided for in by-laws 194 every upper floor shall have means of egress via at least two separated staircase. Staircases shall be of such width that in the event of any one stair- case not being available for escape purpose the remaining stair- cases shall accommodate the highest occupancy load of any one floor discharging into it calculated in accordance with provisions in the Seventh Schedule to these Bylaws. The required width of staircase shall be the clear width between walls but handrails may be permitted to encroach on this width to a maximum of 75 millimetres. The required width of a staircase shall be maintained throughout its length including at landings. Doors giving access to staircase shall be so positioned that their swing shall at no point encroach on the required width of the stair- case or landing.
  • 74.
    Fire Rescue Access Thereis only one main entrance at the centre, the road in front is the only route for fire truck to pass through. The nearest fire station is 500m away. 7.3.7 Figure: The road in front of the elderly centre. Figure: 650m (left) and 500m (right) fire truck route. Figure: The nearest Fire Station (Balai Bomba Dan Penyelamat Taman Sri Sentosa) from the site.
  • 75.
    7.3.8 Figure: The locationof fire door at the Ground Floor Plan & First Floor Plan Figure: The example of fire rated door. Source: http://www.elliottspour- house.com/consider-installing-fire- rated-doors-for-your-familys-sake/ Fire Rated Door Fire resistant door which are thicker than normal door are placed at the entrance of the fire staircase and service room. The fire resistant doors act as a barrier to stop the spreading of fire from the outside of the fire staircase. 1 hour fire rated door with single leaf door of 900mm x 2100mm is used in the centre. The material used in the fire rated doors include gypsum and vermiculite board. It can withstand up to 1 hour of fire and suppress the fire by restricting the flow of oxygen and spread of fire. To fulfil the requirements of By-law Section 164(1), automatic closer hinge is installed to ensure that the doors are closed by default so that the occupants are safe to use the fire staircase in the case of fire. According to UBBL 1984 Section 162: Fire doors in compartment walls and separating walls Fire doors of an appropriate FRP shall be provided. Openings in compartment walls and separating walls shall be protected by a fire door hav- ing a FRP in accordance with the requirements for that wall specified in the Ninth Schedule to these Bylaws. Openings in protecting structures shall be protected by fire doors having FRP of not less than half the requirement for the surrounding wall specified in the Ninth Schedule to these By-laws but in no case less than half hour. Openings in partitions enclosing a protected corridor or lobby shall protected by fire doors having FRP of half-hour. Fire doors including frames shall be constructed to a specification which can be shown to meet the requirements for the relevant FRP when tested in accordance with section 3 of BS 476: 1951. UBBL Section 164 (1) All fire doors shall be fitted with automatic door closed of the hydraulically spring operated type in the case of swing doors and wire rope and weigh type in the case of sliding door.
  • 76.
    Fire Wall Fire wallis installed to prevent and slow down the spread of fire in a period of time, to give more time for the occupants to escape from the building. The wall is constructed using fire-re- sistant materials and able to provide up to 240 minutes’ fire resistance. It is not only acting as a wall to separate the spaces but also separate those high risk areas such as service rooms and also fire staircases. 7.3.9 The location of fire walls at the at the Ground Floor Plan & First Floor Plan Figure: Example of fire wall. Source: http://www.miframsecurity.com/solu- tions/products/durasystem/ According to UBBL Section 138 (C) Any wall or floor separating part of a building form any other part of the same building, which is used or intended to be used mainly for a purpose failing within a different purpose group as, set out in the Fifth Schedule to these by laws. UBBL Section 148 (6) Any compartment walls or compartment floor which is required by these By-Law to have FRP of one hour or more shall be constructed wholly of non-combustible materials and apart from any ceiling, the required FRP of wall or floor shall be obtained without assistance form any non-combustible materials.
  • 77.
    Smoke Curtain Smoke curtainare used to inhibit the spread of fire and prevent it from spreading to other ar- eas of the building. It is installed at the entrance of the service rooms and elevators at ground and first floor. The smoke curtain will automatically be released and rolled down when the smoke detector inside the service rooms have detected the smoke due to fire. The two layer of protection which are smoke curtain and fire rated door are able to control the spread of fire into service rooms. 7.3.10 Figure: The location of smoke curtain at the Ground Floor Plan & First Floor Plan Figure: Smoke curtain located in front of elevator. Source:http://willcosales.com/portfolio/eleva- tor-smoke-curtain/ According to UBBL Section 161 (1) Any fire stop required by the provision of this Part shall be so formed and positioned as to prevent or retard the passage of flame.
  • 78.
    Separation of FireRisk Area (Compartmentation) Compartmentation is used to confine fire and minimize the risk of loss of occupants by segre- gating a space to control the spread of fire. The services rooms with high fire risk are separated with fire wall, doors and smoke curtain. High pressure cylinders of CO2 fire suppression system is also installed in the rooms to stop the spread of fire. These rooms are the most fire protected. 7.3.11 Figure Location of compartmentation (service rooms) at Ground Floor Plan & First Floor Plan Figure: The separation of fire risk area by using fire walls. Source: http://www.fmlfire.com/wp-content/uploads/2013/03/ Compartmentation.jpg According to UBBL Section 139 The following area uses shall be sepa- rated from the other areas of the oc- cupancy in which they are located by fire resisting construction of elements of structure of a FRP to be determined by local authority based on the degree of fire hazard: a) Boiler rooms and associated fuels stor- age area; b) Laundries; c) Repairs shops involving hazardous pro- cesses and materials; d) Storage areas of materials in quantities deemed hazardous; e) Liquefied petroleum gas storage areas; f) Linen rooms; g) Transformer rooms and substations; h) Flammable liquids stores.
  • 79.
    Smoke and Heatventilation The installation of smoke and heat ventilation system is very crucial as smoke inhalation is the primary cause of death for victims of fires. In the elderly centre, louvres are installed beside and at the landing part of the fire staircase to allow air to ventilate and also natural lighting. It is very important to channel the smoke especially at the fire escape to prevent the smoke from cumulating and suffocating the occupants who are trying to escape. 7.3.12 Figure: the ventilation of the fire staircases at the ground floor and first floor. According to UBBL-SECTION 198 Ventilation of staircase enclosures All staircase enclosures shall be ventilated at each floor or land- ing level by either permanent openings or openable windows to the open air having a free area of not less than 1 square metre per floor. Openable windows shall meet the operational requirements of the D.G.F.S. In buildings not exceeding three storeys above ground level, staircase enclosures may be unventilated provided that access to them at all levels except the top floor is through ventilated lobbies. UBBL-SECTION 199 Ventilation of staircase enclosures is buildings not exceeding 18 metres In buildings not exceeding 18 metres above ground level, stair- case enclosures may be unventilated provided that access to them at all levels except the top floor is through ventilated lob- bies and the staircase enclosures are permanently ventilated at the top with at least 5% of the area of the enclosures. Figure: Smoke control louvre. Source: http://www.secontrols.com/product-groups/smoke-ven- tilation/commercial/mechanical-smoke-shaft-fire-fight- ing-core-commercial-building/
  • 80.
  • 81.
    8.1 Introduction By completingthe literature review and studying the UBBL laws, we have gained the basic understanding of the mechanical transportation system. This report is regarding further studies and research on the mechanical transpor- tation by using our own Design Studio Proposal which is an elderly centre. Different types of components and the operation systems which is proposed to be used in this building are supported by various information such as UBBL requirements and schematic diagram of the system for further elaboration. Self-analysis is included based on the study on the mechanical transportation system. 8.0MechanicalTranspoortation System. 8.0.1
  • 82.
    Elevator This elderly centreis a residential building which a single block and 2 storeys height. Due to the disability of the old folks, elevator is introduced in this building to carry people or goods within the 2 floors. There are total 2 hydraulic elevators will be installed in this elderly centre, all the elevators are the passenger lift. The proposed operating hours of the building is 0700 until 1800. 2 elevators are grouped together which is placed in the lounge area. Analysis There are only passenger lifts proposed in this building to function as both passengers and service lift to carry goods. The reason is because the building is an elderly centre which is a residential building. Therefore, no heavy goods and items need to be transferred frequently between 2 floors. So, passenger lift is the only type that is proposed to be used in this elderly centre. Lift Entrance Analysis The 2 passenger lifts are placed side by side in the lounge area. 2 lifts are proposed instead of 1 lift due to the conges- tion of lifts being used during peak hours. Both lifts transfer people or goods to ground and first floors to enter the rooms placed at ground or first floor. 8.1.1 According to UBBL 1984-By Law 124 It stated that for all non-residential buildings which exceeded 4 stores above or below the main access level should provide at least one lift. Figure - Ground Floor Plan & First Floor Plan with the Position of the Elevators Position of the Elevators Figure – View in to the Entrance of Elevator
  • 83.
    Emergency Emergency Staircase Analysis 2 staircaseswere proposed, one in front of the building and one at the back of the building to allow the more available users to access to 2 floors. It is also used as the only access to 2 floors when the power is down or after the operating hours. Besides that, it is also the emergency staircase when the building has caught fire. 8.1.2 Figure - Ground Floor Plan & First Floor Plan with the Indication ooof Staircase Figure – Emergency Exit Sign in Malaysia Context
  • 84.
    Analysis CCTV is installedin every lift shaft and operating 11 hours per day. The CCTVs are integrated with the command and control center for security purpose. Analysis Emergency alarm is provided in each lift shaft which allows the passenger to alert the alarm and transfer the emergency signal to the command and control center. Besides that, the in- tercom button is also provided inside the lift shaft which connected to the interphone located at the ground floor lounge area. The intercom system allows rescuer to communicate with the passenger who is trapped inside the lift. CCTV Emergency Alarm and Intercom System 8.1.3 Figure - Ground Floor Plan with Indication of Control Room Figure – CCTV in the Lift Figure – Monitors which linked to CCTV Installed Figure – Interphone Figure – Alarm and Intercom Button
  • 85.
    Analysis Ventilated holes allowair flow through into the lift car from the lift shaft. It prevents passengers inside to suffocate when they are inside the enclosed lift car or when the lift’s power down. Analysis If there is fire happened, fire indicator will illuminate, a buzz sound will ring. The elevator will move to the ground floor where the main entrance of the building is, to allow passengers to leave the build- ing immediately. Analysis The emergency power control panel will be switched on when there is a power cut off in electricity or the main control system panel is not functioning. The genset will be generated immediately as a backup power supply. The lift car will be landed at the ground floor and door iS opened to allow passengers to leave the lift car. Analysis Air vent is installed to provide ventilation to the lift lobbies. It is also provided ventilation in case of the building has caught fire that the lift has stopped working. Ventilated Holes Smoke Detector Emergency Power Control Panel Air Vent 8.1.4 According to UBBL 1984-By Law 151 Ventilation to Lift Shaft Lift shaft shall be provided with vents of not less than 0.09 square meter per lift located at the top of the shaft. Where the vent does not discharge directly to the open air, the lift shafts shall be vented to the exterior through a duct of the required FRP as for the lift shafts. According to UBBL 1984-By Law 154 Emergency mode of operation in the event of main power failure On failure of main power of lifts shall return in sequence directly to the designated floor, com- mencing with the fire lifts, without answering any car or landing calls and park with doors open. According to UBBL 1984-By Law 153 Smoke detector for lift lobbies All life lobbies shall be provided with smoke detectors. Figure – Ventilated Holes inside the Lift Figure – Smoke Detector Located at the Lift Ceiling Figure – Emergency Control Panel is installed beside Main Panel Figure – Air vent near Lift Lobby
  • 86.
    Fire door islocated in front of the staircase of the building and behind staircase of the building. It ease the victim to escape from the fire easily when the elevator’s power down. All the passenger lift in this building has the same capac- ity which able to carry 1000kg which is the load of average 13 persons. Floor level indicator are located beside lift opening at every floors and inside the lift panel in the lift car. Floor level indicator are located beside lift opening at every floors and inside the lift panel in the lift car. Fire Door Passenger Lift Capacity Floor Indicator Schematic Diagram of Elevator 8.1.5 Figure – Fire Door which Access to Fire Staircase Figure – Capacity Load are Marked inside the Lift Panel Figure – Capacity Load are Marked inside the Lift Panel Figure – Axonometric View of a Lift with Components and Dimensions Figure - Axonometric View of a Lift with Indication of Hydraulic Elevator Components`
  • 87.
    Escalator There is onlyone escalator proposed in the building which is located near the gathering courtyard that connects both ground and first floor. The escalator are allocated in pairs. The capacity of each escalator are able to withstand of 4800 person per hour at the speed of 0.5minute per second with a travel height range until 6 meters. Analysis The arrangement of the escalator is more economical and reduce space wastage due to no inner lateral claddings are required. 8.1.6 Figure - Ground Floor Plan & First Floor Plan with the Indication ooof Staircase Figure – Parallel Layout with Interrupted in Two Way Direction Figure – Layout of the Escalator with Components Escalator Arrangement
  • 88.
    Escalator Components Analysis Controls startand stop operation of the escalator. It also supplies electric power to the Drive Unit. Analysis : Assembly of structural steel that supports the weight and load of an escalator. Analysis : The escalator will start moving when the sensor has sensed there is human movement or motion. 8.1.7 Figure – Escalator Direction Indicator Figure – Elevator Safety Signs Figure – Control Panel Figure – Step Thread and Riser
  • 89.
    Analysis : A sectionor steel plate with teeth that mesh with the step cleats at the boarding and landing areas. This is to prevent fingers, feet or foreign objects from getting caught between the moving steps and floor plate. Analysis : A handhold is placed on top of the balustrade which synchronized with the moving steps. Analysis : Panel below balustrade which is located immediately below the inner deck and adjacent to the steps at a slight gap from the steps. 8.1.8 Figure – Comb Figure – Moving Handrail Figure – Skirt Guard Figure – Landing Plate
  • 90.
    9.0Conclusion 9.0 Through this assignment,all of us real- ized the importance of building services in ordertomakeabuildingsafe,habitableand functional. We also each gained knowl- edge by being able to identify the each sys- tem and its components involved in building services. They are fire protection system, mechanical ventilation system, air-condi- tioning system and mechanical transpor- tation system. The locations of where these system components should be placed (zon- ing) were also taken into consideration. The use of pictures, diagrams and literature review further aids in our understanding of such systems. On the other hand, we also learntomeetthebasicstandardsofbuilding services in accordance to Uniform Building By-Law (UBBL) and MS 1525 codes. We have also come to an agreement of the importanceofapplyingthemostappropriate system in order to ensure maximum energy efficiency and cost efficiency. In addition, appropriate building services system should be applied to accommodate theuser’sneedsandthefunctionofthespace. Being people-oriented and mindful of such details will enable us to design a building that is functional, safe and comfortable for our clients.
  • 91.
    1.0 Mechanical VentilationSystem In summary, mechanical ventilation system plays a very important role in ensuring good indoor air quality as it will ultimately affect the health of the user in the space. Mechanical ventilation sys- tem is a necessity to ensure constant air exchange within indoor spaces in order to remove pollutants, odour, and water vapour trapped in interior spaces. Mechanical ventilation system can be categorized into 3 types, Supply ventilation system, Exhaust ven- tilation system and Combined ventilation system. The system ap- plied in spaces varies according to the function, size, and capac- ity of a room. Appropriate mechanical ventilation system should be assigned correctly to prevent the wastage of energy, cost of installation and maintenance. Constant maintenance should also be conducted regularly to prevent energy loss which in result in- crease utility cost. 9.0Conclusion 9.1
  • 92.
    2.0 Air ConditioningSystem In conclusion, the application of air conditioning system in this El- derly Centre have followed requirements given by MS1525 and UBBL Section 41. Split unit system is introduced to this Elderly Cen- tre which consist of both Mono and Multi-Split Unit system (VRF). This is a public building with variety of spaces with different siz- es. Therefore, the use of VRF is effective as temperature of each room can be alternated as well as the saving in electrical energy. Lesser outdoor unit also provide a better outdoor environment for the elderlies. 9.0Conclusion 9.2
  • 93.
    3.0 Fire ProtectionSystem In conclusion, the overall fire protection system including active and passive fire protection system are well and appropriately in- stalled for different function of the spaces to extinguish the fire effectively and to ensure the safety of the occupants. The unfavourable condition for the fire safety of this elderly centre is there is only one main entrance connected to the main road. The main road in front of the building is always congested during the peak hours and parked with cars which will block the way for fire trucks to pass through. These might hinder the full efficiency of the fire rescue team when they arrive. To summarize, there are two main escape routes provided in this elderly centre. The two fire staircases which are located at the front and back of the building are protected by fire walls and doors with good ventilation and lighting. Each room has their indi- vidual unit of alarm, detectors and sprinklers. CO2 fire extinguish- ers are also provided to enable occupants to react as early as possible when there is an initial stage of fire. Spaces constituting high risk of fire such as service rooms are pro- tected by fixed installations, protective devices and systems and special extinguisher. Fire doors, fire walls and smoke curtain are installed to slow the spread of fire in a period of time. Besides that, the service rooms are also equipped with CO2 suppression units to put out fire at fast instances. In a nutshell, active and passive fire protection system should be installed strictly according to the Uniform Building By-Law of Ma- laysia and also the BOMBA requirements. All the systems should be fully in active operation and be maintained in good condition. 9.0Conclusion 9.3
  • 94.
    9.0GeneralConclusion. 9.4 4.0 Mechanical TransportationSystem In conclusion, mechanical transportation is one of the important design features to be considered in the earliest stage of design. Both engineers and architects have to cooperate to provide transportation systems in the building to ease the users to move from one floor to another safely. This can be proven by looking at how the architects and engineers by following the rules stated in By-Law of UBBL 1984. Mechanical transportation has to be located strategically to al- low users to move around comfortably and conveniently. As this building is longitudinal, the escalator is located in the middle of the building hence everyone can access to it easily. Besides that, the elevators are located near to the escalator as well to aid the disabled to move within floors. In conclusion, no heavy weights is going to be transported within floors frequently. Hence, holeless hydraulic lift is proposed to be used as it is easier to be installed and installation cost will be lowered due to no hole is needed to drilled.
  • 95.
    10.0References. 10.0 Mechanical Ventilation System Whole-HouseVentilation | Department of Energy. (2016). Energy. gov. Retrieved 13 November 2016, from http://energy.gov/ener- gysaver/whole-house-ventilation Air Conditioning System Bell, A. A. (2003). HVAC design portfolio: 865 airside systems flow diagrams and details. New York: McGraw-Hill. Ductless Mini-Split Air Conditioners. (n.d.). Retrieved June 22, 2016, from http://energy.gov/energysaver/ductless-mini-split-air-condi- tioners Installation of the Split Air Conditioners: Deciding the Location of Indoor and Outdoor Units. (n.d.). Retrieved June 19, 2016, from http://www.brighthubengineering.com/hvac/45249-in- door-and-outdoorinstallation-of-split-air-conditioners-decid- ing-the-location/ PartsofSplitAirConditioners:OutdoorUnit.(n.d.).RetrievedJune18, 2016, from http://www.brighthubengineering.com/hvac/45044- parts-of-the-split-air-condioners-outdoorunit/#imgn_3 Wall Mounted Indoor Unit: Ductless Split Air Conditioner Parts. (n.d.). Retrieved June 22, 2016, from http://www.brighthubengi- neering.com/hvac/45046-parts-of-the-split-air-conditioner-wall- mountedindoor-unit/ Whitman, W., Johnson, W., & Tomczyk, J. (2000). Refrigeration & air coniditioning technology. Albany, NY: Delmar Publishers H. (n.d.). 7 Advantages of Ductless Air Conditioners - Cooling Sys- tems. Retrieved November 23, 2016, from http://www.sila.com/ blog/7-advantages-ductless-air-conditioners/ Ltd, I. (n.d.). VRV/VRF CONDENSING UNIT GUARDS. Retrieved No- vember 23, 2016, from http://www.heronhill.co.uk/products/314/ vrvvrf-condensing-unit-guards Fuller, C. A., & Snow, D. (1938). Air conditioning; a practical, mod- ern and fundamental treatise on the subject of air conditioning, air distribution, refrigeration, comfort cooling, humidification, and air purification. New York: Norman W. Henley Pub.
  • 96.
    10.0.1 Fire Protection System: ActiveFire Protection System Densing, J., & Harkins, J. (n.d.). Retrieved November 10, 2016, from http://www.wisegeek.com/what-is-active-fire-protection.htm Fire Extinguisher. (n.d.). Retrieved November 10, 2016, from http:// www.supremexfireextinguisher.com/fireextinguisher.html Peacock, R.D.P., & Bukowski, W.B. (1990). A prototype methodol- ogy for fire hazard analysis. United States: US National Institute of Standards and Technology. Smoke control and environmental ventilation systems for multi-sto- rey residential buildings. (n.d.). Retrieved November 10, 2016, from http://www.coltinfo.co.uk/smoke-control-residential-buildings. html The Different Types of Fire Extinguishers. (n.d.) Retrieved Novem- ber 10, 2016, from http://www.firesure.ie/fire_safety_guidance/ comparison_of_the_different_types_of_fire_extinguishers.html Passive Fire Protection System Compartmentation. (n.d.). Retrieved November 24, 2016, from http://www.fml.eu.com/compartmentation/ DuraSystem - Mifram Security. (n.d.). Retrieved November 24, 2016, from http://www.miframsecurity.com/solutions/products/ durasystem/ Consider Installing Fire Rated Doors for Your Family’s Sake. (n.d.). Retrieved November 24, 2016, from http://www.elliottspourhouse. com/consider-installing-fire-rated-doors-for-your-familys-sake/ H. (n.d.). Elevator Smoke Partition - Smoke Management. Re- trieved November 24, 2016, from http://www.smokeguard.com/ products/m400/ Mechanical Transportation System. Harris, T. (n.d.). retrieved November 12, 2016, from http://science. howstuffworks.com/transport/engines-equipment/elevator.htm Schindler Home. (n.d.). Retrieved November 11, 2016, from http:// www.schindler.com/com/internet/en/home.html Stein, B., & Reynolds, J. (1992). Mechanical and electrical equip- ment for buildings (8th ed.). New York: J. Wiley & Sons Strakosch, G. (2010). The vertical transportation handbook (4th ed. ). Hoboken, N.J.: John Wiley & Sons