Brianna Morales
Architecture Portfolio
Roger Williams University Undergraduate Degree
Bachelor of Science in Architecture
RESUME
Brianna Morales
Skills
Education
Work Experience
241 N. Amherst Ave
Schenectady NY,
12304
AutoCAD, Revit, Sketch up, Photoshop,
Illustrator, InDesign, Hand Rendering,
Drafting
2012 - 2016
Roger Williams University
Bachelor of Science in Architecture
GPA 3.2
Arch 113 - Fall 2012
Arch 114 - Spring 2013
Arch 213 - Fall 2013
Studio Courses
Arch 214 - Spring 2014
Arch 313 - Fall 2014
Arch 416 - Spring 2015
Arch 413 - Fall 2015
2015 - 2016
SD Atelier
511 Broadway
Saratoga Springs NY
12866
Intern
2013 - 2014
Village of Colonie
3 Thunder rd.
Colonie NY, 12205
Camp Counselor
bri.morales94@gmail.com
bmorales474@g.rwu.edu
518-937-1714
1
CONTENTS
01 Innovative Low Income Housing - Fall 2015
02 		 High Rise Residential - Fall 2015
03 		 Isolotto Piazza Redesign - Spring 2015
04 		 Isolotto Museum Design - Spring 2015
05 		 Library Competition - Fall 2014
06 		 The City Lofts - Spring 2013
07 		 The Pole House - Spring 2013
08 Hand Drafting and Sketching - 2012 - 2013
2
LOW INCOME HOUSINGBOSTON, MASSACHUSETTS
3
One ofthemoredifficultaspectsofdesigninglowincomehousing,isfinding
a way to create a building that is affordable, but also is aesthetically
pleasinganddoesn'tstandoutonthestreetasa lowincomehousingfacility.
For the project I wanted to create a place where multiple generations
of people can live together. I want to provide them with large gathering
spaces where they can interact with one another, to help, inspire,
and even just get to know one another. I used fiber cement siding,
and kept the colors rather simple, and on the interior I added pops
of bright colors to liven up the spaces. Lastly in order to allow
for multiple generations i created tree different units types to
allow for young college students, starting Families, and elderly.
ARCH 413: ADVANCE DESIGN STUDIO
Multi-Generation
Diagram
Gathering Space
Diagram
Unit Layout
Diagram
Project 01
4
ONE BEDROOM UNIT
TWO BEDROOM UNIT
MICRO-UNIT
5
6
HIGH-RISE RESIDENTIAL
The taller a building becomes the more impact it has on the city, and skyline. You no longer have to just consider
how your building will affect the surrounding buildings, but also the effect it will have on the entire city. My
goal with this project was to create a high Rise, that addresses both the neighboring building and the city.
I also wanted to take advantage of the incredible views. I divided the building into two masses, the lower mass
was more solid to relate the surroundings, the upper mass, was very light and open to allow for views. I also
places gathering spaces at certain points that allowed optimum views. I wanted the units to be open and light
BOSTON, MASSACHUSETTS
Development of Form Diagram
7
ARCH 413: ADVANCE DESIGN STUDIO
Glass facade with panels detail
Project 02
8
Gathering Spaces
Residential Levels
Working Levels
9
Ground Floor Fourth Floor Ninth Floor Tenth Floor
One Bedroom UnitTwo Bedroom UnitTwo Bedroom Unit
10
ISOLOTTO PIAZZA REDESIGNFLORENCE, ITALY
11
This is a project from my current semester abroad, in
Florence, Italy. This was a collaborative project, in which
i worked with one of my peers. For this project we had to
take an existing piazza and redesign it. Currently on this
site there is a market and a parking lot. The left over space
is not currently being used to its full potential.
We established what parts of the piazza were unsuccessful.
The major concept behind our design was taking two
different market typologies, the permanent market and the
open loggia market to create our design. We oriented the
market on the site so that it opened up to the existing shops
on one side to help draw in those customers. It also closed
the piazza off from the street and residential section. In
doing this, we maintained a strong axis from the church to
the Arno River.
ARCH 416: CORE URBAN STUDIO
Project 03
12
13
Axis Diagram Market Entrance Diagram
View Diagram
Site Plan Drawing the Crowd
Green Space Diagram
14
ISOLOTTO MUSEUM DESIGNFLORENCE, ITALY
15
The taller a building becomes the more impact it has on the city, and skyline.
You no longer have to just consider how your building will affect the
surrounding buildings, but also the effect it will have on the entire city.
My goal with this project was to create a high Rise, that addresses both
the neighboring building and the city. I also wanted to take advantage of
the incredible views. I divided the building into two masses, the lower mass
was more solid to relate the surroundings, the upper mass, was very light
and open to allow for views. I also places gathering spaces at certain
points that allowed optimum views. I wanted the units to be open and light
Context Diagram
ARCH 416: CORE URBAN STUDIO
Project 04
16
Ground Floor Second Floor Third Floor Fourth Floor
17
Exhibit Space
Auditorium
Service
Cafe
Terrace
Bathrooms
18
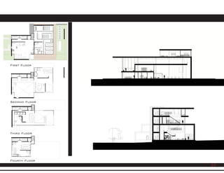
FALL RIVER LIBRARYFALL RIVER, MASSACHUSETTS
19
To start this project we first analyzed a precedent and then take
what we learned and apply it to our own interpretation of a library.
The concept of my library was the idea of Linking the community
to the city. I used large “L” shapes to create spaces that would
invite the community in and once inside, these “L” shapes would
help to frame certain views that would connect people inside to
the community outside. Wanted this to be a place where everyone
felt welcomed.
East Elevation
West Elevation
South Elevation North Elevation
ARCH 313: CORE STUDIO
Project 05
20
21
Fourth Floor
Third Floor
Second Floor
First Floor
22
The City Lofts
For this Project, we
focused on the designs of
two lofts. We had to design
two different options, but
using the same concept
to drive the designs.
My concept focused on
ribbons that were used
in the south loft to
highlight the program and
divide the spaces, while in
the West Loft, the ribbons
were used to highlight the
circulation.
South Loft
Ribbon Diagram
Program Diagram
Circulation Diagram
23
West Loft
Ribbon Diagram
Public vs. Private
Circulation Diagram
ARCH 114: CORE STUDIO
Project 06
24
The is a design for an Elevated Pole House, which was located on a lake. The
house incorporated a timber structure. The concept was to create two boxes
that come together and then overlap. The main vertical circulation of the
house is located in the core, where the boxes interlock. These two boxes also
serve as a way to divide the public spaces and the private spaces of the house.
I also have large full length windows to provide for views
The Pole HouseMASSACHUSETTS
25
Core Diagram
Enclosure Diagram
Public vs. Private
ARCH 114: CORE STUDIO
Project 07
26
Worms-Eye View
Floor PlanSection B
Section A
This page consists of a few different examples of hand drafting
from my first and second year of school. The left side consists of
drawings of a pool house project, the task was to create a pool
house in
Boston. My concept was to create a pool house that is very natural,
yet slightly modern and also conveys an idea of relaxation. I want-
ed it to be an escape from the chaotic city.
The other Piranesi drawing and the constructed perspective are
just two examples of hand drawing that I've done during these first
two years.
Hand Drafting
27
Piranesi Sketch
Constructed Perspective
Site Plan
ARCH 114: CORE STUDIO
Project 08
28

BMorales_Portfolio

  • 1.
    Brianna Morales Architecture Portfolio RogerWilliams University Undergraduate Degree Bachelor of Science in Architecture
  • 2.
    RESUME Brianna Morales Skills Education Work Experience 241N. Amherst Ave Schenectady NY, 12304 AutoCAD, Revit, Sketch up, Photoshop, Illustrator, InDesign, Hand Rendering, Drafting 2012 - 2016 Roger Williams University Bachelor of Science in Architecture GPA 3.2 Arch 113 - Fall 2012 Arch 114 - Spring 2013 Arch 213 - Fall 2013 Studio Courses Arch 214 - Spring 2014 Arch 313 - Fall 2014 Arch 416 - Spring 2015 Arch 413 - Fall 2015 2015 - 2016 SD Atelier 511 Broadway Saratoga Springs NY 12866 Intern 2013 - 2014 Village of Colonie 3 Thunder rd. Colonie NY, 12205 Camp Counselor bri.morales94@gmail.com bmorales474@g.rwu.edu 518-937-1714 1
  • 3.
    CONTENTS 01 Innovative LowIncome Housing - Fall 2015 02 High Rise Residential - Fall 2015 03 Isolotto Piazza Redesign - Spring 2015 04 Isolotto Museum Design - Spring 2015 05 Library Competition - Fall 2014 06 The City Lofts - Spring 2013 07 The Pole House - Spring 2013 08 Hand Drafting and Sketching - 2012 - 2013 2
  • 4.
  • 5.
    One ofthemoredifficultaspectsofdesigninglowincomehousing,isfinding a wayto create a building that is affordable, but also is aesthetically pleasinganddoesn'tstandoutonthestreetasa lowincomehousingfacility. For the project I wanted to create a place where multiple generations of people can live together. I want to provide them with large gathering spaces where they can interact with one another, to help, inspire, and even just get to know one another. I used fiber cement siding, and kept the colors rather simple, and on the interior I added pops of bright colors to liven up the spaces. Lastly in order to allow for multiple generations i created tree different units types to allow for young college students, starting Families, and elderly. ARCH 413: ADVANCE DESIGN STUDIO Multi-Generation Diagram Gathering Space Diagram Unit Layout Diagram Project 01 4
  • 6.
    ONE BEDROOM UNIT TWOBEDROOM UNIT MICRO-UNIT 5
  • 7.
  • 8.
    HIGH-RISE RESIDENTIAL The tallera building becomes the more impact it has on the city, and skyline. You no longer have to just consider how your building will affect the surrounding buildings, but also the effect it will have on the entire city. My goal with this project was to create a high Rise, that addresses both the neighboring building and the city. I also wanted to take advantage of the incredible views. I divided the building into two masses, the lower mass was more solid to relate the surroundings, the upper mass, was very light and open to allow for views. I also places gathering spaces at certain points that allowed optimum views. I wanted the units to be open and light BOSTON, MASSACHUSETTS Development of Form Diagram 7
  • 9.
    ARCH 413: ADVANCEDESIGN STUDIO Glass facade with panels detail Project 02 8
  • 10.
  • 11.
    Ground Floor FourthFloor Ninth Floor Tenth Floor One Bedroom UnitTwo Bedroom UnitTwo Bedroom Unit 10
  • 12.
  • 13.
    This is aproject from my current semester abroad, in Florence, Italy. This was a collaborative project, in which i worked with one of my peers. For this project we had to take an existing piazza and redesign it. Currently on this site there is a market and a parking lot. The left over space is not currently being used to its full potential. We established what parts of the piazza were unsuccessful. The major concept behind our design was taking two different market typologies, the permanent market and the open loggia market to create our design. We oriented the market on the site so that it opened up to the existing shops on one side to help draw in those customers. It also closed the piazza off from the street and residential section. In doing this, we maintained a strong axis from the church to the Arno River. ARCH 416: CORE URBAN STUDIO Project 03 12
  • 14.
  • 15.
    Axis Diagram MarketEntrance Diagram View Diagram Site Plan Drawing the Crowd Green Space Diagram 14
  • 16.
  • 17.
    The taller abuilding becomes the more impact it has on the city, and skyline. You no longer have to just consider how your building will affect the surrounding buildings, but also the effect it will have on the entire city. My goal with this project was to create a high Rise, that addresses both the neighboring building and the city. I also wanted to take advantage of the incredible views. I divided the building into two masses, the lower mass was more solid to relate the surroundings, the upper mass, was very light and open to allow for views. I also places gathering spaces at certain points that allowed optimum views. I wanted the units to be open and light Context Diagram ARCH 416: CORE URBAN STUDIO Project 04 16
  • 18.
    Ground Floor SecondFloor Third Floor Fourth Floor 17
  • 19.
  • 20.
    FALL RIVER LIBRARYFALLRIVER, MASSACHUSETTS 19
  • 21.
    To start thisproject we first analyzed a precedent and then take what we learned and apply it to our own interpretation of a library. The concept of my library was the idea of Linking the community to the city. I used large “L” shapes to create spaces that would invite the community in and once inside, these “L” shapes would help to frame certain views that would connect people inside to the community outside. Wanted this to be a place where everyone felt welcomed. East Elevation West Elevation South Elevation North Elevation ARCH 313: CORE STUDIO Project 05 20
  • 22.
  • 23.
    Fourth Floor Third Floor SecondFloor First Floor 22
  • 24.
    The City Lofts Forthis Project, we focused on the designs of two lofts. We had to design two different options, but using the same concept to drive the designs. My concept focused on ribbons that were used in the south loft to highlight the program and divide the spaces, while in the West Loft, the ribbons were used to highlight the circulation. South Loft Ribbon Diagram Program Diagram Circulation Diagram 23
  • 25.
    West Loft Ribbon Diagram Publicvs. Private Circulation Diagram ARCH 114: CORE STUDIO Project 06 24
  • 26.
    The is adesign for an Elevated Pole House, which was located on a lake. The house incorporated a timber structure. The concept was to create two boxes that come together and then overlap. The main vertical circulation of the house is located in the core, where the boxes interlock. These two boxes also serve as a way to divide the public spaces and the private spaces of the house. I also have large full length windows to provide for views The Pole HouseMASSACHUSETTS 25
  • 27.
    Core Diagram Enclosure Diagram Publicvs. Private ARCH 114: CORE STUDIO Project 07 26
  • 28.
    Worms-Eye View Floor PlanSectionB Section A This page consists of a few different examples of hand drafting from my first and second year of school. The left side consists of drawings of a pool house project, the task was to create a pool house in Boston. My concept was to create a pool house that is very natural, yet slightly modern and also conveys an idea of relaxation. I want- ed it to be an escape from the chaotic city. The other Piranesi drawing and the constructed perspective are just two examples of hand drawing that I've done during these first two years. Hand Drafting 27
  • 29.
    Piranesi Sketch Constructed Perspective SitePlan ARCH 114: CORE STUDIO Project 08 28