OM INSTITUTE OF
ARCHITECTURE AND DESIGN
TOPIC : DECONSTRUCTION ARCHITECTURE
SUBMITTED TO : AR. GARIMA GOYAL
SUBMITTED BY : GIRDHAR
ROLL NO. : 1610463001
BRANCH: B.ARCH. 5TH SEMESTER
AWARDS:
Pritzker Architecture Prize
Stirling Prize
Royal Gold Medal
BORN:
ZAHA MOHAMMAD HADID
31 OCTOBER 1950
DIED:
31 March 2016 (aged 65)
Miami, Florida, United States
AR. ZAHA HADID
HEYDAR ALIYEV CENTRE
Baku, Azerbaijan
• 970,000-SQUARE-FOOT COMPLEX
• WILL HOUSE A 1,200- SEAT CONCERT HALL,
NATIONAL MUSEUM AND LIBRARY ALL
UNDER ONE ROOF
• 243-FOOT-TALL CONTINUOUSLY FOLDING
STRUCTURE
• Zaha Hadid Architects created a building
form that appears to emerge from the
topography.
• The skin of the building – a single curving
surface – rises, undulates, and wraps
inward at its base to completely envelop
the building’s various volumes.
Each building must be reinforced by
massive 150-foot-long concrete
piles buried below the Earth's surface.
Withstand an earthquake
measuring up to magnitude 7.0
• The Library is oriented north to take
advantage of natural light and has its own
entrance.
• Plants tumble over one another with ramps
which connect, creating a continuous
circulation path.
• The Library and Museum are also
connected by a ramp that leads through the
ground floor of the Library, to the first floor
of the Museum.
• The Library is connected to the conference
room through a bridge that 'fly' over the
entrance hall.
• GLASS FIBRE REINFORCED PLASTIC = DIRT-
REPELLENT
• GLASS FIBRE REINFORCED CONCRETE
(GFRC) PANELS
• The cultural centre's main hall is designed
to accommodate a wide variety of events,
from cultural performances to keynote
speeches.
• rotating panels to modify the acoustical
character of the space. This unique design
allows the room to transform seamlessly
from opera hall to convention centre
Ground floor
first floor
second floor
North elevation
West elevation
VITRA FIRE STATION
Weil am Rhein, Germany
• In this project Hadid’s showcased work
that delves into the deconstructivist
theoretical language that she developed
through her paintings as a conceptual
mediator of finding spatial relationships
and form.
They started the project with an intention to
deploy elements of the project so that would
not be lost among the huge sheds of the ships
that make up the factory. They also used
these elements to structure the entire site,
giving identity and rhythm to the main street
that runs through the complex.
• The design unifies two very different parts
of the program: the housing of fire trucks
and the provision of various facilities for
the firefighters.
• The entrance to the building is precisely at
this junction.
• The whole building is constructed
with reinforced concrete in situ in the
light,
• polished aluminium sliding planes
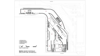
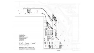
MAXXI: Museum of XXI Century Arts
Rome, Italy
The building is a composition of bending
oblong tubes, overlapping, intersecting
and piling over each other, resembling a
piece of massive transport infrastructure.
• FLUID AND SINUOUS SHAPES
• SPATIAL AND FUNCTIONAL
FRAMEWORK
Zaha Hadid stated, "I see the MAXXI
as an immersive urban environment
for the exchange of ideas, feeding
the cultural vitality of the city.
• PERMANENT COLLECTIONS AND
TEMPORARY EXHIBITIONS
• AUDITORIUM, RECEPTION SERVICES,
CAFETERIA AND BOOKSHOP
• GLASS (ROOF)
• STEEL (STAIRS)
• CEMENT (WALLS)
THANK YOU

Zaha hadid

  • 1.
    OM INSTITUTE OF ARCHITECTUREAND DESIGN TOPIC : DECONSTRUCTION ARCHITECTURE SUBMITTED TO : AR. GARIMA GOYAL SUBMITTED BY : GIRDHAR ROLL NO. : 1610463001 BRANCH: B.ARCH. 5TH SEMESTER
  • 2.
    AWARDS: Pritzker Architecture Prize StirlingPrize Royal Gold Medal BORN: ZAHA MOHAMMAD HADID 31 OCTOBER 1950 DIED: 31 March 2016 (aged 65) Miami, Florida, United States AR. ZAHA HADID
  • 4.
  • 5.
    • 970,000-SQUARE-FOOT COMPLEX •WILL HOUSE A 1,200- SEAT CONCERT HALL, NATIONAL MUSEUM AND LIBRARY ALL UNDER ONE ROOF • 243-FOOT-TALL CONTINUOUSLY FOLDING STRUCTURE
  • 6.
    • Zaha HadidArchitects created a building form that appears to emerge from the topography. • The skin of the building – a single curving surface – rises, undulates, and wraps inward at its base to completely envelop the building’s various volumes.
  • 7.
    Each building mustbe reinforced by massive 150-foot-long concrete piles buried below the Earth's surface. Withstand an earthquake measuring up to magnitude 7.0
  • 8.
    • The Libraryis oriented north to take advantage of natural light and has its own entrance. • Plants tumble over one another with ramps which connect, creating a continuous circulation path.
  • 9.
    • The Libraryand Museum are also connected by a ramp that leads through the ground floor of the Library, to the first floor of the Museum. • The Library is connected to the conference room through a bridge that 'fly' over the entrance hall.
  • 10.
    • GLASS FIBREREINFORCED PLASTIC = DIRT- REPELLENT • GLASS FIBRE REINFORCED CONCRETE (GFRC) PANELS
  • 11.
    • The culturalcentre's main hall is designed to accommodate a wide variety of events, from cultural performances to keynote speeches. • rotating panels to modify the acoustical character of the space. This unique design allows the room to transform seamlessly from opera hall to convention centre
  • 12.
  • 13.
  • 14.
  • 15.
  • 16.
    VITRA FIRE STATION Weilam Rhein, Germany
  • 17.
    • In thisproject Hadid’s showcased work that delves into the deconstructivist theoretical language that she developed through her paintings as a conceptual mediator of finding spatial relationships and form.
  • 18.
    They started theproject with an intention to deploy elements of the project so that would not be lost among the huge sheds of the ships that make up the factory. They also used these elements to structure the entire site, giving identity and rhythm to the main street that runs through the complex.
  • 19.
    • The designunifies two very different parts of the program: the housing of fire trucks and the provision of various facilities for the firefighters. • The entrance to the building is precisely at this junction.
  • 20.
    • The wholebuilding is constructed with reinforced concrete in situ in the light, • polished aluminium sliding planes
  • 21.
    MAXXI: Museum ofXXI Century Arts Rome, Italy
  • 22.
    The building isa composition of bending oblong tubes, overlapping, intersecting and piling over each other, resembling a piece of massive transport infrastructure.
  • 23.
    • FLUID ANDSINUOUS SHAPES • SPATIAL AND FUNCTIONAL FRAMEWORK
  • 24.
    Zaha Hadid stated,"I see the MAXXI as an immersive urban environment for the exchange of ideas, feeding the cultural vitality of the city.
  • 25.
    • PERMANENT COLLECTIONSAND TEMPORARY EXHIBITIONS • AUDITORIUM, RECEPTION SERVICES, CAFETERIA AND BOOKSHOP
  • 26.
    • GLASS (ROOF) •STEEL (STAIRS) • CEMENT (WALLS)
  • 30.