Throughout Logomark history the consistent growth of the company has pushed to acquire adequate operational
space. This situation has been encountered in all departments of the company, from the Warehouse, to Prep, to
Production, to Shipping.When the “Bell” location had become our new home, it incorporated all operations under
one roof. However, shortly afterward “Dyer” was leased, again, to accommodate warehouse growth.
Other flow inhibiting issues observed in the warehouse is our “Prep” staging overflow area and in the Q.C. dept.
continually, we encounter the situation of having to stage completed orders going to “Prep” in the warehouse
aisles and tunnels. This adds to the congestion already in the aisles from staged inbound pallets. In addition, it
affects the runners from “Prep” & “Pack” when they have to search through pallets of orders to locate the ones
they need. It may and has caused the errors of, incorrect orders being prepped, decorated, and/or shipped. Also,
duplicate orders on occasion had to be pulled due to original lost or missing order.
Over the last year or so, our Q.C department has had to endure an onslaught of tasks regarding investigation of basic
Q.C. issues, processing customer returns, fulfilling reject or sample requests, and repackaging cancelled orders.
the Q.C. area is small and not equipped to smoothly process all these various tasks in a timely manner. Too often,
the department is struggling to deal with all the different tasks, requests, and/or repackaging. This tends to lead to
a build-up of pallets with product on them waiting for some type of resolution. A larger and more organized area is
needed to accommodate both short and long-term storage along with room for performing inspections,
repackaging product, and storing extra frequently requested component items.
Recently we learned that the batteries for our equipment are reaching the end of their lifecycles, and replacements
are going to be required. About the same time, we realized our equipment has begun to reach a point of cost in
maintenance & repairs, that consideration of new equipment is warranted. Additional manpower required to,
handle putting product away & continuance of unloading containers, plus increased order pulling has also
pushed this necessary assessment of equipment. Reports show that the average length of time before a
significant amount of expense is invested into equipment maintenance & upkeep is 3 to 5 years. Our
equipment’s age, ranges between 7-9 years.
Presently, our warehouse is full, Dyer is almost at capacity, and our equipment is becoming a cost nuisance. Unless
we make changes within the “Bell” facility we will have out-grown the capacity of it’s current lay-out, spent money
repairing aging equipment and wasted effort in being productive.
1. Warehouse’s storage capacity, & expenditures
 Warehouse size & current storage capacity
 Warehouse’s main expenditures & monthly costs breakdown
2. Warehouse’s receiving process, hindrances, and costs
 Identifying various wastes/costs, risks, & needs in the warehouse
 Cost/Time Analysis of Current Unloading Procedures
 Overview of Warehouse’s receiving processes
 Cost/Time Analysis of Current Unloading & Receiving Procedures
3. Other Warehouse, Prep, Production, Q.C, or Pack/Shipping functions affected by storage issues
 Identifying various wastes/costs, risks, & needs in the warehouse
 Cost/Time Analysis of Current Unloading, Receiving, & Picking Procedures
 Identifying various wastes/costs, risks, & needs in the warehouse
4. Creating better flow
 Prep & Q.C staging overflow area(s)
5. Analysis of current & future equipment maintenance costs
 Identifying various wastes/costs, risks, & needs in the warehouse
 Various graphs/charts of equipment expenditures and future projections
 Comparison chart of equipment costs
6. Restructuring the Warehouse
 Cost/Time Analysis of Current Procedures vs. Eliminated Procedures with Restructuring
 Crown’s Layout & Demo of primary equipment
 Toyota’s Layout & Demo of primary equipment
 Yale’s Layouts & Demo of primary equipment
 Comparison of Storage Capacities
 Comparison of Restructuring Costs
 Example of equipment financing options
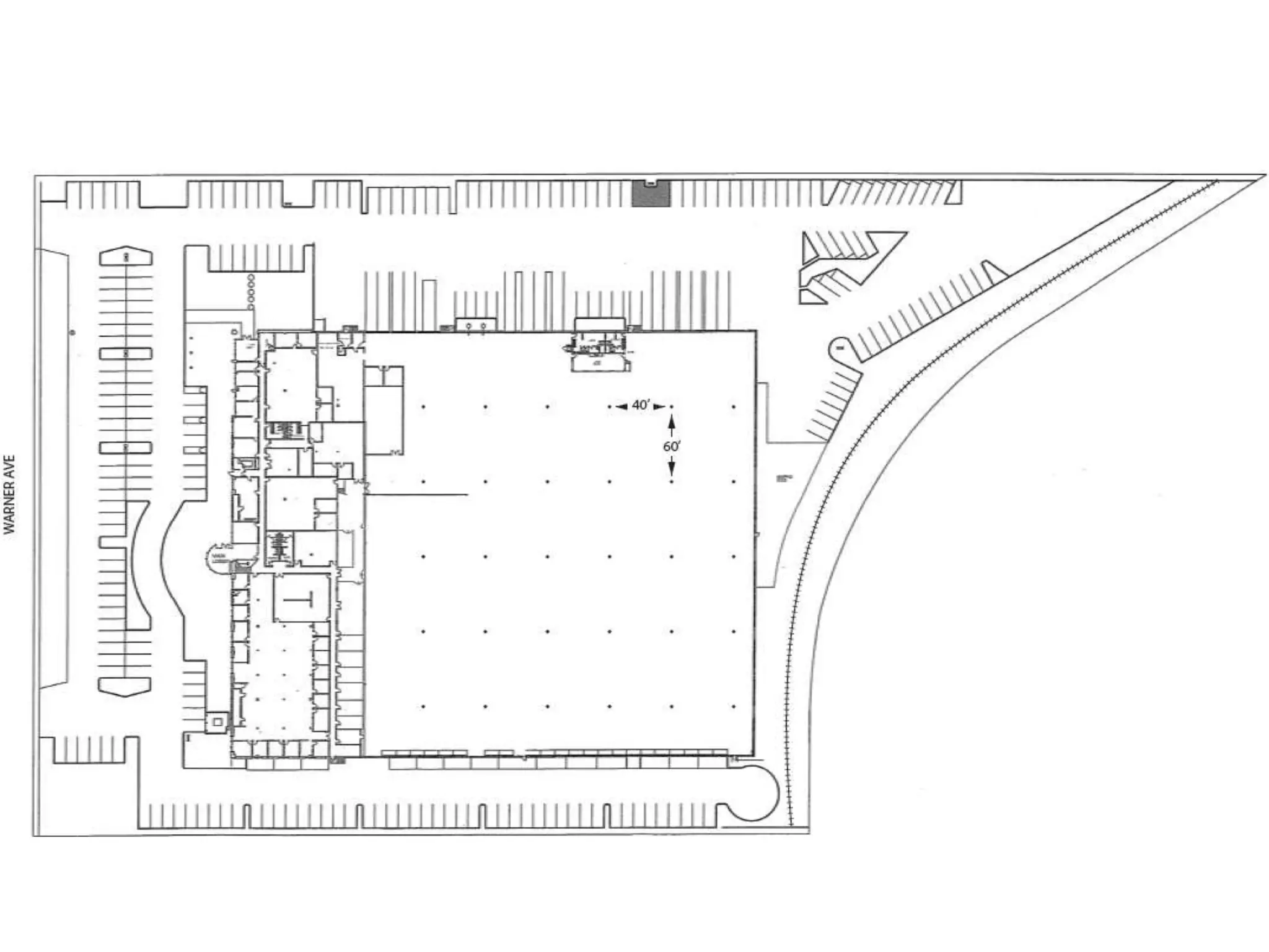
 Warehouse total footage is approx. 60,000 sqft.
 Warehouse occupies approx. 45% of entire building
 Warehouse side “A” (Receiving side) is approx. 38,880 sqft.
 Warehouse side “B” (Essentials side) is approx. 21,120 sqft.
 Warehouse current storage racks occupies approx. 49,147 sqft.
or 82% of the total warehouse space.
 Storage rack system’s capacity is 7,104 pallets (incld. pick loc.)
 Current number of pick locations (not including “Pens”) is 2,724
 Total number of “Pen” pick locations is 1,349
 Current warehouse capacity is at >98%
 Warehouse’s % of lease amount (45% of building) $47,958.75
 Electricity costs (20% of facility’s total monthly usage ) $2,460.00
 Equipment costs (5yr. Monthly avg. of repairs & maintenance) 4,338.25
 Hr. personnel labor exp. (Mo. avg. over 12 mo. period) $39,874.00
 Total Monthly Warehouse Expenses $94,631.00
 Since April 2013 we began to consistently encounter storage, staging, and
picking issues due to our growth.
 By October 2013 we began receiving full containers straight from port, at a
average rate of one container a day (avg. 80+ pallets). This has produced a
steady flow that has become difficult to manage under our current operating
procedures, thus majorly reducing our ability to regulate the amount of pallets
flowing into our facility
Fact:
A staged pallet is handled as much as 10 times before it’s placed into a rack due to current
limitations. The risk of product becoming damaged becomes elevated through handling
multiple times by staging pallets in aisles (O.S. pallets, product in pick loc., & S/O).
Wastes, Costs, & Risks:
 Travel time to return to where staged pallets are located vs. putting straight away into
locations
 Additional manpower required to handle putting product away & continuance of
unloading containers
Aisle 1/2 Aisle 3/4
Man
hrs in
min.
Labor
costin
$
Man
hrs in
min.
Labor
costin
$
Man
hrs in
min.
Labor
costin
$
Man
hrs in
min.
Labor
costin
$
Man
hrs in
min.
Labor
costin$
4 2.58 64 43.52 57 38.76 17 11.56 142 $96.42
UnloadingProcess
Individual Break-downof Processes&CostswithCurrentLayout
Total Cost
Cont./
Trlr.
arrives at
LM
4-6 empty
pallet(s)are
laidouton
floorbyendof
container
Productis
thenunloaded
ontopallets by
item& color
As a palletis
finishedit's
movedto
stagingarea
for
QC/Accuracy
Newpallets
placedattail
& process
repeats until
containeris
emptied
Current
Layout
Operating
Procedures
 Logomark product is delivered via oversea containers, interstate trucking, and
local pick-ups done by Logomark driver.
 As product arrives, it is off-loaded onto the dock, sorted & palletized by stock
# and color.
 Once the entire truck is off-loaded it is then verified against packing slip for
accuracy.
 To clear the dock allowing space for the next inbound load, the palletized
product is then labeled, wrapped and moved as close as possible to the aisle
of the pick location for that product.
 If there are available overstock locations for the product, it is then put into
the rack
 As the racks become full, any remaining pallets are staged in the aisle of
where the product belongs waiting for overstock locations to become open
from orders being pulled.
 The amount of time pallets spend being staged in the aisles can vary, from 24
hours to as much as 5 days (depending on product movement).
 As more freight arrives it is either, staged in the aisles again adding
to/replacing the pallets already waiting for put away, or is relocated to the
“Dyer” warehouse.
Aisle 5/6 Aisle 7/8
Aisle 9/10 Aisle 15/16
Man
hrs in
min.
Labor
costin
$
Man
hrs in
min.
Labor
costin
$
Man
hrs in
min.
Labor
costin
$
Man
hrs in
min.
Labor
costin
$
Man
hrs in
min.
Labor
costin
$
Man
hrs in
min.
Labor
costin
$
Man
hrs in
min.
Labor
costin
$
Man
hrs in
min.
Labor
costin
$
Man
hrs in
min.
Labor
costin$
4 0.93 64 15.62 57 13.91 17 4.15 30 14.10 189 88.83 128 60.16 64 30.08 523 $227.77
Pallets are
transportedto
appropriate
aisles for
putaway
UnloadingProcess
Travel time for
returningto
aisle for
stagedpallets
ReceivingProcess
Staged
containerload
is thenverified
for
QC/Accuracy
Pallets are
movedfrom
stagedarea to
"Wrap
Machine"for
wrapping
Individual Break-downof Processes&CostswithCurrentLayout
Total Cost
Cont./
Trlr.
arrives at
LM
4-6 empty
pallet(s)are
laidouton
floorbyendof
container
Productis
thenunloaded
ontopallets by
item& color
As a palletis
finishedit's
movedto
stagingarea
for
QC/Accuracy
Newpallets
placedattail
& process
repeats until
containeris
emptied
Current
Layout
Operating
Procedures
 Since whenever we began the practice of staging pallets in the aisles, it has had
adverse effects on our time pulling orders. When this occurs, it carries over
affecting the Prep department also.
Fact:
The time pulling a S/O varies greatly on negotiating around inbound product that is staged
in the aisles. Adding to the pallets of product that are already staged for S/O’s in aisles 24-
26, it becomes so congested that it takes extra time to, transport pallets to Prep
department, move pallets around to access pick locations, restack/consolidate previously
staged pallets for accommodating more staging space (O.S. or S/O), and put away
overstock.
Wastes, Costs, & Risks:
 Additional equipment to handle excessive product movement
 Extra time spent to shuffle pallets around to access picking location(s)
 Extra time spent to shuffle pallets around to access O.S. locations
 Extra time spent searching for specific S/O’s by Prep dept.
Aisle 17/18 Aisle 21/22
Man
hrs in
min.
Labor
costin
$
Man
hrs in
min.
Labor
costin
$
Man
hrs in
min.
Labor
costin
$
Man
hrs in
min.
Labor
costin
$
Man
hrs in
min.
Labor
costin
$
Man
hrs in
min.
Labor
costin
$
Man
hrs in
min.
Labor
costin
$
Man
hrs in
min.
Labor
costin
$
Man
hrs in
min.
Labor
costin
$
Man
hrs in
min.
Labor
costin
$
Man
hrs in
min.
Labor
costin
$
Man
hrs in
min.
Labor
costin
$
Man
hrs in
min.
Labor
costin$
4 2.58 64 43.52 57 38.76 17 11.56 30 14.10 189 88.83 128 60.16 64 30.08 64 90.88 47 66.74 38 53.96 173 245.66 845 $746.83
Pallets are
transportedto
appropriate
aisles for
putaway
UnloadingProcess
Travel time for
returningto
aisle for
stagedpallets
Additional
time spentto
move staged
pallets for
access topick
loc.
ReceivingProcess PickingProcess
Additional
time spentto
move staged
pallets for
access toO/S
loc.
Additional
time spent
negotiating
downaisles
withstaged
pallets
Staged
containerload
is thenverified
for
QC/Accuracy
Pallets are
movedfrom
stagedarea to
"Wrap
Machine"for
wrapping
Individual Break-downof Processes&CostswithCurrentLayout
Total Cost
Cont./
Trlr.
arrives at
LM
4-6 empty
pallet(s)are
laidouton
floorbyendof
container
Productis
thenunloaded
ontopallets by
item& color
As a palletis
finishedit's
movedto
stagingarea
for
QC/Accuracy
Newpallets
placedattail
& process
repeats until
containeris
emptied
Current
Layout
Operating
Procedures
Additional
time spent
pickingon
aisles with
stagedpallets
Other flow inhibiting issues observed in the warehouse is our “Prep”
staging overflow area and in the Q.C. dept.
Continually, we encounter the situation of having to stage
completed orders going to “Prep” in the warehouse aisles and
tunnels. This adds to the congestion already in the aisles from
staged inbound pallets. In addition, it affects the runners from
“Prep” & “Pack” when they have to search through pallets of orders
to locate the ones they need. It may and has caused the errors of,
incorrect orders being prepped, decorated, and/or shipped. Also,
duplicate orders on occasion had to be pulled due to original lost or
missing order.
Aisle 25 Aisle 24
Tunnel Outside Prep Aisle 26/27
Over the last year or so, our Q.C department has had to endure a
onslaught of tasks. Investigation of basic Q.C. issues, processing
customer returns, fulfilling reject or sample requests, and
repackaging cancelled orders.
The Q.C. area is small and not equipped to smoothly process all
these various tasks in a timely manner. Too often, the department is
struggling to deal with all the different tasks, requests, and/or
repackaging. This tends to lead to a build-up of pallets with product
on them waiting for some type of resolution. A larger and more
organized area is needed to accommodate both short and long-term
storage along with room for performing inspections, repackaging
product, and storing extra frequently requested component items.
Original Q.C. Staging Tunnel Outside Q.C. Aisle 40/41
 In September 2013 we learned that the batteries for our equipment were
reaching the end of their lifecycles, and replacements were going to be
required. About the same time, we realized our equipment has begun to reach a
point of cost in maintenance & repairs, that consideration of new equipment is
warranted. Additional manpower required to, handle putting product away &
continuance of unloading containers, plus increased order pulling has also
pushed this necessary assessment of equipment.
Fact:
A study of reports, show that the average length of time before a significant amount of
expense is invested into equipment maintenance & upkeep is 3 to 5 years. Our equipment’s
age, ranges between 7-9 years.
Wastes, Costs, & Risks:
 Cost of maintaining current equipment will continue to rise as the equipment gets older.
 Over a short time the amount spent on maintenance & upkeep can exceed the cost of
just replacing the equipment outright when it’s beyond 3-5 yrs old.
 When equipment is down frequently due to repairs, it will affect productivity throughout
the facility.
$0.00
$500.00
$1,000.00
$1,500.00
$2,000.00
$2,500.00
$3,000.00
$3,500.00
$4,000.00
$4,500.00
$5,000.00
$5,500.00
$6,000.00
$6,500.00
$7,000.00
$7,500.00
$8,000.00
$8,500.00
$9,000.00
$9,500.00
$10,000.00
$10,500.00
$11,000.00
$11,500.00
$12,000.00
$12,500.00
1A293089 1A293151 9A139025 9A139026 1A294145 6A229542 9A150784 9A155136 9A155137 1A300834
RR5220-35 RR5220-35 WAV50-118 WAV50-118 SP3410-30 PE4000-60 WAV50-118 WAV50-118 WAV50-118 SP3420-30
Total Maintence Spent on Individual Units
Maintence Expenses
(2013)
Maintence Expenses
(2012)
Maintence Expenses
(2011)
Maintence Expenses
(2010)
Maintence Expenses
(2009)
Maintence Expenses
(2008)
List of Current Equipment & Annual Expenditures
Model # Ser. # Maintence Expenses (2008) Maintence Expenses (2009) Maintence Expenses (2010) Maintence Expenses (2011) Maintence Expenses (2012) Maintence Expenses (2013)
Maintence Expenses (yearly
avg.)
Yearly P.M. Labor Exp.
RR5220-35 1A293089 $375.04 $523.61 $2,493.68 $690.53 $1,501.09 $1,169.95 $1,126.65 $300.00
RR5220-35 1A293151 $650.27 $672.82 $0.00 $965.48 $429.64 $1,256.09 $663.38 $300.00
WAV50-118 9A139025 $2,739.62 $375.01 $2,612.31 $1,932.69 $2,628.01 $2,051.28 $2,057.49 $240.00
WAV50-118 9A139026 $2,619.72 $320.61 $1,986.10 $1,657.39 $1,072.35 $1,347.74 $1,501.65 $240.00
SP3410-30 1A294145 $322.15 $94.47 $402.70 $103.00 $1,233.34 $775.06 $489.45 $300.00
PE4000-60 6A229542 $4.00 $0.00 $0.00 $427.10 $2,006.83 $945.21 $564.86 $240.00
WAV50-118 9A150784 $30.00 $1,538.21 $379.91 $2,407.16 $1,465.41 $1,976.99 $1,300.61 $240.00
WAV50-118 9A155136 $0.00 $0.00 $199.80 $291.86 $2,435.38 $163.35 $516.07 $240.00
WAV50-118 9A155137 $0.00 $0.00 $1,350.12 $396.23 $1,102.74 $2,635.39 $915.08 $240.00
SP3420-30 1A300834 $0.00 $0.00 $0.00 $0.00 $0.00 $403.38 $68.23 $300.00
Summary, & Monthly Breakdown of Total Expendituresfor Equipment
Model # Ser. # DateAquired Cost of Unit
TotalAmt. Spent on P.M.
Labor
Maintence Expenses (2008-
2013)
TotalAmt. Spent per Unit
Monthly Avg. of TotalAmt.
Spent
Projected"Major" Exp. (5yrs)
ProjectedMo. Avg. of Total
Amt. spent
RR5220-35 1A293089 9/20/2005 $30,069.25 $2,400.00 $6,753.90 $39,223.15 $392.23 $9,373.18 $357.33
RR5220-35 1A293151 9/20/2005 $30,069.25 $2,400.00 $3,974.30 $36,443.55 $364.44 $9,905.60 $340.80
WAV50-118 9A139025 9/22/2005 $12,391.25 $1,920.00 $12,338.92 $26,650.17 $266.50 $8,911.91 $261.49
WAV50-118 9A139026 9/22/2005 $12,391.25 $1,920.00 $9,003.91 $23,315.16 $233.15 $4,890.29 $207.39
SP3410-30 1A294145 10/7/2005 $23,390.37 $2,400.00 $2,930.72 $28,721.09 $287.21 $6,547.25 $259.33
PE4000-60 6A229542 10/7/2005 $10,213.62 $1,920.00 $3,383.14 $15,516.76 $155.17 $2,824.30 $134.86
WAV50-118 9A150784 4/27/2007 $12,736.91 $1,680.00 $7,797.68 $22,214.59 $274.25 $4,341.59 $226.98
WAV50-118 9A155136 11/15/2007 $13,894.37 $1,440.00 $3,090.39 $18,424.76 $227.47 $4,345.84 $194.62
WAV50-118 9A155137 11/15/2007 $13,894.37 $1,440.00 $5,484.48 $20,818.85 $257.02 $4,526.35 $216.63
SP3420-30 1A300834 11/27/2012 $25,628.00 $300.00 $403.38 $26,331.38 $1,880.81 $5,045.00 $627.53
Color Legend: Drive Motor replacement Battery replacement Var. Maint. Exp.
Drive Motor & Battery
replacement
Drive Motor & Var. Maint.
Exp.
Battery & Var. Maint. Exp.
RR5220-35 1A293089
9/20/2005
$39,223.15
15%
RR5220-35
1A293151
9/20/2005
$36,443.55
14%
WAV50-118
9A139025
9/22/2005
$26,650.17
11%
WAV50-118 9A139026
9/22/2005
$23,315.16 / 9%
SP3410-30 1A294145
10/7/2005
$28,721.09
11%
PE4000-60 6A229542
10/7/2005
$15,516.76 / 6%
WAV50-118
9A150784
4/27/2007
$22,214.59
9%
WAV50-118 9A155136
11/15/2007
$18,424.76 / 7%
WAV50-118 9A155137
11/15/2007
$20,818.85 / 8%
SP3420-30 1A300834
11/27/2012
$26,331.38
10%
Total Amount Spent per Unit
Comparison of Expenditures for Additional/Replacement Industrial Equipment
Model #
Total Amt. Spent
per Unit
Mo. Avg. Spent
per Unit
Projected
"Major" Exp.
(5yrs)
Projected Total
amount
Projected Mo.
Avg. Next 5 yrs
Cost of
Replacement unit
(New)
Exp. %
Current vs.
New
Proj. Exp. %
Current vs.
New
RR5220-35 $39,223.15 $392.23 $9,373.18 $48,596.33 $357.33 $38,750.00 101% 125%
RR5220-35 $36,443.55 $364.44 $9,905.60 $46,349.15 $340.80 $38,750.00 94% 120%
WAV50-118 $26,650.17 $266.50 $8,911.91 $35,562.08 $261.49 $16,345.00 163% 218%
WAV50-118 $23,315.16 $233.15 $4,890.29 $28,205.45 $207.39 $16,345.00 143% 173%
SP3410-30 $28,721.09 $287.21 $6,547.25 $35,268.34 $259.33 $31,795.00 90% 111%
PE4000-60 $15,516.76 $155.17 $2,824.30 $18,341.06 $134.86 $13,995.00 111% 131%
WAV50-118 $22,214.59 $274.25 $4,341.59 $26,556.18 $226.98 $16,345.00 136% 162%
WAV50-118 $18,424.76 $227.47 $4,345.84 $22,770.60 $194.62 $16,345.00 113% 139%
WAV50-118 $20,818.85 $257.02 $4,526.35 $25,345.20 $216.63 $16,345.00 127% 155%
SP3420-30 $26,331.38 $1,880.81 $5,045.00 $31,376.38 $627.53 $31,795.00 83% 99%
Totals $257,659.46 $4,338.25 $60,711.31 $318,370.77 $2,826.94 $236,810.00 109% 134%
In October 2013 three companies were invited
to submit bids/concepts to improve our
productivity, flow, and storage capabilities.
The following slides are their envisions and
the benefits they bring.
Man
hrs in
min.
Labor
cost
in $
Man
hrs in
min.
Labor
cost
in $
Man
hrs in
min.
Labor
cost
in $
Man
hrs in
min.
Labor
cost
in $
Man
hrs in
min.
Labor
cost
in $
Man
hrs in
min.
Labor
cost
in $
Man
hrs in
min.
Labor
cost
in $
Man
hrs in
min.
Labor
cost
in $
Man
hrs in
min.
Labor
cost
in $
Man
hrs in
min.
Labor
cost
in $
Man
hrs in
min.
Labor
cost
in $
Man
hrs in
min.
Labor
cost in
$
Man
hrs in
min.
Labor
cost in $
4 2.58 64 43.52 57 38.76 17 11.56 30 14.10 189 88.83 128 60.16 0 0.00 0 0.00 0 0.00 0 0.00 0 0.00 489 $259.51
Staged
container
load is then
verified for
QC/Accuracy
Individual Break-down of Costs & Processes with Crown's Layout
Total Spent
As a pallet is
finished it's
moved to
"Wrap
Machine"for
wrapping
Pallets are
transported
to
appropriate
aisles for
putaway
Travel time
for returning
to aisle for
staged
pallets
Additional
time spent
to move
staged
pallets for
access to
pick loc.
Additional
time spent
negotiating
down aisles
with staged
pallets
Additional
time spent
picking on
aisles with
staged
pallets
Additional
time spent
to move
staged
pallets for
access to
O/S loc.
Cont. /
Trlr.
arrives at
LM
New Layout
Operating
Procedures
Unloading Process Receiving Process Picking Process
4-6 empty
pallet(s)are
laid out on
floor by end
ofcontainer
Product is
then
unloaded
onto pallets
by item &
color
As a pallet is
finished it's
moved to
staging area
for
QC/Accuracy
New pallets
placed at
tail &
process
repeats until
container is
emptied
 We conducted a time study to see to what extent our current storage issues have on our performance, capacity, and percentage of overtime.
 What we discovered was an eye-opening observation of how much our storage issues affect our picking and receiving performance.
 What can we do to improve performance, create a better flow and reduce the amount of overtime/labor hours used.
 We need to be able to, increase storage capacity, create a single staging zone for “Prep” that doesn’t hinder performance, and re-design a
better arrangement of flow in the Q.C. area.
 How much unnecessary/wasted effort is there in the chart above?
 We would achieve; a dramatic reduction in O/T labor by approximately 30% along with providing room for growth and making the warehouse
flow a lot smoother and more efficient.
 These figures are based on a 8 hour time period which would result in approximately a savings of $487.32 per day or $10,721.04 per month.
Man
hrs in
min.
Labor
cost
in $
Man
hrs in
min.
Labor
cost
in $
Man
hrs in
min.
Labor
cost
in $
Man
hrs in
min.
Labor
cost
in $
Man
hrs in
min.
Labor
cost
in $
Man
hrs in
min.
Labor
cost
in $
Man
hrs in
min.
Labor
cost
in $
Man
hrs in
min.
Labor
cost
in $
Man
hrs in
min.
Labor
cost
in $
Man
hrs in
min.
Labor
cost
in $
Man
hrs in
min.
Labor
cost
in $
Man
hrs in
min.
Labor
cost in
$
Man
hrs in
min.
Labor
cost in $
4 2.58 64 43.52 57 38.76 17 11.56 30 14.10 189 88.83 128 60.16 64 30.08 64 90.88 47 66.74 38 53.96 173 245.66 875 $746.83
As a pallet is
finished it's
moved to
staging area
for
QC/Accuracy
New pallets
placed at
tail &
process
repeats until
container is
emptied
Current
Layout
Operating
Procedures
Additional
time spent
picking on
aisles with
staged
pallets
Pallets are
moved from
staged area
to "Wrap
Machine"for
wrapping
Individual Break-down of Costs & Processes with Current Layout
Total Cost
Cont. /
Trlr.
arrives at
LM
4-6 empty
pallet(s)are
laid out on
floor by end
ofcontainer
Product is
then
unloaded
onto pallets
by item &
color
Pallets are
transported
to
appropriate
aisles for
putaway
Unloading Process (3 employees @ combined $.68/min.)
Travel time
for returning
to aisle for
staged
pallets
Additional
time spent
to move
staged
pallets for
access to
pick loc.
Receiving Process (4 employees @ combined $.47/min.) Picking Process (9 employees @ combined $1.42/min.)
Additional
time spent
to move
staged
pallets for
access to
O/S loc.
Additional
time spent
negotiating
down aisles
with staged
pallets
Staged
container
load is then
verified for
QC/Accuracy
 Warehouse’s % of lease amount (45% of building) $47,958.75
 Electricity costs (20% of facility’s total monthly usage ) $2,460.00
 Equipment costs (5yr. Monthly avg. of repairs & maintenance) 4,338.25
 Hr. personnel labor exp. (Mo. avg. over 12 mo. period) $29,152.96
 Total Monthly Warehouse Expenses $79,571.71
Man
hrs in
min.
Labor
cost
in $
Man
hrs in
min.
Labor
cost
in $
Man
hrs in
min.
Labor
cost
in $
Man
hrs in
min.
Labor
cost
in $
Man
hrs in
min.
Labor
cost
in $
Man
hrs in
min.
Labor
cost
in $
Man
hrs in
min.
Labor
cost
in $
Man
hrs in
min.
Labor
cost
in $
Man
hrs in
min.
Labor
cost
in $
Man
hrs in
min.
Labor
cost
in $
Man
hrs in
min.
Labor
cost
in $
Man
hrs in
min.
Labor
cost in
$
Man
hrs in
min.
Labor
cost in $
4 2.58 64 43.52 57 38.76 17 11.56 30 14.10 189 88.83 128 60.16 64 30.08 64 90.88 47 66.74 38 53.96 173 245.66 875 $746.83
As a pallet is
finished it's
moved to
staging area
for
QC/Accuracy
New pallets
placed at
tail &
process
repeats until
container is
emptied
Current
Layout
Operating
Procedures
Additional
time spent
picking on
aisles with
staged
pallets
Pallets are
moved from
staged area
to "Wrap
Machine"for
wrapping
Individual Break-down of Costs & Processes with Current Layout
Total Cost
Cont. /
Trlr.
arrives at
LM
4-6 empty
pallet(s)are
laid out on
floor by end
ofcontainer
Product is
then
unloaded
onto pallets
by item &
color
Pallets are
transported
to
appropriate
aisles for
putaway
Unloading Process (3 employees @ combined $.68/min.)
Travel time
for returning
to aisle for
staged
pallets
Additional
time spent
to move
staged
pallets for
access to
pick loc.
Receiving Process (4 employees @ combined $.47/min.) Picking Process (9 employees @ combined $1.42/min.)
Additional
time spent
to move
staged
pallets for
access to
O/S loc.
Additional
time spent
negotiating
down aisles
with staged
pallets
Staged
container
load is then
verified for
QC/Accuracy
Rack Layout
Proposal
Occupied SqFt
Warehouse Side "A" Warehouse Side "B"
Total # of
Pallet Loc.Main Racking Outer racks Tunnel
Total Pallet
Loc. In Whse
"A"
Main Racking Outer racks Tunnel
Total Pallet
Loc. In Whse
"B"
Current 49,147 4,344 0 120 4,464 1,944 480 216 2,640 7,104
Rack Layout
Proposal
Occupied SqFt
Warehouse Side "A" Warehouse Side "B"
Total # of
Pallet Loc.
% of increased
storageMain
Racking
Outer racks Tunnel
Total Pallet
Loc. In Whse
"A"
Main Racking Outer racks Tunnel
Total Pallet
Loc. In Whse
"B"
Crown 49,147 6,375 0 312 6,687 1,680 750 312 2,742 9,429 32.73%
Rack Layout
Proposal
Occupied
SqFt
Warehouse Side "A" Warehouse Side "B"
Total # of
Pallet Loc.
% of increased
storage
Main
Racking
Outer racks Tunnel
Total Pallet
Loc. In Whse
"A"
Main
Racking
Outer racks Tunnel
Total Pallet
Loc. In Whse
"B"
Toyota 49,147 5,625 0 216 5,841 2,565 705 342 3,612 9,453 33.07%
Rack Layout
Proposal
Occupied SqFt
Warehouse Side "A" Warehouse Side "B"
Total # of Pallet
Loc.
% of increased
storageMain Racking Outer racks Tunnel
Total Pallet
Loc. In Whse
"A"
Main Racking Outer racks Tunnel
Total Pallet
Loc. In Whse
"B"
Yale opt 1 49,147 5,430 0 180 5,610 1,944 480 216 2,640 8,250 16.13%
Rack Layout
Proposal
Occupied SqFt
Warehouse Side "A" Warehouse Side "B"
Total # of Pallet
Loc.
% of increased
storageMain Racking Outer racks Tunnel
Total Pallet Loc.
In Whse "A"
Main Racking Outer racks Tunnel
Total Pallet Loc.
In Whse "B"
Yale opt 2 49,147 6,135 0 189 6,324 1,944 480 216 2,640 8,964 26.18%
Rack Layout
Proposal
Occupied SqFt
Warehouse Side "A" Warehouse Side "B"
Total # of Pallet
Loc.
% of increased
storageMain Racking Outer racks Tunnel
Total Pallet Loc. In
Whse "A"
Main Racking Outer racks Tunnel
Total Pallet Loc. In
Whse "B"
Yale opt 3 49,147 6,135 0 189 6,324 2,430 795 324 3,549 9,873 38.98%
Rack Layout
Proposal
Occupied
SqFt
Warehouse Side "A" Warehouse Side "B"
Total # of
Pallet Loc.
% of
increased
storage
Main
Racking
Outer racks Tunnel
Total Pallet
Loc. In Whse
"A"
Main
Racking
Outer racks Tunnel
Total Pallet
Loc. In Whse
"B"
Current 49,147 4,344 0 120 4,464 1,944 480 216 2,640 7,104 0.00%
Crown 49,147 6,375 0 312 6,687 1,680 750 312 2,742 9,429 32.73%
Toyota 49,147 5,625 0 216 5,847 2,565 705 342 3,612 9,453 33.07%
Yale opt 1 49,147 5,430 0 180 5,610 1,944 480 216 2,640 8,250 16.13%
Yale opt 2 49,147 6,135 0 189 6,324 1,944 480 216 2,640 8,964 26.18%
Yale opt 3 49,147 6,135 0 189 6,324 2,430 795 324 3,549 9,873 38.98%
Rack
Layout
Proposal
Monthly
Expenses
(Exclud. Equip.)
$ of
project
Labor $
savings
per year
Mo. $ of
project
(5yr span)
Time (yrs)
until project
has paid for
itself
Equipment Roster
Current Equipment $
Required vs. New
Equipment $ Required
for layout
Mo. $ of equip. /
projected maint.
Req. for layout
(5 yr span)
Time (yrs) until
Project +
Equipment has
paid for itself
Current
(No Chng)
$79,739 $0 $0 $0 N/A
2 RRs (Current), 2 SPs (Current ), 1 PR (Current),
5 Waves (Current), + 1 RR (Encore/Used)
$166,402 $2,773 N/A
Current
Opt 1
$79,739 $0 $0 $0 N/A
3 RRs (New), 1 SP (New), 1 PR (New),
5 Waves (New)
$246,270 $4,105 N/A
Current
Opt 2
$79,739 $0 $0 $0 N/A
3 RRs (Encore/Used), 2 SPs (Encore/Used),
1 PR (New), 5 Waves (New)
$208,975 $3,483 N/A
Current
Opt 3
$79,739 $0 $0 $0 N/A
3 RRs (Encore/Used), 2 SPs (Encore/Used),
1 PR (New)
$152,500 $2,542 N/A
Crown $73,204 $298,257 $78,420 $4,971 3.80
2 TSPs (Demo/Used), 2 SPs (Encore/Used),
1 PR (New)
$227,000 $3,783 6.70
Toyota $77,561 $139,237 $26,136 $2,321 5.33 2 Flexi (Sit-down), 2 Stk Pickers, 1 Pallet Rider $145,635 $2,427 10.90
Yale opt 1 $77,561 $103,349 $26,136 $1,722 3.95 3 Reach Trucks, 2 Stk Pickers, 1 Pallet Rider $146,389 $2,440 9.56
Yale opt 2 $75,382 $167,453 $52,284 $2,791 3.20 2 Bendi, 3 Stk Pickers, 1 Pallet Rider $146,389 $2,440 6.00
Yale opt 3 $73,204 $293,535 $78,420 $4,892 3.74 2 Bendi, 3 Stk Pickers, 1 Pallet Rider $187,110 $3,119 6.13
In this presentation:
 We identified various operational & storage issues.
 We recognized our aging equipment’s rising maintenance costs and need for new equipment
 We compared our current labor costs incurred by our ops and storage issues vs. savings if we
restructured the warehouse
 3 companies submitted their solutions for what we were attempting to accomplish.
 Each concept was analyzed for cost, operational/storage benefits, and dedication to the project.
 Out of the 3 companies' proposals, and although the most cost, Crown lifts provided the most
assistance, best over-all layout concept, and worked diligently to insure the majority of incidental
additional expenses (permits, draft curtain removal, lighting improvements/upgrades, etc…) were
included in their quote.
 Toyota & Yale did not entirely make the extensive effort that Crown has done.
 Toyota’s lack of effort was shown through their layout concept.
 Yale’s layout concept was similar to Crown’s, and a little more detailed, however it lacked in the overall
commitment to us. There were various expenses that were curiously omitted in the quotes initially,
multiple occasions of meetings with us forgotten about or postponed last minute, and unpreparedness
when presenting various layouts and quotes.
 Both Toyota & Yale’s recommended equipment was determined to be high risk.
If a recommendation was to be given, our best choice would be to use Crown for this and any future
projects. Crown has shown their loyalty and commitment to us and our endeavors.
In mid-June it was determined that, due to current and projected
future growth of the company it would be necessary to consider
an alternate solution for increased production and storage needs.
The following slides are potential concepts for handling that growth
with approximate costs and benefits.
Rack Layout
Proposal
Occupied SqFt
Warehouse Side "A" Warehouse Side "B"
Total # of Pallet
Loc.
% of increased
storageMain Racking Outer racks Tunnel
Total Pallet
Loc. In Whse
"A"
Main Racking Outer racks Tunnel
Total Pallet
Loc. In Whse
"B"
Current 49,147 4,344 0 120 4,464 1,944 480 216 2,640 7,104 0.00%
Crown Opt 2 49,147 6,394 0 234 6,628 797 165 126 1088 7,716 8.61%
Rack Layout
Proposal
Occupied SqFt
Warehouse Side "A" Warehouse Side "B"
Total # of Pallet
Loc.
% of increased
storageMain Racking Outer racks Tunnel
Total Pallet
Loc. In Whse
"A"
Main Racking Outer racks Tunnel
Total Pallet
Loc. In Whse
"B"
Current 49,147 4,344 0 120 4,464 1,944 480 216 2,640 7,104 0.00%
Crown Opt 3 49,147 5,764 0 234 5,998 0 0 0 0 5,998 -15.57%
Rack Layout
Proposal
Occupied SqFt
Warehouse Side "A" Warehouse Side "B"
Total # of Pallet
Loc.
% of increased
storageMain Racking Outer racks Tunnel
Total Pallet
Loc. In Whse
"A"
Main Racking Outer racks Tunnel
Total Pallet
Loc. In Whse
"B"
Current N/A N/A N/A N/A N/A N/A N/A N/A N/A 6,032 0.00%
Crown Opt 3 N/A N/A N/A N/A N/A N/A N/A N/A N/A 7,304 17.42%
Rack Layout Proposal
Occupied
SqFt
Warehouse Side "A" Warehouse Side "B"
Total # of
Pallet Loc.
% of
increased
storage
# of additional
pallet
positions
required @
new location
Size of Additional
Warehouse needed
(Min. Sqft. of whse.)Main
Racking
Outer
racks
Tunnel
Total Pallet
Loc. In Whse
"A"
Main
Racking
Outer
racks
Tunnel
Total Pallet
Loc. In Whse
"B"
Current layout @ Bell 49,147 4,344 0 120 4,464 1,944 480 216 2,640 7,104 0.00% N/A N/A
Current Layout @ Dyer N/A N/A N/A N/A N/A N/A N/A N/A N/A 6,032 0.00% N/A N/A
Current Layout @ Bell &
Dyer
N/A N/A N/A N/A N/A N/A N/A N/A N/A 13,136 0.00% N/A N/A
Crown Opt 1 @ Bell 49,147 6,375 0 0 6,375 1,680 750 0 2,430 9,429 32.73% N/A N/A
Crown Opt 2 @ Bell 40,546 6,394 0 234 6,628 797 165 126 1,088 7,716 8.61% N/A N/A
Crown Opt 3 @ Bell 31,946 5,764 0 234 5,998 0 0 0 0 5,998 -15.57% N/A N/A
Crown Layout @ Dyer N/A N/A N/A N/A N/A N/A N/A N/A N/A 7,304 21.09% N/A N/A
Crown Opt 2 + Crown
Layout @ Dyer
N/A N/A N/A N/A N/A N/A N/A N/A N/A 15,020 29.73% N/A N/A
Crown Opt 3 + Crown
Layout @ Dyer
N/A N/A N/A N/A N/A N/A N/A N/A N/A 13,302 1.26% N/A N/A
Crown Opt 2 + Additional
Warehouse (50% growth)
N/A N/A N/A N/A N/A N/A N/A N/A N/A 19,704 50.00% 11,988 73,126.80
Crown Opt 2 + Additional
Warehouse (25% growth)
N/A N/A N/A N/A N/A N/A N/A N/A N/A 16,420 25.00% 8,704 53,094.40
Crown Opt 3 + Additional
Warehouse (50% growth)
N/A N/A N/A N/A N/A N/A N/A N/A N/A 19,704 50.00% 13,706 83,606.60
Crown Opt 3 + Additional
Warehouse (25% growth)
N/A N/A N/A N/A N/A N/A N/A N/A N/A 16,420 25.00% 10,422 63,574.20
Rack Layout Proposal Occupied SqFt
# of Pallet Loc.
In Whse "A"
# of Pallet Loc.
In Whse "B"
Total # of
Pallet Loc.
% of
increased
storage
Pallet positions
required @ new
location
Min. sqft. of Add.
Whse needed
Equipment Roster Cost of Equipment Cost of Project(s) Total Expense
Current layout @ Bell 49,147 4,464 2,640 7,104 0.00% N/A N/A
2 RRs (Current), 2 SPs (Current ), 1 PR
(Current), 5 Waves (Current), + 1 RR
(Encore/Used)
$166,402 $0 $166,402
Current Layout @ Dyer N/A N/A N/A 6,032 0.00% N/A N/A N/A $0 $0 $0
Current Layout @ Bell &
Dyer
N/A N/A N/A 13,136 0.00% N/A N/A
2 RRs (Current), 2 SPs (Current ), 1 PR
(Current), 5 Waves (Current), + 1 RR
(Encore/Used)
$166,402 $0 $166,402
Crown Opt 1 @ Bell
(Original project)
49,147 6,375 2,430 9,429 32.73% N/A N/A
2 TSPs (Demo/Used), 2 SPs
(Encore/Used), 1 PR (New)
$227,000 $383,249 $610,249
Crown Opt 2
(25% loss @ Bell)
40,546 6,628 1,088 7,716 8.61% N/A N/A
2 TSPs (Demo/Used), 2 SPs
(Encore/Used), 2 PRs (New)
$243,500 $151,708 $395,208
Crown Opt 3
(50% loss @ Bell)
31,946 5,998 0 5,998 -15.57% N/A N/A
2 TSPs (Demo/Used), 2 SPs
(Encore/Used), 2 PRs (New)
$243,500 $202,264 $445,764
Crown Layout @ Dyer N/A N/A N/A 7,304 21.09% N/A N/A
2 TSPs (Demo/Used), 1 SP (Encore/Used),
1 PR (New)
$201,750 $234,269 $436,019
Crown Opt 2 (-25%) +
Crown Layout @ Dyer
N/A N/A N/A 15,020 29.73% N/A N/A
4 TSPs (Demo/Used), 3 SPs
(Encore/Used), 3 PRs (New)
$445,250 $385,977 $831,227
Crown Opt 3 (-50%) +
Crown Layout @ Dyer
N/A N/A N/A 13,302 1.26% N/A N/A
4 TSPs (Demo/Used), 3 SPs
(Encore/Used), 3 PRs (New)
$445,250 $436,533 $881,783
Crown Opt 2 +
Add. Warehouse
(50% growth)
N/A N/A N/A 19,704 50.00% 11,988 73,126.80
4 TSPs (Demo/Used), 3 SPs
(Encore/Used), 3 PRs (New)
$445,250 $699,522 $1,144,772
Crown Opt 2 +
Add. Warehouse
(25% growth)
N/A N/A N/A 16,420 25.00% 8,704 53,094.40
4 TSPs (Demo/Used), 3 SPs
(Encore/Used), 3 PRs (New)
$445,250 $425,615 $870,865
476
Crown Opt 3 +
Add. Warehouse
(50% growth)
N/A N/A N/A 19,704 50.00% 13,706 83,606.60
4 TSPs (Demo/Used), 3 SPs
(Encore/Used), 3 PRs (New)
$445,250 $750,078 $1,195,328
Crown Opt 3 +
Add. Warehouse
(25% growth)
N/A N/A N/A 16,420 25.00% 10,422 63,574.20
4 TSPs (Demo/Used), 3 SPs
(Encore/Used), 3 PRs (New)
$445,250 $476,171 $921,421
Equipment Buy-back offer from Crown
Unit Serial # Date Purch. Buy-back Amt.
RR5220-35 1A293089 9/20/2005 $5,000.00
RR5220-35 1A293151 9/20/2005 $5,000.00
SP3410-30 1A294145 10/07/2005 $4,000.00
PE4000-60 6A229542 10/07/2005 $ 500.00
WAV50-118 9A139025 9/22/2005 $1,900.00
WAV50-118 9A139026 9/22/2005 $1,900.00
WAV50-118 9A150784 4/27/2007 $2,000.00
WAV50-118 9A155136 11/15/2007 $2,000.00
WAV50-118 9A150137 11/15/2007 $2,000.00
Total: 9 units Total Amount Offered: $24,300.00
Crown Equipment
Model #
Cost of Replacement unit
(New)
36 mo. Lease w/$1 B.O.
36 mo. Lease w/$1 B.O. &
"Full" Maint.
36 mo. Lease w/$1 B.O. & "Comp."
Maint.
60 mo. Lease w/$1 B.O.
60 mo. Lease w/$1 B.O. &
"Full" Maint.
60 mo. Lease w/$1 B.O. & "Comp."
Maint.
Mo. $ "Full" Maint.
Mo. $ "Comp."
Maint.
RR5220-35 $38,750.00 $1,151.51 $1,406.51 $1,431.51 $719.89 $974.89 $999.89 $255.00 $280.00
WAV50-118 $16,345.00 $487.43 $576.43 $586.43 $304.73 $393.73 $403.73 $89.00 $99.00
SP3410-30 $31,795.00 $945.37 $1,140.37 $1,170.37 $591.01 $786.01 $816.01 $195.00 $225.00
PE4000-60 $13,995.00 $417.78 $552.78 $577.78 $261.18 $396.18 $421.18 $135.00 $160.00
PR4500-60 $16,500.00 $493.51 $628.51 $653.51 $308.52 $443.52 $468.52 $135.00 $160.00
TSP6500 $101,870.00 $3,022.39 $3,347.39 $3,407.39 $1,889.50 $2,214.50 $2,274.50 $325.00 $385.00
Model #
Cost of Replacement unit
(New)
36 mo. Lease w/FMT.
36 mo. Lease w/FMT. & "Full"
Maint.
36 mo. Lease w/FMT. & "Comp."
Maint.
60 mo. Lease w/FMT.
60 mo. Lease w/FMT. & "Full"
Maint.
60 mo. Lease w/FMT. & "Comp."
Maint.
Mo. $ "Full" Maint.
Mo. $ "Comp."
Maint.
RR5220-35 $38,750.00 $831.00 $1,086.00 $1,111.00 $588.19 $843.19 $868.19 $255.00 $280.00
WAV50-118 $16,345.00 $416.72 $505.72 $515.72 $273.97 $362.97 $372.97 $89.00 $99.00
SP3410-30 $31,795.00 $682.23 $877.23 $907.23 $482.89 $677.89 $707.89 $195.00 $225.00
PE4000-60 $13,995.00 $362.52 $497.52 $522.52 $240.04 $375.04 $400.04 $135.00 $160.00
PR4500-60 $16,500.00 $421.91 $556.91 $581.91 $277.39 $412.39 $437.39 $135.00 $160.00
TSP6500 $101,870.00 $2,356.53 $2,681.53 $2,741.53 $1,583.59 $1,908.59 $1,968.59 $325.00 $385.00
Model #
Cost of Replacement unit
(Encore)
36 mo. Lease w/$1 B.O.
36 mo. Lease w/$1 B.O. &
"Full" Maint.
36 mo. Lease w/$1 B.O. & "Comp."
Maint.
Mo. Payment on 60 mo. w/$1
B.O.
60 mo. Lease w/$1 B.O. &
"Full" Maint.
60 mo. Lease w/$1 B.O. & "Comp."
Maint.
Mo. $ "Full" Maint.
Mo. $ "Comp."
Maint.
RR5220-35 $28,500.00 $847.70 $1,102.70 $1,127.70 $529.96 $784.96 $809.96 $255.00 $280.00
WAV50-118 N/A N/A N/A N/A N/A N/A N/A $89.00 $99.00
SP3410-30 $25,250.00 $751.37 $946.37 $976.37 $469.74 $664.74 $694.74 $195.00 $225.00
PE4000-60 $9,899.00 $322.17 $457.17 $482.17 $211.98 $346.98 $371.98 $135.00 $160.00
PR4500-60 $11,750.00 $351.23 $486.23 $511.23 $219.58 $354.58 $379.58 $135.00 $160.00
TSP6500 N/A N/A N/A N/A N/A N/A N/A $325.00 $385.00
Warehouse Restructuring10

Warehouse Restructuring10

  • 2.
    Throughout Logomark historythe consistent growth of the company has pushed to acquire adequate operational space. This situation has been encountered in all departments of the company, from the Warehouse, to Prep, to Production, to Shipping.When the “Bell” location had become our new home, it incorporated all operations under one roof. However, shortly afterward “Dyer” was leased, again, to accommodate warehouse growth. Other flow inhibiting issues observed in the warehouse is our “Prep” staging overflow area and in the Q.C. dept. continually, we encounter the situation of having to stage completed orders going to “Prep” in the warehouse aisles and tunnels. This adds to the congestion already in the aisles from staged inbound pallets. In addition, it affects the runners from “Prep” & “Pack” when they have to search through pallets of orders to locate the ones they need. It may and has caused the errors of, incorrect orders being prepped, decorated, and/or shipped. Also, duplicate orders on occasion had to be pulled due to original lost or missing order. Over the last year or so, our Q.C department has had to endure an onslaught of tasks regarding investigation of basic Q.C. issues, processing customer returns, fulfilling reject or sample requests, and repackaging cancelled orders. the Q.C. area is small and not equipped to smoothly process all these various tasks in a timely manner. Too often, the department is struggling to deal with all the different tasks, requests, and/or repackaging. This tends to lead to a build-up of pallets with product on them waiting for some type of resolution. A larger and more organized area is needed to accommodate both short and long-term storage along with room for performing inspections, repackaging product, and storing extra frequently requested component items. Recently we learned that the batteries for our equipment are reaching the end of their lifecycles, and replacements are going to be required. About the same time, we realized our equipment has begun to reach a point of cost in maintenance & repairs, that consideration of new equipment is warranted. Additional manpower required to, handle putting product away & continuance of unloading containers, plus increased order pulling has also pushed this necessary assessment of equipment. Reports show that the average length of time before a significant amount of expense is invested into equipment maintenance & upkeep is 3 to 5 years. Our equipment’s age, ranges between 7-9 years. Presently, our warehouse is full, Dyer is almost at capacity, and our equipment is becoming a cost nuisance. Unless we make changes within the “Bell” facility we will have out-grown the capacity of it’s current lay-out, spent money repairing aging equipment and wasted effort in being productive.
  • 3.
    1. Warehouse’s storagecapacity, & expenditures  Warehouse size & current storage capacity  Warehouse’s main expenditures & monthly costs breakdown 2. Warehouse’s receiving process, hindrances, and costs  Identifying various wastes/costs, risks, & needs in the warehouse  Cost/Time Analysis of Current Unloading Procedures  Overview of Warehouse’s receiving processes  Cost/Time Analysis of Current Unloading & Receiving Procedures 3. Other Warehouse, Prep, Production, Q.C, or Pack/Shipping functions affected by storage issues  Identifying various wastes/costs, risks, & needs in the warehouse  Cost/Time Analysis of Current Unloading, Receiving, & Picking Procedures  Identifying various wastes/costs, risks, & needs in the warehouse 4. Creating better flow  Prep & Q.C staging overflow area(s) 5. Analysis of current & future equipment maintenance costs  Identifying various wastes/costs, risks, & needs in the warehouse  Various graphs/charts of equipment expenditures and future projections  Comparison chart of equipment costs 6. Restructuring the Warehouse  Cost/Time Analysis of Current Procedures vs. Eliminated Procedures with Restructuring  Crown’s Layout & Demo of primary equipment  Toyota’s Layout & Demo of primary equipment  Yale’s Layouts & Demo of primary equipment  Comparison of Storage Capacities  Comparison of Restructuring Costs  Example of equipment financing options
  • 4.
     Warehouse totalfootage is approx. 60,000 sqft.  Warehouse occupies approx. 45% of entire building  Warehouse side “A” (Receiving side) is approx. 38,880 sqft.  Warehouse side “B” (Essentials side) is approx. 21,120 sqft.  Warehouse current storage racks occupies approx. 49,147 sqft. or 82% of the total warehouse space.  Storage rack system’s capacity is 7,104 pallets (incld. pick loc.)  Current number of pick locations (not including “Pens”) is 2,724  Total number of “Pen” pick locations is 1,349  Current warehouse capacity is at >98%
  • 5.
     Warehouse’s %of lease amount (45% of building) $47,958.75  Electricity costs (20% of facility’s total monthly usage ) $2,460.00  Equipment costs (5yr. Monthly avg. of repairs & maintenance) 4,338.25  Hr. personnel labor exp. (Mo. avg. over 12 mo. period) $39,874.00  Total Monthly Warehouse Expenses $94,631.00
  • 6.
     Since April2013 we began to consistently encounter storage, staging, and picking issues due to our growth.  By October 2013 we began receiving full containers straight from port, at a average rate of one container a day (avg. 80+ pallets). This has produced a steady flow that has become difficult to manage under our current operating procedures, thus majorly reducing our ability to regulate the amount of pallets flowing into our facility Fact: A staged pallet is handled as much as 10 times before it’s placed into a rack due to current limitations. The risk of product becoming damaged becomes elevated through handling multiple times by staging pallets in aisles (O.S. pallets, product in pick loc., & S/O). Wastes, Costs, & Risks:  Travel time to return to where staged pallets are located vs. putting straight away into locations  Additional manpower required to handle putting product away & continuance of unloading containers
  • 7.
  • 8.
    Man hrs in min. Labor costin $ Man hrs in min. Labor costin $ Man hrsin min. Labor costin $ Man hrs in min. Labor costin $ Man hrs in min. Labor costin$ 4 2.58 64 43.52 57 38.76 17 11.56 142 $96.42 UnloadingProcess Individual Break-downof Processes&CostswithCurrentLayout Total Cost Cont./ Trlr. arrives at LM 4-6 empty pallet(s)are laidouton floorbyendof container Productis thenunloaded ontopallets by item& color As a palletis finishedit's movedto stagingarea for QC/Accuracy Newpallets placedattail & process repeats until containeris emptied Current Layout Operating Procedures
  • 9.
     Logomark productis delivered via oversea containers, interstate trucking, and local pick-ups done by Logomark driver.  As product arrives, it is off-loaded onto the dock, sorted & palletized by stock # and color.  Once the entire truck is off-loaded it is then verified against packing slip for accuracy.  To clear the dock allowing space for the next inbound load, the palletized product is then labeled, wrapped and moved as close as possible to the aisle of the pick location for that product.  If there are available overstock locations for the product, it is then put into the rack  As the racks become full, any remaining pallets are staged in the aisle of where the product belongs waiting for overstock locations to become open from orders being pulled.  The amount of time pallets spend being staged in the aisles can vary, from 24 hours to as much as 5 days (depending on product movement).  As more freight arrives it is either, staged in the aisles again adding to/replacing the pallets already waiting for put away, or is relocated to the “Dyer” warehouse.
  • 11.
  • 12.
  • 13.
    Man hrs in min. Labor costin $ Man hrs in min. Labor costin $ Man hrsin min. Labor costin $ Man hrs in min. Labor costin $ Man hrs in min. Labor costin $ Man hrs in min. Labor costin $ Man hrs in min. Labor costin $ Man hrs in min. Labor costin $ Man hrs in min. Labor costin$ 4 0.93 64 15.62 57 13.91 17 4.15 30 14.10 189 88.83 128 60.16 64 30.08 523 $227.77 Pallets are transportedto appropriate aisles for putaway UnloadingProcess Travel time for returningto aisle for stagedpallets ReceivingProcess Staged containerload is thenverified for QC/Accuracy Pallets are movedfrom stagedarea to "Wrap Machine"for wrapping Individual Break-downof Processes&CostswithCurrentLayout Total Cost Cont./ Trlr. arrives at LM 4-6 empty pallet(s)are laidouton floorbyendof container Productis thenunloaded ontopallets by item& color As a palletis finishedit's movedto stagingarea for QC/Accuracy Newpallets placedattail & process repeats until containeris emptied Current Layout Operating Procedures
  • 14.
     Since wheneverwe began the practice of staging pallets in the aisles, it has had adverse effects on our time pulling orders. When this occurs, it carries over affecting the Prep department also. Fact: The time pulling a S/O varies greatly on negotiating around inbound product that is staged in the aisles. Adding to the pallets of product that are already staged for S/O’s in aisles 24- 26, it becomes so congested that it takes extra time to, transport pallets to Prep department, move pallets around to access pick locations, restack/consolidate previously staged pallets for accommodating more staging space (O.S. or S/O), and put away overstock. Wastes, Costs, & Risks:  Additional equipment to handle excessive product movement  Extra time spent to shuffle pallets around to access picking location(s)  Extra time spent to shuffle pallets around to access O.S. locations  Extra time spent searching for specific S/O’s by Prep dept.
  • 15.
  • 16.
    Man hrs in min. Labor costin $ Man hrs in min. Labor costin $ Man hrsin min. Labor costin $ Man hrs in min. Labor costin $ Man hrs in min. Labor costin $ Man hrs in min. Labor costin $ Man hrs in min. Labor costin $ Man hrs in min. Labor costin $ Man hrs in min. Labor costin $ Man hrs in min. Labor costin $ Man hrs in min. Labor costin $ Man hrs in min. Labor costin $ Man hrs in min. Labor costin$ 4 2.58 64 43.52 57 38.76 17 11.56 30 14.10 189 88.83 128 60.16 64 30.08 64 90.88 47 66.74 38 53.96 173 245.66 845 $746.83 Pallets are transportedto appropriate aisles for putaway UnloadingProcess Travel time for returningto aisle for stagedpallets Additional time spentto move staged pallets for access topick loc. ReceivingProcess PickingProcess Additional time spentto move staged pallets for access toO/S loc. Additional time spent negotiating downaisles withstaged pallets Staged containerload is thenverified for QC/Accuracy Pallets are movedfrom stagedarea to "Wrap Machine"for wrapping Individual Break-downof Processes&CostswithCurrentLayout Total Cost Cont./ Trlr. arrives at LM 4-6 empty pallet(s)are laidouton floorbyendof container Productis thenunloaded ontopallets by item& color As a palletis finishedit's movedto stagingarea for QC/Accuracy Newpallets placedattail & process repeats until containeris emptied Current Layout Operating Procedures Additional time spent pickingon aisles with stagedpallets
  • 17.
    Other flow inhibitingissues observed in the warehouse is our “Prep” staging overflow area and in the Q.C. dept. Continually, we encounter the situation of having to stage completed orders going to “Prep” in the warehouse aisles and tunnels. This adds to the congestion already in the aisles from staged inbound pallets. In addition, it affects the runners from “Prep” & “Pack” when they have to search through pallets of orders to locate the ones they need. It may and has caused the errors of, incorrect orders being prepped, decorated, and/or shipped. Also, duplicate orders on occasion had to be pulled due to original lost or missing order.
  • 18.
  • 19.
  • 20.
    Over the lastyear or so, our Q.C department has had to endure a onslaught of tasks. Investigation of basic Q.C. issues, processing customer returns, fulfilling reject or sample requests, and repackaging cancelled orders. The Q.C. area is small and not equipped to smoothly process all these various tasks in a timely manner. Too often, the department is struggling to deal with all the different tasks, requests, and/or repackaging. This tends to lead to a build-up of pallets with product on them waiting for some type of resolution. A larger and more organized area is needed to accommodate both short and long-term storage along with room for performing inspections, repackaging product, and storing extra frequently requested component items.
  • 21.
    Original Q.C. StagingTunnel Outside Q.C. Aisle 40/41
  • 22.
     In September2013 we learned that the batteries for our equipment were reaching the end of their lifecycles, and replacements were going to be required. About the same time, we realized our equipment has begun to reach a point of cost in maintenance & repairs, that consideration of new equipment is warranted. Additional manpower required to, handle putting product away & continuance of unloading containers, plus increased order pulling has also pushed this necessary assessment of equipment. Fact: A study of reports, show that the average length of time before a significant amount of expense is invested into equipment maintenance & upkeep is 3 to 5 years. Our equipment’s age, ranges between 7-9 years. Wastes, Costs, & Risks:  Cost of maintaining current equipment will continue to rise as the equipment gets older.  Over a short time the amount spent on maintenance & upkeep can exceed the cost of just replacing the equipment outright when it’s beyond 3-5 yrs old.  When equipment is down frequently due to repairs, it will affect productivity throughout the facility.
  • 23.
    $0.00 $500.00 $1,000.00 $1,500.00 $2,000.00 $2,500.00 $3,000.00 $3,500.00 $4,000.00 $4,500.00 $5,000.00 $5,500.00 $6,000.00 $6,500.00 $7,000.00 $7,500.00 $8,000.00 $8,500.00 $9,000.00 $9,500.00 $10,000.00 $10,500.00 $11,000.00 $11,500.00 $12,000.00 $12,500.00 1A293089 1A293151 9A1390259A139026 1A294145 6A229542 9A150784 9A155136 9A155137 1A300834 RR5220-35 RR5220-35 WAV50-118 WAV50-118 SP3410-30 PE4000-60 WAV50-118 WAV50-118 WAV50-118 SP3420-30 Total Maintence Spent on Individual Units Maintence Expenses (2013) Maintence Expenses (2012) Maintence Expenses (2011) Maintence Expenses (2010) Maintence Expenses (2009) Maintence Expenses (2008)
  • 24.
    List of CurrentEquipment & Annual Expenditures Model # Ser. # Maintence Expenses (2008) Maintence Expenses (2009) Maintence Expenses (2010) Maintence Expenses (2011) Maintence Expenses (2012) Maintence Expenses (2013) Maintence Expenses (yearly avg.) Yearly P.M. Labor Exp. RR5220-35 1A293089 $375.04 $523.61 $2,493.68 $690.53 $1,501.09 $1,169.95 $1,126.65 $300.00 RR5220-35 1A293151 $650.27 $672.82 $0.00 $965.48 $429.64 $1,256.09 $663.38 $300.00 WAV50-118 9A139025 $2,739.62 $375.01 $2,612.31 $1,932.69 $2,628.01 $2,051.28 $2,057.49 $240.00 WAV50-118 9A139026 $2,619.72 $320.61 $1,986.10 $1,657.39 $1,072.35 $1,347.74 $1,501.65 $240.00 SP3410-30 1A294145 $322.15 $94.47 $402.70 $103.00 $1,233.34 $775.06 $489.45 $300.00 PE4000-60 6A229542 $4.00 $0.00 $0.00 $427.10 $2,006.83 $945.21 $564.86 $240.00 WAV50-118 9A150784 $30.00 $1,538.21 $379.91 $2,407.16 $1,465.41 $1,976.99 $1,300.61 $240.00 WAV50-118 9A155136 $0.00 $0.00 $199.80 $291.86 $2,435.38 $163.35 $516.07 $240.00 WAV50-118 9A155137 $0.00 $0.00 $1,350.12 $396.23 $1,102.74 $2,635.39 $915.08 $240.00 SP3420-30 1A300834 $0.00 $0.00 $0.00 $0.00 $0.00 $403.38 $68.23 $300.00 Summary, & Monthly Breakdown of Total Expendituresfor Equipment Model # Ser. # DateAquired Cost of Unit TotalAmt. Spent on P.M. Labor Maintence Expenses (2008- 2013) TotalAmt. Spent per Unit Monthly Avg. of TotalAmt. Spent Projected"Major" Exp. (5yrs) ProjectedMo. Avg. of Total Amt. spent RR5220-35 1A293089 9/20/2005 $30,069.25 $2,400.00 $6,753.90 $39,223.15 $392.23 $9,373.18 $357.33 RR5220-35 1A293151 9/20/2005 $30,069.25 $2,400.00 $3,974.30 $36,443.55 $364.44 $9,905.60 $340.80 WAV50-118 9A139025 9/22/2005 $12,391.25 $1,920.00 $12,338.92 $26,650.17 $266.50 $8,911.91 $261.49 WAV50-118 9A139026 9/22/2005 $12,391.25 $1,920.00 $9,003.91 $23,315.16 $233.15 $4,890.29 $207.39 SP3410-30 1A294145 10/7/2005 $23,390.37 $2,400.00 $2,930.72 $28,721.09 $287.21 $6,547.25 $259.33 PE4000-60 6A229542 10/7/2005 $10,213.62 $1,920.00 $3,383.14 $15,516.76 $155.17 $2,824.30 $134.86 WAV50-118 9A150784 4/27/2007 $12,736.91 $1,680.00 $7,797.68 $22,214.59 $274.25 $4,341.59 $226.98 WAV50-118 9A155136 11/15/2007 $13,894.37 $1,440.00 $3,090.39 $18,424.76 $227.47 $4,345.84 $194.62 WAV50-118 9A155137 11/15/2007 $13,894.37 $1,440.00 $5,484.48 $20,818.85 $257.02 $4,526.35 $216.63 SP3420-30 1A300834 11/27/2012 $25,628.00 $300.00 $403.38 $26,331.38 $1,880.81 $5,045.00 $627.53 Color Legend: Drive Motor replacement Battery replacement Var. Maint. Exp. Drive Motor & Battery replacement Drive Motor & Var. Maint. Exp. Battery & Var. Maint. Exp.
  • 25.
    RR5220-35 1A293089 9/20/2005 $39,223.15 15% RR5220-35 1A293151 9/20/2005 $36,443.55 14% WAV50-118 9A139025 9/22/2005 $26,650.17 11% WAV50-118 9A139026 9/22/2005 $23,315.16/ 9% SP3410-30 1A294145 10/7/2005 $28,721.09 11% PE4000-60 6A229542 10/7/2005 $15,516.76 / 6% WAV50-118 9A150784 4/27/2007 $22,214.59 9% WAV50-118 9A155136 11/15/2007 $18,424.76 / 7% WAV50-118 9A155137 11/15/2007 $20,818.85 / 8% SP3420-30 1A300834 11/27/2012 $26,331.38 10% Total Amount Spent per Unit
  • 26.
    Comparison of Expendituresfor Additional/Replacement Industrial Equipment Model # Total Amt. Spent per Unit Mo. Avg. Spent per Unit Projected "Major" Exp. (5yrs) Projected Total amount Projected Mo. Avg. Next 5 yrs Cost of Replacement unit (New) Exp. % Current vs. New Proj. Exp. % Current vs. New RR5220-35 $39,223.15 $392.23 $9,373.18 $48,596.33 $357.33 $38,750.00 101% 125% RR5220-35 $36,443.55 $364.44 $9,905.60 $46,349.15 $340.80 $38,750.00 94% 120% WAV50-118 $26,650.17 $266.50 $8,911.91 $35,562.08 $261.49 $16,345.00 163% 218% WAV50-118 $23,315.16 $233.15 $4,890.29 $28,205.45 $207.39 $16,345.00 143% 173% SP3410-30 $28,721.09 $287.21 $6,547.25 $35,268.34 $259.33 $31,795.00 90% 111% PE4000-60 $15,516.76 $155.17 $2,824.30 $18,341.06 $134.86 $13,995.00 111% 131% WAV50-118 $22,214.59 $274.25 $4,341.59 $26,556.18 $226.98 $16,345.00 136% 162% WAV50-118 $18,424.76 $227.47 $4,345.84 $22,770.60 $194.62 $16,345.00 113% 139% WAV50-118 $20,818.85 $257.02 $4,526.35 $25,345.20 $216.63 $16,345.00 127% 155% SP3420-30 $26,331.38 $1,880.81 $5,045.00 $31,376.38 $627.53 $31,795.00 83% 99% Totals $257,659.46 $4,338.25 $60,711.31 $318,370.77 $2,826.94 $236,810.00 109% 134%
  • 27.
    In October 2013three companies were invited to submit bids/concepts to improve our productivity, flow, and storage capabilities. The following slides are their envisions and the benefits they bring.
  • 28.
    Man hrs in min. Labor cost in $ Man hrsin min. Labor cost in $ Man hrs in min. Labor cost in $ Man hrs in min. Labor cost in $ Man hrs in min. Labor cost in $ Man hrs in min. Labor cost in $ Man hrs in min. Labor cost in $ Man hrs in min. Labor cost in $ Man hrs in min. Labor cost in $ Man hrs in min. Labor cost in $ Man hrs in min. Labor cost in $ Man hrs in min. Labor cost in $ Man hrs in min. Labor cost in $ 4 2.58 64 43.52 57 38.76 17 11.56 30 14.10 189 88.83 128 60.16 0 0.00 0 0.00 0 0.00 0 0.00 0 0.00 489 $259.51 Staged container load is then verified for QC/Accuracy Individual Break-down of Costs & Processes with Crown's Layout Total Spent As a pallet is finished it's moved to "Wrap Machine"for wrapping Pallets are transported to appropriate aisles for putaway Travel time for returning to aisle for staged pallets Additional time spent to move staged pallets for access to pick loc. Additional time spent negotiating down aisles with staged pallets Additional time spent picking on aisles with staged pallets Additional time spent to move staged pallets for access to O/S loc. Cont. / Trlr. arrives at LM New Layout Operating Procedures Unloading Process Receiving Process Picking Process 4-6 empty pallet(s)are laid out on floor by end ofcontainer Product is then unloaded onto pallets by item & color As a pallet is finished it's moved to staging area for QC/Accuracy New pallets placed at tail & process repeats until container is emptied  We conducted a time study to see to what extent our current storage issues have on our performance, capacity, and percentage of overtime.  What we discovered was an eye-opening observation of how much our storage issues affect our picking and receiving performance.  What can we do to improve performance, create a better flow and reduce the amount of overtime/labor hours used.  We need to be able to, increase storage capacity, create a single staging zone for “Prep” that doesn’t hinder performance, and re-design a better arrangement of flow in the Q.C. area.  How much unnecessary/wasted effort is there in the chart above?  We would achieve; a dramatic reduction in O/T labor by approximately 30% along with providing room for growth and making the warehouse flow a lot smoother and more efficient.  These figures are based on a 8 hour time period which would result in approximately a savings of $487.32 per day or $10,721.04 per month. Man hrs in min. Labor cost in $ Man hrs in min. Labor cost in $ Man hrs in min. Labor cost in $ Man hrs in min. Labor cost in $ Man hrs in min. Labor cost in $ Man hrs in min. Labor cost in $ Man hrs in min. Labor cost in $ Man hrs in min. Labor cost in $ Man hrs in min. Labor cost in $ Man hrs in min. Labor cost in $ Man hrs in min. Labor cost in $ Man hrs in min. Labor cost in $ Man hrs in min. Labor cost in $ 4 2.58 64 43.52 57 38.76 17 11.56 30 14.10 189 88.83 128 60.16 64 30.08 64 90.88 47 66.74 38 53.96 173 245.66 875 $746.83 As a pallet is finished it's moved to staging area for QC/Accuracy New pallets placed at tail & process repeats until container is emptied Current Layout Operating Procedures Additional time spent picking on aisles with staged pallets Pallets are moved from staged area to "Wrap Machine"for wrapping Individual Break-down of Costs & Processes with Current Layout Total Cost Cont. / Trlr. arrives at LM 4-6 empty pallet(s)are laid out on floor by end ofcontainer Product is then unloaded onto pallets by item & color Pallets are transported to appropriate aisles for putaway Unloading Process (3 employees @ combined $.68/min.) Travel time for returning to aisle for staged pallets Additional time spent to move staged pallets for access to pick loc. Receiving Process (4 employees @ combined $.47/min.) Picking Process (9 employees @ combined $1.42/min.) Additional time spent to move staged pallets for access to O/S loc. Additional time spent negotiating down aisles with staged pallets Staged container load is then verified for QC/Accuracy
  • 29.
     Warehouse’s %of lease amount (45% of building) $47,958.75  Electricity costs (20% of facility’s total monthly usage ) $2,460.00  Equipment costs (5yr. Monthly avg. of repairs & maintenance) 4,338.25  Hr. personnel labor exp. (Mo. avg. over 12 mo. period) $29,152.96  Total Monthly Warehouse Expenses $79,571.71
  • 30.
    Man hrs in min. Labor cost in $ Man hrsin min. Labor cost in $ Man hrs in min. Labor cost in $ Man hrs in min. Labor cost in $ Man hrs in min. Labor cost in $ Man hrs in min. Labor cost in $ Man hrs in min. Labor cost in $ Man hrs in min. Labor cost in $ Man hrs in min. Labor cost in $ Man hrs in min. Labor cost in $ Man hrs in min. Labor cost in $ Man hrs in min. Labor cost in $ Man hrs in min. Labor cost in $ 4 2.58 64 43.52 57 38.76 17 11.56 30 14.10 189 88.83 128 60.16 64 30.08 64 90.88 47 66.74 38 53.96 173 245.66 875 $746.83 As a pallet is finished it's moved to staging area for QC/Accuracy New pallets placed at tail & process repeats until container is emptied Current Layout Operating Procedures Additional time spent picking on aisles with staged pallets Pallets are moved from staged area to "Wrap Machine"for wrapping Individual Break-down of Costs & Processes with Current Layout Total Cost Cont. / Trlr. arrives at LM 4-6 empty pallet(s)are laid out on floor by end ofcontainer Product is then unloaded onto pallets by item & color Pallets are transported to appropriate aisles for putaway Unloading Process (3 employees @ combined $.68/min.) Travel time for returning to aisle for staged pallets Additional time spent to move staged pallets for access to pick loc. Receiving Process (4 employees @ combined $.47/min.) Picking Process (9 employees @ combined $1.42/min.) Additional time spent to move staged pallets for access to O/S loc. Additional time spent negotiating down aisles with staged pallets Staged container load is then verified for QC/Accuracy
  • 31.
    Rack Layout Proposal Occupied SqFt WarehouseSide "A" Warehouse Side "B" Total # of Pallet Loc.Main Racking Outer racks Tunnel Total Pallet Loc. In Whse "A" Main Racking Outer racks Tunnel Total Pallet Loc. In Whse "B" Current 49,147 4,344 0 120 4,464 1,944 480 216 2,640 7,104
  • 32.
    Rack Layout Proposal Occupied SqFt WarehouseSide "A" Warehouse Side "B" Total # of Pallet Loc. % of increased storageMain Racking Outer racks Tunnel Total Pallet Loc. In Whse "A" Main Racking Outer racks Tunnel Total Pallet Loc. In Whse "B" Crown 49,147 6,375 0 312 6,687 1,680 750 312 2,742 9,429 32.73%
  • 38.
    Rack Layout Proposal Occupied SqFt Warehouse Side"A" Warehouse Side "B" Total # of Pallet Loc. % of increased storage Main Racking Outer racks Tunnel Total Pallet Loc. In Whse "A" Main Racking Outer racks Tunnel Total Pallet Loc. In Whse "B" Toyota 49,147 5,625 0 216 5,841 2,565 705 342 3,612 9,453 33.07%
  • 41.
    Rack Layout Proposal Occupied SqFt WarehouseSide "A" Warehouse Side "B" Total # of Pallet Loc. % of increased storageMain Racking Outer racks Tunnel Total Pallet Loc. In Whse "A" Main Racking Outer racks Tunnel Total Pallet Loc. In Whse "B" Yale opt 1 49,147 5,430 0 180 5,610 1,944 480 216 2,640 8,250 16.13%
  • 42.
    Rack Layout Proposal Occupied SqFt WarehouseSide "A" Warehouse Side "B" Total # of Pallet Loc. % of increased storageMain Racking Outer racks Tunnel Total Pallet Loc. In Whse "A" Main Racking Outer racks Tunnel Total Pallet Loc. In Whse "B" Yale opt 2 49,147 6,135 0 189 6,324 1,944 480 216 2,640 8,964 26.18%
  • 43.
    Rack Layout Proposal Occupied SqFt WarehouseSide "A" Warehouse Side "B" Total # of Pallet Loc. % of increased storageMain Racking Outer racks Tunnel Total Pallet Loc. In Whse "A" Main Racking Outer racks Tunnel Total Pallet Loc. In Whse "B" Yale opt 3 49,147 6,135 0 189 6,324 2,430 795 324 3,549 9,873 38.98%
  • 45.
    Rack Layout Proposal Occupied SqFt Warehouse Side"A" Warehouse Side "B" Total # of Pallet Loc. % of increased storage Main Racking Outer racks Tunnel Total Pallet Loc. In Whse "A" Main Racking Outer racks Tunnel Total Pallet Loc. In Whse "B" Current 49,147 4,344 0 120 4,464 1,944 480 216 2,640 7,104 0.00% Crown 49,147 6,375 0 312 6,687 1,680 750 312 2,742 9,429 32.73% Toyota 49,147 5,625 0 216 5,847 2,565 705 342 3,612 9,453 33.07% Yale opt 1 49,147 5,430 0 180 5,610 1,944 480 216 2,640 8,250 16.13% Yale opt 2 49,147 6,135 0 189 6,324 1,944 480 216 2,640 8,964 26.18% Yale opt 3 49,147 6,135 0 189 6,324 2,430 795 324 3,549 9,873 38.98%
  • 46.
    Rack Layout Proposal Monthly Expenses (Exclud. Equip.) $ of project Labor$ savings per year Mo. $ of project (5yr span) Time (yrs) until project has paid for itself Equipment Roster Current Equipment $ Required vs. New Equipment $ Required for layout Mo. $ of equip. / projected maint. Req. for layout (5 yr span) Time (yrs) until Project + Equipment has paid for itself Current (No Chng) $79,739 $0 $0 $0 N/A 2 RRs (Current), 2 SPs (Current ), 1 PR (Current), 5 Waves (Current), + 1 RR (Encore/Used) $166,402 $2,773 N/A Current Opt 1 $79,739 $0 $0 $0 N/A 3 RRs (New), 1 SP (New), 1 PR (New), 5 Waves (New) $246,270 $4,105 N/A Current Opt 2 $79,739 $0 $0 $0 N/A 3 RRs (Encore/Used), 2 SPs (Encore/Used), 1 PR (New), 5 Waves (New) $208,975 $3,483 N/A Current Opt 3 $79,739 $0 $0 $0 N/A 3 RRs (Encore/Used), 2 SPs (Encore/Used), 1 PR (New) $152,500 $2,542 N/A Crown $73,204 $298,257 $78,420 $4,971 3.80 2 TSPs (Demo/Used), 2 SPs (Encore/Used), 1 PR (New) $227,000 $3,783 6.70 Toyota $77,561 $139,237 $26,136 $2,321 5.33 2 Flexi (Sit-down), 2 Stk Pickers, 1 Pallet Rider $145,635 $2,427 10.90 Yale opt 1 $77,561 $103,349 $26,136 $1,722 3.95 3 Reach Trucks, 2 Stk Pickers, 1 Pallet Rider $146,389 $2,440 9.56 Yale opt 2 $75,382 $167,453 $52,284 $2,791 3.20 2 Bendi, 3 Stk Pickers, 1 Pallet Rider $146,389 $2,440 6.00 Yale opt 3 $73,204 $293,535 $78,420 $4,892 3.74 2 Bendi, 3 Stk Pickers, 1 Pallet Rider $187,110 $3,119 6.13
  • 47.
    In this presentation: We identified various operational & storage issues.  We recognized our aging equipment’s rising maintenance costs and need for new equipment  We compared our current labor costs incurred by our ops and storage issues vs. savings if we restructured the warehouse  3 companies submitted their solutions for what we were attempting to accomplish.  Each concept was analyzed for cost, operational/storage benefits, and dedication to the project.  Out of the 3 companies' proposals, and although the most cost, Crown lifts provided the most assistance, best over-all layout concept, and worked diligently to insure the majority of incidental additional expenses (permits, draft curtain removal, lighting improvements/upgrades, etc…) were included in their quote.  Toyota & Yale did not entirely make the extensive effort that Crown has done.  Toyota’s lack of effort was shown through their layout concept.  Yale’s layout concept was similar to Crown’s, and a little more detailed, however it lacked in the overall commitment to us. There were various expenses that were curiously omitted in the quotes initially, multiple occasions of meetings with us forgotten about or postponed last minute, and unpreparedness when presenting various layouts and quotes.  Both Toyota & Yale’s recommended equipment was determined to be high risk. If a recommendation was to be given, our best choice would be to use Crown for this and any future projects. Crown has shown their loyalty and commitment to us and our endeavors.
  • 48.
    In mid-June itwas determined that, due to current and projected future growth of the company it would be necessary to consider an alternate solution for increased production and storage needs. The following slides are potential concepts for handling that growth with approximate costs and benefits.
  • 49.
    Rack Layout Proposal Occupied SqFt WarehouseSide "A" Warehouse Side "B" Total # of Pallet Loc. % of increased storageMain Racking Outer racks Tunnel Total Pallet Loc. In Whse "A" Main Racking Outer racks Tunnel Total Pallet Loc. In Whse "B" Current 49,147 4,344 0 120 4,464 1,944 480 216 2,640 7,104 0.00% Crown Opt 2 49,147 6,394 0 234 6,628 797 165 126 1088 7,716 8.61%
  • 50.
    Rack Layout Proposal Occupied SqFt WarehouseSide "A" Warehouse Side "B" Total # of Pallet Loc. % of increased storageMain Racking Outer racks Tunnel Total Pallet Loc. In Whse "A" Main Racking Outer racks Tunnel Total Pallet Loc. In Whse "B" Current 49,147 4,344 0 120 4,464 1,944 480 216 2,640 7,104 0.00% Crown Opt 3 49,147 5,764 0 234 5,998 0 0 0 0 5,998 -15.57%
  • 51.
    Rack Layout Proposal Occupied SqFt WarehouseSide "A" Warehouse Side "B" Total # of Pallet Loc. % of increased storageMain Racking Outer racks Tunnel Total Pallet Loc. In Whse "A" Main Racking Outer racks Tunnel Total Pallet Loc. In Whse "B" Current N/A N/A N/A N/A N/A N/A N/A N/A N/A 6,032 0.00% Crown Opt 3 N/A N/A N/A N/A N/A N/A N/A N/A N/A 7,304 17.42%
  • 52.
    Rack Layout Proposal Occupied SqFt WarehouseSide "A" Warehouse Side "B" Total # of Pallet Loc. % of increased storage # of additional pallet positions required @ new location Size of Additional Warehouse needed (Min. Sqft. of whse.)Main Racking Outer racks Tunnel Total Pallet Loc. In Whse "A" Main Racking Outer racks Tunnel Total Pallet Loc. In Whse "B" Current layout @ Bell 49,147 4,344 0 120 4,464 1,944 480 216 2,640 7,104 0.00% N/A N/A Current Layout @ Dyer N/A N/A N/A N/A N/A N/A N/A N/A N/A 6,032 0.00% N/A N/A Current Layout @ Bell & Dyer N/A N/A N/A N/A N/A N/A N/A N/A N/A 13,136 0.00% N/A N/A Crown Opt 1 @ Bell 49,147 6,375 0 0 6,375 1,680 750 0 2,430 9,429 32.73% N/A N/A Crown Opt 2 @ Bell 40,546 6,394 0 234 6,628 797 165 126 1,088 7,716 8.61% N/A N/A Crown Opt 3 @ Bell 31,946 5,764 0 234 5,998 0 0 0 0 5,998 -15.57% N/A N/A Crown Layout @ Dyer N/A N/A N/A N/A N/A N/A N/A N/A N/A 7,304 21.09% N/A N/A Crown Opt 2 + Crown Layout @ Dyer N/A N/A N/A N/A N/A N/A N/A N/A N/A 15,020 29.73% N/A N/A Crown Opt 3 + Crown Layout @ Dyer N/A N/A N/A N/A N/A N/A N/A N/A N/A 13,302 1.26% N/A N/A Crown Opt 2 + Additional Warehouse (50% growth) N/A N/A N/A N/A N/A N/A N/A N/A N/A 19,704 50.00% 11,988 73,126.80 Crown Opt 2 + Additional Warehouse (25% growth) N/A N/A N/A N/A N/A N/A N/A N/A N/A 16,420 25.00% 8,704 53,094.40 Crown Opt 3 + Additional Warehouse (50% growth) N/A N/A N/A N/A N/A N/A N/A N/A N/A 19,704 50.00% 13,706 83,606.60 Crown Opt 3 + Additional Warehouse (25% growth) N/A N/A N/A N/A N/A N/A N/A N/A N/A 16,420 25.00% 10,422 63,574.20
  • 53.
    Rack Layout ProposalOccupied SqFt # of Pallet Loc. In Whse "A" # of Pallet Loc. In Whse "B" Total # of Pallet Loc. % of increased storage Pallet positions required @ new location Min. sqft. of Add. Whse needed Equipment Roster Cost of Equipment Cost of Project(s) Total Expense Current layout @ Bell 49,147 4,464 2,640 7,104 0.00% N/A N/A 2 RRs (Current), 2 SPs (Current ), 1 PR (Current), 5 Waves (Current), + 1 RR (Encore/Used) $166,402 $0 $166,402 Current Layout @ Dyer N/A N/A N/A 6,032 0.00% N/A N/A N/A $0 $0 $0 Current Layout @ Bell & Dyer N/A N/A N/A 13,136 0.00% N/A N/A 2 RRs (Current), 2 SPs (Current ), 1 PR (Current), 5 Waves (Current), + 1 RR (Encore/Used) $166,402 $0 $166,402 Crown Opt 1 @ Bell (Original project) 49,147 6,375 2,430 9,429 32.73% N/A N/A 2 TSPs (Demo/Used), 2 SPs (Encore/Used), 1 PR (New) $227,000 $383,249 $610,249 Crown Opt 2 (25% loss @ Bell) 40,546 6,628 1,088 7,716 8.61% N/A N/A 2 TSPs (Demo/Used), 2 SPs (Encore/Used), 2 PRs (New) $243,500 $151,708 $395,208 Crown Opt 3 (50% loss @ Bell) 31,946 5,998 0 5,998 -15.57% N/A N/A 2 TSPs (Demo/Used), 2 SPs (Encore/Used), 2 PRs (New) $243,500 $202,264 $445,764 Crown Layout @ Dyer N/A N/A N/A 7,304 21.09% N/A N/A 2 TSPs (Demo/Used), 1 SP (Encore/Used), 1 PR (New) $201,750 $234,269 $436,019 Crown Opt 2 (-25%) + Crown Layout @ Dyer N/A N/A N/A 15,020 29.73% N/A N/A 4 TSPs (Demo/Used), 3 SPs (Encore/Used), 3 PRs (New) $445,250 $385,977 $831,227 Crown Opt 3 (-50%) + Crown Layout @ Dyer N/A N/A N/A 13,302 1.26% N/A N/A 4 TSPs (Demo/Used), 3 SPs (Encore/Used), 3 PRs (New) $445,250 $436,533 $881,783 Crown Opt 2 + Add. Warehouse (50% growth) N/A N/A N/A 19,704 50.00% 11,988 73,126.80 4 TSPs (Demo/Used), 3 SPs (Encore/Used), 3 PRs (New) $445,250 $699,522 $1,144,772 Crown Opt 2 + Add. Warehouse (25% growth) N/A N/A N/A 16,420 25.00% 8,704 53,094.40 4 TSPs (Demo/Used), 3 SPs (Encore/Used), 3 PRs (New) $445,250 $425,615 $870,865 476 Crown Opt 3 + Add. Warehouse (50% growth) N/A N/A N/A 19,704 50.00% 13,706 83,606.60 4 TSPs (Demo/Used), 3 SPs (Encore/Used), 3 PRs (New) $445,250 $750,078 $1,195,328 Crown Opt 3 + Add. Warehouse (25% growth) N/A N/A N/A 16,420 25.00% 10,422 63,574.20 4 TSPs (Demo/Used), 3 SPs (Encore/Used), 3 PRs (New) $445,250 $476,171 $921,421
  • 64.
    Equipment Buy-back offerfrom Crown Unit Serial # Date Purch. Buy-back Amt. RR5220-35 1A293089 9/20/2005 $5,000.00 RR5220-35 1A293151 9/20/2005 $5,000.00 SP3410-30 1A294145 10/07/2005 $4,000.00 PE4000-60 6A229542 10/07/2005 $ 500.00 WAV50-118 9A139025 9/22/2005 $1,900.00 WAV50-118 9A139026 9/22/2005 $1,900.00 WAV50-118 9A150784 4/27/2007 $2,000.00 WAV50-118 9A155136 11/15/2007 $2,000.00 WAV50-118 9A150137 11/15/2007 $2,000.00 Total: 9 units Total Amount Offered: $24,300.00
  • 65.
    Crown Equipment Model # Costof Replacement unit (New) 36 mo. Lease w/$1 B.O. 36 mo. Lease w/$1 B.O. & "Full" Maint. 36 mo. Lease w/$1 B.O. & "Comp." Maint. 60 mo. Lease w/$1 B.O. 60 mo. Lease w/$1 B.O. & "Full" Maint. 60 mo. Lease w/$1 B.O. & "Comp." Maint. Mo. $ "Full" Maint. Mo. $ "Comp." Maint. RR5220-35 $38,750.00 $1,151.51 $1,406.51 $1,431.51 $719.89 $974.89 $999.89 $255.00 $280.00 WAV50-118 $16,345.00 $487.43 $576.43 $586.43 $304.73 $393.73 $403.73 $89.00 $99.00 SP3410-30 $31,795.00 $945.37 $1,140.37 $1,170.37 $591.01 $786.01 $816.01 $195.00 $225.00 PE4000-60 $13,995.00 $417.78 $552.78 $577.78 $261.18 $396.18 $421.18 $135.00 $160.00 PR4500-60 $16,500.00 $493.51 $628.51 $653.51 $308.52 $443.52 $468.52 $135.00 $160.00 TSP6500 $101,870.00 $3,022.39 $3,347.39 $3,407.39 $1,889.50 $2,214.50 $2,274.50 $325.00 $385.00 Model # Cost of Replacement unit (New) 36 mo. Lease w/FMT. 36 mo. Lease w/FMT. & "Full" Maint. 36 mo. Lease w/FMT. & "Comp." Maint. 60 mo. Lease w/FMT. 60 mo. Lease w/FMT. & "Full" Maint. 60 mo. Lease w/FMT. & "Comp." Maint. Mo. $ "Full" Maint. Mo. $ "Comp." Maint. RR5220-35 $38,750.00 $831.00 $1,086.00 $1,111.00 $588.19 $843.19 $868.19 $255.00 $280.00 WAV50-118 $16,345.00 $416.72 $505.72 $515.72 $273.97 $362.97 $372.97 $89.00 $99.00 SP3410-30 $31,795.00 $682.23 $877.23 $907.23 $482.89 $677.89 $707.89 $195.00 $225.00 PE4000-60 $13,995.00 $362.52 $497.52 $522.52 $240.04 $375.04 $400.04 $135.00 $160.00 PR4500-60 $16,500.00 $421.91 $556.91 $581.91 $277.39 $412.39 $437.39 $135.00 $160.00 TSP6500 $101,870.00 $2,356.53 $2,681.53 $2,741.53 $1,583.59 $1,908.59 $1,968.59 $325.00 $385.00 Model # Cost of Replacement unit (Encore) 36 mo. Lease w/$1 B.O. 36 mo. Lease w/$1 B.O. & "Full" Maint. 36 mo. Lease w/$1 B.O. & "Comp." Maint. Mo. Payment on 60 mo. w/$1 B.O. 60 mo. Lease w/$1 B.O. & "Full" Maint. 60 mo. Lease w/$1 B.O. & "Comp." Maint. Mo. $ "Full" Maint. Mo. $ "Comp." Maint. RR5220-35 $28,500.00 $847.70 $1,102.70 $1,127.70 $529.96 $784.96 $809.96 $255.00 $280.00 WAV50-118 N/A N/A N/A N/A N/A N/A N/A $89.00 $99.00 SP3410-30 $25,250.00 $751.37 $946.37 $976.37 $469.74 $664.74 $694.74 $195.00 $225.00 PE4000-60 $9,899.00 $322.17 $457.17 $482.17 $211.98 $346.98 $371.98 $135.00 $160.00 PR4500-60 $11,750.00 $351.23 $486.23 $511.23 $219.58 $354.58 $379.58 $135.00 $160.00 TSP6500 N/A N/A N/A N/A N/A N/A N/A $325.00 $385.00